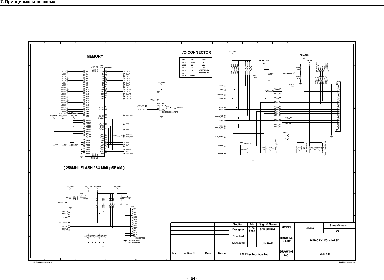
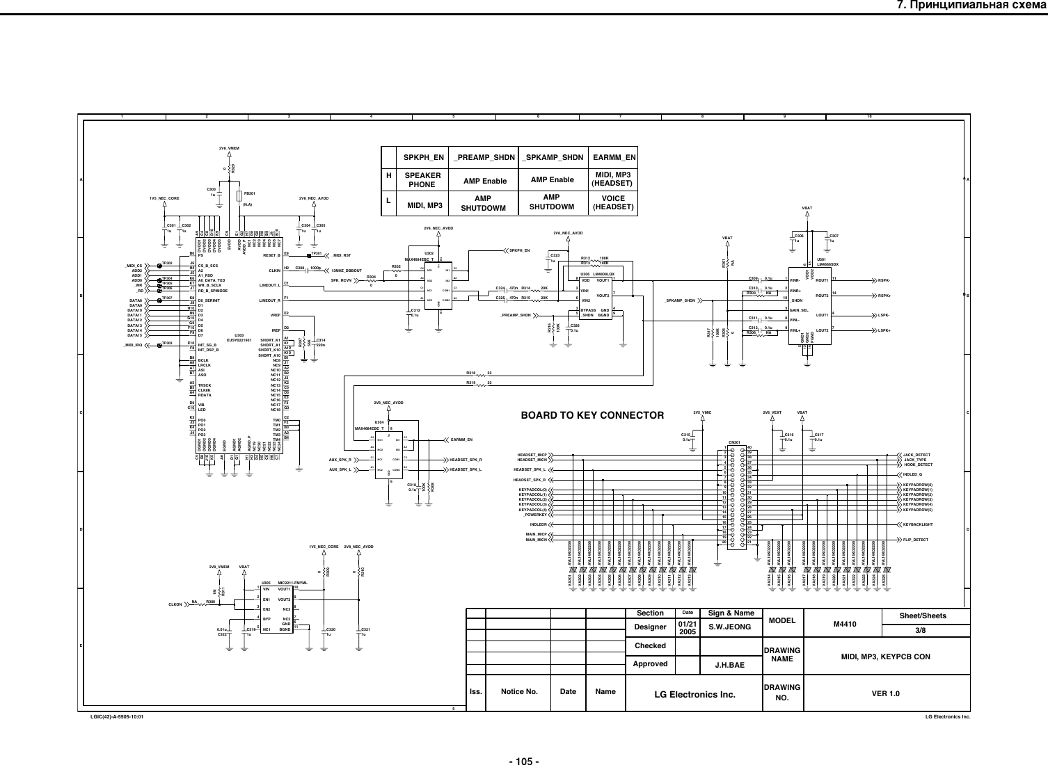
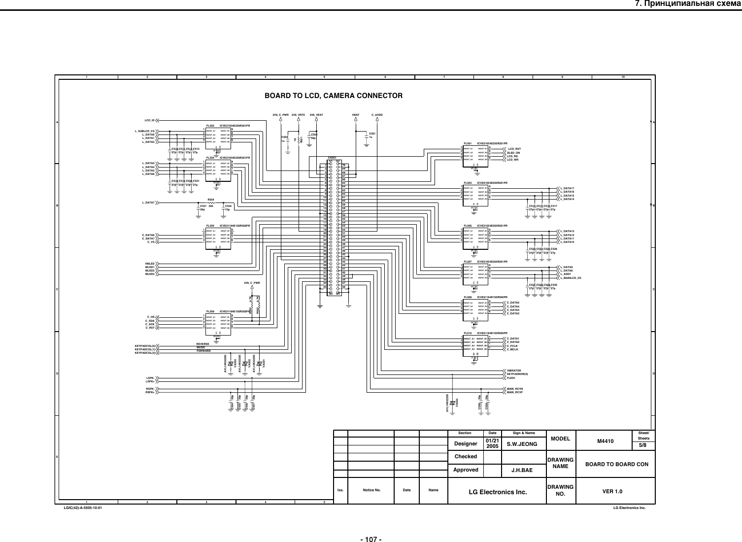
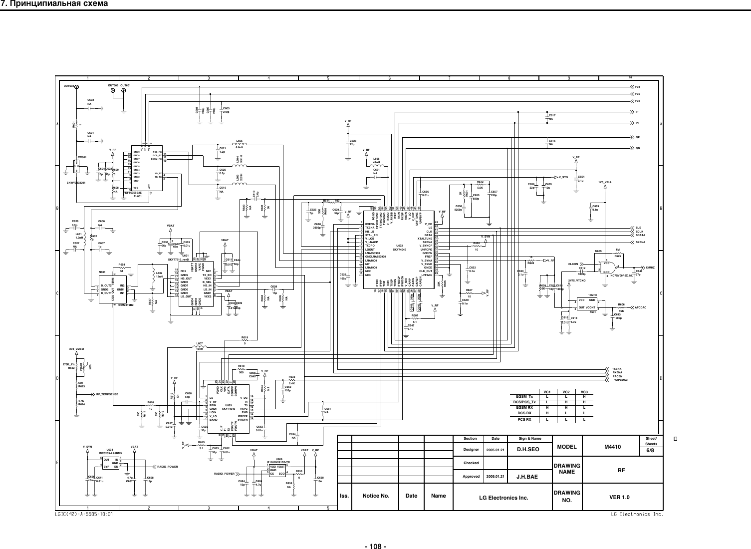
LG M4410 Schematics. Www.s Manuals.com. Schematics
User Manual: Phone LG M4410 - Service manuals and Schematics, Disassembly / Assembly. Free.
Open the PDF directly: View PDF
.
Page Count: 11











User Manual: Phone LG M4410 - Service manuals and Schematics, Disassembly / Assembly. Free.
Open the PDF directly: View PDF
.
Page Count: 11










