TC KB920S Tckb920s
User Manual: TC-KB920S
Open the PDF directly: View PDF
.
Page Count: 38

MICROFILM
SERVICE MANUAL
STEREO CASSETTE DECK
AEP Model
E Model
Australian Model
Model Name Using Similar Mechanism TC-KE500S
Tape Transport Mechanism Type TCM-190VB14
SPECIFICATIONS
TC-KB920S
Dolby noise reduction and HX Pro headroom ex-
tension manufactured under license from Dolby
Laboratories Licensing Corporation. HX Pro origi-
nated by Bang & Olufsen.
“DOLBY”, the double-D symbol a, and “HX PRO”
are trademarks of Dolby Laboratories Licensing Cor-
poration.
– Continued on next page –

– 2 –
Flexible Circuit Board Repairing
• Keep the temperature of the soldering iron around 270 ˚C dur-
ing repairing.
• Do not touch the soldering iron on the same conductor of the
circuit board (within 3 times).
• Be careful not to apply force on the conductor when soldering
or unsoldering.
Notes on chip component replacement
• Never reuse a disconnected chip component.
• Notice that the minus side of a tantalum capacitor may be dam-
aged by heat.
SAFETY-RELATED COMPONENT WARNING!!
COMPONENTS IDENTIFIED BY MARK ! OR DOTTED
LINE WITH MARK ! ON THE SCHEMATIC DIAGRAMS
AND IN THE PARTS LIST ARE CRITICAL TO SAFE
OPERATION. REPLACE THESE COMPONENTS WITH
SONY PARTS WHOSE PART NUMBERS APPEAR AS
SHOWN IN THIS MANUAL OR IN SUPPLEMENTS PUB-
LISHED BY SONY.
MODEL IDENTIFICATION
– BACK PANEL –
3-020-984-
AEP Model : 0
π
Australian Model : 2
π
Malaysia, Singapore Model: 3
π
– 3 –
TABLE OF CONTENTS
1. GENERAL ................................................................... 4
2. DISASSEMBLY ......................................................... 5
3. MECHANICAL ADJUSTMENTS ....................... 9
4. ELECTRICAL ADJUSTMENTS......................... 10
5. DIAGRAMS
5-1. Note for Printed Wiring Boards and
Schematic Diagrams ....................................................... 14
5-2. Printed Wiring Boards – MD Section –......................... 15
5-3. Schematic Diagram – MD Section – .............................. 17
5-4. Printed Wiring Board – MAIN Section – ...................... 19
5-5. Schematic Diagram – MAIN Section – (1/2) ................. 21
5-6. Schematic Diagram – MAIN Section – (2/2) ................. 23
5-7. Printed Wiring Board – DOLBY-S Section – ............... 25
5-8. Schematic Diagram – DOLBY-S Section – .................. 25
5-9. Printed Wiring Boards – POWER Section – ................. 27
5-10. Schematic Diagram – POWER Section – ...................... 28
5-11. Printed Wiring Boards – PANEL Section – .................. 29
5-12. Schematic Diagram – PANEL Section – ........................ 31
5-13. IC Pin Function Description ........................................... 33
6. EXPLODED VIEWS ................................................ 35
7. ELECTRICAL PARTS LIST ............................... 40

– 4 –
SECTION 1
GENERAL
LOCATION OF CONTROLS
1I/O (Power) button
2Remote control sensor
3PHONES jack
4Display panel
5Tape operation buttons
AMS* 0 button
· button
AMS* ) button
p button
P PAUSE button
R REC MUTING button
r REC button
6Tape counter
7Counter buttons
RESET button
MEMORY button
8Cassette holder
9§ EJECT button
!º AUTO CAL button
!¡ DOLBY NR switch
!™ BIAS control
!£ BALANCE control
!¢ CAL REC LEVEL control
!∞ MONITOR button
!§ REC LEVEL control
* AMS is an abbreviation for Automatic Music Sensor.

– 5 –
FRONT PANEL SECTION
MD ASS’Y SECTION
Note: Follow the disassembly procedure in the numerical order given.
SECTION 2
DISASSEMBLY
CASE
Unscrew the four case attachment seven tapping screws and
remove the case.
1
three flat cables
(CN803 – 805)
2
connector
(CN704)
4
claw
4
claw
3
screw
(BVTP3
×
8)
2
two connectors
(CNP304, CN801
)
2
five connectors
(CNP301 – 303, 305, 306)
3
four screws
(BVTP3
×
8)
5
front panel
section
4
two screws
(BVTT2.6
×
8)
5
two screws
(BVTP2.6
×
8)
6
Remove the MD ass’y section
to direction of arrow
A
.
A
2
two
claws
3
cassette lid
ass’y
2
two claws
1
Push the eject button.

– 6 –
MAIN BOARD
CASSETTE HOLDER (R) ASS’Y
1
connector
(CN701)
5
three PC board
holders
4
screw
(BV/ring
)
2
screw
(BV/ring)
4
two screws
(BVTP3
×
8)
6
MAIN board
3
bracket (TR)
2
boss
4
cassette holder (R)
ass’y
3
shaft
1
torsion spring

– 7 –
FITTING BASE BLOCK
HEAD
1
three screws
(PTPWH2
×
23)
Note:
When installing,
pull the FR belt
and put around the
claws as shown below.
Note:
When installing, pull the capstan belt
and put around the claws as shown below.
2
fitting base block
1
screw
(B2
×
4)
4
five screws
(B2
×
4)
5
record/
playback
head
6
head blacket
7
three RPH spring
s
2
erase
head
3
washer

– 8 –
AUDIO BOARD AND MOTOR
1
connector
(CNP71)
2
flexible board
(CNP72)
6
capstan motor
3
claw
5
two screws
(B2.6
×
3)
7
two screws
(P2.6
×
2.8)
9
belt (FR)
0
ground plate
8
reel motor
4
audio boar
d

– 9 –
SECTION 3
MECHANICAL ADJUSTMENTS
PRECAUTION
1. Clean the following parts with a denatured alcohol-moistened
swab:
record/playback/erase head pinch roller
rubber belts capstan
idler
2. Demagnetize the record/playback head with a head demagne-
tizer.
(Head demagnetizer do not approach for the erase head.)
3. Do not use a magnetized screwdriver for the adjustment.
4. After the adjustments, apply suitable locking compound to the
parts adjusted.
5. The adjustments should be performed with the rated power
supply voltage unless otherwise noted.
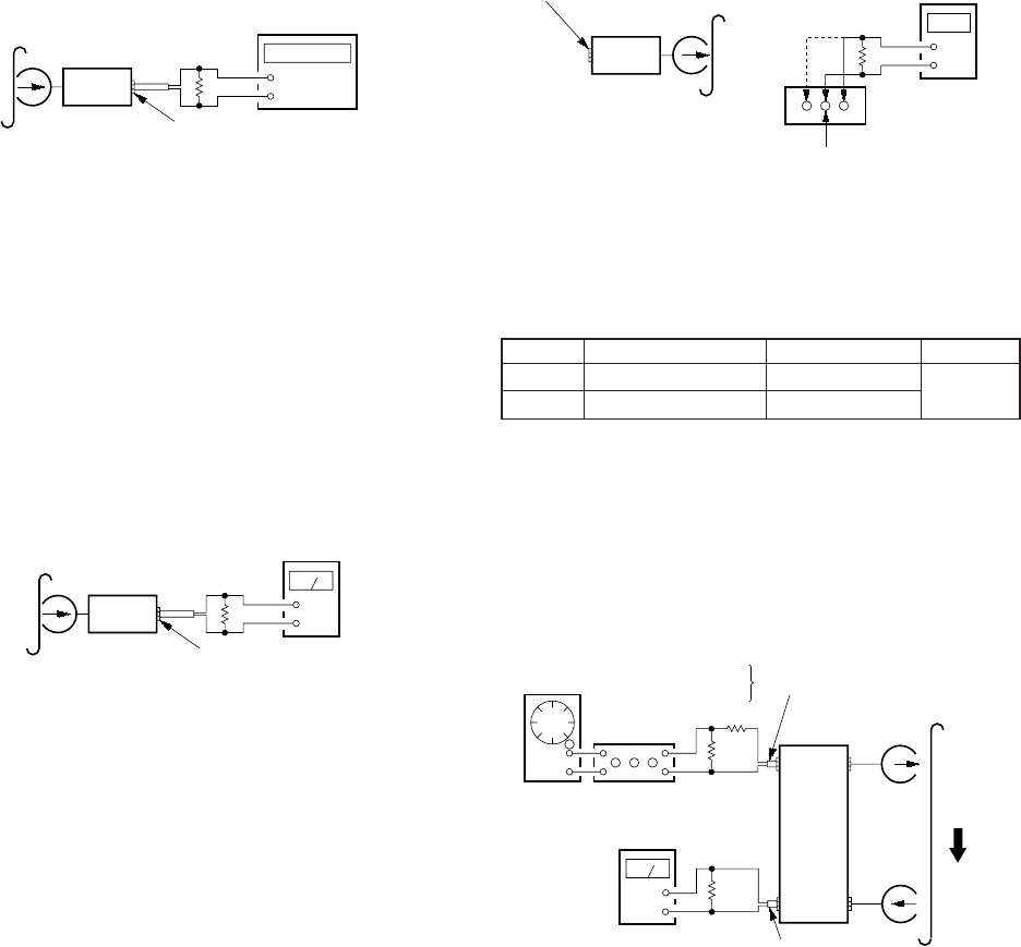
• Torque Measurement
Record/Playback Head Height/Declination Adjustment
Procedures:
1. Test cassette: CQ-009C
2. Insert the mirror cassette and put the unit in record/Playback
mode.
1) Height Adjustment:
Check to see if the tape is curling at the tape guide of the head.
If it is curling, tighten screws A, B and C, respectively by
the same angle, moving the head so that it remains at the same
angle throughout the procedure. If it curls on the bottom side
of the mirror cassette (actually the inner side), tighten all the
screws equally; but loosen them if the tape begins to curl on
the top side. (outer side.)
Mode Torque Meter Meter Reading
Forward CQ-102C 30 to 65 g•cm
(0.42 to 0.90 oz•inch)
Forward
back CQ-102C 1 to 6 g•cm
tension (0.014 to 0.08 oz•inch)
FF/REW CQ-201B 70 to 120 g•cm
(0.98 to 1.66 oz•inch)
2) Declination Adjustment:
While in the record/playback position, set the back tension to
0 (wind the supply reel with something thin like a pencil in a
counterclockwise direction) and make sure there is no curling
or shifting (shifting up/shifting down) at the guide of the
record/playback head.
Because shifting can only occur due to a difference in the width
of the tape and that of the tape guides (curling will otherwise
occur), it is necessary to pay close attention since it can be
easily overlooked.
When there is a shift, tighten screws B and C equally and
change the declination of the head. If the tape is shifting up,
tighten the screws, and if it is shifting down, loosen them.
Repeat the adjustments in steps 1) to 2) and fine adjust the
height and the declination.
Adjustment Location: – record/playback head –
outside
Normal
(Record/playback head
as seen from the side of
the erasehead.
)
Curling on the inner
side
Tighten screws
A
,
B
and
C
.
Curling on
the outer side
Loosen screws
A
,
B
and
C
.
inside
A
BC

– 10 –
SECTION 4
ELECTRICAL ADJUSTMENTS
Note: The adjustment should be performed in the order given in the ser-
vice manual. As a rule, adjustments about playback should be per-
formed before those about recording.
The adjustments should be performed before for both L-CH and R-
CH.
• Switches and controls should be set as follows unless otherwise
specified.
DOLBY NR, MPX FILTER switch: OFF
MONITOR switch: Tape
• Standard Record:
Deliver the standard input signal level to the input jack and set
the REC LEVEL control to obtain the standard output signal
level.
– Record Mode –
Standard Input Level
input terminal LINE IN
source impedance 10 kΩ
input signal level 0.5 V (–3.8 dB)
Standard Output Level
output terminal LINE OUT
load impedance 47 kΩ
output signal level 0.5 V (–3.8 dB)
Test Tape
Type Signal Used for
P-4-A100 10 kHz, –10 dB Azimuth Adjustment
P-4-L300 315 Hz, 0 dB Playback Level Adjustment
WS-48B 3 kHz, 0 dB Tape Speed Adjustment
+
–
set
47 k
Ω
LINE OUT
LINE IN
600
Ω
10 k
Ω
attenuator
AF OSC level meter
Record/Playback Head Azimuth Adjustment
Procedure:
1. Mode: FWD playback
2. Turn the adjustment screw for the maximum output levels. If
these levels do not match, turn the adjustment screw until both
of output levels match together within 1 dB.
3. Phase Check
Mode: playback
4. After the adjustment, lock the screw with locking compound.
Adjustment Location: Record/Playback head
+
–
set
47 k
Ω
LINE OUT
level mete
r
Test tape
P-4-A100
(10 kHz, –10 dB)
Screw
position
L-CH
peak
within
1dB
output
level
L-CH peak R-CH peak
within
1dB
angl
e
R-CH
peak
+
–
VH
+
–
Screen pattern
Good Wrong
in phase 45
°
90
°
135
°
180
°
LINE OUT
set
R-CH
L-CH 47 k
Ω
47 k
Ω
oscilloscope
test tape
P-4-A100
(10 kHz, –10 dB)
Adjustment screw
0 dB=0.775 V

– 11 –
Tape Speed Adjustment
Procedure:
Mode: playback
1. Set to FWD playback mode.
2. Adjust RV71 so that the frequency counter reading becomes
3,000±90 Hz.
3. Frequency difference between the beginning and the end of
the tape should be within 3%.
Adjustment Location: AUDIO board (See page 12.)
Sample value of Wow and Flutter: 0.3% or less W.RMS (JIS)
(WS-48B)
Playback Level Adjustment
Procedure:
Mode: playback
Adjust RV121 (L-CH) and RV221 (R-CH) so that the reading on
level meter meets the adjustment limits below.
Adjustment Limits:
LINE OUT level: –7.7±0.5 dB (0.301 to 0.338 V)
Level difference between channels: within 0.5 dB
Check that the LINE OUT level does not change even if Playback
and Stop operation is repeated several times.
Adjustment Location: MAIN board (See page 12.)
+
–
set
LINE OUT
frequency counte
r
test tape
WS-48B
(3 kHz, 0 dB)
47 k
Ω
+
–
set
LINE OUT
47 k
Ω
test tape
P-4-L300
(315 Hz, 0 dB) level mete
r
Bias Consumption Current Adjustment
Procedure:
1. Set RV103 (L-CH) and RV203 (R-CH) to mechanical center
and turn the set recording mode.
2. Connect digital voltmeter as shown by the following table.
3. Adjust the following transformers for the minimum readings
on the digital voltmeter.
Measurement Point Adjustment Part Value
L-CH 2 and 3, TP321 T101 minimum
R-CH 1 and 2, TP321 T201
Adjustment Location: MAIN board (See page 12.)
Record Bias Adjustment
Setting:
REC LEVEL control: Standard Record (See page 10.)
Procedure:
1. Mode: record and playback
2. Adjust RV103 (L-CH) and RV203 (R-CH) so that 10 kHz play-
back output is 0±0.3 dB relative to the 315 Hz output.
Adjustment Location: MAIN board (See page 12.)
–
+
set
LINE IN
(no signal)
B+ (+7.5 V)
TP321
321
L-CH
R-CH
47 k
Ω
digital voltmete
r
CS-413 blank tape
set
47 k
Ω
AF OSC
Attenuator
LINE IN
315 Hz
10 kHz 50 mV (–23.8 dB)
600
Ω
10 k
Ω
CS-123
blank tape
LINE OUT
level meter
+
–

– 12 –
Record Level Adjustment
Setting:
REC LEVEL control: Standard Record (See page 10.)
Procedure:
1. Mode: record and playback
2. Adjust RV101 (L-CH) and RV201 (R-CH) so that the reading
on level meter meets the adjustment limits below.
Adjustment Limits: –23.8±0.5 dB (47.2 to 53 mV)
Adjustment Location: MAIN board
Record EQ (IV) Adjustment
Setting:
REC LEVEL control: Standard Record (See page 10.)
Procedure:
1. Mode: record and playback
2. Adjust RV102 and RV202 so that they become maximum.
3. Adjust RV102 (L-CH) and RV202 (R-CH) so that the differ-
ence between R-CH and L-CH at 10 kHz is within 1 dB.
4. Adjust RV306 so that the R-CH meet the specification.
Adjustment Limits:
10 kHz level difference against 315 Hz reference.
0±1.0 dB
Adjustment Location: MAIN board
set
47 k
Ω
AF OSC
Attenuator
600
Ω
10 k
Ω
CS-123
blank tape
LINE OUT
level meter
LINE IN
315 Hz, 50 mV (–23.8 dB)
+
–
set
47 k
Ω
AF OSC
Attenuator
LINE IN
315 Hz
10 kHz 50 mV (–23.8 dB)
600
Ω
10 k
Ω
CS-123
blank tape
LINE OUT
level meter
+
–
Adjustment Location:
[MAIN BOARD] – COMPONENT SIDE –
[AUDIO BOARD] – COMPONENT SIDE –
RV71
CNP73
CNP71
CNP72
RV103
RV306
RV121
RV202
DOLBY-S
BOARD
J301
RV102
RV201 RV101
RV221
RV203
T101
T201 13
TP301

– 13 – – 14 –
SECTION 5
DIAGRAMS
5-1. NOTE FOR PRINTED WIRING BOARDS AND SCHEMATIC DIAGRAMS
(In addition to this, the necessary note is each block.)
• Circuit Boards Location
•Abbreviation
AUS : Australian
MY : Malaysia
SP : Singapore
HP board
AC POWER board TRANSFORMER board (AEP, AUS)
DOLBY-S boards
MAIN board
TRANS 1 board
(MY, SP) TRANS 2 boar
d
(MY, SP)
REC VOL board
AUDIO board
LEAF SW
board
PANEL board
Note on Schematic Diagram:
• All capacitors are in µF unless otherwise noted. pF: µµF
50 WV or less are not indicated except for electrolytics
and tantalums.
• All resistors are in Ω and 1/4 W or less unless otherwise
specified.
•¢: internal component.
•2: nonflammable resistor.
•5: fusible resistor.
•C: panel designation.
Note on Printed Wiring Boards:
•X: parts extracted from the component side.
•Y: parts extracted from the conductor side.
•b: Pattern from the side which enables seeing.
•Abbreviation
AUS : Australian model.
MY : Malaysia model.
SP : Singapore model.
•Indication of transistor.
•U: B+ Line.
•V: B– Line.
•H: adjustment for repair.
• Voltages and waveforms are dc with respect to ground
under no-signal conditions.
no mark : PB
( ) : REC
• Voltages are taken with a VOM (Input impedance 10 MΩ).
Voltage variations may be noted due to normal produc-
tion tolerances.
• Waveforms are taken with a oscilloscope.
Voltage variations may be noted due to normal produc-
tion tolerances.
• Circled numbers refer to waveforms.
• Signal path.
E: PB
a: REC
• Abbreviation
AUS : Australian model.
MY : Malaysia model.
SP : Singapore model.
Note: The components identified by mark ! or dotted line
with mark ! are critical for safety.
Replace only with part number specified.
B
These are omitted.
CE
Q
B
These are omitted.
CE
Q

– 15 – – 16 –
TC-KB920S
5-2. PRINTED WIRING BOARDS – MD Section – • See page 13 for Circuit Boards Location.
(Page 19)
(Page 19)

– 17 –
5-3. SCHEMATIC DIAGRAM – MD Section –
TC-KB920S
The components identified by mark ! or dotted
line with mark ! are critical for safety.
Replace only with part number specified.
(Page 24)
(Page 24)

– 18 –
• Waveforms
– MAIN BOARD (1/2) –
1T101 4
2IC304 !¡, !™
4IC304 7, 8
5T301 1
6IQ310 C, Q311 C3T201 4
– MAIN BOARD (2/2) –
7IC801 #º (XIN)
26.4 Vp-p
6.4
µ
s
4.5 Vp-p
6.4
µ
s
23.2 Vp-p
6.4
µ
s
3.8 Vp-p
6.4
µ
s
148 Vp-p
6.4
µ
s
30 Vp-p
6.4
µ
s
4.1 Vp-p
4 MHz
• IC Block Diagram
IC803 BA6219B (MAIN BOARD)
12 3 45 6 7 8 9 10
GND
MOTOR
DRIVE
NOISE
FILTER
CLAMP
FWD.IN
REV.IN
VCC 1
VCC 2
NOISE
FILTER
MOTOR
DRIVE
MOTOR
DRIVE
MOTOR
DRIVE
T.S.D O.C.P
FWD/REV/STOP
CONTROL LOGIC

TC-KB920S
– 19 – – 20 –
5-4. PRINTED WIRING BOARD – MAIN Section – • See page 13 for Circuit Boards Location.
Ref. No. Location
Ref. No. Location
• Semiconductor Location
D101 H-4
D102 H-4
D103 H-4
D201 H-5
D202 H-5
D203 H-4
D301 D-1
D302 F-5
D305 G-5
D306 D-5
D307 E-5
D308 D-5
D309 I-6
D310 I-6
D311 H-5
D312 F-5
D313 D-5
D341 D-1
D342 D-2
D701 G-2
D702 H-2
D703 H-2
D704 H-2
D705 G-3
D706 G-3
D707 H-3
D708 I-2
D709 G-1
D710 I-1
D711 F-3
D712 G-2
D713 G-3
D714 H-3
D715 H-3
D716 G-2
D717 G-2
D802 C-4
D803 C-4
D804 C-4
D814 E-5
D815 E-5
IC301 C-9
IC302 H-7
IC303 E-7
IC304 B-7
IC305 F-4
IC306 H-5
IC307 E-9
IC308 I-6
IC309 I-5
IC310 G-9
IC311 G-9
IC701 I-3
IC801 D-2
IC803 F-2
IC804 D-4
Q101 D-9
Q102 H-5
Q103 H-8
Q105 F-7
Q201 D-10
Q202 I-8
Q203 I-8
Q205 F-7
Q301 G-5
Q302 D-6
Q303 D-6
Q304 D-6
Q305 C-6
Q306 C-6
Q307 A-7
Q308 A-7
Q309 A-7
Q310 C-6
Q311 C-6
Q312 I-6
Q313 I-5
Q314 I-5
Q315 F-9
Q316 D-6
Q351 C-3
Q352 C-2
Q353 C-2
Q701 I-3
Q702 I-2
Q703 I-1
Q704 I-2
Q705 G-2
Q706 G-2
Q707 H-3
Q708 H-3
Q802 C-2
Q803 C-3
Q804 C-3
Q806 F-4
Q807 F-4
Q808 F-4
Q809 F-2
Q810 F-2
Q814 C-2
(Page 29)
(Page 27)
(Page 30) (Page 25) (Page 30) (Page 25) (Page 25)
(Page 25)
(Page 30)
(Page 30)
(Page 15)
(Page 16)

– 21 – – 22 –
TC-KB920S
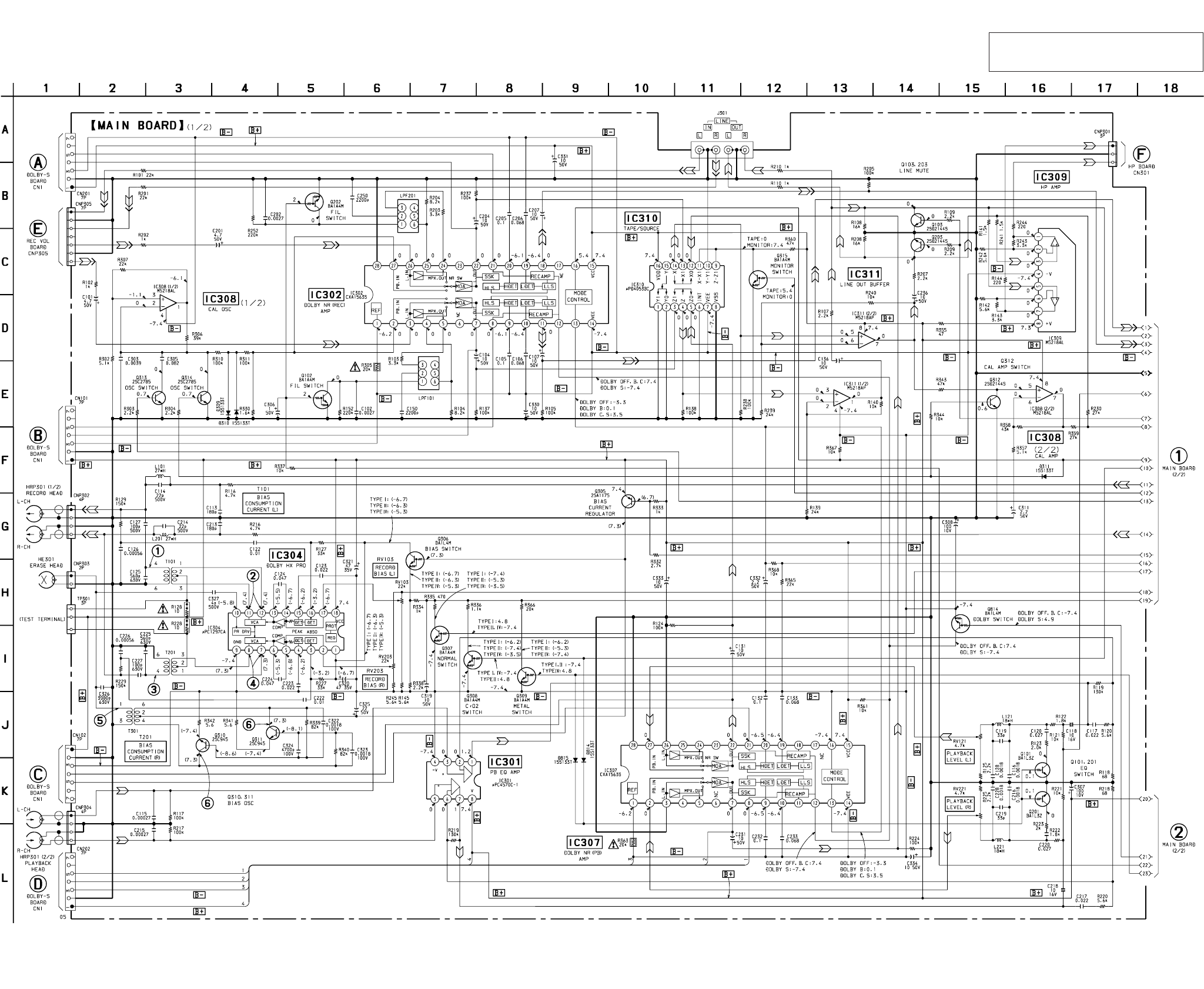
5-5. SCHEMATIC DIAGRAM – MAIN Section – (1/2) • See page 18 for Waveforms.
(Page 26)
(Page 31)
(Page 26)
(Page 26)
(Page 26)
(Page 31)
(Page 23)
(Page 23)
The components identified by mark ! or dotted
line with mark ! are critical for safety.
Replace only with part number specified.

– 23 – – 24 –
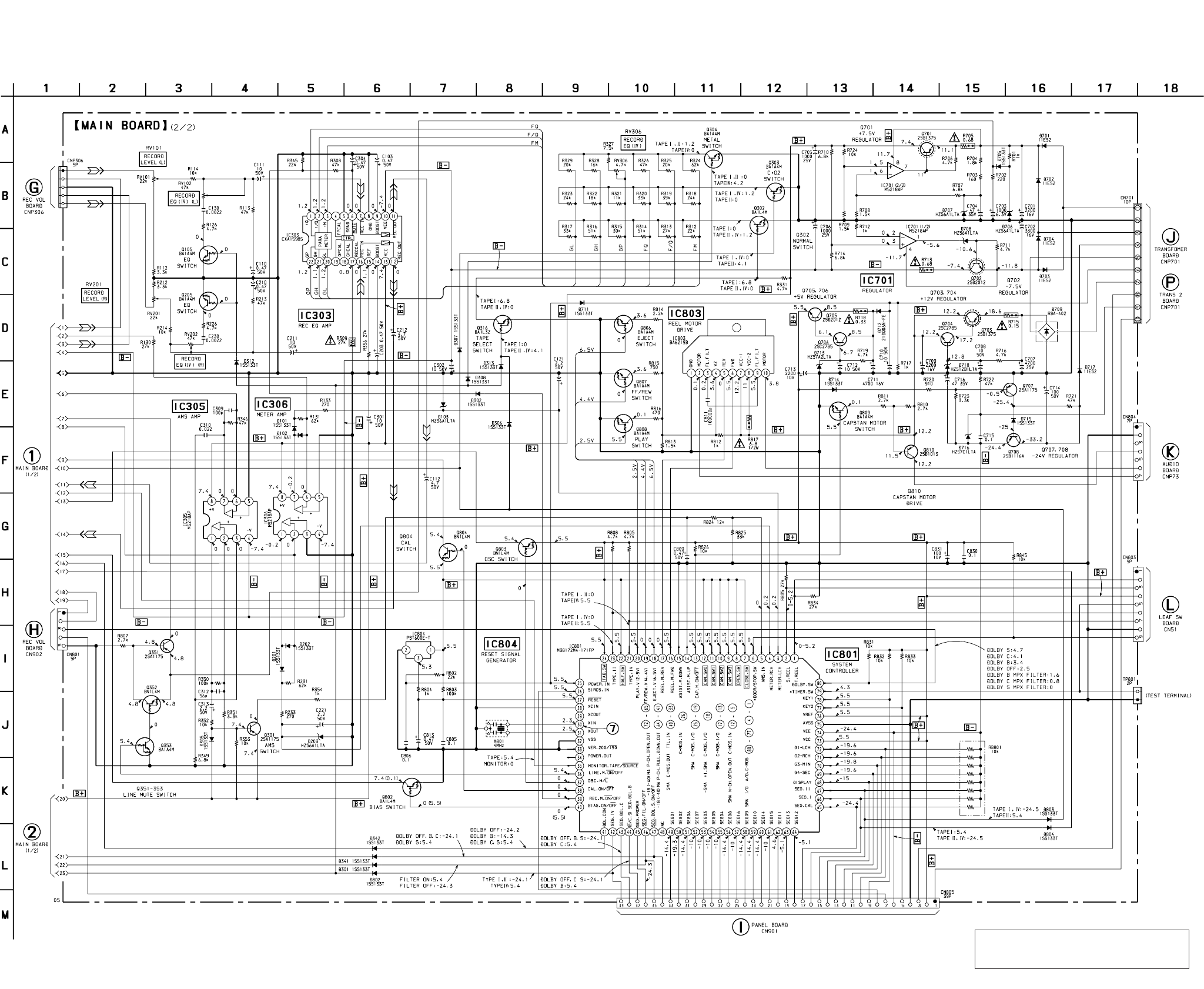
TC-KB920S
5-6. SCHEMATIC DIAGRAM – MAIN Section – (2/2) • See page 18 for Waveforms and IC Block Diagram.
(Page 31)
(Page 22)
(Page 31)
(Page 22)
(Page 31) The components identified by mark ! or dotted
line with mark ! are critical for safety.
Replace only with part number specified.
(Page 17)
(Page 17)
(Page 28)
(Page 28)

– 25 – – 26 –
TC-KB920S
5-7. PRINTED WIRING BOARD – DOLBY-S Section –
• See page 13 for Circuit Boards Location.
5-8. SCHEMATIC DIAGRAM – DOLBY-S Section –
• IC Block Diagram
IC1 CXA1917AM-T6 (DOLBY-S BOARD)
2
1
RECOUT
SCINL
ANTSAT
MC3IN
MC4IN
HLSOUT
MCBO
VCC
IREF
SCBOL
TCS2L
TCS1L
FBOL
TCF1L
TCF2L
4
LFIN
3
TCL2
ZL2
59
8
7
6
TCL1
SCINH
TCS1H
ZL1
HLSMP
MCTC
10 11 12 13
VCT
14
VEE
15
24
25
2627
28
29
30 20
21
22
23 19 17
18 16
TCS2H
TCF2H
FBOH
TCF1H
ANTSAT
FLVCR SLVCR
FHVCR
LFICGLFVCR
LFDET SHVCR
SLDET SLICG
SHICGSHDET
FLDET
FHDET
FLICG
FHICG
V TO I
CONV H
V TO I
CONV H
VREF &
IREF
MC4
MC3DS
MC3DT
MC2
MC1
MC4
MC3
MC1
MC
(Page 19, 20)
(Page 21)
(Page 21)
(Page 21)
(Page 21)

– 27 – – 28 –
TC-KB920S
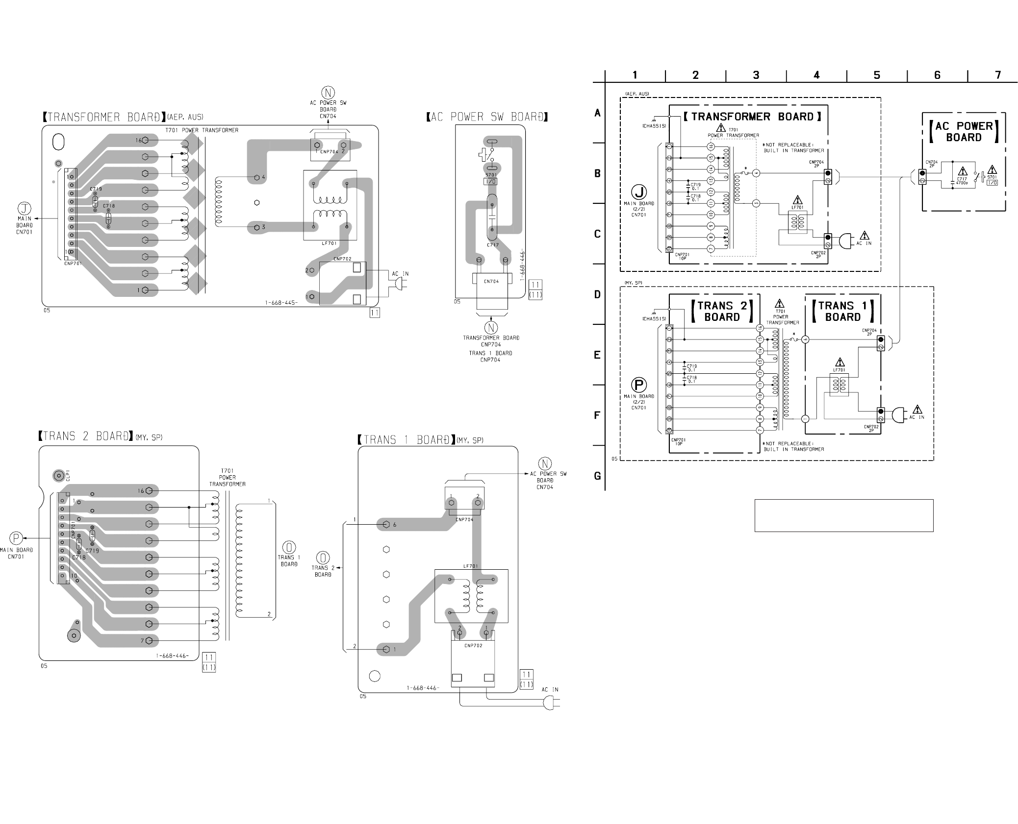
5-9. PRINTED WIRING BOARDS – POWER Section –
• See page 13 for Circuit Boards Location.
5-10. SCHEMATIC DIAGRAM – POWER Section –
(Page 27)
(Page 27, 28)
(Page 19)
(Page 19)
(Page 27)
(Page 27)
(Page 27)
The components identified by mark ! or dotted
line with mark ! are critical for safety.
Replace only with part number specified.
(Page 24)
(Page 24)

– 29 – – 30 –
TC-KB920S
5-11. PRINTED WIRING BOARDS – PANEL Section – • See page 13 for Circuit Boards Location.
(Page 19) (Page 19)
(Page 20)(Page 20)
(Page 19)

– 31 – – 32 –
TC-KB920S
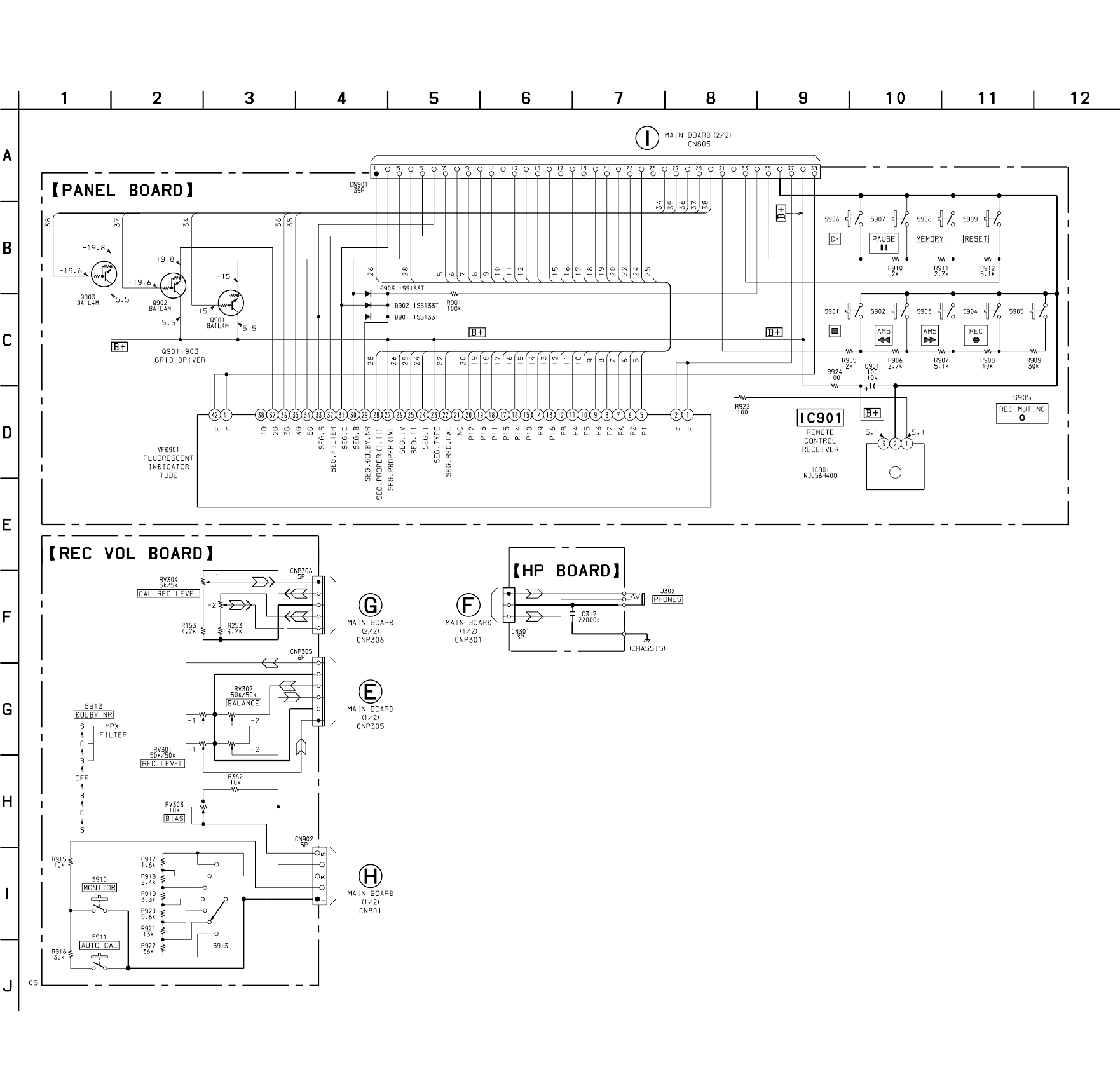
5-12. SCHEMATIC DIAGRAM – PANEL Section –
(Page 24)
(Page 23)
(Page 23)
(Page 21)
(Page 22)

– 33 – – 34 –
5-13. IC PIN FUNCTION DESCRIPTION
• MAIN BOARD IC801 M38172M4-171FP (SYSTEM CONTROLLER)
Pin No. Pin Name I/O Function
1 T.REEL I Take-up reel rotation pulse input from the rotation detect sensor (IC82)
2 S.REEL I Supply reel rotation pulse input from the rotation detect sensor (IC81)
3 METER.LCH I Signal input for the level meter drive (L-ch)
4 METER.RCH I Signal input for the level meter drive (R-ch)
5 AMS.IN I Auto music sensor signal input terminal “H”: AMS detect
6 DOOR/STOP.SW I Mechanism stop detect switch (S81) input terminal
7 CLOSE.SW I Not used (fixed at “H”)
8 OPEN.SW I Not used (fixed at “H”)
9 CAM.SW3 I Not used (fixed at “H”)
10 CAM.SW2 I Not used (fixed at “H”)
11 CAM.SW1 I Not used (fixed at “H”)
12 CAM.SW0 I Not used (fixed at “H”)
13 CAP.M ON/OFF O Capstan motor (M902) on/off control signal output terminal “H”: motor on
14 ASIST.M.UP O Assist motor drive signal output terminal Not used (pull down)
15 ASIST.M.DOWN O Assist motor drive signal output terminal Not used (pull down)
16 REEL.M.FWD O Reel motor (M901) drive signal output to the BA6219B (IC803)
17 REEL.M.REV O Reel motor (M901) drive signal output to the BA6219B (IC803)
18 EJECT.V (6.5V) O Reel motor (M901) eject control signal output terminal “H” active
19 FF/REW.V (4.4V) O Reel motor (M901) FF/REW control signal output terminal “H” active
20 PLAY.V (2.5V) O Reel motor (M901) play control signal output terminal “H” active
21 TYPE.IV I Metal detect switch (S83) input terminal “H”: metal
22 HALF.SW I Half detect switch input terminal Not used (fixed at “H”)
23 TYPE.II I CrO
2
detect switch (S82) input terminal “H”: CrO
2
24 TAB.SW I Not used (fixed at “H”)
25 POWER.IN I AC in detect signal input terminal “H”: AC in
26 SIRCS.IN I Sircs signal input from the remote control receiver (IC901)
27 RESET I System reset signal input from the reset signal generator (IC804) “L”: reset
“L” is input for several 100 msec after power on, then it changes to “H”
28 XCIN I Sub system clock input terminal Not used (fixed at “L”)
29 XCOUT O Sub system clock output terminal Not used (open)
30 XIN I Main system clock input terminal (4 MHz)
31 XOUT O Main system clock output terminal (4 MHz)
32 VSS — Ground terminal
33 VER.200/190 I Setting terminal for the version (fixed at “L”)
34 POWER.OUT O Power on/off control signal output terminal “L”: power on Not used (open)
35 MONITOR.TAPE/
SOURCE O Audio monitor selection signal output terminal “H”: tape monitor, “L”: source monitor
37 OSC H/L O Calibration tone frequency high/low control signal output terminal “L”: frequency low
38 CAL.ON/OFF O Calibration tone on/off control signal output terminal “H”: on, “L”: off
39 REC.M.ON/OFF O Record muting on/off control signal output to the CXA1598S (IC303)
“L”: record muting on
40 BIAS.ON/OFF O Recording bias on/off control signal output terminal “H”: bias on
41 DOL.CON O Dolby B/C type or dolby on/off selection signal output to the CXA1563S (IC302, 307)
“H”: dolby C type, “L”: dolby off (center voltage: dolby B type)
42 SEG.IV O Metal on/off control signal output or segment drive signal output to the fluorescent indicator
tube (VFD901) (for TYPE IV light up)
Pin No. Pin Name I/O Function
43 SEG.DOL.C O Segment drive signal output to the fluorescent indicator tube (VFD901)
(for DOLBY NR C light up)
44 SEG.DOL.B O Segment drive signal output to the fluorescent indicator tube (VFD901)
(for DOLBY NR B light up)
45 SEG.PROPER O Segment drive signal output to the fluorescent indicator tube (VFD901)
(for TYPE I, II light up)
46 SEG.FIL.ON/OFF O Multiplex filter on/off control signal output or segment drive signal output to the fluorescent
indicator tube (VFD901) (for FILTER light up) “H”: multiplex filter on
47 SEG.DOL.S.
ON/OFF ODolby S type on/off selection signal output to the CXA1563S (IC302, 307) or segment drive
signal output to the fluorescent indicator tube (VFD901) (for DOLBY NR S light up)
“L”: dolby S on
48 NC O Not used (open)
49 SEG01 O
50 SEG02 O
51 SEG06 O
52 SEG07 O
53 SEG03 O
54 SEG05 O
55 SEG04 O
56 SEG08 O
57 SEG16 O
58 SEG09 O
59 SEG10 O
60 SEG14 O
61 SEG15 O
62 SEG11 O
63 SEG13 O
64 SEG12 O
65 SEG.CAL O Segment drive signal output to the fluorescent indicator tube (VFD901) (for CAL light up)
66 SEG.I O Recording equalizer type I select signal output or segment drive signal output to the
fluorescent indicator tube (VFD901) (for TYPE I light up)
67 SEG.II O Recording equalizer type II select signal output or segment drive signal output to the
fluorescent indicator tube (VFD901) (for TYPE II light up)
68 G5-DISPLAY O
69 G4-SEC O
70 G3-MIN O Grid drive signal output to the fluorescent indicator tube (VFD901)
71 G2-RCH O
72 G1-LCH O
73 VCC — Power supply terminal (+5V)
74 VEE — Power supply terminal (–24V)
75 AVSS — Ground terminal (for A/D converter)
76 VREF I Reference voltage (+5V) input terminal
77 KEY2 I Key input terminal (A/D input) (S906 to S909)
·, P PAUSE, MEMORY, RESET keys input
78 KEY1 I Key input terminal (A/D input) (S901 to S905)
p, AMS 0, AMS ), r REC, R REC MUTING keys input
79 TIMER.SW I Half detect switch (S86) input terminal
80 DOLBY.SW I DOLBY NR switch (S913) input terminal (A/D input)
Segment drive signal output to the fluorescent indicator tube (VFD901)

– 35 –
SECTION 6
EXPLODED VIEWS
The components identified by
mark ! or dotted line with mark
! are critical for safety.
Replace only with part number
specified.
• Items marked “*” are not stocked since they
are seldom required for routine service. Some
delay should be anticipated when ordering
these items.
• The mechanical parts with no reference num-
ber in the exploded views are not supplied.
• Hardware (# mark) list and accessories and
packing materials are given in the last of the
electrical parts list.
NOTE:
• -XX and -X mean standardized parts, so they
may have some difference from the original
one.
• Color Indication of Appearance Parts
Example:
KNOB, BALANCE (WHITE) . . . (RED)
↑↑
Parts Color Cabinet's Color
Ref. No. Part No. Description Remark Ref. No. Part No. Description Remark
(1) CASE, CHASSIS SECTION
r
A: TRANSFORMER BOARD (AEP, AUS)
r
B: TRANS 1 BOARD (MY, SP)
r
C: TRANS 2 BOARD (MY, SP)
• Abbreviation
AUS : Australian
MY : Malaysia
SP : Singapore
1
2
1
10
#2
#2
not
supplied
not
supplied
FRONT PANEL SECTION
#1
#1
#1
AEP, MY, SP
A
A
#1
not
supplied
not
supplied
T701
MY,
SP
2
22
3
4
6
13
11
5
(including
r
A)
8
13
13 12
9
7
AUS
7
r
A
r
B
r
C
MY, SP
T701
AEP,
AUS
1 X-4949-523-1 FOOT ASSY (F50180S)
2 3-710-901-11 SCREW, TAPPING (BLACK)
2 3-710-901-01 SCREW, TAPPING (SILVER)
*3 3-021-377-01 CASE (BLACK)
*3 3-021-377-21 CASE (SILVER)
*4 A-2007-481-A DOLBY-S BOARD, COMPLETE
*5 A-2007-776-A MAIN BOARD, COMPLETE (AEP,AUS)
*5 A-2007-778-A MAIN BOARD, COMPLETE (MY,SP)
6 4-966-267-11 BUSHING (FBS001), CORD
!7 1-575-651-21 CORD, POWER (AEP,MY,SP)
!7 1-696-845-11 CORD, POWER (AUS)
*8 3-020-984-01 PANEL, BACK (AEP)
*8 3-020-984-22 PANEL, BACK (AUS)
*8 3-020-984-31 PANEL, BACK (MY,SP)
*9 3-703-353-02 SUPPORT, PC BOARD
10 3-703-249-21 SCREW, S TIGHT, +PTTWH (M3X8)
!11 1-692-155-11 SELECTOR, POWER VOLTAGE (MY,SP)
12 4-956-370-12 BAND, PLUG FIXED (AUS)
13 3-704-515-21 SCREW (BV/RING)
!T701 1-431-668-11 TRANSFORMER, POWER (AEP)
!T701 1-431-737-11 TRANSFORMER, POWER (AUS)
!T701 1-431-738-11 TRANSFORMER, POWER (MY,SP)

– 36 –
Ref. No. Part No. Description Remark Ref. No. Part No. Description Remark
(2) FRONT PANEL SECTION
r
D: AC POWER BOARD
r
E: HP BOARD
r
F: REC VOL BOARD
51 3-020-978-01 KNOB (REC)(BLACK)
51 3-020-978-11 KNOB (REC)(SILVER)
52 3-020-979-01 KNOB (BALANCE)(BLACK)
52 3-020-979-11 KNOB (BALANCE)(SILVER)
53 X-3374-954-1 LID ASSY, CASSETTE (BLACK)
53 X-3375-905-1 LID ASSY, CASSETTE (SILVER)
54 4-942-568-41 EMBLEM (NO.5), SONY
55 3-020-971-11 PANEL, FRONT (BLACK)(AEP)
55 3-020-971-31 PANEL, FRONT (MY,SP,AUS)
55 3-020-971-41 PANEL, FRONT (SILVER)(AEP)
56 3-020-980-01 WINDOW (METER)
57 4-922-921-62 BUTTON (POWER)(BLACK)
57 4-922-921-91 BUTOON (POWER)(SILVER)
58 4-951-620-01 SCREW (2.6X8), +BVTP
59 1-777-109-11 WIRE (FLAT TYPE) (39 CORE)
*60 A-2007-775-A PANEL BOARD, COMPLETE (AEP,AUS)
*60 A-2007-777-A PANEL BOARD, COMPLETE (MY,SP)
61 3-020-975-01 BUTTON (CONTROL)(BLACK)
61 3-020-975-11 BUTTON (CONTROL)(SILVER)
62 3-020-977-01 BUTTON (AUTO CAL)(BLACK)
62 3-020-977-11 BUTTON (AUTO CAL)(SILVER)
63 3-933-299-01 KNOB (DIA. 12)(BLACK)
63 3-933-299-11 KNOB (DIA. 12)(SILVER)
64 X-3375-507-1 BASE (KB920S) ASSY, PANEL(BLACK)
64 X-3375-906-1 BASE (KB920S) ASSY, PANEL(SILVER)
65 3-933-296-01 BUTTON (MONITOR)(BLACK)
65 3-933-296-11 BUTOON (MONITOR)(SILVER)
66 3-937-169-01 SPRING, TENSION
67 3-020-976-01 BUTTON (EJECT)(BLACK)
67 3-020-976-11 BUTTON (EJECT)(SILVER)
68 3-354-981-11 SPRING (SUS), RING
51
52
68
53
54
55
56
57
58
58
58
58
58
63
64
67
62
61
59
r
D
r
E
#4
58
60
(including
r
B –
r
F)
not
supplied
MD ASS’Y SECTION
r
F
#3
66
65

– 37 –
101 X-3368-119-1 HOLDER (R) ASSY, CASSETTE
102 3-354-963-01 DAMPER
103 1-769-915-11 WIRE (FLAT TYPE)(9 CORE)
104 1-765-314-11 WIRE (FLAT TYPE)(7 CORE)
105 3-354-957-01 JOINT (LOCK LEVER)
*106 3-354-954-01 LEVER (LOCK LEVER R)
107 3-354-962-01 SPRING (EJ SAFTY SPRING R)
108 3-354-956-01 LEVER (EJ SAFTY LEVER R)
109 3-354-960-01 SPRING (LOADING R), TORSION
Ref. No. Part No. Description Remark Ref. No. Part No. Description Remark
(3) MD ASS’Y SECTION
#5
TCM-190VB14
101 109
108
107
106
105
104
103
102

– 38 –
151 3-911-014-01 SPRING, TORSION
152 3-701-437-01 WASHER
153 3-356-659-11 SPRING (RPH), COMPRESSION
*154 X-3374-992-1 SLIDER (LIMITTER) ASSY
155 3-363-868-01 SPRING (HEAD CHASSIS), TENSION
156 X-3368-368-1 FLYWHEEL (FWD) COMPLETE ASSY
157 3-937-332-01 BELT (CAPSTAN)
158 3-359-414-01 SCREW (+PTPWH 2X23)
159 1-638-983-11 MOTOR FLEXIBLE BOARD
*160 1-634-840-21 AUDIO BOARD
161 3-359-466-01 BELT (FR), SQUARE
*162 1-634-841-14 LEAF SW BOARD
(4) MECHANISM DECK SECTION-1
(TCM-190VB14)
163 3-359-430-01 SPRING(CASSETTE RETAINER),LEAF
164 3-359-424-01 GEAR (REV GEAR)
165 3-575-321-00 RETAINER, THRUST, CAPSTAN
166 X-3366-971-1 TABLE ASSY (B), REEL
167 3-362-308-01 CAP (REEL)
168 3-356-713-01 WASHER
169 X-3366-047-1 LEVER (PINCH F) ASSY
*170 X-3369-024-1 SLIDER (HEAD CHASSIS) ASSY
HE301 1-543-673-11 HEAD, MAGNETIC (ERASE)
HRP301 1-543-733-11 HEAD,MAGNETIC (RECORD/PLAYBACK)
M901 X-3363-501-2 MOTOR ASSY (REEL)
M902 X-3374-302-1 MOTOR ASSY (CAPSTAN)
Ref. No. Part No. Description Remark Ref. No. Part No. Description Remark
not
supplied
not supplied
HRP301
151
152
153
153
#6
#6
HE301
155 154
170 169
168
167
167
166
164
165
156
163 162 161
not
supplied
M901
M902
157
158
158
158
159 160
#7
#8
not
supplied
not
supplied

– 39 –
201 3-359-469-01 SPACER
202 X-3368-719-2 CHASSIS(ONE)ASSY, MECHANICAL
203 3-359-415-11 SLIDER (TRIGGER SLIDER)
204 3-359-454-01 SPRING, TORSION
205 3-359-429-11 SLIDER (BRAKE PLATE)
206 3-359-456-01 SPRING(TRIGGER SPRING),TORSION
207 X-3366-569-1 ARM ASSY, FR
208 3-359-419-11 GEAR (FR GEAR)
209 3-359-421-01 CLUTCH (REEL DISK)
210 3-359-418-01 PULLEY (FR PULLEY)
211 3-924-185-11 SPRING (FR ARM), TORSION
212 3-936-483-01 GEAR (CAM GEAR)
213 3-359-448-01 GEAR (TRIGGER)
Ref. No. Part No. Description Remark Ref. No. Part No. Description Remark
201
202 203
204
205
206
207
208 209
210
211
212
213
(5) MECHANISM DECK SECTION-2
(TCM-190VB14)

– 40 –
SECTION 7
ELECTRICAL PARTS LIST
NOTE:
• Due to standardization, replacements in the
parts list may be different from the parts speci-
fied in the diagrams or the components used
on the set.
• -XX and -X mean standardized parts, so they
may have some difference from the original
one.
• RESISTORS
All resistors are in ohms.
METAL: Metal-film resistor.
METAL OXIDE: Metal oxide-film resistor.
F: nonflammable
• Items marked “*” are not stocked since they
are seldom required for routine service.
Some delay should be anticipated when order-
ing these items.
• SEMICONDUCTORS
In each case, u: µ, for example:
uA. . : µA. . uPA. . : µPA. .
uPB. . : µPB. . uPC. . : µPC. .
uPD. . : µPD. .
• CAPACITORS
uF: µF
• COILS
uH: µH
The components identified by
mark ! or dotted line with mark
! are critical for safety.
Replace only with part number
specified.
When indicating parts by reference
number, please include the board.
Ref. No. Part No. Description Remark Ref. No. Part No. Description Remark
AC POWER SW BOARD
*******************
(Included in PANEL BOARD, COMPLETE)
< CAPACITOR >
!C717 1-117-703-11 CERAMIC 0.0047uF 99% 250V
< CONNECTOR >
CN704 1-568-226-11 PIN, CONNECTOR 2P
< SWITCH >
!S701 1-762-581-11 SWITCH, AC POWER PUSH (1 KEY) (I/O)
************************************************************
*1-634-840-21 AUDIO BOARD
************
< CAPACITOR >
C71 1-124-903-11 ELECT 1uF 20% 50V
C72 1-124-903-11 ELECT 1uF 20% 50V
< CONNECTOR >
*CNP71 1-564-705-11 PIN, CONNECTOR (SMALL TYPE) 3P
CNP72 1-764-902-11 CONNECTOR, FFC/FPC 4P
*CNP73 1-568-826-11 SOCKET, CONNECTOR 7P
< RESISTOR >
!R71 1-249-406-11 CARBON 120 5% 1/4W F
< VARIABLE RESISTOR >
RV71 1-241-761-11 RES, ADJ, CARBON 1K
************************************************************
*A-2007-481-A DOLBY-S BOARD, COMPLETE
***********************
< CAPACITOR >
C1 1-136-165-00 FILM 0.1uF 5% 50V
C2 1-163-012-00 CERAMIC CHIP 0.0018uF 10% 50V
C3 1-163-012-00 CERAMIC CHIP 0.0018uF 10% 50V
C4 1-164-222-11 CERAMIC CHIP 0.22uF 25V
C5 1-136-165-00 FILM 0.1uF 5% 50V
C6 1-136-165-00 FILM 0.1uF 5% 50V
C7 1-137-372-11 FILM 0.022uF 5% 50V
C8 1-164-222-11 CERAMIC CHIP 0.22uF 25V
C9 1-126-301-11 ELECT 1uF 20% 50V
C10 1-137-442-11 FILM 0.039uF 5% 50V
C11 1-163-007-11 CERAMIC CHIP 680PF 10% 50V
C12 1-164-717-11 CERAMIC CHIP 0.0082uF 5% 50V
C13 1-163-038-00 CERAMIC CHIP 0.1uF 25V
C14 1-124-465-00 ELECT 0.47uF 20% 50V
C15 1-164-222-11 CERAMIC CHIP 0.22uF 25V
C16 1-163-038-00 CERAMIC CHIP 0.1uF 25V
C17 1-124-465-00 ELECT 0.47uF 20% 50V
C18 1-163-038-00 CERAMIC CHIP 0.1uF 25V
C19 1-164-222-11 CERAMIC CHIP 0.22uF 25V
C20 1-163-035-00 CERAMIC CHIP 0.047uF 50V
C21 1-164-717-11 CERAMIC CHIP 0.0082uF 5% 50V
C22 1-164-161-11 CERAMIC CHIP 0.0022uF 10% 100V
C23 1-163-005-11 CERAMIC CHIP 470PF 10% 50V
C24 1-137-442-11 FILM 0.039uF 5% 50V
C25 1-136-165-00 FILM 0.1uF 5% 50V
C26 1-137-372-11 FILM 0.022uF 5% 50V
C28 1-163-038-00 CERAMIC CHIP 0.1uF 25V
< CONNECTOR >
CN1 1-695-092-11 SOCKET, CONNECTOR 7P
< IC >
IC1 8-752-076-30 IC CXA1917AM-T6
< SHORT CHIP >
J1 1-216-296-00 SHORT (CHIP) 0
J2 1-216-296-00 SHORT (CHIP) 0
J3 1-216-296-00 SHORT (CHIP) 0
< RESISTOR >
R1 1-216-685-11 METAL CHIP 27K 0.5% 1/10W
R2 1-208-811-11 RES,CHIP 16K 2% 1/10W
R3 1-208-791-11 RES,CHIP 2.4K 2% 1/10W
R4 1-208-799-11 RES,CHIP 5.1K 2% 1/10W
R5 1-216-689-11 METAL CHIP 39K 0.5% 1/10W
• Abbreviation
AUS : Australian
MY : Malaysia
SP : Singapore
AC POWER SW
AUDIO DOLBY-S

– 41 –
Ref. No. Part No. Description Remark Ref. No. Part No. Description Remark
R6 1-216-689-11 METAL CHIP 39K 0.5% 1/10W
R7 1-216-615-11 METAL CHIP 33 0.5% 1/10W
R8 1-208-462-41 RES,CHIP 10K 2% 1/10W
R9 1-208-812-11 RES,CHIP 18K 2% 1/10W
R10 1-216-615-11 METAL CHIP 33 0.5% 1/10W
R11 1-216-619-11 METAL CHIP 47 0.5% 1/10W
R12 1-216-684-11 METAL CHIP 24K 0.5% 1/10W
R13 1-216-615-11 METAL CHIP 33 0.5% 1/10W
R14 1-216-619-11 METAL CHIP 47 0.5% 1/10W
R15 1-216-655-11 METAL CHIP 1.5K 0.5% 1/10W
R16 1-216-678-11 METAL CHIP 13K 0.5% 1/10W
R17 1-216-673-11 METAL CHIP 8.2K 0.5% 1/10W
R18 1-208-462-41 RES,CHIP 10K 2% 1/10W
R19 1-208-462-41 RES,CHIP 10K 2% 1/10W
R20 1-216-689-11 METAL CHIP 39K 0.5% 1/10W
************************************************************
HP BOARD
*********
(Included in PANEL BOARD, COMPLETE)
< CAPACITOR >
C317 1-161-494-00 CERAMIC 0.022uF 25V
< JACK >
J302 1-568-519-41 JACK, LARGE TYPE (PHONES)
************************************************************
*1-634-841-14 LEAF SW BOARD
**************
< CONNECTOR >
*CNP81 1-568-852-11 SOCKET, CONNECTOR 9P
< IC >
IC81 8-749-924-10 IC PHOTO REFLECTOR NJL5165K-B(H1)
IC82 8-749-924-10 IC PHOTO REFLECTOR NJL5165K-B(H1)
< RESISTOR >
R81 1-249-414-11 CARBON 560 5% 1/4W
R83 1-247-834-11 CARBON 1.3K 5% 1/4W
R84 1-249-417-11 CARBON 1K 5% 1/4W
R85 1-249-408-11 CARBON 180 5% 1/4W
R86 1-249-408-11 CARBON 180 5% 1/4W
< SWITCH >
S81 1-571-958-11 SWITCH, PUSH (1 KEY) (MECHANISM STOP)
S82 1-571-281-21 SWITCH, LEAF (70u)
S83 1-571-281-21 SWITCH, LEAF (METAL)
S84 1-571-281-21 SWITCH, LEAF (REC)
S86 1-571-281-21 SWITCH, LEAF (HALF)
************************************************************
*A-2007-776-A MAIN BOARD, COMPLETE (AEP, AUS)
*********************
(Including TRANSFORMER BOARD)
*A-2007-778-A MAIN BOARD, COMPLETE (MY, SP)
*********************
7-685-871-01 SCREW +BVTT 3X6 (S)
< CAPACITOR >
C101 1-126-963-11 ELECT 4.7uF 20% 50V
C102 1-106-353-00 MYLAR 0.0027uF 5% 50V
C103 1-136-173-00 FILM 0.47uF 5% 50V
C104 1-126-964-11 ELECT 10uF 20% 50V
C105 1-136-165-00 FILM 0.1uF 5% 50V
C106 1-136-163-00 FILM 0.068uF 5% 50V
C107 1-126-964-11 ELECT 10uF 20% 50V
C110 1-126-959-11 ELECT 0.47uF 20% 50V
C111 1-126-964-11 ELECT 10uF 20% 50V
C112 1-126-963-11 ELECT 4.7uF 20% 50V
C113 1-137-428-11 FILM 180PF 5% 50V
C114 1-136-935-11 FILM 22PF 5% 630V
C115 1-137-429-11 FILM 270PF 5% 50V
C116 1-130-474-00 MYLAR 0.0018uF 5% 50V
C117 1-130-487-00 MYLAR 0.022uF 5% 50V
C118 1-107-714-11 ELECT 10uF 20% 16V
C119 1-102-518-11 CERAMIC 33PF 5% 50V
C120 1-130-488-00 MYLAR 0.027uF 5% 50V
C121 1-126-961-11 ELECT 2.2uF 20% 50V
C122 1-130-483-00 MYLAR 0.01uF 5% 50V
C123 1-130-487-00 MYLAR 0.022uF 5% 50V
C124 1-130-491-00 MYLAR 0.047uF 5% 50V
C125 1-136-803-11 FILM 560PF 5% 630V
C126 1-130-468-00 MYLAR 560PF 5% 50V
C127 1-136-433-11 FILM 100PF 5% 630V
C128 1-130-474-00 MYLAR 0.0018uF 5% 50V
C130 1-106-351-00 MYLAR 2200PF 5% 200V
C131 1-126-964-11 ELECT 10uF 20% 50V
C132 1-136-165-00 FILM 0.1uF 5% 50V
C133 1-136-163-00 FILM 0.068uF 5% 50V
C136 1-126-964-11 ELECT 10uF 20% 50V
C150 1-162-302-11 CERAMIC 0.0022uF 20% 16V
C201 1-126-963-11 ELECT 4.7uF 20% 50V
C202 1-106-353-00 MYLAR 0.0027uF 5% 50V
C203 1-136-173-00 FILM 0.47uF 5% 50V
C204 1-126-964-11 ELECT 10uF 20% 50V
C205 1-136-165-00 FILM 0.1uF 5% 50V
C206 1-136-163-00 FILM 0.068uF 5% 50V
C207 1-126-964-11 ELECT 10uF 20% 50V
C210 1-126-959-11 ELECT 0.47uF 20% 50V
C211 1-126-964-11 ELECT 10uF 20% 50V
C212 1-126-963-11 ELECT 4.7uF 20% 50V
C213 1-137-428-11 FILM 180PF 5% 50V
C214 1-136-935-11 FILM 22PF 5% 630V
C215 1-137-429-11 FILM 270PF 5% 50V
C216 1-130-474-00 MYLAR 0.0018uF 5% 50V
C217 1-130-487-00 MYLAR 0.022uF 5% 50V
C218 1-107-714-11 ELECT 10uF 20% 16V
C219 1-102-518-11 CERAMIC 33PF 5% 50V
C220 1-130-488-00 MYLAR 0.027uF 5% 50V
C221 1-126-961-11 ELECT 2.2uF 20% 50V
C222 1-130-483-00 MYLAR 0.01uF 5% 50V
C223 1-130-487-00 MYLAR 0.022uF 5% 50V
C224 1-130-491-00 MYLAR 0.047uF 5% 50V
C225 1-136-803-11 FILM 560PF 5% 630V
DOLBY-S HP LEAF SW MAIN

– 42 –
Ref. No. Part No. Description Remark Ref. No. Part No. Description Remark
C226 1-130-468-00 MYLAR 560PF 5% 50V
C227 1-136-433-11 FILM 100PF 5% 630V
C228 1-130-474-00 MYLAR 0.0018uF 5% 50V
C230 1-106-351-00 MYLAR 2200PF 5% 200V
C231 1-126-964-11 ELECT 10uF 20% 50V
C232 1-136-165-00 FILM 0.1uF 5% 50V
C233 1-136-163-00 FILM 0.068uF 5% 50V
C236 1-126-964-11 ELECT 10uF 20% 50V
C250 1-162-302-11 CERAMIC 0.0022uF 20% 16V
C301 1-126-964-11 ELECT 10uF 20% 50V
C302 1-126-964-11 ELECT 10uF 20% 50V
C303 1-130-478-00 MYLAR 0.0039uF 5% 50V
C304 1-126-959-11 ELECT 0.47uF 20% 50V
C305 1-130-494-11 MYLAR 0.082uF 5% 50V
C306 1-126-960-11 ELECT 1uF 20% 50V
C307 1-104-665-11 ELECT 100uF 20% 10V
C308 1-104-665-11 ELECT 100uF 20% 10V
C309 1-162-282-31 CERAMIC 100PF 10% 50V
C310 1-161-494-00 CERAMIC 0.022uF 25V
C311 1-126-961-11 ELECT 2.2uF 20% 50V
C312 1-162-217-31 CERAMIC 56PF 5% 50V
C313 1-126-961-11 ELECT 2.2uF 20% 50V
C319 1-126-964-11 ELECT 10uF 20% 50V
C320 1-126-947-11 ELECT 47uF 20% 35V
C321 1-126-947-11 ELECT 47uF 20% 35V
C322 1-137-613-11 MYLAR 0.0018uF 5% 100V
C323 1-137-613-11 MYLAR 0.0018uF 5% 100V
C324 1-106-359-00 MYLAR 4700PF 5% 200V
C325 1-126-965-11 ELECT 22uF 20% 50V
C326 1-136-558-11 FILM 0.0039uF 5% 630V
C327 1-107-584-11 CERAMIC 4PF 0.25PF 500V
C330 1-126-964-11 ELECT 10uF 20% 50V
C331 1-126-964-11 ELECT 10uF 20% 50V
C332 1-126-961-11 ELECT 2.2uF 20% 50V
C333 1-126-964-11 ELECT 10uF 20% 50V
C334 1-126-964-11 ELECT 10uF 20% 50V
C701 1-126-768-11 ELECT 2200uF 20% 16V
C702 1-126-936-11 ELECT 3300uF 20% 16V
C703 1-126-916-11 ELECT 1000uF 20% 6.3V
C704 1-126-947-11 ELECT 47uF 20% 35V
C705 1-126-942-61 ELECT 1000uF 20% 25V
C706 1-126-942-61 ELECT 1000uF 20% 25V
C707 1-128-548-11 ELECT 4700uF 20% 25V
C708 1-126-964-11 ELECT 10uF 20% 50V
C709 1-126-768-11 ELECT 2200uF 20% 16V
C710 1-126-964-11 ELECT 10uF 20% 50V
C711 1-126-937-11 ELECT 4700uF 20% 16V
C712 1-126-964-11 ELECT 10uF 20% 50V
C713 1-126-927-11 ELECT 2200uF 20% 10V
C714 1-126-968-11 ELECT 100uF 20% 50V
C715 1-164-159-11 CERAMIC 0.1uF 50V
C716 1-126-947-11 ELECT 47uF 20% 35V
C805 1-164-159-11 CERAMIC 0.1uF 50V
C806 1-164-159-11 CERAMIC 0.1uF 50V
C809 1-126-959-11 ELECT 0.47uF 20% 50V
C811 1-164-159-11 CERAMIC 0.1uF 50V
C813 1-126-959-11 ELECT 0.47uF 20% 50V
C830 1-164-159-11 CERAMIC 0.1uF 50V
C831 1-104-665-11 ELECT 100uF 20% 10V
< CONNECTOR >
CN101 1-695-087-11 PIN, CONNECTOR (PC BOARD) 7P
CN102 1-695-087-11 PIN, CONNECTOR (PC BOARD) 7P
CN201 1-695-087-11 PIN, CONNECTOR (PC BOARD) 7P
CN202 1-695-087-11 PIN, CONNECTOR (PC BOARD) 7P
*CN801 1-568-954-11 PIN, CONNECTOR 5P
*CN803 1-568-828-11 SOCKET, CONNECTOR 9P
*CN804 1-568-826-11 SOCKET, CONNECTOR 7P
CN805 1-778-065-11 SOCKET, CONNECTOR 39P
CNP301 1-506-468-11 PIN, CONNECTOR 3P
*CNP302 1-560-062-00 PIN, CONNECTOR 4P
*CNP303 1-560-060-00 PIN, CONNECTOR 2P
*CNP304 1-560-062-00 PIN, CONNECTOR 4P
CNP305 1-691-463-11 PIN, CONNECTOR (PC BOARD) 7P
CNP306 1-764-328-11 PIN, CONNECTOR (PCB)(V TYPE)5P
< DIODE >
D101 8-719-911-19 DIODE 1SS119
D102 8-719-911-19 DIODE 1SS119
D103 8-719-933-33 DIODE HZS6A1L
D201 8-719-911-19 DIODE 1SS119
D202 8-719-911-19 DIODE 1SS119
D203 8-719-933-33 DIODE HZS6A1L
D301 8-719-911-19 DIODE 1SS119
D302 8-719-911-19 DIODE 1SS119
D305 8-719-911-19 DIODE 1SS119
D306 8-719-911-19 DIODE 1SS119
D307 8-719-911-19 DIODE 1SS119
D308 8-719-911-19 DIODE 1SS119
D309 8-719-911-19 DIODE 1SS119
D310 8-719-911-19 DIODE 1SS119
D311 8-719-911-19 DIODE 1SS119
D312 8-719-911-19 DIODE 1SS119
D313 8-719-911-19 DIODE 1SS119
D341 8-719-911-19 DIODE 1SS119
D342 8-719-911-19 DIODE 1SS119
D701 8-719-024-99 DIODE 11ES2-NTA2B
D702 8-719-024-99 DIODE 11ES2-NTA2B
D703 8-719-024-99 DIODE 11ES2-NTA2B
D704 8-719-024-99 DIODE 11ES2-NTA2B
D705 8-719-911-19 DIODE 1SS119
D706 8-719-933-33 DIODE HZS6A1L
D707 8-719-933-33 DIODE HZS6A1L
D708 8-719-933-33 DIODE HZS6A1L
D709 8-719-025-03 DIODE RBA-402-SL
D710 8-719-986-27 DIODE HZS12B1LTA
D711 8-719-911-19 DIODE 1SS119
D712 8-719-200-31 DIODE 21DQ05
D713 8-719-985-95 DIODE HZS7A2LTA
D714 8-719-911-19 DIODE 1SS119
D715 8-719-911-19 DIODE 1SS119
D716 8-719-986-00 DIODE HZS7C1LTA
D717 8-719-024-99 DIODE 11ES2-NTA2B
D802 8-719-911-19 DIODE 1SS119
D803 8-719-911-19 DIODE 1SS119
D804 8-719-911-19 DIODE 1SS119
MAIN

– 43 –
Ref. No. Part No. Description Remark Ref. No. Part No. Description Remark
D814 8-719-911-19 DIODE 1SS119
D815 8-719-911-19 DIODE 1SS119
< IC >
IC301 8-759-111-44 IC uPC4570C-1
IC302 8-752-066-35 IC CXA1563S
IC303 8-752-070-69 IC CXA1598S
IC304 8-759-106-56 IC uPC1297CA
IC305 8-759-634-51 IC M5218AP
IC306 8-759-634-51 IC M5218AP
IC307 8-752-066-35 IC CXA1563S
IC308 8-759-634-50 IC M5218AL
IC309 8-759-634-50 IC M5218AL
IC310 8-759-140-53 IC uPD4053BC
IC311 8-759-634-51 IC M5218AP
IC701 8-759-634-51 IC M5218AP
IC801 8-759-422-06 IC M38172M4-171FP
IC803 8-759-973-95 IC BA6219B
IC804 8-759-165-82 IC PST600E-T
< JACK >
J301 1-784-430-11 JACK, PIN 4P (LINE IN, OUT)
< COIL >
L101 1-410-780-11 INDUCTOR 27mH
L121 1-410-778-11 INDUCTOR 18mH
L201 1-410-780-11 INDUCTOR 27mH
L221 1-410-778-11 INDUCTOR 18mH
< FILTER >
LPF101 1-234-037-11 FILTER, LOW PASS
LPF201 1-234-037-11 FILTER, LOW PASS
< TRANSISTOR >
Q101 8-729-900-74 TRANSISTOR DTC143TS
Q102 8-729-900-80 TRANSISTOR DTC114ES
Q103 8-729-922-37 TRANSISTOR 2SD2144S
Q105 8-729-900-80 TRANSISTOR DTC114ES
Q201 8-729-900-74 TRANSISTOR DTC143TS
Q202 8-729-900-80 TRANSISTOR DTC114ES
Q203 8-729-922-37 TRANSISTOR 2SD2144S
Q205 8-729-900-80 TRANSISTOR DTC114ES
Q301 8-729-119-76 TRANSISTOR 2SA1175-HFE
Q302 8-729-900-89 TRANSISTOR DTC144ES
Q303 8-729-900-80 TRANSISTOR DTC114ES
Q304 8-729-900-80 TRANSISTOR DTC114ES
Q305 8-729-119-76 TRANSISTOR 2SA1175-HFE
Q306 8-729-900-89 TRANSISTOR DTC144ES
Q307 8-729-900-80 TRANSISTOR DTC114ES
Q308 8-729-900-80 TRANSISTOR DTC114ES
Q309 8-729-900-80 TRANSISTOR DTC114ES
Q310 8-729-194-57 TRANSISTOR 2SC945-P
Q311 8-729-194-57 TRANSISTOR 2SC945-P
Q312 8-729-922-37 TRANSISTOR 2SD2144S
Q313 8-729-119-78 TRANSISTOR 2SC403SP-51
Q314 8-729-119-78 TRANSISTOR 2SC403SP-51
Q315 8-729-900-80 TRANSISTOR DTC114ES
Q316 8-729-900-74 TRANSISTOR DTC143TS
Q351 8-729-119-76 TRANSISTOR 2SA1175-HFE
Q352 8-729-900-65 TRANSISTOR DTA144ES
Q353 8-729-900-80 TRANSISTOR DTC114ES
Q701 8-729-141-83 TRANSISTOR 2SB1094-LK
Q702 8-729-209-15 TRANSISTOR 2SD2012
Q703 8-729-141-83 TRANSISTOR 2SB1094-LK
Q704 8-729-119-78 TRANSISTOR 2SC403SP-51
Q705 8-729-209-15 TRANSISTOR 2SD2012
Q706 8-729-119-78 TRANSISTOR 2SC403SP-51
Q707 8-729-119-76 TRANSISTOR 2SA1175-HFE
Q708 8-729-140-04 TRANSISTOR 2SB1116A-L
Q802 8-729-900-89 TRANSISTOR DTC144ES
Q803 8-729-900-65 TRANSISTOR DTA144ES
Q804 8-729-900-65 TRANSISTOR DTA144ES
Q806 8-729-900-80 TRANSISTOR DTC114ES
Q807 8-729-900-80 TRANSISTOR DTC114ES
Q808 8-729-900-80 TRANSISTOR DTC114ES
Q809 8-729-900-80 TRANSISTOR DTC114ES
Q810 8-729-801-84 TRANSISTOR 2SB1013-4
Q814 8-729-900-89 TRANSISTOR DTC144ES
< RESISTOR >
R101 1-249-433-11 CARBON 22K 5% 1/4W
R102 1-249-417-11 CARBON 1K 5% 1/4W
R103 1-247-843-11 CARBON 3.3K 5% 1/4W
R104 1-249-428-11 CARBON 8.2K 5% 1/4W
R105 1-249-441-11 CARBON 100K 5% 1/4W
R107 1-249-421-11 CARBON 2.2K 5% 1/4W
R108 1-247-860-11 CARBON 16K 5% 1/4W
R109 1-249-421-11 CARBON 2.2K 5% 1/4W
R110 1-249-417-11 CARBON 1K 5% 1/4W
R112 1-247-843-11 CARBON 3.3K 5% 1/4W
R113 1-249-437-11 CARBON 47K 5% 1/4W
R114 1-249-429-11 CARBON 10K 5% 1/4W
R116 1-249-425-11 CARBON 4.7K 5% 1/4W
R117 1-249-441-11 CARBON 100K 5% 1/4W
R118 1-249-403-11 CARBON 68 5% 1/4W
R119 1-247-882-11 CARBON 130K 5% 1/4W
R120 1-249-426-11 CARBON 5.6K 5% 1/4W
R121 1-249-429-11 CARBON 10K 5% 1/4W
R122 1-249-420-11 CARBON 1.8K 5% 1/4W
R123 1-247-838-00 CARBON 2K 5% 1/4W
R124 1-249-441-11 CARBON 100K 5% 1/4W
R125 1-249-421-11 CARBON 2.2K 5% 1/4W
R126 1-249-425-11 CARBON 4.7K 5% 1/4W
R127 1-249-435-11 CARBON 33K 5% 1/4W
!R128 1-219-153-11 FUSIBLE 10 5% 1/4W F
R129 1-247-883-00 CARBON 150K 5% 1/4W
R130 1-249-434-11 CARBON 27K 5% 1/4W
R131 1-247-874-11 CARBON 62K 5% 1/4W
R133 1-249-410-11 CARBON 270 5% 1/4W
R137 1-249-441-11 CARBON 100K 5% 1/4W
R138 1-249-441-11 CARBON 100K 5% 1/4W
R139 1-247-864-11 CARBON 24K 5% 1/4W
R140 1-249-429-11 CARBON 10K 5% 1/4W
R141 1-249-419-11 CARBON 1.5K 5% 1/4W
R142 1-249-426-11 CARBON 5.6K 5% 1/4W
MAIN
The components identified by mark ! or dotted
line with mark ! are critical for safety.
Replace only with part number specified.

– 44 –
Ref. No. Part No. Description Remark Ref. No. Part No. Description Remark
R143 1-247-843-11 CARBON 3.3K 5% 1/4W
R144 1-249-409-11 CARBON 220 5% 1/4W
R145 1-249-426-11 CARBON 5.6K 5% 1/4W
R152 1-247-887-00 CARBON 220K 5% 1/4W
R201 1-249-433-11 CARBON 22K 5% 1/4W
R202 1-249-417-11 CARBON 1K 5% 1/4W
R203 1-247-843-11 CARBON 3.3K 5% 1/4W
R204 1-249-428-11 CARBON 8.2K 5% 1/4W
R205 1-249-441-11 CARBON 100K 5% 1/4W
R207 1-249-421-11 CARBON 2.2K 5% 1/4W
R208 1-247-860-11 CARBON 16K 5% 1/4W
R209 1-249-421-11 CARBON 2.2K 5% 1/4W
R210 1-249-417-11 CARBON 1K 5% 1/4W
R212 1-247-843-11 CARBON 3.3K 5% 1/4W
R213 1-249-437-11 CARBON 47K 5% 1/4W
R214 1-249-429-11 CARBON 10K 5% 1/4W
R216 1-249-425-11 CARBON 4.7K 5% 1/4W
R217 1-249-441-11 CARBON 100K 5% 1/4W
R218 1-249-403-11 CARBON 68 5% 1/4W
R219 1-247-882-11 CARBON 130K 5% 1/4W
R220 1-249-426-11 CARBON 5.6K 5% 1/4W
R221 1-249-429-11 CARBON 10K 5% 1/4W
R222 1-249-420-11 CARBON 1.8K 5% 1/4W
R223 1-247-838-00 CARBON 2K 5% 1/4W
R224 1-249-441-11 CARBON 100K 5% 1/4W
R225 1-249-421-11 CARBON 2.2K 5% 1/4W
R226 1-249-425-11 CARBON 4.7K 5% 1/4W
R227 1-249-435-11 CARBON 33K 5% 1/4W
!R228 1-219-153-11 FUSIBLE 10 5% 1/4W F
R229 1-247-883-00 CARBON 150K 5% 1/4W
R230 1-249-434-11 CARBON 27K 5% 1/4W
R231 1-247-874-11 CARBON 62K 5% 1/4W
R233 1-249-410-11 CARBON 270 5% 1/4W
R237 1-249-441-11 CARBON 100K 5% 1/4W
R238 1-249-441-11 CARBON 100K 5% 1/4W
R239 1-247-864-11 CARBON 24K 5% 1/4W
R240 1-249-429-11 CARBON 10K 5% 1/4W
R241 1-249-419-11 CARBON 1.5K 5% 1/4W
R242 1-249-426-11 CARBON 5.6K 5% 1/4W
R243 1-247-843-11 CARBON 3.3K 5% 1/4W
R244 1-249-409-11 CARBON 220 5% 1/4W
R245 1-249-426-11 CARBON 5.6K 5% 1/4W
R252 1-247-887-00 CARBON 220K 5% 1/4W
R302 1-247-848-11 CARBON 5.1K 5% 1/4W
R303 1-249-421-11 CARBON 2.2K 5% 1/4W
R304 1-249-421-11 CARBON 2.2K 5% 1/4W
!R305 1-215-452-00 METAL 20K 1% 1/4W F
R306 1-249-436-11 CARBON 39K 5% 1/4W
R307 1-249-433-11 CARBON 22K 5% 1/4W
R308 1-249-437-11 CARBON 47K 5% 1/4W
!R309 1-215-455-00 METAL 27K 1% 1/4W F
R310 1-249-441-11 CARBON 100K 5% 1/4W
R311 1-249-441-11 CARBON 100K 5% 1/4W
R312 1-249-433-11 CARBON 22K 5% 1/4W
R313 1-249-434-11 CARBON 27K 5% 1/4W
R314 1-247-872-11 CARBON 51K 5% 1/4W
R315 1-247-866-11 CARBON 30K 5% 1/4W
R316 1-247-872-11 CARBON 51K 5% 1/4W
R317 1-249-435-11 CARBON 33K 5% 1/4W
R318 1-247-864-11 CARBON 24K 5% 1/4W
R319 1-249-436-11 CARBON 39K 5% 1/4W
R320 1-249-435-11 CARBON 33K 5% 1/4W
R321 1-247-856-00 CARBON 11K 5% 1/4W
R322 1-249-432-11 CARBON 18K 5% 1/4W
R323 1-247-864-11 CARBON 24K 5% 1/4W
R324 1-247-874-11 CARBON 62K 5% 1/4W
R325 1-247-862-11 CARBON 20K 5% 1/4W
R326 1-249-437-11 CARBON 47K 5% 1/4W
R327 1-247-852-11 CARBON 7.5K 5% 1/4W
R328 1-247-860-11 CARBON 16K 5% 1/4W
R329 1-247-862-11 CARBON 20K 5% 1/4W
R330 1-247-836-11 CARBON 1.6K 5% 1/4W
R331 1-249-425-11 CARBON 4.7K 5% 1/4W
R332 1-249-422-11 CARBON 2.7K 5% 1/4W
R333 1-249-417-11 CARBON 1K 5% 1/4W
R334 1-249-417-11 CARBON 1K 5% 1/4W
R335 1-249-413-11 CARBON 470 5% 1/4W
R336 1-247-832-11 CARBON 1.1K 5% 1/4W
R337 1-249-429-11 CARBON 10K 5% 1/4W
R338 1-249-421-11 CARBON 2.2K 5% 1/4W
R339 1-249-440-11 CARBON 82K 5% 1/4W
R340 1-249-440-11 CARBON 82K 5% 1/4W
R341 1-249-390-11 CARBON 5.6 5% 1/4W
R342 1-249-390-11 CARBON 5.6 5% 1/4W
R343 1-249-437-11 CARBON 47K 5% 1/4W
R344 1-249-429-11 CARBON 10K 5% 1/4W
R345 1-249-433-11 CARBON 22K 5% 1/4W
R346 1-249-437-11 CARBON 47K 5% 1/4W
R349 1-249-427-11 CARBON 6.8K 5% 1/4W
R350 1-249-441-11 CARBON 100K 5% 1/4W
R351 1-247-843-11 CARBON 3.3K 5% 1/4W
R352 1-249-429-11 CARBON 10K 5% 1/4W
R353 1-249-429-11 CARBON 10K 5% 1/4W
R354 1-249-417-11 CARBON 1K 5% 1/4W
R355 1-249-401-11 CARBON 47 5% 1/4W
R356 1-249-434-11 CARBON 27K 5% 1/4W
R357 1-247-848-11 CARBON 5.1K 5% 1/4W
R358 1-247-870-11 CARBON 43K 5% 1/4W
R359 1-249-434-11 CARBON 27K 5% 1/4W
R360 1-249-437-11 CARBON 47K 5% 1/4W
R361 1-249-429-11 CARBON 10K 5% 1/4W
!R363 1-215-452-00 METAL 20K 1% 1/4W F
R365 1-249-433-11 CARBON 22K 5% 1/4W
R366 1-247-862-11 CARBON 20K 5% 1/4W
R367 1-249-429-11 CARBON 10K 5% 1/4W
R368 1-249-429-11 CARBON 10K 5% 1/4W
R701 1-249-417-11 CARBON 1K 5% 1/4W
R702 1-249-409-11 CARBON 220 5% 1/4W
R703 1-247-812-11 CARBON 160 5% 1/4W
R704 1-249-420-11 CARBON 1.8K 5% 1/4W
!R705 1-219-139-11 FUSIBLE 0.68 10% 1/4W F
R706 1-249-425-11 CARBON 4.7K 5% 1/4W
R707 1-249-427-11 CARBON 6.8K 5% 1/4W
R708 1-249-419-11 CARBON 1.5K 5% 1/4W
R709 1-249-419-11 CARBON 1.5K 5% 1/4W
MAIN
The components identified by mark ! or dotted
line with mark ! are critical for safety.
Replace only with part number specified.

– 45 –
Ref. No. Part No. Description Remark Ref. No. Part No. Description Remark
R710 1-249-427-11 CARBON 6.8K 5% 1/4W
R711 1-249-425-11 CARBON 4.7K 5% 1/4W
R712 1-249-417-11 CARBON 1K 5% 1/4W
!R713 1-219-139-11 FUSIBLE 0.68 10% 1/4W F
R714 1-249-427-11 CARBON 6.8K 5% 1/4W
!R715 1-219-135-11 FUSIBLE 0.15 10% 1/4W F
R716 1-249-425-11 CARBON 4.7K 5% 1/4W
R717 1-249-417-11 CARBON 1K 5% 1/4W
!R718 1-219-137-11 FUSIBLE 0.33 10% 1/4W F
R719 1-249-425-11 CARBON 4.7K 5% 1/4W
R720 1-247-830-11 CARBON 910 5% 1/4W
R721 1-249-437-11 CARBON 47K 5% 1/4W
R722 1-249-437-11 CARBON 47K 5% 1/4W
R723 1-247-843-11 CARBON 3.3K 5% 1/4W
R724 1-249-429-11 CARBON 10K 5% 1/4W
R802 1-249-433-11 CARBON 22K 5% 1/4W
R803 1-249-441-11 CARBON 100K 5% 1/4W
R804 1-249-417-11 CARBON 1K 5% 1/4W
R805 1-249-425-11 CARBON 4.7K 5% 1/4W
R807 1-249-422-11 CARBON 2.7K 5% 1/4W
R808 1-249-425-11 CARBON 4.7K 5% 1/4W
R810 1-249-422-11 CARBON 2.7K 5% 1/4W
R811 1-249-422-11 CARBON 2.7K 5% 1/4W
R812 1-249-417-11 CARBON 1K 5% 1/4W
R813 1-249-419-11 CARBON 1.5K 5% 1/4W
R814 1-249-421-11 CARBON 2.2K 5% 1/4W
R815 1-247-828-11 CARBON 750 5% 1/4W
R816 1-249-413-11 CARBON 470 5% 1/4W
!R817 1-212-954-11 FUSIBLE 6.8 5% 1/2W F
R824 1-249-430-11 CARBON 12K 5% 1/4W
R825 1-249-435-11 CARBON 33K 5% 1/4W
R826 1-249-429-11 CARBON 10K 5% 1/4W
R831 1-249-429-11 CARBON 10K 5% 1/4W
R832 1-249-429-11 CARBON 10K 5% 1/4W
R833 1-249-429-11 CARBON 10K 5% 1/4W
R834 1-249-434-11 CARBON 27K 5% 1/4W
R835 1-249-434-11 CARBON 27K 5% 1/4W
R845 1-249-429-11 CARBON 10K 5% 1/4W
< CONPOSITION CIRCUIT BLOCK >
RB801 1-233-199-11 COMPOSITION CIRCUIT BLOCK 10k
< VARIABLE RESISTOR >
RV101 1-241-765-11 RES, ADJ, CARBON 22K
RV102 1-238-019-11 RES, ADJ, CARBON 47K
RV103 1-241-765-11 RES, ADJ, CARBON 22K
RV121 1-241-763-11 RES, ADJ, CARBON 4.7K
RV201 1-241-765-11 RES, ADJ, CARBON 22K
RV202 1-238-019-11 RES, ADJ, CARBON 47K
RV203 1-241-765-11 RES, ADJ, CARBON 22K
RV221 1-241-763-11 RES, ADJ, CARBON 4.7K
RV306 1-241-763-11 RES, ADJ, CARBON 4.7K
< TRANSFORMER >
T101 1-433-344-11 TRANSFORMER, BIAS OSCILLATION
T201 1-433-344-11 TRANSFORMER, BIAS OSCILLATION
T301 1-423-614-11 TRANSFORMER, BIAS OSCILLATION
< TEST PIN >
TP301 1-564-506-11 PLUG, CONNECTOR 3P (TEST TERMINAL)
TP301 1-764-326-11 PIN, CONNECTOR (PCB)(V TYPE)3P
(TEST TERMINAL)
*TP801 1-560-060-00 PIN, CONNECTOR 2P (TESY TERMINAL)
< VIBRATOR >
X801 1-577-358-21 VIBRATOR, CERAMIC (4MHz)
************************************************************
*A-2007-775-A PANEL BOARD, COMPLETE (AEP, AUS)
**********************
(Including AC POWER BOARD, HP BOARD,
and REC VOL BOARD)
*A-2007-777-A PANEL BOARD, COMPLETE (MY, SP)
**********************
(Including AC POWER BOARD, HP BOARD,
REC VOL BOARD, TRANS1 BOARD,
and TRANS 2 BOARD)
*3-386-245-11 HOLDER (FL)
< CAPACITOR >
C901 1-104-665-11 ELECT 100uF 20% 10V
< CONNECTOR >
CN901 1-778-065-11 SOCKET, CONNECTOR 39P
< DIODE >
D901 8-719-911-19 DIODE 1SS119
D902 8-719-911-19 DIODE 1SS119
D903 8-719-911-19 DIODE 1SS119
< IC >
IC901 8-749-014-66 IC NJL56H400
< TRANSISTOR >
Q901 8-729-900-89 TRANSISTOR DTC144ES
Q902 8-729-900-89 TRANSISTOR DTC144ES
Q903 8-729-900-89 TRANSISTOR DTC144ES
< RESISTOR >
R901 1-249-441-11 CARBON 100K 5% 1/4W
R905 1-247-838-00 CARBON 2K 5% 1/4W
R906 1-249-422-11 CARBON 2.7K 5% 1/4W
R907 1-247-848-11 CARBON 5.1K 5% 1/4W
R908 1-249-429-11 CARBON 10K 5% 1/4W
R909 1-247-866-11 CARBON 30K 5% 1/4W
R910 1-247-838-00 CARBON 2K 5% 1/4W
R911 1-249-422-11 CARBON 2.7K 5% 1/4W
R912 1-247-848-11 CARBON 5.1K 5% 1/4W
R923 1-247-807-31 CARBON 100 5% 1/4W
R924 1-247-807-31 CARBON 100 5% 1/4W
< SWITCH >
S901 1-572-184-11 SWITCH, KEYBOARD (p)
MAIN PANEL
The components identified by mark ! or dotted
line with mark ! are critical for safety.
Replace only with part number specified.

– 46 –
Ref. No. Part No. Description Remark Ref. No. Part No. Description Remark
S902 1-572-184-11 SWITCH, KEYBOARD (AMS 0)
S903 1-572-184-11 SWITCH, KEYBOARD (AMS ))
S904 1-572-184-11 SWITCH, KEYBOARD (r, REC)
S905 1-572-184-11 SWITCH, KEYBOARD (R, REC MUTING)
S906 1-572-184-11 SWITCH, KEYBOARD (·)
S907 1-572-184-11 SWITCH, KEYBOARD (P, PAUSE)
S908 1-572-184-11 SWITCH, KEYBOARD (MEMORY)
S909 1-572-184-11 SWITCH, KEYBOARD (RESET)
< FLUORESCENT INDICATOR TUBE >
VFD901 1-517-163-11 INDICATOR TUBE, FLUORESCENT
************************************************************
REC VOL BOARD
**************
(Included in PANEL BOARD, COMPLETE)
< RESISTOR >
R153 1-249-425-11 CARBON 4.7K 5% 1/4W
R253 1-249-425-11 CARBON 4.7K 5% 1/4W
R362 1-249-429-11 CARBON 10K 5% 1/4W
R915 1-249-429-11 CARBON 10K 5% 1/4W
R916 1-247-866-11 CARBON 30K 5% 1/4W
R917 1-247-836-11 CARBON 1.6K 5% 1/4W
R918 1-247-840-00 CARBON 2.4K 5% 1/4W
R919 1-247-843-11 CARBON 3.3K 5% 1/4W
R920 1-249-426-11 CARBON 5.6K 5% 1/4W
R921 1-247-858-11 CARBON 13K 5% 1/4W
R922 1-247-868-11 CARBON 36K 5% 1/4W
< VARIABLE RESISTOR >
RV301 1-225-220-11 RES, VAR, CARBON 50K/50K (REC LEVEL)
RV302 1-241-897-11 RES, VAR, CARBON 50K/50K (BALANCE)
RV303 1-241-896-11 RES, VAR, CARBON 10K (BIAS)
RV304 1-225-568-11 RES, VAR, CARBON 5K/5K (CAL REC LEVEL)
< SWITCH >
S910 1-572-184-11 SWITCH, KEYBOARD (MONITOR)
S911 1-572-184-11 SWITCH, KEYBOARD (AUTO CAL)
S913 1-762-647-11 SWITCH, ROTARY (DOLBY NR)
************************************************************
TRANSFORMER BOARD (AEP, AUS)
********************
(Included in MAIN BOARD, COMPLETE)
*3-923-762-11 HOLDER (TR)
< CAPACITOR >
C718 1-136-165-00 FILM 0.1uF 5% 50V
C719 1-136-165-00 FILM 0.1uF 5% 50V
< CONNECTOR >
CNP701 1-564-513-11 PLUG, CONNECTOR 10P
CNP701 1-764-333-11 PIN, CONNECTOR(PCB)(V TYPE)10P
*CNP702 1-580-230-31 PIN, CONNECTOR (PC BOARD) 2P
PANEL REC VOL TRANSFORMER TRANS 1 TRANS 2
< LINE FILTER >
!LF701 1-424-485-11 FILTER, LINE
************************************************************
TRANS 1 BOARD (MY, SP)
**************
(Included in PANEL BOARD, COMPLETE)
< CONNECTOR >
*CNP702 1-580-230-31 PIN, CONNECTOR (PC BOARD) 2P
< LINE FILTER >
!LF701 1-424-485-11 FILTER, LINE
************************************************************
TRANS 2 BOARD (MY, SP)
**************
(Included in PANEL BOARD, COMPLETE)
< CAPACITOR >
C718 1-136-165-00 FILM 0.1uF 5% 50V
C719 1-136-165-00 FILM 0.1uF 5% 50V
< CONNECTOR >
CNP701 1-564-513-11 PLUG, CONNECTOR 10P
CNP701 1-764-333-11 PIN, CONNECTOR(PCB)(V TYPE)10P
************************************************************
MISCELLANEOUS
***************
!7 1-575-651-21 CORD, POWER (AEP,MY,SP)
!7 1-696-845-11 CORD, POWER (AUS)
!11 1-692-155-11 SELECTOR, POWER VOLTAGE (MY,SP)
59 1-777-109-11 WIRE (FLAT TYPE) (39 CORE)
103 1-769-915-11 WIRE (FLAT TYPE) (9 CORE)
104 1-765-314-11 WIRE (FLAT TYPE) (7 CORE)
159 1-638-983-11 MOTOR FLEXIBLE BOARD
HE301 1-543-673-11 HEAD, MAGNETIC (ERASE)
HRP301 1-543-733-11 HEAD,MAGNETIC (RECORD/PLAYBACK)
M901 X-3363-501-2 MOTOR ASSY (REEL)
M902 X-3374-302-1 MOTOR ASSY (CAPSTAN)
!T701 1-431-668-11 TRANSFORMER, POWER (AEP)
!T701 1-431-737-11 TRANSFORMER, POWER (AUS)
!T701 1-431-738-11 TRANSFORMER, POWER (MY,SP)
************************************************************
**************
HARDWARE LIST
**************
#1 7-685-646-79 SCREW +BVTP 3X8 TYPE2 N-S
#2 7-685-885-09 SCREW +BVTT 4X16 (S)
#3 7-685-863-09 SCREW +BVTT 2.6X8 (S)
#4 7-685-134-19 SCREW +PTPWH 2.6X8 (TYPE2)
#5 7-685-862-09 SCREW +BVTT 2.6X6 (S)
#6 7-621-772-10 SCREW +B 2X4
#7 7-621-775-00 SCREW +B 2.6X3
#8 7-627-556-08 SCREW +P 2.6X2.8
************************************************************
The components identified by mark ! or dotted
line with mark ! are critical for safety.
Replace only with part number specified.

– 47 –
Ref. No. Part No. Description Remark Ref. No. Part No. Description Remark
ACCESSORIES & PACKING MATERIALS
********************************
1-776-263-11 CORD, CONNECTION (AUDIO) 1.5m
3-862-301-11 MANUAL, INSTRUCTION (ENGLISH, FRENCH,
SPANISH, PORTUGUESE)
3-862-301-21 MANUAL, INSTRUCTION (GERMAN, DUTCH,
SWEDISH, ITALIAN)(AEP)
3-862-301-31 MANUAL, INSTRUCTION (CHINESE)(MY,SP)
– 48 –
TC-KB920S
Sony Corporation
Home A&V Products Company9-922-816-11
98D0564-1
Printed in Japan © 1998. 4
Published by Quality Assurance Dept.
(Shibaura)