Effinet Systems EFL1503X 15" LCD Monitor User Manual EFL1503X STD R20

Effinet Systems, Inc. 15" LCD Monitor EFL1503X STD R20

Users Manual

            Model No. : EFL-1503X  Engineering  Specification   Page :            1 of  11  Approval No.: 15- LG-STD  Revision No.: 2.0   Issue Date: Aug. 02. 2004   Engineering  Specification    Model No.  EFL-1503X    15inches Slim Type  High resolution LCD Monitor                                                                            -  LG-Philips TFT LCD Panel -  High performance up-Scaling characteristic -  Automatic Scanning  -  Wide Viewing Angle, High Speed Response -  Enhanced Video Quality -  Embedded Power Supply  -  Test Pattern for Burn-in & Self Check - Option z DVI Input z 3M Touch   Customer’s logo display  on Booting  is available
            Model No. : EFL-1503X  Engineering  Specification   Page :            2 of  11  Approval No.: 15- LG-STD  Revision No.: 2.0   Issue Date: Aug. 02. 2004   FCC RF INTERFERENCE STATEMENT  NOTE :  This equipment has been tested and found to comply with the limits for a Class B digital device, pursuant to Part 15 of the FCC Rules. These limits are designed to provide reasonable protection against harmful interference in a residential installation. This equipment generates, uses and can radiate radio frequency energy and, if not installed and used in accordance with the instructions, may cause harmful interference to radio communications. However, there is no guarantee that interference will not occur in a particular installation.  If this equipment does cause harmful interference to radio or television reception which can be determined by turning the equipment off and on, the user is encouraged to try to correct the interference by one or more of the following measures.  - Reorient or relocate the receiving antenna. - Increase the separation between the equipment and receiver. - Connect the equipment into an outlet on a circuit different from that to which the        receiver is connected. - Consult the dealer or an experienced radio, TV technical for help. - Only shielded interface cable should be used.  Finally, any changes or modifications to the equipment by the user not expressly  approved by the grantee or manufacturer could void the users authority to operate  such equipment.
            Model No. : EFL-1503X  Engineering  Specification   Page :            3 of  11  Approval No.: 15- LG-STD  Revision No.: 2.0   Issue Date: Aug. 02. 2004   Table of Contents  FCC RF INTERFERENCE STATEMENT.................................. 2 1. GENERAL DESCRIPTION ........................................................... 4 1-1. Overview ........................................................................................................................................4 1-2. Quick reference table of Characteristics ........................................................................................4 2. USER CONTROL & OSD.............................................................. 6 2-1. Key Control Board .........................................................................................................................6 2-2. OSD Menu Screen..........................................................................................................................7 2-3. OSD Control Functions..................................................................................................................8 3. CONNECTOR PIN DESCRIPTIONS ............................................ 9 3-1. 15 Pin D-SUB Connector...............................................................................................................9 3-2. Serial(RS-232C) Connector ...........................................................................................................9 4. STANDARD DISPLAY MODE................................................... 10 5. MECHANICAL STRUCTURE .................................................... 11
            Model No. : EFL-1503X  Engineering  Specification   Page :            4 of  11  Approval No.: 15- LG-STD  Revision No.: 2.0   Issue Date: Aug. 02. 2004  1. GENERAL DESCRIPTION 1-1. Overview Effinet open frame LCD Monitor EFL-1503X is a high performance TFT LCD monitor providing high quality image from the analog RGB input.  This monitor supports wide range signal input from VGA to XGA resolution at  vertical refresh  rate of  60 to 75Hz. It includes integrated signal processing unit, named LSP(LCD Signal Processor), which had all electronic function for user application.  It is designed for industrial use with Auto power on, up scaling performance adequate for low-resolution application and enhanced design margin for reliability It also gives versatile optional DVI input. 1-2. Quick reference table of Characteristics Size  15”  Diagonal Active Display Area  304.1 x 228.1 mm Type No.  LG-Philips, LM150X08 Number of Pixels  1024 (H) x 768 (V)  Pixel Arrangement  RGB Vertical Stripe Pixel Pitch   0.297 mm x 0.297mm  Color Depth  16.7M True Color Surface Treatments  Hard Coating (3H), Haze 44%  Viewing Angle (CR≥10)  Horizontal :   ΘL   65 degrees   ΘR   65 degrees Vertical :  Φ H    45 degrees   Φ L    55 degrees Contrast Ratio  Typ. 400 : 1 Response Time  Rise time(tr) : 5ms(Typ.)  Fall time(tf) : 11ms(Typ.) Average Brightness  Typ.  250 cd/ m2  Frame Rate  Typ. 60Hz,  Max. 75Hz Panel Dimension(WHD) 326.5 x 253.5 x 11.2  Panel    CCFT  2 Lamps       Scanning  Horizontal  30 ~ 61KHz
            Model No. : EFL-1503X  Engineering  Specification   Page :            5 of  11  Approval No.: 15- LG-STD  Revision No.: 2.0   Issue Date: Aug. 02. 2004  Frequency  Vertical  50 ~ 75Hz Prime  1024 x 768 @ 60 Hz Resolution Standard  720x400 @70 Hz,                                                      640x480 @60/67/72/75 Hz 800x600 @56/60/72/75 Hz  1024x768 @60/70/75 Hz Input Signal  RGB (Video / Sync)  RGB Analog (0.7Vp-p, 75ohms) / H/V Separate(TTL) Type  Separate H/V sync, Composite, SOG(Sync-On-Green) Level  TTL level  (V high ≥ 2.0V, V low ≤ 0.8V) Sync Polarity  Positive or Negative Input Signal Interface RGB  15pin D-Sub AC Input  AC 90 ~ 265V @60/50Hz, Universal Power  max. power dissipation  26Watts Power DC Adapter ratings  12V 4.16A Regulation(Safety , Ergonomics, EMC)  CUL(UL+CSA), CE, FCC Operating  Temperature : 10 to 50ºC / Humidity : 8 to 80%  Environmental Conditions  Storage  Temperature : -20 to 60ºC / Humidity : 5 to 90%  White Color Temperature  9300°K : CIE  x=0.281±0.015 / y=0.311±0.015 6500°K : CIE  x=0.313±0.015 / y=0.329±0.015 Touch Panel  3M Touch / 13-5811-121MA Controller  EXII-1060SC(Serial) or EXII-5050UC(USB) Touch Screen (Optional) Controller Interface  Serial or USB  Interface Demonstrated MTBF  More than 20,000 hours
            Model No. : EFL-1503X  Engineering  Specification   Page :            6 of  11  Approval No.: 15- LG-STD  Revision No.: 2.0   Issue Date: Aug. 02. 2004  2. USER CONTROL & OSD 2-1. Key Control Board                 SWITCH NAME  SWITCH FUNCTIONS MENU   Activate / Deactivate the OSD Menu Window.   Move cursor to Main Menu from sub-menu. SEL (AUTO)  Move cursor in the Sub-Menu(Brightness ↔ Mode)  Auto Tracking (Pressing “SEL” key) UP(+)   Move cursor at Main Menu(Picture / Utility)  Increase the value of the selected function DOWN(-)   Move cursor at Main Menu(Picture / Utility)  Decrease the value of the selected function.   Cable ConnectSEL (AUTO)UP (+)DOWN(-) MENU Status LED
            Model No. : EFL-1503X  Engineering  Specification   Page :            7 of  11  Approval No.: 15- LG-STD  Revision No.: 2.0   Issue Date: Aug. 02. 2004  2-2. OSD Menu Screen                                 UTILITY PICTURE  Brightness - 100 + contrast  - 80  + sharpness 4h position - 50  + v position - 50  + phase  - 18 + frequency - 105 + mode  normal fill to aspect ratio 1   2   3   4   5 UTILITY PICTURE  color temp 6500  7300  9300 user  language english   german factory  press <up> to reset   power on time  10 information  800 x 600 / 60Hz
            Model No. : EFL-1503X  Engineering  Specification   Page :            8 of  11  Approval No.: 15- LG-STD  Revision No.: 2.0   Issue Date: Aug. 02. 2004  2-3. OSD Control Functions CONTROL FUNCTION Auto Tracking  Automatic screen adjustment process. If there is any noise on the screen or screen shift, just press “ SEL” button.  Since this monitor is equipped with “Auto Tracking” function, it will automatically configure the monitor setting. Brightness  Adjust the brightness level of the Display Contrast  Adjust the contrast level of the Display. Sharpness  Adjuust the sharpness level of the Display H position  Adjust the position of the display horizontally. V position  Adjust the position of the display vertically. Phase  Adjust the clock phase of the display. Frequency  Adjust the clock frequency of the display Mode  Select the video aspect ratio.  It depends on the input video format. COLOR TEMP  Choose different preset color temperatures (6500/7300/9300) or set your own customized color parameters. Red /Green / Blue GAIN Adjust the Red/ Green / Blue Gain Language  Select the OSD language Factory recall  Recall the factory setting value. Power On time  Displayed the total power on time. Information  Displayed the resolution of input signal   Self Test Pattern  To enter auto burn-in mode, press “Up” key first and then “Sel” key simultaneously for 3 seconds. On this mode, Red – Green – Blue – White – Black test pattern will be displayed.  Press Menu key for returning normal display mode.
            Model No. : EFL-1503X  Engineering  Specification   Page :            9 of  11  Approval No.: 15- LG-STD  Revision No.: 2.0   Issue Date: Aug. 02. 2004  3. CONNECTOR PIN DESCRIPTIONS 3-1. 15 Pin D-SUB Connector Shape and pin number  Pin  Description  Pin  Description 1 Red  9 No Connection 2  Green  10  Ground - Sync 3 Blue  11 No Connection 4 Ground  12 No Connection 5  Ground   13  Horizontal Sync 6  Ground - Red  14  Vertical Sync  7  Ground - Green  15  No Connection  8  Ground - Blue      3-2. Serial(RS-232C) Connector Shape and pin number  Pin  Description  Pin  Description 1 DCD  6 DSR 2 RXD  7 RTS 3 TXD  8 CTS 4 DTR  9 N/A  5 Ground       1 2 3 4 56  7  8  9  10 11  12  13  14  15 6 7 8 9 12 34 5
            Model No. : EFL-1503X  Engineering  Specification   Page :            10 of  11  Approval No.: 15- LG-STD  Revision No.: 2.0   Issue Date: Aug. 02. 2004  4. STANDARD DISPLAY MODE  Horizontal Vertical No. Mode  Resolution Frequency Polarity Frequency Polarity Pixel clock 1  720 x 400  31.47 KHz N  70.0 Hz  P  28.322 MHz2  640 x 480  31.47 KHz N  60.0 Hz  N  25.175 MHz3  640 x 480  35.00 KHz N  66.7 Hz  N  30.240 MHz4  640 x 480  37.86 KHz N  72.8 Hz  N  31.500 MHz5  VGA 640 x 480  37.50 KHZ N  75.0 Hz  N  31.500 MHz6  800 X 600  35.16 KHz N / P  56.3 Hz  N / P  36.000 MHz7  800 X 600  37.88 KHz P  60.3 Hz  P  40.000 MHz8  800 X 600  48.08 KHz P  72.2 Hz  P  50.000 MHz9  SVGA 800 X 600  46.87 KHz P  75.0 Hz  P  49.500 MHz10  1024 X 768  48.36 KHz N  60.0 Hz  N  65.000 MHz11  1024 X 768  56.49 KHz N  70.1 Hz  N  75.000 MHz12  XGA 1024 X 768  60.02 KHz P  75.0 Hz  P  78.750 MHz
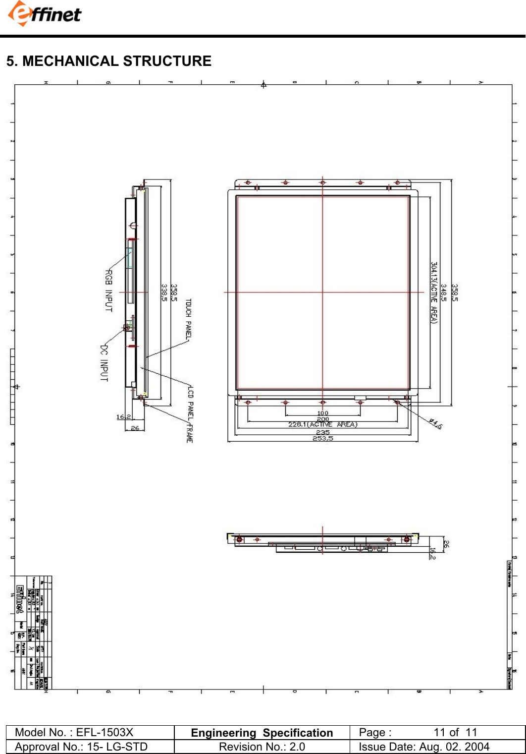
            Model No. : EFL-1503X  Engineering  Specification   Page :            11 of  11  Approval No.: 15- LG-STD  Revision No.: 2.0   Issue Date: Aug. 02. 2004  5. MECHANICAL STRUCTURE

Navigation menu