Effinet Systems EFL2602W LCD Monitor for Gaming User Manual

Effinet Systems, Inc. LCD Monitor for Gaming

User Manual

          Model No. : EFL-2602W  Engineering  Specification   Page :            1 of  12  Approval No.: 26-SS -STD  Revision No.: 2.3   Issue Date: May. 17. 2005    Engineering  Specification    Model No.  EFL-2602W    26inches wide LCD Monitor                                                                             -  Samsung TFT LCD Panel  -  High performance up-Scaling characteristic -  Automatic Scanning  -  Wide Viewing Angle, High Speed Response -  Enhanced Video Quality -  Power Supply with enhanced Design Margin -  Test Pattern for Burn-in & Self Check -  Option  3 Input (RGB, AV, SVHS)   DVI Input  Stereo Audio Amplifier   Customer’s logo display  on Booting  is available
          Model No. : EFL-2602W  Engineering  Specification   Page :            2 of  12  Approval No.: 26-SS -STD  Revision No.: 2.3   Issue Date: May. 17. 2005     Table of Contents  1. GENERAL DESCRIPTION.................................................... 3 1-1. Overview ...................................................................................................................... 3 1-2. FCC RF INTERFERENCE STATEMENT................................................................ 3 1-3. Quick reference table of Characteristics ........................................................................ 4 2. USER CONTROL & OSD...................................................... 6 2-1. Key Control Board..........................................................................................................6 2-2. OSD Menu Screen ......................................................................................................... 7 2-3. OSD Control Functions .................................................................................................. 8 3. CONNECTOR PIN DESCRIPTIONS .................................... 9 3-1. 15 Pin D-SUB Connector ............................................................................................... 9 3-2. Audio Connector ............................................................................................................9 4. STANDARD DISPLAY MODE............................................. 10 5. MECHANICAL STRUCTURE.............................................. 11
          Model No. : EFL-2602W  Engineering  Specification   Page :            3 of  12  Approval No.: 26-SS -STD  Revision No.: 2.3   Issue Date: May. 17. 2005   1. GENERAL DESCRIPTION 1-1. Overview Effinet open frame LCD Monitor EFL-2602W is a high performance TFT LCD monitor providing high quality image from the analog RGB / DVI / CVBS / S-VHS input.  This monitor supports wide range signal input from VGA to WXGA resolution at vertical refresh rate   of 60Hz. It includes integrated signal processing unit, named LSP (LCD Signal Processor), which had all electronic function for user application.  It is designed for industrial use with up scaling performance adequate for low-resolution application and enhanced design margin for reliability. It also gives versatile optional features like, DVI input, Video input, Stereo Audio amplifier, Boot up custom logo and custom designed frame.     1-2. FCC RF INTERFERENCE STATEMENT  NOTE :  This equipment has been tested and found to comply with the limits for a Class B digital device, pursuant to Part 15 of the FCC Rules. These limits are designed to provide reasonable protection against harmful interference in a residential installation.  This equipment generates, uses and can radiate radio frequency energy and, if not installed and used in accordance with the instructions, may cause harmful interference to radio communications. However, there is no guarantee that interference will not occur in a particular installation.  If this equipment does cause harmful interference to radio or television reception which can be determined by turning the equipment off and on, the user is encouraged to try to correct the interference by one or more of the following measures.                  - Reorient or relocate the receiving antenna.                 - Increase the separation between the equipment and receiver. - Connect the equipment into an outlet on a circuit different from that to which the receiver is  connected. - Consult the dealer or an experienced radio, TV technical for help. - Only shielded interface cable should be used.  Finally, any changes or modifications to the equipment by the user not expressly approved by the grantee or manufacturer could void the users authority to operate such equipment.
          Model No. : EFL-2602W  Engineering  Specification   Page :            4 of  12  Approval No.: 26-SS -STD  Revision No.: 2.3   Issue Date: May. 17. 2005   1-3. Quick reference table of Characteristics Size  26”  Diagonal Active Display Area   575.77 x 323.71 mm Type No.  Samsung, LTA260W2 Number of Pixels  1366 (H) x 768 (V)  Pixel Arrangement  RGB Vertical Stripe Pixel Pitch   0.511 mm x 0.511 mm  Color Depth  16.7M True Color Surface Treatments  Hard Coating (3H), Haze 44%  Viewing Angle (CR≥10)  Horizontal :   θL   85 degrees   θR   85 degrees Vertical :  Φ H    85 degrees   Φ L    85 degrees Contrast Ratio  Typ. 1000 : 1 Response Time  Rise time(tr) : 10ms(Typ.)  Fall time(tf) : 6ms(Typ.) Average Brightness  Typ.  500 cd/ m2  Frame Rate  Typ. 60Hz Panel Dimension  (WHD) 626.0 x 373.0 x 51mm Panel CCFT  16 Lamps Horizontal  30 ~ 60KHz Scanning Frequency  Vertical  50 ~ 60Hz Prime  1280 x 768 @ 60 Hz Resolution Standard  720x400 @70 Hz 640x480 @60 Hz 800x600 @60 Hz 1024x768 @60 Hz 1280x768 @60 Hz                                              RGB (Video / Sync)  RGB Analog (0.7Vp-p, 75ohms) / H/V Separate (TTL) Input Signal CVBS  Composite Video 1Vp-p, 75ohms Type  Separate H/V sync, Composite, SOG (Sync-On-Green) Level  TTL level  (V high ≥ 2.0V, V low ≤ 0.8V) Sync Polarity  Positive or Negative RGB  15pin D-Sub Input Signal Interface  Video  RCA Jack - 1 ea.
          Model No. : EFL-2602W  Engineering  Specification   Page :            5 of  12  Approval No.: 26-SS -STD  Revision No.: 2.3   Issue Date: May. 17. 2005    S-Video  SVHS Jack - 1 ea. Compatible Color System  NTSC / PAL / SECAM  AC Input  AC 90 ~ 265V @60/50Hz, Universal Power  Power Max. Power dissipation  110 Watts Regulation (Safety, Ergonomics, EMC)  CUL (UL+CSA), CE, FCC Operating  Temperature: 0 to 50ºC / Humidity: 8 to 80%  Environmental Conditions  Storage  Temperature: -20 to 60ºC / Humidity: 5 to 90%  White Color Temperature  12000°K : CIE  x=0.272±0.015 / y=0.277±0.015 Demonstrated MTBF  More than 20,000 hours  Mono / Stereo  Stereo Input Audio Jack  3.5mm mini jack Audio Output  Nominal 1.3 Wrms at 8 ohms * No external power for audio operation is needed Speaker Connector  Molex 5240: 2p(Left), 3p(Right);  * Speaker side: Molex 5102 S/N Ratio  Over than 80dB Audio (Optional) THD  Under 10% (THD: Total Harmonic Distortion) Audio (Optional) Frequency Response
          Model No. : EFL-2602W  Engineering  Specification   Page :            6 of  12  Approval No.: 26-SS -STD  Revision No.: 2.3   Issue Date: May. 17. 2005   2. USER CONTROL & OSD 2-1. Key Control Board                SWITCH NAME  SWITCH FUNCTIONS MENU   Activate / Deactivate the OSD Menu Window.   Move cursor to Main Menu from sub-menu. SEL (AUTO)  Move cursor in the Sub-Menu(Brightness ↔ Mode)  Auto Tracking (Pressing “SEL” key) UP(+)   Move cursor at Main Menu(Picture / Utility)  Increase the value of the selected function DOWN(-)   Move cursor at Main Menu(Picture / Utility)  Decrease the value of the selected function. INPUT SELECT   Select the input signal( RGB → Video → S-Video → RGB…)  When power off / on, the last memoried input mode will be displayed.  Apply for 3 input model. Cable ConnectSEL (AUTO)UP (+) DOWN(-) MENU  StatusLEDINPUT SELECT * 3 input option only
          Model No. : EFL-2602W  Engineering  Specification   Page :            7 of  12  Approval No.: 26-SS -STD  Revision No.: 2.3   Issue Date: May. 17. 2005   2-2. OSD Menu Screen                                 UTILITY PICTURE  brightness -100 + contrast  -80  + sharpness 4h position -50  + v position -50  + phase  -18 + frequency -105 + mode  normal fill to aspect ratio 1   2   3   4   5 UTILITY PICTURE  color temp 6500  7300  9300 user  language english   german factory  press <up> to reset   power on time 10 hr information 800 x 600 / 60Hz UTILITY PICTURE  brightness -100 + contrast  -80  + Video format   press <up> to select color  -50  + sharpness 4     1   2   3    4    5 VIDEO / S-VIDEO Input
          Model No. : EFL-2602W  Engineering  Specification   Page :            8 of  12  Approval No.: 26-SS -STD  Revision No.: 2.3   Issue Date: May. 17. 2005   2-3. OSD Control Functions CONTROL FUNCTION Auto Tracking  Automatic screen adjustment process. If there is any noise on the screen or screen shift, just press “ SEL” button.  Since this monitor is equipped with “Auto Tracking” function, it will automatically configure the monitor setting. Brightness  Adjust the brightness level of the Display Contrast  Adjust the contrast level of the Display. Sharpness  Adjuust the sharpness level of the Display H position  Adjust the position of the display horizontally. V position  Adjust the position of the display vertically. Phase  Adjust the clock phase of the display. Frequency  Adjust the clock frequency of the display Mode  Select the video aspect ratio.  It depends on the input video format. COLOR TEMP  Choose different preset color temperatures (12000/7300/9300) or set your own customized color parameters. Red /Green / Blue GAIN Adjust the Red/ Green / Blue Gain Language  Select the OSD language Factory recall  Recall the factory setting value. Power On time  Displayed the total power on time. Information  Displayed the resolution of input signal   Color  Set the color(saturation) level Tint(Hue)  Set the hue level. Only for the “NTSC” system Video Format  Select the corresponding input video system. “Auto” setting means monitor automatically recognize the input video system. – Default setting AUTO, NTSC M, NTSC 4.43, PAL M, PAL BGDHI, PAL N SECAM Self Test Pattern  To enter auto burn-in mode, press “Up” key first and then “Sel” key simultaneously for 3 seconds. On this mode, Red – Green – Blue – White – Black test pattern will be displayed.  Press Menu key for returning normal display mode. * Brightness and Contrast value can be set individually for each input mode. * Color Temperature can be set individually for RGB and Video(S-Video).
          Model No. : EFL-2602W  Engineering  Specification   Page :            9 of  12  Approval No.: 26-SS -STD  Revision No.: 2.3   Issue Date: May. 17. 2005   3. CONNECTOR PIN DESCRIPTIONS 3-1. 15 Pin D-SUB Connector Shape and pin number  Pin  Description  Pin  Description 1 Red  9 No Connection 2  Green  10  Ground - Sync 3 Blue  11 No Connection 4 Ground  12 No Connection 5  Ground   13  Horizontal Sync 6  Ground - Red  14  Vertical Sync  7  Ground - Green  15  No Connection  8  Ground - Blue       3-2. Audio Connector                      1  2  3  4  5 6  7  8  9  10 11  12  13  14  15 Speaker Connector (2M)- Optional  Stereo Audio Input (3.5mm mini Jack) Speaker Out Connector - Molex : 5240  - 2p(Left), 3p(Right)
          Model No. : EFL-2602W  Engineering  Specification   Page :            10 of  12  Approval No.: 26-SS -STD  Revision No.: 2.3   Issue Date: May. 17. 2005   4. STANDARD DISPLAY MODE  Horizontal Vertical No. Mode  Resolution Frequency Polarity Frequency Polarity Pixel clock 1  720 x 400  31.47 KHz N  70.0 Hz  P  28.322 MHz2 VGA 640 x 480  31.47 KHz N  60.0 Hz  N  25.175 MHz3  800 X 600  35.16 KHz N / P  56.3 Hz  N / P  36.000 MHz4 SVGA 800 X 600  37.88 KHz P  60.3 Hz  P  40.000 MHz5  XGA  1024 X 768  48.36 KHz N  60.0 Hz  N  65.000 MHz6  WXGA  1280 X 768  47.7 KHz  N  60.0 Hz  P  80.152 MHz
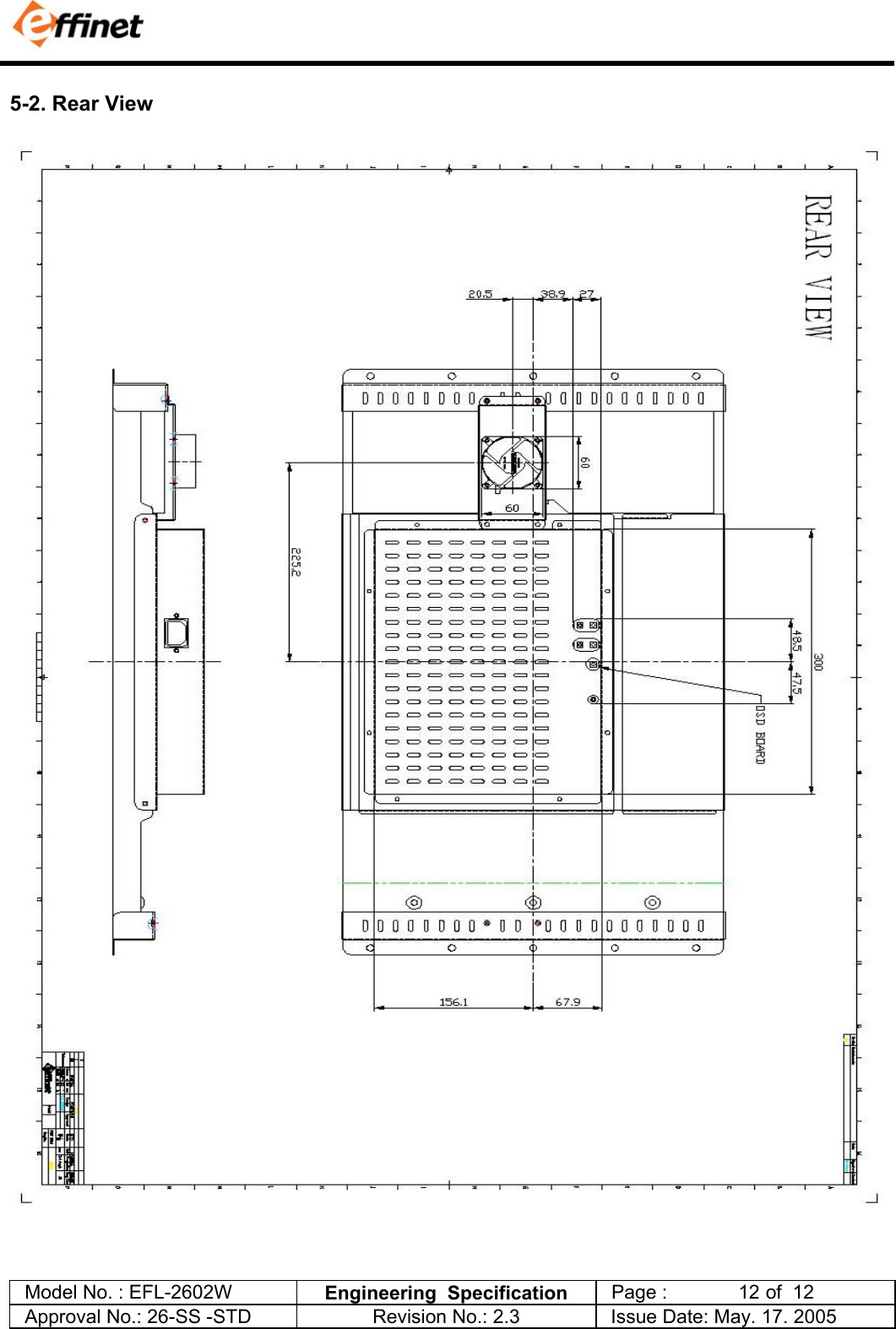
          Model No. : EFL-2602W  Engineering  Specification   Page :            11 of  12  Approval No.: 26-SS -STD  Revision No.: 2.3   Issue Date: May. 17. 2005   5. MECHANICAL STRUCTURE 5.1 Front View
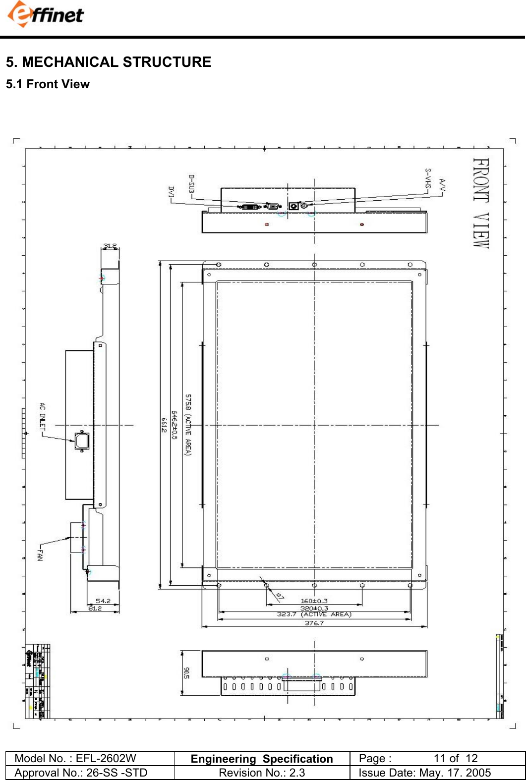
          Model No. : EFL-2602W  Engineering  Specification   Page :            12 of  12  Approval No.: 26-SS -STD  Revision No.: 2.3   Issue Date: May. 17. 2005   5-2. Rear View

Navigation menu