Emerson Fisher Baumann 87000 Data Sheet
2015-03-30
: Emerson Emerson-Fisher-Baumann-87000-Data-Sheet-680832 emerson-fisher-baumann-87000-data-sheet-680832 emerson pdf
Open the PDF directly: View PDF
.
Page Count: 8

www.Fisher.com
Baumann™ 87000 Flexsleev Sanitary
Control Valve
The Baumann 87000 control valve is excellent for
throttling high purity liquid or gaseous media
commonly found in the food and beverage,
pharmaceutical, film, and biotechnology industries.
The valve is suitable for repeated steam sterilization
cycles with 2.4 bar (35 psi) maximum steam pressures.
Assembly of valve body sections using only two bolts
allows for ease of cleaning and inspection. A lower
telltale port is provided. The valve will drain either
horizontally or vertically with the actuator in the
horizontal position. In contrast to diaphragm valves,
the operation is not affected by vacuum.
Features
Unique flow pattern allows for self-draining in both
vertical and horizontal pipelines
Streamlined low shear flow contours make it ideal
for sensitive biomedia
Electropolished, wetted interior finishes to ≤30 Ra
microinch (≤20 Ramicroinch optional)
Flow area between tubing O.D. and valve body
seating is suitable for fine particulate media
Full and reduced port orifices available to optimize
sizing
Foolproof bolting method assists with ease of valve
body disassembly and reassembly
Epoxy powder-coated actuator with stainless steel
yoke and fasteners for maximum corrosion
resistance
FisherrFIELDVUE™ digital valve controller available
for remote calibration and diagnostics in facilities
utilizing the PlantWeb™ architecture
W9823
Baumann 87000 Valve Shown in Recommended
Mounting Position for Self-Draining
W9824
Baumann 87000 Valve with
FIELDVUE DVC2000 Digital Valve Controller
87000 Valve
D103345X012
Product Bulletin
52.1:87FS
November 2011

87000 Valve
D103345X012
Product Bulletin
52.1:87FS
November 2011
2
Figure 1. Baumann 87000 Flexsleev Valve Assembly
E1295
Table 1. Materials of Construction
Key
Number Description Material
1Valve Body ASTM SA479 (S31600/S31603)
2Bonnet, Upper ASTM SA479 (S31600/S31603)
3Bonnet, Lower ASTM SA479 (S31600/S31603)
4Shaft S21800 SST
5Ceramic Ball Grade 25 Ceramic
6Sleeve Bushing S30300 Stainless Steel
7Sleeve Silicone, fluorocarbon (FKM), EPDM,
Perfluoroelastomer (FFKM)
8Anvil S21800
9O-Ring Silicone, fluorocarbon (FKM), EPDM,
Perfluoroelastomer (FFKM)
10 Spring Stem Passivated Stainless Steel
11 Retaining Ring S15700
12 Hex Head Cap Screw 18-8 Stainless Steel
13 Spring Seat PA Nylon 6/6
14 Protecting Cap S30300 Stainless Steel
15 Alignment Pin 18-8 Stainless Steel
16 Drive Nut, (Yoke) S31600 SST (ASTM A194 Grade 8M)
27 Jam Nut (locknut) B8 Stainless Steel
50 O-Ring Fluorocarbon (FKM)
58 Travel Indicator ASTM A240 S30400

87000 Valve
D103345X012
Product Bulletin
52.1:87FS
November 2011
3
Mode of Operation
As shown in figure 2, a flexible sleeve is inserted
through the length of the valve and sealed between
the valve body and bonnet by O-rings. The
actuator-motivated valve stem has a tapered groove
that pushes a ceramic ball against the inside of the
sleeve and, thereby, the sleeve against a valve seat.
Figure 2. Mode of Operation
OPEN CLOSED
SHOWN 90 DEGREES
OUT OF POSITION FOR
CLARITY
FLOW
E1296
Table 2. Technical Specifications
Valve Body Rating 18.9 bar CWP (275 psi CWP)
Nominal Size 17.7 mm (NPS 1/2)
Connections 17.7 mm (0.5 inch), Tri-Clover / Tri-Clamp (Welded Ends Optional)
Seat Leakage Class VI
Bonnet Bolted
Characteristic Modified Linear
Internal Valve Body Finish (Wetted
Interior)
< 30 Ra Microinch / 0.76 Ra Micron (standard)
< 20 Ra Microinch / 0.51 Ra Micron (optional - or as required)
Maximum Operating Temperature Refer to table 3
Available Certificates(1) USP CL VI, 21CFR 177(1)
1. Consult your Emerson Process Management sales office for applicable materials.

87000 Valve
D103345X012
Product Bulletin
52.1:87FS
November 2011
4
Table 3. Sleeve Material Temperature Chart
SLEEVE MATERIAL(1) TEMPERATURE RANGE(3) SEAT
LEAKAGE
FLOW
DIRECTION
MAXIMUM SHUTOFF
PRESSURE
psi bar
Silicone -62 to 232_C (-80 to 450_F)
VI To Open 150 10.35
Silicone (steam) -17 to 135_C (0 to 275_F)
Fluorocarbon (general service) -17 to 204_C (-0 to 400_F)
Fluorocarbon (water or steam service) -17 to 37_C (-0 to 100_F)
EPDM -40 to 148_C (-40 to 300_F)
Perfluoroelastomer(2) -17 to 248_C (-0 to 480_F)
1. Medical grade in compliance with FDA 21CFR 177.
2. Please consult your Emerson Process Management sales office before ordering perfluoroelastomer.
3. Sleeve material temperature limitations may reduce allowable shutoff pressures.
Table 4. Actuator Specifications
Type 16 Multi-Spring Diaphragm (Single Acting)
Nominal Size 103 cm2/16in
2
Air Failure Open or Closed (Field Reversible)
Bench Spring Range 0.3- 0.9 bar (4-13 psi), fail open / 0.3-1.0 bar (4-15 psi) fail closed
Travel 7.93 mm / 0.3125 inch
Ambient Temperature Range -29 to 71_C (-20 to 160_F)
Maximum Air Pressure 2.4 barg / 35 psig
Diaphragm Material Neoprene, Polyester
Spring Cases Steel, Powder Epoxy-Coated Appliance White per
FDA 21 CFR 175.300 with Stainless Steel Fasteners
Yoke CF8M stainless steel
Weight 2.1 kg (4.6 lbs)

87000 Valve
D103345X012
Product Bulletin
52.1:87FS
November 2011
5
Table 5. Flow Coefficients (ASME/ISA/IEC) and ISA Sizing Factors
PLUG
TRAVEL
mm
(INCH)
ORIFICE
DIAMETER
mm
(INCH)
CvAT VALVE OPENING - PERCENT OF PLUG TRAVEL
FLFdXTKC
510 20 30 40 50 60 70 80 90 100
7.9
(0.3125)
3.18
(0.125)
0.002
50.005 0.012
50.033 0.065 0.125 0.18 0.19 0.215 0.22 0.25 0.87 0.56 0.63 0.66
9.40
(0.370)
0.003
00.020 0.12 0.24 0.40 0.532 0.69 0.85 1.0 1.15 1.25 0.87 0.40 0.63 0.66
Table 6. Weights
VALVE ACTUATOR POSITIONER(1)
Size Travel Weight Baumann 16 FIELDVUE DVC2000 FIELDVUE DVC6010
DN NPS mm Inch kg lb kg lb kg lb kg lb
15 1/2 7.9 0.3125 3.6 84.5 10 1.5 3.3 3.5 7.7
1. Not available with Fisher 3660/3661 positioner.
Figure 3. Dimensions
E1299
87000 WITH BAUMANN 16 ACTUATOR AND FIELDVUE DVC2000 SHOWN IN
RECOMMENDED MOUNTING POSITION FOR SELF-DRAINING (TOP VIEW SHOWN AT RIGHT)
166
(6.52)
127 (5.0) mm
(inch)

87000 Valve
D103345X012
Product Bulletin
52.1:87FS
November 2011
6
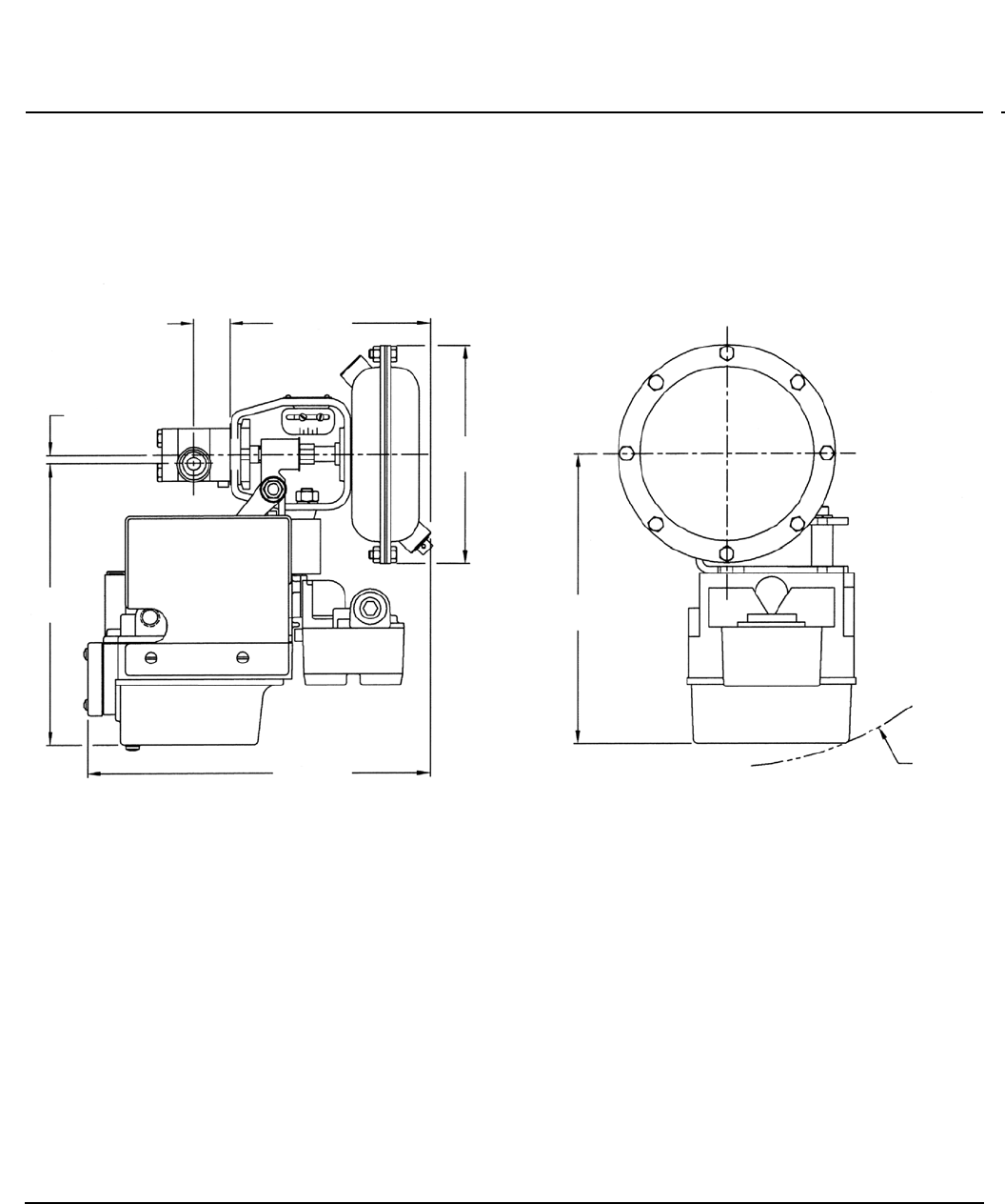
Figure 4. Dimensions
E1297
159
(46.25)
87000 WITH BAUMANN 16 ACTUATOR SHOWN IN RECOMMENDED
MOUNTING POSITION FOR SELF-DRAINING
38
(1.5)
RECOMMENDED MOUNTING FOR SELF-DRAINING (ACTUATOR SHOULD BE MOUNTED HORIZONTALLY)
NOTE: ACTUATOR REQUIRES 115mm (4.5 INCHES) VERTICAL CLEARANCE.
21
(0.83) 9
(0.34)
70
(2.75)
SELF-DRAIN
ANGLE
2 DEGREES
26
(1.03)
146
(5.8)
27
(1.05)
21
(0.83)
9
(0.34)
FLOW
FLOW
mm
(inch)

87000 Valve
D103345X012
Product Bulletin
52.1:87FS
November 2011
7
Figure 5. Dimensions
E1298
159
(46.25)
87000 WITH BAUMANN 16 ACTUATOR AND FIELDVUE DVC6000 SHOWN IN
RECOMMENDED MOUNTING POSITION FOR SELF-DRAINING
(TOP VIEW SHOWN AT RIGHT)
211
(8.3)
RECOMMENDED MOUNTING FOR SELF-DRAINING (ACTUATOR SHOULD BE MOUNTED HORIZONTALLY)
NOTE: ACTUATOR REQUIRES 115mm (4.5 INCHES) VERTICAL CLEARANCE.
250
(9.8)
26
(1.03)
146
(5.8)
R228
(R9.0)
6
(40.25)
205
(48.06)
mm
(inch)

87000 Valve
D103345X012
Product Bulletin
52.1:87FS
November 2011
8
Table 7. Model Numbering System
16 87
ACTUATOR 87000 MAX CvEND CONNECTIONS SLEEVE MATERIAL
CvKv
16 00 0.25 0.22 1Tri-Clamp SSilicone
01 1.25 1.08 3Special EEPDM
VFluorocarbon
KPerfluoroelastomer(1)
1. Consult your Emerson Process Management sales office.
Emerson Process Management
Marshalltown, Iowa 50158 USA
Sorocaba, 18087 Brazil
Chatham, Kent ME4 4QZ UK
Dubai, United Arab Emirates
Singapore 128461 Singapore
www.Fisher.com
The contents of this publication are presented for informational purposes only, and while every effort has been made to ensure their accuracy, they arenot
to be construed as warranties or guarantees, express or implied, regarding the products or services described herein or their use or applicability. All sales are
governed by our terms and conditions, which are available upon request. We reserve the right to modify or improve the designs or specifications of such
products at any time without notice.
EFisher Controls International LLC 2009, 2011; All Rights Reserved
Baumann, Fisher, FIELDVUE, and PlantWeb are marks owned by one of the companies in the Emerson Process Management business division of Emerson
Electric Co. Emerson Process Management, Emerson, and the Emerson logo are trademarks and service marks of Emerson Electric Co. All other marks are
the property of their respective owners.
Neither Emerson, Emerson Process Management, nor any of their affiliated entities assumes responsibility for the selection, use or maintenance
of any product. Responsibility for proper selection, use, and maintenance of any product remains solely with the purchaser and end user.