Emerson Type 92S Self Powered Control Valve Instruction Manual
2015-03-30
: Emerson Emerson-Type-92S-Self-Powered-Control-Valve-Instruction-Manual-681432 emerson-type-92s-self-powered-control-valve-instruction-manual-681432 emerson pdf
Open the PDF directly: View PDF
.
Page Count: 24

Type 92S
D100637X012
Instruction Manual
Form 5234
October 2013
www.fisherregulators.com
Type 92S Pilot-Operated Steam Regulators
!
WARNING
Failure to follow these instructions or
to properly install and maintain this
equipment could result in an explosion,
causing property damage and personal
injury or death.
Fisher® regulators must be installed,
operated, and maintained in accordance
with federal, state, and local codes, rules
and regulations, and Emerson Process
Management Regulator Technologies, Inc.
(Regulator Technologies) instructions.
If the regulator vents gas or a leak
develops in the system, service to the unit
may be required. Failure to correct trouble
could result in a hazardous condition.
Installation, operation, and maintenance
personnel may result in improper
adjustment and unsafe operation. Either
condition may result in equipment
personnel when installing, operating, and
maintaining the Type 92S Pilot-Operated
Steam regulator.
Introduction
Scope of the Manual
This manual provides instruction for installation,
adjustment, maintenance, and parts ordering
information for the Type 92S Pilot-Operated Steam
Regulator complete with Type 6492L, 6492H, or
6492HT pilot. The Type 92S is also available with
a Type 6492HM or 6492HTM safety override pilot.
Accessories used with this valve, including any
pressure-loading device for a Type 6492L, 6492H,
6492HT, 6492HM, or 6492HTM pilot with tapped
spring case, are covered in other manuals.
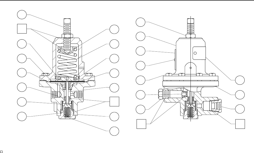
1 NPT STEEL MAIN VALVE WITH
TYPE 6492H OR 6492HT PILOT
WITH TYPE 6492L PILOT
W4088-1
W4086-3
Figure 1. Type 92S Pilot-Operated Steam Regulator

Type 92S
2
10.3 bar for Type 6492H pilot or 25 psig / 1.7 bar for
Type 6492L pilot and 250 psig for Type 6492HT
Pressure Registration
External through downstream control line
(1)
406°F / 208°C
500°F / 260°C
High Temperature Optional Steel and
650°F / 343°C
See Table 1
1/4 NPT in main valve cylinder spacer
(2) 1/4 NPT in pilot body
1/8-inch / 3.2 mm drilled hole
1/4 NPT tapping for pressure loading or
on-off service
Approximate Weights
STYLE
APPROXIMATE
WEIGHTS
NPS Pound kg
1
1-1/2
25
40
NPT or Flanged
NPT or Flanged
32
44
15
20
2 50 NPT
Flanged
55
67
25
30
2-1/2
3
4
65
80
100
Flanged
Flanged
Flanged
90
115
165
41
52
75
6 x 4(2) 150 x 100(2) Flanged CL300 335 152
CL600 435 197
Steel or
1, 1-1/2, and 2 NPT NPT
NPS 1, 1-1/2, 2, 2-1/2, 3,
and 4 / DN 25, 40, 50, 65,
80, and 100
CL125 FF or
CL250 RF
CL150 RF, CL300 RF,
CL600 RF, or
PN 10/25/40
NPS 6 x 4 /
DN 150 x 100(2) Not Available
CL300 RF,
CL600 RF, or
PN 16/25-40/64/100
Maximum Inlet and Pilot Supply Pressure(1)
250 psig / 17.2 bar
or body rating limit, whichever is lower
300 psig / 20.7 bar or body rating limit, whichever
is lower
(1)
MINIMUM
PRESSURE
MAXIMUM
PRESSURE
1, 1-1/2, and 2 /
25, 40, and 50 15 psi / 1.0 bar
200 psi / 13.8 bar or
body rating limit,
whichever is lower
2-1/2, 3, 4, and 6 x 4 /
65, 80, 100, and
150 x 100(2)
20 psi / 1.4 bar
175 psi / 12.1 bar or
body rating limit,
whichever is lower
See Table 2
Maximum Outlet Pressures(1)
See Table 3
Maximum Allowable Loading Pressure for Pilot
(1)
Combination of pilot control spring setting and spring
case loading pressure must not exceed 150 psig /
1. The pressure/temperature limits in this Instruction Manual or any applicable standard limitation should not be exceeded.
2. The two-number designation indicates end connection size by trim size.
The Specications section lists the specications for the Type 92S regulator. Specications for a given regulator
as it originally comes from the factory are stamped on nameplates located on both the main valve body and pilot,
while the pilot control spring range is displayed on the pilot spring case.
REGULATING
S
S
FOR RELIEF
1Km
NPS Inch mm XTFFL
1 25 7/8 22 16 17.5
34
0.62
0.73
0.51
0.791-1/2 40 1-1/8 29 30 33 0.47
2 50 1-29/64 37 48 52 0.48
2-1/2 65 1-5/8 41 74 78
0.71
0.48
0.84
3 80 2-1/16 52 100 110 0.47
4 100 2-3/8 60 140 145 0.46
6 x 4 150 x 100 2-3/8 60 150 155 0.46
1. Cv = Cs x 20 ÷ C1
Table 1. Flow and Sizing Coefcients(1)

Type 92S
3
The Type 92S pressure-reducing regulator for steam
service includes either a Type 6492H, 6492HT, or
6492L pilot (Figure 1). Both pilots have a friction-
reducing bellows seal on the stem, and offer pressure-
setting adjustment plus sensitivity to downstream
pressure changes.
These pilots are available in either a standard version
with a drilled spring case vent, or an optional version
with a tapped spring case vent and a sealed adjusting
screw for pressure-loading or on-off service. A 67 or
1301 Series regulator or 670 Series panel-mounted
regulator may be used to load the pilot of a version
for pressure-loading service, while a solenoid valve
may be used on the pilot of a version for on-off
service. A Type 6492HM or 6492HTM safety override
pilot is available for the Type 92S. The Type 6492H
or 6492HT pilot is used in a series installation with
the Type 6492HM or 6492HTM safety override
pilot installed on the upstream control valve. The
Type 6492HM or 6492HTM safety override pilot
senses pressure downstream of the second valve, and
prevents pressure from rising above safe operating
pressure in the event the downstream valve fails. This
system is approved by ASME B31.1-1989, 122.14.2.A,
and can replace an ASME safety valve when vent
piping is not practical and upstream steam pressure
does not exceed 400 psig / 27.6 bar. Local codes and
standards may require approval by an appropriate
authority prior to installation.
!
WARNING
The Type 92S safety override system
does not provide positive shutoff in
dead end service. It is intended for
large distribution systems where steam
leakage will condense before steam
and components must be rated for
maximum upstream steam pressure for
dead end service. Failure to do so could
cause personal injury or death.
PILOT TYPE OUTLET PRESSURE RANGES SPRING FREE LENGTH
psig bar Inch mm Inch mm
6492L
2 to 6
5 to 15
13 to 25
0.14 to 0.41
0.34 to 1.0
0.90 to 1.7
1E395627022
1D7455T0012
1E395727192
Yellow
Green
Red
0.207
0.234
0.283
5.26
5.94
7.19
2.50
2.62
2.44
63.5
66.5
62.0
6492H
10 to 30
25 to 75
70 to 150
0.69 to 2.1
1.7 to 5.2
4.8 to 10.3
1E395627022
1D7455T0012
1E395727192
Yellow
Green
Red
0.207
0.234
0.283
5.26
5.94
7.19
2.50
2.62
2.44
63.5
66.5
62.0
6492HT 15 to 100
80 to 250
1.0 to 6.9
5.5 to 17.2
14B9943X012
14B9942X022 Unpainted 0.282
0.375
7.16
9.53
2.50
2.50
63.5
63.5
MAXIMUM
OPERATING OUTLET
PRESSURE
Steel and
Stainless Steel
Steel or Stainless Steel
Main Valve and
psig bar psig bar psig bar
With Type 6492HT pilot - - - -
300 20.7
250 17.2 - - - -
300 psig / 20.7 bar or main
valve body rating limit,
whichever is lower
With Type 6492H pilot 250 17.2 150 10.3
250 psig / 17.2 bar or main
valve body rating limit,
whichever is lower
300 psig / 20.7 bar or main
valve body rating limit,
whichever is lower
With Type 6492L pilot 25 1.7 100 psig / 6.9 bar 100 psig / 6.9 bar
TYPE SPRING RANGE
psig bar
6492HM
10 to 30 0.69 to 2.1 Yellow 1E395627022 5 psig / 0.34 bar over normal distribution pressure
25 to 75 1.7 to 5.2 Green 1D7455T0012
10 psig / 0.69 bar over normal distribution pressure
70 to 150 4.8 to 10.3 Red 1E395727192
6492HTM 15 to 100 1.0 to 6.9 Unpainted 14B9943X012
80 to 250 5.5 to 17.2 14B9942X022
Table 4. Safety Pilot Outlet (Control) Pressure Ranges
Table 3. Maximum Inlet and Outlet Pressures
Table 2. Outlet (Control) Pressure Ranges

Type 92S
4
Type 92S 2-1/2 thru 6 x 4-Inch (DN 65 thru 150 x 100)
A6553
September 2006 Type 92S
Type 92S Self-Powered Control Valve
August 2007 Type 92S
INLET PRESSURE
OUTLET PRESSURE
A6553
A6552
Figure 2. Type 92S Pilot-Operated Steam Regulator Operational Schematics
PILOT SPRING
PILOT VALVE
PLUG
PILOT VALVE
PLUG SPRING
MAIN VALVE
PISTONS
MAIN VALVE
PISTON
MAIN VALVE
STEM
MAIN VALVE
PLUG
MAIN VALVE
PLUG
MAIN VALVE
SPRING
Type 92S Self-Powered Control Valve
August 2007 Type 92S
PILOT INLET
PILOT INLET

Type 92S
5
Figure 2. Type 92S Pilot-Operated Steam Regulator Operational Schematics (continued)
S
T
E0402
TYPE 6492H PILOT TYPE 6492H PILOT
TYPE 6492HM SAFETY
TYPE 92S MAIN VALVE TYPE 92S MAIN VALVE
E0403
INLET PRESSURE
OUTLET PRESSURE
TYPE 6492H PILOT
TYPE 6492H PILOT
TYPE 6492HM SAFETY
TYPE 92S MAIN VALVE TYPE 92S MAIN VALVE

Type 92S
6
Principle of Operation
Pilot supply pressure is piped from the main valve inlet
(Figure 2) to the pilot inlet connection. Downstream
pressure registers on the main valve pistons through the
downstream control line and then on the pilot diaphragm.
When increased downstream demand lowers the
downstream pressure to a valve below the setting of
the pilot control spring, this spring forces the pilot valve
plug open to increase the loading pressure on the
main valve pistons. At the same time, the increased
demand lowers the downstream pressure on the
main valve piston(s). This opens the main valve plug,
increasing ow to the downstream system to satisfy
the increased demand and to restore downstream
pressure to the setting of the pilot control spring.
Decreased downstream demand increases the
downstream pressure registered on the pilot
diaphragm. The increased pressure overcomes the
force of the pilot control spring and allows the pilot
valve plug spring to close the pilot valve plug. As the
pilot valve plug closes, excess loading pressure bleeds
to the downstream system through the pilot bleed
restriction. At the same time, decreased downstream
demand increases the downstream pressure
registered on the main valve piston(s). This allows
the main valve spring to close the main valve plug,
reducing ow to the downstream system in response
to the decreased demand.
With a pressure-loaded or on-off pilot, the operation is
the same as for a standard pilot except that the pilot
control spring force on the pilot valve plug is aided
by pneumatic pressure from the loading device or
solenoid valve.
Safety Override Pilot Principle of Operation
Once placed in operation, the upstream Type 6492H
or 6492HT pilot senses the intermediate pressure
between both valves, and the Type 6492HM
or 6492HTM pilot senses downstream pressure of
the second valve. As demand for ow increases,
intermediate pressure will fall causing the Type 6492H
or 6492HT pilot to open. As the Type 6492H pilot
valve opens, loading pressure to the main valve
increases, opening the main valve.
The Type 6492HM or 6492HTM safety override pilot
remains open because its setpoint is above the setpoint
of the downstream valve. In the unlikely event that the
downstream valve fails open, downstream pressure
will rise above the downstream valve’s setpoint. This
pressure is sensed by the Type 6492HM or 6492HTM
safety override pilot. As downstream pressure
increases the safety override pilot closes, reducing
loading pressure to the main valve, which positions
the main valve to maintain downstream pressure as
specied per ASME Boiler and Pressure Vessel Code,
Section VIII.
In the event that the upstream valve fails, the
downstream regulator will prevent downstream
pressure from rising above safe operating levels.
It is recommended to install some type of warning
system, such as a sentinel relief valve, to warn the
operator that a valve has failed in the system. This
will prevent prolonged operation with one valve, which
could cause valve trim wear and noise associated with
operation at high differential pressures.
When operating in most steam systems, valve
setpoints should be in strict accordance to ASME
Boiler and Pressure Vessel Code, Section VIII. The
Type 6492HM or 6492HTM safety override pilot should
be set at 10 psig / 0.69 bar or 10% above maximum
downstream operating pressure of the second valve,
whichever pressure is greater. For example, most
HVAC systems operate at 15 psig / 1.0 bar, so the
safety override pilot should be set no higher than
25 psig / 1.7 bar.
Installation
!
WARNING
Personal injury, equipment damage,
or leakage due to escaping steam or
bursting of pressure-containing parts
may result if this regulator is over
pressured or is installed where service
conditions could exceed the limits given
the appropriate nameplates, or where
conditions exceed any ratings of the
adjacent piping or piping connections.
To avoid such injury or damage, provide
pressure-relieving or pressure-limiting
devices to prevent service conditions
from exceeding those limits.
Additionally, physical damage to the
regulator could result in personal injury
and property damage due to escaping
steam. To avoid such injury and damage,
install the regulator in a safe location.

Type 92S
7
TYPE 92S MAIN VALVE
TYPE 6492H PILOT
TYPE 92S MAIN VALVE
TYPE 6492H PILOT
TOP VIEW
TYPE 6492H PILOT
TYPE 92S MAIN VALVE
TYPE 6492H PILOT
TYPE 92S MAIN VALVE
TYPE 6492HM SAFETY
SHUTOFF VALVE
STRAINER
6492 SERIES PILOT
VALVE
VENT
VALVE
LINE
VALVE
16A7958-B
A2607-1
REGULATOR
VALVE
STRAINER
6492 SERIES PILOT
SHUTOFF VALVE
VALVE
LINE
VALVE
VENT
VALVE
16A7958-B
16A1547-A
A3334
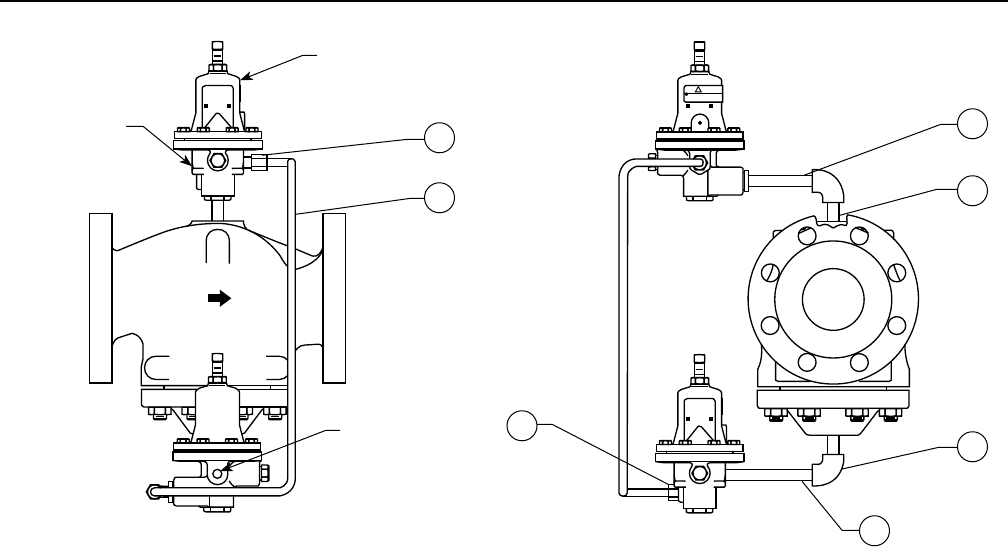
Figure 3. Typical Installations

Type 92S
8
TYPE 6492HM SAFETY
TYPE 92S MAIN VALVE
TYPE 92S MAIN VALVE
TYPE 6492H PILOT
TYPE 6492H PILOT
TYPE 6492H PILOT
TYPE 6492H PILOT
TYPE 92S MAIN VALVE TYPE 92S MAIN VALVE
Figure 3. Typical Installations (continued)
GAUGE
TYPE 92S MAIN VALVE
TYPE 6492HM SAFETY
TYPE 6492H PILOT
TYPE 6492H PILOT
GAUGE
GAUGE
E0662

Type 92S
9
TYPE 6492H PILOT
TYPE 92S MAIN VALVE
GAUGE GAUGE GAUGE
TYPE 6492H PILOT
TYPE 6492HM SAFETY
E0663
Figure 3. Typical Installations (continued)
1. Only personnel qualied through training and
experience should install, operate, and maintain
a Type 92S regulator. Before installation, make
sure that there is no damage to, or debris in the
regulator. Also make sure that all tubing and
piping are clean and unobstructed.
2. A Type 92S regulator may be installed in any
orientation, as long as ow through the regulator
matches the direction of the arrow on the main
valve body. However, the regulator should not be
installed in a tall, vertical pipeline where condensate
could collect and create a pressure head affecting
regulator performance.
3. Apply steam-compatible pipe compound to
the external pipeline threads for a threaded
body, or use suitable line gaskets for a anged
body. Use acceptable piping procedures when
installing regulator.
4. If continuous operation of the system is required
during inspection and maintenance, install a
three-valve bypass around the regulator. If the
owing medium contains solids, install a properly
sized strainer upstream of the regulator.
Note
A clogged vent on the spring case of
a standard Type 6492H or 6492L pilot
may cause the regulator to function
improperly. Install and maintain a
regulator with a standard pilot so that
the spring case vent stays clear.
5. As shown in Figure 3, connect a control line as
large as possible but no smaller than 3/8-inch /
9.5 mm diameter bushed down to the 1/4 NPT
connection in the cylinder spacer NPS 1, 1-1/2,
or 2 / DN 25, 40, or 50 body size or the pilot body
NPS 2-1/2, 3, 4, or 6 x 4 / DN 65, 80, 100, or 150 x
100 body size.
6. Locate the control line connection at least
10 pipe diameters away from the regulator or
swage and in a section of straight pipe.
7. Do not locate the control line connection in a gate,
plug, or check valve, in an elbow, swage, or other
area of the pipeline where turbulence or abnormal
velocities may occur, or in a large-volume vessel
that can cause noticeable control lag.
8. Slope the control line away from the pilot to let
condensate drain into the pipeline.
9. Install a shutoff valve (not a needle valve) in the
control line to isolate the pilot during maintenance.
10. Install a pressure gauge in the control line, or near
the regulator, to aid in setting the outlet pressure.
11. With a pressure-loaded or on-off pilot, connect the
pressure-loading or on-off piping or tubing to the
1/4 NPT connection in the tapped pilot spring case.
12. The pressure setting of the regulator is
determined by:
• The pilot control spring adjustment on a
standard pilot, or

Type 92S
10
• The pressure-loading device in conjunction with
the control spring adjustment on a pressure-
loaded pilot. In both cases, check these
settings to make sure they are correct for
the application.
Startup and Adjustment
Note
The maximum inlet pressure for a
main valve nameplate. Use pressure
gauges to monitor upstream and
downstream pressures during startup.
Adjustment
On a regulator with any kind of Type 6492L,
6492H, or 6492HT pilot, loosen the hex nut (key 16,
Figure 4). Turn the adjusting screw (key 15, Figure 4)
clockwise or into the spring case to increase the
downstream pressure. Turn the adjusting screw
counterclockwise or out of the spring case to decrease
the downstream pressure. When the required
downstream pressure is maintained for several
minutes, tighten the hex nut to lock the adjusting screw
in position.
On a regulator with a pressure-loaded Type 6492L,
6492H, or 6492HT pilot, also refer to the instruction
manual of the pressure-loading device for downstream
pressure adjustment procedures. Make sure that the
combined pilot control spring setting pressure and
spring case loading pressure do not exceed 25 psig /
1.7 bar for the Type 6492L pilot, 150 psig / 10.3 bar
for the Type 6492H pilot, or 25 psig / 17.2 bar for the
Type 6492HT. For example, a 5 psig / 0.34 bar spring
setting and a 10 psig / 0.69 bar pressure loading result
in a regulator pressure of 15 psig / 1.0 bar.
Safety Override Pilot Startup
and Adjustment
1. Loosen adjusting screws of the Type 6492HM
or 6492HTM safety override pilot and Type 6492H
or 6492HT intermediate pilot on the upstream valve
until there is no spring load. The screws should
turn freely by hand.
2. Loosen the adjusting screw of the Type 6492H
or 6492HT pilot on the downstream valve until there
is no spring load.
3. Tighten the Type 6492HM or 6492HTM safety
override pilot of the upstream valve all the way in to
its highest spring setting.
4. Tighten the Type 6492H or 6492HT pilot of
the upstream valve all the way in to its highest
spring setting.
5. Tighten the Type 6492H or 6492HT pilot
of the downstream valve to the desired
downstream pressure.
6. Loosen the Type 6492H or 6492HT
intermediate pilot on the upstream valve to the
desired intermediate pressure (normally 50% of
inlet pressure).
7. Loosen the Type 6492HM or 6492HTM safety
override pilot of the upstream valve until there is
no spring load.
8. Tighten the Type 6492H or 6492HT pilot of the
downstream valve all the way in to its highest
spring setting.
9. Tighten the Type 6492HM or 6492HTM safety
override pilot of the upstream valve to desired
pressure as specied per ASME Boiler and
Pressure Vessel Code, Section VIII.
10. Loosen the Type 6492H or 6492HT pilot of the
downstream valve to the desired downstream
pressure setpoint.
Startup with New Regulator Installation
1. Remove all pilot control spring compression by
turning the adjusting screw out of the spring case
according to the adjustment procedure.
2. Slowly open the upstream block valve.
3. Open the downstream block valve.
4. Open the control line shutoff valve.
Note
allow enough time for the pilot and
main valve to heat up and boil off any
condensate buildup.
5. If a bypass is used, slowly close the bypass line
block valve.
6. Perform the adjustment procedure until the
downstream pressure reaches the desired setting.
*
*
*Regulator Technologies recommends establishing setpoint by tightening the adjusting screw.

Type 92S
11
Startup with Existing Regulator
Installation After Normal Shutdown
1. Open the upstream and downstream block valves
and let the regulator take over control at the
existing pilot control spring setting.
2. If a bypass line is used, slowly control the bypass
line block valve.
Shutdown
1. If a bypass line is used, slowly open the
bypass line block valve while monitoring the
downstream pressure.
2. Close the control line shutoff valve.
3. Close the downstream block valve.
4. Close the upstream block valve.
5. If a pressure-loaded or on-off pilot is used, close
the needle valve to the pilot.
6. Vent the regulator and control line to release any
trapped pressure.
Maintenance
Regulator parts are subject to normal wear and
must be inspected periodically and replaced
as necessary. The frequency of inspection
and replacement depends upon the severity of
service conditions and upon applicable codes and
government regulations.
!
WARNING
To avoid personal injury resulting
from sudden release of pressure,
isolate the regulator from all pressure
and cautiously release trapped
pressure from the regulator before
attempting disassembly.
Types 6492L, 6492H, 6492HT, 6492HM,
and 6492HTM Pilots
These procedures are to be performed if inspecting,
cleaning, or replacing any pilot parts, or if cycling,
erratic control, or too high or too low an outlet
(control) pressure is noted. Perform only those
procedures in this section required to correct the
problem. Refer to Figure 4 for key numbers unless
otherwise noted.
Note
loosen the hex nut (key 16), if used,
until all compression is removed from
the control spring (key 12). Remove
the pilot from the pipe nipple and
1. Unscrew the valve guide (key 2). Remove the
screen (key 77), inner valve (key 4), valve spring
(key 3), and stem (key 7). Unscrew the seat ring
(key 5). Examine the seat ring and plug seating
surfaces for damage.
2. Clean and replace parts as necessary. Apply
sealant to the seat ring threads. Thread the seat
ring into place and tighten it to between 19 and
25 foot•pounds / 26 and 34 N•m of torque.
3. Handle the parts carefully, and place the valve
spring (key 3) in the valve guide (key 2). Slide the
inner valve (key 4) over the spring and into the
valve guide. Place the screen (key 77) onto the
valve guide. Place the stem (key 7) in the center
hole of the valve guide. Apply sealant to the valve
guide threads, and screw the guide plus attached
parts into the body (key 1).
4. Remove the pipe plug (key 74). Then remove
the bleed restriction (key 76) on Types 6492L,
6492H, and 6492HT or the pipe plug (key 94) on
Types 6492HM and 6492HTM. Clean and replace
the bleed restriction or pipe plug as necessary.
5. Apply sealant to the threads of the bleed restriction
(key 76) or pipe plug (key 94) and install.
6. Apply sealant to the threads of the pipe plug
(key 74). Thread the pipe plug into place and tighten
using 5 to 15 foot•pounds / 7 to 20 N•m of torque.
7. Remove the cap screws (key 17), spring case
(key 14), control spring (key 12), and upper spring
seat (key 13) from the body.
8. Remove the lower spring seat (key 11, Types 6492H
and 6492HT pilots only) or diaphragm plate
assembly (key 24, Type 6492L pilot only),
diaphragms (key 10), and diaphragm gasket
(key 18) from the body. Inspect and clean the
diaphragm gasket, and replace if necessary.
9. Unscrew the bellows retainer (key 8) and remove
the bellows (key 9). Replace worn parts as
necessary, and install the bellows and bellows
retainer. Tighten the bellows retainer to between
19 and 25 foot•pounds / 26 and 34 N•m.

Type 92S
12
10. Install the diaphragm gasket. Install both
diaphragms with their raised preformed centers
facing toward the spring case.
11. Lubricate the upper spring seat and the exposed
threads of the adjusting screw. Install the lower
spring seat (key 11, Types 6492H and 6492HT
pilots only) or diaphragm plate assembly (key 24,
Type 6492L pilot only), control spring (key 12),
upper spring seat (key 13), and spring case
(key 14). Insert and tighten the cap screws
(key 17) to between 12 and 18 foot•pounds /
16 and 24 N•m of torque, using a crisscross
bolting pattern.
12. When pilot maintenance is complete, refer to
the Startup section to put the regulator back in
operation and adjust the pressure setting.
Type 92S Main Valve
Perform these procedures if replacing the piston(s),
cylinder(s), stem(s), seals, valve plug, or seat ring.
All key numbers are referenced in Figure 5 except
where otherwise indicated. Instructions are given for
complete disassembly and assembly. Disassemble
the main valve only as far as necessary to complete
the required maintenance. Then, begin the assembly
procedure at the appropriate step.
Note
The regulator may remain in the pipeline
during maintenance procedures unless
the main valve body is replaced or
removed for repairs.
Whenever a gasket seal is disturbed by
removing or shifting gasketed parts, a
new gasket should be installed upon
reassembly. This is necessary to ensure
a good gasket seal.
Disassembly
1. Disconnect all tubing and remove the pilot from the
main valve.
2. Remove the cap screws (key 3, not shown) from
a cast iron body, or stud nuts (key 4) from a steel
body, and lift off the body ange.
3. For NPS 1, 1-1/2, and 2 / DN 25, 40, and
50 body sizes, remove the top cylinder (key 17),
and pull out the top piston with attached stem
and other parts. Remove the hex nut (key 41),
lockwasher (key 40), top ring retainer (key 26), and
top piston ring (key 25) from the top piston (key 24).
4. For NPS 1, 1-1/2, and 2 / DN 25, 40, and
50 body sizes, lift off the cylinder spacer (key 21),
and remove the stem seal retainer (key 23) and
stem seal (key 22) from the spacer.
5. Remove the cylinder (key 17), piston (key 24) with
attached parts, and spiral wound gasket (key 8).
6. Remove the cotter pin (key 16, NPS 1, 1-1/2,
and 2 / DN 25, 40, and 50 body sizes only), stem
nut (key 15), lower stem (key 9) with hex head,
valve plug (key 6), piston ring retainer (key 26),
piston ring (key 25), bottom piston ring retainer
(key 26, applicable for all sizes), piston (key 24),
spring (key 12), piston spacer (key 11), cage
(key 5), and seat ring (key 7).
7. If Noise Attenuation is used, remove the plug
spacer (key 33, NPS 2 / DN 50 body size only),
deector (key 36, NPS 2 / DN 50 body size only),
and screen (key 37).
8. Either remove the retaining ring (key 14), or
remove the spring seat, washer, and O-ring
(keys 32, 34, and 38), if it is necessary to remove
the bafe (key 13).
Assembly
1. Inspect and replace parts as necessary, making
sure that the hollow passage in the upper stem
(key 20, NPS 1, 1-1/2, and 2 / DN 25, 40, and
50 body sizes only) is free from debris.
2. Install a spiral wound gasket (key 8) into the body
(key 1).
3. When installing a new valve plug and/or a new
seat ring, or lower stem, lap the seating surfaces
together outside the body. Use a commercial lapping
compound or a mixture of solidied vegetable oil and
600-grit or ner silicon carbide or aluminum oxide.
Note
If a Noise Attenuation is used, install the
size only) where appropriate in the
following step.
4. Secure the hex head at the lower stem (key 9)
in a vise. Install the valve plug (key 6), seat ring
(key 7) and cage (key 5).
install the bafe (key 13) and the
retaining ring (key 14). Then, install the piston
spacer (key 11) down through the bafe until it
makes contact with the valve plug.

Type 92S
13
*Recommended spare parts
install the plug spacer (key 33),
bafe (key 13), O-ring, washer, spring seat, and
piston spacer (keys 38, 34, 32, and 11). Then,
install the cylinder (key 17), spring (key 12) and
secure with piston (key 24), piston ring (key 25),
with its open end pointing out, piston ring retainer
(key 26) and stem nut (key 15).
lock the stem nut (key 15) in place
with a cotter pin (key 16), but do not fold the pin
ends up on top of the stem since this can interfere
with loading pressure registration through the top
stem passage.
5. Install the main piston cage assembly with
attached parts into the body. Coat the edge of the
main cylinder (key 17) with sealant and install a
new cylinder gasket (key 18) onto this edge.
6. Install a new body gasket (key 19) onto the
appropriate edge of the body.
7. For NPS 1, 1-1/2, and 2 / DN 25, 40, and
50 body sizes, install the stem seal (key 22) onto
the cylinder spacer (key 21) in the orientation
shown in Figure 5, and secure with the stem seal
retainer (key 23). Coat the serrated edge of the
spacer with sealant, and install the spacer edge-
side-down over the bottom cylinder.
8. For NPS 1, 1-1/2, and 2 / DN 25, 40, and 50 body
sizes, coat both serrated edges of the top cylinder
(key 17) with sealant, install new cylinder gaskets
(key 18) on these edges, and install the cylinder.
9. For NPS 1, 1-1/2, and 2 / DN 25, 40, and 50 body
sizes, install the top piston ring (key 25) with its
open end pointing out, ring retainer (key 26), and
stem (key 20) on the top piston. Secure these
parts with the lockwasher and hex nut (keys 40
and 41). Install the top piston plus attached parts
stem-rst through the stem seal until the top stem
contacts the bottom stem.
10. Install the body ange (key 2) on the body, and
secure with the cap screws (key 3, not shown) for
a cast iron body or with the stud nuts (key 4) for a
steel body.
11. Install the pilot and connect all tubing as shown in
Figure 6.
12. When all maintenance is complete, refer to the
Start-up section to put the regulator back into
operation and adjust the pressure setting.
Parts Ordering
The type number, orice size, spring range, and date of
manufacture are stamped on the nameplate. Always
provide this information in any correspondence with
your local Sales Ofce regarding replacement parts or
technical assistance.
When ordering replacement parts, reference the key
number of each needed part as found in the following
parts list. Separate kit containing all recommended
spare parts is available.
Parts List
Types 6492L, 6492H, and 6492HT Pilots
(Figure 4)
Repair Kits (included are keys 4, 5, 7, 8, 9,
10, and 18)
Type 6492L pilot R6492LX0012
Types 6492H and 6492HT pilots R6492HX0012
1 Body
Cast iron
Type 6492L pilot 32A0404X012
Type 6492H pilot 22A0403X012
Steel
Type 6492L pilot 32A0404X052
Types 6492H and 6495HT pilots 22A0403X052
Stainless steel
Type 6492L pilot 32A0404X062
Types 6492H and 6492HT pilots 22A0403X072
2 Valve Guide, Stainless steel
For Cast iron and Steel bodies 1E391835132
For Stainless steel body 1E391835072
3 Valve Spring, Stainless steel 1E392437022
4* Inner Valve, Stainless steel
For Cast iron and Steel bodies 1F967446172
For Stainless steel body 1F9674X0012
5* Orice, Stainless steel
For Cast iron and Steel bodies 1H564446172
For Stainless steel body 1H5644X0012
7* Valve Stem, Stainless steel
For Cast iron and Steel bodies 1F967835132
For Stainless steel body 1F9678X0012
8* Bellows Retainer
For Cast iron and Steel bodies, Brass 1F971214012
For Stainless steel body, Stainless steel 1F9712X0012
9* Bellows
For Cast iron and Steel bodies, Brass 1F971318992
For Stainless steel body, Stainless steel 1F9713X0012
10* Diaphragm, Stainless steel (2 required)
Type 6492L pilot 1E396936012
Types 6492H and 6492HT pilots 1E395836012
11 Lower Spring Seat
(Types 6492H and 6492HT pilots only)
Type 6492H, Aluminum 1J9140X0032
Type 6492HT, Steel
Steel body 1J9140X0022
Stainless steel body 14B9948X012

Type 92S
14
15
11
10
18
5
77
2
3
4
74 78
1
76
17
19
20
14
16
7
8
9
12
13
TYPE 6492H OR 6492HT PILOT
39A3514-B
32A4712-A
TYPE 6492L PILOT
Figure 4. Pilot Assemblies
39A3515-B
78
74
76
77
5
1
18
10
24
15
13
12
9
8
7
4
3
2
17
19
20
14
16
14
16
15
87

Type 92S
15
15
11
10
18
5
77
3
13
12
9
8
7
4
2
16
14
20
19
17
94
74
95
1
78
TYPE 6492HM PILOT
Figure 4. Pilot Assemblies (continued)
39B3357_A
*Recommended spare parts
Types 6492L, 6492H, and 6492HT
Pilots (Figure 4) (continued)
12 Control Spring, Plated steel
(see Table 1 for outlet pressure ranges)
Yellow 1E395627022
Green 1D7455T0012
Red 1E395727192
13 Upper Spring Seat, Plated steel
Cast iron and Steel bodies 1D667125072
Stainless steel body 14B9951X012
14 Spring Case
Standard Cast iron
Type 6492L pilot 3J496319012
Type 6492H pilot 2J496219012
Tapped Cast iron
Type 6492L pilot 3L442119012
Type 6492H pilot 2L441919012
Standard Steel
Type 6492L pilot 3L416122012
Types 6492H and 6492HT pilots 2L416322012
Tapped Steel
Type 6492L pilot 3L442222012
Types 6492H and 6492HT pilots 2L442022012
Standard Stainless steel
Type 6492L pilot 3L4161X0022
Types 6492H and 6492HT pilots 2L416333092
Tapped Stainless steel
Type 6492L pilot 3L4422X0012
Types 6492H and 6492HT pilots 2L4420X0012
15 Adjusting Screw (standard spring case only),
Zinc-plated steel
Standard 1D995448702
Handwheel 1J496428982
16 Hex Nut (standard spring case only),
Zinc-plated steel 1A353724122
17 Cap Screw, Steel, Plate
(10 required for Type 6492L pilot and
8 required for Types 6492H and 6492HT pilots)
Type 6492L
Cast iron and Steel bodies 1A381624052
Stainless steel 1A3816X0152
Type 6492H
Cast iron and Steel bodies 1A381624052
Stainless steel 1A3816X0152
Type 6492HT
Steel 1A3816X0242
Stainless steel 1A3816X0152
18* Diaphragm Gasket
Type 6492L pilot, Composition 1E397004022
Type 6492H pilot 1E396104022
Type 6492HT, Graphite 1E3961X0012
24 Diaphragm Plate Assembly, Aluminum/Steel/
Stainless steel (Type 6492L pilot only) 1E3967X0012
74 Pipe Plug, Steel 0Z020128992
76 Bleed Restriction, Stainless steel 19A2612X012
77 Screen, Stainless steel 16A1512X012
78 Reducing Bushing,
Cast iron and Steel bodies, steel 1C379026232
Stainless steel body, Stainless steel 1C3790X0012
87 Sealing Washer, Carbon steel
(tapped spring case only) 1V205699012

Type 92S
16
*Recommended spare parts
Types 6492HM and 6492HTM Safety
Override Pilots (Figure 4)
1 Pilot Valve Body
Steel 22A0403X052
Stainless steel 22A0403X072
2 Valve Guide
Steel 1E391835132
Stainless steel 1E391835072
3 Valve Spring, Stainless steel 1E392437022
4 Inner Valve
Steel 1F967446172
Stainless steel 1F9674X0012
5 Orice
Steel 1H564446172
Stainless steel 1H5644X0012
7 Valve Stem
Steel 1F967835132
Stainless steel 1F9678X0012
8 Bellows Retainer
Steel 1F971214012
Stainless steel 1F9712X0012
9 Bellows
Steel 1F971318992
Stainless steel 1F9713X0012
10 Diaphragm, Stainless steel (2 required) 1E395836012
11 Lower Spring Seat, Aluminum
Type 6492HM 1J9140X0032
Type 6492HTM
Steel 1J9140X0022
Stainless steel 14B9948X012
12 Spring
Type 6492HM, Steel
10 to 30 psig / 0.69 to 2.1 bar, Yellow 1E395627022
25 to 75 psig / 1.72 to 5.2 bar, Green 1D7455T0012
70 to 150 psig / 4.8 to 10.3 bar, Red 1E395727192
Type 6492HTM, Stainless steel
15 to 100 psig / 1.0 to 6.9 bar, Unpainted 14B9943X012
80 to 250 psig / 5.5 to 17.2 bar, Unpainted 14B9942X022
13 Upper Spring Seat
Type 6492HM, Zinc-plated steel 1D667125072
Type 6492HTM, Carbon-plated steel 14B9951X012
14 Spring Case
Steel
With standard adjusting screw 2L416322012
With sealed adjusting screw 2L442022012
Stainless steel
With standard adjusting screw 2L416333092
With sealed adjusting screw 2L4420X0012
15 Set Screw, Zinc-plated steel
Standard 1D995448702
Handwheel 1J496428982
Sealed Adjusting screw 1D995448702
16 Hex Nut, Zinc-plated steel 1A353724122
17 Cap Screw (8 required)
Type 6492HM
Steel 1A381624052
Stainless steel 1A3816X0152
Type 6492HTM
Steel 1A3816X0242
Stainless steel 1A3816X0152
18* Diaphragm Gasket
Type 6492HM, Composition 1E396104022
Type 6492HTM, Graphite 1E3961X0012
34 Machine Screw for use with Handwheel,
Carbon-plated steel 16A5763X012
38 Handwheel 1J496144012
39 Lock Washer for use with Handwheel, Alloy steel 1A352332992
74 Pipe Plug
Steel 0Z020128992
Stainless steel 0Z020135072
77 Screen, Stainless steel 16A1512X012
78 Reducing Bushing
Steel 1C379026232
Stainless steel 1C3790X0012
87 Sealed Adjusting Screw Sealing Washer 1V205699012
94 Pipe Plug, Stainless steel 1E823135042
95 Warning Label 19B0429X0A2
Types 6492HM and 6492HTM Safety Pilot
Mounting Parts (Figure 6)
81 Tubing, Stainless steel (2 required) - - - - - - - - - - -
82 Pipe Nipple
NPS 1, 1-1/2, or 2 / DN 25, 40, or 50 body size
Steel - - - - - - - - - - -
Stainless steel - - - - - - - - - - -
NPS 2-1/2 / DN 65 body size
Steel - - - - - - - - - - -
Stainless steel - - - - - - - - - - -
NPS 3 / DN 80 body size
Steel - - - - - - - - - - -
Stainless steel - - - - - - - - - - -
NPS 4 or 4 x 6 / DN 100 or 100 x 150 body size
Steel - - - - - - - - - - -
Stainless steel - - - - - - - - - - -
83 Connector (2 required)
Steel - - - - - - - - - - -
Stainless steel - - - - - - - - - - -
84 Elbow (2 required)
Steel - - - - - - - - - - -
Stainless steel - - - - - - - - - - -
86 Pipe Elbow for Stainless steel (2 required) - - - - - - - - - - -
89 Pipe Nipple (2 required)
Steel - - - - - - - - - - -
Stainless steel - - - - - - - - - - -
90 Pipe Nipple
NPS 1 / DN 25 body size
Steel - - - - - - - - - - -
Stainless steel - - - - - - - - - - -
NPS 1-1/2 / DN 40 body size
Steel - - - - - - - - - - -
Stainless steel - - - - - - - - - - -
NPS 2 / DN 50 body size
Steel - - - - - - - - - - -
Stainless steel - - - - - - - - - - -
NPS 2-1/2, 3, or 4 / DN 65, 80, or 100 body size
Steel - - - - - - - - - - -
Stainless steel - - - - - - - - - - -
NPS 4 x 6 / DN 100 x 150 body size
Steel - - - - - - - - - - -
Stainless steel - - - - - - - - - - -
92 Pipe Adapter for NPS 1, 1-1/2, and 2 /
DN 25, 40, and 50 body sizes
Steel - - - - - - - - - - -
Stainless steel - - - - - - - - - - -
93 Pipe Elbow for steel bodies,
Carbon-plated steel (2 required) - - - - - - - - - - -

Type 92S
17
26
18
2
25
24
17
5
32
7
35
9
38
1
6
8
33
13
34
12
11
28
15
3
4
30
19
30 29 26
41
18
2
25
21
22
19
15
24
23
5
7
8
6
3
28
4
30
40
20
18
16
17
12
14
13
11
9
1
NOISE ATTENUATION
36A7960-D
37A6565-B
37A1622-D
Figure 5. Type 92S Main Valve Assemblies
37
11
36
33

Type 92S
18
Key 1, Body
MATERIAL
STYLE
Cast Iron
NPT
CL125 FF
CL250 RF
GE11518X012
GE11528X012
GE11580X012
26A7893X012
26A7894X012
26A7895X012
GE10583X012
GE10585X012
GE10587X012
- - - - - - - - - - -
37A1543X012
37A1544X012
- - - - - - - - - - -
37A1571X012
37A1572X012
- - - - - - - - - - -
GE10707X012
GE10822X012
- - - - - - - - - - -
- - - - - - - - - - -
- - - - - - - - - - -
WCC Steel
NPT
CL150 RF
CL300 RF
CL600 RF
GE11581X012
GE11583X012
GE11607X012
GE11608X012
26A7896X012
26A7897X012
26A7898X012
26A7899X012
GE10588X012
GE10676X012
GE10678X012
GE10679X012
- - - - - - - - - - -
37A1545X012
37A1546X012
37A1547X012
- - - - - - - - - - -
37A1573X012
37A1574X012
37A1575X012
- - - - - - - - - - -
GE10835X012
GE10839X012
GE10842X012
- - - - - - - - - - -
- - - - - - - - - - -
37A9679X012
37A9680X022
CF8M SST
NPT
CL150 RF
CL300 RF
CL600 RF
GE11581X022
GE11583X022
GE11607X022
GE11608X022
26A7896X032
26A7897X032
26A7898X052
26A7899X022
GE10588X022
GE10676X022
GE10678X022
GE10679X022
- - - - - - - - - - -
37A1545X032
37A1546X022
37A1547X022
- - - - - - - - - - -
37A1573X032
37A1574X052
37A1575X022
- - - - - - - - - - -
GE10835X022
GE10839X022
GE10842X022
- - - - - - - - - - -
- - - - - - - - - - -
37A9679X022
37A9680X022
Repair Kits (included are keys 8, 16,
18, 19, 25, and 38)
NPS 1 / DN 25 body R92SX000052
NPS 1-1/2 / DN 40 body R92SX000062
NPS 2 / DN 50 body R92SX000072
NPS 2-1/2 / DN 65 body R92EX0000B2
NPS 3 / DN 80 body R92EX000032
NPS 4 or 6 x 4 / DN 100 or 150 x 100 body R92EX000042
1 Body See following table
2 Body Flange
Cast iron
NPS 1 / DN 25 body 26A7837X012
NPS 1-1/2 / DN 40 body 26A7900X012
NPS 2 / DN 50 body 26A7869X012
NPS 2-1/2 / DN 65 body 27A1548X012
NPS 3 / DN 80 body 27A1576X012
NPS 4 or 6 x 4 / DN 100 or 150 x 100 body 27A1600X012
WCC steel
NPS 1 / DN 25 body 26A7838X012
NPS 1-1/2 / DN 40 body 26A7901X012
NPS 2 / DN 50 body 26A7870X012
NPS 2-1/2 / DN 65 body 27A1549X012
NPS 3 / DN 80 body 27A1577X012
NPS 4 or 6 x 4 / DN 100 or 150 x 100 body 27A1601X012
CF8M Stainless steel
NPS 1 / DN 25 body 26A7838X032
NPS 1-1/2 / DN 40 body 26A7901X032
NPS 2 / DN 50 body 26A7870X032
NPS 2-1/2 / DN 65 body 27A1549X022
NPS 3 / DN 80 body 27A1577X042
NPS 4 or 6 x 4 / DN 100 or 150 x 100 body 27A1601X022
3 Cap Screw (not shown), Zinc-plated steel
For Cast iron body
NPS 1 / DN 25 body (4 required) 16A7839X012
NPS 1-1/2 or 2 / DN 40 or 50 body (8 required) 1U625631192
NPS 2-1/2 / DN 65 body (8 required) 1R281124052
NPS 3 / DN 80 body (8 required) 1A454124052
NPS 4 or 6 x 4 /
DN 100 or 150 x 100 body (8 required) 1A440224052
3 Stud Bolt, Steel
For Steel body
NPS 1 / DN 25 body (4 required) 1V5426X0052
NPS 1-1/2 or 2 / DN 40 or 50 body (8 required) 16A7902X032
NPS 2-1/2 / DN 65 body (8 required) 1R2848X0752
NPS 3 / DN 80 body (8 required) 1A3781X0562
NPS 4 or 6 x 4 /
DN 100 or 150 x 100 body (8 required) 1R3690X0592
3 Stud Bolt, Steel (continued)
For Stainless steel body
NPS 1 / DN 25 body (4 required) 1V5426X0032
NPS 1-1/2 or 2 / DN 40 or 50 body (8 required) 16A7902X022
NPS 2-1/2 / DN 65 body (8 required) 1R284835222
NPS 3 / DN 80 body (8 required) 1A3781X0042
NPS 4 or 6 x 4 /
DN 100 or 150 x 100 body (8 required) 1R3690X001
4 Stud Nut, Steel
For steel body
NPS 1 / DN 25 body (4 required) 1C3306X0832
NPS 1-1/2 or 2 / DN 40 or 50 body (8 required) 1A3772X0892
NPS 2-1/2 / DN 65 body (8 required) 1C3306X0832
NPS 3 / DN 80 body (8 required) 1A3760X0832
NPS 4 or 6 x 4 /
DN 100 or 150 x 100 body (8 required) 1A3520X0922
For Stainless steel body
NPS 1 / DN 25 body (4 required) 1C330635252
NPS 1-1/2 or 2 / DN 40 or 50 body (8 required) 1A3772X0012
NPS 2-1/2 / DN 65 body (8 required) 1C330635252
NPS 3 / DN 80 body (8 required) 1A3760X0012
NPS 4 or 6 x 4 /
DN 100 or 150 x 100 body (8 required) 1A352035252
5 Cage
Cast iron
NPS 1 / DN 25 body 29A1379X012
NPS 1-1/2 / DN 40 body 26A7903X012
NPS 2 / DN 50 body 26A7872X012
NPS 2-1/2 / DN 65 body 27A1550X012
NPS 3 / DN 80 body 27A1578X012
NPS 4 or 6 x 4 / DN 100 or 150 x 100 body 27A1602X012
Stainless steel
NPS 1 / DN 25 body 29A1379X022
NPS 1-1/2 / DN 40 body 26A7903X022
NPS 2 / DN 50 body 26A7872X022
NPS 2-1/2 / DN 65 body 27A1550X022
NPS 3 / DN 80 body 27A1578X022
NPS 4 or 6 x 4 / DN 100 or 150 x 100 body 27A1602X022
6 Valve Plug, Stainless steel
NPS 1 / DN 25 body 16A7842X012
NPS 1-1/2 / DN 40 body 16A7904X012
NPS 2 / DN 50 body 16A7873X012
NPS 2-1/2 / DN 65 body 27A1552X012
NPS 3 / DN 80 body 27A1580X012
NPS 4 or 6 x 4 / DN 100 or 150 x 100 body 27A1604X012

Type 92S
19
39A3519-C
SUPPLY
Figure 6. Pilot Mounting Parts
30B3840_A
SUPPLY

Type 92S
20
WARN
49B1169_A
29A3518-B
93
92
Figure 6. Pilot Mounting Parts (continued)
TYPE 6492H
TYPE 6492HM

Type 92S
21
WARNI
49B1170_A
Figure 6. Pilot Mounting Parts (continued)
93
TYPE 6492HM
*Recommended spare parts
7 Seat Ring, Stainless steel
NPS 1 / DN 25 body 16A7844X012
NPS 1-1/2 / DN 40 body 16A7906X012
NPS 2 / DN 50 body 16A7875X012
NPS 2-1/2 / DN 65 body 27A1553X012
NPS 3 / DN 80 body 27A1581X012
NPS 4 / DN 100 body 27A1605X012
NPS 6 x 4 / 150 x 100 body 27A9678X012
8* Spiral Wound Gasket, Stainless steel
and Graphite
NPS 1 / DN 25 body 16A7845X012
NPS 1-1/2 / DN 40 body 16A7907X012
NPS 2 / DN 50 body 16A7876X012
NPS 2-1/2 / DN 65 body 17A1554X012
NPS 3 / DN 80 body 17A1582X012
NPS 4 or 6 x 4 / DN 100 or 150 x 100 body 17A1606X012
9 Lower Stem, Zinc-plated steel
For Cast iron and Steel bodies, Zinc-plated steel
NPS 1 / DN 25 body 16A7846X012
NPS 1-1/2 / DN 40 body 16A7908X012
NPS 2 / DN 50 body 16A7877X012
NPS 2-1/2 / DN 65 body 17A1556X012
NPS 3 / DN 80 body 17A1584X012
NPS 4 or 6 x 4 / DN 100 or 150 x 100 body 17A1608X012
9 Lower Stem, Zinc-plated steel (continued)
For Stainless steel body,
NPS 1 / DN 25 body 16A7846X022
NPS 1-1/2 / DN 40 body 16A7908X022
NPS 2 / DN 50 body 16A7877X022
NPS 2-1/2 / DN 65 body 17A1556X022
NPS 3 / DN 80 body 17A1584X022
NPS 4 or 6 x 4 / DN 100 or 150 x 100 body 17A1608X022
11 Piston Spacer, Steel
NPS 1 / DN 25 body 16A7848X012
NPS 1-1/2 / DN 40 body 16A7910X012
NPS 2 / DN 50 body
For Standard trim 16A7879X012
For Noise Attenuation 17A6562X012
NPS 2-1/2 / DN 65 body 17A1558X012
NPS 3 / DN 80 body 17A1585X012
NPS 4 or 6 x 4 / DN 100 or 150 x 100 body 17A1610X012
12 Spring, Stainless steel
NPS 1 / DN 25 body 16A7849X012
NPS 1-1/2 / DN 40 body 16A7911X012
NPS 2 / DN 50 body 16A7880X012
NPS 2-1/2 / DN 65 body 17A1559X012
NPS 3 / DN 80 body 17A1586X012
NPS 4 or 6 x 4 / DN 100 or 150 x 100 body 17A1611X012

Type 92S
22
*Recommended spare parts
13 Bafe, Stainless steel
NPS 1 / DN 25 body 19A1378X012
NPS 1-1/2 / DN 40 body 16A7912X012
NPS 2 / DN 50 body 16A7881X012
NPS 2-1/2 / DN 65 body 17A1560X012
NPS 3 / DN 80 body 17A1587X012
NPS 4 or 6 x 4 / DN 100 or 150 x 100 body 17A1612X012
14 Retaining Ring,
For Cast iron and Steel bodies, Steel
NPS 1 / DN 25 body 16A7851X012
NPS 1-1/2 / DN 40 body 16A7913X012
NPS 2 / DN 50 body 16A7882X012
For Stainless steel body, Stainless steel
NPS 1 / DN 25 body 16A7851X022
NPS 1-1/2 / DN 40 body 16A7913X022
NPS 2 / DN 50 body 16A7882X022
15 Stem Nut,
For Cast iron and Steel bodies, Zinc-plated steel
NPS 1 / DN 25 body 16A7852X012
NPS 1-1/2 or 2 / DN 40 or 50 body 16A7914X012
NPS 2-1/2 or 3 / DN 65 or 80 body 1A413224122
NPS 4 or 6 x 4 / DN 100 or 150 x 100 body 1A420124122
For Stainless steel body, Stainless steel
NPS 1 / DN 25 body 16A7852X022
NPS 1-1/2 or 2 / DN 40 or 50 body 16A7914X022
NPS 2-1/2 or 3 / DN 65 or 80 body 1A413235252
NPS 4 or 6 x 4 / DN 100 or 150 x 100 body 1A4201X0012
16 Cotter Pin, Stainless steel
NPS 1 / DN 25 body 16A7930X012
NPS 1-1/2 or 2 / DN 40 or 50 body 17A5574X012
17 Cylinder, Stainless steel
For Cast iron and Steel bodies, Zinc-plated steel
NPS 1 / DN 25 body (2 required) 16A7853X012
NPS 1-1/2 / DN 40 body (2 required) 16A7915X012
NPS 2 / DN 50 body (2 required) 16A7884X012
NPS 2-1/2 / DN 65 body (1 required) 17A1561X012
NPS 3 / DN 80 body (1 required) 17A1588X012
NPS 4 or 6 x 4 /
DN 100 or 150 x 100 body (1 required) 17A1613X012
For Stainless steel body, Stainless steel
NPS 1 / DN 25 body (2 required) 16A7853X022
NPS 1-1/2 / DN 40 body (2 required) 16A7915X022
NPS 2 / DN 50 body (2 required) 16A7884X022
NPS 2-1/2 / DN 65 body (1 required) 17A1561X022
NPS 3 / DN 80 body (1 required) 17A1588X022
NPS 4 or 6 x 4 /
DN 100 or 150 x 100 body (1 required) 17A1613X022
18* Cylinder Gasket,
For Cast iron and Steel bodies, Copper
NPS 1 / DN 25 body (3 required) 16A7854X012
NPS 1-1/2 / DN 40 body (3 required) 16A7916X012
NPS 2 / DN 50 body (3 required) 16A7885X012
NPS 2-1/2 / DN 65 body (1 required) 14A5685X022
NPS 3 / DN 80 body (1 required) 17A1589X012
NPS 4 or 6 x 4 /
DN 100 or 150 x 100 body (1 required) 17A1614X012
For Stainless steel body, N04400 Nickel Alloy
NPS 1 / DN 25 body (3 required) 16A7854X022
NPS 1-1/2 / DN 40 body (3 required) 16A7916X032
NPS 2 / DN 50 body (3 required) 16A7885X032
NPS 2-1/2 / DN 65 body (1 required) 14A5685X062
NPS 3 / DN 80 body (1 required) 17A1589X022
NPS 4 or 6 x 4 /
DN 100 or 150 x 100 body (1 required) 17A1614X022
19* Body Gasket,
For Cast iron and Steel bodies, Copper
NPS 1 / DN 25 body 14A6785X022
NPS 1-1/2 / DN 40 body 14A3384X022
NPS 2 / DN 50 body 14A5685X022
NPS 2-1/2 / DN 65 body 17A1563X012
NPS 3 / DN 80 body 13A0354X022
NPS 4 or 6 x 4 / DN 100 or 150 x 100 body 14A5650X022
For Stainless steel body, N04400 Nickel Alloy
NPS 1 / DN 25 body 14A6785X042
NPS 1-1/2 / DN 40 body 14A3384X042
NPS 2 / DN 50 body 14A5685X062
NPS 2-1/2 / DN 65 body 17A1563X022
NPS 3 / DN 80 body 13A0354X032
NPS 4 or 6 x 4 / DN 100 or 150 x 100 body 14A5650X052
20 Upper Stem, Stainless steel
NPS 1 / DN 25 body 16A7855X012
NPS 1-1/2 or 2 / DN 40 or 50 body 16A7886X012
21 Cylinder Spacer, Steel
NPS 1 / DN 25 body 26A7856X012
NPS 1-1/2 / DN 40 body 26A7918X012
NPS 2 / DN 50 body 26A7887X012
22* Stem Seal, Polytetrauoroethylene (PTFE)
NPS 1 / DN 25 body 16A7962X012
NPS 1-1/2 or 2 / DN 40 or 50 body 16A7963X012
23 Stem Seal Retainer, Stainless steel
NPS 1 / DN 25 body 16A7857X012
NPS 1-1/2 or 2 / DN 40 or 50 body 16A7888X012

Type 92S
23
*Recommended spare parts
24 Piston, Stainless steel
For Cast iron and Steel bodies,
NPS 1 / DN 25 body (2 required) 19A6005X012
NPS 1-1/2 / DN 40 body (2 required) 19A6006X012
NPS 2 / DN 50 body (2 required) 19A6007X012
NPS 2-1/2 / DN 65 body (1 required) 17A1564X012
NPS 3 / DN 80 body (1 required) 17A1590X012
NPS 4 or 6 x 4 /
DN 100 or 150 x 100 body (1 required) 17A1615X012
For Stainless steel body, Stainless steel
NPS 1 / DN 25 body (2 required) 19A6005X022
NPS 1-1/2 / DN 40 body (2 required) 19A6006X022
NPS 2 / DN 50 body (2 required) 19A6007X022
NPS 2-1/2 / DN 65 body (1 required) 17A1564X022
NPS 3 / DN 80 body (1 required) 17A1590X022
NPS 4 or 6 x 4 /
DN 100 or 150 x 100 body (1 required) 17A1615X022
25* Piston Ring, Stainless steel/PTFE
NPS 1 / DN 25 body (2 required) 19A6010X012
NPS 1-1/2 / DN 40 body (2 required) 19A6011X012
NPS 2 / DN 50 body (2 required) 19A6012X012
NPS 2-1/2 / DN 65 body (1 required) 17A1565X012
NPS 3 / DN 80 body (1 required) 17A1591X012
NPS 4 or 6 x 4 / DN 100 or 150 x 100 body (1 required) 17A1616X012
26 Ring Retainer, Stainless steel
NPS 1 / DN 25 body (2 required) 16A7860X012
NPS 1-1/2 / DN 40 body (2 required) 16A7922X012
NPS 2 / DN 50 body (2 required) 16A7891X012
NPS 2-1/2 / DN 65 body (1 required) 17A1566X012
NPS 3 / DN 80 body (1 required) 17A1592X012
NPS 4 or 6 x 4 / DN 100 or 150 x 100 body (1 required) 17A1617X012
29 Flow Arrow, Stainless steel
NPS 1 / DN 25 body 1V105938982
NPS 1-1/2, 2, 2-1/2, 3, 4, or 6 x 4 /
DN 40, 50, 65, 80, 100, or 150 x 100 body 1V106038982
32 Spring Seat,
For Cast iron and Steel bodies, Steel
NPS 2-1/2 / DN 65 body 17A1567X012
NPS 3 / DN 80 body 17A1593X012
NPS 4 or 6 x 4 / DN 100 or 150 x 100 body 17A1618X012
For Stainless steel, Stainless steel
NPS 2-1/2 / DN 65 body 17A1567X022
NPS 3 / DN 80 body 17A1593X022
NPS 4 or 6 x 4 / DN 100 or 150 x 100 body 17A1618X022
33 Plug Spacer, Stainless steel
NPS 2 size (Noise Attenuation only) 17A6563X012
NPS 2-1/2 / DN 65 body 17A1568X012
NPS 3 / DN 80 body 17A1594X012
NPS 4 or 6 x 4 / DN 100 or 150 x 100 body 17A1619X012
34 Washer,
For Cast iron and Steel bodies, Steel
NPS 2-1/2 or 3 / DN 65 or 80 body 17A1569X012
NPS 4 or 6 x 4 / DN 100 or 150 x 100 body 17A1620X012
For Stainless steel body, Stainless steel
NPS 2-1/2 or 3 / DN 65 or 80 body 17A1569X022
NPS 4 or 6 x 4 / DN 100 or 150 x 100 body 17A1620X022
35 Groove Pin, Stainless steel
NPS 2-1/2 / DN 65 or larger body 1C8989X0012
36 Deector, Stainless steel
(2 Noise Attenuation only) 17A6561X012
37 Screen, Stainless steel (Noise Attenuation only)
NPS 2 / DN 50 body 17A5751X012
NPS 2-1/2 / DN 65 body 17A7760X012
NPS 3 / DN 80 body 17A7761X012
NPS 4 or 6 x 4 / DN 100 or 150 x 100 body 17A7762X012
38* O-ring, PTFE
NPS 2-1/2 or 3 / DN 65 or 80 body 17A7396X012
NPS 4 or 6 x 4 / DN 100 or 150 x 100 body 17A7397X012
40 Lockwasher, Stainless steel
NPS 1 / DN 25 body 1F128035022
NPS 1-1/2 or 2 / DN 40 or 50 body 1A505638992
41 Hex Nut
NPS 1 / DN 25 body, Stainless steel 1A391535252
NPS 1-1/2 or 2 / DN 40 or 50 body, Plated steel 1A346524122
Pilot Mounting Parts (Figure 6)
81 Loading Tubing, Copper - - - - - - - - - - -
82 Pipe Nipple, Steel - - - - - - - - - - -
83 Connector, Brass - - - - - - - - - - -
84 Elbow, Brass (2 required for NPS 1, 1-1/2, or 2 /
DN 25, 40, or 50 body size and
1 required for larger sizes) - - - - - - - - - - -
85 Inlet Tubing, Copper (For NPS 1, 1-1/2, or 2 /
DN 25, 40, or 50) - - - - - - - - - - -
86 Street Elbow - - - - - - - - - - -
89 Pipe Nipple (2 required) - - - - - - - - - - -
90 Pipe Nipple - - - - - - - - - - -
93 Pipe Elbow - - - - - - - - - - -

Type 92S
©Emerson Process Management Regulator Technologies, Inc., 1984, 2013; All Rights Reserved
The Emerson logo is a trademark and service mark of Emerson Electric Co. All other marks are the property of their prospective owners. Fisher is a mark owned by Fisher Controls International LLC,
a business of Emerson Process Management.
The contents of this publication are presented for informational purposes only, and while every effort has been made to ensure their accuracy, they are not to be construed as warranties or
guarantees, express or implied, regarding the products or services described herein or their use or applicability. We reserve the right to modify or improve the designs or specications of such
products at any time without notice.
Emerson Process Management Regulator Technologies, Inc. does not assume responsibility for the selection, use or maintenance of any product. Responsibility for proper selection, use and
maintenance of any Emerson Process Management Regulator Technologies, Inc. product remains solely with the purchaser.
Industrial Regulators
Emerson Process Management
Regulator Technologies, Inc.
USA - Headquarters
McKinney, Texas 75070 USA
Tel: +1 800 558 5853
Outside U.S. +1 972 548 3574
Asia-Pacic
Shanghai 201206, China
Tel: +86 21 2892 9000
Europe
Bologna 40013, Italy
Tel: +39 051 419 0611
Middle East and Africa
Dubai, United Arab Emirates
Tel: +971 4811 8100
Natural Gas Technologies
Emerson Process Management
Regulator Technologies, Inc.
USA - Headquarters
McKinney, Texas 75070 USA
Tel: +1 800 558 5853
Outside U.S. +1 972 548 3574
Asia-Pacic
Singapore 128461, Singapore
Tel: +65 6770 8337
Europe
Bologna 40013, Italy
Tel: +39 051 419 0611
Chartres 28008, France
Tel: +33 2 37 33 47 00
Emerson Process Management
USA - Headquarters
Elk River, Minnesota 55330-2445, USA
Tels: +1 763 241 3238
+1 800 447 1250
Europe
Selmsdorf 23923, Germany
Tel: +49 38823 31 287
Asia-Pacic
Shanghai 201206, China
Tel: +86 21 2892 9499
For further information visit www.fisherregulators.com