Falcon K Series Lever Installation Instructions 110973
User Manual: Falcon K-Series Lever Installation Instructions Installation Instructions
Open the PDF directly: View PDF
.
Page Count: 10

*P517-273*
P517-273
Falcon K
Installation Instructions
Instrucciones de instalación
Notice d’installation
1 Mark Door.
A) Drill 1/8” (3 mm).
B) Backset
C) Drill 1/8” (3 mm).
A
B
C
2 Drill Door Holes.
A) 2-1/8” (54 mm) door hole for
lever assemblies.
B) A pair of 5/16” (8 mm) holes as
screw posts.
C) 1” (25.4 mm) hole for latch
installation.
A
B
C
Interior Lever
Security
Cap
Interior Rose
Inside Spring
Cage
Inside Mounting
Plate
Chassis
Latch
Outside Mounting
Plate
Outside Lever, Spring
Cage, and Rose

3 Install Latch.
3a Mark faceplate position.
3b Chisel 11/64” (4.3mm) Deep.
3c Install latch.
4 Install Strike.
4a Drill and prep jamb latch hole.
1" (25.4 mm)
1" (25.4 mm)
1" (25.4 mm)
5/16" (8 mm)
5/16" (8 mm)
4b Trace and prep strike plate for installation.
1/8" (3 mm)
4c Install strike.
5 Install Interchangeable Core.
LSkip this step if you purchased a standard product.
5a For 6-pin core: Insert the spacer spring (Part #5)
around the 2 prongs of the tailpiece (Part #2), and then
insert the tailpiece into the cylinder (Part #1).
For 7-pin core: Insert the tailpiece (Part #2) into the
adapting holes in the rear of the cylinder (spacer
spring is not required).
5b Insert the control key (Part #4) into the cylinder (Part
#1) and push the core into the opening of the lever.
5c Turn the control key (Part #4) around 10 degrees
counterclockwise to engage the core with the lever.
1 Cylinder
2 Tailpiece
3 Exterior Lever
4 Control Key
5 Spacer Springs
10 °
1
1
1
2
2
2
3
4
4
5
5
A-1
7
6
A-2

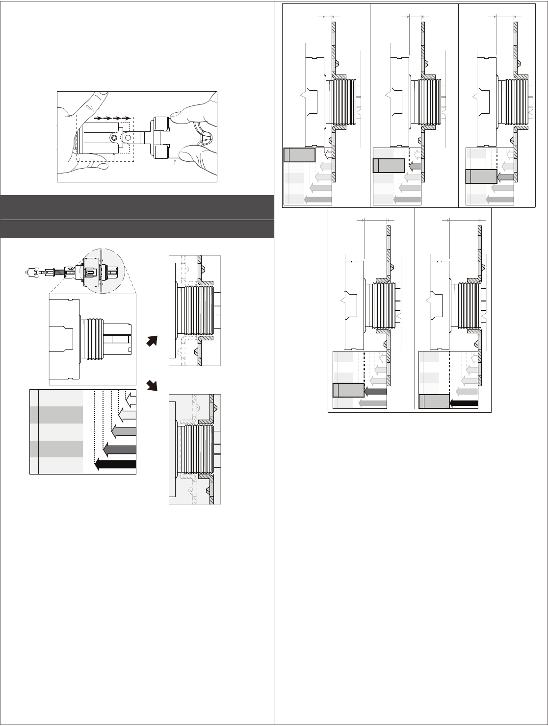
6 Adjust Door Thickness (Slider).
2-1/4” shown
2 "
1
41 "
3
41 "
3
8
2 "
1
41 "
3
41 "
3
81
3
8
Chassis
Move to scale 2-1/4” if door thickness ranges
from 2-1/8” to 2-1/4” (54-57 mm).
Move to scale 1-3/4” if door thickness ranges
from 1-11/16” to 2-1/8” (43-54 mm).
Move to scale 1-3/8” if door thickness ranges
from 1-3/8” to 1-11/16” (35-43 mm).
6a Press and pull the adjustment slider to the very end.
A.
2 "
1
41 "
3
41 "
3
8
LLock comes set to 1 3/4” (45 mm) door thickness.
6b Slide the push button until the correct scale is reached
by the scale positioner for adequate door thickness.
B.
1 "
3
8
6c Release the adjustment slider when the correct
scale is reached. A clip-on will then be heard as
conrmation.
C.
1 "
3
8
1 "
3
4
7 Adjust Door Thickness (Base Plate).
1-3/8"-1-3/4" (35-45 mm)
1-3/4"-2-1/4" (45-57 mm)
2 "
1
41 "
3
41 "
3
8
2-1/4"(57mm)
1-9/16"(40mm)
1-3/8"(35mm) a
b
c
d
e
a
b
1-3/4"(45mm)
c
e
2"(51mm)
d
Door Thickness Guide
(Remove from packaging box)
b c
d e
1-9/16" (40 mm) 1-3/4" (45mm)
2" (51 mm) 2-1/4" (57 mm)
a1-3/8" (35 mm)
2-1/4"(57mm)
1-3/4"(45mm)
2"(51mm)
a
c
b
d
e
c
1-9/64"(40mm)
b
d
e
1-3/8"(35mm)
a
a
c
b
d
e
2-1/4"(57mm)
2"(51mm)
d
e
1-3/8"(35mm)
a
1-3/4"(45mm)
c
1-9/16"(40mm)
b
a
c
b
d
e
2-1/4"(57mm)
2"(51mm)
d
e
1-3/8"(35mm)
a
1-9/16"(40mm)
b
1-3/4"(45mm)
c
a
c
b
d
e
2-1/4"(57mm)
e
1-3/8"(35mm)
a
1-9/16"(40mm)
b
1-3/4"(45mm)
c
2"(51mm)
d
a
c
b
d
e
1-3/8"(35mm)
a
1-9/16"(40mm)
b
1-3/4"(45mm)
c
2"(51mm)
d
2-1/4"(57mm)
e
Interior Exterior

8 Install Exterior Lever Assembly.
Install the exterior lock body in the door hole so it connects with the
latch.
Or
Latch
Chassis
Exterior
Assembly
Exterior
Lever
Exterior
Lever
9 Install Interior Base Plate and Rose Plate.
9a Install the interior base plate with screws so it ts on
the door hole and connects with the exterior lever
assembly.
Interior
Base Plate
LProper installation of these pieces directly affects the
longevity of the product.
9b Install the interior rose plate with screws so it ts on
the base plate.
Interior
Rose
Plate
10 Install Inside Rose and Lever.
10a Install the rose on the rose plate and turn it
counterclockwise until it is secured.
Interior
Rose
10b Insert the security cap into the lever rst, and then
install the lever on the chassis with an Allen wrench.
Security Cap
LEnsure the security cap is fully seated and tightened.
10c For disassembly, unscrew the lever with an Allen
wrench and disassemble the lever with the pick-up pin.

1 Marcar la puerta.
Marquez la porte.
A) Perfore un oricio piloto
de 1/8” (3 mm).
Percez un avant-trou de 1/8
po (3 mm).
B) Aguja
Distance d’entrée
C) Perfore un oricio piloto
de 1/8” (3 mm).
Percez un avant-trou
de 1/8 po (3 mm).
A
B
C
2 Perfore un oricio en la puerta.
Percez un trou dans la porte.
A) Oricio de puerta de 2-1/8” (54
mm) para montaje de palanca.
Trou de porte de 2 1/8 po (54 mm)
pour assemblages à levier.
B) Un par de oricios de 5/16”
(8 mm) como postes roscados
Une paire de trous de 5/16 po
(8 mm) comme colonnes à vis.
C) Oricio de 1” (25,4 mm) para
instalación del pestillo.
Un trou d’un (1) po (25.4 mm)
pour l’installation du pêne.
A
B
C
Palanca interna
Levier intérieur
Tapón de
seguridad
Capuchon
de sûreté
Rosa interna
Rosette intérieure
Jaula del resorte interno
Cage à ressorts
intérieure
Placa interna de montaje
Plaque de montage intérieure
Chasis
Châssis
Boulon transperçant
Perno
Placa externa de montaje
Plaque de montage
extérieure
Manija externa, jaula
de resorte y rosa
Levier extérieur, cage à
ressorts et rosette

3 Instale el pestillo.
Installez le pêne.
3a Marque la posición de la placa frontal.
Marquez la position de la têtière.
3b Creuser au ciseau à une profondeur de 4,3 mm
(11/64 po).
Cincel 11/64” (4,3 mm) de profundidad.
3c Instale el pestillo.
Installez le pêne.
4 Instale el cerradero.
Installez la gâche.
4a Perfore y prepare el oricio del pestillo muerto de la
jamba.
Percer le piédroit de porte et préparez-le trou du pêne
dormant.
1" (25.4 mm)
1" (25.4 mm)
1" (25.4 mm)
5/16" (8 mm)
5/16" (8 mm)
4b Ubique y prepare la placa de la cerradura para su
instalación.
Tracer et préparer la plaque de la gâche pour
l’installer.
1/8" (3 mm)
4c Instale el cerradero.
Installez la gâche.
5 Instale el núcleo intercambiable.
Installez le noyau interchangeable.
LSalte este paso si compró un producto estándar.
LVeuillez sauter cette étape si vous avez acheté un produit
standard.
5a Para núcleo de 6 clavijas: inserte el resorte separador
(pieza #5) alrededor de los 2 dientes de la cola (pieza
#2), luego inserte la cola en el cilindro (pieza #1).
Pour noyau à 6 goupilles : Insérez le ressort
d’écartement (Pièce nº 5) autour des 2 broches de la
queue de pêne (Pièce nº 2); ensuite, insérez la queue
de pêne à l’intérieur du cylindre (Pièce nº 1).
Para núcleo de 7 clavijas: inserte la cola (pieza #2)
en los oricios de adaptación de la parte posterior del
cilindro. (No se requiere resorte separador.)
Pour noyau à 7 goupilles : Insérez la queue de pêne
(Pièce nº 2) à l’intérieur des trous réglables situés à
l’arrière du cylindre. (Le ressort d’écartement n’est pas
requis.)

5b Inserte la llave de control (pieza #4) en el cilindro
(pieza #1) y presione el núcleo hacia adentro de la
abertura de la palanca.
Insérez la clé de contrôle (Pièce #4) dans le cylindre
(Pièce nº 1) et poussez le noyau à l’intérieur de
l’ouverture du levier.
5c Gire la llave de control (pieza #4) alrededor de 10
grados en sentido antihorario para encastrar el núcleo
en la palanca.
Tournez la clé de contrôle (Pièce #4) à environ 10
degrés dans le sens anti-horaire pour engager le
noyau et le levier.
1 Cilindro Cylindre
2 Cola Queue de pêne
3 Palanca exterior Levier extérieur
4 Llave de control Clé de contrôle
5 Resorte separador Ressort d’écartement
10 °
1
1
1
2
2
2
3
4
4
5
5
A-1
7
6
A-2
6 Ajuste el espesor de la puerta (control deslizante).
Réglez l’épaisseur de la porte (Glisseur).
Se muestra 2-1/4”
2-1/4” illustré
2 "
1
41 "
3
41 "
3
8
2 "
1
41 "
3
41 "
3
81
3
8
Bastidor
Encadrement
Mueva para ajustar a 2-1/4” si el espesor de la
puerta varía entre 2-1/8” y 2-1/4” (54 a 57 mm)
Utilisez l’échelle de 2 1/4 po (34.925 mm) si
l’épaisseur de la porte est de 2 1/8 po à 2 1/4 po
(54 à 57 mm)
Mueva para ajustar a 1-3/4” si el espesor de la
puerta varía entre 1-11/16” y 2-1/8” (43 a 54 mm)
Utilisez l’échelle de 1 3/4 po (44.45 mm) si
l’épaisseur de la porte est de 1 11/16 po à 2
1/8po (43 à 54 mm)
Mueva para ajustar a 1-3/8” si el espesor de la
puerta varía entre 1-3/8” y 1-11/16” (35 a 43 mm)
Utilisez l’échelle de 1 3/8 po (57.15 mm) si
l’épaisseur de la porte est de 1 3/8 po à 1 11/16
po (35 à 43 mm)
6a Presione y jale el ajuste deslizante hasta el extremo.
Appuyez et tirez le glisseur de réglage jusqu’au bout.
A.
2 "
1
41 "
3
41 "
3
8
LLa cerradura viene congurada para un espesor de puerta
de 1¾” (45 mm).
LLe verrou est livré pour une épaisseur de porte de 45mm
(1¾ po).
6b Deslice el pulsador hasta que el posicionador de
escuadra alcance la escuadra derecha para lograr un
espesor de puerta adecuado.
Faites glisser le bouton-poussoir jusqu’au moment où
l’échelle correcte a été atteinte par le positionneurde
l’échelle pour l’épaisseur adéquate de la porte.
B.
1 "
3
8

6c Suelte el ajuste deslizante cuando se alcance la
escuadra derecha. Se debe escuchar un “clic” como
conrmación.
Relâchez le glisseur de réglage dès que l’échelle
correcte est atteinte. Un clic se fera entendre comme
conrmation dès qu’il sera en place.
C.
1 "
3
8
1 "
3
4
7 Ajuste el espesor de la puerta (Placa base).
Réglez l’épaisseur de la porte (Plaque de base).
1-3/8"-1-3/4" (35-45 mm)
1-3/4"-2-1/4" (45-57 mm)
2 "
1
41 "
3
41 "
3
8
2-1/4"(57mm)
1-9/16"(40mm)
1-3/8"(35mm) a
b
c
d
e
a
b
1-3/4"(45mm)
c
e
2"(51mm)
d
Guía de espesor de la puerta
(tomar de la caja de empaque)
Guide d’épaisseur de porte
(Retirez de la boîte
d’emballage)
b c
d e
1-9/16" (40 mm) 1-3/4" (45mm)
2" (51 mm) 2-1/4" (57 mm)
a1-3/8" (35 mm)
2-1/4"(57mm)
1-3/4"(45mm)
2"(51mm)
a
c
b
d
e
c
1-9/64"(40mm)
b
d
e
1-3/8"(35mm)
a
a
c
b
d
e
2-1/4"(57mm)
2"(51mm)
d
e
1-3/8"(35mm)
a
1-3/4"(45mm)
c
1-9/16"(40mm)
b
a
c
b
d
e
2-1/4"(57mm)
2"(51mm)
d
e
1-3/8"(35mm)
a
1-9/16"(40mm)
b
1-3/4"(45mm)
c
a
c
b
d
e
2-1/4"(57mm)
e
1-3/8"(35mm)
a
1-9/16"(40mm)
b
1-3/4"(45mm)
c
2"(51mm)
d
a
c
b
d
e
1-3/8"(35mm)
a
1-9/16"(40mm)
b
1-3/4"(45mm)
c
2"(51mm)
d
2-1/4"(57mm)
e
Interior
Intérieur
Exterior
Extérieur

8 Instale el mecanismo de palanca exterior.
Installez l’assemblage de levier extérieur.
Installez le corps extérieur de la serrure dans le trou Instale el
cuerpo de bloqueo exterior en el oricio de la puerta, de manera
que conecte con el pestillo.
Installez le corps extérieur de la serrure dans le trou de la porte
pour qu’elle soit connectée au pêne.
O
Ou
Chasis
Châssis
Boulon
transperçant
Perno
Placa externa de
montaje
Plaque de montage
extérieure
Manija externa
Levier extérieur
9 Instale la placa base interior y la placa de roseta.
Installez la plaque de base intérieure et la plaque en
forme de rose.
9a Instale la placa base interior con tornillos de manera
que quepa en el oricio de la puerta y conecte con el
mecanismo de palanca exterior.
9b Installez la plaque de base intérieure avec des vis
pour qu’elle soit bien ajustée sur le trou de la porte
et qu’elle se connecte avec l’assemblage de levier
extérieur.
Placa de roseta
interior
Plaque intérieure en
forme de rose
LLa instalación correcta de estas piezas afecta
directamente la duración del producto.
LL’installation correcte de ces pièces affecte directement la
longévité du produit.
9c Instale la placa de roseta interior con tornillos de
manera que quepa en la placa base.
Installez la plaque intérieure en forme de rose avec
des vis pour qu’elle s’ajuste bien sur la plaque de
base.
Roseta
interior
Rose
intérieure
I
10 Instale la roseta y palanca interior.
Installez à l’intérieur la rose et le levier.
10a Instale la roseta sobre la placa de roseta, luego gírela
en sentido antihorario hasta que esté ajustada.
Installez la rose sur la plaque et tournez-la dans
le sens anti-horaire jusqu’au moment où elle est
sécurisée.
Roseta
interior
Rose
intérieure

10b Inserte el tapón de seguridad en la palanca, luego
instale la palanca sobre el bastidor con una llave Allen.
Insérez premièrement le capuchon de sûreté à
l’intérieur du levier; ensuite, installez le levier sur
l’encadrement avec une clef Allen.
Tapón de
seguridad
Capuchon
de sûreté
LVerique que la tapa de seguridad esté completamente
asentada y ajustada.
LAssurez-vous que le capuchon de sécurité est
complètement engagé et serré.
10c Para el desensamblaje, desatornille la manija con una
llave Allen y desensamble la manija con la llave para
clavija.
Pour le démontage, dévisser le levier à l’aide d’une clé
Allen et démonter le levier avec la clé à ergot.
© Allegion 2015
Printed in Taiwan
P517-273 Rev. 07/15-b
Customer Service Servicio al cliente Service à la clientèle
1-877-671-7011 www.allegion.com/us