Furuno USA 9ZWRTR079A Marine Radar User Manual Inst manual part 2
Furuno USA Inc Marine Radar Inst manual part 2
Contents
- 1. op manual
- 2. Inst manual part 1
- 3. Inst manual part 2
Inst manual part 2

4. INSTALLING OPTIONAL EQUIPMENT
4-16
Lifting fixture
*
A
P922
View
Fix the cable.
Stern side
Bow side
Gasket
Lifting fixture
Scanner cover assy
Scanner cover assy
Relay plate
TB board
J911 is on rear side.
1.Insert the lifting fixture
as shown below.
Lifting fixture
Coating face
Note:Fix flat side of the fixture to
the coating face.
2. Fix the lifting fixture
as shown below.
Upside down the fixture
from step 1 and pull it
in arrow mark direction.
TB board 03P9349
How to fix lifting fixture
Change the chain here.
B

4. INSTALLING OPTIONAL EQUIPMENT
4-17
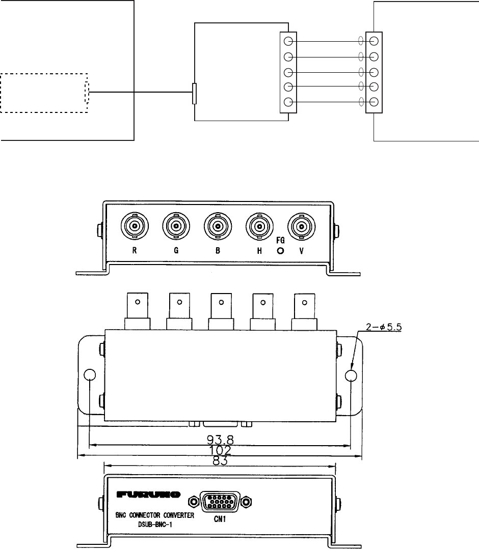
4.5 BNC Connector Converter
To connect the VR-5000 (FURUNO Voyage Data Recorder) to this radar, the DVI-RGB
conversion kit (mentioned at previous paragraph) and the BNC connector converter are
required. Also VGA cable (between the processor unit and the BNC connector converter)
and five 75 ohms coaxial cables (between the BNC connector converter and VR-5000) are
required.
BNC connector
converter
DSUB-BNC-1
VR-5000
Data collecting unit
FAR-2107
Processor Unit
DVI-RGB
Conversion kit
D-sub 15P
Female
VGA cable
75
W
coax. cable VD1
R
G
B
HS
VS
R
G
B
H
V
D-sub 15P
Male
Interconnection

4. INSTALLING OPTIONAL EQUIPMENT
4-18
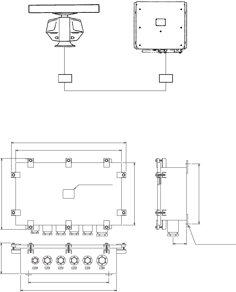
4.6 Junction Box
If the length of the antenna cable is more than 100 m, the optional junction boxes are
required. These boxes should be mounted at the location protected because its
waterproofing is IPX3.
RW-9600
(Max 15 m)
Junction box
RJB-001
RW-9600
(Max 15 m)
DPYCY-6 (3 pcs.)
TTYCY-4 (1 pc.)
RG-12/UY (1 pc.) (Max 270 m)
Antenna unit Processor unit
Junction box
RJB-001
Shipyard supply
Mounting
Fasten the junction boxes to the mounting location with four sets of M8 bolt and nut.
514
474
320
280
139
360
430
270
60
NAMEPLATE
4-
I
10
FIXING HOLES
Mass: 12kg

4. INSTALLING OPTIONAL EQUIPMENT
4-19
Cable fabrication
RW-9600
6
14 59
approx. 450
5
20
Armor
Units: mm
Shield
Vinyl sheath Pull out inner cables from here.
Shield Coaxial cable
Crimp on lug for M8
DPYC-6 and TTYC-4
20
56
DPYC-6: approx. 130
TTYCY-4: approx. 150
Conductor
S = 0.75 mm
= 1.11 mm
2
TTYCY-4 (Four twisted pairs)
Armor
Sheath
= 17.7 mm Sheath
Conductor
S = 6 mm
I
= 3.12 mm
2
DPYCY-6
Armor
Sheath
I
= 13.9 mm
Armor
Vinyl sheath
Taper for unused wires.
I
I
RG-12/UY
20
60
14 9
5
Vinyl sheath Armor
Inner conductor
Outer conductor

4. INSTALLING OPTIONAL EQUIPMENT
4-20
Connection
Insert each cable to the cable gland as follows.
Flat washer Cable gland
Vinyl sheath
Clamping gland Gasket
Cut and trim armor.
Connect each cable cores to the terminal board, referring to the interconnection diagram on
next page.
15 14 13 12 11 10 987654321
RG12/UY
RG-12/UY TTYCY-4 DPYCY-6 RW-9600
Connect inner conductors. M8 screw for grounding
Clamp outer conductor of coaxial cables. Fix wires with cable-tie.

4. INSTALLING OPTIONAL EQUIPMENT
4-21
RED[B]
GRN[B]
WHT
BRK
GRN
RED
WHT[B]
PPL[B]
COAX
GLY[B]
BLU[B]
YEL[B]
ORG[B]
BRN
N.C.
N.C.
N.C.
03P9349
TB802
12
2
13
14
3
4
5
6
7
8
9
10
11
1
TB801
1
2
GND
SIG-GND
1
2
Junction box
Antenna unit
GND
IF_VIDEO
RF_SPU_D_B
RF_SPU_D_A
SPU_RF_D_B
SPU_RF_D_A
MOTOR(-)
MOTOR(-)
MOTOR(+)
MOTOR(+)
24V_MINUS
24V_PLUS
N.C.
TX-HV
RED[B]
GRN[B]
WHT
BRK
GRN
RED
WHT[B]
PPL[B]
GLY[B]
BLU[B]
YEL[B]
ORG[B]
BRN
N.C.
N.C.
N.C.
03P9342
1
2
1
2
3
4
5
6
7
8
9
10
11
12
13
14
15
J610
GND
SIG-GND
10
2
1
2
3
4
5
6
7
8
9
1
2
1
J613
Processor unit
GND
IF_VIDEO
RF_SPU_D_B
RF_SPU_D_A
SPU_RF_D_B
SPU_RF_D_A
MOTOR(-)
MOTOR(-)
MOTOR(+)
MOTOR(+)
24V_MINUS
24V_PLUS
N.C.
TX-HV
1
2
3
4
5
6
7
8
9
10
11
12
13
14
15
11
12
Junction box
RW-9600
RW-9600
RG-12/UY
DPYCY-6
TTYCY-4
J609
COAX
DPYCY-6
DPYCY-6
Clamp with cable-clamp
IV-1.25
pair
pair
4. INSTALLING OPTIONAL EQUIPMENT
4-22
This page is intentionally left blank.

5-1
5. INPUT/OUTPUT DATA
Input and output data are shown in the table below.
Note: This radar accepts position data fixed by WGS-84 geodetic datum only. Set the
datum to WGS-84 on the EPFS (GPS, etc.) connected to this radar. If other type of datum is
input, the error message "DATUM" appears and the AIS feature is inoperative. Baud rate for
the serial input is automatically set to 4800, 9600, 19200 or 38400 as appropriate.
Input
Data Specifications Contents Remarks
synchro or step GC-10 required
AD-10 format External AD-100
Heading signal
IEC 61162-2**
AD-10 and
IEC 61162 are switched by
menu setting.
Speed signal IEC 61162-1
Navaid data IEC 61162-1 Position, course,
speed, LORAN-C TD,
waypoint, route, time,
wind data, current
data, depth,
temperature, roll,
pitch, ROT
For IMO spec, IEC-61162-1
Edition 2 is required.
External radar
signal Heading,
Bearing, Trigger,
Video
No STC control Operate as remote display
Contact closure Input from alarm system Alarm ACK input
IEC61162-1 ACK Input from alarm system
Track Control unit RS-422 Option
Output
Radar system data RS-232C RSD, OSD, TLL, For PC plotter
TT data* IEC 61162-1 TTD, TTM For ECDIS
ALARM data IEC 61162-1 ALR For ALARM system
Remote display
signal HD, BP Trigger,
Video 2 ports
External LCD
monitor signal DVI Same as main display
unit 2 systems in total
External CRT
monitor signal R, G, B, H, V Same as main display
unit Option
Contact closure Output to alarm system
by using photo-relay 4 systems, Output contents
are selected by menu.
Alarm signal
IEC 61162-1 ALR Output to alarm system
*The output sentence, mode and baud rate can be set at the TT Preset menu.
**Data cycle should be input with more than 40 Hz (HSC) or 20 Hz (normal speed).

5. INPUT/OUTPUT DATA
5-2
IEC 61162 input sentence and priority
Contents Sentence and priority
Speed (STW)
Speed (SOG)
Speed (position)
Heading (True)
Position
Datum
Waypoint
Route
Date
Depth
Temperature
Wind
Set and Drift
ALARM ACK
VBW>VHW
VBW
VTG>RMC
THS*>HDT*
GNS>GGA>RMC>GLL
DTM
BWR>BWC> RMB
WPL, RTE
ZDA
DPT >DBT>DBS>DBK
MTW
MWV>VWT>VWR
VDR
ACK
*: THS and HDT are IEC61162-2
Others: IEC61162-1 ed2.
IEC 61162 output sentence
Contents Sentence
Target L/L
Radar system data
Own ship data
TT target data
ALARM data
TLL *
RSD
OSD
TTD, TLB, TTM
ALR
*non IMO-type only.

%1&'01
6;2'
%2
⇛ޓޓ࿑
176.+0'
ฬޓޓ⒓
0#/'
ᢙ㊂
36;
↪ㅜ㧛⠨
4'/#4-5
⇟ภ
01
ဳฬ㧛ⷙᩰ
&'5%4+26+105
+056#..#6+10/#6'4+#.5
Ꮏ᧚ᢱ
).:
ⷺ㩏㨹㩎㩆㨷
*':076 /575
%1&'
01
ⷺ㩘㩨㩣㩎
*':$1.6 /:575
%1&'
01
㨻㨺㩇✢
)4170&9+4' 49
%1&'
01
㧔⇛࿑ߩኸᴺߪޔෳ⠨୯ߢߔޕޓ&+/'05+105+0&4#9+0)(144'('4'0%'10.;㧕
㧲㨁㧾㨁㧺㧻ޓ㧱㧸㧱㧯㨀㧾㧵㧯ޓ㧯㧻ޓ㧚
㧘
㧸㨀㧰
).:
ဳᑼ㩄㨺㩎㩨⇟ภ߇㧞Ბߩ႐วޔਅᲑࠃࠅᲑߦઍࠊࠆㆊᷰᦼຠߢࠅޔߤߜࠄ߆߇ߞߡ߹ߔޕޓߥ߅ޔຠ⾰ߪᄌࠊࠅ߹ߖ
ࠎޕ
6916;2'5#0&%1&'5/#;$'.+56'&(14#0+6'/6*'.19'4241&7%6/#;$'5*+22'&+02.#%'1(6*'722'4
241&7%637#.+6;+56*'5#/'
A
-2
%1&'01
6;2'
%2
⇛ޓޓ࿑
176.+0'
ฬޓޓ⒓
0#/'
ᢙ㊂
36;
↪ㅜ㧛⠨
4'/#4-5
⇟ภ
01
ဳฬ㧛ⷙᩰ
&'5%4+26+105
+056#..#6+10/#6'4+#.5
Ꮏ᧚ᢱ
).:
㒐ⲁࠧࡓ
%14415+10
2411(47$$'4
/#6
41*5
%1&'
01
㩆㨺㩣㩦㨹㩆㨶
5'#.9#5*'4
%1&'
01
41*5
ᠲ㩤㩔㩨㨺
6'4/+0#.12'0'4
%1&'
01
⌕┵ሶ
%4+/210.7) (8.(
%1&'
01
㩔㩨㩒ᐳ㊄
524+0)9#5*'4 /575
%1&'
01
㩚㩀㩨㩁㩙㩣ᐔᐳ㊄
(.#69#5*'4 /575
%1&'
01
ⷺ㩏㨹㩎㩆㨷
*':076 /575
%1&'
01
ⷺ㩘㩨㩣㩎㧔ో㩒㩆㩨㧕
*':$1.6 /:575
%1&'
01
㩚㩀㩨㩁ᐔᐳ㊄
(.#69#5*'4 /575
%1&'
01
㩔㩨㩒ᐳ㊄
524+0)9#5*'4 /575
%1&'
01
㧔⇛࿑ߩኸᴺߪޔෳ⠨୯ߢߔޕޓ&+/'05+105+0&4#9+0)(144'('4'0%'10.;㧕
㧲㨁㧾㨁㧺㧻ޓ㧱㧸㧱㧯㨀㧾㧵㧯ޓ㧯㧻ޓ㧚
㧘
㧸㨀㧰
).:
ဳᑼ㩄㨺㩎㩨⇟ภ߇㧞Ბߩ႐วޔਅᲑࠃࠅᲑߦઍࠊࠆㆊᷰᦼຠߢࠅޔߤߜࠄ߆߇ߞߡ߹ߔޕޓߥ߅ޔຠ⾰ߪᄌࠊࠅ߹ߖ
ࠎޕ
6916;2'5#0&%1&'5/#;$'.+56'&(14#0+6'/6*'.19'4241&7%6/#;$'5*+22'&+02.#%'1(6*'722'4
241&7%637#.+6;+56*'5#/'
A
-1
(QTCPVGPPCWPKV

%1&'01
6;2'
%2
⇛ޓޓ࿑
176.+0'
ฬޓޓ⒓
0#/'
ᢙ㊂
36;
↪ㅜ㧛⠨
4'/#4-5
⇟ภ
01
ဳฬ㧛ⷙᩰ
&'5%4+26+105
+056#..#6+10/#6'4+#.5
Ꮏ᧚ᢱ
(5:
㩕㩩㩧
2+0
%1&'
01
1㩢㩧㩂㩨
14+0) ,$2
%1&'
01
ⷺ㩇㩢㩦㩢㩈㩛㩇$
*':$1.6
5.166'&9#5*'4
*'#&
/:575
%1&'
01
/:575
㩃㩚㩆㨺㩣
5+.+%1047$$'4 59㨻㩣㩚㩋㨷㨺㩖㩨)
%1&'
01
㧔⇛࿑ߩኸᴺߪޔෳ⠨୯ߢߔޕޓ&+/'05+105+0&4#9+0)(144'('4'0%'10.;㧕
㧲㨁㧾㨁㧺㧻ޓ㧱㧸㧱㧯㨀㧾㧵㧯ޓ㧯㧻ޓ㧚
㧘
㧸㨀㧰
(5:
ဳᑼ㩄㨺㩎㩨⇟ภ߇㧞Ბߩ႐วޔਅᲑࠃࠅᲑߦઍࠊࠆㆊᷰᦼຠߢࠅޔߤߜࠄ߆߇ߞߡ߹ߔޕޓߥ߅ޔຠ⾰ߪᄌࠊࠅ߹ߖ
ࠎޕ
6916;2'5#0&%1&'5/#;$'.+56'&(14#0+6'/6*'.19'4241&7%6/#;$'5*+22'&+02.#%'1(6*'722'4
241&7%637#.+6;+56*'5#/'
A
-4
%1&'01
6;2'
%2
⇛ޓޓ࿑
176.+0'
ฬޓޓ⒓
0#/'
ᢙ㊂
36;
↪ㅜ㧛⠨
4'/#4-5
⇟ภ
01
ဳฬ㧛ⷙᩰ
&'5%4+26+105
+056#..#6+10/#6'4+#.5
Ꮏ᧚ᢱ
(5:
1㩢㩧㩂㩨
14+0) ,$2
%1&'
01
ࡃࡀᐳ㊄
524+0)9#5*'4 /575
%1&'
01
㩚㩀㩨㩁ਣᐔᐳ㊄
(.#69#5*'4 /575
%1&'
01
ⷺ㩇㩢㩦㩢㩘㩨㩣㩎
*':$1.6
5.166'&*'#&
/:575
%1&'
01
㩃㩚㩆㨺㩣
5+.+%1047$$'4 59㨻㩣㩚㩋㨷㨺㩖㩨)
%1&'
01
㧔⇛࿑ߩኸᴺߪޔෳ⠨୯ߢߔޕޓ&+/'05+105+0&4#9+0)(144'('4'0%'10.;㧕
㧲㨁㧾㨁㧺㧻ޓ㧱㧸㧱㧯㨀㧾㧵㧯ޓ㧯㧻ޓ㧚
㧘
㧸㨀㧰
(5:
ဳᑼ㩄㨺㩎㩨⇟ภ߇㧞Ბߩ႐วޔਅᲑࠃࠅᲑߦઍࠊࠆㆊᷰᦼຠߢࠅޔߤߜࠄ߆߇ߞߡ߹ߔޕޓߥ߅ޔຠ⾰ߪᄌࠊࠅ߹ߖ
ࠎޕ
6916;2'5#0&%1&'5/#;$'.+56'&(14#0+6'/6*'.19'4241&7%6/#;$'5*+22'&+02.#%'1(6*'722'4
241&7%637#.+6;+56*'5#/'
A
-3
(QTTCFKCVQTQHCPVGPPCWPKV

㧼㧭㧯㧷㧵㧺㧳ޓ㧸㧵㧿㨀
).:
/7%4
0#/' 176.+0' &'5%4+26+10%1&'ͳ 36;
࡙࠾࠶࠻ 70+6
␜ㇱ
&+52.#;70+6
/7%45*-#6
੍ຠ 52#4'2#465
੍ຠ
52#4'2#465
52
&%↪
੍ຠ 52#4'2#465
੍ຠ
52#4'2#465
52
#%↪
ઃዻຠ #%%'5514+'5
ઃዻຠ
#%%'5514+'5
(2
Ꮏ᧚ᢱ +056#..#6+10/#6'4+#.5
㩃㨺㩖㩨㩣⚵ຠ
%#$.'#55;
&8+&&5+0).'.+0-/
㪈㪅䍘䍎䍢䍼ᧃየ䈮㪲㪁㪁㪴䈱ઃ䈇䈢䍳䍤䍍䍢䈲ઍ䈱ဳᑼ㪆䍘䍎䍢䍼䉕␜䈚䈩䈇䉁䈜䇯
㪛㪦㪬㪙㪣㪜㩷㪘㪪㪫㪜㪩㪠㪪㪢㩷㪛㪜㪥㪦㪫㪜㪪㩷㪚㪦㪤㪤㪦㪥㪣㪰㩷㪬㪪㪜㪛㩷㪜㪨㪬㪠㪧㪤㪜㪥㪫㪅
㪉㪅੍ຠ䈲䇮㪘㪚↪㪃㪛㪚↪䈪ㆬᛯ㗿䈇䉁䈜䇯
㪚㪟㪦㪦㪪㪜㩷㪪㪧㪘㪩㪜㩷㪧㪘㪩㪫㪪㩷㪛㪜㪧㪜㪥㪛㪠㪥㪞㩷㪦㪥㩷㪘㪚㩷㪦㪩㩷㪛㪚㩷㪧㪦㪮㪜㪩㪅
䋨⇛࿑䈱ኸᴺ䈲䇮ෳ⠨୯䈪䈜䇯㩷㩷㪛㪠㪤㪜㪥㪪㪠㪦㪥㪪㩷㪠㪥㩷㪛㪩㪘㪮㪠㪥㪞㩷㪝㪦㪩㩷㪩㪜㪝㪜㪩㪜㪥㪚㪜㩷㪦㪥㪣㪰㪅䋩
).:
ဳᑼ㪆䍘䍎䍢䍼⇟ภ䈏䋲Ბ䈱႐ว䇮ਅᲑ䉋䉍Ბ䈮ઍ䉒䉎ㆊᷰᦼຠ䈪䈅䉍䇮䈬䈤䉌䈎䈏䈦䈩䈇䉁䈜䇯䇭䈭䈍䇮ຠ⾰䈲ᄌ䉒䉍䉁䈞䉖䇯
㪫㪮㪦㩷㪫㪰㪧㪜㪪㩷㪘㪥㪛㩷㪚㪦㪛㪜㪪㩷㪤㪘㪰㩷㪙㪜㩷㪣㪠㪪㪫㪜㪛㩷㪝㪦㪩㩷㪘㪥㩷㪠㪫㪜㪤㪅㩷㩷㪫㪟㪜㩷㪣㪦㪮㪜㪩㩷㪧㪩㪦㪛㪬㪚㪫㩷㪤㪘㪰㩷㪙㪜㩷㪪㪟㪠㪧㪧㪜㪛㩷㪠㪥㩷㪧㪣㪘㪚㪜㩷㪦㪝㩷㪫㪟㪜㩷㪬㪧㪧㪜㪩㩷
㪧㪩㪦㪛㪬㪚㪫㪅㩷㪨㪬㪘㪣㪠㪫㪰㩷㪠㪪㩷㪫㪟㪜㩷㪪㪘㪤㪜㪅
A
-6
%1&'01
6;2'
⇛ޓޓ࿑
176.+0'
ฬޓޓ⒓
0#/'
ᢙ㊂
36;
↪ㅜ㧛⠨
4'/#4-5
⇟ภ
01
ဳฬ㧛ⷙᩰ
&'5%4+26+105
+056#..#6+10/#6'4+#.5
Ꮏ᧚ᢱ
).:
(#4(%4
㩃㨺㩖㩨㩣%
%#$.' 49/
ㆬᛯޓ61$'5'.'%6'&
ାภ㩃㨺㩖㩨㩣ޓޓ
5+)0#.%#$.'
%1&'
01
㩃㨺㩖㩨㩣%
%#$.' 49/
ㆬᛯޓ61$'5'.'%6'&
ାภ㩃㨺㩖㩨㩣ޓޓ
5+)0#.%#$.'
%1&'
01
㩃㨺㩖㩨㩣%
%#$.' 49/
ㆬᛯޓ61$'5'.'%6'&
ାภ㩃㨺㩖㩨㩣ޓޓ
5+)0#.%#$.'
%1&'
01
㩃㨺㩖㩨㩣%
%#$.' 49/
ㆬᛯޓ61$'5'.'%6'&
ାภ㩃㨺㩖㩨㩣ޓޓ
5+)0#.%#$.'
%1&'
01
㧔⇛࿑ߩኸᴺߪޔෳ⠨୯ߢߔޕޓ&+/'05+105+0&4#9+0)(144'('4'0%'10.;㧕
㧲㨁㧾㨁㧺㧻ޓ㧱㧸㧱㧯㨀㧾㧵㧯ޓ㧯㧻ޓ㧚
㧘
㧸㨀㧰
).:
ဳᑼ㩄㨺㩎㩨⇟ภ߇㧞Ბߩ႐วޔਅᲑࠃࠅᲑߦઍࠊࠆㆊᷰᦼຠߢࠅޔߤߜࠄ߆߇ߞߡ߹ߔޕޓߥ߅ޔຠ⾰ߪᄌࠊࠅ߹ߖ
ࠎޕ
6916;2'5#0&%1&'5/#;$'.+56'&(14#0+6'/6*'.19'4241&7%6/#;$'5*+22'&+02.#%'1(6*'722'4
241&7%637#.+6;+56*'5#/'
A
-5

㧼㧭㧯㧷㧵㧺㧳ޓ㧸㧵㧿㨀
)/:
/7%4
0#/' 176.+0' &'5%4+26+10%1&'ͳ 36;
࡙࠾࠶࠻ 70+6
␜ㇱ
&+52.#;70+6
/7%45*-#4
੍ຠ 52#4'2#465
੍ຠ
52#4'2#465
52
#%↪
੍ຠ 52#4'2#465
੍ຠ
52#4'2#465
52
&%↪
ઃዻຠ #%%'5514+'5
ઃዻຠ
#%%'5514+'5
(2
Ꮏ᧚ᢱ +056#..#6+10/#6'4+#.5
㩃㨺㩖㩨㩣⚵ຠ
%#$.'#55;
&8+&&5+0).'.+0-/
㪈㪅䍘䍎䍢䍼ᧃየ䈮㪲㪁㪁㪴䈱ઃ䈇䈢䍳䍤䍍䍢䈲ઍ䈱ဳᑼ㪆䍘䍎䍢䍼䉕␜䈚䈩䈇䉁䈜䇯
㪛㪦㪬㪙㪣㪜㩷㪘㪪㪫㪜㪩㪠㪪㪢㩷㪛㪜㪥㪦㪫㪜㪪㩷㪚㪦㪤㪤㪦㪥㪣㪰㩷㪬㪪㪜㪛㩷㪜㪨㪬㪠㪧㪤㪜㪥㪫㪅
㪉㪅੍ຠ䈲䍂㪘㪚㪃㪛㪚䈪ㆬᛯ㗿䈇䉁䈜䇯
㪚㪟㪦㪦㪪㪜㩷㪪㪧㪘㪩㪜㩷㪧㪘㪩㪫㪪㩷㪛㪜㪧㪜㪥㪛㪠㪥㪞㩷㪦㪥㩷㪘㪚㩷㪦㪩㩷㪛㪚㩷㪧㪦㪮㪜㪩㪅
䋨⇛࿑䈱ኸᴺ䈲䇮ෳ⠨୯䈪䈜䇯㩷㩷㪛㪠㪤㪜㪥㪪㪠㪦㪥㪪㩷㪠㪥㩷㪛㪩㪘㪮㪠㪥㪞㩷㪝㪦㪩㩷㪩㪜㪝㪜㪩㪜㪥㪚㪜㩷㪦㪥㪣㪰㪅䋩
)/:
ဳᑼ㪆䍘䍎䍢䍼⇟ภ䈏䋲Ბ䈱႐ว䇮ਅᲑ䉋䉍Ბ䈮ઍ䉒䉎ㆊᷰᦼຠ䈪䈅䉍䇮䈬䈤䉌䈎䈏䈦䈩䈇䉁䈜䇯䇭䈭䈍䇮ຠ⾰䈲ᄌ䉒䉍䉁䈞䉖䇯
㪫㪮㪦㩷㪫㪰㪧㪜㪪㩷㪘㪥㪛㩷㪚㪦㪛㪜㪪㩷㪤㪘㪰㩷㪙㪜㩷㪣㪠㪪㪫㪜㪛㩷㪝㪦㪩㩷㪘㪥㩷㪠㪫㪜㪤㪅㩷㩷㪫㪟㪜㩷㪣㪦㪮㪜㪩㩷㪧㪩㪦㪛㪬㪚㪫㩷㪤㪘㪰㩷㪙㪜㩷㪪㪟㪠㪧㪧㪜㪛㩷㪠㪥㩷㪧㪣㪘㪚㪜㩷㪦㪝㩷㪫㪟㪜㩷㪬㪧㪧㪜㪩㩷
㪧㪩㪦㪛㪬㪚㪫㪅㩷㪨㪬㪘㪣㪠㪫㪰㩷㪠㪪㩷㪫㪟㪜㩷㪪㪘㪤㪜㪅
A
-8
%1&'01
6;2'
(2
⇛ޓޓ࿑
176.+0'
ฬޓޓ⒓
0#/'
ᢙ㊂
36;
↪ㅜ㧛⠨
4'/#4-5
⇟ภ
01
ဳฬ㧛ⷙᩰ
&'5%4+26+105
#%%'5514+'5
ઃዻຠ
).:
㩔㩩㩒㩣㩀㩔㩨㨺
2#0'.%18'4 41*5
␜ㇱ↪ޓޓޓޓޓ
ޓ(14&+52.#;70+6
%1&'01
㩔㩩㩒㩣㩖㨹㩂
2#0'.*11-
␜ㇱ↪ޓޓޓޓޓ
ޓ(14&+52.#;70+6
%1&'01
41*5
㩎㩡㩇㩊㨹㩕㩩㩧㩒㩆㩨ޓ㩆㨷
5'.(6#22+0)5%4'9 :575
␜ㇱ↪ޓޓޓޓޓ
ޓ(14&+52.#;70+6
%1&'01
㧔⇛࿑ߩኸᴺߪޔෳ⠨୯ߢߔޕޓ&+/'05+105+0&4#9+0)(144'('4'0%'10.;㧕
㧲㨁㧾㨁㧺㧻ޓ㧱㧸㧱㧯㨀㧾㧵㧯ޓ㧯㧻ޓ㧚
㧘
㧸㨀㧰
).:
ဳᑼ㩄㨺㩎㩨⇟ภ߇㧞Ბߩ႐วޔਅᲑࠃࠅᲑߦઍࠊࠆㆊᷰᦼຠߢࠅޔߤߜࠄ߆߇ߞߡ߹ߔޕޓߥ߅ޔຠ⾰ߪᄌࠊࠅ߹ߖࠎޕ
6916;2'5#0&%1&'5/#;$'.+56'&(14#0+6'/6*'.19'4241&7%6/#;$'5*+22'&+02.#%'1(6*'722'4241&7%6
37#.+6;+56*'5#/'
A
-7
(QT/7%4

%1&'01
6;2'
%2
⇛ޓޓ࿑
176.+0'
ฬޓޓ⒓
0#/'
ᢙ㊂
36;
↪ㅜ㧛⠨
4'/#4-5
⇟ภ
01
ဳฬ㧛ⷙᩰ
&'5%4+26+105
+056#..#6+10/#6'4+#.5
Ꮏ᧚ᢱ
#%↪
).:
ᠲ㩤㩔㩨㨺
6'4/+0#.12'0'4
ᓮㇱ↪ޓޓޓޓޓ
ޓ(14241%'5514
70+6
%1&'
01
ᠲ㩤㩔㩨㨺
6'4/+0#.12'0'4
ᓮㇱ↪ޓޓޓޓޓ
ޓ(14241%'5514
70+6
%1&'
01
⌕┵ሶ
%4+/210.7) (8
ᓮㇱ↪ޓޓޓޓޓ
ޓ(14241%'5514
70+6
%1&'
01
㧔⇛࿑ߩኸᴺߪޔෳ⠨୯ߢߔޕޓ&+/'05+105+0&4#9+0)(144'('4'0%'10.;㧕
㧲㨁㧾㨁㧺㧻ޓ㧱㧸㧱㧯㨀㧾㧵㧯ޓ㧯㧻ޓ㧚
㧘
㧸㨀㧰
).:
ဳᑼ㩄㨺㩎㩨⇟ภ߇㧞Ბߩ႐วޔਅᲑࠃࠅᲑߦઍࠊࠆㆊᷰᦼຠߢࠅޔߤߜࠄ߆߇ߞߡ߹ߔޕޓߥ߅ޔຠ⾰ߪᄌࠊࠅ߹ߖ
ࠎޕ
6916;2'5#0&%1&'5/#;$'.+56'&(14#0+6'/6*'.19'4241&7%6/#;$'5*+22'&+02.#%'1(6*'722'4
241&7%637#.+6;+56*'5#/'
A
-10
㧼㧭㧯㧷㧵㧺㧳ޓ㧸㧵㧿㨀
).:
427
0#/' 176.+0' &'5%4+26+10%1&'ͳ 36;
࡙࠾࠶࠻ 70+6
ᓮㇱ
241%'551470+6
427
੍ຠ 52#4'2#465
੍ຠ
52#4'2#465
52
੍ຠ
52#4'2#465
52
੍ຠ
52#4'2#465
52
Ꮏ᧚ᢱ +056#..#6+10/#6'4+#.5
Ꮏ᧚ᢱ
+056#..#6+10/#6'4+#.5
%2
Ꮏ᧚ᢱ
+056#..#6+10/#6'4+#.5
%2
࿑ᦠ &1%7/'06
ขᛒ⺑ᦠ
12'4#6145/#07#.
1/
ขᛒ⺑ᦠ
12'4#6145/#07#.
1/
ⵝⷐ㗔ᦠ
+056#..#6+10/#07#.
+/
ᠲⷐ㗔ᦠ
12'4#6145)7+&'
15
㪈㪅䍘㪄䍢䍼⇟ภᧃየ䈱㪲㪁㪁㪴䈲䇮ㆬᛯຠ䈱ઍ䍘䍎䍢䍼䉕䈚䉁䈜䇯
㪚㪦㪛㪜㩷㪥㪬㪤㪙㪜㪩㩷㪜㪥㪛㪠㪥㪞㩷㪮㪠㪫㪟㩷㩹㪁㪁㩹㩷㪠㪥㪛㪠㪚㪘㪫㪜㪪㩷㪫㪟㪜㩷㪚㪦㪛㪜㩷㪥㪬㪤㪙㪜㪩㩷㪦㪝㩷㪩㪜㪧㪩㪜㪪㪜㪥㪫㪘㪫㪠㪭㪜㩷㪤㪘㪫㪜㪩㪠㪘㪣㪅
㪉㪅䋨㪁㪈䋩䋨㪁㪉䋩䈲䇮䈠䉏䈡䉏᭽ㆬᛯຠ䉕䈚䉁䈜䇯
䋨㪁㪈䋩䋨㪁㪉䋩㪠㪥㪛㪠㪚㪘㪫㪜㩷㪪㪧㪜㪚㪠㪝㪠㪚㪘㪫㪠㪦㪥㩷㪪㪜㪣㪜㪚㪫㪠㪭㪜㩷㪠㪫㪜㪤㪅
㪊㪅㩿㪁㪊㪀㩷㪝㪘㪩㪄㪉㪈㪌㪎㪆㪉㪈㪍㪎㪛㪪᭽䈱ᤨ䈱䉂ᷝઃ䈘䉏䉁䈜䇯
㪪㪬㪧㪧㪣㪰㪜㪛㩷㪮㪠㪫㪟㩷㪝㪘㪩㪄㪉㪈㪌㪎㪆㪉㪈㪍㪎㪛㪪㩷㪦㪥㪣㪰㪅
䋨⇛࿑䈱ኸᴺ䈲䇮ෳ⠨୯䈪䈜䇯㩷㩷㪛㪠㪤㪜㪥㪪㪠㪦㪥㪪㩷㪠㪥㩷㪛㪩㪘㪮㪠㪥㪞㩷㪝㪦㪩㩷㪩㪜㪝㪜㪩㪜㪥㪚㪜㩷㪦㪥㪣㪰㪅䋩
).:
ဳᑼ㪆䍘䍎䍢䍼⇟ภ䈏䋲Ბ䈱႐ว䇮ਅᲑ䉋䉍Ბ䈮ઍ䉒䉎ㆊᷰᦼຠ䈪䈅䉍䇮䈬䈤䉌䈎䈏䈦䈩䈇䉁䈜䇯䇭䈭䈍䇮ຠ⾰䈲ᄌ䉒䉍䉁䈞䉖䇯
㪫㪮㪦㩷㪫㪰㪧㪜㪪㩷㪘㪥㪛㩷㪚㪦㪛㪜㪪㩷㪤㪘㪰㩷㪙㪜㩷㪣㪠㪪㪫㪜㪛㩷㪝㪦㪩㩷㪘㪥㩷㪠㪫㪜㪤㪅㩷㩷㪫㪟㪜㩷㪣㪦㪮㪜㪩㩷㪧㪩㪦㪛㪬㪚㪫㩷㪤㪘㪰㩷㪙㪜㩷㪪㪟㪠㪧㪧㪜㪛㩷㪠㪥㩷㪧㪣㪘㪚㪜㩷㪦㪝㩷㪫㪟㪜㩷㪬㪧㪧㪜㪩㩷
㪧㪩㪦㪛㪬㪚㪫㪅㩷㪨㪬㪘㪣㪠㪫㪰㩷㪠㪪㩷㪫㪟㪜㩷㪪㪘㪤㪜㪅
A-9

%1&'01
6;2'
(2
⇛ޓޓ࿑
176.+0'
ฬޓޓ⒓
0#/'
ᢙ㊂
36;
↪ㅜ㧛⠨
4'/#4-5
⇟ภ
01
ဳฬ㧛ⷙᩰ
&'5%4+26+105
#%%'5514+'5
ઃዻຠ
).:
-$⋥ઃ㊄ౕ
-$(+:+0)/'6#. 41*5
ᠲㇱ↪ޓޓޓ
ޓ(14%10641.70+6
%1&'
01
㩂㩨㩥㩜㨹㩎
)41//'6 )
ᠲㇱ↪ޓޓޓ
ޓ(14%10641.70+6
%1&'
01
㩏㩗㩨㩈㩛㩇$
9#5*'4*'#&5&4'9$ /:%9/$0+
ᠲㇱ↪ޓޓޓ
ޓ(14%10641.70+6
%1&'
01
㩂㩢㨻㩔㩨㩧㩘㩩㩧
%75*+10 6/
ᠲㇱ↪ޓޓޓ
ޓ(14%10641.70+6
%1&'
01
㧔⇛࿑ߩኸᴺߪޔෳ⠨୯ߢߔޕޓ&+/'05+105+0&4#9+0)(144'('4'0%'10.;㧕
㧲㨁㧾㨁㧺㧻ޓ㧱㧸㧱㧯㨀㧾㧵㧯ޓ㧯㧻ޓ㧚
㧘
㧸㨀㧰
).:
ဳᑼ㩄㨺㩎㩨⇟ภ߇㧞Ბߩ႐วޔਅᲑࠃࠅᲑߦઍࠊࠆㆊᷰᦼຠߢࠅޔߤߜࠄ߆߇ߞߡ߹ߔޕޓߥ߅ޔຠ⾰ߪᄌࠊࠅ߹ߖ
ࠎޕ
6916;2'5#0&%1&'5/#;$'.+56'&(14#0+6'/6*'.19'4241&7%6/#;$'5*+22'&+02.#%'1(6*'722'4
241&7%637#.+6;+56*'5#/'
A
-12
(QT4%7&GUMVQROQWPVMKV
%1&'01
6;2'
%2
⇛ޓޓ࿑
176.+0'
ฬޓޓ⒓
0#/'
ᢙ㊂
36;
↪ㅜ㧛⠨
4'/#4-5
⇟ภ
01
ဳฬ㧛ⷙᩰ
&'5%4+26+105
+056#..#6+10/#6'4+#.5
Ꮏ᧚ᢱ
&%↪
).:
ᠲ㩤㩔㩨㨺
6'4/+0#.12'0'4
ᓮㇱ↪ޓޓޓޓޓ
ޓ(14241%'5514
70+6
%1&'
01
ᠲ㩤㩔㩨㨺
6'4/+0#.12'0'4
ᓮㇱ↪ޓޓޓޓޓ
ޓ(14241%'5514
70+6
%1&'
01
⌕┵ሶ
%4+/210.7) (8.(
ᓮㇱ↪ޓޓޓޓޓ
ޓ(14241%'5514
70+6
%1&'
01
㧔⇛࿑ߩኸᴺߪޔෳ⠨୯ߢߔޕޓ&+/'05+105+0&4#9+0)(144'('4'0%'10.;㧕
㧲㨁㧾㨁㧺㧻ޓ㧱㧸㧱㧯㨀㧾㧵㧯ޓ㧯㧻ޓ㧚
㧘
㧸㨀㧰
).:
ဳᑼ㩄㨺㩎㩨⇟ภ߇㧞Ბߩ႐วޔਅᲑࠃࠅᲑߦઍࠊࠆㆊᷰᦼຠߢࠅޔߤߜࠄ߆߇ߞߡ߹ߔޕޓߥ߅ޔຠ⾰ߪᄌࠊࠅ߹ߖ
ࠎޕ
6916;2'5#0&%1&'5/#;$'.+56'&(14#0+6'/6*'.19'4241&7%6/#;$'5*+22'&+02.#%'1(6*'722'4
241&7%637#.+6;+56*'5#/'
A
-11

%1&'01
6;2'
(2
⇛ޓޓ࿑
176.+0'
ฬޓޓ⒓
0#/'
ᢙ㊂
36;
↪ㅜ㧛⠨
4'/#4-5
⇟ภ
01
ဳฬ㧛ⷙᩰ
&'5%4+26+105
#%%'5514+'5
ઃዻຠ
).:
㩖㩡㨹㩆㨷㩙㨽㩧㩎㊄ౕ
(.75*/1706+0)2.#6' 41*5
%1&'
01
㩏㩗㩨㩈㩛㩇$
9#5*'4*'#&5&4'9$ /:%9/$0+
%1&'
01
ⷺ㩏㨹㩎ޓ㧝⒳
*':076 /575
%1&'
01
Ⲕ㩘㩨㩣㩎
9+0)5%4'9 /:575
%1&'
01
㧔⇛࿑ߩኸᴺߪޔෳ⠨୯ߢߔޕޓ&+/'05+105+0&4#9+0)(144'('4'0%'10.;㧕
㧲㨁㧾㨁㧺㧻ޓ㧱㧸㧱㧯㨀㧾㧵㧯ޓ㧯㧻ޓ㧚
㧘
㧸㨀㧰
).:
ဳᑼ㩄㨺㩎㩨⇟ภ߇㧞Ბߩ႐วޔਅᲑࠃࠅᲑߦઍࠊࠆㆊᷰᦼຠߢࠅޔߤߜࠄ߆߇ߞߡ߹ߔޕޓߥ߅ޔຠ⾰ߪᄌࠊࠅ߹ߖ
ࠎޕ
6916;2'5#0&%1&'5/#;$'.+56'&(14#0+6'/6*'.19'4241&7%6/#;$'5*+22'&+02.#%'1(6*'722'4
241&7%637#.+6;+56*'5#/'
A
-14
(QT4%7(NWUJOQWPVMKV 1RVKQP
%1&'01
6;2'
(2
⇛ޓޓ࿑
176.+0'
ฬޓޓ⒓
0#/'
ᢙ㊂
36;
↪ㅜ㧛⠨
4'/#4-5
⇟ภ
01
ဳฬ㧛ⷙᩰ
&'5%4+26+105
#%%'5514+'5
ઃዻຠ
).:
-$⋥ઃ㊄ౕ6
-';$1#4&(+:674' 41*5
ᠲㇱ↪ޓޓޓ
ޓ(14%10641.70+6
%1&'
01
㩖㩨㩡㨼㩧㩎㩨㩆㨺㩣
$.+0&5'#. 41*5
ᠲㇱ↪ޓޓޓ
ޓ(14%10641.70+6
%1&'
01
㩂㩨㩥㩜㨹㩎
)41//'6 )
ᠲㇱ↪ޓޓޓ
ޓ(14%10641.70+6
%1&'
01
㩏㩗㩨㩈㩛㩇$
9#5*'4*'#&5&4'9$ /:%9/$0+
ᠲㇱ↪ޓޓޓ
ޓ(14%10641.70+6
%1&'
01
㩂㩢㨻㩔㩨㩧㩘㩩㩧
47$$'4(116 6/
ᠲㇱ↪ޓޓޓ
ޓ(14%10641.70+6
%1&'
01
㧔⇛࿑ߩኸᴺߪޔෳ⠨୯ߢߔޕޓ&+/'05+105+0&4#9+0)(144'('4'0%'10.;㧕
㧲㨁㧾㨁㧺㧻ޓ㧱㧸㧱㧯㨀㧾㧵㧯ޓ㧯㧻ޓ㧚
㧘
㧸㨀㧰
).:
ဳᑼ㩄㨺㩎㩨⇟ภ߇㧞Ბߩ႐วޔਅᲑࠃࠅᲑߦઍࠊࠆㆊᷰᦼຠߢࠅޔߤߜࠄ߆߇ߞߡ߹ߔޕޓߥ߅ޔຠ⾰ߪᄌࠊࠅ߹ߖ
ࠎޕ
6916;2'5#0&%1&'5/#;$'.+56'&(14#0+6'/6*'.19'4241&7%6/#;$'5*+22'&+02.#%'1(6*'722'4
241&7%637#.+6;+56*'5#/'
A
-13
(QT4%7&GUMVQROQWPVMKV

%1&'01
6;2'
(2
⇛ޓޓ࿑
176.+0'
ฬޓޓ⒓
0#/'
ᢙ㊂
36;
↪ㅜ㧛⠨
4'/#4-5
⇟ภ
01
ဳฬ㧛ⷙᩰ
&'5%4+26+105
#%%'5514+'5
ઃዻຠ
).:
ขᚻ
*#0&.' 41*5
%1&'
01
㩥㨺㩈㩨㨹㩎ᐳ㊄
415'66'9#5*'4 /%9㩘㩩㩢㩆㨺㩣
%1&'
01
/%9㩘㩩㩢㩆㨺㩣
ਣ⋁ዊ㩒㩆㩨
18#.*'#&5%4'9 /:%9㩘㩩㩢㩆㨺㩣
%1&'
01
ᵄᐳ㊄
9#8'9#5*'4 99575
%1&'
01
㧔⇛࿑ߩኸᴺߪޔෳ⠨୯ߢߔޕޓ&+/'05+105+0&4#9+0)(144'('4'0%'10.;㧕
㧲㨁㧾㨁㧺㧻ޓ㧱㧸㧱㧯㨀㧾㧵㧯ޓ㧯㧻ޓ㧚
㧘
㧸㨀㧰
).:
ဳᑼ㩄㨺㩎㩨⇟ภ߇㧞Ბߩ႐วޔਅᲑࠃࠅᲑߦઍࠊࠆㆊᷰᦼຠߢࠅޔߤߜࠄ߆߇ߞߡ߹ߔޕޓߥ߅ޔຠ⾰ߪᄌࠊࠅ߹ߖ
ࠎޕ
6916;2'5#0&%1&'5/#;$'.+56'&(14#0+6'/6*'.19'4241&7%6/#;$'5*+22'&+02.#%'1(6*'722'4
241&7%637#.+6;+56*'5#/'
A
-16
1RVKQP
(QT/7%4/7%4
PACKING LIST
PACKING LISTPACKING LIST
PACKING LIST 03GL-X-9859 -0
FP03-09820/09830
FP03-09820/09830FP03-09820/09830
FP03-09820/09830
N A M E O U T L I N E DESCRIPTION/CODE №
Q
'TY
1/1
付属品
付属品付属品
付属品 ACCESSORIES
ACCESSORIESACCESSORIES
ACCESSORIES FP03-09820/09830
FP03-09820/09830FP03-09820/09830
FP03-09820/09830
六角セムスB スリワリ
HEX.BOLT
(SLOTTED,WASHER HEAD)
M6X25 SUS304
000-802-771
4
六角ボルト スリワリ
HEX.BOLT
M10X30 SUS304
000-802-182
2
バネ座金
SPRING WASHER
M10 SUS304
000-864-261
2
ミガキ平座金
FLAT WASHER
M10 SUS304
000-864-131
2
スナップボタン
PLASTIC RIVET
KB-13ヨウ ボタンクロ
000-570-276
4
ホールプラグ
HOLE PLUG
CP-30-HP-13
000-147-143
2
ハンガーR(20)
HANGER R
03-163-1112-0
100-305-180
1
ハンガーL(20)
HANGER L
03-163-1111-0
100-305-140
1
ハンガーササエ(20)
HANGER STAY
03-163-1113-0
100-305-190
1
(*1)
ハンガーササエ(23)
HANGER STAY
03-163-2071-0
100-305-370
1
(*2)
(*1)䈲䇮FP03-09820↪䈪䈜䇯
*1:䇭FOR FP03-09820.
(*2)䈲䇮FP03-09830↪䈪䈜䇯
*2:䇭FOR FP03-09830.
(略図の寸法は、参考値です。 DIMENSIONS IN DRAWING FOR REFERENCE ONLY.)
(略図の寸法は、参考値です。 DIMENSIONS IN DRAWING FOR REFERENCE ONLY.)(略図の寸法は、参考値です。 DIMENSIONS IN DRAWING FOR REFERENCE ONLY.)
(略図の寸法は、参考値です。 DIMENSIONS IN DRAWING FOR REFERENCE ONLY.)
03GL-X-9859
A
-15
(QT/7%4%4&GUMVQROQWPVMKVޓޓޓ1RVKQP

%1&'01
6;2'
%2
⇛ޓޓ࿑
176.+0'
ฬޓޓ⒓
0#/'
ᢙ㊂
36;
↪ㅜ㧛⠨
4'/#4-5
⇟ภ
01
ဳฬ㧛ⷙᩰ
&'5%4+26+105
+056#..#6+10/#6'4+#.5
Ꮏ᧚ᢱ
)1:
⥽ベ⾍ࠅ㩙㨺㩂$5*
56''4+0)9*''..#$'.
%1&'
01
㩔㩨㩒ᐳ㊄
524+0)9#5*'4 /575
%1&'
01
㩚㩀㩨㩁ਣᐔᐳ㊄
(.#69#5*'4 /575
%1&'
01
ⷺ㩏㨹㩎㩆㨷
*':076 /575
%1&'
01
ኸಾ㩘㩨㩣㩎
6*4'#&'&41& /:575
%1&'
01
⥽ベ㩙㨺㩂⾍ઃⷐ㗔
.#$'.#66#%*+0)
241%'&74'
%㩦㨾㨼
%1&'
01
㧔⇛࿑ߩኸᴺߪޔෳ⠨୯ߢߔޕޓ&+/'05+105+0&4#9+0)(144'('4'0%'10.;㧕
㧲㨁㧾㨁㧺㧻ޓ㧱㧸㧱㧯㨀㧾㧵㧯ޓ㧯㧻ޓ㧚
㧘
㧸㨀㧰
)1:
ဳᑼ㩄㨺㩎㩨⇟ภ߇㧞Ბߩ႐วޔਅᲑࠃࠅᲑߦઍࠊࠆㆊᷰᦼຠߢࠅޔߤߜࠄ߆߇ߞߡ߹ߔޕޓߥ߅ޔຠ⾰ߪᄌࠊࠅ߹ߖ
ࠎޕ
6916;2'5#0&%1&'5/#;$'.+56'&(14#0+6'/6*'.19'4241&7%6/#;$'5*+22'&+02.#%'1(6*'722'4
241&7%637#.+6;+56*'5#/'
A
-18
㧼㧭㧯㧷㧵㧺㧳ޓ㧸㧵㧿㨀
)1:
%7(#4
0#/' 176.+0' &'5%4+26+10%1&'ͳ 36;
࡙࠾࠶࠻ 70+6
㩜㩝㩢㨺㩀㨺㩎㩨㨼㩧㩊㨺㩖㨴㨼㩇
/'/14;%#4&+06'4(#%'
%7
Ꮏ᧚ᢱ +056#..#6+10/#6'4+#.5
Ꮏ᧚ᢱ
+056#..#6+10/#6'4+#.5
%2
ߘߩઁᎿ᧚ 16*'4+056#..#6+10/#6'4+#.5
㩃㨺㩖㩨㩣⚵ຠ
%#$.'#55;
2'26:$.
2'26:$.
㩃㨺㩖㩨㩣⚵ຠ/,
%#$.'#55;
/,#52(%
䋨⇛࿑䈱ኸᴺ䈲䇮ෳ⠨୯䈪䈜䇯㩷㩷㪛㪠㪤㪜㪥㪪㪠㪦㪥㪪㩷㪠㪥㩷㪛㪩㪘㪮㪠㪥㪞㩷㪝㪦㪩㩷㪩㪜㪝㪜㪩㪜㪥㪚㪜㩷㪦㪥㪣㪰㪅䋩
)1:
ဳᑼ㪆䍘䍎䍢䍼⇟ภ䈏䋲Ბ䈱႐ว䇮ਅᲑ䉋䉍Ბ䈮ઍ䉒䉎ㆊᷰᦼຠ䈪䈅䉍䇮䈬䈤䉌䈎䈏䈦䈩䈇䉁䈜䇯䇭䈭䈍䇮ຠ⾰䈲ᄌ䉒䉍䉁䈞䉖䇯
㪫㪮㪦㩷㪫㪰㪧㪜㪪㩷㪘㪥㪛㩷㪚㪦㪛㪜㪪㩷㪤㪘㪰㩷㪙㪜㩷㪣㪠㪪㪫㪜㪛㩷㪝㪦㪩㩷㪘㪥㩷㪠㪫㪜㪤㪅㩷㩷㪫㪟㪜㩷㪣㪦㪮㪜㪩㩷㪧㪩㪦㪛㪬㪚㪫㩷㪤㪘㪰㩷㪙㪜㩷㪪㪟㪠㪧㪧㪜㪛㩷㪠㪥㩷㪧㪣㪘㪚㪜㩷㪦㪝㩷㪫㪟㪜㩷㪬㪧㪧㪜㪩㩷
㪧㪩㪦㪛㪬㪚㪫㪅㩷㪨㪬㪘㪣㪠㪫㪰㩷㪠㪪㩷㪫㪟㪜㩷㪪㪘㪤㪜㪅
A
-17

%1&'01
6;2'
(2
⇛ޓޓ࿑
176.+0'
ฬޓޓ⒓
0#/'
ᢙ㊂
36;
↪ㅜ㧛⠨
4'/#4-5
⇟ภ
01
ဳฬ㧛ⷙᩰ
&'5%4+26+105
#%%'5514+'5
ઃዻຠ
)1:
㩄㩧㩉㨺㩣㩠㨽ขઃ᧚
/1706+0)$4#%-'6 41*5
%1&'
01
㩂㩨㩥㩜㨹㩎
)41//'6 %0)37.
%1&'
01
㩔㩨㩒ᐳ㊄
524+0)9#5*'4 /575
%1&'
01
㩚㩀㩨㩁ਣᐔᐳ㊄
(.#69#5*'4 /575
%1&'
01
ⷺ㩏㨹㩎㩆㨷
*':076 /575
%1&'
01
㩏㩗㩨㩈㩛㩇#
9#5*'4*'#&5%4'9 /:%9/$0+
%1&'
01
㧔⇛࿑ߩኸᴺߪޔෳ⠨୯ߢߔޕޓ&+/'05+105+0&4#9+0)(144'('4'0%'10.;㧕
㧲㨁㧾㨁㧺㧻ޓ㧱㧸㧱㧯㨀㧾㧵㧯ޓ㧯㧻ޓ㧚
㧘
㧸㨀㧰
)1:
ဳᑼ㩄㨺㩎㩨⇟ภ߇㧞Ბߩ႐วޔਅᲑࠃࠅᲑߦઍࠊࠆㆊᷰᦼຠߢࠅޔߤߜࠄ߆߇ߞߡ߹ߔޕޓߥ߅ޔຠ⾰ߪᄌࠊࠅ߹ߖ
ࠎޕ
6916;2'5#0&%1&'5/#;$'.+56'&(14#0+6'/6*'.19'4241&7%6/#;$'5*+22'&+02.#%'1(6*'722'4
241&7%637#.+6;+56*'5#/'
A
-20
%1&'01
6;2'
(2
⇛ޓޓ࿑
176.+0'
ฬޓޓ⒓
0#/'
ᢙ㊂
36;
↪ㅜ㧛⠨
4'/#4-5
⇟ภ
01
ဳฬ㧛ⷙᩰ
&'5%4+26+105
#%%'5514+'5
ઃዻຠ
)1:
㩔㩧㩀㩨㨺
/1706+0)$4#%-'6
%1&'
01
㩎㩡㩇㩊㨹㩕㩩㩧㩒㩆㩨ޓ㩆㨷
5'.(6#22+0)5%4'9 :575
%1&'
01
㩏㩗㩨㩈㩛㩇#
9#5*'4*'#&5%4'9 /:%9/$0+
%1&'
01
㧔⇛࿑ߩኸᴺߪޔෳ⠨୯ߢߔޕޓ&+/'05+105+0&4#9+0)(144'('4'0%'10.;㧕
㧲㨁㧾㨁㧺㧻ޓ㧱㧸㧱㧯㨀㧾㧵㧯ޓ㧯㧻ޓ㧚
㧘
㧸㨀㧰
)1:
ဳᑼ㩄㨺㩎㩨⇟ภ߇㧞Ბߩ႐วޔਅᲑࠃࠅᲑߦઍࠊࠆㆊᷰᦼຠߢࠅޔߤߜࠄ߆߇ߞߡ߹ߔޕޓߥ߅ޔຠ⾰ߪᄌࠊࠅ߹ߖ
ࠎޕ
6916;2'5#0&%1&'5/#;$'.+56'&(14#0+6'/6*'.19'4241&7%6/#;$'5*+22'&+02.#%'1(6*'722'4
241&7%637#.+6;+56*'5#/'
A
-19
For CU-200 Desktop mount kit
Option

0#/' 176.+0' 36;&'5%4+26+10%1&'ͳ
㧼㧭㧯㧷㧵㧺㧳ޓ㧸㧵㧿㨀
).:
)%
0#/' 176.+0' 36;&'5%4+26+10%1&'ͳ
੍ຠ 52#4'2#465
੍ຠ
52#4'2#465
52
ߘߩઁㇱຠ 16*'42#465
)%㩀㩔㩨㨺⚵ຠ
)%%18'4#55;
0*㩄㩒㩂㩊
0*%100'%614#55;
2
8*㩄㩒㩂㩊
8*%100'%614#55;
2
8*㩄㩒㩂㩊
8*%100'%614#55;
2
:*2*㩄㩒㩂㩊
:*2*%100'%614#55;
2
Ṷ▚㩖㩩㩢㩧㩎
241%'5514$1#4&
2#.(
㩏㩗㩨㩈㩛㩇$
9#5*'4*'#&5%4'9$
/:%9/$0+
㩏㩗㩨㩈㩛㩇$
9#5*'4*'#&5%4'9
/:%9/$0+
㩏㩗㩨㩈㩛㩇#
9#5*'4*'#&5%4'9
/:%9/$0+
㩄㩒㩂㩊
%100'%614
(74
㩄㩒㩂㩊
%100'%614
(74
䯴⇛࿑䬽ኸᴺ䬾䫺ෳ⠨୯䬶䬨䫻䎃䎧䎬䎰䎨䎱䎶䎬䎲䎱䎶䎃䎬䎱䎃䎧䎵䎤䎺䎬䎱䎪䎃䎩䎲䎵䎃䎵䎨䎩䎨䎵䎨䎱䎦䎨䎃䎲䎱䎯䎼䎑䯵
).:
ဳᑼ䎒䱤䱚䱮䲈⇟ภ䬛䯾Ბ䬽႐ว䫺ਅᲑ䭗䭙Ბ䬺ઍ䭞䭚ㆊᷰᦼຠ䬶䬑䭙䫺䬸䬰䭘䬚䬛䬲䬵䬓䭍䬨䫻䫹䬹䬙䫺ຠ⾰䬾ᄌ䭞䭙䭍䬪䭢䫻
䎷䎺䎲䎃䎷䎼䎳䎨䎶䎃䎤䎱䎧䎃䎦䎲䎧䎨䎶䎃䎰䎤䎼䎃䎥䎨䎃䎯䎬䎶䎷䎨䎧䎃䎩䎲䎵䎃䎤䎱䎃䎬䎷䎨䎰䎑䎃䎃䎷䎫䎨䎃䎯䎲䎺䎨䎵䎃䎳䎵䎲䎧䎸䎦䎷䎃䎰䎤䎼䎃䎥䎨䎃䎶䎫䎬䎳䎳䎨䎧䎃䎬䎱䎃䎳䎯䎤䎦䎨䎃䎲䎩䎃䎷䎫䎨䎃
䎸䎳䎳䎨䎵䎃䎳䎵䎲䎧䎸䎦䎷䎑䎃䎴䎸䎤䎯䎬䎷䎼䎃䎬䎶䎃䎷䎫䎨䎃䎶䎤䎰䎨䎑
A
-21

%1&'01
6;2'
12
⇛ޓޓ࿑
176.+0'
ฬޓޓ⒓
0#/'
ᢙ㊂
36;
↪ㅜ㧛⠨
4'/#4-5
⇟ภ
01
ဳฬ㧛ⷙᩰ
&'5%4+26+105
+056#..#6+10/#6'4+#.5
Ꮏ᧚ᢱ
).:
㩏㩗㩨㩈㩛㩇$
9#5*'4*'#&5&4'9$ /:%9/$0+
%1&'
01
ㅪ⚿บ⚵ຠ
%172.+0)2.#6'#55; 12
%1&'
01
㧔⇛࿑ߩኸᴺߪޔෳ⠨୯ߢߔޕޓ&+/'05+105+0&4#9+0)(144'('4'0%'10.;㧕
㧲㨁㧾㨁㧺㧻ޓ㧱㧸㧱㧯㨀㧾㧵㧯ޓ㧯㧻ޓ㧚
㧘
㧸㨀㧰
).:
ဳᑼ㩄㨺㩎㩨⇟ภ߇㧞Ბߩ႐วޔਅᲑࠃࠅᲑߦઍࠊࠆㆊᷰᦼຠߢࠅޔߤߜࠄ߆߇ߞߡ߹ߔޕޓߥ߅ޔຠ⾰ߪᄌࠊࠅ߹ߖ
ࠎޕ
6916;2'5#0&%1&'5/#;$'.+56'&(14#0+6'/6*'.19'4241&7%6/#;$'5*+22'&+02.#%'1(6*'722'4
241&7%637#.+6;+56*'5#/'
A
-23
Coupling pedestal kit
RCU-014 + MU-201CR Option
㧼㧭㧯㧷㧵㧺㧳ޓ㧸㧵㧿㨀
).:
2/
0#/' 176.+0' &'5%4+26+10%1&'ͳ 36;
࡙࠾࠶࠻ 70+6
㩇㩁㨶㩏㩀㩔㩨㨺2/⚵ຠ
5%#00'4%18'4#55'/$.;
2/
Ꮏ᧚ᢱ +056#..#6+10/#6'4+#.5 12
㩂㩨㩢㨺㩇
)4'#5'
㩖㩩㩡㩇㩍㨲㩣㨺㩖㩨)㨼㩢
Ꮏ᧚ᢱ +056#..#6+10/#6'4+#.5
5/:*㩄㩒㩂㩊
5/:*%100'%614
22
ษࠅ㊄ౕ
.+(6+0)(+:674'
41*5
㩀㩔㩨㨺↪㩔㩩㨹㩁㩧
)#5-'6
41*5
࿑ᦠ &1%7/'06
2/ขઃᦠ
12'4#6145/#07#.
%
䋨⇛࿑䈱ኸᴺ䈲䇮ෳ⠨୯䈪䈜䇯㩷㩷㪛㪠㪤㪜㪥㪪㪠㪦㪥㪪㩷㪠㪥㩷㪛㪩㪘㪮㪠㪥㪞㩷㪝㪦㪩㩷㪩㪜㪝㪜㪩㪜㪥㪚㪜㩷㪦㪥㪣㪰㪅䋩
).:
ဳᑼ㪆䍘䍎䍢䍼⇟ภ䈏䋲Ბ䈱႐ว䇮ਅᲑ䉋䉍Ბ䈮ઍ䉒䉎ㆊᷰᦼຠ䈪䈅䉍䇮䈬䈤䉌䈎䈏䈦䈩䈇䉁䈜䇯䇭䈭䈍䇮ຠ⾰䈲ᄌ䉒䉍䉁䈞䉖䇯
㪫㪮㪦㩷㪫㪰㪧㪜㪪㩷㪘㪥㪛㩷㪚㪦㪛㪜㪪㩷㪤㪘㪰㩷㪙㪜㩷㪣㪠㪪㪫㪜㪛㩷㪝㪦㪩㩷㪘㪥㩷㪠㪫㪜㪤㪅㩷㩷㪫㪟㪜㩷㪣㪦㪮㪜㪩㩷㪧㪩㪦㪛㪬㪚㪫㩷㪤㪘㪰㩷㪙㪜㩷㪪㪟㪠㪧㪧㪜㪛㩷㪠㪥㩷㪧㪣㪘㪚㪜㩷㪦㪝㩷㪫㪟㪜㩷㪬㪧㪧㪜㪩㩷
㪧㪩㪦㪛㪬㪚㪫㪅㩷㪨㪬㪘㪣㪠㪫㪰㩷㪠㪪㩷㪫㪟㪜㩷㪪㪘㪤㪜㪅
A
-22
Option

㧼㧭㧯㧷㧵㧺㧳ޓ㧸㧵㧿㨀
).:
12
0#/' 176.+0' &'5%4+26+10%1&'ͳ 36;
ߘߩઁㇱຠ 16*'42#465
㩏㩗㩨㩈㩛㩇$
9#5*'4*'#&5%4'9
/:%9/$0+
&8+4)$⚵ຠ
&8+4)$#55;
5.$(40#
4)$$7((㩖㩩㩢㩧㩎
4)$$7(($1#4&
2$.(
8*㩄㩒㩂㩊
8*%100'%614
2
:*㩄㩒㩂㩊
:*%100'%614
2
:*㩄㩒㩂㩊
:*%100'%614
2
㩃㨺㩖㩨㩣⚵ຠ
%#$.'#55;
&8+&&5.+0-/
㩇㩗㩩㨺㩅㨺
52#%'4
53
㩔㩨㩒㩅㩨㩀㩨㩒
524+0)9#5*'4
/%9/$0+
/ޓ%9/$0+
䋨⇛࿑䈱ኸᴺ䈲䇮ෳ⠨୯䈪䈜䇯㩷㩷㪛㪠㪤㪜㪥㪪㪠㪦㪥㪪㩷㪠㪥㩷㪛㪩㪘㪮㪠㪥㪞㩷㪝㪦㪩㩷㪩㪜㪝㪜㪩㪜㪥㪚㪜㩷㪦㪥㪣㪰㪅䋩
).:
ဳᑼ㪆䍘䍎䍢䍼⇟ภ䈏䋲Ბ䈱႐ว䇮ਅᲑ䉋䉍Ბ䈮ઍ䉒䉎ㆊᷰᦼຠ䈪䈅䉍䇮䈬䈤䉌䈎䈏䈦䈩䈇䉁䈜䇯䇭䈭䈍䇮ຠ⾰䈲ᄌ䉒䉍䉁䈞䉖䇯
㪫㪮㪦㩷㪫㪰㪧㪜㪪㩷㪘㪥㪛㩷㪚㪦㪛㪜㪪㩷㪤㪘㪰㩷㪙㪜㩷㪣㪠㪪㪫㪜㪛㩷㪝㪦㪩㩷㪘㪥㩷㪠㪫㪜㪤㪅㩷㩷㪫㪟㪜㩷㪣㪦㪮㪜㪩㩷㪧㪩㪦㪛㪬㪚㪫㩷㪤㪘㪰㩷㪙㪜㩷㪪㪟㪠㪧㪧㪜㪛㩷㪠㪥㩷㪧㪣㪘㪚㪜㩷㪦㪝㩷㪫㪟㪜㩷㪬㪧㪧㪜㪩㩷
㪧㪩㪦㪛㪬㪚㪫㪅㩷㪨㪬㪘㪣㪠㪫㪰㩷㪠㪪㩷㪫㪟㪜㩷㪪㪘㪤㪜㪅
A
-25
DVI-RGB conversion kit Option
%1&'01
6;2'
12
⇛ޓޓ࿑
176.+0'
ฬޓޓ⒓
0#/'
ᢙ㊂
36;
↪ㅜ㧛⠨
4'/#4-5
⇟ภ
01
ဳฬ㧛ⷙᩰ
&'5%4+26+105
+056#..#6+10/#6'4+#.5
Ꮏ᧚ᢱ
).:
㩏㩗㩨㩈㩛㩇$
9#5*'4*'#&5&4'9$ /:%9/$0+
%1&'
01
ㅪ⚿บ⚵ຠ
%172.+0)2.#6'#55; 12
%1&'
01
㧔⇛࿑ߩኸᴺߪޔෳ⠨୯ߢߔޕޓ&+/'05+105+0&4#9+0)(144'('4'0%'10.;㧕
㧲㨁㧾㨁㧺㧻ޓ㧱㧸㧱㧯㨀㧾㧵㧯ޓ㧯㧻ޓ㧚
㧘
㧸㨀㧰
).:
ဳᑼ㩄㨺㩎㩨⇟ภ߇㧞Ბߩ႐วޔਅᲑࠃࠅᲑߦઍࠊࠆㆊᷰᦼຠߢࠅޔߤߜࠄ߆߇ߞߡ߹ߔޕޓߥ߅ޔຠ⾰ߪᄌࠊࠅ߹ߖ
ࠎޕ
6916;2'5#0&%1&'5/#;$'.+56'&(14#0+6'/6*'.19'4241&7%6/#;$'5*+22'&+02.#%'1(6*'722'4
241&7%637#.+6;+56*'5#/'
A
-24
Coupling pedestal kit
RCU-014 + MU-231CR Option

For antenna unit motor
For display unit (MU-201CR/231CR, AC set)
For display unit (MU-201CR, DC set)
A
-27
%1&'01
6;2'
%2
⇛ޓޓ࿑
176.+0'
ฬޓޓ⒓
0#/'
ᢙ㊂
36;
↪ㅜ㧛⠨
4'/#4-5
⇟ภ
01
ဳฬ㧛ⷙᩰ
&'5%4+26+105
+056#..#6+10/#6'4+#.5
Ꮏ᧚ᢱ
).:
㩄㩒㩂㩊㩝㩆㩨㨷㩡㨺
/1&7.#4%100%614 /25%
%1&'
01
㧔⇛࿑ߩኸᴺߪޔෳ⠨୯ߢߔޕޓ&+/'05+105+0&4#9+0)(144'('4'0%'10.;㧕
㧲㨁㧾㨁㧺㧻ޓ㧱㧸㧱㧯㨀㧾㧵㧯ޓ㧯㧻ޓ㧚
㧘
㧸㨀㧰
).:
ဳᑼ㩄㨺㩎㩨⇟ภ߇㧞Ბߩ႐วޔਅᲑࠃࠅᲑߦઍࠊࠆㆊᷰᦼຠߢࠅޔߤߜࠄ߆߇ߞߡ߹ߔޕޓߥ߅ޔຠ⾰ߪᄌࠊࠅ߹ߖ
ࠎޕ
6916;2'5#0&%1&'5/#;$'.+56'&(14#0+6'/6*'.19'4241&7%6/#;$'5*+22'&+02.#%'1(6*'722'4
241&7%637#.+6;+56*'5#/'
A
-26
For LAN cable kit Option

For processor unit (24 VDC set)
For GC-10
A
-29
For display unit (MU-231CR, DC set)
For processor unit (100 VAC set)
For processor unit (220 VAC set)
A
-28

D-1

D-2

Jun.11'08 R.Esumi
D-3

D-4

D-5

D-6

D-7

D-8

D-9

D-10

D-11

D-12

/C[4'UWOK
D-13
esumi 電子署名者 : esumi
DN: cn=esumi, c=JP - 日本, o=kisou, ou=toukatu, email=ryosuke.esumi@furuno.co.jp
日付 : 2007.12.26 17:43:45 +09'00'

D-14

D-15

D-16

D-17

Jan.18'08 R.Esumi
D-18

#RT4'UWOK
D-1
9
esumi 電子署名者 : esumi
DN: cn=esumi, c=JP - 日本, o=kisou, ou=toukatu, email=ryosuke.esumi@furuno.co.jp
日付 : 2007.12.26 17:44:45 +09'00'

#RT4'UWOK
D-20
esumi 電子署名者 : esumi
DN: cn=esumi, c=JP - 日本, o=kisou, ou=toukatu, email=ryosuke.esumi@furuno.co.jp
日付 : 2007.12.26 17:45:10 +09'00'

#RT4'UWOK
D-21
esumi 電子署名者 : esumi
DN: cn=esumi, c=JP - 日本, o=kisou, ou=toukatu, email=ryosuke.esumi@furuno.co.jp
日付 : 2007.12.26 17:44:02 +09'00'

#RT4'UWOK
D-22
esumi 電子署名者 : esumi
DN: cn=esumi, c=JP - 日本, o=kisou, ou=toukatu, email=ryosuke.esumi@furuno.co.jp
日付 : 2007.12.26 17:44:16 +09'00'

#RT4'UWOK
D
-
23
esumi 電子署名者 : esumi
DN: cn=esumi, c=JP - 日本, o=kisou, ou=toukatu, email=ryosuke.esumi@furuno.co.jp
日付 : 2007.12.26 17:44:31 +09'00'

D-24

D-25

D-26

D-27

D-28

D-29

D-30

D-31

Apr. 05 '04
D-
3
2

12 4356
A
B
C
D
MASSSCALE
DWG.No.
APPROVED
CHECKED
DRAWN
kg
名称
TYPE
NAME
*4
50-60Hz
100VAC,1φ,
220/230VAC,
110/115/
1φ,50-60Hz
氷結防止用
FOR DE-ICER
GYROCOMPASS
A-D CONVERTER
RGB EXT. MONITOR
03P9229A
RGB バッファ 基板
RGB BUFFER PCB
RW-4747
J615
J3
J4
SLB-FRN4-A
DVI-RGB CONVERSION BOARD
DVI-RGB変換基板
BNCコネクタコンバータ
CONVERTER *2
BNC CONNECTOR
*1
DPYC-1.5
DPYCY-1.5 *1
*2
TB901
空中線部
TB-802
TB-801
COAX.(75Ω)x5
VDR
*1
DSUB-BNC-1
PM-31
PERFORMANCE MONITOR
パフォーマンスモニター
PROCESSOR UNIT
制御部
TB1
P
P
J9
J2
RGB VIDEO CONVERTOR
*2DVI-RGB-1
RGBビデオコンバータ
J1 J3
J603(XH)
J5(VH)
03-2090(3P)
J4(VH)
03-2089(5P)
BOARD
GYRO CONVERTER
64P1106A *2
J1
J7(NH) 03-2091(5P)
03-2088(6-14P)
J608
J609
J610
J613
14
13
-12V
ミドリ GRN 5
GND
キ YEL 4
+5V
ダイ ORG 3
GND
アカ RED 2
+12V
チャ BRN 1
-5/-12V
GND
VCC
3
2
1
NC
NC
GND
GND
+12V
+12V
3
6
5
4
2
1
RU-3305
NC
3
2
1
IF_VIDEO
GND
SG
MOTOR(-)
MOTOR(-)
MOTOR(+)
MOTOR(+)
24V_MINUS
24V_PLUS
NC
TX_HV
12
11
10
9
8
7
6
5
4
3
2
1
2
1
15
14
13
12
11
10
9
8
7
6
5
4
3
2
1
NC
Y_SYNC
H_SYNC
NC
GND
GND
NC
GND
GND
GND
NC
NC
B_VIDEO
G_VIDEO
R_VIDEO
-5/-12V
GND
VCC
GND
V_SYNC
GND
H_SYNC
GND
B_VIDEO
GND
G_VIDEO
GND
R_VIDEO
13
12
11
10
9
8
7
6
5
4
3
2
1
GND
VS
GND
HS
GND
B
GND
G
R
GND
2
1
4
3
10
9
8
7
6
5
2
1
23
24
TB BOARD
03P9342
ムラサキ
アオ
ミドリ
キ
ダイ
アカ
チャ
PPL
BLU
GRN
YEL
ORG
RED
BRN
7
6
5
4
3
2
1
12
11
10
9
GC_5V
GC_0V
GC_DOWN
GC_UP
GC_HOLD
GC_LED
4
3
6
5
2
1
14
13
NC
3
GYRO_R1
2
GYRO_R2
1
GYRO_FG
5
GYRO_T
4
GYRO_S3
3
GYRO_S2
2
GYRO_S1
1
FG
SHIFT1-C
SHIFT1-H
DATA1-C
DATA1-H 1
5
YEL
キ
4
ORGダイ
3
アカ RED
2
BRNチャ
4
3
2
1
IF_VIDEO
GND
SG
MOTOR(-)
MOTOR(-)
MOTOR(+)
MOTOR(+)
24V_MINUS
24V_PLUS
12
11
10
9
8
7
6
5
4
3
2
1
NC
TX_HV
2
1
J602
10
9
8
7
6
5
4
3
GND
+12V
GND
PWR_SW
2
1
(IEC-61162-2)
HDG SENSOR
P
J605
J601
RS-232C
HDG_GND 3
2
1
NC 9
NC 8
NC 7
NC 6
4
GND
NC
5
TXD 3
NC 1
RXD 2
KEY_TXD-B
KEY_TXD-A
KEY_RXD-B
KEY_RXD-A
SYS_FAIL-H
SYS_FAIL-C
SYS_ACK-C
SYS_ACK-H
J622 1
2
PC
WHT
GRN[B]
RED[B]
BLK
GRN
RED
WHT[B]
PPL[B]
GRY[B]
BLU[B]
YEL[B]
ORG[B]
BRN
チャ
ダイ(太)
キ(太)
アオ(太)
ハイ(太)
ムラサキ(太)
シロ(太)
アカ
ミドリ
クロ
シロ
ミドリ(太)
アカ(太)
HDG-B
HDG-A
AD_DATA-H
AD_DATA-C
AD_CLK-H
AD_CLK-C
RF_SPU_D-B
RF_SPU_D-A
SPU_RF_D-B
SPU_RF_D-A
(IEC-61162-1)
NAVIGATOR
P
J606
NC 3
2
1
NAV-B
NAV-A
(IEC-61162-1)
SPEED LOG
P
J607
NC 3
2
1
LOG-B
LOG-A
J620
GND 5
4
3
2
1
TRK_RD-B
TRK_RD-A
TRK_TD-B
TRK_TD-A
(IEC-61162-1)
TRACK_CONTROL
P
(IEC-61162-1)
ECDIS
P
J619
NC 3
2
1
ARPA-B
ARPA-A
P
NOT USED
J621
(IEC-61162-2)
AIS
P
P
J611
GND
GND
6
5
4
3
2
1
AIS_GND 5
4
3
2
1
AIS_RD-B
AIS_RD-A
AIS_TD-B
AIS_TD-A
RSV2_TD-B
RSV2_TD-A
RSV1_TD-B
RSV1_TD-A
(FULL-LOG)
SUB DISPLAY1
MASTER RADAR
(SEMI-LOG)
SUB DISPLAY2
J617(NH)
J616(NH)
J618(NH)
P
P
P
P
P
P
J612
ALARM SYSTEM
8
7
6
5
4
3
2
1
OP_VIDEO_1
GND
OP_TRIG_1
GND
OP_BP_1
GND
OP_HD_1
GND
OP_VIDEO_IN
GND
OP_TRIG_IN
GND
OP_BP_IN
GND
OP_HD_IN
GND
8
7
6
5
4
3
2
1
8
7
6
5
4
3
2
1
OP_VIDEO_2
GND
OP_TRIG_2
GND
OP_BP_2
GND
OP_HD_2
GND
OPERATOR_FITNESS_1
OPERATOR_FITNESS_0
GND
EXT_ALM_ACK_N
ALARM3_1
ALARM3_0
ALARM2_1
ALARM2_0
ALARM1_1
ALARM1_0
12
11
10
9
8
7
6
5
4
3
2
1
SYS_FAIL-H
SYS_FAIL-C
RF_SPU_D-B
RF_SPU_D-A
SPU_RF_D-B
SPU_RF_D-A
100VAC-C
100VAC-H
*2RU-1803
TRANSFORMER
トランス
GNDGND
NC
NC 10
9
8
7
6
5
4
3
GND
+12V
GND
PWR_SW
2
1
10
9
8
7
6
5
4
3
GND
+12V
GND
PWR_SW
2
1KEY_TXD-B
KEY_TXD-A
KEY_RXD-B
KEY_RXD-A
SYS_FAIL-H
SYS_FAIL-C
KEY_TXD-B
KEY_TXD-A
KEY_RXD-B
KEY_RXD-A
1
2
3
4SYS_ACK-C
SYS_ACK-H
SYS_FAIL-C
SYS_FAIL-H
J502/J522J501/J521
J507/J527
NC
NC
10
9
8
7
6
5
4
3
GND
+12V
GND
PWR_SW
2
1
KEY_RXD-A
KEY_RXD-B
KEY_TXD-A
KEY_TXD-B
RCU-016
CONTROL UNIT
*2
操作部
J501
操作部
CONTROL UNIT
RCU-014/015
H
C
100-120/
200-240VAC
1φ,50-60Hz
440VAC
1φ,50-60Hz
J602
REF.No.
ANTENNA UNIT
RSB-096/097
RSB-109(FAR-2127-5A)
*5 : 保護アース用ケーブルは緑/黄の絶縁線を使用のこと。 *5: USE GRN/YEL WIRE FOR PROTECTIVE EARTH.
*4: USE 3A BREAKER IN SHIP'S MAINS SWITCH BOX.
注記 NOTES
*4 : 船内配電盤では3Aのブレーカを使用。
*1 : 造船所手配
*2 : オプション
*3 : 最長 100m (延長するときは接続箱RJB-001が必要 )
*1: SHIPYARD SUPPLY
*2: OPTION
*3: MAX. 100m (JUNCTION BOX RJB-001 IS REQUIRED FOR EXTENSION)
HUB-100 (8 PORTS)
*2MEMORY CARD I/F UNIT
1φ,50/60Hz
100-230VAC
P
P
P
P
MPS588-C
MPS588-C
CU-200
SWITCHING HUB *2
スイッチング ハブ
NETWORK
J614
シロ
クロ
WHT
BLK
LAN
チャ BRN
シロ/チャ WHT/BRN
ダイ ORG
シロ/アオ WHT/BLU
アオ BLU
シロ/ダイ WHT/ORG
ミドリ GRN
シロ/ミドリ WHT/GRN
GND
AC
AC
3
2
1
NC
NC
RXN
NC
NC
RXP
TXN
TXP
8
7
6
5
4
3
2
1
3
2
1
NC
NC
RXN
NC
NC
RXP
TXN
TXP
8
7
6
5
4
3
2
1
+12V
GND
FG
NC
NC
RXN
NC
NC
RXP
TXN
TXP
8
7
6
5
4
3
2
1
GND
+12V
2
1
J1
J302
MJ-A3SPF MJ-A3SPF0015,10m,φ6
P5E-4PTX-BL,10m,φ6.3
防水型カードインターフェイス
2
1
3
4
5
6
1010
03P9339
PWR PCB
J105
2
1
3
4
5
6
J652
2
1MOTOR_DO
MOTOR_C
BRC
2
1DPYC-1.5
*1
BRU-001/002
BREAK UNIT
ブレーキユニット
*2
J662
J1
5
6
4
1
2
3
03P9485
IV-3.5sq.
保護アース
PE *1 *5
IV-8sq.
保護アース PE
*1 *5
PE
*1 *5
保護アース
IV-8sq.
保護アース PE
IV-1.25sq.*1 *5
IV-1.25sq.
*1
FR-FTPC-CY,10/20/30m,φ13
LANCABLE(CAT5)OR
*1
NR203PF-VVS1.25
3.5m,φ8.6
26/Sep/08
26/Sep/08
T.YAMASAKI
T.TAKENO
MARINE RADAR/ARPA
相互結線図
INTERCONNECTION DIAGRAM
船舶用レーダー/ARPA
FAR-2117/2127/2817/2827 (AC SET)
2.3/10/20/30m,φ9
XH10P-W-6P
1.5/10/20/30m,φ9
XH10P-W-5P-A
合計:31.5m以下 TOTAL: UP TO 31.5m
RW-9600,15/30/40/50m,φ22
*3
*1
TTYCS-1Q
*1
RS-232C CABLE
*1
TTYCS-1
*1
TTYCS-1
*1
*1
TTYCS-1
TTYCS-4
*1
TTYCS-4
*1
TTYCS-7
RW-4864,φ9.5
RW-4864,φ9.5
RW-4864,φ9.5
TTYCS-4
*1
MPYC-7
*1
*1
VGA CABLE
*1
DPYC-1.5
*1
DPYC-2.5
C3519-C01- R 03-163-6001-7
DVI-DMONITOR
MONITOR UNIT表示部
J3
RPU-013
24
23
22
21
20
19
18
17
16
15
14
13
12
11
10
9
8
7
6
5
4
3
2
1
24
23
22
21
20
19
18
17
16
15
14
13
12
11
10
9
8
7
6
5
4
3
2
1
J204
TMDS_CLOCK(-)
TMDS_CLOCK(+)
TMDS_CLOCK_SHIELD
NC
NC
TMDS_DATA0/5_SHIELD
TMDS_DATAB(+)
TMDS_DATAB(-)
HOT_PLUG_DETECT
GND
+5V_POWER
NC
NC
TMDS_DATA1/3_SHIELD
TMDS_DATA(+)
TMDS_DATA(-)
NC
DDC_DATA
DDC_CLOCK
NC
NC
TMDS_DATA2/4_SHIELD
TMDS_DATA2(+)
TMDS_DATA2(-)
DVI0TXC_N
DVI0TXC_P
A_GND
NC
NC
A_GND
DVI0TXD_P
DVI0TXD_N
NC
GND
VCC
NC
NC
A_GND
DVI0TX1_P
DVI0TX1_N
NC
NC
NC
NC
NC
A_GND
DVI0TX2_P
DVI0TX2_N
TB1
2
1
MU-201CR/231CR/170C
H
C
*1
DPYC-2.5
100-240VAC
1φ,50/60Hz
IV-8sq.
保護アース PE
*1 *5
5/10m,φ7
DVI-D/DSINGLELINK5M/10M,
外部モニター
DVI-DMONITOR
EXT. MONITOR
SAMEASAVOBE
24
2
1
J205
*2
DVI CABLE
MONITOR
MU-201CR
MU-231CR
MODEL
FAR-2117/2127
FAR-2817/2827
-**AF-MU17
FAR-2117/2127 MU-170C
8/Oct/08 R.Esumi
S-1

12 4356
A
B
C
D
MASSSCALE
DWG.No.
APPROVED
CHECKED
DRAWN
kg
名称
TYPE
NAME
100/110/115/
200/220/240VAC
1φ,50/60Hz
DPYC-2.5
*1
*2
整流器
RECTIFIER
RU-3424
*4
50-60Hz
100VAC,1φ,
220/230VAC,
110/115/
1φ,50-60Hz
氷結防止用
FOR DE-ICER
TTYCS-4
*1
MPYC-7
*1
GYROCOMPASS
A-D CONVERTER
RGB EXT. MONITOR
12-24VDC
03P9229A
RGB バッファ 基板
RGB BUFFER PCB
*1
DPYC-6
RW-4747
J615
J3
J4
SLB-FRN4-A
DVI-RGB CONVERSION BOARD
DVI-RGB変換基板
BNCコネクタコンバータ
CONVERTER *2
BNC CONNECTOR
RW-9600,15/30/40/50m,φ22
RSB-096/097
ANTENNA UNIT
空中線部
COAX.(75Ω)x5
VDR
*1
DSUB-BNC-1
PM-31
PERFORMANCE MONITOR
パフォーマンスモニター
*3
PROCESSOR UNIT
RPU-013
制御部
TB1
P
P
*1 J9
VGA CABLE J2
RGB VIDEO CONVERTOR
*2DVI-RGB-1
RGBビデオコンバータ
J1 J3
J603(XH)
J5(VH)
03-2090(3P)
J4(VH)
03-2089(5P)
BOARD
GYRO CONVERTER
64P1106A *2
J1
J7(NH) 03-2091(5P)
03-2088(6-14P)
J608
J609
J610
J613
*5 : 保護アース用ケーブルは緑/黄の絶縁線を使用のこと。 *5: USE GRN/YEL WIRE FOR PROTECTIVE EARTH.
*4: USE 3A BREAKER IN SHIP'S MAINS SWITCH BOX.
*3: MAX. 100m. (JUNCTION BOX RJB-001 IS REQUIRED FOR EXTENSION)
注記
*3 : 最長 100m (延長するときは接続箱RJB-001が必要 )。
*1 : 造船所手配。
*2 : オプション。 *1: SHIPYARD SUPPLY.
*2: OPTION.
NOTES
*4 : 船内配電盤では3Aのブレーカを使用。
(-)
(+)
-12V
ミドリ GRN 5
GND
キ YEL 4
+5V
ダイ ORG 3
GND
アカ RED 2
+12V
チャ BRN 1
-5/-12V
GND
VCC
3
2
1
NC
NC
GND
GND
+12V
+12V
3
6
5
4
2
1
RU-3305
2
1
15
14
13
12
11
10
9
8
7
6
5
4
3
2
1
NC
Y_SYNC
H_SYNC
NC
GND
GND
NC
GND
GND
GND
NC
NC
B_VIDEO
G_VIDEO
R_VIDEO
-5/-12V
GND
VCC
GND
V_SYNC
GND
H_SYNC
GND
B_VIDEO
GND
G_VIDEO
GND
R_VIDEO
13
12
11
10
9
8
7
6
5
4
3
2
1
GND
VS
GND
HS
GND
B
GND
G
R
GND
2
1
4
3
10
9
8
7
6
5
2
1
23
24
TB BOARD
03P9342
ムラサキ
アオ
ミドリ
キ
ダイ
アカ
チャ
PPL
BLU
GRN
YEL
ORG
RED
BRN
7
6
5
4
3
2
1
12
11
10
9
GC_5V
GC_0V
GC_DOWN
GC_UP
GC_HOLD
GC_LED
4
3
6
5
2
1
14
13
NC
3
GYRO_R1
2
GYRO_R2
1
GYRO_FG
5
GYRO_T
4
GYRO_S3
3
GYRO_S2
2
GYRO_S1
1
FG
SHIFT1-C
SHIFT1-H
DATA1-C
DATA1-H 1
5
YEL
キ
4
ORGダイ
3
アカ RED
2
BRNチャ
4
3
2
1
IF_VIDEO
GND
SG
MOTOR(-)
MOTOR(-)
MOTOR(+)
MOTOR(+)
24V_MINUS
24V_PLUS
12
11
10
9
8
7
6
5
4
3
2
1
NC
TX_HV
2
1
J602
NC
NC 10
9
8
7
6
5
4
3
GND
+12V
GND
PWR_SW
2
1
10
9
8
7
6
5
4
3
GND
+12V
GND
PWR_SW
2
1
10
9
8
7
6
5
4
3
GND
+12V
GND
PWR_SW
2
1
(IEC-61162-2)
HDG SENSOR
P
J605
J601
RS-232C
HDG_GND 3
2
1
NC 9
NC 8
NC 7
NC 6
4
GND
NC
5
TXD 3
NC 1
RXD 2
KEY_TXD-B
KEY_TXD-A
KEY_RXD-B
KEY_RXD-A
SYS_FAIL-H
SYS_FAIL-C
KEY_TXD-B
KEY_TXD-A
KEY_RXD-B
KEY_RXD-A
KEY_TXD-B
KEY_TXD-A
KEY_RXD-B
KEY_RXD-A
SYS_FAIL-H
SYS_FAIL-C
1
2
3
4SYS_ACK-C
SYS_ACK-H
SYS_FAIL-C
SYS_FAIL-H
SYS_ACK-C
SYS_ACK-H
J622 1
2
J502/J522J501/J521
J507/J527
PC
WHT
GRN[B]
RED[B]
BLK
GRN
RED
WHT[B]
PPL[B]
GRY[B]
BLU[B]
YEL[B]
ORG[B]
BRN
チャ
ダイ(太)
キ(太)
アオ(太)
ハイ(太)
ムラサキ(太)
シロ(太)
アカ
ミドリ
クロ
シロ
ミドリ(太)
アカ(太)
HDG-B
HDG-A
AD_DATA-H
AD_DATA-C
AD_CLK-H
AD_CLK-C
RF_SPU_D-B
RF_SPU_D-A
SPU_RF_D-B
SPU_RF_D-A
(IEC-61162-1)
NAVIGATOR
P
J606
NC 3
2
1
NAV-B
NAV-A
(IEC-61162-1)
SPEED LOG
P
J607
NC 3
2
1
LOG-B
LOG-A
J620
GND 5
4
3
2
1
TRK_RD-B
TRK_RD-A
TRK_TD-B
TRK_TD-A
(IEC-61162-1)
TRACK_CONTROL
P
(IEC-61162-1)
ECDIS
P
J619
NC 3
2
1
ARPA-B
ARPA-A
P
NOT USED
J621
(IEC-61162-2)
AIS
P
P
J611
GND
GND
6
5
4
3
2
1
AIS_GND 5
4
3
2
1
AIS_RD-B
AIS_RD-A
AIS_TD-B
AIS_TD-A
RSV2_TD-B
RSV2_TD-A
RSV1_TD-B
RSV1_TD-A
(FULL-LOG)
SUB DISPLAY1
MASTER RADAR
(SEMI-LOG)
SUB DISPLAY2
J617(NH)
J616(NH)
J618(NH)
P
P
P
P
P
P
J612
ALARM SYSTEM
8
7
6
5
4
3
2
1
OP_VIDEO_1
GND
OP_TRIG_1
GND
OP_BP_1
GND
OP_HD_1
GND
OP_VIDEO_IN
GND
OP_TRIG_IN
GND
OP_BP_IN
GND
OP_HD_IN
GND
8
7
6
5
4
3
2
1
8
7
6
5
4
3
2
1
OP_VIDEO_2
GND
OP_TRIG_2
GND
OP_BP_2
GND
OP_HD_2
GND
OPERATOR_FITNESS_1
OPERATOR_FITNESS_0
GND
EXT_ALM_ACK_N
ALARM3_1
ALARM3_0
ALARM2_1
ALARM2_0
ALARM1_1
ALARM1_0
12
11
10
9
8
7
6
5
4
3
2
1
SYS_FAIL-H
SYS_FAIL-C
1.5/10/20/30m,φ9
XH10P-W-5P-A
NC
NC
10
9
8
7
6
5
4
3
GND
+12V
GND
PWR_SW
2
1
KEY_RXD-A
KEY_RXD-B
KEY_TXD-A
KEY_TXD-B
RCU-016
CONTROL UNIT
*2
操作部
J501
GND
操作部
CONTROL UNIT
RCU-014/015
2.3/10/20/30m,φ9
XH10P-W-6P
J602
2
1
3
4
5
6
1010
03P9339
PWR PCB
J105
2
1
3
4
5
6
J652
2
1MOTOR_DO
MOTOR_C
BRC
2
1DPYC-1.5
*1
BRU-001/002
BREAK UNIT
ブレーキユニット
*2
J662
J1
5
6
4
1
2
3
03P9485
T.YAMASAKI
T.TAKENO
C3519-C02- P
FAR-2117/2127/2817/2827 (DC SET)
船舶用レーダー/ARPA
MARINE RADAR/ARPA
相互結線図
INTERCONNECTION DIAGRAM
03-163-6001-7
26/Sep/08
26/Sep/08
保護アース PE
IV-8sq. *1 *5
IV-3.5sq.
PE
保護アース
*1 *5
*1
DPYC-1.5
DPYCY-1.5 *1
*2
*1
TTYCS-1Q
*1
RS-232C CABLE
*1
TTYCS-1
*1
TTYCS-1
*1
*1
TTYCS-1
*1
TTYCS-4
*1
TTYCS-7
RW-4864,φ9.5
RW-4864,φ9.5
RW-4864,φ9.5
TTYCS-4
IV-8sq.
*1
合計:31.5m以下 TOTAL: UP TO 31.5m
TB-802
TB-801
14
13
IF_VIDEO
GND
SG
MOTOR(-)
MOTOR(-)
MOTOR(+)
MOTOR(+)
24V_MINUS
24V_PLUS
NC
TX_HV
12
11
10
9
8
7
6
5
4
3
2
1
RF_SPU_D-B
RF_SPU_D-A
SPU_RF_D-B
SPU_RF_D-A
GND
3
2
1
NC
100VAC-C
100VAC-H
TB901
DVI-DMONITOR
DVI-DMONITOR
MONITOR UNIT表示部
J3
SAMEASAVOBE
24
2
1
J205
24
23
22
21
20
19
18
17
16
15
14
13
12
11
10
9
8
7
6
5
4
3
2
1
24
23
22
21
20
19
18
17
16
15
14
13
12
11
10
9
8
7
6
5
4
3
2
1
J204
TMDS_CLOCK(-)
TMDS_CLOCK(+)
TMDS_CLOCK_SHIELD
NC
NC
TMDS_DATA0/5_SHIELD
TMDS_DATAB(+)
TMDS_DATAB(-)
HOT_PLUG_DETECT
GND
+5V_POWER
NC
NC
TMDS_DATA1/3_SHIELD
TMDS_DATA(+)
TMDS_DATA(-)
NC
DDC_DATA
DDC_CLOCK
NC
NC
TMDS_DATA2/4_SHIELD
TMDS_DATA2(+)
TMDS_DATA2(-)
DVI0TXC_N
DVI0TXC_P
A_GND
NC
NC
A_GND
DVI0TXD_P
DVI0TXD_N
NC
GND
VCC
NC
NC
A_GND
DVI0TX1_P
DVI0TX1_N
NC
NC
NC
NC
NC
A_GND
DVI0TX2_P
DVI0TX2_N
MU-201CR/231CR/170C
IV-8sq.
*1
5/10m,φ7
DVI-D/DSINGLELINK5M/10M,
*2
DVI CABLE
外部モニター
EXT. MONITOR
TB1
-
+
2
1
*1
DPYC-2.5
RU-3423
RECTIFIER
整流器
*2
DPYC-1.5
*1
保護アース PE
IV-8sq. *1 *5
100-240VAC
1φ,50/60Hz
24VDC
HUB-100 (8 PORTS)
*2MEMORY CARD I/F UNIT
1φ,50/60Hz
100-230VAC
P
P
P
P
MPS588-C
MPS588-C
CU-200
SWITCHING HUB *2
スイッチング ハブ
NETWORK
J614
シロ
クロ
WHT
BLK
LAN
チャBRN
シロ/チャWHT/BRN
ダイORG
シロ/アオWHT/BLU
アオBLU
シロ/ダイWHT/ORG
ミドリGRN
シロ/ミドリWHT/GRN
GND
AC
AC
3
2
1
NC
NC
RXN
NC
NC
RXP
TXN
TXP
8
7
6
5
4
3
2
1
3
2
1
NC
NC
RXN
NC
NC
RXP
TXN
TXP
8
7
6
5
4
3
2
1
+12V
GND
FG
NC
NC
RXN
NC
NC
RXP
TXN
TXP
8
7
6
5
4
3
2
1
GND
+12V
2
1
NR203PF-VVS1.25
3.5m, φ8.6
J1
J302
MJ-A3SPF
防水型カードインターフェイス
IV-1.25sq.
*1
IV-1.25sq.
保護アース PE
*1 *5
*1
LAN CABLE(CAT5) OR
FR-FTPC-CY,10/20/30m,φ13
MJ-A3SPF0015,10m,φ6
P5E-4PTX-BL,10m,φ6.3
MONITOR
MU-201CR
MU-231CR
MODEL
FAR-2117/2127
FAR-2817/2827
-**AF-MU17
FAR-2117/2127 MU-170C
8/Oct/08 R.Esumi
S-2

#
$
%
&
/#555%#.'
&9)0Q
#22418'&
%*'%-'&
&4#90
MI
ฬ⒓
6;2'
0#/'
*7$ 21465
*\
8#%Ǿ
8#%
Ǿ*\
᳖⚿㒐ᱛ↪
(14 &'+%'4
66;%5
/2;%
);41%1/2#55
#& %108'46'4
4)$ ':6 /10+614
⼔ࠕࠬ 2'
2#
4)$ 㩔㩨㨹㩖㨱 ၮ᧼
4)$ $7(('4 2%$
/'/14; %#4& +( 70+6
Ǿ*\
ᄖㇱࡕ࠾࠲
8#%
49
+8US
2'
⼔㨻㨺㩇
,
,
,
5.$(40#
&8+4)$ %108'45+10 $1#4&
&8+4)$ᄌ឵ၮ᧼
$0%㩄㩒㩂㩊㩄㩧㩔㩨㨺㩊
%108'46'4
$0% %100'%614
&2;%
&2;%;
6$
2
2
49OǾ
45$
#06'00# 70+6
ⓨਛ✢ㇱ
6$
6$
%1#:ǡ㨤
8&4
&57$$0%
2/
2'4(14/#0%' /10+614
ࡄࡈࠜࡑࡦࠬࡕ࠾࠲
&8+& /10+614
&8+& /10+614
+8US
&8+ %#$.'
241%'5514 70+6
427
ᓮㇱ
6$
2
2
2
2
.#0 %#$.'%#6 14
(4(62%%;OǾ/25%
/25%
%7
59+6%*+0) *7$
㩇㨼㨹㩋㩧㩂㩨 㩔㩖㩨
0'6914-
,
,
8)# %#$.'
,
4)$ 8+&'1 %108'4614
&8+4)$
4)$㩕㩨㩍㩨㨿㩄㩧㩔㩨㨺㩊
, ,
,:*
,8*
2
,8*
2
$1#4&
);41 %108'46'4
2#
,
,0* 2
2
,
,
,
,
ࠪࡠ
ࠢࡠ
9*6
$.-
8
㩚㩎㩨㩢 )40
)0&
ࠠ;'.
8
࠳ࠗ 14)
)0&
ࠕࠞ 4'&
8
࠴ࡖ $40
8
)0&
8%%
0%
0%
)0&
)0&
8
8
.#0
47
0%
8#%A%
8#%A*
+(A8+&'1
)0&
5)
4(A527A&A$
4(A527A&A#
527A4(A&A$
527A4(A&A#
/1614
/1614
/1614
/1614
8A/+075
8A2.75
0%
6:A*8
5#/'#5#81$'
,
,
&8+6:%A0
&8+6:%A2
#A)0&
0%
0%
#A)0&
&8+6:&A2
&8+6:&A0
0%
)0&
8%%
0%
0%
#A)0&
&8+6:A2
&8+6:A0
0%
0%
0%
0%
0%
#A)0&
&8+6:A2
&8+6:A0
࠴ࡖ $40
ࠪࡠ࠴ࡖ 9*6$40
࠳ࠗ 14)
ࠪࡠࠕࠝ 9*6$.7
ࠕࠝ $.7
ࠪࡠ࠳ࠗ 9*614)
ࡒ࠼ )40
ࠪࡠ㩚㩎㩨㩢 9*6)40
)0&
#%
#%
0%
0%
4:0
0%
0%
4:2
6:0
6:2
0%
0%
4:0
0%
0%
4:2
6:0
6:2
8
)0&
()
0%
0%
4:0
0%
0%
4:2
6:0
6:2
)0&
8
0%
;A5;0%
*A5;0%
0%
)0&
)0&
0%
)0&
)0&
)0&
0%
0%
$A8+&'1
)A8+&'1
4A8+&'1
8
)0&
8%%
)0&
8A5;0%
)0&
*A5;0%
)0&
$A8+&'1
)0&
)A8+&'1
)0&
4A8+&'1
)0&
85
)0&
*5
)0&
$
)0&
)
4
)0&
6$ $1#4&
2
㩛㩡㩅㩁
ࠕࠝ
㩚㩎㩨㩢
ࠠ
࠳ࠗ
ࠕࠞ
࠴ࡖ
22.
$.7
)40
;'.
14)
4'&
$40
)%A8
)%A8
)%A&190
)%A72
)%A*1.&
)%A.'&
0%
);41A4
);41A4
);41A()
);41A6
);41A5
);41A5
);41A5
()
5*+(6%
5*+(6*
#%
#*
;'.
ࠠ
14)࠳ࠗ
ࠕࠞ 4'&
$40࠴ࡖ
+(A8+&'1
)0&
5)
/1614
/1614
/1614
/1614
8A/+075
8A2.75
0%
6:A*8
/#4+0' 4##42#
⋧⚿✢࿑
+06'4%100'%6+10 &+#)4#/
⦁⥾↪࠳#42#
2'
⼔ࠕࠬ
,
)0&
8
)0&
294A59
+'%
*&) 5'0514
2
66;%53
,
,
45%
*&)A)0&
0%
0%
0%
0%
)0&
0%
6:&
0%
4:&
-';A6:&$
-';A6:&#
-';A4:&$
-';A4:&#
5;5A(#+.*
5;5A(#+.%
5;5A#%-%
5;5A#%-*
,
45% %#$.' 2%
042(885
O Ǿ
+8US
,
,
+8US
9*6
)40=$?
4'&=$?
$.-
)40
4'&
9*6=$?
22.=$?
)4;=$?
$.7=$?
;'.=$?
14)=$?
$40
࠴ࡖ
࠳ࠗᄥ
ࠠᄥ
ࠕࠝᄥ
ࡂࠗᄥ
㩛㩡㩅㩁ᄥ
ࠪࡠᄥ
ࠕࠞ
㩚㩎㩨㩢
ࠢࡠ
ࠪࡠ
㩚㩎㩨㩢ᄥ
ࠕࠞᄥ
*&)$
*&)#
#&A#*
#&A#%
#&A%.-*
#&A%.-%
4(A527A&$
4(A527A&#
527A4(A&$
527A4(A&#
/,#52( /,#52(OǾ
2'26:$.OǾ
㒐᳓ဳ㩀㨺㩎㩨㨼㩧㩊㨺㩖㨴㨼㩇
ᄖㇱࡕ࠾࠲
&8+ %#$.'
':6 /10+614
':6 /10+614
+'%
0#8+)#614
66;%5
2
,
0%
0#8$
0#8#
+'%
52''& .1)
66;%5
2
,
0%
.1)$
.1)#
+'%
'%&+5
66;%5
2
,
0%
#42#$
#42##
016 75'&
66;%5
,
+'%
#+5
2
2
,
)0&
)0&
#+5A)0&
#+5A4&$
#+5A4&#
#+5A6&$
#+5A6&#
458A6&$
458A6&#
458A6&$
458A6&#
66;%5
(7...1)
57$ &+52.#;
/#56'4 4#
5'/+.1)
57$ &+52.#;
49Ǿ
49Ǿ
49Ǿ
,0*
,0*
,0*
2
2
2
2
2
2
,
#.#4/ 5;56'/
12A8+&'1A
)0&
12A64+)A
)0&
12A$2A
)0&
12A*&A
)0&
12A8+&'1A+0
)0&
12A64+)A+0
)0&
12A$2A+0
)0&
12A*&A+0
)0&
12A8+&'1A
)0&
12A64+)A
)0&
12A$2A
)0&
12A*&A
)0&
12'4#614A(+60'55A
12'4#614A(+60'55A
)0&
':6A#./A#%-A0
#.#4/A
#.#4/A
#.#4/A
#.#4/A
#.#4/A
#.#4/A
5;5A(#+.*
5;5A(#+.%
,
)0&
64-A4&$
64-A4&#
64-A6&$
64-A6&#
+'%
64#%-A%10641.
2
2
66;%5
&2;%
47
64#05(14/'4
࠻ࡦࠬ
8#%
Ǿ*\
8#%
Ǿ*\
&2;%
⼔ࠕࠬ↪ࠤࡉ࡞ߪ✛㧛㤛ߩ⛘✼✢ࠍ↪ߩߎߣޕ 75' )40;'. 9+4' (14 2416'%6+8' '#46*
75' # $4'#-'4 +0 5*+25 /#+05 59+6%* $1:
/#: O ,70%6+10 $1: 4,$ +5 4'37+4'& (14 ':6'05+10
ᵈ⸥
ᦨ㐳 O ᑧ㐳ߔࠆߣ߈ߪធ⛯▫4,$߇ᔅⷐ ޕ
ㅧ⦁ᚲᚻ㈩ޕ
ࠝࡊ࡚ࠪࡦޕ 5*+2;#4& 5722.;
126+10
016'5
⦁ౝ㈩㔚⋚ߢߪ#ߩࡉࠞࠍ↪ޕ
ᵹߪਔᭂಾࠅࡉࠞ㧔ㅧ⦁ᚲᚻ㈩㧕ࠍ⚻↱ߔࠆߎߣޕ 2#55 6*' #% .+0' 6*417)* # &17$.'%106#%6 $4'#-'4 5*+2;#4& 5722.;
(#4$$ #% 5'6
+8US
2'
⼔ࠕࠬ
ว⸘㧦Oએਅ 616#. 72 61 O
*
%
)0&)0&
OǾ
:*292
0%
0%
)0&
8
)0&
294A59
-';A4:&A#
-';A4:&A$
-';A6:&A#
-';A6:&A$
0%
0%
)0&
8
)0&
294A59
)0&
8
)0&
294A59
ᠲㇱ
%10641. 70+6
4%7
-';A6:&$
-';A6:&#
-';A4:&$
-';A4:&#
5;5A(#+.*
5;5A(#+.%
-';A6:&$
-';A6:&#
-';A4:&$
-';A4:&#
5;5A#%-%
5;5A#%-*
5;5A(#+.%
5;5A(#+.*
,,,,
,,
,
4%7
%10641. 70+6
ᠲㇱ
OǾ
:*292#
,
,WP
'/+;15*+
6#-#*#5*+6
;*CVCK
%% 0
S-3

#
$
%
&
/#555%#.'
&9)0Q
#22418'&
%*'%-'&
&4#90
MI
ฬ⒓
6;2'
0#/'
8#%
Ǿ*\
&2;%
ᢛᵹེ
4'%6+(+'4
47
*7$ 21465
*\
8#%Ǿ
8#%
Ǿ*\
᳖⚿㒐ᱛ↪
(14 &'+%'4
66;%5
/2;%
);41%1/2#55
#& %108'46'4
4)$ ':6 /10+614
8&%
⼔ࠕࠬ 2'
2#
4)$ 㩔㩨㨹㩖㨱 ၮ᧼
4)$ $7(('4 2%$
/'/14; %#4& +( 70+6
Ǿ*\
ᄖㇱࡕ࠾࠲
&2;%
8#%
49
+8US
2'
⼔㨻㨺㩇
,
,
,
5.$(40#
&8+4)$ %108'45+10 $1#4&
&8+4)$ᄌ឵ၮ᧼
$0%㩄㩒㩂㩊㩄㩧㩔㩨㨺㩊
%108'46'4
$0% %100'%614
&2;%
&2;%;
6$
2
2
49OǾ
45$
#06'00# 70+6
ⓨਛ✢ㇱ
6$
6$
%1#:ǡ㨤
8&4
&57$$0%
2/
2'4(14/#0%' /10+614
ࡄࡈࠜࡑࡦࠬࡕ࠾࠲
&8+& /10+614
&8+& /10+614
+8US
&8+ %#$.'
241%'5514 70+6
427
ᓮㇱ
6$
2
2
2
2
.#0 %#$.'%#6 14
(4(62%%;OǾ/25%
/25%
%7
59+6%*+0) *7$
㩇㨼㨹㩋㩧㩂㩨 㩔㩖㩨
0'6914-
,
,
8)# %#$.'
,
4)$ 8+&'1 %108'4614
&8+4)$
4)$㩕㩨㩍㩨㨿㩄㩧㩔㩨㨺㩊
, ,
,:*
,8*
2
,8*
2
$1#4&
);41 %108'46'4
2#
,
,0* 2
2
,
,
,
,
⼔ࠕࠬ↪ࠤࡉ࡞ߪ✛㧛㤛ߩ⛘✼✢ࠍ↪ߩߎߣޕ 75' )40;'. 9+4' (14 2416'%6+8' '#46*
75' # $4'#-'4 +0 5*+25 /#+05 59+6%* $1:
/#: O ,70%6+10 $1: 4,$ +5 4'37+4'& (14 ':6'05+10
ᵈ⸥
ᦨ㐳 O ᑧ㐳ߔࠆߣ߈ߪធ⛯▫4,$߇ᔅⷐ ޕ
ㅧ⦁ᚲᚻ㈩ޕ
ࠝࡊ࡚ࠪࡦޕ 5*+2;#4& 5722.;
126+10
016'5
⦁ౝ㈩㔚⋚ߢߪ#ߩࡉࠞࠍ↪ޕ
ࠪࡠ
ࠢࡠ
9*6
$.-
8
㩚㩎㩨㩢 )40
)0&
ࠠ;'.
8
࠳ࠗ 14)
)0&
ࠕࠞ 4'&
8
࠴ࡖ $40
8
)0&
8%%
0%
0%
)0&
)0&
8
8
.#0
47
0%
+(A8+&'1
)0&
5)
/1614
/1614
/1614
/1614
8A/+075
8A2.75
0%
6:A*8
5#/'#5#81$'
,
,
&8+6:%A0
&8+6:%A2
#A)0&
0%
0%
#A)0&
&8+6:&A2
&8+6:&A0
0%
)0&
8%%
0%
0%
#A)0&
&8+6:A2
&8+6:A0
0%
0%
0%
0%
0%
#A)0&
&8+6:A2
&8+6:A0
࠴ࡖ $40
ࠪࡠ࠴ࡖ 9*6$40
࠳ࠗ 14)
ࠪࡠࠕࠝ 9*6$.7
ࠕࠝ $.7
ࠪࡠ࠳ࠗ 9*614)
ࡒ࠼ )40
ࠪࡠ㩚㩎㩨㩢 9*6)40
)0&
#%
#%
0%
0%
4:0
0%
0%
4:2
6:0
6:2
0%
0%
4:0
0%
0%
4:2
6:0
6:2
8
)0&
()
0%
0%
4:0
0%
0%
4:2
6:0
6:2
)0&
8
0%
;A5;0%
*A5;0%
0%
)0&
)0&
0%
)0&
)0&
)0&
0%
0%
$A8+&'1
)A8+&'1
4A8+&'1
8
)0&
8%%
)0&
8A5;0%
)0&
*A5;0%
)0&
$A8+&'1
)0&
)A8+&'1
)0&
4A8+&'1
)0&
85
)0&
*5
)0&
$
)0&
)
4
)0&
6$ $1#4&
2
㩛㩡㩅㩁
ࠕࠝ
㩚㩎㩨㩢
ࠠ
࠳ࠗ
ࠕࠞ
࠴ࡖ
22.
$.7
)40
;'.
14)
4'&
$40
)%A8
)%A8
)%A&190
)%A72
)%A*1.&
)%A.'&
0%
);41A4
);41A4
);41A()
);41A6
);41A5
);41A5
);41A5
()
5*+(6%
5*+(6*
#%
#*
;'.
ࠠ
14)࠳ࠗ
ࠕࠞ 4'&
$40࠴ࡖ
+(A8+&'1
)0&
5)
/1614
/1614
/1614
/1614
8A/+075
8A2.75
0%
6:A*8
/#4+0' 4##42#
⋧⚿✢࿑
+06'4%100'%6+10 &+#)4#/
⦁⥾↪࠳#42#
2'
⼔ࠕࠬ
,
)0&
8
)0&
294A59
+'%
*&) 5'0514
2
66;%53
,
,
45%
*&)A)0&
0%
0%
0%
0%
)0&
0%
6:&
0%
4:&
-';A6:&$
-';A6:&#
-';A4:&$
-';A4:&#
5;5A(#+.*
5;5A(#+.%
5;5A#%-%
5;5A#%-*
,
45% %#$.' 2%
042(885
O Ǿ
)0&
+8US
+8US
,
,
+8US
9*6
)40=$?
4'&=$?
$.-
)40
4'&
9*6=$?
22.=$?
)4;=$?
$.7=$?
;'.=$?
14)=$?
$40
࠴ࡖ
࠳ࠗᄥ
ࠠᄥ
ࠕࠝᄥ
ࡂࠗᄥ
㩛㩡㩅㩁ᄥ
ࠪࡠᄥ
ࠕࠞ
㩚㩎㩨㩢
ࠢࡠ
ࠪࡠ
㩚㩎㩨㩢ᄥ
ࠕࠞᄥ
*&)$
*&)#
#&A#*
#&A#%
#&A%.-*
#&A%.-%
4(A527A&$
4(A527A&#
527A4(A&$
527A4(A&#
/,#52( /,#52(OǾ
2'26:$.OǾ
㒐᳓ဳ㩀㨺㩎㩨㨼㩧㩊㨺㩖㨴㨼㩇
ᄖㇱࡕ࠾࠲
&8+ %#$.'
':6 /10+614
':6 /10+614
+'%
0#8+)#614
66;%5
2
,
0%
0#8$
0#8#
+'%
52''& .1)
66;%5
2
,
0%
.1)$
.1)#
+'%
'%&+5
66;%5
2
,
0%
#42#$
#42##
016 75'&
66;%5
,
+'%
#+5
2
2
,
)0&
)0&
#+5A)0&
#+5A4&$
#+5A4&#
#+5A6&$
#+5A6&#
458A6&$
458A6&#
458A6&$
458A6&#
66;%5
(7...1)
57$ &+52.#;
/#56'4 4#
5'/+.1)
57$ &+52.#;
49Ǿ
49Ǿ
49Ǿ
,0*
,0*
,0*
2
2
2
2
2
2
,
#.#4/ 5;56'/
12A8+&'1A
)0&
12A64+)A
)0&
12A$2A
)0&
12A*&A
)0&
12A8+&'1A+0
)0&
12A64+)A+0
)0&
12A$2A+0
)0&
12A*&A+0
)0&
12A8+&'1A
)0&
12A64+)A
)0&
12A$2A
)0&
12A*&A
)0&
12'4#614A(+60'55A
12'4#614A(+60'55A
)0&
':6A#./A#%-A0
#.#4/A
#.#4/A
#.#4/A
#.#4/A
#.#4/A
#.#4/A
5;5A(#+.*
5;5A(#+.%
,
)0&
64-A4&$
64-A4&#
64-A6&$
64-A6&#
+'%
64#%-A%10641.
2
2
66;%5
4(A527A&$
4(A527A&#
527A4(A&$
527A4(A&#
8#%%
8#%*
(#4$$ &% 5'6
ว⸘㧦Oએਅ 616#. 72 61 O
)0&)0&
OǾ
:*292
0%
0%
)0&
8
)0&
294A59
0%
0%
)0&
8
)0&
294A59
)0&
8
)0&
294A59
-';A6:&$
-';A6:&#
-';A4:&$
-';A4:&#
5;5A(#+.*
5;5A(#+.%
-';A6:&$
-';A6:&#
-';A4:&$
-';A4:&#
5;5A#%-%
5;5A#%-*
5;5A(#+.%
5;5A(#+.*
,,,,
,,
-';A6:&$
-';A6:&#
-';A4:&$
-';A4:&#
4%7
%10641. 70+6
ᠲㇱ
,
OǾ
:*292#
ᠲㇱ
%10641. 70+6
4%7
,
,WP
'/+;15*+
6#-#*#5*+6
;*CVCK
%% /
S-4