GE GTUN275GM2WW User Manual HOME LAUNDRY COMBO Manuals And Guides 1408220L
User Manual: GE GTUN275GM2WW GTUN275GM2WW GE HOME LAUNDRY COMBO - Manuals and Guides View the owners manual for your GE HOME LAUNDRY COMBO #GTUN275GM2WW. Home:Laundry & Garment Care Parts:GE Parts:GE HOME LAUNDRY COMBO Manual
Open the PDF directly: View PDF .
Page Count: 36

Installation
Instructions --i@
Unitized Gas
Washer/Dryer
Questions on installation? Call: 1-800-GECARES (US}or Visit our Web site at: www.GEAppliunces.com (US).
In Canada, call 800-561-3344 or visit www.GEAppliunces.cu.
BEFOREYOU BEGIN
Readthese instructions completely and
carefully.
•IMPORTANT- Save these instructions for
local inspector's use.
•IMPORTANT- Observe all governing
codesand ordinances.
• Note to Installer - Be sure to leave these
instructionswith the customer.
• Note to Customer - Keepthese instructions
with your Use and Care Book for future
reference.
• Beforethe appliance is removedfrom service
or discarded, remove the washer and dryer
door.
• inspectthe dryer exhaustoutlet andstraighten
the outlet walls if they are bent.
• Service information and the wiring diagram
are locatedat the accesspanel.
• Do not allow children on or in the appliance.
Close supervision of children is necessary
when the appliance is usednear children.
• Install the dryer where the temperature is
above 50°F(].O°C)for satisfactory operationof
the dryer control system.
WARNING RISK OF FIRE
, Toreducethe riskofsevereinjuryordeath,followallinstallationinstructions.
. Applianceinstallationmustbeperformedbyaqualifiedinstaller.
. Installtheclothesapplianceaccordingtotheseinstructionsandinaccordancewithlocal
codes.In the absenceof localcodes,installationmustcomplywith NationalFuelGas
Code,ANSIZ223.1/NFPA54ortheCanadianNaturalGasandPropaneInstallationCode,
CSAB149,1,
,CalifomiaSafeOnnkingWaterandToxicEnforcementAct.
Thisact requiresthegovernorof Californiato publisha listof substancesknownto the
stateto causecancer,birthdefectsorotherreproductiveharmandrequiresbusinesses
to warn customersof potentialexposureto suchsubstances.Gasappliancescan
causeminorexposureto fourof thesesubstances,namelybenzene,carbonmonoxide,
formaldehydeandsoot,causedprimarilybythe incompletecombustionof naturalgas
or LPfuels.Properlyadjusteddryerswillminimizeincompletecombustion.Exposureto
thesesubstancescanbeminimizedfurtherbyproperlyventingthedryerto theoutdoors.
, Thisappliancemustbeexhaustedto theoutdoors.
, Useonly4"rigidmetalductingforexhaustingtheapplianceto theoutdoors.
, DONOTinstalla clothesdryerwithflexibleplasticductingmaterials.If flexiblemetal
(semi-rigidorfoiFtype)ductisinstalled,it mustbeULlistedandinstalledinaccordance
withthe instructionsfoundin"ConnectingTheDryerTo HouseVent"onpage8 of this
manual.Flexibleventingmaterialsareknownto collapse,beeasilycrushed,andtraplint.
Theseconditionswillobstructdryerairflowandincreasetheriskoffire.
, Donotinstallorstorethisapplianceinanylocationwhereit couldbeexposedtowater
andorweather.
, Savetheseinstructions.(Installers:Besureto leavetheseinstructionswiththecustomer).
TOOLS YOU WILL NEED
{x2I
i0" ADJUSTABLEWRENCHES _._
8"PIPEWRENCH LEVEL
SUPJOINTPUERS FLATBLADESCREWDRIVER
1/4" Nutdriver
MATERIALS YOU WILL NEED
4'IDIA.METALDUCT
(RECOMMENDED) 4'IDIAMMETALELBOW
4"DIA.FLEXIBLEMETAL(SEMI-RIGID)
ULLISTEDTRANSITIONDUCT
(IFNEEDED)
KITWXO8XlO077(INCLUDES2 ELBOWS)
4"DIA.FLEXIBLEMETAL(FOILTYPE)
ULLISTEDTRANSITIONDUCT
(IFNEEDED.)
EXHAUSTHOOD
(x2)
4"DUCTCLAMPS
OR
4"SPRINGCLAMPS
PIPE
COMPOUND SOAPSOLUTION
FORLEAKDETECTION
DUCTTAPE
FLEXIBLEGASLINECONNECTOR
SAFETYGLASSES
GLOVES
<5
4"COVERPLATE(IFNEEDED)
(KITWEIM454)
In the state of Massachusetts:
• Installation must be performed by
e qualifledor licensed contractor,
plumber, or gesfltter qualified or
licensed by the state.
• When using bell-type gas shut-off
valves, they shell be T-handle type.
• A flexible gas connector, when used,
must not exceed 3 feet.
1.Cable Tie
PARTS SUPPLIED
2 Washer Hoses
% O
2 Stainer Screens
2 Rubber Washers Rubber Washers
(washers may be in water hoses)
Printedinlexico 233D1835PO01 31-16655-6 12-12 GE

Installation
INSTALLATION REQUIREMENTS LOCATION
Thisappliance must beinstalled on firm flooring to minimize
vibration during spin cycle. Concrete flooring is best, but
wood base is sufficient, provided floor support meets FHA
standards. This appliance should not be installed on rugs
or exposed to weather.
PLUMBING
WATERPRESSURE- Must be 20 psi minimum to 120 psi
maximum.
WATERTEIVlPERATURE- Household water heater should be
set to deliver water at 120° to 150°F (50° to 66°C) IN THE
WASHERwhen hot wash is selected.
SHUTOFFVALVES-Both hot and cold shutoffvalves (faucets)
should be supplied.
DRAIN- Water may be drained into standpipe or set tub.
Discharge height MUST NOT BE LESSTHAN 30 INCHES,
and no more than 6 feet above the base of the washer.
Standpipe must be 1-!/2 inches minimum inside diameter
and must be open to atmosphere.
nstructions
ELECTRICAL REQUIREMENTS
CAUTION: Before plugging in washer, read the following
electrical requirements.
CAUTION: For personal safety, do not use an extension
cord or adapter plug with this appliance. Do not, under any
circumstances, cut or remove the third grounding prong
from the power cord. Follow national electrical codes and
ordinances. Thisappliance must besupplied with the voltage
and frequency indicated on the rating plate (located at the
top of the dryer front panel),and connected to an individual,
properly grounded branch circuit, protected by a 15- or 20-
amp circuit breaker or time-delay fuse. If the electric supply
provided does not meet the above requirements, call a
licensed electrician.
Step 1
Step 2
Step 3
Step 4
Step 5
Step 6
Step 7
Step 8
Step 9
Verify Your Gas Installation (see section 2).
Prepare the Area and Exhaust for Installation of
appliance (see section 1).
Check and Insure the Existing External Exhaust
is Clean (see section 1)and Meets Attached
Installation Specifications (see section 6).
Remove the Foam Shipping Pads (see section 1).
Move the appliance to the Desired Location.
Level your appliance (see section 8).
Connect the Gas Supply (see section 3) and check
for leaks (see section 4).
Connect the External Exhaust (see section 7).
Connect to plumbing facilities (see section 11).
Step 10 Connect the Power Supply (see section 5).
Step 11 Check the Operation of the Power Supply, Gas
Connections, and Venting.
Step 12 Place the Owners Manual and the Installation
Instructions in a Location Where They Will Be
Noticed By the Owner.
For Alcove or Closet Installation see section 1:3.
For Bathroom or Bedroom Installation see section 14.
For Mobile or Manufactured Home see section 12.
ADJUSTING FOR ELEVATION
. Gas clothes dryers input ratings are based on sea level
operation and need not be adjusted for operation at
or below 2000 ft. elevation. For operation at elevations
above 2000 ft., input ratings should be reduced at a rate
of 4 percent for each 1000 ft. above sea level.
. Installation must conform to local codes and ordinances
or, in their absence with the National Fuel Gas Code,
ANSI Z22:3.1/NFPA54, or the Natural Gas and Propane
Installation Code,CSAB149.1.
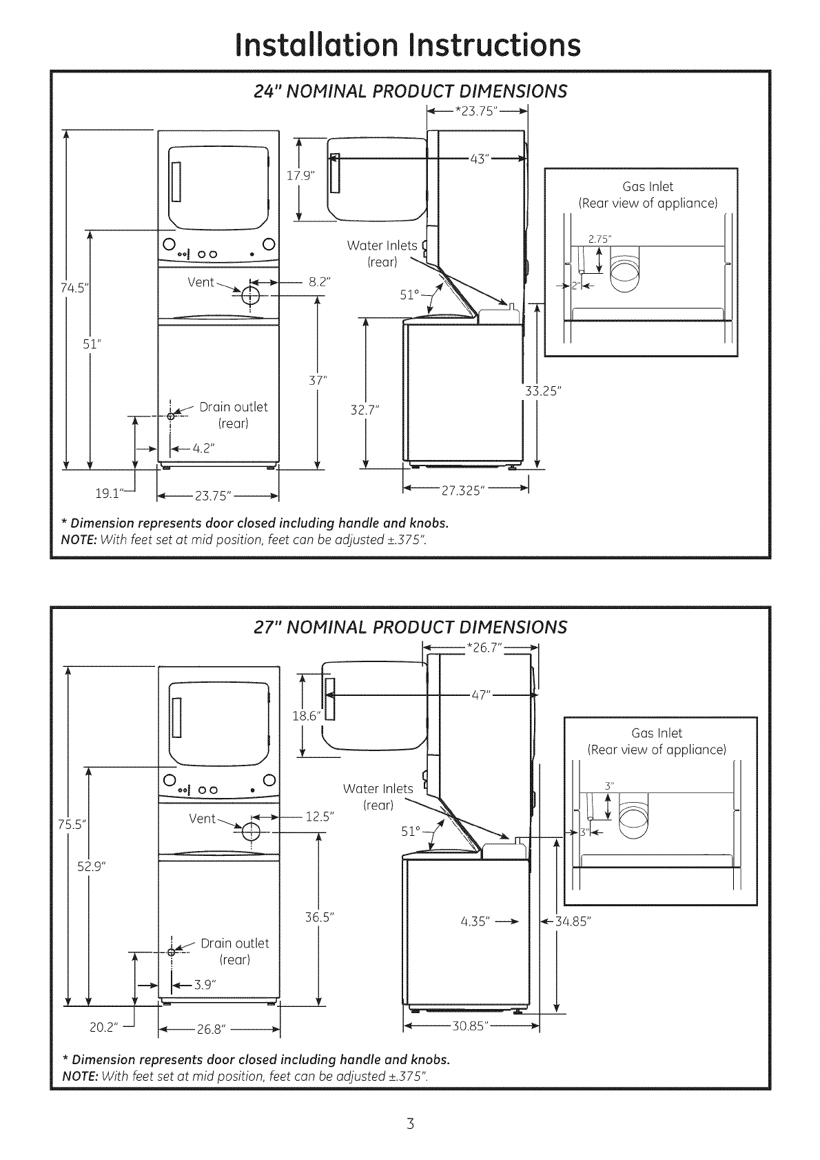
2

Installation Instructions
L5
51"
24" NOMINAL PRODUCT DIMENSIONS
_---'23.75"----_
W(]ter Inlets
(reor)
*Dimension represents door closed including handle and knobs.
NOTE: With feet set at mid position, feet can be adjusted +_.575".
Gas Inlet
(Rear view of appliance)
27" NOMINAL PRODUCT DIMENSIONS
F
52.9"
0oolo o O
_._ Drc]in outlet
i (rec]r)
_-- 3.9"
_--- 26.8"
--12.5"
]36.5"
L
W(]ter Inlets
_------'26.7"-----_
_47"_
4.35"
_------ 30.85"------_
*Dimension represents door closed including handle and knobs.
NOTE: With feet set at mid position, feet can be adjusted +_.575".
Gas Inlet
(Rec]rview of appliance)
3

Installation Instructions
Minimum Clearance Other Than Alcove or Closet Installation
Minimum clearance to combustible surfaces and for air opening are: 0 in. clearance both sides and rear. Consideration
must be given to provide adequate clearance for installation and service.
I-_ PREPARING FOR INSTALLATION
OF NEW APPLIANCE
DISCONNECTING GAS
TURNGAS
SHUT-OFFVALVEI_ DISCONNECTANDDISCARDOLD,_._,
TOTHEOFF ___ FLEXIBLEGASCONNECTORAND
POS,T,ON OLDTRANS,T,ONDUCT,NG
MATERIAL.REPLACEWITHNEW
CSA(AGA)APPROVEDFLEXIBLE
GASLINECONNECTORANDUL
APPROVEDTRANSITIONDUCT.
WARNING - NEVERREUSEOLD
FLE×IBLE CONN ECTORS.
The use of old flexible connectors can cause leaks and
personal injury. Always use new flexible connectors
when installing gas appliances.
REMOVING LINT FROM WALL
EXHAUST OPENING
• Remove and discard existing plastic or metal foil
transition duct and replace with UL listed transition duct.
_j WALL
INTERNAL_t_,].DUCT _ CHECKTHATEXHAUST
OPENING -'_-_ \ G "'.. HOODDAPIPEROPENS
ANDCLOSESFREELY.
TILTTHEAPPLIANCE
SIDEWAYSAND REMOVE
THE FOAMSHIPPINGPADS
BYPULLINGATTHE SIDES
AND BREAKINGTHEM AWAY
FROMTHEAPPLIANCELEGS.
BESURETO REMOVEALL OF
THE FOAMPIECESAROUND
THE LEGS.
After the machine is in the home,
remove remaining packing material/
carton from washer.
DO NOT REMOVE SHIPPING ROD AT
THISTIME.
Removestyrofoam block. Removethe
bag containing the Washer hosesand
parts parts from tub. Put styrofoam
block back in tub opening to hold tub
in place during the rest of installation.
Hove washer close to final position.
Make sure there is at least a 24"
clearance on right side of washer to
remove shipping bar. PULLSHIPPING
BAR OUT USING YELLOW PLASTIC
HANDLE. Keep bar so it can be
reinstalled if washer is ever moved
again.
II
StyrofoamBlock
and Parts
Yellow
" Plastic
/ Handle
NEW HONE OR REMODELING FAUCETS/
DRAI N STAN DPIPE/ELECTRICAL LOCATIO N
Right side of
Laundry Center
12"--_
_ .................. _|
Locate spigots, "
drain standpipe s3" |
and electrical plug | !
in this area
!
FLOOR
I-_ GAS REQUIREMENTS
WARNING
, Installation must conform to local codes and
ordinances, or in their absence, with the National
Fuel Gas Code, ANSI Z223.1/NFPA 54, or the
Natural Gas and Propane Installation Code, CSA
B1491
. Thisgas dryerisequippedwitha Valve& Burner
Assembly foruse only with naturalgas Using
conversion kit WE25M73 for 24" Models or
WE25M74 for 27" Models,your localservice
organizationcan convertthisdryerforuse with
propane (LP)gas ALL CONVERSIONS MUST BE
MADE BY PROPERLY TRAINED AND QUALIFIED
PERSONNEL AND IN ACCORDANCE WITH LOCAL
CODES AND ORDINANCE REQUIREMENTS
• Theappliancemustbedisconnectedfromthegassupply
pipingsystemduringanypressuretestingofthatsystem
ata testpressureinexcessof05 PSI(34KPa)
• The appliancemust be isolatedfromthegassupply
pipingsystemby closingtheequipmentshutoffvalve
duringanypressuretestingofthegassupplypipingof
testpressureequaltoorlessthan05 PSI(34KPa)
27" GASSUPPLYCONNECTION
3"
Note: 24" Gas supply connection has a flexible
hose thus dimensions will vary.
4

Installation Instructions
GAS SUPPLY
, A 1/8-in.National Pipe Taper thread plugged tapping,
accessible for test gauge connection, must be installed
immediately upstream of the gas supply connection to
the dryer, Contact your local gas utility should you have
questions on the installation of the plugged tapping.
. Supply line is to be 1/2-in. rigid pipe and equipped with
an accessible shut-off within 6 ft. of, and in the same
room with the dryer.
,Use pipe thread sealer compound or Teflon tape
appropriate for natural or LPgas.
, You must use with this dryer a flexible metal connector
listed ANSI Z21.24 /CSA 6.10. The length of the
connector shall not exceed 3 ft.
, Connect flexible metal connector to dryer and gas
supply.
, Open shut-off valve.
RECONNECTING GAS
Listed connector ANSI Z21.24 /CSA6.10
BACK OF
APPLIANCE
24"
NEW METAL _.. _ _k_>4/ '_
FLEXIBLEGAS
LINECONNECTOR
/2a" & 27"
INLET FROM
APPLIANCE
FLARE
ADAPTOR
27" ONLY
NEW METAL
FLEXIBLE GAS
LINE CONNECTOR
ADAPTOR
/8" NPT INLET
FROM APPLIANCE
27"ONLY
ELBOW
27" ONLY
NPT PIPE PLUG
FOR CHECKING GAS
INLET PRESSURE
SHUT-OFF VALVE
AT LEAST 1/2"
FLOOR
ITEHS NOT SUPPLIED
Note: The connector and fittings are designed for use only
on the original installation and are not to be reused for
another appliance or at another location. Keepflare end of
adaptor free of grease, oil and thread sealant.
CAUTION: Use adopters as shown. Connector nuts must
not be connected directly to pipe threads.
27"
APPLYPIPECOMPOUND
TOTHEADAPTORAND
APPLIANCEGASINLET.
TIGHTENTHEFLEXIBLEGASLINETO
THEADAPTORUSING2 ADJUSTABLE
WRENCHES.
APPLY PIPE COMPOUND TO
APPLIANCE INLET
24"
;HTEN THE FLEXIBLE GAS
LINE TO THE APPLIANCE
INLET USING 2 ADJUSTABLE
WRENCHES.
24" & 27"
_ APPLY PIPECOMPOUND
TO ALL MALE THREADS
24" & 27"
5
TIGHTEN ALL CONNECTIONS USING TWO
ADJUSTABLE WRENCHES.
DO NOT OVERTORQUE GAS CONNECTIONS!

Installation Instructions
[-4] LEAK TEST
I WARNING: NEVER USE AN OPEN
FLAME TO TEST FOR GAS LEAKS.
OPEN
GASVALVE.
Check oil connections for leaks with soapy solution or equivalent.
Apply soap solution. Bubbles indicate leaks. Leak test solution
must not contain ammonia which could cause damage to the
brass fittings, tf leak are found, close valve retighten thejaint and
repeat the soap test.
[_ELECTRICAL CONNECTION INFORMATION
WARNING - TO REDUCE THE
RISK OF FIRE, ELECTRICAL SHOCK,
AND PERSONAL INJURY:
. DO NOT USEAN EXTENSIONCORD OR AN ADAPTER
PLUGWITH THIS APPLIANCE.
Dryer must be electrically grounded in accordance
with local codes and ordinances, or in the absence
of local codes, in accordance with the NATIONAL
ELECTRICALCODE,ANSI/NFPA NO.70.
ELECTRICAL REQUIREMENTS
This appliance must be supplied with 120V, 60Hz, and
connected to u properly grounded brunch circuit,
protected by u 15- or 20- amp circuit breaker or time-
delay fuse. If electrical supply provided does not meet the
above specifications, it is recommended that a licensed
electrician install an approved outlet.
, WARNING - THIS DRYER IS
EQUIPPED A THREE-PRONG (GROUNDING)
PLUG FOR 'fOUR PROTECTION AGAINST
SHOCK HAZARD AND SHOULD BE PLUGGED
DIRECTLY INTO A PROPERLY GROUNDED
THREE-PRONG RECEPTACLE. DO NOT CUT
OR REMOVE THE GROUNDING PRONG FROM
THIS PLUG.
ENSURE PROPERGROUND EXISTSBEFORE USE.
GROUNDING INSTRUCTIONS
This appliance must be grounded. In the event of
malfunction or breakdown, grounding will reduce the risk
of electric shock by providing u path of least resistance
of electric current. This appliance is equipped with a
cord having an equipment-grounding conductor and
a grounding plug. The plug must be plugged into an
appropriate outlet that is properly installed and grounded
in accordance with all local codes and ordinances.
WARN IN G - Improper connectionofthe
equipment-grounding conductor can result in arisk
of electric shock. Check with a qualified electrician
or serviceman if you are in doubt as to whether the
appliance is properly grounded.
Do not modify the plug provided with the appliance. If it
will not fit the outlet, have a proper outlet installed by a
qualified electrician.
_-I EXHAUST INFORMATION
I WARNING - IN CANADA AND IN THE
UNITED STATES, THE REQUIRED EXHAUST DUCT
DIAMETER IS 4 IN (102ram). DO NOT USE DUCT
LONGER THAN SPECIFIED IN THE EXHAUST
LENGTH TABLE.
Using exhaust longer than specified length will:
• Increase the drying times and the energy cost.
Reducethe dryer life.
Accumulate lint, creating a potential fire hazard.
The correct exhaust installation is YOUR
RESPONSIBILITYoProblems due to incorrect installation
are not covered by the warranty.
Remove and discard existing plastic or metal foil
transition duct and replace with ULlisted transition duct.
The MAXIMUM ALLOWABLEduct length and number of
bends of the exhaust system depends upon the type of
duct, number of turns, the type of exhaust hood (wall
cap), and all conditions noted below. The maximum duct
length for rigid metal duct is shown in the table below.
6

Installation instructions
Use only for short
run installations
No. of 900 Rigid Rigid
Elbows Metal Metal
O 56 Feet 42 Feet
i 48 Feet 34 Feet
2 40 Feet 26 Feet
3 32 Feet 18 Feet
24" DRYEREXHAUSTLENGTH
RECOMMENDED MAXIMUM LENGTH
Exhaust Hood Types
Recommended Use only for short
run installations
No. of 900 Rigid Rigid
Elbows Metal Metal
O 45 Feet 56 Feet
i 53 Feet 26 Feet
2 24 Feet 16 Feet
EXHAUST INFORMATION (CONT.)
27" DRYEREXHAUSTLENGTH
RECOMMENDED MAXIMUM LENGTH
Exhaust Hood Types
Recommended
, For every extra 90° elbow, reduce the allowable vent
system length by 10ft.
, Two 45° elbows will be treated like one 90° elbow. For the
side exhaust installations,add one 90° elbow to the chart.
, The total vent system length includes all the straight
portions and elbows of the system (transition duct
included).
EXHAUST SYSTEM CHECK LIST
HOOD OR WALL CAP
, Terminate in a manner to prevent back drafts or entry
of birds or other wildlife.
, Termination should present minimal resistance to
the exhaust air flow and should require little or no
maintenance to prevent clogging.
, Never install u screen in or over the exhaust duct. This
could cause lint build up.
, Wall cups must be installed at least 12 in.above ground
level or any other obstruction with the opening pointed
down.
SEPARATIONOF TURNS
For best performance, separate all turns by at least 4
ft. of straight duct, including distance between lust turn
and exhaust hood.
TURNS OTHERTHAN 90°
, One turn of 450 or less may be ignored.
, Two 450 turns should be treated us one 900 turn.
, Each turn over 450 should be treated as one 900 turn.
SEALINGOF JOINTS
, Alljoints should be tight to avoid leaks. The mule end of
each section of duct must point away from the dryer.
, Do not assemble the ductwork with fasteners that
extend into the duct. They will serve as a collection
point for lint.
, Duct joints can be made air and moisture-tight by
wrapping the overlapped joints with duct tape.
, Horizontal runs should slope down toward the outdoors
1/4 inch per foot
INSULATION
Duct work that runs through an unheated urea or is
near air conditioning should be insulated to reduce
condensation and lint build-up.
P-JEXHAUST CONNECTION
, WARNING - TO REDUCE THE
RISK OF FIRE OR PERSONAL INJURY:
, This apliancce must be exhausted to the outdoors.
, Use only 4" rigid metal ducting for the home exhaust
duct.
, Use only 4" rigid metal or UL-listed flexible metal
(semi-rigid or foil-type) duct to connect the dryer
to the home exhaust duct. It must be installed
in accordance with the instructions found in
"Connecting The Dryer To House Vent" on page 8 of
this manual.
, Donot terminate exhaust inu chimney, uwall, uceiling,
gas vent, crawl space, attic, under an enclosed floor,
or in any other concealed space of u building. The
accumulated lint could create a potential fire hazard.
, Never terminate the exhaust into a common duct
with u kitchen exhaust system. A combination of
grease and lint creates mpotential fire hazard.
, Do not use duct longer than specified in the exhaust
length table. Longer ducts can accumulate lint,
creating u potential fire hazard.
, Never install u screen in or over the exhaust duct. This
will cause lint to accumulate, creating mpotential fire
hazard.
, Do not assemble ductwork with any fasteners that
extend into the duct. Thesefasteners can accumulate
lint, creating mpotential fire hazard.
, Do not obstruct incoming or exhausted air.
, Provide an access for inspection and cleaning of
the exhaust system, especially at turns and joints.
Exhaust system shall be inspected and cleaned at
least once year.
THIS DRYER COMES READY FOR REAR
EXHAUSTING. IF SPACE IS LIMITED, USE
THE INSTRUCTIONS IN SECTION 9 TO
EXHAUST DIRECTLY FROM THE SIDES OR
BOTTOM OF THE CABINET.
EXTERNALDUCT
OPENING
CSA(AGA}APPROVED
NEWFLEXIBLEGAS For straight line installation, connect
LINECONNECTOR the drger exhaust to the external
exhaust hood using duct tape or
GAS clamp.
INLET
PIPE
DUCTTAPEOR
DUCTCLAMP
4" METALDUCTCUT
TO PROPERLENGTH
DUCTTAPEOR
DUCTCLAMP
7

Installation Instructions
STANDARD REAR EXHAUST
(Vented above floor level}
U
ECOMMENDED
ONFIGURATION
OMINIMIZE
XHAUSTBLOCKAGE
ELBOW HIGHLY
RECOMMENDED
2
NOTE: ELBOWS WILL PREVENT DUCT KINKING AND COLLAPSING
[8]LEVELING AND STABILIZING YOUR
APPLIANCE
_.__E LEVEL
-TO-SIDE
LEVEL
FRONT-TO-BACK.
2LEVELINGLEGS
Level and stabilizing your appliance
1. Carefully move the appliance to its final location.
Gently rock the appliance into position. It is important
not to damage the rubber leveling legs when moving
your appliance to its final location. Damage legs can
increase appliance vibration. It may be helpful to
spray window cleaner on the floor to help move your
appliance to its final position.
Note: do not use washer cover to lift the unit.
2. To ensure the appliance is level and solid on all four
legs, tilt the appliance forward so the rear legs are off
the ground. Gently set the appliance back down to
allow the rear legs to self adjust.
3. With the appliance in its final position, place a level on
top of back part of the washer lid and check it side to
side, then check front to back. Screw the front leveling
legs up or down to ensure the appliance is resting solid
on all four legs (no rocking or the appliance should
exist), turn the lock nuts on each leg up toward the base
of the unit and snug with a wrench.
Note: Keep the leg extension at minimum to prevent
excessive vibration. The farther out legs are extended, the
more the unit will vibrate.
CONNECTING THE DRYER TO HOUSE
VENT
RIGIDMETALTRANSITIONDUCT
• For best drying performance,arigid metal transition duct is
recommended.
• Rigidmetal transitions ducts reduce the risk of crushing and
kinking.
UL-LISTEDFLEXIBLEMETAL(SEMI-RIGID)TRANSITIONDUCT
• tf rigidmetal ductcannot beused,then UL-listedflexiblemetal
(semi-rigid)ductingcan beused (KitWX08X10077).
• Never install flexible metal duct in walls, ceilings, floors or
other enclosedspaces.
For manyapplications,installingelbowsat both the dryer and
the wall is highly recommended(seeillustrationson page 9).
Elbowsallow the dryer to sit closeto the wall without kinking
and or crushing the transition duct, maximizing drying
performance.
Avoidrestingthe duct on sharp objects.
UL-LISTEDFLEXIBLEMETAL(FOIL-TYPE}TRANSITIONDUCT
• tn special installations, it may be necessaryto connect the
dryer to the housevent usinga flexiblemetal (foiltype)duct.
AUL-listedflexiblemetal (foil-type)ductmay be usedONLYin
installations where rigid metal or flexible metal (semi-rigid)
ducting cannot be used AND where a 4" diameter can be
maintained throughout the entire length of the transition
duct.
tn Canadaand the United States,only the flexible metal(foil-
type) ducts that comply with the "Outline for Clothes Dryer
Transition DuctSubject2158A"shallbe used.
Total length of flexible metal duct should not exceed 8 feet
(2.4m).
• Avoidrestingthe duct on sharp objects.
• For bestdrying performance:
1. Slideoneendof the duct over the clothes dryeroutlet pipe.
2. Securethe duct with a clamp.
3. Withthe dryer inits permanentposition,extendthe ductto
its full length.Allow 2" of duct to overlap the exhaustpipe.
Cutoff and removeexcessduct. Keepthe duct as straight
as possiblefor maximumairflow.
/4.Securethe duct to the exhaustpipewith the other clamp.
8

Installation instructions
DO
ELBOW HIGHLY
RECOMMENDED
USE
DO NOT _
EXCESSIVE
DON'T
IIIAPPLIANCE
I II°NFLEXIBLE o
EXHAUST
[-_ 24" MODELS ONLY:
DRYER EXHAUST TO RIGHT, LEFT OR
BOTTOM CABINET
_WARNING - BEFOREPERFORMING
THIS EXHAUST INSTALLATION, BE SURE
TO DISCON N ECT TH EAPPLIANCE FROM
ITS ELECTRICAL SUPPLY. PROTECT
YOUR HANDS AND ARMS FROM SHARP
EDGES WHEN WORKING INSIDE THE
CABINET. BE SURE TO WEAR GLOVES.
For downward venting, rotate elbow
sections so that elbow points downward
i
REMOVE
DESIRED
KNOCKOUT
(ONLY1)
JJ
!
FLO0
EXHAUST TO LEFT OR RIGHT SIDE OF
CABINET
, For side ducting, remove the knockout (ONLY1). Rotate
elbow sections so that the opening points to the side.
Preassemble 4" elbow with 4" duct. Use only 4" UL
approved rigid metal for ducting inside the dryer.
, Insert duct assembly through the side opening and
connect to the internal elbow.
WARNING- Be sure not to pullor damage
the electrical wires inside the dryer when inserting the
duct.
4" UL approved rigid metal
DUCT
TAPE
Apply duct tape as shown on the joint between the dryer
internal duct and the straight duct pipe.
WARNING-
Internal duct joints must be
R secured with tape, otherwise
they may separate and cause
a safety hazard.
27" MODELS ONLY:
DRYER EXHAUST TO RIGHT, LEFT OR
BOTTOM CABINET
WARNING -BEFOREPERFORMING
THIS EXHAUST INSTALLATION, BE SURE
TO DISCON NECTTH EAPPLIANCE FROM
ITS ELECTRICAL SUPPLY. PROTECT
YOUR HANDS AND ARMS FROM SHARP
EDGES WHEN WORKING INSIDE THE
CABINET. BE SURE TO WEAR GLOVES.
For downward venting, rotate elbow
sectionsm, so that elbow points downward.
9

Installation instructions
EXHAUST TO LEFT OR RIGHT SIDE OF
CABINET
, Rotate elbow sections so that the opening points to the
side to which you want to vent. Preassemble 4" elbow
with 4" duct, Use only 4" UL approved rigid metal for
ducting inside the dryer.
, Connect duct assembly to the internal elbow.
WARNING- Be sure not to pull or damage the
electrical wires inside the dryer when inserting the duct.
, Apply duct tape as shown on the joint between the
dryer internal duct and the straight duct pipe.
WARNING-
Internal duct joints must be
H secured with tape, otherwise
they may separate and cause
a safety hazard.
PLUMBING INFORMATION WATER
[ -ISU PPL¥ REQUIREMENTS
, HOTAND COLD WATERFAUCETS- Must be within 42"
of the appliance water inlet hose connections. The
faucets must be 3/4" garden hose-type so inlet hoses
can be connected.
WATER PRESSURE- Must be between 10 and 120
pounds per square inch with a maximum unbalance
pressure, hot vs. cold flowing, of 10 pounds per square
inch.
WATERTEMPERATURE- Water heater should be set to
deliver 140° to 150°F (60° to 66°C) in the washer when
HOTwash is selected.
,SHUT-OFFVALVES- Both hot and cold water shut-off
valves (faucets) should be supplied.
LOCATION- Do not install appliance in an area where
the temperature will fall below freezing. If appliance
is stored or transported in freezing temperatures, be
sure all water from the fill and drain systems has been
removed.
DRAIN REQUIREMENTS
, DRAINRATE- The drain or standpipe must be capable
of accepting a discharge at the rate of 16 gallons per
minute.
, DRAINHEIGHT- The drain height must be 33" minimum
and 96" maximum.
, STANDPIPEDIAMETER- The standpipe diameter must
be 1-1/2" minimum. There MUSTbe an air gap around
the drain hose in the standpipe. A snug fit can cause a
siphoning action.
SIPHON BREAKKIT - For a drain facility less than 33"
high, the hose, coupling and clamps provided in the
machine must be used and, in addition, a siphon break
MUST be installed on the back of the machine. Use
Siphon Break Kit WH/49X228 and follow instructions in
the kit.
[ ]CONNECTING TO PLUMBING
FACILITIES
If not installed, install rubber washer in one end of hot water
hose. Thread hot water hose onto connection labeled H at
top rear of washer. Hand tighten, plus an additional 1/8 turn
with pliers.
Ifnot installed, install rubber washer in one end of cold water
hose. Thread cold water hose onto connection labeled C at
top rear of washer. Hand tighten, plus an additional 1/8 turn
with pliers.
Moveappliance as closeto final location as possible,leaving
room for you to make water, drain, electrical and vent
connections to your home.
NOTE: If longer drain hose
is required, order drain hose
extension kit, GE part number
WH/49X301.Connectadditional
drain hose (contained in kit) to
original hose with hose clamp
(contained in kit).
Insertfree endof drain hoseinto
drain opening of your home up
to drain hose stopper (do not
removehosestopperit prevents
siphoning). If water valves and
drain are built into wall, fasten
drain hoseto oneof water hoses
with cable tie provided (ribbed
side on inside).If your drains is
a standpipe, fasten drain hose
to standpipe with cable tie
provided.
10

Installation instructions
_-2]MOBILE OR MANUFACTURED HOME
INSTALLATION
, Installation MUST conform to the MANUFACTURED
HOME CONSTRUCTION & SAFETY STANDARD,
TITLE 24, PART 32-80 or, when such standard is not
applicable, with AMERICAN NATIONAL STANDARD
FORMOBILE HOME, ANSi/NFPA NO. 501B.
, The appliance MUST be vented to the outdoors with
the termination securely fastened to the mobile home
structure.
, The vent MUST NOTbe terminated beneath a mobile or
manufactured home.
, The vent duct material MUST BE METAL.
• KIT 14-D346-33 MUST be used to attach the appliance
securelyto the structure.
• Thevent MUSTNOTbeconnected to any other duct, vent, or
chimney.
, Do not use sheet metal screws or other fastening
devices which extend into the interior of the exhaust
vent.
• Providean opening with a free area of at least 25 sq.in. for
introduction of outsideair into the dryer room.
ALCOVE OR CLOSET INSTALLATION
, If your appliance is approved for installation in an alcove
or closet, it will be stated on a label on the appliance
back.
• The dryer MUSTbevented to the outdoors. Seethe EXHAUST
INFORMATIONsection.
Do not install this appliance with less than the minimum
clearances shown above.
The closet should be vented to the outdoors to prevent gas
pocketingin caseof a gas leak inthe supplyline.
No other fuel-burning applianceshall beinstalledin the same
closetwith the appliance.
CONSIDERATION MUST BE GIVEN TO PROVIDE
ADEQUATE CLEARANCES FOR INSTALLATION
AND SERVICE.
, WARNING: DO NOTINSTALLTHIS
APPLIANCE IN A CLOSET WITH A SOLID DOOR.
DOOR VENTILATION OPENING (27"
MODELS)
A minimum of 120 square inches of opening, equally
divided at top and bottom, is required. Air openings are
required to be unobstructed when a door is installed. A
Iouvered door with equivalent air openings for the full
length of the door is acceptable.
27" Model
z: :::n::
Sq. In.
Mli i o%.,n.
When louvers or registers are placed in door openings,
the free air openings of the louvers or registers must
equal 120 square inches.
DOOR VENTILATION OPENING (24"
MODELS)
A minimum of 72 square inches of opening is required. Air
openings are required to be unobstructed when a door is
installed. A Iouvered door with equivalent air openings for
the full length of the door is acceptable.
24" Model /o /
H II J'ii'J;4 Sq. In.
I'l HT
When louvers or registers are placed in door openings,
the free air openings of the louvers or registers must
equal 72 square inches.
[Z4]BATHROOM OR BEDROOM INSTALLATION
, The appliance MUST be vented to the outdoors. See
EXHAUSTINFORMATIONsection 6 & 7.
, The installation must conform with local codes or,
in the absence of local codes, with the NATIONAL
ELECTRICALCODE, ANSI/NFPA NO. 70 and NATIONAL
FUELGASCODE,ANSIZ223.
11

Installation instructions
SERVICING
ILWARNING- LABEL ALL WIRES PRIOR TO DISCONNECTION WHEN SERVICING
CONTROLS. WIRING ERRORS CAN CAUSE IMPROPER AND DANGEROUS OPERATION
AFTER SERVICING/INSTALLATION.
For replacement parts and other information, refer to Owner's Manual for servicing phone numbers.
REGISTERYOUR NEW APPLIANCE TO RECEIVEANY
IIvlPORTANT PRODUCT NOTIFICATIONS.
Please go to www.GEAppliances.com or mail in your
Product Registration Card.
For questions on installation, call: 800.626.2000 (US)or
800-561-3344 (Canada).
12

Instructions
D'Installation
Laveuse/S cheuse
Gaz Unifi s
Question sur l'installation? Appelez au 800.561.3344 (Canada)
Ou visitez notre site web: www.electromenagersge.ca.
AVANT DE COMMENCER
Lisezles instructions compl_tement et avec
attention.
•IMPORTANT- Gardezcesinstructions pour
uneutilisation possiblepar un r@arateur local.
•IMPORTANT- Respecter les normes en
vigueur et ordonnances.
• Note pour I'instaltateur - Assurez-vous de
laissercesinstructionsavec leclient.
• Note pour le client - Gardezces instructions
avec votre manuel d'utilisation et d'entretien
pour uneconsultationfuture possible.
•Avant que I'appareil soit d@lac@ apres
r@aration ou pour @trejet@,enlevezles portes
dela laveuseet de las@cheuse.
• Contr61ezlessortiesd'@chappementet redressez
I'installationsurlemur si elleesttordue.
• Lesinformationsder@aration et lediagramme
desconduits sont situ@ssur letableau d'acces.
• Emp@chezles enfants d'@tre sur ou dans
I'appareil.Une supervision proche des enfants
estn@cessaireIorsqueI'appareilestutilis@.
• tnstallez I'appareil o0 la temp@ature est en-
dessousde 50°F(!0°C)pour un fonctionnement
satisfaisantdu systemede contr61e.
, AVERTISSEMENT- RIESQUED'INCENDIE
•Pour r@duireJesrisquesde blessuresgravesou de mort, suivezies instructions
d'instaltation.
•L'installationdeI'appareildolt @refaiteparunepersonnequalifi@.
•Instatlezt'appareilsetoncesinstructionset conform@mentauxnormeslocales.Dans
I'absencede normeslocales,I'instatlationdolt @treconformea ta NormeNationale
surleGazet leCombustible,ANSIZ223.Z/NFPA54outaNormeNationateCanadienne
surleGazNaturetet lePropane,CSIBZ49.Z.
•Lesappareilsa gazpeuventcausesuneexpositionmineur@quatredecessubstances,
benz@ne,monoxydede carbone,formaldehydeet suie,caus@principalementpar
la combustionincompl@tedu gaz naturelou des fuelsLRProprementajust@s,les
s_cheusesminimiserontlacombustionincompl@te.L'exposition(_cessubstancespeut
@treminimis@enventilantcorrectementlas_cheuseversI'ext@ieur.
•Cettes@heusedolt avoirunsystemed'@happementversI'ext@ieur.
•Utilisezseulementdes conduitsrigidesen m@talde 4" pour la canalisationde la
s@cheuseversI'ext@ieur.
•NEPASinstallerunes_cheuseavecdesconduitsflexiblesenplastique.Silesconduits
flexiblesde m@al(semi-rigideou en aluminium)sont install_s,ils doivent_tre UL
et install@sconform@mentaux instructionstrouv@sdans <<BranchezLaS@heuse
AuxConduitsdela Haison>>dela page8dece manuel.Lesmat@iauxdesconduits
flexiblessontconnuspourse fendre,s'_ cras_set _tre des pi_ges6 peluches.Ces
conditionsferont obstacleaufluxd'air de las_cheuseet augmenterontles risques
d'incendie.
•N'installezpas et n'entreposezpascet appareitdansun endroitoOil pourrait@tre
expos@a l'eauouau dimat.
•Gardezlesinstructions.(l'installateurdolt s'assurerdelaissercesinstructionschez
le client).
OUTILS A UTILISER
(×2)
CLE A PIPE 8"
PINCE TOURNE-VIS PLAT
TOURNE-VIS A DOUILLE _,"
}
TUYAU EN METAL DE
DIAM 4" (RECOMMEN DE)
MATERIAL NECESSAIRE
%
COUDE DE
METAL DE
CAPUCHON COMPOSE
D'ECHAPPEMENT TUYAU
TUYAU FLEXIBLE EN METAL (SEMIRIGIDE)
UL DE DIAM 4" (SI NECESSAIRE) KIT
WXO8XlO077 (2 COUDES INCLUS)
2 PINCES DE
TUYAU 4"
SOLUTION DE SAVON POUR
LA DETECTION DES FUITES
LUNETTES DE
SECURITE
ROULEAU ADHESIF GANTS
POUR TUYAU
__CHE DE FR_CTECTION
BRANCHEMENT (SI NECESSAIRE) DE 4"
FLEXIBLE A GAZ (KIT WE:Ilvi454)
TUYAU FLEXIBLE EN METAL
(SEMIRIGIDE) UL DE DIAIVi
4" (SI NECESSAIRE)
OU 2 PINCES
TENDEUR 4"
1 COLLIER EN
PLASTIQUE
PIECES FOURNISES
2 TUYAUX DE LA LAVEUSE
% oo
2 RONDELLES EN RONDELLES
CAOUTCHOUC ENCAOUTCHOUC
(LES JOINTS PEUVENT ETRE
DANS LES TUYAUX A EAU)
233DI835PO01 31-16655-6 12-12 GE

Instructions d'Installation
CONDITIONS D'INSTALLATION DE
L'EMPLACEMENT
Cet appareil doit @reinstall6 sur un sol solide pour minimiser
lesvibrations durant le cycle d'essorage. Lesol en b6ton est
meilleur, mais une base en bois est suffisante. Cet appareil
nedevrait pas 6tre install6 sur un tapis ou e×pos6au climat.
PLOMBERIE
PRESSIONDE UEAU- Elledolt 6tre de 20 psi minimum et
120 psi maximum.
TEMPERATUREDE L'EAU- le chauffe-eau de votre maison
dolt 6tre configur6 pour distribuer une eau de 120o6 !50°F
(50° 6 66o Ct DANS LA LAVEUSEIorsque I'eau chaude est
s61ectionn6e.
VALVESDE FERMETURE- La valve de fermeture d'eau
froide et celle d'eau chaude (robinet) doivent @trefournies.
DRAINAGE- L'eau peut 6tre drain6e par letuyau de rejet a
1'6goutou par lebac configur6. La hauteur de 1'6coulement.
NEDOlTPASETREINFERIEUREA 30 POUCES,et pas plus de
6pieds audessus de labase de la laveuse. Letuyau de rejeta
I'@goutdoit mesurer 1-!/2 pouce minimum 6 I'int@ieur du
diam6tre et doit @treouverte vers I'ext@ieur.
CONDITIONS ELECTRIQUES
PRUDENCE: Avant de brancher la laveuse, lisez les
conditions @lectriquessuivantes.
PRUDENCE: Pour votre propre s_curit6, n'utilisez
pas de rallonge ou d'adaptateur avec cet appareil.
Ne coupez pas ni enlevez la troisi_me dent de la prise
61ectrique correspondant (3la masse. Suivez les normes
61ectriques nationales pour le voltage et la fr_quence
indiqu_s sur la plaque de conversion (situ6e au-dessus de
la s6cheuse surle tableau avant), et branchez (_une prise
individuelle,correctement connect6e (3laterre, prot6g6e par
disjoncteur de 15- ou 20-amp ou un fusible (_retardement.
SiI'installation 61ectrique ne r6pond pas aux condition sci-
dessus,appelez un 61ectricien qualifi6.
Etape ! V6rifiez votre Installation de Gaz (voir section 2).
Etape 2 Pr6parez la Zone et I'Echappement pour
I'lnstallation de I'Nouvelle Appareil (voir section !).
Etape 3 V@ifiez et Assurez I'Echappement Existant
Externe qu'il soit Propre (voir section 1)et les
Sp6cifications d'lnstallation Ci-jointes (voir
section 6).
Etape 4 Enlevez la Mousse de Rembourrage de Transport
(voir section 1).
Etape 5 D6placez I'appareil au Lieu D6sir6.
Etape 6 Nivelez I'appareil (voir section 8).
Etape 7 Branchez le gaz (voir section 3)et v@ifiez les
fuites (section 4).
Etape 8 Branchez I'Echappement Externe (voir section 7).
Etape 9 Raccordezau syst@mede plomberie (voir section !1)
Etape10Branchez I'appareil au Courant Electrique (voir
section 5).
Etape11V@ifiez le Fonctionnement du Courant Electrique,
du Branchement du Gaz et la Ventilation.
Etape12 Placez le Manuel de I'Utilisateur et les Instructions
d'lnstallation dans un Lieu O_ IIs Seront Trouv6s
Par le Propri@aire
Pour le Renfoncement ou I'lnstallation dans un iVleuble,
voir section 13.
Pour I'installation dans une salle de bain ou une
chambre, voir section 1/4.
Pour I'installation dans un mobile home, voir section 12.
AJUSTEMENT POURL'ALTITUDE
. Les classifications du gaz d'entr6e d'une s6cheuse
(3 gaz sont bas6es sur le fonctionnement au niveau
de la met et aucun ajustement n'est n6cessaire pour
fonctionner (3 une altitude de 2000 pieds ou moins.
Pour un fonctionnement aux altitudes plus 61ev6esque
2000 pieds, les classifications d'entr6e doivent _tre
r6duites de 4% pour chaque 1000 pieds au-dessus du
niveau de la met.
. L'installation doit _tre conforme aux normes ou
ordonnances Iocaux, ou, dans I'absence de ceux-
ci, conforme (3 la Norme Nationale sur le Gaz et le
Combustible, ANSIZ223.1/NFPA 5/4 ou la Norme
Nationale Canadienne sur le Gaz Naturel et le Propane,
CSIB!49.1.
2

Instructions d'Installation
.5'
51"
DIMENSIONS NOMINALES DU PRODUIT 24"
'_--'23.75"---_
, Sortie drainage
-.W arri@re
_--4.2"
Arriv#e d'emu
arri_re
- -- 43"'-'--_
*Dimensions Iorsque les portes sont ferrules incluant les poign_es et les boutons.
NOTE: Dimensions en pieds, correspond(]nt 5 _+375".
Entr6e du gc]z
Vue de I'orri_re de I'opporeil)
2.75"
DIIVlENSiONES NOMINALES DU PRODUIT 27"
52.9"
Ooolo o , O
Ventilation
Sortie drainage
_._ orri@re
i_-- 3.9"
_---26.8"
18.6" H
Arriv_e d'eau
--12.5"
36.5"
_------'26.7"----_
47"
30.85
*Dimensions Iorsque les portes sont ferrules incluant les poign6es et les boutons
NOTE: Dimensions en pieds, correspondant a _+375".
Entr6e du gc]z
(rue de I'orri_re de I'opporeil)
3

Instructions d'Installation
Espace Minimum Autre Oue le Renfoncement ou l'installation Dans un Meuble
Uespace minimum pour les surfaces combustibles et I'ouverture d'air sont: 0 in. d'espace de chaque cot# et 6 I'arri_re. Les
consid@ations doivent @redonn@espour fournir un espace ad@quatpour I'installation et la r@paration.
[Tl SE PREPARER POUR L'INSTALLATION
D'UN NOUVEL APPAREIL
DEBRANCHEZ LE GAZ
TOURNEZ DEBRANCHEZETDEBARRASSEZ-_IIf
LAVALVE DE _ VOUS DES ANCIENSTUYAUXA 4qW
FERMETURE _ GAZ FLEXIBLESET LESANCIENS
AGAZA LA JL_/_ HATERIAUX DE TRANBISTION.
POSITIONFERME _--_ REMPLACEZ-LES AVEC UN
BRANCHEMENTA GAZ FLEXIBLE
APPROUVECSA (AGA) NEUF ET
UN TUYAU DE TRANSITION UL
AUSSIAPPROUVE.
i AVERTISSEMENT - NE JAMAm
REUTILISER DES BRANCHEMENTS FLEXIBLES
ANCIENS Uutilisation de branchements flexibles anciens
peut causer desfuites et des blessures personnelles.
Toujours utiliser desbranchements flexibles neufs lorsque
vous installezdesappareils6 gaz.
ENLEVER LES PELUCHES DE
L'OUVERTURE D'ECHAPPEMENT DU
MUR
• Enlevezet d6barrassez-vous des feuilles de m@taletde
plastique du tuyau de transition et remplacez-le avec un
tuyau de transition UL.
/MUR
OUVERTURE VERIFIEZQUELA CLE
INTERNEDU ECHAPPEMENT
TUYAU OUVRE ET FERME
LIBREMENT
PENCHER L'UNITE VERS
LE COTE ET ENLEVER LES
PROTECTIONS DE TRANSPORT
DE STVROMOUSSE EN LES
BRISANT VERS L'EXTERtEUR
DES PATTES DE L'UNITE.
S'ASSURER D'ENLEVER
TOUS LES MORCEAUX DE
AUTOURS
DES PATTES.
Apr#s que la machine salt dans votre
maison, enlevez les mat@iaux restants
et cartons de la laveuse.
N'ENLEVEZ PAS LES BARRES DE
TRANSPORT POUR LE MOMENT.
Enlevez le bloc de mousse de
potystyr#ne.Enlevezlesaccontenanties
Tuyauxdejonction et lespi@cesdu bac.
Mettezleblocdemoussedepolystyrene
danst'ouverturedu bacpourtenir lebac
enplacedurant lerestedeI'instaltation.
D_ptacez la laveuse vers la position
finale.Assurez-vousqu'il yait au mains
24" d'espace 6 droite de la laveuse
pour eniever les barresde transport.
TIREZLES BARRESDETRANSPORT
VERS L'EXTERIEUR UTILISANT LA
POIGNEE JAUNE EN PLASTIQUE.
Gardez lesbarresau cos at]vous
devriezlar_instatl_ou si la taveuseest
d@ptac_eplustard.
Blocdemousse
i_ncC_°n et i
transport
NOUVELLE MAISON OU NOUVEAU×
ROBINETSICANALISATION D'EVACUATION/
EMPLACEMENT ELECTRIQUE
C6t# droite
du centre de
lavage (laveuse/
s6cheuse)
l 2"---_
i...................
Placez la robinetterie, le ..........
tuyau d'@vacuation et la i"
connexion @lectriqu6 cet
endroit. !
T
42"
1
sot --
r2]CONDITIONS CONCERNANT LE GAZ
AVERTISSEMENT
, L'installation dolt @reconforme aux normes locales et
ordonnances, ou en absence de ces derniers, conforme
6 la Norme Nationale sur le Gaz et le Combustible,
ANSIZ223.1/NFPA54ou laNorme NationaleCanadienne
sur leGaz Naturel et le Propane,CSIBZ49.1.
, Cette s#cheuse 6 gaz est #quip6e d'une Valve et
d'un Bruleur Assembl#s pour I'utilisation unique de
gaz naturel. Utilisant le kit de conversion WE251v173
- 24"/WE25M74 - 27", votre organisation locale
de r#paration pourra convertir cette s6cheuse (3
I'utilisation du propane (LP). TOUTE CONVERSION
DOlT ETREREALISEEPARUNE PERSONNEQUALIFIEE
CONFORMEMENT AUX NORMES LOCALES ET
ORDONNANCESREQUISES.
•La s@cheusedolt @tred@branch@edu systeme d'arriv@ede
gazdurant lestests de pressionde ce m@mesystemepour
untest de pressionsup@ieur6 0.5 PSi(3.4Kpa).
•Las@cheusedolt @treisol@edeI'arriv@degaz enfermantles
robinets durant tout test de pressiondu gaz d'un test de
pression@galeou inferieur6 0.5 PSi(3.4Kpa).
27" CONNEXION D'ALIMENTATION EN GAZ.
- 3"<--
REPIARQUE:24" a une connexion d'alimentation en
gaz avec conduit flexible donc les dimensions vont _tre
differentes.
4

Instructions d'Installation
ALIMENTATION DE GAZ
. Un rouleau adh6sif pour branchement a gaz de 1/8 in.,
accessible pour des tests de calibrage du branchement,
doit _tre install6 immadiatement en amont du
branchement d'alimentation en gaz _ la s@cheuse.
Contactez I'entreprise de gaz la plus proche si vous avez
des questions sur I'installation du rouleau adh@sif pour
prise.
. Le branchement d'alimentation doit _tre un tuyau
rigide de 1/2in. et 6quip6 avec une valve de fermeture
accessible a 6 ft. de distance, et dans la m_me piece
que la s_cheuse.
Utilisez le compos6 pour tuyau ou le scotch Taflon
appropri_ pour le gaz naturel et LR
Vous devez utiliser avec cette s@cheuse un
branchement flexible en matal list6 comme
branchement ANSI Z21.24 /CSA6.!0. La Iongueur de
ce branchement ne devrait pas excader 3 ft.
Connectez le branchement flexible en matal 5 la
sacheuse et (3I'alimentation en gaz.
Ouvrez la valve de fermeture.
REBRANCHER LE GAZ
Branchement list6 ANSI Z2!.24 /CSA 6.10
24"
BRANCHEMENT
NEUF FLEXIBLE A,
GAZ EN METAL ENTREE A GAZ
DE LA SECHEUSE
/
RETOUR DE
L'APPAREIL
24" & 27"
FLARE
NPT ENTREE
DE L'APPAREIL 27"
SEULEMENT
45 ° COUDE
27" SEULEMENT
ADAPTATEUR
27" SEULEMENT
BRANCHEMENT NEUF
FLEXIBLE A GAZ EN
METAL
ADAPTATEUR
J NPT
1/8" POUR VERIFIER
LA PRESSION DU GAZ A
ENTRANT
VALVE DE FERMETURE
TAILLE DU BRANCHEMENT D'AU
MOINS 1/2"
PLANCHER
N'EST PAS FOURNI
Note: Le connecteur et les raccords sont congus pour 6tre
utilisas uniquement sur I'installation d'origine et ne doivent
pas 6tre rautilisas pour un autre appareil ou a un autre endroit.
Gardez fusae fin de I'adaptateur sans graisse, huile et un produit
d'6tanch6it6.
ATTENTION: Utiliser des adaptateurs, comme i!lustr@. Ecrous
connecteur dolt ne pas 6tre connect6 directement (] filetages.
27"
APPLIQUEZLE COMPOSED'
ETANCHEtTEDESTUYAUTERIESA
L'ADAPTATEURETLE ENTREEDU GAZ
DELA SECHEUSE
SERRER LA LIGNE DE BRANCHEMENT A
GAZ FLEXIBLE A L'ENTREE A GAZDE LA
SECHEUSE EN UTILISANT 2 CLES/_ MOLETTE
24"
/_ APPLIQUEZ LECOMPOSE
D' ETANCHEITE DES
TUYAUTERIES A L' ENTREEA
GAZ DE LA SECHEUSE
24"
SERRER LA LIGNE DE
BRANCHEMENT A GAZ
FLEXIBLE A L'ENTREE A GAZ DE
LA SECHEUSE EN UTILISANT 2
CLES/_ MOLETTE
24" & 27"
APPLIQUEZ LE
COMPOSED' ETANCHEITE
DESTUYAUTERIES
SURTOUS LES FILETS
DESPARTIES M/_LE
24" & 27"
SERRER TOUS LES CONNECTEURS EN UTILISANT
2 CLt]S A MOLETTE. NE PAS SUR-SERREZ PAS LES
CONNECTEURS DE GAZ.
5

Instructions d'Installation
[-4-]TEST DE LA FUITE
AVERTISSEMENT: NE3AMAIS
UTILISERUNE FLAMME POUR TESTER S'IL¥ A
DES FUITESDE GAZ.
OUVRIR
LA VALVE
A GAZ
V@ifiez s'il y a des fuites 6 tousles branchements avec
du savon ou un produit 6quivalent. Appliquez la solution
de savon. Des bulles indiquent une fuite. Le test de la
fuite ne dolt pas contenir d'ammoniac car ceci pourrait
causer des d@g6ts au× accessoires en cuivre. Si des
fuites sont rencontr6es, resserrez les joints, et r6p6tez le
test du savon.
FS]INFORMATION CONCERNANT LE
BRANCHEMENT ELECTRIQUE
AVERTISSEMENT- POUR
REDUIRE LES RISQUES D'INCENDIE,
DE DECHARGE ELECTRIQUE ET DE
BLESSURE PERSONNELLE :
. N'UTILISEZ PASDE RALONGEELECTRIQUEOU
D'ADAPTATEURAVECCETAPPAREIL.
Cet appareil doit _tre branch_ 6 la terre
conform6ment aux normes locales et ordonnances,
ou dons I'absencede normes locales, conform6ment
AUX NORMESELECTRIQUESNATIONALES,ANSI/NFPA
NO.70.
CONDITIONS ELECTRIQUES
Cet appareil doit @trebranch6 6 une prise 61ectrique 120V,
60Hz, et correctement connect@e @la terre, prot@g6epar
disjoncteur de 15- ou 20-amp ou un fusible 6 retardement.
Si I'installation 61ectrique ne r_pond pas aux sp6cifications
ci-dessus, alors appelez un 61ectricien qualifi6.
AVERTISSEMENT - LASECHEUSE
EST EQUIPPEE D'UNE PRISE TRIPHASEE
(MASSE} POUR VOTRE PROTECTION CONTRE
LES RISQUES DE DECHARGES ELECTRIQUES
ET DEVRAIT ETRE BRANCHEE DIRECTEMENT
AU RECEPTAVLE TRIPHASE. NE COUPEZ PAS ET
N'ENLEVEZ PAS LA DENT CORRESPONDANT A
LA MASSE SUR LA PRISE.
iSlINFORMATION CONCERNANT LE
BRANCHEMENT ELECTRIQUE
ASSUREZ-VOUS QU'IL EXISTE UNE PRISE A LA
TERRE AVANT UTILISATION
INSTRUCTIONS DE MASSE
Cet appareil dolt @tremis (_la terre. En cas de d@faillance
ou de punne, lu terre r@duirale risque de choc @lectriqueen
fournissant un chemin de moindre r@sistancedu courant
@lectrique.Cet appareil est @quip@d'un cordon comportant
un conducteur deterre et unefiche deterre. Lafiche doit @tre
branch@edans une prise appropri@e0correctement install@e
et raise en conformit@avec tousles codes locaux une des
ordonnances.
AVERTISSEMENT - UnemuuvuJse
connexion du conducteur de terre peut entra_'nerun risque
dechoc@lectrique.Consultezun_lectricien ouun r@puruteur
qualifi_ si vous @tesduns ledoute quant 6 savoir si l'appareil
est correctementmise6 la terre.
Ne pas modifier la fichefournie avec I'appareil- si elle n'entre
pas dans la prise,faites installer une prise ad@quatepar un
_lectricienqualifi_.
[] INFORMATION D'ECHAPPEMENT
AVERTISSEMENT -AUCANADAETAU×
USA,LEDIAMETREDU TUYAUD'ECHAPPEMENTREQUISEST4"
(102ram).N'UTILISEZPASDETUYAUPLUSGRANDQUELATAILLE
SPECIFIEEDANSLETABLEAUDELONGUEURD'ECHAPPEMENT.
En utilisantun tuyaud'@chappementplusgrandque
la Iongueur sp#cifi#e, cela :
, Aug.menterale temps de s@chageetles d@enses en
energ_e.
. R6duira la dur_e de vie de la s6cheuse.
. Accumulera les peluches, cr6ant un risque potentiel
d'incendie.
L'installation correcte d'_chuppement est VOTRE
RESPONSABILITE.Lesprobl_mes dus 6 une installation
incorrecte ne sont pus couverts per la garantie.
Enlevez et d6barrassez-vous des plastiques
existants ou du tuyau detransition en feuilles de
m6tal et remplacez-le par un tuyau de transition
UL. La Iongueur de tuyau MAXIMUM AUTORISEEet
le nombre de coudes du syst_me d'6chappement
d6pend du type de tuyau, du nombre decourbes, du
type du capuchon d'6chappement (bouchon du mur)
etdes conditions pr6sent6es ci-dessous. La Iongueur
maximum du tuyau pour les tuyaux rigide en m@al
est montr6e dans le tableau cidessous.
6

Instructions d'Instollotion
INFORMATION D'ECHAPPEMENT ccom.l
27" LONGUEUR D'ECHAPPEMENT
LONGUEUR MAXIMUM RECOMMANDEE
RECOM MAN DEE Utiliseseulement pour les
Instollations de petites distonces
N° de coudes
9o° M6talrigide M6tal rigide
0 56 Feet 42 Feet
i 48 Feet 34Feet
2 40 Feet 26 Feet
3 32 Feet 18 Feet
24" LONGUEUR D'ECHAPPEMENT
LONGUEUR MAXIMUM RECOMMANDEE
Utilise seulement pour les
Installations de petites distances
RECOMMANDEE
....14"1.....
N9dooecoudes M@alrigide M@alrigide
0 43 Feet 36 Feet
1 33 Feet 26 Feet
•Pour chaque coude additionnel de 90°, r_duire de 10 pieds la
Iongueur totale permise du syst_me de ventilation.
•Deux coudes de 45° devront @treconsid@@scomme un coude de
90°
•Pour la ventilation lat@ale,ajouter un coude de 90° au tableau.
• LaIongueur totale du syst@mede ventilation inclut toutes lesportions
droites et toes lescoudes du syst@me(letuyau detransition inclus).
LISTE DE CONTROLE DU SYSTEME D'ECHAPPEMENT
CAPUCHONOU GRILLEDU MUR
• Prot#gez la sortie de votre canalisation dans le but d'#viter les
appels d'air ou I'entr#e d'un oiseau et autres animaux sauvages.
• Cette protection devrait pr@senterune r@sistanceminimum au flux
d'air #chappement et devrait exiger peu ou pas de maintenance
pour #viter I'encrassement.
• Ne gamais installezd'#cran dans ou sur letuyau d'#chappement.
Cecipourrait conduire 6la creation de peluches.Lesgrillesdu mur
doivent @treinstall#es au moins _ 12 in. Au-dessus du niveau du
sol ou (_cette distance au-dessus de n'importe quel autre objet
pouvant faire obstruction a cette sortie.
SEPARATIONDESCOUDES
Pour une meilleure performance, s_pareztoes les coudes d'au moins
4 ft. Detuyauterie droite, incluant ladistance entre ledernier coude et
le capuchon du syst_me d'_chappement.
COUDESAUTRESQUE90°
• Un coude de 45° ou moins peut @reignor_
• Deux coudes de45° devraient _tre trait_s comme uncoude de 90°.
• Cheque coude de plusde 45° devrait _tre trait_ comme un coude
de 90°.
SCELLAGEDESJOINTS
• Toeslesjoints devraient @treserr@spour@viterlesfuites.L'extr@mit@
male de chaque section de tuyau doit @tredirig@evers I'ext@ieur
de la s@cheuse.
• N'assemblez pas la canalisation avec desagrafes qui entrent dans
le tuyau. Ellesserviront 6la creation de peluches.
• Les joints de tuyaux peuvent @trefaits d'air et de moisissures en
emballant le chevauchement dejoints avec le rouleau adh@sifde
tuyau.
• Les trajets horizontaux devraient descendre vers I'ext@ieurde 1/2
pouce par pied.
ISOLATION
La canalisation qui court (_ travers une zone non chauff@e ou
qui est pr@sde I'air conditionn@devrait @treisol@epour r@duirela
condensation et la creation de peluches.
[-7] BRANCHEMENT DE L'ECHAPPEMENT
AVERTISSEMENT- POURREDUIRE
LES RISOUES D'INCENDIE OU DE BLESSURES
PERSONNELLES •
• Cet appareil doit avoir un syst_me d'#chappement
versl'ext@rieur.
Utilisez seulement de la tuyauterie rigide en m_tal de
4" pour letuyau d'_chappement de la maison.
• Utilisezseulement un tuyau rigide en m@talou un tuyau
flexible UL(semi-rigide ou en aluminium) pour brancher
la s@cheuseau tuyau d'@chappementde la maison. II
doit @treinstall@conform@ment aux instructions trouv@
en page 7 de ce manuel sous "Brancher La S@cheuse
au Conduit d'A@ation de la Maison'.
, Ne mettez pas fin a I'@chappementpar une chemin@e,
un mur, un toit, un conduit de gaz, un petit espace, un
grenier,sees un plancher non fermi, ou dans n'importe
quelautre espacedissimul@devotre b@timent.Lacharpie
accumul@epourrait crier un risque potentiel d'incendie.
, Ne jamais mettre fin (_I'_chappement par un tuyau
commun avec le syst_me d'_chappement de la
cuisine. Une combinaison de graisses et de peluches
cr#er un risque potentiel d'incendie.
N'utilisez pas de tuyau plus grand que ce qui est
sp_cifi_ dans letableau de grandeur d'_chappement.
Des tuyaux plus grands peuvent permettre
I'accumulation de peluches et cr#er unrisque
d'incendie potentiel.
Ne jamais installer un #cran dans ou sur le tuyau
d'_chappement. Ceci causera I'accumulation de
peluches,cr#ant un risque potentiel d'incendie.
N'assemblez pas la canalisation avec des agrafes
qui entrent dans le tuyau. Ces agrafes peuvent cr##s
I'accumulation depeluches, cr#ant un risque d'incendie.
N'obstruez pas I'air entrant et sortant.
Mettez6disposition un acc_s pour inspecter et nettoyer
le syst_me d'#chappement, sp_cialement aux coudes
et aux joints. Le syst_me d'#chappement devrait @re
inspects et nettoy# aumoins une lois par an.
L'ECHAPPEMENT ARRIERE FAIT PARTIE DE CETTE SECHEUSE,
SI VOTRE ESPACE EST LIMITE, UTILISEZ LES INSTRUCTIONS
DE LA SECTION 9 POUR AVOIR UN SYSTEME D'ECHAPPEMENT
LATERAL OU PAR LE BAS DU COFFRAGE DE LA MACHINE,
7
BRANCHEMENT NEUF
FLEXIBLE A GAZ EN METAL
APPROUVE CSA(AGA) /
OU E TU EIU2 'E, EE
SCOTCH DE TUYAU
OU PINCE
TUYAU EN METAL
4" COUPE A LA
LONGUEUR
APPROPRIEE
SCOTCH
DETUYAU OU
PINCE
Pour une installation en ligne drake,
branchez le syst_me d'_chappement de la
s_cheuse au conduit externed'_chappement
en utilisant du scotch ouune pince.
® @

Instructions d'Installation
ECHAPPEMENT ARRIERE STANDARD
(Ventil_ au-dessous du niveau du sol)
U
ONFIGU RATION
ECOMMANDEE POUR
INIMISERLESBLOCAGE _E_ _
E CANALISATION
NOTE : LES COUDES EMPECHERONT LES NOEUDS ET LES
EFFONDREMENT5 DU CONDUIT.
COUDE
HAUTEMENT
COMMANDE
[_]METTRE A NIVEAU ET STABILISER
VOTRE APPAREIL /.,,,EAu
/D'U N COTEA
NIVEAU DE j_TRE
L'AVA NT A
L'ARRIERE
__Z_
di
PIEDS DE NIVELEMENT
Mettre 6 niveau et stabiliser votre appareil
!. D@lacez prudemment I'appareil vers sa position finale.
Balancez avec douceur I'appareil en position. II est
important de ne pas endommager les pieds de niv@lement
en caoutchouc Iorsque vous d@lacez votre appareil vers sa
position finale. Les pieds endommag@s peuvent augmenter
les vibrations de I'appareil. II peut @tre utile de pulv@iser
un nettoyeur de vitre sur le sol pour aider 6 d@placer votre
appareil vers sa position finale.
Note :N'utilisez pas la protection de la laveuse pour porter I'unitd.
2. Pour assurer que I'appareil est 6 niveau et stable sur ses
quatre pieds, inclinez I'appareil vers I'avant pour que les
pieds arri@e soient hors du sol. Redescendez en douceur
I'appareil pour permettre aux pieds arri@resde s'ajusteront
seuls.
3. Ayant I'appareil 6 sa position finale, placez un niveau
au-dessus au fond du couvercle de la laveuse et v@ifiez
de chaque cot@,puis v@ifiez I'avant et I'arri@re.Vissezles
pieds de niv_lement avant pour assurer que I'appareil
reste stable sur ses quatre pieds (ne balancez pas
I'appareil pour v@ifier sa stabilit@),relevez les @crousde
verrou sur chaque pied vers la base de I'unit6 et assurez
avec un tourne-a-gauche.
Note: Gardez I'extension de pied au minimum pour dviterles
vibrations excessives. Plus les pieds sont agrandis, plus'unitd a de
chance de vibren
BRANCHER LA SECHEUSE A UAERATION
DE LA MAISON
TUYAU RIGIDE DETRANSITION EN METAL
• Pour lesmeitteuresperformances des_chagepossibles,le tuyau de
transition rigide en m_tal est recommand_.
• Les tuyaux de transition rigides en m_tal r_duisent le risque
d'_crasementet de noeuds.
TUYAU DETRANSITION UL FLEXIBLEEN METAL (SEMI-RIGIDE)
• Sile tuyau rigide en m_tal ne peut pas _tre utilis_, alors tetuyau UL
flexibteen m@al(semi-rigide)peut _tre utilis_(KitWX08X!0077).
• Nejamais installer de tuyau flexibleen m@alau murs,au plafond,
auxsotsou autresespacesfarm,s.
• La Iongueurdutuyau flexibleenm@alnedevrait pas exc6d68 pieds
(2,4m).
• Pour ptusieurs applications, installer des coudes 6 la fois 6 la
s6cheuseet au tour est fortement recommand6 (voir illustration
cidessous).Les coudes permettent 6 I'appareit d'etre ptac6 pros
du mur sans fake de noeuds et/ou _craser le tuyau de transition,
maximisant lesperformancesde s_chage.
• Evitezde pauser letuyau dur desobjetscoupants.
LETUYAUDETRANSITION UL FLEXIBLEENMETAL(ALUMINIUM)
• Pour desinstallations sp_ciales,itpeut _tre n_cessairede brancher
la s_cheuse6 I'a@ationde la maison utitisant un tuyau flexible en
m@al(aluminium).Un tuyau UL flexible en m@al (semi-rigide)ne
peut pas@reutitis@ETceci or]un diam_trede 4" peut @tremaintenu
tout au long du tuyau.
• Au Canada et aux USA,seulement les tuyaux flexibtes en m@al
(aluminium) qui se plient 6 "Description G6n6rale du Tuyau de
Transition dela Laveusede V@ementsdu Sujet 2158A"devrait @re
utitis@.
Ne jamais installer de tuyau flexible en m@al sur les murs,les
ptafonds,lessotsou autresespacesfarm,s.
• La longueur du tuyau flexible en m@alne devrait pas exc6d6e 8
pieds(2,4m).
• Evitezde pauser letuyau dur desobjetscoupants.
• Pourlesmeitteuresperformancespossibles:
1. Faitesgiisserune extr_mit@dutuyau sur leconduit ext@ieurdela
s@cheusedev@tements
2. Fixezletuyau avecune pince.
3. Ayant la s@cheusedans sa position permanente, protongez
le tuyau vers sa Iongueur maximum. Laissez 2" de tuyau se
chevaucher avec le conduit d'_chappement. Coupezet enlevez
I'exc_sde tuyau. Gardezle tuyau aussi droit qua possiblepour
maximiserle flux d'air.
4. Fixezletuyau auconduit d'_chappementavec I'autrepince.
8

Instructions
FA___IRE
UDES FORTEMENT
RECOiVtiVtANDES
NE PA
UTILISER UN
\
NE PAS FAIR_
_, MACHINE
CONDUIT
TRO.'ONG
[9-1UNIQUEMENT POUR MODELES DE 24 PO
ECHAPPEMENT DE LA SECHEUSE PAR LA DROITE,
PAR LA GAUCHE OU PAR LE HAUT DE COFFRAGE
AVERTISSEMENT - AVANT DE
REALISER L'INSTALLATION DE L'ECHAPPEMENT,
ASSUREZ-VOUS DE DEBRANCHER LA SECHEUSE
DE L'ALIMENTATION ELECTRIQUE. PROTEGEZ VOS
MAINS ET VOS BRAS DESPARTIES COUPANTES
LORSQUE VOUS TRAVAILLEZ DANS LE COFFRAGE.
ASSUREZVOUS DE PORTER DES GANTS.
Pourune a_ratJonverslebus,fuitespivoterles
sectionsdu coude pourque ce m_me coude
penche vers le bas.
DEPLACEZ LES
CACHES DESIRES
(SEULEMENT 1)
d' nstallation
AJOUTER LE COUDE ETLE TUYAU POU
L'ECHAPPEMENT PAR LA GAUCHE OU PAR LA
DROITE DY COFFRAGE
. Pour la canulisation de cot6, enlevez le cache
(SEULEMENT1). Faites pivoter les sections du coude Grin
qu'il soit duns ludirection d6sir6e. Pr6parez I'assemblage
du coude de 4" avec le tuyau de 4". Utilisez seulement le
tuyau UL rigide en m6tal approuv6 pour la canalisation
de la s6cheuse.
Ins6rez I'assemblage du tuyau par I'ouverture et
branchez le coude interne.
AVERTISSEMENT - Assurez-vousdene
pus tirer ou endommager les ills @lectriques 6i'int_rieur
de la s@cheuselorsque vous Jns_rez le tuyau.
Tuyau rigide UL en m6tal
autoris6 de 4"
/
SCOTCHA
i //J//
L[
Appliquez le rouleau adh6sif comme il est montr6 sur le
joint entre le tyuyau interne de la s6cheuse et le conduit.
_ILAVERTISSEM ENT -
Les joints du tuyau interne
doivent @tre bien attach@s
_ avecdu scotch, sinon ils
pourraient se s@parerou causer
un risque pour la s@curit@des
personnes et de la machine.
UNIQUEMENT POUR MODELES DE 27 PO
ECHAPPEMENT DE LA SECHEUSE PAR LA DROITE,
PAR LA GAUCHE OU PAR LE HAUT DE COFFRAGE
AVERTISSEMENT- AVANT DE
REALISER L'INSTALLATION DE L'ECHAPPEMENT,
ASSUREZ-VOUS DE DEBRANCHER LA SECHEUSE
DE L'ALIMENTATION ELECTRIQUE. PROTEGEZ VOS
MAINS ET VOS BRAS DESPARTIES COUPANTES
LORSQUE VOUS TRAVAILLEZ DANS LE COFFRAGE.
ASSUREZVOUS DE PORTER DES GANTS.
Pour une a6ration vers le bas, faites pivoter les
sections du coude pour que ce m6me coude
penche vers le bas.
9

Instructions d'Installation
AJOUTER LE COUDE ETLE TUYAU POU
L'ECHAPPEMENT PAR LA GAUCHE OU PAR LA
DROITE DY COFFRAGE
. Faites pivoter les sections du coude Grin qu'il penche
vers le c6t6 que vous desirez a@er. Faites pivoter les
sections du coude afin qu'il soit duns ladirection d6sir6e.
Pr6parez I'assemblage du coude de 4" avec le tuyau
de 4". Utilisez seulement le tuyau UL rigide en m6tal
approuv6 pour la canalisation de la s6cheuse.
. Connectez I'assemblage de tuyau au coude interne.
AVERTISSEM ENT - Assurez-vo.sde
ne pus tirer ou endommager les ills _lectriques a
l'int_rieur de la s_cheuse lorsque vous ins_rez le
tuyau.
. Appliquez le rouleau adh6sif comme il est montr6 sur le
joint entre le tyuyau interne de la s6cheuse et le conduit.
AVERTISSEMENT -
Les joints du tuyau interne
doivent _tre bien attaches
avecdu scotch, sinon ils
hi pourraient se s_parer ou
causer un risque pour la
s_curit_ des personnes et de la
machine,
INFORMATION SUR LA PLOMBERIE
CONDITIONS DE L'APPROVISIONEMENT EN EAU
. ROBINETS D'EAU CHAUDE ET FROIDE - IIs doivent
@re 6 moins de 42" des branchements de I'appareil
pour I'arriv6e d'eau. Les robinets doivent _tre sA" de
la tuyauterie du jardin afin que les tuyaux internes
puissent _tre branch6s.
. PRESSIONDE L'EAU - Elle doit _tre entre 10 et 120psi
avec un maximum de pression d_s6quilibr6e, un flux
d'eau chaude et un flux d'eau froide, de 10 psi.
, TEMPERATUREDE L'EAU- Le chauffe-eau devrait _tre
configur6 pour distribuer une eau de 1400(_150°F (600
a 66°C) (_la laveuse Iorsque I'option de lavage CHAUD
est s61ectionn6e.
. VALVESDE FERIVlETURE- Lesvalves de fermeture d'eau
chaude et d'eau froide devraient _tre fournies.
. EMPLACEMENT-N'installez pas I'appareil dans une zone
o_ la temp@ature sera en-dessous de z@o.Si I'appareil
est gard6 ou transport6 avec des temp@atures en-
dessous de z@o, assurez-vous que toute I'eau depuis
le remplissage jusqu'au syst_me de drainage a 6t6
enlev6e.
CONDITIONS DE DRAINAGE
. RAPPORTDEDRAINAGE- Ledrainage et le tuyau de rejet
(31'6goutdoivent _tre capable d'accepter un 6coulement
d'un rapport de 16 gallons par minute.
. TAILLEDU DRAINAGE- La taille du drainage doit _tre de
33" minimum et de 96" maximum.
. DIAMETREDUTUYAUDE REJETA L'EGOUT- Le diam_tre
du tuyau de rejet (_1'6gout doit _tre de 1-1/4"minimum.
II DOlT yavoir un espace d'air autour duconduit de
drainage dans le tuyau de rejet (31'6gout. Une coupure
peut causer un effet de siphon.
, KIT BRISE-SIPHON- Pour une installation de drainage
inferieure (333" de hauteur, le tuyau, la connexion et les
pinces fournies dans I'appareil doivent _tre utilis6s et,
de plus, un brise-siphon DOlT _tre install_ au dos de la
machine. Utilisez le Kit Brise-Siphon WH49X228 et suivez
les instructions du kit.
[Yi]BRANCHER LA PLOMBERIE
I
J_
Installez si n@cessaireles joints en caoutchouc 6 I'extr@mit@
de I'arriv@ed'eau chaude sur la machine. Introduisez le tuyau
d'eau sur le branchement marqu@de la lettre C dans le coin
en haut de la machine. Serrez6 la main, et ajouter 1/8 de tour
avec une pince.
Installez si n@cessaireles joints en caoutchouc 6 I'extr@mit@
de I'arriv@ed'eau froide sur la machine. Introduisez le tuyau
d'eau sur le branchement marqu@de la lettre H dans le coin
en haut de la machine. Serrez6 la main, et ajouter 1/8 de tour
avec une pince.
D_placez I'appareil au plus proche de sa potion finale si
possible, laissant de la place pour que vous puissiezfake les
branchements d'eau,de drainage, @lectriqueet de ventilation
dans votre maison.
NOTE:Siun conduit dedrainage plus
grand est requis, commandez le kit
d'extension de conduit de drainage,
num@ode produit GEWH49X301.
Branchez un conduit additionnel
de drainage (inclut dons le kit) au
conduit original avec des pinces de
conduit (inclut dans le kit).lnc@ezun
tuyau devidange 6 lacanalisation de
drainage devotremaison pourfermer
letuyau de drainage (nepas assurer
I'6tanch6it@destuyaux pour 6viterde
crier un effet de siphon).Silesvalves
d'eau et le drainage construit dans le
tour, attachez le tuyau de drainage
61'undes tuyaux d'eau avec le collier
en plastique inclut (fix6face 6 face).Si
votre drainage estun tuyau de rejet 6
I'6gout,attachez letuyau dedrainage
aut uyau de rejet 6 I'6gout avec un
collier en plastique inclut
10

Instructions d'Installation
[f2]INSTALLATION POUR LESMOBILES
HOMES
• L'installation DOIT _tre conforme aux STANDARDS DE
CONSTRUCTION ET DE SECURtTE DU MOBILE HOME, TITRE
24, PARTtE 32-80 ou, Iorsque de tels standards ne sont
pas applicables, il faut alors consid@er LES STANDARDS
NATIONAUX AMERICAINS POUR LES MOBILES HOMES, ANSI/
NFPA NO. 50lB.
• L'appareil DOlT @re ventil_ vers I'ext@ieur avec une sortie
s_curis_e fix_e (3 la structure du mobile home.
La ventilation NE DOIT PAS sortir par le dessous du mobile
home.
Le mat@iel du conduit d'a@ation DOIT ETRE DE METAL.
• Kit !4-D346-33 dolt _tre utilis_ pour attacher la s_cheuse 6 la
structure de faqon s_curitaire.
Lo ventilation NE DOIT PAS _tre connect_e _] aucun autre
conduit d'_vacuotion des goz brGl_s ou (_ une chemin_e.
N'utilisez pas de vises pour le m_tal en feuille ou qui
d_passent _] I'int@ieur du conduit d'_vacuation.
• Pr_voyez une ouverture de minimum 25 pouces carr_s ou
I'introduction de I'air de I'ext@ieur dans la chambre o_ se
trouve la s_cheuse.
[13]RENFONCEMENT OU INSTALLATION
DANS UN MEUBLE
ooi,
Si votre appareil est autons_ pour une installation dans un
emplacement ou un meuble, cela sera indiqu_ sur la plaque
au dos de I'appareil.
POUR EVITER UN GRAND NOMBRE DE PELUCHES ET
D'HUMIDITE CAUSES PAR L'ACCUMULATION ET POUR
MAINTENIR L'EFFICACITE DE SECHAGE, CETTE MACHINE
DOlT AVOIR UN SYSTEME D'ECHAPPEMENT VERS
UEXTERIEUR.
N'installez pas cet appareil s'il vous manque I'espace
minimum tel qu'il est montr_ ci-dessus.
UNE ATTENTION PARTICULIERE DOIT ETREPRISE
POUR ASSURER DES ESPACES ADEQUATS POUR
L'INSTALLATION ET LA REPARATION
AVERTISSEMENT: N'INSTALLEZPAS
CET APPAREIL DANS UN MEUBLE AYANT UNE
PORTE.
JT31VENTILATION DE L'OUVERTURE DE
PORTE {MODELES 27")
Un minimum de 120 Sq. In. d'ouverture, divis6 6 part 6gale en haut et
en bas, est requis. Les ouvertures d'air sont tenues d'@re d6gag6es
Iorsqu'une porte est install6e. Une porte persienne avec d'ouvertures
d'air 6quivalentes sur toute la Iongueur de la porte est acceptable.
I1............I1
! 60sq.,o.
, _
27" Model / /_
/I O
Lorsque les persiennes ou les gonds sont plac6s sur les ouvertures de la
porte, les ouvertures d'air des persiennes ou des gonds doit @tre 6gale 6
120 Sq. In.
VENTILATION DE L'OUVERTURE DE
PORTE {MODELES 24")
Un minimum de 72 Sq. In. d'ouverture est requis. Les
ouvertures d'air sont tenues d'etre d_gug6es Iorsqu'une
porte est instull6e. Une porte persienne uvec des
ouvertures d'uir 6quivulentes sur toute lu Iongueur de lu
porte est acceptable.
II 1! 24 Sq. In.
Lorsque les persiennes ou les gonds sont pluc6s duns les
ouvertures de lu porte, les ouvertures d'uir des persiennes
ou des gonds doivent _tre 6gale (372 sq. in.
[1-4-]INSTALLATION POUR SALLE DE BAIN OU
CHAMBRE
o
o
L'appareil DOlT _tre ventil@vers I'ext@ieur.Voir INFORMATION
D'ECHAPPEMENTdes sections 3 & 4.
L'installation dolt _tre conforme aux names locales ou, dans
I'absence de ces normes locales, aux NORMESNATIONALES
ELECTRIQUES,ANSI/NFPA NO.70.
11

Instructions d'Installation
i_-IREPARATION
AVERTISSEMENT - MARQUEZ TOUSLES FILS AVANT LE DEBRANCHEMENT
LORSQUE VOUS EFFECTUEZ UN CONTROLE POUR REPARATION. LES ERREURS DE
BRANCHEMENT PEUVENT CAUSEES DES PROBLEMES DE FONCTIONEMENT APRES
REPARATION ET D'INSTALLATION.
Pour les pisces de rech(]nge et (]utres inform(]tions, veuillez reporter (]u Manuel de I'Utilis(]teur pour les num6ros de
t616phone du service (]prOsvente.
ENREGISTREZVOTRE NOUVEL APPAREIL POUR q)UE
VOUS RECEVIEZ DES INFORMATIONS IMPORTANTES
SUR LE PRODUIT.
Allez, SVP,sur notre site www.GffAppliances.com ou
envoyez par la poste votre Carte d'inscription du produit.
Pour des questions sur I'inst(]ll(]tion, composez:
800.626.2000 (E.U.)ou 800.56!.334/4 (CGnGdG)
12

Instrucciones de
Instalaci6n
Secadora Unificada
a Lavadora/Gas
zPreguntas sabre la Instalaci6n? Llame al: 1-800-GECARES (US)
0 visite nuestro sitio web en: www.GEAppliances.com (US)
ANTES DE COHENZAR
Lea estas instrucciones en su totalidad y
atentamente.
,IMPORTANTE- Conserve est(]s
instruccionespar(]usadelinspectorlocal.
,IMPORTANTE- Cumpl(]con todoslos
c6digos y orden(]nz(]sgubern(]ment(]les.
,Nota para el Instalador - AsegOrese
de que el compr(]dor conserve est(]s
instrucciones.
. Nota para el Consurnidor- Gu(]rde est(]s
instrucciones en su Libra de Usa y Cuid(]do
p(]r(]referenci(]futur(].
,Antesdedej(]resteelectrodom6sticofuera
de servicioo de desh(]cersedel mismo,
quiteI(]puert(]de I(]l(]v(]dor(]y I(]sec(]dor(].
, InspeccioneI(]s(]lid(]del escape de I(]
sec(]dor(] y (]juste I(] conexi6n (] I(]s s(]lid(]s
de pared si se encuentran inclinadas.
La informaci6n del servicio yel diagrama
de cableado se encuentran ubicados en el
panel de acceso.
, No permita que haya ni_os sabre ni
dentro del electrodom6stico. Cuando el
electrodom6stico se use cerca de ni_os,
set6 necesario supervisarlos.
Instale la secadora donde la temperatura
supere los 50°F (!O°C), para un
funcionamiento satisfactorio del sistema
de control de la secadora.
HERRAMIENTAS
NECESARIAS
(x2)
LLAVES AJUSTABLES DE 10"
LLAVE INGLESA DE 8"
PINZA CON JUNTA DESTORNILLADOR DE
DESLIZANTE CABEZA PLANA
Llave para Turcas de 1/4"
ADVERTENCIA RIESGO DE INCENDIO
• Afin dereducirelriesgodelesionesgravesola muerte,sigatodaslasinstrucciones
deinstalaci6n.
• Lainstalaci6ndeelectrodom@sticosdebeserrealizadaparunt@cnicocalificado.
• Instaleelelectrodom@sticoparaprendasde acuerdocon estasinstruccionesy de
acuerdoconlosc6digoslocales.Enlaausenciadelosc6digoslocales,lainstalaci6n
deber6cumplir con el C6digoNacionalde Gas Combustible(NationalFuelgas
Code),ANSIZ223.1!NFPA54o conelC6digodeInstalaci6ndeGasNaturaly Propano
(CanadianNaturalGasandPropaneInstallationCode),CSAB149.1.
• Ley.deAguaPotableInocL_ayTratamientodeResiduosT6xicosdeCalifornia(California
SafeDrinkingWaterand ToxicEnforcementAct).Estaley solicitaal Gobernador
de Californiaquepubliqueuna lista d? sustanciasque e/estado reconocecoma
cancerigenas,queproducendefectosdenacimientou otrosdahosreproductivosy
so.licitaalosempresariosqueadviertana susclientessabrelaposibleexposici6na
talessustancias.Losartefactosagaspuedencausarexposicionesmenoresacuatro
deestassustancias,lascualessonelbenceno,mon6xidodecarbono,formaldehido
y hollin,producidasprincipalmentepar la combusti6nincompletade gas natural
o combustiblesLR Las secadorasajustadas adecuadamenteminimizar0n la
posibilidaddecombusti6nincompleta.Laexposici6na estassustanciaspuedeser
minimizadaa0nm6sgraciasa unaadecuadaventilaci6ndelasecadoraa/airelibre.
• Esteelectrodom@sticodeberdcontarconunescapehaciaelexterioc
• Uses61ounconductodemetalridigode4"paraqueelelectrodom@sticocuentecon
unasalidaal exterior.
• NOinstaleunasecadoraderopaconmaterialesdeconductopl6sticoflexible.Sise
instalaun conductode metalflexible(semi-rigidoo %0 hojade aluminio),deber6
figurarenla listadeULy serinstaladodeacuerdocon lasinstruccionesquefiguran
en "Conexi6nde la Secadoraa la Ventilaci6nde la Casa"en la p6gina8 de este
manual.Sesabequelosmaterialesflexiblesparaventilaci6ncolapsan,serompen
confacilidad,y atrapanlaspelusas.Estascondicionesobstruir(_nelflujode airede
lasecadorae _ncrementar6nelriesgodeincendio.
• No instaleni guardeesteelectrodom@sticoen ningunaubicaci6ndondepudiera
encontrarseexpuestoalaguay/o losfactoresclim6ticos.
• Guardeestasinstrucciones.(Instaladores:Aseg0rensedeque estasinstrucciones
Ileguenamanosdelcomprador).
MATERIALES NECESARIOS
}
CONDUCTO DE METAL
DE 4" DE DIAMETRO
(RECOMENDADO)
CODO METALICO
DE4"
CONDUCTO DE TRANSICION DE
METAL FLEXIBLE (SEMPRiGIDO) DE 4"
DE LA LISTA DE UL (SI ES NECESARIO)
KIT WXO8X10077 (INCLUYE 2 CODAS)
O ABRAZADERAS PARA
RESORTE DE 4" (x2) __
CONDUCTO DE TRANSiCION DE METAL _ -_w.j%_j
FLEXIBLE (TIPO HOJA DE ALUMINIO de _ CONECTOR DE
4" DE LA LISTA DE UL (SI ES NECESARIO) LINEA DE GAS
FLEXIBLE
COMPUESTO
CAMPANA DE PARA SOLUCION GAFAS DE
ESCAPE TUBERiA JABONOSA SEGURIDAD
PARA LA
_DETECCION
DE FUGAS _
ABRAZADERAS PARA ONTA DE GUANTES
CONDUCTO DE 4" (x2) CONDUCTO (5
PANEL PROTECTOR
DE 4" (SI ES
NECESARIO) (KIT
WEIMaga)
PIEZAS PROVISTAS
% OO
2 Pantallas de Filtro/
J_Enlace de Cables randelas de Caucho Arandelas de Caucho
(las arandelas podr6n estar en mangueras de agua)
2 Mangueras de DesagLie para
Lavadora
233DI835PO01 31-16655-5 12-12 GE

Instruccionesde Instalaci6n
REQUiSITOS DE iNSTALACI6N UBiCACI6N
Esteelectrodom6stico se debe instalar en un pisofirme afin
de minimizar la vibraci6n durante el ciclo de centrifugado.
Serecomienda piso de concreto, pero una base de madera
es suficiente, siempre que dicho piso cumpla con los
est6ndares de FHA. Este electrodom_stico no se deber6
instalar sabre tapetes ni estar expuesto a la interperie.
PLONERJA
PRESIONDELAGUA- Debe serde un minima de 20 psiy un
m6ximo de 120 psi PRESIONDELAGUA- Elcalentador de
agua del hogar deber6 estar configurado para que el agua
est6entre 120° y150°F(50°y 66°C)ENLALAVADORAcuando
se seleccione lavado caliente. VALVULASDECIERRE- Tanto
la v61vula de cierre de agua caliente coma la de agua fr[a
(grifos) deber6n ser suministradas.DRENAJE - El agua
podr6 ser drenada al tuba de subida o eltuba configurado.
La altura de descarga NO DEBERASER INFERIORA 30
PULGADAS,o no mds de 6 pies sabre la base de la lavadora.
Eltuba de subida debe ser de un minima de 1-!/2 pulgadas
dentro del di6metro ydeber6 estar abierto a la atm6sfera.
REQUISITOS ELI_CTRICOS
PRECAUCI6N: Antes de enchufar en el agua, lea y
siga los requisitos el6ctricos.
PRECAUCI6N: Para su seguridad personal, no
use extensiones ni enchufes adaptadores con este
electrodom6stico. Nunca, bajo ninguna circunstancia,
carte ni elimine el tercer cable (tierra)del cable de corriente.
Cumpla con los c6digos y ordenanzas nacionales de
electricidad. Este electrodom6stico deber6 ser provisto
con el voltaje y la frecuencia indicados en la placa de
especificaciones (ubicada en la parte superior del panel
frontal de la lavadora), y estar conectado a un circuito
individual que est6 adecuadamente conectado a tierra,
protegido par un disyuntor o fusible de retardo de !5 o
20 amp. Siel suministro el6ctrico provisto no cumple con
los requisitos anteriores, Ilame a un electricista calificado.
Paso ! Verifique su Instalaci6n de Gas (consulte la secci6n
2)
Paso 2 Prepare el Area y el Escape para la Instalaci6n del
Electrodom6stico (consulte la secci6n !)
Paso 3 Controle y AsegOrese de que el Escape Externo
Existente est6 Limpio (consulte la secci6n !) y que
Cumpla con las Especificaciones de Instalaci6n
Adjuntas (consulte la secci6n 6).
Paso 4 Retire las Almohadillas de Gomaespuma de
Transporte (consulte la secci6n !)
Paso 5 Mueva la Secadora a la Ubicaci6n Deseada.
Paso 6 Nivele la Secadora (consulte la secci6n 8).
Paso 7 Conecte el Suministro de Gas (consulte la secci6n 3)
y controle que no haya fugas (consulte la secci6n 4).
Paso 8 Conecte el Escape Externo (consulte la secci6n 7).
Paso 9 Conecte alas instalaciones de plomer[a (consulte
la secci6n !!).
Paso !0 Conecte el Cable de Corriente (consulte la
secci6n 5).
Paso !! Controle el Funcionamiento del Cable de
Corriente, las Conexiones de Gas,y la Ventilaci6n.
Paso !2 Coloque el Manual del Propietario y las
Instrucciones de Instalaci6n en una Ubicaci6n
Donde el Propietario las Pueda Encontrar.
Para instalaciones en alcobas o cl6sets consulte la
secci6n 13.
Para instalaciones en ba_os o habitaciones consulte la
secci6n lzk
Para Casas Prefabricadas o Casas M6viles consulte la
secci6n !2.
AJUSTE PARA ALTURAS ELEVADAS
, Las clasificaciones de entrada de scadoras para ropa a
gas se basan en el funcionamiento a nivel de mar yno
deben ajustarse para funcionar a una elevaci6n de 2000
pies o por debajo de la misma. Para un funcionamiento
en alturas mayores a 2000 pies, las clasificaciones de
entrada deben reducirse a una tasa de 4% por cada
!O00 pies sobre el nivel del mar.
, La instalaci6n debe cumplir con c6digos yordenanzas
locales, o si no las hubiera, con el C6digo Nacional de
Gas Combustible (National Fuel gas Code), ANSIZ223.1/
NFPA54 o con el C6digo de Instalaci6n de Gas Natural y
Propano (Canadian Natural Gas and Propane Installation
Code),CSA B!49.!.
2

Instruccionesde Instalaci6n
DIMENSiONES NOMINALES DEL PRODUCTO DE 24"
51"
!9.! ---j
Entradas de agua
(trasera)
'_---'23.75"-J--_
-- 43"--------€
Entrada para el gas
Vista trasera del aparato)
2.75"
*La dimensi6n representa la puerta cerrada incluyendo la manija y las perillas.
NOTA: Con los potas en Io posici6n intermedio, #stas se pueden ojustar en +_.375".
DIMENSIONES NOMINALES DEL PRODUCTO DE 27"
52.9"
0ool oo . 0
Ventilaci6n __. __.._
I
I_Salida de drenaje
- i_- (trasera)
j_-- 3.9"
_----- 26.8" -JJ---_
18.6" H
Entradasdeagua
(trasera)
--12.5"
36.5"
1
'_=------'2 6.7"------_
--47"_
Entrada para el gas
Vista trasera del aparato)
*La dimensi6n representa la puerta cerrada incluyendo la manija ylos perillus.
NOTA: Con las patas en la posici6n intermedia, @stas se pueden ajustar en +_.375".
3

Instruccionesde Instalaci6n
Claros Minimos para Instalaci6n que no Sea Alcoba o Cl6set
Claros minimos pare superficies combustibles y el aire libre son: 0 pulgadas de despeje a ambos lados yen la parte
trasera. Se deber6 considerar qua se debe brindar el despeje adecuado para la instalaci6n y el servicio tacnico.
[lqPREPARACION PARA L# INSTALACION
DE UN ELECTRODOMESTICO NUEVO
DESCONEXI6N DEL GAS
DESCONECTE Y RETIRE EL_
CONECTORDEGAS FLEXIBLEUSADO % /@
CgLOQUE LA I_#_ ) PREVIAMENTEY EL MATERIAL DE_/_?_
VALVULADE _ TUBER[ADETUBER[ADETRANSICION__v_...v_______
APAGADO._ _ USADO PREVIAMENTE.REEMPLACEI I
DELGAS EN'h%_--y CON UN CONECTORNUEVO PARAI I
LA POSICION e!_.'_ LINEADE GAS FLEXIBLEAPROBADO / /
CERRADA. PORCSA(AGA)Y UN CONDUCTODE
TRANSICIONAPROBADOPORUL.
ADVERTENCIA - NUNCAVUELVA
A USAR CONECTORES FLE×IBLES QUE YA HAYA
USADO.El uso de conectores flexibles que ya hayan
usado puede causer fugas y lesiones personales.
Siempre use conectores fle×ibles nuevos al instalar
electrodom_sticos a gas.
ELIMINACION DE PELUSAS DE LA
ABERTURA DE ESCAPE DE LA PARED
• Retire y elimine plasticos u hojas de aluminio
existentes en el conducto de transici6n y reemplace
por el conducto de transici6n qua figure en la lista
de UL. PARED
ABERTURA
INTERNA DEL
CONDUCTO CONTROLEQUE EL
DE LA
CAMPANA DE ESCAPE
SEABRA Y SECIERRE
LIBREMENTE.
Una vez que la m6quina est@en et hogar, retire
el material/cart6n de embalaje restante de la J"l
lavadora. BLOQUEDEGOMAESPUMA'_'
NORETIREAUN LAVARILLADEEMBARQUE
INCLINE EL ELECTRODOMESTICO
HACIA AMBOS LADOS Y RETIRE LAS
ALMOHADILLAS DE GOMAESPUMA
DEL EMBALAJE, EMPUJANDO
HACIA AIVlBOS LADOS Y RETIRANDO
LAS MISMAS DE LAS PATAS DE LA
SECADORA. ASEGORESE DE QUITAR
TODAS LAS PIEZAS DE GOMAESPUMA.
Retire et bloque de gomaespuma. Retire det
recipiente la botsaque contiene las mangueras
y piezas de ta Lavadora. Cotoque el btoque de
gomaespuma nuevamente en la abertura det
recipiente para sostener el mismo en su lugar
durante el resto dela instalaci6n.
Muevala lavadora hasta su ubicaci6n
final. AsegOresede que haya por Io
menos 2/4"de espacio sobre el lado
derecho de la lavadora para retirar
la varilla de embarque. EMPUJE
LA VARILLA DE EIVlBARQUEHACtA
AFUERA USANDO LA IVlANIJA DE
PLASTICOAMARILLA.iVlantengavarilla
modo qua se pueda volver a instalar
si la lavadora se volviera a mover
nuevamente.
HANGUERAS Y PtEZAS
DE LA LAVADORA
__Vo_LiVlANtJA DE PLASTtCO
AHARILLA
GRIFOS DE HOGAR NUEVOS O REMODELADOS/
TUBO VERTICAL DE DRENAJE/UBICACI6N
ELI_CTRICA _ Lado derecho del
centro de lavado
]33"
Ubique las Ilaves, tubo
vertical de drenaje y
enchufe el6ctrico en
esta area.
!
T
42"
1
Suelo
1]_]REQUISITOS DEL GAS
ADVERTENCIA
. La instalaci6n debe cumplir con los c6digos y
ordenanzas locales, o en su ausencia, con el C6digo
Nacional de Gas Combustible (National Fuel gas Code},
ANSIZ223.1/NFPA 54 o con el C6digo de Instalaci6n de
Gas Natural y Propano (Canadian Natural Gas and
Propane Installation Code}, CSAB149.1.
Esta secadora a gas est6 equipada con un Ensemble
de V61vula y Quemador pare uso con gas natural
6nicamente. AI usar el kit de conversi6n WE25M73
pare 24", WE25M74 pare 27" su organizaci6n del
servicio local puede convertir la secadora pare su
uso con gas propano (LP).TODAS LASCONVERSIONES
DEBERAN SER REALIZADAS POR PERSONAL
ADECUADAMENTE ENTRENADO Y CALIFICADO Y DE
ACUERDO CON LOS REQUISITOSDE LOS CODIGOS Y
ORDENANZAS LOCALES.
El electrodom@sticodeber6 ser desconectado de la tuberia
del sistema de suministro de gas durante cualquier
evaluaci6n de presi6n de dicho sistema en una prueba de
presi6n qua supere los 0.5 PSI(3.4KPa}.
Este electrodom@stico debar6 ser aislado det sistema
de tuberia de suministro de gas, cerrando la v61vula de
apagado del equipamiento durante cualquier prueba de
presi6n de la tuberia de suministro de gas con una presi6n
igual o inferior a los 0.5 PSI(3.4 KPa}.
Nora: La conexian del suministro de gas de 24" cuenta
con una manguera flexible, de modo que las dimensiones
varian.
4

Instruccionesde Instalaci6n
SUMiNiSTRO DE GAS
. Se debe instalar una rosca cubierta NPT de 1/8" en un
lugar accesible en el suministro de gas hacia la conexi6n
del suministro de la secadora para conectar medidores de
prueba. Ante cualquier duda sobre la instalaci6n de la rosca
cubierta, comunfquese con su proveedor local de gas.
o La I[nea de suministro debe contar con una tuber[a
r[gida de 1/S'y estar equipada con una v61vula de cierre
accesible dentro de los 6 pies en lamisma habitaci6n
que la secadora.
Use un compuesto de sellado para rosca de tuber[a o
cinta de tefl6n apropiada para gas natural o LR
Se deber6 usar con la secadora un conector met61ico
flexible que figure en la lista ANSI Z2!.24 /CSA 6.10. La
Iongitud de la conexi6n no deber6 superar los :3 pies.
Conecte el conector de metal flexible a la secadora yal
suministro de gas.
Abra la v61vula de cierre.
RECONE×I6N DEL GAS
Conector de la lista ANSI Z21.24 / CSA 6.10
NUEVO
CONECTOR DE LA,
L[NEA DE GAS DE
METAL FLEXIBLE
PARTETRASERA
DEL ELECTRO-
DOMESTICO ADAPTADOR
FLARE
ADAPTADOR
27" SOLO
ENTRADADE
NPTDE3/8" DEL
ELECTRODOMESTICO
SOLO27"
CODO DE
SOLO 27"
NUEVA MANGUERA
FLEXIBLE METALICA PARA
GAS
DE LA TUBER[A
NTP DE 1/8" PARA
CONTROLAR LA PRESION
DE LA ENTRADA DE GAS
V#,LVULA DE CIERRE
TAMANO DE LA TUBER[A DE POR
LO MENOS 1/2
Piso
[TEHS NO PROVISTOS
Nora: Elconector y losaccesorios est6n disefladospara ser
usados s61o en la instalaci6n original y no deben ser usados
nuevamente con otro electrodom_stico o en otra ubicaci6n.
Mantenga el extremo del adaptador flare libre de grasa, aceite
ysellador de rosca.
PRECAUCION: Use los adaptadores como se muestra. Las
tuercas de cone×i6n no se deber6n conectar directamente a
las roscas de las tuberias.
27"
APLtQUECOMPUESTOPARATUBER[A
AL ADAPTADORY A LA ENTRADADE
GASDEL ELECTRODOIVlESTtCO.
AJUSTE LA LINEA DE GAS FLEXIBLE
AL ADAPTADOR USANDO 2 LLAVES DE
AJ USTE.
24"
APLIQUE COMPUESTO PARA
TUBER[A A LA ENTRADA DEL
ELECTRODOM ESTICO.
AJUSTE LA L[NEA DE GAS
FLEXIBLE A LA ENTRADA DEL
ELECTRODOMESTICO USANDO
2 LLAVES DE AJUSTE.
24" & 27"
_ APLIQUE COMPUESTO
PARATUBERIA A TODAS
LAS ROSCAS MACHO.
24" & 27"
AJUSTE TODAS LAS CONEXIONES USANDO DOS
LLAVES AJUSTABLES.iNO APRIETE EN E×CESO LAS
CONE×IONES DE GAS!
5

Instruccionesde Instalaci6n
@ PRUEBA DE FUGA
i ,ADVERTENCIA: NUNCAUsE
UNA FLAMAABIERTASI HARAUNA PRUEBAPARA
CONTROLARFUGASDEGAS.
ABRA LA
GAsVh'LVULADE
Controle fugas en todas los conexiones con soluci6n de
jab6n o un material equivalente. Aplique una soluci6n
de job6n. Burbujas indican fugo. La soluci6n para la
pruebas de fugas no deber6 contener amonfaco, el cuol
podr6 ocasionar da_os sabre los accesorios de lat6n. Si
se encuentran fugas, cierre la v61vula,vuelva a ajustar la
junta, y repita la prueba conjab6n.
[_]INFORMACION SABRE LA CONE×ION
ELECTRICA
ADVERTENCIA- PARA
REDUCIR EL RIESGO DE INCENDIO,
DESCARGA ELI_CTRICA Y LESlONES
PERSONALES:
. NO USEEXTENSlONESNI ENCHUFESADAPTADORES
CON ESTEELECTRODOMI_STICO.
La secadora deber6 estar correctamente conectada
o tierra de acuerdo con los c6digos y ordenanzas
locales, o en ausencia de c6digos locales, de
ocuerdo con el CODIGONACIONALDE ELECTRICIDAD
(NATIONALELECTRICALCODE),ANSI/NFPA NO.70.
REQUISITOS ELI_CTRICOS
Este electrodom_stico deber6 ser provisto con 120V,
60Hz, y estar conectado a un circuito correctomente
conectado a tierra, protegido par un disyuntor o fusible
de retardo de 15 o 20 amp. Si el suministro de corriente
provisto no cumple con las especificociones anteriores,
se recomienda que un electricista matriculado instale un
tomacorriente aprobado.
ADVERTENCIA - ESTASECADORA
ESTA EQUIPADA CON UN CABLE DE TRES PATAS
{CONE×ION A TIERRA) PARA SU PROTECCI()N
CONTRA RIESGOS DE DESCARGAS V DEBERA
ESTAR ENCHUFADA DIRECTAMENTE EN UN
RECEPT/_CULO DE TRES PATAS CORRECTAMENTE
CONECTADO A TIERRA.NO CARTE NI QUITE LA PATA
DE CONE×ION ATIERRA DE ESTE ENCHUFE.
[_]INFORMACI6N SABRE LA CONE×I6N
ELECTRICA
ASEGORESE DE CONTAR CON UNA CONEXION
A TIERRA ADECUADA ANTES DE USAR.
INSTRUCCIONES DE CONE×ION A TIERRA
Este aparato debe de estar conectado a tierra. En un
posible mal funcionamiento o averfa, la conexi6n a
tierra puede reducir el riesgo de descarga el6ctrica
al proporcionar una via de menor resistencia de la
corriente el6ctrica. Este aparato est6 equipado con
un cable que tiene un conductor de puesta a tierra
y un enchufe de conexi6n a tierra. El enchufe debe
conectarse a un tomacorriente adecuado que est_
debidamente instalado y conectado a tierra de acuerdo
con todos los c6digos locales un ordenanzas.
ADVERTENCIA - uoocooe×iOo
inadecuada de l° cone×i6n a tierra puede resultar
en un riesgo de descarga el_ctrica. Consulte a
un electricista calificado si tiene dudas sabre si el
°par°to est6 correctamente conectado a tierra.
No modifique el conector provisto con el aparato - si
el conector no encaja en el tomacorriente, solicite a
un electricista calificado que instale un tomacorriente
adecuado.
_7 INFORMACION SABRE EL ESCAPE
ADVERTENCIA-EN CANAD/_ VENESTADOS
UNIDOS, EL DIAMETRO DEL CONDUCTO DE ESCAPE REQUERIDO
ESDE4"(102ram.).NO USECONDUCTOSMi_SLARGOSQUELOS
ESPECIFICADOSEN LATABLADELONGITUDDELESCAPE.
Elusa de un escape m6s largo que el especificado:
, Incrementar6 los tiempos de secado y el costa de
energ[a.
, Reducir6 la vida 6til de la secadora.
, Acumular6 pelusa, creando un posible riesgo
de incendio.Es SU RESPONSABILIDAD que el
escape est_ instalado correctamente. Cualquier
problem(] debido a una instalaci6n incorrect°
no estar6 cubierto par esta garantia.
Retire y elimine pl6sticos u hojas de °luminia
existentes en el conducto de trans_ci6ny reemplace
par el conducto de transici6n que figura en la lista
de UL.
La Iongitud MAXIMA PERMITIDAdel conducto yla
cantidad de torsiones del sistema de escape depende
del tipo de conducto, nOmero de giros, el tipo de
campana de escape (caperuza de pared), y todas
las condiciones indic°alas previamente. La Iongitud
m6xima par° conductos de metal r[gido figura en la
siguiente tabla.
6

Instruccionesde Instalaci6n
[6-] INFORMACI6N SOBRE EL ESCAPE
LONGITUD
DEL ESCAPE
27" LONGITUDMAXIMA RECOMENDADA
Tipos de Campanas de Escape
Recomendado: Use s61opara
instataciones cortas
NOdeCodas Metal Rigido
de 900
0 56Pies 42 Pies
1 48Pies 34 Pies
2 40Pies 26 Pies
3 32Pies 18Pies
24" LONGITUDMAXIMA RECOMENDADA
LONGITUD TiposdeCampanasdeEscape
DELESCAPE Recomendado: Uses61opara
instalacionescortas
NOdeCodas MetalRigido MetalRigido
de 900
0 43Pies 36 Pies
1 33Pies 26 Pies
2 24Pies 16Pies
•Para cada coda adicional de 90°, reduzca en !0 pies la Iongitud
permisible del sistema de escape.
• Doscodasde 45°deber6nserconsideradoscomauncodade 90°.
•Para elescape lateral, agregue un coda de 90° a latabla.
•La Iongitud total del sistema de escape incluye todas las
porciones rectas y todos los codas del sistema (incluyendo el
ducto detransici6n).
LISTA DE CONTROL DEL SISTEMA DE ESCAPE
CAMPANA0 CAPERUZADEPARED
Terminar de modo que se eviten r6fagas de aire traseras o la
entrada de p6jaros u otros animales.
La terminaci6n deberia presentar una resistencia minima sabre
el flujo del aire del escape ydeberia requerir poco o ningOn
mantenimiento para evitar obstrucciones.
,Nunca instale una rejilla en o sabre el conducto de escape. Esto
podria ocasionar la acumulaci6n de pelusa.
Las caperuzas de pared se deben instalar par Io menos a 12" sabre
el nivel de suelo o en cualquier otra obstrucci6n con la abertura en
direcci6n hacia abajo.
SEPARACI6NDECURVAS
Para un mejor funcionamiento, separe todas las curvas a par Io
menos 4 pies del conducto recto, incluyendo la distancia entre el
Oltimogiro y la campgna de escape.
CURVASQUENO ESTANA 90°
• Una curva de 45° o menos podr6 ser ignorada.
Dos curvas de 45° se deber6n tratar coma una curva de 90°.
• Cada curva superior a 45° se deber6 tratar coma una curva de 90°.
SELLADODEJUNTAS
Todas las juntas deber6n estar ajustadas para evitar fugas. El
extremo macho de cada secci6n del conducto deber6 estar
apartado de la secadora.
No ensamble la tuberia con tensores que se extiendan sabre el
conducto. Estosservir6n coma puntos de recolecci6n de pelusa.
Se podr6 evitar la entrada de aire y humedad en las juntas del
conducto envolviendo lasjuntas de forma superpuesta con cinta
para conducto.
Las partes horizontales deber6n tener una caida de 1/2"par pie
hacia el exterior
AISLANTE
Cuando el conducto atraviese un 6rea sin calefacci6n o est@cerca
de un aire acondicionado, deber6 ser aislado a fin de reducir la
condensaci6n y la acumulaci6n de pelusa.
[Z]CONE×I6N DEL ESCAPE
AADVERTENCIA - PARA REDUCIR
EL RIESGO DE INCENDIO 0 LESIONES
PERSONALES:
, Este electrodom#stico para ropa deber6 contar con
un escape hacia el exterior.
, Use s61o un conducto de metal r[gido de 4" para el
conducto de salida del hogar.
, Use s61o un conducto de metal rfgido de 4"0 de
metal flexible de la lista de UL (semi-rfgido o tipo hoja
de aluminio) para conectar la secadora al conducto
de escape del hogar. Se deber6 instalar de acuerdo
con las instrucciones que figuran en "Conexi6n de la
Secadora a la Ventilaci6n del Hogar" en la p6gina 8
de este manual.
No termine la salida del escape en una chimenea,
pared, cielo raso, ventilaci6n de gas, s6tano, 6tico,
debajo de un piso adjunto, o en cualquier espacio
oculto de una construcci6n. La acumulaci6n de
pelusas podrfa provocar un riesgo potencial de
incendio.
Nunca termine el escape en un conducto com6n con
un sistema de escape de una cocina. La combinaci6n
de grasa ypelusa crea un posible riesgo de incendio.
Evite que el conducto sea m6s largo que coma se
especifica en la tabla de Iongitud del escape. Los
conductos m6s largos acumulan pelusa, creando un
posible riesgo de incendio.
Nunca instale una rejilla en o sabre el conducto de
escape. Esto causar6 la acumulaci6n de pelusa,
creando un posible riesgo de incendio.
No ensamble la tuberia con tensores que se extiendan
sabre el conducto. Estos tensores acumulan pelusa,
creando un posible riesgo de incendio.
No obstruya el aire entrante o saliente.
Provea un acceso para inspecci6n ylimpieza del
sistema de escape, especialmente en curvas y
juntas. El sistema de escape se deber6 inspeccionar
ylimpiar par Io menos una vez al aflo.
ESTA SECADORA ESTA EQUIPADA CON ESCAPE TRASERO. SI
EL ESPACIO ES LIMITADO, USE LAS INSTRUCCIONES DE LA
SECCI6N 9 PARA QUE EL ESCAPE FUNCIONE DIRECTAMENTE
DESDE LOS COSTADOS O LA PARTE INFERIOR DEL GABINETE.
7
MANGUERA FLEXIBLE
PARA GAS NUEVA \
TUBa DE GAS \
Paralainstalaci6nen linearecta,conecte
elescape de lasecadoraa lacampana de
escape usando cintaparaconducto o una
abrazadera.
ABERTURA DEL
CONDUCTO
EXTERNO
CINTA DE CONDUCTO @ ®
O ABRAZADERA DEL ooj
CONDUCTO
CARTE DEL CONDUCTO
DE METAL DE 4"
PARA UNA LONGITUD
APROPIADA CINTA DE
CON DUCTO O
ABRAZADERA
DEL
CONDUCTO

Instruccionesde Instalaci6n
ESCAPETRASERO ESTANDAR
(VentilacJ6n por encJma del nivel del piso)
//,
CODO ALTAM ENTE
RECOIViENDADO
J
NOTA: EL CODO EVITAR/_ LA TORCEDURA YROTURA DEL CONDUCTO
[] NIVELACI6N DE LA SECADORA
o
NIVELACION DEL
FRENTEHACIA
ATRAS
J
t¢
2 NIVELACION DE LAS PATAS
C6mo nivelar y estabilizar el electrodom_stico
]_.Concuidado mueva el electrodom@stico hasta su ubicaci6n
final.Suavemente balancee el electrodom@stico en su
posici6n. Es importante no daflar las patas niveladoras de
goma al mover el electrodom@stico hasta su ubicaci6n final.
Si las patas se encuentran dafladas, esto podr6 incrementar
la vibraci6n del electrodom@stico. Puede ser de ayuda aplicar
espray de limpieza de ventanas en el piso, a fin de mover el
electrodom_stico hasta su ubicaci6n final.
Nora: No use la cubierta de la lavadora para levantar la unidad.
2. Para asegurar que el electrodom@stico est@ nivelado y
posicionado de forma s61ida sobre sus cuatro patas, incline
el electrodom@stico hacia adelante de modo que las patas
traseras queden levantadas del piso. Suavemente vuelva
a apoyar el electrodom@stico para permitir que las patas
traseras encuentren su ajuste.
3. Con el electrodom6stico en su ubicaci6n final, coloque
un nivel sobre la parte trasera de la tapa de la lavadora
ycontrole la misma de un costado a otro yluego de
adelante hacia atr6s. Atornille las patas niveladoras
del frente de arriba hacia abajo, para asegurar que el
electrodom6stico se apoye con solidez sobre sus cuatro
patas (no deber[a haber balanceo del electrodom_stico),
gire las tuercas de bloqueo en cada pata hacia la base
de la unidad yajuste con una Ilave.
Note: lantenga la extensi6n de la pata al mfnimo para
evitar vibraciones excesivas. Cuando mds extendidas se
encuentran las paras, mds vibrar6 la unidad.
CONEXI6N DE LA SECADORA A LA
VENTILACI6N DE LA CASA
CONDUCTO DETRANSICl6N DE METAL RJGIDO
• Paraun me]or funcionamiento del secado, se recomiendael
uso de un conducto de transici6n de metal rigido.
•Losconductos de transici6n de metal rigido reducen el riesgo
de que se puedanaplastaro doblan
CONDUCTO DE TRANSICI6N DE METAL FLEXIBLE
(SEMi-RIGIDO) DE LA LiSTA DE UL
Sino sepudiera usar unconducto de metal rigido,entonces sepodr6
usar un conducto de metal flexible(semi-rigido)de la lista de UL(Kit
WXO8X]_O077).
Nuncainstaleun conducto demetal flexibleen paredes,cietosrasos,
pisosu otros espaciosadjuntos.
Paramuchasaplicaciones,serecomiendaenf6ticamentelainstaiaci6n
decodostanto en lasecadoracomo en la pared.Loscodos permiten
que la secadora pueda estar junto a la pared sin que se aplaste ni
se dobte et conducto de transici6n, maximizando et rendimiento det
secado.Eviteque la tuberia se apoye sobreobjetoscortantes.
CONDUCTODE TRANSICI6N DE METAL FLEXIBLE(TIPO HOJA DE
ALUMINIO}DELA LISTADEUL
• Para instalacionesespeciales,puede resultar necesaria la conexi6n
de la secadoraa la ventitaci6nde la casa usando un conducto de
metal flexible(tipo hoja de aluminio). Unconducto de metal flexible
(tipo hojadealuminio) podr6 serusado SOLOeninstalacionesdonde
losconductosde metal rigido o metal flexible(semi-rigido)nopuedan
serusados Ydonde sepueda mantener un di6metro de/4"a Io largo
detodo elconducto detransici6n.
• EnCanad6yen EstadosUnidos,s6tosepodr6n usarlosconductos de
metal flexible(tipo hoja de aluminio)que cumptan con et "Resumen
deI Tema 2]_58Ade Conductos de Transici6n para Secadoras de
Ropa"(Outlinefor Clothes DryerTransition DuctSubject 2]_58A).
• La longitudtotal detconducto de metal flexibleno deber6superarlos
8 pies(2.4m).Eviteque latuberia seapoye sobreobjetoscortantes.
• Para unmejor funcionamiento:
]_.Desliceun extremo detconducto sobre la tuberia de salida de la
secadorade ropa.
2. AsegureeI conducto con una abrazadera.
3. Conla secadora ensu posici6npermanente,extiendael conducto
hasta su m6xima extensi6n. Permita que 2" deI conducto se
superpongan con la tuberia de escape.Corte y retire el sobrante
deI conducto. Mantenga et conducto Io m6s recto posible para
Iograr el flujo de airem6ximo.
4. Asegureetconducto a la tuberia de escapeconlaotra abrazadera.
8

Instruccionesde Instalaci6n
_Qu_ .
RECOIVlENDADO
NO USE
LONGITUD
ENO HACER
4 !EL 10
SOBRE UN ESCAPE
EXCESIVA DEL _ _ ,_ilJ
I-_ SOLO PARA MODELOS DE 24"
SALIDA DE LA SECADORA HACIA EL GABINETE
DERECHO, IZOUIERDO O INFERIOR
I ADVERTENCIA- ANTES DE
REALIZAR LA INSTALACION DE ESTE
ESCAPE, ASEGURESE DE DESCONECTAR EL
ELECTRODOMESTICO DE SU SUMINISTRO
ELECTRICO, PROTEJA SUS MANOS Y BRAZOS
DE E×TREMOS CORTANTES AL TRABAJAR
DENTRO DEL GABINETE, ASEGURESE DE USAR
GUANTES.
Para una ventilaci6n descendente, rote las
secciones del codo de modo que 6ste apunte
hacia abajo.
OU ITAR TAPA
REIvlOVIBLE
DESEADA (SOLO 1)
Plso
ESCAPE HACIA LA IZQUIERDA O DERECHA DEL
GABINETE
. Para que el conducto salga hack] uno de los laterales,
quite el separador (SOLO1).Gire las secciones del codo
de modo que apunten hacia el costado. Realice un
ensamble previo del codo de 4" con el conducto de 4".
Use s61ometal r[gido de 4" para conductos aprobados
por UL dentro de la secadora.
, Inserte el ensamble del conducto a trav6s de la abertura
lateral y conecte el mismo al codo interior.
A ADVERTENCIA: Aseg6rese de no forzar
ni daffar los cables el6ctricos dentro de la secadora
al insertar el conducto.
Metal r[gido de 4" aprobado por UL
1
...... CINTAPARA
........ [|".... CONDUCTO
• Aplique cinta para conducto como se muestra en la
junta entre el conducto interior de la secadora yla
tuber[a recta del conducto.
ADVERTENCIA-
Lasjuntas del conducto interior
deben estar aseguradas con
cinta; de otro modo, se podr6n
_] separary ocasionar riesgos de
seguridad.
S6LO PARA MODELOS DE 27"
SALIDA DE LA SECADORA HACIA EL GABINETE
DERECHO, IZQUIERDO O INFERIOR
,ADVERTENCIA - ANTES DE
REALIZAR LA INSTALACION DE ESTE
ESCAPE, ASEGURESE DE DESCONECTAR EL
ELECTRODOMI_STICO DE SU SUMINISTRO
ELI_CTRICO.PROTEJA SUS MANOS V BRAZOS
DE E×TREMOS CORTANTES AL TRABAJAR
DENTRO DEL GABINETE. ASEGURESEDE USAR
GUANTES.
Para una ventilaci6n descendente, rote las secciones del
codo de modo que 6ste apunte hacia abajo.
9

Instruccionesde Instalaci6n
ESCAPE HACIA LA IZQUIERDA O DERECHA DEL
GABINETE
. Gire las secciones con codos para que apunte hacia
el lado que desea ventilar. Gire las secciones del codo
de modo que apunten hacia el costado. Realice un
ensamble previo del codo de 4" con el conducto de 4".
Use s61o metal rigido de 4" para conductos aprobados
pot ULdentro de la secadora.
. Conecte el montaje de conductos al codo interno.
A ADVERTENCIA- Aseg6rese de no forzar
ni dafar los cables el6ctricos dentro de la secadora
al insertar el conducto.
. Aplique cinta para conducto como se muestra en la
junta entre el conducto interior de la secadora yla
tuberia recta del conducto.
ADVERTENCIA -
j] Lasjuntasdelconductointerior
deben estar aseguradas con
cinta; de otro modo, se podr6n
separar y ocasionar riesgos
de seguridad.
JTo-IINFORMACI6N DE PLOMERJA REQUISITOS
SUMINISTRO DE AGUA
. GRIFOSDEAGUACALIENTEYDEAGUAFR[A- Deben estar
dentro de las 42" de las conexiones de la manguera de
entrada de agua del electrodom6stico. Los grifos deben
ser del tipo para manguera de jard[n de 3A",de modo
que las mangueras de entrada puedan set conectadas.
PRESIONDE AGUA - Debe estar entre 10 y120 libras
por pulgada cuadrada con una presi6n desbalanceada
m6xima, flujo caliente versus frb, de 10 libras por
pulgada cuadrada.
TEMPERATURADELAGUA- Elcalentador de agua deber6
estar configurado entre 1/40° y150°F (60° y66°C) en la
lavadora cuando se seleccione lavado CALIENTE.
V_,LVULASDE CIERRE- Tanto la v61vula de cierre de
agua caliente como la de agua fr[a (grifos) deber6n ser
suministradas.
UBICACION - No instale el electrodom6stico en
un 6rea donde la temperatura sea bajo cero. Si el
electrodom6stico es ubicado o transportado en
temperaturas bajo cero, asegOrese de que toda el agua
del sistema de Ilenado ydrenado haya sido removida.
REQUISITOS PARA EL DRENAJE
. REQUISITODEL DRENAJE- Eldrenaje o el tubo de subida
deben poder aceptar una descarga a un promedio de 16
galones por minuto.
ALTURADELDRENAJE- Laaltura del drenaje debe serde
un m[nimo de 33"y un m6ximo de 96".
DIAMETRODELTUBO DE SUBIDA - El di6metro del tubo
de subida debe ser de un m[nimo de 1-1/2". DEBEhaber
un espacio de aire en torno a la manguera de drenaje en
el tubo de subida. Un ajuste sin holgura puede provocar
una acci6n de sifonaje.
KITDE DESVIACIONDELSIFON- Para una instalaci6n de
drenaje inferior alas 33" de altura, la manguera, junto
con las abrazaderas provistas en la m6quina, deber6n
set usadas y, adem6s, se DEBERAinstalar una desviaci6n
del sif6n en la parte trasera de la m6quina. Use el Kit de
Desviaci6n del Sif6n WH4gX228 ysiga las instrucciones
del mismo.
_-ICONE×IgN A INSTALACIONES DE
PLOMERIA
Si no se encuentra instalada, instale la arandela de goma
en un extremo de la manguera de agua caliente. Coloque la
manguera de agua caliente en la conexi6n con etiqueta Hen
la parte superior trasera de la lavadora. Ajuste manualmente,
adem6s de dar un giro adicional de 1/8 con una pinza.
Si no se encuentra instalada, instale la arandela de goma en
un extremo de la manguera deagua frfa. Coloquela manguera
de agua frfa en la conexi6n con etiqueta Cen la parte superior
trasera de la lavadora. Ajuste manualmente, adem6s de dar
un giro adicional de 1/8 con una pinza.
Mueva el electrodom6stico tanto como sea posible hasta su
ubicaci6n final, dejando espacio para que pueda hacer las
conexiones del agua, drenaje, electricidad yventilaci6n en
su hogan
NOTA:Siserequiereelusodeunamanguera
m6s larga, ordene un kit de extensi6n de
manguera de drenaje; el nOmerode pieza
deGEesWH49X301.Conectela manguera
de drenajeadicional (incluida con elkit)a la
manguera original con la abrazadera para
manguera (incluida con el kit).
U
Inserte el extremo libre de la manguera
de drenaje en la abertura del drenaje de
su hogar hasta eltope de la manguera de
drenaje (no retire el tope de la manguera,
ya que 6steevita el sifonaje),si lasv61vulas
de agua yel drenaje est6n adheridas a la
pared,ajustela manguera dedrenajea una
de las mangueras de agua con el enlace
para cable provisto (el lado el6stico en el
interior).Siel drenajees untubo de subida,ajuste lamanguera
de drenaje al tubo de subida con el enlace de cable provisto.
10

Instruccionesde Instalaci6n
[I-2]INSTALACI6N EN CASA RODANTE O
PREFABRICADA
•Lo instoloci6nDEBE ser reolizodoconforme con el
ESTANDAR DE CONSTRUCCION Y SEGURIDAD DE CASAS
PREFABRICADAS,T[TULO 24,PARTE 32-80 (MANUFACTURED
HOME CONSTRUCTION & SAFETY STANDARD, TITLE 24,
PART 32-80)o, cuondo dichoest6ndorno seo oplicoble,
con el ESTANDAR NACIONAL ESTADOUNIDENSE DE CASAS
RODANTES (AMERICAN NATIONAL STANDARD FOR MOBILE
HOME),ANSt/NFPANO. 50lB.
• El electrodom@stico DEBE contor con ventiloci6n hocio el
exterior con Io terminoci6n ojustodo de formo seguro o Io
estructuro de Io coso rodonte.
Lo ventiloci6n NO DEBEterminor en Io porte inferior de uno
coso rodonte o prefobricodo.
El moteriol del conducto de ventiloci6n DEBESERDEMETAL.
Se DEBERAusor el KIT 14-D346-33 poro odherir Io secodoro
o Io estructuro de formo seguro.
Lo ventiloci6n NO DEBE estor conectodo o ning0n otro
conducto, ventiloci6n o chimeneo.
No use tornillos de chopo u otros dispositivos de ojuste que
se extiendon por el interior de Io ventiloci6n del escope.
Brinde uno operturo con un 6reo libre de por Io menos 25
pulgodos cuodrodos poro Io introducci6n de oire exterior en
Io solo de Io secodoro.
IT3] INSTALACI6N EN ALCOBA O CLOSET
• Sise oprob6 Io instoloci6n de su electrodom@stico en olcobo
o cl6set, esto figuror6 en uno etiqueto en el reverso del
electrodom@stico.
Lo secodoro DEBERAcontor con ventiloci6n hocio el exterion
Consulte Io secci6n de tNFORMACt0N DEL ESCAPE.
No instole este electrodom@stico con menos del nivel de
despeje m[nimo como se muestro m6s orribo.
El cl6set debe contor con ventiloci6n hocio el exterior, o fin
de evitor Io ocumuloci6n de gos en coso de uno p@rdidodel
suministro de gos.
No se deber6 instolor ning0n otro electrodom@stico
que consumo combustible en el mismo cl6set con el
electrodom@stico.
SE DEBERA PROVEER EL NIVEL DE DESPEJE NECESARIO
PARA LA INSTALACION Y EL SERVICIO TECNICO.
ADVERTENCIA: NoINSTALEESTE
ELECTRODOMESTICO EN UN CL6SET QUE POSEA UNA
PUERTA S6LIDA.
ABERTURA DE LA PUERTA DE
VENTILACI6N (MODELOS DE 27'I
Se requiere un minimo de 220 pulgadas cuadradas de
abertura, equivalentemente divididos en la porte superior
e inferior. Se requiere que los aberturas de aire no est6n
obstruidos cuondo se instole uno puerto. Se acepto el uso
de una puerto de celosia con aberturas de aire sobre toda
Io Iongitud de Io 3uerto.
Modelode
27"
60 pulgadoscuadrados
Cuondo se colocon celosfos o registros en operturos de
puertos, sus oberturos de oire deben ser equivolentes o
120 pulgodos cuodrodos.
ABERTURA DE LA PUERTA DE
VENTILACI6N (MODELOS DE 24")
Se requiere un m[nimo de 72 pulgodos cuodrodos de
oberturo. Se requiere que los oberturos de oire no est@n
obstruidos cuondo se instole uno puerto. Se ocepto
el uso de uno puerto de celos[o con oberturos de oire
equivolentes o Io Iongitud completo de Io puerto.
:I :::: ..... F1
_ 48 pulgadas
VI i_ _ ll_uadradas.
Modelo de ..... I/,1f
24- )I O /:1
Cuondo se colocon celos[os o registros en operturos de
puertos, sus oberturos de oire deben ser equivolentes o
72 pulgodos cuodrodos.
[i4]INSTALACI6N EN BANO O HABITACI6N
•Este electrodom@stico DEBER/_contar con ventilaci6n hacia el
exterior. Consulte INFORMACI6N DE ESCAPEen las secciones
3y4.
•La instalaci6n debe cumplir con los c6digos locales o, en
ausencia de c6digos locales, con el C6DIGO NACIONAL DE
ELECTRICIDAD(NATIONAL ELECTRICALCODE),ANSI/NFPA NO.
70 y el C6DIGO NACIONAL DE GAS COMBUSTIBLE(NATIONAL
FUEL GASCODE),ANSI Z223.
11

Instruccionesde Instalaci6n
_5]SERVICIO TI_CNICO
ADVERTENCIA- ETiQUETE TODOS LOS CABLES ANTES DE LA DESCONEXI6N
s
CUANDO SE REALICEN CONTROLES DEL SERVICiO TECNICO. CUALQUIER ERROR DE
CABLEADO PUEDE OCASIONAR UN FUNCiONAIvIIENTO INADECUADO V PELIGROSO
LUEGO DE LA iNSTALACI6N/SERVICiO TECNICO.
Para el reemplazo de piezas yotras informaciones, consulte los n6meros telef6nicos del servicio t6cnico en el Hanual
del Propietario.
REGISTRE SU NUEVO APARATO PARA RECIBtR LAS
NOTIFICACIONES DE PRODUCTOS IMPORTANTES.
Por favor vaya a www.GEAppliunces.com o
enviar por correo su tarjeta de inscripci6n.
Para preguntas sobre la instalaci6n, Ilame al:
800.626.2000 (EE.UU.)o800-561-3344 (Canad6).
12