Goodman Mfg Co Lp Heating System Gsh13 Users Manual
GSH13 to the manual 51b93a90-9a4c-405f-9094-0a242a3e0359
2015-02-02
: Goodman-Mfg Goodman-Mfg-Goodman-Mfg-Co-Lp-Heating-System-Gsh13-Users-Manual-429753 goodman-mfg-goodman-mfg-co-lp-heating-system-gsh13-users-manual-429753 goodman-mfg pdf
Open the PDF directly: View PDF  .
.
Page Count: 8

SS-GSH13 www.goodmanmfg.com 11/13
Supersedes 9/13
* Complete warranty details available 
from your local dealer or at www.
goodmanmfg.com.
GSH13
1½- To 5-Ton SpliT SySTem HeaT pumpS 
13 SeeR / R-22 
Contents
Nomenclature ....................................... 2
Product Specications .......................... 3
AHRI Ratings .......................................... 4
Dimensions ........................................... 5
Wiring Diagrams ................................... 6
Accessories ............................................ 7
Standard Features
•  Energy-efcient compressor
•  Quiet condenser fan system
•  Copper tube/aluminum n coil
•  For use with R-22 refrigerant and 
charged with inert gas for shipping
•  Factory-installed bi-ow liquid line lter drier
•  Low-pressure switch
•  Time-initiated, temperature- 
terminated defrost control
•  Service valves with sweat connec-
tions and easy-access gauge ports
•  Contactor with lug connection
•  Ground lug connection
•  ETL Listed
Cabinet Features
•  Louver design sound control top
•  Steel louver coil guard
•  Heavy-gauge, galvanized-steel  
cabinet with rust-resistant screws
•  Attractive Architectural Gray powder-paint  
nish with 500-hour salt-spray approval
•  Single-panel access to controls with space  
provided for eld-installed accessories
•  When properly anchored, meets the 
2010 Florida Building Code unit integrity 
requirements for hurricane-type winds 
(Anchor bracket kits available.)

2 www.goodmanmfg.com SS-GSH13
Product SPecificationS
nomenclaTuRe
Brand Engineering *
G
Goodman® (Standard Minor Revision
Feature Set Models)
Engineering *
Product Category Major Revision
S Split System
 Electrical
Unit Type 1 208/230 V, 1 Phase, 60 Hz
C Condenser R-22
H Heat Pump R-22 Nominal Capacity
018 1½ Tons 042    3½ Tons
Efficiency 024 2 Tons 048    4 Tons
13 13 SEER 030 2½ Tons 060    5 Tons
036 3 Tons
* Neither used for order entry 
or inventory management.
11
A
S
2
1
G
H
3
036
6,7,8
13
4,5
9
1
10
A

SS-GSH13 www.goodmanmfg.com 3
Product SPecificationS
SpecificaTionS
GSH13
0181C*
GSH13
0241C*
GSH13
0301C*
GSH13
0361C*
GSH13
0421B*
GSH13
0481B*
GSH13
0601A*
Capacities and Ratings
Tonnage 1½ 2 2½ 3 3½ 4 5
Decibels 73 71 72 71 76 76 77
Compressor
RLA 8.3 10.8 13.5 14.1 19.2 19.9 25.0
LRA 40.3 56.0 68.0 75.0 112.0 104.0 148.0
Type Scroll Scroll Scroll Scroll Scroll Scroll Scroll
Condenser Fan Motor
Horsepower 1/8 1/8 1/8 ¼ ¼ ¼ 1/6
FLA 0.7 0.7 0.7 1.5 1.5 1.5 1.1
Refrigerant System
Refrigerant Line Size
Liquid Line Size (“O.D.) ⅜" ⅜" ⅜" ⅜" ⅜" ⅜" ⅜"
Sucon Line Size (“O.D.) ¾" ¾" ¾" ⅞" 1⅛" 1⅛" 1⅛"
Refrigerant Connecon Size
Liquid Valve Size (“O.D.) ⅜" ⅜" ⅜" ⅜" ⅜" ⅜" ⅜"
Sucon Valve Size (“O.D.) ¾" ¾" ¾" ⅞" ⅞" ⅞" ⅞"
Valve Type Sweat Sweat Sweat Sweat Sweat Sweat Sweat
Refrigerant Charge 127 122 130 188 246 208 233
Electrical Data
Voltage-Phase (60 Hz) 208/230-1 208/230-1 208/230-1 208/230-1 208/230-1 208/230-1 208/230-1
Minimum Circuit Ampacity ² 11.1 14.2 17.6 19.1 25.5 26.4 32.3
Max. Overcurrent Protecon ³ 15 25 30 30 40 45 50
Min / Max Volts 197/253 197/253 197/253 197/253 197/253 197/253 197/253
Electrical Conduit Size ½" or ¾" ½" or ¾" ½" or ¾" ½" or ¾" ½" or ¾" ½" or ¾" ½" or ¾"
Equipment Weight (lbs) 142 147 146 146 152 152 278
Ship Weight (lbs) 159 164 164 164 170 170 300
¹   Tested and rated in accordance with AHRI Standard 210/240
²   Wire size should be determined in accordance with Naonal Electrical Codes; extensive wire runs will require larger wire sizes
³   Must use me-delay fuses or HACR-type circuit breakers of the same size as noted.
Notes
•  Always check the S&R plate for electrical data on the unit being installed.
•  Installer will need to supply ⅞” to 1⅛” adapters for sucon line connecons.
•  Charge to be added for 15’ of ⅜” liquid line. System charge must be adjusted per Installaon Instrucons Final Charge Procedure.
•  Installaon of these units requires the specied TXV Kit to be installed on the indoor coil. THE SPECI-
FIED TXV IS DETERMINED BY THE OUTDOOR UNIT NOT THE INDOOR COIL.

4 www.goodmanmfg.com SS-GSH13
Product SPecificationS
aHRi RaTinGS
Outdoor
Unit
Indoor
Unit
Cooling Capacity¹
SEER² EER³
TVA Ratings⁴ Heating Capacity¹
CFM AHRI #
Total Sens. Total Sens. High HSPF⁵ Low
GSH130484A* AR*F486016B* 45,000 33,800 13.0 11.0 41,500 31,800 43,000 8.2 27,000 1,600 1492572
GSH130601A* AR*F486016B* 55,500 41,000 13.0 11.0 51,500 37,000 55,500 8.5 35,000 1,800 1492576
GSH130603A* AR*F486016B* 55,500 41,000 13.0 11.0 51,500 37,000 55,500 8.5 35,000 1,800 1492581
GSH130604A* AR*F486016B* 55,500 41,000 13.0 11.0 51,500 37,000 55,500 8.5 35,000 1,800 1492585
GSH130241(B,C)* AR*F182416B*+TXV 23,000 17,800 13.0 11.0 21,400 15,800 21,400 7.7 11,800 860 4675037
GSH130301(B,C)* AR*F363616B* 27,800 20,200 13.0 11.0 25,800 19,300 25,400 7.7 15,300 1,020 4692016
GSH130181(B,C)* AR*F182416B* 17,600 13,100 13.0 11.0 16,300 11,800 16,800 7.7 8,900 625 4675036
GSH130361(B,C)* AR*F374316B* 33,600 26,200 13.0 11.0 31,000 23,400 31,400 7.7 18,200 1,260 4692017
GSH130604AC AR*F486016B* 55,500 41,500 13.0 11.0 51,500 37,000 55,500 8.5 35,000 1,800 4982919
GSH130481B* AR*F486016B* 45,000 33,800 13.0 11.0 41,500 31,800 43,000 8.2 27,000 1,600 5528480
GSH130421B* AR*F364216B* 40,000 29,800 13.0 11.0 37,200 28,200 39,000 8.0 23,000 1,250 5528479
GSH130363A* AR*F374316B* 33,600 26,200 13.0 11.0 31,000 23,400 31,400 7.7 18,200 1,260 5528484
GSH130483B* AR*F486016B* 45,000 33,800 13.0 11.0 41,500 31,800 43,000 8.2 27,000 1,600 5528481
GSH130484AD AR*F486016B* 45,000 33,200 13.0 11.0 41,500 31,800 43,000 8.2 27,000 1,600 5528482
¹   BTU/h ²    Seasonal Energy Eciency Rao; Cered per AHRI 210/240 @ 80°F/ 67°F/ 95°F
³    Energy Eciency Rao @ 80°F/ 67°F/ 95°F ⁴    TVA Rang: BTU/h @ 75°F/ 63°F - 95°F ⁵    HSPF = Heang Seasonal Performance Factor
Notes
•  Always check the S&R plate for electrical data on the unit being installed.
•  When matching outdoor unit to indoor unit, use the piston supplied with outdoor unit or that specied on the piston kit chart supplied with the indoor unit.
•  EEP - Order from Service Dept. Part No. B13707-38 or new Solid State Board B13707-35S. Part No. B13707-38 is not in-
terchangeable with B13707-35S. The Goodman Gas Furnace contains the EEP cooling me delay

SS-GSH13 www.goodmanmfg.com 5
Product SPecificationS
DimenSionS 
H
W
D
Model
Dimensions
W” D” H”
GSH130181C 26 26 32¼
GSH130241C 26 26 32¼
GSH130301C 29 29 34¾
GSH130361C 29 29 38¼
GSH130421B 29 29 32¼
GSH130481B 29 29 34¾
GSH130601A 35½ 35½ 34¾

6 www.goodmanmfg.com SS-GSH13
Product SPecificationS
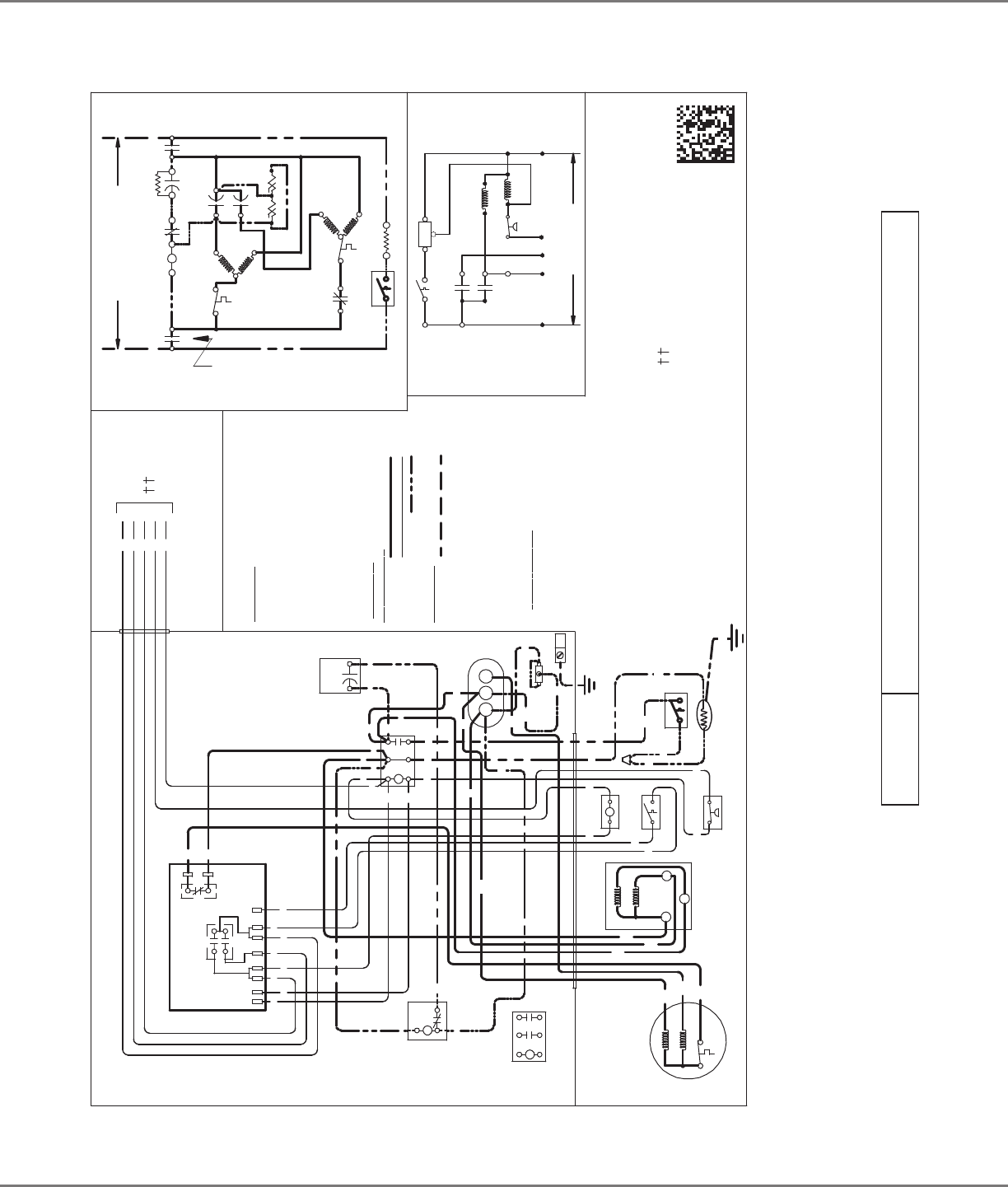
WiRinG DiaGRam 
Wiring is subject to change. Always 
refer to the wiring diagram or the 
unit for the most up-to-date wiring. ⚠    Warning
High Voltage:  Disconnect  all  power  before  servicing  or  installing  this  unit.  Mulple  power  
sources may be present. Failure to do so may cause property damage, personal injury, or death. ⚡
BK
BK
DF1
DF2
H
V
D
R
RD
DFT
WH
W2
LVDR
RD
RR
RD
BK
YL
BL
OO
YC
OR
DC
W2
WH
RD
RD
BK
RVC
DFT
RDC
Y
C
DFT
C
R
INDOOR POWER
SUPPLY
W2
RVC
C
Y
O
O
R
O
LVDR
W2
(IF USED)
NOTE 3
CH
HVDR
DF2
DF1
LPS
YL YL
DFT
BK
COMP
MAIN
AUX
BK
RD
S
R
C
YL
PU
BR
BK
MAIN
AUX
CM
IO
BL
YL
BK
1
2
5
SR
RCCF
RD
BL
YL
YL
BL
BK
RD
RD
BKBK
BK
C
T1
L1
T2
L2
BL
RD
SC
CONTROL BOX LVJB
WIRING CODE
FACTORY WIRING
HIGH VOLTAGE
LOW VOLTAGE
OPTIONAL HIGH VOLTAGE
FIELD WIRING
HIGH VOLTAGE
OUTDOOR POWER SUPPLY
SEE RATING PLATE
COMPONENT CODE
C --------------- CONTACTOR
CH ------------- CRANKCASE HEATER
CHS ------------- CRANKCASE HEATER SWITCH
CM ------------ OUTDOOR FAN MOTOR
COMP -------- COMPRESSOR
DC ------------- DEFROST CONTROL
DFT ----------- DEFROST THERMOSTAT
HVDR -------- HIGH VOLTAGE DEFROST RELAY
IO -------------- INTERNAL OVERLOAD
LPS ------------ LOW PRESSURE SWITCH
LVDR --------- LOW VOLTAGE DEFROST RELAY
LVJB ---------- LOW VOLTAGE JUNCTION BOX
RCCF --------- RUN CAPACITOR FOR COMPRESSOR & FAN
RVC ----------- REVERSING VALVE COIL
SA ------------- START ASSIST
SC ------------- START CAPACITOR FOR COMPRESSOR (OPTIONAL)
SR ------------- START RELAY FOR COMPRESSOR (OPTIONAL)
CONTROLS SHOWN WITH THERMOSTAT IN 'OFF' POSITION.
COLOR CODE
BK --------------- BLACK
BL --------------- BLUE
BR --------------- BROWN
OR --------------- ORANGE
PU --------------- PURPLE
RD --------------- RED
WH -------------- WHITE
YL --------------- YELLOW
NOTE 1
R
C
Y
O
RD
BL
YL
OR
LPS
CM
AUX
MAIN
F
C
HC
(IF USED)
L2
L1
C
T2
SC
RCCF
1
2
SA
SR
S
5
AUX
R
MAIN
C
T1
ALTERNATE DOUBLE
POLE CONTACTOR ONLY
COMP
NOTES:
1. TO INDOOR UNIT LOW VOLTAGE TERMINAL BLOCK & INDOOR
    THERMOSTAT.
2. START ASSIST FACTORY EQUIPPED WHEN REQUIRED.
3. CRANKCASE HEATER & CRANKCASE HEATER SWITCH ARE
    FACTORY INSTALLED OPTION.
4. USE COPPER CONDUCTOR ONLY.
USE N.E.C. CLASS 2 WIRE
RD
SA
(IF USED)
NOTE 2
T1
L1
T2
L2
0140R00019P-B
EQUIPMENT GROUND
SEE NOTE 4
ALTERNATE
DOUBLE POLE
CONTACTOR
HFC
YL
RD
PU
BR
YL
YL
RD
PU
IO
IO
BK
CHS
GR
RD
BK
RD
CH
(IF USED)
SEE NOTE  3
BK RD
BK
CHS

SS-GSH13 www.goodmanmfg.com 7
Product SPecificationS
acceSSoRieS
Model Description GSH13 
018
GSH13 
024
GSH13 
030
GSH13 
036
GSH13 
042
GSH13 
048
GSH13 
060
ABK-20 Anchor Bracket Kit *XXXXXXX
ASC01 An-Short Cycle Kit X X X X X X X
CSR-U-1 Hard-start Kit X X X X X X
CSR-U-2 Hard-start Kit
CSR-U-3 Hard-start Kit X
FSK01A¹ Freeze Protecon Kit X X X X X X X
OT/EHR18-60 Emergency Heat Relay kit X X X X X X X
OT18-60A² Outdoor Thermostat with Lockout Stat X X X X X X X
*  Contains 20 brackets; four brackets needed to anchor unit to pad
¹  Installed on indoor coil
²  Required for heat pump applicaons where ambient temperatures fall below 0 °F with 50% or higher relave humidity.
³  Condensing units and heat pumps with reciprocang compressors require the use of start-assist components when used in conjuncon with an indoor 
coil using a non-bleed thermal expansion valve refrigerant metering device. The TXV should always be sized based on the tonnage of the outdoor unit.

8 www.goodmanmfg.com SS-GSH13
Product SPecificationS
Goodman Manufacturing Company, L.P., reserves the right to discontinue, or change at any time, specications or designs without  
notice or without incurring obligations. © 2013  •  Goodman Manufacturing Company, L.P.  •  Houston, Texas  •  Printed in the USA. 
noTeS