Harman Stove Company P35I Users Manual
P35I to the manual b441f029-72d6-49f4-842a-182cc76a2bd1
2015-02-09
: Harman-Stove-Company Harman-Stove-Company-P35I-Users-Manual-563954 harman-stove-company-p35i-users-manual-563954 harman-stove-company pdf
Open the PDF directly: View PDF
.
Page Count: 48

www.harmanstoves.com 3-90-775 Rev; 7 August, 2011
• Important operating and
maintenance instructions
included.
• Read, understand and
follow these instructions
for safe installation and
operation.
• Leave this manual with
party responsible for use
and operation.
• Do not store or use gasoline or other am-
mable vapors and liquids in the vicinity of this
or any other appliance.
• Do not overre - If any external part starts to
glow, you are overring. Reduce feed rate.
Overring will void your warranty.
• Comply with all minimum clearances to com-
bustibles as specied. Failure to comply may
cause a house re.
Check building codes prior to installation.
• Installation MUST comply with local, regional, state and
national codes and regulations.
• Consult local building, re ofcials or authorities having
jurisdiction about restrictions, installation inspection, and
permits.
• Do not touch glass until it is cooled
• NEVER allow children to touch glass
• Keep children away
• CAREFULLY SUPERVISE children in same room
as replace.
• Alert children and adults to hazards of high
temperatures.
• Keep clothing, furniture, draperies and other
ammable materials away.
Glass and other surfaces are
hot during operation AND
cool down.
Tested and approved for use with wood pellets
and a mixture of shelled eld corn and wood
pellets only. Burning any other type of fuel will
void your warranty.
Do Not
Discard

2Pellets or Corn/Pellet Mixture Only 3-90-775 Save These Instructions
Hearth & Home Technologies welcomes you to our tradition of excellence! By choosing a Harman appliance, you
have become part of a long standing family committed to meeting the heating needs of consumers with the most
distinctive, powerful and responsible home heating products available.
The P35i insert has brilliant features in an elegant package, giving you 0 to 35,000 BTU when you need it,
automatically. Aside from the regular, simple cleaning process, you need only set your desired room temperature,
keep the hopper full, and the ash pan empty. With the P35i, you will notice even heat throughout your zone and a
level of convenience you never thought possible. The P35i takes advantage of Harman’s 30+ years of stove design,
technology and manufacturing. Output is managed by a microprocessor that senses the room temperature and
the re temperature with two thermistor probes and then determines the best feed rate for your heating demand.
The platinum combination is Harman’s Patented Pellet ProTM Feeder system, and ESP Control which have been
developed to their highest state. These features work together to allow amazing heat output with little regard for
fuel quality.
We wish you and your family many years of enjoyment in the warmth and comfort of your hearth appliance.
Thank you for choosing Harman Home Heating.
, A division of
Hearth & Home Technologies, Inc.
352 Mountain House Road
Halifax, PA 17032
www.harmanstoves.com
SAMPLE

3
Save These Instructions 3-90-775 Pellets or Corn/Pellet Mixture Only
A. Appliance Certications......................4
B. Mobile Home Approval.......................4
C. Glass Specications...........................4
D. Electrical Rating ................................4
E. BTU & Efciency Specications.........4
A. Carbon Monoxide Warnings &
Considerations....................................5
B. Other Safety Considerations .............5
A. Design, Installation & Location .........6
B. Fire Safety..........................................6
C. Component Locator .........................7
D. Pre-Use Checklist..............................8
A. Appliance Dimensions .......................9
B. Clearances to Combustibles.............10
C. Floor Protection ..............................10
D. Minimum Fireplace Opening
Requirements .................................10
E. Mantel Projections ...........................10
F. Factory Built Fireplaces.....................11
A. Vent Termination Requirements ......12
B. Avoiding Smoke and Odors..............13
C. Venting Requirements / Restrictions 14
D. Existing Fireplace Installation...........15
E. Rear Venting.....................................16
F. Zero Clearance Cabinet ..................16
A. Mobile Home Installation .................17
A. Outside Air Attachment ......................18
B. Installing the Surround ......................19
C. Routing the Power Cord ....................19
D. Securing the Mounting Frame............20
E. Attaching the Venting .........................20
F. Installing the Body Into The Frame.....21
G. Control Board Installation ...................21
H. Room Sensor Installation ..................21
I. Optional Log Kit .................................22
J. Optional Trim Kit ................................22
K. Service Rail Kit ..................................22
A. Fire Safety .........................................23
B. Fuel & Fuel Storage ...........................23
C. General Operating Information ..........24
D. Before Your First Fire ........................26
E. Draft Test Procedure .........................26
F. Starting a Fire "Manual" .....................26
G. Starting a Fire "Automatic" ................27
H. Maintaining The Fire ..........................27
I. Relaxation Mode ................................27
J. Shut-Down Procedure ....................... 27
Troubleshooting Chart..............................28
A. Shut-Down Procedure .......................29
B. Quick Reference Maintenance...........29
C. General Maintenance Procedures .....30
D. Motors and Components....................34
A. Wiring Diagram ..................................38
B. Power Failure / Back-up ....................39
C. Service Parts Listing...........................40
D. Custom Surround Sizes......................44
E. Warranty Policy ..................................45
Indicates a hazardous situation which, if not avoided will result in death or serious injury.
Indicates a hazardous situation which, if not avoided could result in death or serious injury.
Indicates a hazardous situation which, if not avoided could result in minor or moderate injury.
Indicates practices which may cause damage to the appliance or to property.

4Pellets or Corn/Pellet Mixture Only 3-90-775 Save These Instructions
Hopper Capacity-
#1-70-774235 (23½ ")
Model: P35i Insert
Laboratory: OMNI-Test Laboratories, Inc.
Report No. 135-S-25-6.2
Type: Solid Fuel Room Heater / Fireplace
Insert.
Standard(s): ASTM E1509-04, ULC S628-93 and
ULC/ORD C1482-M1990
This appliance is approved for Installation in mobile/
manufactured homes. The structural integrity of the
mobile home oor, ceiling and walls must be main-
tained. The appliance must be properly grounded to
the frame of the mobile home, and must never be
installed in a room designated for sleeping. The unit
must have provisions for an outside air source when
installed in a mobile home.
This appliance is equipped with 5mm ceramic glass.
Replace glass only with 5mm ceramic glass. Please
contact your dealer for replacement glass if needed.
115 VAC, 60 Hz,
3.6 Amps (Start-up); avg. 1.5 Amps (Normal Run)
Particulate Emissions
Rating:
*BTU Input:
Heating Capacity:
Hopper Capacity-
#1-70-774195 (19½ ")
Fuel:
Shipping Weight:
41 lbs.
Wood pellets / Corn†
289 lbs.
1,500 sq. ft.
0 or 6,000 - 35,000 / hr
Exempt from EPA per
40 CFR, Method 28A
* BTU input will vary, depending on the type of
fuel you use in your stove. Moisture and ash
content can affect performance.
† Corn is approved for burning only when mixed
with wood pellets.
62 lbs.

5
Save These Instructions 3-90-775 Pellets or Corn/Pellet Mixture Only
Carbon monoxide, referred to as CO, is a colorless,
odorless gas that is produced during combustion of solid
fuels.
Even though this stove is designed to be as safe
as possible, it is recommended that you
This is true for oil, gas, or wood burning
products as well.
CO is not specically heavier or lighter than air.
Therefore, it is best to install the detector at table top level
rather than on the ceiling like a smoke detector.
CO detectors are very sensitive and may sound an
alarm for fumes other than CO or CO from sources other
than the stove such as a car or lawn mower exhaust.
1. Increase house ventilation by opening windows or
doors.
2. Make sure the stove doors and hopper lid are closed
and latched.
3. Check stove for electrical power and normal opera-
tion.
4. Check vent for possible blockage or down-draft.
5. Check for false alarm.
Never use gasoline, lantern fuel, kerosene, charcoal
lighter uid, or similar liquids to start or “freshen up” a
re in this heater. Keep all such liquids well away from
the heater while it is in use.

6Pellets or Corn/Pellet Mixture Only 3-90-775 Save These Instructions
Consideration must be given to safety, convenience,
trafc ow, and the fact that the appliance will need to
be vented to the outside.
It is a good idea to plan your instal-
lation on paper. Use exact measurements for clear-
ances and oor protection, before actually beginning
the installation.
Maintain specied vent clearance to combustible
requirements listed by the vent manufacturers instruc-
tions and all appliance clearances as listed in this
manual.
Check with your local building code agency before
you begin your installation. Local codes may su-
persede the test laboratories specications. Always
obtain any required permit(s) so that insurance pro-
tection benets cannot be unexpectedly cancelled. If
any assistance is required during installation, please
contact your dealer.
We recommend that a qualied building inspector and
your insurance company representative review your
plans before and after the installation.
The room sensor's location will have some effect on
the appliance's operation. When the sensor is located
close to the appliance, it may require a higher set-
ting to keep the rest of the house comfortable. If the
sensor is located in an adjacent room, or farther away
from the stove, you will notice higher temperatures
near the appliance.
• Do NOT connect this unit to a chimney ue
servicing another appliance.
• Do NOT connect to any forced air distribution
duct or system.
Maintain the designated clearances to combustibles.
Insulation must not touch the chimney. You must
maintain the designated air space around the chim-
ney. This space around a chimney is necessary to
allow natural heat removal from the area. Insulation
in this space will cause a heat buildup, which may
ignite wood framing.
To provide reasonable re safety, the following should
be given serious consideration:
1. Install at least one smoke detector on each oor
of your home. Detectors should be located away
from the heating appliance and close to sleeping
areas. Follow the smoke detector manufacturer's
placement and installation instructions, and be
sure to maintain regularly.
2. A conveniently located Class A re extinguisher
to contend with small res resulting from burning
embers.
3. A practiced evacuation plan, consisting of at least
two escape routes.
4. A plan to deal with a hopper re as follows:
In the event of a hopper re:
a. Turn appliance to "OFF".
b.
c. Notify Fire Department.
d. Do NOT pour water in the hopper.
e. pull the plug or otherwise disconnect the
power supply to kill a re.
Fire Hazard
• Do not operate appliance before
reading and understanding the
operating instructions.
• Failure to operate properly may
cause a house re.

7
Save These Instructions 3-90-775 Pellets or Corn/Pellet Mixture Only

8Pellets or Corn/Pellet Mixture Only 3-90-775 Save These Instructions
1. Place the appliance in a location near the
nal installation and follow the procedures
below:
2. Open the appliance and remove all articles
packed inside. Inspect all items for shipping
damage. Notify dealer of any missing or
damaged goods.
3. All safety warnings have been read and
followed precisely.
4. This Owner's Manual has been read in it's
entirety.
5. Floor protection requirements have been
read and followed.
6. The ue connector has been installed in
accordance with the instructions herein.
7. The proper clearances from the appliance
and chimney connector to combustibles
have been met.
8. The masonry chimney has been cleaned
and inspected by a professional, or the
factory built metal chimney is installed
according to the manufacturers instructions.
9. The chimney meets the minimum height
requirements.
10. All labels and hang tags have been removed
from the glass.
11. All plated surfaces have been wiped clean,
if applicable.
12. The room sensor and any additional cable
has been installed properly.
13. A properly grounded electrical receptacle is
available within reach of the unit's power
cord.
14. A good quality surge protector is highly
recommended to protect the electronics.
Inspect appliance and components for
damage. Damaged parts may impair safe
operation.
• Do NOT install damaged components.
• Do NOT install incomplete components.
• Do NOT install substitute components.
Report damaged parts to dealer.
Hearth & Home Technologies
disclaims any responsibility for, and
the warranty will be voided by, the
following actions:
• Installation and use of any damaged appliance.
• Modication of the appliance.
• Installation other than as instructed by Hearth &
Home Technologies.
• Installation of substitute materials or replacement
parts not approved by Hearth & Home Technologies
• Operating appliance without fully assembling all
components.
• Do NOT Overre.

9
Save These Instructions 3-90-775 Pellets or Corn/Pellet Mixture Only
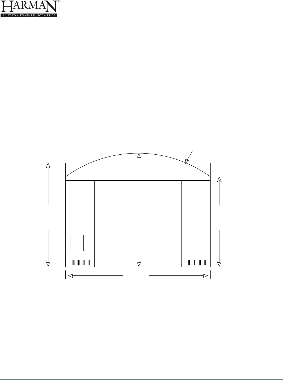
14”
35.56 cm
22”
55.88 cm
8”
20.32 cm 10”
25.4 cm
2”
5.08 cm
24”
60.96 cm
A
B
19.5”
49.53 cm
Hopper
23.5”
59.69 cm
Hopper

10 Pellets or Corn/Pellet Mixture Only 3-90-775 Save These Instructions
Hearth extension must be of a non-combustible material. It
must extend beyond the appliance according to the mea-
surements listed.
Minimum Size Hearth Extension is 16" Deep By 32" Wide.
Mantel
Side Wall
Face Trim
Inches Millimeters
Insert to combustible sidewall
Surround top to face trim
13 330
1 25.4
0 0
12 305
Surround side to face trim
Insert top to (max) 12" mantel
Inches Millimeters
Window opening to front 6 152
6 152
Window opening to side
Inches Millimeters
Minimum Width 24 609
23½ 597
14.5 368
19½ 495
Minimum Depth
Minimum Height #1-70-774235
Minimum Height #1-70-774195
The Maximum mantel depth (J) is 12 inches (305 mm) with
a minimum vertical height (K) of 12 inches (305 mm).

11
Save These Instructions 3-90-775 Pellets or Corn/Pellet Mixture Only
When installing the P35i Insert into a factory built
wood burning replace, several things need to be taken
into consideration.
The size of the replace opening. Will the unit t into
the opening? Some of the factory built replaces have
metal smoke shields inside the top that can be removed
to gain height. Keep in mind that anything removed
from the factory built replace must be attached to the
replace with a metal wire. Floor protection guidelines,
as listed previously, must also be followed.
The manufactured replace may not be altered be-
yond the exceptions listed below. Never remove masonry
bricks or mortar from an existing replace.
The following modications are permissible:
• Removal of the damper or lock in open position
• Removal of smoke shelf or bafe
• Removal of andirons or ember catchers
• Removal of log grate
• Removal of view screen or curtain
• Removal of doors
• External trim pieces, that do not affect the operation
of the replace, may be removed providing they can
be stored on or within the replace for reassembly if
the insert is removed.
• If the hearth extension is lower than the replace
opening, the portion of the insert extending onto the
hearth must be supported.
• Final approval of this type of installation is contingent
upon the authority having jurisdiction.
Note: If the Harman P35i Insert is installed into a factory built wood burning replace, this
label (Harman part # 3-90-00675) MUST be attached to the altered replace.
The factory built chimney must be listed per UL 127 (US)
and meet type HT requirements of UL 103 (US). Factory
Built replace chimneys tested to UL 127-98 may be, at the
replace manufacturers option, tested to the same criteria
as UL 103HT requirements. If the chimney is not listed as
meeting HT requirements, or if the factory built replace was
tested prior to 1998, a full height listed chimney liner must
be installed from the appliance ue collar to the chimney top.
Liner must meet high temperature (2100 F) per UL1777 (US).
The liner must be securely attached to both the ue collar
and the chimney cap. To prevent room air passage to the
chimney cavity of the replace, seal the damper area around
the chimney liner with berglass batting.
Hearth must be constructed to
the proper height and finished
with a non-combustible
material.

12 Pellets or Corn/Pellet Mixture Only 3-90-775 Save These Instructions
= Vent Termination = Air Supply Inlet = Restricted Area
WARNING: Venting terminals must not be recessed into
a wall or siding.
NOTE: Only PL or L vent pipe wall pass-throughs and
re stops should be used when venting through combus-
tible materials.
NOTE: Always take into consideration the affect the pre-
vailing wind direction or other wind currents will cause with
yash and /or smoke when placing the termination.
A. The clearance above grade must be a minimum of
18".
B. The clearance to a window or door that may be opened
must be a minimum of 48" to the side and 48" below the
window/door, and 12" above the window/door.
()
C. A 12" clearance to a permanently closed window is
recommended to prevent condensation on the window.
D. The vertical clearance to a ventilated soft located
above the terminal within a horizontal distance of 2 feet
(60 cm) from the center-line of the terminal must be a
minimum of 18".
E. The clearance to an unventilated soft must be a
minimum of 12".
F. The clearance to an outside corner is 11" from center
of pipe.
G. The clearance to an inside corner is 12".
H. A vent must not be installed within 3 feet (90 cm)
above a gas meter/regulator assembly when measured
from the horizontal center-line of the regulator.
I. The clearance to service regulator vent outlet must be
a minimum of 6 feet.
J. The clearance to a non-mechanical air supply inlet to
the building or the combustion air inlet to any other appli-
ance must be a minimum of 48”.
K. The clearance to a mechanical air supply inlet must
be a minimum of 10 feet.
()
L. The clearance above a paved sidewalk or a paved
driveway located on public property must be a minimum
of 7 feet.
M. The clearance under a veranda, porch, deck or bal-
cony must be a minimum of 12 inches.
NOTE: The clearance to vegetation and other exterior
combustibles such as mulch is 36” as measured from the
center of the outlet or cap. This 36” radius continues to
grade or a minimum of 7 feet below the outlet.
Certain Canadian and or Local codes or regulations
may require different clearances.
A vent shall not terminate directly above a side-walk or
paved driveway which is located between two single family
dwellings and serves both dwellings.
Only permitted if veranda, porch, deck, or balcony is
fully open on a minimum of 2 sides beneath the oor.

13
Save These Instructions 3-90-775 Pellets or Corn/Pellet Mixture Only
: The restriction of not venting more than one appliance
to the same ue applies to the U.S. specically. While it is not
recommended that you use the same chimney for more than
one appliance, in Canada certain exceptions may be made.
Be sure to contact your building code inspection ofcial to
see if this option is allowed in your area, and to nd out the
specic requirements for such an installation.
Do not connect this unit to a chimney
ue servicing another appliance.
T
without exhaust blower op-
eration. Negative pressure in the house will resist this
natural draft if not accounted for in the pellet appliance
installation.
Heat rises in the house and leaks out at upper levels.
This air must be replaced with cold air from outdoors,
which ows into lower levels of the house. Vents and
chimneys into basements and lower levels of the house
can become the conduit for air supply, and reverse under
these conditions.
Per national building codes, consideration must be
given to combustion air supply to all combustion appli-
ances. Failure to supply adequate combustion air for all
appliance demands, may lead to back-drafting of those
and other appliances.
When the appliance is side-wall vented: The air intake
is best located on the same exterior wall as the exhaust
vent outlet and located lower on the wall than the exhaust
vent outlet.
When the appliance is roof vented: The air intake is
best located on the exterior wall oriented towards the
prevailing wind direction during the heating season.
The outside air connection will supply the demands of
the pellet appliance, but consideration must be given to
the total house demand. House demand may consume
some air needed for the stove, especially during a power
failure. It may be necessary to add additional ventilation
to the space in which the pellet appliance is located.
Consult with your local HVAC professional to determine
the ventilation demands for your house.
The outside air kit consists of a flue stub pipe,
berglass gasket, silicone gasket, intake box and a
section of ex pipe.
An adjustable chimney intake extension, part # 1-00-
674104 is available to be used on masonry chimneys
only.
To install outside air, use kit part number 1-00-774280.
Follow the installation instructions provided with the
kit.
To reduce probability of reverse drafting during
shut-down conditions, Hearth & Home Technologies
strongly recommends:
• Installing the pellet vent with a minimum vertical
run of ve feet, preferably terminating above the roof
line.
• Installing the outside air intake at least four feet
below the vent termination.
To prevent soot damage to exterior walls of the
house and to prevent re-entry of soot or ash into the
house:
• Maintain specied clearances to windows, doors,
and air inlets, including air conditioners.
• Vents should not be placed below ventilated
softs. Run the vent above the roof.
• Avoid venting into alcove locations.
• Vents should not terminate under overhangs,
decks or onto covered porches.
• Maintain minimum clearance of 12 inches from
the vent termination to the exterior wall. If you see
deposits developing on the wall, you may need to
extend this distance to accommodate your installation
conditions.
Do not connect this unit to any air
distribution duct or system.

14 Pellets or Corn/Pellet Mixture Only 3-90-775 Save These Instructions
A combustion blower is used to extract the combus-
tion gases from the rebox. This causes a negative pres-
sure in the rebox and a positive pressure in the venting
system. The longer the vent pipe and more elbows used
in the system, the greater the ow resistance.
30 Lineal ft. Vertical*
4" Pl Vent Pipe: 30 Lineal ft. Vertical*
4" Pl Vent Pipe: 14 ft. Vertical w/1-90o and 12 lineal ft.
horizontal*
Vertical 90o or T: 2.5'
Vertical 45o: 1.5'
Horizontal 90o or T: 5.0'
Horizontal 45o: 2.5'
20 Lineal ft. vertical*
8 Lineal ft. vertical w/1-90o & 8 lineal ft. horizontal*
Vertical 90o or T: 2.0'
Vertical 45o: 1.0'
Horizontal 90o or T: 4.0'
Horizontal 45o: 2.0'
* Long runs of ex or PL vent pipe installed directly
vertical from the ue stub may require more frequent
cleaning due to y ash falling off inside and collecting
directly above the combustion blower outlet.
Any use of horizontal venting will require more
frequent cleaning. It is the responsibility of the installer
to make sure the entire ue conguration is accessible
for cleaning.
Stainless steel ex vent is only allowed for use in
masonry replaces and chimneys or in factory built wood
burning replace installations when used as a liner for
a class A metal chimney. All pellet vent pipe must be
secured together by means provided by pipe manufac-
turer. The vent pipe must be secured to the appliance
ue collar with a minimum of three screws.
It is also recommended that you seal all vent pipe
joints with high temperature silicone.
• Only LISTED type L or PL Pellet venting compo-
nents may be used.
• NO OTHER type of venting materials or compo-
nents may be used.
• Substitute or damaged vent components may
impair safe operation.
• Improper installation, adjustment, alteration,
service, or maintenance can cause injury or
property damage.
• Read and Refer to your owner's manual.
• For assistance or additional information, consult a
qualied installer, service agency or your dealer.

15
Save These Instructions 3-90-775 Pellets or Corn/Pellet Mixture Only
If using a short run of venting, whether ex or rigid,
through the damper and into the chimney ue; The
Damper must be removed or locked in the open posi-
tion and sealed with a plate constructed of steel or
other non-combustible material.
Kaowool, mineral wool or other non-combustible insu-
lation is recommended above the plate to reduce the
possibility of condensation. You will also need to wrap
the venting section between the insert frame and the
damper sealing plate. This is to prevent overheating
of the replace cavity, which may cause damage to
the insert's motors and other electrical components.
The connector pipe should extend through the sealing
plate and smoke chamber and into, or beyond the rst
ue tile.
--
--
Tile Flue Liner
Non-combustible
Insulation
Sealing Plate When using single wall flex, this
section of venting must be
wrapped with non-combustible
insulation to prevent excessive
heat build-up in the cavity.
When venting in this configuration, a rain cap and
proper flashing must be installed on the top of the
chimney to prevent flooding and damage.
Be sure to design the venting so that it can be easily
cleaned.
Check with your local authority having jurisdiction to
determine if this venting method is acceptable. Some
Provincial, State, or Local codes may require a full
liner run to the top of the chimney. Be sure and check
your local regulations before planning the installation.
In this method, the proper ashing and rain cap are
also required.
• Masonry chimney must be in good condition
• Meets minimum of NFPA 211 standard
• Factory-built chimney must meet requirements
of UL103 HT

16 Pellets or Corn/Pellet Mixture Only 3-90-775 Save These Instructions
If installing using the optional zero clearance cabinet,
Item #1-00-774257, the venting will need to exit through
the top of the cabinet. The vent can be vertical or
horizontal after leaving the cabinet. Once clear of the
cabinet, a 90 degree elbow can be installed for rear
termination as shown. Do not allow vent pipe seams to
fall within the cabinet wall. Use proper wall thimble as
supplied by the venting manufacturer.
If nishing the interior with stone or masonry, the venting
can be installed without the appliance. Install the cabinet
and secure the venting using the Flue Rough-in Support
#1-00-774283.
The top of the chimney must also be sealed.
Otherwise, it can become a nesting area or a
water trap.
If passing through combustible
material, the proper thimble from the
vent manufacturer must be used.
Masonry wall
3" Clearance
Zero Clearance Cabinet
shown with Flue Rough-in
Support
Vent pipe seams must be
accessible.
Vertical Venting may be used in a constructed chase
providing all clearances to combustibles are met.
Proper wall pass-thru device
as recommended by the
venting manufacturer.
When installed in a rear vent
conguration, the maximum BTU
may be reduced due to elevated ESP
temperatures associated with the
horizontal exhaust stream.

17
Save These Instructions 3-90-775 Pellets or Corn/Pellet Mixture Only
1. An outside air inlet must be provided for combus-
tion air, and must remain clear of leaves, debris,
ice, and/or snow. The outside air path must be
unrestricted while the appliance is in operation.
2. The combustion air intake system must be of
metal construction. It must permit zero-clearance
to combustible materials, and contain a rodent
screen.
3. The appliance must be secured to the mobile
home structure by bolting it to the oor. Use the
correct length lag-bolts through the same holes
that secured the appliance to the shipping pallet.
4. The appliance must be grounded to the metal
framing of the mobile home.
5. All clearances to combustibles and oor protection
requirements must be followed.
6. Follow the vent manufacturer's instructions when
installing in a mobile home. Use silicone or equiva-
lent to create an effective vapor barrier where the
chimney or other component penetrates to the
exterior of the mobile home.
7. Installation shall be in accordance with the Manu-
factured Home and Safety Standard (HUD) CFR
3280, Part 24
8. The appliance must never be installed in a room
designated for sleeping.
9. The space heater must be connected to a fac-
tory built chimney conforming to CAN/ULC-S629.
Maximum 8 inch diameter. Chimney must be
removable to allow transport of mobile home.
Installation must comply with Manufactured
Home and Safety Standard (HUD), CFR
3280, Part 24.
Do cut through:
• Floor joist, wall studs, or ceiling trusses.
• Any supporting material that would affect the
structural integrity.
Never draw outside combustion air from:
• Wall, oor or ceiling cavity.
• Enclosed space such as an attic or garage
There are a few holes in the bottom of the insert
mounting frame which can be used for lag bolts. Use
at least two of these holes for securing the appliance
to the replace oor in a mobile home installation. The
installer will need to determine and obtain the properly
sized lag bolts and masonry anchors.
Four 5/16 -18 Leveling
bolts may be installed
in each corner
Numerous holes allow
for lag bolts (2 min.)in
mobile home installation

18 Pellets or Corn/Pellet Mixture Only 3-90-775 Save These Instructions
Outside Air Kit #1-00-774280 (sold separately) must
be used for attaching outside air to the insert. This kit
contains a 3" stub and gasket to mount to the frame,
and the outside air adapter which secures to the insert
body. The outside air intake connection will seal to the
mounting frame, just like the exhaust does. Follow the
instructions included in the kit to ensure proper instal-
lation.
1. Make a determination of where you want to draw
the outside air from. Here are a few options.
a. Punch a hole through the rear of the
replace and exterior wall. Rigid pipe or ex
pipe could be used.
b. Use the chimney or chase as a conduit for
outside air. The exhaust liner must be run
the full length of the ue. When creating
your steel plate to seal the damper area,
Make another 3 inch hole for the outside air
pipe. Install a short run of pipe from the
mounting frame through the sealing plate.
Then install the chimney top extension kit,
item #1-00-674104 at the top of the chimney.
This is slotted to allow fresh air into the
chimney or chase.
2. Secure the outside air supply pipe to the stub on
the mounting frame using a minimum of two fas-
teners.
3. If running the supply pipe direct, install the outside
air cover weldment #1-10-09542 to keep birds or
rodents from entering the supply pipe.
4. Keep the intake a minimum of 4 feet (1.2 m) below
the exhaust termination.
Never draw outside combustion air from:
• Wall, oor or ceiling cavity.
• Enclosed space such as an attic or garage
--
--

19
Save These Instructions 3-90-775 Pellets or Corn/Pellet Mixture Only
The surround consists of three panels, the top and
two sides. Follow these steps for installation:
1. Remove the insert body from the mounting frame;
2. Start your leveling bolts into the oor of the frame
and adjust to slightly raise the height.(see next
section) This will allow some clearance to
assemble the surround.
3. Prepare the side panels by removing three nuts
each. The left side panel is the one with the control
board opening. If mounting the control door, the
hinge bracket will attach using the control panel
mounting screws.
4. Attach the side panels to the mounting frame by
guiding the threaded studs through the holes in
the mounting frame. Slip the power cord ground
wire terminal over the bottom stud on the left side.
Install the nuts onto the studs, nger tighten only.
5. Install the top panel, making sure to close the gap
with the side panels rst. Tighten the nuts on the
splice brackets securely.
6. Set the mounting frame into position in the
replace opening. Be sure the surround panel is
raised slightly so that it is not supporting any of the
weight of the mounting frame.
7. When pleased with the alignment, tighten all of the
nuts securely.
8. There are two more holes in the splice brackets to
align the outer sides of the surround panel joints. If
desired, install the supplied black pop-rivets here.
When choosing an electrical supply outlet, be sure
the polarity is correct, and that the supplied voltage is
within the range of 117 to 123 Volts. Surge protection
is also recommended to protect the control board
software in the event of a surge or spike.
Once the outlet location is decided, you'll need to
install and route the power cord.
At the bottom of each of the side surround panels
is a knockout for the cord retainer. Remove the
appropriate knockout and feed
the loose wire end of the cord
into the hole. If your cord needs
to exit from the right side, route
the cord up the side and over
the top of the mounting frame
and back down the left side.
Attach the ground wire ring
terminal to the bottom stud
on the left, and use the two
hooks on the top corners of
the mounting frame to secure
the cord. Slip the cord clamp onto the cord right in
front of the opening in the side panel. Using a pliers,
compress the cord clamp and push it into the hole.

20 Pellets or Corn/Pellet Mixture Only 3-90-775 Save These Instructions
Most importantly, the frame must be level. Again, be
certain that the surround is not supporting the weight.
Turn the leveling screws in until there is a slight gap
beneath the surround panels.
Here are a few different ways to anchor the mounting
frame.
On the sides of the frame, there are a few holes which
can be used to attach metal straps. These straps
can be anchored into the
replace using masonry
anchors. You could also
use any of the unused
holes in the bottom of the
frame to install anchors
and lag bolts. Another
option involves using kit #
1-00-774279. Here, you will
mount plates to the frame.
These plates have coupling
nuts welded to them. The
kit also includes two pieces
of 1/2" all thread, which threads into the coupling nuts.
These can be used to tighten upward against the lintel
until the unit is secure.
The ue collar on the rear of the mounting frame is
designed to pivot. Loosen the four mounting bolts
and adjust the angle of the collar as needed. Shown
above is the vertical position and the horizontal
position. Be sure the ber gasket remains in place
between the collar and the mounting frame, and
secure the bolts. Secure the rst section of venting
to the collar with a minimum of two fasteners. Self-
drilling screws will work well for this. Once the
venting is secured and the seams are sealed, it is
recommended that you wrap the vent pipe with a
non-combustible insulation to prevent overheating of
the motors and other appliance components. This is
required (and supplied) when using the optional Zero
Clearance Cabinet.
There are four (4) holes located as shown, that are
threaded for 5/16 - 18 bolts. Thread the bolts down
through the holes to raise the frame corners as
needed, to level.
Straps could
attach here
When installed in a rear vent conguration, the maximum BTU
may be reduced due to elevated ESP temperatures associated with the
horizontal exhaust stream.

21
Save These Instructions 3-90-775 Pellets or Corn/Pellet Mixture Only
The control board is packaged in a static resistant
bag. Use care when handling, hold the circuit board
only by the edges. In a large replace opening, you
may have plenty of space for the circuit board to re-
main attached. For a smaller replace opening, you'll
likely need to remove the wiring from the circuit board
to route it through the side of the mounting frame and
out through the control opening. Follow these steps;
• Disconnect the 11 pin harness plug.
• Disconnect the red twisted ESP wire.
• Feed the harness wires and the ESP wire through
the opening in the mounting frame and out
through the control opening in the surround panel.
• Holding the control board outside the opening in
the surround panel, re-attach the harness plug
and the ESP wire.
• After determining the location of the Room Sen-
sor (See next Section), Attach it to the two male
spade terminals near the top of the circuit board.
NOTE: These connections are not polarity specic.
• From the power cord, attach the green ground
wire to the grounding post located on the feeder
air intake snout.
• The black wire from the power cord gets attached
to the short brown wire from the control harness
• The white wire from the power cord will attach to
the short white wire on the control harness.
• Install the control panel into the surround; Right
side rst, then tilt in the left side.
• Secure using the four black machine screws in-
cluded with the surround.
Although not required, it is recommended that the
room sensor be connected in every installation. Using
a minimum size 18 gauge wire, you may splice in an
additional length, to extend the room sensor. The fol-
lowing are typical locations for the room sensor;
• On an interior wall next to or in place of a typical
wall thermostat.
• On the leg of a coffee table or end table in your
favorite sitting location.
• Sticking out through the punched hole at the lower
right corner of the control panel.
Once the location has been decided, run the wiring to
the control panel. You'll need to remove the two ter-
minals from the end of the sensor cable and replace
them with the two smaller terminals from the hardware
bag. Plug the terminals into the circuit board. These
connections are not polarity specic.
The rollers on the sides of the insert body will ride on
the rails of the mounting frame. Once the body is all
the way in, hook and close the top spring latches on
each side to secure.

22 Pellets or Corn/Pellet Mixture Only 3-90-775 Save These Instructions
Ceramic log #3-40-674099
Log Bracket Kit #1-00-774401
Remove the two bolts from the air manifold below the
glass opening. Install the log bracket using the same
two bolts. Place the log onto the bracket with the
smaller twigs pointing back toward the burn pot.
Please Note; The decorative log is fragile and must be
handled with care. The abrasive nature of pellet ash
may cause the log to deteriorate. Therefore, the log is
not covered under the appliance warranty.
The trim kit option includes a door frame and an ash
lip trim. To install the ash lip trim, simply slide it over
the ash lip from the front. You can secure it with a few
dabs of high temperature silicone, if desired. To install
the door trim, follow these steps.
• Remove the door latch
by loosening the small
set-screw and tapping
out the roll pin.
• Remove the door
by lifting it off of the
hinges. Lay it, face
down on a at surface.
• Locate and drill the
dimpled holes in each
corner of the door,
using the provided drill
bit.
• Install the trim frame with
the threaded studs through
the holes in the door, and
secure it with the four nuts
provided in the kit.
Set-screw
Roll Pin
The Service Rail Kit is used to support the insert
body while it is pulled out of the mounting frame for
cleaning or service. Used only with a raised hearth
installation, it is easily adjustable to a height range
of 4" to 14". Assemble the rail kit using the provided
instructions. After removing the Ash Pan cover, the
rails attach to the mounting frame with four bolts.
There are even stop bolts on the rails to prevent
accidental roll-off.
* Trim nish sufx; 4=Gold,
7=Brushed Stainless, 8=Bright Nickel

23
Save These Instructions 3-90-775 Pellets or Corn/Pellet Mixture Only
You can never be too cautious when it comes to re
safety. Please give serious consideration to the follow-
ing:
• Install at least one smoke detector and CO detec-
tor on each level of the home.
• Locate detectors away from the appliance and
close to the sleeping quarters.
• Follow the manufacturer's guidelines on placement
and installation as well as maintaining regularly.
• Place a Class A re extinguisher nearby to con-
tend with small res.
• In the event of a fuel hopper re:
• Evacuate the house immediately.
• Notify the Fire Department.
Pellet fuel quality can uctuate. This appliance is
designed to burn a wide variety of pellet fuel, giving
you the freedom to choose the most economical fuel
in your area.
Hearth & Home Technologies strongly recommends
that you choose a fuel that is recognized by the Pellet
Fuels Institute (PFI)
Pellet fuels are made from sawdust, or other wood
bers. The source material determines the ash and
heat content. Higher ash content fuel, or Standard
Grade, may contain bark, leaves, stems, or other by-
products. Higher ash may not mean more or less heat
value, but it will require more maintenance and clean-
ing. Low ash content fuel, or Premium Grade, is made
from only the cleanest sawdust. Cleaning and mainte-
nance are greatly reduced while typically higher heat
value is experienced.
• Wood Pellets- Any grade of wood or biomass pel-
letized fuel. Pellets should be either 1/4 inch or
5/16 inch (6 - 8mm) in diameter, and no more than
1½" (38mm) in length.
• Shelled Field Corn- Corn is approved for use as
a fuel ONLY when mixed with pellets. The tested
mixture is up to 50% corn. Since corn is grown as
a feed source, and not as a fuel, there are many
possible inconsistencies with regards to burning.
Because of this, you may not be successful with
the maximum mixture, and may need to reduce
the percentage of corn in the mix. Corn should
have a moisture content of 15% or less. Corn for
burning should be clean and free of debris, stalks
and pieces of cob.
• May cause hopper re
• Damage to product may result
Read the list of ingredients on the packaging. If you
are buying eld corn, the only ingredient listed should
be eld corn.
Do burn treated seed corn
• Exhaust gases are toxic
• Chemicals used to treat are harmful or fatal if
ingested.
• Burning seed corn will void the product warranty.
Fuel should be stored in a dry area, preferably in-
doors, and well away from the appliance clearance
area.
Corn, for mixture, should be stored in a sealed con-
tainer to prevent mold growth and to deter pests. Re-
member, corn is a food source and will attract rodents
and other pests.
Tested and approved for use with wood pellets
and a mixture of shelled eld corn and wood pel-
lets ONLY. Burning of any other fuel will void your
warranty.
Hearth & Home Technologies is not responsible for
stove performance or extra maintenance required
as a result of using fuel with higher ash or mineral
content.

24 Pellets or Corn/Pellet Mixture Only 3-90-775 Save These Instructions
The P35i's ESP control will maintain an output level to t your temperature demands. There are two modes of
operation; "Stove Temp" mode, where the control will maintain a specied constant temperature, regardless of
the surrounding environment temperature conditions, Or "Room Temp" mode, where the control will adjust the
rate of burn to meet a specied room temperature setting. You also have the choice of Automatic or Manual
ignition. Regardless of the mode selected, operation is controlled by both, exhaust temperature- being reported
by the ESP (Exhaust Sensing Probe), and the microprocessor circuit board.
We'll discuss these control devices and their functions now.
The ESP is a tiny thermistor located in the exhaust stream. The probe chang-
es it's thermal resistance based on minute changes in temperature, which is
monitored by the circuit board and used to determine the need for changes in
the burn rate to meet the temperature demand.
As stated previously, the circuit board is a microprocessor, which means it
has the ability to "think" and adjust itself based on both, reported tempera-
tures and demand temperature. The circuit board will also ash a code se-
quence on the Status light if an error is detected.
Sets the maximum feed rate.
Runs all motors at full speed for one
minute to check operation. Afterwards
the combustion blower will remain on
low burn voltage.
Set to appropriate Start-Up mode.
Distribution Blower speed adjustment
range. L = low
H = high
Variable speed anywhere between L
and H; although as the stove temp.
goes up , so does the low end of the
scale.
Allows you to adjust the room temperature in Room Temp
Mode using the outer scale marked in degrees Fahrenheit.
It also allows you to adjust the stove temperature while in
Stove Temp Mode using the inner scale marked from 1 to 7.
Allows you to choose between Room
Temp Mode, Stove Temp Mode, or OFF.
Also allows you to vary the distribution
blower speed by turning the knob to the
high or low side of each mode.
Indicates power to the control.
Indicates power to the feed motor.
Indicates power to the igniter.
Indicates power to combustion blower.
Will be lit in either stove or room temp mode
when pointer is not within off position band
except after normal shut down. Blinks to
indicate errors detected.
Indicates power to distribution blower.
For dealer maintenance only.
Requires special DDM monitor
supplied to Harman Dealers
exclusively.
Low Draft Adjustment Screw
(see page 26)

25
Save These Instructions 3-90-775 Pellets or Corn/Pellet Mixture Only
The Circuit board runs on a one minute timer cycle.
Each minute, the board is thinking ahead to what it
needs to do for the next minute to maintain or achieve
the demanded temperature. What you are setting on
the feed adjuster dial is the maximum amount of feed
time, per minute, that you'll allow.
The circuit board will make its own determination of
how long to run the feeder, the maximum, as
set on the dial. For instance, a number 4 setting on
the feed adjuster will allow a maximum of 40 seconds
per minute of feed. If the room temperature is satis-
ed, with only feeding 20 seconds, then that is all the
circuit board will run the feeder. When heating a large
area, the number 4 setting is usually adequate, how-
ever, fuel quality may dictate a higher or lower setting.
If you see un-burned or burning fuel being pushed off
of the grate during a high demand period, the feed
rate is set too high. Ideally, you'll want to see about
an inch of ashes in front of the burning fuel during a
peak demand period. When the appliance is located
in a smaller room or area, the feed adjuster may need
to be kept at a lower setting of #2 or #3, to maintain a
re with less frequent shut-down and ignition cycles.
Always allow a minimum of fteen minutes between
making any adjustments to the feed rate.
Room-Temp mode is the ideal mode of operation if
you wish to maintain a comfortable temperature in
the room. As the outdoor temperature uctuates, the
control will adjust the feed rate to maintain the desired
temperature setting in the room. For best results,
be sure the room sensor is located away from drafty
areas and not positioned on the oor or near an exte-
rior wall.
Stove-Temp mode is more of a manual method of
operation. The stove will run at a constant heat output,
regardless of surrounding air temperature. Note that
on the coldest days, your indoor heated space will be
cooler than on the warmer days. The only real benet
to this mode of operation is that you'll be able to know
exactly how long a hopper full of fuel will last, because
the consumption is going to stay relatively the same.
The temperature dial is a dual purpose dial. In Room-
Temp mode, you select the room temperature you
want the stove to maintain at the room sensor probe.
This is marked in Fahrenheit scale from 50 to 90 de-
grees. In Stove-Temp mode, you select a temperature
setting based on the #1 - 7 with 1 being a minimum
burn and 7 being a maximum burn rate.
The mode selector is also marked with a L to H scale
in each mode. This is a variable speed control for the
distribution blower. is the low setting, and is the
high setting. It is important to note that the blower will
not come on until the ESP reaches a specic tem-
perature, to ensure that cold air is not being blown out
into the room. Also, the speed of the blower, when set
on lower speeds, will automatically increase as the
temperature of the stove increases.
The toggle switch for the igniter is a two position
switch. Select from either AUTOMATIC or MANUAL.
Will automatically start the re in either
STOVE TEMP or ROOM TEMP mode.
The ignition mode will start the
re one time only. Since STOVE TEMP maintains a
constant output, the re will never go out to need re-
ignited.
The ignition mode will start the
rst re. Then, if the room temperature is satised,
the re will go out. Once the room cools, the ignition
mode will start another re, and so on. This mode
provides fully automatic temperature control.
MANUAL- The re must be started manually using
starting gel or other manufactured re starter.
With the igniter switch in the MANUAL
position, the igniter is disabled.
The re would need to be
started manually, and will maintain a constant output
based on the temperature setting.
The re would need to be
started manually. The control will adjust output to
maintain a constant room temperature, however it will
not allow the re to go out. If the room temperature is
satised, the control will adjust to the minimum burn
rate and hold there until the room temperature de-
creases.

26 Pellets or Corn/Pellet Mixture Only 3-90-775 Save These Instructions
• Be sure the appliance is installed properly and that
all safety requirements have been met. Pay par-
ticular attention to the clearances to combustibles,
oor protection and the venting instructions.
• Test your smoke detector(s) and CO detector(s) to
the specications of the manufacturer.
• Double check that the ash pan and internal rebox
are empty.
• Be sure to read this entire manual.
1. With the mode selector in the "OFF" position, and
the Feed Adjuster on "Test", plug the power
cord into a properly grounded receptacle.
2. Fill the hopper with DRY fuel.
3. Turn the FEED ADJUSTER dial to "Test". This will
run the feed motor for one minute. If you begin to
see fuel entering the burn pot, you can stop the
test cycle. Return to #4 or #5 to start out.
4. Turn the mode selector dial to the desired mode.
This will start the combustion blower operating.
5. Fill the burn pot with a mixture of wood pellets and
starting gel.
6. Light the starting gel with a match, and close the
door.
7. Only after the ESP temperature increases, will the
feeder start operating to increase the re size.
• Using a 9/16" wrench, remove the draft test port
plug bolt, located to the left inside the rebox. This
bolt threads downward through the outside of the
body. Externally, the opened hole is located above
the ash pan spring latch on the left.
• Insert the
draft meter
hose into the
test port.
• Be sure the
meter is ca-
pable of a scale
between 0 and
1 inch Water
Column. Zero the
meter if necessary,
and be sure it is set
up to read in negative
pressure.
• Be sure the ash pan, door, and hopper lid are all
closed and latched.
• Turn the feed adjuster to "Test" mode.
• During the rst minute of test, the combustion
blower will be on high. Record the high draft
reading here ____________-W.C. The high draft
should be above -0.5" W.C. but no higher than -1"
W.C.
• After a minute, the combustion blower will go to
low speed. Here you want to see a reading be-
tween -0.30" and -0.35". If necessary, adjust the
draft voltage using the low draft adjustment screw
on the circuit board (See Page 24). Clockwise
will increase the draft and counter-clockwise will
decrease it.
• Once set, record the low draft reading here:_____
______ -W.C.
• Be sure and turn off of "Test" mode. Disconnect
the meter and return the plug bolt to the test port.

27
Save These Instructions 3-90-775 Pellets or Corn/Pellet Mixture Only
During operation in ROOM TEMP/ AUTOMATIC
mode, the appliance will shut down naturally when
demand is met or exceeded. In other modes of opera-
tion, the unit will shut-down only if or when it runs out
of fuel.
To kill or stop a re, turn the mode selector dial to
"OFF". The shut down cycle will slow or stop the
feeder to gradually cool the re and ensure that all of
the exhaust gases are safely expelled before stopping
the combustion blower. This not only ensures removal
of all smoke and gases, it also keeps the re from at-
tempting to travel into the fuel storage hopper. For this
reason; Hearth & Home Technologies recommends
installing a battery back-up in areas where frequent
power outages are experienced. (Also see page13)
The best way to kill a re, especially at the end of the
heating season, is to simply allow it to run out of fuel.
An added feature for those times when you'd like to
unwind watching a re but yet do not want all the heat.
With the igniter switch in the "MANUAL" position and
the mode selector in "STOVE TEMP", your tempera-
ture dial can be set up to a #3 and the distribution
blower will be disabled. As you turn up the tempera-
ture dial and the re
begins to burn hotter,
the distribution blower
will begin to operate.
1. With the mode selector in the "OFF" position, and
the Feed Adjuster on "Test", plug the power
cord into a properly grounded receptacle.
2. Fill the hopper with DRY fuel.
3. Turn the FEED ADJUSTER dial to "Test". This will
run the feed motor for one minute. If you begin to
see fuel entering the burn pot, you can stop the
test cycle. Return to #4 or #5 to start out.
4. Position the Igniter switch to AUTOMATIC.
5. Turn the mode selector dial to the desired mode.
This will start the combustion blower, feeder, and
igniter operating.
6. After the initial feed cycle is typically when you'll
begin to see sparks, smoke, or ames.
Once the Distribution Blower begins operation, your
re is well established. Now, you can make any
desired adjustments to the temperature dial. Remem-
ber, in STOVE TEMP, the temperature dial uses the
inner portion of the scale (#1 thru 7). In ROOM TEMP,
select the desired temperature in Fahrenheit from 50
to 90 degrees.
The ames should appear brisk and bright. If you see
deep orange and lazy ames, it is usually an indica-
tion that the burn pot needs to be cleaned. Refer to
the Maintenance Section of this manual.
Keep combustible mate-
rials, gasoline, and other ammable vapors or liquids
clear of this appliance.
• Do store ammable materials in the vicinity
of this appliance.
• DO NOT BURN GARBAGE OR FLAMMABLE
FLUIDS SUCH AS GASOLINE, NAPTHA OR
ENGINE OIL.
• DO NOT USE CHEMICALS OR FLUIDS TO
START A FIRE.
Keep all such liquids well away from the heater while
it is in use, combustible materials may ignite!

28 Pellets or Corn/Pellet Mixture Only 3-90-775 Save These Instructions
3-Blinks; Poor ESP signal. Broken probe, wire or connection.
Exhaust temperature has gone out of range
multiple times.
Check connection / Replace Probe
Clean exhaust- possible soot or creosote
accumulation near probe.
4-Blinks; Poor Room Sensor
signal.
Broken sensor, wire or connection. Check connection / Replace sensor
5-Blinks; Failed ignition
No fuel in hopper
Door, hopper lid, or ash pan open
Poor draft / weak combustion blower
Fuel feed restriction
Blocked airow / Igniter failure
Load fuel
Close all doors and check seals
Perform draft test, clean exhaust, replace blower if
necessary.
Check operation in "Test" mode. Clear obstruction
Open burn pot cleanout to access igniter- clean.
Check igniter, replace if necessary
6-Blinks; Poor combustion
No fuel in hopper
Door, hopper lid, or ash pan open
Poor draft / weak combustion blower
Fuel feed restriction
Load fuel
Close all doors and check seals
Perform draft test, clean exhaust, replace blower if
necessary.
Check operation in "Test" mode. Clear obstruction
Low volume or no fuel feed
No fuel in hopper
Door, hopper lid, or ash pan open
Poor draft / weak combustion blower
Fuel feed restriction
Failed feed motor
Load fuel
Close all doors and check seals
Perform draft test, clean exhaust, replace blower if
necessary.
Check operation in "Test" mode. Clear obstruction
Replace motor if necessary
No Distribution Blower
Fire isn't hot enough for blower operation
MANUAL / STOVE TEMP
Failed motor or connections- "Test" mode
Increase temperature setting
When operating in manual ignite / stove temp mode,
the blower will not run below a #3 setting on the
temperature dial. Increase temperature setting.
Check connections / Replace blower
Low heat output, or room tem-
perature doesn't match ther-
mometer or other readings
Feed rate too low
Room sensor location different than ther-
mometer location
Excessive ash buildup on heat exchanger
or in the exhaust
Set feed adjuster at #4 or higher
Room sensor reports the room air temperature to
the circuit board. Move sensor location or adjust set
point accordingly
Clean exhaust, rebox, and heat exchanger thor-
oughly.
With proper installation, operation, and maintenance, your appliance will provide years of
trouble-free service. If you do experience a problem, this troubleshooting guide will assist a
qualied service person in proper diagnosis and repair. This guide is intended for qualied
service technician use only.

29
Save These Instructions 3-90-775 Pellets or Corn/Pellet Mixture Only
The best way to shut down the appliance is to simply
let it run out of fuel, and shut down naturally as the
temperature cools. This method is highly recommend-
ed for the end of season shut-down.
To shut-down otherwise, turn the mode selector to
"OFF' verify by ensuring that the Status light goes out.
The shut-down protocol of the circuit board will safely
allow the re to go out. All motors will stop when cool,
and only the POWER light will remain lit. It is now safe
to un-plug the electrical supply.
Cleaning or Inspection Frequency Daily Weekly Monthly Yearly
Area beneath burn pot grate /
Igniter After each ton of fuel burned OR X
Ash removal Depending on fuel quality OR X X
Burn pot grate surface Depending on fuel quality OR X
Combustion blower / paddle fan After each ton of fuel burned OR X
Distribution blower
More frequently depending on
surroundings OR X
Door latch inspection Prior to heating season OR X
Feeder body / Fines collection area Depending on fuel quality OR X
Firebox / thorough cleaning After each ton of fuel burned OR X
Glass
When view of re becomes
obstructed OR X
Heat exchanger After each ton of fuel burned OR X
Hopper Whenever adding fuel OR X
Venting system
More frequently depending on
fuel quality and quantity OR X
When wood is burned, the products of combustion
combine with moisture to form a soot residue which
accumulates on the ue lining. When ignited, this
soot makes an extremely hot re. The entire venting
system should be inspected at least once every two
months during the heating season to determine if a
soot buildup has occurred. If soot has accumulated,
it should be removed to reduce the risk of a chimney
re.
Turn the control
to "Off". Keep appliance doors and hopper lid closed
and latched. Notify the re department. Do not oper-
ate the appliance until the chimney and connector
have been inspected and approved by a chimney
professional.
• Smoke spillage may occur if shut-down is not
complete
• Risk of shock if appliance is not disconnected from
the supply power prior to servicing.
NOTICE: For recommendation purposes only - More frequent cleaning is necessary if heavy buildup is
encountered at the recommended intervals, or if you see soot coming from the vent.

30 Pellets or Corn/Pellet Mixture Only 3-90-775 Save These Instructions
Daily to Weekly *
User
This procedure can be done with a re burning. It is
recommended that you turn the temperature dial down
approximately one half hour before to allow some
cooling of the re.
Open the front door by lifting upward on the latch
handle, then swing the door open. Using the scraper
tool provided with your appliance, scrape any
cool or spent ashes from in front of the re off
the front of the grate to the ash pan. Next,
scrape downward into the burn pot,
under the burning fuel to remove any
carbon deposits. Pay particular
attention to the corners on each
side of the auger, as this is
generally the rst place to
see accumulation. You do
not want to scrape the re
out of the pot, you just
want to clean the holed
surface underneath the
re. Any loosened mate-
rial will be pushed off of
the grate into the ash
pan as burning resumes. Close the door when n-
ished, and return your temperature dial to the desired
setting.
* Depending on fuel quality and the quantity of fuel
consumed, the interval between scraping will vary. If
you see orange and lazy ames, it is a good indicator
of the need for scraping.
Weekly / depending on fuel and/or
ash buildup.
User
The re MUST be out and cool for safe ash removal.
The scraper tool can be used to knock any ash accu-
mulation into the ash pan.
Frequent cleaning of ash from the rebox will help to
slow the accumulation of ash in the exhaust and vent-
ing system.
Bi-Weekly / as needed
User
The re MUST be out and cool for safe ash removal.
a. Remove the ash pan cover by grasping the ash lip
and slide forward.
b. Open the lower spring latch on each side to release
the ash pan.
c. Slide the ash pan straight out.
d. Empty into a
non-combustible
container and
slide the ash pan
straight into the
stove.
e. Secure the ash
pan by hooking
and closing the
spring latches.
As needed
User

31
Save These Instructions 3-90-775 Pellets or Corn/Pellet Mixture Only
Keep combustible materi-
als, gasoline and other ammable vapors and liquids
clear of the appliance.
• Do store ammable materials in the vicinity
of the appliance.
• Do use gasoline, lantern fuel, kerosene,
charcoal lighter uid or similar liquids to start or
"freshen up" a re in this appliance.
Keep all such liquids well away from the heater while
it is in use, as combustible materials may ignite.
Do store fuel:
• Within the required clearance areas of the appli-
ance.
• Within the space required for fueling or ash re-
moval.
Monthly or more frequently depend-
ing on fuel quality and/or ash buildup.
User
a. Loosen the two wingscrews located on the front of
the burn pot housing.
b. Lift the cover off of the wingscrews and set aside.
c. Using your ash-vac, remove any ashes or debris from
the air chamber.
d. You can tap on the igniter, located above the cleanout
hole. This will help to remove any accumulation on
the igniter element.
e. Re-install the cleanout cover and tighten the
wingscrews. Be sure that the cover is completely
covering the hole, as air leakage here may lead to
incomplete combustion or poor ignition.
Monthly or after each ton of fuel is
burned.
User
It is recommended that you use a vacuum that is
designed for ash, as ashes may block conventional
vacuum lters.
NOTICE: For optimal performance of your pellet burn-
ing appliance, you must perform regular cleaning and
maintenance as directed in this manual. Not doing so
will result in:
Poor performance
Smoke spillage into the room
Overheating of components
Failure to perform regular cleaning on your pellet
burning appliance will void the warranty.
a. Make sure the re is out and cool. Disconnect
power cord prior to servicing.
b. Scrape the majority of ashes into the ash pan. Be-
gin with the back and roof above the burn pot.
c. Scrape the ashes from both sides, into the ash pan.

32 Pellets or Corn/Pellet Mixture Only 3-90-775 Save These Instructions
k. With this cover removed, you can vacuum the
paddle fan and the inside of the chamber. Be careful
not to bend the blades on the paddle fan.
l. Before reinstalling the access cover, make sure the
insulation between the two layers is in tact.
d. Un-latch and remove the ash pan. Dispose of the
ashes in a metal container with a tight tting lid.
e. Remove the two (2) corner cleanout covers by re-
moving the wing-screws (one per).
f. Brush or vacuum the remaining ash from the re-
box.
g. Guide the vacuum hose upward into the exhaust
passage in the right rear corner of the rebox.
h. You can now return all pieces inside the rebox and
close the door.
i. Release the spring latches and slide the insert body
out onto the hearth or onto the service rail kit, if pur-
chased.
j. Remove the exhaust chamber access cover on the
right rear of the insert.
Whenever run to empty
User
Whenever the hopper is empty, inspect and remove
any large amounts of sawdust or nes. Although this
ner material will mostly feed through with the fuel,
large quantities of sawdust may restrict feeder ow.

33
Save These Instructions 3-90-775 Pellets or Corn/Pellet Mixture Only
As needed / Weekly
User
Whenever the view of the re is obstructed, or weekly,
clean the glass using a soft cloth dampened with stan-
dard household glass cleaner.
Inspect the glass and sealing gasket. Replace gasket
as needed. Do not operate the stove with a broken
glass. Replacement glass, which is ceramic glass,
should be obtained through your Harman dealer.
To replace a broken glass; rst be sure to carefully
remove the broken glass and any remaining shards or
pieces. With the door laying on a at surface, lay the
gasketted glass panel onto the door and be sure it is
properly tted into the channel. Lay the glass retainer
clips in place near each corner, and secure them
using the 3/8" screws. Be sure to tighten each screw
equally so you don't create a pressure point on the
glass.
Handle glass with care.
• Avoid striking, scratching, or slamming glass.
• Do NOT Clean Glass When Hot.
• Do NOT use abrasive cleaners.
• Inspect gasket, replace if necessary.
Retainers and screws
Glass
Adhesive gasket
Door Frame
Yearly or more frequently depending
on ash build-up.
Service Technician / Chimney Sweep
The products of combustion will contain small
particles of y ash. The y ash will collect in the
exhaust venting system and restrict the ow of
exhaust gases.
During periods of incomplete combustion, which may
occur during start-up, shut down, or when operated
incorrectly, the y ash may actually lead to soot
formation in the venting system.
The venting system will need to be cleaned at least
once per year, or more often depending on the quality
of the fuel being used. Horizontal sections of vent
pipe are especially prone to soot formation, as ash will
accumulate more quickly.

Pellets or Corn/Pellet Mixture Only 3-90-775 Save These Instructions
34

35
Save These Instructions 3-90-775 Pellets or Corn/Pellet Mixture Only
Requires no lubrication.
Keep the motor windings free of dust. Can be wiped
clean or vacuumed.
To remove combustion blower;
• Slide the insert body out of the mounting frame.
• Locate the combustion blower motor in the back
right corner.
• Loosen 3 wing screws and turn the blower and
mounting plate 1/4 turn.
• Lower the motor and paddle fan out of the blower
housing.
Remove and wipe clean with a soft cloth and glass
cleaner or alcohol.
To remove the probe;
• Slide the insert body out of the mounting frame.
• The probe is installed on the side of the exhaust
chamber.
• With a 1/4" socket or driver, remove the screw that
attaches the probe.
• Pull the probe out of it's mounting hole.
Requires no lubrication.
Keep the motor windings free of dust. Can be wiped
clean or vacuumed.
To remove feed motor;
• Slide the insert body out of the mounting frame.
• Between the feed motor and the feeder body,
you'll see the cam block with a bearing that actu-
ates the pusher arm.
• With a 7/16" wrench, loosen the hex-head bolt in
the end of the cam.
• With the bolt loosened, the feed motor and its
mounting bracket will pull straight out of the auger
shaft.
Loosen bolt in end of
cam block
ESP location

36 Pellets or Corn/Pellet Mixture Only 3-90-775 Save These Instructions
Requires no lubrication.
Keep the motor windings and squirrel cage fan free of
dust. Can be wiped clean or vacuumed.
To remove distribution blower;
• Slide the insert body out of the mounting frame.
• Locate the blower in the back of the unit. You'll
need to tilt the unit forward for easy access.
• Remove 8 tek screws using a 5/16" driver or
wrench.
Wipe or vacuum to clean.
Use a vacuum to remove nes and sawdust.
To access feeder cleanout;
• Slide the insert body out of the mounting frame.
• Locate the feeder cover from the right side of the
unit.
• Loosen the wing nut approximately 3/4 of the way
out on the stud.
• Pull out on the bottom of the cover then lift upward
to remove.
• Notice the deector shield is sitting loose in the
feeder. It can be removed by rolling it from under
the pusher arm shaft. Just be sure it is reposi-
tioned properly.
• When re-installing cover, tighten the wing nut hand
tight only.

37
Save These Instructions 3-90-775 Pellets or Corn/Pellet Mixture Only
Vacuum to clean.
Whenever cleaning burn pot air chamber.
To remove igniter;
• Loosen wing screws and remove cover on front of
burn pot.
• Using a 5/16" wrench, remove the two black
screws above the cleanout. The igniter and brack-
et are now free.
• Slide the insert body out of the mounting frame.
• Locate the pale blue and yellow wires entering at
the bottom of the feeder body.
• Remove wire ties as needed to loosen the igniter
wires.
• Pull the igniter and bracket out from the front until
the wire disconnects are accessible.
• When installing igniter, reverse these steps and be
sure that the plastic coated wires are pulled all the
way to the rear of the feeder.
• Re- tie all wires clear of all hot or moving parts.

38 Pellets or Corn/Pellet Mixture Only 3-90-775 Save These Instructions
HARMAN - ACCENTRA, XXV, P35I PELLET STOVE WIRING DIAGRAM
COMBUSTION MOTOR
WHITE
MALE/FEMALE CONNECTIONS
BROWN
CONTACTS
LOW PRESSURE SWITCH
MAX WATTS - 440 @ 120VAC 60Hz = 3.6 A
STANDARD USE WATTS - 180 @ 120VAC 60Hz = 1.5 A
WHITE or LT BLUE
DK BLUE or BLACK
GREEN USED ON ACCENTRA ONLY
DISTRIBUTION BLOWER
21
N.O.
BONDED TO STOVE FRAME
18/3 RUBBER CORD
GREEN WIRE IS GROUND
MALE/FEMALE CONNECTIONS
POWER CORD
DK BLUE
WHITE
GREEN
RED
WHITE
IGNITER ELEMENT
INSIDE BURNPOT
BOARD
CONTROL
ESP
YELLOW
HOPPER LID SWITCH
MALE/FEMALE CONNECTIONS
N.O. CONTACTS
ACC/XXV
OUTBOARD
FEEDER MOTOR
LT.BLUE
FEEDER MOTOR
P35I
STANDARD
LT.BLUE
3-20-232108
REMOTE SENSOR PORTS
WHITE
BLACK
ACC/XXV
PART NO. 3-90-00777C
WHITE 6
WHITE 11 PIN PLUG
BLACK
BLUE
EMPTY
YELLOW
RED 10
11
9
8
7
WHITE
WHITE
BROWN
WHITE
PLUGGED
5
4
2
3
1
6 AMP GLASS FUSE
ROOM SENSOR TERM.
1
8
9
10
11
6
5
4
3
P35I
ESP PROBE

39
Save These Instructions 3-90-775 Pellets or Corn/Pellet Mixture Only
TM
Your pellet/biomass burning appliance relies on a combustion blower to remove exhaust. A power failure
will cause the combustion blower to stop. This may lead to exhaust seeping into the room. Vertical rise in
the venting may provide natural draft. It is, however, no guarantee against leakage.
TM
UPS battery back-ups are available online or at computer and
office equipment stores. Your HarmanTM appliance with Rev E or later software available beginning in
November 2010 may be plugged directly into a HarmanTM approved UPS:
• The APC (American Power Conversion) model #BE750G and the TrippLite model
INTERNET750U are tested and approved. Other brands or models may not be compatible.
When power is lost, a fully charged UPS will power a safe, combustion blower only shut-down. Your
appliance will pulse the blower every few seconds to clear exhaust until the fire is out.
Your appliance will recognize when power is restored. What happens depends on ESP temperature and
whether it is equipped with automatic ignition:
•, units equipped with automatic ignition will respond to the set point and
ESP temperature and resume normal operation.
• or for units without automatic ignition:
• If the ESP is cool, the appliance will remain shut down.
• If the fire is out and the ESP is still warm, the feeder may restart. Since the fire is out, the
ESP temperature will not rise. The unit will then shut-down, and may flash a six-blink status
error. (See ESP error codes)
• If the fire is still burning, it will resume normal operation.
Contact your dealer if you have questions about UPS compatibility with your appliance.
The 512H connects to a 12 volt deep cycle battery that will run
your appliance for up to eight (8) hours. It includes a trickle charge feature that keeps your battery
charged when power is available.

08/11

08/11
IMPORTANT: THIS IS DATED INFORMATION. When requesting service or replacement
parts for your appliance please provide model number and serial number. All parts listed
in this manual may be ordered from an authorized dealer.
1 Pipe Stub/4 in Flex w/gasket 1-00-674040
2 Gasket Set, Burnpot/Pipe Stub Set of 5 1-00-07384
3 Mounting Frame Assembly 1-10-774235A
4 Wing Assembly
Oversize-Black 1-00-774250-1
1-00-774250-2
1-00-774250-3
Custom 1-00-774221-SPL
4.1 Surround Top Standard 1-10-774222
Oversize 1-10-774250
4.2 Machine Screw Nut10-32 Pkg of 100 3-30-8003-100
4.3 Pop Rivet 1/8 X 1/8 Black Pkg of 50 3-30-9004-50
4.4 Surround Left Standard 1-10-774220
Oversize 1-10-774248
4.5 Control Door w/Hinge 1-00-774310
4.6 Screw, PHM 8 X 1/2 Black Pkg of 100 3-30-5000-100
4.7 Surround Right Standard 1-10-774221
Oversize 1-10-774249
5 Differential Switch 3-20-6866
6 Docking Gasket 3-44-06108
7 4 Output Circuit Board w/Knobs & Shafts 1-00-05886
8 Circuit Board Plate 1-10-774114A
9 Black Knob 3-43-02000-1
Additional service parts on following page.

08/11
IMPORTANT: THIS IS DATED INFORMATION. When requesting service or replacement
parts for your appliance please provide model number and serial number. All parts listed
in this manual may be ordered from an authorized dealer.
10 Top Assembly 1-10-774223A
11 Hopper Latch 2 Sets 1-00-0669697
12
23.5 in Hopper Pre 008651553 1-10-774050A
Post 008651553 1-10-774150A
19.5 Iin Hopper Pre 008651553 1-10-774028A
Post 008651553 1-10-774128A
Switch, Hopper Lid,48 in 3-20-232108
13 3/8X1/2 Silicone PSA-20FT For hopper top 1-00-375501
14 Spring Latch Qty 4 req 3-31-00927
15 Ash Pan W/Gasket 1-10-774207
Ash Pan Gasket 3-44-774211
16 Ash Pan Cover Assembly 1-10-774205A
17 Load Door Painted Only 4-00-06800P
Door glass 3-40-00774
1/4 Rd Black PSA For glass 15 Ft Length 1-00-2312
Glass Clips & Hdwr 1-00-249140
Latch Kit 1-00-73553
Cast Front Door Latch 3-00-249119
3/8 4 Strand White-30 Ft 30 Ft Length 1-00-00888
18 Wood Handle w/Bolt 1-00-00247
19 Burnpot w/Cleanout 1-10-774286
20 Flame Guide 3-00-03000
21 Cleanout Cover Set Left & Right 1-00-774213
22 Combustion Blower 3-21-08639
23 Combustion Blower Mount 1-10-677006
24 4-3/4 Single Paddle Blade 3-21-00661
25 Combustion Cleanout 1-10-774167A
26 Distribution Blower 3-21-29045
27 UL Feeder Assembly See following page
14 Ft Power cord 3-20-674200
306W/120V Igniter 15 Fin 3-20-677200
ESP-RED/RED 3-20-00844
Pipe Insulation 3-44-774282
Roller Hardware 4 Sets 1-00-05232
Room Sensor 3-20-00906
Touch up Paint, Black 12 oz Can 3-42-1990
Wiring Harness 3-20-08727
Additional service parts on following page.

08/11
IMPORTANT: THIS IS DATED INFORMATION. When requesting service or replacement
parts for your appliance please provide model number and serial number. All parts listed
in this manual may be ordered from an authorized dealer.
27 UL Feeder Assembly 1-10-774000A
27.1 Pellet Feeder CW Motor-4 RPM 3-20-60906
27.2 Feeder Motor Bracket w/ Grommet 1-00-247406
27.3 Bearing 3/8 ID X 1-1/8 OD 3-31-3014
Cast Cam Block 3-00-677154
27.4 Pellet Feeder Bearing RETNR w/Bolts 1-00-04035
27.5 Pellet Feeder Auger 3-50-00565
27.6 Feeder Air Crossover Kit 1-00-67900
9MM X 13MM Tubing Kit 5 Ft Length 1-00-511427
27.7 1/8 Silicone Tubing 5 Ft Length 1-00-5113574
27.8 Screws-HWH TEKS 10 X 3/4 Pkg of 100 3-30-5004-100
27.9 Pellet Air Intake w/Gasket 1-10-06810A
27.10 Gasket, Feeder Air Intake Pkg of 6 3-44-72224-6
27.11 Snout Weldment w/Gasket 1-10-774143A
27.12 Pellet Feeder Weldment 1-10-724132
27.13 Flange 1/4-20 X 3/8 Pkg of 50 3-30-2000-50
27.14 Pillow Block-1/2 in Pkg of 4 3-31-3614087-4
27.15 Wing Nut, 5/16-18 Pkg of 25 3-30-8012-25
27.16 Short Feed CVR & Gasket 1-00-677122
27.17 Pusher Arm Assembly 1-10-774354W
27.18 Slide Plate 1-10-677121A
27.19 Nut, FHN 5/16-18 Z 5 Pkg of 100 3-30-8005-100
27.20 Grommet-1/2 in ID-Thick Pkg of 12 3-31-2761-12
Gasket Hopper Throat 3-44-677185

44 Pellets or Corn/Pellet Mixture Only 3-90-775 Save These Instructions
31 3/8"
797 mm
24 7/8"
632 mm
Minimum
Width- 40"
1016mm
28 11/16"
729 mm
Arched- Minimum
Center Height
Arched- Minimum
Side Height
Rectangular-
Minimum Height
P35i Custom Surround -
Part #: 1-00-774221-SPL
The top of the mounting frame
must be covered at this point.
This diagram shows the minimum dimensions of a custom t surround panel, part number
1-00-774221-SPL. Note that arched surrounds can only be made at. Therefore, the intake air
slots, normally in the sides of the surround, are moved to the face. Rectangular surrounds can
be made at if desired, and they will also have the intake slots in the face.

4021-645C 12-29-10 Page 1 of 2
Hearth & Home Technologies Inc.
LIMITED LIFETIME WARRANTY
Hearth & Home Technologies Inc., on behalf of its hearth brands (”HHT”), extends the following warranty for
HHT gas, wood, pellet, coal and electric hearth appliances that are purchased from an HHT authorized dealer.
WARRANTY COVERAGE:
HHT warrants to the original owner of the HHT appliance at the site of installation, and to any transferee taking ownership
of the appliance at the site of installation within two years following the date of original purchase, that the HHT appliance
will be free from defects in materials and workmanship at the time of manufacture. After installation, if covered compo-
nents manufactured by HHT are found to be defective in materials or workmanship during the applicable warranty period,
HHT will, at its option, repair or replace the covered components. HHT, at its own discretion, may fully discharge all of its
obligations under such warranties by replacing the product itself or refunding the verified purchase price of the product
itself. The maximum amount recoverable under this warranty is limited to the purchase price of the product. This warranty
is subject to conditions, exclusions and limitations as described below.
WARRANTY PERIOD:
Warranty coverage begins on the date of original purchase. In the case of new home construction, warranty coverage
begins on the date of first occupancy of the dwelling or six months after the sale of the product by an independent,
authorized HHT dealer/ distributor, whichever occurs earlier. The warranty shall commence no later than 24 months
following the date of product shipment from HHT, regardless of the installation or occupancy date. The warranty period for
parts and labor for covered components is produced in the following table.
The term “Limited Lifetime” in the table below is defined as: 20 years from the beginning date of warranty coverage for
gas appliances, and 10 years from the beginning date of warranty coverage for wood, pellet, and coal appliances. These
time periods reflect the minimum expected useful lives of the designated components under normal operating conditions.
See conditions, exclusions, and limitations on next page.
Parts Labor Gas Wood Pellet EPA
Wood
Coal Electric Venting
XXXXXXX
All parts and material except as
covered by Conditions,
Exclusions, and Limitations
listed
XXX Igniters, electronic components,
and glass
X X X X X Factory-installed blowers
X Molded refractory panels
X Firepots and burnpots
5 years 1 year X X Castings and baffles
7 years 3 years X X X Manifold tubes,
HHT chimney and termination
10
years
1 year X Burners, logs and refractory
Limited
Lifetime
3 years X X X X X Firebox and heat exchanger
XXXXXXX All replacement parts
beyond warranty period
Warranty Period HHT Manufactured Appliances and Venting
1 Year
Components Covered
3 years
2 years
90 Days

4021-645C 12-29-10 Page 2 of 2
WARRANTY CONDITIONS:
• This warranty only covers HHT appliances that are purchased through an HHT authorized dealer or distributor. A list of
HHT authorized dealers is available on the HHT branded websites.
• This warranty is only valid while the HHT appliance remains at the site of original installation.
• Contact your installing dealer for warranty service. If the installing dealer is unable to provide necessary parts, contact
the nearest HHT authorized dealer or supplier. Additional service fees may apply if you are seeking warranty service
from a dealer other than the dealer from whom you originally purchased the product.
• Check with your dealer in advance for any costs to you when arranging a warranty call. Travel and shipping charges
for parts are not covered by this warranty.
This warranty is void if:
• The appliance has been over-fired or operated in atmospheres contaminated by chlorine, fluorine, or other damaging
chemicals. Over-firing can be identified by, but not limited to, warped plates or tubes, rust colored cast iron, bubbling,
cracking and discoloration of steel or enamel finishes.
• The appliance is subjected to prolonged periods of dampness or condensation.
• There is any damage to the appliance or other components due to water or weather damage which is the result of, but
not limited to, improper chimney or venting installation.
LIMITATIONS OF LIABILITY:
• The owner’s exclusive remedy and HHT’s sole obligation under this warranty, under any other warranty, express or
implied, or in contract, tort or otherwise, shall be limited to replacement, repair, or refund, as specified above. In no
event will HHT be liable for any incidental or consequential damages caused by defects in the appliance. Some states
do not allow exclusions or limitation of incidental or consequential damages, so these limitations may not apply to you.
This warranty gives you specific rights; you may also have other rights, which vary from state to state. EXCEPT TO
THE EXTENT PROVIDED BY LAW, HHT MAKES NO EXPRESS WARRANTIES OTHER THAN THE WARRANTY
SPECIFIED HEREIN. THE DURATION OF ANY IMPLIED WARRANTY IS LIMITED TO DURATION OF THE
EXPRESSED WARRANTY SPECIFIED ABOVE.
WARRANTY EXCLUSIONS:
This warranty does not cover the following:
• Changes in surface finishes as a result of normal use. As a heating appliance, some changes in color of interior and
exterior surface finishes may occur. This is not a flaw and is not covered under warranty.
• Damage to printed, plated, or enameled surfaces caused by fingerprints, accidents, misuse, scratches, melted items,
or other external sources and residues left on the plated surfaces from the use of abrasive cleaners or polishes.
• Repair or replacement of parts that are subject to normal wear and tear during the warranty period. These parts
include: paint, wood, pellet and coal gaskets, firebricks, grates, flame guides, light bulbs, batteries and the discolor-
ation of glass.
• Minor expansion, contraction, or movement of certain parts causing noise. These conditions are normal and com-
plaints related to this noise are not covered by this warranty.
• Damages resulting from: (1) failure to install, operate, or maintain the appliance in accordance with the installation
instructions, operating instructions, and listing agent identification label furnished with the appliance; (2) failure to
install the appliance in accordance with local building codes; (3) shipping or improper handling; (4) improper opera-
tion, abuse, misuse, continued operation with damaged, corroded or failed components, accident, or improperly/
incorrectly performed repairs; (5) environmental conditions, inadequate ventilation, negative pressure, or drafting
caused by tightly sealed constructions, insufficient make-up air supply, or handling devices such as exhaust fans or
forced air furnaces or other such causes; (6) use of fuels other than those specified in the operating instructions; (7)
installation or use of components not supplied with the appliance or any other components not expressly authorized
and approved by HHT; (8) modification of the appliance not expressly authorized and approved by HHT in writing;
and/or (9) interruptions or fluctuations of electrical power supply to the appliance.
• Non-HHT venting components, hearth components or other accessories used in conjunction with the appliance.
• Any part of a pre-existing fireplace system in which an insert or a decorative gas appliance is installed.
• HHT’s obligation under this warranty does not extend to the appliance’s capability to heat the desired space. Informa-
tion is provided to assist the consumer and the dealer in selecting the proper appliance for the application. Consider-
ation must be given to appliance location and configuration, environmental conditions, insulation and air tightness of
the structure.

47
Save These Instructions 3-90-775 Pellets or Corn/Pellet Mixture Only

Proudly Printed On 100% Recycled Paper