Hearth and Home Technologies 2326-130 Fireplace system controller (ECM) User Manual
Hearth & Home Technologies Fireplace system controller (ECM)
User manual

1
Heat & Glo • 6000CMOD-IPI, 8000CMOD-IPI • 2241-900 Rev. i • 4/13
•DO NOT store or use gasoline or other fl am-
mable vapors and liquids in the vicinity of this
or any other appliance.
• What to do if you smell gas
- DO NOT try to light any appliance.
- DO NOT touch any electrical switch. DO
NOT use any phone in your building.
- Immediately call your gas supplier from a
neighbor’s phone. Follow the gas suppli-
er’s instructions.
- If you cannot reach your gas supplier, call
the fi re department.
• Installation and service must be performed
by a qualifi ed installer, service agency, or the
gas supplier.
WARNING: If the information in these
instructions is not followed exactly, a fi re
or explosion may result causing property
damage, personal injury, or death.
Owner’s Manual
Installation and Operation
DO NOT DISCARD THIS MANUAL
NOTICE
This appliance may be installed as an OEM installation in
manufactured home (USA only) or mobile home and must be
installed in accordance with the manufacturer’s instructions
and the manufactured home construction and safety standard,
Title 24 CFR, Part 3280 or Standard for Installation in Mobile
Homes, CAN/CSA Z240MH, in Canada.
This appliance is only for use with the type(s) of gas indicated
on the rating plate.
Installation and service of this appliance should be
performed by qualifi ed personnel. Hearth & Home
Technologies suggests NFI certifi ed or factory trained
professionals, or technicians supervised by an NFI
certifi ed professional.
• Leave this manual with
party responsible for use
and operation.
DO NOT
DISCARD
WARNING
• Important operating
and maintenance
instructions included.
• Read, understand and follow
these instructions for safe
installation and operation.
In the Commonwealth of Massachusetts installation must be
performed by a licensed plumber or gas fi tter.
See Table of Contents for location of additional Commonwealth
of Massachusetts requirements.
This appliance has been supplied with an integral barrier
to prevent direct contact with the fi xed glass panel. DO
NOT operate the appliance with the barrier removed.
Contact your dealer or Hearth & Home Technologies if the
barrier is not present or help is needed to properly install one.
HOT SURFACES!
Glass and other surfaces are hot during
operation AND cool down.
Hot glass will cause burns.
•DO NOT touch glass until it is cooled
• NEVER allow children to touch glass
• Keep children away
• CAREFULLY SUPERVISE children in same room as
fi replace.
• Alert children and adults to hazards of high temperatures.
High temperatures may ignite clothing or other fl ammable
materials.
• Keep clothing, furniture, draperies and other fl ammable
materials away.

Heat & Glo • 6000CMOD-IPI, 8000CMOD-IPI • 2241-900 Rev. i • 4/132
Listing Label Information/Location
Model Name: ___________________________________________ Date purchased/installed: __________________
Serial Number: __________________________________________ Location on fi replace: _____________________
Dealership purchased from: _______________________________ Dealer Phone: __________________________
Notes: _______________________________________________________________________________________
_____________________________________________________________________________________________
A. Congratulations
Congratulations on selecting a Heat & Glo gas fi replace, an
elegant and clean alternative to wood burning fi replaces.
The Heat & Glo gas fi replace you have selected is designed
to provide the utmost in safety, reliability, and effi ciency.
As the owner of a new fi replace, you’ll want to read and
carefully follow all of the instructions contained in this
owner’s manual. Pay special attention to all cautions and
warnings.
This owner’s manual should be retained for future
reference. We suggest that you keep it with your other
important documents and product manuals.
The information contained in this owner’s manual, unless
noted otherwise, applies to all models and gas control
systems.
Your new Heat & Glo gas fi replace will give you years of
durable use and trouble-free enjoyment. Welcome to the
Heat & Glo family of fi replace products!
We recommend that you record the following pertinent
information about your fi replace.
The model information regarding your specifi c fi replace can be found on
the rating plate usually located in the control area of the fi replace.
Homeowner Reference Information
Read this manual before installing or operating this appliance.
Please retain this owner’s manual for future reference.
Gas and Electric
Information
Serial Number
Type of Gas
Model Number
Not Not for for use use with with solid solid fuel.fuel.
((Ne Ne doit doit pas pas entre entre utilise utilise avec avec un un combustible combustible solide).solide).
This This appliance appliance must must be be installed installed in in accordance accordance with with local local codes, codes, if if any; any; if if not, not, follow follow ANSI ANSI Z223.1Z223.1
in in the the USA USA or or CAN/CGA CAN/CGA B149 B149 installation installation codes. codes. (Installer (Installer l’appareil l’appareil selon selon les les codes codes ou ou reglementsreglements
locaux locaux ou, ou, en en l’absence l’absence de de tels tels reglements, reglements, selon selon les les codes codes d’installation d’installation CAN/CGA-B149.)CAN/CGA-B149.)
Type Type of of Gas Gas (Sorte (Sorte De De Gaz)Gaz)::
NNAATURALTURAL GASGAS
MADE MADE IN IN USAUSA
Minimum Minimum Permissible Permissible Gas Gas Supply Supply for for Purposes Purposes of of Input Input Adjustment.Adjustment.
Approved Approved Minimum Minimum (De (De Gaz) Gaz) AcceptableAcceptable 0.00.0 in in w.c.w.c. (Po. (Po. Col. Col. d’eau)d’eau)
Maximum Maximum Pressure Pressure (Pression)(Pression) 0.00.0 in in w.c.w.c. (Po. (Po. Col. Col. d’eau)d’eau)
Maximum Maximum Manifold Manifold Pressure Pressure (Pression)(Pression) 0.00.0 in in w.c.w.c. (Po. (Po. Col. Col. d’eau)d’eau)
Minimum Minimum Manifold Manifold Pressure Pressure (Pression)(Pression) 0.00.0 in in w.c.w.c. (Po. (Po. Col. Col. d’eau)d’eau)
Model:Model:
(Modele):(Modele):
SerialSerial
(Serie):(Serie):
ANSI ANSI Z21XX-XXXX Z21XX-XXXX · · CSA CSA 2.XX-MXX 2.XX-MXX
XXXXXXXXXXXXXXXX
IN IN CANADACANADA
ALTITUDE:ALTITUDE: 0-0000 0-0000 FT.FT. 0000-0000FT.0000-0000FT.
MAX. MAX. INPUT INPUT BTUH:BTUH: 00,00000,000 00,00000,000
MIN. MIN. INPUT INPUT BTUH:BTUH: 00,00000,000 00,00000,000
ORIFICE ORIFICE SIZE:SIZE: #XXXXX#XXXXX #XXXXX#XXXXX XXXXXXXXXXXXXXXX
Total Total Electrical Electrical Requirements: Requirements: 000Vac, 000Vac, 00Hz., 00Hz., less less than than 00 00 AmperesAmperes
Heat & Glo, a brand of Hearth & Home Technologies
7571 215th Street West, Lakeville, MN 55044
FCC Statement:
This equipment has been tested and found to comply with the limits for a Class B digital device, pursuant to Part
15 of the FCC Rules. These limits are designed to provide reasonable protection against harmful interference in a
residential installation. This equipment generates uses and can radiate radio frequency energy and, if not installed
and used in accordance with the instructions, may cause harmful interference to radio communications. However,
there is no guarantee that interference will not occur in a particular installation. If this equipment does cause
harmful interference to radio or television reception, which can be determined by turning the equipment off and on,
the user is encouraged to try to correct the interference by one or more of the following measures:
-- Reorient or relocate the receiving antenna.
-- Increase the separation between the equipment and receiver.
-- Connect the equipment into an outlet on a circuit different from that to which the receiver is connected.
-- Consult the dealer or an experienced radio/TV technician for help.
This device complies with part 15 of the FCC Rules. Operation is subject to the following two conditions: (1) This
device may not cause harmful interference, and (2) this device must accept any interference received, including
interference that may cause undesired operation.
Changes or modifications not expressly approved by the party responsible for compliance could void the user's
authority to operate the equipment.
IC Statement:
This device complies with Industry Canada licence-exempt RSS standard(s). Operation is subject to the following
two conditions: (1) this device may not cause interference, and (2) this device must accept any interference,
including interference that may cause undesired operation of the device.
Le présent appareil est conforme aux CNR d'Industrie Canada applicables aux appareils radio exempts de licence.
L'exploitation est autorisée aux deux conditions suivantes : (1) l'appareil ne doit pas produire de brouillage, et (2)
l'utilisateur de l'appareil doit accepter tout brouillage radioélectrique subi, même si le brouillage est susceptible
d'en compromettre le fonctionnement.

3
Heat & Glo • 6000CMOD-IPI, 8000CMOD-IPI • 2241-900 Rev. i • 4/13
Safety Alert Key:
• DANGER! Indicates a hazardous situation which, if not avoided will result in death or serious injury.
• WARNING! Indicates a hazardous situation which, if not avoided could result in death or serious injury.
• CAUTION! Indicates a hazardous situation which, if not avoided, could result in minor or moderate injury.
• NOTICE: Used to address practices not related to personal injury.
Table of Contents
A. Congratulations . . . . . . . . . . . . . . . . . . . . . . . . . . . . . . . . . 2
B. Limited Lifetime Warranty . . . . . . . . . . . . . . . . . . . . . . . . . . 5
1 Listing and Code Approvals
A. Appliance Certifi cation . . . . . . . . . . . . . . . . . . . . . . . . . . . . 7
B. Tempered Glass Specifi cations . . . . . . . . . . . . . . . . . . . . . 7
C. BTU Specifi cations . . . . . . . . . . . . . . . . . . . . . . . . . . . . . . . 7
D. High Altitude Installations . . . . . . . . . . . . . . . . . . . . . . . . . . 7
E. Non-Combustible Materials Specifi cation. . . . . . . . . . . . . . 7
F. Combustible Materials Specifi cation . . . . . . . . . . . . . . . . . 7
G. Electrical Codes . . . . . . . . . . . . . . . . . . . . . . . . . . . . . . . . . 7
H. Requirements for the Commonwealth of Massachusetts . . 8
User Guide
2 Operating Instructions
A. Gas Fireplace Safety . . . . . . . . . . . . . . . . . . . . . . . . . . . . . 9
B. Your Fireplace . . . . . . . . . . . . . . . . . . . . . . . . . . . . . . . . . . 9
C. Fan Kit (optional) . . . . . . . . . . . . . . . . . . . . . . . . . . . . . . . 10
D. Clear Space . . . . . . . . . . . . . . . . . . . . . . . . . . . . . . . . . . . 10
E. Decorative Doors and Fronts . . . . . . . . . . . . . . . . . . . . . . 10
F. Fixed Glass Assembly . . . . . . . . . . . . . . . . . . . . . . . . . . . 10
G. Remote Controls, Wall Controls and Wall Switches . . . . . 10
H. IPI Battery Tray/Battery Installation . . . . . . . . . . . . . . . . . 11
I. Control Module Operation . . . . . . . . . . . . . . . . . . . . . . . . 11
J. Before Lighting Fireplace . . . . . . . . . . . . . . . . . . . . . . . . . 11
K. Lighting Instructions (IPI) . . . . . . . . . . . . . . . . . . . . . . . . . 12
L. After Fireplace is Lit . . . . . . . . . . . . . . . . . . . . . . . . . . . . . 13
M. Frequently Asked Questions . . . . . . . . . . . . . . . . . . . . . . 13
3 Maintenance and Service
A. Maintenance Tasks-Homeowner . . . . . . . . . . . . . . . . . . . 14
B. Maintenance Tasks-Qualifi ed Service Technician . . . . . . 14
C. Glass Refractory, Base Pan, Burner and Valve Assembly
Removal . . . . . . . . . . . . . . . . . . . . . . . . . . . . . . . . . . . . . . 16
D. Burner Identifi cation . . . . . . . . . . . . . . . . . . . . . . . . . . . . . 17
Installer Guide
4 Getting Started
A. Typical Appliance System. . . . . . . . . . . . . . . . . . . . . . . . . 18
B. Design and Installation Considerations . . . . . . . . . . . . . . 19
C. Tools and Supplies Needed . . . . . . . . . . . . . . . . . . . . . . . 19
D. Inspect Appliance and Components . . . . . . . . . . . . . . . . . 19
5 Framing and Clearances
A. Selecting Appliance Location . . . . . . . . . . . . . . . . . . . . . . 20
B. Constructing the Appliance Chase . . . . . . . . . . . . . . . . . . 21
C. Clearances . . . . . . . . . . . . . . . . . . . . . . . . . . . . . . . . . . . . 21
D. Mantel and Wall Projections . . . . . . . . . . . . . . . . . . . . . . . 22
6 Termination Locations
A. Vent Termination Minimum Clearances . . . . . . . . . . . . . . 23
7 Vent Information and Diagrams
A. Approved Pipe . . . . . . . . . . . . . . . . . . . . . . . . . . . . . . . . . 25
B. Vent Table Key . . . . . . . . . . . . . . . . . . . . . . . . . . . . . . . . . 25
C. Use of Elbows . . . . . . . . . . . . . . . . . . . . . . . . . . . . . . . . . 25
D. Measuring Standards . . . . . . . . . . . . . . . . . . . . . . . . . . . . 25
E. Vent Diagrams . . . . . . . . . . . . . . . . . . . . . . . . . . . . . . . . . 26
8 Vent Clearances and Framing
A. Pipe Clearances to Combustibles . . . . . . . . . . . . . . . . . . 32
B. Wall Penetration Framing . . . . . . . . . . . . . . . . . . . . . . . . . 32
C. Install the Ceiling Firestop . . . . . . . . . . . . . . . . . . . . . . . . 33
D. Install Attic Insulation Shield . . . . . . . . . . . . . . . . . . . . . . . 34
E. Installing the Optional Heat-Zone® Gas Kit . . . . . . . . . . . . . 34
9 Appliance Preparation
A. Top Vent . . . . . . . . . . . . . . . . . . . . . . . . . . . . . . . . . . . . . . 35
B. Installing the Non-combustible Board. . . . . . . . . . . . . . . . 36
C. Securing and Leveling the Appliance . . . . . . . . . . . . . . . . 36
10 Installing Vent Pipe (DVP and SLP Pipe)
A. Assemble Vent Sections (DVP Pipe Only) . . . . . . . . . . . . 37
B. Assemble Vent Sections (SLP Pipe Only) . . . . . . . . . . . . 38
C. Assemble Slip Sections . . . . . . . . . . . . . . . . . . . . . . . . . . 38
D. Secure the Vent Sections . . . . . . . . . . . . . . . . . . . . . . . . . 39
E. Disassemble Vent Sections . . . . . . . . . . . . . . . . . . . . . . . 39
F. Install Decorative Ceiling Components (SLP only) . . . . . . 40
G. Install Metal Roof Flashing . . . . . . . . . . . . . . . . . . . . . . . . 41
H. Assemble and Install Storm Collar . . . . . . . . . . . . . . . . . . 41
I. Install Vertical Termination Cap . . . . . . . . . . . . . . . . . . . . 42
J. Install Decorative Wall Components (SLP only) . . . . . . . . 42
K. Heat Shield Requirements for Horizontal Termination . . . 42
L. Install Horizontal Termination Cap (DVP and SLP Pipe) . 43
11 Gas Information
A. Fuel Conversion . . . . . . . . . . . . . . . . . . . . . . . . . . . . . . . . 44
B. Gas Pressure . . . . . . . . . . . . . . . . . . . . . . . . . . . . . . . . . . 44
C. Gas Connection . . . . . . . . . . . . . . . . . . . . . . . . . . . . . . . . 44
D. High Altitude Installations . . . . . . . . . . . . . . . . . . . . . . . . . 44
12 Electrical Information
A. Wiring Requirements . . . . . . . . . . . . . . . . . . . . . . . . . . . . 45
B. IntelliFire PlusTM Ignition System Wiring . . . . . . . . . . . . . . 45
C. Optional Accessories Requirements . . . . . . . . . . . . . . . . 45
D. Electrical Service and Repair . . . . . . . . . . . . . . . . . . . . . . 46
E. Junction Box Installation. . . . . . . . . . . . . . . . . . . . . . . . . . 46
F. Wall Switch Installation for Fan (Optional) . . . . . . . . . . . . 46
Heat & Glo • 6000CMOD-IPI, 8000CMOD-IPI • 2241-900 Rev. i • 4/134
= Contains updated information.
13 Finishing
A. Mantel and Wall Projections . . . . . . . . . . . . . . . . . . . . . . . 47
B. Facing Material . . . . . . . . . . . . . . . . . . . . . . . . . . . . . . . . . 48
C. Finish and Sealing Joints . . . . . . . . . . . . . . . . . . . . . . . . . 48
D. Door Selection . . . . . . . . . . . . . . . . . . . . . . . . . . . . . . . . . 49
14 Appliance Setup
A. Remove Fixed Glass Assembly . . . . . . . . . . . . . . . . . . . . 52
B. Remove the Shipping Materials . . . . . . . . . . . . . . . . . . . . 52
C. Clean the Appliance . . . . . . . . . . . . . . . . . . . . . . . . . . . . . 52
D. Accessories . . . . . . . . . . . . . . . . . . . . . . . . . . . . . . . . . . . 52
E. Glass Panel Installation . . . . . . . . . . . . . . . . . . . . . . . . . . 52
F. Media Placement . . . . . . . . . . . . . . . . . . . . . . . . . . . . . . . 53
G. Fixed Glass Assembly . . . . . . . . . . . . . . . . . . . . . . . . . . . 55
H. Install Trim and/or Surround . . . . . . . . . . . . . . . . . . . . . . . 55
I. Air Shutter Setting . . . . . . . . . . . . . . . . . . . . . . . . . . . . . . 55
15 Troubleshooting
A. IntelliFire PlusTM Ignition System . . . . . . . . . . . . . . . . . . . 56
16 Reference Materials
A. Appliance Dimension Diagram . . . . . . . . . . . . . . . . . . . . . 58
B. Vent Components Diagrams . . . . . . . . . . . . . . . . . . . . . . 60
C. Service Parts . . . . . . . . . . . . . . . . . . . . . . . . . . . . . . . . . . 67
D. Contact Information . . . . . . . . . . . . . . . . . . . . . . . . . . . . . 71

5
Heat & Glo • 6000CMOD-IPI, 8000CMOD-IPI • 2241-900 Rev. i • 4/13
B. Limited Lifetime Warranty
4021-645F 02-18-13 Page 1 of 2
Hearth & Home Technologies
LIMITED LIFETIME WARRANTY
Hearth & Home Technologies, on behalf of its hearth brands (”HHT”), extends the following warranty for HHT
gas, wood, pellet, coal and electric hearth appliances that are purchased from an HHT authorized dealer.
WARRANTY COVERAGE:
HHT warrants to the original owner of the HHT appliance at the site of installation, and to any transferee taking ownership
of the appliance at the site of installation within two years following the date of original purchase, that the HHT appliance
will be free from defects in materials and workmanship at the time of manufacture. After installation, if covered compo-
nents manufactured by HHT are found to be defective in materials or workmanship during the applicable warranty period,
HHT will, at its option, repair or replace the covered components. HHT, at its own discretion, may fully discharge all of its
obligations under such warranties by replacing the product itself or refunding the verified purchase price of the product
itself. The maximum amount recoverable under this warranty is limited to the purchase price of the product. This warranty
is subject to conditions, exclusions and limitations as described below.
WARRANTY PERIOD:
Warranty coverage begins on the date of original purchase. In the case of new home construction, warranty coverage
begins on the date of first occupancy of the dwelling or six months after the sale of the product by an independent,
authorized HHT dealer/ distributor, whichever occurs earlier. The warranty shall commence no later than 24 months
following the date of product shipment from HHT, regardless of the installation or occupancy date. The warranty period for
parts and labor for covered components is produced in the following table.
The term “Limited Lifetime” in the table below is defined as: 20 years from the beginning date of warranty coverage for
gas appliances, and 10 years from the beginning date of warranty coverage for wood, pellet, and coal appliances. These
time periods reflect the minimum expected useful lives of the designated components under normal operating conditions.
See conditions, exclusions, and limitations on next page.
Parts Labor Gas Wood Pellet
EPA
Wood
Coal Electric Venting
XXXXXXX
All parts and material except as
covered by Conditions,
Exclusions, and Limitations
listed
XXX
Igniters, electronic components,
and glass
XXXXX Factory-installed blowers
X Molded refractory panels
X Firepots and burnpots
5 years 1 year X X Castings and baffles
7 years 3 years X X X
Manifold tubes,
HHT chimney and termination
10
years
1 year X Burners, logs and refractory
Limited
Lifetime
3 yearsXXXXX Firebox and heat exchanger
XXXXXXX
All replacement parts
beyond warranty period
Warranty Period
HHT Manufactured Appliances and Venting
1 Year
Components Covered
3 years
2 years
90 Days

Heat & Glo • 6000CMOD-IPI, 8000CMOD-IPI • 2241-900 Rev. i • 4/136
B. Limited Lifetime Warranty (continued)
4021-645F 02-18-13 Page 2 of 2
WARRANTY CONDITIONS:
• This warranty only covers HHT appliances that are purchased through an HHT authorized dealer or distributor. A list of
HHT authorized dealers is available on the HHT branded websites.
• This warranty is only valid while the HHT appliance remains at the site of original installation.
• This warranty is only valid in the country in which the HHT authorized dealer or distributor that sold the appliance
resides.
• Contact your installing dealer for warranty service. If the installing dealer is unable to provide necessary parts, contact
the nearest HHT authorized dealer or supplier. Additional service fees may apply if you are seeking warranty service
from a dealer other than the dealer from whom you originally purchased the product.
• Check with your dealer in advance for any costs to you when arranging a warranty call. Travel and shipping charges
for parts are not covered by this warranty.
This warranty is void if:
• The appliance has been over-fired or operated in atmospheres contaminated by chlorine, fluorine, or other damaging
chemicals. Over-firing can be identified by, but not limited to, warped plates or tubes, rust colored cast iron, bubbling,
cracking and discoloration of steel or enamel finishes.
• The appliance is subjected to prolonged periods of dampness or condensation.
• There is any damage to the appliance or other components due to water or weather damage which is the result of, but
not limited to, improper chimney or venting installation.
LIMITATIONS OF LIABILITY:
• The owner’s exclusive remedy and HHT’s sole obligation under this warranty, under any other warranty, express or
implied, or in contract, tort or otherwise, shall be limited to replacement, repair, or refund, as specified above. In no
event will HHT be liable for any incidental or consequential damages caused by defects in the appliance. Some states
do not allow exclusions or limitation of incidental or consequential damages, so these limitations may not apply to you.
This warranty gives you specific rights; you may also have other rights, which vary from state to state. EXCEPT TO
THE EXTENT PROVIDED BY LAW, HHT MAKES NO EXPRESS WARRANTIES OTHER THAN THE WARRANTY
SPECIFIED HEREIN. THE DURATION OF ANY IMPLIED WARRANTY IS LIMITED TO DURATION OF THE
EXPRESSED WARRANTY SPECIFIED ABOVE.
WARRANTY EXCLUSIONS:
This warranty does not cover the following:
• Changes in surface finishes as a result of normal use. As a heating appliance, some changes in color of interior and
exterior surface finishes may occur. This is not a flaw and is not covered under warranty.
• Damage to printed, plated, or enameled surfaces caused by fingerprints, accidents, misuse, scratches, melted items,
or other external sources and residues left on the plated surfaces from the use of abrasive cleaners or polishes.
• Repair or replacement of parts that are subject to normal wear and tear during the warranty period. These parts
include: paint, wood, pellet and coal gaskets, firebricks, grates, flame guides, batteries and the discoloration of glass.
• Minor expansion, contraction, or movement of certain parts causing noise. These conditions are normal and com-
plaints related to this noise are not covered by this warranty.
• Damages resulting from: (1) failure to install, operate, or maintain the appliance in accordance with the installation
instructions, operating instructions, and listing agent identification label furnished with the appliance; (2) failure to
install the appliance in accordance with local building codes; (3) shipping or improper handling; (4) improper opera-
tion, abuse, misuse, continued operation with damaged, corroded or failed components, accident, or improperly/
incorrectly performed repairs; (5) environmental conditions, inadequate ventilation, negative pressure, or drafting
caused by tightly sealed constructions, insufficient make-up air supply, or handling devices such as exhaust fans or
forced air furnaces or other such causes; (6) use of fuels other than those specified in the operating instructions; (7)
installation or use of components not supplied with the appliance or any other components not expressly authorized
and approved by HHT; (8) modification of the appliance not expressly authorized and approved by HHT in writing;
and/or (9) interruptions or fluctuations of electrical power supply to the appliance.
• Non-HHT venting components, hearth components or other accessories used in conjunction with the appliance.
• Any part of a pre-existing fireplace system in which an insert or a decorative gas appliance is installed.
• HHT’s obligation under this warranty does not extend to the appliance’s capability to heat the desired space. Informa-
tion is provided to assist the consumer and the dealer in selecting the proper appliance for the application. Consider-
ation must be given to appliance location and configuration, environmental conditions, insulation and air tightness of
the structure.

7
Heat & Glo • 6000CMOD-IPI, 8000CMOD-IPI • 2241-900 Rev. i • 4/13
C. BTU Specifi cations
MODELS: 6000CMOD-IPI, 8000CMOD-IPI
LABORATORY: Underwriters Laboratories, Inc. (UL)
TYPE: Direct Vent Gas Appliance Heater
STANDARD: ANSI Z21.50b-2009 • CSA 2.22b-2009
This product is listed to ANSI standards for “Vented Gas
Appliance Heaters” and applicable sections of “Gas Burn-
ing Heating Appliances for Manufactured Homes and
Recreational Vehicles”, and “Gas Fired Appliances for
Use at High Altitudes”.
A. Appliance Certifi cation
NOT INTENDED FOR USE AS A PRIMARY HEAT SOURCE.
This appliance is tested and approved as either supplemen-
tal room heat or as a decorative appliance. It should not be
factored as primary heat in residential heating calculations.
NOTICE: This installation must conform with local codes.
In the absence of local codes you must comply with the
National Fuel Gas Code, ANSI Z223.1-latest edition in
the U.S.A. and the CAN/CGA B149 Installation Codes in
Canada.
1
1 Listing and Code Approvals
Models
(U.S. or Canada)
Maximum
Input
BTU/h
Minimum
Input
BTU/h
Orifi ce
Size
(DMS)
6000CMOD-IPI
(NG)
US
(0-2000 FT) 28,000 19,000 40
CANADA
(2000-4500 FT) 25,200 17,100 41
6000CMOD-IPI
(LP)
US
(0-2000 FT) 20,000 14,000 55
CANADA
(2000-4500 FT) 18,000 12,000 56
8000CMOD-IPI
(NG)
US
(0-2000 FT) 32,000 22,000 35
CANADA
(2000-4500 FT) 28,800 19,800 36
8000CMOD-IPI
(LP)
US
(0-2000 FT) 22,000 15,000 54
CANADA
(2000-4500 FT) 20,000 14,000 55
D. High Altitude Installations
NOTICE: If the heating value of the gas has been reduced,
these rules do not apply. Check with your local gas utility
or authorities having jurisdiction.
When installing above 2000 feet elevation:
• In the USA: Reduce input rate 4% for each 1000 feet
above 2000 feet.
• In CANADA: Reduce input rate 10% for elevations
between 2000 feet and 4500 feet. Above 4500 feet,
consult local gas utility.
Check with your local gas utility to determine proper
orifi ce size.
E. Non-Combustible Materials Specifi cation
Material which will not ignite and burn. Such materials are
those consisting entirely of steel, iron, brick, tile, concrete,
slate, glass or plasters, or any combination thereof.
Materials that are reported as passing ASTM E 136,
Standard Test Method for Behavior of Materials in
a Vertical Tube Furnace at 750 ºC shall be considered
non-combustible materials.
F. Combustible Materials Specifi cation
Materials made of or surfaced with wood, compressed pa-
per, plant fi bers, plastics, or other material that can ignite
and burn, whether fl ame proofed or not, or plastered or
unplastered shall be considered combustible materials.
G. Electrical Codes
NOTICE: This appliance must be electrically wired and
grounded in accordance with local codes or, in the absence
of local codes, with National Electric Code ANSI/NFPA
70-latest edition or the Canadian Electric Code CSA
C22.1.
• A 110-120 VAC circuit for this product must be protected
with ground-fault circuit-interrupter protection, in compliance
with the applicable electrical codes, when it is installed in
locations such as in bathrooms or near sinks.
B. Tempered Glass Specifi cations
Hearth & Home Technologies appliances manufactured
with tempered glass may be installed in hazardous lo-
cations such as bathtub enclosures as defi ned by the
Consumer Product Safety Commission (CPSC). The
tempered glass has been tested and certifi ed to the re-
quirements of ANSI Z97.1 and CPSC 16 CFR 1202
(Safety Glazing Certifi cation Council SGCC# 1595 and
1597. Architectural Testing, Inc. Reports 02-31919.01 and
02-31917.01).
This statement is in compliance with CPSC 16 CFR Sec-
tion 1201.5 “Certifi cation and labeling requirements”
which refers to 15 U.S. Code (USC) 2063 stating “…Such
certifi cate shall accompany the product or shall otherwise
be furnished to any distributor or retailer to whom the
product is delivered.”
Some local building codes require the use of tempered
glass with permanent marking in such locations. Glass
meeting this requirement is available from the factory.
Please contact your dealer or distributor to order.

Heat & Glo • 6000CMOD-IPI, 8000CMOD-IPI • 2241-900 Rev. i • 4/138
H. Requirements for the Commonwealth of
Massachusetts
For all side wall horizontally vented gas fueled equipment
installed in every dwelling, building or structure used in
whole or in part for residential purposes, including those
owned or operated by the Commonwealth and where the
side wall exhaust vent termination is less than seven (7)
feet above fi nished grade in the area of the venting, in-
cluding but not limited to decks and porches, the following
requirements shall be satisfi ed:
Installation of Carbon Monoxide Detectors
At the time of installation of the side wall horizontal vented
gas fueled equipment, the installing plumber or gas fi tter
shall observe that a hard wired carbon monoxide detector
with an alarm and battery back-up is installed on the fl oor
level where the gas equipment is to be installed. In addi-
tion, the installing plumber or gas fi tter shall observe that
a battery operated or hard wired carbon monoxide detec-
tor with an alarm is installed on each additional level of
the dwelling, building or structure served by the side wall
horizontal vented gas fueled equipment. It shall be the
responsibility of the property owner to secure the services
of qualifi ed licensed professionals for the installation of
hard wired carbon monoxide detectors.
In the event that the side wall horizontally vented gas fu-
eled equipment is installed in a crawl space or an attic,
the hard wired carbon monoxide detector with alarm and
battery back-up may be installed on the next adjacent
fl oor level.
In the event that the requirements of this subdivision can
not be met at the time of completion of installation, the
owner shall have a period of thirty (30) days to comply
with the above requirements; provided, however, that dur-
ing said thirty (30) day period, a battery operated carbon
monoxide detector with an alarm shall be installed.
Approved Carbon Monoxide Detectors
Each carbon monoxide detector as required in accor-
dance with the above provisions shall comply with NFPA
720 and be ANSI/UL 2034 listed and IAS certifi ed.
Signage
A metal or plastic identifi cation plate shall be permanent-
ly mounted to the exterior of the building at a minimum
height of eight (8) feet above grade directly in line with the
exhaust vent terminal for the horizontally vented gas fu-
eled heating appliance or equipment. The sign shall read,
in print size no less than one-half (1/2) in. in size, “GAS
VENT DIRECTLY BELOW. KEEP CLEAR OF ALL OB-
STRUCTIONS”.
Inspection
The state or local gas inspector of the side wall horizon-
tally vented gas fueled equipment shall not approve the
installation unless, upon inspection, the inspector ob-
serves carbon monoxide detectors and signage installed
in accordance with the provisions of 248 CMR 5.08(2)(a)1
through 4.
Exemptions
The following equipment is exempt from 248 CMR
5.08(2)(a)1 through 4:
• The equipment listed in Chapter 10 entitled “Equipment
Not Required To Be Vented” in the most current edition
of NFPA 54 as adopted by the Board; and
• Product Approved side wall horizontally vented gas fu-
eled equipment installed in a room or structure separate
from the dwelling, building or structure used in whole or
in part for residential purposes.
MANUFACTURER REQUIREMENTS
Gas Equipment Venting System Provided
When the manufacturer of Product Approved side wall
horizontally vented gas equipment provides a venting
system design or venting system components with the
equipment, the instructions provided by the manufacturer
for installation of the equipment and the venting system
shall include:
• Detailed instructions for the installation of the venting
system design or the venting system components; and
• A complete parts list for the venting system design or
venting system.
Gas Equipment Venting System NOT Provided
When the manufacturer of a Product Approved side wall
horizontally vented gas fueled equipment does not pro-
vide the parts for venting the fl ue gases, but identifi es
“special venting systems”, the following requirements
shall be satisfi ed by the manufacturer:
• The referenced “special venting system” instructions
shall be included with the appliance or equipment in-
stallation instructions; and
• The “special venting systems” shall be Product Ap-
proved by the Board, and the instructions for that sys-
tem shall include a parts list and detailed installation
instructions.
A copy of all installation instructions for all Product Ap-
proved side wall horizontally vented gas fueled equip-
ment, all venting instructions, all parts lists for venting
instructions, and/or all venting design instructions shall
remain with the appliance or equipment at the completion
of the installation.
See Gas Connection section for additional Common-
wealth of Massachusetts requirements.
Note: The following requirements reference various
Massachusetts and national codes not contained in this
document.

9
Heat & Glo • 6000CMOD-IPI, 8000CMOD-IPI • 2241-900 Rev. i • 4/13
Figure 2.1 General Operating Parts
B. Your Fireplace
WARNING! DO NOT operate fi replace before read-
ing and understanding operating instructions. Failure
to operate fi replace according to operating instructions
could cause fi re or injury.
DECORATIVE DOORS
(NOT SHOWN)
SECTION 2.E.
FIXED GLASS ASSEMBLY
(NOT SHOWN)
SECTION 14.G.
MANTEL
SECTION 5.D
HEARTH
FAN KIT
SECTION 2.C.
CLEAR SPACE
SECTION 2.D.
If you expect that small children or vulnerable adults may
come into contact with this fi replace, the following precau-
tions are recommended:
• Install a physical barrier such as:
- A decorative fi rescreen.
- Adjustable safety gate.
A. Gas Fireplace Safety
WARNING
This appliance has been supplied with an integral barrier
to prevent direct contact with the fi xed glass panel. DO
NOT operate the appliance with the barrier removed.
Contact your dealer or Hearth & Home Technologies if the
barrier is not present or help is needed to properly install one.
HOT SURFACES!
Glass and other surfaces are hot during
operation AND cool down.
Hot glass will cause burns.
• DO NOT touch glass until it is cooled
• NEVER allow children to touch glass
• Keep children away
• CAREFULLY SUPERVISE children in same room as
fi replace.
• Alert children and adults to hazards of high temperatures.
High temperatures may ignite clothing or other
fl ammable materials.
• Keep clothing, furniture, draperies and other fl ammable
materials away.
• Install a switch lock or a wall/remote control with child
protection lockout feature.
• Keep remote controls out of reach of children.
• Never leave children alone near a hot fi replace, whether
operating or cooling down.
• Teach children to NEVER touch the fi replace.
• Consider not using the fi replace when children will be
present.
Contact your dealer for more information, or visit: www.
hpba.org/safety-information.
To prevent unintended operation when not using your fi re-
place for an extended period of time (summer months,
vacations, trips, etc):
• Remove batteries from remote controls.
• Turn off wall controls.
• Unplug 6 volt transformer plug and remove batteries on
IPI models.
2
2 Operating Instructions
User Guide
WARNING! Choking Hazard! Keep media out of reach
of children.

Heat & Glo • 6000CMOD-IPI, 8000CMOD-IPI • 2241-900 Rev. i • 4/1310
D. Clear Space
WARNING! DO NOT place combustible objects in front
of the fi replace or block louvers. High temperatures may
start a fi re. See Figure 2.2.
Avoid placing candles and other heat-sensitive objects on
mantel or hearth. Heat may damage these objects.
Figure 2.2 Clear Space
C. Fan Kit (optional)
If desired, a fan kit may be added. Contact your dealer to
order the correct fan kit.
F. Fixed Glass Assembly
See Section 14.G.
E. Decorative Doors and Fronts
WARNING! Risk of Fire! Install ONLY doors or fronts
approved by Hearth & Home Technologies. Unapproved
doors or fronts may cause fi replace to overheat.
This fireplace has been supplied with an integral
barrier to prevent direct contact with the fi xed glass
panel. DO NOT operate the fi replace with the barrier
removed.
Contact your dealer or Hearth & Home Technologies if
the barrier is not present or help is needed to properly
install one.
For more information refer to the instructions supplied with
your decorative door or front.
G. Remote Controls, Wall Controls and Wall
Switches
Follow the instructions supplied with the control installed
to operate your fi replace.
For specifi c information on fi replace controls, see Section 12.
For safety:
• Install a switch lock or a wall/remote control with child
protection lockout feature.
• Keep remote controls out of reach of children.
See your dealer if you have questions.
CLEAR SPACE
3 FT. IN FRONT OF FIREPLACE

11
Heat & Glo • 6000CMOD-IPI, 8000CMOD-IPI • 2241-900 Rev. i • 4/13
Nine Hour Safety Shutdown Feature
This appliance has a safety feature that automatically
shuts down the fi replace after 9 hours of continuous
operation without receiving a command from the
RC300 remote.
J. Before Lighting Fireplace
Before operating this fi replace for the fi rst time, have a
qualifi ed service technician:
• Verify all shipping materials have been removed from
inside and/or underneath the fi rebox.
• Review proper placement of glass panels and media.
• Check the wiring.
• Check the air shutter adjustment.
• Ensure that there are no gas leaks.
• Ensure that the glass is sealed and in the proper position
and that the integral barrier is in place.
WARNING! Risk of Fire or Asphyxiation! DO NOT op-
erate fi replace with fi xed glass assembly removed.
H. IPI Battery Tray/Battery Installation
The IntelliFire PlusTM system has a battery backup option.
Battery longevity and performance will be affected by the
service temperatures of this appliance.
NOTICE: Batteries should only be used as a power source
in the event of an emergency such as an outage.
I. Control Module Operation
1. The control module has an ON/OFF/REMOTE selector
switch that must be set. See Figure 2.3.
OFF Position: Appliance will ignore all power inputs and
will not respond to any commands from a wall switch or
remote. The unit should be in the OFF position during
installation, service, battery installation, fuel conversion,
and in the event that the control goes into LOCK-OUT
mode as a result of an error code.
ON Position: Appliance will ignite and run continuously
in the HI fl ame setting, with no adjustment in fl ame
output. This mode of operation is primarily used for
initial installation or power outage operation with battery
backup.
REMOTE Position: Appliance will initiate commands
from an optional wired wall switch and/or the wireless
remote (RC300).
2. If using a wired wall switch with the module in REMOTE
mode, the fl ame output can be adjusted with the HI/LO
selector switch on the module. See Figure 2.3. Note
that the fl ame HI/LO selector switch will become inactive
once an optional remote control (RC200/RC300) is
programmed to the control module. Note that the control
module will always ignite the fi replace on HI and remain
so for the initial 10 seconds of operation. If the HI/LO
is switched to the LO position, the fl ame output will
automatically drop to the lowest setting after the fl ame
has been established for 10 sec. After this 10 second
period, the fl ame can be adjusted from HI to LO with
the switch.
3. The control module has safety feature that automatically
shuts down the fi replace after 9 hours of continuous
operation without receiving a command from the RC300
remote.
4. If you intend to use both an optional wired wall switch
and the RC300 remote control to operate your fi replace,
the wall switch will override any commands given by
the remote.
5. Module Reset
This module may lock-out under certain conditions.
When this occurs, the appliance will not ignite or
respond to commands. The module will go into lock-out
mode by emitting three audible beeps, then continuously
displaying an error code at its status indicator LED.
• Check battery tray. Remove batteries if installed.
Batteries should only be installed for use during power
outages. See Section H.
Figure 2.3 Control Module
• Locate the module selector switch. (See Figure 2.3).
• Set the module selector switch to the OFF position.
• Wait fi ve (5) minutes to allow possible accumulated gas
to clear.
• Set the module selector switch to ON or REMOTE
position.
• Start the appliance.
WARNING! Risk of Explosion! DO NOT reset the mod-
ule more than one time within a fi ve minute time period.
Gas may accumulate in fi rebox. Call a qualifi ed service
technician.
LP/NG GAS-TYPE
SELECTOR SWITCH
WIRE LEAD FROM
REGULATOR CONNECTS HERE
MODULE
SELECTOR
SWITCH

Heat & Glo • 6000CMOD-IPI, 8000CMOD-IPI • 2241-900 Rev. i • 4/1312
K. Lighting Instructions (IPI)
1. This appliance is equipped with an ignition
device which automatically lights the burner.
DO NOT try to light the burner by hand.
2. Wait fi ve (5) minutes to clear out any gas.
Then smell for gas, including near the fl oor. If
you smell gas, STOP! Follow “B” in the Safety
Information located on the left side of this la-
bel. If you do not smell gas, go to next step.
3. To light the burner:
Equipped with wall switch: Turn ON/OFF switch
to ON.
Equipped with remote or wall control: Press
ON or FLAME button.
Equipped with thermostat: Set temperature to
desired setting.
4. If the appliance does not light after three tries,
call your service technician or gas supplier.
LIGHTING
INSTRUCTIONS (IPI)
TO TURN OFF
GAS TO APPLIANCE
1. Equipped with wall switch: Turn ON/OFF switch
to OFF.
Equipped with remote or wall control: Press
OFF button.
Equipped with thermostat: Set temperature to
lowest setting.
2. Service technician should turn off electric
power to the control when performing service.
FOR YOUR SAFETY
READ BEFORE LIGHTING
WARNING: If you do not follow these instructions exactly, a fi re or explosion
may result causing property damage, personal injury or loss of life.
CAUTION:
NOT FOR USE
WITH SOLID FUEL
WARNING:
593-913G
GAS
VALVE
For additional information on operating your
Hearth & Home Technologies fi replace, please refer to www.fi replaces.com.
A. This appliance is equipped with an
intermittent pilot ignition (IPI) device
which automatically lights the burn-
er. DO NOT try to light the burner by
hand.
B. BEFORE LIGHTING, smell all around
the appliance area for gas. Be sure to
smell next to the fl oor because some
gas is heavier than air and will settle
on the fl oor.
WHAT TO DO IF YOU SMELL GAS
• DO NOT try to light any appliance.
• DO NOT touch any electric switch; do
not use any phone in your building.
DO NOT CONNECT LINE VOLT-
AGE (110/120 VAC OR 220/240
VAC) TO THE CONTROL VALVE.
Improper installation, adjustment, al-
teration, service or maintenance can
cause injury or property damage. Re-
fer to the owner’s information manual
provided with this appliance.
This appliance needs fresh air for
safe operation and must be installed
so there are provisions for adequate
combustion and ventilation air.
If not installed, operated, and main-
tained in accordance with the manufac-
turer’s instructions, this product could
expose you to substances in fuel or
fuel combustion which are known to the
State of California to cause cancer, birth
defects, or other reproductive harm.
Keep burner and control compartment
clean. See installation and operating
instructions accompanying appliance.
Hot while in operation. DO NOT touch.
Keep children, clothing, furniture, gaso-
line and other liquids having fl ammable
vapors away.
DO NOT operate the appliance with
fi xed glass assembly removed, cracked
or broken. Replacement of the fi xed
glass assembly should be done by a
licensed or qualifi ed service person.
• Immediately call your gas supplier
from a neighbor’s phone. Follow the
gas supplier’s instructions.
• If you cannot reach your gas sup-
plier, call the fi re department.
C. DO NOT use this appliance if any
part has been under water. Imme-
diately call a qualifi ed service tech-
nician to inspect the appliance and
to replace any part of the control
system and any gas control which
has been under water.
For use with natural gas and propane.
A conversion kit, as supplied by the
manufacturer, shall be used to convert
this appliance to the alternate fuel.
Also Certifi ed for Installation in a
Bedroom or a Bedsitting Room.
For assistance or additional informa-
tion, consult a qualifi ed installer, ser-
vice agency or the gas supplier.
Final inspection by

13
Heat & Glo • 6000CMOD-IPI, 8000CMOD-IPI • 2241-900 Rev. i • 4/13
Initial Break-in Procedure
• The fireplace should be run three to four hours
continuously on high.
• Turn the fi replace off and allow it to completely cool.
• Remove fi xed glass assembly. See Section 14.G.
• Clean fi xed glass assembly. See Section 3.
• Replace the fi xed glass assembly and run continuously
on high an additional 12 hours.
This cures the materials used to manufacture the fi re-
place.
NOTICE! Open windows for air circulation during fi re-
place break-in.
• Some people may be sensitive to smoke and odors.
• Smoke detectors may activate.
L. After Fireplace is Lit
M. Frequently Asked Questions
ISSUE SOLUTIONS
Condensation on the glass This is a result of gas combustion and temperature variations. As the appliance warms, this
condensation will disappear.
Blue fl ames This is a result of normal operation and the fl ames will begin to yellow as the appliance is al-
lowed to burn for 20 to 40 minutes.
Odor from appliance When fi rst operated, this appliance may release an odor for the fi rst several hours. This is caused
by the curing of the paint and the burning off of any oils remaining from manufacturing. Odor may
also be released from fi nishing materials and adhesives used around the appliance.
Film on the glass This is a normal result of the curing process of the paint and logs. Glass should be cleaned
within 3 to 4 hours of initial burning to remove deposits left by oils from the manufacturing
process. A non-abrasive cleaner such as gas fi replace glass cleaner may be necessary. See
your dealer.
Metallic noise Noise is caused by metal expanding and contracting as it heats up and cools down, similar to
the sound produced by a furnace or heating duct. This noise does not affect the operation or
longevity of the appliance.
Is it normal to see the pilot fl ame burn
continually?
In an intermittent pilot ignition system (IPI), the pilot fl ame should turn off when appliance is
turned off. Some optional control systems available with IPI models may allow pilot fl ame to
remain lit. In a standing pilot system the pilot will always stay on.
Glass rock media color change It is normal for the glass rock media to change color slightly over the lifetime of the
appliance.

Heat & Glo • 6000CMOD-IPI, 8000CMOD-IPI • 2241-900 Rev. i • 4/1314
Glass Cleaning
Frequency: Seasonally
By: Homeowner
Tools Needed: Protective gloves, glass cleaner, drop
cloth and a stable work surface.
CAUTION! Handle fi xed glass assembly with care.
Glass is breakable.
• Avoid striking, scratching or slamming glass
• Avoid abrasive cleaners
• DO NOT clean glass while it is hot
• Prepare a work area large enough to accommodate fi xed
glass assembly and door frame by placing a drop cloth
on a fl at, stable surface.
• Clean glass with a non-abrasive commercially available
cleaner.
- Light deposits: Use a soft cloth with soap and water
- Heavy deposits: Use commercial fireplace glass
cleaner (consult with your dealer)
Doors, Surrounds, Fronts
Frequency: Annually
By: Homeowner
Tools needed: Protective gloves, stable work surface
• Assess condition of screen and replace as necessary.
• Inspect for scratches, dents or other damage and repair
as necessary.
• Check that louvers are not blocked.
• Vacuum and dust surfaces.
3
3 Maintenance and Service
A. Maintenance Tasks-Homeowner
The following tasks may be performed annually by the
homeowner. If you are uncomfortable performing any of
the listed tasks, please call your dealer for a service ap-
pointment.
More frequent cleaning may be required due to lint from
carpeting or other factors. Control compartment, burner
and circulating air passageway of the fi replace must be
kept clean.
CAUTION! Risk of Burns! The fi replace should be turned
off and cooled before servicing.
When properly maintained, your fi replace will give you
many years of trouble-free service. We recommend an-
nual service by a qualifi ed service technician.
Remote Control
Frequency: Seasonally
By: Homeowner
Tools needed: Replacement batteries and remote con-
trol instructions.
• Locate remote control transmitter and receiver.
• Verify operation of remote. Refer to remote control
operation instructions for proper calibration and setup
procedure.
• Place batteries as needed in remote transmitters and
battery-powered receivers.
• Place remote control out of reach of children.
If not using your fi replace for an extended period of time
(summer months, vacations/trips, etc), to prevent unin-
tended operation:
• Remove batteries from remote controls.
• Unplug 6 volt transformer plug on IPI models.
• Unplug battery backup from control module.
Venting
Frequency: Seasonally
By: Homeowner
Tools needed: Protective gloves and safety glasses.
• Inspect venting and termination cap for blockage or
obstruction such plants, bird nests, leaves, snow, debris,
etc.
• Verify termination cap clearance to subsequent construc-
tion (building additions, decks, fences, or sheds). See
Section 6.
• Inspect for corrosion or separation.
• Verify weather stripping, sealing and fl ashing remains
intact.
• Inspect draft shield to verify it is not damaged or missing.
Any safety screen or guard removed for servicing must be
replaced prior to operating the fi replace.
Installation and repair should be done by a qualifi ed service
technician only. The fi replace should be inspected before
use and at least annually by a professional service person.
B. Maintenance Tasks-Qualifi ed Service
Technician
The following tasks must be performed by a qualifi ed ser-
vice technician.
Gasket Seal and Glass Assembly Inspection
Frequency: Annually
By: Qualifi ed Service Technician
Tools needed: Protective gloves, drop cloth and a stable
work surface.
• Inspect gasket seal and its condition.
• Inspect fi xed glass assembly for scratches and nicks that
can lead to breakage when exposed to heat.

15
Heat & Glo • 6000CMOD-IPI, 8000CMOD-IPI • 2241-900 Rev. i • 4/13
• Confi rm there is no damage to glass or glass frame.
Replace as necessary.
• Verify that fi xed glass assembly is properly retained and
attachment components are intact and not damaged.
Replace as necessary.
Interior Ceramic Glass Panel Cleaning
Frequency: Seasonally
By: Qualifi ed Service Technician
Tools Needed: Protective gloves, glass cleaner.
CAUTION! Handle glass with care. Glass is breakable.
• Avoid striking, scratching or slamming glass
• Avoid abrasive cleaners
• DO NOT clean glass while it is hot
• Clean glass with a non-abrasive commercially available
cleaner.
- Light deposits: Use a soft cloth with soap and water
- Heavy deposits: Use commercial fireplace glass
cleaner (consult with your dealer)
Firebox
Frequency: Annually
By: Qualifi ed Service Technician
Tools needed: Protective gloves, sandpaper, steel wool,
cloths, mineral spirits, primer and touch-up paint.
• Inspect for paint condition, warped surfaces, corrosion
or perforation. Sand and repaint as necessary.
• Replace fi replace if fi rebox has been perforated.
Control Compartment and Firebox Top
Frequency: Annually
By: Qualifi ed Service Technician
Tools needed: Protective gloves, vacuum cleaner, dust
cloths
• Vacuum and wipe out dust, cobwebs, debris or pet hair.
Use caution when cleaning these areas. Screw tips that
have penetrated the sheet metal are sharp and should
be avoided.
• Remove all foreign objects.
• Verify unobstructed air circulation.
Burner Ignition and Operation
Frequency: Annually
By: Qualifi ed Service Technician
Tools needed: Protective gloves, vacuum cleaner, whisk
broom, fl ashlight, voltmeter, indexed drill bit set, and a
manometer.
• Verify burner is properly secured and aligned with pilot
or igniter.
• Clean off burner top, inspect for plugged ports, corrosion
or deterioration. Replace burner if necessary.
• Verify batteries have been removed from battery back-up
IPI systems to prevent premature battery failure or
leaking.
• Check for smooth lighting and ignition carryover to all
ports. Verify that there is no ignition delay.
• Inspect for lifting or other fl ame problems.
• Verify air shutter setting is correct. See Section 14 for
required air shutter setting. Verify air shutter is clear of
dust and debris.
• Inspect orifi ce for soot, dirt and corrosion. Verify orifi ce
size is correct. See Service Parts List for proper orifi ce
sizing.
• Verify manifold and inlet pressures. Adjust regulator as
required.
• Inspect pilot fl ame pattern and strength. See Figure 3.1
for proper pilot fl ame pattern. Clean or replace orifi ce
spud as necessary.
• Inspect IPI fl ame sensing rod for soot, corrosion and
deterioration. Polish with fi ne steel wool or replace as
required.
• Verify that there is not a short in fl ame sense circuit
by checking continuity between pilot hood and fl ame
sensing rod. Replace pilot as necessary. (IPI only)
(Either cobrahead or SIT)
Figure 3.1 IPI Pilot Flame Patterns

Heat & Glo • 6000CMOD-IPI, 8000CMOD-IPI • 2241-900 Rev. i • 4/1316
Figure 3.3 Glass Panel Removal
C. Glass Refractory, Base Pan, Burner and
Valve Assembly Removal
It may become necessary to remove the glass panels,
base pan, burner and valve assembly. This task should
be performed by a qualifi ed service technician.
Figure 3.4 Base Pan Removal
Figure 3.2 Remove Glass Panel Retainers
REAR PANEL RETAINER
SIDE PANEL RETAINERS
Figure 3.5 Burner Assembly Removal
4. Remove the base pan by removing the screws circled
in Figure 3.4.
5. Remove the burner assembly by removing the two
screws as shown in Figure 3.5. To disengage the burner
from the orifi ce, slide the burner to the right and lift it out.
6. See Figure 3.6 for valve assembly removal.
1. Remove the media.
2. Remove the side glass panel retainers. See Figure
3.2. Slide the side glass panels out of the appliance
as shown in Figure 3.3.
3. Remove the rear glass panel retainer, shown in Figure
3.2, and lift the rear glass panel out of the appliance. APPEARANCE
MAY VARY

17
Heat & Glo • 6000CMOD-IPI, 8000CMOD-IPI • 2241-900 Rev. i • 4/13
Figure 3.6 Valve Assembly Removal
Appearance of valve
components may vary.
8000CMOD-IPI (NG)
8000CMOD-IPI (LP)
Figure 3.8 Valve Assembly Removal
6000CMOD-IPI (NG)
6000CMOD-IPI (LP)
Figure 3.7 Valve Assembly Removal
D. Burner Identifi cation

Heat & Glo • 6000CMOD-IPI, 8000CMOD-IPI • 2241-900 Rev. i • 4/1318
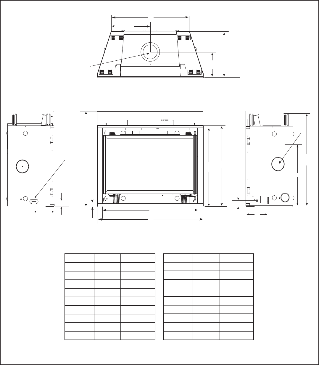
A. Typical Appliance System
NOTICE: Illustrations and photos refl ect typical installations and are for design purposes only. Illustrations/diagrams are not
drawn to scale. Actual product may vary from pictures in manual
Figure 4.1 Typical System
CEILING FIRESTOP
ON FLOOR OF ATTIC
(SECTION 8.C)
VERTICAL TERMINATION CAP
(SECTION 10.I)
VENT PIPE PENETRATES ROOF
PREFERABLY WITHOUT AFFECTING
ROOF RAFTERS (SECTION 8.C)
FRAMING HEADED OFF
IN CEILING JOISTS
(SECTION 8.C)
GAS LINE
(SECTION 11)
MANTEL AND
MANTEL LEG
(SECTION 5.D)
SURROUND
HEARTH EXTENSION
VENT PIPE (SECTIONS 7 and 8)
OPTIONAL
WALL SWITCH
(SECTION 12.C)
STORM COLLAR
(SECTION 10.H)
NON-COMBUSTIBLE ROOF FLASHING
MAINTAINS MINIMUM CLEARANCE
AROUND PIPE (SECTION 10.G)
FRAMING/HEADER
(SECTION 5.B)
ATTIC INSULATION SHIELD (NOT
SHOWN) MUST BE USED HERE TO
KEEP INSULATION AWAY FROM
VENT PIPE IF ATTIC IS INSULATED
(SECTION 8.D)
4
4 Getting Started
Installer Guide

19
Heat & Glo • 6000CMOD-IPI, 8000CMOD-IPI • 2241-900 Rev. i • 4/13
B. Design and Installation Considerations
Heat & Glo direct vent gas appliances are designed to
operate with all combustion air siphoned from outside of
the building and all exhaust gases expelled to the outside.
No additional outside air source is required.
Installation MUST comply with local, regional, state and
national codes and regulations. Consult insurance carrier,
local building inspector, fi re offi cials or authorities having
jurisdiction over restrictions, installation inspection and
permits.
Before installing, determine the following:
• Where the appliance is to be installed.
• The vent system confi guration to be used.
• Gas supply piping requirements.
• Electrical wiring requirements.
• Framing and fi nishing details.
• Whether optional accessories—devices such as a fan,
wall switch, or remote control—are desired.
D. Inspect Appliance and Components
• Carefully remove the appliance and components from
the packaging.
• The vent system components and decorative doors and
fronts may be shipped in separate packages.
• If packaged separately, the log set and appliance grate
must be installed.
• Report to your dealer any parts damaged in shipment,
particularly the condition of the glass.
• Read all of the instructions before starting the instal-
lation. Follow these instructions carefully during the
installation to ensure maximum safety and benefi t.
WARNING! Risk of Fire or Explosion! Damaged parts
could impair safe operation. DO NOT install damaged, in-
complete or substitute components. Keep appliance dry.
C. Tools and Supplies Needed
Before beginning the installation be sure that the following
tools and building supplies are available.
Tape measure Framing material
Pliers Non-corrosive leak check solution
Hammer Phillips screwdriver
Gloves Framing square
Voltmeter Electric drill and bits (1/4 in.)
Plumb line Safety glasses
Level Reciprocating saw
Manometer Flat blade screwdriver
1/2 - 3/4 in. length, #6 or #8 Self-drilling screws
One 1/4 in. female connection (for optional fan).
Caulking material (300ºF minimum continuous exposure
rating)
Hearth & Home Technologies disclaims any responsibility for,
and the warranty will be voided by, the following actions:
• Installation and use of any damaged appliance or vent
system component.
• Modifi cation of the appliance or vent system.
• Installation other than as instructed by Hearth & Home
Technologies.
• Improper positioning of the gas logs or the glass door.
• Installation and/or use of any component part not approved
by Hearth & Home Technologies.
Any such action may cause a fi re hazard.
WARNING! Risk of Fire, Explosion or Electric Shock!
DO NOT use this appliance if any part has been under
water. Call a qualifi ed service technician to inspect the
appliance and to replace any part of the control system
and/or gas control which has been under water.
Improper installation, adjustment, alteration, service or
maintenance can cause injury or property damage. For
assistance or additional information, consult a qualifi ed
service technician, service agency or your dealer.

Heat & Glo • 6000CMOD-IPI, 8000CMOD-IPI • 2241-900 Rev. i • 4/1320
5
5 Framing and Clearances
A. Selecting Appliance Location
When selecting a location for the appliance it is important to
consider the required clearances to walls (see Figure 5.1).
WARNING! Risk of Fire or Burns! Provide adequate
clearance around air openings and for service access.
Due to high temperatures, the appliance should be locat-
ed out of traffi c and away from furniture and draperies.
NOTICE: Illustrations refl ect typical installations and are
FOR DESIGN PURPOSES ONLY. Illustrations/diagrams
are not drawn to scale. Actual installation may vary due to
individual design preference.
Figure 5.1 Appliance Locations
ABC D E F
6000 in. 51 42 72 See Section D.
Mantel Projections
22 17-3/4
mm 1295 1067 1829 559 451
8000 in. 55-7/8 49 79 See Section D.
Mantel Projections
22 19-3/4
mm 1419 1245 2007 559 502
1/2 IN.
ALCOVE
INSTALLATION
TOP VENT
ONE 90º ELBOW
A
BC
B
D
B
E
F
A
NOTE: THE REAR STANDOFF MAY NEED
TO BE REMOVED WHEN VENTING AT 45º

21
Heat & Glo • 6000CMOD-IPI, 8000CMOD-IPI • 2241-900 Rev. i • 4/13
B. Constructing the Appliance Chase
A chase is a vertical box-like structure built to enclose the
gas appliance and/or its vent system. In cooler climates
the vent should be enclosed inside the chase.
NOTICE: Treatment of ceiling fi restops and wall shield
fi restops and construction of the chase may vary with the
type of building. These instructions are not substitutes
for the requirements of local building codes. Therefore,
you MUST check local building codes to determine the
requirements to these steps.
Chases should be constructed in the manner of all out-
side walls of the home to prevent cold air drafting prob-
lems. The chase should not break the outside building
envelope in any manner.
Walls, ceiling, base plate and cantilever fl oor of the chase
should be insulated. Vapor and air infi ltration barriers
should be installed in the chase as per regional codes for
the rest of the home. Additionally, in regions where cold
air infi ltration may be an issue, the inside surfaces may be
sheetrocked and taped for maximum air tightness.
Figure 5.2 Clearances to Combustibles
C. Clearances
NOTICE: Install appliance on hard metal or wood surfaces
extending full width and depth. DO NOT install directly
on carpeting, vinyl, tile or any combustible material other
than wood.
WARNING! Risk of Fire! Maintain specifi ed air space
clearances to appliance and vent pipe:
• Insulation and other materials must be secured to prevent
accidental contact.
• The chase must be properly blocked to prevent blown
insulation or other combustibles from entering and
making contact with fi replace or chimney.
• Failure to maintain airspace may cause overheating and
a fi re.
To further prevent drafts, the wall shield and ceiling fi re-
stops should be caulked with caulk with a minimum of
300ºF continuous exposure rating to seal gaps. Gas line
holes and other openings should be caulked with caulk
with a minimum of 300ºF continuous exposure rating or
stuffed with unfaced insulation. If the appliance is being
installed on a cement surface, a layer of plywood may be
placed underneath to prevent conducting cold up into the
room.
* Adjust framing dimensions for interior sheathing (such as sheetrock)
F
G
H
I
J
E
C
B
D
A
* MINIMUM FRAMING DIMENSIONS
Models
A B C** D E F G H I J
Rough
Opening
(Width)
Rough
Opening
(Height)
Rough
Opening
(Depth)
Rough
Opening
(Width)
Clearance
to Ceiling Combustible
Floor Combustible
Flooring Behind
Appliance Sides of
Appliance Front of
Appliance
6000 in. 10 40-1/8 22 42 25 0 0 1/2 1/2 36
mm 254 1019 559 1067 635 0 0 13 13 914
8000 in. 10 42-1/8 22 49 25 0 0 1/2 1/2 36
mm 254 1070 559 1245 635 0 0 13 13 914

Heat & Glo • 6000CMOD-IPI, 8000CMOD-IPI • 2241-900 Rev. i • 4/1322
D. Mantel and Wall Projections
WARNING! Risk of Fire! Comply with all minimum clear-
ances as specifi ed. Framing or fi nishing material closer than
the minimums listed must be constructed entirely of noncom-
bustible materials (i.e., steel studs, concrete board, etc).
Combustible Mantels
Combustible Mantel Legs or Wall Projections
MEASUREMENTS FROM
TOP EDGE OF THE OPENING
5
10
11
12
2-1/2
13
14
15 16
17 18 19
32
TO CEILING
9 10 11 12
8
7
6
5
4
3
25
18
AB
INTERIOR WALL
TOP VIEW
MANTEL LEG OR WALL PROJECTIONS
FIREPLACE OPENING
Note: All measurements in inches.
If A minimum is ____, then B maximum is_____.
AInches 2-7/16 3-7/16 4-7/16 5-7/16 6-7/16 7-7/16
Millimeters 62 87 113 138 164 189
BInches 12345
Millimeters 25 51 76 102 127
Note: Measurement is taken from top of the
opening, NOT the top of the fi replace.
Figure 5.5 Appliance Surround
Figure 5.3 Minimum Vertical and Maximum Horizontal
Dimensions of Combustibles
3/8 IN.
1-3/4 IN.
3/8 IN.
Figure 5.6 Door Overlaps Surround
The CMOD door will overlap the appliance. See Figure
5.5 and 5.6.

23
Heat & Glo • 6000CMOD-IPI, 8000CMOD-IPI • 2241-900 Rev. i • 4/13
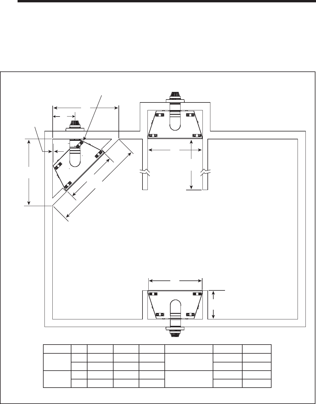
A. Vent Termination Minimum Clearances
Roof Pitch H (Min.) Ft.
Flat to 6/12...........................................................1.0*
Over 6/12 to 7/12 .................................................1.25*
Over 7/12 to 8/12 .................................................1.5*
Over 8/12 to 9/12 .................................................2.0*
Over 9/12 to 10/12 ...............................................2.5
Over 10/12 to 11/12 .............................................3.25
Over 11/12 to 12/12 .............................................4.0
Over 12/12 to 14/12 .............................................5.0
Over 14/12 to 16/12 .............................................6.0
Over 16/12 to 18/12 .............................................7.0
Over 18/12 to 20/12 .............................................7.5
Over 20/12 to 21/12 .............................................8.0
Figure 6.1 Minimum Height From Roof To Lowest Discharge
Opening
* 3 foot minimum in snow regions
HORIZONTAL
OVERHANG
VERTICAL
WALL
GAS DIRECT VENT
TERMINATION CAP
12
X
ROOF PITCH
IS X/ 12
LOWEST
DISCHARGE
OPENING
2 FT.
MIN.
20 INCHES MIN.
H (MIN.) - MINIMUM HEIGHT FROM ROOF
TO LOWEST DISCHARGE OPENING
6
6 Termination Locations
Fire Risk.
Maintain vent clearance to combustibles as
specifi ed.
• DO NOT pack air space with insulation or other
materials.
Failure to keep insulation or other materials away
from vent pipe may cause overheating and fi re.
WARNING
Gas, Wood or Fuel Oil
Termination Cap
B
Gas
Termination
Cap **
A*
*If using decorative cap cover(s), this distance may need to be
increased. Refer to the installation instructions supplied with the
decorative cap cover.
**
AB
6 in. (minimum) up to 20 in.
152 mm/508 mm 18 in. minimum
457 mm
20 in. and over 0 in. minimum
In a staggered installation with both gas and wood or fuel oil
terminations, the wood or fuel oil termination cap must be
higher than the gas termination cap.
Figure 6.2 Staggered Termination Caps

Heat & Glo • 6000CMOD-IPI, 8000CMOD-IPI • 2241-900 Rev. i • 4/1324
Figure 6.3 Minimum Clearances for Termination
ON
P
R
Q
X= AIR SUPPLY INLET
A = 12 inches.................clearances above grade, veranda,
porch, deck or balcony
B =
12 inches.................clearance to window or door that may
be opened, or to permanently closed
window
C = 18 inches.................clearance below unventilated soffi t
18 inches.................clearance below ventilated soffi t
30 inches .................clearance below vinyl soffits and
electrical service
D = 9 inches...................clearance to outside corner
E = 6 inches...................clearance to inside corner
F = 3 ft. (Canada) ..........not to be installed above a gas me-
ter/regulator assembly within 3 feet
horizontally from the center-line of the
regulator
G = 3 ft ...........................clearance to gas service regulator
vent outlet
H = 9 inches (U.S.A)
12 inches (Canada). clearance to non-mechanical (unpow-
ered) air supply inlet, combustion air
inlet or direct-vent termination
i = 3 ft. (U.S.A.)
6 ft. (Canada) ...........clearance to a mechanical (powered)
air supply inlet
All mechanical air intakes within 10 feet of a termination cap
must be a minimum of 3 feet below termination.
J = 7 ft. ......................... On public property: clearance above
paved sidewalk or a paved driveway.
A vent shall not terminate directly above a sidewalk or paved
driveway which is located between two single family dwellings
and serves both dwellings.
V= VENT TERMINAL
= AREA WHERE TERMINAL IS NOT PERMITTED
C
JB
D
B
F
B
A
E
V
V
V
V
V
V
M
H or i
V
GX
VH
A
VV
H
Electrical
Service
V
K
V K
V
L
C
V
N = 6 inches ........... non-vinyl sidewalls
12 inches ......... vinyl sidewalls
O = 18 inches ......... non-vinyl soffi t and overhang
42 inches ......... vinyl soffi t and overhang
P = 8 ft.
QMIN RMAX
1 cap 3 feet 2 x Q ACTUAL
2 caps 6 feet 1 x Q ACTUAL
3 caps 9 feet 2/3 x Q ACTUAL
4 caps 12 feet 1/2 x Q ACTUAL
QMIN = # termination caps x 3 RMAX = (2 / # termination caps) x QACTUAL
Covered Alcove Applications
(Spaces open only on one side and with an overhang)
Measure horizontal clearances from this surface.
Measure vertical clearances from this surface.
CAUTION! Risk of Burns! Termination caps are HOT,
consider proximity to doors, traffi c areas or where people
may pass or gather (sidewalk, deck, patio, etc.). Listed cap
shields available. Contact your dealer.
• Local codes or regulations may require different
clearances.
• Vent system termination is NOT permitted in screened
porches.
• Vent system termination is permitted in porch areas with
two or more sides open.
• Hearth & Home Technologies assumes no responsibility
for the improper performance of the appliance when the
venting system does not meet these requirements.
• Vinyl protection kits are suggested for use with vinyl siding.
M = 18 inches ...................clearance under veranda, porch, deck,
balcony or overhang
42 inches ................vinyl or composite overhang
Permitted when veranda, porch, deck or balcony is fully open
on a minimum of 2 sides beneath the fl oor.
K = 6 inches................. clearance from sides of electrical
service
L = 12 inches................ clearance above electrical service
Location of the vent termination must not interfere with access to the
electrical service.

25
Heat & Glo • 6000CMOD-IPI, 8000CMOD-IPI • 2241-900 Rev. i • 4/13
A. Approved Pipe
This appliance is approved for use with Hearth & Home
Technologies DVP or SLP venting systems. Refer to Sec-
tion 16B for vent component information.
DO NOT mix pipe, fi ttings or joining methods from differ-
ent manufacturers.
The pipe is tested to be run inside an enclosed wall.
There is no requirement for inspection openings at each
joint within the wall.
WARNING! Risk of Fire or Asphyxiation. This appli-
ance requires a separate vent. DO NOT vent to a pipe
serving a separate solid fuel burning appliance.
C. Use of Elbows
Diagonal runs have both vertical and horizontal vent as-
pects when calculating the effects. Use the rise for the
vertical aspect and the run for the horizontal aspect (see
Figure 7.1).
Two 45º elbows may be used in place of one 90º elbow.
On 45º runs, one foot of diagonal is equal to 8-1/2 in. (216
mm) horizontal run and 8-1/2 in. (216 mm) vertical run. A
length of straight pipe is allowed between two 45º elbows
(see Figure 7.1).
Figure 7.1
7
7 Vent Information and Diagrams
B. Vent Table Key
The abbreviations listed in this vent table key are used in
the vent diagrams.
D. Measuring Standards
Vertical and horizontal measurements listed in the vent
diagrams were made using the following standards.
• Pipe measurements are shown using the effective length
of pipe (see Figure 7.2).
• Horizontal terminations are measured to the outside
mounting surface (fl ange of termination cap) (see Figure
6.3).
• Vertical terminations are measured to bottom of
termination cap.
• Horizontal pipe installed level with no rise.
Figure 7.2 DVP Pipe Effective Length
Effective
Height/Length
Symbol Description
V1First section (closest to appliance) of vertical length
V2Second section of vertical length
H1First section (closest to appliance) of horizontal length
H2Subsequent sections of horizontal length
Horizontal
Vertical
8-1/2 in.
8-1/2 in.
12 in.
Pipe Effective Length
Inches Millimeters
DVP4 4 102
DVP6 6 152
DVP12 12 305
DVP24 24 610
DVP36 36 914
DVP48 48 1219
DVP6A 3 to 6 76 to 152
DVP12A 3 to 12 76 to 305

Heat & Glo • 6000CMOD-IPI, 8000CMOD-IPI • 2241-900 Rev. i • 4/1326
H1
V1
Figure 7.3
Top Vent - Horizontal Termination
Top Vent - Horizontal Termination
One Elbow
Note: For corner installations: A 6 inch (152
mm) section of straight pipe may need to
be attached to the appliance before a 90º
elbow, to allow the vent pipe to clear the top
standoffs.
Fire Risk. Explosion Risk.
Do NOT pack insulation or other combustibles
between ceiling fi restops.
• ALWAYS maintain specifi ed clearances around
venting and fi restop systems.
• Install wall shield and ceiling fi restops as speci-
fi ed.
Failure to keep insulation or other material away
from vent pipe may cause fi re.
Example: DVP pipe 3 ft. min. vertical = 11 ft. max. horizontal
SLP pipe 7 ft. min. vertical = 11 ft. max. horizontal
Fire Risk.
• When using DVP-HRC-SS and DVP-HRC-ZC-
SS termination caps on top vented fi replaces, a
6 inch minimum vertical vent section is required
before installing fi rst elbow.
WARNING
WARNING
E. Vent Diagrams
Note: The 6000/8000 series fi replaces can adapt to SLP series
vent pipe, if desired.
When venting off the top of the unit, use a DVP-2SL adapter and a
minimum 48 inch vertical section of SLP series vent pipe.
A DVP-SLP24 adapter may also be used with a 24 inch vertical
section of SLP series vent pipe.
After the 48 inch vertical section, the venting table rules must be
followed. The fi rst 48 inch vertical section is NOT counted as part
of the vertical components in the table. It is still counted as part of
the overall maximum run. All venting table rules for the vent run
must still be followed.
8000CMOD-IPI
V1 Minimum H1 Maximum
Elbow Only 2 ft. 610 mm
1 ft. 305 mm 3 ft. 914 mm
2 ft. 610 mm 6 ft. 1.8 m
3 ft. 914 mm 11 ft. 3.4 m
4 ft. 1.2 m 20 ft. 6.1 m
V1 + H1 = 40 ft. (12.2 m) Maximum
H1 = 20 ft. (6.1 m) Maximum
6000CMOD-IPI
V1 Minimum H1 Maximum
Elbow only 2 ft 610 mm
6 in. 152 mm 4 ft. 1.2 m
1 ft. 305 mm 6 ft. 1.8 m
1-1/2 ft. 457 mm 10 ft. 3.0 m
2 ft. 610 m 15 ft. 4.6 m
2-1/2 ft. 762 mm 18 ft. 5.5 m
3 ft. 914 mm 20 ft. 6.1 m
V1 + H1 = 40 ft. (12.2 m) Maximum
H1 = 20 ft. (6.1 m) Maximum

27
Heat & Glo • 6000CMOD-IPI, 8000CMOD-IPI • 2241-900 Rev. i • 4/13
INSTALLED
HORIZONTALLY
H1
H2
V1
Figure 7.4
Two Elbows Note: For corner installations: A 6 inch
(152 mm) section of straight pipe may
need to be attached to the appliance
before a 90º elbow, to allow the vent
pipe to clear the top standoffs.
6000CMOD-IPI
V1 Minimum H1 + H2 Maximum
Elbow only Not allowed
6 in. 152 mm 2 ft. 610 mm
1 ft. 305 mm 4 ft. 1.2 m
1-1/2 ft. 457 mm 11 ft. 3.4 m
2 ft. 610 mm 17 ft. 5.2 m
2-1/2 ft. 762 mm 20 ft. 6.1 m
V1 + H1 + H2 = 40 ft. (12.2 m) Maximum
H1 + H2 = 20 ft. (6.1 m) Maximum
V1 = 1 ft. (305 mm) Minimum
8000CMOD-IPI
V1 Minimum H1 + H2 Maximum
Elbow only Not allowed
6 in. 152 mm Not allowed
1 ft. 305 mm 2 ft. 610 mm
2 ft. 610 mm 4 ft. 1.2 m
3 ft. 914 mm 6 ft. 1.8 m
4 ft. 1.2 m 8 ft. 2.4 m
6 ft. 1.8 m 12 ft. 3.6 m
10 ft. 3.0 20 ft. 6.1 m
V1 + H1 + H2 = 40 ft. (12.2 m) Maximum
H1 + H2 = 20 ft. (6.0 m) Maximum
V1 = 1 ft. (305 mm) Minimum

Heat & Glo • 6000CMOD-IPI, 8000CMOD-IPI • 2241-900 Rev. i • 4/1328
Figure 7.5
Top Vent - Horizontal Termination - (continued)
Three Elbows
H2
H1
V2
V1
V1 Min. H1 Max. V2 Min. H2 Max.
Elbow only 2 ft. 610 mm 0 in. 0 mm 1 ft. 305 mm
6 in. 152 mm 3 ft 914 mm 6 in. 152 mm 2 ft. 610 mm
1 ft. 305 mm 6 ft. 1.8 m 1 ft. 305 mm 6 ft. 1.8 m
2 ft. 610 mm 11 ft.* 3.4 m* 2 ft. 610 mm 10 ft.* 3.1 m*
3 ft. 914 mm 16 ft * 4.9 m* 3 ft. 914 mm 14 ft.* 4.3 m*
*H1 + H2 = 20 ft. (6.1 m) Maximum V1 + V2 + H1 + H2 = 40 ft. (12.2 m) Maximum

29
Heat & Glo • 6000CMOD-IPI, 8000CMOD-IPI • 2241-900 Rev. i • 4/13
FLUE
RESTRICTOR
Top Vent - Vertical Termination
No Elbow
Figure 7.6
Note: If installing a vertical vent/
termination off the top of the appli-
ance, the fl ue restrictor should be
used. See Figure 7.9.
V1
V1 = 40 ft. Max. (12.4 m)
V1 = 3 ft. Min. (914 mm)
Figure 7.8 Flue Restrictor
2. Break the fl ue restrictor into two pieces. Do this by
bending the part back and forth until it breaks (see
Figure 7.8).
Figure 7.7
BREAK
HERE
Flue Restrictor Instructions
1. Install fl ue restrictor as shown below.

Heat & Glo • 6000CMOD-IPI, 8000CMOD-IPI • 2241-900 Rev. i • 4/1330
H
1
V
1
V
2
Top Vent - Vertical Termination (continued)
Figure 7.11
Two Elbows
Figure 7.10
4. Center the Flue Restrictor on vent and secure in place
by using two self-tapping screws (see Figure 7.10).
5. Reinstall the Exhaust Shield.
3. Match the amount of vertical you have in the system
with the chart to fi nd the appropriate position to set the
Flue Restrictor (see Figure 7.9).
Figure 7.9
1 2 3 4 5
SETTING
1 2 3 4 5
Vertical TOP VENT
NG LP
4 ft. 1-1 No
Restrictor
8 ft. 2-2 1-2
15 ft. 3-3 3-2
20 ft. 3-3 3-3
25 ft. 3-3 3-3
30 ft. 3-4 3-4
35 ft. 3-4 3-4
40 ft. 3-4 4-4
V1 H
1 Maximum V2V1 + V2 Min.
Elbow only 2 ft. 610 mm * * *
6 in. 152 mm 6 ft. 1.8 m * * *
2 ft. 610 mm 11 ft. 3.4 m * * *
3 ft. 914 mm 16 ft. 4.9 m * * *
4 ft. 1.2 m 20 ft. 6.1 m * * *
V1 + V2 + H1 = 50 ft. (15.2 m) Maximum
*No specifi c restrictions on this value EXCEPT
V1 + V2 + H1 cannot exceed 50 ft (15.2 m)
Note: If the DVP-2SL or DVP-SLP24 adapter is used with
SLP pipe, you MUST subtract one number from the table
above.
Example: Top vent 40 ft vertical with DVP pipe = 4-4
Top vent 40 ft vertical with SLP pipe = 3-3

31
Heat & Glo • 6000CMOD-IPI, 8000CMOD-IPI • 2241-900 Rev. i • 4/13
Figure 7.12
Top Vent - Vertical Termination - (continued)
Three Elbows
INSTALLED
HORIZONTALLY
H1
H2V1
V2
V1H1 + H2V2V1 + V2 Minimum H1 + H2 Maximum
Elbow only 1 ft. 305 mm * * * 1 ft. 305 mm
6 in. 152 mm 2 ft. 610 mm * * * 2 ft. 610 mm
1 ft. 305 mm 2 ft. 610 mm * * * 2 ft. 610 mm
2 ft. 610 mm 4 ft. 1.2 m * * * 4 ft. 1.2 m
3 ft. 914 mm 9 ft. 2.7 m * * * 9 ft. 2.7 m
4 ft. 1.2 m 18 ft. 5.5 m * * * 18 ft. 5.5 m
H1 + H2 = 20 ft. (6.1 m) Maximum V1 + V2 + H1 + H2 = 40 ft. (12.2 m) Maximum

Heat & Glo • 6000CMOD-IPI, 8000CMOD-IPI • 2241-900 Rev. i • 4/1332
A*
B
10 in. 12 in.
A. Pipe Clearances to Combustibles
WARNING! Risk of Fire! Maintain air space clearance to
vent. DO NOT pack insulation or other combustibles:
• Between ceiling fi restops
• Between wall shield fi restops
• Around vent system
Failure to keep insulation or other material away from
vent pipe may cause over heating and fi re.
8
8 Vent Clearances and Framing
Figure 8.2 Wall Penetration
* Shows center of vent framing hole for top or rear venting. The center of the
hole is one (1) in. (25.4 mm) above the center of the horizontal vent pipe.
Figure 8.1 Horizontal Venting Clearances To Combustible
Materials
A* B
6000 in. 42-3/4 41-3/4
mm 1086 1060
8000 in. 44-3/4 44-1/8
mm 1137 1111
B. Wall Penetration Framing
Combustible Wall Penetration
Whenever a combustible wall is penetrated, you must
frame a hole for the wall shield fi restop(s). The wall shield
fi restop maintains minimum clearances and prevents cold
air infi ltration.
• The opening must be framed on all four sides using the
same size framing materials as those used in the wall
construction.
• SLP pipe - A wall shield fi restop must be placed on each
side of an interior wall. A minimum 1-1/2 in. (38 mm)
overlap of attached heat shields must be maintained.
• DVP pipe - A wall shield fi restop is required on one side
only on interior walls. If your local inspector requires a
wall shield fi restop on both sides, then both wall shield
fi restops must have a heat shield (refer to Section 16.B.)
attached to them.
• See Section 10.L for information for regarding the in-
stallation of a horizontal termination cap.
Non-Combustible Wall Penetration
If the hole being penetrated is surrounded by noncom-
bustible materials such as concrete, a hole with diameter
one inch greater than the pipe is acceptable.
Whenever a non-combustible wall is penetrated, the wall
shield fi restop is only required on one side and no heat
shield is necessary.
* When using SLP or SL-D pipe, minimum clearances from the vent pipe to combus-
tible materials at inside wall firestops are: Top: 2-1/2 in. (64 mm)
Bottom: 1/2 in. (13 mm)
Sides: 1 in. (25 mm)
Note: Heat shields MUST overlap by a minimum of 1-1/2 in. (38 mm).
DVP heat shield - designed to be used on a wall 4 in. to 7-1/4 in. (102 mm to 184
mm) thick.
,f wall thickness is less than 4 in. the e[isting heat shields must be field trimmed. ,f
wall thickness is greater than 7-1/4 in. a DVP-HSM-B will be required.
SLP heat shield - designed to be used on a wall 4-3/8 in. to 7-5/8 in. (111 mm to
194 mm thick).
,f wall thickness is less than 4-3/8 the e[isting heat shields must be field trimmed.
,f wall thickness is greater than 7-5/8 in. a DVP-HSM-B will be required.
(DVP-SLP Pipe Shown)
3 in. (76 mm)
top clearance *
1 in. (25 mm)
clearance
bottom & sides
Heat
Shield
Wall
Shield
Firestop
Heat
Shield
WALL
3 in. (76 mm)
top clearance
1 in. (25 mm)
clearance around
vertical sections

33
Heat & Glo • 6000CMOD-IPI, 8000CMOD-IPI • 2241-900 Rev. i • 4/13
C. Install the Ceiling Firestop
A ceiling fi restop MUST be used between
fl oors and attics.
• DVP pipe only - Frame an opening 10 in.
by 10 in. (254 mm by 254 mm) whenever
the vent penetrates a ceiling/fl oor (see
Figure 8.3).
• SLP pipe only - Frame opening 9 in. x 9
in. (229 mm x 229 mm) whenever the vent
penetrates a ceiling/fl oor (see Figure 8.3).
• Frame the area with the same sized lumber
as used in ceiling/fl oor joist.
• The ceiling fi restop may be installed above or
below the ceiling joists when installed with a
attic insulation shield. It must be under joists
between fl oors that are not insulated. Refer
to Figure 8.4.
• Secure with three fasteners on each side.
WARNING! Risk of Fire! DO NOT pack insu-
lation around the vent. Insulation must be kept
back from the pipe to prevent overheating.
Figure 8.3 Installing Ceiling Firestop
Figure 8.4 Installing the Attic Shield
3 FASTENERS
PER SIDE
INSTALL ATTIC INSULATION SHIELDS
BEFORE OR AFTER INSTALLATION OF VENT SYSTEM
CEILING FIRESTOP
INSTALLED BELOW CEILING CEILING FIRESTOP
INSTALLED ABOVE CEILING
ATTIC ABOVE
A
PIPE
DVP
SLP
A
10 in. (254 mm)
9 in. (229 mm)
A

Heat & Glo • 6000CMOD-IPI, 8000CMOD-IPI • 2241-900 Rev. i • 4/1334
D. Install Attic Insulation Shield
WARNING! Fire Risk. DO NOT allow loose materials or
insulation to touch vent. Hearth & Home Technologies
Inc. requires the use of an attic shield.
The National Fuel Gas Code ANSI Z223.1 and NFPA 54
requires an attic shield constructed of 26 gauge minimum
metal that extends at least 2 in. (51 mm) above insulation.
Attic shields must meet specifi ed clearance and be se-
cured in place.
Flat Ceiling Installation
• Remove one shield from box.
NOTICE: Cut previously installed batt insulation to make
room for the attic insulation shield.
• Wrap shield around pipe if pipe is already installed in
area to be insulated.
• Match the three holes in each side and fasten with three
screws to form a tube.
• Bend three tabs on the bottom of the shield outward to
allow attachment to the ceiling fi restop.
• Bend the remaining bottom tabs inward 90º to maintain
the air space between the pipe and the shield. Set the
shield on the ceiling fi restop and attach to the fi restop.
• Bend all tabs inward 90º around the top of the shield.
These tabs must be used to prevent blown insulation
from getting between the shield and vent pipe, and to
maintain air space clearance.
Figure 8.5 Attic Insulation Shield
Figure 8.6 Heat Zone Cover Plate
E. Installing the Optional Heat-Zone® Gas Kit
• Remove the knockout from the fi replace and discard it
(see Figure 8.6).
• Center the duct collar around the exposed hole and
attach it to the fi replace with 3 screws. Note: Do this
BEFORE fi nal positioning of fi replace.
• Determine the location for the air register/fan housing
assembly.
Reference the Heat-Zone® Gas kit instructions for the
remaining installation steps.
Vaulted Ceiling Installation
• Remove one shield from box.
NOTICE: Cut previously installed batt insulation to make
room for the attic insulation shield.
• Cut the attic insulation shield (if application is for vaulted
ceiling) to fi t your ceiling pitch. Snip cut edge to recreate
1 in. bend tabs all the way around the bottom.
• Wrap shield around pipe if pipe is already installed in
area to be insulated.
• Match the three holes in each side and fasten with three
screws to form a tube.
• Bend three tabs on the bottom of the shield outward to
allow attachment to the ceiling fi restop.
• Bend the remaining bottom tabs inward 90º to maintain
the air space between the pipe and the shield. Set the
shield on the ceiling fi restop and attach to the fi restop.
• Bend all tabs inward 90º around the top of the shield.
These tabs must be used to prevent blown insulation
from getting between the shield and vent pipe, and to
maintain air space clearance.
BEND ALL TABS INWARD 90°
TO MAINTAIN CLEARANCE
AND PREVENT INSULATION
FROM FALLING INSIDE
INSERT 3
SCREWS
BEND 3 TABS
OUTWARD TO
FASTEN TO CEILING
FIRESTOP-BEND
REMAINING TABS
INWARD 90 DEGREES
TO MAINTAIN
CLEARANCE
HEAT-ZONE® GAS
ATTACHES HERE

35
Heat & Glo • 6000CMOD-IPI, 8000CMOD-IPI • 2241-900 Rev. i • 4/13
9
9 Appliance Preparation
CAUTION! Risk of Cuts, Abrasions or Flying Debris.
Wear protective gloves and safety glasses during instal-
lation. Sheet metal edges are sharp.
A. Vent Preparation
Figure 9.2 Remove the seal cap.
1. Remove the seal cap as shown in Figure 9.2.
2. Locate the fi berglass gasket in the manual bag. Attach
the gasket to the outer wrap using two self-tapping
screws. This creates a seal between the fi rst vent
component and the outer fi replace wrap. Figure 9.3
shows the gasket in place.
3. Secure the fi rst section of venting to the fi rebox by at-
taching to the starting collar with screws. See Figure
9.4.
Figure 9.1 Seal Cap in Position
Figure 9.3 Gasket in Place
Note: Vent attachment method varies by model.
Figure 9.4 Starting Collar
STARTING COLLAR

Heat & Glo • 6000CMOD-IPI, 8000CMOD-IPI • 2241-900 Rev. i • 4/1336
Figure 9.5 Non-combustible Board
B. Installing the Non-combustible Board
The factory supplied non-combustible board spans the
distance from the top of the fi replace to the center of the
framing header. This board must be used. See Figure 9.5.
HEADER
HEADER
C. Securing and Leveling the Appliance
WARNING! Risk of Fire! Prevent contact with:
• Sagging or loose insulation
• Insulation backing or plastic
• Framing and other combustible materials
Block openings into the chase to prevent entry of blown-
in insulation. Make sure insulation and other materials
are secured.
DO NOT notch the framing around the appliance
standoffs.
Failure to maintain air space clearance may cause
overheating and fi re.
The diagram shows how to properly position and secure
the appliance (see Figure 9.7). Nailing tabs are provided
to secure the appliance to the framing members.
• Bend out nailing tabs on each side.
• Place the appliance into position.
• Keep nailing tabs fl ush with the framing.
• Level the appliance from side to side and front to back.
• “Square” the unit by securing diagonal dimensions to
within 1/4 inch of each other. See Figure 9.6.
• Shim the appliance as necessary. It is acceptable to use
wood shims underneath the appliance.
• Secure the appliance to the framing by using nails or
screws through the nailing tabs.
• Secure the appliance to the fl oor by inserting two screws
through the pilot holes at the bottom of the appliance.
Figure 9.7 Proper Positioning and Securing of an Appliance
NAILING TABS
(BOTH SIDES)
PILOT HOLES
Figure 9.6 Positioning the Appliance Squarely
AB
Note: Diagonal dimensions (A) and (B) must be within
1/4 inch of each other.
WARNING! Risk of Fire! Non-combustible board must
be installed across the top of the fi replace per Figure 9.5.

37
Heat & Glo • 6000CMOD-IPI, 8000CMOD-IPI • 2241-900 Rev. i • 4/13
10
10 Installing Vent Pipe (DVP and SLP Pipe)
A. Assemble Vent Sections (DVP Pipe Only)
Attach Vent to the Firebox Assembly
Note: The end of the pipe sections with the lanced tabs will face
toward the appliance.
Attach the fi rst pipe section to the starting collar:
• Lanced pipe end to the starting collar
• Inner pipe over inner collar
• Push the pipe section until all lanced tabs snap in place
• Lightly tug on pipe to confi rm it has locked.
Figure 10.1 High Temperature Silicone Sealant
Figure 10.2
A
B
Figure 10.3
Assemble Pipe Sections
Per Figure 10.2:
• Start the inner pipe on the lanced end of section A into
the fl ared end of section B.
• Start the outer pipe of section A over the outer pipe of
section B.
• Once both vents sections are started, push fi rmly until
all lanced tabs lock into place.
• Lightly tug on the pipe to confi rm the tabs have locked.
It is acceptable to use screws no longer than 1/2 in. (13
mm) to hold outer pipe sections together. If predrilling holes,
DO NOT penetrate inner pipe.
For 90º and 45º elbows that are changing the vent direction
from horizontal to vertical, one screw minimum should be
put in the outer fl ue at the horizontal elbow joint to prevent
the elbow from rotating. Use screws no longer than 1/2
in. (13 mm). If predrilling screw holes, DO NOT penetrate
inner pipe.
Commercial, Multi-family (Multi-level exceeding two sto-
ries), or High-Rise Applications
All outer pipe joints must be sealed with high temperature
silicone (minimum of 300ºF continuous exposure rating), in-
cluding the slip section that connects directly to the hori-
zontal termination cap.
• Apply a bead of silicone sealant inside the female outer
pipe joint prior to joining sections. See Figure 10.1
• Only outer pipes need to be sealed. All unit collar, pipe,
slip section, elbow and cap outer fl ues shall be sealed
in this manner, unless otherwise stated.
WARNING! Risk of Fire or Explosion! DO NOT break
silicone seals on slip sections. Use care when remov-
ing termination cap from slip pipe. If slip section seals
are broken during removal of the termination cap, vent
may leak.
Figure 10.4 Seams
Note: Make sure that the seams are not aligned to prevent
unintentional disconnection.
INCORRECT
CORRECT
Lances
Lances

Heat & Glo • 6000CMOD-IPI, 8000CMOD-IPI • 2241-900 Rev. i • 4/1338
B. Assemble Vent Sections (SLP Pipe Only)
To attach the fi rst vent component to the starting collars
of the appliance:
• Attach a DVP-2SL or DVP-SLP24 adapter to the starting
collar of the appliance.
• Lock the vent components into place by sliding the pipe
section onto the collar.
• Align the seam of the pipe and seam of collar to allow
engagement. Rotate the vent component to lock into
place. Use this procedure for all vent components. See
Figure 10.5.
• Slide the gasket over the fi rst vent section and place it
fl ush to the appliance. This will prevent cold air infi ltration.
Caulk with a minimum of 300ºF continuous exposure
rating may be used to hold the part in place.
• Continue adding vent components, locking each
succeeding component into place.
• Ensure that each succeeding vent component is securely
fi tted and locked into the preceding component.
Commercial, Multi-family (Multi-level exceeding two sto-
ries), or High-Rise Applications
For Installation into a commercial, multi-family (multi-level
exceeding two stories) or high-rise applications: All outer
pipe joints must be sealed with high temperature silicone
(minimum of 300ºF continuous exposure rating), including
the slip section that connects directly to the horizontal ter-
mination cap.
• Apply a bead of silicone sealant (minimum of 300ºF con-
tinuous exposure rating), inside the female outer pipe
joint prior to joining sections. See Figure 10.1.
• Only outer pipes need to be sealed. All unit collar, pipe,
slip section, elbow and cap outer fl ues shall be sealed
in this manner, unless otherwise stated.
Figure 10.5 Adding Venting Components
WARNING! Risk of Fire or Explosion! DO NOT break
silicone seals on slip sections. Use care when remov-
ing termination cap from slip pipe. If slip section seals
are broken during removal of the termination cap, vent
may leak.
Note: Align seams to engage pipe,
then rotate counterclockwise to lock
C. Assemble Slip Sections
• Slide the inner fl ue of the slip section into the inner fl ue of
the pipe section and the outer fl ue of the slip section over
the outer fl ue of the pipe section. See Figure 10.6.
• Slide together to the desired length.
Figure 10.6 Slip Section Pilot Holes
Figure 10.7 Screws into Slip Section
Pilot hole
Pilot hole
NOTICE: When installing a vent system with an HRC
termination cap, all pipe system joints shall be sealed using
a high temperature silicone sealant (minimum of 300ºF
continuous exposure rating),.
• Apply a bead of silicone sealant inside the female outer
pipe joint prior to joining sections.
• Only outer pipes are sealed, sealing the inner fl ue is not
required.
• All unit collar, pipe, slip section, elbow and cap outer
fl ues shall be sealed.
• Continue adding pipe as necessary following instructions
in “Assembling Pipe Sections.”
NOTICE: If slip section is too long, the inner and outer fl ues
of the slip section can be cut to the desired length.
• Maintain a 1-1/2 in. (38 mm) overlap between the slip
section and the pipe section.
• Secure the pipe and slip section with two screws no
longer than 1/2 in. (13 mm), using the pilot holes in the
slip section. See Figure 10.7.

39
Heat & Glo • 6000CMOD-IPI, 8000CMOD-IPI • 2241-900 Rev. i • 4/13
120º
Figure 10.8 Securing Vertical Pipe Sections
120º
Figure 10.9 Securing Horizontal Pipe Sections
E. Disassemble Vent Sections
• Rotate either section (see Figure 10.10) so the seams
on both pipe sections are aligned as shown in Figure
10.11.
• Pull carefully to separate the pieces of pipe.
Figure 10.11 Align and Disassemble Vent Sections
Figure 10.10 Rotate Seams for Disassembly
D. Secure the Vent Sections
• Vertical runs originating off the top of the appliance, with
no offsets, must be supported every 8 ft. (2.44 m) after
the maximum allowed 25 ft. (7.62 m) of unsupported rise.
• Vertical runs originating off the rear of the appliance, or
after any elbow, must be supported every 8 ft. (2.44 m).
• Horizontal runs must be supported every 5 feet (1.52
m).
• Vent supports or plumbers strap (spaced 120º apart)
may be used to support vent sections. See Figures 10.8
and 10.9.
• Wall shield fi restops may be used to provide horizontal
support to vent sections.
• SLP ceiling fi restops have tabs that may be used to
provide vertical support.
WARNING! Risk of Fire, Explosion or Asphyxiation!
Improper support may allow vent to sag and separate.
Use vent run supports and connect vent sections per in-
stallation instructions. DO NOT allow vent to sag below
connection point to appliance.

Heat & Glo • 6000CMOD-IPI, 8000CMOD-IPI • 2241-900 Rev. i • 4/1340
F. Install Decorative Ceiling Components
(SLP only)
A decorative ceiling thimble can be installed on a fl at ceil-
ing through which the vent passes. The decorative ceiling
thimble is used to cover the fi restop.
• Seal the gap between the vent pipe and fi restop using
high temperature silicone (minimum of 300ºF continuous
exposure rating) to prevent cold air infi ltration.
• Install the decorative ceiling thimble by sliding it up to
the ceiling and attaching it using the provided screws.
A decorative cathedral ceiling support box can be installed
on a cathedral ceiling through which the vent passes.
• Use a plumb-bob to mark the center line of the venting
system on the ceiling and drill a small hole through the
ceiling and roof at this point. Locate the hole and mark
the outline of the cathedral ceiling support box on the
outside roof.
• Remove shingles or other roof covering as necessary
to cut the rectangular hole for the support box. Cut the
hole 1/8 in. (3 mm) larger than the support box outline.
• Lower the support box through the hole in the roof until its
bottom is at least 2 in. (51 mm) below the ceiling (Figure
10.12).
• Level the support box both vertically and horizontally and
temporarily tack it in place through the inside walls into
the roof sheathing.
• Use tin snips to cut the support box from the top corners
down to the roof line and fold the resulting fl aps to the
roof. See Figure 10.13.
• Nail the fl aps to the roof AFTER running a bead of non
hardening sealant between the fl aps and the roof.
WARNING! Risk of Fire! Clean out ALL materials from
inside the support box and complete the vertical vent run
and termination.
LEVEL
CATHEDRAL CEILING
SUPPORT BOX
2 in. (51 mm) MIN. BELOW
FINISHED CEILING
CUT HOLE 1/8 in. (3 mm)
GREATER IN SIZE THAN
PATTERN OF SUPPORT
BOX AS IT IS PROJECTED
ONTO ROOF LINE
Figure 10.12
Figure 10.13

41
Heat & Glo • 6000CMOD-IPI, 8000CMOD-IPI • 2241-900 Rev. i • 4/13
G. Install Metal Roof Flashing
• See minimum vent heights for various pitched roofs
(Figure 10.14) to determine the length of pipe to extend
through the roof.
• Slide the roof fl ashing over the pipe sections extending
through the roof as shown in Figure 10.15.
Roof Pitch H (Min.) Ft.
Flat to 6/12........................................1.0*
Over 6/12 to 7/12 ............................1.25*
Over 7/12 to 8/12 ..............................1.5*
Over 8/12 to 9/12 ..............................2.0*
Over 9/12 to 10/12 ............................. 2.5
Over 10/12 to 11/12 ......................... 3.25
Over 11/12 to 12/12 ........................... 4.0
Over 12/12 to 14/12 ........................... 5.0
Over 14/12 to 16/12 ........................... 6.0
Over 16/12 to 18/12 ........................... 7.0
Over 18/12 to 20/12 ........................... 7.5
Over 20/12 to 21/12 ........................... 8.0
* 3 foot minimum in snow regions
Figure 10.14 Minimum Height From Roof To Lowest Discharge
Opening
HORIZONTAL
OVERHANG
VERTICAL
WALL
GAS DIRECT VENT
TERMINATION CAP
12
X
ROOF PITCH
IS X/ 12
LOWEST
DISCHARGE
OPENING
2 FT.
MIN.
20 INCHES MIN.
H (MIN.) - MINIMUM HEIGHT FROM ROOF
TO LOWEST DISCHARGE OPENING
H. Assemble and Install Storm Collar
CAUTION! Risk of Cuts, Abrasions or Flying Debris.
Wear protective gloves and safety glasses during instal-
lation. Sheet metal edges are sharp.
• Connect both halves of the storm collar with two screws
(see Figure 10.16).
• Wrap the storm collar around the exposed pipe section
closest to the roof and align brackets. Insert a bolt
(provided) through the brackets and tighten the nut to
complete the storm collar assembly. Make sure the collar
is tight against the pipe section.
• Slide the assembled storm collar down the pipe section
until it rests on the roof fl ashing (see Figure 10.17).
• Caulk around the top of the storm collar (see Figure 10.23).
Figure 10.16 Assembling the Storm Collar
Figure 10.16 Assembling the Storm Collar
Figure 10.17 Assembling the Storm Collar Around the Pipe
Figure 10.17 Assembling the Storm Collar Around the Pipe
Figure 10.15
Figure 10.15
CAULK
NOTICE: Failure to properly caulk the roof fl ashing and
pipe seams may permit entry of water.
• Caulk the gap between the roof fl ashing and the outside
diameter of the pipe.
• Caulk the perimeter of the fl ashing where it contacts the
roof surface. See Figure 10.15.
• Caulk the overlap seam of any exposed pipe sections
that are located above the roof line.

Heat & Glo • 6000CMOD-IPI, 8000CMOD-IPI • 2241-900 Rev. i • 4/1342
SCREWS
CAULK
STORM
COLLAR
(1 of 3)
Figure 10.23
Figure 10.23
TERMINATION CAP
I. Install Vertical Termination Cap
• Attach the vertical termination cap by sliding the inner
collar of the cap into the inner fl ue of the pipe section
while placing the outer collar of the cap over the outer
fl ue of the pipe section.
• Secure the cap by driving three self-tapping screws
(supplied) through the pilot holes in the outer collar of the
cap into the outer fl ue of the pipe (see Figure 10.23).
J. Install Decorative Wall Components (SLP
only)
A decorative wall thimble can be installed on wall through
which the vent passes. The decorative wall thimble is used
to cover the wall shield fi restop.
• Slide the decorative wall thimble over the last section of
horizontal pipe before connecting the termination cap to
the pipe.
• Once the pipe section and the termination cap have been
connected, slide the wall thimble up to the interior wall
surface and attach with screws provided. See Figure
10.24.
Important Notice: Heat shields may not be fi eld constructed.
K. Heat Shield Requirements for Horizontal
Termination
WARNING! Risk of Fire! To prevent overheating and fi re,
heat shields must extend through the entire wall thick-
ness.
• DO NOT remove the heat shields attached to the
wall shield fi restop and the horizontal termination cap
(shown in Figure 10.25).
• Heat shields must overlap 1-1/2 in. (38 mm) mini-
mum.
There are two sections of the heat shield. One section
is factory-attached to the wall shield fi restop. The other
section is factory-attached to the cap. See Figure 10.25.
If the wall thickness does not allow the required 1-1/2 in.
(38 mm) heat shield overlap when installed, an extended
heat shield must be used.
• If the wall thickness is less than 4 in./102 mm (DVP)
or 4-3/8 in./ 111 mm (SLP), the heat shields on the cap
and wall shield fi restop must be trimmed. A minimum
1-1/2 in. (38 mm) overlap MUST be maintained.
• Use an extended heat shield if the fi nished wall thickness
is greater than 7-1/4 in. (184 mm).
• The extended heat shield may need to be cut to length
maintaining suffi cient length for a 1-1/2 in. (38 mm)
overlap between heat shields.
• Attach the extended heat shield to either of the existing
heat shields using the screws supplied with the extended
heat shield. Refer to vent components diagrams in the
back of this manual.
• Rest the small leg on the extended heat shield on top
of the pipe section to properly space it from the pipe
section.
Figure 10.24 Wall Thimble

43
Heat & Glo • 6000CMOD-IPI, 8000CMOD-IPI • 2241-900 Rev. i • 4/13
Figure 10.25 Venting through the wall
INTERIOR
HEAT SHIELD OR
EXTENDED
HEAT SHIELD
WALL SHIELD
FIRESTOP
HEAT SHIELD
1-1/2 IN. (38 MM) MIN.
OVERLAP
SHEATHING
VENT DEPTH FROM BACK OF APPLIANCE TO
OUTSIDE SURFACE OF EXTERIOR WALL
(SEE CHART BELOW)
SLIP SECTION
CAN BE EXTENDED
INNER VENT
OUTER VENT
EXTERIOR
Note: When using termination caps with factory-supplied
heat shield attached, no additional wall shield fi restop is
required on the exterior side of a combustible wall.
L. Install Horizontal Termination Cap (DVP
and SLP Pipe)
WARNING! Risk of Fire! The telescoping fl ue section of
the termination cap MUST be used when connecting vent.
• 1-1/2 (38 mm) minimum overlap of fl ue telescoping
section is required.
Failure to maintain overlap may cause overheating and
fi re.
• Vent termination must not be recessed in the wall. Siding
may be brought to the edge of the cap base.
• Flash and seal as appropriate for siding material at
outside edges of cap.
• When installing a horizontal termination cap, follow
the cap location guidelines as prescribed by current
ANSI Z223.1 and CAN/CGA-B149 installation codes
and refer to Section 6 of this manual.
CAUTION! Risk of Burns! Local codes may require in-
stallation of a cap shield to prevent anything or anyone
from touching the hot cap.
NOTICE: For certain exposures which require superior
resistance to wind-driven rain penetration, a fl ashing kit and
HRC caps are available. When penetrating a brick wall, a
brick extension kit is available for framing the brick.
Cap Specifi cation Chart
(depth without using additional pipe sections)
6000
Series
8000
Series
DVP-TRAPK1
Top Vent Depth
2-3/4 in. to 4-5/8 in.
DVP-TRAPK2
Top Vent Depth
5-1/8 in. to 9-1/8 in.
DVP-HPC1
Top Vent Depth
2-3/4 in. to 4-7/8 in.
DVP-HPC2
Top Vent Depth
4-7/8 in. to 9 in.
DVP-TRAP1 can adjust 1-1/2 in. (3-1/8 to 4-5/8 in.)
DVP-TRAP2 can adjust 4 in. (5-3/8 to 9-3/8)
DVP-HPC1 can adjust 2-1/8 in. (4-1/4 to 6-3/8)
DVP-HPC2 can adjust 4-1/8 in. (6-3/8 to 10-1/2)

Heat & Glo • 6000CMOD-IPI, 8000CMOD-IPI • 2241-900 Rev. i • 4/1344
A. Fuel Conversion
• Make sure the appliance is compatible with available gas
types.
• Conversions must be made by a qualified service
technician using Hearth & Home Technologies specifi ed
and approved parts.
B. Gas Pressure
• Optimum appliance performance requires proper input
pressures.
• Gas line sizing requirements will be determined in ANSI
Z223.1 National Fuel Gas Code in the USA and CAN/
CGA B149 in Canada.
• Pressure requirements are:
C. Gas Connection
• Refer to Reference Section 16 for location of gas line
access in appliance.
• Gas line may be run through knockout(s) provided.
• The gap between supply piping and gas access
hole may be caulked with caulk with a minimum of
300ºF continuous exposure rating or stuffed with non-
combustible, unfaced insulation to prevent cold air
infi ltration.
• Ensure that gas line does not come in contact with outer
wrap of the appliance. Follow local codes.
• Pipe incoming gas line into valve compartment.
• Connect incoming gas line to the 1/2 in. (13 mm)
connection on manual shutoff valve.
WARNING! Risk of Fire or Explosion! Support control
when attaching pipe to prevent bending gas line.
• A small amount of air will be in the gas supply lines.
WARNING! Risk of Fire or Explosion! Gas build-up dur-
ing line purge could ignite.
• Purge should be performed by qualified service
technician.
• Ensure adequate ventilation.
• Ensure there are no ignition sources such as sparks
or open fl ames.
Light the appliance. It will take a short time for air to purge
from lines. When purging is complete the appliance will
light and operate normally.
WARNING! Risk of Fire, Explosion or Asphyxiation!
Check all fi ttings and connections with a non-corrosive
commercially available leak-check solution. DO NOT use
open fl ame. Fittings and connections could have loos-
ened during shipping and handling.
WARNING! Risk of Fire! DO NOT change valve settings.
This valve has been preset at the factory.
WARNING! Risk of Fire or Explosion! High pressure
will damage valve. Low pressure may cause explosion.
• Verify inlet pressures. Verify minimum pressures when
other household gas appliances are operating.
• Install regulator upstream of valve if line pressure is
greater than 1/2 psig.
11
11 Gas Information
Gas Pressure Natural Gas Propane
Minimum inlet pressure 5.0 in. w.c. 11.0 in. w.c.
Maximum inlet pressure 10.0 in. w.c. 13.0 in. w.c.
Manifold pressure 3.5 in. w.c. 10.0 in. w.c.
Note: Have the gas supply line installed in accordance with
local codes, if any. If not, follow ANSI 223.1. Installation
should be done by a qualifi ed installer approved and/or
licensed as required by the locality. (In the Commonwealth
of Massachusetts installation must be performed by a
licensed plumber or gas fi tter).
Note: A listed (and Commonwealth of Massachusetts ap-
proved) 1/2 in. (13 mm) T-handle manual shut-off valve
and fl exible gas connector are connected to the 1/2 in. (13
mm) control valve inlet.
• If substituting for these components, please consult
local codes for compliance.
D. High Altitude Installations
NOTICE: If the heating value of the gas has been reduced,
these rules do not apply. Check with your local gas utility
or authorities having jurisdiction.
When installing above 2000 feet elevation:
• In the USA: Reduce burner orifi ce 4% for each 1000 feet
above 2000 feet.
• In CANADA: Reduce burner orifi ce 10% for elevations
between 2000 feet and 4500 feet. Above 4500 feet,
consult local gas utility.
Fire Risk.
Explosion Hazard.
High pressure will damage valve.
• Disconnect gas supply piping BEFORE
pressure testing gas line at test pressures
above 1/2 psig.
• Close the manual shutoff valve BEFORE
pressure testing gas line at test pressures
equal to or less than 1/2 psig.
WARNING

45
Heat & Glo • 6000CMOD-IPI, 8000CMOD-IPI • 2241-900 Rev. i • 4/13
A. Wiring Requirements
NOTICE: This appliance must be electrically wired
and grounded in accordance with local codes or, in the
absence of local codes, with National Electric Code
ANSI/NFPA 70-latest edition or the Canadian Electric
Code CSA C22.1.
• Wire the appliance junction box to 110-120 VAC. This is
required for use of optional accessories (standing pilot
ignition) or proper operation of the appliance (IntelliFire
PlusTM ignition).
• A 110-120 VAC circuit for this product must be protected
with ground-fault circuit-interrupter protection, in
compliance with the applicable electrical codes, when
it is installed in locations such as in bathrooms or near
sinks.
• Low voltage and 110-120 VAC voltage cannot be shared
within the same wall box.
WARNING! Risk of Shock or Explosion! DO NOT wire
110V to the valve or to the appliance wall switch. Incorrect
wiring will damage controls.
B. IntelliFire PlusTM Ignition System Wiring
• Wire the appliance junction box to 110-120 VAC for
proper operation of the appliance.
WARNING! Risk of Shock or Explosion! DO NOT wire
IPI controlled appliance junction box to a switched circuit.
Incorrect wiring will override IPI safety lockout.
• Refer to Figure 12.1, IPI Wiring Diagram.
• This appliance is equipped with an IntelliFire PlusTM
control valve which operates on a 6 volt system.
• Plug the 6 volt transformer plug into the appliance junction
box to supply power to the unit OR install 4 AA cell
batteries (not included) into the battery pack before use.
12
12 Electrical Information
Figure 12.1 IPI Wiring Diagram
TO JUNCTION
BOX (110V)
MODULE
FLAME
SENSE IGNITER
(OPTIONAL WALL CONTROLS)
GROUND
ORANGE
(PILOT) GREEN
(MAIN)
BROWN
BLACK
RED
BATTERY PACK
6V DC
FLAME
MODULATION
THERMOSTAT WIRE
ASSEMBLY / WALL
SWITCH WIRE
C. Optional Accessories Requirements
• This appliance may be used with a wall switch, wall
mounted thermostat and/or a remote control.
Wiring for optional Hearth & Home Technologies approved
accessories should be done now to avoid reconstruction.
Follow instructions that come with those accessories.
• Hearth & Home Technologies recommends that Intel-
liFire PlusTM wireless controls be used for their features
and functionality with the IntelliFire PlusTM ignition sys-
tem.
• A standard ON/OFF switch is compatible.

Heat & Glo • 6000CMOD-IPI, 8000CMOD-IPI • 2241-900 Rev. i • 4/1346
F. Wall Switch Installation for Fan (Optional)
If the box is being wired to a wall mounted switch for use
with a fan (See Figure 12.3):
• The power supply for the appliance must be brought into
a switch box.
• The power can then be supplied from the switch box to the
appliance using a minimum of 14-3 with ground wire.
• At the switch box connect the black (hot) wire and red
(switch leg) wire to the wall switch as shown.
• At the appliance connect the black (hot), white (neutral)
and green (ground) wires to the junction box as shown.
• Add a 1/4 in. insulated female connector to the red (switch
leg) wire, route it through the knockout in the face of the
junction box, and connect to the top fan switch connector
(1/4 in. male) as shown.
WHT
WHT
BLK
BLK
GRN wire
inside box
Copper
ground attached
to GRN screw with
GRN wire
14/2WG
Cover Plate
outside firebox
Romex
Connector
Figure 12.2 Junction Box Detail
NOTICE: DO NOT wire 110-120 VAC to wall switch.
Red
Switch
Switch Box
Red
Black
Black
Green Green
White
Power
Supply
Wires
White
Red
Black
Green
White
Minimum 14-3 AWG
with Ground
Junction Box
Knockout
Figure 12.3 Junction Box Wired to Wall Switch or BC10
E. Junction Box Installation
If the box is being wired from the INSIDE of the appliance:
• Remove the screw attaching the junction box/receptacle to
the outer shell, rotate the junction box inward to disengage
it from the outer shell (see Figure 12.2).
• Pull the electrical wires from outside the appliance through
the opening into the valve compartment and secure wires
with a Romex connector. See Figure 12.2.
• Make all necessary wire connections to the junction box/
receptacle and reattach the junction box/receptacle to the
outer shell.
D. Electrical Service and Repair
WARNING! Risk of Shock! Label all wires prior to dis-
connection when servicing controls. Wiring errors can
cause improper and dangerous operation. Verify proper
operation after servicing.
WARNING! Risk of Shock! Replace damaged wire with
type 105º C rated wire. Wire must have high temperature
insulation.

47
Heat & Glo • 6000CMOD-IPI, 8000CMOD-IPI • 2241-900 Rev. i • 4/13
13
13 Finishing
A. Mantel and Wall Projections
WARNING! Risk of Fire! Comply with all minimum clear-
ances as specifi ed. Framing closer than the minimums list-
ed must be constructed entirely of noncombustible materials
(i.e., steel studs, concrete board, etc.)
Figure 13.2 Combustible Mantel Leg or Wall Projections
(Acceptable on both sides of opening)
Figure 13.1 Minimum Vertical and Maximum Horizontal
Dimensions of Combustibles
Combustible Mantels
Combustible Mantel Legs or Wall Projections
MEASUREMENTS FROM
TOP EDGE OF THE OPENING
5
10
11
12
2-1/2
13
14
15 16
17 18 19
32
TO CEILING
9 10 11 12
8
7
6
5
4
3
25
18
AB
INTERIOR WALL
TOP VIEW
MANTEL LEG OR WALL PROJECTIONS
FIREPLACE OPENING
Note: All
measurements
in inches.
If A minimum is ____, then B maximum is_____.
AInches 2-7/16 3-7/16 4-7/16 5-7/16 6-7/16 7-7/16
Millimeters 62 87 113 138 164 189
BInches 12345
Millimeters 25 51 76 102 127
Note: Measurement is taken from top of the opening,
NOT the top of the fi replace.
3/8 IN.
1-3/4 IN.
3/8 IN.
The CMOD door will overlap the appliance. See Figure
13.3 and 13.4.
Figure 13.3 Appliance Surround
Figure 13.4 Door Overlaps Surround

Heat & Glo • 6000CMOD-IPI, 8000CMOD-IPI • 2241-900 Rev. i • 4/1348
B. Facing Material
• Metal front faces may be covered with non-combustible
materials only.
• Facing and/or fi nishing materials must not interfere with
air fl ow through louvers, operation of louvers or doors,
or access for service.
• Facing and/or fi nishing materials must never overhang
into the glass opening.
• Observe all clearances when applying combustible
materials.
• Seal joints between the fi nished wall and appliance top
and sides using a 300ºF minimum sealant. Refer to
Figure 13.3.
WARNING! Risk of Fire! DO NOT apply combustible
materials beyond the minimum clearances. Comply with
all minimum clearances to combustibles as specifi ed in
this manual. Overlapping materials could ignite and will
interfere with proper operation of doors and louvers.
Figure 13.5 Noncombustible Facing Diagram
B
A
FACTORY-INSTALLED NON-COMBUSTIBLE BOARD
DO NOT REMOVE
AB
6000 inches 39-3/4 41
millimeters 1010 1041
8000 inches 41-3/4 48
millimeters 1060 1219
C. Finish and Sealing Joints
All joints between the fi nished wall sheathing and the ap-
pliance must be sealed with non-combustible materials.
Sealants, such as caulk or mastic used to seal the gap
between the wall and the fi replace, should be rated at a
minimum continuous exposure to 300ºF.
Finishing Around Opening with Gypsum Wallboard
Gypsum wallboard (drywall) joints adjacent to the fi re-
place opening, including the non-combustible board on
the appliance, require special attention to minimize crack-
ing. When installing gypsum wallboard around the fi re-
place, install the hole for the fi replace opening in a single
wallboard sheet, if possible. This will minimize the joints
adjacent to the fi replace opening.
Tape wall board joints around the fi replace opening with
fi berglass-mesh tape. It will provide a more crack-resis-
tant joint than paper tape. Fill, smooth and fi nish wall
joints with chemically setting-type joint compound. It will
provide a more crack-resistant joint than air-drying light-
weight compound.
Painting
If desired fi nishing includes a painted wall, 100% acrylic
latex with compatible primer is recommended around this
appliance. Oil-based or standard acrylic paints may dis-
color due to heat exposure.

49
Heat & Glo • 6000CMOD-IPI, 8000CMOD-IPI • 2241-900 Rev. i • 4/13
D. Door Selection
Only doors certifi ed for use with this appliance model may be used. Contact your dealer for a list of doors that may be used.
The CMOD door can not be used if the appliance is installed directly on the fl oor. See Figure 13.6 and 13.7.
WALL WALL
FLOOR/ ELEVATED HEARTH
FOLIO DOOR
FLOOR/ ELEVATED HEARTH
Figure 13.6 Appliance Installed on Floor or Elevated Hearth
FLOOR/ELEVATED HEARTH
WALL
WALL
NOTE: THE APPLIANCE MUST BE ELEVATED A MINIMUM
OF 1 INCH IN ORDER TO USE THE CMOD DOOR.
FLOOR/ELEVATED HEARTH
CMOD DOOR
Figure 13.7 Appliance Installed Off the Floor
Folio Door Application
If the appliance is installed on the fl oor or level with an elevated hearth, the Folio Door MUST be used. The CMOD door
is not compatible with this type of installation as a minimum elevation of 1 inch is required on the bottom of the appliance.
CMOD Door Application
If the appliance is installed at a minimum of 1 inch above the fl oor, the CMOD door can be used. The CMOD door OVER-
LAPS the sides, top and bottom of the appliance surround. See Figure 13.3 and 13.4 for dimensions.

Heat & Glo • 6000CMOD-IPI, 8000CMOD-IPI • 2241-900 Rev. i • 4/1350
Figure 13.8 Finishing Material 1 Inch Thick or Less
DOOR 1 in. MAX.
FINISHING MATERIAL
(TOP EDGE)
Finishing materials 1 inch maximum thick.
Stop fi nishing material fl ush with opening.
NON-COMBUSTIBLE
FINISHING MATERIAL
Finishing Material:
1 Inch Thick or Less - Overlap Fit Method
DOOR FIT FINISH MATERIAL
THICKNESS SEE
FIGURE
CMOD-8-BK
CMOD-8-GY
Overlap 1 inch thick or less 13.8
Inside 1-4 inches maximum 13.9
CMOD-6-BK
CMOD-6-GY
Overlap 1 inch thick or less 13.8
Inside 1-4 inches maximum 13.9
FOLIO Inside Any 13.10
Only doors certifi ed for use with this appliance model
may be used. Contact your dealer for a list of doors that
may be used. Once you have determined what kind of
door and fi nishing material is going to be used on the
fi replace, you may use the table below which shows the
door models and the fi nishing material thickness allowed.

51
Heat & Glo • 6000CMOD-IPI, 8000CMOD-IPI • 2241-900 Rev. i • 4/13
DOOR
FINISHING
MATERIAL
FINISHING
MATERIAL
C
(Includes 1/8 in. opening each side of door)
A
(Outside door width)
Finishing Material Thickness Greater than 1 Inch
B = Top of door to bottom of fi replace.
D = Bottom of Finishing Material to Bottom of Fireplace
A
(Outside door width)
B
C
(Includes 1/8 in. opening each side of door)
D
E
NON-COMBUSTIBLE
FINISHING MATERIAL
Figure 13.9 Finishing Material Thickness Greater Than One Inch
8000 Models 6000 Models
Inches Millimeters Inches Millimeters
A48-13/16 1240 41-13/16 1062
B38-3/8 975 36-3/8 924
C49-1/16 1246 42-1/16 1068
D39-1/4 997 37-1/4 946
E3/8 10 3/8 10
Finishing Material Thickness:
Greater than 1 Inch - Inside Fit Method
NOTICE: Non-combustible fi nishing materials greater than
one inch require the inside fi t method.
Figure 13.10 Folio Inside Fit
NON-COMBUSTIBLE
FINISHING MATERIAL
DOOR FINISHING MATERIALFINISHING MATERIAL
Finishing Material:
0 - 4 Inches - Inside Fit Method

Heat & Glo • 6000CMOD-IPI, 8000CMOD-IPI • 2241-900 Rev. i • 4/1352
A. Remove Fixed Glass Assembly
See Section 14.G.
B. Remove the Shipping Materials
Remove shipping materials from inside or underneath the
fi rebox.
C. Clean the Appliance
Clean/vacuum any sawdust that may have accumulated
inside the fi rebox or underneath in the control cavity.
D. Accessories
Install approved accessories per instructions included
with accessories. Contact your dealer for a list of ap-
proved accessories.
WARNING! Risk of Fire and Electric Shock! Use ONLY
Hearth & Home Technologies-approved optional acces-
sories with this appliance. Using non-listed accessories
could result in a safety hazard and will void the warranty.
14
14 Appliance Setup
Figure 14.1 Install Rear Retainer
E. Glass Panel Installation
CAUTION! Risk of Cuts, Abrasions or Flying Debris.
Wear protective gloves and safety glasses during instal-
lation.
CAUTION! Glass is fragile. Handle with care.
1. Install the rear glass panel as shown in Figure 14.1.
the panel retainers and screws are included in the ap-
pliance manual bag.
Note: Screw the three glass panel retainers to the fi re-
box using the EXISTING pilot holes.
2. Slide the side glass panels in positions as shown in
Figure 14.2.
3. Figure 14.3. shows the glass panels installed properly.
SIDE RETAINERS
Figure 14.3 Install Side Retainers
REAR RETAINER
Figure 14.2 Install Side Glass Panels

53
Heat & Glo • 6000CMOD-IPI, 8000CMOD-IPI • 2241-900 Rev. i • 4/13
F. Media Placement
WARNING! Risk of Explosion! Follow media placement
instructions. Improperly placed media interfere with proper
burner operation.Fireplace will not function properly.
Delayed ignition may occur.
WARNING! Choking Hazard! Keep media out of reach
of children.
• DO NOT place media in pilot opening.
• DO NOT place media in a position that it may fall into
the pilot opening.
• DO NOT use any media other than the media supplied
with this fi replace or listed in Service Parts Section in
this manual.
• DO NOT use more than 14 lb. of media per 8000CMOD-
IPI or 12 lb. per 6000CMOD-IPI fi replace. Note: One bag
of glass contains 7 lbs.
6000CMOD-IPI: Extra 2 lbs. may be saved for future use.
1. Place media evenly on the base pan. Figure 14.9
shows properly placed media.
2. The media can only be placed in the shaded areas as
shown in Figure 14.7 and Figure 14.8.
3. Do not apply media over the pilot opening. See Figure
14.7 and Figure 14.8.
4. The rock fi xture assembly is factory installed in the
appliance. See Figure 14.4 and Figure 14.5.
5. After the media is properly installed, carefully remove
the rock fi xture assembly. Do not allow any media to
fall into the opening. See Figure 14.6. Store the rock
fi xture assembly under the appliance for future use.
Figure 14.4 Rock Fixture Installed
Figure 14.5 Rock Fixture Assembly Installed
Figure 14.6 Remove Rock Fixture Assembly
REMOVE SCREW
REMOVE SCREW
THIS JIG MUST BE USED FOR
THIS JIG MUST BE USED FOR
STONE PLACEMENT
STONE PLACEMENT
• REMOVE BEFORE BURNING
• REMOVE BEFORE BURNING
• DO NOT DISCARD
• DO NOT DISCARD

Heat & Glo • 6000CMOD-IPI, 8000CMOD-IPI • 2241-900 Rev. i • 4/1354
Figure 14.7 Placement of Media
NO MEDIA ON
PILOT OPENING
(WHITE AREA)
BURNER
NO MEDIA ON
PILOT OPENING
(WHITE AREA)
BURNER
Figure 14.8 Placement of Media
Figure 14.9 Proper Placement of Media

55
Heat & Glo • 6000CMOD-IPI, 8000CMOD-IPI • 2241-900 Rev. i • 4/13
Figure 14.8 Air Shutter
Figure 14.7 Fixed Glass Assembly
G. Fixed Glass Assembly
WARNING! Risk of Asphyxiation! Handle fi xed glass
assembly with care. Inspect the gasket to ensure it is
undamaged and inspect the glass for cracks, chips or
scratches.
• DO NOT strike, slam or scratch glass.
• DO NOT operate fi replace with glass removed, cracked,
broken or scratched.
• Replace as a complete assembly.
Removing Fixed Glass Assembly
• Pull the four glass assembly latches out of the groove on
the glass frame. Remove glass door from the appliance
(see Figure 14.7).
Replacing Fixed Glass Assembly
• Replace the glass door on the appliance. Pull out and
latch the four glass assembly latches into the groove on
the glass frame.
Air Shutter Settings
H. Install Trim and/or Surround
• Install optional trim kits and/or surrounds using the
instructions included with the accessory.
• Use non-combustible materials to cover the gap between
the sheet rock and the appliance (when applicable to the
model).
GLASS
ASSEMBLY
LATCHES
(BOTH BOTTOM
AND TOP)
AIR SHUTTER
WING NUT
I. Air Shutter Setting
Air shutter settings should be adjusted by a qualifi ed ser-
vice technician at the time of installation. The air shutter is
set at the factory for minimum vertical vent run. Adjust air
shutter for longer vertical runs. See Figure 14.8.
• Loosen the wing nut.
• Move the air handle to the left to open the air shutter.
• Move the air handle to the right to close the air shutter.
• Tighten the wing nut.
NOTICE: If sooting occurs, provide more air by opening
the air shutter.
NG LP
6000 Fully Closed Fully Open
8000 Fully Open Fully Open
Appearance of
components may vary.

Heat & Glo • 6000CMOD-IPI, 8000CMOD-IPI • 2241-900 Rev. i • 4/1356
15
15 Troubleshooting
With proper installation, operation, and maintenance your gas appliance will provide years of trouble-free service. If you do
experience a problem, this troubleshooting guide will assist a qualifi ed service technician in the diagnosis of a problem and
the corrective action to be taken. This troubleshooting guide can only be used by a qualifi ed service technician. Contact
your dealer to arrange a service call by a qualifi ed service technician.
A. IntelliFire PlusTM Ignition System
Symptom Possible Cause Corrective Action
1. Pilot won’t light.
The ignitor/module
makes noise, but no
spark.
A. Incorrect wiring. Verify “S” wire (white) for sensor and “I” wire (orange) for ignitor are
connected to correct terminals on module and pilot assembly.
B. Loose connections or electrical
shorts in the wiring. Verify no loose connections or electrical shorts in wiring from mod-
ule to pilot assembly. Verify connections underneath pilot assembly
are tight; also verify igniter and fl ame sense wires are not grounding
out to metal chassis, pilot burner, pilot enclosure, mesh screen if
present, or any other metal object.
C. Ignitor gap is too large. Verify gap of igniter to right side of pilot hood. The gap should be
approximately .17 in. or 1/8 in. (3 mm).
2. Pilot won’t light,
there is no noise or
spark.
A. No power, transformer installed
incorrectly or depleted batteries. Verify that transformer is installed and plugged into module. Check
voltage of transformer at connection to module. Acceptable read-
ings of a good transformer are between 6.4 and 6.6 volts AC. Bat-
tery power supply voltage must be at least 4 volts. If below 4 volts,
replace batteries.
B. A shorted or loose connection in
wiring confi guration or wiring har-
ness.
Remove and reinstall the wiring harness that plugs into module.
Verify there is a tight fi t. Verify pilot assembly wiring to module. Re-
move and verify continuity of each wire in wiring harness. Replace
any damaged components.
C. Improper wall switch wiring. Verify that 110-120 VAC power is “ON” to junction box.
D. Module not grounded. Verify black ground wire from module wire harness is grounded to
metal chassis of appliance.
3. Pilot sparks, but
Pilot will not light. A. Gas supply. Verify that incoming gas line ball valve is “open”. Verify that inlet
pressure reading is within acceptable limits.
B. Ignitor gap is too large. Verify gap of igniter to right side of pilot hood. The gap should be
approximately .17 in. or 1/8 in. (3 mm).
C. Module is not grounded. Verify module is securely grounded to metal chassis of appliance.
D. Pilot valve solenoid. Verify that 1.5 to 1.8 VDC is supplied to pilot solenoid from module.
If below 1.5 volts, replace module. If 1.5 volts or greater, replace
valve.

57
Heat & Glo • 6000CMOD-IPI, 8000CMOD-IPI • 2241-900 Rev. i • 4/13
Troubleshooting (continued)
Symptom Possible Cause Corrective Action
4. Pilot lights but contin-
ues to spark, and main
burner will not ignite.
(If the pilot continues
to spark after the
pilot fl ame has been lit,
fl ame rectifi cation has
not occurred.)
A. A shorted or loose connection in fl ame
sensing rod. Verify all connections to wiring diagram in manual. Verify
connections underneath pilot assembly are tight. Verify
fl ame sense or igniter wires are not grounding out to metal
chassis, pilot burner, pilot enclosure or screen if present, or
any other metal object.
B. Poor fl ame rectifi cation or contaminated
fl ame sensing rod. With fi xed glass assembly in place, verify that fl ame is en-
gulfi ng fl ame sensing rod on left side of pilot hood. Flame
sensing rod should glow shortly after ignition. With a multi-
meter, verify that current in series between module and
sense lead is at least 0.14 microamps. Verify correct pilot
orifi ce is installed and gas inlet is set to pressure specifi -
cations. Polish fl ame sensing rod with fi ne steel wool to
remove any contaminants that may have accumulated on
fl ame sensing rod.
C. Module is not grounded. Verify module is securely grounded to metal chassis of ap-
pliance. Verify that wire harness is fi rmly connected to the
module.
D. Damaged pilot assembly or contami-
nated fl ame sensing rod. Verify that ceramic insulator around the fl ame sensing rod
is not cracked, damaged, or loose. Verify connection from
fl ame sensing rod to white sensor wire. Polish fl ame sens-
ing rod with fi ne steel wool to remove any contaminants
that may have accumulated on fl ame sensing rod. Verify
continuity with a multi-meter with ohms set at lowest range.
Replace pilot if any damage is detected.
E. Module. Turn ON/OFF rocker switch or wall switch to OFF position.
Remove ignitor wire “I” from module. Place ON/OFF rocker
switch or wall switch in ON position. If there is no spark at “I”
terminal module must be replaced. If there is a spark at “I”
terminal, module is fi ne.

Heat & Glo • 6000CMOD-IPI, 8000CMOD-IPI • 2241-900 Rev. i • 4/1358
16
16 Reference Materials
A. Appliance Dimension Diagram
Dimensions are actual appliance dimensions. Use for reference only. For framing dimensions and clearances refer to Section 5.
Figure 16.1 Appliance Dimensions-6000 Models
A
B
CD
E
FRONT VIEW
TOP VIEW
LEFT SIDE RIGHT SIDE
F
G
H
I
J
K
L
O
P
GAS LINE
ACCESS
Q
R
N
Location Inches Millimeters
J 21 533
K 11-11/16 297
L 28-1/2 724
M 14-1/4 362
N 8-1/2 216
O 2-7/8 73
P 8-1/2 216
Q1 25
R 40-7/8 1038
Location Inches Millimeters
A 41 1041
B 36-1/8 918
C 33-1/2 851
D 34-5/8 879
E 2-1/4 57
F 9-11/16 246
G 26-7/8 683
H 6 dia 152
I 39-7/8 1013

59
Heat & Glo • 6000CMOD-IPI, 8000CMOD-IPI • 2241-900 Rev. i • 4/13
Figure 16.2 Appliance Dimensions-8000 Models
Location Inches Millimeters
J 21 533
K 11-11/16 297
L 35-1/2 901
M 17-3/4 451
N 8-1/2 216
O 2-7/8 73
P 8-1/2 216
Q1 25
R 42-7/8 1089
Location Inches Millimeters
A 48 1219
B 43-1/8 1096
C 35-1/2 902
D 36-5/8 930
E 2-3/8 60
F 9-15/16 252
G 28-7/8 734
H 6 152
I 41-7/8 1064
TOP VIEW
J
K
L
M
N
LEFT SIDE
O
GAS LINE
ACCESS
P
A
B
CD
FRONT VIEW
Q
R
E
F
G
H
I
RIGHT VIEW

Heat & Glo • 6000CMOD-IPI, 8000CMOD-IPI • 2241-900 Rev. i • 4/1360
B. Vent Components Diagrams
Figure 16.2 DVP vent components
Pipe Effective Length
Inches Millimeters
DVP4 4 102
DVP6 6 152
DVP12 12 305
DVP24 24 610
DVP36 36 914
DVP48 48 1219
DVP6A 3 to 6 76 to 152
DVP12A 3 to 12 76 to 305
10-1/2 in.
(267 mm)
10-7/8 in.
(276 mm)
45°
7-3/8 in.
(187 mm)
11-3/8 in.
(289 mm)
1-1/4 in. (32 mm)
9-1/4 in.
(235 mm)
13-1/4 in.
(337 mm)
1/2 in. TYP
DVP90ST (90° Elbow)
10 in.
(254 mm)
10 in.
(254 mm)
1 in.
(25 mm)
12 in.
(305 mm)
14 in.
(356 mm)
1 in.
(25 mm)
8 in.
(203 mm)
6 in.
(152 mm)
10 in.
(254 mm)
1- 1/2 in.
(38 mm)
5 in.
(127 mm) 12 in.
(305 mm)
UP
DVP-HVS (Vent Support) DVP-WS (Wall Shield Firestop)
DVP-FS (Ceiling Firestop)
DVP45 (45º Elbow)
DVP Pipe (see chart)
Effective
Height/Length
4-7/8 in.
(124 mm)
(13 mm)
Assembled
Height: 24 in./610 mm
Diameter: 10 in./254 mm
DVP-AS2

61
Heat & Glo • 6000CMOD-IPI, 8000CMOD-IPI • 2241-900 Rev. i • 4/13
DVP-HPC1 DVP-HPC2
DVP-TRAP1 DVP-TRAP2
DVP-TRAPK2
DVP-TRAPK1
DVP-TRAP
Horizontal Termination Cap
15-1/8 in.
(384 mm)
12 in.
(305 mm)
8 in.
(203 mm)
Max
Effective
Length
Note: Heat shields MUST overlap by a minimum of 1-1/2 in. (38 mm). The heat shield is designed to be
used on a wall 4 in. to 7-1/4 in. (102 mm to 184 mm) thick. If wall thickness is less than 4 in. (102 mm) the
existing heat shields must be field trimmed. If wall thickness is greater than 7-1/4 in. (184 mm) a DVP-HSM-B
will be required.
Heat
Shield
B. Vent Components Diagrams (continued)
Figure 16.3 DVP vent components
Term Cap Minimum
Effective Length Maximum
Effective Length
Trap1 3-1/8 in. 4-5/8 in.
79 mm 117 mm
Trap2 5-3/8 in. 9-3/8 in.
137 mm 238 mm

Heat & Glo • 6000CMOD-IPI, 8000CMOD-IPI • 2241-900 Rev. i • 4/1362
13-1/4 in.
(337 mm)
24-5/8 in.
(625 mm)
27-1/2 in.
(699 mm)
RF6M
Roof Flashing Multi-pak
31 in.
(787 mm)
24-5/8 in.
(625 mm)
13-1/4 in.
(337 mm)
RF12M
Roof Flashing Multi-pak
BEK
Trap Cap Brick Extension
13-3/4 in.
(349 mm)
5 in.
(127 mm)
13-3/4 in.
(349 mm)
Cap Shield
DRC-RADIUS
13-7/8 in.
(352 mm) 9-1/2 in.
(241 mm)
14 in.
(356 mm)
COOL-ADD
Cap Shield
11-5/8 in.
(295 mm)
5-3/4 in.
(146 mm)
7-1/8 in.
(181 mm)
12-1/8 in.
(308 mm)
DVP-BEK2
DVP-HPC Cap Brick Extension
13-7/8 in.
(352 mm)
5 in.
(127 mm)
11-7/8 in.
(302 mm)
DVP-TRAPFL
Flashing
26 in.
660 mm
DVP-HSM-B
Extended Heat Shield
B. Vent Components Diagrams (continued)
Figure 16.4 DVP vent components

63
Heat & Glo • 6000CMOD-IPI, 8000CMOD-IPI • 2241-900 Rev. i • 4/13
DVP-TB1
BasementVent Cap
12 in.
(305 mm)
1-1/2 in.
(38 mm)
7-3/8 in.
(187 mm)
14 in.
(356 mm)
17-3/4 in.
(451 mm)
7-1/4 in.
12 in.
305 mm
(184 mm)
5-1/4 in.
(133 mm)
12-1/2 in.
(318 mm)
DVP-TVHW
VerticalTermination Cap (Highwind)
PVK-80
(Not compatible with Intellifire Plus™.)
(For use with IPI and DSI appliances only.)
14 in.
(356 mm)
12 in.
(305 mm)
12-1/8 in.
(314 mm)
7-1/8 in.
(181 mm)
8-3/4 in.
(222 mm)
1-5/8 in.
(41 mm)
16-7/8 in.
(429 mm)
DVP-HPC
High Performance Cap
1 in.
(25 mm)
14 in.
(356 mm)
3/8 in. (10 mm)
1 in. (25 mm)
7-1/4 in.
(184 mm)
7-3/4 to 10-3/8 in.
(197 to 264 mm)
DVP-FBHT
FireBrickTermination Cap
B. Vent Components Diagrams (continued)
Figure 16.5 DVP vent components

Heat & Glo • 6000CMOD-IPI, 8000CMOD-IPI • 2241-900 Rev. i • 4/1364
B. Vent Components Diagrams (continued)
DVP-HRC-SS
DVP-HRC-ZC-SS
HORIZONTAL TERMINATION CAP
13 in.
(330 mm)
15 in.
(381 mm)
8-1/8 in.
(206 mm)
10-7/8 in.
276 mm
10-1/2 in.
267 mm
3°
87°
Effective Length
5-3/4 to 8-3/8 in.
146 to 213 mm 5-1/2 in.
140 mm 8-3/8 in.
213 mm
Figure 16.6 Vent Components
Fire Risk.
• When using DVP-HRC-SS and DVP-HRC-ZC-
SS termination caps on top vented fi replaces, a
6 inch minimum vertical vent section is required
before installing fi rst elbow.
WARNING
Optional Wire Harness
DESCRIPTION PART NUMBER
10 ft. PV Wire Harness PVI-WH10
20 ft. PV Wire Harness PVI-WH20
40 ft. PV Wire Harness PVI-WH40
60 ft. PV Wire Harness PVI-WH60
80 ft. PV Wire Harness PVI-WH80
100 ft. PV Wire Harness PVI-WH100
PVI-SLP
Power Vent Inline
SLP-LPC
SLP Low Profi le Cap
Note: Wire harnesses required to power the PVI-SLP
connect to the appliance and are ordered separately from
PVI-SLP. Contact your dealer to order.
16 IN.
406 mm
15 IN.
(381 mm)
16-11/16 IN.
(424 mm)
9-3/16 IN.
(233 mm)
4-1/2 IN.
114 mm
16-11/16 IN.
424 mm
13-5/8 IN.
(346 mm)
12-1/2 IN.
(318 mm)
12-1/2 IN.
318 mm
20-3/4 IN.
527 mm
13-5/8 IN.
346 mm

65
Heat & Glo • 6000CMOD-IPI, 8000CMOD-IPI • 2241-900 Rev. i • 4/13
B. Vent Components Diagrams (continued)
Figure 16.7 SLP Series Vent Components
8-3/4 in.
222 mm
6-1/2 in.
165 mm
6-5/8 in.
168 mm
6 in.
152 mm
6-1/2 in.
165 mm
6-5/8 in.
168 mm
9-7/8 in.
251 mm
6-1/2 in.
165 mm
9-1/4 in.
235 mm
SLP45
45° Elbow
SLP90
90° Elbow
Effective
Height/
Length
SLP PIPE
SLP-HVS
Horizontal Pipe
Support
SLP-FS
Ceiling Firestop SLP-WS
Wall Shield Firestop
DVP-SLP24
Adapter
Effective Height/Length
Pipe inches mm
SLP4 4 102
SLP6 6 152
SLP12 12 305
SLP24 24 610
SLP36 36 914
SLP48 48 1219
SLP6A 2 - 6 51 - 152
SLP12A 2 - 12 51 - 305

Heat & Glo • 6000CMOD-IPI, 8000CMOD-IPI • 2241-900 Rev. i • 4/1366
B. Vent Components Diagrams (continued)
Figure 16.8 SLP Series Vent Components
SLK-SNKD
Snorkel
Termination Cap
SLP-TVHW
Vertical
Termination Cap
SLP-CCS-BK
Cathedral Ceiling
Support Box-Black
SLP-DCF-BK
Ceiling Firestop
Black
SLP-WT-BK
Wall Thimble-Black
DVP-2SL
Adapter
26 in.
660 mm
DVP-HSM-B
Extended Heat Shield
SLP-TRAP
Horizontal Termination Cap
15-1/8 in.
(384 mm)
Note: Heat shields MUST overlap by a minimum of 1-1/2 in. (38 mm). The heat shield is designed to be
used on a wall 4 in. to 7-1/4 in. (102 mm to 184 mm) thick. If wall thickness is less than 4 in. (102 mm)
the existing heat shields must be field trimmed. If wall thickness is greater than 7-1/4 in. (184 mm) a
DVP-HSM-B will be required.
Heat
Shield
Term Cap Minimum
Effective Length Maximum
Effective Length
Trap1 3-1/8 in. 4-3/4 in.
79 mm 121 mm
Trap2 5-1/4 in. 9-1/4 in.
133 mm 235 mm
8 in.
(203 mm)
12 in.
(305 mm)
Max
Effective
Length

67
Heat & Glo • 6000CMOD-IPI, 8000CMOD-IPI • 2241-900 Rev. i • 4/13
Service Parts
Beginning Manufacturing Date: Aug 2010
Ending Manufacturing Date: Active
IMPORTANT: THIS IS DATED INFORMATION. When requesting service or replacement
parts for your appliance please provide model number and serial number. All parts listed
in this manual may be ordered from an authorized dealer. Stocked
at Depot
ITEM DESCRIPTION COMMENTS PART NUMBER
1 Non-Combustible Board 2166-136
2 Refractory Bracket Qty 2 req 2241-115
3 Rock Fixture Assembly 2241-040 Y
4 Base Pan Assembly 2241-015
4 Base Pan Back 2241-114
4 Base Pan Front 2241-101
4 Pilot Hood 2241-117
4 Pilot Shield Stainless 2241-116
5 Burner Assembly NG 2241-007 Y
LP 2241-008 Y
6 Glass Refractory, Back 2241-200
7 Glass Refractory, Sides Qty 2 req 2241-201
8 Glass Retainer Clips Pkg of 25 060-235-25 Y
9 Surround Assembly 2166-019
10 Glass Assembly GLA-6000G Y
11 Junction box 4021-013 Y
Additional service part numbers on following page. 4/13
36” Gas Fireplace - DV
6000CMOD-IPI
1
2
3
4
5
6
7
8
9
11
10
4.1
4.2
4.3
4.4
C. Service Parts

Heat & Glo • 6000CMOD-IPI, 8000CMOD-IPI • 2241-900 Rev. i • 4/1368
Service Parts
Beginning Manufacturing Date: Aug 2010
Ending Manufacturing Date: Active
IMPORTANT: THIS IS DATED INFORMATION. When requesting service or replacement
parts for your appliance please provide model number and serial number. All parts listed
in this manual may be ordered from an authorized dealer. Stocked
at Depot
ITEM DESCRIPTION COMMENTS PART NUMBER
1 Non-Combustible Board 2170-136
2 Refractory Bracket Qty 2 req 2241-115
3 Rock Fixture Assembly 2241-040 Y
4 Base Pan Assembly 2242-015
4 Base Pan Back 2242-114
4 Base Pan Front 2242-101
4 Pilot Hood 2241-117
4 Pilot Shield Stainless 2241-116
5 Burner Assembly NG 2242-007 Y
LP 2242-008 Y
6 Glass Refractory, Back 2242-200
7 Glass Refractory, Sides Qty 2 req 2242-201
8 Glass Retainer Clips Pkg of 25 060-235-25 Y
9 Surround Assembly 2170-019
10 Glass Assembly GLA-950TR Y
11 Junction box 4021-013 Y
Additional service part numbers on following page. 4/13
42” Gas Fireplace - DV
8000CMOD-IPI
1
2
3
4
5
6
7
8
9
11
10
4.1
4.2
4.3
4.4

69
Heat & Glo • 6000CMOD-IPI, 8000CMOD-IPI • 2241-900 Rev. i • 4/13
Service Parts
Beginning Manufacturing Date: Aug 2010
Ending Manufacturing Date: Active
IMPORTANT: THIS IS DATED INFORMATION. When requesting service or replacement
parts for your appliance please provide model number and serial number. All parts listed
in this manual may be ordered from an authorized dealer. Stocked
at Depot
ITEM DESCRIPTION COMMENTS PART NUMBER
12.1 Shutter Bracket Assembly 2118-121 Y
12.2 Pilot Assembly, NG 2090-012 Y
Pilot Assembly, LP 2090-013 Y
12.3 Pilot Bracket 2241-109
12.4 3-Hole Grommet 2118-420
12.5 Valve Bracket 2118-104
12.6 Flex Ball Valve Assembly 302-320A Y
12.7 Valve, NG 2166-302 Y
Valve, LP 2166-303 Y
12.8 Male Connector Pkg of 5 303-315/5 Y
12.9 Bulkhead w/FlexTube 7000-156 Y
12.10 Control Module, Gray 2166-306 Y
12.11 Wire Harness 2166-304 Y
12.12 Switched DC Regulator 2166-305 Y
12.13 Jumper Wire 2187-198 Y
12.14 Thermostat Wire Assembly 2118-170 Y
Orifi ce, NG (#40C) 6000CMOD-IPI 582-840 Y
Orifi ce, LP (#55C) 582-855 Y
Orifi ce, NG (#35C) 8000CMOD-IPI 582-835 Y
Orifi ce, LP (#54C) 582-854 Y
Additional service part numbers on following page.
6000CMOD-IPI, 8000CMOD-IPI
12.2
12.3 12.1
12.13
12.12
12.11
12.10
12.9
12.8
12.7
12.6
12.5
12.14
12.4
#12 Valve Assembly

Heat & Glo • 6000CMOD-IPI, 8000CMOD-IPI • 2241-900 Rev. i • 4/1370
Service Parts
Beginning Manufacturing Date: Aug 2010
Ending Manufacturing Date: Active
6000CMOD-IPI, 8000CMOD-IPI
IMPORTANT: THIS IS DATED INFORMATION. When requesting service or replacement
parts for your appliance please provide model number and serial number. All parts listed
in this manual may be ordered from an authorized dealer. Stocked
at Depot
ITEM DESCRIPTION COMMENTS PART NUMBER
Battery Pack** 2166-323 Y
**Fuse for battery pack can be sourced locally, not a warranty item. Specs are 500mA~10A 3/4" long
Flue Restrictor 385-128
Gasket Assembly
2166-081
Includes Vent, Seal Cap, Burner Neck, Shutter Bracket,
Manifold and Valve Plate gaskets
Glass Latch Assembly Pkg of 2 386-122A/2 Y
Media, Standard, 7 lb bags Clear (Qty 2 req) 4065-111
Media (Optional 14 LB bag)
Amber MEDIA-AMBER-14
Black MEDIA-BLACK-14
Cobalt (Blue) MEDIA-COBALT-14
Touch Up Paint TUP-GBK-12
Conversion Kit, NG 6000CMOD-IPI N/A
Conversion Kit, LP LPKI-6CM Y
Conversion Kit, NG 8000CMOD-IPI N/A
Conversion Kit, LP LPKI-8CM Y
Pilot Orifi ce, NG 593-528 Y
Pilot Orifi ce, LP 593-527 Y
Regulator, NG NGK-DXV-50 Y
Regulator, LP LPK-DXV-50 Y

71
Heat & Glo • 6000CMOD-IPI, 8000CMOD-IPI • 2241-900 Rev. i • 4/13
D. Contact Information
Please contact your Heat & Glo dealer with any questions or concerns.
For the location of your nearest Heat & Glo dealer,
please visit www.heatnglo.com.
- NOTES -
________________________________________________________________________________
________________________________________________________________________________
________________________________________________________________________________
________________________________________________________________________________
________________________________________________________________________________
________________________________________________________________________________
________________________________________________________________________________
________________________________________________________________________________
________________________________________________________________________________
Printed in U.S.A. - Copyright 2013
DO NOT DISCARD THIS MANUAL
NOTICE
• Leave this manual with
party responsible for use
and operation.
• Important operating
and maintenance
instructions included.
• Read, understand and follow
these instructions for safe
installation and operation.
Heat & Glo, a brand of Hearth & Home Technologies
7571 215th Street West, Lakeville, MN 55044
www.heatnglo.com
This product may be covered by one or more of the following patents: (United States) 5601073, 5613487, 5647340,
5890485, 5941237, 6006743, 6019099, 6053165, 6145502, 6374822, 6484712, 6601579, 6769426, 6863064, 7077122,
7098269, 7258116, 7470729, 8147240 or other U.S. and foreign patents pending.
2000-945B