Honeywell THM5421R01 Equipment Interface Module User Manual 69 2445EFS 01 System Installation Guide

Honeywell International Inc Equipment Interface Module 69 2445EFS 01 System Installation Guide

Manual

PrestigeTM 2-wire IAQ and RF EIMWith wireless accessories® U.S. Registered Trademark.Copyright © 2010 Honeywell International Inc.All rights reserved.SystemInstallation Guide69-2445EFS-01Control for up to 4 Heat/2 Cool heat pump systems or up to  3 Heat/2 Cool conventional systems.Installation guide for:• THX9000 Prestige IAQ• Wireless remote control• Equipment Interface Module• Wireless Outdoor Air SensorDISCONNECT POWER BEFORE BEGINNING INSTALLATION. Can cause electrical shock or equipment damage.MERCURY NOTICE: If this product is replacing a control that contains mercury in a sealed tube, do not place the old control in the trash. Contact your local waste management authority for instructions regarding recycling and proper disposal.Must be installed by a trained, experienced technician. Read these instructions carefully. Failure to follow these instructions can damage the product or cause a hazardous condition.
Prestige TM Installation Guide269-2445EFS—01System installation at a glanceInstallation procedureMount and wire thermostat ...................................................... Pages 3-7Mount and wire EIM .................................................................. Pages 3-7Connect thermostat to EIM ...................................................... Pages 3-7Customize thermostat (installer setup) ........................................Pages 8Install batteries in wireless accessories ........................................Page 8Link accessories to thermostat .............................................. Pages 9-10Mount outdoor sensor ..................................................................Page 11To replace system components if needed, see page 14 If you have more than one thermostat: Optional accessories must be linked to each thermostat separately.DISCONNECT POWER BEFORE BEGINNING INSTALLATION. Can cause electrical shock or equipment damage.MCR32049HVAC equipmentRemote controlThermostat1234657
369-2445EFS—01Mount and wire thermostatInstall as shown below. Connect wires to the R and C terminals on the thermostat.The other ends of these wires should be connected to the Equipment Interface Module R and C terminals or to a separate 24 volt transformer (not provided).Mount and wire Equipment Interface Module12MCR29241MCR32050Drywall: 3/16" hole Plaster: 7/32" holeWall anchorMounting screwMount Equipment Interface Module on wall near HVAC equipment, or on the equipment itself. Do not install inside HVAC equip-ment. Use screws & anchors as appropriate for mounting surface.M32051
Prestige TM Installation Guide469-2445EFS—01M32053Equipment Interface Module wiringStrip 1/4” insulation, then insert wires as shown.Wiring must comply with local electrical codes.Wiring guideTypical hookup of conventional system with up to three-stage heat and two-stage cool with one transformer (3H/2C, 2H/2C, 2H/1C, 1H/2C, 1H/1C, 1H, 2H, 3H, 1C, 2C conventional).HEAT 1 RELAYHEAT 2 RELAYHEAT 3 RELAYCOOL 1 RELAYCOOL 2 RELAYFAN RELAYSENSORS24VPOWERIAQCONTROL(24 VAC)TOTHERMOSTATIAQ DEVICEEQUIPMENTSENSOR TYPETHM5421RCONVM32054M32052
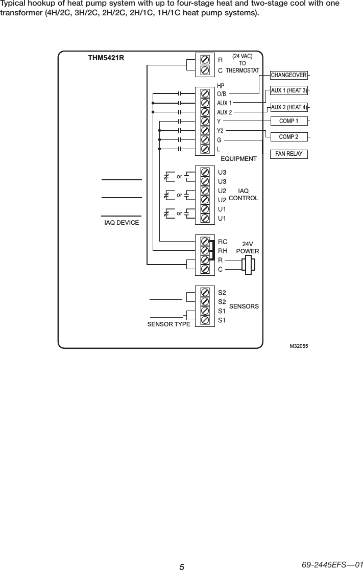
569-2445EFS—01Typical hookup of heat pump system with up to four-stage heat and two-stage cool with one transformer (4H/2C, 3H/2C, 2H/2C, 2H/1C, 1H/1C heat pump systems).SENSORSIAQCONTROL(24 VAC)TOTHERMOSTATIAQ DEVICEEQUIPMENTSENSOR TYPETHM5421RM32055CHANGEOVERAUX 1 (HEAT 3)AUX 2 (HEAT 4)COMP 1COMP 2FAN RELAY24VPOWER
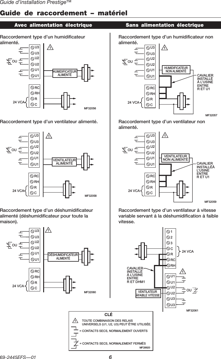
Prestige TM Installation Guide669-2445EFS—01POWEREDHUMIDIFIERRCRHRC24 VACU3U3U2U2U1 U1ORM320561Wiring guide—equipmentAny combination of Universal relays (U1, U2, U3) can be used.  With power supply  Without power supplyFIELD- INSTALLED JUMPER BETWEEN R AND U1RCRHRC24 VACU3U3U2U2U1 U1ORNON-POWEREDHUMIDIFIERM320571Typical hookup of non-powered humidifier.Typical hookup of powered humidifier.FIELD- INSTALLED JUMPER BETWEEN R AND U1RCRHRC24 VACU3U3U2U2U1 U1ORNON-POWEREDVENTILATORM320591Typical hookup of non-powered ventilation.M32061FIELD INSTALLED JUMPER BETWEEN R AND DHM 11 2 3 C R RC RH  24 VAC U1U1U2U2U3 U3ORLOW SPEED FAN1Typical hookup of variable speed blower for dehumidification in low speed.POWEREDVENTILATORRCRHRC24 VACU3U3U2U2U1 U1ORM320581Typical hookup of powered ventilation.POWEREDDEHUMIDIFIERRCRHRC24 VACU3U3U2U2U1 U1ORM320601Typical hookup of powered dehumidifier (whole house dehumidifier).M28920KEY= NORMALLY OPEN, DRY CONTACTSANY COMBINATION OF UNIVERSALRELAYS (U1, U2, U3) CAN BE USED.= NORMALLY CLOSED, DRY CONTACTS1
769-2445EFS—01Enroll the thermostat3Navigate through the installer setup to the Wireless Setup screen:Press the connect button on the Equipment Interface Module:Press Next at thermostat. Display will show "Device Connected' when the thermostat and Equipment Interface Module are connected.MCR32063NextMCR32065DoneM32064CONNECTBUTTON
Prestige TM Installation Guide869-2445EFS—01MENUHELPHELPM28799M29863M28800Customize thermostat (installer options)Install batteries in wireless accessoriesPress MENU. Press t to scroll down, then press INSTALLER OPTIONS. Enter security code when prompted. Security code is the thermostat date code (printed on back of thermostat). Or press MENU > EQUIPMENT STATUS to find code.Press CREATE SETUP to set all system settings one by one.Press VIEW/EDIT to select a specific  function and make quick changes. (See complete list of system settings on pages 12-13.)Press INSTALLER TEST to run system tests. You should always test the sys-tem after making changes to settings.Note: Press HELP for more information on these and other options.Remote control (optional) Outdoor air sensor (optional)45M29794MENUM29862MENUInstall 3 fresh AA batteriesInstall 2 fresh AA lithium batteries
969-2445EFS—01View Connected DevicesM28804Add DeviceM28803M28802Wireless DeviceManager Link wireless accessories to thermostat (optional)Press MENU. Press t to scroll down, then press INSTALLER OPTIONS. Enter security code when prompted. Security code is the thermostat date code (printed on back of thermostat). Or press MENU > EQUIPMENT STATUS to find code.Press t to scroll down, then press WRELESS DEVICE MANAGER. Press ADD DEVICE to start timer, then press the Connect button on wireless accessories to link them to the ther-mostat (see next page). Timer will re-set to 15 minutes after each accessory is linked. Thermostat will exit link mode after 15 minutes if there is no activity.Press VIEW CONNECTED DEVICES to verify that all wireless accessories have been linked to the thermostat. Press DONE when finished.Note: If you are installing more than one thermostat, repeat steps above and on page 10 for each thermostat.If you are installing multiple thermostats, you must press DONE to exit “Add Device” mode at each thermostat before linking wireless accessories to the next thermostat.6MENUM28801M29862MENU
Prestige TM Installation Guide1069-2445EFS—01CONNECTWIRELESS SETUPM28481Link remote control to thermostat (optional)Link outdoor sensor to thermostat (optional)1  Make sure the thermostat displays the “Add Device” timer screen (see page 9).2  Press CONNECT at the remote. There will be a short delay as the remote seeks a signal from the thermostat.3  When the screen displays "Connected," press DONE.4  Press NO at the next screen to save and exit. (Or press YES and repeat steps 1-4 to link another thermostat.)1  Make sure the thermostat displays the “Add Device” timer screen (see page 9).2  Press the CONNECT button on the back of the sensor.3  Check thermostat to verify that the outdoor sensor is working. After about 15 seconds, the thermostat should display outdoor temperature and humidity.Press to link to another thermostatPress to save and exitPress and releaseThe linking procedure at the remote may time out if there is no keypress within 30 minutes. To begin again, press and hold the blank space (or arrow, if present) in the lower right corner of the screen until the display changes (about 3 seconds).NOYESCONNECT MORE?M28482M28846M28847A
11 69-2445EFS—01Install outdoor sensor (optional)Mount the sensor on a vertical exterior wall, at least 6 inches below any over-hang. Choose a location protected from direct sunlight.Place sensor securely in bracket, facing away from wall.7M28491M28849A
Prestige TM Installation Guide1269-2445EFS—01Installer setup tablesSetup functions   (factory default setting listed, other options available)100   Language   English110   Zone Number  Not Zoned112   Device name   Thermostat130   Date year   2011140   Date month   June150   Date day   15160   Schedule options   Programmable165   Restore Energy Saver Schedule   No172   System selection   Conventional173 Heat Pump Type  Air To Air174   Compressor stages   1175   Series 20 Control  No176   Heat stages   1180   Fan operation   System (gas/oil/heat)190   Reversing valve   O/B on Cool200   Backup heat   Electric210   External fossil fuel   Yes220   Compressor stage 1 cycle rate   3230   Compressor stage 2 cycle rate   3240   Heat stage 1 cycle rate (Aux)   5250   Heat stage 2 cycle rate (Aux 2)   5260   Heat stage 3 cycle rate   5281   Display inactive backlight level   5 (color models only)300   Changeover   Manual310   Deadband   2° F320   Temperature display   Fahrenheit330   Daylight savings time   Auto change: On342   Outdoor temperature sensor?   No346   Dual-fuel upstage timer   60 minutes347  Droop Temperature  2349  Backup Heat Control  Comfort350   Compressor lockout (balance point)   Off360   Auxiliary lockout   Off365  Discharge Air Temperature Sensor  No371   Humidification equipment   None372   Indoor humidity control   Off374   Humidifier fan action   Humidify only with fan379   Dehumidification equipment   None383   Overcooling limit   3° F (1.5° C)384   Dehumidification fan control   Forces fan on386   Whole house Dehumidification Lockout  Off390   Dehumidification away mode   Off
13 69-2445EFS—01Installer setup tables391   Away mode fan operation   Automatic392   Away mode low temp. setting   76° F (24.5° C)393   Away mode high temp. setting   85° F (29.5° C)394   Away mode dehumidification   65% relative humidity400 Ventilation Control  Off401 Number of Bedrooms  2402 Total Sq. Ft. of Home  1000403 Ventilation CFM  160404 Max Ventilation Percentage Limit  50%405 Ventilation Fan Action  Ventilation Forces Fan On406 Ventilation in High Humidity  On431 Ventilation Lockout High Temperature  None432 Ventilation Lockout Low Temperature  None433 Ventilation Lockout High Outdoor Humidity  Off434 Ventilation Lockout High   75° dewpoint   Outdoor Humidity Setting450  A-Coil Low Temperature Cutoff  None500   Reminder: Furnace filter   Off502   Furnace filter runtime counter   Count heat and cool510   Reminder: Humidifier pad   Off520   Reminder: UV bulb   Off525 Installer Custom Reminders  Add Customer Reminder530   Adaptive Intelligent Recovery   On540   Number of schedule periods   4580   Minimum compressor off time   5 minutes600   Maximum heat range   90° F (32° C)610   Minimum cool range   60° F (15.5° C)640   Clock format   12-hour650   Extended fan on time (heat)   Off660   Extended fan on time (cool)   Off670   Keypad lock   Unlocked680   Temp. control (heat)   Standard690   Temp. control (cool)   Standard695  Finish on High Heat Stage  No696  Finish on High Cool Stage  No700   Temperature display offset   No offset701   Humidity display offset   No offset710   RESTORE FACTORY DEFAULTS   No: Advanced OptionsSetup functions   (factory default setting listed, other options available)
Prestige TM Installation Guide1469-2445EFS—01Installer setup tablesNote: All installer options, including Dealer name, contact information and message can be set up as a file and downloaded via the USB port on the thermostat.Replacing system componentsThermostatAfter installing a new thermostat, you must re-link all accessories to the new thermostat, as described below.1  Install and wire new thermostat (see pages 3-7).2  Customize new thermostat (see page 8).3  Link wireless accessories (see pages 9-10).At the remote control:•  Press and hold the blank space (or arrow if present) in the lower right corner of the screen until the display changes (see page 10).•  Press REMOVE, then yES to disconnect from old thermostat.•  Follow the procedure on page 10 to link to new thermostat.At the outdoor air sensor:•  Press the CONNECT button to link to the new thermostat (see page 10).4  Press DONE at the thermostat.Remote control & outdoor sensorTo replace a remote control or outdoor air sensor, install batteries and follow the procedures on pages 9-10 to link it to the thermostat.Customer contact information (optional, but recommended)1100   Dealer name   Your company name1150   Dealer phone number   Your telephone contact1200   Dealer email address   Your email address1250   Dealer website   Your web site1300 Dealer Message   Edit1350 Configurable S1 Sensor Input   None1355 Configurable S2 Sensor Input   None1400 Configurable U1 Relay  None1405 Configurable U2 Relay  None1410 Configurable U3 Relay  None1500 Low Speed Fan Position  Normally Closed
15 69-2445EFS—01Specifications & replacement partsOperating Ambient Temperature  Thermostat: 32 to 120° F (0 to 48.9° C)  Remote control: 32 to 120° F (0 to 48.9° C)  Outdoor air sensor: -40 to 140° F (-40 to 60° C)  EIM: -40 to 165° F (-40 to 73.9° C)  Return air sensor: 0 to 200° F (-17.8 to 93.3° C)  Discharge air sensor: 0 to 200° F (-17.8 to 93.3° C)Operating Relative Humidity  Thermostat: 5% to 90% (non-condensing)  Remote control: 5% to 90% (non-condensing)  Outdoor air sensor: 0% to 100% (condensing)  EIM: 5% to 95% (non-condensing)Physical Dimensions (height, width, depth)  Thermostat: 3-9/16 x 5-13/16 x 1-1/2 inches (91 x 147 x 38 mm)  Outdoor air sensor: 5 x 3-1/2 x 1-11/16 inches (127 x 89 x 43 mm)  EIM: 9-5/16 x 4-13/16 x 1-19/32 inches (91 x 147 x 38 mm)Electrical RatingsTerminal Voltage (50/60 Hz)   Max. Current RatingW - O/B  18 to 30 VAC   1.00AY (cooling)  18 to 30 VAC   1.00AG (fan)  18 to 30 VAC   0.60AW2 - Aux 1 (heating)  18 to 30 VAC   0.60AY2 (cooling)  18 to 30 VAC   0.60AW3 - Aux 2  18 to 30 VAC   1.00AL (Output)  18 to 30 VAC   0.60AU1  30 VAC max.   0.50AU1  30 VAC max.   0.50AU2  30 VAC max.   0.50AU2  30 VAC max.   0.50AU3  30 VAC max.   0.50AU3  30 VAC max.   0.50AAccessories & Replacement PartsItem   Part NumberWireless adapter   THM4000R1000Remote control   REM5000R1001Outdoor air sensor   C7089R1013Cover plate (covers marks left by old thermostats)   50028399-001
Prestige TM Installation Guide1669-2445EFS—01Regulatory informationFCC Compliance Statement (Part 15.19) (USA only) This device complies with Part 15 of the FCC Rules. Operation is subject to the following two conditions:1  This device may not cause harmful interference, and2  This device must accept any interference received, including interference that may cause undesired operation.FCC Warning (Part 15.21) (USA only) Changes or modifications not expressly approved by the party responsible for compliance could void the user’s authority to operate the equipment.FCC Interference Statement (Part 15.105 (b)) (USA only) This equipment has been tested and found to comply with the limits for a Class B digital device, pursuant to Part 15 of the FCC Rules. These limits are designed to provide reasonable protection against harmful interference in a residential installation. This equipment generates uses and can radiate radio frequency energy and, if not installed and used in accordance with the instructions, may cause harmful interference to radio communications. However, there is no guarantee that interference will not occur in a particular installation. If this equipment does cause harmful interference to radio or television reception, which can be determined by turning the equipment off and on, the user is encouraged to try to correct the interference by one of the following measures:•  Reorient or relocate the receiving antenna.•  Increase the separation between the equipment and receiver.•  Connect the equipment into an outlet on a circuit different from that to which the receiver is connected.•  Consult the dealer or an experienced radio/TV technician for help.Thermostats and outdoor sensor To comply with FCC and Industry Canada RF exposure limits for general population/ uncontrolled exposure, the antenna(s) used for these transmitters must be installed to provide a separation distance of at least 20 cm from all persons and must not be co-located or operating in conjunction with any other antenna or transmitter.Remote control This portable transmitter with its antenna complies with FCC and Industry Canada RF exposure limits for general population/uncontrolled exposure. Section 7.1.5 of RSS-GEN Operation is subject to the following two conditions:1  this device may not cause interference, and2  this device must accept any interference, including interference that may cause undesired operation of the device.
Module d’interface d’équipement RF et IAQ Prestige™ à deux filsAvec accessoires sans l® Marque de commence enregistrée aux États-Unis.Copyright © 2010 Honeywell International Inc.Tous droits réservés.Guided’installationdu systèmeRégulation de thermopompes offrant jusqu’à 4 étages de chauffage et 2 étag-es de refroidissement ou de systèmes classiques offrant jusqu’à 3 étages de chauffage et 2 étages de refroidissement.Guide d’installation pour :• IAQ Prestige THX9000• Télécommande sans fil• Module d’interface d’équipement• Capteur d’air extérieur sans filCOUPER L’ALIMENTATION ÉLECTRIQUE AVANT D’EFFECTUER LE RACCORDEMENT. Peut provoquer des chocs électriques ou endommager le matériel.AVIS SUR LE MERCURE : Si le nouveau thermostat remplace un ancien régulateur contenant un contact à mercure, ne pas mettre l’ancien régulateur aux poubelles. Communiquer avec le service local de cueillette des déchets pour obtenir de l’information sur le recyclage ou sur la bonne façon de disposer d’un ancien régulateur contenant un contact à mercure.Doit être installé par un technicien d'expérience ayant reçu la formation pertinente. Lire attentivement les instructions. Le fait de ne pas les suivre risque d'endommager le produit ou de constituer un danger.
Guide d’installation Prestige™69-2445EFS—01 2Installation du système en un coup d’oeilProcédure d’installationInstallation et raccordement du thermostat ............................ Pages 3-7Montage et câblage du module d’interface d’équipement .... Pages 3-7Branchement du thermostat au module  d’interface d’équipement .......................................................... Pages 3-7Personnalisation du thermostat  (mode de configuration par l’installateur).. ..................................Pages 8Insertion des piles dans les accessoires sans fil ..........................Page 8Connexion des accessoires au thermostat ........................... Pages 9-10Installation du capteur extérieur ..................................................Page 11Pour remplacer les composants du système au besoin, voir la page 14S’il y a plus d’un thermostat : Les accessoires en option doivent être liés à chaque thermostat séparément.COUPER L’ALIMENTATION ÉLECTRIQUE AVANT D’EFFECTUER LE RACCORDEMENT. Peut provoquer des chocs électriques ou endommager le matériel.Matériel de CVCAMCR32049ThermostatTélécommande1234657
  3  69-2445EFS—01Installation et raccordement du thermostatInstaller comme illustré ci-dessous. Brancher les fils aux bornes R et C du thermostat.Les autres extrémités de ces fils doivent être branchées sur les bornes R et C du module d’interface d'équipement ou sur un transformateur séparé de 24 V (non fourni).1MCR29241MCR32050Placoplâtre : Ouverture de 3/16 po (0.19 mm) Plâtre : Ouverture de 7/32 po (0.22 mm)Cheville d’ancrageVis de fixationInstallation et raccordement du Module d’interface d’équipement2Installer le Module d’interface d’équipement sur le mur à proximité du système de CVCA ou sur le système même. Ne pas l’installer à l’intérieur du système. Utiliser les vis et les chevilles d’ancrage fournies pour une installation en surface.M32051
Guide d’installation Prestige™69-2445EFS—01 4M32053Raccordement électrique du Module d’interface d’équipementDénuder l’isolant sur 1/4 po puis insérer les fils comme le montre l’illustration.Le câblage doit être conforme aux codes locaux de l’électricité.Guide de raccordementRaccordement type d’un système classique offrant jusqu’à 3 étages de chauffage et 2 étages de refroidissement avec un transformateur (3C/2R, 2C/2R, 2C/1R, 1C/2R, 1C/1R, 1C, 2C, 3C, 1R, 2R classique).RELAIS CHAUFFAGE 1RELAIS CHAUFFAGE 2RELAIS CHAUFFAGE 3RELAIS REFROIDISSEMENT 1RELAIS REFROIDISSEMENT 2RELAIS VENTILATEURCAPTEURSALIMENTATION24 VRÉGULATEURIAQ(24 V C.A.) VERSTHERMOSTATDISPOSITIF IAQÉQUIPEMENTTYPE DE CAPTEURTHM5421RCONVMF32054M32052
  5  69-2445EFS—01Raccordement type d’un système avec thermopompe à un transformateur offrant jusqu’à quatre étages de chauffage et deux étages de refroidissement et (thermopompes 4C/2R, 3C/2R, 2C/2R, 2C/1R, 1C/1R).THM5421RMF32055COMMUTTIONAUX 1 (CHAUFFAGE 3)AUX 2 (CHAUFFAGE 4)COMP 1COMP 2RELAIS VENTILATEURCAPTEURSALIMENTATION24 VRÉGULATEURIAQ(24 V C.A.) VERSTHERMOSTATDISPOSITIF IAQÉQUIPEMENTTYPE DE CAPTEUR
Guide d’installation Prestige™69-2445EFS—01 6HUMIDIFICATEURALIMENTÉRCRHRC24 VCAU3U3U2U2U1 U1OUMF320561Guide de raccordement – matériel  Avec alimentation électrique  Sans alimentation électriqueCAVALIER INSTALLÉÀ L’USINE ENTRE R ET U1RCRHRC24 VCAU3U3U2U2U1 U1OUHUMIDIFICATEURNON ALIMENTÉMF320571Raccordement type d’un humidificateur non alimenté.Raccordement type d’un humidificateur alimenté.RCRHRC24 VCAU3U3U2U2U1 U1OUVENTILATEURNON ALIMENTÉMF320591CAVALIER INSTALLÉÀ L’USINE ENTRE R ET U1Raccordement type d’un ventilateur non alimenté.MF32061CAVALIER INSTALLÉÀ L’USINE ENTRE R ET DHM11 2 3 C R RC RH  24 VCAU1U1U2U2U3 U3OUVENTILATEUR ÀFAIBLE VITESSE1Raccordement type d’un ventilateur à vitesse variable servant à la déshumidification à faible vitesse.VENTILATEURALIMENTÉRCRHRC24 VCAU3U3U2U2U1 U1OUMF320581Raccordement type d’un ventilateur alimenté.DÉSHUMIDIFICATEURALIMENTÉRCRHRC24 VCAU3U3U2U2U1 U1OUMF320601Raccordement type d’un déshumidificateur alimenté (déshumidificateur pour toute la maison).CLÉMF28920= CONTACTS SECS, NORMALEMENT OUVERTSTOUTE COMBINAISON DES RELAIS UNIVERSELS (U1, U2, U3) PEUT ÊTRE UTILISÉE.= CONTACTS SECS, NORMALEMENT FERMÉS1
  7  69-2445EFS—01Enregistrement du thermostat3Naviguer dans l’écran Wireless Setup (Configuration sans fil) de configuration de l’installateur :Appuyer sur le bouton de con-nexion du module d’interface d’équipement :Appuyer sur Next (Suivant) pour le thermostat. L’affichage indique « Device Connected » (Dispositif connecté) lorsque le thermostat et le module d’interface d’équipement sont connectés.MCR32063NextMCR32065DoneMF32064LE BOUTON CONNECT (CONNECTER)
Guide d’installation Prestige™69-2445EFS—01 8MENUHELPAIDEMF28799Personnalisation du thermostat (options de l’installateur)Insertion des piles dans les accessoires sans filAppuyer sur MENU. Appuyer sur t pour faire défiler le menu vers le bas, puis appuyer sur REGLAGE PAR L'INSTALLATEUR. À l’invite du thermostat, inscrire le code de sécurité.Le code de sécurité correspond au code de date du thermostat (imprimé à l’arrière de la thermostat). Ou appuyer sur MENU > éTAT DU MATERIéL pour trouver le code.Appuyer sur CRéER INSTALLATION pour configurer un à un tous les paramètres du système.Appuyer sur VOIR/éDITER pour choisir une fonction précise et apporter rapidement des modifications. (Voir la liste des paramètres de système aux pages 12-13.)Appuyer sur TEST PAR L'INSTALLATEUR pour vérifier le fonctionnement du système. Il est conseillé de toujours vérifier le système après avoir modifié les paramètres.Remarque : Appuyer sur AIDE pour obtenir plus d’information sur ces options et sur les autres options.Télécommande (optionnelle) Capteur d’air extérieur (optionnel)45Insérer 3 piles AA neuvesInsérer 2 piles au lithium AA neuvesMF29794MENUMF29862MENUM29863M28800
  9  69-2445EFS—01Connexion des accessoires sans fil au thermostat (optionnel)Appuyer sur MENU.  Appuyer sur t pour faire défiler le menu vers le bas, puis appuyer sur REGLAGE PAR L'INSTALLATEUR. À l’invite du thermostat, inscrire le code de sécurité. Le code de sécurité correspond au code de date du thermostat (imprimé à l’arrière de la thermostat). Ou appuyer sur MENU > éTAT DU MATERIéL > pour trouver le code.Appuyer sur t pour faire défiler le  menu vers le bas, puis appuyer sur  GESTIONNAIRE D'APPAREILS SANS fILAppuyer sur AjOUTER APPAREIL pour lancer la minuterie, puis appuyer sur le bouton Connect (Connecter) des accessoires sans fil pour établir la connexion avec le thermostat (voir à la page suivante).La minuterie revient à zéro après la connexion de chaque appareil. Le thermostat quittera le mode de connexion après 15 minutes sans activité.Appuyer sur VOIR APPAREILS CONNECTéS pour vérifier si tous les appareils sans fil ont bien été connectés au thermostat.Appuyer sur TERMINé une fois l’opération terminée.Remarque : S’il y a plus d’un thermostat à installer, répéter les étapes ci-dessus et celles de la page 10 pour chacun des thermostats.Lors de l’installation de plusieurs thermostats, il faut appuyer sur la touche TERMINé pour quitter le mode «Ajouter Appareil» à chaque thermostat avant de connecter des accessoires sans fil au thermostat suivant.6MENUMF28801MF29862MENUGestionnaire d’appareilssans filMF28802Ajouter appareilMF28803Voir appareils connectésMF28804
Guide d’installation Prestige™69-2445EFS—01  10NOYESCONNECT MORE?M28482Relier la télécommande au thermostat (optionnel)Connexion du capteur extérieur au thermostat (optionnel)1  S’assurer que le thermostat affiche l'écran de minuterie « Ajouter dispositif » (voir la page 9).2  Appuyer sur CONNECT de la télécommande. Il y a aura un court délai pendant que la télécommande recherche le signal du thermostat.3  Lorsque l’écran affiche «Connected», appuyer sur TERMINé.4  Appuyer sur non à l’écran suivant pour sauvegarder la configuration et quitter. (Ou appuyer sur oui et répéter les étapes 1 à 4 pour connecter un autre thermostat.)1  S’assurer que le thermostat affiche l'écran de minuterie « Ajouter dispositif » (voir la page 9).2  Appuyer sur CONNECT à l’arrière du capteur.3  Observer le thermostat pour vérifier que le capteur d’air extérieur fonctionne. Après environ 15 secondes, le thermostat devrait afficher la température et l’humidité extérieures.Appuyez pour le lien vers un autre thermostatAppuyez pour sauvegarder et quitterAppuyer sur le bouton et le relâcherM28846La connexion à la télécommande peut prendre fin automatiquement après 30 minutes d’inactivité sur les touches. Pour recommencer, appuyer sur l’espace vierge (ou sur la flèche, selon le cas) dans le coin inférieur droit de l’écran et le maintenir enfoncé jusqu’à ce que l’écran change (au bout d’environ 3 secondes).CONNECTWIRELESS SETUPM28481M28847A
  11  69-2445EFS—01Installation du capteur extérieur (optionnel)Installer le capteur sur un mur extérieur à la verticale, à au moins 6 pouces (15 cm) de tout surplomb. Choisir un emplacement où le capteur sera à l’abri des  rayons du soleil.Fixer fermement le capteur sur le support, en mettant le dos de l’appareil contre le mur.7M28491M28849A
Guide d’installation Prestige™69-2445EFS—01  12Tableaux de configuration par l’installateurFonctions de configuration   (réglage de l’usine indiqué, autres options possibles)100   Langue   Anglais110   Numéro de zone  Pas de zone112   Nom de l’appareil   Thermostat130   Année   2011140   Mois   Juin150   Jour   15160   Options de programmation   Programmable165   Restaurer le calendrier de l’économiseur d’énergie  Non172   Sélection du système   Classique173  Type de thermopompe  Air-air174   Étages de compresseur   1175   Régulateur série 20  Non176   Étages de chauffage   1180   Fonctionnement du ventilateur   Système (gaz/mazout/chauffage)190   Vanne d’inversion   O/B en Refroidissement200   Chauffage d’appoint   Électricité210   Combustible fossile externe   Oui220   Cycles de fonc. de l’étage 1 du compresseur   3230   Cycles de fonc. de l’étage 2 du compresseur   3240   Cycles de fonc. de l’étage 1 de chauffage (Aux)  5250   Cycles de fonc. de l’étage 2 de chauffage (Aux)  2260   Cycles de fonc. de l’étage 3 de chauffage)   5281   Niveau de rétroéclairage inactif   5 (modèles couleur seulement)300   Commutation chaud-froid   Manuelle310   Zone morte   2 °F320   Affichage de la température   0 Fahrenheit330   Heure d’été   Changement automatique : Marche342   Capteur de température extérieure   Non346   Minuterie de passage à l’étage supérieur   60 minutes   dans un système bi-énergie 347 Température de chute  2349   Régulateur de chauffage de secours  Confort350   Mise sous sécurité du compresseur   Arrêt   (point d’équilibre) 360   Mise sous sécurité du chauffage auxiliaire   Arrêt365   Capteur de température d'air de soufflage  Non371   Matériel d’humidification   Aucun372   Régulation de l’humidité ambiante   Arrêt374   Fonc. du ventilateur pour l’humidification   Humidité avec ventilateur seule-ment379   Matériel de déshumidification   Aucun383   Seuil de sur-refroidissement   3° F (1,5° C)384   Commande du ventilateur en déshumidification  Oblige la mise en marche du      ventilateur386   Verrouillage de la déshumidification pour  Arrêt   toute la maison390   Déshumidification en mode d’absence   Arrêt391   Fonc. du ventilateur en mode d’absence   Automatique
  13  69-2445EFS—01Tableaux de configuration par l’installateur392   Réglage du seuil de température   76 °F (24,5° C)Fonctions de   bas en mode d’absence   configuration (réglage de l’usine      indiqué, autres options possibles)393   Réglage du seuil de température haut   en mode d’absence   85 °F (29,5 °C)394   Déshumidification en mode d’absence   65 % d’humidité relative400 Commande de ventilation  Arrêt401 Nombre de chambres à coucher  2402 Superficie totale de la maison  1000403 Superficie de ventilation (pi3/min)  160404 Limite de pourcentage max. de la ventilation  50 %405 Action du ventilateur  Enclenchement forcé du ventilateur406 Ventilation par forte humidité  Marche431 Verrouillage de la ventilation haute température  Aucun432 Verrouillage de la ventilation basse température  Aucun433 Verrouillage de la ventilation   Arrêt   Humidité extérieure élevée434 Réglage Verrouillage de la ventilation   Point de rosée 75°   Humidité extérieure élevée  450  Coupure basse température serpentin A  Aucun500 Rappel : filtre pour appareil de chauffage   Arrêt502   Totalisateur de temps de fonctionnement du   filtre de l’appareil de chauffage   Décompte en chauff. et en ref.510   Rappel : Tampon d’humidificateur   Arrêt520   Rappel : Lampe UV   Arrêt525 Rappels personnalisés de l’installateur  Ajouter rappel du client530   Fonction de reprise auto-adaptative   Marche540   Nombre de périodes à l’horaire   4580   Temps d’arrêt minimal du compresseur   5 minutes600   Seuil maximal de chauffage   90 °F (32 °C)610   Seuil minimal de refroidissement   60 °F (15,5 °C)640   Affichage de l’heure   12 heures650   Prolongement du temps de marche   du ventilateur (chauffage)   Arrêt660   Prolongement du temps de marche   du ventilateur (refroidissement)   Arrêt670   Verrouillage du clavier   Déverrouillé680   Régulation de la température (chauffage)   Standard690   Régulation de la température (refroidissement)   Standard695  Fin sur étage chauffage élevé  Non696  Fin sur étage refroidissement élevé  Non700   Écart d’affichage de la température   Pas d’écart701   Écart d’affichage de l’humidité   Pas d’écart710  RÉTABLIR LES RÉGLAGES DE L’USINE   Non : Options avancéesFonctions de configuration   (réglage de l’usine indiqué, autres options possibles)
Guide d’installation Prestige™69-2445EFS—01  14Remplacement des composants du systèmeThermostatAprès l’installation d’un nouveau thermostat, il faut réarmer tous les accessoires au nouveau thermostat, selon les directives ci-dessous.1 Installation et raccordement d’un nouveau thermostat (voir les pages 3-7)2 Personnalisation du nouveau thermostat (voir la page 8)3 Connexion des accessoires sans fil (voir les pages 9-10)À la télécommande :• Appuyer sur l’espace vierge (ou la flèche, selon le cas) dans le coin inférieur droit de l’écran et le maintenir enfoncé jusqu’à ce que l’affichage change (voir page 10).• Appuyer sur REMOVE, puis sur pour déconnecter la télécommande de l’ancien hermostat.• Suivre les étapes à la page 10 pour connecter la télécommande au nouveau thermostat.Au capteur d’air extérieur :• Appuyer sur CONNECT pour lier le capteur au nouveau thermostat (voir la page 10).4 Appuyer sur TERMINé au thermostat.Télécommande et capteur extérieurPour remplacer une télécommande ou un capteur d’air extérieur, insérer des piles euves et suivre les étapes décrites aux pages 9-10 pour le relier au thermostat.Remarque : Toutes les options de l’installateur, y compris le nom du distributeur, les coordonnées et le message peuvent être configurées sous forme de fichier et téléchar-gées via le port USB du thermostat.Coordonnées de l’entrepreneur (optionnel, mais recommandé)1100   Raison sociale   Votre nom d’entreprise1150  Numéro de téléphone de l’entrepreneur   Votre numéro de téléphone1200  Courriel de l’entrepreneur   Votre courriel1250  Site Web de l’entrepreneur   Votre site Web1300 Message du distributeur   Modifier1350 Entrée capteur S1 configurable  Aucun1355 Entrée capteur S2 configurable  Aucun1400 Relais U1 configurable  Aucun1405 Relais U2 configurable  Aucun1410 Relais U3 configurable  Aucun1500 Position basse vitesse du ventilateur  Normalement ferméTableaux de configuration par l’installateur
  15  69-2445EFS—01Caractéristiques techniques et pièces de rechangeGamme de température ambiante de service Thermostat : 0 à 48,9 °C (32 à 120 °F) Télécommande : 0 à 48,9 °C (32 à 120 °F) Capteur d’air extérieur : -40 à 60 °C (-40 à 140 °F) Module d’interface d’équipement : -40 à 73.9° C (-40 à 165° F) Capteur d’air de retour : -17.8 à 93.3° C (0 à 200° F) Capteur d’air de soufflage : -17.8 à 93.3° C (0 à 200° F)Humidité relative de service Thermostat : 5 % à 90 % (sans condensation) Télécommande : 5 % à 90 % (sans condensation) Capteur d’air extérieur : 0 % à 100 % (avec condensation) Module d’interface d’équipement : 5 % à 90 % (sans condensation)Encombrement (hauteur, largeur, profondeur) Thermostat : 91 x 147 x 38 mm (3-9/16 x 5-13/16 x 1-1/2 po) Capteur d’air extérieur : 127 x 89 x 43 mm (5 x 3-1/2 x 1-11/16 po) Module d’interface d’équipement : 91 x 147 x 38 mm (9-5/16 x 4-13/16 x 1-19/32 po)Caractéristiques électriques nominalesBorne   Tension (50/60 Hz)   Intensité max.W - O/B 18 à 30 V c.a.  1,00 AY (refroidissement) 18 à 30 V c.a.  1,00 AG (ventilateur)  18 à 30 V c.a.  0,60 AW2 - Aux 1 (chauffage)  18 à 30 V c.a.   0,60 AY2 (refroidissement)  18 à 30 V c.a.  0,60 AW3 - Aux 2  18 à 30 V c.a.  1,00 AL (Sortie)  18 à 30 V c.a.   0,60 AU1  30 VAC max.   0,50 AU1  30 VAC max.   0,50 AU2  30 VAC max.   0,50 AU2  30 VAC max.   0,50 AU3  30 VAC max.   0,50 AU3  30 VAC max.   0,50 AAccessoires/Pièces de rechangeArticle   Numéro de pièceAdaptateur sans fil   THM4000R1000Télécommande   REM5000R1001Capteur d’air extérieur   C7089R1013Plaque de recouvrement (sert à masquer les   50028399-001 marques laissées par les anciens thermostats)
Guide d’installation Prestige™69-2445EFS—01  16Information sur la réglementationDéclaration de conformité à la FCC (partie 15,19) (États-Unis seulement) Cet appareil est conforme à la Partie 15 des règles de la FCC. Le fonctionnement de ce système est assorti aux deux conditions suivantes :(1) L’appareil ne peut causer d’interférences nuisibles, et(2) L’appareil doit accepter les interférences reçues, y compris celles qui pourraient nuire à son fonctionnement.Avis de la FCC (partie 15,21) (États-Unis seulement)  Toute modification qui n’est pas autorisée expressément par la partie responsable de la conformité de l’appareil aux règles en vigueur pourrait rendre l’utilisateur inapte à faire fonctionner le matériel.Déclaration sur l’interférence selon la FCC (partie 15,105 (b)) (États-Unis seulement) Ce dispositif a été testé et déclaré conforme aux normes spécifiées dans la partie 15 desrèglements de la FCC (Federal Communications Commission) concernant les dispositifsnumériques de classe B. Ces limites sont conçues pour offrir une protection raisonnable contre les interférences nocives pouvant survenir lorsque le produit est utilisé dans unenvironnement résidentiel. Ce dispositif produit, utilise et émet de l’énergie radioélectrique qui peut perturber les communications radio s’il n’est pas installé et utilisé conformément aux instructions du fabricant. Toutefois, rien ne garantit qu’il n’y aura pas d’interférences dans une installation donnée. Si l’appareil produit des interférences qui nuisent à la réception radio ou télé, ce qu’on peut déterminer en mettant l’appareil en service et hors service, l’utilisateur est invité à corriger la situation de l’une ou l’autre des façons suivantes :• Réorienter ou déplacer l’antenne de réception.• Augmenter l’espace qui sépare l’appareil du récepteur.• Brancher l’appareil à une prise faisant partie d’un circuit différent de celui du récepteur.• Consulter un détaillant ou technicien radio-télé d’expérience pour obtenir de l’aide.Thermostats et capteur extérieur  Pour être conformes aux limites d’exposition aux radiofréquences établies par la FCC et Industrie Canada pour le grand public/l’exposition non contrôlée, la ou les antennes employées par le transmetteur doivent être installées à au moins 20 cm de distance de toute personne et ne peuvent être situées au même endroit qu’une autre antenne ou un autre transmetteur ou fonctionner conjointement avec une autre antenne ou un autre transmetteur.Télécommande Le transmetteur portatif et son antenne sont conformes aux limites d’exposition aux radiofréquences établies par la FCC et Industrie Canada pour le grand public/l’exposition non contrôlée.Article 7.1.5 de CNR-GEN Le fonctionnement de ce système est assorti aux deux conditions suivantes :(1) L’appareil ne peut causer d’interférences nuisibles, et(2) L’appareil doit accepter les interférences reçues, y compris celles qui pourraient nuire à son fonctionnement.
IAQ y RM EIM Prestige™ de 2 cables Con accesorios inalámbricos® Marca registrada de los EE. UU. Patentes en trámite. Copyright © 2010 Honeywell International Inc.Todos los derechos reservados.Guía deinstalacióndel sistemaControl para los sistemas de bombas de calor de hasta 4 etapas de calor/2 etapas de frío o para sistemas convencionales de hasta 3 etapas de calor/2 etapas de frío.Guía de instalación para:• IAQ Prestige THX9000• Control remoto inalámbrico• Módulo interfaz del equipo• Sensor de aire exterior inalámbricoDESCONECTE LA ENERGÍA ANTES DE COMENZAR LA INSTALACIÓN. Puede ausar una descarga eléctrica o daños al equipo.AVISO SOBRE MERCURIO: Si este producto esta reemplazando a un control que contiene mercurio en un tubo sellado, no tire a la basura el control anterior. Contacte a la oficina de manejo de desechos de su localidad en relación a la forma de reciclar y desechar adecuadamente el control.Debe ser instalado por un técnico capacitado y experimentado. Lea detenidamente estas instrucciones. Si no sigue estas instrucciones, corre el riesgo de dañar el producto o de provocar una situación peligrosa.
Guía de instalación Prestige™ 69-2445EFS—01 2Instalación del sistema a simple vistaProcedimiento de instalaciónInstale y conecte el termostato ................................................. Págs. 3-7Instale y conecte el EIM ............................................................ Págs. 3-7Conecte el termostato al EIM .................................................... Págs. 3-7Personalice el termostato (configuración del instalador) ..............Pág. 8Instale las baterías en los accesorios inalámbricos ......................Pág. 8Conecte los accesorios al termostato .................................... Págs. 9-10Instale el sensor exterior ...............................................................Pág. 11Si necesita reemplazar los componentes del sistema, vea la pág.14Si tiene más de un termostato: Los accesorios opcionales se deben conectar a cada termostato por separado.DESCONECTE LA ENERGÍA ANTES DE COMENZAR LA INSTALACIÓN. Puede causar na descarga eléctrica o daños al equipo.Equipo de HVACMCR32049Control remotoTermostato1234657
  3  69-2445EFS—01Instale y conecte el termostatoInstale como se ilustra a continuación. Conecte los cables a los terminales R y C del termostato.Los otros extremos de estos cables deben estar conectados al Módulo Interfaz del equipo R y a los terminales C o a un transformador separado de 24 voltios (no se suministra).1MCR29241MCR32050Tarugo de paredTornilloPanel de yeso: orificio de 3/16” (4,7 mm) Yeso: orificio de 7/32” (5,5 mm)Instalación y conexión del Módulo interfaz del equipo2Instale el Módulo interfaz del equipo en una pared cerca del equipo de HVAC o sobre el mismo equipo. No lo instale dentro del equipo de HVAC. Utilice tornillos y tarugos de acuerdo con la superficie de montaje.M32051
Guía de instalación Prestige™ 69-2445EFS—01 4M32053Cableado del Módulo interfaz del equipoCorte 1/4 de pulgada (6,4 mm) del material aislante y luego inserte los cables tal como se muestra.El cableado debe cumplir con los códigos de electricidad locales.Guía de cableadoConexión típica del sistema convencional con calor de hasta tres etapas y frío de hasta dos etapas con un transformador (convencional de 3C/2R, 2C/2R, 2C/1R, 1C/2R, 1C/1R, 1C, 2C, 3C, 1R, 2R).RELÉ DE CALOR 1RELÉ DE CALOR 2RELÉ DE CALOR 3RELÉ DE REFRIGERACIÓN 1RELÉ DE REFRIGERACIÓN 2RELÉ DEL VENTILADORSENSORESELECTRICIDADDE 24 VCONTROLIAQ(24 VAC) AL TERMOSTATODISPOSITIVO IAQEQUIPOTIPO DE SENSORTHM5421RCONVMS32054M32052
  5  69-2445EFS—01Conexión típica del sistema de bomba de calor con un transformador, con calor de hasta cuatro etapas y frío de hasta dos etapas (sistemas de bombas de calor 4C/2R, 3C/2R, 2C/2R, 2C/1R, 1C/1R).THM5421RMS32055AUX 1 (CALOR 3)CAMBIOAUX 2 (CALOR 4)COMP 1COMP 2RELÉ DEL VENTILADORSENSORESELECTRICIDADDE 24 VCONTROLIAQ(24 VAC) AL TERMOSTATODISPOSITIVO IAQEQUIPOTIPO DE SENSOR
Guía de instalación Prestige™ 69-2445EFS—01 6HUMIDIFICADORCON ENERGÍARCRHRC24 VCAU3U3U2U2U1 U1OMS320561Guía de cableado—equipo  Con suministro de energía  Sin suministro de energíaPUENTE INSTALADO EN CAMPO ENTRE R Y U1RCRHRC24 VCAU3U3U2U2U1 U1OHUMIDIFICADORSIN ENERGÍAMS320571Conexión típica de humidificador sin energía.Conexión típica de humidificador con energía.PUENTE INSTALADOEN CAMPO ENTRER Y U1RCRHRC24 VCAU3U3U2U2U1 U1OVENTILADORSIN ENERGÍAMS320591Conexión típica de ventilación sin energía.MS32061PUENTE INSTALADOEN CAMPO ENTRER Y DHM 11 2 3 C R RC RH  24 VCAU1U1U2U2U3 U3OVENTILADOR DEBAJA VELOCIDAD1Conexión típica del ventilador de velocidad variable para deshumidificación a baja velocidad.VENTILADORCON ENERGÍARCRHRC24 VCAU3U3U2U2U1 U1OMS320581Conexión típica de ventilación con energía.DESHUMIDIFICADORCON ENERGÍARCRHRC24 VCAU3U3U2U2U1 U1OMS320601Conexión típica de deshumidificador con energía (deshumidificador de hogares).TECLAMS28920= CONTACTOS SECOS, NORMALMENTE ABIERTOSPUEDE UTILIZAR CUALQUIER COMBINACIÓN DE RELÉS UNIVERSALES (U1, U2, U3).= CONTACTOS SECOS, NORMALMENTE ABIERTOS1
  7  69-2445EFS—01Registre el termostato3Navegue a través de la configuración del instalador hasta la pantalla de configuración inalámbrica:Presione el botón para conectar el módulo interfaz del equipo:Presione "Next" (siguiente) en el termostato. La pantalla mostrará "Device Connected" (dispositivo conectado) cuando el termostato y el módulo interfaz del equipo estén conectados.MCR32063NextMCR32065DoneMS32064EL BOTÓN CONNECT (CONECTAR)
Guía de instalación Prestige™ 69-2445EFS—01 8Personalice el termostato (opciones del instalador)Presione MENÚ.Presione t para desplazar hacia abajo, después presione CONfIGURACIóN DEL INSTALADOR. Ingrese el código de  seguridad cuando se lo pida. El código de seguridad es el código de fecha del termostato (impreso en la parte posterior de la termostato). O presione MENÚ > ESTATUS DEL EQUIPO para encontrar el código.Presione CREAR CONfIGURACIóN para ajustar todas las configuraciones del sistema una por una.Presione VER/EDITAR para seleccionar  una función específica y para realizar cambios rápidos. (Vea la lista completa de las configuraciones del sistema en las pág. 12-13.)Presione PRUEbA DEL INSTALADOR para probar el sistema. Siempre se debe  probar el sistema después de realizar cambios en las configuraciones.4Instalar las baterías en los accesorios inalámbricosControl remoto (opcional) Sensor de aire exterior (opcional)5Instale 3 baterías AA nuevasInstale 2 baterías AA de litio nuevasM29863M28800MENÚMS29794MENUMS29862Configuración del instaladorMENUHELPAIDEMENUHELPAYUDAMS28799Nota: presione AYUDA para obtener más información sobre esta y otras opciones.
  9  69-2445EFS—01Accesorios inalámbricos para el termostato (opcional)Presione MENÚ. Presione t para desplazar hacia abajo, después presione CONfIGURACIóN DEL INSTALADOR. Ingrese el código de  seguridad cuando se lo pida. El código de seguridad es el código de fecha del termostato (impreso en la parte posterior de la termostato). O presione MENÚ > ESTATUS DEL EQUIPO para encontrar el código.Presione t para desplazar hacia abajo, después presione DISPOSITIVO INALáM-bRICO ADMINISTRADOR.Presione AñADIR DISPOSITIVO para  accionar el temporizador, después  presione el botón Connect (conectar) en los accesorios inalámbricos para conectarlos al termostato (vea la pág. siguiente). El temporizador se restablecerá 15  minutos después de que se conecte cada accesorio. El termostato saldrá del modo de conexión después de 15 minutos si no hay actividad.Presione VER DISPOSITIVOS CONECTADOS para comprobar que todos los acceso-rios inalámbricos se hayan conectado al termostato.Presione hEChO cuando finalice.Nota: si instala más de un termostato, repita los pasos mencionados anteriormente y en la pág. 10 para cada termostato.Si instala varios termostatos, debe presionar HECHO para salir del modo “Add Device” “Añadir Dispositivo” en cada termostato antes de conectarle los accesorios inalámbricos al próximo termostato.6MENUMS29862Configuración del instaladorMENÚMS28801Dispositivo inalambricoAdministradorMS28802Añadir dispositivoMS28803Ver DispositivosconectadosMS28804
Guía de instalación Prestige™ 69-2445EFS—01  10NOYESCONNECT MORE?M28482Conecte el control remoto al termostato (opcional)Conecte el sensor de aire exterior al termostato (opcional)1  Cerciórese que el termostato muestra la pantalla del temporizador "añadir dispositivo" (vea la pág. 9).2  Presione CONNECT en el control remoto. Habrá una breve demora mientras el control remoto busca una señal procedente del termostato.3  Cuando la pantalla muestre “Connnected,” presione DONE.4  En la pantalla siguiente presione NO para guardar y salir. (O presione YES y repita los pasos del 1 al 4 para conectar otro termostato).1  Cerciórese que el termostato muestra la pantalla del temporizador "añadir dispositivo" (vea la pág. 9).2  Presione el botón CONECTAR en la parte posterior del sensor.3  Controle el termostato para comprobar que el sensor exterior esté funcionando. Después de 15 segundos, aprox., el termostato debe mostrar la temperatura y la humedad exteriores.Presione para conectar a otro termostatoPresione para guardar y salirPresione y suelteEs posible que el procedimiento de conexión en el control remoto se interrumpa si no presiona ninguna tecla en 30 minutos.Para volver a comenzar, presione y mantenga presionado el espacio en blanco (o la flecha, si la hubiera) en la esquina inferior derecha de la pantalla hasta que esta se modifique (30 segundos, aprox.).M28846CONNECTWIRELESS SETUPM28481M28847A
  11  69-2445EFS—01Instale el sensor exterior (opcional)Instale el sensor en una pared exterior vertical, a 6 pulg. (15,24 cm) como míni-mo, debajo de cualquier alero.Elija una ubicación donde no haya luz solar directa.Coloque bien el sensor en el soporte,  orientado en dirección opuesta a la pared.5M28491M28849A
Guía de instalación Prestige™ 69-2445EFS—01  12Tablas de configuración del instaladorFunciones de configuración   (listado de las configuraciones de fábrica)100   Idioma   Inglés110   Número de zona  No zonificado112   Nombre del dispositivo   Termostato130   Año   2011140   Mes   Junio150   Día   15160   Opciones de la configuración   Programable165   Recuperar programación para ahorro de energía  No172   Selección del sistema   Convencional173  Tipo de bomba de calor  Aire a aire174   Etapas del compresor   1175   Control Serie 20  No176   Etapas de calor   1180   Funcionamiento del ventilador   Sistema (gas/aceite/calor)190   Válvula de inversión   O/B en Cool (frío)200   Calefacción de reserva   Eléctrica210   Combustible fósil externo   Sí220   Frecuencia del ciclo 1 de la etapa del compresor  3230   Frecuencia del ciclo 2 de la etapa del compresor  3240   Frecuencia del ciclo 1 de la etapa de calor (Aux)  5250   Frecuencia del ciclo 2 de la etapa de calor (Aux 2)  5260   Frecuencia del ciclo 3 de la etapa de calor   5281   Nivel inactivo de la luz de fondo de la pantalla   5 (solo modelos a color)285   Contraste de la pantalla   5 (solo modelos en      escalas de grises)300   Cambio   Manual310   Banda muerta   2ºF (-16,6ºC)320   Pantalla de la temperatura   Fahrenheit330   Horario de verano Cambio automático:   On (encendido)342   ¿Sensor de temperatura exterior?   No345   Control de la bomba de calor combustible dual   Punto de equilibrio + caída347  Temperatura de descenso  2346   Temporizador de combustible dual   60 minutos349  Control de calor de respaldo  Confort350   Bloqueo del compresor (punto de equilibrio)   Off (desactivado)360   Bloqueo auxiliar   Off (desactivado)365   ¿Sensor de temperatura de descarga?   No366   Límite superior de descarga por zona   160ºF (71ºC)367   Límite inferior de descarga por zona   40ºF (4,5ºC)368   Límite superior de descarga por etapa   110ºF (43,5ºC)369   Límite inferior de descarga por etapa   55ºF (13ºC)371   Equipo de deshumidificación   Ninguno372   Control de la humedad interior   Off (desactivado)374   Acción del ventilador del humidificador   Humidificar solo con      ventilador379   Equipo de deshumidificación   Ninguno380   Control de deshumidificación interior   Ninguno383   Límite de enfriamiento máximo   3ºF (1,5ºC).384   Control del ventilador de deshumidificación   Activa el ventilador
  13  69-2445EFS—01Tablas de configuración del instalador386  Bloqueo de la deshumidificación para toda la casa  Off (apagado)390   Modo de deshumidificación de casa vacante   Off (desactivado)391   Ventilador en modo de deshumidificación de   Automático   casa vacante392   Temp. baja en modo de deshumidificación de   76ºF (24,5ºC   casa vacante   )393   Temp. alta en modo deshumidificación de   85ºF (29,5ºC)   casa vacante394   Deshumidificación en modo de casa vacante   65% de humedad relativa400  Control de ventilación  Off (apagado)401  Número de dormitorios  2402  Total de pies cuadrados  de la casa  1000403  CFM de ventilación   160404  Límite máx. del porcentaje de ventilación    50%405  Acción de ventilación del ventilador  La ventilación hace que      se encien da el ventilador406  Ventilación en humedad alta  On (encendido)431  Temperatura máxima de bloqueo de la ventilación  Ninguno432  Temperatura mínima de bloqueo de la ventilación  Ninguno433  Bloqueo de ventilación por humedad exterior alta  Off (apagado)434  Bloqueo de ventilación por configuración   75° punto de rocío   de humedad exterior alta450  Corte en la bobina A por temperatura baja   Ninguno500  Recordatorio: filtro de la estufa   Off (desactivado)502   Contador del tiempo de ejecución del filtro   Cuenta calefacción y   de la estufa  refrigeración510   Recordatorio: almohadilla del humidificador   Off (desactivada)520   Recordatorio: lámpara UV   Off (desactivada525  Recordatorios personalizados para el instalador  Añadir recordatorio al cliente530   Adaptive Intelligent Recovery   On (activada)540   Cantidad de períodos del programa   4580   Tiempo mínimo de apagado del compresor   5 minutos600   Rango de temperatura máxima   90ºF (32ºC)610   Rango de temperatura mínima   60ºF (15,5ºC)630   Tiempo mínimo de apagado del compresor   Off (desactivado)640   Formato de reloj   12 horas650   Tiempo extendido de encendido del   Off (desactivado)   ventilador (calefacción)660   Tiempo extendido de encendido del   Off (desactivado)   ventilador (refrigeración)670   Bloqueo del teclado   Desbloqueado680   Control de la temperatura (calefacción)   Estándar690   Control de la temperatura (refrigeración)   Estándar695  Termine en etapa de calor alto  No696  Termine en etapa de refrigeración alta  No700   Desplazamiento de pantalla de la temperatura   Sin desplazamiento701   Desplazamiento de pantalla de la humedad   Sin desplazamiento710   RECUPERAR CONFIGURACIONES DE FÁBRICA   No: Opciones avanzadasFunciones de configuración   (listado de las configuraciones de fábrica)
Guía de instalación Prestige™ 69-2445EFS—01  14Reemplazo de los componentes del sistemaTermostatoDespués de instalar un termostato nuevo, se deben volver a conectar todos los accesorios al termostato nuevo, como se indica a continuación.1  Instale y conecte el termostato nuevo (vea las pág. 3 a la 7)2  Personalice el termostato nuevo (vea la pág. 8)3  Conecte los accesorios inalámbricos( vea las pág. 9 a la 10)En el control remoto:•  Presione y mantenga presionado el espacio en blanco (o la flecha, si la hubiera) en la esquina inferior derecha de la pantalla hasta que cambie (vea la pág. 10).•  Presione QUITAR y luego SÍ para desconectarlo del termostato anterior.•  Siga los procedimientos que figuran en la pág. 10 para conectar el termostato nuevo.En el sensor de aire exterior:•  Presione CONECTAR para conectar el termostato nuevo (vea la pág. 10).4  Presione hEChO en el termostato.Control remoto y sensor exteriorPara remplazar un control remoto o sensor de aire exterior, instale las baterías y siga los procedimientos de las pág. 9-10 para conectarlo al termostato.Nota: Todas las opciones del instalador, incluyendo el nombre del distribuidor, la infor-mación de contacto y el mensaje pueden configurarse como un archivo y descargarse a través del puerto USB del termostato.Información de contacto del cliente (opcional, pero recomendada)1100   Nombre del distribuidor   Nombre de su compañía1150  Núm. de teléfono del distribuidor   Su contacto telefónico1200  Dirección de correo electrónico del distribuidor  Su dirección de correo electrónico1250  Sitio de Internet del distribuidor   Su sitio de Internet1300  Mensaje del distribuidor   Editar1350 Entrada de sensor S1 configurable   Ninguno1355 Entrada de sensor S2 configurable   Ninguno1400  Relé U1 configurable  Ninguno1405  Relé U2 configurable  Ninguno1410  Relé U3 configurable  Ninguno1500  Posición de ventilador de baja velocidad  Normalmente cerradoTablas de configuración del instalador
  15  69-2445EFS—01Especificaciones y piezas de repuestoTemperatura ambiente de funcionamiento Termostato: 32 a 120° F (0 a 48,9°C) Control remoto: 32 a 120° F (0 a 48,9°C) Sensor de aire exterior: -40 a 140° F (-40 a 60°C)  EIM: -40 a 165° F (-40 a 73,9° C)  Sensor de aire de retorno: 0 a 200° F (-17,8 a 93,3° C)  Sensor de aire de descarga: 0 v 200° F (-17,8 a 93,3° C)Humedad relativa de funcionamiento Termostato: del 5% al 90% (sin condensación) Control remoto: del 5% al 90% (sin condensación) Sensor de aire exterior: del 0% al 100% (condensación)  EIM: del 5% al 95% (sin condensación)Dimensiones físicas (altura, ancho, profundidad) Termostato: 3-9/16 x 5-13/16 x 1-1/2 pulgadas (91 x 147 x 38 mm) Sensor de aire exterior: 5 x 3-1/2 x 1-11/16 pulgadas (127 x 89 x 43 mm)  EIM: 9-5/16 x 4-13/16 x 1-19/32 pulgadas (91 x 147 x 38 mm)Clasificación eléctricaTerminal Voltaje (50/60 Hz)   Clasificación actual máx.W - O/B  de 18 a 30 V CA   1,00 AY (calefacción)  de 18 a 30 V CA   1,00 AG (ventilación)  de 18 a 30 V CA  0,60 AW2 - Aux 1 (calefacción)  de 18 a 30 V CA  0,60 AY2 (calefacción)  de 18 a 30 V CA   0,60 AW3 - Aux 2  de 18 a 30 V CA   1,00 AL (salida)  de 18 a 30 V CA  0,60 AU1  30 V CA máx.   0,50 AU1  30 V CA máx.  0,50 AU2  30 V CA máx.   0,50 AU2  30 V CA máx.  0,50 AU3  30 V CA máx.   0,50 AU3  30 V CA máx.  0,50 AAccesorios y piezas de repuestoPieza   Núm. de la piezaAdaptador inalámbrico   THM4000R1000Control remoto   REM5000R1001Sensor de aire exterior  C7089R1013Placa protectora (cubre las marcas que dejó el   50028399-001 termostato anterior)
Guía de instalación Prestige™ 69-2445EFS—01  16Información reguladoraDeclaración de conformidad con las regulaciones FCC (Sección 15.19) (solo en  los EE. UU.)Este dispositivo cumple con la Sección 15 de las regulaciones FCC. El funcionamiento está sujeto a las dos condiciones siguientes:1  Este dispositivo no debe causar interferencia perjudicial.2  Este dispositivo deberá aceptar cualquier interferencia que se reciba, incluso la interferencia que pudiese causar el funcionamiento no deseado.Advertencia de la FCC (Sección 15.21) (solo en los EE. UU.)Los cambios o las modificaciones que no hayan sido expresamente aprobados por la parte responsable del cumplimiento de las regulaciones podrían anular la autoridad del usuario para hacer funcionar el equipo.Declaración de la FCC sobre interferencias (Sección 15.105(b)) (solo en los EE. UU.)Este equipo fue probado y cumple con los límites de los dispositivos digitales clase B, conforme a la Sección 15 de las regulaciones FCC. Estos límites están diseñados para ofrecer una protección razonable contra la interferencia perjudicial en una instalación residencial. Este equipo genera usos y puede irradiar energía de frecuencia de radio y, si no se instala y se utiliza según las instrucciones, puede producir una interferencia perjudicial en la comunicación radial. Sin embargo, no se garantiza que no habrá interferencia en una instalación particular. Si este equipo produce una interferencia perjudicial en la recepción televisiva o radial, lo cual puede determinarse al apagar y encender el equipo, se recomienda que el usuario intente corregir la interferencia con una o más de las siguientes medidas:•  Vuelva a orientar y ubicar la antena receptora.•  Aumente la distancia entre el equipo y el receptor.•  Conecte el equipo a un tomacorriente en un circuito diferente a aquel en el que está conectado el receptor.•  Consulte con su distribuidor o con un técnico experto en radio/televisión para recibir ayuda.Termostatos y sensores exteriores Para cumplir con los límites de exposición RF que establece la FCC y el Industry Canada para la población en general/exposición no controlada, la o las antenas usadas para estos transmisores deben instalarse a una distancia de, al menos, 20 cm de todas las personas, y no deben ubicarse ni utilizarse junto con otra antena o transmisor.Control remotoEste transmisor portátil y su antena cumplen con los límites de exposición RF que establece la FCC y el Industry Canada para la población en general/exposición no controlada.Sección 7.1.5 de RSS-GENEl funcionamiento está sujeto a las dos condiciones siguientes: 1  es posible que este dispositivo no cause interferencia y2  este dispositivo debe aceptar cualquier interferencia recibida, incluso la que puede producir un funcionamiento no deseado del dispositivo.
Need Help?For assistance with this product please visit http://customer.honeywell.com or call Honeywell Customer Care toll-free at 1-800-468-1502¿Necesita ayuda?Consulte sobre este producto en http://customer.honeywell.como llamando sin cargo a atención al cliente de Honeywell 1-800-468-1502Vous faut-il de l’aide ?Pour obtenir de l’assistance concernant ce produit, visitez http://customer.honeywell.comou appelez gratuitement l’assistance client d’Honeywell au 1-800-468-1502Automation and Control SolutionsHoneywell International Inc.1985 Douglas Drive NorthGolden Valley, MN 55422Honeywell Limited–Honeywell Limitée35 Dynamic DriveToronto, Ontario M1V 4Z9http://yourhome.honeywell.comU.S. Patent Numbers 7,181,317 • 7,274,972 • 7,114,554 •6,621,507 • 7,225,054 • 7,222,494 • 5,651,498 • 7,360,717 •7,306,165 (and other patents pending)® U.S. Registered Trademark. © 2010 Honeywell International Inc.69-2445EFS—01  M.S.    06-10Printed in U.S.A.

Navigation menu