Hp 9000 Superdome Sx2000 Servers Installation Manual Guide, Integrity Superdome/sx2000 And
2015-01-05
: Hp Hp-9000-Superdome-Sx2000-Servers-Installation-Manual-155704 hp-9000-superdome-sx2000-servers-installation-manual-155704 hp pdf
Open the PDF directly: View PDF
.
Page Count: 62
- HP Installation Guide, HP Integrity Superdome/sx2000 and HP 9000 Superdome/sx2000 Servers
- About This Document
- 1 Installing the System
- Introduction
- Unpacking and Inspecting the System
- Setting Up the System
- Moving the System and Related Equipment to the Installation Site
- Unpacking and Installing the Blower Housings and Blowers
- Attaching the Side Skins and Blower Side Bezels
- Attaching the Leveling Feet and Leveling the Cabinet
- Installing the Front Door Bezels and the Front and Rear Blower Bezels
- Wiring Check
- Installing and Verifying the PDCA
- Checking Voltage
- Removing the EMI Panels
- Connecting the Cables
- Routing the I/O Cables
- Adding an IOX Cabinet
- Installing the Support Management Station
- Installing the SMS Support Shelf
- Connecting the SMS to the Superdome
- SMS Software and Superdome Firmware Downloading Procedure
- Restore the A9802E SMS PC with the HP Recovery Manager
- Configuring the Event Information Tools
- Turning On Housekeeping Power
- Connecting the MP to the Customer LAN
- Booting and Verifying the System
- Running JET Software
- Offline Diagnostic Environment
- Attaching the Rear Kick Plates
- Performing a Visual Inspection and Completing the Installation
- Conducting a Post-Installation Check
- Index

HP Installation Guide, HP Integrity
Superdome/sx2000 and HP 9000
Superdome/sx2000 Servers
HP Part Number: 5992-1042
Published: July 2011
Edition: 9

© Copyright 2006, 2011 Hewlett-Packard Development Company, L.P.
The information contained herein is subject to change without notice. The only warranties for HP products and services are set forth in the express
warranty statements accompanying such products and services. Nothing herein should be construed as constituting an additional warranty. HP shall
not be liable for technical or editorial errors or omissions contained herein. Intel, Pentium, Intel Inside, and the Intel Inside logo are trademarks or
registered trademarks of Intel Corporation or its subsidiaries in the United States and other countries.
Microsoft and Windows are U.S. registered trademarks of Microsoft Corporation.
UNIX is a registered trademark of The Open Group.
Warranty
To obtain a copy of the warranty for this product see the warranty information website:
http://h20341.www2.hp.com/integrity/w1/en/resources/warranty-information.html

About This Document
This document contains the installation procedures of the system and operating system specifics
for components in the system.
Intended Audience
This document is intended for HP trained Customer Support Consultants.
Document Organization
This document is organized as follows:
Chapter 1 This chapter describes how to unpack and inspect the system, set up the system,
connect the MP to the customer LAN, and how to complete the installation.
Typographic Conventions
The following typographic conventions are used in this document.
WARNING! Lists requirements that you must meet to avoid personal injury.
CAUTION: Provides information required to avoid losing data or to avoid losing system
functionality.
IMPORTANT: Provides essential information to explain a concept or to complete a task.
NOTE: Highlights useful information such as restrictions, recommendations, or important details
about HP product features.
•Commands and options are represented using this font.
•Text that you type exactly as shown is represented using this font.
•Text to be replaced with text that you supply is represented using this
font.
Example: “Enter the ls -l filename command” means you must replace filename with
your own text.
•Keyboard keys and graphical interface items (such as buttons, tabs, and menu items) are
represented using this font.
Examples: The Control key, the OK button, the General tab, the Options menu.
•Menu —> Submenu represents a menu selection you can perform.
Example: “Select the Partition —> Create Partition action” means you must select the Create
Partition menu item from the Partition menu.
•Example screen output is represented using this font.
Related Information
Further information on HP server hardware management, Microsoft® Windows®, and diagnostic
support tools are available through the following website links.
Website for HP Technical Documentation
This is the main website for HP technical documentation. See http://www.hp.com/go/bizsupport.
Intended Audience 3

Server Hardware Information
The following website offers more information http://www.hp.com/go/integrity_servers-docs . It
provides HP nPartition server hardware management information, including information on site
preparation, installation, and more.
Diagnostics and Event Monitoring: Hardware Support Tools
The following link contains comprehensive information about HP hardware support tools, including
online and offline diagnostics and event monitoring tools. This website has manuals, tutorials,
FAQs, and other reference material. See www.hp.com/go/bizsupport.
Website for HP Technical Support
HP's IT resource center is located at the following website: and provides comprehensive support
information for IT professionals on a wide variety of topics, including software, hardware, and
networking. .
http://www13.itrc.hp.com/service/home/home.do?admit
Publishing History
The document printing date and edition number indicate the document’s current edition and are
included in the following table. The printing date will change when a new edition is produced.
Document updates may be issued between editions to correct errors or document product changes.
The latest version of this document is available on line at:
www.hp.com/go/bizsupport
March2006....................................................FirstEdition
September2006....................................................SecondEdition
February2007....................................................ThirdEdition
November2007....................................................FourthEdition
September2009....................................................FifthEdition
March2010....................................................SixthEdition
August2010....................................................SeventhEdition
April2011....................................................EighthEdition
July2011....................................................NinthEdition
HP contact information
For the name of the nearest HP authorized reseller:
•In the United States, see the HP US service locator website
http://welcome.hp.com/country/us/en/wwcontact.html.
•In other locations, see the Contact HP worldwide (in English) website:
http://welcome.hp.com/country/us/en/wwcontact.html.
For HP technical support:
•In the United States, for contact options see the Contact HP United States website:
http://welcome.hp.com/country/us/en/contact_us.html.
4

To contact HP by phone:
◦Call 1-800-HP-INVENT (1-800-474-6836). This service is available 24 hours a day, 7
days a week. For continuous quality improvement, calls may be recorded or monitored.
◦If you have purchased a Care Pack (service upgrade), call 1-800-633-3600. For more
information about Care Packs, see the HP website:
http://www.hp.com/hps.
•In other locations, see the Contact HP worldwide (in English) website:
http://welcome.hp.com/country/us/en/wwcontact.html.
Documentation feedback
HP welcomes your feedback. To make comments and suggestions about product documentation,
send a message to docsfeedback@hp.com.
Include the document title and manufacturing part number. All submissions become the property
of HP
Documentation feedback 5

1 Installing the System
This chapter describes installation of HP Integrity Superdome/sx2000 and HP 9000/sx2000
systems. Installers must have received adequate training, be knowledgeable about the product,
and have a good overall background in electronics and customer hardware installation.
Introduction
The instructions in this chapter are written for Customer Support Consultants (CSC) who are
experienced at installing complex systems. This chapter provides details about each step in the
sx2000 installation process. Some steps must be performed before others can be completed
successfully. To avoid undoing and redoing an installation step, follow the installation sequences
outlined in this chapter.
Communications Interference
HP system compliance tests are conducted with HP supported peripheral devices and shielded
cables, such as those received with the system. The system meets interference requirements of all
countries in which it is sold. These requirements provide reasonable protection against interference
with radio and television communications.
Installing and using the system in strict accordance with instructions provided by HP minimizes the
chances that the system will cause radio or television interference. However, HP does not guarantee
that the system will not interfere with radio and television reception.
Take the following precautions:
•Use only shielded cables.
•Install and route the cables according to the instructions provided.
•Ensure that all cable connector screws are firmly tightened.
•Use only HP supported peripheral devices.
•Ensure that all panels and cover plates are in place and secure before turning on the system.
Electrostatic Discharge
HP systems and peripherals contain assemblies and components that are sensitive to electrostatic
discharge (ESD).
CAUTION: Carefully observe the precautions and recommended procedures in this document to
prevent component damage from static electricity.
Take the following precautions:
•Always wear a grounded wrist strap when working on or around system components.
•Treat all assemblies, components, and interface connections as static-sensitive.
•When unpacking cards, interfaces, and other accessories that are packaged separately from
the system, keep the accessories in their non-conductive plastic bags until you are ready to
install them.
•Before removing or replacing any components or installing any accessories in the system,
select a work area in which potential static sources are minimized, preferably an antistatic
work station.
•Avoid working in carpeted areas and keep body movement to a minimum while installing
accessories.
6 Installing the System

Public Telecommunications Network Connection
Instructions are issued to the installation site that modems cannot be connected to public
telecommunications networks until full datacomm licenses are received for the country of installation.
Some countries do not require datacomm licenses. The product regulations engineer must review
beta site locations, and if datacomm licenses are not complete, ensure that the installation site is
notified officially and in writing that the product cannot be connected to public telecommunications
networks until the license is received.
Unpacking and Inspecting the System
This section describes what to do before unpacking the server and how to unpack the system itself.
WARNING! Do not attempt to move the cabinet, packed or unpacked, up or down an incline
of more than 15 degrees.
Verifying Site Preparation
Verifying site preparation includes gathering LAN information and verifying electrical requirements.
Gathering LAN Information
The Support Management Station (SMS) connects to the customer’s LAN. Determine the appropriate
IP address.
Verifying Electrical Requirements
The site must be verified for proper grounding and electrical requirements prior to the system being
shipped to the customer as part of the site preparation. Before unpacking and installing the system,
verify with the customer that grounding specifications and power requirements are met.
Checking the Inventory
The sales order packing slip lists all equipment shipped from HP. Use this packing slip to verify
that all equipment has arrived at the customer site.
NOTE: To identify each item by part number, see the sales order packing slip.
One of the large overpack containers is labeled “Open Me First.” This box contains the Solution
Information Manual and DDCAs. The unpacking instructions are in the plastic bag taped to the
cabinet.
The following items are in other containers. Check them against the packing list:
•Power distribution control assembly (PDCA) and power cord
•Two blower housings per cabinet
•Four blowers per cabinet
•Four side skins with related attachment hardware
•Cabinet blower bezels and front door assemblies
•Support Management Station
•Cables
•Optional equipment
•Boot device with the operating system installed
Unpacking and Inspecting the System 7

Inspecting the Shipping Containers for Damage
HP shipping containers are designed to protect their contents under normal shipping conditions.
After the equipment arrives at the customer site, carefully inspect each carton for signs of shipping
damage.
WARNING! Do not attempt to move the cabinet, packed or unpacked, up or down an incline
of more than 15 degrees.
A tilt indicator is installed on the back and side of the cabinet shipping container (Figure 1
(page 8)). If the container is tilted to an angle that can cause equipment damage, the beads in
the indicator shift positions (Figure 2 (page 9)). If a carton has received a physical shock and
the tilt indicator is in an abnormal condition, visually inspect the unit for any signs of damage. If
damage is found, document the damage with photographs and contact the transport carrier
immediately.
Figure 1 Normal Tilt Indicator
8 Installing the System

Figure 2 Abnormal Tilt Indicator
NOTE: If the tilt indicator shows that an abnormal shipping condition has occurred, write “possible
hidden damage” on the bill of lading and keep the packaging.
Inspection Precautions
•When the shipment arrives, check each container against the carrier's bill of lading. Inspect
the exterior of each container immediately for mishandling or damage during transit. If any
of the containers are damaged, request the carrier's agent be present when the container is
opened.
•When unpacking the containers, inspect each item for external damage. Look for broken
controls and connectors, dented corners, scratches, bent panels, and loose components.
NOTE: HP recommends keeping the shipping container and the packaging material. If it becomes
necessary to repackage the cabinet, the original packing material is necessary.
If discarding the shipping container or packaging material, dispose of them in an environmentally
responsible manner (recycle, if possible).
Claims Procedures
If the shipment is incomplete, if the equipment is damaged, or it fails to meet specifications, notify
the nearest HP Sales and Service Office. If damage occurred in transit, notify the carrier as well.
HP will arrange for replacement or repair without waiting for settlement of claims against the
carrier. In the event of damage in transit, retain the packing container and packaging materials
for inspection.
Unpacking and Inspecting Hardware Components
This section describes the procedures for opening the shipping container and unpacking and
inspecting the cabinet.
Unpacking and Inspecting the System 9

Tools Required
The following tools are required to unpack and install the system:
•Standard hand tools, such as a adjustable-end wrench
•ESD grounding strap
•Digital voltmeter capable of reading ac and dc voltages
•1/2-inch socket wrench
•9/16-inch wrench
•#2 Phillips screwdriver
•Flathead screwdriver
•Wire cutters or utility knife
•Safety goggles or glasses
•T-10, T-15, T-20, T-25, and T-30 Torx drivers
•9-pin to 25-pin serial cable (HP part number 24542G)
•9-pin to 9-pin null modem cable
Unpacking the Cabinet
WARNING! Use three people to unpack the cabinet safely.
HP recommends removing the cardboard shipping container before moving the cabinet into the
computer room.
NOTE: If unpacking the cabinet in the computer room, be sure to position it so that it can be
moved into its final position easily. Notice that the front of the cabinet (Figure 3) is the side with
the label showing how to align the ramps.
To unpack the cabinet, follow these steps:
10 Installing the System

1. Position the packaged cabinet so that a clear area about three times the length of the package
(about 12 feet or 3.66 m) is available in front of the unit, and at least 2 feet (0.61 m) are
available on the sides.
Figure 3 Front of Cabinet Container
WARNING! Do not stand directly in front of the strapping while cutting it. Hold the band
above the intended cut and wear protective glasses. These bands are under tension. When
cut, they spring back and can cause serious eye injury.
2. Cut the plastic polystrap bands around the shipping container (Figure 4 (page 11)).
Figure 4 Cutting the Polystrap Bands
Unpacking and Inspecting the System 11

3. Lift the cardboard corrugated top cap off the shipping box.
4. Remove the corrugated sleeves surrounding the cabinet.
CAUTION: Cut the plastic wrapping material off rather than pulling it off. Pulling the plastic
covering off creates an ESD hazard to the hardware.
5. Remove the stretch wrap, the front and rear top foam inserts, and the four corner inserts from
the cabinet.
6. Remove the ramps from the pallet and set them aside (Figure 5 (page 12)).
Figure 5 Removing the Ramps from the Pallet
12 Installing the System

7. Remove the plastic antistatic bag by lifting it straight up off the cabinet. If the cabinet or any
components are damaged, follow the claims procedure. Some damage can be repaired by
replacing the damaged part. If you find extensive damage, you might need to repack and
return the entire cabinet to HP.
Inspecting the Cabinet
To inspect the cabinet exterior for signs of shipping damage, follow these steps:
1. Look at the top and sides for dents, warping, or scratches.
2. Verify that the power supply mounting screws are in place and locked (Figure 6).
Figure 6 Power Supply Mounting Screws Location
3. Verify that the I/O chassis mounting screws are in place and secure (Figure 7).
Inspect all components for signs of shifting during shipment or any signs of damage.
Figure 7 I/O Chassis Mounting Screws
Unpacking and Inspecting the System 13

14 Installing the System

Moving the Cabinet Off the Pallet
1. Remove the shipping strap that holds the BPSs in place during shipping (Figure 8 (page 15)).
Failure to remove the shipping strap will obstruct air flow into the BPS and FEPS.
Figure 8 Shipping Strap Location
2. Remove the pallet mounting brackets and pads on the side of the pallet where the ramp slots
are located (Figure 9).
Unpacking and Inspecting the System 15

Figure 9 Removing the Mounting Brackets
WARNING! Do not remove the bolts on the mounting brackets that attach to the pallet. These
bolts prevent the cabinet from rolling off the back of the pallet.
3. On the other side of the pallet, remove only the bolt on each mounting bracket that is attached
to the cabinet.
4. Insert the ramps into the slots on the pallet.
CAUTION: Make sure the ramps are parallel and aligned (Figure 10).
The casters on the cabinet must roll unobstructed onto the ramp.
16 Installing the System

Figure 10 Positioning the Ramps
WARNING! Do not attempt to roll a cabinet without help. The cabinet can weigh as much
as 1400 pounds (635 kg). Three people are required to roll the cabinet off the pallet. Position
one person at the rear of the cabinet and one person on each side.
WARNING! Do not attempt to move the cabinet, either packed or unpacked, up or down
an incline of more than 15 degrees.
5. Carefully roll the cabinet down the ramp (Figure 11).
Figure 11 Rolling the Cabinet Down the Ramp
6. Unpack any other cabinets that were shipped.
Unpacking and Inspecting the System 17

Unpacking the PDCA
At least one PDCA ships with the system. In some cases, the customer might order two PDCAs, the
second to be used as a backup power source. Unpack the PDCA and ensure it has the power cord
option for installation.
Several power cord options are available for the PDCAs. Only options 6 and 7 are currently
available in new system configurations (Table 1 (page 18)). Table 2 (page 18) details options 6
and 7.
Table 1 Available Power Options
Power Receptacle RequiredInput Current Per
Phase 200 to 240 V
ac1
PDCA
Required
Source Voltage
(Nominal)
Source
Type
Option
Connector and plug provided
with a 2.5 m (8.2 feet) power
cable. An electrician must
hardwire receptacle to 60 A site
power.
44 A maximum per
phase
4-wireVoltage range 200 to
240 V ac,
phase-to-phase, 50 Hz
/ 60 Hz
3-phase6
Connector and plug provided
with a 2.5 m (8.2 feet) power
cable. An electrician must
hardwire receptacle to 32 A site
power.
24 A maximum per
phase
5-wireVoltage range 200 to
240 V ac,
phase-to-neutral, 50 Hz
/ 60 Hz
3-phase7
1 A dedicated branch circuit is required for each PDCA installed.
Table 2 Power Cord Option 6 and 7 Details
Receptacle RequiredAttached PlugAttached Power CordPDCA Part Number
Mennekes ME 460R9
(60 A capacity)
Mennekes ME 460P9
(60 A capacity)
OLFLEX 190 (PN 600804) is a 2.5 meter
multiconductor, 600 V, 90˚C, UL and CSA
A5201-69023
(Option 6)
approved, oil resistant flexible cable. (8
AWG 60 A capacity)
Mennekes ME
532R6-1500 (32 A
capacity)
Mennekes ME
532P6-14 (32 A
capacity)
H07RN-F (OLFLEX PN 1600130) is a 2.5
meter heavy-duty neoprene jacketed
harmonized European flexible cable. (4
mm232 A capacity)
A5201-69024
(Option 7)
Returning Equipment
If the equipment is damaged, use the original packing material to repackage the cabinet for
shipment. If the packing material is not available, contact the local HP Sales and Support Office
regarding shipment.
Before shipping, place a tag on the container or equipment to identify the owner and the service
to be performed. Include the equipment model number and the full serial number, if applicable.
The model number and the full serial number are printed on the system information labels located
at the bottom front of the cabinet.
WARNING! Do not attempt to push the loaded cabinet up the ramp onto the pallet. Three people
are required to push the cabinet up the ramp and position it on the pallet. Inspect the condition of
the loading and unloading ramp before use.
Repackaging
To repackage the cabinet, follow these steps:
1. Assemble the HP packing materials that came with the cabinet.
2. Carefully roll the cabinet up the ramp.
3. Attach the pallet mounting brackets to the pallet and the cabinet.
18 Installing the System

4. Reattach the ramps to the pallet.
5. Replace the plastic antistatic bag and foam inserts.
6. Replace the cardboard surrounding the cabinet.
7. Replace the cardboard caps.
8. Secure the assembly to the pallet with straps.
The cabinet is now ready for shipment.
Setting Up the System
After a site is prepared, the system is unpacked, and all components are inspected, the system can
be prepared for booting.
Moving the System and Related Equipment to the Installation Site
Carefully move the cabinets and related equipment to the installation site but not into the final
location. If the system is to be placed at the end of a row, you must add side bezels before
positioning the cabinet in its final location. Check the path from where the system was unpacked
to its final destination to make sure the way is clear and free of obstructions.
WARNING! If the cabinet must be moved up ramps, be sure to maneuver it using three people.
Unpacking and Installing the Blower Housings and Blowers
Each cabinet contains two blower housings and four blowers. Although similar in size, the blower
housings for each cabinet are not the same; one has a connector to which the other attaches. To
unpack and install the housings and blowers, follow these steps:
1. Unpack the housings from the cardboard box and set them aside.
The rear housing is labeled Blower 3 Blower 2. The front housing is labeled Blower 0 Blower
1.
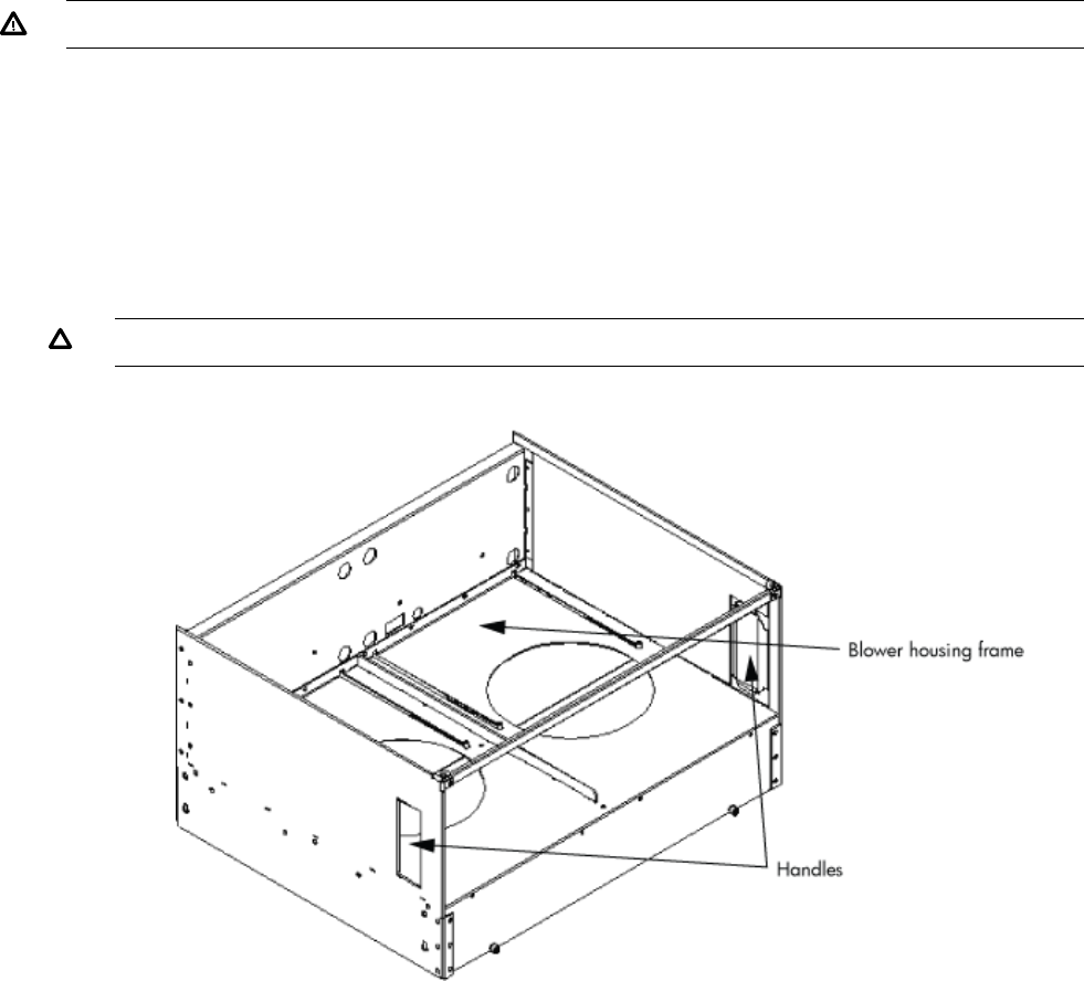
CAUTION: Do not lift the housing by the frame (Figure 12).
Figure 12 Blower Housing Frame
Setting Up the System 19

2. Remove the cardboard from the blower housing (Figure 13).
This cardboard protects the housing baffle during shipping. If it is not removed, the fans can
not work properly.
Figure 13 Removing Protective Cardboard from the Housing
NOTE: Double-check that the protective cardboard has been removed.
3. Using the handles on the housing labeled Blower 3 Blower 2, align the edge of the housing
over the edge at the top rear of the cabinet, and slide it into place until the connectors at the
back of each housing are fully mated (Figure 14). Then tighten the thumbscrews at the front
of the housing.
Figure 14 Installing the Rear Blower Housing
20 Installing the System

4. Using the handles on the housing labeled Blower 0 Blower 1, align the edge of the housing
over the edge at the top front of the cabinet, and slide it into place until the connectors at the
back of each housing are fully mated (Figure 15). Then tighten the thumbscrews at the front
of the housing.
Figure 15 Installing the Front Blower Housing
5. Unpack each of the four blowers.
6. Insert each of the four blowers into place in the blower housings with the thumbscrews at the
bottom (Figure 16).
Setting Up the System 21

Figure 16 Installing the Blowers
7. Tighten the thumbscrews at the front of each blower.
8. If required, install housings on any other cabinets that were shipped with the system.
Attaching the Side Skins and Blower Side Bezels
Two cosmetic side panels affix to the left and right sides of the system. In addition, each system
has bezels that cover the sides of the blowers.
IMPORTANT: Be sure to attach the side skins at this point in the installation sequence, especially
if the cabinet is to be positioned at the end of a row of cabinets or between cabinets.
Attaching the Side Skins
Each system has four side skins: two front-side skins and two rear-side skins.
NOTE: Attach side skins to the left side of cabinet 0 and the right side of cabinet 1 (if applicable).
To attach the side skins, follow these steps:
1. If not already done, remove the side skins from their boxes and protective coverings.
2. From the end of the brackets at the back of the cabinet, position the side skin with the lap
joint (Rear) over the top bracket and under the bottom bracket, and gently slide it into position
(Figure 17).
Two skins are installed on each side of the cabinet: one has a lap joint (Rear) and one does
not (Front). The side skins with the lap joint are marked Rear and the side skins without the
lap joint are marked Front.
22 Installing the System

Figure 17 Attaching the Rear Side Skin
3. Attach the skin without the lap joint (Front) over the top bracket and under the bottom bracket
and gently slide the skin into position.
Setting Up the System 23

Figure 18 Attaching the Front Side Skins
4. Push the side skins together, making sure the skins overlap at the lap joint.
Attaching the Blower Side Bezels
The bezels are held on at the top by the bezel lip, which fits over the top of the blower housing
frame, and are secured at the bottom by tabs that fit into slots on the cabinet side panels (Figure 19).
Use the same procedure to attach the right and left blower side bezels.
24 Installing the System

1. Place the side bezel slightly above the blower housing frame.
Figure 19 Attaching the Side Bezels
2. Align the lower bezel tabs to the slots in the side panels.
3. Lower the bezel so the bezel top lip fits securely on the blower housing frame and the two
lower tabs are fully inserted into the side panel slots.
IMPORTANT: Use four screws to attach the side skins to the top and bottom brackets, except
for the top bracket on the right side (facing the front of the cabinet). Do not attach the rear
screw on that bracket. Insert all screws but do not tighten until all side skins are aligned.
4. Using a T-10 driver, attach the screws to secure the side skins to the brackets.
5. Repeat step 1 through step 4 for the skins on the other side of the cabinet.
6. To secure the side bezels to the side skins, attach the blower bracket locks (HP part number
A5201-00268) to the front and back blowers using a T-20 driver.
There are two blower bracket locks on the front blowers and two on the rear.
Setting Up the System 25

Attaching the Leveling Feet and Leveling the Cabinet
After positioning the cabinet in its final location, to attach and adjust the leveling feet, follow these
steps:
1. Remove the leveling feet from their packages.
2. Attach the leveling feet to the cabinet using four T-25 screws.
Figure 20 Attaching the Leveling Feet
3. Screw down each leveling foot clockwise until it is in firm contact with the floor. Adjust each
foot until the cabinet is level.
Installing the Front Door Bezels and the Front and Rear Blower Bezels
Each cabinet has two doors, one at the front and one at the back. The back door is shipped on
the chassis and requires no assembly. The front door, which is also shipped on the chassis, requires
the assembly of two plastic bezels to its front surface and a cable from the door to the upper front
bezel. In addition, you must install bezels that fit over the blowers at the front and back of the
cabinet.
Installing the Front Door Bezels
The front door assembly includes two cosmetic covers, a control panel, and a key lock. To install
the front door, you must connect the control panel ribbon cable from the chassis to the control
panel and mount the two plastic bezels onto the metal chassis door.
IMPORTANT: The procedure in this section requires two people and must be performed with the
front metal chassis door open.
To install the front door assembly, follow these steps:
1. Open the front door, unsnap the screen, and remove all the filters held in place with Velcro.
2. Remove the cabinet keys that are taped inside the top front door bezel.
3. Insert the shoulder studs on the lower door bezel into the holes on the front door metal chassis
(Figure 21).
26 Installing the System

Figure 21 Installing the Lower Front Door Assembly
4. Using a T-10 driver, secure the lower door bezel to the front door chassis with 10 of the screws
provided. Insert all screws loosely, then tighten them after the bezel is aligned.
5. While another person holds the upper door bezel near the door chassis, attach the ribbon
cable to the back of the control panel on the bezel and tighten the two flathead screws
(Figure 22).
Setting Up the System 27

Figure 22 Installing the Upper Front Door Assembly
6. Feed the grounding strap through the door and attach it to the cabinet.
7. Insert the shoulder studs on the upper door bezel into the holes on the front door metal chassis.
8. Using a T-10 driver, secure the upper door bezel to the metal door with eight of the screws
provided. Be sure to press down on the hinge side of the bezel while tightening the screws to
prevent misalignment of the bezel.
9. Reattach all filters removed in step 1.
Installing the Rear Blower Bezel
The rear blower bezel is a cosmetic cover for the blowers and is located above the rear door.
To install the rear blower bezel, follow these steps:
1. Open the rear cabinet door.
NOTE: The latch is located on the right side of the door.
2. Slide the bezel over the blower housing frame, hooking the lip of the bezel onto the cross
support of the blower housing while holding the bottom of the bezel. Rotate the bezel downward
from the top until the bottom snaps in place (Figure 23 (page 29)).
28 Installing the System

Figure 23 Installing the Rear Blower Bezel
3. Align the bezel over the nuts that are attached to the bracket at the rear of the cabinet.
4. Using a T-20 driver, tighten the two captive screws on the lower flange of the bezel.
NOTE: Tighten the screws securely to prevent them from interfering with the door.
5. Close the cabinet rear door.
Installing the Front Blower Bezel
The front blower bezel is a cosmetic cover for the blowers and is located above the front door. To
install the front blower bezel, follow these steps:
1. Open the front door.
NOTE: The latch is located on the right side of the front door.
2. Position the bezel over the blower housing frame, hooking the lip of the bezel onto the cross
support of the blower housing (Figure 24 (page 30)).
Setting Up the System 29

Figure 24 Installing the Front Blower Bezel
3. Align the bezel over the nuts that are attached to the bracket at the front of the cabinet.
4. Using a T-20 driver, tighten the two captive screws on the lower flange of the bezel.
NOTE: Tighten the screws securely to prevent them from interfering with the door.
5. Close the front door.
Wiring Check
WARNING! LETHAL VOLTAGE HAZARD—Hazardous voltages can be present in the cabinet if
incorrectly wired into the site AC power supply. Always verify correct wiring and product grounding
before applying AC power to the cabinet. Failure to do so can result in injury to personnel and
damage to equipment.
Verify the following items before applying AC power to the cabinet:
•Cabinet safety ground connects to the site electrical system ground and is not left floating or
connected to a phase.
•The minimum required method of grounding is to connect the green power cord safety ground
to the site ground point through the power cord receptacle wiring. HP does not recommend
cabinet grounding. Treat cabinet grounding as auxiliary or additional grounding over and
above the ground wire included within the supplied power cord.
If the product ground is left floating, anyone coming into contact with the cabinet can receive a
lethal shock if a component fails and causes leakage or direct connection of phase energy to the
cabinet.
If the product ground connects to a phase, the server is over 200 volts above ground, presenting
a lethal shock hazard to anyone coming into contact with the product when site AC power is
applied to the product.
Verify the connection of the product ground to site AC power ground through a continuity check
between the cabinet and site AC power supply ground. Perform the continuity check while the site
AC power supply circuit breakers serving the cabinet and the cabinet circuit breaker are all set to
OFF.
To verify that the product ground connects to the site AC power supply ground, follow these steps:
30 Installing the System

1. Ensure that the site AC power supply circuit breakers serving the cabinet are set to OFF.
2. Ensure that the cabinet main circuit breaker is set to OFF.
3. Touch one test probe to the site AC power supply ground source.
4. Touch the other test probe to an unpainted metal surface of the cabinet.
NOTE: If the digital multimeter (DMM) leads can not reach from the junction box to the
cabinet, use a piece of wire connected to the ground terminal of the junction box.
5. Check for continuity indication of less than 0.1 ohm.
•If continuity is not found, check to ensure that the DMM test leads are making good contact
to unpainted metal and try again.
•If continuity is still not found, disconnect the cabinet site AC power immediately and notify
the customer of the probability of incorrectly wired AC power to the cabinet.
•If continuity is good, and connection of the cabinet to site AC power supply ground (and
not floating or connected to a phase) is verified, then check the voltage.
NOTE: For dual power sources, proceed to “Checking Voltage” (page 35) with special attention
to PDCA 0 ground pin to PDCA 1 ground pin voltage. Anything greater than 3 V is cause for
further investigation.
Installing and Verifying the PDCA
All systems are delivered with the appropriate cable plug for options 6 and 7 (Figure 25 (page 32)).
Check the voltages at the receptacle prior to plugging in the PDCA plug.
•To verify the proper wiring for a 4-wire PDCA, use a digital voltmeter (DVM) to measure the
voltage at the receptacle. Voltage must read 200–240 V ac phase-to-phase as measured
between the receptacle pins as follows: L1 to L2, L2 to L3, L1 to L3 (Figure 26 (page 32)).
•To verify the proper wiring for a 5-wire PDCA, use a DVM to measure the voltage at the
receptacle. Voltage must read 200–240 V ac phase-to-neutral as measured between the
receptacle pins as follows: L1 to N, L2 to N, L3 to N (Figure 27 (page 33)).
Setting Up the System 31

Figure 25 PDCA Assembly for Options 6 and 7
Figure 26 A 4-Wire Connector
32 Installing the System

Figure 27 A 5-Wire Connector
To install the PDCA, follow these steps:
WARNING! Make sure the circuit breaker on the PDCA is OFF.
1. Remove the rear PDCA bezel by removing the four retaining screws.
2. Run the power cord down through the appropriate opening in the floor tile.
3. Insert the PDCA into its slot (Figure 28 (page 33)).
Figure 28 Installing the PDCA
4. Using a T-20 driver, attach the four screws that hold the PDCA in place.
5. If required, repeat step 2 through step 4 for the second PDCA.
Setting Up the System 33

6. Reinstall the rear PDCA bezel.
CAUTION: Do not measure voltages with the PDCA breaker set to ON. Make sure the
electrical panel breaker is ON and the PDCA breaker is OFF.
7. Plug in the PDCA connector.
8. Check the voltage at the PDCA:
a. Using a T-20 driver, remove the screw on the hinged panel at the top of the PDCA.
(Figure 29).
b. Using a voltmeter, measure the test points and compare the values to the ranges given
in Table 3 (page 34) to make sure the voltages conform to the specifications for the PDCA
and local electrical specifications.
If the voltage values do not match the specifications, have the customer contact an
electrician to troubleshoot the problem.
Figure 29 Checking PDCA Test Points (5-Wire)
Table 3 4- and 5-Wire Voltage Ranges
5-Wire4-Wire
L1 to N: 200-240 VL2 to L3: 200-240 V
L2 to N: 200-240 VL2 to L1: 200-240 V
L3 to N: 200-240 VL1 to L3: 200-240 V
N to Ground: 1
1 Neutral to ground voltage can vary from millivolts to several volts depending on the distance to the ground/neutral
bond at the transformer. Any voltage over 3 V must be investigated by a site preparation or power specialist.
34 Installing the System

Checking Voltage
The voltage check ensures that all phases (and neutral, for international systems) are wired correctly
for the cabinet and that the AC input voltage is within specified limits.
NOTE: If you use a UPS, see applicable UPS documentation for information to connect the server
and to check the UPS output voltage. UPS User Manual documentation is shipped with the UPS
and is available at www.hp.com/go/bizsupport.
1. Verify that site power is OFF.
2. Open the site circuit breakers.
3. Verify that the receptacle ground connector is connected to ground. See Figure 30 for connector
details.
4. Set the site power circuit breaker to ON.
Figure 30 Wall Receptacle Pinouts
5. Verify that the voltage between receptacle pins x and y is 200–240 volts ac.
6. Set the site power circuit breaker to OFF.
7. Ensure that power is removed from the server.
8. Route and connect the server power connector to the site power receptacle.
•For locking type receptacles, line up the key on the plug with the groove in the receptacle.
•Push the plug into the receptacle and rotate to lock the connector in place.
WARNING! Do not set site ac circuit breakers serving the processor cabinets to ON before
verifying that the cabinet has been wired into the site ac power supply correctly. Failure to
do so can result in injury to personnel or damage to equipment when ac power is applied to
the cabinet.
9. Set the site power circuit breaker to ON.
WARNING! There is a risk of shock hazard while testing primary power. Use properly
insulated probes. Be sure to replace the access cover when you finish testing primary power.
10. Set the server power to ON.
Setting Up the System 35

11. Check that the indicator LED on each power supply is lit. See Figure 31.
Figure 31 Power Supply Indicator LED
Removing the EMI Panels
Remove the front and back electromagnetic interference (EMI) panels to access ports and to visually
check whether components are in place and the LEDs are properly illuminated when power is
applied to the system.
To remove the front and back EMI panels, follow these steps:
36 Installing the System

1. Using a T-20 driver, loosen the captive screw at the top center of the front EMI panel
(Figure 32).
Figure 32 Removing Front EMI Panel Screw
2. Use the handle provided to remove the EMI panel and set it aside.
When in position, the EMI panels (front and back) are tightly in place. Removing them takes
controlled but firm exertion.
3. Loosen the captive screw at the lower center of the back EMI panel (Figure 33 (page 37)).
Figure 33 Removing the Back EMI Panel
4. Use the handle provided to gently remove the EMI panel and set it aside.
Setting Up the System 37

Connecting the Cables
The I/O cables are attached and tied inside the cabinet. When the system is installed, these cables
must be untied, routed, and connected to the cabinets where the other end of the cables terminate.
Use the following guidelines and Figure 34 to route and connect cables. For more information on
cable routing, see “Routing the I/O Cables” (page 38).
•Each cabinet is identified with a unique color. The cabinet color label is located at the top of
the cabinet.
•The colored label closest to the cable connector corresponds to the color of the cabinet to
which it is attached.
•The colored label farther away from the cable connector corresponds to the color of the cabinet
where the other end of the cable is attached. In Figure 34, the dotted lines show where the
label is located and where the cable terminates.
•Each cable is also labeled with a unique number. This number label is applied on both ends
of the cable and near the port where the cable is to be connected. In Figure 34, the cable
number labels are indicated by circled numbers, and the cabinet port numbers are indicated
with boxed numbers.
Figure 34 Cable Labeling
Routing the I/O Cables
Routing the cables is a significant task in the installation process. Efficient cable routing is important
not only for the initial installation, but also to aid in future service calls. The most efficient use of
space is to route cables so that they are not crossed or tangled. Figure 35 (page 39) illustrates
efficient I/O cable routing.
38 Installing the System

Figure 35 Routing I/O Cables
To route cables through the cable groomer at the bottom rear of the cabinet, follow these steps:
1. Remove the cable access plate at the bottom of the groomer.
2. Beginning at the front of the cabinet, route the cables using the following pattern:
a. Route the first cable on the left side of the leftmost card cage first. Route it under the PCI-X
card cage toward the back of the cabinet and down through the first slot at the right of
the cable groomer.
b. Route the second cable on the left side of the leftmost card cage to the right of the first
cable, and so on, until routing all of the cables in the card cage is complete.
The number and width of cables varies from system to system. Use judgment and the
customer’s present and estimated future needs to determine how many cables to route
through each cable groomer slot.
c. After routing the leftmost card cage at the front of the cabinet, route the cables in the
rightmost card cage at the back of the cabinet. Begin with the right cable in the card
cage and work toward the left.
d. After routing the cables in the rightmost card cage at the rear of the cabinet, return to the
front of the system and route the cables in the next card cage to the right.
e. Repeat steps a through d until all the cables are routed.
3. Connect the management processor cables last.
4. Reattach the cable access plate at the bottom of the cable groomer.
5. Reattach the cable groomer kick plate at the back of the cabinet.
6. Slip the L bracket under the power cord on the rear of the PDCA.
7. While holding the L bracket in place, insert the PDCA completely into the cabinet and secure
the L bracket with one screw.
Setting Up the System 39

Adding an IOX Cabinet
There are two (2) IOX cabinet designs available: AF034A and AF092A. Each are different in
design. They support the IOX mounted inside to connect the e-link cables to the Superdome server.
Ensure your customer's cabinet is identified correctly.
In Figure 36 (page 40), note that the AF034A cabinet on the left has 200mm length extension
added to the rear with custom vertical side access panels. These vertical openings are located
slightly above center height on either side to aid in e-link cable management routing.
On the right, the recently released AF092A rack is designed 200mm longer and requires that the
middle and top side panels adjacent to the host Superdome cabinet are removed for e-link cable
routing.
These views are from the front. Either IOX cabinet can be placed next to either side of the Superdome
cabinet(s).
Figure 36 3/4 Front View of IOX Cabinets AF034A (left) and AF092A (right)
Installing the Support Management Station
The Support Management Station (SMS) ships separately in boxes. The SMS software and 3
Revisions of Superdome Firmware history are preloaded at the factory.
NOTE: The SMS Shelf may or may not be installed in the factory prior to shipping.
Installing the SMS Support Shelf
1. Unpack the HP Compaq 6200 Pro Series SMS and Support Shelf from their respective shipping
containers.
40 Installing the System

2. Install the Support Shelf Rack at the U15 position in the 10KG2 Rack and place the SMS PC
onto the shelf.
See the following:
Connecting the SMS to the Superdome
The Superdome Cookbook document is found through the following website (requires authentication):
http://athp.hp.com/portal/site/sig/menuitem.260d6c199fc475a058b9d8a989806e01/
In the Search the Sales Library: field, enter the keywords: SMS Cookbook. A second window is
displayed with the file information. Select Worldwide, English (US) to download.
NOTE: The SMS Cookbook file is presented as a Windows Visio file.
The SMS software and 3 revisions of Superdome firmware histories are preloaded onto the SMS
at the factory. If needed, see the following section for the procedures to capture the SMS SW and
Superdome firmware files.
Connecting the SMS to the Superdome 41

SMS Software and Superdome Firmware Downloading Procedure
Go to the following URL (requires authentication):
http://intranet.hp.com/tsg/WW2/CESL/Pages/SMS-SW-FW.aspx
Select the STSD SMS & FW Files link at approximately mid page.
The Superdome_Binaries.exe file is a self-extracting archive containing the following Firmware
binaries and SMS Software Utilities for Superdome Servers:
1. SX1000 – Last three revisions of PA and IA Firmware
2. SX2000 – Last three revisions of PA and IA Firmware
3. Legacy – Last three revisions of PA Firmware
4. SMS Software Utilities:
— CYGWIN
— EIT
— PARCLI
— SCAN
Either copy the Superdome_Binaries.exe file to the desktop, or save it to a CD.
Open the Superdome_Binaries.exe file.
NOTE: The /opt directory will be created as the default location.
SMS Software Utilities
Move the Software Utilities onto the SMS as indicated:
•SCAN— c:\opt\scansw
•CYGWIN— c:\CYGWIN
•PARCLI— c:\Program Files\Hewlett-Packard\nParCommands
•EIT Tools— c:\Program Files\Hewlett-Packard\EIT
Superdome Firmware Instructions
NOTE: Reference to pa or ia denotes two firmware types: one for PARISC Processors (pa) and
one for Itanium Processors (ia). This is applicable for the sx1000, the sx2000, and the Legacy
Servers. The Legacy Servers will only have the PARISC Processors (pa) installed.
PC SMS
1. Create a c:\opt\firmware\sxX000\X.Xx directory.
Example 1 Directory Example
sx2000\8.7f
2. Copy the h_ipf_(pa or iA)_sxX000_X.Xx tar.gz file to the
c:\opt\firmware\sxX000\X.Xx directory.
3. Open a Cygwin window.
4. Enter the following command to move that bundle into the targeted directory:
cd c:\opt\firmware\sxX000\X.Xx
5. Enter the following command to un-compress the gzip file:
gunzip h_ipf_(pa or iA)_sxX000_X.Xx.tar.gz
42 Installing the System

6. Enter the following command to un-tar the tar files:
tar -xvf h_ipf_(pa or iA)_sxX000_X.Xx.tar
HP-UX SMS
1. Create a /opt/firmware/sxX000/X.Xx directory.
Example 2 Directory Example
sx2000/8.7f
2. Copy the h_ipf_(pa or iA)_sxX000_X.Xx.tar.gz file to the
/opt/firmware/sxX000/X.Xx directory.
3. Change the directory to:
/opt/firmware/sxX000/X.Xx
4. Enter the following command to un-compress the gzip file:
gunzip h_ipf_(pa or ia)_sxX000_X.Xx.tar.gz
5. Enter the following command to un-tar the tar file:
tar -xvf h_ipf_(pa or ia)_sxX000_X.Xx.tar
Restore the A9802E SMS PC with the HP Recovery Manager
If the A9802E model SMS PC cannot launch Windows, it may be possible to use the HP Recovery
Manager on the PC's hard drive to restore the A9802E SMS to the factory default configuration.
The HP Recovery Manager can be launched during the start up process with the following procedure:
1. Press the Power button to start the PC.
2. When the standard BIOS prompts are displayed on the black screen, press the f11 key. The
HP Splash screen with the HP logo may also appear in the background.
NOTE: Pressing the f11 key during the startup on a computer with an HP factory image will
begin the system recovery process even if the prompt is not displayed.
•If the HP Recovery Manager can access the recovery partition on the PC's hard drive, a
prompt will be displayed to backup the user files before beginning the recovery.
Follow the on-screen instructions.
•If the HP Recovery Manager cannot access the hard drive to fix any system errors, you
will need the personalized recovery disc. The recovery disc is created previously by the
user to recover the hard drive to its original configuration.
If the user has not created the personalized recovery disc or if the disc(s) is (are) corrupt,
a replacement recovery kit can be ordered from HP.
•A replacement Windows 7 media recovery kit contains:
Restore Plus! disc◦
◦The OS disc for Windows 7 32/64
◦Language pack
The kit can be ordered by contacting HP post sales support at: 800–334–5144.
Restore the A9802E SMS PC with the HP Recovery Manager 43

IMPORTANT: The serial number of the desktop PC must be provided.
•Place an order for the following product:
HP Compaq 6200 Pro Series™ QT042AW #ABA
3. When the HP Recovery Manager begins, follow the step-by-step instructions.
Configuring the Event Information Tools
There are three tools included in the Event Information Tools (EIT) bundle for the SMS. They are
the Console Logger, the IPMI Log Acquirer and the IPMI Event Viewer. These tools work together
to collect, interpret, and display system event messages on the SMS.
EIT Tools Functionality
The Console Logger captures the commands typed at the console, the response displayed, and
alert messages generated by the system. It stores them on the SMS disk drive in a continuous log
format.
The IPMI Log Acquirer acquires FPL and FRUID logs from the remote system and stores them on the
SMS disk drive.
The IPMI Event Viewer analyzes the FPL logs captured by the IPMI Log Acquirer and displays the
system event information through either a command-line or Web-based interface.
Where to Find the EIT Documentation
The latest documentation for setting up and configuring these tools is available at:
www.hp.com/go/bizsupport
Once you are at the website, select “Event Information Tools (EIT) - formerly SMS”. You will find
documentation for each of the following subjects:
•Console Logger
•IPMI Event Viewer
•IPMI Log Acquirer
•Release Notes
Turning On Housekeeping Power
To turn on housekeeping power to the system, follow these steps:
1. Verify that the ac voltage at the input source is within specifications for each cabinet being
installed.
2. Ensure the following:
•The ac breakers are in the OFF position.
•The cabinet power switch at the front of the cabinet is in the OFF position.
•The ac breakers and cabinet switches on the I/O expansion cabinet (if present) are in
the OFF position.
3. If the complex has an IOX cabinet, power on this cabinet first.
44 Installing the System

IMPORTANT: The 48 V switch on the front panel must be OFF.
4. Turn on the ac breakers on the PDCAs at the back of the each cabinet.
•In a large complex, power on the cabinets in one of the two following orders:
9, 8, 1, 0◦
◦8, 9, 0, 1
•On the front and back panels, the HKP and the Present LEDs illuminate (Figure 37).
•On cabinet 0, the HKP and the Present LEDs illuminate, but only the HKP LED illuminates
on cabinet 1 (the right cabinet).
Figure 37 Front Panel with HKP and Present LEDs
Turning On Housekeeping Power 45

5. Examine the BPS LEDs (Figure 38).
When on, the breakers on the PDCA distribute ac power to the BPSs. Power is present at the
BPSs when:
•The amber LED next to the AC0 Present label is on (if the breakers on the PDCA are on
the left side at the back of the cabinet).
•The amber LED next to the AC1 Present label is on (if the breakers on the PDCA are on
the right side at the back of the cabinet).
Figure 38 BPS LEDs
Connecting the MP to the Customer LAN
This section describes how to connect, set up, and verify the management processor (MP) to the
customer LAN. LAN information includes the MP network name (host name), the MP IP address,
the subnet mask, and the gateway address. The customer provides this information.
Connecting the MP to the Network
NOTE: Based on the customer’s existing SMS configuration, make the appropriate modifications
to add in the Superdome/sx2000 SMS LAN configuration.
Unlike earlier systems, which required the MP to be connected to the private LAN, the sx2000
system MP now connects to the customer’s LAN through the appropriate hub, switch, router, or
other customer-provided LAN device.
In some cases, the customer can connect the SMS to the MP on the private management LAN. In
this case, inform the customer that administrators will not be able to access the SMS remotely and
will have to use the SMS as a “local” device.
Connect the MP to the customer’s LAN:
46 Installing the System

1. Connect one end of the RJ-45 LAN cable to the LAN port on the MP (Figure 39).
Figure 39 MP LAN Connection Location
2. Connect the other end of the LAN cable to the customer-designated LAN port. Obtain the IP
address for the MP from the customer.
Connect the dial-up modem cable between the MP modem and the customers phone line
connection.
Setting the Customer IP Address
NOTE: The default IP address for the customer LAN port on the MP is 192.168.1.1.
To set the customer LAN IP address, follow these steps:
Connecting the MP to the Customer LAN 47

1. From the MP Command Menu prompt MP:CM>, enter lc (LAN configuration).
The screen displays the default values and asks if you want to modify them.
TIP: Write down the information, as it may be required for future troubleshooting.
If you are not already in the Command Menu, enter ma to return to the Main Menu, then enter
cm.
The LAN configuration screen appears (Figure 40).
Figure 40 LAN Configuration Screen
2. If the LAN software on the MP is working properly, the message LAN status: UP and
RUNNING appears. The value in the IP address field has been set at the factory.
NOTE: The customer LAN IP address is designated LAN port 0.
3. The prompt asks if you want to modify LAN port 0. Enter Y.
The current customer IP address appears; then the Do you want to modify it? (Y/[N]) prompt
appears.
4. Enter Y.
5. Enter the new IP address.
6. Confirm the new address.
7. Enter the MP network name.
This is the host name for the customer LAN. You can use any name up to 64 characters long.
It can include alphanumerics, dash (-), under score (_), period (.), or the space character. HP
recommends that the name be a derivative of the complex name. For example,
Maggie.com_MP.
8. Enter the LAN parameters for Subnet mask and Gateway address.
Obtain this information from the customer.
9. To display the LAN parameters and status, enter the ls command at the MP Command Menu
prompt (MP:CM>).
The ls command screen appears (Figure 41).
48 Installing the System

Figure 41 The ls Command Screen
To return to the MP Main Menu, enter ma.
To exit the MP, enter xat the MP Main Menu.
10. Check the settings for the model string, UUID, and Creator Product Name using the ID
command. For example:
MP modifiable stable complex configuration data fields.
Model String : 9000/800/SD32B
Complex System Name : maggie
Original Product Number: A5201A
Current Product Number : A9834A
UUID : ffffffff-ffff-ffff-ffff-ffffffffffff
Creator Manufacturer : hp
Creator Product Name : superdome server SD32B
Creator Serial Number : USRxxxxxxxx
OEM Manufacturer :
OEM Product Name :
OEM Serial Number :USRxxxxxxxx
11. Set the date and time using the MP command.
Booting and Verifying the System
After installing the system, verify that the proper hardware is installed and booted.
This section describes how to power on the cabinet and boot and test each partition. You must
open a console window for each partition. You must also open two additional windows, one
window for initiating reset on partitions and the other for monitoring system partition status. Initiate
the MP in each window.
NOTE: The HKP must be ON and the 48 V switch on the front panel must be OFF . To turn on
the HKP, see“Turning On Housekeeping Power” (page 44) .
Connecting to the MP
Before powering on the cabinet, you need to open several windows connected to the MP. Then
switch the 48 V on and boot each partition to the EFI prompt, (the BCH prompt in the case of an
HP 9000/sx2000 server). To connect to the MP, follow these steps:
Booting and Verifying the System 49

1. On the SMS, open the following command prompt windows:
•One console window for each partition (MP CO option)
•One for initializing the RS command from the MP
•One for monitoring partition status (MP VFP option)
In each window, connect to the MP by entering the following:
telnet <MP hostname>
Or
telnet <IP address>
2. Enter the appropriate login and password at the MP prompts (Figure 42).
Figure 42 Logging In
The MP Main Menu appears (Figure 43).
Figure 43 Main MP Menu
3. Repeat steps 1 and 2 for each partition.
4. In one window bring up the command prompt by entering cm at the MP> prompt (Figure 44).
50 Installing the System

Figure 44 MP Command Option
5. In the another window, open the Virtual Front Panel (VFP) by entering vfp at the MP prompt
(Figure 45). Use this window to observe partition status.
Figure 45 MP Virtual Front Panel
6. From the VFP menu, enter sto select the whole system, or enter the partition number to select
a particular partition. An output similar to Figure 46 appears. In this example, no status is
listed because the system 48 V has not been switched on.
Figure 46 Example of Partition State—Cabinet Not Powered Up
Booting and Verifying the System 51

7. For each of the remaining windows, open the partition console for each partition by enter co
at the MP> prompt (Figure 47). These windows open blank.
NOTE: If information appears in the windows, it means nothing because the cabinet is
powered off.
Figure 47 MP Console Option
Powering On the System 48 V Power Supply
To power on the system 48 V power supply, follow these steps:
1. Switch on the 48 V supply from each cabinet front panel.
IMPORTANT: If the complex has an IOX cabinet, power on this cabinet first.
In a large complex, power on cabinets in one of the two following orders: 9, 8, 1, 0 or 8, 9,
0, 1.
IMPORTANT: The MP must be running in each window.
As the cabinet boots, observe the partition activity in the window displaying the VFP.
2. For HP Integrity Superdome/sx2000 systems, follow the procedure in “Booting the HP Integrity
Superdome/sx2000 to an EFI Shell” (page 52).
3. For HP 9000/sx2000 systems, follow the procedure in “Booting an HP 9000 sx2000 Server
to BCH” (page 54).
Booting the HP Integrity Superdome/sx2000 to an EFI Shell
After powering on or using the CM bo command, all partition console windows show activity while
the firmware initializes and stops momentarily at an EFI Boot Manager menu (Figure 48).
52 Installing the System

Figure 48 HP Integrity Superdome/sx2000 EFI Boot Manager
Use the up and down arrow keys on the keyboard to highlight EFI Shell (Built-in) and
press Enter. Do this for all partitions.
After you start the EFI Shell, the console window displays the EFI shell prompt (Figure 49).
Figure 49 EFI Shell Prompt
NOTE: If autoboot is enabled for an nPartition, you must interrupt it to stop the boot process at
the EFI firmware console.
The VFP indicates that each partition is at system firmware console (Figure 50).
Booting and Verifying the System 53

Figure 50 HP Integrity Superdome/sx2000 Partitions at System Firmware Console
Booting an HP 9000 sx2000 Server to BCH
After you power on the server or use the MP BO command to boot an nPartition past boot-is-blocked
(BIB), the nPartition console shows activity while the firmware initializes and stops at the BCH Main
Menu (the Main Menu: Enter command or menu> prompt).
To redisplay the current menu and its available commands, enter the BCH DI command.
Main Menu: Enter command or menu > di
---- Main Menu ---------------------------------------------------------------
Command Description
------- -----------
BOot [PRI|HAA|ALT|<path>] Boot from specified path
PAth [PRI|HAA|ALT] [<path>] Display or modify a path
SEArch [ALL|<cell>|<path>] Search for boot devices
ScRoll [ON|OFF] Display or change scrolling capability
COnfiguration menu Displays or sets boot values
INformation menu Displays hardware information
SERvice menu Displays service commands
DIsplay Redisplay the current menu
HElp [<menu>|<command>] Display help for menu or command
REBOOT Restart Partition
RECONFIGRESET Reset to allow Reconfig Complex Profile
----
Main Menu: Enter command or menu >
For information about any of the available BCH commands, enter the HE command.
Verifying the System
To verify the system, follow these steps:
54 Installing the System

1. To observe the power status, enter ps at the CM> prompt. A status screen similar to the one
in Figure 51 appears.
Figure 51 Power Status First Window
2. At the Select Device: prompt, enter bthen the cabinet number to check the power status
of the cabinet. Observe Power Switch: on and Power: enabled (Figure 52).
Figure 52 Power Status Window
Figure 52 shows that cells are installed in slots 0 and 4. In the cabinet, verify that cells are
physically located in slots 0 and 4.
3. Press <CR> one more time to observe the power status (Figure 53).
Booting and Verifying the System 55

Figure 53 Power Status Showing State of UGUY LEDs
4. Verify that there is an asterisk (*) in the columns marked MP, CLU, and PM.
IMPORTANT: An asterisk (*) appears in the MP column only for cabinet 0; that is, the cabinet
containing the MP.
Verify that there is an asterisk (*) for each of the cells installed in the cabinet by comparing
what is in the Cells column with the cells located inside the cabinet.
Running JET Software
To ensure that the network diagnostic is enabled at the MP prompt, enter the nd command;
MP:CM>nd. You must run nd to run scan and to do firmware updates to the system.
The JTAG Utility for Scan Tests (JUST) Exploration Tool (JET) collects system information for each
system on a network and places it in files for use by other scan tools. JET gathers configuration
data by executing a series of queries targeted at the MP and the CLU portion of the UGUY board.
IMPORTANT: You must resolve any problems you find as a result of running JET before booting
the operating system.
Running JUST
To run JUST to ensure that the hardware is working properly, follow these steps:
1. Enter jet_setup at the Windows® SMS command window or enter scan_setup at the
HP-UX SMS command window.
2. Enter the complex_name, IP address, and system type.
3. Enter jet -s <complex_name>.
4. Enter just -s <complex_name>.
See the JET User Guide, JUST Users Guide, and other related documentation for testing located
in:
•\opt\scansw\docs\stt directory on the Windows® Support Management Station
•/opt/scansw/docs/stt directory on the HP-UX Support Management Station
56 Installing the System

IMPORTANT: After scan testing successfully completes, reset the complex by cycling the AC
power.
Power Cycling After Using JET
After using JET, you must recycle the system power because the offline diagnostic can deallocate
the CPUs.
To remove the 48 V power, run the MP pe command. Then cycle the ac breakers on the rear of
the cabinets. Leave power off for about 30 seconds to allow the backplane CSRs to reset.
IMPORTANT: If the complex has any IOX cabinets with IDs 8 or 9, you must power cycle these
cabinets in the proper sequence.
Offline Diagnostic Environment
Now that scan has been run, you can run all the appropriate diagnostics for this system. See the
offline diagnostic environment (ODE) documentation for instructions.
Attaching the Rear Kick Plates
Kick plates protect cables from accidentally being disconnected or damaged and add an attractive
cosmetic touch to the cabinet. You must attach three metal kick plates to the bottom rear of the
cabinet.
To install the kick plates, follow these steps:
1. Hold the left kick plate in position and attach a clip nut (0590-2318) on the cabinet column
next to the hole in the flange at the top of the kick plate (Figure 54).
2. Using a screw (0515-0671) and a T-25 driver, attach the flange on the kick plate to the nut
clip.
3. Using a T-10 driver and a screw, attach the bottom of the kick plate to the center hole in the
leveling foot.
Offline Diagnostic Environment 57

Figure 54 Attaching Rear Kick Plates
4. Perform steps 1–3 on the right kick plate.
5. Position the upper flange of the center kick plate under the I/O trays complementary mounting
bracket, to retain the center kick plate top flanges. No top screws are needed on the center
kick plate. Orient this asymmetrical bracket with the hole located nearest the edge in the up
position.
6. Using a T-20 driver, tighten the thumbscrews at the bottom of the center kick plate.
Performing a Visual Inspection and Completing the Installation
After booting the system, carefully inspect it and reinstall the EMI panels. To perform a final
inspection and complete the installation, follow these steps:
1. Visually inspect the system to verify that all components are in place and secure.
2. Check that the cables are secured and routed properly.
3. Check that the cell board ejectors are secure (Figure 55).
If the ejectors are broken or open, the cell board is disconnected.
58 Installing the System

Figure 55 Cell Board Ejectors
4. Reinstall the front EMI panel (Figure 56).
Figure 56 Front EMI Panel Flange and Cabinet Holes
a. Hook the flange at the lower corners of the EMI panel into the holes on the cabinet.
b. Position the panel at the top lip, and lift the panel up while pushing the bottom into
position.
If needed, compress the EMI gasket to seat the panel properly.
c. Reattach the screw at the top of the EMI panel.
5. Check that the cables inside the rear enclosure are secure.
Performing a Visual Inspection and Completing the Installation 59

6. Reinstall the back EMI panel (Figure 57 (page 60)).
a. Align the lip inside the cabinet with the lip on the EMI panel.
Figure 57 Reinstalling the Back EMI Panel
b. Push the EMI panel up and in. If needed, compress the EMI gasket at the top of the
enclosure to get the panel to seat properly.
c. Reattach the screw at the bottom of the EMI panel.
Conducting a Post-Installation Check
After the system is installed in a computer room and verified, conduct the post-installation check.
Before turning the system over to the customer, inspect the system visually and clean up the
installation area. Perform the following:
•Inspect circuit boards. Verify that all circuit boards are installed and properly seated and that
the circuit board retainers are reinstalled.
•Inspect cabling. Ensure that all cables are installed, secured, and properly routed.
•Inspect test points. Verify that test leads are removed from the test points and that the test points
are properly covered.
•Clean up and dispose of debris. Remove all debris from the area and dispose of it properly.
•Perform final check. Inspect the area to ensure that all parts, tools, and other items used to
install the system are disposed of properly. Then close and lock the doors.
•Enter information in the Gold Book. When the installation and cleanup are complete, make
the appropriate notations in the Gold Book shipped with the system.
•Obtain customer acceptance (if required). Be sure to thank the customer for choosing HP.
60 Installing the System

Index
A
ac power verification
4-wire PDCA, 31
5-wire PDCA, 31
AC0 Present LED, 46
AC1 Present LED, 46
B
bezel
attaching front bezel, 29
attaching rear bezel, 28
attaching side bezels, 22
blower bezels (See also "bezel"), 22
blower housings
installing, 19
unpacking, 19
booting
checking cabinet power status, 55
checking installed cell slot locations, 55
invoking the EFI shell, 53
output from the EFI shell, 53
system verification, 49
to the EFI boot manager menu, 52
viewing UGUY LED status, 55
C
cabinet unpacking, 10
cable groomer, 39
cables
connecting I/O, 38
labeling I/O, 38
routing I/O, 38
cell board
ejectors, 58
verifying presence of, 56
checklist
repackaging, 18
claims procedures, 9
clock and utilities board, see CLU
CLU
status seen in window, 56
communications interference, 6
connecting I/O cables, 38
customer LAN, 47
customer signoff, 60
D
damage
returning equipment, 18
shipping containers, 8
discharge
electrostatic, 6
door installation
back, 26
front, 26
E
ejectors
cell board, 58
electrostatic discharge, 6
EMI panel
installing, 59
removing, 36
equipment
returning, 18
G
gateway address, 48
Gold Book, 60
H
housekeeping power
front panel display, 45
HKP LED, 45
turning on, 44
housekeeping power LED, 45
I
inspecting
cables, 60
circuit boards, 60
installation
EMI panel, 59
PDCA, 33
tools required for, 10
visual inspection, 58
interference
communications, 6
inventory check, 7
IP address
default values, 47
LAN configuration screen, 48
setting private and customer LAN, 47
J
JET
invoking the software, 56
power cycling after usage, 56
purpose for invoking, 56
JTAG utility for scan test
JUST, 56
JUST
JTAG utility for scan test, 56
K
kick plates
attaching to cabinet, 57
shown on cabinet, 57
L
LAN
61
port 0, 48
port 1, 48
status, 48
LED
AC0 Present, 46
AC1 Present, 46
HKP (housekeeping), 45
Present, 45
leveling feet
attaching, 26
M
MAC address, 48
moving the system, 19
MP
displaying the customer LAN parameters, 48
exiting the main menu, 49
invoking a partition console, 52
invoking the virtual front panel, 51
physical connection to the customer LAN, 46
returning to the main menu, 49
setting the customer LAN parameters, 48
viewing the virtual front panel screen, 51
P
packing carton contents, 7
PDCA
4-wire voltage verification, 31
5-wire voltage verification, 31
ac breakers, 45
installation, 33
unpacking, 18
wiring configurations, 18, 33
post installation check, 60
power
housekeeping, 44
power supply mounting screws, 13
power up
power on sequence for cabinets, 52
R
ramp extensions, 12
repackaging checklist, 18
returning equipment, 18
routing I/O cables, 38
S
signoff, customer, 60
site of installation, 19
site preparation verification, 7
skins, attaching, 22
subnet mask, 48
Support Management Station
private LAN IP address, 47
private LAN port designations, 48
T
tilt indicator
description, 8
shown in diagram, 9
U
unpacking
blower housings, 19
blowers, 19
pallet ramps, 12
PDCA, 18
system cabinet, 10
W
wrist strap usage, 6
62 Index