Intel Computer Accessories 845 Users Manual .
845 to the manual a0214cf2-bdad-4bad-a7c2-db305c5118c3
2015-02-02
: Intel Intel-Intel-Computer-Accessories-845-Users-Manual-432127 intel-intel-computer-accessories-845-users-manual-432127 intel pdf
Open the PDF directly: View PDF
.
Page Count: 148 [warning: Documents this large are best viewed by clicking the View PDF Link!]
- Title Page
- Contents
- Revision History
- Introduction
- Signal Description
- Register Description
- Register Terminology
- I/O Mapped Registers
- Memory-Mapped Register Space
- DRAMWIDTH—DRAM Width Register
- DQCMDSTR—Strength Control Register (SDQ and CMD Signal Groups)
- CKESTR—Strength Control Register (SCKE Signal Group)
- CSBSTR—Strength Control Register (SCS# Signal Group)
- CKSTR—Strength Control Register (Clock Signal Group)
- RCVENSTR—Strength Control Register (RCVENOUT Signal Group)
- Host-Hub Interface Bridge Device Registers (Device 0)
- VID—Vendor Identification Register (Device 0)
- DID—Device Identification Register (Device 0)
- PCICMD—PCI Command Register (Device 0)
- PCISTS—PCI Status Register (Device 0)
- RID—Revision Identification Register (Device 0)
- SUBC—Sub-Class Code Register (Device 0)
- BCC—Base Class Code Register (Device 0)
- MLT—Master Latency Timer Register (Device 0)
- HDR—Header Type Register (Device 0)
- APBASE—Aperture Base Configuration Register (Device 0)
- SVID—Subsystem Vendor Identification (Device 0)
- SID—Subsystem Identification (Device 0)
- CAPPTR—Capabilities Pointer (Device 0)
- AGPM—AGP Miscellaneous Configuration Register (Device 0)
- DRB[0:7]—DRAM Row Boundary Registers (Device 0)
- DRA—DRAM Row Attribute Registers (Device 0)
- DRT—DRAM Timing Register (Device 0)
- DRC—DRAM Controller Mode Register (Device 0)
- DERRSYN—DRAM Error Syndrome Register (Device 0)
- EAP—Error Address Pointer Register (Device 0)
- PAM[0:6]—Programmable Attribute Map Registers (Device 0)
- FDHC—Fixed DRAM Hole Control Register (Device 0)
- SMRAM—System Management RAM Control Register (Device 0)
- ESMRAMC—Extended System Mgmt RAM Control Register (Device 0)
- ACAPID—AGP Capability Identifier Register (Device 0)
- AGPSTAT—AGP Status Register (Device 0)
- AGPCMD—AGP Command Register (Device 0)
- AGPCTRL—AGP Control Register (Device 0)
- APSIZE—Aperture Size (Device 0)
- ATTBASE—Aperture Translation Table Base Register (Device 0)
- AMTT—AGP Interface Multi-Transaction Timer Register (Device 0)
- LPTT—AGP Low Priority Transaction Timer Register (Device 0)
- TOM—Top of Low Memory Register (Device 0)
- MCHCFG—MCH Configuration Register (Device 0)
- ERRSTS—Error Status Register (Device 0)
- ERRCMD—Error Command Register (Device 0)
- SMICMD—SMI Command Register (Device 0)
- SCICMD—SCI Command Register (Device 0)
- SKPD—Scratchpad Data Register (Device 0)
- CAPID—Product Specific Capability Identifier Register (Device 0)
- Bridge Registers (Device 1)
- VID1—Vendor Identification Register (Device 1)
- DID1—Device Identification Register (Device 1)
- PCICMD1—PCI-PCI Command Register (Device 1)
- PCISTS1—PCI-PCI Status Register (Device 1)
- RID1—Revision Identification Register (Device 1)
- SUBC1—Sub-Class Code Register (Device 1)
- BCC1—Base Class Code Register (Device 1)
- MLT1—Master Latency Timer Register (Device 1)
- HDR1—Header Type Register (Device 1)
- PBUSN1—Primary Bus Number Register (Device 1)
- SBUSN1—Secondary Bus Number Register (Device 1)
- SUBUSN1—Subordinate Bus Number Register (Device 1)
- SMLT1—Secondary Master Latency Timer Register (Device 1)
- IOBASE1—I/O Base Address Register (Device 1)
- IOLIMIT1—I/O Limit Address Register (Device 1)
- SSTS1—Secondary PCI-PCI Status Register (Device 1)
- MBASE1—Memory Base Address Register (Device 1)
- MLIMIT1—Memory Limit Address Register (Device 1)
- PMBASE1—Prefetchable Memory Base Address Register (Device 1)
- PMLIMIT1—Prefetchable Memory Limit Address Register (Device 1)
- BCTRL1—PCI-PCI Bridge Control Register (Device 1)
- ERRCMD1—Error Command Register (Device 1)
- DWTC—DRAM Write Thermal Management Control Register (Device 1)
- DRTC—DRAM Read Thermal Management Control Register (Device 1)
- System Address Map
- Functional Description
- Electrical Characteristics
- Ballout and Package Information
- Testability

Intel® 845 Chipset: 82845
Memory Controller Hub (MCH)
for SDR
Datasheet
January 2002
Document Number: 290725-002
R

R
2 Intel® 82845 MCH for SDR Datasheet
Information in this document is provided in connection with Intel® products. No license, express or implied, by estoppel or otherwise, to any intellectual
property rights is granted by this document. Except as provided in Intel’s Terms and Conditions of Sale for such products, Intel assumes no liability
whatsoever, and Intel disclaims any express or implied warranty, relating to sale and/or use of Intel products including liability or warranties relating to
fitness for a particular purpose, merchantability, or infringement of any patent, copyright or other intellectual property right. Intel products are not
intended for use in medical, life saving, or life sustaining applications.
Intel may make changes to specifications and product descriptions at any time, without notice.
Designers must not rely on the absence or characteristics of any features or instructions marked "reserved" or "undefined." Intel reserves these for
future definition and shall have no responsibility whatsoever for conflicts or incompatibilities arising from future changes to them.
The Intel® 845 chipset may contain design defects or errors known as errata which may cause the product to deviate from published specifications.
Current characterized errata are available on request.
Contact your local Intel sales office or your distributor to obtain the latest specifications and before placing your product order.
I2C is a two-wire communications bus/protocol developed by Philips. SMBus is a subset of the I2C bus/protocol and was developed by Intel.
Implementations of the I2C bus/protocol may require licenses from various entities, including Philips Electronics N.V. and North American Philips
Corporation.
Copies of documents which have an ordering number and are referenced in this document, or other Intel literature, may be obtained from:
Intel Corporation
www.intel.com
or call 1-800-548-4725
Intel , Pentium and the Intel logo are trademarks or registered trademarks of Intel Corporation or its subsidiaries in the United States and other
countries.
*Other names and brands may be claimed as the property of others.
Copyright © 2001–2002, Intel Corporation

R
Intel® 82845 MCH for SDR Datasheet 3
Contents
1 Introduction........................................................................................................................11
1.1 Terminology and Notations...................................................................................11
1.2 Reference Documents ..........................................................................................13
1.3 Intel® 845 Chipset System Architecture................................................................14
1.4 Intel® 82845 MCH Overview .................................................................................14
1.4.1 System Bus Interface ............................................................................15
1.4.2 System Bus Error Checking ..................................................................15
1.4.3 System Memory Interface .....................................................................16
1.4.4 AGP Interface........................................................................................16
1.4.5 Hub Interface.........................................................................................17
1.4.6 Intel® MCH Clocking..............................................................................17
1.4.7 System Interrupts ..................................................................................18
1.4.8 Powerdown Flow ...................................................................................18
2 Signal Description..............................................................................................................19
2.1 System Bus Signals ..............................................................................................21
2.2 SDR SDRAM Interface Signals.............................................................................23
2.3 Hub Interface Signals............................................................................................23
2.4 AGP Interface Signals...........................................................................................24
2.4.1 AGP Addressing Signals .......................................................................24
2.4.2 AGP Flow Control Signals.....................................................................25
2.4.3 AGP Status Signals...............................................................................25
2.4.4 AGP Strobes Signals.............................................................................26
2.4.5 AGP/PCI Signals ...................................................................................26
2.5 Clocks, Reset, and Miscellaneous Signals ...........................................................28
2.6 Voltage Reference and Power Signals .................................................................29
2.7 Reset States During Reset ...................................................................................30
3 Register Description ..........................................................................................................31
3.1 Register Terminology............................................................................................31
3.2 PCI Bus Configuration Space Access...................................................................32
3.2.1 Standard PCI Bus Configuration Mechanism........................................33
3.2.2 Routing Configuration Accesses ...........................................................33
3.3 I/O Mapped Registers ...........................................................................................34
3.3.1 CONF_ADDR—Configuration Address Register ..................................34
3.3.2 CONF_DATA—Configuration Data Register.........................................36
3.4 Memory-Mapped Register Space .........................................................................36
3.4.1 DRAMWIDTH—DRAM Width Register.................................................37
3.4.2 DQCMDSTR—Strength Control Register (SDQ and CMD
Signal Groups) ......................................................................................38
3.4.3 CKESTR—Strength Control Register (SCKE Signal Group) ................39
3.4.4 CSBSTR—Strength Control Register (SCS# Signal Group).................40
3.4.5 CKSTR—Strength Control Register (Clock Signal Group) ...................41
3.4.6 RCVENSTR—Strength Control Register (RCVENOUT
Signal Group) ........................................................................................42

R
4 Intel® 82845 MCH for SDR Datasheet
3.5 Host-Hub Interface Bridge Device Registers (Device 0)......................................43
3.5.1 VID—Vendor Identification Register (Device 0) ....................................45
3.5.2 DID—Device Identification Register (Device 0).....................................45
3.5.3 PCICMD—PCI Command Register (Device 0) .....................................46
3.5.4 PCISTS—PCI Status Register (Device 0).............................................47
3.5.5 RID—Revision Identification Register (Device 0)..................................48
3.5.6 SUBC—Sub-Class Code Register (Device 0).......................................48
3.5.7 BCC—Base Class Code Register (Device 0)........................................48
3.5.8 MLT—Master Latency Timer Register (Device 0).................................49
3.5.9 HDR—Header Type Register (Device 0) ..............................................49
3.5.10 APBASE—Aperture Base Configuration Register (Device 0) ...............50
3.5.11 SVID—Subsystem Vendor Identification (Device 0) .............................51
3.5.12 SID—Subsystem Identification (Device 0) ............................................51
3.5.13 CAPPTR—Capabilities Pointer (Device 0)............................................51
3.5.14 AGPM—AGP Miscellaneous Configuration Register (Device 0)...........52
3.5.15 DRB[0:7]—DRAM Row Boundary Registers (Device 0)........................52
3.5.16 DRA—DRAM Row Attribute Registers (Device 0) ................................53
3.5.17 DRT—DRAM Timing Register (Device 0).............................................55
3.5.18 DRC—DRAM Controller Mode Register (Device 0)..............................56
3.5.19 DERRSYN—DRAM Error Syndrome Register (Device 0) ....................58
3.5.20 EAP—Error Address Pointer Register (Device 0) .................................58
3.5.21 PAM[0:6]—Programmable Attribute Map Registers (Device 0) ...........59
3.5.22 FDHC—Fixed DRAM Hole Control Register (Device 0)........................62
3.5.23 SMRAM—System Management RAM Control Register (Device 0)......63
3.5.24 ESMRAMC—Extended System Mgmt RAM Control
Register (Device 0)................................................................................64
3.5.25 ACAPID—AGP Capability Identifier Register (Device 0).......................65
3.5.26 AGPSTAT—AGP Status Register (Device 0) .......................................66
3.5.27 AGPCMD—AGP Command Register (Device 0)..................................67
3.5.28 AGPCTRL—AGP Control Register (Device 0)......................................68
3.5.29 APSIZE—Aperture Size (Device 0).......................................................69
3.5.30 ATTBASE—Aperture Translation Table Base Register (Device 0).......70
3.5.31 AMTT—AGP Interface Multi-Transaction Timer Register (Device 0) ...71
3.5.32 LPTT—AGP Low Priority Transaction Timer Register (Device 0).........72
3.5.33 TOM—Top of Low Memory Register (Device 0) ...................................73
3.5.34 MCHCFG—MCH Configuration Register (Device 0).............................74
3.5.35 ERRSTS—Error Status Register (Device 0) .........................................75
3.5.36 ERRCMD—Error Command Register (Device 0) .................................76
3.5.37 SMICMD—SMI Command Register (Device 0) ....................................78
3.5.38 SCICMD—SCI Command Register (Device 0) .....................................78
3.5.39 SKPD—Scratchpad Data Register (Device 0) ......................................79
3.5.40 CAPID—Product Specific Capability Identifier Register (Device 0) ......79
3.6 Bridge Registers (Device 1)..................................................................................80
3.6.1 VID1—Vendor Identification Register (Device 1) ..................................81
3.6.2 DID1—Device Identification Register (Device 1)...................................81
3.6.3 PCICMD1—PCI-PCI Command Register (Device 1)............................82
3.6.4 PCISTS1—PCI-PCI Status Register (Device 1)....................................83
3.6.5 RID1—Revision Identification Register (Device 1)................................84
3.6.6 SUBC1—Sub-Class Code Register (Device 1).....................................84
3.6.7 BCC1—Base Class Code Register (Device 1)......................................84
3.6.8 MLT1—Master Latency Timer Register (Device 1)...............................85
3.6.9 HDR1—Header Type Register (Device 1) ............................................85
3.6.10 PBUSN1—Primary Bus Number Register (Device 1) ...........................85

R
Intel® 82845 MCH for SDR Datasheet 5
3.6.11 SBUSN1—Secondary Bus Number Register (Device 1) ......................86
3.6.12 SUBUSN1—Subordinate Bus Number Register (Device 1)..................86
3.6.13 SMLT1—Secondary Master Latency Timer Register (Device 1) .........87
3.6.14 IOBASE1—I/O Base Address Register (Device 1) ...............................88
3.6.15 IOLIMIT1—I/O Limit Address Register (Device 1) ................................88
3.6.16 SSTS1—Secondary PCI-PCI Status Register (Device 1) .....................89
3.6.17 MBASE1—Memory Base Address Register (Device 1)........................90
3.6.18 MLIMIT1—Memory Limit Address Register (Device 1).........................90
3.6.19 PMBASE1—Prefetchable Memory Base Address
Register (Device 1)................................................................................91
3.6.20 PMLIMIT1—Prefetchable Memory Limit Address
Register (Device 1)................................................................................91
3.6.21 BCTRL1—PCI-PCI Bridge Control Register (Device 1)........................92
3.6.22 ERRCMD1—Error Command Register (Device 1) ...............................93
3.6.23 DWTC—DRAM Write Thermal Management Control
Register (Device 1)................................................................................94
3.6.24 DRTC—DRAM Read Thermal Management Control
Register (Device 1)................................................................................95
4 System Address Map.........................................................................................................97
4.1 Memory Address Ranges .....................................................................................97
4.1.1 VGA and MDA Memory Space..............................................................99
4.1.2 PAM Memory Spaces..........................................................................100
4.1.3 ISA Hole Memory Space .....................................................................100
4.1.4 TSEG SMM Memory Space................................................................101
4.1.5 IOAPIC Memory Space .......................................................................101
4.1.6 System Bus Interrupt APIC Memory Space ........................................101
4.1.7 High SMM Memory Space...................................................................101
4.1.8 AGP Aperture Space (Device 0 BAR) .................................................102
4.1.9 AGP Memory and Prefetchable Memory.............................................102
4.1.10 Hub Interface Subtractive Decode ......................................................102
4.2 AGP Memory Address Ranges...........................................................................102
4.2.1 AGP DRAM Graphics Aperture...........................................................103
4.3 System Management Mode (SMM) Memory Range...........................................103
4.3.1 SMM Space Definition.........................................................................104
4.3.2 SMM Space Restrictions .....................................................................104
4.4 I/O Address Space..............................................................................................105
4.5 Intel® MCH Decode Rules and Cross-Bridge Address Mapping.........................105
4.5.1 Hub Interface Decode Rules ...............................................................105
4.5.2 AGP Interface Decode Rules ..............................................................106
5 Functional Description .....................................................................................................107
5.1 System Bus.........................................................................................................107
5.1.1 Dynamic Bus Inversion........................................................................107
5.1.2 System Bus Interrupt Delivery.............................................................108
5.1.3 Upstream Interrupt Messages.............................................................108
5.2 System Memory Interface...................................................................................109
5.2.1 Single Data Rate (SDR) SDRAM Interface Overview .........................109
5.2.2 Memory Organization and Configuration.............................................109
5.2.2.1 Configuration Mechanism For DIMMs ...............................110
5.2.3 Memory Address Translation and Decoding .......................................111
5.2.4 DRAM Performance Description .........................................................112
5.2.4.1 Data Integrity (ECC)...........................................................112

R
6 Intel® 82845 MCH for SDR Datasheet
5.3 AGP Interface Overview .....................................................................................112
5.3.1 AGP Target Operations.......................................................................112
5.3.2 AGP Transaction Ordering..................................................................114
5.3.3 AGP Signal Levels...............................................................................114
5.3.4 4x AGP Protocol..................................................................................114
5.3.5 Fast Writes..........................................................................................114
5.3.6 AGP FRAME# Transactions on AGP..................................................115
5.4 Power and Thermal Management ......................................................................117
5.4.1 Processor Power State Control...........................................................117
5.4.2 Sleep State Control .............................................................................118
5.5 Intel® MCH Clocking ...........................................................................................118
5.6 Intel® MCH System Reset and Power Sequencing.............................................118
6 Electrical Characteristics .................................................................................................119
6.1 Absolute Maximum Ratings ................................................................................119
6.2 Power Characteristics.........................................................................................119
6.3 Signal Groups .....................................................................................................120
6.4 DC Characteristics..............................................................................................122
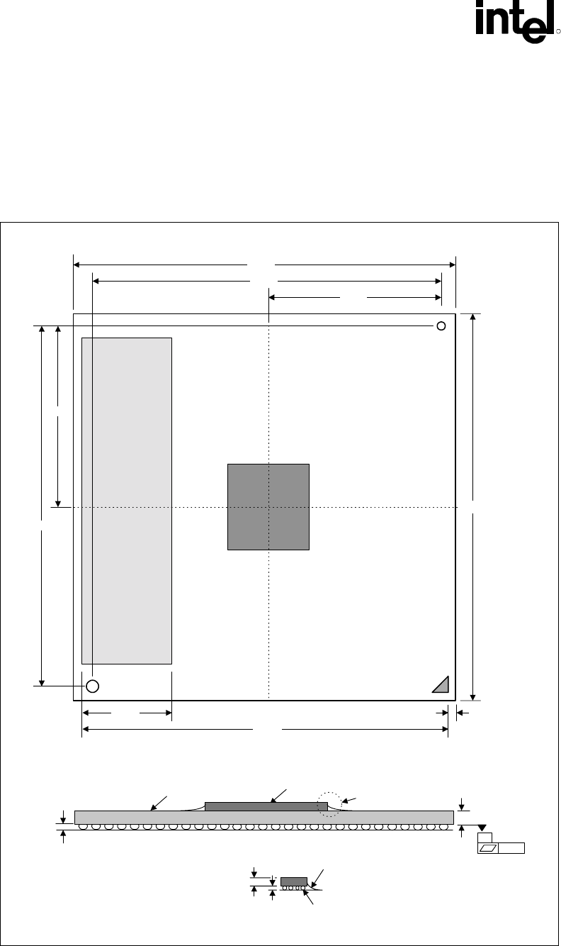
7 Ballout and Package Information.....................................................................................125
7.1 Package Mechanical Information........................................................................134
8 Testability.........................................................................................................................137
8.1 XOR Test Mode Initialization ..............................................................................137
8.2 XOR Chains........................................................................................................138

R
Intel® 82845 MCH for SDR Datasheet 7
Figures
Figure 1. Intel® MCH Simplified Block Diagram.................................................................20
Figure 2. PAM Register Attributes .....................................................................................60
Figure 3. Addressable Memory Space ..............................................................................97
Figure 4. DOS Compatible Area Address Map..................................................................98
Figure 5. Extended Memory Range Address Map ............................................................98
Figure 6. Intel® 82845 MCH Ballout Diagram (Top View—Left Side)..............................126
Figure 7. Intel® 82845 MCH Ballout Diagram (Top View—Right Side)............................127
Figure 8. Intel® MCH FC-BGA Package Dimensions (Top and Side View).....................134
Figure 9. Intel® MCH FC-BGA Package Dimensions (Bottom View)...............................135
Figure 10. XOR Tree Chain.............................................................................................137
Tables
Table 1. General Terminology...........................................................................................11
Table 2. Data Type Notation..............................................................................................12
Table 3. Number Format Notation.....................................................................................12
Table 4. Memory Capacity.................................................................................................16
Table 5. Intel® MCH Clock Ratio Table .............................................................................17
Table 6. Intel® MCH Internal Device Assignments ............................................................32
Table 7. Memory-mapped Register Address Map.............................................................36
Table 8. Intel® MCH Configuration Space (Device 0)........................................................43
Table 9. PAM Register Attributes ......................................................................................61
Table 10. Intel® MCH Configuration Space (Device 1)......................................................80
Table 11. SMM Space Address Ranges .........................................................................104
Table 12. Supported DIMM Configurations .....................................................................109
Table 13. Data Bytes on DIMM Used for Programming DRAM Registers ......................110
Table 14. Address Translation and Decoding .................................................................111
Table 15. AGP Commands Supported by the Intel® MCH When Acting as
an AGP Target .................................................................................................113
Table 16. Data Rate Control Bits.....................................................................................115
Table 17. PCI Commands Supported by the Intel® MCH (When Acting
as a FRAME# Target) ......................................................................................115
Table 18. Absolute Maximum Ratings.............................................................................119
Table 19. Power Characteristics......................................................................................119
Table 20. Signal Groups..................................................................................................120
Table 21. DC Characteristics...........................................................................................122
Table 22. Intel® 82845 MCH Ballout Listed Alphabetically by Signal Name ....................128
Table 23. XOR Chain 0 ...................................................................................................138
Table 24. XOR Chain 1 ...................................................................................................140
Table 25. XOR Chain 2 ...................................................................................................141
Table 26. XOR Chain 3 ...................................................................................................142
Table 27. XOR Chain 4 ...................................................................................................143
Table 28. XOR Chain 5 ...................................................................................................144
Table 29. XOR Chain 6 ...................................................................................................146
Table 30. XOR Chain 7 ...................................................................................................147

R
8 Intel® 82845 MCH for SDR Datasheet
Revision History
Revision
Number Description Date
-001 Initial Release. September 2001
-002 • Changed the document name to add the term “for SDR”.
• DWTC—DRAM Write Thermal Management Control Register was
incorrectly placed in Device 0. It should be in Device 1.
• DRTC—DRAM Read Thermal Management Control Register was
incorrectly placed in Device 0. It should be in Device 1.
January 2002

R
Intel® 82845 MCH for SDR Datasheet 9
Intel® 82845 MCH Features
!
Intel® Pentium® 4 Processor (478 pin package)
Support
Enhanced Mode Scaleable Bus Protocol
2x Address, 4x Data
System Bus interrupt delivery
400 MHz system bus
System Bus Dynamic Bus Inversion (DBI)
32-bit system bus addressing
12 deep In-Order Queue
AGTL+ bus driver technology with
integrated AGTL+ termination resistors
!
System Memory Support
Directly supports one SDR SDRAM
channel, 64 bits wide (72 bits with ECC)
133 MHz Single Data Rate (SDR) SDRAM
devices
64 Mb, 128 Mb, 256 Mb and 512 Mb
technologies for x8 and x16 devices
By using 64 Mb technology, the smallest
memory capacity possible is 32 MB
Configurable optional ECC operation (single
bit Error Correction and multiple bit Error
Detection)
Page sizes of 2 KB, 4 KB, 8 KB and 16 KB
(individually selected for every row)
Thermal management
Maximum of 3 Double-Sided DIMMs (6
rows populated) with unbuffered PC133
(with or without ECC)
Note: Mixed mode, populating ECC and
Non-ECC Memories simultaneously is not
supported.
3 GB Maximum using 512 Mb technology
Supports up to 24 simultaneous open pages
Maximum memory bandwidth of 1.067 GB/s
with PC133
!
Hub Interface to Intel® 82801BA ICH2
266 MB/s point-to-point hub interface to
ICH2
66 MHz base clock
MSI interrupt messages, power management
state change, SMI, SCI and SERR error
indication
!
Accelerated Graphics Port (AGP) Interface
Supports a single AGP device (either a
connector or on the motherboard)
Supports AGP 2.0 including 1x, 2x, and 4x
AGP data transfers and 2x/4x Fast Write
protocol
Supports only 1.5 V AGP electrical
characteristics
32 deep AGP request queue
Delayed transaction support for AGP-to-
System Memory FRAME# semantic reads
!
System Interrupt Support
System bus interrupt delivery mechanism
Interrupts signaled as upstream memory
writes from AGP/PCI
Supports peer MSI between hub interface
and AGP
Provides redirection for IPI and upstream
interrupts to the system bus
!
Power Management
SMRAM space remapping to A0000h
Supports extended SMRAM space above
256 MB, additional TSEG from Top of
Memory
SMRAM accesses from AGP or hub
interface are not supported
PC ’99 suspend to DRAM support
ACPI, Revision 1.0b compliant power
management
APM, Revision 1.2 compliant power
management
NT Hardware Design Guide, Version 1.0
compliant
!
Package
MCH: 593 pin FC-BGA (37.5 x 37.5 mm)

R
10 Intel® 82845 MCH for SDR Datasheet
System Block Diagram
Intel® 82801BA
I/O Controller Hub
(ICH2)
System Memory
sys_blk
PCI Bus
Intel® 82845
Memory
Controller Hub
(MCH)
4x AGP
Graphics
Controller
Hub
Interface
4 USB Ports; 2 HC
UltraATA/100
AC '97 Codec(s)
(optional)
AC'97 2.1
LPC I/F Super I/O
Keyboard,
Mouse, FD, PP,
SP, IR
FWH Flash
BIOS
PCI
Slots
AGP 2.0
Intel® Pentium® 4
Processor
Intel® 845 Chipset
PCI
Agent
GPIO
LAN Connect
2 IDE Drives
SDRAM
SDRAM
Interface

Introduction
R
Intel® 82845 MCH for SDR Datasheet 11
1 Introduction
The Intel® 82845 Memory Controller Hub (MCH) is designed for use with the Intel® Pentium® 4
processor in the 478-pin package. The Intel® 845 chipset contains two main components: the
82845 Memory Controller Hub (MCH) for the host bridge and the Intel 82801BA I/O Controller
Hub (ICH2) for the I/O subsystem. The MCH provides the processor interface, system memory
interface, AGP interface, and hub interface in an 845 chipset desktop platform.
This document describes the 82845 Memory Controller Hub (MCH) for use with SDR (Single
Data Rate) memory devices. Section 1.3 provides an overview of the 845 chipset.
1.1 Terminology and Notations
This section provides the definitions of some of the terms used in this document. Notations used
for data types and numbers are also included. In addition, Section 3.1 contains register
terminology definitions.
Table 1. General Terminology
Term Description
MCH The Memory Controller Hub component that contains the processor interface, System
Memory DRAM controller, and AGP interface. It communicates with the I/O controller
hub (ICH2) and other IO controller hubs over proprietary interconnect called the hub
interface.
ICH2 The I/O Controller Hub component that contains the primary PCI interface, LPC
interface, USB, ATA-100, AC ’97, and other I/O functions. It communicates with the
MCH over a proprietary interconnect called the hub interface.
Host This term is used synonymously with processor.
Core The internal base logic in the MCH.
System Bus Processor-to-MCH interface. The system bus runs at 400 MHz, from a 100 MHz quad-
pumped clock. It consists of source synchronous transfers for address and data, and
system bus interrupt delivery.
Hub Interface The proprietary hub interconnect that connects the MCH to the ICH2. In this document
hub interface cycles originating from or destined for the primary PCI interface on the
ICH2 are generally referred to as hub interface cycles.
Accelerated
Graphics Port
(AGP)
Refers to the AGP interface that is in the MCH. The MCH supports AGP 2.0 compliant
components only with 1.5 V signaling level. PIPE# and SBA addressing cycles and their
associated data phases are generally referred to as AGP transactions. FRAME# cycles
over the AGP bus are generally referred to as AGP/PCI transactions.
PCI_A The physical PCI bus, driven directly by the ICH2 component. It supports 5 V, 32-bit,
33 MHz PCI 2.2 compliant components. Communication between PCI_A and the MCH
occurs over the hub interface.
Note: Even though this PCI bus is referred to as PCI_A, it is not PCI Bus #0 from a
configuration standpoint.
Full Reset A full MCH reset is defined in this document when RSTIN# is asserted.

Introduction
R
12 Intel® 82845 MCH for SDR Datasheet
Term Description
GART Graphics Aperture Re-map Table. This table contains the page re-map information used
during AGP aperture address translations.
GTLB Graphics Translation Look-aside Buffer. A cache used to store frequently used GART
entries.
UP Uni-Processor.
DBI Dynamic Bus inversion.
MSI Message Signaled Interrupts. MSIs allow a device to request interrupt service via a
standard memory write transaction instead of through a hardware signal.
IPI Inter Processor Interrupt.
SDR Single Data-Rate SDRAM memory.
Table 2. Data Type Notation
Data Type Size
bit (b) Smallest unit, 0 or 1
byte 8 bits
word 16 bits = 2 bytes
DWord (DW) Doubleword: 32 bits = 4 bytes
QWord (QW) Quadword: 8 bytes = 4 words
DQWord (DQW) Double Quadword. 16 bytes or 8 words. This is sometimes
referred to as a Superword (SW or SWord), and is also
referred to as a “Cache Line”.
Kilobyte (KB) 1024 bytes
Megabit (Mb) 1, 048,576 bits = 128 KB
Megabyte (MB) 1,048,576 bytes = 1024 KB
Gigabit (Gb) 1024 Mb
Gigabyte (GB) 1024 MB
Table 3. Number Format Notation
Number Format Notation Example
Decimal (default) 14
Binary b 1110b
Hex h 0Eh

Introduction
R
Intel® 82845 MCH for SDR Datasheet 13
1.2 Reference Documents
Document Document Number
/ Location
Intel® Pentium 4 Processor in a 478 Pin Package and Intel® 845 Chipset Platform for
SDR Design Guide
298354
Intel® 82801BA I/O Controller Hub (ICH2) and Intel® 82801BAM I/O Controller Hub
(ICH2-M) Datasheet
290687
Intel® 845 Chipset Thermal and Mechanical Design Guidelines for SDR 298586
Intel® 82802AB/AC Firmware Hub (FWH) Datasheet 290658
PCI Local Bus Specification, Revision 2.1 Contact Intel Field
Representative
Accelerated Graphics Port Interface Specification, Revision 2.0 www.agpforum.org
Intel® Pentium 4 Processor Datasheet
PC SDRAM Specification, Rev. 1.7 developer.intel.com
Note: See the Intel® Pentium 4 Processor in a 478 Pin Package and Intel® 845 Chipset Platform Design
Guide for an expanded set of related documents.

Introduction
R
14 Intel® 82845 MCH for SDR Datasheet
1.3 Intel® 845 Chipset System Architecture
The MCH provides the processor interface, system memory interface, AGP interface, and hub
interface in an 845 chipset desktop platform. The processor interface supports the Pentium 4
processor subset of the Extended Mode of the Scalable Bus Protocol. The MCH supports a single
channel of PC133 SDRAM. The MCH contains advanced power management logic. The 845
chipset platform supports the I/O Controller Hub 2 (ICH2) to provide the features required by a
desktop platform.
Intel® 82801BA I/O Controller Hub 2 (ICH2)
The ICH2 is a highly integrated multifunctional I/O Controller Hub that provides the interface to
the PCI Bus and integrates many of the functions needed in today’s PC platforms. The MCH and
ICH2 communicate over a dedicated hub interface. The 82801BA ICH2 Functions and capabilities
include:
• PCI Rev 2.2 compliant with support for 33 MHz PCI operations
• Supports up to 6 Request/Grant pairs (PCI slots)
• Power management logic support
• Enhanced DMA controller, interrupt controller, and timer functions
• Integrated IDE controller; Ultra ATA/100/66/33
• USB host interface; 2 host controllers and supports 4 USB ports
• Integrated LAN controller
• System Management Bus (SMBus) compatible with most I2C devices; ICH2 has both bus
master and slave capability
• AC ’97 2.1 compliant link for audio and telephony codecs; up to 6 channels (ICH2)
• Low Pin Count (LPC) interface
• FWH Interface (FWH Flash BIOS support)
• Alert on LAN* (AOL and AOL2)
1.4 Intel® 82845 MCH Overview
The MCH role in a system is to manage the flow of information between its four interfaces: the
system bus, the memory interface, the AGP port, and the hub interface. The MCH arbitrates
between the four interfaces, when each initiates an operation. While doing so, the MCH supports
data coherency via snooping and performs address translation for access to AGP Aperture
memory. To increase system performance, the MCH incorporates several queues and a write
cache.
The MCH is in a 593 pin FC-BGA package and contains the following functionality:
• Supports single Pentium 4 processor configuration at 400 MHz
• AGTL+ system bus with integrated termination supporting 32-bit system bus addressing
• Up to 3 GB (w/ 512 Mb technology) of PC133 SDRAM
• 1.5 V AGP interface with 4x SBA/data transfer and 2x/4x fast write capability
• 8 bit, 66 MHz 4x hub interface to the ICH2
• Distributed arbitration for highly concurrent operation

Introduction
R
Intel® 82845 MCH for SDR Datasheet 15
1.4.1 System Bus Interface
The MCH is optimized for the Pentium 4 processor. The primary enhancements over the
Compatible Mode P6 bus protocol are:
• Source synchronous double-pumped address
• Source synchronous quad-pumped data
• System bus interrupt and side-band signal delivery
The MCH supports a 64-byte cache line size. Only one processor is supported at a system bus
frequency of 400 MHz. The MCH supports a 3:4 host-to-memory frequency ratio (using the
100 MHz clock). The MCH integrates AGTL+ termination resistors on all of the AGTL+ signals.
The MCH supports 32-bit system bus addresses, allowing the processor to access the entire 4 GB
of the MCH memory address space.
The MCH has a 12-deep In-Order Queue to support up to twelve outstanding pipelined address
requests on the system bus. The MCH supports two outstanding defer cycles at a time; however,
only one to any particular I/O interface. Processor-initiated I/O cycles are positively decoded to
AGP/PCI or MCH configuration space and subtractively decoded to the hub interface. Processor-
initiated memory cycles are positively decoded to AGP/PCI or system memory, and are again
subtractively decoded to the hub interface, if under 4 GB. AGP semantic memory accesses
initiated from AGP/PCI to system memory are not snooped on the system bus. Memory accesses
initiated from AGP/PCI using PCI semantics and from the hub interface to system memory will be
snooped on the system bus. Memory accesses whose addresses lie within the AGP aperture are
translated using the AGP address translation table, regardless of the originating interface.
1.4.2 System Bus Error Checking
The MCH does not generate parity, nor check parity for data, address/request, and response
signals on the processor bus.

Introduction
R
16 Intel® 82845 MCH for SDR Datasheet
1.4.3 System Memory Interface
The MCH directly supports one channel of PC133 SDRAM. The memory interface supports
Single Data Rate (SDR) devices with densities of 64 Mb, 128 Mb, 256 Mb, and 512 Mb
technology. The memory interface also supports variable page sizes of 2 KB, 4 KB, 8 KB, and
16 KB. Page size is individually selected for every row and a maximum of 8 pages per DIMM may
be opened simultaneously.
The MCH supports a maximum of 3 double-sided DIMMs (6 rows populated) with unbuffered
PC133 (with or without ECC) Note that in mixed mode, populating ECC and Non-ECC memories
simultaneously is not supported.
Table 4. Memory Capacity
Technology SDR (PC133)
Maximum
64 Mb 384 MB
128 Mb 768 MB
256 Mb 1.5 GB
512 Mb 3 GB
The memory interface provides optional ECC error checking for system memory data integrity.
During system memory writes, ECC is generated on a QWord (64 bit) basis. Because the MCH
stores only entire cache lines in its internal buffers, partial QWord writes initially cause a read of
the underlying data, and their write-back into memory is no different from that of a complete cache
line. During system memory reads, and the read of the data that underlies partial writes, the MCH
supports detection of single-bit and multiple-bit errors, and will correct single-bit errors when
correction is enabled.
The MCH supports a thermal management scheme to selectively manage reads and/or writes.
Thermal management can be triggered by preset read/write bandwidth limits.
1.4.4 AGP Interface
A single AGP component or connector (not both) is supported by the MCH AGP interface. The
AGP buffers operate only in 1.5 V mode. They are not 3.3 V safe.
The AGP interface supports 1x/2x/4x AGP signaling and 2x/4x fast writes. AGP semantic cycles
to system memory are not snooped on the system bus. PCI semantic cycles to system memory are
snooped on the system bus. The MCH supports PIPE# or SBA[7:0] AGP address mechanisms, but
not both simultaneously. Either the PIPE# or the SBA[7:0] mechanism must be selected during
system initialization. Both upstream and downstream addressing is limited to 32 bits for AGP and
AGP/PCI transactions. The MCH contains a 32 deep AGP request queue. High-priority accesses
are supported. All accesses from the AGP/PCI interface that fall within the Graphics Aperture
address range pass through an address translation mechanism with a fully associative 20 entry
TLB. Accesses between AGP and hub interface are limited to memory writes originating from the
hub interface destined for AGP. The AGP interface is clocked from a dedicated 66 MHz clock
(66IN). The AGP-to-host/core interface is asynchronous.

Introduction
R
Intel® 82845 MCH for SDR Datasheet 17
1.4.5 Hub Interface
The 8-bit hub interface connects the MCH to the ICH2. All communication between the MCH and
the ICH2 occurs over the hub interface. The hub interface runs at 66 MHz / 266 MB/s. In addition
to the normal traffic types, the following communication also occurs over the hub interface:
• Interrupt related messages
• Power management events as messages
• SMI, SCI, and SERR error indication messages
It is assumed that the hub interface is always connected to an ICH2.
1.4.6 Intel® MCH Clocking
The MCH has the following clock input pins:
• Differential BCLK for the host interface
• 66 MHz clock input for the AGP and hub interface
Clock synthesizer chip(s) generate the system host clocks, AGP and hub interface clocks, and PCI
clocks. The system bus target speed is 400 MHz. The MCH does not require any relationship
between the HCLKIN host clock and the 66 MHz clock generated for AGP and the hub interface;
they are asynchronous to each other. The AGP and hub interface runs at a constant 66 MHz base
frequency. The hub interface runs at 4x. AGP transfers can be 1x, 2x, or 4x. Table 5 indicates the
supported frequency ratios between the various interfaces.
Table 5. Intel® MCH Clock Ratio Table
Interface Speed Processor BCLK
(100 MHz)
Memory SDR 133 MHz 3:4 synchronous
AGP 66 MHz Asynchronous
Hub interface 66 MHz Asynchronous

Introduction
R
18 Intel® 82845 MCH for SDR Datasheet
1.4.7 System Interrupts
The MCH supports both Intel 8259 and Pentium 4 processor interrupt delivery mechanisms. The
serial APIC interrupt mechanism is not supported.
Intel 8259 support consists of flushing inbound hub interface write buffers when an Interrupt
Acknowledge cycle is forwarded from the system bus to the hub interface.
The MCH supports the Pentium 4 processor interrupt delivery mechanism. IOxAPIC and PCI MSI
interrupts are generated as memory writes. The MCH decodes upstream memory writes to the
range 0FEE0_0000h–0FEEF_FFFFh from AGP and the hub interface as message-based interrupts.
The MCH forwards the memory writes, along with the associated write data, to the system bus as
an interrupt message transaction. Note that since this address does not decode as part of system
memory, the write cycle and the write data are not forwarded to system memory via the write
buffer. The MCH provides the response and TRDY# for all interrupt message cycles, including the
ones originating from the MCH. The MCH supports interrupt re-direction for inter-processor
interrupts (IPIs) as well as upstream interrupt memory writes.
For message-based interrupts, system write-buffer coherency is maintained by relying on strict
ordering of memory writes. The MCH ensures that all memory writes received from a given
interface prior to an interrupt message memory write are delivered to the system bus for snooping
in the same order that they occur on the given interface.
1.4.8 Powerdown Flow
Since the MCH is powered down during STR, the MCH cannot maintain any state information
when exiting STR. Thus, the entire initialization process when exiting STR must be performed by
the BIOS via accesses to the DRC2 register.
Entry into STR (ACPI S3) is initiated by the Operating System (OS), based on detecting a lack of
system activity. The OS unloads all system device drivers as part of the process of entering STR.
The OS then writes to the PM1_CNT I/O register in the ICH2 to trigger the transition into STR.

Signal Description
R
Intel® 82845 MCH for SDR Datasheet 19
2 Signal Description
This chapter provides a detailed description of the MCH signals. The signal descriptions are
arranged in functional groups according to their associated interface (see Figure 1). The states of
all of the signals during reset are provided in the System Reset section.
The “#” symbol at the end of a signal name indicates that the active, or asserted state occurs when
the signal is at a low voltage level. When “#” is not present after the signal name the signal is
asserted when at the high voltage level.
The following notations are used to describe the signal type:
I Input pin
O Output pin
I/O Bi-directional Input/Output pin
s/t/s Sustained Three-state. This pin is driven to its inactive state prior to three-
stating.
as/t/s Active Sustained Three-state. This applies to some of the hub interface signals.
This pin is weakly driven to its last driven value.
The signal description also includes the type of buffer used for the particular signal:
AGTL+ Open Drain AGTL+ interface signal. Refer to the AGTL+ I/O Specification for
complete details. The MCH integrates AGTL+ termination resistors.
AGP AGP interface signals. These signals are compatible with AGP 2.0 1.5 V
Signaling Environment DC and AC Specifications. The buffers are not 3.3 V
tolerant.
CMOS CMOS buffers.
Ref Voltage reference signal
Note: System address and data bus signals are logically inverted signals. In other words, the actual
values are inverted of what appears on the system bus. This must be taken into account and the
addresses and data bus signals must be inverted inside the MCH. All processor control signals
follow normal convention. A “0” indicates an active level (low voltage) if the signal is followed by
“#” symbol, and a “1” indicates an active level (high voltage) if the signal has no “#” suffix.

Signal Description
R
20 Intel® 82845 MCH for SDR Datasheet
Figure 1. Intel® MCH Simplified Block Diagram
block_dia_845
SCS[11:0]#
SMA[12:0]
SBS[1:0]
SRAS#
SCAS#
SWE#
SDQ[63:0]
SCB[7:0]
SCKE[5:0]
RDCLKO
RDCLKIN
AGP
Interface
SBA[7:0]
PIPE#
ST[2:0]
RBF#
WBF#
AD_STB[1:0], AD_STB[1:0]#
SBSTB, SBSTB#
AGPRCOMP
G_FRAME#
G_IRDY#
G_TRDY#
G_STOP#
G_DEVSEL#
G_REQ#
G_GNT#
G_AD[31:0]
G_C/BE[3:0]#
G_PAR
Processor
System
Bus
Interface
HA[31:3]#
HD[63:0]#
ADS#
BNR#
BPRI#
DBSY#
DEFER#
DRDY#
HIT#
HITM#
HLOCK#
HREQ[4:0]#
HTRDY#
RS[2:0]#
CPURST#
BR0#
DBI[3:0]#
HADSTB[1:0]#
HDSTBP[3:0]/HDSTBN[3:0]
System
Memory
SDRAM
Interface
Hub
Interface
HI_[10:0]
HI_STB, HI_STB#
HVREF
SDREF
HI_REF
AGPREF
HLRCOMP
GRCOMP
HRCOMP[1:0]
HSWNG[1:0]
SMRCOMP
VCC1_5
VCC1_8
VCCSM
VCCA[1:0]
VTT
VSS
VSSA[1:0]
Voltage
Refernce,
PLL Power
BCLK, BCLK#
66IN
SCK[11:0]
RSTIN#
TESTIN#
Clocks
and
Reset

Signal Description
R
Intel® 82845 MCH for SDR Datasheet 21
2.1 System Bus Signals
Signal Name Type Description
ADS# I/O
AGTL+ Address Strobe: The system bus owner asserts ADS# to indicate the first
of two cycles of a request phase.
BNR# I/O
AGTL+ Block Next Request: BNR# is used to block the current request bus
owner from issuing a new request. This signal dynamically controls the
system bus pipeline depth.
BPRI# O
AGTL+ Bus Priority Request: The MCH is the only Priority Agent on the system
bus. It asserts this signal to obtain the ownership of the address bus. This
signal has priority over symmetric bus requests and will cause the current
symmetric owner to stop issuing new transactions unless the HLOCK#
signal was asserted.
BR0# I/O
AGTL+ Bus Request 0#: The MCH pulls the processor bus BR0# signal low
during CPURST#. The signal is sampled by the processor on the active-to-
inactive transition of CPURST#. The minimum setup time for this signal is
4 BCLKs. The minimum hold time is 2 BCLKs and the maximum hold time
is 20 BCLKs. BR0# should be three-stated after the hold time requirement
has been satisfied.
CPURST# O
AGTL+ Processor Reset: The CPURST# pin is an output from the MCH. The
MCH asserts CPURST# while RSTIN# (PCIRST# from the ICH2) is
asserted and for approximately 1 ms after RSTIN# is deasserted. The
CPURST# allows the processor to begin execution in a known state.
DBSY# I/O
AGTL+ Data Bus Busy: DBSY# is used by the data bus owner to hold the data
bus for transfers requiring more than one cycle.
DEFER# O
AGTL+ Defer Response: This signal, when asserted, indicates that the MCH will
terminate the transaction currently being snooped with either a deferred
response or with a retry response.
DBI[3:0]# I/O
AGTL+ Dynamic Bus Inversion: DBI[3:0]# are driven along with the HD[63:0]#
signals. DBI[3:0]# Indicate if the associated data signals are inverted.
DBI[3:0]# are asserted such that the number of data bits driven electrically
low (low voltage) within the corresponding 16-bit group never exceeds 8.
DBI[x]# Data Bits
DBI3# HD[63:48]#
DBI2# HD[47:32]#
DBI1# HD[31:16]#
DBI0# HD[15:0]#
DRDY# I/O
AGTL+ Data Ready: Asserted for each cycle that data is transferred.
HA[31:3]# I/O
AGTL+ Host Address Bus: HA[31:3]# connect to the system address bus. During
processor cycles, HA[31:3]# are inputs. The MCH drives HA[31:3]# during
snoop cycles on behalf of the hub interface and AGP/Secondary PCI
initiators. HA[31:3]# are transferred at 2x rate. Note that the address is
inverted on the system bus.
HADSTB[1:0]# I/O
AGTL+ Host Address Strobe: The source synchronous strobes used to transfer
HA[31:3]# and HREQ[4:0]# at the 2x transfer rate.
Strobe Address Bits
HADSTB0# HA[16:3]#, HREQ[4:0]#
HADSTB1# HA[31:17]#

Signal Description
R
22 Intel® 82845 MCH for SDR Datasheet
Signal Name Type Description
HD[63:0]# I/O
AGTL+ Host Data: These signals are connected to the system data bus.
HD[63:0]# are transferred at a 4x rate. Note that the data signals are
inverted on the system bus.
HDSTBP[3:0]#
HDSTBN[3:0]#
I/O
AGTL+ Differential Host Data Strobes: The differential source synchronous
strobes used to transfer HD[63:0]# and DBI[3:0]# at the 4x transfer rate.
Strobe Data Bits
HDSTBP3#, HDSTBN3# HD[63:48]#, DBI3#
HDSTBP2#, HDSTBN2# HD[47:32]#, DBI2#
HDSTBP1#, HDSTBN1# HD[31:16]#, DBI1#
HDSTBP0#, HDSTBN0# HD[15:0]#, DBI0#
HIT# I/O
AGTL+ Hit: This signal indicates that a caching agent holds an unmodified version
of the requested line. HIT# is also driven in conjunction with HITM# by the
target to extend the snoop window.
HITM# I/O
AGTL+ Hit Modified: This signal indicates that a caching agent holds a modified
version of the requested line and that this agent assumes responsibility for
providing the line. HITM# is also driven in conjunction with HIT# to extend
the snoop window.
HLOCK# I
AGTL+ Host Lock: All system bus cycles sampled with the assertion of HLOCK#
and ADS#, until the negation of HLOCK# must be atomic (i.e., no hub
interface or AGP snoopable access to system memory are allowed when
HLOCK# is asserted by the processor).
HREQ[4:0]# I/O
AGTL+ Host Request Command: These signals define the attributes of the
request. In Enhanced Mode HREQ[4:0]# are transferred at 2x rate.
HREQ[4:0]# are asserted by the requesting agent during both halves of
Request Phase. In the first half the signals define the transaction type to a
level of detail that is sufficient to begin a snoop request. In the second half
the signals carry additional information to define the complete transaction
type.
The transactions supported by the MCH host bridge are defined in the
Section 5.1.
HTRDY# O
AGTL+ Host Target Ready: HTRDY# indicates that the target of the processor
transaction is able to enter the data transfer phase.
RS[2:0]# O
AGTL+ Response Status: RS[2:0]# indicates the type of response according to
the following the table:
RS[2:0] Response Type
000 Idle state
001 Retry response
010 Deferred response
011 Reserved (not driven by MCH)
100 Hard Failure (not driven by MCH)
101 No data response
110 Implicit Write back
111 Normal data response

Signal Description
R
Intel® 82845 MCH for SDR Datasheet 23
2.2 SDR SDRAM Interface Signals
Signal Name Type Description
SCS[11:0]# O
CMOS Chip Select: These signals select the particular SDRAM components
during the active state.
Note: There are two SCS# signals per SDRAM row. These signals can
be toggled on every rising system memory clock edge.
SMA[12:0] O
CMOS Multiplexed Memory Address: These signals are used to provide the
multiplexed row and column address to SDRAM.
SBS[1:0] O
CMOS Memory Bank Select: SBS[1:0] define the banks that are selected within
each SDRAM row. The SMA and SBS signals combine to address every
possible location in a SDRAM device.
SRAS# O
CMOS SDRAM Row Address Strobe: SRAS# is Used with SCAS# and SWE#
(along with SCS#) to define the DRAM commands.
SCAS# O
CMOS SDRAM Column Address Strobe: SCAS# is used with SRAS# and
SWE# (along with SCS#) to define the SDRAM commands.
SWE# O
CMOS Write Enable: SWE# is used with SCAS# and SRAS# (along with SCS#)
to define the SDRAM commands.
SDQ[63:0] I/O
CMOS Data Lines: These signals are used to interface to the SDRAM data bus.
SCB[7:0] I/O
CMOS Check Bit Data Lines: These signals are used to interface to the
SDRAM ECC signals.
SCKE[5:0] O
CMOS Clock Enable: These pins are used to signal a self-refresh or
Powerdown command to a SDRAM array when entering system
suspend. SCKE is also used to dynamically powerdown inactive SDRAM
rows. There is one SCKE per SDRAM row. These signals can be toggled
on every rising SCLK edge.
RDCLKO O
CMOS Clock Output: RDCLKO is used to emulate source-synch clocking for
reads. This signal connects to RDCLKIN.
RDCLKIN I
CMOS Clock Input: RDCLKIN is used to emulate source-synch clocking for
reads. This signal connects to RDCLKO.
2.3 Hub Interface Signals
Signal Name Type Description
HI_[10:0] I/O
CMOS Hub Interface Signals: Signals used for the hub interface.
HI_STB I/O
CMOS Hub Interface Strobe: One of two differential strobe signals used to
transmit or receive packet data over the hub interface.
HI_STB# I/O
CMOS Hub Interface Strobe Compliment: One of two differential strobe
signals used to transmit or receive packet data over the hub interface.

Signal Description
R
24 Intel® 82845 MCH for SDR Datasheet
2.4 AGP Interface Signals
2.4.1 AGP Addressing Signals
Signal Name Type Description
PIPE# I
AGP Pipelined Read: This signal is asserted by the AGP master to indicate a
full-width address is to be enqueued on by the target using the AD bus.
One address is placed in the AGP request queue on each rising clock
edge while PIPE# is asserted. When PIPE# is deasserted, no new
requests are queued across the AD bus.
During SBA Operation: Not Used.
During FRAME# Operation: Not Used.
PIPE# is a sustained three-state signal from masters (graphics
controller), and is an MCH input.
Note: Initial AGP designs may not use PIPE# (i.e., PCI only 66 MHz).
Therefore, an 8 kΩ pull-up resistor connected to this pin is
required on the motherboard.
SBA[7:0] I
AGP Sideband Address: These signals are used by the AGP master
(graphics controller) to place addresses into the AGP request queue.
The SBA bus and AD bus operate independently. That is, a transaction
can proceed on the SBA bus and the AD bus simultaneously.
During PIPE# Operation: Not Used.
During FRAME# Operation: Not Used.
Note: When sideband addressing is disabled, these signals are
isolated (no external/internal pull-up resistors are required).
NOTE: The above table contains two mechanisms to queue requests by the AGP master. Note that the
master can only use one mechanism. The master may not switch methods without a full reset of the
system. When PIPE# is used to queue addresses the master is not allowed to queue addresses using
the SBA bus. For example, during configuration time, if the master indicates that it can use either
mechanism, the configuration software will indicate which mechanism the master will use. Once this
choice has been made, the master will continue to use the mechanism selected until the master is
reset (and reprogrammed) to use the other mode. This change of modes is not a dynamic mechanism
but rather a static decision when the device is first being configured after reset.

Signal Description
R
Intel® 82845 MCH for SDR Datasheet 25
2.4.2 AGP Flow Control Signals
Signal Name Type Description
RBF# I
AGP Read Buffer Full: RBF# indicates if the master is ready to accept
previously requested low priority read data. When RBF# is asserted, the
MCH is not allowed to initiate the return low priority read data. That is, the
MCH can finish returning the data for the request currently being
serviced. RBF# is only sampled at the beginning of a cycle. If the AGP
master is always ready to accept return read data, then it is not required
to implement this signal.
During FRAME# Operation: Not Used.
WBF# I
AGP Write-Buffer Full: Indicates if the master is ready to accept fast write
data from the MCH. When WBF# is asserted, the MCH is not allowed to
drive fast write data to the AGP master. WBF# is only sampled at the
beginning of a cycle. If the AGP master is always ready to accept fast
write data, then it is not required to implement this signal.
During FRAME# Operation: Not Used.
2.4.3 AGP Status Signals
Signal Name Type Description
ST[2:0] O
AGP Status: ST[2:0] provides information from the arbiter to an AGP Master
on what it may do. ST[2:0] only have meaning to the master when its
G_GNT# is asserted. When G_GNT# is deasserted, these signals have
no meaning and must be ignored. Refer to the AGP Interface
Specification, Revision 2.0 for further explanation of the ST[2:0] values
and their meanings.
During FRAME# Operation: These signals are not used during
FRAME#-based operation, except that a ‘111’ indicates that the master
may begin a FRAME# transaction.

Signal Description
R
26 Intel® 82845 MCH for SDR Datasheet
2.4.4 AGP Strobes Signals
Signal Name Type Description
AD_STB0 I/O
(s/t/s)
AGP
Address/Data Bus Strobe-0: This signal provides timing for 2x and 4x
data on AD[15:0] and the C/BE[1:0]# signals. The agent that is providing
the data drives this signal.
AD_STB0# I/O
(s/t/s)
AGP
Address/Data Bus Strobe-0 Compliment: Differential strobe pair that
provides timing information for the AD[15:0] and C/BE[1:0]# signals. The
agent that is providing the data drives this signal.
AD_STB1 I/O
(s/t/s)
AGP
Address/Data Bus Strobe-1: This signal provides timing for 2x- and 4x-
clocked data on AD[31:16] and C/BE[3:2]# signals. The agent that is
providing the data drives this signal.
AD_STB1# I/O
(s/t/s)
AGP
Address/Data Bus Strobe-1 Compliment: The differential compliment
to the AD_STB1 signal. It is used to provide timing for 4x-clocked data.
SB_STB I
AGP Sideband Strobe: This signal provides timing for 2x- and 4x- clocked
data on the SBA[7:0] bus. It is driven by the AGP master after the system
has been configured for 2x- or 4x- clocked sideband address delivery.
SB_STB# I
AGP Sideband Strobe Compliment: SB_STB# is the differential compliment
to the SB_STB signal. It is used to provide timing for 4x-clocked data.
2.4.5 AGP/PCI Signals
For transactions on the AGP interface carried using AGP FRAME# protocol, these signals operate
similar to their semantics in the PCI 2.1 specification the exact role of all AGP FRAME# signals
are defined below.
Signal Name Type Description
G_FRAME# I/O
s/t/s
AGP
FRAME: During FRAME# Operations, G_FRAME# is an output when the
MCH acts as an initiator on the AGP Interface.
G_IRDY# I/O
s/t/s
AGP
Initiator Ready#: This signal indicates the AGP compliant master is
ready to provide all write data for the current transaction. Once G_IRDY#
is asserted for a write operation, the master is not allowed to insert wait
states. The master is never allowed to insert a wait state during the initial
data transfer (32 bytes) of a write transaction. However, it may insert wait
states after each 32-byte block is transferred.
G_TRDY# I/O
s/t/s
AGP
Target Ready: This signal indicates the AGP compliant target is ready to
provide read data for the entire transaction (when the transfer size is less
than or equal to 32 bytes) or is ready to transfer the initial or subsequent
block (32 bytes) of data when the transfer size is greater than 32 bytes.
The target is allowed to insert wait states after each block (32 bytes) is
transferred on write transactions.
G_STOP# I/O
s/t/s
AGP
STOP: G_STOP Is an input when the MCH acts as a FRAME#-based
AGP initiator and an output when the MCH acts as a FRAME#-based
AGP target. G_STOP# is used for disconnect, retry, and abort
sequences on the AGP interface.

Signal Description
R
Intel® 82845 MCH for SDR Datasheet 27
Signal Name Type Description
G_DEVSEL# I/O
s/t/s
AGP
Device Select: This signal indicates that a FRAME#-based AGP target
device has decoded its address as the target of the current access. The
MCH asserts G_DEVSEL# based on the DRAM address range being
accessed by a PCI initiator. As an input it indicates whether any device
on the bus has been selected.
G_REQ# I
AGP Request: Indicates that a FRAME# or PIPE#-based AGP master is
requesting use of the AGP interface. This signal is an input into the
MCH.
G_GNT# O
AGP Grant: During SBA, PIPE# and FRAME# operation, G_GNT#, along with
the information on the ST[2:0] signals (status bus), indicates how the
AGP interface will be used next.
G_AD[31:0] I/O
AGP Address/Data Bus: These signals are used to transfer both address and
data on the AGP interface.
G_C/BE[3:0]# I/O
AGP Command/Byte Enable:
During FRAME# Operation: During the address phase of a transaction,
G_C/BE[3:0]# define the bus command. During the data phase,
G_C/BE[3:0]# are used as byte enables. The byte enables determine
which byte lanes carry meaningful data.
During PIPE# Operation: When an address is enqueued using PIPE#,
the G_C/BE# signals carry command information. The command
encoding used during PIPE#-based AGP is DIFFERENT than the
command encoding used during FRAME#-based AGP cycles (or
standard PCI cycles on a PCI bus).
G_PAR I/O
AGP Parity:
During FRAME# Operations: This signal is driven by the MCH when it
acts as a FRAME#-based AGP initiator during address and data phases
for a write cycle, and during the address phase for a read cycle. PAR is
driven by the MCH when it acts as a FRAME#-based AGP target during
each data phase of a FRAME#-based AGP memory read cycle. Even
parity is generated across AD[31:0] and G_C/BE[3:0]#.
During SBA and PIPE# Operation: This signal is not used during SBA
and PIPE# operation.
NOTE: PCIRST# from the ICH2 is connected to RSTIN# and is used to reset AGP interface logic within the
MCH. The AGP agent will also use PCIRST# provided by the ICH2 as an input to reset its internal
logic.

Signal Description
R
28 Intel® 82845 MCH for SDR Datasheet
2.5 Clocks, Reset, and Miscellaneous Signals
Signal Name Type Description
BCLK
BCLK#
I
CMOS Differential Host Clock In: These pins receive a differential host clock
from the external clock synthesizer. This clock is used by all of the MCH
logic that is in the host clock domain.
66IN I
CMOS 66 MHz Clock In: This pin receives a 66 MHz clock from the clock
synthesizer. This clock is used by AGP/PCI and hub interface clock
domains.
Note: That this clock input is 3.3 V tolerant.
SCK[11:0] O
CMOS System Memory Clocks (SDR): These signals deliver a synchronized
clock to the DIMMs. There are two per row.
RSTIN# I
CMOS Reset In: When asserted, this signal asynchronously resets the MCH
logic. RSTIN# is connected to the PCIRST# output of the ICH2. All
AGP/PCI output and bi-directional signals will also three-state compliant
to PCI Rev 2.0 and 2.1 specifications.
Note: This input needs to be 3.3 V tolerant.
TESTIN# I
CMOS Test Input: This pin is used for manufacturing and board level test
purposes.
Note: This signal has an internal pull-up resistor.

Signal Description
R
Intel® 82845 MCH for SDR Datasheet 29
2.6 Voltage Reference and Power Signals
Signal Name Type Description
HVREF Ref Host Reference Voltage: Reference voltage input for the data, address,
and common clock signals of the host AGTL+ interface.
SDREF Ref SDRAM Reference Voltage: Reference voltage input for DQ, DQS,
RDCLKIN (SDR).
HI_REF Ref Hub Interface Reference: Reference voltage input for the hub interface.
AGPREF Ref AGP Reference: Reference voltage input for the AGP interface.
HLRCOMP I/O
CMOS Compensation for Hub Interface: This signal is used to calibrate the
hub interface I/O buffers. It is connected to a 40.2 Ω pull-up resistor with
1% tolerance and is pulled up to VCC1_8.
GRCOMP I/O
CMOS Compensation for AGP: This signal is used to calibrate buffers. It is
connected to a 40.2 Ω pull-down resistor with a 1% tolerance.
HRCOMP[1:0] I/O
CMOS Compensation for Host: These signals are used to calibrate the host
AGTL+ I/O buffers. Each signal is connected to a 24.9 Ω pull-down
resistor with a 1% tolerance.
HSWNG[1:0] I
CMOS Host Reference Voltage: Reference voltage input for the compensation
logic.
SMRCOMP I/O
CMOS System Memory RCOMP:
VCC1_5 1.5 V Power Input: These pins are connected to a 1.5 V power source.
VCC1_8 1.8 V Power Input Pins: These pins are connected to a 1.8 V power
source.
VCCSM SDRAM Power Input Pins: These pins are connected to a 3.3 V power
source for SDR.
VCCA[1:0] PLL Power Input Pins: These pins provide power for the PLL.
VTT AGTL+ Bus Termination Voltage Inputs: These pins provide the
AGTL+ bus termination.
VSS Ground: The VSS pins are the ground pins for the MCH.
VSSA[1:0] PLL Ground: The VSSA[1:0] pins are the ground pins for the PLL on
the MCH.

Signal Description
R
30 Intel® 82845 MCH for SDR Datasheet
2.7 Reset States During Reset
Z Ti-state
ISO Isolate inputs in inactive state
S Strap input sampled during assertion or on the de-asserting edge of RSTIN#
H Driven high
L Driven low
D Strong drive (to normal value supplied by core logic if not otherwise stated)
I Input active
Signal Name
State
During
RSTIN#
Assertion
System Bus Interface
CPURST# L
HADSTB[1:0]# Z/I
AP[1:0]# Z/I
HA[31:4]# Z/I
HD[63:0]# Z/I
HDSTBP[3:0]# Z/I
HDSTBN[3:0]# Z/I
DBI[3:0]# Z/I
ADS# Z/I
BNR# Z/I
BPRI# Z/I
DBSY# Z/I
DEFER# Z/I
DRDY# Z/I
HIT# Z/I
HITM# Z/I
HLOCK# Z/I
HREQ[4:0]# Z/I
HTRDY# Z/I
RS[2:0]# Z/I
BREQ0# Z/I
HVREF I
Signal Name
State
During
RSTIN#
Assertion
HLRCOMP Z
HSWNG I
SDR System Memory
SCK[11:0] Z
SCS[11:0]# Z
SMA[12:0] Z
SBS[1:0] Z
SRAS# Z
SCAS# Z
SWE# Z
SDQ[63:0] Z/I
SCB[7:0] Z
SCKE[5:0] L
RDCLKO Z
RDCLKIN I
AGP
PIPE# I
SBA[7:0] ISO/S
RBF# I
WBF# I/S
G_REQ# I
ST[2:0] L/S
G_GNT# H/S
Signal Name
State
During
RSTIN#
Assertion
AD_STB[1:0] Z
AD_STB[1:0]# Z
SB_STB I
SB_STB# I
G_AD[31:0] Z
G_C/BE[3:0]# Z
G_FRAME# Z/I
G_IRDY# Z/I
G_TRDY# Z/I
G_STOP# Z/I
G_DEVSEL# Z/I
G_PAR Z
AGPREF Z
Hub Interface
HI_[10:0] Z/I
HI_STB Z/I
HI_STB# Z/I
Clocks
BCLK I
Miscellaneous
RSTIN# I
TESTIN# I

Register Description
R
Intel® 82845 MCH for SDR Datasheet 31
3 Register Description
The MCH contains two sets of software accessible registers, accessed via the host processor I/O
address space:
• Control registers I/O mapped into the processor I/O space, which control access to PCI and
AGP configuration space (see Section 3.3).
• Internal configuration registers residing within the MCH are partitioned into two logical
device register sets (“logical” since they reside within a single physical device). The first
register set is dedicated to Host-HI Bridge functionality (i.e., DRAM configuration, other
chip-set operating parameters and optional features). The second register block is dedicated to
Host-AGP Bridge functions (controls AGP interface configurations and operating
parameters).
The MCH supports PCI configuration space accesses using the mechanism denoted as
Configuration Mechanism #1 in the PCI specification.
The MCH internal registers (I/O Mapped and configuration registers) are accessible by the
processor. The registers can be accessed as Byte, Word (16-bit), or DWord (32-bit) quantities,
with the exception of CONF_ADDR which can only be accessed as a DWord. All multi-byte
numeric fields use "little-endian" ordering (i.e., lower addresses contain the least significant parts
of the field).
3.1 Register Terminology
Term Description
RO Read Only. If a register is read only, writes to this register have no effect.
R/W Read/Write. A register with this attribute can be read and written.
R/W/L Read/Write/Lock. A register with this attribute can be read, written, and Locked.
R/WC Read/Write Clear. A register bit with this attribute can be read and written. However, a
write of a 1 clears (sets to 0) the corresponding bit and a write of a 0 has no effect.
R/WO Read/Write Once. A register bit with this attribute can be written to only once after
power up. After the first write, the bit becomes read only.
L Lock. A register bit with this attribute becomes Read Only after a lock bit is set.
Reserved Bits Some of the MCH registers described in this section contain reserved bits. These bits
are labeled “Reserved”. Software must deal correctly with fields that are reserved. On
reads, software must use appropriate masks to extract the defined bits and not rely on
reserved bits being any particular value. On writes, software must ensure that the
values of reserved bit positions are preserved. That is, the values of reserved bit
positions must first be read, merged with the new values for other bit positions and
then written back. Note that software does not need to perform a read-merge-write
operation for the Configuration Address (CONF_ADDR) register.

Register Description
R
32 Intel® 82845 MCH for SDR Datasheet
Term Description
Reserved
Registers
In addition to reserved bits within a register, the MCH contains address locations in the
configuration space that are marked “Reserved”. When a “Reserved” register location
is read, a random value is returned. (“Reserved” registers can be 8-, 16-, or 32-bit in
size). Registers that are marked as “Reserved” must not be modified by system
software. Writes to “Reserved” registers may cause system failure.
Default Value
upon a Reset
Upon a Full Reset, the MCH sets all of its internal configuration registers to
predetermined default states. Some register values at reset are determined by
external strapping options. The default state represents the minimum functionality
feature set required to successfully bring up the system. Hence, it does not represent
the optimal system configuration. It is the responsibility of the system initialization
software (usually BIOS) to properly determine the DRAM configurations, operating
parameters and optional system features that are applicable, and to program the MCH
registers accordingly.
3.2 PCI Bus Configuration Space Access
The MCH and ICH2 are physically connected by the hub interface. From a configuration
standpoint, the hub interface is PCI bus 0. As a result, all devices internal to the MCH and ICH2
appear to be on PCI bus 0. The system’s primary PCI expansion bus is physically attached to the
ICH2 and, from a configuration perspective appears to be a hierarchical PCI bus behind a PCI-to-
PCI bridge and, therefore, has a programmable PCI Bus number. Note that the primary PCI bus
is referred to as PCI_A in this document and is not PCI bus #0 from a configuration
standpoint. The AGP appears to system software to be a real PCI bus behind PCI-to-PCI bridges
resident as devices on PCI bus 0.
The MCH contains two PCI devices within a single physical component. The configuration
registers for the four devices are mapped as devices residing on PCI bus 0.
• Device 0: Host-Hub Interface Bridge/DRAM Controller. Logically this appears as a PCI device
residing on PCI bus 0. Physically Device 0 contains the standard PCI registers, DRAM registers, the
Graphics Aperture controller, and other MCH specific registers.
• Device 1: Host-AGP Bridge. Logically this appears as a “virtual” PCI-to-PCI bridge residing
on PCI bus 0. Physically Device 1 contains the standard PCI-to-PCI bridge registers and the
standard AGP/PCI configuration registers (including the AGP I/O and memory address
mapping).
Table 6 shows the Device # assignment for the various internal MCH devices.
Table 6. Intel® MCH Internal Device Assignments
MCH Function Bus 0, Device #
DRAM Controller/8 bit HI_A Controller Device 0
Host-to-AGP Bridge (virtual P2P) Device 1
NOTE: A physical PCI bus 0 does not exist. The hub interface and the internal devices in
the MCH and ICH2, logically constitute PCI Bus 0 to configuration software.

Register Description
R
Intel® 82845 MCH for SDR Datasheet 33
3.2.1 Standard PCI Bus Configuration Mechanism
The PCI Bus defines a slot based "configuration space" that allows each device to contain up to 8
functions with each function containing up to 256 8-bit configuration registers. The PCI
specification defines two bus cycles to access the PCI configuration space: Configuration Read
and Configuration Write. Memory and I/O spaces are supported directly by the processor.
Configuration space is supported by a mapping mechanism implemented within the MCH. The
PCI specification defines two mechanisms to access configuration space, Mechanism #1 and
Mechanism #2. The MCH supports only Mechanism #1.
The configuration access mechanism makes use of the CONF_ADDR Register (at I/O address
0CF8h though 0CFBh) and CONF_DATA register (at I/O address 0CFCh though 0CFFh). To
reference a configuration register a DWord I/O write cycle is used to place a value into
CONF_ADDR that specifies the PCI bus, the device on that bus, the function within the device,
and a specific configuration register of the device function being accessed. CONF_ADDR[31]
must be 1 to enable a configuration cycle. CONF_DATA then becomes a window into the four
bytes of configuration space specified by the contents of CONF_ADDR. Any read or write to
CONF_DATA results in the MCH translating the CONF_ADDR into the appropriate
configuration cycle.
The MCH is responsible for translating and routing the processor’s I/O accesses to the
CONF_ADDR and CONF_DATA registers to internal MCH configuration registers, hub interface
or AGP.
3.2.2 Routing Configuration Accesses
The MCH supports two bus interfaces: the hub interface and AGP. PCI configuration cycles are
selectively routed to one of these interfaces. The MCH is responsible for routing PCI configuration
cycles to the proper interface. PCI configuration cycles to the ICH2 internal devices and Primary
PCI (including downstream devices) are routed to the ICH2 via the hub interface. AGP
configuration cycles are routed to AGP. The AGP interface is treated as a separate PCI bus from
the configuration point of view. Routing of configuration AGP is controlled via the standard PCI-
PCI bridge mechanism using information contained within the Primary Bus Number, the
Secondary Bus Number, and the Subordinate Bus Number registers of the corresponding PCI-PCI
bridge device.
A detailed description of the mechanism for translating processor I/O bus cycles to configuration
cycles on one of the buses is described below.
PCI Bus 0 Configuration Mechanism
The MCH decodes the Bus Number (bits 23:16) and the Device Number fields of the
CONF_ADDR register. If the Bus Number field of CONF_ADDR is 0, the configuration cycle is
targeting a PCI Bus 0 device.
• The Host-HI Bridge entity in the MCH is hardwired as Device 0 on PCI Bus 0.
• The Host-AGP Bridge entity in the MCH is hardwired as Device 1 on PCI Bus 0.
Configuration cycles to any of the MCH’s internal devices are confined to the MCH and not sent
over the hub interface. Accesses to disabled MCH internal devices are forwarded over the hub
interface as Type 0 Configuration Cycles.

Register Description
R
34 Intel® 82845 MCH for SDR Datasheet
Primary PCI and Downstream Configuration Mechanism
If the Bus Number in the CONF_ADDR is non-zero, and is less than the value in the Host-AGP
device’s Secondary Bus Number register, or greater than the value in the Host-AGP device’s
Subordinate Bus Number register, the MCH will generate a Type 1 hub interface configuration
cycle. The ICH2 compares the non-zero Bus Number with the Secondary Bus Number and
Subordinate Bus Number registers of its P2P bridges to determine if the configuration cycle is
meant for Primary PCI, or a downstream PCI bus.
AGP Configuration Mechanism
From the chip-set configuration perspective, AGP is seen as a PCI bus interface residing on a
Secondary Bus side of the “virtual” PCI-PCI bridges referred to as the MCH Host-AGP bridge. On
the Primary Bus side, the “virtual” PCI-PCI bridge is attached to PCI Bus 0. Therefore, the
Primary Bus Number register is hardwired to 0. The “virtual” PCI-PCI bridge entity converts
Type 1 PCI bus configuration cycles on PCI Bus 0 into Type 0 or Type 1 configuration cycles on
the AGP interface. Type 1 configuration cycles on PCI Bus 0 that have a Bus Number that
matches the Secondary Bus Number of the MCH’s “virtual” Host-to-PCI_B/AGP bridge will be
translated into Type 0 configuration cycles on the AGP interface.
If the Bus Number is non-zero, greater than the value programmed into the Secondary Bus
Number Register, and less than or equal to the value programmed into the Subordinate Bus
Number Register, the MCH will generate a Type 1 PCI configuration cycle on AGP.
3.3 I/O Mapped Registers
The MCH contains two registers that reside in the processor I/O address space: the Configuration
Address (CONF_ADDR) register and the Configuration Data (CONF_DATA) register. The
Configuration Address register enables/disables the configuration space and determines what
portion of configuration space is visible through the configuration data window.
3.3.1 CONF_ADDR—Configuration Address Register
I/O Address: 0CF8h Accessed as a DWord
Default Value: 00000000h
Access: R/W
Size: 32 bits
CONF_ADDR is a 32 bit register that can be accessed only as a DWord. A Byte or Word
reference will "pass through" the Configuration Address register and the hub interface, onto the
PCI bus as an I/O cycle. The CONF_ADDR register contains the Bus Number, Device Number,
Function Number, and Register Number for which a subsequent configuration access is intended.

Register Description
R
Intel® 82845 MCH for SDR Datasheet 35
Bit Descriptions
31 Configuration Enable (CFGE).
0 = Disable.
1 = Enable. Accesses to PCI configuration space are enabled.
30:24 Reserved. These bits are read only and have a value of 0.
23:16 Bus Number. When Bus Number is programmed to 00h, the target of the configuration cycle is
a hub interface agent (MCH, ICH2, etc.).
The configuration cycle is forwarded to the hub interface, if Bus Number is programmed to 00h
and the MCH is not the target (the device number is ≥2).
If Bus Number is non-zero and matches the value programmed into the Secondary Bus Number
Register of device 1, a Type 0 PCI configuration cycle will be generated on AGP.
If Bus Number is non-zero, greater than the value in the Secondary Bus Number register of
device 1 and less than or equal to the value programmed into the Subordinate Bus Number
register of device 1 a Type 1 PCI configuration cycle will be generated on AGP.
If Bus Number is non-zero, and does not fall within the ranges enumerated by device 1’s
Secondary Bus Number or Subordinate Bus Number register, then a hub interface Type 1
configuration cycle is generated.
15:11 Device Number. This field selects one agent on the PCI bus selected by the Bus Number field.
When the Bus Number field is 00, the MCH decodes the Device Number field. The MCH is
always Device Number 0 for the Host-Hub Interface bridge entity and Device Number 1 for the
Host-AGP entity. Therefore, when Bus Number =0 and Device Number=0–1, the internal MCH
devices are selected.
If the Bus Number is non-zero and matches the value programmed into the Secondary Bus
Number register a Type 0 PCI configuration cycle is generated on AGP. The MCH decodes the
Device Number field ([15:11]) and assert the appropriate GAD signal as an IDSEL. For PCI-to-
PCI Bridge translation, one of the 16 IDSELs is generated. When bit [15] = 0, bits [14:11] are
decoded to assert a signal AD[31:16] IDSEL. GAD16 is asserted to access Device 0, GAD17 for
Device 1, and so forth up to Device 15 which asserts AD31. All device numbers higher than 15
cause a type 0 configuration access with no IDSEL asserted, which results in a Master Abort
reported in the MCH’s “virtual” PCI-PCI bridge registers.
For Bus Numbers resulting in hub interface configuration cycles, the MCH propagates the device
number field as A[15:11]. For bus numbers resulting in AGP type 1 configuration cycles, the
device number is propagated as GAD[15:11].
10:8 Function Number. This field is mapped to GAD[10:8] during AGP configuration cycles and
A[10:8] during Hub Interface configuration cycles. This allows the configuration registers of a
particular function in a multi-function device to be accessed. The MCH ignores configuration
cycles to its internal devices if the function number is not equal to 0.
7:2 Register Number. This field selects one register within a particular bus, device, and function as
specified by the other fields in the Configuration Address register. This field is mapped to
GAD[7:2] during AGP configuration cycles and A[7:2] during hub interface configuration cycles.
1:0 Reserved.

Register Description
R
36 Intel® 82845 MCH for SDR Datasheet
3.3.2 CONF_DATA—Configuration Data Register
I/O Address: 0CFCh
Default Value: 00000000h
Access: R/W
Size: 32 bits
CONF_DATA is a 32 bit read/write window into configuration space. The portion of
configuration space that is referenced by CONF_DATA is determined by the contents of
CONF_ADDR.
Bit Descriptions
31:0 Configuration Data Window (CDW). If bit 31 of the CONF_ADDR register is 1, any I/O access
to the CONF_DATA register will be mapped to configuration space using the contents of
CONF_ADDR.
3.4 Memory-Mapped Register Space
All system memory control functions have been consolidated into a new memory-mapped address
region within Device 0, Function 0. This space will be accessed using a new Base Address register
(BAR) located at Device 0, Function 0 (address offset 14h). By default this BAR is invisible
(i.e., read-only as 0s).
Note: All accesses to these memory-mapped registers must be made as a single DWord (4 bytes) or less.
Access must be aligned on a natural boundary.
The high-level address map for the memory-mapped registers is shown in Table 7.
Table 7. Memory-mapped Register Address Map
Memory Address Offset Register Group
020h–02Bh Reserved
2Ch DRAM Width Register
02Dh–02Fh Reserved
030h–034h Strength Registers
040h–0DFh Reserved
140h–1DFh Reserved

Register Description
R
Intel® 82845 MCH for SDR Datasheet 37
3.4.1 DRAMWIDTH—DRAM Width Register
Address Offset: 2Ch
Default Value: 00h
Access: R/W
Size: 8 bits
This register determines the width of SDRAM devices populated in each row of memory.
Bit Descriptions
7:6 Reserved.
5 Row 5 Width. Width of devices in Row 5
0 = 16-bit wide devices, or Unpopulated (default)
1 = 8-bit wide devices
4 Row 4 Width. Width of devices in Row 4
0 = 16-bit wide devices, or Unpopulated (default)
1 = 8-bit wide devices
3 Row 3 Width. Width of devices in Row 3
0 = 16-bit wide devices, or Unpopulated (default)
1 = 8-bit wide devices
2 Row 2 Width. Width of devices in Row 2
0 = 16-bit wide devices, or Unpopulated (default)
1 = 8-bit wide devices
1 Row 1 Width. Width of devices in Row 1
0 = 16-bit wide devices, or Unpopulated (default)
1 = 8-bit wide devices
0 Row 0 Width. Width of devices in Row 0
0 = 16-bit wide devices, or Unpopulated (default)
1 = 8-bit wide devices
Note: Since there are multiple clock signals assigned to each row of a DIMM, it is important to clarify
exactly which row width field affects which clock signal.
Row Parameters SDR Clocks Affected
0 SCK[0], SCK[2]
1 SCK[1], SCK[3]
2 SCK[4], SCK[6]
3 SCK[5], SCK[7]
4 SCK[8], SCK[10]
5 SCK[9], SCK[11]

Register Description
R
38 Intel® 82845 MCH for SDR Datasheet
3.4.2 DQCMDSTR—Strength Control Register (SDQ and CMD
Signal Groups)
Memory Address Offset: 30h
Default Value: 00h
Access: R/W
Size: 8 bits
This register controls the drive strength of the I/O buffers for the DQ/DQS and CMD signal
groups.
Bit Descriptions
7 Reserved.
6:4 CMD Strength Control (SRAS#, SCAS#, SWE#, SMA[12:0], SBS[1:0]). This field selects the
signal drive strength.
000 = 0.75 X (default)
001 = 1.00 X
010 = 1.25 X
011 = 1.50 X
100 = 2.00 X
101 = 2.50 X
110 = 3.00 X
111 = 4.00 X
3 Reserved.
2:0 SDQ/SDQS Strength Control. This field selects the signal drive strength.
000 = 0.75 X (default)
001 = 1.00 X
010 = 1.25 X
011 = 1.50 X
100 = 2.00 X
101 = 2.50 X
110 = 3.00 X
111 = 4.00 X

Register Description
R
Intel® 82845 MCH for SDR Datasheet 39
3.4.3 CKESTR—Strength Control Register (SCKE Signal Group)
Memory Address Offset: 31h
Default Value: 00h
Access: R/W
Size: 8 bits
This register controls the drive strength of the I/O buffers for the CKE signal group. This group
has two possible loadings depending on the width of SDRAM devices used in each row of memory
(x8 or x16). The proper strength can be independently programmed for each configuration. The
actual strength used for each signal is determined by the DRAMWIDTH Register (offset 2Ch).
Bit Descriptions
7 Reserved.
6:4 SCKE x16 Strength Control. This field selects the signal drive strength.
000 = 0.75 X (default)
001 = 1.00 X
010 = 1.25 X
011 = 1.50 X
100 = 2.00 X
101 = 2.50 X
110 = 3.00 X
111 = 4.00 X
3 Reserved.
2:0 SCKE x8 Strength Control. This field selects the signal drive strength.
000 = 0.75 X (default)
001 = 1.00 X
010 = 1.25 X
011 = 1.50 X
100 = 2.00 X
101 = 2.50 X
110 = 3.00 X
111 = 4.00 X

Register Description
R
40 Intel® 82845 MCH for SDR Datasheet
3.4.4 CSBSTR—Strength Control Register (SCS# Signal Group)
Memory Address Offset: 32h
Default Value: 00h
Access: R/W
Size: 8 bits
This register controls the drive strength of the I/O buffers for the SCS# signal group. This group
has two possible loadings depending on the width of SDRAM devices used in each row of memory
(x8 or x16). The proper strength can be independently programmed for each configuration. The
actual strength used for each signal is determined by the DRAMWIDTH Register (offset 2Ch).
Bit Descriptions
7 Reserved.
6:4 SCS# x16 Strength Control. This field selects the signal drive strength.
000 = 0.75 X (default)
001 = 1.00 X
010 = 1.25 X
011 = 1.50 X
100 = 2.00 X
101 = 2.50 X
110 = 3.00 X
111 = 4.00 X
3 Reserved.
2:0 SCS# x8 Strength Control. This field selects the signal drive strength.
000 = 0.75 X (default)
001 = 1.00 X
010 = 1.25 X
011 = 1.50 X
100 = 2.00 X
101 = 2.50 X
110 = 3.00 X
111 = 4.00 X

Register Description
R
Intel® 82845 MCH for SDR Datasheet 41
3.4.5 CKSTR—Strength Control Register (Clock Signal Group)
Memory Address Offset: 33h
Default Value: 00h
Access: R/W
Size: 8 bits
This register controls the drive strength of the I/O buffers for the Clock (CK) signal group
including both the CK and CK# signals. This group has two possible loadings depending on the
width of SDRAM devices used in each row of memory (x8 or x16). The proper strength can be
independently programmed for each configuration. The actual strength used for each signal is
determined by the DRAMWIDTH Register (offset 2Ch).
Bit Descriptions
7 Reserved.
6:4 CK x16 Strength Control. This field selects the signal drive strength.
000 = 0.75 X (default)
001 = 1.00 X
010 = 1.25 X
011 = 1.50 X
100 = 2.00 X
101 = 2.50 X
110 = 3.00 X
111 = 4.00 X
3 Reserved.
2:0 CK x8 Strength Control. This field selects the signal drive strength.
000 = 0.75 X (default)
001 = 1.00 X
010 = 1.25 X
011 = 1.50 X
100 = 2.00 X
101 = 2.50 X
110 = 3.00 X
111 = 4.00 X

Register Description
R
42 Intel® 82845 MCH for SDR Datasheet
3.4.6 RCVENSTR—Strength Control Register (RCVENOUT
Signal Group)
Memory Address Offset: 34h
Default Value: 00h
Access: R/W
Size: 8 bits
This register controls the drive strength of the I/O buffers for the Receive Enable Out signal group
(RDCLKO# signal).
Bit Descriptions
7:3 Reserved.
2:0 Receive Enable Out Signal Group (RCVEnOut) Strength Control. This field selects the
signal drive strength.
000 = 0.75 X (default)
001 = 1.00 X
010 = 1.25 X
011 = 1.50 X
100 = 2.00 X
101 = 2.50 X
110 = 3.00 X
111 = 4.00 X

Register Description
R
Intel® 82845 MCH for SDR Datasheet 43
3.5 Host-Hub Interface Bridge Device Registers
(Device 0)
Table 8 provides the register address map for Device 0 PCI configuration space. An “s” in the
Default Value column indicates that a strap determines the power-up default value for that bit.
Table 8. Intel® MCH Configuration Space (Device 0)
Address
Offset Register
Symbol Register Name Default
Value Access
00–01h VID Vendor Identification 8086h RO
02–03h DID Device Identification 1A30h RO
04–05h PCICMD PCI Command 0006h RO, R/W
06–07h PCISTS PCI Status 0090h RO, R/WC
08h RID Revision Identification 03h, 04h RO
09h — Reserved. — —
0Ah SUBC Sub-Class Code 00h RO
0Bh BCC Base Class Code 06h RO
0Dh MLT Master Latency Timer 00h RO
0Eh HDR Header Type 00h RO
0Fh — Reserved. — —
10–13h APBASE Aperture Base Configuration 00000008h RO, R/W
14–2Bh — Reserved. — —
2C–2Dh SVID Subsystem Vendor Identification 0000h R/WO
2E–2Fh SID Subsystem Identification 0000h R/WO
30–33h — Reserved. — —
34h CAPPTR Capabilities Pointer A0h RO
35–50h — Reserved. — —
51h AGPM AGP Miscellaneous Configuration 00h R/W
52–5Fh — Reserved. — —
60–67h DRB[0:7] DRAM Row Boundary (8 registers) 00h R/W
68–6Fh — Reserved. — —
70–73h DRA DRAM Row Attribute (4 registers) 00h R/W
73–77h — Reserved. — —
78–7Bh DRT DRAM Timing Register 00000010h R/W
7C–7Fh DRC DRAM Controller Mode 0000h R/W, RO
80–85h — Reserved. — —
86h DERRSYN DRAM Error Syndrome 00h RO

Register Description
R
44 Intel® 82845 MCH for SDR Datasheet
Address
Offset Register
Symbol Register Name Default
Value Access
87–8Bh — Reserved. — —
8C–8Fh EAP Error Address Pointer 00000000h RO
90–96h PAM[0:6] Programmable Attribute Map (7 Registers) 0000000000
0000h
RO, R/W
97h FDHC Fixed DRAM Hole Control 00h R/W
98–9Ch — Reserved. — —
9Dh SMRAM System Management RAM Control 02h RO, R/W,
R/W/L
9Eh ESMRAMC Extended System Mgmt RAM Control 38h RO, R/W,
R/WC,
R/W/L
9Fh — Reserved. — —
A0–A3h ACAPID AGP Capability Identifier 00200002h RO
A4–A7h AGPSTAT AGP Status 1F000216h RO
A8–ABh AGPCMD AGP Command 00000000h R/W
AC–AFh — Reserved. — —
B0–B3h AGPCTRL AGP Control 00000000h R/W
B4h APSIZE Aperture Size 00h R/W
B5–B7h — Reserved — —
B8–BBh ATTBASE Aperture Translation Table Base 00000000h R/W
BCh AMTT AGP MTT Control 00h R/W
BDh LPTT AGP Low Priority Transaction Timer 00h R/W
BE–C3h Reserved
C4–C5h TOM Top of Low Memory 0000h R/W
C6–C7h MCHCFG MCH Configuration 0000h R/W, RO
C8–C9h ERRSTS Error Status 0000h R/WC
CA–CBh ERRCMD Error Command 0000h R/W
CC–CDh SMICMD SMI Command 0000h R/W
CE–CFh SCICMD SCI Command 0000h R/W
D0–DDh — Reserved. — —
DE–DFh SKPD Scratchpad Data 0000h R/W
E0–E3h — Reserved. — —
E4–E7h CAPID Product Specific Capability Identifier F104A009h RO
E8–FFh — Reserved. — —

Register Description
R
Intel® 82845 MCH for SDR Datasheet 45
3.5.1 VID—Vendor Identification Register (Device 0)
Address Offset: 00–01h
Default Value: 8086h
Attribute: RO
Size: 16 bits
The VID Register contains the vendor identification number. This 16-bit register combined with
the DID Register uniquely identifies any PCI device. Writes to this register have no effect.
Bit Description
15:0 Vendor Identification Number. This is a 16-bit value assigned to Intel.
Intel VID = 8086h.
3.5.2 DID—Device Identification Register (Device 0)
Address Offset: 02–03h
Default Value: 1A30h
Attribute: RO
Size: 16 bits
This 16-bit register combined with the VID Register uniquely identifies any PCI device. Writes to
this register have no effect.
Bit Description
15:0 Device Identification Number. This is a 16-bit value assigned to the MCH Host-Hub Interface
Bridge Function #0.

Register Description
R
46 Intel® 82845 MCH for SDR Datasheet
3.5.3 PCICMD—PCI Command Register (Device 0)
Address Offset: 04–05h
Default: 0006h
Access: R/W, RO
Size 16 bits
Since MCH Device 0 does not physically reside on PCI0, many of the bits are not implemented.
Bit Descriptions
15:10 Reserved.
9 Fast Back-to-Back—RO. Not implemented; Hardwired to 0. This bit controls whether or not the
master can do fast back-to-back write. Since device 0 is strictly a target this bit is not
implemented.
8 SERR Enable (SERRE)—R/W. This bit is a global enable bit for Device 0 SERR messaging.
The MCH does not have an SERR# signal. The MCH communicates the SERR# condition by
sending a SERR message to the ICH2.
0 = Disable. SERR message is not generated by the MCH for Device 0.
1 = Enable. The MCH is enabled to generate SERR messages over the hub interface for
specific Device 0 error conditions that are individually enabled in the ERRCMD Register. The
error status is reported in the ERRSTS and PCISTS registers.
NOTE: This bit only controls SERR message for the Device 0. Device 1 has its own SERRE
bits to control error reporting for error conditions occurring on their respective devices.
7 Address/Data Stepping—RO. Not implemented; Hardwired to 0.
6 Parity Error Enable (PERRE)—RO. Not implemented; Hardwired to 0.The PERR# signal is not
implemented by the MCH.
5 VGA Palette Snoop—RO. Not implemented; Hardwired to 0.
4 Memory Write and Invalidate Enable(MWIE)—RO. Not implemented; Hardwired to 0.
3 Special Cycle Enable(SCE)—RO. Not implemented; Hardwired to 0.
2 Bus Master Enable (BME)—RO. Hardwired to 1. The MCH is always enabled as a master on
the hub interface.
1 Memory Access Enable (MAE)—RO. Not implemented; Hardwired to 1. The MCH always
allows access to system memory.
0 I/O Access Enable (IOAE)—RO. Not implemented; Hardwired to 0.

Register Description
R
Intel® 82845 MCH for SDR Datasheet 47
3.5.4 PCISTS—PCI Status Register (Device 0)
Address Offset: 06–07h
Default Value: 0090h
Access: RO, R/WC
Size: 16 bits
PCISTS is a 16-bit status register that reports the occurrence of error events on Device 0s on the
hub interface. Since MCH Device 0 is the Host-to-hub interface bridge, many of the bits are not
implemented.
Bit Description
15 Reserved.
14 Signaled System Error (SSE)—R/WC.
0 = Software clears this bit by writing a 1 to it.
1 = MCH Device 0 generated an SERR message over the hub interface for any enabled Device
0 error condition. Device 0 error conditions are enabled in the PCICMD and ERRCMD
Registers. Device 0 error flags are read/reset from the PCISTS or ERRSTS Registers.
13 Received Master Abort Status (RMAS)—R/WC.
0 = Software clears this bit by writing a 1 to it.
1 = MCH generated a hub interface request that receives a Master Abort completion packet or
Master Abort Special Cycle.
12 Received Target Abort Status (RTAS)—R/WC.
0 = Software clears this bit by writing a 1 to it.
1 = MCH generated a hub interface request that receives a Target Abort completion packet or
Target Abort Special Cycle.
11 Signaled Target Abort Status (STAS)—RO. Not Implemented; Hardwired to 0. The MCH will
not generate a Target Abort hub interface completion packet or special cycle.
10:9 DEVSEL Timing (DEVT)—RO. Hardwired to 00. Hub interface does not comprehend
DEVSEL# protocol.
8 Master Data Parity Error Detected (DPD)—RO. Not Implemented; Hardwired to 0. PERR
signaling and messaging are not implemented by the MCH.
7 Fast Back-to-Back (FB2B)—RO. Hardwired to 1.
6:5 Reserved.
4 Capability List (CLIST)—RO.
1 = Indicates to the configuration software that this device/function implements a list of new
capabilities. A list of new capabilities is accessed via the CAPPTR Register (offset 34h).
CAPPTR contains an offset pointing to the start address within configuration space of this
device where the AGP Capability standard register resides.
3:0 Reserved.

Register Description
R
48 Intel® 82845 MCH for SDR Datasheet
3.5.5 RID—Revision Identification Register (Device 0)
Address Offset: 08h
Default Value: See table below
Access: RO
Size: 8 bits
This register contains the revision number of the MCH Device 0. These bits are read only and
writes to this register have no effect.
Bit Description
7:0 Revision Identification Number. This is an 8-bit value that indicates the revision identification
number for the MCH Device 0.
03h = A3 Stepping
04h = B0 Stepping
3.5.6 SUBC—Sub-Class Code Register (Device 0)
Address Offset: 0Ah
Default Value: 00h
Access: RO
Size: 8 bits
This register contains the Sub-Class Code for the MCH Device 0.
Bit Description
7:0 Sub-Class Code (SUBC). This is an 8-bit value that indicates the category of bridge of the
MCH.
00h = Host bridge.
3.5.7 BCC—Base Class Code Register (Device 0)
Address Offset: 0Bh
Default Value: 06h
Access: RO
Size: 8 bits
This register contains the Base Class Code of the MCH Device 0.
Bit Description
7:0 Base Class Code (BASEC). This is an 8-bit value that indicates the Base Class Code for the
MCH.
06h = Bridge device.

Register Description
R
Intel® 82845 MCH for SDR Datasheet 49
3.5.8 MLT—Master Latency Timer Register (Device 0)
Address Offset: 0Dh
Default Value: 00h
Access: RO
Size: 8 bits
The hub interface does not comprehend the concept of Master Latency Timer. Therefore, this
register is not implemented.
Bit Description
7:0 Hardwired to 00h. Writes have no effect.
3.5.9 HDR—Header Type Register (Device 0)
Address Offset: 0Eh
Default: 00h
Access: RO
Size: 8 bits
This register identifies the header layout of the configuration space.
Bit Description
7:0 Hardwired to 00h. Writes have no effect.

Register Description
R
50 Intel® 82845 MCH for SDR Datasheet
3.5.10 APBASE—Aperture Base Configuration Register (Device 0)
Offset: 10–13h
Default: 0000_0008h
Access: R/W, RO
Size: 32 bits
The APBASE is a standard PCI Base Address register that is used to set the base of the Graphics
Aperture. The standard PCI Configuration mechanism defines the base address configuration
register such that only a fixed amount of space can be requested (dependent on which bits are
hardwired to 0 or behave as hardwired to 0). To allow for flexibility (of the aperture), an
additional register called APSIZE is used as a “back-end” register to control, which bits of the
APBASE will behave as hardwired to 0. This register will be programmed by the MCH specific
BIOS code that runs before any of the generic configuration software is run.
Note: Bit 9 of the MCHCFG register is used to prevent accesses to the aperture range before this register
is initialized by the configuration software and the appropriate translation table structure has been
established in the system memory.
Bit Description
31:28 Upper Programmable Base Address—R/W. These bits are part of the aperture base set by
configuration software to locate the base address of the graphics aperture. They correspond to
bits [31:28] of the base address in the processor's address space that will cause a graphics
aperture translation to be inserted into the path of any memory read or write.
Default = 0000
27:22 Middle “Hardwired”/Programmable Base Address—R/W. These bits are part of the aperture
base set by configuration software to locate the base address of the graphics aperture. They
correspond to bits [27:4] of the base address in the processor's address space that will cause a
graphics aperture translation to be inserted into the path of any memory read or write. These
bits can behave as though they were hardwired to 0, if programmed to do so by the APSIZE bits
of the APSIZE register. This causes configuration software to understand that the granularity of
the graphics aperture base address is either finer or more coarse, depending on the bits set by
MCH-specific configuration software in APSIZE.
21:4 Lower “Hardwired” Base Address—RO. Hardwired to 0s. This forces a minimum aperture
size selected by this register to be 4 MB.
3 Prefetchable—RO. This bit is hardwired to 1 to identify the Graphics Aperture range as
prefetchable as per the PCI Local Bus Specification for the base address registers.
There are no side effects on reads, the device returns all bytes on reads, regardless of the byte
enables, and the MCH may merge processor writes into this range without causing errors.
2:1 Type—RO. These bits determine addressing type and they are hardwired to “00” to indicate that
address range defined by the upper bits of this register can be located anywhere in the 32-bit
address space.
0 Memory Space Indicator—RO. Hardwired to 0 to identify aperture range as a memory range.

Register Description
R
Intel® 82845 MCH for SDR Datasheet 51
3.5.11 SVID—Subsystem Vendor Identification (Device 0)
Offset: 2C–2Dh
Default: 0000h
Access: R/WO
Size: 16 bits
This value is used to identify the vendor of the subsystem.
Bit Description
15:0 Subsystem Vendor ID. (Default = 0000h). This field should be programmed during boot-up.
After this field is written once, it becomes read only.
3.5.12 SID—Subsystem Identification (Device 0)
Offset: 2E–2Fh
Default: 0000h
Access: R/WO
Size: 16 bits
This value is used to identify a particular subsystem.
Bit Description
15:0 Subsystem ID. (Default = 0000h). This field should be programmed during boot-up. After this
field is written once, it becomes read only.
3.5.13 CAPPTR—Capabilities Pointer (Device 0)
Offset: 34h
Default: E4h
Access: RO
Size: 8 bits
The CAPPTR provides the offset that is the pointer to the location where the AGP standard
registers are located.
Bit Description
7:0 AGP Standard Register Block Pointer Address. This address pointer indicates to software
where it can find the beginning of the AGP register block.
E4h = AGP register block beginning address.

Register Description
R
52 Intel® 82845 MCH for SDR Datasheet
3.5.14 AGPM—AGP Miscellaneous Configuration Register
(Device 0)
Address Offset: 51h
Default Value: 00h
Access: R/W
Size: 8 bits
Bit Descriptions
7:2 Reserved.
1 Aperture Access Global Enable (APEN). This bit is used to prevent access to the graphics
aperture from any port (processor, hub interface, or AGP/PCI_B) before the aperture range is
established by the configuration software and the appropriate translation table in system
memory has been initialized. The default value is 0; thus, this field must be set after system is
fully configured to enable aperture accesses.
3.5.15 DRB[0:7]—DRAM Row Boundary Registers (Device 0)
Offset: 60–67h (DRB0–DRB7)
Default: 00h
Access: R/W
Size: 8 bits
The DRAM Row Boundary Register defines the upper boundary address of each pair of DRAM
rows with a granularity of 32 MB. Each row has its own single-byte DRB register. For example, a
value of 1 in DRB0 indicates that 32 MB of DRAM has been populated in the first row.
Row 0 = 60h
Row 1 = 61h
Row 2 = 62h
Row 3 = 63h
Row 4 = 64h
Row 5 = 65h (See Note 1)
Row 6 = 66h (See Note 2)
Row 7 = 67h (See Note 2)
DRB0 = Total memory in row0 (in 32 MB increments)
DRB1 = Total memory in row0 + row1 (in 32 MB increments)
Notes:
1. DRB5 = Total memory in row0 + row1 + row2 + row3 + row4 + row5 (in 32 MB increments)
2. DRB [7:6] must be programmed with the value contained in DBR5
Each Row is represented by a byte. Each byte has the following format.
Bit Description
7:0 DRAM Row Boundary Address. This 8 bit value defines the upper and lower addresses for
each DRAM row. This 8-bit value is compared against a set of address lines to determine the
upper address limit of a particular row.

Register Description
R
Intel® 82845 MCH for SDR Datasheet 53
3.5.16 DRA—DRAM Row Attribute Registers (Device 0)
Offset: 70–73h (DRA0–DRA3)
Default: 00h
Access: R/W
Size: 8 bits
The DRAM Row Attribute Register defines the page sizes to be used when accessing different
pairs of rows. Each nibble of information in the DRA registers describes the page size of a pair of
rows:
Row 0, 1 = 70h
Row 2, 3 = 71h
Row 4, 5 = 72h (Used for SDRAM configuration only)
Row 6, 7 = 73h (RAODD and RAEVEN fields must contain default value of 00h)
7 6 4 3 2 0
Rsvd Row attribute for Row 1 Rsvd Row Attribute for Row 0
7 6 4 3 2 0
Rsvd Row attribute for Row 3 Rsvd Row Attribute for Row 2
7 6 4 3 2 0
Rsvd Row attribute for Row 5 Rsvd Row Attribute for Row 4
7 6 4 3 2 0
Rsvd Row attribute for Row 7 Rsvd Row Attribute for Row 6

Register Description
R
54 Intel® 82845 MCH for SDR Datasheet
Bit Description
7 Reserved.
6:4 Row Attribute for Odd-Numbered Row (RAODD). This 3-bit field defines the page size of the
corresponding row.
001 = 2 KB
010 = 4 KB
011 = 8 KB
100 = 16 KB
Others = Reserved
3 Reserved.
2:0 Row Attribute for Even-Numbered Row (RAEVEN). This 3-bit field defines the page size of
the corresponding row.
001 = 2 KB
010 = 4 KB
011 = 8 KB
100 = 16 KB
Others = Reserved

Register Description
R
Intel® 82845 MCH for SDR Datasheet 55
3.5.17 DRT—DRAM Timing Register (Device 0)
Offset: 78–7Bh
Default: 00000010h
Access: R/W
Size: 32 bits
Bit Description
31:19 Reserved.
18:16 DRAM Idle Timer. This field determines the number of clocks the DRAM controller will remain
in the idle state before it begins precharging all pages.
000 = infinite.
001 = 0 DRAM clocks
010 = 8 DRAM clocks
011 = 16 DRAM clocks
100 = 64 DRAM clocks
Others = Reserved
15:11 Reserved.
10:9 Activate to Precharge delay (tRAS). This bit controls the number of DRAM clocks for tRAS.
00 = 7 clocks
01 = 6 clocks
10 = 5 clocks
11 = Reserved
8:6 Reserved.
5:4 CAS# Latency (tCL). This bit controls the number of DRAM clocks between when a read
command is sampled by the SDRAMs and when the MCH samples read data from the
SDRAMs.
00 = Reserved
01 = 3 clocks
10 = 2 clocks
11 = Reserved
3 Reserved.
2 DRAM RAS# to CAS# Delay (tRCD). This bit controls the number of clocks inserted between a
row activate command and a read or write command to that row.
0 = 3 DRAM clocks
1 = 2 DRAM clocks
1 Reserved.
0 DRAM RAS# Precharge (tRP). This bit controls the number of clocks that are inserted
between a row precharge command and an activate command to the same row.
0 = 3 DRAM clocks
1 = 2 DRAM clocks

Register Description
R
56 Intel® 82845 MCH for SDR Datasheet
3.5.18 DRC—DRAM Controller Mode Register (Device 0)
Offset: 7C–7Fh
Default: 00000000h
Access: R/W, RO
Size: 32 bits
Bit Description
31:30 Revision Number (REV)—R/W. Reflects the revision number of the format used for SDRAM
register definition. Currently, this field must be 00, since this revision (rev 00) is the only existing
version of the specification.
29 Initialization Complete (IC)—R/W. This bit is used for communication of software state
between the memory controller and the BIOS. BIOS sets this bit to 1 after initialization of the
DRAM memory array is complete.
28 Dynamic Powerdown Mode Enable—R/W. When set, the system memory controller will put a
pair of rows into powerdown mode when all banks are pre-charged (closed). Once a bank is
accessed, the relevant pair of rows is taken out of powerdown mode.
The entry into powerdown mode is performed by de-activation of CKE. The exit is performed by
activation of CKE.
0 = Disable. System memory powerdown disabled
1 = Enable. System memory powerdown enabled
Note: Dynamic powerdown is a mobile only feature and not supported on desktop applications.
27:24 Active SDRAM Rows—R/W. Implementations may use this field to limit the maximum number
of SDRAM rows that may be active at once.
0000 = All rows allowed to be in the active state
Others = Reserved.
23:22 Reserved.
21:20 DRAM Data Integrity Mode (DDIM)—R/W. These bits select the system memory data integrity
mode.
00 = Non-ECC mode
10 = Error checking with correction
Other = Reserved
19:11 Reserved.
10:8 Refresh Mode Select (RMS)—R/W. This field determines whether refresh is enabled and, if
so, at what rate refreshes will be executed.
000 = Reserved
001 = Refresh enabled. Refresh interval 15.6 us
010 = Refresh enabled. Refresh interval 7.8 us
011 = Refresh enabled. Refresh interval 64 us
111 = Refresh enabled. Refresh interval 64 clocks (fast refresh mode)
Other = Reserved
7 Reserved.

Register Description
R
Intel® 82845 MCH for SDR Datasheet 57
Bit Description
6:4 Mode Select (SMS)—R/W. These bits select the special operational mode of the system
memory interface. The special modes are intended for initialization at power up.
000 = Post Reset state. When the MCH exits reset (power-up or otherwise), the mode select
field is cleared to “000”.
During any reset sequence, while power is applied and reset is active, the MCH asserts
all CKE signals. After internal reset is deasserted, CKE signals remain deasserted until
this field is written to a value different than “000”. On this event, all CKE signals are
asserted.
During suspend, MCH internal signal triggers system memory controller to flush pending
commands and enter all rows into Self-Refresh mode. As part of resume sequence, the
MCH will be reset ( which will clear this bit field to “000” and maintain CKE signals
deasserted). After internal reset is deasserted, CKE signals remain deasserted until this
field is written to a value different than “000”. On this event, all CKE signals are asserted.
During entry to other low power states (C3, S1), MCH internal signal triggers DRAM
controller to flush pending commands and enter all rows into Self-Refresh mode. During
exit to normal mode, MCH signal triggers DRAM controller to exit Self-Refresh and
resume normal operation without S/W involvement.
001 = NOP Command Enable. All processor cycles to system memory result in a NOP
command on the system memory interface.
010 = All Banks Pre-charge Enable. All processor cycles to system memory result in an “all
banks precharge” command on the system memory interface.
011 = Mode Register Set Enable. All processor cycles to system memory result in a “mode
register” set command on the system memory interface. Host address lines are mapped
to memory address lines to specify the command sent. Host address lines [15:3] are
mapped to SMA[12:0].
100 = Reserved
101 = Reserved
110 = CBR Refresh Enable. In this mode all processor cycles to system memory result in a
CBR cycle on the SDRAM interface
111 = Normal operation.
3:2 Reserved.
1:0 DRAM Type (DT)—RO. Used to select between supported SDRAM types.
00 = Single Data Rate (SDR) SDRAM.
01–11 = Reserved

Register Description
R
58 Intel® 82845 MCH for SDR Datasheet
3.5.19 DERRSYN—DRAM Error Syndrome Register (Device 0)
Address Offset: 86h
Default Value: 00h
Access: RO
Size: 8 bits
This register is used to report the ECC syndromes for each quadword of a 32 byte-aligned data
quantity read from the system memory array.
Bit Description
7:0 DRAM ECC Syndrome (DECCSYN). After a system memory ECC error, hardware loads this
field with a syndrome that describes the set of bits found to be in error.
Note: This field is locked from the time that it is loaded up to the time when the error flag is
cleared by software. If the first error was a single bit, correctable error, then a subsequent
multiple bit error will overwrite this field. In all other cases, an error that occurs after the
first error and before the error flag has been cleared by software will escape recording.
3.5.20 EAP—Error Address Pointer Register (Device 0)
Address Offset: 8C–8Fh
Default Value: 0000_0000h
Access: RO
Size: 32 bits
This register contains the address of the 32 byte-aligned data unit on which system memory ECC
error(s) was detected.
Bit Descriptions
31:30 Reserved.
29:1 Error Address Pointer (EAP). This field is used to store address bits A[33:5] of the 32-byte-
aligned data unit of system memory of which an error (single bit or multi-bit error) has occurred.
Note: The value of this bit field represents the address of the first single or the first multiple bit
error occurrence after the error flag bits in the ERRSTS register have been cleared by
software. A multiple bit error will overwrite a single bit error. Once the error flag bits are set
as a result of an error, this bit field is locked and does not change as a result of a new error
until the error flag is cleared by software.
0 Reserved.

Register Description
R
Intel® 82845 MCH for SDR Datasheet 59
3.5.21 PAM[0:6]—Programmable Attribute Map Registers
(Device 0)
Address Offset: 90–96h (PAM0–PAM6)
Default Value: 00h
Attribute: R/W, RO
Size: 8 bits
The MCH allows programmable memory attributes on 13 Legacy memory segments of various
sizes in the 640 Kbytes to 1 Mbytes address range. Seven Programmable Attribute Map (PAM)
Registers are used to support these features. Cacheability of these areas is controlled via the
MTRR registers in the processor. Two bits are used to specify memory attributes for each memory
segment. These bits apply to host initiator only access to the PAM areas. The MCH forwards to
system memory for any AGP, PCI or hub interface-initiated accesses to the PAM areas. These
attributes are:
RE - Read Enable. When RE = 1, the host read accesses to the corresponding memory
segment are claimed by the MCH and directed to system memory. Conversely, when
RE = 0, the host read accesses are directed to PCI0.
WE - Write Enable. When WE = 1, the host write accesses to the corresponding memory
segment are claimed by the MCH and directed to system memory. Conversely, when
WE = 0, the host write accesses are directed to PCI0.
The RE and WE attributes permit a memory segment to be Read Only, Write Only, Read/Write, or
disabled. For example, if a memory segment has RE = 1 and WE = 0, the segment is Read Only.
Each PAM Register controls two regions, typically 16 KB in size. Each of these regions has a 4-bit
field. The four bits that control each region have the same encoding and defined in the following
table.
Bits [7, 3]
Reserved Bits [6, 2]
Reserved Bits [5, 1]
WE Bits [4, 0]
RE Description
X X 0 0 Disabled. System memory is disabled and all
accesses are directed to the hub interface. The MCH
does not respond as a PCI target for any read or write
access to this area.
X X 0 1 Read Only. Reads are forwarded to system memory
and writes are forwarded to the hub interface for
termination. This write protects the corresponding
memory segment. The MCH responds as an AGP or
hub interface target for read accesses but not for any
write accesses.
X X 1 0 Write Only. Writes are forwarded to system memory
and reads are forwarded to the hub interface for
termination. The MCH responds as an AGP or hub
interface target for write accesses but not for any read
accesses.
X X 1 1 Read/Write. This is the normal operating mode of
system memory. Both read and write cycles from the
host are claimed by the MCH and forwarded to
system memory. The MCH responds as an AGP or
hub interface target for both read and write accesses.

Register Description
R
60 Intel® 82845 MCH for SDR Datasheet
At the time that a hub interface or AGP accesses to the PAM region may occur, the targeted PAM
segment must be programmed to be both readable and writeable.
As an example, consider BIOS that is implemented on the expansion bus. During the initialization
process, the BIOS can be shadowed in system memory to increase the system performance. When
BIOS is shadowed in system memory, it should be copied to the same address location. To shadow
the BIOS, the attributes for that address range should be set to write only. BIOS is shadowed by
first performing a read of that address. This read is forwarded to the expansion bus. The host then
does a write of the same address, which is directed to system memory. After the BIOS is
shadowed, the attributes for that memory area are set to read only so that all writes are forwarded
to the expansion bus. Table 9 and Figure 2 show the PAM registers and the associated attribute
bits:
Figure 2. PAM Register Attributes
pam
REWERE R RWERR
76543210
PAM6
PAM5
PAM4
PAM3
PAM2
PAM1
PAM0
Read Enable (R/W)
1=Enable
0=Disable
Write Enable (R/W)
1=Enable
0=Disable
Reserved
Reserved
Read Enable (R/W)
1=Enable
0=Disable
Write Enable (R/W)
1=Enable
0=Disable
Reserved
Reserved
96h
95h
94h
93h
92h
91h
90h
Offset

Register Description
R
Intel® 82845 MCH for SDR Datasheet 61
Table 9. PAM Register Attributes
PAM Reg Attribute Bits Memory Segment Comments Offset
PAM0[3:0] Reserved 90h
PAM0[7:4] R R WE RE 0F0000h–0FFFFFh BIOS Area 90h
PAM1[3:0] R R WE RE 0C0000h–0C3FFFh ISA Add-on BIOS 91h
PAM1[7:4] R R WE RE 0C4000h–0C7FFFh ISA Add-on BIOS 91h
PAM2[3:0] R R WE RE 0C8000h–0CBFFFh ISA Add-on BIOS 92h
PAM2[7:4] R R WE RE 0CC000h–0CFFFFh ISA Add-on BIOS 92h
PAM3[3:0] R R WE RE 0D0000h–0D3FFFh ISA Add-on BIOS 93h
PAM3[7:4] R R WE RE 0D4000h–0D7FFFh ISA Add-on BIOS 93h
PAM4[3:0] R R RE 0D8000h–0DBFFFh ISA Add-on BIOS 94h
PAM4[7:4] R R WE RE 0DC000h–0DFFFFh ISA Add-on BIOS 94h
PAM5[3:0] R R WE RE 0E0000h–0E3FFFh BIOS Extension 95h
PAM5[7:4] R R WE RE 0E4000h–0E7FFFh BIOS Extension 95h
PAM6[3:0] R R WE RE 0E8000h–0EBFFFh BIOS Extension 96h
PAM6[7:4] R R WE RE 0EC000h–0EFFFFh BIOS Extension 96h
For details on overall system address mapping scheme see Chapter 4.
DOS Application Area (00000h–9FFFh)
The DOS area is 640 KB in size and it is further divided into two parts. The 512 KB area at
0h to 7FFFFh is always mapped to the system memory controlled by the MCH, while the 128 KB
address range from 080000 to 09FFFFh can be mapped to PCI0 or to system memory. By default
this range is mapped to system memory and can be declared as a system memory hole (accesses
forwarded to PCI0) via MCH FDHC configuration register.
Video Buffer Area (A0000h–BFFFFh)
Attribute bits do not control this 128 KB area. The host -initiated cycles in this region are always
forwarded to either PCI0 or AGP unless this range is accessed in SMM mode. Routing of
accesses is controlled by the Legacy VGA control mechanism of the “virtual” PCI-PCI
bridge device embedded within the MCH.
This area can be programmed as SMM area via the SMRAM register. When used as a SMM
space, this range cannot be accessed from the hub interface or AGP.
Expansion Area (C0000h–DFFFFh)
This 128 KB area is divided into eight 16 KB segments, which can be assigned with different
attributes via PAM control register as defined by the table above.

Register Description
R
62 Intel® 82845 MCH for SDR Datasheet
Extended System BIOS Area (E0000h–EFFFFh)
This 64 KB area is divided into four 16 KB segments that can be assigned with different attributes
via PAM control register as defined by the table above.
System BIOS Area (F0000h–FFFFFh)
This area is a single 64 KB segment, which can be assigned with different attributes via PAM
control register as defined by the table above.
3.5.22 FDHC—Fixed DRAM Hole Control Register (Device 0)
Address Offset: 97h
Default Value: 00h
Access: R/W
Size: 8 bits
This 8-bit register controls a fixed DRAM hole: 15–16 MB.
Bit Description
7 Hole Enable (HEN). This bit enables a memory hole in DRAM space. Host cycles matching an
enabled hole are passed on to the ICH2 through the hub interface. The hub interface cycles
matching an enabled hole will be ignored by the MCH. Note that a selected hole is not re-
mapped.
0 = Disabled. No hole
1 = 15 MB–16 MB (1 MB hole)
6:0 Reserved.

Register Description
R
Intel® 82845 MCH for SDR Datasheet 63
3.5.23 SMRAM—System Management RAM Control Register
(Device 0)
Address Offset: 9Dh
Default Value: 02h
Access: R/W, RO, R/W/L
Size: 8 bits
The SMRAMC register controls how accesses to Compatible and Extended SMRAM spaces are
treated. The Open, Close, and Lock bits function only when the G_SMRAME bit is set to a 1.
Also, the OPEN bit must be reset before the LOCK bit is set.
Bit Description
7 Reserved.
6 SMM Space Open (D_OPEN)—R/W/L. When D_OPEN=1 and D_LCK=0, the SMM space
DRAM is made visible even when SMM decode is not active. This is intended to help BIOS
initialize SMM space. Software should ensure that D_OPEN=1 and D_CLS=1 are not set at the
same time. When D_LCK is set to a 1, D_OPEN is reset to 0 and becomes read only.
5 SMM Space Closed (D_CLS)—R/W. When D_CLS = 1, SMM space DRAM is not accessible
to data references, even if SMM decode is active. Code references may still access SMM
space DRAM. This allows SMM software to reference “through” SMM space to update the
display, even when SMM is mapped over the VGA range. Software should ensure that
D_OPEN=1 and D_CLS=1 are not set at the same time.
Note that the D_CLS bit only applies to Compatible SMM space.
4 SMM Space Locked (D_LCK)—R/W. When D_LCK is set to 1, D_OPEN is reset to 0 and
D_LCK, D_OPEN, C_BASE_SEG, H_SMRAM_EN, TSEG_SZ and TSEG_EN become “Read
Only”. D_LCK can be set to 1 via a normal configuration space write but can only be cleared by
a Full Reset. The combination of D_LCK and D_OPEN provide convenience with security. The
BIOS can use the D_OPEN function to initialize SMM space and then use D_LCK to “lock
down” SMM space in the future so that no application software (or BIOS itself) can violate the
integrity of SMM space, even if the program has knowledge of the D_OPEN function.
3 Global SMRAM Enable (G_SMRAME)—R/W/L.
0 = Disable
1 = Enable. Compatible SMRAM functions are enabled, providing 128 KB of DRAM accessible
at the A0000h address while in SMM (ADS# with SMM decode). To enable Extended
SMRAM function this bit has to be set to 1.
Once D_LCK is set, this bit becomes read only.
2:0 Compatible SMM Space Base Segment (C_BASE_SEG)—RO. This field indicates the
location of SMM space. “SMM DRAM” is not remapped. It is simply “made visible” if the
conditions are right to access SMM space, otherwise the access is forwarded to the hub
interface.
010 = Hardwired to 010 to indicate that the MCH supports the SMM space at A0000h–BFFFFh.

Register Description
R
64 Intel® 82845 MCH for SDR Datasheet
3.5.24 ESMRAMC—Extended System Mgmt RAM Control Register
(Device 0)
Address Offset: 9Eh
Default Value: 38h
Access: RO, R/W, R/WC, R/W/L
Size: 8 bits
The Extended SMRAM register controls the configuration of Extended SMRAM space. The
Extended SMRAM (E_SMRAM) memory provides a write-back cacheable SMRAM memory
space that is above 1 MB.
Bit Description
7 H_SMRAM_EN (H_SMRAME)—R/W/L. Controls the SMM memory space location (i.e., above 1
MB or below 1 MB). When G_SMRAME is 1 and H_SMRAME this bit is set to 1, the high
SMRAM memory space is enabled. SMRAM accesses from FEDA_0000h to FEDB_FFFFh are
remapped to DRAM address 000A0000h to 000BFFFFh.
Once D_LCK is set, this bit becomes read only.
6 E_SMRAM_ERR (E_SMERR)—R/WC.
0 = The software must write a 1 to this bit to clear it.
1 = This bit is set when host accesses the defined memory ranges in Extended SMRAM (High
Memory and T-segment) while not in SMM space and with the D-OPEN bit = 0.
5 SMRAM_Cache (SM_CACHE)—RO. Hardwired to 1.
4 SMRAM_L1_EN (SM_L1)—RO. Hardwired to 1.
3 SMRAM_L2_EN (SM_L2)—RO. Hardwired to 1.
2:1 TSEG_SZ[1-0] (T_SZ)—R/W. Selects the size of the TSEG memory block if enabled. This
memory is taken from the top of system memory space (i.e., TOM – TSEG_SZ), which is no
longer claimed by the memory controller (all accesses to this space are sent to the hub interface
if TSEG_EN is set). This field decodes as follows:
00 = (TOM–128 KB) to TOM
01 = (TOM–256 KB) to TOM
10 = (TOM–512 KB) to TOM
11 = (TOM–1 MB) to TOM
Once D_LCK is set, this bit becomes read only.
0 TSEG_EN (T_EN)—R/W/L. Enabling of SMRAM memory (TSEG, 128 KB, 256 KB, 512 KB or
1 MB of additional SMRAM memory) for Extended SMRAM space only. When G_SMRAME =1
and TSEG_EN = 1, the TSEG is enabled to appear in the appropriate physical address space.
Once D_LCK is set, this bit becomes read only.

Register Description
R
Intel® 82845 MCH for SDR Datasheet 65
3.5.25 ACAPID—AGP Capability Identifier Register (Device 0)
Address Offset: A0–A3h
Default Value: 0020_0002h
Access: RO
Size: 32 bits
This register provides standard identifier for AGP capability.
Bit Description
31:24 Reserved.
23:20 Major AGP Revision Number (MAJREV). These bits provide a major revision number of AGP
specification that this version of the MCH conforms. This field is hardwired to value of “0010b”
(i.e., implying Rev 2.x).
19:16 Minor AGP Revision Number (MINREV). These bits provide a minor revision number of AGP
specification that this version of the MCH conforms. This number is hardwired to value of “0000”
(i.e., implying Rev x.0)
Together with the major revision number this field identifies MCH as an AGP Revision 2.0
compliant device.
15:8 Next Capability Pointer (NCAPTR). AGP capability is the first and the last capability described
via the capability pointer mechanism; therefore, these bits are hardwired to 0h to indicate the
end of the capability linked list.
7:0 AGP Capability ID (CAPID). This field identifies the linked list item as containing AGP
registers. This field has a value of 0000_0010b assigned by the PCI SIG.

Register Description
R
66 Intel® 82845 MCH for SDR Datasheet
3.5.26 AGPSTAT—AGP Status Register (Device 0)
Address Offset: A4–A7h
Default Value: 1F00_0217h
Access: RO
Size: 32 bits
This register reports AGP device capability/status.
Bit Description
31:24 Request Queue (RQ). This field contains the maximum number of AGP command requests the
MCH is configured to manage.
1Fh = Allows a maximum of 32 outstanding AGP command requests.
23:10 Reserved.
9 Side Band Addressing Support (SBA). Hardwired to 1 to indicate that the MCH supports side
band addressing.
8:6 Reserved.
5 Greater that 4 GB Support (4G). Hardwired to 0 to indicate that the MCH does not support
addresses greater than 4.
4 Fast Write Support (FW). Hardwired to 1 to indicate that the MCH supports Fast Writes from the
host to the AGP master.
3 Reserved.
2:0 Data Rate Support (RATE). Hardwired to 111. After reset, the MCH reports its data transfer rate
capability. Bit 0 identifies if AGP device supports 1x data transfer mode, bit 1 identifies if AGP
device supports 2x data transfer mode, bit 2 identifies if AGP device supports 4x data transfer
mode.
111 = 1x, 2x, and 4x data transfer modes are supported by the MCH
Note: The selected data transfer mode applies to both AD bus and SBA bus. It also applies to
Fast Writes if they are enabled.

Register Description
R
Intel® 82845 MCH for SDR Datasheet 67
3.5.27 AGPCMD—AGP Command Register (Device 0)
Address Offset: A8–ABh
Default Value: 0000_0000h
Access: R/W
Size: 32 bits
This register provides control of the AGP operational parameters.
Bit Description
31:10 Reserved.
9 SideBand Address Enable (SBAEN).
0 = Disable.
1 = Enable.
8 AGP Enable (AGPEN).
0 = The MCH ignores all AGP operations, including the sync cycle. Any AGP operation received
while this bit is 1 will be serviced, even if this bit is set to 0. If this bit transitions from a 1 to a 0
on a clock edge in the middle of an SBA command being delivered in 1X mode, the command
will be issued.
1 = The MCH will respond to AGP operations delivered via PIPE# or to operations delivered via
SBA if the AGP Side Band Enable bit is also set to 1.
7:5 Reserved.
4 Fast Write Enable (FWEN).
0 = When this bit is set to 0, or when the data rate bits are set to 1x mode, the memory write
transactions from the MCH to the AGP master use standard PCI protocol.
1 = MCH uses the Fast Write protocol for memory write transactions from the MCH to the AGP
master. Fast Writes occur at the data transfer rate selected by the DRATE bits (2:0) in this
register.
3 Reserved.
2:0 Data Rate (DRATE). The settings of these bits determine the AGP data transfer rate. One (and
only one) bit in this field must be set to indicate the desired data transfer rate.
001 = 1x transfer mode
010 = 2x transfer mode
100 = 4x transfer mode
Configuration software updates this field by setting only one bit that corresponds to the capability
of AGP master (after that capability has been verified by accessing the same functional register
in the AGP masters’ configuration space.)
Note: This field applies to AD and SBA buses. It also applies to Fast Writes if they are enabled.

Register Description
R
68 Intel® 82845 MCH for SDR Datasheet
3.5.28 AGPCTRL—AGP Control Register (Device 0)
Address Offset: B0–B3h
Default Value: 0000_0000h
Access: R/W
Size: 32 bits
This register provides for additional control of the AGP interface.
Bit Description
31:8 Reserved.
7 GTLB Enable (GTLBEN). This bit provides enable and flush control of the GTLB.
0 = Disable (Default). GTLB is flushed by clearing the valid bits associated with each entry.
1 = Enable. Normal operations of the Graphics Translation Lookaside Buffer.
6:1 Reserved.
0 Data Rate 4x Override.
1 = The RATE[2:0] bit in the AGPSTS register will be read as a 001. This bit allows the BIOS to
force 1x mode. Note that this bit must be set by the BIOS before AGP configuration.

Register Description
R
Intel® 82845 MCH for SDR Datasheet 69
3.5.29 APSIZE—Aperture Size (Device 0)
Address Offset: B4h
Default Value: 00h
Access: R/W
Size: 8 bits
This register determines the effective size of the Graphics Aperture used for a particular MCH
configuration. This register can be updated by the MCH specific BIOS configuration sequence
before the PCI standard bus enumeration sequence takes place. If the register is not updated, the
default value will select an aperture of maximum size (i.e., 256 MB). The size of the table that will
correspond to a 256 MB aperture is not practical for most applications; therefore, these bits must
be programmed to a smaller practical value that will force adequate address range to be requested
via APBASE register from the PCI configuration software.
Bit Description
7:6 Reserved.
5:0 Graphics Aperture Size (APSIZE). Each bit in APSIZE[5:0] operates on similarly ordered bits in
APBASE[27:22] of the Aperture Base configuration register. When a particular bit of this field is 0,
it forces the similarly ordered bit in APBASE[27:22] to behave as “hardwired” to 0. When a
particular bit of this field is set to 1, it allows corresponding bit of the APBASE[27:22] to be
read/write accessible. Only the following combinations are allowed:
5 4 3 2 1 0 Aperture Size
1 1 1 1 1 1 4 MB
1 1 1 1 1 0 8 MB
1 1 1 1 0 0 16 MB
1 1 1 0 0 0 32 MB
1 1 0 0 0 0 64 MB
1 0 0 0 0 0 128 MB
0 0 0 0 0 0 256 MB
Default for APSIZE[5:0]=000000b forces default APBASE[27:22] =000000b (i.e., all bits respond
as “hardwired” to 0). This provides maximum aperture size of 256 MB. As another example,
programming APSIZE[5:0]=111000b hardwires APBASE[24:22]=000b and while enabling
APBASE[27:25] as read/write.

Register Description
R
70 Intel® 82845 MCH for SDR Datasheet
3.5.30 ATTBASE—Aperture Translation Table Base Register
(Device 0)
Address Offset: B8–BBh
Default Value: 0000_0000h
Access: R/W
Size: 32 bits
This register provides the starting address of the Graphics Aperture Translation Table Base
located in the system memory. This value is used by the MCH Graphics Aperture address
translation logic (including the GTLB logic) to obtain the appropriate address translation entry
required during the translation of the aperture address into a corresponding physical system
memory address. The ATTBASE register may be dynamically changed.
Note: The address provided via ATTBASE is 4 KB aligned.
Bit Description
31:12 Aperture Translation Table Base (TTABLE). This field contains a pointer to the base of the
translation table used to map memory space addresses in the aperture range to addresses in
system memory.
Note: It should be modified only when the GTLB has been disabled.
11:0 Reserved.

Register Description
R
Intel® 82845 MCH for SDR Datasheet 71
3.5.31 AMTT—AGP Interface Multi-Transaction Timer Register
(Device 0)
Address Offset: BCh
Default Value: 00h
Access: R/W
Size: 8 bits
AMTT is an 8-bit register that controls the amount of time that the MCH arbiter allows AGP
master to perform multiple back-to-back transactions. The MCH AMTT mechanism is used to
optimize the performance of the AGP master (using PCI protocol) that performs multiple back-to-
back transactions to fragmented memory ranges (and as a consequence it can not use long burst
transfers). The AMTT mechanism applies to the host-AGP transactions as well and it guarantees
to the processor a fair share of the AGP interface bandwidth.
The number of clocks programmed in the AMTT represents the guaranteed time slice (measured in
66 MHz clocks) allotted to the current agent (either AGP master or host bridge) after which the
AGP arbiter will grant the bus to another agent. The default value of AMTT is 00h and disables
this function. The AMTT value can be programmed with 8-clock granularity. For example, if the
AMTT is programmed to 18h, then the selected value corresponds to the time period of 24 AGP
(66 MHz) clocks.
Bit Description
7:3 Multi-Transaction Timer Count Value (MTTC). The number programmed in these bits
represents the guaranteed time slice (measured in eight 66 MHz clock granularity) allotted to
the current agent (either AGP master or MCH) after which the AGP arbiter will grant the bus to
another agent.
2:0 Reserved.

Register Description
R
72 Intel® 82845 MCH for SDR Datasheet
3.5.32 LPTT—AGP Low Priority Transaction Timer Register
(Device 0)
Address Offset: BDh
Default Value: 00h
Access: R/W
Size: 8 bits
LPTT is an 8-bit register similar in function to AMTT. This register is used to control the
minimum tenure on the AGP for low-priority data transactions (both reads and writes) issued using
PIPE# or SB mechanisms.
The number of clocks programmed in the LPTT represents the guaranteed time slice (measured in
66 MHz clocks) allotted to the current low priority AGP transaction data transfer state. This does
not necessarily apply to a single transaction but it can span over multiple low-priority transactions
of the same type. After this time expires, the AGP arbiter may grant the bus to another agent if
there is a pending request. The LPTT does not apply in the case of high-priority request where
ownership is transferred directly to high-priority requesting queue. The default value of LPTT is
00h and disables this function. The LPTT value can be programmed with 8-clock granularity. For
example, if the LPTT is programmed to 10h, the selected value corresponds to the time period of
16 AGP (66 MHz) clocks.
Bit Description
7:3 Low Priority Transaction Timer Count Value (LPTTC). The number of clocks programmed in
these bits represents the guaranteed time slice (measured in eight 66 MHz clock granularity)
allotted to the current low priority AGP transaction data transfer state.
2:0 Reserved.

Register Description
R
Intel® 82845 MCH for SDR Datasheet 73
3.5.33 TOM—Top of Low Memory Register (Device 0)
Address Offset: C4–C5h
Default Value: 0100h
Access: R/W
Size: 16 bits
This register contains the maximum address below 4 GB that should be treated as a memory
access. Note that this register must be set to a value of 0100h (16 MB) or greater. Usually it will
sit below the areas configured for the hub interface, PCI memory, and the graphics aperture.
Bit Description
15:4 Top of Low Memory (TOM). This register contains the address that corresponds to bits 31 to
20 of the maximum system memory address that lies below 4 GB. Configuration software
should set this value to either the maximum amount of memory in the system or to the
minimum address allocated for PCI memory or the graphics aperture, whichever is smaller.
Programming Example: 400h = 1 GB. An access to 4000_0000h or above will be considered
above the TOM and therefore not routed to system memory. It may go to AGP, aperture, or
subtractively decode to the hub interface.
3:0 Reserved.

Register Description
R
74 Intel® 82845 MCH for SDR Datasheet
3.5.34 MCHCFG—MCH Configuration Register (Device 0)
Offset: C6–C7h
Default: 0000h
Access: R/W, RO
Size: 16 bits
Bit Description
15:12 Reserved.
11 System Memory Frequency Select. This bit must be programmed prior to memory
initialization.
0 = Reserved
1 = System Memory frequency is set to 133 MHz
11:6 Reserved.
5 MDA Present (MDAP)—R/W. This bit works with the VGA Enable bit in the BCTRL1 register
(device 1) to control the routing of host-initiated transactions targeting MDA compatible I/O and
memory address ranges. This bit should not be set when the VGA Enable bit is not set in either
device 1. If the VGA enable bit is set, then accesses to I/O address range x3BCh–x3BFh are
forwarded to the hub interface. MDA resources are defined as the following:
Memory: 0B0000h–0B7FFFh
I/O: 3B4h, 3B5h, 3B8h, 3B9h, 3BAh, 3BFh,
(including ISA address aliases, A[15:10] are not used in decode)
Any I/O reference that includes the I/O locations listed above, or their aliases, are forwarded to
the hub interface, even if the reference includes I/O locations not listed above.
Refer to the Chapter 4 for further information.
4:3 Reserved.
2 In-Order Queue Depth (IOQD)–RO. This bit reflects the value sampled on HA7# on the
deassertion of the CPURST#. It indicates the depth of the host bus in-order queue (i.e., level of
host bus pipelining).
0 = HA7# was sampled asserted (i.e., 0); the depth of the host bus in-order queue is set to 1
(i.e., no pipelining support on the host bus).
1 = HA7# was sampled 1 (i.e., undriven on the host bus); the depth of the host bus in-order
queue is configured to the maximum allowed by the host bus protocol (i.e., 12). Note that
the MCH has a 12 deep IOQ.
Note that HA7# is not driven by the MCH during CPURST#. If an IOQ size of 1 is desired, HA7#
must be driven low during CPURST# by an external source.
1 APIC Memory Range Disable (APICDIS)—R/W.
0 = The MCH sends cycles between 0_FEC0_0000 and 0_FEC7_FFFF to the hub interface.
1 = The MCH forwards accesses to the IOAPIC regions to the appropriate interface, as
specified by the memory and PCI configuration registers.
0 Reserved.

Register Description
R
Intel® 82845 MCH for SDR Datasheet 75
3.5.35 ERRSTS—Error Status Register (Device 0)
Address Offset: C8–C9h
Default Value: 0000h
Access: R/WC
Size: 16 bits
This register is used to report various error conditions via the hub interface messages to ICH2. An
SERR, SMI, or SCI error message may be generated via the hub interface on a zero to one
transition of any of these flags when enabled in the PCICMD/ERRCMD, SMICMD, or SCICMD
registers, respectively. These bits are set, regardless of whether or not the SERR is enabled and
generated.
Bit Description
15:10 Reserved.
9 LOCK to non-DRAM Memory Flag (LCKF).
0 = Software must write a 1 to clear this status bit.
1 = Indicates that a host initiated LOCK cycle targeting non-DRAM memory space occurred.
8:7 Reserved.
6 SERR on Hub Interface Target Abort (TAHLA).
0 = Software must write a 1 to clear this status bit.
1 = MCH detected that a MCH-originated hub interface cycle was terminated with a Target Abort
completion packet or special cycle.
5 MCH Detects Unimplemented Hub Interface Special Cycle (HIAUSC).
0 = Software must write a 1 to clear this status bit.
1 = MCH detected an Unimplemented Special Cycle on the hub interface.
4 AGP Access Outside of Graphics Aperture Flag (OOGF).
0 = Software must write a 1 to clear this status bit.
1 = Indicates that an AGP access occurred to an address that is outside of the graphics aperture
range.
3 Invalid AGP Access Flag (IAAF).
0 = Software must write a 1 to clear this status bit.
1 = Indicates that an AGP access was attempted outside of the graphics aperture and either to
the 640 KB – 1 MB range or above the top of memory.
2 Invalid Graphics Aperture Translation Table Entry (ITTEF).
0 = Software must write a 1 to clear this status bit.
1 = Indicates that an invalid translation table entry was returned in response to an AGP access
to the graphics aperture.
1 Multiple-bit DRAM ECC Error Flag (DMERR).
0 = After software completes the error processing, a value of 1 is written to this bit field to set the
value back to 0 and unlock the error logging mechanism.
1 = A memory read data transfer had an uncorrectable multiple-bit error. When this bit is set, the
address and device number that caused the error are logged in the EAP Register. Software
uses bits [1:0] to detect whether the logged error address is for Single or Multiple-bit error.

Register Description
R
76 Intel® 82845 MCH for SDR Datasheet
Bit Description
0 Single-bit DRAM ECC Error Flag (DSERR).
0 = Software must write a 1 to clear this bit and unlock the error logging mechanism.
1 = A memory read data transfer had a single-bit correctable error and the corrected data was
sent for the access. When this bit is set, the address, channel number, and device number
that caused the error are logged in the EAP Register. When this bit is set, the EAP, CN, DN,
and ES fields are locked to further single bit error updates until the processor clears this bit
by writing a 1.
3.5.36 ERRCMD—Error Command Register (Device 0)
Address Offset: CA–CBh
Default Value: 0000h
Access: R/W
Size: 16 bits
This register enables various errors to generate a SERR message via the hub interface. Since the
MCH does not have an SERR# signal, SERR messages are passed from the MCH to the ICH2
over the hub interface. When a bit in this register is set, a SERR message will be generated on the
hub interface when the corresponding flag is set in the ERRSTS register. The actual generation of
the SERR message is globally enabled for Device 0 via the PCICMD register.
Note: An error can generate one and only one error message via the hub interface. It is software’s
responsibility to make sure that when an SERR error message is enabled for an error condition,
SMI and SCI error messages are disabled for that same error condition.
Bit Description
15:10 Reserved.
9 SERR on Non-DRAM Lock (LCKERR).
0 = Disable.
1 = Enable. The MCH will generate a hub interface SERR special cycle when a processor lock
cycle is detected that does not hit system memory.
8:7 Reserved.
6 SERR on Target Abort on Hub Interface Exception (TAHLA_SERR).
0 = Disable.
1 = Enable. Generation of the hub interface SERR message is enabled when a MCH-originated
hub interface cycle is completed with “Target Abort” completion packet or special cycle
status.
5 SERR on Detecting Hub Interface Unimplemented Special Cycle (HIAUSCERR). SERR
messaging for Device 0 is globally enabled in the PCICMD register.
0 = Disable. MCH does not generate an SERR message for this event.
1 = Enable. MCH generates a SERR message over the hub interface when an unimplemented
Special Cycle is received on the hub interface.

Register Description
R
Intel® 82845 MCH for SDR Datasheet 77
Bit Description
4 SERR on AGP Access Outside of Graphics Aperture (OOGF_SERR).
0 = Disable.
1 = Enable. Generation of the hub interface SERR message is enabled when an AGP access
occurs to an address outside of the graphics aperture.
3 SERR on Invalid AGP Access (IAAF_SERR).
0 = Disable.
1 = Generation of the hub interface SERR message is enabled when an AGP access occurs to
an address outside of the graphics aperture and either to the 640 KB – 1 MB range or above
the top of memory.
2 SERR on Invalid Translation Table Entry (ITTEF_SERR).
0 = Disable.
1 = Enable. Generation of the hub interface SERR message is enabled when an invalid
translation table entry was returned in response to an AGP access to the graphics aperture.
1 SERR Multiple-Bit DRAM ECC Error (DMERR_SERR).
0 = Disable. For systems not supporting ECC, this bit must be disabled.
1 = Enable. Generation of the hub interface SERR message is enabled when the MCH system
memory controller detects a multiple-bit error.
0 SERR on Single-bit ECC Error (DSERR).
0 = Disable. For systems that do not support ECC, this bit must be disabled.
1 = Enable. Generation of the hub interface SERR message is enabled when the MCH system
memory controller detects a single bit error.

Register Description
R
78 Intel® 82845 MCH for SDR Datasheet
3.5.37 SMICMD—SMI Command Register (Device 0)
Address Offset: CC–CDh
Default Value: 0000h
Access: R/W
Size: 16 bits
This register enables various errors to generate a SMI message via the hub interface.
Note: An error can generate one and only one error message via the hub interface. It is software’s
responsibility to make sure that when an SMI error message is enabled for an error condition,
SERR and SCI error messages are disabled for that same error condition.
Bit Description
15:2 Reserved.
1 SMI on Multiple-Bit DRAM ECC Error (DMERR).
0 = Disable. For systems not supporting ECC, this bit must be disabled.
1 = Enable. Generation of the hub interface SMI message is enabled when the MCH system
memory controller detects a multiple-bit error.
0 SMI on Single-bit ECC Error (DSERR).
0 = Disable. For systems that do not support ECC, this bit must be disabled.
1 = Enable. Generation of the hub interface SMI message is enabled when the MCH system
memory controller detects a single bit error.
3.5.38 SCICMD—SCI Command Register (Device 0)
Address Offset: CE–CDh
Default Value: 0000h
Access: R/W
Size: 16 bits
This register enables various errors to generate a SCI message via the hub interface.
Note: An error can generate one and only one error message via the hub interface. It is software’s
responsibility to make sure that when an SCI error message is enabled for an error condition, SERR
and SMI error messages are disabled for that same error condition.
Bit Description
15:2 Reserved.
1 SCI on Multiple-Bit DRAM ECC Error (DMERR).
0 = Disable. For systems not supporting ECC, this bit must be disabled.
1 = Enable. Generation of the hub interface SCI message is enabled when the MCH system
memory controller detects a multiple-bit error.
0 SCI on Single-bit ECC Error (DSERR).
0 = Disable. For systems that do not support ECC, this bit must be disabled.
1 = Enable. Generation of the hub interface SCI message is enabled when the MCH system
memory controller detects a single bit error.

Register Description
R
Intel® 82845 MCH for SDR Datasheet 79
3.5.39 SKPD—Scratchpad Data Register (Device 0)
Address Offset: DE–DFh
Default Value: 0000h
Access: R/W
Size: 16 bits
Bit Description
15:0 Scratchpad [15:0]. These bits are R/W storage bits that have no effect on the MCH
functionality.
3.5.40 CAPID—Product Specific Capability Identifier Register
(Device 0)
Address Offset: E4h
Default Value: 0104A009h
Access: RO
Size: 32 bits
Bit Descriptions
31 System Memory Capability.
0 = Component only supports SDR SDRAM memory; DRAM Type field is read-only. (default)
1 = Reserved
30 Mobile Power Management Capability.
0 = Component is NOT capable of all mobile power management features and is limited to
desktop use only (default)
1 = Component is capable of all mobile power management features.
29:28 Reserved.
27:24 CAPID Version.
0001b = First revision of the CAPID register definition. (default)
23:16 CAPID Length.
04h = Indicates a structure length of 4 bytes. (default)
15:8 Next Capability Pointer.
A0h = Points to the next Capability ID in this device (ACAPID register). (default)
7:0 CAP_ID.
1001b = Identifies the CAP_ID assigned by the PCI SIG for vendor dependent capability
pointers. (default)

Register Description
R
80 Intel® 82845 MCH for SDR Datasheet
3.6 Bridge Registers (Device 1)
Table 10. provides the register address map for Device 0 PCI configuration space. An “s” in the
Default Value column indicates that a strap determines the power-up default value for that bit.
Table 10. Intel® MCH Configuration Space (Device 1)
Address
Offset Symbol Name Default Access
00-01h VID1 Vendor Identification 8086h RO
02–03h DID1 Device Identification 1A31h RO
04–05h PCICMD1 PCI Command 0000h RO, R/W
06–07h PCISTS1 PCI Status 00A0h RO, R/WC
08 RID1 Revision Identification 03h, 04h RO
09 — Reserved — —
0Ah SUBC1 Sub-Class Code 04h RO
0Bh BCC1 Base Class Code 06h RO
0Ch — Reserved — —
0Dh MLT1 Master Latency Timer 00h R/W
0Eh HDR1 Header Type 01h RO
0F–17h — Reserved — —
18h PBUSN1 Primary Bus Number 00h RO
19h SBUSN1 Secondary Bus Number 00h R/W
1Ah SUBUSN1 Subordinate Bus Number 00h R/W
1Bh SMLT1 Secondary Bus Master Latency Timer 00h R/W
1Ch IOBASE1 I/O Base Address F0h R/W
1Dh IOLIMIT1 I/O Limit Address 00h R/W
1E–1Fh SSTS1 Secondary Status 02A0h RO, R/WC
20–21h MBASE1 Memory Base Address FFF0h R/W
22–23h MLIMIT1 Memory Limit Address 0000h R/W
24–25h PMBASE1 Prefetchable Memory Base Address FFF0h R/W
26–27h PMLIMIT1 Prefetchable Memory Limit Address 0000h R/W
28–3Dh — Reserved — —
3Eh BCTRL1 Bridge Control 00h RO, R/W
3Fh — Reserved — —
40h ERRCMD1 Error Command 00h R/W
41–4Fh — Reserved — —
50–57h DWTC DRAM Write Thermal Management Control 0000000
0h
R/W/L

Register Description
R
Intel® 82845 MCH for SDR Datasheet 81
Address
Offset Symbol Name Default Access
58–5Fh DRTC DRAM Read Thermal Management Control 0000000
0h
R/W/L
59–FFh — Reserved — —
3.6.1 VID1—Vendor Identification Register (Device 1)
Address Offset: 00–01h
Default Value: 8086h
Attribute: RO
Size: 16 bits
The VID1 register contains the vendor identification number. This 16-bit register combined with
the DID1 Register uniquely identifies any PCI device. Writes to this register have no effect.
Bit Description
15:0 Vendor Identification Number. This is a 16-bit value assigned to Intel. Intel VID = 8086h.
3.6.2 DID1—Device Identification Register (Device 1)
Address Offset: 02–03h
Default Value: 1A31h
Attribute: RO
Size: 16 bits
This 16-bit register combined with the VID1 register uniquely identifies any PCI device. Writes to
this register have no effect.
Bit Description
15:0 Device Identification Number. This is a 16-bit value assigned to the MCH Device 1.
MCH1 Device 1 DID = 1A31h.

Register Description
R
82 Intel® 82845 MCH for SDR Datasheet
3.6.3 PCICMD1—PCI-PCI Command Register (Device 1)
Address Offset: 04–05h
Default: 0000h
Access: RO, R/W
Size 16 bits
Bit Descriptions
15:10 Reserved.
9 Fast Back-to-Back (FB2B)—RO. Not Implemented; Hardwired to 0.
8 SERR Message Enable (SERRE1)—R/W. This bit is a global enable bit for Device 1 SERR
messaging. The MCH does not have an SERR# signal. The MCH communicates the SERR#
condition by sending an SERR message to the ICH2.
0 = Disable. SERR message is not generated by the MCH for Device 1.
1 = Enable. MCH is enabled to generate SERR messages over the hub interface for specific
Device 1 error conditions that are individually enabled in the BCTRL register. The error
status is reported in the PCISTS1 register.
NOTE: This bit only controls SERR messaging for the Device 1. Device 0 has its own SERRE
bit to control error reporting for error conditions occurring on Device 0.
7 Address/Data Stepping (ADSTEP)—RO. Not Implemented; Hardwired to 0.
6 Parity Error Enable (PERRE1)—RO. Not Implemented; Hardwired to 0.
5 Reserved.
4 Memory Write and Invalidate Enable (MWIE)—RO. Not Implemented; Hardwired to 0.
3 Special Cycle Enable (SCE)—RO. Not Implemented; Hardwired to 0.
2 Bus Master Enable (BME1)—R/W. This bit is not functional. It is a R/W bit for compatibility
with compliance testing software.
1 Memory Access Enable (MAE1)—R/W.
0 = Disable. All of Device 1’s memory space is disabled.
1 = Enable. The Memory and Prefetchable memory address ranges defined in the MBASE1,
MLIMIT1, PMBASE1, and PMLIMIT1 registers are enabled.
0 I/O Access Enable (IOAE1)—R/W.
0 = Disable. All of device 1’s I/O space is disabled.
1 = Enable. This bit must be set to1 to enable the I/O address range defined in the IOBASE1,
and IOLIMIT1 registers.

Register Description
R
Intel® 82845 MCH for SDR Datasheet 83
3.6.4 PCISTS1—PCI-PCI Status Register (Device 1)
Address Offset: 06–07h
Default Value: 00A0h
Access: RO, R/WC
Size: 16 bits
PCISTS1 is a 16-bit status register that reports the occurrence of error conditions associated with
primary side of the “virtual” PCI-PCI bridge embedded n the MCH. Since this device does not
physically reside on PCI_A, it reports the optimum operating conditions so that it does not restrict
the capability of PCI_A.
Bit Descriptions
15 Detected Parity Error (DPE1)—RO. Not Implemented; Hardwired to 0.
14 Signaled System Error (SSE1)—R/WC.
0 = Software clears this bit by writing a 1 to it.
1 = MCH device 1 generated an SERR message over the hub interface for any enabled Device
1 error condition. Device 1 error conditions are enabled in the ERRCMD, PCICMD1 and
BCTRL1 registers. Device 1 error flags are read/reset from the ERRSTS and SSTS1
register.
13 Received Master Abort Status (RMAS1)—RO. Not Implemented; Hardwired to 0.
12 Received Target Abort Status (RTAS1)—RO. Not Implemented; Hardwired to 0.
11 Signaled Target Abort Status (STAS1)—RO. Not Implemented; Hardwired to 0.
10:9 DEVSEL# Timing (DEVT1)—RO. Hardwired to 00b. Indicate that the device 1 uses the fastest
possible decode.
8 Data Parity Detected (DPD1). Not Implemented; Hardwired to 0.
7 Fast Back-to-Back (FB2B1)—RO. Hardwired to 1. The AGP port always supports fast back to
back transactions.
6 Reserved.
5 66 MHz Capability (CAP66)—RO. Hardwired to 1. Indicates that the AGP port is 66 MHz
capable.
4:0 Reserved.

Register Description
R
84 Intel® 82845 MCH for SDR Datasheet
3.6.5 RID1—Revision Identification Register (Device 1)
Address Offset: 08h
Default Value: See RID1 table below
Access: RO
Size: 8 bits
This register contains the revision number of the MCH device 1. These bits are read only and
writes to this register have no effect.
Bit Description
7:0 Revision Identification Number (RID): This is an 8-bit value that indicates the revision
identification number for the MCH device 1.
03h = A3 Stepping
04h = B0 Stepping
3.6.6 SUBC1—Sub-Class Code Register (Device 1)
Address Offset: 0Ah
Default Value: 04h
Access: RO
Size: 8 bits
This register contains the Sub-Class Code for the MCH device 1.
Bit Description
7:0 Sub-Class Code (SUBC1): This is an 8-bit value that indicates the category of bridge of the
MCH.
04h = Host bridge.
3.6.7 BCC1—Base Class Code Register (Device 1)
Address Offset: 0Bh
Default Value: 06h
Access: RO
Size: 8 bits
This register contains the Base Class Code of the MCH device 1.
Bit Description
7:0 Base Class Code (BASEC): This is an 8-bit value that indicates the Base Class Code for the
MCH device 1.
06h = Bridge device.

Register Description
R
Intel® 82845 MCH for SDR Datasheet 85
3.6.8 MLT1—Master Latency Timer Register (Device 1)
Address Offset: 0Dh
Default Value: 00h
Access: R/W
Size: 8 bits
This functionality is not applicable. It is described here since these bits should be implemented as
a read/write to prevent standard PCI-PCI bridge configuration software from getting “confused”.
Bit Description
7:3 Not applicable but supports read/write operations. (Reads return previously written data.)
2:0 Reserved.
3.6.9 HDR1—Header Type Register (Device 1)
Offset: 0Eh
Default: 01h
Access: RO
Size: 8 bits
This register identifies the header layout of the configuration space.
Bit Descriptions
7:0 This read only field always returns 01h when read. Writes have no effect.
3.6.10 PBUSN1—Primary Bus Number Register (Device 1)
Offset: 18h
Default: 00h
Access: RO
Size: 8 bits
This register identifies that “virtual” PCI-PCI Bridge is connected to bus #0.
Bit Descriptions
7:0 Bus Number. Hardwired to 0.

Register Description
R
86 Intel® 82845 MCH for SDR Datasheet
3.6.11 SBUSN1—Secondary Bus Number Register (Device 1)
Offset: 19h
Default: 00h
Access: R/W
Size: 8 bits
This register identifies the bus number assigned to the second bus side of the “virtual” PCI-PCI
bridge i.e. to AGP. This number is programmed by the PCI configuration software to allow
mapping of configuration cycles to AGP.
Bit Descriptions
7:0 Bus Number. Programmable. Default = 00h.
3.6.12 SUBUSN1—Subordinate Bus Number Register (Device 1)
Offset: 1Ah
Default: 00h
Access: R/W
Size: 8 bits
This register identifies the subordinate bus (if any) that resides at the level below AGP. This
number is programmed by the PCI configuration software to allow mapping of configuration
cycles to AGP.
Bit Descriptions
7:0 Bus Number. Programmable. Default = 0.

Register Description
R
Intel® 82845 MCH for SDR Datasheet 87
3.6.13 SMLT1—Secondary Master Latency Timer Register
(Device 1)
Address Offset: 1Bh
Default Value: 00h
Access: R/W
Size: 8 bits
This register controls the bus tenure of the MCH on AGP. MLT is an 8-bit register that controls
the amount of time the MCH, as an AGP/PCI bus master, can burst data on the AGP bus. The
count value is an 8-bit quantity; however, MLT[2:0] are reserved and have a value of 0 when
determining the count value. The MCH’s MLT is used to guarantee to the AGP master a minimum
amount of the system resources. When the MCH begins the first AGP FRAME# cycle after being
granted the bus, the counter is loaded and enabled to count from the assertion of FRAME#. If the
count expires while the MCH’s grant is removed (due to AGP master request), the MCH will lose
the use of the bus, and the AGP master agent may be granted the bus. If the MCH’s bus grant is
not removed, the MCH continues to own the AGP bus, regardless of the MLT expiration or idle
condition. Note that the MCH always properly terminates an AGP transaction, with FRAME#
negation prior to the final data transfer.
The number of clocks programmed in the MLT represents the guaranteed time slice (measured in
66 MHz AGP clocks) allotted to the MCH, after which it must complete the current data transfer
phase and then surrender the bus as soon as its bus grant is removed. For example, if the MLT is
programmed to 18h, the value is 24 AGP clocks. The default value of MLT is 00h and disables
this function. When the MLT is disabled, the burst time for the MCH is unlimited (i.e., the MCH
can burst forever).
Bit Description
7:3 Secondary MLT Counter Value. Default=0s (i.e., SMLT disabled)
2:0 Reserved.

Register Description
R
88 Intel® 82845 MCH for SDR Datasheet
3.6.14 IOBASE1—I/O Base Address Register (Device 1)
Address Offset: 1Ch
Default Value: F0h
Access: R/W
Size: 8 bits
This register controls the hosts to AGP I/O access routing based on the following formula:
IO_BASE ≤ address ≤ Ι O_LIMIT
Only upper 4 bits are programmable. For the purpose of address decode, address bits A[11:0] are
treated as 0. Thus, the bottom of the defined I/O address range is aligned to a 4 KB boundary.
Bit Description
7:4 I/O Address Base. Corresponds to A[15:12] of the I/O address. (Default=F0h)
3:0 Reserved.
3.6.15 IOLIMIT1—I/O Limit Address Register (Device 1)
Address Offset: 1Dh
Default Value: 00h
Access: R/W
Size: 8 bits
This register controls the hosts to AGP I/O access routing based on the following formula:
IO_BASE ≤ address ≤ IO_LIMIT
Only upper 4 bits are programmable. For the purpose of address decode, address bits A[11:0] are
assumed to be FFFh. Thus, the top of the defined I/O address range is at the top of a 4 KB aligned
address block.
Bit Description
7:4 I/O Address Limit. Corresponds to A[15:12] of the I/O address. (Default=0)
3:0 Reserved. (Only 16-bit addressing supported.)

Register Description
R
Intel® 82845 MCH for SDR Datasheet 89
3.6.16 SSTS1—Secondary PCI-PCI Status Register (Device 1)
Address Offset: 1E–1Fh
Default Value: 02A0h
Access: RO, R/WC
Size: 16 bits
SSTS1 is a 16-bit status register that reports the occurrence of error conditions associated with
secondary side (i.e., AGP side) of the “virtual” PCI-PCI bridge embedded in the MCH.
Bit Descriptions
15 Detected Parity Error (DPE1)—R/WC.
0 = Software sets this bit to 0 by writing a 1 to it.
1 = MCH detected a parity error in the address or data phase of AGP bus transactions.
14 Reserved.
13 Received Master Abort Status (RMAS1)—R/WC.
0 = Software sets this bit to 0 by writing a 1 to it.
1 = MCH terminated a Host-to-AGP with an unexpected master abort.
12 Received Target Abort Status (RTAS1)—R/WC.
0 = Software sets this bit to 0 by writing a 1 to it.
1 = MCH-initiated transaction on AGP is terminated with a target abort.
11 Signaled Target Abort Status (STAS1)—RO. Hardwired to a 0. The MCH does not generate
target abort on AGP.
10:9 DEVSEL# Timing (DEVT1)—RO. Hardwired to 01. This 2-bit field indicates the timing of the
DEVSEL# signal when the MCH responds as a target on AGP. This field indicates the time
when a valid DEVSEL# can be sampled by the initiator of the PCI cycle.
01 = Medium timing.
8 Master Data Parity Error Detected (DPD1)—RO. Hardwired to 0. MCH does not implement
G_PERR# signal.
7 Fast Back-to-Back (FB2B1)—RO. Hardwired to 1. MCH as a target supports fast back-to-back
transactions on AGP.
6 Reserved.
5 66 MHz Capable (CAP66)—RO. Hardwired to 1. AGP bus is capable of 66 MHz operation.
4:0 Reserved.

Register Description
R
90 Intel® 82845 MCH for SDR Datasheet
3.6.17 MBASE1—Memory Base Address Register (Device 1)
Address Offset: 20–21h
Default Value: FFF0h
Access: R/W
Size: 16 bits
This register controls the host to AGP non-prefetchable memory accesses routing based on the
following formula:
MEMORY_BASE1 ≤ address ≤ MEMORY_LIMIT1
The upper 12 bits of the register are read/write and correspond to the upper 12 address bits
A[31:20] of the 32-bit address. The bottom 4 bits of this register are read-only and return 0s when
read. The configuration software must initialize this register. For the purpose of address decode,
address bits A[19:0] are assumed to be 0. Thus, the bottom of the defined memory address range
will be aligned to a 1 MB boundary.
Bit Description
15:4 Memory Address Base 1 (MEM_BASE1). Corresponds to A[31:20] of the memory address.
3:0 Reserved.
3.6.18 MLIMIT1—Memory Limit Address Register (Device 1)
Address Offset: 22–23h
Default Value: 0000h
Access: R/W
Size: 16 bits
This register controls the host to AGP non-prefetchable memory accesses routing based on the
following formula:
MEMORY_BASE1 ≤ address ≤ MEMORY_LIMIT1
The upper 12 bits of the register are read/write and correspond to the upper 12 address bits
A[31:20] of the 32-bit address. The bottom 4 bits of this register are read-only and return 0s when
read. The configuration software must initialize this register. For the purpose of address decode,
address bits A[19:0] are assumed to be FFFFFh. Thus, the top of the defined memory address
range will be at the top of a 1 MB aligned memory block.
Bit Description
15:4 Memory Address Limit 1(MEM_LIMIT1). Corresponds to A[31:20] of the memory address.
Default=0
3:0 Reserved.
Note: Memory range covered by MBASE1 and MLIMIT1 registers are used to map non-prefetchable
AGP address ranges (typically, where control/status memory-mapped I/O data structures of the
graphics controller will reside) and PMBASE 1and PMLIMIT1 Registers are used to map
prefetchable address ranges (typically, graphics local memory). This segregation allows
application of USWC space attributes to be performed in a true plug-and-play manner to the
prefetchable address range for improved host-AGP memory access performance.

Register Description
R
Intel® 82845 MCH for SDR Datasheet 91
3.6.19 PMBASE1—Prefetchable Memory Base Address Register
(Device 1)
Address Offset: 24–25h
Default Value: FFF0h
Access: R/W
Size: 16 bits
This register controls the host to AGP prefetchable memory accesses routing based on the
following formula:
PREFETCHABLE_MEMORY_BASE1 ≤ address ≤ PREFETCHABLE_MEMORY_LIMIT1
The upper 12 bits of the register are read/write and correspond to the upper 12 address bits
A[31:20] of the 32-bit address. The bottom 4 bits of this register are read-only and return 0s when
read. The configuration software must initialize this register. For the purpose of address decode,
address bits A[19:0] are assumed to be 0. Thus, the bottom of the defined memory address range
will be aligned to a 1 MB boundary.
Bit Description
15:4 Prefetchable Memory Address Base 1(PMEM_BASE1). Corresponds to A[31:20] of the
memory address.
3:0 Reserved.
3.6.20 PMLIMIT1—Prefetchable Memory Limit Address Register
(Device 1)
Address Offset: 26–27h
Default Value: 0000h
Access: R/W
Size: 16 bits
This register controls the host to AGP prefetchable memory accesses routing based on the
following formula:
PREFETCHABLE_MEMORY_BASE1 ≤ address ≤ PREFETCHABLE_MEMORY_LIMIT1
The upper 12 bits of the register are read/write and correspond to the upper 12 address bits
A[31:20] of the 32-bit address. The bottom 4 bits of this register are read-only and return 0s when
read. The configuration software must initialize this register. For the purpose of address decode,
address bits A[19:0] are assumed to be FFFFFh. Thus, the top of the defined memory address
range will be at the top of a 1 MB aligned memory block.
Bit Description
15:4 Prefetchable Memory Address Limit 1(PMEM_LIMIT1). Corresponds to A[31:20] of the
memory address. (Default=00h)
3:0 Reserved.
Note: Prefetchable memory range is supported to allow segregation by the configuration software
between the memory ranges that must be defined as UC and the ones that can be designated as a
USWC (i.e., prefetchable) from the processor perspective.

Register Description
R
92 Intel® 82845 MCH for SDR Datasheet
3.6.21 BCTRL1—PCI-PCI Bridge Control Register (Device 1)
Address Offset: 3Eh
Default: 00h
Access: RO, R/W
Size 8 bits
This register provides extensions to the PCICMD1 register that are specific to PCI-PCI bridges.
BCTRL1 provides additional control for the secondary interface (i.e., AGP) as well as some bits
that affect the overall behavior of the “virtual” PCI-PCI bridge embedded in the MCH (e.g., VGA
compatible address ranges mapping).
Bit Descriptions
7 Fast Back to Back Enable (FB2BEN)—RO. Hardwired to 0. Since there is only one target
allowed on AGP, this bit is meaningless. The MCH will not generate FB2B cycles in 1x mode, but
will generate FB2B cycles in 2x and 4x Fast Write modes.
6 Secondary Bus Reset (SRESET)—RO. Hardwired to 0. MCH does not support generation of
reset via this bit on the AGP.
Note: The only way to perform a hard reset of the AGP is via the system reset either initiated by
software or hardware via the ICH2.
5 Master Abort Mode (MAMODE)—RO. Hardwired to 0. This means that when acting as a master
on AGP and a Master Abort occurs, the MCH will discard data on writes and return all 1s during
reads.
4 Reserved.
3 VGA Enable (VGA_EN1)—R/W. This bit controls the routing of host-initiated transactions
targeting VGA compatible I/O and memory address ranges.
0 = VGA compatible memory and I/O range accesses are not forwarded to AGP (Default). Rather,
they are mapped to primary PCI unless they are mapped to AGP via I/O and memory range
registers defined above (IOBASE1, IOLIMIT1, MBASE1, MLIMIT1, PMBASE1, PMLIMIT1)
1 = MCH forwards the following host accesses to the AGP:
• Memory accesses in the range 0A0000h to 0BFFFFh
• I/O addresses where A[9:0] are in the ranges 3B0h to 3BBh and 3C0h to 3DFh
(inclusive of ISA address aliases - A[15:10] are not decoded)
When this bit is set, forwarding of these accesses issued by the host is independent of the I/O
address and memory address ranges defined by the previously defined base and limit
registers. Forwarding of these accesses is also independent of the settings of bit 2 (ISA
Enable) of this register if this bit is 1.
Refer to Chapter 4 for further information.
2 ISA Enable (ISA_EN)—R/W. Modifies the response by the MCH to an I/O access issued by the
host that targets ISA I/O addresses. This applies only to I/O addresses that are enabled by the
IOBASE and IOLIMIT registers.
0 = Disable. All addresses defined by the IOBASE and IOLIMIT Registers for host I/O
transactions are mapped to AGP (Default).
1 = Enable. MCH does not forward to AGP any I/O transactions addressing the last 768 bytes in
each 1 KB block, even if the addresses are within the range defined by the IOBASE and
IOLIMIT registers. Instead of going to AGP, these cycles are forwarded to PCI0 where they
can be subtractively or positively claimed by the ISA bridge.
1 Reserved.

Register Description
R
Intel® 82845 MCH for SDR Datasheet 93
Bit Descriptions
0 Parity Error Response Enable (PER_EN)—R/W. Controls MCH’s response to data phase parity
errors on AGP.
0 = Address and data parity errors on AGP are not reported via the MCH hub interface SERR#
messaging mechanism. Other types of error conditions can still be signaled via SERR#
messaging independent of this bit’s state.
1 = The G_PERR# signal is not implemented by the MCH. However, when this bit is set to 1,
address and data parity errors detected on AGP are reported via hub interface SERR#
messaging mechanism, if further enabled by SERRE1.
3.6.22 ERRCMD1—Error Command Register (Device 1)
Address Offset: 40h
Default Value: 00h
Access: R/W
Size: 8 bits
Bit Description
7:1 Reserved.
0 SERR on Receiving Target Abort (SERTA).
0 = MCH does not assert an SERR message upon receipt of a target abort on AGP. SERR
messaging for Device 1 is globally enabled in the PCICMD1 register.
1 = MCH generates an SERR message over the hub interface when a target abort is received on
AGP.

Register Description
R
94 Intel® 82845 MCH for SDR Datasheet
3.6.23 DWTC—DRAM Write Thermal Management Control
Register (Device 1)
Address Offset: 50–57h
Default Value: 00h
Access: R/W/L
Size: 64 bits
Bit Descriptions
63:41 Reserved.
40:28 Global Write Hexword Threshold (GWHT). The 13-bit value in this field is multiplied by 215 to
arrive at the number of hexwords that must be written within the Global DRAM Write Sampling
Window to cause the thermal management mechanism to be invoked.
27:22 Write Thermal Management Time (WTMT). This value provides a multiplier between 0 and 63
that specifies how long thermal management remains in effect as a number of Global DRAM
Write Sampling Windows. For example, if GDWSW is programmed to
1000_0000b and WTT is set to 01_0000b, then thermal management will be performed for
8192*105 host clocks (@ 100 MHz) seconds once invoked (128 * 4*105 host clocks * 16).
21:15 Write Thermal Management Monitoring Window (WTMMW). The value in this register is
padded with four 0s to specify a window of 0–2047 host clocks with a 16-clock granularity.
While the thermal management mechanism is invoked, system memory writes are monitored
during this window. If the number of hexwords written during the window reaches the Write
Thermal Management Hexword Maximum (bits 14:3), then write requests are blocked for the
remainder of the window.
14:3 Write Thermal Management Hexword Maximum (WTMHM). The Write Thermal
Management Hexword Maximum defines the maximum number of hexwords between 0–4095
that are permitted to be written to system memory within one Write Thermal Management
Monitoring Window.
2:1 Write Thermal Management Mode (WTMMode).
00 = Thermal management via Counters and Hardware Thermal Management_on signal
mechanisms disabled.
01 = Hardware Thermal Management_on signal mechanism is enabled. In this mode, as long
as the Thermal Management_on signal is asserted, write thermal management is in effect
based on the settings in WTMW and WTHM. When the Thermal Management_on signal is
deasserted, write thermal management stops and the counters associated with the
WTMW and WTHM are reset. When the hardware Thermal Management_on signal
mechanism is not enabled, the Thermal Management_on signal has no effects.
10 = Counter mechanism controlled through GDWSW and GWHT is enabled. When the
threshold set in GDWSW and GWHT is reached, thermal management start/stop cycles
occur based on the settings in WTT, WTMW and WTHM.
11 = Reserved.
0 START Write Thermal Management (SWTM). Software writes to this bit to start and stop write
thermal management.
0 = Write thermal management stops and the counters associated with WTMW and WTHM are
reset.
1 = Write thermal management begins based on the settings in WTMW and WTHM, and
remains in effect until this bit is reset to 0.
0 Reserved.

Register Description
R
Intel® 82845 MCH for SDR Datasheet 95
3.6.24 DRTC—DRAM Read Thermal Management Control Register
(Device 1)
Address Offset: 58–5Fh
Default Value: 0000_0000_0000_0000h
Access: R/W/L
Size: 64 bits
Bit Descriptions
63:41 Reserved.
40:28 Global Read Hexword Threshold (GRHT). The thirteen-bit value held in this field is multiplied by
215 to arrive at the number of hexwords that must be written within the Global DRAM Read
Sampling Window to cause the thermal management mechanism to be invoked.
27:22 Read Thermal Management Time (RTMT). This value provides a multiplier between 0 and 63
that specifies how long counter-based read thermal management remains in effect as a number
of Global DRAM Read Sampling Windows. For example, if GDRSW is programmed to
1000_0000b and RTT is set to 01_0000b, then read thermal management will be performed for
8192*105 host clocks (@ 100 MHz) seconds once invoked (128 * 4*105 host clocks * 16).
21:15 Read Thermal Management Monitoring Window (RTMMW). The value in this register is
padded with four 0s to specify a window of 0–2047 host clocks with 16-clock granularity. While
the thermal management mechanism is invoked, system memory reads are monitored during this
window. If the number of hexwords read during the window reaches the Read Thermal
Management Hexword Maximum (bits 14:3), then read requests are blocked for the remainder of
the window.
14:3 Read Thermal Management Hexword Maximum (RTMHM). This field defines the maximum
number of hexwords between 0–4095 that are permitted to be read from system memory within
one Read Thermal Management Monitoring Window.
2:1 Read Thermal Management Mode (RTMMode).
00 = Thermal management via counters and Hardware Thermal Management_on signal
mechanisms disabled.
01 = Hardware Thermal Management_on signal mechanism is enabled. In this mode, as long as
the Thermal Management_on signal is asserted, read thermal management is in effect
based on the settings in RTMW and RTHM. When the Thermal Management_on signal is
deasserted, read thermal management stops and the counters associated with the RTMW
and RTHM are reset. When the hardware Thermal Management_on signal mechanism is
not enabled, the Thermal Management_on signal has no effects.
10 = Counter mechanism controlled through GDRSW and GRHT is enabled. When the threshold
set in GDRSW and GRHT is reached, thermal management start/stop cycles occur based
on the settings in RTT, RTMW and RTHM.
11 = Reserved.
0 START Read Thermal Management (SRTM). Software writes to this bit to start and stop read
thermal management.
0 = Read thermal management stops and the counters associated with RTMW and RTHM are
reset.
1 = Read thermal management begins based on the settings in RTMW and RTHM, and remains
to be in effect until this bit is reset to 0.

Register Description
R
96 Intel® 82845 MCH for SDR Datasheet
This page is intentionally left blank.

System Address Map
R
Intel® 82845 MCH for SDR Datasheet 97
4 System Address Map
A system based on the 845 chipset supports 4 GB of addressable memory space and 64 KB+3 of
addressable I/O space. The I/O and memory spaces are divided by system configuration software
into regions. The memory ranges are useful either as system memory or as specialized memory,
while the I/O regions are used solely to control the operation of devices in the system.
When the MCH receives a write request whose address targets an invalid space, the data is
ignored. For reads, the MCH responds by returning all zeros on the requesting interface.
4.1 Memory Address Ranges
The system memory map is broken into two categories:
• Extended Memory Range (1 MB to 4 GB). The second is extended memory, existing
between 1MB and 4GB. It contains a 32-bit memory space, which is used for mapping PCI,
AGP, APIC, SMRAM, and BIOS memory spaces.
• DOS Compatible Area (below 1 MB). The final range is a DOS legacy space, which is used
for BIOS and legacy devices on the LPC interface.
Figure 3. Addressable Memory Space
DOS Legacy Address
Range
System Memory
Address Range
PCI Memory Address
Range
Top of Low
Memory
1 MB
4 GB
Hub Interface AGP Graphics
Aperture
I/O
Aperture APICs
Independently Programmable
Non-overlapping Windows
sys_addr_map_1
Additional System
Memory Address
Range
16 GB
These address ranges are always mapped to system memory, regardless of the system
configuration. Memory may be taken out of the system memory segment for use by System
Management Mode (SMM) hardware and software. The Top of Low Memory (TOM) register
defines the top of system memory.
Note that the address of the highest 16 MB quantity of valid memory in the system is placed into
the GBA15 register. For memory populations <3 GB, this value will be the same as the one
programmed into the TOM register. For other memory configurations, the two are unlikely to be
the same, since the PCI configuration portion of the BIOS software will program the TOM register
to the maximum value that is less than the amount of memory in the system and that allows enough
room for all populated PCI devices.

System Address Map
R
98 Intel® 82845 MCH for SDR Datasheet
Figure 4. DOS Compatible Area Address Map
Monochrome Display
Adapter Space
Upper, Lower,
Expansion Card BIOS
and Buffer Area
1 MB
sys_addr_map_2
640 KB
704 KB
736 KB
768 KB
0A0000h
0B0000h
0B8000h
0C0000h
Standard PCI/ISA
Video Memory
(SMM Memory)
Controlled by
PAM[6:0]
Controlled by
VGA Enable and
MDA Enable
= Optional AGP
= Optional System Memory
= System Memory
Figure 5. Extended Memory Range Address Map
= System Memory Region
= Optional System Memory Region
1_0000_0000 (4 GB)
FEF0_0000
FEE0_0000
FED0_0000
Top of Low Memory (TOM)
FEC0_0000
FEC8_0000
FF00_0000
100A_0000
100C_0000
00F0_0000 (15 MB)
0100_0000 (16 MB)
0010_0000 (1 MB)
TEM - TSEG
High BIOS, Optional
extended SMRAM
sys_addr_map_3
ISA Hole
Extended SMRAM
(translated to < 1 MB)
Extended SMRAM
Space
Local APIC Space
I/O APIC Space
I/O APIC Space
AGP/PCI
Hub Interface
(always)
Hub Interface
(always)

System Address Map
R
Intel® 82845 MCH for SDR Datasheet 99
4.1.1 VGA and MDA Memory Space
Video cards use these legacy address ranges to map a frame buffer or a character-based video
buffer. The address ranges in this memory space are:
• VGAA 0_000A_0000 to 0_000A_FFFF
• MDA 0_000B_0000 to 0_000B_7FFF
• VGAB 0_000B_8000 to 0_000B_FFFF
By default, accesses to these ranges are forwarded to the hub interface. However, if the VGA_EN1
bit is set in the BCTRL1 configuration register, transactions within the VGA and MDA spaces are
sent to AGP. If the MCHCFG.MDAP configuration bit is set, accesses that fall within the MDA
range are sent to the hub interface independent of the setting of the VGA_EN1 bit.
If the MCHCFG.MDAP configuration bit is set, accesses in the MDA range are sent to the hub
interface, independent of the setting of the VGA_EN1 bit. Legacy support requires the ability to
have a second graphics controller (monochrome) in the system. In an 845 chipset system, accesses
in the standard VGA range are forwarded to AGP. Since the monochrome adapter may be on the
hub interface or (or ISA) bus, the MCH must decode cycles in the MDA range and forward them
to the hub interface. This capability is controlled by a configuration bit (MCHCFG.MDAP). In
addition to the memory range B0000h to B7FFFh, the MCH decodes I/O cycles at 3B4h, 3B5h,
3B8h, 3B9h, 3BAh, and 3BFh and forwards them to the hub interface.
An optimization allows the system to reclaim the memory displaced by these regions. If SMM
memory space is enabled by SMRAM.G_SMRARE and either the SMRAM.D_OPEN bit is set or
the system bus receives an SMM-encoded request for code (not data), then the transaction is
steered to system memory rather than the hub interface. Under these conditions, the VGA_EN1 bit
and the MDAP bit are ignored.

System Address Map
R
100 Intel® 82845 MCH for SDR Datasheet
4.1.2 PAM Memory Spaces
The address ranges in this memory space are:
• PAMC0 0_000C_0000 to 0_000C_3FFF
• PAMC4 0_000C_4000 to 0_000C_7FFF
• PAMC8 0_000C_8000 to _000C_BFFF
• PAMCC 0_000C_C000 to 0_000C_FFFF
• PAMD0 0_000D_0000 to 0_000D_3FFF
• PAMD4 0_000D_4000 to 0_000D_7FFF
• PAMD8 0_000D_8000 to 0_000D_BFFF
• PAMDC 0_000D_C000 to 0_000D_FFFF
• PAME0 0_000E_0000 to 0_000E_3FFF
• PAME4 0_000E_4000 to 0_000E_7FFF
• PAME8 0_000E_8000 to 0_000E_BFFF
• PAMEC 0_000E_C000 to 0_000E_FFFF
• PAMF0 0_000F_0000 to 0_000F_FFFF
The 256 KB PAM region is divided into three parts:
• ISA expansion region; 128 KB area between 0_000C_0000h–0_000D_FFFFh
• Extended BIOS region; 64 KB area between 0_000E_0000h–0_000E_FFFFh
• System BIOS region; 64 KB area between 0_000F_0000h–0_000F_FFFFh.
The ISA expansion region is divided into eight 16 KB segments. Each segment can be assigned
one of four read/write states: read-only, write-only, read/write, or disabled. Typically, these blocks
are mapped through MCH and are subtractively decoded to ISA space.
The extended system BIOS region is divided into four 16 KB segments. Each segment can be
assigned independent read and write attributes so it can be mapped either to main system memory
or to the hub interface. Typically, this area is used for RAM or ROM.
The system BIOS region is a single 64 KB segment. This segment can be assigned read and write
attributes. It is by default (after reset) read/write disabled and cycles are forwarded to the hub
interface. By manipulating the read/write attributes, the MCH can “shadow” BIOS into system
memory.
4.1.3 ISA Hole Memory Space
BIOS software may optionally open a “window” between 15 MB and 16 MB (0_00F0_0000h to
0_00FF_FFFFh) that relays transactions to the hub interface instead of completing them with a
system memory access. This window is opened by programming the FDHC.HEN configuration
field.

System Address Map
R
Intel® 82845 MCH for SDR Datasheet 101
4.1.4 TSEG SMM Memory Space
The TSEG SMM space (TOM – TSEG to TOM) allows system management software to partition
a region of system memory just below the top of low memory (TOM) that is accessible only by
system management software. This region may be 128 KB, 256 KB, 512 KB, or 1 MB in size,
depending on the ESMRAMC.TSEG_SZ field. SMM memory is globally enabled by
SMRAM.G_SMRAME. Requests can access SMM system memory when either SMM space is
open (SMRAM.D_OPEN) or the MCH receives an SMM code request on its system bus. To
access the TSEG SMM space, TSEG must be enabled by ESMRAMC.T_EN. When all of these
conditions are met, then a system bus access to the TSEG space (between TOM–TSEG and TOM)
is sent to system memory. If the high SMRAM is not enabled or if the TSEG is not enabled, then
all memory requests from all interfaces are forwarded to system memory. If the TSEG SMM space
is enabled, and an agent attempts a non-SMM access to TSEG space, then the transaction is
specially terminated.
Note: Hub interface and AGP originated accesses are not allowed to SMM space.
4.1.5 IOAPIC Memory Space
The IOAPIC space (0_FEC0_0000h to 0_FEC7_FFFFh) is used to communicate with IOAPIC
interrupt controllers that may be populated on the hub interface. Since it is difficult to relocate an
interrupt controller using plug-and-play software, fixed address decode regions have been
allocated for them. Processor accesses to the IOAPIC0 region are always sent to the hub interface.
4.1.6 System Bus Interrupt APIC Memory Space
The system bus interrupt space (0_FEE0_0000h to 0_FEEF_FFFFh) is the address used to deliver
interrupts to the system bus. Any device on AGP may issue a memory write to 0FEEx_xxxxh. The
MCH forwards this memory write, along with the data, to the system bus as an Interrupt Message
Transaction. The MCH terminates the system bus transaction by providing the response and
asserting TRDY#. This memory write cycle does not go to system memory.
4.1.7 High SMM Memory Space
The HIGHSMM space (0_FEDA_0000h to 0_FEDB_FFFFh) allows cacheable access to the
compatible SMM space by re-mapping valid SMM accesses between 0_FEDA_0000 and
0_FEDB_FFFF to accesses between 0_000A_0000 and 0_000B_FFFF. The accesses are
remapped when SMRAM space is enabled; an appropriate access is detected on the system bus,
and when ESMRAMC.H_SMRAME allows access to high SMRAM space. SMM memory
accesses from any hub interface or AGP are specially terminated: reads are provided with the
value from address 0 while writes are ignored entirely.

System Address Map
R
102 Intel® 82845 MCH for SDR Datasheet
4.1.8 AGP Aperture Space (Device 0 BAR)
Processors and AGP devices communicate through a special buffer called the “graphics aperture”
(APBASE to APBASE + APSIZE). This aperture acts as a window into main system memory and
is defined by the APBASE and APSIZE configuration registers of the MCH. Note that the AGP
aperture must be above the top of memory and must not intersect with any other address space.
4.1.9 AGP Memory and Prefetchable Memory
Plug-and-play software configures the AGP memory window to provide enough memory space for
the devices behind this PCI-to-PCI bridge. Accesses whose addresses fall within this window are
decoded and forwarded to AGP for completion. The address ranges are:
• M1 MBASE1 to MLIMIT1
• PM1 PMBASE1 to PMLIMIT1
Note that these registers must be programmed with values that place the AGP memory space
window between the value in the TOM register and 4 GB. In addition, neither region should
overlap with any other fixed or relocatable area of memory.
4.1.10 Hub Interface Subtractive Decode
All accesses that fall between the value programmed into the TOM register and 4 GB
(i.e., TOM to 4 GB) are subtractively decoded and forwarded to the hub interface if they do not
decode to a space that corresponds to another device.
4.2 AGP Memory Address Ranges
The MCH can be programmed to direct memory accesses to the AGP bus interface when
addresses are within either of two ranges specified via registers in MCH device 1 configuration
space. The first range is controlled via the Memory Base Address (MBASE1) register and
Memory Limit Address (MLIMIT1) register. The second range is controlled via the Prefetchable
Memory Base Address (PMBASE1) register and Prefetchable Memory Limit Address
(PMLIMIT1) register
The MCH positively decodes memory accesses to AGP memory address space as defined by the
following equations:
• Memory_Base_Address ≤ Address ≤ Memory_Limit_Address
• Prefetchable_Memory_Base_Address ≤ Address ≤ Prefetchable_Memory_Limit_Address
The plug-and-play configuration software programs the effective size of the range and it depends
on the size of memory claimed by the AGP device.
Note: The MCH device 1 memory range registers described above are used to allocate memory address
space for any devices sitting on AGP bus that require such a window.

System Address Map
R
Intel® 82845 MCH for SDR Datasheet 103
4.2.1 AGP DRAM Graphics Aperture
Memory-mapped, graphics data structures can reside in a Graphics Aperture to system memory.
This aperture is an address range defined by the APBASE and APSIZE registers of the MCH
device 0. The APBASE register follows the standard base address register template as defined by
the PCI Local Bus Specification, Revision 2.1. The size of the range claimed by the APBASE is
programmed via “back-end” register APSIZE (programmed by the chipset specific BIOS before
plug-and-play session is performed). APSIZE allows the BIOS software to pre-configure the
aperture size to be 4 MB, 8 MB, 16 MB, 32 MB, 64 MB, 128 MB or 256 MB. By programming
APSIZE to a specific size, the corresponding lower bits of APBASE are forced to 0 (behave as
hardwired). The default value of APSIZE forces an aperture size of 256 MB. The aperture address
range is naturally aligned.
Accesses within the aperture range are forwarded to the system memory subsystem. The MCH
translates the originally issued addresses via a translation table maintained in system memory. The
aperture range should be programmed as non-cacheable in the processor caches.
Note: Plug-and-play software configuration model does not allow overlap of different address ranges.
Therefore the AGP Graphics Aperture and AGP memory address range are independent address
ranges that may abut, but cannot overlap one another.
4.3 System Management Mode (SMM) Memory Range
The MCH supports the use of system memory as System Management RAM (SMRAM) enabling
the use of System Management Mode. The MCH supports three SMRAM options: Compatible
SMRAM (C_SMRAM), High Segment (HSEG), and Top of Memory Segment (TSEG). System
Management RAM (SMRAM) space provides a memory area that is available for the SMI
handler’s and code and data storage. This memory resource is normally hidden from the system
OS so that the processor has immediate access to this memory space upon entry to SMM. The
MCH provides three SMRAM options:
• Below 1 MB option that supports compatible SMI handlers.
• Above 1 MB option that allows new SMI handlers to execute with write-back cacheable
SMRAM.
• Optional larger write-back cacheable T_SEG area from 128 KB to 1 MB in size above 1 MB
that is reserved from the highest area in system memory. The above 1 MB solutions require
changes to compatible SMRAM handlers’ code to properly execute above 1 MB.
Note: Masters from the hub interface and AGP are not allowed to access the SMM space.

System Address Map
R
104 Intel® 82845 MCH for SDR Datasheet
4.3.1 SMM Space Definition
Its addressed SMM space and its DRAM SMM space define SMM space. The addressed SMM
space is defined as the range of bus addresses used by the processor to access SMM space. System
memory SMM space is defined as the range of physical system memory locations containing the
SMM code. SMM space can be accessed at one of three transaction address ranges: Compatible,
High, and TSEG. The Compatible and TSEG SMM space is not remapped and, therefore, the
addressed and DRAM SMM space is the same address range. Since the High SMM space is
remapped the addressed and system memory SMM space is a different address range. Note that the
High system memory space is the same as the Compatible Transaction Address space. Therefore,
the table below describes three unique address ranges:
• Compatible Transaction Address
• High Transaction Address
• TSEG Transaction Address
Table 11. SMM Space Address Ranges
SMM Space Enabled Transaction Address Space System Memory Space
Compatible A0000h to BFFFFh A0000h to BFFFFh
High 0FEDA0000h to 0FEDBFFFFh A0000h to BFFFFh
TSEG (TOM–TSEG_SZ) to TOM (TOM–TSEG_SZ) to TOM
Note: High SMM: This is different than in some previous chipsets where the High segment was the
384 KB region from A0000h to FFFFFh.
Note: TSEG SMM: Note that this is different than in previous chipsets where the TSEG address space
was offset by 256 MB to allow for simpler decoding and the TSEG was remapped to just under the
TOM. In the MCH the 256 MB does not offset the TSEG region and it is not remapped.
4.3.2 SMM Space Restrictions
If any of the following conditions are violated, the results of SMM accesses are unpredictable and
may cause the system to hang:
• The Compatible SMM space must not be setup as cacheable.
• High or TSEG SMM transaction address space must not overlap address space assigned to
system memory, the AGP aperture range, or to any “PCI” devices (including hub interface and
AGP devices). This is a BIOS responsibility.
• Both D_OPEN and D_CLOSE must not be set to 1 at the same time.
• When TSEG SMM space is enabled, the TSEG space must not be reported to the OS as
available system memory. This is a BIOS responsibility.
• Any address translated through the AGP Aperture GTLB must not target system memory from
000A0000h to 000FFFFFh.

System Address Map
R
Intel® 82845 MCH for SDR Datasheet 105
4.4 I/O Address Space
The MCH does not support the existence of any other I/O devices beside itself on the system bus.
The MCH generates either hub interface or AGP bus cycles for all processor I/O accesses. The
MCH contains two internal registers in the processor I/O space: Configuration Address
(CONF_ADDR) register and Configuration Data (CONF_DATA) register. These locations are
used to implement the PCI configuration space access mechanism and as described in Chapter 3.
The processor allows 64 KB+3 bytes to be addressed within the I/O space. The MCH propagates
the processor I/O address without any translation on to the destination bus and therefore provides
addressability for 64 KB+3 byte locations. Note that the upper 3 locations can be accessed only
during I/O address wrap-around when signal A16# address signal is asserted. A16# is asserted on
the system bus whenever an I/O access is made to 4 bytes from address 0FFFDh, 0FFFEh, or
0FFFFh. A16# is also asserted when an I/O access is made to 2 bytes from address 0FFFFh.
The I/O accesses (other than ones used for configuration space access) are forwarded normally to
the hub interface unless they fall within the AGP I/O address range as defined by the mechanisms
explained below. The MCH does not post I/O write cycles to IDE.
The MCH never responds to I/O or configuration cycles initiated on AGP or the hub interface.
Hub interface transactions requiring completion are terminated with “master abort” completion
packets on the hub interface. Hub interface write transactions not requiring completion are
dropped. AGP/PCI I/O reads are never acknowledged by the MCH.
4.5 Intel® MCH Decode Rules and Cross-Bridge
Address Mapping
The address map described above applies globally to accesses arriving on any of the three
interfaces (i.e., processor system bus, hub interface, or AGP).
4.5.1 Hub Interface Decode Rules
The MCH accepts accesses from the hub interface with the following address ranges:
• All memory read and write accesses to main DRAM (except SMM space).
• All memory write accesses from the hub interface to AGP memory range defined by
MBASE1, MLIMIT1, PMBASE1, and PMLIMIT1.
• All memory read/write accesses to the Graphics Aperture defined by APBASE and APSIZE.
• Memory writes to VGA range on AGP if enabled.
All memory reads from the hub interface that target >4 GB memory range are terminated with a
master abort completion, and all memory writes (>4 GB) from the hub interface are ignored.

System Address Map
R
106 Intel® 82845 MCH for SDR Datasheet
4.5.2 AGP Interface Decode Rules
Cycles Initiated Using AGP FRAME# Protocol
The MCH does not support any AGP FRAME# access targeting the hub interface. The MCH
claims AGP-initiated memory read and write transactions decoded to the system memory range or
the Graphics Aperture range. All other memory read and write requests will be master-aborted by
the AGP initiator as a consequence of MCH not responding to a transaction.
Under certain conditions, the MCH restricts access to the DOS Compatibility ranges governed by
the PAM registers by distinguishing access type and destination bus. The MCH does NOT accept
AGP FRAME# write transactions to the compatibility ranges if the PAM designates system
memory as writeable. If accesses to a range are not write-enabled by the PAM, the MCH does not
respond and the cycle results in a master-abort. The MCH accepts AGP FRAME# read
transactions to the compatibility ranges if the PAM designates system memory as readable. If
accesses to a range are not read-enabled by the PAM, the MCH does not respond and the cycle
results in a master-abort.
If agent on AGP issues an I/O, PCI Configuration or PCI Special Cycle transaction, the MCH does
not respond and cycle results in a master-abort.
Cycles Initiated Using AGP PIPE# or SB Protocol
All cycles must reference system memory; that is, system memory address range (including PAM)
or Graphics Aperture range (also physically mapped within system memory but using different
address range). AGP accesses to SMM space are not allowed. AGP-initiated cycles that target
system memory are not snooped on the host bus, even if they fall outside of the AGP aperture
range.
If a cycle is outside of the system memory range, then it terminates as follows:
• Reads remap to memory address 0h, return data from address 0h, and set the IAAF error bit in
ERRSTS register in device 0
• Writes are terminated internally without affecting any chip signals or system memory
AGP Accesses to MCH that Cross Device Boundaries
For AGP FRAME# accesses, when an AGP master gets disconnected, it resumes at the new
address which allows the cycle to be routed to or claimed by the new target. Therefore, the target
on potential device boundaries should disconnect accesses. The MCH disconnects AGP FRAME#
transactions on 4 KB boundaries.
AGP PIPE# and SBA accesses are limited to 256 bytes and must hit system memory. Read
accesses crossing a device boundary will return invalid data when the access crosses out of system
memory. Write accesses crossing out of system memory will be discarded. The IAAF Error bit will
be set.

Functional Description
R
Intel® 82845 MCH for SDR Datasheet 107
5 Functional Description
This chapter describes the system bus that connects the MCH to the processor, the system memory
interface, the AGP interface, the MCH power and thermal management, the MCH clocking, and
the MCH system reset and power sequencing.
5.1 System Bus
The MCH supports the Pentium 4 processor subset of the Enhanced Mode Scaleable Bus. Source
synchronous transfers are used for the address and data signals. The address signals are double
pumped and a new address can be generated every other bus clock. At 100 MHz bus frequency,
the address signals run at 200 MT/s for a maximum address queue rate of 50 M addresses/sec. The
data is quad pumped and an entire 64-byte cache line can be transferred in two bus clocks. At
100 MHz bus frequency, the data signals run at 400 MT/s for a maximum bandwidth of 3.2 GB/s.
The MCH supports a 12 deep IOQ.
The MCH supports two outstanding deferred transactions on the system bus. The two transactions
must target different I/O interfaces as only one deferred transaction can be outstanding to any
single I/O interface at a time.
5.1.1 Dynamic Bus Inversion
The MCH supports Dynamic Bus Inversion (DBI) when driving and receiving data from the
system bus. DBI limits the number of data signals that are driven to a low voltage on each quad
pumped data phase. This decreases the power consumption of the MCH. DBI[3:0]# indicates if the
corresponding 16 bits of data are inverted on the bus for each quad pumped data phase:
DBI[3:0]# Data Bits
DBI0# HD[15:0]#
DBI1# HD[31:16]#
DBI2# HD[47:32]#
DBI3# HD[63:48]#
When the processor or the MCH drives data, each 16-bit segment is analyzed. If more than 8 of
the 16 signals would normally be driven low on the bus, the corresponding DBI# signal will be
asserted and the data will be inverted prior to being driven on the bus. When the processor or the
MCH receives data, it monitors DBI[3:0]# to determine if the corresponding data segment should
be inverted.

Functional Description
R
108 Intel® 82845 MCH for SDR Datasheet
5.1.2 System Bus Interrupt Delivery
The Pentium 4 processor supports the system bus interrupt delivery; the APIC serial bus interrupt
delivery mechanism is not supported. Interrupt-related messages are encoded on the system bus as
“Interrupt Message Transactions”. In an 845 chipset platform, system bus interrupts can originate
from the processor on the system bus, or from a downstream device on the hub interface or AGP.
In the later case the MCH drives the “Interrupt Message Transaction” onto the system bus.
In an 845 chipset platform, the ICH2 contains IOxAPICs, and its interrupts are generated as
upstream hub interface memory writes. Furthermore, PCI 2.2 defines MSIs (Message Signaled
Interrupts) that are also in the form of memory writes. A PCI 2.2 device can generate an interrupt
as an MSI cycle on it’s PCI bus, instead of asserting a hardware signal to the IOxAPIC. The MSI
can be directed to the IOxAPIC, which in turn generates an interrupt as an upstream hub interface
memory write. Alternatively, the MSI can be directed directly to the system bus. The target of a
MSI is dependent on the address of the interrupt memory write. The MCH forwards inbound hub
interface and AGP (PCI semantic only) memory writes to address 0FEEx_xxxxh, to the system bus
as “Interrupt Message Transactions”.
5.1.3 Upstream Interrupt Messages
The MCH accepts message-based interrupts from AGP (PCI semantics only) or its hub interface
and forwards them to the system bus as Interrupt Message Transactions. The interrupt messages
presented to the MCH are in the form of memory writes to address 0FEEx_xxxxh. At the hub
interface or AGP interface, the memory write interrupt message is treated like any other memory
write; it is either posted to the inbound data buffer (if space is available) or retried (if data buffer
space is not immediately available). Once posted, the memory write from AGP or the hub interface
to address 0FEEx_xxxxh is decoded as a cycle that needs to be propagated by the MCH to the
system bus as an Interrupt Message Transaction.

Functional Description
R
Intel® 82845 MCH for SDR Datasheet 109
5.2 System Memory Interface
The 845 chipset can be configured to support PC133 SDRAM.
5.2.1 Single Data Rate (SDR) SDRAM Interface Overview
The MCH integrates a system memory SDRAM controller with a 64-bit wide interface and twelve
system memory clock signals (each at 133 MHz). The MCH’s system memory buffers support
LVTTL (SDRAM) signaling at 133 MHz.
The MCH includes support for:
• Up to 3 GB of 133 MHz SDR SDRAM
• PC133 unbuffered 168 pin SDR SDRAM DIMMs
• Maximum of 3 DIMMs, single-sided and/or double-sided
• Configurable optional ECC
The two bank-select lines SBS[1:0] and the thirteen address lines (SMA[12:0]) allow the MCH to
support 64-bit wide DIMMs using 64 Mb, 128 Mb, 256 Mb, and 512 Mb SDRAM technologies.
While address lines SMA[9:0] determine the starting address for a burst, burst lengths are fixed at
four. Twelve chip selects SCS# lines allow a maximum of three rows of single-sided SDRAM
DIMMs and six rows of double-sided SDRAM DIMMs.
The MCH’s system memory controller targets CAS latencies of 2 and 3 clocks for SDRAM. The
MCH provides refresh functionality with a programmable rate (normal SDRAM rate is
1 refresh/15.6 us).
5.2.2 Memory Organization and Configuration
In the following discussion the term row refers to a set of memory devices that are simultaneously
selected by a SCS# signal. The MCH supports a maximum of 6 rows of memory. For the purposes
of this discussion, a “side” of a DIMM is equivalent to a “row” of SDRAM devices.
Table 12. Supported DIMM Configurations
Density 64 Mbit 128 Mbit 256 Mbit 512 Mbit
Device
Width X8 X16 X8 X16 X8 X16 X8 X16
Single \
Double SS/DS SS/DS SS/DS SS/DS SS/DS SS/DS SS/DS SS/DS
168 pin
SDR
DIMMs
64 MB /
128 MB
32 MB /
64 MB
128 MB /
256 MB
64 MB /
128 MB
256 MB /
512 MB
128 MB /
256 MB
512 MB /
1024 MB
256 MB /
512 MB

Functional Description
R
110 Intel® 82845 MCH for SDR Datasheet
5.2.2.1 Configuration Mechanism For DIMMs
Detection of the type of SDRAM installed on the DIMM is supported via a Serial Presence Detect
mechanism as defined in the JEDEC 168-pin DIMM specification. This uses the SCL, SDA and
SA[2:0] pins on the DIMMs to detect the type and size of the installed DIMMs. No special
programmable modes are provided on the MCH for detecting the size and type of memory
installed. Type and size detection must be done via the serial presence detection pins.
Memory Detection and Initialization
Before any cycles to the memory interface can be supported, the MCH SDRAM registers must be
initialized. The MCH must be configured for operation with the installed memory types. Detection
of memory type and size is accomplished via the System Management Bus (SMBus) interface on
the ICH2. This two-wire bus is used to extract the SDRAM type and size information from the
Serial Presence Detect port on the SDRAM DIMMs. SDRAM DIMMs contain a 5-pin Serial
Presence Detect interface, including SCL (serial clock), SDA (serial data), and SA[2:0]. Devices
on the SMBus bus have a seven-bit address. For the SDRAM DIMMs, the upper four bits are
fixed at 1010. The lower three bits are strapped on the SA[2:0] pins. SCL and SDA are connected
directly to the system management bus on the ICH2. Thus, data is read from the Serial Presence
Detect port on the DIMMs via a series of I/O cycles to the ICH2. BIOS needs to determine the
size and type of memory used for each of the rows of memory to properly configure the MCH
memory interface.
SMBus Configuration and Access of the Serial Presence Detect Ports
For more details on SMBus Configuration and Serial Present Detect Ports, see the Intel® 82801BA
I/O Controller Hub 2 (ICH2) and 82801BAM I/O Controller Hub 2 Mobile (ICH2-M) Datasheet.
Memory Register Programming
This section provides an overview of how the required information for programming the SDRAM
registers is obtained from the Serial Presence Detect ports on the DIMMs. The Serial Presence
Detect ports are used to determine refresh rate, MA and MD buffer strength, row type (on a row by
row basis), SDRAM Timings, row sizes and row page sizes. Table 13 lists a subset of the data
available through the on-board Serial Presence Detect ROM on each DIMM.
Table 13. Data Bytes on DIMM Used for Programming DRAM Registers
Byte Function
2 Memory type (SDR SDRAM or DDR SDRAM)
3 Number of row addresses, not counting bank addresses
4 Number of column addresses
5 Number of banks of SDRAM (single- or double-sided DIMM)
11 ECC, no ECC
12 Refresh rate
17 Number banks on each device
Table 13 is only a subset of the defined SPD bytes on the DIMMs. These bytes collectively
provide enough data for programming the MCH SDRAM registers.

Functional Description
R
Intel® 82845 MCH for SDR Datasheet 111
5.2.3 Memory Address Translation and Decoding
The 845 MCH contains address decoders that translate the address received on the system bus or
the hub interface. Decoding and translation of these addresses vary with the four SDRAM types.
Also, the number of pages, page sizes, and densities supported vary with the type. In general, the
MCH supports 64 Mb, 128 Mb, 256 Mb, and 512 Mb SDRAM devices. The multiplexed
row/column address to the SDRAM memory array is provided by the SBS[1:0] and SMA[12:0]
signals. These addresses are derived from the system address bus as defined by Table 14 for
SDRAM devices.
Table 14. Address Translation and Decoding
Tech. Configuration Row size
Page size Row /
Column /
Bank
Row
Col Addr BA1 BA0 A12 A11 A10 A9 A8 A7 A6 A5 A4 A3 A2 A1 A0
64 Mb 1Meg x 16 x 4 bks 32 MB 12x8x2 Row 24 11 12 24 13 14 15 16 23 22 21 20 19 18 17
2 KB Col AP 10 9 8 7 6 5 4 3
64 Mb 2Meg x 8 x 4 bks 64 MB 12x9x2 Row 25 13 12 24 25 14 15 16 23 22 21 20 19 18 17
4 KB Col AP 11 10 9 8 7 6 5 4 3
128 Mb 2Meg x 16 x 4bks 64 MB 12x9x2 Row 25 13 12 24 25 14 15 16 23 22 21 20 19 18 17
4 KB Col AP 11 10 9 8 7 6 5 4 3
128 Mb 4Meg x 8 x 4bks 128 MB 12x10x2 Row 26 14 13 26 25 24 15 16 23 22 21 20 19 18 17
8 KB Col AP 12 11 10 9 8 7 6 5 4 3
256 Mb 4Meg x 16 x 4 bks 128 MB 13x9x2 Row 26 13 12 26 24 25 14 15 16 23 22 21 20 19 18 17
4 KB Col AP 11 10 9 8 7 6 5 4 3
256 Mb 8Meg x 8 x 4 bks 256 MB 13x10x2 Row 27 14 13 27 26 25 24 15 16 23 22 21 20 19 18 17
8 KB Col AP 12 11 10 9 8 7 6 5 4 3
512 Mb 8Meg x 16 x 4bks 256 MB 13x10x2 Row 27 14 13 27 26 25 24 15 16 23 22 21 20 19 18 17
8 KB Col AP 12 11 10 9 8 7 6 5 4 3
512 Mb 16Meg x 8 x 4bks 512 MB 13x11x2 Row 28 14 15 27 26 25 24 28 16 23 22 21 20 19 18 17
16 KB Col 13 AP 12 11 10 9 8 7 6 5 4 3

Functional Description
R
112 Intel® 82845 MCH for SDR Datasheet
5.2.4 DRAM Performance Description
The overall memory performance is controlled by the DRAM Timing (DRT) Register, pipelining
depth used in the MCH, memory speed grade, and the type of SDRAM used in the system. In
addition, the exact performance in a system is also dependent on the total memory supported,
external buffering, and memory array layout. The most important contribution to overall
performance by the system memory controller is to minimize the latency required to initiate and
complete requests to memory and to support the highest possible bandwidth (full streaming, quick
turn-arounds). One measure of performance is the total flight time to complete a cache line
request. A complete discussion of performance involves the entire chipset, not just the system
memory controller.
5.2.4.1 Data Integrity (ECC)
The MCH supports single-bit Error Correcting Code (or Error Checking and Correcting) and
multiple-bit EC (Error Checking) on the system memory interface. The MCH generates an 8-bit
code word for each 64-bit QWord of memory. The MCH performs two QWord writes at a time;
thus, two 8-bit codes are sent with each write. Since the code word covers a full QWord, writes of
less than a QWord require a read-merge-write operation. Consider a DWord write to memory. In
this case, when in ECC mode, the MCH reads the QWord where the addressed DWord will be
written, merges in the new DWord, generates a code covering the new QWord, and, finally, writes
the entire QWord and code back to memory. Any correctable (single-bit) errors detected during
the initial QWord read are corrected before merging the new DWord.
The MCH also supports EC (Error Checking) data integrity mode. In this mode, the MCH
generates and stores a code for each QWord of memory. It then checks the code for reads from
memory but does not correct any errors that are found. Thus, the read performance hit associated
with ECC is not incurred.
5.3 AGP Interface Overview
The MCH supports 1.5 V AGP 1x/2x/4x devices. The AGP signal buffers are 1.5 V drive/receive
(buffers are not 3.3 volt tolerant). The MCH supports 2x/4x source synchronous clocking transfers
for read and write data, and sideband addressing. The MCH also support 2x and 4x clocking for
Fast Writes initiated from the MCH (on behalf of the processor).
AGP PIPE# or SBA[7:0] transactions to system memory do not get snooped and are, therefore, not
coherent with the processor caches. AGP FRAME# transactions to system memory are snooped.
AGP PIPE# and SBA[7:0] accesses to and from the hub interface are not supported. AGP
FRAME# access from an AGP master to the hub interface are also not supported. Only the AGP
FRAME memory writes from the hub interface are supported.
5.3.1 AGP Target Operations
As an initiator, the MCH does not initiate cycles using AGP enhanced protocols. The MCH
supports AGP cycles targeting the interface to system memory only. The MCH supports
interleaved AGP PIPE# and AGP FRAME#, or AGP SBA[7:0] and AGP FRAME# transactions.

Functional Description
R
Intel® 82845 MCH for SDR Datasheet 113
Table 15. AGP Commands Supported by the Intel® MCH When Acting as an AGP Target
MCH Host Bridge AGP
Command C/BE[3:0]#
Encoding
Cycle Destination Response as PCIx Target
Read 0000 System memory Low-priority read
0000 Hub interface Complete with random data
Hi-Priority Read 0001 System memory High-priority read
0000 The Hub interface Complete with random data
Reserved 0010 N/A No response
Reserved 0011 N/A No response
Write 0100 System memory Low-priority write
0100 Hub interface Cycle goes to DRAM with byte
enables inactive
Hi-Priority Write 0101 System memory High-priority write
0101 Hub interface Cycle goes to DRAM with byte
enables inactive; does not go to
the hub interface
Reserved 0110 N/A No response
Reserved 0111 N/A No response
Long Read 1000 System memory Low-priority read
Hub interface Complete locally with random data;
does not go to the hub interface
Hi-Priority Long
Read
1001 System memory High-priority read
Hub interface Complete with random data
Flush 1010 MCH Complete with QW of random data
Reserved 1011 N/A No response
Fence 1100 MCH No response; Flag inserted in
MCH request queue
Reserved 1101 N/A No response
Reserved 1110 N/A No response
Reserved 1111 N/A No response
NOTES:
1. N/A refers to a function that is not applicable
As a target of an AGP cycle, the MCH supports all the transactions targeting system memory
(summarized in Table 15). The MCH supports both normal and high-priority read and write
requests. The MCH does not support AGP cycles to the hub interface. PIPE# and SBA cycles do
not require coherency management and all AGP initiator accesses to system memory, using AGP
PIPE# or SBA protocol, are treated as non-snoopable cycles. These accesses are directed to the
AGP aperture in system memory that is programmed as either uncacheable (UC) memory or write
combining (WC) in the processor’s MTRRs.

Functional Description
R
114 Intel® 82845 MCH for SDR Datasheet
5.3.2 AGP Transaction Ordering
The MCH observes transaction ordering rules as defined by the AGP Interface Specification,
Revision 2.0.
5.3.3 AGP Signal Levels
The 4x data transfers use 1.5 V signaling levels as described by the AGP Interface Specification,
Revision 2.0. The MCH supports 1x/2x data transfers using 1.5 V signaling levels.
5.3.4 4x AGP Protocol
In addition to the 1x and 2x AGP protocol, the MCH supports 4x AGP read and write data
transfers and 4x sideband address generation. The 4x operation is compliant with the AGP
Interface Specification, Revision 2.0.
The MCH indicates that it supports 4x data transfers via bit 2 of the AGPSTAT.RATE field.
When bit 2 of the AGPCMD.DRATE field is set to 1 during system initialization, the MCH
performs AGP read/write data transactions using 4x protocol. This bit is not dynamic. Once this
bit is set during initialization, the data transfer rate must not be changed.
The 4x data rate transfer provides 1.06 GB/s transfer rates. The control signal protocol for the 4x
data transfer protocol is identical to 1x/2x protocol. In 4x mode 16 bytes of data are transferred on
every 66 MHz clock edge. The minimum throttleable block size remains four 66 MHz clocks
(64 bytes of data are transferred per block). Three additional signal pins are required to implement
the 4x data transfer protocol. These signal pins are complimentary data transfer strobes for the AD
bus (2) and the SBA bus (1).
5.3.5 Fast Writes
The MCH supports 2x and 4x Fast Writes from the MCH to the graphics controller on AGP. Fast
Write operation is compliant with Fast Writes as currently described in the AGP Interface
Specification, Revision 2.0. To use the Fast Write protocol, both AGPCTRL.FWCE and
AGPCMD.FWPE must be set to 1.
AGPCTRL.FWCE is set to 0 by default. When this bit is set to 1, the MCH indicates that it
supports Fast Writes through AGPSTAT.FW. When both AGPCMD.FWEN and
AGPCTRL.FWCE are set to 1, the MCH uses Fast Write protocol to transfer memory write data to
the AGP master.
Memory writes originating from the processor or from the hub interface use the Fast Write
protocol when it is both capability enabled and enabled. The data rate used to perform the Fast
Writes is dependent on the bits set in the AGPCMD.DRATE field (bits [2:0]). If bit 2 of the
AGPCMD.DRATE field is 1, the data transfers occur using 4x strobing. If bit 1 of
AGPCMD.DRATE field is 1, the data transfers occur using 2x strobing. If bit 0 of
AGPCMD.DRATE field is 1, Fast Writes are disabled and data transfers occur using standard PCI
protocol. Note that only one of the three DRATE bits can be set by initialization software
(Table 16).

Functional Description
R
Intel® 82845 MCH for SDR Datasheet 115
Table 16. Data Rate Control Bits
AGPCNTL
.FWCE AGPCMD.
FWPE AGPCMD.
DRATE
[bit 2]
AGPCMD.
DRATE
[bit 1]
AGPCMD.
DRATE
[bit 0]
MCH =>AGP Master Write
Protocol
0 0 X X X 1x
1 1 0 0 1 1x
1 1 0 1 0 2x strobing
1 1 1 0 0 4x strobing
5.3.6 AGP FRAME# Transactions on AGP
The MCH accepts and generates AGP FRAME# transactions on the AGP bus. The MCH
guarantees that AGP FRAME# accesses to system memory are kept coherent with the processor
caches by generating snoops to the host bus. LOCK#, SERR#, and PERR# signals are not
supported.
MCH Initiator and Target Operations
Table 17 summarizes MCH target operation for AGP FRAME# initiators. The cycles can be either
destined to system memory or the hub interface.
Table 17. PCI Commands Supported by the Intel® MCH (When Acting as a FRAME# Target)
C/BE[3:0]# Intel® MCH PCI Command
Encoding Cycle Destination Response as a FRAME#
Target
Interrupt Acknowledge 0000 N/A No response
Special cycle 0001 N/A No response
I/O Read 0010 N/A No response
I/O Write 0011 N/A No response
Reserved 0100 N/A No response
Reserved 0101 N/A No response
Memory Read 0110 System memory Read
0110 Hub interface No response
Memory Write 0111 System memory Posts data
0111 Hub interface No response
Reserved 1000 N/A No response
Reserved 1001 N/A No response
Configuration Read 1010 N/A No response
Configuration Write 1011 N/A No response
Memory Read Multiple 1100 System memory Read
1100 Hub interface No response

Functional Description
R
116 Intel® 82845 MCH for SDR Datasheet
C/BE[3:0]# Intel® MCH PCI Command
Encoding Cycle Destination Response as a FRAME#
Target
Dual Address Cycle 1101 N/A No response
Memory Read Line 1110 System Memory Read
1110 Hub interface No response
Memory Write and
Invalidate
1111 System memory Posts data
1111 Hub interface Posts Data
NOTES:
1. N/A refers to a function that is not applicable
As a target of an AGP FRAME# cycle, the MCH only supports the following transactions:
• Memory Read, Memory Read Line, and Memory Read Multiple. These commands are
supported identically by the MCH. The MCH does not support reads of the hub interface bus
from AGP.
• Memory Write and Memory Write and Invalidate. These commands are aliased and processed
identically.
• Other Commands. Other commands (e.g., I/O R/W and Configuration R/W) are not supported
by the MCH as a target and result in master abort.
• Exclusive Access. The MCH does not support PCI locked cycles as a target.
• Fast Back-to-Back Transactions. The MCH, as a target, supports fast back-to-back cycles
from an AGP FRAME# initiator.
As an initiator of AGP FRAME# cycle, the MCH only supports the following transactions:
• Memory Read and Memory Read Line. MCH supports reads from host to AGP. MCH does
not support reads from the hub interface to AGP.
• Memory Read Multiple. This command is not supported by the MCH as an AGP FRAME#
initiator.
• Memory Write. The MCH initiates AGP FRAME# cycles on behalf of the host or the hub
interface. As an initiator, the MCH does not issue Memory Write and Invalidate cycles. The
MCH does not support write merging or write collapsing. The MCH allows non-snoopable
write transactions from the hub interface to the AGP bus.
• I/O Read and Write. I/O read and write cycles from the host are sent to the AGP bus. The I/O
base and limit address range for the AGP bus are programmed in the configuration registers.
All other accesses that do not correspond to this programmed address range are forwarded to
the hub interface.
• Exclusive Access. The MCH does not issue a locked cycle on the AGP bus on behalf of either
the host or the hub interface. The hub interface and host locked transactions to AGP are
initiated as unlocked transactions by the MCH on the AGP bus.
• Configuration Read and Write. Host configuration cycles to AGP are forwarded as Type 1
configuration cycles.
• Fast Back-to-Back Transactions. The MCH, as an initiator, does not perform fast back-to-
back cycles.

Functional Description
R
Intel® 82845 MCH for SDR Datasheet 117
MCH Retry/Disconnect Conditions
The MCH generates retry/disconnect according to the AGP Interface Specification, Revision 2.0
rules when being accessed as a target from the AGP FRAME# device.
Delayed Transaction
When an AGP FRAME#-to-system memory read cycle is retried by the MCH, it is processed
internally as a delayed transaction. The MCH supports the delayed transaction mechanism on the
AGP target interface for the transactions issued using AGP FRAME# protocol. This mechanism is
compatible with the PCI Local Bus Specification, Revision 2.1. The process of latching all
information required to complete the transaction, terminating with Retry, and completing the
request without holding the master in wait-states is called a delayed transaction.
The MCH latches the address and command when establishing a delayed transaction. The MCH
generates a delayed transaction on the AGP only for AGP FRAME# to system memory read
accesses. The MCH does not allow more than one delayed transaction access from AGP at any
time.
5.4 Power and Thermal Management
An 845 chipset platform is compliant with the following specifications:
• APM, Revision 1.2
• ACPI, Revision 1.0b
• PCI Power Management, Revision 1.0
• PC ’99, Revision 1.0
• PC ’99A
• PC ’01, Revision 1.0
5.4.1 Processor Power State Control
• C0 (Full On): This is the only state that runs software. All clocks are running, STPCLK# is
deasserted, and the processor core is active. The processor can service snoops and maintain cache
coherency in this state.
• Stop-Grant State: This function can be enabled or disabled via a configuration bit. When this function
is enabled, STPCLK# is asserted to place the processor into the C2 state with a programmable
duty cycle. This is an ACPI defined function but BIOS or APM (via BIOS) can use this
facility.

Functional Description
R
118 Intel® 82845 MCH for SDR Datasheet
5.4.2 Sleep State Control
• S0 (Awake): In this state all power planes are active. All of the ACPI software “C” states are
embedded in this state.
• S1: The recommended implementation of S1 state is the same as C2 state (Stop Grant), which
is entered by the assertion of the STPCLK# signal from the ICH2 to the processor. A further
power saving can be achieved by asserting processor SLP# from the ICH2. This puts the
processor into Sleep State.
• S2: ACPI S2 state is not supported in the 845 chipset desktop platform.
• S3 (Suspend To RAM (STR)): The next level of power reduction occurs when the clock
synthesizers and main power planes (ICH2, MCH, and the processor) are shut down but the
system memory plane and the ICH2 resume well remain active. This is the Suspend-to-RAM
(STR) state. All clocks from synthesizers are shut down during the S3 state.
• S4 and S5 (Suspend To Disk (STD), Soft Off): The next level of power reduction occurs
when the memory power and MCH are shut down in addition to the clock synthesizers, ICH2,
and the processor power planes. The ICH2 resume well is still powered.
• G3 (Mechanical Off): In this state only the RTC well is powered. The system can only
reactivate when the power switch is returned to the “On” position.
5.5 Intel® MCH Clocking
The 845 chipset is supported by the CK_408 compliant clock synthesizer. For details on clocking,
refer to the Intel® Pentium 4 Processor in a 478 Pin Package and Intel® 845 Chipset Platform
Design Guide.
5.6 Intel® MCH System Reset and Power Sequencing
For details on MCH system reset and power sequencing, refer to the Intel® Pentium 4 Processor in
a 478 Pin Package and Intel® 845 Chipset Platform Design Guide.

Electrical Characteristics
R
Intel® 82845 MCH for SDR Datasheet 119
6 Electrical Characteristics
This chapter contains the absolute maximum operating ratings, power characteristics, and DC
characteristics for the 82845 MCH.
6.1 Absolute Maximum Ratings
Table 18 lists the MCH’s maximum environmental stress ratings. Functional operation at the
absolute maximum and minimum is neither implied nor guaranteed. Functional operating
parameters are listed in the DC tables.
Warning: Stressing the device beyond the “Absolute Maximum Ratings” may cause permanent damage.
These are stress ratings only. Operating beyond the “operating conditions” is not recommended
and extended exposure beyond “operating conditions” may affect reliability.
Table 18. Absolute Maximum Ratings
Symbol Parameter Min Max Unit Notes
Tstorage Storage Temperature -55 150 °C
VCC1_5 1.5 V Supply Voltage with respect to VSS -0.72 2.3 V
VCC1_8 1.8 V Supply Voltage with respect to VSS -0.88 2.69 V
VCCSM 3.3 V Supply Voltage with respect to VSS -2.83 6.3 V
VTT AGTL+ buffer DC input voltage with respect
to VSS
-0.55 2.3 V
6.2 Power Characteristics
Table 19. Power Characteristics
Symbol Parameter Min Typ Max Unit Notes
IVTT MCH VTT supply current 2.4 A
IVCC1_5_CORE 1.5 V core supply current 1.5 A 1
IVCC1_5_AGP 1.5 V AGP supply current 0.37 A 1
IVCC1_8 1.8 V hub interface supply current 0.20 A
IVCCSM 3.3 V system memory supply current 2.0 A
ISUS_3.3 3.3 V standby supply current 25 mA
HVREF, AGPREF, HI_REF, SDREF
supply current
10 mA
NOTES:
1. These current levels can happen simultaneously, and can be summed into one supply.

Electrical Characteristics
R
120 Intel® 82845 MCH for SDR Datasheet
6.3 Signal Groups
The signal description includes the type of buffer used for the particular signal:
AGTL+ Open Drain AGTL+ interface signal. Refer to the AGTL+ I/O Specification for
complete details. The MCH integrates most AGTL+ termination resistors.
AGP AGP interface signals. These signals are compatible with AGP 2.0 1.5 V
Signaling Environment DC and AC Specifications. The buffers are not 3.3 V
tolerant.
HI CMOS Hub Interface 1.8 V CMOS buffers.
SM CMOS System memory 3.3 V CMOS buffers.
Table 20. Signal Groups
Signal
Group Signal Type Signals
(a) AGTL+ I/O ADS#, BNR#, BR0#,DBSY#, DBI[3:0]#, DRDY#, HA[31:3]#,
HADSTB[1:0] #, HD[63:0]#, HDSTBP[3:0]#, HDSTBN[3:0]#, HIT#,
HITM#, HREQ[4:0]#
(b) AGTL+ Output BPRI#, CPURST#, DEFER#, HTRDY#, RS[2:0]#
(c) AGTL+ Input HLOCK#
(d) Host Reference
Voltages
HVREF, HSWING[1:0]
(e) AGP I/O AD_STB0, AD_STB0#, AD_STB1, AD_STB1#, G_FRAME#,
G_IRDY#, G_TRDY#, G_STOP#, G_DEVSEL#, G_AD[31:0],
G_C/BE[3:0]#, G_PAR
(f) AGP Input PIPE#, SBA[7:0], RBF#, WBF#, SB_STB, SB_STB#, G_REQ#
(g) AGP Output ST[2:0], G_GNT#
(h) AGP Reference
Voltage
AGPREF
(i) Hub Interface’s
CMOS I/O
HI_[10:0], HI_STB, HI_STB#
(j) Hub Interface
Reference Voltage
HI_REF
(k) SDRAM CMOS I/O SDQ[63:0], SCB[7:0]
(l) SDRAM CMOS
Output
SCS[11:0]#, SMA[12:0], SBS[1:0], SRAS#, SCAS#, SWE#,
SCKE[5:0], SCK[11:0], RDCLKO
(m) SDRAM CMOS Input RDCLKI
(n) SDRAM Reference
Voltage
SDREF
(o) CMOS Input TESTIN#
(p) CMOS Input RSTIN# (3.3V)
(r) AGTL+ Termination
Voltage
VTT

Electrical Characteristics
R
Intel® 82845 MCH for SDR Datasheet 121
Signal
Group Signal Type Signals
(s) 1.5 V Core and AGP
Voltage
VCC1_5
(t) 1.8 V Hub Interface
Voltage
VCC1_8
(u) 3.3 V PC133
SDRAM I/O Voltage
VCCSM
(v) CMOS Clock Input 66IN
(w) CMOS Clock Input BCLK, BCLK#

Electrical Characteristics
R
122 Intel® 82845 MCH for SDR Datasheet
6.4 DC Characteristics
Table 21. DC Characteristics
Symbol Signal
Group Parameter Min Typ Max Unit Notes
I/O Buffer Supply Voltage
VCCSM (u) PC133 SDRAM I/O Voltage 3.135 3.3 3.465 V
VCC1_8 (t) 1.8V I/O Supply Voltage 1.71 1.8 1.89 V
VCC1_5 (s) Core and AGP Voltage 1.425 1.5 1.575 V
VTT (r) Host AGTL+ Termination Voltage N/A N/A 1.75 V
Reference Voltages
HVREF (d) Host Address and Data Reference
Voltage
(2/3 x VTT) – 2% 2/3 x VTT (2/3 x VTT) + 2% V
HSWING (d) Host Compensation Reference
Voltage
(1/3 x VTT) – 2% 1/3 x VTT (1/3 x VTT) + 2% V
HI_REF (j) Hub Interface Reference Voltage 0.48 x VCC1_8 1/2 x VCC1_8 0.52 x VCC1_8 V
SDREF (n) SDRAM Reference Voltage 0.49 x VCCSM 1/2 x VCCSM 0.51 x VCCSM V
AGPREF (h) AGP Reference Voltage 0.48 x VCC1_5 1/2 x VCC1_5 0.52 x VCC1_5 V
System Bus Interface
VIL (a,c) Host AGTL+ Input Low Voltage (2/3 x VTT) – 0.1 V
VIH (a,c) Host AGTL+ Input High Voltage (2/3 x VTT) + 0.1 V
VOL (a,b) Host AGTL+ Output Low Voltage (1/3 x VTT) + 0.1 V
VOH (a,b) Host AGTL+ Output High Voltage VTT-0.1 V
IOL (a,b) Host AGTL+ Output Low Current VTTmax / 0.75Rtt mA Rttmin = 45 Ω
Rtttyp = 50 Ω
Rttmax = 55 Ω
ILEAK (a,c) Host AGTL+ Input Leakage
Current
±15 µA VOL<Vpad<
VTT
CPAD (a,c) Host AGTL+ Input Capacitance 1.0 pF
3.3 V Interface
VIL (k,m,p) Input Low Voltage SDREF – 2.0 V
VIH (k,m,p) Input High Voltage SDREF + 2.0 V
VOL (k,l) Output Low Voltage 0.4 V
VOH (k,l) Output High Voltage 2.4 V
IOL (k,l) Output Low Current 4 mA @VOL_S max
IOH (k,l) Output High Current -4 mA @VOH_S max
ILEAK (k,m,p) Input Leakage Current ±100 µA 0<Vin<VCC3_3

Electrical Characteristics
R
Intel® 82845 MCH for SDR Datasheet 123
Symbol Signal
Group Parameter Min Typ Max Unit Notes
CI/0 (k,m,p) Input Capacitance 4.65 5.37 pF
1.5 V Interface
VIL (e,f) Input Low Voltage 0.4 x VCC1_5 V
VIH (e,f) Input High Voltage 0.6 x VCC1_5 V
VOL (e,g) Output Low Voltage 0.15 x VCC1_5 V
VOH (e,g) Output High Voltage 0.85 x VCC1_5 V
IOL (e,g) Output Low Current 1 mA @VOL_A max
IOH (e,g) Output High Current -0.2 mA @VOH_A max
ILEAK (e,f) Input Leakage Current ±15 µA 0<Vin<VCC1_5
CIN (e,f) Input Capacitance 1.32 1.92 pF
1.8 V Interface
VIL (i,o) Input Low Voltage HI_REF – 0.15 V
VIH (i,o) Input High Voltage HI_REF + 0.15 V
VOL (i,o) Output Low Voltage 0.1 x VCC1_8 V IOL= 1 mA
VOH (i,o) Output High Voltage 0.9 x VCC1_8 V IOH = 1 mA
IOL (i,o) Output Low Current 1 mA @VOL_HI max
IOH (i,o) Output High Current -1 mA @VOH_HI max
ILEAK (i,o) Input Leakage Current -150, +15 µA 0<Vin<VCC1_8
CIN (i,o) Input Capacitance 2.58 3.17 pF
Clock Signals
VIL (v) Input Low Voltage 0.8 V
VIH (v) Input High Voltage 2.4 V
CIN (v) Input Capacitance 1.2 1.4 pF
VIL (w) Input Low Voltage 0 V
VIH (w) Input High Voltage 0.660 0.710 0.850 V
VCROSS (w) Crossing Voltage 0.45 x (VIH – VIL) 0.5 x (VIH – VIL) 0.55 x (VIH – VIL)V
CIN (w) Input Capacitance 0.94 1.1 pF
RSTIN# Signals
VIL (p) Input Low Voltage 0.8 V
VIH (p) Input High Voltage 2.0 V
ILEAK (p) Input Leakage Current ±100 µA 0<Vin<VCC3_3

Electrical Characteristics
R
124 Intel® 82845 MCH for SDR Datasheet
This page is intentionally left blank.

Ballout and Package Information
R
Intel® 82845 MCH for SDR Datasheet 125
7 Ballout and Package Information
This chapter provides the MCH ballout and package information. The ballout footprint is shown in
Figure 6 and Figure 7. These figures represent the ballout organized by ball number. Table 22
provides the MCH ballout listed alphabetically by signal name.
The following notes apply to the ballout.
Note: NC = No Connect.
Note: RSVD = These pins should not be connected and should be allowed to float.
Note: VSS = Connect to ground.

Ballout and Package Information
R
126 Intel® 82845 MCH for SDR Datasheet
Figure 6. Intel® 82845 MCH Ballout Diagram (Top View—Left Side)
29 28 27 26 25 24 23 22 21 20 19 18 17 16 15
AJ VSS VCC1_5 VTT VTT VTT VSS VSS
AH SBA0 SBA1 G_GNT# VSS VSS VSS HD61# HD57#
AG VCC1_5 SBA2 SBA3 ST2 ST0 G_REQ# VTT VSS VTT VSS VTT VSS HD56# HD55# HD54#
AF SB_STB SB_STB# VSS ST1 VCC1_5 PIPE# VSS VTT VSS VTT VSS HD59# VSS
AE VSS SBA4 SBA5 VCC1_5 SBA7 SBA6 WBF# RBF# VTT VSS VTT VSS CPURST# HD63# HD60#
AD NC NC GRCOMP G_AD31 VCC1_5 VSS VCC1_5 VTT VSS VTT HD62# VSS DBI3#
AC VCC1_5 AD_STB1# AD_STB1 VSS G_AD28 G_AD29 VSS G_AD30 VSS VSS VTT VSS HD58# HDSTBP3# HDSTBN3#
AB G_AD20 G_AD22 G_AD19 G_AD27 G_AD24 VSS VCC1_5 VTT VSS VTT HVREF VSS VSS
AA VSS G_AD18 G_AD21 VCC1_5 G_AD26 G_AD25 G_C/BE3# VCC1_5 AGPREF
Y G_AD16 G_AD17 G_C/BE2# G_FRAME# G_AD23 VSS
W VCC1_5 G_DEVSEL# G_IRDY# VSS G_PAR G_TRDY# G_STOP# VCC1_5
V G_AD9 G_AD8 G_C/BE0# G_AD15 G_C/BE1# VSS
U VSS G_AD7 G_AD6 VCC1_5 G_AD14 G_AD13 G_AD11 VCC1_5 VSSA1 VCC1_5 VSS
T G_AD5 G_AD4 G_AD2 G_AD12 G_AD10 VSS VCCA1 VSS VCC1_5
R VCC1_5 G_AD1 G_AD0 VSS G_AD3 AD_STB0 AD_STB0# VCC1_5 VSS VCC1_5 VSS
P HLRCOMP HI_REF HI_0 HI_1 HI_3 66IN VCC1_5 VSS VCC1_5
N VSS HI_9 HI_2 VCC1_8 HI_STB HI_STB# VCC1_8 VSS VSS VCC1_5 VSS
M HI_8 HI_4 HI_5 HI_10 VSS VCC1_8
L VCC1_8 HI_6 HI_7 VSS VCC1_8 VSS VCCSM VSS
K VSS VCCSM RSVD VCCSM RSVD VCCSM
J VSS SMRCOMP RSTIN# VSS SCAS# SCS4# SCS1# VSS SDREF
H RSVD TESTIN# SCS9# VCCSM SCS0# VCCSM VSS VCCSM VSS VCCSM VSS VCCSM VSS
G VCCSM SDQ32 SWE# VSS SCS8# SCS5# SRAS# SMA0 SMA3 SMA5 SMA8 SMA9 SBS1 SCK8 SCK4
F SDQ0 RSVD SDQ37 VSS SDQ8 VCCSM SMA2 VSS SMA7 VCCSM SBS0 VSS SCK9
E VSS SDQ33 SDQ1 VSS SDQ5 SDQ39 SDQ41 SDQ43 SMA1 SMA4 SMA6 SDQ47 SMA10 SCB1 SMA11
D SDQ35 SDQ4 VCCSM SDQ7 VCCSM SDQ42 VSS SDQ12 VCCSM SDQ46 VSS SCB5 VCCSM
C VCCSM SDQ34 SDQ3 RSVD SDQ38 SDQ40 RSVD SDQ10 SDQ11 SDQ45 SDQ13 SDQ14 SDQ15 SCB0 SCB2
B SDQ2 SDQ36 SDQ6 SDQ9 SDQ44 RSVD SCB4 SCB6
A VSS VCCSM VSS VCCSM VSS VCCSM VSS
29 28 27 26 25 24 23 22 21 20 19 18 17 16 15
NOTES:
1. NC = No Connect.
2. RSVD = These pins should not be connected and should be allowed to float.
3. VSS = Connect to ground.

Ballout and Package Information
R
Intel® 82845 MCH for SDR Datasheet 127
Figure 7. Intel® 82845 MCH Ballout Diagram (Top View—Right Side)
14 13 12 11 10 9 8 7 6 5 4 3 2 1
VSS VSS VSS VSS VSS VSS
AJ
HD49# HD44# DBI2# HD24# HD31# HD25# HD20#
AH
HD52# HD48# HD45# HD42# HD43# HD38# HD27# HD28# HD29# HD16# DBI1# HD22# HD17# VSS AG
HD51# VSS HD47# VSS HD41# VSS HD30# VSS HD19# VSS HD26# HD21# AF
HD53# HD46# HD40# HDSTBN2# HD36# HD34# HD18# HDSTBP1# HDSTBN1# HD23# VSS HD8# HD15# VSS AE
VSS HSWNG1 VSS HDSTBP2# VSS HD37# VSS HD10# VSS DBI0# HDSTBN0# HDSTBP0# AD
HD50# HRCOMP1 HD33# HD32# HD39# HD35# HD14# HD11# HD12# HD5# VSS HD13# HRCOMP0 VSS AC
VSS VSS VSS HVREF VSS VSS VTT HD9# VSS HD1# HD4# HD3# AB
VTT VSS HSWNG0 HD7# HD2# VSS HD6# HD0# VSS
AA
HVREF BPRI# VSS HIT# DEFER# HITM#
Y
VSS RS1# RS2# HLOCK# VSS BNR# RS0# VSS
W
VSS BR0# VSS DBSY# DRDY# ADS#
V
VCC1_5 VSSA0 VTT HTRDY# HREQ0# HREQ3# VSS HA6# HREQ4# VSS
U
VSS VCCA0 VSS HREQ1# VSS HA4# HA3# HA5#
T
VCC1_5 VSS HVREF HREQ2# HA11# HADSTB0# VSS HA7# HA9# VSS
R
VSS VCC1_5 VSS HA8# VSS HA12# HA10# HA13#
P
VCC1_5 VSS VSS HA15# HADSTB1# HA28# VSS HA16# HA14# VSS
N
VTT HVREF HA30# HA24# HA18# HA19#
M
VSS HA31# VSS HA21# VSS HA20# HA26# VSS
L
BCLK# VSS VCCSM VSS HA17# HA22#
K
SDREF BCLK VCCSM VSS VCCSM VSS HA25# HA23# VSS
J
VCCSM VSS VCCSM VSS VCCSM VSS VCCSM SCS6# SCS11# SCK10 HA27# RDCLKO H
SCK5 SCK1 SMA12 SCKE4 SCKE2 SCKE0 SCS3# SCS2# SCS10# SCK11 VCCSM RDCLKIN HA29# VCCSM G
VCCSM SCK0 VSS SDQ51 VCCSM SDQ22 VSS SCS7# VCCSM SCKE3 SCKE1 SCK6 F
SDQ48 SDQ17 SDQ50 SDQ20 SDQ53 SDQ56 SDQ24 SDQ25 SDQ59 SCKE5 VSS SCK7 SCK2 VSS E
SCB3 VSS RSVD VCCSM SDQ54 VSS SDQ57 VCCSM SDQ27 VSS SDQ29 SDQ63 D
SCB7 SDQ49 SDQ18 SDQ52 SDQ21 SDQ23 RSVD SDQ26 SDQ60 RSVD SDQ61 SDQ30 SCK3 VCCSM C
SDQ16 SDQ19 SDQ55 SDQ58 SDQ28 SDQ62 SDQ31 B
VCCSM VSS VCCSM VSS VCCSM VSS
A
14 13 12 11 10 9 8 7 6 5 4 3 2 1
NOTES:
1. NC = No Connect.
2. RSVD = These pins should not be connected and should be allowed to float.
3. VSS = Connect to ground.

Ballout and Package Information
R
128 Intel® 82845 MCH for SDR Datasheet
Table 22. Intel® 82845 MCH Ballout Listed Alphabetically by Signal Name
Signal Name Ball #
66IN P22
AD_STB0 R24
AD_STB0# R23
AD_STB1 AC27
AD_STB1# AC28
ADS# V3
AGPREF AA21
BCLK# K8
BCLK J8
BNR# W3
BPRI# Y7
BR0# V7
CPURST# AE17
DBSY# V5
DEFER# Y4
DBI0# AD5
DBI1# AG4
DBI2# AH9
DBI3# AD15
DRDY# V4
G_AD0 R27
G_AD1 R28
G_AD2 T25
G_AD3 R25
G_AD4 T26
G_AD5 T27
G_AD6 U27
G_AD7 U28
G_AD8 V26
G_AD9 V27
G_AD10 T23
G_AD11 U23
G_AD12 T24
G_AD13 U24
Signal Name Ball #
G_AD14 U25
G_AD15 V24
G_AD16 Y27
G_AD17 Y26
G_AD18 AA28
G_AD19 AB25
G_AD20 AB27
G_AD21 AA27
G_AD22 AB26
G_AD23 Y23
G_AD24 AB23
G_AD25 AA24
G_AD26 AA25
G_AD27 AB24
G_AD28 AC25
G_AD29 AC24
G_AD30 AC22
G_AD31 AD24
G_C/BE0# V25
G_C/BE1# V23
G_C/BE2# Y25
G_C/BE3# AA23
G_DEVSEL# W28
G_FRAME# Y24
G_GNT# AH25
G_IRDY# W27
G_PAR W25
G_REQ# AG24
G_STOP# W23
G_TRDY# W24
GRCOMP AD25
HA3# T4
HA4# T5
HA5# T3

Ballout and Package Information
R
Intel® 82845 MCH for SDR Datasheet 129
Signal Name Ball #
HA6# U3
HA7# R3
HA8# P7
HA9# R2
HA10# P4
HA11# R6
HA12# P5
HA13# P3
HA14# N2
HA15# N7
HA16# N3
HA17# K4
HA18# M4
HA19# M3
HA20# L3
HA21# L5
HA22# K3
HA23# J2
HA24# M5
HA25# J3
HA26# L2
HA27# H4
HA28# N5
HA29# G2
HA30# M6
HA31# L7
HADSTB0# R5
HADSTB1# N6
HD0# AA2
HD1# AB5
HD2# AA5
HD3# AB3
HD4# AB4
HD5# AC5
HD6# AA3
HD7# AA6
Signal Name Ball #
HD8# AE3
HD9# AB7
HD10# AD7
HD11# AC7
HD12# AC6
HD13# AC3
HD14# AC8
HD15# AE2
HD16# AG5
HD17# AG2
HD18# AE8
HD19# AF6
HD20# AH2
HD21# AF3
HD22# AG3
HD23# AE5
HD24# AH7
HD25# AH3
HD26# AF4
HD27# AG8
HD28# AG7
HD29# AG6
HD30# AF8
HD31# AH5
HD32# AC11
HD33# AC12
HD34# AE9
HD35# AC9
HD36# AE10
HD37# AD9
HD38# AG9
HD39# AC10
HD40# AE12
HD41# AF10
HD42# AG11
HD43# AG10

Ballout and Package Information
R
130 Intel® 82845 MCH for SDR Datasheet
Signal Name Ball #
HD44# AH11
HD45# AG12
HD46# AE13
HD47# AF12
HD48# AG13
HD49# AH13
HD50# AC14
HD51# AF14
HD52# AG14
HD53# AE14
HD54# AG15
HD55# AG16
HD56# AG17
HD57# AH15
HD58# AC17
HD59# AF16
HD60# AE15
HD61# AH17
HD62# AD17
HD63# AE16
HDSTBN0# AD4
HDSTBP0# AD3
HDSTBN1# AE6
HDSTBP1# AE7
HDSTBN2# AE11
HDSTBP2# AD11
HDSTBN3# AC15
HDSTBP3# AC16
HI_0 P25
HI_1 P24
HI_2 N27
HI_3 P23
HI_4 M26
HI_5 M25
HI_6 L28
HI_7 L27
Signal Name Ball #
HI_8 M27
HI_9 N28
HI_10 M24
HI_REF P26
HI_STB N25
HI_STB# N24
HIT# Y5
HITM# Y3
HLOCK# W5
HLRCOMP P27
HRCOMP0 AC2
HRCOMP1 AC13
HREQ0# U6
HREQ1# T7
HREQ2# R7
HREQ3# U5
HREQ4# U2
HSWNG0 AA7
HSWNG1 AD13
HTRDY# U7
HVREF M7, R8, Y8, AB11, AB17
NC AD26, AD27
PIPE# AF22
RBF# AE22
RDCLKIN G3
RDCLKO H3
RS0# W2
RS1# W7
RS2# W6
RSTIN# J27
RSVD B19, C5, C8, C23, C26, D12,
F26, H27, K23, K25
SBA0 AH28
SBA1 AH27
SBA2 AG28
SBA3 AG27

Ballout and Package Information
R
Intel® 82845 MCH for SDR Datasheet 131
Signal Name Ball #
SBA4 AE28
SBA5 AE27
SBA6 AE24
SBA7 AE25
SB_STB AF27
SB_STB# AF26
SBS0 F17
SBS1 G17
SCAS# J25
SCK0 F13
SCK1 G13
SCK2 E2
SCK3 C2
SCK4 G15
SCK5 G14
SCK6 F3
SCK7 E3
SCK8 G16
SCK9 F15
SCK10 H5
SCK11 G5
SCKE0 G9
SCKE1 F4
SCKE2 G10
SCKE3 F5
SCKE4 G11
SCKE5 E5
SCS0# H23
SCS1# J23
SCS2# G7
SCS3# G8
SCS4# J24
SCS5# G24
SCS6# H7
SCS7# F7
SCS8# G25
Signal Name Ball #
SCS9# H25
SCS10# G6
SCS11# H6
SDQ0 F27
SDQ1 E27
SDQ2 B28
SDQ3 C27
SDQ4 D26
SDQ5 E25
SDQ6 B25
SDQ7 D24
SDQ8 F23
SDQ9 B23
SDQ10 C22
SDQ11 C21
SDQ12 D20
SDQ13 C19
SDQ14 C18
SDQ15 C17
SDQ16 B13
SDQ17 E13
SDQ18 C12
SDQ19 B11
SDQ20 E11
SDQ21 C10
SDQ22 F9
SDQ23 C9
SDQ24 E8
SDQ25 E7
SDQ26 C7
SDQ27 D6
SDQ28 B5
SDQ29 D4
SDQ30 C3
SDQ31 B2
SDQ32 G28

Ballout and Package Information
R
132 Intel® 82845 MCH for SDR Datasheet
Signal Name Ball #
SDQ33 E28
SDQ34 C28
SDQ35 D27
SDQ36 B27
SDQ37 F25
SDQ38 C25
SDQ39 E24
SDQ40 C24
SDQ41 E23
SDQ42 D22
SDQ43 E22
SDQ44 B21
SDQ45 C20
SDQ46 D18
SDQ47 E18
SDQ48 E14
SDQ49 C13
SDQ50 E12
SDQ51 F11
SDQ52 C11
SDQ53 E10
SDQ54 D10
SDQ55 B9
SDQ56 E9
SDQ57 D8
SDQ58 B7
SDQ59 E6
SDQ60 C6
SDQ61 C4
SDQ62 B3
SDQ63 D3
SCB0 C16
SCB1 E16
SCB2 C15
SCB3 D14
SCB4 B17
Signal Name Ball #
SCB5 D16
SCB6 B15
SCB7 C14
SDREF J9, J21
SMA0 G22
SMA1 E21
SMA2 F21
SMA3 G21
SMA4 E20
SMA5 G20
SMA6 E19
SMA7 F19
SMA8 G19
SMA9 G18
SMA10 E17
SMA11 E15
SMA12 G12
SMRCOMP J28
SRAS# G23
ST0 AG25
ST1 AF24
ST2 AG26
SWE# G27
TESTIN# H26
VCC1_5 R22, R29, U22, U26, W22,
W29, AA22, AA26, AB21,
AC29, AD21, AD23, AE26,
AF23, AG29, AJ25
VCC1_5 N14, N16, P13, P15, P17,
R14, R16, T15, U14, U16
VCCA1 T17
VCCA0 T13
VCC1_8 L25, L29, M22, N23, N26
VCCSM A5, A9, A13, A17, A21, A25,
C1, C29, D7, D11, D15, D19,
D23, D25, F6, F10, F14, F18,
F22, G1, G4, G29, H8, H10,
H12, H14, H16, H18, H20,
H22, H24, J5, J7, K6, K22,
K24, K26, L23

Ballout and Package Information
R
Intel® 82845 MCH for SDR Datasheet 133
Signal Name Ball #
VSS A3, A7, A11, A15, A19, A23,
A27, D5, D9, D13, D17, D21,
E1, E4, E26, E29, F8, F12,
F16, F20, F24, G26, H9, H11,
H13, H15, H17, H19, H21, J1,
J4, J6, J22, J26, J29, K5, K7,
K27, L1, L4, L6, L8, L22, L24,
L26, M23, N1, N4, N8, N13,
N15, N17, N22, N29, P6, P8,
P14, P16, R1, R4, R13, R15,
R17, R26, T6, T8, T14, T16,
T22, U1, U4, U15, U29, V6,
V8, V22, W1, W4, W8, W26,
Y6, Y22, AA1, AA4, AA8,
AA29, AB6, AB9, AB10, AB12,
AB13, AB14, AB15, AB16,
AB19, AB22, AC1, AC4,
AC18, AC20, AC21, AC23,
AC26, AD6, AD8, AD10,
AD12, AD14, AD16, AD19,
AD22, AE1, AE4, AE18, AE20,
AE29, AF5, AF7, AF9, AF11,
AF13, AF15, AF17, AF19,
AF21, AF25, AG1, AG18,
AG20, AG22, AH19, AH21,
AH23, AJ3, AJ5, AJ7, AJ9,
AJ11, AJ13, AJ15, AJ17, AJ27
Signal Name Ball #
VSSA1 U17
VSSA0 U13
VTT M8, U8, AA9, AB8, AB18,
AB20, AC19, AD18, AD20,
AE19, AE21, AF18, AF20,
AG19, AG21, AG23, AJ19,
AJ21, AJ23
WBF# AE23
NOTES:
1. NC = No Connect.
2. RSVD = These pins should not be connected
and should be allowed float.
3. VSS = Connect to ground.

Ballout and Package Information
R
134 Intel® 82845 MCH for SDR Datasheet
7.1 Package Mechanical Information
This section provides the MCH package mechanical dimensions. The package is a 593 ball
FC-BGA.
Figure 8. Intel® MCH FC-BGA Package Dimensions (Top and Side View)
pkg_olga_593_top-side
Units = Millim eters
9.67
36.28
33.90
Top View
0.61
16.95
16.95
33.90
37.50
37.50
1.100 ±0.100
Die
0.152
A
Side View
Substrate
0.600 ±0.100 See Detail A
Detail A
0.74 ±0.025
0.10 ±0.025 Die Solder
Bumps
Underfill
Epoxy

Ballout and Package Information
R
Intel® 82845 MCH for SDR Datasheet 135
Figure 9. Intel® MCH FC-BGA Package Dimensions (Bottom View)
pkg-MCH_olga_593_Bot
D
E
G
H
K
L
P
R
U
V
Y
N
W
M
AA
AB
AC
AD
AE
AF
J
F
A
AH
AG
AJ
1.270
B
C
T
10 16 20
3579
11 13 15 17 19
46 1881214 22
21 24
23 26
25 28
27 29
12
17.780
35.560
1.270
17.780
35.560
Note: All dimensions are in millimeters

Ballout and Package Information
R
136 Intel® 82845 MCH for SDR Datasheet
This page is intentionally left blank.

Testability
R
Intel® 82845 MCH for SDR Datasheet 137
8 Testability
In the MCH, testability for Automated Test Equipment (ATE) board-level testing has been
implemented as an XOR chain. An XOR-tree is a chain of XOR gates, each with one input pin
connected to it (see Figure 10).
Figure 10. XOR Tree Chain
Input
XOR
Out
xor.vsd
Input Input Input Input
VCC1_8
The algorithm used for in-circuit test is as follows:
• Drive all input pins to an initial logic level 1. Observe the output corresponding to scan chain
being tested.
• Toggle pins one at a time (starting from the first pin in the chain and continuing to the last
pin) from its initial logic level to the opposite logic level. Observe the output changes with
each pin toggle.
8.1 XOR Test Mode Initialization
XOR test mode can be entered by pulling three shared pins (reset straps) low through the rising
transition of RSTIN#. The signals that need to be pulled are as follows:
• G_GNT# = 0 (Global strap enable)
• SBA1 = 0 (XOR strap)
• ST2 = 0 (PLL Bypass mode; it is recommended to enter PLL Bypass in XOR test mode)

Testability
R
138 Intel® 82845 MCH for SDR Datasheet
8.2 XOR Chains
Note: RSTIN#, TESTIN#, and all Rcomp buffers are not part of any XOR chain.
Table 23. XOR Chain 0
Chain 0 Ball Element # Signal Name Note Initial Logic
Level
AE6 1 HDSTBP1# Input 1
AD3 2 HDSTBP0# Input 1
V3 3 ADS# Input 1
U6 4 HREQ0# Input 1
U3 5 HA6# Input 1
U2 6 HREQ4# Input 1
U5 7 HREQ3# Input 1
T5 8 HA4# Input 1
T7 9 HREQ1# Input 1
T4 10 HA3# Input 1
R7 11 HREQ2# Input 1
R5 12 HADSTB0# Input 1
R3 13 HA7# Input 1
P3 14 HA13# Input 1
R2 15 HA9# Input 1
R6 16 HA11# Input 1
T3 17 HA5# Input 1
N3 18 HA16# Input 1
P5 19 HA12# Input 1
P4 20 HA10# Input 1
P7 21 HA8# Input 1
N2 23 HA14# Input 1
N7 24 HA15# Input 1
N5 25 HA28# Input 1
M4 26 HA18# Input 1
L3 27 HA20# Input 1
M3 28 HA19# Input 1
L2 29 HA26# Input 1
K3 30 HA22# Input 1

Testability
R
Intel® 82845 MCH for SDR Datasheet 139
Chain 0 Ball Element # Signal Name Note Initial Logic
Level
M5 31 HA24# Input 1
K3 32 HA23# Input 1
K4 33 HA17# Input 1
J3 34 HA25# Input 1
L5 35 HA21# Input 1
H4 36 HA27# Input 1
M6 37 HA30# Input 1
L7 38 HA31# Input 1
G2 39 HA29# Input 1
H6 40 SCS11# Input 1
H3 41 RDCLKIN Input 1
G3 42 RDCLKO Input 1
H5 43 SCK10 Input 1
G6 44 SCS10# Input 1
E7 45 SCS7# Input 1
G8 46 SCS3# Input 1
G9 47 SCKE0 Input 1
AH28 48 SBA0 Output N/A

Testability
R
140 Intel® 82845 MCH for SDR Datasheet
Table 24. XOR Chain 1
Chain 1 Ball Element # Signal Name Note Initial Logic
Level
N6 1 HADSTDB1# Input 1
H7 2 SCS6# Input 1
G10 3 SCKE2 Input 1
G5 4 SCK11 Input 1
F4 5 SCKE1 Input 1
F3 6 SCK6 Input 1
C2 7 SCK3 Input 1
B2 8 SDQ31 Input 1
E2 9 SCK2 Input 1
D3 10 SDQ63 Input 1
E3 11 SCK7 Input 1
G7 12 SCS2# Input 1
C3 13 SDQ30 Input 1
E5 14 SCKE5 Input 1
F7 15 SCS7# Input 1
D4 16 SDQ29 Input 1
C4 17 SDQ61 Input 1
C5 18 RSVD Input 1
E6 19 SDQ59 Input 1
D6 20 SDQ27 Input 1
B3 21 SDQ62 Input 1
C6 22 SDQ60 Input 1
B5 23 SDQ28 Input 1
C7 24 SDQ26 Input 1
B7 25 SDQ58 Input 1
E8 26 SDQ24 Input 1
C8 27 RSVD Input 1
C9 28 SDQ23 Input 1
D8 29 SDQ57 Input 1
E10 30 SDQ53 Input 1
B9 31 SDQ5 Input 1
E11 32 SDQ20 Input 1
E9 33 SDQ56 Input 1
AH27 34 SBA1 Output N/A

Testability
R
Intel® 82845 MCH for SDR Datasheet 141
Table 25. XOR Chain 2
Chain 2 Ball Element # Signal Name Note Initial Logic Level
D10 1 SDQ54 Input 1
C10 2 SDQ21 Input 1
C11 3 SDQ52 Input 1
F9 4 SDQ22 Input 1
B11 5 SDQ19 Input 1
B13 6 SDQ16 Input 1
G11 7 SCKE4 Input 1
C12 8 SDQ18 Input 1
F11 9 SDQ51 Input 1
C13 10 SDQ49 Input 1
D12 11 RSVD Input 1
E12 12 SDQ50 Input 1
E13 13 SDQ17 Input 1
G14 14 SCK5 Input 1
G13 15 SCK1 Input 1
F15 16 SCK9 Input 1
E15 17 SMA11 Input 1
G16 18 SCK8 Input 1
E16 19 SDQ65 Input 1
E18 20 SDQ47 Input 1
F17 21 SBS0 Input 1
F19 22 SMA7 Input 1
G18 23 SMA9 Input 1
G20 24 SMA5 Input 1
G19 25 SMA8 Input 1
F21 26 SMA2 Input 1
G21 27 SMA3 Input 1
E22 28 SDQ43 Input 1
G24 29 SCS5# Input 1
G23 30 SRAS# Input 1
G25 31 SCS8# Input 1
H23 32 SCS0# Input 1
J25 33 SCAS# Input 1
AG28 34 SBA2 Output N/A

Testability
R
142 Intel® 82845 MCH for SDR Datasheet
Table 26. XOR Chain 3
Chain 3 Ball Element # Signal Name Note Initial Logic Level
G10 1 SCKE0 Input 1
G12 2 SMA12 Input 1
G15 3 SCK4 Input 1
F13 4 SCK0 Input 1
C14 5 SCB3 Input 1
E14 6 SDQ48 Input 1
D14 7 SCB7 Input 1
C15 8 SCB6 Input 1
G17 9 SBCS1 Input 1
C16 10 SDQ64 Input 1
D16 11 SCB5 Input 1
B15 12 SCB5 Input 1
C17 13 SDQ15 Input 1
B17 14 SCB4 Input 1
D18 15 SDQ46 Input 1
E17 16 SMA10 Input 1
B19 17 RSVD Input 1
C18 18 SDQ14 Input 1
E19 19 SMA6 Input 1
C19 20 SDQ13 Input 1
C20 21 SDQ45 Input 1
D20 22 SDQ12 Input 1
C21 23 SDQ11 Input 1
E20 24 SMA4 Input 1
B21 25 SDQ44 Input 1
E21 26 SMA1 Input 1
C22 27 SDQ10 Input 1
D22 28 SDQ42 Input 1
C24 29 SDQ40 Input 1
C23 30 RSVD Input 1
B23 31 SDQ9 Input 1
D24 32 SDQ7 Input 1
G22 33 SMA0 Input 1
E23 34 SDQ41 Input 1

Testability
R
Intel® 82845 MCH for SDR Datasheet 143
Chain 3 Ball Element # Signal Name Note Initial Logic Level
B25 35 SDQ6 Input 1
C25 36 SDQ38 Input 1
C27 37 SDQ3 Input 1
D27 38 SDQ35 Input 1
B27 39 SDQ36 Input 1
C26 40 RSVD Input 1
F23 41 SDQ8 Input 1
E24 42 SDQ39 Input 1
E25 43 SDQ5 Input 1
E27 44 SDQ1 Input 1
N24 45 HI_STB# Input 1
R24 46 AD_STB Input 1
AG27 47 SBA3 Output N/A
Table 27. XOR Chain 4
Chain 4 Ball Element # Signal Name Note Initial Logic Level
D26 1 SDQ4 Input 1
F25 2 SDQ37 Input 1
B28 3 SDQ2 Input 1
C28 4 SDQ3 Input 1
E28 5 SDQ33 Input 1
J24 6 SCS4# Input 1
F26 7 RSVD Input 1
H25 8 SCS9# Input 1
K25 9 RSVD Input 1
J23 10 SCS1# Input 1
F27 11 SDQ0 Input 1
K23 12 RSVD Input 1
G28 13 SDQ32 Input 1
G27 14 SWE# Input 1
M27 15 HI_8 Input 1
M24 16 HI_10 Input 1
N28 17 HI_9 Input 1
L28 18 HI_6 Input 1
M25 19 HI_5 Input 1

Testability
R
144 Intel® 82845 MCH for SDR Datasheet
Chain 4 Ball Element # Signal Name Note Initial Logic Level
N27 20 HI_2 Input 1
M26 21 HI_4 Input 1
N25 22 HI_STB Input 1
L27 23 HI_7 Input 1
P25 24 HI_0 Input 1
P23 25 HI_3 Input 1
P24 26 HI_1 Input 1
R27 27 G_ADO Input 1
R28 28 G_AD1 Input 1
U27 29 G_AD6 Input 1
R25 30 G_AD3 Input 1
T27 31 G_AD5 Input 1
T36 32 G_AD4 Input 1
U28 33 G_AD7 Input 1
R24 34 AD_STB0 Input 1
V27 35 G_AD9 Input 1
T25 36 G_AD2 Input 1
U27 37 G_AD8 Input 1
T24 38 G_AD12 Input 1
U24 39 G_AD13 Input 1
U25 40 G_AD14 Input 1
T23 41 G_AD10 Input 1
V24 42 G_AD15 Input 1
U23 43 G_AD11 Input 1
AE28 44 SBA4 Output N/A
Table 28. XOR Chain 5
Chain 5 Ball Element # Signal Name Note Initial Logic Level
V25 1 G_C/BE0# Input 1
W28 2 G_DEVSEL# Input 1
W25 3 G_PAR Input 1
Y25 4 G_C/BE2# Input 1
W27 5 G_IRDY# Input 1
V23 6 G_C/BE1# Input 1
Y24 7 G_FRAME# Input 1

Testability
R
Intel® 82845 MCH for SDR Datasheet 145
Chain 5 Ball Element # Signal Name Note Initial Logic Level
W24 8 G_TRDY# Input 1
AE23 9 WBF# Input 1
W23 10 G_STOP# Input 1
AA23 11 G_C/BE3# Input 1
AA28 12 G_AD18 Input 1
Y26 13 G_AD17 Input 1
Y27 14 G_AD16 Input 1
AB27 15 G_AD20 Input 1
AB26 16 G_AD22 Input 1
AA25 17 G_AD26 Input 1
AA24 18 G_AD25 Input 1
AA27 19 G_AD21 Input 1
AC27 20 AD_STB1 Input 1
Y23 21 G_AD23 Input 1
AC25 22 G_AD28 Input 1
AB25 23 G_AD19 Input 1
AB23 24 G_AD24 Input 1
AB24 25 G_AD31 Input 1
AC24 26 G_AD29 Input 1
AC22 27 G_AD30 Input 1
AB24 28 G_AD27 Input 1
AE22 29 RBF# Input 1
AF24 30 ST1 Input 1
AF22 31 PIPE# Input 1
AF27 32 SB_STB Input 1
AH25 33 G_GNT# Input 1
AG25 34 ST0 Input 1
AG24 35 G_REQ# Input 1
AG26 36 ST2 Input 1
AH17 37 HD61# Input 1
AG16 38 HD55# Input 1
AG17 39 HD56# Input 1
AC16 40 HDSTBP3# Input 1
AE11 41 HDSTBP2# Input 1
AE27 42 SBA5 Output N/A

Testability
R
146 Intel® 82845 MCH for SDR Datasheet
Table 29. XOR Chain 6
Chain 6 Ball Element # Signal Name Note Initial Logic Level
AC27 1 AD_STB1 Input 1
AF27 2 SB_STB Input 1
AE17 3 CPURST# Input 1
AD17 4 HD62# Input 1
AE16 5 HD63# Input 1
AH15 6 HD57# Input 1
AG15 7 HD54# Input 1
AF16 8 HD59# Input 1
AC16 9 HDSTBP3# Input 1
AE15 10 HD60# Input 1
AG14 11 HD52# Input 1
AC17 12 HD58# Input 1
AF14 13 HD51# Input 1
AE14 14 HD53# Input 1
AH13 15 HD49# Input 1
AD15 16 DBI3# Input 1
AG13 17 HD48# Input 1
AC14 18 HD50# Input 1
AF12 19 HD47# Input 1
AG12 20 HD45# Input 1
AE12 21 HD40# Input 1
AE13 22 HD46# Input 1
AH9 23 DBI2# Input 1
AG10 24 HD43# Input 1
AH11 25 HD44# Input 1
AG9 26 HD38# Input 1
AG11 27 HD42# Input 1
AE11 28 HDSTBN2# Input 1
AF10 29 HD41# Input 1
AE10 30 HD36# Input 1
AC12 31 HD33# Input 1
AC11 32 HD32# Input 1
AC10 33 HD39# Input 1
AE9 34 HD34# Input 1

Testability
R
Intel® 82845 MCH for SDR Datasheet 147
Chain 6 Ball Element # Signal Name Note Initial Logic Level
AC9 35 HD35# Input 1
AD9 36 HD37# Input 1
AH7 37 HD24# Input 1
AH5 38 HD31# Input 1
AG8 39 HD27# Input 1
Y4 40 DEFER# Input 1
W7 41 RS1# Input 1
AE24 42 SBA6 Output N/A
Table 30. XOR Chain 7
Chain 7 Ball Element # SDR Ball name Note Initial Logic Level
AG6 1 HD29# Input 1
AG5 2 HD16# Input 1
AG7 3 HD28# Input 1
AF6 4 HD19# Input 1
AF8 5 HD30# Input 1
AE6 6 HDSTBN1# Input 1
AG4 7 DBI1# Input 1
AH3 8 HD25# Input 1
AE8 9 HD18# Input 1
AG2 10 HD17# Input 1
AF4 11 HD26# Input 1
AH2 12 HD20# Input 1
AE5 13 HD23# Input 1
AG3 14 HD22# Input 1
AF3 15 HD21# Input 1
AD7 16 HD10# Input 1
AC7 17 HD11# Input 1
AC8 18 HD14# Input 1
AD5 19 DBI0# Input 1
AC6 20 HD12# Input 1
AE2 21 HD15# Input 1
AB7 22 HD9# Input 1
AE3 23 HD8# Input 1
AD4 24 HDSTBN0# Input 1

Testability
R
148 Intel® 82845 MCH for SDR Datasheet
Chain 7 Ball Element # SDR Ball name Note Initial Logic Level
AC3 25 HD13# Input 1
AB5 26 HD1# Input 1
AC5 27 HD5# Input 1
AA6 28 HD7# Input 1
AA5 29 HD2# Input 1
AB3 30 HD3# Input 1
AA3 31 HD6# Input 1
AB4 32 HD4# Input 1
AA2 33 HD0# Input 1
Y5 34 HIT# Input 1
Y7 35 BPRI# Input 1
W6 36 RS2# Input 1
Y3 37 HITM# Input 1
U7 38 HTRDY# Input 1
W5 39 HLOCK# Input 1
V7 40 BR0# Input 1
W3 41 BNR# Input 1
W2 41 RS0# Input 1
V5 43 DBSY# Input 1
V4 44 DRDY# Input 1
AE25 45 SBA7 Output N/A