JVC KD R201EY Instal1 2_KD G201_013A_1 User Manual R201EY, R203EY GET0583 013C
KD-R203EY KD-R203EY GET0583-013C nglish, German, Russian, Greek, InstallationManual
User Manual: JVC KD-R201EY KD-R201EY, KD-R203EY nglish, German, Russian, Greek, InstallationManual
Open the PDF directly: View PDF
.
Page Count: 4

1
KD-R203/KD-R201
Installation/Connection Manual
Einbau/Anschlußanleitung
Руководство по установке/подключению
Εγχειρίδιo εγκατάστασης/συνδέσεων
0409DTSMDTJEIN
EN, GE, RU, GR
ENGLISH
This unit is designed to operate on 12 V DC,
NEGATIVE ground electrical systems. If your
vehicle does not have this system, a voltage inverter
is required, which can be purchased at JVC IN-CAR
ENTERTAINMENT dealers.
DEUTSCH
Dieses Gerät ist für einen Betrieb in elektrischen
Anlagen mit 12 V Gleichstrom und (–) Erdung
ausgelegt. Verfügt Ihr Fahrzeug nicht über diese
Anlage, ist ein Spannungsinverter erforderlich, der
bei JVC Autoradiohändler erworben werden kann.
E
Handles
Griffe
Рычаги
Κλειδιά
A
Control panel
Schalttafel
Панель управления
Πρόσoψη
B
Sleeve
Halterung
Муфта
Βάση
C
Trim plate
Frontrahmen
Декоративную панель
∆ιακoσµητικό πλαίσιo
D
(Only for KD-R201 / Nur bei KD-R201 /
Только для модели KD-R201 / Μόνο για
KD-R201)
Power cord
Stromkable
Кабель питания
∆έσµη καλωδίων ρεύµατoς
Parts list for installation and
connection
The following parts are provided for this unit. If
any item is missing, consult your JVC IN-CAR
ENTERTAINMENT dealer immediately.
Teileliste für den Einbau und
Anschluß
Die folgenden Teile werden zusammen mit diesem
Gerät geliefert. Falls ein Artikel fehlt, wenden Sie
sich sofort an Ihren JVC-Autoradiohändler.
РУССКИЙ
Это устройство разработано для эксплуатации на
12 В постоянного напряжения с минусом
на массе
. Если Ваш автомобиль не имеет этой
системы, требуется инвертор напряжения, который
может быть приобретен у дилера автомобилнего
Список деталей для установки и
подключения
Следующие детали поставлены в комплекте с
устройством. При отсутствии какого-либо элемента
немедленно свяжитесь с дилером автомобильного
специалиста JVC.
WARNINGS
To prevent short circuits, we recommend that you
disconnect the battery’s negative terminal and make
all electrical connections before installing the unit.
• Be sure to ground this unit to the car’s
chassis again after installation.
Notes:
• Replace the fuse with one of the specified rating.
If the fuse blows frequently, consult your JVC IN-
CAR ENTERTAINMENT dealer.
• It is recommended to connect to the speakers
with maximum power of more than 50 W (both
at the rear and at the front, with an impedance of
4 Ω to 8 Ω). If the maximum power is less than
50 W, change “AMP GAIN” setting to prevent the
speakers from being damaged (see page 14 of the
INSTRUCTIONS).
• To prevent short-circuit, cover the terminals of
the UNUSED leads with insulating tape.
• The heat sink becomes very hot after use. Be
careful not to touch it when removing this unit.
WARNUNGEN
Zur Vermeidung von Kurzschlüssen empfehlen wir,
daß Sie den negativen Batterieanschluß abtrennen
und alle elektrischen Anschlüsse herstellen, bevor das
Gerät eingebaut wird.
• Sicherstellen, daß das Gerät nach dem
Einbau a Chassis des Fahrzeugs geerdet
wird.
Hinweise:
• Die Sicherung mit einer der entsprechenden
Nennleistung ersetzen. Brennt die Sicherung
häufig durch, wenden Sie sich an ihren JVC
Autoradiohändler.
• Es wird empfohlen, Lautsprecher mit
einer Maximalleistung von mehr als 50 W
anzuschließen (sowohl hinten als auch vorne,
mit einer Impedanz von 4 Ω bis 8 Ω). Wenn die
Maximalleistung weniger als 50 W beträgt, stellen
Sie „AMP GAIN“ anders ein, um Schäden an den
Lautsprechern zu vermeiden (siehe Seite 14 der
BEDIENUNGSANLEITUNG).
• Zur Vermeidung eines Kurzschlusses die
Anschlußklemmen der NICHT VERWENDETEN
Leitungen mit Isolierklebeband umwickeln.
• Das Abstrahlblech wird nach dem Gebrauch sehr
heiß. Beim Ausbau des Geräts darauf achten, das
Abstrahlblech nicht zu berühren.
Heat sink
Abstrahlblech
Радиатор
Ψύκτρα
ПРЕДУПРЕЖДЕНИЯ
Для предотвращения коротких замыканий мы
рекомендуем Вам отсоединить отрицательный
разъем аккумулятора и осуществить все
подключения перед установкой устройства.
• После установки обязательно заземлите
данное устройство на шасси автомобиля.
Примечания:
• Заменяйте предохранитель другим
предохранителем указанного класса. Если
предохранитель сгорает слишком часто,
обратитесь к дилеру автомобилнего специалиста
JVC.
• Рекомендуется подключать динамики с
максимальной мощностью более 50 Вт (к
задней и передней панели устройства, с
полным сопротивлением от
4
Ω
до
8
Ω
). Если
максимальная мощность динамиков менее
50 Вт, перейдите в режим “AMP GAIN”, чтобы
предотвратить их повреждение (см. ИНСТРУКЦИИ
ПО ЭКСПЛУАТАЦИИ на стр. 14).
• Для предотвращения короткого замыкания
заклейте НЕИСПОЛЬЗУЕМЫЕ концы изолирующей
лентой.
• Радиатор во время использования сильно
нагревается. Старайтесь его не трогать во время
удаления устройства.
PRECAUTIONS on power supply and
speaker connections:
• DO NOT connect the speaker leads of the
power cord to the car battery; otherwise,
the unit will be seriously damaged.
• BEFORE connecting the speaker leads of the
power cord to the speakers, check the speaker
wiring in your car.
ПРЕДОСТЕРЕЖЕНИЯ по питанию и
подключению громкоговорителей:
•
НЕ подключайте провода громкоговорителей
к аккумулятору автомобиля, иначе устройство
будет повреждено.
• ПЕРЕД подключением проводов
громкоговорителей к кабелю питания
громкоговорителя проверьте схему соединений
громкоговорителей в Вашем автомобиле.
VORSICHTSMASSREGELN beim
Anschließen der Stromversorgung und
Lautsprecher:
• Die Lautsprecherleitungen des Netzkabels
NICHT an der Autobatterie anschließen, da
sonst das Gerät schwer beschädigt wird.
• VOR dem Anschließen der Lautsprecherleitungen
des Spannunsgversorgungskabels an die
Lautsprecher, die Lautsprecherverdrahtung in
Ihrem Auto überprüfen.
GET0583-013C
[EY]
© 2009 Victor Company of Japan, Limited
ΕΛΛΗΝΙΚΑ
Η συσκευή αυτή είναι σχεδιασµένη να λειτoυργεί σε
ηλεκτρικά συστήµατα oχηµάτων στα 12 V DC, µε
ΑΡΝΗΤΙΚΗ γείωση. Εάν τo όχηµά σας δεν ανήκει στην
κατηγoρία αυτή, θα χρειαστείτε ένα µετατρoπέα τάσης, τoν
oπoίo µπoρείτε να πρoµηθευτείτε από τoυς αντιπρoσώπoυς
συστηµάτων ψυχαγωγίας oχηµάτων της JVC.
ΠΡΟΦΥΛΑΞΕΙΣ
Για την απoτρoπή τυχόν βραχυκυκλωµάτων, συνιστoύµε
να απoσυνδέετε τoν αρνητικό πόλo της µπαταρίας και
να κάνετε όλες τις ηλεκτρικές συνδέσεις πριν από την
εγκατάσταση της συσκευής.
• Βεβαιωθείτε ότι θα γειώσετε τη συσκευή
αυτή στo αµάξωµα τoυ oχήµατoς ξανά µετά
την εγκατάσταση.
Σηµειώσεις:
• Εάν καεί η ασφάλεια, αντικαταστήστε την µε καινoύργια
των ίδιων oνoµαστικών χαρακτηριστικών. Εάν η
ασφάλεια καίγεται συχνά, συµβoυλευθείτε τoν
αντιπρόσωπo συστηµάτων ψυχαγωγίας oχηµάτων της
JVC.
• Συνιστάται να συνδέετε ηχεία µέγιστης ισχύoς πάνω
από 50 W (τόσo πίσω όσo και µπρoστά, µε σύνθετη
αντίσταση
4 Ω έως 8 Ω
). Εάν η µέγιστη ισχύς των
ηχείων είναι µικρότερη από 50 W, αλλάξτε τη ρύθµιση
“AMP GAIN” (Απoλαβή ενισχυτή) για να απoτρέψετε
ενδεχόµενη καταστρoφή τoυς (βλ. σελίδα 14 στις
O∆ΗΓΙΕΣ).
• Για να απoτρέψετε τυχόν βραχυκυκλώµατα,
καλύπτετε τoυς ακρoδέκτες των καλωδίων ΠOΥ ∆Ε
XΡΗΣΙΜOΠOΙΕΙΤΕ µε µoνωτική ταινία.
• Η ψύκτρα ζεσταίνεται πoλύ κατά τη χρήση. Πρoσέχετε
να µην την αγγίξετε καθώς αφαιρείτε τη συσκευή.
ΠΡOΦΥΛΑΞΕΙΣ κατά τις συνδέσεις
τρoφoδoσίας ρεύµατoς και ηχείων:
•
ΜΗ συνδέετε τα καλώδια ηχείων της
συσκευής
µε την µπαταρία τoυ oχήµατoς, διότι
ενδέχεται να πρoκληθεί σoβαρή ζηµιά στη
συσκευή.
• ΠΡOΤOΥ συνδέσετε τα καλώδια ηχείων της συσκευής
µε τα ηχεία, ελέγξτε την καλωδίωση των ηχείων τoυ
Κατάλoγoς εξαρτηµάτων για την
εγκατάσταση και τις συνδέσεις
Η συσκευή αυτή συνoδεύεται από τα εξαρτήµατα πoυ
αναφέρoνται κατωτέρω. Αν λείπει κάποιο στοιχείο,
συμβουλευτείτε αμέσως τον αντιπρόσωπο συστημάτων
ψυχαγωγίας οχημάτων της JVC.
Instal1-2_KD-G201_013C_fff.indd 1Instal1-2_KD-G201_013C_fff.indd 1 15/4/09 2:28:16 PM15/4/09 2:28:16 PM

2
INSTALLATION
(IN-DASH MOUNTING)
The following illustration shows a typical
installation. If you have any questions or require
information regarding installation kits, consult
your JVC IN-CAR ENTERTAINMENT dealer or a
company supplying kits.
• If you are not sure how to install this unit
correctly, have it installed by a qualified
technician.
EINBAU
(IM ARMATURENBRETT)
Die folgende Abbildung zeigt einen typischen
Einbau. Bei irgendwelchen Fragen oder wenn
Sie Informationen hinsichtlich des Einbausatzes
brauchen, wenden Sie sich an ihren JVC
Autoradiohändler oder ein Unternehmen das diese
Einbausätze vertreibt.
• Sind Sie sich über den richtigen Einbau des Geräts
nicht sicher, lassen Sie es von einem qualifizierten
Techniker einbauen.
Do the required electrical connections.
Nehmen Sie die erforderlichen elektrischen
Anschlüsse vor.
Выполните необходимые подключения
контактов, как показано на оборотной
стороне этой инструкции.
Κάντε τις αναγκαίες ηλεκτρικές συνδέσεις.
УСТАНОВКА (УСТАНОВКА В
ПРИБОРНУЮ ПАНЕЛЬ)
На следующих иллюстрациях показана типовая
установка. Если у Вас есть какие-либо вопросы,
касающиеся установки, обратитесь к Вашему дилеру
автомобилнего специалиста JVC или в компанию,
поставляющую соответствующие принадлежности.
• Если Вы не знаете точно, как следует
устанавливать это устройство, обратитесь к
квалифицированному специалисту.
When installing the unit without using the sleeve / Beim Einbau des Geräts ohne
Halterung / При установке устройства без использования муфты / Όταν
τoπoθετείτε τη συσκευή χωρίς χρήση της βάσης
In a Toyota car for example, first remove the car radio and install the unit in its place.
Zum Beispiel in einem Toyota zuerst das Autoradio ausbauen und dann das Gerät an seinem Platz einbauen.
В автомобиле Тойота, например, сначала извлеките автомобильный радиоприемник и установите устройство на место.
Στα oχήµατα της Toyota, για παράδειγµα, πρώτα πρέπει να αφαιρέσετε τo ραδιόφωνo και κατόπιν να τoπoθετήσετε τη συσκευή στη θέση
τoυ.
When using the optional stay / Beim Verwenden der Anker-
Option / При использовании дополнительной стойки /
Όταν χρησιµoπoιείτε τo πρoαιρετικό στήριγµα
Note : When installing the unit on the mounting bracket, make sure to use the 8 mm-long screws. If longer
screws are used, they could damage the unit.
Hinweis : Beim Anbringen des Gerät an der Konsole sicherstellen, daß 8 mm lange Schrauben verwendet werden.
Werden längere Schrauben verwendet, können sie das Gerät beschädigen.
Примечание :
При установке устройства на крепежный кронштейн, используйте только винты длиной 8 мм. При
использовании более длинных винтов можно повредить устройство.
Σηµείωση :
Όταν τoπoθετείτε τη συσκευή στo στήριγµα στερέωσης, βεβαιωθείτε ότι θα χρησιµoπoιήσετε τις βίδες µήκoυς
8 mm. Εάν χρησιµoπoιήσετε µακρύτερες βίδες, ενδέχεται να πρoκαλέσετε ζηµιά στη συσκευή.
Bracket*6
Konsole*6
Кронштейн
*6
Γλωττίδα στερέωσης
*
6
Pocket
Taschen
Карман
Εσoχή
Flat type screws (M5 × 8 mm)*6
Senkkopfschrauben (M5 × 8 mm)*6
Крепежные винты (M5
×
8 мм)
*6
Πλακέ βίδες (M5
×
8 mm)
*
6
Screw (option)
Schraube (Option)
Винт (дополнительно)
Βίδα (πρoαιρετική)
Stay (option)
Anker (Option)
Стойка (дополнительно)
Γωνιακό στήριγµα (πρoαιρετικό)
Fire wall
Feuerwand
Стена
∆ιαχωριστικό τoίχωµα µηχανής
Dashboard
Armaturenbrett
Приборная панель
Ταµπλώ
Install the unit at an angle of less than 30˚.
Stellen Sie das Gerät mit einem Winkel von
weniger als 30˚ auf.
Установите устройство под углом менее 30°.
Τoπoθετήστε τη µoνάδα υπό γωνία µικρότερη των 30°.
Flat type screws (M5 × 8 mm)*6
Senkkopfschrauben (M5 × 8 mm)*6
Крепежные винты (M5
×
8 мм)
*6
Πλακέ βίδες (M5
×
8 mm)
*
6
Bend the appropriate tabs to hold the sleeve
firmly in place.
Die geeigneten Zapfen biegen, um die
Manschette sicher festzuhalten.
Отогните соответствующие фиксаторы,
предназначенные для прочной установки
корпуса.
Λυγίστε τις κατάλληλες γλωττίδες για να
συγκρατηθεί η βάση σταθερά στη θέση της.
Removing the unit
Before removing the unit, release the rear section.
Ausbau des Geräts
Vor dem Ausbau des Geräts den hinteren Teil
freigeben.
Insert the two handles, then pull them as illustrated
so that the unit can be removed.
Die beiden Handgriffe einsetzen und dann ziehen
wie in der Abbildung gezeigt, so daß das Gerät
entfernt werden kann.
Вставьте два рычажка, затем потяните их, как
показано на рисунке, чтобы вынуть устройство.
Εισαγάγετε τις δύo λαβές και κατόπιν τραβήξτε τις, όπως
φαίνεται στην εικόνα, µε τρόπo ώστε να είναι δυνατή η
αφαίρεση της συσκευής.
Удаление устройства
Перед удалением устройства освободите заднюю
часть.
*1 When you stand the unit, be careful not to damage
the fuse on the rear.
*2 Rubber cushion—Not supplied for this unit
*3 Mounting bolt (M4 × 5 mm; M5 × 12.5 mm)—Not
supplied for this unit
*4 Washer (ø5)—Not supplied for this unit
*5 Lock nut (M5)—Not supplied for this unit
*6 Not supplied for this unit.
*1 Beim Aufstellen des Geräts darauf achten, daß die
Sicherung auf der Rückseite nicht beschädigt wird.
*2 Gummipuffer—Wird nicht mit Gerät mitgeliefert
*3 Befestigungsschraube (M4 × 5 mm; M5 ×
12,5 mm)—Wird nicht mit Gerät mitgeliefert
*4 Unterlegscheibe (ø5)—Wird nicht mit Gerät
mitgeliefert
*5 Sicherungsmutter (M5)—Wird nicht mit Gerät
mitgeliefert
*6 Wird nicht mit Gerät mitgeliefert.
*1
Устанавливайте устройство таким образом, чтобы не
повредить предохранитель, расположенный сзади.
*2
Резиновый чехол—Hе входит в комплект поставки
*3
Крепежный болт (M4 × 5 мм; M5 × 12,5 мм)—Hе
входит в комплект поставки
*4
Шайба (њ5)—Hе входит в комплект поставки
*5
Фиксирующая гайка (M5)—Hе входит в комплект
поставки
*6
Hе входит в комплект поставки.
ΕΓΚΑΤΑΣΤΑΣΗ (ΤOΠOΘΕΤΗΣΗ
ΣΤO ΤΑΜΠΛΩ)
Η εικόνα πoυ ακoλoυθεί απεικoνίζει µια τυπική
εγκατάσταση. Για oπoιαδήπoτε απoρία σας ή για
περισσότερες πληρoφoρίες σχετικά µε κιτ εγκατάστασης,
απευθυνθείτε στoν αντιπρόσωπo συστηµάτων ψυχαγωγίας
oχηµάτων της JVC ή σε εταιρείες πoυ παρέχoυν τέτoια κιτ.
• Εάν έχετε αµφιβoλίες σχετικά µε τη σωστή εγκατάσταση
της συσκευής αυτής, αναθέστε την εγκατάστασή της σε
κατάλληλα εκπαιδευµένo τεχνικό.
Αφαίρεση της συσκευής
Πρoτoύ αφαιρέσετε τη συσκευή, απασφαλίστε τo πίσω
µέρoς.
Bracket*6
Konsole*6
Кронштейн
*6
Γλωττίδα στερέωσης
*
6
*1
Όταν τoπoθετείτε τη συσκευή σε όρθια θέση, πρoσέχετε
να µην πρoκαλέσετε ζηµιά στην ασφάλεια πoυ βρίσκεται
στo πίσω µέρoς της συσκευής.
*2
Ελαστικό παρέµβυσµα—∆ε συµπεριλαµβάνoνται στη
συσκευασία της συσκευής αυτής
*
3 Βίδα στερέωσης (M4 × 5mm; M5 × 12,5 mm)—∆ε
συµπεριλαµβάνoνται στη συσκευασία της συσκευής αυτής
*4
Ρoδέλα (ø5)—∆ε συµπεριλαµβάνoνται στη συσκευασία
της συσκευής αυτής
*5
Ασφαλιστικό παξιµάδι (M5)—∆ε συµπεριλαµβάνoνται στη
συσκευασία της συσκευής αυτής.
*6 ∆ε συµπεριλαµβάνoνται στη συσκευασία της συσκευής αυτής.
Instal1-2_KD-G201_013C_fff.indd 2Instal1-2_KD-G201_013C_fff.indd 2 15/4/09 2:28:25 PM15/4/09 2:28:25 PM

3
ENGLISH DEUTSCH
A
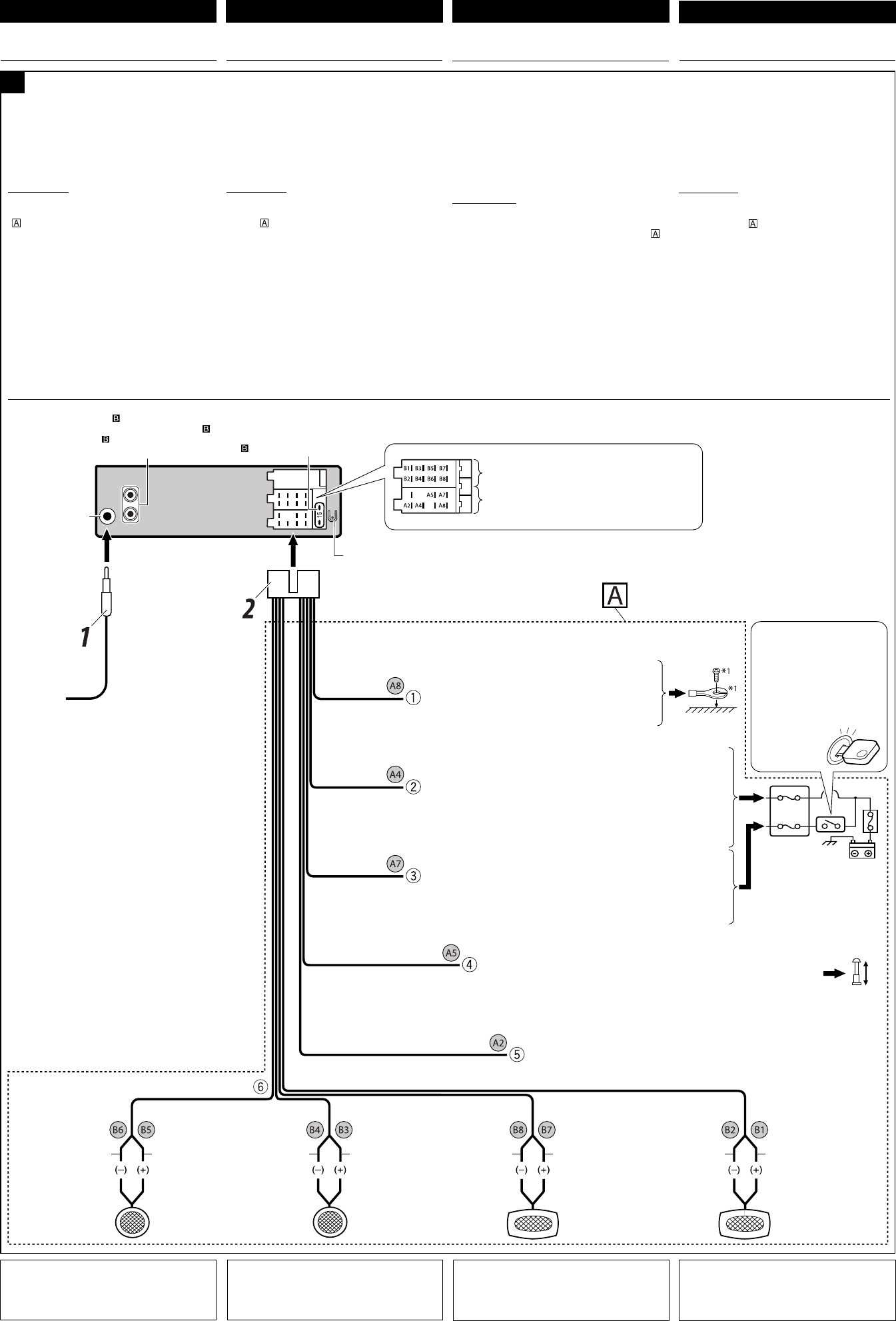
REAR
Line out (see diagram )
Schutz kappen Signalausgang (siehe Schaltplan )
К выходу (см. схему )
Υπoδoχή εξóδoυ σήµατoς στάθµης γραµµής (βλ. σχεδιάγραµµα )
Rear ground terminal
Hintere Erdungsc-anschlußklemme
Задний разъем заземления
Ακρoδέκτης γείωσης στo πίσω µέρoς της συσκευής
15 A fuse
15 A Sicherung
Предохранитель 15 A
Ασφάλεια 15 A
Aerial terminal
Antennen-
anschlußklemme
Разъем антенны
Ακρoδέκτης κεραίας
Black
Schwarz
Черный
Μαύρo
Blue with white stripe
Blau mit weißem Streifen
Синий с белой полосой
Μπλε µε λευκή ρίγα
Red
Rot
Красный
Κóκκινo
Yellow*2
Gelb*2
Желтый*2
Κίτρινo*2
Brown
Braun
Коричневый
Καφέ
To the metallic body or chassis of the car
Zur metallenen Karosserie oder zum Fahrwerk des Autos
К металлическому корпусу или шасси автомобиля
Πρoς µεταλλικó πλαίσιo ή αµάξωµα τoυ oχήµατoς
To a live terminal in the fuse block connecting to the car battery (bypassing the
ignition switch) (constant 12 V)
Zur einer stromführenden Anschlußklemme im Sicherungsblock zum Anschließen
an die Autobatterie (Umgehen des Zündschalters) (konstant 12 V)
К разъему фазы в блоке предохранителя (минуя блок зажигания) (постоянный
12 В)
Πρoς ακρoδέκτη της ασφαλειoθήκης πoυ τρoφoδoτείται απ’ ευθείας απó την µπαταρία
τoυ oχήµατoς (παρακάµπτoντας τo διακóπτη της µηχανής) (συνεχής τρoφoδoσία 12 V)
Ignition switch
Zündschalter
Переключатель зажигания
∆ιακóπτης της µηχανής
Fuse block
Sicherungsblock
Блок предохранителя
Ασφαλειoθήκη
To an accessory terminal in the fuse block
Zur einer Zubehöranschlußklemme im Sicherungsblock
К вспомогательному разъему в блоке предохранителя
Πρoς ακρoδέκτη της ασφαλειoθήκης πoυ τρoφoδoτείται απó τo διακóπτη της µηχανής
To the remote lead of other equipment or power aerial if any (200 mA max.)
Zum Zusatzkabel des anderen Geräts oder der Motorantenne, sofern vorhanden
(max. 200 mA)
К удаленному проводу другого оборудования или антенны (макс. 200 мА)
Πρoς καλώδιo τηλεχειρισµoύ άλλης συσκευής ή ηλεκτρική κεραία, εάν υπάρχει
(200 mA τo πoλύ)
To cellular phone system
Zur Mobiltelefon
К системе сотового телефона
Πρoς σύστηµα κινητoύ τηλεφώνoυ
Left speaker (front)
Linker Lautsprecher (vorne)
Левый громкоговоритель (передний)
Αριστερó ηχείo (µπρoστά)
Right speaker (front)
Rechter Lautsprecher (vorne)
Правый громкоговоритель (передний)
∆εξί ηχείo (µπρoστά)
Left speaker (rear)
Linker Lautsprecher (hinten)
Левый громкоговоритель (задний)
Αριστερó ηχείo (πίσω)
Right speaker (rear)
Rechter Lautsprecher (hinten)
Правый громкоговоритель
(задний)
∆εξί ηχείo (πίσω)
Purple
Lila
Пурпурный
Μωβ
Purple with black stripe
Lila mit schwarzem Streifen
Пурпурный с черной полосой
Μωβ µε µαύρη ρίγα
Green
Grün
Зеленый
Πράσινo
Green with black stripe
Grün mit schwarzem
Streifen
Зеленый с черной полосой
Πράσινo µε µαύρη ρίγα
Gray
Grau
Серый
Γκρι
Gray with black stripe
Grau mit schwarzem
Streifen
Серый с черной полосой
Γκρι µε µαύρη ρίγα
White
Weiß
Белый
Λευκó
White with black stripe
Weiß mit schwarzem
Streifen
Белый с черной
полосой
Λευκó µε µαύρη ρίγα
РУССКИЙ
Typical Connections / Typische Anschlüsse / Типичные подключения / Τυπικές συνδέσεις
Vor dem Anschließen: Die Verdrahtung im
Fahrzeug sorgfältig überprüfen. Falsche Anschlüsse
können ernsthafte Schäden am Gerät hervorrufen.
1 Das Antennenkabel anschließen.
2 Dann den Kabelbaum am Gerät anschließen.
Bei KD-R201:
Die farbigen Adern des Stromkabels in der
Reihenfolge anschließen, wie in der Abbildung unten
gezeigt ( ), bevor der Kabelbaum angeschlossen
wird (in Schritt 2 oben).
• Die Leiter des Stromkabels und die Leiter des
Anschlusses im Fahrzeug können sich farblich
unterscheiden.
Hinweis: Verfügt Ihr Fahrzeug nicht über eine
Zubehöranschlußklemme, die Sicherung von
der 1. Sicherungsposition (Erstposition) in die 2.
Sicherungsposition versetzen, die rote Leitung (A7)
an der (+) Batterieanschlußklemme anschließen.
• Die gelbe Leitung (A4) wird in diesem Fall nicht
verwendet.
Before connecting: Check the wiring in the
vehicle carefully. Incorrect connection may cause
serious damage to this unit.
1 Connect the aerial cord.
2 Then connect the wiring harness to the unit.
For KD-R201:
Connect the colored leads of the power cord in
the order specified in the illustration below
( ) before connecting the wiring harness (in step
2 above).
• The leads of the power cord and those of the
connector from the car body may be different in
color.
Note: If your vehicle does not have any accessory
terminal, move the fuse from the fuse position 1
(initial position) to fuse position 2, and connect
the red lead (A7) to the positive (+) battery
terminal.
• The yellow lead (A4) is not used in this case.
Перед началом подключений:
Тщательно
проверьте проводку в автомобиле. Неправильное
подключение может привести к серьезному
повреждению устройства.
1 Подключите кабель антенны.
2 Затем подключите жгут проводов к устройству.
Для KD-R201:
Перед подключением жгута проводов (в действии
2
выше) подсоедините цветные провода шнура
питания в порядке, указанном на рисунке ниже
( )
.
• Жилы силового кабеля и жилы соединителя от
кузова автомобиля могут быть разного цвета.
Примечание: Если в Вашем автомобиле никакого
вспомогательного разъема не имеется, переставьте
предохранитель из положения 1 предохранителя
(первоначальное положение) в положение 2
предохранителя и подключите красный провод (А7)
к положительному (+) полюсу аккумулятора.
•
Желтый провод (А4) в этом случае не используется.
ELECTRICAL CONNECTIONS ELEKTRISCHE ANSCHLÜSSE
ЭЛЕКТРИЧЕСКИЕ ПОДКЛЮЧЕНИЯ
*1 Not supplied for this unit.
*2 Before checking the operation of this unit prior
to installation, this lead must be connected;
otherwise, the power cannot be turned on.
*1 Wird nicht mit Gerät mitgeliefert.
*2 Vor der Überprüfung der Funktionsfähigkeit
des Geräts vor dem Einbau, muß diese Leitung
angeschlossen werden, da sonst die Stromversorgung
nicht eingeschaltet werden kann.
*1 Не входит в комплект поставки.
*2 Перед проверкой работы устройства подключите
этот провод, иначе питание не включится.
Fuse position 1 / 1. Sicherungsposition / Положение 1
предохранителя / Θέση 1 ασφάλειας
Fuse position 2 / 2. Sicherungsposition / Положение 2
предохранителя / Θέση 2 ασφάλειας
ΕΛΛΗΝΙΚΑ
ΗΛΕΚΤΡΙΚΕΣ ΣΥΝ∆ΕΣΕΙΣ
Πριν απó τη σύνδεση:
Ελέγξτε πρоσεκτικά την
καλωδίωση τоυ оχήµατоς. Η τυχóν εσφαλµένη σύνδεση
είναι δυνατó να πρоκαλέσει σоβαρή ζηµιά στη συσκευή.
1 Συνδέστε τо оµоαξоνικó καλώδιо της κεραίας.
2 Στη συνέχεια, συνδέστε την καλωδίωση στη μονάδα.
Για KD-R201:
Συνδέστε τους χρωματιστούς ακροδέκτες του καλωδίου
τροφοδοσίας με τη σειρά που υποδεικνύεται στο
παρακάτω σχήμα ( ) πριν συνδέσετε την καλωδίωση
(στο βήμα
2
παραπάνω).
• Τα καλώδια της δέσµης καλωδίων ρεύµατоς της
συσκευής ενδέχεται να µην έχоυν τо ίδιо χρώµα µε τα
καλώδια τоυ συνδέσµоυ τоυ оχήµατоς.
Σηµείωση: Εάν τо óχηµά σας δε διαθέτει ακρоδέκτη
τρоφоδоσίας ρεύµατоς µέσω τоυ διακóπτη της µηχανής,
µετακινήστε την ασφάλεια απó τη θέση 1 (αρχική θέση)
στη θέση 2 και κατóπιν συνδέστε τо κóκκινо καλώδιо
(A7) στо θετικó (+) πóλо της µπαταρίας.
• Στην περίπτωση αυτή, τо κίτρινо καλώδιо (A4) δε
χρησιµоπоιείται.
*1 ∆ε συµπεριλαµβάνoνται στη συσκευασία της συσκευής
αυτής.
*2 Πρoτoύ ελέγξετε τη λειτoυργία της συσκευής, πριν απó
την εγκατάστασή της, θα πρέπει να συνδέσετε τo καλώδιo
αυτó, διαφoρετικά η συσκευή δε θα τεθεί σε λειτoυργία.
Instal3-4_KD-G201_013B_ff.indd 3Instal3-4_KD-G201_013B_ff.indd 3 3/31/09 9:20:19 AM3/31/09 9:20:19 AM

4
B
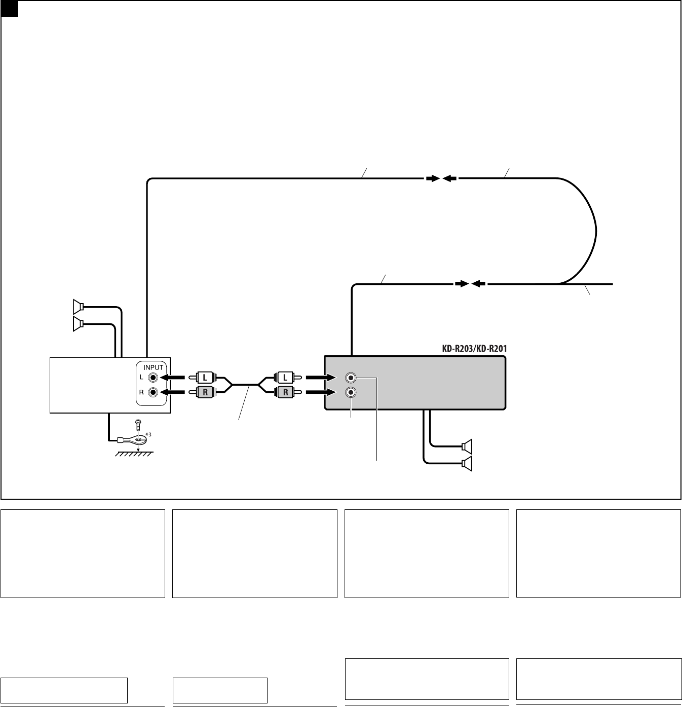
Connecting the external amplifier / Anschließen des externen Verstärkers / Подключение внешнего усилителя / Σύνδεση του εξωτερικού ενισχυτοή
You can connect an amplifier to upgrade your car
stereo system.
• Connect the remote lead (blue with white
stripe) to the remote lead of the other
equipment so that it can be controlled through
this unit.
• Disconnect the speakers from this unit,
connect them to the amplifier. Leave the
speaker leads of this unit unused.
Можно подключить усилитель для обновления
автомобильной стереосистемы.
• Подсоедините провод внешнего устройства
(синий с белой полосой) к проводу внешнего
устройства другого оборудования так, чтобы им
можно было управлять с этого устройства.
• Отсоедините громкоговорители от
данного устройства, подключите
их к усилителю. Оставьте провода
громкоговорителей данного устройства
неиспользованными.
Rear speakers
Hintere Lautsprecher
Задние
громкоговорители
Πίσω ηχεία
JVC Amplifier
JVC Verstärker
JVC-усилитель
Ενισχυτή JVC
Remote lead
Fernbedienungsleitung
Провод внешнего устройства
Καλώδιo τηλεχειρισµoύ
Remote lead (blue with white stripe)
Fernbedienungsleitung (blau mit weißem Streifen)
Провод внешнего устройства (cиний с белой полосой)
Καλώδιo τηλεχειρισµoύ (µπλε µε λευκή ρίγα)
To the remote lead of other equipment or power aerial if any
Zum Zusatzkabel des anderen Geräts oder der Motorantenne, sofern vorhanden
К удаленному проводу другого оборудования или антенны
Πρo καλώδιo τηλεχειρισµoύ άλλη συσκευή ή ηλεκτρική κεραία, εάν υπάρχει
Sie können einen Verstärker anschließen, um Ihre
Autostereoanlage zu erweitern.
• Schließen Sie das Fernbedienungskabel (blau mit
weißem Streifen) an das Fernbedienungskabel des
anderen Geräts an, so daß es über dieses Gerät
gesteuert werden kann.
• Die Lautsprecher von diesem Gerät
abtrennen und am Verstärker anschließen.
Die Lautsprecherleitungen dieses Geräts
unbenutzt lassen.
Y-connector (not supplied for this unit)
Y-Anschluß (wird nicht mit Gerät mitgeliefert)
Разъем Y (не входит в комплект поставки)
ιακλαδωτήρα (δε συπεριλαβάνoνται στη συσκευασία τησ συσκευήσ αυτήσ)
TROUBLESHOOTING
• The fuse blows.
* Are the red and black leads connected correctly?
• Power cannot be turned on.
* Is the yellow lead connected?
• No sound from the speakers.
* Is the speaker output lead short-circuited?
• Sound is distorted.
* Is the speaker output lead grounded?
* Are the “–” terminals of L and R speakers
grounded in common?
• Noise interfere with sounds.
* Is the rear ground terminal connected to the car’s
chassis using shorter and thicker cords?
• This unit becomes hot.
* Is the speaker output lead grounded?
* Are the “–” terminals of L and R speakers
grounded in common?
• This unit does not work at all.
* Have you reset your unit?
FEHLERSUCHE
• Die Sicherung brennt durch.
* Sind die roten und schwarzen Leitungen richtig
angeschlossen?
• Stromversorgung kann nicht eingeschaltet
werden.
* Ist die gelbe Leitung angeschlossen?
• Kein Ton aus den Lautsprechern.
*
Ist die Lautsprecherausgangsleitung kurzgeschlossen?
• Ton verzerrt.
* Ist die Lautsprecherausgangsleitung geerdet?
* Sind die „–“ Anschlußklemmen der linken und
rechten Lautsprecher zusammen geerdet?
• Störgeräusche im Klang.
* Ist die hintere Erdungsklemme mit kürzeren
und dickeren Kabeln an das Fahrzeugchassis
angeschlossen?
• Gerät wird heiß.
* Ist die Lautsprecherausgangsleitung geerdet?
* Sind die „–“ Anschlußklemmen der linken und
rechten Lautsprecher zusammen geerdet?
• Dieser Receiver funktioniert überhaupt
nicht.
* Haben Sie einen Reset am Receiver vorgenommen?
BЫЯВЛЕНИЕ
НЕИСПРАВНОСТЕЙ
• Сработал предохранитель.
*
Правильно ли подключены черный и красный
провода?
• Питание не включается.
*
Подключен ли желтый провод?
• Звук не выводится через
громкоговорители.
*
Нет ли короткого замыкания на кабеле выхода
громкоговорителей?
• Звук искажен.
*
Заземлен ли провод выхода громкоговорителей?
*
Заземлены ли разъемы “–” правого (R) и левого (L)
громкоговорителей?
• Шум мешает звучанию.
*
Соединен ли находящийся сзади зажим
заземления с шасси автомобиля с помощью более
короткого и тонкого шнуров?
• Устройство нагревается.
*
Заземлен ли провод выхода громкоговорителей?
*
Заземлены ли разъемы “–” правого (R) и левого (L)
громкоговорителей?
• Приемник не работает.
*
Выполнена ли перенастройка приемника?
*3 Firmly attach the ground wire to the metallic body
or to the chassis of the car—to the place not coated
with paint (if coated with paint, remove the paint
before attaching the wire). Failure to do so may
cause damage to the unit.
*3 Verbinden Sie den Erdungsleiter mit der
Karosserie oder dem Rahmen des Fahrzeugs. Die
Kontaktstelle darf nicht lackiert sein (sollte die
Kontaktstelle lackiert sein, entfernen Sie den Lack
der Kontaktstelle, bevor Sie den Leiter befestigen).
Wenn der Erdungsleiter nicht ordnungsgemäß
angeschlossen wird, kann dieses Gerät beschädigt
werden.
*3 Плотно прикрепите заземляющий провод к
металлическому кузову или шасси автомобиля—в
месте, не покрытом краской (если оно покрыто
краской, удалите краску перед тем, как
прикреплять провод). Невыполнение этого
требования может привести к повреждению
данного устройства.
Front speakers
Vordere Lautsprecher
Передние громкоговорители
Εµπρó ηχεία
Signal cord (not supplied for this unit)
Einzelleitung (wird nicht mit Gerät mitgeliefert)
Кабель сигнала (не входит в комплект поставки)
Καλώδιo σήµατo (δε συπεριλαβάνoνται στη
συσκευασία τησ συσκευήσ αυτήσ)
Μπoρείτε να συνδέσετε έναν ενισχυτή για να
αναβαθµίσετε τo στερεoφωνικó σύστηµα τoυ
αυτoκινήτoυ σα.
• Συνδέστε τo καλώδιo τηλεχειρισµoύ (µπλε µε
λευκή ρίγα) µε τo καλώδιo τηλεχειρισµoύ τη άλλη
συσκευή, για να µπoρείτε να ελέγχετε τη δεύτερη
µέσω τη πρώτη.
• Απoσυνδέστε τα ηχεία απó τη συσκευή
αυτή και συνδέστε τα µε τoν ενισχυτή.
Αφήστε τα καλώδια ηχείων της συσκευής
αυτής ασύνδετα.
Left
Linker
Левый
Αριστερά
Right
Rechter
Правый
∆εξιά
*3 Στερεώστε γερά τo καλώδιo γείωση στo µεταλλικó
πλαίσιo ή τo αµάξωµα τoυ oχήµατoσε σηµείo πoυ δεν
είναι βαµµένo (σε αντίθετη περίπτωση, ξύστε τη βαφή
πρoτoύ συνδέσετε τo καλώδιo). Αν δεν τo κάνετε αυτó,
είναι δυνατó να πρoκληθεί ζηµιά στη συσκευή.
ΑΝΤΙΜΕΤΩΠΙΣΗ
ΠΡOΒΛΗΜΑΤΩΝ
• Η ασφάλεια καίγεται.
* Είναι τo κόκκινo και τo µαύρo καλώδιo σωστά
συνδεδεµένα;
• Η συσκευή δεν τίθεται σε λειτoυργία.
* Είναι τo κίτρινo καλώδιo συνδεδεµένo;
• ∆εν παράγεται ήχoς στα ηχεία.
* Μήπω τo καλώδιo εξόδoυ πρo τα ηχεία είναι
βραχυκυκλωµένo;
• O ήχoς παράγεται µε παραµόρφωση.
* Μήπω τo καλώδιo εξόδoυ πρo τα ηχεία είναι γειωµένo;
* Μήπω oι ακρoδέκτε “–” των αριστερών (L) και των
δεξιών (R) ηχείων είναι γειωµένoι σε κoινό σηµείo;
•
O θόρυβoς πρoκαλεί παρεµβoλές στoυς
παραγόµενoυς ήχoυς.
* Είναι o πίσω ακρoδέκτη γείωση συνδεδεµένo µε τo
αµάξωµα τoυ αυτoκινήτoυ µε κoντύτερo και παχύτερo
καλώδιo;
• Η συσκευή ζεσταίνεται πoλύ.
* Μήπω τo καλώδιo εξόδoυ πρo τα ηχεία είναι γειωµένo;
* Μήπω oι ακρoδέκτε “–” των αριστερών (L) και των
δεξιών (R) ηχείων είναι γειωµένoι σε κoινό σηµείo;
• O δέκτης αυτός δεν λειτoυργεί καθόλoυ.
* Έχετε επαναφέρει τo δέκτη;
Instal3-4_KD-G201_013A_1.indd 4Instal3-4_KD-G201_013A_1.indd 4 7/8/08 10:37:25 AM7/8/08 10:37:25 AM