Kenmore 11027122310 User Manual COMMERCIAL AUTOMATIC WASHER Manuals And Guides 1304435L
User Manual: Kenmore 11027122310 11027122310 KENMORE COMMERCIAL AUTOMATIC WASHER - Manuals and Guides View the owners manual for your KENMORE COMMERCIAL AUTOMATIC WASHER #11027122310. Home:Laundry & Garment Care Parts:Kenmore Parts:Kenmore COMMERCIAL AUTOMATIC WASHER Manual
Open the PDF directly: View PDF
.
Page Count: 44

Installation Instructions
instructions d'installation
Instrucciones de instalaci6n
English /Espa_ol /F:rangais
Table of Contents /indJce /Table des mati_res ......2
Models/Modelos/Mod_les: 27122310, 2992310 _
Ke re®
@
ksv u$$
¢__ color number, nOmero de color, num@o de couleur
P/N W10474358A
Sears Brands Management Corporation
Hoffman Estates, IL 60179 U.S.A.
www.kenmore.com
www.sears.com
Sears Canada Inc.
Toronto, Ontario, Canada M5B 2B8
www.sears.ca

Table of Contents
WASHER SAFETY ....................................... 3
TOOLS & PARTS ......................................... 4
DIMENSIONS .............................................. 5
LOCATION REQUIREMENTS .................... 6
DRAIN SYSTEM ........................................... 7
ELECTRICAL REQUIREMENTS .................. 8
INSTALLATION INSTRUCTIONS .............. 9
CONNECT DRAIN HOSE ........................ 10
CONNECT INLET HOSES ......................... 11
LEVEL WASHER ......................................... 12
INSTALLING COIN SLIDE AND
COIN BOX .................................................. 12
COMPLETE INSTALLATION ..................... 13
TYPICAL FULL LOAD SIZES ...................... 13
WASHER MAINTENANCE ...................... 14
ALTERNATE PARTS.................................... 14
PROTECTION AGREEMENTS .................. 15
ASSISTANCE OR SERVICE.BACK COVER
Indice
SEGURIDAD DE LA LAVADORA ............ 16
HERRAMIENTAS Y PIEZAS .................... 17
DIMENSIONES ....................................... 18
REQUlSITOS DE UBICACION .............. 19
SISTEMA DE DESAGUE ......................... 20
REQUlSITOS ELECTRICOS ...................... 21
INSTRUCCIONES DE INSTALACION...22
CONEXION DE LA MANGUERA
DE DESAGUE ........................................... 23
CONEXION DE LAS MANGUERAS
DE ENTRADA ............................................ 24
NIVELACION DE LA LAVADORA .......... 25
INSTALACION DEL TRAGAMONEDAS
Y LA CAJA DE MONEDAS .................... 26
COMPLETE LA INSTALACION ............ 26
TAMANOS DE CARGAS TJPICAS
DE VOLUMEN COMPLETO ................... 26
MANTENIMIENTO DE
LA LAVADORA ....................................... 27
PIEZAS ALTERNATIVAS ......................... 27
CONTRATOS DE PROTECCION ........... 28
AYUDA O SERVICIO
TECNICO ............................ Contraportada
Table des mati_res
SECURITE DE LA LAVEUSE ...................... 29
OUTILLAGE ET PIECES ............................ 30
DIMENSIONS ............................................. 31
EXIGENCES D'EMPLACEMENT .............. 32
SYSTEME DE VIDANGE .......................... 33
SP_:CIFICATIONS ELECTRIQUES ............ 34
INSTRUCTIONS D'INSTALLATION ........ 35
RACCORDEMENT DU TUYAU
DE VIDANGE ............................................ 36
RACCORDEMENT DES TUYAUX
D'ARRIV_:E D'EAU ..................................... 37
ETABLISSEMENT DE L'APLOMB DE
LA LAVEUSE ............................................... 38
INSTALLATION DE LA GLISSIERE ET
DE LA BO/TE _, MONNAIE ..................... 39
ACHEVER L'INSTALLATION .................... 39
TAILLE TYPIQUE DES CHARGES
COMPLETES .............................................. 39
ENTRETIEN DE LA LAVEUSE .................. 40
AUTRES PIECES ......................................... 41
CONTRATS DE PROTECTION ................ 42
ASSISTANCE OU
SERVICE ................ COUVERTURE ARRIERE

WASHER SAFETY
Your safety and the safety of others are very important.
We have provided many important safety messages in this manual and on your appliance. Always read and obey all safety
messages.
This is the safety alert symbol.
This symbol alerts you to potential hazards that can kill or hurt you and others.
All safety messages will follow the safety alert symbol and either the word "DANGER" or "WARNING."
These words mean:
You can be killed or seriously injured if you don't immediately
follow instructions.
You can be killed or seriously injured if you don't follow
instructions.
All safety messages will tell you what the potential hazard is, tell you how to reduce the chance of injury, and tell you what can
happen if the instructions are not followed.
iMPORTANT SAFETY iNSTRUCTiONS
WARNING: To reduce the risk of fire, electric shock, or injury to persons when using the washer, follow basic precautions,
including the following:
[] Read all instructions before using the washer.
[] Do not wash articles that have been previously cleaned
in, washed in, soaked in, or spotted with gasoline,
dry=cleaning solvents, other flammable, or explosive
substances as they give off vapors that could ignite or
explode.
[] Do not add gasoline, dry-cleaning solvents, or other
flammable, or explosive substances to the wash water.
These substances give off vapors that could ignite or
explode.
[] Under certain conditions, hydrogen gas may be
produced in a hot water system that has not been used
for 2 weeks or more. HYDROGEN GAS IS
EXPLOSIVE. if the hot water system has not been
used for such a period, before using the washing
machine, turn on all hot water faucets and let the water
flow from each for several minutes. This will release
any accumulated hydrogen gas. As the gas is
flammable, do not smoke or use an open flame during
[] Do not allow children to play on or in the washer. Close
supervision of children is necessary when the washer is used
near children.
[] Before the washer is removed from service or discarded,
remove the door or lid.
[] Do not reach into the washer if the drum, tub or agitator is
moving.
[] Do not install or store the washer where it will be exposed to
the weather.
[] Do not tamper with controls.
[] Do not repair or replace any part of the washer or attempt any
servicing unless specifically recommended in this manual or in
published user=repair instructionsthat you understand and
have the skills to carry out.
[] See "Electrical Requirements" located in the installation
instructions for grounding instructions.
this time. SAVE THESE iNSTRUCTiONS
FOR YOUR SAFETY i
1
Do not store or use gasoline or other flammable vapors and liquids in the vicinity of this or any other appliance.

TOOLS &
Tools Needed:
PARTS
Level Pliers Utility Knife
Adjustable Wrench
Optional tools:
Flat=Blade Screwdriver
Parts Supplled:
S
Water Inlet Hoses (2) Drain hose with clamp,
U=form, and cable tie
4

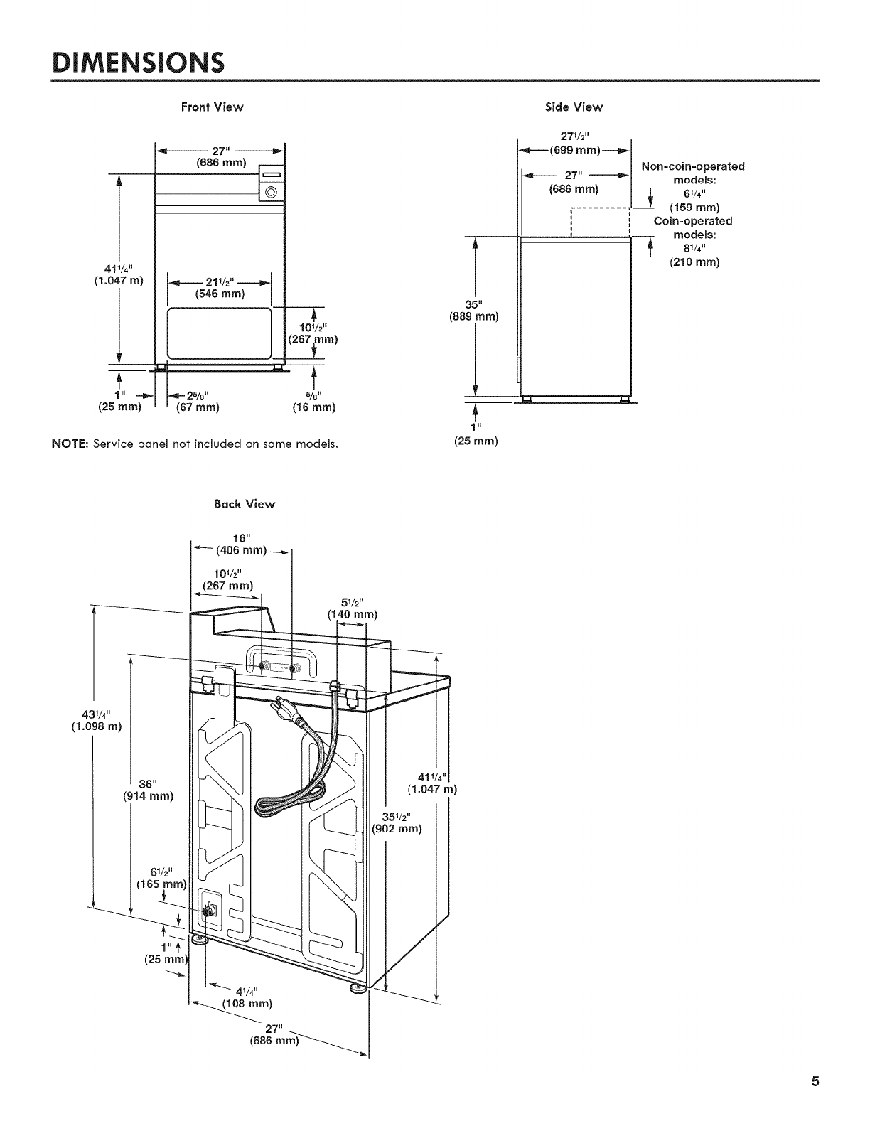
DIMENSIONS
Front View
[
411/4"
(1.047 m)
L
1" --D
(25 ram)
27"
(686 ram)
-(5211/2"
46 ram)
2s/8,, 5/8,,
(67 ram) (16 ram)
NOTE: Service panel not included on some models.
T
35"
(889 ram)
÷
1"
(25 ram)
Side View
271/2`'
-.t----- (699 mm)_
I Non-coin-operated
27" _l models:
(686 mm) _ 61/4,,
¢,--v (159 ram)
,' ' Coin-operated
............................_................ ' models:
q 81/4,,
(210 mm)
Back View
36"
(914 ram)
(25 ram'
41/4,,
(108 ram)
27"
(886
51/2 u
40 ram)
411/4"
(1.047 m)
351/2''
(902 ram)

LOCATION REQUIREMENTS
Selecting the proper location for your washer improves
performance and minimizes noise and possible washer "walk."
Your washer can be installed in a basement, laundry room, or
recessed area. See "Drain System."
Companion appliance location requirements should also be
considered.
iMPORTANT: Do not install or store the washer where it will be
exposed to the weather. Do not store or operate the washer in
temperatures at or below 32°F (0°C). Some water can remain in
the washer and can cause damage in low temperatures. Proper
installation is your responsibility.
You will need:
[] A water heater set to 120°F (49°C).
[] A grounded electrical outlet located within 4ft. (1.2 m) of
power cord on back of washer. See "Electrical Requirements."
[] Hot and cold water faucets located within 4ft. (1.2 m) of hot
and cold water fill valves on washer, and water pressure
of 20-100 psi (138-690 kPa). A pressure reduction valve
should be used in the supply line where inlet pressure
entering the building exceeds 100 PSI (690 kPa) to avoid
damage to the washer mixing valve.
[] Single washer installations require 12" (300 mm) minimum
risers to provide an air cushion and avoid noise and damage
to valves.
[] A level floor with maximum slope of 1" (25 ram) under entire
washer. Installing on carpet is not recommended.
[] Floor must support washer's total weight (with water and load)
of 315 Ibs (143 kgs).
[] A floor drain under the bulkhead. Prefabricated bulkheads
with electrical outlets, water inlet lines, and drain facilities
should be used only where local codes permit.
Recessed Area or Closet Installation
This washer may be installed in a recessed area or closet. The
installation dimensions shown are the minimum spaces allowable.
Additional spacing should be considered for ease of installation
and servicing. If closet door is installed, the minimum air openings
in top and bottom of door are required. Louvered doors with
air openings in top and bottom are acceptable. Companion
appliance spacing should be considered.
Minimum insfallafian spacing
14" max._! .....
(356 mm)_.
(127rnrn)I,_-_-..
/- (25 mm)
ram)
(25 ram)
(761
(76=
6

DRAIN SYSTEM
Drain system can be installed using a floor drain, wall standpipe,
floor standpipe, or laundry tub. Select method you need.
Floor standpipe drain system
Minimum diameter for a standpipe drain: 2" (51 mm). Minimum
carry-away capacity: 10 gal. (38 L) per minute. Top of standpipe
must be at least 39" (990 ram) high; install no higher than
96" (2.44 m) from bottom of washer.
Floor drain system
(
Floor drain system requires a Siphon Break Kit (Part Number
285834). Minimum siphon break: 28" (710 mm) from bottom
of washer. Additional hoses may be needed.
Laundry tub drain system
Wall standpipe drain system
Minimum capacity: 20 gal. (76 L). The top of the laundry tub
must be at least 39" (990 mm) above floor.
See requirements for floor standpipe drain system.

ELECTRICALREQUIREMENTS
Electrical Shock Hazard
Plug into agrounded 3 prong outlet.
Do not remove ground prong.
Do not use an adapter.
Do not use an extension cord.
Failure to follow these instructions can result in death,
fire, or electrical shock.
[] A 120 volt, 60 Hz., AC only, 15- or 20-amp, fused electrical
supply is required. A time-delay fuse or circuit breaker is
recommended.
It is recommended that a separate circuit breaker serving only
this appliance be provided.
[] This washer is equipped with a power supply cord having
a 3 prong grounding plug.
[] To minimize possible shock hazard, the cord must be plugged
into a mating, 3 prong, grounding-type outlet, grounded in
accordance with local codes and ordinances. If a mating outlet
is not available, it is the personal responsibility and obligation
of the customer to have the properly grounded outlet installed
by a qualified electrician.
[] If codes permit and a separate ground wire is used, it is
recommended that a qualified electrician determine that
the ground path is adequate.
[] Do not ground to a gas pipe.
[] Check with a qualified electrician if you are not sure the
washer is properly grounded.
[] Do not have a fuse in the neutral or ground circuit.
GROUNDING INSTRUCTIONS
For a grounded, cord=connected washer:
This washer must be grounded. In the event of a malfunction
or breakdown, grounding will reduce the risk of electrical
shock by providing a path of least resistance for electric
current. This washer is equipped with a cord having an
equipment-grounding conductor and a grounding plug.
The plug must be plugged into an appropriate outlet that is
properly installed and grounded in accordance with all local
codes and ordinances.
WARNING: Improper connection of the equipment-
grounding conductor can result in a risk of electric shock.
Check with a qualified electrician or serviceman if you are
in doubt as to whether the appliance is properly grounded.
Do not modify the plug provided with the appliance - if it will
not fit the outlet, have a proper outlet installed by a qualified
electrician.
For a permanently connected washer:
This washer must be connected to a grounded metal,
permanent wiring system, or an equipment grounding
conductor must be run with the circuit conductors and
connected to the equipment-grounding terminal or lead
on the appliance.
8

iNSTALLATiON iNSTRUCTiONS
Excessive Weight Hazard
Use two or more people to move and install washer.
Failure to do so can result in back or other injury.
It is necessary to remove all shipping materials for proper
operation and to avoid excessive noise from washer.
1. Move washer to within 4 ft (1.2 m) of its final location; it must
be in a fully upright position.
NOTE: To avoid floor damage, set washer onto cardboard
before moving it and make sure lid is taped shut.
\
3. Remove tape from washer lid, open lid, and remove cardboard
packing tray from tub. Be sure to remove all parts from tray.
NOTE: Keep tray in case you need to move washer later.
2. To avoid damaging floor, place cardboard supports from
shipping carton on floor behind washer. Tip washer back and
place on cardboard supports. Remove shipping base. Set
washer upright.
iMPORTANT: Removing shipping base is necessary for proper
operation. If your washer includes a sound shield° please refer
to the instructions included with the sound shield to install it
at this time.

CONNECT DRAIN HOSE
Proper routing of the drain hose avoids damage to your floor
due to water leakage.
Remove drain hose from the washer drum
1. Remove tape from the washer drain port on the back of
the washer.
2. If clamp is not already in place on elbow end of drain hose,
slide it over end as shown.
3. Squeeze clamp with pliers and slide elbow end of drain
hose onto washer drain port and secure with clamp.
J
4. The washer drain system can be installed using a floor drain,
wall standpipe, floor standpipe, or laundry tub.
5. Place hose into standpipe (shown in picture) or over side
of laundry tub.
iMPORTANT: 4.5" (114 mm) of drain hose should be inside
standpipe; do not force excess hose into standpipe or lay
on bottom of laundry tub. Drain hose form must be used.
Drain
hose form
6. For floor drain installations, you will need to remove the drain
hose form from the end of the drain hose. You may need
additional parts with separate directions. See "Tools and Parts."
The floor drain system requires a siphon break that may be
purchased separately. The siphon break (Part Number 285834)
must be a minimum of 28" (710 ram) from the bottom of the
washer. Additional hoses might be needed.
10

CONNECT iNLET HOSES
Insert new hose washers (supplied) into each end of the inlet hoses.
Firmly seat the washers in the couplings.
Washer Coupling
Connect Inlet Hoses to Water Faucets
1. Attach hose to hot water faucet. Screw on coupling until it is
seated on washer. Repeat process for cold water.
Connect Inlet Hoses to Washer
1. Attach cold water hose to cold water inlet valve marked with
a blue ring. Screw coupling by hand until it is snug.
2. Attach hot water hose to hot water inlet valve marked with
a red ring. Screw coupling by hand until it is snug.
3. Use pliers to tighten couplings an additional two-thirds turn.
2. Use pliers to tighten the couplings an additional two-thirds turn.
C
iMPORTANT: Do not overtighten or use tape or sealants on valve
when attaching to faucets or washer. Damage can result.
Clear Water Lines
[] Run water through both faucets and inlet hoses, into a laundry
tub, drainpipe, or bucket, to get rid of particles in the water
lines that might clog the inlet valve screens.
[] Check the temperature of the water to make sure that the hot
water hose is connected to the hot water faucet and that the
cold water hose is connected to the cold water faucet.
NOTE: Do not overtighten. Damage to the valve can result.
4. Turn on water faucets to check for leaks. A small amount
of water may enter washer. It will drain later.
NOTE: Replace inlet hoses after 5years of use to reduce the risk
of hose failure. Record hose installation or replacement dates on
the hoses for future reference.
Periodically inspect and replace hoses if bulges, kinks, cuts,
wear, or leaks are found.
11

LEVEL WASHER
iMPORTANT: Level washer properly to reduce excess noise
and vibration.
Excessive Weight Hazard
Use two or more people to move and install washer/dryer.
Failure to do so can result in back or other injury.
1. Move the washer to its final location. Place a level on top
edges of washer. Use side seam as a guide to check levelness
of sides. Check levelness of front using lid, as shown. Rock
washer back and forth to make sure all four feet make solid
contact with floor.
HELPFUL TiP: You may want to prop up front of washer about
4" (102 ram) with a wood block or similar object that will support
weight of washer.
Models with
plastic feet
Place level here Place level here
or
Models with
metal feet
Jam nut
3. On models with metal feet, when washer is level, use a
9/16" or 14 mm open=end or adjustable wrench to turn jam
nuts counterclockwise on leveling feet tightly against washer
cabinet.
Not Level LEVEL Not Level
2. On models with metal feet, use a 9/16" or 14 mm open-end or
adjustable wrench to turn jam nuts clockwise on feet until they
are about 1/2" (13 mm) from the washer cabinet. Then turn the
leveling foot clockwise to lower the washer or counterclockwise
to raise the washer.
On models with plastic feet, use adjustable pliers to turn the
plastic leveling foot counterclockwise to lower the washer or
clockwise to raise the washer. On all models, recheck levelness
of washer and repeat as needed.
Jam nut
INSTALLING COIN SLIDE AND COIN BOX
The coin slide mechanism, service door lock and key, and coin box
loci< and key are not included with some models, but can
be obtained from the usual industry sources.
Remove the service door of the meter case by lifting it up at the
back. Install the money-accepting device. (Refer to manufacturer's
instructions for proper installation.)
For washer using coin slides, use the adapter kit supplied with the
washer.
Install a lock and cam on the meter case service door. Install the
coin vault with lock and key in the meter case opening.
12

COMPLETE INSTALLATION
Electrical Shock Hazard
Plug into agrounded 3 prong outlet.
Do not remove ground prong.
Do not use an adapter.
Do not use an extension cord.
Failure to follow these instructions can result in death,
fire, or electrical shock.
[] Check that you have all of your tools.
[] Check that shipping materials were completely removed
from washer.
[] Dispose of/recycle all packaging materials.
[] Check that the water faucets are on.
[] Check for leaks around faucets and inlet hoses.
[] Remove film from console and any tape remaining on washer.
[] Plug into a grounded outlet, or connect power.
[] Check that circuit breaker is not tripped or fuse is not blown.
[] Start washer using the payment system (if available) to check
that the wash cycle completes without an error code or water
leak.
[] Check electrical requirements. Be sure that you have
the correct electrical supply and the recommended
grounding method.
[] Check that all parts are now installed. If there is an extra part_
go back through steps to see what was skipped.
TYPICAL FULL LOAD SIZES
Load Type
Mixed Load
Permanent Press
Loading Suggestion
3 double sheets
4 pillowcases
6 pair shorts
8 T-shirts
2 shirts
2 blouses
8 handkerchiefs
2 double or
1 king size sheet
1 tablecloth
1 dress
1 blouse
2 slacks
3 shirts
2 pillowcases
Load Type
Heavy Work Clothes
Knits
Loading Suggestion
3 pair pants
3 shirts
1 coverall
4pair leans
1 overall
3 blouses
4 slacks
6 shirts
4 tops
4 dresses
13

WASHER MAINTENANCE
Operating Tips Transporting Your Washer
Fire Hazard
Never place items in the washer that are dampened
with gasoline or other flammable fluids.
No washer can completely remove oil.
Do not dry anything that has ever had any type of oil on
it (including cooking oils).
Doing so can result in death, explosion, or fire.
[] Shut off both water faucets. Disconnect and drain water inlet
hoses.
[] Disconnect drain from drain system and drain any remaining
water into a pan or bucket. Disconnect drain hose from back
of washer.
[] Unplug power cord.
[] Place inlet hoses and drain hose inside washer basket.
[] Drape power cord over edge and into washer basket.
[] Place packing tray from original shipping materials back inside
washer. If you do not have packing tray, place heavy blankets
or towels into basket opening. Close lid and place tape over
lid and down front of washer. Keep lid taped until washer is
placed in new location.
It is recommended that fiberglass items not be washed in coin-
operated washers. If these items are washed in the washer, run the
washer through a complete cycle to rinse any residue away that
might be left in the washer.
iMPORTANT: Load detergent, bleach, and fabric softener
before adding clothes and do all of this before starting the washer
as the lid will lock after starting the washer.
ALTERNATE PARTS
Your installation may require additional parts. If you are interested
in purchasing one of the items listed here, call the toll-free number
in the "If You Need Assistance" section.
If You Have:
Overhead sewer
1" (25 mm) standpipe
Lint clogged drain
Floor drain system
Water faucets beyond
reach of fill hoses
You Will Need:
Standard 20 gal. (76 L) 39" (990
ram) tall drain tub or utility sink,
sump pump and connectors
(available from local plumbing
suppliers)
2" (51 mm) diameter to
1" (25 mm) diameter Standpipe
Adapter Part Number 3363920
Connector Kit Part Number
285835
Drain Protector Part Number
367031 Connector Kit Part
Number 285835
Siphon break, Part Number
285834 Connector Kit (x2) Part
Number 285835 Extension Drain
Hose Part Number 285863
2 longer water fill hoses..
6 ft. (1.8 m) 90 °bend hose
Part Number 76314, 10 ft. (3.0 m)
Part Number 350008
Washer drip trays
Part Number 8212526
14

PROTECTION AGREEMENTS
Master Protection Agreements
Congratulations on making a smart purchase. Your new Kenmore <">
product is designed and manufactured for years of dependable
operation.
But like all products, it may require preventive maintenance or
repair from time to time. That's when having a Master Protection
Agreement can save you money and aggravation.
The Master Protection Agreement also helps extend the life of
your new product. Here's what the Agreement _ includes:
Parts and labor needed to help keep products operating properly
under normal use, not just defects. Our coverage goes well
beyond the product warranty. No deductibles, no functional
failure excluded from coverage-- real protection.
Expert service by a force of more than 10,000 authorized Sears
service technicians, which means someone you can trust will be
working on your product.
Unlimited service calls and nationwide service, as often as you
want us, whenever you want us.
- replacement of your covered product if four or more product
failures occur within twelve months.
Product replacement if your covered product can't be fixed.
Annual Preventive Maintenance Check at your request -no extra
charge.
Fast help by phone -we call it Rapid Resolution - phone support
from a Sears representative on all products. Think of us as a
"talking owner's manual."
Power surge protectionagainst electrical damage due
to power fluctuations.
Rental reimbursement if repair of your covered product takes
longer than promised.
10% discount off the regular price of any non-covered repair
service and related installed parts.
Once you purchase the Agreement, a simple phone call is all that
it takes for you to schedule service. You can call anytime day
or night_ or schedule a service appointment online.
The Master Protection Agreement is a risk free purchase. If you
cancel for any reason during the product warranty period, we
will provide a full refund. Or, a prorated refund anytime after the
product warranty period expires. Purchase your Master Protection
Agreement today! Some limitations and exclusions apply.
For prices and additional information in the U.S.A. call
1-800-827-6655. _Coveroge in Canada varies on some items.
For fuji details caii Sears Canada at 1-800-361-6665.
Sears Installation Service
For Sears professional installation of home appliances, garage
door openers, water heaters, and other major home items,
in the U.S.A. or Canada call 1-800-4-MY-HOME ®.
15

SEGURIDAD DE LA LAVADORA
Su seguridad y la seguridad de los demos es muy irnportante,
Hemos incJuidomuchos mensajes importantes de seguridad en este manual yen su electrodom6stico. Lea y obedezca siempre
todos Jos mensajes de seguridad.
Este es el simboJo de advertencia de seguridad.
Este simboJo Je llama Ja atenci6n sobre peJigros potenciaJes que pueden ocasionar Jamuerte o una Jesi6n a
usted y a los demAs.
Todos los mensajes de seguridad iran a continuaciSn deJ simboJo de advertencia de seguridad y de Ja palabra
"PELIGRO" o "ADVERTENCJA'. Estas paJabras significan:
Si no sigue las instrucciones de inmediato, usted puede
morir osufrir una lesi6n grave.
Si no sigue las instrucciones, usted puede morir osufrir
una lesi6n grave.
Todos los mensajes de seguridad le diran el peligro potenciaJ, JedirAn c6mo reducir Jas posibilidades de sufrir una Jesi6n y Jo que
puede suceder si no se siguen Jas instrucciones.
INSTRUCCIONES IMPORTANTES DE SEGURIDAD
ADVERTENCIA: Para reducir el riesgo de incendio, choque eJ6ctrico o Jesiones a personas aJusar su lavadora, siga Jas
precauciones b&sicas, incJuyendo Jas siguientes:
[] Lea todas Jas instrucciones antes de usar Ja
Javadora.
[] No lave articulos que hayan sido previamente
Jimpiados, Javados, remojados o humedecidos con
gasolina, solventes para Javar en seco, u otras
sustancias inflamabJes o explosivas ya que estas
emanan vapores que podrian encenderse o causar
una expJosi6n.
[] No agregue gasoJina, soJventes para Javar en seco,
u otras sustancias inflamables o explosivas al agua
de lavado. Estas sustancias emanan vapores que
podrian encenderse o causar una explosi6n.
[] En ciertas condiciones, puede generarse gas
hidr6geno en un sistema de agua caJiente que no se
haya usado por dos semanas o un periodo mayor.
EL GAS HIDROGENO ES EXPLOSJVO. Si no se ha
usado el agua caliente durante dicho periodo, antes
de usar JaJavadora, abra todos los grifos de agua
caliente y deje que corra el agua por vados minutos.
Esto liberar& todo el gas hidr6geno que se haya
acumulado. Debido a Jainfiamabilidad de dicho gas,
no fume ni use una llama abierta durante este lapso.
[] No permita que los nidos jueguen encima o dentro de la
lavadora. Es necesario una supervisi6n cuidadosa de los
nidos toda vez que se use Ja lavadora cerca de elJos.
[] Antes de poner la Javadora fuera de servJcio o desecharJa,
quiteJe Japuerta o Jatapa.
[] No introduzca las manos en JaJavadora si el tambor, la
tina, o el agitador est&n funcionando.
[] No instale ni aJmacene esta Javadora donde pudiese estar
sometida a Jaintemperie.
[] No trate de forzar los controles.
[] No repare ni cambie pieza alguna de la Javadora ni intente
reaJizar tarea alguna de servicio tecnico, excepto cuando
asi se le indique especificamente en este manual o en
instrucciones de reparaci6n para el usuario pubJicadas,
que usted entienda y para cuya ejecuci6n cuente con la
habiJidad necesaria.
[] Para obtener informaciOn respecto a Jas instrucciones de
conexi6n a tierra, consulte "Requisitos el6ctricos" en las
instrucciones de instalaci6n.
GUARDE ESTAS INSTRUCCIONES
PARA SU SEGURIDAD
No almacene ni use gasolina u otros vapores y liquidos inflamables cerca de 6ste o cualquier otro electrodom6stico.
16

HERRAMIENTAS
Herramlentas necesarlas:
Y PIEZAS
Nivel Pinza$ Cuchillo para usa general
Llave ajustable
Herramlentas optativas:
Destarnillaclar de haja plana
Cubeta
Piezas sumlnisfradas:
S
Mangueras de entrada
de agua (2)
0
Arandelas de la manguera
de entracla (4)
Manguera de desagUe con
abrazaclera, molde en farina de u
y fleje de ataclura reborcleacla
17

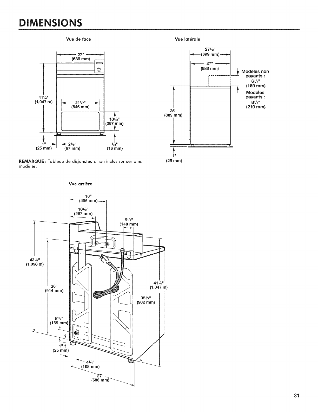
DIMENSIONES
Vista fronfal
411/4"
(1,047 m)
(25 ram)
27"
(686 ram) _
211/2" -------_J
46 ram) J_ i
I 1__
2%"
(67 ram)
101/2"
(267rm)
f
5/8"
(16 ram)
NOTA: En algunos modelos no se incluye el panel de servicio.
Visfa laferal
35"
(889 ram)
L
I"
(25 mm)
271/2"
(699 ram)
_,_---_ 27 -------l_ J
1881._m_i
ModeJos operados
sin monedas:
Modelos operados
con monedas:
81/4''
(210 ram)
Visfa posferior
16"
(406 ram)
101/2''
(267 ram)
431/4''
(1,098 m)
38"
(914 ram)
61/2 u
(165 mini
r
351/2''
(902 ram)
18

REQUISITOS DE UBICACION
Seleccione una ubicaci6n apropiada para su lavadora, para
realzar el rendimiento y reducir al mfnimo el ruido y la posible
"caminata" de la lavadora.
Su lavadora se puede instalar en un s6tano, cuarto para lavar
o un lugar empotrado. Vea "Sistema de desagOe'.
Deber6 tenerse en cuenta tambi6n los requisitos para la ubicaci6n
de otto electrodom_stico que le acompa_e.
IMPORTANTE: No instale o almacene esta lavadora donde estar_
expuesta a la intemperie. No guarde ni haga funcionar
su lavadora a temperaturas iguales o inferiores a 32 °F (0 °C).
El agua que quede en la lavadora puede ocasionar da_os a bajas
temperaturas. La instalaci6n correcta es su responsabilidad.
Usted necesitar_:
[] Un calentador de agua fijado en 120°F (49°C).
[] Un contacto con conexi6n a tierra ubicado a no m_s de
4pies (1,2 m) del cable el_ctrico en la parte posterior de
la lavadora. Vea "Requisitos EI6ctricos'.
[] Grifos de agua caliente y de agua frfa ubicados a una
distancia de no m_s de 4 pies (1,2 m) de las v_lvulas de
Ilenado del agua caliente y frfa en la lavadora y una presi6n
de agua de 20-100 Ib/pulg 2 (138 - 690 kPa). Debe usarse una
v_lvula de reducci6n de presi6n en la Ifnea de suministro
donde la presi6n de entrada hacia el edificio exceda
100 Ib/pulg 2 (690 kPa) para evitar da_os a la v_lvula de
mezcla de la lavadora.
[] Para las instalaciones con lavadoras simples se requieren
montantes de un mfnimo de 12" (300 mm) para que provean
una cc]mara de aire, y eviten el ruido y los da_os alas v_lvulas.
[] Un piso nivelado con un declive m_ximo de 1" (25 mm) debajo
de la lavadora completa. No se recomienda la instalaci6n
sobre una alfombra.
[]
[]
El piso debe sostener el peso total de la lavadora (con
el agua y la carga) de 315 Ib (143 kg).
Un desagOe de piso debajo del tabique. Los tabiques
divisorios prefabricados con contactos el_ctricos, las
Ifneas de entrada de agua y las instalaciones con desag0es
deben ser usados Onicamente donde los c6digos locales Io
permitan.
Instalaci6n en zona empotrada oen el cl6set
Esta lavadora podrc] instalarse en un _rea empotrada o en
un cl6set. Las dimensiones de instalaci6n que se ilustran a
continuaci6n son para los espacios mfnimos permitidos. Debe
considerarse espacio adicional para facilitar la instalaci6n y el
servicio t_cnico. Si se instala la puerta de cl6set, se requieren
aberturas mfnimas de ventilaci6n en la parte superior e inferior
de la puerta. Son aceptables las puertas con persianas que
tengan aberturas de aire en la parte superior e inferior. Debe
considerarse el espacio adicional para otro electrodom_stico que
le acompa_e.
Espacio rninimo para la instalaci6n
14" max, i_
(356 ram)_. -....
(127 ram) _"-_,-..,.
F(25 ram)
m)
7(25 ram)
(761
(761
19

®o
SISTEMA DE DESAGUE
El sistema de desagOe de la lavadora se puede instalar utilizando
un desagOe de piso, un tubo vertical de pared_ un tubo vertical de
piso o una tina de lavadero. Seleccione el mStodo que necesita.
Sisterna de desagOe de tuba vertical de piso
Di_metro mfnimo para el desagOe de tubo vertical: 2" (51 ram).
Capacidad de desplazamiento mfnima: 10 gal. (38 L) por minuto.
La parte superior del tubo vertical debe estar a 39" (990 ram)
de altura como mfnimo; inst_lela a no m_s de 96" (2,44 m) de
la base de la lavadora.
Un sistema de desagOe por el piso requiere de un ]uego de
desviaci6n de sif6n (pieza nOmero 285834). Desviaci6n de sif6n
mfnima: 28" (710 ram) de la base de la lavadora. Se pueden
necesitar mangueras adicionales.
Sistema de desagUe de tina de lavadero
Sistema de desagOe de tuba vertical de pared
Capacidad mfnima: 20 gal. (76 L). La parte superior de la fina de
lavadero debe estar a 39" (990 mm) del piso como mfnimo.
Vea los requisitos para el sistema de desagOe de tubo vertical
de piso.
2O

REQUISITOS ELECTRICOS
Peligro de Choque El_ctrico
Conecte a un contacto de pared de conexi6n atierra
de 3 terminales.
No quite la terminal de conexi6n atierra.
No use un adaptador.
No use un cable el_ctrico de extensi6n.
No seguir estas instrucciones puede ocasionar
la muerte, incendio o choque el_ctrico.
[] Se necesita un suministro el_ctrico de 120 voltios, 60 hertzios,
CA solamente, de 15 6 20 amperios y protegido con fusible.
Se recomienda un fusible retardador o un cortacircuitos, en un
circuito independiente que preste servicio 0nicamente a este
aparato.
[] Esta lavadora vJene equipada con un cable el6ctrico dotado
de un enchufe de 3 terminales con conexi6n a tierra.
[] Para reducir al mfnimo el peligro de posibles choques
el_ctricos, el cable debe ser enchufado en un contacto
apropiado de pared de 3 terminales, conectado a tierra de
acuerdo con los c6digos y normas locales. Si no hay disponible
una salida equivalente_ es responsabilidad y obligaci6n
personal del diente de tenet un contacto apropJado con
conexi6n a tierra instalado por un electricista calificado.
[] Si los c6digos Io permiten y se emplea un alambre de conexi6n
a tJerra separado, es recomendable que un electricista
calificado determine si la trayectoria de conexi6n a tierra es
adecuada.
[] No conecte a tierra a un tubo de gas.
[] Si no est_ seguro de que la conexi6n a tierra de la lavadora
sea la adecuada r veriffquela con un electricista competente.
[] No coloque un fusible en el circuito neutro o de puesta a tierra.
INSTRUCCIONES PARA LA CONEX|ON
A TiERRA
Para una lavadora conectada a tierra con cable
el_ctrico:
Esta lavadora debe conectarse a tierra. En caso de
funcionamiento defectuoso o averia, la conexi6n a tierra
reducir& el riesgo de choque el6ctrico al proporcionar una
via de menor resistencia para la corriente electrica. Esta
lavadora viene equipada con un cable electrico que tiene
un conductor de cone×i6n atierra del equipo y un enchufe
con conexi6n a tierra. El enchufe debe conectarse en un
contacto de pared apropiado que haya sido debidamente
instalado y conectado a tierra de conformidad con todos
los c6digos y ordenanzas locales.
ADVERTENCIA: La conexi6n incorrecta de la terminal
de conexi6n a tierra del equipo puede ocasionar un riesgo
de choque el6ctrico. Consulte con un electricista o t6cnico
en reparaciones calificado si tiene duda alguna en cuanto
a la cone×i6n a tierra correcta del electrodom6stico.
No modifique el enchufe provisto con el electrodom6stico.
Si 6ste no encaja en el contacto de pared, pida a un
electricista calificado que le instale un contacto de pared
apropiado.
Para una lavadora con contacto el_ctrico perrnanente:
Esta lavadora debe estar conectada aun sistema de
cableado de metal permanente, conectado a tierra, o
se debe tender un conducto para la conexi6n a tierra del
equipo con los conductores de circuito y conectado a la
terminal de tierra del equipo o al conductor de suministro
del electrodomestico.
21

INSTRUCCIONES DE INSTALACION
Peligro de Peso Excesivo
Use dos o m_s personas para mover einstalar
la lavadora.
No seguir esta instruccibn puede ocasionar una lesi6n
en la espalda uotro tipo de lesiones,
Es necesario quitar todos materiales de transporte para obtener
un funcionamiento adecuado y para evitar ruido excesivo de la
lavadora.
]. Mueva la lavadora a 4 pies (1,2 m) de su ubicaci6n final. Debe
estar en posici6n vertical.
NOTA: Para evitar da_os en el piso, coloque la lavadora sobre
un cart6n antes de moverla y asegOrese de que la tapa est_
cerrada con cinta adhesiva.
3. Quite la cinta adhesiva de la tapa de la lavadora, abra la
tapa y saque la bandeja de empaque de cart6n de la tina.
Cerci6rese de sacar todas las piezas de la bandeja.
NOTA: Guarde la bandeja por si necesita mover la lavadora
m6s tarde.
2. Para evitar da_os al piso_ coloque soportes de cart6n de la
caja de transporte sobre el piso, detr6s de la lavadora. Incline
hacia atr6s la lavadora y col6quela sobre los soportes de
cart6n. Saque la base de transporte. Ponga la lavadora en
posici6n vertical.
IMPORTANTE: Para un funcionamiento adecuado es necesario
quitar la base de transporte. Si su lavadora incluye un aislador
de sonido, consulte las instrucciones incluidas con el mismo
para instalarlo en este momento.
22

CONEXION DE LA MANGUERA DE DESAGOE
El tendido apropiado de la manguera de desagOe evita da_os
a sus pisos ocasionados por filtraciones de agua.
Retire la manguera de clesagUe de la canasta de
la lavaclora
LQuite la cinta adhesiva del puerto de desag0e de la lavadora
que se encuentra en la parte posterior de la lavadora.
5_ Coloque la manguera dentro del tubo vertical (se muestra
en la ilustraci6n) o sobre el lado de la tina de lavadero.
IMPORTANTE: No debe haber m_s de 4,5" (114 mm) de
manguera de desagOe dentro del tubo vertical; no fuerce
el exceso de la manguera dentro del tubo vertical, ni Io
¢oloque en el fondo de la fina de lavadero. El molde de
la manguera de desag0e debe usarse.
Molde de la
manguera
de desagOe
2. Si la abrazadera no est_ en su lugar, sobre el extremo del
¢odo de la manguera de desag0e, deslfcelo sobre el extremo
¢omo se muestra.
3. Apriete la abrazadera con pinzas y deslice el extremo en
forma de codo de la manguera de desagOe sobre el puerto
de desag0e. Aseg0relo con la abrazadera.
J
4. El sistema de desag0e de la lavadora se puede instalar
utilizando un desag0e de piso run tubo vertical de pared,
un tubo vertical de piso o una fina de lavadero.
6. Para las instalaciones con desagOe por el piso, necesitar_
quitar el molde de la manguera de desagOe del extremo de
la misma. Puede ser que necesite piezas adicionales con
instrucciones por separado. Vea "Piezas y herramientas".
EI sistema de desag0e por el piso necesita una desviaci6n
de sif6n que puede adquirirse por separado. La desviaci6n
del sif6n (pieza n0mero 285834) debe estar a una distancia
mfnima de 28" (710 mm) de la parte inferior de la lavadora.
Se pueden necesitar mangueras adicionales.
23

CONEXION DE LAS MANGUERAS DE ENTRADA
Inserte las nuevas arandelas para manguera (suministradas) en
¢ada extremo de las mangueras de entrada. Asiente firmemente
las arandelas en los acoplamientos.
®
Arandela AcopLamiento
Conecte las rnangueras de entracla a los grifos del agua
1. Sujete la manguera al grifo de agua caliente. Atornille el
acoplamiento hasta que quede asentado en la lavadora.
Repita el procedimiento para la manguera de agua fr[a.
Conecte las mengueras de entracia ala lavaciora
1. Sujete ia manguera de agua fr[a a la vc_ivula de entrada de
agua fr[a, marcada con un aro azui. Atornille el acopiamiento
amano hasta que quede apretado.
2. Su]ete la manguera de agua caliente a la v_lvula de entrada
del agua caliente, marcada con un anillo rojo. Atornille
el acoplamiento a mano hasta que quede apretado.
2. Use pinzas para apretar los acoplamientos dos tercios de
vuelta adicional.
3. Use pinzas para apretar los acoplamientos dos tercios de
vuelta adicional.
C
IMPORTANTE; No apriete en exceso ni use ¢inta o selladores
en la v_lvula. Puede resultar en da_os.
Despeje las lineas de agua
[] Deje correr el agua de los grifos y las mangueras de entrada
[]
24
en un lavadero, tubo de desagOe o cubeta para eliminar las
parficulas que se encuentran en las tuber[as del agua, las
¢uales podr[an obstruir los filtros de la v_lvula de entrada.
Verifique la temperatura del agua para asegurarse de que la
manguera de agua caliente est6 conectada al grifo de agua
caliente y que la manguera de agua fr[a est6 conectada al
grifo de agua fr[a.
NOTA; No apriete demasiado. Se puede da_ar la v_ivula.
4. Abra los grifos del agua para revisar si hay fugas de agua
en el grifo yen la conexi6n a la lavadora. Una peque_a
¢anfidad de agua podr[a entrar en la lavadora. Esta se
desaguar_ m_s tarde.
0
NOTA; Reempiace las mangueras de entrada despu6s de
5a_os de uso para reducir el riesgo de que fallen. Para
consulta en el futuro, anote en las mangueras la fecha de
instalaci6n o la fecha de reposici6n de las mismas.
Inspeccione peri6dicamente y reemplace las mangueras
si aparecen bultos, torceduras, ¢ortaduras, desgaste o
filtraciones de agua.

NIVELACION DE LA
IMPORTANTE: La nivelaci6n adecuadamente de la lavadora
reduce el ruido y la vibraci6n en exceso.
LAVADORA
CONSEJO 0TIL: Puede apuntalar el frente de la lavadora
aproximadamente 4" (102 mm) con un bloque de madera o un
objeto similar que vaya a soportar el peso de la lavadora.
Peligro de Peso Excesivo
Use dos o m_s personas para mover einstalar
la lavadora/secadora.
No seguir esta instrucci6n puede ocasionar una lesi6n
en la espalda u otto tipo de lesiones.
1. Con la lavadora en su ubicaci6n final, coloque un nivel en los
bordes superiores de la lavadora. Use la hendidura lateral
como una gufa para revisar la nivelaci6n de los lados. Revise
la nivelaci6n del frente usando la tapa, como se muestra.
Balancee la lavadora hacia delante y hacia atr6s para
asegurarse de que las 4patas hagan contacto firme con el
piso.
Coloque el nivel aquiColoc ue el nivel aqui
NIVELADA No est6 niveladaNo est6 nivelada
2. En los modelos con las patas de metal, use una Ilave de boca
de 9/16" 6 14 mm o una Ilave ajustable para girar las tuercas
fiadoras hacia la derecha sobre las patas, hasta que est6n a
aproximadamente 1/2" (13 mm) de la carcasa de la lavadora.
Luego gire la pata niveladora hacia la derecha para bajar la
lavadora, o hacia la izquierda para levantarla.
En los modelos con las patas pl6sficas, use los alicates
ajustables para girar la pata niveladora pl6stica hacia la
izquierda para bajar la lavadora o hacia la derecha para
levantarla. En todos los modelos, revise la nivelaci6n de la
lavadora nuevamente y repita el procedimiento segOn sea
necesario.
Modelos con
las patas plasticas
Tuerca
fiadora
Modelos con
las patas de metal
3. En los modelos con las patas de metal_ cuando la lavadora
est6 nivelada, use una Ilave de boca de 9/16" 6 14 mm o una
Ilave ajustable para girar las tuercas fiadoras en las patas
hacia la izquierda, apret_ndolas contra la carcasa de la
lavadora.
f
Tuerca
fiadora
25

INSTALACiON DELTRAGAMONEDASY LACAJA DEMONEDAS
El mecanismo del tragamonedas, el bloqueo de la puerta y la
Ilave, asf como el seguro del tragamonedas y la Ilave, no est_n
incluidos en algunos modelos, pero pueden obtenerse a travSs de
fuentes industriales comunes.
Retire la puerta de servicio de la caja del contador levant6ndola
por la parte posterior. Instale el dispositivo para aceptar el dinero.
(Consulte las instrucciones del fabricante para ver la instalaci6n
adecuada.)
COMPLETE LA INSTALACI6N
Para las lavadoras que usan tragamonedas, use el juego
adaptador suministrado con la lavadora.
Instale un seguro y una leva en la puerta de servicio de la caja
del contador. Instale la c6mara acorazada y el seguro con la Ilave
en la abertura de la caja del contador.
Peligro de Choque EI6ctrico
Conecte aun contacto de pared de conexi6n atierra
de 3 terminales.
No quite la terminal de conexi6n atierra.
No use un adaptador.
No use un cable el6ctrico de extensi6n.
No seguir estas instrucciones puede ocasionar
la muerte, incendio o choque el6ctrico.
[] Revise que los materiales de transporte se hayan quitado
por completo de la lavadora.
[] Desh6gase de todos los materiales de embalaje o recfclelos.
[] Revise que los grifos de agua estSn abiertos.
[] Verifique si hay fugas alrededor de los grifos y de las
mangueras de entrada.
[] Quite la pelfcula de la consola y la cinta que quede
en la lavadora.
[] Enchufe en un contacto con conexi6n a tierra o reconecte
el suministro de energfa.
[] Revise que el cortacircuitos no se haya disparado o que
el fusible no est8 quemado.
[] Ponga en marcha la lavadora mediante el sistema de pago
(si est_ disponible) para verJficar que el ciclo de lavado se
complete sin un c6digo de error o fuga de agua.
[] Revise los requisitos el6ctricos. AsegOrese de contar con
la fuente de electricJdad correcta y el m_todo recomendado
de conexi6n a tierra.
[] Verifique que todas las pJezas est_n ahora instaladas. Si hay
alguna pieza extra r vuelva a revisar todos los pasos para ver
qu_ se omiti6.
[] Verifique que tenga todas las herramientas.
TAMAI OS DE CARGAS TJPICAS DE VOLUMEN COMPLETO
Tipo de carga
Carga mixta
Permanent Press
(Planchado permanente)
Sugerencias para cargar
3 s6banas dobles
4fundas para almohada
6shorts
8 camisetas
2 camisas
2 blusas
8 pa_uelos
2 s6banas de tama_o doble o
1 de tama_o extra
1 mantel
1 vestido
1 blusa
2 pantalones
3 camisas
2 fundas para almohada
Tipo de carga
Ropa pesada de trabajo
Tejidos de punto
Sugerencias para cargar
3 pantalones
3 camisas
1 overol
4 pantalones de mezclilla
1 overol
3 blusas
4 pantalones
6 camisas
4 tops
4 vestidos
26

MANTENIMIENTO DE LA LAVADORA
Consejos para el funcionamiento Transporte de la lavadora
Peligro de Incendio
Nunca coloque en la lavadora arficulos que esten
humedecidos con gasolina o cualquier otto
Iiquido inflarnable.
Ninguna lavadora puede eliminar completarnente
el aceite.
No seque ning_n articulo que haya tenido alguna vez
cualquier fipo de aceite (incluyendo aceites de cocina).
No seguir estas instrucciones puede ocasionar
la rnuerte, explosi6n o incendio.
[]
[]
[]
[]
[]
[]
Cierre ambos grifos de agua. Desconecte y elimine el agua de
las mangueras de entrada de agua.
Desconecte el desag0e del sistema de desagLie y drene el
agua restante en una olla o cubeta. Desconecte la manguera
de desagOe de la parte posterior de la lavadora.
Desenchufe el cable ei_ctrico.
Ponga las mangueras de entrada y la manguera de desagOe
en el interior de la canasta de la lavadora.
Pase el cable el6ctrico sobre el borde y col6quelo dentro
de la canasta de la lavadora.
Coloque la bandeia de empaque de los materiales de envfo
originales nuevamente en el interior de la lavadora. Si no
cuenta con la bandeja de empaque, coloque frazadas o toallas
pesadas en la abertura de la canasta. Cierre la tapa y coloque
cinta sobre la misma hacia el frente de la lavadora. Mantenga
la tapa pegada con cinta adhesiva hasta que se coloque
la lavadora en su nuevo lugar.
Se recomienda que arficulos de fibra de vidrio no se laven en las
lavadoras de funcionamiento con monedas. Si estos arficulos se
lavan en la lavadora, ponga a funcionar la lavadora en un ciclo
completo para enjuagar cualquier residuo que pudiera haber
quedado en la lavadora.
IMPORTANTE: Ponga el detergente, blanqueador y suavizante
de telas antes de agregar las prendas, y haga todo esto antes
de poner la lavadora en marcha, ya que la tapa se bloquear6
despuSs de este paso.
PIEZAS ALTERNATIVA$
Su instalaci6n puede requerir piezas suplementarias. Si est6
interesado en adquirir una de las piezas aqu[ enlistadas, Ilame
al nOmero gratuito que se encuentra en la secci6n "Si necesita
ayuda'.
Si tiene: Usted necesitar_:
Una alcantaritla suspendida Tina de desagiJe est6ndar de
20 gatones (76 L) 39" (990 mm) de
altura o tavadero utilitario, bomba de
sumidero y conectores (disponible con
proveedores locales)
Tubo vertical de Adaptador para tubo vertical de 2"
1" (25 mm) de di6metro (51 mm) a 1" (25 mm) de di6metro,
pieza nOmero 3363920
Juego de conectores, pieza nOmero
285835
DesacjiJe obstruido pot petusa Protector det desagiJe, pieza n0mero
367031
Juego de conectores, pieza n0mero
285835
Si tiene: Usted necesitar_:
Sistema de desagiJe pot et Desviaci6n de sif6n, pieza nOmero
piso 285834, iuego de conectores (x 2),
pieza nOmero 285835, iuecjo de
extensi6n para mancjuera, pieza
n0mero 285863
Grifos del acjua fuera del 2 mangueras de llenado de agua m6s
alcance de las mancjueras de largas: manguera con doblez de 90 °
Ilenado de 6pies (1,8 m), pieza n0mero 76314
y de 10 pies (3,0 m), pieza n0mero
350008
Bande]as de goteo para lavadora,
pieza n0mero 8212526
27

CONTRATOS DE PROTECCION
Contratos maestros de protecci6n
iFelicitaciones par su inteligente adquisici6n! Su nuevo producto
Kenmore _>est6 dise_ado y fabricado para proporcionarle a_os de
funcionamiento confiable.
Pero al igual que todos los productos, puede necesitar
mantenimiento preventivo o reparaci6n de vez en cuando. Es alli
donde el Contrato maestro de protecci6n puede ahorrarle dinero
e inconvenientes.
El Contrato maestro de protecci6n tambiSn ayuda a prolongar
la vida de su nuevo producto. He aqui Io que se incluye en el
Contrato_':
Piezas y maria de obra necesarios para ayudar a mantener los
productos funcionando correctamente bajo use normal, no s61o
en caso de defectos. Nuestra cobertura va mucho rues alia de
la garanfia del producto. No existen deducibles ni fallas de
funcionamiento que est6n excluidas de la cobertura - protecci6n
verdaderao
Servicio experta a cargo de un personal de m6s de 10.000
t_cnicas de servicio autorizados par Sears, Io que significa que su
producto ser6 reparado par alguien en quien usted puede confiar.
Llamadas de servicio ilimitada y servicio en todo el pais, con la
frecuencia que usted desee, cuando usted desee.
-reemplazo de su producto protegido si ocurren cuatro fallas
o m6s del producto en el transcurso de dace meses.
Reemplazo del producto si su producto protegido no puede ser
reparado.
Revisi6n anual de mantenimienta preventiva a solicitud suya -
sin costa adicional.
Ayuda r6pida par tel_fono -Io que nosotros Ilamamos Soluci6n
r_pida - apoyo par tel_fono a cargo de un representante de
Sears para todos los productos. Piense en nosotros coma si
fu_ramos un "manual parlante para el propietario'.
Protecci6n par sobrevoltaje contra da_os el_ctricos debido a
fluctuaciones de electricidad.
Reembolso de la renfa si la reparaci6n de su producto protegido
tarda m6s de Io prometido.
Descuento de110% sabre el precio comOn par el servicio de
reparaci6n qua no est6 cubierto, asi coma tambi6n las plazas
relacionadas con el mismo que se hayan instalado.
Una vez adquirido el Contrato, tan s61o tiene qua Ilamar para fijar
la visita de servicio t_cnico. Usted puede Ilamar a cualquier hora,
de dia o de noche, o fijar una visita t_cnica en Internet.
El Contrato maestro de protecci6n es una compra sin riesgo. Si par
algOn motivo usted Io cancela durante el periodo de la garantia
del producto, le proveeremos un reembolso total. O un reembolso
proporcional en cualquier momenta posterior a la expiraci6n del
periodo de la garantia, iAdquiera hay su Contrato maestro de
protecci6n! Se aplican algunas limitaciones y exclusiones. Para
inforrnarse sabre los precios y obtener informaci6n adicional, en
los EE.UU. Ilame al 1=800=827=6655. _La cobertura en Canad6
varia para algunos articulos. Para obtener los detalles completos,
Ilarne aSears Canada al 1=800=361=6665.
Servicio de instalaci6n de Sears
Para la instalaci6n profesional de Sears de aparatos
electrodomSsticos, abridores de puertas de garaje, calentadores
de agua y otros articulos principales del hogar, en los EE.UU. o
en Canad6 Ilame a 1=800=4=MY=HOME ®.
28

SECURITE DE LA LAVEUSE
Votre s_curit_ et celle des autres est trbs importante.
Nous donnons de nombreux messages de s6curit6 importants dans ce manuel et sur votre appareil m6nager. Assurez-vous de
toujours life tousles messages de s6curit6 et de vous y conformer.
Voici le symbole d'alerte de s6curit6.
Ce symbole d'alerte de s_curit6 vous signale les dangers potentiels de d6c_s et de blessures graves a vous
et & d'autres.
Tous les messages de s6curit6 suivront le symbole d'alerte de securit6 et le mot "DANGER" ou
"AVERTISSEMENT'. Ces mots signifient :
Risque possible de d_ces ou de blessure grave si vous ne
suivez pas imrn_diaternent les instructions,
Risque possible de d_c_s ou de blessure grave si vous
ne suivez pas les instructions.
Tousles messages de s6curit6 vous diront quel est le danger potentiel et vous disent comment reduire le risque de blessure et
ce qui peut se produire en cas de non-respect des instructions.
IMPORTANTES iNSTRUCTiONS DE SI_CURIT¢:
AVERTISSEMENT : Pour reduire les risques d'incendie, de choc electrique ou de blessures Iors de I'utilisation de la
laveuse, suivre les pr6cautions fondamentales dont les suivantes :
[] Lire toutes les instructions avant d'utiliser la laveuse.
[] Ne pas laver des articles qui grit et6 nettoy6s ou
laves avec de I'essence ou imbibes d'essence,
solvants de nettoyage & sec, ou autres substances
inflammables ou explosives; ces substances
peuvent emettre des vapeurs susceptibles de
s'enflammer ou d'exploser.
[] Ne pas ajouter d'essence, solvant de nettoyage &
sec ou autre produit inflammable ou explosif dans
I'eau de lavage. Ces substances peuvent 6mettre
des vapeurs susceptibles de s'enflammer ou
d'exploser.
[] Darts certaines conditions, de I'hydrog_ne gazeux
peut se former dans un circuit d'eau chaude qui n'a
pas et6 utilis6 pendant 2 semaines ou plus. LE GAZ
HYDROG#NE EST EXPLOSIBLE. Si le circuit d'eau
chaude n'a pas 6t6 utilis6 pendant une telle p6riode,
avant d'utiliser la laveuse, ouvrir tousles robinets
d'eau chaude et laisser I'eau s'ecouler pendant
plusieurs minutes par chaque robinet. Ceci
permettra revacuation de I'hydrogene gazeux
accumule. Comme ce gaz est inflammable, ne pas
ruiner ou utiliser une fiamme nue au cours de cette
p6riode.
[] Ne pas laisser des enfants jouer sur ou & I'interieur de la
laveuse. Bien surveiller les enfants Iorsque la laveuse est
utilis6e & proximit6 d'enfants.
[] Avant de mettre la laveuse au rebut ou hors de service,
enlever la porte ou le couvercle.
[] Ne pas tenter d'atteindre un article & I'int6rieur de la cuve de
la laveuse Iorsque le tambour, la cuve ou I'agitateur est en
mouvement.
[] Ne pas installer ou remiser cette laveuse & un endroit oB elle
serait expos6e aux intemp6ries.
[] Ne pas modifier les organes de commande.
[] Ne pas r6parer ou remplacer un composant quelconque de
la laveuse, ni entreprendre une operation de service, si ce
n'est sp6cifiquement recommand6 clans ce manuel ou dans
un manuel d'instructions de reparations destine a I'utilisateur;
il est alors essentiel que la personne concernee comprenne
ces instructions et soit comp6tente pour les ex6cuter.
[] Pour les instructions de liaison & la terre, voir "Specifications
electriques" dans les instructions d'installation.
CONSERVEZ CES iNSTRUCTiONS
POUR VOTRE SECUR|TE
Ne pas remiser ou utiliser de I'essence ou tout autre liquide ou vapeur inflammable & proximite de cet appareil ou de tout autre appareil.
29

OUTILLAGE
Outillage n_cessalre :
ET PIi:CES
Niveau Pince Couteau utilitaire
Cl_ _ molette
Outillage facultatif :
c _i3
Lampe de poche Seau
Pi_ces fournies :
S
Tuyaux d'alimentation (2)
d'alimentation (4) Tuyau de vidange avec
bride, bride de retenue en
forme de u et attache=cable
3O

DIMENSIONS
Vue de face
[
41¼"
(I,047 m)
(25 ram)
27"
(686 ram)
-(521V2"
46 ram)
2s/8,, 5/8,,
(67 ram) (16 ram)
REMARQUE :Tableau de disjoncteurs non inclus sur certains
mod$1es.
l
35"'
(889 ram)
÷
1"
(25 ram)
Vue lat_rale
27V2"
_t----- (699 mm)_
27"" _l
(686¢ram) ,--
J
i
............... ................ J-7
ModUles non
payants :
61/4''
(159 ram)
ModUles
payants :
81/4''
(210 ram)
Vue arri_re
43¼"
(I,098 m)
36"
(914 ram)
61/2 u
(165 ram)
(25 ram'
41/4.
(108 ram)
27"
(686
51/2 u
40 ram)
41¼
(1,047 m)
351/2"
(902 mm)
31

EXIGENCES D'EMPLACEMENT
Le choix d'un emplacement appropri_ pour la laveuse en am61iore
le rendement et r6duit au minimum le bruit et le "d6piacement"
possible de la laveuse.
La laveuse peut 8tre installSe dans un sous-sol, une buanderie
ou un encastrement. Voir "SystSme de vidange'.
II faut aussi prendre en compte les exigences d'emplacement
des appareils voisins.
IMPORTANT :Ne pas installer ou remiser la laveuse dans un
endroJt o0 elle sera expos_e aux Jntemp_rJes. Ne pas remJser
ou faJre fonctJonner la laveuse _ des temperatures _gales ou
inf_rJeures _ 32°F (0°C). Une quantJt6 d'eau peut demeurer dans
la laveuse et causer des dommages _ des temp6ratures basses.
C'est c] i'utilisateur qu'incombe ia responsabiiit_ de r_aiiser une
installation correcte.
II vaus faudra :
[] Un chauff:e-eau r_gl6 6120 °F (49 ° C).
[] Une prise _lectrique reii_e 6 la terre et situ_e 6 mains de 4pi
(1,2 m) du cordon d'alimentation situ_ 6I'arriSre de la laveuse.
Voir "Specifications _lectriques''.
[] Des robinets d'eau chaude et d'eau froide situ6s 6mains
de 4 pi (1,2 m) des 6iectrovannes de rempiissage d'eau
chaude et d'eau froide situ6es sur la laveuse et une pression
d'eau de 20-100 Ib/po 2 (138 6 690 kPa). Lorsque la pression
d'alimentafion 6I'entr_e du b_timent est sup6rieure 6 100 Ib!
po2 (690 kPa), on devrait installer une vanne de rSduction de
la pression pour 8viter une 8ventuelle d_tSrioration de
la vanne de mixage de la laveuse.
[] Lqnstallation d'une seule laveuse nScessite une colonne
montante d'au mains 12" (300 mm) pour assurer un coussin
d'air et 6viter le bruit et I'endommagement des vannes.
[] Un plancher de niveau avec une pente maximale de
1" (25 mm) sous I'ensemble de la laveuse. Lqnstallation
sur de la moquette n'est pas recommand_e.
[] Un plancher capable de supporter le poids total de
315 Ib (143 kg) de la laveuse (eau et charge comprises).
[] Un avaloir de sol sous le coffrage. Les taft:rages prSfabriquSs
8quip_s de prises 81ectriques, lignes d'arrivSe d'eau et
conduites d'Svacuation doivent 8tre utilis_s seulement 16 oO les
codes Iocaux I'autorisent.
Installation darts un encastrement au un placard
Cette laveuse peut _tre install_e dans un encastrement ou un
placard. Les dimensions d'installation indiqu6es correspondent 6
I'espacement minimal permis. PrSvoir davantage d'espace pour
faciliter I'installation et I'entretien. Si I'on installe une porte de
placard, des ouvertures d'aSration minimales sont nScessaires
en haut et en bas de la porte. Les portes 6 claire-voie off:rant
des ouvertures 6quivalentes (sup6rieures et infSrieures) sont
acceptables. II faut aussi prendre en compte I'espace requis entre
les appareils voisins.
Minimum installation spacing
14" max. _! .....
(356 ram)_. ,
(127 ram) _.,_'_".-%.....
_- (25 ram)
m)
(25 ram)
(761
(761
%
32

SYSTi::MEDE VIDANGE
Le systSme de vidange de la laveuse peut 6tre install_ 6Faide
d'un conduit d'Svacuation au plancher, un tuyau de rejet 61'6gout
au plancher ou mural ou un 8vier de buanderie. SSlectionner la
mSthode 6 utiliser.
Syst_me de vidange avec tuyau de rejet _ F_gout
au plancher
DiamStre minimal pour un tuyau de rejet 6I'Sgout :2" (51 ram).
Capacit6 minimale d'acheminement :10 gal. (38 L) par minute.
Le sommet du tuyau de rejet 6FSgout doit avoir une hauteur d'au
moins 39" (990 mm) high; ne pas Finstaller 6 plus de 96" (2,44 m)
du fond de la laveuse.
Le systSme de vidange au plancher nScessite un ensemble de
brise-siphon (piSce numSro 285834). Dimension minimale pour
le brise-siphon :28" (710 mm) 6partir du fond de la laveuse.
Des tuyaux supplSmentaires peuvent &tre requis.
Syst_rne de vidange dans un _vier de buanderie
Syst_rne de vidange avec tuyau de rejet _ F_gaut mural
Capacit6 minimale :20 gal. (76 L). Le sommet de I'6vier de
buanderie dolt se trouver 6 au moins 39" (990 mm) du plancher.
Voir les exigences pour le syst6me de vidange avec tuyau
de rejet 6 I'6gout au plancher.
33

SP :CIFICATIONS F:LECTRIQUES
Risque de choc 61ectrique
Brancher sur une prise a3alv6oles reli6e _ la terre.
Ne pas enlever la broche de liaison _la terre.
Ne pas utiliser un adaptateur.
Ne pas utiliser un c_ble de rallonge.
Le non=respect de ces instructions peut causer
un d6c_s, un incendie ou un choc 61ectrique.
[] Une alimentation de 120 volts, 60 Hz, CA seulement, de
15 ou 20 amperes, prot6g_e par un fusible est requJse.
On recommande I'ernploi d'un fusible ou d'un disioncteur
temporis6. II est recommand_ de raccorder Fappareil sur un
circuit distinct exclusif 6 cet appareil.
[] Cette laveuse comporte un cordon d'alimentation _lectrique
6 trois broches pour liaison 6 la terre0
[] Pour minimiser les risques de choc _lectrique, on doit
brancher le cordon sur une prise de courant de configuration
correspondante, 6 3 alv6oles, reli6e 6 la terre et install_e
conformSment aux codes et r_glements Iocaux. Si une prise de
courant de configuration correspondante n'est pas disponible,
le client a la responsabilit6 et Fobligation de faire installer par
un 6iectricien qualifi6 une prise de courant correctement reli_e
la terre.
[] Si les codes le permettent et si Fon utilise un conducteur distinct
de liaison 6 la terre, il est recommand_ qu'un 81ectricien
qualifi8 vSrifie la qualit_ de la liaison 6 la terre0
[] Ne pas utJliser une tuyauterie de gaz pour le raccordement
6 la terre.
[] En cas de doute quant 6 la qualit6 de la liaison 6 la terre de
la laveuse, consulter un 81ectricien qualifi&
[] Ne pas installer un fusible dans le conducteur neutre ou
le circuit de liaison 6 la terre.
INSTRUCTIONS DE LIAISON ALA TERRE
Pour une laveuse reli6e _ la terre et connect6e par
un cordon ."
Cette laveuse doit 6tre reli6e & la terre. En cas d'anomalie
de fonctionnement ou de panne, la liaison & la terre r6duira
le risque de choc 61ectrique en offrant au courant 61ectrique
un itin6raire d'6vacuation de moindre r6sistance. Cette
laveuse est aliment6e par un cordon 61ectrique comportant
un conducteur reli6 & la terre et une fiche de branchement
munie d'une broche de liaison & la terre. La fiche doit 6tre
branch6e sur une prise de courant appropri6e qui est bien
install6e et reli6e & la terre conform6ment & tous les codes
et reglements Iocaux.
AVERTISSEMENT :Le raccordement incorrect de cet
appareil au conducteur de liaison & la terre peut susciter un
risque de choc 61ectrique. En cas de doute quant & la
qualit6 de la liaison & la terre de I'appareil, consulter un
61ectricien ou technicien d'entretien qualifi6.
Ne pas modifier la fiche de branchement fournie avec
I'appareil - si la fiche ne correspond pas & la configuration
de la prise de courant, demander & un 61ectricien qualifi6
d'installer une prise de courant convenable.
Pour une laveuse raccord6e en permanence :
Cette laveuse doit 6tre raccord6e & un systeme de c&blage
permanent en m6tal reli6 & la terre ou un conducteur reli6 &
la terre doit 6tre en fonction avec les conducteurs de circuit
et raccord6s & la borne de liaison & la terre ou la borne sur
I'appareil m6nager.
34

iNSTRUCTiONS D'INSTALLATION
Risque du poids excessif
Utiliser deux ou plus de personnes pour d6piacer et
installer la laveuse.
Le non=respect de cette instruction peut causer une
blessure au dos ou d'autre blessure,
II est n6cessaire de retirer tout le matSriel d'expSdition pour un
fonctionnement correct et pour 8viter que la laveuse ne fasse trop
de bruit.
1. DSplacer la laveuse 6 moins de 4 pi (1,2 m) de son
emplacement final; elle dolt &tre en position complStement
verticale.
REMARQUE :Pour 6viter d'endommager le plancher, installer
la laveuse sur un carton avant de la dSplacer. Assurer que le
couvercle est retenu en place avec le ruban adhSsif.
3. Retirer le ruban adh6sif du couvercle de la laveuse, ouvrir
le couvercle et retirer le carton plat d'emballage de la cuve.
Veiller _ retirer toutes les pisces du carton plat.
REMARQUE :Conserver le carton plat au cas o6 il faudrait
dSplacer la laveuse ultSrieurement.
48"
(1,2 m)
\
2. Afin d'6viter d'endommager le plancher0 placer les supports
en carton du carton d'exp6difion sur le plancher, derriere
la laveuse. Incliner la laveuse vers Farri6re et la placer sur
les supports en carton. Retirer la base d'exp6dition. Redresser
la laveuse en position verticale.
IMPORTANT :Le retrait de la base d'exp6difion en polystyrene
est n6cessaire au bon foncfionnement de la laveuse. Si la
laveuse comprend une plaque d'insonorisation_ consulter les
instructions fournies avec la plaque d'insonorisation pour
I'installer maintenant.
35

RACCORDEMENT DU TUYAU DE VIDANGE
Le bon acheminement du tuyau de vidange 6vite d'endommager
le sol 6 cause de fuites d'eau.
Retirer le tuyau de vidange du tambour de la laveuse
1. Retirer le ruban adh_sif de I'orifice de vidange de la laveuse
situ6 6 I'arriSre de celle-ci.
5_ Placer le tuyau dans le tuyau de rejet 6 I'6gout (illustr6 sur
I'image) ou par-dessus le c6t6 de I'6vier de buanderie.
iMPORTANT ._4,5" (114 ram) du tuyau de vidange doit 6tre 6
I'int6rieur du tuyau de rejet 6 I'6gout; ne pas forcer I'exc6dent
de tuyau dans le tuyau de rejet 6 1'6gout nile placer dans
I'6vier de buanderie. On dolt utiliser la bride de retenue pour
tuyau de vidange.
Bride de retenue
pour tuyau
de vidange
2. Si la bride n'est pas d6j6 install6e sur I'extr6mit6 coud_e du
tuyau de vidange, la faire glisser sur I'extr6mit6 tel qu'indiqu6.
3. Serrer la bride avec une pince et faire glisser I'extr@mit@
coud_e du tuyau de vidange sur I'orifice de vidange de la
laveuse, puis fixer avec la bride.
J
6. Pour les installations avec vidange au plancher, il faut retirer
la bride de retenue pour tuyau de vidange de I'extrSmit8 du
tuyau de vidange. Des pi&ces supplSmentaires avec des
directives distinctes seront peut-Stre nScessaires. Voir "Outillage
et pi_ces'.
Le syst&me de vidange au sol n6cessite un brise-siphon
qui peut _tre achet6 s_par_ment. Le brise-siphon (pi&ce
num_ro 285834) doit se trouver au moins 6 28" (710 mm)
de la base de la laveuse. Des tuyaux suppl_mentaires peuvent
s'av_rer n_cessaires.
4. Le syst&me de vidange de la laveuse peut &tre install_ 8 I'aide
d'un avaloir de sol, un tuyau rigide de rejet 8 I'_gout mural, un
tuyau rigide de rejet 8 I'_gout au sol ou un _vier de buanderie.
36

RACCORDEMENT DES TUYAU× D'ARRIV :E D'EAU
InsSrer les rondeiles de tuyau neuves (fournies) dans ¢haque
extrSmit6 des tuyaux d'arriv6e d'eau. InsUrer fermement les
rondelles dans les raccords.
RondeHe Raccord
Raccorder les tuyaux d'arriv6e d'eau aux rebinets
1. Fixer le tuyau au robinet d'eau chaude. Visser le raccord
la main jusqu'6 ¢e qu'il repose sur la rondelle. R_p6ter
I'op6ration pour I'eau froide.
Raccorder les tuyaux d'arriv_e d'eau _ la laveuse
1. Fixer le tuyau d'eau froide au robinet d'arriv_e d'eau froide
cercl6 de bleu. Visser le raccord 6 la main jusqu'6 ¢e qu'il soit
bien serr&
2. Fixer le tuyau d'eau chaude au robinet d'arriv6e d'eau chaude
indiqu6e par une bague rouge. Visser le raccord 6 la main
jusqu'6 ¢e qu'il soit bien serr&
2. Serrer les raccords de deux tiers de tour supplSmentaires
I'aide d'une pince.
C
iMPORTANT :Ne pas serrer excessivement ni ufiliser de
ruban adhSsif ou de dispositif d'6tanch6it6 sur la valve Iors de
la fixation aux robinets ou _ la laveuse. Cela pourrait entra?ner des
dommages.
Purger les canalisations d'eau
[] Laisser s'6couler I'eau des deux robinets et les tuyaux d'arriv6e
d'eau dans un 6vier de buanderie_ un tuyau rigide de rejet c]
1'6gout ou un seau pour 61iminer les parficuies se trouvant dans
les canalisafions d'eau qui pourraient obstruer les tamis de la
valve d'arriv6e d'eau.
[] V6rifier la temp6rature de I'eau pour s'assurer que le tuyau
d'eau chaude est connect6 au robinet d'eau chaude et que
le tuyau d'eau froide est connect6 au robinet d'eau froide.
3. Serrer les raccords de deux tiers de tour supplSmentaires
I'aide d'une pince.
REMARQUE :Ne pas serrer excessivement. Les robinets
risquent d'6tre endommag6s.
4. Ouvrir les robinets d'eau pour v6rifier qu'il n'y a pas de fuite.
Une petite quanfit6 d'eau peut entrer dans la laveuse. EIle
s'6vacuera plus tard.
0
REMARQUE :Remplacer les tuyaux d'arriv6e d'eau aprSs 5ans
d'ufilisation pour r6duire le risque de d6faillance intempesfive.
Prendre note de la date d'installation ou de remplacement des
tuyaux d'arriv6e d'eau, pour r6f6rence ult6rieure.
Inspecter p6riodiquement les tuyaux et les remplacer en cas de
renflement, de dSformation, de coupure, d'usure ou si une fuite
se manifeste.
37

ETABLISSEMENT DE L'APLOMB DE LA LAVEUSE
iMPORTANT : L'6tablissement correct de I'aplomb de CONSEIL UTILE :II serait judicieux de soulever I'avant de
la laveuse permet de r_duJre les nuisances sonores et la laveuse d'envJron 4" (102 ram) 6 Faide d'une cale en bois
de limiter les vibrations, ou d'un objet similaire qui soutiendra le poids de la laveuse.
Risque du poids excessif
Utiliser deux ou plus de personnes pour d_placer et
installer la laveuse/s_cheuse,
Le non=respect de cette instruction peut causer une
bmessure au dos ou d'autre blessure.
1. Me#re la laveuse est 6 son emplacement final. Placer un niveau
sur les bords sup6rieurs de la laveuse. Utiliser une rive lat6rale
comme guide pour d_terminer I'aplomb des cbtSs. V6rifier
l'aplomb de l'avant 6l'aide du couvercle r tel qu'indiqu_. Faire
bouger la laveuse d'avant en arri_re pour s'assurer que les
quatre pieds sont bien en contact avec le plancher.
Placer le niveau & cet endroit Placer le niveau & cet endroit
OU
ModUles avec les
pieds en plastique
ModUles avec les
pieds en m_tal
3. Sur les modSles avec les pieds en instal, une fois Faplomb
de la laveuse _tabli r utiliser une cl8 plate ou une cl6 6 molette
de 9/16" ou 14 mm pour tourner les contre-6crous sur les pieds
de nivellement dans le sens anti-horaire et les serrer fermement
contre la caisse de la laveuse.
Pas d'aplomb APLOMB Pas d'aplomb
2. Sur les modules avec les pieds en instal, ufiliser une cl_ plate
ou une cl_ 6 molette de 9/16" ou 14 mm pour tourner les
contre-6crous dans le sens horaire jusqu'6 ce qu'ils se trouvent 6
environ 1/2" (13 ram) de la caisse de la laveuse. Tourner ensuite
le pied de nivellement dans le sens horaire pour abaisser la
laveuse ou antihoraire pour la soulever.
Sur les modules avec les pieds en plastique, utiliser une pince
rSglable pour tourner le pied de nivellement dans le sens
antihoraire pour abaisser la laveuse ou horaire pour la soulever.
Sur tousles modules, contrGler 6 nouveau Faplomb de la
laveuse et r_p_ter au besoin.
/
Contre6crod
38

iNSTALLATiON DELAGLISSIEREETDELA BO|TEAMONNAIE
Sur certains modSles, le m6canisme de glissi_re, le verrou et la cl_
de la porte de service et le verrou et la cl_ de la bo?te 6 monnaie
ne sont pas indus mais ces pisces sont disponibles auprSs des
fournisseurs industriels classiques.
Enlever la porte de service du compteur en la souievant par
I'arri_re. Installer le dispositif de rSception de la monnaie.
(Consulter les instructions du fabricant concernant Finstallation). Pour les laveuses utilisant des glissiSres, utiliser Fensemble
d'adaptateur fourni avec la laveuse.
Installer un verrou et une came sur la porte de service du bo?fier
du compteur. Installer la chambre 6 pisces et son verrou dans
Fouverture du bo?tier du compteur.
ACHEVER L'INSTALLATION
Risque de choc 61ectrique
Brancher sur une prise _3alv6oles reli6e _la terre.
Ne pas enlever la broche de liaison _la terre.
Ne pas utiliser un adaptateur.
Ne pas utiliser un c_ble de rallonge.
Le non-respect de ces instructions peut causer
un d6c_s, un incendie ou un choc 61ectrique.
[] V6rifier que tout le matSriel d'exp_dition 6 8t8 retir8
de la laveuse.
[] Eliminer/recycler tousles matSriaux d'emballage.
[] VSrifier que les robinets d'eau sont ouverts.
[] V6rifier quql n'y a pas de fuite autour des robinets et
des tuyaux d'arriv6e d'eau.
[] C)ter la pellicule de la console et tout ruban adhSsif rest8
sur la laveuse.
[] Brancher sur une prise reliSe 6 la terre ou connecter
la source de courant 81ectrique.
[] V6rifier que le dis]oncteur ne s'est pas dSclench8 et
qu'aucun fusible n'est grill&
[] DSmarrer la laveuse 6 Faide du systSme de paiement (si eile en
comporte un) pour vSrifier que le programme de lavage arrive
bien 6 terme sans qu'aucun code d'erreur ou fuite n'apparaisse.
[] Consulter les specifications _lectriques. S'assurer de disposer
d'une source d'61eetricit_ appropri_e et d'une liaison 6 la terre
conforme 6 la m6thode recommand6e.
[] VSrJfler que toutes les pisces sont maintenant Jnstall6es.
S'il reste une piSce r passer en revue les diff6rentes _tapes pour
d6couvrir laquelle aurait 6t6 oubli6e.
[] VSrifier la presence de tous les outils.
TAILLE TYPIQUE DES CHARGES COMPLETES
Type de charge
Charge mixte
Pressage permanent
Suggestion de chargement
3 draps (lit & 2 places)
4taies d%reiller
6shorts
8 T-shirts
2 chemises
2 chemisiers
8 mouchoirs
2 draps (lit 6 2 places) ou
1 drap (lit trSs grand)
1 nappe
1 robe
1 chemisier
2 pantalons
3 chemises
2 tales d%reiller
Type de charge
V&tements de travail tr_s sales
Tricots
Suggestion de chargement
3 pantalons
3 chemises
1 combinaison
4 jeans
1 salopette
3 chemisiers
4pantalons
6chemises
4tricots
4robes
39

ENTRETIEN DE LA LAVEUSE
Consells d'uffllsaffon Transport de la laveuse
Risque d'incenclie
Ne jamais mettre des articles humect6s d'essence ou
d'autres fluides inflammables dans la laveuse.
Aucune laveuse ne peut compl_ternent enlever I'huile.
Ne pas faire s6cher des articles qui ont 6t6 saNispar
tout genre d'huile (y compris les huiles de cuisson).
Le non=respect de ces instructions peut causer un
cl6c_s, une explosion ou un incendie.
[] Fermer les deux robinets d'eau. D6brancher et vidanger les
tuyaux d'arriv6e d'eau.
[] D6connecter le tuyau d'6vacuation du syst6me de vidange et
vider I'eau qui reste dans un bac ou un seau. D6connecter le
tuyau d'6vacuation de I'arri_re de la laveuse.
[] D6brancher le cordon d'alimentation.
[] Placer les tuyaux d'arriv6e d'eau et le tuyau d'6vacuation dans
le panier de la laveuse.
[] Faire passer le cordon d'alimentation par dessus le bord et le
mettre dans le panier de la laveuse.
[] Replacer le support d'emballage de I'appareil 6 Hnt6rieur de
la laveuse. Si vous ne poss6dez plus le support d'emballage
de I'appareil, placer des couvertures Iourdes ou des serviettes
dans I'ouverture du panier. Fermer le couvercle et placer du
ruban adh6sif sur le couvercle et jusqu'6 la partie
inf6rieure avant de la laveuse. Laisser le couvercle ferm6 par
I'adh_sif jusqu'6 ce que la laveuse soit install6e 6 son nouvel
emplacement.
II est recommand6 de ne pas laver d'articles en fibre de verre
dans une laveuse payante. Si on lave ces articles dans la laveuse,
faire fonctionner un programme complet pour rincer les 6ventuels
r6sidus rest6s dans la laveuse.
iMPORTANT : Le d6tergent, I'agent de blanchiment et
I'assouplissant pour tissu doivent 6tre vers6s dans les distributeurs
avant d'ajouter les v6tements et on ne dolt mettre en marche la
laveuse qu'apr6s avoir effectu6 ces op6rations car le couvercle se
verrouille une fois que la laveuse a d6marr6.
4O

AUTRES PIi:CES
II se peut que I'installation n6cessite des pisces suppl_mentaires.
Pour acheter run des articles indiqu6s ici, composer le numSro sans
frais indiqu_ 6 la section "Assistance".
Tuyau de rejet 6 I'_gout
rigide de diam_tre 1" (25
ram)
II vous faudra :
Tuyau de vidange standard de
20 gal. (76 L) de 39" (990 mm)
de haut ou 6vier de d_charge,
pompe de puisard et connecteurs
(disponibles chez les vendeurs de
materiel de plomberie Iocaux)
Adaptateur pour tuyau rigide de
rejet 6 I'_gout rigide de diam_tre
2" (51 ram) 6 1" (25 ram), piece
num_ro 3363920
Ensemble de connection, piece
num_ro 285835
Le syst@me d'@vacuation Protecteur de canaNsation, piece
obstru6 par de la charpie num6ro 367031 Ensemble de
connection, piece num6ro 285835
Si vous avez : II vous faudra :
Syst_me d'avaloir de sol Brise-siphon, r_f_rence 285834,
Ensemble de raccordement (x2),
r6f6rence 285835
Prolongateur de tuyau flexible de
vidange, r6f6rence 285863
Robinets d'eau hors 2 tuyaux de remplissage plus
d'atteinte des tuyaux longs :tuyau coud6 6 90 ° de 6pi
d'alimentation (1,8 m), piSce num6ro 76314, 10 pi
(3 m), piSce num6ro 350008
Plateau d'6gouttement de la
laveuse, pi6ce num6ro 8212526
41

CONTRATS DE PROTECTION
Confrafs prlnclpau× de protection
Nous vous fSlicitons d'avoir fait un achat ]udicieux. Votre nouvel
appareil Kenmore _ est con_:u et fabriqu8 pour vous procurer des
annSes de fonctionnement fiable.
Mais comme pour tousles produits, il pourra 6 I'occasion
nScessiter un entretien prSventif ou une rSparation. Le cas
8ch6ant, un Contrat principal de protection peut vous 8pargner
de I'argent et des soucis.
Le Contrat principal de protection contribue aussi 6 prolonger
la vie utile de votre nouvel appareil mSnager. Le Contrat _"inclut :
Pi@ces et main d'oeuvre nScessaires pour conserver les
appareils en 8tat de fonctionnement correct pendant une
utilisation normale, pas uniquement pour remSdier aux
d6faillances. Notre couverture s'_tend bien au-dei_ de la
garantie du praduit. Aucune franchise, aucune anomaiie de
fonctionnement ne sont exclues de ce contrat -protection r@elle.
Un service d'expeH propos6 par plus de 10 000 techniciens
d'entretien Sears autaris_s, ce qui signifie que quelqu'un de
conflance prendra soin de votre produit.
Appels de service illimit_s et service national, aussi souvent que
vous en avez besoin et quand vous en avez besoin.
- remplacement de vatre praduit couvert si au mains quatre
pannes se produisent en de96 de douze rnois.
Rempiacement du produit si votre produit couvert ne peut _tre
rSpar_
V@riflcatian annuelle d'entretien pr@venfif sur demande -sans
frais suppl_mentaires
Aide rapide par t_l_phone - nous appelons cela R_salutian
rapide - support t_l_phonique d'un agent de Sears sur tousles
produits. Consid_rez-nous cornrne un "manuel d'utilisateur parlant'.
Protection contre les sautes de puissance pour pr_venir les
dornrnages _lectriques attribuables aux fluctuations de courant.
Remboursement de location si ia r6paration du produit couvert
prend plus de temps que prornis.
10 °/0 de r@ductian sur ie prix courant de toute intervention de
r_paration non-couverte et pi_ces de rechange.
DSs que vous achetez le Contrat, il suffit d'un appel t616phonique
pour obtenir un rendez-vous pour une intervention de dSpannage
ou d'entretien. Vous pouvez appeler 6 n'importe quelle heure du
jour ou de la nuit ou prendre un rendez-vous de dSpannage en
ligne.
Le Contrat principal de protection constitue un investissement
sans risque. Si vous annulez pour une quelconque raison pendant
la p_riode de garantie du produit, nous vous rembourserons
intSgralement. Ou nous vous verserons un remboursement au
prorata aprSs I'expiration de la p_riode de garantie. Achetez
votre Contrat principal de protection aujourd'hui m_me! Certaines
limitations et exclusions s'appliquent. Pour des prix et
renseignements suppl_mentaires aux Etats-Unis, composer le
1-800-827-6655. _Au Canada, la cauverture varie en fonction
des articles. Pour des infarmations d_taill_es, appeler Sears
Canada au 1=800=361=6665.
Service d'installatian Sears
Pour I'installation professionnelle garantie par Sears d'appareils
rn_nagers et d'artides tels qua les ouvre-portes de garage,
chauffe-eau, et autres gros appareils rnSnagers, aux E.-U. ou au
Canada, composer le 1=800=4=MY=HOME®.
42

NOTES
43

Your Home
For troubleshooting, product manuals and expert advice:
www.managemylife.com
For repair - in your home - of all major brand appliances,
lawn and garden equipment, or heating and cooling systems,
no matter who made it, no matter who sold it!
For the replacement parts, accessories and
owner's manuals that you need to do-it-yourself.
For Sears professional installation of home appliances
and items like garage door openers and water heaters.
1-800-4-MY-HOME ®(1-800-469-4663)
Call anytime, day or night (U.S.A. and Canada)
www.sears.com www.sears.ca
Our Home
For repair of carry-in items like vacuums, lawn equipment,
and electronics, call anytime for the location of your nearest
Sears Parts & Repair Service Center
1-800-488-1222 (U.S.A.) 1-800-469-4663 (Canada)
www.sears.com www.sears.ca
To purchase a protection agreement on a product serviced by Sears:
1-800-827-6655 (U.S.A.) 1-800-361-6665 (Canada)
Para pedir servicio de reparaci6n
a domicilio, y para ordenar piezas:
1-888-SU-HOGAR ®
(1-888-784-6427)
www.sears.com
Au Canada pour service en frangais:
1-800-LE-FOYER Mc
(1-800-533-6937)
www.sears.ca
sear8
TM
® Registered Trademark /Trademark of KCD IP, LLC in the United States, or Sears Brands, LLC in other countries
® Marca Registrada /rM Marca de Fabrica de KCD IP, LLC en Estados Unidos, o Sears Brands, LLC in otros paises
MCMarque de commerce /MDMarque d6pos6e de Sears Brands, LLC
W10474358A
01/13
Printed in U.S.A.
Impreso en EE;UU.
Imprim& aux E.-U.