Kenmore 11047602940 User Manual WASHER Manuals And Guides L0407291
KENMORE Residential Washers Manual L0407291 KENMORE Residential Washers Owner's Manual, KENMORE Residential Washers installation guides
User Manual: Kenmore 11047602940 11047602940 KENMORE WASHER - Manuals and Guides View the owners manual for your KENMORE WASHER #11047602940. Home:Laundry & Garment Care Parts:Kenmore Parts:Kenmore WASHER Manual
Open the PDF directly: View PDF
.
Page Count: 124 [warning: Documents this large are best viewed by clicking the View PDF Link!]

Owner's Manual and
Installation Instructions
Two-Speed
®
AUTOMATIC WASHERS
IMPORTANT:
Read and follow all safety
and operating instructions
before first use of this product.
Your washer may look different
from the washer shown.
Sears, Roebuck and Co., Hoffman Estates, IL 60179 U.S.A. www.sears.com
Sears Canada Inc., Toronto, Ontario, Canada M5B 2B8 www.sears.ca
3954090 PRINTED IN U.S.A. 9/99

BEFORE USING YOUR NEW WASHER __ _ 2
KENMORE AUTOMATIC WASHER WARRANTY 3
WASHER SAFETY ............ 4
INSTALLATION INSTRUCTIONS 6
OPERATING YOUR WASHER 21
LAUNDRY TIPS .......... 31
CARING FOR YOUR WASHER 33
TROUBLESHOOTING ....... 34
SEARS MAINTENANCE AGREEMENT 38
Please read this manual. It will help
you install and operate your new
Kenmore washer in the safest and
most economical way.
For more information about the care
and operation of Kenmore appliances call
your nearest Sears store. You will need
the complete model and serial
numbers when requesting information,
Your washer's model and serial numbers
are located on the Model and Serial
Number Plate.
Use the space below to record the model
number and serial number of your new
Kenmore Washer.
Model No.
Serial No.
Date of Purchase
\
"ModelandSerial
NumberPlato
Keep this book and your Sears
Salescheck (receipt) in asafe
place for future reference.

Limited Lifetime Warranty on
White Porcelain Basket
For the lifetime of the washer from the
date of purchase, Sears will replace the
white porcelain wash basket if it chips
or rusts due to defective material or
workmanship, After the first year, you
will be charged for labor.
Limited 10-Year Warranty on
Plastic Tub*
For the second through tenth year from
the date of purchase, Sears will replace
the plastic tub if it is defective in
material or workmanship. After the first
year, you will be charged for labon
Limited 5-Year Warranty on
Gearcase Parts*
For the second through fifth year from
the date of purchase, Sears will replace
any gearcase parts that are defective in
material or workmanship. After the first
year, you will be charged for labon
Full 1-Year Warranty on
"Spreckle" Porcelain Basket
For one year from the date of
purchase, when this washer is installed
and operated according to the instruc-
tions that come with it, Sears will
replace the "spreckle" (speckled sur-
face) porcelain wash basket if it chips
or rusts due to defective material or
workmanship.
Full 1-Year Warranty on
Mechanical and Electrical parts
For one year from the date of purchase,
when this washer is installed and
operated according to the instructions
that come with it, Sears will repair or
replace any of its mechanical or electrical
parts if they are defective in material or
workmanship.
Warranty Restriction
If this washer is operated for any
purpose other than private family use,
all warranty coverage is restricted to 90
days from the date of purchase.
Warranty Service
Warranty service is available by
contacting your nearest Sears Service
Center in the United States or Canada.
This warranty applies only while this
washer is used in the United States or
Canada.
This warranty gives you specific legal
rights and you may also have other rights
that vary from state to state or province to
province.
Sears, Roebuck and Co.,
Dept 817WA,
Hoffman Estates, IL 60179
Sears Canada Inc.,
Toronto, Ontario,
Canada M5B 2B8
* In Canada a different warranty may apply.
in the U.S., for Sears warranty information
or to contact a Sears Service Center', call
1-800-4-MY-HOME" (1-800-469-4663). In
Canada, calI 1-877-533-6937.

Your safety and the safety of others is very important.
We have provided many important safety messages in thismanual and on
your appliance. Always read and obeyall safety messages.
This is the safety alert symbol. This symbol alerts you to
hazards that can kill or hurt you and others. All safety
messages will be preceded by the safety alert symbol and
the word "DANGER" or "WARNING." These words mean:
You will be killed or seriously
injured if you don't follow
instructions.
You can be killed or seriously
injured if you don't follow
instructions,
All safety messages will identify the hazard, tell you how to reduce the
chance of injury, and tell you what can happen if the instructions are not
followed.

IMPORTANT SAFETY INSTRUCTIONS
WARNING: To reduce the risk of fire, electric shock, or injury to persons
when using your washer, follow basic precautions, including the following:
•Read all instructions before using
the washer.
• Do not wash articles that have been
previously cleaned in, washed in,
soaked in, or spotted with gasoline,
dry-cleaning solvents, other
flammable or explosive substances
as they give off vapors that could
ignite or explode.
• Do not add gasoline, dry-cleaning
solvents, or other flammable or
explosive substances to the wash
water. These substances give off
vapors that could ignite or explode.
• Under certain conditions, hydrogen
gas may be produced in a hot water
system that has not been used for 2
weeks or more. HYDROGEN GAS IS
EXPLOSIVE. If the hot water system
has not been used for such a period,
before using a washing machine, turn
on all hot water faucets and let the
water flow from each for several min-
utes. This will release any accumulat-
ed hydrogen gas. As the gas is flam*
mable, do not smoke or use an open
flame during this time.
• Do not allow children to play on or in
the washer. Close supervision of
children is necessary when the washer
is used near children.
• Before the washer is removed from
service or discarded, remove the lid,
• Do not reach into the washer if the tub
or agitator is moving.
• Do not install or store this washer where
it will be exposed to the weather.
• Do not tamper with controls.
• Do not repair or replace any part of the
washer or attempt any servicing unless
specifically recommended in the
Owner's Manual or in published user-
repair instructions that you understand
and have the skills to carry out.
• See the "INSTALLATION INSTRUC-
TIONS" section for grounding require-
ments.
SAVE THESE INSTRUCTIONS

INSTALLATION OVERVIEW
For a complete list of tools and parts
needed, see pages 7-9.
A. SELECT LOCATION
FOR YOUR WASHER (pgs. 11-13)
Recessed Area/
Closet Installation Instructions (p. 11)
Standpipe Drain System (p, 13)
39 in
(99 cm) '
l
Laundry Tub Drain System (p. 12)
(99 cm)
Floor Drain System (p. 13)

B,REMOVESHIPPINGSTRAP(p,14)
ToolsNeeded:
Scissors Flashlight (optional
depending on installation)
C, CONNECT DRAIN HOSE (pgs. 15-16)
Ns_IST
Tools Needed: Parts Supplied:
Pliers that open
to 1 9he in (3.95 cm)
Flashlight (optional
depending on installation)
1 yellow, single-wire
hose clamp (top of
drain hose)
1 silver, double-
wire hose clamp
(bottom of drain
hose)

D. CONNECT INLET HOSES TO WASHER (pgs. 16-17)
Tools Needed: Parts Supplied:
Pliers that open
to 19/16in (3.95_
Flashlight (optional
depending on installation)
2 water inlet hoses
4 fiat water inlet hose washers
E. CONNECT INLET HOSES TO WATER FAUCETS (p. 17)
i
Tools Needed: Parts Supplied:
Pliers that open to 19/_6inches (3.95 cm)
Bucket
(optional Flashlight (optional
depending on depending on installation)
installation)
2 water inlet hoses

F. SECURE DRAIN HOSE (p, 18)
Tools Needed: Parts Supplied:
Flashlight (optional
depending on installation)
Shipping strap with fastener
G, LEVEL WASHER (p. 19)
Tools Needed: Parts Supplied:
9/_6in (1.43 cm)
open-end wrench
Flashlight (optional
depending on installation)
Wood block
2 front leveling legs with nuts

ELECTRICAL REQUIREMENTS
120-Voif, 60-Hz., AC-only, 15- or
20-ampere fused electrical supply is
required. (Time-delay fuse or circuit
breaker is recommended.) Connect
to an individual branch circuit.
Electrical Shock Hazard
Plug into a grounded 3 prong outlet.
Do not remove ground prong.
Do not use an adapter.
Do not use an extension cord.
Failure to follow these instructions
can result in death, fire, or
electrical shock.
This washer is equipped with a power
supply cord having a 3 prong grounding
plug. To minimize possible shock hazard,
you must plug the power supply cord
into a mating 3 prong grounding-type
wall receptacle, grounded in accordance
with National Electrical Code,
ANSI/NFPA
70-latest edition and all local codes and
3 prong
grounding-type
wa_l receptacle
3 prong
grounding plug
Grounding \ _== /_
ng
Power supply
cord
•For a grounded, cord-
connected washer:
GROUNDING INSTRUCTIONS
This washer must be grounded. In the
event of malfunction or breakdown,
grounding will reduce the risk of
electrical shock by providing a path of
least resistance for electric current. This
washer is equipped with a cord having
an equipment-grounding conductor and
a grounding plug. The plug must be
plugged into an appropriate outlet that
is properly installed and grounded in
accordance with all local codes and
ordinances.
WARNING: Improper connection
of the equipment grounding conductor
can result in a risk of electric shock.
Check with a qualified electrician or
serviceman if you are in doubt as to
whether the appliance is properly
grounded.
Do not modify the plug provided with
the appliance - if it will not fit the
outlet, have a proper outlet installed by
a qualified electrician.
•For a permanently connected
washer:
GROUNDING INSTRUCTIONS
This washer must be connected to a
grounded metal, permanent wiring
system, or an equipment grounding
conductor must be run with the circuit
conductors and connected to the
equipment-grounding terminal or lead
on the appliance.
10

A. SELECT LOCATION
FOR YOUR WASHER -
Selecting the proper location for your
washer will improve its performance
and minimize concerns like washer
walk or noise.
RECESSED AREA/
CLOSET INSTALLATION INSTRUCTIONS
This washer may be installed in a recessed area or closet.
3[-
19in
(48.3 _m'
*0 in--), _24 in
(0 cm) (61 cm)
14inmax,_---
(310 cm2) =
minimum
ventilation
24 in2
(155cm2)
minimum_
ventilation
_r8_
<--*0 in -_1 in1_-251/2in_ 4in
(Ocm) (2.5 cm)(64.8 cm) (10 2cm)
3 in
_(7 6cm)
3 in
__(7.6 cm)
Front View SideView Front View
(Door NotShown) (Door Shown) (Door With Vent)
*Additional clearance lot wail, door and floor moldings may be Tequited To reduce tTans_eral washer sounds, a clearance o_ 1 in 125 cm} on the
sides o_ the washer is recommended
•The installation spacing is in inches
(centimeters) and is the minimum
allowable.
• Allow additional space if other
appliances are to be installed in
the area.
• If closet door is installed, the
minimum air openings in top and
bottom are required. Louvered doors
with equivalent air openings in top
and bottom are acceptable.
11

LAUNDRY TUB DRAIN SYSTEM
Check location where washer will be
installed. This washer can be installed
using one of three systems:
• Laundry tub drain system (below)
• Standpipe drain system (p. 13)
• Floor drain system (p. 13)
Do not store or operate washer at or
below 32°F (0°C) (some water may
remain in washer), See page 33 for
winterizing information.
Proper installation is your responsibility,
Make sure you have everything neces-
sary for correct installation including the
following points:
Grounded receptacle: Must Hot and cold water faucets:
be within 4 ft (1.2 m) of where Must provide water pressure
the power cord is attached to between 5-I00 psi and be
the back of the washer', within 4 ft (1.2 m) of the hot
/and cold water fill valves
/attached to the back of the Laundry tub drain system:
// washer. _%, Needs a minimum 20 gal
/"_ (76 L) laundry tub.
p be at
/least 39 in (99 cm)
Support: Floor must be sturdy Level floor: Maximum above floor and no
enough to support a total weight allowable slope under entire higher than 96 in
of 315 Ibs (143 kg) (includes washer - 1 in (2.5 cm). (2.4 m) from bottom
washer, water, and load weight), of washer.
12

ALTERNATE LOCATIONS -
STANDPIPE AND FLOOR DRAIN SYSTEMS
Siphon break: Must be purchased
39 in
(99 cm)
drain system: Needs a 2-in
(5 cm) minimum diameter standpipe with
minimum carry-away capacity of 17 gal (64 L)
per minute. Top of standpipe must be at least
39 in (99 cm) above floor and no higher than
96 in (2.4 m) from bottom of washer.
Floor drain system: Requires a siphon
break, see chart below. A minimum
carry-away capacity of 17 gal (64 L) per
minute is required.
If you have: You will need to buy:
Laundry tub or standpipe
taller than 96 in (2.4 m)
1 in (2,5 cm) diameter
standpipe
Overhead sewer
Sump pump system
(if not already available)
2 in (5 cm) diameter to 1 in (2.5 cm) diameter
standpipe adapter, Part No. 3363920
Standard 20 gal (76 L), 39 in (99 cm) tall drain
tub or utility sink and sump pump (available
from local plumbing suppliers)
Floor drain Siphon break, Part No. 285320;
additional drain hose, Part No. 3357090;
and Connector Kit, Part No. 285442
Parts listed are available from your local Sears store or Sears Service Cente[ In the United
States, calI 1-800-366-PART (1-809-366-7278). in Canada, call 1-877-533-6937.
13

B. REMOVE SHIPPING STRAP
Removing the shipping strap is
necessary for smooth operation.
If the shipping strap is not removed,
the washer will make excessive noise,
STEP 2. Pull firmly to remove the end
of the shipping strap that remains
pinned to the back of the washer. This
will
release the rear selfqeveling legs.
Pin
To prevent floor damage, set washer
onto cardboard before moving across
floor. Move washer close to its final
location.
STEP 1. Do not cut yellow strap. Pull
yellow strap firmly, until completely
removed from washer. Depending on
your model, there should be either two
or three cotter pins on the end of the
shipping strap when it is pulled out of
the washer. The electrical plug is
attached to this shipping strap.
Electricalplug
Shippingstrap
STEP 3. Cut the shipping strap about
16 in (40 cm) from plug end. Look for
the words "CUT HERE." Discard end
with the cotter pins. Slide remainder
of shipping strap from the electrical
plug, You will use this to secure the
drain hose.
© ©
\
PULL
Pin
14

C. CONNECT DRAIN HOSE
Proper connection of the drain hose
will protect your floors from damage
due to water leakage.
STEP 1. To prevent the drain hose from
coming off or leaking, it must be installed
per the following instructions:
IMPORTANT: To ensure proper installa-
tion, this procedure must be followed
exactly.
a. Wet the inside of the straight end of the
drain hose with tap water. DO NOT
USE ANY OTHER LUBRICANT.
b. Squeeze ears of silver, double-wire
clamp with pliers to open, Place clamp
over the straight end of the drain hose
_/4in (6 mm) from the end.
d. Place clamp over area marked
"CLAMP." Release clamp.
TWIST
;in
(6 ram)
c. Open clamp, Twist hose back and forth
while pushing down onto drain
connector at the bottom of the washer.
Continue until hose contacts the ribbed
stop on the cabinet,
(6¼_m)/_Orain H0se_ _
¼ in
(6 ram)
If you have: You will need to buy:
Drain hose that is too short Drain hose, Part No. 388423 and
hose kit, Part No. 285442
Drain hose that is too long Hose kit, Part No. 285442
A problem with lint clogging your drain Drain protector, Part No. 367031
Parts listed are available from your local Sears store or Sears Service Center. In the United
States, call 1-800-366-PART (1-800-366-7278). In Canada, call 1-877-533-6937.
15

For standpipe or laundry tub drain
systems:
STEP 2. Open yellow, single-wire clamp
with pliers and slide over hooked end
of drain hose to secure the rubber and
corrugated sections together.
_HookedEnd
f_,_ Drain Hose
STEP 3. Put hooked end of drain hose
into laundry tub or standpipe. Check
for proper length of drain hose. Rotate
hook to eliminate kinks.
To prevent drain water from going back
into the washer:
•Do not straighten hooked end of drain
hose and force excess drain hose into
standpipe.
• Do not lay excess drain hose in bottom
of laundry tub.
D. CONNECT INLET HOSES
TO WASHER
I'R m p4f
Proper connection of your inlet hoses
will allow hot and cold water to enter
your washer properly. It also helps
prevent water damage due to leaks.
NOTE: Replace inlet hoses after five
years of use to reduce the risk of hose
failure, Periodically inspect and replace
inlet hoses if bulges, kinks, cuts, wear,
or leaks are found. When replacing
your inlet hoses, mark the date of
replacement on the label with a
permanent marker.
STEP 1. insert one new, flat washer (from
the parts bag) into each end of
the inlet hoses, Check that washers
are firmly seated in couplings.
0
COUPLING WASHER
16

pliers. Screw on coupling by hand. Make
an additional two-thirds turn with pliers to
tighten coupling. DO NOT OVER-
TIGHTEN; this could damage the valves.
STEP 2, Attach the hose with the red E. CONNECT INLET HOSES
coupling to the hot water (bottom) inlet TO WATER FAUCETS
valve. Attaching the red coupling first
makes it easier to tighten connection with STEP 1. Make sure washer basket is
empty. Run water through both faucets
into a bucket or laundry tub to get rid of
particles in the water lines that might
clog hoses. Determine which faucet is
hot and which is cold. Mark the hot
water faucet.
Hot
Water
Inlet
Valve
ColdWater
Inlet Valve
STEP 3. Attach the hose with the blue
coupling to the cold water (top) inlet
valve. Screw on coupling by hand. Make
an additional two-thirds turn with pliers to
tighten coupling. DO NOT OVER-
TIGHTEN; this could damage valves.
STEP 2. Attach the hose with the red
coupling to the hot water faucet. Screw
on coupling by hand. Make an additional
two-thirds turn with pliers to tighten
coupling. DO NOT OVERTIGHTEN;
this could damage the coupling.
STEP 3. Attach the hose with the blue
coupling to the cold water faucet.
Screw on coupling by hand. Make an
additional two-thirds turn with pliers to
tighten coupling. DO NOT OVER-
TIGHTEN; this could damage the
coupling.
STEP 4. Turn on water faucets and
check for leaks. A small amount of water
may enter the washer. You will drain this
later.
Jlf you have: You will need to buy:
Water faucets beyond the 2 longer water fill hoses:
reach of water fill hoses 6 ft (1.8 m), Part No. 76314
10 ft (3.0 m), Part No. 350008
Parts listed are available from your local Sears store or Sears Service Cente_In the United
States, calI 1-800-366-PART(1-800-366-7278). In Canada, call 1-877-533-6937.
17

F. SECURE DRAIN HOSE
Ir I+'jar++'j++.":I_]m[_ ii-,
Securing the drain hose properly will
protect your floors from damage due
to water leakage.
STEP 1. Move washer to its final
location.
m
If the water faucets and drain standpipe
are recessed, put hooked end of drain
hose in standpipe. Tightly wrap the
shipping strap around the drain hose
and water inlet hoses (not the handles
or stems). Push fastener into the
nearest hole in the shipping strap.
I
STEP 2. Locate the remaining piece
of shipping strap (not the end with the
cotter pins) from STEP 3 of "REMOVE
SHIPPING STRAR" Use it to wrap the
drain hose together with the laundry tub
or standpipe. Push fastener into the
nearest hole in the shipping strap.
Fastener
18

G. LEVEL WASHER
Leveling your washer properly pre-
vents excessive noise and vibration,
To install front legs:
STEP 1. Prop front of washer up about
4 in (10.2 cm). Use awood block or
another object that will support the
weight of the washer. If washer was
placed against a wall, move the washer
out slightly before tipping it up,
STEP 2. With one of the legs in hand,
screw lock nut onto leg _ in (9,5 ram)
from top of leg base. This is the
recommended initial setting.
STEP 3. Screw leg into washer base by
hand until nut reaches washer base.
Repeat for other leg,
STEP 5. Move washer to its final
location.
STEP 6. Tilt washer forward until rear
of washer is at least 3 in (7,6 cm) off
floor, You may hear the self-adjusting
rear legs click into place. Lower washer
to floor, Check levelness of the washer
by placing a level on top of the washer,
first side-to-side; then front4o-back.
STEP 7. If washer is not level, prop
up the front of the washer and adjust
the legs up or down as necessary,
Lower washer and reset self-adjusting
rear legs (as in Step 6), Repeat Step 7
until the washer is level.
STEP 8. When washer is in its final
location and level, use a 9/_64n
(1,43 mm) open-end wrench to turn
nuts on front legs tightly against washer
cabinet, If nuts are not tight against
washer cabinet, the washer may vibrate.
STEP 4, Tilt washer backward until
front of washer is off the wood block.
Remove wood block. Gently lower
washer to floor.
19

REVIEW INSTALLATION
Take a few minutes to complete
this checklist. It will help assure you
that you have a proper installation
and increase your satisfaction with
your Kenmore washer,
[ Check electrical requirements,
Be sure you have correct electrical
supply and recommended grounding
method.
[ Check that you have:
•All the tools you started with.
• Removed all packaging materials.
• Removed shipping strap with
cotter pins.
• Installed all parts listed on
pages 7-9.
[ Check that:
• The washer is level.
• The nuts on the front legs are tight.
[ Check that the water faucets are
turned on.
FINAL STEPS
I Plug power supply cord into
grounded outlet.
I Remove the blue protective film on the
console and any tape remaining on
washen
[ Take a few minutes and read the
"OPERATING YOUR WASHER"
section to fully understand your new
washer. Then, start the washer and
allow it to complete the NORMAL
Cycle.
2O

To get the maximum cleaning and
fabric care from your washer, please
read and follow these instructions.
NOTE: The drawings in this section show
the basic features of all models covered
by this manual, Refer to the supplied
"Feature Sheet" for your washer's
particular features.
Fire Hazard
Never place items in the washer
that are dampened with gasoline
or other flammable fluids.
No washer can completely
remove oil.
Do not dry anything that has ever
had any type of oil on it (including
cooking oils).
Doing so can result in death,
explosion, or fire.
LID INSTRUCTIONS
These instructions are found under the
lid of your washer.
I]'.J:ItI_.VlI_T[L"I_.'_I[L'fL"13,.'_I[IXI_;
DISPENSER Add measured liquid chlorine bleach to the
dispenser, 5 min. after the washer cycle starts for
best wash performance.
Do not use POWDERED BLEACH IN THIS
DISPENSER.
Add measured fabric softener to the agitator
mounted dispenser.
Add measured detergent to the washer basket.
1. SELECT & ADJUST Make the selections for these washer controls:
(some washers may not have all of these controls)
• WATER LEVEL Adjust to load size.
• WASH /RINSE TEMP ....... Use AUTO TEMP selections for best wash
performance.
• SPEEDS Adjust to fabric type being washed.
DENIMS_TOWELS; • • • HOTWASH
EXTRADIRTY
COTTONS
HEAVYDUTY
REGULAR
PERMPRESS
DELICATE
HANDWASH
[] SYNTHETICS
KNITS
LINGERIE
t= WARM WASH
COLDWASH
ZANY BLEACH
/iX NON-CHLORINE
SLEACH
DONOT BLEACH
21

2. SELECT CYCLE Choose more time for heavily soiled loads and
less time for lightly soiled loads.
3. PULL TIMER TO START ..... Lid must be closed to complete cycle.
PUSH TIMER TO STOP
_,,_,];J:_.tl,,'fl,lr*,,"/lfzfl_Vl,*]_iJ_[liv/_f¢m;,/,_YllR_
Antiperspirants, Deodorants
Treat with a paste of ammonia and
color safe bleach. Let stand for 30 min-
utes. Wash in hottest water safe for
fabric.
Blood
Rinse immediately or soak in cold
water with detergent for 30 minutes.
Rinse. Rub detergent into any remain-
ing stains. Rinse thoroughly. Wash.
Cream, Milk, Ice Cream
Sponge immediately or apply a pre-
wash soil and stain remover. Rinse.
Wash. Repeat if necessary. If stain
remains, apply a few drops of liquid
detergent. Rinse. If stain remains, soak.
Wash.
Grass
Use an enzyme presoak or rub enzyme
detergent on the stain. Launder with
detergent and bleach appropriate for
the fabric.
Ketchup, Tomato Products
Sponge immediately or apply a
prewash soil and stain remover. Rinse.
Wash. If stain remains, apply a liquid
detergent to stain or soak in warm
water with detergent. Rewash.
Mud
Brush offthe dry mud. Rinse under
cold water. Pretreat with a paste of
detergent and water. Launder using
detergent and bleach safe for the
fabric.
22

STARTING WASHER
STEP 1. Add measured detergent
directly into washer basket. Then place
a load of sorted clothes in the washer.
STEP 2. (OPTIONAL STEP) If desired,
add measured liquid chlorine bleach to
the liquid bleach dispenser; (details on
page 29).
STEP 3. (OPTIONAL STEP) If desired,
add measured liquid fabric softener
to the fabric softener dispenser (if
available); (details on page 30).
STEP 4. Close washer lid.
STEP 5. Set WATER LEVEL Control Q
based on the size of your wash load
(details on page 24).
STEP 6. Set the WATER TEMPERA-
TURE Control O (details on page 24).
STEP 7. Push the Cycle Selector Control
(Timer) Knob @ in and turn to the right,
Set cycle and time according to the type
of fabric in the load (details on page 25).
STEP 8. Pull the Cycle Selector Control
(Timer) Knob _ out, The dial will rotate
as the cycle progresses. The knob will
not rotate.
STOPPING/RESTARTING
WASHER
•To stop the washer at any time, push
the Cycle Selector Control (Timer)
Knob (_ in.
• Pull the knob out to restart,
WATERLEVEL WA_R TEMPERATURE
@J
'- 0 n
HEAVY INITy su_R
"NORMAL
PERMA_ENTPRES$ _
23

SET WATER LEVEL CONTROL SET WATER TEMPERATURE
CONTROL
This control gives you the flexibility to
save water when washing small loads,
Your washer lets you select a water
setting based on the size of your wash
load.
• For normal loads, start with the
medium load setting, Adjust up or down
depending on your load. Clothes should
move freely and roll toward the agitator.
• To change to a higher water level setting
after the washer has started to agitate,
turn the knob to the desired new setting.
SMALL • LARGE
LOAD •_ LOAD
Your washer lets you select a wash and
rinse water temperature setting based
on the type of load you are washing.
WARM
COLD
COLD • HOT
COLD _COLD
Some washers allow you to select
warm rinses:
• Using warm rinse water will leave loads
dryer after the spin cycle than if you use
cold rinse water. However, warm rinses
may increase wrinkling when line drying.
• In cold climates, warm rinse water also
provides a more comfortable tempera-
ture for handling the wash load.
SELECTING WATER TEMPERATURES
Wash Water
Temperature Suggested Fabrics Comments
HOT • Work clothes • Best cleaning for heavily soiled items
111°F (44°C) • Sturdy whites/ • Removes oils, perspiration, greasy soils
or above colorfast pastels and stains
• Diapers • Prevents graying or yellowing
WARM • Dark/non-colorfast colors • Best for moderately soiled to lightly soiled items
90°-110°F • Permanent press items • Safe for most fabric finishes
(32°-43°C) • Nylon, polyester, acrylics, • Less fading and dye bleeding
silks, woolens • Reduces wrinkling
• Knits/delicate fabrics
COLD* • Extra-sensitive colors • Best for very lightly soiled items
70°-90°F • Non-colorfast items • Saves hot water
(21°-32°C) • Hand washables
• In wash water tem )eratures colder than 70°F (21°C), detergents do not dissolve well. Also,
soils may be difficult to remove and some fabrics may retain wear wrinkles and have
increased pilling - the formation of small lint-like balls on the surface of garments. Pilling is
the natural result of wearing and washing of garments.
24

SETTING YOUR CYCLE
SELECTOR (TIMER) CONTROL
Use this control to choose the agitation
time and to start the washer. Each cycle
is designed with the wash and spin
speeds that are appropriate for the fab-
rics and soil levels in your wash load.
• For heavy soil and sturdy fabrics, use
the full time (SUPER or REGULAR
if indicated).
• For light soil and delicate fabrics, use less
time (SHORT if indicated).
NOTE: Some "Hand Wash" items,
particularly wool, naturally shrink when
washed, Keep this in mind when you
purchase items labeled "Hand Wash,"
Items that shrink should be dried flat.
When still wet, block these items by
gently stretching to original measure-
ments.
PERMANENT PRESS
You can select up to 10 minutes of
wash time.
DELICATE
Use this cycle to get up to 6 minutes
of wash time for lingerie and loosely
knit items.
The PERMANENT PRESS/DELICATE
Cycles include a load cooling process
that reduces wrinkling compared to
other cycles,
• Wash combines slow speed agitation for
gentle soil removal and slow spin speeds
to reduce wrinkling.
H_VY DUT_ mjpm
NORMAL
Use this cycle to get up to 10 minutes
of wash time for normally soiled cottons
and linens.
• Wash combines fast and slow speed
agitation with fast spin speeds to
shorten drying time.
• Selecting REGULAR gives you fast
agitation speeds initially, then the washer
steps down to a slow agitation speed.
• Selecting SHORT gives you slow
agitation speed.
HEAVY DUTY
Usethiscycle _ getupto 14 minutes
washtime _rstu_y orheavilysoiled
loads.
• Wash combines fast speed agitation and
fast spin speeds.
PREWASH (on some models)
Use this cycle to get up to 4 minutes of
agitation to help remove heavy soils and
stains that need pretreatment. PREWASH
Cycle should be followed by a HEAVY
DUTY, NORMAL, PERMANENT PRESS
or DELICATE cycle with additional
detergent.
SOAK (on some models)
SOAK Cycle features 4 minutes of
agitation followed by an unlimited soak
time to help remove heavy soils and
stains that need pretreatment. You will
need to reset the washer to a SPIN
setting to remove water. SOAK Cycle
should be followed by a HEAVY DUTY,
NORMAL, PERMANENT PRESS,
DELICATE or PREWASH cycle with
additional detergent.
NOTE: We do not recommend hot water
for soaking. It may set some stains.
HEAVY DUTY
14 I_ 4 SHORT
_R_GULA_
SRO_T SHORT
OEUCATE °'_,_,am."
PERMANENTPRESS 1o
Your washer will have one of these knobs.
25

2ND RINSE (on some models)
A second rinse removes excess
detergent residue.
STEP 1. Set the WATER LEVEL Control.
STEP 2. Set the WATER
TEMPERATURE Control,
STEP 3. Set the Cycle Selector Control
(Timer) to 2ND RINSE.
STEP 4. Pull the Timer knob out to start
the washer.
NOTE: You may select an additional
SPIN only.
•Set the Timer knob to SPIN.
• An additional spin may shorten drying
times for heavy fabrics or special-care
items by removing excess water.
RINSE AND SPIN
When using extra detergent for heavily
soiled clothes, or washing special-care
items, you may find an extra rinse and
spin is needed.
STEP 1. Set WATER LEVEL Control.
STEP 2. Set WATER TEMPERATURE
Control.
STEP 3. Set the Cycle Selector Control
(Timer) Knob to a RINSE setting:
• For fast agitation and spin, use the
HEAVY DUTY Cycle,
• For slow agitation and spin, use the
PERMANENT PRESS Cycle.
• For slow agitation and fast spin, use the
NORMAL Cycle.
STEP 4. Pull Cycle Selector Control
(Timer) Knob out to start washer.
HEAVY DUTY
~Io N_Rm_a_
=u=. -- "-
PERMANENTPRESS le _" _ il_
SPIN ONLY
A drain and spin may help shorten drying
times for some heavy fabrics or special-
care items by removing excess water.
STEP 1. Set the Cycle Selector Control
(Timer) Knob to a SPIN setting:
• For fast spin, use the NORMAL Cycle.
• For slow spin, use the PERMANENT
PRESS Cycle.
STEP 2. Pull the Cycle Selector Control
(Timer) Knob out to start washer.
HEAVY DUTY
26

UNDERSTANDING WHAT HAPPENS
IN EACH CYCLE
PERMANENT NORMAL
PRESS /DELICATE _Fill to
Wselected level
Fill to
selected level •
Wash
selected time
• _ Drain -
Partial W no spin
Drain •
• Spin
Pause
Wash
selected time
_[_ Fill to
Fill for selected level
cool down
Wash
Drain -
no spin
Spin
Fill to
selected level
Rinse
Drain =
no spin
Spin
Off
Rinse
m
m
m
Drain -
no spin
Spin
Off
SOAK*
Fill to
selected level
Agitate
Soak
(reset to SPIN to
drain washer)
(*on some models)
HEAVY DUTY
Fill to
selected level
Wash
selected time
mDrain -
no spin
Spin
Fill to
selected level
Rinse
W Drain -
no spin
m
Spin
Off
PREWASH*/2ND RINSE*
IT Fill to
__w_v selected level
i •
Wash
selected time
imDrain -
no spin
i •
Spin
i m Off
m
(*on some models)
27

SELF-CLEANING LINT FILTER DUAL ACTION TM AGITATOR
II!'t,J_i,/,J,_,lt.t_] i[_ i'[-"
Lint is filtered from the load
automatically - there's no messy
cleanup.
Your washer features a self-cleaning
filter that traps lint from the water while
the washer is washing and deep rinsing
the laundry. The trapped lint is flushed
down the drain automatically. You don't
have to clean the filter.
Wz'jji'z'j_' :[q i[_ _t"
Kenmore's DUAL ACTION TM Agitator
gives you flexible fabric care for even
your largest loads,
The best cleaning
action in your
washer takes
place at the bot-
tom where the
agitator vanes
move back and
forth to flex the
fabric, loosening
the soil. To get all
your clothes down
to the bottom of
the washer, the
upper portion of
the agitator has
uniquely designed, spiral vanes to help
push the clothes that are on top down to
the bottom. This spiraling action dis-
places the clothes that are on the bot-
tom with a "roll-over" motion.
28

UNDERSTANDING NORMAL
WASHER SOUNDS
Your new washer may make sounds that
your old one didn't. Because the sounds
are unfamiliar, you may be concerned
about them.
The following describes some of the
normal sounds you may hear and what
causes them.
During Washing
When you select a small load size setting
for a small wash load, your washer has a
lower water level. With this lower water
level, you may hear a clicking sound from
the upper portion of the agitator.
During Drain
The rate that water is drained from your
washer depends on your installation, If
water is drained quickly from the washer,
you may hear air being pulled through the
pump. This happens during the end of
draining,
After Drain and Before Spin
When the cycle changes from draining
to spinning, you may hear a noise as the
gearcase shifts.
USING THE LIQUID CHLORINE
BLEACH DISPENSER
The dispenser automatically dilutes
bleach to ensure the cleanest and
brightest loads.
Always measure liquid chlorine
bleach, Use a measuring cup, do not
guess, Do not pour directly from bottle,
Never use more than 1 cup (250 mL) for
a full load. Use less with smaller loads.
Follow
manufacturer's directions for safe use, A
cup with apouring spout will help you
After loading the washer, pour measured
liquid chlorine bleach carefully into the
dispenser.
• Do not let bleach splash, drip, or run
down into washer basket. Undiluted
bleach will damage any fabric it touches.
• Start the washer. Bleach will be diluted
automatically before it comes in contact
with the wash load.
NOTE: Do not use this dispenser to add
powdered chlorine or color-safe bleach
to your wash load, The dispenser is for
liquid chlorine bleach only.
IoOoO%o_oO-/_, ILiquidchlorine
o on o_ on e o ,J_ ,
IoOoOoO _J°TY/J/\ !,J hleaehdlspenser
oo°oo o on ° _,_
29

USING THE LIQUID FABRIC
SOFTENER DISPENSER
(on some models)
After loading the washer, measure and
add the recommended amount of fabric
softener into the dispenser. Follow
manufacturer's directions.
NOTE: Pouring too much fabric softener
into the dispenser will cause the fabric
softener to dispense instantly into the
load due to siphoning action. This instant
"dump" could damage fabrics and will
make it appear that your dispenser is not
working correctly.
To Remove the Fabric Softener
Dispenser for Cleaning
STEP 1. Pull the blue lock ring up,
then remove dispenser from agitator
by pulling up.
STEP 2. Flush the dispenser with
warm water.
To Replace the Fabric Softener
Dispenser
STEP 1. Be sure the blue lock ring
is pulled up. Starting at an angle (see
illustration), push the bottom of the
dispenser down on the agitator top.
STEP 2. When the dispenser is
seated on the agitator, push the blue lock
ring down until it snaps in place.
It must fit tightly.
Liquidfabric softener
Blue I0ck ring
•Add warm water to fill the dispenser
until it reaches the crossed opening at
the bottom of the funnel-shaped portion
of the dispenser.
• Fabric softener is dispensed into the first
deep rinse water automatically.
NOTE: Fabric softeners are not com-
patible with detergents, This dispenser
should never be used in the PREWASH
Cycle since it would dispense fabric
softener into a wash load that has not
been rinsed, Undiluted fabric softener
spilled on fabric may result in spots that
look like oil stains.
If you ever use your dispenser this way
by mistake, rewash the load with extra
detergent to remove these deposits.
30

PREPARING CLOTHES
FOR WASHING
_teJ.-,toJ_.,, "[:4 i [._ _ "
Follow these recommendations
to help you prolong the life of
your garments,
•Close zippers, snaps, and hooks to
avoid snagging other items, Remove
pins, buckles, and other hard objects
to avoid scratching the washer interior.
Remove nomwashable trim and
ornaments.
•Empty pockets and turn them
inside out.
•Turn down cuffs, brush away lint
and dirt.
•Turn synthetic knits inside out to
avoid pilling,
• Tie strings and sashes so they will
not tangle.
• Mend tears, loose hems, and seams.
• Treat spots and stains.
• Stained or wet garments should be
washed promptly for best results.
SORTING
• Separate heavily soiled items from
lightly soiled ones, even if they would
normally be washed together. Separate
lint givers (towels, chenille) from lint
takers (corduroy, synthetics, permanent
press), When possible, turn lint givers
inside out.
• Separate dark colors from light colors,
colorfast items from non-colorfast items.
• Sort by fabric and construction (sturdy
cottons, knits, delicate items).
31

LOADING
Wte_'=_lej_*=:[;-] i[_ i'["
Proper loading of your washer con-
tributes to proper cleaning and fabric
care and reduces machine noise,
• Drop items into washer loosely. Fill
to the top of the basket (top row of
holes). Do not wrap items around the
agitator, items should move easily
through wash water for best cleaning
and wrinkle-free results, items should
sink and reappear later.
• Load washer properly and select correct
water level setting, Overloading or pack-
ing the machine, and selecting a setting
too small for the wash load can:
- cause poor cleaning
- increase wrinkling
- create excessive lint
- wear out items faster
(because of pilling)
• Load by the amount of space items take
up, not by their weight.
• Mix large and small items in each load.
Load evenly to maintain washer bal-
ance. An off-balance load can make the
washer vibrate during spin.
• Use a higher water level setting to re-
duce wrinkling with permanent press
clothes and some synthetic knits, These
items should have more room to move
in the water than heavy items (towels,
jeans),
• Reduce wash time by using a lower
water level setting, Loads with only a
few small items need less wash time.
LOADING SUGGESTIONS
For these suggested full-sized Ioads_
set the WATER LEVEL control to the
highest setting.
SUPER CAPACITY WASHERS
Heavy Work
Clothes
4 jeans
4 workpants
4 workshirts
1 sweatshJrt
1 sweatpants
Towels Mixed Load
9 bath towels 3 sheets
9 hand towels (1 king, 2 twin)
10 wash cloths 4 pillowcases
2 shirts
2 blouses
8 T-shirts
6 shorts
8 handkerchiefs
32

CLEANING YOUR WASHER
Proper care of your washer can extend
its life. This section explains how to care
for your washer properly and safely.
Exterior
Wipe up detergent, bleach, and other
spills with a soft, damp cloth or sponge
as they occur. Occasionally wipe the out*
side of the washer to keep it looking like
new.
Do not put sharp or metal objects in your
washer. They can damage the finish.
Check all pockets for pins, clips, money,
bolts, nuts, etc. Do not lay these objects
on your washer after emptying pockets.
Interior
Clean interior with 1 cup (250 mL) of
chlorine bleach mixed with 2 cups
(500 mL) of detergent. Run washer
through a complete cycle using hot water.
Repeat process if necessary.
NOTE: Remove hard water deposits
using only cleaners labeled as washer
safe.
Water Inlet Hoses
Replace inlet hoses after five years of
use to reduce the risk of hose failure. Pe-
riodically inspect and replace inlet hoses
if bulges, kinks, cuts, wear or leaks are
found. When replacing your inlet hoses,
mark the date of replacement on the
label with a permanent marker.
WINTER STORAGE
OR MOVING CARE
Install and store your washer where it will
not freeze. Because some water may
stay in the hoses and pump, freezing can
damage your washer. If storing or moving
your washer during freezing weather,
winterize it.
To winterize washer:
1. Shut off both water faucets.
2, Disconnect and drain water inlet
hoses.
3. Put 1 qt (1 L) of R.V.4ype antifreeze
in the basket,
4. Run washer on a SPIN setting for
about 30 seconds to mix the
anti-freeze and water. Some of the
mixture will pump out while the
washer spins.
5. Unplug the power supply cord.
To use washer again:
1. Flush water pipes and hoses.
2, Reconnect water inlet hoses.
3. Turn on both water faucets.
4. Reconnect power supply cord.
5. Run the washer through a complete
cycle with 1 cup (250 mL) of detergent
to clean out antifreeze.
NON-USE OR VACATION CARE
Operate your washer only when you
are at home. If you will be on vacation or
not using your washer for an extended
period of time, you should:
• Unplug the power supply cord or turn
off electrical power to the washer.
• Turn off the water supply to the washer.
This helps avoid accidental flooding
(due to a water pressure surge) while
you are away.
33

Most laundering problems are easily solved if you understand the cause.
Check these lists for common laundry and washer problems, If you need
further assistance, see the back cover,
Problem Possible Cause Solution
Washer Leaks Household plumbing is leaking. Repair plumbing.
Inlet hoses not tight. Tighten hoses (see "Installation
Instructions,"Sections D & E).
Inlet hose washers not Reseat washers (see "Installation
properly seated. Instructions,"Section D).
Drain hose not propedy Clamp drain hose (see "Installation
clamped or is off. Instructions,"Section C).
Drain is clogged, Remove drain clogs. Sink, standpipe,
or floor drain must be able to handle
17 gaI (64 L) of water per minute.
Tub moved forward during Ensure tub is centered before
unloading, causing water to starting washer.
deflect off tub ring.
Unit not level causing water Ensure front feet are installed and
to deflect off tub ring. nuts are tightened. Level washer.
Reset rear legs (see "Installation
Instructions,"Section G),
Load is unbalanced. Spray Redistribute the load.
rinses are deflecting off load,
Washer is overloaded. Fills or Reduce load size.
spray rinses are deflecting off
load.
Won't Drain/ Drain hose is kinked or Straighten or unplug hose (see
Won't Spin/ clogged. "Installation Instructions," Section C).
Wet Loads Correct operation of After awash or rinse, the washer will
neutral drain, drain without spinning. After draining,
the spinning begins.
Lid is open. Close the lid.
Drain hose is more than Lower drain hose (see "Installation
96 in (2,4 m) above floor. Instructions," Section A).
Too much detergent - Use less detergent.
excessive sudsing.
Wrong cycle for load Choose a cycle with a higher spin
being washed, speed (see "Operating Your
Washer").
34

Problem Possible Cause Solution
Won't Drain/ Low voltage or using Check electrical source or call
Won't Spin/ an extension cord. electrician. Do not use extension
Wet Loads cords.
(cont,) Cold rinses. Cold rinses leave loads wetter than
warm rinses. This is normal.
Continues Drain hose is less than Raise the drain hose (see
to Fill/ 39 in (99 cm) above floor. "Installation Instructions,"Section A).
Continues
to Drain/ Drain hose fits tightly into Adjust drain hose for loose fit
Cycle Stuck standpipe. (see "Installation Instructions,"
Section C).
Drain hose taped into Do not seal off drain hose with tape.
standpipe. The drain hose needs an air gap.
Washer Makes Load is unbalanced. Redistribute load.
Noise Washer is not level. Level washer. Reset rear legs
Rear leveling legs not set. (see "Installation instructions,"
Section G).
Nuts on front feet not tight. Tighten nuts (see "installation
Instructions," Section G).
Yellow shipping strap with Remove strap with cotter pins
cotter pins not completely (see "Installation instructions,"
removed. Section B).
Floor not strong enough Relocate washer (see "installation
to support washer. Instructions," Section A).
Gears engaging after drain This is normal.
and before spin.
Upper part of agitator clicks This is normal.
during wash.
Won't Water inlet valve Clean screens.
Fill/Won't screens are plugged.
Rinse/Won't
Agitate/ Water is turned off, Turn on water.
Wrong Hot and cold hoses are Reverse hoses (see "Installation
Temperature reversed. Instructions," Sections D & E).
Inlet hose is kinked. Straighten hoses.
Timer dial is not lined up. Turn timer knob to the right slightly
and pull to start.
Power cord not plugged in. Plug in power cord.
35

Problem Possible Cause Solution
Machine Power cord not plugged in. Plug in power cord.
Stops No power at plug. Check electrical source or call
electrician.
Fuse blown or circuit Replace fuse or reset circuit breaker.
breaker open. If problem continues, call electrician.
Using an extension cord. Do not use extension cords.
Timer is not lined up. Turn timer to the right slightly
and pull to start.
Timer knob not pulled out. Set and pull out knob.
Machine is overloaded. Wash smaller loads.
Agitator Not The top of the agitator moves This is normal.
Working only in one direction.
The top of the agitator is loose. This is normal.
Water Level The top of the agitator is much This is normal.
Too Low/Not higher than the highest water
Completely level. This creates a perception
Filling of the washer not being full.
Tub is Tub pulled fot_vardwhen Ensure tub is centered before
Crooked unloading, starting washer.
Tub moves. This is normal.
Unit not level. Ensure front feet are installed and
nuts are tightened. Level washer.
Reset rear Iegs (see "Installation
Instructions," Section G).
Lint on Load Improper sorting. Sort lint givers from lint takers
and by color.
Overloading. Lint can be trapped in load if
overloaded. Wash smaller loads.
Paper or tissue in pockets. Clean out pockets before washing.
Not enough detergent. Use enough detergent to
hold lint in water.
Detergent not dissolving. Use wash water warmer than
Water temperatures lower 70°F (21°C).
than 70°F (21°C).
36

Problem Possible Cause Solution
Tearing Overloading. Improper Loads should move freely during
use of washer, wash. Wash smaller loads or
increase water level
Improper use of chlorine Do not pour chlorine bleach directly
bleach. Undiluted bleach on Ioad. Wipe up bleach spills.
will damage fabrics.
Sharp items not removed Clean out pockets before washing.
from pockets; fasteners Zip zippers before washing.
not fastened.
Items damaged before Mend rips and broken threads in
washing, seams before washing.
Stains on Improper use of fabric Dilute fabric softener and add to
Load softener in washer or dryer, deep rinse only.
Iron in water (rust). Install an iron filter.
Under use of detergent causing Use enough detergent to remove
soil to be redeposited, soil and hoId it in suspension.
Dye transfer due to not Sort dark clothing from whites
sorting loads properly, and lights.
Dye transfer due to not Unload the washer as soon as
unloading washer promptly, it stops.
Load is Not removing Ioad promptly. Unload the washer as soon as it
Wrinkled stops.
Wrong cycle for fabrics Use cold rinses and cycles with slow
being washed, spin speeds to reduce wrinkling.
Overloading. Loads should move freely during
wash. Wash smalIer loads.
Hoses reversed. Reverse hoses (see "Installation
Instructions," Sections D & E).
Load is Overloading. Loads should move freely during
Tangled/ wash. Wash smalIer loads.
Twisted Clothes wrapped around Do not wrap items around agitator
agitator, when loadingwasher.
Clogged Not diIuting softener. Dilute fabric softener in dispenser.
Dispensers/
Bleach Use of color-safe bleach in Add color-safe bleach directly to the
Leaking/ chlorine bleach dispenser, basket. Do not use chlorine bleach
Bleach on dispenser.
Wrong Loads Improper use of chlorine bleach. Always measure bleach before
adding to the dispenser. Carefully
pour into the dispenser. Wipe up
bleach spiIIs.
37

KENMORE WASHERS
"We Service What We Sell" is our assurance you can depend on Sears for service.
Your Kenmore appliance has added value when you consider that Sears has service
units nationwide, staffed with professional technicians trained on all appliances Sears
sells. They have the knowledge and skills, tools, parts and equipment to ensure our
pledge to you that "We Service What We Sell."
Maintain the value of your purchase with a Sears Maintenance Agreement. Kenmore
appliances are designed, manufactured and tested for years of dependable operation.
Yet any major appliance may require service from time to time. The Sears Maintenance
Agreement offers you an outstanding service program for your product.
The Sears Maintenance Agreement
•Is your way to buy tomorrow's service at today's prices.
• Eliminates repair bills resulting from normal use.
• Allows for as many service calls as required.
• Provides an annual Preventive Maintenance Check at your request to keep your
Kenmore appliance in proper running condition.
For more information, call
1-800-827-6655 (USA) or
1-877-533-6937 (Canada)

39

40

Manual del propietario e
Instrucciones de instalacion
®
LAVADORAS AUTOMATICAS
Con dos velocidades
IMPORTANTE:
Lea y siga todas las
instrucciones de seguridad y de
modo de empleo antes de usar este
producto por primera vez.
Su lavadora puede ser diferente
de la lavadora que se muestra.
Sears, Roebuck and Co., Hoffman Estates, IL 60179 U.S.A.
www.sears.com
Sears Canada Inc., Toronto, Ontario MSB 2B8
www.sears.ca

ANTES DE USAR SU NUEVA LAVADORA 2
GARANTiA DE LA LAVADORA AUTOMATICA KENMORE 3
SEGURIDAD DE LA LAVADORA ...... 4
INSTRUCCIONES DE INSTALACIC)N __ 6
FUNCIONAMIENTO DE SU LAVADORA 21
SUGERENCIAS DE LAVANDERiA 31
EL CUlDADO DE SU LAVADORA 33
SOLUCION DE PROBLEMAS ....... 34
CONTRATO DE MANTENIMIENTO SEARS 39
Sirvase leer este manual, pues le
facilitar& la instalaci6n y funcionamiento
de su nueva lavadora Kenmore de
manera mas segura y econ6mica.
Para obtener informaci6n adicional sabre
el cuidado y funcionamiento de los
electrodomesticos Kenmore, Ilame al
establecimiento Sears mas cercano,
Siempre que pida informaci6n, usted
necesitara tener ala mano los nt_meros
completos del modelo y de la serie, Estos
se encuentran en la placa con el modelo
y el nt_mero de serie.
Use el espacio a continuaci6n para
registrar el nL_mero del modelo y de la
serie de su nueva lavadora Kenmore,
No. de modelo_ _
No. de serie ....
Fecha de compra
Guarde este libro y el comprobante de
venta (el recibo) de Sears en un lugar
seguro para referencia futurs,
Placa con el modelo
y el m3mero de serie
2

Garantia Limitada de Vida 0til Para la
Canasta de Porcelana Blanca
Durante la vida _til de la lavadora, a partir
de la fecha de compra, Sears reemplazar_
la canasta de lavado en porcelana blanca
si 6sta se desportillara u oxidara como
resultado de defectos de material o de
fabricacbn. Despu6s del primer aSo,
usted set& responsable de los gastos de
mano de obra.
Garantia Limitada de 10 Ahos para el
Tambor de Plbstico*
Desde el segundo aSo y por un md_ximode
diez aSos a partir de la fecha de compra,
Sears reemplazar9 el tambor de pl_stico si
6ste tuviese alg_n defecto de material o de
fabricacbn. Despu6s del primer aSo,
usted set& responsable de los gastos de
mano de obra.
Garantia Limitada de 5 A_os para las
Piezas de la Caja de Engranajes*
Desde el segundo aSo y por un m&ximo de
cinco aSos a partir de la fecha de compra,
Sears reemplazar9 cualquier pieza de la
caja de engranajes que tuviese algQn
defecto de material o de fabricaci6n.
Despu@sdel primer aSo, usted ser9
responsable de los gastos de mano de
obra.
Garantia integral de 1 Aho para la
Canasta de Porcelana con "Salpicados"
Durante un aSo a partir de la fecha de
compra, si se instala y pone en fun-
cionamiento la lavadora de conformidad
con las instrucciones que vienen con la
misma, Sears reemplazar& la canasta de
lavado en porcelana con "salpicados"
(superficie con salpicados) si se
desportillara u oxidara como resultado de
defectos de material o de fabricacbn.
Garantia Integral de 1 Aho para las
Piezas Mecbnicas y Componentes
Eldctricos
Durante un a_o a partir de la fecha de
compra, si se instala y pone en fun-
cionamiento la lavadora en conformidad
con las instrucciones que vienen con la
misma, Sears reparar& o reemplazar9
cualquier pieza mecanica o componente
el6ctrico de esta lavadora que tuviese
algt]n defecto de material o de fabricacbn.
Restriccibn de la Garantia
Si se somete a esta lavadora a un uso
ajeno al familiar privado, todas las
coberturas de las garantias arriba citadas
quedan restringidas a 90 dias a partir de la
fecha de compra.
Servicio de Reparacibn de la Garantia
El servicio de reparaci6n de la garantia
est9 a su disposid6n al contactarse con el
Centre de Servicio Sears de su Iocalidad
en los Estades Unidos o en Canad&
Esta garantia corresponde s61o mientras se
use esta lavadora en los Estados Unidos o
en Canad&
Esta garantia le otorga derechos
especificos legales yes posible que usted
tenga tambi6n otros derechos que pueden
variar de un estado a otto o de una
provincia a otra.
Sears Roebuck and Co.,
Dept. 817WA,
Hoffman Estates, IL 60179
Sears Canada INC.,
Toronto, Ontario Canada
MSB 2B8
*La garantia que se aptique en Canada puede
set diferente.
Para obtener informaci6n en los Estados
Unidos referente a la garantia o para ponerse
en contacto con un Centro de Servicio Sears,
por favor Ilarne al 1-890-676-5811. En
Canad& Ilame aI 1-877-533-6937.

Su seguridad y la seguridad de los demas
es muy importante.
Hemos incluido muchos mensajes importantes de seguridad en este manual
yen su electrodom6stico. Lea y obedezca siempre todos los mensajes de
seguridad.
Este es el simbolo de advertencia de seguridad,
Este simbolo le llama la atenci6n sobre peligros que pueden
ocasionar la muerte o una lesi6n a usted y a los demas.
Todos los mensajes de seguridad ir&n precedidos por el
simbolo de advertencia de seguridad y la palabra "PELIGRO"
o "ADVERTENClA". Estas palabras significan:
Si no sigue las instrucciones,
usted morirb o sufrirb una
lesion grave,
Si no sigue las instrucciones,
_uede morir o sufrir una
lesion grave.
Todos los mensajes de seguridad identificar_n el peligro, le informar_n
c6mo reducir las posibilidades de sufrir una lesi6n y Io que puede suceder
si no siguen las instrucciones.

INSTRUCCIONES IMPORTANTES DE SEGURIDAD
ADVERTENCIA: Para reducir el riesgo de incendio, cheque el6ctrico o
lesiones a personas al usar su lavadora, siga las precauciones b_sicas,
incluyendo las siguientes:
•Lea todas las instrucciones antes de
usar la lavadora.
• No lave articulos que hayan side
previamente limpiados, lavados,
remojados o humedecidos con
gasolina, solventes para lavar en
seco, otras sustancias inflamables o
explosivas ya que 6stas emanan
vapores que podrian encenderse o
causar una explosi6n.
• No agregue gasolina, solventes para
lavar en seco, u otras sustancias
inflamables o explosivas al agua de
lavado. Estas sustancias emanan
vapores que podrian encenderse o
causar una explosi6n.
• En ciertas condiciones, puede
generarse gas hidr6geno en un
sistema de agua caliente que no se
haya usado por dos semanas o un
periodo mayor. EL GAS
HIDROGENO ES EXPLOSWO. Si no
se ha usado el agua caliente durante
dicho periodo, antes de usar la
lavadora, abra todos los grifos de
agua caliente y deje que corra el
agua per varies minutes. Esto liberar9
todo el gas hidrogeno que se haya
acumulado. Debido a la inflamabilidad
de dicho gas, no fume ni use una
llama abierta durante este lapso.
• No permita que los nifios jueguen
encima o dentro de la lavadora. Es
necesario una supervisi6n cuidadosa
de los nifios toda vez que se use la
lavadora cerca de ellos.
• Antes de poner la lavadora fuera de
servicio o descartarla, quitele la tapa.
• No introduzca las manos en la
lavadora si el tambor o el agitador
est&n funcionando.
•No instale ni almacene esta lavadora
donde pudiese estar sometida a la
intemperie.
• No trate de forzar los controles.
• No repare ni cambie pieza alguna de
la lavadora ni intente realizar tarea
alguna de servicie t6cnico, excepte
cuando asi se le indique especifica-
mente en el Manual del propietarie e
en instruccienes de reparaci6n por el
usuarie publicadas que usted entienda
y para cuya ejecuci6n cuente con la
habilidad necesaria
• Para obtener informaci6n respecte a
los requisites de cenexi6n a tierra
refi6rase alas INSTRUCCIONES DE
INSTALACION'
GUARDE ESTAS INSTRUCCIONES

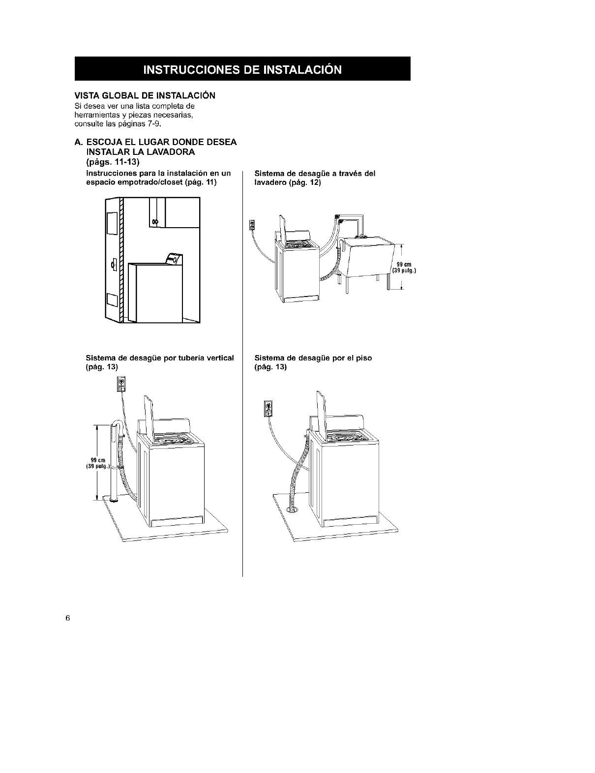
VISTA GLOBAL DE INSTALACION
Si desea vet una lista completa de
herramientas y piezas necesarias,
consulte las paginas 7-9.
A. ESCOJA EL LUGAR DONDE DESEA
INSTALAR LA LAVADORA
(p&gs. 11-13)
Instrucciones para la instalacibn en un
espacio empotrado/closet (pag. 11)
Sistema de desagLie pot tuberia vertical
(p_g. 13)
99 cm
(39 pulg.)_
Sistema de desagiJe a trav6s del
Iavadero (pag. 12)
Sistema de desagiJe por el piso
(p_g. 13)
99 cm
39 pulg.)

B. QUITE EL FLEJE DE EMBALAJE (p_g. 14)
Herramientas necesarias:
Tijeras Lintema (opcional;
depende del tipo de
instalaci6n)
C. CONECTE LA MANGUERA DE DESAGUE (p&gs, 15-16)
Herramientas necesarias: Piezas proporcionadas:
Alicates que se
abran a 3,95 cm _.._-_\\
(1_6 pulg.)
Lintema (opcional;
depende del tipo
de instalaci6n)
1 abrazadera amarilla 1 abrazadera plateada
unifilar para manguera para manguera de
(parte superior de ia alambre doble (parte
manguera de inferior de la
desagLie) manguera de
desagQe)
7

D. CONECTE LAS MANGUERAS DE ENTRADA DE
AGUAA LA LAVADORA (pbgs, 16-17)
Herramientas necesarias: Piezas proporcionadas:
Alicates que se abran a
3,95 cm (1_ p_
Linterna (opcionaI, depende
del tipo de instalaci6n)
2 mangueras de
entrada de agua
4 arandelas planas para manguera
de suministro de agua
E. CONECTE LAS MANGUERAS DE ENTRADA
A LOS GRIFOS DE AGUA (pbg. 17)
Herramientas necesarias: Piezas proporcionadas:
Alicates que se abran a
3,95 cm (l_b pulg.)
Cubeta _
(opcional, Linterna (opcional, depende
depende del tipo del tipo de instalaci6n)
de instalaci6n)
2 mangueras
de entrada de agua

F, ASEGURE LA MANGUERA DE DESAGOE (p_g. 18)
Herramientas necesarias: Piezas proporcionadas:
Linterna (opcional;
depende del tipo
de instalaci6n)
El fleje de embalaje
con ajustador
G, NIVELE LA LAVADORA (p&g. 19)
Herramientas necesarias: Piezas proporcionadas:
Llave de boca
de 1,45 cm
(_,,pulg.)
Lintema (opcional;
depende del tipo
de instalaci6n)
Bloque de
madera
2 patas niveladoras con tuercas

REQUISITOS EL_:CTRICOS
Se necesita un suministro el_ctdco de 120
voltios, 60 hertzios, CA solamente, de 15 6 20
amperios y protegido con fusibles. (Se
recomienda el empleo de un fusible
retardador o cortacircuitos.) Con_ctelo con un
circuito dedvado individual.
Peligro de Cheque El_ctrico
Conecte a un contacto de pared de
conexibn a tierra de 3 terminales.
No quite el terminal de conexibn
atierra.
No use un adaptador,
No use un cable el_ctrico de
extensibn,
No seguir estas instrucciones
puede ocasionar la muerte,
incendio o choque el_ctrico,
Esta lavadora viene equipada con un cable
el6ctrico que tiene un enchufe con conexi6n
a tierra de tres terminales. Para reducir el
posible peligro de choque el6ctrico, debe
enchufar el cable el6ctlico en un contacto de
pared de tres terminales, conectado a tierra
de conformidad con las Normas para
Instalaciones EI6ctricas, t_ltima edici6n de
ANSI/NFPA 70, asi come con todos los
c6digos y ordenanzas locales.
•Para una lavadora conectada a
tierra, con cable el_ctrico:
INSTRUCCIONES PARA LA
CONEXION ATIERRA
Esta lavadora debe conectarse a tierra. En
caso de funcionamiento defectuoso o averia,
la conexi6n a tierra reducir9 el riesgo de
choque el6ctrico al proporcionar una via de
menor resistencia para la cordente el6ctdca.
Esta lavadora viene equipada con un cable
el6ctrico que tiene un conductor de conexi6n
a tierra del equipo y un enchufe con
conexi6n a tierra. El enchufe debe conec*
tarse en un contacto de pared apropiado que
haya sido debidamente instalado y conecta*
do a tierra de confomTidad con todos los
c6digos y ordenanzas locales.
ADVERTENClA: La conexi6n
incorrecta del conductor de conexi6n a tier-
ra del equipo puede ocasionar un riesgo de
choque el6ctrico. Consulte con un elec*
tricista o tecnico en reparaciones calificado si
tiene duda alguna en cuanto a la conexi6n a
tierra correcta del electrodom6stico.
No modifique el enchufe provisto con el elec-
trodom6stico, Si 6ste no encaja en el
contacto de pared, pida a un electdcista
ca]ificado que le instale un contacto de pared
apropiado.
•Para una lavadora con contacto
electrico permanente:
INSTRUCCIONES PAPA LA
CONEXION A TIERRA
Esta lavadora debe conectarse a un
sistema de metal con cableado permanente,
o se debe tender un conductor de conexi6n
a tierra del equipo con los conductores del
circuito y conectarlos al terminal de conexion
a tierra del equipo o conductor de suministro
en el electrodom6stico,
10
Centacto de pared cozz
cenexlen atierra de tres
Enchofe con terizlinales
collexittl[ 21tletra de
t_es lermPlales
Terminal de
Cable el_ctricÜ
®
rn yJ

A. ESCOJA EL LUGAR DONDE DESEA
INSTALAR LA LAVADORA
La seleccibn de una ubicacibn
adecuada para su layadora mejorara su
rendimiento y reducira inquietudes tales
coma la caminata o el ruido producido par
la Iavadora.
INSTRUCCIONES PARA LA INSTALACI(_N EN UN LUGAR
EMPOTRADO/CLOSET
Esta lavadora se puede instalar en un Iugar empotrado o en un closet.
43,3cm
(19pulg.
*Ocm_ _- 61 cm -_
(0 pulg.) (24pulg.)
6teadeventilaci6n
minimade310cm2
(48pulg.cua&)
7,6 cm
_13 pulg.)
_(3 pulg.)
m6x.
35,6cm
_ _reade
ve.n!ilaci6n
minima
de 155cm2
(24pulg.
•_. cuad.)
<--'o_m->l _I<-
(Opulg.) 2,5 64,8cm 10,2
cm (251/2 cm
(1pulg) pulg.) (4puig.)
Vistadecostado
(seilustralapuerta)
Vistade frente Vistade eente
(nose ilustra la puerta) (puertaconabertura
de ventiliaci6n)
*Qoiz_s sea necesaria dejar espaaioslibres adicionales para las moldoras de pared,
puerta y piss. Para redocir la transferencia de sonidosde la lavadora, se recomienda
dejar ana distancia de 2,5 cm (1 palg.) de aada lads de la lavadora.
• El espacio de la instalaci6n esta expresado
en centimetros (pulgadas), yes el minimo
permitido.
•Deber_ considerarse un espacio adicional si
se van a instaiar otros electrod6mesticos en
el 9rea.
• Si se instala una puerta de closet, son
necesadas las aberturas de aire minimas
para arriba y abajo. Son aceptables las
puertas con persianas que tengan aberturas
de aire equivalentes arriba y abajo.
11

SISTEMADEDESAGUEATRAVESDEL
LAVADERO
Compruebe la Iocalizacion de la instalaci6n de
la lavadora. Esta lavadora puede instalarse con
uno de estos tres sistemas:
• sistema de desagQe a trav6s del lavadero
(a continuaci6n)
• sistema de desagQe pot tubo vertical
(pag. 13)
• sistema de desagQe por el piso (p&g. 13)
No almacene ni ponga en funcionamiento la
lavadora a una temperatura igual o inferior a
0°C (32°F) (es posible que quede un poco de
agua en la lavadora). Consulte la informaci6n
sobre protecci6n contra los agentes invemales
que aparece en la pagina 33.
La instalaci6n adecuada es responsabilidad
del propietario del electrodom_stico, quien
debera asegurarse de tener todo Io necesario
para realizar una instalaci6n correcta, que
incluir_ estos puntos:
Contacto de pared con
cortexibn a tierra:
Debe estar a menos de
1,2 m (4 pies) de distancia
del lugar en donde el cable
el6ctrico esta conectado
con la parte trasera de la
lavadora.
Grifos de agua caliente y
fria: Deben proporcionar una
presi6n de agua de 5 a 100
psi. Los grifos deben estar a
una distancia de 1,2 m (4 pies)
de las valvulas de Ilenado de Sistema de desagiJe a tray,s
agua caliente y fria, las cuales del lavadero: Se necesita un
se conectan en Ia parte poste- lavadero con una capacidad
rior de la lavadora, minima de 76 litros (20 galones).
Io
,ii_ ,i_i_I'
Soporte: El piso debe set Io
suficientemente firme como para
soportar un peso total de 143 kg
(315 libras) (incluyendo el peso de
Ia lavadora, del agua y de la carga
de ropa).
Piso a nivel: El declive
maximo permitido
debajo de toda la
lavadora es de 2,5 cm
(1 pulg.).
menos a una altura de
99 cm (39 pulg.) del piso y
a una altura no mayor de
2,4 m (96 pulg.) de la parte
inferior de la lavadora.
12

LOCALIZACIONES ALTERNATIVAS - SISTEMAS DE DESAGUE
POR TUBO VERTICAL Y POR DESAGUE DEL PISO
Desviacibn del sifon: debe comprarse
por separado. V6ase el cuadro siguiente.
\
Sistema de desagLie pot tuberia vertical:
se necesria un tubo vertical de un diametro
minimo de dos puIgadas y con una capacidad
minima de desag0e de 64 litros (17 galones)
per minuto. La parte superior del tubo de
desagLie debe estar pot Io menos a 99 cm
(39 pulg.) sobre el piso y a una altura no
mayor de 2,4 m (96 pulg.) de la parte inferior
de la lavadora.
Sistema de desagiJe por el piso: se
necesita una desviaci6n de sif6n. V6ase eI
cuadro siguiente. Se requiere una capacidad
minima de desagQe de 64 L (17 galones) por
minuto.
Si tiene: Necesitar_ adquirir:
Un lavadero o tubo vertical de una Sistema de bomba de sumidero (si ya no
altura mayor de 2,4 m (96 pulg.) esta disponible)
Un tubo vertical de 2,5 cm (1 pulg.) Racor de 5 cm (2 puIg.) a 2,5 cm (1 pulg.)
de di&metro de diametro, repuesto No. 3363920
Una alcantarilIa suspendida Tubo normal de desagL_e de 76 litros
(20 galones) y 99 cm (39 pulg.) de altura, o
lavabo utilitario y bomba de sumidero (en
venta en establecimientos proveedores de
fontaneria locales)
Un desagQe pot el piso Desviaci6n del sifon, repuesto No. 285320;
manguera de desagQe adicional, repuesto
No. 3357090; y juego de conectores,
repuesto No. 285442
Las piezas aqui mencionadas estan disponibles en su tienda Sears o en el Centro de Servicio
Sears de su Iocalidad. En los EE.UU., Ilame aI 1-800-659-7084. En Canad&, llame al
1-877-533-6937.
13

B. QUITE EL FLEJE DE EMBALAJE
Es necesario quitar el fleje de embalaje para
facilitar el funcionamiento sin dificultades. Si
no se le quita, la lavadora harb un ruido
excesivo.
PASO 2. Tire flrmemente para quitar el otto
extremo el fleje de embalaje, el cual estara
conectado a la parte posterior de la lavadora.
Esta acci6n soltara Ias patas traseras
autonivelantes.
Peligro de Peso Excesivo
Use dos o m_s personas para mover
e instalar la lavadora.
No seguir esta instruccion puede
ocasionar una lesibn en la espalda
u otro tipo de lesiones.
Para prevenir dafios al piso, coloque la
Iavadora sobre cart6n antes de trasladarla
pot el piso. Traslade la lavadora cerca de su
Iocalizaci6n definitiva.
PASO 1. No corte el fleje amarillo. Jale el fleje
amarillo con firmeza hasta sacarlo pot completo
de la lavadora. Seg_n el modelo de su lavado-
ra, cuando jale el fleje de embalaje fuera de la
Iavadora, habr&n dos o tres chavetas al extremo
del mismo. El enchufe el6ctrico viene junto con
el fleje de embalaje.
Enchufeel_ctrico
Alfiier
PASO 3. Corte el fleje de embalaje a unos 40
cm (16 pulgadas) de distancia del extremo del
enchufe. Fijese en las palabras "CORTE AQU[
(CUT HERE)." Descarte el extremo del fleje de
embalaje que tiene las tres chavetas. Deslice
el resto del fleje de embalaje para
separarlo del enchufe el_ctrico. Utilizara
este fleje de embalaje para asegurar la
manguera de desagQe.
© ©
Alfiier
TIRE
14

C, CONECTE LA MANGUERA
DE DESAGUE
La conexibn correcta de la manguera
de desag_ie protegera sus pisos del
daSo producido por la p_rdida de agua.
PASO 1. Para evitar que la manguera
de desagOe se salga o pierda agua, debe
instalarse segun estas instrucciones:
IMPORTANTE: Este procedimiento se
debe seguir con exactitud para asegurar
una instalacion adecuada.
a. Moje la parte interior del extremo recto
de la manguera de desagLie con agua
del grifo. NO UTILICE NINGUN OTRO
LUBRICANTE.
b. Apriete las orejas de la abrazadera plateada
de alambre doble para manguera con ali-
cates para abrirla. Coloque la abrazadera
sobre el extremo recto de la manguera de
desagLie a 6 mm (_ pulg.) del extremo.
_ pulg.)
c. Abra la abrazadera. Gire la manguera
de un lado a otro y a la vez empuje
hacia abajo hacia el conectador que
se encuentra en la parte inferior de la
lavadora. Contin0e hasta que la manguera
haga contacto con el tope abultado del
gabinete.
d. Coloque la abrazadera en el _irea
marcada "CLAMFt" Suelte la abrazadera.
Si Ud. tiene: Tendra que comprar:
Una manguera de desagL_e que Una manguera de desagLie, No. de pieza
es demasiado corta 388423 y juego de mangueras, No. de pieza
285442
Una manguera de desagL_e que Juego de mangueras, No. de pieza 285442
es demasiado Iarga
El problema de pelusa que tapa Protector de desagLie, No. de pieza 367031
el drenaje
Las piezas aqui mencionadas est_n disponibles en su tienda Sears o en el Centro de Servicio
Sears de su Iocalidad. En los EE.UU., Ilame al 1-800-659-7084. En Canad&, Ilame al
1-877-533-6937.
15

Para los sistemas de desagiJe por tuberia
vertical o a tray,s del lavadero:
PASO 2. Abra la abrazadera amarilla unifllar
para manguera con los alicates y deslicela a
trav6s del extremo en forma de gancho de la
manguera de desagLie para sujetar las
secciones de caucho y corrugadas.
Extrem0en
................forma degancho
Manguerade
desague
PASO 3. Ponga el extremo en forma de
gancho de la manguera de desagL_e dentro
del Iavadero o del tubo vertical. Verifique que
la Iongitud de la manguera de desagL_e sea la
apropiada. Gire el gancho para eliminar
arrugas.
Para evitar que el agua de desagLie vuelva a
la lavadora:
•No estire el extremo en forma de gancho de
ia manguera de desagL_e ni fuerce el exceso
de la manguera de desag0e dentro del tubo
vertical de desagQe.
• No ponga el exceso de la manguera de
desag0e en el fondo del lavadero.
D. CONECTE LAS MANGUERAS
DE ENTRADA DE AGUAA LA
LAVADORA
La conexibn correcta de las mangueras de
Ilenado permitir_ la admisibn adecuada a la
lavadora de agua fria y caliente y, ademas,
facilitara evitar los daSos por agua debido
ap_rdidas.
NOTA: Reemptace las mangueras de entrada
de agua despu6s de cinco afios de use para
reducir e] riesgo de que fallen las mangueras.
Inspeccione peri6dicamente y reemplace las
mangueras de entrada de agua si aparecen
bultos, arTugas, cortaduras, desgaste o fugas
de agua. AI reemplazar las mangueras de
entrada de agua marque la fecha de
reemplazo en la etiqueta con un marcador
permanente.
PASO 1. Introduzca una arandela nueva plana
(de la bolsa de piezas) en cada uno de los
extremos de las mangueras de entrada de
agua. Revise la instalaci6n para asegurarse
de que las arandelas est6n asentadas
firmemente en los acoplamientos.
0
ACOPLAMtENTO ARANDELA
16

PASO2.Conectelamangueraconel
acoplamientorojoconlaIlavedeentrada
deaguacaliente(inferior').AIconectarel
acoplamientorojoprimerosehacemas
facilapretarlaconexi6nconalicates.Atornille
elacoplamientoconIamano.Gireel
acoplamientodosterciosdevueltaadicional
conalicatesparaapretarlo.NOLOAPRIETE
DEMASIADO;estopuededafiarlasv&lvulas.
v lv.zade IIIIIIII
entrada de
agua caliente
V_lvuladeentrada
de aguafria
PASO 3. Conecte la manguera con el
acoplamiento azul con la Ilave de entrada de
agua frfa (superior). Atornille el acoplamiento
con la mano. Gire el acoplamiento dos tercios
de vuelta adicional con alicates para apretarlo.
NO LO APRIETE DEMASIADO; esto puede
daSar las valvulas.
E. CONECTE LAS MANGUERAS DE
ENTRADA A LOS GRIFOS DE
AGUA
PASO 1. AsegQrese de que la canasta de la
lavadora est_ vacia. Abra ambos grifos de
agua y deje que caiga el agua en una cubeta
para permitir que salga cualquier particula
de suciedad que se encuentre en las
tubedas y evitar que se tapen las
mangueras. Determine cu&l de los grifos es
el de agua caliente y cual es el de agua fria.
Marque el grifo de agua caliente.
PASO 2. Conecte la manguera con el
acoplamiento rojo con la Ilave de entrada
de agua caliente. Atornille el acoplamiento
con la mano. Gire el acoplamiento dos tercios
de vuelta adicional con alicates para
apretarlo. NO LO APRIETE DEMASlADO;
esto puede dafiar el acoplamiento.
PASO 3. Conecte la manguera con el
acoplamiento azul con la Ilave de entrada
de agua fria. Atornille el acoplamiento con la
mano. Gire el acoplamiento dos tercios de
vuelta adicional con alicates para apretarlo.
NO LO APRIETE DEMASIADO; esto puede
daSar el acoplamiento.
PASO 4. Abra los grifos de agua y
compruebe si hay p_rdidas. Un poco de agua
entrara en la lavadora. Podra hacer
el desag0e m&s tarde.
Si Ud. tiene: Tendr_ que comprar:
Llaves de agua que se encuentran mas 2 mangueras de entrada de agua mas
alia del alcance de las mangueras de largas: Mangueras de 1,8 m (6 pies),
entrada de agua No. de pieza 76314 5mangueras de
3,6 m (10 pies), No. de pieza 350008
Las piezas aqui mencionadas est_n disponibles en su tienda Sears o en el Centre de Servicio
Sears de su Iocalidad. En los EE.UU., flame al 1-800-659-7084. En Canad&, Ilame al
1-877-533-6937.
17

F, ASEGURE LA MANGUERA DE
DESAGOE
Asegure la manguera de desag_ie
adecuadamente para proteger sus pisos
contra daSos causados por fugas de agua.
PASO 1. Mueva la Iavadora a su lugar final.
Si los grifos de agua y el tubo vertical de
desagQe estan empotrados, coloque el
extremo con forma de gancho de la manguera
de desagL)e dentro del tubo vertical. Envuelva
el fleje de embalaje de manera ajustada
alrededor de la manguera de desag0e y las
mangueras de entrada de agua (no los
agarradores ni las puntas). Empuje el ajusta-
dor hacia el agujero m&s cercano del fleje de
embalaje.
PASO 2. Encuentre la pieza restante del fieje
de embalaje (no el extremo con los pasadores
des chavetas) del PASO 3 "QUITE EL FLEJE
DE EMBALAJE." Utilicelo para envolver la
manguera de desag0e con e1 lavadero o el
tubo de desagQe. Empuje el ajustador hacia el
agujero m&s cercano del fleje de embalaje.
Ajustador
18

G. NIVELE LA LAVADORA
La nivelacibn adecuada de su lavadora
previene la generacibn de ruidos y
vJbraciones excesivas.
Para instalar las patas delanteras:
PASO 1. Levante la parte frontal de la
lavadora hacia arriba (aproximadamente
10,2 cm [4 pulg.]). Utilice un bloque de madera
u otro objeto que pueda soportar el peso de la
lavadora. Si la lavadera estuviese instalada aI
lado de una pared, alejela de la pared
ligeramente antes de levantada.
PASO 2. Mientras sujeta una de las patas en
la mano, atornille la contratuerca en la pata a
9,5 mm (_ de pulg.) de distancia de la parte
superior de la base de la pata. Esta es la
posici6n inicial recomendada.
9,5 mln
PASO 3. Atornille la pata en la base de la
lavadora con la mano hasta que la tuerca
Ilegue a la base de la lavadora. Repita los
mismos pasos con Ia otra pata.
PASO 5. Traslade la lavadora a su ubicaci6n
final.
PASO 6. Incline la lavadora hacia adelante
hasta que la parte trasera de la lavadora est6
pot Io menos 7,62 cm (3 pulg.) arriba del piso.
Usted escuchar_ las patas traseras
autoajustables cuando encajen en su lugar.
Baje la lavadora al piso. Asegt_rese de que la
lavadera est6 nivelada, colocando un nivel
encima de la lavadora, en primer lugar de lado
a lado; luego de frente hacia atras.
PASO 7. Si la lavadora no esta nivelada,
levante la parte frontal de la lavadora y ajuste
las patas hacia ardba o hacia abajo segun sea
necesario. Baje la lavadora y ajuste las patas
traseras autoajustables (tal como en el paso 6).
Repita el paso 7 hasta que Ia Iavadora est6
nivelada.
PASO 8. Cuando la lavadora est6 en su
ubicaci6n final y nivelada, utilice una Ilave de
boca de 1,43 mm (_ pulg.) para girar las
tuercas de las patas delanteras contra el
gabinete de la lavadora. Si las tuercas no
estan bien ajustadas contra el gabinete de la
lavadera, la lavadora vibrar&.
PASO 4. Incline la lavadora hacia atras basra
que la parte frontal de la misma ya no est6
sobre el bloque de madera. Quite el bloque de
madera. Con cuidado baje la lavadora aI piso.
19

REVISE LA INSTALACION
Tbmese unos cuantos minutos para Ilenar
esta lista de verificacibn. Le ayudara a
cerciorarse de que se ha efectuado una
instalacibn apropiada y aumentara su
satisfaccibn con su lavadora Kenmore.
[ Revise los requisitos de suministro
el_ctrico. Aseg_rese de que cuenta con el
suministro el6ctrico correcto y el m6todo
recomendado de conexi6n a tierra.
[ Aseg_rese de que:
• Tenga todas las herramientas con las que
empez6.
• Haya quitado todos los materiales de
embalaje.
• Haya quitado el fleie de embalaje con
las chavetas.
• Haya instalado todas las piezas
mencionadas en las paginas 7-9.
[ Revise que:
• La lavadora est6 nivelada
• Las tuercas de las patas frontales est6n
ajustadas.
[ AsegQrese de que los grifos de agua est_n
abiertos.
PASOS FINALES
[ Conecte el cable el_ctrico en el
contacto con conexi6n a tierra.
[ Quite la capa protectora azul que esta en
ia consola y cualquier pedazo de cinta que
haya quedado en la lavadora.
[ Tome unos minutos para leer la secci6n
"FUNCIONAMIENTO DE SU LAVADORA"
para entender completamente el
funcionamiento de su nueva lavadora.
Luego, ponga la lavadora en marcha y deje
que termine el ciclo NORMAL.
2O

Para obtener la limpieza y cuidado 6ptimos
de los tejidos con su lavadora, le rogamos
lea y siga estas instrucciones.
NOTA: Los graficos de esta secci6n
muestran las caracteristicas basicas de todos
los modelos cubiertos pot este manual.
Consulte la "hoja de caracteristicas" que se
adjunta para las funciones especificas de su
lavadora.
Peligro de Incendio
Nunca coloque en la lavadora
articulos que est_n humedecidos
con gasolina o cualquier otro liquido
inflamable.
Ninguna lavadora puede eliminar
completamente el aceite.
No seque ningtin articulo que haya
tenido alguna vez cualquier tipo de
aceite (incluyendo aceites de
cocina).
No seguir estas instrucciones puede
ocasionar la muerte, explosion o
incendio,
INSTRUCCIONES EN LA TAPA
Estas instrucciones se encuentran debajo de la
tapa de su lavadora.
DISTRIBUIDOR AUTOM,&,TICO =-=--Agregue el blanqueador de cloro liquido medido en el
distribuidor autom_tico, 5 rain. despu_s de haber
empezado el ciclo para obtener resuffados 6ptimos de
lavado,
No use BLANQUEADOR EN POLVO EN ESTE
DISTRIBUIDOR
Agregue una medida del suavizante de tejidos en el dis-
tribuidor autom_tico montado sobre el agitador.
Agregue el detergente medido en la canasta de la
lavadora.
1. SELECCIONE Y REGULE .......... Para seleccionar, use estos controles de la lavadora:
(algunas lavadoras quiz_s no tengan todos estos controles)
• NIVEL DEL AGUA Regule segQn el tamaSo de Ia carga de lavado
(WATER LEVEL)
• TEMPERATURA DE LAVADO/ENJUAGUE
(WASH/RINSE TEMP) .......... Use las opciones de la Temperatura Autom_tica
(AUTO TEMP) para obtener 6ptimos resultados de
lavado.
• VELOCIDADES (SPEEDS) ....... Regule la veIocidad segL_n el tipo de tejidos que se est_
lavando.
21

LAVADOPESAD_JDRILTOALLAS,ROPACON
SUCIEDADPROFUNDA
_ RE6Uk_Jt PRENDASDE
ALGODON
__ PLANCHADO FIBRAS_NTETICAS
PERMANENTE
DELICADO TEJIDOSDEPUNTO
_ I_VADOAMANCENCERJA
•.. LAVAD0CON
AGUACAUENTE
•. LAVAD0CON
A6UA IIBIA
LAVAD0CON
A6UAFRIA
_CU_QUI_
BI_NQU[,NIOR
/_ _NQUE_DOR SIN
etORO
_ NO USEBL_QUE_IIR
2. SELECCIONE EL CICLO .......... Seleccione mas tiempo para lavar ropa con suciedad
profunda y menos tiempo para lavar ropa con suciedad
ligera.
3. JALE EL RELOJ AUTOMATICO
PARA COMENZAR. La tapa deber_ estar cerrada para completar el,ciclo.
EMPUJE HACIA ADENTRO EL RELOJ AUTOMATICO
PARA DETENER EL CICLO.
Antiperspirantes, desodorantes
Aplique el area afectada con una pasta de
amoniaco y blanqueador no=decolorante y
deje reposar unos 30 minutos. Lave con el
agua mas caliente que el tejido pueda
resistir.
Sangre
Enjuague de inmediato o remoje en agua
fria con detergente unos 30 minutos.
Enjuague. Frote las manchas restantes con
detergente. Enjuague a fondo. Lave.
Crema, leche, helados
Limpie de inmediato con una esponja o
aplique un producto de prelavado para
quitar manchas o suciedad. Enjuague. Lave.
Repita eI procedimiento si fuera necesario.
Si la mancha permanece, aplique unas
cuantas gotas de detergente Iiquido.
Enjuague. Si la mancha persiste, remoje.
Lave.
Pasto/zacate
Haga un remojo previo de la mancha
usando un detergente con enzima para
refregar, Lave con el detergente y
blanqueador correcto para el tipo de tejido.
Salsa de tomate, productos de tomate
Limpie de inmediato con una esponja o
aplique un producto de prelavado para
quitar manchas o suciedad. Enjuague. Lave.
Si Ia mancha persiste, aplique un detergente
Iiquido sobre la mancha o remoje en agua
tibia con detergente. Vuelva aIavar.
Barro/Iodo
Quite el barro seco con un cepillo, Enjuague
con agua fria, Haga un tratamiento con una
pasta de detergente y agua. Lave con un
detergente y blanqueador que no afecte eI
tejido.
22

PUESTA EN MARCHA DE LA
LAVADORA
PASO 1. ASada una medida de detergente
directamente en ]a canasta de la lavadora.
Luego coloque una carga de ropa
seleccionada en la lavadora.
PASO 2. (PASO OPCIONAL) Si Io desea,
aSada una medida de blanqueador de cIoro
liquido en el distribuidor automatico del
btanqueador liquido (Vea la pagina 29).
PASO 3. (PASO OPCIONAL) Si Io desea,
aSada una medida de suavizante liquido en el
distribuidor del suavizante liquido (si est&
disponible) (Detalles en la pagina 30).
PASO 4. Cierre la tapa de la lavadora.
PASO 5. Fije el Control de Nivel del Agua
(WATER LEVEL) Q segQn el volumen de la
carga de ropa para lavar (Refi6rase a la
pagina 24).
PASO 6. Fije eI Control de Temperatura del
Agua (WATER TEMPERATURE) _)
(Refi6rase a Ia p_gina 24).
PASO 7. Empuje la perilla de Control del
Selector de Ciclos (_ (reloj automatico)
hacia adentro y girela hacia la derecha a la
posici6n deseada (Vea ia pagina 25).
PASO 8. Jale la perilla de Control del
Selector de Ciclos (_ (reloj autom_tico).
El indicador girara a medida que el cicto
avanza. La perilla no rotarY.
CC)MO DETENER Y VOLVER A PONER
EN MARCHA LA LAVADORA
• Para detener la lavadora en cualquier
momento, empuje hacia adentro la perilla
de Control del Selector de Ciclos (_
(reloj automatico).
• Jale la perilla para volver a poner Ia
lavadora en funcionamiento.
WATERLEVEL WATERTEMpE,'_TUR6
•• •
23

CONTROL DE NIVEL DEL AGUA
(WATER LEVEL)
Este control le brinda la flexibilidad de
ahorrar agua cuando lave pequeSas cargas
de ropa.
Su lavadora le permite seleccionar un nivel de
agua de acuerdo con el volumeR de su carga
de lavado.
• Para cargas de lavado normales, comience
con la posici6n de carga mediana. Ajuste el
control hacia arriba o hacia abajo segt3n la
carga de lavado. Las prendas se deberan
mover libremente y girar hacia el agitador.
•Para cambiar a un nivel del agua mas alto
despu6s de que la lavadora haya empezado
a agitarse, gire la perilla al nuevo aiuste
deseado.
CONTROL DE TEMPERATURA DEL
AGUA (WATER TEMPERATURE)
Su Iavadora le permite seleccionar el ajuste
de temperatura del agua de lavado y
enjuague correcto segun eI tipo de ropa que
est& lavando.
WARM
COLD
COLD •HOT
COLD @COLD
AIgunas lavadoras le permiten selec-
cionar enjuagues tibios.
• El agua de enjuague tibia deja la carga
m&s seca despu_s del ciclo de exprimido
que al usar agua fria. Sin embargo, el
enjuague tibio puede arrugar mas la ropa
cuando se seca en el tendedero o cordel.
• En climas frios, el enjuague de agua tibia
bdnda adem_s una temperatura m_s
c6moda para sacar la carga de ropa
lavada.
C(_MO SELECCIONAR LA TEMPERATURA DEL AGUA
Temperatura
del agua de Tejidos sugeridos Comentarios
lavado
HOT • Ropas de trabajo • Produce ta mejor limpieza para articulos con
(CALIENTE) suciedad profunda
111°F (44°C) • Ropa blanca pesada/ • Elimina aceites, sudor, suciedad y manchas
o superior de color pastel que grasosas
no destine
• Pa_ales • Evita que las prendas se pongan gris_ceas o
amadllentas
WARM • Colores oscuros/ • Da mejores resultados en prendas con suciedad
(TIBIA) que se destiSen entre ligera y moderada
90°-110°F • Art{culos de planchado • Es segura para la mayoria de acabados de
(32°-43°C) permanente tejidos
• Nil6n, poliester, acrilicos, • Produce menos prendas descoloddas o desteSidas
sedas, lanas
• Tejidos de punto/telas • Reduce la formaci6n de arrugas
delicadas
COLD • Colores muy sensiNes • Produce mejores resultados en prendas con
(FRiA*) suciedad muy ligera
70°-90°F • Art{culos que se desti_en • Ahorra agua caliente
(21°-32°C) • Lavado a mano
*En temperaturas de agua inferiores a 70°F (21 °C), los detergentes no se disuelven bien. Ademas, puede
resultar dificii quitar la suciedad y algunos tejidos pueden retener las arrugas del uso y aumentar las
motitas - la formaci6n de pequeSas motitas que parecen pelusas en la superficie de las prendas. Las
motitas son et resuttado natural del uso y el lavado de las prendas.
24

CONTROL DEL SELECTOR DE CICLOS
(RELOJ AUTOMATICO)
Use este control para seleccionar el tiempo de
agitaci6n y para poner la lavadora en
funcionamiento. Cado ciclo est_ diseSado con
velocidades de lavado y de expdmido
apropiadas para las telas y los niveles de
suciedad que se encuentran en la ropa que se
esta lavando.
• Para los tejidos sumamente sucios y prendas
fuertes, use el tiempo complete. (REGULAR o
SUPER, si se indic&)
• Para los tejidos ligeramente sucios y prendas
delicadas, use menos Uempo. (SHORT, si se
indic&)
NOTA: Algunas prendas para lavar a mane
"Hand Wash", especialmente de lana, se encogen
naturalmente cuando se lavan. Tenga esto en
mente cuando compre prendas que tienen etique-
tas de lavado a mane "Hand Wash." Los articulos
que encogen se deben secar extendidos en una
supefficie plan& Cuando aun est6n mojados,
estirelos con cuidado a sus medidas odginaies.
PLANCHADO PERMANENTE
(PERMANENT PRESS )
Usted puede seleccionar hasta 10 minutes de
tiempo de lavado.
DEMCADO (DELICATE)
Use este ciclo para obtener hasta 6 minutes
de tiempo de lavado para lenceda yarticulos
de tejidos de punto delicados.
Los ciclos de PIanchado Permanente/
Delicado (PERMANENT PRESS/
DELICATE) incluyen un proceso de
enfriamiento de la carga que reduce la
formacibn de arrugas en comparacibn a
otros ciclos.
• El lavado combina una velocidad de
agitaci6n lenta para la limpieza de suciedad
ligera y velocidades lentas de exprimido
para reducir las arrugas en las prendas.
FIr_AVYOln'Y
NORMAL
Use este ciclo para obtener hasta 10 minutes de
tiempo de lavado de prendas de algod6n y ropa
de cama con suciedad NORMAL.
•Esta posici6n de lavado combina una velocidad
de agitaci6n lenta y velccidades rapidas de
expfimido para reducir el tiempo de secado.
• La selecci6n del cido REGULAR le proporciona
vebddades de agitad6n rapidas inidalmente,
luego la lavadora disminuye la velocidad a una
agitaci6n lent&
• La selecci6n del cido corto (SHORT) le
proporciona una vebcidad de agitaci6n lenta.
LAVADO PESADO (HEAVY DUTY)
Use este ciclo para obtener hasta 14 minu-
tes de tiempo de lavado de ropa pesada o
con suciedad rebelde.
• Esta posici6n de lavade combina una
agitaci6n de velocidad rapida y un exprimide
veloz.
PRELAVADO (PREWASH)
(en algunos modelos)
Use este ciclo para obtener hasta 4 minutes
de agitaci6n para facilitar la eliminaci6n de
suciedad profunda y manchas que necesitan
un tratamiento previo. El ciclo de prelavado
(PREWASH) debe ser seguido per un ciclo
de lavado pesado (HEAVY DUTY) o de
NORMAL o planchado permanente
(PERMANENT PRESS), o de Delicado
(DELICATE) agregando detergente adicional.
REMOJO (SOAK)
(en aIgunos modelos)
El ciclo de remojo (SOAK) ofrece 4 minutes
de agitaci6n seguidos por un tiempo ilimitado
de remojo para facilitar la eliminaci6n de
suciedad profunda y manchas que necesitan
un tratamiento previo. Usted tendra que
reiniciar en la posici6n de exprimido (SPIN)
para vaciar eI agua. El ciclo de remojo
(SOAK) debe ser seguido por un ciclo de
lavado pesado (HEAVY DUTY) o de
NORMAL o de planchado permanente
(PERMANENT PRESS) o de delicado
(DELICATE) o de prelavado (PREWASH),
agregando detergente adicional.
NOTA: No le recomendamos usar agua
caiiente para remojar. Esto puede fijar
algunas manchas.
HEAVY DUTY
/...E_U[E_
14 le _ SRORT
_', io NORMAL
.... Jl_ _RE_ULAR
DELICATE s_ _
PERMANENT PRESS _o '_ _
25
Su Iavadora tendra una de estas periilas.

SEGUNDO ENJUAGUE (2ND RINSE)
(en algunos modelos)
Un segundo enjuague eliminara todo
residuo excedente de detergente.
PASO 1. Fije el Control de Nivel del agua
(WATER LEVEL).
PASO 2. Fije el Control de Temperatura del
agua (WATER TEMPERATURE).
PASO 3. Fije el Control del Selector de Ciclos
(Reloj automatico) en 2do. enjuague
(2ND RINSE).
PASO 4. Jale la perilla del Reloj automatico
para poner la lavadora en marcha.
NOTA: Usted puede seleccionar s61o un
exprimido (SPIN) adicional.
• Gire eI indicador del reloj automatico a la
posici6n de exprimido (SPIN).
• Un exprimido adicional puede reducir los
tiempos de secado para la ropa pesada o
prendas de cuidado especial, al eliminar el
exceso de agua.
ENJUAGUE YEXPRIMIDO
AI usar detergente adicional para la ropa muy
sucia+ o para lavar prendas que requieren un
cuidado especial, puede ser que usted nece-
site un nuevo ciclo de enjuague y exprimido
PASO 1. Fije el Control de Nivel del agua
(WATER LEVEL).
PASO 2. Fije el Control de Temperatura
(WATER TEMPERATURE).
PASO 3. Fije la perilla del Control del
Selector de Ciclos (reloj autom_tico) en una
posici6n de enjuage (RINSE):
• Para agitaci6n y exprimido rapidos, use el
ciclo de lavado pasado (HEAVY DUTY).
• Para agitaci6n y exprimido lentos, use el
ciclo de planchado permanente
(PERMANENT PRESS).
• Para agitaci6n lenta y exprimido
rapido, use el ciclo NORMAL.
PASO 4. Jale Ia pefilla del Control del
Selector de Ciclos (reloj automatico) para
poner la lavadora en marcha.
Hr_.'_P/DUTY
-
PERMANENT PRE88 le _
SOLO EXPRIMIDO
Un desagL_e y exprimido adicional puede
acortar Ios tiempos de secado para la ropa
pesada o prendas de cuidado especial, aI
eliminar el exceso de agua.
PASO 1. Fije la perilla del Control del
Selector de Ciclos (reloj automatico) en una
posici6n de exprimido (SPIN):
• Para exprimido rapido, use el ciclo
normal (NORMAL).
• Para expdmido lento, use el ciclo de plancha-
do permanente (PERMANENT PRESS).
PASO 2. Jale Ia pefilla del Control del
Selector de Ciclos (reloj automatico) para
poner la lavadora en marcha.
HEAVY DUTY
26

PARA ENTENDER LO QUE SUCEDE EN CADA ClCLO
PLANCHADO NORMAL LAVADO PESADO
PERMANENTE/ (HEAVY DUTY)
DELICADO
Uena hasta
(PERMANENT PRESS/ elnivel Uenahasta
DELICATE) seieccionado el niveE
seleccionado
LIena hasta
_ elnivel Lavadurante
seleccionado e]tiempo
seleccionado
Lava durante
el_empo
seleccionado
Escurrido
parcial
Pausa
Uenado para
enf#amiento
Agitacion
Escurre sin
exprimir
Exprime
PRELAVADO*/
SEGUNDO
ENJUAGUE*
(PREWASH/
2ND RINSE)
Llena hasta
Lava durante el nivel
eltiempo selecdonado
seleccionado •
Escurre-sin _ Escurre sin
exprlmir exprlmir
Exprime
Lavadurante
el tiempo
seEec_onado
Escurre sin
exprimir
Expdme •
_ Exprime
Llena hasta Uena hasta •
elnivel elnivel
seleccionado seleccionado
Apagado
Enjuaga
Llena hasta
el nivel
selecclonado
Enjuaga
Escurre sin
exprimir
Exprime
Apagado
Enjuaga
EsculT e . sin _ Escurre sin
exprimir expdmir
Exprime Expdme
Apagado Apagado
REMOJO*
(SOAK)
Liena hasta
el nivel
selecdonado
Agita
Remoia
(reinido a
expr_mlr
{SPIN) para
vat,aria
lavadora
*en algunos modelos
*en algunos modelos
27

FILTRO AUTOLIMPIANTE DE PELUSA AGITADOR DE DOBLE ACCION
(DUAL ACTION TM )
La pelusa de la carga de ropa se filtra
automaticamente - no hay robs
preocupaciones con la limpieza de
pelusa.
Su lavadora viene con un filtro autolimpiante
que atrapa la pelusa del agua mientras lava
y enjuaga a rondo la ropa. La pelusa
atrapada se elimina automaticamente en el
agua de desagL)e. Usted no tiene que
limpiar el flltro.
El agitador DUAL ACTION TM exclusivo de
Kenmore le brinda un cuidado flexible de
los tejidos incluso para las cargas de
ropa m_s volu_irlosas.
La mejor acci6n de
Iimpieza en su
Iavadora se realiza
en el fondo donde las
aspas del agitador se
mueven en vaiv_n
para que los tejidos
se doblen y la
suciedad se afloje.
Para hacer que toda
Ia ropa Ilegue al
fondo de la lavado-
ra, la parte superior
del agitador tiene
aspas en espiral
especialmente dise5adas para ayudar a
empujar la ropa de la superficie al rondo.
Esta acci6n en espiral desplaza las ropas
que se encuentran en el rondo con un
movimiento de desplazamiento.
28

PAPA ENTENDER LOS SONIDOS
NORMALES DE LA LAVADORA
Su nueva lavadora puede producir sonidos
que su vieja lavadora no hacia. Como se
trata de sonidos con los que usted no esta
familiarizado, es posible que le preocupen.
A continuaci6n se descdben algunos de los
sonidos normales que puede oir, asi como
sus causas.
Durante el lavado
Cuando usted selecciona una posici6n para
un volumen de carga de Iavado pequeSa, su
lavadora tiene un nivel de agua m&s bajo.
Con este nivel de agua m_s bajo, quizas
escuche un sonido de clic proveniente de la
parte superior del agitador.
Durante el desag_Je
La velocidad de desagQe del agua de su
lavadora depende de su instalaci6n. Si se
vacia el agua de la lavadora con rapidez, es
posible que escuche Ia succi6n de aire que
pasa por la bomba. Esto ocurre en la etapa
final del desagQe.
Luego del desag{ie y antes del
exprimido
Cuando cambia del ciclo de desag0e al de
exprimido, es posible que escuche un ruido
mientras la caja de engranajes cambia de
velocidad.
USO DEL DISTRIBUIDOR
AUTOMATICO DEL BLANQUEADOR
DE CLORO LiQUlDO
Distribuye autombticamente el blan-
queador en el momento apropiado del
ciclo de lavado para asegurar cargas de
lavado m&s limpias y de colores mas
vivos.
Siempre mida el blanqueador de cloro
licluido. Use una taza medidora, no Io haga
al c_lculo. No vierta el blanqueador directa-
mente de la botella. Nunca use mas de una
taza (250 mL) por carga completa. Use
menos para las cargas de ropa m&s
pequeSas. Siga Ias instrucciones del fabri-
cante para obtener un use seguro. Una taza
con pico vertedor le ayudar& a evitar
derrames.
Luego de cargar la lavadora, vierta la medi-
da de blanqueador de cloro liquido cuida-
dosamente en el distribuidor automatico.
• No deje que el blanqueador salpique,
gotee o se corra hasta el interior de la
canasta de la lavadora. El blanqueador no
disuelto daSara cualquier tejido que toque.
• Ponga la lavadora en marcha. El
blanqueador sera distribuido automatica-
mente antes de que entre en contacto con
la carga de lavado.
NOTA: No use este distribuidor automatico
para aSadir cloro en polvo o blanqueador
no-decolorante a su carga de lavado. El
distribuidor automatico esta diseSado s61o
para btanqueador de cloro liquido.
o°_o°°:_o°:}o°°°
Iooooo>OS JJJ
O°oO°oO o° _/x _
Distribuidor del
blanclueador de
cloro Iiquido
29

USO DEL DISTRIBUIDOR
AUTOMATICO DEL SUAVIZANTE DE
TEJIDOS LiQUIDO
(en algunos modelos)
Luego de cargar la lavadora, mida y agregue
Ia cantidad recomendada del suavizante de
tejidos en el distribuidor autom&tico. Siga las
instrucciones del fabricante.
NOTA: AI Ilenar en exceso el distribuidor
automatico el suavizante se dispersara de
inmediato dentro de la carga de ropa debido
a una acci6n de sifonaje. Esta descarga
subita podrJa daSar los tejidos y parecer&
que el distribuidor automatico no esta
funcJorlando correctamente.
Cbmo sacar el distribuidor automatico deI
suavizante de tejidos para su limpieza
PASO 1. Levante el anillo azul de sujeci6n,
luego saque el distribuidor del agitador
jalandolo hacia arriba.
PASO 2. Lave el distribuidor automatico con
agua tibia.
Cbmo colocar de nuevo el distribuidor
automatico deI suavizante de tejidos
PASO 1. Cerci6rese de que el anillo azul de
sujeci6n est6 levantado. Partiendo en un
&ngulo (vet la ilustraci6n), empuje hacia
adentro el boton del distribuidor automatico
sobre la parte supedor del agitador.
PASO 2. Cuando el distribuidor se asiente
en el agitador, empuje el anillo azul de
sujeci6n hacia el rondo hasta encajarlo en
su Iugar. Debe de quedar apretado.
•Agregue agua tibia para Ilenar el
distribuidor hasta que Ilegue a la abertura
cruzada en el fondo de la pieza en forma
de embudo del distribuidor automatico.
• El suavizante de tejidos se distribuye
automaticamente en el agua deI primer
enjuague profundo.
NOTA: El suavizante no es compatible con
detergentes. Nunca se debe usar este
distribuidor automatico en el ciclo de
prelavado (PREWASH) porque agregara el
suavizante a una carga de lavado que no se
ha enjuagado aBn. El suavizante no
disuelto puede dar lugar a puntos que lucen
como manchas de aceite aI salpicar sobre la
ropa.
Si alguna vez utiliza de este modo el
distribuidor por error, vuelva a lavar la ropa
con detergente adicional para quitar estos
residuos.
Distribuidor
///autom_tico del
fsuavizante de tejidos
_ d,AnjiellOazul de
30

PREPARACION DE LA ROPA PARA
LAVAR
Siga estas recomendaciones para
ayudarle a prolongar la vida de sus
prendas de vestir.
•Cierre los zipers, broches de presi6n y
corchetes para evitar que enganchen otras
prendas. Quite alfileres, hebillas y demas
objetos duros para evitar que rayen el interior
de la lavadora. Quite todo adorno y
ornamento que no sea lavable.
• Vacie los bolsillos y vudlvalos aI revds.
• Doble los puSos y limpie con un cepillo la
pelusa y la suciedad.
• Vuelva aI revds las prendas de tejido
sintdtico para evitar que se Ilenen de
pelusas.
• Ate los cordones y fajas, de modo que no se
enreden.
• Remiende Io que estd roto asi como las
costuras y dobladillos flojos.
• Trate las manchas y suciedades.
• Las prendas manchadas o mojadas deber&n
lavarse con prontitud para obtener mejores
resultados.
SELECCION DE LA ROPA
•Separe la ropa con suciedad rebelde de las
que est&n ligeramente sucias, aun cuando
_stas normalmente se lavarian juntas.
Separe las prendas que sueltan pelusas
(toallas, felpilla) de las que atraen pelusa
(pana, flbras sint#ticas y planchado perma-
nente). Siempre que sea posible, vuelva al
revds las prendas que sueltan pelusa.
• Separe los colores oscuros de los colores
claros, los articulos no destefiibles de los
que si Io son.
• Separe por tipo de tela y estructura (prendas
fuertes de algoddn, teiidos de punto y
prendas finas).
31

CC)MO CARGAR LA LAVADORA
La carga adecuada de la lavadora
contribuye a la limpieza y al cuidado
apropiado de los tejidos y reduce el
ruido producido pot la Iavadora.
•Coloque las prendas en la lavadora de
manera suelta. Llene la lavadora hasta el tope
de Ia canasta (la hilera mas alta de agujeros).
No envuelva la ropa alrededor del agitador.
Las prendas deben moverse con facilidad en
el agua de lavado para Iograr mejores
resultados de limpieza y evitar la formaci6n de
arrugas en las prendas. Las prendas deben
sumergirse y luego volver a aparecer durante
el lavado.
• Cargue la lavadora adecuadamente y
seleccione una posici6n de nivel del agua
correcta. Sobrecargar o Ilenar en exceso la
lavadora, asi como seleccionar una posici6n
demasiado pequeSa para la carga de lavado
puede:
- ocasionar una limpieza deficiente
- aumentar la formaci6n de arrugas
- crear pelusa en exceso
- desgastar las prendas con mayor rapidez
(debido a que se Ilenan de pelusas)
• Cargue la lavadora segQn la cantidad de
espacio que las prendas ocupen, no por su
peso.
• Mezcle prendas grandes y pequeSas en cada
carga. Prepare una carga pareja para
mantener el equilibrio de la lavadora. Una
carga desequilibrada puede hacer vibrar la
lavadora durante el ciclo de exprimido.
• Use una posici6n mayor de nivel del agua
para reducir arrugas en las prendas de
planchado permanente y algunas de tejido de
punto sint6tico. Estas prendas deben contar
con mayor espacio para circular en el agua
que las prendas pesadas (toallas, pantalones
de mezclilla).
•Reduzca el tiempo de lavado mediante el
uso de una posici6n mas baja de nivel del
agua. Las cargas que tengan unas cuantas
prendas pequefias necesitan menos tiempo
de lavado.
SUGERENCIAS PARA SELECCIONAR
LA CARGA
Para las cargas de volumen completo
sugeridas a continuaci6n, coloque el Selector
de Nivel del Agua (WATER LEVEL) en la
posici6n mas aIta de nivel del agua.
LAVADORAS DE CAPACIDAD SUPERIOR
Prendas de
trabajo pesado
4 pantalones de
mezclilla
4 pantalones de
trabajo
4 camisas de
trabajo
1 sudadera
1 pantal6n de
depoite
Toallas
9 toallas de
bafio
9 toallas de
mal3O
10 toatlas
faciaies
Carga mixta
3 s_banas
(I extra doble =
"king", 2 de
camas gemelas)
4 fundas
2 camisas
2 blusas
8 camisetas
6pantalones
cortos
8 pafiuelos
32

LIMPIEZA DE SU LAVADORA
El buen cuidado de su lavadora puede
prolongar su vida [itil. Esta secci6n explica
c6mo cuidar su lavadora de manera adecuada
y segura.
Exterior
Limpie todo resto de detergente, blanqueador
u otros derrames con un paso o urn esponja
tan pronto _stos ocurran. De vez en cuando,
limpie el exterior de la lavadora para que se
yea como nueva.
No coloque objetos puntiagudos o metalicos
en su lavadora, ya que pueden daSar el
acabado. Examine eI contenido de todos los
bolsillos para detectar alflleres, clips, monedas,
pemos, tuercas, etc. No deje estos objetos
sobre la lavadora despu_s de vaciar los
bolsillos.
Interior
Limpie el interior con 250 mL (1 taza) de
blanqueador de cloro mezclado con 500 mL
(2 tazas) de detergente. Ponga a funcionar la
lavadora pot un ciclo completo con agua
caliente. Repita este procedimiento si fuera
necesario.
NOTA: Para quitar los dep6sitos endurecidos
de agua, utilice [inicamente productos de
limpieza cuya etiqueta indique que pueden ser
usados en lavadoras.
Mangueras de Entrada de Agua
Reemplace las mangueras de entrada de agua
despu6s de cinco aSos de uso para reducir el
riesgo de fallas. Inspeccione peri6dicamente y
cambie las mangueras si se hallan
protuberancias, torceduras, cortes, desgaste o
p6rdidas de agua. Cuando reemplace sus
mangueras de entrada de agua, anote la fecha
de reposici6n en la etiqueta con un marcador
permanente.
ALMACENAJE DE SU LAVADORA
DURANTE EL INVIERNO Y CUIDADO
EN CASO DE MUDANZA
Instale y almacene su lavadora en un lugar
donde no se congele. Debido a que queda
algo de agua en las mangueras, la
congelaci6n de 6sta puede dafiar la lavadora.
Si va a almacenar o mover su lavadora
durante una temporada de inviemo riguroso,
acondici6nela para el inviemo.
Para acondicionar su Iavadora para el
invierno:
1. Cierre ambos grifos de agua.
2. Desconecte y elimine el agua de las
mangueras de entrada de agua.
3. Vierta 1 L (un litro) de anticongelante tipo
R.V. en la canasta de la lavadora.
4. Ponga la lavadora a funcionar en la
posici6n de exprimido (SPIN) por unos 30
segundos para mezclar el anticongelante
con el agua. Parte de la mezcla saldr&
bombeada hacia afuera mientras la
lavadora opera el ciclo de exprimido.
5. Desenchufe la lavadora.
Para volver ausar la lavadora:
1. Deje correr agua por los tubos y
mangueras.
2. Vuelva a conectar las mangueras de
entrada de agua.
3. Abra ambos grifos de agua.
4. Vuelva a enchufar la lavadora.
5. Ponga a funcionar la lavadora pot un
ciclo completo con 250 mL (1 taza) de
detergente para eliminar los restos del
anticongelante.
FALTA DE USO Y CUIDADO DE LA
LAVADORA DURANTE LAS
VACACIONES
Ponga a funcionar la lavadora Qnicamente
cuando est_ en casa. Siva a salir de
vacaciones o no va a usar la lavadora durante
un periodo largo, usted debe:
• Desenchufar la lavadora o cortar el
suministro el6ctrico de la lavadora.
• Interrumpir el suministro de agua de la
lavadora. Esto ayuda a evitar inundaciones
accidentales (debido a aumentos en Ia
presi6n del agua) en ausencia suya.
33

34
La mayor parte de los problemas relacionados con el lavado de ropa se solucionan con
facilidad si usted entiende la causa de los mismos. Examine estas listas para
identificar los problemas comunes del Iavado y el funcionamiento de su lavadora. Si
necesita ayuda adicional, refi_rase a la contratapa.
Problema Causa probable Solucibn
La lavadora El sistema de tuberias de la Repare la plomeria de la casa.
pierde agua casa tiene p_rdidas de agua.
Las mangueras de entrada Ajuste las mangueras (refi6rase a Ias
estan flojas, secciones D y E de
"lnstrucciones de instalaci6n").
Las arandelas de las Vuelva a asentar las arandelas
mangueras de entrada de agua (refi_rase a la secci6n D de
no estan debidamente "lnstrucciones de instalaci6n").
encajadas.
La manguera de desag0e tiene Coloque la abrazader_ en la manguera
la abrazadera incorrectamente de desagL_e(refi6rase a Ia secci6n C
puesta o no la tiene, de "lnstrucciones de instalaci6n").
El desag0e est& obstruido. Quite la obstrucci6n del desag0e. El
lavadero, el tubo vertical o el desagL_e
del piso deben tenet la capacidad
para desplazar 64 litros (17 gal) de
agua pot minuto.
El tambor se movi6 hacia Asegurese de que el tambor est6
adelante al sacar la ropa, y por centrado antes de poner a
ello el agua se corre fuera de! funcionar la lavadora.
aro del tambor.
La unidad no est& nivelada, y Asegurese de que las patas delanteras
pot esta causa el agua se corre est6n instaladas y que las tuercas
fuera del aro de! tambor, est6n ajustadas. Nivele la lavadora.
Reajuste las patas traseras (refi_rase
a la secci6n G de "lnstrucciones de
instalaci6n").
La carga est_ desequilibrada. Redistribuya la carga.
Los enjuagues pot rocio se
desvian de la carga.
La lavadora esta sobrecargada. Reduzca el tamaSo de la carga.
Los lienados o enjuagues por
rocio se desvian de la carga.
La lavadora La manguera de desag0e est_ Enderece o desconecte la manguera
no escurre/ retorcida u obstruida. (refi_rase a la secci6n C de
no exprime/ "lnstrucciones de instalaci6n").
cargas mojadas Funcionamiento correcto del Luego de un cido de lavado o
desagQe neutro, enjuague, la lavadora escun'ira el agua
sin exprimir. Despu6s del escurrido,
comienza el ciclo de exprimido.
La tapa est& abierta. Cierre la tap&
La manguera de desagLie est& Baje la manguera de desagQe
a una altura mayor de 2,4 m (refi_rase a la secci6n A de
(96 pulg.) del piso. "lnstrucciones de instalaci6n").
Demasiado detergente; espuma Use menos detergente.
excesiva.
Ciclo equivocado para la carga Seleccione un cido que tenga una velod-
de ropa que se esta lavando, dad mayor de exprimido, (ref_6rasea
"Funcionamiento de su lavadora").

Problema Causa probable Solucion
Bajo voltaje, o se esta
empleando un cable el_ctrico
de extensi6n.
La lavadora
no escurre/
no exprime/
Cargas mojadas Enjuagues frfos. Los enjuagues con agua fria dejan
(coat.) las cargas mas mojadas que los
enjuagues con agua tibia. Esto es
normal.
ContinUa Ilenando/ La manguera de desagQe esta a Levante la posici6n de la manguera
contint_a una distancia menor de 99.06 de desag(Je (refl_rase a la secci6n
escurriendo/ciclo cm (39 pulg.) del piso. A de "lnstrucciones de instalaci6n").
atascado La manguera de desagQe Ajuste la manguera de desag0e
encaja de manera forzada en el para que encaje bien, ni suelta ni
tubo vertical, apretada (refi6rase a la secci6n C
de "lnstrucciones de instalaci6n").
La manguera de desagQe esta NO selle la manguera de desagLie
asegurada con cinta adhesiva al con cinta adhesiva. La manguera
tubo vertical, de desagL_e necesita una abertura
para el fluio de aire.
La lavadora La carga de ropa esta Redistribuya la carga.
hace Ruido desequilibrada.
La lavadora no esta nivelada. Nivele la lavadora. Reajuste las
Las patas traseras no estan patas traseras. (refi6rase a la
niveladas, secci6n G de "lnstrucciones de
instalaci6n").
Las tuercas de las patas Ajuste las tuercas (refi_rase a la
delanteras no est&n ajustadas, secci6n G de "lnstrucciones de
instalaci6n").
Quite eI fleje de embalaje con
chavetas (refi6rase a la secci6n B
de "lnstrucciones de instalaciSn").
Reubique la lavadora (refi6rase a Ia
secci6n A de "lnstrucciones de
instalaci6n").
Esto es normal.
Revise la fuente de electricidad o
Ilame aun electricista. No use
cables el6ctricos de extensi6n.
El fleje amarillo de embalaje con
chavetas no ha sido quitado per
completo.
El piso no es Io suficientemente
resistente para aguantar el peso
de la lavadora.
El engranaje que cambia de
velocidad luego del escurrido y
antes del exprimido.
La parte supedor del agitador Esto es normal.
hace clics durante el lavado.
La lavadora no Los flltros de la valvula de Limpie los filtros.
Ilena/no enjuagal admisi6n estan obstruidos.
no agita/ El suministro de agua esta Abra la Ilave del agua.
temperatura interrumpido.
equivoeada Las mangueras de agua Invierta las mangueras (refi6rase a
caliente y de agua frfa estan las secciones D y E de
invertidas. "lnstrucciones de instalaciSn").
La manguera de entrada de Enderece las mangueras.
agua esta retorcida.
El indicador del reloj automatico Gire la perilla del reloj automatico
no est& alineado, ligeramente a la derecha y jalela
para poner la lavadora en marcha.
El cable eI6ctrico no esta Enchufe el cable el6ctrico.
enchufado.
35

Problema Causa probable Solucibn
La Iavadora El cable electrico no esta Enchufe el cable el_cErico.
se detiene enchufado.
El enchufe no tiene corriente Revise Ia fuente de elec_ricidad o Ilame a
el6ctrica, un electdcista.
Fusible quemado o el Reemplace el fusible o ajuste el
cortacircuitos est& abierto, cortacircuitos. Si el problema contint]a,
Ilame a un elect_cista.
Se esta utilizando un cable No use cables el6cEricos de extensi6n.
el6ctrico de extensi6n.
El reloj automatico no esta Gire la perilla del reloi automatico
alineado. Iigeramente hacia la derecha y j_lela para
poner la Iavadora en funcionamiento.
No se ha jalado la perilla del Coloque en la posici6n deseada y jale la
reloj automatico, perilla.
La lavadora esta sobrecargada. Lave cargas mas pequeSas.
El agitador no La parle superior del agitador Esto es normal.
funciona se mueve unicamente en una
direcci6n.
La parle superior deI agitador Esto es normal.
est& floja.
El nivel del La parle superior deI agitador Esto es normal
agua es est& mucho mas alta que el
demasiado nivel mas alto del agua. EIIo da
bajo/la lavadora la impresi6n que la lavadora no
no se Ilena est& Ilena.
completamente
El tambor El tambor se movi6 hacia Aseg_rese de que el tambor est6
esta torcido adelante al sacar la ropa de la centrado antes de porter la lavadora en
lavadora, funcionamiento.
El tambor se mueve. Esto es normal.
La unidad no esta nivelada. Aseg_rese que las patas delanteras
est6n instaladas y las tuer'cas ajustadas.
Nivele la lavadora. Reajuste las patas
traseras (refi6rase a la secci6n G de
"lnstrucciones de instalaci6n").
36

Problema Causa probable Solucibn
Pelusas en la Selecci6n indebida de las Separe las prendas que sueltan pelusa de las
carga prendas, prendas que atraen pelusa y pot color.
Sobrecarga. La pelusa puede quedarse atrapada en la
carga si la lavadora est& sobrecargada. Lave
cargas m&s peque5as.
Papel o papel facial en ios Vacie los bolsiilos antes del iavado.
bolsillos.
No hay suficiente detergente. Use suficiente detergente para retener la
pelusa en el agua.
El detergente no se disuelve. Use Ia temperatura del agua para lavar
La temperatura deI agua es encima de 21°C (70°F).
m&s baja que 21°C (70°F).
Prendas Sobrecarga. Uso indebido de ta Las cargas deben moverse libremente durante
rasgadas lavadora, el lavado. Lave cargas mas pequeSas.
Uso incorrecto del No vierta el blanqueador con cloro
blanqueador de cloro. El directamente en la carga. Limpie los derrames
blanqueador no diluido daSar_ del blanqueador.
los tejidos.
No se han quitado los articulos Vacie los bolsillos antes del lavado. Cierre los
puntiagudos de los bolsillos; zipers antes del lavado.
cierres abiertos.
Articulos daSados antes del Remiende las prendas rasgadas y Io que est_
lavado, descosido antes del lavado.
Manchas en Uso incorrecto del suavizante de Diluya el suavizante de tejidos y agreguelo
Ias prendas tejidos en la lavadora o la al enjuague profundo s61o.
secadora.
Hierro (6xido) ell el agua. Instale un filtro para 6xido ferroso.
Uso insuficiente de detergente Use suficiente detergente para quitar la
que causa que la suciedad se suciedad y mantenerla ell suspensi6n.
deposite de nuevo.
Transferencia del tinte por no Separe las prendas de color oscuro de las
haber seleccionado blancas y tiaras.
correctamente ta carga.
Transferencia de tinte pot no Descargue la lavadora tan pronto termine el
haber sacado las prendas de la ciclo de lavado.
lavadora de inmediato.
37

Problema Causa probable Solucibn
Prendas No se sac6 la carga de Descargue la lavadora tan pronto termine el
arrugadas inmediato, ciclo de tavado.
Ciclo equivocado para los Use enjuagues con agua fria y ciclos con
tejidos que se estan lavando, velocidades lentas de exprimido para reducir
las arrugas ell las prendas.
Sobrecarga. Las cargas de ropa deben poder moverse
libremente durante el lavado. Lave cargas
m_s peque_as.
Las mangueras est_n invertidas, hwierta las mangueras (refi_rase alas
secciones D y E de "lnstrucciones de
instalaci6n").
Prendas Sobrecarga. Las cargas de ropa deben moverse tibremente
enredadas/ durante el lavado. Lave cargas mas pequeSas.
enroscadas La ropa est_ enrollada en No enrolie ]as prendas airededor del agitador
el agitador, cuando cargue la lavadora.
Distribuidor No se diluy6 el suavizante de Diluya el suavizante de tejidos en el
autom&tico tejidos distdbuidor.
obstruido/
_rdida del Uso de un blanqueador que no A6ada el blanqueador no decolorante
banqueador/ decolora en el distribuidor directamente en la canasta. No use el
autom_tico del blanqueador con distribuidor autom_tico del blanqueador con
blanqueador cloro, doro.
e_ las cargas
equivocadas Uso indebido del blanqueador Siempre mida el blanqueador antes de aSadir
con doro. al distribuidor autom_tico. Vierta
cuidadosamente en el distribuidor autom_tico.
Limpie los derrames del blanqueador.
38

LAVADORAS KENMORE
La frase "Reparamos Lo Que Vendemos" es nuestra garantia de que usted puede confiar en
Sears para obtener servicio de reparaci6n. Su electrodom6stico Kenmore adquiere un nuevo
valor cuando usted considera que Sears tiene unidades de servicio t6cnico en todo el pais,
equipadas con profesionales de servicio t6cnico competentes, capacitados en todos los
electrodom_sticos que Sears vende. EIIos poseen los conocimientos y pericia, herramientas,
piezas de repuesto y equipos para asegurar que cumplamos con nuestra promesa hecha a
usted de que "Reparamos Lo Que Vendemos."
Mantenga el valor de su adquisiciSn con un Contrato de Mantenimiento Sears.
Los electrodom6sticos Kenmore se ban diseSado, fabricado y sometido a prueba para brindar
aSos de funcionamiento confiable. No obstante, cualquier electrodom6stico puede necesitar
servicio t6cnico de vez en cuando. El contracto de mantenimento Sears le ofrece un programa
de servicio excepcional para su producto.
El Contrato de Mantenimiento Sears
•Es la manera de adquirir el servicio t_cnico del manana a precios de hoy.
• Elimina las facturas de reparaci6n producidas por el uso normal.
• Permite tantas visitas de servioio como sean necesarias.
• Proporciona una revisi6n anual de mantenimiento preventivo a solicitud suya, a fin de
mantener su electrodom_stico Kenmore en condiciones adecuadas de funcionamiento.
Para obtener m&s informacibn, Ilame al
1-800-676-5811 (EE.UU.) o
al 1-877-533-6937 (Canad&)
39

40

Manuel de I'utilisateur et
Instructions d'installation
®
LAVEUSES AUTOMATIQUES
deux vitesses
iMPORTANT :Votre laveuse peut 6tre differente
Life et observer toutes les de celle qui est illustr6e.
instructions de s6curit6 et
d'utilisation avant la premiere
utilisation de cet appareil.
Sears, Roebuck and Co., Hoffman Estates, IL 60179 U.S.A. www.sears.com
Sears Canada Inc., Toronto, Ontario, Canada M5B 2B8 www.sears.ca
3954090 IMPRiME AUX ETATS-UNIS 9/99

AVANT L'UTILISATION DE CETTE NOUVELLE LAVEUSE 2
GARANTIE DE LAVEUSE AUTOMATIQUE KENMORE 3
SECURITE DE LA LAVEUSE 4
INSTRUCTIONS D'INSTALLATION __ 6
FONCTIONNEMENT DE LA LAVEUSE 21
CONSEILS POUR LE LAVAGE 33
ENTRETIEN DE LA LAVEUSE 35
DEPANNAGE ......... 36
CONTRAT D'ENTRETIEN SEARS 41
Veuillez lire ce manuel qui vous aidera
installer et & faire fonctionner votre
nouvelle laveuse Kenmore de la mani_re
la plus sere et la plus 6conomique.
Pour obtenir d'autres renseignements au
sujet de I'entretien et de I'utilisation des
appareils m6nagers Kenmore, contacter le
magasin Sears le plus proche, Lors d'une
demande d'information, vous devrez
communiquer les num6ros de modele et
de s6rie de I'appareil, Les numeros de
module et de s6de de la laveuse se
trouvent sur la plaque signal6tique.
Inscrire ci-dessous les num6ros de
mod¢le et de s@ie de cette nouvelle
laveuse Kenmore.
Num6ro de mod_le __
Num6ro de s6rie
Date d'achat
Plaque signal_tique
(num_ros de mod_Ie
et de s_rie)
Conserver ce manuel et la facture
d'achat (re£:u) de Sears en lieu st3r
pour consultation ult_rieure.

Garantielimitdebvie sur le
panier en porcelaine blanche
Pendant la vie de la laveuse, & compter
de la date d'achat, Sears remplacera le
panier de lavage en porcelaine blanche
s'il survient des eclats ou de la rouille
attribuables & des vices de mat@iau ou
de fabrication. Apr6s un an, les frais de
main-d'oeuvre vous seront factur6s.
Garantie limitee de 10 ans sur la
cuve de plastique*
A partir de la deuxi_me jusqu'_ la
dixi_me ann6e inclusivement & compter
de la date d'achat, Sears remplacera la
cuve de plastique s'il existe un vice de
mat@iau ou de fabrication. Apr_s un an,
les frais de main-d'oeuvre vous seront
factur6s.
Garantie limitee de 5 arts sur
les composants de la boTte
d'engrenages*
A partir de la deuxi_me jusqu'_ la
cinqui_me ann6e inclusivement
compter de la date d'achat, Sears
remplacera toute piece de la bo;te
d'engrenages qui s'av@era d6fectueuse
cause d'un vice de mat6riau ou de
fabrication. Apr_s un an, les frais de
main-d'oeuvre vous seront factur6s.
Garantie complete de 1 an sur le
panier de lavage en porcelaine
tachetde
Pendant une ann6e _ compter de la
date d'achat, Iorsque cette laveuse est
install6e et utilis6e conform6ment aux
instructions qui I'accompagnent, Sears
remplacera le panier de lavage en
porcelaine tachet6e s'il survient des
6clats ou de la rouille attribuables 9 un
vice de mat@iau ou de fabrication.
Garantie complete de 1 an sur les
composants mecaniques et
dlectriques
Pendant un an, _ compter de la date
d'achat, si la laveuse est install6e et
utilis6e conform6ment aux instructions
qui I'accompagnent, Sears r6parera ou
remplacera tout composant m6canique
ou 61ectrique qui s'av@era d_fectueux
cause d'un vice de mat@iau ou de
main-d'oeuvre.
Restriction des garanties
Si la laveuse est utilis6e autrement que
dans une utilisation familiale, la garantie
ci-dessus ne demeure en vigueur que
pendant 90 jours a compter de la date
d'achat.
Service sous garantie
Pour obtenir le service sous garantie,
contacter le Centre de service Sears le
plus proche aux Etats-Unis ou au
Canada.
La presente garantie ne vaut que
pendant que cette laveuse est utilis6e
aux Etats-Unis ou au Canada.
Cette garantie vous donne des droits
juridiques sp¢cifiques et vous pourriez
avoir d'autres droits qui pourraient varier
d'un Etat & un autre ou d'une province
une autre.
Sears, Roebuck and Co.,
Dept 817WA,
Hoffman Estates, IL 60179
Sears Canada Inc.,
Toronto, Ontario, Canada
M5B 2B8
*Une garantie diff6rente peut _tre offerte au
Canada.
Aux Etats-Unis, composer le
1-800-4-MY-HOME 'M (1-800-469-4663) pour
obtenir des renseignements sur la garantie
de Seats ou pour contacter un Centre de
service Sears. Au Canada, composer le
1-877-833-6937.

Votre securite et celle des autres est tres importante.
Nous donnons de nombreux messages de s6curit6 importants dans ce
manuel et sur votre appareil m6nager. Assurez-vous de toujours lire tous
les messages de s6curit6 et de vous y conformer.
Voici le symbole d'alerte de s6curit6.
Ce symbole d'alerte de s6curit6 vous signale les dangers
susceptibles de causer le d6c_s et des blessures graves
vous et & d'autres,
Tousles messages de s6curite seront pr6c6d6s du
symbole d'alerte de s6curit6 et du mot "DANGER" ou
"AVERTISSEMENT". Ces mots signifient :
Risque certain de d6c_s ou
de blessure grave si vous ne
suivez pas les instructions,
Risque possible de d6c6s ou
de blessure grave si vous ne
suivez pas les instructions,
Tousles messages de s6curit6 identifient le danger et vous disent
comment r6duire le risque de blessure et ce qui peut se produire en cas
de non-respect des instructions.

IMPORTANTES INSTRUCTIONS DE SI_CURITI_
AVERTISSEMENT :Pour r6duire les risques d'incendie, de choc
61ectrique ou de blessures Iors de I'utilisation de la laveuse, suivre les
pr6cautions fondamentales dont les suivantes :
• Lire toutes les instructions avant
d'utiliser la laveuse.
• Ne pas laver des articles qui ont
6t6 nettoy6s ou laves avec de
I'essence ou imbib6s d'essence,
solvants de nettoyage & sec, ou
autres substances inflammables ou
explosives; ces substances
peuvent 6mettre des vapeurs
susceptibles de s'enflammer ou
d'exploser.
• Ne pas ajouter d'essence, solvant
de nettoyage & sec ou autre
produit inflammable ou explosif
dans I'eau de lavage. Ces
substances peuvent 6mettre des
vapeurs susceptibles de
s'enflammer ou d'explosen
• Dans certaines conditions, de
I'hydrog_ne gazeux a pu se former
dans un circuit d'eau chaude qui
n'a pas 6t6 utilis6 pendant deux
semaines ou plus. LE GAZ
HYDROGENE EST EXPLOSIBLE.
Si le circuit d'eau chaude n'a pas
6t6 utilis6 pendant une telle
p6riode, avant d'utiliser la laveuse,
ouvrir tousles robinets d'eau
chaude et laisser I'eau s'6couler
pendant plusieurs minutes par
chaque robinet. Ceci permettra
1'6vacuation de I'hydrogCne gazeux
accumul6. Comme ce gaz est
inflammable, ne pas fumer ni
utiliser une flamme nue au cours
de cette p6riode,
• Ne pas laisser des enfants jouer sur
la laveuse ou 9 proximit6, Bien sur-
veiller les enfants Iorsque la laveuse
est utilis6e & proximit6 d'enfants.
• Avant de mettre la laveuse au rebut
ou hors de service, enlever le
couvercle,
• Ne pas tenter d'atteindre un article
I'int6rieur de la cuve de la laveuse
Iorsque la cuve ou I'agitateur est en
mouvement.
• Ne pas installer ni remiser cette
laveuse & un endroit o_ elle serait
expos6e aux intemp6ries,
• Ne pas modifier les organes de
commande.
• Ne pas r6parer ni remplacer un
composant quelconque de la
laveuse, ni entreprendre une
op6ration de service, si ce West
sp6cifiquement recommande dans le
manuel de I'utilisateur ou dans un
manuel d'instructions de r6parations
destin6 9 I'utilisateur; il est alors
essentiel que la personne concern6e
comprenne ces instructions et soit
comp6tente pour les ex6cuter.
• Voir les "INSTRUCTIONS
D'INSTALLATION" pour les
exigences de liaison & la terre.
CONSERVEZ CES INSTRUCTIONS

VUE G#N#RALE DE L'INSTALLATION
Pour avoir une liste complete des outils et
des pi_ces n6cessaires, voir les pages 7 a 9.
A. SELECTION DE L'EMPLACEMENT
DE LA LAVEUSE (p. 11 &13)
Instructions d'installation dans un
encastrement/placard (p, 11)
Evacuation par tuyau rigide (p. 13)
(30po)
Syst_me d'_vacuation dans I'_vier
de buanderie (p, 12)
Evacuation par _gout au plancher
(p. 13)

B,ELIMINATIONDELASANGLED'EMBALLAGE(p,14)
Outilsrequis:
Ciseaux Lampe de poche
(facultative suivant
I'installation)
C, RACCORDEMENT DU TUYAU D'EVACUATION FLEXIBLE (p, 15-16)
Outils requis : Pi6ces fournies :
Pinces -ouverture de
3,95 cm (l_'e po) _ _,,4_
Lampe de poche
(facultative suivant
I'instaIlation)
1 bride jaune de fil
unique (pattie
sup6deure du tuyau
d'6vacuation)
1 bride & tuyau, couleur
argent (extr_mit6
inferieure du tuyau
de vidange)

D. RACCORDEMENT DES TUYAUX D'ALIMENTATION ALA LAVEUSE (p, 16-17)
Outils requis : Pi_ces fournies :
Pinces - ouverture de
3,95 cm (1_'6
Lampe de poche
(facultative suivant
I'installation)
2 tuyaux
d'alimentation
4 joints d'_tanch_it_ pour ies
tuyaux d'alimentation
E, RACCORDEMENT DES TUYAUX D'ALIMENTATION AUX ROBINETS D'EAU (p. 17)
i
Outils requis : Pi_ces fournies :
Pinces - ouverture de
3,95 cm (1%_po)
(Saeoau_atif_
suivant
I'installation)
Lampe de poche
(facultative suivant
Hnstallation)
2 tuyaux
d'alimentation

F, FIXATION AU TUYAU D'EVACUATION (p, 18)
Outils requis : Pi_ces fournies :
Lampe de poche
(facultative suivant
I'installation)
Sangle d'emballage avec
accessoire de fermeture
G, MISE D'APLOMB DE LA LAVEUSE (p, 19)
Outils requis : Pi_ces fournies :
Cl_ ouverte de
1,43 cm (_6 po)
Lampe de poche
(facultative suivant
I'installation)
Bloc de bois
2 pieds de nivelIement & I'avant
avec 6crous

SPF:CIFICATIONS #LECTRIQUES
L'appareil dolt _tre aliment6 uniquement
par un circuit de 120 V CA., 60 Hz, 15 ou
20 amperes, prot6g6 par fusible. (On
recommande I'emploi d'un fusible ou
d'un disjoncteur temporis6). Raccorder
I'appareil sur un circuit distinct exclusif
cet appareil.
Risque de choc _lectrique
Brancher sur une prise _3 alv_oles
reliee &la terre.
Ne pas enlever la broche de liaison
la terre,
Ne pas utiliser un adaptateur,
Ne pas utiliser un c&ble de
rallonge.
Le non-respect de ces instructions
peut causer un d_ces, un incendie
ou un choc _lectrique.
Cette laveuse est aliment6e par un cor-
don electrique comportant une fiche de
branchement & 3 broches, munie d'une
broche de liaison 9 la terre, Pour
minimiser le risque de choc electrique,
brancher le cordon 61ectrique sur une
prise de courant 9 3 alveoles correspon-
dant & celle de la fiche reliee & la terre,
conformement aux prescriptions du
Code national des installations 6lec-
triques ANSI/NFPA 70-derniere edition
et de tous les codes et r6glements
Iocaux en vigueur.
• Pour une laveuse reli_e a la terre
et connectde par un cordon :
INSTRUCTIONS DE LIAISON
ALA TERRE
Cette laveuse dolt 6tre reli6e & la terre.
En cas d'anomalie de fonctionnement
ou de panne, la liaison & la terre
r6duira le risque de choc electrique en
offrant au courant 61ectrique un
itineraire d'evacuation de moindre
resistance. Cette laveuse est alimentee
par un cordon electrique comportant
un conducteur relic & la terre et une
fiche de branchement munie d'une
broche de liaison & la terre. La fiche
dolt 6tre branchee sur une prise de
courant appropri6e qui est bien instal-
16eet reliee a la terre conformement
tousles codes et rCglements Iocaux.
AVERTISSEMENT : Le rac-
cordement incorrect de cet appareil au
conducteur de liaison _ la terre peut
susciter un risque de choc electrique.
En cas de doute quant _ la qualite de
la liaison _ la terre de I'appareil, con-
sulter un 61ectricien ou technicien d'en-
tretien qualifi6.
Ne pas modifier la fiche de branche-
ment fournie avec I'appareil - si la
fiche ne correspond pas & la configura-
tion de la prise de courant, demander
un electricien qualifi6 d'installer une
)rise de courant convenable.
Pour une laveuse raccordde en
permanence :
INSTRUCTIONS DE LIAISON
ALA TERRE
Cette laveuse dolt 6tre raccord6e & un
syst_me de c_blage permanent en
metal relic & la terre ou un conducteur
relie 9 la terre dolt etre en fonction
avec les conducteurs de circuit et rac-
cord6s & la borne de liaison & la terre
ou la borne sur I'appareil menager.
10
Prise de courant murale
3alv_oles rali_e _ Ia terra
Ficha de branchement
3broches pour
Broche de
n_
la terra
........ Cordon
_lectrique
®

A. SE_LECTION DE L'EMPLACEMENT
DE LA LAVEUSE -
V-A\v_ 1| l _. [=_,][|_zpJtJm_zpJt_l
Le choix de I'emplacement d'installa-
tion convenable pour la laveuse
am_liorera son rendement en plus de
minimiser les probl_mes causes par le
d_placement de I'appareil ou le bruit.
INSTRUCTIONS D'INSTALLATION DANS UN ENCASTREMENT/
PLACARD
On peut installer cette laveuse dans une cavit6 d'encastrement ou un placard.
48,3em
(19polar
*0 cm --_
(0po)
TILl 35,6em
I.J"-I (14po)
(24pe)
_Surface
minirnule-
des
0uvertures
d'udrution
de310em2
(48pe2)
Surface
minimule
des _
ouvertures
d'udration
de155emz
64,8u ÷(24po2)
(Opo) 2,5cm (25_/2pe)lO,2cm
(1pe} (4po)
7,Gem
_(3 po)
7,6era
_- (3po)
Vueavant Vue]at_rale Vueavant
(Porteuonrepr_sent_e) (Porterepr_sent_e) (Perleavecouverturesd'adratieu)
*Uu espaced'a_rationadditionnelpect _tre n_cecsaire,tenantcomptedecmoulerespourtour, porte et plancher,
Pour rdduire le bruit_rnanant de la Ioveuse, il estrecomrnand_de pr_voir un espocelibre tie 2,5 cm (1 po)autourde
cbocufl8CJBSfecesCJ8Io ]uveose.
•L'espacement d'installation est en
centimetres (pouces) et constitue le
minimum permis.
• II faut pr6voir un espace additionnel si
d'autres appareils doivent _tre install6s
au m_me endroit.
•Si la porte du placard est install6e, on
dolt respecter les valeurs de surface
minimales des ouvertures d'aeration en
haut et en bas. On peut utiliser des
portes _ claire_voie offrant une surface
6quivalente de passage de rair en haut
et en has.
11

SYSTEME D'I_VACUATION DANS
L'F:VIER DE BUANDERIE
Inspecter I'emplacement d'installation de
la laveuse. Pour I'installation de cette
laveuse, on peut utiliser I'un des trois
syst_mes d'evacuation ci-dessous :
•€:vier de buanderie (ckdessous)
•€:vacuation par tuyau rigide (p. 13)
•€:vacuation par 6gout au plancher
(p. 13)
Ne pas remiser ou faire fonctionner la
laveuse 9 une temperature au-dessous
de 0°C (32°F) (il peut rester un peu
d'eau dans la laveuse). Voir 9 la page 35
rinformation de pr@aration pour rhiver.
C'est au propri6taire de r6quipement
qu'incombe la responsabilit6 d'une
installation correcte. V6rifier que tout le
mat6riel necessaire pour une installation
correcte est disponible, y compris ce
qui suit :
Une prise de courant
_lectrique reli_e a la terre
doit se trouver & moins de
1,2 rn (4 pi) de rendroit d'ou
sort Ie cordon d'alimentation
_lectrique a I'arriere de la
laveuse.
Support : II faut que le plancher
soit suffisamment r6sistant pour
supporter un poids total de 143 kg
(315 Ib) (laveuse, eau et charge).
Les robinets d'eau chaude
et d'eau froide doivent avoir
une pression d'alimentation en
eau se situant entre
5 et 100 Ib/po 2et _tre situ6s
moins de 1,2 m (4 pi) des
valves de remplissage d'eau
chaude et d'eau froide situ6es
& I'arriere de la laveuse. L'_vier de buanderie du
_syst_me d'_vacuation doit
_ avoir une capacit_ d'au moins
_\ 76 litres (20 gaI).
Plancher : Pente maximale
de 2,5 cm (1 po) sur toute la
largeur de la laveuse.
Le sommet du bac dolt
_tre situ6 a au moins
99 cm (39 po) au-
dessus du plancher et
moins de 2,4 m
(96 po) du fond de la
iaveuse.
12

AUTRES EMPLACEMENTS D'INSTALLATION -
EVACUATION PAR TUYAU RIGIDE ET EGOUT AU PLANCHER
Brise-siphon : On doit acheter cet
accessoire s_parement. Voir le tableau
ci-dessous.
/
Evacuation par tuyau rigide :On dolt se
servir d'un tuyau d'6vacuation rigide de
diametre d'au moins 5 cm (2 po) avec
capacit6 d'6vacuation d'au moins 64 litres
(17 gal) par minute. Le sommet du tuyau rigide
d'6vacuation doit _tre situ6 & au moins 99 cm
(39 po) au-dessus du sol eta moins de 2,4 m
(96 po) au-dessus du fond de la laveuse.
\,
Evacuation par _gout au plancher : L'emploi
d'un brise-siphon est n_cessaire; voir le
tableau ci-dessous. L'6gout au plancher dolt
avoir une capacit6 minimale d'6vacuation de
64 litres (17 gal) par minute.
Si vous avez : Vous devez acheter :
€:vier de buanderie ou tuyau rigide Pompe de puisard
de hauteur sup6rieure a 2,4 m (96 po) (s'il n'y en a pas d6j9 une)
Tuyau rigide d'un diametre Raccord d'adaptation de 5 cm (2 po)
de 2,5 cm (1 po) 2,5 cm (1 po) de diametre; piece 3363920
Canalisation d'egout en hauteur €:vier de buanderie standard de 76 L
(20 gal) & hauteur de 99 cm (39 po) ou
evier utilitaire et pompe de puisard
(disponible Iocalement chez le fournisseur
d'articles de plomberie)
€:gout au plancher Brise-siphon, piece 285320; tuyau
d'evacuation flexible additionnel, piece
3357090; ensemble de connexion,
piece 285442
On peut obtenir la liste des pi_ces au magasin Sears local ou au centre de service Sears.
Aux Etats-Unis, composer le 1-800-366-PART (1-800-366-7278). Au Canada, composer le
1-877-533-6937.
13

B. I_LIMINATION DE LA SANGLE D'EMBALLAGE
II faut retirer la sangle d'emballage
pour que la laveuse fonctionne en
douceur. Autrement, elle produira un
bruit excessif.
ETAPE 2. Tirer fermement pour sortir
rautre extr6mit6 de la sangle d'emballage
retenue 9 I'arriCre de la laveuse, Vous
degagerez ainsi les pieds de raise
d'aplomb automatique de I'arri_re de la
laveuse.
Risque du poids excessif
Utiliser deux ou plus de personnes
pour d6placer et installer la laveuse.
Le non-respect de cette instruction
peut causer une blessure au dos
ou d'autre blessure,
Pour 6viter d'endommager le plancher,
d6poser la laveuse sur le carton avant de
la glisser sur le plancher. D6placer la
laveuse jusqu'9 ce qu'elle soit & proximit6
de son emplacement final.
teTAPE 1. Ne pas couper la sangle
jaune. Sortir compl6tement de la laveuse
la sangle jaune d'emballage. Selon votre
module, I'extr6mit6 de la sangle d'ex-
pedition comportera deux ou trois
goupilles Iorsqu'elle est retir6e de la
laveuse. La prise 61ectrique est retenue
par la sangle d'emballage.
Prise dlectrique
teTAPE 3. Couper ia sangie d'emballage
40 cm (16 po) environ de I'extr6mit6 de
la prise. Rechercher les roots "CUT
HERE" (couper ici), Jeter I'extr6mit6
contenant les trois goupilles fendues.
D_gager le reste de la sangle
d'emballage de la prise 61ectrique.
Cette courroie d'emballage servira
arrimer le tuyau d'6vacuation.
d'emballage
Goupille
14

C. RACCORDEMENT DU TUYAU D'I_VACUATION FLEXIBLE
Si le tuyau d'_vacuation flexible est
convenablement raccord_, les
planchers seront proteges des
dommages imputables aux fuites d'eau.
ETAPE 1. Pour que le tuyau d'6vacuation
ne puisse passe detacher ou comporter
une fuite, on dolt I'installer conform6ment
aux instructions suivantes :
IMPORTANT : Pour realiser une installa-
tion correcte, il est essentiel de respecter
cette procedure.
a. Humidifier la surface int6rieure de
I'extr6mit6 rectiligne du tuyau d'6vacua-
tion avec de I'eau du robinet. NE PAS
UTILISER UN AUTRE LUBRIFIANT.
b. Ouvrir la bride & tuyau (couleur argent)
avec une pince et placer la bride sur
I'extr6mit6 rectiligne du tuyau d'6vacua-
tion, 6 mm (_ po) de I'extr6mit&
mm
po)
d. Placer la bride a I'endroit marqu6
"CLAMP". Rel_cher la bride.
c. Ouvrir la bride : Tourner le tuyau dans
un sens et dans I'autre et engager
I'extr6mit6 du tuyau d'6vacuation sur le
raccord de vidange situ6 au bas de la
laveuse. Poursuivre I'op6rafion jusqu'_
ce que le tuyau soit en contact avec la
caisse.
Si vous avez : Vous devez acheter :
Tuyau d'6vacuation trap court Tuyau d'6vacuation flexible, pi6ce 388423
et ensemble d'extension, piece 285442
Tuyau d'6vacuation trop long Ensemble d'extension de tuyaux, piece
285442
Probl_me d'obstruction par la charpie Dispositif de protection, pi6ce 367031
On peut obtenir la liste des pieces au magasin Sears local ou au centre de service Sears.
Aux Etats-Unis, composer le 1-800-366-PART (1-800-366-7278). Au Canada, composer le
1-877-533-6937.
15

Pour les syst_mes de d_charge b
I'_gout ou d'_vier de buanderie :
#TAPE 2. Ouvrir la bride jaune & fil
unique avec des pinces et I'enfiler sur
I'extr6mit6 recourb6e du tuyau
d'6vacuation afin de maintenir ensemble
la section de caoutchouc et la section
ondul6e.
Extr6mit6
....recourbee
.'_ _T'UYvaaUcuat1°n
ETAPE 3. Placer I'extr6mit6 recourb6e
du tuyau d'6vacuation dans 1'6vier de
buanderie ou le conduit de d6charge
1'6gout, V6rifier la bonne Iongueur du
tuyau d'6vacuation. Faire tourner
I'extr6mit6 recourb6e pour 61iminer les
deformations.
Pour empecher I'eau de vidange de
refluer dans la laveuse :
•Ne pas redresser I'extremit6 recourb6e
du tuyau d'6vacuation ni forcer
I'exc6dent de tuyau dans le tuyau de
rejet 9 1'6gout.
• Ne pas mettre I'exc6dent du tuyau
d'evacuation au fond de I'evier de
buanderie.
D. RACCORDEMENT DES TUYAUX
D'ALIMENTATION ALA LAVEUSE
V-A\v/_.1| l _ [ e_pze]tJmefe]t_l
Le raccordement convenable des
tuyaux d'alimentation permettra _la
laveuse d'etre correctement aliment_e
en eau chaude et en eau froide. Ceci
minimisera _galement les risques de
dommages imputables aux fuites.
REMARQUE :Remplacer ]es tuyaux
d'alimentation apres 5 ans d'utilisation afin
de reduire les risques de probleme avec
les tuyaux. Inspecter periodiquement et
remplacer les tuyaux d'alimentation
comportant des renflements, des
6crasements, des coupures, des signes
d'usure ou de fuites. Lors du remplace-
ment des tuyaux d'alimentation, inscrire la
date du remplacement sur 1'6tiquette
I'aide d'un marqueur permanent.
#TAPE 1. Inserer un joint plat neuf
(provenant du sachet de pieces) sur
chaque extremit6 des tuyaux
d'alimentation. Verifier que chaque joint
est bien enfonce dans le raccord.
0
Raccord Joint
16

ETAPE 2. Connecter le tuyau d'alimenta-
tion & raccord rouge a la valve d'entr6e
d'eau chaude (inferieure). L'installation du
raccerd rouge en premier facilite le
serrement du raccord 9 I'aide de pinces.
Serrer manuellement les raccords. Serrer
ensuite de _ de tour 9 I'aide des pinces.
NE PAS SERRER EXCESSIVEMENT
pour ne pas endemmager les valves.
Valve d'alimentation
IIIII
d'alimen-
tation en
eau
chaude
teTAPE 3. Connecter le tuyau d'alimenta-
tion & raccord bleu 9 la valve d'entr6e
d'eau froide (sup6rieure). Serrer
manuellement les raccords. Serrer
ensuite de _ de tour 9 I'aide de pinces.
NE PAS SERRER EXCESSIVEMENT
pour ne pas endemmager les valves.
E. RACCORDEMENT DES TUYAUX
D'ALIMENTATION AUX
ROBINETS D'EAU
teTAPE 1. S'assurer que la cuve de la
laveuse est vide. Laisser couler I'eau
chaude et I'eau freide des rebinets dans
un seau eu dans un bac de buanderie
pour eliminer les particules solides
pr6sentes qui peurraient obstruer les
tuyaux. D6terminer quel robinet
correspond a I'eau chaude et & I'eau
freide. Marquer le rebinet d'eau chaude.
teTAPE 2. Raccorder le tuyau 9 raccerd
rouge au robinet d'eau chaude. Setter
manuellement le raccerd. Serrer ensuite
de _ de tour avec des pinces. NE PAS
SERRER EXCESSIVEMENT pour ne pas
endemmager les raccerds.
teTAPE 3. Raccerder le tuyau 9 raccerd
bleu au robinet d'eau froide. Setter
manuellement le raccerd. Serrer ensuite
de _ de tour avec des pinces. NE PAS
SERRER EXCESSIVEMENT pour ne pas
endemmager les raccerds.
teTAPE 4. Ouvrir les robinets; inspecter
pour rechercher les fuites. Une petite
quantit6 d'eau pourrait p6n6trer dans la
laveuse. On 1'61imineraplus tard.
Si vous avez : Vous devrez acheter :
Des robinets d'eau d6passant 2 tuyaux d'alimentation plus longs,
la capacit6 des tuyaux d'alimentation des tuyaux de 1,8 cm (6 pi), piece 76314
eu des tuyaux de 3 cm (10 pi), piece
350008
On peut obtenir la liste des pi_ces au magasin Sears local ou au centre de service Sears.
Aux l_tats-Unis, composer le 1-800-366-PART (1-800-366-7278). Au Canada, composer le
1-877-533-6937.
17

F. FIXATION AU TUYAU
D'#VACUATION
L'arrimage correct du tuyau d'_vacua-
tion prot_gera les planchers contre les
dommages imputables aux fuites
d'eau,
ETAPE 1. Placer la laveuse & son
emplacement final.
Si les robinets d'eau et le tuyau rigide
d'6vacuation sont encastr6s, ins6rer
I'extr6mit6 en U du tuyau flexible dans le
tuyau rigide. Serrer la sangle d'emballage
6troitement autour du tuyau d'evacuation
rigide et des tuyaux d'arriv6e d'eau (non
autour des poign6es ou des tJges des
robinets), Pousser I'attache dans I'odfice le
plus rapproch6 de la sangle d'emballage.
ETAPE 2. Trouver le reste de la sangle
d'emballage (autres que I'extr6mit6 ot_ se
trouvaient les goupilles fendues) decrite
I'ETAPE 3 "€:LIMINATION DE LA
SANGLE D'EMBALLAGE", Utiliser cette
sangle pour arrimer les tuyaux
d'6vacuation et 1'6vier de buanderie ou le
tuyau rigide, Pousser I'attache dans
I'orifice le plus rapproche de la sangle
d'emballage,
Attache
18

G. MISE D'APLOMB DE LA
LAVEUSE
Le r_glage correct de I'aplomb de la
laveuse minimise I'_mission de bruit et
de vibrations,
Installation des pieds avant :
ETAPE 1. Lever I'avant de la laveuse
environ 10,2 cm (4 po). Utiliser un bloc de
bois ou un autre objet capable de sup-
porter le poids de la laveuse. Si rarri@e
de la laveuse a 6t6 plac6 9 proximit6 d'un
tour, avancer 16g_rement la laveuse avant
de I'incliner.
ETAPE 2. Tenir I'un des pieds dans une
main et visser le contre-6crou sur un
pied, & 9,5 mm (_ po) & partir du dessus
de la base du pied. C'est le r6glage initial
recommand&
9,5 mm
ETAPE 3. Visser manuellement le pied
dans la base de la laveuse jusqu'9 ce
que 1'6crou parvienne & la base de la
laveuse. R6p6ter le m6me processus
avec I'autre pied.
ETAPE 5. Installer la laveuse 9 son
emplacement final
ETAPE 6. Incliner la laveuse jusqu'& ce
que I'arri_re soit au moins 9 7,6 cm (3 po)
au-dessus du plancher, Vous pourriez
entendre les pieds arrJ_re auto-r6glables
se mettre en place, Abaisser la laveuse
sur ses pieds, Effectuer un contr61e final
de I'aplomb avec un niveau plac6 sur le
dessus, transversalement, puis dans le
sens avant arri_re.
ETAPE 7. Si la laveuse n'est pas car-
rectement d'aplomb, soulever I'avant de la
laveuse et r6gler la Iongueur des pieds.
Remettre la laveuse sur ses pJeds et
refaire le r6glage automatique des pieds
arri6re (voir 1'6tape 6), R6p6ter 1'6tape 7
jusqu'a ce que la laveuse soit au niveau.
ETAPE 8. Lorsque la laveuse est ason
emplacement definitif et au niveau, utiliser
une cl6 ouverte de 1,43 mm (_ po) pour
serrer 1'6crou des pieds avant sur la
caJsse de la laveuse, Si les 6crous ne
sont pas bien serr6s sur la caisse de la
laveuse, cette derni_re vibrera.
ETAPE 4. Incliner la laveuse vers I'arri@e
jusqu'a ce que I'avant de celle-ci ne porte
plus sur le bloc de bois, Retirer le bloc de
bois. Abaisser lentement la laveuse sur le
plancher.
19

V#RIFICATION DE L'INSTALLATION
V-A\v_ 1|l P. [=_]pIeJ#m_/eJr_l
II est utile de consacrer quelques
minutes &ces _tapes pour garantir
I'installation. Elles aideront &vous
assurer que votre installation a _t_
faite correctement et que vous _tes
satisfait du produit Kenmore que vous
avez achet&
[ V6rifier les specifications de
I'alimentation 61ectrique. V6rifier que
les caract6ristiques de I'alimentation
correspondent aux sp6cifications et
que la m6thode de liaison 9 la terre
recommandee est employ6e.
[ V6rifier que :
• Tousles outils utilis6s sont encore
pr6sents.
• Tousles mat6riaux d'emballage ont
6t6 enlev6s,
• La sangle d'emballage avec les
goupilles fendues a 6t6 enlev6e.
• Toutes les pi_ces apparaissant aux
pages 7 & 9 ont 6t6 install6es.
S'assurer que :
• La laveuse est d'aplomb.
• Les 6crous des pieds avant sont
serr6s.
V6rifier que les robinets d'eau sont
ouverts.
ETAPES FINALES
Brancher le cordon d'alimentation
61ectrique sur une prise de courant
reli6e a la terre.
[ Retirer la pellicule protectrice bleue du
tableau de commande et tout ruban
adh6sif qui resterait sur la laveuse.
[ Consacrer quelques minutes a la
lecture "FONCTIONNEMENT DE LA
LAVEUSE" pour bien comprendre le
fonctionnement de la laveuse. Mettre
la laveuse en marche pour qu'elle
ex6cute le programme NORMAL.
2O

Pour obtenir le meilleur rendement de
nettoyage et d'entretien des tissus, lire
les instructions qui suivent et s'y
conformer,
REMARQUE : Les dessins dans cette
section montrent les principales
caract6ristiques de tousles modeles
couverts par ce manuel. Se r6f6rer & la
"Feuille de caract6ristiques" pour les
caracteristiques particuli_res pour votre
laveuse.
Risque d'incendie
Ne jamais mettre des articles
humect_s d'essence ou d'autres
fluides inflammables dans
la laveuse.
Aucune laveuse ne peut
compl_tement enlever I'huUe.
Ne pas faire s_cher des articles qui
ont _t_ sails par tout genre d'huile
(y compris les huUes de cuisson).
Le non-respect de ces instructions
peut causer un ddc_s,
une explosion ou un incendie,
INSTRUCTIONS SOUS LE
COUVERCLE
Ces instructions sont donnees sous le
couvercle de votre laveuse.
DISTRIBUTEUR Ajouter la quantit6 mesuree d'eau de Javel dans le
distributeur, 5 minutes apres la mise en marche de
la laveuse pour le meilleur rendement.
Ne pas utiliser un AGENT DE BLANCHIMENT EN
POUDRE DANS CE DiSTRIBUTEUR.
Ajouter la quantit_ mesur_e d'agent assouplissant
de tissu dans le distributeur mont6 sur I'agitateur.
Ajouter la quantit6 mesur6e de detergent clans la
cuve de la laveuse.
21

1. S¢:LECTION ET Rf:GLAGE --- Faire les selections pour ces commandes de
laveuse : (certaines laveuses peuvent ne pas
comporter toutes ces comrnandes)
• NIVEAU D'EAU Ajuster en fonction de la quantite de la charge.
• TEMPERATURE DE ........... Utiliser les selections AUTO TEMP pour le meilleur
LAVAGE/RIN_AGE rendement de lavage.
• VITESSES Ajuster en fonction du type de tissu lave.
SERVICE TOILE, SERVIETTES
RIGOUREUX TRES SALES
NORMAL COTONS
__ PRESSAGE SYNTH£TIQUES
PERMANENT
DELICAT TRICOTS
_ LAVAGE UNGERIE
MANUEL
•• • LAVAGE A
i'EAUCHAUDE
LAVAGE A
"" i'EAUTILDE
LAVAGE A
i'EAUFROIDE
A TOt/I NtONIITI_
IN/_HIMENf
2:_ NEP_S BU_IeltlR
2. CHOISIR LE Choisir une duree plus Iongue pour les charges
PROGRAMME tres sales et moins Iongue pour les charges
legerement sales.
3. TIRER LA MINUTERIE ........ Le couvercle doit 6tre ferme pour completer le
POUR LA MISE EN MARCHE programme. APPUYER SUR LA MINUTERIE POUR
ARRETER LA LAVEUSE.
Antisudorifiques, d_sodorisants
Traiter avec une pgte d'ammoniaque et
d'agent de blanchiment sans danger
pour les couleurs. Laisser reposer 30
minutes, Laver dans I'eau la plus
chaude possible sans danger pour
le tissu,
Sang
Rincer imm6diatement ou faire tremper
dans de I'eau froide avec un detergent
pendant 30 minutes. Rincer. Frotter le
detergent dans les taches qui restent.
Rincer afond. Laver.
Cr6rne, lait, creme glac6e
€:ponger immediatement ou appliquer un
detachant de prelavage, Rincer. Laver.
R_p_ter au besoin, Si la tache persiste,
appliquer quelques gouttes de detergent
liquide. Rincer, Si la tache persiste, faire
tremper. Laver.
Herbe
Utiliser un enzyme de pretrempage ou
frotter un detergent aux enzymes sur la
tache. Lessiver avec du detergent et un
agent de blanchiment approprie pour
le tissu.
Ketchup, produits a base de tomate
€:ponger immediatement eu appliquer un
detachant de prelavage. Rincer. Laver.
Si la tache persiste, appliquer un deter-
gent liquide sur la tache et faire tremper
dans de I'eau tiede avec un detergent.
Relaver.
Boue
Brosser la boue seche. Rincer 9 I'eau
froide. Pretraiter avec une pgte de
d_tergent et d'eau. Lessiver avec du
d_tergent et un agent de blanchiment
sans danger pour le tissu.
22

MISE EN MARCHE DE LALAVEUSE
#:TAPE 1. Ajouter directement le d6tergent
mesur6 dans la cuve de la laveuse. Placer
ensuite une charge de v_tements tri6s
dans la laveuse.
I_TAPE 2. (#:TAPE FACULTATIVE) Si
d6sir6, ajouter la quantit6 mesur6e d'eau
de Javel au distributeur d'eau de Javel
(veir page 31).
#:TAPE 3. (#:TAPE FACULTATIVE) Si
d6sir& ajouter la quantit6 mesur6e
d'assouplissant de tissu liquide au
distributeur d'assouplissant de tissu
(si disponible) (voir page 32),
I_TAPE 4. Fermer le couvercle de la
laveuse.
I_TAPE 5. R6gler la commande de niveau
d'eau (WATER LEVEL) O en fonction de
la quantit6 de la charge & laver (voir
page 24).
#:TAPE 6. R6gler la cemmande de
temp6rature de reau (WATER
TEMPERATURE) _) (voir page 24).
#:TAPE 7. Pousser le bouton de s61ection
de programme (minuterie) 1_ et le tourner
vers la droite, R6gler le programme et la
dur6e en fonction du tissu dans la charge
(voir page 25).
#:TAPE 8. Tirer le bouton de selection de
programme (minuterie) (_. Le cadran
tournera au fur et & mesure de la
progression du programme. Le bouton
ne tournera pas.
ARR#:T/REMISE EN MARCHE DE LA
LAVEUSE
•Pour arr6ter la laveuse & tout moment,
pousser sur le bouton de s61ection de
programme (minuterie) (_.
• Le tirer pour remettre la laveuse en
marche.
HEAVY_UTY su_
_ERt_ANSNT pRES&¢ 1_
23

COMMANDE DU NIVEAU D'EAU
(WATER LEVEL)
Ce r_glage vous donne la flexibilit_
pour _conomiser I'eau Iors du lavage
de petites charges.
Votre laveuse vous laisse choisir un
r6glage de niveau d'eau d'apres la
quantit6 de votre charge de lavage.
• Pour les charges normales, commencer
avec le r6glage charge moyenne. R6gler
vers le haut ou vers le bas selon la
charge. Le linge devrait pouvoir se
d6placer librement et rouler vers
I'agitateur.
• Pour choisir un niveau d'eau plus 61ev6
apr@sque la laveuse a commenc6
I'agitation, tourner le bouton au nouveau
r6glage d6sir6.
LOAD
COMMANDE DE LA
TEMPERATURE DE L'EAU
(WATER TEMPERATURE)
La laveuse vous permet de choisir une
temp6rature d'eau de lavage et de
rin9age en fonction du type de charge
lav6.
WARM
COLD
COLD _ HOT
COLD COLD
Certaines iaveuses vous permettent de
choisir des rin_:ages tildes :
•L'utilisation d'une eau de rin_age tilde
laissera les charges plus s¢ches apr_s
le programme d'essorage que si on
utilise une eau de ringage froide.
Toutefois, les ringages _ I'eau tiede
peuvent accrokre le froissement Iors
du s6chage sur une corde _ linge.
•Dans les climats froids, I'eau de
ringage tilde procure une temp6rature
plus confortable pour manipuler la
charge de linge.
SELECTION DE LA TEMPERATURE DE L'EAU
Temperature de
I'eau de Iavage Tissus sugg_r_s Commentaires
HOT (CHAUDE) •V_tements de travail •Le meilleur nettoyage pour" les articles tr_s
44°C (111°F) •Blancs robustes/pastels sales
ou plus grand teint • Enleve I'huile, la transpiration, les saletes
• Couches de graisse et les taches
• Emp6che la nuance grise ou le jaunissement
WARM (TIEDE) • Couleurs fonc_es qui ne • Le meilleur pour les articles mod6r_ment
32°-43°C sont pas grand teint sales a I_g_rement sales
(90°-110°F) • Articles de pressage • Sans danger pour la plupart des finis de tissu
permanent • Moins de d6coloration et d'ecoulement de
• Nylon, polyester, acrylique, teinture
sole, Iainage • R_duit le froissement
• Tricots/tissus delicats
COLD* (FROIDE' • Couleurs extra sensibles • L_emeilleur pour les articles legerement sales
21°-32°C • Articles de couleur qui • Economise reau chaude
(70°-90°F) ne sont pas grand teint
• Articles iavables a la main
*Dans les temp6ratures d'eau de lavage plus froides que 21°0 (70°F), les d6tergents ne se
dissolvent pas bien. Egalement, les salet6s peuvent _tre difficiles a enlever, et certains tissus
peuvent garder des froissements et avoir un boulochage plus accentu6 - la formation de
petites boules de genre de charpie sur la surface des v_tements. Le boulochage est le r6sultat
naturel de porter et de laver des v_tements.
24

BOUTON DE S¢:LECTION DE
PROGRAMME (MINUTERIE)
Utiliser ce programme pour choisir la du_e
d'agitaflon et mettre la laveuse en mamhe.
Chaque programme comporte des vitesses
de lavage et d'essorage qui sont
appropri6es aux tissus et aux niveaux de
souillures qui existent dans vo_-echarge
laver.
• Pour la salet6 intense et les tissus
robustes, utiliser la dur6e complete.
(SUPER ou REGULAR si indiqu&)
• Pour les saletes 16g_res et les tissus
delicats, utiliser moins de temps.
(SHORT, si indiqu&)
REMARQUE : Certains articles lavables
la main, particuli_rement la laine,
r6tr6cissent naturellement Iorsqu'ils sont
lav6s. Consid6rez ce facteur quand
vous achetez des articles marques
"Hand Wash" (Laver & la main). Les arti-
cles qui r6tr6cissent devraient 6tre
s6ch6s & plat. BIoquer ces articles en
les 6tirant
d61icatement & leur taille originaIe.
PRESSAGE PERMANENT
(PERMANENT PRESS)
Vous pouvez choisir une dur6e de
lavage jusqu'& 10 minutes.
ARTICLES DF:LICATS (DELICATE)
Utiliser ce programme pour obtenir
jusqu'& 6 minutes de lavage pour les
HEAI_ DurT'Ysu._
[A\IY.1il/_.[' [_IseJ#l_eJr_l
articles de lingerie et de tricot non serr&
Le programme PERMANENT PRESS/
DELICATE comporte un ringage
aspersion refroidissant qui r_duit le
froissement en comparaison avec les
autres programmes.
• Le lavage combine une vitesse d'agita-
tion lente pour enlever doucement la
salet6 et de vitesses d'essorage lentes
pour r6duire le froissement.
NORMAL
Utiliser ce programme pour obtenir
jusqu'& 10 minutes de lavage. Pour les
articles de coton et de toile normalement
sales.
• Le lavage combine I'agitation
vitesses rapide et lente et les vitesses
d'esso-rage rapides pour diminuer le
temps de s6chage.
• La selection d'un programme
REGULAR vous donne des vitesses
rapides d'agitation au d6but, ensuite la
laveuse change pour une vitesse
d'agitation lente.
•La s61ection d'un programme SHORT
vous donne une vitesse d'agitation
lente.
SERVICE RIGOUREUX
(HEAVY DUTY)
Utiliser ce programme pour obtenir
jusqu'& 14 minutes de lavage pour les
charges de tissu robuste ou tres sale.
• Le lavage combine une agitation
haute vitesse ainsi que des vitesses
d'essorage rapides.
HEAVY DUTY
1_ S_ORT
DELICATE S_O_T _'_,IF6 S_O_T
PERMANENT PRESS _ _,s
Votre laveuse aura I'un de ces boutons.
25

PRELAVAGE (PREWASH)
(sur certains modules)
Utiliser ce programme pour obtenir
jusqu'a 4 minutes d'agitation pour aider
enlever les grosses salet6s et les
taches necessitant un pr6traitement. Le
programme PREWASH devrait etre suivi
du programme HEAVY DUTY, NORMAL,
PERMANENT PRESS ou DELICATE
avec un supplement de detergent.
TREMPAGE (SOAK)
(sur certains modules)
Le programme SOAK comporte une
agitation de 4 minutes suivie d'une
duree de trempage illimit6e pour aider
enlever les grosses saletes et les taches
necessitant un pretraitement. II faudra
r6gler de nouveau la laveuse 9 un
r6glage SPIN pour vidanger I'eau. Le
programme SOAK devrait 6tre suivi
d'un programme HEAVY DUTY,
NORMAL, PERMANENT PRESS,
DELICATE ou PREWASH et d'un
supplement de detergent.
REMARQUE : Nous ne recommandons
pas I'eau chaude pour le trempage. Elle
risque de fixer certaines taches.
DEUXI#ME RIN(_,AGE (2ND RINSE)
(sur certains modules)
__i\ Vp.11i _- [ =_IIeJril_eJr_l
Un deuxieme rin_age enlevera
I'excedent de d_tergent.
ETAPE 1. R6gler la commande de
niveau d'eau (WATER LEVEL).
ETAPE 2. R6gler la commande de
temperature de I'eau (WATER
TEMPERATURE).
ETAPE 3. R6gler le bouton de selection
de programme (minuterie) au deuxi_me
ringage (2ND RINSE).
#TAPE 4. Tirer le bouton de la minuterie
pour mettre la laveuse en marche.
REMARQUE : Vous pouvez choisir un
seul essorage additionnel.
• R6gler le cadran de la minuterie
SPIN (essorage).
• L'essorage additionnel peut reduire le
temps de s6chage des tissus robustes
ou des articles necessitant un soin
sp6cial en retirant I'exc6dent d'eau.
RIN(_AGE ET ESSORAGE
Lors de I'utilisation d'un supplement de
detergent pour les v6tements tr_s sales,
ou lots du lavage d'articles necessitant
des soins sp6ciaux, vous decouvrirez
peut-6tre qu'un rin*;age et essorage
supplementaires s'imposent.
ETAPE 1. R6gler la commande de
niveau d'eau (WATER LEVEL).
ETAPE 2, Regler la commande de
temperature de I'eau (WATER
TEMPERATURE).
ETAPE 3. R6gler le bouton de selection
de programme (minuterie) au reglage
RINSE :
• Pour une agitation et un essorage
rapides, utiliser le programme
HEAVY DUTY.
• Pour une agitation et un essorage
lents, utiliser le programme
PERMANENT PRESS.
• Pour une agitation lente et un
essorage rapide, utiliser le programme
NORMAL.
ETAPE 4. Tirer le bouton de s61ection
de programme (minuterie) pour mettre
la laveuse en marche.
HEAVy OlSq_
DELICA'_ smm
PERMANENT FILE88 l=
26

ESSORAGE SEULEMENT
Une vidange et un essorage peuvent
aider & reduire les dur6es de sechage
pour certains tissus Iourds ou articles
n6cessitant un soin sp6cial en enlevant
I'exc6dent d'eau.
#TAPE 1. R6gler le bouton de s61ection
de programme (minuterie) au r6glage
SPIN :
• Pour un essorage rapide, utiliser le
programme NORMAL.
• Pour un essorage lent, utiliser le
r6glage PERMANENT PRESS.
#TAPE 2, Tirer le bouton de selection
de programme (minuterie) pour mettre
la laveuse en marche.
HEAVY DUTY
1oNORMAL
'-
FILTRE ACHARPIE
AUTONETTOYANT
La charpie est filtr_e automatiquement
de la charge et n'exige pas de
nettoyage d_sagr_able.
La laveuse comporte un filtre
autonettoyant qui retire la charpie de
I'eau pendant que la laveuse fonctionne
et rince en profondeur la lessive. La
charpie capt6e est vidangee automatique-
merit dans le conduit d'6coulement. Vous
n'avez pas _ nettoyer le filtre.
27

COMPREHENSION DES PROGRAMMES
PRESSAGE PERMANENT /
DELICAT (PERMANENT
PRESS /DELICATE)
Remplissage
_ jusqu'au niveau
s61ectionn6
Lavage dur6e
s61ectionn6e
v,dan e
partielle
Pause
_ Remplissage
pour
refroidissement
Lavage
NORMAL
Remplissage
jusqu'au niveau
selec;onn6
Lavage dur6e
s61ectionn6e
Vidange -
sans essorage
Essorage
Remplissage
jusqu'au niveau
s_lectionn_
IZIv,dan0e-
sans essorage
Essorage
Remplissage
_ jusqu'au niveau
s61ectionn6
Ringage
Ringage
Vidange -
sans essorage
Essorage
Arr6t
IZI Vidange-
sans essorage
Essorage
IZI Arr0t
28

SERVICE RIGOUREUX
(HEAVY DUTY )
_[_ Remplissage
jusqu'au niveau
s61ec;onn6
Lavage dur6e
s61ectionn_e
Vidange -
sans essorage
Essorage
Remplissage
usqu'au niveau
se ect onne
Ringage
Vidange sans
essorage
Essorage
Arr6t
PR#:LAVAG El2e RIN(_AGE
(PREWASH*/2ND RINSE*)
Remplissage
jusqu'au niveau
s61ectionn6
Lavage dur6e
s61ectionn_e
Vidange -
sans essorage
Essorage
Arr@t
(*sur certains modules)
TREMPAGE
(SOAK*)
Remplissage
usqu'au niveau
s6 ect onn6
Agitation
Trempage
(retour
ESSORAGE
pour vidanger la
laveuse)
(*sur certains modules)
29

AGITATEUR EXCLUSIF DUAL
ACTION TM
[!\vY.1 il/_4' _I, JrJm_,Jr_1
L'agitateur DUAL ACTION TM de
Kenmore vous donne le soin des
tissus le plus souple m_me pour les
plus grosses charges,
La meilleure
action de net-
toyage dans
votre laveuse se
passe au fond dJ
le mouvement de
va-etwient des
pales de ragita-
teur ploie le tissu
et degage la
salet& Pour
acheminer tous
les v_tements
vers le fond de la
laveuse, la partie
sup6rieure de I'agitateur comporte des
pales spiral6es de conception unique
pour aider 9 pousser les vetements qui
se trouvent au-dessus vers le fond.
L'action spiral6e d6place les %tements
qui se trouvent au fond par un
mouvement de roulement.
BRUITS NORMALEMENT EMIS
PAR LA LAVEUSE
Votre nouvelle laveuse peut 6mettre des
bruits que n'6mettait pas votre ancienne
laveuse. Comme vous n'_tes pas
habitue 9 ces bruits, ils vous causent
peut4tre des soucis.
Nous decrivons ci-dessous quelques-
uns des bruits normalement 6mis par la
laveuse et leurs causes.
Pendant le lavage
Lorsque vous choisissez un programme
de lavage pour une petite charge de
linge, le niveau d'eau dans la laveuse
est moins 61ev& Avec ce niveau d'eau
plus bas, vous pouvez entendre des
d6clics provenant de la partie sup6rieure
de ragitateur.
Pendant la vidange
La vitesse d'evacuation de I'eau Iors de
la vidange de la laveuse depend de
I'installation. Si reau est 6vacu6e
rapidement de la laveuse, on peut
percevoir un bruit d'air aspir6 _ travers
la pompe. Ceci survient _ la fin de la
p6riode de vidange.
Apr_s la vidange et avant I'essorage
Lors du passage de la phase de vidange
la phase d'essorage du programme,
on peut percevoir le bruit 6mis par les
mouvements des engrenages de
transmission.
3O

UTILISATION DU DISTRIBUTEUR
D'F_AUDE JAVEL
Le distributeur d'eau de Javel
distribue automatiquement I'eau de
Javel pour assurer les charges les
plus propres et les plus _clatantes.
Toujours mesurer I'eau de Javel.
Utiliser un rCcipient & mesurer et 6viter
I'a-peu-pr_s, Ne pas verser directement
de la bouteille, Ne jamais utiliser plus de
250 mL (1 tasse) pour une charge
complete, Utiliser une quantit6 moindre
avec des charges plus petites, Suivre le
mode d'emploi du fabricant pour une
utilisation sans danger, Utiliser une
tasse comportant un bec verseur pour
6viter de renverser le liquide.
Apres avoir charge la laveuse, verser
avec prCcaution reau de Javel mesurCe
dans le distributeur,
• Ne pas laisser ]'eau de Javel
6clabousser, dCgoutter ou couler dans
la cuve de la laveuse, L'eau de Javel
non diluCe endommage tousles tissus
avec lesquels elle entre en contact.
• Mettre la laveuse en marche. L'eau de
Javel sera automatiquement distribuCe
avant d'entrer en contact avec la
charge de lavage.
REMARQUE : Ne pas utiliser ce
distributeur pour I'addition d'un agent de
blanchiment chlor6 en poudre ou d'un
agent de blanchiment polyvalent
utilisable avec les tissus de couleur. Le
distributeur est congu seulement pour
I'utilisation d'eau de JaveL
i oOoO%o_oOO/_-, i _Distributeur
ioOooOooOOo d'eaudeJavei
OOo oo oO° Y
Io
31

UTILISATION DU DISTRIBUTEUR
D'ASSOUPLISSANT LIQUIDE DE
TISSU (sur certains modules)
Apr_s avoir charg6 la laveuse, mesurer
et ajouter la quantit6 recommand6e
d'assouplissant de tissu dans le
distributeur. Observer le mode d'emplei
du fabricant.
REMARQUE :Si on verse trop d'assou-
plissant de tissu dans le distributeur, il
sera distribu6 instantan6ment dans la
charge par suite de I'action de siphon.
Ce d6versement instantane risque
d'endommager les tissus et donnera
I'impression que le distributeur ne
fonctionne pas correctement.
Enl_vement du distributeur d'assou-
plissant du tissu pour le nettoyage
ETAPE 1. Tirer sur I'anneau de
verrouillage bleu vers le haut, puis
enlever le distributeur de I'agitateur en le
tirant vers le haut.
ETAPE 2. Rincer le distributeur & I'eau
ti6de.
R_installation du distributeur
d'assouplissant de tissu
ETAPE 1. S'assurer que I'anneau de
verrouillage bleu a 6t6 tir6 vers le haut.
En I'inclinant (voir I'illustration), pousser
le bas du distributeur sur la pattie
sup6rieure de I'agitateur.
ETAPE 2. Une fois le distributeur en
place sur I'agitateur, baisser I'anneau
de verrouillage bleu jusqu'_ ce qu'il
s'enclenche en place. II devrait _tre
bien serf6.
• Ajouter de I'eau tilde pour remplir le
distributeur jusqu'_ I'ouverture en croix
au bas de la pattie en forme
d'entonnoir du distributeur,
• L'assouplissant de tissu est distribue
automatiquement dans I'eau du
premier ringage.
REMARQUE : Les assouplissants de
tissus ne sont pas compatibles avec les
d6tergents. Ce distributeur ne devrait
jamais Ctre utilis6 Iors du programme de
pr61avage (PREWASH) car il distribuerait
rassouplissant de tissu dans une charge
de lavage qui n'a pas encore _t6 rinc6e.
L'assouplissant de tissu non dilu6
renvers_ sur Ie tissu peut causer des
taches qui ressemblent _ des taches
d'huile.
Si jamais vous utilisez votre distributeur
de cette mani_re par erreur, relaver la
charge avec un suppl6ment de
d6tergent pour enlever ces dep6ts.
32
Distributeur
dissant
de tissu
Anneau de
bleu

PRF:PARATION DU LINGE POUR
LE LAVAG E
_-i \IY.1hi _li [_]pzeJrli_/eJr_1
Observer les recommandations ci-
dessous pour vous aider &prolonger
la vie de vos v_tements.
•Fermer les fermetures & glissi6re,
boutons-pression et agrafes pour 6viter
d'accrocher d autres articles Enlever
6pingles, boucles et autres objets durs
pour 6viter d'6gratigner l int6rieur de la
laveuse Enlever les garnitures et
ornements non lavables
• Vider les poches et les retourner
• Retoumer les poignets; brosser ou
61iminer la charpie et la poussi_re.
• Retourner les tricots synth6tiques pour
6viter le boulochage.
• Attacher les cordons et les ceintures
pour qu'ils ne s'emmelent pas.
• R6parer les dechirures, les ourlets et les
coutures d6cousues.
•Traiter les taches.
•Pour obtenir les meilleurs r6sultats
possibles, laver les vetements tach6s ou
mouill6s d_s que possible.
TRI
• S6parer les articles tr6s sales des
articles 16gerement sales, meme si on
pourrait normalement les laver
ensemble. S6parer les articles
g,6n6rateurs de charpie (serviettes,
chenille) des articles capteurs de
charpie (velours, tissus synth6tiques et
articles & pressage permanent). Lorsque
c'est possible, retourner les articles qui
ont tendance 9 6mettre de la charpie.
• S6parer les articles de teinte fonc6e des
articles de teinte claire et les articles
grand teint de ceux qui d6teignent.
• S6parer les divers types de tissus
(coton 6pais, tricots, articles d_licats).
33

CHARGEMENT
Un chargement correct de la laveuse
optimise le nettoyage et I'entretien du
linge en plus de r_duire le niveau de
bruit de la laveuse.
• Introduire les articles dans la laveuse
sans les tasser. Remplir jusqu'au
sommet du panier (rang6e sup6rieure
d'orifices). Ne pas enrouler les articles
laver autour de I'agitateur. Pour
I'obtention de la meilleure performance
de lavage, sans froissement, il faut que
les articles de la charge de linge
puissent se deplacer librement dans
I'eau de lavage, Les articles doivent
s'enfoncer et r6apparaftre plus tard.
• Charger convenablement la laveuse et
selectionner le niveau d'eau correspon-
dant au volume de la charge. Un
chargement excessif ou un tassement
excessif du linge et la s61ection d'un
niveau d'eau insuffisant pour la charge
peut provoquer :
- un lavage m6diocre
- une augmentation du froissement
- une formation excessive de charpie
- une usure plus rapide du linge
(par boulochage).
• Charger la laveuse en fonction du
volume des articles et non de leur poids.
• M61anger les articles de grande taille et
de petite taille dans chaque charge.
R6partir la charge uniformement pour
6quilibrer la laveuse, Une charge
d_s6quilibr6e peut _tre la cause de
vibrations au cours de I'essorage.
• Pour r6duire le froissement des articles
pressage permanent et de certains
tricots synth6tiques, s61ectionner le
niveau d'eau correspondant 9 une
charge importante. Ces articles doivent
disposer de plus d'espace pour se
d_placer dans I'eau que les articles
Iourds (serviettes, jeans).
• R6duire la dur6e de la p6riode de
lavage dans le cas d'une charge de
faible volume. Une charge qui ne
contient que quelques petits articles se
lave plus rapidement.
SUGGESTIONS DE CHARGEMENT
Pour ces charges compl6tes sugg6r6es
de la laveuse, s61ectionner le niveau
d'eau ("WATER LEVEL") le plus 61ev&
LAVEUSES ASUPER
CAPACITE
V_tements de
travail _pais
4 jeans
4pantalons de
travail
4 chemises de
travail
1 surv_tement
(haul)
1 surv_tement
(bas)
Serviettes
9 serviettes de
bain
9 serviettes
main
10 d#barbouil-
lettes
Charge mixte
3 draps (1 super
grand, 2
jumea_)
4 taies d'oreiller
2 chemises
2 chemisiers
10 T-shirts
6 shorts
8 mouchoirs
34

NETTOYAGE DE LA LAVEUSE
Un entretien convenable de la laveuse en
augmentera la Iongevit& Cette section
explique comment assurer I'entretien
convenable et en securit6 de la laveuse.
Exterieur
€:liminer immediatement par essuyage les
residus de detergent, eau de Javel, autres
produits renverses, avec une 6ponge ou
un linge doux humide, Essuyer occasion-
nellement les surfaces externes de la
laveuse pour maintenir son aspect d'ap-
pareil neuf, Ne pas introduire d'objets
metalliques ou aceres dans la laveuse. De
tels objets
peuvent endommager la finition. Avant
d'introduire les vetements dans la laveuse,
eniever de leurs poches les epingles,
trombones, pieces de monnaie, vis,
ecreus, etc. Ne pas laisser ces objets sur
la laveuse apres aveir vide les poches des
vetements.
Interieur
Pour nettoyer les surfaces interieures,
verser dans la laveuse 250 mL (1 tasse)
d'eau de Javel et melanger avec 500 mL
(2 tasses) de detergent, Faire executer 9 la
laveuse un programme cemplet de lavage
e I'eau chaude. Repeter cette operation si
necessaire.
REMARQUE : Pour eliminer les depets
imputables 9 la duret6 de I'eau, utiliser un
produit de nettoyage sans danger pour la
laveuse.
Tuyaux flexibles d'alimentation d'eau
Remplacer ies tuyaux d'alimentation apres
5 ans d'utilisation afin de reduire les
risques de problemes avec les tuyaux,
Inspecter periodiquement et remplacer les
tuyaux d'alimentation comportant des
renflements, des ecrasements, des
coupures, des signes d'usure ou de fuites.
Lors du remplacement des tuyaux
d'alimentation, inscrire la date du
remplacement sur I'etiquette a I'aide d'un
marqueur permanent.
PRF:PARATION AVANT UN
DF:MI_NAGEMENT OU UN
ENTREPOSAGE HIVERNAL
Installer et remiser la iaveuse 9 un
emplacement o_ elle ne sera pas exposee
au gel Comme il peut rester un residu
d'eau dans les tuyaux, le gel pourrait
endommager la laveuse. Si la laveuse dolt
faire I'objet d'un demenagement ou etre
remisee au cours d'une pedode hivernale,
executer les operations de preparation.
Preparation de la laveuse pour I'hiver :
1. Fermer les deux robinets d'arrivCe d'eau.
2, Decennecter et vider les tuyaux flexibles
d'alimentatien d'eau.
3, Verser dans la cuve 1 litre (1 pinte)
d'antigel pour vehicule recreatif.
4, Laisser la laveuse fenctionner au mode
d'esserage pendant 30 secendes
environ pour que I'antigel se melange
reau, La pempe refoulera une partie du
melange pendant resserage.
5, Debrancher le cordon electrique.
Avant de reutiliser la laveuse :
1, Rincer les tuyaux flexibles d'ardvee
d'eau.
2. Reconnecter les tuyaux flexibles
d'alimentation d'eau.
3. Ouvrir les deux robinets d'arrivee d'eau.
4. Rebrancher le cordon electrique.
5. Faire executer & la laveuse un
programme de lavage complet avec
250 mL (1 tasse) de detergent pour
eliminer I'antigeL
PI_RIODE D'INUTILISATION OU
PI_RIODE DE VACANCES
On dolt faire fonctionner la laveuse
seulement Iorsqu'on est present. Si les
utilisateurs doivent partir en vacances ou
ne pas utiliser la laveuse pendant une
periode prolongee, il convient d'executer
les operations suivantes :
• Debrancher le cordon electrique ou
decennecter le courant qui alimente la
laveuse.
• Fermer les robinets d'arrivee d'eau. Ceci
evitera les risques d'inondation (&
roccasion d'une surpression) au ceurs de
la periode d'absence. 35

On peut facilement r_soudre la plupart des probl_mes de lavage si on en connait
la cause. Etudier la liste suivante des probl_mes qui peuvent survenir et leurs
causes. Pour avoir de plus amples renseignements, voir la couverture arri_re,
36
Probleme Cause possible Solution
Fuites d'eau Fuites des circuits de R6parer les circuits.
plombede de la maison.
Tuyaux d'alimentation real Serrer Ies tuyaux (Voir la rubrique "lns-
serr6s, tructions d'installation", sections D et E).
Joints des tuyaux Placer correctement les joints (Voir la
d'alimentation rubrique "Instructions d'installation",
incorrectement places, section D).
Tuyau d'evacuation real Bien fixer le tuyau avec la bride (Voir la
fix6 ou detech6, rubrique "Instructions d'installation",
section C).
Tuyau d'6vecuation €:liminer I'obstruction. II faut que 1'6vier,
obstru6, le tuyau rigide d'6vacuation ou 1'6gout
au plancher puisse 6vacuer 64 L
(17 gal) d'eau par minute.
La cuve s'est d6plac6e S'assurer que la cuve est centr6e
vers I'avant durant le avant de mettre la laveuse en marche.
d6chargement, entra;nant
1'6coulement hers de la
cuve.
Aplomb de la laveuse S'assurer que les pieds avant sont
incorrect entra;nant install6s et les 6crous bien serres.
I'ecoulement hers de la Mettre la laveuse d'aplomb. R6gler les
cuve. pieds ardere (Voir la rubrique
"Instructions d'installation", section G).
Desequilibre de la charge. Redistribuer la charge.
Jet de rin?age devie par le
linge.
La laveuse est surchargee. Reduire la quantit6 de la charge.
L'eau de remplissage ou
de rin?age devie & partir de
la charge.
Deficiences Tuyau d'6vacuation Redresser ou deboucher le tuyau (Voir
de vidange/ obstrue ou 6crase. la rubdque "Instructions d'installation",
essorage/ section C).
linge mouill_ Fonctionnement correct Apres un lavage ou un tin?age, la
pour vidange neutre, laveuse effectue une vidange sans
essorage. Apr_s la vidange, I'essorage
d6bute.
Couvercle ouvert. Fermer le couvercle.
Extremite du _yau d'eva- Abaisser le tuyau d'6vecuation (Voir la
cuation situe & plus de 2,4 m rubrique "Instructions d'installation",
(96 13o)au-dessus du sol. section A).
Trop de detergent -Exces Utiliser moins de detergent.
de mousse.
Programme de lavage S61ectionner un programme avec un
incorrect pour le linge aessorage avitesse plus 61ev6e(Voir la
laver, rubdque "Fonctionnement de la
laveuse").

Probleme Cause possible Solution
D_ficiences Tension 61ectrique V6rifier la source 61ectrique ou faire
de vidange/ insuffisante ou utilisation venir un 61ectricien. Ne pas utiliser un
essorage/ d'un cable de rallonge, cordon de rallonge.
linge mouill6 Rin_age aI'eau froide. Le linge est plus mouill6 apres un
(suite) rin_age & I'eau froide qu'apres un
rin_age aI'eau ti6de. Ceci est normal.
Pas Le tuyau d'6vacuation est Relever le tuyau d'6vacuation (Voir la
d'interrup- plac6 & moins de 99 cm rubrique "Instructions d'instalIation",
tion du (39 po) au-dessus du sol. section A).
remplissage Ajustement trop serre du Ajuster les connexions du tuyau
ou de la tuyau d'6vacuation dace d'6vacuation. II faut qu'il y ait du jeu.
vidange/ le tuyau rigide. (Voir la rubrique "Instructions
programme d'installatien", section C).
bloqu_ Tuyau d'6vacuation Ne pas sceller le tuyau d'6vacuation
retenu sur le tuyau rigide avec du ruban adhesif. Le tuyau a
par du ruban adh6sif, besoin d'un peu d'air.
La laveuse Charge d_s6quilibr6e. Redistribuer la charge.
fait du bruit Aplomb incorrect de la Etablir I'aplomb de la laveuse. R6gler
laveuse. Pieds arri6re de les pieds arri_re 9 nouveau. (Voir la
mise d'aplomb non rubrique "Instructions d'installation",
r6gl6s, section G).
€:crous des pieds avant Setter les 6crous (Volt la rubrique
non serr6s. "Instructions d'installation", section G).
La sangle jaune d'embak Retirer la sangle avec les goupilles
lage avec les goupilles fendues (Voir la rubrique
fendues non complete- "Instructions d'installation", section B).
ment retiree.
Plancher insuffisamment D6m6nager la laveuse (Voir la rubrique
robuste pour porter la "Instructions d'installation", section A).
laveuse.
Engagement des Ceci est normal.
engrenages apr6s la
vidange et avant
I'essorage.
La pattie sup6rieure de Ceci est normal.
I'agitateur 6met des
d6clics pendant le lavage.
Impossibilit_ Tamis des valves Nettoyer les tamis.
de remplis- d'arriv6e d'eau obstru6s.
sage/rin£age/ Robinet d'arriv6e d'eau Ouvrir les robinets d'eau.
agitation/ ferm6.
temperature
incorrecte Inversion des tuyaux Inverser les tuyaux (Volt la rubrique
d'arriv6e d'eau chaude et "Instructions d'installation", sections
froide. D et E).
Tuyau d'alimentation Redresser les tuyaux.
6cras6.
Bouton de s61ection de Tourner 16g_rement le bouton de la
programme incerrecte- minuterie vers la droite et tirer pour
ment align6, mettre en marche.
Cordon d'alimentation Brancher le cordon d'alimentation.
non branch6.
37

Probl_me Cause possible Solution
La laveuse Cordon d'alimentation non Brancher le cordon d'alimentation.
s'arr_te branch6.
Prise de courant non V6rifier le circuit 61ectrique ou faire
aliment6e, venir un 61ectricien.
Fusible grill6 ou Remplacer le fusible grill6 ou fermer
disjoncteur ouvert, le disjoncteur. Si le probl6me
persiste, faire venir un 61ectricien.
Utilisation d'un c_ble de Ne pas utiliser de cordon de
rallonge, rallonge.
La minuterie n'est pas Tourner la minuterie 16gerement vers
bien align6e, la droite et tirer pour la mise en
marche.
Le beuton de la minuterie R6gler et tirer le bouton.
n'est pas tir6.
La machine est Laver des charges plus petites.
surcharg6e.
L'agitateur ne Le sommet de I'agitateur Ceci est normal.
fonctionne ne se deplace que dans
pas une seule direction.
Le dessus de I'agitateur Ceci est normal.
est dessert6.
Niveau d'eau Le dessus de I'agitateur Ceci est normal.
insuffisant/ est beaucoup plus haut
remplissage que le niveau maximum
incomplet d'eau. Ceci cr6e I'impres-
sion que la laveuse n'est
pas pleine.
Position Cuve tiree vers I'avant V6rifier que la cuve est centr6e avant
incorrecte de pendant le d_chargement, la raise en marche de la laveuse.
la cure La cuve se deplace. Ceci est normal.
Mauvais aplomb de la Verifier que les pieds avant sont
laveuse, install6s.et que les 6crous sent
serr6s. Etablir I'aplomb de la laveuse.
R6gler les pieds arriCre. (Voir la
rubrique "Instructions d'installation",
section G).
38

Probleme Cause possible Solution
Presence de Tri incorrect du linge. Trier le linge : s6parer les articles
charpie sur g_n6rateurs de charpie des articles
le liege capteurs de charpie et par couleur.
Chargement excessif. La charpie peut rester emprisonnee
dans la charge en cas de chargement
excessif. Laver de plus petites
charges.
Residu de papier ou Vider les poches avant le lavage.
mouchoirs de papier dans
les poches.
Quantit6 insuffisante de Utiliser une quantit6 suffisante de
d6tergent, d6tergent pour conserver la charpie
en suspension dans I'eau.
Le detergent ne se dis- Utiliser une temp6rature de I'eau de
sout pas. Eau de lavage lavage sup6rieure a21°C (70°F).
plus froide que 21°C
(70°F).
D_chirures Chargement excessif, Le linge doit se d6placer librement
Utilisation incorrecte de la pendant le lavage. Laver de plus
laveuse, petites charges ou augmenter le
niveau d'eau.
Utilisation incorrecte Ne pas verser I'eau de Javel
d'eau de Javel, L'eau de directement sur le linge. Essuyer
Javel non diluee apr_s un renversement d'eau de
endommagera les tissus. Javel.
Articles acer6s pr6sents Vider les poches avant le lavage.
dans les poches; Fermer les fermetures & glissi_re
accessoires de fermeture avant le lavage.
non ferm6s.
Articles endommag6s Reparer les d_chirures et ills bris6s
avant le lavage, des piqt3res avant le lavage.
Pr6eence de Utilisation incorrecte de L'assouplissant de tissu dilu6 peut
tachee sur le I'assouplissant de tissu. _tre ajout6 au ringage.
linge Pr6sence de fer dans Installer un filtre _ fer.
I'eau (rouille).
Utilisation insuffisante de
d6tergent, ce qui permet
aux salet6s de se
red6poser.
Transfert de teinture
aprCs un tri d6ficient des
articles.
Utiliser suffisamment de detergent
pour detacher les salet6s et les
maintenir en suspension.
S6parer le linge de teinte sombre
des articles blancs ou clairs.
Decharger la laveuse d6s ia fin du
programme.
Transfert de teinture du
fait du d6chargement
tardif de la laveuse.
39

Probleme Cause possible Solution
Linge froiss_ D6chargement tardif de la D6charger la laveuse d6s qu'elle
laveuse, s'arr_te.
Mauvais programme pour Utiliser le ringage 9 I'eau froide et les
le linge & laver, programmes avec essorage & basse
vitesse pour r6duire le froissement.
Charge excessive. Le linge doit pouvoir se deplacer
librement pendant le lavage. Laver
de plus petites charges.
Tuyaux invers6s. Inverser les tuyaux d'arriv6e d'eau
(Voir la rubrique "Instructions d'installa-
tion", sections D et E).
Linge Charge excessive. Le linge doit pouvoir se deplacer
emm61_ librement pendant le lavage. Laver
de plus petites charges.
Enroulement des articles Ne pas enrouler les articles autour
autour de I'agitateur. de I'agitateur durant le chargement.
Distributeur Assouplissant non dilu6. Dissoudre I'assouplissant de tissu
obstru_/fuite dans le distributeur.
d'eau de Utilisation d'agent de Verser de I'agent de blanchiment
Javel/ blanchiment pour linge de utilisable avec les couleurs directe-
distribution couleur dans le distribu- ment dans le panier. Ne pas utiliser
d'eau de teur d'eau de Javel. le distributeur d'eau de Javel.
Javel
inopportune Utilisation incorrecte de Mesurer toujours la quantite d'eau
I'eau de Javel. de Javel avant de la verser prudem-
ment dans le distributeur. Essuyer
tout renversement d'eau de Javel.
4O

LAVEUSES KENMORE
"Nous assurons I'entretien des produits que nous vendons"... C'est ainsi que nous
garantissons que vous pouvez compter sur Sears pour le service apres-vente. Votre
appareil menager Kenmore est porteur de valeur ajout6e si vous tenez compte du fait
que Sears dispose d'6tablissements de service dans tout le pays det6s de techniciens
professionnels qui ont re_u une formation sur tousles appareils menagers vendus par
Sears. IIs ont les connaissances et comp6tences, I'outillage et de 1'6quipement n6ces-
saires pour etre & la hauteur de I'engagement que nous avons pris avotre 6gard que
"Nous assurons I'entretien des produits que nous vendons".
Pr6servez la valeur de votre achat avec un contrat d'entretien Sears. Les appareils
m6nagers Kenmore sont con£us, fabriqu6s et testes pour qu'ils fournissent de nom-
breuses ann6es de service fiable. Malgr6 tout, tout appareil moderne peut n6cessiter
des interventions de service de temps a autre. Le contrat d'entretien Sears vous offre
un programme de service remarquable pour votre appareil 61ectrom6nager.
Le contrat d'entretien Sears
• Le moyen pour vous d'acheter aux prix d'aujourd'hui les services dont vous aurez
besoin demain.
• Elimine les factures de r6paration imputables & I'utilisation normale.
• Couvre autant d'interventions de service que c'est necessaire.
• Procure une inspection annuelle d'entretien pr6ventif sur votre demande pour
maintenir votre appareil menager Kenmore en bon 6tat de fonctionnement.
Pour plus de renseignements,
composer le
1-800-827-6655 (E.-U.) ou
1-877-533-6937 (Canada)
41

42

43

In U.S.A. or Canada
for in-home major brand repair service:
Call 24 hours a day, 7 days a week
1-800-4-MY-HOME" (1-800-469-4663)
Pars pedir servicio de mparaci6n a domicilio- 1-800-676-5811
Au Canada pour tout le service - 1-877-LE-FOYER" (1-877-533-6937)
For the repair or replacement parts you need:
Call 6 a.m. - 11 p.m. CST, 7 days a week
PartsDirect"
1-800-366-PART (1-800-366-7278)
www.sears.com/par tsdlrect
Pars ordenar plszas con entrsga a domlclllo - 1-800-859-7084
For the location of a Sears Service Center in your area:
Call 24 hours a day, 7 days a week
1-800-488-1222
To purchase or inquire about a Sears Maintenance Agreement:
Call 7 a.m. - 5 p.m. CST, Monday - Saturday
1-800-827-6655