Keston Frame And Header Kits Installation Manual
Keston frame and header kits manual 2013 Keston frame and header kits manual 2013
2015-05-15
: Keston Keston-Frame-And-Header-Kits-Installation-Manual-719671 keston-frame-and-header-kits-installation-manual-719671 keston pdf
Open the PDF directly: View PDF
.
Page Count: 20

FRAME & HEADER KIT
INSTRUCTIONS
Keston Heat 45
Keston Heat 55
Keston Heating
PO Box 103, National Avenue, Kingston Upon Hull, HU5 4JN
Tel. +44 (0) 1482 443005 Fax. +44 (0) 1482 467133
email : info@keston.co.uk web : www.keston.co.uk

2Keston Heat - Frame & Header Kits
CONTENTS
1 Introduction and General Description ..........................3
2 General Description of Cascade System .....................4
3 Multiple Boiler System Components ............................5
4 Installation Drawings for Multiple Boiler Systems ......8
5 Wall Mounted Installation Procedure .........................11
6 Frame Kit Installation Procedure ................................13
7 Header Kit Assembly .................................................... 14
8 Electrical Connections ................................................. 17
9 Commissioning and Testing ........................................17
Keston Heat 45 & 55
This kit is suitable for the following boilers:

3
Keston Heat - Frame & Header Kits
1 INTRODUCTION
This technical data contains information for dimensioning & assembly of a cascade system kit for the Keston Heat range of
products.
Header and Frame kits are available in line (from 2 to 6 boilers long).
GENERAL DESCRIPTION OF FRAME & HEADER KITS
A requirement to spread the total required heat output over several boilers can be accommodated by the use of the Keston Heat
multiple boiler frame & header kit options.
An optional sequencer kit can be specied to switch boilers in cascade on or off dependent on total heat demand.

4Keston Heat - Frame & Header Kits
Total Output
Required Kw
Side By Side Option –
Number Of Boilers/Output
Required
Side by Side
Footprint Size
W x D (mm)
Header Kit
Product No.
Side By Side
90 2 x 45 1500x560 355014
100 1 x 45 - 1 x 55 1500x560 355014
110 2 x 55 1500x560 355014
135 3 x 45 2055x560 355015
145 1 x 55 - 2 x 45 2055x560 355015
155 2 x 55 - 1 x 45 2055x560 355015
165 3 x 55 2055x560 355015
180 4 x 45 2600x560 355016
190 1 x 55 - 3 x 45 2600x560 355016
200 2 x 55 - 2 x 45 2600x560 355016
210 3 x 55 - 1 x 45 2600x560 355016
220 4 x 55 2600x560 355016
225 5 x 45 3150x560 355017
235 1 x 55 - 4 x 45 3150x560 355017
245 2 x 55 - 3 x 45 3150x560 355017
255 3 x 55 - 2 x 45 3150x560 355017
265 4 x 55 - 1 x 45 3150x560 355017
275 5 x 55 3150x560 355017
280 1 x 55 - 5 x 45 3700x560 355018
290 2 x 55 - 4 x 45 3700x560 355018
300 3 x 55 - 3 x 45 3700x560 355018
310 4 x 55 - 2 x 45 3700x560 355018
320 5 x 55 - 1 x 45 3700x560 355018
330 6 x 55 3700x560 355018
In line frame kit 355013
Header Low Loss DN80 Kit 355019
FRAME AND HEADER KIT SYSTEM DESIGN OPTIONS
2.1 FRAME AND HEADER KIT DESIGN OPTIONS
The Keston Heat boilers are suitable for use in a multiple boiler conguration. The multiple boiler system is available as a wall
or frame mounted side by side conguration with the use of the relevant frame / header kits. This gives opportunity to choose
the optimum footprint size or wall space for a given output. The table below states options available and gives the minimum
number of appliances required, the appropriate oor space & the kit product number (N.B. The kits do not include the boilers).
Side by side kits do not include the support frame as the boilers can be wall mounted but a frame kit is available if wall space
etc. does not facilitate boiler/header wall mounting.
Flue conguration for the appliance is C53 and C13 only (see appliance manual).
2 GENERAL DESCRIPTION OF CASCADE SYSTEMS
5
Keston Heat - Frame & Header Kits
2.2 MULTIPLE BOILER INSTALLATIONS
For installing 2 to 6 boilers, the product range includes water and gas headers capable of assembly using threaded socket,compression
and ange connections.
2.3 HYDRAULIC ISOLATION: MIXING HEADER (HEADER KITS INCLUDE A LOW LOSS MIXING HEADER)
A low loss header allows ow separation within a hydronic system.
This essentially creates linked stand alone ow circuits with their own ow rates and pressure drops. Allowing for the modern high
resistant high efciency boilers to operate under their optimum conditions, while the main heating circuit operates to its own controlled
optimum requirements.
2.4 OUTPUT CONTROL
An optional sequencer kit is available to maximise the efciency of a multiple boiler installation. Instructions for installation and use are
contained in the sequencer kit. The sequencer kit facilitates control of up to ve boilers in cascade.
2.5 GAS SUPPLY
The 45-55kW boilers are suitable for use with natural gas. Connect the boilers to the gas mains in accordance with the applicable
regulations The gas header connection is a 2” female thread with test points at each end. It is the test point nearest the inlet of the
group of appliances that becomes the appliance inlet pressure point. Refer to the boiler Installation & Servicing Instructions for general
GAS SUPPLY details.
2.6 ASSEMBLY
The frames and headers must stand on a at and level oor of suitable load bearing capacity.
2.7 SAFE HANDLING
This boiler may require 2 or more operatives to move it to its installation site, remove it from its packaging base and during movement into its
installation location. Manoeuvring the boiler may include the use of a sack truck and involve lifting, pushing and pulling.
Caution should be exercised during these operations.
Operatives should be knowledgeable in handling techniques when performing these tasks and the following precautions should be considered:
• Grip the boiler at the base.
• Be physically capable.
• Use personal protective equipment as appropriate, e.g. gloves, safety footwear.
During all manoeuvres and handling actions, every attempt should be made to ensure the following unless unavoidable and/or the
weight is light.
• Keep back straight.
• Avoid twisting at the waist.
• Avoid upper body/top heavy bending.
• Always grip with the palm of the hand.
• Use designated hand holds.
• Keep load as close to the body as possible.
• Always use assistance if required.
3 MULTIPLE BOILER SYSTEM COMPONENTS
3.1 GENERAL
The multiple boiler systems consist of the following components:
• Frame kit. (Optional only with In-line kits)
• Boiler gas header.
• Boiler ow and return headers supported on mounting skid
• Low loss mixing header
• Hardware packs (includes essential connection and valve components)
3.2 MAIN WATER HEADERS
The main water headers consist of: insulated water ow, insulated water return headers custom sized for all boilers. It is possible to
extend the system to a maximum of 6 boilers in a linear conguration.Each header kit provides water ow and return headers sized
either DN80 or DN100 dependent on total maximum combined heating output required.

6Keston Heat - Frame & Header Kits
3.3 GAS HEADER
The Gas header consists of a custom manufactured 2” manifold. This is located in a cradle incorporated within the header mounting skid.
3.4 MIXING HEADER
The mixing headers are insulated and are supplied with an auto air vent and drain point as standard.
3.5 BOILER CONNECTION KITS
3.6 FREE-STANDING FRAMES
If boilers in cascade are positioned in-line the installer has the option to either wall mount the boilers or mount boilers on optional frame
kits available. If mounting in-line product on frames, optional frame kit UIN 355013 must be specied in the correct quantity, one frame
kit for each boiler installed in cascade.
3.7 INSTALLATION AREA AND DIMENSIONS
Care must be taken to ensure adequate access for boiler / cascade system installation and servicing.
A minimum of 450mm must be provided from the front of the installed boilers in cascade to facilitate boiler servicing.
Consideration to connecting heating ow and return pipework, gas supply and condensate drainage must be given. Routing of the
condensate drain must be made to allow a minimum fall of 1 in 20 away from the installed boilers in cascade, throughout its length.
Adequate room above the boilers must be provided to install and service the boiler ue system. Further information with respect to ue
and condensate drain connection is provided in the installation and servicing instructions provided within the boilers packaging carton.
Legend
1. 11/4" x 3/4" x 11/4" Tee
2. Close Taper Nipple
3. Safety Relief Valve 6 bar
4. Isolation Valve
5. 11/4" x 1/2" x 11/4" Tee
6. Drain O Cock
7. Connection Pipe Assembly
8. Non Return Valve
9. 11/4" Taper Male to 11/4" Parallel Hex Adapter
10. Boiler Flow Flexible Connection from Header
11. Boiler Return Flexible Connection from Header
Items 1,2,3,4,5 & 6 are supplied with the boiler. (AL-208973
Isolation Valve Kit)
Items 7, 8 & 9 are supplied with the Header Kit
Items 10 & 11 are pre-assembled to the water header.
Assemble ttings together as shown using appropriate sealing
material. Do not t the safety relief valve (item 3) at this stage.
When assemblies are complete t to boiler ow and return stubs
with suitable sealing material. The safety valve (item 3) can now
be tted using suitable sealing material.
Ensure all isolation valves, pressure relief valves and drain valves
are tted to allow unrestricted operation.
7

7
Keston Heat - Frame & Header Kits
IMPORTANT POINTS
Before commencing installation:
If Wall mounting;
• Ensure wall is capable of supporting the weight of boilers to be mounted
• Mark drill points of header using oor mounting template
• Mark height on to the wall from the oor to the top of the boiler
• Ensure oor is at and level and is of suitable load bearing capacity
If Frame mounting;
• The frames must stand on a at and level oor of suitable load bearing
capacity.
• If using a frame kit (UIN 355013) the header must be bolted to the frame before
the hoses are connected to the boiler.
These Installations refer to perpendicular wall and oor. If walls are not
perpendicular, it is recommended that a frame kit be used (UIN 355013). The
correct number of frames should be ordered (1 per boiler).
Allowances must be made for installation where skirting boards or other features
are in place that may affect the nominal installation conditions.

8Keston Heat - Frame & Header Kits
4 INSTALLATION DRAWINGS FOR MULTIPLE BOILER SYSTEMS
4.1 GENERAL
The multiple boiler systems are available in two formats:
• 2 to 6 boilers in a linear conguration, mounted on a wall.
• 2 to 6 boilers in a linear conguration, mounted on free-standing frames.
The boiler side of the cascade systems is sized to give a water ow and return differential 20ºC.
4.2 SIDE BY SIDE FRAME KIT CONFIGURATION
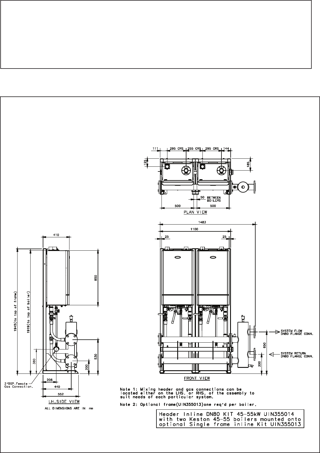
4.2.1 INSTALLATION DRAWING WITH 2 - 45 or 55 BOILERS (SIDE BY SIDE)
Side by side wall or
frame mounting dimensions

9
Keston Heat - Frame & Header Kits
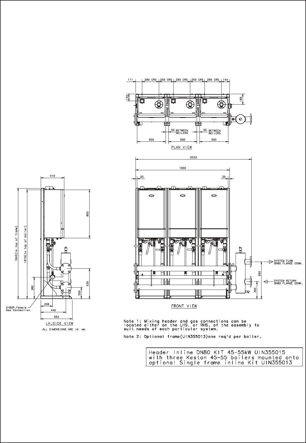
4.2.2 INSTALLATION DRAWING WITH 3 - 45 or 55 BOILERS (SIDE BY SIDE)
Side by side wall or
frame mounting dimensions

10 Keston Heat - Frame & Header Kits
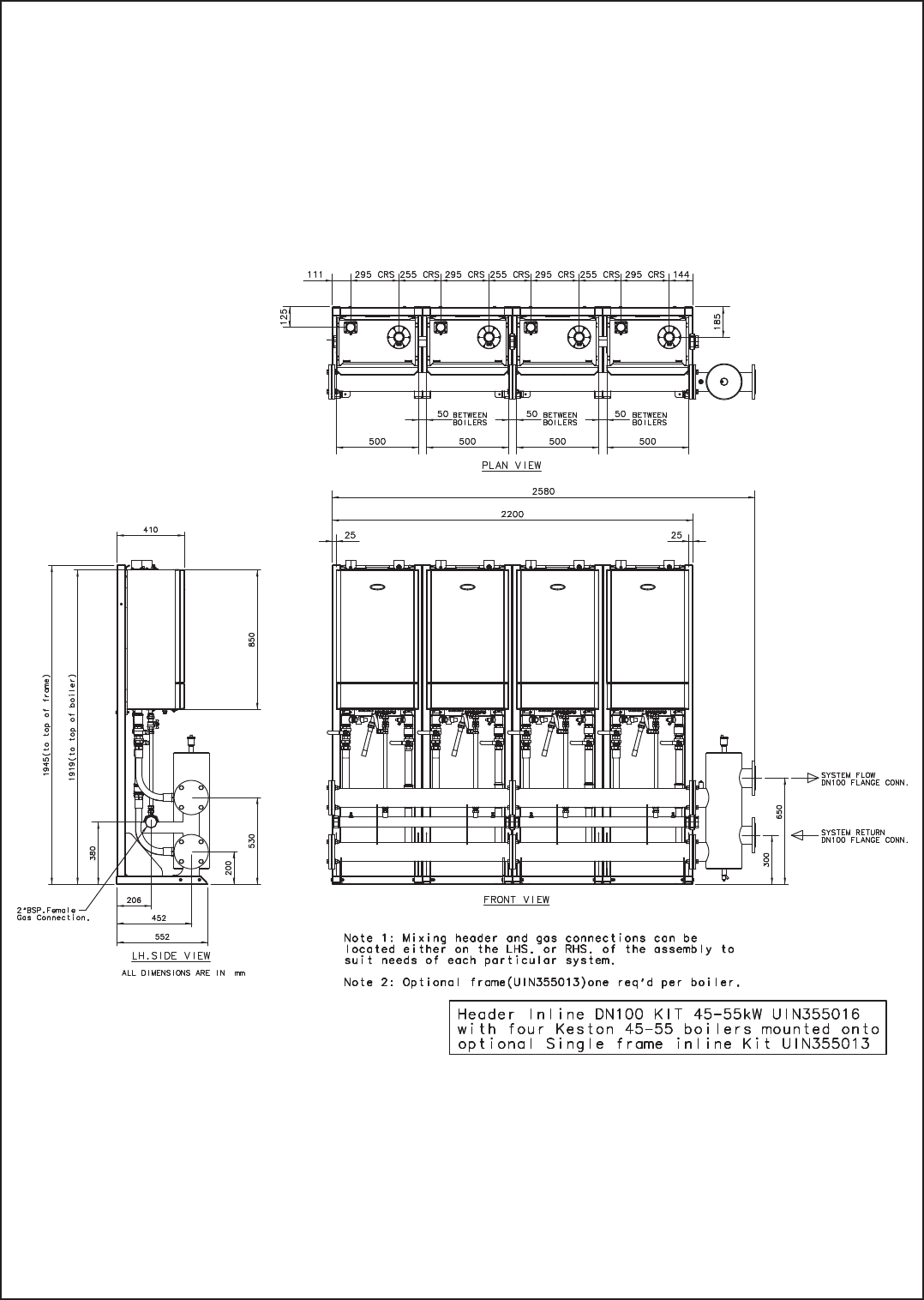
4.2.3 INSTALLATION DRAWING WITH 4 - 45 or 55 BOILERS (SIDE BY SIDE)
Side by side wall or
frame mounting dimensions

11
Keston Heat - Frame & Header Kits
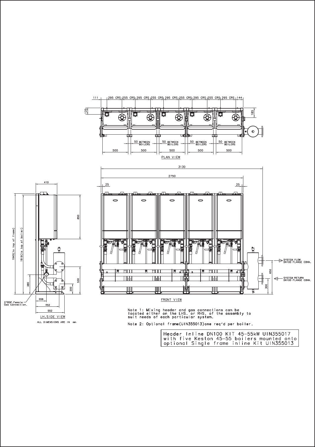
4.2.4 INSTALLATION DRAWING WITH 5 - 45 or 55 BOILERS (SIDE BY SIDE)
Side by side wall or
frame mounting dimensions

12 Keston Heat - Frame & Header Kits
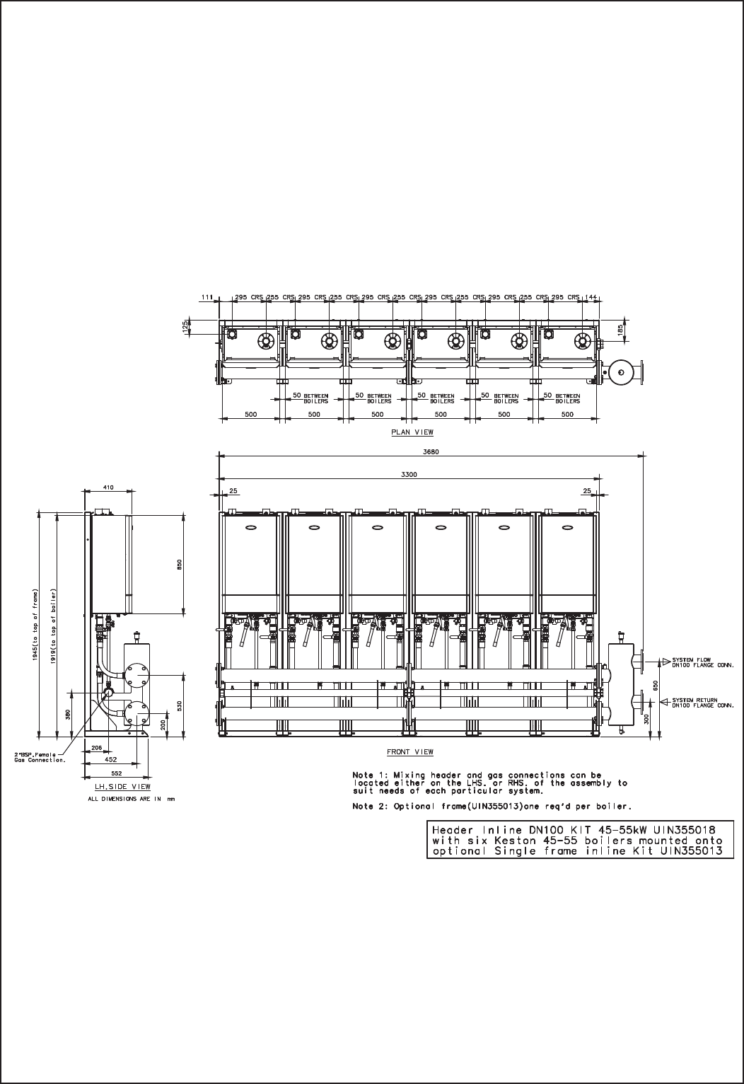
4.2.5 INSTALLATION DRAWING WITH 6 - 45 or 55 BOILERS (SIDE BY SIDE)
Side by side wall or
frame mounting dimensions

13
Keston Heat - Frame & Header Kits
5 WALL MOUNTED INSTALLATION PROCEDURE
5.1 WALL MOUNTED SIDE BY SIDE OPTION
Ensure wall is capable of supporting the weight of boilers
to be mounted. Note. boiler weights can found in the
boiler Installation Instructions.
1. Cut the sides off the cardboard wall mounting
template/s (found in the boiler packaging) to create
the 50mm side clearance required.
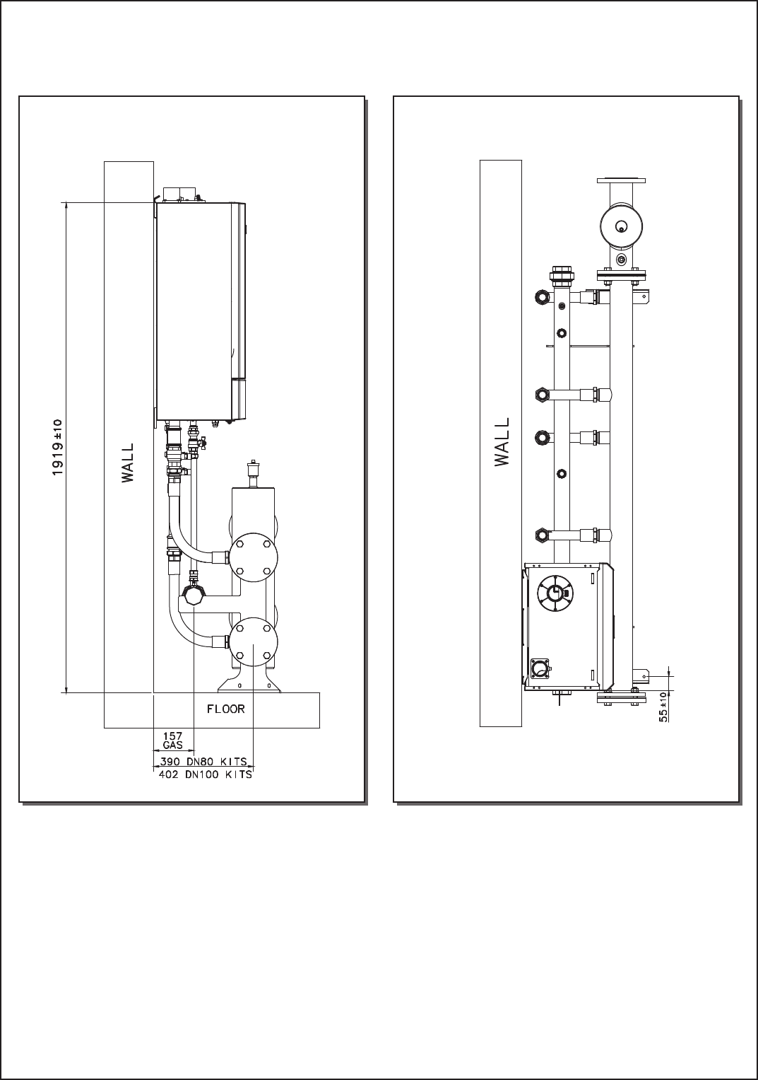
2. Mark the height on to the wall from the oor to the top
of the boiler 1919mm.
4. Drill the required holes in the wall to t the wall mounting
plate plugs. (See boiler Installation Instructions for details)
5. Screw the wall mounting plate(s) to the wall.
5
Floor Mounting: Align centre line of template
to centre line of boiler and drill holes for
headers.
3. Tape the template/s to the wall ensuring the 50mm
side clearance per boiler requirement is adhered to.
3
4
2
1
continued . . . . .

14 Keston Heat - Frame & Header Kits
5.1 WALL MOUNTED SIDE BY SIDE OPTION CONT'D............
PLAN VIEWSIDE VIEW
Careful consideration MUST be given to the installation tolerances. If these are not
adhered to, hoses may become kinked or connections may not t.
Bolt header to oor using template provided (front xings only). Connect up hoses (see
page 15)

15
Keston Heat - Frame & Header Kits
6 FRAME KIT INSTALLATION PROCEDURE
6.1 SIDE BY SIDE FRAME KIT MOUNTING PROCEDURE
1. Place the frame kit sections in the required position and bolt them together at the top and bottom with the bolts, nuts and
washers provided.
2. If additional stability is required
remove the plastic foot covers and
drill the oor. Then bolt the frame
to the oor using suitable bots and
xings (bolts not supplied).
2
1

16 Keston Heat - Frame & Header Kits
6.2 BOILER MOUNTING
7 HEADER KIT ASSEMBLY
7.1 FITTING MIXING HEADER AND BLANKING FLANGES
1. Fit the mixing header and blanking anges in the chosen positions, with the bolts, washers and seals supplied.
Note. Mixing header can be located either LHS or RHS of the headers.
1
Mixing Header Blanking Flange
2. Ensure the two boiler bottom xing brackets
are screwed to the frame or wall.
2
1. As appropriate mount the boilers onto either the wall plates or the side
by side frame kit.

17
Keston Heat - Frame & Header Kits
7.2 FITTING HEADER KIT ASSEMBLY
2. Screw the header legs to the frame feet with the bolts,
nuts & washers provided. Tighten nuts after the exible
hoses have been tted to the boiler.
3. Fit the two exible header connections to the boiler
ow and return connections ensuring the sealing
washers are tted.
1. Slide the header kit assembly between the frame legs but
do not screw the header kit to the frame at this stage.
2
1

18 Keston Heat - Frame & Header Kits
1
2
2
7.3 FITTING GAS CONNECTION
1. Fit the gas isolation valve assembly supplied with the boiler to the boiler gas connection ensuring the sealing washer is tted.
7.4
PRESSURE RELIEF VALVE CONNECTION
1. Ensure each boiler pressure relief connection is piped to a
safe discharge point.
7.5 CONDENSATE TRAP FITTING
1. Fit the condensate trap to the boiler and pipe to drain
following the recommendations contained in the boiler
Installation instructions.
2. Fit the copper gas pipe provided in the header kit to the isolating valve and the header gas connection using
22mm compression ttings provided.
1
1

19
Keston Heat - Frame & Header Kits
8 ELECTRICAL CONNECTIONS
9 COMMISSIONING AND TESTING
Refer to the Installer Wiring Connection section in the boiler Installation Instructions for wiring details.
Electrical and gas safety checks must be carried out on completion of installation as with individual boiler commissioning.

June 2013 UIN 209785 A01
Keston pursues a policy of continuing improvement
in the design and performance of its products.
The right is therefore reserved to vary specication without notice.
Keston Heating, PO Box 103, National Avenue, Kingston Upon Hull, HU5 4JN
Tel. +44 (0) 1482 443005 Fax. +44 (0) 1482 467133. www.keston.co.uk