Kitchenaid KBLC36FMS00 User Manual BUILT IN REFRIGERATOR Manuals And Guides L0511270
KITCHENAID Bottom Mount Refrigerator Manual L0511270 KITCHENAID Bottom Mount Refrigerator Owner's Manual, KITCHENAID Bottom Mount Refrigerator installation guides
User Manual: Kitchenaid KBLC36FMS00 KBLC36FMS00 KITCHENAID BUILT-IN REFRIGERATOR - Manuals and Guides View the owners manual for your KITCHENAID BUILT-IN REFRIGERATOR #KBLC36FMS00. Home:Kitchen Appliance Parts:Kitchenaid Parts:Kitchenaid BUILT-IN REFRIGERATOR Manual
Open the PDF directly: View PDF
.
Page Count: 68

I_itchen_kid ®
BOTTOM-MOUNT BUILT-IN REFRIGERATOR
IMPORTANT: READ AND SAVE THESE INSTRUCTIONS. INSTALLATION REQUIRES 2 OR MORE PEOPLE.
REFRIGERADOR EMPOTI_DOS
CON MONTAJE INFERIOR
IMPORTANTE: LEA Y GUARDE ESTAS INSTRUCCIONES. LA INSTALACION REQUIERE DE 20 MAS PERSONAS.
P P P
REFRIGERATEUR ENCASTRE AVEC
P
CONGELATEUR EN DESSOUS
IMPORTANT : LIRE ET CONSERVER CES INSTRUCTIONS. L'INSTALLATION NECESSITE L'INTERVENTION DE 2 PERSONNES OU PLUS.
Table of Contents/indice/Table des matieres .................................................................. 2
2307890A

TABLE OF CONTENTS
REFRIGERATOR SAFETY ............................................................. 3
DESIGN SPECIFICATIONS ............................................................ 4
Product Dimensions ..................................................................... 5
Tipping Radius ............................................................................. 6
Door Swing Dimensions ............................................................... 6
Handle and Door Clearances ....................................................... 7
Classic, Architect ®,and Overlay Series
Factory Panels and Kits ............................................................. 10
Classic Series Custom Panels ................................................... 10
Overlay Series Custom Panels .................................................. 11
Architect ®Series Custom Side Panels ....................................... 12
Classic and Overlay Series Custom Side Panels ...................... 13
INSTALLATION REQUIREMENTS .............................................. 14
Tools and Parts .......................................................................... 14
Location Requirements .............................................................. 14
Electrical Requirements ............................................................. 15
Water Supply Requirements ...................................................... 15
INSTALLATION INSTRUCTIONS ................................................ 16
Unpack the Refrigerator ............................................................. 16
Reduce Tipping Radius .............................................................. 16
Move the Refrigerator into House .............................................. 17
Install Anti-Tip Boards ................................................................ 17
Connect the Water Supply ......................................................... 18
Plug in Refrigerator ..................................................................... 19
Move Refrigerator to Final Location ........................................... 19
Lower Leveling Legs .................................................................. 19
Install Classic Series Custom Panels ......................................... 19
Install Overlay Series Custom Panels ........................................ 20
Level Refrigerator ....................................................................... 21
Adjust and Remove Door ........................................................... 22
Install Side Panel ........................................................................ 22
Install Base Grille ........................................................................ 23
Water System Preparation ......................................................... 23
Complete Installation .................................................................. 23
P
INDICE
SEGURIDAD DEL REFRIGERADOR ........................................... 24
ESPECIFICACIONES DE DISEI_IO .............................................. 25
Medidas del producto ................................................................ 26
Arco de vuelco ........................................................................... 27
Medidas de oscilaci6n de la puerta ........................................... 27
Espacios para la agarradera y la puerta .................................... 28
Paneles y juegos de fabrica de la
Serie Classic, Architect®y Overlay ............................................. 31
Paneles de la puerta a la medida para la Serie Classic ............ 31
Paneles a la medida de la Serie Overlay ................................... 32
Paneles laterales a la medida para la Serie Architect ®............. 33
Paneles laterales a la medida para
las Serie Classic y Overlay ......................................................... 34
REQUISITOS DE INSTALACION ................................................. 35
Piezas y Herramientas ............................................................... 35
Requisites de ubicaci6n ............................................................. 35
Requisites electricos .................................................................. 36
Requisitos del suministro de agua ............................................. 37
INSTRUCCIONES DE INSTALAOION ......................................... 37
C6mo desempacar su refrigerador ............................................ 37
C6mo reducir el arco de vuelco ................................................. 38
C6mo hacer entrar el refrigerador en la casa ............................ 38
C6mo instalar los tableros antivuelco ........................................ 39
Conexi6n del suministro de agua .............................................. 39
C6mo enchufar el refrigerador ................................................... 40
Ubicaci6n final del refrigerador .................................................. 41
Baje las patas niveladoras ......................................................... 41
C6mo instalar los paneles a la medida para la Serie Classic....41
C6mo instalar los paneles a la medida para la Serie Overlay ...42
C6mo nivelar el refrigerador ....................................................... 43
C6mo ajustar y quitar las puertas .............................................. 44
C6mo instalar el panel lateral ..................................................... 45
C6mo instalar la rejilla de la base .............................................. 45
Preparaci6n del sistema de agua .............................................. 46
C6mo terminar la instalaci6n ..................................................... 46
TABLE DES MATIERES
S¢:CURIT¢: DU RC:FRIGC:RATEUR .............................................. 47
SPI:!:CIFICATIONS DE DESIGN .................................................... 48
Dimensions du produit ............................................................... 49
Rayon de basculement .............................................................. 50
Dimensions pour le pivotement des portes ............................... 50
D_gagements pour les poignees et portes ............................... 51
Ensembles de panneaux d'origine de la
Serie Classic, Architect®et Overlay ............................................ 54
Panneaux personnalises de la Serie Classic ............................. 54
Panneaux personnalises de la serie Overlay ............................. 55
Panneaux lateraux personnalises de la Serie Architect ®.......... 56
Panneaux lateraux personnalises
des Series Classic et Overlay .................................................... 57
EXIGENCES D'INSTALLATION ................................................... 58
Outillage et pieces necessaires ................................................. 58
Exigences d'emplacement ......................................................... 58
Specifications electriques ......................................................... 59
Specifications de I'alimentation en eau ..................................... 60
INSTRUCTIONS D'INSTALLATION ............................................. 60
Deballage du refrigerateur .......................................................... 60
Reduction du rayon de basculement ......................................... 61
Faire entrer le refrigerateur dans le domicile ............................. 61
Installation de planches antibasculement .................................. 62
Raccordement de la canalisation d'eau .................................... 62
Brancher le rdrigerateur ............................................................. 63
Deplacement du refrigerateur & I'emplacement final ................. 63
Deploiement des pieds de nivellement ...................................... 63
Installation des panneaux personnalises de la Serie Classic....64
Installation des panneaux personnalises de la Serie Overlay ...65
Nivellement du refrig_rateur ....................................................... 66
Ajustement et enlevement des portes ....................................... 66
Installation du panneau lateral ................................................... 67
Installation de la grille de la base ............................................... 68
Preparation du syst_me d'eau ................................................... 68
Achever I'installation .................................................................. 68

REFRIGERATOR SAFETY
Your safety and the safety of others are very important.
We have provided many important safety messages in this manual and on your appliance. Always read and obey all safety
messages.
This is the safety alert symbol.
This symbol alerts you to potential hazards that can kill or hurt you and others.
All safety messages will follow the safety alert symbol and either the word "DANGER" or "WARNING."
These words mean:
You can be killed or seriously injured if you don't immediately/
follow instructions.
You can be killed or seriously injured if you don't follow
instructions.
All safety messages will tell you what the potential hazard is, tell you how to reduce the chance of injury, and tell you what can
happen if the instructions are not followed.
Tip Over Hazard
Refrigerator is top heavy and tips easily when not
completely installed.
Keep doors taped closed until refrigerator is
completely installed.
Use two or more people to move and install
refrigerator.
Failure do so can result in death or serious injury.

DESIGN SPECIFICATIONS
Models
_!!ii_i_ii___i_i__ii_i_i!!i_ii___ii_
Architect ®Series
Features wraparound styling that complements the contoured
door handles. This series provides a warm commercial-looking
built-in refrigerator.
KBRC36FMS KBLC36FMS
Classic Series
Features traditional style trim, factory-installed, to provide a
"framed" look. This series requires the installation of custom panels
that are not included.
KBRS36FMB KBRS36FMX KBLS36FMB
KBLS36FMX
m
Overlay Series
Features factory-installed, overlay style trim, to provide a
"frameless" look. This series requires the installation of custom
panels, handles, and standoffs.
KBRO36FMX KBLO36FMX
Complete Series
Features factory-installed stainless steel trim and panels to create a
sleek, contemporary look.
KBRP36FMS KBLP36FMS

ProLineTMSeries
Features extraordinary design and exceptional levels of
performance. This series is a perfect blend of form and function
delivering professional quality, durability and simplicity.
KBRV36FPM KBRV36FPS KBLV36FPM
KBLV36FPS
Side View
• The depth from the front of the top grille to the back of the
refrigerator cabinet is 251/8'' (64 cm).
• The power cord is 84" (213 cm) long.
• The water line attached to the back of the refrigerator is 5 ft.
(1.5 m) long. Height dimensions are shown with leveling legs
extended 1/8"(3 mm) below the rollers.
.831/8"
(211 cm)
v:
251/8"
(64 crn)
231/2"
(60 cm)
84" (213 crn)
Power Cord
_L "31/2 '' (9 ore)
*When leveling legs are fully extended to 11/4"(32 mm) below
rollers, add 11/8"(29 mm) to the height dimensions.
Top View
357/16 ''
(90 cm) T
251/8"
(64 cm)

Front View
Width dimensions were measured from trim edge to trim
edge.
Height dimensions are shown with leveling legs extended 1/8"
(3 mm) below the rollers.
>
IIIIIIIIIIIllllllllllllllllllll_
-- 361/4" (92 cm)
"831/8"
(211 cm)
*When leveling legs are fully extended to 11/4"(32 mm) below
rollers, add 11/8"(29 mm) to the height dimensions.
Be sure there is adequate ceiling height to stand the refrigerator
upright when it is moved into place.
• The dolly wheel height must be added to the tipping radius
when a dolly is used.
• If needed, the tipping radius can be reduced. See "Reduce
Tipping Radius."
Side Tipping Radius
NOTE: Tip on side only.
%,,
901/2 ''
,_ (229.9 cm)
A. Tip this side only
The location must permit the door to open to a minimum of 90 °.
Allow 41/2'' (11.4 cm) minimum space between the side of the
refrigerator and a corner wall.
NOTE: More clearance may be required if you are using overlay
panels or custom handles.
To adjust the door swing, see "Adjust and Remove Door."
36" (91 cm} Models
23"
_. (58cm)
51 "
(130 cm)
59"
(150 cm)

_ _ _oo-: _l_:_ __
If you are installing custom panels, the panels must allow certain clearances for the handles and for the door to swing open. First,
determine the types of handles you will be using and the door stop setting. Then, choose the appropriate scale drawing to use as a
template for creating the panels.
Classic
Handle
Optional
Extended
Handle
Door
Custom Panel
Architect ®Handle
Handle Dimensions
Actual Size
......... V4"(6.35 mm)
_/_"(1.3 cm)
3/4"(1.9 cm)
1" (2.5 cm)
1_/4"(3.2 cm)
1_/_"(3.8 cm)
13/4"(4.4 cm)
2" (5.1 cm)
2V4" (5.7 cm)
2V_" (6.4 cm)
23/4"(7 cm)
3" (7.6 cm)
" 2" 3"
(2.5 cm) (5.1 cm) (7.6 cm)

,I
L
0
0Hinge
Spacer Panel
Overlay Series
Door Swing 90 °
Actual Size
Refrigerator to
Cabinetry Clearance
Refrigerator
Side Trim
iIiiIi
iIi
i I
, , ---1 .... t-----_.
iiIi
iiIi
iiIi
-÷---4 .... J- 1- i_
i i i i
i i i i
i i i i
iii
i
-T .... i .... T-_
1/2"
(1.3cm)i
3/4"
(1.9 cm)
1"
(2.5cm)
1/4"(6.35 mm)
1/2"(1.3 cm)
-_ .... ÷
i
i
i
L
3/4"(1.9 cm)
1" (2.5 cm)
11/4"(3.2 cm)
11/2"(3.8 cm)
1 1/4"
(3.2 cm)
0
<11/2"
(3.8 cm)
"13
e_

0
Hinge
®
NOTE: Do not place the door stop screw in
the 130 ° position on Overlay Series models.
See "Adjust and Remove Door." O
Overlay Series
Door Swing 110 °
Actual Size
Refrigerator to
Cabinetry Clearance
Refrigerator 1"
Side Trim (2.5 cm)
3/4"
(1.9 cm)
1/2" E
(1.3 cm)
1/4"
(6.35 mm)
(5.1 cm)
13/4" _J
J
(4.4 cm),,
11/2" '
(3.8 cm)',
11/4 '' '
(3.2 cm)',
1/4"(6.35 mm)
1/2"(1.3 cm)
3/4"(1.9 cm)
1" (2.5 cm)
11/4"(3.2 cm)
11/2"(3.8 cm)
Spacer Panel

iCiiiiii_!i_!!i!i_!ii,_::::J:_!_,ii:_::ii:i/iiii;::_:i!i,_i:ili:j _ii!'_i_!:_;_::iiiO':i,,"_ii!!_ii:!_iiiiii__¸!!!ii:_ii!_i_i_:i_i!_!!ii_
iii!:i_,_i_i_::!_!io_i_i_ii?_ii!i_,i_ii,_,_i_!_iiiiiiii_!_!_!,i__ii!_!_!_!_:_:ii_!iiiiii,_i,iiiiii_iii_:_!!_
All factory parts are available through your KitchenAid dealer or
by calling KitchenAid Parts and Accessories at 1-800-442-9991.
In Canada, call 1-800-807-6777.
Factory Door Panel Kits
Four kits containing colored acrylic or stainless steel door and
top grille panels are available. Follow the kit instructions for
installing the panels.
NOTE: Panel kits are not required for factory-installed stainless
steel panel models.
Color 36" (91 cm}
White #2300072
Black #2300073
Stainless Steel #2300074
Classic and Architecf Series
72" (183 cm) Top Grille Panel Kit
72" (183 cm) wide Top Grille Panel Kits are available. These kits
allow 2 units (one left-hand swing and one right-hand) to be
installed side by side with a single grille.
Color 72" (183 cm)
White #2300075
Black #2300076
Stainless Steel (Classic Series) #2300077
Stainless Steel (Architect ®Series) #2302797
Overlay #2300078
Extended Door Handle Kits
Use extended door handles when additional finger clearance is
needed between the door handles and custom panel. Follow the
kit instructions for installing the door handles.
Color Left-Hand Right-Hand
Swing Swing
White (Classic #4396119 #8171424
Series)
Black (Classic #4396116 #8171427
Series)
Stainless Steel #4396118 #8171425
(Classic Series)
Matte Aluminum #4396120 #8171423
Etched (Classic
Series)
Matte Aluminum #4396718
(Overlay Series)
S
If you plan to install custom wood panels, you will need to create
the panels yourself or consult a qualified cabinetmaker or
carpenter. See dimension drawings for panel specifications.
IMPORTANT: Panels weighing more than recommended may
cause damage to your refrigerator.
NOTE: Dimensions shown have a (_+)1/16"(1.5 mm) tolerance.
Panels that are more than 1/4"(6.35 mm) thick must be routed. If
panels are less than 1/4"(6.35 mm) thick, install a filler panel
between the door and the decorative panel.
Top Grille Panel
The top panel should not weigh more than 10 Ibs (4.5 kg).
341/2" ---}_1
(87,63 cm)
Refrigerator and Freezer Panels
The freezer panel should not weigh more than 30 Ibs (13 kg). The
refrigerator panel should not weigh more than 50 Ibs (22 kg).
341/4 ''
(87 cm)
341/4 ''
_-_ (87 cm)
49"
(124.5 cm)
!
201/_ ''
(51.1 cm)
10

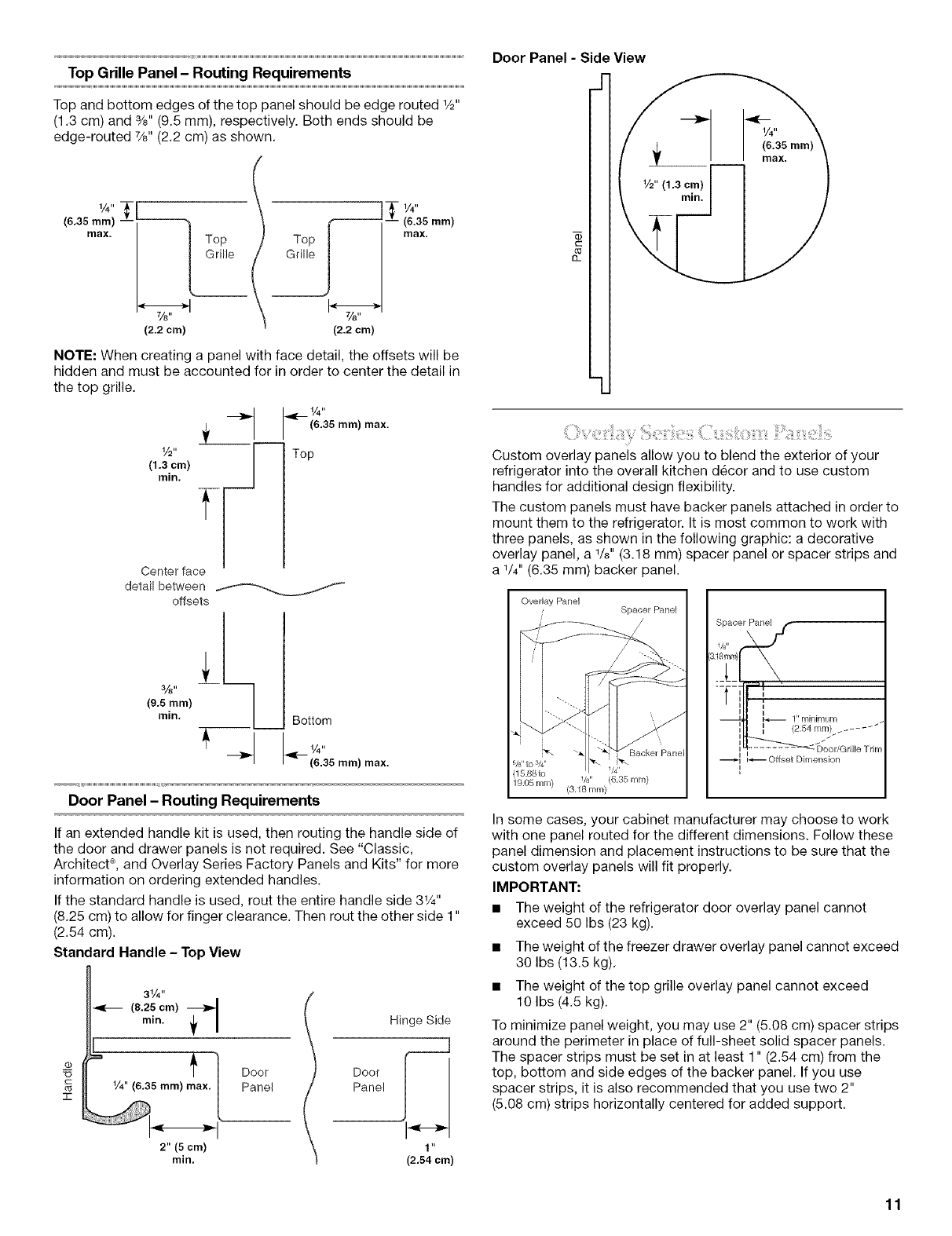
Top Grille Panel - Routing Requirements
Top and bottom edges of the top panel should be edge routed 1/2"
(1.3 cm) and %" (9.5 mm), respectively. Both ends should be
edge-routed %" (2.2 cm) as shown.
Topi Top1'max'6 mm'
Grille (Grille _
(2.2 crn) (2.2 cm)
NOTE: When creating a panel with face detail, the offsets will be
hidden and must be accounted for in order to center the detail in
the top grille.
1/4"
(6.35 mrn) max.
1/2" lTop
(1.3 cm)
rnin,
Center face
detail between _
offsets
%" ]
(9,5 rnrn)
min, Bottom
Door Panel -Routing Requirements
If an extended handle kit is used, then routing the handle side of
the door and drawer panels is not required. See "Classic,
Architect ®,and Overlay Series Factory Panels and Kits" for more
information on ordering extended handles.
If the standard handle is used, rout the entire handle side 31/4''
(8.25 cm) to allow for finger clearance• Then rout the other side 1"
(2.54 cm).
Standard Handle - Top View
I
31/4"
(8.25 cm)
mln.
1/4"
(6.35 mm) max. I
lI
2" (5 cm)
rain.
Door
Panel
Hinge Side
__]
Door [_H_
Panel
1 u
(2.54 cm)
Door Panel - Side View
C
0-
Custom overlay panels allow you to blend the exterior of your
refrigerator into the overall kitchen decor and to use custom
handles for additional design flexibility.
The custom panels must have backer panels attached in order to
mount them to the refrigerator. It is most common to work with
three panels, as shown in the following graphic: a decorative
overlay panel, a 1/8"(3.18 mm) spacer panel or spacer strips and
a 1/4"(6.35 mm) backer panel.
I Overlay Panel Spacer Panel
i_'_ Backer Panel
g/8,,1os/4,, b_.
(15.88to V4"
19.05 ram) l/s" (6,35 ram)
(3.18 mm)
1Spacer Panel
1/8"
-f-,
I i
I I
_._ 1" mm_mum
_ (2.54 Inm)_ ......
i _<D_r/Grilb Trim
_J _ Offset Dimerlsk)n
In some cases, your cabinet manufacturer may choose to work
with one panel routed for the different dimensions. Follow these
panel dimension and placement instructions to be sure that the
custom overlay panels will fit properly.
IMPORTANT:
• The weight of the refrigerator door overlay panel cannot
exceed 50 Ibs (23 kg).
• The weight of the freezer drawer overlay panel cannot exceed
30 Ibs (13.5 kg).
• The weight of the top grille overlay panel cannot exceed
10 Ibs (4.5 kg).
To minimize panel weight, you may use 2" (5.08 cm) spacer strips
around the perimeter in place of full-sheet solid spacer panels.
The spacer strips must be set in at least 1" (2.54 cm) from the
top, bottom and side edges of the backer panel. If you use
spacer strips, it is also recommended that you use two 2"
(5.08 cm) strips horizontally centered for added support.
11

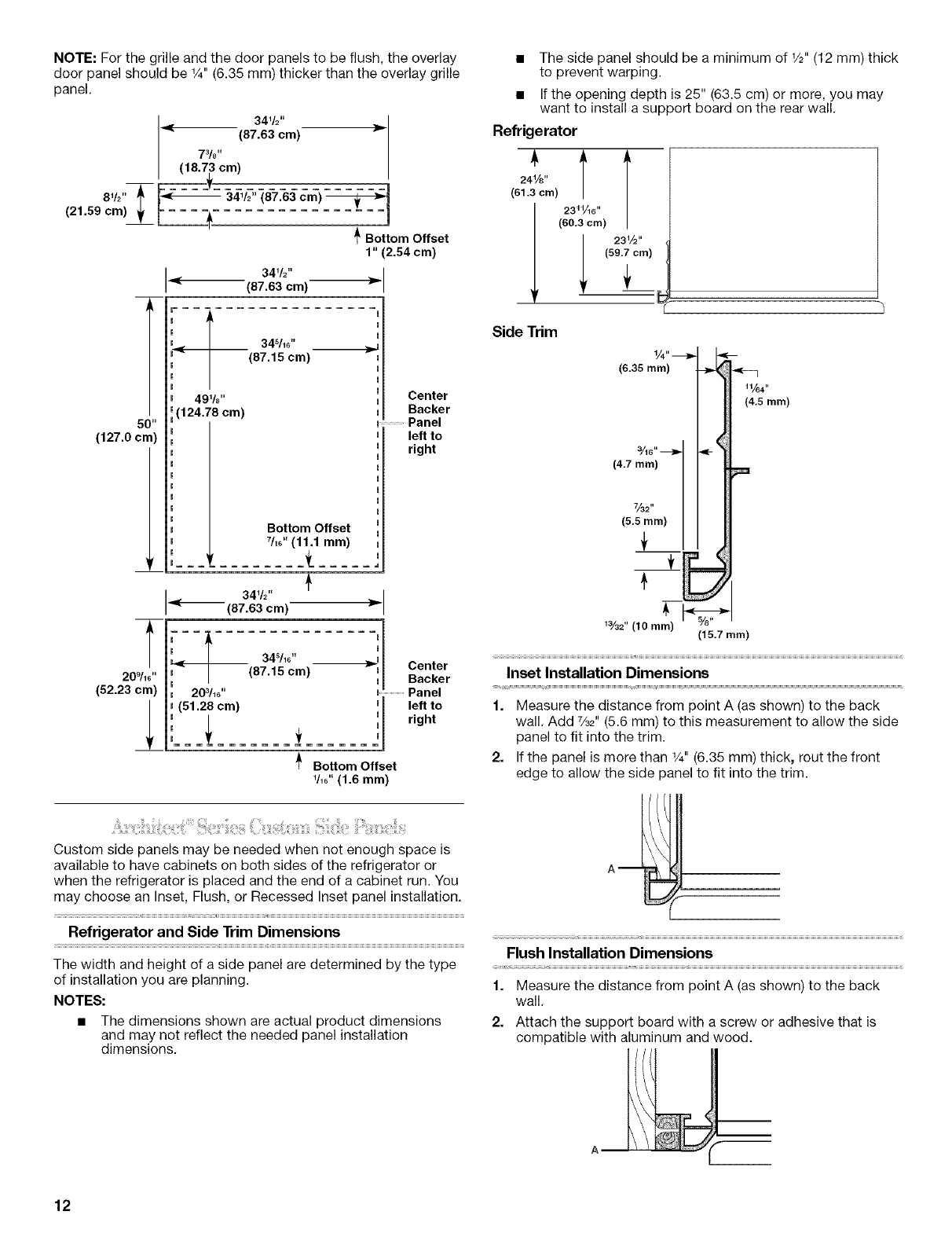
NOTE: For the grille and the door panels to be flush, the overlay
door panel should be 1/4"(6.35 mm) thicker than the overlay grille
panel.
341/2''
(87.63 cm)
73/8,,
(18.73 cm)
IJ,
8W' T _ 34W' (87.63 cm)
(21.5g cm)__ _'
_Bottom Offset
1" (2.54 cm)
341/2''
(87.63 cm)
50"
(127.0 cm)
l 34_h6''
(87.15 cm)
491/8,,
(124.78 cm)
t
209/_6''
(52.23 cm)
Center
Backer
Panel
left to
right
Bottom Offset
7/16"(11.1 mm)
==r ........ t ......
+
I*- 34v ''
(87.63 cm)
t m Center
34sh6" ____
I(87.15 cm) i I Backer
203/16" m...........................Panel
(51.28 cm) mm leftto
right
___ ...... J
Bottom Offset
1/16"(1.6 mm)
Custom side panels may be needed when not enough space is
available to have cabinets on both sides of the refrigerator or
when the refrigerator is placed and the end of a cabinet run. You
may choose an Inset, Flush, or Recessed Inset panel installation.
; r ; r; r
Refrigerator and Side Trim Dimensions
The width and height of a side panel are determined by the type
of installation you are planning.
NOTES:
•The dimensions shown are actual product dimensions
and may not reflect the needed panel installation
dimensions.
• The side panel should be a minimum of 1/2"(12 mm) thick
to prevent warping.
• If the opening depth is 25" (63.5 cm) or more, you may
want to install a support board on the rear wall.
Refrigerator
241/8,,
(61.3 cm)
(60.3 cm)
231/2 ''
(59,7 cm)
¼" _ _- q(6.35 mm)
11/64"
(4,5 mm)
Side Trim
(4"7 mm) / _
(5.6 I
Wa2"(10 ram) I %,,
(15,7 ram)
Inset Installation Dimensions
1. Measure the distance from point A (as shown) to the back
wall. Add %2" (5.6 mm) to this measurement to allow the side
panel to fit into the trim.
2. If the panel is more than 1/4"(6.35 mm) thick, rout the front
edge to allow the side panel to fit into the trim.
Flush Installation Dimensions
1. Measure the distance from point A (as shown) to the back
wall.
Attach the support board with a screw or adhesive that is
compatible with aluminum and wood.
I ,
f---
12

Recessed Inset Installation Dimensions
1. Measure the distance from point A (as shown) to back wall,
2. Rout the front edge of the support board or attach a 1/4"
(6.35 mm) board to hold the panel in the cabinet side trim.
L
Custom side panels may be needed when not enough space is
available to have cabinets on both sides of the refrigerator or
when the refrigerator is placed and the end of a cabinet run. You
may choose an Inset or Recessed Inset panel installation,
Refrigerator and Side Trim Dimensions
The width and height of a side panel are determined by the type
of installation you are planning.
NOTES:
• The dimensions shown are actual product dimensions
and may not reflect the needed installation dimensions.
• The side panel should be a minimum of 1/2"(1,27 cm) thick
to prevent warping.
• If the opening depth is 25" (63.5 cm) or more, you may
want to install a support board on the rear wall.
Refrigerator
L
Side Trim
3/8"
(9.7 mm)
1/16"
(1.5 ram)
V_" _-
(3,2 ram) _
3/16"
--_ _--- (4.5 ram)
Inset Installation Dimensions
1. Measure the distance from point A (as shown) to the back
wall. Add 1/32"(0.8 mm) to this measurement to allow the side
panel to fit into the trim.
2. If the panel is more than %" (9.5 mm) thick, rout the front
edge to allow the side panel to fit into the trim.
Recessed Inset Installation Dimensions
1. Measure the distance from point A (as shown) to back wall.
2. Rout the front edge of the support board or attach a %"
(9.5 mm) board to hold the panel in the cabinet side trim.
13

INSTALLATION
REQUIREMENTS The refrigerator can be recessed in an opening between cabinets
or installed at the end of a cabinet run using a side panel to
enclose the refrigerator.
IMPORTANT:
• Installer: Leave Installation Instructions with the homeowner.
• Homeowner: Keep Installation Instructions for future
reference. Save these Installation Instructions for the local
electrical inspector's use.
TOOLS NEEDED:
Gather the required tools and parts before starting installation.
Read and follow the instructions provided with any tools listed
here.
• Hand drill or electric drill • Torx®tT27 screwdriver
(properly grounded)
• Drill bits • rl/32"nut driver
• Two adjustable wrenches • %" and 1/2"open-end
wrenches
• Phillips screwdriver • %2" Allen wrench
• Small level • %6" socket wrench
• Appliance dolly • Tape measure
PARTS NEEDED:
• Six #8 x 3" (7.6 cm) wood screws (longer screws may be needed)
• One or two 2" x 4" x 32" (5 cm x 10 cm x 81 cm) wood board(s)
• Order factory panels, make custom panels or consult a
qualified cabinetmaker or carpenter to make the panels.
Classic Series: Order factory panels, make custom panels, or
consult a qualified cabinetmaker or carpenter to make the
panels. See "Design Specifications" for more information.
Overlay Series: Make custom panels, or consult a qualified
cabinetmaker or carpenter to make the panels. See "Design
Specifications" for more information.
Complete, Architect _ and Pro Line®Series are shipped
complete.
• If you are connecting the water line directly to copper tubing
and not to a shutoff valve, you need a ferrule, a union, and a
r/4" (6.35 mm) compression fitting.
1-®TORX is a registered trademark of Textron Innovations Inc.
Expmosion Hazard
Keep flammable materials and vapors, such as
gasoUne, away from refrigerator.
Faimure to do so can resumt in death, explosion, or fire.
IMPORTANT:
• Observe all governing codes and ordinances.
• It is recommended that you do not install the refrigerator
near an oven, radiator, or other heat source.
• Do not install in a location where the temperature will fall
below 55°F (13°C).
• Floor must support the refrigerator weight, more than
600 Ibs (272 kg), door panels and contents of the
refrigerator.
• Ceiling height must allow for side tipping radius. See
"Tipping Radius."
• Location should permit door to open fully. See "Door
Swing Dimensions."
• Location must permit top grille removal. See "Opening
Dimensions."
Opening Dimensions
The solid soffit must be within 1" (2.5 cm) maximum above
the refrigerator. If the solid soffit is higher than 1" (2.5 cm) or
one is not available, then the refrigerator must be braced to
prevent tipping during use.
If the anti-tip boards are needed, they must be attached to
the rear wall studs 80" to 90" (203 - 229 cm) above the floor.
See "Install Anti-Tip Boards" for more information.
NOTE: A clearance of 1/2"(1.3 cm) must be maintained in front
of the refrigerator's side trim in order for the top grille to be
removed.
A grounded 3 prong electrical outlet should be placed within
4" (10.2 cm) of the right side cabinets or end panel. See
"Electrical Requirements" for additional information.
The water shutoff should be located in the base cabinet on
either side of the refrigerator or some other easily accessible
area. If the water shutoff valve is not in the cabinets, the
plumbing for the water line can come through the floor or the
14

back wall. See "Water Supply Requirements" for more
specific information.
mirl.
84_/4'' (215 cm) max.
to bottom of solid soffit
351/2"
(90,2 cm)
(10.2 cm
77"
(196 cm)
6"
5,2 cm)
231/2''
(60 cm) min,
Emectrica_ Shock Hazard
Pmuginto a grounded 3prong outlet.
Do not remove ground prong.
Do not use an adapter.
Do not use an extension cord.
Failure to follow these instructions can resumt in death,
fire, or electrical shock.
Before you move your refrigerator into its final location, it is
important to make sure you have the proper electrical
connection.
Recommended Grounding Method
A 115 Volt, 60 Hz., AC only 15- or 20-amp fused, grounded
electrical supply is required. It is recommended that a separate
circuit serving only your refrigerator be provided. Use an outlet
that cannot be turned off by a switch. Do not use an
extension cord.
IMPORTANT: If this product is connected to a GFCI (Ground
Fault Circuit Interrupter) protected outlet, nuisance tripping of the
power supply may occur, resulting in loss of cooling. Food quality
and flavor may be affected. If nuisance tripping has occurred,
and if the condition of the food appears poor, dispose of it.
NOTE: Before performing any type of installation, cleaning, or
removing a light bulb, remove the top grille and turn the master
power switch to OFF or disconnect power at the circuit breaker
box.
When you are finished, turn ON the master power switch or
reconnect power at the circuit breaker box. Then reset the control
to the desired setting.
All installations must meet local plumbing code requirements.
The water shutoff should be located in the base cabinet on
either side of the refrigerator or some other easily accessible
area. The right-hand side is recommended. The access hole
through the right-hand side cabinet must be within 1/2"
(12.7 mm) of the rear wall.
5"
(15.2 cm)
231/2"
(60 cm) min.
If the water shutoff valve is not in the cabinets, the plumbing
for the water line can come through the floor or the back wall.
A 1/2"(12.7 mm) hole for plumbing should be drilled 6"
(15.2 cm) to 12" (30.4 cm) from the right-hand side cabinet or
panel. On the floor, the hole should be no more than 11"
(28 cm) away from the back wall. On the wall, the hole should
be no more than 3" (7.6 cm) up from the floor. See "Connect
the Water Supply."
If this recommended water line location is used, no additional
plumbing must be purchased.
If additional tubing is needed, use copper tubing and check
for leaks. Install the copper tubing only in areas where the
household temperatures will remain above freezing.
Do not use a piercing-type or 3/16"(4.76 mm) saddle valve
which reduces water flow and clogs more easily.
NOTE: Your refrigerator dealer has a kit available with a 1/4"
(6.35 mm) saddle-type shutoff valve, a union, and copper
tubing. Before purchasing, make sure a saddle-type valve
complies with your local plumbing codes.
15

Water Pressure
A cold water supply with water pressure between 30 and 120 psi
(207 - 827 kPa) is required to operate the water dispenser and ice
maker. If you have questions about your water pressure, call a
licensed, qualified plumber.
Reverse Osmosis Water Supply
IMPORTANT: The pressure of the water supply coming out of a
reverse osmosis system going to the water inlet valve of the
refrigerator needs to be between 30 and 120 psi (207 - 827 kPa).
If a reverse osmosis water filtration system is connected to your
cold water supply, the water pressure to the reverse osmosis
system needs to be a minimum of 40 to 60 psi (276 - 414 kPa).
If the water pressure to the reverse osmosis system is less than
40 to 60 psi (276 - 414 kPa):
• Check to see whether the sediment filter in the reverse
osmosis system is blocked. Replace the filter if necessary.
• Allow the storage tank on the reverse osmosis system to refill
after heavy usage.
•If your refrigerator has a water filter cartridge, it may further
reduce the water pressure when used in conjunction with a
reverse osmosis system. Remove the water filter cartridge.
If you have questions about your water pressure, call a licensed,
qualified plumber.
INSTALLATION
INSTRUCTIONS
NOTE: Do not remove tape and door bracing until the
refrigerator is in its final position.
If necessary, reduce the tipping radius. See "Tipping Radius"
for ceiling height requirements or "Reduce Tipping Radius"
for step-by-step instructions. If you do not need to reduce
the tipping radius, proceed to "Move the Refrigerator into
House."
Before bringing the refrigerator into the home, be sure there is
adequate ceiling height to stand the refrigerator upright. See
"Tipping Radius" in the "Design Specifications" section for more
information.
If you do not have adequate ceiling height to stand the
refrigerator upright, the tipping radius can be reduced by
removing the top grille and side trims (see the following chart).
0__ educed Tipping Radius t88"
36 (223.5 cm)
Classic and Overlay Series
1. Grasp both ends of the top grille.
2. Push the top grille straight up; then pull straight out. Lay the
grille on a soft surface.
Tip Over Hazard
Refrigerator is top heavy and tips easily when not
completely installed.
Keep doors taped closed until refrigerator is
completely installed.
Use two or more people to move and install
refrigerator.
Failure do so can result in death or serious injury.
IMPORTANT:
• Do not remove the protective film until the refrigerator is in its
operating position.
• All four leveling legs must contact the floor to support and
stabilize the full weight of the refrigerator.
• Keep the cardboard shipping piece or plywood under the
refrigerator until it is installed in the operating position.
1. Remove and save the literature package and parts bag taped
to the refrigerator door. Remove the four brackets (two on
each side) that attach the shipping base to the refrigerator
bottom.
A. Top grille
B. Cabinet side trim
3. Remove the six screws attaching each cabinet side trim to
the refrigerator and remove the side trims.
Architect _Series
Grasp both ends of the louver panel. Push the louver panel
straight up; then pull straight out. Lay the panel on a soft
surface.
Grasp both ends of the top grille. Push the top grille straight
up; then pull straight out. Lay the top grille on a soft surface.
B A B
iiiiii_
C
A. Top grille
B. Cabinet side trim
C. Louver panel
3. Remove the six screws attaching each cabinet side trim to
the refrigerator and remove the side trims.
16

Pro Line TM Series
1. Grasp both ends of the top grille.
2. Push the top grille straight up, and then pull straight out.
3. Disconnect the wiring harness from the back of the top grille.
4. Lay the top grille on a soft surface.
5. Remove the six screws that attach each cabinet side trim to
the refrigerator, and remove the side trims.
ii!_iiii!ilo '_i;¸¸¸¸_iii!!t ii!i__i?iiiiiii!iil_!!__ii!ii:i_ii!i;,i_iii!__:_;i!!_i!:o,_:_iiiii_i_!ii:_ii,¸,!iiil¸:iilo _:_!_!_!i'_i;:;_!!:
Tip Over Hazard
Refrigerator is top heavy and tips easily when not
completely installed.
Keep doors taped closed until refrigerator is
completely installed.
Use two or more people to move and install
refrigerator.
Failure do so can result in death or serious injury.
E
1. Place an appliance dolly under the left side of the refrigerator
as shown. Be sure to protect the side trims and handles.
Place the corner posts from the packing materials over the
trims and handles as appropriate. Slowly tighten the strap.
NOTE: Pass the dolly strap under the handles for the
Architect _ Series.
2. Place pieces of the shipping carton on the floor when rolling
the dolly and refrigerator into the house. Move the refrigerator
close to the built-in opening.
3. Place top of cardboard carton or plywood under refrigerator.
Remove dolly.
4. Do not remove protective film or cover.
5. If necessary, reassemble the trim and top grille after the dolly
has been removed from the refrigerator.
IMPORTANT:
• The solid soffit must be within 1" (2.5 cm) maximum above
the refrigerator. If the solid soffit is higher than 1" (2.5 cm) or
one is not available, prevent the refrigerator from tipping
during use as shown.
• It is recommended that board(s) be installed before the
refrigerator is installed.
• Board(s) must be long enough to fully cover the width of the
compressor cover.
• Locate the board(s) so the bottom surface(s) of the board(s)
is(are) 84" (213 cm) from the floor.
During installation, raise the refrigerator up so there is 1/4"
(6.35 mm) maximum between the top of the refrigerator and
the bottom of the anti-tip board(s). Do not crush the
condenser cover when raising the rear leveling legs.
To Install Anti-tip Boards
1. Mark the stud locations on rear wall 80" to 90" (203 cm to
229 cm) above floor.
2. Securely attach one or two 2" x 4" x 32" (5 cm x 10 cm x
81 cm) wood boards to wall studs behind refrigerator. Use six
#8 x 3" (7.6 mm) (or longer) wood screws. The wood screws
must be screwed into the studs at least 11/2"(3.8 cm). The
board(s) must overlap the compressor cover.
A B
D
A. Center board _" (6.35 mm) max. above refrigerator
B. Two 2" x 4" x 32" (5 cm x 10 cm x 81 cm) boards
C. Attach to studs with six #8 x 3" (7.6 cm) screws
D. Compressor cover
17

O::i_,!_!_!_:__i_i_is_ii!x:i!ilili:i:il__?_V_?}ii_;_:_iii!_s:¸¸S_i:_i_ii!i,_ii:?iiiiii},¸,¸
Read all directions before you begin.
IMPORTANT: If you turn the refrigerator on before the water line
is connected, turn the ice maker OFR
Connect to Water Line
1. Unplug refrigerator or disconnect power.
2. Turn OFF main water supply. Turn ON nearest faucet long
enough to clear line of water.
3. Locate a 1/2"to 11/4'' (1.25 cm to 3.18 cm) vertical cold water
pipe near the refrigerator.
IMPORTANT:
4=
5=
• Make sure it is a cold water pipe.
• Horizontal pipe will work, but drill on the top side of the
pipe, not the bottom. This will help keep water away from
the drill and normal sediment from collecting in the valve.
Determine the length of copper tubing you need. Measure
from the connection on the lower left rear of refrigerator to the
water pipe. Add 7 ft (2.1 m) to allow for cleaning. Use 1/4"
(6.35 mm) O.D. (outside diameter) copper tubing. Be sure
both ends of copper tubing are cut square.
Using a grounded drill, drill a %" hole in the cold water pipe
you have selected.
..................A
G..................B
........ ......... C
A. CoM water p@e _-.Uompress¢on sleeve
B. Pipe clamp F Shutoff valve
C.Copper tubing G.Packing nut
D. Compression nut
6. Fasten the shutoff valve to the cold water pipe with the pipe
clamp. Be sure the outlet end is solidly in the 1/4"drilled hole
in the water pipe and that the washer is under the pipe clamp.
Tighten the packing nut. Tighten the pipe clamp screws
slowly and evenly so washer makes a watertight seal. Do not
overtighten, or you may crush the copper tubing.
7. Slip the compression sleeve and compression nut on the
copper tubing as shown. Insert the end of the tubing into the
outlet end squarely as far as it will go. Screw compression nut
onto outlet end with adjustable wrench. Do not overtighten
the clamp or the sleeve. This will crush the copper tubing.
8. Before attaching copper tubing to the refrigerator place the
free end of the tubing in a container or sink and turn on the
main water supply. Flush at least 2 qt (1.9 L) of water through
the copper tubing until water is clear to get rid of any particles
in the water line. Turn off the shutoff valve on the water pipe.
Coil the copper tubing.
9. Check for leaks around the saddle valve.
Connecting to Refrigerator
Style I -Copper Line Connection
1. Remove the shipping tape from the gray, coiled water tubing
on the rear of the refrigerator.
2. A 1/4"x 1/4"coupling is needed in order to connect the water
tubing to an existing household water line. Thread the
provided nut onto the coupling on the end of the copper
tubing.
NOTE: Tighten the nut by hand. Then tighten it with a wrench
two more turns. Do not overtighten.
3=
4.
AB CO
A. Refrigerator water tubing E.Ferrule (purchased)
B. Nut (provided) FNut (purchased)
C.Bulb G. Household water
D.Coupling (provided) line
Turn shutoff valve ON.
Check for leaks. Tighten any nuts or connections (including
connections at the valve) that leak.
NOTE: Allow 24 hours to produce the first batch of ice. Discard
the first three batches of ice produced. Allow 3 days to
completely fill ice container.
Style 2 -Shutoff Valve Connection
1. Remove the shipping tape from the gray, coiled water tubing
on the rear of the refrigerator.
2. Thread the provided nut onto the water valve as shown.
NOTE: Tighten the nut by hand. Then tighten it with a wrench
two more turns. Do not overtighten.
A
B
A. Bulb
B. Nut (provided)
3. Turn shutoff valve ON.
4. Check for leaks. Tighten any nuts or connections (including
connections at the valve) that leak.
NOTE: Allow 24 hours to produce the first batch of ice. Discard
the first three batches of ice produced. Allow 3 days to
completely fill ice container.
18

Emectrical Shock Hazard
Pmuginto a grounded 3 prong outlet°
Do not remove ground prong.
Do not use an adapter.
Do not use an extension cord°
Failure to follow these instructions can reeumt }n death,
fire, or electrical shock.
1. Set control switch at top of cabinet to the OFF position.
2. Plug into a grounded 3 prong outlet.
Tip Over Hazard
Refrigerator is top heavy and tips easily when not
completely installed.
Keep doors taped closed until refrigerator is
completely installed.
Use two or more people to move and install
refrigerator.
Failure do so can result in death or serious injury.
IMPORTANT: To prevent floor damage, make sure levelers are
raised (not touching floor) and refrigerator is on rollers before
moving.
1. Move the refrigerator straight back and evenly into the
opening. Be sure that water tubing is not kinked and the
power supply cord is on top of the refrigerator next to the
cover.
Co :
NOTE: All four leveling legs must contact the floor to support and
stabilize the full weight of refrigerator. Rollers are for moving
refrigerator and not for permanent support.
Use socket wrench to turn leg levelers on both sides of
refrigerator to the right (clockwise) until refrigerator weight is
supported by leveling legs. The rollers should be off the floor.
To avoid cabinet damage, do not apply more than 50 inch-
pounds (58 cm - kg) of torque to the leveling legs.
!i il
A B
A. Rear leveling legs
B. Front leveling legs
': :c S: :1
IMPORTANT: KitchenAid is not responsible for the removal or
addition of molding or decorative panels that would prevent the
refrigerator from being serviced.
Door and Drawer Panels
1. Remove all tape and door bracing from the refrigerator door
and freezer drawer.
2. Remove the screws that attach the handle to the frame.
3. Slide the decorative door panel into the frame.
4. If needed, rout the door and drawer panels or install a filler
panel between the door and drawer and the decorative
panels. See the "Classic Series Custom Panels" section in
"Design Specifications."
_A
B
A. Door panel
B. Drawer panel
Replace the door and drawer handles. Be sure that the door
and drawer are aligned.
19

6. Remove the protective skin from the screw covers. Snap the
screw covers into the handle trim section. 5. Replace the top grille in the cabinet side trims and pull the
panel down slightly to lock it into place.
B A B
7. If the door gap is uneven, see "Adjust and Remove Door."
Top Grille Panel
1=
2.
Grasp both ends of the top grille.
Push straight up; then pull straight out. Place the top grille
panel-side down on a soft working surface.
B A B
A. Top grille
B. Cabinet side trim
3. Remove one end cap by loosening the nuts and sliding the
end cap off.
A
A. Bottom rail C. End cap
B. Nuts D. Toprail
4. Slide the panel into the top grille channel and reattach the
end cap.
A. Panel
A. Top grille
B. Cabinet side trim
IMPORTANT:
• Install the custom handles prior to installing the panels on
the refrigerator. For more information on KitchenAid
custom handle selection, refer to the KitchenAid Catalog,
visit www.kitchenaid.com, or call 1-800-422-1230.
In Canada, visit www.KitchenAid.ca, or call
1-800-461-5681.
• Create custom door overlay panels according to the
specifications in the "Overlay Series Custom Panels"
section.
• KitchenAid is not responsible for the removal or addition
of molding or decorative panels that would prevent the
refrigerator from being serviced.
Door Panel Installation
1. Remove all tape and door bracing from the refrigerator door
and freezer drawer.
2. Open the refrigerator door and freezer drawer and remove the
trims.
S............
A. Refrigerator door trims
B. Freezer drawer trim
2O

3=
4=
5.
Slide the custom panels into the trims on the refrigerator door
and freezer drawer, making sure that the backer panel fits into
the hinge side trims.
........................................ _ ,]
A
A. Panels
Reinstall the handle-side and top trims.
Remove the protective skin from the screw covers. Snap the
screw covers into the handle trim section.
3. Remove one end cap by loosening the nuts and sliding the
end cap off. A
A. Bottom rail C.End cap
B. Nuts D. Toprail
4. Slide the panel into the top grille channel and reattach the
end cap.
Replace the top grille in the cabinet side trims and pull the
panel down slightly to lock it into place.
B A B
A. Top grille
B. Cabinet side trim
Top Grille Panel
1=
2.
Grasp both ends of the top grille.
Push straight up; then pull straight out. Place the top grille
panel-side down on a soft working surface.
B A B
NOTE: Custom or full-overlay door panels must be installed
before leveling.
1. Open the door and place the level on top of the refrigerator
frame as shown. Check to see whether the refrigerator is level
from left to right.
A.........
B
A. Top grille
B. Cabinet side trim
A. Level to check left to right leveling
B. Level to check front to back leveling
Use the leveling bolts to adjust the leveling legs until the
refri( erator is level from left to right.
A. Rear leveling bolt
B. Front levering bolt
21

3. Place the level(s) on shelf or shelves. Check to see whether
the refrigerator is level from front to back.
4. Use the leveling bolts to adjust the leveling legs until the
refrigerator is level from front to back.
5. Be sure that all four leveling legs contact the floor and
support the full weight of the refrigerator.
6. Make final check to ensure the refrigerator is level.
Door Removal and Alignment
NOTE: Do not loosen the two 1/4"hex-head mounting screws.
A
A. Torxc_t27 flat-head mounting screws
B. ¼" box-head mounting screws
Use the following steps to remove door during installation.
1. Pull out freezer drawer and set it aside.
2. Loosen and remove the four Torx®t27 flat-head mounting
screws on top of hinge. Keep the screws together.
3. Lift the door up and away from the refrigerator and set it
aside.
Use the following steps to reinstall the door.
1. Replace freezer drawer.
2. Position the door so the mounting screw holes on top of
hinge are aligned.
3. Insert the four Torx®t27 flat-head mounting screws on top of
hinge. Make sure the spacing between the doors is the same
distance at the left and right.
4. Tighten the screws on the hinge.
Use the following steps to adjust door alignment if door
needs to be adjusted up or down.
1. Inspect spacing of the gap between the freezer drawer and
the refrigerator door. Make sure the spacing between the
doors is the same distance at the left and the right.
U
( >
2.
_lllllllllllllllllllllllllllll_ I
A. Uneven door gap
If the door gap is uneven, loosen the 4 Torx®t27 flat-head
mounting screws on top of the hinge. Loosen screws to the
point that the hinge is movable, but there is friction when
trying to move the hinge. Do not loosen the two %" hex-head
mounting screws.
A
A. Torx_27 flat-head mounting screws
B. ¼" hex-head mounting screws
3. Adjust the hinge so that the door gap is the same distance on
the left as it is on the right. The hinge side distance should be
used as the template for the handle side.
4. Tighten screws on the hinge.
Door Swing Adjustment
1. Check that the refrigerator door can open freely. If the door
opens too wide, remove the door stop screw from the bottom
hinge.
2.
3.
A
A. Doorstop screw in 110°position
Hold the door open to a position that is less than 90 °.
Replace the door stop screw in the bottom hinge and tighten.
IMPORTANT: Do not place the door stop screw in the 130 °
position on Overlay Series models. See "Handle and Door
Clearances."
.....i' ii
A B C
A. Door stop screw in 130°position
B. 110°postion (Overlayseries)
C. 90°position
If the built-in area depth is 25" (63.5 cm) or more, the side panels
can be installed inside the side trim or attached to the outside of
the side trim.
1-®TORX is a registered trademark of Textron Innovations Inc.
22

IMPORTANT: KitchenAid is not responsible for the removal or
addition of molding or decorative panels that would prevent the
refrigerator from being serviced.
1. For the inside side trim piece, slide the front edge of the
routed side panel into the trim piece.
2. Nail the rear edge of the panel to the support board.
A. Support board
B. Side trim piece
_4i._ _, _ _ S ¸¸__,_ _
There are two pieces to the base grille to allow for a custom fit:
the base grille itself and the skirt. The skirt can be added to the
base grille in order to extend it all the way to the floor.
1. Open the refrigerator door and measure the distance from the
bottom of the refrigerator cabinet to the floor.
B
2.
JJJJJJJJJJ
A. Floor
B. Refrigerator cabinet bottom
C. Distance to be measured
Measure this same distance from the top of the base grille to
the closest "V" groove on the skirt. Use a knife to score down
the "V" groove and break the skirt at the score line.
A
3. Slide the skirt onto the base grille.
4. Then attach the base grille to the cabinet with the two screws
provided.
Please read before using the water system.
Immediately after installation, follow the steps below to make
sure that the water system is properly cleaned.
1. Turn off the ice maker by opening the freezer door and lifting
up the wire shutoff arm as shown.
NOTES:
• If your model has a base grille filter system, make sure the
base grille filter is properly installed and the cap is in the
horizontal position.
Do not use with water that is microbiologically unsafe or
of unknown quality without adequate disinfection before
or after the system. Systems certified for cyst reduction
may be used on disinfected waters that may contain
filterable cysts.
Turn on the ice maker by opening the freezer door and
lowering the wire shutoff arm as shown. Please refer to the
"Ice Maker and Storage Bin" section in the Use & Care Guide
for further instructions on the operation of your ice maker.
• Allow 24 hours to produce the first batch of ice.
• Discard the first three batches of ice produced.
1. Turn the water supply line valve to the "Open" position.
2. Turn the refrigerator switch to the ON position. See "Power
On/Off Switch" in the Use & Care Guide for instructions. Wait
a few minutes. Check the water line connections for leaks.
3. Remove all boxes, parts packages and packing materials
from the interior of the refrigerator. See the "Cleaning" section
in the Use & Care Guide for instructions. Remove the
protective film and cardboard from the grille and doors or
door frame, depending on your model.
4. Install the shelves and bins in the refrigerator and freezer
compartments.
5. The controls are preset at the factory to the midpoint setting.
Check to be sure that the compressor is operating properly
and that all the lights are working.
6. If construction will continue after the refrigerator has been
installed, set the controls to OFE
To get the most efficient use from your new built-in refrigerator,
read your Use & Care Guide. Keep Installation Instructions and
Use & Care Guide near the built-in refrigerator for easy reference.
C
A. Grille and skirt assembly
B. Measured distance from above in Step 2
C. Score "V" groove
23

SEGURIDAD DEL REFRIGERADOR
Su seguridad y la seguridad de los demas es muy importante.
Hemos incluido muchos mensajes importantes de seguridad en este manual yen su electrodomestico. Lea y obedezca siempre
todos los mensajes de seguridad=
Este es el simbolo de advertencia de seguridad.
Este simbolo le llama la atencion sobre peligros potenciales que pueden ocasionar la muerte o una lesion a
usted y a los dem_.s.
Todos los mensajes de seguridad iran a continuacidn del simbolo de advertencia de seguridad y de la palabra
"PELIGRO" o "ADVERTENCIA". Estas palabras significan:
Si no sigue las instrucciones de inmediato, usted puede
morir o sufrir una lesion grave.
Si no sigue las instrucciones, usted puede morir o sufrir
una lesion grave.
Todos los mensajes de seguridad le diran el peligro potencial, le diran cdmo reducir las posibilidades de sufrir una lesidn y Io que
puede suceder si no se siguen las instrucciones.
Pe_igro de Vuelco
El refrigerador puede volcarse cuando esta siendo
insta_ado debido a que _a parte superior es pesada,
Mantenga las puertas cerradas con cinta hasta que el
refrigerador est@.compietamente insta_ado,
Use dos o mas personas para mover e insta_ar e{
refrigerador,
No seguir estas instruceiones puede ocasionar
_amuerte o herida seria,
24

ESPECIFICACIONES DE DISEI O
Modelos
Serie Architect ®
Presenta un estilo envolvente que complementa los contornos de
las agarraderas de la puerta Esta serie ofrece un estilo comercial
calido para refrigeradores empotrados.
KBRC36FMS KBLC36FMS
Serie Classic
Presenta un adorno tipo tradicional instalado de fabrica que ofrece
un estilo "enmarcado'. Esta serie requiere la instalaci6n de paneles
a la medida que no estan incluidos.
KBRS36FMB KBRS36FMX KBLS36FMB
KBLS36FMX
m
Serie Overlay
Presenta un adorno recubierto instalado de fabrica que ofrece un
estilo "sin marco". Esta serie requiere la instalaci6n de paneles,
agarraderas y pedestales a la medida.
KBRO36FMX KBLO36FMX
Serie Completa
Presenta un adorno y paneles de acero inoxidable instalados de
fabrica para crear una apariencia elegante y contemporanea.
KBRP36FMS KBLP36FMS
25

Serie Pro LineTM
Presenta un dise_o extraordinario y niveles excepcionales de
rendimiento. Esta serie constituye una combinaci6n ideal de
forma y funci6n que ofrece calidad profesional, durabilidad y
simplicidad.
KBRV36FPM KBRV36FPS KBLV36FPM
KBLV36FPS
vista lateral
• La profundidad del frente de la rejilla superior a la parte
posterior del gabinete del refrigerador es de 251/8'' (64 cm).
• El cable de suministro de energfa es de 84" (213 cm) de largo.
• La Ifnea de agua ajustada a la parte posterior del refrigerador
es de 5 pies (1,5 m) de largo.
• Las medidas de altura indicadas consideran las patas
niveladoras extendidas 1/8"(3 mm) per debajo de los rodillos.
251/8"
(64 cm)
231/2 ''
(60 cm)
.831/s ''
(211 cm)
84" (213 cm)
cable de suministro
de energfa
1f"31/2" (9 cm)
*Si las patas niveladoras estan totalmente extendidas 11/4"
(32 mm) por debajo de los rodillos, agregue 11/8"(29 mm) alas
medidas de altura.
Vista superior
357/16''
(90 cm) T
251/s''
(64 cm)
26

Vista frontal
• Las medidas de anchura indicadas consideran la distancia de
adomo externo a adorno externo.
• Las medidas de altura indicadas consideran las patas
niveladoras extendidas _/8"(3 mm) por debajo de los rodillos.
< >
361/4'' (92 cm)
.831/8''
(211 cm)
L
*Si las patas niveladoras estan totalmente extendidas 1V4"
(32 mm) por debajo de los rodillos, agregue 1_/8"(29 mm) a las
medidas de altura.
Antes de colocar en su lugar el refrigerador, asegQrese que
dispone de suficiente altura al techo para que el refrigerador este
completamente derecho.
• Si se utiliza una plataforma rodante, se debe agregar la altura
de sus ruedas al arco de vuelco.
• Si desea reducir el arco de vuelco, vea la seccidn "C6mo
reducir el arco de vuelco."
Arco de vuelco lateral
NOTA: Se vuelca s6lo de costado.
A...........
901/2''
_(229,9 cm)
A. Vuelco Onicamente
es este/ado
La ubicaci6n debe permitir que la puerta se abra a un mfnimo de
90°. Deje un espacio m[nimo de 4_/='' (11,4 cm) entre el lado del
refrigerador y una pared de la esquina.
NOTA: Puede ser que se requieran mas espacios libres siesta
usando paneles recubiertos o agarraderas a la medida.
Para ajustar la oscilacidn de la puerta, vea la secci6n "Cdmo
ajustar la puerta."
Modelos de 36" (91 cm)
23"
< (58cm)
51 "
(130 cm)
59"
(150 cm)
27

i!i:ii!!!,iiii?;_!__::!i_i_i__::i_,_!_!;il:i;_¸,_!_ii:;_i!_ii;_ilii_i!i_iill;_;__i:_ii,:_;;i_ii__:!_:_ii:_i!i_i!ii_i!,;i_i_i_iiii:;___i,_i?d:_ii!i_
Siesta instalando paneles a la medida, los paneles deben dejar ciertos espacios para las agarraderas y para la abertura de la puerta.
Primero determine el tipo de agarraderas que usara y el ajuste del tope de la puerta. Despues utilice los dibujos a escala adecuados
como plantilla para crear los paneles.
Agarradera
Classic
Agarradera
extensible
opcional
Pue_a
Panel a la medida
i
i
i i
i i
i
i
i
I I
I I
I I
I I
4
ii
ii
i i
i i
i i
i i
i i
/
)
......... 1/4"(6,35 mm)
1/2"(1,3 cm)
3/4"(1,9 cm)
1" (2,5 cm)
11/4"(3,2 cm)
11/2"(3,8 cm)
13/4"(4,4 cm)
2" (5,1 cm)
21/4"(5,7 cm)
21/2'' (6,4 cm)
23/4 '' (7 cm)
3" (7,6 cm)
Dimensiones de la agarradera
Tama_o real
1" 2" 3"
(2,5 cm) (5,1 cm) (7,6 cm)
28

IO
OBisagra
Panel espaciador
Serie Overlay
Abertura de la puerta 90 °
Tamaho real
Espacio desde el refrigerador
hasta los armarios
Adorno lateral
del refrigerador
iiiiii
iii
i i
, , ---1 .... _---_
iiii
iiii
iiiii
_÷_____ .... _ j. _1
i i i i
i i i i
i i i i
iii
i
, -7 .... i.... T- "-_ ....
I
I
I
f
I
I
I
- i- .... i
i
i
i
L
I 1/4"
1/2"
(1,3 cm)i
3/4"
(1,9 cm)
1"
(2,5cm)
"0 (3,2 cm)
11/2"
= (3,8 cm)
0
<
1/4"(6,35 mm)
1/2"(1,3 cm)
3/4"(1,9 cm)
1" (2,5 cm)
11/4"(3,2 cm)
11/2"(3,8 cm)
29

I
0
0
0
Bisagra
®
NOTA: No coloque el tornillo del reten de la
puerta en la posicion de 130 ° en los modelos
de la serie recubierta. Vea "Cdmo ajustar la
altura de la puerta."
Serie Overlay
Abertura de la puerta 110 °
Tamaho real
Espacio desde el refrigerador
hasta los armarios
Adorno lateral
del refrigerador 1"
(2,5 cm)
3/4"
(1,9 cm)
1/2"
(1,3 cm)
1/4"
(6,35 mm)
1
(2,5 cm)
(5,1 cm)
13/4" ',
(4,4 cm)i
1_/_'' !
(3,8 cm)',
11/4" i
(3,2 cm)',
1/4" (6,35 mm)
1/2"(1,3 cm)
3/4"(1,9 cm)
1" (2,5 cm)
11/4"(3,2 cm)
11/2"(3,8 cm)
Panel espaciador
3O

i/i_;_i:_:ii:!_i_i;iii_i!!':_!!i;_i!i:_¸_ii_!_ii_:!!iii!!i;_;:i_!!_!ii'_;:!ii_ii!_iii!;_i!!iii/::_'_i_:!iiic_ii__;:!ii_!_!i_i!_
i!!iiiil,,_:!__i_i::i_!:!__Ciiiiiii_i_!!_%!,i_iliil_::i,_,_:_i!!i__i_i_i_:ii!ilil__!,ii!i:,_ii!!__::i_!__iii!i,_,_'O_i__:I!_,_SI!!;_!_iii!!i_
Todas las piezas de fabrica estan disponibles con su distribuidor
KitchenAid o Ilamando a KitchenAid Parts and Accessories
(Refacciones y accesorios KitchenAid) al 1-800-442-9991. En
Canad& Ilame al 1-800-807-6777.
Juegos de paneles para puertas de f&brica
Estan disponibles cuatro juegos que incluyen paneles de acr(lico
de colores o acero inoxidable para las puertas y las rejillas
superiores. Para la instalaci6n de los paneles siga las
instrucciones del juego.
NOTA: Los juegos de paneles no son necesarios para los
)aneles de acero inoxidable instalados de fabrica.
Color 36" (91 cm)
Blanco #2300072
Negro #2300073
Acero inoxidable #22300074
Juego para rejilla superior de 72" (183 cm) para la Serie
Classic y Architect _
Estan disponibles los juegos de panel de rejilla superior de 72"
(183 cm) de ancho. Estos juegos permiten que se instalen
2 unidades (una que abra a la izquierda y una que abra a la
derecha) lado a lado, con una sola rejilla.
Color 72" (183 cm)
Blanco #2300075
Negro #2300076
Acero inoxidable (Serie Classic) #2300077
Acero inoxidable (Serie Architect ®) #2302797
Overlay #2300078
Juegos de extensibn de agarraderas de puerta
Use las agarraderas de extensi6n de la puerta si necesita mas
espacio para los dedos entre las agarraderas de las puertas y los
paneles a la medida. Siga las instrucciones del juego para la
instalaci6n de las agarraderas de las puertas.
Color Abre a la izquierda Abre a la derecha
Blanco (Serie #4396119 #8171424
Classic)
Negro (Serie #4396116 #8171427
Classic)
Acero inoxidable #4396118 #8171425
(Serie Classic)
Aluminio mate #4396120 #8171423
etche (Serie
Classic)
Color Abre a la izquierda Abre a la derecha
Aluminio mate #4396718
(Serie Overlay)
Siva a instalar paneles de madera a la medida, debera hacerlos
usted mismo 0 consultar un carpintero 0 fabricante de gabinetes
calificado. Para obtener informaci6n acerca de las
especificaciones de los paneles, vea los graficos dimensionales.
IMPORTANTE: Los paneles que pesan mas de Io recomendado
pueden da_ar a su refrigerador.
NOTA: Las medidas que se muestran tienen una tolerancia de
(±)1/16"(1,5 mm). Los paneles de mas de 1/4"(6,35 mm) de grosor
deberan contornearse. Si los paneles tienen menos de 1/4"
(6,35 mm) de grosor, instale un panel de relleno entre la puerta y
el panel decorative.
Panel de la rejilla superior
El panel superior no debera pesar mas de 10 Ib (4,5 kg).
341/2" ____1_1
I'_-- (87,63 cm)
J___ (18,4 cm)
Paneles del refrigerador y congelador
El panel del congelador no debera pesar mas de 30 Ib (13 kg). El
panel del refrigerador no debera pesar mas de 50 Ib (22 kg).
341/4''
<_ (87 cm)
341/4 ''
(87 cm)
49"
(124,5 cm)
!
201/8"
(51,1 cm)
31

Requisitos de contorneado del panel de la rejilla
superior
Los bordes super!ores e infer!ores del panel superior deberan set
contorneados per el borde 1/2"(1,3 cm) y %" (9,5 cm)
respectivamente. Los dos extremes deberan set contorneados a
%" (2,2 cm) tal come se muestra.
¼"Tr- Roi,,la
(2,2 cm)
1!1/4 ''
Reii,la ( '22mm)
zj(2,2cm)
NOTA: Cuando haga un panel con detalles frontales, los
desplazamientos estaran escondidos y se deberan tomar en
cuenta para poder centrar el detalle en la rejilla superior.
.9_--- ¼''
__ (6,35 mm) max.
--[-
1/2" Parte superior
(1,3 cm)
rain.
Centre el detalle
fronta! entre !os
desplazamientos
%" L
(9,5 ram)
rain. Parte inferior
--(6,35 mm) max.
Requisitos de contorneado de los paneles de la puerta
Si se usa el juego de agarraderas extendidas, no es necesario
contornear del lade de la agarradera de los paneles de la puerta
y del caj6n. Vea la secci6n "Paneles y juegos de fabrica de la las
Series Classic, Architect _ y Overlay" para obtener mas
informaci6n y ordenar agarraderas extendidas.
Si se usa la manija normal, contornee todo el lade de la manija
31/4'' (8,25 cm) para dejar espacio para los dedos. Despues
contomee el otro lade 1" (2,54 cm).
Agarradera comt]n -- Vista superior
co
_d
_d
_b
<
3¼"
(8,25 cm)
mlrl.
° t
1/4"
(6,35 mm) max. I
[I
2" (5 cm)
min.
Panel de
la puerta
Panel de la puerta -Vista lateral
Lade de la bisagra
__J
Panel de [o
la puerta
1"
(2,54 cm)
V2" (1,3 cm)
c
(3-
Los paneles a la medida Overlay le permiten combinar el exterior
de su refrigerador con toda la decoraci6n de la cocina y usar las
agarraderas a la medida para mayor flexibilidad en el diseffo.
Los paneles a la medida deben tener paneles de soporte para
montarlos en el refrigerador. Lo mas comQn es trabajar con tres
paneles, come se muestra en el siguiente grafico: un panel
decorative Overlay, un panel espaciador de 1/8" (3,18 mm) o
franjas espaciadoras y un panel de soporte de 1A" (6,35 mm).
IPanel recubierto Panel espaciador IPanel espaciador
-r-i ,
i I .
1" mmlmo
1 1 (2,54 ram). ......
[ _d)rno de la
_[ _ puerta/rejilla
Medida de desplazamiento
En algunos cases, el fabricante de gabinetes puede elegir
trabajar con un panel trazado para las diferentes medidas. Siga
estas instrucciones para las medidas del panel y la ubicaci6n
para asegurarse de que los paneles recubiertos a la medida
encajaran adecuadamente.
32

IMPORTANTE:
•El peso del panel recubierto de la puerta del refrigerador no
puede ser mayor de 50 lb. (23 kg).
El peso del panel recubierto de la puerta del congelador no
puede ser mayor de 30 lb. (13,5 kg).
El peso del panel recubierto de la rejilla superior no puede ser
mayor de 10 lb. (4,5 kg).
Para minimizar el peso del panel, puede usar franjas
espaciadoras de 2" (5,08 cm) alrededor del perimetro en lugar de
paneles espaciadores de hoja plena macizos. Las franjas
espaciadoras deben fijarse a una distancia de al menos 1"
(2,54 cm) de la parte superior, inferior y extremos laterales del
panel de soporte. Si usa franjas espaciadoras, se recomienda
que use 2 franjas de 2" (5,08 cm) centradas horizontalmente para
soporte adicional.
NOTA: Para que la rejilla y los paneles de la puerta queden
alineados, el panel recubierto para la puerta debe ser 1A"
(6,35 mm) mas espeso que el panel recubierto de la rejilla.
341/2"
(87,63 cm)
7%"
(18,73 cm)
(87,63cm)
(21,59cm)t r---o€ '1
Desplazamiento
I_. 341/2''
(87,83 cm)
k_t
49%"
(124,78 cm)
50"
(127,0 cm)
(87,15 cm)
Desplazamiento
inferior
7h6"(11,1 mm)
_t
inferior 1" (2,54 cm)
Centre el
panel de
soporte de
izquierda
a derecha
t
209/16''
(52,23 cm)
-341/2"
(87,63 cm)
_--1 34%6"
I (87,15 cm)
203h6"
(51,28 cm)
--_'i Centreel
panel de
soportede
iizquierda
a derecha
_* Desplazamiento
inferior 1/_6"(1,6 mm)
Los paneles laterales a la medida pueden ser necesarios cuando
no hay suficiente espacio disponible para tener gabinetes en los
dos lados del refrigerador o cuando el refrigerador se coloca al
final de una tira de gabinetes. Usted puede elegir una instalacidn
de paneles empotrados, al ras o en relieve.
1 r r rr r
Medidas del refrigerador y del adorno lateral
El ancho y la altura del panel lateral estan determinados pot el
tipo de instalaci6n que usted planifique.
NOTAS:
• Las dimensiones que se muestran son las dimensiones
exactas del producto y puede que no reflejen las
dimensiones necesarias de la instalaci6n del panel.
• El panel lateral debera tenet un grosor m(nimo de 1/2"
(12 mm) para impedir pandeos.
• Si la profundidad de la abertura es de 25" (63,5 cm) o
mayor, tal vez quiera instalar una tabla de soporte en la
pared posterior.
Refrigerador
241/8"
(61,3 cm)
(69,3 cm) 23V2"
(59,7 cm)
Adornos laterales
1/4"
(6,35 ram)
3/16" _1
(4,7 ram)
(5,%turn)
1a/a2"(10 ram) %"
(15,7 ram)
1V64"
(4,5 ram)
.<
33

Medidas para la instalacibn empotrada
1. Mida la distancia del punto A (como se muestra) a la pared
posterior. Agregue %2" (5,6mm) a esta medida para que el
panel lateral se ajuste dentro del adorno.
2. Si el panel tiene mas de 1/4"(6,35 mm) de grosor, contornee el
borde delantero del panel para permitir que el panel lateral
encaje en el adorno.
Medidas para la instalacibn al ras
1. Mida la distancia del punto A (como se muestra) a la pared
posterior.
2. Afiance el tablero de soporte con tornillos o pegamento que
sea compatible con aluminio y madera.
NOTAS:
•Las medidas que se muestran son las medidas exactas
del producto y puede que no reflejen las dimensiones
necesarias de la instalaci6n.
• El panel lateral debera tenet un grosor minimo de 1/2"
(12 mm) para impedir pandeos.
• Si la profundidad de la abertura es de 25" (63,5 cm) o
mayor, tal vez quiera instalar una tabla de soporte en la
pared posterior.
Refrigerador
Medidas para la instalacibn en relieve
1. Mida la distancia del punto A (como se muestra) a la pared
posterior.
2. Contornee el borde delantero del tablero de soporte o afiance
un tablero de 1/4"(6,35 mm) para fijar el panel en el adorno
lateral del gabinete. l
Los paneles laterales a la medida pueden ser necesarios cuando
no hay suficiente espacio disponible para tener gabinetes en los
dos lados del refrigerador o cuando el refrigerador se coloca al
final de una tira de gabinetes. Usted puede elegir una instalaci6n
de paneles, empotrados o en relieve.
Medidas del refrigerador y del adorno lateral
El ancho y la altura del panel lateral estan determinados por el
tipo de instalaci6n que usted planifique.
Adornos laterales
3/8"
(9,7 mm)
1/16"
(1,5 mm)
3/16"
_-- (4,5 mm)
1/8,, _--
(3,2 mm) _ i
Medidas para la instalacibn empotrada
1. Mida la distancia del punto A (como se muestra) a la pared
posterior. Agregue 1/32"(0,8 mm) a esta medida para que el
panel lateral se ajuste dentro del adorno.
2. Si el panel tiene mas de %" (9,5 mm) de grosor, contornee el
borde delantero para permitir que el panel lateral encaje en el
adorno.
34

Medidas para la instalacibn en relieve
1. Mida la distancia del punto A (como se muestra) a la pared
posterior.
2. Contornee el canto delantero del tablero de soporte o afiance
un tablero de %" (9,5 mm) para fijar el panel al adorno lateral
del gabinete.
A
REQUISITOSDE
INSTALACION
IMPORTANTE:
Instalador: Deje las Instrucciones de instalaci6n con el
propietario.
Propietario: Conserve las Instrucciones de instalaci6n para
referencia futura. Guarde estas Instrucciones de instalaci6n
para tenerlas a disposici6n del inspector de electricidad
local.
HERRAMIENTAS NECESARIAS:
Ensamble las herramientas y piezas necesarias antes de
comenzar la instalaci6n. Lea y siga las instrucciones provistas
con cualquiera de las herramientas enlistadas aquL
Taladro manual o electrico
(debidamente conectado a
tierra)
• Destornillador Torx®_T27
• Brocas • Llave para tuercas de lr/=,,
• Dos Ilaves ajustables • Llaves de boca de 3/8"y V2"
• Destornillador Phillips • Llave Allen de 8/32"
• Plataforma rodante para • Llave de cube de 8/18"
electrodomesticos
• Nivel peque_o • Cinta para medir
PIEZAS NECESARIAS:
• 6 tornillos para madera #8 x 3" (7,6 cm) (pudiera necesitarse
tornillos mas largos)
• 1 6 2 tableros de madera de 2" x 4" x 32"
(5 cm x 10 cm x 81 cm)
• Solicite los paneles de fabrica, hagalos a la medida o
consulte con un carpintero o fabricante de gabinetes
calificado para fabricar los paneles.
Serie Classic: Solicite los paneles de fabrica, hagalos a la
medida o consulte con un carpintero o fabricante de
gabinetes calificado para fabricar los paneles. Para obtener
mas informaci6n, vea las "Especificaciones de dise_o".
Serie Overlay: Haga los paneles a la medida o consulte con
un carpintero o fabricante de gabinetes calificado para
fabricarlos. Para obtener mas informaci6n, vea las
"Especificaciones de dise_o".
Las series Completa Architect ®y Pro Line®se envian
completas.
Siesta conectando la linea de agua directamente a una
tuberia de cobre y no a una valvula de cierre, necesitara una
ferula, una uni6n y un accesorio de compresi6n de 1A"
(6,35 mm).
El refrigerador puede instalarse en un recinto entre los gabinetes
o al extremo de una tira de gabinetes utilizando un panel lateral
para cercar el refrigerador.
Peligro de E×ptosi6n
Mantenga los materiales y vapores inftamab_es,
ta_es como gaso_ina, alejadoe det refrigerador.
No seguir esta instruccion puede ocasionar la muerte,
exp_osi6n, o incendio.
IMPORTANTE:
• Observe todos los c6digos y reglamentos aplicables.
• No se recomienda instalar el refrigerador cerca de un
homo, radiador u otra fuente de calor.
• No instale el refrigerador cerca una ubicaci6n en la que la
temperatura puede bajar de los 55°F (13°C).
• El piso debe soportar el peso del refrigerador, mas de
60 Ibs. (272 kg), los paneles de las puertas y el contenido
del refrigerador.
La altura del techo debera permitir un arco de vuelco
lateral o delantero. Vea "Arco de vuelco".
• La ubicaci6n debe permitir que la puerta abra totalmente.
Vea "Medidas de oscilaci6n de la puerta."
• La ubicaci6n debe permitir que se quite la rejilla superior.
Vea "Medidas de la abertura."
Medidas de la abertura
El plaf6n s61ido debe estar a no mas de 1" (2,5 cm) por
encima del refrigerador. Si el plaf6n s61ido esta a una altura
de mas de 1" (2,5 cm) o no hay ninguno disponible, entonces
el refrigerador debera estar apuntalado para impedir que se
vuelque durante el uso.
Si se necesitan los tableros antivuelco, se deben ajustar los
pies derechos de la pared posterior de 80" a 90" (203 -
229 cm) arriba del piso. Vea "C6mo instalar los tableros
antivuelco" para recibir mas informaci6n.
1-®TORX es una marca registrada Textron Innovations Inc.
35

NOTA: Se debe mantener un espacio de 1/2"(1,3 cm) frente al
adorno lateral del refrigerador que la rejilla superior pueda ser
retirada
Un contacto de tres terminales con conexi6n a tierra debe ser
ubicado a no mas de 4" (10,2 cm) a la derecha de los
gabinetes laterales odel panel del extremo. Vea "Requisitos
electricos" para obtener informaci6n adicional.
El cierre del agua debera estar Iocalizado en la base del
gabinete, a cualquier lade del refrigerador o en algQn otro
lugar de facil acceso. Si la valvula de cierre del agua no esta
en los gabinetes, la tuberfa para la linea del agua puede Ilegar
a traves del piso o de la pared trasera. Vea "Requisitos del
suministro de agua" para obtener informaci6n adicional.
min.
843/4'' (215 cm) m_x.
a la base de un
351/2,
(90,2cm)
77"
(196 cm)
L
i
Pemigro de Choque Electrico
Conecte a un contacto de pared de conexi6n a tierra de
3 terrninaies.
No quite la terminaB de cone×i6n a tierra.
No use un adaptador.
No use un cabme electrico de extensi6n.
No seguir eetae instrucciones puede ocasionar
la muerte, incendio o choque emectrico.
Antes de mover el refrigerador a su posici6n definitiva, es
importante asegurarse que Ud. tiene la conexi6n electrica
adecuada.
M_todo de conexibn a tierra recomendado
Se requiere una fuente de energfa electrica de 115 Voltios,
60 Hz., CA solamente y con fusibles de 15 6 20 amp,
debidamente conectados a tierra. Se recomienda que se use un
circuito separado s61o para su refrigerador. Use un tomacorriente
que no se puede apagar con un interruptor. No use un cable de
extensi6n.
IMPORTANTE: Si este producto esta conectado a un
tomacorriente protegido por un interrupter del circuito de falla
electrica de puesta a tierra (GFCI por sus iniciales en ingles),
puede ocurrir un disparo brusco del suministro de corriente, Io
que resultara en una perdida de refrigeraci6n. Esto puede afectar
la calidad y el saber de los alimentos. Si ha ocurrido un disparo
brusco, y el alimento aparenta estar en malas condiciones,
deshagase del mismo.
NOTA: Antes de realizar cualquier tipo de instalaci6n, limpieza o
quitar un foco, quite la rejilla superior y ponga el interruptor de
alimentaci6n en la posici6n OFF (Apagado) o desconecte el
suministro de energia electrica en la caja de disyuntores.
Cuando haya terminado, ENCIENDA el interruptor de suministro
de energfa o reconecte el suministro de energia en la caja de
disyuntores. Luego vuelva a ajustar el control en la posici6n
deseada.
231/2"
(60 cm) min.
36

!!_iiii:i_i!i!_¸q ii:,!,!iii_!!i;_iiii:_::_i:!_!i,i_;_::!ii_::!_iiiiiis _:_:_:;i__iii_i__i_ii!!i;iil_i:_;::_,_i:!!ii_!__;i_;i!ii__:;!_:!_z_
Todas las instalaciones deben hacerse de acuerdo a los
requerimientos locales de plomerfa.
El cierre del agua debera estar Iocalizado en la base del
gabinete, a cualquier lado del refrigerador o en algOn otro
lugar de facil acceso. Recomendamos el lado derecho. El
agujero de acceso a traves del gabinete derecho debera
estar a no mas de 1/2"(12,7 mm) de la pared trasera.
6"
(15,2 cm)
Si se conecta un sistema de filtraci6n de agua de 6smosis
inversa al suministro de agua fria, la presi6n de agua al sistema
de 6smosis inversa necesitara set de un minimo de 40 a 60 Ib/
pulg 2 (276 a 414 kPa).
Si la presi6n del agua del sistema de 6smosis inversa es menor
de 40 a 60 Ib/pulg 2 (276 a 414 kPa):
• Fijese si el filtro de sedimentos en el sistema de 6smosis
inversa esta bloqueado y reemplacelo si fuera necesario.
Deje que se vuelva a Ilenar el tanque de almacenaje del
sistema de 6smosis inversa despues del uso intenso.
Si su refrigerador tiene un cartucho del filtro de agua, se
podra reducir la presi6n aQn mas si se usa en conjunto con
un sistema de 6smosis inversa. Quite el cartucho del filtro de
agua.
Si tiene preguntas acerca de la presi6n del agua, Ilame a un
plomero competente autorizado.
INSTRUCCIONES DE
P
INSTALACION
231/2"
(60 cm) rain,
Si la valvula de cierre del agua no esta en los gabinetes, la
tuberia para la linea del agua puede Ilegar a traves del piso o
de la pared trasera. Se debe perforar un orificio para plomerfa
de 1/2"(12,7 mm) a una distancia de 6" (15,2 cm) a 12"
(30,4 cm) del lado derecho del gabinete o panel. En el piso, el
orificio no debe estar a mas de 11" (28 cm) de la pared
trasera. En la pared, el orificio no debe estar a mas de 3"
(7,6 cm) del piso. Vea "C6mo conectar el suministro de
agua".
Si se usa esta ubicaci6n recomendada para la tuberia de
agua, no sera necesario adquirir accesorios de plomeria
adicionales.
Si necesita tuberfa adicional, use tuberias de cobre y revise si
hay fugas. Instale la tuber[a de cobre s61o en Areas donde la
temperatura vaya a permanecer por encima del punto de
congelaci6n.
No use una valvula perforadora o una valvula de montura de
3/16"(4,76 mm) que reduce el flujo de agua y se obstruye con
mas facilidad.
NOTA: El distribuidor de su refrigerador tiene disponible un
juego con una valvula de cierre tipo montura de 1/4"
(6,35 mm), una uni6n y tubeda de cobre. Antes de comprar,
asegQrese que la valvula tipo montura cumpla con los
c6digos de plomeria de su Iocalidad.
Presibn del agua
Se necesita un suministro de agua fria con presi6n de agua entre
30 y 120 Ib/pulg _(207 a 827 kPa) para hacer funcionar el
despachador de agua y la fabrica de hielo. Si usted tiene
preguntas acerca de la presi6n de agua, Ilame a un plomero
competente autorizado.
Suministro de agua de 6smosis inversa
IMPORTANTE: La presi6n del suministro de agua que sale de un
sistema de 6smosis inversa y va a la valvula de entrada de agua
del refrigerador necesitara ser entre 30 y 120 Ib/pulg _(207 a
827 kPa).
Pe_igro de Vue_co
E_refrigerador puede vo_caree cuando esta siendo
insta_ado debido a que la parte superior ee pesada.
Mantenga las puertas cerradas con cinta hasta que e_
refrigerador este comp_etamente instatado.
Use dos o maa personas para mover e ineta_ar el
refrigerador.
No seguir estas instrucciones puede ocasionar
_amuerte o herida seria.
IMPORTANTE:
• No quite la pel_cula de protecci6n de su refrigerador hasta
que este en su ubicaci6n para el funcionamiento.
• Las cuatro patas niveladoras deberan tocar el piso para
soportar y estabilizar el peso total del refrigerador.
• Mantenga un tramo de cart6n de empaque o de madera
contrachapada bajo el refrigerador hasta que este instalado
para el funcionamiento.
1. Quite y guarde todo el paquete de material impreso y la bolsa
de piezas adherida a la puerta del refrigerador. Quite las
cuatro mensulas (dos de cada lado) que afianzan la base de
empaque al fondo del refrigerador.
NOTA: No quite la cinta y los refuerzos de las puertas hasta
que el refrigerador este en su ubicaci6n final.
2. Si es necesario, reduzca el arco de vuelco. Vea "Arco de
vuelco" para los requisitos de altura del techo o "C6mo
reducir el arco de vuelco" para ver las instrucciones paso a
paso. Si usted no necesita reducir el arco de vuelco, proceda
con "C6mo hacer entrar el refrigerador en la casa".
37

i{i}d!i_!ii:!,!,i:_O_ii'O_;;;!ii:_Ci:_?,di/4!!_zi,!:_oodl,_i:i!_¸ v ui_!i!!iii_co
Antes de Ilevar el refrigerador a casa, asegQrese de que dispone
de suficiente altura al techo para que el refrigerador este
completamente derecho. Vea "Arco de Vuelco" en la secci6n
"Requisitos de installaci6n" y "Especificaciones de Dise_o" para
mas informaci6n.
Si no se dispone de suficiente altura al techo para que el
refrigerador este completamente derecho, el arco de vuelco se
puede reducir si quita la rejilla superior y los adornos laterales
(vea el grafico siguiente).
Modelo Arco de vuelco reducido
36 88" (223,5 cm)
Series Classic y Overlay
1=
2.
Tome ambos extremos de la rejilla superior.
Empuje la rejilla superior hacia arriba y luego tire
directamente hacia afuera. Coloque la rejilla sobre una
superficie de trabajo blanda.
B
Serie Pro Line TM
1. Tome ambos extremos de la parte superior.
2. Empuje la rejilla superior directamente hacia arriba y luego
jalela directamente hacia afuera.
3. Retire el conector de la parte posterior de la rejilla superior.
4. Coloque la rejilla superior sobre una super_icie blanda.
5. Quite los seis tornillos clue afianzan el adorno lateral de cada
gabinete al refrigerador y quite estos adornos laterales.
A. Rejilla superior
B. Adomo lateral del gabinete
3. Quite los seis tornillos que afianzan el adorno lateral de cada
gabinete al refrigerador y quite los adornos laterales.
Serie Architect _
1. Tome ambos extremos del panel de celosia. Empuje el panel
de celosia hacia arriba y luego tire directamente hacia afuera.
Coloque el panel de celosfa sobre una superficie de trabajo
blanda.
2. Tome ambos extremes de la rejilla superior. Empuje la rejilla
superior hacia arriba y luego tire directamente hacia afuera.
Coloque la rejilla superior sobre una superficie de trabajo
blanda.
BA B
Pe_igro de Vue_co
E_refrigerador puede vo_caree cuando esta siendo
insta_ado debido a que la parte superior ee pesadao
Mantenga las puertas cerradas con cinta hasta que e_
refrigerador este comp_etamente instatado.
Use dos o mas personas para mover e ineta_ar el
refrigeradoro
No seguir estas instrucciones puede ocasionar
_amuerte o herida seriao
1. Coloque una plataforma rodante para electrodomesticos
debajo del refrigerador, en el lade del izquierdo como se
muestra. AsegQrese de que los adornos laterales y las
agarraderas esten protegidos. Inserte los postes esquineros
de los materiales de empaque en los adornos y agarraderas
apropiadamente. Apriete cuidadosamente la correa.
3=
C
A. Rejilla superior
B. Adomo lateral del gabinete
C. Panel de celosfa
Quite los seis tornillos que afianzan el adorno lateral de cada
gabinete al refrigerador y quite estos adornos laterales.
38

NOTA: Pase la correa de la plataforma rodante per debajo de
las agarraderas para las series Architect ®.
montantes. El (Los) tablero(s) deben quedar sobrepuestos
encima de la cubierta del compresor.
A B
.................._ iI_i,
2" (5 cm)
2.
3.
4.
5.
Coloque unos tramos de cart6n de embarque en el piso
cuando haga rodar la plataforma rodante y el refrigerador al
interior de la casa. Acerque el refrigerador a la abertura
donde se va a empotrar.
NOTA: Si fuera necesario, reduzca el arco de vuelo. Vea
"Reducci6n del arco de vuelo".
Coloque la parte superior del empaque de cart6n o madera
contrachapada debajo del refrigerador. Quite la plataforma
rodante.
No quite la pelicula o cubierta.
Si es necesario, vuelva a ensamblar el adorno y la rejilla
superior despues de quitar la plataforma rodante del
refrigerador.
IMPORTANTE:
• El plaf6n s61ido debe estar a no mas de 1" (2,5 cm) per
encima del refrigerador. Si el plaf6n s61ido esta a mas de 1"
(2,5 cm) o no hay ninguno disponible, impida que el
refrigerador se vuelque durante el uso come se muestra.
• Se recomienda que el(los) tablero(s) se instale(n) antes de la
instalaci6n del refrigerador.
• El (Los) tableros debera(n) ser suficientemente largo(s) para
poder cubrir totalmente el ancho de la cubierta del
compresor.
• Ubique el (los) tablero(s) de manera que la superficie inferior
del (los) tablero(s) este a 84" (213 cm) del piso.
Durante la instalaci6n, eleve el refrigerador de manera que
haya un maximo de 1/4"(6,35 mm) entre la parte superior del
refrigerador y el fondo del (los) tablero(s) antivuelco. No
aplaste la cubierta del condensador al levantar las patas
niveladoras traseras.
Cbmo instalar los tableros antivuelco
1. Set, ale las ubicaciones para los montantes en la pared
trasera, de 80" a 90" (203 - 229 cm) por encima del piso,
2. Afiance seguramente uno o dos de los tableros de madera de
2" x 4" x 32" (5 cm x 10 cmx 81 cm) a los montantes de
pared detras del refrigerador. Use 6 tornillos para madera
#8 x 3" (7,6 ram) (o mas largos). Los tornillos para madera
deberan atornillarse un minimo de 11/2"(3,8 cm) en los
D
A. Tablerocentral a _A" (6,35 mm) mbximo por encima del
refrigerador
B. Des tableros de 2"x 4" x 32" (5 cm x 10 cm x 81 cm)
C.Afiance a los montantes con 6 tomillos #8 x 3" (7,6 cm)
D. Cubierta del compresor
Lea todas las instrucciones antes de comenzar.
IMPORTANTE: Si usa el refrigerador antes de instalar la
conexi6n del agua, ponga la fabrica de hielo en la posici6n de
apagado (OFF).
Conexibn a la linea de agua
1. Desenchufe el refrigerador o desconecte el suministro de
energia.
2. CIERRE el suministro principal de agua. ABRA el grifo de
agua mas cercano el tiempo suficiente para que la tuberia de
agua se vacie totalmente.
3. Busque una tuber(a vertical de agua fria de 1/2"a 11_''
(1,25 cm a 3,18 cm) cercana al refrigerador.
IMPORTANTE:
• Aseg_rese de que sea una tuber(a de agua fria.
• Una tuber(a horizontal funcionara, pete taladre por el lade
superior de la tuberia, no per debajo. Esto ayudara a
mantener el agua alejada del taladro. Esto tambien evita
que se junte sedimento normal en la valvula.
Para determinar la Iongitud de la tuberia de cobre que va a
necesitar, mida desde la conexi6n baja de la parte trasera
izquierda del refrigerador hasta la tuber(a de agua. Agregue
7 pies (2,1 m) para la limpieza. Use tuberia de cobre de 1_,,
(6,35 mm) de diametro externo. Aseg_rese que ambos
extremos de la tuberia de cobre esten cortados rectos.
Usando un taladro conectado a tierra, haga un orificio de 1_,,
en la tuberia de agua fria que Ud. eligi6.
...............A
G ..................B
............... C
A. Tuberfa de agua frfa
B. Abrazadera para tuberfa
C. Tuberfa de cobre
D. Tuerca de compresidn
E. Manga de compresidn
F. V#lvula de cierre
G. Tuerca de presidn
39

6. Ajuste la valvula de cierre a la tuberia de agua fria con una
abrazadera para tuberfa. Asegt]rese que el extremo de salida
este firmemente insertado en el orificio taladrado de 1A"en la
tuberia de agua y que la arandela este por debajo de la
abrazadera para tuberfa. Ajuste la tuerca de presi6n. Ajuste
los tornillos de la abrazadera para tuberfa lentamente yen
forma pareja de manera que la arandela provea un cierre
hermetico. No apriete demasiado porque se puede quebrar la
tuberia de cobre.
7. Deslice la manga de compresi6n y la tuerca de compresi6n
sobre la tubeda de cobre come se muestra. Inserte el
extremo de la tubena en el extreme de salida hasta donde
sea posible. Atornille la tuerca de compresi6n sobre el
extreme de salida con una Ilave ajustable. No apriete
demasiado la abrazadera o manga. Se puede quebrar la
tuberia de cobre.
8. Antes de afianzar la tuberfa de cobre al refrigerador, coloque
el extreme libre de la tubeda en un recipiente o fregadero y
abra la Ilave principal de agua. Deje que corran por Io menos
2 qt. (1,9 L) de agua per la tubeda de cobre hasta que el agua
salga limpia para deshacerse de cualquier partfcula en la
linea de agua. Cierre la valvula de cierre del tubo de agua.
Enrolle la tuberia de cobre.
9. Busque fugas alrededor de la valvula tipo montura.
Conexibn al refrigerador
Estilo I -Conexibn de la linea de cobre
1. Quite la cinta de empaque de la tuberia gris enrollada en la
parte trasera del refrigerador.
2. Se necesita un acoplamiento de 1/4"x 1_,,para conectar la
tuberia de agua a una linea domestica de agua existente.
Enrosque la tuerca provista sobre el acoplamiento en el
extreme de la tubena de cobre.
NOTA: Apriete la tuerca a mano. Luego aprietela dos vueltas
con una Ilave de tuercas. No apriete demasiado.
ii,
AB c D
3=
4.
A. Tuberfa de agua al
refrigerador
B. Tuerca (provista)
C. Bulbo
D. Acoplamiento (provisto)
E. F_rula (adquirida)
E Tuerca (adquirida)
G. Lfnea de agua de la casa
ABRA la valvula de cierre.
Revise si hay fugas. Apriete aquellas tuercas o conexiones
que tengan fugas (incluidas las conexiones en la valvula).
NOTA: Deje transcurrir 24 horas para la producci6n de la primera
tanda de hielo. Deshagase de los tres primeros Iotes de hielo
producido. Deje pasar 3 dias para que se Ilene completamente el
recipiente para hielo.
Estilo 2 - Conexibn de la v&lvula de cierre
1. Quite la cinta de empaque de la tuberfa gris enrollada en la
parte trasera del refrigerador.
2. Enrosque la tuerca provista sobre la valvula de agua como se
muestra.
NOTA: Apriete la tuerca a mano. Luego aprietela 2 vueltas
con una Ilave de tuercas. No apriete demasiado.
A
}/ | B
A. Bulbo
B. Tuerca (provista)
3. ABRA la valvula de cierre.
4. Revise si hay fugas. Apriete aquellas tuercas o conexiones
que tengan fugas (incluidas las conexiones en la valvula).
NOTA: Deje transcurrir 24 horas para la producci6n de la primera
tanda de hielo. Deshagase de los tres primeros Iotes de hielo
producido. Deje pasar 3 dias para que se Ilene completamente el
recipiente para hielo.
Pe_igro de Choque E_ectrico
Conecte a un contacto de pared de conexion a tierra de
3 terminates.
No quite la termina_ de cone×ion a tierra,
No use un adaptador,
No use un cable e{ectrico de e×tension,
No seguir eetae instrucciones puede ocasionar
la rnuerte, incendio o choque e_ectrico,
1. Coloque el interruptor de control en la parte superior del
gabinete en la posici6n OFF (Apagado).
2. Conecte a un contacto de pared de conexi6n a tierra de
3 terminales.
40

PeHgro de Vuemco
El refrigerador puede vomcarse cuando esta siendo
instaiadodeb}do a que la partesuperiores pesada.
Mantenga maspuertas cerradas con e{nta hasta que e{
refrigerador este compmetamente instaiadoo
Use dos o mas personas para mover e instalar el
refrigeradoro
No seguir estas }nstrucciones puede ocasionar
la muerte o hedda seria,
IMPORTANTE: Antes de mover el refrigerador y para evitar
dahos al piso, aseg_rese que laa patas niveladoras estan
levantadaa (no estan tocando el piso) y que el refrigerador se
encuentra aobre los rodillos.
i. Empuje el refrigerador directamente hacia atras yen forma
pareja hacia el intertior de la abertura. Verifique que la tuber(a
de agua no este torcida y que el cable de alimentaci6n este
encima del refrigerador, junto a la cubierta.
NOTA: Las cuatro patas niveladoras deberan hacer contacto con
el piso para soportar y estabilizar el peso total del refrigerador.
Los rodillos se usan para mover el refrigerador y nunca para un
aoporte permanente.
Utilice la Ilave de cubo para hacer girar los niveladores de las
patas a la derecha (sentido de las manecillas del reloj) en ambos
lados del refrigerador, haata que el peso del refrigerador este
aoportado pot las pataa niveladoras. Los rodillos no deberan
hacer contacto con el piso. Para evitar dahos al gabinete, limite
el torque aplicado a laa patas niveladoras a no maa de
50 pulg - lb. (58 cm - kg).
A B
A. Patas niveladoras traseras
B. Patas niveladoras delanteras
IMPORTANTE: KitchenAid no es responsable pot la remoci6n o
adici6n de molduras o paneles decorativos que pudieran impedir
darle servicio al refrigerador.
Paneles de la puerta y cajbn
1,
2.
3.
4.
Quite toda la cinta y los puntales de la puerta del refrigerador
y del caj6n del congelador.
Quite los tornillos que afianzan las agarraderas a los marcos.
Deslice la puerta decorativa y los paneles del caj6n dentro de
los marcos.
Si es necesasrio, contornee los paneles de la puerta y caj6n o
instale un panel de relleno entre la puerta y el caj6n y los
paneles decorativos. Vea la secci6n "Paneles a la medida
para la serie Classic" en "Es 3ecificaciones de diseho".
......A
B
A. Paneles
Reemplace las agarraderas de la puerta y del caj6n. Verifique
que la puerta y el caj6n esten alineados. Quite la capa
protectora de las cubiertas de los tornillos. Encaje las
cubiertas de los tomillos en la secci6n del adorno de la
agarradera.
6. Si las agarraderas de la puerta no estan alineadas, vea
"Come ajustar y quitar las puertas'.
41

Panel de la rejilla superior
1. Tome ambos extremos de la rejilla superior.
2. Empuje hacia arriba y luego tire directamente hacia afuera.
Coloque la rejilla superior con el lado del panel hacia abajo
sobre una superficie de trabajo blanda.
B A B
3=
4.
5=
A. Rejilla superior
B. Adorno lateral del gabinete
Quite una cubierta de borde aflojando las tuercas y
deslizando la cubierta de borde hacia afuera.
A
D_
A. Riel inferior C. Cubierta de borde
B. Tuercas D. Riel superior
Deslice el panel dentro del canal de la rejilla superior y vuelva
a colocar la cubierta de borde.
A. Panel
Vuelva a colocar la rejilla superior en los adornos laterales del
gabinete y empuje ligeramente hacia abajo el panel para
trabarlo en su lugar.
B
IMPORTANTE:
• Instale las agarraderas a la medida antes de instalar los
paneles en el refrigerador. Para obtener mas informaci6n
sobre la selecci6n de agarraderas a la medida de
KitchenAid, consulte el catalogo de KitchenAid, visite el
sitio www.kitchenaid.com o Ilame al 1-800-422-1230.
En CanadA, visite www.KitchenAid.ca o Ilame al
1-800-461-5681.
• Cree paneles recubiertos para puerta de acuerdo alas
especificaciones en la secci6n "Paneles a la medida para
la Serie Overlay."
• KitchenAid no es responsable por la remoci6n o adici6n
de adornos o paneles decorativos que pudieran impedir
darle servicio al refrigerador.
Instalacibn del panel de la puerta
1. Quite toda la cinta adhesiva y los puntales de la puerta del
refrigerador y del caj6n del congelador.
2. Abra la puerta del refrigerador y el caj6n del congelador y
quite los adornos.
S
A. Adomos de la puerta del refrigerador
B. Adomo del cajdn del congelador
A. Rejilla superior
B. Adomo lateral del gabinete
42

3. 3. Quite una cubierta de borde aflojando las tuercas y
deslizando la cubierta de borde hacia afuera.
Deslice los paneles a la medida en los adornos sobre la
puerta del refrigerador y el cajdn del congelador,
asegurandose de que el panel de soporte encaja dentro de la
bisagra de los adornos laterales.
A. Paneles
4. Vuelva a instalar los adornos del lade de la agarradera y los
superiores.
5. Quite la capa protectora de las cubiertas de los tornillos.
Encaje las cubiertas de los tornillos en la secci6n del adorno
de la agarradera.
D
A. Riel inferior C. Cubierta de borde
B. Tuercas D. Riel superior
4. Deslice el panel dentro del canal de la rejilla superior y vuelva
a colocar la cubierta de borde.
A. Panel
5. Vuelva a colocar la rejilla superior en los adornos laterales del
gabinete y empuje ligeramente hacia abajo el panel para
trabarlo en su lugar.
B A B
A. Rejilla superior
B. Adomo lateral del gabinete
Panel de la rejilla superior
1. Tome ambos extremes de la rejilla superior.
2. Empuje hacia arriba y luego tire directamente hacia afuera.
Coloque la rejilla superior con el lade del panel hacia abajo
sobre una superficie de trabajo blanda.
B A B
NOTA: Antes de nivelar el refrigerador deberan instalarse los
paneles de la puerta a la medida o totalmente recubiertos.
1. Abra las puertas y coloque un nivel en la parte superior del
marco del refrigerador come se muestra. Verifique que el
refrigerador este nivelado de izquierda a derecha.
A............
B...........
A. Rejilla superior
B. Adomo lateral del gabinete
A. Nivel para verificar la nivelacidn de izquierda a derecha
B. Nivel para verificar la nivelacidn de adelante hacia atrbs
43

2. Utilice los pernos niveladores para ajustar las patas
niveladoras hasta que el refrigerador este nivelado de
izquierda a derecha.
'................................................B
A. Perno nivelador trasero
B. Perno nivelador delantero
3. Coloque el (los) nivel(es) en el estante. Verifique que el
refrigerador este nivelado de adelante hacia atras.
4. Utilice los pernos niveladores para ajustar las patas
niveladoras hasta que el refrigerador este nivelado de
adelante hacia atras.
5. AsegQrese que las cuatro patas niveladoras hagan contacto
con el piso y soporten el peso total de del refrigerador.
6. Haga una verificaci6n final para asegurarse de que el
refrigerador este nivelado.
Cbmo quitar y alinear la puerta
NOTA: No afloje los dos tomillos de montaje de cabeza
hexagonal de rA".
A
A. Tornillos de montaje de cabeza plana Tot,,(_t 27
B. Tornillos de montaje de cabeza hexagonal de F4"
Siga los siguientes pasos para quitar la puerta durante la
instalacibn.
1. Quite la puerta del congelador y col6quela a un lado.
2. Afloje y saque los cuatro tornillos de montaje de cabeza
plana Torx°t 27 de la parte superior de la bisagra. Guarde los
tornillos juntos.
3. Levante la puerta, retirela del refrigerador y coldquela a un
lado.
Siga los siguientes pasos para volver a instalar la puerta.
1. Vuelva a poner en su lugar la puerta del congelador.
2. Ubique la puerta de manera tal que los orificios de los
tornillos de montaje en la parte superior de la bisagra esten
alineados.
3. Coloque los cuatro tornillos de montaje de cabeza plana
Torx®t 27 en la parte superior de la bisagra. AsegQrese que el
espacio entre las puertas sea el mismo en la izquierda y la
derecha.
4. Ajuste los tornillos en la bisagra.
Siga los siguientes pasos para ajustar la alineacibn de la
puerta, si _sta necesita ser ajustada hacia arriba o abajo.
1. Revise el espacio entre la puerta del congelador y la del
refrigerador. AsegQrese que el espacio entre las puertas sea
el mismo en el lado izquierdo y el derecho.
ILi IIIIIIHHHHHHHHHHHH,
A. Espacio desigual entre las puertas
Si el espacio entre las puertas es desigual, afloje los cuatro
tornillos de montaje de cabeza plana Torx®t 27 de la parte
superior de la bisagra. Afloje los tornillos hasta el punto en
que se pueda mover la bisagra, pero de manera que haya
algo de fricci6n al tratar de mover la bisagra. No afloje los dos
tornillos de montaje de cabeza hexagonal de 1A".
A
A. Tomillos de montaje de cabeza plana Torx_t 27
B. Torn#los de montaje de cabeza hexagonal de F4"
3. Ajuste las bisagras de manera que el espacio de la puerta sea
igual en el lado izquierdo y el derecho. La distancia del lado
de la bisagra debera usarse como muestra para el lado de la
puerta.
4. Apriete los tornillos de ambas bisagras.
Cbmo ajustar la oscilacibn de las puertas
1. Verifique que la puerta del refrigerador abra con toda libertad.
Si la puerta se abre demasiado, quite el tornillo de retenci6n
de la puerta de la bisagra inferior.
A
A. Tornillo de retenci6n de la puerta a 110°
1-®TORX es una marca registrada Textron Innovations Inc.
44

2,
3.
Sostenga la puerta abierta en un angulo menor de 90 °.
Vuelva a colocar el tornillo de retenci6n de la puerta en la
bisagra inferior y aprietelos.
IMPORTANTE: No coloque el tornillo de retenci6n de la
puerta en la posici6n de 130 ° en los modelos de la serie
Overlay. Vea "Espacios libres para la agarradera y la puerta".
A B C
A. Tomillo de retencidn de la puerta a 130 °
B. a ! 10°(Sefie Overlay)
C. a90 °
Si la profundidad del Area para empotrar es de 25" (63,5 cm) o
mas, los paneles laterales pueden instalarse dentro del adorno
lateral o afianzarse a la parte externa del adorno lateral.
IMPORTANTE: KitchenAid no es responsable por la remocidn o
adici6n de adornos o paneles decorativos que pudieran impedir
darle servicio al refrigerador.
1. Para la pieza que va dentro del adorno lateral, deslice el
borde delantero del lado contorneado del panel dentro de la
pieza de adorno,
2. Clave el borde trasero del panel al tablero de soporte.
g....
A. Tablero de soporte
B. Pieza de adorno lateral
Hay dos piezas en la rejilla de la base para permitir un encaje a la
medida: la base de la rejilla misma y el fald6n. Se puede agregar
el fald6n a la rejilla de la base para extenderla completamente
hasta el piso.
1. Abra la puerta del refrigerador y mida la distancia desde el
fondo del gabinete del refrigerador al piso.
I
A,, ..............._ I c
JJJJJJJJJJ
A. Piso
B. Fondo del gabinete del refrigerador
C. Distancia que debe medirse
Mida esta misma distancia desde la parte superior de la rejilla
de la base al surco "V" mas cercano en el fald6n de la rejilla,
Use un cuchillo para marcar hacia abajo per el surco "V" y
rompa el fald6n por la Ifnea que marc6,
A
A. Ensambladura de la rejilla y el falddn
B. Distancia medida desde arriba segOn el paso 2
C. Marque la ranura "V"
3. Deslice el fald6n sobre la rejilla de la base.
4. Afiance la rejilla de la base al gabinete con los dos tornillos
provistos.
45

Sirvase leer antes de usar el sistema de agua.
Inmediatamente despues de la instalaci6n, siga los pasos a
continuaci6n para asegurarse de que el sistema de agua este
debidamente limpio.
1. Apague la fabrica de hielo abriendo la puerta del congelador
y levantando el brazo de control de alambre come se
muestra.
NOTAS:
• Si su modelo tiene un sistema de filtro de la rejilla de la base,
aseg0rese de que el filtro de la rejilla de la base este instalado
adecuadamente y que la tapa este en la posici6n horizontal.
No use con agua que no sea microbiol6gicamente segura
o que sea de calidad desconocida sin desinfectarla
adecuadamente antes o despu_s del sistema. Pueden
usarse sistemas certificados para la reducci6n de quistes
en aguas desinfectadas que puedan contener quistes
filtrables.
2= Ponga la fabrica de hielo a funcionar abriendo la puerta del
congelador y bajando el brazo de control de alambre come
se muestra. Vea la secci6n "Fabrica de hielo y dep6sito/
balde" en la Guia de uso y cuidado para obtener mas
instrucciones sobre el funcionamiento de su fabrica de hielo.
• Deje transcurrir 24 horas para la producci6n del primer
Iote de hielo.
• Deshagase de los tres primeros Iotes de hielo producido.
1. Gire la valvula de la tuberia de alimentaci6n de agua a la
posici6n "Abierta ".
2. Gire el interruptor del refrigerador a la posici6n ON
(encendido). Espere unos minutes. Busque fugas en las
conexiones de la tuberia de agua. Vea la secci6n "lnterruptor
de Encendido/Apadago" en la Guia de use y cuidado, para
las instrucciones.
3. Quite todas las cajas, paquetes de partes y materiales de
empaque del interior del refrigerador. Vea la secci6n
"Limpieza" en la Guia de use y cuidado, para las
instrucciones. Quite la pelicula y el cart6n protector de la
rejilla y de las puertas o marco de la puerta, seg0n su
modelo.
4. Instale los anaqueles y recipientes en el refrigerador y en los
compartimientos del congelador.
5. Los controles estan prefijados de fabrica en su posici6n
intermedia. Verifique que el compresor este funcionando
correctamente y que todas las luces funcionan.
6. Si se sigue construyendo despues de haber instalado el
refrigerador, fije los controles en OFF (Apagado).
Para obtener el uso mas eficiente de su nuevo refrigerador
empotrado, lea la Guia de uso y cuidado. Conserve a mano las
Instrucciones de instalaci6n y la Guia de uso y cuidado del
refrigerador empotrado para una consulta facil.
46

P P P P
SECURITE DU REFRIGERATEUR
Votre s6curit6 et celle des autres est tr6s importante.
Nous donnons de nombreux messages de securite importants dans ce manuel et sur votre appareil menager. Assurez-vous de
toujours lire tousles messages de securite et de vous y conformer.
Voici le symbole d'alerte de securit&
Ce symbole d'alerte de securite vous signale les dangers potentiels de deces et de blessures graves & vous
et a d'autres.
Tousles messages de securite suivront le symbole d'alerte de securite et le mot "DANGER" ou
"AVERTISSEMENT'. Ces roots signifient :
Risque possible de deces ou de blessure grave si vous ne
suivez pas immediatement les instructions.
Risque possible de deces ou de blessure grave si vous
ne suivez pas les instructions.
Tousles messages de securite vous diront quel est le danger potentiel et vous disent comment reduire le risque de blessure et
ce qui peut se produire en cas de non-respect des instructions.
Risque de bascu_ement
Le r_frig_rateur est Iourd au sommet et bascule
facilement _orsqu'H n"est pas comp_etement install&
Garder les portes fermees avec un ruban adh_sif
jusqu'a I'installation complete du refrigerateur,
UtHiser deux ou plus de personnes pour deplacer et
installer le refrigerateur.
Le non-respect de ces instructions peut causer un
d_cee ou une b_essure grave,
47

P
SPECIFICATIONS DE DESIGN
ModUles
i i
i iii I ii i _iii _
ii I i
_iiiiiiii
S6rie Architect ®
Se caract_rise par un style enveloppant qui complete les
poignees de porte galbees. Cette serie presente un refrigerateur
encastre d'apparence commerciale et de style chaleureux.
KBRC36FMS KBLC36FMS
Serie Classic
Se caracterise par des garnitures pre-installees a I'usine de style
traditionnel procurant un aspect "encadre". Cette serie necessite
I'installation de panneaux personnalises non inclus.
KBRS36FMB KBRS36FMX KBLS36FMB
KBLS36FMX
S6rie Overlay Serie Complbte
Se caracterise par des garnitures pre-installees a I'usine de style Se distingue par des panneaux et garniture en acier inoxydable pre-
decoratif procurant un aspect "sans cadre". Cette serie necessite installes a I'usine pour donner une apparence contemporaine aux
I'installation de panneaux, poignees et supports pour poignee lignes pures.
personnalises. KBRP36FMS KBLP36FMS
KBRO36FMX KBLO36FMX
48

S_rie Pro Line TM
Se distingue par une conception extraordinaire et des niveaux
de rendement exceptionnels. Cette serie constitue un alliage
parfait de la forme et de la fonction pour offrir qualite
professionnelle, durabilite et simplicite.
KBRV36FPM KBRV36FPS KBLV36FPM
KBLV36FPS
Vue lat_rale
• La profondeur de I'avant de la grille superieure a I'arriere de la
caisse du rdrigerateur est de 251/8'' (64 cm).
• Le cordon d'alimentation mesure 84" (213 cm) de long.
• La canalisation d'eau fixee a I'arriere du refrigerateur mesure
5 pi (1,5 m) de long.
• Les hauteurs indiquees sent calculees Iorsque les pieds de
nivellement deployes depassent de 1/8"(3 mm) au-dessous
des roulettes.
251/8"
(64 cm)
231/2 ''
(60cm)
.831/s "
(211 cm)
84" (213 cm)
cordon d'alimentation
_ ==_
*Lorsque les pieds de nivellement sont totalement deployes de
11_,,(32 mm) au-dessous des roulettes, ajouter 11/8"(29 mm) a la
hauteur totale.
Vue de dessus
357/16 ''
_-_ (90 cm)
251/_''
(64 cm)
i
49

Vue avant
• Les dimensions de largeur ont 6te mesurees d'un bord
I'autre de la garniture exterieure.
• Les dimensions de hauteur indiquees correspondent & la
situation ou les pieds de nivellement deploy6s depassent de
1/8"(3 mm) au-dessous des roulettes.
-- 361/4'' (92 cm)
.831/8 ''
(211 cm)
_r
*Lorsque les pieds de nivellement sent totalement deployes de
11A"(32 mm) au-dessous des roulettes ajouter 11/8"(29 mm) a la
hauteur totale.
Avant d'apporter le refrig6rateur dans le domicile, s'assurer que
la hauteur du plafond est suffisante pour mettre le refrig6rateur
en position verticale.
• Si le refrigerateur est installe sur un chariot a roulettes, on
dolt ajouter la hauteur du chariot au rayon de basculement.
• Pour reduire le rayon de basculement, voir la section
"Reduction du rayon de basculement".
Rayon de basculement lateral
REMARQUE : Faire basculer sur le c6te uniquement.
A...........
901/2"
_f_ (229,9 cm)
A. Ne faire basculer
que de ce cSt_.
: ': S '_i S
L'emplacement d'installation dolt permettre I'ouverture des deux
portes & un angle minimal de 90 °. Laisser un espace libre d'au
moins 41/_'' (11,4 cm) entre le c6te du refrigerateur et lemur
formant I'angle.
REMARQUE : Un degagement plus grand peut _tre necessaire si
vous utilisez des panneaux decoratifs ou des poignees
personnalisees.
Pour ajuster I'ouverture des portes, voir la section "Ajustement et
enlevement des portes".
ModUles de 36" (91 cm}
, \ 90 °
23 II
(58 cm)
I
51 "
(130 cm)
59"
(150cm)
50

ilii:i_i!;_¸i!!i;;;i!!ii_l!i!:ii_:!!_i_i_i_:_:_i_,_!i!!¸i_:_iiii_,:i:,iii:_,_!_,_i_i_:_i:__i_;i?!!;iii:?_ii_iiiiI!!!!!ii;ii_i__;ii:!i¸_:ii!_¸_!i;__::!__!:/i;;_,_i_i_i:_!:_:!_!!!_
Si on installe des panneaux personnalises, ces derniers doivent permettre certains degagements pour les poignees et pour I'ouverture
des portes. Determiner d'abord le type des poignees qui seront utilisees et le reglage des butees de porte. Choisir ensuite le dessin
I'echelle approprie a utiliser pour la creation des panneaux.
Poignde
Classic
Poign_e
prolong_e
optionnelle
Porte
Panneau personnalis_
Poign_e Architect e
()
......... 1/4"(6,35 mm)
1/2"(1,3 cm)
3/4"(1,9 cm)
1" (2,5 cm)
11/4"(3,2 cm)
11/2"(3,8 cm)
13/4"(4,4 cm)
2" (5,1 cm)
21/4'' (5,7 cm)
21/2'' (6,4 cm)
23/4'' (7 cm)
3" (7,6 cm)
Dimensions de la poignee
Taille reelle
1" 2" 3"
(2,5 cm) (5,1 cm) (7,6 cm)
51

I
I[
O
OCharni_re
i
Panneau intercalaire
S_rie Overlay
Pivotement de la porte de 90 °
Taille r_elle
Espace entre le r_frig_rateur
et les placards
Garniture lat_rale
du r_frig_rateur
iIiiIi
iIi
i I
, , ---1 .... _---_"
iiIi
iiIi
iiIi
-+----4 .... • i. i_
i i i i
i i i i
i i i i
iii
i
-T .... i .... T-_
1/2"
(1,3cm)i
3/4"
(1,9 cm)
1"
(2,5cm)
1/4"(6,35 mm)
1/2"(1,3 cm)
....... 3/4"(1,9 cm)
i
i
i
L 1" (2,5 cm)
11/4' (3,2 cm)
11/2"(3,8 cm)
1 1/4'
(3,2 cm)
11/2"
= (3,8 cm)
,t,,,,
0
o
_,,_,,
52

I
O
O
O
Charniere
®
REMARQUE : Sur les modeles de Serie
Overlay, ne pas placer la vis au haut de la
porte & 130 °.Voir "Ajustement de la hauteur
des portes."
Serie Overlay
Pivotement de la porte de 110 °
Taille r_elle
Espace entre le r_frig_rateur
et les placards
Garniture lat_rale
1 "
du r_frig_rateur (2,5cm)
3/4"
(1,9 cm)
1/2"
(1,3 cm)
1/4"
(6,35 mm)
(5,1 cm)
13/4" ',
(4,4 cm)i
11/2" i
(3,8 cm)',
11/4'' ,
(3,2 cm)',
11/4"
(3,2 cm)',
11/2"
(3,8 cm)
Panneau intercalaire
53

i!i:il_i_i_i:_i!!il_ii!_!_iiii:iiii:i_¸¸ii_;i!!!i!;ii__i:i!iI_i!!_ii_;_iii__ii_;ii_iii!_ii!ii_;_i_ikl _:i:!i_:_,_i:_!ii!;!iiiii_;_iii_i:i?,_,_:i:!ii_i:_ii;_!i_
S_i_i_i'!i_i:_i_i:!__iiiiiiiiiililil_ii!i_!ii,i_!!ii_ii_iiii'_,,_!!_,__i_i:_:_!:_!iiiiiii:_i:!!,_::!iiill_ _i_i!__i:O'v_iii!_i_i_!!_i_ii!i__'_
Toutes les pieces d'origine sont disponibles par I'entremise de
votre marchand KitchenAid ou en telephonant a Pieces et
accessoires KitchenAid au 1-800-442-9991. Au Canada,
telephoner au 1-800-807-6777.
Ensembles de panneaux de porte d'origine
Quatre ensembles contenant des panneaux de porte et de grille
superieure, en acrylique de couleur ou en acier inoxydable sont
disponibles. Suivre les instructions de I'ensemble pour
I'installation des panneaux.
REMARQUE :Les ensembles de panneaux ne sent pas requis
)our les modeles a panneaux en acier inoxydable d'origine.
Couleur 36" (91 cm)
Blanc n° 2300072
Noir n° 2300073
Acier inoxydable n° 2300074
Ensemble de la grille sup_rieure 72" (183 cm) pour les
S_ries Classic et Architect _
Des ensembles de panneau de la grille superieure de 72"
(183 cm) de large sont disponibles. Ces ensembles permettent
I'installation c6te a c6te de 2 refrigerateurs (l'un a ouverture vers
la gauche et I'autre vers la droite) avec une seule grille.
Couleur 72" (183 cm)
Blanc n° 2300075
Noir n° 2300076
Acier inoxydable (Serie Classic) n° 2300077
Acier inoxydable (Serie Architect ®) n° 2302797
Overlay n° 2300078
Ensembles de poign_es de porte prolong_es
Utiliser les poignees de porte prolongees Iorsqu'un ecart
additionnel pour les doigts est requis entre les poignees de porte
et le panneau personnalise. Suivre les instructions de I'ensemble
)our I'installation des poignees de porte.
Couleur Ouverture vers Ouverture vers la
la gauche droite
Blanc (Serie n° 4396119 n° 8171424
Classic)
Noir (Serie n° 4396116 n° 8171427
Classic)
Acier inoxydable n° 4396118 n° 8171425
(Serie Classic)
Couleur Ouverture vers Ouverture vers la
la gauche droite
Aluminium mat n° 4396120 n° 8171423
etch (Serie
Classic)
Aluminium mat n° 4396718
etch (Serie
Overlay)
Si vous prevoyez installer des panneaux personnalises en bois,
vous devrez les creer vous-m_me ou consulter un ebeniste ou
menuisier qualifie. Voir les dessins dimensionnels pour les
specifications des panneaux.
IMPORTANT : Les panneaux de poids superieur au poids
recommande risquent d'endommager le refrigerateur.
REMARQUE : Les dimensions indiquees ont une tolerance de
(±)_/_e"(1,5 mm). Les panneaux dont I'epaisseur est superieure
V4"(6,35 mm) doivent faire I'objet d'un usinage. Si I'epaisseur des
panneaux est inferieure a V4" (6,35 mm), installer un panneau de
remplissage entre la porte et la panneau decoratif.
Panneau de la grille sup_rieure
Le panneau superieur ne dolt pas peser plus de 10 Ib (4,5 kg).
34V2" --->"-I
I'_-- (87,63 cm)
__ (18,4 cm)
Panneaux du r_frig_rateur et du cong_lateur
Le panneau du congelateur ne dolt pas peser plus de 30 Ib
(13 kg). Le panneau du refrigerateur ne dolt pas peser plus de
5O Ib (22 kg).
34 V4"
(87 cm)
341/4 ,'
<_ (87 cm)
49"
(124,5 cm)
[
20V8"
(51,1 cm)
54

Exigences d'usinage du panneau de la grille sup_rieure
Les rives superieure et inferieure du panneau superieur devraient
_tre usinees de 1/2"(1,3 cm) et %" (0,95 cm) respectivement. Les
deux extremites devraient _tre usinees sur les rives de %"
(2,2 cm) tel qu'illustr&
lJ,,,TI
(6,35 mm) --
max.
(2,2 cm)
]i 1/4"
(6,35 mm)
max.
(2,2 cm)
REMARQUE : Lors de la creation d'un panneau orne en fagade,
les decalages seront dissimules et il faut en tenir compte pour
centrer le detail dans la grille superieure.
_1 _(-- 1/4"
(6,35 ram) max.
1/2" l Sommet
(1,3 cm)
min.
Centrer les detaiB
de laface avant _ ...i _"
entre bs d_calages
%" L
(9,5 ram)
min. Fond
_-- _6,"35mm)max.
Exigences d'usinage des panneaux de porte
Si on utilise un ensemble de poignees de porte prolongees, il
n'est pas necessaire d'usiner le c6te poignee des panneaux. Voir
"Ensembles de panneaux d'origine de la Serie Classic, Architect ®
et Overlay" pour plus d'information sur la commande de
poignees prolongees.
Si on utilise la poignee standard, usiner sur toute sa Iongueur le
c6te poignee des deux panneaux de 31/4'' (8,25 cm) en prevision
d'un degagement pour les doigts. Usiner les autres c6tes de 1"
(2,54 cm).
Pok n_e standard -- Vue sup_rieure
31/4 ''
(8,25 cm)
mln. C6t_ de la charni_re
Panneau
de porte
__]
.¢ Panneau
._ 1/4"(6,35mm)m de porte
CL
2" (5 cm) 1"
min. (2,54 cm)
Panneau de porte -- Vue lat_rale
V2" (1,3 cm)
c
c
r_
Les panneaux personnalises vous permettent d'agencer
I'exterieur de votre refrigerateur a I'ensemble du decor de la
cuisine et d'utiliser des poignees personnalisees pour une plus
grande souplesse de design.
Les panneaux personnalises doivent _tre munis de panneaux de
soutien pour pouvoir _tre installes sur le refrigerateur. La fagon la
plus courante est d'utiliser trois panneaux, tel qu'illustre ci-
dessous : un panneau decoratif, une plaque d'espacement de %"
(3,18 mm) ou des tringles d'espacement et un panneau de
soutien de W' (6,35 mm).
Panneau d_coratif Plaque
d'espacernent
[Panneau
_/_"to 3/4' 1/2_,_ desoutien
V_" (6,35 rnm)
(3,18 mra)
l I Plaque
d'espaoem6nt
I
I_ 1" minimum
', (_,64mm)j......
3arniture de [agrille do la porto
Dimension de d6calage
Dans certains cas, votre fabricant de placards choisira peut-_tre
de travailler avec un panneau usine aux differentes dimensions.
Suivre ces instructions pour les dimensions et I'emplacement des
panneaux pour s'assurer que les panneaux decoratifs
conviendront bien.
IMPORTANT :
• Le poids du panneau decoratif de la porte du refrigerateur ne
peut depasser 50 Ib (23 kg).
55

•Le poids du panneau decoratif de la porte du congelateur ne
peut depasser 30 Ib (13,5 kg).
• Le poids du panneau decoratif de la grille superieure ne peut
depasser 10 Ib (4,5 kg).
Pour minimiser le poids du panneau, vous pouvez utiliser des
tringles d'espacement de 2" (5,08 cm) sur le perimetre a la place
d'une plaque d'espacement massif. Les tringles d'espacement
doivent _tre installees a au moins 1" (2,54 cm) des rives
superieure, inferieure et laterales du panneau de soutien. Si on
utilise des tringles d'espacement, il est aussi recommande
d'utiliser 2 tringles de 2" (5,08 cm) centrees horizontalement pour
un soutien additionnel.
REMARQUE :Pour que la grille et les panneaux de porte soient
au m6me niveau, le panneau decoratif de la porte dolt _tre 1/4"
(6,35 mm) plus epais que le panneau a recouvrement de la grille.
I_34V2" _I
(87,63 cm) r
7_/8,,
(18,73 cm)
8'/_"T _34'1_" (87,63 cm) _"_
(21,59cm) _ L_,__ __]
D_calage du bas
50"
(127,0 cm)
34V2"
<(87,63 cm)
r l 34%6"
(87,15 cm)
49%"
(124,78 cm)
D_calagedu bas
7/16"(11,1 mm)
1" (2,54 cm)
m
m
m
Centrer le
panneau
de soutien
de gauche
droite
t
209116"
(52,23 cm)
.___ 34112" _II
(87,63 cm)
l34%6" Centrerle
lI(87,1 cm) panneau
l203h6'' l de soutien
i(51,28 cm) loJ de gauche
l/ia droite
D_calagedu bas
%o"(1,6 mm)
Des panneaux lateraux personnalises peuvent _tre necessaires
Iorsqu'il n'y a pas suffisamment d'espace pour avoir des
placards des deux c6tes du refrigerateur ou Iorsque le
refrig6rateur est place a I'extremit6 d'une enfilade de placards.
Vous avez le choix d'installer un panneau insere, en affleurement
ou inser6 en retrait.
Dimensions du r_frig_rateur et des garnitures lat_rales
La largeur et la hauteur du panneau lateral sent determinees en
fonction du type d'installation prevu.
REMARQUES :
• Les dimensions indiquees sent les dimensions reelles du
produit et peuvent ne pas refleter les dimensions
necessaires d'installation des panneaux.
• Le panneau lateral devrait avoir une epaisseur minimale
de 1/_,,(12 mm) pour prevenir le gauchissement.
• Si la profondeur de I'ouverture est de 25" (63,5 cm) ou
plus, vous voudrez peut-_tre installer une tringle d'appui
sur le mur arriere
R_frig_rateur
24Y8"
(61,3 cm)
(60,3 cm)
231/2 `'
(59,7 cm)
Garnitures lat_rales
1/4"
(6,35 mm)
(4,7 mm) 1
(5'5 mm) I
_a/a_"(10 ram) %"
(15,7 ram)
-_4/._"mm )
Dimensions pour un panneau ins_r_
1. Mesurer la distance du point A (tel qu'illustre) a la paroi
arriere. Ajouter %2" (5,6 mm) a cette mesure pour que le
panneau lateral entre dans la garniture.
2. Si le panneau a plus de 1/4"(6,35 mm) d'epaisseur, usiner la
rive avant pour que I'insertion du panneau lateral soit
possible.
56

Dimensions pour un panneau en affieurement
1. Mesurer la distance du point A (tel qu'illustre) a la paroi
arriere.
2. Fixer la tringle d'appui avec une vis ou un adhesif compatible
avec I'aluminium et le bois.
R_frig_rateur
Rev_tement
t
23a/a,,
(59,40 cm)
Dimensions pour un panneau ins_r_ en retrait
1. Mesurer la distance du point A (tel qu'illustre) a la paroi
arriere.
2. Usiner la rive avant de la tringle d'appui ou installer une
planchette de 1A" (6,35 mm) pour la retention du panneau
dans la garniture laterale de la caisse.
Des panneaux lat&raux personnalises peuvent _tre necessaires
Iorsqu'il n'y a pas suffisamment d'espace pour avoir des
placards des deux c6tes du refrigerateur ou Iorsque le
rdrigerateur est place a I'extremite d'une enfilade de placards.
Vous avez le choix d'installer un panneau insere ou insere en
retrait.
Dimensions du r_frig_rateur et des garnitures lat_rales
La largeur et la hauteur du panneau lateral sont determinees en
fonction du type d'installation prevu.
REMARQUES :
• Les dimensions indiquees sent les dimensions reelles du
produit et peuvent ne pas refleter les dimensions
necessaires d'installation des panneaux.
• Le panneau lateral devrait avoir une epaisseur minimale
de _/_"(1,27 mm) pour prevenir le gauchissement.
• Si la profondeur de I'ouverture est de 25" (63,5 cm) ou
plus, vous voudrez peut-_tre installer une tringle d'appui
sur lemur arriere.
Garnitures lat_rales
1_16"
(1,5 ram)
Dimensions pour un panneau ins_r_
1. Mesurer la distance du point A (tel qu'illustre) a la paroi
arriere. Ajouter %_" (0,8 mm) a cette mesure pour que le
panneau lateral entre dans la garniture.
2. Si le panneau a plus de %" (9,5 mm) d'epaisseur, usiner la rive
avant du panneau lateral pour que I'insertion soit possible.
57

Dimensions pour un panneau ins6r6 en retrait
1. Mesurer la distance du point A (tel qu'illustre) a la paroi
arriere.
2. Usiner la rive avant de la tringle d'appui ou installer une
planchette de %" (9,5 mm) pour la retention du panneau dans
la garniture laterale de la caisse.
A
EXIGENCES
D'INSTALLATION
IM PORTANT :
•Installateur : Remettre les instructions d'installation au
proprietaire.
• Proprietaire : Conserver les instructions d'installation pour
reference ulterieure. Conserver ces instructions d'installation
pour consultation par I'inspecteur local des installations
electriques.
OUTILLAGE REQUIS :
Rassembler les outils et pieces necessaires avant de commencer
I'installation. Lire et suivre les instructions fournies avec les outils
indiques ici.
• Perceuse manuelle ou
electrique (convenablement
reliee a la terre)
• Forets
• Deux cles a molette
• Tournevis Phillips
• Petit niveau
• Chariot pour appareil
menager
• Tourne-ecrou a Torx®tT27
• Tourne-ecrou de 1r/s2"
• Cles plates de %" et 1/2"
• Cle Allen de %2"
• Cle a douille de 5/16"
• Metre-ruban
PII_CES NI_CESSAIRES :
• 6 visa bois n° 8 x 3" (7,6 cm) (il peut _tre necessaire d'utiliser
des vis plus Iongues)
1 ou 2 morceaux de bois de 2" x 4" x 32" (5 cm x 10 cm x
81 cm)
Commander les panneaux d'origine, fabriquer des panneaux
personnalises ou consulter un ebeniste ou un menuisier
qualifie pour la fabrication de panneaux.
Serie Classic : Commander des panneaux d'origine, fabriquer
des panneaux personnalises ou consulter un ebeniste ou
menuisier qualifie pour la fabrication des panneaux. Voir
"Specifications de design" pour plus d'information.
Serie Overlay : Fabriquer des panneaux personnalises ou
consulter un ebeniste ou menuisier qualifie pour la fabrication
des panneaux. Voir "Specifications de design" pour plus
d'information.
Les series Complete, Architect _ et Pro Line®sont expediees
completes.
Si on connecte la canalisation d'eau directement a un tube en
cuivre et non a un robinet d'arr_t, il faut une virole, un raccord
et une bague de compression de rA" (6,35 mm).
Le refrigerateur peut _tre encastre dans une ouverture entre les
placards ou installe a I'extremite d'une enfilade de placards en
utilisant un panneau lateral pour encadrer le refrigerateur.
Risque d'explosion
Garder les materiau× et les vapeurs inflammables, teHe
que l'essence, loin du refrigerateur.
Le non-respect de cette instruction peut causer
un deces, u_e e×p_osio_ ou u_ ince_die.
IMPORTANT :
• Observer tous les codes et reglements en vigueur.
• II est recommande de ne pas installer le refrigerateur pres
d'un four, d'un radiateur ou de toute autre source de
chaleur.
• Ne pas installer le refrigerateur dans un endroit or'4la
temperature baissera au-dessous de 55°F (13°C).
• Le plancher doit supporter le poids du refrigerateur, soit
plus de 600 Ib (272 kg), en plus des panneaux de porte et
du contenu du refrigerateur.
• La hauteur du plafond doit _tre suffisante pour le rayon de
basculement lateral et avant. Voir "Rayon de
basculement" plus loin dans cette section.
• L'emplacement doit permettre I'ouverture complete des
portes.
• L'emplacement doit permettre d'enlever la grille
superieure. Voir "Dimensions de I'ouverture".
Dimensions de rouverture
Le soffite massif doit se trouver en deg;a de 1" (2,5 cm) au
plus au-dessus du rdrigerateur. Si le soffite massif se trouve
plus de 1" (2,5 cm) ou si un soffite n'est pas disponible, le
refrigerateur doit _tre arrime pour I'emp_cher de basculer en
cours de service.
Si des planches antibasculement sont necessaires, elles
doivent _tre fixees aux poteaux de colombage du mur arriere
de 80 a 90" (203 a 229 cm) au-dessus du plancher. Voir
"Installation de planches antibasculement" pour plus
d'informations.
1-®TORX est une marque deposee de Textron Innovations Inc.
58

REMARQUE : Un degagement de 1/2"(1,3 cm) dolt _tre
maintenu devant la grille laterale pour que la grille superieure
puisse _tre enlevee.
Une prise de courant a 3 alveoles reliee a la terre devrait _tre
installee a 4" (10,2 cm) du c6te droit des placards ou du
panneau d'extremite. Voir "Specifications electriques" pour
plus d'informations.
Le robinet d'arr6t devrait se trouver dans le placard inferieur,
d'un c6te ou I'autre du refrigerateur ou a un autre endroit
facilement accessible. Si le robinet d'arr_t n'est pas dans les
placards, la plomberie pour la canalisation d'alimentation
peut _tre acheminee a travers le plancher ou lemur arriere.
Voir "Specifications de I'alimentation en eau" pour plus
d'informations.
]
il 80"-90" il ...........................................
i i(203"229 cm)i i
(10,2cn
mlrl,
843/4 '' (215 cm) max.
jusqu'a la base du soffite
351/2"
(90,2cm)
231/2"
(60cm) min.
77"
(196cm)
i
m
m
Risque de choc electrique
Brancher sur une prise a 3alveoles retiee a la terre.
Ne pas enlever la broche de miaison ama terreo
Ne pae utiliser un adaptateuro
Ne pae utiliser un cable de raHonge.
Le non-respect de ees instructions peut causer
un deces, un incendie ou un choc electrique.
Avant de placer le refrigerateur a son emplacement final, il est
important de vous assurer d'avoir la connexion electrique
appropriee.
M_thode recommand_e de raise _la terre
Une source d'alimentation de 115 volts, 60 Hz, type 15 ou
20 amp CA seulement, prot6gee par fusible et adequatement
mise a la terre est necessaire. II est recommande d'utiliser un
circuit distinct pour alimenter uniquement votre refrigerateur.
Utiliser une prise murale qui ne peut _tre mise hors circuit a I'aide
d'un commutateur. Ne pas utiliser de cordon de rallonge.
IMPORTANT : Si ce produit est connecte a une prise protegee
par un disjoncteur de fuite a la terre, un declenchement
intempestif peut se produire et causer une perte de
refroidissement. La qualite et la saveur des aliments risquent
d'etre affect_es. Si un declenchement intempestif se produit et si
les aliments semblent de pietre qualite, jeter le tout.
REMARQUE : Avant d'executer tout type d'installation,
nettoyage ou remplacement d'une ampoule d'eclairage, enlever
la grille superieure et mettre I'interrupteur general d'alimentation
OFF (arr_t) ou deconnecter la source de courant electrique au
boitier de disjoncteurs.
Lorsque vous avez termine, mettre I'interrupteur general
d'alimentation a ON (marche) ou reconnecter la source de
courant electrique au boitier de disjoncteurs. Puis mettre de
remettre la commande au reglage desire.
59

:iJ!iii_iii?_i:!i!i,_::::iii_i_!!:iit:::'¸_ii_!iiiii{i_iJ_i_i:__!_i:_:_:Ji_i::!!!¸ii_',i::_i_!Iilii_i:!i_!i_i__i:!i!!¸iii:ii_{:;!i_i{{;ii{_ii_,i_i__i_i,_i!_i_i_i_'__iii!_¸¸;!i__i!ii
Toutes les installations doivent _tre conformes aux exigences
des codes Iocaux de plomberie.
Le robinet d'arr_t devrait se trouver dans le placard inferieur,
d'un c6te ou I'autre du refrigerateur ou a un autre endroit
facilement accessible. Le cSte droit est recommande. Le trou
d'acces a travers le placard de droite dolt se trouver en de(;a
de 1/2"(12,7 mm) du mur arriere.
6 II
(15,2cm)
Si la pression de I'eau au syst_me d'osmose inverse est
inferieure a 40 - 60 Ib/po 2 (276 - 414 kPa) :
• Verifier pour voir si le filtre du systeme d'osmose inverse est
bloque et le remplacer si necessaire.
• Laisser le reservoir du systeme d'osmose inverse se remplir
apres une utilisation intense.
Si votre refrigerateur a une cartouche de filtre a eau, celle-ci
peut reduire encore plus la pression de I'eau Iorsqu'elle est
utilisee avec un systeme d'osmose inverse. Retirer la
cartouche du filtre a eau.
Si vous avez des questions au sujet de la pression de votre eau,
appeler un plombier qualifie agree.
INSTRUCTIONS
D'INSTALLATION
231/2"
(60 cm)rain.
Si le robinet d'arr_t n'est pas dans les placards, la plomberie
pour la canalisation d'alimentation peut _tre acheminee
travers le plancher ou lemur arriere. Un trou de 1/2"(12,7 mm)
devrait _tre perce de 6" (15,2 cm) a 12" (30,4 cm) du c6te
droit du placard ou panneau du c6te droit. Sur le plancher, le
trou ne devrait pas se trouver a plus de 11" (28 cm) du mur
arriere. Sur lemur, le trou ne devrait passe trouver a plus de
3" (7,6 cm) du plancher. Voir "Raccordement de la
canalisation d'eau".
Si cet emplacement recommande de la canalisation d'eau est
utilise, il ne sera pas necessaire d'acheter des pieces de
plomberie additionnelles.
Si un tube supplementaire est necessaire, utiliser un tube en
cuivre et verifier s'il y a des fuites. Installer les tuyaux en
cuivre seulement la ou les temperatures domestiques
resteront au-dessus du point de congelation.
Ne pas employer de robinet d'arr_t a etrier de 3/16"(4,76 mm)
ou de type a percer, ce qui reduit le debit d'eau et cause une
obstruction plus facilement.
REMARQUE : Votre marchand de refrigerateurs offre une
trousse avec un robinet d'arr6t a etrier de 1/4"(6,35 mm), un
raccord et un tube en cuivre. Avant I'achat, s'assurer que le
robinet d'arr_t a etrier est conforme aux codes Iocaux de
plomberie.
Pression de I'eau
Une alimentation en eau froide avec une pression entre 30 et
120 Ib/po 2(207 - 827 kPa) est necessaire pour faire fonctionner le
distributeur d'eau et la machine a glagons. Si vous avez des
questions au sujet de la pression de votre eau, appeler un
plombier qualifie agree.
Alimentation en eau par osmose inverse
IMPORTANT : La pression de I'alimentation en eau entre le
systeme d'osmose inverse et la valve d'arrivee d'eau du
refrigerateur dolt _tre entre 30 et 120 Ib/po 2 (207 - 827 kPa).
Si un systeme de purification de I'eau par osmose inverse est
raccorde & votre alimentation en eau froide, la pression de I'eau
au systeme dolt _tre d'un minimum de 40 a 60 Ib/po 2 (276 -
414 kPa).
Risque de bascutement
Le refrigerateur est Iourd au sommet et bascule
faci}ement Iorsqa'il n'est pas comp}etement install&
Garder les portes fermees avec un ruban adhesif
jusqu'a HnstaHation cornp}ete du r_frig_rateur.
Ut[Hser deu× ou plus de personnes pour d_placer et
installer le refrigerateur.
Le non-respect de ces instructions peat causer un
deces ou une blessure grave.
IMPORTANT :
• Ne pas 6ter la pellicule protectrice avant que le refrigerateur
ne soit a I'emplacement de service.
• Les quatre pieds de nivellement doivent toucher le plancher
pour supporter et stabiliser le poids total du refrigerateur.
• Garder la piece de carton ou de contreplaque d'expedition
sous le refrigerateur jusqu'a son installation a I'emplacement
de service.
Enlever et conserver le sachet de documents et le sachet de
pieces fixes par du ruban adhesif sur la porte du refrigerateur.
Enlever les quatre brides (deux de chaque c6te) fixant la base
utilisee pour expedition sous le refrigerateur.
REMARQUE : Ne pas enlever les rubans adhesifs et articles
d'arrimage des portes avant que le refrigerateur ne soit a son
emplacement final.
Si necessaire, reduire le rayon de basculement. Voir "Rayon
de basculement" pour les exigences relatives a la hauteur du
plafond ou "Reduction du rayon de basculement" pour les
instructions etape par etape. S'il n'est pas necessaire de
reduire le rayon de basculement, poursuivre avec la section
"Faire entrer le refrigerateur dans le domicile".
60

}!_iiii:i_ii!;!x;;iu _:::i:ii;i_i:__ii_di 8!i ziS}_'O_iS,d!_;i}¸ !/3_;iil}_S4:;:_iJi}i_ii!sis:_i_{!!s;'_ii:
Avant d'apporter le r6frigerateur dans le domicile, s'assurer que
la hauteur du plafond est suffisante pour mettre le refrig6rateur
en position verticale. Voir "Rayon de basculement" dans la
section "Specifications de design" pour plus d'information.
Si vous n'avez pas une hauteur de plafond suffisante pour mettre
le r6frigerateur en position verticale, le rayon de basculement
peut 6tre reduit en enlevant la grille superieure et les garnitures
laterales (voir le tableau suivant).
Mod61e Rayon de basculement r6duit
36 88" (223,5 cm)
S6ries Classic et Overlay
1=
2.
Saisir les deux extremit6s de la grille superieure.
Pousser la grille tout droit vers le haut, puis tout droit vers
I'exterieur. Poser la grille superieure sur une surface molle.
B A B
A. Grille sup_rieure
B. Garniture lat6rale de la caisse
3. Enlever les six vis qui fixent chaque garniture laterale de la
caisse au refrig6rateur et enlever les garnitures laterales.
S6rie Architect _
1. Saisir les deux extr6mites du panneau a jalousies. Pousser le
panneau a jalousies tout droit vers le haut, puis tout droit vers
I'exterieur. Poser le panneau sur une surface molle.
2. Saisir les deux extr6mites de la grille superieure. Pousser la
grille superieure tout droit vers le haut, puis tout droit vers
I'exterieur. Poser la grille supeneure sur une surface molle.
B A B
C
A. Grille sup_rieure
B. Garniture lat6rale de la caisse
C. Panneaua jalousies
3. Enlever les six vis qui fixent chaque garniture laterale de la
caisse au refrig6rateur et enlever les garnitures laterales.
S6rie Pro Line TM
1. Saisir les deux extremit6s de la grille superieure.
2. Pousser la grille superieure tout droit vers le haut, puis tirer
tout droit vers I'exterieur.
4=
5.
superieure.
2
Detacher le raccord de la grille de I'arriere de la grille
Poser la grille supeneure sur une surface molle.
Enlever les six vis qui fixent chaque garniture laterale de la
caisse au refrig6rateur et enlever les garnitures laterales.
Risque de basculement
Le r6frig6rateur est _ourd au sommet et bascule
faci_ement Jorsqu'iI West pas cornpletement install6•
Garder Jes portes ferm6es avec an ruban adh6sif
jusqu'a HnstaHation complete du r6frig6rateur•
UtiHser deux ou plus de personnes pour d6placer et
installer le r6frig6rateur.
Le non-respect de ces instructions peat causer un
d6ces ou une blessure grave•
1. Introduire le chariot sous le r6frigerateur, c6te gauche comme
sur I'illustration. Veiller a proteger les garnitures laterales et
les poignees./_, cette fin, placer les cornieres de I'emballage
par-dessus les garnitures et poignees. Serrer prudemment la
sangle.
REMARQUE : Faire passer la sangle du chariot sous les
poignees de la serie de poignee Architect_L
Placer des pieces de carton d'expedition sur le plancher
Iorsqu'on utilise un chariot pour faire entrer le refrig6rateur
dans le domicile. Deplacer le refrig6rateur pres de la cavite
d'encastrement.
61

REMARQUE : Si necessaire, reduire le rayon de
basculement. Voir la section "Reduction du rayon de
basculement".
3. Placer une feuille de carton ou de contreplaque sous le
refrigerateur. Enlever le chariot.
4. Ne pas enlever la pellicule protectrice ou le carton.
5. Si necessaire, reinstaller la garniture et la grille superieure
apres avoir retire le chariot du refrigerateur.
IMPORTANT :
• Le soffite massif dolt se trouver en de_a de 1" (2,5 cm) au
plus au-dessus du refrigerateur. Si le soffite massif se trouve
plus de 1" (2,5 cm) ou si aucun soffite n'est disponible,
proceder comme suit pour emp_cher tout basculement du
refrigerateur en cours de service.
• On recommande la mise en place d'une ou de plusieurs
planches avant I'installation du refrig6rateur.
• II faut que la ou les planches soit(soient) assez Iongue(s) pour
recouvrir completement le couvercle du compresseur sur
toute la largeur.
• Positionner la ou les planches de telle maniere que la surface
inferieure soit a 84" (213 cm) du plancher.
Durant I'installation, soulever le refrig6rateur pour que la
distance residuelle entre le sommet du refrigerateur et la
surface inferieure de la ou des planche(s) antibasculement
soit de 1/4"(6,35 mm) maximum. Veiller a ne pas ecraser le
couvercle du condenseur Iors du soulevement des pieds de
nivellement arriere.
Installation des planches antibasculement
1. Marquer la position des poteaux de colombage sur lemur
arriere de 80" a 90" (203 - 229 cm) au-dessus du plancher.
2. Fixer solidement une ou deux planches de bois de
2" x 4" x 32" (5 cm x 10 cm x 81 cm) sur les poteaux de
colombage derriere le refrigerateur. Utiliser 6 visa bois
n° 8 x 3" (7,6 mm) ou plus Iongues. Les visa bois doivent
penetrer dans les poteaux d'au moins 11/2"(3,8 cm). La ou les
planche(s) doit(doivent) _tre placee(s) en chevauchement sur
le couvercle du compresseur.
A
2" (5 cm)
B
D
A. Centrer la planche bun maximum de V4"(6,35 mm)
au-dessus du r_frig_rateut:
B. Deux planches de 2" x 4" x 32" (5 cm x 10 cm x 81 cm)
C. Fixer aux poteaux avec 6 vis n ° 8 x 3" (7,6 cm)
D. Couvercle du compresseur
Lire attentivement toutes les instructions avant de commencer.
62
IMPORTANT : Si on dolt utiliser le refrigerateur avant qu'il soit
raccorde a la canalisation d'eau, placer la commande de la
machine a glagons a la position OFF (arr_t).
Raccordement & une canalisation d'eau
1. Debrancher le refrig6rateur ou deconnecter la source de
courant electrique.
2. FERMER le robinet principal d'arrivee d'eau. OUVRIR le
robinet de puisage le plus proche pendant une p_riode
suffisante pour que la canalisation d'eau se vide.
3. Trouver une canalisation d'eau froide verticale de
1/2"a 11/4'' (1,25 cm a 3,18 cm) pres du refrigerateur.
IMPORTANT :
Assurez-vous qu'il s'agit d'un conduit d'eau froide.
Un conduit horizontal fonctionnera, mais percer par le
dessus de la canalisation et non pas par le dessous.
Ainsi, I'eau ne risquera pas d'arroser la perceuse. Ceci
emp_che egalement les sediments qu'on trouve
normalement dans I'eau de s'accumuler dans le robinet
d'arr_t.
Pour determiner la Iongueur du tube en cuivre, il faut mesurer
la distance entre le point de connexion inferieur gauche
I'arriere du rdrigerateur et le tuyau d'arrivee d'eau. Ajouter
une Iongueur de 7 pi (2,1 m) pour permettre le deplacement
du refrigerateur pour le nettoyage. Utiliser un tube en cuivre
de 1/4"(6,35 mm) de diametre exterieur. Veiller ace que le
tube soit coupe d'equerre aux deux extremites.
A I'aide d'une perceuse electrique reliee a la terre, percer un
trou de 1/4"dans le tuyau de canalisation d'eau froide choisi.
.......... A
G, ..................B
........... ............C
A. Canalisation d'eau froide
B. Bride de tuyau
C. Tube en cuivre
D. Ecrou de compression
E. Bague de compression
FRobinet d'arr#t
G. Ecrou de serrage
6. Fixer le robinet d'arr_t sur la canalisation d'eau froide avec la
bride de tuyau. Verifier que le raccord du robinet est bien
engage dans le trou de 1/4"perce dans la canalisation et que
la rondelle d'etancheite est placee sous la bride de tuyau.
Serrer I'ecrou de serrage. Serrer lentement et uniformement
les vis de la bride de tuyau afin que la rondelle forme une
jonction etanche. Ne pas serrer excessivement car ceci
pourrait provoquer I'ecrasement du tube en cuivre.
7. Enfiler I'ecrou et la bague de compression du raccord sur le
tube en cuivre comme on le volt sur I'illustration. Inserer
I'extremite du tube aussi loin que possible dans I'ouverture
de sortie du robinet. Visser I'ecrou de compression sur le
raccord de sortie avec une cle a molette. Ne pas serrer
excessivement la bride ou la bague, au risque d'ecraser le
tube en cuivre.
8. Avant d'attacher le tube en cuivre au refrigerateur, placer le
bout libre du tube dans un contenant ou evier et ouvrir le
robinet principal d'arrivee d'eau. Faire couler au moins
2 pintes (1,9 L) d'eau dans le tube en cuivre jusqu'a ce que
I'eau soit limpide afin de se debarasser de toutes les
particules darts la tuyauterie. Fermer le robinet principal
d'arrivee d'eau. Enrouler le tube en cuivre en spirale.
g. Inspecter pour rechercher les fuites autour de la vanne
etrier.

Raccordement au r_frig_rateur
Style I-Raccordement du tube en cuivre
1. Enlever le ruban gomme d'expedition du tube gris, en
serpentin pour I'eau, a I'arriere du refrigerateur.
2. Un raccord de %" x 1/4"est necessaire pour connecter le
conduit pour I'eau a une canalisation d'eau existante de la
maison. Enfiler I'ecrou fourni dans le joint a I'extremite du
tube de cuivre.
REMARQUE :Serrer I'ecrou a la main. Ensuite le serrer avec
une cle deux tours de plus. Ne pas serrer excessivement.
A. Tube vers le r_frig_rateur
B. £-crou (foumi)
C. Renflement
D. Raccord (fourni)
E. Virole (a acheter)
F. £-crou (a acheter)
G. Canalisation d'eau
du domicile
3. Ouvrir le robinet d'arr_t.
4. Inspecter pour rechercher les fuites. Serrer tousles raccords
(y compris les raccordements de la valve d'entree d'eau) ou
les ecrous qui coulent.
REMARQUE : Attendre 24 heures pour produire la premiere
quantite de glagons. Jeter les trois premieres quantites de
gla_ons produites. Attendre 3 jours pour que le bac & glagons se
remplisse entierement.
Style 2-Raccordement au robinet d'arr_t
1. Enlever le ruban gomme d'expedition du tube gris, en
serpentin pour I'eau, a I'arriere du refrigerateur.
2. Enfiler I'ecrou fourni dans le robinet d'eau comme sur
I'illustration.
REMARQUE :Serrer I'ecrou a la main. Ensuite, le serrer avec
une cle 2 tours de plus. Ne pas serrer excessivement.
A
B
A. Renflement
B. E-crou (fourni)
3. Ouvrir le robinet d'arr_t.
4. Inspecter pour rechercher les fuites. Serrer tousles raccords
(y compris les raccordements de la valve d'entree d'eau) ou
les ecrous qui coulent.
REMARQUE : Attendre 24 heures pour produire la premiere
quantite de gla(_,ons.Jeter les trois premieres quantites de
gla£ons produites. Attendre 3 jours pour que le bac a glagons se
remplisse entierement.
1=
2.
Risque de choc electrique
Brancher sur une prise a 3a_veoles retiee a la terre.
Ne pas en_ever la broche de _iaison a _aterre.
Ne pas utiliser un adaptateur.
Ne pas utiiiser un cSb_e de raHonge.
Le non-respect de ces instructions peat causer
un deces, an incendie ou un choc e_ectrique.
Regler I'interrupteur de la pattie superieure de la caisse & la
position OFF (Arr_t).
Brancher sur une prise & 3 alveoles reliee & la terre.
Risque de basculement
Le refrigerateur est Iourd au sommet et bascule
facilement Iorsqu'i_ n'est pas completement install&
Garder les portes fermeee avec an ruban adhesif
jusqa'a HnstaHation complete du r6frig_rateur.
UtiHser deux ou p_us de personnes pour deplacer et
installer le refrigerateur.
Le nomrespect de ces instructions peat causer an
deces ou ane blessure grave.
IMPORTANT : Pour eviter d'endommager le plancher, avant de
deplacer le refrigerateur, verifier que les pieds sont souleves
(aucun contact avec le plancher) et que le refrigerateur repose
sur des roulettes.
1. Pousser le refrigerateur tout droit dans la cavite
d'encastrement. Verifier que la canalisation d'arrivee d'eau
n'est pas deformee et que le cordon d'alimentation electrique
est sur le dessus du refrigerateur, pros du couvercle.
REMARQUE : Les quatre pieds de nivellement doivent toucher le
plancher pour supporter et stabiliser le poids total du
refrigerateur. Les roulettes ne sont utilisees que pour le
deplacement du rdrigerateur, et non pas pour un soutien
permanent.
63

Utiliser une cle & douille pour faire tourner vers la droite les pieds
de nivellement sur chaque c6te du refrig6rateur jusqu'& ce que le
poids du refrigerateur soit en appui sur les pieds de nivellement.
Les roulettes ne devraient pas _tre en contact avec le plancher.
Pour eviter d'endommager la caisse, ne pas exercer un couple
de plus de 50 po - Ib (58 cm - kg) sur les pieds de nivellement.
A B
A. Pieds de nivellement arriere
B. Pieds de nivellement avant
IMPORTANT : KitchenAid n'est pas responsable des operations
d'enlevement ou d'installation des moulures ou panneaux
decoratifs qui entraveraient I'acces au refrigerateur Iors d'une
intervention de reparation.
Panneaux de porte et de tiroir
1. Enlever tousles rubans adhesifs et articles d'arrimage de la
porte du refrigerateur et du tiroir du congelateur.
2. Enlever les vis fixant les poignees sur le cadre de la porte.
3. Enfiler les panneaux decoratifs de porte et de tiroir dans les
cadres.
4. Si necessaire, usiner les panneaux de porte et de tiroir ou
installer un panneau de remplissage entre la porte et le tiroir.
Voir la section "Panneaux personnalises de la Serie Classic"
dans "Specifications de design".
B
A. Panneau de porte
B. Panneau du tiroir
5. Reinstaller les poignees de porte et de tiroir. Verifier que la
porte et le tiroir sont alignes.
6. Enlever la pellicule protectrice des capuchons de vis.
7. Embo;ter les capuchons de vis dans la section de garniture
de la poignee.
8. Si les poign_es de porte ne sent pas alignees. Voir
"Ajustement des portes".
Panneau de la grille sup_rieure
1=
2.
Saisir les deux extremites de la grille superieure.
Pousser la grille tout droit vers le haut, puis tout droit vers
I'exterieur. Poser la grille superieure c6te panneau vers le bas
sur une surface de travail molle.
A. Grille sup_rieure
B. Garniture lat_rale de la caisse
Enlever un embout en desserrant les ecrous et en faisant
glisser et sortir I'embout.
A
A. Tringleinf_rieure C. Embout
B. Ecrous D. Tringlesup_rieure
Glisser le panneau dans la tringle de la grille superieure et
reinstaller I'embout.
A. Panneau
64

5= Reinstaller la grille superieure dans les garnitures laterales et
tirer 16g_rement le panneau vers le bas pour le verrouiller en
place.
B
Glisser les panneaux personnalises dans les garnitures dans
la porte du compartiment de refrig6ration et du tiroir de
congelation, en s'assurant que le panneau de remplissage
entre dans les garnitures du c6te des charnieres.
A. Grille sup_rieure
B. Garniture lat_rale de la caisse
IMPORTANT :
•Installer les poignees personnalisees avant d'installer les
panneaux sur le refrig6rateur. Pour plus de
renseignements sur la selection de poignees
personnalisees KitchenAid, consulter le Catalogue
KitchenAid, visiter le site www.kitchenaid.com ou
t61ephoner au 1-800-422-1230. Au Canada, visiter
www.KitchenAid.ca ou telephoner au 1-800-461-5681.
• Creer des panneaux decoratifs personnalises
conformement aux specifications dans la section
"Panneaux personnalises de la serie Overlay".
• KitchenAid n'est pas responsable des operations
d'enlevement ou d'installation des moulures ou panneaux
decoratifs qui entraveraient I'acces au refrigerateur Iors
d'une intervention de reparation.
Installation des panneaux de porte
1. Enlever tousles rubans adhesifs et articles d'arrimage de la
porte du rdrigerateur et du tiroir du congelateur.
2. Ouvrir la porte du compartiment de refrigeration et du tiroir du
congelateur et enlever les garnitures
A. Panneaux
4. Reinstaller les garnitures superieures et du c6te des
poignees.
5. Enlever la pellicule protectrice des capuchons de vis.
Emboiter les capuchons de vis dans la section de garniture
de la poignee.
Panneau de la grille sup_rieure
1. Saisir les deux extremites de la grille superieure.
2. Pousser la grille tout droit vers le haut, puis tout droit vers
I'exterieur. Poser la grille superieure c6te panneau vers le bas
sur une surface de travail molle.
B A B
A. Garnitures de la porte de compartiment de r_frig_ration
B. Garniture du tiroir du cong_lateur
A. Grille sup_rieure
B. Garniture lat_rale de la caisse
65

3. Utiliser les ecrous de nivellement pour ajuster les pieds de
nivellement jusqu'& ce que le refrig@ateur soit d'aplomb de
4=
5=
Enlever un embout en desserrant les ecrous et en faisant
glisser et sortir I'embout.
A
A. Tringle infErieure C. Embout
B. E-crous D. Tringle supErieure
Glisser le panneau dans la tringle de la grille superieure et
reinstaller I'embout.
A. Panneau
Reinstaller la grille sup@ieure dans les garnitures lat@ales et
tirer leg@ement le panneau vers le bas pour le verrouiller en
place.
B
2=
gauche & droite.
A. Ecrou de nivellement arriere
B. Ecrou de nivellement avant
3. Placer le(s) niveau(x) sur la ou les tablettes. Verifier si le
refrig6rateur est d'aplomb d'avant en arriere.
4. Utiliser les ecrous de nivellement pour ajuster les pieds de
nivellement jusqu'a ce que le refrig@ateur soit d'aplomb
d'avant en arriere.
5. Verifier que les quatre pieds de nivellement sont au contact
du plancher et supportent le poids total du refrig6rateur.
6. Preceder a une verification finale pour s'assurer que le
refrig@ateur est d'aplomb.
Enl_vement et alignement des portes
REMARQUE : Ne pas devisser les deux vis de montage de rA" &
t6te hexagonale.
A. Grille supErieure
B. Garniture latErale de la caisse
REMARQUE :Les panneaux de porte personnalises et de
rev_tement doivent 6tre installes avant le nivellement.
1. Ouvrir les portes et placer un niveau sur le dessus du
refrig@ateur tel qu'illustr& V@ifier si le refrig@ateur est
d'aplomb de gauche & droite.
A
B--
A. Niveau pour verifier I'aplomb de gauche a droite
B. Niveau pour verifier I'aplomb d'avant en arriere
A. Vis de montage Tor__t 27 a t#te plate
B. Vis de montage de ¼" a t_te hexagonale
Suivre les _tapes suivantes pour enlever la porte pendant
I'installation.
1. Tirer la porte du congelateur pour I'enlever et la mettre de
c6t&
2. Devisser partiellement et enlever les 4 vis de montage
Torx®t27 a t_te plate sur le haut de la charniere. Conserver
les vis ensemble.
3. Soulever la porte pour I'enlever du refrigerateur et la mettre
de c6t&
Suivre les _tapes suivantes pour r_installer la porte.
1. Reinstaller la porte du congelateur.
2. Positionner la porte de fa£on ace que les trous des vis de
montage sur le haut de la charniere soient alignes.
3. Ins@er les 4 vis de montage Torx_t 27 a t6te plate sur le haut
de la charniere. S'assurer que la distance d'espacement
entre les portes est la m_me a gauche eta droite.
4. Serrer les vis sur la charniere.
T@TORX est une marque deposee de Textron Innovations Inc.
66

Suivre les _tapes suivantes pour ajuster I'alignement si la
porte a besoin d'etre ajust_e en haut ou en bas.
1. Inspecter I'espacement de I'ecart entre la porte du
congelateur et celle du refrig@ateur. S'assurer que la
distance d'espacement entre les portes est la m_me
gauche et a droite.
U
A-- .....
C >
2=
A. Espacement in_gal entre les portes
Si I'espacement entre les portes est inegal, devisser
partiellement les quatre vis de montage Torx®t27 a t_te plate
sur le haut des deux charnieres. Desserrer les vis au point ou
la charniere peut _tre deplac6e, mais ou I'on sent une friction
quand on essaie de deplacer la charniere. Ne pas devisser
les deux vis de montage de 1A" a t_te hexagonale.
A
A. Visde montage TorxC_r27a t#te plate
1
B. Visde montage de Y4"a t_te hexagonale
3. Ajuster les charnieres de telle sorte que la distance
d'espacement des portes est la m_me a gauche et a droite.
La distance sur le c6te de la charniere devrait servir de repere
pour le c6te de la poignee.
4. Serrer les vis sur les deux charnieres.
Ajustement de rouverture des portes
1. S'assurer que la porte du refrig@ateur s'ouvre librement. Si la
porte s'ouvre trop grand, enlever la vis de la charniere
inf@ieure.
Reinstaller la ou les vis de butee de porte dans la charniere
inferieure et serrer.
IMPORTANT : Ne pas placer la vis de butee de porte dans la
position de 130 ° sur les modeles de la serie Overlay. Voir
Degagements pour les poignees et portes".
A B C
A. Vis de butte de porte dans la position 130 °
B. Dans la position 110 °(S_rie Overlay)
C. Dans la position 90 °
Si la profondeur de la cavite d'encastrement est de 25" (63,5 cm)
ou plus, on peut ins@er chaque panneau lat@al dans la garniture
laterale ou le fixer a I'ext@ieur de la garniture lat@ale.
IMPORTANT : KitchenAid n'est pas responsable des operations
d'enlevement et de reinstallation des moulures ou panneaux
decoratifs qui entraveraient I'acc_s au refrigerateur Iors d'une
intervention de reparation.
1. Pour la piece de garniture laterale, ins@er la rive avant du
panneau lat@al usine dans le profile de garniture.
2. CIouer la rive arriere du panneau sur la planche d'appui.
A
B
A. Planche d'appui
B. Garniture lat_rale
2=
A
A. Visde butte deporte
dans laposition 110°
Tenir la porte ouverte a une position de moins de 90 °.
67

iiiiii:!i_!!!i_iiii:_!i/!ii_ii_/i_:ii_:i_i_:__i:!!l_!!!i_i!:ii__!i!ll;i_:ili!ii!ii_i!i!!!¸_i:ii_ii!!'¸!ii_!i_!/:?ii!_i!_,i;i_ii:!!_
La grille de la base comporte deux pieces pour permettre un
ajustement personnalise : la grille de la base elle-m_me et la
plinthe. La plinthe peut _tre ajoutee a la grille de la base pour la
prolonger jusqu'au plancher.
1. Ouvrir la porte du refrigerateur et mesurer la distance entre le
fond de la caisse et le plancher.
B
I
A......................_ I c
//////////
A. Plancher
B. Fond de la caisse du r_frig_rateur
C. Distance a mesurer
2= Mesurer cette m_me distance depuis le sommet de la grille
de la base jusqu'& la plus proche rainure en "V" sur la plinthe.
Entailler la plinthe dans la rainure en "V" avec un couteau, et
briser la plinthe sur la ligne d'entaille.
A. Ensemble grille/plinthe
B. Distance mesur_e a I'_tape 2 ci-dessus
C. Entaille dans la rainure en "V"
3. Glisser la plinthe sur la grille de la base.
4. Fixer I'ensemble grille/plinthe sur la caisse avec les deux vis
fournies.
Veuillez lire avant d'utiliser le systeme d'eau.
Immediatement apres I'installation, suivre les etapes ci-dessous
pour vous assurer que le syst_me d'eau est bien nettoye.
1. 12teindre la machine a glagons en ouvrant la porte du
congelateur et en levant le bras de commande metallique tel
qu'illustre.
REMARQUES :
•Si votre modele est muni d'un systeme de filtre a la grille de la
base, s'assurer que le filtre a la grille de la base est bien
installe et que la capsule est a la position horizontale.
Ne pas utiliser pour le filtrage d'une eau
microbiologiquement pollue_ ou de qualit_ inconnue en
I'absence d'un dispositif de d_sinfection ad_quat avant
ou apr_s le syst_me. Les syst_mes certifies pour la
r_duction de kyste peuvent _tre utilis_s pour I'eau
desinfect_e qui peut contenir des kystes filtrables.
2. Mettre la machine a glagons en marche en ouvrant la porte
du congelateur et en abaissant le bras de commande
metallique tel qu'illustre. Veuillez consulter la section
"Machine a glagons et bac d'entreposage" pour obtenir
d'autres instructions sur le fonctionnement de la machine
glagons.
• Attendre 24 heures pour obtenir la premiere quantite de
gla9ons.
• Jeter les trois premieres quantites de glagons produites.
1. Tourner le robinet de la canalisation d'eau a la position
"Open" (ouvert).
2. Tourner le commutateur du refrigerateur a la position ON
(marche). Attendre quelques minutes. Verifier les raccords de
la canalisation d'eau pour voir s'il y a des fuites.
3. Retirer toutes les boftes, tousles paquets de pieces et tous
les materiaux d'emballage de I'interieur du refrigerateur. Voir
la section "Nettoyage" dans le Guide d'utilisation et
d'entretien pour les instructions. Oter la pellicule protectrice
et le carton de la grille et des portes ou du ch&ssis de la
porte, selon le modele.
4. Installer les tablettes et bacs dans les compartiments de
refrigeration et de congelation.
5. Les commandes sont prereglees a I'usine au reglage moyen.
S'assurer que le compresseur fonctionne bien et que toutes
les lampes s'allument.
6. Si la construction doit continuer apres I'installation du
refrigerateur, regler les commandes a OFF (Arr_t).
Pour I'utilisation la plus efficace de votre nouveau refrigerateur
encastre, lire le Guide d'utilisation et d'entretien. Conserver les
instructions d'installation et le Guide pres du refrigerateur
encastre pour s'y referer facilement.
2307890A 6/06
© 2005. All rights reserved. ® Registered Tradernark/TM Trademark of KitchenAid, U.S.A.. KitchenAid Canada licensee in Canada Printed in U.S.A.
Todos los derechos reservados. ® Marca Registrada/TM Marca de cornercio de KitchenAid, U.S.A., usada en Canada bajo licencia de KitchenAid Canada Irnpreso en EE..UU.
Tous droits reserves. ® Marque d_posee/TM Marque de commerce de KitchenAid. U.S.A.. Ernploi licencie par KitchenAid Canada au Canada Irnprirne aux E.-U.