Kitchenaid KDFE104DSS0 User Manual DISHWASHER Manuals And Guides 1402110L
User Manual: Kitchenaid KDFE104DSS0 KDFE104DSS0 KITCHENAID DISHWASHER - Manuals and Guides View the owners manual for your KITCHENAID DISHWASHER #KDFE104DSS0. Home:Kitchen Appliance Parts:Kitchenaid Parts:Kitchenaid DISHWASHER Manual
Open the PDF directly: View PDF
.
Page Count: 56

KitchenAid _
INSTALLATION INSTRUCTIONS
UNDERCOUNTER DISHWASHER
INSTRUCTIONS D'INSTALLATIQN
LAVE-VAISSELLE SOUS PLAN DE TRAVAIL
Table of Contents .............................................................. 2
Table des matieres .......................................................... 27
W10579129B

TABLE OF
DISHWASHER SAFETY ............................................................................... 2
INSTALLATION REQUIREMENTS ............................................................. 3
Tools and Parts ......................................................................................... 3
Location Requirements ............................................................................. 4
Drain Requirements .................................................................................. 6
Water Supply Requirements ..................................................................... 6
Electrical Requirements ............................................................................ 6
INSTALLATION INSTRUCTIONS ............................................................... 7
Prepare Cabinet Opening--
Existing Utilities ......................................................................................... 7
Prepare Cabinet Opening--New Utilities ................................................. 7
Prepare and Route Water Line ................................................................. 8
Install Drain Hose ...................................................................................... 9
Install Moisture Barrier ............................................................................ 11
Prepare Dishwasher ................................................................................ 11
Make Power Supply Cord Connection ................................................... 12
CONTENTS
Determine Cabinet Opening ................................................................... 14
Install Door Handle ................................................................................. 15
Custom Panel Dimensions ..................................................................... 15
Install Custom Panel ............................................................................... 15
Choose Attachment Option .................................................................... 17
Prepare Water Supply Line..................................................................... 18
Move Dishwasher Close to Cabinet Opening ........................................ 19
Connect to Water Supply ....................................................................... 21
Connect to Drain ..................................................................................... 21
Make Direct Wire Electrical Connection ................................................. 22
Secure Dishwasher in Cabinet Opening ................................................ 23
Complete Installation .............................................................................. 24
Check Operation ..................................................................................... 26
If Dishwasher Does Not Operate ............................................................ 26
Additional Tips ........................................................................................ 26
DISHWASHER SAFETY
Your safety and the safety of others are very important.
We have provided many important safety messages in this manual and on your appliance. Always read and obey all safety
messages.
This is the safety alert symbol.
This symbol alerts you to potential hazards that can kill or hurt you and others.
All safety messages will follow the safety alert symbol and either the word "DANGER" or "WARNING."
These words mean:
You can be killed or seriously injured if you don't immediately
follow instructions.
You can be killed or seriously injured if you don't follow
instructions.
All safety messages will tell you what the potential hazard is, tell you how to reduce the chance of injury, and tell you what can
happen if the instructions are not followed.
Tip Over Hazard
Do not use dishwasher until completely installed.
Do not push down on open door.
Doing so can result in serious injury or cuts.
You Need to:
• Slowly open dishwasher door while someone grasps the rear
of the dishwasher. Remove shipping materials and drain hose.
Close dishwasher door until latched.
NOTE: Each dishwasher is tested at the factory and may contain
some residual water in the tub as a result of the test.
• Observe all governing codes and ordinances.
• Install this dishwasher as specified in these instructions.
• Installation should be performed by a qualified service
technician. The dishwasher must be installed to meet all
electrical and plumbing national and local codes and
ordinances.
Care shall be exercised when the appliance is installed or
removed, to reduce the likelihood of damage to the power-supply
cord.
WARNING: To reduce the risk of electric shock, fire, or injury to
persons, the installer must ensure that the dishwasher is
completely enclosed at the time of installation.
2

INSTALLATION
Tools and Parts
Gather the recommended tools and parts before starting
installation. Read and follow the instructions provided with any
tools listed here.
All Installations
Toolsneeded:
ie;S Flat'blade
Iscrewdriver _"
5Ae!'and 1/4" _ I ULListed/CSA
nut drivers or _ I ApprovedtWist/0n _
hex sockets _ IWireconnectorse
10, adjustable wrench _1%" omen'end
that opens t0 _' I wiln'ih _"
11/8 (2,9 cm)_
Torx®_T20® and; if installing custom
front panel& Torx® T15®screwdrivers
*Must be the proper size to connect your household wiring to
16-gauge wiring in dishwasher.
Other useful items you may need:
Parts supplied:
, =-=
Drainh0se Drainhose #10Xl/2, underCounter
Clamps (2) Phillips, mounting
(1 argeand _ head brackets(2)
1 small)screws (2)_
Parts needed:
%" compr x 3A"hose fitting
For part or kit, see local
retailer or Call Whirlpool
FNaurtS:1-800,442-9991. Part
mber W10273460
(4) #10 x 1/2"wood screws (if installing custom front panels)
t®TORX, T15, and T20 are registered trademarks of Acument
Intellectual Properties, LLC.
REQUIREMENTS
Supplied in Kit:
(4) Plastic studs (attached to each other by runners)
(4) Short screws (10-16 hex-head screw)
(4) Long screws (8-18 Torx®head screws)
(1)Template (located inside Use and Care Guide bag assembly)
(1) Instruction sheet (located inside Use and Care Guide bag
assembly)
NOTE: The screws supplied are used for only 3/4"thick wooden
panel. If the wooden panel is less than 3/4"thick, customer must
purchase screws locally.
Other parts you may also need:
I 11/2"_2'' _sture
(3'81_5 cm)I duct tal_e Ibarrier tape J_
screw:type Number_
277)
NOTES:
• Moisture barrier tape is recommended when installing a
dishwasher under a wood countertop.
Parts available for purchase in plumbing supply stores. Check
local codes. Check existing electrical supply. See "Electrical
Requirements" section. It is recommended that electrical
connections be made by a licensed electrical installer.
In addition, for first-time installations
Toolsneeded:
I 7iL
IandIV "hole
Parts needed:
Co ertubin (% see EleCtrical ReqUirements_" .
O.D.suggested) or I ........ ^ ,
fexbebadedr i For Direct Wire'. For Powerbupply
flet iebr'e_rilvd _ ! Fu°reDu'Le_itsWteid/Cord: use UL
........ _'_"' ..... I CSA Approved Listed!CSA
strain relief Approved power
t0fitT_ (2,2cm) supplycord kit
hole marked for use with
dishwasher
Make sure all these parts are included in the literature package.
If parts are not included, call 1-800-422-1230. In Canada, call
1-800-807-6777.

Groundedelectricalsupplyrequired.
Donotrundrainlines,waterlinesorelectricalwiringwherethey
caninterferewithorcontactdishwashermotororlegs.
Thelocationwherethedishwasherwillbeinstalledmustprovide
clearancebetweenmotorandflooring.Motorshouldnottouch
thefloor.
Donotinstalldishwasherovercarpetedflooring.
Shelterdishwasherandwaterlinesleadingtodishwasheragainst
freezing.Damagefromfreezingisnotcoveredbythewarranty.
Amoisturebarrieraccessory(PartNumber4396277)isavailable
fromyourdealerforinstallingunderneaththecountertop.
Call1-800-422-1230toorder.InCanada,call1-800-807-6777.
Locat on Requirements
Check location where dishwasher will be installed. The location
must provide;
• easy access to water, electricity and drain.
• convenient access for loading and unloading dishes.
Corner locations require a 2" (5.1 cm) minimum clearance
between the side of the dishwasher door and the wall or
cabinet.
• square opening for proper operation and appearance.
• cabinet front perpendicular to floor.
• level floor. If floor at front of opening is not level with floor
at rear of opening, shims may be needed to level
dishwasher.
Helpful Tip: Be sure to accurately measure dimensions and
ensure dishwasher is level if the floor in the dishwasher opening is
uneven (example: Flooring extends only partway into opening).
NOTE: To avoid shifting during dishwasher operation, shims must
be securely attached to the floor.
If dishwasher will be left unused for a period of time or in a
location where it may be subject to freezing, have it winterized by
authorized service personnel.
Make sure pipes, wires and drain hose are within the shaded area
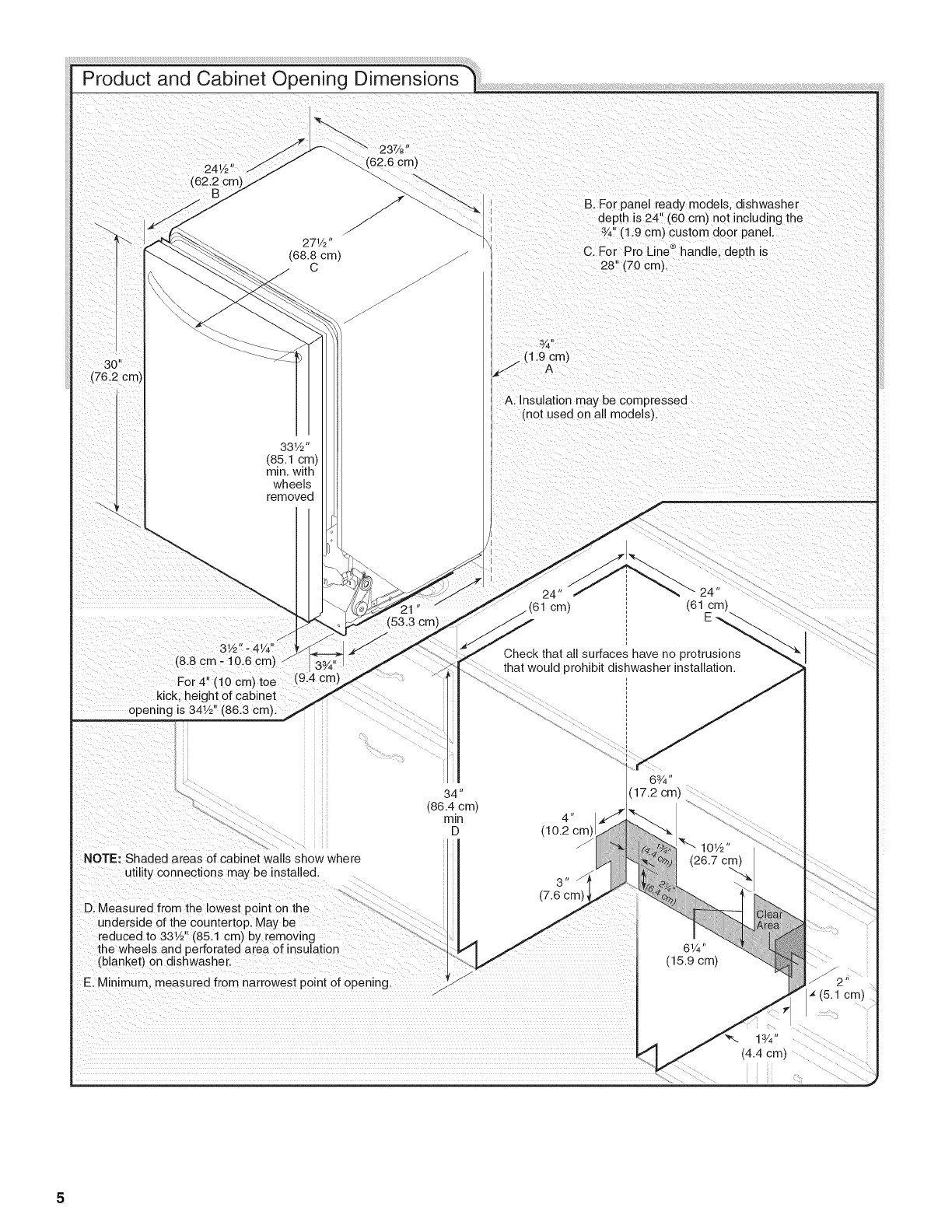
shown in the "Product and Cabinet Opening Dimensions" section.

(76.2 cm)
(62
331/2,,
(85.1 cm_
min. with
wheels
removed
_62.6 cm)
B. For panel ready models, dishwasher
depth is 24" (60 cm) not including the
¾" (1.9 cm) custom door panel.
C. For Pro Line ® handle, depth is
28" (70 cm).
A. nsulation "nay be compressed
(not used on all models).
(8.8 cm - 10.6 cm)
For 4" (10 cm) toe (9.
kick, height of cabinel
opening is 341/2'' 186.3 cmL
NOTE: Shaded areas of cabinet walls show where
utility connection s may be installed.
D. Measured from the lowest point on the
underside of the countertop. May be
reduced to 33W' (85.1 cm) by removing
the wheels and perforated area of insulation
(blanket) on dishwasher.
E. Minimum. measurea from narrowest point of opening.
34 "
(86.4 cm)
min
D
Check that all surfaces have no protrusions
that would prohibit dishwasher installation.
5

Drain Requ rements
A new drain hose is supplied with your dishwasher. If drain
hose is not long enough, use a new drain hose with a
maximum length of 12 ft (3.7 m) (Part Number 3385556) that
meets all current AHAM/IAPMO test standards, is resistant to
heat and detergent, and fits the 1" (2.5 cm) drain connector of
the dishwasher.
Make sure to connect drain hose to waste tee or disposer inlet
above drain trap in house plumbing and 20" (50.8 cm)
minimum above the floor. It is recommended that the drain
hose either be looped up and securely fastened to the
underside of the counter, or be connected to an air gap.
Make sure to use an air gap if the drain hose is connected to
house plumbing lower than 20" (50.8 cm) above subfloor or
floor.
If required, the air gap should be installed in accordance with
the air gap installation instructions. When you are connecting
the air gap, a rubber hose (not provided) will be needed to
connect to the waste tee or disposer inlet.
Water Supply Requirements
• A hot water line with 20 to 120 psi (138 to 862 kPa) water
pressure can be verified by a licensed plumber.
• 120°F (49°C) water at dishwasher.
• 3/8"O.D. copper tubing with compression fitting or flexible
braided water supply line (Part Number 4396897RP).
NOTE: 1/2"minimum plastic tubing is not recommended.
• A 90° elbow with 3/4"hose connection with rubber washer
(Part Number W10273460).
• Do not solder within 6" (15.2 cm) of the water inlet valve.
Electr cal Requ rements
Be sure that the electrical connection and wire size are adequate
and in conformance with the National Electrical Code, ANSI/NFPA
70 - latest edition and all local codes and ordinances.
A copy of the above code standards can be obtained from:
National Fire Protection Association
1 Batterymarch Park
Quincy, MA 02169-7471
You must have:
• 120-volt, 60 Hz, AC-only, 15- or 20-amp, fused electrical
supply.
• Copper wire only.
We recommend:
• A time-delay fuse or circuit breaker.
• Aseparate circuit.
If connecting dishwasher with a
power supply cord:
Use UL Listed power supply cord kit
(Part Number 4317824) marked for
use with dishwasher.
Power supply cord must plug into a grounded
3 prong outlet, located in the cabinet next to
the dishwasher opening. Outlet must meet all
local codes and ordinances.
If connecting dishwasher with direct wiring:
• Use flexible, armored or nonmetallic
sheathed, copper wire with
grounding wire that meets the
wiring requirements for your home
and local codes and ordinances.
• Use a UL Listed/CSA Approved strain relief.
6

INSTALLATION
Electrical Shock Hazard
Disconnect electrical power at the fuse box or circuit
breaker box before installing dishwasher.
Failure to do so can result in death or electrical shock.
I Disc0aneCt electdcan p0we[ at the fUSe box 0r circui t J
31 Do you already have utility
---" hookups?
YeS _FolIoW instrUCtions in the Prepare Cabinet
opening_EXist!ng Utilities" section,
No _F011ow instructi0ns in the Prepare- Cabinet
Open!ngmaew util!ties" section,
INSTRUCTIONS
Prepare Cabinet Opening--
Existing Utilities
If the water line and the cable extend to the locations shown,
proceed to the "Install Drain Hose" section. If they do not reach far
enough, follow the instructions in the "Prepare Cabinet Opening--
New Utilities" section.
Prepare Cab net Opening--New Ut Ites
Prepare and route the electrical supply
Power SuPply Cord!
Follow opt!on A instructions
DireCt wirel
_----_. Follow Option B instructions
Option A, Power Supply Cord:
NOTE: A grounded 3 prong outlet is required inside a cabinet next
to the dishwasher cabinet opening.
(Jptibnal location
(3.8
Drill a 11/2"(3.8 cm) hole in cabinet side or rear.
See "Product and Cabinet Opening Dimensions" section.

Woodcabinet:Sandtheholeuntilsmooth.
Metalcabinet:Coverholewithgrommetincludedwithpower
supplycordkit.
Option B, Direct Wire:
Helpful Tip: Wiring the dishwasher will be easier if you route the
cable into the cabinet opening from the right-hand side.
Drill a 1V2"(3.8 cm) hole in right-hand cabinet side or rear.
See "Product and Cabinet Opening Dimensions" section.
Wood cabinet: Sand the hole until smooth.
Metal cabinet: Cover hole with grommet (Part Number 302797 -
not provided).
Route cable from power supply through cabinet hole (cable must
extend to the right front side of cabinet opening). Tape cable to
the floor in area shown. This will prohibit cable from moving when
dishwasher is moved into cabinet opening.
Prepare and Route Water Lne
Helpful Tip: Routing the water line through the left side of cabinet
opening will make water connection easier.
Drill a V2"(1.3 cm) hole in the cabinet side or rear.
(copper tubing only)
Measure overall length of copper tubing for the water supply line.
8

Attach the water supply line (copper tubing or flexible braided line)
to the hot water line using a connection configuration that is in
compliance with local codes and ordinances. The water supply to
the dishwasher should have a manual shutoff valve located under
the sink.
Slowly route water supply line through hole in cabinet. (If you are
using copper tubing, it will bend and kink easily, so be gentle.) It
should be far enough into the cabinet opening to connect it to the
dishwasher inlet on the front left side of the dishwasher.
Slowly turn water shutoff valve to "ON" position. Flush water into
a shallow pan until clear to get rid of particles that could clog the
inlet valve. Turn shutoff valve to "OFF" position.
Route water line and tape it to the floor in area shown. This will
keep it from moving when dishwasher is moved into cabinet
opening.
Install Dran Hose
IMPORTANT: Always use a new drain hose. Oheck local codes to
determine whether an air gap is required.
If needed, drill a 1V2"(3.8 cm) diameter hole in cabinet wall or side
of the opening closest to the sink.
Route drain hose as shown through hole in cabinet to the front
center of opening where drain connection will be made. Tape
drain hose to the floor in area shown. This will prohibit it from
moving when dishwasher is moved into cabinet opening.

connectdrainhoseto wastetee0rwastedisposer
us!ngOne0fthefollowingOPtions:
option;A;WastedisP0ser,noairgap
, optionB,Nowastedisposer--noairgap
[ OptionC,Wastedisposer,withairgap
optionD'NoWastedisposer#withairgap
IMPORTANT:Thedrainhoseconnectionofthedisposerora
wasteteemustbemadebeforethedraintrapandatleast
20"(50.8cm)abovethefloorwherethedishwasherwillbe
installed.
HelpfulTip:Toreducevibrationofthehose,keepthehoseaway
fromthefloor.
Option A, Waste disposer - no air gap
Helpful Tip: Remove disposer knock-out plug.
1. Using a hammer and screwdriver,
knock plug into disposer.
2. Use needle-nose pliers to remove
plug.
3. Attach drain hose to disposer inlet
with large drain hose clamp
(provided). Use pliers to squeeze
clamp open and move into position.
Option B, No waste disposer - no air gap
1. Fit rubber end of drain hose to waste
tee and cut if needed.
NOTE: Do not cut ribbed section.
2. Attach rubber end of drain hose to
waste tee with a large drain hose
clamp (provided). Use pliers to
squeeze clamp open and move into
position. If the drain hose was cut,
use a 1V2" to 2" (3.8 to 5 cm) screw-
type clamp (not provided).
Option C, Waste disposer - with air gap
Drain trap
Helpful Tip: Remove disposer knock-out plug.
1. Using a hammer and screwdriver,
knock plug into disposer.
2. Use needle-nose pliers to remove
plug.
3. Connect rubber end of drain hose to
air gap and cut if needed.
NOTE: Do not cut ribbed section.
4. Attach drain hose to air gap with
large drain hose clamp (provided).
Use pliers to squeeze clamp open
and move into position. If the drain
hose was cut, use a 11/2"to 2" (3.8 to
5 cm) screw-type clamp (not
provided).
5. Use a rubber hose (not provided)
with screw-type clamps (not
provided) to connect from air gap to
disposer inlet.
10

1=
2.
Option D, No waste disposer - with air gap
_i_; _;_,;_;_i __;;_i¸_ ;_ ;; ;_ ;_
i 5( _!iiiiiiii
1=
2=
3=
Connect rubber end of drain hose to
air gap and cut if needed.
NOTE: Do not cut ribbed section.
Attach drain hose to air gap with
large drain hose clamp (provided).
Use pliers to squeeze clamp open
and move into position. If the drain
hose was cut, use a 11/2'' to 2" (3.8 to
5 cm) screw-type clamp (not
provided).
Use a rubber hose (not provided)
with screw-type clamps (not
provided) to connect from waste tee
to air gap.
Install Moisture Barr er
(under a wood countertop)
(under a wood countertop) I
Moisture
barrier
Make sure the area under the cabinet is clean and dry for
installation of the moisture barrier.
Remove the backing of the moisture barrier and apply to
underside of the countertop along the front edge of the
counter.
Prepare D shwasher
Tip Over Hazard
Do not use dishwasher until completely installed.
Do not push down on open door.
Doing so can result in serious injury or cuts.
Excessive Weight Hazard
Use two or more people to move and install
dishwasher.
Failure to do so can result in back or other injury.
Helpful Tip: Place cardboard under dishwasher until installed in
cabinet opening to avoid damaging floor covering. Do not use
door panel as a worktable without first covering with a towel to
avoid scratching the door panel.
Using 2 or more people, grasp sides of dishwasher door frame
and place dishwasher on its back.
_Put dishwasher on its
11

OptionA,RemoveAccessPanel-Plastic Panel
Using a flat-blade screwdriver, turn the plastic fasteners 1/4turn
counterclockwise to unlock them. Remove panel. Do not remove
tech sheet from access panel.
Option B, Remove Access Panel -Metal Panel
Using a 1/4"hex-head socket, nut driver or Phillips screwdriver,
remove 2 screws attaching access panel and lower panel to
dishwasher. Do not remove tech sheet from access panel.
® ®
Using a 1/4"hex-head socket, nut driver or Torx T20 screwdriver,
remove terminal box cover. Retain for later use.
Install a UL Listed/CSA Approved strain relief. Make sure screw
heads are facing to the left when tightening conduit nut. Strain
relief is provided with the power supply cord kit.
What type of electrical
connection will you use? [
_ Power Supply Cord:
Follow Option A instructions
NOTE: If using Option B, proceed to "Determine Cabinet
Opening," to continue with the installation of your dishwasher.
Make Power Suppy Cord Connect on
Option A, Power Supply Cord:
Route cord so that it does not touch dishwasher motor or lower
part of dishwasher tub. Pull cord through strain relief in terminal
box.
12

Select UL Listed/CSA Approved twist-on wire connectors rated to
connect your power supply cord to 16-gauge dishwasher wiring.
Electrical Shock Hazard
ElectricMly ground dishwasher.
Connect ground wire to green ground connector in
terminal box.
Do not use an extension cord.
Failure to follow these instructions can result in death,
fire, or electrical shock.
--_ Connect ground wire
,
o
d
I JI V_-_ _/ wire _ L_rouna
_ashe
Ground j
Remove the ground connector screw and place through the ring
terminal of the green ground wire. Reattach and tighten the
ground connector screw.
J _:
Power Cord--Connect
remaining wires
' /
)
NOTE: Do not pre-twist stranded wire. Twist on wire connector.
Gently tug on wires to be sure both are secured.
Connect wires black to black and white to white, using UL
Listed/CSA Approved twist-on wire connectors.
If needed, see website for animated representation of this step.
Visit www.kitchenaid.com/electrical under FAQ tab.
Tighten strain relief screws to secure cord.
Place wires inside terminal box. Insert tabs on left side of cover.
Make sure wires are tucked inside box. Close cover ensuring
wires are not pinched. Use 1/4"hex-head socket, nut driver or
Torx®T20 ®screwdriver and previously removed screw to secure
cover.
NOTE: Do not plug into outlet until instructed to do so.
13

Determine Cabinet Opening
Measure height of cabinet opening from underside of countertop
to floor where dishwasher will be installed (you will need to
measure the lowest point on the underside of the countertop and
the highest point on the floor). Refer to "Dishwasher Height
Adjustment Chart" for wheel position and the number of turns
needed.
NOTE: If the minimum cabinet opening height is less than 34"
(86.4 cm), the rear wheels can be removed for additional
clearance. This will allow the dishwasher and perforated section
of the insulation blanket to fit into a 331/2'' (85.1 cm) high cabinet
opening, but the dishwasher will be more difficult to move.
Measurements are approximate. Wheels and legs are preset at
the factory for 341/2"(87.6 cm).
Cabinet Wheel Number of turns
opening height position on front leg
!331/2" (85 1 cm) Removed I A the way up
34,(86,4 Cm) I ! !0
Turn both leveler legs to the same height. Put wheels in the
required position determined from "Dishwasher Height
Adjustment Chart."
Built-up floors: If the kitchen floor is higher than the cabinet
opening's floor - for example, the kitchen floor tile does not
extend into the cabinet opening - add shims as needed in the area
shown to bring the dishwasher up to 34" (86.4 cm) below the
countertop.
NOTE: Shims must be securely attached to floor to avoid
movement when the dishwasher is in use.
14

Install Door Handle
(onsore÷models)
Install door
Handle
Setscrew
(in bottom
of handle)
Hex key
IMPORTANT: Do not scratch the front panel during this
procedure.
Remove the door handle and hardware bag containing the
setscrews and hex key from the cardboard box. Setscrews are
already installed in the handle. Place handle on mounting studs
with the setscrews facing down. Push the door handle tightly
against the door. Insert the short end of the hex key into the
setscrews. Tighten the setscrews 1/4turn past snug.
Retain hex key with Installation Instructions.
Custom Panel Dimensions
with control panel on the top
,
(60 cm) ! 29 Y32'(76 cm)
¾" (19.1 mm)
* This dimension is for 4" (10.2 cm) toe kick. If the
installation needs a higher toe kick, adjust the height
of the wood panel accordingly except on models with
ProDry TM. Not recommended for toe kicks greater than
Install Custom Panel
Follow steps below:
A customer supplied panel must weigh no more than 16 Ibs
(7.3 kg) and must be made to specific dimensions. It is
recommended that a cabinetmaker cut the customer panel
because of the precise dimensions needed.
NOTES:
• The handle for the custom panel is not included.
All mounting hardware supplied is for a 3/4"(19.1 mm) thick
wood panel. If a thinner wood panel or materials other than
wood are used, it is the customer's responsibility to obtain the
proper length screws and adjust the pilot holes accordingly.
IMPORTANT: Use a moisture-resistant sealer on both sides and
all edges of the panel to avoid damage from moisture.
Excessive Weight Hazard
Use two or more people to move and install
dishwasher.
Failure to do so can result in back or other injury.
Stand dishwasher upright
Using 2 or more people, stand the dishwasher up.
NOTE: Do not install kick plate until instructed to do so.
Install the custom hardware handle(s) on the front of the wooden
panel inside dotted line.
IMPORTANT: If the handle is attached from the back of the
custom panel, the screw holes should be countersunk for the
screws heads to be flush with the panel. If the handle is attached
to the front of the custom panel, the screw lengths cannot exceed
the panel thickness.
15

/
Top Of Panel
Tapadelpanel
Ue_ dupanne_
Using the template provided, attach it to the backside of the
custom panel with tape. Make sure that the center of the template
is aligned with the center of the wooden panel and top of the
template is aligned to the top face of the wooden panel.
Predrill custom panel holes
J
NOTE: Do not drill deeper then _/8"(16 mm) to keep from drilling
through panel. Pilot hole depths given are for 3/4"(19 mm) thick
panel.
Mark 4 pilot holes on the wooden panel using the template
provided. Predrill 4 pilot holes using a 3/32"drill bit. Use tape to
mark the drill bit to gauge hole depth. Drill pilot holes
approximately %" (16 mm) into the custom panel.
4 Attach plastic studs
='_'Plastic studs attached
with 4 short screws
Visible side
Attach the 4 plastic studs to the wooden panel using the 4 short
hex-head (sAe")screws provided.
16
Attach custom tape
Check custom tape alignment with metal door slots; verify tape is
right-side up, and that the tape does not overhang the metal door
on the top, bottom or side interfaces. Remove the backing from
the custom tape by pulling straight down on the liner. Align the
custom tape to the keyhole slots on the metal door (see image)
and apply. Repeat steps for one side and then the other.
NOTE: The adhesive on the tape is aggressive, so proper
alignment and attachment to the metal door needs to occur on
the first try.
assembly
Align the studs on the custom wood panel to the keyhole slots on
the door assembly. Ensure that all 4 plastic studs are engaged in
the keyhole slots. Slide wood panel down until the top surface of
the wooden panel is flush with the top of the door.

Customer-supplied
panel
Drill through
these holes.
Remove 2 short screws
and replace with long
screws provided.
Open the door and align top edges. Predrill 2 pilot holes using a
3/32"drill bit. Use tape to mark the drill bit to gauge hole depth. Drill
pilot holes approximately 11/2"(3.8 cm) into the top corners of the
door using hole in liner as a guide.
I
I
edges
)rill through
these holes
Customer-supplied
panel
Using a Torx®T15®screwdriver, install two #8 x 1%" screws in top
corners to secure custom wood panel in place.
Remove the short screws
edges
Remove 2 short screws Customer-supplied
and replace with long panel
screws provided.
Remove the short screws (3rd from top) on either side of the inner
door panel. Predrill 2 pilot holes using a 3/32"drill bit. Use tape to
mark the drill bit to gauge the hole depth. Drill pilot holes
approximately 11/2"(3.8 cm) using the door liner hole as a guide
into the panel. Install the 2 remaining long screws.
Choose Attachment Opton
Excessive Weight Hazard
Use two or more people to move and install
dishwasher.
Failure to do so can result in back or other injury.
Use 2 or more people to move and install dishwasher.
IMPORTANT: The dishwasher must be secured to the cabinet.
There are two brackets found in the parts bag. Attach the
brackets using Option A if the countertop is wood, laminate or
another similar surface. If your countertop is marble, granite or
another hard surface, install using Option B.
Option A, Countertop attachment:
m=_=eV
Tabs must point
_;:_ to the right
.... ....._::2
Remove the brackets from the package and insert into the open
slots on the left and right-hand top of the dishwasher collar as
shown.
Using a pair of pliers, bend the tab down to secure the bracket in
place. Repeat this step for the other side.
NOTE: Do not attach the dishwasher. This will be done later.
17

Option B, Dishwasher side attachment:
NOTE: Remove the brackets from the parts package.
Break off the end of the bracket along the scored line.
With another person holding the rear of the dishwasher to keep it
from tipping, open dishwasher door and place towel over pump
assembly and spray arm of dishwasher. This will keep screws
from falling into pump area when you are securing dishwasher to
cabinet.
Push the plastic buttons out of the side of the tub.
NOTE: Save the buttons to cover the holes after dishwasher is
installed.
Install bracket
Push bracket into slot on the side of dishwasher, and bend tab in
toward the side of the dishwasher so that it keeps the bracket in
place. Repeat this step for the other side of the dishwasher.
NOTE: Do not attach the dishwasher. This will be done later.
Prepare Water Supply Line
Copper tubing only: Slide nut, then ferrule, about 1" (2.5 cm) onto
copper tubing.
NOTE: To avoid vibration during operation, route the water supply
line so that it does not touch the dishwasher base, frame or motor.
Connect the 3/8"compression fitting of the 90 ° elbow to the water
supply line prior to installing the unit into the cabinet opening.
Attach such that the 3/4"connection is facing upward as shown
above.
Copper tubing only: Put the tubing into the 90° elbow fitting as far
as it will go (the copper tubing bends and kinks easily). Slide the
nut and ferrule forward and start the nut onto the elbow threads.
Flexible braided connection: Secure nut to elbow using 5/8"open
ended wrench or adjustable wrench.
NOTE: Do not use Teflon ®ttape with compression fittings.
1-®TEFLON is a registered trademark of E.I. Du Pont De Nemours and Company.
18

Move D shwasher Close to Cabinet Opening
Excessive Weight Hazard
Use two or more people to move and install
dishwasher.
Failure to do so can result in back or other injury.
Use 2 or more people to move and install dishwasher.
IMPORTANT: Double-check correct placement of utilities. Grasp
the sides of the dishwasher at the edges of the door panel. Tilt
dishwasher backward on wheels and move dishwasher close to
cabinet opening.
NOTE: Do not push on the front of the panel or on the console.
Panel or console may dent.
Helpful Tip: Temporarily tape utilities to the floor in the locations
shown to prohibit them from moving when dishwasher is moved
into the cabinet opening.
Check that water line is on the left side of opening and drain hose
is near the center of the cabinet opening.
With another person holding the dishwasher to keep it from
tipping, open and close the door a few times. If the door closes or
falls open under its own weight, the door tension will need to be
adjusted.
Tensioner
Screw n []
To adjust the door spring tension, unhook the spring from the rear
leg of dishwasher.
Using a s/le" nut driver or hex socket, remove the screw from the
tensioner.
The screw can be put into one of 3 holes (1,2, 3) in the front leg of
dishwasher. If the door closes by itself, move the tensioner to a
lower-numbered hole and replace screw. Reattach door spring to
rear leg.
NOTE: Tensioners on both sides of dishwasher should be secured
at same holes.
19

Spring
ioner
J
Screw [] [] []
When door is unlatched, if door opens by itself, move the
tensioner to a higher-numbered hole and replace the screw.
Reattach door spring to rear leg.
NOTE: Tensioners on both sides of dishwasher should be secured
at same holes.
IMPORTANT: If wheels were removed, cover the floor when
moving the dishwasher. Slowly move dishwasher completely into
cabinet opening. Do not kink or pinch water line, drain hose,
power supply cord or direct wire between dishwasher and
cabinet. Remove cardboard from under dishwasher.
NOTES:
• It is all right if dishwasher fits tightly into cabinet opening. Do
not remove insulation blanket - the blanket reduces the sound
level.
If using power cord, make sure to route end through hole in
cutout before sliding dishwasher into cabinet opening.
For models with water softener, make sure that the drain hose
stays on the hanger that is on the right-hand side and is
tucked in on the side of the unit.
Align front of dishwasher door panel with front of cabinet doors.
You may need to adjust alignment to be even with your cabinets.
Check that leveling legs are firmly against the floor. Close and
latch the door, and place level against the front panel. Check that
dishwasher is centered from front to back in the opening. If
needed, adjust leveling leg until dishwasher is plumb. Repeat for
other side of dishwasher.
Helpful Tip: Push up on front of dishwasher to raise dishwasher
off the ground to adjust front legs. With some installations, it may
be easier to adjust the front leg using the ¾6" hex-head socket or
adjustable wrench.
20

Place level against top front opening of tub. Check that
dishwasher is level from side-to-side. If dishwasher is not level,
adjust front legs up or down until dishwasher is level.
Connect to Water Supply
Be sure rubber washer is properly seated in fitting. Slide the
3/4"fitting of the 90 ° elbow up to the valve and hand tighten to
avoid cross-threading. Hand tighten until the coupling is tight.
Using pliers, check the tightness of the coupling. An additional
1/4to 1/2turn may be required to seal the rubber gasket.
NOTE: Do not overtighten. Damage to the coupling can result.
Place paper towel under 90° elbow fitting. Turn on water supply
and check for leaks. If leak occurs, repeat previous step.
If needed, see website for animated representation of this step.
Visit www'kitchenaid'c°m/watersupply under FAQ tab.
NOTE: Do not use Teflon ®tape with compression fittings.
Connect to Drain
Place towel under drain hose to catch any water in drain hose.
Place the small drain hose clamp onto the small end of the drain
hose. Push the new drain hose into the rubber drain hose
connector up to the drain hose stop.
Using pliers, squeeze open the small drain hose clamp and slide
onto connector between stops.
Hose clamp final position
Drain hose
Rubber drain hose
connector
Small clamp
Stop
Stop
Drain hose stop
(
After hose is connected, remove towel.
If needed, see website for animated representation of this step.
Visit www.kitchenaid.com/drain under FAQ tab.
21

Make Drect Wre Electr cal Connect on
NOTE: If the power supply cord was connected earlier, proceed to
"Secure Dishwasher in Cabinet Opening" section.
Option B, Direct Wire:
Route cable so that it does not touch dishwasher motor or lower
part of dishwasher tub. Pull cable through UL Listed/CSA
Approved strain relief in terminal box. Strain relief is not supplied
with the dishwasher. Owner must purchase a 7/8"screw-in type
strain relief.
Select UL Listed/CSA Approved twist-on wire connectors (not
included) rated to connect your household wiring to 16-gauge
dishwasher wiring.
Electrical Shock Hazard
Electrically ground dishwasher.
Connect ground wire to green ground connector in
terminal box.
Do not use an extension cord.
Failure to follow these instructions can result in death,
fire, or electrical shock.
Direct WiremConnect
ground wire
o
\-J_ I _:_.,_i'_Y wi rd f"
_ashe 1
Ground /
Form bare ground wire into a U-shaped hook. Wrap ground wire
hook clockwise around ground connector screw and under the
washer. Securely tighten ground connector.
NOTE: Twist on UL Listed/CSA Approved wire connector. Gently
tug on wires to be sure both are secured.
22

Connect wires black to black and white to white, using UL
Listed/CSA Approved twist-on wire connectors (not included).
If needed, see website for animated representation of this step.
Visit www.kitchenaid.com/electrical under FAQ tab.
Tighten strain relief screws to secure cable.
_ Direct Wire--Reinstall 1
terminal box cover
\
Place wires inside terminal box. Insert tabs on left side of cover.
Make sure wires are tucked inside box. Close cover ensuring
wires are not pinched. Use V4" hex-head socket, nut driver or
Torx®T20 ®screwdriver and previously removed screw to secure
cover.
Secure Dishwasher in Cabinet Opening
Check that dishwasher is still level front-to-back and side-to-side
in cabinet opening.
Open dishwasher door to prepare for securing the dishwasher to
the cabinet.
NOTES:
• Do not drop screws into bottom of dishwasher.
If side mounting, you must drill pilot holes in cabinet to avoid
splitting the wood before installing screws. Locate brackets
on top of dishwasher and secure dishwasher to countertop
with two #10 x _/2"Phillips-head screws (included). The
dishwasher must be secured to keep it from shifting when
door is opened.
23

Check that top of door does not contact screws, brackets or
countertop. If it does, adjust leveling legs.
Open door and check that space between dishwasher cabinet
opening and tub is equal on both sides. If spacing is not equal,
loosen bracket screws and shift tub. Tighten bracket screws.
If securing with a side attachment, check that sides of door do not
rub against the screw heads. If they do, dishwasher must be
re-centered. When dishwasher is properly centered, replace
plastic buttons.
If needed, see website for animated representation of this step.
Visit www.kitchenaid.com/anchoring under FAQ tab.
Compete Insta aton
Option A, Install Access Panel -Plastic Panel
Reinstall access panel and fasteners
Insulation
(or
Place the plastic access panel against the dishwasher leg.
Check that the lower edge of the access panel touches the floor.
Adjust if necessary.
Using a flat-blade screwdriver, turn the fasteners 1/4turn clockwise
to lock into place. The fasteners slot will be straight up and down
when properly locked.
24

Option B, Install Access Panel - Metal Panel
Check that grounding clip is attached to the lower panel. Position
the lower panel behind the access panel. On some models there
is insulation on the access panel that must fall behind the
insulation on the lower panel.
Hold the 2 panels together and place them against dishwasher
leg. Using a Phillips or 1/4"screwdriver, reinstall the screws through
the holes in the access panel and the slots in the lower panel.
Check that the lower edge of the lower panel contacts the floor.
Adjust if necessary.
Tighten access panel screws.
25

Electrical Shock Hazard
Plug into agrounded 3 prong outlet.
Do not remove ground prong.
Do not use an adapter.
Do not use an extension cord.
Failure to follow these instructions can result in death,
fire, or electrical shock.
Plug into a grounded 3 prong outlet. Check that power supply
cord does not touch dishwasher motor or lower part of
dishwasher tub.
Reconnect Power
Check Operat on
• Read the Dishwasher User Instructions that came with your
dishwasher.
Check that all parts have been installed and no steps were
skipped. Check that you have all tools used.
Start dishwasher and allow it to complete the shortest wash
cycle. After the first 2 minutes, unlatch door, wait 5 seconds,
then open door. Check that there is water in the bottom of the
dishwasher tub. Check that dishwasher is working properly.
If the dishwasher is not working properly, disconnect power or
unplug dishwasher and see "If Dishwasher Does Not Operate"
section.
If Dishwasher Does Not Operate
First try the solutions suggested here to possibly avoid the cost of
a service call.
• Has the circuit breaker tripped or the house fuse blown?
• Is the door closed tightly and latched?
• Has the cycle been set correctly to start the dishwasher?
• Is the water turned on?
If none of these possible solutions work, please see your Use and
Care Guide for service contact information.
Addit onal Tps
Expect longer wash times. Your new dishwasher will average
2-3 hours per load, but use nearly 40% less energy than older
models. Designed with a low wattage, low energy consumption
motor, your dishwasher washes longer to ensure exceptional
cleaning. Certain models are equipped with an optical water
sensor so the first cycle will run longer to calibrate to optical
sensor. Selecting certain options could increase cycle time past
3.5 hours.
Rinse Aid is necessary for good drying results:
This dishwasher is designed to be used with rinse aid for good
drying performance and controlling hard water deposit buildup.
Energy efficient dishwashers use less water and energy, so they
depend on the water sheeting action of rinse aid for good drying
performance.
Start/Resume light may flash:
When pressing Start/Resume, you must make sure the door is
closed within 3 seconds. If you do not close the door within
3 seconds, the Start/Resume light will flash until you press it
again. (You must also do this when adding a dish during the
middle of a cycle.)
NOTE: If a braided supply hose is used, replace inlet hose after
5 years to reduce the risk of hose failure. Record hose installation
or replacement dates on the hose for future reference.
26

TABLE DES
Sl:tCURITl:tDU LAVE-VAISSELLE............................................................27
EXIGENCES D'INSTALLATION................................................................28
Outillage et pieces ..................................................................................28
Exigencesd'emplacement .....................................................................29
Exigences d'evacuation ..........................................................................31
Specifications de I'alimentation en eau..................................................31
Specifications electriques.......................................................................31
INSTRUCTIONS D'INSTALLATION.........................................................32
Preparationde I'ouverture d'encastrement du placard -
Moyens de raccordement preexistants..................................................32
Preparationde I'ouverture d'encastrement du placard -
Nouveaux moyensde raccordement .....................................................32
Preparation et acheminement de lacanalisation d'eau .........................34
Installationdu tuyau d'evacuation ..........................................................35
Installationde la barriere anti-humidite..................................................37
Preparation du lave-vaisselle..................................................................37
Raccordement du cordon d'alimentation...............................................39
MATIERES
€:valuationde I'ouverture d'encastrement du placard...........................40
Installationde la poignee de porte .........................................................41
Dimensionsdu panneau personnalise...................................................41
Installation du panneau personnalise.....................................................42
Choix de I'option de fixation...................................................................44
Preparationde la canalisationd'alimentation en eau............................45
Deplacementdu lave-vaisselle& proximite
de I'ouverture d'encastrement du placard .............................................46
Raccordement a I'alimentation en eau...................................................48
Raccordement au circuit d'evacuation ..................................................48
Raccordement electrique direct .............................................................49
Fixationdu lave-vaisselledarts I'ouverture
d'encastrement du placard ....................................................................50
Achever I'installation...............................................................................51
Contr61edu fonctionnement...................................................................54
Si le lave-vaissellenefonctionne pas ....................................................54
Conseils supplementaires ......................................................................54
SI CURITI DU LAVE-VAISSELLE
Votre securite et celle des autres est tres importante.
Nous donnons de nombreux messages de s_curit_ importants dans ce manuel et sur votre appareil m_nager. Assurez-vous de
toujours lire tousles messages de s_curit_ et de vous y conformer.
Voici le symbole d'alerte de s_curit&
Ce symbole d'alerte de s_curit_ vous signale les dangers potentiels de d_c_s et de blessures graves & vous
eta d'autres.
Tousles messages de s_curit_ suivront le symbole d'alerte de s_curit_ et le mot "DANGER" ou
"AVERTISSEMENT". Ces mots signifient •
Risque possible de d_cbs ou de blessure grave si vous ne
suivez pas imm_diatement les instructions.
Risque possible de d_cbs ou de blessure grave si vous
ne suivez pas les instructions.
Tousles messages de s_curit_ vous diront quel est le danger potentiel et vous disent comment r_duire le risque de blessure et
ce qui peut se produire en cas de non-respect des instructions.
Risque de basculement
Ne pas utiliser le lave=vaisselle jusqu'a ce qu'il soit
complbtement install&
Ne pas appuyer sur la porte ouverte.
Le non=respect de ces instructions peut causer des
blessures graves ou des coupures.
II faut :
• Ouvrir lentement la porte du lave-vaisselle tandis qu'une autre
personne saisit I'arriere de I'appareil. Retirer les materiaux
d'expedition et le tuyau d'evacuation. Fermer la porte du lave-
vaisselle; elle doit s'enclencher.
REMARQUE : Chaque lave-vaisselle a et6 teste en usine - en
raison de ces tests, il est possible qu'il reste un peu d'eau dans la
cuve du lave-vaisselle.
• Respecter les dispositions de tousles codes et r_glements en
vigueur.
• Installer le lave-vaisselle conformement aux presentes
instructions.
L'installation doit _tre execut6e par un technicien qualifi& Le
lave-vaisselle doit _tre installe conformement aux dispositions
de tousles codes et r_glements Iocaux et nationaux regissant
les installations de plomberie et d'electricit&
L'installation ou le retrait de I'appareil doit se faire avec precaution
afin de reduire le risque d'endommagement du cordon
d'alimentation.
AVERTISSEMENT : Afin de reduire le risque d'incendie, de choc
electrique ou de blessures corporelles, I'installateur doit s'assurer
que le lave-vaisselle est completement encastre au moment de
I'installation.
27

EXIGENCES
Out liage et pi6ces
Rassembler les outils et composants necessaires avant
d'entreprendre I'installation. Lire et observer les instructions
fournies avec chacun des outils de la liste ci-dessous.
Toutes les installations
Outillage n_cessaire :
Pnce
Toumevis
Phillips
Tourne-_crou ou
cl_s b,douil
hexagonal_
SAd'et 1/2"
Metre-ruban
ou regle
CI6 & molette de 10"
(ouverture jusqu' & J_//-_
11/8[2,9 cm])
Tournevis &
lame plate
Couteau
utilitaire
Connecteurs de N A
ills (homologation U U
UL ou CSAF
Petit niveau
C1€ plate
Tournevis Torx ®tT20 ®.Si I'on i nstalle des panneaux J
avant personnalis6s, tournevis Torx_ T15 ®.
*Dolt _tre de taille appropriee pour raccorder le c&blage du
domicile au c&blage de calibre 16 du lave-vaisselle.
Autres articles utiles pouvant _tre n_cessaires :
l
p0che i
Pi_ces fournies :
Brides Vis
Tuyau
de tUyau d'evacua. PhillipS
n* 10 Xl/2d'_vacuation
et ! petite)
• .
Brides de
montage sous
le plan de travail
(dessus) (2)
Pibces n_cessaires :
Ruban
adh_sif
Raccord decompression
de %1_x ¾, pour tuyau,
Pour commander des pi_ces
ou un ensemble, consulter
votre marchand local ou
ap_pelerWhMpool Pi_ces:
1.800-442.9991. Num_ro de l
piece W!0273460
1-®TORX, T15 et T20 sont des marques d6pos&es de Acument
Intellectual Properties, LLC.
D'INSTALLATIO N
(4) visa bois n°10 x 1/2"(si installation de panneaux personnalises
avant.)
Fourniture dans la trousse :
(4) goujons en plastique (assujettis ensemble sur une tringle)
(4)vis courtes (10-16, t_te hexagonale)
(4) vis Iongues (8-18, Torx®)
(1) gabarit (dans le sachet du Guide d'utilisation et d'entretien)
(1) fiche d'instructions (dans le sachet du Guide d'utilisation et
d'entretien)
REMARQUE :Les vis fournies sont utilisees seulement sur des
panneaux de bois de 3/4";si I'epaisseur des panneaux est
inferieure & 3/4",I'installateur dolt acheter Iocalement des vis
appropriees.
Autres pibces pouvant _tre n_cessaires :
Bd_
11/2',,2', (3,81,5 Cm)
(3 max)
Ruban de Barri_re
masqUa_ e anti_humidit _
ou ruban (pi#ce no _
439627_ !
REMARQUES :
• La bande de barriere anti-humidite est recommandee pour les
installations du lave-vaisselle sous un plan de travail en bois.
Pieces disponibles a I'achat dans les magasins de fournitures
de plomberie. Consulter les codes Iocaux. Verifier
I'alimentation electrique existante. Voir la section
"Specifications electriques". II est recommande de faire
realiser tous les raccordements electriques par un electricien
qualifie agree.
D'autre part, pour les premieres installations
Outillage n_cessaire :
PerceuSe _ I.¢,-.
sans fil _ _-_/ ,_.__-_ _"_
avec m_cheS ,_,_/"_,_ ._.._9_ "__:?ff-.."_
I
!_34 ,, _ Pmce a
[e_ Iw j..........
Pibces n_cessaires : ,,
Cana sai on de Voir la section i'Sp6cifiCations _lectriques
cuivre (diam_tre Pour leS Pour les installations
externe suggere inStallations _ aveC un cordon
de%)0u ''
. raccordement d a mentat on
canahsat!°n d rect ut serun _lectiique :
a arriv_e d eau s rre C_ble
f"ex'b'etress_e ,,e -, . u_H]ser unc.oraon
d,ad,=., tnomo!ogat!on a a!!mentahon
UL/CSA) qui (homologation UL/
cony ent_ CSA)€on£u pour
\k_'___..__) or f Ce de utilisation avec un
(212Cm) lave,VaisselJe
S'assurer que toutes ces pieces sont contenues dans le sachet
de documentation.
Si ce n'est pas le cas, composer le 1-800-422-1230. Au Canada,
appeler le 1-800-807-6777.
28

Une source d'electricit6 avec liaison & la terre est necessaire.
Ne pas placer de canalisation d'evacuation, canalisation d'eau ou
c&blage electrique & un endroit oQ cela susciterait interference ou
contact avec les pieds ou le moteur du lave-vaisselle.
A I'emplacement d'installation du lave-vaisselle, on doit pouvoir
etablir le degagement approprie entre le moteur et le plancher. Le
moteur ne doit pas toucher le plancher.
Ne pas installer le lave-vaisselle sur de la moquette.
Abriter du gel le lave-vaisselle et les canalisations d'eau qui
I'alimentent. La garantie de I'appareil ne couvre pas les
dommages imputables au gel.
Une barriere anti-humidite (produit n° 4396277) est disponible
chez votre revendeur pour I'installation de I'appareil sous le plan
de travail. Composer le 1-800-422-1230 pour commander. Au
Canada, appeler le 1-800-807-6777.
Ex gences d emplacement
Inspecter I'emplacement d'installation du lave-vaisselle. II doit
comporter les caracteristiques suivantes :
• facilite d'acces aux canalisations d'eau et d'egout et & la
source d'electricit&
acces facile pour le chargement et dechargement de la
vaisselle. Dans le cas d'installation dans un angle, on doit
pouvoir etablir un degagement minimal de 2" (5,1 cm)
entre le c6te de la porte du lave-vaisselle et lemur ou le
placard.
ouverture carree offrant I'esthetique appropriee et
permettant un fonctionnement correct.
fagade des placards perpendiculaire au plancher.
plancher horizontal et plat. S'il y a un ecart de niveau sur
le plancher entre I'avant et I'arriere de I'emplacement
d'installation, il pourrait _tre necessaire d'utiliser des cales
pour etablir I'aplomb de I'appareil.
Conseil utile •Veiller & mesurer correctement les dimensions et
s'assurer que le lave-vaisselle est d'aplomb si le plancher dans
I'ouverture d'encastrement du lave-vaisselle est irregulier (par
exemple, le rev_tement de sol ne penetre que partiellement dans
I'ouverture).
REMARQUE : Pour eviter tout deplacement des cales durant le
fonctionnement du lave-vaisselle, les cales doivent _tre
solidement fixees au plancher.
Si le lave-vaisselle ne doit pas _tre utilise pendant une periode
prolongee ou s'il est laisse & un endroit qui pourrait _tre expose au
gel, veiller & faire executer les operations de pre-hivernage par un
technicien competent.
Veiller & ce que les canalisations d'eau et d'evacuation et les
c&bles electriques se trouvent dans les limites de la zone marquee
en gris illustree dans la section "Dimensions du produit et de
I'ouverture d'encastrement du placard".
29

30"
(76,2 cm)
331/2,,
_85.1 cml
min. avec
roulettes
reti tees
31/2"- 4W'/
(8,8 cm - 10.6 cm)
S'il y a un panneau de plinthe"
de 4" (10 cm),
I'ouverture du
est 341A" (86,3 cm).
REMARQUE :La zone gris6e sur la paroi du
placard identifie la zone de passage des
c&bles et tuyaux.
D. Mesure depuis le point le plus bas sur la face
inferieure du plan de travail. Cette dimension
1
peut _tre reduite & 33W'(85,1 cm) en retirant
les roulettes du lave-vaisselle at en perforant I'isolant
(la plaque d'insonorisation) de I'appareil.
E. Minimum, mesure depuis le point le plus
6troit de I'ouverture.
34
_86.4 cm/
min
D
/
B. Pour un module pr6t pour la pose de
panneaux, la profondeur du lave-vaisselle
est de 24' (60 cm} ceci n'inclut pas le
panneau de porte pe rsonnalis6 de 3A" (1,9 cm).
C. Avec une poignee Pro Line ®. la
profondeur est de 28" (70 cm).
/(1 9 cm)
,z- A
A. L'isolant peut 6tre comprime
(pas utilise sur tousles modules).
24" 24
_" (61 cm} (61 cm}
V6rifier rabsence sur chaque surface de toute
protuberance qu_ pourrait emp6cher
I'installation du lave-vaisselle.
63/4
(17.2 cm_
101/2"
_26.7 cm_
61/4"
_15.9 cm}
30

Ex gences d'6vacuat on
Un tuyau d'evacuation neuf est fourni avec le lave-vaisselle. Si
ce tuyau n'est pas suffisamment long, utiliser un tuyau
d'evacuation neuf de Iongueur maximale de 12 pi (3,7 m)
(piece numero 3385556) qui satisfait aux criteres des normes
de test AHAM/IAPMO en vigueur, est resistant & la chaleur et
aux detergents, et peut etre connecte au raccord d'evacuation
de 1" (2,5 cm) du lave-vaisselle.
Veiller & raccorder le tuyau d'evacuation & la canalisation
d'egout en T ou & I'entree du raccord de broyeur & dechets en
amont du siphon du circuit de plomberie du domicile, et & au
moins 20" (50,8 cm) au-dessus du sol. On recommande de
lover le tuyau d'evacuation et de le fixer solidement sur la face
inferieure du plan de travail, ou de le raccorder & un dispositif
de brise-siphon.
Utiliser un dispositif de brise-siphon si le tuyau d'evacuation
est raccorde au circuit de plomberie du domicile & moins de
20" (50,8 cm) au-dessus du sous-plancher ou du plancher.
Si necessaire, le dispositif de brise-siphon doit etre installe
conformement aux instructions d'installation de ce dernier.
Lors du raccordement du dispositif de brise-siphon & la
canalisation d'egout en T ou au raccord de broyeur & dechets,
un tuyau en caoutchouc (non fourni) sera necessaire.
#-.r_ .bpecIT cax ons de I'al mentat on en eau
Une canalisation d'eau chaude, sous pression de 20 &
120 Ib/po 2(138-862 kPa) peut etre inspectee par un plombier
certifi&
Temperature de I'eau de 120°F (49°C) a I'entree du lave-
vaisselle.
Canalisation de cuivre de diametre externe de 3/8"avec
raccord & compression ou canalisation d'arrivee d'eau flexible
tressee (piece numero 4396897RP).
REMARQUE • L'emploi d'un tuyau de plastique d'un
minimum de 1/2"n'est pas recommand&
Raccord coude & 90° avec raccord de tuyau de 3/4"et rondelle
de caoutchouc (piece numero W10273460).
Souder & plus de 6" (15,2 cm) de I'electrovanne d'admission
d'eau.
Sp6c f cat ons 61ectr ques
S'assurer que le raccordement electrique et la taille des
conducteurs sont adequats et conformes au code national de
I'electricite, ANSI/NFPA 70 - derniere edition, et & tousles codes
et reglements Iocaux en vigueur.
Pour obtenir un exemplaire des normes des codes ci-dessus,
contacter :
National Fire Protection Association
1 Batterymarch Park
Quincy, MA 02169-7471
On doit disposer des _l_ments suivants :
• Une source d'alimentation de 120 V, 60 Hz, CA uniquement,
de type 15 ou 20 amperes, protegee par fusible.
• Uniquement des conducteurs de cuivre.
Nous recommandons •
• L'utilisation d'un fusible ou disjoncteur temporis&
• Un circuit separ&
Pour le raccordement du lave-
vaisselle avec un cordon
d'alimentation _lectrique :
• Utiliser I'ensemble de cordon
d'alimentation electrique
(homologation UL) (piece numero 4317824) pour utilisation
avec lave-vaisselle.
Le cordon d'alimentation electrique doit etre r----q
branche dans une prise &trois alveoles reliee
la terre situee dans le placard, pres de
I'ouverture du lave-vaisselle. La prise doit etre
conforme a tousles codes et reglements
Iocaux.
Pour le raccordement direct du
lave-vaisselle :
• Utiliser des conducteurs de
cuivre gaines non metalliques
ou blindes souples avec
conducteur de liaison & la
terre qui satisfassent aux
exigences de I'installation electrique du domicile, et qui soient
conformes aux prescriptions des codes et reglements Iocaux.
• Utiliser un serre-c&ble (homologation UL ou CSA).
31

INSTRUCTIONS D'INSTALLATION
Risque de choc _lectrique
Interrompre I'alimentation _lectrique avant d'installer
le lave=vaisselle (au niveau du tableau de distribution =
fusible ou disjoncteur)
Le non=respect de cette instruction peut causer
un d_c_s ou un choc _lectrique.
llD6connecte;:la:sou:;
de courant _lectrique L
hterrompre='a_entat_On6=_Ctriqueawntd,inSta,_r
le lave,vaisselle (au niveau du tableau de distribution.
fusible 0u disJ0ncteuD
31L'utilisateur possede-t-il deja
-:Jdes moyens de raccordement?L_
Oui--Suivre les instructions de la section
"Preparation de I"ouverture d'encastrement du placard -
Moyens de raccordement preexistants".
NoIT--Suivre les instructions de la section
"Pr6paration de I"ouverture d'encastrement du placard -
Nouveaux moyens de raccordement".
Pr6parat on de I'ouve£ure d'encastrement
du placard - Moyens de
raccordement pr6existants
Si la canalisation d'eau et le c&ble depassent des emplacements
indiques, passer & la section "Installation du tuyau d'evacuation".
S'ils ne sont pas assez longs, suivre les instructions dans la
section "Preparation de I'ouverture d'encastrement du placard -
Nouveaux moyens de raccordement".
Pr6paration de I'ouve_ure d"encastrement
du placard -Nouveaux moyens de
Preparation et acheminement de I'alimentation _lectrique
..................type de connexio
I utilisateur emploie-t=il?_
COrdon d,alimentation 61ectrique ]
Suivre les instructions de !i0Pt!O n A
RaCCordement d!rect : I |
..Suivre les instructions de I"option B
32

OptionA,cordond'alimentation:
REMARQUE : On doit disposer d'une prise & trois alveoles, reliee
& la terre, situee dans un placard qui se trouve pres de I'ouverture
du lave-vaisselle.
Percer un trou de 1V2" (3,8 cm) dans la paroi laterale ou arriere du
placard.
Voir la section "Dimensions du produit et de I'ouverture
d'encastrement du placard".
Placard en bois • Poncer le trou jusqu'& obtenir une surface lisse.
Placard metallique • Couvrir le trou avec I'ceillet fourni dans la
trousse du cordon d'alimentation electrique.
Option B, raccordement direct :
Conseil utile :Le raccordement au lave-vaisselle sera plus facile
si I'on achemine le c&ble par le c6te droit de I'ouverture
d'encastrement du placard.
Raccordement direct
Per£age du trou
Emplacement
facultatif Emplacement
recommand_
Percer un trou de 11/2"(3,8 cm) dans le c6te droit de la paroi
laterale ou arriere du placard.
Voir la section "Dimensions du produit et de I'ouverture
d'encastrement du placard".
Placard en bois • Poncer le trou jusqu'& obtenir une surface lisse.
Placard metallique • Couvrir le trou avec un ceillet (piece
n° 302797 - non fournie).
Acheminer le c&ble de la source d'alimentation electrique &
travers le trou dans le placard (le c&ble doit depasser par le c6te
avant droit de I'ouverture d'encastrement du placard).
Fixer le c&ble au plancher avec du ruban adhesif dans la zone
indiquee. Cela emp_chera le c&ble de bouger Iors de I'insertion du
lave-vaisselle dans I'ouverture du placard.
33

Pr6parat on et achem nernent de la canalisat[on d'eau
Conseil utile ; Le raccordement du circuit d'eau sera plus facile si
I'on achemine la canalisation d'eau par le c6te gauche de
I'ouverture du placard.
Percer un trou de V2" (1,3 cm) dans la paroi laterale ou arriere du
)lacard.
J Mesurer la Iongueur de la
canalisation d'alimentation en eau
(tube de cuivre uniquement)
i
Mesurer la Iongueur totale du tube de cuivre pour la canalisation
d'alimentation en eau.
ixerl C sail 0n me ntati On
en eau L
Fixer la canalisation d'alimentation en eau (tube de cuivre ou
canalisation flexible tressee) a la canalisation d'eau chaude
I'aide d'une configuration de raccordement qui soit conforme
tousles codes et r_glements Iocaux. La canalisation
d'alimentation en eau raccordee au lave-vaisselle doit comporter
un robinet d'arr_t manuel situ6 sous I'evier.
Faire passer prudemment la canalisation d'alimentation en eau
travers le trou perce dans le placard. (Un tube en cuivre s'ecrase/
se deforme facilement - proceder prudemment si I'on en utilise
un.) II faut que la Iongueur de la section qui depasse dans
I'espace d'encastrement soit suffisante pour le raccordement
I'entree du lave-vaisselle sur le c6te gauche, a I'avant du lave-
vaisselle.
Tourner lentement le robinet d'arr_t jusqu'& la position "ON"
(marche). Vider I'eau dans un plat peu profond pour eliminer les
particules et debris qui pourraient obstruer I'electrovanne
d'admission. Tourner le robinet d'arr_t jusqu'a la position "OFF"
(arr_t).
Installer la canalisation d'alimentation en eau et la fixer au
plancher avec du ruban adhesif dans la zone indiqu6e. Cela
I'emp_chera de bouger Iors de I'insertion du lave-vaisselle dans
I'ouverture du placard.
34

IMPORTANT: Utiliser toujours un tuyau d'evacuation neuf.
Verifier les codes Iocaux pour determiner si un dispositif de brise-
siphon est necessaire.
Si necessaire, percer un trou de 1V2"(3,8 cm) de diam_tre dans la
paroi du placard ou le c6te de I'ouverture le plus proche de I'evier.
Inserer le tuyau d'evacuation tel qu'indiqu6 & travers le trou dans
le placard et I'acheminer jusqu'au point de raccordement du
tuyau d'evacuation (au centre de I'ouverture, & I'avant). Fixer le
tuyau d'evacuation au plancher avec du ruban adhesif dans la
zone indiqu6e. Cela I'emp_chera de bouger Iors de I'insertion du
lave-vaisselle dans I'ouverture du placard.
lets, avec brise.siphon
IMPORTANT : Le raccordement du tuyau d'evacuation & la
canalisation d'egout en T ou au raccord de broyeur & dechets doit
_tre r6alise en amont du siphon du circuit d'evacuation et & au
moins 20" (50,8 cm) au-dessus du plancher de I'espace
d'installation du lave-vaisselle.
Conseil utile : Afin de minimiser les vibrations du tuyau, le tenir &
distance du plancher.
Installat on du tuyau d'6vacuat on
Option A, Broyeur &d_chets - sans brise-siphon
d'6vacuation
Conseil utile : Retirer le bouchon d'obturation arrachable du
broyeur.
1. A I'aide d'un marteau et d'un
tournevis, enfoncer le bouchon
d'obturation dans le broyeur &
dechets.
2. Retirer le bouchon d'obturation &
I'aide d'une pince & pointe
biseautee.
3. Fixer le tuyau d'evacuation sur
I'entree du raccord de broyeur &
dechets & I'aide de la grosse bride
de tuyau d'evacuation (fournie). A
I'aide d'une pince, serrer la bride
pour I'ouvrir et la mettre en position.
35

Option B, Pas de broyeur &d_chets - sans brise-siphon
1=
2=
Raccorder I'extremit6 en caoutchouc
du tuyau d'evacuation & la
canalisation d'egout en T et couper
si necessaire.
REMARQUE : Ne pas couper la
section ondulee.
Fixer I'extremit6 en caoutchouc du
tuyau d'evacuation & la canalisation
d'egout en T & I'aide d'une grosse
bride pour tuyau d'evacuation
(fournie). A I'aide d'une pince, serrer
la bride pour I'ouvrir et la mettre en
position. Si le tuyau d'evacuation a
et6 coupe, utiliser une bride & vis de
1W' & 2" (3,8 a 5 cm) (non fournie).
Option C, Broyeur &d_chets - avec brise-siphon
Siphon
Conseil utile :Retirer le bouchon d'obturation arrachable du
broyeur.
1=
2=
3=
A I'aide d'un marteau et d'un
tournevis, enfoncer le bouchon
d'obturation dans le broyeur &
dechets.
Retirer le bouchon d'obturation &
I'aide d'une pince & pointe
biseautee.
Raccorder I'extremit6 en caoutchouc
du tuyau d'evacuation au dispositif
de brise-siphon et couper si
necessaire.
REMARQUE : Ne pas couper la
section ondulee.
4. Fixer le tuyau d'evacuation sur le
dispositif de brise-siphon & I'aide de
la grosse bride de tuyau
d'evacuation (fournie). A I'aide d'une
pince, serrer la bride pour I'ouvrir et
la mettre en position. Si le tuyau
d'evacuation a et6 coupe, utiliser
une bride & vis de 11/2"& 2" (3,8 &
5 cm) (non fournie).
5. Utiliser un tuyau en caoutchouc (non
fourni) et une bride & vis (non fournie)
pour le raccordement du dispositif
de brise-siphon & I'entree du broyeur
& dechets.
36

OptionD,Pasdebroyeur&d_chets - avec brise-siphon
-- Tuyau
d'evacuation
1= Raccorder I'extremit6 en caoutchouc
du tuyau d'evacuation au dispositif
de brise-siphon et couper si
necessaire.
REMARQUE : Ne pas couper la
section ondulee.
2. Fixer le tuyau d'evacuation sur le
dispositif de brise-siphon & I'aide de
la grosse bride de tuyau
d'evacuation (fournie). A I'aide d'une
pince, serrer la bride pour I'ouvrir et
la mettre en position. Si le tuyau
d'evacuation a et6 coupe, utiliser
une bride & vis de 11/2"& 2" (3,8 &
5 cm) (non fournie).
3. Utiliser un tuyau en caoutchouc (non
fourni) et une bride &vis (non fournie)
pour le raccordement de la
canalisation d'egout en T au
dispositif de brise-siphon.
installation de Jabarr 6re ant-humidit6
(SOUSun plan de travail en bois)
Barri_re
anti=humidite
1. Veiller & ce que la zone se trouvant sous le placard soit propre
et s_che avant d'installer la barriere anti-humidit&
2. 0ter I'endos de la barriere anti-humidite et appliquer la
barriere sur le dessous du plan de travail, le long de la rive
avant du comptoir.
Pr6parat on du Jave-va ssdJe
Risque de basculement
Ne pas utiliser le lave=vaisselle jusqu'a ce qu'il soit
compl_tement install&
Ne pas appuyer sur la porte ouverte.
Le non=respect de ces instructions peut causer des
blessures graves ou des coupures.
Risque du poids excessif
Utiliser deux personnes ou plus pour d_placer et
instalJer Je lave=vaisselJe.
Le non=respect de cette instruction peut causer une
blessure au dos ou d'autre blessure.
Conseil utile :Pour eviter d'endommager le rev_tement de sol,
placer une feuille de carton sous le lave-vaisselle jusqu'& son
installation dans la cavite d'encastrement. Ne pas utiliser le
panneau de porte comme surface de travail sans d'abord I'avoir
recouvert d'une serviette pour eviter de le rayer.
Faire intervenir deux personnes ou plus - saisir les c6tes du
chassis de la porte du lave-vaisselle pour placer le lave-vaisselle
en appui sur la face arriere.
37

OptionA: Retraitdupanneaud'acc_s- Panneauen
plastique
A I'aide d'un tournevis & lame plate, tourner les dispositifs de
fixation en plastique d'un quart de tour dans le sens antihoraire
pour les deverrouiller. Retirer le panneau. Ne pas retirer la fiche
technique du panneau d'acces.
Option B : Retrait du panneau d'acc_s - Panneau
m_tallique
A I'aide d'une cle & douille & t_te hexagonale, un tourne-ecrou de
1/4"ou un tournevis Phillips, 6ter les deux vis fixant le panneau
d'acces et le panneau inferieur au lave-vaisselle. Ne pas retirer la
fiche technique du panneau d'acces.
Utiliser une cle & douille hexagonale, un tourne-ecrou de 1/4"ou un
tournevis Torx®T20®; demonter le couvercle du boitier de
connexion; conserver les pieces pour reutilisation eventuelle.
Installer un serre-c&ble (homologation UL ou CSA). Veiller & ce
que les t_tes de vis soient orientees vers la gauche pour le
serrage de I'ecrou du conduit. Le serre-c&ble est fourni avec
I'ensemble de cordon d'alimentation.
I utilisateur emploie-t-il? ........................................................................................................................................
Cordon d'alimentati0n _lectrique_
Suivre Jes instructions de I"option A J
RaCC0rdement direct:,
_: Suivre les instructions de I option B
REMARQUE : Si I'on utilise I'option B, passer & "12valuation de
I'ouverture d'encastrement du placard" pour poursuivre
I'installation du lave-vaisselle.
38

Raccordement du cordon d"al mentat on
Selectionner des connecteurs de fils (homologation UL ou CSA)
Option A, Cordon d'alimentation : con_;us pour le raccordement du cordon d'alimentation du
domicile au c&blage de calibre 16 du lave-vaisselle.
Acheminer le cordon d'alimentation de fagon & ce qu'il ne touche
pas le moteur ou lave-vaisselle, ni la partie inferieure de la cuve du
lave-vaisselle. Tirer le cordon pour I'acheminer a travers le serre-
c&ble dans le boitier de connexion.
Risque de choc _lectrique
Relier le lave=vaisselle a la terre d'une m_thode
_lectrique.
Brancher le fil reli_ a la terre au connecteur vert reli_
la terre clans la boite de la borne.
Ne pas utiliser un cable de rallonge.
Le non=respect de ces instructions peut causer
un d_c_s, un incendie ou un choc _lectrique.
Connecteur de liaison
Oter la vis de liaison & la terre et la placer & travers la borne en
anneau du conducteur vert de mise & la terre. Fixer & nouveau la
vis de liaison & la terre et la serrer.
REMARQUE : Ne pas pre-torsader les brins des conducteurs.
Installer le connecteur de ills en le faisant pivoter. Tirer doucement
sur les conducteurs pour verifier qu'ils sont bien fixes.
39

Connecter le conducteur noir avec le noir et le conducteur blanc
avec le blanc a I'aide des connecteurs de ills (homologation UL ou
CSA).
!!!i!!_
fil de raise & la terre _ connecteur de mise I
la terre
Au besoin, visiter le site Web pour une representation video de
cette etape. Visiter www.kitchenaid.com/electrical sous I'onglet
FAQ.
serre-c_ble
Resserrer les vis de serre-c&ble pour fixer le cordon.
Placer les conducteurs & I'interieur du boitier de connexion.
Inserer les languettes du c6te gauche du couvercle. S'assurer que
les ills sont bien loges & I'interieur du boitier. Fermer le couvercle
tout en veillant & ne pas coincer de ills. Fixer le couvercle & I'aide
d'une cle & douille, d'un tourne-ecrou de 1/4"ou d'un tournevis
Torx®T20 ®et de la vis prec6demment retiree.
REMARQUE : Ne pas brancher dans une prise avant que les
instructions ne le specifient.
Evaluat on de J'ouverture
d"encastrement du placard
1J Mesure de I'ouverture "_
d'encastrement du placard I
Mesurer la hauteur de I'ouverture d'encastrement du placard
entre le dessous du plan de travail et le plancher, & I'emplacement
d'installation du lave-vaisselle (la mesure dolt _tre prise entre le
point le plus bas depuis le dessous du plan de travail et le point le
plus haut du plancher). Consulter le "Tableau de reglage de la
hauteur du lave-vaisselle" pour la position des roulettes et le
nombre de tours necessaires.
REMARQUE : Si la hauteur libre minimale de I'ouverture
d'encastrement du placard est inferieure & 34" (86,4 cm), on peut
enlever les roulettes arriere pour obtenir un degagement
supplementaire. On pourra ainsi installer le lave-vaisselle et la
section perforee de la plaque d'insonorisation dans une ouverture
d'encastrement du placard d'une hauteur de 331/2'' (85,1 cm), mais
il sera plus difficile de deplacer le lave-vaisselle. Les mesures ne
sont pas exactes. Les roulettes et les pieds sont prer6gl6s &
I'usine pour une hauteur de 341/2'' (87,6 cm).
Hauteurd!ouverture Position des Nombre de tours
du placard roulettes sur le pied avant
331/2"(85,1 Cm) Jusqu!en haut
i m
34 II "--- "(86,4 cm) , 1 , 10
|
341/4'!(87 cm)i 2. 5
Decouper la plaque d'insonorisation le
long des perforations
40

Regler les deux pieds de nivellement a la meme hauteur. Placer
les roulettes a la position requise determin6e a partir du "Tableau
de reglage de la hauteur du lave-vaisselle".
Planchers surelev6s : Si la hauteur du plancher de la cuisine est
superieure a celle du plancher de I'ouverture d'encastrement du
placard, par exemple, le carrelage du plancher de la cuisine
n'arrive pas jusque dans I'ouverture du placard : ajouter des cales
selon le besoin dans la zone indiqu6e pour placer le lave-vaisselle
une hauteur maximale de 34" (86,4 cm) sous le plan de travail.
REMARQUE : Pour eviter tout deplacement des cales durant le
fonctionnement du lave-vaisselle, les cales doivent 6tre
solidement fixees au plancher.
Installation de la poign6e de po_e
(sur ce£a[ns mod&tes)
Installation de la poignee de porte
Montant de fixation
Poign6e
Vis de blocage
(situee au fond
de la poign6e)
CI6 hexa,
IMPORTANT : Ne pas erafler le panneau avant durant ce
processus.
Oter la poignee de porte et le sachet de pieces contenant les vis
de blocage et la cle hexagonale du carton. Les vis de blocage
sont dej& fixees dans la poignee. Placer la poignee sur les
montants de fixation avec les vis de blocage orientees vers le bas.
Pousser la poignee de porte fermement en appui contre la porte.
Inserer le c6te court de la cle hexagonale dans les vis de blocage.
Serrer les vis d'un quart de tour au-del& de la butee.
Conserver la cle hexagonale avec les instructions d'installation.
Dimensions du panneau personnalis6
Dimensions du panneau personnalise pour
lave-vaisselle avec tableau de commande
sur le dessus
23%" _.2929/32,, (76 cm)
(60 cm)
3/4"(19,1 mm)
*Cette dimension correspond & une plinthe de 4" (10,2 cm).
Si I'installation necessite une plinthe plus haute, ajuster la
hauteur du panneau de bois en fonction - sauf pour les
modeles avec ProDry TM. D6conseille pour les plinthes de
plus de 6" (15,2 cm).
41

Installat on du panneau personnal s6
Ex_cuter les _tapes ci-dessous :
Le poids du panneau fourni par le client ne dolt pas depasser
16 Ib (7,3 kg), et il dolt respecter des dimensions specifiques. Du
fait de la precision dimensionnelle necessaire, il est recommande
que le panneau fourni par le client soit realis6 par un eb6niste.
REMARQUES •
• La poignee du panneau personnalise n'est pas incluse.
Les articles de quincaillerie fournis sont utilisables avec un
panneau de bois de 3/4"(19,1 mm) d'epaisseur; dans le cas
d'un panneau plus mince ou constitu6 d'un autre materiau,
I'installateur dolt obtenir les vis de Iongueur appropriee et
ajuster les avant-trous en consequence.
IMPORTANT : Pour eviter tout dommage dQ & I'humidite,
appliquer sur les deux faces et sur les quatre rives du panneau un
bouche-pores resistant & I'humidit&
Risque du poids excessif
Utiliser deux personnes ou plus pour d_placer et
installer le lave=vaisselle.
Le non=respect de cette instruction peut causer une
blessure au dos ou d'autre blessure.
A I'aide d'au moins deux personnes, mettre le lave-vaisselle en
position verticale.
REMARQUE :Ne pas installer le garde-pieds avant que les
instructions ne le specifient.
Installer la/les poignee(s) personnalisee(s) sur le devant du
panneau en bois dans la ligne pointillee.
IMPORTANT : Si la poignee est fixee par I'arriere du panneau
personnalise, fraiser les trous de vis pour que les t_tes de vis
soient en affleurement avec la surface du panneau. Si la poignee
est fixee & I'avant du panneau personnalise, la Iongueur des vis ne
dolt pas depasser I'epaisseur du panneau.
Top of Panel
iTapadelpsnel
Oe_susd_ panneau
Fixer le gabarit fourni & I'arriere du panneau personnalise avec du
ruban adhesif. Veiller & aligner I'axe central du gabarit avec le
centre du panneau de bois, et & aligner le sommet du gabarit avec
la rive superieure du panneau de bois.
31Pr6per(;age des trous dans le]
panneau personnalise
,J
REMARQUE :Veiller & ne pas traverser le panneau -la
profondeur des trous ne dolt pas depasser 5/8"(16 mm). La
profondeur indiquee pour les avant-trous correspond & un
panneau d'epaisseur 3/4"(19 mm).
Utiliser le gabarit fourni pour marquer la position de 4 avant-trous
sur le panneau de bois. Pre-percer 4 avant-trous avec un foret de
3/32".Utiliser du ruban adhesif pour marquer sur le foret la
profondeur & ne pas depasser pour les trous. Percer les avant-
trous & une profondeur d'environ 5/8"(16 mm) dans le panneau
personnalis&
42

Fixer les 4 goujons de plastique sur le panneau de bois avec les
4 vis courtes fournies (_6", t_te hexagonale).
Verifier I'alignement du ruban adhesif sur mesure avec les
encoches de la porte metallique. Verifier que la face superieure du
ruban adhesif est bien orientee vers le haut et que le ruban ne
depasse pas de la porte metallique au niveau des bords
superieurs, inferieurs et lateraux. Retirer I'endos du ruban adhesif
sur mesure en tirant la doublure droit vers le bas. Aligner le ruban
adhesif sur mesure avec les encoches en trou de serrure de la
porte metal lique et I'appliquer (voir I'illustration). Rep6ter
I'operation pour chaque c6t&
REMARQUE • La colle du ruban adhesif est puissante; le ruban
dolt donc _tre correctement aligne et fixe sur la porte metallique
des le premier essai.
Aligner les goujons de plastique (sur le panneau de bois
personnalise) avec les trous en forme de trou de serrure (sur la
porte). Veiller & bien engager les 4 goujons de plastique dans les
trous allonges (forme de trou de serrure). Laisser glisser le
panneau de bois vers le bas pour placer la rive superieure du
panneau de bois en affleurement avec le sommet de la porte.
rives
Panneau fourni
par meclient
Percer a travers
ces trous
Oter 2 vis courtes; remplacer
ceHes-ci par les vis
Iongues fournies
Ouvrir la porte et aligner les rives superieures. Pre-percer deux
avant-trous avec un foret de 3/32".Utiliser du ruban adhesif pour
marquer sur le foret la profondeur & ne pas depasser pour les
trous. Percer les avant-trous & une profondeur d'environ 1V2"
(3,8 cm) dans les angles superieurs de la porte (utiliser comme
guide le trou dans la doublure de la porte).
43

Panneau achet_
par le client
A I'aide d'un tournevis Torx ®T15 ®, installer deux vis n° 8 x 13/8"
dans les angles superieurs pour fixer le panneau de bois
personnalise en place.
Depose des vis
Oter 2 vis courtes; remplace
celles-ci par des vis
Iongues fournies
rives
sup_rieures
Panneau fourni
par le client
Retirer les vis courtes (troisiemes & partir du sommet) de chaque
c6te du panneau de porte interieur. Pre-percer 2 avant-trous en
utilisant un foret de 3/32".Utiliser du ruban adhesif pour marquer le
foret et calibrer la profondeur des trous. Percer des avant-trous
d'environ 1V2" (3,8 cm) dans le panneau en utilisant le trou de la
doublure de la porte comme guide. Installer les 2 vis Iongues
restantes.
Choix de I'opt on de f xat on
Risque du poids excessif
Utiliser deux personnes ou plus pour d_placer et
instMler le lave=vaisselle.
Le non=respect de cette instruction peut causer une
blessure au dos ou d'autre blessure.
Utiliser au moins deux personnes pour deplacer et installer le
lave-vaisselle.
IMPORTANT :Le lave-vaisselle doit _tre fixe au placard. On
trouvera deux attaches dans le sachet de pieces. Fixer les
attaches en suivant les instructions de I'option A si le plan de
travail est en bois, en rev_tement stratifie ou s'il est compose d'un
autre materiau de surface similaire. Si le plan de travail est en
marbre, en granite ou autre materiau solide, effectuer I'installation
en suivant I'option B.
Option A, Fixation au plan de travail :
Retirer les brides de I'emballage et les inserer dans les fentes
ouvertes sur les c6tes superieurs droit et gauche du collet du
lave-vaisselle, tel qu'indiqu&
A I'aide d'une pince, replier la languette vers le bas pour fixer la
bride. Repeter cette etape pour I'autre c6t&
REMARQUE •Ne pas fixer le lave-vaisselle. Ceci sera fait
ulterieurement.
Option B, Fixation au cet_ du lave-vaisselle :
REMARQUE : Retirerles brides du sachet de pieces.
Sectionnement de I'extremit6
de la bride
Briser I'extremit6 de la bride le long de la ligne en pointilles.
Avec I'aide d'une autre personne pour maintenir I'arriere du lave-
vaisselle et I'emp_cher de basculer, ouvrir la porte du lave-
vaisselle et placer une serviette sur la pompe et le bras
d'aspersion du lave-vaisselle. Ceci emp_chera les vis de tomber
dans la pompe Iors de la fixation du lave-vaisselle au placard.
44

Bouton en
plastique
Pousser sur les boutons en plastique pour les extraire du c6te de
la cuve.
REMARQUE : Conserver les boutons & part pour recouvrir les
trous une fois le lave-vaisselle installe.
Enfoncer la bride dans la fente sur le c6te du lave-vaisselle et
replier la languette vers le c6te du lave-vaisselle afin de maintenir
la bride en place. R6peter cette etape pour I'autre c6te du lave-
vaisselle.
REMARQUE : Ne pas fixer le lave-vaisselle. Ceci sera fait
ulterieurement.
Pr6paration de la canalisation d'alimentation
en eau
Canalisation en cuivre uniquement : Enfiler I'ecrou puis a virole
sur la canalisation de cuivre, sur environ 1" (2,5 cm).
REMARQUE •Pour reduire les vibrations durant le
fonctionnement, acheminer la canalisation d'alimentation en eau
de telle maniere qu'elle ne touche pas la base. le chassis ou le
moteur de I'appareil
Raccorder le raccord coude de 90°
la canalisation d'alimentation en eau
Raccorder le raccord de compression de 3/8"du coude & 90 ° & la
canalisation d'alimentation en eau avant d'installer I'appareil dans
I'ouverture decoup6e dans le placard. Le fixer de fagon & ce que
le raccord de 3A"soit oriente vers le haut, tel qu'illustre ci-dessus.
Canalisation en cuivre uniquement : Inserer la canalisation dans le
raccord coude de 90° aussi loin que possible (la canalisation en
cuivre se plie et s'ecrase facilement). Faire glisser I'ecrou et la
virole vers I'avant et engager I'ecrou sur le filetage du raccord
coude.
Raccord flexible tresse : Fixer I'ecrou sur le coude & I'aide d'une
cle plate ou d'une cle & molette de %".
REMARQUE : Ne pas utiliser de ruban adhesif Teflon ®t
avec les raccords de compression.
t®TEFLON est une marque d&pos6e de E.I. Du Pont De Nemours et compagnie.
45

D6placement du Jave-va sselle bproximit6 de I'ouverture d'encastrement du placard
Risque du poids excessif
Utiliser deux personnes ou plus pour d_placer et
installer le lave=vaisselle.
Le non=respect de cette instruction peut causer une
blessure au dos ou d'autre blessure.
Utiliser deux personnes ou plus pour deplacer et installer le lave-
vaisselle.
IMPORTANT : Verifier que le c&blage et les canalisations sont
installes au bon endroit. Saisir les c6tes du lave-vaisselle par les
rebords du panneau de porte. Incliner le lave-vaisselle vers
I'arriere sur ses roulettes et approcher I'appareil de I'ouverture
dans le placard.
REMARQUE :Ne pas pousser sur I'avant du panneau ou sur la
console. Ceci pourrait laisser des indentations sur le panneau ou
la console.
Conseil utile :Fixer temporairement le c&blage et les
canalisations au plancher avec du ruban adhesif aux
emplacements indiqu6s pour I'emp6cher de bouger Iors de
I'insertion du lave-vaisselle dans I'ouverture du placard.
Verifier que la canalisation d'eau se trouve sur le c6te gauche de
I'ouverture du placard, et que le tuyau d'evacuation se trouve pros
du centre de I'ouverture du placard.
3 !Ouverture et fermeture de la porte
Alors qu'une autre personne retient I'appareil pour I'emp6cher de
basculer, ouvrir et refermer la porte plusieurs fois. Si la porte se
ferme ou s'ouvre sous I'effet de son propre poids, il sera
necessaire d'ajuster la tension du ressort de la porte.
"liii ii:i
R6duction de la tension du ressort L
Pour regler la tension du ressort de la porte, detacher le ressort du
pied arriere du lave-vaisselle.
A I'aide d'un tourne-ecrou ou d'une cle a douille &t6te hexagonale
de 5Ae",6ter la vis du tendeur.
La vis peut 6tre placee dans I'un des trois trous (1,2, 3) dans le
pied avant du lave-vaisselle. Si la porte se ferme d'elle meme,
deplacer le tendeur vers un trou numerote inferieur et replacer la
vis. Fixer & nouveau le ressort de la porte au pied arriere.
REMARQUE :Les tendeurs des deux c6tes du lave-vaisselle
doivent 6tre fixes aux m6mes trous.
46

5_La s'ouvre et retombe -
porte
Augmentation de la tension du ressort
_essort
Lorsque la porte est d6verrouillee, si elle s'ouvre d'elle meme,
deplacer le tendeur vers un trou numerote superieur et replacer la
vis. Fixer & nouveau le ressort de la porte au pied arriere.
REMARQUE : Les tendeurs des deux c6tes du lave-vaisselle
doivent etre fixes aux memes trous.
IMPORTANT : Si I'on enleve les roulettes, proteger le plancher
Iors des deplacements du lave-vaisselle. Inserer lentement et
completement le lave-vaisselle dans I'ouverture d'encastrement
du placard. Veiller & ne pas coincer ou deformer la canalisation, le
tuyau d'evacuation, le cordon d'alimentation ou le c&ble de
raccordement direct entre le lave-vaisselle et le placard. Enlever le
carton place sous le lave-vaisselle.
REMARQUES :
Le fait qu'il n'y ait que peu d'espace entre le lave-vaisselle et
I'ouverture d'encastrement du placard ne pose pas de
probleme. Ne pas enlever la plaque d'insonorisation - celle-ci
reduit le niveau sonore.
En cas d'utilisation d'un cordon d'alimentation, veiller &
acheminer I'extremite de celui-ci dans le trou de I'ouverture
decoupee avant d'inserer le lave-vaisselle dans I'ouverture du
placard.
Pour les modeles equipes d'un adoucisseur d'eau, s'assurer
que le tuyau de vidange reste accroche sur le support situe du
c6te droit et qu'il est range sur le c6te de I'appareil.
Aligner I'avant du panneau de porte du lave-vaisselle avec I'avant
des portes des placards. II faudra peut-etre ajuster I'alignement
de celui-ci pour qu'il soit en affleurement avec les placards.
Verifier que chaque pied de reglage de I'aplomb est fermement en
appui sur le sol. Fermer et verrouiller la porte; placer un niveau
contre le panneau avant. Verifier que le lave-vaisselle est centre
de I'avant vers I'arriere dans I'ouverture. Si necessaire, regler le
pied de nivellement jusqu'& ce que le lave-vaisselle soit d'aplomb.
Repeter ces operations pour I'autre c6te du lave-vaisselle.
Conseil utile : Pousser contre I'avant du lave-vaisselle pour le
soulever et pouvoir ajuster les pieds avant. Pour certaines
installations, il peut etre plus facile de regler le pied avant & I'aide
d'une cle a douille hexagonale ou une cle a molette de ¾e".
47

Placer le niveau contre la partie superieure de I'ouverture avant de
la cuve. Verifier I'aplomb transversal de I'appareil. Si le lave-
vaisselle n'est pas d'aplomb, regler la hauteur des pieds avant
vers le haut ou vers le bas jusqu'& ce que le lave-vaisselle soit
d'aplomb.
Raccordement _ I'alimentation en eau
S'assurer que la rondelle de caoutchouc est correctement
installee dans le raccord. Enfiler le raccord de 3/4' du coude &
90° jusqu'au robinet et serrer & la main pour eviter de visser de
travers. Serrer & la main jusqu'& ce que le raccord soit serr&
A I'aide d'une pince, verifier I'etanch6it6 du raccord. 1/4a 1/2tour
supplementaire peut s'averer necessaire pour creer I'etanch6it6
du joint de caoutchouc.
REMARQUE • Ne pas trop serrer. Le raccord risque d'etre
endommag&
Placer une serviette de papier sous le raccord coude &90 °. Ouvrir
I'alimentation en eau et inspecter pour identifier toute fuite. Si une
fuite se produit, rep6ter I'etape prec6dente.
Au besoin, visiter le site Web pour une representation video de
cette etape. Visiter www.kitchenaid.com/watersupply sous
I'onglet FAQ.
REMARQUE • Ne pas utiliser de ruban adhesif Teflon®avec les
raccords de compression.
Raccordement au circuit d'6vacuation
Placer une serviette sous le tuyau d'evacuation pour recup6rer
I'eau restee dans le tuyau d'evacuation. Placer la petite bride pour
tuyau d'evacuation sur la petite extremit6 du tuyau d'evacuation.
Enfoncer le tuyau d'evacuation neuf dans le connecteur en
caoutchouc du tuyau d'evacuation jusqu'& la butee d'arr_t du
tuyau d'evacuation.
J Enfilement de la bride sur le
Raccord de tuyau Petite bride --
d'evacuation
en caoutchouc --
A I'aide d'une pince, ouvrir la petite bride de tuyau d'evacuation
en la serrant et la faire glisser sur le connecteur, entre les butees.
48

Une fois le tuyau raccorde, 6ter la serviette.
Au besoin, visiter le site Web pour une representation video de
cette etape. Visiter www.kitchenaid.com/drain sous I'onglet
FAQ.
Raccordement 61ectrique direct
REMARQUE •Si le cordon d'alimentation a et6 raccorde
prec6demment, passer & la section "Fixation du lave-vaisselle
dans I'ouverture d'encastrement du placard".
Option B, raccordement direct :
du c_ble dans le boftier de connexion
_/ iI .....
/ 2
Acheminer le cordon d'alimentation de fagon & ce qu'il ne touche
nlle moteur du lave-vaisselle, ni la partie inferieure de la cuve du
lave-vaisselle. Tirer le c&ble pour le faire passer a travers le serre-
c&ble (homologation UL/CSA) dans le boitier de connexion. Le
serre-c&ble n'est pas fourni avec le lave-vaisselle. Le proprietaire
dolt acheter un serre-c&ble a vis de 7/8".
Selectionner des connecteurs de fils (homologation UL ou CSA)
(non fournis) congus pour le raccordement du c&blage du
domicile au c&blage de calibre 16 du lave-vaisselle.
Risque de choc _lectrique
Relier le lave=vaisselle ala terre d'une m_thode
_lectrique.
Brancher le fil reli_ a la terre au connecteur vert reli_
la terre darts la boite de la borne.
Ne pas utiliser un cable de rallonge.
Le non-respect de ces instructions peut causer
un d_c_s, un incendie ou un choc _lectrique.
Raccordement direct - Raccordement
du fil de mise ,_ la terre
[_ Q _--I
.... _:
)
Former un crochet en U avec le conducteur nu de liaison & la
terre. Enrouler le crochet du conducteur de liaison & la terre sur la
vis du connecteur de liaison & la terre et sous la rondelle (dans le
sens horaire). Serrer fermement le connecteur de liaison a la terre.
REMARQUE :Installer un serre-c&ble (homologation UL ou CSA).
Tirer doucement sur les conducteurs pour verifier qu'ils sont bien
fixes.
49

Connecter le conducteur noir avec le noir et le conducteur blanc
avec le blanc & I'aide des connecteurs de ills (homologation UL ou
CSA) (non fournis).
Conducteur d a mentat on Conducteurdu boTtier I
electr que : de connexion : I
blanc_ blanc
noir _ noir
fil demise & la terre _ connecteur dem se |
Au besoin, visiter le site Web pour une representation video de
cette etape. Visiter www.kitchenaid.com/electrical sous I'onglet
FAQ.
Resserrer les vis de serre-c_ble pour fixer le cable.
Placer les conducteurs & I'interieur du boitier de connexion.
Inserer les languettes du c6te gauche du couvercle. S'assurer que
les ills sont bien loges & I'interieur du boitier. Fermer le couvercle
tout en veillant & ne pas coincer de ills. Fixer le couvercle & I'aide
d'une cle & douille & t_te hexagonale, d'un tourne-ecrou de 1/4"ou
d'un tournevis Torx®T20 ®et de la vis prec6demment retiree.
Fixation du lave-va sselle dans I'ouverture
d"encastrement du placard
Verifier que le lave-vaisselle est toujours d'aplomb d'avant en
arriere et transversalement dans I'ouverture d'encastrement du
placard.
Ouvrir la porte du lave-vaisselle pour preparer la fixation de
I'appareil au placard.
REMARQUES :
• Ne pas faire tomber de vis au fond du lave-vaisselle.
Pour un montage lateral, il est imperatif de percer des avant-
trous dans le placard pour eviter toute fente dans le bois avant
d'installer les vis. Localiser les brides sur le dessus du lave-
vaisselle et fixer celui-ci au plan de travail a I'aide de deux vis
Phillips n°l 0 x 1/2"(fournies). Le lave-vaisselle doit _tre
immobilise pour I'emp_cher de basculer Iors de I'ouverture de
la porte.
50

Verifier qu'il n'y a aucun contact entre le sommet de la porte et les
vis, les brides ou le plan de travail. Regler les pieds de nivellement
le cas ech6ant.
Ouvrir la porte et verifier que la distance entre I'ouverture du
placard pour I'installation du lave-vaisselle et la cuve est la m_me
des deux c6tes. Si la distance n'est pas la m_me, desserrer les vis
des brides d'arrimage et deplacer legerement la cuve. Resserrer
les vis de brides.
5J V_rification de la fixation
Bouton
I! IIIII
Dans le cas de la fixation sur les placards lateraux, verifier que les
c6tes de la porte ne frottent pas contre les t_tes de vis. S'il y a
frottement, centrer a nouveau le lave-vaisselle. Une fois le lave-
vaisselle correctement centre, reinstaller les bouchons
d'obturation de plastique.
Au besoin, visiter le site Web pour une representation video de
cette etape. Visiter www.kitchenaid.com/anchoring sous
I'onglet FAQ.
Achever I'installat on
Option A: Installation du panneau d'acc_s - Panneau en
plastique
R6installer le panneau d'acc_s et les
dispositifs de fixation
(sur certains modules
Placer le panneau d'acces en plastique contre le pied du lave-
vaisselle.
51

Inspecter le bord du panneau
Verifier que la rive inferieure du panneau d'acces est au contact
du plancher. La reajuster au besoin.
/_,I'aide d'un tournevis a lame plate, tourner les dispositifs de
fixation d'un quart de tour dans le sens horaire pour les emboiter.
L'encoche des dispositifs de fixation est completement & la
verticale Iorsqu'ils sont correctement emboites.
Option B : Installation du panneau d'acc_s-
Panneau m_tallique
Verifier que I'agrafe de liaison a la terre est fixee sur le panneau
inferieur. Placer le panneau inferieur derriere le panneau d'acces.
Sur certains modeles, il y a sur le panneau d'acces un materiau
isolant qui devra _tre insere derriere 'isolant du panneau inferieur.
Maintenir les deux panneaux ensemble et les placer contre les
pieds du lave-vaisselle. Reinstaller les visa travers les trous du
panneau d'acces et les fentes du panneau inferieur a I'aide d'un
tournevis Phillips ou tournevis de 1/4".
52

Verifier que la rive inferieure du panneau inferieur est au contact
du plancher. Le reajuster au besoin.
Serrer les vis du panneau d'acces.
Risque de choc _lectrique
Brancher sur une prise a3alv_oles reli_e a la terre.
Ne pas enlever la broche de liaison ala terre.
Ne pas utiliser un adaptateur.
Ne pas utiliser un c&ble de rallonge.
Le non=respect de ces instructions peut causer
un d_c_s, un incendie ou un choc _lectrique.
Brancher sur une prise de courant a 3 alveoles reliee a la terre.
Verifier I'absence de tout contact entre le cordon d'alimentation et
le moteur du lave-vaisselle ou la partie inferieure de la cuve du
lave-vaisselle.
R_tablir la source de courant _lectrique
de courant _lectrique
Reconnecter la source de Courant _lectrique au niveau I
du tableau de distribution OU du disjoncteur,
53

Contrele du fonctionnement
• Lire les instructions d'utilisation du lave-vaisselle fournies
avec le lave-vaisselle.
Verifier que toutes les pieces ont et6 installees et qu'aucune
etape n'a et6 omise. Verifier la presence de tousles outils.
Mettre le lave-vaisselle en marche et commander I'execution
complete du programme de lavage le plus court. Apres les
deux premieres minutes, deverrouiller la porte; attendre cinq
secondes, puis ouvrir la porte. Verifier qu'il y a bien de I'eau au
fond de la cuve du lave-vaisselle. Verifier que le lave-vaisselle
fonctionne correctement.
Si ce n'est pas le cas, deconnecter la source de courant
electrique ou debrancher le lave-vaisselle et voir la section "Si le
lave-vaisselle ne fonctionne pas."
S le lave-va ssel)e ne fonct onne pas
Essayer d'abord les solutions suggerees ici pour eviter le coot
d'une intervention de depannage.
• Disjoncteur ouvert ou fusible grille?
• Porte bien fermee et verrouillee?
• Selection correcte du programme pour le demarrage du
lave-vaisselle?
• Arrivee d'eau ouverte?
Si aucune de ces verifications ne resout le probleme, consulter le
Guide d'utilisation et d'entretien pour obtenir les coordonnees.
Conse Is suppl@_?_entaires
Prevoir des durees de lavage plus Iongues. La duree d'execution
des programmes de votre nouveau lave-vaisselle est d'environ
2 a 3 heures par charge, mais il utilise presque 40 % d'energie de
moins que des modeles plus anciens. Congu pour une faible
consommation d'ensemble avec un moteur a faible
consommation d'energie, votre lave-vaisselle lave plus Iongtemps
pour garantir un lavage d'exception. Certains modeles sont dotes
d'un capteur optique de niveau d'eau; pour ces modeles, le
premier programme doit se calibrer en fonction du capteur
optique et est donc plus long que les autres. La selection de
certaines options peut entrainer un allongement de la duree du
programme et mener a une duree totale de plus de 3,5 heures.
L'agent de ringage est essentiel pour un sechage satisfaisant :
Afin d'obtenir un bon sechage et pour limiter I'accumulation de
dep6ts d'eau dure, ce lave-vaisselle est congu pour etre utilise
avec un agent de rin£;age. Les lave-vaisselle eco-energetiques
consomment moins d'eau et d'energie. IIs dependent donc de
I'effet "nappe d'eau" d'un agent de rin£sage pour fournir un bon
sechage.
II est possible que le temoin lumineux Start/Resume (mise en
marche/reprise) clignote :
Lorsque I'on appuie sur Start/Resume, (mise en marche/reprise),
veiller a fermer la porte dans les 3 secondes qui suivent. Si I'on ne
ferme pas la porte dans les 3 secondes qui suivent, le temoin
lumineux Start/Resume (mise en marche/reprise) clignote jusqu'&
ce que I'on appuie & nouveau dessus. (Cette operation est
egalement necessaire Iors de I'ajout d'un plat au cours d'un
programme.)
REMAROUE •Si I'on utilise un tuyau d'alimentation tresse,
remplacer le tuyau d'alimentation apres 5 ans d'utilisation pour
reduire le risque de defaillance du tuyau. Inscrire la date
d'installation ou de remplacement du tuyau sur celui-ci, pour
reference ulterieure.
54

55

W10579129B ®/TM@2013 KitchenAid. All rights reserved. Used under license in Canada.
Tous droits reserves. Utilise sous licence au Canada.
11/13
Printed in U.S.A.
Imprime aux E.-U.