LCN Full Line Catalog LCNFull
User Manual: LCN LCN Full Line Catalog Catalog
Open the PDF directly: View PDF .
Page Count: 400 [warning: Documents this large are best viewed by clicking the View PDF Link!]
- General information
- 4000 Series surface mounted closers
- 1000 Series surface mounted closers
- Concealed closer series
- Fire/Life Safety Closers/Holders Series
- High Security Series
- Automatic Operators
- Pneumatic Powered Systems
- 2610 Series Auto Equalizer
- 4810 Series Auto Equalizer
- 4820 Series Auto Equalizer
- 4840 Series Auto Equalizer
- 7900 Series Control Boxes
- Electrohydraulic Powered Systems
- 4630 Series Auto Equalizer
- 4640 Series Auto Equalizer
- Electromechanical Powered Systems
- Benchmark Unique Features
- 9130 Series Benchmark
- 9140 Series Benchmark
- 9150 Series Benchmark
- Senior Swing Unique Features
- 2810 Series Senior Swing
- 2850 Series Senior Swing
- 2860 Series Senior Swing
- 9530 Series Senior Swing
- 9540 Series Senior Swing
- 9550 Series Senior Swing
- 9560 Series Senior Swing
- 8310 Series
- Door Hardware

Door
controls

2LCN Door Control Catalog
phone: 877-671-7011 n fax: 800-248-1460 n www.allegion.com/us n 009426 rev. 2/16
General
information
Trinity Church…
In 1876, Mr. L. C. Norton was sent to
Boston, Massachusetts to help build the
Boston Trinity Church. The church took
over four years to complete. The church
was located on the Back Bay facing south
and west thus at times, encountering some
very severe wind conditions. The church
began operation in 1880, the pastor, Rev. Brooks
and his congregation quickly found out that the strong winds
would make the doors close with a thunderous bang. Needless to
say, the pastor was not going to stand for all the noise; those doors
needed to be controlled! This prompted Mr. Norton to action.
Mr. Norton’s first attempt to remedy the situation was to hang
the doors on double-spring hinges. Mr. Norton had now uncovered
a second problem. The slamming stopped but now the strong
winds made the doors stand open. The cold, drafting air raised
protest amongst the people in the church. He tried rubber stops,
special door linings, and some other ideas. Nothing worked. One
day, continuing to ponder the problem with the doors at the Trinity
Church, he put some things away in a closet and being in a hurry,
he threw the door shut. To his amazement, the door did not slam.
Instead, the door bounced back. He tried this over and over with
the same result. An idea came to him; he rushed to town and
purchased a beer pump. With the beer pump, a makeshift arm,
and some special brackets he had designed, Mr. Norton installed
his invention on one of the exterior church doors. He opened the
door and let it go…CRASH! The door slammed so hard it broke the
pump into many pieces.
Mr. Norton spent many months trying to solve the problem;
finally, he used the principles of the lever, improved the main
components, and decided to reposition the device on the door.
He took his updated version and again installed it on one of
the troublesome church doors. Rev. Brooks saw Mr. Norton’s
new design and to his delight, the closer worked perfectly. Mr.
Norton had used air pressure to make the doors close quietly. The
problems with the doors at the Boston Trinity Church were now
solved.
Growing Pains…
Soon after the doors at the Trinity Church were under control,
Mr. Norton formed a company to manufacture his new found
invention. The factory was located in Boston, Massachusetts and
business started out strong. In fact, at times, there were more
orders than production could match.
Time flew by. Mr. Norton’s company began to experience difficulty.
Competition was fierce. Some competitors began to infringe on
patents, which drained Mr. Norton of both cash flow and other
resources. Mr. Norton also made a few business decisions that
would hamper company growth. The early years presented other
challenges too. New closer designs were being introduced at an
increasingly fast pace. This quick growth brought about some
challenging quality issues. Business associates both good and bad,
came and went. The factory moved to Brooklyn, New York and
then back to Boston, Massachusetts. In these years, the door closer
business was a volatile one. Most good companies were forced into
change whether they liked it or not. The door closer industry was
no exception.
New Beginnings…
Competition drove Mr.
Norton in a new direction.
His air check had worked
well but was slowly giving
way to new technology.
In 1900, Mr. Norton
developed a liquid door
check. This new liquid
door check controlled
the door through the
entire door swing by incorporating three independent hydraulic
regulations. Back-check, general speed, and latch speed were
necessary for total door control. In 1908, the company was moved
to Chicago, Illinois. By the early 1920’s, the door closer business was
doing well but Mr. Norton was wearing down, he needed help.
History of
door closers & LCN

3
LCN Door Control Catalog
phone: 877-671-7011 n fax: 800-248-1460 n www.allegion.com/us n 009426 rev. 2/16
General
information
In 1925, Mr. L. C. Norton teamed with Mr.
D. R. Lasier and formed the Norton-Lasier
Company. The business was located at
466 West Superior Street in Chicago, Illinois.
Norton & Lasier knew that if their company
was to survive, they must build a far superior
product at a very fair price. They called their
improved door closer an LCN. After a few years,
Mr. Norton left the business to Mr. Lasier and moved
to California. During the years of 1926 through 1948, under the
leadership of Mr. D. R. Lasier, LCN manufactured and shipped
high-quality traditional
style closers all over
the world. Many of
these closers are still
in use today. In 1949,
the factory moved to
Princeton, Illinois. In
1958, LCN introduced the
heavy-duty 4010/4110
series closer. Schlage Lock Company purchased LCN in 1959. In
1974, Ingersoll-Rand purchased Schlage Lock Company (and
LCN). Today, LCN offers a complete line of door control products
including heavy-duty hydraulic closers, power operators, fire/life
safety closer/holders, high security closers & more.
The model numbers
may have changed
but the passion,
quality, and
excitement will
always remain. LCN
closers are made with
premier materials
and our products are
tested far beyond the industry requirements.
1851 – Lewis C. Norton born May 5th in New Hampshire.
1880
– First door closer installed at Boston Trinity Church.
1881 – Manufacturing begins at Boston plant.
1900 – Mr. Norton introduces a liquid door check.
1908 – Company moves to Chicago.
1917
– David R. Lasier joins company as timekeeper.
1925 – Norton-Lasier Company begins operation.
1929 – L. C. Norton moves to California. D. R. Lasier
heads up company.
1930 – Norton-Lasier Company produces wooden riding toys to cope
with the Great Depression.
1937 – L. C. Norton passes away on November 4th.
1942 – Norton-Lasier Company produces hydraulic
aircraft fittings for the war effort.
1948 – Norton-Lasier Company officially changes name to LCN.
1958 – LCN introduces the 4010/4110 series door closer.
1959 – LCN sold to Schlage Lock Company.
1972 – LCN introduces Sentronic line of fire/life safety holder/closers.
1973 – LCN introduces the 4040 series door closer.
1974 – Schlage Lock (and LCN) sold to Ingersoll-Rand.
1978 – LCN introduces Equalizer units.
1980 – Production on traditional series ends.
1981
– LCN introduces the 1460 series door closer.
1981
– LCN introduces AutoEqualizer™ units.
1985 – LCN introduces the 1070 series door closer.
1993 – LCN introduces the powder coat finish.
1995 – LCN introduces Electric Operator units.
1996 – LCN introduces the 1520 series door closer.
1998 – LCN introduces the 1370 series door closer.
2006
– LCN introduces the new 4030 series door
closer to replace the 1520 closer series.
2006
– LCN introduces the new Senior, Astro and
Middle Swing Digital Control Box.
2007 – LCN introduces the new Tri-Volt Magnets.
2007 – LCN introduces the new 4040XP.
2007 – LCN introduces the new 1260 Series.
2013 – In December of 2013, the Security Technologies division of
Ingersoll Rand became its own publicly traded company
called Allegion.
2015 – LCN introduces the 1250, 1450 and 4050 series cast
aluminum door closers.
History of
door closers & LCN

4LCN Door Control Catalog
phone: 877-671-7011 n fax: 800-248-1460 n www.allegion.com/us n 009426 rev. 2/16
General
information
GENERAL INFORMATION
History of Door Closers & LCN ............................................................2-3
Table of Contents ..................................................................................... 4
Finishes .........................................................................................................5
Warranty ...................................................................................................... 6
Door Closer Specialists ............................................................................. 7
Specifications ...................................................................................... 8-10
ANSI Cross Reference .........................................................................11-13
Materials .....................................................................................................14
Proper Door Control ................................................................................ 15
Mechanical Considerations ............................................................ 16-21
Glossary of Abbreviations .................................................................... 22
Glossary of Terms ...............................................................................23-31
4000 SERIES SURFACE MOUNTED CLOSERS
Product Selection Guide .......................................................................1-2
4010 Series .............................................................................................3-6
4010T Series ........................................................................................... 7-11
4020 Series ......................................................................................... 13-16
4020T Series ........................................................................................17-21
4030 Series ....................................................................................... 23-30
4030T Series ...................................................................................... 31-36
4040XP Series ..................................................................................37-45
4040XPT Series ................................................................................ 47-53
4050 Series ....................................................................................... 55-63
4050T Series .......................................................................................65-71
4110 Series ............................................................................................ 73-77
4110T Series ....................................................................................... 79-83
4000T Series ....................................................................................85-88
1000 SERIES SURFACE MOUNTED CLOSERS
Product Selection Guide .......................................................................1-2
1250 Series .............................................................................................3-10
1260 Series ............................................................................................11-18
1450 Series .......................................................................................... 19-26
1460 Series ..........................................................................................27-34
1460T Series .......................................................................................35-41
CONCEALED CLOSERS SERIES
Product Selection Guide .......................................................................1-2
2010 Series ..............................................................................................3-6
2030 Series ............................................................................................. 7-11
3030 Series .......................................................................................... 13-16
3130 Series ...........................................................................................17-20
5010 Series...........................................................................................21-24
5030 Series ........................................................................................ 25-28
6030 Series ........................................................................................29-32
FIRE/LIFE SAFETY CLOSER/HOLDERS SERIES
Product Selection Guide .......................................................................1-3
SEM Series .............................................................................................5-10
3130SE Series ....................................................................................... 11-14
4040SE Series ...................................................................................15-20
2310ME Series .....................................................................................21-24
4310ME Series ................................................................................... 25-29
4410ME Series ....................................................................................31-35
4310 HSA Series ............................................................................... 37-40
4410 HSA Series ................................................................................41-44
SEH Series ..........................................................................................45-48
HIGH SECURITY CLOSERS SERIES
Product Selection Guide .......................................................................1-2
2210 Series .............................................................................................. 3-6
4210 Series ............................................................................................. 7-10
4210T Series ......................................................................................... 11-14
4510 Series ...........................................................................................15-18
4510T Series ....................................................................................... 19-22
AUTOMATIC OPERATORS
Product Selection Guide ...................................................................... 1-5
Pneumatic Powered Systems ............................................................7-9
2610 Series ............................................................................................ 11-14
4810 Series .......................................................................................... 15-18
4820 Series ......................................................................................... 19-22
4840 Series ........................................................................................23-27
7900 Series Control Boxes ............................................................. 28-31
Electrohydraulic Powered Systems .............................................32-34
4630/4640 Electrohydraulic Series ........................................... 35-36
4630 Series ..........................................................................................37-41
4640 Series ........................................................................................43-47
Electromechanical Powered Systems ....................................... 49-53
Benchmark Unique Features ..............................................................54
9130 Series .........................................................................................55-59
9140 Series ..........................................................................................61-65
9150 Series ..........................................................................................67-70
Senior Swing Unique Features ............................................................ 71
2810 Series .......................................................................................... 73-78
2850 Series ........................................................................................79-84
2860 Series....................................................................................... 85-90
9530 Series ......................................................................................... 91-95
9540 Series........................................................................................97-101
9550 Series .................................................................................... 103-108
9560 Series .....................................................................................109-114
Actuators, Sensors & Accessories ...............................................115-131
DOOR HARDWARE
PAH60 ............................................................................................................1
LCN
121 West Railroad Avenue
P.O. Box 100
Princeton, IL 61356-0100
For SSC Representative contact information, please visit
www.allegion.com/us and click “Contact Us”
To view or download an electronic copy, visit
www.allegion.com/us.
LCN reserves the right to change the information
contained in this catalog without notice.
Table of contents

5
LCN Door Control Catalog
phone: 877-671-7011 n fax: 800-248-1460 n www.allegion.com/us n 009426 rev. 2/16
General
information
STANDARD POWDER COAT FINISHES
LCN powder coating provides superior protection
against the effects of weather conditions and is an
environmentally friendly process. The high quality, chip
resistant finish is far superior to any previously offered.
Corrosion resistance surpasses 100 hours salt spray
testing (four times the industry standard). Non-metallic
components also provide the same high resistance to the
effects of the elements. All LCN products must be shipped
with a finish.
LCN STANDARD FINISHES
(CLOSEST BHMA EQUIVALENT):
OPTIONAL PLATED FINISHES
Visible components such as metal covers, arms, fasteners, and finish plates
are plated to match the selected finish. Surface mounted tracks are powder coated
to compliment the plated finish. Hidden assemblies such as cylinders, tracks, and
mounting plates are supplied with a powder coated finish. Plated finishes require
handing of closers.
LCN PLATED FINISHES:
US 3 Bright Brass (BHMA 632)
US 4 Satin Brass (BHMA 633)
US 10 Satin Bronze (BHMA 639)
US 11 Satin Bronze (BHMA 643)
US 15 Satin Nickel (BHMA 646)
US 26 Bright Chrome (BHMA 651)
US 26D Satin Chrome (BHMA 652)
LCN PAINTED FINISHERS
Aluminum ALUM (BHMA 689)
Dark Bronze DKBRZ (BHMA 695)
SPECIAL RUST INHIBITING (SRI) PROCESS
For installations where a higher level of protection against weather conditions, or
the effects of a potentially corrosive atmosphere is required, LCN offers a special rust
inhibiting (SRI) process. Ferrous metal components receive an SRI pretreatment and
a standard powder coat finish of your choice, or a custom powder coat finish for a
nominal additional cost. Closers treated with the SRI process exceed the 100 hour
protection level available with standard LCN powder coated finishes. For details,
contact your local SSC representative or the LCN factory.
STANDARD ANODIZED FINISHES
LCN Senior Swing & Benchmark electromechanical power operators are offered with
an anodized finish. Anodizing is an electrochemical process that thickens and toughens
the protective oxide on aluminum metal.
LCN ANODIZED FINISHES:
Aluminum ANCLR (BHMA 628)
Dark Bronze ANDKBRZ (BHMA 710)
OPTIONAL CUSTOM POWDER COAT FINISHES
LCN offers custom powder coating to provide a custom
appearance and all the corrosion resistance of standard
powder coat finishes at a nominal additional cost. LCN
uses the RAL numbering system for the 150+ custom
colors available. Contact your local SSC representative
for a brochure showing the available custom colors. Note:
Custom powder coat finishes require a metal cover.
ALUM ALUMINUM (BHMA 689)
DKBRZ DARK BRONZE (BHMA 695)
STAT STATUARY BRONZE (BHMA 690)
LTBRZ LIGHT BRONZE (BHMA 691)
BLK BLACK (BHMA 693)
BRASS BRASS (BHMA 696)
Finishes

6LCN Door Control Catalog
phone: 877-671-7011 n fax: 800-248-1460 n www.allegion.com/us n 009426 rev. 2/16
General
information
Term: The limited warranty period for Products is as stated in the Product Table above. The “Commencement Date” for a limited warranty
period shall be the date of Company’s delivery to the original purchaser of the Products. Proof of Product purchase may be required by Company to
confirm the Commencement Date.
What Company will do: Company may require proof of Product purchase in order to provide coverage under this limited warranty. As Company’s
only responsibility and user’s only remedy under this limited warranty, Company will furnish a replacement Product upon receipt and confirmation
by Company, in its sole opinion, that the Product has, in fact, failed due to a manufacturing defect under normal use and maintenance. In the event a
replacement Product cannot be provided, Company will either provide a suitable replacement Product or a refund in the amount of the original purchase
price.
What is not covered: The following costs, expenses, and damages are not covered by the provisions of this limited warranty: (i) labor costs including, but
not limited to, such costs as removal and installation of Product; (ii) shipping and freight expenses required to return Product to Company; (iii) failures,
defects, or damage caused by any third party product or service; (iv) any other incidental, consequential, indirect, special and/or punitive damages,
whether based on contract, warranty, tort (including, but not limited to, strict liability or negligence), patent infringement, or otherwise, even if advised of
the possibility of such damages.
The provisions of this limited warranty do not apply to Product that is: (i) not the proper size for the application for which the Product is used; (ii)
not installed in accordance with Company’s published Product installation instructions; (iii) installed with improper parts and/or incorrect parts (NOTE:
It is recommended that Product be installed with LCN fasteners provided with Product); (iv) improperly stored, maintained, or operated; (v) modified,
repaired, or altered in Company’s sole opinion, in any manner, without the express written consent of Company; (vi) used for purposes for which the
Product is not designed or intended; (vii) subjected to misuse, abuse, negligence, or accident; or (vii) subjected to improper temperature, humidity, or
other environmental conditions.
Note: 900/7900 Series compressors are not manufactured by Company and are excluded from coverage under this limited warranty. For more
information, parts, or repairs concerning the compressors, contact the compressor manufacturer directly at (269) 926-6171.
Additional Terms: This limited warranty is in lieu of all other warranties, express or implied. Company does not authorize any person to create for it
any obligation or liability in connection with Product. Company’s maximum liability hereunder is limited to the original purchase price of the Product. No
action arising out any claimed breach of this limited warranty by Company may be brought by the user more than one (1) year after the cause of action
has arisen.
How local law applies: This limited warranty gives you specific legal rights, and you may also have other rights as permitted by law. Some local laws do
not allow limitations on how long an implied warranty lasts or the exclusions or limitation of incidental or consequential damages so the limitations or
exclusions provided herein may not apply to you.
Program and Warranty Claims: If product is to be claimed to be defective under this limited warranty, contact Customer Care at (877) 671-7011.
Note: Please contact LCN Customer Care prior to returning any product back to the factory. You will need prior authorization and an RMA for your return.
Subject to the terms and conditions of this limited warranty, Schlage Lock Company, LLC (the “Company’) extends a limited warranty against defects in
material and workmanship for its LCN branded product(s) identified in the Product Table below (“Products”) as installed in the original location.
This limited warranty applies to Products purchased on or after March 3, 2014.
Product Table - Cast Iron
4000 Series 30 Years
1460 Series 30 Years
1260 Series 20 Years
Concealed, High Security (except 2210DPS) 15Years
Automatic Operators; SE, ME, HSA, SEH Series; SEM Magnets; 2210 DPS
(includes both electronic and mechanical components) 2 Years
Product Table - Cast Aluminum
1250 Series 15 Years
1450 Series 25 Years
4050 Series 25 Years
Limited Warranty

7
LCN Door Control Catalog
phone: 877-671-7011 n fax: 800-248-1460 n www.allegion.com/us n 009426 rev. 2/16
General
information
Since its founding in 1926, LCN has specialized in solving door control problems through the use
of high quality, innovative door control products. By adhering to high standards of performance,
LCN has earned a leadership role within the industry and is committed to meeting door control
challenges of the future. With representatives located throughout the world, LCN provides the
products and services necessary to solve your door control problems.
Materials
LCN is committed to providing
the best door closers in the world.
In addition to the mechanical
advantages derived from proven
designs, much of the durability
of the closer and arm system is
related to the materials used in
their manufacturing.
Extensive Abuse Test
Why do some hardware
professionals claim that LCN
stands for “Last Closer Needed?”
LCN closers are put through
grueling tests in which they
exceed industry requirements.
Forged Steel Arms
The closing power and control
generated within LCN closers is
transferred to the door through
forged steel arms. Forged steel
arms have greater strength, better
appearance and less bulk.
Chrome Silicon
Many closer manufacturers use
less expensive oil-tempered
springs, but LCN engineers know
that such a spring loses up to 20%
of its power after a few thousand
cycles.
Heat-Treated
LCN steel pinions have larger,
stronger teeth and are double
heat-treated for the greatest
possible strength on the shaft.
Heat-treating makes the pinion
harder, better able to resist wear
after years of service and results
in less stress on the cylinder.
Special Templates
When a standard door closer
won’t do the job, there is only one
proven, reliable source for special
solutions — LCN. With over 3,000
special templates on file, LCN can
provide a door control solution for
one-of-a-kind doors such as vault,
balanced, over-sized and arch
doors.
Hydraulic Fluid
LCN uses a special formula
hydraulic fluid with special
lubrication properties to keep
closer components working
smoothly. This unique all-weather
hydraulic fluid eliminates the
need for seasonal adjustments.
Customer Service
At a time when machines are
picking up more and more
customer calls, real people are
answering the phones at LCN.
Every member of our customer
service staff is trained and
qualified to assist you with orders,
closer selection and special
applications.
The LCN formula for success
Door closer specialist

8LCN Door Control Catalog
phone: 877-671-7011 n fax: 800-248-1460 n www.allegion.com/us n 009426 rev. 2/16
General
information
PART 1 - GENERAL
1.1 QUALITY ASSURANCE
A. Reference Standards
1. American National Standards Institute
(ANSI/BHMA):
A117.1 Providing Accessibility and Usability
for Physically Handicapped People
A156.10 For Power Operated Pedestrian Doors
A156.4 Door Controls - Closers
A156.15 Life Safety Closer Holder Release Devices
A156.18 Materials and Finishes
A156.19 Power Assist and Low Energy Power
Operated Doors
2. Americans with Disabilities Act (ADA)
3. American Society for Testing and Material (ASTM):
Specification B117-9 Method of Finish Corrosion Testing
4. Underwriters Laboratory (UL):
228 Door Closers-Holders
UL10C Standard Positive Pressure Fire
Test of Door Assemblies
UL10B Standard for Fire Test of Door Assemblies
5. National Fire Protection Association (NFPA)
No. 80 Fire Doors and Windows
No. 101 Life Safety Code
B. Source Quality Control
1. Obtain each kind of hardware (latch and lock sets, hinges,
closers, etc.) from only one manufacturer, although several may
be indicated as offering products complying with requirements.
2. All products shall meet grade 1 or the highest level
of cycle test requirements of the applicable
ANSI/BHMA standard.
C. Supplier Qualifications
1. Supplier must be a recognized builders hardware supplier who
has been furnishing hardware in the projects vicinity for a period
of not less than two years.
2. Supplier must be or employ an experienced hard ware
consultant who is available, at reasonable times during
the course of the work, for consultation about the project’s
hardware requirements, to Owner, Architect, and Contractor.
D. Fire-rated Openings
1. Provide hardware for fire rated openings in compliance with
NFPA Standard No. 80, NFPA Standard No. 101, and local
building codes.
2. [Manual hold-open arm function not allowed.] Provide
hardware which has been tested and listed by UL for types and
sizes of doors required and complies with the requirements of
door and frame labels.
PART 2 - PRODUCTS
2.3 MATERIALS AND FABRICATION
A. General
1. Closers shall be installed to allow door swing as shown
on plans. Doors swinging into exit corridors should provide for
corridor clear width as required by codes.
2.8 CLOSERS AND DOOR CONTROL DEVICES
A. General
All closers shall be as manufactured by LCN CLOSERS, Princeton,
Illinois, USA, and shall have the following features:
1. [Applies to 4010, 4020, 4110, 4210, 4510, 5010 Series
only.]All manual door closers shall be certified to exceed 15
million (15,000,000) full load operating cycles by a recognized
independent testing laboratory.
2. All closers shall carry manufacturer’s warranty, as stated on
page 6.
3. All closers with electrical or pneumatic components shall carry
a manufacturers two (2) year warranty.
[Items 4 through 12 apply to closer cylinder, items 13
through 16 apply to closer arms.]
4. [Delete for 1250, 1450, and 4050] Fully hydraulic, rack and
pinion action with high strength cast iron cylinders and one
piece forged steel pistons.
5. Fluid of a type requiring no seasonal adjustments.
6. [Delete for 1460, 1260, 3030, 3130 4030 4040XP, 1250,
1450, and 4050 Series. 4040XP has a minimum 3/4”
pinion shaft diameter.] Pinion shaft minimum diameter of
11/16”.
7. Hydraulic regulation controlled by tamper-proof, non-critical
screw valves, adjustable with a hex wrench.
8. Separate adjustments for backcheck, general speed, and latch
speed.
9. [Applies to 1450, 1460, 4010, 4020, 4040XP, 4050,
4110, 4210, 4510, 5010 Series.] Where detailed on
double lever arm closers, provide a delayed action feature to
delay closing up to one minute from maximum opening to
approximately 75º.
10. Backcheck shall be properly located for protection of the door,
frame, and applied hardware.
11. [Applies to 2210, 4110, 4210, 4210T, 4510, and 4510T
Series only.] Where detailed, provide advanced variable
backcheck to start backcheck function at approximately 45º.
12. Include high efficiency, low friction full compliment pinion
bearings.
13. [Delete for 1260, 1460, 6030 Series.] Forged steel main
arms.
14. [Applies to 4110, 4210, 4510 Series and all EDA and CUSH
arms.] Forged steel main and forearms.
15. [Applies to all single lever arm (track type) closers.]
Where detailed, provide a quiet, low friction track and roller
assembly and provisions for an optional bumper assembly to
assist backcheck and/or hold-open clip.
16. [Applies to all double lever arm closers, except EDA or
CUSH arms.] Reversible shoe to increase latching power of the
closer.
Specifications

9
LCN Door Control Catalog
phone: 877-671-7011 n fax: 800-248-1460 n www.allegion.com/us n 009426 rev. 2/16
General
information
B. Size of Closers
1. Sized in accordance with ANSI/BHMA Standard A156.4
as shown in the applicable TABLE OF SIZES listed in the current
LCN General Catalog.
2. Closing power of non-sized cylinders shall be adjustable over
a range of sizes;[Applies to 1250, 1261, 1450, 1461, 1460T,
4011, 4021, 4040SE, 4040XP, 4040XPT, 4041DEL,
4050, 4111, 4211, 4511, 4631, 4642, 4811, 4822, 4841,
4031, 4031T Cylinders.]
C. Barrier Free Manual Closers
1. All closers for openings that must meet the minimum
requirements of the ADA act, in lieu of ANSI/BHMA Standard
A156.4, shall be sized in accordance with the applicable
REDUCED OPENING FORCE table in the current LCN General
Catalog.
2. All size 1 manual closers shall provide or be adjustable to
provide less than 5 pounds opening force on a 36” door leaf and
delay closing time in accordance with the ADA requirements.
D. Combination Door Closers and Holders
1. Provide closer/holders designed to hold the door in the open
position under normal usage and to release and automatically
close the door under fire conditions. Closer will include an
integral electro magnetic holder mechanism designed for use
with UL listed fire detectors, provided with normally closed
switching contacts.
2. [Applies to all ME models.]
Where detailed, multi-point closer/holders shall incorporate a
hold-open bypass feature from 0º
up to either 80º or 140º.
3. [Applies to 4310 ME only.]
Where detailed, multi-point closer/holders shall
provide a swing-free function with a no-drift feature.
E. High Security Closers
1. Provide closers designed to resist vandalism and tampering.
2. All exposed fasteners shall be TORX machine screws
with a security pin.
3. All closer adjustments shall be shielded by the cover
or finish plate, after installation.
4. Arm and, where furnished, high security roller assembly shall be
designed to prevent disassembly.
5. [4210 and 4510 Series only.] All surface mounted high
security closers shall include a cast iron cylinder certified by an
independent testing laboratory to exceed fifteen
million (15,000,000) operating cycles, heavy gauge
metal covers with four mounting screws and double
lever arms manufactured to prevent disassembly.
6. [4210T and 4510T Series only.] All surface mounted high
security closers shall include a cast iron cylinder certified by
an independent testing laboratory to exceed fifteen million
(15,000,000) operating cycles, heavy gauge metal covers with
four mounting screws, heavy duty arm with special security
roller, and a heavy gauge high security track designed to eject
foreign objects.
7. [2210 and 2210 DPS only.] All concealed high security closers
shall include a cast iron cylinder certified by an independent
testing laboratory to exceed fifteen million (15,000,000)
operating cycles, 3/8” steel mounting plate, heavy duty arm
with special security roller, and a heavy gauge high security
track designed to eject foreign objects.
8. [2210 DPS only.] A built-in door position switch shall be
optional with concealed closers.
F. Automatic Operators
1. Where low kinetic energy, as defined by ANSI/BHMA
Standard 156.19, automatic operators are indicated for doors
required to be accessible to the disabled. Provide pneumatic,
electrohydraulic or electromechanical [2610, 2810, 2850,
2860, 4630, 4640, 4810, 4820, 4840, 9130, 9140, 9150,
9530, 9540, 9550, 9560 Series] operators complying with
the ADA for opening force and time to close standards.
2. Full closing force shall be provided when the power or assist
cycle ends [2610, 2810, 2850, 2860, 4630, 4640, 4810,
4820, 4840, 9130, 9140, 9150, 9530, 9540, 9550, 9560
Series].
3. [2610, 4810, 4820, 4840] Locate power unit and pneumatic
exhaust away from door to minimize noise and vibration in
pedestrian areas.
4. All automatic operator systems shall include the following
features and functions.
a) Provisions for separate conduits to carry high and low
voltage wiring in compliance with the National Electrical
Code, section 725-31.
b) The operator will be designed to prevent damage to the
mechanism if the system is actuated while the door is
latched or if the door is forced closed during the opening
cycle.
c) All covers, mounting plates and arm systems shall be
powder coated and successfully pass a minimum of 100
hours testing as outlined in ANSI/BHMA Standard A156.18
[2610, 4630, 4640, 4810, 4820, 4840 Series].
-Or-
d) Electromechanical automatic operators shall be standard
anodized either in aluminum or dark bronze. Custom
anodized finishes and custom paint are available and can
be specified. [2810, 2850, 2860, 9130, 9140, 9150,
9530, 9540, 9550, 9560 Series]
e) UL listed for use on labeled doors
f) [4630, 4640, 4810, 4820, 4840 Series] shall be non-
handed with spring power over a range of at least four
sizes either 1 through 4 or 2 through 5.
-Or-
g) [2810, 2850, 2860, 9130, 9140, 9150, 9530, 9540,
9550, 9560, Series] are handed and feature a spring
return.
Specifications

10 LCN Door Control Catalog
phone: 877-671-7011 n fax: 800-248-1460 n www.allegion.com/us n 009426 rev. 2/16
General
information
h) Provisions in the control box or module shall provide
control {inputs and outputs} for; electric strike delay,
auxiliary contact, sequential operations, fire alarm
systems, actuators, swing side sensors, stop side sensors.
[2610, 4630, 4640, 4810, 4820, 4840, 9130, 9140,
9150 Series]
5. [4630, 4640 Series] All electrohydraulic automatic
operators shall include the following features or functions:
a) Second Chance Feature: When an obstruction or
resistance to the opening swing is encountered the
operator will pause at that point, then attempt to
continue opening the door. If the obstruction or resistance
remains, the operator will again pause the door.
b) Easily accessible main power and maintain hold-open
switches will be provided on the operator.
c) An electronically controlled clutch to provide adjustable
opening force.
d) A microprocessor to control all motor and clutch
functions.
e) An on-board power supply capable of delivering both 12V
and 24V outputs up to a maximum of
1.0 ampere combined load.
f) All input and output power wiring shall be
protected by a resettable circuit breaker.
-Or-
5. All electromechanical automatic operators shall include the
following features of functions:
a) Maximum 8-1/2 lbs of manual opening force [9130,
9140, 9150 Series].
b) Maximum 15 lbs of manual opening force [2810, 2850,
2860, 9530, 9540, 9550, 9560 Series].
c) Bottom loaded header for easy access to controls [2810,
2850, 2860, 9550, 9560 Series].
d) Power Boost, which adds an additional 25 lbs of closing
force at latch [2810, 2850, 2860, 9130, 9140, 9150,
9530, 9540, 9550, 9560 Series].
e) Self contained automatic operators in a cast aluminum
housing and a forged steel arm [2810, 2850, 2860,
9130, 9140, 9150, 9530, 9540, 9550, 9560 Series].
2.12 HARDWARE FINISHES
A. Finish
1. All closers with powder coat finishes shall exceed a minimum
100 hour salt spray test, as described in ANSI/BHMA Standard
A156.4 and ASTM B117.
2. All closers detailed with plated finishes shall include plated
covers (or finish plates), arms, and visible fasteners.
3. All electromechanical automatic operators supplied
with anodized finishes.
4. All closers must be shipped with a finish.
PART 3 - EXECUTION
3.1 INSTALLATION
A. General
1. Installation shall be in accordance with the templates and
installation instructions packaged with the closers
at the time of manufacture.
2. Installation shall be made with fasteners packaged with the
closer by the manufacturer.
3. All electrical connections shall be made in accordance with the
manufacturers recommendations.
4. Clean installed closer to remove dirt, debris, and marks
incidental to installation work.
5. Installation instructions and templates are to be turned over to
the Owners representative upon completion of the installation
work.
6. Factory trained representative will be available for job site
inspection of major projects upon completion of the hardware
installation work.
3.2 ADJUSTMENT
A. Adjustment
1. Install and regulate all closers in accordance with the
installation instructions packaged with the closers at the time
of manufacture.
2. If unfamiliar with LCN products furnished, consult factory
representative prior to installation for assistance.
Specifications

11
LCN Door Control Catalog
phone: 877-671-7011 n fax: 800-248-1460 n www.allegion.com/us n 009426 rev. 2/16
General
information
Note: All closers listed in this section are
certified grade 1 = 1,500,000 cycles, PT4A
= 15% adjustable closing force, PT4B =
35% adjustable closing force, PT4C = 50%
adjustable closing force, PT4D = adjustable
hydraulic backcheck, PT4F = delayed action,
PT4G = built-in factory dead stop (Cush-N-
Stop), PT4H = spring power adjustable over
a range of sizes, PT4J = backcheck position
advanced 15 degrees.
ANSI cross reference
C02011 HINGE SIDE 4031 XXXX X
4040XP XXXX X
1250 XXXX X
1260 XXXXX X
1450 XXXX X
1460 XXXXX X
4010 XXXXX X
4050 XXXX X
4510 XXXXX XX
C02021 PARALLEL 4031 XXXX XX
4040XP XXXX XX
1250 XXXX XX
1260 XXXXXXX
1450 XXXX XX
1460 XXXXXXX
4050 XXXX XX
4110 XXXXXXXX
4210 XXXXXXXX
C02031 BRACKET 4040XP XXXX X
4010 XXXXX X
4050 XXXX X
C02041 TOP JAMB 4031 XXXX X
4040XP XXXX X
1250 XXXX X
1260 XXXXX X
1450 XXXX X
1460 XXXXX X
4020 XXXXX X
4050 XXXX X
C02051 HINGE SIDE HOLD OPEN 4031 XXXX X
4040XP XXXX X
1250 XXXX X
1260 XXXXX X
1450 XXXX X
1460 XXXXX X
4010 XXXXX X
4050 XXXX X
C02061 PARALLEL HOLD OPEN 4031 XXXX XX
4040XP XXXX XX
1250 XXXX XX
1260 XXXXXXX
1450 XXXX XX
1460 XXXXXXX
4050 XXXX XX
4110 XXXXXXXX
4210 XXXXXXXX
C02071 BRACKET HOLD OPEN 4010 XXXXX X
4040XP XXXX X
4050 XXXX X
C02081 TOP JAMP HOLD OPEN 4031 XXXX X
4040XP XXXX X
1250 XXXX X
1260 XXXXX X
1450 XXXX X
1460 XXXXX X
4020 XXXXX X
4050 XX X X X
C02091 HINGE SIDE FUSIBLE LINK 4010 XXXX X X
C02101 PARALLEL FUSIBLE LINK 4110 XXXXX XX
C02111 BRACKET FUSIBLE LINK 4010 XXXXX X
C02121 TOP JAMP FUSIBLE LINK 4020 XXXXX X
C02171 HINGE SIDE TELEPHONE BOOTH 4010TEL X
4110TEL X
C02211 HINGE SIDE TRACK 1460T XXXX X
4010T XXXX X
4031T XXXX X
4040XPT XXXX X
4510T XXXX XX
ANSI
NUMBER
LCN
CLOSER
MOUNTING
PT-4H
PT-4J
PT-4A
PT-4D
PT-4F
PT-4G
PT-4C
Note: All closers listed in this section are
certified grade 1 = 1,500,000 cycles, PT4A
= 15% adjustable closing force, PT4B =
35% adjustable closing force, PT4C = 50%
adjustable closing force, PT4D = adjustable
hydraulic backcheck, PT4F = delayed action,
PT4G = built-in factory dead stop (Cush-N-
Stop), PT4H = spring power adjustable over
a range of sizes, PT4J = backcheck position
advanced 15 degrees.
ANSI FUNCTION NUMBER TO LCN PRODUCT
SURFACE MOUNTED ANSI Standard A156.4-2013
PT-4B

12 LCN Door Control Catalog
phone: 877-671-7011 n fax: 800-248-1460 n www.allegion.com/us n 009426 rev. 2/16
General
information
ANSI
NUMBER
LCN
CLOSER
MOUNTING
PT-4H
PT-4J
PT-4A
PT-4D
PT-4F
PT-4G
PT-4C
ANSI FUNCTION NUMBER TO LCN PRODUCT
SURFACE MOUNTED ANSI Standard A156.4-2013
PT-4B
C04011 CONCEALED IN DOOR REG 3030 X X
HO 3030H X X
C04031 CONCEALED IN DOOR STANDARD 3130 X
HO 3130H X
ANSI
NUMBER
ARM
LCN
CLOSER
MOUNTING
PT-4A
ANSI FUNCTION NUMBER TO LCN PRODUCT
CONCEALED IN DOOR ANSI Standard A156.4-2013
PT-4D
Note: All closers listed in this section are
certified grade 1 = 1,500,000 cycles, PT4A
= 15% adjustable closing force, PT4B =
35% adjustable closing force, PT4C = 50%
adjustable closing force, PT4D = adjustable
hydraulic backcheck, PT4F = delayed action,
PT4G = built-in factory dead stop (Cush-N-
Stop), PT4H = spring power adjustable over
a range of sizes, PT4J = backcheck position
advanced 15 degrees.
Note: All closers listed in this section are
certified grade 1 = 1,500,000 cycles. PT4A
= 15% adjustable closing force, PT4D =
adjustable hydraulic backcheck.
ANSI cross reference
C02221 HINGE SIDE HOLD OPEN TRACK 1460T XXXX X
4010T XXXX X
4031T XXXX X
4040XPT XXXX X
4031T XXXX X
4040XPT XXXX X
4510T XXXX XX
C02231 STOP FACE TRACK 1460T XXXX X
4031T XXXX X
4040XPT XXXX X
4110T XXXX X
4210T XXXX XX
C02241 STOP FACE HOLD OPEN TRACK 1460T XXXX X
4031T XXXX X
4040XPT XXXX X
4110T XXXX X
C02251 TOP JAMB TRACK 1460T XXXX X
4000T XXXX X
4020T XXXX X
4031T XXXX X
4040XPT XXXX X
C02261 TOP JAMB HOLD OPEN TRACK 1460T XXXX X
4020T XXXX X
4031T XXXX X
4040XPT XXXX X
C02271 TOP JAMB PUSH SIDE FLUSH
FRAME TRACK
4031T XXXX X
C02281 TOP JAMB PUSH SIDE FLUSH
FRAME HOLD OPEN TRACK
4031T XXXX X
C03011 HINGE SIDE 1250 XXXX X
1260 XXXXX X
1450 XXXX X
C03021 PARALLEL 1250 XXXX XX
1260 XXXXXXX
1450 XXXX XX
C03041 TOP JAMB 1260 XXXXX X
C03051 HINGE SIDE HOLD OPEN 1250 XXXX X
1260 XXXXX X
1450 XXXX X
C03061 PARALLEL HOLD OPEN 1250 XXXX XX
1260 XXXXXXX
1450 XXXX XX
C03081 TOP JAMB HOLD OPEN 1250 XXXX X
1260 XXXXX X
1450 XXXX X

13
LCN Door Control Catalog
phone: 877-671-7011 n fax: 800-248-1460 n www.allegion.com/us n 009426 rev. 2/16
General
information
C05011 BUTT HINGE REG 5010 XXXXXXX
5030 XXXXX X
C05021 PIVOT REG 5010 XXX XXX
5030 X X X X X
C05031 BUTT HINGE STANDARD 2010 X X X X X
2030 X X X X X
2210 X X X X X
2210 DPS X X X X X
C05041 PIVOT STANDARD 2010 X X X X
2030 X X X X
2210 XXXX
2210 DPS XXXX
C05071 PIVOT STANDARD 2010 X X X X
2030 X X X X
C05081 PIVOT STANDARD 6030 X X X X
C05091 BUTT HINGE HO 5010 XXXXXXX
5030 XXXXX X
ANSI
NUMBER
ARM
LCN
CLOSER
MOUNTING
PT-8A
PT-8D
PT-8J
ANSI FUNCTION NUMBER TO LCN PRODUCT
OVERHEAD CONCEALED ANSI Standard A156.4-2013
PT-8B
PT-8F
PT-8E
PT-8L
Note: All closers listed in this section are
certified grade 1 = 1,500,000 cycles.
PT8A = door under control from 7 degrees of
maximum door opening to close,
PT8B = hold-open between 85 and 180
degrees, PT8D = 50% adjustable
PT8E = single acting, 165 degrees of opening,
double acting 165 degrees of opening either
way, PT8F = adjustable hydraulic backcheck,
PT8J = delayed action, PT8L = 35%
adjustable closing force.
C00011 WALL N/A 7830, 7840, 7850
C00021 FLOOR N/A 7820
C00191 HINGE SIDE STANDARD 4040SE XXX
4040SEL XXX
C00231 STOP FACE STANDARD 4040SE XXX
4040SEL XXX
C00311 TOP JAMB REG 4410HSA X X
4410ME X X
C00351 HINGE SIDE STANDARD 4310HSA X X
4310ME X X
C00371 HINGE SIDE SF 4310ME X X
C00391 TOP JAMB DE 4310HSA X X
4310ME X X
C00471 HINGE SIDE REG 4040SEH X
C00511 PUSH SIDE REG 4040SEH X
C00611 CONCEALED STANDARD 3130SE X X
3130SEL X X
C00651 CONCEALED STANDARD 2310ME X X
ANSI
NUMBER
ARM
LCN
CLOSER
MOUNTING
PT4D
PT4P
ANSI FUNCTION NUMBER TO LCN PRODUCT
LIFE SAFETY CLOSER/
HOLDER RELEASE DEVICE ANSI Standard A156.15-2001
PT4N
Note: Options are; PT4D = adjustable
hydraulic backcheck, PT4N = adjustable
spring power, and PT4P = adjustable hold-
open intensity.
ANSI cross reference

14 LCN Door Control Catalog
phone: 877-671-7011 n fax: 800-248-1460 n www.allegion.com/us n 009426 rev. 2/16
General
information
Made from premier materials, LCN is committed to providing
the best door closers in the world. In addition to the mechanical
advantages derived from proven designs, much of the durability of
the closer and arm system is directly related to the materials used
in their manufacturing.
Precision machined cast iron cylinders and forged steel
pistons work together because of the compatibility of their
basic elements. Heat-treated pinions and pistons spread
the load over a large gear tooth system to better handle the
wear and stress of millions of operating cycles. Upper and lower
full compliment pinion bearings provide the support and load
capacity required by the design of the closer. All weather fluid
eliminates the need for seasonal adjustments.
Forged steel main arms
are superior to stamped steel arms used
on closers where price is the primary concern. Specially designed
shoe and elbow joints provide maintenance free service. A state-
of-the-art,
powder coat
process delivers a high quality, corrosion
resistant finish on all metal parts in popular architectural finishes.
LCN always uses the best materials available to provide the
exceptional value and long service life that you, our customer,
have every right to expect.
Materials

15
LCN Door Control Catalog
phone: 877-671-7011 n fax: 800-248-1460 n www.allegion.com/us n 009426 rev. 2/16
General
information
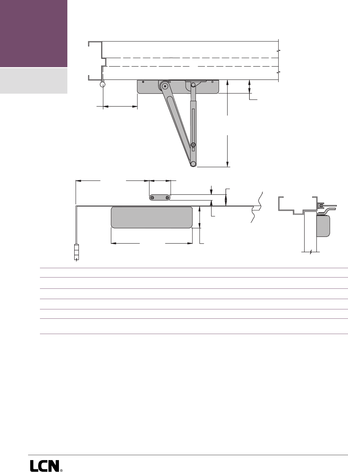
This diagram shows the main part or stages in correct door operation,
whether under manual or mechanical control or a combination of the
two.
(1) On the opening swing, the door closers function is to let
the door open easily, except at the end of the swing
where backcheck is applied.
(2) Backcheck is a feature that cushions the opening swing to prevent
the door from slamming into the stop. Special closers designed for
potentially abusive applications begin the backcheck function much
earlier (2A) such as LCN’s advanced variable backcheck (AVB).
(3) Through the long closing arc, a uniform, reasonable (main) speed
should be maintained.
(4) The latching arc allows the door to close quietly and firmly.
Opening the door builds up the power, which later closes the door.
As a controlled door is opened, the spring of the closer is compressed which builds up the power to close the door. Normally, more opening
force would be required as spring compression increases. However, as an LCN closer changes it’s arm geometry while the door opens, it
increases the door leverage. This offsets the spring compression, resulting in greater ease in opening the door.
In opening, more leverage for the person.
The changing arm geometry gives increased leverage over the door to overcome the growing power of the spring allowing one to pass
through the door easily.
In closing, more leverage for the closer.
When the person releases the door and the closer takes over, spring power is applied through the arm system to close the door. Because
the spring has been compressed, its power is very high. As the door closes the spring expands, providing the power to
close the door.
Special closers for reduced opening force.
The 1990 Americans with Disabilities Act (ADA) and ANSI Standard A117.1 describe maximum opening force limitations for certain non-fire
rated doors. The last page of each closer section in the catalog includes a section titled REDUCED OPENING FORCE CLOSERS. This section
lists closers in that specific series that will comply with a maximum opening force based on the width of the door.
Any manual door closer, including those certified by BHMA to conform to ANSI Standard A156.4, that is selected, installed, and adjusted
based on ADA or other reduced opening force requirements may not provide sufficient power to reliably close and latch the door.
Refer to AUTOMATIC OPERATORS section for information on electric, pneumatic and electromechanical systems that meet
reduced opening force requirements without affecting closer power.
Proper door control
Today practically every door in modern commercial, industrial, and institutional buildings is
opened by the person passing through and closed by a mechanical door closer which keeps the
door under control at all times. The power to close the door is generated by the springs inside
the closer. Regulated hydraulic circuits control the speed of the doors closing swing. Ideal door
“conduct” is illustrated and described in the diagram below. It can be achieved by equipping each
door with the appropriate LCN door closer.
Perfect door operation… The aim of mechanical control.

16 LCN Door Control Catalog
phone: 877-671-7011 n fax: 800-248-1460 n www.allegion.com/us n 009426 rev. 2/16
General
information
HOW TO SELECT A DOOR CLOSER
CONCEALED OR SURFACE MOUNTED CLOSERS?
Door closers are available in two styles - concealed or surface
mounted. In choosing a closer style for a parti cu lar application,
consideration should be given to the type of door being controlled,
frame conditions, aesthetic requirements, and control features
needed. Information contained in the following material can
serve as a guide in selecting the style and model of
closer to meet specific requirements.
IF CONCEALED, WHERE?
Closers concealed in the head frame over the door are
out of sight and entirely out of the pedestrians way.
They cannot be harmed by scrub water, cleaning chemicals or
floor dirt, and are protected from airborne contaminants, like dust.
They are easy to reach for regulation without removing any parts.
Closers for frame sections as thin as 1-3/4˝ (44 mm) are available.
Closers located within the door itself are also hidden and
protected but recommended for interior doors only.
CONCEALED IN FRAME
CONCEALED IN 1-3/4” TUBE
CONCEALED IN DOOR
SURFACE MOUNTED CLOSERS – LOCATION?
Closer location is subject to the considerations of practicality and
appearance. Good taste usually decrees that closers on doors
along a corridor be located on the room side of the door so they
are out of the line of sight from the corridor. Closers should be
placed on the inside of exterior doors for appearance and to
shelter them from the elements.
WHERE ARE HEAVY DUTY CLOSERS REQUIRED?
Heavy duty closers should always be used in these places:
1) Schools or public buildings where heavy or abusive usage is
expected.
2) Exterior doors.
3) Doors subject to draft, winds, or air pressure differentials.
4) High frequency doors such as those on department stores,
malls, or mixed use tenancies.
HINGE (PULL) SIDE MOUNT
TOP JAMB (PUSH SIDE) MOUNT
PARALLEL ARM (PUSH SIDE) MOUNT
Mechanical
considerations

17
LCN Door Control Catalog
phone: 877-671-7011 n fax: 800-248-1460 n www.allegion.com/us n 009426 rev. 2/16
General
information
WHICH ARM SYSTEM?
Double lever arm closers can provide control under difficult conditions for either interior or exterior doors. A parallel arm system is
a type of double lever arm where the main arm is parallel to the face of the closed door. Available double lever arms:
Single lever arm (track) closers may be used on interior or sheltered exterior doors. The hold-open function in a single lever arm
system is provided by either the track or the cylinder assembly. Available single lever arms:
HOLD-OPEN (H)
FUSIBLE LINK (FL)
EXTRA DUTY (EDA) HOLD-OPEN
EXTRA DUTY (HEDA)
STANDARD (STD) DOUBLE EGRESS (DE)
STANDARD ADJUSTABLE (STD)
SWING-FREE (SF)
SPRING CUSH (SCUSH) SPRING HOLD-OPEN
CUSH (SHCUSH)
REGULAR (REG)
HOLD-OPEN
CUSH-N-STOP (HCUSH)
CUSH-N-STOP (CUSH)
3077CNS 3049CNS
Mechanical
considerations

18 LCN Door Control Catalog
phone: 877-671-7011 n fax: 800-248-1460 n www.allegion.com/us n 009426 rev. 2/16
General
information
DO YOU NEED SPECIAL CYLINDER FUNCTIONS?
Many LCN closers can be ordered with a delayed action func tion
built into the cylinder. Delayed action (DEL) is a special hydraulic
circuit that provides additional time to pass through the door. A
special regulating screw con trols the closing speed from maxi-
mum opening through approximately 75°. After that point the
normal main speed resumes control to close the door. Delayed
action is not available with single lever arm (track) closers.
Advanced Variable Backcheck (AVB) is available
with high security and 4110 series closers to begin cushioning the
opening swing at about 45° (2A) instead of the usual 75° (2).
AVB is especially suited for potentially abusive applications.
Multi-point (ME series) closer/holders can be ordered with a
hold-open bypass at either 80° or 140° function. This feature
does not allow hold-open to take effect until opened beyond the
selected degree of bypass.
IS SEASONAL ADJUSTMENT REQUIRED?
Temperature changes can affect the operation of common door
closers by changing the viscosity of the hydraulic fluid inside the
closer. As temperature rises, the fluid thins out and closes the door
more rapidly. As temperatures decrease, the fluid thickens causing
the closer to close the door very slowly.
LCN uses all weather Ultra X fluid to eliminate the need for
seasonal adjustment.
HOW WILL THE DOORS BE HUNG?
While butt hinges provide the most common method
of hanging doors, some doors are hung on pivots centered in the
door, others on offset pivots. Surface mounted closers will handle
doors hung in any of these three
ways. LCN 4020 Series closers can even control a “balanced” door
installation. Concealed closers may conflict in location with pivot
leaves and thus may
require special templating.
HOW FAR SHOULD THE DOOR OPEN?
Three basic rules apply to maximum degree of opening.
1. It is best to let the door swing as far as it can swing freely.
Some closers are mounted in different locations for different
degrees of opening.
2. Use a mechanical stop when a door can not swing 180° or at
the selected hold-open point of a double lever arm system.
The mechanical stop can be mounted on the floor, wall,
overhead, or built into the closer arm.
3. The closer should be positioned so backcheck takes place well
in advance of the stop position to cushion the opening swing
and prevent door and frame damage from an abrupt stop.
Mechanical
considerations

19
LCN Door Control Catalog
phone: 877-671-7011 n fax: 800-248-1460 n www.allegion.com/us n 009426 rev. 2/16
General
information
DOOR DIMENSIONS?
The width of the door is the main consideration in determining
the correct closer size. Size here refers to the minimum spring
power and hence the closing force, generated by the closer. In
the catalog, the interior and exterior TABLE OF SIZES for each
closer are set up for ranges of door width and assume normal
operating conditions. If a door is of exceptional height, weight,
special construction, or if drafts and air pressure differ entials exist,
increased closer power should be considered.
Door thickness may be a factor. A concealed-in-the-door closer
should not be used in a hollow metal door less than 1-1/2˝ (38
mm) thick or a wood door under 1-3/4˝ (44 mm). Exceptionally
thick doors can affect hinge and pivot centers to the extent that
closer functions and geometry are also affected.
The depth of the doors top rail is important to nearly every closer
installation. Narrow top rails may require plates to successfully
mount the closer. An insufficient top rail in flush, hollow, or
composite filled doors may make concealed-in-the-door
installations impractical.
HAND OF A DOOR?
Some door closers are handed. When approaching a door from
the push side, if hinged on the left, it is a left hand door; if hinged
on the right, it is a right hand door.
For purposes of handing door closers, right hand reverse bevel and
left hand are identical. Also, left hand reverse bevel and right hand
are identical.
WILL A STANDARD CLOSER AND TEMPLATE MEET
YOUR NEEDS?
Occasionally the physical limitations of the selected closer may
not provide the desired functions or degree of opening. Standard
templated locations may interfere with other applied hardware.
In these situations, contact the LCN Applications Engineering
Department for assistance. Customized installation templates or
pro ducts may be available to solve an unusual application.
DOOR TOP RAIL
Mechanical
considerations

20 LCN Door Control Catalog
phone: 877-671-7011 n fax: 800-248-1460 n www.allegion.com/us n 009426 rev. 2/16
General
information
Specialized brackets, adapters, and parallel arm shoes are
available to simplify the installation of closers with a variety of
frame and door conditions. The most commonly used are listed
with each closer. Consult LCN for assistance if you are not sure.
WHY USE PLATES, BRACKETS, ADAPTERS AND OTHER
SPECIAL PIECES?
A drop plate is now commonly used to drop (lower) closers
to meet special conditions or adapt a closer to door or frame
surfaces that are not adequate for normal mounting patterns.
WHAT FASTENERS SHOULD BE USED?
LCN closers are shipped with a wood and machine screw pack or
Self-Reaming and Tapping screws (SRT) unless other fasteners
are ordered. These screw packs are suitable for wood or properly
reinforced hollow metal frames and metal or solid core wood
doors. For wood door applications, LCN recommends the use of
wood screws. For selected closers, metric machine screws are
available in lieu of UNC/UNF machine screws.
When attaching closers to hollow core doors, optional THRU
BOLTS (TB) are recommended to minimize crushing or squeezing
the door. Thru bolting can also provide a very strong mechanical
connection for potentially abusive applications. Because the TB
barrel extends completely through the door, the door thickness
must be specified when ordering if it is other than 1-3/4˝ (44 mm).
TB’s are only available for 1/4-20 machine screws.
For high security applications, TORX machine screws are available
with most closers. These are standard for all exposed fasteners
with high security closers. TORX fasteners feature a hex lobular
drive with a security pin in the center. They can only be installed or
removed with a special set of bits that are available from LCN.
DROP PLATE
EDA ARM
TORX
CUSH SHOE SUPPORT
BLADE STOP SPACER
Mechanical
considerations

21
LCN Door Control Catalog
phone: 877-671-7011 n fax: 800-248-1460 n www.allegion.com/us n 009426 rev. 2/16
General
information
WHAT FINISH IS DESIRED?
LCN powder coating provides superior protection against the
effects of weather conditions and is an environmentally friendly
process. The high quality, chip resistant finish is far superior to any
previously offered. Corrosion resistance surpasses 100 hours salt
spray testing (four times the industry standard). Non-metallic
components also provide the same high resistance to the effects
of the elements. All LCN products must be shipped with a finish.
LCN offers custom finishing services to complement special
installations. This provides a custom appearance and all the
corrosion resistance inherent in the standard powder coated
finishes. It is recommended that the customer submit a physical
sample of desired custom finish with the closer order. Custom
powder coat finishes are available at additional cost. A metal
cover must be ordered when custom powder coat finishes are
desired.
With some exceptions, visible components such as covers, arms,
fasteners, and finish plates are available in plated finishes. Tracks
are painted to complement the plated finish. Hidden assemblies
such as cylinders and mounting plates are supplied with a powder
coated finish. Plated finishes are available at additional cost.
For installations where a higher level of protection against
weathering is required, LCN offers a special rust inhibiting (SRI)
process at an additional cost. Metal components receive an SRI
pretreatment and a standard or custom powder coat finish. The
SRI process with a powder coat finish exceeds the protection level
available with powder coated parts. SRI can not be ordered with
plated or anodized finishes. All closers must be shipped with a
finish.
INSTALLATION PROCESS?
Before installation of the door closer;
n Review the installation instructions provided with the
door closer.
n Verify the desired installation and template with the
hardware schedule. Review other applied door hardware
for possible interference.
n Verify that the frame attachments and door hinges or
pivots are securely installed.
n Verify that the door is hung properly and operates
smoothly through it’s entire range of opening.
Misalignment, sagging or other conditions that prevent
free movement of the door must be corrected prior to
installation of the door closer.
LCN recommends < 1/4 lbf to open the door before
installing closers for ADA applications.
n Check latching mechanisms for proper operation
and release.
n Verify that the door and frame have specified
reinforcements.
n Verify that all required tools are available.
Complete the installation by;
n Follow the installation instructions and use fasteners
provided with the closer.
n Using the template provided with the closer, layout, drill
and tap (for metal screws) the required mounting holes.
Be sure to use the proper size drill bit and tap to ensure
maximum holding power by the screws.
n For closers with adjustable spring power, adjust the
cylinder spring power based on the width of the door as
described in the installation instructions.
n The hydraulic back check, main speed and latch speed
regulation adjustments of the door closer have been
adjusted at the factory to meet normal installation
conditions. If further adjustments are required to the
hydraulic regulation, follow the directions included with
the installation instructions.
n Lightly wipe the cover and arm surfaces with a soft, clean,
dry cloth to remove any dirt or smudges that occurred
during the installation.
Mechanical
considerations

22 LCN Door Control Catalog
phone: 877-671-7011 n fax: 800-248-1460 n www.allegion.com/us n 009426 rev. 2/16
General
information
Arm Options
STD - Standard Arm
REG - Regular Arm
Rw/PA - Regular Arm with Parallel Arm Shoe
R/62A - Regular Arm with Auxiliary Parallel
Arm Shoe
H - Hold Open Arm
Hw/PA - Hold Open Arm with Parallel Arm Shoe
LONG - Long Arm
XLONG - Extra Long Arm
HLONG - Hold Open Long Arm
EDA - Extra Duty Arm
EDAw/62G - Extra Duty Arm with Thick Hub Shoe
HEDA - Hold Open Extra Duty Arm
HEDAw/62G - Hold Open Extra Duty Arm
w/ Thick Hub Shoe
CUSH - Cush -n- Stop Arm
HCUSH - Hold Open Cush -n- Stop Arm
SCUSH(SCNS) - Spring Cush -n- Stop Arm
SHCUSH(SHCNS) - Spring Hold Open
Cush -n- Stop Arm
SF - Swing Free Arm
DE - Double Egress Arm
FL - Fusible Link Arm
Control Box Options
SC - Standard Control Box
Cylinder Options
STD - Standard Cylinder
DEL(DA) - Delayed Action Cylinder
AVB - Advanced Variable Backcheck
B80 - Bypass 80 Degree ME Cylinder
B140 - Bypass 140 Degree ME Cylinder
TEL - Telephone Cylinder
Cover Option
STD - Standard Plastic Cover
MC - Metal Cover
FC - Full Cover
CL - Cover Length
DS1 - Designer Series Cover
Track Options
STD - Standard Track
HO - Hold Open Track
BUMPER - Track with Bumper
HBUMPER - Hold Open Track with Bumper
Fastener Pack Options
WMS - Wood & Machine Screws
TBWMS - Thru-Bolt, Wood & Machine Screws
SRT - Self Reaming & Tapping Screws
TBSRT - Thru-Bolt, Self Reaming & Tapping Screws
TORX - ‘TORX’ Machine Screws
TBTRX - Thru-Bolt, ‘TORX’ Machine Screws
UNIV - Universal Screw Pack
Motor Gearbox Options
SF - Standard Force Motor Gearbox
Powder Coat Finishes
AL - Aluminum
DKBRZ - Dark Bronze
STAT - Statuary Bronze
LTBRZ - Light Bronze
BLK - Black
BRASS - Brass
Miscellaneous Terms
ELR - Extra Long Rod
SRI - Special Rust Inhibitor
SE - Single Point Electronic
ME - Multi-Point Electronic
PAH - Parallel Arm Holder
HSA - Hold Open / Scanner Activated
ES - Electric Strike Relay (Control Boxes)
S - Sequential (Control Boxes)
RF - Radio Frequency
TJ - Top Jamb
PA - Parallel Arm
G - Flush Ceiling
T - Track
DPS - Door Position Switch
LR - Long Rod
ST - Special Template
RH - Right Hand
LH - Left Hand
HL - Header Length
DD - Double Door Header
POS - Positive Mechanical Stop
BKY - Panic Breakaway Stop
XP - Extra Protection
Glossary of
abbreviations

23
LCN Door Control Catalog
phone: 877-671-7011 n fax: 800-248-1460 n www.allegion.com/us n 009426 rev. 2/16
General
information
Glossary of terms
A - B
ARCH TOP DOOR – Any door with an arched top rail.
ARMATURE EXTENSION – Standard metal extensions available for
SEM magnets where the armature does not reach the magnet. Available
in 1/2", 3/4", 1", 2", 4" or a kit including all sizes.
AUTOEQUALIZER™ – An LCN specific term for an electric or a
pneumatic power operator. System is low-energy & carries a two-year
warranty.
AUTOMATIC OPERATOR – A term used to describe a type of
automated opening system.
AUXILIARY DOOR STOP – Hardware designed and installed to limit
the swing of a door.
B
BACKCHECK – Hydraulic circuit designed to cushion the doors opening
swing at about 75°. Standard on all LCN closers.
A
ADA – Americans with Disabilities Act.
ADVANCED VARIABLE BACKCHECK CYLINDER (AVB) – Optional
cylinder that starts backcheck at about 45° (2A) instead of the normal
75°(2).
ANODIZED – An electrochemical process that thickens and toughens
the protective oxide on aluminum metal.
ANSI – American National Standards Institute publishes standards for
commercial hardware. A156.4 is the basic door closer standard.
APPLIED STOP – Surface mounted stop attached to a cased opening
frame.
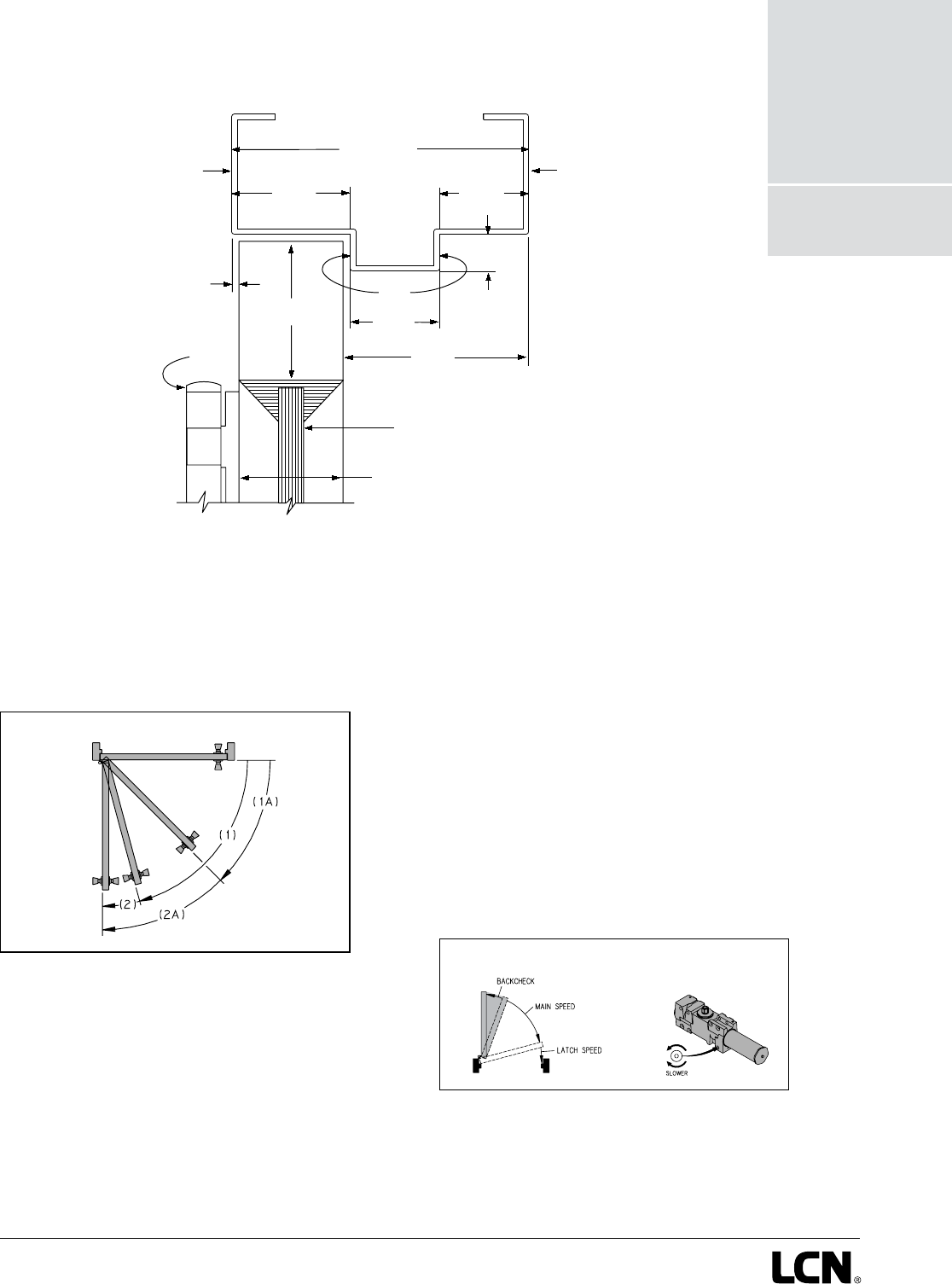
FRAME DEPTH
FRAME
FACE
RABBET
TOP RAIL
OF DOOR
HINGE
SIDE
FRAME
REVEAL
HINGE
DOOR THICKNESS
PANEL OR
GLASS LITE
REVEAL
SOFFIT
STOP
STOP
HEIGHT
RABBET
FRAME
FACE
INCREASE
BACKCHECK BACKCHECK
REGULATING SCREW
SOFTER
Pull
side
Push
side
AVB CYLINDER

24 LCN Door Control Catalog
phone: 877-671-7011 n fax: 800-248-1460 n www.allegion.com/us n 009426 rev. 2/16
General
information
B - C
Glossary of terms
BACKCHECK SELECTOR VALVE – Valve used to provide
proper backcheck location for 4040XP and 4050 parallel arm
mounting.
BLADE STOP – Narrow frame stop that will not accept a
parallel arm shoe.
BLADE STOP SPACER – Spacer lowers a parallel arm 1/2˝ so
the arm will clear a blade stop.
BLOW-OPEN
– A type of control box that is used for a smoke
evacuation system. Can be used with or without a normal
power operator system.
BRIGHT METALLIC – Custom powder coat finish, which
resembles that of US26 or US26D plated finish.
BYPASS CYLINDER – ME cylinder that will not hold-open
within a specified range of door swing.
C
CASED OPENING – Frame section without stops.
CAST ALUMINUM – Material used in producing LCN’s
competitively priced door closers.
CAST IRON – Material used in producing high quality door
closers.
CLEARANCE – Distance from a PA SHOE to the push side of
door or distance from the pull side of door to the wall on 90°
installations.
CLOSING FORCE – Energy generated by a closer to close and
latch the door.
CONTROL BOX, Standard, 9100 SERIES – Microprocessor door
control without Power Boost or built in power supply.
CONTROL BOX, 2800, 9500 SERIES – Microprocessor door
control, includes adjustment for opening, closing & backcheck
speeds. Features Push ‘N Go & Power Boost.
CONTROL BOX, 7900 SERIES – Heavy duty, surface mounted
control box that contains one or two electrically controlled
pneumatic circuits.
CONTROLLER ASSEMBLY – Digital control suite used in the LCN
electric power operator. Includes adjustments for opening force
and opening speed.
CONCEALED IN DOOR – Closer with cylinder concealed in the
top rail of the door with either an exposed or concealed arm.
CUSH SHOE SUPPORT – Support provides fifth screw
anchorage of CUSH shoes on frames with narrow push side
reveals.
CUSH-N-STOP ARMS (CUSH) – Extra duty, parallel arm that
includes a stop in the CUSH shoe.
CUSTOM POWDER COAT (RAL) – An optional powder coat
finish. Currently, LCN offers a wide selection for special powder
coat finishes. LCN uses a European color standard, referred to as
an RAL #, to differentiate between finishes.
CUTOUT – Preparation of the top rail of a door or frame for
concealment of the closer, arm or track.
80° BYPASS CYLINDER
ILLUSTRATED
CLEARANCE DOOR
WALL
CUSH SHOE SUPPORT
CUSH-N-STOP ARM
BLADE STOP SPACER
BACKCHECK SELECTOR VALVE
SIDE
1 03
1
4041
Turn in clockwise for PA mount.
4040XP shown

25
LCN Door Control Catalog
phone: 877-671-7011 n fax: 800-248-1460 n www.allegion.com/us n 009426 rev. 2/16
General
information
Glossary of terms
D - E
DOUBLE LEVER ARM – Two-part arm hinged at the elbow
that provides superior leverage. Used on hinge side, top jamb
and parallel arm mountings, the geometry of the arm provides
greater mechanical advantage to the closer.
DOUBLE RABBET FRAME – Frame with a recess or offset
formed on both sides of a stop to receive a door.
DROP PLATE – Designed to mount a closer on top rail or
head frame to meet special conditions or mounting surface
dimensions that are below minimums.
E
ELECTRIC STRIKE – An optional, electronic latching device
that replaces a regular lock strike in a doorframe that allows
the door to open from a remote location or by special access
equipment.
ELECTRIC STRIKE RELAY (ES) – An optional feature found
in an LCN 7900 Series control box that can be used to control
an electric strike.
ELECTROHYDRAULIC POWER OPERATOR – Power
operator with an electrically controlled opening feature and
hydraulic closing feature.
ELECTROMECHANICAL POWER OPERATOR – Power
operator with an electrically controlled opening feature and
closing feature.
ESCUTCHEON – An optional, protective or decorative plate
that can be installed with many surface mounted actuators.
CYLINDER ASSEMBLY – Main closer component complete
with any mounting plates or electronics.
CYLINDER ONLY – Hydraulic cast iron cylinder.
D
DEEP REVEAL – Reveal deeper than what an arm will
accommodate.
DELAYED ACTION (DEL) – Delays closing from maximum
opening to approximately 75°.
DESIGNER SERIES COVER (DS1) – An aesthetically
pleasing cover design that appeals to many types of facilities &
architects.
DOOR POSITION SWITCH (DPS) – A security option specific
to the 2210 Series closer. A door position switch is used to
monitor the closed position of a door in an opening.
DOUBLE DOOR HEADER – One automatic electromechanical
power operator and one manual door within the same header,
for a pair of doors.
DOUBLE ACTING – Term used to describe door swing.
A double acting frame does not have a stop thus allowing
the door to swing 95° in both directions.
DOUBLE EGRESS ARM (DE) – Designed for pull side
installation on double egress frames. Actual arm varies
depending on selected closer.
DELAYED ACTION
DOUBLE LEVER ARM
DOUBLE EGRESS ARM
SIDE
1 03
1
4041
DOUBLE RABBET FRAME
CYLINDER ASSEMBLY

26 LCN Door Control Catalog
phone: 877-671-7011 n fax: 800-248-1460 n www.allegion.com/us n 009426 rev. 2/16
General
information
E - H
Glossary of terms
EXTRA DUTY ARM (EDA) – Double lever arm with both main
and forearm made of solid forged steel for extra strength.
EXTRA LONG ARM (XLONG) – 4040XP Series double lever
arm for exceptionally deep reveals or other special applications.
F
(LCN®) FAST™ POWER ADJUST – A green dial located on the
end of the spring tube on selected heavy duty closers. Designed
to help installers accurately adjust the closer power to match
the conditions of the entrance.
FIFTH SCREW – Mounting screw farthest from the door on a
parallel arm shoe.
FIFTH SCREW SPACER – Supports PA shoe mounted on
frame stop.
FINISH PLATE – Decorative plate applied to overhead
concealed closer to conceal closer mounting plate and screws.
FIRE SHIELD – 22-gage steel liner mounts in the track mortise
of the door’s top rail for 20 minute labeled wood doors.
FLUSH CEILING – Condition when the ceiling is at the same
height as the top of the frame.
FLUSH PANEL ADAPTER – Adapter provides PA shoe mounting
surface when door and frame are flush.
FOREARM – Arm part that connects main arm to the shoe
attachments in a double lever arm system.
FRAME DEPTH – Face to face dimension of the frame.
FRAME FACE – Exposed part of frame parallel to face of
the wall.
FULL COMPLIMENT BEARINGS – Low friction, high load needle
bearings found in all LCN closers.
FULL COVER (FC) – Cover that encloses cylinder assembly
except for shaft/arm attachment.
FUSIBLE LINK ARM (FL) – Releases hold-open function when
exposed to high temperatures. 135°F and 165°F available.
H
HAND – Direction of a doors’ swing, either right or left.
HANDED – Closer or part designed for ONLY right or left
swinging doors.
HEAD FRAME – Member of the frame above the door.
LCN® FAST™ POWER ADJUST
FLUSH CEILING
FLUSH
PANEL
ADAPTER
FRAME FACE
FUSIBLE LINK ARM
HAND
EXTRA-DUTY ARM

27
LCN Door Control Catalog
phone: 877-671-7011 n fax: 800-248-1460 n www.allegion.com/us n 009426 rev. 2/16
General
information
Glossary of terms
H- M
J
JAMB – The vertical member that forms the sides of a door
frame. There is a hinge side jamb and a strike side jamb.
L
LABELED DOOR – Conforms to all applicable codes,
requirements, and procedures governing fire rated doors and
bears the manufacturer’s identification label.
LATCH SPEED – Separate adjustment to control the last few
degrees of the door’s closing swing.
LOCK STILE – Vertical member of a door prepared for
installation of a lock.
LONG ARM (LONG) – Extended arm for deep reveals or other
special applications.
LOW ENERGY OPERATOR – A type of automated opener
used on a door that should take approximately 5 seconds to
open to 90°. Low Energy operators do not require safety devices
or guide rails. Conforms to ANSI A156.19.
M
MAIN ARM – Connects to the cylinder in a double lever arm
system.
MAIN SPEED – Separate adjustment to control closing swing
of the door to within a few degrees of latch.
MAXIMUM OPENING – Furthest degree of door opening.
METAL COVER (MC) – Stamped metal cover required for
optional plated finishes and custom powder coat finishes.
Standard cover with High Security Series closers.
MOTOR CLUTCH – The geared assembly in an LCN electric
power operator. Once activated, the motor clutch drives the
door open.
MOTOR GEARBOX – Electromechanical drive unit.
HEADER – Aluminum enclosure for motor gearbox &
controller.
HINGE SIDE – Face of door and frame on which the hinge
pivot point is located.
HINGE SIDE MOUNT – Mounting with the closer cylinder on
the hinge side of the door top rail.
HINGE SIDE REVEAL – Depth measured from the frame face
to the pull side of the door face.
HINGE STILE – Vertical member of a door prepared for
installation of hinges.
HOLD-OPEN ARM (H) – Double lever arm that provides hold-
open function that is either adjustable at elbow or shoe.
HOLD-OPEN CLIP – Located in track to provide hold-open
function for single lever arms.
HOLD-OPEN CUSH (HCUSH) – Parallel arm that features
solid forged steel main arm and forearm with stop in soffit
shoe. Uses control handle to select hold-open function.
HOLD-OPEN LONG ARM (HLONG) – Hold-open arm
extended by a long head and tube for deep reveals.
HOLD-OPEN TRACK with BUMPER (HBUMPER) –
Track with hold-open clip and bumper assembly installed.
HOLDER SCANNER-ACTIVATED (HSA) – Electrically
controlled closer/holder with built-in scanner.
HYDRAULIC FLUID – Fluid metered by valve system to control
door.
I
INDEPENDENT PAIR – Two automatic doors that function
separately.
HINGE (PULL)
SIDE MOUNT
HINGE SIDE REVEAL
LATCH SPEED
LATCH SPEED REGULATION
MAIN SPEED
MAIN SPEED REGULATION

28 LCN Door Control Catalog
phone: 877-671-7011 n fax: 800-248-1460 n www.allegion.com/us n 009426 rev. 2/16
General
information
M-P
Glossary of terms
MORTISE – Material removed from frame and/or top rail
of door.
MOUNTING/FINISH PLATE – Plate with exposed mounting
screws and finish applied.
MULTI-POINT HOLD-OPEN (ME) – Infinite hold-open points
from 0° up to maximum opening.
N
NO DESTRUCT FEATURE – A feature specific to the motor
clutch assembly portion of an LCN electric power operator. This
feature does not allow the user to back drive the motor, which
could cause damage to the unit.
NON-HANDED – Closer or part designed for both right and left
hand swinging doors.
NON-SIZED – Cylinder assembly with spring power adjustable
over a range of sizes.
O
OPENING FORCE – Force required to open the door against
the closers spring power.
OVERHEAD CONCEALED – Closer with cylinder concealed in
head frame and either a concealed or exposed arm.
P
PA SHOE ADAPTER – Adapter provides horizontal mounting
for PA shoe on a flush door and frame.
PA SHOE – Attaches the forearm to the soffit for a parallel
arm system.
PACKING NUT – A threaded part that holds the pinion in
place. Usually, the LCN model number and date of manufacture
are stamped into this part. The date of manufacture is
important because the owner can determine if the cylinder is in
or out of warranty.
PA SHOE
ADAPTER
PANIC BREAKAWAY STOP – An optional safety device that
permits egress on in-swinging exterior doors by allowing them to
swing out in case of an emergency. Used with overhead concealed,
center pivoted in-swinging doors.
PARALLEL ARM – A push side mounted double lever arm
system where main arm is parallel to the door when in the closed
position.
PARALLEL ARM HOLDER (PAH) – An item usually used on the
inactive leaf of a pair of doors for hold-open where the active leaf
has a closer installed.
PINION – Transfers rotary motion of the arm system to the
piston. Also provides attachment of arms to closer.
PISTON – One of the internal pieces of a door closer. The piston is
moved by the rotating pinion, which in turn compresses the spring.
POSITIVE MECHANICAL STOP – Door stop for overhead
concealed, center pivoted out swinging doors.
PNEUMATIC – This type of LCN Automatic Operator is driven by
an air source. The air source can be built into the control box or
provided separately within the building.
POWER BOOST – Provides additional closing force to ensure
latching.
POWER OPERATOR – A term used to describe a type of
automated opening system. Refer to “Automatic Operators”.
POWDER COAT – A standard finishing process that provides
a very durable, corrosion resistant covering to the majority of
products that LCN offers. An LCN powder coat finish offers over
four times the ANSI salt spray test of 25 hours.
PULL SIDE – Hinge side of door.
PARALLEL ARM MOUNT
SIDE
1 03
1
4041
PULL SIDE/
PUSH SIDE
SIDE
1 03
1
4041
PACKING NUT
Model#
Shift Made
Week of the
Year Manufactured
Year Manufactured

29
LCN Door Control Catalog
phone: 877-671-7011 n fax: 800-248-1460 n www.allegion.com/us n 009426 rev. 2/16
General
information
Glossary of terms
P-S
S
SELF-REAMING and TAPPING SCREW (SRT) – Philips
head screw with self-reaming and self-tapping capability used
in mounting installations.
SECOND CHANCE FEATURE – A feature that allows the
Automatic Operator two attempts at opening the door. If
resistance is encountered on the first attempt, the operator will
pause and then try a second time. This feature is standard on
the LCN electric automatic operators.
SEM – SEM is short for ‘single-point electronic magnet’.
An actual product number is required when ordering.
SENTRONIC – A general term for the fire/life safety products
that are offered by LCN.
SEQUENCE – An option to the LCN series of automatic
operators. This option allows a pair of vestibule doors to open
one after the other.
SHOE – Attaches forearm to frame or door face in a double
lever arm system.
SIMULTANEOUS PAIR – Two automatic doors that open at
the same time.
SINGLE POINT HOLD-OPEN (SE) – Electrically controlled
hold-open using a special track and single lever arm.
SINGLE LEVER (STANDARD) ARM (STD) – Directly
connects cylinder and track/roller assembly on the door or
frame.
SINGLE RABBET FRAME – Frame with a recess or offset
formed on one side of a stop to receive a door.
SIZED – A closer with a specific closer power for proper door
applications.
SLIDER – This part is used in conjunction with a track roller in a
Sentronic track assembly.
SINGLE LEVER ARM
SIDE
1 03
1
4041
SELF-REAMING and TAPPING SCREW
SINGLE RABBET
PUSH SIDE – Face of door on stop side of frame.
PUSH ‘N GO – Provides power opening after partial (5°)
manual opening of door.
Q
QUICK FIX PLATE™ – Retrofit mounting plate for the
LCN 1260 closer used for closer replacement in push/pull
applications.
R
RABBET – Recess or offset formed in the face to receive
a door.
RADIO FREQUENCY (RF) – A method of actuating LCN
Automatic Operators. A RF transmitter signals a RF receiver to
open a door.
REGULAR ARM – A double lever, non hold-open arm.
REGULATING SCREW – Valve that adjusts flow of hydraulic
fluid within cylinder to control door closing speed.
REVEAL – Depth measured from the frame face to the
door face.
ROD & SHOE – Part of forearm that provides adjustable
length feature for double lever arms.
REGULAR ARM
REVEAL
ROD & SHOE
SIDE
1 03
1
4041
REGULATING
SCREW
DELAY REGULATING
SCREW

30 LCN Door Control Catalog
phone: 877-671-7011 n fax: 800-248-1460 n www.allegion.com/us n 009426 rev. 2/16
General
information
S-T
Glossary of terms
SLIM LINE COVER – A over that conceals the cylinder but
exposes both pinion shafts.
SOFFIT – Horizontal surface of a frame between vertical stops
on a double rabbet frame.
SOFFIT SHOE – Connects parallel arm shoe to soffit.
SPECIAL RUST INHIBITOR (SRI) – A special corrosion
resistant pre-treatment that is available for most LCN closers.
Adding SRI to the standard LCN powder coat finish gives the
closer a tremendous advantage over a potentially corrosive
environment.
SPECIAL TEMPLATE (ST) – A special template is usually a
modification to a standard product. Either the product itself
changes location in the opening or a component is modified
from the standard offering to accommodate other hardware or
door and frame dimensions.
SPRING CUSH ARM (SCUSH) – Non-handed parallel arm for
abusive applications. Features solid forged steel main arm and
forearm with spring loaded stop in the soffit shoe.
SPRING HOLD-OPEN CUSH ARM (SHCUSH) – Non-handed
parallel arm for abusive applications features solid forged steel
main arm and forearm with spring loaded stop in the soffit
shoe. Uses control handle to select hold-open function.
SPRING POWER – Closing force exerted by the spring inside
the cylinder to close the door.
SPRING POWER ADJUSTMENT – Mechanical pre-loading of
spring to adjust closing force.
SPRING TUBE – Part of the closer assembly that contains
the spring.
STANDARD CYLINDER – Cylinder with main speed, latch
speed, and backcheck adjustments.
STANDARD TRACK – Non hold-open track.
STOP – Part of frame against which the door closes.
STOP HEIGHT – Distance the stop extends below the
frame face.
SWING FREE ARM – ME arm designed to allow free movement
of the door without disengaging the holding mechanism.
T
TBSRT – Thru bolts and self-reaming and tapping screw
package.
TBTRX – Thru bolts and TORX security machine screw package.
TBWMS – Thru bolt, wood and machine screw package.
THICK HUB SHOE – Substituted for soffit shoe on EDA arm to
clear blade stop.
TOP JAMB – Mounting with closer installed on frame face.
TOP RAIL – Horizontal top member of a door that connects the
latch and hinge stiles. Height is measured from stop on push side.
TOP RAIL
SWING FREE ARM
STOP HEIGHT
STOP
STANDARD TRACK
TOP JAMB
(PUSH SIDE)
MOUNT
SPRING POWER
ADJUSTMENT

31
LCN Door Control Catalog
phone: 877-671-7011 n fax: 800-248-1460 n www.allegion.com/us n 009426 rev. 2/16
General
information
Glossary of terms
T-W
TORX – Security machine screw with TORX drive and security
pin for tamper resistant applications.
TRACK BUMPER – Mounts in track to cushion opening swing,
but reduces maximum opening. This is not a substitute for a
mechanical door stop.
TRANSFORMER – Electrical device to reduce voltage from
120V AC to 24V AC.
TRI-VOLTAGE – SEM magnets available with current inputs of
12v, 24v and 120v.
U
ULTRA LIQUID X – All weather fluid that does not change
viscosity over a wide temperature range.
UNIVERSAL – A term used to describe a door closer. Closers of
this nature are non-sized and non-handed.
V
VESTIBULE – A small lobby or entrance that has at least two
doors. One door is to the exterior and the other to the interior
of the building. A variation could be multiple doors or banks of
doors.
W
WMS – Standard wood and machine screw package.
WOOD MOUNTING CLIP – Designed to ease installation of
concealed closer in wood frame.
TORX
TRANSFORMER
TRACK BUMPER

32 LCN Door Control Catalog
phone: 877-671-7011 n fax: 800-248-1460 n www.allegion.com/us n 009426 rev. 2/16
Notes
__________________________________________________________________________________________________________________________________________________________________________________
__________________________________________________________________________________________________________________________________________________________________________________
__________________________________________________________________________________________________________________________________________________________________________________
__________________________________________________________________________________________________________________________________________________________________________________
__________________________________________________________________________________________________________________________________________________________________________________
__________________________________________________________________________________________________________________________________________________________________________________
__________________________________________________________________________________________________________________________________________________________________________________
__________________________________________________________________________________________________________________________________________________________________________________
__________________________________________________________________________________________________________________________________________________________________________________
__________________________________________________________________________________________________________________________________________________________________________________
__________________________________________________________________________________________________________________________________________________________________________________
__________________________________________________________________________________________________________________________________________________________________________________
__________________________________________________________________________________________________________________________________________________________________________________
__________________________________________________________________________________________________________________________________________________________________________________
__________________________________________________________________________________________________________________________________________________________________________________
__________________________________________________________________________________________________________________________________________________________________________________
__________________________________________________________________________________________________________________________________________________________________________________
__________________________________________________________________________________________________________________________________________________________________________________
__________________________________________________________________________________________________________________________________________________________________________________
__________________________________________________________________________________________________________________________________________________________________________________
__________________________________________________________________________________________________________________________________________________________________________________
__________________________________________________________________________________________________________________________________________________________________________________
__________________________________________________________________________________________________________________________________________________________________________________
__________________________________________________________________________________________________________________________________________________________________________________
__________________________________________________________________________________________________________________________________________________________________________________
__________________________________________________________________________________________________________________________________________________________________________________

1
LCN Door Control Catalog
phone: 877-671-7011 n fax: 800-248-1460 n www.allegion.com/us n 009426 rev. 2/16
Product selection guide
Surface mounted 4000 Series LCN closers feature a modern design engineered for each application, easy installation,
and superior performance. This guide is based on the desired mounting of the closer.
Product comparison
This chart shows a basic comparison of 4000 Series closers. Refer to the specific closer chapter for complete details.
* INDICATES HIGH SECURITY CLOSER. REFER TO THAT SECTION OF THE CATALOG.
EXTERIOR DOOR
DOUBLE
LEVER ARM
4010 4040XP
4020 4210*
4110 4050
4030
PUSH SIDE
MOUNTED
PULL SIDE
MOUNTED
DOUBLE
LEVER ARM
4020 4040XP
4110 4210*
4050
PULL SIDE
MOUNTED
INTERIOR DOOR
PUSH SIDE
MOUNTED
DOUBLE
LEVER ARM
4010 4040XP
4510* 4050
SINGLE
LEVER ARM
4110T 4040XPT
4210T* 4050T
DOUBLE
LEVER ARM
4020 4030
4040XP 4510*
4050 4010
SINGLE
LEVER ARM
4000T 4010T
4020T 4510T*
4040XPT
4030T
4050T
Closeravailablewithlessthan5.0lbs.openingforceon36˝door.
* Maximumopening/hold-openpointwithstandardtemplate.Seeindividualcloserseriesfor
degreesofopeningperinstallation.
** AdvancedVariableBackcheck.
*** DelayActionfor4040XPincorporatesstandard4041cylinder.
AVAILABLE
NOT AVAILABLE
4010
CLOSER
SERIES
4010T
4020
4020T
4030
PLASTIC
METAL
HINGE (PULL) SIDE
TOP JAMB (PULL)
TOP JAMB (PUSH)
4030T
PARALLEL ARM
STOP FACE
MOUNTING COVER CYLINDER
180°
180°
140° 140° 140°
180°
180°
140°
180° 110° 100° 100°
140°
100°
120°
STANDARD (SINGLE)
REGULAR (DOUBLE)
HOLD-OPEN
FUSIBLE LINK
EDA/HEDA
CUSH/HCUSH
SCUSH/SHCUSH
180° 180°
*ARM FUNCTION
FINISH
NON-HANDED
NON-SIZED
ACCESSIBILITY
DELAYED ACTION***
AVB**
4040XP
180° 110°
110°
120°120°
4040XPT
4050
4050T
4110
4110T
4000T
DOUBLE EGRESS
110°
110°
120°
180°180° 180° 110° 110°
100°
90°
POWDER COAT
PLATED
100°
95°
95°
180° 180°
180°180°180°110°
110°
4000 Series
surface
mounted
closers

2LCN Door Control Catalog
phone: 877-671-7011 n fax: 800-248-1460 n www.allegion.com/us n 009426 rev. 2/16
APPLICATIONS
nFor aluminum, hollow metal, or wood swinging doors and frames.
nCan be used with hinge or pivot mounted door.
n
Adapter plates and other installation accessories available for
unusual conditions.
FEATURES COMMON TO 4000 SERIES
n
Each closer (except 4050, 4050T, 4040XP, 4040XPT, 4030, 4030T)
is designed for a specific mounting; hinge side, top jamb, or parallel
arm. 4040XP closer with regular or hold-open arm mounts hinge side
or top jamb. 4030, 4040XP and 4050 regular parallel arm closers
include 62PA SHOE required to parallel arm mount either regular or
hold-open arm.
n
Handed for right or left swinging doors, except for 4000T, 4030,
4030T, 4040XP, 4050, 4050T and 4040XPT.
n
Closers to meet ADA reduced opening force requirements
except 4000T.
nAdjustable hydraulic backcheck cushions opening swing prior to 90°.
nSeparate regulation of general closing speed and latching speed.
nJoints in regular arm and shoe adapt to uneven trim.
nReversible shoe to boost latching power on double lever arms.
n
Available in a wide range of standard or optional custom powder
coat finishes to blend with door and frame.
nPlated finishes available to accent door and frame.
nNot designed for exterior mounting or exposed to elements.
DESIGN ASSISTANCE
LCN has been providing reliable solutions to unique door control
problems since 1925. Design and specification assistance are
only a phone call away.
Contact LCN for assistance or technical information at 877-671-7011
or FAX 800-248-1460 (Order Entry), Fax 815-879-1495 for
Product Support.
WARRANTY
30 year limited warranty; 25 year limited warranty (4050). See General
Information Section for complete warranty details.
SPECIFICATIONS
Refer to “SPECIFICATIONS” section for suggested architectural
specifications.
MATERIALS
nHigh strength cast iron or cast aluminum (4050) cylinder.
nForged steel main arms.
nOne piece forged steel piston.
nDouble heat treated pinion.
n
LCN’s all weather “Liquid X” fluid performs to temperature
ranges from 120°F (49°C) to -30°F (-35°C) without any seasonal
adjustment.
n
LCN's standard all weather fluid performs to temperature ranges
from 120°F (49°C) to -30°F (-35°C). .
nHigh efficiency, full complement, low friction bearings.
nTamper resistant regulating screws.
nFull rack and pinion hydraulic action.
n
Quiet, low friction track and roller combination for all single lever arm
(track style) closers.
FINISHES
n
Available in six standard or optional custom powder
coat finishes to blend with door and frame.
n
LCN’s powder coat finishes surpass 100 hours of salt spray which
is over four times the ANSI standard for corrosion resistance.
n
For installations where a higher level of corrosive resistance is
required, LCN offers an optional special rust inhibiting (SRI) pre-
treatment. Closers that combine the exclusive LCN powder coat finish
and the SRI pre-treatment exceed the ANSI standard for corrosion
resistance even further.
n
Plated finishes are available as an option to accent door and frame.
(SRI not available with plated finishes).
LISTINGS & APPROVALS
UL listed for self-closing doors without hold-open under “SWINGING DOOR
CLOSERS”(GVEV) file R1943.
Tested and certified under ANSI Standard A156.4 Grade One. Consult
factory for details.
Consult factory for other listings such as; cUL, California State Fire Marshal,
Bureau of Standards and Appeals.
POSITIVE PRESSURE
LCN closers have been certified for three hours by UL to be in compliance
with UL 10C. Contact LCN for specific details on door closer fire ratings.
FASTENERS
4010, 4010T, 4020, 4020T, 4040XP, 4040XPT, 4050, 4050T, 4110, 4110T
Series closers are shipped with: A standard SELF-REAMING and TAPPING
SCREW (SRT) pack that contains Philips head SRT screws to install the
closer. 4000T series closers are shipped with: A standard WOOD and
MACHINE SCREW (WMS) pack that contains Philips head wood and
machine screws to install the closer. 4030, 4030T series closers are shipped
with: A standard WOOD and SELF-TAPPING MACHINE SCREW (WMS)
pack that contains Phillips head wood and self-tapping machine screws to
install the closer.Standard LCN thru bolts (TB) can be installed on 1-3/4˝
(44 mm) thick doors with 1/4-20 machine screws. Optional thru bolt (TB)
sizes are available for 1-5/8˝ (41 mm) or 1-3/8˝ (35 mm) door thickness,
but this must be specified when ordering.
Notes:
1.ForThruBolts,specifydoorthicknessifotherthan1-3/4˝(44mm),
representedindiagramasdimension"X".
2.Phillipshead,metricmachinescrewsareavailable,pleasespecify.
3.LCNrecommendstheuseofwoodscrews,availableinoptionalWMSscrewpacks,
forwooddoorapplications.
MAINTENANCE
Closers mounted according to LCN installation instructions require no
periodic maintenance or adjustments.
Drill 25/64˝ for
steel doors
or
Drill 3/8˝
for wood doors
4000 Series
mounted closers

3
LCN Door Control Catalog
phone: 877-671-7011 n fax: 800-248-1460 n www.allegion.com/us n 009426 rev. 2/16
Closeravailablewithlessthan5.0lbs.openingforceon36˝door.
*Maximumopening/hold-openpointwithstandardtemplate.
**AdvancedVariableBackcheck.
AVAILABLE
NOT AVAILABLE
NON-HANDED
NON-SIZED
ACCESSIBILITY
DELAYED ACTION
AVB**
PLASTIC
METAL
HINGE (PULL) SIDE
TOP JAMB (PULL)
TOP JAMB (PUSH)
STANDARD (SINGLE)
REGULAR (DOUBLE)
HOLD-OPEN
FUSIBLE LINK
EDA/HEDA
CUSH/HCUSH
SCUSH/SHCUSH
DOUBLE EGRESS
PARALLEL ARM
STOP FACE
POWDER COAT
PLATED
140° 140° 140°
MOUNTING COVER CYLINDER *ARM FUNCTION
FINISH
Features
4010
Series
The 4010 is LCN’s best performing heavy duty closer designed specifically for institutional
and other rugged high traffic applications.
Certifications Grade 1 - ANSI A156.4, UL 10C, ADA, 100 Hour
Salt Spray, Meets BAA - Buy American Act
Body Construction n Cast Iron Body
n Full Complement Bearing
n 1-1/2˝DiameterPiston
n 11/16˝DiameterDoubleHeatTreated
PinionJournal
Fluid All Weather Fluid
Handing Handed
Templating Peel-n-Sticktemplates-
2-1/2˝x6˝MountingHolePattern
Size Adjustable1-5orSized6
Warranty 30 years
Cover n Plastic,Standard
n Metal, Optional
Fasteners SelfReamingandTappingScrews(SRT)
Mounting Hinge(PullSide)
Arms Regular Arm
Finishes/Colors/
Powder Coat
n Aluminum(689)
n StatuaryBronze(690)
n LightBronze(691)
n Black(693)
n DarkBronze(695)
n Brass(696)
n Custom colors optional
n OptionalSRIprimer-powdercoatonly
n Optional plated finishes
Customizedinstallationtemplatesorproductsmaybeavailabletosolveunusualapplications.
ContactLCNProductSupportforassistance.
Special
Templates

4LCN Door Control Catalog
phone: 877-671-7011 n fax: 800-248-1460 n www.allegion.com/us n 009426 rev. 2/16
Hinge (Pull) Side
Mounting
Mounting details
4010
Series
A
B
C4010-18
11-1/2"
292 mm
2-1/4"
57 mm
3-1/2"
89 mm
12-1/4"
311 mm
3-5/8"
92 mm
1"
25 mm
3/4"
19 mm
2-11/16"
68 mm
Butt Hinges Shouldnotexceed5˝(127mm)inwidth
Auxiliary Stop Recommendedathold-openpointorwhereadoorcannotswing140°
Reveal Shouldnotexceed3/4˝(19mm).Shouldnotexceed1/8˝(3mm)forFusiblelinkarm
Top Rail n Lessthan3-3/4˝(95mm)requiresPLATE,4010-18
n Platerequires2˝(51mm)minimum
n Clearanceof2-1/4˝(57mm)behinddoorrequiredfor90°installation
Delayed Action n Addsuffix“DEL”toselectedcylinder
n Notavailablewith4016cylinder
n Delaysclosingfrommaximumopeningtoapproximately70°.
n Delaytimeadjustableuptoapproximately1minute
Maximum Opening Canbetemplatedfor:
100°: A=5-15/16˝(151mm)
B=11-15/16˝(303mm)
140°: A=4-3/16˝(106mm)
B=10-3/16˝(259mm)
Hold-openpointsuptomaximumopeningwithhold-openarm
Arm Clearance Regulararm:
C=1-1/16˝(27mm)
Hold-openarm:
C=1-3/8˝(35mm)
Fusiblelinkarmrequires:
C=1-5/8˝(41mm)
Note:
•Hold-openpointsuptomaximumopeningwithhold-openarm

5
LCN Door Control Catalog
phone: 877-671-7011 n fax: 800-248-1460 n www.allegion.com/us n 009426 rev. 2/16
Accessories
4010
Series
4010-72MC
Metal Cover
n Handed
n Requiredforplatedfinishes
andcustompowdercoat
finishes
n Optional
4011(6)-3071
Cast Iron Cylinder Assembly
n Handed
n Standard
4010-72
Plastic Cover
n Non-handed
n Standard
4010-3077
Regular Arm
n Non-handed
4010-18
Plate
n Requiredwheretoprailisless
than3-3/4˝(95mm)
n Requiresminimum2˝(51mm)
top rail
4010-3049
Hold-Open Arm
n Provideshold-openfunction,
adjustableatelbow
n Optional
4010-3049FL
Fusible Link Arm
n Handed
n Releases hold-open function
whenexposedtotemperatures
above165°F.1/8˝(3mm)
maximumreveal
n Optional
NOTE:Checklocalcodesbefore
specifying FL arms. NOT A life safety
product!
Cylinders Installation Accessories
Covers
RightHandShown
Arms

6LCN Door Control Catalog
phone: 877-671-7011 n fax: 800-248-1460 n www.allegion.com/us n 009426 rev. 2/16
*4011 *4011
4016 4016
Ordering Information
4010
Series
Closer will be shipped with:
- Standard cylinder
-Standardcover
- Regular arm
-Self-reamingandtappingscrews
unless options listed below are selected.
Closer options
Cylinder
Delayed Action (DEL)
Cover
Metal (MC)
Arm
Hold-Open (H)
Fusible Link, 165°F (FL)
Finish
Custom Powder Coat (RAL) ___________
(handed metal cover required)
Plated Finish, US ___________
(handed metal cover required)
SRI primer (use with powder coat
finishes only)
Table of sizes
n Selectcloserbasedonwidthofdoor
n Thespringpowerofnon-sized4011cylinderisadjustablefromsize1throughsize5andisshippedsettosize3
n Sized4010Seriescylindersavailableinsize6
n Delayedactionnotavailablewith4016cylinder
Screw Pack
TB* & SRT Screw (TBSRT)
Wood & Machine Screw (WMS)
TB*, Wood & Machine Screw
(TBWMS)
TORX Machine Screw (TORX)
TB* & TORX Machine Screw (TBTRX)
*Specifydoorthicknessifotherthan
1-3/4˝.
Installation Accessories
Plate, 4010-18
Special Template
ST- _________
Reduced opening force 4010 Series closers
CAUTION ! Anymanualdoorcloser,includingthosecertifiedbyBHMAtoconformtoANSIStandardA156.4,thatisselected,installedandadjustedbased
onADAorotherreducedopeningforcerequirementsmaynotprovidesufficientpowertoreliablycloseandlatchadoor.
RefertoPOWEROPERATORSsectionfor
information on systems that meet reduced
openingforcerequirementswithouteffecting
closingpower.
DOOR WIDTH 36˝ 42˝ 48˝
8.5*lbs. 4011 4011 4011
5.0*lbs. 4011 4011 4011
size2 size3 size4 size5 size6
Indicatesrecommendedrangeofdoorwidthforclosersize.
* Adjustable Size 1 thru 5.
Minimumdoorwidthminimumdoorwidth
Exterior (and Vestibule) door width
24˝
610mm
30˝
762mm
36˝
914mm
42˝
1067mm
48˝
1219mm
Interior door width
24˝
610mm
34˝
864mm
38˝
965mm
48˝
1219mm
54˝
1372mm
60˝
1524mm
How-to-order 4010 Series closers
* Maximum opening force.
1. Select cylinder size
4011 (adjustable from size 1 to 5)
4016 (DEL not available)
2. Specify hand
RH
LH
3. Select finish
Standard Powder Coat __________
Aluminum, Dark Bronze, Statuary,
Light Bronze, Black, Brass.

7
LCN Door Control Catalog
phone: 877-671-7011 n fax: 800-248-1460 n www.allegion.com/us n 009426 rev. 2/16
Features
4010T
Series
The 4010T is LCN’s best performing heavy duty track closer designed specifically for interior
doors in institutional and other rugged high traffic applications.
Certifications Grade 1 - ANSI A156.4, UL 10C, ADA, 100 Hour
Salt Spray, Meets BAA - Buy American Act
Body Construction n Cast Iron Body
n Full Complement Bearing
n 1-1/2˝DiameterPiston
n 11/16˝DiameterDoubleHeatTreated
PinionJournal
Fluid All Weather Fluid
Handing Handed
Templating Peel-n-Sticktemplates-
2-1/2˝x6˝MountingHolePattern
Size Sized1,3or4
Warranty 30 years
Cover n Plastic,Standard
n Metal, Optional
Fasteners SelfReamingandTappingScrews(SRT)
Mounting Hinge(PullSide)
Arms StandardArmandTrackwithRoller
Finishes/Colors/
Powder Coat
n Aluminum(689)
n StatuaryBronze(690)
n LightBronze(691)
n Black(693)
n DarkBronze(695)
n Brass(696)
n Custom colors optional
n OptionalSRIprimer-powdercoatonly
n Optional plated finishes
Customizedinstallationtemplatesorproductsmaybeavailabletosolveunusualapplications.
ContactLCNProductSupportforassistance.
Special
Templates
Closeravailablewithlessthan5.0lbs.Openingforce@36˝
* Maximumopening/hold-openpointwithstandardtemplate.
AVAILABLE
NOT AVAILABLE
180° 120°
PLASTIC
METAL
HINGE (PULL) SIDE
TOP JAMB (PULL)
TOP JAMB (PUSH)
STANDARD (SINGLE)
REGULAR (DOUBLE)
HOLD-OPEN
FUSIBLE LINK
EDA/HEDA
CUSH/HCUSH
SCUSH/SHCUSH
DOUBLE EGRESS
PARALLEL ARM
STOP FACE
MOUNTING COVER CYLINDER *ARM FUNCTION
FINISH
NON-HANDED
NON-SIZED
ACCESSIBILITY
DELAYED ACTION
AVB
POWDER COAT
PLATED
100°

8LCN Door Control Catalog
phone: 877-671-7011 n fax: 800-248-1460 n www.allegion.com/us n 009426 rev. 2/16
2"
51 mm
12-1/4"
311 mm
22-3/4"
578 mm
1-7/16"
37 mm
1-1/16"
27 mm
3-11/16"
94 mm
3-1/2"
89 mm
3-15/16"
100 mm
1-1/4"
32 mm
2-1/4"
57 mm
4010T-18
Hinge (Pull) Side
Mounting
Mounting details
4010T
Series
Butt Hinges Shouldnotexceed5˝(127mm)inwidth
Auxiliary Stop Recommendedathold-openpointorwhereadoorcannotswing180°
Note:Optionaltrackbumperassemblyassistsbackcheckincushioningtheopeningswingofthedoor.Itisnotintendedtoreplacean
auxiliary stop
Reveal n Shouldnotexceed1/8˝(3mm)forstandardarm
n Shouldnotexceed3-5/16˝(84mm)fordoubleegressarm
Top Rail n Lessthan3-3/4˝(95mm)requiresPLATE,4010T-18
Note:Platerequires2˝(51mm)minimum
Head Frame Requires1-1/2˝(38mm)minimum
Clearance n 2-1/4˝(57mm)behinddoorrequiredfor90°or180°installation
Maximum Opening n Templatingallows180°withstandardarm,limitedto120°whenoptionalbumperisinstalled
n Consultfactoryifdoorwillbeheldopenat180°
n Variablehold-openangleswithinfiniteoptions
Notes:
•Manytrackstyledoorclosersarecapableofallowing180°ofdoorswing
•Themajorityoftrackstyleclosersareattheirweakestclosingforceinthe180–130°range
•Consultfactoryforapplicationswheredoormustswing180°

9
LCN Door Control Catalog
phone: 877-671-7011 n fax: 800-248-1460 n www.allegion.com/us n 009426 rev. 2/16
Accessories
4010T
Series
4010T-72MC
Metal Cover
n Handed
n Requiredforplatedfinishes
andcustompowdercoat
finishes
n Optional
4011T(3)(4)-3071
Cast Iron Cylinder Assembly
n Handed
n Standard
4010T-72
Plastic Cover
n Non-handed
n Standard
4010T-3077T
Standard Arm
n Handed
n Doesnotincludetrackroller
4010T-3077DE
Double Egress Arm
n Handed
n Fordoubleegressdoorsand
frames
n Doesnotincludetrackroller
n Maximumrevealis35/16˝
(84mm)
n Optional
Cylinders Covers
RightHandShown
Arms
Tracks
4010T-3038
Standard Track
n Non-handed
n Non hold-open
n Will accept hold-open clip and/or
bumperassembly
n Standard
4010T-3038B
Standard Track with Bumper
n Non-handed
n Non hold-open
n Withbumperassemblyinstalled
n Will accept hold-open clip
n Optional
4010T-3038H
Hold-Open Track
n Non-handed
n With hold-open clip installed
n Willacceptbumperassembly
n Optional
4010T-3038HB
Hold-Open Track with Bumper
n Non-handed
n Withhold-openclipandbumper
assemblyinstalled
n Optional

10 LCN Door Control Catalog
phone: 877-671-7011 n fax: 800-248-1460 n www.allegion.com/us n 009426 rev. 2/16
4010T-169
Track Bumper
n Mountsintracktoassist
backcheck,doesnotreplace
auxiliarystop
n Limitsmaximumopening
n Consistsofbumper,bumper
post,andmountingscrew
4010T-3054
Hold-Open Clip
n Mountsintracktoprovide
hold-openfunction)
n Hold-openpointcontrolledby
clip location
n Consists of clip and mounting
screws
n Requires4010T-3034HTrack
Roller
4010T-3034
Track Roller
n Quiet,lowfrictionroller
assembly
n Shoulderdimension“X”=1/16˝
(2mm)
Installation Accessories
Accessories
4010T
Series
4010T-18
Plate
n Requiredwheretoprailisless
than3-3/4˝(95mm)
n Requiresminimum2˝
(51mm)toprail
4010T-3034H
Track Roller
n Quiet,lowfrictionrollerassembly
n Shoulderdimension“X”=1/16˝
(2mm)
n Spring-loaded hold-open
mechanism

11
LCN Door Control Catalog
phone: 877-671-7011 n fax: 800-248-1460 n www.allegion.com/us n 009426 rev. 2/16
Ordering Information
4010T
Series
Closer will be shipped with:
- Standard cylinder
-Standardcover
- Standard arm
-Trackroller
-Standardtrack
-Self-reamingandtappingscrews
unless options listed below are selected.
Closer options
Cover
Metal (MC)
Arm
Double Egress (DE)**
Track
Regular with Bumper (BUMPER)
Hold-Open (HO)
Hold-Open with Bumper (HBUMPER)
Finish
Custom Powder Coat (RAL) ___________
(handed metal cover required)
Plated Finish, US ______________
(handed metal cover required)
SRI primer (use with powder coat
finishes only
Screw Pack
TB* & SRT Screw (TBSRT)
Wood & Machine Screw (WMS)
TB*, Wood & Machine Screw (TBWMS)
TORX Machine Screw (TORX)
TB* & TORX Machine Screw (TBTRX)
* Specify door thickness if other than 1-3/4˝
Installation Accessories
Plate, 4010T-18
Special Template
ST- _________
Reduced opening force 4010T Series closers
CAUTION ! Anymanualdoorcloser,includingthosecertifiedbyBHMAtoconformtoANSIStandardA156.4,thatisselected,installedandadjustedbased
onADAorotherreducedopeningforcerequirementsmaynotprovidesufficientpowertoreliablycloseandlatchadoor.
RefertoAUTOMATICOPERATORSsectionfor
information on systems that meet reduced
openingforcerequirementswithouteffecting
closingpower.
Indicatesrecommendedrangeofdoorwidthforclosersize.
Minimumdoorwidth.TomeetADA,refertochartbelow.
How-to-order 4010T Series closers
**Note:Usingthiscloserondouble-egressdoorsandframesrequirestheclosertobeorderedwitha“DE”suffix(i.e.,4014TDE).Standard“DE”
optionwillaccommodatepullsiderevealsupto3-5/16˝.Fordeeperreveals,consultfactory.
**Note:Usingthiscloserondouble-egressdoorsandframesrequirestheclosertobeorderedwitha“DE”suffix
(i.e.,4014TDE).Standard“DE”optionwillaccommodatepullsiderevealsupto3-5/16˝.Fordeeperreveals,
consult factory.
* Maximum opening force.
1. Select cylinder size
4011T (ADA)
4013T
4014T
2. Specify hand
RH
LH
3. Select finish
Standard Powder Coat __________
Aluminum, Dark Bronze, Statuary,
Light Bronze, Black, Brass.
Table of sizes
n Selectcloserbasedonwidthofdoor
n Sized4010TSeriescylindersavailableinsize1,3or4
n Closingpowerofall4010TSeriesclosersmaybeincreased15%
4011T*
4013T
4014T
Interior door width
26˝
660mm
34˝
864mm
38˝
965mm
48˝
1219mm
size1 size3 size4
DOOR WIDTH 36˝ 42˝ 48˝
8.5*lbs. N/A N/A N/A
5.0*lbs. 4011T 4011T 4011T

12 LCN Door Control Catalog
phone: 877-671-7011 n fax: 800-248-1460 n www.allegion.com/us n 009426 rev. 2/16
Notes
__________________________________________________________________________________________________________________________________________________________________________________
__________________________________________________________________________________________________________________________________________________________________________________
__________________________________________________________________________________________________________________________________________________________________________________
__________________________________________________________________________________________________________________________________________________________________________________
__________________________________________________________________________________________________________________________________________________________________________________
__________________________________________________________________________________________________________________________________________________________________________________
__________________________________________________________________________________________________________________________________________________________________________________
__________________________________________________________________________________________________________________________________________________________________________________
__________________________________________________________________________________________________________________________________________________________________________________
__________________________________________________________________________________________________________________________________________________________________________________
__________________________________________________________________________________________________________________________________________________________________________________
__________________________________________________________________________________________________________________________________________________________________________________
__________________________________________________________________________________________________________________________________________________________________________________
__________________________________________________________________________________________________________________________________________________________________________________
__________________________________________________________________________________________________________________________________________________________________________________
__________________________________________________________________________________________________________________________________________________________________________________
__________________________________________________________________________________________________________________________________________________________________________________
__________________________________________________________________________________________________________________________________________________________________________________
__________________________________________________________________________________________________________________________________________________________________________________
__________________________________________________________________________________________________________________________________________________________________________________
__________________________________________________________________________________________________________________________________________________________________________________
__________________________________________________________________________________________________________________________________________________________________________________
__________________________________________________________________________________________________________________________________________________________________________________
__________________________________________________________________________________________________________________________________________________________________________________
__________________________________________________________________________________________________________________________________________________________________________________
__________________________________________________________________________________________________________________________________________________________________________________

13
LCN Door Control Catalog
phone: 877-671-7011 n fax: 800-248-1460 n www.allegion.com/us n 009426 rev. 2/16
Closeravailablewithlessthan5.0lbs.openingforceon36˝door.
* Maximumopening/hold-openpointwithstandardtemplate.
** AdvancedVariableBackcheck.
AVAILABLE
NOT AVAILABLE
180° 140° 140°
PLASTIC
METAL
HINGE (PULL) SIDE
TOP JAMB (PULL)
TOP JAMB (PUSH)
STANDARD (SINGLE)
REGULAR (DOUBLE)
HOLD-OPEN
FUSIBLE LINK
EDA/HEDA
CUSH/HCUSH
SCUSH/SHCUSH
PARALLEL ARM
STOP FACE
MOUNTING COVER CYLINDER *ARM FUNCTION
FINISH
NON-HANDED
NON-SIZED
ACCESSIBILITY
DELAYED ACTION
AVB**
POWDER COAT
PLATED
DOUBLE EGRESS
Features
4020
Series
The 4020 is LCN’s best performing heavy duty closer designed specifically for institutional
and other rugged high traffic applications.
Certifications Grade 1 - ANSI A156.4, UL 10C, ADA, 100 Hour
Salt Spray, Meets BAA - Buy American Act
Body Construction n Cast Iron Body
n Full Complement Bearing
n 1-1/2˝DiameterPiston
n 11/16˝DiameterDoubleHeatTreated
PinionJournal
Fluid All Weather Fluid
Handing Handed
Templating Peel-n-Sticktemplates-
2-1-2˝x6˝MountingHolePattern
Size Adjustable1-5orSized6
Warranty 30 years
Cover n Plastic,Standard
n Metal, Optional
Fasteners SelfReamingandTappingScrews(SRT)
Mounting TopJamb(PushSide)
Arms Regular arm
Finishes/Colors/
Powder Coat
n Aluminum(689)
n StatuaryBronze(690)
n LightBronze(691)
n Black(693)
n DarkBronze(695)
n Brass(696)
n Custom colors optional
n OptionalSRIprimer-powdercoatonly
n Optional plated finishes
Customizedinstallationtemplatesorproductsmaybeavailabletosolveunusualapplications.
ContactLCNProductSupportforassistance.
Special
Templates

14 LCN Door Control Catalog
phone: 877-671-7011 n fax: 800-248-1460 n www.allegion.com/us n 009426 rev. 2/16
Top Jamb (Push) Side
Mounting
Mounting details
4020
Series
A
B
4020-18 4020-18G
2-1/4"
57 mm
3-1/2"
89 mm
3-5/8"
92 mm
12-1/4"
311 mm
11-1/2"
292 mm
1"
25 mm
3/4"
19 mm
2-11/16"
68 mm
Butt Hinges Shouldnotexceed5˝(127mm)inwidth
Auxiliary Stop Recommendedathold-openpointorwherethedoorcannotswing180°
Reveal n 2-9/16˝(65mm)allows180°openingwithregulararm
n 4-13/16˝(122mm)allowsupto140°openingwithregulararm
n 8˝(203mm)allowsupto140°openingwithLONGARMwherestandardrodandshoeisreplacedwithoptional
longrodandshoe(4020-79LR)
Head Frame Lessthan3-7/16˝(87mm)requiresPLATE,4020-18UsePLATE,4020-18Gforflushceilingcondition.
Eitherplaterequires1-3/4˝(44mm)frameminimum.
Top Rail n Requiresminimum1-1/2˝(38mm)
n Closeron4020-18platerequires2˝(51mm)minimum
n Closeron4020-18Gplaterequires2-3/4˝(70mm)minimum
Delayed Action n Addsuffix“DEL”toselectedcylinder.
n Notavailablewith4026cylinder
n Delaysclosingfrommaximumopeningtoapproximately75°
n Delaytimeadjustableuptoapproximately1minute
Maximum Opening Canbetemplatedfor:
100°: A=6˝(152mm)
B=123/8˝(314mm)
140°: A=4˝(102mm)
B=103/8˝(264mm)
180°: A=2˝(51mm)
B=83/8˝(213mm)
Notes:
•Hold-openpointsuptomaximumopeningor140°,whicheverisless,forhold-openorfusiblelinkarm
•Forhold-openbeyond140°,use4110Seriescloser

15
LCN Door Control Catalog
phone: 877-671-7011 n fax: 800-248-1460 n www.allegion.com/us n 009426 rev. 2/16
Accessories
4020
Series
4020-72MC
Metal Cover
n Handed
n Requiredforplatedfinishes
andcustompowdercoat
finishes
n Optional
4021(6)-3071
Cast Iron Cylinder Assembly
n Handed
n Standard
4020-72
Plastic Cover
n Handed
n Standard
4020-3077
Regular Arm
n Non-handed
4020-3049
Hold-Open
n Handed
n Provideshold-openfunction,
adjustableatelbow
n 5-3/4˝(146mm)maximum
reveal,140°holdopen
n Optional
4020-3077L
Long Arm
n Non-handed
n Includes4020-79LRfor
deepreveals.(seepage14for
allowablereveals)
n Optional
4020-3049FL
Fusible Link
n Handed
n Releases hold-open function,
adjustableatshoe,whenexposed
totemperaturesabove165°F
n 3-7/8˝(98mm)maximumreveal
n Optional
NOTE:Checklocalcodesbeforespecifing
FLarms.NOTAlifesafetyproduct!
Cylinders Covers
RightHandShownLeftHandShown
Arms
4020-18
Plate
n Requiredwhereheadframeis
lessthan3-7/16˝(87mm)
n Requiresminimum1-3/4˝(44
mm)minimumheadframeand
2˝(51mm)toprail
n 3-7/8˝(98mm)maximumreveal
4020-18G
Plate
n For flush ceiling condition
n Rrequiresminimum1-3/4˝(44
mm)minimumheadframeand
2-3/4˝(70mm)toprail
Installation Accessories

16 LCN Door Control Catalog
phone: 877-671-7011 n fax: 800-248-1460 n www.allegion.com/us n 009426 rev. 2/16
size 3 size 4 size 5 size 6
Ordering Information
4020
Series
*4021
4026
Closer will be shipped with:
- Standard cylinder
-Standardcover
- Regular arm
-Self-reamingandtappingscrews
unless options listed below are selected.
Reduced opening force 4020 Series closers
CAUTION ! Anymanualdoorcloser,includingthosecertifiedbyBHMAtoconformtoANSIStandardA156.4,thatisselected,installedandadjustedbased
onADAorotherreducedopeningforcerequirementsmaynotprovidesufficientpowertoreliablycloseandlatchadoor.
RefertoAUTOMATICOPERATORSsectionfor
information on systems that meet reduced
openingforcerequirementswithouteffecting
closingpower.
size2 size3 size4 size5 size6
Indicatesrecommendedrangeofdoorwidthforclosersize.
* Adjustable Size 1 thru 5.
MinimumdoorwidthMinimumdoorwidth
Exterior (and Vestibule) door width
24˝
610mm
30˝
762mm
36˝
914mm
42˝
1067mm
48˝
1219mm
Interior door width
24˝
610mm
34˝
864mm
38˝
965mm
48˝
1219mm
54˝
1372mm
60˝
1524mm
How-to-order 4020 Series closers
Closer options
Cylinder
Delayed Action (DEL)
Cover
Metal (MC)
Arm
Hold-Open (H)
Fusible Link, 165°F (FL)
Finish
Custom Powder Coat (RAL) __________
(handed metal cover required)
Plated Finish, US _____________
(handed metal cover required)
SRI primer (use with powder coat
finishes only)
Screw Pack
TB* & SRT Screw (TBSRT)
Wood & Machine Screw (WMS)
TB*, Wood & Machine Screw (TBWMS)
TORX Machine Screw (TORX)
TB* & TORX Machine Screw (TBTRX)
* Specify door thickness if other than 1-3/4˝
Installation Accessories
Plate, 4020-18
Plate, 4020-18G
Special Template
ST- _________
* Maximum opening force.
*4021
4026
1. Select cylinder size
4021 (adjustable from size 1 to 5)
4026 (DEL not available)
2. Specify hand
RH
LH
3. Select finish
Standard Powder Coat __________
Aluminum, Dark Bronze, Statuary,
Light Bronze, Black, Brass.
Table of sizes
n Selectcloserbasedonwidthofdoor
n Thespringpowerofnon-sized4021cylinderisadjustablefromsize1throughsize5andisshippedsettosize3
n Sized4020Seriescylindersavailableinsize6
n Delayedactionnotavailablewith4026cylinder
DOOR WIDTH 36˝ 42˝ 48˝
8.5*lbs. 4021 4021 4021
5.0*lbs. 4021 4021 4021

17
LCN Door Control Catalog
phone: 877-671-7011 n fax: 800-248-1460 n www.allegion.com/us n 009426 rev. 2/16
Closeravailablewithlessthan5.0lbs.openingforceon36˝door.
* Maximumopening/hold-openpointwithstandardtemplate.
** AdvancedVariableBackcheck.
AVAILABLE
NOT AVAILABLE
100°
180°
PLASTIC
METAL
HINGE (PULL) SIDE
TOP JAMB (PULL)
TOP JAMB (PUSH)
STANDARD (SINGLE)
REGULAR (DOUBLE)
HOLD-OPEN
FUSIBLE LINK
EDA/HEDA
CUSH/HCUSH
SCUSH/SHCUSH
PARALLEL ARM
STOP FACE
MOUNTING COVER CYLINDER *ARM FUNCTION
FINISH
NON-HANDED
NON-SIZED
ACCESSIBILITY
DELAYED ACTION
AVB**
POWDER COAT
PLATED
DOUBLE EGRESS
Features
4020T
Series
The 4020T is LCN’s best performing heavy duty track closer designed specifically for
interior doors in institutional and other high traffic applications.
Certifications Grade 1 - ANSI A156.4, UL 10C, ADA, 100 Hour
Salt Spray, Meets BAA - Buy American Act
Body Construction n Cast Iron Body
n Full Complement Bearing
n 1-1/2˝DiameterPiston
n 11/16˝DiameterDoubleHeatTreated
PinionJournal
Fluid All Weather Fluid
Handing Handed
Templating Peel-n-Sticktemplates-
2-1/2˝x6˝MountingHolePattern
Size Sized1,3or4
Warranty 30 years
Cover n Plastic,Standard
n Metal, Optional
Fasteners SelfReamingandTappingScrews(SRT)
Mounting TopJamb(PullSide)
Arms Standardarm,trackwithroller
Finishes/Colors/
Powder Coat
n Aluminum(689)
n StatuaryBronze(690)
n LightBronze(691)
n Black(693)
n DarkBronze(695)
n Brass(696)
n Custom colors optional
n OptionalSRIprimer-powdercoatonly
n Optional plated finishes
Customizedinstallationtemplatesorproductsmaybeavailabletosolveunusualapplications.
ContactLCNProductSupportforassistance.
Special
Templates

18 LCN Door Control Catalog
phone: 877-671-7011 n fax: 800-248-1460 n www.allegion.com/us n 009426 rev. 2/16
12-1/4"
311 mm
22-3/4"
578 mm
1-1/16"
27 mm
3-1/2"
89 mm
1-1/4"
32 mm
1-5/8"
41 mm
4-1/16"
103 mm
5-5/16"
151 mm
2-1/4"
57 mm
4020T-18
Top Jamb (Pull Side)
Mounting
Mounting details
4020T
Series
Butt Hinges Shouldnotexceed5˝(127mm)inwidth
Auxiliary Stop Recommendedathold-openpointorwhereadoorcannotswing180°
Note:Optionaltrackbumperassemblyassistsbackcheckincushioningtheopeningswingofthedoor.Itisnotintendedtoreplacean
auxiliary stop
Reveal Shouldnotexceed1/8˝(3mm)
Head Frame n Lessthan3-7/8˝(98mm),requiresPLATE,4020T-18
n Platerequires1-3/4˝(44mm)minimum
Clearance 1-1/2˝(38mm)behinddoorrequiredfor90°or180°installation
Maximum Opening n Templatingallows180°withstandardtrackarm,limitedto100°withoptionalbumperinstalled
n Consultfactoryifdoorwillbeheldopenat180°
n Variablehold-openangleswithinfiniteoptions
Notes:
•Manytrackstyledoorclosersarecapableofallowing180°ofdoorswing
•Themajorityoftrackstyleclosersareattheirweakestclosingforceinthe180°–130°range
•Consultfactoryforapplicationswheredoormustswing180°

19
LCN Door Control Catalog
phone: 877-671-7011 n fax: 800-248-1460 n www.allegion.com/us n 009426 rev. 2/16
Accessories
4020T
Series
4020T-72MC
Metal Cover
n Handed
n Requiredforplatedfinishes
andcustompowdercoat
finishes
n Optional
4021T(3)(4)-3071
Cast Iron Cylinder Assembly
n Handed
n Standard
4020T-72
Plastic Cover
n Handed
n Standard
4020T-3077T
Standard Arm
n Handed
n Rollernotincludedwitharm
Cylinders Covers
Arms
Tracks
4020T-3038
Standard Track
n Non-handed
n Non hold-open
n Will accept hold-open clip and/or
bumperassembly
n Standard
4020T-3038B
Standard Track with Bumper
n Non-handed
n Non hold-open
n Withbumperassemblyinstalled
n Will accept hold-open clip
n Optional
4020T-3038H
Hold-Open Track
n Non-handed
n With hold-open clip installed
n Willacceptbumperassembly
n Optional
4020T-3038HB
Hold-Open Track with Bumper
n Non-handed
n Withhold-openclipandbumper
assemblyinstalled
n Optional
RightHandShown LeftHandShown

20 LCN Door Control Catalog
phone: 877-671-7011 n fax: 800-248-1460 n www.allegion.com/us n 009426 rev. 2/16
4020T-18
Plate
n Requiredwhereheadframeis
lessthan3-7/8˝(98mm)
n Requiresminimum1-3/4˝
(44mm)frameface
4020T-169
Track Bumper
n Mountsintracktoassist
backcheck,doesnotreplace
auxiliarystop
n Limitsmaximumopening
n Consistsofbumper,bumper
post,andmountingscrew
4020T-3054
Hold-Open Clip
n Mountsintracktoprovide
hold-open function
n Hold-openpointcontrolledby
clip location
n Consists of clip and mounting
screws
n Requires4020T-3034HTrack
Roller
4020T-3034
Track Roller
n Quiet,lowfrictionroller
assembly
n Shoulderdimension“X”=1/16˝
(2mm)
Installation Accessories
Accessories
4020T
Series
4020T-3034H
Track Roller
n Quiet,lowfrictionrollerassembly
n Shoulderdimension“X”=1/16˝
(2mm)
n Spring-loaded hold-open
mechanism

21
LCN Door Control Catalog
phone: 877-671-7011 n fax: 800-248-1460 n www.allegion.com/us n 009426 rev. 2/16
1. Select cylinder size
4021T (ADA)
4023T
4024T
2. Specify hand
RH
LH
3. Select finish
Standard Powder Coat __________
Aluminum, Dark Bronze, Statuary,
Light Bronze, Black, Brass.
Ordering Information
4020T
Series
Closer will be shipped with:
-Standard cylinder
-Standardcover
- Standard arm
-Trackroller
-Standardtrack
-Self-reamingandtappingscrews
unless options listed below are selected.
Closer options
Cover
Metal (MC)
Track
Standard with Bumper (BUMPER)
Hold-Open (HO)
Hold-Open with Bumper (HBUMPER)
Finish
Custom Powder Coat (RAL) __________
(handed metal cover required)
Plated Finish, US _____________
(handed metal cover required)
SRI primer (use with powder coat
finishes only)
Screw Pack
TB* & SRT Screw (TBSRT)
Wood & Machine Screw (WMS)
TB*, Wood & Machine Screw
(TBWMS)
TORX Machine Screw (TORX)
TB* & TORX Machine Screw (TBTRX)
* Specify door thickness if other than
1-3/4˝
Installation Accessories
Plate, 4010T-18
Special Template
ST- _________
Indicatesrecommendedrangeofdoorwidthforclosersize.
Minimumdoorwidth
How-to-order 4020T Series closers
Table of sizes
n Selectcloserbasedonwidthofdoor
n 4020TSeriescylindersavailableinsize1,3or4
n Closingpowerofall4020TSeriesclosersmaybeincreased15%
n Specifynexthighersizecloserwherestrongdraftsexist
4021T*
4023T
4024T
Interior door width
26˝
660mm
34˝
864mm
38˝
965mm
48˝
1219mm
size1 size3 size4

22 LCN Door Control Catalog
phone: 877-671-7011 n fax: 800-248-1460 n www.allegion.com/us n 009426 rev. 2/16
Notes
__________________________________________________________________________________________________________________________________________________________________________________
__________________________________________________________________________________________________________________________________________________________________________________
__________________________________________________________________________________________________________________________________________________________________________________
__________________________________________________________________________________________________________________________________________________________________________________
__________________________________________________________________________________________________________________________________________________________________________________
__________________________________________________________________________________________________________________________________________________________________________________
__________________________________________________________________________________________________________________________________________________________________________________
__________________________________________________________________________________________________________________________________________________________________________________
__________________________________________________________________________________________________________________________________________________________________________________
__________________________________________________________________________________________________________________________________________________________________________________
__________________________________________________________________________________________________________________________________________________________________________________
__________________________________________________________________________________________________________________________________________________________________________________
__________________________________________________________________________________________________________________________________________________________________________________
__________________________________________________________________________________________________________________________________________________________________________________
__________________________________________________________________________________________________________________________________________________________________________________
__________________________________________________________________________________________________________________________________________________________________________________
__________________________________________________________________________________________________________________________________________________________________________________
__________________________________________________________________________________________________________________________________________________________________________________
__________________________________________________________________________________________________________________________________________________________________________________
__________________________________________________________________________________________________________________________________________________________________________________
__________________________________________________________________________________________________________________________________________________________________________________
__________________________________________________________________________________________________________________________________________________________________________________
__________________________________________________________________________________________________________________________________________________________________________________
__________________________________________________________________________________________________________________________________________________________________________________
__________________________________________________________________________________________________________________________________________________________________________________
__________________________________________________________________________________________________________________________________________________________________________________

23
LCN Door Control Catalog
phone: 877-671-7011 n fax: 800-248-1460 n www.allegion.com/us n 009426 rev. 2/16
Closeravailablewithlessthan5.0lbs.openingforceon36˝door.
* Maximumopening/hold-openpointwithstandardtemplate.Seeindividual
closerseriesfordegreesofopeningperinstallation.
** AdvancedVariableBackcheck
AVAILABLE
NOT AVAILABLE
DOUBLE EGRESS
Features
4030
Series
The 4030 is a cast iron, universal closer designed specifically for doors in moderate traffic
conditions. This versatile closer compliments the rest of the heavy duty 4000 Series and
offers the choice of three mountings and multiple arm options.
Certifications Grade 1 - ANSI A156.4, UL 10C, ADA, 100 Hour
Salt Spray, Meets BAA - Buy American Act
Body Construction n Cast Iron Body
n Full Complement Bearing
n 1-1/8˝DiameterPiston
n 1/2˝DiameterSingleHeatTreated
PinionJournal
Fluid All Weather Fluid
Handing Non-Handed
Templating Peel-n-Sticktemplates-
1-23/32˝x6-17/16˝MountingHolePattern
Size AdjustableSpringSize1-4
Warranty 30 years
Cover Metal, Standard
Fasteners SelfReamingandTappingScrews(SRT)
Mounting Hinge(PullSide),TopJamb(PushSide),
ParallelArm(PushSide)
Arms Regular arm
Finishes/Colors/
Powder Coat
n Aluminum(689)
n StatuaryBronze(690)
n LightBronze(691)
n Black(693)
n DarkBronze(695)
n Brass(696)
n Custom colors optional
n OptionalSRIprimer-powdercoatonly
n Optional plated finishes
Customizedinstallationtemplatesorproductsmaybeavailabletosolveunusualapplications.
ContactLCNProductSupportforassistance.
Special
Templates

24 LCN Door Control Catalog
phone: 877-671-7011 n fax: 800-248-1460 n www.allegion.com/us n 009426 rev. 2/16
4-1/2"
114 mm
11-3/8"
289 mm
1-3/4"
44 mm
9-1/4"
235 mm 2-11/16"
69 mm 1-3/8"
35 mm
3/4"
19 mm
2-7/8"
73 mm
10-3/8"
264 mm
Hinge (Pull) Side
Mounting
Mounting details
4030
Series
Butt Hinges Shouldnotexceed5˝(127mm)inwidth
Auxiliary Stop Recommendedathold-openpointorwhereadoorcannotswing180°
Reveal Shouldnotexceed3/16˝(5mm)forregulararmor3/16˝(5mm)forhold-openarm
Top Rail Requires2-7/8˝(73mm)minimum
Clearance 1-3/4˝(44mm),behinddoorrequiredforinstallation
Maximum Opening n Canbetemplatedfor180°
n Hold-openpointsuptomaximumopeningwithhold-openarm

25
LCN Door Control Catalog
phone: 877-671-7011 n fax: 800-248-1460 n www.allegion.com/us n 009426 rev. 2/16
11-3/8"
289 mm
1-3/4"
44 mm
3-5/8"
92 mm
2-11/16"
69 mm 1-1/2"
38 mm
7-5/8"
194 mm
4030-18TJ
3/4"
19 mm
2-7/8"
73 mm
10-3/8"
264 mm
Butt Hinges Shouldnotexceed5˝(127mm)inwidth
Auxiliary Stop Recommendedathold-openpointorwherethedoorcannotswing180°
Reveal n upto3-1/2˝(89mm)allows180°opening
n upto7-1/2˝(191mm)withlongarmallowsfor140°opening
Top Rail Requires1-1/2˝(38mm)minimumfromstop
Head Frame n Lessthan2-1/4˝(57mm)requiresPLATE,4030-18TJ
n Platerequires1-1/2˝(38mm)minimum
Maximum Opening n Canbetemplatedfor180°
n Hold-openpointsuptomaximumopeningwithhold-openarm
Mounting details
4030
Series
Top Jamb (Push Side)
Mounting

26 LCN Door Control Catalog
phone: 877-671-7011 n fax: 800-248-1460 n www.allegion.com/us n 009426 rev. 2/16
1-3/4"
44 mm
3"
76 mm
18"
457 mm
10-3/8"
264 mm
5"
127 mm
4030-18PA
6-1/4"
160 mm
4"
102 mm
4"
102 mm
1-3/4"
44 mm
18"
457 mm
5-1/2"
140 mm
2-1/8"
54 mm
2-3/4"
70 mm
5"
127 mm
4030-18PA
4"
102 mm
8-1/4"
210 mm
EDA
mount
Parallel arm mount
Parallel arm (Push Side)
and EDA mounting
Mounting details
4030
Series
Butt Hinges Shouldnotexceed5˝(127mm)inwidth
Auxiliary Stop Recommendedathold-openpointorwhereadoorcannotswingmaximumopening
Clearance n For4030-62PAshoeis4˝(102mm)fromdoorface
n EDAarmis5-1/2˝(140mm)fromdoorface
Top Rail n Lessthan5˝(127mm)measuredfromthestoprequiresPLATE,4030-18PA
n Platerequires1-3/4˝(44mm)minimum
Stop Width Minimum1˝(25mm)
Head Frame FlushorsinglerabettedrequiresPASHOEADAPTER,4030-419
Blade Stop Clearance,requires1/2˝(13mm)BLADESTOPSPACER,4030-61
Auxiliary Shoe n 4030-62Aallowsinstallationofregulararmwithoverheadholder/stop
n Specialtemplatingrequired
EDA Arm RequiresSHOESUPPORT,4030-30forfifthscrewanchoragewhererevealislessthan3-1/16˝(78mm)
Maximum Opening n REGULARorHOLD-OPENarmscanbetemplatedfor180°
n EDAtemplateallows110°maximumopening
n Hold-openpointsuptomaximumopeningwithhold-openarm
Notes:
•4030closersorderedwithEDAarmsinclude4030-201FIFTHHOLESPACERtosupporttheshoe
•REGULARorHOLD-OPENarmmountingrequiresPASHOE,4030-62PAforregularorHOLD-OPENarms.Addprefix“P”tocloserdescription(eg.P4031.)
•P4031closerincludes4030-201FIFTHHOLESPACERtosupportPASHOE

27
LCN Door Control Catalog
phone: 877-671-7011 n fax: 800-248-1460 n www.allegion.com/us n 009426 rev. 2/16
Clearance ForCUSHorSPRINGCUSHshoeis5-1/2˝(140mm)fromdoorface
Head Frame FlushorrabettedrequiresCUSHFLUSHPANELADAPTER,4030-419
CUSH or Spring CUSH ARM RequiresSHOESUPPORT,4030-30forfifthscrewanchoragewhererevealislessthan3-1/16˝(78mm)
Maximum opening CUSHandSPRINGCUSHarmscanbetemplatedformaximumopening/hold-openpointat:
85°: A=3-5/8(92mm)
B=9-3/4˝(248mm)
90°: A=3˝(76mm)
B=9-1/8˝(232mm)
100°*: A=1-7/8˝(48mm)
B=8˝(203mm)
*100°mountingwillnotworkwithswingclearhinges.
Note:
•4031closersorderedwithCUSHorSPRINGCUSHarmsinclude4030-201FIFTHHOLESPACERtosupporttheshoe
Mounting details
4030
Series
CUSH and Spring CUSH
Mounting
A
B
4"
102 mm
4030-18PA
1-3/4"
44 mm 18"
457 mm 5-1/2"
140 mm 10-3/8"
264 mm
2-3/4"
70 mm
5"
127 mm
A
B
4"
102 mm
4030-18PA
1-3/4"
44 mm
18"
457 mm
5-1/2"
140 mm 10-3/8"
264 mm
2-3/4"
70 mm
5"
127 mm
Spring CUSH
mount
SpringCushdeadstoppointsareapproximately5°greaterthantemplatedstoppoint.
CUSH mount

28 LCN Door Control Catalog
phone: 877-671-7011 n fax: 800-248-1460 n www.allegion.com/us n 009426 rev. 2/16
Accessories
4030
Series
4031-3071
Cast Iron Cylinder Assembly
n Non-handed
n Standard
4030-72MC
Metal Cover
n Non-handed
n Standard
4030-18TJ
Plate
n Requiredfortopjambmounting
whereheadframeislessthan
2-1/4˝(57mm)orflushceiling
conditionexists
n Requires1-1/2˝(38mm)
minimum
4030-62A
Auxiliary Shoe
n Requiresatoprailof7˝(178mm)
n Replaces-62PAforparallelarm
mountingofregulararmwith
someoverheadholder/stop
n Optional
4030-18PA
Plate
n Requiredforparallelarm
mountingwheretoprailisless
than5˝(127mm),measured
from the stop
n Rrequires1-3/4˝(44mm)
minimum
4030-419
PA Flush Panel Adapter
n Provideshorizontalmounting
surfaceforPAorCUSHshoeon
singlerabettedorflushframe
4030-30
CUSH Shoe Support
n Provideanchorageforfifthscrew
usedwithCUSHarmswhere
revealislessthan3-1/16˝
(78mm)
4030-61
Blade Stop Spacer
n Lowersparallelarmshoeto
clear1/2˝(13mm)bladestop
Cylinders
Installation Accessories
Covers
4030-62PA
PA Shoe
n Requiredforparallelarm
mounting

29
LCN Door Control Catalog
phone: 877-671-7011 n fax: 800-248-1460 n www.allegion.com/us n 009426 rev. 2/16
Accessories
4030
Series
4030-3077
Regular Arm
n Non-handed
n Mountshingesideortopjamb
n P4031closerincludesPASHOE,
4030-62PAisrequiredforparallel
arm mounting
4030-3077L
Long Arm
n Non-handed
n IncludesLONGRODANDSHOE,
4030-79LRfortopjambmount
withdeepreveals
n Optional
4030-3049
Hold-Open Arm
n Non-handed
n Mountshingeside,topjambor
parallelarm(62PArequired)
n Hold-openadjustableatshoe
n Optional
4030-3077LD
Light Duty Arm
n Non-handed
n Mountshingeside,topjambor
parallelarm(62PArequired)
n Optional
4030-3049CNS
Hold-Open CUSH Arm
n Non-handed
n Provideshold-openfunctionwith
templated stop/hold-open points
n Handle controls hold-open
function
n Optional
4030-3077SCNS
Spring CUSH Arm
n Non-handed
n Forabusiveapplications
n Features solid forged steel main
armandforearmwithspring
loaded stop in the soffit shoe
n Optional
4030-3049SCNS
Spring HCUSH Arm
n Non-handed
n Forabusiveapplications
n Features solid forged steel main
armandforearmwithspring
loaded stop in the soffit shoe
n Handle controls hold-open
function
n Optional
4030-3049L
Long Hold-Open Arm
n Non-handed
n IncludesLONGHEADANDTUBE,
4030-3048Lfortopjambmount
withdeepreveals
n Optional
4030-3077EDA
Extra Duty Arm
n Non-handed
n Extradutyarmfeaturessolid
forged steel main and forearm for
potentiallyabusiveinstallations
n Optional
4030-3049EDA
Hold-Open EDA Arm
n Handed
n Arm,provideshold-openfunction
adjustableatshoe
n Optional
4030-3077CNS
Cush-n-Stop® Arm
n Non-handed
n Solid forged steel main arm and
forearmwithstopinsoffitshoe
n Optional
Arms

30 LCN Door Control Catalog
phone: 877-671-7011 n fax: 800-248-1460 n www.allegion.com/us n 009426 rev. 2/16
size 3 size 4
Ordering Information
4030
Series
4031
Closer will be shipped with:
- Standard cylinder
-Standardmetalcover
- Regular arm
-Woodandself-tappingmachinescrewpack
unless options listed below are selected.
Reduced opening force 4030 Series closers
CAUTION ! Anymanualdoorcloser,includingthosecertifiedbyBHMAtoconformtoANSIStandardA156.4,thatisselected,installedandadjustedbased
onADAorotherreducedopeningforcerequirementsmaynotprovidesufficientpowertoreliablycloseandlatchadoor.
RefertoAUTOMATICOPERATORSsectionfor
information on systems that meet reduced
openingforcerequirementswithouteffecting
closingpower.
size2 size3 size4
Indicatesrecommendedrangeofdoorwidthforclosersize.
Minimumdoorwidth
Minimumdoorwidth
Exterior (and Vestibule) door width
26˝
660mm
30˝
762mm
36˝
914mm
Interior door width
26˝
660mm
34˝
864mm
38˝
965mm
48˝
1219mm
How-to-order 4030 Series closers
* Maximum opening force.
4031
1. Select finish
Standard Powder Coat __________
Aluminum, Dark Bronze, Statuary,
Light Bronze, Black, Brass.
Closer options
Finish
Custom Powder Coat (RAL) ___________
Plated Finish, US ______________
SRI primer (use with powder coat
finishes only)
Arm
Regular w/62PA (Rw/PA)
Regular w/62A (R/62A)
Long (LONG)
Hold-Open (H)
Hold-Open w/62PA (Hw/PA)
Long Hold-Open (HLONG)
Light Duty (LD)
Light Duty w/62A (LD/62A)
Light Duty w/62PA (LD/PA)
Light Duty Long (LDL)
EDA
HEDA (specify right or left hand)
Cush-N-Stop (CUSH)
HCush-N-Stop (HCUSH)
Spring Cush (SCUSH)
Spring HCush (SHCUSH)
Optional Screw Packs
TB*, Wood & Machine Screw (TBWMS)
* Specify door thickness if other than
1-3/4˝.
Installation Accessories
Plate, 4030-18TJ
Plate, 4030-18PA
CUSH Shoe Support, 4030-30
Blade Stop Spacer, 4030-61
Auxiliary Shoe, 4030-62A
PA Flush Panel Adapter, 4030-419
Special Template
ST- _________
Table of sizes
n Non-sized4031cylinderisadjustablefromsizes1to4andisshippedsettosize3.
DOOR WIDTH 36˝ 42˝ 48˝
8.5*lbs. 4031 4031 4031
5.0*lbs. 4031 4031 4031

31
LCN Door Control Catalog
phone: 877-671-7011 n fax: 800-248-1460 n www.allegion.com/us n 009426 rev. 2/16
Closeravailablewithlessthan5.0lbs.openingforceon36˝door.
* Maximumopening/hold-openpointwithstandardtemplate.Seeindividual
closerseriesfordegreesofopeningperinstallation.
AVAILABLE
NOT AVAILABLE
Features
4030T
Series
The 4031T is a single lever (track) arm, surface mounted closer designed for interior use on
narrow head frames and top rails. The choice of three mountings and ease of installation
offer a versatile solution to door control in moderate traffic applications. The 4030T
compliments the heavy duty 4000 Series.
Certifications Grade 1 - ANSI A156.4, UL 10C, ADA, 100 Hour
Salt Spray, Meets BAA - Buy American Act
Body Construction n Cast Iron Body
n Full Complement Bearing
n 1-1/8˝DiameterPiston
n 1/2˝DiameterSingleHeatTreated
PinionJournal
Fluid All Weather Fluid
Handing Non-Handed
Size AdjustableSpringSize1-3
Warranty 30 years
Cover Metal, Standard
Fasteners SelfReamingandTappingScrews(SRT)
Mounting Pullsideondoor,pullsideonframeand
push side on door
Arms Standardarmandtrack
Finishes/Colors/
Powder Coat
n Aluminum(689)
n StatuaryBronze(690)
n LightBronze(691)
n Black(693)
n DarkBronze(695)
n Brass(696)
n Custom colors optional
n OptionalSRIprimer-powdercoatonly
n Optional plated finishes
Customizedinstallationtemplatesorproductsmaybeavailabletosolveunusualapplications.
ContactLCNProductSupportforassistance.
Special
Templates
DOUBLE EGRESS

32 LCN Door Control Catalog
phone: 877-671-7011 n fax: 800-248-1460 n www.allegion.com/us n 009426 rev. 2/16
C
L
7-5/8"
194 mm
1-3/4"
44 mm
1-5/16"
33 mm
7/32"
6 mm
MAX.
1-3/8"
35 mm
MIN.
24-1/2"
622 mm
2-7/8"
73 mm
10-3/8"
264 mm
1-3/8"
35 mm
3/4"
19 mm
Hinge (Pull Side)
Mounting
Mounting details
4030T
Series
Butt Hinges Shouldnotexceed5˝(127mm)inwidth
Auxiliary Stop Recommendedathold-openpointorwhereadoorcannotswing180°
Reveal Shouldnotexceed7/32˝(6mm)
Top Rail Requires2-7/8˝(73mm)minimum
Clearance 1-3/4˝(44mm),behinddoorrequiredforinstallation
Maximum Opening n Canbetemplatedfor180°
n Consultfactoryifdoorwillbeheldopenat180°
n Hold-openpointsuptomaximumopeningpointwithhold-openoption
Notes:
•Manytrackstyledoorclosersarecapableofallowing180°ofdoorswing.
•Themajorityoftrackstyleclosersareattheirweakestclosingforceinthe180°-130°range.
•Consultfactoryforapplicationswheredoormustswing180°.

33
LCN Door Control Catalog
phone: 877-671-7011 n fax: 800-248-1460 n www.allegion.com/us n 009426 rev. 2/16
C
L
1"
25 mm
MIN.
1/8"
3 mm
MAX.
1"
25 mm
3-1/4"
81 mm
1-3/4"
44 mm
1-5/16"
32 mm
24-1/2"
622 mm
10-3/8"
264 mm
4"
100 mm
3/4"
19 mm
Butt Hinges Shouldnotexceed5˝(127mm)inwidth
Auxiliary Stop Recommendedathold-openpointorwherethedoorcannotswing180°
Reveal Shouldnotexceed1/8˝(3mm)
Top Rail Requires1˝(25mm)minimum
Head Frame Requires2-7/8˝(73mm)minimum
Maximum Opening n Canbetemplatedfor180°
n Consultfactoryifdoorwillbeheldopenat180°
n Hold-openpointsuptoMaximumopeningpointwithhold-openoption
Notes:
•Manytrackstyledoorclosersarecapableofallowing180°ofdoorswing.
•Themajorityoftrackstyleclosersareattheirweakestclosingforceinthe180°-130°range.
•Consultfactoryforapplicationswheredoormustswing180°.
Mounting details
4030T
Series
Top Jamb (Push Side)
Mounting

34 LCN Door Control Catalog
phone: 877-671-7011 n fax: 800-248-1460 n www.allegion.com/us n 009426 rev. 2/16
C
L
C
L
1-3/4"
44 mm
1-5/16"
33 mm
1"
25 mm
4-1/8"
105 mm
1-1/4"
32 mm
MIN.
24-1/2"
622 mm
11-5/8"
295 mm
1-1/4"
32 mm
1-1/2"
38 mm
Stop Face (Push) Side
Mounting
Mounting details
4030T
Series
Butt Hinges Shouldnotexceed5˝(127mm)inwidth
Auxiliary Stop Recommendedathold-openpointorwhereadoorcannotswing110°
Reveal Shouldnotexceed1-3/4˝(44mm)
Top Rail Requires4-1/8˝(105mm)minimummeasuredfromthestop
Head Frame Minimum1-1/4˝(32mm)
Maximum opening n Canbetemplatedfor110°
n Hold-openpointsuptomaximumopeningwithhold-openoption
Notes:
•Manytrackstyledoorclosersarecapableofallowing180°ofdoorswing.
•Themajorityoftrackstyleclosersareattheirweakestclosingforceinthe180°-130°range.
•Consultfactoryforapplicationswheredoormustswing180°.

35
LCN Door Control Catalog
phone: 877-671-7011 n fax: 800-248-1460 n www.allegion.com/us n 009426 rev. 2/16
4031T-3071
Cast Iron Cylinder Assembly
n Non-handed
n Standard
4030T-72MC
Metal Cover
n Non-handed
4030T-3038
Standard Track
n Non-handed
n Nonhold-opentrackmountson
either side of the door
n Will accept hold-open clip
n Standard
4030T-3038H
Hold-Open Track
n Non-handed
n Hold-opentrackmountsoneither
side of the door
n Comeswith4030T-3054
Hold-open clip
n Optional
Cylinders
Tracks
4030T-3077T
Standard Arm
n Non-handed
n Singlelevermountshingeside,
topjamborstopface
n Trackrollerincluded
Arms
Installation Accessories
Covers
Accessories
4030T
Series
4030T-3054
Hold-Open Clip
n Mountsintracktoprovidehold-
open function
n Hold-openpointcontrolledby
clip location
n Requires4030T-3034H

36 LCN Door Control Catalog
phone: 877-671-7011 n fax: 800-248-1460 n www.allegion.com/us n 009426 rev. 2/16
size 2 size 3
Ordering Information
4030T
Series
Closer will be shipped with:
- Standard cylinder
-Standardmetalcover
-Standardtrack
- Standard arm
-Trackroller
-Woodandself-tappingmachinescrewpack
unless options listed below are selected.
1. Select finish
Standard Powder Coat __________
Aluminum, Dark Bronze, Statuary,
Light Bronze, Black, Brass.
Reduced opening force 4030T Series closers
CAUTION ! Anymanualdoorcloser,includingthosecertifiedbyBHMAtoconformtoANSIStandardA156.4,thatisselected,installedandadjustedbased
onADAorotherreducedopeningforcerequirementsmaynotprovidesufficientpowertoreliablycloseandlatchadoor.
RefertoAUTOMATICOPERATORSsectionfor
information on systems that meet reduced
openingforcerequirementswithouteffecting
closingpower.
Indicatesrecommendedrangeofdoorwidthforclosersize.
Minimumdoorwidth
Interior door width
26˝
660mm
30˝
762mm
38˝
965mm
How-to-order 4030T Series closers
Closer options
Finish
Custom Powder Coat (RAL) ___________
Plated Finish, US ______________
SRI primer (use with powder coat
finishes only)
Track
Hold-open(H)
Optional Screw Packs
TB*, Wood & Machine Screw (TBWMS)
Table of sizes
n Non-sized4031Tcylinderisadjustablefromsizes1to3andisshippedsettosize3.
* Maximum opening force.
4031T
DOOR WIDTH 36˝ 42˝ 48˝
8.5*lbs. N/A N/A N/A
5.0*lbs. 4031T 4031T 4031T

37
LCN Door Control Catalog
phone: 877-671-7011 n fax: 800-248-1460 n www.allegion.com/us n 009426 rev. 2/16
Closeravailablewithlessthan5.0lbs.openingforceon36˝door.
* Maximumopening/hold-openpointwithstandardtemplate.
** AdvancedVariableBackcheck.
*** Delayfeatureincorporatesstandard4040cylinder(notXP).
AVAILABLE
NOT AVAILABLE
Features
4040XP
Series
The 4040XP is LCN’s most durable and flexible heavy duty closer designed for institutional
and other demanding high traffic applications.
Certifications Grade 1 - ANSI A156.4, UL 10C, ADA, 100 Hour
Salt Spray, Meets BAA - Buy American Act
Body Construction n Cast Iron Body
n Full Complement Bearings
n 1-1/2˝DiameterPiston
n 3/4˝DiameterDoubleHeatTreated
PinionJournal
Fluid AllWeatherLiquidXFluid
Handing Non-Handed
Templating Peel-n-Sticktemplates-
2-1/4˝x5˝MountingHolePattern
Size AdjustableSpringSize1-6,includesPatented
Green Dial
Warranty 30 years
Cover n Plastic,Standard
n Metal, Optional
Fasteners SelfReamingandTappingScrews(SRT)
Mounting Hinge(PullSide),TopJamb(PushSide),
ParallelArm(PushSide)
Arms Regular Arm
Finishes/Colors/
Powder Coat
n Aluminum(689)
n StatuaryBronze(690)
n LightBronze(691)
n Black(693)
n DarkBronze(695)
n Brass(696)
n Custom colors optional
n OptionalSRIprimer-powdercoatonly
n Optional plated finishes
Customizedinstallationtemplatesorproductsmaybeavailabletosolveunusualapplications.
ContactLCNProductSupportforassistance.
Special
Templates
PLASTIC
METAL
HINGE (PULL) SIDE
TOP JAMB (PULL)
TOP JAMB (PUSH)
PARALLEL ARM
STOP FACE
MOUNTING COVER
180°180°180°110°
110°
STANDARD (SINGLE)
REGULAR (DOUBLE)
HOLD-OPEN
FUSIBLE LINK
EDA/HEDA
CUSH/HCUSH
SCUSH/SHCUSH
DOUBLE EGRESS
*ARM FUNCTION
FINISH CYLINDER
NON-HANDED
NON-SIZED
ACCESSIBILITY
DELAYED ACTION***
AVB**
POWDER COAT
PLATED

38 LCN Door Control Catalog
phone: 877-671-7011 n fax: 800-248-1460 n www.allegion.com/us n 009426 rev. 2/16
2-1/4"
57 mm
11"
279 mm
1-1/16"
27 mm
3/4"
19 mm
2-11/16"
68 mm
10-7/16"
625 mm
5/8"
16 mm
12-1/4"
311 mm 3-1/2"
89 mm
3-3/4"
95 mm
4040XP-18
Hinge (Pull Side)
Mounting
Mounting details
4040XP
Series
Butt Hinges n Shouldnotexceed5˝(127mm)inwidth
Auxiliary Stop n Recommendedathold-openpointorwhereadoorcannotswingbeyond120°
Reveal n Shouldnotexceed3/4˝(19mm)forregulararmorhold-openarm
Top Rail n Lessthan3-3/4˝(95mm)requiresPLATE,4040XP-18.Platerequires2˝(51mm)minimum
Clearance n 2-3/8˝(60mm)behinddoorrequiredfor90°installation
Delayed Action n Incorporatesstandard4041cylinder,withoutXPcylinder
n Delaysclosingfrom120°to70°
n Delaytimeadjustableuptoapproximately1minute
Maximum Opening n Templatingallowsupto120°.
n Hold-openpoints90°upto120°withhold-openarm.

39
LCN Door Control Catalog
phone: 877-671-7011 n fax: 800-248-1460 n www.allegion.com/us n 009426 rev. 2/16
2-1/4"
57 mm 11"
279 mm
1-3/16"
30 mm
3/4"
19 mm
2-11/16"
68 mm
12-1/4"
311 mm
11/16"
17 mm
10-3/8"
264 mm
3-1/2"
89 mm
3-3/4"
95 mm
4040XP-18G
4040XP-18TJ
Mounting details
4040XP
Series
Top Jamb (Push Side)
Mounting
Butt Hinges Shouldnotexceed5˝(127mm)inwidth
Auxiliary Stop Recommendedathold-openpointorwhereadoorcannotswingbeyond120°
Reveal ArmType Reveal MaxOpening
Regular Arm 2-9/16˝ Upto120°
Long 4-13/16˝ Upto120°
Hold-Open 2-9/16˝ Upto120°
Long Hold-Open Arm 8˝ Upto120°
Top Rail n Requires1-1/4˝(32mm)minimum
n 2-1/4˝(57mm)minimumwithcloseronPLATE,4040XP-18TJ
n 3˝(76mm)minimumwithcloseronPLATE,4040XP-18G
Head Frame n Lessthan3-1/2˝(89mm)requiresPLATE,4040XP-18TJ
n Withflushceiling,usePLATE,4040XP-18G.Eitherplaterequires1-3/4˝(44mm)minimum
Maximum Opening n Templatingallowsupto120°.
n Hold-openpoints85°upto120°withhold-openarm.
Delayed Action n Incorporatesstandard4041cylinder,withoutXPcylinder
n Delaysclosingfrom120°to70°
n Delaytimeadjustableuptoapproximately1minute

40 LCN Door Control Catalog
phone: 877-671-7011 n fax: 800-248-1460 n www.allegion.com/us n 009426 rev. 2/16
2-1/4"
57 mm
4"
102 mm
4"
102 mm
5-7/8"
149 mm
5-3/8"
137 mm
12-1/4"
311 mm
3-1/2"
89 mm
4-15/16"
125 mm
5-3/8"
137 mm
4040XP-18PA
14-1/2"
368 mm
Parallel Arm (Push Side)
Mounting
Mounting details
4040XP
Series
Butt Hinges Shouldnotexceed5˝(127mm)inwidth
Auxiliary Stop Recommendedathold-openpoint,wherethedoorcannotswing180°,orwhereCUSH-N-STOParmisnotused
Reveal Shouldnotexceed7/32˝(6mm)
Top Rail Lessthan5-3/8˝(137mm)measuredfromthestoprequiresPLATE,
4040XP-18PA.Platerequires2˝(51mm)minimumfromthestop
Head Frame FlushorrabettedrequiresPASHOEADAPTER,4040XP-419
Stop Width Minimum1˝(25mm).CUSHarmrequiresminimum1-1/2˝(38mm)
Blade Stop Clearancerequires1/2˝(13mm)BLADESTOPSPACER,4040XP-61.
Clearance n 4040XP-62PAshoeis4˝(102mm)fromdoorface.
n EDAshoeprojects5-1/2˝(140mm)fromdoorface.
n CUSHshoeprojects6˝(152mm)fromdoorface
Delayed Action n Incorporatesstandard4041cylinder,withoutXPcylinder
n Delaysclosingfrom120°to70°.
n Delaytimeadjustableuptoapproximately1minute.
Maximum Opening n 180°opening/hold-openpointswithallexceptCUSHarms
n 110°opening/hold-openwithCUSHarms
Notes:
•OptionalmountingrequiresPASHOE,4040XP-62PAforregularorHOLD-OPENarms
•Addprefix“P”tocloserdescription(eg.P4040XP)
•P4040XPcloserincludes4040XP-201FIFTHHOLESPACERtosupportPASHOE

41
LCN Door Control Catalog
phone: 877-671-7011 n fax: 800-248-1460 n www.allegion.com/us n 009426 rev. 2/16
Mounting details
4040XP
Series
EDA and CUSH
Mounting
Clearance 4040XP-62EDAis5-1/2˝(140mm)fromdoorface.6˝(152mm)forCUSH
Head Frame FlushorrabettedrequiresCUSHFLUSHPANELADAPTER,4040XP-419
CUSH ARM RequiresSHOESUPPORT,4040XP-30forfifthscrewanchoragefornarrowframes
Delayed Action n Incorporatesstandard4041cylinder,withoutXPcylinder.
n Delaysclosingfrommaximumopeningto;115˚with180˚template,95˚with110˚template,85˚with100˚
template,75˚with90˚template.Delaytimeadjustableuptoapproximately1minute.
Maximum Opening
EDAarmcanbetemplatedforpointsat:
CUSHarmscanbetemplatedfor
opening/hold-openpointat:
110°: A=6-3/8˝(162mm)
B=7-3/4˝(197mm)
85°: A=7-15/16˝(202mm)
B=9-1/8˝(232mm)
or180°: A=2-7/8˝(73mm)
B=4-1/4˝(108mm)
90°: A=7-3/16˝(183mm)
B=8-1/2˝(216mm)
Hold-openpointsuptomaximumopening
withHEDAarm
100°: A=6-1/16˝(154mm)
B=7-1/4˝(184mm)
or110°: A=5-1/16˝(129mm)
B=6-3/8˝(162mm)
Notes:
•4040XPSeriesclosersorderedwithEDAorCUSHarmsinclude4040XP-201FIFTHHOLESPACERtosupporttheshoe
•SpringCushstoppointsareapproximately5˚morethantemplatedstoppoint
•Holdopenattemplatedstoppoints
CUSH
mount
EDA mount
A
B
4"
102 mm
14-1/16"
357 mm
3-1/2"
89 mm
12-1/4"
311 mm
4040XP-18PA
2-1/4"
57 mm
5-1/4"
133 mm
5-1/4"
133 mm
A
B
4"
102 mm
5-1/2"
140 mm
14-1/16"
357 mm
3-1/2"
89 mm
12-1/4"
311 mm
4040XP-18PA
2-1/4"
57 mm
6"
152 mm
5-1/4"
133 mm

42 LCN Door Control Catalog
phone: 877-671-7011 n fax: 800-248-1460 n www.allegion.com/us n 009426 rev. 5/16
4040XP-3071
Cast Iron Cylinder Assembly
n Non-handed
n Heavyduty
4041-3071 DEL
Cast Iron Cylinder Assembly
n Used for delayed action
closing
n Non-handed
n Heavyduty
4040XP-72
Plastic Cover
n Includes4040XP-54snap-on
coverclip
n Non-handed
n Standard
4040XP-72MC
Metal Cover
n Handed
n Requiredforplatedfinishesand
custompowdercoatfinishes
n Optional
4040XP-18
Plate
n Requiredforhingesidemount
wheretoprailislessthan3-3/4˝
(95mm)
n Requiresminimum2˝
(51mm)minimumtoprail
4040XP-18G
Plate
n Locatestopjambmounted
closerflushwithtopofhead
frame face in flush ceiling
condition
n Requires1-3/4˝(44mm)
minimum head frame
4040XP-18TJ
Plate
n Centerstopjambmountedcloser
verticallyonheadframewhere
faceislessthan3-1/2˝(89mm).
Platerequires1-3/4˝(44mm)
minimum head frame
4040XP-18PA
Plate
n Requiredforparallelarm
mountingwheretoprailis
lessthan5-1/2˝(140mm),
measured from the stop
n Requires2˝(51mm)minimum
top rail
Cylinders
Installation Accessories
Covers
Accessories
4040XP
Series
4040XP-62PA
PA Shoe
n Requiredforparallelarm
mounting

43
LCN Door Control Catalog
phone: 877-671-7011 n fax: 800-248-1460 n www.allegion.com/us n 009426 rev. 2/16
4040XP-3077
Regular Arm
n Non-handed
n Mountspullsideortopjamb
withshallowrevealP4041closer
includesPASHOE,4040XP-62PA
requiredforparallelarmmounting
4040XP-3077ELR
Extra Long Arm
n Non-handed
n IncludesEXTRALONGRODAND
SHOE,4040XP-79ELRfortop
jambmountwithdeepreveal
n Optional
4040XP-3049
Hold-Open Arm
n Non-handed
n Mountspullsideortopjamb
withshallowreveal,hold-open
adjustableshoe
n 4040XPcloserincludes
4040XP-62PAshoerequiredfor
parallel arm mounting
n Optional
4040XP-3077L
Long Arm
n Non-handed
n IncludesLONGRODANDSHOE,
4040XP-79LRfortopjambmount
n Optional
4040XP-3049EDA/62G
Hold-Open Extra Duty Arm with 62G
n Handed
n Features forged, solid steel main
and forearm for potentially
abusiveinstallations
n 62Gshoeprovidesadditional
bladestopclearance.Hold-open
function is adjusted at the shoe
n Optional
4040XP-3049SCNS
Spring HCUSH Arm
n Non-handed
n Forabusiveapplicationsfeatures
solid forged steel main arm and
forearmwithspringloadedstopin
the soffit shoe
n Handle controls hold-open function
n Optional
4040XP-3077CNS
Cush-N-Stop® Arm
n Non-handed
n Features solid forged steel main arm
andforearmwithstopinsoffitshoe.
n Optional
4040XP-3049CNS
HCUSH Arm
n Non-handed
n Hold-openfunctionwith
templated stop/hold-open points
n Handle controls hold-open
function
n Optional
4040XP-3049L
Long Hold-Open Arm
n Non-handed
n IncludesLONGHEADANDTUBE,
4040XP-3048Lfortopjamb
mount
n Optional
4040XP-3077EDA
Extra Duty Arm
n Non-handed
n Features forged, solid steel main
and forearm for potentially
abusiveinstallations
n Optional
4040XP-3049EDA
Hold-Open Extra Duty Arm
n Handed
n Parallelarmfeaturesforged,
solid steel main and forearm for
potentiallyabusiveinstallations
n Hold-open function is adjusted at
the shoe
n Optional
4040XP-3077EDA/62G
Extra Duty Arm with 62G
n Non-handed
n Features forged, solid steel main
and forearm for potentially
abusiveinstallations
n 62Gshoeprovidesadditional
bladestopclearance
n Optional
4040XP-3077SCNS
Spring CUSH Arm
n Non-handed
n Forabusiveapplicationsfeatures
solid forged steel main arm and
forearmwithspringloadedstopin
the soffit shoe
n Optional
Arms
Accessories
4040XP
Series

44 LCN Door Control Catalog
phone: 877-671-7011 n fax: 800-248-1460 n www.allegion.com/us n 009426 rev. 2/16
4040XP-30
CUSH Shoe Support
n Providesanchorageforfifth
screwusedwithCUSHarms,
whererevealislessthan
3-1/16˝(78mm)
n Optional
4040XP-54
Snap-On Cover Clip
n Usedtosecure4040XP-72
PlasticCovertocylinderbody
4040XP-61
Blade Stop Spacer
n Requiredtolowerparallelarm
shoetoclear1/2˝(13mm)
bladestop
n Optional
4040XP-419
PA Flush Panel Adapter
n Provideshorizontalmounting
surface for parallel arm shoe on
singlerabettedorflushframe
n Optional
4040XP-62A
Auxiliary Shoe
n Requiresatoprailof7˝
(178mm)
n Shoereplaces-62PAfor
parallel arm mounting of
regulararmwithoverhead
holder/stop
n Optional
Installation Accessories cont.
Accessories
4040XP
Series

45
LCN Door Control Catalog
phone: 877-671-7011 n fax: 800-248-1460 n www.allegion.com/us n 009426 rev. 2/16
Table of sizes
n 4040XPcylindersareadjustablefromsize1throughsize6andisshippedsettosize3
n Closingpowerof4040XPSeriesclosersmaybeadjusted50%
Ordering Information
4040XP
Series
Closer will be shipped with:
- Standard cylinder
-Standardcover
- Regular arm
-Self-reamingandtappingscrews
unless options listed below are selected.
1. Select finish
Standard Powder Coat __________
Aluminum, Dark Bronze, Statuary,
Light Bronze, Black, Brass.
Reduced opening force 4040XP Series closers
CAUTION ! Anymanualdoorcloser,includingthosecertifiedbyBHMAtoconformtoANSIStandardA156.4,thatisselected,installedandadjustedbased
onADAorotherreducedopeningforcerequirementsmaynotprovidesufficientpowertoreliablycloseandlatchadoor.
RefertoPOWEROPERATORSsectionforinformationon
systemsthatmeetreducedopeningforcerequirements
withouteffectingclosingpower.
How-to-order 4040XP Series closers
* Maximum opening force.
*4040XP *4040XP
Minimumdoorwidth Minimumdoorwidth
Exterior (and vestibule) door width
24˝
610mm
30˝
762mm
36˝
914mm
42˝
1067mm
48˝
1219mm
Interior door width
24˝
610mm
30˝
762mm
38˝
965mm
48˝
1219mm
54˝
1372mm
60˝
1524mm
size3 size4 size5 size6 size2 size3 size4 size5 size6
Indicatesrecommendedrangeofdoorwidthforclosersize. *AdjustableSize1thru6.
Closer options
Cylinder
Delayed Action (4041 DEL)
Cover
Metal (specify right or left hand) (MC)
Finish
Custom Powder Coat (RAL) ___________
(handed metal cover required)
Plated Finish, US ______________
(handed metal cover required)
SRI primer (use with powder coat finishes only)
Arm
Regular (REG)
Regular w/62PA (Rw/PA)
Regular w/62A (R/62A)
Long (LONG)
Extra Long (XLONG)
Hold-Open (H)
Hold-Open w/62PA (Hw/PA)
Long Hold-Open (HLONG)
Extra Duty Arm (EDA)
Extra Duty Arm with 62G (EDA/62G)
Hold Open Extra Duty Arm (HEDA)
(Handed)
Hold Open Extra Duty Arm with 62
(HEDA/62G)(Handed)
Cush-N-Stop (CUSH)
HCush-N-Stop (HCUSH)
Spring Cush (SCUSH)
Spring HCush (SHCUSH)
Optional Screw Packs
TB* w/Self-Reaming and Tapping (TBSRT)
Wood & Machine Screw (WMS)
TB*, Wood & Machine Screw (TBWMS)
TORX Machine Screw (TORX)
TB* & TORX Machine Screw (TBTRX)
* Specify door thickness if other than
1-3/4˝.
Installation Accessories
Plate, 4040XP-18
Plate, 4040XP-18TJ
Plate, 4040XP-18G
Plate, 4040XP-18PA
CUSH Shoe Support, 4040XP-30
Blade Stop Spacer, 4040XP-61
Auxiliary Shoe, 4040XP-62A
PA Flush Panel Adapter, 4040XP-419
Special Template
ST- _________
DOOR WIDTH 36˝ 42˝ 48˝
8.5*lbs. 4 0 4 0 X P 4040XP 4040XP
5.0*lbs. 4040XP 4040XP 4040XP

46 LCN Door Control Catalog
phone: 877-671-7011 n fax: 800-248-1460 n www.allegion.com/us n 009426 rev. 2/16
Notes
__________________________________________________________________________________________________________________________________________________________________________________
__________________________________________________________________________________________________________________________________________________________________________________
__________________________________________________________________________________________________________________________________________________________________________________
__________________________________________________________________________________________________________________________________________________________________________________
__________________________________________________________________________________________________________________________________________________________________________________
__________________________________________________________________________________________________________________________________________________________________________________
__________________________________________________________________________________________________________________________________________________________________________________
__________________________________________________________________________________________________________________________________________________________________________________
__________________________________________________________________________________________________________________________________________________________________________________
__________________________________________________________________________________________________________________________________________________________________________________
__________________________________________________________________________________________________________________________________________________________________________________
__________________________________________________________________________________________________________________________________________________________________________________
__________________________________________________________________________________________________________________________________________________________________________________
__________________________________________________________________________________________________________________________________________________________________________________
__________________________________________________________________________________________________________________________________________________________________________________
__________________________________________________________________________________________________________________________________________________________________________________
__________________________________________________________________________________________________________________________________________________________________________________
__________________________________________________________________________________________________________________________________________________________________________________
__________________________________________________________________________________________________________________________________________________________________________________
__________________________________________________________________________________________________________________________________________________________________________________
__________________________________________________________________________________________________________________________________________________________________________________
__________________________________________________________________________________________________________________________________________________________________________________
__________________________________________________________________________________________________________________________________________________________________________________
__________________________________________________________________________________________________________________________________________________________________________________
__________________________________________________________________________________________________________________________________________________________________________________
__________________________________________________________________________________________________________________________________________________________________________________

47
LCN Door Control Catalog
phone: 877-671-7011 n fax: 800-248-1460 n www.allegion.com/us n 009426 rev. 2/16
4040XPT
Series
The 4040XPT is LCN’s most flexible heavy duty track closer designed specifically for
interior doors in institutional and other rugged high traffic applications.
Certifications Grade 1 - ANSI A156.4, UL 10C, ADA, 100 Hour
Salt Spray, Meets BAA - Buy American Act
Body Construction n Cast Iron Body
n Full Complement Bearings
n 1-1/2˝DiameterPiston
n 3/4˝DiameterDoubleHeatTreated
PinionJournal
Fluid AllWeatherLiquidXFluid
Handing Non-Handed
Size AdjustableSpringSize1-4
Warranty 30 years
Cover n Plastic,Standard
n Metal, Optional
Fasteners SelfReamingandTappingScrews(SRT)
Mounting Pullsideondoor,pullsidetopjamb,push
side on door
Arms StandardArmandTrackwithRoller
Finishes/Colors/
Powder Coat
n Aluminum(689)
n StatuaryBronze(690)
n LightBronze(691)
n Black(693)
n DarkBronze(695)
n Brass(696)
n Custom colors optional
n OptionalSRIprimer-powdercoatonly
n Optional plated finishes
Customizedinstallationtemplatesorproductsmaybeavailabletosolveunusualapplications.
ContactLCNProductSupportforassistance.
Features
Special
Templates
AVAILABLE
NOT AVAILABLE
Closeravailablewithlessthan5.0lbs.openingforceon36˝door.
* Maximumopening/hold-openpointwithstandardtemplate.
PLASTIC
METAL
HINGE (PULL) SIDE
TOP JAMB (PULL)
TOP JAMB (PUSH)
PARALLEL ARM
STOP FACE
MOUNTING COVER
110°120°
STANDARD (SINGLE)
REGULAR (DOUBLE)
HOLD-OPEN
FUSIBLE LINK
EDA/HEDA
CUSH/HCUSH
SCUSH/SHCUSH
*ARM FUNCTION
DOUBLE EGRESS
FINISH CYLINDER
NON-HANDED
NON-SIZED
ACCESSIBILITY
DELAYED ACTION
AVB
POWDER COAT
PLATED
95°

48 LCN Door Control Catalog
phone: 877-671-7011 n fax: 800-248-1460 n www.allegion.com/us n 009426 rev. 2/16
4040XPT
Series
Hinge (Pull Side)
Mounting
Mounting details
12-1/4"
311 mm
22-3/4"
578 mm
1-7/16"
37 mm
3-11/16"
94 mm
3-1/2"
89 mm
2"
51 mm
1-1/4"
32 mm
7/16"
11 mm
1-1/16"
27 mm
2-1/4"
57 mm
4040XPT-18
Butt Hinges Shouldnotexceed5˝(127mm)inwidth
Auxiliary Stop n Recommendedathold-openpointorwhereadoorcannotswing120°
n Optionaltrackbumperassemblyassistsbackcheckincushioningtheopeningswingofthedoor
n Itisnotintendedtoreplaceanauxiliarystop
Reveal Shouldnotexceed1/8˝(3mm)forstandardarm
Top Rail Lessthan3-3/4˝(95mm)requiresPLATE,4040XPT-18.Platerequires1-13/16˝(44mm)minimum
Head Frame Requires1-1/4˝(32mm)minimum
Clearance 2-1/4˝(57mm)behinddoorrequiredfor90°installation
Maximum Opening n Templatingallows120°withstandardarm,limitedto110°whenoptionalbumperisinstalled
n Hold-openpointsat85°,90°,95°,100°,105°,or110°,dependingonthecliplocationintrack
Notes:
•Manytrackstyledoorclosersarecapableofallowing180°ofdoorswing
•Themajorityoftrackstyleclosersareattheirweakestclosingforceinthe180°–130°range
•Consultfactoryforapplicationswheredoormustswing180°

49
LCN Door Control Catalog
phone: 877-671-7011 n fax: 800-248-1460 n www.allegion.com/us n 009426 rev. 2/16
12-1/4"
311 mm
3-1/2"
89 mm
22-3/4"
578 mm
2-5/8"
67 mm
4-3/8"
111 mm
4-1/16"
103 mm
1-1/16"
27 mm
1-1/4"
32 mm
2-1/4"
57 mm
4040XPT-18TJ
Butt Hinges Shouldnotexceed5˝(127mm)inwidth
Auxiliary Stop n Recommendedathold-openpointorwhereadoorcannotswing180°
n Optionaltrackbumperassemblyassistsbackcheckincushioningtheopeningswingofthedoor
n Itisnotintendedtoreplaceanauxiliarystop
Reveal Shouldnotexceed1/8˝(3mm)
Head Frame Lessthan3-7/8˝(98mm),requiresPLATE,4040XPT-18TJ.Platerequires1-3/4˝(44mm)minimum
Clearance 1-1/4˝(32mm)behinddoorrequiredfor180°installation
Maximum Opening n Templatingallows180°withstandardtrackarm,limitedto110°withoptionalbumperinstalled
n Consultfactoryifdoorwillbeheldopenat180°
n Hold-openpointsat85°,90°,95°,100°,105°or110°withhold-opentracks
Notes:
•Manytrackstyledoorclosersarecapableofallowing180°ofdoorswing
•Themajorityoftrackstyleclosersareattheirweakestclosingforceinthe180°–130°range
•Consultfactoryforapplicationswhereanexteriororlarge/heavydoormustswing180°
4040XPT
Series
Mounting details
Top Jamb (Pull Side)
Mounting

50 LCN Door Control Catalog
phone: 877-671-7011 n fax: 800-248-1460 n www.allegion.com/us n 009426 rev. 5/16
4040XPT
Series
Stop Face (Push Side)
Mounting
Mounting details
Butt Hinges Shouldnotexceed5˝(127mm)inwidth
Auxiliary Stop n Recommendedathold-openpointorwhereadoorcannotswing120°
n Optionaltrackbumperassemblyassistsbackcheckincushioningtheopeningswingofthedoor
n Itisnotintendedtoreplaceanauxiliarystop
Clearance Projects2-1/4˝(57mm)fromfaceofdoor
Top Rail n Lessthan5-1/4˝(133mm)measuredfromthestop,requiresPLATE,4040XPT-18
n Platerequires3-1/2˝(89mm)minimum
Stop Width Minimum1-1/4˝(32mm)
Maximum Opening n Templatingallows120°withstandardtrackarm,limitedto110°withoptionalbumpertracks
n Hold-openpointsat85°,90°,95°,100°,105°or110°withhold-opentracks
Notes:
•Manytrackstyledoorclosersarecapableofallowing180°ofdoorswing
•Themajorityoftrackstyleclosersareattheirweakestclosingforceinthe180°–130°range
•Consultfactoryforapplicationswheredoormustswing180°
12-1/4"
311 mm
22-3/4"
578 mm
1-1/16"
27 mm
5-1/4"
133 mm
5-1/4"
133 mm
4-5/8"
118 mm
3-1/2"
89 mm
2-7/16"
62 mm
1-1/4"
32 mm
2-1/4"
57 mm
4040XPT-18

51
LCN Door Control Catalog
phone: 877-671-7011 n fax: 800-248-1460 n www.allegion.com/us n 009426 rev. 2/16
4040XPT
Series
Accessories
4040XPT-3071
Cast Iron Cylinder Assembly
n Non-handed
n Standard
4040XPT-72
Plastic Cover
n Non-handed
n Snap-on
n Standard
4040XPT-72MC
Metal Cover
n Handed
n Requiredforplatedfinishesand
custompowdercoatfinishes
n Optional
4040XPT-3077T
Standard Arm
n Non-handed
n Armdoesnotincludetrack
roller
4040XPT-3038
Standard Track
n Non-handed
n Non hold-open
n Will accept hold-open clip and/
orbumperassembly
n Standard
4040XPT-3077DE
Double Egress Arm
n Handed
n Fordoubleegressdoorsand
frames
n Doesnotincludetrackroller
n Maximumrevealis2-11/16˝
(68mm)
n Optional
4040XPT-3038B
Standard Track with Bumper
n Non-handed
n Non hold-open
n Will accept hold-open clip
n Optional
4040XPT-3038H
Hold-Open Track
n Non-handed
n With hold-open clip installed
n Willacceptbumperassembly
n Optional
4040XPT-3038HB
Hold-Open Track with Bumper
n Non-handed
n With hold-open clip and
bumperassemblyinstalled
n Optional
Cylinder Covers
Arms
Tracks

52 LCN Door Control Catalog
phone: 877-671-7011 n fax: 800-248-1460 n www.allegion.com/us n 009426 rev. 2/16
4040XPT
Series
4040XPT-18
Plate
n Requiredforpullside(door
mount)installationswheretop
railislessthan3-3/4˝(95mm)
-Requiresminimum1-3/4˝
(44mm)toprail
n Requiredforpushside(door
mount)installationswheretop
railislessthan5-1/4˝(133mm)
measured from the stop
-Requiresminimum3-1/2˝
(89mm)toprail
4040XPT-3054
Hold-Open Clip
n Mountsintracktoprovide
hold-openfunction)
n Hold-openpointcontrolledby
clip location
n Consists of clip and mounting
screws
n Requires4040XPT-3034H
Hold-OpenTrackRoller
4040XPT-18TJ
Plate
n Requiredforpullsidetopjamb
installationswhereheadframeis
lessthan3-7/8˝(98mm)
n Requiresminimum1-3/4˝
(44mm)headframe
4040XPT-3034H
Hold-Open Track Roller
n Quiet,lowfrictionroller
assembly
n Shoulder dimension
“X”=1/8˝(3mm)
4040XPT-169
Track Bumper
n Mountsintracktoassist
backcheck,doesnotreplace
auxiliarystop
n Limitsmaximumopening.
Consistsofbumper,bumperpost,
andmountingscrew
4040XPT-3034
Track Roller
n Quiet,lowfrictionroller
assembly
n Shoulder dimension
“X”=1/8˝(3mm)
Installation Accessories
Accessories

53
LCN Door Control Catalog
phone: 877-671-7011 n fax: 800-248-1460 n www.allegion.com/us n 009426 rev. 2/16
Ordering Information
4040XPT
Series
Closer will be shipped with:
- Standard cylinder
-Standardcover
- Standard arm
-Trackroller
-Standardtrack
-Self-reamingandtappingscrews
unless options listed below are selected.
1. Select finish
Standard Powder Coat __________
Aluminum, Dark Bronze, Statuary,
Light Bronze, Black, Brass.
Reduced opening force 4040XPT Series closers
CAUTION ! Anymanualdoorcloser,includingthosecertifiedbyBHMAtoconformtoANSIStandardA156.4,thatisselected,installedandadjustedbased
onADAorotherreducedopeningforcerequirementsmaynotprovidesufficientpowertoreliablycloseandlatchadoor.
RefertoPOWEROPERATORSsectionforinformationon
systemsthatmeetreducedopeningforcerequirements
withouteffectingclosingpower.
How-to-order 4040XPT Series closers
* Maximum opening force.
4040XPT
Minimumdoorwidth
Interior door width
26˝
660mm
34˝
864mm
38˝
965mm
48˝
1219mm
size2 size3 size4
Indicatesrecommendedrangeofdoorwidthforclosersize.
Closer options
Cover
Metal (specify right or left hand) (MC)
Finish
Custom Powder Coat (RAL) ___________
(handed metal cover required)
Plated Finish, US ______________
(handed metal cover required)
SRI primer (use with powder coat finishes only)
Track
Regular with Bumper (BUMPER)
Hold-Open (HO)
Hold-Open with Bumper (HBUMPER)
Specific Screw Pack
TB* w/Self-Reaming and Tapping Screws
(TBSRT)
Wood & Machine Screw (WMS)
TB*, Wood & Machine Screw (TBWMS)
TORX Machine Screw (TORX)
TB* & TORX Machine Screw (TBTORX)
* Specify door thickness if other than 1-3/4˝.
Installation Accessories
Plate, 4040XPT-18
Plate, 4040XPT-18TJ
Special Template
ST- _________
Table of sizes
n Non-Sized4040XPTcylinderisadjustablefromsizes1thru4andisshippedsettosize3
DOOR WIDTH 36˝ 42˝ 48˝
8.5*lbs. N/A N/A N/A
5.0*lbs. 4040XPT 4040XPT 4040XPT

54 LCN Door Control Catalog
phone: 877-671-7011 n fax: 800-248-1460 n www.allegion.com/us n 009426 rev. 2/16
Notes
__________________________________________________________________________________________________________________________________________________________________________________
__________________________________________________________________________________________________________________________________________________________________________________
__________________________________________________________________________________________________________________________________________________________________________________
__________________________________________________________________________________________________________________________________________________________________________________
__________________________________________________________________________________________________________________________________________________________________________________
__________________________________________________________________________________________________________________________________________________________________________________
__________________________________________________________________________________________________________________________________________________________________________________
__________________________________________________________________________________________________________________________________________________________________________________
__________________________________________________________________________________________________________________________________________________________________________________
__________________________________________________________________________________________________________________________________________________________________________________
__________________________________________________________________________________________________________________________________________________________________________________
__________________________________________________________________________________________________________________________________________________________________________________
__________________________________________________________________________________________________________________________________________________________________________________
__________________________________________________________________________________________________________________________________________________________________________________
__________________________________________________________________________________________________________________________________________________________________________________
__________________________________________________________________________________________________________________________________________________________________________________
__________________________________________________________________________________________________________________________________________________________________________________
__________________________________________________________________________________________________________________________________________________________________________________
__________________________________________________________________________________________________________________________________________________________________________________
__________________________________________________________________________________________________________________________________________________________________________________
__________________________________________________________________________________________________________________________________________________________________________________
__________________________________________________________________________________________________________________________________________________________________________________
__________________________________________________________________________________________________________________________________________________________________________________
__________________________________________________________________________________________________________________________________________________________________________________
__________________________________________________________________________________________________________________________________________________________________________________
__________________________________________________________________________________________________________________________________________________________________________________

55
LCN Door Control Catalog
phone: 877-671-7011 n fax: 800-248-1460 n www.allegion.com/us n 009426 rev. 2/16
4050
Series
Features
The 4050 Series cast aluminum closer is engineered for durability and built tough to excel
in the harsh environments of high frequency, high abusive traffic areas. Ideal for commercial
building applications and competitive specification situations that demand a combination of
quality, reliability and value. The cast aluminum door closer offers premium features like powder
coating, full complement bearing, All Weather Fluid and a 25 year warranty.
Certifications Grade 1 - ANSI A156.4, UL 10C, ADA, 100 Hour
Salt Spray, Meets BAA - Buy American Act
Body Construction n Cast Aluminum Body
n Full Complement Bearings
n 1-1/2˝DiameterPiston
n 11/16˝DiameterDoubleHeatTreated
PinionJournal
Fluid AllWeatherLiquidXFluid
Handing Non-Handed
Templating Peel-n-Sticktemplates-
2-3/8˝x6-3/4˝MountingHolePattern
Size Adjustablespringsize1-6
Warranty 25 years
Cover n Plastic,Standard
n Metal, Optional
Fasteners SelfReamingandTappingScrews(SRT)
Mounting Hinge(PullSide),TopJamb(PushSide),
ParallelArm(PushSide)
Arms Standard Regular Arm
Finishes/Colors/
Powder Coat
n Aluminum(689)
n StatuaryBronze(690)
n LightBronze(691)
n Black(693)
n DarkBronze(695)
n Brass(696)
n Custom colors optional
n OptionalSRIprimer-powdercoatonly
n Optional plated finishes
Customizedinstallationtemplatesorproductsmaybeavailabletosolveunusualapplications.
ContactLCNProductSupportforassistance.
Special
Templates
AVAILABLE
NOT AVAILABLE
Closeravailablewithlessthan5.0lbs.openingforceon36˝door.
* Maximumopening/hold-openpointwithstandardtemplate.
PLASTIC
METAL
HINGE (PULL) SIDE
TOP JAMB (PULL)
TOP JAMB (PUSH)
PARALLEL ARM
STOP FACE
MOUNTING COVER
180°180°180°110°
110°
STANDARD (SINGLE)
REGULAR (DOUBLE)
HOLD-OPEN
FUSIBLE LINK
EDA/HEDA
CUSH/HCUSH
SCUSH/SHCUSH
DOUBLE EGRESS
*ARM FUNCTION
FINISH CYLINDER
NON-HANDED
NON-SIZED
ACCESSIBILITY
DELAYED ACTION
AVB
POWDER COAT
PLATED

56 LCN Door Control Catalog
phone: 877-671-7011 n fax: 800-248-1460 n www.allegion.com/us n 009426 rev. 2/16
4050
Series
Hinge (Pull Side)
Mounting
Mounting details
Butt Hinges Shouldnotexceed5˝(127mm)inwidth
Auxiliary Stop Recommendedathold-openpointorwhereadoorcannotswingbeyondtemplatedmaximumopening
Reveal Shouldnotexceed3/4˝(19mm)forregulararmorhold-openarm
Top Rail n Lessthan3-7/8˝(98mm)requiresPLATE,4050-18.
n Platerequires1-13/16˝(44mm)minimum
Clearance 2-13/16˝(72mm)behinddoorrequiredfor90°installation
Delayed Action Delaysclosingfrom180°-70°.Delaytimeadjustableuptoapproximately1minute
Maximum Opening n Templatingallowsupto180°
n Hold-openpointsuptomaximumopeningwithhold-openarm
To100°: A=6-15/16˝(176mm)
B=12-5/8˝(321mm)
100°to120°: A=5-15/16˝(151mm)
B=11-5/8˝(295mm)
120°to150°: A=3-15/16˝(100mm)
B=9-5/8˝244mm)
150°to180°: A=3-7/16˝(87mm)
B=9-1/8˝(232mm)
C
L
11-15/16"
304mm
2-13/16"
72mm
2-11/16"
68mm
3/4"
19mm
1-5/8"
41mm
3-7/8"
98mm 12-7/8"
327mm
A
B

57
LCN Door Control Catalog
phone: 877-671-7011 n fax: 800-248-1460 n www.allegion.com/us n 009426 rev. 2/16
Mounting details
4050
Series
Top Jamb (Push Side)
Mounting
4-1/4"
108mm
5/8"
16mm
3/4"
19mm
2-11/16"
68mm
3-7/8"
98mm
12-7/8"
327mm
11-15/16"
303mm
2-13/16"
72mm
C
L
C
L
A
B
The'A'dimensionreferstotheedgeofthecloserbodytothecenterlineofpivotorhinge.
The'B'dimensionreferstotheedgeoftheclosershoebrackettothecenterlineofpivotorhinge.
Butt Hinges Shouldnotexceed5˝(127mm)inwidth
Auxiliary Stop Recommendedathold-openpointorwhereadoorcannotswingbeyondtemplatedmaximumopening
Reveal ArmType Reveal MaxOpening
Regular Arm 4˝ Upto180°
Long 9˝ Upto150°
Hold-Open 4˝ Upto170°
Long Hold-Open Arm 8-3/4˝ Upto155°
Top Rail Requires2˝(51mm)minimum.
Head Frame Lessthan3-7/8˝(98mm)requiresplate.
Delayed Action Delayclosingfrom180°to70°.Delaytimeadjustableuptoapproximately1minute.
Maximum Opening n Templatingallowsupto180°
n Hold-openpointsuptomaximumopeningwithhold-openarm
To100°: A=6-7/8˝(175mm)
B=12-11/16˝(322mm)
100°to120°: A=5-7/8˝(149mm)
B=11-11/16˝(297mm)
120°to150°: A=3-7/8˝(98mm)
B=9-11/16˝(246mm)
150°to180°: A=3-3/8˝(86mm)
B=9-3/16˝(233mm)

58 LCN Door Control Catalog
phone: 877-671-7011 n fax: 800-248-1460 n www.allegion.com/us n 009426 rev. 2/16
Parallel Arm (Push) Side
Mounting
Mounting details
4050
Series
Butt Hinges Shouldnotexceed5˝(127mm)inwidth
Auxiliary Stop Recommendedathold-openpoint,wherethedoorcannotswingbeyondtemplatedmaximumopening,orwhere
CUSH-N-STOParmisnotused
Top Rail Lessthan5-3/4˝(146mm)measuredfromthestoprequiresPLATE,4050-18PA.Platerequires2-1/4˝(57mm)
minimum from the stop
Clearance For4050-62PAshoeis4-1/8˝(105mm)fromdoorface
Head Frame FlushorrabettedrequiresPASHOEADAPTER,4050-419
Stop Width Minimum1-3/16˝(30mm)
Blade Stop Clearancerequires1/2˝(13mm)BLADESTOPSPACER,4050-61
Delayed Action Delaysclosingfrom180°-70°.Delaytimeadjustableuptoapproximately1minute
Auxiliary Shoe 4050-62Aallowsinstallationofregulararmwithoverheadholder/stop
Maximum Opening To100°: A=8-1/16˝(205mm)
B=8-5/8˝(219mm)
100°to130°: A=6-9/16˝(167mm)
B=7-1/8˝(181mm)
130°to150°: A=5-9/16˝(141mm)
B=6-1/8˝(156mm)
150°to180°: A=4-9/16˝(116mm)
B=5-1/8˝(130mm)
Hold-openpointsuptomaximumopeningwithhold-openarm
Note:
•OptionalmountingrequiresPASHOE,4050-62PAforregularorHOLD-OPENarms
15-1/2"
394 mm
12-7/8”
327 mm
3-7/8"
98 mm
2-13/16"
72 mm
4"
102 mm
4-1/8"
105 mm
C
L
C
L
A
B
5-3/4”
146 mm
The'A'dimensionreferstotheedgeofthecloserbodytothecenterlineofpivotorhinge.
The'B'dimensionreferstotheedgeoftheclosershoebrackettothecenterlineofpivotorhinge.

59
LCN Door Control Catalog
phone: 877-671-7011 n fax: 800-248-1460 n www.allegion.com/us n 009426 rev. 2/16
Mounting details
4050
Series
EDA and CUSH
Mounting
Clearance 4050-62EDAis5-11/16˝(145mm)fromdoorface.5-11/16˝(145mm)forCUSH
Head Frame FlushorrabettedrequiresFLUSHPANELADAPTER,4050-419
CUSH ARM RequiresCUSHSHOESUPPORT,4050-30forfifthscrewanchoragefornarrowframes
Delayed Action Delaysclosingfrom180°toapproximately70°.Delaytimeadjustableuptoapproximately1minute.
Maximum Opening
EDAarmcanbetemplatedforpointsat:100°
CUSHarmscanbetemplatedfor
opening/hold-openpointat:
100°: A=8-1/16˝(205mm)
B=8-5/8˝(219mm)
85°: A=9-13/16˝(250mm)
B=10-1/2˝(267mm)
100°to130°: A=6-9/16˝(167mm)
B=7-1/8˝(181mm)
90°: A=8-15/16˝(227mm)
B=9-5/8˝(244mm)
130°to150°: A=5-9/16˝(141mm)
B=6-1/8˝(156mm)
95°: A=8-5/16˝(212mm)
B=9˝(229mm)
150°to180°: A=4-9/16˝(116mm)
B=5-1/8˝(130mm)
100°: A=7-11/16˝(196mm)
B=8-3/8˝(213mm)
Hold-openpointsuptomaximumopening
withHEDAarm
105°: A=7-1/16˝(180mm)
B=7-3/4˝(197mm)
110°: A=6-9/16˝(167mm)
B=7-1/4˝(184mm)
Notes:
•SpringCushdeadstoppointsareapproximately5˚morethantemplatedstoppoint
•Holdopenattemplatedstoppoints
•4050SeriesclosersorderedwithEDAorCUSHarmsinclude4050-201FIFTHHOLESPACERtosupporttheshoe
CUSH
mount
EDA mount
15-7/8”
403 mm
5-3/4”
146 mm
12-7/8”
327 mm
3-7/8”
98 mm
2-13/16”
72 mm
4”
102 mm
5-11/16”
145 mm
C
L
C
L
A
B
C
L
C
L
2-13/16”
72 mm
15-13/16”
402 mm
5-11/16”
145 mm
4”
102 mm
3-7/8”
98 mm
12-7/8”
327 mm
5-3/4”
146 mm
A
B
The'A'dimensionreferstotheedgeofthecloserbodytothecenterlineofpivotorhinge.
The'B'dimensionreferstotheedgeoftheclosershoebrackettothecenterlineofpivotorhinge.

60 LCN Door Control Catalog
phone: 877-671-7011 n fax: 800-248-1460 n www.allegion.com/us n 009426 rev. 2/16
4050-3071
Cast Aluminum Cylinder
Assembly
n Non-handed
n Heavyduty
4050-3071 DEL
Cast Aluminum Cylinder
Assembly
n Cylinder used for delayed
action closing
n Non-handed
n Heavyduty
4050-72
Plastic Cover
n Non-handed
n Standard
4050-72MC
Metal Cover
n Non-handed
n Requiredforplatedfinishesand
custompowdercoatfinishes
n Optional
4050-18
Plate
n Requiredforhingesidemount
wheretoprailislessthan
3-7/8˝(98mm)
n Requiresminimum1-3/4˝
(44mm)toprail
4050-61
Blade Stop Spacer
n Requiredtolowerparallelarm
shoetoclear1/2˝(13mm)blade
stop
4050-18G
Plate
n Locatestopjambmounted
closerflushwithtopofhead
frame face in flush ceiling
condition
n ContactLCNProductSupport
for minimum head frame
requirement.
4050-419
Flush Panel Adapter
n Provideshorizontalmounting
surface for parallel arm shoe on
singlerabettedorflushframe
4050-18PA
Plate
n Requiredforparallelarm
mountingwheretoprailisless
than5-3/4˝(146mm),measured
from the stop
n Requires2-1/4˝(57mm)
minimum top rail
4050-62A
Auxiliary Shoe
n Requiresatoprailof7-13/16˝
(198mm)
n Replaces-62PAforparallelarm
mountingofregulararmwith
overheadholder/stop
n Optional
4050-30
Cush Shoe Support
n Providesanchorageforfifth
screwusedwithCUSHarms,
whererevealislessthan
3-1/16˝(78mm)
Cylinders
Installation Accessories
Covers
Accessories
4050
Series
4050-62PA
PA Shoe
n Requiredforparallelarm
mounting

61
LCN Door Control Catalog
phone: 877-671-7011 n fax: 800-248-1460 n www.allegion.com/us n 009426 rev. 2/16
4050-3077
Regular Arm
n Non-handed
n Mountspullsideortopjambwith
shallowreveal
n IncludesPASHOE,4050-62PA
requiredforparallelarmmounting
4050-3049
Hold-Open Arm
n Non-handed
n Mountspullsideortopjambwith
shallowreveal
n Hold-openadjustableshoe
n 4050closerincludes4050-62PA
shoerequiredforparallelarm
mounting
n Optional
4050-3077L
Long Arm
n Non-handed
n IncludesLONGRODANDSHOE,
4050-79LRfortopjambmount
n Optional
4050-3077CNS
Cush-N-Stop® Arm
n Non-handed
n Features solid forged steel main
armandforearmwithstopin
soffit shoe
n Optional
4050-3049CNS
HCUSH Arm
n Provideshold-openfunctionwith
templated stop/hold-open points
n Handle controls hold-open function
4050-3077EDA/62G
Extra Duty Arm With 62G
n Non-handed
n Features forged, solid steel main
and forearm for potentially
abusiveinstallations
n 62Gshoeprovidesadditional
bladestopclearanceforusewith
additionaldoorhardwaresuchas
anoverheadholder
4050-3049EDA/62G
Hold-Open Extra Duty Arm With 62G
n Handed
n Features forged, solid steel main
and forearm for potentially
abusiveinstallations
n 62Gshoeprovidesadditional
bladestopclearanceforusewith
additionaldoorhardwaresuchas
anoverheadholder
n Hold-open function is adjusted at
the shoe
Arms
Accessories
4050
Series
4050-3049L
Long Hold-Open Arm
n Non-handed
n Hold-openadjustableshoe
n IncludesLONGHEADANDTUBE,
4050-3048Lfortopjambmount
n Optional
4050-3077EDA
Extra Duty Arm
n Non-handed
n Features forged, solid steel main
and forearm for potentially
abusiveinstallations
4050-3049EDA
Hold-Open Extra Duty Arm
n Handed
n Features forged, solid steel main
and forearm for potentially
abusiveinstallations
n Hold-open function is adjusted at
the shoe

62 LCN Door Control Catalog
phone: 877-671-7011 n fax: 800-248-1460 n www.allegion.com/us n 009426 rev. 2/16
4050-3077SCNS
Spring CUSH Arm
n Non-handed
n Forabusiveapplications
features solid forged steel main
armandforearmwithspring
loaded stop in the soffit shoe
n Optional
4050-3049SCNS
Spring HCUSH Arm
n Non-handed
n Forabusiveapplications
features solid forged steel
mainarmandforearmwith
spring loaded stop in the
soffit shoe
n Handle controls hold-open
function
n Optional
Arms cont.
Accessories
4050
Series

63
LCN Door Control Catalog
phone: 877-671-7011 n fax: 800-248-1460 n www.allegion.com/us n 009426 rev. 2/16
Ordering Information
4050
Series
1. Select finish
Standard Powder Coat __________
Aluminum, Dark Bronze, Statuary,
Light Bronze, Black, Brass.
Table of sizes
n 4050cylindersareadjustablefromsize1throughsize6andisshippedsettosize3
n Closingpowerof4050Seriesclosersmaybeadjusted50%
Reduced opening force 4050 Series closers
CAUTION ! Anymanualdoorcloser,includingthosecertifiedbyBHMAtoconformtoANSIStandardA156.4,thatisselected,installedandadjustedbased
onADAorotherreducedopeningforcerequirementsmaynotprovidesufficientpowertoreliablycloseandlatchadoor.
RefertoPOWEROPERATORSsectionforinformationon
systemsthatmeetreducedopeningforcerequirements
withouteffectingclosingpower.
How-to-order 4050 Series closers
* Maximum opening force.
*4050 *4050
Minimumdoorwidth Minimumdoorwidth
Exterior (and vestibule) door width
24˝
610mm
30˝
762mm
36˝
914mm
42˝
1067mm
48˝
1219mm
Interior door width
24˝
610mm
34˝
864mm
38˝
965mm
48˝
1219mm
54˝
1372mm
60˝
1524mm
size3 size4 size5 size6 size2 size3 size4 size5 size6
Indicatesrecommendedrangeofdoorwidthforclosersize. *AdjustableSize1thru6.
Closer options
Cylinder
Delayed Action (4050 DEL)
Cover
Metal (specify right or left hand) (MC)
Finish
Custom Powder Coat (RAL) ___________
(handed metal cover required)
Plated Finish, US ______________
(handed metal cover required)
SRI primer (use with powder coat finishes only)
Arm
Regular (REG)
Long (LONG)
Hold-Open (H)
Hold-Open w/62PA (Hw/PA)
Long Hold-Open (HLONG)
Extra Duty Arm (EDA)
Extra Duty Arm with 62G (EDA/62G)
Hold Open Extra Duty Arm (HEDA)
(Handed)
Hold Open Extra Duty Arm with 62
(HEDA/62G)(Handed)
Cush-N-Stop (CUSH)
HCush-N-Stop (HCUSH)
Spring Cush (SCUSH)
Spring HCush (SHCUSH)
Optional Screw Packs
TB* w/Self-Reaming and Tapping (TBSRT)
Wood & Machine Screw (WMS)
TB*, Wood & Machine Screw (TBWMS)
TORX Machine Screw (TORX)
TB* & TORX Machine Screw (TBTRX)
* Specify door thickness if other than
1-3/4˝.
Installation Accessories
Plate, 4050-18
Plate, 4050-18G
Plate, 4050-18PA
CUSH Shoe Support, 4050-30
Blade Stop Spacer, 4050-61
Auxiliary Shoe, 4050-62A
Flush Panel Adapter, 4050-419
Special Template
ST- _________
Closer will be shipped with:
- Standard cylinder
-Standardcover
-Tripackarm(Rw/PA)
-Self-reamingandtappingscrews
unless options listed below are selected.
DOOR WIDTH 36˝ 42˝ 48˝
8.5*lbs. 4050 4050 4050
5.0*lbs. 4050 4050 4050

64 LCN Door Control Catalog
phone: 877-671-7011 n fax: 800-248-1460 n www.allegion.com/us n 009426 rev. 2/16
Notes
__________________________________________________________________________________________________________________________________________________________________________________
__________________________________________________________________________________________________________________________________________________________________________________
__________________________________________________________________________________________________________________________________________________________________________________
__________________________________________________________________________________________________________________________________________________________________________________
__________________________________________________________________________________________________________________________________________________________________________________
__________________________________________________________________________________________________________________________________________________________________________________
__________________________________________________________________________________________________________________________________________________________________________________
__________________________________________________________________________________________________________________________________________________________________________________
__________________________________________________________________________________________________________________________________________________________________________________
__________________________________________________________________________________________________________________________________________________________________________________
__________________________________________________________________________________________________________________________________________________________________________________
__________________________________________________________________________________________________________________________________________________________________________________
__________________________________________________________________________________________________________________________________________________________________________________
__________________________________________________________________________________________________________________________________________________________________________________
__________________________________________________________________________________________________________________________________________________________________________________
__________________________________________________________________________________________________________________________________________________________________________________
__________________________________________________________________________________________________________________________________________________________________________________
__________________________________________________________________________________________________________________________________________________________________________________
__________________________________________________________________________________________________________________________________________________________________________________
__________________________________________________________________________________________________________________________________________________________________________________
__________________________________________________________________________________________________________________________________________________________________________________
__________________________________________________________________________________________________________________________________________________________________________________
__________________________________________________________________________________________________________________________________________________________________________________
__________________________________________________________________________________________________________________________________________________________________________________
__________________________________________________________________________________________________________________________________________________________________________________
__________________________________________________________________________________________________________________________________________________________________________________

65
LCN Door Control Catalog
phone: 877-671-7011 n fax: 800-248-1460 n www.allegion.com/us n 009426 rev. 7/16
4050T
Series
The 4050T cast aluminum heavy duty track closer is designed for rugged high frequency
traffic areas. Ideal for commercial building applications and competitive specification
situations that demand a combination of quality, reliability and value.
Certifications Grade 1 - ANSI A156.4, UL 10C, ADA, 100 Hour
Salt Spray, Meets BAA - Buy American Act
Body Construction n Cast Aluminum Body
n Full Complement Bearings
n 1-1/2˝DiameterPiston
n 11/16˝DiameterDoubleHeatTreated
n PinionJournal
Fluid All Weather Fluid
Handing Non-Handed
Size AdjustableSpringSize1-4
Warranty 25 years
Cover n Plastic,Standard
n Metal, Optional
Fasteners SelfReamingandTappingScrews(SRT)
Mounting Pullsideondoor,pullsidetopjamb,push
side on door
Arms StandardArmandTrackwithRoller
Finishes/Colors/
Powder Coat
n Aluminum(689)
n StatuaryBronze(690)
n LightBronze(691)
n Black(693)
n DarkBronze(695)
n Brass(696)
n Custom colors optional
n OptionalSRIprimer-powdercoatonly
n Optional plated finishes
Customizedinstallationtemplatesorproductsmaybeavailabletosolveunusualapplications.
ContactLCNProductSupportforassistance.
Features
Special
Templates
AVAILABLE
NOT AVAILABLE
Closeravailablewithlessthan5.0lbs.openingforceon36˝door(pullsideandtopjambonly).
* Maximumopening/hold-openpointwithstandardtemplate.
PLASTIC
METAL
HINGE (PULL) SIDE
TOP JAMB (PULL)
TOP JAMB (PUSH)
PARALLEL ARM
STOP FACE
MOUNTING COVER
180°180°
STANDARD (SINGLE)
REGULAR (DOUBLE)
HOLD-OPEN
FUSIBLE LINK
EDA/HEDA
CUSH/HCUSH
SCUSH/SHCUSH
*ARM FUNCTION
DOUBLE EGRESS
FINISH CYLINDER
NON-HANDED
NON-SIZED
ACCESSIBILITY
DELAYED ACTION
AVB
POWDER COAT
PLATED
95°

66 LCN Door Control Catalog
phone: 877-671-7011 n fax: 800-248-1460 n www.allegion.com/us n 009426 rev. 7/16
4050T
Series
Hinge (Pull Side)
Mounting
Mounting details
2-13/16"
72 mm
22-11/16"
577 mm
12-7/8"
327 mm
3-7/8"
98 mm
4-1/16"
104 mm
1-1/2"
38 mm
1-1/16"
27mm
1-1/4"
32 mm
4-7/16"
113 mm
2"
52 mm
4050T-18
Butt Hinges Shouldnotexceed5˝(127mm)inwidth
Auxiliary Stop n Recommendedathold-openpointorwhereadoorcannotswing180°
n Optionaltrackbumperassemblyassistsbackcheckincushioningtheopeningswingofthedoor
n Itisnotintendedtoreplaceanauxiliarystop
Reveal Shouldnotexceed1/8˝(3mm)forstandardarm
Top Rail Lessthan4-1/8˝(104mm)requiresPLATE,4050T-18.Platerequires2-1/16˝(52mm)minimum
Head Frame Requires1-1/4˝(32mm)minimum
Clearance 2-13/16˝(52mm)behinddoorrequiredfor90°installation
Maximum Opening n Templatingallows180°
Notes:
•Manytrackstyledoorclosersarecapableofallowing180°ofdoorswing
•Themajorityoftrackstyleclosersareattheirweakestclosingforceinthe180°–130°range
•Consultfactoryforapplicationswheredoormustswing180°

67
LCN Door Control Catalog
phone: 877-671-7011 n fax: 800-248-1460 n www.allegion.com/us n 009426 rev. 7/16
4-5/16"
109 mm
12-7/8"
327 mm
22-11/16"
577 mm
1-1/4"
32 mm
2-5/8"
67 mm
2-13-16"
72 mm
3-7/8"
98 mm
4-17/32"
115 mm
1-1/16"
27 mm
4050T-18G
Butt Hinges Shouldnotexceed5˝(127mm)inwidth
Auxiliary Stop n Recommendedathold-openpointorwhereadoorcannotswing180°
n Optionaltrackbumperassemblyassistsbackcheckincushioningtheopeningswingofthedoor
n Itisnotintendedtoreplaceanauxiliarystop
Reveal Shouldnotexceed1/8˝(3mm)
Head Frame Lessthan4-1/2˝(114mm),requiresPLATE,4050T-18G.Platerequires2-1/16˝(52mm)minimum
Clearance 1-1/4˝(32mm)behinddoorrequiredfor180°installation
Maximum Opening n Templatingallows180°
Notes:
•Manytrackstyledoorclosersarecapableofallowing180°ofdoorswing
•Themajorityoftrackstyleclosersareattheirweakestclosingforceinthe180°–130°range
•Consultfactoryforapplicationswhereanexteriororlarge/heavydoormustswing180°
4050T
Series
Mounting details
Top Jamb (Pull Side)
Mounting

68 LCN Door Control Catalog
phone: 877-671-7011 n fax: 800-248-1460 n www.allegion.com/us n 009426 rev. 7/16
4050T
Series
Stop Face (Push Side)
Mounting
Mounting details
Butt Hinges Shouldnotexceed5˝(127mm)inwidth
Auxiliary Stop n Recommendedathold-openpointorwhereadoorcannotswing120°
n Optionaltrackbumperassemblyassistsbackcheckincushioningtheopeningswingofthedoor
n Itisnotintendedtoreplaceanauxiliarystop
Clearance Projects2-9/16˝(65mm)fromfaceofdoor
Top Rail n Lessthan5-11/16˝(144mm)measuredfromthestop,requiresPLATE,4050T-18G
n Platerequires3-5/16˝(84mm)minimum
Stop Width Minimum1-1/4˝(32mm)
Maximum Opening n Templatingallows120°
Notes:
•Manytrackstyledoorclosersarecapableofallowing180°ofdoorswing
•Themajorityoftrackstyleclosersareattheirweakestclosingforceinthe180°–130°range
•Consultfactoryforapplicationswheredoormustswing180°
4050T-18G
22-11/16"
577 mm
2-7/16"
62 mm
4-5/8"
118 mm
5-11/16"
145 mm
1-11/16"
27 mm
3-7/8"
98 mm
12-7/8"
327 mm
1-1/2"
38 mm 2-13/16"
72 mm

69
LCN Door Control Catalog
phone: 877-671-7011 n fax: 800-248-1460 n www.allegion.com/us n 009426 rev. 7/16
4050T
Series
Accessories
4050T-3071
Cast Aluminum Cylinder
Assembly
n Non-handed
n Standard
4050T-72
Plastic Cover
n Non-handed
n Standard
4050T-72MC
Metal Cover
n Non-handed
n Requiredforplatedfinishesand
custompowdercoatfinishes
n Optional
4050T-3077T
Standard Arm
n Non-handed
n Armdoesnotincludetrack
roller
4050T-3038
Standard Track
n Non-handed
n Non hold-open
n Will accept hold-open clip and/
orbumperassembly
n Standard
4050T-3077DE
Double Egress Arm
n Handed
n Fordoubleegressdoorsand
frames
n Doesnotincludetrackroller
n Maximumrevealis3˝(76mm)
n Optional
4050T-3038B
Standard Track with Bumper
n Non-handed
n Non hold-open
n Will accept hold-open clip
n Optional
4050T-3038H
Hold-Open Track
n Non-handed
n With hold-open clip installed
n Willacceptbumperassembly
n Optional
4050T-3038HB
Hold-Open Track with Bumper
n Non-handed
n With hold-open clip and
bumperassemblyinstalled
n Optional
Cylinder Covers
Arms
Tracks

70 LCN Door Control Catalog
phone: 877-671-7011 n fax: 800-248-1460 n www.allegion.com/us n 009426 rev. 7/16
4050T
Series
4050T-18
Plate
n Requiredforpullside(door
mount)installationswheretop
railislessthan4-1/8˝
-Requiresminimum2-1/16˝
top rail
4050T-3054
Hold-Open Clip
n Mountsintracktoprovide
hold-openfunction)
n Hold-openpointcontrolledby
clip location
n Consists of clip and mounting
screws
n Requires4050T-3034H
Hold-OpenTrackRoller
4050T-18G
Plate
n Requiredforpullsidetopjamb
installationswhereheadframeis
lessthan4-1/2˝.
-Requiresminimum2-1/16˝head
frame
n Requiredforpushside(door
mount)installationswheretop
railislessthan5-11/16˝measured
from the stop
-Requiresminimum3-5/16˝
top rail
4050T-3034H
Hold-Open Track Roller
n Quiet,lowfrictionroller
assembly
n Shoulder dimension
“X”=1/8˝(3mm)
4050T-480
Pinion Extender
n Connects pinion to arm
4050T-169
Track Bumper
n Mountsintracktoassist
backcheck,doesnotreplace
auxiliarystop
n Limitsmaximumopening.
Consistsofbumper,bumperpost,
andmountingscrew
4050T-3034
Track Roller
n Quiet,lowfrictionroller
assembly
n Shoulder dimension
“X”=1/8˝(3mm)
Installation Accessories
Accessories

71
LCN Door Control Catalog
phone: 877-671-7011 n fax: 800-248-1460 n www.allegion.com/us n 009426 rev. 7/16
Ordering Information
4050T
Series
Closer will be shipped with:
- Standard cylinder
-Standardcover
- Standard arm
-Trackroller
-Standardtrack
-Self-reamingandtappingscrews
unless options listed below are selected.
1. Select finish
Standard Powder Coat __________
Aluminum, Dark Bronze, Statuary,
Light Bronze, Black, Brass.
Reduced opening force 4050T Series closers
CAUTION ! Anymanualdoorcloser,includingthosecertifiedbyBHMAtoconformtoANSIStandardA156.4,thatisselected,installedandadjustedbased
onADAorotherreducedopeningforcerequirementsmaynotprovidesufficientpowertoreliablycloseandlatchadoor.
RefertoPOWEROPERATORSsectionforinformationon
systemsthatmeetreducedopeningforcerequirements
withouteffectingclosingpower.
How-to-order 4050T Series closers
*Maximumopeningforce.Appliestopullsideandtopjambonly.
4050T
Minimumdoorwidth
Interior door width
26˝
660mm
34˝
864mm
38˝
965mm
48˝
1219mm
size2 size3 size4
Indicatesrecommendedrangeofdoorwidthforclosersize.
Closer options
Cover
Metal (MC)
Finish
Custom Powder Coat (RAL) ___________
(handed metal cover required)
Plated Finish, US ______________
(handed metal cover required)
SRI primer (use with powder coat finishes only)
Track
Regular with Bumper (BUMPER)
Hold-Open (HO)
Hold-Open with Bumper (HBUMPER)
Specific Screw Pack
TB* w/Self-Reaming and Tapping Screws
(TBSRT)
Wood & Machine Screw (WMS)
TB*, Wood & Machine Screw (TBWMS)
TORX Machine Screw (TORX)
TB* & TORX Machine Screw (TBTORX)
* Specify door thickness if other than 1-3/4˝.
Installation Accessories
Plate, 4050T-18
Plate, 4050T-18G
Special Template
ST- _________
Table of sizes
n Non-Sized4050Tcylinderisadjustablefromsizes1thru4andisshippedsettosize3
DOOR WIDTH 36˝ 42˝ 48˝
8.5*lbs. N/A N/A N/A
5.0*lbs. 4050T 4050T 4050T

72 LCN Door Control Catalog
phone: 877-671-7011 n fax: 800-248-1460 n www.allegion.com/us n 009426 rev. 7/16
Notes
__________________________________________________________________________________________________________________________________________________________________________________
__________________________________________________________________________________________________________________________________________________________________________________
__________________________________________________________________________________________________________________________________________________________________________________
__________________________________________________________________________________________________________________________________________________________________________________
__________________________________________________________________________________________________________________________________________________________________________________
__________________________________________________________________________________________________________________________________________________________________________________
__________________________________________________________________________________________________________________________________________________________________________________
__________________________________________________________________________________________________________________________________________________________________________________
__________________________________________________________________________________________________________________________________________________________________________________
__________________________________________________________________________________________________________________________________________________________________________________
__________________________________________________________________________________________________________________________________________________________________________________
__________________________________________________________________________________________________________________________________________________________________________________
__________________________________________________________________________________________________________________________________________________________________________________
__________________________________________________________________________________________________________________________________________________________________________________
__________________________________________________________________________________________________________________________________________________________________________________
__________________________________________________________________________________________________________________________________________________________________________________
__________________________________________________________________________________________________________________________________________________________________________________
__________________________________________________________________________________________________________________________________________________________________________________
__________________________________________________________________________________________________________________________________________________________________________________
__________________________________________________________________________________________________________________________________________________________________________________
__________________________________________________________________________________________________________________________________________________________________________________
__________________________________________________________________________________________________________________________________________________________________________________
__________________________________________________________________________________________________________________________________________________________________________________
__________________________________________________________________________________________________________________________________________________________________________________
__________________________________________________________________________________________________________________________________________________________________________________
__________________________________________________________________________________________________________________________________________________________________________________

73
LCN Door Control Catalog
phone: 877-671-7011 n fax: 800-248-1460 n www.allegion.com/us n 009426 rev. 2/16
4110
Series
The 4110 is LCN’s best performing heavy duty closer designed specifically for institutional
and other rugged high traffic applications.
Certifications Grade 1 - ANSI A156.4, UL 10C, ADA, 100 Hour
Salt Spray, Meets BAA - Buy American Act
Body Construction n Cast Iron Body
n Full Complement Bearing
n 1-1/2˝DiameterPiston
n 11/16˝DiameterDoubleHeatTreated
PinionJournal
Fluid All Weather Fluid
Handing Handed
Templating Peel-n-Sticktemplates-
2-1/2˝x6˝MountingHolePattern
Size AdjustableSpringSize1-5,orSized6,Includes
PatentedGreenDial
Warranty 30 years
Cover n Plastic,Standard
n Metal, Optional
Fasteners SelfReamingandTappingScrews(SRT)
Mounting ParallelArm(PushSide)
Arms Extra-Dutyarm
Finishes/Colors/
Powder Coat
n Aluminum(689)
n StatuaryBronze(690)
n LightBronze(691)
n Black(693)
n DarkBronze(695)
n Brass(696)
n Custom colors optional
n OptionalSRIprimer-powdercoatonly
n Optional plated finishes
Customizedinstallationtemplatesorproductsmaybeavailabletosolveunusualapplications.
ContactLCNProductSupportforassistance.
Features
Special
Templates
AVAILABLE
NOT AVAILABLE
Closeravailablewithlessthan5.0lbs.openingforceon36˝door.
* Maximumopening/hold-openpointwithstandardtemplate.
180° 110° 110°
180°
PLASTIC
METAL
HINGE (PULL) SIDE
TOP JAMB (PULL)
TOP JAMB (PUSH)
STANDARD (SINGLE)
REGULAR (DOUBLE)
HOLD-OPEN
FUSIBLE LINK
EDA/HEDA
CUSH/HCUSH
SCUSH/SHCUSH
PARALLEL ARM
STOP FACE
MOUNTING COVER CYLINDER *ARM FUNCTION
FINISH
NON-HANDED
NON-SIZED
ACCESSIBILITY
DELAYED ACTION
AVB
POWDER COAT
PLATED
DOUBLE EGRESS

74 LCN Door Control Catalog
phone: 877-671-7011 n fax: 800-248-1460 n www.allegion.com/us n 009426 rev. 2/16
4110
Series
Parallel Arm (Push
Side) Mounting
Mounting details
C
L
2-1/4"
57 mm
5-1/8"
130 mm
5-1/2"
140 mm
3-1/2"
89 mm
14-1/16"
357 mm
4"
102 mm
5-1/8”
130 mm
12-1/4"
311 mm
4110-18
A
B
Butt Hinges Shouldnotexceed5˝(127mm)inwidth
Auxiliary Stop Recommendedathold-openpoint,whereadoorcannotswing180°,orwhereCUSH-N-STOParmisnotused
Clearance EDA,orCUSHshoeis5-1/2˝(140mm)fromdoorface
Top Rail n Lessthan5-1/8˝(130mm)measuredfromstoprequiresPLATE,4110-18
n Platerequires2˝(51mm)minimummeasuredfromthestop
Stop Width Minimum1˝(25mm)
Head Frame FlushorrabettedrequiresCUSHFLUSHPANELADAPTER,4110-419
Reveal Lessthan2-3/4˝(70mm),useCUSHSHOESUPPORT,4110-30withCUSHarms
Blade Stop Spacer 4110-61requiredtoclear1/2˝(13mm)bladestop
Crush Arm RequiresCUSHSHOESUPPORT,4110-30forfifthscrewanchoragewithCUSHarms
Delayed Action n Addsuffix“DEL”toselectedcylinder(eg.4111DEL)
n Notavailablewith4116cylinder.Delaysclosingfrommaximumopeningtoapproximately70°
n Delaytimeadjustableuptoapproximately1minute
Advanced Variable
Backcheck
n Cylinderstartsbackcheckatapproximately45°insteadofthenormal75°
n Addsuffix“AVB”toselectedcylinder
Maximum opening EDAorFusibleLinkarmcanbetemplatedfor
100° A=5-15/16˝(151mm)
B=7-1/4˝(184mm)
CUSHarmcanbetemplatedformaximumopeningat
85° A=8-5/16˝(211mm)
B=9-5/8˝(244mm)
140° A=4-7/16˝(113mm)
B=5-3/4˝(146mm)
90° A=7-11/16˝(195mm)
B=9˝(229mm)
or180° A=2-15/16˝(75mm)
B=2-15/16˝(75mm)
or110° A=5-9/16˝(141mm)
B=6-7/8˝(175mm)
n Hold-openpointsuptomaximumopeningwith
HEDAorFusibleLinkarm
n Hold-openpointatmaximumopeningwith
HCUSH arm
n SpringCushhold-openpointsareapproximately
5˚lessthantemplatedstoppoint

75
LCN Door Control Catalog
phone: 877-671-7011 n fax: 800-248-1460 n www.allegion.com/us n 009426 rev. 2/16
4110
Series
Accessories
4111(6)-3071
Cast Iron Cylinder Assembly
n Handed
n Standard
4110-72
Plastic Cover
n Non-handed
n Standard
4110-72MC
Metal Cover
n Handed
n Requiredforplatedfinishesand
custompowdercoatfinishes
n Optional
4110-3077EDA
Extra Duty Arm
n Non-handed
n Features forged, solid
steel main and forearm
forpotentiallyabusive
installations
4110-3077EDA/ 62G
Extra Duty Arm
n Non-handed
n Features forged, solid
steel main and forearm
forpotentiallyabusive
installations
n Optional4110-62Gthickhub
shoeforbladestopclearance
4110-3049EDA
Hold-Open Arm
n Handed
n Optional
n Provideshold-openfunction,
adjustableatshoe
4110-3049FL
Fusible Link Arm
n Handed
n Releases hold-open function
adjustableatshoewhen
exposedtotemperatures
above165°F
n Optional
NOTE:Checklocalcodesbefore
specifing FL arms. NOT A life safety
product!
4110-3077CNS
Cush-N-Stop Arm
n Non-handed
n Features solid forged steel
mainarmandforearmwith
built-instopinsoffitshoe
Cylinder
Arms
Lefthandshown
Covers

76 LCN Door Control Catalog
phone: 877-671-7011 n fax: 800-248-1460 n www.allegion.com/us n 009426 rev. 2/16
4110
Series
4110-18
Plate
n Requiredforpushsidemount
wheretoprailislessthan5-1/8˝
(130mm),measuredfromthe
stop
n Requiresminimum2˝(51mm)
minimum top rail
4110-30
CUSH Shoe Support
n Providesanchorageforfifthscrew
usedwithCUSHarm,wherereveal
islessthan3-1/16˝(78mm)
4110-61
Blade Stop Spacer
n Lowersparallelarmshoetoclear
1/2˝(13mm)bladestop
4110-419
PA Flush Panel Adapter
n Provideshorizontalmounting
surface for CUSH shoe on single
rabettedorflushframe
Installation Accessories
Accessories
4110-3049CNS
HCUSH Arm
n Non-handed
n Provideshold-openfunction
withtemplatedstop/hold-
open points.
n Handle controls hold-open
function
4110-3077SCNS
Spring CUSH Arm
n Non-handed
n Forabusiveapplications
features solid forged steel main
armandforearmwithspring
loaded stop in the soffit shoe
n Optional
4110-3049SCNS
Spring HCUSH Arm
n Non-handed
n Forabusiveapplications
features solid forged steel main
armandforearmwithspring
loaded stop in the soffit shoe
n Handle controls hold-open
function
n Optional
Arms

77
LCN Door Control Catalog
phone: 877-671-7011 n fax: 800-248-1460 n www.allegion.com/us n 009426 rev. 2/16
Ordering Information
4110
Series
Closer will be shipped with:
- Standard cylinder
-Standardcover
-Extradutyarm
-Self-reamingandtappingscrews
unless options listed below are selected.
1. Specify cylinder size
4111(adjustablefromsize1to5)
4116(DEL,SHCUSHorHCUSHarmnotavailable)
2. Specify hand
RH
LH
3. Select finish
Standard Powder Coat __________
Aluminum, Dark Bronze, Statuary, Light Bronze, Black, Brass
Reduced opening force 4110 Series closers
CAUTION ! Anymanualdoorcloser,includingthosecertifiedbyBHMAtoconformtoANSIStandardA156.4,thatisselected,installedandadjustedbased
onADAorotherreducedopeningforcerequirementsmaynotprovidesufficientpowertoreliablycloseandlatchadoor.
RefertoAUTOMATICOPERATORSsectionforinformation
onsystemsthatmeetreducedopeningforcerequirements
withouteffectingclosingpower.
How-to-order 4110 Series closers
* Maximum opening force.
*4111
4116
*4111
4116
Minimumdoorwidth Minimumdoorwidth
Exterior (and vestibule) door width
28˝
711mm
30˝
762mm
36˝
914mm
42˝
1067mm
48˝
1219mm
Interior door width
28˝
711mm
34˝
864mm
38˝
965mm
48˝
1219mm
54˝
1372mm
60˝
1524mm
size3 size4 size5 size6 size2 size3 size4 size5 size6
Indicatesrecommendedrangeofdoorwidthforclosersize. *AdjustableSize1thru5.
Closer options
Cylinder
Delayed Action (DEL) (not available with 4116)
Advanced Variable Backcheck (AVB)
Cover
Metal (MC)
Finish
Custom Powder Coat (RAL) ___________
(handed metal cover required)
Plated Finish, US ______________
(handed metal cover required)
SRI primer (use with powder coat finishes only)
Specify Arm
Hold-Open Extra Duty (HEDA)
Fusible Link,165° F (FL)
Cush-N-Stop (CUSH)
H-Cush-N-Stop (n/a with 4116 cylinder)
(HCUSH)
Spring Cush (SCUSH)
Spring H-Cush (n/a with 4116 cylinder)
(SHCUSH)
Extra Duty (EDA)
H-Extra Duty (HEDA)
Screw Packs
TB*, Self-Reaming & Tapping (TBSRT)
Wood & Machine Screw (WMS)
TB*, Wood & Machine Screw (TBWMS)
TORX Machine Screw (TORX)
TB* & TORX Machine Screw (TBTRX)
* Specify door thickness if other than 1-3/4˝.
Installation Accessories
Plate, 4110-18
CUSH Shoe Support, 4110-30
Blade Stop Spacer, 4110-61
PA Flush Panel Adapter, 4110-419
Special Template
ST- _________
Table of sizes
n Selectcloserbasedonwidthofdoor.
n Thespringpowerofnon-sized4111cylinderisadjustablefromsize1throughsize5andisshippedsettosize3.
n Sized4116seriescylinders6.
n Delayedactionnotavailablewith4116cylinder
n H-CUSHandSPRINGH-CUSHarmnotavailablewith4116cylinder.
DOOR WIDTH 36˝ 42˝ 48˝
8.5*lbs. 4111 4111 4111
5.0*lbs. 4111 4111 4111

78 LCN Door Control Catalog
phone: 877-671-7011 n fax: 800-248-1460 n www.allegion.com/us n 009426 rev. 2/16
Notes
__________________________________________________________________________________________________________________________________________________________________________________
__________________________________________________________________________________________________________________________________________________________________________________
__________________________________________________________________________________________________________________________________________________________________________________
__________________________________________________________________________________________________________________________________________________________________________________
__________________________________________________________________________________________________________________________________________________________________________________
__________________________________________________________________________________________________________________________________________________________________________________
__________________________________________________________________________________________________________________________________________________________________________________
__________________________________________________________________________________________________________________________________________________________________________________
__________________________________________________________________________________________________________________________________________________________________________________
__________________________________________________________________________________________________________________________________________________________________________________
__________________________________________________________________________________________________________________________________________________________________________________
__________________________________________________________________________________________________________________________________________________________________________________
__________________________________________________________________________________________________________________________________________________________________________________
__________________________________________________________________________________________________________________________________________________________________________________
__________________________________________________________________________________________________________________________________________________________________________________
__________________________________________________________________________________________________________________________________________________________________________________
__________________________________________________________________________________________________________________________________________________________________________________
__________________________________________________________________________________________________________________________________________________________________________________
__________________________________________________________________________________________________________________________________________________________________________________
__________________________________________________________________________________________________________________________________________________________________________________
__________________________________________________________________________________________________________________________________________________________________________________
__________________________________________________________________________________________________________________________________________________________________________________
__________________________________________________________________________________________________________________________________________________________________________________
__________________________________________________________________________________________________________________________________________________________________________________
__________________________________________________________________________________________________________________________________________________________________________________
__________________________________________________________________________________________________________________________________________________________________________________

79
LCN Door Control Catalog
phone: 877-671-7011 n fax: 800-248-1460 n www.allegion.com/us n 009426 rev. 2/16
4110T
Series
The 4110T is LCN’s best performing heavy duty track closer designed specifically for interior
doors in institutional and other high traffic applications.
Certifications Grade 1 - ANSI A156.4, UL 10C, ADA, 100 Hour
Salt Spray, Meets BAA - Buy American Act
Body Construction n Cast Iron Body
n Full Complement Bearing
n 1-1/2˝DiameterPiston
n 11/16˝DiameterDoubleHeatTreated
PinionJournal
Fluid All Weather Fluid
Handing Handed
Size AdjustableSpringSize1-5,orSized6.
IncludesPatentedGreenDial
Warranty 30 years
Cover n Plastic,Standard
n Metal, Optional
Fasteners SelfReamingandTappingScrews(SRT)
Mounting StopFace(PushSide)
Arms StandardArmandTrackwithRoller
Finishes/Colors/
Powder Coat
n Aluminum(689)
n StatuaryBronze(690)
n LightBronze(691)
n Black(693)
n DarkBronze(695)
n Brass(696)
n Custom colors optional
n OptionalSRIprimer-powdercoatonly
n Optional plated finishes
Customizedinstallationtemplatesorproductsmaybeavailabletosolveunusualapplications.
ContactLCNProductSupportforassistance.
Features
Special
Templates
AVAILABLE
NOT AVAILABLE
Closeravailablewithlessthan5.0lbs.openingforceon36˝door.
* Maximumopening/hold-openpointwithstandardtemplate.
HINGE (PULL) SIDE
TOP JAMB (PULL)
TOP JAMB (PUSH)
PARALLEL ARM
STOP FACE
MOUNTING
110° 100°
PLASTIC
METAL
STANDARD (SINGLE)
REGULAR (DOUBLE)
HOLD-OPEN
FUSIBLE LINK
EDA/HEDA
CUSH/HCUSH
SCUSH/SHCUSH
COVER CYLINDER *ARM FUNCTION
FINISH
NON-HANDED
NON-SIZED
ACCESSIBILITY
DELAYED ACTION
AVB
POWDER COAT
PLATED
DOUBLE EGRESS

80 LCN Door Control Catalog
phone: 877-671-7011 n fax: 800-248-1460 n www.allegion.com/us n 009426 rev. 2/16
4110T
Series
Stop face (Push Side)
Mounting
Mounting details
2"
51 mm
12-1/4"
311 mm
22-3/4"
578 mm
1-7/16"
37 mm
1-1/16"
27 mm
3-11/16"
94 mm
3-1/2"
89 mm
7/16"
11 mm
1-1/4"
32 mm
2-1/4"
57 mm
4110T-18
Butt Hinges Shouldnotexceed5˝(127mm)inwidth
Auxiliary Stop n Recommendedathold-openpointorwhereadoorcannotswing110°.
n Optionaltrackbumperassemblyassistsbackcheckincushioningtheopeningswingofthedoor
n Itisnotintendedtoreplaceanauxiliarystop
Clearance Projects2-1/4˝(57mm)fromfaceofdoor
Top Rail n Lessthan5-1/4˝(133mm)measuredfromthestop,requiresPLATE,4110T-18
n Platerequires2-1/4˝(57mm)minimum
Stop Width Minimum1-1/4˝(32mm)
Maximum Opening n Templatingallows110°withstandardtrackarm,limitedto100°withoptionalbumpertracks
n Variablehold-openangleswithinfiniteoptions
Notes:
•Manytrackstyledoorclosersarecapableofallowing180°ofdoorswing
•Themajorityoftrackstyleclosersareattheirweakestclosingforceinthe180°–130°range
•Consultfactoryforapplicationswheredoormustswing180°

81
LCN Door Control Catalog
phone: 877-671-7011 n fax: 800-248-1460 n www.allegion.com/us n 009426 rev. 2/16
4110T
Series
Accessories
4111(6)T-3071
Cast Iron Cylinder Assembly
n Handed
n Standard
4110T-72
Plastic Cover
n Non-handed
n Standard
4110T-72MC
Metal Cover
n Handed
n Requiredforplatedfinishesand
custompowdercoatfinishes
n Optional
4110T-3077T
Standard
n Handed
n Rollernotincludedwitharm
4110T-3038
Standard Track
n Non-handed
n Non hold-open
n Will accept hold-open clip and/
orbumperassembly
n Standard
4110T-3038B
Standard Track with Bumper
n Non-handed
n Non hold-open
n Withbumperassembly
installed
n Will accept hold-open clip
n Optional
4110T-3038H
Hold-Open Track
n Non-handed
n With hold-open clip installed
n Willacceptbumperassembly
n Optional
4110T-3038HB
Hold-Open Track with Bumper
n Non-handed
n With hold-open clip and
bumperassemblyinstalled
n Optional
Cylinder
Arm
Tracks
Covers

82 LCN Door Control Catalog
phone: 877-671-7011 n fax: 800-248-1460 n www.allegion.com/us n 009426 rev. 2/16
4110T
Series
4110T-18
Plate
n Requiredwheretoprail,when
measured from the stop, is less
than5-1/4˝(133mm)
n Requiresminimum2-1/4˝
(57mm)minimumtoprail
4110T-169
Track Bumper
n Mountsintracktoassist
backcheck,notreplaceauxiliary
stop
n Limitsmaximumopening.
Consistsofbumper,bumperpost,
andmountingscrew
4110T-3054
Hold-Open Clip
n Mountsintracktoprovidehold-
open function
n Hold-openpointcontrolledbyclip
location
n Consists of clip and mounting
screws
n Requires4110T-3034HTrack
Roller
4110T-3034
Track Roller
n Quiet,lowfrictionroller
assembly
n Shoulderdimension“X”=1/16˝
(2mm)
Installation Accessories
Accessories
4110T-3034H
Track Roller
n Quiet,lowfrictionrollerassembly
n Shoulderdimension“X”=1/16˝
(2mm)
n Spring-loaded hold-open
mechanism

83
LCN Door Control Catalog
phone: 877-671-7011 n fax: 800-248-1460 n www.allegion.com/us n 009426 rev. 2/16
Ordering Information
4110T
Series
Closer will be shipped with:
-Standardcover
- Standard arm
-Trackroller
-Standardtrack
-Self-reamingandtappingscrews
unless options listed below are selected.
1. Specify cylinder size
4111T(ADA)
4113T
4114T
2. Specify hand
RH
LH
3. Select finish
Standard Powder Coat __________
Aluminum, Dark Bronze, Statuary, Light Bronze, Black, Brass
Reduced opening force 4110T Series closers
CAUTION ! Anymanualdoorcloser,includingthosecertifiedbyBHMAtoconformtoANSIStandardA156.4,thatisselected,installedandadjustedbased
onADAorotherreducedopeningforcerequirementsmaynotprovidesufficientpowertoreliablycloseandlatchadoor.
RefertoPOWEROPERATORSsectionforinformationon
systemsthatmeetreducedopeningforcerequirements
withouteffectingclosingpower.
How-to-order 4110T Series closers
4113T
4114T
Minimumdoorwidth
Interior door width
26˝
660mm
34˝
864mm
38˝
965mm
48˝
1219mm
size1 size3 size4
Indicatesrecommendedrangeofdoorwidthforclosersize.
Closer options
Cover
Metal (MC)
Finish
Custom Powder Coat (RAL) ___________
(handed metal cover required)
Plated Finish, US ______________
(handed metal cover required)
SRI primer (use with powder coat finishes only)
Specify Track
Standard with Bumper (BUMPER)
Hold-Open (HO)
Hold-Open with Bumper (HBUMPER)
Specify Screw Packs
TB* w/Self-Reaming and Tapping (TBSRT)
Wood & Machine Screw (WMS)
TB*, Wood & Machine Screw (TBWMS)
TORX Machine Screw (TORX)
TB* & TORX Machine Screw (TBTRX)
* Specify door thickness if other than 1-3/4˝.
Installation Accessories
Plate, 4110T-18
Special Template
ST- _________
Table of sizes
n Selectcloserbasedonwidthofdoor
n Sized4110Tseriescylindersavailableinsize1,3or4
n Closingpowerofall4110TSeriesclosersmaybeincreased15%
n Specifynexthighersizecloserwherestrongdraftsexist
* Maximum opening force.
DOOR WIDTH 36˝ 42˝ 48˝
8.5*lbs. N/A N/A N/A
5.0*lbs. 4111T 4111T 4111T

84 LCN Door Control Catalog
phone: 877-671-7011 n fax: 800-248-1460 n www.allegion.com/us n 009426 rev. 2/16
Notes
__________________________________________________________________________________________________________________________________________________________________________________
__________________________________________________________________________________________________________________________________________________________________________________
__________________________________________________________________________________________________________________________________________________________________________________
__________________________________________________________________________________________________________________________________________________________________________________
__________________________________________________________________________________________________________________________________________________________________________________
__________________________________________________________________________________________________________________________________________________________________________________
__________________________________________________________________________________________________________________________________________________________________________________
__________________________________________________________________________________________________________________________________________________________________________________
__________________________________________________________________________________________________________________________________________________________________________________
__________________________________________________________________________________________________________________________________________________________________________________
__________________________________________________________________________________________________________________________________________________________________________________
__________________________________________________________________________________________________________________________________________________________________________________
__________________________________________________________________________________________________________________________________________________________________________________
__________________________________________________________________________________________________________________________________________________________________________________
__________________________________________________________________________________________________________________________________________________________________________________
__________________________________________________________________________________________________________________________________________________________________________________
__________________________________________________________________________________________________________________________________________________________________________________
__________________________________________________________________________________________________________________________________________________________________________________
__________________________________________________________________________________________________________________________________________________________________________________
__________________________________________________________________________________________________________________________________________________________________________________
__________________________________________________________________________________________________________________________________________________________________________________
__________________________________________________________________________________________________________________________________________________________________________________
__________________________________________________________________________________________________________________________________________________________________________________
__________________________________________________________________________________________________________________________________________________________________________________
__________________________________________________________________________________________________________________________________________________________________________________
__________________________________________________________________________________________________________________________________________________________________________________

85
LCN Door Control Catalog
phone: 877-671-7011 n fax: 800-248-1460 n www.allegion.com/us n 009426 rev. 2/16
4000T
Series
The 4000T is a heavy duty closer to reliably control fire and smoke barrier doors with
maximum swing of 90°. Designed for use with an SEM 7850 wall magnet.
Certifications Grade 1 - ANSI A156.4, UL 10C, ADA, 100 Hour
Salt Spray, Meets BAA - Buy American Act
Body Construction n Cast Iron Body
n Full Complement Bearing
n 1-1/2˝DiameterPiston
n 3/4˝DiameterDoubleHeatTreated
PinionJournal
Fluid All Weather Fluid
Handing Non-Handed
Size Sized3or4
Warranty 30 years
Cover n Plastic,Standard
n Metal, Optional
Fasteners Woodandmachinescrewpack
Mounting Inawallpocket,hingeside
Arms StandardArmandTrackwithRoller
Finishes/Colors/
Powder Coat
n Aluminum(689)
n StatuaryBronze(690)
n LightBronze(691)
n Black(693)
n DarkBronze(695)
n Brass(696)
n Custom colors optional
n OptionalSRIprimer-powdercoatonly
n Optional plated finishes
Customizedinstallationtemplatesorproductsmaybeavailabletosolveunusualapplications.
ContactLCNProductSupportforassistance.
Features
Special
Templates
AVAILABLE
NOT AVAILABLE
* Maximumopening/hold-openpointwithstandardtemplate.
90°
PLASTIC
METAL
HINGE (PULL) SIDE
TOP JAMB (PULL)
TOP JAMB (PUSH)
STANDARD (SINGLE)
REGULAR (DOUBLE)
HOLD-OPEN
FUSIBLE LINK
EDA/HEDA
CUSH/HCUSH
SCUSH/SHCUSH
PARALLEL ARM
STOP FACE
MOUNTING COVER CYLINDER *ARM FUNCTION
FINISH
NON-HANDED
NON-SIZED
ACCESSIBILITY
DELAYED ACTION
AVB
POWDER COAT
PLATED
DOUBLE EGRESS

86 LCN Door Control Catalog
phone: 877-671-7011 n fax: 800-248-1460 n www.allegion.com/us n 009426 rev. 2/16
4000T
Series
Wall pocket mounting
Mounting details
1
X
2
3
X
VIEW OF CLOSER
WITH DOOR CLOSED
DEPTH OF POCKET AT
MAGNET MOUNTING LOCATION = X
RECOMMENDED
POCKET DEPTH
LCN MODEL
SEM 7830
SEM 7840
SEM 7850
2-1/4"
57 mm
12-1/4"
311 mm
22-3/4"
578 mm
1-1/4"
32 mm
OF PIVOT POINT (BY OTHERS)
3-1/2"
89 mm
1-9/16"
40 mm
1-1/16"
27 mm
4-1/16"
103 mm
2-7/16"
62 mm
3-7/16"
87 mm
Butt Hinges n PocketPivot,TotalDoorHingeorCenterPivotaredoormountingoptions
n Shouldnotexceed5˝(127mm)
Pocket Depth n Seeabovetablefordistancerequiredbetweendoorandclosermountinglocation
n Thisdimensionismeasuredfromthecylindermountingsurfacetothepullsidefaceofthedoorat90°
Wall Magnet n SEM7850isrecommended.Useofothermagnetsmayrequirespecialconstructiontoalterthedepthofthepocket
at the magnet location
n See Fire Life Safety Section
Dimension 1 n Thedistancefromthecenterlineoftheclosershafttothecenterlineofthehingeorpivot
n Forpocketpivotortotaldoorhinge,9-1/2˝(241mm)
n Forbutthinge8˝(203mm)
n Forcenterpivot10˝(254mm)
Dimension 2 n Thedistancefromthecenterlineofthepivotorhingetothecylindermountingsurface
n Forpocketpivot4-1/2˝(114mm)
n Fortotaldoorhinge3-7/8˝(98mm)
n Forbutthinge2-7/8˝(73mm)
n Forcenterpivot4-1/2˝(114mm)
Dimension 3 n Thedistancefromthecenterlineofthepivotorhingetoendofthetrack
n Forpocketpivotortotaldoorhinge,3-7/8˝(98mm)
n Forbutthinge2-3/8˝(60mm)
n Forcenterpivot4-5/8˝(117mm)
Maximum Opening n Templatingallows90°only
n Hold-openpoint90°withmagnet
Notes:
•Cylindermountsonwall
•Trackmountsonhingesideofdoor

87
LCN Door Control Catalog
phone: 877-671-7011 n fax: 800-248-1460 n www.allegion.com/us n 009426 rev. 2/16
4000T
Series
Accessories
4003(4)T-3071
Cast Iron Cylinder Assembly
n Non-handed
n Standard
4000T-72
Plastic Cover
n Non-handed
n Standard
4000T-72MC
Metal Cover
n Handed
n Requiredforplatedandcustom
powdercoatfinishes
n Optional
4000T-3077T
Standard Arm
n Non-handed
n Rollernotincludedwitharm
4000T-3038
Standard Track
n Non-handed
n Non hold-open
n Will not accept hold-open clip
orbumperassembly
n Standard
4000T-3034
Track Roller
n Quiet,lowfrictionroller
assembly
n ShoulderDimension“X”=1/8˝
(3mm)
Cylinder
Arm
Tracks
Covers

88 LCN Door Control Catalog
phone: 877-671-7011 n fax: 800-248-1460 n www.allegion.com/us n 009426 rev. 2/16
Ordering Information
4000T
Series
Closer will be shipped with:
- Standard cylinder
-Standardcover
- Standard arm
-Trackroller
-Standardtrack
-Self-reamingandtappingscrews
unless options listed below are selected.
1. Select cylinder size
4003T
4004T
2. Select finish
Standard Powder Coat __________
Aluminum, Dark Bronze, Statuary, Light Bronze, Black, Brass
How-to-order 4000T Series closers
4003T
4004T
Minimumdoorwidth
Interior door width
28˝
711mm
34˝
864mm
38˝
965mm
42˝
1067mm
48˝
1219mm
size3 size4
Indicatesrecommendedrangeofdoorwidthforclosersize.
Closer options
Cover
Metal (MC)
Finish
Custom Powder Coat (RAL) ___________
(handed metal cover required)
Plated Finish, US ______________
(handed metal cover required)
SRI primer (use with powder coat finishes only)
Specify Screw Packs
TB*, Wood & Machine Screw (TBWMS)
TORX Machine Screw (TORX)
TB* & TORX Machine Screw (TBTRX)
* Specify door thickness if other than 1-3/4˝.
Special Template
ST- _________
Table of sizes
n Selectcloserbasedonwidthofdoor
n 4000TSeriescylindersavailableinsize3or4
n Closingpowerof4000TSeriesclosersisnotadjustable

1
LCN Door Control Catalog
phone: 877-671-7011 n fax: 800-248-1460 n www.allegion.com/us n 009426 rev. 2/16
Product selection guide
Surface mounted 1000 Series LCN closers feature a modern slim line design for easy installation on
narrow head frames and top rails. This guide is based on the desired mounting of the closer. NOTE:
For parallel mounts order “P” version to also receive PA Shoe.
Product comparison
This chart shows a basic comparison of LCN 1000 Series closers. Refer to the specific closer chapter for complete details.
EXTERIOR DOOR
DOUBLE
LEVER ARM
1250
1260
1450
1460
PUSH SIDE
MOUNTED
PULL SIDE
MOUNTED
DOUBLE
LEVER ARM
1250
1260
1450
1460
PULL SIDE
MOUNTED
INTERIOR DOOR
PUSH SIDE
MOUNTED
DOUBLE
LEVER ARM
1250
1260
1450
1460
SINGLE
LEVER ARM
1460T
DOUBLE
LEVER ARM
1250
1260
1450
1460
SINGLE
LEVER ARM
1460T
Closeravailablewithlessthan5.0lbs.openingforceon36˝door.
* Maximumopening/hold-openpointwithstandardtemplate.Seeindividualcloserseriesfordegreesofopeningper
installation.
D= Fordesignerseriesonly.
AVAILABLE
NOT AVAILABLE
1000 Series
surface
mounted
closers
PAINT
PLASTIC
METAL
DESIGNER SERIES
COVER *ARM FUNCTION
HEAVY DUTY
HOLD-OPEN
STANDARD (SINGLE)
REGULAR (DOUBLE)
EDA/HEDA
CUSH/HCUSH
SCUSH/SHCUSH
180
NON-HANDED
NON-SIZED
ACCESSIBILITY
CYLINDER
DELAYED ACTION
POWDER COAT
PLATED
FINISH
STOP FACE
PARALLEL ARM
MOUNTING
1250
HINGE (PULL) SIDE
TOP JAMB (PULL)
TOP JAMB (PUSH)
180 180 110 110
180 180 110120 110
1450 180 180 180 110 110
1260
1460
1460T
180 180 180
115180
110 100 100
D
D

2LCN Door Control Catalog
phone: 877-671-7011 n fax: 800-248-1460 n www.allegion.com/us n 009426 rev. 2/16
APPLICATIONS
n For aluminum, hollow metal, or wood swinging doors and frames.
n Can be used with hinge or pivot mounted door.
n Mounts on 1-3/4˝ transom without adapter plates.
n Adapter plates and other installation accessories available for
unusual conditions.
FEATURES COMMON TO 1000 SERIES
n
1000 series closers mount three ways. Closers with regular or hold-
open arm mount hinge side or top jamb. Parallel arm, closers include -
62PA SHOE required for parallel arm mount. 1460T mounts hinge side,
top jamb (pull side) and stop face.
n Non-handed for right and left swinging doors.
n Closers to meet ADA reduced opening force requirements.
n Adjustable hydraulic backcheck cushions opening swing prior to 90°.
n Separate regulation of general closing speed and latching speed.
n Joints in arm and shoe adapt to uneven trim.
n Reversible shoe to boost latching power on double lever arms.
DESIGN ASSISTANCE
LCN has been providing reliable solutions to unique door control problems
since 1925. Design and specification assistance are only a phone call away.
Contact LCN for assistance or technical information at 877-671-7011
or FAX 800-248-1460 (Order Entry), Fax 815-879-1495 for
Product Support.
WARRANTY
n
30 year limited warranty (1460 Series) and 20 year limited warranty
(1260 Series) on cast iron closers.
n
15 year limited warranty (1250 series) and25 year limited warranty
(1450 series) on cast aluminum closers.
See General Information Section for complete warranty details.
SPECIFICATIONS
Refer to “SPECIFICATIONS” section for suggested architectural
specifications.
MATERIALS
n
High strength cast iron (1260, 1460, 1460T) or cast aluminum
(1250, 1450) cylinder.
n Forged steel main arm for all EDA, Cush, 1460HD and 1460T Arms.
n One piece forged steel piston.
n Heat treated pinion.
n
LCN's standard all weather fluid performs to temperature ranges
from 120°F (49°C) to -30°F (-35°C).
n High efficiency, full complement, low friction bearings.
n Tamper resistant regulating screws.
n Full rack and pinion hydraulic action.
n
Quiet, low friction track and roller combination for all single lever arm
closers.
FINISHES
n
Available in six standard or a wide selection of optional custom
powder coat finishes to blend with door and frame.
n
LCN’s powder coat finish surpasses 100 hours of salt spray which is
over four times the ANSI standard for corrosion resistance.
n Painted finishes on cast aluminum closers (1250, 1450).
n
For installations where a higher level of corrosion resistance is
required, LCN offers an optional special rust inhibiting (SRI) pre-
treatment (cast iron). Closers that combine the exclusive LCN powder
coat finish and the SRI pre-treatment exceed the ANSI standard for
corrosion resistance even further.
n
Plated finishes are available as an option to accent door and frame
for the 1460 Series closers.
LISTINGS & APPROVALS
UL listed for self-closing doors without hold-open under “SWINGING
DOOR CLOSERS” (GVEV) file R 1943. Tested and certified under ANSI
Standard A156.4 grade one. Consult factory for details.
Consult factory for other listings such as; cUL, California State Fire
Marshal, Bureau of Standards and Appeals.
POSITIVE PRESSURE
LCN closers have been certified for three hours by UL to be in compliance
with UL 10 C. Contact LCN for specific details on door closer fire ratings.
FASTENERS
1260, 1460, 1460T series closers are shipped with: A standard
SELF-REAMING and TAPPING SCREW (SRT) pack that contains
Philips head SRT screws to install the closer. 1250 and 1450 series closers
are shipped with: A universal screw pack to include self reaming and
tapping screws (SRT), machine screws and wood screws. Standard LCN
thru bolts (TB) can be installed on 1-3/4˝ (44 mm) thick doors with
1/4-20 machine screws. Optional thru bolt (TB) sizes are available
for 1-5/8˝ (41 mm) or 1-3/8˝ (35 mm) door thickness, but this
must be specified when ordering.
Drill 25/64˝ for
steel doors
or
Drill 3/8˝
for wood doors
Notes:
1.ForThruBolts,specifydoorthicknessifotherthan1-3/4˝(44mm).Representedindiagram
asdimension“X”.
2.Phillipshead,metricmachinescrewsareavailable,pleasespecify.
3.LCNrecommendstheuseofwoodscrewsinwooddoorapplications.
MAINTENANCE
Closers mounted according to LCN installation instructions require no
periodic maintenance or adjustments..
1000 Series
surface
mounted
closers

3
LCN Door Control Catalog
phone: 877-671-7011 n fax: 800-248-1460 n www.allegion.com/us n 009426 rev. 2/16
1250
Series
The 1250 Series cast aluminum closer is designed for low-frequency and low abusive traffic
areas. This cast aluminum closer is ideal for aluminum storefronts, interior offices and many
other applications. Combining dependable operation, low maintenance and a patented stylish
look - with or without the optional slim line cover. And with the most common hole pattern in
the industry, the 1250 Series is the perfect choice for easy aftermarket replacement.
AVAILABLE
NOT AVAILABLE
Closer available with less than 5.0 lbs. opening force on 36˝ door.
* Maximum opening/hold-open point with standard template.
Certifications Grade 1 - ANSI A156.4, UL 10C, ADA, 100 Hour
Salt Spray, Meets BAA - Buy American Act
Body Construction n Cast Aluminum Body
n Full Complement Bearing
n 1-3/8˝DiameterPiston
n 5/8˝DiameterSingleHeatTreated
PinionJournal
Fluid All Weather Fluid
Handing Non-Handed
Templating Peel-n-Sticktemplates-
3/4˝x9-1/16˝MountingHolePattern
Size Adjustable Spring Size 1-5
Warranty 15 years
Cover n Slim Line Cover, Optional
Fasteners UniversalScrewPack(UNIV)
Mounting Hinge(PullSide),TopJamb(PushSide),
ParallelArm(PushSide)
Arms TripackincludesRegular,TopJamb,and
ParallelArm(Rw/PA)
Finishes/Colors/
Powder Coat
n Aluminum(689)
n StatuaryBronze(690)
n LightBronze(691)
n Black(693)
n DarkBronze(695)
n Brass(696)
n Custom colors optional
n OptionalSRIprimer-powdercoatonly
Customized installation templates or products may be available to solve unusual applications.
ContactLCNProductSupportforassistance.
Special
Templates
Features
PLASTIC
METAL
COVER*ARM FUNCTION
HEAVY DUTY
HOLD-OPEN
STANDARD (SINGLE)
REGULAR (DOUBLE)
EDA/HEDA
CUSH/HCUSH
SCUSH/SHCUSH
180°180°180°110°110°
NON-HANDED
NON-SIZED
ACCESSIBILITY
CYLINDER
DELAYED ACTION
POWDER COAT
PLATED
FINISH
PARALLEL ARM
MOUNTING
STOP FACE
HINGE (PULL) SIDE
TOP JAMB (PULL)
TOP JAMB (PUSH)
PAINT

4LCN Door Control Catalog
phone: 877-671-7011 n fax: 800-248-1460 n www.allegion.com/us n 009426 rev. 2/16
1250
Series
Hinge (Pull) Side
Mounting
Mounting details
Butt Hinges Shouldnotexceed5˝(127mm)inwidth
Auxiliary Stop Recommendedathold-openpointorwhereadoorcannotswing180°
Reveal Shouldnotexceed3/4˝(19mm)forregulararmor1/2˝(13mm)forhold-openarm
Top Rail Lessthan2-3/8˝(60mm)requiresPLATE,1250-18
Clearance 3-1/16˝(78mm)behinddoorrequiredforinstallation.
Maximum opening 100°: A=6-11/16˝(170mm)
B=12-7/16˝(316mm)
101°to120°: A=5-11/16˝(144mm)
B=11-7/16˝(291mm)
or*121°to180°: A=3-1/16˝(78mm)
B=8-15/16˝(227mm)
Hold-openpointsuptomaximumopeningwithhold-openarm
*Frameandtrimpermitting.
A
B
3-3/16"
81 mm
2-11/16"
68 mm
3-1/16"
78 mm
11-3/4"
298 mm
1-1/2"
38 mm
2-3/8"
60 mm
9-11/16"
246 mm

5
LCN Door Control Catalog
phone: 877-671-7011 n fax: 800-248-1460 n www.allegion.com/us n 009426 rev. 2/16
1250
Series
Top Jamb (Push Side)
Mounting
Mounting details
Butt Hinges Shouldnotexceed5˝(127mm)inwidth
Auxiliary Stop Recommendedathold-openpointorwhereadoorcannotswing180°
Reveal Arm Type MaximumReveal Opening
RegularArm 0˝to5˝ 180°
Long Arm 4˝to8˝ 165°
Hold-Open Arm 0˝to2-3/4˝ 180°
Long Hold-Open Arm 2˝to6-1/2˝ 180°
Top Rail Requires1-3/4˝(44mm)minimum.2-1/2˝(64mm)minimumwithcloseronPLATE,1250-18
Head Frame Lessthan1-3/4˝(44mm)requiresPLATE,1250-18.Forflushceilingconditionwith2˝(51mm)headframe,
usePLATE,1250-18.(Platerequires1-3/8˝(35mm)minimum.)
Maximum opening 100°: A=7-3/16˝(183mm)
B=12-15/16˝(329mm)
101°to120°: A=5-11/16˝(144mm)
B=11-7/16˝(291mm)
or*121°to180°: A=3-1/16˝(78mm)
B=8-15/16˝(227mm)
Hold-openpointsuptomaximumopeningwithhold-openarm
*Frameandtrimpermitting.
11-3/4"
298 mm
3-1/16"
78 mm 2-9/16"
65 mm
2-11/16"
68 mm 1-13/16"
46 mm
1-15/16"
49 mm
9-11/16"
246 mm
A
B

6LCN Door Control Catalog
phone: 877-671-7011 n fax: 800-248-1460 n www.allegion.com/us n 009426 rev. 2/16
1250
Series
Mounting details
Parallel Arm
(Push Side) Mounting
Butt Hinges Shouldnotexceed5˝(127mm)inwidth
Auxiliary Stop Recommendedathold-openpoint,whereadoorcannotswing180°,orwhereCUSH-N-STOParmisnotused
Top Rail Lessthan4-1/2˝(114mm)measuredfromthestoprequiresPLATE,1250-18PA
Clearance 1250-62PAshoeprojects4-1/8˝(105mm)fromdoorface
Stop Width Minimum1˝(25mm)
Blade Stop Clearance,requires1/2˝(13mm)BLADESTOPSPACER,1250-61
Auxiliary Shoe 1250-62Aallowsinstallationofregulararmwithoverheadholder/stop
Maximum opening Regularorhold-openarmcanbetemplatedto
100°: A=7-5/16˝(186mm)
B=8-5/8˝(219mm)
or101°to130°: A=5-13/16˝(148mm)
B=7-1/8˝(181mm)
or*131°to180°: A=3-13/16˝(97mm)
B=5-1/8˝(130mm)
Hold-openpointsuptomaximumopeningwithhold-openarm.
*Frameandtrimpermitting.
Note:
•1250Parallelarmcloserincludes1250-201FIFTHHOLESPACERtosupportPASHOE
A
B
9-11/16"
246 mm
5-5/16"
135 mm
3-1/16"
78 mm
4-1/8"
105 mm
4"
102 mm
4-1/2
114mm
16-11/16"
424 mm
The'A'dimensionreferstotheedgeofthecloserbodytothecenterlineofpivotorhinge.
The'B'dimensionreferstotheedgeoftheclosershoebrackettothecenterlineofpivotorhinge.

7
LCN Door Control Catalog
phone: 877-671-7011 n fax: 800-248-1460 n www.allegion.com/us n 009426 rev. 2/16
1250
Series
17"
433 mm
3-1/16"
78 mm
4-13/16"
122 mm 5-11/16"
144 mm
9-11/16"
246 mm
4"
102 mm
4"
102 mm
A
B
17"
433 mm
3-1/16"
78 mm
4-13/16"
122 mm
4"
102 mm
4"
102 mm 9-11/16"
246 mm
A
B
Mounting details
Clearance 1250-62EDAorCUSHshoeprojects5-11/16˝(144mm)fromdoorface
Head Frame FlushorrabbetedrequiresCUSHFLUSHPANELADAPTER,1250-419
EDA or CUSH ARM RequiressoffitSHOESUPPORT,1250-30forfifthscrewanchoragewhererevealislessthan2-3/4˝(70mm)
Spring CUSH Deadstoppointsareapproximately5°morethantemplatedstoppoint.
Maximum opening EDAtemplateallows180°.Hold-openpoint
uptomaximumopening
CUSHarmscanbetemplatedformaximumopening/
hold-openpointat85°
100°: A=7-5/16˝(186mm)
B=9˝(229mm)
85°: A=8-13/16˝(224mm)
B=10-1/2˝(267mm)
or130°: A=5-13/16˝(148mm)
B=7-1/2˝(191mm)
90°: A=8-1/16˝(205mm)
B=9-3/4˝(248mm)
or180°: A=3-13/16˝(97mm)
B=5-1/2˝(140mm)
100°: A=6-11/16˝(170mm)
B=8-3/8˝(213mm)
105°: A=6-1/16˝(154mm)
B=7-3/4˝(197mm)
110°: A=5-7/16˝(138mm)
B=7-1/8˝(181mm)
Note:
•1250closersorderedwithEDA,CUSHorSPRINGCUSHarmsinclude1250-201FIFTHHOLESPACERtosupporttheshoe
CUSH/SCUSH
mount
EDA mount
EDA and CUSH -N-STOP
mounting
The'A'dimensionreferstotheedgeofthecloserbodytothecenterlineofpivotorhinge.
The'B'dimensionreferstotheedgeoftheclosershoebrackettothecenterlineofpivotorhinge.

8LCN Door Control Catalog
phone: 877-671-7011 n fax: 800-248-1460 n www.allegion.com/us n 009426 rev. 2/16
1250-62A
Auxiliary Shoe
n Requiresatoprailof7-1/8˝
(181mm).Optionalshoereplaces
-62PAforparallelarmmounting
ofregulararmwithoverhead
holder/stop
1250-30
CUSH Shoe Support
n Provideanchorageforfifth
screw used with CUSH arms where
reveal is less than
2-3/4˝(70mm)
1250-61
Blade Stop Spacer
n Lowers parallel arm shoe to clear
1/2˝(13mm)bladestop
1250-18PA
Plate
n Requiredforparallelarm
mounting where top rail is less
than4-1/2˝(114mm),measured
fromthestop
n Requires1-3/4˝(44mm)
minimum top rail
1250
Series
1250-3071
Cast Aluminum Cylinder Assembly
n Non-Handed
n Standard
1250-72
Slim Line Plastic Cover
n Non-Handed
n Optional
1250-419
PA Flush Panel Adapter
n Provideshorizontalmounting
surfaceforPA,EDAorCUSH
shoe on single rabbeted or
flushframe
1250-62PA
PA Shoe
n Requiredforparallelarmmounting
Cylinders
Installation Accessories
Covers
Accessories
1250-18
Plate
n Requiredforhingesidemount
where top rail is less than
2-3/8˝(60mm)
n Requiredfortopjambmounting
whereheadframeislessthan
1-3/4˝(44mm)orflushceiling
conditionexists
n Requiresminimum1-1/2˝(38
mm)minimumtoprailor1-1/4˝
(32mm)headframe

9
LCN Door Control Catalog
phone: 877-671-7011 n fax: 800-248-1460 n www.allegion.com/us n 009426 rev. 2/16
1250
Series
1250-3077
Regular Arm w/PA
n Non-handed
n Mounts hinge side or top jamb
n ParallelArmincludesPASHOE,
1250-62PArequiredforparallel
arm mounting
1250-3049
Hold-Open Arm w/ PA
n Non-handed
n Mounts hinge side, top jamb or
parallelarm(62PArequired)
n Hold-open adjustable at shoe
n Optional
1250-3049L
Long Hold-Open Arm
n Non-handed
n Includes LONG HEAD AND TUBE,
1250-3048Lfortopjambmount
with deep reveals
n Optional
1250-3077L
Long Arm
n Non-handed
n IncludesLONGRODANDSHOE,
1250-79LRfortopjambmount
with deep reveals
n Optional
1250-3077EDA
Extra Duty Arm
n Non-handed
n Featuressolidforgedsteelmain
andforearmforpotentiallyabusive
installations
n Optional
1250-3049EDA
Hold-Open Extra Duty Arm
n Handed
n Provideshold-openfunction
adjustable at shoe
n Optional
1250-3077CNS
Cush-n-Stop® Arm
n Non-handed
n Featuressolidforgedsteelmain
armandforearmwithstopinsoffit
shoe
n Optional
1250-3049CNS
HCUSH Arm
n Non-handed
n Provideshold-openfunctionwith
templated stop/hold-open points.
n Handle controls hold-open
function
n Optional
1250-3077SCNS
Spring CUSH Arm
n Non-handed
n Forabusiveapplicationsfeatures
solidforgedsteelmainarmand
forearmwithspringloadedstopin
thesoffitshoe
n Optional
1250-3049SCNS
Spring HCUSH Arm
n Non-handed
n Forabusiveapplicationsfeatures
solidforgedsteelmainarmand
forearmwithspringloadedstopin
thesoffitshoe
n Handle controls hold-open
function
n Optional
Arms
Accessories

10 LCN Door Control Catalog
phone: 877-671-7011 n fax: 800-248-1460 n www.allegion.com/us n 009426 rev. 5/16
1250
Series
Closer will be shipped with:
- Standard cylinder
-Tripackarm(Rw/PA)
-Universalscrewpack
unless options listed below are selected.
Closer options
Cover
Slimlinecover(SLIM)
Finish
CustomPowderCoat(RAL)
SRIprimer
Optional screw packs
TORXMachineScrew(TORX)
TB*&TORXMachineScrew(TBTORX)
*Specifydoorthicknessifotherthan1-3/4˝
Installation accessories
Plate,1250-18
Plate,1250-18PA
CUSHShoeSupport,1250-30
BladeStopSpacer,1250-61
AuxiliaryShoe,1250-62A
PAFlushPanelAdapter,1250-419
Special template
ST- ________
Meets Buy American Act
BAA
Arm
Regularw/62PA(Rw/PA)
Long(LONG)
Regularw/62A(R/62A)
Hold-Openw/62PA(Hw/PA)
LongHold-Open(HLONG)
ExtraDuty(EDA)
Hold-OpenExtraDuty(HEDA)-specifyhanding
Cush-N-Stop(CUSH)
HCush(HCUSH)
SpringCUSH(SCUSH)
SpringHCUSH(SHCUSH)
Select finish
StandardPowderCoat__________
Aluminum,DarkBronze,Statuary,
LightBronze,Black,Brass
Reduced opening force 1250 Series closers
CAUTION ! Anymanualdoorcloser,includingthosecertifiedbyBHMAtoconformtoANSIStandardA156.4,thatisselected,installedandadjustedbased
onADAorotherreducedopeningforcerequirementsmaynotprovidesufficientpowertoreliablycloseandlatchadoor.
RefertoPOWEROPERATORSsectionforinformationon
systemsthatmeetreducedopeningforcerequirements
withoutaffectingclosingpower.
* Maximum opening force.
DOOR WIDTH 36˝ 42˝ 48˝
8.5* lbs. 1250 1250 1250
5.0* lbs. 1250 1250 1250
size2 size3 size4 size5
Indicatesrecommendedrangeofdoorwidthforclosersize.
* Adjustable Size 1 thru 5.
*1250 *1250
Minimum door width Minimum door width
Exterior (and Vestibule) door width
24˝
610mm
30˝
762mm
36˝
914mm
42˝
1067mm
Interior door width
24˝
610mm
34˝
864mm
38˝
965mm
48˝
1219mm
54˝
1372mm
size 3 size 4 size 5
How-to-order 1250 Series closers
Ordering Information
Table of sizes
n Selectcloserbasedonwidthofdoor.
n Thespringpowerofa1250cylinderisfieldadjustablefromsize1throughsize5andisshippedadjustedtosize3.

11
LCN Door Control Catalog
phone: 877-671-7011 n fax: 800-248-1460 n www.allegion.com/us n 009426 rev. 5/16
1260
Series
The 1260 is a light to medium duty cast iron closer designed to fit into the most common
commercial foot print. The 1260 is adjustable for spring sizes 1-5. The 1260 also features a
complete line of regular and extra duty arms, LCN’s peel-n-stick installation templates, a
convenient spring adjust pointer, and an optional Quick Fix™ bracket kit.
AVAILABLE
NOT AVAILABLE
Closer available with less than 5.0 lbs. opening force on 36˝ door.
* Maximum opening/hold-open point with standard template.
Certifications Grade 1 - ANSI A156.4, UL 10C, ADA, 100 Hour
Salt Spray, Meets BAA - Buy American Act
Body Construction n Cast Iron Body
n Full Complement Bearing
n 1-3/8˝DiameterPiston
n 5/8˝DiameterSingleHeatTreated
PinionJournal
Fluid All Weather Fluid
Handing Non-Handed
Templating Peel-n-Sticktemplates-
3/4˝x9-1/16˝MountingHolePattern
Size Adjustable Spring Size 1-5
Warranty 20years
Cover n Slim Line Cover, Optional
Fasteners SelfReamingandTappingScrews(SRT)
Mounting Hinge(PullSide),TopJamb(PushSide),
ParallelArm(PushSide)
Arms RegularArm
Finishes/Colors/
Powder Coat
n Aluminum(689)
n StatuaryBronze(690)
n LightBronze(691)
n Black(693)
n DarkBronze(695)
n Brass(696)
n Custom colors optional
n OptionalSRIprimer-powdercoatonly
Customized installation templates or products may be available to solve unusual applications.
ContactLCNProductSupportforassistance.
Special
Templates
Features
PLASTIC
METAL
COVER
DESIGNER SERIES
*ARM FUNCTION
HEAVY DUTY
HOLD-OPEN
STANDARD (SINGLE)
REGULAR (DOUBLE)
EDA/HEDA
CUSH/HCUSH
SCUSH/SHCUSH
180°180°120°110°110°
NON-HANDED
NON-SIZED
ACCESSIBILITY
CYLINDER
DELAYED ACTION
POWDER COAT
PLATED
FINISH
PARALLEL ARM
MOUNTING
STOP FACE
HINGE (PULL) SIDE
TOP JAMB (PULL)
TOP JAMB (PUSH)

12 LCN Door Control Catalog
phone: 877-671-7011 n fax: 800-248-1460 n www.allegion.com/us n 009426 rev. 2/16
1260
Series
Hinge (Pull) Side
Mounting
Mounting details
Butt Hinges Shouldnotexceed5˝(127mm)inwidth
Auxiliary Stop Recommendedathold-openpointorwhereadoorcannotswing180°
Reveal Shouldnotexceed3/4˝(19mm)forregulararmor1/2˝(13mm)forhold-openarm
Top Rail Lessthan2-1/2˝(64mm)requiresPLATE,1260-18
Clearance 2-7/8˝(73mm)behinddoorrequiredforinstallation
Maximum opening 110°: A=6-9/16˝(167mm)
B=12-7/16˝(316mm)
101°to120°: A=5-9/16˝(141mm)
B=11-7/16˝(291mm)
or*121°to180°: A=3-1/16˝(78mm)
B=8-15/16˝(227mm)
Hold-openpointsuptomaximumopeningwithhold-openarm
*Frameandtrimpermitting.
A
B
9-15/16"
252 mm
3-3/8"
86 mm
1-1/4"
32 mm
2-11/16"
68 mm
2-1/2"
64 mm
2-7/8"
73 mm
12"
305 mm
1260-18

13
LCN Door Control Catalog
phone: 877-671-7011 n fax: 800-248-1460 n www.allegion.com/us n 009426 rev. 2/16
1260
Series
Top Jamb (Push Side)
Mounting
Mounting details
Butt Hinges Shouldnotexceed5˝(127mm)inwidth
Auxiliary Stop Recommendedathold-openpointorwhereadoorcannotswing180°
Reveal Arm Type MaximumReveal Opening
RegularArm 3-1/2˝ Upto120°
RegularArm 2-1/4˝ 121°to180°
Long Arm 7-1/2˝ Upto120°
Long Arm 3-1/2˝ 121°to180°
Hold-Open Arm 2˝ Upto120°
Hold-Open Arm 2-1/4˝ 121°to180°
Long Hold-Open Arm 4-1/2˝ Upto120°
Long Hold-Open Arm 4-1/2˝ 121°to160°
Top Rail 1-3/4˝(44mm)minimum.2-1/2˝(64mm)minimumwithcloseronPLATE,1260-18
Head Frame Lessthan1-3/4˝(44mm)requiresPLATE,1260-18.Forflushceilingconditionwith2˝(51mm)headframe,
usePLATE,1260-18.(Platerequires1-3/8˝(35mm)minimum.)
Maximum opening 110°: A=7-1/16˝(179mm)
B=12-15/16˝(329mm)
101°to120°: A=5-9/16˝(141mm)
B=11-7/16˝(291mm)
or*121°to180°: A=3-1/16˝(78mm)
B=8-15/16˝(227mm)
Hold-openpointsuptomaximumopeningwithhold-openarm
*Frameandtrimpermitting.
A
B
2-7/8"
73 mm
12"
305 mm
9-15/16"
252 mm
2-5/8"
67 mm
1-7/8"
48 mm
1-7/8"
48 mm
2-11/16"
68 mm
1260-18

14 LCN Door Control Catalog
phone: 877-671-7011 n fax: 800-248-1460 n www.allegion.com/us n 009426 rev. 2/16
1260
Series
Mounting details
Parallel Arm
(Push Side) Mounting
Butt Hinges Shouldnotexceed5˝(127mm)inwidth
Auxiliary Stop Recommendedathold-openpoint,whereadoorcannotswing180°,orwhereCUSH-N-STOParmisnotused
Top Rail Lessthan4-3/8˝(111mm)measuredfromthestoprequiresPLATE,1260-18PA
Clearance 1260-62PAshoeprojects4˝(102mm)fromdoorface
Stop Width Minimum1˝(25mm)
Blade Stop Clearance,requires1/2˝(13mm)BLADESTOPSPACER,1260-61
Auxiliary Shoe 1260-62Aallowsinstallationofregulararmwithoverheadholder/stop.Specialtemplatingrequired
Maximum opening Regularorhold-openarmcanbetemplatedto
100°: A=7-3/16˝(183mm)
B=8-5/8˝(219mm)
or101°to130°: A=5-11/16˝(144mm)
B=7-1/8˝(181mm)
or*131°to180°: A=3-11/16˝(94mm)
B=5-1/8˝(130mm)
Hold-openpointsuptomaximumopeningwithhold-openarm.
*Frameandtrimpermitting.
Notes:
•OptionalmountingrequiresPASHOE,1260-62PAforREGULARorHOLD-OPENarms
•1260Parallelarmcloserincludes1260-201FIFTHHOLESPACERtosupportPASHOE
A
B4"
102 mm
4"
102 mm
16-1/4"
413 mm
2-7/8"
73 mm
9-15/16"
252 mm
1260-18PA
4-1/2"
114 mm
5-1/4"
133 mm

15
LCN Door Control Catalog
phone: 877-671-7011 n fax: 800-248-1460 n www.allegion.com/us n 009426 rev. 2/16
1260
Series
A
B4-1/2"
114 mm
5-1/4"
133 mm
5-1/2"
140 mm
16"
406 mm
4"
102 mm
2-7/8"
73 mm
1260-18PA
9-15/16"
252 mm
4-1/2"
114 mm
5-1/4"
133 mm
9-15/16"
252 mm
5-1/2"
140 mm
16"
406 mm
4"
102 mm
2-7/8"
73 mm
1260-18PA
A
B
Mounting details
Clearance 1260-62EDAorCUSHshoeprojects5-1/2˝(140mm)fromdoorface
Head Frame FlushorrabbetedrequiresCUSHFLUSHPANELADAPTER,1260-419
EDA or CUSH ARM RequiresSHOESUPPORT,1260-30forfifthscrewanchoragewhererevealislessthan3-1/16˝(78mm)
Maximum opening EDAtemplateallows120°.Hold-openpoint
uptomaximumopening
CUSHarmscanbetemplatedformaximumopening/
hold-open point at
90°: A=4-13/16˝(122mm)
B=9-1/2˝(241mm)
85°: A=5-5/16˝(135mm)
B=10˝(254mm)
or120°: A=3-5/16˝(84mm)
B=8˝(203mm)
90°: A=4-11/16˝(119mm)
B=9-3/8˝(238mm)
Hold-openpointsuptomaximum
opening with HEDA arm
100°: A=3-9/16˝(90mm)
B=8-1/4˝(210mm)
110°: A=2-13/16˝(71mm)
B=7-1/2˝(191mm)
Note:
•1260closersorderedwithEDA,CUSHorSPRINGCUSHarmsinclude1260-201FIFTHHOLESPACERtosupporttheshoe.
CUSH
mount
EDA mount
EDA and CUSH
mounting

16 LCN Door Control Catalog
phone: 877-671-7011 n fax: 800-248-1460 n www.allegion.com/us n 009426 rev. 2/16
1260-61
Blade Stop Spacer
n Lowers parallel arm shoe to clear
1/2˝(13mm)bladestop
1260-18QF
Quick Fix™ Bracket Kit
n Optionalkitincludesretro-fit
mountingplatesfor1371closer
cylinder and shoe
n Usefulinapplicationswhen
previously drilled holes are
damaged
1260-30
CUSH Shoe Support
n Provideanchorageforfifth
screw used with CUSH arms
where reveal is less than
3-1/16˝(78mm)
1260-18PA
Plate
n Requiredforparallelarm
mounting where top rail is less
than4-3/8˝(111mm),measured
fromthestop
n Requires1-3/4˝(44mm)
minimum top rail
1260
Series
1261(2)(3)(4)(5)-3071
Cast Iron Cylinder Assembly
n Non-handed
n Standard
1260-72
Slim Line Plastic Cover
n Non-handed
n Optional
1260-62A
Auxiliary Shoe
n Requiresatoprailof7˝(178
mm)
n Optionalshoereplaces-62PAfor
parallelarmmountingofregular
arm with overhead holder/stop
1260-419
PA Flush Panel Adapter
n Provideshorizontalmounting
surfaceforPA,EDAorCUSH
shoe on single rabbeted or
flushframe
1260-62PA
PA Shoe
n Requiredforparallelarm
mounting
Cylinders
Installation Accessories
Covers
Accessories
1260-18
Plate
n Requiredforhingesidemount
wheretoprailislessthan2-1/2˝
(64mm)
n Requiredfortopjambmounting
whereheadframeislessthan
1-3/4˝(44mm)orflushceiling
conditionexists
n Requiresminimum1-1/2˝(38
mm)minimumtoprailor1-1/4˝
(32mm)headframe

17
LCN Door Control Catalog
phone: 877-671-7011 n fax: 800-248-1460 n www.allegion.com/us n 009426 rev. 2/16
1260
Series
1260-3077
Regular Arm
n Non-handed
n Mounts hinge side or top jamb
n ParallelArmincludesPASHOE,
1260-62PArequiredforparallel
arm mounting
1260-3049
Hold-open Arm
n Non-handed
n Mounts hinge side, top jamb or
parallelarm(62PArequired)
n Hold-open adjustable at shoe
n Optional
1260-3049L
Long Hold-open Arm
n Non-handed
n Includes LONG HEAD AND TUBE,
1260-3048Lfortopjambmount
with deep reveals
n Optional
1260-3077L
Long Arm
n Non-handed
n IncludesLONGRODANDSHOE,
1260-79LRfortopjambmount
with deep reveals
n Optional
1260-3077EDA
Extra Duty Arm
n Non-handed
n Featuressolidforgedsteelmain
andforearmforpotentially
abusive installations
n Optional1260-3077EDA/Gfor
blade stop clearance
1260-3077EDA/62G
Extra Duty Arm w/ 62G
n Non-handed
n Featuressolidforgedsteelmain
andforearmforpotentially
abusive installations
1260-3049EDA
Hold-Open Extra Duty Arm
n Handed arm
n Provideshold-openfunction
adjustable at shoe
n Optional
1260-3077CNS
Cush-n-Stop® Arm
n Non-handed
n Featuressolidforgedsteelmain
armandforearmwithstopinsoffit
shoe
n Optional
1260-3049CNS
HCUSH Arm
n Non-handed
n Provideshold-openfunctionwith
templated stop/hold-open points.
n Handle controls hold-open
function
n Optional
Arms
Accessories

18 LCN Door Control Catalog
phone: 877-671-7011 n fax: 800-248-1460 n www.allegion.com/us n 009426 rev. 2/16
1260
Series
Closer will be shipped with:
- Standard cylinder
-Regulararm
-Self-reamingandtappingscrews
unless options listed below are selected.
Closer options
Cover
Slimlinecover(SLIM)
Finish
CustomPowderCoat(RAL)
SRIprimer(forusewithpowdercoatfinishesonly)
Optional screw packs
TB*w/Self-ReamingandTappingScrews(TBSRT)
Wood&MachineScrew(WMS)
TB*,Wood&MachineScrew(TBWMS)
TORXMachineScrew(TORX)
TB*&TORXMachineScrew(TBTORX)
*Specifydoorthicknessifotherthan1-3/4˝
Installation accessories
Plate,1260-18
Plate,1260-18PA
CUSHShoeSupport,1260-30
BladeStopSpacer,1260-61
AuxiliaryShoe,1260-62A
PAFlushPanelAdapter,1260-419
QuickFix™BracketKit,1260-18QF
Special template
ST- ________
Arm
Regularw/62PA(Rw/PA)
Long(LONG)
Regularw/62A(R/62A)
Hold-Open(H)
Hold-Openw/62PA(Hw/PA)
LongHold-Open(HLONG)
ExtraDuty(EDA)(optional-62G)
Hold-OpenExtraDuty(HEDA)-specifyhanding(optional-62G)
Cush-N-Stop(CUSH)
HCush(HCUSH)
Select finish
StandardPowderCoat__________
Aluminum,DarkBronze,Statuary,
LightBronze,Black,Brass
Reduced opening force 1260 Series closers
CAUTION ! Anymanualdoorcloser,includingthosecertifiedbyBHMAtoconformtoANSIStandardA156.4,thatisselected,installedandadjustedbased
onADAorotherreducedopeningforcerequirementsmaynotprovidesufficientpowertoreliablycloseandlatchadoor.
RefertoPOWEROPERATORSsectionforinformationon
systemsthatmeetreducedopeningforcerequirements
withoutaffectingclosingpower.
* Maximum opening force.
DOOR WIDTH 36˝ 42˝ 48˝
8.5* lbs. 1261 1261 1261
5.0* lbs. 1261 1261 1261
size2 size3 size4 size5
Indicatesrecommendedrangeofdoorwidthforclosersize.
* Adjustable Size 1 thru 5.
*1261 *1261
Minimum door width Minimum door width
Exterior (and Vestibule) door width
24˝
610mm
30˝
762mm
36˝
914mm
42˝
1067mm
Interior door width
24˝
610mm
34˝
864mm
38˝
965mm
48˝
1219mm
54˝
1372mm
size 3 size 4 size 5
How-to-order 1260 Series closers
Ordering Information
Table of sizes
n Selectcloserbasedonwidthofdoor.
n Thespringpowerofa1261cylinderisfieldadjustablefromsize1throughsize5andisshippedadjustedtosize3.

19
LCN Door Control Catalog
phone: 877-671-7011 n fax: 800-248-1460 n www.allegion.com/us n 009426 rev. 2/16
1450
Series
The 1450 Series cast aluminum closer was specially designed to deliver consistent, dependable,
long-term performance in frequently-used, low-abusive traffic areas. The patented design,
featuring the industry's most common hole pattern, is an excellent choice for a range of
applications - from aftermarket replacement to aluminum store fronts, to new construction
projects - anywhere quality, reliability and value are important.
AVAILABLE
NOT AVAILABLE
Certifications Grade 1 - ANSI A156.4, UL 10C, ADA, 100 Hour
Salt Spray, Meets BAA - Buy American Act
Body Construction n Cast Aluminum Body
n Full Complement Bearing
n 1-1/4˝DiameterPiston
n 5/8˝DiameterSingleHeatTreated
PinionJournal
Fluid All Weather Fluid
Handing Non-Handed
Templating Peel-n-Sticktemplates-
3/4˝x12˝MountingHolePattern
Size Adjustable Spring Size 1-6
Warranty 25years
Cover n SlimLinePlastic,Standard
n FullPlasticandMetal,Optional
Fasteners UniversalScrewPack(UNIV)
Mounting Hinge(PullSide),TopJamb(PushSide),
ParallelArm(PushSide)
Arms Standard regular pull side, and top jamb
Finishes/Colors/
Powder Coat
n Aluminum(689)
n StatuaryBronze(690)
n LightBronze(691)
n Black(693)
n DarkBronze(695)
n Brass(696)
n Custom colors optional
n OptionalSRIprimer-powdercoatonly
n Optionalplatedfinishes
Customized installation templates or products may be available to solve unusual applications.
ContactLCNProductSupportforassistance.
Special
Templates
Features
Closeravailablewithlessthan5.0lbs.openingforceon36˝door.
* Maximumopening/hold-openpointwithstandardtemplate.
D =Fordesignerseriesonly.
PLASTIC
METAL
COVER *ARM FUNCTION
HOLD-OPEN*
REGULAR (DOUBLE)
STANDARD (SINGLE)
EDA/HEDA*
CUSH/HCUSH
SCUSH/SHCUSH
180° 180° 180° 110° 110°
NON-HANDED
NON-SIZED
ACCESSIBILITY
CYLINDER
DELAYED ACTION
FINISH
PARALLEL ARM
MOUNTING
STOP FACE
HINGE (PULL) SIDE
TOP JAMB (PULL)
TOP JAMB (PUSH)
POWDER COAT
PLATED
PAINT

20 LCN Door Control Catalog
phone: 877-671-7011 n fax: 800-248-1460 n www.allegion.com/us n 009426 rev. 2/16
1450
Series
Hinge (Pull) Side
Mounting
Mounting details
Butt Hinges Shouldnotexceed5˝(127mm)inwidth
Auxiliary Stop Recommendedathold-openpointorwhereadoorcannotswing180°
Reveal Shouldnotexceed3/4˝(19mm)forregulararmor1/2˝(13mm)forhold-openarm
Top Rail n Lessthan2-1/2˝(64mm)requiresPLATE,1450-18
n WithFullcover,usePLATE,1450-18FC.Platerequires1-1/2˝(38mm)minimum
Clearance 2-3/8˝(60mm)behinddoorrequiredforinstallation
Delayed Action Delaysclosingfrom180°-70°.Delaytimeadjustableuptoapproximately1minute
Maximum opening 100°: A=7˝(102mm)
B=12-3/8˝(314mm)
101°to130°: A=5-1/2˝(140mm)
B=10-7/8˝(276mm)
131°to180°: A=4˝(140mm)
B=9-3/8˝(238mm)
Hold-openpointsuptomaximumopeningwithhold-openarm
*Frameandtrimpermitting.
11-13/16"
300 mm
2-11/16"
68 mm
2-15/16"
75 mm
2-1/8"
54 mm
13-1/16"
332 mm
REGULAR-PULL SIDE
3/4"
19 mm
2-11/16"
68 mm 1-3/8"
35 mm
A
B
The'A'dimensionreferstotheedgeofthecloserbodytothecenterlineofpivotorhinge.
The'B'dimensionreferstotheedgeoftheclosershoebrackettothecenterlineofpivotorhinge.

21
LCN Door Control Catalog
phone: 877-671-7011 n fax: 800-248-1460 n www.allegion.com/us n 009426 rev. 2/16
1450
Series
Top Jamb (Push Side)
Mounting
Mounting details
Butt Hinges Shouldnotexceed5˝(127mm)inwidth
Auxiliary Stop Recommendedathold-openpointorwhereadoorcannotswing180°
Reveal Arm Type Reveal MaxOpening
RegularArm 5˝ Upto170°
RegularArm 3-3/4˝ Upto180°
Long Arm 8˝ Upto155°
Hold-Open Arm 2-3/4˝ Upto180°
Long Hold-Open Arm 4-7/8˝ Upto140°
Top Rail Requires2-1/8˝(54mm)minimum.3-3/8˝(86mm)minimumwithcloseronPLATE,1450-18.
Head Frame Lessthan1-3/4˝(44mm)requiresPLATE,1450-18.Forflushceilingconditionwith1-3/4˝(45mm)headframe,use
PLATE,1450-18
Delayed Action Delaysclosingfrom180°-70°.Delaytimeadjustableuptoapproximately1minute
Maximum opening 100°: A=7˝(102mm)
B=12-3/8˝(314mm)
101°to130°: A=5-1/2˝(140mm)
B=10-7/8˝(276mm)
131°to180°: A=4˝(102mm)
B=9-3/8˝(238mm)
Hold-openpointsuptomaximumopeningwithhold-openarm.
*Frameandtrimpermitting.
3/4"
19 mm
2-11/16"
68 mm
2-9/16"
65 mm
11-3/4"
299 mm
13-1/16"
332 mm
1-5/8"
42 mm
AB
The'A'dimensionreferstotheedgeofthecloserbodytothecenterlineofpivotorhinge.
The'B'dimensionreferstotheedgeoftheclosershoebrackettothecenterlineofpivotorhinge.

22 LCN Door Control Catalog
phone: 877-671-7011 n fax: 800-248-1460 n www.allegion.com/us n 009426 rev. 2/16
1450
Series
Mounting details
Parallel Arm
(Push Side) Mounting
Butt Hinges Shouldnotexceed5˝(127mm)inwidth
Auxiliary Stop Recommendedathold-openpoint,whereadoorcannotswing180°,orwhereCUSH-N-STOParmisnotused
Top Rail n Lessthan5-1/4˝(133mm)measuredfromthesoffitrequires
n Platerequires1-1/4˝(32mm)minimum.
Cover MinimumTopRail
(measuredfromsoffit) PlateRequired
Plastic 3-1/2˝(89mm) 1450-18
2-1/4˝(57mm) 1450-18PA
Metal 3-1/2˝(89mm) 1450-18FC
2-1/4˝(57mm) 1450-18PAFC
Clearance 1450-62PAshoeprojects4-1/8˝(105mm)fromdoorface
Head Frame FlushorsinglerabbetedrequiresPASHOEADAPTER,1450-418
Stop Width Minimum1˝(25mm)
Blade Stop Clearance,requires1/2˝(13mm)BLADESTOPSPACER,1450-61
Auxiliary Shoe 1450-62Aallowsinstallationofregulararmwithoverheadholder/stop
Delayed Action Delaysclosingfrom180°-70°.Delaytimeadjustableuptoapproximately1minute
Maximum opening Regularorhold-openarmcanbetemplatedto
120°: A=3-3/16˝(81mm)
B=8-7/8˝(225mm)
121°to180°: A=11/16˝(17mm)
B=6-3/8˝(162mm)
Hold-openpointsuptomaximumopeningwithhold-openarm.
Notes:
•PAshoeisincludedwithRw/PAArm
•1450closerincludes1450-201FIFTHHOLESPACERtosupportPASHOE
4"
102 mm
5-3/8"
136 mm
20-3/8"
517 mm
13-1/16"
332 mm
4-1/8"
105 mm
2-1/8"
54 mm
A
B

23
LCN Door Control Catalog
phone: 877-671-7011 n fax: 800-248-1460 n www.allegion.com/us n 009426 rev. 2/16
1450
Series
4"
102 mm
5-11/16"
145 mm
20-13/16"
528 mm
13-1/16"
332 mm
2-1/8"
54 mm
4-9/16"
116 mm
2-11/16"
68 mm
A
B
4"
102 mm
5-11/16"
145 mm
20-13/16"
528 mm
13-1/16"
332 mm 2-1/8"
54 mm
4-9/16"
116 mm
2-11/16"
68 mm
A
B
Mounting details
Clearance 1450-62EDAorCUSHshoeprojects5-11/16˝(144mm)fromdoorface
Head Frame FlushorrabbetedrequiresCUSHFLUSHPANELADAPTER,1450-419
EDA or CUSH ARM RequiressoffitSHOESUPPORT,1450-30forfifthscrewanchoragewhererevealislessthan3-1/16˝(78mm)
Spring CUSH Deadstoppointsareapproximately5°morethantemplatedstoppoints
Maximum opening EDAtemplateallows110°.Hold-openpoint
uptomaximumopening
CUSHarmscanbetemplatedformaximumopening/
hold-openpointat85°
120°: A=8-7/8˝(225mm)
B=3-3/16˝(81mm)
85°: A=10-3/8˝(279mm)
B=4-15/16˝(140mm)
over120°: A=6-3/8˝(162mm)
B=11/16˝(17mm)
90°: A=9-5/8˝(244mm)
B=4-3/16˝(106mm)
95°: A=8-7/8˝(225mm)
B=3-7/16˝(87mm)
100°: A=8-1/4˝(210mm)
B=2-13/16˝(71mm)
105°: A=7-5/8˝(194mm)
B=2-3/16˝(56mm)
110°: A=7˝(178mm)
B=1-9/16˝(40mm)
Note:
•1450closersorderedwithEDA,CUSHorSPRINGCUSHarmsinclude1450-201FIFTHHOLESPACERtosupporttheshoe.
CUSH/HCUSH/SCUSH
/SHCUSH mount
EDA/HEDA mount
EDA and CUSH -N-STOP
mounting
The'A'dimensionreferstotheedgeofthecloserbodytothecenterlineofpivotorhinge.
The'B'dimensionreferstotheedgeoftheclosershoebrackettothecenterlineofpivotorhinge.

24 LCN Door Control Catalog
phone: 877-671-7011 n fax: 800-248-1460 n www.allegion.com/us n 009426 rev. 2/16
1450-62A
Auxiliary Shoe
n Requiresatoprailof7˝(178mm).
Optionalshoereplaces-62PAfor
parallelarmmountingofregular
arm with overhead holder/stop
1450-30
CUSH Shoe Support
n Provideanchorageforfifth
screw used with CUSH arms where
reveal is less than
3-1/16˝(78mm)
1450-61
Blade Stop Spacer
n Lowers parallel arm shoe to clear
1/2˝(13mm)bladestop.
1450-18PA / 1450-18PAFC
Plate
n Requiredforparallelarm
mounting where top rail is less
than4-3/8˝(111mm),measured
fromthestop
n Requires1-3/4˝(44mm)
minimum top rail
n Withfullcover,usePLATE,
1450-18FC
1450
Series
1450-3071
Cast Aluminum Cylinder Assembly
n Non-Handed
n Standard
1450-3071DEL
Cast Aluminum Cylinder
Assembly with Delay Action
n Optional
1450-72
Slim Line Plastic Cover
n Non-Handed
n Standard
1450-72MC
Metal Cover
n Handed
n Optional
1450-72FC
Full Plastic Cover
n Non-Handed
n Optional
1450-419
PA Flush Panel Adapter
n Provideshorizontalmounting
surfaceforPA,EDAorCUSHshoe
onsinglerabbetedorflushframe
1450-62PA
PA Shoe
n Requiredforparallelarm
mounting
Cylinders
Installation Accessories
Covers
Accessories
1450-18 / 1450-18FC
Plate
n Requiredforhingesidemount
where top rail is less than
2-1/2˝(64mm)
n Requiredfortopjambmounting
whereheadframeislessthan
1-3/4˝(44mm)orflushceiling
conditionexists
n Requiresminimum1-1/2˝
(38mm)minimumtoprailor
1-1/4˝(32mm)headframe
n Withfullcover,usePLATE,
1450-18FC
Lefthandshown

25
LCN Door Control Catalog
phone: 877-671-7011 n fax: 800-248-1460 n www.allegion.com/us n 009426 rev. 2/16
1450
Series
1450-3077
Regular Arm w/PA
n Non-Handed
n Mounts hinge side or top jamb
n IncludesPASHOE,1450-62PA
requiredforparallelarmmounting
1450-3049
Hold-Open Arm w/PA
n Non-Handed
n Mounts hinge side, top jamb or
parallelarm(62PArequired)
n Hold-open adjustable at shoe
n Optional
1450-3049L
Long Hold-Open Arm
n Non-Handed
n Includes LONG HEAD AND TUBE,
1450-3048Lfortopjambmount
with deep reveals
n Optional
1450-3077L
Long Arm
n Non-Handed
n IncludesLONGRODANDSHOE,
1450-79LRfortopjambmount
with deep reveals
n Optional
1450-3077EDA
Extra Duty Arm
n Non-Handed
n Featuressolidforgedsteelmain
andforearmforpotentiallyabusive
installations
n Optional1450-3077EDA/Gfor
blade stop clearance
1450-3077EDA/62G
Extra Duty Arm w/ 62G
n Non-Handed
n Featuressolidforgedsteelmain
andforearmforpotentiallyabusive
installations
n Optional1450-3077EDA/Gfor
blade stop clearance
1450-3049EDA
Hold-Open Extra Duty Arm
n Handed arm
n Provideshold-openfunction
adjustable at shoe
n Optional
1450-3077CNS
Cush-n-Stop® Arm
n Non-Handed
n Featuressolidforgedsteelmain
armandforearmwithstopinsoffit
shoe
n Optional
1450-3049CNS
HCUSH Arm
n Non-Handed
n Provideshold-openfunctionwith
templated stop/hold-open points
n Handle controls hold-open
function
n Optional
1450-3077SCNS
Spring CUSH Arm
n Non-Handed
n Forabusiveapplicationsfeatures
solidforgedsteelmainarmand
forearmwithspringloadedstopin
thesoffitshoe
n Optional
1450-3049SCNS
Spring HCUSH Arm
n Non-Handed
n Forabusiveapplicationsfeatures
solidforgedsteelmainarmand
forearmwithspringloadedstopin
thesoffitshoe
n Handle controls hold-open
function
n Optional
Arms
Accessories

26 LCN Door Control Catalog
phone: 877-671-7011 n fax: 800-248-1460 n www.allegion.com/us n 009426 rev. 2/16
1450
Series
Closer will be shipped with:
- Standard cylinder
- Standard cover
-Tripackarm(Rw/PA)
-Universalscrewpack
unless options listed below are selected.
Closer options
Cylinder
DelayedAction(DEL)
Finish
CustomPowderCoat(RAL)
(Metalcoverrequired)
PlatedFinish,US___________
(Metalcoverrequired)
SRIprimer
Optional screw packs
TORXMachineScrew(TORX)
TB*&TORXMachineScrew(TBTORX)
*Specifydoorthicknessifotherthan1-3/4˝
Installation accessories
Plate,1450-18
Plate,1450-18FC
Plate,1450-18PA
Plate,1450-18PAFC
CUSH Shoe Support, 1450-30
Blade Stop Spacer, 1450-61
AuxiliaryShoe,1450-62A
PAFlushPanelAdapter,1450-419
Special template
ST- ________
Meets Buy American Act
BAA
Arm
Regularw/62PA(Rw/PA)
Long(LONG)
Regularw/62A(Rw/62A)
Hold-Openw/62PA(Hw/PA)
LongHold-Open(HLONG)
ExtraDuty(EDA)(optional-62G)
Hold-OpenExtraDuty(HEDA)-specifyhanding
Cush-N-Stop(CUSH)
HCush(HCUSH)
SpringCush(SCUSH)
SpringHCush(SHCUSH)
Select finish
StandardPowderCoat__________
Aluminum,DarkBronze,Statuary,
LightBronze,Black,Brass
Reduced opening force 1450 Series closers
CAUTION ! Anymanualdoorcloser,includingthosecertifiedbyBHMAtoconformtoANSIStandardA156.4,thatisselected,installedandadjustedbased
onADAorotherreducedopeningforcerequirementsmaynotprovidesufficientpowertoreliablycloseandlatchadoor.
RefertoPOWEROPERATORSsectionforinformationon
systemsthatmeetreducedopeningforcerequirements
withoutaffectingclosingpower.
* Maximum opening force.
DOOR WIDTH 36˝ 42˝ 48˝
8.5* lbs. 1450 1450 1450
5.0* lbs. 1450 1450 1450
size2 size3 size4 size5 size6
Indicatesrecommendedrangeofdoorwidthforclosersize.
* Adjustable Size 1 thru 6.
*1450 *1450
Minimum door width Minimum door width
Exterior (and Vestibule) door width
24˝
610mm
30˝
762mm
36˝
914mm
42˝
1067mm
48˝
1219mm
Interior door width
24˝
610mm
34˝
864mm
38˝
965mm
48˝
1219mm
54˝
1372mm
60˝
1524mm
size 3 size 4 size 5 size 6
How-to-order 1450 Series closers
Ordering Information
Table of sizes
n Selectcloserbasedonwidthofdoor.
n Thespringpowerofa1450cylinderisfieldadjustablefromsize1throughsize6andisshippedadjustedtosize3.

27
LCN Door Control Catalog
phone: 877-671-7011 n fax: 800-248-1460 n www.allegion.com/us n 009426 rev. 2/16
1460
Series
Designed for maximum versatility, the 1460, available with multiple cover options, can be
used for both commercial and institutional applications. This fully universal closer offers a
wide variety of options and fast and accurate installation.
AVAILABLE
NOT AVAILABLE
Certifications Grade 1 - ANSI A156.4, UL 10C, ADA, 100 Hour
Salt Spray, Meets BAA - Buy American Act
Body Construction n Cast Iron Body
n Full Complement Bearing
n 1-1/4˝DiameterPiston
n 3/4˝DiameterSingleHeatTreated
PinionJournal
Fluid All Weather Fluid
Handing Non-Handed
Templating Peel-n-Sticktemplates-
1˝x7-1/2˝MountingHolePattern
Size AdjustableSpringSize1-6.IncludesPatented
Green Dial
Warranty 30 years
Cover n SlimLinePlastic,Standard
n FullPlasticandMetalDesignerSeries,
Optional
Fasteners SelfReamingandTappingScrews(SRT)
Mounting Hinge(PullSide),TopJamb(PushSide),
ParallelArm(PushSide)
Arms Standard regular pull side, and top jamb
Finishes/Colors/
Powder Coat
n Aluminum(689)
n StatuaryBronze(690)
n LightBronze(691)
n Black(693)
n DarkBronze(695)
n Brass(696)
n Custom colors optional
n OptionalSRIprimer-powdercoatonly
n Optionalplatedfinishes
Customized installation templates or products may be available to solve unusual applications.
ContactLCNProductSupportforassistance.
Special
Templates
Features
PLASTIC
METAL
COVER
DESIGNER SERIES
*ARM FUNCTION
HEAVY DUTY
HOLD-OPEN
STANDARD (SINGLE)
REGULAR (DOUBLE)
EDA/HEDA
CUSH/HCUSH
SCUSH/SHCUSH
180 180 180 110 100 100
NON-HANDED
NON-SIZED
ACCESSIBILITY
CYLINDER
DELAYED ACTION
POWDER COAT
PLATED
FINISH
D
PARALLEL ARM
MOUNTING
STOP FACE
HINGE (PULL) SIDE
TOP JAMB (PULL)
TOP JAMB (PUSH)
Closeravailablewithlessthan5.0lbs.openingforceon36˝door.
* Maximumopening/hold-openpointwithstandardtemplate.
D =Fordesignerseriesonly.

28 LCN Door Control Catalog
phone: 877-671-7011 n fax: 800-248-1460 n www.allegion.com/us n 009426 rev. 2/16
1460
Series
Hinge (Pull) Side
Mounting
Mounting details
Butt Hinges Shouldnotexceed5˝(127mm)inwidth
Auxiliary Stop Recommendedathold-openpointorwhereadoorcannotswing180°
Reveal Shouldnotexceed3/4˝(19mm)forregulararmor1/2˝(13mm)forhold-openarm
Top Rail n Lessthan2-1/2˝(64mm)requiresPLATE,1460-18
n WithFullcover,usePLATE,1460-18FC.Platerequires1-1/2˝(38mm)minimum
n WithDesignerSeriesmetalcover,usePLATE,1460-18DS1
Clearance 2-3/8˝(60mm)behinddoorrequiredforinstallation
Delayed Action n Addsuffix“DEL”toselectedcylinder(eg.1461DEL)
n Delaysclosingfrom:
110°to65°(using110°template)
160°to75°(using180°template)
n Delaytimeadjustableuptoapproximately1minute
Maximum opening 110°: A=5-7/8˝(149mm)
B=10-7/8˝(276mm)
or*180° A=2-7/8˝(73mm)
B=7-7/8˝(200mm)
Hold-openpointsuptomaximumopeningwithhold-openarm
*Frameandtrimpermitting.
A
B1-3/8"
35 mm
2-3/8"
60 mm
11-3/8"
289 mm
1460-18
3/4"
19 mm
2-11/16"
68 mm
12-1/4"
311 mm
2"
51 mm 2-9/16"
65 mm
3"
76 mm
12-1/2"
318 mm
12-3/8"
314 mm
Non-handedDesignerSeriesMetalCover
Optional

29
LCN Door Control Catalog
phone: 877-671-7011 n fax: 800-248-1460 n www.allegion.com/us n 009426 rev. 2/16
1460
Series
Top Jamb (Push Side)
Mounting
Mounting details
Butt Hinges Shouldnotexceed5˝(127mm)inwidth
Auxiliary Stop Recommendedathold-openpointorwhereadoorcannotswing180°
Reveal Arm Type Reveal MaxOpening
RegularArm 4-7/8˝ Upto140°
RegularArm 3-1/2˝ Upto180°
Long Arm 7˝ Upto140°
Hold-Open Arm 2-1/2˝ Upto180°
Long Hold-Open Arm 4-7/8˝ Upto140°
Top Rail Requires1-7/8˝(48mm)minimum.2-3/4˝(70mm)minimumwithcloseronPLATE,1460-18
Head Frame Lessthan1-3/4˝(44mm)requiresPLATE,1460-18.Forflushceilingconditionwith2˝(51mm)headframe,usePLATE,
1460-18
Delayed Action n Addsuffix“DEL”toselectedcylinder(eg.1460DEL).
n Delaysclosing:
110°to75°(using110°template)
180°to95°(using180°template)
n Delaytimeadjustableuptoapproximately1minute.
Maximum opening 110°: A=6-3/4˝(169mm)
B=11-1/4˝(286mm)
101°to120°: A=3˝(76mm)
B=7-1/2˝(191mm)
Hold-openpointsuptomaximumopeningwithhold-openarm.
*Frameandtrimpermitting.
2"
51 mm
1-7/8"
48 mm
3/4"
19 mm
2-11/16"
68 mm
11-3/8"
289 mm
2-3/8"
60 mm
12-1/4"
311 mm
1461-18
A
B
3"
76 mm
12-1/2"
318 mm
12-3/8"
314 mm
Non-handedDesignerSeriesMetalCover
Optional

30 LCN Door Control Catalog
phone: 877-671-7011 n fax: 800-248-1460 n www.allegion.com/us n 009426 rev. 2/16
1460
Series
Mounting details
Parallel Arm
(Push Side) Mounting
Butt Hinges Shouldnotexceed5˝(127mm)inwidth
Auxiliary Stop Recommendedathold-openpoint,whereadoorcannotswing180°,orwhereCUSH-N-STOParmisnotused
Top Rail n Lessthan4-3/8˝(111mm)measuredfromthestoprequiresPLATE,1460-18PA.WithFullcover,usePLATE,1460-
18PAFC
n Platerequires1-3/4˝(44mm)minimum.Platerequires1-1/4˝(32mm)minimum
n WithDesignerSeriesmetalcover,usePLATE,1460-18PADS1
Clearance 1460-62PAshoeprojects4˝(102mm)fromdoorface
Head Frame FlushorsinglerabbetedrequiresPASHOEADAPTER,1460-419
Stop Width Minimum1˝(25mm)
Blade Stop Clearance,requires1/2˝(13mm)BLADESTOPSPACER,1460-61
Auxiliary Shoe n 1460-62Aallowsinstallationofregulararmwithoverheadholder/stop
n Specialtemplatingrequired
Delayed Action n Addsuffix“DEL”toselectedcylinder(eg.P1460DEL)
n Delaysclosingfrommaximumopeningtoapproximately75°
n Delaytimeadjustableuptoapproximately1minute
Maximum opening Regularorhold-openarmcanbetemplatedto
100°: A=4-1/4˝(108mm)
B=9-1/4˝(235mm)
or180°: A=1-3/4˝(44mm)
B=6-3/4˝(171mm)
Hold-openpointsuptomaximumopeningwithhold-openarm.
Notes:
•OptionalmountingrequiresPASHOE,1460-62PAforREGULARorHOLD-OPENarms.Addprefix“P”tocloserdescription(e.g.P1460)
•P1460closerincludes1460-201FIFTHHOLESPACERtosupportPASHOE.
4-3/8"
111 mm
4"
102 mm
1460-18PA
19-1/8"
486 mm
4"
102 mm
2-3/8"
60 mm
2"
51 mm
12-1/4"
311 mm
A
B

31
LCN Door Control Catalog
phone: 877-671-7011 n fax: 800-248-1460 n www.allegion.com/us n 009426 rev. 2/16
1460
Series
4-1/4"
108 mm
2"
51 mm
12-1/4"
311 mm
1-1/4"
32 mm
5-1/2"
140 mm
1460-18PA
19-9/16"
497 mm
2-3/8"
60 mm
8-5/8"
219 mm
4"
102 mm
4"
102 mm
4-1/4"
108 mm
2"
51 mm
12-1/4"
311 mm
5-1/2"
140 mm
1461PA-18
2-3/8"
60 mm
19-9/16"
497 mm A
B
Mounting details
Spring CUSH Holdopenpointsareapproximately5°lessthandeadstoppoint
Clearance 1460-62EDAorCUSHshoeprojects5-1/2˝(140mm)fromdoorface
Head Frame FlushorrabbetedrequiresPAFLUSHPANELADAPTER,1460-419
EDA or CUSH ARM RequiresSHOESUPPORT,1460-30forfifthscrewanchoragewhererevealislessthan3-1/16˝(78mm)
Maximum opening EDAtemplateallows110°
Hold-openpointuptomaximumopening
CUSHarmscanbetemplatedfor
maximumopening/hold-openpointat
85°: A=2-3/8˝(60mm)
B=9-9/16˝(243mm)
90°: A=1-5/8˝(41mm)
B=9-1/16˝(230mm)
100°: A=5/8˝(16mm)
B=8-1/16˝(205mm)
Note:
•1460closersorderedwithEDA,CUSHorSPRINGCUSHarmsinclude1460-201FIFTHHOLESPACERtosupporttheshoe
CUSH
mount
EDA mount
EDA and CUSH
mounting

32 LCN Door Control Catalog
phone: 877-671-7011 n fax: 800-248-1460 n www.allegion.com/us n 009426 rev. 2/16
1460
Series
1460-18
Plate
The following details pertain to the above plates:
n Requiredforhingesidemountwheretoprailislessthan2-1/2˝(64mm)
n Requiredfortopjambmountingwhereheadframeislessthan1-3/4˝(44mm)
orflushceilingconditionexists
n Requiresminimum1-1/2˝(38mm)minimumtoprailor1-1/4˝(32mm)head
frame
n Withfullcover,usePLATE,1460-18FC
n WithDesignerSeriesmetalcover,usePLATE,1460-18DS1
Note:18FCand18DSwillnotworkintopjambapplication.
1460-18PA
Plate
The following details pertain to the above plates:
n Requiredforparallelarmmountingwheretoprailislessthan4-3/8˝(111mm),
measuredfromthestop
n Requires1-3/4˝(44mm)minimumtoprail
n Withfullcover,usePLATE,1460-18PAFC
n WithDesignerSeriesmetalcover,usePLATE,1460-18PADS1
1460-18FC
Plate
1460-18PAFC
Plate
1460-30
Cush Shoe Support
n Provideanchorageforfifth
screw used with CUSH arm
where reveal is less than
3-1/16˝(78mm)
1460-61
Blade Stop Spacer
n Lowers parallel arm shoe to
clear1/2˝(13mm)bladestop
1460-419
PA Flush Panel Adapter
n Provideshorizontalmounting
surfaceforPA,EDA,orCUSH
shoe on single rabbeted or
flushframe
1460-30A
Mounting Bracket
n Brackettobeusedwhen
installing cylinder body
n Included with cylinder when
ordered
1460-62A
Auxiliary Shoe
n Requiresatoprailof7˝(178mm)
n Optionalshoereplaces-62PAfor
parallelarmmountingofregular
arm with overhead holder/stop
1460-18DS1
Plate
1460-18PADS1
Plate
1461-3071
Cast Iron Cylinder Assembly
n Non-Handed
n Standard
1460-72
Slim Line Plastic Cover
n Non-Handed
n Standard
1460-72FC
Full Cover
n Non-Handed
n Plasticcover
n Optional
1460-72DS
Designer Series Metal Cover
n Non-Handed
n Providescompleteenclosure
withastylishlook
n Requiredforplatingand
custom powder coat option
n Optional
Cylinders
Installation Accessories
Covers
Accessories
1460-62PA
PA Shoe
n Requiredforparallelarm
mounting

33
LCN Door Control Catalog
phone: 877-671-7011 n fax: 800-248-1460 n www.allegion.com/us n 009426 rev. 2/16
1460
Series
1460-3077
Regular Arm
n Non-handed
n Mounts hinge side or top jamb
n P1460closerincludesPASHOE,
1460-62PArequiredforparallel
arm mounting
1460-3077HD
Heavy Duty Regular Arm
n Non-handed
n Mounts hinge side, top jamb or
parallel arm
n Optional
1460-3049CNS
HCUSH Arm
n Non-handed
n Provideshold-openfunctionwith
templated stop/hold-open points
n Handle controls hold-open
function
n Optional
1460-3077HDL
Heavy Duty Long Arm
n Non-handed
n Includes long rod and shoe, 1460-
79LRfortopjambmountswith
deep reveals
n Optional
1460-3077SCNS
Spring CUSH Arm
n Non-handed
n Forabusiveapplicationsfeatures
solidforgedsteelmainarmand
forearmwithspringloadedstopin
thesoffitshoe
n Optional
1460-3077L
Long Arm
n Non-handed
n IncludesLONGRODANDSHOE,
1460-79LRfortopjambmount
with deep reveals
n Optional
1460-3049
Hold-Open Arm
n Non-handed
n
M
ounts hinge side, top jamb or
parallelarm(62PArequired)
n Hold-open adjustable at shoe
n Optional
1460-3049SHCNS
Spring HCUSH Arm
n Non-handed
n Forabusiveapplicationsfeatures
solidforgedsteelmainarmand
forearmwithspringloadedstopin
thesoffitshoe.Handlecontrols
hold-openfunction
n Optional
1460-3049EDA
Hold-Open Extra Duty Arm
n Handed arm
n Provideshold-openfunction
adjustable at shoe
n Optional
1460-3049L
Long Hold-Open Arm
n Non-handed
n Includes LONG HEAD AND TUBE,
1460-3048Lfortopjambmount
with deep reveals
n Optional
1460-3077CNS
Cush-N-Stop® Arm
n Non-handed
n Featuressolidforgedsteelmain
armandforearmwithstopinsoffit
shoe
n Optional
1460-3077EDA
Extra Duty Arm
n Non-handed
n Featuressolidforged
steelmainandforearm
forpotentiallyabusive
installations
n Optional1460-3077EDA/62G
forbladestopclearance
Arms
Accessories
1460-3077EDA/62G
Extra Duty Arm w/ 62G
n Non-handed
n Featuressolidforgedsteelmain
andforearmforpotentially
abusive installations

34 LCN Door Control Catalog
phone: 877-671-7011 n fax: 800-248-1460 n www.allegion.com/us n 009426 rev. 2/16
1460
Series
Closer will be shipped with:
- Standard cylinder
- Standard cover
-Regulararm
-Self-reamingandtappingscrews
unless options listed below are selected.
Closer options
Cylinder
DelayedAction(DEL)
Cover
Fullcover(FC)
Designerseriescover(DS)
Finish
CustomPowderCoat(RAL)________
(DScoverrequired)
PlatedFinish,US________
(DScoverrequired)
SRIprimer(forusewithpowdercoatfinishesonly)
Optional screw packs
TB*w/Self-ReamingandTappingScrews(TBSRT)
Wood&MachineScrew(WMS)
TB*,Wood&MachineScrew(TBWMS)
TORXMachineScrew(TORX)
TB*&TORXMachineScrew(TBTORX)
*Specifydoorthicknessifotherthan1-3/4˝
Installation accessories
Plate,1460-18
Plate,1460-18DS
Plate,1460-18FC
Plate,1460-18PA
Plate,1460-18PADS
Plate,1460-18PAFC
CUSH Shoe Support, 1460-30
Blade Stop Spacer, 1460-61
AuxiliaryShoe,1460-62A
PAFlushPanelAdapter,1460-419
Special template
ST- ________
Arm
Regularw/62PA(Rw/PA)
Long(LONG)
Regularw/62A(Rw/62A)
Hold-Open(H)
Hold-Openw/62PA(Hw/PA)
LongHold-Open(HLONG)
HeavyDuty(HD)
HeavyDutyw/62A(HD/62A)
HeavyDutyw/62PA(HD/PA)
HeavyDutyLong(HDL)
Select finish
StandardPowderCoat__________
Aluminum,DarkBronze,Statuary,
LightBronze,Black,Brass
Reduced opening force 1460 Series closers
CAUTION ! Anymanualdoorcloser,includingthosecertifiedbyBHMAtoconformtoANSIStandardA156.4,thatisselected,installedandadjustedbased
onADAorotherreducedopeningforcerequirementsmaynotprovidesufficientpowertoreliablycloseandlatchadoor.
RefertoPOWEROPERATORSsectionforinformationon
systemsthatmeetreducedopeningforcerequirements
withoutaffectingclosingpower.
* Maximum opening force.
DOOR WIDTH 36˝ 42˝ 48˝
8.5* lbs. 1461 1461 1461
5.0* lbs. 1461 1461 1461
size2 size3 size4 size5 size6
Indicatesrecommendedrangeofdoorwidthforclosersize.
* Adjustable Size 1 thru 5.
*1461 *1461
Minimum door width Minimum door width
Exterior (and Vestibule) door width
24˝
610mm
30˝
762mm
36˝
914mm
42˝
1067mm
48˝
1219mm
Interior door width
24˝
610mm
34˝
864mm
38˝
965mm
48˝
1219mm
54˝
1372mm
54˝
1524mm
size 3 size 4 size 5 size 6
How-to-order 1460 Series closers
Ordering Information
ExtraDutyArm(EDA)(optional-62G)
Hold-OpenExtraDuty(HEDA)
(specifyhanding),(optional-62G)
Cush-N-Stop(CUSH)
HCush(HCUSH)
SpringCush(SCUSH)
SpringHCush(SHCUSH)
Table of sizes
n Selectcloserbasedonwidthofdoor
n Thespringpowerofa1461cylinderisfieldadjustablefromsize1throughsize6andisshippedadjustedtosize3

35
LCN Door Control Catalog
phone: 877-671-7011 n fax: 800-248-1460 n www.allegion.com/us n 009426 rev. 2/16
1460T
Series
PLASTIC
METAL
COVER
DESIGNER SERIES
*ARM FUNCTION
HEAVY DUTY
HOLD-OPEN
STANDARD (SINGLE)
REGULAR (DOUBLE)
EDA/HEDA
CUSH/HCUSH
SCUSH/SHCUSH
NON-HANDED
NON-SIZED
ACCESSIBILITY
CYLINDER
DELAYED ACTION
POWDER COAT
PLATED
FINISH
115
D
PARALLEL ARM
MOUNTING
STOP FACE
HINGE (PULL) SIDE
TOP JAMB (PULL)
TOP JAMB (PUSH)
180
The 1460T is a fully universal slim line, single lever (track) arm closer designed for interior
use on narrow head frames and top rails. The modern styling and small projection make it
an excellent choice for interior doors.
AVAILABLE
NOT AVAILABLE
Closer available with less than 5.0 lbs. opening force on 36˝ door.
* Maximum opening/hold-open point with standard template.
D = For designer series only.
Certifications Grade 1 - ANSI A156.4, UL 10C, ADA, 100 Hour
Salt Spray, Meets BAA - Buy American Act
Body Construction n Cast Iron Body
n Full Complement Bearing
n 1-1/4˝DiameterPiston
n 5/8˝DiameterSingleHeatTreated
PinionJournal
Fluid All Weather Fluid
Handing Non-Handed
Templating Peel-n-Sticktemplates-
1˝x7-1/2˝MountingHolePattern
Size AdjustableNon-Sized2-4
Warranty 30 years
Cover n Slim Line, Standard
n FullPlasticorFullMetalDesignersSeries,
Optional
Fasteners SelfReamingandTappingScrews(SRT)
Mounting Hingepullside,topjamb,pullstopface
Arms Singlelevelwithtrackroller
Finishes/Colors/
Powder Coat
n Aluminum(689)
n StatuaryBronze(690)
n LightBronze(691)
n Black(693)
n DarkBronze(695)
n Brass(696)
n Custom colors optional
n OptionalSRIprimer-powdercoatonly
n Optionalplatedfinishes
Customized installation templates or products may be available to solve unusual applications.
ContactLCNProductSupportforassistance.
Special
Templates
Features

36 LCN Door Control Catalog
phone: 877-671-7011 n fax: 800-248-1460 n www.allegion.com/us n 009426 rev. 2/16
1460T
Series
Hinge (Pull) Side
Mounting
Mounting details
Butt Hinges Shouldnotexceed5˝(127mm)inwidth
Auxiliary Stop n Recommendedwhereadoorcannotswing180°
n Optionaltrackbumperassemblyassistsbackcheckincushioningtheopeningswingofthedoor.
Itisnotintendedtoreplaceanauxiliarystop
Reveal Shouldnotexceed1/8˝(3mm)
Top Rail n Lessthan2-1/2˝(64mm)requiresPLATE,1460T-18
n Platerequires1-1/2˝(38mm)minimum
n WithFullcover,usePLATE,1460T-18FC
n WithDesignerSeriesmetalcover,usePLATE,1460T-18DS
Clearance 2-3/8˝(60mm)behinddoorrequiredforinstallation
Maximum opening n Templatingallowsupto180°,trimandframepermitting,limitedto115°whenoptionalbumperisinstalled
n Consultfactoryifdoorwillbeheldopenat180°
n Hold-openpointsat85°,90°,95°,100°,110°or115°withhold-opentracks
n Pleasenotethatmanytrackstyledoorclosersarecapableofallowing180°ofdoorswing
n Beawarethatthemajorityoftrackstyleclosersareattheirweakestclosingforceinthe180°-130°range
n Consultfactoryforapplicationswhereanexteriororlarge/heavydoormustswing180°
2-3/8"
60 mm
1460T-18
1-1/4"
32 mm
2-1/2"
64 mm
2-1/2"
64 mm
3-15/16"
100 mm
12-1/4"
311 mm
22-3/4"
578 mm
2"
51 mm
1-7/16"
37 mm
3"
76 mm
12-1/2"
318 mm
12-3/8"
314 mm
Non-handedDesignerSeriesMetalCover
Optional

37
LCN Door Control Catalog
phone: 877-671-7011 n fax: 800-248-1460 n www.allegion.com/us n 009426 rev. 5/16
1460T
Series
Top Jamb (Pull Side)
Mounting
Mounting details
Butt Hinges Shouldnotexceed5˝(127mm)inwidth
Auxiliary Stop n Recommendedwhereadoorcannotswing180°
n Trackbumperassemblyassistsbackcheckincushioningtheopeningswingofthedoor.
Itisnotintendedtoreplaceanauxiliarystop
Reveal Shouldnotexceed1/8˝(3mm)
Top Rail Minimum1-1/4˝(32mm)
Head Frame n Lessthan2-3/4˝(70mm)requiresPLATE,1460T-18
n Platerequires1-3/4˝(44mm)minimum
n Withfullcover,usePLATE,1460T-18FC
n WithDesignerSeriesmetalcover,usePLATE,1460T-18DS
Clearance 1-1/4˝(32mm)behinddoorforinstallations
Maximum opening n Templatingallowsupto180°,limitedto115°whenoptionalbumperisinstalled
n Consultfactoryifdoorwillbeheldopenat180°
n Hold-openpointsat85°,90°,95°,100°,110°or115°withhold-opentracks
n Pleasenotethatmanytrackstyledoorclosersarecapableofallowing180°ofdoorswing
n Beawarethatthemajorityoftrackstyleclosersareattheirweakestclosingforceinthe180°–130°range
n Consultfactoryforapplicationswhereanexteriororlarge
22-3/4"
578 mm
2-1/8"
54 mm 1-1/16"
27 mm
1-1/4"
32 mm
2-3/8"
60 mm
1"
25 mm
12-1/4"
311 mm
1460T-18
3"
76 mm
12-1/2"
318 mm
12-3/8"
314 mm
Non-handedDesignerSeriesMetalCover
Optional

38 LCN Door Control Catalog
phone: 877-671-7011 n fax: 800-248-1460 n www.allegion.com/us n 009426 rev. 2/16
1460T
Series
Mounting details
Stop Face (Push Side)
Mounting
Butt Hinges Shouldnotexceed5˝(127mm)inwidth
Auxiliary Stop n Recommendedwhereadoorcannotswing110°
n Trackbumperassemblyassistsbackcheckincushioningtheopeningswingofthedoor.
Itisnotintendedtoreplaceanauxiliarystop
Top Rail n Lessthan4˝(102mm)measuredfromthestopfacerequiresPLATE,1460T-18PA.
Platerequires1-1/2˝(38mm)minimum
n WithFullcover,usePLATE,1460T-18PAFC
n WithDesignerSeriesmetalcover,usePLATE,1460T-18PADS
Clearance 1460Tprojects2-3/8˝(60mm)fromdoorface
Stop Width Minimum1-1/4˝(32mm)
Maximum opening n Templatingallows110°,limitedto100°whenoptionalbumperisinstalled
n Variablehold-openangleswithinfiniteoptions
2-7/8"
73 mm
22-3/4"
578 mm
12-1/4"
311 mm
7/8"
22 mm
1-1/4"
32 mm
1460T-18PA
2-3/8"
60 mm
4"
102 mm
2"
51 mm
1-1/16"
27 mm

39
LCN Door Control Catalog
phone: 877-671-7011 n fax: 800-248-1460 n www.allegion.com/us n 009426 rev. 2/16
1460T
Series
Accessories
1460(1)T-3071
Cast Iron Cylinder Assembly
n Non-handed
n 1461adjustable1-2
n 1461Tadjustable2-4
n Standard
1460T-3077T
Single Lever Standard Arm
n Non-handed
n Mounts hinge side, top jamb, or
stopface
n Trackrollernotincludedwith
arm
1460T-72
Slim Line Plastic Cover
n Non-handed
n Standard
1460T-3038
Track
n Non-handed
n Non hold-open
n Mountsoneithersideofthedoor
n Will accept hold-open clip and/
or bumper assembly
n Standard
1460T-72FC
Full Plastic Cover
n Non-handed
n Optional
1460T-3038B
Track with Bumper
n Non-handed
n Non hold-open
n Mountsoneithersideofthe
door
n Will accept hold-open clip
n Optional
1460T-3038H
Track with Hold-Open
n Non-handed
n Hold-open
n Mountsoneithersideofthe
door
n Will accept bumper assembly
n Optional
1460T-72DS
Designer Series Metal Cover
n Non-handed
n Requiredforplatingoption
and custom powder coat
finishes
n Optional
1460T-3038HB
Hold-Open Track with Bumper
n Non-handed
n Hold-open
n Mountsoneithersideofthe
door
n Optional
Cylinders Arm
Covers
Tracks

40 LCN Door Control Catalog
phone: 877-671-7011 n fax: 800-248-1460 n www.allegion.com/us n 009426 rev. 2/16
1460T-18PA
Plate
The following details pertain to the above plates:
n Requiredforstopfacemountingwheretoprailislessthan4˝(102mm),measuredfromthestop
n Requires1-1/2˝(38mm)minimumtoprail
n WithFullcover,usePLATE,1460T-18PAFC
n WithDesignerSeriesmetalcover,usePLATE,1460T-18PADS1
1460T-18
Plate
The following details pertain to the above plates:
n Requiredforhingesidemountwheretoprailislessthan2-1/2˝(64mm)
n Requiredfortopjambmountwhenheadframeislessthan2-3/4˝(70mm)
n Requiresminimum1-1/2˝(38mm)toprailor1-3/4˝(44mm)headframeminimum
n WithFullcover,usePLATE,1460T-18FC
n WithDesignerSeriesmetalcover,usePLATE,1460T-18DS1
1460T
Series
1460T-18DS
Plate
1460T-18PADS
Plate
1460T-18FC
Plate
1460T-18PAFC
Plate
Installation Accessories
Accessories
1460T-169
Track Bumper
n Mountsintracktoassist
backcheck,doesnotreplace
auxiliarystop
n Limitsmaximumopening
n Consistsofbumper,bumperpost,
and mounting screw
1460T-3054
Hold-Open Clip
n Mountsintracktoprovide
hold-openfunction
n Hold-open point controlled
by clip location
1460T-3034
Track Roller
n Quiet,lowfrictionroller
assembly
n Shoulder dimension
“X”=1/8˝(3mm)
1460T-3034H
Hold-Open Track Roller
n Hold-open roller
n Quiet,lowfrictionrollerassembly
n Shoulder dimension
“X”=1/8˝(3mm)
n Spring-loaded hold-open
mechanism
1460T-30A
Mounting Bracket
n Used when installing cylinder
body
n Included with cylinder when
ordered

41
LCN Door Control Catalog
phone: 877-671-7011 n fax: 800-248-1460 n www.allegion.com/us n 009426 rev. 2/16
1460T
Series
Accessories
Closer will be shipped with:
- Standard cover
- Standard arm
-Standardtrack
-Trackroller
-Self-reamingandtappingscrews
unless options listed below are selected.
Closer options
Cover
Fullcover(FC)
DesignerSeriesmetalcover(DS)
Finish
CustomPowderCoat(RAL)___________
(DScoverrequired)
PlatedFinish,US___________
(DScoverrequired)
SRIprimer(forusewithpowdercoatfinishesonly)
Track
StandardwithBumper(BUMPER)
Hold-Open(H)
Hold-OpenwithBumper(HBUMPER)
Optional screw packs
TB*w/Self-ReamingandTappingScrews
(TBSRT)
Wood&MachineScrew(WMS)
TB*,Wood&MachineScrew(TBWMS)
TORXMachineScrew(TORX)
TB*&TORXMachineScrew(TBTRX)
* Specify door thickness if other than 1-3/4˝
Installation accessories
Plate,1460T-18
Plate,1460T-18DS1
Plate,1460T-18FC
Plate,1460T-18PA
Plate,1460T-18PADS1
Plate,1460T-18PAFC
Special template
ST- ________
Reduced opening force 1460T Series closers
CAUTION ! Anymanualdoorcloser,includingthosecertifiedbyBHMAtoconformtoANSIStandardA156.4,thatisselected,installedandadjustedbased
onADAorotherreducedopeningforcerequirementsmaynotprovidesufficientpowertoreliablycloseandlatchadoor.
RefertoPOWEROPERATORSsectionforinformationon
systemsthatmeetreducedopeningforcerequirements
withoutaffectingclosingpower.
* Maximum opening force.
DOOR WIDTH 36˝ 42˝ 48˝
8.5* lbs. N/A N/A N/A
5.0* lbs. 1461T 1461T 1461T
Indicatesrecommendedrangeofdoorwidthforclosersize.
*Adjustable Size 2 thru 4
Indicatesrecommendedrangeofdoorwidthforclosersize.
*Adjustable Size 1 thru 2
*1460T *1461T
Minimum door width Minimum door width
Interior door width
26˝
660mm
34˝
864mm
38˝
965mm
48˝
1219mm
Interior door width
26˝
660mm
34˝
864mm
size2 size3 size4 size2
How-to-order 1460T Series closers
Table of sizes
n Selectcloserbasedonwidthofdoor.Thespringpowerofa1460Tcylinderisadjustablefromsize2to
size 4 and is shipped adjusted to size 3
n Theclosingpowerof1460Tseriescylindersmaybeincreased50%
n Thespringpowerofa1461Tcylinderisadjustablefromsize1tosize2andisshippedadjustedtosize1
1. Select cylinder size
1461T(adjustablefromsize1to2)
1460T(adjustablefromsize2to4)
2. Select finish
StandardPowderCoat__________
Aluminum,DarkBronze,Statuary,
LightBronze,Black,Brass

42 LCN Door Control Catalog
phone: 877-671-7011 n fax: 800-248-1460 n www.allegion.com/us n 009426 rev. 2/16
Notes
__________________________________________________________________________________________________________________________________________________________________________________
__________________________________________________________________________________________________________________________________________________________________________________
__________________________________________________________________________________________________________________________________________________________________________________
__________________________________________________________________________________________________________________________________________________________________________________
__________________________________________________________________________________________________________________________________________________________________________________
__________________________________________________________________________________________________________________________________________________________________________________
__________________________________________________________________________________________________________________________________________________________________________________
__________________________________________________________________________________________________________________________________________________________________________________
__________________________________________________________________________________________________________________________________________________________________________________
__________________________________________________________________________________________________________________________________________________________________________________
__________________________________________________________________________________________________________________________________________________________________________________
__________________________________________________________________________________________________________________________________________________________________________________
__________________________________________________________________________________________________________________________________________________________________________________
__________________________________________________________________________________________________________________________________________________________________________________
__________________________________________________________________________________________________________________________________________________________________________________
__________________________________________________________________________________________________________________________________________________________________________________
__________________________________________________________________________________________________________________________________________________________________________________
__________________________________________________________________________________________________________________________________________________________________________________
__________________________________________________________________________________________________________________________________________________________________________________
__________________________________________________________________________________________________________________________________________________________________________________
__________________________________________________________________________________________________________________________________________________________________________________
__________________________________________________________________________________________________________________________________________________________________________________
__________________________________________________________________________________________________________________________________________________________________________________
__________________________________________________________________________________________________________________________________________________________________________________
__________________________________________________________________________________________________________________________________________________________________________________
__________________________________________________________________________________________________________________________________________________________________________________

1
LCN Door Control Catalog
phone: 877-671-7011 n fax: 800-248-1460 n www.allegion.com/us n 009426 rev. 2/16
Product selection guide
The concealed LCN closers feature a modern design for concealment in either the head frame or top
rail of the door. This guide is based on the desired mounting of the closer.
Product comparison
This chart shows a basic comparison of LCN concealed closers. Refer to the specific closer chapter for complete details.
Closeravailablewithlessthan5.0lbs.openingforceon36˝door.
* Maximumopening/hold-openpointwithstandardtemplate.Seeindividualcloserseriesfordegreesofopeningper
installation.
AVAILABLE
NOT AVAILABLE
Concealed
closer series
DOUBLE
LEVER ARM
5010
SINGLE
LEVER ARM
2010 2210**
DOUBLE
LEVER ARM
5030
SINGLE
LEVER ARM
2030 6030
DOUBLE
LEVER ARM
3030
SINGLE
LEVER ARM
3130 3130SE***
**INDICATESHIGHSECURITYCLOSER,DOORPOSITIONSWITCHOPTIONAL.REFERTOHIGHSECURITYSECTIONOFTHECATALOG.
***INDICATESFIRELIFESAFETYCLOSER.REFERTOFIRELIFESAFETYSECTION.
INTERIOR
DOOR
CONCEALED
IN FRAME
CONCEALED IN
TUBE FRAME
CONCEALED
IN DOOR
DOUBLE
LEVER ARM
5010
CONCEALED
IN FRAME
SINGLE
LEVER ARM
2010 2210**
DOUBLE
LEVER ARM
5030
EXTERIOR
DOOR
CONCEALED IN
TUBE FRAME
SINGLE
LEVER ARM
2030 6030
IN FRAME
IN 1-3/4˝ TUBE
IN DOOR
POWDER COAT
PLATED
CONCEALED
MOUNTING FINISH
CLOSER
SERIES
2010
2030
CONCEALED
EXPOSED
ARM
ACCESSIBILITY
CYLINDER *ARM FUNCTION
DELAYED ACTION
REGULAR (DOUBLE)
STANDARD (SINGLE)
180°
180°
HANDED
SIZED
110°
110°
3030
3130 140°
180°
180°
5010
6030
5030
95°
180°
100°
100°
95°
100°
140°
HOLD-OPEN

2LCN Door Control Catalog
phone: 877-671-7011 n fax: 800-248-1460 n www.allegion.com/us n 009426 rev. 2/16
APPLICATIONS
n For aluminum, hollow metal, or wood doors and frames.
n Can be used with hinge or pivot mounted door.
n Closers for 4˝ or minimum 1-3/4˝ head frame or 4˝ top rail.
n Mounting clips for wood frames and other installation accessories
available for unusual conditions.
n For concealed in door closers consult factory for installations with
pivots.
FEATURES COMMON TO CONCEALED CLOSERS
n Mountings for head frame or door top rail.
n Handed for right or left swinging doors. (except 6030)
n Closers to meet ADA reduced opening force requirements.
n Adjustable hydraulic backcheck cushions opening swing prior to 90°.
n Separate regulation of general closing speed and latching speed.
n Joints in arm and shoe adapt to uneven trim. (for double lever arms)
DESIGN ASSISTANCE
LCN has been providing reliable solutions to unique door control problems
since 1925. Design and specification assistance are only a phone call away.
Contact LCN for assistance or technical information at 877-671-7011
or FAX 800-248-1460 (Order Entry), Fax 815-879-1495 for
Product Support.
WARRANTY
15 year limited warranty. See General Information Section for complete
warranty details.
SPECIFICATIONS
Refer to “SPECIFICATIONS”section for suggested architectural
specifications.
MATERIALS
(Closers concealed in the door or frame)
n High strength cast iron cylinder.
n Forged steel main arms (except 6030).
n One piece forged steel piston.
n
All weather fluid in overhead concealed models performs to
temperature ranges from 120°F (49°C) to -30°F (-35°C) without any
seasonal adjustment.
n High efficiency, full complement, low friction bearings.
n Tamper resistant regulating screws.
n Full rack and pinion hydraulic action.
n
Quiet, low friction track and roller combination for all single lever
(standard) arm closers.
FINISHES
n Available in six standard or a wide selection of optional custom
powder coat finishes to blend with door and frame.
n LCN’s powder coat finishes surpass 100 hours of salt spray which is
over four times the ANSI standard for corrosion resistance.
n For installations where a higher level of corrosive resistance is
required, LCN offers an optional special rust inhibiting (SRI) pre-
treatment. Closers that combine the exclusive LCN powder coat finish
and the SRI pre-treatment exceed the ANSI standard for corrosion
resistance even further.
n
Plated finishes are available as an option to accent door and frame.
(SRI not available with plated finishes)
LISTINGS & APPROVALS
UL listed for self-closing doors without hold-open under “SWINGING DOOR
CLOSERS” (GVEV) file R 1943.
Tested and certified under ANSI Standard A156.4. Consult factory for
details.
Consult factory for other listings such as; cUL, California State Fire Marshal,
Bureau of Standards and Appeals.
POSITIVE PRESSURE
LCN closers have been certified for three hours by UL to be in compliance
with UL 10 C. Contact LCN for specific details on door closer fire ratings.
FASTENERS
Standard WOOD and MACHINE SCREW (WMS) pack contains phillips head
wood and machine screws to install the closer.
TORX machine screws are available for some closers.
Note1:Phillipshead,metricmachinescrewsareavailable,pleasespecify.
MAINTENANCE
Closers mounted according to LCN installation instructions require no
periodic maintenance or adjustments.
Concealed
closer series

3
LCN Door Control Catalog
phone: 877-671-7011 n fax: 800-248-1460 n www.allegion.com/us n 009426 rev. 2/16
IN FRAME
IN 1-3/4˝ TUBE
IN DOOR
POWDER COAT
PLATED
CONCEALED
MOUNTING FINISH
CONCEALED
EXPOSED
ARM
ACCESSIBILITY
CYLINDER *ARM FUNCTION
DELAYED ACTION
REGULAR (DOUBLE)
STANDARD (SINGLE)
HANDED
SIZED
HOLD-OPEN
180° 110°
AVAILABLE
NOT AVAILABLE
2010
Series
The concealed 2010 Series is a heavy duty closer designed to provide complete
concealment. The single lever arm and roller assembly provide smooth, quiet door control
and the choice of finishes and track functions meet virtually all architectural requirements.
Closer available with less than 5.0 lbs. opening force on 36˝ door.
* Maximum opening/hold-open point with standard template. See individual closer series for
degrees of opening per installation.
Certifications Grade 1 - ANSI A156.4, UL 10 C, ADA, 100 Hour
Salt Spray, Meets BAA - Buy American Act
Body Construction n Cast Iron Body
n Full Complement Bearing
n 1-1/2˝DiameterPiston
n 11/16˝DiameterDoubleHeatTreated
PinionJournal
Fluid All Weather Fluid
Handing Handed
Size Sized 1-6
Warranty 15 years
Fasteners WoodandMachineScrewPack
Mounting Concealed (in frame); aluminum frame
requiresminimum4˝x4˝(102mm)tube
Arms Standardarmandtrack
Finishes/Colors/
Powder Coat
n Aluminum (689)
n Statuary Bronze (690)
n Light Bronze (691)
n Black(693)
n DarkBronze(695)
n Brass (696)
n Custom colors optional
n Optional SRI primer - powder coat only
n Optional plated finishes
Customizedinstallationtemplatesorproductsmaybeavailabletosolveunusualapplications.
ContactLCNProductSupportforassistance.
Special
Templates
Features

4LCN Door Control Catalog
phone: 877-671-7011 n fax: 800-248-1460 n www.allegion.com/us n 009426 rev. 2/16
2010
Series
Concealed
Mounting
Mounting details
Butt Hinges Shouldnotexceed5˝(127mm)inwidth
Auxiliary Stop n Recommended where a door cannot swing 180°
n Optionaltrackbumperassemblyassistsbackcheckincushioningtheopeningswingofthedoor(notintendedto
replaceanauxiliarystop).
Top Rail n 1-3/8˝(35mm)mortiserequired
n WithFireShield,1-13/32˝(36mm)mortiserequired
n 5/16˝(8mm)cutoutrequiredattopofthedoor,stopfaceonly
Door Thickness 1-3/4˝(44mm)minimum
Hollow Metal Frame Consult factory for installation instructions
Maximum opening n Butt hinge template allows 180°, trim permitting
n Limitedto110°whenoptionalbumperisinstalled
n Adjustablehold-openpointsfrom85°to110°,withhold-opentrack
n Offsetpivottemplateallows110°,trimpermitting
n Limitedto95°whenoptionalbumperisinstalled
n Adjustablehold-openpointsfrom75°to95°,withhold-opentrack
n Centerpivottemplateallows120°,trimpermitting
n Limitedto95°whenoptionalbumperisinstalled
n Adjustablehold-openpointsfrom75°to95°,withhold-opentrack
Notes:
•Forinteriororexteriordoors
•Singleactingcylinderinheadframe
•Concealedarmandtrackindoortoprail
2-1/16"
52 mm 1-1/4"
32mm
10"
254 mm
22-1/2"
572 mm
5-5/16"
135 mm 14"
356 mm
1-1/16"
27 mm 1-3/8"
35 mm
3/8"
10 mm
3-5/8"
92 mm
1"
25 mm
1/4"
6mm
of Track
to of Closer

5
LCN Door Control Catalog
phone: 877-671-7011 n fax: 800-248-1460 n www.allegion.com/us n 009426 rev. 2/16
2010
Series
2011(3)(4)(5)(6)-3071
Cast Iron Cylinder Assembly
n Handed
n With mounting plate
n Standard
2010-3038
Standard Track
n Non-handed
n Non hold-open
n Will accept hold-open clip
and/orbumperassembly.
n Standard
2010-3038B
Standard Track with Bumper
n Non-handed
n Non hold-open
n Will accept hold-open clip
n Optional
2010-3077T
Standard Arm
n Handed
n Trackrollernotincludedwith
arm
2010-3038H
Hold-Open Track
n Non-handed
n Willacceptbumperassembly
n Optional
2010-3038HB
Hold-Open Track with Bumper
n Non-handed
n Optional
Cylinders
Tracks
Cylinder Installation AccessoriesArm
Accessories
2010-420
Fire Shield
n 22 gauge steel liner mounts in the
trackmortiseofthedoor’stoprail
for20minutelabeledwooddoors
2010-169
Track Bumper
n Mountsintracktoassistbackcheck
n Limitsmaximumopening
n Consistsofbumper,bumperpost,
and mounting screw
NOTE:Trackbumperdoesnotreplace
auxiliarystop.
2010-3054
Hold-Open Clip
n Mountsintracktoprovidehold-
open function
n Hold-openpointcontrolledbyclip
location
n Requires2010-3034H
2010-3034
Track Roller
n Quiet,lowfrictionrollerassembly
n Shoulderdimension“X”=1/16˝
(2mm)
2010-3034H
Hold-Open Track Roller
n Quiet,lowfrictionrollerassembly
n Shoulderdimension“X”=1/16˝
(2mm)

6LCN Door Control Catalog
phone: 877-671-7011 n fax: 800-248-1460 n www.allegion.com/us n 009426 rev. 2/16
2010
Series
Closer will be shipped with:
- Standard cylinder with finish plate
- Standard arm
-Standardtrack
-Woodandmachinescrewpack
unless options listed below are selected.
Closer options
Tracks
StandardwithBumper(BUMPER)
Hold-open (H)
Hold-openwithBumper(HBUMPER)
Finishes
CustomPowderCoat(RAL)_____________
PlatedFinish,US______________
SRI primer (use with powder coat finishes only)
Screw pack
TORXMachineScrew(TORX)
Installation accessories
Fire Shield, 2010-420
Special template
ST-________
Table of sizes
n Selectcloserbasedonwidthofdoor.
n 2010Seriescylindersavailableinsize1,3,4,5,or6.
n Closingpowerofall2010Seriesclosersmaybeincreased15%.
n Specifynexthighersizecloserwherestrongdraftsexist.
Select cylinder size
2011
2013
2014
2015
2016
Reduced opening force 2010 Series closers
CAUTION ! Anymanualdoorcloser,includingthosecertifiedbyBHMAtoconformtoANSIStandardA156.4,thatisselected,installedandadjustedbased
onADAorotherreducedopeningforcerequirementsmaynotprovidesufficientpowertoreliablycloseandlatchadoor.
RefertoPOWEROPERATORSsectionforinformationon
systems that meet reduced opening force requirements
without affecting closing power.
* Maximum opening force.
DOOR WIDTH 36˝ 42˝ 48˝
8.5*lbs. 2014 2014 2015
5.0*lbs. 2011 2011 2013
Indicates recommended range of door width for closer size.
2013
2014
2015
2016
2013
2014
2015
2016
Minimum door width Minimum door width
Exterior (and Vestibule) door width
28˝
711mm
30˝
762mm
36˝
914mm
42˝
1067mm
48˝
1219mm
Interior door width
28˝
711mm
34˝
864mm
38˝
965mm
48˝
1219mm
54˝
1372mm
60˝
1524mm
size3 size4 size5 size6 size3 size4 size5 size6
How-to-order 2010 Series closers
Ordering Information
Select hand
RH
LH
Specify finish
StandardPowderCoat__________
Aluminum,DarkBronze,Statuary,LightBronze,Black,Brass.

7
LCN Door Control Catalog
phone: 877-671-7011 n fax: 800-248-1460 n www.allegion.com/us n 009426 rev. 2/16
2030
Series
The concealed 2030 Series PACER® is a heavy duty closer designed to fit in a narrow,
minimum 1-3/4˝ aluminum transom. The single lever arm and roller assembly provide
smooth, quiet door control and the choice of finishes and track functions meet virtually all
architectural requirements.
AVAILABLE
NOTAVAILABLE
Certifications Grade 1 - ANSI A156.4, UL 10 C, ADA, 100 Hour
Salt Spray, Meets BAA - Buy American Act
Body Construction n Cast Iron Body
n Full Complement Bearing
n 11/8˝DiameterPiston
n 11/16˝DiameterDoubleHeatTreated
PinionJournal
Fluid All Weather Fluid
Handing Handed
Size Sized 1-5
Warranty 15 years
Fasteners WoodandMachineScrewPack
Mounting Concealed(intube);aluminumframe
requiresminimum1-3/4˝(44mm)x
4˝(102)mm)tube
Arms Standardarmandtrack
Finishes/Colors/
Powder Coat
n Aluminum (689)
n Statuary Bronze (690)
n Light Bronze (691)
n Black(693)
n DarkBronze(695)
n Brass (696)
n Custom colors optional
n Optional SRI primer - powder coat only
n Optional plated finishes
Customizedinstallationtemplatesorproductsmaybeavailabletosolveunusualapplications.
ContactLCNProductSupportforassistance.
Special
Templates
Features
Closeravailablewithlessthan5.0lbs.openingforceon36˝door.
* Maximumopening/hold-openpointwithstandardtemplate.Seeindividualcloserseriesfordegreesofopeningper
installation.
POWDER COAT
PLATED
CONCEALED
MOUNTING FINISH
CONCEALED
EXPOSED
ARM
ACCESSIBILITY
CYLINDER *ARM FUNCTION
DELAYED ACTION
REGULAR (DOUBLE)
STANDARD (SINGLE)
HANDED
SIZED
110°
HOLD-OPEN
180°
IN FRAME
IN 1-3/4˝ TUBE
IN DOOR
AVAILABLE
NOT AVAILABLE

8LCN Door Control Catalog
phone: 877-671-7011 n fax: 800-248-1460 n www.allegion.com/us n 009426 rev. 2/16
2030
Series
Concealed
Mounting
Mounting details
9/64"
4 mm
3-23/32"
94 mm
5-13/16"
148 mm 21-7/8"
556 mm 1-5/8"
41 mm
1-1/4"
32 mm 1"
25 mm
10"
254 mm 22-1/2"
572 mm
1-1/16"
27 mm
1-3/8"
35 mm
Butt Hinges Shouldnotexceed5˝(127mm)inwidth
Auxiliary Stop n Recommended where a door cannot swing 180°
n Optionaltrackbumperassemblyassistsbackcheckincushioningtheopeningswingofthedoor(notintendedto
replaceanauxiliarystop).
Top Rail n 1-3/8˝(35mm)mortiserequired
n WithFireShield,1-13/32˝(36mm)mortiserequired
n 5/16˝(8mm)cutoutrequiredattopofthedoor,stopfaceonly
Door Thickness 1-3/4˝(44mm)minimum
Hollow Metal Frame Consult factory for installation instructions
Wood Frame InstallationsimplifiedbyWOODMOUNTINGCLIPSET2030-416forcenterpivotedor2030-417foroffsetpivotedand
butthunginstallations.Consultfactoryforpreparationdetails.
Maximum opening n Butt hinge template allows 180°, trim permitting
n Limitedto110°whenoptionalbumperisinstalled
n Adjustablehold-openpointsfrom85°to110°,withhold-opentrack
n Consultfactoryifdoorwillbeheldopenat180°
n Offsetpivottemplateallows115°,trimpermitting.Limitedto95°whenoptionalbumperisinstalled
n Hold-openpointfrom85°,withhold-opentrack
n Centerpivottemplateallows120°,trimpermitting
n Limitedto100°whenoptionalbumperisinstalled
n Adjustablehold-openpointsfrom85°to100°,withhold-opentrack
Notes:
•Forinteriororexteriordoors
•Singleactingcylinderinheadframe
•Concealedarmandtrackindoortoprail

9
LCN Door Control Catalog
phone: 877-671-7011 n fax: 800-248-1460 n www.allegion.com/us n 009426 rev. 2/16
1460
Series
Accessories
2031(2)(3)(4)(5)-3071
Cast Iron Cylinder Assembly
n Handed
n With mounting plate
n Standard
2030-3038
Standard Track
n Non-handed
n Non hold-open
n Will accept hold-open clip and/or
bumperassembly
n Standard
2030-3038B
Standard Track with Bumper
n Non-handed
n Non hold-open
n Will accept hold-open clip
n Optional
2030-3077T
Standard Arm
n Handed
n Trackrollernotincludedwitharm
2030-3038H
Hold-Open Track
n Non-handed
n Willacceptbumperassembly
n Optional
2030-3038HB
Hold-Open Track with Bumper
n Non-handed
n Optional
Cylinders
Cylinders
Cylinder
Tracks
Arm
2030
Series
Accessories

10 LCN Door Control Catalog
phone: 877-671-7011 n fax: 800-248-1460 n www.allegion.com/us n 009426 rev. 2/16
2030
Series
2030-420
Fire Shield
n 22 gauge steel liner mounts in the
trackmortiseofthedoor’stoprail
for20minutelabeledwooddoors
2030-3054
Hold-Open Clip
n Mountsintracktoprovidehold-
open function
n Hold-openpointcontrolledbyclip
location
n Requires2030-3034HHold-Open
TrackRoller
2030-416
Wood Mounting Clip Set
n Simplifies mounting center
pivoted2030closerinwoodframe
n Includes latch stile clip, hinge stile
clip,andcover
n ForusewithIvesSeriescenter
pivots
n Consult factory for special
template
2030-3034
Track Roller
n Quiet,lowfrictionrollerassembly
n Shoulderdimension“X”=1/16˝
(2mm)
2030-417
Wood Mounting Clip Set
n Simplifiesmountingoffsetpivoted
orbutthung2030closerinwood
frame
n Includes two clips
n Forusewithoffsetpivots
n Consult factory for special
template
2030-169
Track Bumper
n Mountsintracktoassist
backcheck.Limitsmaximum
opening.
n Consistsofbumper,bumper
post, and mounting screw
NOTE:Trackbumperdoesnot
replaceauxiliarystop
Installation Accessories
Accessories
2030-3034H
Hold-Open Track Roller
n Quiet,lowfrictionrollerassembly
n Shoulderdimension“X”=1/16˝
(2mm)

11
LCN Door Control Catalog
phone: 877-671-7011 n fax: 800-248-1460 n www.allegion.com/us n 009426 rev. 2/16
2030
Series
Ordering Information
1460
Series
Closer will be shipped with:
- Standard cylinder with mounting plate
- Standard arm
-Standardtrack
-Woodandmachinescrewpack
unless options listed below are selected.
Closer options
Tracks
StandardwithBumper(BUMPER)
Hold-open (H)
Hold-openwithBumper(HBUMPER)
Finishes
CustomPowderCoat(RAL)_____________
PlatedFinish,US______________
SRI primer (use with powder coat finishes only)
Screw pack
TORXMachineScrew(TORX)
Installation accessories
FireShield,2030-420
WoodClipSet,2030-416
WoodClipSet,2030-417
Special template
ST-________
Select cylinder size
2031
2032
2033
2034
2035
Select hand
RH
LH
Specify finish
StandardPowderCoat__________
Aluminum,DarkBronze,Statuary,
LightBronze,Black,Brass
Reduced opening force 2030 Series closers
CAUTION ! Anymanualdoorcloser,includingthosecertifiedbyBHMAtoconformtoANSIStandardA156.4,thatisselected,installedandadjustedbased
onADAorotherreducedopeningforcerequirementsmaynotprovidesufficientpowertoreliablycloseandlatchadoor.
RefertoPOWEROPERATORSsectionforinformationon
systems that meet reduced opening force requirements
without affecting closing power.
* Maximum opening force.
DOOR WIDTH 36˝ 42˝ 48˝
8.5*lbs. 2033 2033 2034
5.0*lbs. 2031 2032 2032
Indicates recommended range of door width for closer size.
2033
2034
2035
2032
2033
2034
2035
Minimum door width Minimum door width
Exterior (and Vestibule) door width
28˝
711mm
30˝
762mm
36˝
914mm
42˝
1067mm
Interior door width
28˝
711mm
34˝
864mm
38˝
965mm
48˝
1219mm
54˝
1372mm
size3 size4 size5 size2 size3 size4 size5
How-to-order 2030 Series closers
Table of sizes
n Selectcloserbasedonwidthofdoor.
n 2030Seriescylindersavailableinsize1,2,3,4,or5.
n Closingpowerofall2030Seriesclosersmaybeincreased35%.
n Specifynexthighersizecloserwherestrongdraftsexist

12 LCN Door Control Catalog
phone: 877-671-7011 n fax: 800-248-1460 n www.allegion.com/us n 009426 rev. 2/16
Notes
__________________________________________________________________________________________________________________________________________________________________________________
__________________________________________________________________________________________________________________________________________________________________________________
__________________________________________________________________________________________________________________________________________________________________________________
__________________________________________________________________________________________________________________________________________________________________________________
__________________________________________________________________________________________________________________________________________________________________________________
__________________________________________________________________________________________________________________________________________________________________________________
__________________________________________________________________________________________________________________________________________________________________________________
__________________________________________________________________________________________________________________________________________________________________________________
__________________________________________________________________________________________________________________________________________________________________________________
__________________________________________________________________________________________________________________________________________________________________________________
__________________________________________________________________________________________________________________________________________________________________________________
__________________________________________________________________________________________________________________________________________________________________________________
__________________________________________________________________________________________________________________________________________________________________________________
__________________________________________________________________________________________________________________________________________________________________________________
__________________________________________________________________________________________________________________________________________________________________________________
__________________________________________________________________________________________________________________________________________________________________________________
__________________________________________________________________________________________________________________________________________________________________________________
__________________________________________________________________________________________________________________________________________________________________________________
__________________________________________________________________________________________________________________________________________________________________________________
__________________________________________________________________________________________________________________________________________________________________________________
__________________________________________________________________________________________________________________________________________________________________________________
__________________________________________________________________________________________________________________________________________________________________________________
__________________________________________________________________________________________________________________________________________________________________________________
__________________________________________________________________________________________________________________________________________________________________________________
__________________________________________________________________________________________________________________________________________________________________________________
__________________________________________________________________________________________________________________________________________________________________________________

13
LCN Door Control Catalog
phone: 877-671-7011 n fax: 800-248-1460 n www.allegion.com/us n 009426 rev. 2/16
3030
Series
The concealed 3030 Series is designed to mount in a 1-3/4˝ interior door. The double lever
arm provides superior door control and the choice of finishes and arm functions meet
virtually all architectural requirements.
AVAILABLE
NOTAVAILABLE
Closer available with less than 5.0 lbs. opening force on 36˝ door.
* Maximum opening/hold-open point with standard template. See individual closer series for
degrees of opening per installation.
Certifications Grade 1 - ANSI A156.4, UL 10 C, ADA, 100 Hour
Salt Spray, Meets BAA - Buy American Act
Body Construction n Cast Iron Body
n Full Complement Bearing
n 1-1/8˝DiameterPiston
n 1/2˝DiameterDoubleHeatTreated
PinionJournal
Fluid All Weather Fluid
Handing Handed
Size Sized 1-4
Warranty 15 years
Fasteners WoodScrewsandTorxSecurityScrews
(optional)
Mounting Concealed (in door); consult factory for
installationswithpivots
Arms Regular arm
Finishes/Colors/
Powder Coat
n Aluminum (689)
n Statuary Bronze (690)
n Light Bronze (691)
n Black(693)
n DarkBronze(695)
n Brass (696)
n Custom colors optional
n Optional SRI primer - powder coat only
n Optional plated finishes
Customizedinstallationtemplatesorproductsmaybeavailabletosolveunusualapplications.
ContactLCNProductSupportforassistance.
Special
Templates
Features
POWDER COAT
PLATED
CONCEALED
MOUNTING FINISH
CONCEALED
EXPOSED
ARM
ACCESSIBILITY
CYLINDER *ARM FUNCTION
DELAYED ACTION
REGULAR (DOUBLE)
STANDARD (SINGLE)
HANDED
SIZED
140°
HOLD-OPEN
180°
IN FRAME
IN 1-3/4˝ TUBE
IN DOOR
AVAILABLE
NOT AVAILABLE

14 LCN Door Control Catalog
phone: 877-671-7011 n fax: 800-248-1460 n www.allegion.com/us n 009426 rev. 2/16
3030
Series
Concealed
Mounting
Mounting details
A
B
C
3-3/16"
81 mm
2-15/16"
75 mm
9/16"
14 mm
8-3/4"
222 mm
1-1/2"
38 mm
4-7/8"
124 mm
5/16"
8 mm
1-3/8"
35 mm
8-3/4"
222 mm
11-3/4"
298 mm
3"
76 mm
3/4"
19 mm
15/16"
24 mm
2-11/16"
68 mm
3-3/4"
95 mm
1-1/4" dia.
32 mm
Butt Hinges Shouldnotexceed5˝(127mm)inwidth
Auxiliary Stop Recommended at hold-open point or where a door cannot swing 180°
Top Rail Minimum4˝(102mm)required
Door Thickness n 1-3/4˝(44mm)minimum
n Pleaseconsultthedoormanufacturertoassurethatthedoorintegrityandwarrantyismaintainedafterinstalling
the3030Seriesdoorcloserina1-3/4˝thickwooddoor
Maximum opening Canbetemplatedfor
100°: A=3-5/8˝(92mm)
B=10-1/4˝(260mm)
130°: A=2-5/8˝(67mm)
B=9-1/4˝(235mm)
180°: A=1-5/8˝(41mm)
B=8-1/4˝(210mm)
n Hold-openpointsuptomaximumopeningor140°,whicheverisless,withhold-openarm.
Armclearanceabovedoor
C=1-1/4˝(32mm)minimum
Notes:
•Forinteriororexteriordoors
•Singleactingcylinderintoprailofdoor
•Exposedarmonhingesideofdoor

15
LCN Door Control Catalog
phone: 877-671-7011 n fax: 800-248-1460 n www.allegion.com/us n 009426 rev. 2/16
3030
Series
Accessories
3031(2)(3)(4)-3071
Cast Iron Cylinder Assembly
n Handed
n With mounting plate
n Standard
3030-3049
Hold-open arm
n Handed
n Provideshold-openfunction,
adjustableatelbow
n Optional
Cylinder Arms
3030-3077
Regular arm
n Non-handed

16 LCN Door Control Catalog
phone: 877-671-7011 n fax: 800-248-1460 n www.allegion.com/us n 009426 rev. 2/16
3030
Series
Ordering Information
Closer will be shipped with:
-Standardcylinderwithmountingbracket
- Regular arm
-Woodandmachinescrewpack
unless options listed below are selected.
Closer options
Arm
Hold-open (H)
Finishes
CustomPowderCoat(RAL)___________
PlatedFinish,US______________
SRI primer (use with powder coat finishes only)
Screw pack
TORXMachineScrew(TORX)
Special template
ST-________
Select cylinder size
3031
3032
3033
3034
Select hand
RH
LH
Specify finish
StandardPowderCoat__________
Aluminum,DarkBronze,Statuary,LightBronze,Black,Brass.
Reduced opening force 3030 Series closers
CAUTION ! Anymanualdoorcloser,includingthosecertifiedbyBHMAtoconformtoANSIStandardA156.4,thatisselected,installedandadjustedbased
onADAorotherreducedopeningforcerequirementsmaynotprovidesufficientpowertoreliablycloseandlatchadoor.
RefertoPOWEROPERATORSsectionforinformationon
systems that meet reduced opening force requirements
without affecting closing power.
* Maximum opening force.
DOOR WIDTH 36˝ 42˝ 48˝
8.5*lbs. N/A N/A N/A
5.0*lbs. 3031 3031 3032
Indicates recommended range of door width for closer size.
3032
3033
3034
Minimum door width
Interior door width
24˝
610mm
34˝
864mm
38˝
965mm
48˝
1219mm
size2 size3 size4
How-to-order 3030 Series closers
Table of sizes
n Selectcloserbasedonwidthofdoor
n 3030Seriescylindersavailableinsize1,2,3,or4
n Closingpowerofall3030Seriesclosersmaybeincreased15%

17
LCN Door Control Catalog
phone: 877-671-7011 n fax: 800-248-1460 n www.allegion.com/us n 009426 rev. 2/16
3130
Series
The concealed 3130 Series is designed to mount in a 1-3/4˝ interior door. The single lever
arm and roller assembly provides complete concealment and the choice of finishes and
track functions meet virtually all architectural requirements.
AVAILABLE
NOTAVAILABLE
Closer available with less than 5.0 lbs. opening force on 36˝ door.
* Maximum opening/hold-open point with standard template. See individual closer series for
degrees of opening per installation.
Certifications Grade 1 - ANSI A156.4, UL 10 C, ADA, 100 Hour
Salt Spray, Meets BAA - Buy American Act
Body Construction n Cast Iron Body
n Full Complement Bearing
n 1-1/8˝DiameterPiston
n 1/2˝DiameterDoubleHeatTreated
PinionJournal
Fluid All Weather Fluid
Handing Handed
Size Sized1-3
Warranty 15 years
Fasteners WoodScrewsandTorxSecurityScrews
(optional)
Mounting Concealed (in door); consult factory for
installationwithpivots
Arms Standardarmandtrack
Finishes/Colors/
Powder Coat
n Aluminum (689)
n Statuary Bronze (690)
n Light Bronze (691)
n Black(693)
n DarkBronze(695)
n Brass (696)
n Custom colors optional
n Optional SRI primer - powder coat only
n Optional plated finishes
Customizedinstallationtemplatesorproductsmaybeavailabletosolveunusualapplications.
ContactLCNProductSupportforassistance.
Special
Templates
Features
POWDER COAT
PLATED
CONCEALED
MOUNTING FINISH
CONCEALED
EXPOSED
ARM
ACCESSIBILITY
CYLINDER *ARM FUNCTION
DELAYED ACTION
REGULAR (DOUBLE)
STANDARD (SINGLE)
HANDED
SIZED
100°
HOLD-OPEN
140°
IN FRAME
IN 1-3/4˝ TUBE
IN DOOR
AVAILABLE
NOT AVAILABLE

18 LCN Door Control Catalog
phone: 877-671-7011 n fax: 800-248-1460 n www.allegion.com/us n 009426 rev. 2/16
3130
Series
Concealed
Mounting
Mounting details
1-1/4"
32 mm
2"
50 mm
3/8"
10 mm
4-7/8"
124 mm
4-3/8"
110 mm
8-3/4"
222 mm
5/8"
16 mm 3"
76 mm
3-1/4"
83 mm
1-1/16"
27 mm
1-1/2"
38 mm
22-1/2"
572 mm
11-3/4"
298 mm
1-3/8"
35 mm
1-1/4" dia.
32 mm
Butt Hinges Shouldnotexceed5˝(127mm)inwidth
Auxiliary Stop n Recommended at hold-open point or where a door cannot swing 140°
n Optionaltrackbumperassemblyassistsbackcheckincushioningtheopeningswingofthedoor.Itisnotintendedto
replaceanauxiliarystop
Top Rail Minimum4˝(102mm)required
Door Thickness n 1-3/4˝(44mm)minimum.
n Pleaseconsultthedoormanufacturertoassurethatthedoorintegrityandwarrantyismaintainedafterinstalling
the3130Seriesdoorcloserina1-3/4˝thickwooddoor
Door Width 2´2˝(660mm)minimum
Maximum opening n Templatingallows140°,trimpermitting.100°withoptionalbumperinstalled
n Adjustablehold-openpointsfrom85°to100°,withhold-opentrack
Notes:
•Forinteriordoors
•Singleactingcylinderandstandardarmintoprailofdoor
•Concealedtrackinheadframe
•Consultfactoryforinstallationswithpivots.

19
LCN Door Control Catalog
phone: 877-671-7011 n fax: 800-248-1460 n www.allegion.com/us n 009426 rev. 2/16
3130
Series
Accessories
3131(2)(3)-3071
Cast Iron Cylinder Assembly
n Handed
n With mounting plate
n Standard
3130-3038
Track
n Non-handed
n Non hold-open
n Will accept hold-open clip and/
orbumperassembly
n Standard
3130-169
Track Bumper
n Mountsintracktoassist
backcheck,doesnotreplace
auxiliarystop
n Limitsmaximumopening
n Consistsofbumper,bumper
post, and mounting screw
3130-3038B
Standard Track with Bumper
n Non-handed
n Non hold-open
n Will accept hold-open clip
n Optional
3130-3054
Hold-Open Clip
n Mountsintracktoprovidehold-
open function
n Hold-openpointcontrolledby
clip location
n Requires3130-3034HHold-
OpenTrackRoller
3130-3038H
Hold-Open track
n Non-handed
n Willacceptbumperassembly
n Optional
3130-3034
Track Roller
n Quiet, low friction roller
assembly
n Shoulder dimension “X” =
1/8˝(3mm)
3130-3038HB
Hold-Open Track with Bumper
n Non-handed
n Optional
Cylinder
Tracks
Installation Accessories
Arm
3130-3077T
Standard Arm
n Handed
n Trackrollernotincludedwitharm
n Standard
3130-3034H
Hold-Open Track Roller
n Quiet,lowfrictionrollerassembly
n Shoulder dimension “X” =
1/8˝(3mm)

20 LCN Door Control Catalog
phone: 877-671-7011 n fax: 800-248-1460 n www.allegion.com/us n 009426 rev. 2/16
3130
Series
Ordering Information
Closer will be shipped with:
-Standardcylinderwithmountingbracket
- Standard arm wtih finish plate
-Standardtrack
-Woodandmachinescrewpack
unless options listed below are selected.
Closer options
Track
StandardwithBumper(BUMPER)
Hold-open (H)
Hold-openwithBumper(HBUMPER)
Finishes
CustomPowderCoat(RAL)___________
PlatedFinish,US______________
SRI primer (use with powder coat finishes only)
Screw pack
TORXMachineScrew(TORX)
Special template
ST-________
Select cylinder size
3131
3132
3133
Select hand
RH
LH
Specify finish
StandardPowderCoat__________
Aluminum,DarkBronze,Statuary,LightBronze,Black,Brass.
Reduced opening force 3130 Series closers
CAUTION ! Anymanualdoorcloser,includingthosecertifiedbyBHMAtoconformtoANSIStandardA156.4,thatisselected,installedandadjustedbased
onADAorotherreducedopeningforcerequirementsmaynotprovidesufficientpowertoreliablycloseandlatchadoor.
RefertoPOWEROPERATORSsectionforinformationon
systems that meet reduced opening force requirements
without affecting closing power.
* Maximum opening force.
DOOR WIDTH 36˝ 42˝ 48˝
8.5*lbs. N/A N/A N/A
5.0*lbs. 3131 3131 3132
Indicates recommended range of door width for closer size.
3132
3133
Minimum door width
Interior door width
26˝
660mm
34˝
864mm
38˝
965mm
size2 size3
How-to-order 3130 Series closers
Table of sizes
n Selectcloserbasedonwidthofdoor.
n 3130Seriescylindersavailableinsize1,2,or3.
n Closingpowerof3130Seriesclosersisnotadjustable

21
LCN Door Control Catalog
phone: 877-671-7011 n fax: 800-248-1460 n www.allegion.com/us n 009426 rev. 2/16
5010
Series
The concealed 5010 Series is a heavy duty closer designed for institutional, high traffic, or
other applications exposed to weather or abuse. The double lever arm provides superior
door control and a choice of finishes, cylinder functions, and arm functions that meet
virtually all architectural requirements.
AVAILABLE
NOTAVAILABLE
Closer available with less than 5.0 lbs. opening force on 36˝ door.
* Maximum opening/hold-open point with standard template. See individual closer series for
degrees of opening per installation.
Certifications Grade 1 - ANSI A156.4, UL 10 C, ADA, 100 Hour
Salt Spray, Meets BAA - Buy American Act
Body Construction n Cast Iron Body
n Full Complement Bearing
n 1-1/8˝DiameterPiston
n 11/16˝DiameterDoubleHeatTreated
PinionJournal
Fluid All Weather Fluid
Handing Handed
Size Sized 1-6
Warranty 15 years
Fasteners WoodScrewsandTorxSecurityScrews
(optional)
Mounting Concealed (in frame); aluminum frame
requires4˝(102mm)x4˝tube
Arms Regular Arm
Finishes/Colors/
Powder Coat
n Aluminum (689)
n Statuary Bronze (690)
n Light Bronze (691)
n Black(693)
n DarkBronze(695)
n Brass (696)
n Custom colors optional
n Optional SRI primer - powder coat only
n Optional plated finishes
Customizedinstallationtemplatesorproductsmaybeavailabletosolveunusualapplications.
ContactLCNProductSupportforassistance.
Special
Templates
Features
POWDER COAT
PLATED
CONCEALED
MOUNTING FINISH
CONCEALED
EXPOSED
ARM
ACCESSIBILITY
CYLINDER *ARM FUNCTION
DELAYED ACTION
REGULAR (DOUBLE)
STANDARD (SINGLE)
HANDED
SIZED
100°
HOLD-OPEN
180°
IN FRAME
IN 1-3/4˝ TUBE
IN DOOR
AVAILABLE
NOT AVAILABLE

22 LCN Door Control Catalog
phone: 877-671-7011 n fax: 800-248-1460 n www.allegion.com/us n 009426 rev. 2/16
5010
Series
Concealed
Mounting
Mounting details
3/4"
19 mm
14"
356 mm
7/8"
22 mm
3-5/8"
92 mm
3/8"
10 mm
3/4"
19 mm
2-1/8"
54 mm
11-1/2"
292 mm
2-1/16"
52 mm
2-11/16"
68 mm
2" MAX
51 mm
A
B
Butt Hinges Shouldnotexceed6˝(152mm)inwidth
Auxiliary Stop Recommended at hold-open point or where a door cannot swing 180°
Top Rail Minimum2-1/8˝(54mm)required
Delay Action n Addsuffix“DEL”toselectedcylinder(eg.5014DEL)(notavailablewith5016cylinder)
n Delaysclosingfrommaximumopeningtoapproximately70°
n Delaytimeadjustableuptoapproximately1minute
Maximum opening Butthungdoorscanbetemplatedfor
100°: A=10-3/16˝(259mm)
B=12˝(305mm)
180°: A=5-1/2˝(140mm)
B=7-5/16˝(186mm)trimpermitting
n Hold-open points up to 100° only with hold-open arm
n Centerpivotmountingrestrictsopeningto140°
n Offsetpivotmountingallowsupto180°,trimpermitting
Notes:
•Forinteriororexteriordoors
•Singleactingcylinderinheadframe
•Exposedarmonhingesideofdoor

23
LCN Door Control Catalog
phone: 877-671-7011 n fax: 800-248-1460 n www.allegion.com/us n 009426 rev. 2/16
5010
Series
Accessories
5011(2)(3)(4)(5)(6)-3071
Cast Iron Cylinder Assembly
n Handed
n With mounting plate
n Standard
Cylinder Arms
5010-3077
Regular Arm
n Non-handed
5010-3049
Hold-Open Arm
n Handed
n Provideshold-openfunctionfor
100°Template,adjustmentat
elbow
n Optional

24 LCN Door Control Catalog
phone: 877-671-7011 n fax: 800-248-1460 n www.allegion.com/us n 009426 rev. 2/16
2030
Series
5010
Series
Closer will be shipped with:
- Standard cylinder with finish plate
- Standard arm
- Regular arm
-Woodandmachinescrewpack
unless options listed below are selected.
Select cylinder size
5011
5012
5013
5014
5015
5016(DELnotavailable)
Select hand
RH
LH
Reduced opening force 5010 Series closers
CAUTION ! Anymanualdoorcloser,includingthosecertifiedbyBHMAtoconformtoANSIStandardA156.4,thatisselected,installedandadjustedbased
onADAorotherreducedopeningforcerequirementsmaynotprovidesufficientpowertoreliablycloseandlatchadoor.
RefertoPOWEROPERATORSsectionforinformationon
systems that meet reduced opening force requirements
without affecting closing power.
* Maximum opening force.
DOOR WIDTH 36˝ 42˝ 48˝
8.5*lbs. 5012 5013 5013
5.0*lbs. 5011 5011 5012
Indicates recommended range of door width for closer size.
5013
5014
5015
5016
5012
5013
5014
5015
5016
Minimum door width
Minimum door width
Exterior (and Vestibule) door width
24˝
610mm
30˝
762mm
36˝
914mm
42˝
1067mm
48˝
1219mm
Interior door width
24˝
610mm
34˝
864mm
38˝
965mm
48˝
1219mm
54˝
1372mm
60˝
1524mm
size3 size4 size5 size6 size2 size3 size4 size5 size6
How-to-order 5010 Series closers
Specify finish
StandardPowderCoat__________
Aluminum,DarkBronze,Statuary,LightBronze,Black,Brass
Ordering information
Closer options
Cylinder function
DelayedAction(DEL)
Arm
Hold-Open (H)
Finishes
CustomPowderCoat(RAL)_____________
PlatedFinish,US______________
SRI primer (use with powder coat finishes only)
Screw pack
TORXMachineScrew(TORX)
Special template
ST-________
Table of sizes
n Selectcloserbasedonwidthofdoor
n Seriescylindersavailableinsize1,2,3,4,5,or6
n Closingpowerofall5010Seriesclosersmaybeincreased50%
n Specifynexthighersizecloserwherestrongdraftsexist
n Delayedactionnotavailablewith5016cylinder

25
LCN Door Control Catalog
phone: 877-671-7011 n fax: 800-248-1460 n www.allegion.com/us n 009426 rev. 2/16
5030
Series
The concealed 5030 Series PACER® is a heavy duty closer designed to fit in a narrow,
minimum 1-3/4˝ aluminum transom. The double lever arm provides superior door control
and the choice of finishes and arm functions meet virtually all architectural requirements.
AVAILABLE
NOTAVAILABLE
Closer available with less than 5.0 lbs. opening force on 36˝ door.
* Maximum opening/hold-open point with standard template. See individual closer series for
degrees of opening per installation.
Certifications Grade 1 - ANSI A156.4, UL 10 C, ADA, 100 Hour
Salt Spray, Meets BAA - Buy American Act
Body Construction n Cast Iron Body
n Full Complement Bearing
n 1-1/8˝DiameterPiston
n 11/16˝DiameterDoubleHeatTreated
PinionJournal
Fluid All Weather Fluid
Handing Handed
Size Sized1;3-6
Warranty 15 years
Fasteners WoodScrewsandTorxSecurityScrews
(optional)
Mounting Concealed(intube);aluminumframe
requiresminimum1-3/4˝(44mm)x
4-1/2˝(114mm)tube
Arms Regular Arm
Finishes/Colors/
Powder Coat
n Aluminum (689)
n Statuary Bronze (690)
n Light Bronze (691)
n Black(693)
n DarkBronze(695)
n Brass (696)
n Custom colors optional
n Optional SRI primer - powder coat only
n Optional plated finishes
Customizedinstallationtemplatesorproductsmaybeavailabletosolveunusualapplications.
ContactLCNProductSupportforassistance.
Special
Templates
Features
POWDER COAT
PLATED
CONCEALED
MOUNTING FINISH
CONCEALED
EXPOSED
ARM
ACCESSIBILITY
CYLINDER *ARM FUNCTION
DELAYED ACTION
REGULAR (DOUBLE)
STANDARD (SINGLE)
HANDED
SIZED
100°
HOLD-OPEN
180°
IN FRAME
IN 1-3/4˝ TUBE
IN DOOR
AVAILABLE
NOT AVAILABLE

26 LCN Door Control Catalog
phone: 877-671-7011 n fax: 800-248-1460 n www.allegion.com/us n 009426 rev. 2/16
5030
Series
Concealed
Mounting
Mounting details
A
B
19/32" dia.
15 mm
1-5/8"
41 mm 21-7/8"
556 mm
3/4"
19 mm
2-1/8"
54 mm
2-11/16"
68 mm
3/4" MIN.
19 mm
11-1/4"
286 mm
3-23/32"
94 mm
Butt Hinges Shouldnotexceed6˝(152mm)inwidth
Auxiliary Stop Recommended at hold-open point or where the door cannot swing 180°
Wood Frame n InstallationsimplifiedbyWOODMOUNTINGCLIPSET5030-416forcenterpivotedor5030-417foroffsetpivoted
andbutthunginstallations
n Consult factory for preparation details
Top Rail Minimum2-1/8˝(54mm)required
Door Thickness Maximum1-3/4˝(44mm),fordoorsthickerthan1-3/4˝consultfactory
Maximum opening Butthungdoorscanbetemplatedfor
100°: A=5-13/16˝(148mm)
B=11-13/16˝(300mm)
180°: A=2-1/16˝(52mm)
B=8-1/16˝(205mm)
trim permitting
n Hold-open points up to 100° only with hold-open arm
n Centerpivotmountingrestrictsopeningto120°.Hold-openupto120°withhold-openarm
n Offsetpivotmountingallowsupto115°,trimpermitting.Hold-openupto115°withhold-openarm
Notes:
•Forinteriororexteriordoors
•Singleactingcylinderinheadframe
•Exposedarmonpushsideofdoor

27
LCN Door Control Catalog
phone: 877-671-7011 n fax: 800-248-1460 n www.allegion.com/us n 009426 rev. 2/16
5030
Series
Accessories
5031(3)(4)(5)(6)-3071
Cast Iron Cylinder Assembly
n Handed
n With mounting plate
n Standard
5030-416
Wood Mounting Clip Set
n Simplifies mounting center
pivoted5030closerinwood
frame
n Includes latch stile clip, hinge
stileclip,andcover.
n ForusewithIvesSeriescenter
pivots
n Consult factory for special
template
5030-417
Wood Mounting Clip Set
n Simplifies mounting offset
pivotedorbutthung5030
closer in wood frame.
n Includes two clips.
n Forusewithoffsetpivots.
n Consult factory for special
template.
Cylinder
Installation Accessories
Arms
5030-3077
Regular Arm
n Non-handed
5030-3049
Hold-Open Arm
n Handed
n Provideshold-openfunctionfor
100°template,adjustableat
elbow
n Optional

28 LCN Door Control Catalog
phone: 877-671-7011 n fax: 800-248-1460 n www.allegion.com/us n 009426 rev. 2/16
2030
Series
5030
Series
Closer will be shipped with:
- Standard cylinder with mounting plate
- Regular arm
-Woodandmachinescrewpack
unless options listed below are selected.
Select cylinder size
5031
5033
5034
5035
5036
Select hand
RH
LH
Closer options
Arm
Hold-Open (H)
Finishes
CustomPowderCoat(RAL)_____________
PlatedFinish,US______________
SRI primer (use with powder coat finishes only)
Screw pack
TORXMachineScrew(TORX)
Special template
ST-________
Installation accessories
WoodClipSet,5030-416
WoodClipSet,5030-417
Reduced opening force 5030 Series closers
CAUTION ! Anymanualdoorcloser,includingthosecertifiedbyBHMAtoconformtoANSIStandardA156.4,thatisselected,installedandadjustedbased
onADAorotherreducedopeningforcerequirementsmaynotprovidesufficientpowertoreliablycloseandlatchadoor.
RefertoPOWEROPERATORSsectionforinformationon
systems that meet reduced opening force requirements
without affecting closing power.
* Maximum opening force.
DOOR WIDTH 36˝ 42˝ 48˝
8.5*lbs. 5033 5033 5033
5.0*lbs. 5031 5031 5033
Indicates recommended range of door width for closer size.
Note: Minimum door width 28˝ (711 mm).
5033
5034
5035
5036
5033
5034
5035
5036
Minimum door width Minimum door width
Exterior (and Vestibule) door width
28˝
711mm
30˝
762mm
36˝
914mm
42˝
1067mm
48˝
1219mm
Interior door width
28˝
711mm
34˝
864mm
38˝
965mm
48˝
1219mm
54˝
1372mm
60˝
1524mm
size3 size4 size5 size6 size3 size4 size5 size6
How-to-order 5030 Series closers
Specify finish
StandardPowderCoat__________
Aluminum,DarkBronze,Statuary,LightBronze,Black,Brass
Ordering information
Table of sizes
n Selectcloserbasedonwidthofdoor
n 5030Seriescylindersavailableinsize1,2,3,4,5or6
n Closingpowerofall5030Seriesclosersmaybeincreased50%
n Specifynexthighersizecloserwherestrongdraftsexist

29
LCN Door Control Catalog
phone: 877-671-7011 n fax: 800-248-1460 n www.allegion.com/us n 009426 rev. 2/16
6030
Series
The concealed 6030 Series PACER® is a heavy duty, double acting closer designed to fit
in a narrow, minimum 1-3/4˝ header. The single lever arm and roller assembly provides
smooth, quiet door control and the choice of finishes and track functions meet virtually
all architectural requirements. Installation at left illustrated with center pivot set (not
included).
AVAILABLE
NOTAVAILABLE
Closer available with less than 5.0 lbs. opening force on 36˝ door.
* Maximum opening/hold-open point with standard template. See individual closer series for
degrees of opening per installation.
Certifications Grade 1 - ANSI A156.4, UL 10 C, ADA, 100 Hour
Salt Spray, Meets BAA - Buy American Act
Body Construction n Cast Iron Body
n Full Complement Bearing
n 1-1/8˝DiameterPiston
n 11/16˝DiameterDoubleHeatTreated
PinionJournal
Fluid All Weather Fluid
Handing Non-Handed
Size Sized 1-5
Warranty 15 years
Fasteners WoodScrewsandTorxSecurityScrews
(optional)
Mounting Concealed(intube);doubleacting
Arms Standardarmwithtrack
Finishes/Colors/
Powder Coat
n Aluminum (689)
n Statuary Bronze (690)
n Light Bronze (691)
n Black(693)
n DarkBronze(695)
n Brass (696)
n Custom colors optional
n Optional SRI primer - powder coat only
n Optional plated finishes
Customizedinstallationtemplatesorproductsmaybeavailabletosolveunusualapplications.
ContactLCNProductSupportforassistance.
Special
Templates
Features
POWDER COAT
PLATED
CONCEALED
MOUNTING FINISH
CONCEALED
EXPOSED
ARM
ACCESSIBILITY
CYLINDER *ARM FUNCTION
DELAYED ACTION
REGULAR (DOUBLE)
STANDARD (SINGLE)
HANDED
SIZED
95°
HOLD-OPEN
95°
IN FRAME
IN 1-3/4˝ TUBE
IN DOOR
AVAILABLE
NOT AVAILABLE

30 LCN Door Control Catalog
phone: 877-671-7011 n fax: 800-248-1460 n www.allegion.com/us n 009426 rev. 2/16
6030
Series
Concealed
Mounting
Mounting details
1-1/4"
32 mm
23-5/8"
600 mm
22-1/2"
572 mm
1-7/16"
37 mm
1-5/8"
41 mm
18-1/4"
464 mm
4-1/2"
115 mm
3-23/32"
95 mm
1-5/8"
41 mm
1"
25 mm
5-1/4"
133 mm
1/2"
13 mm
of Pivot
of Door
Auxiliary Stop Recommended where a door cannot swing 95°
Center Pivot Set Mustbeusedbutorderedseparately
Door Width 30˝(762mm)minimumwith1-3/4˝(44mm)pivotcenters
Top Rail n 1-7/16˝(36mm)mortiserequired
n 3/8˝(10mm)cutoutrequiredattopofthedoor,bothsides.
Door Thickness 1-3/4˝(44mm)minimum
Centering Adjustment Centeringisprovidedbyrotatingthetrackrollertocenterthedoorintheopening.
Wood Frame n InstallationsimplifiedbyWOODMOUNTINGCLIPSET,6030-416
n Consult product support for special template
Maximum opening n Centerpivottemplateallows95°
n Adjustablehold-openpointsfrom85°to95°,withhold-opentrack
Notes:
•Forinteriororexteriordoors
•Doubleactingcylinderincasedframe
•Concealedarmandtrackindoortoprail
•Centerpivotsonly

31
LCN Door Control Catalog
phone: 877-671-7011 n fax: 800-248-1460 n www.allegion.com/us n 009426 rev. 2/16
6030
Series
Accessories
6031(2)(3)(4)(5)-3071
Cast Iron Cylinder Assembly
n Non-handed
n With mounting plate
n Standard
6030-3038B
Standard Track with Bumper
n Non-handed
n Non hold-open
n Will accept hold-open clip
n Standard
6030-416
Wood Mounting Clip Set
n Simplifies mounting closer in
wood frame
n Includes latch stile clip, hinge
stileclip,andcover
n ForusewithIvesSeriescenter
pivots
n Consult factory for special
template
6030-3038HB
Hold-Open Track with Bumper
n Non-handed
n Optional
6030-169
Track Bumper
n Mountsintracktoassist
backcheck
n Limitsmaximumopening
n Consistsofbumper,bumper
post, and mounting screw
NOTE:Trackbumperdoesnot
replaceauxiliarystop.
6030-3054
Hold-Open Clip
n Mountsintracktoprovidehold-
open function
n Hold-openpointcontrolledby
clip location
n Requires6030-3034HHold-
OpenTrackRoller
6030-3034
Track Roller
n Quiet, low friction roller
assemblyincludeseccentric
with3/4˝(19mm)adjustment
tocenter36˝(914mm)door
6030-3034H
Hold-Open Track Roller
n Hold-open roller
n Quiet, low friction roller
assembly
Cylinder Tracks
Installation Accessories
Arm
6030-3077T
Standard Arm
n Non-handed
n 5/16˝(8mm)thickarm
n Trackrollernotincluded
with arm

32 LCN Door Control Catalog
phone: 877-671-7011 n fax: 800-248-1460 n www.allegion.com/us n 009426 rev. 2/16
2030
Series
6030
Series
Closer will be shipped with:
- Standard cylinder with mounting plate
- Standard arm
-Standardtrackwithbumper
-Woodandmachinescrewpack
unless options listed below are selected.
Select cylinder size
6031
6032
6033
6034
6035
Specify finish
StandardPowderCoat__________
Aluminum,DarkBronze,Statuary,LightBronze,Black,Brass
Closer options
Track
Hold-openwithBumper(HBUMPER)
Finishes
CustomPowderCoat(RAL)_____________
PlatedFinish,US______________
SRI primer (use with powder coat finishes only)
Screw pack
TORXMachineScrew(TORX)
Special template
ST-________
Installation accessories
WoodClipSet,6030-416
Reduced opening force 6030 Series closers
CAUTION ! Anymanualdoorcloser,includingthosecertifiedbyBHMAtoconformtoANSIStandardA156.4,thatisselected,installedandadjustedbased
onADAorotherreducedopeningforcerequirementsmaynotprovidesufficientpowertoreliablycloseandlatchadoor.
RefertoPOWEROPERATORSsectionforinformationon
systems that meet reduced opening force requirements
without affecting closing power.
* Maximum opening force.
DOOR WIDTH 36˝ 42˝ 48˝
8.5*lbs. 6033 6034 6035
5.0*lbs. 6031 6032 6032
Indicates recommended range of door width for closer size.
Note: Minimum door width 28˝ (711 mm).
6033
6034
6035
6032
6033
6034
6035
Minimum door width Minimum door width
Exterior (and Vestibule) door width
30˝
762mm
34˝
864mm
36˝
914mm
42˝
1067mm
Interior door width
30˝
762mm
34˝
864mm
38˝
965mm
48˝
1219mm
54˝
1372mm
size3 size4 size5 size2 size3 size4 size5
How-to-order 6030 Series closers
Ordering information
Table of sizes
n Selectcloserbasedonwidthofdoor
n 6030Seriescylindersavailableinsize1,2,3,4,or5
n Closingpowerofall6030Seriesclosersmaybeincreased35%
n Specifynexthighersizecloserwherestrongdraftsexist

1
LCN Door Control Catalog
phone: 877-671-7011 n fax: 800-248-1460 n www.allegion.com/us n 009426 rev. 2/16
Product selection guide
SENTRONIC® Series LCN closer/holders combine heavy duty closers with electrically controlled hold-
open functions to control fire and smoke barrier doors. This guide is based on the desired mounting of
the unit.
Product comparison
This chart shows a basic comparison of Sentronic closer/holders. Refer to the specific product chapter for complete details..
* Maximum hold-open with standard template. See individual closer series for degrees of opening and hold-open per installation.
AVAILABLE
NOT AVAILABLE
Fire/
Life Safety
Closers/
Holders Series
SINGLE POINT
4040SE
SEH**
PUSH SIDE
MOUNTED
MULTI-POINT
4410ME
SINGLE POINT
4040SE
SEH**
PULL SIDE
MOUNTED
MULTI-POINT
4310ME
SINGLE POINT
3130SE
CONCEALED
MOUNTING
MULTI POINT
2310ME
INTERIOR
DOOR
WALL
SEM7830
SEM7840
SEM7850
PULL SIDE
4310 HSA
7800***
MAGNETS
FLOOR
SEM7820
PUSH SIDE
4410 HSA
HIGH VOLUME TRAFFIC DOORS
INTERIOR/EXTERIOR
** See SEH section (cylinder not included).
*** SEM 7800 Series are die cast.
3130SE
CLOSER
SERIES
4040SE
2310ME
4310ME
4410ME
4310HSA
4410HSA
PLASTIC
METAL
HINGE (PULL) SIDE
TOP JAMB (PUSH)
STOP FACE (PUSH)
REGULAR (DOUBLE)
STANDARD (SINGLE)
SWING FREE
DOUBLE EGRESS
CONCEALED (FRAME)
CONCEALED (DOOR)
MOUNTING COVER CYLINDER *ARM FUNCTION
FINISH
NON-SIZED
HANDED
SIZED
SINGLE POINT HOLD-OPEN
MULTI-POINT HOLD-OPEN
BYPASS 80/140
POWDER COAT
PLATED

2LCN Door Control Catalog
phone: 877-671-7011 n fax: 800-248-1460 n www.allegion.com/us n 009426 rev. 2/16
SENTRONIC® CLOSER/HOLDERS
Automatic detection and containment of fire and smoke are the best ways
to minimize danger to life and property. Patented Sentronic door closer/
holders are designed to hold swinging doors open in normal use and release
and automatically close the doors under fire conditions. Conforms to major
building codes, life safety codes (eg. NFPA 101) and ANSI A156.15.
SINGLE POINT HOLD-OPEN (SE)
SE Series offers adjustable single point hold-open function controlled by
solenoid assembly located in the SE track.
MULTI-POINT HOLD-OPEN (ME)
ME Series offers infinitely adjustable, multi-point hold-open function
controlled by solenoid on the cylinder assembly.
HOLDER SCANNER ACTIVATED (HSA)
Electronically controlled closer/ holder designed to provide easy passage for
groups of pedestrians through high traffic doors. Best suited for high traffic
emergency exit doors.
MAGNETS (SEM) - ELECTROMAGNETIC DOOR HOLDERS
SEM Series magnets work with manual door closers to provide single point
hold-open. Now available in new tri-voltage with 35 lbs. of holding force.
APPLICATIONS
n For fire and smoke barrier doors.
n Integrated into larger system.
n Surface and concealed mountings.
n Remote control hold-open function of executive and conference area
doors.
n Adapter plates and other installation accessories available for unusual
conditions.
GENERAL NOTES
Note 1: For installations where 120V AC input voltage is supplied, 120V/24V
transformer, 4040SE-3210, is required to reduce line voltage for 24V
holding solenoid. Units are available in either 24V or 120V input, please
specify.
Note 2: Transformer 4040SE-3210 mounted on cover plate to fit 4˝ (102 mm)
x 4˝ x 2-1/8˝ (54 mm) junction box (by others).
Note 3: SE track quick-connector is required for 1/2˝ conduit.
Note 4: SE test switch assembly includes fuse to protect solenoid. Works with
ionization, photoelectric and heat sensing detectors (by others).
LISTINGS AND APPROVALS
Sentronic closer/holders are listed by Underwriters Laboratories, Inc. in
the following product categories under FIRE DOORS (GSNV), Combination
Door Closers and Holders (GTIS) file R7050. SEM 7800 Series magnets are
listed under Door Holders (GTPR) file R8327.
Consult the factory for other listings, such as; cUL, Department of Labor
and Industry of the Commonwealth of Pennsylvania, The Board of
Standards and Appeals of the City of New York, Fire and Panic Safety
Standards of the California State Fire Marshal.
HOLDING SOLENOIDS CURRENT DRAW
SE/ME
24V AC/DC (+10% -15%) @ 90 mA max.
120V AC/DC (+10% -15%) @ 30 mA max.
SEM (TRI-VOLT)
12V DC (+10% -15%) @ 30 mA max.
24V AC/DC (+10% -15%) @ 20 mA max.
120V AC (+10% -15%) @ 20 mA max.
HSA
24V AC/DC (+10% -15%) @ 120 mA max.
TRANSFORMER DATA
120V AC 50-60 Hz (primary); 24V AC @ 400 mA max. (secondary)
An LCN supplied transformer will power (recommended) 2 SE, 3
SE/ME, and 15 SEM.
ME WIRING
ME “ON/OFF” switch assembly includes trim pot to adjust pull out
force and fuse to protect solenoid.
Fire/
Life Safety
Closers/
Holders Series
Chassis Ground
WIRING DIAGRAM
Input voltage 24V AC/DC
or 120V AC/DC
(usually from alarm
panel or detector)
ME (2310) WIRING DIAGRAM
Input Wires
(18 Gauge Black)
Earth Ground
(Green)
Wire Harness ConnectorRectifier Capacitor
(24V Only)
Solenoid
Power Plug
Solenoid Holding Force
Adjustment Potentiometer (24V Only)
On/Off Switch
ME (4310, 4410) WIRING DIAGRAM (24V only)
To either terminal
INPUT WIRES
To either terminal
Green ground
Terminal
SE WIRING DIAGRAM

3
LCN Door Control Catalog
phone: 877-671-7011 n fax: 800-248-1460 n www.allegion.com/us n 009426 rev. 2/16
Fire/
Life Safety
Closers/
Holders Series
HSA WIRING
HSA “On/Off” switch assembly includes trim pot to adjust hold-open time
and fuse to protect solenoid.
FEATURES COMMON TO FIRE/LIFE SAFETY CLOSERS
n 24V AC/DC or 120V AC input, please specify for SE or ME.
n When current is interrupted, hold-open releases and door closes.
n Adjustable hydraulic backcheck cushions opening swing prior to 90°.
n Separate regulation of general closing speed and latching speed.
n Available in a wide range of powder coated finishes to blend with door
and frame. SEM magnets available in Aluminum and Dark Bronze only.
n Circuit automatically handles AC or DC input.
n Can be pushed safely and easily out of hold-open.
n Functions as a full rack and pinion door closer when hold-open is not
engaged or current is interrupted.
n Works with ionization, photoelectric and heat sensing detectors (by
others).
WARRANTY
2 year limited warranty. See General Information Section for complete
warranty details..
SPECIFICATIONS
Refer to “SPECIFICATIONS” section for suggested architectural specifications.
DESIGN ASSISTANCE
LCN has been providing reliable solutions to unique door control problems
since 1925.
Contact LCN for assistance or technical information at 877-671-7011 or
FAX 800-248-1460 (order entry), Fax 815-879-1495 for Application
Engineering.
MATERIALS
n High strength cast iron cylinder.
n Forged steel main arm.
n One piece forged steel piston.
n All weather fluid eliminates seasonal adjustments.
n High efficiency, full complement, low friction bearings.
n Tamper resistant regulating screws.
n
Quiet, low friction track and roller combination for all single lever arm
closers.
FINISHES
n Available in six standard or a wide selection of optional custom
powder coat finishes to blend with door and frame.
n LCN’s powder coat finishes surpass 100 hours of salt spray which is
over four times the ANSI standard for corrosion resistance.
n Plated finishes are available as an option to accent door and frame.
MAINTENANCE
Closers mounted according to LCN installation instructions require no
periodic adjustments. Quarterly inspections are recommended. Refer to the
installation instructions for complete, product specific details.
POSITIVE PRESSURE
LCN closers have been certified for three hours by UL to be in compliance
with UL 10 C. Contact LCN for specific details on door closer fire ratings.
FASTENERS
Standard WOOD and MACHINE SCREW (WMS) pack contains phillips head
wood and machine screws to install the closer. Thru Bolts and/or TORX®
machine screws are available for most closers. LCN thru bolts (TB) can be
installed on 1-3/4˝ thick doors with either the 1/4-20 machine screws or
optional TORX screws supplied with the closer. Optional sizes are available
for 1-5/8˝ or 1-3/8˝ door thicknesses, but this must be specified when
ordering.
Drill 25/64" for
steel doors or
Drill 3/8" for
wood doors
X
NOTE 1: For Thru Bolts, specify door thickness if other than 1-3/4˝ (44 mm).
NOTE 2: Phillips head, metric machine screws are available on special order.
Connect Green Wire
to Earth Ground
Connect Black Wires
to Input Voltage Leads
(polarity not important)
HSA WIRING DIAGRAM

4LCN Door Control Catalog
phone: 877-671-7011 n fax: 800-248-1460 n www.allegion.com/us n 009426 rev. 2/16
Notes
__________________________________________________________________________________________________________________________________________________________________________________
__________________________________________________________________________________________________________________________________________________________________________________
__________________________________________________________________________________________________________________________________________________________________________________
__________________________________________________________________________________________________________________________________________________________________________________
__________________________________________________________________________________________________________________________________________________________________________________
__________________________________________________________________________________________________________________________________________________________________________________
__________________________________________________________________________________________________________________________________________________________________________________
__________________________________________________________________________________________________________________________________________________________________________________
__________________________________________________________________________________________________________________________________________________________________________________
__________________________________________________________________________________________________________________________________________________________________________________
__________________________________________________________________________________________________________________________________________________________________________________
__________________________________________________________________________________________________________________________________________________________________________________
__________________________________________________________________________________________________________________________________________________________________________________
__________________________________________________________________________________________________________________________________________________________________________________
__________________________________________________________________________________________________________________________________________________________________________________
__________________________________________________________________________________________________________________________________________________________________________________
__________________________________________________________________________________________________________________________________________________________________________________
__________________________________________________________________________________________________________________________________________________________________________________
__________________________________________________________________________________________________________________________________________________________________________________
__________________________________________________________________________________________________________________________________________________________________________________
__________________________________________________________________________________________________________________________________________________________________________________
__________________________________________________________________________________________________________________________________________________________________________________
__________________________________________________________________________________________________________________________________________________________________________________
__________________________________________________________________________________________________________________________________________________________________________________
__________________________________________________________________________________________________________________________________________________________________________________
__________________________________________________________________________________________________________________________________________________________________________________

5
LCN Door Control Catalog
phone: 877-671-7011 n fax: 800-248-1460 n www.allegion.com/us n 009426 rev. 2/16
SEM7800
Series
The Sentronic® SEM 7800 Series are heavy duty, electrically controlled door holding
magnets. Magnets are fail safe and hold until the current is interrupted. A manual door
closer is used to control and close the door. A choice of floor, recessed wall, or surface
mounted wall magnets are available.
Magnets
Certifications Grade 1 - ANSI A156.15, UL 10C for metal smoke barrier or labeled door, ADA, Life Safety Code, NFPA 101, 100 Hour Salt
Spray, Meets BAA - Buy American Act
Voltage Tri-voltage design with 35 lbs. of holding force
Housing Die cast
Fasteners Wood and machine screw pack
Finishes/Colors/
Powder Coat
Available in Aluminum and Dark Bronze only
Options Now available with armature extensions (see page 11)

6LCN Door Control Catalog
phone: 877-671-7011 n fax: 800-248-1460 n www.allegion.com/us n 009426 rev. 2/16
SEM7800
Series
Features and
mounting details
Magnets
Mounting Surface wall mounted
Total Projection 4-1/8˝ (105 mm)
n Suitable for use in pocket door installations
Mounting n Standard profile recessed wall mount
n 2˝ (51 mm) x 4˝ (102 mm) x 1-1/2˝ (38 mm)
Total Projection 3-5/8˝ (92 mm)
n Suitable for use in pocket door installations
Note:
Outlet box not included.
Mounting n Low profile recessed wall mount
n 2˝ (51 mm) x 4˝ (102 mm) x 1-1/2˝ (38 mm)
Total Projection 2-5/8˝ (67 mm)
n Suitable for use in pocket door installations
Note:
Outlet box not included.
1-7/8"
48 mm
1-5/8"
41 mm
1-11/16"
43 mm
2-3/8"
60 mm
2-1/2"
64 mm
2-13/16"
70 mm
4-5/8"
117 mm
1-7/8"
48 mm
1-5/8"
41 mm
1-11/16"
43 mm
2-3/8"
60 mm
1"
25 mm 2-13/16"
70 mm
4-5/8"
117 mm
1-7/8"
48 mm
2-3/8"
60 mm
1-11/16"
43 mm
2-5/8"
67 mm
1"
25 mm 2-13/16"
70 mm
4-5/8"
117 mm
4-9/16"
116 mm
1-7/8"
48 mm
1-5/8"
41 mm
1-11/16"
43 mm
2-3/8"
60 mm 3-7/16"
87 mm
2-1/8"
54 mm
5-1/8"
130 mm
Mounting Floor mounted
Total Projection 6-3/4˝ (171 mm)
7820
7840
7830
7850

7
LCN Door Control Catalog
phone: 877-671-7011 n fax: 800-248-1460 n www.allegion.com/us n 009426 rev. 2/16
SEM
Series
Electrical data
Holding Force 35 lbs. @ nominal input voltage
Maximum Current Draw n .020A @ 24VAC/DC, 120VAC
n .030A @ 12VDC
Earth Ground
24V
120V
12V
COM
COM
24V
120V
12V
COM
24V
120V
12V
COM
24V
120V
12V
Fire Alarm
Panel
Fire Alarm
Panel
Fire Alarm
Panel
EGnd
N
H
-
+
Fig. 1 24V AC/DC Wiring
Polarity is inimportant
Fig. 2 120V AC Wiring
Fig. 3 12V DC Wiring
Polarity as shown
Operation:
Electromagnets are typically used
with fire alarm systems. Doors are
held open in the non-alarm
condition. When the fire alarm
panel enters the alarm condition,
power to the electromagnets is
removed, the doors close under
door closer control, and function as
a manual door. When the fire alarm
panel returns to the non-alarm
condition, power is reapplied to the
electromagnets and the doors can
be held open again.
Electrical Specifications
Max. Current Draw
.030A @ 12VDC
.020A @ 24VAC/DC
.020A @ 120VAC
Voltage input Electrical schematic
Operation:
Electromagnets are typically used
with fire alarm systems. Doors
are held open in the non-alarm
condition. When the fire alarm panel
enters the alarm condition, power to
the electromagnets is removed, the
doors close under door closer control,
and function as a manual door.
When the fire alarm panel returns to
the non-alarm condition, power is
reapplied to the electromagnets and
the doors can be held open again.

8LCN Door Control Catalog
phone: 877-671-7011 n fax: 800-248-1460 n www.allegion.com/us n 009426 rev. 2/16
SEM
Series
SEM7820-516
Floor Magnet
n Magnet coil
n Standard
SEM7830-72
SEM7840-72
SEM7850-72
Standard Cover
n Die cast cover
n Standard
SEM7830-268
Wall Box
n Die cast surface wall mount box
n Standard
SEM7820-825
SEM7830-825
SEM7840-825
Door Armature
n Die cast low profile armature
n Standard
SEM7830-516
SEM7840-516
SEM7850-516
Wall Magnet
n Magnet coil
n Standard
SEM7850-828
Door Armature
n Die cast armature
n Standard
Magnets
Cover Box
Armatures
Accessories

9
LCN Door Control Catalog
phone: 877-671-7011 n fax: 800-248-1460 n www.allegion.com/us n 009426 rev. 2/16
SEM
Series
SEM7810-514
Coupler Assembly Kit
n Required for each door needing
extension(s)
n Kit includes coupler link and ball
pivot (alone serves as a 1-1/2˝
extension)
SEM7810-E200
Extension - 2˝
n Metal
n Standard
SEM7810-E075
Extension - 3/4˝
n Metal
n Standard
SEM7810-517
Extension kit
Extension kit includes:
n 10 .......... 7810SEM-E050
n 10 ...........7810SEM-E075
n 10 ........... 7810SEM-E100
n 5 ............7810SEM-E200
n 20 .............7810SEM-514
SEM7810-E050
Extension - 1/2˝
n Metal
n Standard
Extension, SEM7810-E400
Extension - 4˝
n Metal
n Standard
Extension, SEM7810-E100
Extension - 1˝
n Metal
n Standard
Extensions
Accessories
Note: Using just the Coupler Assembly Kit (SEM7810-514) will create a 1-1/2˝ link.
Extension Links are available in different lengths and can be combined together to achieve the desired length. Max. recommended length = 12˝

10 LCN Door Control Catalog
phone: 877-671-7011 n fax: 800-248-1460 n www.allegion.com/us n 009426 rev. 2/16
SEM
Series
Ordering Information
Select magnet series
SEM7820
SEM7830
SEM7840
SEM7850
Specify finish
Standard Powder Coat __________
Aluminum, Dark Bronze
Select magnet series
SEM7810-514 (qty.) _______________
SEM7810-E050 (qty.) _______________
SEM7810-E075 (qty.) _______________
SEM7810-E100 (qty.) _______________
SEM7810-E200 (qty.) _______________
SEM7810-E400 (qty.) _______________
SEM7810-517 (qty.) _______________
How-to-order SEM 7800 series magnets
How-to-order SEM 7810 extensions
Magnets will be shipped with:
- Die cast housing
- Cover
- Armatures
- WMS screw pack

11
LCN Door Control Catalog
phone: 877-671-7011 n fax: 800-248-1460 n www.allegion.com/us n 009426 rev. 2/16
3130SE
Series
The 3130SE SENTRONIC® is a concealed in the door, closer/ holder designed to provide
single point hold-open for fire and smoke barrier doors. Door is held open until current
interruption releases the holding mechanism and the door closes. Single lever (track) arm
closer is specifically designed for interior doors.
AVAILABLE
NOT AVAILABLE
* Maximum opening/hold-open point with standard template. See individual closer series for
degrees of opening per installation.
Certifications Grade 1 - ANSI A156.15, UL/for metal smoke
barrier or labeled door, ADA, Life Safety Code,
NFPA 101, 100 Hour Salt Spray, Meets BAA -
Buy American Act
Body Construction n Cast Iron Body
n Full Complement Bearing
n 1-1/8˝ Diameter Piston
n 9/16˝ Diameter Double Heat Treated
Pinion Journal
Fluid All Weather Fluid
Handing Handed
Size Size 3 or 4, non-adjustable
Warranty 2 years
Fasteners Wood and machine screw pack
Mounting Concealed (in door) for interior smoke
barrier and labeled doors
Arms Standard, handed arm and non-handed
track
Finishes/Colors/
Powder Coat
n Aluminum (689)
n Statuary Bronze (690)
n Light Bronze (691)
n Black (693)
n Dark Bronze (695)
n Brass (696)
n Custom colors optional
n Optional SRI primer - powder coat only
n Optional plated finishes
Customized installation templates or products may be available to solve unusual applications.
Contact LCN Product Support for assistance.
Features
PLASTIC
METAL
HINGE (PULL) SIDE
TOP JAMB (PUSH)
STOP FACE (PUSH)
SWING FREE
DOUBLE EGRESS
CONCEALED (FRAME)
CONCEALED (DOOR)
MOUNTING COVER CYLINDER *ARM FUNCTION
FINISH
NON-SIZED
HANDED
SIZED
SINGLE POINT HOLD-OPEN
MULTI-POINT HOLD-OPEN
BYPASS 80/140
POWDER COAT
PLATED
REGULAR (DOUBLE)
STANDARD (SINGLE)
Special
Templates

12 LCN Door Control Catalog
phone: 877-671-7011 n fax: 800-248-1460 n www.allegion.com/us n 009426 rev. 2/16
3130SE
Series
Concealed
Mounting
Mounting details
11-3/4"
298 mm
1-3/8"
35 mm
1-1/4"
32 mm
3-7/8"
98 mm
3/8"
10 mm
4-7/8"
124 mm
1-1/2"
38 mm
3-5/16"
84 mm
8-3/4"
222 mm
22-3/4"
578 mm
5/8"
16 mm
3"
76 mm
3-1/4"
83 mm
1-1/16"
27 mm
1-1/4" Dia.
32 mm
Butt Hinges n Should not exceed 5˝ (127 mm) in width
n Consult factory for pivot hung installations
Auxiliary Stop Recommended at hold-open point
Top Rail Minimum 4˝ (102 mm)
Door Thickness n 1-3/4˝ (44 mm) minimum
n Please consult the door manufacturer to assure that the door integrity and warranty is maintained after installing
the 3130SE Series door closer in 1-3/4˝ (44 mm) thickness wood doors
Door Width n 2´4˝ (711 mm) minimum for single door with SE
n 2´8˝ (813 mm) minimum for door with SEL
Maximum Opening n Templating allows 110°
n Hold-open points between 85° and 110° in approximately 3° increments
n SEL arm and track locate hold-open at 110°, 120° and 130°
SE, SEL Electrical Options n These track assemblies require a single power circuit for the holding solenoid
n SE or SEL holding solenoid is either 24V or 120V input, please specify
n An optional 4040SE-3210 or 8310-824 TRANSFORMER reduces 120V AC line voltage to 24V AC
n Circuitry accepts either AC or DC input
Options n Long (SEL) track and arm
n 24V or 120V input, please specify
SE Wiring Diagram
n For interior smoke barrier and labeled fire doors
n Functions as full rack and pinion door closer when hold-open is not engaged or current is interrupted
n Interfaces with fire alarm system
To either terminal
INPUT WIRES
To either terminal
Green ground
Terminal

13
LCN Door Control Catalog
phone: 877-671-7011 n fax: 800-248-1460 n www.allegion.com/us n 009426 rev. 2/16
3130SE
Series
Accessories
3130SE-3071
SE Cylinder Assembly
n Handed
n Cast iron
n For various applications see
“Table of Sizes” on 3130SE
Series page 16
n Standard
3130SE-3038
SE Track
n Non-handed
n Circuitry accepts either AC or DC
input
n 24V holding solenoid (24) or
120V holding solenoid (120),
please specify
n Standard
3130SE-81
Conduit Quick-Connector
n Two piece connector for use
with 1/2˝ conduit
n See page 21 for illustration
3130SEL-3077T
Long Arm
n Handed
n Provides hold-open point from
110° to 130°, determined by
track templating
n Used with SEL TRACK 3130SEL-
3038 only
n Optional
3130SE-3436
Test Switch
4040SE-3210
Transformer
n Reduces line voltage from 120V
to 24V AC
n Mounted on plate for 4˝
(102 mm) x 4˝ x 2-1/8˝
(54 mm) junction box (by
others)
Cylinder
Tracks Installation Accessories
Switch
Arms
3130SE-3077T
Standard Arm
n Handed
n Adjustable to select hold-open
point
n Standard
3130SEL-3038
SEL Long Track
n Non-handed
n Used with LONG ARM, 3130SEL-
3077T, only
n Provides hold open point from
110° to 130°, determined by
templating. Circuitry accepts
either AC or DC input
n 24V holding solenoid (24) or 120V
holding solenoid (120), please
specify
n Optional
3130SE-3034SE
Track Roller & Track Slider
n Quiet, low friction roller assembly
n Shoulder dimension “X” = 1/8˝
(3 mm)
n Alloy metal slider for use in SE
series tracks only
CHASSIS GROUND
WIRING DIAGRAM
INPUT VOLTAGE
24V AC/DC
OR 120V AC/DC
(USUALLY FROM
ALARM PANEL
OR DETECTOR)

14 LCN Door Control Catalog
phone: 877-671-7011 n fax: 800-248-1460 n www.allegion.com/us n 009426 rev. 2/16
3130SE
Series
Ordering Information
Closer will be shipped with:
- Standard arm
- Track roller and slider
- Standard track
- Wood & machine screw pack
unless options listed below are selected.
Closer options
Arm
Long Arm* (LONG)
* use with SEL track only
Finishes
Custom Powder Coat (RAL) ___________
Plated Finish, US ___________
Installation accessories
Transformer, 4040SE-3210
Screw pack
TORX Machine Screw (TORX)
Special template
ST- ________
Select cylinder size
3133SE
3134SE
Select hand
RH
LH
Voltage
24V AC/DC
120V AC/DC
Specify finish
Standard Powder Coat __________
Aluminum, Dark Bronze, Statuary, Light Bronze, Black, Brass
Indicates recommended range of door width for closer size.
3133SE
3134SE
Minimum door width
Interior door width
28˝
711mm
34˝
864mm
38˝
965mm
48˝
1219mm
size 3 size 4
How-to-order 3130SE Series closers
NOTE: For SE, minimum door width 28˝ (711mm)
For SEL, minimum door width 32˝ (813mm)
Table of sizes
n Select closer based on width of door
n Sized 3130SE series cylinders available in size 3 or 4
n Closing power of all 3130SE Series closers is not adjustable

15
LCN Door Control Catalog
phone: 877-671-7011 n fax: 800-248-1460 n www.allegion.com/us n 009426 rev. 2/16
4040SE
Series
The 4040SE SENTRONIC® is a heavy duty, non-handed, nonsized closer/holder designed
to provide single point hold-open for fire and smoke barrier doors. The door is held open
until current interruption releases the holding mechanism and the door closes. Single
lever (track) arm closer is specifically designed for interior doors. Choice of finishes, track
functions, and installation accessories meet virtually all life safety requirements.
AVAILABLE
NOT AVAILABLE
* Maximum opening/hold-open point with standard template. See individual closer series for
degrees of opening per installation.
Certifications Grade 1 - ANSI A156.15, UL 10C, ADA, 100 Hour
Salt Spray, Meets BAA - Buy American Act,
NFPA 101
Body Construction n Cast Iron Body
n Full Complement Bearing
n 1-1/2˝ Diameter Piston
n 3/4˝ Diameter Double Heat Treated
Pinion Journal
Fluid All Weather Fluid
Handing Non-Handed
Size Adjustable Spring Size, up to 4
Warranty 2 years
Cover n Clip-on plastic, standard
n Metal, optional
Fasteners Wood and machine screw pack
Mounting Hinge (Pull Side), Stop Face (Push Side)
Arms Standard arm and SE track, standard
Double egress arm and SEL track, optional
Finishes/Colors/
Powder Coat
n Aluminum (689)
n Statuary Bronze (690)
n Light Bronze (691)
n Black (693)
n Dark Bronze (695)
n Brass (696)
n Custom colors optional
n Optional SRI primer - powder coat only
n Optional plated finishes
Wiring Concealed or surface, interfaces with fire
alarm systems
Customized installation templates or products may be available to solve unusual applications.
Contact LCN Product Support for assistance.
Features
Special
Templates
110 95
PLASTIC
METAL
HINGE (PULL) SIDE
TOP JAMB (PUSH)
STOP FACE (PUSH)
SWING FREE
DOUBLE EGRESS
CONCEALED (FRAME)
CONCEALED (DOOR)
MOUNTING COVER CYLINDER *ARM FUNCTION
FINISH
NON-SIZED
HANDED
SIZED
SINGLE POINT HOLD-OPEN
MULTI-POINT HOLD-OPEN
BYPASS 80/140
POWDER COAT
PLATED
REGULAR (DOUBLE)
STANDARD (SINGLE)

16 LCN Door Control Catalog
phone: 877-671-7011 n fax: 800-248-1460 n www.allegion.com/us n 009426 rev. 2/16
4040SE
Series
Hinge (Pull)
Side Mounting
Mounting details Mounting details
1-1/4"
32 mm
1-1/2"
38 mm
5/16"
8 mm
12-1/4"
311 mm
3-1/2"
89 mm
3-1/2"
89 mm
2-1/4"
57 mm
22-3/4"
578 mm
1-1/16"
27 mm
Butt Hinges Should not exceed 5˝ (127 mm) in width
Swing Clear Hinges Consult factory
Auxiliary Stop Recommended at hold-open point
Reveal n Should not exceed 1/8˝ (3 mm) for standard arm
n Should not exceed 2-11/16˝ (68 mm) for double egress arm
Top Rail n Minimum 3-1/2˝ (89 mm)
n Installation with PLATE, 4040SE-18 requires SPECIAL TEMPLATE and 1-3/4˝ (44 mm) minimum top rail
Head Frame Requires 2˝ (51 mm) minimum
Flush Ceiling 2˝ (51 mm) head frame does not require special templating
Door Width n 2´4˝ (711 mm) minimum for single door with SE
n 4´8˝ (1422 mm) minimum for paired doors with SE
Flush Ceiling 2-3/8˝ (60 mm) behind door required for 90° installation
Maximum Opening n Templating allows 110°
n Hold-open points between 85° and 110° in approximately 3° increments
n Pull side mounting on a double egress frame requires a handed double egress arm
n Maximum hold-open to 95°
n 2-11/16˝ (67 mm) maximum reveal on pull side
n SEL track provides hold-open points between 90° and 120°‚ in approximately 3° increments
SE, SEL Electrical Options n These track assemblies require a single power circuit for the holding solenoid
n SE or SEL holding solenoid is either 24V or 120V input, please specify
n An optional 4040SE-3210 or 8310-824 TRANSFORMER reduces 120V AC line voltage to 24V AC.
n Circuitry accepts either AC or DC input
Options n Long (SEL) track
n Handed double egress arm for reveal under 2-11/16˝ (67 mm)
SE Wiring Diagram See “FIRE/LIFE SAFETY” section page 19 for typical wiring and electrical diagram
Notes:
• Information applies to 4040 SE unless otherwise specified
• Hold-open force is adjustable
• Momentary on/off switch board assembly for testing door release also provides over-voltage protection. Field replaceable
• Functions as a full rack and pinion closer when hold-open is not engaged or current is interrupted

17
LCN Door Control Catalog
phone: 877-671-7011 n fax: 800-248-1460 n www.allegion.com/us n 009426 rev. 2/16
4040SE
Series
Mounting details
Stop Face (Push Side)
Mounting
1-1/4"
32 mm
3-7/8"
98 mm
5-3/16"
132 mm
12-1/4"
311 mm
3-3/4"
95 mm
3-1/2"
89 mm
2-1/4"
57 mm
22-3/4"
578 mm
1-1/16"
27 mm
Butt Hinges Should not exceed 5˝ (127 mm) in width
Auxiliary Stop Recommended at hold-open point
Top Rail n Minimum 5-3/4˝ (146 mm)
n Installation with PLATE, 4040SE-18PA requires SPECIAL TEMPLATE and 2˝ (51 mm) minimum top rail
Stop Width 1-1/4˝ (32 mm) minimum
Door Width n 2´4˝ (711 mm) minimum for single door with SE
n 4´8˝ (1422 mm) minimum for paired doors with SE
Maximum Opening n Templating allows 110°
n Hold-open points between 85° and 110° in approximately 3° increments
n SEL track provides hold-open points between 90° and 120°‚ in approximately 3° increments
SE, SEL Electrical Options n These track assemblies require a single power circuit for the holding solenoid
n SE or SEL holding solenoid is either 24V or 120V input, please specify
n An optional 4040SE-3210 or 8310-824 TRANSFORMER reduces 120V AC line voltage to 24V AC
n Circuitry accepts either AC or DC input
Options n Long (SEL) track
SE Wiring Diagram
Notes:
• Information applies to 4040 SE closers unless otherwise specified
• Momentary on/off switch board assembly for testing door release also provides over-voltage protection. Field replaceable
• Functions as a full rack and pinion closer when hold-open is not engaged or current is interrupted
To either terminal
INPUT WIRES
To either terminal
Green ground
Terminal

18 LCN Door Control Catalog
phone: 877-671-7011 n fax: 800-248-1460 n www.allegion.com/us n 009426 rev. 2/16
4040SE
Series
Accessories
4040SE-3071
Cylinder Assembly
n Non-handed
n Cast iron
n Standard
4040SE-3077T
Standard Arm
n Non-handed
n Adjustable to select hold-open
point
4040SE-3038
SE Track
n Non-handed
n For SE closers. Mounts on either
head frame or stop
n 24V or 120V AC/DC input
for holding solenoid, please
specify.
n Includes test switch assembly
with fuse
n Standard
4040SE-72MC
Metal Cover
n Handed
n Required for plated finishes and
custom powder coat finishes
n Optional
Cylinder
Arms Tracks
Covers
4040SE-72
Plastic Cover
n Non-handed
n Clip-on
n Standard
4040SE-3077DE
Double Egress Arm
n Handed
n For pull side installations on
double egress doors and frames
n Not required for push side
mounting on double egress
frames
n Optional
4040SEL-3038
SEL Long Track
n Non-handed
n Mounts on either head frame or
stop
n 24V or 120V AC/DC input
standard for holding solenoid,
please specify
n Includes test switch assembly
with fuse
n Optional
Accessories

19
LCN Door Control Catalog
phone: 877-671-7011 n fax: 800-248-1460 n www.allegion.com/us n 009426 rev. 2/16
4040SE
Series
Accessories
4040SE-3436
Test Switch
4040SE-18
Plate
n Required where top rail is less
than 3-1/2˝ (89 mm)
n Requires minimum 2˝ (51 mm)
top rail
n Installations require a SPECIAL
TEMPLATE
4040SE-81
Conduit Quick-Connector
n Two piece connector for use
with 1/2˝ conduit
4040SE-3034SE
Track Roller & Track Slider
n Quiet, low friction roller
assembly
n Shoulder dimension “X” = 1/8˝
(3 mm)
n Alloy metal slider for use in SE
series tracks only
Switch
Installation Accessories
4040SE-18PA
Plate
n Required where top rail is less
than 5-3/4˝ (146 mm)
n Requires minimum 2˝ (51 mm)
top rail
n Installations require a SPECIAL
TEMPLATE
4040SE-3210
Transformer
n Reduces line voltage from 120V
to 24V AC
n Mounted on cover for 4˝ (102
mm) x 4˝ x 2-1/8˝ (54 mm)
junction box (by others)
Accessories
CHASSIS GROUND
WIRING DIAGRAM
INPUT VOLTAGE
24V AC/DC
OR 120V AC/DC
(USUALLY FROM
ALARM PANEL
OR DETECTOR)

20 LCN Door Control Catalog
phone: 877-671-7011 n fax: 800-248-1460 n www.allegion.com/us n 009426 rev. 2/16
4040SE
Series
Ordering Information
Closer will be shipped with:
- Standard cylinder
- Standard clip-on cover
- Standard arm
- Standard track
- Wood & machine screw pack
unless options listed below are selected.
Closer options
Cover
Metal (MC) (please specify right or left hand)
Finishes
Custom Powder Coat (RAL) (handed metal cover required)
Plated Finish, US ___________ (handed metal cover required)
Arm
Double Egress (DE) (please specify right or left hand)
Screw pack
TB*, Wood & Machine Screw (TBWMS)
TORX Machine Screw (TORX)
TB* & TORX Machine Screw (TBTRX)
* Specify door thickness if other than 1-3/4˝
Select cylinder size
SE
SEL
Voltage
24V AC/DC
120V AC/DC
Specify finish
Standard Powder Coat __________
Aluminum, Dark Bronze, Statuary, Light Bronze, Black, Brass.
Indicates recommended range of door width for closer size.
4040SE
Minimum door width
Interior door width
28˝
711mm
34˝
864mm
38˝
965mm
48˝
1219mm
size 3 size 4
How-to-order 4040SE Series closers
NOTE: For SE on paired door, min. width 60˝ (1524 mm).
For SE, minimum door width 28˝ (711 mm).
For SEL, minimum door width 30˝ (762 mm).
Details are listed on the MOUNTING DETAILS pages.
Installation accessories
Plate, 4040SE-18
Plate, 4040SE-18PA
Transformer, 4040SE-3210
Special template
ST- ________
Table of sizes
n 4040SE series cylinders accommodate interior doors up to 48˝ (1219 mm) wide
n Closing power of 4040SE Series closers is adjustable through a range of sizes up to size 4

21
LCN Door Control Catalog
phone: 877-671-7011 n fax: 800-248-1460 n www.allegion.com/us n 009426 rev. 2/16
2310ME
Series
The 2310ME SENTRONIC® is a concealed heavy duty, electrically controlled closer/holder
designed to provide infinitely adjustable hold-open for fire and smoke barrier doors. Door
is held open until current interruption releases mechanism and the door closes. Single lever
(track) arm closer is specifically designed for interior doors. Choice of finishes, cylinder
functions, and installation accessories meet virtually all life safety requirements.
AVAILABLE
NOT AVAILABLE
* Maximum opening/hold-open point with standard template. See individual closer series for
degrees of opening per installation.
Certifications Grade 1 - ANSI A156.15, UL 10C, ADA, 100 Hour
Salt Spray, Meets BAA - Buy American Act,
NFPA 101
Body Construction n Cast iron Body
n Full Complement Bearing
n 1-1/2˝ Diameter Piston
n 11/16˝ Diameter Double Heat Treated
Pinion Journal
Fluid All Weather Fluid
Handing Handed
Size Sized, 4 only
Warranty 2 years
Fasteners Wood and machine screw pack
Mounting Concealed (in frame)
Arms Standard handed arm and non-handed
track ( two piece metal finish plate)
Finishes/Colors/
Powder Coat
n Aluminum (689)
n Statuary Bronze (690)
n Light Bronze (691)
n Black (693)
n Dark Bronze (695)
n Brass (696)
n Custom colors optional
n Optional SRI primer - powder coat only
n Ooptional plated finishes
Wiring n Concealed or exposed
n Built in on/off switch controls hold-open
function
n Interfaces with fire alarm system
Customized installation templates or products may be available to solve unusual applications.
Contact LCN Product Support for assistance.
Features
Special
Templates
160°
PLASTIC
METAL
HINGE (PULL) SIDE
TOP JAMB (PUSH)
STOP FACE (PUSH)
SWING FREE
DOUBLE EGRESS
CONCEALED (FRAME)
CONCEALED (DOOR)
MOUNTING COVER CYLINDER *ARM FUNCTION
FINISH
NON-SIZED
HANDED
SIZED
SINGLE POINT HOLD-OPEN
MULTI-POINT HOLD-OPEN
BYPASS 80/140
POWDER COAT
PLATED
REGULAR (DOUBLE)
STANDARD (SINGLE)

22 LCN Door Control Catalog
phone: 877-671-7011 n fax: 800-248-1460 n www.allegion.com/us n 009426 rev. 2/16
2310ME
Series
Concealed
Mounting
Mounting details
1-1/4"
32 mm
2-1/16"
52 mm
1/4"
6 mm
1-3/8"
35 mm
1-3/8"
35 mm
3/8"
10 mm
3-5/8"
92 mm
22-1/2"
572 mm
10-3/16"
259 mm
1"
25 mm
1"
25 mm
7/8"
22 mm
20-1/4"
514 mm
of track
to of closer
1-1/16"
27 mm
Butt Hinges Should not exceed 5˝ (127 mm) in width
Top Rail n 1-3/8˝ (35 mm) mortise required
n 5/16˝ (8 mm) cutout required at top of door, stop face only
Door Thickness 1-3/4˝ (44 mm) minimum
Door Width 2´4˝ (711 mm) minimum
Hollow Metal Frame n Requires minimum 4˝ (102 mm) x 4˝ frame
n Consult factory or template for preparation details
Bypass n (suffix “B80” or “B140”) eliminates hold-open function up to a specified point of door swing
n B80 cylinder from 0° to 80°
n B140 cylinder from 0° to 140°
Maximum Opening Templating allows 180° with hold-open points up to 160°
Options n Hold-open bypass
n 24V or 120 volt input, please specify
Me (2310) Wiring Diagram
Notes
• For interior smoke barrier and labeled fire doors
• Functions as full rack and pinion door closer when hold-open is not engaged or when current is interrupted
Chassis Gr
ound
WIRING DIA
GRAM
Input voltage 24V AC/DC
or 120V AC/DC
(usually from alarm
panel or detector)

23
LCN Door Control Catalog
phone: 877-671-7011 n fax: 800-248-1460 n www.allegion.com/us n 009426 rev. 2/16
CHASSIS GROUND
WIRING DIAGRAM
INPUT VOLTAGE
24V AC/DC
OR 120V AC/DC
(USUALLY FROM
ALARM PANEL
OR DETECTOR)
2310ME
Series
Accessories
2310ME-3971
ME Cylinder Assembly
n Handed
n Cast iron
n Specify 24V or 120V
n Standard
2310ME-3038
Standard Track
n Non-handed
n Standard
2310ME-420
Fire Shield
n 22 gauge steel liner mounts in
the track mortise of the door’s
top rail for 20 minute labeled
wood doors with hollow metal
frames
2310ME-3077T
Standard Arm
n Handed
2310ME-3351
Switch
n “On/Off” switch assembly
provides continuous hold-open
function
n 24V or 120V, please specify
2310ME-3034
Track Roller
n Quiet, low friction roller
assembly
n Shoulder dimension “X” = 1/16˝
(2 mm)
Cylinders
Track
Installation Accessories
Switch
Arm
2310ME-3071
ME Cylinder/Plate Assembly
n Handed
n “On/Off” switch assembly
controls the hold-open function.
n Circuitry accepts either AC or DC
input. Specify 24V or 120V
n Standard
2310ME-3210
Transformer
n Reduces line voltage from 120V
to 24V AC
n Mounted on plate for 4˝ (102
mm) x 4˝ x 2-1/8˝ (54 mm)
junction box (by others)

24 LCN Door Control Catalog
phone: 877-671-7011 n fax: 800-248-1460 n www.allegion.com/us n 009426 rev. 2/16
2310ME
Series
Ordering Information
Closer will be shipped with:
- Finish plates
- Standard arm
- Standard track
- Track roller
- Wood & machine screw pack
unless options listed below are selected.
Closer options
Cylinder function
Bypass 80° (B80)
Bypass 140° (B140)
Finishes
Custom Powder Coat (RAL) ___________
Plated Finish, US ___________
Screw pack
TORX Machine Screw (TORX)
Installation accessories
Fire Shield, 2310ME-420
Transformer, 2310ME-3210
Special template
ST- ________
Select hand
RH
LH
Voltage
24V AC/DC
120V AC/DC
Specify finish
Standard Powder Coat __________
Aluminum, Dark Bronze, Statuary, Light Bronze, Black, Brass.
Indicates recommended range of door width for closer size.
2314
Minimum door width
Interior door width
28˝
711mm
34˝
864mm
38˝
965mm
48˝
1219mm
size 4
How-to-order 2310ME Series closers
NOTE: For SE, minimum door width 28˝ (711mm)
For SEL, minimum door width 32˝ (813mm)
Table of sizes
n Closing power of 2314ME Series closers may be increased 15%

25
LCN Door Control Catalog
phone: 877-671-7011 n fax: 800-248-1460 n www.allegion.com/us n 009426 rev. 2/16
4310ME
Series
The 4310ME SENTRONIC® is a heavy duty, electrically controlled closer/holder designed to provide
infinitely adjustable hold-open for fire and smoke barrier doors. Door is held open until current
interruption releases mechanism and the door closes. Single lever (track) arm closer is specifically
designed for interior doors. Choice of finishes, cylinder functions, and installation accessories meet
virtually all life safety requirements. An ME provides only the closer / holder function.
AVAILABLE
NOT AVAILABLE
* Maximum opening/hold-open point with standard template. See individual closer series for
degrees of opening per installation.
Certifications Grade 1 - ANSI A156.15, UL 10C, ADA, 100 Hour
Salt Spray, Meets BAA - Buy American Act,
NFPA 101
Body Construction n Cast Iron Body
n Full Complement Bearing
n 1-1/2˝ Diameter Piston
n 11/16˝ Diameter Double Heat Treated
Pinion Journal
Fluid All Weather Fluid
Handing Handed
Size Sized, 4 only
Warranty 2 years
Wiring n Concealed or exposed electrical connectors
n Built in “On/Off” switch controls hold-
open function
n Interfaces with fire alarm systems
Cover Metal, Standard
Fasteners Wood and machine screw pack
Mounting Hinge (Pull Side)
Arms Swing free arm, standard
Double egress, optional
Finishes/Colors/
Powder Coat
n Aluminum (689)
n Statuary Bronze (690)
n Light Bronze (691)
n Black (693)
n Dark Bronze (695)
n Brass (696)
n Custom colors optional
n Optional SRI primer - powder coat only
n Optional plated finishes
Customized installation templates or products may be available to solve unusual applications.
Contact LCN Product Support for assistance.
Features
Special
Templates
160 95
PLASTIC
METAL
HINGE (PULL) SIDE
TOP JAMB (PUSH)
STOP FACE (PUSH)
SWING FREE
DOUBLE EGRESS
CONCEALED (FRAME)
CONCEALED (DOOR)
MOUNTING COVER CYLINDER *ARM FUNCTION
FINISH
NON-SIZED
HANDED
SIZED
SINGLE POINT HOLD-OPEN
MULTI-POINT HOLD-OPEN
BYPASS 80/140
POWDER COAT
PLATED
REGULAR (DOUBLE)
STANDARD (SINGLE)

26 LCN Door Control Catalog
phone: 877-671-7011 n fax: 800-248-1460 n www.allegion.com/us n 009426 rev. 2/16
4310ME
Series
Hinge (Pull) Side
Mounting
Mounting details
22-3/4"
578 mm
1"
25 mm
1-1/16"
27 mm
3-7/8"
98 mm
19"
483 mm
1/2"
13 mm
1-1/4"
32 mm
3-1/2"
89 mm
2-9/16"
65 mm
Butt Hinges Should not exceed 4-1/2˝ (114 mm) in width
Top Rail 1-1/16˝ (27 mm) minimum
Reveal n Should not exceed 1/8˝ (3 mm) for Swing-Free arm
n Should not exceed 2-11/16˝ (68 mm) for double egress arm
Head Frame Requires 2˝ (51 mm) minimum
Clearance 1-1/4˝ (32 mm) behind door required for installation
Bypass n (suffix “B80 or B140”) eliminates hold-open function up to a specified point of the doors swing
n B80 cylinder from 0° to 80°
n B140 cylinder from 0° to 140°
Maximum Opening n Templating allows 180° with hold-open points up to 160°
n Optional double egress arm limited to 95°
n Please note that many track style door closers are capable of allowing 180° of door swing.
n Be aware that the majority of track style closers are at their weakest closing force in the 180° – 130° range
n Consult factory for applications where exterior or large/heavy door must swing 180°
ME Electrical Options n These assemblies have a single electrical circuit with a choice of voltages
n A separate TRANSFORMER, 4040SE-3210, can be used to reduce line voltage to 24V AC
n Circuitry accepts either AC or DC input
n Please specify 24V or 120V
Options n Hold-open bypass
n 24V or 120 volt input, please specify
ME (4310, 4410)
Wiring Diagram
Notes:
• Information applies to ME closer
• Functions as full rack and pinion door closer when hold-open is not engaged or when current is interrupted with Swing-Free arm engaged
• Swing free arm allows door to be moved without door closer resistance
Input Wires
(18 Gauge Black)
Earth Ground
(Green)
Wire Harness ConnectorRectifier Capacitor
(24V Only)
Solenoid
Power Plug
Solenoid Holding Force
Adjustment Potentiometer (24V Only)
On/Off Switch

27
LCN Door Control Catalog
phone: 877-671-7011 n fax: 800-248-1460 n www.allegion.com/us n 009426 rev. 2/16
4310ME
Series
Accessories
4310ME-3971
ME Cylinder Assembly
n Handed
n Cast iron
n Specify 24V or 120V
n Standard
4310ME-3077SF
Swing-Free Arm
n Handed
n After door is placed in hold-
open, secondary pivot point
allows up to 160° swing
without door closer resistance
4310ME-3077DE
Double Egress Arm
n Handed
n For double egress doors and
frames
n 2-11/16˝ (68 mm) maximum
reveal
n Optional
4310ME-72MC
Metal Cover
n Handed
n Standard
4310ME-3038
Track
n Non-handed
n Standard
Cylinder
Arms Track
Cover
4310ME-3071
ME Cylinder/Plate Assembly
n Handed
n “On/Off” switch assembly
controls hold-open function
n Circuitry accepts either AC or DC
input
n 24V or 120V, please specify
n Standard

28 LCN Door Control Catalog
phone: 877-671-7011 n fax: 800-248-1460 n www.allegion.com/us n 009426 rev. 2/16
4310ME-3354
ME Wiring Harness
n Three wire harness with 6˝
(152 mm) leads for field wiring
connections
4310ME
Series
4310ME-3351
Switch Assembly
n Provides continuous hold-open
function
n 24V or 120V, please specify
4310ME-3034
Track Roller
n Quiet, low friction roller assembly
n Shoulder dimension “X” = 1/8˝
(3mm)
4310-3210
Transformer
n Reduces line voltage from 120V
to 24V AC
n Mounted on cover for 4˝ (102
mm) x 4˝ x 2-1/8˝ (54mm)
junction box (by others)
Switch
Installation Accessories
Accessories
CHASSIS GROUND
WIRING DIAGRAM
INPUT VOLTAGE
24V AC/DC
OR 120V AC/DC
(USUALLY FROM
ALARM PANEL
OR DETECTOR)
120V shown
24V shown

29
LCN Door Control Catalog
phone: 877-671-7011 n fax: 800-248-1460 n www.allegion.com/us n 009426 rev. 2/16
4310ME
Series
Ordering Information
Closer will be shipped with:
- Standard cover
- Swing-free (sf) arm
- Standard track
- Track roller
- Wood & machine screw pack
unless options listed below are selected.
Closer options
Cylinder function
Bypass 80° (B80)
BBypass 140° (B140)
Arm
Double Egress (DE)
Finishes
Custom Powder Coat (RAL) ___________
Plated Finish, US ___________
Screw pack
TB*, Wood & Machine Screw (TBWMS)
TORX Machine Screw (TORX)
TB* & TORX Machine Screw (TBTRX)
*Specify door thickness if other than 1-3/4˝.
Select hand
RH
LH
Voltage
24V AC/DC
120V AC/DC
Specify finish
Standard Powder Coat __________
Aluminum, Dark Bronze, Statuary, Light Bronze, Black, Brass.
Indicates recommended range of door width for closer size.
4314ME
Minimum door width
Interior door width
26˝
660mm
34˝
864mm
38˝
965mm
48˝
1219mm
size 4
How-to-order 4310ME Series closers
Installation accessories
Transformer, 4310ME-3210
Special template
ST- ________
Table of sizes
n Closing power of 4314ME Series closers may be increased 15%

30 LCN Door Control Catalog
phone: 877-671-7011 n fax: 800-248-1460 n www.allegion.com/us n 009426 rev. 2/16
Notes
__________________________________________________________________________________________________________________________________________________________________________________
__________________________________________________________________________________________________________________________________________________________________________________
__________________________________________________________________________________________________________________________________________________________________________________
__________________________________________________________________________________________________________________________________________________________________________________
__________________________________________________________________________________________________________________________________________________________________________________
__________________________________________________________________________________________________________________________________________________________________________________
__________________________________________________________________________________________________________________________________________________________________________________
__________________________________________________________________________________________________________________________________________________________________________________
__________________________________________________________________________________________________________________________________________________________________________________
__________________________________________________________________________________________________________________________________________________________________________________
__________________________________________________________________________________________________________________________________________________________________________________
__________________________________________________________________________________________________________________________________________________________________________________
__________________________________________________________________________________________________________________________________________________________________________________
__________________________________________________________________________________________________________________________________________________________________________________
__________________________________________________________________________________________________________________________________________________________________________________
__________________________________________________________________________________________________________________________________________________________________________________
__________________________________________________________________________________________________________________________________________________________________________________
__________________________________________________________________________________________________________________________________________________________________________________
__________________________________________________________________________________________________________________________________________________________________________________
__________________________________________________________________________________________________________________________________________________________________________________
__________________________________________________________________________________________________________________________________________________________________________________
__________________________________________________________________________________________________________________________________________________________________________________
__________________________________________________________________________________________________________________________________________________________________________________
__________________________________________________________________________________________________________________________________________________________________________________
__________________________________________________________________________________________________________________________________________________________________________________
__________________________________________________________________________________________________________________________________________________________________________________

31
LCN Door Control Catalog
phone: 877-671-7011 n fax: 800-248-1460 n www.allegion.com/us n 009426 rev. 2/16
4410ME
Series
The 4410ME SENTRONIC® is a heavy duty, electrically controlled closer/holder designed
to provide infinitely adjustable hold-open for fire and smoke barrier doors. Door is held
open until current interruption releases mechanism and the door closes. Double lever arm
closer is specifically designed for interior doors. Choice of finishes, cylinder functions, and
installation accessories meet virtually all life safety requirements.
AVAILABLE
NOT AVAILABLE
* Maximum opening/hold-open point with standard template. See individual closer series for
degrees of opening per installation.
Certifications Grade 1 - ANSI A156.15, UL 10C, ADA, 100 Hour
Salt Spray, Meets BAA - Buy American Act,
NFPA 101
Body Construction n Cast iron Body
n Full Complement Bearing
n 1-1/2˝ Diameter Piston
n 11/16˝ Diameter Double Heat Treated
Pinion Journal
Fluid All Weather Fluid
Handing Handed
Size Sized, 4 only
Warranty 2 years
Cover Metal, Standard
Fasteners Wood and machine screw pack
Mounting Top jamb (Push Side)
Arms Regular arm
Finishes/Colors/
Powder Coat
n Aluminum (689)
n Statuary Bronze (690)
n Light Bronze (691)
n Black (693)
n Dark Bronze (695)
n Brass (696)
n Custom colors optional
n Optional SRI primer - powder coat only
n Optional plated finishes
Wiring n Concealed or surface
n Interfaces with fire alarm systems
Customized installation templates or products may be available to solve unusual applications.
Contact LCN Product Support for assistance.
Features
Special
Templates
150
PLASTIC
METAL
HINGE (PULL) SIDE
TOP JAMB (PUSH)
STOP FACE (PUSH)
SWING FREE
DOUBLE EGRESS
CONCEALED (FRAME)
CONCEALED (DOOR)
MOUNTING COVER CYLINDER *ARM FUNCTION
FINISH
NON-SIZED
HANDED
SIZED
SINGLE POINT HOLD-OPEN
MULTI-POINT HOLD-OPEN
BYPASS 80/140
POWDER COAT
PLATED
REGULAR (DOUBLE)
STANDARD (SINGLE)

32 LCN Door Control Catalog
phone: 877-671-7011 n fax: 800-248-1460 n www.allegion.com/us n 009426 rev. 2/16
4410ME
Series
Top Jamb (Push Side)
Mounting
Mounting details
3-1/2"
89 mm
1-5/8"
41 mm
3/4"
19 mm
8-9/16"
217 mm
1-1/8"
29 mm
2-9/16"
65 mm
11-11/16"
297 mm
19"
483 mm
4410 ME-18G
4410 ME-18
2-11/16"
68 mm
Butt Hinges Should not exceed 4-1/2˝ (114 mm) in width
Top Rail n 1-3/4˝ (44 mm) minimum
n 3-3/4˝ (95mm) minimum with flush ceiling
Reveal n 3-7/8˝ (98 mm) maximum regular or long arm
n For reveals greater than 3-7/8˝ consult factory
Head Frame n Requires 1-1/2˝ (38 mm) minimum
n 2˝ (51 mm) minimum with flush ceiling
Flush Ceiling Requires PLATE, 4410ME-18G substituted for standard mounting plate
Bypass n (Suffix “B80” or “B140”) eliminates hold-open function up to a specified point of door swing
n B80 cylinder from 0° to 80°
n B140 cylinder from 0° to 140°
Maximum Opening n Templating allows 160°, with hold-open points up to 150°
n Optional long arm allows 180°, hold-open points up to 170°
ME Electrical Options n These assemblies have a single electrical circuit with a choice of voltages
n A separate TRANSFORMER, 4040SE-3210, can be used to reduce line voltage to 24V AC. Circuitry accepts either AC
or DC input
n Please specify 24V or 120V
Options n Hold-open bypass
n Optional long arm allows 180° with hold-open points up to 170°
n Optional –18G plate accommodates flush ceiling conditions
n 24V or 120V volt input, please specify
ME (4310, 4410)
Wiring Diagram
Input Wires
(18 Gauge Black)
Earth Ground
(Green)
Wire Harness ConnectorRectifier Capacitor
(24V Only)
Solenoid
Power Plug
Solenoid Holding Force
Adjustment Potentiometer (24V Only)
On/Off Switch

33
LCN Door Control Catalog
phone: 877-671-7011 n fax: 800-248-1460 n www.allegion.com/us n 009426 rev. 2/16
4410ME
Series
Accessories
4414ME-3971
ME Cylinder Assembly
n Handed
n Cast iron
n Specify 24V or 120V
n Standard
4410ME-3077
Regular Arm
n Non-handed
n 3-7/8˝ (98 mm) maximum
reveal
4410ME-3077L
Long Arm
n For increasing opening to 180°
n 3-7/8˝ (98 mm) maximum
reveal
n Optional
4410ME-72MC
Metal Cover
n Handed
Cylinders
Arms
Cover
4414ME-3071
ME Cylinder/Plate Assembly
n Handed
n “On/Off” switch assembly
controls hold-open function
n Circuitry accepts either AC or DC
input
n Please specify 24V or 120V
n Standard

34 LCN Door Control Catalog
phone: 877-671-7011 n fax: 800-248-1460 n www.allegion.com/us n 009426 rev. 2/16
4410ME
Series
4410ME-3351
Switch Assembly
n Provides continuous hold-open
function
n Available as 24V or 120V, please
specify
4410ME-18
Mounting Plate
n Standard
4410ME-18G
Mounting Plate
n Substituted for standard plate on
flush ceiling installations
n Optional
4410ME - 3210
Transformer
n Reduces line voltage from 120V to
24V AC
n Mounted on cover for 4˝ (102 mm)
x 4˝ x 2-1/8˝ (54 mm) junction
box (by others)
4410ME-3354
ME Wiring Harness
n Three wire harness with 6˝
(152 mm) leads for field wiring
connections
Switch
Installation Accessories
Accessories
CHASSIS GROUND
WIRING DIAGRAM
INPUT VOLTAGE
24V AC/DC
OR 120V AC/DC
(USUALLY FROM
ALARM PANEL
OR DETECTOR)
120V shown
24V shown

35
LCN Door Control Catalog
phone: 877-671-7011 n fax: 800-248-1460 n www.allegion.com/us n 009426 rev. 2/16
4410ME
Series
Ordering Information
Closer will be shipped with:
- Standard cover
- Regular arm
- Wood & machine screw pack
unless options listed below are selected.
Closer options
Cylinder function
Bypass 80° (B80)
Bypass 140° (B140)
Arm
Long (LONG)
Finishes
Custom Powder Coat (RAL)
Plated Finish, US
Screw pack
TB*, Wood & Machine Screw (TBWMS)
TORX Machine Screw (TORX)
TB* & TORX Machine Screw (TBTRX)
*Specify door thickness if other than 1-3/4˝
Select hand
RH
LH
Voltage
24V AC/DC
120V AC/DC
Specify finish
Standard Powder Coat __________
Aluminum, Dark Bronze, Statuary, Light Bronze, Black, Brass.
Indicates recommended range of door width for closer size.
4414ME
Minimum door width
Interior door width
24˝
610mm
34˝
864mm
38˝
965mm
48˝
1219mm
size 4
How-to-order 4410ME Series closers
Installation accessories
Plate, 4410ME-18G
(substituted for standard mounting plate)
Transformer, 4410ME-3210
Special template
ST- ________
Table of sizes
n Closing power of 4414ME Series closers may be increased 15%

36 LCN Door Control Catalog
phone: 877-671-7011 n fax: 800-248-1460 n www.allegion.com/us n 009426 rev. 2/16
Notes
__________________________________________________________________________________________________________________________________________________________________________________
__________________________________________________________________________________________________________________________________________________________________________________
__________________________________________________________________________________________________________________________________________________________________________________
__________________________________________________________________________________________________________________________________________________________________________________
__________________________________________________________________________________________________________________________________________________________________________________
__________________________________________________________________________________________________________________________________________________________________________________
__________________________________________________________________________________________________________________________________________________________________________________
__________________________________________________________________________________________________________________________________________________________________________________
__________________________________________________________________________________________________________________________________________________________________________________
__________________________________________________________________________________________________________________________________________________________________________________
__________________________________________________________________________________________________________________________________________________________________________________
__________________________________________________________________________________________________________________________________________________________________________________
__________________________________________________________________________________________________________________________________________________________________________________
__________________________________________________________________________________________________________________________________________________________________________________
__________________________________________________________________________________________________________________________________________________________________________________
__________________________________________________________________________________________________________________________________________________________________________________
__________________________________________________________________________________________________________________________________________________________________________________
__________________________________________________________________________________________________________________________________________________________________________________
__________________________________________________________________________________________________________________________________________________________________________________
__________________________________________________________________________________________________________________________________________________________________________________
__________________________________________________________________________________________________________________________________________________________________________________
__________________________________________________________________________________________________________________________________________________________________________________
__________________________________________________________________________________________________________________________________________________________________________________
__________________________________________________________________________________________________________________________________________________________________________________
__________________________________________________________________________________________________________________________________________________________________________________
__________________________________________________________________________________________________________________________________________________________________________________

37
LCN Door Control Catalog
phone: 877-671-7011 n fax: 800-248-1460 n www.allegion.com/us n 009426 rev. 2/16
4310 HSA
Series
The 4310HSA SENTRONIC® is an electrically controlled closer/holder designed to provide
easy passage for groups of pedestrians through high traffic doors. Pedestrians, moving
through the doorway, trigger the built-in scanner. When the door is opened to 80° or more,
the door is electrically held open to minimize wear and tear on applied door hardware.
After the last pedestrian in a group passes through the doorway, the system timer releases
the hold-open, closing the door under control of the heavy duty closer. Single lever (track)
arm closer is specifically designed for pull side mounting. Choice of finishes and accessories
meet virtually all high traffic installation requirements.
AVAILABLE
NOT AVAILABLE
* Maximum opening/hold-open point with standard template. See individual closer series for
degrees of opening per installation.
Certifications Grade 1 - ANSI A156.4, ANSI 156.15, NFPA 101,
UL 10C, ADA, 100 Hour Salt Spray, Meets BAA
- Buy American Act
Body Construction n Cast Iron Body
n Full Complement Bearing
n 1-1/2˝ Diameter Piston
n 11/16˝ Diameter Double Heat Treated
Pinion Journal
Fluid All Weather Fluid
Handing Handed
Size Sized, 1-6
Warranty 2 years
Fasteners Wood and machine screw pack
Mounting Hinge (Pull Side)interior doors
Cover Metal, Standard
Arms n Standard arm (with track)
n Double egress arm, optional
Finishes/Colors/
Powder Coat
n Aluminum (689)
n Statuary Bronze (690)
n Light Bronze (691)
n Black (693)
n Dark Bronze (695)
n Brass (696)
n Custom colors optional
n Optional SRI primer - powder coat only
n Optional plated finishes
Wiring n Concealed or surface wiring
n 24V AC/DC input only
n 120V requires 4310HSA-3210 transformer
n HSA features a scanner activated hold-
open function, fixed 15 seconds or 30
seconds
Customized installation templates or products may be available to solve unusual applications.
Contact LCN Product Support for assistance.
Features
Special
Templates
160°
95
95°
PLASTIC
METAL
HINGE (PULL) SIDE
TOP JAMB (PUSH)
STOP FACE (PUSH)
SWING FREE
DOUBLE EGRESS
CONCEALED (FRAME)
CONCEALED (DOOR)
MOUNTING COVER CYLINDER *ARM FUNCTION
FINISH
NON-SIZED
HANDED
SIZED
SINGLE POINT HOLD-OPEN
MULTI-POINT HOLD-OPEN
BYPASS 80/140
POWDER COAT
PLATED
REGULAR (DOUBLE)
STANDARD (SINGLE)

38 LCN Door Control Catalog
phone: 877-671-7011 n fax: 800-248-1460 n www.allegion.com/us n 009426 rev. 2/16
4310 HSA
Series
Hinge (Pull) Side
Mounting
Mounting details
3-1/2"
89 mm
1-1/4"
32 mm
2-9/16"
65 mm
1/2"
13 mm 3-7/8"
98 mm
1-1/16"
27 mm
24"
610 mm
22-3/4"
578 mm
1"
25 mm
Butt Hinges Should not exceed 4-1/2˝ (114 mm) in width
Top Rail 1-1/16˝ (27 mm) minimum
Reveal n Should not exceed 1/8˝ (3 mm) for standard arm
n Should not exceed 2-11/16˝ (68 mm) for double egress arm
Head Frame Requires 2˝ (51 mm) minimum
Clearance 1-1/4˝ (32 mm) minimum.
Maximum Opening n Templating allows 180°
n Optional double egress arm limited to 95°
n Infinite hold-open points from 80° up to 160°
Options n 120 volt input requires 4310HSA-3210 transformer to change 120V AC to 24V AC
HSA (4310)Wiring Diagram
Notes:
• Functions as full rack and pinion door closer when current is interrupted or continuous hold-open is not engaged
• Built-in “On/Off” switch provides continuous hold-open function
Connect Green Wire
to Earth Ground
Connect Black Wires
to Input Voltage Leads
(polarity not important)

39
LCN Door Control Catalog
phone: 877-671-7011 n fax: 800-248-1460 n www.allegion.com/us n 009426 rev. 2/16
CHASSIS GROUND
WIRING DIAGRAM
INPUT VOLTAGE
24V AC/DC
OR 120V AC/DC
(USUALLY FROM
ALARM PANEL
OR DETECTOR)
3448
3351
4310 HSA
Series
Accessories
4311HSA-3971
HSA Cylinder Assembly
n Handed
n Cast iron
n 24V AC/DC input only for
holding solenoid
n Standard
4310HSA-3077T
Standard Arm
n Handed
4310HSA-3077DE
Double Egress Arm
n Handed
n For double egress doors and
frames
n 2 11/16˝ (67 mm) maximum
reveal
n Optional
4310HSA-3034
Track Roller
n Quiet, low friction roller
assembly
n Shoulder dimension “X” = 1/8˝
(3 mm)
4310HSA-3428
Scanner Module
4310HSA-72MC
Metal Cover
n Handed
n Standard
4310HSA-3038
Track
n Non-handed
n Standard
4310HSA-3448
Switch Assembly
n Provides continuous hold-open
function
n Available in 24V only
Cylinders
Arms
Installation Accessories
ScannerSwitch
Cover Track
4311HSA-3071
HSA Cylinder/Plate Assembly
n Handed
n Includes scanner module and
system timer module
n “On/Off” switch assembly
provides continuous hold-open
function
n 24V AC/DC input only for holding
solenoid and electronics modules
n Standard
4310HSA-3210
Transformer
n Reduces line voltage from 120V
to 24V AC
n Mounted on plate for 4˝
(102 mm) x 4˝ x 2-1/8˝ (54 mm)
junction box (by others)

40 LCN Door Control Catalog
phone: 877-671-7011 n fax: 800-248-1460 n www.allegion.com/us n 009426 rev. 2/16
4310 HSA
Series
Ordering Information
Closer will be shipped with:
- 24 AC/DC HSA cylinders
- Metal cover
- Standard arm
- Standard track
- Track roller
- Wood & machine screw pack
unless options listed below are selected.
Closer options
Arm
Double Egress (DE)
Finishes
Custom Powder Coat (RAL) ___________
Plated Finish, US ___________
Screw pack
TB*, Wood & Machine Screw (TBWMS)
TORX Machine Screw (TORX)
TB* & TORX Machine Screw (TBTRX)
* Specify door thickness if other than 1-3/4˝
Installation accessories
Transformer, 4310HSA-3210
Special template
ST- ________ (if required)
Select hand
RH
LH
Voltage
24V AC/DC
Specify finish
Standard Powder Coat __________
Aluminum, Dark Bronze, Statuary, Light Bronze, Black, Brass.
Indicates recommended range of door width for closer size.
4311HSA
Minimum door width
Interior door width
26˝
660mm
34˝
864mm
38˝
965mm
48˝
1219mm
How-to-order 4310 HSA Series closers
Table of sizes
n Closing power of 4310 HSA Series closers may be increased 15%

41
LCN Door Control Catalog
phone: 877-671-7011 n fax: 800-248-1460 n www.allegion.com/us n 009426 rev. 2/16
150°
PLASTIC
METAL
HINGE (PULL) SIDE
TOP JAMB (PUSH)
STOP FACE (PUSH)
SWING FREE
DOUBLE EGRESS
CONCEALED (FRAME)
CONCEALED (DOOR)
MOUNTING COVER CYLINDER *ARM FUNCTION
FINISH
NON-SIZED
HANDED
SIZED
SINGLE POINT HOLD-OPEN
MULTI-POINT HOLD-OPEN
BYPASS 80/140
POWDER COAT
PLATED
REGULAR (DOUBLE)
STANDARD (SINGLE)
4410 HSA
Series
The 4410HSA SENTRONIC® is an electrically controlled closer/holder designed to provide easy
passage for groups of pedestrians through high traffic doors. Pedestrians, moving through
the doorway, trigger the built-in scanner. When the door is opened to 80° or more, the door
is electrically held open to minimize wear and tear on applied door hardware. After the last
pedestrian in a group passes through the doorway, the system timer releases the hold-open,
closing the door under control of the heavy duty closer. Double lever arm closer is specifically
designed for push side mounting. Choice of finishes and accessories meet virtually all high
traffic installation requirements.
AVAILABLE
NOT AVAILABLE
* Maximum opening/hold-open point with standard template. See individual closer series for
degrees of opening per installation.
Certifications Grade 1 - ANSI A156.4, ANSI 156.16, NFPA 101,
UL 10C, ADA, 100 Hour Salt Spray, Meets BAA
- Buy American Act
Body Construction n Cast Iron Body
n Full Complement Bearing
n 1-1/2˝ Diameter Piston
n 11/16˝ Diameter Double Heat Treated
Pinion Journal
Fluid All Weather Fluid
Handing Handed
Size Sized, 1-6
Warranty 2 years
Fasteners Wood and machine screw pack
Mounting Hinge (Pull Side) for interior
Cover Metal, Standard
Customized installation templates or products may be available to solve unusual applications.
Contact LCN Product Support for assistance.
Features
Special
Templates
Arms n Standard arm and track
n Double egress, optional
Finishes/Colors/
Powder Coat
n Aluminum (689)
n Statuary Bronze (690)
n Light Bronze (691)
n Black (693)
n Dark Bronze (695)
n Brass (696)
n Custom colors optional
n Optional SRI primer - powder coat only
n Optional plated finishes
Wiring n Concealed or surface
n 24V AC/DC input only
n 120V AC input requires 4310HSA-3210
transformer
n HSA features a scanner activated hold-
open function, adjustable 15 seconds or
30 seconds
n Built-in “On/Off” switch provides
continuous hold-open feature

42 LCN Door Control Catalog
phone: 877-671-7011 n fax: 800-248-1460 n www.allegion.com/us n 009426 rev. 2/16
4410 HSA
Series
Top Jamb (Push) Side
Mounting
Mounting details
3-7/8"
3/4"
1-1/4"
8-15/16"
1-15/16"
8" 11-1/8"
1-1/4" Dia. for electrical connetor if
concealed conduit option is used
(8) 1/4 - 20 x 5/8 P.H.M.S or
(8) No. 14 x 1-1/5 P.H.W.S
Top of door
Reveal
See note (2)
Door
1-1/2" Min.
1-1/8"
Optional
wiring
connections
4410 HSA - Hold open any point 80° to 160°
4410 HSAL - Hold open any point 80° to 170°
“L” Indicates Long Arm
3/4"
3/4"
3/8"
7/8"
Jamb
Line
Jamb
Line
Hinge Edge of Door
Butt Hinges Should not exceed 4-1/2˝ (114 mm) in width
Top Rail n 1-3/4˝ (44 mm) minimum
n 3-3/4˝ (95 mm) minimum with flush ceiling
Head Frame n Requires 1-1/2˝ (38mm) minimum
n 2˝ (51 mm) minimum with flush ceiling
Reveal n 3-7/8˝ (98 mm) maximum for regular or long arm
n For reveals greater than 3-7/8˝ consult factory
Maximum Opening n Templating allows 160°
n Infinite hold-open points from 80° up to 150°
n Optional long arm allows 180°, hold-open points up to 170°
Options n Optional long arm allows 180° with hold-open points up to 170°
n Optional –18G plate accommodates flush ceiling conditions
n 120 volt input requires 4410HSA–3210 transformer to change 120V AC to 24V AC
HSA Wiring Diagram
Connect Green Wire
to Earth Ground
Connect Black Wires
to Input Voltage Leads
(polarity not important)

43
LCN Door Control Catalog
phone: 877-671-7011 n fax: 800-248-1460 n www.allegion.com/us n 009426 rev. 2/16
3448
3351
4410 HSA
Series
Accessories
4412HSA-3971
n Handed
n Cast iron
n 24V AC/DC input only for
holding solenoid
n Standard
4410HSA-3077
Regular Arm
n Non-Handed
n 3-7/8˝ (98 mm) maximum
reveal
4410HSA-3077L
Long Arm
n For increased opening
n 3-7/8˝ (98 mm) maximum
reveal
n Optional
4410HSA-18
Mounting Plate
n Standard
4410HSA-3428
Scanner Module
4410HSA-72MC
Metal Cover
n Handed
n Standard
4410HSA-3448
Switch Assembly
n Provides continuous hold-open
function
n Available in 24V only
Cylinders
Arms
Installation AccessoriesScanner
Switch
Cover
4412HSA-3071
HSA Cylinder / Plate Assembly
n Handed
n Includes scanner module and
system timer module
n “On/Off” switch assembly
provides continuous hold-open
function
n 24V AC/DC input only for holding
solenoid and electronics modules
n Standard
4410HSA-18G
Transformer Mounting Plate
n Substituted on flush ceiling
installations
n Optional
4410HSA-3210
Transformer
n Reduces line voltage from 120V
to 24V AC
n Mounted on plate for 4˝ (102
mm) x 4˝ x 2-1/8˝ (54 mm)
junction box (by others)
CHASSIS GROUND
WIRING DIAGRAM
INPUT VOLTA GE
24V AC/DC
OR 120V AC/DC
(USUALLY FROM
ALARM PANEL
OR DETECTOR)

44 LCN Door Control Catalog
phone: 877-671-7011 n fax: 800-248-1460 n www.allegion.com/us n 009426 rev. 2/16
4410 HSA
Series
Ordering Information
Closer will be shipped with:
- 24 AC/DC HSA cylinders
- Metal cover
- Regular arm
- Wood & machine screw pack
unless options listed below are selected.
Closer options
Arm
Long Arm (LONG)
Finishes
Custom Powder Coat (RAL) ___________
Plated Finish, US ___________
Screw pack
TB*, Wood & Machine Screw (TBWMS)
TORX Machine Screw (TORX)
TB* & TORX Machine Screw (TBTRX)
* Specify door thickness if other than 1-3/4˝
Select hand
RH
LH
Voltage
24V AC/DC
Specify finish
Standard Powder Coat __________
Aluminum, Dark Bronze, Statuary, Light Bronze, Black, Brass.
Indicates recommended range of door width for closer size.
4412HSA
Minimum door width
Interior door width
24˝
610mm
34˝
864mm
38˝
965mm
48˝
1219mm
How-to-order 4410 HSA Series closers
Installation accessories
Plate, 4410HSA-18
Plate, 4410HSA-18G
(substituted for standard mounting plate)
Transformer,4410HSA-3210
Special template
ST- ________ (if required)
Table of sizes
n Closing power of 4410 HSA Series closers may be increased 15%

45
LCN Door Control Catalog
phone: 877-671-7011 n fax: 800-248-1460 n www.allegion.com/us n 009426 rev. 2/16
SEH
Series
The SEH SENTRONIC® is a holder designed to provide single point hold-open for fire and
smoke barrier doors that must be used with an opposite side mounted UL listed door closer.
The door is held open until current interruption releases the holding mechanism and the door
closes. Single lever (track) arm is specifically designed for interior doors. Choice of finishes,
track functions, and installation accessories meet virtually all life safety requirements.
AVAILABLE
NOT AVAILABLE
* Maximum opening/hold-open point with standard template. See individual closer series for
degrees of opening per installation.
** Cylinder sold separately.
Certifications Grade 1 - ANSI A156.15, UL 10C, ADA, 100 Hour
Salt Spray, Meets BAA - Buy American Act,
NFPA 101
Handing Non-Handed
Templating 22 3/4˝ x 1 1/4˝
Warranty 2 years
Fasteners Wood and machine screw pack
Mounting Hinge (Pull Side)
Arms n Standard, non-handed arm for any
4040SE Series
n Standard, non-handed track for SEH
n Specify 24V or 120V AC/DC input for
holding solenoid
n Includes test switch assembly with fuse
Finishes/Colors/
Powder Coat
n Aluminum (689)
n Statuary Bronze (690)
n Light Bronze (691)
n Black (693)
n Dark Bronze (695)
n Brass (696)
n Custom colors optional
n Optional SRI primer - powder coat only
n Optional plated finishes
Wiring n Concealed or surface
n 24V or 120V, please specify
n Interfaces with alarm system, please
consult with factory for full details
Customized installation templates or products may be available to solve unusual applications.
Contact LCN Product Support for assistance.
Features
Special
Templates
100
PLASTIC
METAL
HINGE (PULL) SIDE
TOP JAMB (PUSH)
STOP FACE (PUSH)
SWING FREE
DOUBLE EGRESS
CONCEALED (FRAME)
CONCEALED (DOOR)
MOUNTING COVER **CYLINDER *ARM FUNCTION
FINISH
NON-SIZED
HANDED
SIZED
SINGLE POINT HOLD-OPEN
MULTI-POINT HOLD-OPEN
BYPASS 80 / 140
POWDER COAT
PLATED
REGULAR (DOUBLE)
STANDARD (SINGLE)

46 LCN Door Control Catalog
phone: 877-671-7011 n fax: 800-248-1460 n www.allegion.com/us n 009426 rev. 2/16
SEH
Series
Hinge (pull) side &
Stop face (push side)
Mountings
Mounting details
Butt Hinges Should not exceed 5˝ (127 mm) in width
Swing Clear Hinges Consult factory
Auxiliary Stop Recommended at hold-open point
Reveal Should not exceed 1/8˝ (3 mm) for standard arm
Head Frame Requires 2˝ (51 mm) minimum
Stop Width 1-1/4˝ (32 mm) minimum
Flush Ceiling 2˝ (51 mm) head frame does not require special templating
Door Width n 2´4˝ (711 mm) minimum for single door with SEH
n 4´8˝ (1422 mm) minimum for paired doors with SEH
Maximum Opening n Templating allows 100°
n Hold-open points between 80° and 100° in approximately 3° increments
SEH Electrical Options n These track assemblies require a single power circuit for the holding solenoid
n SEH holding solenoid is either 24V or 120V input, please specify
n An optional 4040SE-3210 TRANSFORMER or 8310-824 reduces 120V AC line voltage to 24V AC. Circuitry accepts
either AC or DC input
Options n 24V or 120V volt input for SEH, please specify
Wiring Diagram See “FIRE/LIFE SAFETY” section page 19 for typical wiring and electrical diagram
Notes:
• Information applies to SEH unless otherwise specified
• Standard SEH Series is a door holder that must be installed in conjunction with an opposite side mounted, UL listed door closer
• Hold-open force is adjustable
• Momentary on/off switch board assembly for testing door release also provides over-voltage protection. Field replaceable
• All SEH type holders require a separate closer for fire or smoke barrier door applications
22-3/4"
578 mm
2-11/16"
68 mm
Optional
Wiring
Connections
6-7/8"
175 mm
2-7/8"
73 mm 1-11/16"
43 mm
3/4"
19 mm
2-9/16" 65 mm
6-1/2"
165 mm
2-11/16"
68 mm
1-1/4"
32 mm
22-3/4"
578 mm
3-1/8"
79 mm
Optional Wiring
Connections
22-3/4"
578 mm
2-11/16"
68 mm
Optional
Wiring
Connections
6-7/8"
175 mm
2-7/8"
73 mm 1-11/16"
43 mm
3/4"
19 mm
2-9/16" 65 mm
6-1/2"
165 mm
2-11/16"
68 mm
1-1/4"
32 mm
22-3/4"
578 mm
3-1/8"
79 mm
Optional Wiring
Connections
22-3/4"
578 mm
2-11/16"
68 mm
Optional
Wiring
Connections
6-7/8"
175 mm
2-7/8"
73 mm 1-11/16"
43 mm
3/4"
19 mm
2-9/16" 65 mm
6-1/2"
165 mm
2-11/16"
68 mm
1-1/4"
32 mm
22-3/4"
578 mm
3-1/8"
79 mm
Optional Wiring
Connections
22-3/4"
578 mm
2-11/16"
68 mm
Optional
Wiring
Connections
6-7/8"
175 mm
2-7/8"
73 mm 1-11/16"
43 mm
3/4"
19 mm
2-9/16" 65 mm
6-1/2"
165 mm
2-11/16"
68 mm
1-1/4"
32 mm
22-3/4"
578 mm
3-1/8"
79 mm
Optional Wiring
Connections
22-3/4"
578 mm
2-11/16"
68 mm
Optional
Wiring
Connections
6-7/8"
175 mm
2-7/8"
73 mm 1-11/16"
43 mm
3/4"
19 mm
2-9/16" 65 mm
6-1/2"
165 mm
2-11/16"
68 mm
1-1/4"
32 mm
22-3/4"
578 mm
3-1/8"
79 mm
Optional Wiring
Connections
Stop face (push side) mount
Hinge (pull) side mount

47
LCN Door Control Catalog
phone: 877-671-7011 n fax: 800-248-1460 n www.allegion.com/us n 009426 rev. 2/16
SEH
Series
Accessories
SEH-3077T
Holder Arm
n Non-handed
n Can be combined with any
4040SE Series track to provide
an electrically controlled hold-
open function on either side of
the door
n All SEH type holders require a
separate closer for fire or smoke
barrier door applications
SEH-3436
Test Switch
SEH-3034SE
Track Roller & Track Slider
n Quiet, low friction roller
assembly
n Shoulder dimension
“X” = 1/4˝ (6 mm)
n Alloy metal slider for use in SE
series tracks only
SEH-81
Conduit Quick-Connector
n Two piece connector for use
with 1/2˝ conduit
Arm
Switch
Installation Accessories
Track
SEH-3038
SEH Track
n Non-handed
n Mounts on either head frame
or stop
n 24V or 120V AC/DC input for
holding solenoid, please specify
n Includes test switch assembly
with fuse
n Standard
4040SEH-3210
Transformer
n Reduces line voltage from 120V
to 24V AC
n Mounted on cover for 4˝
(102 mm) x 4˝ x 2-1/8˝ (54 mm)
junction box (by others)
CHASSIS GROUND
WIRING DIAGRAM
INPUT VOLTAGE
24V AC/DC
OR 120V AC/DC
(USUALLY FROM
ALARM PANEL
OR DETECTOR)

48 LCN Door Control Catalog
phone: 877-671-7011 n fax: 800-248-1460 n www.allegion.com/us n 009426 rev. 2/16
SEH
Series
Ordering Information
Closer will be shipped with:
- Standard arm
- Standard track
- Wood & machine screw pack
unless options listed below are selected.
Options
Finishes
Custom Powder Coat (RAL)
Screw pack
TB*, Wood & Machine Screw (TBWMS)
TORX Machine Screw (TORX)
TB* & TORX Machine Screw (TBTRX)
* Specify door thickness if other than 1-3/4˝
Installation accessories
Transformer, 4040SE-3210
Special template
ST- ________ (if required)
Voltage
24V AC/DC
120V AC/DC
Specify finish
Standard Powder Coat __________
Aluminum, Dark Bronze, Statuary, Light Bronze, Black, Brass.
How-to-order SEH Series closers

1
LCN Door Control Catalog
phone: 877-671-7011 n fax: 800-248-1460 n www.allegion.com/us n 009426 rev. 5/16
Product selection guide
High Security LCN closers feature a vandal resistant design engineered for each application, easy
installation, and superior performance. This guide is based on the desired mounting of the closer.
Product comparison
This chart shows a basic comparison of LCN High Security closers. Refer to the specific closer chapter for complete details.
Closeravailablewithlessthan5.0lbs.openingforceon36˝door.
** Maximumopeningwithstandardtemplate.Seeindividualcloserseriesfordegreesofopeningperinstallation.
*** AdvancedVariableBackcheck.
AVAILABLE
NOT AVAILABLE
High Security
Series
* Door position switch.
SINGLE
LEVER ARM
2210
2210 DPS*
EXTERIOR
DOOR
CONCEALED
IN FRAME
PARALLEL
ARM
4210
PUSH SIDE
MOUNTED
DOUBLE
LEVER ARM
4510
PULL SIDE
MOUNTED
PARALLEL
ARM
4210
PUSH SIDE
MOUNTED
SINGLE
LEVER ARM
4210T
DOUBLE
LEVER ARM
4510
PULL SIDE
MOUNTED
SINGLE
LEVER ARM
4510T
SINGLE
LEVER ARM
2210
2210 DPS*
INTERIOR
DOOR
CONCEALED
IN FRAME
PLASTIC
METAL
COVER CYLINDER
180
180
180
140
110
110
180
EDA
STANDARD (SINGLE)
CUSH/HCUSH
**ARM FUNCTION
FINISH
HANDED
NON-SIZED
SIZED
ACCESSIBILITY
DELAYED ACTION
2210
CLOSER
SERIES
2210DPS
4210
4210T
4510
4510T
HINGE (PULL) SIDE
PARALLEL ARM (PUSH)
STOP FACE
CONCEALED (FRAME)
MOUNTING
POWDER COAT
PLATED
AVB***
DPS SWITCH

2LCN Door Control Catalog
phone: 877-671-7011 n fax: 800-248-1460 n www.allegion.com/us n 009426 rev. 2/16
APPLICATIONS
n
For any concealed or surface mounted installation subject to potential
abuse or vandalism.
n For correctional, aluminum, hollow metal, or wood doors and frames.
n Can be used with hinge or pivot mounted door.
n
Adapter plates and other installation accessories available for unusual
conditions.
FEATURES COMMON TO HIGH SECURITY CLOSERS
n Each closer is a vandal resistant design for a specific mounting; hinge
side, parallel arm, stop face, or concealed.
n All high security closers are based on a cylinder certified to exceed
10,000,000 cycles in independent testing.
n Handed for right or left swinging doors.
n Closers to meet ADA reduced opening force requirements.
n All closers furnished with TORX tamper resistant machine screws.
n All surface mount closers include a heavy gauge steel cover with four
attachment points.
n All closer adjustments are protected when installation is complete.
n All track closers use a jam resistant track and tamper resistant arm/
roller assembly.
n Adjustable hydraulic backcheck cushions opening swing prior to 90°.
n Advanced variable backcheck (AVB) is available on all high security
closers.
n Separate regulation of general closing speed and latching speed.
DESIGN ASSISTANCE
LCN has been providing reliable solutions to unique door control problems
since 1925. Design and specification assistance are only a phone call away.
Contact LCN for assistance or technical information at 877-671-7011 or FAX
800-248-1460 (order entry), Fax 815-879-1495 for Technical Support.
WARRANTY
High Security Series closers carry a 15 year limited warranty, except for the
2210DPS Series closer that carries a 2 year limited warranty. See General
Information Section for complete warranty details.
MATERIALS
n High strength cast iron cylinder.
n Forged steel main arms and forearms.
n One piece forged steel piston.
n LCN's all weather “Liquid X” fluid performs to temperature ranges
from 120°F (49°C) to -30°F (-35°C) without any seasonal adjustment.
n High efficiency, full complement, low friction bearings.
n Double heat treated pinions.
n Tamper resistant regulating screws.
n Full rack and pinion hydraulic action.
n
Quiet, low friction track and roller combination for all single lever arm
closers.
FINISHES
n
Available in six standard or a wide selection of optional custom powder
coat finishes to blend with door and frame.
n
LCN’s powder coat finishes surpass 100 hours of salt spray which is over
four times the ANSI standard for corrosion resistance.
n
For installations where a higher level of corrosive resistance is required,
LCN offers an optional special rust inhibiting (SRI) pre-treatment.
Closers that combine the exclusive LCN powder coat finish and the
SRI pre-treatment exceed the ANSI standard for corrosion resistance
even further.
n Plated finishes are available as an option to accent door and frame.
LISTINGS & APPROVALS
UL listed for self-closing doors without hold-open under “SWINGING
DOOR CLOSERS“(GVEV) file R 1943.
Tested and certified under ANSI Standard A 156.4. Consult factory for
details.
Consult factory for other listings such as; ULC, California State Fire Marshal,
Bureau of Standards and Appeals.
POSITIVE PRESSURE
LCN closers have been certified for three hours by UL to be in compliance
with UL 10 C. Contact LCN for specific details on door closer fire ratings.
FASTENERS
TORX MACHINE SCREW (TORX) pack contains tamper resistant machine
screws to install the closer. Thru Bolts for TORX machine screws are
available for all high security closers, except 2210 series.
LCN thru bolts (TB) can be installed on 1-3/4˝ thick doors with the
1/4-20 TORX screws supplied with the closer. Optional sizes are available
for 1-5/8˝ or 1-3/8˝ door thicknesses, but this must be specified when
ordering.
Drill 25/64˝ for
steel doors
or
Drill 3/8˝
for wood doors
Note1:ForThruBolts,specifydoorthicknessifotherthan1-3/4˝(44mm).
Special driver bits are required for installation or removal of TORX machine
screws with a security pin as supplied with LCN High Security closers. All
bits fit a 1/4˝ hex drive socket. For 1/4-20 screws use T-27, for #12 machine
screws use T-25, for 10# machine screws use T20, for #8 (and undercut
#10) machine screws use T15, and for #6 machine screws use T10. The
specific bits required for installation are listed on the “HOW TO ORDER”
page for each closer. Sold separately.
FASTENERS
TORX MACHINE SCREW (TORX) pack contains tamper resistant machine
screws to install the closer. Thru Bolts for TORX machine screws are
available for all high security closers, except 2210 series.
SPECIFICATIONS
Refer to “SPECIFICATIONS” section for suggested architectural
specifications.
High Security
Closers Series

3
LCN Door Control Catalog
phone: 877-671-7011 n fax: 800-248-1460 n www.allegion.com/us n 009426 rev. 5/16
2210
Series
The concealed 2210 Series, heavy duty, high security track closer features complete
concealment with special components to minimize tampering and vandalism. Forged
steel, single lever arm and heavy steel mounting plate are designed for correctional, vandal
prone, institutional, and other high traffic applications. A choice of finishes and cylinder
functions meet correctional and vandal resistant requirements.
AVAILABLE
NOT AVAILABLE
* Maximum opening with standard template.
** Advanced Variable Backcheck.
Certifications Grade 1 - ANSI A156.4, UL 10C, ADA, 100 Hour
Salt Spray, Meets BAA - Buy American Act
Body Construction n Cast Iron Body
n Full Complement Bearing
n 1-1/2˝DiameterPiston
n 11/16˝DiameterDoubleHeatTreated
PinionJournal
Fluid All Weather Liquid X Fluid
Handing Handed
Size Sized,interior,exteriorandvestibule3-5
(refer to chart)
Warranty 15years(2210);2years(2210DPS)
Cover Metal, standard
Fasteners TORX machine screw pack
Mounting n Concealed, single acting cylinder in head
frame
n Concealed, arm and track in top rail of
door
Arms Standard security arm and security track
Finishes/Colors/
Powder Coat
n Aluminum (689)
n Statuary Bronze (690)
n Light Bronze (691)
n Black(693)
n Dark Bronze (695)
n Brass (696)
n Custom colors optional
n Optional SRI primer - powder coat only
n Optional plated finishes
Customizedinstallationtemplatesorproductsmaybeavailabletosolveunusualapplications.
ContactLCNProductSupportforassistance.
Features
Special
Templates
PLASTIC
METAL
COVER CYLINDER
180
EDA
STANDARD (SINGLE)
CUSH/HCUSH
*ARM FUNCTION
FINISH
HANDED
NON-SIZED
SIZED
ACCESSIBILITY
DELAYED ACTION
HINGE (PULL) SIDE
PARALLEL ARM (PUSH)
STOP FACE
CONCEALED (FRAME)
MOUNTING
POWDER COAT
PLATED
AVB**
DPS SWITCH

4LCN Door Control Catalog
phone: 877-671-7011 n fax: 800-248-1460 n www.allegion.com/us n 009426 rev. 2/16
2210
Series
Concealed
Mounting
Mounting details
2"
51 mm
2-1/16"
52 mm
1-3/8"
35 mm
1-3/4"
44 mm
3/16"
5 mm
7/8"
22 mm
7/16"
11 mm
24-1/2"
622 mm
14-3/8"
365 mm
5-5/16"
135 mm
1/2"
13 mm
of Track
to of Closer
of Track
to of Closer
3-11/16"
94 mm
1-1/4"
32 mm
Butt Hinges Shouldnotexceed4-1/2˝(114mm)inwidth
Auxiliary Stop Recommended where a door cannot swing 180°
Top Rail 1-1/4˝(32mm)mortiserequired.3/8˝(10mm)cutoutrequiredattopofdoor,stopfaceonly
Door Thickness 1-3/4˝(44mm)minimum
Door Width 28˝(711mm)minimum
Head Frame n 5-3/4˝(146mm)wideand4˝(102mm)highwith2-3/16˝(56mm)rabbetrequired
n Consult factory if any dimension is less
Steel Mounting Plate Thickness3/8˝(10mm)
Door Position Switch n Optional,newlyredesigned,fieldadjustableswitchcaninterfacewithsecurityandmonitoringsystems
n Addsuffix“DPS”toselectedcylinder
n Providesnormallyopen(N.O.)andnormallyclosed(N.C.)circuit
n Athreewireconnectorharnesswith84˝(2134mm),16AWGleadsisfurnishedtosimplifyconnectiontofieldwiring
n Singlepoledoublethrow(SPDT)contactsratedat125/250VACat10.1ampsmaximumresistiveloadarestandard
Advanced Variable
Backcheck
n Cylinderstartsbackcheckatapproximately45°insteadofthenormal75°
n Addsuffix“AVB”toselectedcylinder(eg.2213DPSAVB)
Maximum Opening n Templating allows 180°
n Consultfactoryifdoorwillbeheldopenat180°
n Pivotmountingdoorlimitsopeningto110°andincreasesminimumdoorwidthto32˝(813mm).Consultfactory
n Pleasenotethatmanytrackstyledoorclosersarecapableofallowing180°ofdoorswing
Note:Trackstyleclosersareattheirweakestclosingforceat180°.Consultfactoryforapplicationswheredoormustswing180°.
Options n AdvancedVariableBackcheckCylinder
n DoorPositionSwitch

5
LCN Door Control Catalog
phone: 877-671-7011 n fax: 800-248-1460 n www.allegion.com/us n 009426 rev. 2/16
2210
Series
Accessories
2213(4)(5)-3071
Cylinder Assembly
n Handed
n Cast iron
n Standard
2210DPS-3071
Cylinder Assembly
n Handed
n Cast iron
2210-3038
Security Track
n Non-handed
n Hold-open function not
available
n Designed to eject foreign
objectsplacedintrackduring
either opening or closing
motion
n Requirestrackroller,2210-3034
2210DPS-3038
2210-493
Test Kit
n Battery operated designed to
verify switch signal response
point
n Canbeuseddirectlyatdoor
location(usedfor2210DPS
only)
2210-11
Long Plate
n Heavy gauge metal plate
n Required for complete
enclosure
n Six point TORX® mounting
screws for extra security
n Closer adjustments not
accessiblewithfinishplates
installed
2210-12
Short Plate
n Heavy gauge metal plate
n Required for complete
enclosure
n Four point TORX® mounting
screws for extra security
n Closer adjustments not
accessiblewithfinishplates
installed
Cylinder
Tracks
Installation Accessories
Finish Plates
Arms
2210-3077T
2210DPS-3077T
Standard Security Arm
n Handed
n Solid forged steel and large cross
sectionforpotentiallyabusive
installations
n Special threaded attachment of
track roller for extra security
n Doubleslabarm/pinion
attachment for maximum
strength
2210-3034
Security Track Roller
n Low friction track roller threads
into2210-3077Tarmforextra
strength and security
n Cannotberemovedwithout
disconnecting arm from closer
n Canonlybeusedwithhigh
securitytrackroller,2210-3034
or2210DPS-3034
n Roller is included with arm
wheneitherthe2210-3077T
or2210DPS-3077Tareordered
separately

6LCN Door Control Catalog
phone: 877-671-7011 n fax: 800-248-1460 n www.allegion.com/us n 009426 rev. 2/16
2210
Series
Ordering Information
Closer will be shipped with:
- Standard cylinder
- Finish plate
- Standard security arm
- Security track roller
- Security track
- TORX machine screw pack,
unless options listed below are selected.
Closer options
Cylinder
AdvancedVariableBackcheck(AVB)
Finishes
CustomPowderCoat(RAL)___________
PlatedFinish,US___________(coverplateandarmonly)
SRIprimer(excludesDPS)(usewithpowder_coatfinishesonly)
Special template
ST-________
Select cylinder size
2213
2213DPS
2214
2214DPS
2215
2215DPS
Select hand
RH
LH
Specify finish
StandardPowderCoat__________
Aluminum, Dark Bronze, Statuary, Light Bronze, Black, Brass
Indicates recommended range of door width for closer size.
How-to-order 2210 Series closers
Note:Minimumdoorwidth28˝(711mm).
NOTE:InstallationofthiscloserrequiresT-27,T-25andT-15driver
bitsforTORXmachinescrewswithasecuritypin.Soldseparately.
2213(DPS)
2214(DPS)
2215(DPS)
2213(DPS)
2214(DPS)
2215(DPS)
Minimum door width Minimum door width
Exterior (and Vestibule) door width
28˝
711mm
30˝
762mm
36˝
914mm
42˝
1067mm
Interior door width
28˝
711mm
34˝
864mm
38˝
965mm
48˝
1219mm
54˝
1372mm
size3 size4 size5 size3 size4 size5
Table of sizes
n Selectcloserbasedonwidthofdoor
n 2210Seriescylindersavailableinsize3,4,or5
n Springpowerissetatthefactoryforsize3,4,or5,butisfieldadjustable(maybeincreased50%)

7
LCN Door Control Catalog
phone: 877-671-7011 n fax: 800-248-1460 n www.allegion.com/us n 009426 rev. 2/16
4210
Series
The 4210 SMOOTHEE® Series is a heavy duty, high security closer with special components
to minimize tampering and vandalism. Forged steel parallel arms and heavy gauge metal
security covers are designed for correctional, vandal prone, institutional and other high
traffic applications. The closer has passed 10 million cycles in independent testing. A choice
of finishes and cylinder functions meet correctional and vandal resistant requirements.
AVAILABLE
NOT AVAILABLE
Closeravailablewithlessthan5.0lbs.openingforceon36˝door.
* Maximumopeningwithstandardtemplate.Seeindividualcloserseriesfordegreesofopeningperinstallation.
** AdvancedVariableBackcheck.
Certifications Grade 1 - ANSI A156.4, UL 10C, ADA*, 100 Hour
Salt Spray, Meets BAA - Buy American Act
*4211cylindermeetsADA
Body Construction n Cast Iron Body
n Full Complement Bearing
n 1-1/2˝DiameterPiston
n 11/16˝DiameterDoubleHeatTreated
PinionJournal
Fluid All Weather Fluid
Handing Handed
Size n AdjustableExteriorand,Vestibule,Size3-5
or size 6
n Adjustable,Interior,Size2-5;orsize6
Warranty 15 years
Cover Metal Security
Fasteners TORX machine screw pack
Mounting Parallel(PushSide)
Arms Extra duty, non hold-open
Finishes/Colors/
Powder Coat
n Aluminum (689)
n Statuary Bronze (690)
n Light Bronze (691)
n Black(693)
n Dark Bronze (695)
n Brass (696)
n Custom colors optional
n Optional SRI primer - powder coat only
n Optional plated finishes (cover only)
Customizedinstallationtemplatesorproductsmaybeavailabletosolveunusualapplications.
ContactLCNProductSupportforassistance.
Features
Special
Templates
PLASTIC
METAL
COVER CYLINDER
110
180
EDA
STANDARD (SINGLE)
CUSH/HCUSH
*ARM FUNCTION
FINISH
HANDED
NON-SIZED
SIZED
ACCESSIBILITY
DELAYED ACTION
HINGE (PULL) SIDE
PARALLEL ARM (PUSH)
STOP FACE
CONCEALED (FRAME)
MOUNTING
POWDER COAT
PLATED
AVB**
DPS SWITCH

8LCN Door Control Catalog
phone: 877-671-7011 n fax: 800-248-1460 n www.allegion.com/us n 009426 rev. 2/16
4210
Series
Parallel Arm
(Push Side) Mounting
Mounting details
2-1/4"
57 mm
5-1/8"
130 mm
5-1/2"
140 mm
14-1/16"
357 mm
4"
102 mm
3-1/2"
89 mm
5-1/8"
130 mm
12-1/4"
311 mm
4210-18
A
B
Butt Hinges Shouldnotexceed5˝(127mm)inwidth
Auxiliary Stop Recommended where the door cannot swing 180° or where CUSH arms not used
Clearance ForEDAorCUSHis5-1/2˝(140mm)frompushsideofdoor
Top Rail Lessthan5-1/8˝(130mm)measuredfromstop,requiresPLATE4210-18.Platerequires2˝(51mm)minimumtoprail
Stop Width 2-3/4˝(70mm)recommended.Lessthan1˝(25mm),consultfactory
Delay Action n Addsuffix“DEL”toselectedcylinder(eg.4211DEL)
n Notavailablewith4215or4216cylinder
n Delaysclosingfrommaximumopeningtoapproximately70°
n Delaystimeadjustableuptoapproximately1minute
Advanced Variable
Backcheck
n Cylinderstartsbackcheckatapproximately45°insteadofthenormal75°
n Addsuffix“AVB”toselectedcylinder(eg.4211AVB)
Maximum opening
EDAarmcanbetemplatedfor
CUSHarmcanbetemplatedfor
maximum opening at
100°: A=5-15/16˝(151mm)
B=7-1/4˝(184mm)
85°: A=8-5/16˝(211mm)
B=9-5/8˝(244mm)
140°: A=4-7/16˝(113mm)
B=5-3/4˝(146mm)
90°: A=7-11/16˝(195mm)
B=9˝(229mm)
180°: A=2-15/16˝(75mm)
B=4-1/4˝(108mm)
100°: A=6-7/16˝(164mm)
B=7-3/4˝(197mm)
110°: 5-9/16˝(141mm)
B=6-7/8˝(175mm)
Hold-open point at maximum opening
with H-CUSH arm.
Options n DelayedActionorAdvancedVariableBackcheckcylinder.

9
LCN Door Control Catalog
phone: 877-671-7011 n fax: 800-248-1460 n www.allegion.com/us n 009426 rev. 2/16
4210
Series
Accessories
4211(6)-3071
Cylinder Assembly
n Handed
n Cast iron
n Standard
4210-3077EDA
Extra Duty Arm
n Non-handed
n Parallelarmfeaturessolid
forged steel main arm and
forearmforpotentiallyabusive
installations
n Doubleslabarm/pinion
attachment for maximum
strength
4210-18, 4210-18CUSH
Plate
n Required for push side mount
wheretoprailislessthan5-1/8˝
(130mm),measuredfromthe
stop
n Requires2˝(51mm)minimum
top rail measured from the stop.
n Also used with CUSH arm
installations
4210-30
CUSH Shoe Support
n Providesanchorageforfifth
screw used with CUSH arms
whererevealislessthan3-1/16˝
(78mm)
4210-61
Blade Stop Spacer
n Lowers parallel arm shoe to
clear1/2˝(13mm)bladestop
4210-419
PA Flush Panel Adapter
n Provideshorizontalmounting
surface for EDA or CUSH shoe on
singlerabettedorflushframe
4210-3049CNS
HCUSH Arm
n Non-handed
n Parallelarmprovideshold-openfunction
with templated stop/hold-open points
n Handle controls hold-open function with
thumbturn
n HCUSHarmnotavailablewith4216cylinder
n Doubleslabarm/pinionattachmentfor
maximum strength
Cylinder
Arms
Installation Accessories
Cover
4210-72MC
Metal Security Cover
n Handed
n Four point mounting for extra
security
n Closer adjustments not
accessiblewithcoverinstalled
n Standard
4210-3077CNS
Cush-N-Stop® (CUSH) Arm
n Non-handed
n Parallelarmfeaturessolidforged
steel main arm and forearm with
built-instopinsoffitshoe
n Doubleslabarm/pinion
attachment for maximum
strength

10 LCN Door Control Catalog
phone: 877-671-7011 n fax: 800-248-1460 n www.allegion.com/us n 009426 rev. 2/16
4210
Series
Ordering Information
Closer will be shipped with:
- Standard cylinder
- Security cover
- Standard security arm
- TORX machine screw pack,
unless options listed below are selected.
Closer options
Cylinder
Delayed Action (DEL)
AdvancedVariableBackcheck(AVB)
Finishes
CustomPowderCoat(RAL)___________
PlatedFinish,US___________(coveronly)
SRIprimer(excludesDPS)(usewithpowdercoat
finishes only)
Arms
Cush-N-Stop arm (CUSH)
HCush-N-Stop arm (HCUSH)
Select cylinder size
4211(adjustablefromsize1to5)
4216(DELorHCUSHarmnotavailable)
Select hand
RH
LH
Specify finish
StandardPowderCoat__________
Aluminum, Dark Bronze, Statuary, Light Bronze, Black, Brass
How-to-order 4210 Series
Reduced opening force 4210 Series closers
CAUTION ! Anymanualdoorcloser,includingthosecertifiedbyBHMAtoconformtoANSIStandardA156.4,thatisselected,installedandadjustedbased
onADAorotherreducedopeningforcerequirementsmaynotprovidesufficientpowertoreliablycloseandlatchadoor.
RefertoPOWEROPERATORSsectionforinformationon
systems that meet reduced opening force requirements
without affecting closing power.
* Maximum opening force.
Indicates recommended range of door width for closer size. *AdjustableSize1thru5
*4211
4216
*4211
4216
Minimum door width Minimum door width
Exterior (and Vestibule) door width
28˝
711mm
30˝
762mm
36˝
914mm
42˝
1067mm
48˝
1219mm
Interior door width
28˝
711mm
34˝
864mm
38˝
965mm
48˝
1219mm
54˝
1372mm
60˝
1524mm
size3 size4 size5 size6 size2 size3 size4 size5 size6
Screw pack
TB* and TORX Machine Screw (TBTRX)
*Specifydoorthicknessifotherthan1-3/4˝.
Installation accessories
PLATE,4210-18
PLATE,4210-18CUSH
Special template
ST-________
NOTE:InstallationofthiscloserrequiresT-27andT-25driver
bitsforTORXmachinescrewswithasecuritypin.
Soldseparately.
Table of sizes
n Selectcloserbasedonwidthofdoor
n Thespringpowerofnon-sized4211cylinderisadjustablefromsize1throughsize5andisshippedsettosize3
n Sized4210Seriescylinderavailableinsize6
n Delayedactionnotavailablewith4216cylinder
DOOR WIDTH 36˝ 42˝ 48˝
8.5*lbs. 4211 4211 4211
5.0*lbs. 4211 4211 4211
* Maximum opening force.

11
LCN Door Control Catalog
phone: 877-671-7011 n fax: 800-248-1460 n www.allegion.com/us n 009426 rev. 2/16
4210T
Series
The 4210T SMOOTHEE® Series is a heavy duty, high security track closer with special
components to minimize tampering and vandalism. Forged steel arms and heavy gauge
metal security covers are designed for correctional, vandal prone, institutional and other
high traffic interior applications. The closer has passed 10 million cycles in independent
testing. A choice of finishes and cylinder functions meet correctional and vandal resistant
requirements.
AVAILABLE
NOT AVAILABLE
Certifications Grade 1 - ANSI A156.4, UL 10C, ADA*, 100 Hour
Salt Spray, Meets BAA - Buy American Act
*4211meetingADArequirements
Body Construction n Cast Iron Body
n Full Complement Bearing
n 1-1/2˝DiameterPiston
n 11/16˝DiameterDoubleHeatTreated
PinionJournal
Fluid All Weather Fluid
Handing Handed
Size Interior,Sized1,3or4
Warranty 15 years
Cover Metal Security
Fasteners TORX machine screw pack
Mounting StopFace(PushSide)
Arms Security arm, security track with roller
Finishes/Colors/
Powder Coat
n Aluminum (689)
n Statuary Bronze (690)
n Light Bronze (691)
n Black(693)
n Dark Bronze (695)
n Brass (696)
n Custom colors optional
n Optional SRI primer - powder coat only
n Optional plated finishes
Customizedinstallationtemplatesorproductsmaybeavailabletosolveunusualapplications.
ContactLCNProductSupportforassistance.
Features
Special
Templates
PLASTIC
METAL
COVER CYLINDER
110
EDA
STANDARD (SINGLE)
CUSH/HCUSH
*ARM FUNCTION
FINISH
HANDED
NON-SIZED
SIZED
ACCESSIBILITY
DELAYED ACTION
HINGE (PULL) SIDE
PARALLEL ARM (PUSH)
STOP FACE
CONCEALED (FRAME)
MOUNTING
POWDER COAT
PLATED
AVB**
DPS SWITCH
Closeravailablewithlessthan5.0lbs.openingforceon36˝door.
* Maximumopeningwithstandardtemplate.
** AdvancedVariableBackcheck.

12 LCN Door Control Catalog
phone: 877-671-7011 n fax: 800-248-1460 n www.allegion.com/us n 009426 rev. 2/16
4210T
Series
Stop Face (Push Side)
Mounting
Mounting details
3-1/2"
89 mm
2-1/4"
57 mm
1-3/8"
35 mm 2-15/16"
75 mm 12-1/4"
311 mm
5-1/4"
133 mm
24-1/2"
622 mm
3"
76 mm
7/8"
22 mm
4210T-18
Butt Hinges Shouldnotexceed5˝(127mm)inwidth
Auxiliary Stop Recommended where the door cannot swing 110°
Clearance 2-1/4˝(57mm)fromdoor
Top Rail n Lessthan5-1/4˝(133mm)measuredfromstop,requiresPLATE4210T-18
n Platerequires2-1/4˝(57mm)minimummeasuredfromthestop
Stop Width Minimum1-3/8˝(35mm)
Advanced Variable
Backcheck
n Cylinderstartsbackcheckatapproximately45°insteadofthenormal75°
n Addsuffix“AVB”toselectedcylinder(eg.4213TAVB)
Maximum opening Templating allows 110°
Options AdvancedVariableBackcheckcylinder

13
LCN Door Control Catalog
phone: 877-671-7011 n fax: 800-248-1460 n www.allegion.com/us n 009426 rev. 2/16
4210T
Series
Accessories
4211(3)(4)T-3071
Cylinder Assembly
n Handed
n Cast iron
n For various applications see
“TableofSizes”on4210TSeries
page 14
n Standard
4210T-3077T
Standard Security Arm
n Handed
n Solid forged steel, large cross section arm
n Special threaded attachment of track roller
for extra security
n Doubleslabarm/pinionattachmentfor
maximum strength
n Canonlybeusedwithhighsecuritytrack
roller,4210T-3034
4210T-18
Plate
n Required where top rail, when
measured from the stop, is less
than5-1/4˝(133mm)
n Requires2-1/4˝(57mm)
minimum top rail measured
from the stop
4210T-3038
Security Track
n Non-handed
n Designed to eject foreign
objectsplacedintrackduring
either opening or closing
motion
n Requires track roller,
4210T-3034
4210T-3034
Security Track Roller
n Low friction track roller threads
into4210T-3077armforextra
strength and security
n Cannotberemovedwithout
disconnecting arm from closer
Cylinder Arms
Installation Accessories
Track
Cover
4210T-72MC
Metal Security Cover
n Handed
n Four point TORX mounting for
extra security
n Closer adjustments not
accessiblewithcoverinstalled

14 LCN Door Control Catalog
phone: 877-671-7011 n fax: 800-248-1460 n www.allegion.com/us n 009426 rev. 2/16
4210T
Series
Ordering Information
Closer will be shipped with:
- Standard cylinder
- Security cover
- Standard security arm
- Security track roller
- Security track
- TORX machine screw pack,
unless options listed below are selected.
Closer options
Cylinder
AdvancedVariableBackcheck(AVB)
Finishes
CustomPowderCoat(RAL)___________
PlatedFinish,US___________
SRIprimer(excludesDPS)(usewithpowdercoat
finishes only)
Screw pack
TB* and TORX Machine Screw (TBTRX)
*Specifydoorthicknessifotherthan1-3/4˝.
Select cylinder size
4211T (ADA)
4213T
4214T
Select hand
RH
LH
Specify finish
StandardPowderCoat__________
Aluminum, Dark Bronze, Statuary, Light Bronze, Black, Brass
How-to-order 4210T Series
Reduced opening force 4210T Series closers
CAUTION ! Anymanualdoorcloser,includingthosecertifiedbyBHMAtoconformtoANSIStandardA156.4,thatisselected,installedandadjustedbased
onADAorotherreducedopeningforcerequirementsmaynotprovidesufficientpowertoreliablycloseandlatchadoor.
RefertoPOWEROPERATORSsectionforinformationon
systems that meet reduced opening force requirements
without affecting closing power.
* Maximum opening force.
Installation accessories
PLATE,4210T-18
Special template
ST-________
NOTE:InstallationofthiscloserrequiresT-27andT-25
driverbitsforTORXmachinescrewswithasecuritypin.
Soldseparately.
Indicates recommended range of door width for closer size. Note:Minimumdoorwidth30˝(762mm).
4211T
4213T
4214T
Minimum door width
Interior door width
30˝
762mm
34˝
864mm
38˝
965mm
48˝
1219mm
size1 size3 size4
Table of sizes
n Selectcloserbasedonwidthofdoor
n 4210Tseriescylindersavailableinsize1,3or4
n Closingpowerofall4210TSeriesclosersmaybeincreased15%
DOOR WIDTH 36˝ 42˝ 48˝
8.5*lbs. 4213T 4213T 4213T
5.0*lbs. 4211T 4211T 4211T
* Maximum opening force.

15
LCN Door Control Catalog
phone: 877-671-7011 n fax: 800-248-1460 n www.allegion.com/us n 009426 rev. 2/16
4510
Series
The 4510 SMOOTHEE® Series is a heavy duty, high security closer with special components
to minimize tampering and vandalism. Forged steel double lever arms and heavy gauge
metal security covers are designed for correctional, vandal prone, institutional and
other high traffic applications. The closer has passed 10 million cycles in independent
testing. A choice of finishes and cylinder functions meet correctional and vandal resistant
requirements.
AVAILABLE
NOT AVAILABLE
Certifications Grade 1 - ANSI A156.4, UL 10C, ADA*, 100 Hour
Salt Spray, Meets BAA - Buy American Act
*4511cylindermeetsADArequirements
Body Construction n Cast Iron Body
n Full Complement Bearing
n 1-1/2˝DiameterPiston
n 11/16˝DiameterDoubleHeatTreated
PinionJournal
Fluid All Weather Fluid
Handing Handed
Size ExteriorandVestibule,AdjustableSize1-5
Interior,AdjustableSize1-5
Warranty 15 years
Cover Metal Security
Fasteners TORX machine screw pack
Mounting Hinge(PullSide)
Arms Extra heavy duty, non-hold open
Finishes/Colors/
Powder Coat
n Aluminum (689)
n Statuary Bronze (690)
n Light Bronze (691)
n Black(693)
n Dark Bronze (695)
n Brass (696)
n Custom colors optional
n Optional SRI primer - powder coat only
n Optional plated finishes
Customizedinstallationtemplatesorproductsmaybeavailabletosolveunusualapplications.
ContactLCNProductSupportforassistance.
Features
Special
Templates
Closeravailablewithlessthan5.0lbs.openingforceon36˝door.
* Maximumopeningwithstandardtemplate.
** AdvancedVariableBackcheck.
PLASTIC
METAL
COVER CYLINDER
140
EDA
STANDARD (SINGLE)
CUSH/HCUSH
*ARM FUNCTION
FINISH
HANDED
NON-SIZED
SIZED
ACCESSIBILITY
DELAYED ACTION
HINGE (PULL) SIDE
PARALLEL ARM (PUSH)
STOP FACE
CONCEALED (FRAME)
MOUNTING
POWDER COAT
PLATED
AVB**
DPS SWITCH

16 LCN Door Control Catalog
phone: 877-671-7011 n fax: 800-248-1460 n www.allegion.com/us n 009426 rev. 2/16
4510
Series
Hinge (Pull Side)
Mounting
Mounting details
2-1/4"
57 mm
3-1/2"
89 mm
1"
25 mm 1-1/8"
29 mm
3-5/8"
92 mm
2-11/16"
68 mm
11-13/16"
300 mm
12-1/4"
311 mm
4510-18
A
B
Butt Hinges Shouldnotexceed5˝(127mm)inwidth
Auxiliary Stop Recommended where a door cannot swing 140°
Reveal Shouldnotexceed1/8˝(3mm)
Top Rail n Lessthan3-1/2˝(89mm),requiresPLATE4510-18
n Platerequires2˝(51mm)minimumtoprail
Head Frame Lessthan1˝(25mm),consultfactory
Clearance 2-1/4˝(57mm)behinddoorrequiredforinstallation
Arm Clearance Abovedoor1-1/8˝(29mm)required
Delay Action n Addsuffix“DEL”toselectedcylinder.
n Notavailablewith4516cylinder.
n Delaysclosingfrommaximumopeningtoapproximately70°.
n Delaytimeadjustableuptoapproximately1minute.
Advanced Variable
Backcheck
n Cylinderstartsbackcheckatapproximately45°insteadofthenormal75°
n Addsuffix“AVB”toselectedcylinder
Maximum opening Canbetemplatedfor
140°: A=4-3/16˝(106mm)
B=9-7/8˝(251mm)
Options n DelayedactionorAdvancedVariableBackcheckcylinder

17
LCN Door Control Catalog
phone: 877-671-7011 n fax: 800-248-1460 n www.allegion.com/us n 009426 rev. 2/16
4510
Series
Accessories
4511(6)-3071
Cylinder Assembly
n Handed
n Cast iron
n Standard
4510-3077EDA
Extra Duty Arm
n Non-handed
n Solid forged steel main arm and
forearmforpotentiallyabusive
installations
n Doubleslabarm/pinion
attachment for maximum
strength
n Standard
4510-18
Plate
n Required where top rail is less
than3-1/2˝(89mm)
n Requiresminimum2˝(51mm)
top rail
Cylinder Arms
Installation Accessories
Cover
4510-72MC
Metal Security Cover
n Handed
n Four point mounting for extra
security
n Closer adjustments not
accessiblewithcoverinstalled
n Standard

18 LCN Door Control Catalog
phone: 877-671-7011 n fax: 800-248-1460 n www.allegion.com/us n 009426 rev. 2/16
4510
Series
Ordering Information
Closer will be shipped with:
- Standard cylinder
- Security cover
- Extra duty arm
- TORX machine screw pack,
unless options listed below are selected.
Closer options
Cylinder
Delayed Action (DEL)
AdvancedVariableBackcheck(AVB)
Finishes
CustomPowderCoat(RAL)___________
PlatedFinish,US___________
SRI primer (use with powder coat finishes only)
Screw pack
TB* and TORX Machine Screw (TBTRX)
*Specifydoorthicknessifotherthan1-3/4˝.
Select cylinder size
4511(adjustablefromsize1to5)
4516(DELnotavailable)
Select hand
RH
LH
Specify finish
StandardPowderCoat__________
Aluminum, Dark Bronze, Statuary, Light Bronze, Black, Brass
How-to-order 4510 Series
Reduced opening force 4510 Series closers
CAUTION ! Anymanualdoorcloser,includingthosecertifiedbyBHMAtoconformtoANSIStandardA156.4,thatisselected,installedandadjustedbased
onADAorotherreducedopeningforcerequirementsmaynotprovidesufficientpowertoreliablycloseandlatchadoor.
RefertoPOWEROPERATORSsectionforinformationon
systems that meet reduced opening force requirements
without affecting closing power.
* Maximum opening force.
Installation accessories
PLATE,4510-18
Special template
ST-________
NOTE:InstallationofthiscloserrequiresT-27andT-25
driverbitsforTORXmachinescrewswithasecuritypin.
Soldseparately.
Indicates recommended range of door width for closer size. *AdjustableSize1thru5
*4511
4516
*4511
4516
Minimum door width Minimum door width
Exterior (and Vestibule) door width
24˝
610mm
30˝
762mm
36˝
914mm
42˝
1067mm
48˝
1219mm
Interior door width
24˝
610mm
34˝
864mm
38˝
965mm
48˝
1219mm
54˝
1372mm
60˝
1524mm
size3 size4 size5 size6 size2 size3 size4 size5 size6
Table of sizes
n Selectcloserbasedonwidthofdoor
n Thespringpowerofnon-sized4511cylinderisadjustablefromsize1throughsize5andisshippedsettosize3
n Sized4510Seriescylinderavailableinsize6
n Delayedactionnotavailablewith4516cylinder
DOOR WIDTH 36˝ 42˝ 48˝
8.5*lbs. 4511 4511 4511
5.0*lbs. 4511 4511 4511
* Maximum opening force.

19
LCN Door Control Catalog
phone: 877-671-7011 n fax: 800-248-1460 n www.allegion.com/us n 009426 rev. 2/16
4510T
Series
The 4510T SMOOTHEE® Series is a heavy duty, high security track closer with special
components to minimize tampering and vandalism. Forged steel single lever arm and
heavy gauge metal security cover are designed for correctional, vandal prone, institutional
and other high traffic interior applications. The closer has passed 10 million cycles in
independent testing. A choice of finishes and cylinder functions meet correctional and
vandal resistant requirements.
AVAILABLE
NOT AVAILABLE
Certifications Grade 1 - ANSI A156.4, UL 10C, ADA*, 100 Hour
Salt Spray, Meets BAA - Buy American Act
*4511TcylindermeetsADArequirements
Body Construction n Cast Iron Body
n Full Complement Bearing
n 1-1/2˝DiameterPiston
n 11/16˝DiameterDoubleHeatTreated
PinionJournal
Fluid All Weather Fluid
Handing Handed
Size Sized,1,3or4
Warranty 15 years
Cover Metal Security
Fasteners TORX machine screw pack
Mounting Hinge(PullSide)
Arms Standard security arm, security track
(non hold-open) and track roller
Finishes/Colors/
Powder Coat
n Aluminum (689)
n Statuary Bronze (690)
n Light Bronze (691)
n Black(693)
n Dark Bronze (695)
n Brass (696)
n Custom colors optional
n Optional SRI primer - powder coat only
n Optional plated finishes
Customizedinstallationtemplatesorproductsmaybeavailabletosolveunusualapplications.
ContactLCNProductSupportforassistance.
Features
Special
Templates
Closeravailablewithlessthan5.0lbs.openingforceon36˝door.
* Maximumopeningwithstandardtemplate.
** AdvancedVariableBackcheck.
PLASTIC
METAL
COVER CYLINDER
180
EDA
STANDARD (SINGLE)
CUSH/HCUSH
*ARM FUNCTION
FINISH
HANDED
NON-SIZED
SIZED
ACCESSIBILITY
DELAYED ACTION
HINGE (PULL) SIDE
PARALLEL ARM (PUSH)
STOP FACE
CONCEALED (FRAME)
MOUNTING
POWDER COAT
PLATED
AVB**
DPS SWITCH

20 LCN Door Control Catalog
phone: 877-671-7011 n fax: 800-248-1460 n www.allegion.com/us n 009426 rev. 2/16
4510T
Series
Hinge (Pull Side)
Mounting
Mounting details
3-11/16"
94 mm 1-5/8"
41 mm
2-1/8"
54 mm
24-1/2"
622 mm
12-1/4"
311 mm
3-15/16"
100 mm
1"
25 mm
1-3/8"
35 mm
3-1/2"
89 mm
2-1/4"
57 mm
4510T-18
Butt Hinges Shouldnotexceed5˝(127mm)inwidth
Auxiliary Stop Recommended where a door cannot swing 180°
Reveal Shouldnotexceed1/8˝(3mm)
Top Rail n Lessthan3-3/4˝(95mm),requiresPLATE4510T-18
n Platerequires2˝(51mm)minimumtoprail
Head Frame Minimum2-1/8˝(54mm)
Clearance 2-1/4˝(57mm)behinddoorrequiredforinstallation
Advanced Variable
Backcheck
n Cylinderstartsbackcheckatapproximately45°insteadofthenormal75°
n Addsuffix“AVB”toselectedcylinder(eg.4513TAVB)
Maximum opening n Templating allows 180°
n Consultfactoryifdoorwillbeheldopenat180°.
Options AdvancedVariableBackcheckcylinder

21
LCN Door Control Catalog
phone: 877-671-7011 n fax: 800-248-1460 n www.allegion.com/us n 009426 rev. 2/16
4510T
Series
Accessories
4511T(3)(4)
Cylinder Assembly
n Handed
n Cast iron
n Standard
4510T-3077T
Standard Security Arm
n Handed
n Solid forged steel, large cross section arm
n Special threaded attachment of track roller
forpotentiallyabusiveinstallations
n Doubleslabarm/pinionattachmentfor
maximum strength
n Canonlybeusedwithhighsecuritytrack
roller,4510T-3034
4510T-18
Plate
n Required where top rail is less
than33/4˝(95mm)
n Requiresminimum2˝(51mm)
top rail
4510T-3038
Security Track
n Non-handed
n Designed to eject foreign
objectsplacedintrackduring
either opening or closing
motion
n Requires track roller,
4510T-3034
4510T-3034
Security Track Roller
n Low friction track roller threads
into4510T-3077Tarmforextra
strength and security
n Cannotberemovedwithout
disconnecting arm from closer
Cylinder Arms
Installation Accessories
Track
Cover
4510T-72MC
Metal Security Cover
n Handed
n Four point TORX mounting for
extra security
n Closer adjustments not
accessiblewithcoverinstalled

22 LCN Door Control Catalog
phone: 877-671-7011 n fax: 800-248-1460 n www.allegion.com/us n 009426 rev. 2/16
4510T
Series
Ordering Information
Closer will be shipped with:
- Standard cylinder
- Security cover
- Standard security arm
- Security track roller
- Security track
- TORX machine screw pack,
unless options listed below are selected.
Closer options
Cylinder
AdvancedVariableBackcheck(AVB)
Finishes
CustomPowderCoat(RAL)___________
PlatedFinish,US___________
SRI primer (use with powder coat finishes only)
Screw pack
TB* and TORX Machine Screw (TBTRX)
*Specifydoorthicknessifotherthan1-3/4˝.
Table of sizes
n Selectcloserbasedonwidthofdoor
n Sized4510TSeriescylindersavailableinsize1,3or4
n Closingpowerofall4510TSeriesclosersmaybeincreased15%
Select cylinder size
4511T (ADA)
4513T
4514T
Select hand
RH
LH
Specify finish
StandardPowderCoat__________
Aluminum, Dark Bronze, Statuary, Light Bronze, Black, Brass
How-to-order 4510T Series
Reduced opening force 4510T Series closers
CAUTION ! Anymanualdoorcloser,includingthosecertifiedbyBHMAtoconformtoANSIStandardA156.4,thatisselected,installedandadjustedbased
onADAorotherreducedopeningforcerequirementsmaynotprovidesufficientpowertoreliablycloseandlatchadoor.
RefertoPOWEROPERATORSsectionforinformationon
systems that meet reduced opening force requirements
without affecting closing power.
* Maximum opening force.
Installation accessories
PLATE,4510T-18
Special template
ST-________
NOTE:InstallationofthiscloserrequiresT-27andT-25
driverbitsforTORXmachinescrewswithasecuritypin.Sold
separately.
Indicates recommended range of door width for closer size. Note:Minimumdoorwidth30˝(762mm).
4511T
4513T
4514T
Minimum door width
Interior door width
26˝
660mm
34˝
864mm
38˝
965mm
48˝
1219mm
size1 size3 size4
DOOR WIDTH 36˝ 42˝ 48˝
8.5*lbs. 4513T 4513T 4513T
5.0*lbs. 4511T 4511T 4511T
* Maximum opening force.

1
LCN Door Control Catalog
phone: 877-671-7011 n fax: 800-248-1460 n www.allegion.com/us n 009426 rev. 2/16
Product selection guide
LCN automatic operators are the proven standard in schools and health care facilities for over 20
years. They are easily retrofitted into existing doors and frames, as well as new construction. LCN low
energy electrohydraulic and pneumatic automatic operators feature a heavy duty closer with a slow
opening function. LCN’s electromechanical automatic operators utilizes a motor gearbox and control
box to perform the opening and closing function.
Automatic
Operators
2610 (PNEUMATIC)
2810 (ELECTROMECHANICAL)
2850 (ELECTROMECHANICAL)
2860 (ELECTROMECHANICAL)
SURFACE MOUNTED
PULL SIDE
4630 (ELECTROHYDRAULIC)
4810 (PNEUMATIC)
9130 (ELECTROMECHANICAL)
9530 (ELECTROMECHANICAL)
9550 (ELECTROMECHANICAL)
9560 (ELECTROMECHANICAL)
SURFACE MOUNTED
PUSH SIDE
4640 (ELECTROHYDRAULIC)
4820 (PNEUMATIC)
4840 (PNEUMATIC)
9140 (ELECTROMECHANICAL)
9150 (ELECTROMECHANICAL)
9540 (ELECTROMECHANICAL)
9550 (ELECTROMECHANICAL)
9560 (ELECTROMECHANICAL)
LOW ENERGY
POWERED
SYSTEMS
CONCEALED
MOUNT
SURFACE MOUNTED
DOUBLE EGRESS
9550 (ELECTROMECHANICAL)
9560 (ELECTROMECHANICAL)

2LCN Door Control Catalog
phone: 877-671-7011 n fax: 800-248-1460 n www.allegion.com/us n 009426 rev. 2/16
Automatic
Operators
Product comparison
Electrohydraulic/Pneumatic Product Comparison
This chart shows a basic features comparison of the LCN electrohydraulic and pneumatic power operator systems
designed to provide easy access without sacrificing closing power. Refer to the specific closer chapter for complete details.
Product comparison
Electromechanical Product Comparison
This chart shows a basic features comparison of the LCN electromechanical power operator systems designed to provide easy access
without sacrificing closing power. Refer to the specific operator chapter for complete details.
TOP JAMB (PULL SIDE)
TOP JAMB (PUSH SIDE)
MOUNTING
PARALLEL ARM
OPERATOR
SERIES
2610
POWDER COAT
PLATED
PLASTIC
METAL
NON-HANDED
NON-SIZED
ACCESSIBILITY*
COVER CYLINDERFINISH
POWER OPERATOR
CONCEALED
4630
4640
4810
4820
4840
HOLD-OPEN
STANDARD (SINGLE)
REGULAR (DOUBLE)
EXTRA DUTY ARM
*ARM FUNCTION
CUSH-N-STOP
SPRING CUSH
4630CS
4640CS
DPS SWITCH
Meets ADA requirements (power mode).
* See individual series for maximum manual opening.
** Switch provided for continuous Hold Open (4630 & 4640 only).
AVAILABLE
NOT AVAILABLE
STANDARD ANODIZED
FINISH
HANDING
HANDED****
NON-HANDED
COVER
METAL
ARM FUNCTION
STANDARD (SINGLE LEVER)
REGULAR (DOUBLE LEVER)
OFFSET PIVOT ARM
CENTER PIVOT ARM
DOUBLE EGRESS (PUSH/PULL)
OPERATOR
SERIES
MOUNTING
SURFACE MOUNT SINGLE DOOR
SURFACE MOUNT SIMULTANEOUS PAIR
SURFACE MOUNT INDEPENDENT PAIR
CONCEALED SINGLE DOOR
CONCEALED INDEPENDENT PAIR
CONCEALED SIMULTANEOUS PAIR
2810
2850
2860
9130
9140
9150
9530
9540
9550
9560
AVAILABLE
NOT AVAILABLE
*** All electromechanical operators open to 90º.
**** Handed for 2850 and 2860, double egress only.

3
LCN Door Control Catalog
phone: 877-671-7011 n fax: 800-248-1460 n www.allegion.com/us n 009426 rev. 2/16
Automatic
Operators
WHAT IS THE ADA?
The ADA is a civil rights law, not a building code. This act is designed to
provide protection for people with disabilities. The law is divided into four
major titles that prohibit discrimination against the disabled in Employment,
Title I, Public Services and Transportation Title II, Public Accommodations
Title III, and Telecommunications Title IV. Title III concerns doors and door
controls.
WHAT IS THE INTENT OF ADA, TITLE III?
Essentially, owners of certain types of buildings must remove barriers and
provide people with disabilities with access equal to, or similar to, that
available to the general public. The deadline for compliance was January
26, 1992.
The final rules implementing Title III were published in the Federal
Register of July 26, 1991. To obtain a copy or ask questions, contact the U.S.
DEPARTMENT OF JUSTICE. Technical information can be obtained from The
U.S. ARCHITECTURAL AND TRANSPORTATION BARRIERS COMPLIANCE
BOARD.
HOW DOES ADA AFFECT DOORS?
The ADA defines an “accessible” opening which means, among other
things, providing a door with a minimum 32˝ (813 mm) clear opening, easily
manipulated handles, a maximum opening force, a minimum closing time,
and capable of opening to at least 90°.
ADA criteria, based on OPENING FORCE, are similar to American National
Standards Institute (ANSI) Standard A117.1. This is different from ANSI
Standard A156.4, which is based on CLOSING FORCE.
WHAT ARE THE OPENING FORCE LIMITS?
DOOR TYPE OPENING FORCE
Fire Rated Note 1
Interior Non-Fire-Rated 5.0 lbs. (22.2 N)
Exterior Non-Fire-Rated “Reserved”
NOTE 1: All fire rated doors should have the minimum opening force allowable by the
appropriate administrative authority, typically the local Fire Marshal. Closing and
latching a fire door takes precedence over ADA opening force limits.
HOW IS THE DOOR MEASURED?
Two ADA criteria affect the door closer selection, adjustments, opening
force, and time to close. Since the law does not clearly define the method
of measurement, this is LCN’s recommendation.
1. On the push side of the door, locate a point at the center line of the
push plate/lock trim or 34˝ (864 mm), from the hinge edge of the door,
whichever is greater.
2. Mark the floor at a point where the push side of the doors’ latch stile is
at 70°. Mark a second point where the push side is 3˝ (76 mm) from the
latch.
3. Open the door so the latch is clear of the strike and the door is slightly
off the stop.
4. Using a force gauge on the mark determined in Step #1, push the door
open to the 70° mark established in Step #2. Observe the force readings.
(Accuracy of the readings varies with the gauge quality.)
5. Adjust the closer spring power to meet the maximum opening force.
6. Hold the door at the 70° mark. Release the door and time the closing
sweep between the two marks.
7. Adjust the closer main speed regulation valve to obtain a minimum 3
second “time to close”.
FINISHES
n
Available in six standard or a wide selection of optional custom
powder coat finishes to blend with door and frame.
n
LCN’s powder coat finishes surpass 100 hours of salt spray which is
over four times the ANSI standard for corrosion resistance.
n
For installations where a higher level of corrosive resistance is
required, LCN offers an optional special rust inhibiting (SRI) pre-
treatment. Closers that combine the exclusive LCN powder coat finish
and the SRI pre-treatment exceed the ANSI standard for corrosion
resistance even further.
n Plated finishes are available as an option to accent door and frame.
NOTE: Delayed action closers are not
necessary to meet the ADA 3 second
“time to close” requirement but do
offer additional time for people to
pass through the door.
CAUTION ! Any manual door closer,
including those certified by BHMA to
conform to ANSI Standard 156.4, that
is selected, installed, and adjusted
based on ADA requirements may not
provide sufficient power to reliably
close and latch a door. Auto Equalizer
systems offer an alternate solution.
30"
(OR)
C/L OF TRIM
WHICHEVER
IS GREATER

4LCN Door Control Catalog
phone: 877-671-7011 n fax: 800-248-1460 n www.allegion.com/us n 009426 rev. 2/16
WHAT ARE THE CHOICES FOR ADA COMPLIANT
DOOR CONTROLS?
LCN offers both surface and concealed mountings for powered systems or
manual closers.
POWERED SYSTEMS
LCN Power Operator Systems offer easy access for the disabled and resolve
the problem of obtaining reduced opening force while providing adequate
closing force.
POWERED SYSTEMS
Manual closers rely on reduced spring power to meet opening force
requirements. Four principle factors affect the performance of manual
closers:
1. DOOR WIDTH:
A wider door provides more leverage for the user, thus reducing the
opening force required.
2. SPRING POWER:
Adjusting spring power to achieve a lower opening force also reduces the
closing force available.
3. ARM SELECTION:
The superior mechanical advantage of a regular arm system offers
the user significantly lower average opening forces through the 70°
measurement range compared to a standard arm (track type) closer.
Regular arms also provide superior latching power.
REGULAR ARM STANDARD ARM
REGULAR ARM STANDARD ARM
(TRACK TYPE)
ADA MEASUREMENT RANGE
EXT
MAX.
INT.
MAX.
OPENING FORCE (lbs.)
TYPICAL ARM POWER CURVE
• "RESERVED", TYPICALLY 8.6 POUNDS
DOOR OPENING ANGLE
10
9
8
7
6
5
4
3
2
1
0
0 10 20 30 40 50 60 70 80 90 100 110
4. ADDITIONAL FORCES
Improperly hung doors, stiff latches, HVAC or environmental pressures,
and other forces acting on the door require increasing the closer spring
power to reliably close and latch a door which produces a corresponding
increase in opening force.
INFORMATION SOURCES
LCN CLOSERS PHONE 877-671-7011
121 W. RAILROAD AVE. FAX 800-248-1460
P.O. BOX 100 www.securitiestechnologies.ingersollrand.com
PRINCETON, IL, USA 61356-0100
U.S. DEPARTMENT OF JUSTICE
The Office of the Americans with Disabilities Act, Civil Rights Div.,
P.O. Box 66118, Washington, D.C. 20035-6118
(202) 514-0301
THE U.S. ARCHITECTURAL AND TRANSPORTATION
BARRIERS COMPLIANCE BOARD
1111 18th Street N.W., Suite 501, Washington, D.C. 20036
(800) 872-2253
AMERICAN NATIONAL STANDARDS INSTITUTE
11 West 42nd Street, New York, N.Y. 10036
(212) 642-4900
- ANSI A117.1 Providing Accessibility and Usability for Physically
Handicapped People
- ANSI A156.4 for Door Controls - Closers
- ANSI A156.19 Power Assist and Low Energy Power Operated Doors
ELECTROHYDRAULIC & PNEUMATIC FASTENERS
Standard WOOD and MACHINE SCREW (WMS) pack contains phillips head
wood and machine screws to install the closer. Thru Bolts (TB) and/or
TORX® machine screws are available for all closers, except the 2610 series.
LCN thru bolts can be installed on 1-3/4˝ thick doors with either the 1/4-20
machine screws or optional TORX security screws supplied with the closer.
Optional sizes are available for 1-5/8˝ or 1-3/8˝ door thicknesses, but must
be specified when ordering.
Drill 25/64˝ for
steel doors
or
Drill 3/8˝
for wood doors
NOTE 1: Phillips head, metric machine screws are available, please specify.
ELECTROMECHANICAL FASTENERS
Typically installed 1/4 - 20 machine screw for aluminum/steel frames.
Wood screws included for wood door mounting. Consult factory for
additional information.
Automatic
Operators

5
LCN Door Control Catalog
phone: 877-671-7011 n fax: 800-248-1460 n www.allegion.com/us n 009426 rev. 2/16
APPLICATIONS
n
Electrohydraulic and pneumatic systems are used primarily for manual
opening with available push button automatic opening.
n
Electromechanical systems are used primarily for automatic openings.
n
For dedicated handicap access.
n Stand alone or integrated into larger multi-door systems.
n Surface and concealed mountings.
n
Installation accessories available for unusual conditions.
n
CAUTION ! For exterior doors exceeding 3´0˝ wide by 7´0˝ tall,
interior doors exceeding 4´0˝ wide by 8´0˝ tall, or any door exceeding
225 pounds, consult factory before specifying or installing LCN
electrohydraulic or pneumatic automatic operators.
n
CAUTION ! For exterior doors exceeding 4´0˝ wide by 7´0˝ tall,
interior doors exceeding 4´0˝ wide by 8´0˝ tall, or any door exceeding
200 pounds, consult factory before specifying or installing LCN
Electromechanical automatic operators.
A156.19 SYSTEM DESIGN PARAMETERS
n Cycle test standard of 300,000 full load operating cycles.
n Power opening plus full door control.
n Open to backcheck no faster than 3 seconds.
n Opening time to fully open is no faster than 4 seconds.
n Remain fully open for at least 5 seconds.
n Closing time from 90° to 10° is no faster than 3 seconds.
n Less than 15 lb to stop doors motion.
n Kinetic energy must not exceed 1.25 lb-ft.
n
In event of failure, less than 15 lb to release latch, less than 30 lb to put
door in motion, less than 15 lb to fully open door system.
COMMON SYSTEM FEATURES
n Power opening plus full door control.
n No guide rails or safety devices required due to low energy design.
n Adjustable opening force.
n Adjustable closing power.
n
4630 and 4810 operators meet ADA reduced manual opening force
requirements.
n
Electrohydraulic and pneumatic systems feature adjustable
backcheck that slows opening swing at about 70°.
n
Electromechanical systems feature electronic backcheck that slows
opening swing at about 70°.
n
Systems allow for separate adjustment of general closing and latch
speed.
n
Electrohydraulic and pneumatic systems are available in six standard
finishes or a wide selection of optional custom powder coat finishes
to blend with door and frame.
n
Electromechanical systems are available in two standard anodized
finishes.
n UL & NEC compliant.
n Compatible with most security and safety systems.
n
Capable of full integration with high security keypads and card
readers.
n
Wiring allows for sequential operation for vestibule applications.
Electromechanical systems require additional components.
n
Modular design simplifies installation and maintenance.
WARRANTY
n
2 year limited warranty. See General Information Section for complete
details.
MAINTENANCE
n
Operators mounted according to the LCN installation instructions
require no periodic maintenance or adjustments.
n Periodic visual inspections are recommended.
Automatic
Operators
Low Energy Operators
The basic design concept for all LCN power operator systems is door control of both the opening and closing motion of the door. Our
designs allow the system to be easily retrofitted into existing doors and frames as well as new construction. A basic LCN electrohydraulic/
pneumatic system consists of a power operator based on a heavy duty LCN 4040 Series door closer and peripheral actuators. Our
electromechanical automatic operators utilize a motor gearbox and a control box to perform the opening and closing function. LCN
offers a choice of either electrohydraulic, electromechanical or pneumatic low energy automatic operators.

6LCN Door Control Catalog
phone: 877-671-7011 n fax: 800-248-1460 n www.allegion.com/us n 009426 rev. 2/16
Notes
__________________________________________________________________________________________________________________________________________________________________________________
__________________________________________________________________________________________________________________________________________________________________________________
__________________________________________________________________________________________________________________________________________________________________________________
__________________________________________________________________________________________________________________________________________________________________________________
__________________________________________________________________________________________________________________________________________________________________________________
__________________________________________________________________________________________________________________________________________________________________________________
__________________________________________________________________________________________________________________________________________________________________________________
__________________________________________________________________________________________________________________________________________________________________________________
__________________________________________________________________________________________________________________________________________________________________________________
__________________________________________________________________________________________________________________________________________________________________________________
__________________________________________________________________________________________________________________________________________________________________________________
__________________________________________________________________________________________________________________________________________________________________________________
__________________________________________________________________________________________________________________________________________________________________________________
__________________________________________________________________________________________________________________________________________________________________________________
__________________________________________________________________________________________________________________________________________________________________________________
__________________________________________________________________________________________________________________________________________________________________________________
__________________________________________________________________________________________________________________________________________________________________________________
__________________________________________________________________________________________________________________________________________________________________________________
__________________________________________________________________________________________________________________________________________________________________________________
__________________________________________________________________________________________________________________________________________________________________________________
__________________________________________________________________________________________________________________________________________________________________________________
__________________________________________________________________________________________________________________________________________________________________________________
__________________________________________________________________________________________________________________________________________________________________________________
__________________________________________________________________________________________________________________________________________________________________________________
__________________________________________________________________________________________________________________________________________________________________________________
__________________________________________________________________________________________________________________________________________________________________________________

7
LCN Door Control Catalog
phone: 877-671-7011 n fax: 800-248-1460 n www.allegion.com/us n 009426 rev. 2/16
Pneumatic
Powered
Systems
PNEUMATIC (AIR) POWERED SYSTEMS
LCN Pneumatic Auto Equalizer systems use the power of pressurized air
to do the work of automatically opening the door. These systems have
exceeded 3 million full load automatic operating cycles; that’s 10 times
the industry standard! A basic pneumatic system consists of an automatic
operator to provide the door control, a control box that contains the
valves and electrical timing circuits, actuators to start the system, and a
compressed air source.
UNIQUE FEATURES
n Multi-Door & Single-Door Solutions
The pneumatic automatic operators are ideal for multidoor
applications because the cost per door leaf decreases significantly as
the number of door leaves increase. A single control box may power up
to two pairs of doors simultaneously making it a cost-effective solution
for single or multi-door applications. This flexibility results in significant
savings in material and installation costs.
n Quiet Operation
Since the pneumatic automatic operators are powered by pressurized
air, they are quiet, efficient, and very reliable. Flexible LCN pneumatic
tubing is the only connection between the control box and the door
frame. There is no need for high-voltage wiring at the door frame since
all of the power for operation is generated by pressurized air located
away from the door frame. (Note: special fittings are available so 3/16˝
metal tubing (by others) can be used in fire rated plenums).
n Pneumatically (Air) Powered
All pneumatic automatic operators require a compressed air source.
LCN’s pneumatic systems have the flexibility to run as an independent
unit (7980 Series has a compressor built into the control box) or to
run off an existing air supply (7900 Series has connections for utilizing
existing air supply). Using a self-contained 7980 Series control box
for single or double door leaf applications eliminates the need for an
independent compressor. Existing building air compressors with a
storage tank can be used to reduce the cost of multi-door systems and
must utilize the 7900 Series control boxes.
n Easy Adjustment/Installation
The air pressure and timing cycle are easily adjustable to meet the
need of a specific installation. Because the control box can be located
anywhere within 100 linear tubing feet from the controlled door for the
7900 Series or within 50 linear tubing feet for the 7980 Series, they can
be placed in easily accessible locations. Convenient features such as
sequential operation of vestibule doors are available.
n Multiple Mounting Configurations
Available in three different mounting configurations:
- Concealed in the frame (2610 Series).
- Top Jamb Surface Mounted on the pull side of the door (4810 Series).
- Top Jamb Surface Mounted on the push side of the door
(4820 Series).
- Door Mounted, Parallel Arm on the push side of the door
(4840 Series).
n Hazardous Location Use
Since there is no high-voltage wiring at the door frame, pneumatically
powered systems are ideal for use in hazardous areas. The control
box, which contain the valves and electrical timing circuits, is remotely
located outside the hazardous area.
n Blow-Open (Smoke Evacuations Systems)
An auxiliary “blow-open” box is available and is controlled by the
building smoke evacuation system to allow fresh air into the building.
When activated, the normal pneumatic power operator functions are
not available. The 7949 Series “blowopen” box works with or without
the 7900 Series control boxes. (Limited to 50 linear foot of tubing).
STANDARDS, LISTINGS & APPROVALS
n
UL listed for self-closing doors without hold open under “SWINGING
DOOR CLOSERS (GVEV)” file R1943.
n
Tested and certified under ANSI Standard A156.19. Refer to Section 2.1
and consult factory for details.
n ANSI Standard A117.1, Section 4.13.13.
n ADA law, Section 4.13.12.
n UL 10B and UL 10C listing.
n Consult the factory for other listings
WARRANTY
n
2 year limited warranty. See General Information Section for complete
details.
STANDARDS, LISTINGS & APPROVALS
n
Operators mounted according to the LCN installation instructions
require no periodic maintenance or adjustments.
n Periodic visual inspections are recommended.
n
Inspect and service filter assembly in 7900 Series control boxes as
required.
n No service contracts.

8LCN Door Control Catalog
phone: 877-671-7011 n fax: 800-248-1460 n www.allegion.com/us n 009426 rev. 2/16
Typical
Pneumatic
Powered
Systems
These pages illustrate examples of typical Pneumatic LCN systems. Please consult your local SSC representative or LCN for assistance
with specific installations and material requirements.
SINGLE INTERIOR DOOR SYSTEM (WIRED)
n Slow opening interior door leaf
n System may be expanded to include an additional
simultaneous door
n No guide rails or safety devices
How It Works:
n A person requiring assistance triggers the system using either
actuator.
n The control box supplies pressurized air to the Auto Equalizer
which opens the door slowly to 90˚, holds it for up to 30
seconds, then applies full spring power to reliably close and
latch the door
n If not actuated, the Auto Equalizer functions as a full featured
door closer
Bill Of Materials: Qty. Part No. Description
1 4811 Auto Equalizer
1 8310-856 Actuator (exterior)
1 8310-856 Actuator (interior)
1 7901 Control Box
1 Compressor*
(as needed) 925 Tubing
* Contact Technical Support to verify compressor requirements.
SINGLE INTERIOR DOOR SYSTEM (WIRELESS)
n Slow opening automatic door on door leaf
n Wireless actuators
n Stand alone system, no planned expansion
n No guide rails or safety devices
How It Works:
n A person requiring assistance triggers the system using either
actuator
n The wireless transmitter in the actuator sends a signal to the
wireless receiver which triggers the control box
n The control box supplies pressurized air to the Auto Equalizer
which slowly swings door to 90°, holds it for up to 30 seconds,
then applies full spring power to reliably close and latch the
door.
n If not actuated, the Auto Equalizer functions as a full featured
door closer
Bill Of Materials: Qty. Part No. Description
1 4811 Auto Equalizer
2 8310-3856WS Wireless Actuator
1 8310-865 Wireless Receiver
1 7981 Control Box
(as needed) 925 Tubing
Interior
Actuator
Exterior
Actuator Compressor
Control
Box
Auto-Equalizer
Pneumatic
Tubing
(100' Max.) 12V DC
Wiring
120V AC
Input
Pneumatic
Tubing
(500' Max.)
120V AC
Input
Interior
Actuator
Exterior
Actuator
Receiver
Auto-Equalizer
Pneumatic
Tubing
(50' Max.)
120V AC
Input
Control
Box

9
LCN Door Control Catalog
phone: 877-671-7011 n fax: 800-248-1460 n www.allegion.com/us n 009426 rev. 2/16
Typical
Pneumatic
Powered
Systems
These pages illustrate examples of typical Pneumatic LCN systems. Please consult your local SSC representative or LCN for assistance
with specific installations and material requirements.
ALTERNATE VESTIBULE DOOR SYSTEM (WIRED)
n Slow opening automatic doors with sequential operation for
exterior and vestibule pairs of doors
n No guide rails or safety devices
How It Works:
n People requiring assistance press exterior actuator for entry
n The exterior pair opens and after a short sequential delay the
interior pair opens
n As the system times out, first the exterior, then the interior
doors close
n Pressing the interior actuator reverses the process to exit the
building
n This allows passage through the vestibule without all doors
open for the entire cycle
n If a person stops in the vestibule and the system times out
before they exit, pressing either vestibule actuator opens the
appropriate doors
n Compressor is sized for multiple systems. Sequential
operation is not recommended with scanners or motion
sensors
n If not actuated, the Auto Equalizer functions as a full feature
door closer
Bill Of Materials: Qty. Part No. Description
2 4822 Auto Equalizer (exterior)
2 4811 Auto Equalizer (interior)
1 7902S Control Box with
Sequencer Card
1 Compressor*
4 8310-856 Actuator
(as needed) 925 Tubing
* Contact Technical Support to verify compressor requirements.
VESTIBULE DOOR SYSTEM (WIRELESS)
n Slow opening automatic doors with sequential operation for
single exterior and vestibule doors
n No guide rails or safety devices
How It Works:
n People requiring assistance press exterior actuator for entry
n The exterior door opens and after a short delay the interior door
opens
n When the system times out, first the exterior, then the interior
door closes
n Pressing the interior actuator reverses the process to exit the
building
n This allows passage through the vestibule without both doors
open for the entire cycle
n If a person stops in the vestibule and the system times out before
they exit, pressing either vestibule actuator opens the appropriate
door
n Sequential operation is not recommended with scanners or
motion sensors
n If not actuated, the Auto Equalizer functions as a full featured
door closer
Bill Of Materials: Qty. Part No. Description
1 4822 Auto Equalizer (exterior)
1 4811 Auto Equalizer (interior)
1 7982S Control Box with
Sequencer Card
4 8310-3856WS RF Actuators
2 8310-865 RF Receiver
(as needed) 925 Tubing
Interior
Actuator
Exterior
Actuator Compressor
Control
Box
Auto-Equalizer
Pneumatic
Tubing
(100' Max.) 12V DC
Wiring
120V AC
Input
Pneumatic
Tubing
(500' Max.)
120V AC
Input
Interior
Actuator
Exterior
Actuator
Receiver
Auto-Equalizer
Pneumatic
Tubing
(50' Max.)
120V AC
Input
Control
Box

10 LCN Door Control Catalog
phone: 877-671-7011 n fax: 800-248-1460 n www.allegion.com/us n 009426 rev. 2/16
Notes
__________________________________________________________________________________________________________________________________________________________________________________
__________________________________________________________________________________________________________________________________________________________________________________
__________________________________________________________________________________________________________________________________________________________________________________
__________________________________________________________________________________________________________________________________________________________________________________
__________________________________________________________________________________________________________________________________________________________________________________
__________________________________________________________________________________________________________________________________________________________________________________
__________________________________________________________________________________________________________________________________________________________________________________
__________________________________________________________________________________________________________________________________________________________________________________
__________________________________________________________________________________________________________________________________________________________________________________
__________________________________________________________________________________________________________________________________________________________________________________
__________________________________________________________________________________________________________________________________________________________________________________
__________________________________________________________________________________________________________________________________________________________________________________
__________________________________________________________________________________________________________________________________________________________________________________
__________________________________________________________________________________________________________________________________________________________________________________
__________________________________________________________________________________________________________________________________________________________________________________
__________________________________________________________________________________________________________________________________________________________________________________
__________________________________________________________________________________________________________________________________________________________________________________
__________________________________________________________________________________________________________________________________________________________________________________
__________________________________________________________________________________________________________________________________________________________________________________
__________________________________________________________________________________________________________________________________________________________________________________
__________________________________________________________________________________________________________________________________________________________________________________
__________________________________________________________________________________________________________________________________________________________________________________
__________________________________________________________________________________________________________________________________________________________________________________
__________________________________________________________________________________________________________________________________________________________________________________
__________________________________________________________________________________________________________________________________________________________________________________
__________________________________________________________________________________________________________________________________________________________________________________

11
LCN Door Control Catalog
phone: 877-671-7011 n fax: 800-248-1460 n www.allegion.com/us n 009426 rev. 2/16
2610
Series
Auto Equalizer
The 2610 AUTO EQUALIZER™ is LCN’s pneumatically powered MULTI-DOOR solution. This
low-energy power operator provides easy access for people with disabilities, or the elderly.
Designed primarily for manual opening applications that occasionally require automatic
opening.
Certifications Grade 1 - ANSI A117.1, A156.19 UL228, ADA,
100 Hour Salt Spray, Meets BAA - Buy
American Act
Body Construction n Cast Iron Body
n Full Complement Bearing
n 1-1/2˝ Diameter Piston
n 11/16˝ Diameter Double Heat Treated
Pinion Journal
Fluid All Weather Fluid
Handing Handed
Size Sized 3 and 4
Warranty 2 years
Fasteners Wood and machine screws
Mounting Concealed, in frame
Arms Single lever arm, mounting/finish plate,
standard track
Finishes/Colors/
Powder Coat
n Aluminum (689)
n Statuary Bronze (690)
n Light Bronze (691)
n Black (693)
n Dark Bronze (695)
n Brass (696)
n Custom colors optional
n Optional SRI primer - powder coat only
n Optional plated finishes
Customized installation templates or products may be available to solve unusual applications.
Contact LCN Product Support for assistance.
Features
Special
Templates
POWDER COAT
PLATED
PLASTIC
METAL
NON-HANDED
NON-SIZED
ACCESSIBILITY*
COVER CYLINDERFINISH
POWER OPERATOR
TOP JAMB (PULL SIDE)
TOP JAMB (PUSH SIDE)
MOUNTING
PARALLEL ARM
CONCEALED
HOLD-OPEN
DPS SWITCH
STANDARD (SINGLE)
REGULAR (DOUBLE)
EXTRA DUTY ARM
*ARM FUNCTION
CUSH-N-STOP
SPRING CUSH
Meets ADA requirements (power mode).
* See individual series for maximum manual opening.
AVAILABLE
NOT AVAILABLE

12 LCN Door Control Catalog
phone: 877-671-7011 n fax: 800-248-1460 n www.allegion.com/us n 009426 rev. 2/16
2610
Series
Auto Equalizer
Concealed Mounting
Mounting details
11/16"
17 mm
1-1/4"
32 mm
1"
25 mm
1"
25 mm
1"
25 mm
2-5/16"
59 mm
21"
533 mm
25-1/2"
648 mm
1-1/16"
27 mm
1-3/8"
35 mm
3-5/8"
92 mm
3/8"
10 mm
11-5/8"
295 mm
of Track
to of Closer
Butt Hinges Should not exceed 5˝ (127 mm) in width
Auxiliary Stop Recommended
Head Frame Minimum 4˝ (102 mm) x 4˝ for hollow metal or aluminum tube construction
Top Rail n 1-3/8˝ (35 mm) mortise required
n 5/16˝ (8 mm) cutout required at top of the door, push side only
System Diagram See “AUTOMATIC OPERATORS” section pages 8-9 for typical system wiring, and pages 28-29 for electrical and
pneumatic data for control boxes
Maximum opening n Butt hinge template allows 90° power opening and 160° manual opening
n Please note that many track style door closers are capable of allowing 180° of door swing
n Track style closers are at their weakest closing force at 180°
n Consult factory for applications where exterior or large/heavy door must swing 180°
n Consult factory for all pivot mounted installations
Notes:
• For interior or exterior doors
• Single acting cylinder in head frame
• Concealed arm and track in door top rail
• Consult factory for all pivot mounted installations.
• Multi-door solution utilizing 10,000,000 cycle heavy duty door closer
• Requires control box with integral compressor or control box using auxiliary air supply. See CONTROL BOX pages 28-29 and actuators and accessories, pages 115-131
• Guard rails/safety mats not required

13
LCN Door Control Catalog
phone: 877-671-7011 n fax: 800-248-1460 n www.allegion.com/us n 009426 rev. 2/16
Accessories
2610-3971
Cast Iron Cylinder Assembly
n Handed
n For various applications see
“Table of Sizes” on 2610 Series
page 14
n Standard
2610-3077T
Standard Arm
n Handed
n Track roller not included with arm
2610-3071
Cast Iron Cylinder Assembly
n Handed
n Mounting plate
n For various applications see
“Table of Sizes” on 2610 Series
page 14
n Standard
2610-3071 DPS
Cast Iron Cylinder Assembly
n Handed
n Mounting plate with door
position switch which sends
signal when door is closed
n Standard
2610-3034
Track Roller
n Quiet, low friction roller
assembly
n Shoulder dimension
“X” = 1/16˝ (2 mm)
Cylinders
Arm Track
Installation Accessories
2610-3971 DPS
Cast Iron Cylinder Assembly
n Handed
n With door position switch which
sends signal when door
is closed
n Standard
2610-3038
Standard Track
n Non-handed
n Will not accept hold open clip
or bumper assembly
n Standard
2610
Series
Auto Equalizer

14 LCN Door Control Catalog
phone: 877-671-7011 n fax: 800-248-1460 n www.allegion.com/us n 009426 rev. 2/16
2610
Series
Ordering Information
Closer will be shipped with:
- Standard arm
- Track roller
- Standard track
- Wood & machine screw pack
unless options listed below are selected.
Closer options
Finishes
Custom Powder Coat (RAL)
Plated Finish, US
Screw pack
Wood & Machine Screw (WMS)
Special template
ST- ________
Select cylinder size
2613
2613 DPS
2614
2614 DPS
Select hand
RH
LH
Specify finish
Standard Powder Coat __________
Aluminum, Dark Bronze, Statuary, Light Bronze, Black, Brass
How-to-order 2610 Series
Indicates recommended range of door width for closer size. NOTE: Minimum door width 30˝ (762 mm).
2614 2613
2614
Minimum door width
Minimum door width
Exterior (and Vestibule) door width
30˝
762mm
36˝
914mm
Interior door width
30˝
762mm
38˝
965mm
48˝
1219mm
size 4 size 3 size 4
Table of sizes
n Select closer based on width of door
n Sized 2610 Series cylinders available in size 3 or 4
n Closing power of all 2610 Series closers may be increased 15%

15
LCN Door Control Catalog
phone: 877-671-7011 n fax: 800-248-1460 n www.allegion.com/us n 009426 rev. 2/16
Interior door width
30˝
762mm
38˝
965mm
48˝
1219mm
The 4810 AUTO EQUALIZER™ is LCN’s pneumatically powered MULTIDOOR solution. This
low-energy automatic operator provides easy access for people with disabilities, or the
elderly. Designed primarily for manual opening applications that occasionally require
automatic opening.
Certifications Grade 1 - ANSI A117.1, A156.19, UL 10C 228,
ADA, 100 Hour Salt Spray, Meets BAA - Buy
American Act
Body Construction n Cast Iron Body
n Full Complement Bearing
n 1-1/2˝ Diameter Piston
n 3/4˝ Diameter Double Heat Treated
Pinion Journal
Fluid All Weather Fluid
Handing Handed
Size Adjustable Spring Size 1-4
Warranty 2 years
Cover Metal, standard
Fasteners Wood and machine screws
Mounting Top jamb (Pull Side)
Arms Single lever arm with standard track
Finishes/Colors/
Powder Coat
n Aluminum (689)
n Statuary Bronze (690)
n Light Bronze (691)
n Black (693)
n Dark Bronze (695)
n Brass (696)
n Custom colors optional
n Optional SRI primer - powder coat only
n Optional plated finishes
Customized installation templates or products may be available to solve unusual applications.
Contact LCN Product Support for assistance.
Features
Special
Templates
TOP JAMB (PULL SIDE)
TOP JAMB (PUSH SIDE)
MOUNTING
PARALLEL ARM
POWDER COAT
PLATED
PLASTIC
METAL
NON-HANDED
NON-SIZED
ACCESSIBILITY*
COVER CYLINDERFINISH
POWER OPERATOR
CONCEALED
HOLD-OPEN
DPS SWITCH
STANDARD (SINGLE)
REGULAR (DOUBLE)
EXTRA DUTY ARM
*ARM FUNCTION
CUSH-N-STOP
SPRING CUSH
Meets ADA requirements (power mode).
* See individual series for maximum manual opening.
AVAILABLE
NOT AVAILABLE
4810
Series
Auto Equalizer

16 LCN Door Control Catalog
phone: 877-671-7011 n fax: 800-248-1460 n www.allegion.com/us n 009426 rev. 2/16
Top Jamb (Pull Side)
Mounting
Mounting details
2-5/8"
67 mm 22-3/4"
578 mm
20"
508 mm
2"
51 mm
1-1/4"
32 mm
3-5/16"
84 mm
4810-18
3-1/2"
89 mm
4"
102 mm
1-1/16"
27 mm
Butt Hinges Should not exceed 5˝ (127 mm) in width
Auxiliary Stop Recommended
Reveal Should not exceed 1/8˝ (3 mm)
Head Frame Minimum 2˝ (51 mm)
Top Rail Minimum 1-1/8˝ (29 mm)
System Diagram See “AUTOMATIC OPERATORS” section pages 7-8 for typical system wiring, and pages 28-29 for electrical and
pneumatic data for control boxes
Maximum opening n Templating allows 90° power opening and 170° manual opening
n Please note that many track style door closers are capable of allowing 180° of door swing
n Track style closers are at their weakest closing force at 180°
n Consult factory for applications where exterior or large/heavy door must swing 180°
Notes:
• Multi-door solution utilizing 10,000,000 cycle heavy duty door closer
• Requires control box with integral compressor or control box using auxiliary air supply
• See CONTROL BOX pages 28-29 and actuators and accessories, pages 115-131
• Guard rails/safety mats not required
4810
Series
Auto Equalizer

17
LCN Door Control Catalog
phone: 877-671-7011 n fax: 800-248-1460 n www.allegion.com/us n 009426 rev. 2/16
Accessories
4811-3971
Cast Iron Cylinder Assembly
n Non-handed
n Standard
4810-72MC
Metal Cover
n Non-handed
n With black end caps
n Standard
4810-3034
Track Roller
n Quiet low friction roller
assembly
n Shoulder dimension
“X” = 1/8˝ (3mm)
Cylinders
Cover Track Arm
Installation Accessories
4811-3071
Cast Iron Cylinder Assembly
n Non-handed
n Mounting plate
n Standard
4810-3038
Standard Track
n Non-handed
n Will not accept hold open clip
or bumper assembly
n Standard
4810-3077T
Standard Arm
n Non-handed
n Track roller not included with
arm
4810
Series
Auto Equalizer

18 LCN Door Control Catalog
phone: 877-671-7011 n fax: 800-248-1460 n www.allegion.com/us n 009426 rev. 2/16
Ordering Information
Closer will be shipped with:
- Standard cylinder
- Standard metal cover
- Standard arm
- Track roller
- Standard track
- Wood and machine screw pack
unless options listed below are selected.
Closer options
Finishes
Custom Powder Coat (RAL)-_________
Plated Finish, US-_________
Screw pack
TB*, Wood & Machine Screw (TBWMS)
*Specify door thickness if other than 1-3/4˝
Special template
ST- ________
Specify finish
Standard Powder Coat __________
Aluminum, Dark Bronze, Statuary, Light Bronze, Black, Brass
How-to-order 4810 Series
Indicates recommended range of door width for closer size. NOTE: Minimum door width 28˝ (711 mm).
4811 4811
Minimum door width Minimum door width
Exterior (and Vestibule) door width
28˝
711mm
30˝
762mm
36˝
914mm
Interior door width
28˝
711mm
34˝
864mm
38˝
965mm
48˝
1219mm
size 3 size 4 size 2 size 3 size 4
Table of sizes
n Non-sized 4810 Series cylinder is adjustable from size 1 through size 4 and is shipped set to size 3
n Closing power of 4810 Series closers may be increased 50%
4810
Series
Auto Equalizer

19
LCN Door Control Catalog
phone: 877-671-7011 n fax: 800-248-1460 n www.allegion.com/us n 009426 rev. 2/16
The 4820 AUTO EQUALIZER™ is LCN’s pneumatically powered MULTI-DOOR solution.
This low-energy automatic operator provides easy access for people with disabilities, or
the elderly. Designed primarily for manual opening applications that occasionally require
automatic opening.
Certifications Grade 1 - ANSI A117.1, A156.19, UL 10C 228,
ADA, 100 Hour Salt Spray, Meets BAA - Buy
American Act
Body Construction n Cast Iron Body
n Full Complement Bearing
n 1-1/2˝ Diameter Piston
n 3/4˝ Diameter Double Heat Treated
Pinion Journal
Fluid All Weather Fluid
Handing Non-Handed
Size Adjustable Spring Size 2-5
Warranty 2 years
Cover Metal, standard
Fasteners Wood and machine screw
Mounting Top Jamb (Push Side)
Arms n Regular arm, standard
n Long arm, optional
Finishes/Colors/
Powder Coat
n Aluminum (689)
n Statuary Bronze (690)
n Light Bronze (691)
n Black (693)
n Dark Bronze (695)
n Brass (696)
n Custom colors optional
n Optional SRI primer - powder coat only
n Optional plated finishes
Customized installation templates or products may be available to solve unusual applications.
Contact LCN Product Support for assistance.
Features
Special
Templates
TOP JAMB (PULL SIDE)
TOP JAMB (PUSH SIDE)
MOUNTING
PARALLEL ARM
POWDER COAT
PLATED
PLASTIC
METAL
NON-HANDED
NON-SIZED
ACCESSIBILITY*
COVER CYLINDERFINISH
POWER OPERATOR
CONCEALED
HOLD-OPEN
DPS SWITCH
STANDARD (SINGLE)
REGULAR (DOUBLE)
EXTRA DUTY
*ARM FUNCTION
CUSH-N-STOP
SPRING CUSH
Meets ADA requirements (power mode).
* See individual series for maximum manual opening.
AVAILABLE
NOT AVAILABLE
4820
Series
Auto Equalizer

20 LCN Door Control Catalog
phone: 877-671-7011 n fax: 800-248-1460 n www.allegion.com/us n 009426 rev. 2/16
Top Jamb (Push Side)
Mounting
Mounting details
20"
508 mm
2"
51 mm 2-7/8"
73 mm
1-7/8"
48 mm
3/4"
19 mm
12-5/32"
309 mm
12-3/8"
314 mm
2-11/16"
68 mm
3-5/16"
84 mm
4820-18 4820-18G
3-1/2"
89 mm
Butt Hinges Should not exceed 5˝ (127 mm) in width
Auxiliary Stop Recommended
Reveal n 4-1/2˝ (114 mm) allows up to 90° power opening and 100° manual opening
n 8˝ (203 mm) allows up to 90° power opening and 100° manual opening with LONG ARM where standard rod and
shoe is replaced with optional LONG ROD AND SHOE, 4820-79LR
Head Frame n Minimum 1-3/4˝ (44 mm)
n With flush ceiling use PLATE, 4820-18G substituted for standard plate
Top Rail n Minimum 1-3/4˝ (44 mm)
n Closer on 4820-18G plate requires 3˝ (76 mm) minimum
System Diagram See “AUTOMATIC OPERATORS” section pages 7-8 for typical system wiring, and pages 28-29 for electrical and
pneumatic data for control boxes
Maximum opening Templating allows 90° power opening and 100° manual opening
Options Door position switch (DPS) kit that signals when the door has reached the open position
Notes:
• Multi-door solution utilizing 10, 000,000 cycle heavy duty door closer
• Requires control boxes with integral compressor and control box using auxiliary air supply
• See CONTROL BOX pages 27-29 and actuators and accessories, pages 118-133
• Guard rails/safety mats not required
4820
Series
Auto Equalizer

21
LCN Door Control Catalog
phone: 877-671-7011 n fax: 800-248-1460 n www.allegion.com/us n 009426 rev. 2/16
Accessories
4822-3971
Cast Iron Cylinder Assembly
n Non-handed
n Standard
4820-72MC
Metal Cover
n Non-handed
n With black end caps
n Standard
4820-18
Plate
n Requires minimum 1-3/4˝
(44 mm) minimum head frame
and 2˝ (51 mm) top rail
n Standard
4820-18G
Plate
n Requires minimum 1-3/4˝
(44 mm) minimum head frame
and 2˝ (51 mm) top rail
n Standard
4820-3377
Door Position Switch Kit
n Provides feedback when the
door reaches the fully opened
position
n Specifically RH or LH when
ordering
Cylinders
Cover Arms
Installation Accessories
4822-3071
Cast Iron Cylinder Assembly
n Non-handed
n Includes; 4820-18 Mounting
Plate or 4820-18G Mounting
Plate (must specify)
n Standard
4820-3077
Regular Arm
n Non-handed
n Standard
4820-3077L
Long Arm
n Includes LONG ROD AND SHOE,
4820-79LR for deep reveals
n Optional
4820
Series
Auto Equalizer

22 LCN Door Control Catalog
phone: 877-671-7011 n fax: 800-248-1460 n www.allegion.com/us n 009426 rev. 2/16
Ordering Information
Closer will be shipped with:
- Standard cylinder
- Standard metal cover
- Regular arm
- Wood and machine screw pack
unless options listed below are selected.
Closer options
Finishes
Custom Powder Coat (RAL)-_________
Plated Finish, US-_________
Arm
Long (LONG)
Screw pack
TB*, Wood & Machine Screw (TBWMS)
*Specify door thickness if other than 1-3/4˝
Specify finish
Standard Powder Coat __________
Aluminum, Dark Bronze, Statuary, Light Bronze, Black, Brass
How-to-order 4820 Series
Installation Accessories
Plate, 4820-18
Plate, 4820-18G
Door Position Switch Kit, 4820-3377 LH
Door Position Switch Kit, 4820-3377 RH
Special template
ST- ________
Indicates recommended range of door width for closer size.
4822 4822
Minimum door width Minimum door width
Exterior (and Vestibule) door width
24˝
610mm
30˝
762mm
36˝
914mm
42˝
1067mm
Interior door width
24˝
610mm
34˝
864mm
38˝
965mm
48˝
1219mm
54˝
1372mm
size 3 size 4 size 5 size 2 size 3 size 4 size 5
Table of sizes
n Non-sized 4820 Series cylinder is adjustable from size 2 through size 5 and is shipped set to size 3
n Closing power of 4820 Series closers may be increased 50%
4820
Series
Auto Equalizer

23
LCN Door Control Catalog
phone: 877-671-7011 n fax: 800-248-1460 n www.allegion.com/us n 009426 rev. 2/16
The 4840 AUTO EQUALIZER™ is LCN’s pneumatically powered MULTIDOOR solution.
This low-energy automatic operator provides easy access for people with disabilities, or
the elderly. Designed primarily for manual opening applications that occasionally require
automatic opening.
Certifications Grade 1 - ANSI A117.1, A156.19, UL 10C 228,
ADA, 100 Hour Salt Spray, Meets BAA - Buy
American Act
Body Construction n Cast Iron Body
n Full Complement Bearing
n 1-1/2˝ Diameter Piston
n 3/4˝ Diameter Double Heat Treated
Pinion Journal
Fluid All Weather Fluid
Handing Non-Handed
Size Adjustable Spring Size 1-5
Warranty 2 years
Cover Metal, standard
Fasteners Wood and machine screws
Specify door thickness if over 1-3/4˝
Mounting Parallel arm (Push Side)
Arms Extra heavy duty, standard
Cush-n-stop and spring cush, optional
Finishes/Colors/
Powder Coat
n Aluminum (689)
n Statuary Bronze (690)
n Light Bronze (691)
n Black (693)
n Dark Bronze (695)
n Brass (696)
n Custom colors optional
n Optional SRI primer - powder coat only
n Optional plated finishes*
*End caps are black
Customized installation templates or products may be available to solve unusual applications.
Contact LCN Product Support for assistance.
Features
Special
Templates
POWDER COAT
PLATED
PLASTIC
METAL
NON-HANDED
NON-SIZED
ACCESSIBILITY*
COVER CYLINDERFINISH
POWER OPERATOR
TOP JAMB (PULL SIDE)
TOP JAMB (PUSH SIDE)
MOUNTING
PARALLEL ARM
CONCEALED
HOLD-OPEN
DPS SWITCH
STANDARD (SINGLE)
REGULAR (DOUBLE)
EXTRA DUTY
*ARM FUNCTION
CUSH-N-STOP
SPRING CUSH
Meets ADA requirements (power mode).
* See individual series for maximum manual opening.
AVAILABLE
NOT AVAILABLE
4840
Series
Auto Equalizer

24 LCN Door Control Catalog
phone: 877-671-7011 n fax: 800-248-1460 n www.allegion.com/us n 009426 rev. 2/16
Parallel Arm (Push
Side) Mounting
Mounting details
20"
508 mm
2-1/2"
64 mm
3/4"
19 mm
3-5/16"
84 mm
7-1/2"
191 mm
5-1/2"
140 mm
4"
102 mm
3-1/2"
89 mm
Butt Hinges Should not exceed 5˝ (127 mm) in width
Auxiliary Stop Recommended when CUSH-N-STOP or SPRING CUSH arms are not used
Clearance EDA or CUSH shoes is 5-1/2˝ (140 mm) from door face
Top Rail Minimum 4-1/8˝ (105 mm). 6˝ minimum top rail for screw not to show in glass
Head Frame (Flush) requires PA SHOE ADAPTER, 4840-419
Stop Width Minimum 1˝ (25 mm)
Blade Stop Clearance requires 1/2˝ (13 mm) BLADE STOP SPACER, 4840-61
System Diagram See “AUTOMATIC OPERATORS” section pages 7-8 for typical system wiring, and pages 28-29 for electrical and
pneumatic data for control boxes
Maximum Opening n Maximum power opening is 90° with all arms
n Maximum manual opening is 105° with EDA or SPRING CUSH arms
n Maximum manual opening is 100° with CUSH-N-STOP arm
NOTE: For CUSH-N-STOP or SPRING CUSH arm installations with maximum opening less than listed above, consult factory for Special Template
Notes:
• Multi-door solution utilizing 10, 000,000 cycle heavy duty door closer
• Requires control boxes with integral compressor and control box using auxiliary air supply
• See CONTROL BOX pages 28-29 and actuators and accessories, pages 115-131
• Guard rails/safety mats not required
4840
Series
Auto Equalizer

25
LCN Door Control Catalog
phone: 877-671-7011 n fax: 800-248-1460 n www.allegion.com/us n 009426 rev. 2/16
Accessories
4841-3971
Cast Iron Cylinder Assembly
n Non-handed
n Standard
4840-3077EDA
Extra Duty Arm
n Non-handed
n Features forged solid steel main
arm and forearm for potentially
abusive installations
n Standard
4840-3077CNS
Cush-n-Stop Arm
n Non-handed
n Features forged solid steel
main arm and forearm with
stop in soffit shoe
n Optional
4840-3077SCNS
Spring CUSH Arm
n Non-handed
n For abusive applications
features forged solid steel main
arm and forearm with spring
loaded stop in soffit shoe
n Optional
4840-72MC
Metal Cover
n Non-handed
n With black end caps
n Standard
Cylinders
Arms
Cover
4841-3071
Cast Iron Cylinder Assembly
n Non-handed
n Mounting plate
n Standard
4820
Series
Auto Equalizer

26 LCN Door Control Catalog
phone: 877-671-7011 n fax: 800-248-1460 n www.allegion.com/us n 009426 rev. 2/16
4840-30
CUSH Shoe Support
n Provides anchorage for fifth screw
used with EDA and CUSH arms,
where reveal is less than 3-1/16˝
(78 mm)
4840-61
Blade Stop Spacer
n Required to lower parallel arm
shoe to clear 1/2˝ (13 mm) blade
stop
4840-419
PA Flush Panel Adapter
n
Provides horizontal mounting
surface for parallel arm shoe on
single rabbeted or flush frame
4840-459
Door Loop Kit
n Surface mounted, flexible metal
loop transfers pressurized air via
pneumatic tubing from frame to
closer end cap
n Extra caps allow tubing to run on
frame surface or concealed in the
frame.
4840-460
Pneumatic Transfer Hinge
n Transfers pressurized air via
pneumatic tubing from frame
to door leaf for fully concealed
installations
n Preparation of a raceway is
required from the hinge stile
of the door to the top rail for
concealment of the pneumatic
tubing within the door leaf
Installation accessories
Accessories
4840
Series
Auto Equalizer

27
LCN Door Control Catalog
phone: 877-671-7011 n fax: 800-248-1460 n www.allegion.com/us n 009426 rev. 2/16
Ordering Information
Closer will be shipped with:
- Standard cylinder
- Standard metal cover
- Extra duty arm
- Wood and machine screw pack
unless options listed below are selected
Closer options
Finishes
Custom Powder Coat (RAL)__________________
Plated Finish, US_____________________________
Arm
CUSH-N-STOP (CUSH)
SPRING CUSH (SCUSH)
Screw pack
TB*, Wood & Machine Screw (TBWMS)
*Specify door thickness if other than 1-3/4˝.˝
Installation accessories
Cush Shoe Support, 4840-30
Blade Stop Spacer, 4840-61
PA Flush Panel Adapter, 4840-419
Door Loop Kit, 4840-459
Pneumatic Transfer Hinge, 4840-460
Special template
ST- ________
Specify finish
Standard Powder Coat __________
Aluminum, Dark Bronze, Statuary, Light Bronze, Black, Brass
How-to-order 4840 Series closers
Indicates recommended range of door width for closer size.
4841 4841
Minimum door width Minimum door width
Exterior (and Vestibule) door width
24˝
610mm
30˝
762mm
36˝
914mm
42˝
1067mm
Interior door width
24˝
610mm
34˝
864mm
38˝
965mm
48˝
1219mm
54˝
1372mm
size 3 size 4 size 5 size 2 size 3 size 4 size 5
Table of sizes
n Non-sized 4841 cylinder is adjustable from size 1 through size 5 and is shipped set to size 3
n Closing power of 4841 closers may be increased 50%
4820
Series
Auto Equalizer

28 LCN Door Control Catalog
phone: 877-671-7011 n fax: 800-248-1460 n www.allegion.com/us n 009426 rev. 2/16
CONTROL BOXES
Heavy duty, surface mounted control box contains one or two electrically controlled pneumatic circuits. Air filtration, pneumatic
regulation, and system timing is performed by the control box. 7980 Series control boxes also contain a built-in air pump to power the
system. Each pneumatic circuit can be adjusted for a hold open time up to 30 seconds. Output air pressure can be adjusted to precisely
tailor system to individual door requirements.
Pneumatic connections use standard barbed fittings and 925 tubing from the compressor to the control box to the operator. A package
of barbed tee and butt connectors are supplied with each control box to simplify installations. Consult LCN for details. Other than a
semi-annual inspection of the air filter assembly and muffler, no periodic system maintenance is required.
7901 AND ES7901 CONTROL BOX
n For single door applications or independent control of single door in
multiple door systems
n Two door leaves can be operated, if they are activated
simultaneously
n The single pneumatic circuit accepts Normally Open (N.O.) inputs
from hardwired or RF (wireless) actuator/receiver combinations
n The 7901 control box requires a separate compressor
7981 AND ES7981 CONTROL BOX
n Self-contained control box/compressor combination for single door
leaf applications
n The single pneumatic circuit accepts Normally Open (N.O.) inputs
from hardwired or RF (wireless) actuator/receiver combinations
n The 7981 control box does not require a separate compressor
7902 AND ES7902 CONTROL BOX
n For independent operation of two door or four door leaves, if pairs
are actuated simultaneously
n Two independent pneumatic circuits accept Normally Open
(N.O.) inputs from hardwired or RF (wireless) actuator/receiver
combinations
n Sequential operation (add suffix “S”) is available for 7902
n The 7902 control box requires a separate compressor
A
Timer
Adjust
Wheel
AB
LED LED
AB
*Filter
Earth
Ground
Air Pressure
Regulator
Knob
Air
Pressure
Gauge
Manual
Override
7900
Series
Control Boxes
LEDLED
A
A
A
5 AMP Fuse Only
Door Open
Time Delay
Pump
“On”
Time
P
P
Earth
Ground
Air Filter
Air
Valve
Regulated
Air Output
to Closer
Compressor Pump
Capacitor
A
Timer
Adjust
Wheel
*Filter
Manual
Override
Air Pressure
Gauge
5 AMP
Fuse only
Earth
Ground
Air Pressure
Regulator
Knob
Install box with two tapcon
concrete screws - 3/16" x 1-1/4".
Drill 5/32" hole 1-1/4" deep with
carbide tipped concrete bit

29
LCN Door Control Catalog
phone: 877-671-7011 n fax: 800-248-1460 n www.allegion.com/us n 009426 rev. 2/16
7982 AND ES7982 CONTROL BOX
n Self-contained control box/compressor combination for
independent or simultaneous operation of two door leaves
n Two independent pneumatic circuit accepts Normally Open
(N.O.) inputs from hardwired or RF (wireless) actuator/ receiver
combinations
n The 7982 control box does not require a separate compressor.
n Sequential operation (add suffix “S”) is available for 7982 control
boxes
7900
Series
Control Boxes
LEDLED LED
B
AB
A
5 AMP Fuse Only
Door
Open
Time
Delay
Door
Open
Time
Delay
Pump
“On”
Time
P
P
Earth
Ground
Air Filter
Air
Valve
Air
Valve
Regulated
Air Output
to Closer
Compressor Pump
Capacitor
Control Box Must
Be Connected to
Earth Ground.
DANGER
!
A
*Filter
120 VAC Input
Earth
Ground
Air Pressure
Regulator
Install box with two tapcon
concrete screws - 3/16" x 1-1/4".
Drill 5/32" hole 1-1/4" deep. Use a
carbide tipped drill if mounted on
masonary surface
Caution:
Locate this box in areas where
the temperatures do not exceed
120°F or fall below 35°F.
7949 and Es7949 Control Box
n Auxiliary “blow-open” box works with or without 7901 or 7902 and
one or two Auto Equalizers
n Controlled by smoke evacuation system, the 7949 open the door(s)
to allow fresh air into the building
n Normal Auto Equalizer functions are not available when “blow-
open” box is activated
Optional “ES” Boxes
n Identical in function(s) to the basic box but includes an isolated
(SPDT) relay with 1 set of Normally Open (N.O.) and Normally Closed
(N.C.) contracts to control an electric strike
n The LCN control box cannot power the strike. ES7949 has two sets
of isolated (DPDT) contacts. Compressor size recommendations are
based on normal usage for the number of operations listed
n All LCN supplied auxiliary compressors include an automatic drain
feature
Control Box Installation Notes
n Locate a 7900 Series control box so no more than 100 linear feet of LCN 925 pneumatic tubing is required between the control box
and door. Maximum 50 linear feet for a 7980 and 7949 Series
n Locate a 7900/7980/7949 Series control box where the temperatures do not exceed 120°F or fall below 35°F
n 7901, 7902 and 7949 control box input 120V AC @ 1 amp. 7981 and 7982 control boxes input 120V AC @ 5 amp
n Output voltage is 12V DC @ 0.25 amp. max
n Air pressure input, 80 PSI minimum/100 PSI maximum, required for 7901, 7902 and 7949
n Regulated air output up to 80 PSI for Auto Equalizer
n Auto Equalizers require approximately 0.5 cfm airflow in heavy traffic
n All control boxes are 15˝ x 15˝ x 6˝

30 LCN Door Control Catalog
phone: 877-671-7011 n fax: 800-248-1460 n www.allegion.com/us n 009426 rev. 2/16
7900
Series
Control Boxes
Accessories
3390A
3390B
3390C
941
942
941C
3299A
3299B
CAPACITOR
3390A
3390B
3390C
941
942
941C
3299A
3299B
CAPACITOR
3390A
3390B
3390C
941
942
941C
3299A
3299B
CAPACITOR
3390A
3390B
3390C
941
942
941C
3299A
3299B
CAPACITOR
3390A
3390B
3390C
941
942
941C
3299A
3299B
CAPACITOR
3390A
3390B
3390C
941
942
941C
3299A
3299B
CAPACITOR
-941C
Valve Assembly
n Regulator valve assembly
for 7949 Series blow open
control box
3390A
3390B
3390C
941
942
941C
3299A
3299B
CAPACITOR
3390A
3390B
3390C
941
942
941C
3299A
3299B
CAPACITOR
3390A
3390B
3390C
941
942
941C
3299A
3299B
CAPACITOR
-3299A
Solenoid Valve Assembly
n Air valve assembly for 7981
Series control box or the ‘A’
circuit valve assembly for the
7982 Series control box
-3299B
Solenoid valve assembly
n Air valve assembly for the
‘B’ circuit in the 7982 Series
control box
3390A
3390B
3390C
941
942
941C
3299A
3299B
CAPACITOR
3390A
3390B
3390C
941
942
941C
3299A
3299B
CAPACITOR
-903
Timer Card
n 0 to 30 second timer module
n Plugs into the power supply
board, -900. 7901 (A slot)
Series control box requires 1
each.
n 7902 (A/B slots) and 7981
(P/A slots) Series control boxes
require 2 each
n 7982 (P/A/B slots) Series
control box requires 3 each
-3426
Sequencer Card
n Dual, 0 to 30-second sequence
timer module for 7902 and
7982 Series control boxes
n Can be added to a standard
7902 or 7982 Series control
box to convert to a sequential
operation.
n Sequencer card, -3426 is
included when ordering a
7902S or 7982S Series control
box
-941
Valve Assembly
n Regulator valve assembly for 7901
Series control box
-942
Valve Assembly
n Regulator valve assembly for
7902 Series control box
-329
Air Filter
n Replacement inlet air filter for
7981 or 7982 Series control
boxes
-900
Power Supply Board
n Main power supply/input board
for the 7901, 7902, 7981, or
7982 Series control boxes
-929
Filter and Seal
n Internal filter and seal
component to the Air Filter
-329G assembly
-329G
Air Filter
n Replacement inlet air filter
assembly for 7901 or 7902 Series
control boxes
Accessories

31
LCN Door Control Catalog
phone: 877-671-7011 n fax: 800-248-1460 n www.allegion.com/us n 009426 rev. 2/16
7900
Series
Control Boxes
Accessories
-3390A
Relay Package “A”
n ES relay assembly for 7901 and
7981 Series control boxes or the ‘A’
circuit ES relay assembly in a 7902
or 7982 Series control boxes
n Includes 390 relay, base, and wires
n Can be added to standard 7901,
7902, 7981, or 7982 Series control
boxes to convert to ES operation
n Relay package, -3390A is included
when ordering a 7901ES, 7902ES,
7981ES, or 7982ES Series control
box
-3390B
Relay Package “B”
n ES relay assembly for ‘B’ circuit in
7902 or 7982 Series control boxes
n Includes –390 relay, base, and
wires
n Can be added to standard 7902
or 7982 Series control boxes to
convert to ES operation
n Relay package, -3390B is included
when ordering a 7902ES or
7982ES Series control box
-3390C
Relay Package “C”
n ES relay assembly in 7949 Series
blow open control box
n Includes –390C relay, base, and
wires
n Can be added to standard 7949
Series blow open control box to
convert to ES operation
n Relay package, -3390C is included
when ordering a 7949ES Series
control box
Accessories
-962
Isolator
n Rubber Isolators for 7981/7982
compressor assembly, -3960
-3592
Compressor Service Kit
n Internal components for
pressure release valve on
–3960 Compressor Assembly
925
Pneumatic Tubing
n 1/8˝ (3mm) I.D. flexible
pneumatic tubing for use
with standard barbed fittings
provided on pneumatic control
boxes and operators
n Order by linear footage required
n 925 tubing is not fire-rated
n Contact LCN for applications
where tubing must run through
rated plenums
-3960
Compressor Assembly
n Internal air pump assembly for
7981 or 7982 Series control box
n Includes starter capacitor, -962
Isolators, and -329 air filter
-293G
Muffler
n Exhaust muffler for 7901, 7902,
7949, 7981, and 7982 Series
control boxes
3390A
3390B
3390C
941
942
941C
3299A
3299B
CAPACITOR
3390A
3390B
3390C
941
942
941C
3299A
3299B
CAPACITOR
3390A
3390B
3390C
941
942
941C
3299A
3299B
CAPACITOR
3390A
3390B
3390C
941
942
941C
3299A
3299B
CAPACITOR

32 LCN Door Control Catalog
phone: 877-671-7011 n fax: 800-248-1460 n www.allegion.com/us n 009426 rev. 2/16
ELECTRIC AUTO EQUALIZERS
These Auto Equalizer products are an addition to the original pneumatic
drive system. People moving through a door can use it as a normal rack &
pinion door closer or, at the touch of a button, open the door automatically.
An integrated digital control suite provides all electrical control functions.
These self-contained units are suitable for use on single leaf doors or pair of
doors where each leaf is equipped with an operator. The operator provides
all the control and power elements into a single operator package, only
some actuators are required to complete the system.
n Introduced in 1995.
n
Two surface mount models available. The 4630 mounts on the pull side
of the door and the 4640 Series mounts on the push side of the door.
n Integrates a modified heavy-duty 4040 Series cast iron cylinder.
n 4600 Electric Operators are not approved for smoke evacuation systems.
UNIQUE FEATURES
n Digital Control Box
Provides exceptionally precise control of a large range of built-in functions
combined with superior durability and performance. Visual indications
and digital readouts of all control function settings and activity make
adjustments easy, fast and accurate.
n Dual Independent Program Memories
Each unit is pre-programmed to factory default settings. The installer can
adjust the unit to meet the job site requirements. These field settings are
locked into the computer’s memory. Any subsequent field adjustments
replace the original field adjustments. The factory settings are always
retained in memory and can be recalled to replace the field settings in just
seconds, restoring the unit to it’s original programming.
n On-Board Diagnostics
Sophisticated built-in diagnostics program monitors the system
microprocessor, power supplies, drive system and actuators circuitry.
Reduces the time required to make sure the installation is complete and
correct.
n On-Board Power Supply
Provides both 12V DC and 24V DC outputs to power card readers, manual
actuators and other peripherals.
n “No Destruct” Drive System
Specially designed motor and clutch assembly provide a ‘breakaway’
function that reduces the chance the operator will be damaged in an
abusive application. If a vandal tries to force the door closed while it is
trying to open, the clutch mechanism prevents damage. The door is never
out of control because the heavy duty 4040 closer is always operable.
n Electronic Circuit Protection
The high voltage input circuit is protected by a one amp slow blow fuse.
The low voltage output circuits by self-resetting fuses.
n Visual Function Indicators
LED’s allow direct observation of these inputs:
- input power
- fire alarm input
- normal trigger (actuator) input
- sequential trigger (actuator) input
- hold open/alternate action (actuator) input
- lockout timer
- safety sensor (clear) input
- safety sensor (active) input
n Programming Mode
Allows tailoring the following functions to meet specific site conditions:
- hold open time
- 90° slow down time
- one shot input [ON or OFF]
- Exterior mode [ON or OFF] function to accommodate momentary
resistance, like wind gusts, during the opening swing.
- electric strike delay timer
- electric strike 3 second power function [ON or OFF]
- sequential trigger delay timer
- alternate action timer
- lockout timer
Electrohydraulic
Powered
Systems

33
LCN Door Control Catalog
phone: 877-671-7011 n fax: 800-248-1460 n www.allegion.com/us n 009426 rev. 2/16
Electrohydraulic
Powered
Systems
ELECTRIC AUTO EQUALIZER SYSTEMS
n Originally introduced in 1995.
n
Exceeds proposed ANSI cycle test standard of 300,000 full load
automatic operating cycles. Integrated LCN 10 million cycle heavy duty
4040 door closer.
n Power operation plus full door control.
n For all applications, single or multi-door projects.
n Opening time to backcheck no faster than 3 seconds.
n Opening time 4 seconds or more to fully open.
n Must remain fully open for at least 5 seconds.
n Closing time from 90° to 10° no faster than 3 seconds.
n Less than 15 pounds-force to stop door’s motion.
n Kinetic energy must not exceed 1.25 lbf-ft.
n
In event of failure; less than 15 lbf. to release latch, less than 30 lbf. to put
door in motion, less than 15 lbf. to fully open door systems.
STANDARDS, LISTINGS & APPROVALS
n
UL listed for Fire Door Operator (GUJY) and Door Operator System
(+DDR) file R18222.
n
Tested and certified under ANSI Standard A156.19. Refer to Section 2.1 and
consult factory for details.
n ANSI Standard A117.1, Section 4.13.13.
n ADA law, Section 4.13.12.
n Listed for positive pressure plus UL 10B and UL 10C.
n Wiring is compliant with both UL 325 and the NEC. Separation of high and
low voltage.
n
Consult the factory for other listings such as; State and Local Government
regulations.
n
UL 10 C Listed for Fire Rated Door Operators with Automatic Closers, File
No. (GUJY).
WARRANTY
n
2 year limited warranty. See General Information Section for complete
details.
MAINTENANCE
n
Operators mounted according to the LCN installation instructions require
no periodic maintenance or adjustments.
n Periodic visual inspections are recommended.
n No service contracts.

34 LCN Door Control Catalog
phone: 877-671-7011 n fax: 800-248-1460 n www.allegion.com/us n 009426 rev. 2/16
Electrohydraulic
Powered
Systems
Automatic
Operators
This page illustrates examples of typical Electric LCN systems. Please consult your local SSC representative or LCN for assistance with
specific installations and material requirements.
SINGLE DOOR SYSTEM (WIRELESS)
n An Interior Door
n No guide rails or safety devices
n Free Swinging (or Dogged) Door
How It Works:
n Wireless RF actuators and receiver, powered by the Auto
Equalizer simplify installation and minimize installation costs
n For automatic door operation, touching either actuator signals
the receiver and controller module to open the door to 90°
n The door is held there until the system times out, then full
spring power is applied to reliably close and latch the door.
n Door opening speed and hold open time are adjustable on the
controller
n Closing power and speed are adjustable on the cylinder
assembly
n If not actuated, the Auto Equalizer functions as a full featured
door closer
Bill of Materials: Qty. Part No. Description
1 4631 Auto Equalizer
2 8310-3856WS Wireless Actuators
1 8310-865 Wireless Receiver
VESTIBULE ENTRY SYSTEM (WIRED)
n Exterior & Vestibule doors
n Sequential Operation
n No guide rails or safety devices
n Controlled Access, Free Egress
How It Works:
n This installation provides both accessibility and security for
building occupants
n The Auto Equalizer controller module provides both the
power and coordination for card reader and electric strike
applications
n A built-in delay allows the strike to release before the door
begins to open
n Two interconnected Auto Equalizers provide sequential
operation in both directions
n Vestibule actuators allow single door ingress/egress from the
vestibule as needed
NOTE: An EL device requires a separate power supply. If not actuated, the
Auto Equalizer functions as a full featured door closer
Bill of Materials: Qty. Part No. Description
1 4642 Auto Equalizer (exterior)
1 4631 Auto Equalizer (interior)
3 8310-856 Wall Plate Actuators
Other products from Von Duprin and
Locknetics
Low Voltage Wiring RF Receiver
RF Actuator
RF Actuator
Auto-Equalizer 120V
Input
Low Voltage Wiring
Auto-Equalizer
(mounted on push side)
Electric Strike
Card Reader
w/keypad as
Exterior Actuator Note: 120V AC Input
required to both operators
Interior
Actuator
Vestibule
Actuator
(interior door)
Vestibule
Actuator
(exterior door)
Auto-Equalizer
SINGLE DOOR SYSTEMS VESTIBULE ENTRY OPERATION

35
LCN Door Control Catalog
phone: 877-671-7011 n fax: 800-248-1460 n www.allegion.com/us n 009426 rev. 2/16
4630/4640
Electrohydraulic
Powered
Systems
4.3
4.421
4.24.1 3
1 - DOOR CLOSER ASSEMBLY
n Based on a heavy duty 4040, cast iron cylinder with all-
weather fluid for consistency and reliability
n Rugged drive mechanism provides the connection to the
electric motor assembly
n Fully adjustable, independent hydraulic regulation controls the
door to minimize the chance of damage to the door and frame
assemblies
2 - ELECTRIC MOTOR/CLUTCH ASSEMBLY
n Highly efficient motor combined with a custom designed gear
system provides exceptionally quiet and smooth operation
n Special clutch transmits the power and provides a unique
“breakaway” function that prevents damage to the operator,
door and frame if a vandal forces the door closed during the
powered opening swing
3 - DIGITAL CONTROLLER MODULE
n Digital Control Suite
n Dual Independent Program Memories
n On Board Diagnostics
n Visual Function Indicators
n Adjustable Programming Modes
4.X - FIELD WIRING
4.1
n Input power; 120V AC @ 1.5 amperes
n On-board, low voltage power supply provides both 12V and
24V DC @ 1.0 ampere (maximum combined load) for LCN
actuators, RF receivers, and electric strikes or magnetic locks
n Slow blow and self-resetting fuses protect input and output
power from voltage spikes
n Terminal strips simplify field wiring
4.2
n On/Off Switch
4.3
n Hold Open Switch
4.4
n Separate conduits for high voltage power and low voltage
power and signal wiring meet UL and National Electrical Code
requirements

36 LCN Door Control Catalog
phone: 877-671-7011 n fax: 800-248-1460 n www.allegion.com/us n 009426 rev. 2/16
4630/4640
Electrohydraulic
Powered
Systems
Automatic
Operators
LCN LOW VOLTAGE (CLASS 2 NEC) ELECTRICAL CONNECTIONS
Function Terminal
Actuator - Normal Input (N.O.) 16 & 17 or 18 & 19
Actuator - Sequential Input (N.O.) 8 & 19
Actuator - Alternate Action (N.O.) 15 & 17
Actuator - Continuous (N.O.) 6 & 17
Sequential Output 9
Stop Side Safety (N.O.) 19 & 20
Swing Side Safety (N.O.) 19 & 21
Fire Alarm Contact (N.C.) 13 & 14 (Fire Shunt)
Auxiliary Relay Contacts (5 amp max) 10 - Common
11 - N.O.
12 - N.C.
E.S. Relay Contacts (5 amp max) 22 - Common
23 - N.O.
24 - N.C.
12V DC & 24V DC Negative* 2, 4, 13, 17, & 19
12V DC Positive* 5 & 7
24V DC Positive* 1 & 3
* NOTE: 1 Amp max load between 12V and 24V DC outputs.
FIELD CONNECTION TERMINALS
12/24 VDC
1
12345678910 11 12 13 14 15 16 17 18 19 20 21 22 23 24
Fire Alarm Shunt
LCN DIGITAL CONTROL BOX
Opening Speed
Adjustment
Limited to a minimum of 3 seconds to
backcheck (approx. 70°)
Opening Force
Adjustment
Maximum of 15 lb-f to stop door swing
Time Display Displays numeric value relating to timing
adjustments (16 = approx. 5 seconds)
Mode Indicator Indicates programming mode currently
being displayed
Up Button Increases time or changes from OFF to ON
when programming
Down Button Decreases time or changes from OFF to ON
when programming
Mode Button Advances through programming setups on
Mode Indicator
Operating Indicators Displays operating information about
internal functions and external hardware
©
ETAD.GFM
ROPPUS LACINHCET T
®
1-877-671-7011
www.allegion.com/us
Allegion 2015

37
LCN Door Control Catalog
phone: 877-671-7011 n fax: 800-248-1460 n www.allegion.com/us n 009426 rev. 2/16
The 4630 AUTO EQUALIZER™ is LCN’s SMART & RELIABLE electrically powered low-energy
power operator. It provides easy access for people with disabilities, or the elderly. Designed
primarily for manual opening applications that occasionally required automatic opening.
Certifications Grade 1 - ANSI A117.1, A156.19, UL 10C,
UL 325/228, ADA, 100 Hour Salt Spray,
Meets BAA - Buy American Act
Body Construction n Cast Iron Body
n Full Complement Bearing
n 1-1/2˝ Diameter Piston
n 3/4˝ Diameter Double Heat Treated
Pinion Journal
Fluid All Weather Fluid
Handing Non-Handed
Size Adjustable Spring Size 1-4
Warranty 2 years
Cover Metal, standard
Fasteners Wood and machine screws
Mounting Top jamb (Pull Side)
Arms Standard single lever arm and track
Finishes/Colors/
Powder Coat
n Aluminum (689)
n Statuary Bronze (690)
n Light Bronze (691)
n Black (693)
n Dark Bronze (695)
n Brass (696)
n Custom colors optional
n Optional SRI primer - powder coat only
n Optional plated finishes*
*End caps are black
Customized installation templates or products may be available to solve unusual applications.
Contact LCN Product Support for assistance.
Features
Special
Templates
TOP JAMB (PULL SIDE)
TOP JAMB (PUSH SIDE)
MOUNTING
PARALLEL ARM
POWDER COAT
PLATED
PLASTIC
METAL
NON-HANDED
NON-SIZED
ACCESSIBILITY*
COVER CYLINDERFINISH
POWER OPERATOR
CONCEALED
HOLD-OPEN
DPS SWITCH
STANDARD (SINGLE)
REGULAR (DOUBLE)
EXTRA DUTY
*ARM FUNCTION
CUSH-N-STOP
SPRING CUSH
Meets ADA requirements (power mode).
* See individual series for maximum manual opening.
** Switch provided for continuous hold open (4630 only).
AVAILABLE
NOT AVAILABLE
4630
Series
Auto Equalizer

38 LCN Door Control Catalog
phone: 877-671-7011 n fax: 800-248-1460 n www.allegion.com/us n 009426 rev. 2/16
Top Jamb (Pull Side)
Mounting
Mounting details
1-7/8"
48 mm 33-1/2"
850 mm
22-3/4"
578 mm
2-5/8"
67 mm
1-1/4"
32 mm 4-3/8"
110 mm
4-7/8"
125 mm
1-1/16"
27 mm
Butt Hinges Should not exceed 5˝ (127 mm) in width
Auxiliary Stop Recommended
Reveal Should not exceed 1/8˝ (3 mm)
Head Frame Minimum 2˝ (51 mm)
Top Rail Minimum 1-1/8˝ (29 mm)
Opening Time and Force n Variable by adjustments to the electronic control module located on the operator assembly
n Maximum hold open time adjustable up to approximately five minutes
System Diagram See “AUTOMATIC OPERATORS” section pages 35 for typical system wiring and pages 37-38 for electrical data
Maximum Opening n Templating allows 90° power opening and 170° manual opening
n Please note that many track style door closers are capable of allowing 180° of door swing
n Track style closers are at their weakest closing force at 180°
n Consult factory for applications where exterior or large/heavy door must swing 180°
Notes:
• Actuators are sold separately, see pages 115-131
• Comes with a digital control box utilizing a 4040 heavy duty door closer with on-board diagnostics and power supply
• Has a factory default memory that include "No Destruct" drive system
• Guard rails or safety mats not required
• 4630 has easily accessible switches to provide on/off and continuous hold open functions
• CS options provides concealed on/off power switch
• Control module provides timing and sequential door functions, electric strike controls and adjustments for opening speed and force
4630
Series
Auto Equalizer

39
LCN Door Control Catalog
phone: 877-671-7011 n fax: 800-248-1460 n www.allegion.com/us n 009426 rev. 2/16
Accessories
4631-3971
Cast Iron Cylinder Assembly
n Non-handed
n Standard
4630-3038
Standard Track
n Non-handed
n Will not accept hold open clip
or bumper assembly
n Standard
4630-3077T
Standard Arm
n Non-handed
n Track roller not included
with arm
4630-3034
Track Roller
n Quiet low friction roller
assembly
n Shoulder dimension
“X” = 1/8˝ (3mm)
4631-3071CS
Cast Iron Cylinder Assembly
n Non-handed
n Mounting plate
n Includes 4630-3454 Motor
Clutch, 4630-3180 I/O Board
Assembly and 4630-3462
Controller
n Same as a 4630-3071 assembly
except on/ off switch is
concealed in endcap and no
hold open switch is included
(Separate key switches
suggested)
n Standard
4630-72MC
Metal Cover
n Non-handed
n Standard
Cylinders
Track Arm Installation Accessories
Cover
4631-3071
Cast Iron Cylinder Assembly
n Non-handed
n Mounting plate
n Includes 4630-3454 Motor
Clutch, 4630-3180 I/O Board
Assembly and 4630-3462
Controller
n Standard
4630
Series
Auto Equalizer

40 LCN Door Control Catalog
phone: 877-671-7011 n fax: 800-248-1460 n www.allegion.com/us n 009426 rev. 2/16
4630-334
Switch End Cap
n End cap (black powder coat finish
only) with cut outs for installing
on/off and hold open switches
4630-3179-2
Hold Open Switch Assembly
n Black rocker switch
n Field wired to low voltage PC
board
4630-3498-2
AC Power Cable
n 2 wire cable to connect 120 VAC
from PC board assembly to
controller
4630-334-2
Blank End Cap
n Black powder coat only
4630-3180
PC Board Assembly
n High and low voltage PC boards
connected to mounting bracket
4630-3498-1
Ribbon Cable Connector
n 16 wire ribbon cable connecting
1-24 pin terminal connectors to
controller
4630-334CS
Switch End Cap
n End cap and switch (black powder
coat only) for concealed switch
option
4630-3454
Motor/Clutch Assembly
n A geared assembly in an LCN
power operator that incorporates
a “no destruct” feature
4630-3179-1
On/Off Switch Assembly
n Black rocker switch. Plugs into
high voltage PC board
4630-3462
Control Box Assembly
n Digital controller with built-in
12/24 VDC power supply
n Programming and timing
functions are adjusted on
controller
Installation Accessories
Accessories
4630
Series
Auto Equalizer

41
LCN Door Control Catalog
phone: 877-671-7011 n fax: 800-248-1460 n www.allegion.com/us n 009426 rev. 2/16
Ordering Information
Closer will be shipped with:
- Standard cylinder
- Standard metal cover
- Standard arm
- Track roller
- Standard track
- Wood and machine screw pack
unless options listed below are selected
Closer options
Cylinder Assembly
CS (concealed on/off switch)
(separate key switches suggested)
Finishes
Custom Powder Coat (RAL)__________________
Plated Finish, US_____________________________
Screw pack
TB*, Wood & Machine Screw (TBWMS)
TORX Machine Screw (TORX)
TB* & TORX Machine Screw (TBTRX)
*Specify door thickness if other than 1-3/4˝.
Special template
ST- ________
Specify finish
Standard Powder Coat __________
Aluminum, Dark Bronze, Statuary, Light Bronze, Black, Brass
How-to-order 4630 Series closers
4631 4841
Minimum door width Minimum door width
Exterior (and Vestibule) door width
36˝
914mm
Interior door width
36˝
914mm
38˝
965mm
48˝
1219mm
size 2 size 3
Indicates recommended range of door width for closer size. NOTE: Minimum door width 36˝ (914 mm).
Table of sizes
n Non-Sized 4630 series cylinder is adjustable from size 1 through size 4 and is shipped set to size 3
n Closing power of 4630 Series closers may be increased 50%
4630
Series
Auto Equalizer

42 LCN Door Control Catalog
phone: 877-671-7011 n fax: 800-248-1460 n www.allegion.com/us n 009426 rev. 2/16
__________________________________________________________________________________________________________________________________________________________________________________
__________________________________________________________________________________________________________________________________________________________________________________
__________________________________________________________________________________________________________________________________________________________________________________
__________________________________________________________________________________________________________________________________________________________________________________
__________________________________________________________________________________________________________________________________________________________________________________
__________________________________________________________________________________________________________________________________________________________________________________
__________________________________________________________________________________________________________________________________________________________________________________
__________________________________________________________________________________________________________________________________________________________________________________
__________________________________________________________________________________________________________________________________________________________________________________
__________________________________________________________________________________________________________________________________________________________________________________
__________________________________________________________________________________________________________________________________________________________________________________
__________________________________________________________________________________________________________________________________________________________________________________
__________________________________________________________________________________________________________________________________________________________________________________
__________________________________________________________________________________________________________________________________________________________________________________
__________________________________________________________________________________________________________________________________________________________________________________
__________________________________________________________________________________________________________________________________________________________________________________
__________________________________________________________________________________________________________________________________________________________________________________
__________________________________________________________________________________________________________________________________________________________________________________
__________________________________________________________________________________________________________________________________________________________________________________
__________________________________________________________________________________________________________________________________________________________________________________
__________________________________________________________________________________________________________________________________________________________________________________
__________________________________________________________________________________________________________________________________________________________________________________
__________________________________________________________________________________________________________________________________________________________________________________
__________________________________________________________________________________________________________________________________________________________________________________
__________________________________________________________________________________________________________________________________________________________________________________
__________________________________________________________________________________________________________________________________________________________________________________
Notes

43
LCN Door Control Catalog
phone: 877-671-7011 n fax: 800-248-1460 n www.allegion.com/us n 009426 rev. 2/16
The 4640 AUTO EQUALIZER™ is LCN’s SMART & RELIABLE electrically powered low-energy
power operator. It provides easy access for people with disabilities, or the elderly. Designed
primarily for manual opening applications that occasionally require automatic opening.
Certifications Grade 1 - ANSI A117.1, A156.19, UL 10C, ADA,
100 Hour Salt Spray, Meets BAA - Buy
American Act
Body Construction n Cast Iron Body
n Full Complement Bearing
n 1-1/2˝ Diameter Piston
n 3/4˝ Diameter Double Heat Treated
Pinion Journal
Fluid All Weather Fluid
Handing Non-Handed
Size Adjustable Spring Size 2-5
Warranty 2 years
Cover Metal, standard
Fasteners Wood and machine screws
Mounting Top jamb (Push Side)
Arms n Regular arm, standard
n Long arm, optional
Finishes/Colors/
Powder Coat
n Aluminum (689)
n Statuary Bronze (690)
n Light Bronze (691)
n Black (693)
n Dark Bronze (695)
n Brass (696)
n Custom colors optional
n Optional SRI primer - powder coat only
n Optional plated finishes*
*End caps are black
Customized installation templates or products may be available to solve unusual applications.
Contact LCN Product Support for assistance.
Features
Special
Templates
TOP JAMB (PULL SIDE)
TOP JAMB (PUSH SIDE)
MOUNTING
PARALLEL ARM
POWDER COAT
PLATED
PLASTIC
METAL
NON-HANDED
NON-SIZED
ACCESSIBILITY*
COVER CYLINDERFINISH
POWER OPERATOR
CONCEALED
HOLD-OPEN
DPS SWITCH
STANDARD (SINGLE)
REGULAR (DOUBLE)
EXTRA DUTY
*ARM FUNCTION
CUSH-N-STOP
SPRING CUSH
Meets ADA requirements (power mode).
* See individual series for maximum manual opening.
** Switch provided for continuous hold open (4640 only).
AVAILABLE
NOT AVAILABLE
4640
Series
Auto Equalizer

44 LCN Door Control Catalog
phone: 877-671-7011 n fax: 800-248-1460 n www.allegion.com/us n 009426 rev. 2/16
Top Jamb (Push Side)
Mounting
Mounting details
1-7/8"
48 mm 33-1/2"
850 mm
4-3/8"
110 mm
3/4"
19 mm
1-7/8"
48 mm
2-11/16"
68 mm
12-3/8"
314 mm
12-5/32"
309 mm
Butt Hinges Should not exceed 5˝ (127 mm) in width
Auxiliary Stop Recommended
Reveal n 4-1/2˝ (114 mm) allows up to 90° power opening and 100° manual opening
n 8˝ (203 mm) allows up to 90° power opening and 100° manual opening with LONG ARM where standard rod and
shoe is replaced with optional LONG ROD AND SHOE, 4640-79LR
Head Frame Minimum 1-3/4˝ (44 mm). The standard mounting plate is also used to meet flush ceiling conditions
Top Rail n Minimum 1-3/4˝ (44 mm)
n Flush ceiling installation requires 3-3/4˝ (95 mm) minimum
Opening Time and Force n Variable by adjustments to the electronic control module located on the operator assembly
n Maximum hold open time adjustable up to approximately five minutes
System Diagram See “AUTOMATIC OPERATORS” section page 35 for typical system wiring and pages 37-38 for electrical data
Maximum Opening n Templating allows 90° power opening and 100° manual opening
n Consult factory for all pivot mounted installations
Notes:
• Actuators are sold separately, see pages 115-131
• Comes with a digital control box utilizing a 4040 heavy duty door closer with on-board diagnostics and power supply
• Has a factory default memory that include "No Destruct" drive system
• Guard rails or safety mats not required
• 4030 has easily accessible switches to provide on/off and continuous hold open functions
• CS options provides concealed on/off power switch
• Control module provides timing and sequential door functions, electric strike controls and adjustments for opening speed and force.
Flush Ceiling MountStandard Mount
4640
Series
Auto Equalizer

45
LCN Door Control Catalog
phone: 877-671-7011 n fax: 800-248-1460 n www.allegion.com/us n 009426 rev. 2/16
Accessories
4642-3971
Cast Iron Cylinder Assembly
n Non-handed
n Standard
4640-3077
Regular Arm
n Non-handed
4640-3077L
Long Arm
n Includes LONG ROD AND SHOE,
4640-79LR for deep reveals
4640-79
Rod & Shoe
n For use with regular arm
4640-79LR
Long Rod & Shoe
n Used for long arm with deep
reveals
4642-3071CS
Cast Iron Cylinder Assembly
n Non-handed
n Mounting plate.
n Includes; 4640-3454 Motor
Clutch, 4640-3180 I/O Board
Assembly and 4640-3462
Controller
n Same as a 4640-3071 assembly
except on/ off switch is
concealed in endcap and no
hold open switch is included.
(Separate key switches
suggested)
n Standard
4640-72MC
Metal Cover
n Non-handed
n Standard
Cylinders
Arms
Cover
4642-3071
Cast Iron Cylinder Assembly
n Non-handed
n Mounting plate
n Includes; 4640-3454 Motor
Clutch, 4640-3180 I/O Board
Assembly and 4640-3462
Controller
n Standard
4640
Series
Auto Equalizer

46 LCN Door Control Catalog
phone: 877-671-7011 n fax: 800-248-1460 n www.allegion.com/us n 009426 rev. 2/16
4640-334
Switch End Cap
n End cap (black powder finish coat
only) with cut outs for installing
on/off and hold open switches
4640-3179-2
Hold Open Switch Assembly
n Black rocker switch
n ield wired to low voltage PC board
4640-3498-2
AC Power Cable
n 2 wire cable to connect 120 VAC
from PC board assembly to
controller
4640-334-2
Blank End Cap
n Black powder coat only
4640-3180
PC Board Assembly
n High and low voltage PC boards
connected to mounting bracket
4640-3498-1
Ribbon Cable Connector
n 16 wire ribbon cable connecting
1-24 pin terminal connectors to
controller
4640-334CS
Switch End Cap
n End cap and switch (black powder
coat only) for concealed switch
option
4640-3454
Motor/Clutch Assembly
n A geared assembly in an LCN
power operator that incorporates
a “no destruct” feature
4640-3179-1
On/Off Switch Assembly
n Black rocker switch
n Plugs into high voltage PC board
4640-3462
Control Box Assembly
n Digital controller with built-in
12/24 VDC power supply
n Programming and timing
functions are adjusted on
controller
Installation Accessories
Accessories
4640
Series
Auto Equalizer

47
LCN Door Control Catalog
phone: 877-671-7011 n fax: 800-248-1460 n www.allegion.com/us n 009426 rev. 2/16
Ordering Information
Closer will be shipped with:
- Standard cylinder
- Standard metal cover
- Regular arm
- Wood and machine screw pack
unless options listed below are selected
Closer options
Cylinder Assembly
CS (concealed on/off switch)
(separate key switches suggested)
Finishes
Custom Powder Coat (RAL)__________________
Plated Finish, US_____________________________
Arm
Long (LONG)
Screw pack
TB*, Wood & Machine Screw (TBWMS)
TORX Machine Screw (TORX)
TB* & TORX Machine Screw (TBTRX)
*Specify door thickness if other than 1-3/4˝.
Special template
ST- ________
Specify finish
Standard Powder Coat __________
Aluminum, Dark Bronze, Statuary, Light Bronze, Black, Brass
How-to-order 4640 Series closers
4642 4642
Minimum door width Minimum door width
Exterior (and Vestibule) door width
36˝
914mm
42˝
1067mm
Interior door width
36˝
914mm
38˝
965mm
48˝
1219mm
54˝
1372mm
size 3 size 4 size 5 size 5
Indicates recommended range of door width for closer size. NOTE: Minimum door width 36˝ (914 mm).
Table of sizes
n Non-sized 4640 series cylinder is adjustable from size 2 through size 5 and is shipped set to size 3
n Closing power of 4640 Series closers may be increased 50%
4640
Series
Auto Equalizer

48 LCN Door Control Catalog
phone: 877-671-7011 n fax: 800-248-1460 n www.allegion.com/us n 009426 rev. 2/16
Notes
__________________________________________________________________________________________________________________________________________________________________________________
__________________________________________________________________________________________________________________________________________________________________________________
__________________________________________________________________________________________________________________________________________________________________________________
__________________________________________________________________________________________________________________________________________________________________________________
__________________________________________________________________________________________________________________________________________________________________________________
__________________________________________________________________________________________________________________________________________________________________________________
__________________________________________________________________________________________________________________________________________________________________________________
__________________________________________________________________________________________________________________________________________________________________________________
__________________________________________________________________________________________________________________________________________________________________________________
__________________________________________________________________________________________________________________________________________________________________________________
__________________________________________________________________________________________________________________________________________________________________________________
__________________________________________________________________________________________________________________________________________________________________________________
__________________________________________________________________________________________________________________________________________________________________________________
__________________________________________________________________________________________________________________________________________________________________________________
__________________________________________________________________________________________________________________________________________________________________________________
__________________________________________________________________________________________________________________________________________________________________________________
__________________________________________________________________________________________________________________________________________________________________________________
__________________________________________________________________________________________________________________________________________________________________________________
__________________________________________________________________________________________________________________________________________________________________________________
__________________________________________________________________________________________________________________________________________________________________________________
__________________________________________________________________________________________________________________________________________________________________________________
__________________________________________________________________________________________________________________________________________________________________________________
__________________________________________________________________________________________________________________________________________________________________________________
__________________________________________________________________________________________________________________________________________________________________________________
__________________________________________________________________________________________________________________________________________________________________________________
__________________________________________________________________________________________________________________________________________________________________________________

49
LCN Door Control Catalog
phone: 877-671-7011 n fax: 800-248-1460 n www.allegion.com/us n 009426 rev. 2/16
ELECTROMECHANICAL AUTOMATIC OPERATORS
LCN’s electromechanical products are designed primarily for automatic
opening applications that occasionally require manual opening. A control
box provides all electrical functions. These self-contained units are suitable
for use on single leaf doors or pair of doors. These products combine all
the control and power elements into a single operator package, only some
actuators are required to complete the system.
n Surface mounted and overhead concealed mountings available.
n Available in two standard anodized finishes – Aluminum and Dark Bronze.
LOW ENERGY ELECTROMECHANICAL POWER
OPERATORS
n Complies with ANSI 156.19.
n Opening time from full close to backcheck is no faster than 3 seconds.
n Less than 15 lbs of force to open door manually.
STANDARDS, LISTINGS & APPROVALS
n UL listed for self-closing doors without hold open. UL 325.
n Tested and certified under ANSI.
n Low Energy Electromechanical Operators ANSI 156.19.
n ADA Compliant.
n
Wiring is compliant with both UL 325 and the NEC. Separation of high
and low voltage.
n Consult the factory for other listings.
WARRANTY
n
2 year limited warranty. See General Information Section for complete
details.
MAINTENANCE
Low Energy Electromechanical Power Operators
n
Operators mounted according to the LCN Installation instructions require
no periodic maintenance or adjustments.
n Periodic visual inspections are recommended.
n No service contracts.
Electro-
mechanical
Powered
Systems

50 LCN Door Control Catalog
phone: 877-671-7011 n fax: 800-248-1460 n www.allegion.com/us n 009426 rev. 2/16
Electro-
mechanical
Powered
Systems
This page illustrates examples of typical Electromechanical LCN systems. Please consult your local SSC representative of LCN for
assistance with specific installations and material requirements.
SINGLE DOOR SYSTEM (WIRELESS)
n An interior door
n Guide rails or safety devices not required
n Free swinging (or dogged) door
How It Works:
n Wireless actuators with receiver, powered by the transformer
allows for easy installation
n For automatic door operation, touching either actuator signals
the receiver and power operator to open the door to 90 degrees
n The door is held there until the system times out
n Door closes via spring return
n Door opening speed, closing speed and hold open time is
adjustable on the control box
n If not actuated, the power operator functions as a manual
door
Bill Of Materials: Qty. Part No. Description
1 9531 Automatic Operator (RH)
2 8310-3853WS Wireless Actuators
1 8310-865 Wireless Receiver
VESTIBULE ENTRY SYSTEM (WIRED)
n Exterior & vestibule doors
n Sequential operation
n Guide rails or safety devices not required
n Controlled access, free egress
How It Works:
n This installation provides both accessibility and security for
building occupants
n It allows for the integration of multiple automatic operators, a
card reader and electric strike
n A sequencer allows sequential operation of the two automatic
operators
n Vestibule actuators allow single door ingress/ egress from the
vestibule as needed
n If not actuated the power operator functions as a manual door
Bill Of Materials: Qty. Part No. Description
1 9542 Automatic operator (RH)
1 9531 Automatic operator (RH)
3 8310-853 Wall Plate Actuators
1 8310-849 Sequencer
Other products from Von Duprin and
Schlage Electronics
120v
Input
Low Voltage
Wiring RF Receiver
RF Actuator
RF Actuator
Automatic
Operator
SINGLE DOOR SYSTEMS VESTIBULE ENTRY OPERATION
Low Voltage Wiring
Automatic
Operator
Automatic
Operator
Card Reader
w/keypad as
Exterior Actuator
Sequencer
Electric
Strike
Low Voltage
Wall Plate
Actuator
Wall Plate
Actuator
Wall Plate
Actuator
Note: 120V AC Input
required to both operators
120v
Input
120v
Input

51
LCN Door Control Catalog
phone: 877-671-7011 n fax: 800-248-1460 n www.allegion.com/us n 009426 rev. 2/16
Electro-
mechanical
Powered
Systems
CONTROL BOX - 2800, 9500 SERIES
1. Control Box, 115VAC 60Hz, or 240 VAC 50/60 Hz
2. Seven Segment Display
3. Power Indicator
4. Factory Default Push Button
5. Model Identification Label
6. 6-Pin Connector for Master Motor
7. 3-Pin Connector for 3 Position Switch
8. Breakaway Jumper Cable
9. 2-Pin Connector for Breakaway Switch
10. Accessory Direct Connect Diagram
11. 6-Pin Connector for Companion Motor (supply only w/
simultaneous pairs)
12. Value Adjustment Push Buttons
13. Setting Adjustment Menu
14. Function Adjustment Push Buttons
15. Closing Speed Adjustment Dial (Master)
16. Closing Speed Adjustment Dial (Companion)
17. 3-Pin Connector for AC power

52 LCN Door Control Catalog
phone: 877-671-7011 n fax: 800-248-1460 n www.allegion.com/us n 009426 rev. 2/16
Electro-
mechanical
Powered
Systems
STANDARD CONTROL BOX - 9100 SERIES
24VDC -
24VDC +
Safety Sen
Safety GND
Common GND
N/O Strike Relay
N/C Strike Relay
Aux GND
Aux ACT
3 Way HO
3 Way GND
3 Way OFF
Main Act
Main Act
Electric Lock,
Electric Strike, etc.
N.O. or N.C.
Depending on Device
Black DC-
Activation
Device
N.O.
Dry Contacts
Red
Black
Green
Activation Device
N.O. Dry Contacts
Multiple activation devices
should be connected in parallel
Control box
grounding stud
For clarity, not all
components are shown
on the control box PC board
J8, 10-position
Control Box Power Cable
J1, 6-position
Main Power Cable
J5, 2-position
Motor Power Cable
J3, 4-position
Hall Effect Cable
Plug cables into
these receptacles
Connect
Fail Safe to N/C
Fail Secure to N/O
Disabled when
optional 3 position
switch is in
Off position
Optional
3 Position
Switch
Red DC+

53
LCN Door Control Catalog
phone: 877-671-7011 n fax: 800-248-1460 n www.allegion.com/us n 009426 rev. 2/16
Electro-
mechanical
Powered
Systems
GENERAL ELECTRICAL DATA
1. The 115/240 volt power supply must be a dedicated circuit from the main
circuit breaker panel and must not be connected into a building lighting
system operating fluorescent lights.
2. Location of conduits determined by mounting. See installation
instructions for location.
2800, 9500, SERIES
Electrical Data
1. 120 VAC 60Hz input @ 2.5 amps (2800 and 9500 Series).
2. 240 VAC 50/60 Hz @ 2.5 amps (2800, and 9500 Series).
3. 24 V AC output @ 1.5 amps (protected by self-resetting thermal fuse).
4. 24 V DC available with SO kit included.
9100, SERIES
Electrical Data
1. 120 VAC input @ 1 amp.
2. 24 VDC output @ 2.5 amps.

54 LCN Door Control Catalog
phone: 877-671-7011 n fax: 800-248-1460 n www.allegion.com/us n 009426 rev. 2/16
On-Board Power Supply
Provides 24V DC output to power card readers, manual actuators and other
peripherals.
Electronic Circuit Protection
Fused input circuit protection and fused output protection for 24 VDC
peripherals.
Visual Function Indicators
There are 2 LED's for installation and trouble shooting feedback. The motor
LED will illuminate when the motor drive circuit energizes. This is when the
operator is activated it will remain on only during the opening of the door
and the power LED this will illuminate when power is applied to the board
and remains illuminated as long as there is power applied to the board.
Programming Mode
Allow tailoring of the following functions to meet specific site conditions:
n Power Boost
n Opening Speed
n Backcheck Speed
n Hold Open Time Delay
n Backcheck Position
n Closing Speed
n Latch Position
n Push ‘N Go
n Delayed Activation
Benchmark
Unique
Features

55
LCN Door Control Catalog
phone: 877-671-7011 n fax: 800-248-1460 n www.allegion.com/us n 009426 rev. 2/16
9130
Series
Benchmark
The 9130 BENCHMARK by LCN is an electrically powered low-energy operator. It provides
easy access for people with disabilities, or the elderly. Designed primarily for automatic
opening applications that occasionally require manual opening. The BENCHMARK is a
cost-effective solution for retrofitting an activated or manual door.
Certifications Grade 1 - A156.19, UL325, ADA, 100 Hour Salt
Spray, Meets BAA - Buy American Act
Handing Non-Handed
Door Width n 30˝-48˝
n 30˝minimumdoorwidthfor27˝
n 36˝doorwidthonlyforfulllengthpull
operator
Warranty 2 years
Cover n Metal27˝, standard
n Metal36˝, optional
Fasteners Wood and machine screws
Mounting Single interior door, surface mount, offset
pivot / butt hinge (Pull Side)
Arms Standard arm and track
Finishes/Colors/
Powder Coat
n Anodized aluminum, standard
n Dark bronze, optional
Customized installation templates or products may be available to solve unusual applications.
Contact LCN Product Support for assistance.
Features
Special
Templates
STANDARD ANODIZED
FINISH
HANDING
HANDED
NON-HANDED
COVER
METAL
ARM FUNCTION
STANDARD (SINGLE LEVER)
REGULAR (DOUBLE LEVER)
OFFSET PIVOT BUTT HINGE ARM
CENTER PIVOT ARM
DOUBLE EGRESS (PUSH/PULL)
MOUNTING
SURFACE MOUNT SINGLE DOOR
SURFACE MOUNT SIMULTANEOUS PAIR
SURFACE MOUNT INDEPENDENT PAIR
CONCEALED SINGLE DOOR
CONCEALED INDEPENDENT PAIR
CONCEALED SIMULTANEOUS PAIR
AVAILABLE
NOT AVAILABLE

56 LCN Door Control Catalog
phone: 877-671-7011 n fax: 800-248-1460 n www.allegion.com/us n 009426 rev. 2/16
Top Jamb Single Door
Mounting
Mounting details
Butt Hinges Shouldnotexceed5˝(127mm)inwidth
Reveal Shouldnotexceed1/8˝(3mm)
Head Frame Minimum2˝(51mm)
Top Rail Minimum2˝(51mm)
Opening and Closing Time n Variable by adjustments to the electronic control module located on the operator assembly
n Maximum hold open time adjustable up to approximately 30 seconds
System Diagram See “AUTOMATIC OPERATORS” section page 51 for typical system wiring and page 53 for electrical data
Maximum Opening Template allows 90 degree power opening and 90 degree manual opening
Notes:
• Push 'N Go permits non-switch activation with a microprocessor control box that ensures reliability and maintains customer settings
• Power boost allows for increased closing force near latch
• On/off switch is included as standard
• All potentiometers are clearly labeled with their functions
• LED lights indicate power to control box and motor gearbox
Offset/butt hinge, center pivot, pull, standard cover
Offset/butt hinge, center pivot, pull, full cover
5/8" from
Top of Door
From Top of Door
Opening to Ceiling
Pull Arm
Assembly
4-3/4"
121 mm
4-1/2"
114 mm
6" Min.
152 mm
27" Operator
28-1/2" Pull Channel
Offset
Pivot or
Butt
Hinges
Operator
Door
Door
Frame
5/8" from
Top of Door
From Top of Door
Opening to Ceiling
Pull Arm
Assembly
4-3/4"
121 mm
4-1/2"
114 mm
6" Min.
152 mm
Full Length Operator
28-1/2" Pull Channel
Offset
Pivot or
Butt
Hinges Operator
Door
Door
Frame
9130
Series
Benchmark

57
LCN Door Control Catalog
phone: 877-671-7011 n fax: 800-248-1460 n www.allegion.com/us n 009426 rev. 2/16
Accessories
9130-3454S
Motor Gearbox Assembly
n Driving mechanism for operator
(switch included)
n For27˝unit
9130-3462
Control Box (120v)
n Electronic controlling device
with power supply output
and power boost feature for
Benchmark
9130-3018
Mounting Bracket
n Standard
9130-72MC
Metal Cover
n Non-handed
n 27˝
n Extruded aluminum
n Standard
9130-163-1
Cover End Cap Insert
n Used to cover switch hole
opening
9130-72FC
Full Metal Cover
n Non-handed
n 36˝
n Extruded aluminum
9130-334
Cover End Cap
n Black plastic
n Includes 9130-163-1 cover and cap insert
9130-3351-2
Switch Bracket
n 41˝cable
n Bracket used to locate switch at
end of cover on full length unit
9130-163
Cover Insert
n Used to cover operator shaft
opening (includes 2 pieces)
Motor Gearbox Control Box
Brackets
Covers
9130-3454
Motor Gearbox Assembly
(W/O Switch)
n Driving mechanism for
operator (switch not included)
n Forfulllength36˝unit
9130
Series
Benchmark

58 LCN Door Control Catalog
phone: 877-671-7011 n fax: 800-248-1460 n www.allegion.com/us n 009426 rev. 2/16
9130-3038
Standard Track
n Non-handed
n Standard
9130-73
Track End Cap
n Black plastic
9130-3034
Roller Assembly
n Quiet low friction
9130-3077T
Standard Arm
n Non-handed
n Track roller not included
9130-3077PLCM
Standard Arm
n Non-handed
n Standard non-handed track
Tracks
Arms
Accessories
9130
Series
Benchmark

59
LCN Door Control Catalog
phone: 877-671-7011 n fax: 800-248-1460 n www.allegion.com/us n 009426 rev. 2/16
Ordering Information
Operator will be shipped with:
- Standard motor gearbox
- Standard control box
- Mounting bracket
-27˝metalcover
- Standard arm (3077t)
- Standard track w/track roller
- Wood and machine screw pack
unless options listed below are selected
Operator options
Cover
36˝FullCover
Specify Finish
Standard Anodized Finish __________
Aluminum or Dark Bronze
How-to-order 9130 Series closers
Indicates recommended range of door width for operator.
9131
Minimum door width
Door width
30˝
762mm
48˝
1219mm
NOTE: For All Benchmark Series.
30˝ minimum door width for 27˝ pull operator.
36˝ door width only for full length pull operator.
Table of sizes
9130
Series
Benchmark

60 LCN Door Control Catalog
phone: 877-671-7011 n fax: 800-248-1460 n www.allegion.com/us n 009426 rev. 2/16
Notes
__________________________________________________________________________________________________________________________________________________________________________________
__________________________________________________________________________________________________________________________________________________________________________________
__________________________________________________________________________________________________________________________________________________________________________________
__________________________________________________________________________________________________________________________________________________________________________________
__________________________________________________________________________________________________________________________________________________________________________________
__________________________________________________________________________________________________________________________________________________________________________________
__________________________________________________________________________________________________________________________________________________________________________________
__________________________________________________________________________________________________________________________________________________________________________________
__________________________________________________________________________________________________________________________________________________________________________________
__________________________________________________________________________________________________________________________________________________________________________________
__________________________________________________________________________________________________________________________________________________________________________________
__________________________________________________________________________________________________________________________________________________________________________________
__________________________________________________________________________________________________________________________________________________________________________________
__________________________________________________________________________________________________________________________________________________________________________________
__________________________________________________________________________________________________________________________________________________________________________________
__________________________________________________________________________________________________________________________________________________________________________________
__________________________________________________________________________________________________________________________________________________________________________________
__________________________________________________________________________________________________________________________________________________________________________________
__________________________________________________________________________________________________________________________________________________________________________________
__________________________________________________________________________________________________________________________________________________________________________________
__________________________________________________________________________________________________________________________________________________________________________________
__________________________________________________________________________________________________________________________________________________________________________________
__________________________________________________________________________________________________________________________________________________________________________________
__________________________________________________________________________________________________________________________________________________________________________________
__________________________________________________________________________________________________________________________________________________________________________________
__________________________________________________________________________________________________________________________________________________________________________________

61
LCN Door Control Catalog
phone: 877-671-7011 n fax: 800-248-1460 n www.allegion.com/us n 009426 rev. 2/16
9140
Series
Benchmark
The 9140 BENCHMARK by LCN is an electrically powered low-energy operator. It provides
easy access for people with disabilities, or the elderly. Designed primarily for automatic
opening applications that occasionally require manual opening. The BENCHMARK is a
cost-effective solution for retrofitting an activated or manual door.
Certifications Grade 1 - ANSI A156.19, UL325/228, ADA,
100 Hour Salt Spray, Meets BAA - Buy
American Act
Handing Non-Handed
Door Width n 26˝-48˝
n 26˝minimumdoorwidthfor27˝
n 36˝doorwidthonlyforfulllengthpull
operator
Warranty 2 years
Fasteners Wood and machine screws
Mounting Single interior door, surface mount, offset
pivot / butt hinge (Push Side)
Arms Regular arm
Finishes/Colors/
Powder Coat
n Anodized aluminum, standard
n Dark bronze, optional
Customized installation templates or products may be available to solve unusual applications.
Contact LCN Product Support for assistance.
Features
Special
Templates
AVAILABLE
NOT AVAILABLE
STANDARD ANODIZED
FINISH
HANDING
HANDED
NON-HANDED
COVER
METAL
ARM FUNCTION
STANDARD (SINGLE LEVER)
REGULAR (DOUBLE LEVER)
OFFSET PIVOT BUTT HINGE ARM
CENTER PIVOT ARM
DOUBLE EGRESS (PUSH/PULL)
MOUNTING
SURFACE MOUNT SINGLE DOOR
SURFACE MOUNT SIMULTANEOUS PAIR
SURFACE MOUNT INDEPENDENT PAIR
CONCEALED SINGLE DOOR
CONCEALED INDEPENDENT PAIR
CONCEALED SIMULTANEOUS PAIR

62 LCN Door Control Catalog
phone: 877-671-7011 n fax: 800-248-1460 n www.allegion.com/us n 009426 rev. 2/16
Top Jamb Single Door
Mounting
Mounting details
Butt Hinges Shouldnotexceed5˝(127mm)inwidth
Reveal Pushinstallationsshouldnotexceed6˝(152mm)forREGULARARMand9-3/4˝(248mm)forLONGARM
Head Frame Minimum2˝(51mm)
Top Rail n Minimum2˝(51mm)
n Flushceilinginstallationrequires5-1/4˝(133mm)minimum
Opening and Closing Time n Variable by adjustments to the electronic control module located on the operator assembly
n Maximum hold open time adjustable up to approximately 30 seconds
System Diagram See “AUTOMATIC OPERATORS” section pages 54 for typical system wiring and page 55 for electrical data
Maximum Opening Template allows 90 degree power opening and 90 degree manual opening
Notes:
• Push 'N Go permits non-switch activation with a microprocessor control box that ensures reliability and maintains customer settings
• Power boost allows for increased closing force near latch
• On/off switch is included as standard
• All potentiometers are clearly labeled with their functions
• LED lights indicate power to control box and motor gearbox
Offset/butt hinge, center pivot, push, standard cover
Offset/butt hinge, center pivot, push, full cover
18-1/4" from
Edge of Door
1-7/16" from
Top of Door
5-9/16" Min.
141 mm
19-1/2" Max.
495 mm
Pull Arm
Assembly
4-3/4"
121 mm 4-1/2"
114 mm
27" Operator
Offset
Pivot or
Butt Hing
es
Operator
Door Door
Frame
18-1/4" from
Edge of Door
1-7/16" from
Top of Door
5-9/16" Min.
141 mm
19-1/2" Max.
495 mm
Push Arm
Assembly
4-3/4"
121 mm 4-1/2"
114 mm
Full Length Operator
Offset
Pivot or
ButtHing
es
Operator
Door Door
Frame
9140
Series
Benchmark

63
LCN Door Control Catalog
phone: 877-671-7011 n fax: 800-248-1460 n www.allegion.com/us n 009426 rev. 2/16
Accessories
9140-3454S
Motor Gearbox Assembly
n Driving mechanism for operator
(switch included)
n For27˝unit
9130-3462
Control Box (120v)
n Electronic controlling device
with power supply output
and power boost feature for
Benchmark
9140-3018
Mounting bracket
n Standard
9140-72MC
Metal Cover
n Non-handed
n 27˝
n Extruded aluminum cover
n Standard
9140-163-1
Cover End Cap Insert
n Used to cover switch hole
opening
9140-3351-1
Switch Bracket
n 29˝cable
n Used with a 36" door
n Used to locate switch at end of
cover on full length unit
9140-72FC
Full Metal Cover
n Non-handed
n 36˝
n Extruded aluminum cover
9140-334
Cover End Cap
n Black plastic
n Includes 9130-163-1 cover and cap insert
9140-163
Cover Insert
n Used to cover operator shaft
opening (includes 2 pieces)
Motor Gearbox Control Box
Brackets
Covers
9140-3454
Motor Gearbox Assembly
(W/O Switch)
n Driving mechanism for
operator (switch not
included)
n Forfulllengthunit(36˝)
9140
Series
Benchmark

64 LCN Door Control Catalog
phone: 877-671-7011 n fax: 800-248-1460 n www.allegion.com/us n 009426 rev. 2/16
9140-3077
Regular arm
n Non-handed
9140-3077L
Long push arm
n Non-handed
9140-79
Rod and shoe
n For use with regular arm
9140-79LR
Long rod and shoe
n Used with long arm, for deep
reveals
Arms
Accessories
9140
Series
Benchmark

65
LCN Door Control Catalog
phone: 877-671-7011 n fax: 800-248-1460 n www.allegion.com/us n 009426 rev. 2/16
Ordering Information
Operator will be shipped with:
- Standard motor gearbox
- Standard control box
- Mounting bracket
-27˝metalcover
- Standard arm (3077)
- Standard track w/track roller
- Wood and machine screw pack
unless options listed below are selected
Operator options
Cover
36˝FullCover
Arm
LongArm(3077L)(reveals6˝to9-3/4˝)
Specify Finish
Standard Anodized Finish __________
Aluminum or Dark Bronze
How-to-order 9140 Series closers
Indicates recommended range of door width for operator.
9142
Minimum door width
Door width
26˝
660mm
48˝
1219mm
NOTE: For All Benchmark Series.
30˝ minimum door width for 27˝ pull operator.
36˝ door width only for full length pull operator.
Table of sizes
9140
Series
Benchmark

66 LCN Door Control Catalog
phone: 877-671-7011 n fax: 800-248-1460 n www.allegion.com/us n 009426 rev. 2/16
Notes
__________________________________________________________________________________________________________________________________________________________________________________
__________________________________________________________________________________________________________________________________________________________________________________
__________________________________________________________________________________________________________________________________________________________________________________
__________________________________________________________________________________________________________________________________________________________________________________
__________________________________________________________________________________________________________________________________________________________________________________
__________________________________________________________________________________________________________________________________________________________________________________
__________________________________________________________________________________________________________________________________________________________________________________
__________________________________________________________________________________________________________________________________________________________________________________
__________________________________________________________________________________________________________________________________________________________________________________
__________________________________________________________________________________________________________________________________________________________________________________
__________________________________________________________________________________________________________________________________________________________________________________
__________________________________________________________________________________________________________________________________________________________________________________
__________________________________________________________________________________________________________________________________________________________________________________
__________________________________________________________________________________________________________________________________________________________________________________
__________________________________________________________________________________________________________________________________________________________________________________
__________________________________________________________________________________________________________________________________________________________________________________
__________________________________________________________________________________________________________________________________________________________________________________
__________________________________________________________________________________________________________________________________________________________________________________
__________________________________________________________________________________________________________________________________________________________________________________
__________________________________________________________________________________________________________________________________________________________________________________
__________________________________________________________________________________________________________________________________________________________________________________
__________________________________________________________________________________________________________________________________________________________________________________
__________________________________________________________________________________________________________________________________________________________________________________
__________________________________________________________________________________________________________________________________________________________________________________
__________________________________________________________________________________________________________________________________________________________________________________
__________________________________________________________________________________________________________________________________________________________________________________

67
LCN Door Control Catalog
phone: 877-671-7011 n fax: 800-248-1460 n www.allegion.com/us n 009426 rev. 2/16
9150
Series
Benchmark
The 9150 BENCHMARK by LCN is an electrically powered low-energy operator. It provides
easy access for people with disabilities, or the elderly. Designed primarily for automatic
opening applications that occasionally require manual opening. The BENCHMARK is a
cost-effective solution for retrofitting an activated or manual door.
Certifications Grade 1 - ANSI A156.19, UL325/228 ADA,
100 Hour Salt Spray, Meets BAA - Buy
American Act
Handing Non-Handed
Templating Peel-n-Stick templates -
2-3/8˝x6-3/4˝MountingHolePattern
Door Width n Minimumdoorwidth52˝-96˝
n 72˝doorwidthonlyforfulllengthdouble
operator
Warranty 2 years
Cover Metal, standard
Fasteners Wood and machine screws
Mounting Pair of doors, surface mount, offset pivot /
butt hinges (Push Side)
Arms Regular arms
Finishes/Colors/
Powder Coat
n Anodized aluminum, standard
n Dark bronze, optional
Customized installation templates or products may be available to solve unusual applications.
Contact LCN Product Support for assistance.
Features
Special
Templates
AVAILABLE
NOT AVAILABLE
STANDARD ANODIZED
FINISH
HANDING
HANDED
NON-HANDED
COVER
METAL
ARM FUNCTION
STANDARD (SINGLE LEVER)
REGULAR (DOUBLE LEVER)
OFFSET PIVOT BUTT HINGE ARM
CENTER PIVOT ARM
DOUBLE EGRESS (PUSH/PULL)
MOUNTING
SURFACE MOUNT SINGLE DOOR
SURFACE MOUNT SIMULTANEOUS PAIR
SURFACE MOUNT INDEPENDENT PAIR
CONCEALED SINGLE DOOR
CONCEALED INDEPENDENT PAIR
CONCEALED SIMULTANEOUS PAIR

68 LCN Door Control Catalog
phone: 877-671-7011 n fax: 800-248-1460 n www.allegion.com/us n 009426 rev. 2/16
Top jamb, Independent/
Simultaneous Pair
Mounting
Mounting details
Butt Hinges Shouldnotexceed5˝(127mm)inwidth
Reveal Pushinstallationsshouldnotexceed6˝(152mm)forREGULARARMand9-3/4˝(248mm)forLONGARM
Head Frame Minimum2˝(51mm)
Top Rail n Minimum2˝(51mm)
n Flushceilinginstallationrequires5-1/4˝(133mm)minimum
Opening and Closing Time n Variable by adjustments to the electronic control module located on the operator assembly
n Maximum hold open time adjustable up to approximately 32 seconds
System Diagram See “AUTOMATIC OPERATORS” section pages 54 for typical system wiring and page 55 for electrical data
Maximum Opening Template allows 90 degree power opening and 90 degree manual opening
Notes:
• Determined by wiring
• Push N' Go permits non-switch activation with a microprocessor control box that ensures reliability and maintains customer settings
• Power boost allows for increased closing force near latch
• All potentiometers clearly labeled with their functions
• LED lights indicate power to control box and motor gearbox
Offset pivot/butt hinge, center pivot, push
18-1/4" from
Edge of Door
18-1/4" from
Edge of Door
1-7/16" from
Top of Door
5-9/16" Min.
141 mm
19-1/2" Max.
495 mm
Pull Arm
Assembly
Push Arm
Assembly
4-3/4"
121 mm 4-1/2"
114 mm
Full Length Operator
Offset
Pivot or
Butt
Hinges
Offset
Pivot or
Butt
Hinges
Operator
Door
Door
Frame
9150
Series
Benchmark

69
LCN Door Control Catalog
phone: 877-671-7011 n fax: 800-248-1460 n www.allegion.com/us n 009426 rev. 2/16
Accessories
9150-3454S
Motor Gearbox Assembly
n Driving mechanism for operator
(switch included)
9150-3462
Control Box (120v)
n Electronic controlling device
with power supply output
and power boost feature for
Benchmark
9150-3018
Mounting Bracket
n Standard
9150-72MC
Metal Cover
n Non-handed
n 72˝
n Extruded aluminum cover
n Standard
9150-163
Cover Insert
n Used to cover operator shaft
opening (includes 2 pieces)
9150-163-1
Cover End Cap Insert
n Used to cover switch hole
opening
9150-334
Cover End Cap
n Black plastic
n Includes 9130-163-1 cover
and cap insert
Motor Gearbox Control Box
Brackets
Covers
9150-3077
Regular arm
n Non-handed
9150-3077L
Long arm
n Non-handed
9150-79
Rod and shoe
n For use with regular arm
9150-79LR
Long rod and shoe
n Used with long arm, for deep reveals
Arms
9150
Series
Benchmark

70 LCN Door Control Catalog
phone: 877-671-7011 n fax: 800-248-1460 n www.allegion.com/us n 009426 rev. 2/16
Ordering Information
Operator will be shipped with:
- Standard motor gearbox (2 ea)
- Standard control box (2 ea)
- Mounting bracket (2 ea)
-72˝metalcover
- Standard arm (2 ea)
- Wood and machine screw pack
unless options listed below are selected
Operator options
Arm
LongArm(3077L)(Reveals6˝to9-3/4˝)
Table of sizes
Specify Finish
Standard Anodized Finish __________
Aluminum or Dark Bronze
How-to-order 9150 Series closers
Notes:
• For 9150 Benchmark Series
• 72˝ door width only for full length push double door operator.
9150
Series
Benchmark

71
LCN Door Control Catalog
phone: 877-671-7011 n fax: 800-248-1460 n www.allegion.com/us n 009426 rev. 2/16
Senior Swing
Unique
Features
Digital Control Suite
Provides exceptionally precise control of a large range of built-in functions
combined with superior durability and performance. Visual indications
and digital readouts of all control function settings and activity make
adjustments easy, fast and accurate.
Dual Independent Program Memories
Each unit is pre-programmed to factory default settings. The installer can
adjust the unit to meet the job site requirements. These field settings are
locked into the computer’s memory. Any subsequent field adjustments
replace the original field adjustments. The factory settings are always
retained in memory and can be recalled to replace the field settings in just
seconds, restoring the unit to its original programming.
On-Board Diagnostics
Sophisticated built-in diagnostics program monitors the system
microprocessor, power supplies, drive systems, actuators and safety circuits.
Reduces the time required to make sure the installation is complete and
correct.
On-Board Power Supply
Provides 24V AC output or 24V DC output with rectifier to power card
readers, manual actuators and other peripherals.
Plug and Play Sensors
Motion sensors and safety sensors feature a “plug and play” concept
allowing fast and accurate wiring connections in only seconds.
Electronic Circuit Protection
High voltage (primary AC input) is protected by replaceable fuse. Low
voltage (secondary AC output) is protected by self-resetting fuses.
Visual Function Indicators
LED Display allows direct observation of these inputs while in visual
function indicator mode:
n Key switch- set to Auto, OFF or HOLD
n Activate
n DMSS approach
n DMSS safety
n Bodyguard
n Power Boost Disable
Programming Mode
Allows tailoring the following functions to meet specific site conditions
n Opening Speed
n Backcheck Speed
n Backcheck Position
n Hold Open Delay
n Latch Position
n Auto Reverse - Closing
n Electric Lock Delay
n Power Boost
n Push N’ Go
n Alternate Action
n Safety Slow/Stop
n Slow Down Disable
Push ‘N Go
Allows pedestrians to walk up to the door and push it open as if it were a
manual door. After the door is manually opened approximately 5 degrees,
the Push ‘N Go feature takes over and continues to open the door – slowly
and automatically to the full open position. With Push ‘N Go, the door
will stay fully open from one to 30 seconds, depending on the time delay
chosen.
Auto Reverse
A safety feature that reverses the direction of the door when it comes into
contact with an object during either opening or closing.
Safety Slow/Stops Function
Once the door starts opening, any person or object entering the swing area
will cause the door to go into a safety slow speed. This function can be set
to allow for a short stop once a person or object is sensed.
Power Boost
Adds an additional latching force to ensure secure latching in severe wind
or stack conditions. Power Boost is also ideal for overcoming slowing
obstacles such as electric strikes. Provides approximately 25 lbs. of total
closing force.
Microprocessor
Control unit allows for quiet efficiency in operation. Combined with the all
electromechanical unit, it eliminates unnecessary wear and prolongs the
life of the unit.
Electric Lock Delay
Causes a 1 second delay between activate signal and door opening to allow
time for most electric locks to disengage before operator opens door.

72 LCN Door Control Catalog
phone: 877-671-7011 n fax: 800-248-1460 n www.allegion.com/us n 009426 rev. 2/16
Notes
__________________________________________________________________________________________________________________________________________________________________________________
__________________________________________________________________________________________________________________________________________________________________________________
__________________________________________________________________________________________________________________________________________________________________________________
__________________________________________________________________________________________________________________________________________________________________________________
__________________________________________________________________________________________________________________________________________________________________________________
__________________________________________________________________________________________________________________________________________________________________________________
__________________________________________________________________________________________________________________________________________________________________________________
__________________________________________________________________________________________________________________________________________________________________________________
__________________________________________________________________________________________________________________________________________________________________________________
__________________________________________________________________________________________________________________________________________________________________________________
__________________________________________________________________________________________________________________________________________________________________________________
__________________________________________________________________________________________________________________________________________________________________________________
__________________________________________________________________________________________________________________________________________________________________________________
__________________________________________________________________________________________________________________________________________________________________________________
__________________________________________________________________________________________________________________________________________________________________________________
__________________________________________________________________________________________________________________________________________________________________________________
__________________________________________________________________________________________________________________________________________________________________________________
__________________________________________________________________________________________________________________________________________________________________________________
__________________________________________________________________________________________________________________________________________________________________________________
__________________________________________________________________________________________________________________________________________________________________________________
__________________________________________________________________________________________________________________________________________________________________________________
__________________________________________________________________________________________________________________________________________________________________________________
__________________________________________________________________________________________________________________________________________________________________________________
__________________________________________________________________________________________________________________________________________________________________________________
__________________________________________________________________________________________________________________________________________________________________________________
__________________________________________________________________________________________________________________________________________________________________________________

73
LCN Door Control Catalog
phone: 877-671-7011 n fax: 800-248-1460 n www.allegion.com/us n 009426 rev. 2/16
The 2810 SENIOR SWING by LCN is an ADA door operator that is a two-in-one swing
door operator. SENIOR SWING operator when activated, opens doors automatically for
wheelchair access, yet allows for manual operation for regular pedestrian traffic.
Certifications Grade 1 - ANSI A156.19, UL325, UL1998,
ADA, 100 Hour Salt Spray, Meets BAA - Buy
American Act
Handing Handed
Door Width Minimumdoorwidth33˝-48˝49"with
finger guard.
Note: Single door width per leaf 33" minimum,
48" maximum
Warranty 2 years
Fasteners Wood and machine screws
Mounting Single door, overhead concealed, center
pivot, offset pivot, butt hinge
Arms Center Pivot Arm or Offset Pivot Arm
Finishes/Colors/
Powder Coat
n Anodized Aluminum
n Anodized Dark Bronze
Customized installation templates or products may be available to solve unusual applications.
Contact LCN Product Support for assistance.
Features
Special
Templates
AVAILABLE
NOT AVAILABLE
STANDARD ANODIZED
FINISH
HANDING
HANDED
NON-HANDED
COVER
METAL
ARM FUNCTION
STANDARD (SINGLE LEVER)
REGULAR (DOUBLE LEVER)
OFFSET PIVOT BUTT HINGE ARM
CENTER PIVOT ARM
DOUBLE EGRESS (PUSH/PULL)
MOUNTING
SURFACE MOUNT SINGLE DOOR
SURFACE MOUNT SIMULTANEOUS PAIR
SURFACE MOUNT INDEPENDENT PAIR
CONCEALED SINGLE DOOR
CONCEALED INDEPENDENT PAIR
CONCEALED SIMULTANEOUS PAIR
2810
Series
Senior Swing

74 LCN Door Control Catalog
phone: 877-671-7011 n fax: 800-248-1460 n www.allegion.com/us n 009426 rev. 5/16
Concealed Single
Door Mounting
Mounting details
Head Frame Minimum36˝(L)x5-3/4˝(H)x4-1/2˝(W)(914mmx146mmx114mm)
Top Rail Minimum2˝(51mm)
Opening and Closing Time n Variable by adjustments to the electronic control box
n Maximum hold open time adjustable up to approximately 32 seconds
Door Stop Required for each door panel
System Diagram See “AUTOMATIC OPERATORS” section page 51 for typical system wiring and page 53 for electrical data
Maximum Opening Template allows 90 degree power opening and 90 degree manual opening
n Minimumheaderlength33˝withappliedstopbyothersand36˝withLCNfixedorbreakawaystop
Notes:
• Push N' Go permits non-switch activation
• Power boost provides additional latch forcing for electromechanical unit with microprocessor control
• Double door header available up to 98˝, specify length 49˝ to 98˝ maximum (Consult factory regarding this option)
• Fixed (positive) or breakaway stop available with center pivot arm
• Adjustable hold open time of 1-32 seconds
Center pivot, emergency breakaway, pull
Shown w/ 3-3/4˝ pivot and finger guard
Center pivot, fixed stop, push
Shown w/ 3-3/4˝ pivot and finger guard
1/8"
3 MM
4-1/2"
114 mm
5-3/4"
146 mm
3-3/4"
95 mm
1"
25 mm
Emergency
Breakout
Incoming
48" Door Opening (Max.)
3/16"
5 mm
Swing
Operator
Breakaway
Stop
Breakout
Direction
Swing
Direction
Exterior
1/8"
3 MM
4-1/2"
114 mm
5-3/4"
146 mm
3-3/4"
95 mm
1"
25 mm
Outgoing
48" Door Opening (Max.)
3/16"
5 mm
Swing
Operator
Fixed
Stop
Swing
Direction
Exterior
2810
Series
Senior Swing

75
LCN Door Control Catalog
phone: 877-671-7011 n fax: 800-248-1460 n www.allegion.com/us n 009426 rev. 5/16
Concealed Single
Door Mounting
Mounting details
Head Frame Minimum33˝(L)x5-3/4˝(H)x4-1/2˝(W)(838mmx146mmx114mm)
Top Rail Minimum2˝(51mm)
Opening and Closing Time n Variable by adjustments to the electronic control box
n Maximum hold open time adjustable up to approximately 32 seconds
Door Stop Required for each door panel
System Diagram See “AUTOMATIC OPERATORS” section page 51 for typical system wiring and page 53 for electrical data
Maximum Opening Template allows 90 degree power opening and 90 degree manual opening
n Minimumheaderlength33˝
n Installations require bottom pivot and two intermediate pivots
Notes:
• Push N' Go permits non-switch activation
• Power boost provides additional latch forcing for electromechanical unit with microprocessor control
• Double door header available up to 98˝, specify length 49˝ to 98˝ maximum (Consult factory regarding this option)
• Fixed (positive) or breakaway stop available with center pivot arm
• Adjustable hold open time of 1-32 seconds
Offset pivot or butt hinge, slide arm, push
Shown w/ 3-3/4˝ pivot
4-1/2"
114 mm
3-3/4"
95 mm 10-1/2"
257 mm
5-3/4"
146 mm
Outgoing
Slide Arm Assembly
with Slide Block
Slide Arm
Assembly
11" Slide Channel
Concealing Channel
Conc
ealing
Channel
Door
1/8"
3 mm
Door
Frame
Swing
Operator
Swing
Direction
Exterior
Offset
Piv
ot or
Butt
Hinges
2810
Series
Senior Swing

76 LCN Door Control Catalog
phone: 877-671-7011 n fax: 800-248-1460 n www.allegion.com/us n 009426 rev. 2/16
2810
Series
Senior Swing
2810-3454
Motor Gearbox
n Senior swing
n Handed
n Driving mechanism for operator
n Provides maximum 15 lbs
opening force
2810-375
Mounting Bracket
n Motor gearbox mounting
bracketfor3-3/4˝offsetpivot,
butt hinge or center pivot with
finger guard installations
n Front bracket
2810-275
Mounting Bracket
n Motor gearbox mounting
bracketfor2-3/4˝centerpivot
installations
n Front bracket
2810-3572DD
Header
n Standard
n Double door, single operator
n Specifylength49˝to98˝
maximum
2810-3018
Rear Mounting Bracket
n Motor gearbox mounting
bracket
n Rear bracket
2810-334
Header End Caps
n Wth openings for wiring
2810-3462
Control Box
n Senior swing
n Electronic controlling device for
Senior Swing
2810-3077CP
Center Pivot Arm
n Center pivot installations only
n Used with overhead concealed
operators and center pivoted
doors
2810-3572HL
Header
n Standard
n Single door, single operator
n Specifylength33˝to49˝
maximum
2810-3077OP
Offset Pivot Arm
n Offset pivot or butt hung
installations only
n Used with overhead concealed
operators
2810-3077 OPCM
Offset Pivot Arm Assembly
n Offset arm with track and
concealing channel (includes
3072 concealing channel, 168
slide channel and 3077OP
offset pivot arm)
Motor Gearbox Mount Brackets
Headers End CapControl Box
Arms
Accessories

77
LCN Door Control Catalog
phone: 877-671-7011 n fax: 800-248-1460 n www.allegion.com/us n 009426 rev. 2/16
2810
Series
Senior Swing
Accessories
2810-3072
Concealing Channel
n Used to conceal arm
in overhead concealed
applications
n For offset pivot installations
only
n If ordering separately specify
length and hand
2810-168
Slide channel
n
Offset pivot or butt hinge
installations only
n Mounts in top rail of door
n Allows arm to slide
2810-384B
Door Stop Breakaway
n Allows in-swinging door to
swing out in case of emergency
n Disables operator in breakaway
mode.
n For center pivoted installations
only
2810-12
Filler Plate Blank
n Completes length of header
box
2810-384F
Door Stop Fixed
n Prevents out-swinging door
from swinging in
n For center pivoted installations
only
2810-11A
Spindle Plate
n Hides bottom of motor gearbox
n Completes header box
n Cutout allows for motor
gearbox shaft
n For2-3/4˝centerpivot
installations
2810-3107
Bottom Pivot Assembly
n Includes pivot body, pivot post
and bottom pivot plate
n For overhead concealed, center
pivoted installations
n Includes; 2810-107, 2810-110
and 2810-117
2810-110
Pivot Post
n Connects pivot body to bottom
pivot plate for center pivoted
installations
2810-107
Bottom Pivot Body
n For center pivoted installations
2810-117
Bottom Pivot Plate
n Applied to floor for center
pivoted installations
2810-11B
Spindle Plate
n Hides bottom of motor gearbox
n Completes header box
n Cutout allows for motor gearbox shaft
n For3-3/4˝offsetpivot,butthingeorcenterpivotwith
finger guard installations
Channels Installation Accessories
Pivots

78 LCN Door Control Catalog
phone: 877-671-7011 n fax: 800-248-1460 n www.allegion.com/us n 009426 rev. 2/16
Ordering Information
Operator will be shipped with:
- Motor gearbox,
- Control box,
-Header(atspecifiedlength,36˝standard),
- Wood and machine screw pack
unless options listed below are selected.
Operator options
Stops
Positive Mechanical Stop (POS)
Panic Breakaway Stop (BKY)
*Available with Center Pivoted installations only
Select installation type
2811
Specify arm
3-3/4˝(Offsetpivoted)Arm(3077OP)
2-3/4˝(Centerpivoted)Arm(3077CP)
3-3/4˝(Centerpivoted)Arm(3077CP)
Specify hand
RH
LH
Specify header/length
HL__(Specifylength33˝to49˝offsetpivot)
HL__(Specifylength36˝to49˝centerpivot)
DD__(Specifylength49˝to98˝)
Specify finish
Standard Anodized Finish ______________
Aluminum or Dark Bronze
How-to-order 2810 Series
Indicates recommended range of door width for operator.
2811
Minimum door width
Door width
33˝
838mm
48˝
1219mm
NOTE: For all Senior Swing Series
Single Door - Width per leaf 33˝ minimum, 48˝ maximum
Table of sizes
2810
Series
Senior Swing

79
LCN Door Control Catalog
phone: 877-671-7011 n fax: 800-248-1460 n www.allegion.com/us n 009426 rev. 2/16
2850
Series
Senior Swing
The 2850 SENIOR SWING by LCN is an ADA door operator that is a two-in-one swing
door operator. SENIOR SWING operator when activated, opens doors automatically for
wheelchair access, yet allows for manual operation for regular pedestrian traffic.
Certifications Grade 1 - ANSI A156.19, UL325, UL1998,
ADA, 100 Hour Salt Spray, Meets BAA - Buy
American Act
Fluid All Weather Fluid
Handing Handed
Door Width n Combinedwidthmin52˝-96˝
n Simultaneouspair-widthperleaf26˝
minimumto48˝maximum
Warranty 2 years
Fasteners Wood and machine screw pack
Mounting Double door, overhead concealed, center
pivot, offset pivot, butt hinge
Arms Offset Pivot Arm or Center Pivot Arm
Finishes/Colors/
Powder Coat
n Anodized Aluminum
n Anodized Dark Bronze
Customized installation templates or products may be available to solve unusual applications.
Contact LCN Product Support for assistance.
Features
Special
Templates
AVAILABLE
NOT AVAILABLE
STANDARD ANODIZED
FINISH
HANDING
HANDED*
NON-HANDED
COVER
METAL
ARM FUNCTION
STANDARD (SINGLE LEVER)
REGULAR (DOUBLE LEVER)
OFFSET PIVOT BUTT HINGE ARM
CENTER PIVOT ARM
DOUBLE EGRESS (PUSH/PULL)
MOUNTING
SURFACE MOUNT SINGLE DOOR
SURFACE MOUNT SIMULTANEOUS PAIR
SURFACE MOUNT INDEPENDENT PAIR
CONCEALED SINGLE DOOR
CONCEALED INDEPENDENT PAIR
CONCEALED SIMULTANEOUS PAIR
* For double egress only.

80 LCN Door Control Catalog
phone: 877-671-7011 n fax: 800-248-1460 n www.allegion.com/us n 009426 rev. 2/16
2850
Series
Senior Swing
Concealed
Simultaneous Pair
Mounting details
Head Frame Minimum52˝(L)x5-3/4˝(H)x4-1/2˝(W)(1524mmx146mmx114mm)
Top Rail Minimum2˝(51mm)
Opening and Closing Time n Variable by adjustments to the electronic control box
n Maximum hold open time adjustable up to approximately 32 seconds.
Door Stop Required for each door panel
System Diagram See “AUTOMATIC OPERATORS” section page 51 for typical system wiring and page 53 for electrical data
Maximum Opening Template allows 90 degree power opening and 90 degree manual opening
Notes:
• Push N' Go permits non-switch activation with power boost providing additional latching force
• Electromechanical unit with microprocessor control
• 36˝ header length is standard, specify length 33˝ - 49˝ max
• Double header available 98˝, specify length 49˝ - 98˝ max
• Fixed (positive) or breakaway stop available with center pivot arm
• Adjustable hold open time of 1-32 seconds
• Actuators available separately, see pages 115-131
Center pivot, emergency breakaway, pull
Shown w/ 3-3/4˝ pivot
Center pivot, fixed stop, push
Shown w/ 3-3/4˝ pivot
4-1/2"
114 mm
3-3/4"
95 mm
3-3/4"
95 mm
5-3/4"
146 mm
1/8"
3 mm
1"
25 mm 1"
25 mm
Swing
Operator
8'0" Door Opening (Max.)
Incoming Incoming Swing
Direction
Exterior
Exterior
Breakaway
Stop
Breakaway
Direction
Emergency
Breakaway
Emergency
Breakaway
4-1/2"
114 mm
3-3/4"
95 mm
3-3/4"
95 mm
5-3/4"
146 mm
1/8"
3 mm
1"
25 mm
1"
25 mm
Swing
Operator
Fixed
Stop
8'0" Door Opening (Max.)
OutgoingOutgoing
Swing
Direction
Exterior
Exterior

81
LCN Door Control Catalog
phone: 877-671-7011 n fax: 800-248-1460 n www.allegion.com/us n 009426 rev. 2/16
2850
Series
Senior Swing
Mounting details
Concealed
Simultaneous Pair
Head Frame Minimum52˝(L)x5-3/4˝(H)x4-1/2˝(W)(1524mmx146mmx114mm)
Top Rail Minimum2˝(51mm)
Opening and Closing Time n Variable by adjustments to the electronic control box
n Maximum hold open time adjustable up to approximately 32 seconds
Door Stop Required for each door panel
System Diagram See “AUTOMATIC OPERATORS” section page 51 for typical system wiring and page 53 for electrical data
Maximum Opening Template allows 90 degree power opening and 90 degree manual opening
Notes:
• Push N' Go permits non-switch activation with power boost providing additional latching force
• Electromechanical unit with microprocessor control
• 36˝ header length is standard, specify length 33˝ - 49˝ max
• Double header available 98˝, specify length 49˝ - 98˝ max
• Fixed (positive) or breakaway stop available with center pivot arm
• Adjustable hold open time of 1-32 seconds
• Actuators available separately, see pages 115-131
Offset pivot or butt hinge, slide arm, push
Shown w/ 3-3/4˝ pivot
4-1/2"
114 mm
3-3/4"
95 mm
10-1/2"
257 mm
5-3/4"
146 mm
OutgoingOutgoing
Slide Arm Assembly
with Slide Block
Slide Arm
Assembly
11" Slide Channel
Concealing Channel
Concealing
Channel
Door
1/8"
3 mm
Door
Frame
Swing
Operator
Swing
Direction
Exterior
Offset
Pivot or
Butt
Hinges

82 LCN Door Control Catalog
phone: 877-671-7011 n fax: 800-248-1460 n www.allegion.com/us n 009426 rev. 2/16
2850
Series
Senior Swing
9150
Series
Accessories
2850-3454
Motor Gearbox
n Senior swing
n Driving mechanism for operator
n Provides maximum 15 lbs
opening force
n Handed
2850-375
Mounting Bracket
n Motor gearbox mounting
bracketfor3-3/4˝offsetpivot,
butt hinge or center pivot with
finger guard installations
n Front bracket
2850-275
Mounting Bracket
n Motor gearbox mounting
bracketfor2-3/4˝centerpivot
installations
n Front bracket
2850-3572HL
Header
n Mounting header
n Pair door, two operators
n Specifylength52˝to98˝
maximum
n Standard
2850-3018
Rear Mounting Bracket
n Motor gearbox mounting
bracket
n Rear bracket
2850-334
Header End Caps
n End cap with openings for
wiring
2850-3462
Control box
n Senior swing
n Electronic controlling device for
Senior Swing
2850-3077CP
Center pivot arm
n Center pivot installations only
n Used with overhead concealed
operators and center pivoted
doors
2850-982
Companion Cable
n Cable that allows one
control box to run two motor
gearboxes
n For use with Senior Swing
2850-3077OP
Offset pivot arm
n Offset pivot or butt hung
installations only
n Handed
n Used with overhead concealed
operators
2850-3077OPCM
Offset Pivot Arm Assembly
n Offset arm with track and
concealing channel
n Includes 3072 Concealing
Channel, 168 Slide Channel and
30770P offset pivot arm
Motor Gearbox Mount Brackets
Header End CapControl Box
Arms
Accessories

83
LCN Door Control Catalog
phone: 877-671-7011 n fax: 800-248-1460 n www.allegion.com/us n 009426 rev. 2/16
2810
Series
2850
Series
Senior Swing
Accessories
2850-3072
Concealing Channel
n Used to conceal arm
in overhead concealed
applications
n For offset pivot installations
only
n If ordering separately specify
length and hand
2850-168
Slide Channel
n Offset pivot or butt hinge
installations only
n Mounts in top rail of door
n Allows arm to slide
2850-384B
Door Stop Breakaway
n Allows in-swinging door to
swing out in case of emergency
n For center pivoted installations
only
2850-12
Filler Plate Blank
n Completes length of header
box
2850-384F
Door Stop Fixed
n Prevents out-swinging door
from swinging in
n For center pivoted installations
only
2850-11A
Spindle Plate
n Hides bottom of motor gearbox
n Completes header box
n Cutout allows for motor
gearbox shaft
n For2-3/4˝centerpivot
installations
2850-3107
Bottom Pivot Assembly
n Includes pivot body, pivot post
and bottom pivot plate
n For overhead concealed, center
pivoted installations
n Includes: 2850-107, 2850-110
and 2850-117
2850-110
Pivot Post
n Connects pivot body to bottom
pivot plate for center pivoted
installations
2810-107
Bottom Pivot Body
n Pivot body for center pivoted
installations
2850-117
Bottom Pivot Plate
n Applied to floor for center
pivoted installations
2850-11B
Spindle Plate
n Hides bottom of motor gearbox
n Completes header box
n Cutout allows for motor gearbox shaft
n For3-3/4˝offsetpivot,butthingeorcenter
pivot with finger guard installations
Channels Installation Accessories
Pivots
Accessories

84 LCN Door Control Catalog
phone: 877-671-7011 n fax: 800-248-1460 n www.allegion.com/us n 009426 rev. 2/16
2850
Series
Senior Swing
Ordering Information
Operator will be shipped with:
- Standard motor gearbox (1 LH & 1 RH)
- Standard control box
- Companion cable
-Header(atspecifiedlength-72˝standard)
-2-3/4˝pivotpoint
- Wood and machine screw pack
unless options listed below are selected.
Operator options
Stops*
Pair Positive Mechanical Stop (POS)
Pair Panic Breakaway Stop (BKY)
*Available with Center Pivoted installations only
Select installation type
2853
Specify arm
3-3/4˝(Offsetpivoted)Arm(3077OP)
2-3/4˝(Centerpivoted)Arm(3077CP)
3-3/4˝(Centerpivoted)Arm(3077CP)
Specify hand
RH
LH
Specify header/length
HL__(Specifylength52˝to98˝)
Specify finish
Standard Anodized Finish ______________
Aluminum or Dark Bronze
How-to-order 2850 Series
Indicates recommended range of door width for operator.
2853
Minimum door width
Door width
52˝
1524mm
96˝
2438mm
NOTE: For all Senior Swing Series
Simultaneous Pair – Width per leaf 26˝ minimum to 48˝ maximum.
Table of sizes

85
LCN Door Control Catalog
phone: 877-671-7011 n fax: 800-248-1460 n www.allegion.com/us n 009426 rev. 2/16
2860
Series
Senior Swing
The 2860 SENIOR SWING by LCN is an ADA door operator that is a two-in-one swing
door operator. SENIOR SWING operator when activated, opens doors automatically for
wheelchair access, yet allows for manual operation for regular pedestrian traffic.
Certifications Grade 1 - ANSI A156.19, UL325/228, UL1998,
ADA, 100 Hour Salt Spray, Meets BAA - Buy
American Act
Handing Handed
Door Width n Minimumcombineddoorwith52˝-96˝
n Simultaneouspair-widthperleaf26˝
minimumto48˝maximum
Warranty 2 years
Fasteners Wood and machine screw packs
Mounting Independent pair, overhead concealed,
center pivot, offset pivot, butt hinge
Arms Offset Pivot Arm or Center Pivot Arm
Finishes/Colors/
Powder Coat
n Anodized Aluminum
n Anodized Dark Bronze
Customized installation templates or products may be available to solve unusual applications.
Contact LCN Product Support for assistance.
Features
Special
Templates
AVAILABLE
NOT AVAILABLE
* For double egress only.
STANDARD ANODIZED
FINISH
HANDING
HANDED*
NON-HANDED
COVER
METAL
ARM FUNCTION
STANDARD (SINGLE LEVER)
REGULAR (DOUBLE LEVER)
OFFSET PIVOT BUTT HINGE ARM
CENTER PIVOT ARM
DOUBLE EGRESS (PUSH/PULL)
MOUNTING
SURFACE MOUNT SINGLE DOOR
SURFACE MOUNT SIMULTANEOUS PAIR
SURFACE MOUNT INDEPENDENT PAIR
CONCEALED SINGLE DOOR
CONCEALED INDEPENDENT PAIR
CONCEALED SIMULTANEOUS PAIR

86 LCN Door Control Catalog
phone: 877-671-7011 n fax: 800-248-1460 n www.allegion.com/us n 009426 rev. 2/16
2860
Series
Senior Swing
Concealed
Independent Pair
Mounting details
Head Frame Minimum65˝(L)x53/4˝(H)x41/2˝(W)(1651mmx146mmx114mm)
Top Rail Minimum2˝(51mm)
Opening and Closing Time n Variable by adjustments to the electronic control box
n Maximum hold open time adjustable up to approximately 32 seconds.
Door Stop Required for each door panel
System Diagram See “AUTOMATIC OPERATORS” section page 51 for typical system wiring and page 53 for electrical data
Maximum Opening Template allows 90 degree power opening and 90 degree manual opening
Note:
• Push N' Go permits non-switch activation with power boosts providing additional latching force
• Electromechanical unit with microprocessor control
• Digital keypad for easy setup
• 72" header length is standard. Specify other length 65" - 98" max. Consult factory with this option
• Adjustable hold time of 1-32 seconds
• Actuators available separately, see pages 115-131
Center pivot, emergency breakaway, pull
Shown w/ 3-3/4˝ pivot
Center pivot, fixed stop, push
Shown w/ 3-3/4˝ pivot
4-1/2"
114 mm
3-3/4"
95 mm
3-3/4"
95 mm
5-3/4"
146 mm
1/8"
3 mm
1"
25 mm
1"
25 mm
Swing
Operator
8'0" Door Opening (Max.)
Incoming Incoming Swing
Direction
Exterior
Exterior
Breakaway
Stop
Breakawa
y
Direction
Emergency
Breakaway
Emergency
Breakaway
4-1/2"
114 mm
3-3/4"
95 mm
3-3/4"
95 mm
5-3/4"
146 mm
1/8"
3 mm
1"
25 mm
1"
25 mm
Swing
Operator
Fixed
Stop
8'0" Door Opening (Max.)
OutgoingOutgoing
Swing
Direction
Exterior
Exterior

87
LCN Door Control Catalog
phone: 877-671-7011 n fax: 800-248-1460 n www.allegion.com/us n 009426 rev. 2/16
2860
Series
Senior Swing
Mounting details
9150
Series
Concealed
Independent Pair
Mounting details
Head Frame Minimum65˝(L)x5-3/4˝(H)x4-1/2˝(W)(1651mmx146mmx114mm)
Top Rail Minimum2˝(51mm)
Opening and Closing Time n Variable by adjustments to the electronic control box
n Maximum hold open time adjustable up to approximately 32 seconds
Door Stop Required for each door panel
System Diagram See “AUTOMATIC OPERATORS” section page 51 for typical system wiring and page 53 for electrical data
Maximum Opening Template allows 90 degree power opening and 90 degree manual opening
Notes:
• Offset pivot installations require a bottom pivot and two intermediate pivots
Push N' Go permits non-switch activation with power boosts providing additional latching force
Electromechanical unit with microprocessor control
Digital keypad for easy setup
72˝ header length is standard. Specify other length 65˝ - 98˝ max. Consult factory with this option
Optional fixed (POS) or breakaway stop (BKY) available (center pivot arm)
Header lengths 70˝ - 98˝ max with either POS or BKY
Adjustable hold time of 1-32 seconds
Actuators available separately, see pages 115-131
Offset pivot/butt hinge, push
4-1/2"
114 mm
3-3/4"
95 mm
10-1/2"
257 mm
5-3/4"
146 mm
OutgoingOutgoing
Slide Arm Assembly
with Slide Block
Slide Arm
Assembly
11" Slide Channel
Concealing Channel
Concealing
Channel
Door
1/8"
3 mm
Door
Frame
Swing
Operator
Swing
Direction
Exterior
Offset
Pivot or
Butt
Hinges

88 LCN Door Control Catalog
phone: 877-671-7011 n fax: 800-248-1460 n www.allegion.com/us n 009426 rev. 2/16
2860
Series
Senior Swing
9150
Series
Accessories
2860-3454
Motor gearbox
n Senior swing
n Handed
n Driving mechanism for operator
n Provides maximum 15 lbs
opening force
2860-375
Mounting Bracket
n Motor gearbox mounting
bracketfor3-3/4˝offsetpivot,
butt hinge or center pivot with
finger guard installations
n Front bracket
2860-275
Mounting Bracket
n Motor gearbox mounting
bracketfor2-3/4˝centerpivot
installations
n Front bracket
2860-3572HL
Mounting Header
n Pair door, two operators
n Specifylength65˝to98˝
maximum
n Standard
2860-3018
Rear Mounting Bracket
n Motor gearbox mounting
bracket
n Rear bracket
2860-334
Header End Caps
n With openings for wiring
2860-3462
Control box
n Electronic controlling device for
Senior Swing
2860-3077CP
Center Pivot Arm
n Center pivot installations only
n Used with overhead concealed
operators and center pivoted
doors
2860-3077OP
Offset Pivot Arm
n Offset pivot or butt hung
installations only
n Used with overhead concealed
operators
2860-3077OPCM
Offset Pivot Arm Assembly
n Offset arm with track and
concealing channel
n Includes 3072 Concealing
Channel, 168 Slide Channel and
30770P offset pivot arm
Motor Gearbox Mount Brackets
Header End CapControl Box
Arms
Accessories

89
LCN Door Control Catalog
phone: 877-671-7011 n fax: 800-248-1460 n www.allegion.com/us n 009426 rev. 2/16
2810
Series
2860
Series
Senior Swing
Accessories
2860-3072
Concealing Channel
n Used to conceal arm
in overhead concealed
applications
n For offset pivot installations
only
n If ordering separately specify
length and hand
2860-168
Slide Channel
n Offset pivot or butt hinge
installations only
n Mounts in top rail of door
n Allows arm to slide
2860-384B
Door Stop Breakaway
n Allows in-swinging door to
swing out in case of emergency
n For center pivoted installations
only
2860-12
Filler Plate Blank
n Completes length of header
box
2860-384F
Door Stop Fixed
n Prevents out-swinging door
from swinging in
n For center pivoted installations
only
2860-11A
Spindle Plate
n Hides bottom of motor gearbox
n Completes header box
n Cutout allows for motor
gearbox shaft
n For2-3/4˝centerpivot
installations
2860-3107
Bottom Pivot Assembly
n Includes pivot body, pivot post
and bottom pivot plate
n For overhead concealed, center
pivoted installations
n Includes: 2860-107, 2860-110
and 2860-117
2860-110
Pivot Post
n Connects pivot body to bottom
pivot plate for center pivoted
installations
2860-107
Bottom Pivot Body
n Pivot body for center pivoted
installations
2860-117
Bottom Pivot Plate
n Applied to floor for center
pivoted installations
2860-11B
Spindle Plate
n Hides bottom of motor gearbox
n Completes header box
n Cutout allows for motor gearbox
shaft
n For3-3/4˝offsetpivot,butthinge
or center pivot with finger guard
installations
Channels Installation Accessories
Pivots

90 LCN Door Control Catalog
phone: 877-671-7011 n fax: 800-248-1460 n www.allegion.com/us n 009426 rev. 2/16
2860
Series
Senior Swing
Ordering Information
Operator will be shipped with:
- Standard motor gearbox (1 LH & 1 RH)
- Standard control box (2 ea)
-Header(atspecifiedlength-72˝standard)
-2-3/4˝pivotpoint
- Wood and machine screw pack
unless options listed below are selected.
Operator options
Stops*
Pair Positive Mechanical Stop (POS)
Pair Panic Breakaway Stop (BKY)
*Available with Center Pivoted installations only
Select installation type
2863
Specify arm
3-3/4˝(Offsetpivoted)Arm(3077OP)
2-3/4˝(Centerpivoted)Arm(3077CP)
3-3/4˝(Centerpivoted)Arm(3077CP)
Specify hand
RH
LH
Specify header/length
HL__(Specifylength65˝to98˝)
Specify finish
Standard Anodized Finish ______________
Aluminum or Dark Bronze
How-to-order 2860 Series
Indicates recommended range of door width for operator.
2863
Minimum door width
Door width
65˝
1651mm
96˝
2438mm
NOTE: For all Senior Swing Series
Independent Pair – Width per leaf 32-1/2˝ minimum to 48˝ maximum
Table of sizes

91
LCN Door Control Catalog
phone: 877-671-7011 n fax: 800-248-1460 n www.allegion.com/us n 009426 rev. 2/16
9530
Series
Senior Swing
The 9530 SENIOR SWING by LCN is an ADA door operator that is a two-in-one swing
door operator. SENIOR SWING operators when activated, opens doors automatically for
wheelchair access, yet allows for manual operation for regular pedestrian traffic.
Certifications Grade 1 - ANSI A156.19, UL325/228, UL1998,
ADA, 100 Hour Salt Spray, Meets BAA - Buy
American Act
Fluid All Weather Fluid
Handing Handed
Door Width n Minimum33˝-48˝
n Singledoor-widthperleaf33˝minimum,
48˝maximum
Warranty 2 years
Fasteners Machine screw pack
Mounting Single door, surface mount, offset pivot.
butt hinge, pull side
Arms Standard arm (3077T)
Finishes/Colors/
Powder Coat
n Anodized Aluminum
n Anodized Dark Bronze
Customized installation templates or products may be available to solve unusual applications.
Contact LCN Product Support for assistance.
Features
Special
Templates
AVAILABLE
NOT AVAILABLE
STANDARD ANODIZED
FINISH
HANDING
HANDED
NON-HANDED
COVER
METAL
ARM FUNCTION
STANDARD (SINGLE)
REGULAR (DOUBLE)
OFFSET PIVOT BUTT HINGE ARM
CENTER PIVOT ARM
DOUBLE EGRESS (PUSH/PULL)
MOUNTING
SURFACE MOUNT SINGLE DOOR
SURFACE MOUNT SIMULTANEOUS PAIR
SURFACE MOUNT INDEPENDENT PAIR
CONCEALED SINGLE DOOR
CONCEALED INDEPENDENT PAIR
CONCEALED SIMULTANEOUS PAIR

92 LCN Door Control Catalog
phone: 877-671-7011 n fax: 800-248-1460 n www.allegion.com/us n 009426 rev. 2/16
9530
Series
Senior Swing
Top Jamb Single Door
Mounting
Mounting details
Butt Hinges Shouldnotexceed5˝(127mm)inwidth
Reveal Shouldnotexceed4˝(102mm)
Head Frame Minimum1-3/4˝(44mm).Faceframe6-3/4˝(171mm)totaloperatorclearance
Top Rail Minimum2-3/4˝(70mm)
Opening and Closing Time n Variable by adjustments to the electronic control box
n Maximum hold open time adjustable up to approximately 32 seconds
System Diagram See “AUTOMATIC OPERATORS” section page 51 for typical system wiring and page 53 for electrical data
Maximum Opening Template allows 90 degree power opening and 90 degree manual opening
Notes:
• Push N' Go permits non-switch activation with a power boost providing additional latching force
• Electromechanical unit with microprocessor control
• Digital keypad for easy setup
• 36" header length is standard. Specify 33" - 48" max
• Double door header available up to 98", specify other length 49" - 98" max
• Consult factory regarding this option
• Adjustable hold open period of 2 - 32 seconds in automatic or manual mode
• Actuators available separately, see pages 115-131
Offset pivot/butt hinge, center pivot, pull
NOTE: Cannot be used with swing clear hinges, pocket pivots or balanced doors.
Hollow metal frame
Suggested Installation.
INCOMING
4-3/4"
121 mm
5-3/4"
146 mm
1-3/4"
44 mm
1"
25 mm
6-3/4"
171 mm
2-3/4"
70 mm
11-1/2"
292 mm
17-3/8"
Pull Channel
1-15/16"
49 mm
Pull
Channel
48" Door Opening (Max.)
Door
Swing
Operator
Swing
Operator
Pull Arm
Assembly
Left Hand
Swing
Direction
Interior
Offset
Pivot or
Butt
Hinges
Swing
Operator
4-1/2"
1-3/4"
6-3/4"
5-3/4"
Shim behind
plate by others
Hollow
Metal Frame
Universal
18 plate
Stop
Door opening width
& length of header
Bottom of frame rabbet
& botom of 18 plate
The 18 plate is 6-3/4" thick and will need to be ordered 3-/1/2"
longer than the header to allow for mounting the angle brackets
to the vertical side jambs. See illustration below.
The length of universal 18 plate will need to be
ordered 3-1/2" longer than the supplied header
Install the plate securely to the frame
using field generated mounting holes

93
LCN Door Control Catalog
phone: 877-671-7011 n fax: 800-248-1460 n www.allegion.com/us n 009426 rev. 2/16
9530
Series
Senior Swing
Accessories
9530-3454
Motor Gearbox
n Senior swing
n Handed
n Driving mechanism for operator
n Provides maximum 15 lbs
opening force
9530-275
Mounting Bracket
n Motor gearbox mounting
bracketfor2-3/4˝offsetpivot
or butt hinge installations
n Front bracket
9530-3018
Rear Mounting Bracket
n Motor gearbox mounting
bracket
n Rear bracket
9530-3572HL
Header
n Standard
n Single door, single operator
n Specifylength33˝to48˝
maximum
9530-334-1
Angled Bracket
n Mounting bracket for surface
applications (includes 2
mounting brackets)
9530-3572DD
Header
n Standard
n Double door, single operator
n Specifylength49˝to98˝
maximum
9530-3462
Control Box
n Electronic controlling device for
Senior Swing
9530-334
Header End Caps
n With openings for wiring
9530-334-2
End Dress Plate
n Metal finish end cap
Motor Gearbox Mount Brackets
HeadersControl Box
End Caps

94 LCN Door Control Catalog
phone: 877-671-7011 n fax: 800-248-1460 n www.allegion.com/us n 009426 rev. 2/16
9530
Series
Senior Swing
9530-3077PLCM
Standard Arm Assembly
n Handed
n Track roller included (includes
3038, 3077T, 3034 & 73)
9530-3077T
Standard Arm
n Handed
n Track roller not included
9530-3038
Track
n Non-handed
n Includes 3034 & 73
9530-11A
Spindle Plate
n Hides bottom of motor gearbox
n Completes header box
n Cutout allows for motor gearbox
shaft
n For2-3/4˝offsetpivotorbutt
hinge installations
9530-73
Track End Cap
n Black plastic end caps
9530-12
Filler
n Plate blank
n Completes length of header box
(specify Length)
9530-3034
Roller
n Quiet low friction roller assembly
9530-18
Mounting Plate
n Optional mounting plate for
standard hollow metal door
frames
n Specifylength36-1/2˝to101-1/2˝
maximum, when angle brackets
n Specifylength33˝to98˝
maximum when using end dress
plates
NOTE: The length of a universal 18 plate
will need to be ordered 3-1/2˝ longer than
the supplied header when using angle
brackets
Arms
Tracks
Installation Assembly
Accessories

95
LCN Door Control Catalog
phone: 877-671-7011 n fax: 800-248-1460 n www.allegion.com/us n 009426 rev. 2/16
9530
Series
Senior Swing
Ordering Information
Operator will be shipped with:
- Standard motor gearbox
- Standard control box
-Header(atspecifiedlength,36˝standard)
- Standard arm (3077T)
-2-3/4˝pivotpoint
- Standard track w/track roller
- Machine screw pack
unless options listed below are selected
Operator options
Mounting plate
Plate,____(SpecifyLength33˝to101-1/2˝)
Specify hand
RH
LH
Specify header/length
HL__(Specifylength33˝to48˝)
DD__(Specifylength49˝to98˝)
Specify finish
Standard Anodized Finish ______________
Aluminum or Dark Bronze
How-to-order 9530 Series closers
Indicates recommended range of door width for operator.
9531
Minimum door width
Door width
33˝
838mm
48˝
1219mm
NOTE: For all Senior Swing Series.
Single Door - Width per leaf 33˝ minimum, 48˝ maximum.
Table of sizes

96 LCN Door Control Catalog
phone: 877-671-7011 n fax: 800-248-1460 n www.allegion.com/us n 009426 rev. 2/16
Notes
__________________________________________________________________________________________________________________________________________________________________________________
__________________________________________________________________________________________________________________________________________________________________________________
__________________________________________________________________________________________________________________________________________________________________________________
__________________________________________________________________________________________________________________________________________________________________________________
__________________________________________________________________________________________________________________________________________________________________________________
__________________________________________________________________________________________________________________________________________________________________________________
__________________________________________________________________________________________________________________________________________________________________________________
__________________________________________________________________________________________________________________________________________________________________________________
__________________________________________________________________________________________________________________________________________________________________________________
__________________________________________________________________________________________________________________________________________________________________________________
__________________________________________________________________________________________________________________________________________________________________________________
__________________________________________________________________________________________________________________________________________________________________________________
__________________________________________________________________________________________________________________________________________________________________________________
__________________________________________________________________________________________________________________________________________________________________________________
__________________________________________________________________________________________________________________________________________________________________________________
__________________________________________________________________________________________________________________________________________________________________________________
__________________________________________________________________________________________________________________________________________________________________________________
__________________________________________________________________________________________________________________________________________________________________________________
__________________________________________________________________________________________________________________________________________________________________________________
__________________________________________________________________________________________________________________________________________________________________________________
__________________________________________________________________________________________________________________________________________________________________________________
__________________________________________________________________________________________________________________________________________________________________________________
__________________________________________________________________________________________________________________________________________________________________________________
__________________________________________________________________________________________________________________________________________________________________________________
__________________________________________________________________________________________________________________________________________________________________________________
__________________________________________________________________________________________________________________________________________________________________________________

97
LCN Door Control Catalog
phone: 877-671-7011 n fax: 800-248-1460 n www.allegion.com/us n 009426 rev. 5/16
9540
Series
Senior Swing
The 9540 SENIOR SWING by LCN is an ADA door operator that is a two-in-one swing
door operator. SENIOR SWING operators when activated, opens doors automatically for
wheelchair access, yet allows for manual operation for regular pedestrian traffic.
Certifications Grade 1 - ANSI A156.19, UL325/228, UL1998,
ADA, 100 Hour Salt Spray, Meets BAA - Buy
American Act
Fluid All Weather Fluid
Handing Handed
Door Width n Minimumdoorwidth33˝-48˝
n Singledoor-widthperleaf33˝minimum,
48˝maximum
Warranty 2 years
Fasteners Machine screw pack
Mounting Single door, surface mount, offset pivot,
butt hinge (Push Side)
Arms Regular Arm (3077)
Finishes/Colors/
Powder Coat
n Anodized Aluminum
n Anodized Dark Bronze
Customized installation templates or products may be available to solve unusual applications.
Contact LCN Product Support for assistance.
Features
Special
Templates
AVAILABLE
NOT AVAILABLE
STANDARD ANODIZED
FINISH
HANDING
HANDED
NON-HANDED
COVER
METAL
ARM FUNCTION
STANDARD (SINGLE LEVER)
REGULAR (DOUBLE LEVER)
OFFSET PIVOT BUTT HINGE ARM
CENTER PIVOT ARM
DOUBLE EGRESS (PUSH/PULL)
MOUNTING
SURFACE MOUNT SINGLE DOOR
SURFACE MOUNT SIMULTANEOUS PAIR
SURFACE MOUNT INDEPENDENT PAIR
CONCEALED SINGLE DOOR
CONCEALED INDEPENDENT PAIR
CONCEALED SIMULTANEOUS PAIR

98 LCN Door Control Catalog
phone: 877-671-7011 n fax: 800-248-1460 n www.allegion.com/us n 009426 rev. 2/16
9540
Series
Senior Swing
Top Jamb Single Door
Mounting
Mounting details
Butt Hinges Shouldnotexceed5˝(127mm)inwidth
Reveal pushinstallationsshouldnotexceed10˝(254mm)forREGULARARMand20˝(508mm)forLONGARM
Head Frame Minimum1-3/4˝(44mm).Faceframe6-3/4˝(171mm)totaloperatorclearance
Top Rail Minimum2-3/4˝(70mm)
Opening and Closing Time n Variable by adjustments to the electronic control box
n Maximum hold open time adjustable up to approximately 32 seconds
System Diagram See “AUTOMATIC OPERATORS” section page 51 for typical system wiring and page 53 for electrical data
Maximum Opening Template allows 90 degree power opening and 90 degree manual opening
Notes:
• Push N' Go permits non-switch activation with a power boost providing additional latching force
• Electromechanical unit with microprocessor control
• Digital keypad for easy setup
• 36" header length is standard. Specify 33" - 48" max
• Double door header available up to 98", specify other length 49" - 98" max
• Adjustable hold open period of 2 - 32 seconds in automatic or manual mode
• Actuators available separately, see pages 115-131
Offset pivot/butt hinge, center pivot, push
Consult factory for all balance door installations.
Hollow metal frame
Suggested Installation.
Swing
Operator
4-1/2"
1-3/4"
6-3/4"
5-3/4"
Shim behind
plate by
others
Hollow
Metal Frame
Universal
18 plate
Stop
Door opening width
& length of header
Bottom of frame rabbet
& botom of 18 plate
The 18 pl
ate is 6-3/4" thick and will need to be ordered 3-/1/2"
l
onger than the header to allow for mounting the angle brackets
to
the vertical side jambs. See illustration below.
The length of universal 18 plate will need to be
ordered 3-1/2" longer than the supplied header
Install the plate securely to the frame
using field generated mounting holes
4-1/2"
114 mm
5-3/4"
146 mm
1"
25 mm
1-7/16" from
top of door
6-3/4"
171 mm
2-3/4"
70 mm
17" from
edge of door
Outgoing
Reveal
48" Door Opening (Max.)
Door
Frame
Secondary Link
Door
Door
Swing
Operator
Swing
Operator
Push Arm
Assembly
Offset
Pivot or
Butt
Hinges
Exterior
Swing
Direction

99
LCN Door Control Catalog
phone: 877-671-7011 n fax: 800-248-1460 n www.allegion.com/us n 009426 rev. 2/16
9540
Series
Senior Swing
Accessories
9540-3454
Motor Gearbox
n Senior swing
n Handed
n Driving mechanism for operator
n Provides maximum 15 lbs
opening force
9540-275
Mounting Bracket
n Motor gearbox mounting
bracketfor2-3/4˝offsetpivot
or butt hinge installations
n Front bracket
9540-3018
Rear Mounting Bracket
n Motor gearbox mounting
bracket
n Rear bracket
9540-3572HL
Header
n Single door, single operator
n Specifylength33˝to48˝
maximum
n Standard
9540-334-1
Angled Bracket
n Mounting bracket for surface
applications (includes 2
mounting brackets)
9540-3572DD
Header
n Double door, single operator
n Specifylength49˝to98˝
maximum
n Standard
9540-3462
Control Box
n Electronic controlling device for
Senior Swing
9540-334
Header End Caps
n With openings for wiring
9540-334-2
End Dress Plate
n Metal finish end cap
Motor Gearbox Mount Brackets
HeadersControl Box
End Caps

100 LCN Door Control Catalog
phone: 877-671-7011 n fax: 800-248-1460 n www.allegion.com/us n 009426 rev. 2/16
9540
Series
Senior Swing
9540-3077
Regular Arm Assembly
n Handed
n Includes 77 main arm assembly
and 79 linkage assembly
9540-3077L
Regular Long Arm Assembly
n Handed
n Includes 77 main arm assembly
and 79LR linkage assembly
9540-77
Main Arm
n Handed
n Attaches to motor gearbox
9540-11A
Spindle Plate
n Hides bottom of motor gearbox
n Completes header box
n Cutout allows for motor gearbox
shaft
n For2-3/4˝offsetpivotorbutt
hinge installations
9540-79
Linkage Assembly - 15˝
n Threaded rod attaches to door
n Extends from main arm
9540-79LR
Linkage Assembly - 32˝
n Threaded long rod attaches to
door
n Extends from main arm.
n Usedforreveal10˝to20˝
9540-12
Filler Plate Blank
n Completes length of header box
(specify length)
9540-18
Mounting Plate
n For standard hollow metal door frames
n Specifylength55-1/2˝to101-1/2˝maximumwhenusinganglebrackets
n Specifylength52˝to98˝maximumwhenusingdressplates
n Optional
NOTE: The length of a universal 18 plate will need to be ordered 3-1/2˝ longer than
the supplied header when using angle brackets.
Arms
Installation Accessories
Accessories
Tracks

101
LCN Door Control Catalog
phone: 877-671-7011 n fax: 800-248-1460 n www.allegion.com/us n 009426 rev. 2/16
9540
Series
Senior Swing
Ordering Information
Operator will be shipped with:
- Standard motor gearbox
- Standard control box
-Header(atspecifiedlength,36˝standard)
- Regular arm (3077)
-2-3/4˝pivotpoint
- Machine screw pack
unless options listed below are selected.
Operator options
Mounting plate
Plate,____(SpecifyLength33˝to101-1/2˝)
Arm
Long Arm (3077L)
Specify hand
RH
LH
Specify header/length
HL__(Specifylength33˝to48˝)
DD__(Specifylength49˝to98˝)
Specify finish
Standard Anodized Finish ______________
Aluminum or Dark Bronze
How-to-order 9540 Series closers
Indicates recommended range of door width for operator.
9542
Minimum door width
Door width
33˝
838mm
48˝
1219mm
NOTE: For all Senior Swing Series.
Single Door - Width per leaf 33˝ minimum, 48˝ maximum.
Table of sizes

102 LCN Door Control Catalog
phone: 877-671-7011 n fax: 800-248-1460 n www.allegion.com/us n 009426 rev. 2/16
Notes
__________________________________________________________________________________________________________________________________________________________________________________
__________________________________________________________________________________________________________________________________________________________________________________
__________________________________________________________________________________________________________________________________________________________________________________
__________________________________________________________________________________________________________________________________________________________________________________
__________________________________________________________________________________________________________________________________________________________________________________
__________________________________________________________________________________________________________________________________________________________________________________
__________________________________________________________________________________________________________________________________________________________________________________
__________________________________________________________________________________________________________________________________________________________________________________
__________________________________________________________________________________________________________________________________________________________________________________
__________________________________________________________________________________________________________________________________________________________________________________
__________________________________________________________________________________________________________________________________________________________________________________
__________________________________________________________________________________________________________________________________________________________________________________
__________________________________________________________________________________________________________________________________________________________________________________
__________________________________________________________________________________________________________________________________________________________________________________
__________________________________________________________________________________________________________________________________________________________________________________
__________________________________________________________________________________________________________________________________________________________________________________
__________________________________________________________________________________________________________________________________________________________________________________
__________________________________________________________________________________________________________________________________________________________________________________
__________________________________________________________________________________________________________________________________________________________________________________
__________________________________________________________________________________________________________________________________________________________________________________
__________________________________________________________________________________________________________________________________________________________________________________
__________________________________________________________________________________________________________________________________________________________________________________
__________________________________________________________________________________________________________________________________________________________________________________
__________________________________________________________________________________________________________________________________________________________________________________
__________________________________________________________________________________________________________________________________________________________________________________
__________________________________________________________________________________________________________________________________________________________________________________

103
LCN Door Control Catalog
phone: 877-671-7011 n fax: 800-248-1460 n www.allegion.com/us n 009426 rev. 2/16
9550
Series
Senior Swing
The 9550 SENIOR SWING by LCN is an ADA door operator that is a two-in-one swing
door operator. SENIOR SWING operators when activated, opens doors automatically for
wheelchair access, yet allows for manual operation for regular pedestrian traffic.
Certifications Grade 1 - ANSI A156.19, UL325/228, UL1998,
ADA, 100 Hour Salt Spray, Meets BAA - Buy
American Act
Handing Handed
Door Width n Minimumcombineddoorwidth52˝-98˝
(push)
n Minimumcombineddoorwidth60˝-98˝
(pull; double egress)
n Simultaneouspair-widthperleaf30˝
minimum-48˝maximum
Warranty 2 years
Fasteners Machine screw pack
Mounting Simultaneous pair, surface mount, pull side,
push side, double egress
Arms n 2 Regular Arms (push)
n 2 Standard Arms (pull)
n 1 Regular and 1 Standard (double egress)
Finishes/Colors/
Powder Coat
n Anodized Aluminum
n Anodized Dark Bronze
Customized installation templates or products may be available to solve unusual applications.
Contact LCN Product Support for assistance.
Features
Special
Templates
AVAILABLE
NOT AVAILABLE
STANDARD ANODIZED
FINISH
HANDING
HANDED
NON-HANDED
COVER
METAL
ARM FUNCTION
STANDARD (SINGLE LEVER)
REGULAR (DOUBLE LEVER)
OFFSET PIVOT BUTT HINGE ARM
CENTER PIVOT ARM
DOUBLE EGRESS (PUSH/PULL)
MOUNTING
SURFACE MOUNT SINGLE DOOR
SURFACE MOUNT SIMULTANEOUS PAIR
SURFACE MOUNT INDEPENDENT PAIR
CONCEALED SINGLE DOOR
CONCEALED INDEPENDENT PAIR
CONCEALED SIMULTANEOUS PAIR

104 LCN Door Control Catalog
phone: 877-671-7011 n fax: 800-248-1460 n www.allegion.com/us n 009426 rev. 2/16
9550
Series
Senior Swing
Top Jamb Simultaneous
Pair Mounting
Mounting details
Butt Hinges Shouldnotexceed5˝(127mm)inwidth
Reveal for push Shouldnotexceed10˝(254mm)forREGULARARMand20˝(508mm)forLONGARM
Reveal for pull Shouldnotexceed4˝(102mm)
Reveal Doubleegressinstallationsshouldnotexceed4˝(102mm)
Head Frame n Minimum1-3/4˝(44mm)
n Faceframe6-3/4˝(171mm)totaloperatorclearance
Top Rail Minimum2-3/4˝(70mm)
Opening and Closing Time n Variable by adjustments to the electronic control box
n Maximum hold open time adjustable up to approximately 32 seconds.
Door Stop Required for each door panel
System Diagram See “AUTOMATIC OPERATORS” section page 51 for typical system wiring and page 53 for electrical data
Maximum Opening Template allows 90 degree power opening and 90 degree manual opening
Notes:
• Push N' Go permits non-switch activation with a power boost providing additional latching force
• Electromechanical unit with microprocessor control
• Digital keypad for easy setup
• 72" header length is standard. Specify other length 52" - 98" (push), specify other length 60" - 98" (pull; double egress). Consult factory regarding this option
• Adjustable hold open period of 2 - 32 seconds in automatic or manual mode
• Actuators available separately, see pages 115-131
4-1/2"
114 mm
5-3/4"
146 mm
1"
25 mm
1-7/16" from
top of door
6-3/4"
171 mm
2-3/4"
70 mm
17" from
edge of door
Outgoing Outgoing
Reveal
8'0" Door Opening (Max.) Door
Frame
Secondary Link
Door
Swing
Operator
Swing Operator
Push Arm
Assembly
Offset
Pivot or
Butt
Hinges
Exterior
Swing
Direction
Offset pivot/butt hinge, center pivot, push
Consult factory for all balanced door installations.
Offset pivot/ butt hinge, center pivot, pull
NOTE: Cannot be used with swing clear hinges, pocket pivots or
balanced doors.
4-1/2"
114 mm
5-3/4"
146 mm
1"
25 mm
6-3/4"
171 mm
2-3/4"
70 mm
11-1/2"
291 mm
1-3/4"
44 mm
1-15/16"
49 mm
17-3/8"
441 mm
8'0" Door Opening (Max.)
Pull Channel
Pull Arm
Assembly
Door
Swing
Operator
Swing Operator
Pull Channel
Pull Arm
Assembly
Offset
Pivot or
Butt
Hinges
Interior
Interior IncomingIncoming Swing
Direction

105
LCN Door Control Catalog
phone: 877-671-7011 n fax: 800-248-1460 n www.allegion.com/us n 009426 rev. 2/16
9550
Series
Senior Swing
Mounting details
Butt Hinges Shouldnotexceed5˝(127mm)inwidth
Reveal for push Shouldnotexceed10˝(254mm)forREGULARARMand20˝(508mm)forLONGARM
Reveal for pull Shouldnotexceed4˝(102mm)
Reveal Doubleegressinstallationsshouldnotexceed4˝(102mm)
Head Frame n Minimum1-3/4˝(44mm)
n Faceframe6-3/4˝(171mm)totaloperatorclearance
Top Rail Minimum2-3/4˝(70mm)
Opening and Closing Time n Variable by adjustments to the electronic control box
n Maximum hold open time adjustable up to approximately 32 seconds.
Door Stop Required for each door panel
System Diagram See “AUTOMATIC OPERATORS” section page 51 for typical system wiring and page 53 for electrical data
Maximum Opening Template allows 90 degree power opening and 90 degree manual opening
Notes:
• Push N' Go permits non-switch activation with a power boost providing additional latching force
• Electromechanical unit with microprocessor control
• Digital keypad for easy setup
• 72" header length is standard. Specify other length 52" - 98" (push), specify other length 60" - 98" (pull; double egress). Consult factory regarding this option
• Adjustable hold open period of 2 - 32 seconds in automatic or manual mode
• Actuators available separately, see pages 115-131
RH double egress
Double egress applications with safety sensors require LCN 9560 series.
NOTE: Cannot be used with swing clear hinges, pocket pivots or balanced door.
Hollow metal frame
Suggested Installation.
Top Jamb Simultaneous
Pair Mounting
Swing
Operator
4-1/2"
1-3/4"
6-3/4"
5-3/4"
Shim behind
plate by
others
Hollow
Metal Frame
Universal
18 plate
Stop
Door opening width
& length of header
Bottom of frame rabbet
& botom of 18 plate
The 18 pl
ate is 6-3/4" thick and will need to be ordered 3-/1/2"
l
onger than the header to allow for mounting the angle brackets
to
the vertical side jambs. See illustration below.
The length of universal 18 plate will need to be
ordered 3-1/2" longer than the supplied header
Install the plate securely to the frame
using field generated mounting holes
4-1/2"
114 mm
4-1/2"
114 mm
1"
25 mm
1"
25 mm
1-15/16"
from top of door
2-3/18" from bottom
of door stop
6-3/4" 171 mm
5-3/4" 146 mm
5-3/4"
146 mm
1-3/4"
44 mm
2-3/4"
70 mm
2-3/4"
70 mm
11-1/2"
292 mm
17-3/8"
Pull Channel
17" from
edge of door Pull Channel
48" Door Opening (Max.)
Secondary
Link
Door
Door
Door
Frame Door
Frame
Swing
Operator
Swing
Operator
Swing
Operator
Swing
Operator
Pull Arm
Assembly
Push Arm
Assembly
Pull Arm
Assembly
Push Arm
Assembly
Butt
Hinges
Interior
Swing
Direction
Swing
Direction

106 LCN Door Control Catalog
phone: 877-671-7011 n fax: 800-248-1460 n www.allegion.com/us n 009426 rev. 2/16
9550
Series
Senior Swing
9550-3454
Motor Gearbox
n Senior swing
n Handed
n Driving mechanism for operator
n Provides maximum 15 lbs
opening force
9550-275
Mounting Bracket
n Motor gearbox mounting
bracketfor2-3/4˝offsetpivot
or butt hinge installations
n Front bracket
9550-3018
Rear Mounting Bracket
n Motor gearbox mounting
bracket
9550-334-1
Angled Bracket
n Mounting bracket for surface
applications (includes 2
mounting brackets)
Motor Gearbox Mount Brackets
Accessories
9550-3572HL
Header
n Pair door, two operators
n Specifyotherlength52˝to98˝(Push)
n Specifyotherlength60˝to98˝(Pull;DoubleEgress)
n Standard
9550-3462
Control Box
n Electronic controlling device for
Senior Swing
9550-334
Header End Caps
n With openings for wiring
9550-334-2
End Dress Plate
n Metal finish end cap
HeaderControl Box
End Caps
9550-982
Companion Cable
n Cable that allows one control
box to run two motor gear
boxes
n For use with Senior Swing

107
LCN Door Control Catalog
phone: 877-671-7011 n fax: 800-248-1460 n www.allegion.com/us n 009426 rev. 2/16
9550
Series
Senior Swing
Accessories
9550-3077Plcm
Standard Arm Assembly
n Handed
n Includes 3077 regular arm
assembly, 3038 track, and
3034 track roller
9550-77
Main Arm
n Handed
n Attaches to motor gearbox
9550-3077L
Regular Long Arm Assembly
n Handed
n Includes 77 main arm assembly
and 79LR linkage assembly
9550-79LR
Linkage Assembly
n 32˝
n Threaded long rod attaches to door
n Extends from main arm
n Usedforreveal10˝to20˝
9550-3077T
Standard Arm
n Handed
n Track roller not included
9550-3077
Regular Arm Assembly
n Handed
n Includes 77 main arm assembly
and 79 linkage assembly
9550-79
Linkage Assembly
n 15˝
n Threaded rod attaches to door
n Extends from main arm
9550-3038
Track
n Non-handed
n Standard
9550-73
Track End Cap
n Black plastic end caps
9550-3034
Roller
n Quiet low friction roller
assembly
9550-11A
Spindle Plate
n Hides bottom of motor gearbox
n Completes header box
n Cutout allows for motor gearbox
shaft
n For2-3/4˝offsetpivotorbutt
hinge installations
9550-12
Filler Plate
n Blank
n Completes length of header box
n Specify length
9550-18
Mounting Plate
n Optional mounting plate for standard hollow metal door frames
n Specifylength68-1/2˝to101-1/2˝maximumwhenusinganglebrackets
n Specifylength65˝to98˝maximumwhenusingdressplates.
NOTE: The length of a universal 18 plate will need to be ordered 3-1/2˝ longer than
the supplied header when using angle brackets.
Arms
Installation Assembly
Tracks

108 LCN Door Control Catalog
phone: 877-671-7011 n fax: 800-248-1460 n www.allegion.com/us n 009426 rev. 2/16
9550
Series
Senior Swing
Ordering Information
Indicates recommended range of door width for operator.
9550 (Push)
9550 (Pull; Double Egress)
Minimum door width
Combined door width
52˝
1321mm
60˝
1524mm
98˝
2489mm
NOTE: For all Senior Swing Series.
Simultaneous Pair – Width per leaf 26" minimum (push) 30˝ minimum (pull) to 48˝ maximum.
Operator will be shipped with:
- Standard motor gearbox (SF) (2 ea)
- Standard control box (SC)
-Metalcover(atspecifiedlength72˝standard)
- Regular arm (2 ea)
-2-3/4˝pivotpoint
- Machine screw pack
unless options listed below are selected
Operator options
Mounting plate
Plate,____(SpecifyLength52˝to101-1/2˝)
Arm
Standard Arm (2 ea) w/Standard Track (2 ea)
Double Egress includes Standard Arm w/Track (1 ea) & Regular Arm (1 ea)
Long Arm (3077L)
Specify hand
RH
LH
Specify header/length
HL__(Specifylength52˝to98˝)regularorlongarm
HL__(Specifylength60˝to98˝)forstandardorDEarm
Specify finish
Standard Anodized Finish ______________
Aluminum or Dark Bronze
How-to-order 9550 Series closers
Table of sizes

109
LCN Door Control Catalog
phone: 877-671-7011 n fax: 800-248-1460 n www.allegion.com/us n 009426 rev. 2/16
9560
Series
Senior Swing
The 9560 SENIOR SWING by LCN is an ADA door operator that is a two-in-one swing
door operator. SENIOR SWING operators when activated, opens doors automatically for
wheelchair access, yet allows for manual operation for regular pedestrian traffic.
Certifications Grade 1 - ANSI A156.19, UL325/228, UL1998,
ADA, 100 Hour Salt Spray, Meets BAA - Buy
American Act
Handing Handed
Warranty 2 years
Cover Metal, Standard
Fasteners Machine screw pack
Mounting Independent pair, surface, pull, push, double
egress
Arms Single lever (push side), Double lever (Pull
Side), Double egress (Push/Pull)
Finishes/Colors/
Powder Coat
n Anodized Aluminum
n Anodized Dark Bronze
Customized installation templates or products may be available to solve unusual applications.
Contact LCN Product Support for assistance.
Features
Special
Templates
AVAILABLE
NOT AVAILABLE
* For double egress only.
STANDARD ANODIZED
FINISH
HANDING
HANDED
NON-HANDED
COVER
METAL
ARM FUNCTION
STANDARD (SINGLE LEVER)
REGULAR (DOUBLE LEVER)
OFFSET PIVOT BUTT HINGE ARM
CENTER PIVOT ARM
DOUBLE EGRESS (PUSH/PULL)
MOUNTING
SURFACE MOUNT SINGLE DOOR
SURFACE MOUNT SIMULTANEOUS PAIR
SURFACE MOUNT INDEPENDENT PAIR
CONCEALED SINGLE DOOR
CONCEALED INDEPENDENT PAIR
CONCEALED SIMULTANEOUS PAIR

110 LCN Door Control Catalog
phone: 877-671-7011 n fax: 800-248-1460 n www.allegion.com/us n 009426 rev. 2/16
9560
Series
Senior Swing
Top Jamb Independent
Pair Mounting
Mounting details
Offset pivot/butt hinge, center pivot, push
Consult factory for all balanced door installations.
Offset pivot/butt hinge, center pivot, pull
NOTE: Cannot be used with swing clear hinges, pocket pivots or balanced doors.
Butt Hinges Shouldnotexceed5˝(127mm)inwidth
Reveal for push Shouldnotexceed10˝(254mm)forREGULARARMand20˝(508mm)forLONGARM
Reveal for pull Shouldnotexceed4˝(102mm)
Reveal Doubleegressinstallationsshouldnotexceed4˝(102mm)
Head Frame n Minimum1-3/4˝(44mm)
n Faceframe6-3/4˝(171mm)totaloperatorclearance
Top Rail Minimum2-3/4˝(70mm)
Opening and Closing Time n Variable by adjustments to the electronic control box
n Maximum hold open time adjustable up to approximately 32 seconds.
Door Stop Required for each door panel
System Diagram See “AUTOMATIC OPERATORS” section page 51 for typical system wiring and page 53 for electrical data
Maximum Opening Template allows 90 degree power opening and 90 degree manual opening
Notes:
• Push N' Go permits non-switch activation with a power boost providing additional latching force
• Electromechanical unit with microprocessor control
• Digital keypad for easy setup
• 72" header length is standard. Specify 65" - 98" max
• Pull, push, or double egress applications available
• Adjustable hold open period of 2 - 32 seconds in automatic or manual mode
• Actuators available separately, see pages 115-131
4-1/2"
114 mm
5-3/4"
146 mm
1"
25 mm
6-3/4"
171 mm
2-3/4"
70 mm
11-1/2"
291 mm
1-3/4"
44 mm
1-15/16"
49 mm
17-3/8"
441 mm
8'0" Door Opening (Max.)
Pull Channel
Pull Arm
Assembly
Door
Swing
Operator
Swing Operator
Pull Channel
Pull Arm
Assembly
Offset
Pivot or
Butt
Hinges
Interior
Interior IncomingIncoming Swing
Direction
4-1/2"
114 mm
5-3/4"
146 mm
1"
25 mm
1-7/16" from
t
op of door
6-3/4"
171 mm
2-3/4"
70 mm
17" from
edge of door
Outgoing Outgoing
Reveal
8'0" Door Opening (Max.) Door
Frame
Secondary Link
Door
Swing
Operator
Swing Operator
Push Arm
Assembly
Offset
Pivot or
Butt
Hinges
Exterior
Swing
Direction

111
LCN Door Control Catalog
phone: 877-671-7011 n fax: 800-248-1460 n www.allegion.com/us n 009426 rev. 2/16
9560
Series
Senior Swing
Mounting details
Rh double egress
NOTE: Cannot be used with swing clear hinges, pocket pivots or balanced doors.
Hollow metal frame
Suggested Installation.
Top Jamb Independent
Pair Mounting
Butt Hinges Shouldnotexceed5˝(127mm)inwidth
Reveal for push Shouldnotexceed10˝(254mm)forREGULARARMand20˝(508mm)forLONGARM
Reveal for pull Shouldnotexceed4˝(102mm)
Reveal Doubleegressinstallationsshouldnotexceed4˝(102mm)
Head Frame n Minimum1-3/4˝(44mm)
n Faceframe6-3/4˝(171mm)totaloperatorclearance
Top Rail Minimum2-3/4˝(70mm)
Opening and Closing Time n Variable by adjustments to the electronic control box
n Maximum hold open time adjustable up to approximately 32 seconds.
Door Stop Required for each door panel
System Diagram See “AUTOMATIC OPERATORS” section page 51 for typical system wiring and page 53 for electrical data
Maximum Opening Template allows 90 degree power opening and 90 degree manual opening
Notes:
• Push N' Go permits non-switch activation with a power boost providing additional latching force
• Electromechanical unit with microprocessor control
• Digital keypad for easy setup
• 72" header length is standard. Specify 65" - 98" max
• Pull, push, or double egress applications available
• Adjustable hold open period of 2 - 32 seconds in automatic or manual mode
• Actuators available separately, see pages 115-131
4-1/2"
114 mm
4-1/2"
114 mm
1"
25 mm
1"
25 mm
1-15/16"
from top of door
2-3/18" from bottom
of door stop
6-3/4" 171 mm
5-3/4" 146 mm
5-3/4"
146 mm
1-3/4"
44 mm
2-3/4"
70 mm
2-3/4"
70 mm
11-1/2"
292 mm
17-3/8"
Pull Channel
17" from
edge of door Pull Channel
48" Door Opening (Max.)
Secondary
Link
Doo
r
Door
Door
Frame Door
Frame
Swing
Operator
Swing
Operator
Swing
Operator
Swing
Operator
Pull Arm
Assembly
Push Arm
Assembly
Pull Arm
Assembly
Push Arm
Assembly
Butt
Hinges
Interior
Swing
Direction
Swing
Direction
Swing
Operator
4-1/2"
1-3/4"
6-3/4"
5-3/4"
Shim behind
plate by
others
Hollow
Metal Frame
Universal
18 plate
Stop
Door opening width
& length of header
Bottom of frame rabbet
& botom of 18 plate
The 18 pl
ate is 6-3/4" thick and will need to be ordered 3-/1/2"
l
onger than the header to allow for mounting the angle brackets
to
the vertical side jambs. See illustration below.
The length of universal 18 plate will need to be
ordered 3-1/2" longer than the supplied header
Install the plate securely to the frame
using field generated mounting holes

112 LCN Door Control Catalog
phone: 877-671-7011 n fax: 800-248-1460 n www.allegion.com/us n 009426 rev. 2/16
9560
Series
Senior Swing
9560-3454
Motor Gearbox
n Senior swing
n Handed
n Driving mechanism for operator
n Provides maximum 15 lbs
opening force
9560-275
Mounting Bracket
n Motor gearbox mounting
bracketfor2-3/4˝centerpivot
installations
n Front bracket
9560-3018
Rear Mounting Bracket
n Motor gearbox mounting
bracket
9560-334-1
Angled Bracket
n Mounting bracket for surface
applications
n Includes 2 mounting brackets
9560-3572HL
Header
n Pair door, two operators
n Specifylength65˝to98˝
maximum
n Standard
9560-334
Header End Caps
n With openings for wiring
9560-334-2
End Dress Plate
n Metal finish end cap
9560-3462
Control Box
n Electronic controlling device for
Senior Swing
Motor Gearbox Mounting Brackets
HeaderControl Box
End Caps
Accessories

113
LCN Door Control Catalog
phone: 877-671-7011 n fax: 800-248-1460 n www.allegion.com/us n 009426 rev. 2/16
9560
Series
Senior Swing
Accessories
9560-3077PLCM
Standard Arm Assembly
n Handed
n Includes 3077 regular arm
assembly, 3038 track, and 3034
track roller
9560-3077
Regular Arm Assembly
n Handed
n Includes 77 main arm assembly
and 79 linkage assembly
9560-3038
Track
n Non-handed
n Standard
9560-3077L
Regular Long Arm Assembly
n Handed
n Includes 77 main arm assembly
and 79LR linkage assembly
9560-73
Track End Cap
n Black plastic end caps
9560-3077T
Standard Arm
n Handed
n Track roller not included
9560-3034
Roller
n Quiet low friction roller
assembly
9560 -77
Main Arm
n Handed
n Attaches to motor gearbox
9560-11A
Spindle Plate
n Hides bottom of motor gearbox
n Completes header box
n Cutout allows for motor gearbox
shaft
n For2-3/4˝offsetpivotorbutt
hinge installations
9560-79
Linkage Assembly
n 15˝
n Threaded rod attaches to door
n Extends from main arm
n Used for reveal 1" to 10"
9560-79LR
Linkage Assembly
n 32˝
n Threaded long rod attaches to
door
n Extends from main arm.
n Usedforreveal10˝to20˝
9560-12
Filler Plate
n Blank
n Completes length of header box
n Specify length
9560-18
Mounting Plate
n Optional mounting plate for standard hollow metal door frames
n Specifylength68-1/2˝to101-1/2˝maximumwhenusinganglebrackets
n Specifylength65˝to98˝maximumwhenusingdressplates.
NOTE: The length of a universal 18 plate will need to be ordered 3-1/2˝ longer than
the supplied header when using angle brackets.
Arms
Tracks
Installation Accessories

114 LCN Door Control Catalog
phone: 877-671-7011 n fax: 800-248-1460 n www.allegion.com/us n 009426 rev. 2/16
9560
Series
Senior Swing
Ordering Information
Operator will be shipped with:
- Standard motor gearbox (SF) (2 ea)
- Standard control box (SC)
-Metalcover(atspecifiedlength72˝standard)
- Regular arm (2 ea)
-2-3/4˝pivotpoint
- Machine screw pack
unless options listed below are selected.
Operator options
Mounting plate
Plate,____(SpecifyLength65˝to101-1/2˝)
Arm
Standard Arm (2 ea) w/Standard Track (2 ea)
Double Egress - Includes Standard Arm w/Track (1 ea) & Regular Arm (1 ea)
Long Arm (3077L)
Specify hand
RH
LH
Specify header/length
HL__(Specifylength65˝to98˝)regularorlongarm
Specify finish
Standard Anodized Finish ______________
Aluminum or Dark Bronze
How-to-order 9560 Series
Indicates recommended range of door width for operator.
9560
Minimum combined
Door width
Combined door width
65˝
1651mm
98˝
2489mm
NOTE: For all Senior Swing Series
Independent Pair – Width per leaf 30˝ minimum to 48˝ maximum.
Table of sizes

115
LCN Door Control Catalog
phone: 877-671-7011 n fax: 800-248-1460 n www.allegion.com/us n 009426 rev. 2/16
8310 Series
Auto Operator
Actuators &
Accessories
8310-856
Wall Mounted Actuator
n Hardwired low voltage actuator with round, stainless steel touch plate in
4-1/2˝(114mm)diameter
n Engraved blue filled handicap symbol conforms to most accessibility codes
n Designed to mount in a flush or surface mount box (sold separately) in/on a
vertical surface near the controlled door
n Optional mounting in single gang electrical box (by others)
n Heavy industrial grade components provide vandal resistant mounting and
weather resistant switch standard
8310-856T
Wall Mounted Actuator
n Same as the 8310-856, with the
added engraving of “Push to
Open”
8310-844
Transmitter
n Transmitter, Wireless, 1 Channel,
9v battery included
n Use to convert standard wall
mount actuator to wireless
n Requires 8310-865 Receiver
8310-868S
Surface Mount Box
n RuggedPlasticBox,4-1/2˝Round
n Optional accessory - can be used
w/any4-1/2˝roundactuator
8310-874
Escutcheon
n Tapered stainless steel escutcheon covers the gap between the wall and
the back of the wall plate actuators when mounted in electrical boxes (by
others) to minimize cart damage or vandalism
n Optionalaccessory-canbeusedw/any4-1/2˝roundactuator
n Not to be used with wireless function
8310-868F
Flush Mount Box
n RuggedPlasticBox,4-1/2˝
Round
n Optional accessory - can be used
w/any4-1/2˝roundactuator
8310-865
Receiver
n Receiver, Wireless, 1 Channel, w/
Sequencing Feature
n Used in conjunction w/ Wireless
Actuators & Transmitter(s)
8310-800
Weather/Trim Ring
n Weather/TrimRing,4-1/2˝
Round
n Optional accessory - must be
usedw/any4-1/2˝roundplastic
mounting box
Automatic Operator Actuators & Accessories
The actuators and accessories on the following pages are to be used with LCN automatic operators. When
using actuators supplied by others, such as card readers, consult the factory.
The desired function, traffic patterns and physical design of the opening will determine the type of actuators used.
Generally, for twoway traffic, an actuator is required on both the interior and exterior side of the door. Each actuator
is packaged with a decal to be applied to the controlled door. Scanners operate on 12V or 24V AC/DC and may be
powered by the LCN electrohydraulic/electromechanical operators. The 7900 series control box requires separate
power supply for scanners. Actuators provide normally open (N.O.) dry contacts.
4-1/2˝ Surface and Flush
Mounts

116 LCN Door Control Catalog
phone: 877-671-7011 n fax: 800-248-1460 n www.allegion.com/us n 009426 rev. 2/16
8310-3856WF
Flush Mount Kit
n Actuator,4-1/2˝Round,Logo,Wireless
n Includes 8310-856 Actuator, 8310-844 Transmitter, 8310-868F Flush Box,
8310-800 Weather/Trim Ring
n Requires 8310-865 Receiver (not part of kit)
8310-3856TWF
Flush Mount Kit
n Actuator,4-1/2˝Round,Logo,Text,Wireless,
n Includes 8310-856T Actuator, 8310-844 Transmitter, 8310-868F Flush Box,
8310-800 Weather/Trim Ring
n Requires 8310-865 Receiver (not part of kit)
8310-3860T
Surface Mount Kit
n ActuatorPackage,4-1/2˝Round
n Includes 8310-856T (2) Wall Mount Actuator, 8310-868S Surface Mount
Box.
NOTE: Weather/Trim Rings are sold separately
8310-3856WS
Surface Mount Kit
n Actuator,4-1/2˝Round,Logo,Wireless
n Includes 8310-856 Actuator, 8310-844 Transmitter, 8310-868S Surface
Box, 8310-800 Weather/Trim Ring
n Requires 8310-865 Receiver (not part of kit)
8310-3856TWS
Surface Mount Kit
n Actuator,4-1/2˝Round,Logo,Text,Wireless,
n Includes 8310-856T Actuator, 8310-844 Transmitter, 8310-868S Surface
Box, 8310-800 Weather/Trim Ring
n Requires 8310-865 Receiver (not part of kit)
8310-3860TW
Surface Mount Kit
n ActuatorPackage,4-1/2˝Round,Wireless
n Includes 8310-856T (2) Wall Mount Actuator, 8310-868S (2) Surface
Mount Box, 8310-800 (2) Weather/Trim Ring, 8310-844 (2) Transmitter,
8310-865 Receiver
Automatic Operator Actuators & Accessories
4-1/2˝ Surface and Flush
Mounts
8310 Series
Auto Operator
Actuators &
Accessories

117
LCN Door Control Catalog
phone: 877-671-7011 n fax: 800-248-1460 n www.allegion.com/us n 009426 rev. 2/16
8310 Series
Auto Operator
Actuators &
Accessories
8310-852
Wall Mounted Actuator
n Hardwiredlowvoltageactuatorwithround,stainlesssteeltouchplatein6˝
(152mm) diameter
n Engraved blue filled handicap symbol conforms to most accessibility codes
n Designed to mount in a flush or surface mount box (sold separately) in/on a
vertical surface near the controlled door
n Optional mounting in single gang electrical box (by others) or double gang
box(4˝x4˝byothers)
n Heavy industrial grade components provide vandal resistant mounting and
weather resistant switch standard.
8310-852T
Wall Mounted Actuator
n Same as the 8310-852, with the
added engraving of “Push to
Open”
8310-869S
Surface Mount Box
n RuggedPlasticBox,6˝Round
n Optional accessory - can be used
w/any6˝roundactuator
8310-852TWP
Wall Mounted Actuator
n Same as the 8310-852WP, with
the added engraving of “Push to
Open”
8310-8/444
Transmitter
n Transmitter, Wireless, 1 Channel,
9v battery included
n Use to convert standard wall
mount actuator to wireless
n Requires 8310-865 Receiver
8310/-865
Receiver
n Receiver, Wireless, 1 Channel, w/
Sequencing Feature
n Used in conjunction w/ Wireless
Actuators & Transmitter(s)
8310-876
Escutcheon
n Tapered stainless steel escutcheon covers the gap between the wall and
the back of the wall plate actuators when mounted in electrical boxes (by
others) to minimize cart damage or vandalism
n Optionalaccessory-Canbeusedw/any6˝roundactuator
n Not to be used with wireless function
8310-852WP
Wall Mounted Actuator
n Wireless, low profile, low voltage actuator with round, stainless steel touch
platein6˝(152mm)diameter
n Engraved blue filled handicap symbol conforms to most accessibility codes
n Surface mount box includes integral transmitter w/ battery and actuator
switch
n Heavy industrial grade components provide vandal resistant mounting and
weather resistant switch standard
n Requires 8310-865 Receiver
8310-802
Weather/Trim Ring
n PlasticWeather/TrimRing,6˝
Round
n Optional accessory - can be
usedw/any6˝roundplastic
mounting box.
8310-869F
Flush Mount Box
n RuggedPlasticBox,6˝Round
n Optional accessory - can be
usedw/any6˝roundactuator
Automatic Operator Actuators & Accessories
6˝ Surface and Flush
Mounts

118 LCN Door Control Catalog
phone: 877-671-7011 n fax: 800-248-1460 n www.allegion.com/us n 009426 rev. 2/16
8310-3852WF
Flush Mount Kit
n 6˝Round,Logo,Wireless
n Includes 8310-852 Actuator, 8310-844 Transmitter, 8310-869F Flush Box,
8310-802 Weather/Trim Ring
n Requires 8310-865 Receiver (not part of kit)
8310-3852TWF
Flush Mount Kit
n 6˝Round,Logo,Text,Wireless,
n Includes 8310-852T Actuator, 8310-844 Transmitter, 8310-869F Flush Box,
8310-802 Weather/Trim Ring
n Requires 8310-865 Receiver (not part of kit)
8310-3852WS
Surface Mount Kit
n 6˝Round,Logo,Wireless,
n Includes 8310-852 Actuator, 8310-844 Transmitter, 8310-869S Surface
Box, 8310-802 Weather/Trim Ring
n Requires 8310-865 Receiver (not part of kit)
8310-3852TWS
Surface Mount Kit
n 6˝Round,Logo,Text,Wireless,
n Includes 8310-852T Actuator, 8310-844 Transmitter, 8310-869S Surface
Box, 8310-802 Weather/Trim Ring
n Requires 8310-865 Receiver (not part of kit)
Automatic Operator Actuators & Accessories
6˝ Surface and Flush
Mounts
8310 Series
Auto Operator
Actuators &
Accessories

119
LCN Door Control Catalog
phone: 877-671-7011 n fax: 800-248-1460 n www.allegion.com/us n 009426 rev. 2/16
8310 Series
Auto Operator
Actuators &
Accessories
8310-818
Jamb Mounted Actuator
n Hardwired low voltage actuator with rectangular stainless steel touch
plate.
n 1-1/2˝(38mm)wideby4-3/4˝(121mm)
n Engraved blue filled handicap symbol conforms to most accessibility codes
n Designed to mount in a frame cutout (template provided) projecting
approximately1/2˝(12mm)fromtheframe
n Optional mounting in surface or flush mount box (sold separately)
n Heavy industrial grade components provide vandal resistant mounting and
weather resistant switch standard
8310-818T
Jamb Mounted Actuator
n Same as the 8310-818, with the
added engraving of “Push to
Open”
8310-844J
Transmitter
n Wireless, 1 Channel, Jamb Mount,
3v battery included
n Used to convert standard jamb
mount actuator to wireless when
used w/ 819F or 819S boxes.
Requires 8310-865 Receiver
(interior use only)
8310-819F
Flush Mount Box
n Rugged Plastic Jamb Box
n 1-1/2˝x4-3/4˝rectangle,
optional accessory - can be used
w/any1-1/2˝x4-3/4˝jamb
mount actuator
8310-865
Receiver
n Wireless, 1 Channel, w/
Sequencing Feature
n Used in conjunction w/ Wireless
Actuators & Transmitter(s)
8310-819S
Surface Mount Box
n Rugged Plastic Jamb Box
n 1-1/2˝x4-3/4˝,rectangle
n Optional accessory - can be
usedw/any1-1/2˝x4-3/4˝
jamb mount plastic mounting
box
Automatic Operator Actuators & Accessories
NOTE: LCN recommends for all jamb mount actuators be used on an interior installation only.
1-1/2˝ x 4-3/4˝ Surface
and Flush Mounts

120 LCN Door Control Catalog
phone: 877-671-7011 n fax: 800-248-1460 n www.allegion.com/us n 009426 rev. 2/16
8310-3818WF
Flush Mount Kit
n Actuator,1-1/2˝x4-3/4˝Rectangle,Logo,Wireless
n Includes 8310-818 Actuator, 8310-844J Transmitter, 8310-819F Flush Box
n Requires 8310-865 Receiver (not part of kit)
8310-3818TWF
Flush Mount Kit
n Actuator,1-1/2˝x4-3/4˝Rectangle,Logo,Wireless
n Includes 8310- 818T Actuator, 8310-844J Transmitter, 8310-819F Flush Box
n Requires 8310-865 Receiver (not part of kit)
8310-3822T
Surface Mount Kit
n ActuatorPackage,1-1/2˝x4-3/4˝,JambMount
n Includes 8310-818T (2) Jamb Mount Actuator, 8310-819S (2)
n Surface Mount Box
8310-3818WS
Surface Mount Kit
n Actuator,1-1/2˝x4-3/4˝Rectangle,Logo,Wireless
n Includes 8310-818 Actuator, 8310-844J Transmitter, 8310-819S Surface Box
n Requires 8310-865 Receiver (not part of kit)
8310-3818TWS
Surface Mount Kit
n Actuator,1-1/2˝x4-3/4˝Rectangle,Logo,Wireless
n Includes 8310-818T Actuator, 8310-844J Transmitter, 8310-819S Surface
Box
n Requires 8310-865 Receiver (not part of kit)
8310-3822TW
Surface Mount Kit
n ActuatorPackage,1-1/2˝x4-3/4˝,Wireless,JambMount
n Includes 8310-818T (2) Jamb Mount Actuator, 8310-819S (2)
n Surface Mount Box, 8310-844J (2) Jamb Mount Transmitter, 8310-865
Receiver
Automatic Operator Actuators & Accessories
1-1/2˝ x 4-3/4˝ Surface
and Flush Mounts
NOTE: LCN recommends for all jamb mount actuators be used on an interior installation only.
8310 Series
Auto Operator
Actuators &
Accessories

121
LCN Door Control Catalog
phone: 877-671-7011 n fax: 800-248-1460 n www.allegion.com/us n 009426 rev. 2/16
8310 Series
Auto Operator
Actuators &
Accessories
8310-853
Wall Mounted Actuator
n Hardwiredlowvoltageactuatorwithstainlesssteeltouchplatein4-3/4˝
(121mm) square
n Engraved blue filled handicap symbol conforms to most accessibility codes
n Designed to mount in a flush or surface mount box (sold separately) in/on a
vertical surface near the controlled door
n Optional mounting in single gang electrical box (by others) or double gang
box(4˝x4˝byothers)oronan8310-866bollardpost
n Heavy industrial grade components provide vandal resistant mounting and
weather resistant switch standard
8310-853T
Wall Mounted Actuator
n Same as the 8310-853, with the
added engraving of “Push to
Open”
8310-867S
Surface Mount Box
n RuggedPlasticBox,4-3/4˝
Square
n Optional accessory - can be used
w/any4-3/4˝squareactuator
8310-853TWP
Surface Mounted Actuator
n Same as the 8310-853WP, with
the added engraving of “Push to
Open”
8310-844
Transmitter
n Wireless, 1 Channel, 9v battery
included
n Use to convert standard wall
mount actuator to wireless
n Requires 8310-865 Receiver
8310-865
Receiver
n Wireless, 1 Channel, w/
Sequencing Feature
n Used in conjunction w/ Wireless
Actuators & Transmitter(s)
8310-813
Touchless Wall Mounted Actuator
n Hardwiredlowvoltageactuatorwithplasticplatein4-3/4˝(121mm)
square
n Optional mounting in single gang electrical box (by others) or double gang
box(4˝x4˝byothers)
8310-853WP
Surface Mounted Actuator
n Wireless, low profile, low voltage actuator with round, stainless steel touch
platein4-3/4˝(121mm)square
n Engraved blue filled handicap symbol conforms to most accessibility codes
n Surface mount box includes integral transmitter w/ battery and actuator
switch
n Heavy industrial grade components provide vandal resistant mounting and
weather resistant switch standard
n Requires 8310-865 Receiver
8310-801
Weather/Trim Ring
n Plastic Weather Ring,
4-3/4˝Square
n Optional accessory - can be used
w/any4-3/4˝squareplastic
mounting box
8310-867F
Flush Mount Box
n Rugged Plastic Box
n 4-3/4˝Square
n Optional accessory - can be used
w/any4-3/4˝squareactuator
Automatic Operator Actuators & Accessories
4-3/4˝ Square Surface
and Flush Mounts

122 LCN Door Control Catalog
phone: 877-671-7011 n fax: 800-248-1460 n www.allegion.com/us n 009426 rev. 2/16
Accessories
8310-3853WF
Flush Mount Kit
n Actuator,4-3/4˝Square,Logo,Wireless
n Includes 8310-853, 8310-844 Transmitter, 8310-867F Flush Box, 8310-801
Weather/Trim Ring
n Requires 8310-865 Receiver (not part of kit)
8310-3853TWF
Flush Mount Kit
n Actuator,4-3/4˝Square,Logo,Text,Wireless
n Includes 8310-853T, 8310-844 Transmitter, 8310-867F Flush Box,
8310-801 Weather/Trim Ring
n Requires 8310-865 Receiver (not part of kit)
8310-3857T
Surface Mount Kit
n ActuatorPackage,4-3/4˝Square
n Includes 8310-853T (2) Wall Mount Actuator, 8310-867S (2)
n Surface Mount Box
NOTE: Weather/Trim Rings are sold separately
8310-3853WS
Surface Mount Kit
n Actuator,4-3/4˝Square,Logo,Wireless
n Includes 8310-853, 8310-844 Transmitter, 8310-867S Surface Box,
8310-801 Weather/Trim Ring
n Requires 8310-865 Receiver (not part of kit)
8310-3853TWS
Surface Mount Kit
n Actuator,4-3/4˝Square,Logo,Text,Wireless
n Includes 8310-853T, 8310-844 Transmitter, 8310-867S Surface Box,
8310-801 Weather/Trim Ring
n Requires 8310-865 Receiver (not part of kit)
8310-3857TW
Surface Mount Kit
n ActuatorPackage,4-3/4˝Square
n Includes 8310-853T (2) Wall Mount Actuator, 8310-867S (2) Surface Mount
Box, 8310-801 (2) Weather/Trim Ring, 8310-844 (2) Transmitter,
8310-865 Receiver
Automatic Operator Actuators & Accessories
4-3/4˝ Square Surface
and Flush Mounts
8310 Series
Auto Operator
Actuators &
Accessories

123
LCN Door Control Catalog
phone: 877-671-7011 n fax: 800-248-1460 n www.allegion.com/us n 009426 rev. 2/16
8310 Series
Auto Operator
Actuators &
Accessories
8310-855
Dual Wall Mounted Actuator
n Hardwired low voltage actuator with dual rectangle, stainless steel touch
platein4-3/4˝(121mm)square
n Engraved blue filled handicap symbol w/ text, conforms to most
accessibility codes
n Designed to mount in a flush or surface mount box (sold separately) in/on a
vertical surface near the controlled door
n Optionalmountingindoublegangbox(4˝x4˝byothers)oronan8310-
866 bollard post
n Heavy industrial grade components provide vandal resistant mounting and
weather resistant switch standard
8310-867F
Flush Mounted Actuator
n RuggedPlasticBox,4-3/4˝
Square
n Optional accessory - can be used
w/any4-3/4˝squareactuator
8310-844
Transmitter
n Transmitter, Wireless, 1 Channel,
9v battery included
n Use to convert standard wall
mount actuator to wireless
n Requires 8310-865 Receiver
8310-865
Receiver
n Receiver, Wireless, 1 Channel, w/
Sequencing Feature
n Used in conjunction w/ Wireless
Actuators & Transmitter(s)
8310-801
Weather/Trim Ring
n PlasticWeatherRing,4-3/4˝
Square
n Optional accessory - can be used
w/any4-3/4˝squareplastic
mounting box
8310-867S
Surface Mount Box
n RuggedPlasticBox,4-3/4˝
Square
n Optional accessory -can be used
w/any4-3/4˝squareactuator
Automatic Operator Actuators & Accessories
4-3/4˝ Dual Square
Surface and Flush
Mounts

124 LCN Door Control Catalog
phone: 877-671-7011 n fax: 800-248-1460 n www.allegion.com/us n 009426 rev. 2/16
4-3/4˝ Dual Square
Surface and Flush Mounts
8310 Series
Auto Operator
Actuators &
Accessories
Automatic Operator Actuators & Accessories
8310-3855WF
Flush Mount Kit
n Actuator,4-3/4˝Square,Logo,Text,DualVestibule,Wireless
n Includes 8310-855 Actuator, 8310-844 Transmitter (2), 8310-867F Flush
Box, 8310-801 Weather/Trim Ring
n Requires 8310-865 Receiver (2) (not part of kit)
8310-3853WB
Actuator, Bollard Mount Kit
n 4-3/4˝Squarew/Logo,Wirelessactuator
n Use w/ 8310-866 Bollard (not included) - Includes 8310- 853 actuator,
8310-844 transmitter
n Requires 8310-865 Receiver (not part of kit)
8310-3855WS
Surface Mount Kit
n Actuator,4-3/4˝Square,Logo,Text,DualVestibule,Wireless
n Includes 8310-855 Actuator, 8310-844 Transmitter (2), 8310-867S Surface
Box, 8310-801 Weather/Trim Ring
n Requires 8310-865 Receiver (2) (not part of kit)
8310-3853TWB
Actuator, Bollard Mount Kit
n 4-3/4˝Squarew/Logo,Text,Wirelessactuator
n Use w/8310-866 Bollard (not included) - Includes 8310- 853T actuator,
8310-844 Transmitter
n Requires 8310-865 Receiver (not part of kit)

125
LCN Door Control Catalog
phone: 877-671-7011 n fax: 800-248-1460 n www.allegion.com/us n 009426 rev. 2/16
Automatic Operator Actuators & Accessories
8310-836T
Full Length Actuator (FLA)
n Hardwiredlowvoltageactuatorwithstainlesssteeltouchplatewith36˝x
6˝activationsurface
n Blue handicap symbol conforms with most accessibility codes
n Added “PUSH TO OPEN” lettering for enhanced identification
n Designed to meet California building codes and increase accessibility for
wheelchair bound entrants
n Can easily be mounted to any flat surface or a bollard post
8310-836TW
Flush Length Actuator (FLA)
n Same as the 8310-836T with a
built in wireless transmitter and
3v battery
n Use in conjunction with 8310-865
Receiver (not included)
8310-866FLA
FLA Bollard Post
n Apowdercoatedsteel42˝x4˝x
6˝:BollardPost,mountingbase
pre prepped for the 8310-836T
n Includes 8310-866 CAP, 2
mounting screws & spacer for
installation
8310-3836T
FLA Bollard Mount Kit
n 36˝x6˝Actuatorwith8310-
866FLA Bollard for wired
applications
8310-3836TW
FLA Bollard Mount Kit
n 36˝x6˝Actuatorwith8310-
866FLA Bollard and 8310-844
wireless Transmitter
n Transmitter requires 8310-865
Receiver (not included)
8310-844
Transmitter
n Wireless, 1 Channel, 9v Battery
included.
n Used to convert standard
actuators to wireless
n Requires 8310-865 Receiver
n Recommended for exterior
application with 8310-836T
n Used with the 866FLA bollard
post
8310-865
Receiver
n Wireless, 1 Channel,
w/Sequencing Feature
n Used in conjunction w/ Wireless
Actuators & Transmitter(s)
8310 Series
Auto Operator
Actuators &
Accessories
36˝ x 6˝ Full Length
Actuators

126 LCN Door Control Catalog
phone: 877-671-7011 n fax: 800-248-1460 n www.allegion.com/us n 009426 rev. 2/16
Accessories
Automatic Operator Sensors & Accessories
Sensors
8310
Series
Auto Operator
Sensors &
Accessories
8310-804-1
Door Mount Safety Sensor
n Contains one active sensor
module to detect obstruction(s)
on leading edge of door
8310-854
Header Mount Activation Sensor
n Activation Sensor, 'K' Band
Technology
n Used to detect objects either
approaching or moving away from
sensor
n Uses standard 'one way' detection
but additional detection can be
programmed
n Optional 8310-859 Handheld
Remote Control can be used to
program 8310-854 sensor from a
distance
8310-859
Handheld Remote Control
n Used to program 8310-877 Header
Mount Safety Sensor or 8310-854
Header Mount Motion Sensor
8310-804-2
Door Mount Safety Sensor
n Contains two active sensor
modules to detect obstruction(s)
on full face of door
8310-846
Header Mount Harness
n Comes with 8310-877 Header
Mount Safety Sensor
8310-847
Door Mount Harness
n Used with 8310-804-1 or 8310-
804-2 Door Mount Safety Sensor,
must order separately.
n Used with Senior Swing only, must
order separately
8310-877S
Header Mount Safety Sensor
Spacer
n Required when 8310-804-1 or
8310-804-2 Door Mount Safety
n Spacers are used w/ 8310-877
Header Mount Safety Sensor
8310-877
Header Mount Safety Sensor
n Safety Sensor, 'Diffused Infrared'
Technology
n Used to detect obstructions
during door open and door closed
position
n Nine selectable patterns
n 8310-859 Handheld Remote
Control required to program 8310-
877 sensor from a distance
n Includes 8310-846 Harness
The sensors and accessories on the following pages are to be used only with LCN automatic operators.
When using sensors supplied by others, consult the factory.
The desired function, traffic patterns and physical design of the opening will determine the type of sensors used.

127
LCN Door Control Catalog
phone: 877-671-7011 n fax: 800-248-1460 n www.allegion.com/us n 009426 rev. 2/16
8310
Series
Auto Operator
Sensors &
Accessories
Automatic Operator Sensors & Accessories
Packages
8310-3881L
Safety Sensor Package
n Activation/Safety Sensor Package, Single Door
n Includes 8310-854 (2) Header Mount Activation Sensor, 8310-877 Header Mount Safety Sensor, 8310-877S
Header Mount Spacer, 8310-804-2 Door Mount
n Safety Sensor (approach side), 8310-847 Harness (Used with Senior Swing only)
8310-3881
Safety Sensor Package
n Activation/Safety Sensor Package, Single Door
n Includes 8310-854 (2) Header Mount Activation Sensor, 8310-877 Header Mount Safety Sensor, 8310-877S
Header Mount Spacer, 8310-847 Harness, 8310- 804-2 (2) Door Mount Safety Sensor (approach/safety side)
(Used with Senior Swing only)
8310-3883
Safety Sensor Package
n Activation/Safety Sensor Package, Low Energy Convenience
n Single Door, Includes 8310-804-1 Door Mount Safety
n Sensor (approach side), 8310-805C Door Position Switch (Concealed), 8310-845 Programmable Relay
Module (Used with Senior Swing only)

128 LCN Door Control Catalog
phone: 877-671-7011 n fax: 800-248-1460 n www.allegion.com/us n 009426 rev. 2/16
8310
Series
Accessories
Automatic Operator Sensors & Accessories
Packages
8310-3882L
Safety Sensor Package
n Activation/Safety Sensor Package, Double Door
n Includes 8310-854 (2) Header Mount Activation Sensor, 8310-877 Header Mount Safety Sensor, 8310-877S Header
Mount Spacer, 8310-847 (2) Harness, 8310-804-2 (2) Door Mount Safety Sensor (approach side) (Used with Senior
Swing only)
NOTE: Not for use with Double Egress
8310-3882
Safety Sensor Package
n Activation/Safety Sensor Package, Double Door
n Includes 8310-854 (2) Header Mount Sensor, 8310-877 Header Mount Sensor, 8310-877S Header Mount
Spacer, 8310-847 (2) Harness, 8310-804-2 (4) Door Mount Safety Sensor (approach/safety side) (Used with
Senior Swing only)
NOTE: Not for use with Double Egress
8310-3891
Safety Sensor Package
n Activation/Safety Sensor Package, Health Care I, Simultaneous Pair
n Includes 8310-877 Header Mount Sensor, 8310-877S Header Mount
Spacer, 8310-804-2 (4) Door Mount Sensor (approach/ safety side),
8310-847 (2) Harness (Used with Senior Swing only)
NOTE: Not for use with Double Egress
8310-3892
Safety Sensor Package
n Activation/Safety Sensor Package, Health Care II, Independent Pair,
Includes 8310-877 (2) Header Mount Sensor, 8310-877S (2) Header
Mount Spacer, 8310-804-2 (4) Door Mount Sensor (approach/safety
side), 8310-847 (2) Harness (Used with Senior Swing only)
Auto Operator
Sensors &
Accessories

129
LCN Door Control Catalog
phone: 877-671-7011 n fax: 800-248-1460 n www.allegion.com/us n 009426 rev. 2/16
8310
Series
8310-805
Door Position Switch
n Surface mount
n Used when 8310-804-1 or
8310-804-2 Door Mounted
Safety Sensor and 8310-845
Relay Module is installed
in conjunction w/ either a
electrohydraulic, pneumatic or
Benchmark Automatic Operator
n Disables approach side sensor
when door is closed
8310-805C
Door Position Switch
n Concealed
n Used when 8310-804-1 or 8310-
804-2 Door Mounted Safety
Sensor and 8310-845 Relay
Module is installed in conjunction
w/ either a electrohydraulic,
pneumatic or Benchmark
Automatic Operator
n Disables approach side sensor
when door is closed
8310-854ERA
Protective Cover
n Cover used w/ 8310-854 Header
Mount Activation Sensor
n Optional
8310-3888
Harness
n Safety module, service part
n Safety Module Harness for
pneumatic control box
8310-3803
Wireless Conversion Kit
n Jamb mount, 3v
n Converts standard jamb actuator
to wireless version
n Includes 8310-865 Receiver, 8310-
844J (2) Jamb Mounted
n Transmitter - Requires 8310-819S
or 8310-819F Jamb Box
8310-3809
Wireless Conversion Kit
n Jamb mount, 9v
n Converts standard wall mount
actuator to wireless version
n Includes 8310-865 Receiver, 8310-
844 (2) Wall Mount Transmitter
n Requires Surface or Flush Box and
Weather Ring
8310-854ECA
Drop Ceiling Bracket
n Bracket used w/ 8310-854
Header Mount Activation Sensor
n Optional
8310-3889
Safety Module Kit
n Used w/ 7901, 7902, 7981, 7982
Control Boxes.
n Includes 8310-3888 Safety
Module Harness. Required when
8310-877 Header Mount Safety
Sensor is used w/ Pneumatic
n Automatic Operators (2610,
4810, 4820 or 4840 Series)
8310-824
Transformer, 24v,
n Hardwired
n Optional accessory - Used to
remotely power any 24v sensor/
receiver
8310-824P
Transformer
n 24v, plug in
n Optional accessory - Used to
remotely power any 24v sensor/
receiver
Automatic Operator Sensors & Accessories
Auto Operator
Sensors &
Accessories

130 LCN Door Control Catalog
phone: 877-671-7011 n fax: 800-248-1460 n www.allegion.com/us n 009426 rev. 2/16
8310
Series
Accessories
8310-861
Transmitter
n Wireless
n 1 Channel, Handheld, 3v.
Requires 8310-865 Receiver
8310-862
Transmitter
n Wireless
n 2 Channel, Handheld, 3v.
Requires 8310-865 Receiver
8310-866CAP
Bollard Post
n Plastic Cap, Protective Cover,
Service Part for 8310-866 Bollard
Post
8310-866
Bollard Post
n A powder coated steel
42˝x4˝x6˝BollardPost,
Mounting Base and 8310-866CAP
n Actuator cut out accepts
8310-3853WB or 8310- 3853TWB
wirelessactuators4-3/4˝square
hard wired actuator
8310-863
Transmitter
n Wireless
n 3 Channel, Handheld, 3v.
Requires 8310-865 Receiver
8310-864
Transmitter
n Wireless
n 4 Channel, Handheld, 3v.
Requires 8310-865 Receiver.
Automatic Operator Sensors & Accessories
Auto Operator
Sensors &
Accessories

131
LCN Door Control Catalog
phone: 877-671-7011 n fax: 800-248-1460 n www.allegion.com/us n 009426 rev. 2/16
8310
Series
8310-806K
Key Switch
n Type, 3 Position (On/Off/Hold-
Open)
n Optional switch used w/
Senior Swing, Benchmark, or
4630/4640 Operators with (CS)
option
8310-806R
Rocker Switch
n Type, 3 Position (On/Off/Hold-
Open)
n Optional switch w/ Senior Swing,
Benchmark, or 4630/4640
n Operators with (CS) option
8310-3134
Retrofit Cable Kit
n Allows newer style Senior Swing
Digital Control to be activated by
existing switches when replacing
older control purchased prior to
September, 2006.
n Also includes cables to allow
Safety Sensors to activate
n Includes 8310-887 plus Safety
Sensor Cables
8310-887
Retrofit Cable
n Allows newer style Senior
Swing digital control to be
activated by existing switches
when replacing older control
purchased prior to September,
2006
8310-807
Line Filter
n AC, 120v, Optional filter used w/
Senior Operators to reduce ‘line
noise’
8310-845
Programmable Relay Module
n Used to sequence door operation
in Senior Swing and Benchmark
for hard wired applications
Automatic Operator Actuators & Accessories
Auto Operator
Sensors &
Accessories

132 LCN Door Control Catalog
phone: 877-671-7011 n fax: 800-248-1460 n www.allegion.com/us n 009426 rev. 2/16
Notes
__________________________________________________________________________________________________________________________________________________________________________________
__________________________________________________________________________________________________________________________________________________________________________________
__________________________________________________________________________________________________________________________________________________________________________________
__________________________________________________________________________________________________________________________________________________________________________________
__________________________________________________________________________________________________________________________________________________________________________________
__________________________________________________________________________________________________________________________________________________________________________________
__________________________________________________________________________________________________________________________________________________________________________________
__________________________________________________________________________________________________________________________________________________________________________________
__________________________________________________________________________________________________________________________________________________________________________________
__________________________________________________________________________________________________________________________________________________________________________________
__________________________________________________________________________________________________________________________________________________________________________________
__________________________________________________________________________________________________________________________________________________________________________________
__________________________________________________________________________________________________________________________________________________________________________________
__________________________________________________________________________________________________________________________________________________________________________________
__________________________________________________________________________________________________________________________________________________________________________________
__________________________________________________________________________________________________________________________________________________________________________________
__________________________________________________________________________________________________________________________________________________________________________________
__________________________________________________________________________________________________________________________________________________________________________________
__________________________________________________________________________________________________________________________________________________________________________________
__________________________________________________________________________________________________________________________________________________________________________________
__________________________________________________________________________________________________________________________________________________________________________________
__________________________________________________________________________________________________________________________________________________________________________________
__________________________________________________________________________________________________________________________________________________________________________________
__________________________________________________________________________________________________________________________________________________________________________________
__________________________________________________________________________________________________________________________________________________________________________________
__________________________________________________________________________________________________________________________________________________________________________________

1
LCN Door Control Catalog
phone: 877-671-7011 n fax: 800-248-1460 n www.allegion.com/us n 009426 rev. 2/16
PAH 60
Holder
1-7/8"
48 mm
3/4"
19 mm
3-3/4"
94 mm
6-1/8"
156 mm
2-11/16"
68 mm
8-11/16"
221 mm
1-1/4"
32 mm
1-3/4"
44 mm
The PAH 60 is recommended for use on the inactive leaf of a pair of doors where the active
leaf has a door closer installed.
Features & Ordering
Information
Handing Handed
Butt Hinges Should not exceed 5˝ (127 mm) in width
Auxiliary Stop Recommended at hold-open point
Top Rail Minimum 2˝ (51 mm)
Rabbet Depth Minimum 1-1/4˝ (32 mm)
Maximum opening n Hold-open points up to 180°
n
Hold-open point adjustable at the
soffit shoe
1. Specify hand
RH
LH
2. Select finish
Standard Powder Coat __________
Aluminum, Dark Bronze, Statuary,
Light Bronze, Black, Brass
3. Optional arm finish
Custom Powder Coat (RAL) __________
Plated Finish, US __________
SRI Primer __________
How-to-order PAH 60 Holder
Fasteners Wood and machine screw pack
Finishes/Colors/
Powder Coat
n Aluminum (689)
n Statuary Bronze (690)
n Light Bronze (691)
n Black (693)
n Dark Bronze (695)
n Brass (696)
n Custom colors optional
n Optional SRI primer - powder coat only
n Optional plated finishes

2LCN Door Control Catalog
phone: 877-671-7011 n fax: 800-248-1460 n www.allegion.com/us n 009426 rev. 2/16
Notes
__________________________________________________________________________________________________________________________________________________________________________________
__________________________________________________________________________________________________________________________________________________________________________________
__________________________________________________________________________________________________________________________________________________________________________________
__________________________________________________________________________________________________________________________________________________________________________________
__________________________________________________________________________________________________________________________________________________________________________________
__________________________________________________________________________________________________________________________________________________________________________________
__________________________________________________________________________________________________________________________________________________________________________________
__________________________________________________________________________________________________________________________________________________________________________________
__________________________________________________________________________________________________________________________________________________________________________________
__________________________________________________________________________________________________________________________________________________________________________________
__________________________________________________________________________________________________________________________________________________________________________________
__________________________________________________________________________________________________________________________________________________________________________________
__________________________________________________________________________________________________________________________________________________________________________________
__________________________________________________________________________________________________________________________________________________________________________________
__________________________________________________________________________________________________________________________________________________________________________________
__________________________________________________________________________________________________________________________________________________________________________________
__________________________________________________________________________________________________________________________________________________________________________________
__________________________________________________________________________________________________________________________________________________________________________________
__________________________________________________________________________________________________________________________________________________________________________________
__________________________________________________________________________________________________________________________________________________________________________________
__________________________________________________________________________________________________________________________________________________________________________________
__________________________________________________________________________________________________________________________________________________________________________________
__________________________________________________________________________________________________________________________________________________________________________________
__________________________________________________________________________________________________________________________________________________________________________________
__________________________________________________________________________________________________________________________________________________________________________________
__________________________________________________________________________________________________________________________________________________________________________________

Allegion (NYSE: ALLE) creates peace of mind by pioneering safety and security.
As a $2 billion provider of security solutions for homes and businesses, Allegion
employs more than 7,800 people and sells products in more than 120 countries
across the world. Allegion comprises 23 global brands, including strategic
brands CISA®
, Interflex®
, LCN®
, Schlage® and Von Duprin®
.
For more, visit www.allegion.com
About Allegion
© 2016 Allegion
009426, Rev. 2/16
allegion.com/us