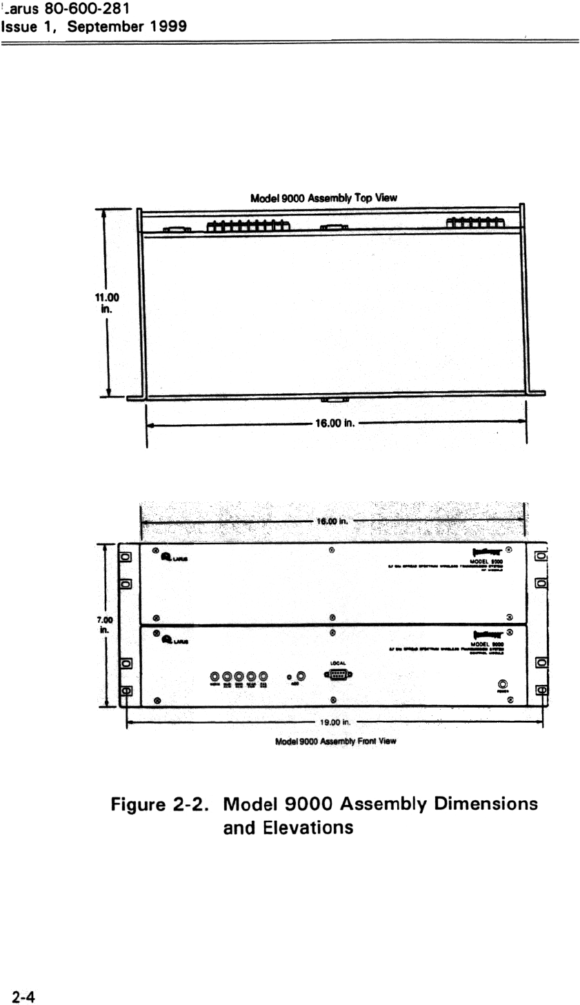
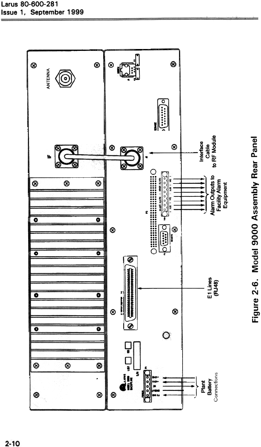
Larus 9000 E1/DS1 SPREAD SPECTRUM 5.78 GHz DIGITAL RADIO User Manual Installation Instructions 2
Larus Corporation E1/DS1 SPREAD SPECTRUM 5.78 GHz DIGITAL RADIO Installation Instructions 2
Larus >
Contents
Installation Instructions 2













