Liebert Series 600T Users Manual Insms225
SERIES 600T to the manual 938fd302-6969-4739-8e0b-3a343f30bed0
2015-02-09
: Liebert Liebert-Series-600T-Users-Manual-571415 liebert-series-600t-users-manual-571415 liebert pdf
Open the PDF directly: View PDF
.
Page Count: 84
- INSTALLATION MANUAL TABLE OF CONTENTS
- TABLES
- FIGURES
- Figure 2. Alternative Grounding Configuration, 480 or 600 VAC input and output
- 1. SAFETY PRECAUTIONS
- 2. INSTALLATION CONSIDERATIONS
- 3. UNLOADING AND HANDLING
- 4. INSPECTIONS
- 5. EQUIPMENT LOCATION
- 6. BATTERY INSTALLATION
- 7. CONFIGURING YOUR NEUTRAL AND GROUND CONNECTIONS
- Figure 1. Preferred Grounding Configuration, 480 or 600 VAC input and output
- Figure 3. Preferred Grounding Configuration, 480 or 600 VAC input and 208 VAC output
- Figure 4. Preferred Grounding Configuration, 208 VAC input and output
- Figure 5. Preferred Grounding Configuration with Ungrounded Delta Source Input (top) and Corner-G...
- Figure 6. Preferred Grounding Configuration, Power-Tie™ Systems
- Figure 7. Preferred Battery Cabinet Grounding Configuration
- 8. wiring considerations
- Figure 8. Typical One-Line Diagrams for SMS with Standard Dual Input
- Figure 9. Typical One-Line Diagrams of SMS with optional single input.
- Figure 10. Typical One-Line Diagrams of SMS with optional Maintenance Bypass Cabinets
- 9. WIRING CONNECTIONS
- 9.2 Specific Connections
- 10. WIRING INSPECTION
- Figure 11. Outline Drawing Single and Multi Module 65 & 80 kVA
- Figure 12. Outline Drawing, 100 through 225 kVA Module with SpaceSaver Top-Entry Configuration
- Figure 13. Outline Drawing, 100 through 225 kVA Module with Standard Top & Bottom Entry
- Figure 14. Bypass Transformer Cabinet, 65 & 80 kVA
- Figure 15. Bypass Transformer Cabinet, 100-225 kVA
- Figure 16. Battery Power Pack, 65 & 80 kVA
- Figure 17. Battery Power Pack, Size A, 100-225 kVA
- Figure 18. Outline Drawing, 3-Breaker MBC, 65 & 80 kVA
- Figure 19. Outline Drawing, 3-Breaker MBC with Bypass Transformer, 65 & 80 kVA
- Figure 20. Outline Drawing, 3-Breaker MBC, 125-350 Amps
- Figure 21. Outline Drawing, 3-Breaker MBC, 450 to 800 Amps
- Figure 22. Outline Drawing, 3-Breaker MBC, 600-800 Amps
- Figure 23. Line-up Detail, 65 & 80 kVA SMS with Bypass Transformer Cabinet
- Figure 24. Line-up Detail, 100-225 kVA Space Saver with Bypass Transformer Cabinet
- Figure 25. Line-up Detail, 100-225 kVA Standard SMS with Bypass Transformer Cabinet
- Figure 26. Line-up Detail, 65 & 80 kVA SMS with Battery Cabinets
- Figure 27. Line-up Detail, 100-225 kVA Space Saver with Battery Cabinets
- Figure 28. Line-up Detail, 100-225 kVA Standard SMS with Battery Cabinets
- Figure 29. Line-up Detail, 65 & 80 kVA with 3-Breaker MBC
- Figure 30. Line-up Detail, 65 & 80 kVA with Bypass Transformer and 3-Breaker MBC
- Figure 31. Line-up Detail, 100-225 kVA Space Saver with 3-Breaker MBC
- Figure 32. Line-up Detail, 100-225 kVA Space Saver with Bypass Transformer Cabinet and 3-Breaker MBC
- Figure 33. Line-up Detail, 100-225 kVA with 3-Breaker MBC
- Figure 34. Line-up Detail, 100-225 kVA with Bypass Transformer Cabinet and 3-Breaker MBC
- Figure 35. Terminal Details, 65 & 80 kVA Single Module Systems
- Figure 36. Terminal Details, 100 & 125 kVA Space Saver
- Figure 37. Terminal Details, 150 & 225 kVA Standard SMS
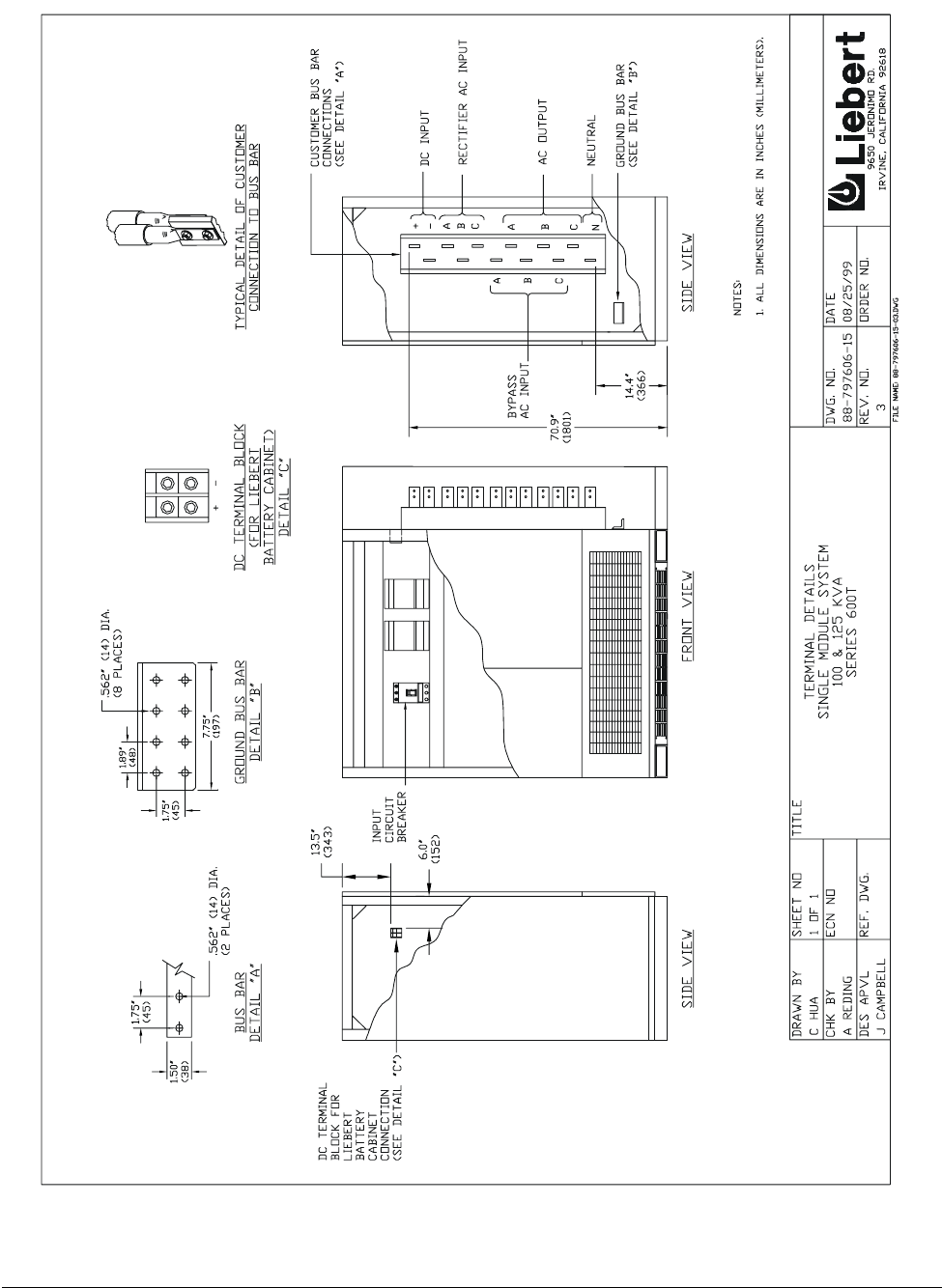
- Figure 38. Terminal Details, 100 & 125 kVA Standard SMS
- Figure 39. Terminal Details, 150 & 225 kVA Standard SMS
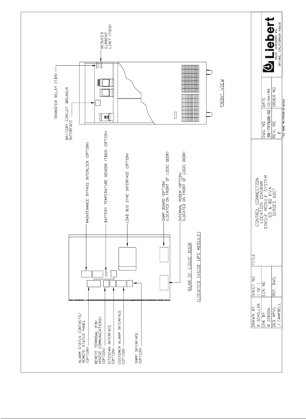
- Figure 40. Control Connection Locations, 65 & 80 kVA
- Figure 41. Control Connection Locations, 100 through 225 kVA
- Figure 42. Standard Control Wiring, Single Module System
- Figure 43. Option Wiring, Alarm Status Contacts
- Figure 44. Option Wiring, Maintenance Bypass Interlock
- Figure 45. Option Wiring, Remote Status Panel Interface
- Figure 46. Option Wiring, Remote Terminal IFM (RS-232 Communications)
- Figure 47. Option Wiring, SiteScan Interface
- Figure 48. Option Wiring, Customer Alarm Interface
- Figure 49. Option Wiring, Battery Temperature Sensor
- Figure 50. Option Wiring, SNMP Interface
- Figure 51. Option Wiring, Internal Modem
- Figure 52. Option Wiring, Maintenance Bypass Cabinet
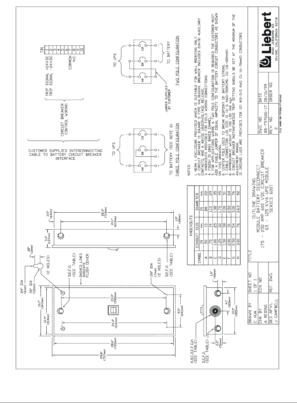
- Figure 53. Module Battery Disconnect, 65 through 125 kVA
- Figure 54. Module Battery Disconnect, 150 & 225 kVA
- Figure 55. Remote Status Panel, Surface Mount
- Figure 56. Circuit Breaker Schedule, 65 through 225 kVA
- Figure 57. Circuit Breaker Schedule, Battery Cabinets, 65 to 500 kVA
- Figure 58. Circuit Breaker Schedule, Maintenance Bypass Cabinet, 65 through 225 kVA
- INSTALLATION
- Appendix A: Site Planning Data 65-225 kVA Single Module Systems
- Series 600T Single Module Systems 208 Volt Input
- Series 600T Single Module Systems 480 Volt Input
- Series 600T Single Module Systems 600 Volt Input

POWER AVAILABILITY
Series 600T™ UPS
INSTALLATION MANUAL
Single Module
Three-Phase
65-225 kVA
60 Hz

The following WARNING applies to all battery cabinets supplied
with UPS systems:
INTERNAL BATTERY STRAPPING MUST BE VERIFIED BY MANU-
FACTURER PRIOR TO MOVING A BATTERY CABINET.
Battery cabinets contain non-spillable batteries.
Keep units upright.
Do not stack.
Do not tilt.
Failure to heed this warning could result in smoke, fire or electric
hazard. Call 1-800-LIEBERT prior to moving battery cabinets.

i
INSTALLATION MANUAL
TABLE OF CONTENTS
1. SAFETY PRECAUTIONS . . . . . . . . . . . . . . . . . . . . . . . . . . . . . . . . . . . . . . . . . . . . . . . . . . . . . . . . . 1
2. INSTALLATION CONSIDERATIONS . . . . . . . . . . . . . . . . . . . . . . . . . . . . . . . . . . . . . . . . . . . . . . . 2
3. UNLOADING AND HANDLING. . . . . . . . . . . . . . . . . . . . . . . . . . . . . . . . . . . . . . . . . . . . . . . . . . . . 3
4. INSPECTIONS . . . . . . . . . . . . . . . . . . . . . . . . . . . . . . . . . . . . . . . . . . . . . . . . . . . . . . . . . . . . . . . . . . 3
4.1. External Inspections . . . . . . . . . . . . . . . . . . . . . . . . . . . . . . . . . . . . . . . . . . . . . . . . . . . . . . . 3
4.2. Internal Inspections . . . . . . . . . . . . . . . . . . . . . . . . . . . . . . . . . . . . . . . . . . . . . . . . . . . . . . . 3
5. EQUIPMENT LOCATION . . . . . . . . . . . . . . . . . . . . . . . . . . . . . . . . . . . . . . . . . . . . . . . . . . . . . . . . . 4
6. BATTERY INSTALLATION. . . . . . . . . . . . . . . . . . . . . . . . . . . . . . . . . . . . . . . . . . . . . . . . . . . . . . . . 4
6.1. Battery Safety Precautions . . . . . . . . . . . . . . . . . . . . . . . . . . . . . . . . . . . . . . . . . . . . . . . . . . 4
6.2 Battery Cabinets . . . . . . . . . . . . . . . . . . . . . . . . . . . . . . . . . . . . . . . . . . . . . . . . . . . . . . . . . . 6
6.3 Open-Rack Batteries . . . . . . . . . . . . . . . . . . . . . . . . . . . . . . . . . . . . . . . . . . . . . . . . . . . . . . . 7
7. CONFIGURING YOUR NEUTRAL AND GROUND CONNECTIONS . . . . . . . . . . . . . . . . . . . . . 7
7.1. Preferred Grounding Configuration, Isolated Power Distribution Units . . . . . . . . . . . . . . 8
7.2. Alternative Grounding Configuration, Isolated Power Distribution Units, . . . . . . . . . . . 9
7.3. Preferred Grounding Configuration, 480 or 600 VAC Input, 208VAC Output . . . . . . . . . 10
7.4. Preferred Grounding Configuration, 208 VAC Input and Output, Non-Isolated Load . . .11
7.5. Grounding Configuration, Delta Source or Impedance-Grounded Wye . . . . . . . . . . . . . . 12
7.6. Preferred Grounding Configuration with Power-Tie™ Switchgear . . . . . . . . . . . . . . . . . 13
7.7. Preferred Grounding Configuration, Battery Systems . . . . . . . . . . . . . . . . . . . . . . . . . . . 14
8. WIRING CONSIDERATIONS . . . . . . . . . . . . . . . . . . . . . . . . . . . . . . . . . . . . . . . . . . . . . . . . . . . . . 15
8.1. Power Wiring . . . . . . . . . . . . . . . . . . . . . . . . . . . . . . . . . . . . . . . . . . . . . . . . . . . . . . . . . . . . 15
8.2. Control Wiring . . . . . . . . . . . . . . . . . . . . . . . . . . . . . . . . . . . . . . . . . . . . . . . . . . . . . . . . . . . 19
8.3. Battery Wiring . . . . . . . . . . . . . . . . . . . . . . . . . . . . . . . . . . . . . . . . . . . . . . . . . . . . . . . . . . . 19
9. WIRING CONNECTIONS . . . . . . . . . . . . . . . . . . . . . . . . . . . . . . . . . . . . . . . . . . . . . . . . . . . . . . . . 20
9.1 Warnings. . . . . . . . . . . . . . . . . . . . . . . . . . . . . . . . . . . . . . . . . . . . . . . . . . . . . . . . . . . . . . . . 20
9.2 Specific Connections. . . . . . . . . . . . . . . . . . . . . . . . . . . . . . . . . . . . . . . . . . . . . . . . . . . . . . . 20
10. WIRING INSPECTION . . . . . . . . . . . . . . . . . . . . . . . . . . . . . . . . . . . . . . . . . . . . . . . . . . . . . . . . . . 21
WARNING
LOCATE CENTER OF GRAVITY SYMBOLS
AND DETERMINE UNIT WEIGHT BEFORE HANDLING CABINET
If you require assistance for any reason, call the toll-free Liebert Global Services number,
1-800-543-2378. Please have the following information available:
Part Number: ________________________________________________________
Serial Number: ________________________________________________________
kVA Rating ________________________________________________________
kW Rating ________________________________________________________
Date Purchased ________________________________________________________
Date Installed ________________________________________________________
Location: ________________________________________________________
Input Voltage ________________________________________________________
Output Voltage ________________________________________________________
Battery Reserve Time: __________________________________________________
!

TABLES
Table 1. Power Wiring Terminals - Factory Supplied ..............................................................................22
Table 2. Torque Specifications ...................................................................................................................22
Table 3. Field-Supplied Lugs.....................................................................................................................23
Table 310-16, NEC Allowable Ampacities of Insulated Conductors............................................................24
FIGURES
Figure 1. Preferred Grounding Configuration, 480 or 600 VAC input and output . . . . . . . . . . . . . . . . . . . 8
Figure 2. Alternative Grounding Configuration, 480 or 600 VAC input and output . . . . . . . . . . . . . . . . . 9
Figure 3. Preferred Grounding Configuration, 480 or 600 VAC input and 208 VAC output . . . . . . . . . . 10
Figure 4. Preferred Grounding Configuration, 208 VAC input and output . . . . . . . . . . . . . . . . . . . . . . . . 11
Figure 5. Preferred Grounding Configuration with Delta Source Input . . . . . . . . . . . . . . . . . . . . . . . . . . 12
Figure 6. Preferred Grounding Configuration, Power-Tie™ Systems . . . . . . . . . . . . . . . . . . . . . . . . . . . . 13
Figure 7. Preferred Battery Cabinet Grounding Configuration . . . . . . . . . . . . . . . . . . . . . . . . . . . . . . . . . 14
Figure 8. Typical One-Line Diagrams for SMS with Standard Dual Input . . . . . . . . . . . . . . . . . . . . . . . . 16
Figure 9. Typical One-Line Diagrams of SMS with optional single input. . . . . . . . . . . . . . . . . . . . . . . . . 17
Figure 10. Typical One-Line Diagrams of SMS with optional Maintenance Bypass Cabinets . . . . . . . . 18
Figure 11. Outline Drawing Single and Multi Module 65 & 80 kVA . . . . . . . . . . . . . . . . . . . . . . . . . . . . . 25
Figure 12. Outline Drawing, 100 through 225 kVA Module with SpaceSaver Top-Entry Configuration 26
Figure 13. Outline Drawing, 100 through 225 kVA Module with Standard Top & Bottom Entry . . . . . . 27
Figure 14. Bypass Transformer Cabinet, 65 & 80 kVA . . . . . . . . . . . . . . . . . . . . . . . . . . . . . . . . . . . . . . . . 28
Figure 15. Bypass Transformer Cabinet, 100-225 kVA . . . . . . . . . . . . . . . . . . . . . . . . . . . . . . . . . . . . . . . 29
Figure 16. Battery Power Pack, 65 & 80 kVA . . . . . . . . . . . . . . . . . . . . . . . . . . . . . . . . . . . . . . . . . . . . . . . 30
Figure 17. Battery Power Pack, Size A, 100-225 kVA . . . . . . . . . . . . . . . . . . . . . . . . . . . . . . . . . . . . . . . . . 31
Figure 18. Outline Drawing, 3-Breaker MBC, 65 & 80 kVA . . . . . . . . . . . . . . . . . . . . . . . . . . . . . . . . . . . 32
Figure 19. Outline Drawing, 3-Breaker MBC with Bypass Transformer, 65 & 80 kVA . . . . . . . . . . . . . . 33
Figure 20. Outline Drawing, 3-Breaker MBC, 125-350 Amps . . . . . . . . . . . . . . . . . . . . . . . . . . . . . . . . . . 34
Figure 21. Outline Drawing, 3-Breaker MBC, 450 to 800 Amps . . . . . . . . . . . . . . . . . . . . . . . . . . . . . . . . 35
Figure 22. Outline Drawing, 3-Breaker MBC, 600-800 Amps . . . . . . . . . . . . . . . . . . . . . . . . . . . . . . . . . . 36
Figure 23. Line-up Detail, 65 & 80 kVA SMS with Bypass Transformer Cabinet . . . . . . . . . . . . . . . . . . 37
Figure 24. Line-up Detail, 100-225 kVA Space Saver with Bypass Transformer Cabinet . . . . . . . . . . . . 38
Figure 25. Line-up Detail, 100-225 kVA Standard SMS with Bypass Transformer Cabinet . . . . . . . . . . 39
Figure 26. Line-up Detail, 65 & 80 kVA SMS with Battery Cabinets . . . . . . . . . . . . . . . . . . . . . . . . . . . . 40
Figure 27. Line-up Detail, 100-225 kVA Space Saver with Battery Cabinets . . . . . . . . . . . . . . . . . . . . . . 41
Figure 28. Line-up Detail, 100-225 kVA Standard SMS with Battery Cabinets . . . . . . . . . . . . . . . . . . . . 42
Figure 29. Line-up Detail, 65 & 80 kVA with 3-Breaker MBC . . . . . . . . . . . . . . . . . . . . . . . . . . . . . . . . . . 43
Figure 30. Line-up Detail, 65 & 80 kVA with Bypass Transformer and 3-Breaker MBC . . . . . . . . . . . . 44
Figure 31. Line-up Detail, 100-225 kVA Space Saver with 3-Breaker MBC . . . . . . . . . . . . . . . . . . . . . . . 45
Figure 32. Line-up Detail, 100-225 kVA Space Saver with Bypass Cabinet and 3-Breaker MBC . . . . . . 46
Figure 33. Line-up Detail, 100-225 kVA with 3-Breaker MBC . . . . . . . . . . . . . . . . . . . . . . . . . . . . . . . . . 47
Figure 34. Line-up Detail, 100-225 kVA with Bypass Transformer Cabinet and 3-Breaker MBC . . . . . 48
Figure 35. Terminal Details, 65 & 80 kVA Single Module Systems . . . . . . . . . . . . . . . . . . . . . . . . . . . . . . 49
Figure 36. Terminal Details, 100 & 125 kVA Space Saver . . . . . . . . . . . . . . . . . . . . . . . . . . . . . . . . . . . . . 50
Figure 37. Terminal Details, 150 & 225 kVA Standard SMS . . . . . . . . . . . . . . . . . . . . . . . . . . . . . . . . . . . 51
Figure 38. Terminal Details, 100 & 125 kVA Standard SMS . . . . . . . . . . . . . . . . . . . . . . . . . . . . . . . . . . . 52
Figure 39. Terminal Details, 150 & 225 kVA Standard SMS . . . . . . . . . . . . . . . . . . . . . . . . . . . . . . . . . . . 53
Figure 40. Control Connection Locations, 65 & 80 kVA . . . . . . . . . . . . . . . . . . . . . . . . . . . . . . . . . . . . . . . 54
Figure 41. Control Connection Locations, 100 through 225 kVA . . . . . . . . . . . . . . . . . . . . . . . . . . . . . . . . 55
Figure 42. Standard Control Wiring, Single Module System . . . . . . . . . . . . . . . . . . . . . . . . . . . . . . . . . . . 56
Figure 43. Option Wiring, Alarm Status Contacts . . . . . . . . . . . . . . . . . . . . . . . . . . . . . . . . . . . . . . . . . . . 57
Figure 44. Option Wiring, Maintenance Bypass Interlock . . . . . . . . . . . . . . . . . . . . . . . . . . . . . . . . . . . . . 58
Figure 45. Option Wiring, Remote Status Panel Interface . . . . . . . . . . . . . . . . . . . . . . . . . . . . . . . . . . . . . 59
Figure 46. Option Wiring, Remote Terminal IFM (RS-232 Communications) . . . . . . . . . . . . . . . . . . . . . 60
Figure 47. Option Wiring, SiteScan Interface . . . . . . . . . . . . . . . . . . . . . . . . . . . . . . . . . . . . . . . . . . . . . . . 61

iii
Figure 48. Option Wiring, Customer Alarm Interface . . . . . . . . . . . . . . . . . . . . . . . . . . . . . . . . . . . . . . . . 62
Figure 49. Option Wiring, Battery Temperature Sensor . . . . . . . . . . . . . . . . . . . . . . . . . . . . . . . . . . . . . . 63
Figure 50. Option Wiring, SNMP Interface . . . . . . . . . . . . . . . . . . . . . . . . . . . . . . . . . . . . . . . . . . . . . . . . . 64
Figure 51. Option Wiring, Internal Modem . . . . . . . . . . . . . . . . . . . . . . . . . . . . . . . . . . . . . . . . . . . . . . . . . 65
Figure 52. Option Wiring, Maintenance Bypass Cabinet . . . . . . . . . . . . . . . . . . . . . . . . . . . . . . . . . . . . . . 66
Figure 53. Module Battery Disconnect, 65 through 125 kVA . . . . . . . . . . . . . . . . . . . . . . . . . . . . . . . . . . . 67
Figure 54. Module Battery Disconnect, 150 & 225 kVA . . . . . . . . . . . . . . . . . . . . . . . . . . . . . . . . . . . . . . . 68
Figure 55. Remote Status Panel, Surface Mount . . . . . . . . . . . . . . . . . . . . . . . . . . . . . . . . . . . . . . . . . . . . 69
Figure 56. Circuit Breaker Schedule, 65 through 225 kVA . . . . . . . . . . . . . . . . . . . . . . . . . . . . . . . . . . . . 70
Figure 57. Circuit Breaker Schedule, Battery Cabinets, 65 to 500 kVA . . . . . . . . . . . . . . . . . . . . . . . . . . 71
Figure 58. Circuit Breaker Schedule, Maintenance Bypass Cabinet, 65 through 225 kVA . . . . . . . . . . . 72


Liebert Series 600T UPS, 65-225 kVA, Single Module 1
1. SAFETY PRECAUTIONS
Read this manual thoroughly, paying special
attention to the sections that apply to you, before
working with the UPS. Retain this manual for
use by installing personnel.
Under typical operation and with all UPS doors
closed, only normal safety precautions are
necessary. The area around the UPS system should
be kept free from puddles of water, excess
moisture, or debris.
Special safety precautions are required for
procedures involving handling, installation, and
maintenance of the UPS system or the battery.
Observe all safety precautions in this manual
before handling or installing the UPS system.
Observe all precautions in the Operation and
Maintenance Manual, before and during
performance of all maintenance procedures.
Observe all battery safety precautions before
working on or near the battery.
This equipment contains several circuits that
are energized with high voltage. Only test
equipment designated for troubleshooting should
be used. This is particularly true for oscilloscopes.
Always check with an AC and DC voltmeter to
ensure safety before making contact or using tools.
Even when the power is turned Off, dangerously
high potentials may exist at the capacitor banks
and at the batteries.
ONLY qualified service personnel should
perform maintenance on the UPS system.
When performing maintenance with any part of
the equipment under power, service personnel and
test equipment should be standing on rubber mats.
The service personnel should wear insulating
shoes for isolation from direct contact with the
floor (earth ground).
Unless all power is removed from the equipment,
one person should never work alone. A second
person should be standing by to assist and
summon help in case an accident should occur.
Four types of messages are used throughout the
manual to stress important text. Carefully read the
text below each Danger, Warning, Caution, and
Note and use professional skills and prudent care
when performing the actions described by that
text.
A Danger signals immediate hazards resulting in
severe personal injury or death. For example:
DANGER
A DANGER SIGNALS IMMEDIATE
HAZARDS WHICH WILL RESULT IN
SEVERE PERSONAL INJURY OR DEATH.
A Warning signals the presence of a possible
serious, life-threatening condition. For example:
WARNING
LETHAL VOLTAGES MAY BE PRESENT
WITHIN THIS UNIT EVEN WHEN IT IS
APPARENTLY NOT OPERATING.
OBSERVE ALL CAUTIONS AND
WARNINGS IN THIS MANUAL. FAILURE
TO DO SO COULD RESULT IN SERIOUS
INJURY OR DEATH. DO NOT WORK ON OR
OPERATE THIS EQUIPMENT UNLESS
YOU ARE FULLY QUALIFIED TO DO SO!!
NEVER WORK ALONE.
A Caution indicates a condition that could
seriously damage equipment and possibly injure
personnel. For example:
CAUTION
Extreme care is necessary when removing
shoring braces. Do not strike the cabinet
with hammers or other tools.
A Note emphasizes important text. If the note is
not followed, equipment could be damaged or may
not operate properly. For example:
NOTE
If the UPS system has a blown fuse, the
cause should be determined before you
replace the fuse. Contact Liebert Global
Services.
INSTALLATION

2Installation Manual
2. INSTALLATION CONSIDERATIONS
Install your Series 600T UPS in accordance
with the submittal drawing package and the
following procedures.
A Liebert authorized representative must
perform the initial system check-out and start-
up to ensure proper system operation.
Equipment warranties will be voided unless
system start-up is performed by a Liebert
authorized representative. Contact your local
Liebert sales representative or Liebert Global
Services at 1-800-543-2378 to arrange for
system start-up.
CAUTION
Read this manual thoroughly before
attempting to wire or operate the unit.
Improper installation is the most
significant cause of UPS start-up
problems.
Do not install this equipment near gas
or electric heaters. It is preferable to
install the UPS in a restricted location
to prevent access by unauthorized
personnel.
1. Proper planning will speed unloading,
location, and connection of the UPS. Refer
to Figures 11 through 58 and the Site
Planning Data (Appendix A).
2. Be certain that the floor at the final
equipment location and along the route
(inside the facility) to the installation site
can support the cabinet weight and the
weight of any material handling
equipment. The UPS modules can weigh
up to two tons. The battery cabinets weigh
between 2300 and 5000 pounds each.
3. Plan the routing to ensure that the unit
can move through all aisle ways, doorways,
and around corners without risking
damage. If the modules and batteries must
be moved by elevator, check the size of the
door openings and the weight-carrying
capacity of the elevator.
4. Refer to information later in this manual
regarding the optional Battery Cabinet(s),
Maintenance Bypass Cabinets,
Panelboards and Switchboards. Observe
all battery safety precautions when
working on or near the battery.
5. Use the shortest output distribution cable
runs possible, consistent with logical
equipment arrangements and with
allowances for future additions if planned.
6. Recommended ambient operating
temperature is 25C (77F). Relative
humidity must be less than 95%, non-
condensing. Note that room ventilation is
necessary, but air conditioning may not be
required. Maximum ambient operating
temperature for the UPS and switchgear is
40C (104F) without derating. The
batteries should not exceed 25C (77F). At
elevations above 4,000 feet (1219 meters)
temperature derating may be required for
full power output (consult your Liebert
sales representative).
7. Even though your Liebert UPS unit is 92.5
to 94% efficient, the heat output is
substantial. For more specific information,
see the Site Planning Data (Appendix A).
Be sure environmental conditioning
systems can accommodate this BTU load,
even during utility outages.
8. The installer should attempt to balance the
load between the three output phases. The
UPS will operate safely with an unbal-
anced load, but will give optimum perfor-
mance if the three output phases are
loaded within 20 percent of each other.

Liebert Series 600T UPS, 65-225 kVA, Single Module 3
3. UNLOADING AND HANDLING
Because the weight distribution in each UPS and
ancillary cabinet is uneven, use extreme care
during handling and transport. Your installation
may also include Battery Cabinets, a Bypass
Transformer Cabinet and a Maintenance Bypass
Cabinet, Panelboard or Switchboard.
WARNING
EXERCISE EXTREME CARE WHEN
HANDLING UPS CABINETS TO AVOID
EQUIPMENT DAMAGE OR INJURY TO
PERSONNEL. THE UPS MODULE CAN
WEIGH UP TO TWO TONS. THE BATTERY
CABINETS WEIGH UP TO 5100 POUNDS.
THE UPS MODULES ARE HEAVIER IN
THE BACK THAN THE FRONT BECAUSE
OF THE WEIGHT OF THE MAGNETICS.
LOCATE CENTER OF GRAVITY SYMBOLS
BEFORE HANDLING CABINET. TEST LIFT
AND BALANCE THE CABINET BEFORE
TRANSPORTING. MAINTAIN MINIMUM
TILT FROM VERTICAL AT ALL TIMES.
WARNING
INTERNAL BATTERY CABINET
STRAPPING MUST BE VERIFIED BY
MANUFACTURER PRIOR TO MOVING
THIS UNIT.
THIS UNIT CONTAINS NON-SPILLABLE
BATTERIES. KEEP UNIT UPRIGHT. DO
NOT STACK. DO NOT TIP.
FAILURE TO HEED THIS WARNING
COULD RESULT IN SMOKE, FIRE OR
ELECTRICAL HAZARD. CALL 1-800-
LIEBERT PRIOR TO RELOCATING
BATTERY CABINET (AFTER INITIAL
INSTALLATION).
4. INSPECTIONS
4.1. External Inspections
1. While the UPS system is still on the truck,
inspect the equipment and shipping
container(s) for any signs of damage or
mishandling. Do not attempt to install the
system if damage is apparent. If any damage is
noted, file a damage claim with the shipping
agency within 24 hours and contact Liebert
Global Services at 1-800-543-2378 to inform
them of the damage claim and the condition of
the equipment.
2. Locate the bag containing the keys for the front
access door. The bag is attached to the cabinet.
3. Compare the contents of the shipment with the
bill of lading. Report any missing items to the
carrier and to Liebert Global Services
immediately.
4. Check the nameplate on the cabinet to verify
that the model number corresponds with the
one specified. Record the model number and
serial number in the front of this installation
manual. A record of this information is
necessary should servicing become required.
4.2. Internal Inspections
1. Verify that all items have been received.
2. If spare parts were ordered, verify arrival.
3. Open doors and remove cabinet panels to check
for shipping damage to internal components.
4. Check for loose connections or unsecured
components in the cabinet(s).
5. Check for installation of circuit breaker line
safety shields. There should be no exposed
circuit breaker terminals when the cabinet
doors are opened.
6. Remove any orange shipping braces or
brackets from the transformers.
7. Check for any unsafe condition that may be a
potential safety hazard.

4Installation Manual
5. EQUIPMENT LOCATION
1. Handle cabinet(s) in accordance with WARN-
INGS in Section 3. Use a suitable material
handling device to move each cabinet to its
final location. Exercise extreme care
because of the uneven weight distribu-
tion. Carefully lower the cabinets to the floor
and position them for reconnection, if applica-
ble.
2. Verify that the UPS system is installed in a
clean, cool and dry location. Observe the
location of overhead water lines for fire
sprinkler systems. Avoid placing the UPS and
related equipment directly under water lines
or within range of a sprinkler head.
3. Installation and serviceability will be easier if
adequate access is provided on all sides of the
equipment, but only front access is required.
a. Verify that there is adequate clearance to
open cabinet doors (4 feet is recommended).
See drawings and local codes.
b. Verify that there is adequate area in front of
circuit breakers to perform maintenance.
Check installation drawings for location of
breakers. Check with local codes.
c. Verify that there is adequate clearance
above all cabinets to allow exhaust air to
flow without restriction (2 feet minimum,
unobstructed).
4. Connect the cabinets, internal cables and bus
bars, if applicable.
6. BATTERY INSTALLATION
6.1. Battery Safety Precautions
Battery installation and servicing should be
performed or supervised by personnel
knowledgeable of batteries and the required
precautions. Keep unauthorized personnel away
from batteries.
Be sure to observe the grounding recommendations
in Section 7 when installing batteries. When
replacing batteries, use the same number and type
of batteries.
CAUTION
Lead-acid batteries contain hazardous
materials. Batteries must be handled,
transported, and recycled or discarded in
accordance with federal, state, and local
regulations. Because lead is a toxic
substance, lead-acid batteries should be
recycled rather than discarded.
Do not open or mutilate the battery or
batteries. Released electrolyte is harmful
to the skin and eyes. It may be toxic. Do
not dispose of battery or batteries in a fire.
The battery may explode.
A battery can present a risk of electrical
shock and high short-circuit current. The
following precautions should be observed
when working on batteries:
1. Remove watches, rings, or other metal
objects.
2. Use tools with insulated handles.
3. Wear rubber gloves and boots.
4. Do not lay tools or metal parts on top of
batteries.
5. Disconnect charging source prior to
connecting or disconnecting battery
terminals.
6. Determine if the battery is inadver-
tently grounded. If it is inadvertently
grounded, remove source of ground.
Contact with any part of a grounded
battery can result in electrical shock.
The likelihood of such shock will be
reduced if such grounds are removed
during installation and maintenance.
Lead-acid batteries can present a risk of
fire because they generate hydrogen gas.
The following procedures should be
followed:
1. DO NOT SMOKE when near batteries.
2. DO NOT cause flame or spark in
battery area.
3. Discharge static electricity from body
before touching batteries by first
touching a grounded metal surface.

Liebert Series 600T UPS, 65-225 kVA, Single Module 5
BATTERY SAFETY PRECAUTIONS IN
FRENCH PER CSA REQUIREMENTS
INSTRUCTIONS IMPORTANES
CONCERNANT LA SÉCURITÉ
CONSERVER CES INSTRUCTIONS
AVERTISSEMENT
DES PIECES SOUS ALIMENTATION SERONT
LAISSEES SANS PROTECTION DURANT CES
PROCEDURES D'ENTRETIEN. UN
PERSONNEL QUALIFIE EST REQUIS POUR
EFFECTUER CES TRAVAUX.
LES FUSIBLES A C.C. DE LA BATTERIE
D'ACCUMULATEURS OPERENT EN TOUT
TEMPS A LA TENSION NOMINALE. LA
PRESENCE D'UN FUSIBLE A C.C. BRULE
INDIQUE UN PROBLEME SERIEUX. LE
REMPLACEMENT DE CE FUSIBLE, SANS
AVOIR DETERMINE LES RAISONS DE LA
DEFECTUOSITE, PEUT ENTRAINER DES
BLESSURES OU DES DOMMAGES SERIEUX A
L'EQUIPEMENT. POUR ASSISTANCE,
APPELER LE DEPARTEMENT DE SERVICE A
LA CLIENTELE DE LIEBERT.
DANGER
Les accumulateurs plomb-acide contiennent de la
matière comportant un certain risque. Les
accumulateurs doivent être manipulés, transportés
et recyclés ou éliminés en accord avec les lois
fédérales, provinciales et locales. Parce que le
plomb est une substance toxique, les
accumulateurs plomb-acide devraient être recyclés
plutôt qu'éliminés.
Il ne faut pas brûlé le ou les accumulateurs.
L'accumulateur pourrait alors explosé.
Il ne faut pas ouvrir ou endommager le ou les
accumulateurs. L'électrolyte qui pourrait s'en
échapper est dommageable pour la peau et les
yeux.
Un accumulateur représente un risque de choc
électrique et de haut courant de court-circuit.
Lorsque des accumulateurs sont manipulés, les
mesures préventives suivantes devraient être
observées:
1. Retirer toutes montre, bagues ou autres objets
métalliques.
2. Utiliser des outils avec manchon isolé.
3. Porter des gants set des bottes decautchouc.
4. Ne pas déposer les outils ou les pièces
métalliques sur le dessus des accumulateurs.
5. Interrompre la source de charge avant de
raccorder ou de débrancher les bornes de la
batterie d'accumulateurs.
6. Déterminer si l'accumulateur est mis à la terre
par erreur. Si oui, défaire cette mise à la terre.
Tout contact avec un accumulateur mis à la
terre peut se traduire en un choc électrique. La
possibilitié de tels chocs sera réduite si de
telles mises à la terre sont débranchées pour la
durée de l'installation ou de l'entretien.
Les accumulateurs plomb-acide présentent un
risque d'incendie parce qu'ils génèrent des gaz à
l'hydrogène. Les procédures suivantes devront être
respectées.
1. NE PAS FUMER lorsque près des
accumulateurs.
2. NE PAS produire de flammes ou d'étincelles
près des accumulateurs.
3. Décharger toute électricité statique présente
sur votre corps avant de toucher un
accumulateur en touchant d'abord une surface
métallique mise à la terre.
DANGER
L'électrolyte est un acide sulfurique dilué qui est
dangereux au contact de la peau et des yeux. Ce
produit est corrosif et aussi conducteur electrique.
Les procédures suivantes devront être observées:
1. Porter toujours des vêtements protecteurs
ainsi que des lunettes de protection pour les
yeux.
2. Si l'électrolyte entre en contact avec la peau,
nettoyer immédiatement en rinçant avec de
l'eau.
3. Si l'électrolyte entre en contact avec les yeux,
arroser immédiatement et généreusement avec
de l'eau. Demander pour de l'aide médicale.
4. Lorsque l'électrolyte est renversée, la surface
affectée devrait être nettoyée en utilisant un
agent neutralisant adéquat. Une pratique cou-
rante est d'utiliser un mélange d'approxima-
tivement une livre (500 grammes) de
bicarbonate de soude dans approximativement
un gallon (4 litres) d'eau. Le mélange de bicar-
bonate de soude devra être ajouté jusqu'à ce
qu'il n'y ait plus apparence de réaction
(mousse). Le liquide résiduel devra être net-
toyé à l'eau et la surface concernée devra être
asséchée.

6Installation Manual
6.2 Battery Cabinets
Optional battery cabinets are available from
Liebert and other qualified vendors. Consult your
submittal package for details.
The same model battery cabinet may be paralleled
in multiple cabinet strings for additional capacity.
Battery capacity (in minutes) at your installation
will depend on cabinet model, number of cabinets,
and amount of critical load on the UPS.
1. Handling. The Battery Cabinet weighs up to
5100 pounds. Fork lift slots are provided in the
base of 100-225 kVA cabinets for easy
handling. Fork lift forks or a pallet jack can be
used between the casters of the 65 and 80 kVA
battery cabinets.
2. Cabinet Inspection. Remove all panels and
visually inspect the batteries, bus connections,
and cabinet for any damage. If any foam blocks
were placed between shelves to restrain
movement during shipment, remove them now.
Exercise caution; voltage is present
within the Battery Cabinet even before
installation. If there are signs of damage, do
not proceed. Call Liebert Global Services at 1-
800-542-2378.
3. Battery Storage. The batteries used in the
Battery Cabinet retain their charge well. The
batteries can be stored for up to six months
without any appreciable deterioration. Self-
discharge rate of the batteries is approximately
3% per month when the batteries are stored in
temperatures of 15°C to 25°C (59°F to 77°F). If
the Battery Cabinet must be stored for longer
than six months, contact Liebert Global
Services.
4. Installation. The Battery Cabinet(s) can be
located conveniently to the left side of the 65-
225 kVA UPS module. The front-access-only-
design eliminates side and rear service
clearance requirements.
5. Re-Installation. If it later becomes necessary
to move the Battery Cabinet to another
location, contact Liebert Global Services to
inspect the internal battery hold-down straps.
6. Environment. Locate the Battery Cabinet in
a clean, dry environment. Recommended
temperature range for optimum performance
and lifetime is 20-25°C (68-77°F).
7. Service Clearance. Allow front access to the
Battery Cabinet at all times for maintenance
and servicing. Electrical codes require that the
Battery Cabinet be installed with no less than
3 feet (1 meter) of clearance at the front of the
cabinet when operating. Side and rear panels
do not require service clearance.
8. Side Panels. Remove protective side panels to
connect battery cabinets together. Do not
remove the shield plate, explained below.
9. Shield Plate. The shield plate in 125 kVA
Battery Cabinets should be on the side toward
the UPS system. Move the shield if required by
your Battery Cabinet location.
10. Cables. Cables may be run between battery
cabinets through cutouts in the top of the
cabinets, eliminating the need for external
conduit runs. Route cables before moving
cabinets into final position for bolting
together. Remove top panels for access. Refer
to Figures 16 and 17 or your submittal
drawings for instructions on wiring cabinets in
parallel.
11. Grounding. The battery cabinets have ground
studs near the bus bar connections. Use an
equipment grounding conductor to connect the
lugs of the cabinets together and to connect the
cabinets to the ground bus bar in the UPS
module.
CAUTION
Cables between batteries and modules
should be run in matched pairs, positive-
with-negative. Grouping like-polarity
cables together (i.e. positive-with-positive
and negative-with-negative) can cause
stress or damage to the cables, conduit or
buswork.

Liebert Series 600T UPS, 65-225 kVA, Single Module 7
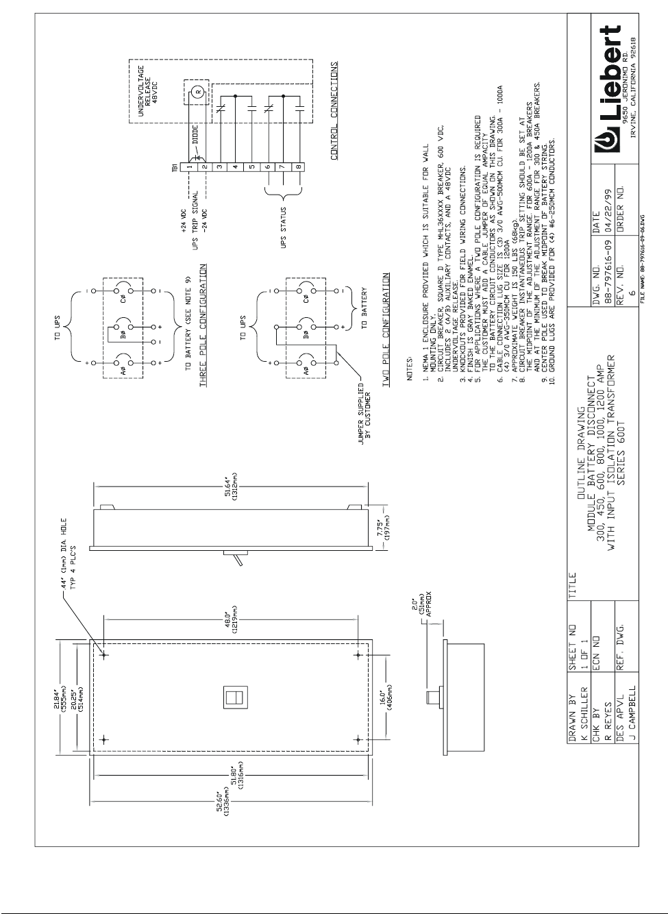
6.3 Open-Rack Batteries
When batteries other than Liebert Battery
Cabinets are used, a remote battery disconnect
switch with overcurrent protection is required per
the National Electrical Code. Refer to Figures 53
and 54. Contact your Liebert sales representative.
1. Install battery racks/cabinets and batteries per
manufacturer's installation and maintenance
instructions.
2. Verify battery area has adequate ventilation
and battery operating temperature complies
with manufacturer's specification.
3. Ensure that battery racks are properly
grounded according to code requirements in
your area.
If you have any questions concerning batteries,
battery racks, or accessories, contact Liebert
Global Services at 1-800-543-2378.
CAUTION
Cables between batteries and modules
should be run in matched pairs, positive-
with-negative. Grouping like-polarity
cables together (i.e. positive-with-positive
and negative-with-negative) can cause
stress or damage to the cables, conduit or
buswork.
7. CONFIGURING YOUR NEUTRAL AND
GROUND CONNECTIONS
Improper grounding is the largest single cause of
UPS installation and start-up problems. This is not
an easy subject, since grounding techniques vary
significantly from site to site, depending on several
factors. The questions you should ask are:
• What is the configuration of the input power
source? Most of the recommended schemes for
UPS grounding require grounded-wye ser-
vice. The UPS system requires a bypass neu-
tral for sensing and monitoring the quality of
the bypass input. If the building service is
ungrounded delta or corner-grounded delta,
contact your Liebert representative to ensure
your system includes the Artificial Neutral or
Isolated Neutral kit.
• Does the system have a bypass isolation
transformer? Systems with 480 VAC (or 600
VAC) input and 208 VAC output require a
bypass isolation transformer. In some cases,
it may be necessary to treat that transformer
as a “separately derived source” with its own
grounding electrode. See page 10 for details.
• What are the UPS input and output voltages?
Systems with 480 VAC input and output have
significantly different needs than systems
with 480/208 VAC or 208/208 VAC.
• What is the connected load? Does the critical
load consist of one or more Power Distribu-
tion Units (PDUs)? Do the PDUs have isola-
tion transformers?
The following sections discuss recommended
grounding procedures for various system
configurations.
NOTE
Some UPS modules are equipped with
input isolation transformers. However,
these transformers have no effect upon any
system grounding considerations. These
modules will be grounded exactly as shown
in the following examples.

8Installation Manual
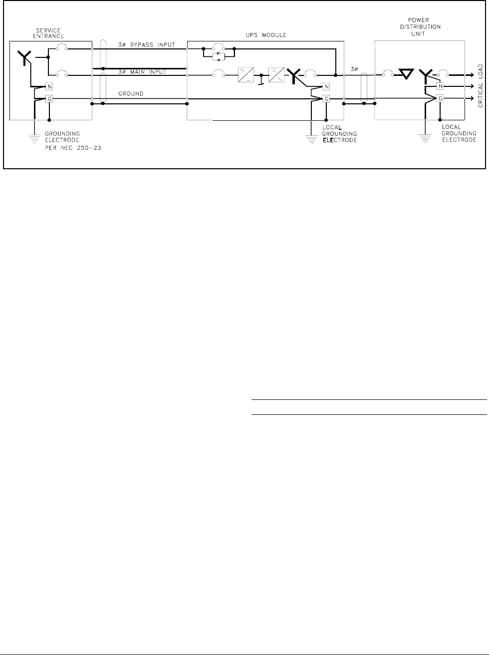
Figure 1. Preferred Grounding Configuration, 480 or 600 VAC input and output
GROUNDING
ELECTRODE
PER NEC 250-24
7.1. Preferred Grounding Configuration,
480 or 600 VAC Input and Output,
Isolated Power Distribution Units,
Wye-Connected Service
One of the most-common configurations of the
Series 600T UPS is the Single Module System with
480 VAC input, 480 VAC output, and a connected
load consisting of multiple Power Distribution
Units (PDUs) with isolation transformers in the
PDUs to produce 208 VAC. For Canadian
customers, the UPS modules usually have 600 VAC
input and output. The same principles apply if the
connected load is an isolation transformer feeding
various loads. Figure 1 above shows a typical
installation.
Notice that the UPS module main input and
bypass input are connected to a grounded-wye
service. In this configuration, the UPS module is
not considered a separately derived source. The
UPS module output neutral is solidly connected to
the building service neutral, which is bonded to the
grounding conductor at the service entrance
equipment
The isolation transformers in the PDUs are
considered a separately derived source. Therefore
the PDU neutral should be bonded to the PDU
grounding conductor and connected to a local
grounding electrode in compliance with NEC 250-
26.
Advantages of this configuration include:
• A measure of common-mode noise attenua-
tion, since the isolation (common-mode rejec-
tion) occurs as close to the load as practical
(i.e. at the PDU).
• The UPS module can be located remotely
from the PDU without compromising com-
mon-mode noise performance.
• By using UPS modules with 480 VAC input
and output and creating 208 VAC at the PDU,
smaller and less costly power feeders can be
used and less voltage drop (as a percent of
nominal) occurs.
NOTE
Impedance-grounded wye sources must be
grounded in accordance with Section 7.5.

Liebert Series 600T UPS, 65-225 kVA, Single Module 9
Figure 2. Alternative Grounding Configuration, 480 or 600 VAC input and output
7.2 Alternative Grounding
Configuration, 480 or 600 VAC Input
and Output, Isolated Power
Distribution Units, Wye-Connected
Service
This configuration is similar to that shown in
Section 7.1, except that the service entrance
neutral is not brought into the UPS module. In this
configuration, the UPS output transformer is
considered a separately derived source. The UPS
module neutral is bonded to the UPS ground,
which is connected to a local grounding electrode in
accordance with NEC 250-26.
Please note that this configuration represents a
price/performance trade-off. Whenever the UPS
module transfers to or from bypass, two AC sources
(input and bypass) are briefly connected together
and circulating current must flow. In the previous
configuration, the current flows through the
neutral conductor. In this configuration, the
current flows through the ground path, possibly
tripping ground fault interruptors (GFIs) and
distorting the bypass waveform reference. Proper
adjustment of ground fault interrupters is
necessary to avoid unwanted tripping.
This configuration is reserved for those
applications which meet all the following criteria:
• The facility has Wye-connected service
• The module rectifier input and bypass input
are fed from the same source
• The connected load is strictly 3-wire (such as
one or more PDUs) and does not require a
neutral from the UPS
• Special precautions are taken to prevent trip-
ping the ground fault interruptors. The time
delay should be set to at least 30 cycles to pre-
vent tripping when the UPS performs a
transfer or retransfer operation.
CAUTION
Failure to properly set the ground fault
interruptors could cause loss of power to
the critical load.

10 Installation Manual
Figure 3. Preferred Grounding Configuration, 480 or 600 VAC input and 208 VAC output
GROUNDING
ELECTRODE
PER NE
C
2
50
-24
LOCAL GROUNDING
ELECTRODE
PER NEC 250-30
7.3. Preferred Grounding Configuration,
480 or 600 VAC Input, 208VAC
Output, and Isolated Bypass
Another configuration in this power range is the
Single Module System with 480 or 600 VAC input,
208 VAC output, a Bypass Isolation Transformer
and a connected load consisting of multiple
distribution panelboards or switchboards. Figure 3
above shows a typical installation.
The Bypass Transformer provides isolation and
steps down the voltage to the bypass inputs. The
Bypass Transformer and the UPS module together
constitute a separately derived system, since there
is no direct electrical connection between the input
(service entrance) circuit conductors and the
output circuit conductors.
NOTE
The illustration above shows a wye-
connected source, but the same grounding
scheme would apply for a delta source at
the service entrance.
The bonding of the neutral to the grounding
conductor can theoretically be done at either the
UPS module or the Bypass Transformer. However,
we recommend bonding at the Bypass Transformer
because the UPS module will sometimes be
powered down for maintenance and its output
transformer will be out of the circuit. The neutral
should be bonded to ground and a local grounding
electrode should be installed at the Bypass
Transformer, per NEC 250-30.
Features of this configuration include:
• The UPS receives its bypass neutral from the
Bypass Transformer
• The output is isolated from the input circuit
conductors, and
• Some amount of common-mode noise attenu-
ation can be obtained for sensitive loads if the
UPS module and Bypass Transformer are
located close to sensitive loads.

Liebert Series 600T UPS, 65-225 kVA, Single Module 11
Figure 4. Preferred Grounding Configuration, 208 VAC input and output
GROUNDING
ELECTRODE
PER NEC 250-24
7.4. Preferred Grounding Configuration,
208 VAC Input and Output, Non-
Isolated Load, Wye-Connected
Service
A few applications in this power range have 208
VAC input and output, and a connected load
consisting of multiple Power Distribution Units
(PDUs), panelboards, switchboards or other items
of load equipment which do not have isolation
transformers.
Notice in Figure 4 above that the UPS module
main input and bypass input are connected to a
grounded-wye service. In this configuration, the
UPS module is not considered a separately derived
source.
The UPS module output neutral and the load
neutral are solidly connected to the building
service neutral, which is bonded to the grounding
conductor at the service entrance equipment.
This arrangement is typical for systems with 208
VAC input and output. However, it does not
provide any isolation or common-mode noise
attenuation for sensitive loads.

12 Installation Manual
Figure 5. Preferred Grounding Configuration with Ungrounded Delta Source Input (top) and
Corner-Grounded Delta (bottom)
GROUNDING
ELECTRODE
PER NEC 250-24
GROUNDING
ELECTRODE
PER NEC 250-24
LOCAL
GROUNDING
ELECTRODE
PER NEC 250-30
LOCAL
GROUNDING
ELECTRODE
PER NEC 250-30
LOCAL
GROUNDING
ELECTRODE
PER NEC 250-3
0
7.5. Grounding Configuration, 480 or 600
VAC Input and Output, Delta Source
or Impedance-Grounded Wye
As previously mentioned, Series 600T UPS
modules require a bypass input neutral for sensing
and monitoring. With a wye-connected input
source, the installer should always connect the
building service neutral to the module output
neutral to achieve this. When the building service
is delta-connected, however, the installer must
take special steps to ensure reliable UPS
functioning.
If building service is ungrounded delta (and there
is no intent to operate with one corner of the delta
grounded, either on purpose or accidentally), the
UPS requires the Series 600T Artificial Neutral
Kit for proper operation. This kit uses a resistor
network to create a reference point for the bypass
input. In this case, the UPS output neutral must be
bonded to the UPS ground. See Figure 5 above.
If the building service is corner-grounded delta or
an impedance-grounded wye, the UPS requires the
Series 600T Isolated Neutral Kit. This kit uses
control isolation transformers to create a reference
point. For this application, the UPS output neutral
must not be bonded to the UPS ground.

Liebert Series 600T UPS, 65-225 kVA, Single Module 13
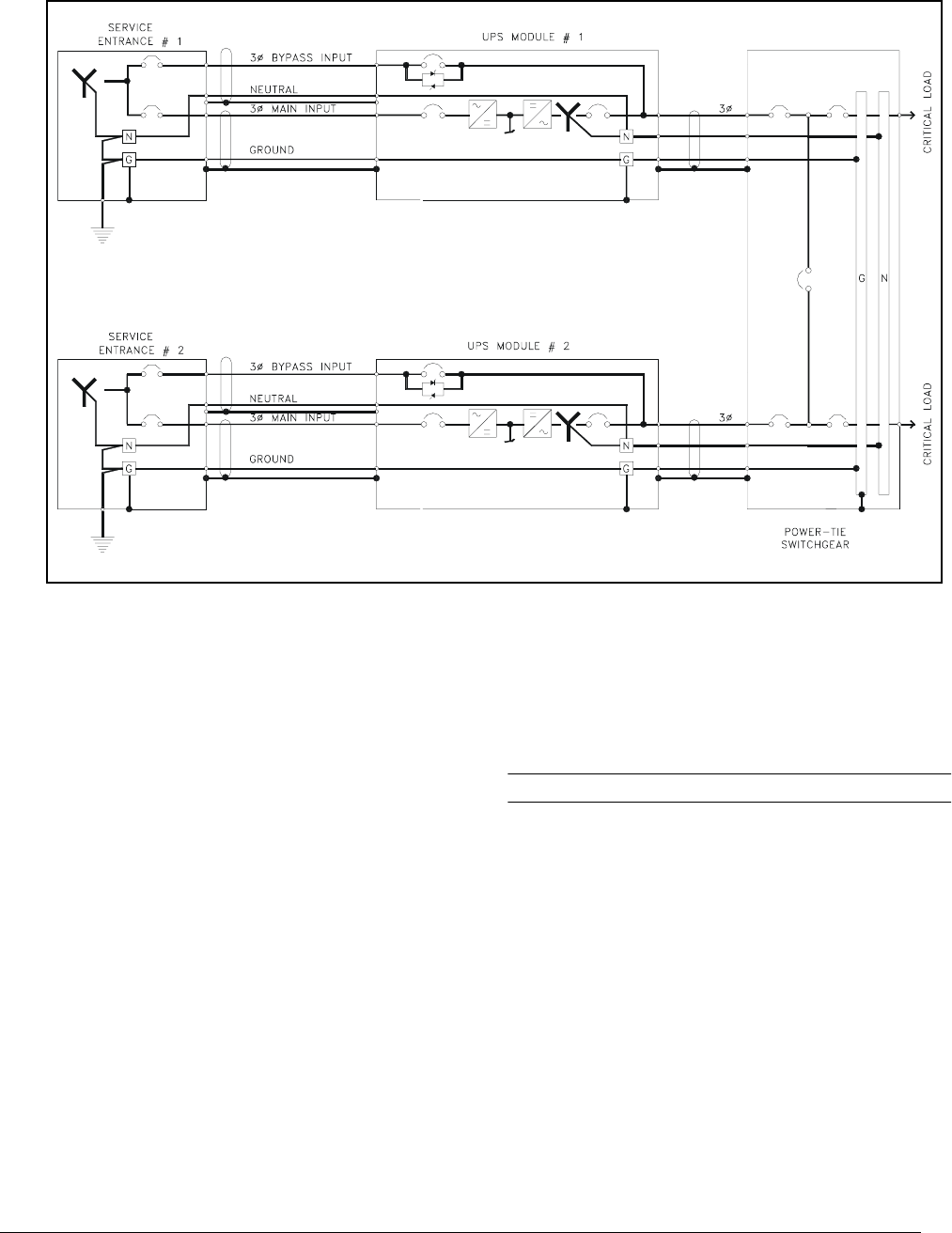
Figure 6. Preferred Grounding Configuration, Power-Tie™ Systems
GROUNDING
ELECTRODE
PER NEC 250-24
GROUNDING
ELECTRODE
PER NEC 250-24
7.6. Preferred Grounding Configuration,
480 or 600 VAC Input and Output,
with Power-Tie™ Switchgear
Single Module Systems can be used with Power-Tie
switchgear to provide dual critical load busses. The
Power-Tie switchgear permits transferring critical
loads from one critical bus to the other so that one
UPS module and associated breakers can be de-
energized for maintenance. Certain configurations
of Power-Tie equipment also permit the operator to
continuously parallel the output of the UPS
modules.
In tied systems, each UPS module must have its
neutral solidly connected to its own building
service neutral and to the Power-Tie switchgear
neutral. See Figure 6 above.
NOTE
It is essential to run a neutral connection
between the tie switchgear and both UPS
modules as shown in the illustration above.

14 Installation Manual
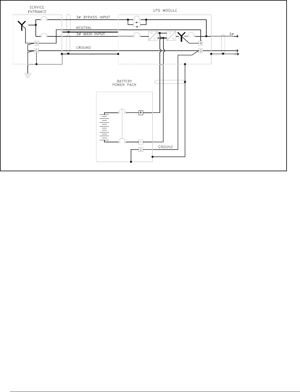
Figure 7. Preferred Battery Cabinet Grounding Configuration
GROUNDING
ELECTRODE
PER NEC 250-24
TO OUTPUT
DISTRIBUTION
7.7. Preferred Grounding Configuration,
Battery Systems
Large, open-rack battery systems are normally
either locally grounded or left ungrounded,
depending on local code requirements.
Battery cabinet systems, on the other hand, should
be grounded to the UPS ground bus bar. Figure 7
above illustrates how a simple one-cabinet system
would be grounded. For systems with multiple
cabinets, the same configuration would apply.
However, for simplicity the installer can connect all
the battery cabinet grounds together and run a
single ground conductor (in the same conduit as
the phase conductors) to the UPS ground.

Liebert Series 600T UPS, 65-225 kVA, Single Module 15
8. WIRING CONSIDERATIONS
8.1. Power Wiring
Refer to Site Planning Data (Appendix A) and the
installation drawings. Determine AC currents for
your system based on kVA, kW, voltage, and
options. Also refer to equipment nameplate for the
model number, rating, and voltage. For wire
termination data, refer to Tables 1-3.
1. Power wiring -- rectifier input, bypass input,
UPS output, and battery cables -- must be run
in individual, separate conduit or cable tray.
Refer to the Outline and Terminal Details
drawings (Figures 11-13 and 35-39) for location
of the various power connections within the
UPS.
CAUTION
Power and control wiring must be
separated!
2. Observe local, state and national electrical
codes. Verify utility power and its overcurrent
protection rating will accommodate the UPS
input rating, including battery recharging.
3. A safety ground wire must be run from
building ground to ground point in the UPS
Module Cabinet, the Battery Cabinet and the
Power-Tie™ switchgear cabinet. See Sections
7.1 through 7.7. The grounding conductor shall
comply with the following conditions of
installation:
a. The insulated grounding conductor must be
sized in accordance with the NEC and local
codes. It must be green (with or without
yellow stripes) and be installed as part of
the branch circuit that supplies the unit or
system.
b. The grounding conductor described above is
to be grounded to earth at the service equip-
ment or, if supplied by a separately derived
system, at the supply transformer or motor-
generator set in accordance with the
instructions in Section 7 of this Manual.
c. The attachment-plug receptacles in the
vicinity of the unit or system are all to be of
a grounding type, and the grounding con-
ductors serving these receptacles are to be
connected to earth ground at the service
equipment.
4. Observe clockwise phase rotation of all power
wiring. Phase A leads Phase B leads Phase C.
A qualified electrician should check the phase
rotation.
5. Power cables must be rated for less than 2 volts
line drop at maximum rated system current.
6. Use 75°C copper wire. Select wire size based on
the ampacities in Table 310-16 and associated
notes of the National Electrical Code (NFPA
70) reprinted on page 24 of this manual.
CAUTION
The weight of power cables must be
adequately supported to avoid stress on
bus bars and lugs. The following
restraining method is recommended to
both to support cable weight and control
cable movement during external fault
conditions: Wrap line cables together at 6
inches and 12 inches from the terminals
with 5 wraps of 3/8 inch nylon rope or
equivalent (tensile strength of 2000
pounds). Support remainder of cable with
5 wraps every 6 inches or 1 wrap every 1
inch.
7. If site equipment includes a backup generator
and automatic transfer switch(es), consult the
manufacturers of those devices for information
on sizing and interfacing to the UPS system.
8. The installing contractor can remove the access
plates from the top left or top right sides of the
UPS in order to cut entry holes for conduit. For
units with bottom-entry cable access, there is a
separate (third) access plate in the base of the
unit, under the cable access wireway.
CAUTION
After cutting holes in the access plates, be
certain that no foreign matter (metal
shavings, sawdust, insulation or wire
fragments, etc.) remains inside the UPS.
Likewise be certain to block any “extra”
holes in the plates through which foreign
matter could later enter the UPS.

16 Installation Manual
Figure 8. Typical One-Line Diagrams for SMS with Standard Dual Input
CB3
CB2
CB1
CB3
CB2
CB1
Input Iso
Transformer
Standard SMS, with 208/208, 480/480 or 600/600
VAC input/output. SMS with input isolation transformer and 208/208,
480/480 or 600/600 VAC input/output.
CB3
CB2
CB1
CB3
CB2
CB1
Input Iso
Transformer
Standard SMS, with 208/208, 480/480 or 600/600
VAC input/output. SMS with input isolation transformer and 208/208,
480/480 or 600/600 VAC input/output.
CB3
CB2
CB1
Bypass
Isolation
Xfmr
600/208 VAC module with external bypass
isolation transformer.
CB3
CB2
CB1
Bypass
Isolation
Xfmr
Input Isolation
Transformer
480/208 or 600/208 VAC module with both
internal input isolation transformer and external
bypass isolation transformer.

Liebert Series 600T UPS, 65-225 kVA, Single Module 17
Figure 9. Typical One-Line Diagrams of SMS with optional single input.
CB3
CB2
CB1
Input Isolation
Transformer
CB3
CB2
CB1
Standard single-input SMS with 208/208, 480/480
or 600/600 VAC input/output. Single-input SMS with input isolation transformer
and 208/208, 480/480 or 600/600 VAC input/output.
CB3
CB2
CB1
Internal
Bypass
Isolation
Xfmr
CB3
CB2
CB1
External
Bypass
Isolation
Transformer
480/208 VAC single-input SMS with bypass
isolation transformer. Single-input modules are
not available with both bypass and input isolation
transformers.
600/208 VAC single-input SMS with bypass
isolation transformer. Single-input modules are
not available with both bypass and input isolation
transformers.

18 Installation Manual
Figure 10. Typical One-Line Diagrams of SMS with optional Maintenance Bypass Cabinets
Abbreviations for Circuit Breakers
BIB
MBB
Bypass Isolation Breaker
MIB
RIB
Maintenance Bypass Breaker
Maintenance Isolation Breaker
Rectifier Input Breaker
MBB
CB3
CB2
CB1
MIB
2-breaker Maintenance Bypass Cabinets for standard (left) and single-input (right) modules.
MBB
CB3
CB2
CB1
BIB MIB
MBB
CB3
CB2
CB1
RIB MIB
3-breaker Maintenance Bypass Cabinets for standard (left) and single-input (right) modules.
BYPASS
ISO XFMR
(OPT.)
BIB
MBB
CB3
CB2
CB1
MIB
MBB
CB3
CB2
CB1
RIB BIB MIB
BYPASS
ISO XFMR
(OPT.)
3-breaker and 4-breaker Maintenance Bypass Cabinets for stepdown-voltage applications.
MBB
MIB
CB3
CB2
CB1

Liebert Series 600T UPS, 65-225 kVA, Single Module 19
8.2. Control Wiring
Control wiring must be stranded and tinned and
run in individual separate steel conduit. Control
wiring must be separated from power wiring. In
addition, each control wiring cable group should be
run in a separate conduit to minimize control
signal interference.
If your system has any installed options, special
wire lists will be included in your Submittal
Drawing Package. Contact your Liebert Sales
Representative for assistance if the Submittal
drawings have been lost or misplaced.
All control cable groups are connected to different
Interface Modules (IFMs) inside the UPS. Figure
29 shows the typical location of each IFM inside
the UPS. The position of a particular IFM may be
different for your UPS, depending upon the model
and the installed options.
NOTE
The UPS control and communication
wiring are considered Class 2 circuits by
NEC standards. However, NEC Class 1
wiring methods are required for these
circuits to ensure proper operation of the
UPS.
8.3. Battery Wiring
Power wiring to the Battery Cabinet connects
positive, negative, and ground power cables from
the Battery Cabinet to the associated UPS.
Connection of the UPS to the Battery Cabinet
serves to both charge and discharge the batteries
(when needed). The battery disconnect (circuit
breaker) requires a control cable. Liebert Battery
Cabinets include power and control cables to join
multiple cabinets together into a system.
Additional (field-supplied) power or control wiring
might be necessary to connect the battery cabinet
system to the UPS. Refer to Figures 16-17.
DANGER
A BATTERY INTERCELL CONNECTION
ON EACH TIER IS DISCONNECTED FOR
SAFETY DURING SHIPMENT. DO NOT
COMPLETE THESE CONNECTIONS. THE
LIEBERT GLOBAL SERVICES REPRESEN-
TATIVE WILL COMPLETE THESE CON-
NECTIONS AS PART OF START-UP. AN IM-
PROPERLY INSTALLED UNIT CAN
RESULT IN INJURY TO PERSONNEL OR
DAMAGE TO EQUIPMENT.
CAUTION
Be sure polarity is correct when wiring
the Battery Cabinet to the connected
equipment (positive to positive; negative
to negative). If polarity is not correct, fuse
failures or equipment damage can result.
CAUTION
DC power cables should be installed in
conduit with conductors in matched pairs
(positive and negative).
NOTE
Inspection of the battery installation is a
service that can be provided by Liebert. A
Battery Specialist can perform a detailed
inspection of the entire battery system to
ensure it meets current IEEE standards.
This inspection service is recommended
because batteries are a critical part of the
UPS system.

20 Installation Manual
9. WIRING CONNECTIONS
9.1 Warnings
DANGER
VERIFY THAT ALL INCOMING HIGH AND
LOW VOLTAGE POWER CIRCUITS ARE
DE-ENERGIZED AND LOCKED OUT
BEFORE INSTALLING CABLES OR
MAKING ELECTRICAL CONNECTIONS.
ALL POWER CONNECTIONS MUST BE
COMPLETED BY A LICENSED
ELECTRICIAN EXPERIENCED IN WIRING
UPS EQUIPMENT, AND IN ACCORDANCE
WITH ALL APPLICABLE NATIONAL AND
LOCAL ELECTRICAL CODES.
IMPROPER WIRING MAY CAUSE DAMAGE
TO THE UPS OR INJURY TO PERSONNEL.
CAUTION
All shielded cables, non-shielded cables,
non-shielded control wires, non-shielded
battery breaker control wires, and non-
shielded remote control wires must be
housed in individual, separate, steel
conduits. Placing multiple cables in the
same conduit with other control or power
wiring may cause system failure.
9.2 Specific Connections
Refer to the drawings in this manual and any other
drawings provided by Liebert for this installation.
Make all of the following connections:
a. AC power cables from input power source
circuit breaker to UPS Module Input. Observe
phase rotation.
CAUTION
See Section 7 of this Manual for an
explanation of proper grounding
techniques.
b. AC power cables from bypass power source cir-
cuit breaker to UPS Module Bypass input.
Observe phase rotation.
c. AC power cables from UPS Module Output to
critical load. Observe phase rotation.
NOTE
If your installation includes a
Maintenance Bypass Cabinet, Switchboard
or Panelboard, some (or all) power cables
will be terminated in these cabinet(s).
Make sure all required wiring between
UPS module and the optional cabinet(s) is
completed. Observe phase rotation.
d. The UPS Module Output Neutral must be con-
nected to one common point and solidly
grounded per requirements of the National
Electrical Code. See Section 7.
CAUTION
UPS bypass and output neutral must be
connected to only one common point in
the UPS. This neutral line must be
grounded at the source.
e. For Battery Cabinets:
DC power cables and ground from Battery Cab-
inet to UPS Module, and between Battery Cab-
inets. Observe polarity. DC power cables
should be installed in matched pairs (positive
and negative).

Liebert Series 600T UPS, 65-225 kVA, Single Module 21
NOTE
DC power and battery circuit breaker con-
trol cables are provided with the Liebert
brand Battery Cabinets. Power cables are
sized for interconnecting Battery Cabinets.
Battery Cabinets specified for bolting up to
the UPS are shipped with power cables to
connect the Battery Cabinet system to the
UPS Module. Field-supplied cabling must be
provided to connect “stand-alone” Battery
Cabinets to the UPS Module.
DANGER
DO NOT MAKE ANY CONNECTIONS
BETWEEN BATTERY TIERS IN THE
BATTERY CABINET. THESE
CONNECTIONS WILL BE MADE BY THE
LIEBERT GLOBAL SERVICES
REPRESENTATIVE DURING START-UP.
f. For remote battery:
DC power cables (and ground) from battery to
Module Battery Disconnect, and then to UPS
Module DC bus. Observe polarity. DC power
cables should be installed in conduit with con-
ductors in matched pairs (positive and nega-
tive).
g. Module Battery Disconnect control wiring to
UPS Module (and between Battery Cabinets, if
applicable).
h. Control wiring to Remote Monitor Panel, if
used. Selected alarm messages are also avail-
able for customer use through a set of contacts
on a separate terminal board. Wiring must be
run in individual separate steel conduit.
i. Emergency Power Off control wiring must be
run in separate steel conduit.
j. Communications wiring for site monitoring or
for modem must be run in separate steel con-
duit.
k. Power and control connections required for the
Maintenance Bypass.
l. Any additional special wiring required at the
customer site.
10. WIRING INSPECTION
1. Verify all power connections are tightened per
the torque specifications in Table 2. Verify all
control wire terminations are tight.
2. Verify all power wires and connections have
proper spacing between exposed surfaces,
phase-to-phase and phase-to-ground.
3. Verify that all control wires are run in steel
conduit, separate from all power wiring.

22 Installation Manual
Use 75°C copper wire. Select wire size based on the ampacities in Table 310-16 and associated notes of the National
Electrical Code (NFPA 70).
Use commercially available solderless lugs for the wire size required for your application. Refer to Table 3. Connect
wire to the lug using tool and procedure specified by the lug manufacturer.
Table 1
Power Wiring Terminals - Factory Supplied
UPS
MODULE CONNECTION
TYPE
65 & 80 kVA
100-225 kVA
Bypass input wiring is top-entry, to busbars on top of the circuit breaker. Rectifier
input wiring is top-entry, directly to lugs on top of the input circuit breaker. DC link
and critical bus output connections are top entry, to frame-mounted lugs. A bottom-
entry access plate is standard, to enable the installer to pull AC cables and control
wiring through the module to the connections on top.
For “SpaceSaver” modules in the 48” frame, rectifier and bypass input wiring is top-
entry, directly to lugs on top of their respective circuit breakers. DC link and critical
bus output connection are top entry, to frame-mounted lugs.
Standard modules with top-and-bottom entry have access plates and a wireway on
the right side of the modules. All power connections are to bus bars in the wireway.
Table 2
Torque Specifications
NUT AND BOLT COMBINATIONS
BOLT SHAFT
SIZE GRADE 2
STANDARD ELECTRICAL CONNECTIONS
with Belleville Washers
Lb - in N-m Lb-in N-m
1/4 53 6.0 46 5.2
5/16 107 12 60 6.8
3/8 192 22 95 11
1/2 428 22 256 29
CIRCUIT BREAKERS
WITH COMPRESSION LUGS
(For Power Wiring)
TERMINAL BLOCK
COMPRESSION LUGS
(For Control Wiring)
WIRE SIZE
OR
RANGE
Lb-in N-m AWG WIRE
SIZE
OR RANGE
Lb-in N-m
#6 - #4 100 11 #22 -#14 3.5 to 5.3 0.4 to 0.6
#3 - #1 125 14
1/0 - 2/0 150 17
3/0 - 200 MCM 200 23
250 - 400 MCM 250 28
500 - 700 MCM 300 34

Liebert Series 600T UPS, 65-225 kVA, Single Module 23
NOTES:
1. Manufacturer: Thomas & Betts (T & B). (800) 862-8324
Table 3
Field-Supplied Lugs
ONE-HOLE LUGS
T & B LUG STYLE WIRE SIZE BOLT SIZE
(INCHES)
TONGUE
WIDTH (IN.)
T & B P/N LIEBERT P/N
1 1/0 AWG 3/8 0.88 J973 12-714255-56
2 STAK-ON 2/0 AWG 3/8 1.00 K973 12-714255-66
3 3/0 AWG 3/8 1.10 L973 12-714255-76
4 4/0 AWG 3/8 1.20 M973 12-714255-86
5 COLOR-KEYED 1/0 AWG 3/8 0.93 60130
6 ALUMINUM/ 2/0 AWG 3/8 0.97 60136
7 COPPER 3/0 AWG 3/8 1.06 60142
8 1/0 AWG 3/8 0.75 54909BE
9 COLOR-KEYED 2/0 AWG 3/8 0.81 54910BE
10 COPPER CABLE 3/0 AWG 1/2 0.94 54965BE
11 LONG BARREL 4/0 AWG 1/2 1.03 54970BE
12 250MCM 1/2 1.09 54913BE
13 NARROW-TONGUE 350MCM 1/2 1.09 55165
14 COPPER CABLE 500MCM 1/2 1.20 55171

24 Installation Manual
Reprinted with permission from NEC 1999, NFPA 70, the National Electrical Code , Copyright 1998, National Fire Protection Association, Quincy,
MA 02269. This reprinted material is not the complete and official position of the National Fire Protection Association, on the referenced subject which
is represented only by the standard in its entirety.
Table 310-16. Allowable Ampacities of Insulated Conductors
Rated 0-2000 Volts, 60 to 90C (140 to 194F)
Not More Than Three Conductors in Raceway or Cable or
Earth (Directly Buried), Based on Ambient Temperature of 30 (86F)
Size Temperature Rating of Conductor. See Table 310-13. Size
60oC
(140°F)
75°C
(167°F)
90°C
(194°F)
60°C
(140°)
75°C
(167°F)
90°C
(194°F)
AWG
kcmil
TYPES
TW=
UF=
TYPES
FEPW=,
RH, RHW=,
THHW=,
THW=,
THWN=,
XHHW=,
USE=, ZW=
TYPES
TBS, SA,
SIS, FEP=
FEPB=, MI,
RHH= RHW-2
THHN=, THHW=,
THW-2, THWN-2,
USE-2, XHH,
XHHW=
XHHW-2, ZW-2
TYPES
TW=
UF=
TYPES
RH=, RHW=,
THHW=,
THW=,
THWN=,
XHHW=,
USE=
TYPES
TBS,
SA, SIS,
THHN=,
THHW=,
THW-2, THWN-2,
RHH==, RHW-2,
USE-2,
XHH, XHHW=,
XHHW-2, ZW-2
AWG
kcmil
COPPER ALUMINUM OR COPPER-CLAD ALUMINUM
18
16
14*
12*
10*
8
......
......
20
25
30
40
.......
.......
20
25
35
50
14
18
25
30
40
55
.......
.......
.......
20
25
30
.......
.......
.......
20
30
40
.......
.......
.......
25
35
45
.......
.......
.......
12*
10*
8*
6
4
3
2
1
55
70
85
95
110
65
85
100
115
130
75
95
110
130
150
40
55
65
75
85
50
65
75
90
100
60
75
85
100
115
6
4
3
2
1
1/0
2/0
3/0
4/0
125
145
165
195
150
175
200
230
170
195
225
260
100
115
130
150
120
135
155
180
135
150
175
205
1/0
2/0
3/0
4/0
250
300
350
400
500
215
240
260
280
320
255
285
310
335
380
290
320
350
380
430
170
190
210
225
260
205
230
250
270
310
230
255
280
305
350
250
300
350
400
500
600
700
750
800
900
355
385
400
410
435
420
460
475
490
520
475
520
535
555
585
285
310
320
330
355
340
375
385
395
425
385
420
435
450
480
600
700
750
800
900
1000
1250
1500
1750
2000
455
495
520
545
560
545
590
625
650
665
615
665
705
735
750
375
405
435
455
470
445
485
520
545
560
500
545
585
615
630
1000
1250
1500
1750
2000
CORRECTION FACTORS
Ambient
Temp °CFor ambient temperatures other than 30°C (86°F), multiply the allowable ampacities
shown above by the appropriate factor shown below. Ambient
Temp °F
21-25
26-30
31-35
36-40
41-45
46-50
51-55
56-60
61-70
71-80
1.08
1.00
.91
.82
.71
.58
.41
.......
.......
.......
1.05
1.00
.94
.88
.82
.75
.67
.58
.33
.......
1.04
1.00
.96
.91
.87
.82
.76
.71
.58
.41
1.08
1.00
.91
.82
.71
.58
.41
.......
.......
.......
1.05
1.00
.94
.88
.82
.75
.67
.58
.33
.......
1.04
1.00
.96
.91
.87
.82
.76
.71
.58
.41
70-77
78-86
87-95
96-104
105-113
114-122
123-131
132-140
141-158
159-176
*Unless otherwise specifically permitted in Section 240-3 of this Code, the overcurrent protection for conductor types marked with an asterisk (*) shall not
exceed 15 amperes for No. 14, 20 amperes for No. 12, and 30 amperes for No. 10 copper; or 15 amperes for No. 12 and 25 amperes for No. 10 aluminum
and copper-clad aluminum after any correction factors for ambient temperature and number of conductors have been applied.

Liebert Series 600T UPS, 65-225 kVA, Single Module 25
Figure 11. Outline Drawing Single and Multi Module 65 & 80 kVA

26 Installation Manual
Figure 12. Outline Drawing, 100 through 225 kVA Module with SpaceSaver Top-Entry Configuration

Liebert Series 600T UPS, 65-225 kVA, Single Module 27
Figure 13. Outline Drawing, 100 through 225 kVA Module with Standard Top & Bottom Entry

28 Installation Manual
Figure 14. Bypass Transformer Cabinet, 65 & 80 kVA

Liebert Series 600T UPS, 65-225 kVA, Single Module 29
Figure 15. Bypass Transformer Cabinet, 100-225 kVA

30 Installation Manual
Figure 16. Battery Power Pack, 65 & 80 kVA

Liebert Series 600T UPS, 65-225 kVA, Single Module 31
Figure 17. Battery Power Pack, Size A, 100-225 kVA

32 Installation Manual
Figure 18. Outline Drawing, 3-Breaker MBC, 65 & 80 kVA

Liebert Series 600T UPS, 65-225 kVA, Single Module 33
Figure 19. Outline Drawing, 3-Breaker MBC with Bypass Transformer,
65 & 80 kVA

34 Installation Manual
Figure 20. Outline Drawing, 3-Breaker MBC, 125-350 Amps

Liebert Series 600T UPS, 65-225 kVA, Single Module 35
Figure 21. Outline Drawing, 3-Breaker MBC, 450 to 800 Amps

36 Installation Manual
Figure 22. Outline Drawing, 3-Breaker MBC, 600-800 Amps

Liebert Series 600T UPS, 65-225 kVA, Single Module 37
Figure 23. Line-up Detail, 65 & 80 kVA SMS with Bypass Transformer Cabinet

38 Installation Manual
Figure 24. Line-up Detail, 100-225 kVA Space Saver with Bypass Transformer Cabinet

Liebert Series 600T UPS, 65-225 kVA, Single Module 39
Figure 25. Line-up Detail, 100-225 kVA Standard SMS with Bypass Transformer Cabinet

40 Installation Manual
Figure 26. Line-up Detail, 65 & 80 kVA SMS with Battery Cabinets

Liebert Series 600T UPS, 65-225 kVA, Single Module 41
Figure 27. Line-up Detail, 100-225 kVA Space Saver with Battery Cabinets

42 Installation Manual
Figure 28. Line-up Detail, 100-225 kVA Standard SMS with Battery Cabinets

Liebert Series 600T UPS, 65-225 kVA, Single Module 43
Figure 29. Line-up Detail, 65 & 80 kVA with 3-Breaker MBC

44 Installation Manual
Figure 30. Line-up Detail, 65 & 80 kVA with Bypass Transformer and 3-Breaker MBC

Liebert Series 600T UPS, 65-225 kVA, Single Module 45
Figure 31. Line-up Detail, 100-225 kVA Space Saver with 3-Breaker MBC

46 Installation Manual
Figure 32. Line-up Detail, 100-225 kVA Space Saver with
Bypass Transformer Cabinet and 3-Breaker MBC

Liebert Series 600T UPS, 65-225 kVA, Single Module 47
Figure 33. Line-up Detail, 100-225 kVA with 3-Breaker MBC

48 Installation Manual
Figure 34. Line-up Detail, 100-225 kVA with Bypass Transformer Cabinet and 3-Breaker MBC

Liebert Series 600T UPS, 65-225 kVA, Single Module 49
Figure 35. Terminal Details, 65 & 80 kVA Single Module Systems

50 Installation Manual
Figure 36. Terminal Details, 100 & 125 kVA Space Saver

Liebert Series 600T UPS, 65-225 kVA, Single Module 51
Figure 37. Terminal Details, 150 & 225 kVA Standard SMS

52 Installation Manual
Figure 38. Terminal Details, 100 & 125 kVA Standard SMS

Liebert Series 600T UPS, 65-225 kVA, Single Module 53
Figure 39. Terminal Details, 150 & 225 kVA Standard SMS

54 Installation Manual
Figure 40. Control Connection Locations, 65 & 80 kVA

Liebert Series 600T UPS, 65-225 kVA, Single Module 55
Figure 41. Control Connection Locations, 100 through 225 kVA

56 Installation Manual
Figure 42. Standard Control Wiring, Single Module System

Liebert Series 600T UPS, 65-225 kVA, Single Module 57
Figure 43. Option Wiring, Alarm Status Contacts

58 Installation Manual
Figure 44. Option Wiring, Maintenance Bypass Interlock

Liebert Series 600T UPS, 65-225 kVA, Single Module 59
Figure 45. Option Wiring, Remote Status Panel Interface

60 Installation Manual
Figure 46. Option Wiring, Remote Terminal IFM (RS-232 Communications)

Liebert Series 600T UPS, 65-225 kVA, Single Module 61
Figure 47. Option Wiring, SiteScan Interface

62 Installation Manual
Figure 48. Option Wiring, Customer Alarm Interface

Liebert Series 600T UPS, 65-225 kVA, Single Module 63
Figure 49. Option Wiring, Battery Temperature Sensor

64 Installation Manual
Figure 50. Option Wiring, SNMP Interface

Liebert Series 600T UPS, 65-225 kVA, Single Module 65
Figure 51. Option Wiring, Internal Modem

66 Installation Manual
Figure 52. Option Wiring, Maintenance Bypass Cabinet

Liebert Series 600T UPS, 65-225 kVA, Single Module 67
Figure 53. Module Battery Disconnect, 65 through 125 kVA

68 Installation Manual
Figure 54. Module Battery Disconnect, 150 & 225 kVA

Liebert Series 600T UPS, 65-225 kVA, Single Module 69
Figure 55. Remote Status Panel, Surface Mount

70 Installation Manual
Figure 56. Circuit Breaker Schedule, 65 through 225 kVA

Liebert Series 600T UPS, 65-225 kVA, Single Module 71
Figure 57. Circuit Breaker Schedule, Battery Cabinets, 65 to 500 kVA

72 Installation Manual
Figure 58. Circuit Breaker Schedule, Maintenance Bypass Cabinet, 65 through 225 kVA

Liebert Series 600T UPS, 65-225 kVA, Single Module A-1
Appendix A: Site Planning Data
65-225 kVA Single Module Systems
Notes
1. Nominal rectifier AC input current (considered continuous) is based on full rated output load. Maximum current
includes nominal input current and maximum battery recharge current (considered noncontinuous). Continuous and
noncontinuous current limits are defined in NEC 100. Maximum input current is controlled by current limit setting which
is adjustable. Values shown for maximum setting are 125% of nominal input current. Standard factory setting is 115%.
2. Nominal AC output current (considered continuous) is based on full rated output load. Maximum current includes
nominal output current and overload current for 10 minutes.
3. Bypass AC input current (considered continuous) is based on full rated output load.
4. Feeder protection (by others in external equipment) for rectifier AC input and bypass AC input is recommended to be
provided by separate overcurrent protection devices.
5. UPS output load cables must be run in separate conduit from input cables.
6. Power cable from module DC bus to battery should be sized for a total maximum 2.0 volt line drop
(measured at the module) at maximum discharge current.
7. Grounding conductors to be sized per NEC 250-122. Neutral conductors to be sized for full capacity -- per
NEC 310-15 (b)(4) -- for systems with 4-wire loads and half capacity for systems with 3-wire loads.
8. Rectifier AC Input:3-phase, 3-wire, plus ground
AC Output to Load: 3-phase, 3 or 4-wire, plus ground
Bypass AC Input:3-phase, 3 or 4-wire, plus ground
Module DC Input from Battery:2-wire, (positive and negative) plus ground
9. All wiring is to be in accordance with National and Local Electrical Codes.
10. Minimum overhead clearance is 2 feet above UPS.
11. Top and bottom cable entry standard through removable access plates. However, SpaceSaver versions of the 100-225
kVA modules are 8” narrower (48” vs. 56”) and are top-entry only. Tables show SpaceSaver modules, where available.
Cut access plates to suit conduit size.
12. Control wiring and power cables must be run in separate conduits. Control wiring must be stranded tinned conductors.
13. 7% maximum reflected input harmonic current and 0.92 lagging input power factor at full load with optional input filter.

A-2 Installation Manual
Series 600T Single Module Systems
208 Volt Input
UPS Rating
AC
Output
Voltage Options Rectifier AC
Input Current
Inverter Or
Bypass AC
Output
Current
Required
Battery
Discon-
nect
Maximum
Battery
Current
At End Of
Maximum
Heat
Dissipa-
tion Dimen-
sions Approx.
Weight
Floor
Loading
Lb./Sq.ft
(Concen-
kVA kW VAC Input
Filter Input
Xformer Nom Max Nom Max Rating
Amperes Discharge
Amperes BTU/Hr
Full Load Inches
(WxDxH) LB.
(unpacked) trated
Loading)
65 52 208 NO NO 184 229 180 226 175 141 14,390 34x32x68 1,900 251
65 52 208 YES NO 170 213 180 226 175 141 15,015 34x32x68 1,950 258
65 52 208 NO YES 187 233 180 226 175 141 17,555 34x32x68 2,400 318
65 52 208 YES YES 173 216 180 226 175 141 18,200 34x32x68 2,450 324
80 64 208 NO NO 226 282 222 278 175 174 17,710 34x32x68 2,100 278
80 64 208 YES NO 209 262 222 278 175 174 18,480 34x32x68 2,150 285
80 64 208 NO YES 230 287 222 278 175 174 21,600 34x32x68 2,630 348
80 64 208 YES YES 213 266 222 278 175 174 22,395 34x32x68 2,680 355
100 80 208 NO NO 282 353 278 347 250 217 22,140 48x33x79 2,900 264
100 80 208 YES NO 262 327 278 347 250 217 23,100 48x33x79 2,950 268
100 80 208 NO YES 287 359 278 347 250 217 27,005 48x33x79 3,270 297
100 80 208 YES YES 266 333 278 347 250 217 27,995 48x33x79 3,320 302
125 100 208 NO NO 353 441 347 434 250 271 27,675 48x33x79 3,050 277
125 100 208 YES NO 327 409 347 434 250 271 28,875 48x33x79 3,100 282
125 100 208 NO YES 359 449 347 434 250 271 33,755 48x33x79 3,450 314
125 100 208 YES YES 333 416 347 434 250 271 34,995 48x33x79 3,500 318
150 120 208 NO NO 424 530 416 520 350 326 33,200 56x33x79 3,320 259
150 120 208 YES NO 393 491 416 520 350 326 34,650 56x33x79 3,450 269
150 120 208 NO YES 431 538 416 520 350 326 40,500 56x33x79 4,020 313
150 120 208 YES YES 399 499 416 520 350 326 42,000 56x33x79 4,150 323
225 180 208 NO NO 635 794 625 781 500 488 49,800 56x33x79 3,870 302
225 180 208 YES NO 589 736 625 781 500 488 52,000 56x33x79 4,000 312
225 180 208 NO YES 646 807 625 781 500 488 60,750 56x33x79 4,510 351
225 180 208 YES YES 599 748 625 781 500 488 63,000 56x33x79 4,640 362
Applicable
Notes:
13 1,4,8,
9,11,12
2,3,5,7,8,
9,11,12
66,8,9,
11,12
11

Liebert Series 600T UPS, 65-225 kVA, Single Module A-3
Series 600T Single Module Systems
480 Volt Input
UPS Rating
AC
Output
Voltage Options
Rectifier
AC Input
Current
Inverter Or
Bypass AC
Output
Current
Required
Battery
Discon-
nect
Maximum
Battery
Current At
End Of
Maximum
Heat
Dissipa-
tion Dimensions Approx.
Weight
Floor
Loading
Lb./Sq.ft
(Concen-
kVA kW VAC Input
Filter Input
Xformer Nom Max Nom Max Rating
Amperes Discharge
Amperes BTU/Hr
Full Load Inches
(WxDxH) LB.
(unpacked) trated
Loading)
65 52 480 NO NO 78 98 78 98 150 140 11,330 34x32x68 1,500 281
65 52 480 YES NO 73 91 78 98 150 140 11,935 34x32x68 1,550 291
65 52 480 NO YES 80 99 78 98 150 140 14,390 34x32x68 2,200 413
65 52 480 YES YES 74 92 78 98 150 140 15,015 34x32x68 2,250 422
65 52 208 NO NO 79 98 180 226 150 141 12,340 34x32x68 1,700 319
65 52 208 YES NO 73 91 180 226 150 141 12,950 34x32x68 1,750 328
65 52 208 NO YES 80 100 180 226 150 141 15,435 34x32x68 2,400 450
65 52 208 YES YES 74 93 180 226 150 141 16,065 34x32x68 2,450 459
80 64 480 NO NO 96 120 96 120 175 173 13,945 34x32x68 1,700 319
80 64 480 YES NO 89 112 96 120 175 173 14,685 34x32x68 1,750 328
80 64 480 NO YES 98 122 96 120 175 173 17,710 34x32x68 2,430 456
80 64 480 YES YES 91 113 96 120 175 173 18,480 34x32x68 2,480 465
80 64 208 NO NO 97 121 222 278 175 174 15,185 34x32x68 1,950 366
80 64 208 YES NO 90 112 222 278 175 174 15,940 34x32x68 2,000 375
80 64 208 NO YES 98 123 222 278 175 174 18,995 34x32x68 2,680 503
80 64 208 YES YES 91 114 222 278 175 174 19,770 34x32x68 2,730 512
100 80 480 NO NO 120 151 120 150 225 216 17,425 48x33x79 2,300 209
100 80 480 YES NO 112 140 120 150 225 216 18,360 48x33x79 2,370 215
100 80 480 NO YES 122 153 120 150 225 216 22,140 48x33x79 3,075 280
100 80 480 YES YES 113 142 120 150 225 216 23,100 48x33x79 3,145 286
100 80 208 NO NO 121 151 278 347 225 217 18,980 48x33x79 2,600 236
100 80 208 YES NO 112 140 278 347 225 217 19,920 48x33x79 2,670 243
100 80 208 NO YES 123 154 278 347 225 217 23,745 48x33x79 3,375 307
100 80 208 YES YES 114 143 278 347 225 217 24,715 48x33x79 3,445 313
125 100 480 NO NO 151 188 150 188 250 270 21,785 48x33x79 2,400 218
125 100 480 YES NO 140 174 150 188 250 270 22,950 48x33x79 2,470 225
125 100 480 NO YES 153 191 150 188 250 270 27,675 48x33x79 3,200 291
125 100 480 YES YES 142 177 150 188 250 270 27,675 48x33x79 3,270 297
125 100 208 NO NO 151 189 347 434 250 271 23,725 48x33x79 2,700 245
125 100 208 YES NO 140 175 347 434 250 271 23,725 48x33x79 2,770 252
125 100 208 NO YES 154 192 347 434 250 271 29,680 48x33x79 3,500 318
125 100 208 YES YES 143 178 347 434 250 271 29,680 48x33x79 3,570 325
150 120 480 NO NO 181 226 180 226 300 324 26,140 48x33x79 2,650 241
150 120 480 YES NO 167 209 180 226 300 324 27,540 48x33x79 2,780 253
150 120 480 NO YES 184 229 180 226 300 324 33,210 48x33x79 3,550 323
150 120 480 YES YES 170 213 180 226 300 324 34,650 48x33x79 3,680 335
150 120 208 NO NO 182 227 416 520 300 326 28,475 56x33x79 3,050 238
150 120 208 YES NO 168 210 416 520 300 326 29,885 56x33x79 3,180 248
150 120 208 NO YES 185 231 416 520 300 326 35,615 56x33x79 3,950 308
150 120 208 YES YES 171 214 416 520 300 326 37,070 56x33x79 4,080 318
225 180 480 NO NO 271 339 271 338 500 486 39,215 48x33x79 2,990 272
225 180 480 YES NO 251 314 271 338 500 486 41,305 48x33x79 3,120 284
225 180 480 NO YES 275 344 271 338 500 486 49,810 48x33x79 4,190 381
225 180 480 YES YES 255 319 271 338 500 486 41,305 48x33x79 4,320 393
225 180 208 NO NO 272 341 625 781 500 488 42,710 56x33x79 3,475 271
225 180 208 YES NO 253 316 625 781 500 488 44,825 56x33x79 3,605 281
225 180 208 NO YES 277 346 625 781 500 488 53,420 56x33x79 4,675 364
225 180 208 YES YES 257 321 625 781 500 488 55,605 56x33x79 4,805 374
Applicable
Notes: 13 1,4,8,
9,11,12
2,3,5,7,8,
9,11,12
66,8,9,
11,12
11

A-4 Installation Manual
Series 600T Single Module Systems
600 Volt Input
UPS Rating
AC
Output
Voltage Options
Rectifier AC
Input
Current
Inverter Or
Bypass AC
Output
Current
Required
Battery
Discon-
nect
Maximum
Battery
Current At
End Of
Maxmum
Heat
Dissipa-
tion Dimensions Approx.
Weight
Floor
Loading
Lb./Sq.ft
(Concen-
kVA kW VAC Input
Filter Input
Xformer Nom Max Nom Max Rating
Amperes Discharge
Amperes BTU/Hr
Full Load Inches
(WxDxH) LB.
(unpacked) trated
Loading)
65 52 600 NO NO 63 79 63 78 150 140 12,340 34x32x68 1,600 300
65 52 600 YES NO 58 73 63 78 150 140 12,950 34x32x68 1,650 309
65 52 600 NO YES 64 80 63 78 150 140 15,435 34x32x68 2,200 413
65 52 600 YES YES 59 74 63 78 150 140 16,065 34x32x68 2,250 422
65 52 208 NO NO 63 79 180 226 150 141 13,355 34x32x68 1,800 338
65 52 208 YES NO 59 73 180 226 150 141 13,975 34x32x68 1,850 347
65 52 208 NO YES 64 80 180 226 150 141 16,490 34x32x68 2,400 450
65 52 208 YES YES 60 75 180 226 150 141 17,125 34x32x68 2,450 459
80 64 600 NO NO 77 97 77 96 175 173 15,185 34x32x68 1,800 338
80 64 600 YES NO 72 90 77 96 175 173 15,940 34x32x68 1,850 347
80 64 600 NO YES 79 98 77 96 175 173 18,995 34x32x68 2,430 456
80 64 600 YES YES 73 91 77 96 175 173 19,770 34x32x68 2,480 465
80 64 208 NO NO 78 97 222 278 175 174 16,445 34x32x68 2,050 384
80 64 208 YES NO 72 90 222 278 175 174 17,200 34x32x68 2,100 394
80 64 208 NO YES 79 99 222 278 175 174 20,290 34x32x68 2,680 503
80 64 208 YES YES 73 92 222 278 175 174 21,075 34x32x68 2,730 512
100 80 600 NO NO 97 121 96 120 225 216 18,980 48x33x79 2,450 223
100 80 600 YES NO 90 112 96 120 225 216 18,920 48x33x79 2,520 229
100 80 600 NO YES 98 123 96 120 225 216 23,745 48x33x79 3,075 280
100 80 600 YES YES 91 114 96 120 225 216 24,715 48x33x79 3,145 286
100 80 208 NO NO 97 122 278 347 225 217 20,550 48x33x79 2,750 250
100 80 208 YES NO 90 113 278 347 225 217 21,500 48x33x79 2,820 256
100 80 208 NO YES 99 124 278 347 225 217 25,265 48x33x79 3,375 307
100 80 208 YES YES 92 115 278 347 225 217 26,345 48x33x79 3,445 313
125 100 600 NO NO 121 151 120 150 250 270 23,725 48x33x79 2,600 236
125 100 600 YES NO 112 140 120 150 250 270 24,900 48x33x79 2,670 243
125 100 600 NO YES 123 154 120 150 250 270 29,680 48x33x79 3,200 291
125 100 600 YES YES 114 143 120 150 250 270 30,895 48x33x79 3,270 297
125 100 208 NO NO 122 152 347 434 250 271 25,690 48x33x79 2,900 264
125 100 208 YES NO 113 141 347 434 250 271 26,875 48x33x79 2,970 270
125 100 208 NO YES 124 155 347 434 250 271 31,705 48x33x79 3,500 318
125 100 208 YES YES 115 143 347 434 250 271 32,930 48x33x79 3,570 325
150 120 600 NO NO 145 182 144 180 300 324 28,480 48x33x79 2,920 265
150 120 600 YES NO 135 168 144 180 300 324 29,880 48x33x79 3,050 277
150 120 600 NO YES 148 185 144 180 300 324 35,615 48x33x79 3,570 325
150 120 600 YES YES 137 171 144 180 300 324 37,070 48x33x79 3,700 336
150 120 208 NO NO 146 183 416 520 300 326 30,825 56x33x79 3,270 255
150 120 208 YES NO 135 169 416 520 300 326 32,250 56x33x79 3,400 265
150 120 208 NO YES 148 186 416 520 300 326 38,045 56x33x79 3,920 305
150 120 208 YES YES 138 172 416 520 300 326 39,520 56x33x79 4,050 316
225 180 600 NO NO 218 272 217 271 500 486 42,710 48x33x79 3,260 296
225 180 600 YES NO 202 253 217 271 500 486 44,825 48x33x79 3,390 308
225 180 600 NO YES 221 277 217 271 500 486 53,420 48x33x79 4,210 383
225 180 600 YES YES 205 257 217 271 500 486 55,605 48x33x79 4,340 395
225 180 208 NO NO 219 274 625 781 500 488 46,240 56x33x79 3,660 285
225 180 208 YES NO 203 254 625 781 500 488 48,380 56x33x79 3,790 295
225 180 208 NO YES 223 278 625 781 500 488 57,070 56x33x79 4,610 359
225 180 208 YES YES 206 258 625 781 500 488 59,280 56x33x79 4,740 369
Applicable
Notes:
13 1,4,8,
9,11,12
2,3,5,7,8,
9,11,12
66,8,9,
11,12
11

Liebert Series 600T UPS, 65-225 kVA, Single Module A-5

The Company Behind the Products
With over a million installations around the globe,
Liebert is the world leader in computer protection
systems. Since its founding in 1965, Liebert has
developed a complete range of support and
protection systems for sensitive electronics:
• Environmental systems—close-control air
conditioning from 1 to 60 tons
• Power conditioning and UPS with power
ranges from 300 VA to more than 1000 kVA
• Integrated systems that provide both
environmental and power protection in a
single, flexible package
• Monitoring and control—from systems of any
size or location, on-site or remote
• Service and support through more than 100
service centers around the world and a 24/7
Customer Response Center
While every precaution has been taken to ensure
the accuracy and completeness of this literature,
Liebert Corporation assumes no responsibility and
disclaims all liability for damages resulting from
use of this information or for any errors or
omissions.
© 2000 Liebert Corporation
All rights reserved throughout the world.
Specifications subject to change without notice.
® Liebert and the Liebert logo are registered
trademarks of Liebert Corporation. All names
referred to are trademarks or registered
trademarks of their respective owners.
SL-30545 (2/00)
Technical Support
United States
1050 Dearborn Drive
P.O. Box 29186
Columbus, OH 43229
Single-Phase UPS
800-543-2378
Outside the United States
614-841-6598
3-Phase UPS
800-543-2378
Environmental Control
800-543-2778
Italy
Via Leonardo Da Vinci 8
Zona Industriale Tognana
35028 Piove Di Sacco (PD)
+39 049 9719 111
FAX: +39 049 5841 257
Asia
23F, Allied Kajima Bldg.
138 Gloucester Road
Wanchai
Hong Kong
+852 2 572 2201
FAX: +852 2 831 0114
Web Site
www.liebert.com
E-mail
UPStech@liebert.com
POWER AVAILABILITY
Series 600T™ UPS
INSTALLATION MANUAL