Locks 52626 Fire Lite MS 5UD &M 10UD Series User Manual
User Manual: Locks Fire Lite MS-5UD &M-10UD Series User Manual Security Product Manuals - Northeast Security SolutionsNortheast Security Solutions
Open the PDF directly: View PDF
.
Page Count: 144 [warning: Documents this large are best viewed by clicking the View PDF Link!]
- Table of Contents
- Section 1: Product Description
- Section 2: Installation
- 2.1 Backbox Mounting
- 2.2 Operating Power
- 2.3 Input Circuits
- 2.4 Output Circuits
- 2.5 Power-limited Wiring Requirements
- 2.6 Digital Communicator
- 2.7 Installation of Optional Modules
- 2.8 ANN-BUS Devices
- 2.9 ANN-BUS Audio Panel
- Section 3: Programming
- 3.1 User Programming
- 3.2 Initial Power-up
- 3.3 Programming Screens Description
- 3.4 Programming and Passwords
- 3.5 Master Programming Level
- 3.6 Maintenance Programming Level
- Section 4: Operating Instructions
- 4.1 Panel Control Buttons
- 4.2 LED Indicators
- 4.3 Normal Operation
- 4.4 Trouble Operation
- 4.5 Alarm Operation
- 4.6 Supervisory Operation
- 4.7 Process Monitor Operation
- 4.8 Hazard/Tornado Condition Operation
- 4.9 Medical Alert Condition Operation
- 4.10 Disable/Enable Operation
- 4.11 Waterflow Circuits Operation
- 4.12 Detector Functions
- 4.13 Time Functions: Real-Time Clock
- 4.14 Coded Operation
- 4.15 Presignal
- 4.16 Positive Alarm Sequence
- 4.17 Special System Timers
- 4.18 Walktest
- 4.19 Read Status
- Section 5: Central Station Communications
- Section 6: Local/Remote Site Upload/Download
- Section 7: Power Supply Calculations
- Appendix A: Ademco Contact ID Format Event Code Descriptions
- Appendix B: NFPA Standard-Specific Requirements
- Appendix C: FACP with Keltron
- Appendix D: Wire Requirements
- Appendix E: Default Programming
- Appendix F: Canadian Application
- Index

C4
P/N 52626:C4 ECN 14-167
Document 52626
3/7/2014 Rev:
Fire Alarm Control Panels
MS-5UD Series
MS-10UD Series
Manual
2MS-5UD & MS-10UD Series Manual — P/N 52626:C4 3/7/2014
Fire Alarm & Emergency Communication System Limitations
While a life safety system may lower insurance rates, it is not a substitute for life and property insurance!
An automatic fire alarm system—typically made up of smoke
detectors, heat detectors, manual pull stations, audible warning
devices, and a fire alarm control panel (FACP) with remote notifi-
cation capability—can provide early warning of a developing fire.
Such a system, however, does not assure protection against
property damage or loss of life resulting from a fire.
An emergency communication system—typically made up of
an automatic fire alarm system (as described above) and a life
safety communication system that may include an autonomous
control unit (ACU), local operating console (LOC), voice commu-
nication, and other various interoperable communication meth-
ods—can broadcast a mass notification message. Such a
system, however, does not assure protection against property
damage or loss of life resulting from a fire or life safety event.
The Manufacturer recommends that smoke and/or heat
detectors be located throughout a protected premises following
the recommendations of the current edition of the National Fire
Protection Association Standard 72 (NFPA 72), manufacturer's
recommendations, State and local codes, and the
recommendations contained in the Guide for Proper Use of
System Smoke Detectors, which is made available at no charge
to all installing dealers. This document can be found at http://
www.systemsensor.com/appguides/. A study by the Federal
Emergency Management Agency (an agency of the United
States government) indicated that smoke detectors may not go
off in as many as 35% of all fires. While fire alarm systems are
designed to provide early warning against fire, they do not
guarantee warning or protection against fire. A fire alarm system
may not provide timely or adequate warning, or simply may not
function, for a variety of reasons:
Smoke detectors may not sense fire where smoke cannot
reach the detectors such as in chimneys, in or behind walls, on
roofs, or on the other side of closed doors. Smoke detectors
also may not sense a fire on another level or floor of a building.
A second-floor detector, for example, may not sense a first-floor
or basement fire.
Particles of combustion or “smoke” from a developing fire
may not reach the sensing chambers of smoke detectors
because:
• Barriers such as closed or partially closed doors, walls, chim-
neys, even wet or humid areas may inhibit particle or smoke
flow.
• Smoke particles may become “cold,” stratify, and not reach
the ceiling or upper walls where detectors are located.
• Smoke particles may be blown away from detectors by air
outlets, such as air conditioning vents.
• Smoke particles may be drawn into air returns before reach-
ing the detector.
The amount of “smoke” present may be insufficient to alarm
smoke detectors. Smoke detectors are designed to alarm at var-
ious levels of smoke density. If such density levels are not cre-
ated by a developing fire at the location of detectors, the
detectors will not go into alarm.
Smoke detectors, even when working properly, have sensing
limitations. Detectors that have photoelectronic sensing cham-
bers tend to detect smoldering fires better than flaming fires,
which have little visible smoke. Detectors that have ionizing-type
sensing chambers tend to detect fast-flaming fires better than
smoldering fires. Because fires develop in different ways and
are often unpredictable in their growth, neither type of detector is
necessarily best and a given type of detector may not provide
adequate warning of a fire.
Smoke detectors cannot be expected to provide adequate warn-
ing of fires caused by arson, children playing with matches
(especially in bedrooms), smoking in bed, and violent explosions
(caused by escaping gas, improper storage of flammable materi-
als, etc.).
Heat detectors do not sense particles of combustion and alarm
only when heat on their sensors increases at a predetermined
rate or reaches a predetermined level. Rate-of-rise heat detec-
tors may be subject to reduced sensitivity over time. For this
reason, the rate-of-rise feature of each detector should be tested
at least once per year by a qualified fire protection specialist.
Heat detectors are designed to protect property, not life.
IMPORTANT! Smoke detectors must be installed in the same
room as the control panel and in rooms used by the system for
the connection of alarm transmission wiring, communications,
signaling, and/or power. If detectors are not so located, a devel-
oping fire may damage the alarm system, compromising its abil-
ity to report a fire.
Audible warning devices such as bells, horns, strobes,
speakers and displays may not alert people if these devices
are located on the other side of closed or partly open doors or
are located on another floor of a building. Any warning device
may fail to alert people with a disability or those who have
recently consumed drugs, alcohol, or medication. Please note
that:
• An emergency communication system may take priority over
a fire alarm system in the event of a life safety emergency.
• Voice messaging systems must be designed to meet intelligi-
bility requirements as defined by NFPA, local codes, and
Authorities Having Jurisdiction (AHJ).
• Language and instructional requirements must be clearly dis-
seminated on any local displays.
• Strobes can, under certain circumstances, cause seizures in
people with conditions such as epilepsy.
• Studies have shown that certain people, even when they hear
a fire alarm signal, do not respond to or comprehend the
meaning of the signal. Audible devices, such as horns and
bells, can have different tonal patterns and frequencies. It is
the property owner's responsibility to conduct fire drills and
other training exercises to make people aware of fire alarm
signals and instruct them on the proper reaction to alarm sig-
nals.
• In rare instances, the sounding of a warning device can cause
temporary or permanent hearing loss.
A life safety system will not operate without any electrical
power. If AC power fails, the system will operate from standby
batteries only for a specified time and only if the batteries have
been properly maintained and replaced regularly.
Equipment used in the system may not be technically compat-
ible with the control panel. It is essential to use only equipment
listed for service with your control panel.
Telephone lines needed to transmit alarm signals from a prem-
ises to a central monitoring station may be out of service or tem-
porarily disabled. For added protection against telephone line
failure, backup radio transmission systems are recommended.
The most common cause of life safety system malfunction is
inadequate maintenance. To keep the entire life safety system in
excellent working order, ongoing maintenance is required per the
manufacturer's recommendations, and UL and NFPA stan-
dards. At a minimum, the requirements of NFPA 72 shall be fol-
lowed. Environments with large amounts of dust, dirt, or high air
velocity require more frequent maintenance. A maintenance
agreement should be arranged through the local manufacturer's
representative. Maintenance should be scheduled monthly or as
required by National and/or local fire codes and should be per-
formed by authorized professional life safety system installers
only. Adequate written records of all inspections should be kept.
Limit-D-1-2013

MS-5UD & MS-10UD Series Manual — P/N 52626:C4 3/7/2014 3
Installation Precautions
Adherence to the following will aid in problem-free installation with long-term reliability:
WARNING - Several different sources of power can be
connected to the fire alarm control panel. Disconnect all
sources of power before servicing. Control unit and associ-
ated equipment may be damaged by removing and/or insert-
ing cards, modules, or interconnecting cables while the unit is
energized. Do not attempt to install, service, or operate this
unit until manuals are read and understood.
CAUTION - System Re-acceptance Test after Software
Changes: To ensure proper system operation, this product
must be tested in accordance with NFPA 72 after any pro-
gramming operation or change in site-specific software. Re-
acceptance testing is required after any change, addition or
deletion of system components, or after any modification,
repair or adjustment to system hardware or wiring. All compo-
nents, circuits, system operations, or software functions known
to be affected by a change must be 100% tested. In addition,
to ensure that other operations are not inadvertently affected,
at least 10% of initiating devices that are not directly affected
by the change, up to a maximum of 50 devices, must also be
tested and proper system operation verified.
This system meets NFPA requirements for operation at 0-49º
C/32-120º F and at a relative humidity 93% ± 2% RH (non-
condensing) at 32°C ± 2°C (90°F ± 3°F). However, the useful
life of the system's standby batteries and the electronic com-
ponents may be adversely affected by extreme temperature
ranges and humidity. Therefore, it is recommended that this
system and its peripherals be installed in an environment with
a normal room temperature of 15-27º C/60-80º F.
Verify that wire sizes are adequate for all initiating and indi-
cating device loops. Most devices cannot tolerate more than a
10% I.R. drop from the specified device voltage.
Like all solid state electronic devices, this system may
operate erratically or can be damaged when subjected to light-
ning induced transients. Although no system is completely
immune from lightning transients and interference, proper
grounding will reduce susceptibility. Overhead or outside aerial
wiring is not recommended, due to an increased susceptibility
to nearby lightning strikes. Consult with the Technical Ser-
vices Department if any problems are anticipated or encoun-
tered.
Disconnect AC power and batteries prior to removing or
inserting circuit boards. Failure to do so can damage circuits.
Remove all electronic assemblies prior to any drilling, filing,
reaming, or punching of the enclosure. When possible, make
all cable entries from the sides or rear. Before making modifi-
cations, verify that they will not interfere with battery, trans-
former, or printed circuit board location.
Do not tighten screw terminals more than 9 in-lbs. Over-
tightening may damage threads, resulting in reduced terminal
contact pressure and difficulty with screw terminal removal.
This system contains static-sensitive components.
Always ground yourself with a proper wrist strap before han-
dling any circuits so that static charges are removed from the
body. Use static suppressive packaging to protect electronic
assemblies removed from the unit.
Follow the instructions in the installation, operating, and pro-
gramming manuals. These instructions must be followed to
avoid damage to the control panel and associated equipment.
FACP operation and reliability depend upon proper installation.
Precau-D1-9-2005
FCC Warning
WARNING: This equipment generates, uses, and can
radiate radio frequency energy and if not installed and
used in accordance with the instruction manual may
cause interference to radio communications. It has been
tested and found to comply with the limits for class A
computing devices pursuant to Subpart B of Part 15 of
FCC Rules, which is designed to provide reasonable
protection against such interference when devices are
operated in a commercial environment. Operation of this
equipment in a residential area is likely to cause interfer-
ence, in which case the user will be required to correct
the interference at his or her own expense.
Canadian Requirements
This digital apparatus does not exceed the Class A limits
for radiation noise emissions from digital apparatus set
out in the Radio Interference Regulations of the Cana-
dian Department of Communications.
Le present appareil numerique n'emet pas de bruits radi-
oelectriques depassant les limites applicables aux appa-
reils numeriques de la classe A prescrites dans le
Reglement sur le brouillage radioelectrique edicte par le
ministere des Communications du Canada.
LiteSpeed™ is a trademark; and FireLite® Alarms is a registered trademark of Honeywell International Inc. Microsoft® and Windows® are registered
trademarks of the Microsoft Corporation.
©2014 by Honeywell International Inc. All rights reserved. Unauthorized use of this document is strictly prohibited.
4MS-5UD & MS-10UD Series Manual — P/N 52626:C4 3/7/2014
Software Downloads
In order to supply the latest features and functionality in fire alarm and life safety technology to our customers, we make
frequent upgrades to the embedded software in our products. To ensure that you are installing and programming the latest
features, we strongly recommend that you download the most current version of software for each product prior to
commissioning any system. Contact Technical Support with any questions about software and the appropriate version for a
specific application.
Documentation Feedback
Your feedback helps us keep our documentation up-to-date and accurate. If you have any comments or suggestions about our
online Help or printed manuals, you can email us.
Please include the following information:
•Product name and version number (if applicable)
•Printed manual or online Help
•Topic Title (for online Help)
•Page number (for printed manual)
•Brief description of content you think should be improved or corrected
•Your suggestion for how to correct/improve documentation
Send email messages to:
FireSystems.TechPubs@honeywell.com
Please note this email address is for documentation feedback only. If you have any technical issues, please contact Technical
Services.
MS-5UD & MS-10UD Series Manual — P/N 52626:C4 3/7/2014 5
Table of Contents
Section 1: Product Description .............................................................................................13
1.1: Product Features ..........................................................................................................................................14
1.2: Specifications...............................................................................................................................................15
1.3: Controls and Indicators................................................................................................................................20
1.4: Digital Alarm Communicator/Transmitter ..................................................................................................21
1.5: Components .................................................................................................................................................21
1.6: Optional Modules and Accessories .............................................................................................................21
1.7: Telephone Requirements and Warnings.......................................................................................................23
1.7.1: Telephone Circuitry...........................................................................................................................23
1.7.2: Digital Communicator.......................................................................................................................23
1.7.3: Telephone Company Rights and Warnings.......................................................................................24
1.7.4: For Canadian Applications................................................................................................................24
Section 2: Installation.............................................................................................................26
2.1: Backbox Mounting ......................................................................................................................................26
2.2: Operating Power ..........................................................................................................................................28
2.3: Input Circuits ...............................................................................................................................................30
2.4: Output Circuits.............................................................................................................................................32
2.4.1: Notification Appliance Circuits.........................................................................................................32
2.4.2: Special Application DC Power Output Connections.........................................................................33
2.4.3: Relays - Programmable .....................................................................................................................33
2.4.4: Remote Synchronization Output .......................................................................................................34
2.5: Power-limited Wiring Requirements ...........................................................................................................35
2.6: Digital Communicator .................................................................................................................................36
2.7: Installation of Optional Modules.................................................................................................................37
2.7.1: CAC-5X Class A Converter Module.................................................................................................37
Installation............................................................................................................................................37
Wiring NACs and IDCs for Class A ....................................................................................................38
2.7.2: 4XTMF Option Module ....................................................................................................................39
4XTMF Transmitter Module Installation.............................................................................................39
2.7.3: ANN-SEC Option Card.....................................................................................................................40
2.8: ANN-BUS Devices......................................................................................................................................41
Guidelines.............................................................................................................................................41
2.8.1: ANN-BUS Wiring.............................................................................................................................41
Calculating Wiring Distance for ANN-BUS Modules.........................................................................41
Wiring Configuration ...........................................................................................................................44
Powering ANN-BUS Devices from Auxiliary Power Supply .............................................................45
2.8.2: ANN-BUS Device Addressing..........................................................................................................45
2.8.3: ANN-80(C) Remote Fire Annunciator/Indicator ..............................................................................46
Specifications .......................................................................................................................................46
Installation............................................................................................................................................46
Opening/Closing Annunciator..............................................................................................................46
Mounting ..............................................................................................................................................47
Wiring ANN-80 to FACP.....................................................................................................................47
2.8.4: ANN-S/PG Serial/Parallel Printer Interface Installation...................................................................48
Specifications .......................................................................................................................................49
PRN-6F Printer Installation..................................................................................................................49
2.8.5: ANN-I/O LED Driver Module..........................................................................................................51
ANN-I/O Board Layout........................................................................................................................51
Specifications .......................................................................................................................................51
ANN-I/O Connection to FACP ............................................................................................................52
ANN-I/O Module LED Wiring ............................................................................................................52
2.8.6: ANN-LED Annunciator Module.......................................................................................................53
Specifications .......................................................................................................................................53

Table of Contents
6MS-5UD & MS-10UD Series Manual — P/N 52626:C4 3/7/2014
Mounting/Installation ...........................................................................................................................54
ANN-LED Board Layout and Connection to FACP............................................................................54
2.8.7: ANN-RLY Relay Module..................................................................................................................54
Specifications........................................................................................................................................54
Mounting/Installation ...........................................................................................................................55
ANN-RLY Board Layout and Connection to FACP............................................................................56
2.9: ANN-BUS Audio Panel...............................................................................................................................56
Section 3: Programming ........................................................................................................58
3.1: User Programming.......................................................................................................................................58
3.2: Initial Power-up............................................................................................................................................59
3.3: Programming Screens Description ..............................................................................................................59
3.4: Programming and Passwords.......................................................................................................................60
3.5: Master Programming Level .........................................................................................................................61
3.5.1: Input Zones........................................................................................................................................61
3.5.2: NAC (Notification Appliance Circuit) ..............................................................................................66
Enabled .................................................................................................................................................66
NAC Coding.........................................................................................................................................67
Silence...................................................................................................................................................68
Auto Silence..........................................................................................................................................69
Silence Inhibited...................................................................................................................................69
3.5.3: Relays ................................................................................................................................................69
3.5.4: System Setup .....................................................................................................................................69
Timers...................................................................................................................................................70
Banner...................................................................................................................................................72
Time-Date.............................................................................................................................................72
Trouble Reminder.................................................................................................................................74
Canadian Option...................................................................................................................................74
Charger Disable....................................................................................................................................74
3.5.5: Option Modules ................................................................................................................................75
ANN-BUS.............................................................................................................................................75
ANN-RLY Options Screen...................................................................................................................78
ANN-AUDIO Options Screen..............................................................................................................79
ANN-SEC Enable.................................................................................................................................79
Onboard DACT ....................................................................................................................................79
3.5.6: History ...............................................................................................................................................90
View Events..........................................................................................................................................90
Erase History ........................................................................................................................................91
3.5.7: Walktest.............................................................................................................................................91
3.5.8: Clear Program....................................................................................................................................92
Printer/PC .............................................................................................................................................92
3.5.9: Password Change...............................................................................................................................92
3.6: Maintenance Programming Level................................................................................................................93
3.6.1: Input Zones - Enable/Disable ............................................................................................................93
3.6.2: History ...............................................................................................................................................94
3.6.3: Walktest.............................................................................................................................................94
3.6.4: Time-Date..........................................................................................................................................95
Section 4: Operating Instructions.........................................................................................96
4.1: Panel Control Buttons..................................................................................................................................96
4.1.1: Acknowledge/Step.............................................................................................................................96
4.1.2: Alarm Silenced ..................................................................................................................................96
4.1.3: Drill/Hold 2 Sec.................................................................................................................................96
4.1.4: Reset ..................................................................................................................................................96
4.2: LED Indicators.............................................................................................................................................96
4.3: Normal Operation ........................................................................................................................................97
4.4: Trouble Operation........................................................................................................................................97
4.5: Alarm Operation ..........................................................................................................................................99

Table of Contents
MS-5UD & MS-10UD Series Manual — P/N 52626:C4 3/7/2014 7
4.6: Supervisory Operation.................................................................................................................................99
4.7: Process Monitor Operation........................................................................................................................100
4.8: Hazard/Tornado Condition Operation .......................................................................................................100
4.9: Medical Alert Condition Operation...........................................................................................................101
4.10: Disable/Enable Operation........................................................................................................................101
4.11: Waterflow Circuits Operation..................................................................................................................101
4.12: Detector Functions...................................................................................................................................102
4.13: Time Functions: Real-Time Clock...........................................................................................................102
4.14: Coded Operation......................................................................................................................................102
4.15: Presignal ..................................................................................................................................................102
4.16: Positive Alarm Sequence.........................................................................................................................103
4.17: Special System Timers.............................................................................................................................103
4.17.1: Silence Inhibit Timer.....................................................................................................................103
4.17.2: Autosilence Timer .........................................................................................................................103
4.17.3: Trouble Reminder..........................................................................................................................103
4.17.4: Waterflow Retard Timer................................................................................................................104
4.17.5: Alarm Verification (None or One Minute)....................................................................................104
4.18: Walktest ...................................................................................................................................................104
4.19: Read Status ..............................................................................................................................................105
4.19.1: Input Zones....................................................................................................................................105
4.19.2: NAC...............................................................................................................................................106
4.19.3: Relays ............................................................................................................................................106
4.19.4: System Settings .............................................................................................................................107
4.19.5: Timers............................................................................................................................................107
4.19.6: Daylight Savings ...........................................................................................................................107
4.19.7: History ...........................................................................................................................................107
4.19.8: Print ...............................................................................................................................................107
4.19.9: ANN-BUS .....................................................................................................................................108
4.19.10: Central Station.............................................................................................................................108
4.19.11: Phone Line...................................................................................................................................109
4.19.12: Service Terminal..........................................................................................................................109
Section 5: Central Station Communications......................................................................110
5.1: Transmittal Priorities .................................................................................................................................111
Section 6: Local/Remote Site Upload/Download...............................................................113
6.1: Remote Download .....................................................................................................................................113
6.2: Transferring a Program..............................................................................................................................114
6.2.1: Security Features .............................................................................................................................114
Section 7: Power Supply Calculations................................................................................116
7.1: Overview....................................................................................................................................................116
7.2: Calculating the AC Branch Circuit............................................................................................................116
7.3: Calculating the System Current Draw.......................................................................................................117
7.3.1: Overview .........................................................................................................................................117
7.3.2: How to Use Table 7.3 on page 118 to Calculate System Current Draw .........................................117
7.4: Calculating the Battery Size ......................................................................................................................119
7.4.1: NFPA Battery Requirements...........................................................................................................119
7.4.2: Selecting and Locating Batteries.....................................................................................................119
Appendix A: Ademco Contact ID Format Event Code Descriptions................................120
A.1: Transmission Format Between DACT and Receiver................................................................................120
A.2: Ademco Contact ID Typical Printout .......................................................................................................120
Appendix B: NFPA Standard-Specific Requirements .......................................................125
B.1: Central Station/Remote Station Transmitter: Connection to FACP Dry Contacts....................................130

Table of Contents
8MS-5UD & MS-10UD Series Manual — P/N 52626:C4 3/7/2014
Appendix C: FACP with Keltron..........................................................................................131
Appendix D: Wire Requirements.........................................................................................132
D.1: MS-5UD-3(E) & MS-10UD-3(E) NAC Wiring .......................................................................................132
D.2: MS-5UD-7(C/E) & MS-10UD-7(C/E) NAC Wiring................................................................................133
Appendix E: Default Programming .....................................................................................134
Appendix F: Canadian Application .....................................................................................136
F.1: ANN-LED Annunciator Installation for Canadian Applications...............................................................136
Index ......................................................................................................................................138

MS-5UD & MS-10UD Series Manual — P/N 52626:C4 3/7/2014 9
It is imperative that the installer understand the requirements of the Authority Having Jurisdiction
(AHJ) and be familiar with the standards set forth by the following regulatory agencies:
• Underwriters Laboratories/Underwriters Laboratories Canada
• National Fire Protection Association
NFPA Standards
This Fire Alarm Control Panel complies with the following NFPA Standards:
NFPA 72 National Fire Alarm Code for Local Fire Alarm Systems and Remote Station
Fire Alarm Systems (requires an optional Remote Station Output Module)
Underwriters Laboratories Documents for Reference:
UL 38 Manually Actuated Signaling Boxes
UL 217 Smoke Detectors, Single and Multiple Station
UL 228 Door Closers–Holders for Fire Protective Signaling Systems
UL 268 Smoke Detectors for Fire Protective Signaling Systems
UL 268A Smoke Detectors for Duct Applications
UL 346 Waterflow Indicators for Fire Protective Signaling Systems
UL 464 Audible Signaling Appliances
UL 521 Heat Detectors for Fire Protective Signaling Systems
UL 864 Standard for Control Units for Fire Protective Signaling Systems
UL 1481 Power Supplies for Fire Protective Signaling Systems
UL 1638 Visual Signaling Appliances
UL 1971 Signaling Devices for Hearing Impaired
UL 2017 General-Purpose Signaling Devices and Systems
CAN/ULC - S524-01 Standard for Installation of Fire Alarm Systems
CAN/ULC - S559 Standard for Equipment for Fire Signal Receiving Centers and
Systems
This Class (A) digital apparatus complies with Canadian ICES-003.
Cet appareil numérique de la classe (A) est conforme à la norme NMB-003 du Canada.
Other:
Canadian Electrical Code, Part I
NEC Article 250 Grounding
NEC Article 300 Wiring Methods
NEC Article 760 Fire Protective Signaling Systems
Applicable Local and State Building Codes
Requirements of the Local Authority Having Jurisdiction (LAHJ)
Fire•Lite Documents
Fire•Lite Device Compatibility Document Document #15384
CHG-120F Battery Charger Manual Document #50888
CHG-75 Battery Charger Manual Document #51315
411UD Manual Document #50759
411UDAC Manual Document #51073
ANN-80 Product Installation Doc. Document #52749
ANN-(R)LED Product Installation Doc. Document #53032
ANN-I/O Product Installation Doc. Document #151416
ANN-RLY Product Installation Doc. Document #53033
ANN-S/PG Product Installation Doc. Document #151417
ACC-25/50 Series Audio Panel Document #51889
This product has been certified to comply with the requirements in the Standard for Control Units and Accessories for Fire
Alarm Systems, UL 864, 9th Edition. Operation of this product with products not tested for UL 864, 9th Edition has not
been evaluated. Such operation requires the approval of the local Authority Having Jurisdiction (AHJ).
Before proceeding, the installer should be familiar with the following documents.

10 MS-5UD & MS-10UD Series Manual — P/N 52626:C4 3/7/2014
MS-5UD Series Main Circuit Board
SW1
Dummy load all unused circuits
with 4.7K, ½ watt End-of-Line
resistors
Style Z (Class A) NAC
Style D (Class A) IDC
Class A Converter Module
3 Programmable Relays
Nonsupervised relay contacts
Contact Ratings
2.0 amps @ 30 VDC (resistive)
0.5 amp @ 30 VAC (resistive)
Contacts shown below in normal
condition (AC power with no alarm,
trouble, or supervisory activity)
A Fail Safe Trouble relay switches
to the NC position during trouble
conditions and under loss of all
power.
(*Factory default relay
programming)
Alarm* Trouble* Supervisory*
Remote
Synchronization
Output (see note 2)
Special Application
Power
24 VDC filtered,
supervised, and power-
limited. 0.040 amp
maximum. Requires
4.7K ohm ELR.
Notes:
1. MS-5UD-3(E) = 2.5 amps max. per NAC
MS-5UD-7(C/E)= 3 amps max. per NAC
2. Remote Sync Output is required only for
the MS-5UD-3(E): Refer to “Remote
Synchronization Output” on page 34.
3. 18 Amp Hour max. for MS-5UD-3(E)
26 Amp Hour max. for MS-5UD-7(E)
18 Amp Hour max. for MS-5UD-7C
Class A Converter Module
Remove jumper JP43 to
disable Ground Fault
Detection circuit (only with
approval of AHJ)
Cut this jumper to supervise
the 4XTMF module when
installed (see J4 & J5)
Cut this jumper to
enable Supervisory
Relay when 4XTMF
module is installed
Auxiliary
Trouble Input
Kiss-off LED
Secondary Phone
Active LED
Primary Phone
Active LED
Primary Secondary
ANN-SEC
option card connector
USB port for local programming using a
personal computer and PK-5X Utility
DACT Phone Line Jacks
Nonpower-Limited
Battery (see note 3)
24 VDC, supervised,
nonpower-limited
Basic System Connections
5-Zone Panel
Power Supply Connector
For more specific UL wiring
information, refer to page 35.
Important! Removing Ground Fault Disable
Jumper JP43 voids UL/NFPA Style/Class
indentifications for circuits. Remove jumper
JP43 only with the approval of the local AHJ
(Authority Having Jurisdiction).
Special Application
DC Power Outputs 24 VDC)
Nonsupervised, power-limited circuits
Supervise with a power supervision relay
EOLR-1
Resettable Power - 24 VDC filtered,
power-limited (0.5 amp maximum) to
smoke detectors (IDC). Supervision
required.
Nonresettable or Resettable Power
Jumper selectable by JP31, 24 VDC
filtered, power-limited (0.5 amp maximum).
Supervision required. Nonresettable
Power suitable for powering smoke
detectors.
Configure TB9, Terminals 1 & 2 as
Resettable or Nonresettable Power.
• Resettable Power - jumper JP31 pins 2
& 3
• Nonresettable Power - jumper JP31 pins
1 & 2 (as shown)
4
3
2
1
{
{
Notification Appliance Circuits (see note 1)
Special Application Power
NAC #1, #2, #3, & #4, Style Y (Class B) (Supervised, Power-
Limited) (See Style Z illustrated near right edge of board.)
4.7Kohm, ½ watt End-of-Line Resistor
PN 71252
NAC #1 NAC #2 NAC #3 NAC #4
Special Application
Power
IDCs 1 through 5, Style B
(Class B) (Supervised,
Power-Limited) (See
Style D illustrated near
right edge of board.)
4.7Kohm, ½ watt End-of-
Line Resistor
PN 71252
Initiating Device Circuits
Push switch down to
upgrade software
ms-5udlayout.wmf

MS-5UD & MS-10UD Series Manual — P/N 52626:C4 3/7/2014 11
MS-10UD Series Main Circuit Board
466
4
TB6
ZONE
6ZONE
7ZONE
8
ZONE
9
ZONE
10
SW1
T
B
4
/
T
B
6
1
/
6
2
/
7
3
/
8
5
/
1
0
4
/
9
Notes:
1. MS-10UD-3(E) = 2.5 amps max. per NAC
MS-10UD-7(C/E) = 3 amps max. per
NAC
2. Remote Sync Output is required only for
the MS-10UD-3(E): refer to “Remote
Synchronization Output” on page 34.
3. 18 Amp Hour max. for MS-10UD-3(E)
26 Amp Hour max. for MS-10UD-7(E)
18 Amp Hour max. for MS-10UD-7C
Dummy load all unused circuits
with 4.7K, ½ watt End-of-Line
resistors
Style Z (Class A) NAC
Style D (Class A) IDC
Class A Converter Module
3 Programmable Relays
Nonsupervised relay contacts
Contact Ratings
2.0 amps @ 30 VDC (resistive)
0.5 amp @ 30 VAC (resistive)
Contacts shown below in normal
condition (AC power with no alarm,
trouble, or supervisory activity)
A Fail Safe Trouble relay switches to
the NC position during trouble
conditions and under loss of all
power.
(*Factory default relay programming)
Alarm* Trouble* Supervisory*
Remote
Synchronization
Output (see note 2)
Special Application Power
24 VDC filtered, supervised,
and power-limited. 0.040 amp
maximum. Requires 4.7K
ohm ELR.
Class A Converter Module
Remove jumper JP43 to
disable Ground Fault
Detection circuit (only with
approval of AHJ)
Cut this jumper to supervise
the 4XTMF module when
installed (see J4 & J5)
Cut this jumper to
enable Supervisory
Relay when 4XTMF
module is installed
Auxiliary
Trouble Input
Kiss-off LED
Secondary Phone
Active LED
Primary Phone
Active LED
Primary Secondary
ANN-SEC
option card connector
USB port for local programming using a
personal computer and PK-5X Utility
DACT Phone Line Jacks
Nonpower-Limited
Battery (see note 3)
24 VDC, supervised,
nonpower-limited
Basic System Connections
10-Zone Panel
Power Supply Connector
For more specific UL wiring
information, refer to page 35.
Important! Removing Ground Fault Disable
Jumper JP43 voids UL/NFPA Style/Class
indentifications for circuits. Remove jumper
JP43 only with the approval of the local AHJ
(Authority Having Jurisdiction).
Special Application
DC Power Outputs 24 VDC)
Nonsupervised, power-limited circuits
Supervise with a power supervision relay
EOLR-1
Resettable Power - 24 VDC filtered,
power-limited (0.5 amp maximum) to
smoke detectors (IDC). Supervision
required.
Nonresettable or Resettable Power
Jumper selectable by JP31, 24 VDC
filtered, power-limited (0.5 amp maximum).
Supervision required. Nonresettable
Power suitable for powering smoke
detectors.
Configure TB9, Terminals 1 & 2 as
Resettable or Nonresettable Power.
• Resettable Power - jumper JP31 pins 2
& 3
• Nonresettable Power - jumper JP31 pins
1 & 2 (as shown)
4
3
2
1
{
{
Notification Appliance Circuits (see note 1)
Special Application Power
NAC #1, #2, #3, & #4, Style Y (Class B) (Supervised, Power-
Limited) (See Style Z illustrated near right edge of board.)
4.7Kohm, ½ watt End-of-Line Resistor
PN 71252
NAC #1 NAC #2 NAC #3 NAC #4
Special Application
Power
IDCs 1 through 5, Style B
(Class B) (Supervised,
Power-Limited) (See
Style D illustrated near
right edge of board.)
4.7Kohm, ½ watt End-of-
Line Resistor
PN 71252
Initiating Device Circuits
Push switch down to
upgrade software
Special Application Power
IDCs 1 through 5, Style B
(Class B) (Supervised, Power-
Limited) (See Style D
illustrated near right edge of
board.)
4.7Kohm, ½ watt End-of-Line
Resistor
PN 71252
Initiating Device Circuits
ms-10udlayout.wmf

12 MS-5UD & MS-10UD Series Manual — P/N 52626:C4 3/7/2014
-
+
-
+
JP1
JP3
SW1
JP4
TB3
TB4
TB2
ENABLE
AC DELAY
16 HR
DELAY
TENS
ONES
CUT FOR
240VAC
GND FLT
DISABLE
AM-1 ENABLE
ADDRESS
ON OFF
AM-1
JP5
JP2
F1 F2
J4
J1 J2 J3
F3
TB1
HOT
OUT
+
BAT
+ OUT
-
BAT
-
EARTH
NEUT
1
5
1
5
A- B- A+ B+
NC NO C
0
4
3
9
2
6
1
5
7
8
12
13
15
14
10
11
0
4
3
9
2
6
1
5
7
8
12
13
15
14
10
11
TB1
TBL
J1
J2
7 6 5 1
POWER LIMITED
Sw1
P1
P2 P3 P4
110
11 20 21 30 31 40
1
2
3
4
5
ALARM
TROUBLE
FIRE ALARM ANNUNCIATOR
A
C
K
S
T
E
P
TB1
J1
SW1
JP2
ANN-BUS
1 2 3 4 5 6 7 8
TB6
TB3
TB5
TB4
TB2
Alarm
Silenced
Earth
Fault
ZONE 1
ALM
TBL
SUP
1
ZONE 6
ALM
TBL
SUP
6
NAC 1
Fault
Battery
Fault
ZONE 2
ALM
TBL
SUP
2
ZONE 7
ALM
TBL
SUP
7
NAC2
Fault
Charger
Fault
ZONE 3
ALM
TBL
SUP
3
ZONE 8
ALM
TBL
SUP
8
FIRE ALARM ANN UNCIATOR
NAC 4
Fault
ZONE 5
ALM
TBL
SUP
5
ALM
TBL
SUP
NAC 3
Fault
Disabled
ZONE 4
ALM
TBL
SUP
4
ZONE 9
ALM
TBL
SUP
9
F
R
O
M
A
P
P
H
O
N
E
P
S
T
N
T
O
A
P
O
U
T
N
C
O
U
T
N
O
I
N
P
U
T
T
A
M
P
E
R
G
N
D
+
1
2
/
2
4
V
P
4
C
N
2
P
5
P
6
P
7
P
8
P
9
P
1
0
P
1
1
P
1
2
CHG-120 Charger
Doc. #
ANN-BUS - TB3
Battery Connector - J12
510udperi.wmf
ANN-80(C)
LCD Text Annunciator/Indicator
Doc. #
ANN-I/O
LED Driver
Doc. #
ANN-S/PG
Printer Driver
Doc. #
CHG-75 Charger
Doc. # 51315
ANN-(R)LED
LED Display
Doc. #
ANN-RLY
10 Form-C Relay Card
Doc. #
4XTM
Reverse Polarity Module
J4 & J5
IPDACT
Internet Communicator
Doc. #53109
J8 & J9 Telephone Connections
USB Local PC
MS-5UD & MS-10UD Series Manual — P/N 52626:C4 3/7/2014 13
Section 1: Product Description
The MS-5UD is a five zone FACP (Fire Alarm Control Panel) and the MS-10UD is a ten zone
FACP. The information in this manual refers to both the MS-5UD and MS-10UD unless otherwise
specified. The combination control and digital communicator panels provide reliable fire signaling
protection for small to medium sized commercial, industrial and institutional buildings. The FACP
is compatible with System Sensor’s i3 detectors which are conventional smoke detectors that can
transmit a maintenance trouble signal to the FACP indicating the need for cleaning and a supervi-
sory ‘freeze’ signal when the ambient temperature falls below the detector rating of approximately
45o F (refer to System Sensor i3 Installation and Maintenance Instructions). In addition, the control
panel is compatible with conventional input devices such as two-wire smoke detectors, four-wire
smoke detectors, pull stations, waterflow devices, tamper switches and other normally-open contact
devices. Refer to the Fire•Lite Device Compatibility Document for a complete listing of compati-
ble devices.
Outputs include four NACs (Notification Appliance Circuits), three programmable Form-C relays
(factory programmed for Alarm, Trouble and Supervisory) and 24 VDC special application reset-
table and nonresettable power outputs. The FACP supervises all wiring, AC voltage, battery level
and telephone line integrity. Available accessories include local and remote upload/download soft-
ware, remote annunciators and reverse polarity/city box transmitter.
The integral DACT transmits system status (alarms, troubles, AC loss, etc.) to a Central Station via
the public switched telephone network. It also allows remote programming or interrogation of the
control panel using the PS-Tools Upload/Download utility via the public switched telephone net-
work. Local programming interrogation is also possible using the PS-Tools and the USB port on
the FACP. Any personal computer with Windows® XP or newer, compatible modem with a speed
of 2400 baud and PS-Tools may serve as a Service Terminal. This allows download of the entire
program or upload of the entire program, history file, walktest data and current status.
Activation of a compatible smoke detector or any normally-open fire alarm initiating device will
activate audible and visual signaling devices, illuminate an indicating LED, display alarm informa-
tion on the panel’s LCD, sound the piezo sounder at the FACP, activate the FACP alarm relay and
operate an optional module used to notify a remote station or initiate an auxiliary control function.

14 MS-5UD & MS-10UD Series Manual — P/N 52626:C4 3/7/2014
Product Description Product Features
The following versions of the MS-5UD and MS-10UD are available:
1.1 Product Features
• Built-in DACT (Digital Alarm Communicator/Transmitter)
• Style B (Class B) IDC (Initiating Device Circuit)
MS-5UD - five programmable IDCs
MS-10UD - ten programmable IDCs
• Four Style Y (Class B) NAC (Notification Appliance Circuit) -
special application power
• Three programmable Form-C relays
• Built-in Programmer
• Touchtone/Rotary dialing
• Programmable Make/Break Ratio
• Optional Dress Panel: DP-51050
• A modified Dress Panel is provided standard with Canadian models: includes an ANN-LED
Annunciator module
• Optional Trim Ring TR-CE (red) for semi-flush mounting the cabinet
• ANN-BUS for connection to optional:
ANN-80 Remote LCD Annunciator
ANN-I/O LED Driver
ANN-S/PG Printer Module
FACP Version Description
MS-5UD-3 Five Zone Panel: 120 VAC with FLPS-3 power supply providing 3.0 amps total 24
VDC output current
MS-5UD-7 Five Zone Panel: 120 VAC with FLPS-7 power supply providing 7.0 amps total 24
VDC output current
MS-5UD-7C Five Zone Panel: 120 VAC with FLPS-7 power supply providing 7.0 amps total 24
VDC output current. Includes built-in ANN-LED Annunciator. This panel is approved
for Canadian applications
MS-5UD-3E Five Zone Panel: 240 VAC with FLPS-3 power supply providing 3.0 amps total 24
VDC output current
MS-5UD-7E Five Zone Panel: 240 VAC with FLPS-7 power supply providing 7.0 amps total 24
VDC output current
MS-10UD-3 Ten Zone Panel: 120 VAC with FLPS-3 power supply providing 3.0 amps total 24
VDC output current
MS-10UD-3E Ten Zone Panel: 240 VAC with FLPS-3 power supply providing 3.0 amps total 24
VDC output current
MS-10UD-7 Ten Zone Panel: 120 VAC with FLPS-7 power supply providing 7.0 amps total 24
VDC output current
MS-10UD-7C Ten Zone Panel: 120 VAC with FLPS-7 power supply providing 7.0 amps total 24
VDC output current. Includes built-in ANN-LED Annunciator. This panel is approved
for Canadian applications.
MS-10UD-7E Ten Zone Panel: 240 VAC with FLPS-7 power supply providing 7.0 amps total 24
VDC output current
NOTE: Unless otherwise specified, the information in this manual applies to all versions of the
panels.

MS-5UD & MS-10UD Series Manual — P/N 52626:C4 3/7/2014 15
Specifications Product Description
ANN-RLY Relay Module
ANN-LED Annunciator Module
• 80-character LCD display (backlit)
• Real-time clock/calendar with daylight savings time control
• History log with 256 event storage
• Control Buttons
ACK (Acknowledge)
Alarm Silence
System Reset/Lamp Test
Drill
• LED Indicators
Fire Alarm
Supervisory
Trouble
AC Power
Alarm Silence
Primary and Secondary Phone Line Active LEDs
• Piezo sounder for alarm, trouble and supervisory
• 24 volt operation
• Low AC voltage sense
• Alarm Verification
• NACs Programmable for:
Silence Inhibit
Auto-Silence
Strobe Synchronization (System Sensor, Wheelock, Gentex, Faraday, Amseco)
Selective Silence (horn-strobe mute)
Temporal or Steady Signal
Silenceable or Nonsilenceable
• Automatic battery charger with charger supervision
• Silent or audible walktest capabilities
• Optional PK-CD (contains PS-Tools utility) for local or remote Upload/Download of program
and data
• Optional CAC-5X Class A Converter Module for NACs and IDCs
• Optional 4XTMF Transmitter Module
• Optional ANN-SEC card for a secondary ANN-BUS
1.2 Specifications
AC Power
MS-5UD-3 (FLPS-3 Power Supply): 120 VAC, 60 HZ, 1.00 amps
MS-5UD-7 (FLPS-7 Power Supply): 120 VAC, 60 HZ, 3.90 amps
MS-5UD-7C (FLPS-7 Power Supply): 120 VAC, 60 HZ, 3.90 amps
MS-10UD-3 (FLPS-3 Power Supply): 120 VAC, 60 HZ, 1.00 amps
MS-10UD-7 (FLPS-7 Power Supply): 120 VAC, 60 HZ, 3.90 amps
MS-10UD-7C (FLPS-7 Power Supply): 120 VAC, 60 HZ, 3.90 amps
NOTE: For wiring specifications, refer to“Wire Requirements” on page 132.

16 MS-5UD & MS-10UD Series Manual — P/N 52626:C4 3/7/2014
Product Description Specifications
MS-5UD-3E (FLPS-3 Power Supply): 240 VAC, 50 HZ, 0.54 amps
MS-5UD-7E (FLPS-7 Power Supply): 240 VAC, 50 HZ, 2.20 amps
MS-10UD-3E (FLPS-3 Power Supply): 240 VAC, 50 HZ, 0.54 amps
MS-10UD-7E (FLPS-7 Power Supply): 240 VAC, 50 HZ, 2.20 amps
Wire size: minimum #14 AWG (2.0 mm2) with 600V insulation
Supervised, nonpower-limited
Battery (sealed lead acid only) - J12
Maximum Charging Circuit - Normal Flat Charge: 27.6 VDC @ 1.4 amp
Supervised, nonpower-limited
Maximum Charger Capacity: 18 Amp Hour battery for MS-5UD-3(E), MS-5UD-7C, MS-10UD-
3(E), and MS-10UD-7C, and 26 Amp Hour battery for MS-5UD-7(E) and MS-10UD-7(E) [two 18
Amp Hour batteries can be housed in FACP cabinet. Larger batteries require a separate battery box
such as the BB-26 or BB-55F and the CHG-75 or CHG-120F Battery Charger.]
Minimum Battery Size: 7 Amp Hour (12 Amp Hour for MS-5UD-7C & MS-10UD-7C)
Initiating Device Circuits - TB4 (and TB6 on MS-10UD only)
Alarm Zones 1 - 5 on TB 4 (MS-5UD and MS-10UD)
Alarm Zones 6 - 10 on TB6 (MS-10UD only)
Supervised and power-limited circuitry
Operation: All zones Style B (Class B)
Normal Operating Voltage: Nominal 20 VDC
Alarm Current: 15 mA minimum
Short Circuit Current: 40 mA max.
Maximum Loop Resistance: 100 ohms (700 ohms per zone for linear heat detection - See
Section 2.3, “Input Circuits” for more information.)
End-of-Line Resistor: 4.7K, 1/2 watt (Part #71252)
Standby Current: 2 mA
Refer to the Fire•Lite Device Compatibility Document for listed compatible devices
Notification Appliance Circuit(s) - TB5 and TB7
Four NACs
Operation: Style Y (Class B)
Special Application power
Supervised and power-limited circuitry
Normal Operating Voltage: Nominal 24 VDC
Maximum Signaling Current: 3.0 amps for MS-5UD-3(E), MS-10UD-3(E) (2.5 amp maximum per
NAC); 7.0 amps for MS-5UD-7(E), MS-10UD-7(E) (3.0 amps maximum per NAC)
End-of-Line Resistor: 4.7K, 1/2 watt (Part #71252)
Refer to the Fire•Lite Device Compatibility Document for compatible listed devices
Form-C Relays - Programmable - TB8
Relay 1 (factory default programmed as Alarm Relay)
Relay 2 (factory default programmed as fail-safe Trouble Relay)
Relay 3 (factory default programmed as Supervisory Relay)
Relay Contact Ratings: 2 amps @ 30 VDC (resistive), 0.5 amps @ 30 VAC (resistive)
Special Application Resettable Power - TB9
Operating Voltage: Nominal 24 VDC
Maximum Available Current: 500 mA - appropriate for powering 4-wire smoke detectors
Power-limited Circuitry
Refer to the Fire•Lite Device Compatibility Document for compatible listed devices

MS-5UD & MS-10UD Series Manual — P/N 52626:C4 3/7/2014 17
Specifications Product Description
Special Application Resettable or Nonresettable Power - TB9
Operating Voltage: Nominal 24 VDC
Maximum Available Current: 500 mA
Power-limited Circuitry
Jumper selectable by JP31 for resettable or nonresettable power:
Jumper pins 1 & 2 on JP31 for nonresettable power
Jumper pins 2 & 3 on JP31 for resettable power
Refer to the Fire•Lite Device Compatibility Document for compatible listed devices
Special Application Primary ANN-BUS Power - TB3
Operating voltage: Nominal 24 VDC
Maximum Available Current: 500mA
Power-limited circuit
Special Application Secondary ANN-BUS Power - ANN-SEC - TB1
Operating voltage: Nominal 24 VDC
Maximum Available Current: 500mA
Power-limited circuit
Remote Sync Output - TB2
Remote power supply synchronization output, only required for the MS-5UD-3(E), MS-10UD-
3(E) (refer to“Remote Synchronization Output” on page 34)
24 VDC nominal special application power
Maximum current is 40 mA
End-of-Line Resistor: 4.7K
Supervised and power-limited circuit
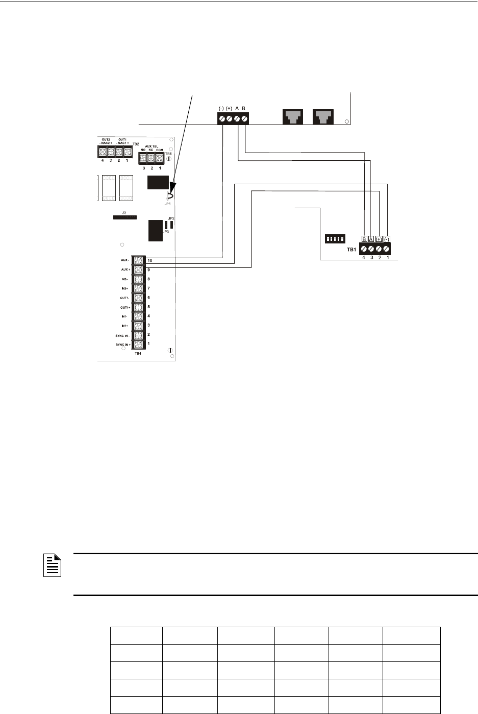
Auxiliary Trouble Input - J6
The Auxiliary Trouble Input is an open collector circuit which can be used to monitor an external
device for trouble conditions. It can be connected to the trouble bus of a peripheral, such as a
power supply, which is compatible with open collector circuits.
All connections must be in conduit, less than 20 ft. (610 cm) in length in the same room.

18 MS-5UD & MS-10UD Series Manual — P/N 52626:C4 3/7/2014
Product Description Specifications
The following figure illustrates the maximum current that is possible for each major panel output
circuit and the total current available from the FACP with the FLPS-3 power supply. This applies
to the MS-5UD-3, MS-10UD-3, MS-5UD-3E, and MS-10UD-3E.
TB9
TB5
TB7
TB3
TB2
TB1
Figure 1.1 Current Availability with FACP and FLPS-3 Power Supply
powerdist510.wmf
Refer to the battery calculations section for additional information.
Standby
1.0 amp max
per panel
Special Application
Nonresettable or
Resettable Power
Special Application
Resettable Power
NAC #1
NAC #2
NAC #3
NAC #4
0.5 amp max
per circuit
0.5 amp max
per circuit
2.5 amps max
per circuit
2.5 amps max
per circuit
2.5 amps max
per circuit
2.5 amps max
per circuit Alarm
3.0 amps
max
per panel
Primary
ANN-BUS
Standby
1.0 amp max
per panel
0.5 amp max
per circuit
Remote
Synchronization
Output
0.040 amp max
per circuit
ANN-SEC
Option Card
0.5 amp max
per circuit

MS-5UD & MS-10UD Series Manual — P/N 52626:C4 3/7/2014 19
Specifications Product Description
The following figure illustrates the maximum current that is possible for each major panel output
circuit and the total current available from the FACP with the FLPS-7 power supply. This applies
to the MS-5UD-7, MS-5UD-7C, MS-10UD-7, MS-10UD-7C, MS-5UD-7E, and MS-10UD-7E.
TB9
TB5
TB7
TB3
TB1
Figure 1.2 Current Availability with FACP and FLPS-7 Power Supply
powerdistmrp.wmf
Refer to the battery calculations section for additional information.
Standby
1.0 amp max
per panel
Special Application
Nonresettable or
Resettable Power
Special Application
Resettable Power
NAC #1
NAC #2
NAC #3
NAC #4
0.5 amp max
per circuit
0.5 amp max
per circuit
3.0 amps max
per circuit
3.0 amps max
per circuit
3.0 amps max
per circuit
3.0 amps max
per circuit
Alarm
7.0 amps
max
per panel
Primary
ANN-BUS
Standby
1.0 amp max
per panel
0.5 amp max
per circuit
0.5 amp max
per circuit
ANN-SEC
Option Card

20 MS-5UD & MS-10UD Series Manual — P/N 52626:C4 3/7/2014
Product Description Controls and Indicators
1.3 Controls and Indicators
LCD Display
The FACP uses an 80-character (4 lines X 20 characters)
high viewing angle LCD display. The display includes a
long life LED backlight that remains illuminated. If AC
power is lost and the system is not in alarm, the LED back-
light will turn off to conserve batteries.
Key Panel
Mounted on the main circuit board, the key panel includes a window for the LCD display and LED
indicators as listed above. The key panel, which is visible with the cabinet door closed, has 25
keys, including a 16 key alpha-numeric pad similar to a telephone keypad.
Function keys:
• Acknowledge/Step
• Alarm Silence
• Drill
• System Reset (lamp test)
Service/program keys:
• Keys labeled 1 to 9
• * key
• # key
• 0 (recall) key
• 1st Event key
• Clear key
• Escape key
• Mode key
• Four cursor keys (up, down, left and right)
• Enter key
LED Indicators
LEDs are provided to annunciate the following conditions:
• Fire Alarm - red LED
• Supervisory - yellow LED
• AC Power - green LED
• System Trouble - yellow LED
• Alarm Silence - yellow LED
• Primary Phone Line Active (on circuit board) - red LED
• Secondary Phone Line Active (on circuit board) - red LED
• Kiss-off (on circuit board) - green LED
Local Piezo Sounder
A piezo sounder provides separate and distinct sounds for alarm, trouble, maintenance, process
monitor and supervisory conditions as follows:
• Alarm - on steady
• Trouble - pulse 1 second on and 1 second off
• Maintenance - pulse 1 second on and 1 second off
• Supervisory - pulse ½ second on and ½ second off
• Process Monitor - pulse ¼ second on and ¼ second off
SYSTEM ALL NORMAL
10:00A 012105
Figure 1.3 Membrane/Display Panel
9050udkypd.cdr

MS-5UD & MS-10UD Series Manual — P/N 52626:C4 3/7/2014 21
Digital Alarm Communicator/Transmitter Product Description
1.4 Digital Alarm Communicator/Transmitter
Two modular phone jacks allow easy connection to telephone lines. Modular jacks are labeled PH1
for Primary Phone Line and PH2 for Secondary Phone Line. Two telephone line active red LEDs
are provided as well as a green Kissoff LED. The integral digital communicator provides the fol-
lowing functions:
• Line Seizure: takes control of the phone lines disconnecting any premises phones
• Off/On Hook: performs on and off-hook status to the phone lines
• Listen for dial tone: 440 Hz tone typical in most networks
• Dialing the Central Station(s) number: default is Touch-Tone®, programmable to rotary
• For tone burst or touchtone type formats: discern proper Ack and Kissoff tone(s). The
frequency and time duration of the tone(s) varies with the transmission format. The control
panel will adjust accordingly.
• Communicate in the following formats:
Ademco Contact ID
SIA-DCS-8
SIA-DCS-20
1.5 Components
Main Circuit Board
The main circuit board contains the system’s CPU, DACT and other primary components and wir-
ing interface connectors. Optional modules plug in and are mounted to the main circuit board.
Power Supply
One power supply is provided standard with each FACP, mounted to a chassis.
• FLPS-3 for the MS-5UD-3(E), MS-10UD-3(E)
• FLPS-7 for the MS-5UD-7(C/E), MS-10UD-7(C/E)
Cabinet
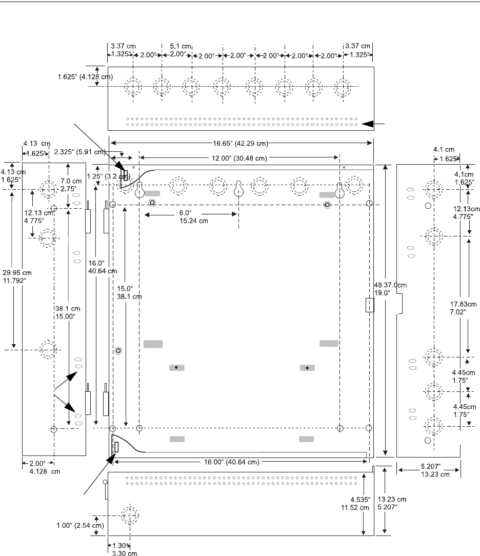
The backbox measures 16.65” (42.29 cm) x 19.0” (48.26 cm) x 5.207” (13.23 cm) and provides
space for two batteries (up to 18 Amp Hours). Also available are an optional dress panel (DP-
51050) which mounts inside the cabinet and trim-ring (TR-CE). The Canadian version is supplied
standard with a modified dress panel and one ANN-LED annunciator module.
Batteries
The cabinet provides space for two 18 Amp Hour batteries (larger batteries require use of a UL
listed battery box such as the BB-26 or BB-55). Batteries must be ordered separately.
1.6 Optional Modules and Accessories
CAC-5X Class A Converter Module
The CAC-5X Module can be used to convert the Style B (Class B) Initiating Device Circuits to
Style D (Class A) and Style Y (Class B) Notification Appliance Circuits to Style Z (Class A). The
module connects to J2 on the MS-5UD and MS-10UD main circuit board and to J7 on the MS-
10UD. Note that two Class A Converter modules are required for the 10 zone panel.
4XTMF Transmitter Module
The 4XTMF provides a supervised output for local energy municipal box transmitter and alarm and
trouble reverse polarity. It includes a disable switch and disable trouble LED. A module jumper
option allows the reverse polarity circuit to open with a system trouble condition if no alarm condi-
tion exists. The 4XTMF mounts to the main circuit board connectors J4 & J5.

22 MS-5UD & MS-10UD Series Manual — P/N 52626:C4 3/7/2014
Product Description Optional Modules and Accessories
ANN-80 LCD Annunciator
The ANN-80 is a remote LCD annunciator which mimics the information displayed on the FACP
LCD display and provides remote RESET, SILENCE, ACKNOWLEDGE, and DRILL.
ANN-80C LCD Indicator (Canadian applications)
The ANN-80C is a remote LCD indicator which mimics the information displayed on the FACP
LCD display but does not allow remote control of the FACP.
ANN-LED Annunciator Module
The ANN-LED Annunciator Module provides three LEDs for each zone: Alarm, Trouble and
Supervisory. ANN-LED module is installed in dress panel for Canadian version.
ANN-RLY Relay Module
The ANN-RLY Module, which can be mounted inside the cabinet, provides 10 Form-C relays.
ANN-S/PG Serial/Parallel Printer Gateway
The ANN-S/PG module provides a connection for a serial or parallel printer.
ANN-I/O LED Driver Module
The ANN-I/O module provides connections to a user supplied graphic annunciator.
ANN-SEC Secondary ANN-BUS Module
The ANN-SEC module provides another ANN-BUS port for more wiring flexibility and for Cana-
dian applications requiring remote annunciation.
DP-51050 Dress Panel
A dress panel DP-51050 is available as an option. The dress panel restricts access to the system
wiring while allowing access to the membrane switch panel. The Canadian version is supplied
standard with a modified dress panel.
TR-CE Trim-ring
A trim-ring TR-CE is available as an option. The trim-ring allows semi-flush mounting of the cab-
inet.
Battery Box
The BB-26 or BB-55F battery box may be used to house two batteries greater than 18 Amp Hour.
The battery box mounts directly below the control panel cabinet, centered to the main circuit board.
Battery Charger
CHG-75 Battery Charger
The CHG-75 is capable of charging up to 75 AH lead-acid batteries with the FACP. The FACP bat-
tery charger must be disabled, through software programming, when using the CHG-75. The char-
ger and up to 26 AH batteries can be housed in the BB-26 battery box. Larger batteries and the
charger can be housed in the BB-55F battery box which can be mounted up to 20 feet away from
the control panel. Refer to the CHG-75 Manual for additional information.
CHG-120F Battery Charger
The CHG-120F is capable of charging up to 120 AH lead-acid batteries with the FACP. The FACP
battery charger must be disabled, through software programming, when using the CHG-120F. The
batteries and charger can be housed in the BB-55F battery box which can be mounted up to 20 feet
away from the control panel. Note that when using a BB-55F for housing the charger and batteries
greater than 26AH, multiple BB-55Fs are required. Refer to the CHG-120F Manual for additional
information.

MS-5UD & MS-10UD Series Manual — P/N 52626:C4 3/7/2014 23
Telephone Requirements and Warnings Product Description
PS-Tools Programming Utility
The PS-Tools Programming Utility can be used to locally or remotely program the FACP directly
from most IBM compatible personal computers (PC), running Windows® XP (or newer). FACP
program files can also be created and stored on the PC and then downloaded later to the control
panel. The P/N: PK-CD includes the Windows-based Programming Utility software on CD-ROM
with on-line help file. A standard USB cable with male-A to male-B connectors, which must be
purchased separately, is required for local connection of the PC to the USB port J11 on the FACP
main circuit board. Remote programming requires that the PC have a 2400 baud (or faster)
modem.
Important: Remote modification of FACP programming requires that the panel be enabled for
remote download (refer to “Remote Download” on page 113). Remote interrogation of panel pro-
gramming, history logs, detector status, etc., is possible without enabling the remote download
option.
1.7 Telephone Requirements and Warnings
1.7.1 Telephone Circuitry
Ringer Equivalence Number (REN) = 0.0B
AC Impedance: 10.0 Mega Ohm
Complies with FCC Part 68
Mates with RJ31X Male Connector
Supervision Threshold: loss of phone line voltage for 2 minutes
The REN is used to determine the quantity of devices which may be connected to the telephone
line. Excessive RENs on the telephone line may result in the devices not ringing in response to an
incoming call. In most, but not all areas, the sum of the RENs should not exceed five (5.0). To be
certain of the number of devices that may be connected to the line as determined by the total RENs,
contact the telephone company to determine the maximum REN for the calling area.
1.7.2 Digital Communicator
Before connecting the control panel to the public switched telephone network, the installation of
two RJ31X jacks is necessary. If trouble is experienced with this equipment, for repair or warranty
information, please contact:
Manufacturer: Fire•Lite Alarms
One Fire-Lite Place
Northford, CT 06472
(203) 484-7161
Product Model Number: MS-5UD/MS-10UD
FCC Registration Number: 1W6AL00B10UD
Ringer Equivalence: 0.0B
Important! The DACT must not be used to dial a phone number that is call-forwarded.
This equipment complies with Part 68 of the FCC rules and the requirements adopted by
the ACTA. On the inside of the FACP door is a label that contains, among other
information, a product identifier in the format US:AAAEQ##TXXXX. If requested, this
number must be provided to the telephone company.
Alarm dialing equipment must be able to seize the telephone line and place a call in an emergency
situation. It must be able to do this even if other equipment (telephone, answering system, com-
puter modem, etc.) already has the telephone line in use. To do so, alarm dialing equipment must
be connected to a properly installed RJ31X jack that is electrically in series with and ahead of all
other equipment attached to the same telephone line. If there are any questions concerning these

24 MS-5UD & MS-10UD Series Manual — P/N 52626:C4 3/7/2014
Product Description Telephone Requirements and Warnings
instructions, consult the telephone company or a qualified installer about installing the RJ31X jack
and alarm dialing equipment. Refer to “Digital Communicator” on page 36 for an illustration of
the proper installation of this equipment.
1.7.3 Telephone Company Rights and Warnings
The telephone company, under certain circumstances, may temporarily discontinue services and/or
make changes in its facilities, services, equipment or procedures which may affect the operation of
this control panel. However, the telephone company is required to give advance notice of such
changes or interruptions.
If the control panel causes harm to the telephone network, the telephone company reserves the right
to temporarily discontinue service. Advance notification will be provided except in cases when
advance notice is not practical. In such cases, notification will be provided as soon as possible.
The opportunity will be given to correct any problems and to file a complaint with the FCC if you
believe it is necessary.
DO NOT CONNECT THIS PRODUCT TO COIN TELEPHONE, GROUND START, OR PARTY
LINE SERVICES.
When the control panel activates, premise phones will be disconnected.
Two separate phone lines are required. Do not connect both telephone interfaces to the same tele-
phone line.
The control panel must be connected to the public switched telephone network upstream (as first
device) of any private telephone system at the protected premises.
A plug and jack used to connect this equipment to the premises wiring and telephone network must
comply with the applicable FCC Part 68 rules and requirements adopted by ACTA. This equip-
ment is designed to be connected to the telephone network or premises wiring using a compliant
RJ31X male modular plug and compatible modular jack that is also compliant.
1.7.4 For Canadian Applications
The following is excerpted from CP-01 Issue 5:
NOTICE: The Industry Canada (IC) label identifies certified equipment. This certification means
that the equipment meets certain telecommunications network protective, operational and safety
requirements as prescribed in the appropriate Terminal Equipment Technical Requirements docu-
ment(s). The Department does not guarantee the equipment will operate to the users’s satisfaction.
Before installing this equipment, users should ensure that it is permissible to be connected to the
facilities of the local telecommunications company. The equipment must also be installed using an
acceptable method of connection. The customer should be aware that compliance with the above
conditions may not prevent degradation of service in some situations.
Repairs to certified equipment should be made by an authorized Canadian maintenance facility des-
ignated by the supplier. Any repairs or alterations made by the user to this equipment, or equip-
ment malfunctions, may give the telecommunications company cause to request the user to
disconnect the equipment.
Users should ensure, for their own protection, that the electrical ground connections of the power
utility, telephone lines and internal metallic water pipe system, if present, are connected together.
This precaution may be particularly important in rural areas.
CAUTION
Users should not attempt to make such connections themselves, but should contact the appropriate
electric inspections authority, or electrician.

MS-5UD & MS-10UD Series Manual — P/N 52626:C4 3/7/2014 25
Telephone Requirements and Warnings Product Description
“The Ringer Equivalence Number (REN) assigned to each terminal device provides an indication
of the maximum number of terminals allowed to be connected to a telephone interface. the termi-
nation of an interface may consist of any combination of devices subject only to the requirement
that the sum of the REN of all devices does not exceed 5.”
DOC Compliance - “This digital apparatus does not exceed the Class A limits for radio noise emis-
sions from digital apparatus set out in the Radio Interference Regulations of the Canadian Depart-
ment of Communications.”
Representative: NOTIFIER/FIRE•LITE, CANADA
10 Whitmore Road
Woodbridge, Ontario L4L7Z4
Phone: (905) 856-8733
FAX: (905) 856-9687
IC Certificate Number: 2132A-10UD
Ringer Equivalence Number (REN): 0.0B
Load Number: 2

26 MS-5UD & MS-10UD Series Manual — P/N 52626:C4 3/7/2014
Section 2: Installation
The cabinet can be surface mounted or semi-flush mounted. The door is removable during the
installation period by opening and lifting it off the hinges. The cabinet mounts using two key slots
at the top of the backbox and two additional securing holes located at the bottom.
Carefully unpack the system and check for shipping damage. Mount the cabinet in a clean, dry,
vibration-free area where extreme temperatures are not encountered. The area should be readily
accessible with sufficient room to easily install and maintain the panel. Locate the top of the cabi-
net approximately 5 feet (1.5 m) above the floor with the hinge mounting on the left. Determine the
number of conductors required for the devices to be installed. Sufficient knockouts are provided
for wiring convenience. Select the appropriate knockout(s) and pull the conductors into the box.
All wiring should be in accordance with the National and/or Local codes for fire alarm systems.
2.1 Backbox Mounting
To prevent damage to the circuit board and to facilitate backbox mounting, the chassis with main
circuit board and transformer can be easily removed. Loosen the two 3/8” nuts securing the top
flanges of the chassis, then slide the chassis up to free it from the lower tabs. Place the chassis
assembly in a protective antistatic bag in a safe location until it can be reinstalled in the backbox.
Mark and predrill hole in the wall for the center top keyhole mounting bolt using the
dimensions illustrated in Figure 2.2 on page 27.
Install center top fastener in the wall with the screw head protruding.
Place backbox over the top screw, level and secure.
Mark and drill the left and right upper and lower mounting holes.
Note: outer holes (closest to sidewall) are used for 16” O.C. stud mounting.
Install remaining fasteners and tighten.
!
CAUTION: STATIC SENSITIVE COMPONENTS
THE CIRCUIT BOARD CONTAINS STATIC-SENSITIVE COMPONENTS. ALWAYS GROUND
YOURSELF WITH A PROPER WRIST STRAP BEFORE HANDLING ANY BOARDS SO THAT
STATIC CHARGES ARE REMOVED FROM THE BODY. USE STATIC SUPPRESSIVE
PACKAGING TO PROTECT ELECTRONIC ASSEMBLIES.
mounting studs
mounting slots
mounting tabs
mounting holes
grounding stud:
attach solid earth
ground wire (refer to
Figure 2.4 on page 29)
MS-5UD Board on Chassis
MS-5UD Backbox
Figure 2.1 Chassis Mounting in Backbox
5udbrdinbox.wmr
mounting slots

MS-5UD & MS-10UD Series Manual — P/N 52626:C4 3/7/2014 27
Backbox Mounting Installation
9050UDencl.wmf
Figure 2.2 Cabinet Dimensions
Hinge Slot for optional
Dress Panel
Semi-
Flush
mounting
hole
Mounting
slots for
optional
Trim Ring
Hinge Slot for optional
Dress Panel
Semi-Flush Mounting
Do not recess box more
than 3.875” into wall to
avoid covering venting
holes on top of box.

28 MS-5UD & MS-10UD Series Manual — P/N 52626:C4 3/7/2014
Installation Operating Power
2.2 Operating Power
Primary Power Source (AC) and Earth Ground Connections
AC power connections are made inside the control panel cabinet. Refer to AC Power in the sec-
tion titled “Specifications” on page 15, for power and current requirements for each FACP version.
Run a pair of wires (with ground conductor) from the protected premises main breaker box to the
AC terminal block TB1 on the main power supply. As per the National Electrical Code, use 14
AWG (2.00 mm2, 1.6 mm O.D.) or heavier gauge wire with 600V insulation. No other equipment
!
WARNING: RISK OF ELECTRICAL SHOCK AND/OR EQUIPMENT DAMAGE
SEVERAL DIFFERENT SOURCES OF POWER CAN BE CONNECTED TO THIS PANEL.
DISCONNECT ALL SOURCES OF POWER BEFORE SERVICING. THE PANEL AND
ASSOCIATED EQUIPMENT MAY BE DAMAGED BY REMOVING AND/OR INSERTING CARDS,
MODULES OR INTERCONNECTING CABLES WHILE THIS UNIT IS ENERGIZED.
Figure 2.3 Backbox and Battery Box
9050UDcab2.wmf
Door = 19.26” (48.92 cm)
Backbox = 19.0” (48.26)
Door = 16.821” (42.73 cm)
Backbox = 16.65” (42.29 cm)
Depth = 5.207” (13.23 cm)
Depth = 5.257”
(13.353 cm)
Top
Left Side Right Side
Bottom

MS-5UD & MS-10UD Series Manual — P/N 52626:C4 3/7/2014 29
Operating Power Installation
may be connected to this circuit. In addition, this circuit must be provided with overcurrent protec-
tion and may not contain any power disconnect devices. An Earth Ground connection must be
made to ensure proper panel operation and lightning and transient protection. Connect the Earth
Ground wire [minimum 14 AWG (2.00 mm2)] to the grounding stud in the backbox and then run
the wire to TB1. Do not use conduit for the Earth Ground connection since this does not provide
reliable protection.
Secondary Power Source (Batteries)
Observe polarity when connecting the battery. Connect the battery cable to J12 on the main circuit
board using the plug-in connector and cable provided. The battery charger is current-limited and
capable of charging sealed lead acid batteries. The charger shuts off when the system is in alarm.
!
WARNING: SULFURIC ACID
BATTERIES CONTAINS SULFURIC ACID WHICH CAN CAUSE SEVERE BURNS TO THE SKIN
AND EYES AND CAN DESTROY FABRICS. IF CONTACT IS MADE WITH SULFURIC ACID,
IMMEDIATELY FLUSH THE SKIN OR EYES WITH WATER FOR 15 MINUTES AND SEEK
IMMEDIATE MEDICAL ATTENTION.
Figure 2.4 Operating Power Connections
AC Power
Hot (L1)
Earth
Neutral (L2)
Ground Stud
J12
to batteries
5ud_10udacpower.wmf
+
-Ground Stud
J12
to batteries
+
-
FLPS-7
Power Supply FLPS-3
Power Supply
AC Power
AC Hot
AC Neutral
Earth
MS-5UDC-7(C)(E)
MS-10UD-7(C)(E) MS-5UD-3(E)
MS-10UD-3(E)

30 MS-5UD & MS-10UD Series Manual — P/N 52626:C4 3/7/2014
Installation Input Circuits
2.3 Input Circuits
The MS-5UD has five IDCs (Initiating Device Circuits) and the MS-10UD has ten IDCs. Each cir-
cuit is compatible with System Sensor’s i3 smoke detectors which generate a maintenance signal
when the detector becomes dirty and a separate supervisory ‘freeze’ signal when ambient tempera-
ture falls below the detector rating of approximately 45oF. The maximum loop resistance limit for
each IDC is 100 ohms (700 ohms per zone for linear heat detection). Do not use 2-wire smoke
detectors on input zones used for linear heat detection. The field wiring for each zone is supervised
for opens, shorts and ground faults. All conditions are visually and audibly annunciated.
Each circuit is configured for Style B (Class B) operation and will accept i3 smoke detectors, any
normally-open contact devices as well as conventional 2-wire or 4-wire, 24 VDC smoke detectors.
Refer to the Fire•Lite Device Compatibility Document for a list of compatible devices.
Initiating Device Circuits can be converted to Style D (Class A) by installing the optional Class A
Converter module. Refer to “CAC-5X Class A Converter Module” on page 37.
Figure 2.5 IDC Connections
Class B Initiating Device Circuits (supervised and power-limited) 4.7 K, ½ watt resistor P/N:71252
UL listed compatible
2-wire smoke detectors
manual pull stations
heat detectors
Dummy load all unused
circuits - 4.7 K, ½ watt
resistor (P/N: 71245)
ms-10UDidc.wmf
UL listed Power Supervision Relay
(refer to Device Compatibility Document for list of compatible relays)
Resettable 24 VDC
4-wire smoke
detector power
(500 mA maximum)
UL listed compatible 4-wire smoke detector

MS-5UD & MS-10UD Series Manual — P/N 52626:C4 3/7/2014 31
Input Circuits Installation
Combination Waterflow/Supervisory Zone
A combination Waterflow/Supervisory circuit allows an FACP to distinguish between an Alarm
switch (waterflow device) and a Supervisory switch (tamper) installed on the same circuit. Any
circuit can be programmed as a Combo Type zone. The following figure illustrates the wiring of
Zone 2 as a Style B (Class B) Waterflow/Supervisory circuit.
Requirements for the Combination Waterflow/Supervisory circuit are as follows:
The Waterflow Alarm Switch must connect to the FACP Initiating Device Circuit before the
In-Line Resistor as shown in Figure 2.6
The Supervisory Switch must connect to the FACP Initiating Device Circuit after the In-
Line Resistor as shown in Figure 2.6
Program the FACP Initiating Device Circuit as a Combination circuit as described in “Input
Zones” on page 61. Note that since a Waterflow Supervisory Switch is included in a
Combination circuit, the waterflow delay must be taken into consideration. Refer to
“Waterflow Delay” on page 71.
Waterflow Alarm Switch activation causes the panel to latch into alarm until the alarm
condition is cleared and the FACP is reset
Supervisory Switch activation causes the panel to latch the supervisory condition if the
Combo type code is selected or track (the panel will clear when the supervisory condition is
cleared) if the Combo Autoresettable Supervisory type code is selected
Class B Initiating Device Circuits (supervised and power-limited)
4.7 K, ½ watt resistor P/N:71252
In-Line-Resistor
1.2 K, ½ watt resistor P/N: 75579
Alarm Switch
(waterflow) Dummy load all unused
circuits - 4.7 K, ½ watt
resistor (P/N: 71245)
Figure 2.6 Style B Combination Circuit on Zone 2
Supervisory Switch
(tamper)
ms10udcomboIDC.wmf

32 MS-5UD & MS-10UD Series Manual — P/N 52626:C4 3/7/2014
Installation Output Circuits
2.4 Output Circuits
2.4.1 Notification Appliance Circuits
Total current drawn from the four Style Y (Class B) Notification Appliance Circuits as well as other
DC power outputs cannot exceed 3.0 amps for the MS-5UD-3(E), MS-10UD-3(E) [2.5 amp maxi-
mum per NAC] powered by the FLPS-3 power supply or 7.0 amps for the MS-5UD-7(C/E), MS-
10UD-7(C/E) [3.0 amps maximum per NAC] powered by the FLPS-7 power supply (refer to
“Power Supply Calculations” on page 116). Each circuit is supervised, power-limited and provides
special application power. Refer to the Fire•Lite Device Compatibility Document for a listing of
compatible notification appliances.
The NACs can be converted to Style Z (Class A) by installing the optional Class A Converter mod-
ule. Refer to “CAC-5X Class A Converter Module” on page 37.
For FCC compliance with Class B wiring, a ferrite bead (supplied) is required for NAC 1 and for
NAC 2. If using both NAC 1 and NAC 2 with Class B wiring, a single ferrite may be used with
wiring as shown in Figure 2.7.
Figure 2.7 NAC Connections
Class B Notification Appliance Circuits (supervised and power-limited)
4.7 K, ½ watt resistor P/N:71252
Dummy load any unused circuits (P/N: 71245)
Polarized Bell
Polarized Strobe
Polarized Horn Polarized Horn
Polarized Horn-Strobe
Polarized Bell
Notification Appliance Circuit
polarity shown in alarm condition
ms-10UDnac.wmf
+ - + -
Ferrite Bead
p/n 50116546-001

MS-5UD & MS-10UD Series Manual — P/N 52626:C4 3/7/2014 33
Output Circuits Installation
2.4.2 Special Application DC Power Output Connections
Special Application Resettable and Nonresettable 24 VDC power is available on the MS-5UD and
MS-10UD control panel.
2.4.3 Relays - Programmable
The MS-5UD and MS-10UD control panels provide a factory default programmed alarm relay, fail-
safe trouble relay and supervisory relay. Each relay can be programmed to activate for other con-
ditions (refer to “Relays” on page 69). Each Form-C relay is rated for 2 amps @ 30VDC (resistive)
and 0.5 amps @ 30 VAC (resistive).
Note that relay connections must be power-limited.
Figure 2.8 Special Application Auxiliary Power
Special Application
4-Wire Smoke Detector Power (500 mA)
24 VDC filtered, resettable power for 4-wire smoke detectors can be
obtained from these terminals (power-limited)
Special Application
Resettable or Nonresettable Power (500 mA)
24 VDC filtered, resettable or nonresettable power can be obtained
from these terminals (power-limited)
• Jumper JP31 pins 1 & 2 for nonresettable power (as illustrated in
figure to right)
• Jumper JP31 pins 2 & 3 for resettable power
-
+
-
+
ms-10UDtb9.wmf
4
3
2
1
Figure 2.9 Relay Terminals
Note: Relay contacts are shown with
power applied to the panel and no active
troubles, alarms or supervisories.
The Trouble Relay is a fail-safe relay
which will transfer on any trouble or total
power failure.
ms10udrelay.wmf

34 MS-5UD & MS-10UD Series Manual — P/N 52626:C4 3/7/2014
Installation Output Circuits
2.4.4 Remote Synchronization Output
Synchronization is a feature that controls the activation of notification appliances in such a way that
all devices will turn on and off at exactly the same time. This is particularly critical when activat-
ing strobes which must be synchronized to avoid random activation and a potential hazard to indi-
viduals. Devices connected directly to the control panel’s NAC can be synchronized as described
in “Synchronized NAC Operation” on page 68.
Notification appliances connected to remote power sources may require synchronization with the
FACP’s devices. For the MS-5UD-3(E), MS-10UD-3(E), this can be accomplished by connecting
the Remote Synchronization Output from TB2 of the FACP to a compatible sync input of a power
supply such as the FCPS-24FS6/8. The 24 VDC, 40 mA signal from TB2 follows, that is mimics
the signal on NAC 1 (Out 1). This allows the devices connected to the power supply to be synchro-
nized with the devices connected to Out 1 on the FACP.
For the MS-5UD-7(C/E), MS-10UD-7(C/E), the Remote Sync Output is not required. Synchroni-
zation for remote power supplies is provided directly from NAC1 (Out 1). Note that NAC 1 (Out
1) must be programmed for sync operation when used for this purpose.
The Remote Synchronization Output is power-limited and supervised and requires a 4.7K ELR
resistor at the remote power supply end of the wiring.
Remote Power Supply
FACP main circuit board
4.7K ELR
Sync Input
Remote Sync Output
Figure 2.10 Remote Sync Output
10xudsync.wmf

MS-5UD & MS-10UD Series Manual — P/N 52626:C4 3/7/2014 35
Power-limited Wiring Requirements Installation
2.5 Power-limited Wiring Requirements
Power-limited and nonpower-limited circuit wiring must remain separated in the cabinet. All
power-limited circuit wiring must remain at least 0.25” (6.35 mm) away from any nonpower-lim-
ited circuit wiring. Furthermore, all power-limited and nonpower-limited circuit wiring must enter
and exit the cabinet through different knockouts and/or conduits. A typical wiring diagram is illus-
trated below.
J13
Figure 2.11 Typical UL Power-limited Wiring Requirements
Power-limited Circuits
(Class 2)
Power-limited
Circuits
(Class 2)
Nonpower-
limited
Circuit
AC Power
CAC-5X
10udULwire2.wmf
4XTMF
CAC-5X
earth
ground
Nonpower-
limited
Circuit
Power-limited
Circuit
(Class 2)
MS-10UD FACP
Power-limited Circuits (Class 2)

36 MS-5UD & MS-10UD Series Manual — P/N 52626:C4 3/7/2014
Installation Digital Communicator
2.6 Digital Communicator
Two independent telephone lines can be connected to the control panel. Telephone line con-
trol/command is made possible via double line seizure as well as usage of an RJ31X style intercon-
nection. Note that it is critical that the panel's digital communicator be located as the first device
on the incoming telephone circuit to properly function.
Important! The DACT must not be used to dial a phone number that is call-forwarded.
The control panel's digital communicator is built into the main circuit board. Connection and wir-
ing of two phone lines is required as shown below.
Figure 2.12 DACT Installation
Customer Premises Equipment and Wiring
Telephone
Line
FACP with DACT
Network
Service
Provider’s
Facilities
Network
Demarcation
Point
RJ31X
Jack Unused
RJ-11 Jack
Unused
J-11 Jack
Telephone
Telephone
Telephone Answering
System
Fax Machine
Computer
9050ACTAdact.wmf
1
2
3
4
5
6
7
7
8
123
4
5
6
8
J8 J9
Figure 2.13 Wiring Phone Jacks
10UDJACK2.wmf
RJ31X
Jack RJ31X
Jack
(Secondary Lines)
Incoming Telco
phone lines
(Primary Lines)
Incoming Telco
phone lines
Ring
Ring Ring
Tip
Tip Tip
Green Wire
Red Wire to premise phones
Ring
Tip Green Wire
Red Wire
to premise phones
Note: Shorting bars
inside RJ31X Jack
removed during
male plug insertion
7 foot cable
MCBL-7
(ordered separately)
Primary
phone line
PH-1
Secondary
phone line PH-2
Modular female
connectors
Male plug
connectors
Primary
phone line
active LED
Secondary
phone line
active LED

MS-5UD & MS-10UD Series Manual — P/N 52626:C4 3/7/2014 37
Installation of Optional Modules Installation
2.7 Installation of Optional Modules
2.7.1 CAC-5X Class A Converter Module
Installation
The CAC-5X Module can be used to convert five Style B (Class B) Initiating Device Circuits to
Style D (Class A) and the two Style Y (Class B) Notification Appliance Circuits to Style Z (Class
A). The module plugs into connector J2 which is located at the top left of the MS-5UD and MS-
10UD main circuit board and J7 which is located at the top center of the MS-10UD. Note that two
CAC-5X modules are required to convert all NACs and IDCs on the MS-10UD to Class A circuits.
To install the CAC-5X in the MS-5UD or MS-10UD, remove the two main circuit board mounting
screws referenced in the following illustration and replace with the two supplied male/female
standoffs in the locations indicated in the following figure. Carefully align the connector on the
CAC-5X with J2 on the FACP main circuit board and press the module securely into place. Make
certain the pins are properly aligned to prevent bending or breaking of any connector pins. Secure
the CAC-5X to the standoffs with the screws that were just removed.
To install the second CAC-5X on J7 of the MS-10UD, remove the main circuit board mounting
screw referenced in the following illustration and replace with the supplied male/female standoff.
Insert the supplied plastic standoff in the location indicated in the following illustration. Carefully
align the connector on the CAC-5X with J7 and press the module securely into place. Make certain
the pins are properly aligned to prevent bending or breaking of any connector pins. Secure the
CAC-5X to the metal standoff with the screw that was just removed.
!
WARNING: RISK OF ELECTRICAL SHOCK
REMOVE ALL POWER (AC AND DC) BEFORE INSTALLING OR REMOVING MODULES OR
WIRING.
Figure 2.14 CAC-5X Module Installation
MS-10UD Main Circuit Board
Metal
Standoff Plastic
Standoff
CAC-5X Module
ms-10udcac5mnt.wmf
CAC-5X Module
Metal
Standoff Metal
Standoff
Installation in MS-5UD or MS-10UD Installation in MS-10UD

38 MS-5UD & MS-10UD Series Manual — P/N 52626:C4 3/7/2014
Installation Installation of Optional Modules
Wiring NACs and IDCs for Class A
Wire the Style Z (Class A) Notification Appliance Circuits using TB5 of the MS-5UD/MS-10UD
and TB2 of the CAC-5X module. Wire the Style D (Class A) Initiating Device Circuits using TB4
of the MS-5UD/MS-10UD and TB1 of the CAC-5X. Note that the wiring will be identical when
using TB7 NAC and TB6 IDC of the MS-10UD. Make certain to observe polarity when
connecting the devices to the circuits. The B+ and A+ terminals must comprise the feed and return
for the positive side of a device and the B- and A- terminals must comprise the feed and return for
the negative side of a device. To configure any of the zones for Class B when the CAC-5X is
installed, simply wire to the B+ and B- input on the FACP terminal(s) and install the End-of-Line
Resistor after the last device on the circuit. Do not wire to the corresponding A+ and A- terminals
on the CAC-5X module. For FCC compliance with Class A wiring, a ferrite bead (supplied with
the CAC-5X board) is required for NAC 1 and for NAC 2. If using NAC 1 and/or NAC 2 with
Class A wiring, a ferrite must be used for each NAC with wiring as shown in Figure 2.15.
Figure 2.15 Wiring NACs and IDCs for Class A Operation
CAC-5X Class A Converter Module
MS-5UD
Circuit Board
Class B (Style B) IDC - 4.7 K
½ watt ELR resistor
P/N:71252 (supervised and power-limited)
Dummy load all unused
circuits - 4.7 K
½ watt resistor
(P/N: 71245)
Polarized
Bell
Circuit polarities
shown in alarm
condition
Class A (Style Z) NAC
(supervised and power-limited)
Class A (Style D) IDC
(supervised and power-limited)
Polarized
Strobe
Polarized
Horn
Smoke
Smoke
Pull Station Pull Station
Heat Heat
ms10udclassa.wmf
B+ B- B+ B-
A+ A- A+ A- A+ A- A+ A- A+ A- A+ A- A+ A-
B+ B- B+ B- B+ B- B+ B- B+ B-
Ferrite Bead
p/n 50116546-001

MS-5UD & MS-10UD Series Manual — P/N 52626:C4 3/7/2014 39
Installation of Optional Modules Installation
2.7.2 4XTMF Option Module
The 4XTMF module can be plugged into connectors J4 and J5 on the main circuit board.
The following steps must be followed when installing the 4XTMF module:
1. Remove all power (AC and DC) from the FACP before installing the modules.
2. Cut jumper JP30 on the main circuit board to allow the control panel to supervise the
placement of the 4XTMF option module.
3. Install the two supplied metal standoffs in the locations indicated. These standoffs provide the
required earth ground protection.
4. Carefully plug the connectors on the option module into connectors J4 and J5 on the FACP
main circuit board, being careful not to bend any pins.
5. Secure the option module to the standoff on the main circuit board with the supplied screws.
6. For proper 4XTM operation, the output relays must be programmed for the factory default
settings: Alarm Relay 1, Trouble Relay 2 and Supervisory Relay 3.
7. When the installation has been completed, connect the wiring to the modules as indicated in
the following sections.
8. Test system for proper operation.
4XTMF Transmitter Module Installation
The 4XTMF provides a supervised output for a local energy municipal box transmitter in addition
to alarm and trouble reverse polarity. A jumper option allows the reverse polarity circuit to open
with a system trouble condition if no alarm condition exists. A disable switch allows disabling of
the transmitter output during testing to prevent accidental calling of the monitoring service.
SW1
Figure 2.16 4XTMF Option Module Connection to MS-5UD
J4
J5
Standoffs
ms-5board.wmf
Note: This illustration shows the installation of the Option Module on the 5-zone panel.
The module is installed in the same location on the 10-zone panel.

40 MS-5UD & MS-10UD Series Manual — P/N 52626:C4 3/7/2014
Installation Installation of Optional Modules
Local Energy Municipal Box Service (NFPA 72 Auxiliary Fire Alarm Systems):
Supervisory Current: 5.0 mA
Trip Current: 350 mA (subtracted from notification appliance power)
Coil Voltage: 3.65 VDC
Maximum Coil Resistance: 14.6 ohms
Maximum allowable wire resistance between panel and trip coil: 3 ohms
Municipal Box wiring can leave the building
Remote Station Service (NFPA 72 Remote Station Fire Alarm Systems) - Intended for
connection to a polarity reversal circuit or a Remote Station receiving unit having
compatible ratings:
Maximum load for each circuit: 10 mA
Reverse polarity output voltage: 24 VDC
Remote Alarm and Remote Trouble wiring can leave the building
Before installing the module, place the disconnect switch to the down (disconnect) position to pre-
vent accidental activation of the municipal box. Note that a Disconnect LED will illuminate after
the module is installed in the FACP. In addition, the System Trouble LED will turn on to indicate
the Disconnect condition.
2.7.3 ANN-SEC Option Card
The ANN-SEC option card allows for a secondary ANN-BUS. Install the ANN-SEC as follows.
1. Remove the chassis mounting screw to the right of TB3 and replace it with the supplied 0.5” x
4-40 male-female standoff.
2. Install the header into J13 on the main circuit board.
Figure 2.17 4XTMF Transmitter Module
Connect to FACP Connectors J4 & J5
Disconnect
Switch
shown in
disconnect
position
TBL Jumper
Remote Alarm - Class 2
(power-limited)*
Remote Trouble - Class 2
(power-limited)*
No connection
Municipal Box (nonpower-limited)*
1+
2-
3+
4-
5
6+
7-
Polarities are shown for module activation
Note: the 4XTMF Module is not directly suitable for transmitting reverse polarity supervisory signal.
For an application of reverse polarity of a supervisory signal, refer to the Appendix titled “FACP with
Keltron” on page 131.
* Wiring from these terminals
can exit the protected premises.
Dummy load terminals 6 and 7
(4.7K, ¼ watt resistor) if
Municipal Box is not connected.
Disconnect LED
4xtmf.wmf

MS-5UD & MS-10UD Series Manual — P/N 52626:C4 3/7/2014 41
ANN-BUS Devices Installation
3. Secure the ANN-SEC to the circuit board with the supplied screw.
2.8 ANN-BUS Devices
Guidelines
• A variety of optional annunciation devices can be connected to an ANN-BUS communication
circuit. ANN Series devices can be connected to the primary communication circuit (EIA-485)
terminals on TB3. A secondary communication circuit (EIA-485) for these devices is available
at TB1 on the ANN-SEC card.
• When using one ANN-BUS circuit, up to eight (8) annunciators can be supported.
• When using both ANN-BUS communication circuits, the primary circuit supports up to three
(3) annunciators and the secondary circuit supports up to (5) annunciators.
Compatible devices include:
– ANN-80 LCD Annunciator
– ANN-80C LCD Indicator (Canadian Applications)
– ANN-S/PG Serial/Parallel Printer Interface Module
– ANN-I/O LED Driver Module
– ANN-LED Annunciator Module
– ANN-RLY Relay Module (can be mounted in the FACP chassis)
• When operating two ANN-BUS circuits, only one ANN-S/PG Printer module can be used in
the system.
• The panel is capable of operating a primary ANN-BUS (TB3) and a secondary ANN-BUS
(TB1 on ANN-SEC card) simultaneously.
2.8.1 ANN-BUS Wiring
This section contains information on calculating ANN-BUS wire distances and the types of wiring
configurations (Class B). The length of the 4-conductor wire run is governed by the power pair
loading as described below.
Calculating Wiring Distance for ANN-BUS Modules
The following instructions will guide the installer in determining the type of wire and the maximum
wiring distance that can be used with FACP ANN-BUS accessory modules.
TB1
J1
ANN-SEC
FACP Circuit Board
connector to J13 on
main circuit board
standoff and screw
Figure 2.18 Installing the ANN-SEC Option Card
ann-secinst.wmf
!
WARNING: RISK OF ELECTRICAL SHOCK
Disconnect all sources of power (AC and DC) before installing or removing any modules or wiring.

42 MS-5UD & MS-10UD Series Manual — P/N 52626:C4 3/7/2014
Installation ANN-BUS Devices
To calculate the wire gauge that must be used to connect ANN-BUS modules to the FACP, it is nec-
essary to calculate the total worst case current draw for all modules on a single 4-conductor bus.
The total worst case current draw is calculated by adding the individual worst case currents for each
module. The individual worst case values are shown in the following table:
After calculating the total worst case current draw, Table 2.1 specifies the maximum distance the
modules can be located from the FACP on a single wire run. The table ensures 6.0 volts of line
drop maximum. In general, the wire length is limited by resistance, but for heavier wire gauges,
capacitance is the limiting factor.
These cases are marked in the chart with an asterisk (*). Maximum length can never be more than
6,000 feet (1,800 m), regardless of gauge used. The formula used to generate this chart is shown in
the note below.
The following formulas were used to generate the wire distance chart:
Model Number Worst Case Current Draw1
1 Total worst case current draw on a single ANN-BUS cannot exceed 0.5 amp.
ANN-80(C) LCD Annunciator/Indicator 0.040 amps
ANN-S/PG Serial/Parallel Printer Interface Module 0.040 amps
ANN-I/O LED Driver Module 0.200 amps
ANN-LED Annunciator Module 0.068 amps
ANN-RLY Relay Module 0.075 amps
24 VDC Power Wiring Distance: ANN-BUS Modules to FACP
Total Worst Case Current
Draw (amps) 22 Gauge 18 Gauge 16 Gauge 14 Gauge
0.100 1,852 ft. 4,688 ft. * 6,000 ft. * 6,000 ft.
0.200 926 ft. 2,344 ft. 3,731 ft. 5,906 ft.
0.300 617 ft. 1,563 ft. 2,488 ft. 3,937 ft.
0.400 463 ft. 1,172 ft. 1,866 ft. 2,953 ft.
0.500 370 ft. 938 ft. 1,493 ft. 2,362 ft.
Table 2.1 Wiring Distances
Maximum Resistance (Ohms) =
6.0 Volts
Total Worst Case Current Draw (amps)
Maximum Wire Length (feet)
(6,000 feet maximum) =
Maximum Resistance (Ohms)
*500
Rpu
where: Rpu = Ohms per 1,000 feet for various Wire Gauges (see table below)

MS-5UD & MS-10UD Series Manual — P/N 52626:C4 3/7/2014 43
ANN-BUS Devices Installation
Exception: When using the ANN-RLY module, the installer must ensure that the maximum
24VDC power line drop does not exceed 0.3 volts. This results in the following wiring limitations:
Wiring Distance Calculation Example:
Suppose a system is configured with the following ANN-BUS modules:
• 2 ANN-80 Remote Fire Annunciators
• 1 ANN-S/PG Serial/Parallel Printer Interface Module
• 1 ANN-I/O LED Driver Module
The total worst case current is calculated as follows:
Using this value and referring to the Wiring Distance Table 2.1 on page 42, it can be found that the
available options are:
463 feet maximum using 22 Gauge wire
1,172 feet maximum using 18 Gauge wire
1,866 feet maximum using 16 Gauge wire
2,953 feet maximum using 14 Gauge wire
Wire Gauge Ohms per 1,000 feet (Rpu)
22 16.2
18 6.4
16 4.02
14 2.54
Wire Gauge Maximum Wire Length
18 312 feet
16 497 feet
14 787 feet
12 1,250 feet
ANN-80 Current Draw = 2 X 0.040 amps = 0.080 amps
ANN-S/PG Current Draw = 1 X.0.040 amps = 0.040 amps
ANN-I/O Current Draw = 1 X.0.200 amps = 0.200 amps
Total Worst Case Current Draw = 0.320 amps

44 MS-5UD & MS-10UD Series Manual — P/N 52626:C4 3/7/2014
Installation ANN-BUS Devices
Wiring Configuration
Figure 2.19 illustrates the wiring between the FACP’s Primary ANN-BUS and ANN-BUS devices.
illustrates the wiring between the FACP’s Secondary ANN-BUS, via the ANN-SEC option card,
and ANN-BUS devices.
Figure 2.19 FACP wiring to ANN-BUS Device on Primary ANN-BUS
FACP
ANN-80
ANN-BUS and power wiring are
supervised and power-limited
TB3
Primary ANN-BUS
ann80to5x.wmf
TB1
J1
- + A B
ANN-SEC
Figure 2.20 FACP wiring to ANN-BUS Device on Secondary ANN-BUS via ANN-SEC
FACP
ANN-80
ANN-BUS and power wiring are
supervised and power-limited
Secondary ANN-BUS
ann80to5x2.wmf

MS-5UD & MS-10UD Series Manual — P/N 52626:C4 3/7/2014 45
ANN-BUS Devices Installation
Powering ANN-BUS Devices from Auxiliary Power Supply
Figure 2.21 illustrates the powering of ANN-BUS devices from an auxiliary power supply such as
the FCPS-24FS6/8, when the maximum number of ANN-BUS devices exceeds the ANN-BUS
power requirements.
2.8.2 ANN-BUS Device Addressing
Each ANN-BUS device requires a unique address (ID Number) in order to communicate with the
FACP. A 5-position DIP switch on each device is used to set this address. The address set for these
devices must also be programmed at the FACP for the specific device (refer to the programming
section titled “ANN-BUS” on page 75).
A maximum of 8 devices can be connected to the FACP ANN-BUS communication circuit. Device
addresses do not need to be sequential and can be set to any number between 01 and 08. Note that
00 is not a valid address. The following table shows the DIP switch setting for each address.
Figure 2.21 Powering ANN-BUS Devices from FCPS-24FS6/8
ANN-80
MS-5UD/MS-10UD
FCPS-24FS6/8
+24 VDC
-24 VDC
ANN-BUS
Cut Ground Fault Detection jumper JP1 (FACP monitors for ground faults)
ANN-BUS and power wiring are
supervised and power-limited
TB3
ann80tofcps5x.wmf
NOTE: address (ID Number) DIP switches on some devices may have more than 5 switch
positions. Unless otherwise specified in the documentation supplied with each device, switch
positions 6 and above must be set to OFF.
Address Switch 5 Switch 4 Switch 3 Switch 2 Switch 1
not valid OFF OFF OFF OFF OFF
01 OFF OFF OFF OFF ON
02 OFF OFF OFF ON OFF
03 OFF OFF OFF ON ON

46 MS-5UD & MS-10UD Series Manual — P/N 52626:C4 3/7/2014
Installation ANN-BUS Devices
2.8.3 ANN-80(C) Remote Fire Annunciator/Indicator
The ANN-80(C) Annunciator/Indicator is a compact, 80 character, backlit LCD remote fire annun-
ciator which mimics the FACP display. It also provides system status indicators for AC Power,
Alarm, Trouble, Supervisory and Alarm Silenced conditions. The ANN-80 Annunciator provides
buttons for remote Reset, Silence, Acknowledge, and Drill of the FACP. The ANN-80C Indicator
does not provide these buttons. Communication between the ANN-80(C) and FACP is accom-
plished over a two wire serial interface employing the ANN-BUS communication format. The
devices are powered, via two additional wires, from either the host FACP or remote UL-listed, fil-
tered, power supply.
Specifications
• Operating Voltage Range: 18 VDC to 28 VDC
• Current Consumption @ 24 VDC nominal (filtered and nonresettable):
Normal/Standby (no activity): 37.0 mA
Trouble: 39.0 mA
Alarm: 40.0 mA
AC Fail ( not backlit): 15.0 mA
• For use indoors in a dry location
Installation
Ensure that all power (AC and DC) has been removed from the FACP before installing the annunci-
ator.
Opening/Closing Annunciator
The following procedure details the steps used to open the annunciator in order to access the termi-
nal block and DIP switches (refer to figure below):
1. Turn the key switch to the ON (Unlocked) position by turning the key counter-clockwise
2. Push in the snap latch located on the right side of the unit while pulling the cover open
3. To close the cover, make certain the key switch is in the ON (Unlocked) position. Swing the
cover closed, snapping it shut
4. Turn the key switch to the OFF (Locked) position by turning clockwise and remove the key
04 OFF OFF ON OFF OFF
05 OFF OFF ON OFF ON
06 OFF OFF ON ON OFF
07 OFF OFF ON ON ON
08 OFF ON OFF OFF OFF
Key switch shown
in ON position
Press in latch
and
Pull annunciator
cover open
Annunciator cover
with LCD display
Annunciator backplate
ann-80_iso.wmf

MS-5UD & MS-10UD Series Manual — P/N 52626:C4 3/7/2014 47
ANN-BUS Devices Installation
Mounting
The ANN-80 can be surface or semi-flush mounted to a single, double or 4” square electrical box.
Select and remove the appropriate knockout(s), pull the necessary wires through the knockouts and
mount the annunciator in or on the wall depending on the type of installation desired.
The ANN-SB80KIT(-R/-B/-W) is an available mounting kit for the ANN-80 annunciator. The kit
comes with a surface backbox and surface wedge for angled viewing. The two pieces can be used
separately or can be stacked together.
The ANN-80 cover must be attached to the annunciator backplate before mounting the annunciator
to the electrical box/wall. The cover cannot be reattached or removed after the annunciator has
been mounted.
Wiring ANN-80 to FACP
The following steps can be used as a guide to wire the annunciator. Make certain all power has
been removed from the FACP prior to annunciator installation.
1. Route wires from hole in backplate, through wiring channel and then to ANN-80 terminal
block TB1.
2. Remove appropriate amount of wire insulation.
3. Connect the wiring from the FACP ANN-BUS to annunciator TB1 terminals 3 (A) & 4 (B).
Make certain to connect A to A and B to B.
4. If appropriate, connect the wiring going to the next device on the ANN-BUS to TB1 terminals
3 & 4. Make certain to connect A to A and B to B.
Annunciator mounted on
surface wedge from the
ANN-SB80KIT
Annunciator mounted on
surface backbox from the
ANN-SB80KIT
Annunciator mounted on
stacked surface wedge
and backbox from the
ANN-SB80KIT
ann80kitmount.wmf
wiring channel
wires
TB1
ann-80boxinside.wmf

48 MS-5UD & MS-10UD Series Manual — P/N 52626:C4 3/7/2014
Installation ANN-BUS Devices
5. Connect the wiring from the 24 VDC power source to annunciator TB1 terminals 1 (-) & 2 (+).
Make certain to observe proper polarity.
6. If appropriate, connect the power wiring going to the next device to terminals
1 (-) & 2 (+). Make certain to observe proper polarity.
7. After all connections are made, remove extra wire from inside of annunciator by dressing it
neatly through wire channel, with any excess wire pushed back through hole into electrical
box.
The following table shows the ANN-80 connections to the MS-5UD/MS-10UD.
Programming
Following installation and wiring of the ANN-80 LCD annunciator to the FACP, the annunciator
must be added to the system via FACP programming. Refer to the programming section titled
“ANN-BUS” on page 75 in this manual for detailed programming information. Select the LCD
option for programming.
2.8.4 ANN-S/PG Serial/Parallel Printer Interface Installation
The ANN-S/PG Serial/Parallel Printer Interface module allows the ancillary connection of a serial
or parallel printer to the FACP for a real-time log of system events, detector status reports and event
history. Proceed with the installation as described in the following:
1. Ensure that all power (AC and DC) has been removed from the FACP.
MS-5UD/MS-10UD (TB3) ANN-80 (TB1)
Terminal 4 GND (-) Terminal 1 (-)
Terminal 3 PWR (+) Terminal 2 (+)
Terminal 2 A (ANN-BUS) Terminal 3 (A)
Terminal 1 B (ANN-BUS) Terminal 4 (B)
Figure 2.22 ANN-80 Wiring to FACP
FACP
ANN-80
ANN-BUS and power wiring are
supervised and power-limited
4 3 2 1
TB3
Primary ANN-BUS
ann80to5x.wmf

MS-5UD & MS-10UD Series Manual — P/N 52626:C4 3/7/2014 49
ANN-BUS Devices Installation
2. Connect the ANN-S/PG to the FACP as illustrated in Figure 2.23.
3. Using the DIP switches on the back of the ANN-S/PG module, assign an ID number (address)
to the module.
4. Select the address and configuration options for the ANN-S/PG module as described in the
Programming section of this manual (refer to“ANN-BUS” on page 75).
Note that the Auto-configure feature allows the programmer to quickly bring all installed
ANN-BUS modules online (refer to“Auto-Configure” on page 76).
5. Connect a printer to the ANN-S/PG Parallel and/or Serial connectors (refer to Figure 2.23 on
page 49).
Specifications
• Operating Voltage: 24 VDC
• Current (Alarm and Standby): 45 mA
• Ambient Temperature: 32oF to 120oF (0oC to 49oC)
• Max. Wiring Distance from FACP: 6,000 ft. (1,800 m)
• Mounting: Surface
• Dimensions: 6”W x 7-3/4”H x 1-7/16”D (15.2 cm W x 19.7 cm H x 3.7 cm D)
• For indoor use in a dry location only
PRN-6F Printer Installation
When connected to the FACP via the ANN-S/PG module, the PRN-6F prints the status changes
within the control panel and time-stamps the printout with the time of day and date that the event
occurred. It provides 80 columns of data on standard 9” x 11” tractor-feed paper. This section con-
tains information on connecting a printer to the control panel and setting the printer options.
Connecting PRN-6F Printer
Remote printers require a primary AC power source. If required for the fire alarm system configu-
ration (for example, a Proprietary Fire Alarm System), a remote printer requires a secondary power
source (battery backup). Since a secondary power source is not provided as a standard feature, a
separate UL-listed Uninterruptible Power Supply (UPS) should be used. The building emergency
power supply may be used, as long as it meets the power continuity requirements of NFPA 72.
Refer to NFPA 72 for further details.
Connect the remote printer to the FACP via the ANN-S/PG module using a standard DB-25 cable.
One end of the cable will plug into the DB-25 connector on the PRN-6F printer and the other end
plugs into the parallel connector on the ANN-S/PG module. Note that the 9-pin DB-9 port on the
ANN-S/PG is used to connect a serial printer. The 25-pin port is used for a Centronics parallel
printer cable. Connect either a serial or parallel printer, but not both at the same time.
Figure 2.23 ANN-S/PG Connection to FACP
ANN-S/PG Module
Cable
Connectors
for connection
to printer
Parallel
Serial
ANN-BUS and power wiring are
supervised and power-limited
TB3
Primary ANN-BUS
Primary ANN-BUS
annspfto5x.wmf

50 MS-5UD & MS-10UD Series Manual — P/N 52626:C4 3/7/2014
Installation ANN-BUS Devices
Setting Printer Options
Refer to the documentation supplied with the PRN-6F printer for instructions on using the printer
menu controls. Set the printer options (under the menu area) as shown in the following table:
Option Setting Option Setting
Font HS Draft CPI 10CPI
LPI 6 LPI Skip 0.5
ESC Character ESC Emulate Epson FX-850
Bidirectional Copy ON I/O
CG-TAB Graphic Buffer 40K
Country E-US ASCII Serial
Auto CR OFF Baud 9600 or 2400
Color Option Not Installed Format 7 Bit, Even, 1 Stop
Formien Protocol XON/XOFF
Lines 6LPI=60 Character Set Standard
Standard Exec 10.5 SI.Zero On
Auto LF On
PAPER
BIN 1 12/72”
BIN 2 12/72”
SINGLE 12/72”
PUSH TRA 12/72”
PULL TRA 12/72”
PAP ROLL 12/72”
Table 2.2 PRN-6F Setup Options

MS-5UD & MS-10UD Series Manual — P/N 52626:C4 3/7/2014 51
ANN-BUS Devices Installation
2.8.5 ANN-I/O LED Driver Module
The ANN-I/O is an LED driver module that can be used in a wide variety of applications, including
as an interface with most customized graphic annunciators. The ANN-I/O can drive up to 40
LEDs. The following sections describe hardware installation. Refer to the section titled“ANN-
BUS” on page 75 for programming information.
ANN-I/O Board Layout
Figure 2.24 illustrates the ANN-I/O board showing locations of screw terminals for connection to
the FACP, pin connectors for connecting LEDs and the DIP switch for selecting the ANN-BUS ID
number.
Specifications
• Max. ANN-BUS Voltage: 28 VDC
• Max. Current:
Alarm: 200 mA
Standby: 35 mA
Each LED: 10 mA
• Operating Temperature: 32oF to 120oF (0oC to 49oC)
• For indoor use in a dry location only
Figure 2.24 ANN-I/O Board Layout
ANN-BUS (ID#)
Address DIP
switch
ANN-BUS Connector
Terminals not used (future)
anniobrd.wmf

52 MS-5UD & MS-10UD Series Manual — P/N 52626:C4 3/7/2014
Installation ANN-BUS Devices
ANN-I/O Connection to FACP
The ANN-I/O connects to the FACP via the ANN-BUS as illustrated in Figure 2.25. After the
ANN-I/O is connected to the panel, it must be added to the system via FACP programming.
ANN-I/O Module LED Wiring
There are four 12-pin connectors on the ANN-I/O module for connecting LEDs. Each set of 10
LEDs get their power from Pin 11 of the corresponding connector. Internal resistors are sized so
that there is approximately 10 mA of current for each LED. No series resistors are required. LED
outputs are mapped to output circuits. Refer to the section titled “ANN-I/O LED Zone Assign-
ments” on page 77 of this manual.
Figure 2.25 ANN-I/O Connection to FACP
ANN-I/O Module
ANN-BUS and power wiring are
supervised and power-limited
TB3
Primary ANN-BUS
ann-ioto5x.wmf

MS-5UD & MS-10UD Series Manual — P/N 52626:C4 3/7/2014 53
ANN-BUS Devices Installation
The LEDs are wired as illustrated in Figure 2.26. Note that the illustration depicts only connectors
P1 and P2. Wiring is identical for P3 (LEDs 21-30) and P4 (LEDs 31-40).
2.8.6 ANN-LED Annunciator Module
The ANN-LED annunciator module provides LED annunciation of general system faults and input
zones when used with a compatible FACP. The ANN-LED module provides alarm (red), trouble
(yellow) and supervisory (yellow) indication for up to ten input zones.
Canadian Applications: The ANN-LED is supplied standard with the MS-5UD-7C and MS-10UD-
7C models. It is mounted to the dress panel included with these models.
Specifications
• Max. ANN-BUS Voltage: 24 VDC
• Max. Current:
Alarm: 68 mA
Standby: 28 mA
• Operating Temperature: 32o F to 120o F (0o C to 49o C)
• For indoor use in a dry location only
Figure 2.26 ANN-I/O Board Layout
ann-ioleds.wmf

54 MS-5UD & MS-10UD Series Manual — P/N 52626:C4 3/7/2014
Installation ANN-BUS Devices
Mounting/Installation
Install the ANN-LED Module as described in the documentation supplied with the annunciator.
ANN-LED Board Layout and Connection to FACP
Figure 2.27 illustrates the ANN-LED board wiring connections to the FACP.
2.8.7 ANN-RLY Relay Module
The ANN-RLY relay module provides 10 programmable Form-C relays when used with a compat-
ible FACP.
Specifications
• Operating Voltage: 24 VDC
• Max. Current:
Alarm: 75 mA
Standby: 15 mA
• Relay Contact Ratings:
2 amps @ 30 VDC (resistive)
0.5 amps @ 30 VAC (resistive)
• Operating Temperature: 32o F to 120o F (0o C to 49o C)
• For indoor use in a dry location only
Figure 2.27 ANN-LED Board Layout and Connection to FACP
FACP ANN-LED
Primary ANN-BUS
+24 VDC
-24 VDC
ANN-BUS (ID#)
Address DIP switch
TB3
annledto5x.wmf

MS-5UD & MS-10UD Series Manual — P/N 52626:C4 3/7/2014 55
ANN-BUS Devices Installation
Mounting/Installation
The ANN-RLY relay module can be mounted inside the FACP main circuit board chassis or inside
the ROME Series enclosure. Refer to the ANN-RLY Installation Document #53033 for instructions
on chassis mounting or to the ROME Series Installation Document #53530 for mounting in the sep-
arate backbox.
mounting holes
mounting hooks through
mounting slots
grounding wire
ANN-RLY
ANN-MBRLY
mounting bracket
mounting holes
mounting holes
FACP Backbox Installation
using ANN-MBRLY mounting bracket
FACP Chassis Installation
mounting holes
mounting holes
ANN-RLY on ANN-
MBRLY mounting
bracket
ROME Series Installation
using ANN-MBRLY mounting bracket
Figure 2.28 ANN-RLY Mounting Options
ann-rlyinchassis.wmf
ann_mbriyincab3.wmf
rome-relay-plate3.wmf

56 MS-5UD & MS-10UD Series Manual — P/N 52626:C4 3/7/2014
Installation ANN-BUS Audio Panel
ANN-RLY Board Layout and Connection to FACP
Figure 2.29 illustrates the ANN-RLY board wiring connections to the FACP.
2.9 ANN-BUS Audio Panel
The FACP must be enabled to communicate with the ACC-25/50ZS/T Audio Panel over the ANN-
BUS (refer to “ANN-BUS Enabled” on page 75). This is accomplished by programming the Audio
Panel ANN-BUS address into the FACP (refer to“BUS Modules” on page 75). For details on set-
ting the ANN-BUS address and programming the audio panel, refer to the ACC-25/50ZS/T Series
Audio Panel manual (document #51889).
The ACC-25/50ZS/T Series audio panel connects to the FACP via the ANN-BUS communication
circuit. The five input zones on the MS-5UD correspond to the first five ACC-25/50ZS/T Series
audio zones and the ten input zones on the MS-10UD correspond to the first ten ACC-25/50ZS/T
Series audio zones. The programmer can select which of the five audio messages at the audio panel
will play when an FACP input zone goes into alarm (refer to“ACC Message” on page 64). The
Figure 2.29 ANN-RLY Board Layout and Connection to FACP
FACP ANN-RLY
Primary ANN-BUS
+24 VDC
-24 VDC
ANN-BUS (ID#)
Address DIP switch
TB3
ann-rlyto5x.wmf
!
WARNING: RISK OF ELECTRICAL SHOCK
DISCONNECT ALL SOURCES OF POWER (AC AND DC) BEFORE INSTALLING OR REMOVING
ANY WIRING.

MS-5UD & MS-10UD Series Manual — P/N 52626:C4 3/7/2014 57
ANN-BUS Audio Panel Installation
message will play over the corresponding audio panel output circuit. For example, if FACP Input
Zone 3 goes into alarm, the programmed message will play over the ACC-25/50ZS/T output circuit
3. If two or more input zones are active at the same time, the highest priority message will turn on.
One of the FACP input zones can be programmed as an All-Call Zone. If this zone goes into alarm,
all ACC-25/50ZS/T Series audio zones will activate (refer to“ANN-AUDIO Options Screen” on
page 79).
A fault at the ACC-25/50ZS/T Series panel will cause the FACP to indicate a System Trouble and
the display will indicate a Voice Evac Fault.
The only connection between the MS-5UD/10UD and the ACC-25/50ZS/T audio panel is a pair of
communication wires connected between the A/B terminals on TB3 of the FACP and TB1 termi-
nals 2 & 3 of the ACC-ZPMK module on the ACC-25/50ZS/T.
A (+) B (-)
FACP
ACC-ZPMK
on ACC-25/50ZST
-
+
Figure 2.30 FACP Connection to ACC-25/50ZS/T Audio Panel
Primary
ANN-BUS
acczpmto5x.wmf

58 MS-5UD & MS-10UD Series Manual — P/N 52626:C4 3/7/2014
Section 3: Programming
3.1 User Programming
The MS-5UD/MS-10UD FACP is completely field programmable using the panel keypad and
requires no special software skills.
Site-specific programming may be accomplished in the following ways:
• Manual programming or editing, using the FACP keypad
• Remote Programming and Editing Feature - allows creation and editing of site-specific custom
programs using a Windows-based computer and modem. For programs requiring a large
amount of data entry, this method may be preferred. A PK-CD programming CD ROM can be
ordered for this purpose
• Local Programming and Editing Feature - allows creation and editing of site-specific custom
programs using a Windows-based computer and USB connection. For programs requiring a
large amount of data entry, this method may be preferred. A PK-CD programming CD ROM
can be ordered for this purpose
The System All Normal screen will be displayed in a programmed system with no active alarms,
troubles or supervisories, as illustrated below:
NOTICE TO USERS, INSTALLERS, AUTHORITIES HAVING JURISDICTION, AND OTHER INVOLVED PARTIES
This product incorporates field-programmable software. In order for the product to comply with the requirements in the Standard
for Control Units and Accessories for Fire Alarm Systems, UL 864, certain programming features or options must be limited to
specific values or not used at all as indicated below:
Program feature or
option Permitted in UL
864? (Y/N) Possible settings Settings permitted in
UL 864
Trouble Call Limit N Refer to “Trouble Call Limit (Dialer Runaway Prevention)” on
page 89.
Trouble Call Limit = 0 (factory default): unlimited calling to
Central Station for any trouble condition
Trouble Call Limit = 1 - 99: limits call for each unique trouble
to from 1 to 99 within a 24 hour period
Trouble Call Limit = 0
for unlimited Central
Station trouble calls
Remote Download Y Refer to“Remote Download” on page 113.
Remote Download - Proprietary No
Remote Download - Proprietary Yes
Remote Download
Proprietary Yes for
Proprietary system
intended to protect only
contiguous properties
Combo Y Refer to Table 3.1 on page 62. One Waterflow and one
Supervisory device
Combo
w/AutoResettable
Superv
Y Refer to Table 3.1 on page 62. One Waterflow and one
Supervisory device
!
CAUTION: FIRE PROTECTION ENABLED
WHILE PROGRAMMING THE FACP, THE FIRE PROTECTION CAPABILITIES OF THE CONTROL
PANEL ARE ENABLED. PROGRAMMING MODE TIMES-OUT AFTER 10 MINUTES OF
INACTIVITY.
SYSTEM ALL NORMAL
10:00A 070707

MS-5UD & MS-10UD Series Manual — P/N 52626:C4 3/7/2014 59
Initial Power-up Programming
Read Status mode can be entered while the panel is in any mode of operation. If an alarm or super-
visory event exists at the panel, the event must be cleared before entering Programming mode. To
access any of the programming or read status features, the Enter or Mode key must be pressed,
which will cause the LCD to display the following:
Pressing 1, while this screen is being displayed, will cause the control panel to enter the Read Sta-
tus Mode which allows the user to view the programmed features and status of the control panel
The Read Status feature is not password protected. Refer to “Read Status” on page 105 for a
detailed description of this feature.
Pressing 2 will select user Programming Mode which may only be accomplished by an authorized
person. After pressing 2, a screen will prompt for a password. After entering the correct password,
the user may select from a list of programming options.
Pressing 4 will select Remote Download which allows the user to enable the remote programming
option. Refer to “Remote Download” on page 113.
Exit Programming and Read Status Mode
The programmer can exit any mode by repeatedly pressing the keypad ESC (Escape) key until the
display reads System All Normal. Ten minutes of inactivity will also cause the panel to exit Pro-
gramming Mode Note that the data which is entered during Programming mode is not saved until
the programmer exits this mode by repeatedly pressing the ‘ESC’ key. If the Reset key is pressed or
power is lost before exiting Programming mode, all data just entered will be lost.
User Programming Levels
There are two user programming levels:
• User Master Program Level 1 is used for programming panel specific data relating to device
types, zoning, messages, control panel functions, etc.
• User Maintenance Program Level 2 is used by a qualified operator to access features such as
Disable/Enable, View and Clear History, Walktest and System Time Change.
3.2 Initial Power-up
The following sections describe the initial programming procedures for a new system. The same
procedures are used to modify programming in an existing system.
After completing the wiring of devices to the FACP, apply power to the control panel. If wiring has
not been completed and/or End-of-Line resistors are not installed at the panel, a trouble condition
will be indicated at the panel and a trouble message will be displayed on the LCD. Following is an
example of a possible trouble message that may be displayed.
3.3 Programming Screens Description
Three options are available when the Enter key is pressed: Read Status, Programming, and Remote
Download Mode. The Read Status and Programming options have multiple functions or features
which may be chosen. To view all of the choices, it is necessary that the programmer scroll through
1=READ STATUS MODE
2=PROGRAMMING MODE
3=FUTURE USE
4=REMOTE DOWNLOAD
TROUBLE PULL STATION
ZONE 1 OPEN FAULT
09:03A 090909

60 MS-5UD & MS-10UD Series Manual — P/N 52626:C4 3/7/2014
Programming Programming and Passwords
a number of additional subscreens. These selections are displayed on multiple screens to make
them more readable for the programmer. Refer to “Master Programming Level” on page 61, for
additional information on the various screens.
The title of the main option screen will always be displayed at the top of the subscreens for the pro-
grammer’s convenience. If additional subscreens exist, an Up or Down arrow will be displayed in
the upper right corner of the screen being viewed. The programmer can then press the keypad Up
or Down arrow key to view the new subscreen. To select one of the choices in a screen, the pro-
grammer presses the keypad numerical key corresponding to the desired choice.
Note that subscreens may also have multiple options which require viewing more than one screen.
The same process, as detailed in the previous paragraphs, is followed to view all option choices.
3.4 Programming and Passwords
There are two factory set programming passwords which will access the Programming screens as
indicated in the following examples. From either of the screens, access to specific system and
device features or programming may be obtained. All user programming entries are stored in non-
volatile memory. The factory set passwords can be changed by the user as described in “Password
Change” on page 92. If an invalid password is entered, the blinking cursor will return to the first
password character position. To exit Programming or Read Status mode at any time, press the ESC
(Escape) key repeatedly. Note that Programming mode must be exited using the ESC key in order
to store the program data entered during this mode. If the Reset key is pressed or power is lost
before exiting Programming mode, the data just entered will not be saved.
To access user Programming mode, press the Enter or Mode key. The LCD will display the follow-
ing:
To enter the user Programming mode, press 2. The display will read as follows:
Entering the Master level password (default 00000) will cause the following screen to appear:
If the Maintenance level password (default 11111) is entered, the following screen will appear:
Note that in the two preceding screens, an arrow appears to inform the programmer that additional
options can be viewed by pressing the keypad down arrow key.
1=READ STATUS MODE
2=PROGRAMMING MODE
3=FUTURE USE
4=REMOTE DOWNLOAD
PROGRAMMING
ENTER PASSWORD
PROGRAMMING
1=INPUT ZONES
2=NACS
3=RELAYS
PROGRAMMING
1=INPUT ZONES
2=HISTORY
3=WALKTEST

MS-5UD & MS-10UD Series Manual — P/N 52626:C4 3/7/2014 61
Master Programming Level Programming
3.5 Master Programming Level
When the Master Program Level password is entered, the control panel will enter user Program-
ming mode. In this mode, the piezo sounder remains off, the trouble relay is activated and the sys-
tem Trouble LED flashes until Programming mode is exited. The following display will appear:
The down arrow which appears in the display indicates that additional programming choices can be
viewed by pressing the down arrow key on the keypad. If a down and up arrow appear in the dis-
play, pressing the ‘down’ arrow key will display the subsequent Programming Screens as illustrated
below while pressing the ‘up’ arrow key will display the previous screen.
3.5.1 Input Zones
The Input Zones option allows the user to initially program or change the programming for the five
input zones (circuits) on the MS-5UD or the ten input zones (circuits) on the MS-10UD. Pressing
1, while viewing Programming Screen #1, will select the Input Zones option and display a screen
similar to the following:
Pressing the down arrow key will display additional screens for Input Zones 4 through 5 in the MS-
5UD or Input Zones 4 through 10 in the MS-10UD. To program a specific zone, press the number
key corresponding to the desired zone while viewing one of the Input Zone screens. To program
Input Zone 1, press the 1 key while viewing Input Zone Screen #1. The following screens will be
displayed:
To change the programming for the displayed zone, press the keyboard ‘down’ arrow key to view
the Edit Zone screens.
PROGRAMMING
1=INPUT ZONES
2=NACS
3=RELAYS
Programming Screen #1
PROGRAMMING
1=SYSTEM SETUP
2=OPTION MODULES
3=HISTORY
PROGRAMMING
1=WALKTEST
2=CLEAR PROGRAM
3=PASSWORD CHANGE
Programming Screen #2 Programming Screen #3
PROGRAMMING
1=INPUT ZONES
2=NACS
3=RELAYS
Programming Screen #1
INPUT ZONES
1=ZONE 1
2=ZONE 2
3=ZONE 3
Input Zone Screen #1
PULL STATION
ZONE 1
PRESS TO EDIT
Edit Input Zone Screen #1

62 MS-5UD & MS-10UD Series Manual — P/N 52626:C4 3/7/2014
Programming Master Programming Level
The following examples show the editing of Input Zone 1:
Enable/Disable Zone
To Enable or Disable the zone, press the 1 key while viewing the Edit Input Zone Screen #2. Each
press of the key will toggle the screen between Enabled Yes and Enabled No. If Enabled No is
selected, the zone will be disabled by the control panel, preventing the circuit from reporting alarms
and troubles to the panel. The control panel LCD will display the zone which has been disabled
and FACP will turn on the Trouble LED.
Type
To select the type of zone being programmed, press the 2 key while viewing the Edit Input Zone
Screen #2. This will cause the control panel to display the following Zone Type Screen:
Pressing the down arrow key will display additional zone types as indicated in the following table.
Some of the following Zone Types are not available for Canadian applications. Refer to “Canadian
Option” on page 74 for additional details.
Zone Type Action When Activated
Pull-Station Fire Alarm
Waterflow Fire Alarm Delayed (uses waterflow delay)
Waterflow Nonsilenceable Fire Alarm (uses waterflow delay)
Combo Fire/Supervisory (uses waterflow delay)
Combo AutoResettable Fire/Supervisory AR, nonlatching (uses waterflow delay)
2-Wire Detector Fire Alarm
Normally Open Contact Fire Alarm
Fire Fire Alarm
Tamper Supervisory
Supervisory Supervisory, latching
Supervisory AutoResettable Supervisory, nonlatching
Medic-Alert Supervisory, latching
Hazard-Alert Supervisory, latching
Tornado-Alert Supervisory, latching
Table 3.1 Zone Types
INPUT ZONE 1
1=ENABLED YES
2=TYPE PULL STATION
3=VERIFICATION NO
Edit Input Zone Screen #2
INPUT ZONE 1
1=PAS/PRE-SIG DELAY
NO DELAY
Edit Input Zone Screen #3
Edit Input Zone Screen #5
INPUT ZONE 1
1=ADJECTIVE/NOUN
2=DESCRIPTION
INPUT ZONE 1
1=FREEZE SUPV. NO
2=ACC MSG# 2
Edit Input Zone Screen #4
INPUT ZONE
1=ENABLED
2=TYPE
3=VERIFICATION
Edit Input Zone Screen #2
ZONE TYPE
1=PULL STATION
2=WATERFLOW
3=WATERFLOW NS
Zone Type Screen #1

MS-5UD & MS-10UD Series Manual — P/N 52626:C4 3/7/2014 63
Master Programming Level Programming
While viewing any Zone Type screen, select the type of zone being programmed by pressing the
corresponding keyboard number key. The display will return to Edit Input Zone Screen #2 and
indicate the selection next to the Type option.
Verification
Alarm verification is used to confirm that a smoke detector activation is a true alarm condition and
not a false alarm. This feature is selected by pressing 3 while viewing the Edit Zone Screen #2 so
that the display reads Verification On. Each time the 3 key is pressed, the display will toggle
between Verification On and Verification Off. For a detailed description, refer to “Alarm Verifica-
tion (None or One Minute)” on page 104.
Note that verification can only be enabled for a zone that is programmed as a smoke detector type.
Zones programmed for any other type will not allow the Verification feature to be enabled. Do not
use the verification feature if a mix of smoke detectors and normally open contact devices are con-
nected to the same zone.
PAS/Pre-Signal Delay
Pressing 1 while viewing Edit Input Zone Screen #3 will display the following screen:
Pre-signal
The Pre-signal option programs the zone to delay panel activation for a preprogrammed time delay
of up to three minutes while allowing for visual verification by a person. Note that the alarm relay
and communicator will respond to the initial alarm immediately. To enable the Pre-signal feature,
press 2 while viewing PAS/Pre-Signal Screen. Refer to “Presignal” on page 102.
PAS
The PAS (Positive Alarm Sequence) option will program the zone to delay panel activation (includ-
ing alarm relay and communicator) for a period of 15 seconds plus a programmable time of up to 3
minutes. To enable the PAS feature, press 3 while viewing the PAS/Pre-Signal Screen. This option
is available only for circuits programmed as smoke detector circuits. Refer to “Positive Alarm
Proc-Mon Piezo
Procmon-AR Piezo, nonlatching
AC-Loss-Mon Trouble
Ack-Switch Acts like panel Acknowledge Key
Sil-Switch Acts like panel Alarm Silence Key
Drill-Switch Acts like panel Drill Key
Reset-Switch Acts like panel Reset Key
PAS-Bypass Positive Alarm Sequence Disable
Drill-Switch AutoResettable Acts like panel Drill Key, nonlatching
Table 3.1 Zone Types
NOTE: Almost any Input Zone type can activate an ACC-25/50ZST audio zone and output an
assigned message with the exception of ACKNOWLEDGE, SILENCE, RESET and PAS
BYPASS Switches. The DRILL Switch (or input programmed as a drill switch) will cause all of
the corresponding ACC-25/50ZST audio zones to go active and will output Message 1.
INPUT ZONE
1=ENABLED
2=TYPE
3=VERIFICATION
Edit Input Zone Screen #2
INPUT ZONE #
1=PAS/PRE-SIG DELAY
NO DELAY
Edit Input Zone Screen #3
PAS/PRE-SIG DELAY
1=NO DELAY
2=PRE-SIGNAL DELAY
3=PAS DELAY
PAS/Pre-Signal Delay Screen

64 MS-5UD & MS-10UD Series Manual — P/N 52626:C4 3/7/2014
Programming Master Programming Level
Sequence” on page 103.
Freeze Supervision
Pressing 1 for Freeze Supv. while viewing Edit Input Zone Screen #4 programs the FACP to super-
vise the devices connected to the selected zone for freeze conditions. Each press of the 1 key will
toggle the display between Freeze Supv. Yes and No. The factory default setting is No Freeze
Supervision.
ACC Message
Pressing 2 for ACC MSG # while viewing Edit Input Zone Screen #4 will cause the following
screens to be displayed:
Using these screens, the programmer can assign an audio message to each input zone. The NO
MSG-ACTIVE option is the factory default selection which means that no message has been pro-
grammed for the input zone but its corresponding ACC-25/50ZST audio zone will turn on when
this input zone goes active (if an input zone with a programmed audio message goes active, the
message will also be played over this zone). The NO MSG-INACTIVE option will not turn on the
corresponding ACC-25/50ZST audio zone when this input goes active. If MESSAGE 1 through 5
is the programmed option, the selected message will play when the FACP is connected to an ACC-
25/50ZST Audio Panel via the ANN-BUS and the corresponding FACP input zone goes into alarm.
Adjective/Noun
The Adjective/Noun selection allows the programmer to enter specific descriptors about the detec-
tor currently being programmed. Pressing 1 while viewing Edit Input Zone Screen #4 will cause
the following screen to be displayed:
Pressing 1 while viewing the Adjective/Noun Screen will cause the following screen(s) to be dis-
played. Note that the keyboard down arrow key must be pressed to see all the Adjective screens.
Press the number corresponding to the adjective that is to be used as a descriptor for the location of
the detector currently being programmed. When an adjective has been selected, it will appear at the
top of the display as indicated by the asterisks.
INPUT ZONE #
1=FREEZE SUPV. NO
2=ACC MSG #
Edit Input Zone Screen #4
ACC MSG NUMBER
1=NO MSG-ACTIVE
2=NO MSG-INACTIVE
3=MESSAGE 1
ACC Message Screen #1
ACC MSG NUMBER
1=MESSAGE 2
2=MESSAGE 3
3=MESSAGE 4
ACC Message Screen #2
ACC MSG NUMBER
1=MESSAGE 5
ACC Message Screen #3
INPUT ZONE #
1=ADJECTIVE/NOUN
2=DESCRIPTION
Edit Input Zone Screen #5
1=STANDARD ADJECTIVE
2=STANDARD NOUN
3=CUSTOM ADJECTIVE
4=CUSTOM NOUN
Adjective/Noun Screen
1=NORTH
2=SOUTH
3=EAST
Adjective Screen #1
1=WEST
2=FRONT
3=CENTER
Adjective Screen #3
1=REAR
2=UPPER
3=LOWER
Adjective Screen #5
1=MAIN
2=FIRST
3=2ND
Adjective Screen #7
1=3RD
2=4TH
3=5TH
Adjective Screen #2
1=FLOOR4
2=FLOOR5
3=ROOM
Adjective Screen #6
1=FLOOR1
2=FLOOR2
3=FLOOR3
Adjective Screen #4

MS-5UD & MS-10UD Series Manual — P/N 52626:C4 3/7/2014 65
Master Programming Level Programming
Pressing 2 while viewing the Adjective/Noun Screen will cause the following screen(s) to be dis-
played. Note that the keyboard down arrow key must be pressed to see all the Noun screens. Press
the number corresponding to the noun that is to be used as a descriptor for the location of the detec-
tor currently being programmed. When a noun has been selected, it will appear at the top of the
display as indicated by the asterisks.
Pressing 3 or 4 while viewing the Adjective/Noun Screen will display screens similar to the previ-
ous Adjective and Noun Screens. The new screens will list custom Adjectives and Nouns which
have been programmed into the control panel by the user utilizing the PK-CD programming kit.
These descriptors are selected as described in the previous sections.
Description
The Description selection allows the programmer to enter additional information about the zone
currently being programmed. This information will be displayed as part of the device label on the
display. Pressing 2 while viewing Edit Input Zone Screen #4 will cause the following screen to be
displayed:
A flashing cursor will appear at the first asterisk to the left. The programmer can enter additional
descriptive information about the device being programmed. This information will appear on the
display along with the standard device label information.
A maximum of 20 characters (including spaces) can be entered. To enter alphanumeric characters
from the keypad, repeatedly press the appropriate key until the desired character is displayed in the
first position. For example, to enter the letter B, press the 2 (ABC) key three times to toggle
through the characters 1, A, and B. Press the right arrow key to move the cursor one position to the
right and repeat the process to enter the next character. To enter a space, press the * (QZ) key four
times until a blank appears in the desired position. When all characters have been entered, press the
Enter key to store the information. The display will return to the Edit Input Zone Screen #4, dis-
playing the new information at the bottom of the screen.
Recall/Increment Function
In addition, the user may use the Recall/Increment function at any time when the cursor is on the
first letter of the Description, Adjective or Noun field as follows:
• If the zero key is pressed, a 0 is placed in the first letter position
1=STANDARD ADJECTIVE
2=STANDARD NOUN
3=CUSTOM ADJECTIVE
4=CUSTOM NOUN
Adjective/Noun Screen
1=BASEMENT
2=BOILER RM
3=CLASSROOM
Noun Screen #1
1=CLOSET
2=CORRIDOR
3=ELECTRIC RM
Noun Screen #3
1=ELEVATOR
2=ENTRANCE
3=FLOOR
Noun Screen #5
1=GARAGE
2=HALLWAY
3=HVAC RM
Noun Screen #7
1=KITCHEN
2=LOBBY
3=OFFICE
Noun Screen #2
1=STAIRWAY
2=STOREROOM
3=WING
Noun Screen #6
1=PATIENT
2=RESTROOM
3=ROOM
Noun Screen #4
1=ZONE
Noun Screen #8
1=STANDARD ADJECTIVE
2=STANDARD NOUN
3=CUSTOM ADJECTIVE
4=CUSTOM NOUN
Adjective/Noun Screen
INPUT ZONE #
1=ADJECTIVE/NOUN
2=DESCRIPTION
Edit Input Zone Screen #4
ZONE # DESCRIPTION
PRESS ENTER IF DONE
Adjective/Noun Screen

66 MS-5UD & MS-10UD Series Manual — P/N 52626:C4 3/7/2014
Programming Master Programming Level
• If the zero key is then pressed a second time with no intervening key actions, the entire field is
replaced with the field entered for the previous device programmed, and the cursor moves to
the last character of the field (Recall function). The Recalled Adjective or Noun field may
now be changed letter-by-letter
• If the zero key is pressed again with no other intervening key actions and the last character in
the field is a number 0-9, the number is incremented by one. If the last character is a letter, it
changes to a 0. If the last character goes from 9 to 0 and the characters to the left of the last
character are also numbers, they are also incremented (overflow)
• The above increment function may be repeated with each press of the zero key
As an example, the user could quickly enter ‘FLR_3_ROOM_305’ as follows:
1. The cursor is on the first letter of the Adjective field. Press the zero key twice to display
FLR_3.
2. With the cursor on the first letter of the Noun field, press the zero key twice to recall the dis-
play ROOM_304. The cursor automatically jumps from the first to the last letter of the Noun
field.
3. With the cursor on the last letter of the Noun field, press the zero key again to increment the
room number to 305.
4. Press the Enter key to store the information.
3.5.2 NAC (Notification Appliance Circuit)
The options for the NACs on the control panel main circuit board can be configured by pressing 2
while viewing Programming Screen #2. The following screens will be displayed:
The Notification Appliance Circuits can be configured independently by pressing 1 for NAC 1, 2
for NAC 2, 3 for NAC 3, or 4 for NAC 4.
To program an NAC circuit, press the number corresponding to the NAC to be programmed. The
following screens will be displayed for each selection:
Enabled
Pressing 1 while viewing NAC Screen #1 will cause the display to change to Enabled No. This will
prevent the selected main circuit board NAC from activating its devices. Each press of the 1 key
will cause the display to toggle between Enabled Yes and Enabled No.
Note that if a circuit is disabled, a trouble will be logged on the FACP until the circuit is enabled.
PROGRAMMING
1=INPUT ZONES
2=NACS
3=RELAYS
Programming Screen #1
NACS
1=NAC 1 3=NAC 3
2=NAC 2 4=NAC 4
NAC Selection Screen
NAC #
1=ENABLED YES
2=CODING
STEADY
NAC Screen #1 NAC Screen #2
NAC #
1=SILENCE YES
2=AUTO SILENCE NO
3=SIL INHIBITED NO
NAC #
1=ENABLED
2=CODING
STEADY
NAC Screen #1

MS-5UD & MS-10UD Series Manual — P/N 52626:C4 3/7/2014 67
Master Programming Level Programming
NAC Coding
The Coding feature allows the programmer to select the type of output that the main circuit board
notification appliances will generate when activated. Pressing 2 while viewing NAC Screen #1
will cause the following displays to appear:
The programmer can select the notification appliance output by pressing the number corresponding
to the desired output. The coding selections are:
• Steady - a continuous output with no coding
• March Time - 120 ppm (pulse-per-minute) output
• California - 10 seconds on and 5 seconds off
• Temporal - ½ second on, ½ second off, ½ second on, ½ second off, ½ second on, 1½ second off
• Two Stage 3 Minutes or 5 Minutes - refer to “Two Stage Operation” on page 68 for a
description of this feature
• Synchronized output for System Sensor, Wheelock, Gentex, Faraday or Amseco - Refer to
“Synchronized NAC Operation” on page 68 for additional information
Selection of one of the above options will cause the control panel to store the information in mem-
ory and return the display to NAC Screen #1, which will display the new coding choice.
Two Stage Operation
Two Stage operation consists of the following:
• 1st stage output - 20 ppm (pulse-per-minute) coding
• 2nd stage output - Temporal coding as described above
• Acknowledge button functions as the automatic alarm signal cancel button
If Two Stage operation is programmed as the Coding option, the following sequence of events will
occur during an alarm.
1. The on-board NACs will activate with a 1st stage output upon activation of any alarm.
2. If, after the programmed time of 3 or 5 minutes, the Acknowledge switch has not been pressed,
all NACs presently in 1st stage activation will go to 2nd stage activation.
3. If an Acknowledge switch has been pressed, the Alarm LED will turn from flashing to steady.
Any NACs currently in 1st stage activation will remain in 1st stage. Pressing the Acknowl-
edge switch does not affect NACs already in 2nd stage activation.
4. If another alarm point is activated and the countdown timer is counting, the alarm point will
have no effect on the NACs.
5. If another alarm point is activated and the countdown timer has stopped counting due to the
Acknowledge switch being pressed, the countdown timer will restart and the NACs will
respond as outlined in step 1. NACs already in 2nd stage activation will not be affected.
CODING
1=STEADY
2=MARCH TIME
3=CALIFORNIA
Coding Screen #1
CODING
1=TEMPORAL
2=TWO STAGE 3 MIN
3=TWO STAGE 5 MIN
Coding Screen #2
CODING
1=SYNC SYSTEM SENSR
2=SYNC WHEELOCK
3=SYNC GENTEX
Coding Screen #3
CODING
1=SYNC FARADAY
2=SYNC AMSECO
Coding Screen #4

68 MS-5UD & MS-10UD Series Manual — P/N 52626:C4 3/7/2014
Programming Master Programming Level
Synchronized NAC Operation
Synchronization is a panel feature that controls the activation of notification appliances in such a
way that all devices will turn on and off at exactly the same time. This is particularly critical when
activating strobes which must be synchronized to avoid random activation and a potential hazard or
confusion. The FACP can be programmed to operate with a variety of manufacturer’s devices.
Maximum Number of Strobes for Synchronization
The maximum current draw for a Notification Appliance Circuit cannot exceed 2.5 amps for mod-
els with the FLPS-3 power supply or 3.0 amps for models with the FLPS-7 power supply (refer to
the AC Power section under“Specifications” on page 15). Refer to the manufacturer’s documenta-
tion supplied with the Strobes to determine the maximum current draw for each strobe and ensure
that the circuit maximum is not exceeded.
To ensure proper strobe and circuit operation, there is also a limit to the number of strobes that can
be attached to each circuit. Following is a list of the strobes that have been tested with this FACP
and the maximum number that can be connected to each NAC. Make sure that the NAC maximum
current is not exceeded:
Silence
Pressing 1 while viewing NAC Screen #2 will cause the following screen to be displayed:
Pressing 1 while viewing the Silenceable Screen will program the selected NAC as a silenceable
circuit. This will allow the NAC to be silenced by pressing the Alarm Silence key or by the Auto
Silence feature.
Pressing 2 while viewing the Silenceable Screen will program the selected NAC as a nonsilence-
able circuit. This will prevent the selected main circuit board NAC from being silenced by pressing
the Alarm Silence key or by the Auto Silence feature.
Pressing 3 while viewing the Silenceable Screen will program the selected NAC as a synchronized
mute circuit. Refer to “Synchronized NAC Operation” on page 68 for a description of synchroni-
zation.
Important: When a Notification Appliance Circuit with a mix of audible and visual devices is pro-
grammed for Sync Mute, only the audible devices will be turned off if the Silence key is pressed or if
the Autosilence feature is enabled. The visual devices (strobes, etc.) will continue to operate.
Strobe Manufacturer FACP with FLPS-3 Power Supply:
Maximum Number of Strobes FACP with FLPS-7 Power Supply:
Maximum Number of Strobes
System Sensor 35 46
Wheelock 24 50
Gentex 22 39
Faraday 22 33
Amseco 19 34
NAC #
1=SILENCE YES
2=AUTO SILENCE NO
3=SIL INHIBITED NO
NAC Screen #2
SILENCEABLE
1=SILENCEABLE
2=NON SILENCEABLE
3=SYNC MUTE
Silenceable Screen

MS-5UD & MS-10UD Series Manual — P/N 52626:C4 3/7/2014 69
Master Programming Level Programming
Auto Silence
The Auto Silence feature, when enabled, automatically silences all main circuit board silenceable
notification appliances after a programmed length of time. To enable this feature and program the
time delay before Auto Silence activation, press 2 while viewing NAC Screen #2. The following
screens will be displayed:
To disable the Auto Silence feature, press 1 for No while viewing Auto Silence Screen #1. To
enable the Auto Silence feature, press the number corresponding to the time delay which will
elapse before Auto Silence activates. This information will be stored in memory and the display
will return to NAC Screen #1.
Silence Inhibited
The Silence Inhibit feature, when enabled, prevents the silencing of the selected main circuit board
NAC for a period of one minute. Resetting the FACP will also be prevented for one minute while
the NAC programmed for silence inhibit is activated. Pressing 3 while viewing NAC Screen #2
will cause a screen to be displayed with the options 1=No Silence Inhibit and 2=1 Min. Silence
Inhibit. Pressing 1 will disable the Silence Inhibit feature while pressing 2 will enable a 1 minute
Silence Inhibit for the selected Output.
3.5.3 Relays
Pressing 3 while viewing Programming Screen #1 will allow the programmer to configure the three
main circuit board Form-C relays. The following screen will be displayed:
To program Relay 1, 2 or 3, press the number corresponding to the selected relay. The following
screens will appear for each relay to be programmed:
While viewing the selected screen, press the number corresponding to the desired relay type to pro-
gram the main circuit board relay. The choice will be stored in memory and the display will return
to the Relay Type Screen which will show the programmed type choice. Press the Escape key to
return to the Relays Selection Screen and repeat the preceding procedure for the remaining relays.
3.5.4 System Setup
System Setup allows the programmer to configure the following control panel features:
•Timers: This option allows the programmer to set the PAS (Positive Alarm Sequence) time
delay, Pre-Signal time delay and Waterflow time delay
PROGRAM NAC #
1=SILENCEABLE YES
2=AUTO SILENCE NO
3=SIL INHIBITED NO
NAC Screen #2
AUTO SILENCE
1=NO
2=5 MINUTES
3=10 MINUTES
Auto Silence Screen #1
AUTO SILENCE
1=30 MINUTES
Auto Silence Screen #2
AUTO SILENCE
1=15 MINUTES
2=20 MINUTES
3=25 MINUTES
Auto Silence Screen #3
PROGRAMMING
1=INPUT ZONES
2=NACS
3=RELAYS
Programming Screen #1
RELAYS
1=RELAY 1 ALARM
2=RELAY 2 TROUBLE
3=RELAY 3 SUPERV
Relays Selection Screen
RELAY TYPE
1=ALARM
2=TROUBLE
3=SUPERVISORY
Relay Screen #1
RELAY TYPE
1=PROCESS MONITOR
2=AC LOSS
3=HAZARD
Relay Screen #3
RELAY TYPE
1=COMM FAIL
2=MEDICAL
3=SILENCEABLE ALARM
Relay Screen #2
NOTE: A relay programmed with the Silenceable Alarm type will deactivate when the FACP
Alarm Silenced LED is illuminated.

70 MS-5UD & MS-10UD Series Manual — P/N 52626:C4 3/7/2014
Programming Master Programming Level
•Banner: This option allows the user to change the top two lines of the LCD display from the
factory default readout, which is blank, to a user defined readout when the control panel is in
Normal condition
•Time-Date: This feature allows the programmer to set the time, display format (24 hr or 12 hr),
date and daylight savings time feature into the FACP memory
•Trouble Reminder: This feature, when enabled, provides an audible reminder that an alarm or
trouble still exists on the FACP after the control panel has been silenced. The control panel
piezo sounder will pulse once every 15 seconds during an alarm and every two minutes during
a trouble condition, after the Alarm Silence or Acknowledge key is pressed. The piezo will
continue to sound at these rates until the alarm or trouble condition is cleared. If the Trouble
Reminder feature is not enabled and a trouble condition is not cleared within 24 hours, the
panel will reactivate the trouble sounder and retransmit the trouble condition to the central
station if connected
•Canadian Option: This option allows the automatic programming of the FACP to Canadian
specifications (refer to “Canadian Option” on page 74).
Important! For Canadian Applications, this option must be set to ON prior to any other panel
programming.
•Charger Disable: This option allows the programmer to disable the onboard battery charger in
the event an external battery charger is being used
Pressing 1 for System Setup, while viewing Programming Screen #2, will cause the following
screens to be displayed:
Timers
Timer delays for PAS, Pre-signal and waterflow activation can be programmed by pressing 1 while
viewing System Setup Screen #1. The following screen will be displayed:
PAS (Positive Alarm Sequence) Delay
The factory default setting for PAS is 000 for no delay. To select a PAS delay of 001 to 180 seconds
for all devices programmed for PAS, press 1 while viewing Timer Screen #1. The following dis-
play will appear:
A flashing cursor is positioned in the lower left corner of the display. Enter a delay time consisting
of three digits, such as 005 for five seconds. Upon entering the third digit, the time delay will be
stored in the control panel memory and the display will return to the Delay Screen which will indi-
cate the new delay time.
PROGRAMMING
1=SYSTEM SETUP
2=OPTION MODULES
3=HISTORY
Programming Screen #2
SYSTEM SETUP
1=TIMERS
2=BANNER
3=TIME-DATE
System Setup Screen #1
SYSTEM SETUP
1=TROUBLE REMIND NO
2=CANADIAN OPTION OFF
3=CHARGR DISABLE NO
System Setup Screen #2
SYSTEM SETUP
1=TIMERS
2=BANNER
3=TIME-DATE
System Setup Screen #1
TIMERS
1=PAS DELAY 120
2=PRE SIGNAL 120
3=WATERFLW DELAY 0
Timer Screen #1
TIMERS
1=AC LOSS DELAY 2
Timer Screen #2
TIMERS
1=PAS DELAY 120
2=PRE SIGNAL 120
3=WATERFLW DELAY 0
Timer Screen #1
PAS DELAY
RANGE 000-180 SECONDS
PAS Delay Screen

MS-5UD & MS-10UD Series Manual — P/N 52626:C4 3/7/2014 71
Master Programming Level Programming
Pre-signal Delay
The factory default setting for Pre-signal delay is 000 for no delay. To select a Pre-signal delay of
001 to 180 seconds for all devices programmed for Pre-signal, press 2 while viewing Timer Screen
#1. The following screen will be displayed:
A flashing cursor is positioned in the lower left corner of the display. Enter a delay time consisting
of three digits, such as 009 for nine seconds. Upon entering the third digit, the time delay will be
stored in the control panel memory and the display will return to the Delay Screen which will indi-
cate the new delay time.
Note that the FACP can have both PAS and Pre-signal timers programmed with values but a zone
can only use either the PAS or Pre-signal feature, but not both.
Waterflow Delay
A delay can be added prior to declaring a waterflow type of alarm. Be careful to include any built-
in delays of the waterflow device. The factory default setting for Waterflow delay is 000 for no
delay. To select a Waterflow delay of 01 to 90 seconds for all devices programmed for Waterflow
delay, press 3 while viewing Timer Screen #1. The following screen will be displayed:
A flashing cursor is positioned in the lower left corner of the display. Enter a delay time consisting
of two digits, such as 25 for twenty-five seconds. Upon entering the second digit, the time delay
will be stored in the control panel memory and the display will return to the Delay Screen which
will indicate the new delay time.
AC Loss Delay
The reporting of a loss of AC power to a central station can be delayed by programming the length
of the desired delay. Press 1 while viewing Timer Screen #2 to display the following:
A flashing cursor will appear in the lower left corner of the display. The factory default setting is
02 hours. Type the two digit AC loss reporting delay in hours (00 to 24 hour delay). When the sec-
ond digit is entered, the display will return to AC Loss Delay Screen #1.
PRESIGNAL DELAY
RANGE 000-180 SECONDS
Pre-signal Delay Screen
TIMER
1=PAS DELAY 120
2=PRE SIGNAL 120
3=WATERFLW DELAY 0
Timer Screen #1
WATERFLOW DELAY
RANGE 00-90 SECONDS
Waterflow Delay Screen
TIMER
1=AC LOSS DELAY 2
Timer Screen #2
AC LOSS DELAY
RANGE 00-24 HOURS
AC Loss Delay Screen #1
NOTE: Upon the loss of AC power at the control panel, relays programmed for AC Loss will
transfer immediately, regardless of the AC Loss Delay setting. If no troubles other than AC Loss
exist in the panel, the System Trouble relay will delay activation for the duration of the AC Loss
Delay setting.

72 MS-5UD & MS-10UD Series Manual — P/N 52626:C4 3/7/2014
Programming Master Programming Level
Banner
The top line of the display, which appears when the control panel is in normal mode, can be
changed by using the Banner option. Pressing 2 while viewing System Setup Screen #1 will cause
the following to be displayed:
Pressing 1 while viewing the Select Banner Screen will display the following screen:
This screen allows the user to select the factory default Banner which will be displayed when the
system is in Normal Mode of operation. Press the Enter key to accept this as the default display.
Press the Escape key to cancel and return to the Select Banner Screen.
Pressing 2 wile viewing the Select Banner Screen will display the following screen:
This screen allows the programmer to enter a custom banner. A flashing cursor will appear in the
bottom left corner of the display. A maximum of 20 characters (including spaces) can be entered
into the screen. After entering up to 20 characters in the screen, press Enter to store the entry. To
quickly clear the current banner, press the CLR key.
To enter alphanumeric characters from the keypad, repeatedly press the appropriate key until the
desired character is displayed in the first position. For example, to enter the letter B, press the 2
(ABC) key three times to toggle through the characters 1, A, and B. Press the right arrow key to
move the cursor one position to the right and repeat the process to enter the next character. To enter
a space, press the * (QZ) key four times to place a blank in the desired position. When all charac-
ters have been entered, press the Enter key to store the information. The display will return to the
Select Banner Screen.
Time-Date
The control panel time and date can be changed by pressing 3 while viewing the System Setup
Screen #1. The following screen will be displayed:
SYSTEM SETUP
1=TIMERS
2=BANNER
3=TIME-DATE
System Setup Screen #1
SELECT BANNER
1=FACTORY BANNER
2=USER BANNER
Select Banner Screen
FACTORY BANNER
PRESS ENTER IF OK
User Defined Banner Screen #1
USER BANNER-LINE 1
PRESS ENTER IF OK
User Defined Banner Screen
SYSTEM SETUP
1=TIMERS
2=BANNER
3=TIME-DATE
System Setup Screen #1
TIME AND DATE
1=TIME 10:00 AM
2=DATE 07072007
3=CLOCK FORMAT 12HR
Time-Date Screen #1
TIME AND DATE
1=DAYLIGHT SAVINGS
Time-Date Screen #2

MS-5UD & MS-10UD Series Manual — P/N 52626:C4 3/7/2014 73
Master Programming Level Programming
Time
To change the time, press 1 while viewing the Time-Date Screen. The following screen will be dis-
played:
A flashing cursor is located toward the top left of the display. Below the cursor is the current time.
To change the time, enter the two-digit hours followed by the two-digit minutes. The cursor will
move one position to the right each time a digit is entered. After the last minutes digit is entered,
the cursor will again move one position to the right. At this point enter 1 for AM or 2 for PM. The
display will then return to the Time-Date Screen which will show the new time entry. If an error is
made while entering a digit, press the CLR key to delete the entire entry and beginning again.
Date
To change the date, press 2 while viewing the Time-Date Screen. The following screen will be dis-
played:
A flashing cursor is located toward the top left of the display. Below the cursor is the current date.
To change the date, enter the two-digit month followed by the two-digit day and then the two-digit
year (07 for 2007, 08 for 2008, etc.). The cursor will move one position to the right each time a
digit is entered. After the last year digit is entered, the display will return to the Time-Date Screen
which will show the new date entry. If an error is made while entering a digit, press the CLR key to
delete the entire entry and beginning again.
Clock Format
The clock can be configured to display 12 hour (AM & PM) or 24 hour (military) time. Pressing 3
while viewing the Time-Date screen will cause the display to toggle between 12HR and 24HR.
Select 12HR for 12 hour display or 24HR for 24 hour display.
Daylight Savings Time
Pressing 1 while viewing Time-Date Screen #2 will cause the following screens to be displayed:
Pressing 1 while viewing Daylight Savings Screen #1 will cause the display to toggle between
Enabled Yes and Enabled No. The control panel will automatically update the time for daylight
savings time when Enabled Yes is selected.
Pressing 2 while viewing Daylight Savings Screen #1 will display another screen which allows the
programmer to select the month that daylight savings time will begin. In this sub-screen, pressing
1 will select March, 2 will select April, and 3 will select May.
ENTER TIME AS 12HRS
10:00 AM
1=AM 2=PM
Time Screen
ENTER DATE
--
MONTH DAY YEAR
07-07-2007
Date Screen
NOTE: If the clock is changed to 24 hour (military) format, the date will change to the European
standard of Day-Month-Year (for display purposes only).
TIME AND DATE
1=DAYLIGHT SAVINGS
Time & Date Screen #2
DAYLIGHT SAVINGS
1=ENABLED YES
2=START MONTH MAR
3=START WEEK WK 2
Daylight Savings Screen #1 Daylight Savings Screen #2
DAYLIGHT SAVINGS
1=END MONTH NOV
2=END WEEK WK 1

74 MS-5UD & MS-10UD Series Manual — P/N 52626:C4 3/7/2014
Programming Master Programming Level
Pressing 3 while viewing Daylight Savings Screen #1 will display two sub-screens which allow the
programmer to select the week of the month that daylight savings time will begin. In the first sub-
screen, pressing 1 will select the first week, 2 will select the second week, and 3 will select the third
week, while in the second sub-screen, pressing 1 will select the fourth week, and 2 will select the
last week of the selected month.
Pressing 1 while viewing Daylight Savings Screen #2 will display another screen which allows the
programmer to select the month that daylight savings time will end. In this sub-screen, pressing 1
will select September, 2 will select October, and 3 will select November.
Pressing 2 while viewing Daylight Savings Screen #2 will display two sub-screens which allow the
programmer to select the week of the month that daylight savings time will end. In the first sub-
screen, pressing 1 will select the first week, 2 will select the second week, and 3 will select the third
week, while in the second sub-screen, pressing 4 will select the fourth week, and 5 will select the
last week of the selected month.
Trouble Reminder
The Trouble Reminder features causes the control panel piezo to sound a reminder ‘beep’ for
alarms and troubles, after the panel has been silenced. Refer to “System Setup” on page 70, for a
detailed description of this feature. Pressing 1 while viewing System Setup Screen #2 will cause
the display to toggle to Trouble Rem Yes, which enables this feature. Each press of the 1 key will
cause the display to toggle between Trouble Rem Yes and Trouble Rem No.
Note that if the Trouble Reminder feature is not enabled, a trouble existing on the panel for more
than 24 hours will cause the FACP to resound the trouble sounder.
Canadian Option
Pressing 2 while viewing System Setup Screen #2 will configure the FACP to comply with Cana-
dian requirements. The display will change to Canadian Opt. On. Each press of the 2 key will
cause the display to toggle between Canadian Opt. On and Canadian Opt. Off. The factory default
setting is Canadian Opt. Off.
For Canadian applications, remote annunciation must be done using the secondary ANN-BUS.
The Canadian Options configures the FACP with the following as required by Canada:
• The following zone type codes are not available:
non-latching supervisory
non-latching drill
process monitor (latching or non-latching)
hazard
tornado
medical alert
combo autoresettable
• The auto-silence feature can be enabled or disabled. If this feature is enabled, the alarm signals
will be turned off after 20 minutes of activation
• The installer must write in the Date of Final Assembly on the Master Marking and Warranty
label, located on the FACP backbox door
Charger Disable
Pressing 3 while viewing System Setup Screen #2 will allow the programmer to enable or disable
the onboard battery charger. If an external battery charger is being used, the onboard battery char-
ger must be disabled. Each press of the 3 key will toggle between Chrgr Disable No and Chrgr
Disable Yes.
SYSTEM SETUP
1=TROUBLE REMIND NO
2=CANADIAN OPTION OFF
3=CHARGR DISABLE NO
System Setup Screen #2

MS-5UD & MS-10UD Series Manual — P/N 52626:C4 3/7/2014 75
Master Programming Level Programming
3.5.5 Option Modules
Options available for the FACP include annunciators, printer connection for acquiring hardcopy
printouts of panel data and onboard DACT.
Pressing 2 while viewing Programming Screen #2 will display the following screen:
ANN-BUS
Pressing 1 while viewing the Option Modules screen will cause the control panel to display the fol-
lowing screens.
A variety of ANN-BUS option modules can be installed in the FACP. These devices communicate
with the FACP over the ANN-BUS terminals on the control panel.
ANN-BUS Enabled
The ANN-BUS must be enabled if any modules are installed on the ANN-BUS terminals. To
enable the ANN-BUS, press 1 while viewing ANN-BUS screen #1 so that the display reads ANN-
BUS Enabled Yes. Each press of the 1 key will cause the display to toggle between ANN-BUS
Enabled Yes and ANN-BUS Enabled No.
BUS Modules
If an ANN-BUS module is installed, press 2 while viewing ANN-BUS screen #1 to select ANN-
BUS addresses for the module(s). The following screen will be displayed.
Pressing the down arrow key will allow the programmer to view additional screens displaying
Addresses 1 - 8. Pressing the number corresponding to the desired address will display a screen
with technical information about the selected module.
In the technical information screen, pressing 1 for Type will display the following screens:
Press the number corresponding to the module type, if any, that is installed with the selected
address. This will enable the module.
PROGRAMMING
1=SYSTEM SETUP
2=OPTION MODULES
3=HISTORY
Programming Screen #2
OPTION MODULES
1=ANN-BUS
2=ON BOARD DACT
ANN-BUS
1=BUS ENABLED NO
2=BUS MODULES
3=AUTO CONFIGURE
ANN-BUS Screen #1
ANN-BUS
1=ANN-S/PG OPTIONS
2=ANN-80 OPTIONS
3=ANN-RLY OPTIONS
ANN-BUS Screen #2
ANN-BUS
1=ANN-AUDIO OPTIONS
2=ANN-SEC ENABLE NO
ANN-BUS Screen #3
ANN-BUS MODULES
1=ADDR. 1 NONE
2=ADDR. 2 NONE
3=ADDR. 3 NONE
On Board DACT Screen #1
ANN-BUS MODULE TYPE
1=NOT INSTALLED
2=ANN-80
3=ANN-I/O
Module Type Screen #1
ANN-BUS MODULE TYPE
1=ANN-S/PG
2=ANN-RLY
3=ANN-LED
Module Type Screen #2
ANN-BUS MODULE TYPE
1=ANN-AUDIO MODULE
Module Type Screen #3

76 MS-5UD & MS-10UD Series Manual — P/N 52626:C4 3/7/2014
Programming Master Programming Level
Auto-Configure
The ANN-BUS Auto-Configure features allows the programmer to quickly bring all installed
ANN-BUS modules online. The software will search for all ANN-BUS modules and automatically
program the device type and address into the system. Pressing 3 while viewing ANN-BUS Screen
#1 will begin the Auto-Configure process and cause the following screen to be displayed:
ANN-S/PG Options Screen
The Printer Option allows the user to configure the optional printer. Pressing 1 while viewing the
ANN-BUS Screen #2 will display the following screens:
Pressing 1 for Port while viewing Printer Options screen #1 will allow the programmer to select
between a Parallel and Serial Port for printer connection. Each press of the 1 key will cause the dis-
play to toggle between Port PAR (parallel) and Port SER (serial). It is important to note that the
interface selected determines which options are available to the user.
If the Parallel Port option is selected, the user has the option to supervise the printer and select an
offline timer for the supervision by pressing 2 for Printer Supervision while viewing Print Options
screen #1. Each press of the 2 key will cause the display to toggle between Printer Supv NO for no
supervision and Printer Supv YES for printer supervision. Note that this option is not selectable if
the Serial Port option has been selected.
If the Parallel Port option is selected, the user has the ability to select an Offline Timer by pressing
3 while viewing Print Options screen #1. The resultant screen allows the programmer to program
the Offline Timer for a delay of between 0 and 255 seconds before loss of printer supervision is
reported as a trouble.
If the Serial Port option is selected, the Printer Supv and Offline Timer options will not be available.
The Baud Rate, Data Bits, Parity and Stop Bits options are only available when the Serial Port
option has been selected.
Pressing 1 for Baud Rate while viewing Printer Options screen #2 will cause a screen to appear
which allow the user to select a Baud Rate of 19200, 9600, or 2400.
Pressing 2 for Data Bits while viewing Printer Options screen #2 will cause screens to appear
which allow the user to select 5, 6, 7, or 8 Data Bits.
Pressing 3 for Parity while viewing Printer Options screen #2 will cause a screen to appear which
allows the user to select between No Parity, Even Parity, or Odd Parity.
Pressing 1 for Stop Bits while viewing Printer Options screen #3 will cause a screen to appear
which allows the user to select between 0.5, 1.0, or 2.0 Stop Bits.
ANN-I/O LED Zone Assignments
The information displayed by LEDs on every ANN-I/O module is not programmable and will
therefore be as indicated in the following table.
LED Zone (any address)
1 AC Fault
2 General Alarm
3 General Supervisory
ANN-BUS
AUTO-CONGFIGURE
IN PROGRESS
PLEASE WAIT
Auto-Configure Screen
PROGRAMMING
1=ANN-S/PG OPTIONS
2=ANN-80 OPTIONS
3=ANN-RLY OPTIONS
ANN-BUS Screen #2
ANN-S/PG OPTIONS
1=PORT PARALLEL
2=PRINTER SUPV NO
3=OFFLINE TIMER 60
Printer Options Screen #1
ANN-S/PG OPTIONS
1=BAUD RATE N/A
2=DATA BITS N/A
3=PARITY N/A
Printer Options Screen #2
ANN-S/PG OPTIONS
1=STOP BITS N/A
Printer Options Screen #3

MS-5UD & MS-10UD Series Manual — P/N 52626:C4 3/7/2014 77
Master Programming Level Programming
ANN-80 Options Screen
Pressing 2 while viewing ANN-BUS screen #2 will display the following screen:
The Piezo Enable option allows the programmer to select whether the piezo sounder on any
installed ANN-80 module will ever sound. Pressing 1 while viewing the ANN-80 Options Screen
#1 causes the display to toggle between Piezo Enable Yes and Piezo Enable No.
The Lock Enable option allows the programmer to select whether or not the ANN-80 annunciator
must be unlocked by its key before any annunciator key presses will function. Pressing 2 while
viewing the ANN-80 Options Screen #1 causes the display to toggle between Lock Enable Yes
(annunciator must be unlocked for keys to function) and Lock Enable No (lock position is ignored).
The Acknowledge Button Enable (ACK BTN ENABLE) option allows the programmer to select
whether the Ack/Step button on any installed ANN-80 annunciator will function normally or
always be ignored. Pressing 3 while viewing the ANN-80 Options Screen #1 causes the display to
toggle between Ack Btn Enable Yes (Ack/Step button functions normally) and Ack Btn Enable No
(Ack/Step button never functions).
4 General Trouble
5 Alarm Silenced
6 Earth Fault
7 Battery Fault
8 Charger Fault
9 Disable
10 Maintenance
11 Zone 1 Alarm
12 Zone 2 Alarm
13 Zone 3 Alarm
14 Zone 4 Alarm
15 Zone 5 Alarm
16 Zone 6 Alarm
17 Zone 7 Alarm
18 Zone 8 Alarm
19 Zone 9 Alarm
20 Zone 10 Alarm
21 Zone 1 Trouble
22 Zone 2 Trouble
23 Zone 3 Trouble
24 Zone 4 Trouble
25 Zone 5 Trouble
26 Zone 6 Trouble
27 Zone 7 Trouble
28 Zone 8 Trouble
29 Zone 9 Trouble
30 Zone 10 Trouble
31 Zone 1 Supervisory
32 Zone 2 Supervisory
33 Zone 3 Supervisory
34 Zone 4 Supervisory
35 Zone 5 Supervisory
36 Zone 6 Supervisory
37 Zone 7 Supervisory
38 Zone 8 Supervisory
39 Zone 9 Supervisory
40 Zone 10 Supervisory
ANN-80 OPTIONS
1=PIEZO ENABLE
2=LOCK ENABLE
3=ACK BTN ENABLE
ANN-80 Options Screen #1
ANN-80 OPTIONS
1=SIL BTN ENABLE
2=RST BTN ENABLE
3=DRL BTN ENABLE
ANN-80 Options Screen #2

78 MS-5UD & MS-10UD Series Manual — P/N 52626:C4 3/7/2014
Programming Master Programming Level
The Silence Button Enable (SIL BTN ENABLE) option allows the programmer to select whether the
Silence button on any installed ANN-80 annunciator will function normally or always be ignored.
Pressing 1 while viewing the ANN-80 Options Screen #2 causes the display to toggle between Sil
Btn Enable Yes (Silence button functions normally) and Sil Btn Enable No (Silence button never
functions).
The Reset Button Enable (RST BTN ENABLE) option allows the programmer to select whether the
Reset button on any installed ANN-80 annunciator will function normally or always be ignored.
Pressing 2 while viewing the ANN-80 Options Screen #2 causes the display to toggle between Rst
Btn Enable Yes (Reset button functions normally) and Rst Btn Enable No (Reset button never func-
tions).
The Drill Button Enable (DRL BTN ENABLE) option allows the programmer to select whether the
Drill button on any installed ANN-80 annunciator will function normally or always be ignored.
Pressing 3 while viewing the ANN-80 Options Screen #2 causes the display to toggle between Drl
Btn Enable Yes (Drill button functions normally) and Drl Btn Enable No (Drill button never func-
tions).
ANN-RLY Options Screen
Pressing 3 for ANN-RLY Options while viewing ANN-BUS Screen #2 will cause the following
screen to be displayed:
The ANN-RLY module provides ten Form-C relays which can be programmed for various func-
tions. The initial screen displays Relays 1 through 3. Pressing the down arrow key will display the
remaining relays for this module.
To program any of the ANN-RLY relays, while viewing the appropriate ANN-RLY Option screen,
press the number key corresponding to the relay to be programmed. Following is a list of the avail-
able programming options for each relay:
• General Alarm
• General Trouble
• General Supervisory
•AC Loss
• Waterflow Delay
• Input Zone 1
• Input Zone 2
• Input Zone 3
• Input Zone 4
• Input Zone 5
• Input Zone 6
• Input Zone 7
• Input Zone 8
• Input Zone 9
• Input Zone 10
• Silenceable Alarm
• Not Assigned
PROGRAMMING
1=ANN-S/PG OPTIONS
2=ANN-80 OPTIONS
3=ANN-RLY OPTIONS
ANN-BUS Screen #2
ANN-RLY OPTIONS
1=RELAY 1 IN ZONE 1
2=RELAY 2 IN ZONE 2
3=RELAY 3 IN ZONE 3
ANN-RLY Options Screen

MS-5UD & MS-10UD Series Manual — P/N 52626:C4 3/7/2014 79
Master Programming Level Programming
ANN-AUDIO Options Screen
Pressing 1 for ANN-AUDIO Options while viewing ANN-BUS Screen #3 will cause the following
screen to be displayed:
This screen shows the Input Zone that has been assigned to be the All-Call Zone. In this example,
Zone 1 is the All-Call Zone. The All-Call Zone can be changed by pressing the 1 key while view-
ing the ANN-AUDIO Options Screen. The following screens will be displayed.
These screens allow the programmer to select which Input Zone will be assigned as the All-Call
Zone.
ANN-SEC Enable
The ANN-SEC option must be enabled if any modules are connected to the ANN-SEC option card
at J13. To enable the Secondary ANN-BUS, press 2 while viewing ANN-BUS Screen #3 so that the
display reads ANN-SEC ENABLE YES. Each press of the 2 key will cause the display to toggle
between ANN-SEC ENABLE YES and ANN-SEC ENABLE NO. The factory default setting is ANN-
SEC ENABLE NO.
Onboard DACT
The Onboard DACT (Digital Alarm Communicator/Transmitter) provides communication to a cen-
tral station. Pressing 2 while viewing the Option Module Screen will cause the following screens
to be displayed:
Primary Phone
Press 1 while viewing Onboard DACT Screen to program the type of primary phone line being
connected to the DACT. The following screen will be displayed:
Press 1 to select Touchtone dialing, 2 to select Rotary dialing with a make/break ratio of 67/33, or 3
to select Rotary dialing with a make/break ratio of 60/40.
PROGRAMMING
1=ANN-AUDIO OPTIONS
ANN-BUS Screen #3
ANN-AUDIO OPTIONS
1=ALL CALL ZONE 1
ANN-AUDIO Options Screen
ANN-AUDIO ALL CALL
1=NO ALL CALL ZONE
2=INPUT ZONE 1
3=INPUT ZONE 2
All-Call Options Screen #1
ANN-AUDIO ALL CALL
1=INPUT ZONE 3
2=INPUT ZONE 4
3=INPUT ZONE 5
All-Call Options Screen #2
ANN-AUDIO ALL CALL
1=INPUT ZONE 9
2=INPUT ZONE 10
All-Call Options Screen #4
(MS-10UD Only)
ANN-AUDIO ALL CALL
1=INPUT ZONE 6
2=INPUT ZONE 7
3=INPUT ZONE 8
All-Call Options Screen #3
(MS-10UD Only)
OPTION MODULES
1=ANN-BUS
2=ON BOARD DACT
Option Module Screen
ANN-BUS
1=ANN-AUDIO OPTIONS
2=ANN-SEC ENABLE NO
ANN-BUS Screen #3
ON BOARD DACT
1=PRIM PHONE TCH TNE
2=SCND PHONE TCH TNE
3=CENTRAL STATION
ON BOARD DACT
1=SERVICE TERMINAL
2=SUPERV PHONE LINE
Onboard DACT Screen 1 Onboard DACT Screen 2
PHONE LINE
1=TOUCHTONE
2=ROTARY 67/33 (EURO)
3=ROTARY 60/40 (U.S.)
Primary Phone Type Screen

80 MS-5UD & MS-10UD Series Manual — P/N 52626:C4 3/7/2014
Programming Master Programming Level
Secondary Phone
Press 2 while viewing Onboard DACT Screen 1 to program the type of secondary phone line being
connected to the DACT. The following screen will be displayed:
Press 1 to select Touchtone dialing, 2 to select Rotary dialing with a make/break ratio of 67/33, or 3
to select Rotary dialing with a make/break ratio of 60/40.
Central Station
Central Station programming configures the control panel DACT for contacting the central station.
Pressing 3 while viewing Onboard DACT Screen 1 will cause the following screens to be dis-
played:
Reporting
To enable the DACT for reporting FACP activity to the central station, press 1 while viewing Cen-
tral Station Screen #1 so the display reads Reporting Yes. Each press of the 1 key will toggle the
display between Reporting Yes and Reporting No.
Report Style
The DACT can be programmed to transmit reports to primary and/or secondary central station
phone numbers as a backup. Press 2 while viewing Central Station Screen #1 to display the follow-
ing screen:
Press 1 to have all reports transmitted to the central station secondary phone number as a backup
only if the primary phone line fails, 2 to transmit all reports to both the primary and secondary
phone numbers all of the time, or 3 to send reports to the first available phone number.
Central Station Primary and Secondary Phone Numbers
Pressing 1 for Primary or 2 for Secondary, while viewing Central Station Screen #2, will display
the following screens.
Note that the following information must be entered for both the Primary and Secondary Central
Station Phone Numbers.
ON BOARD DACT
1=PRIM PHONE
2=SCND PHONE
3=CENTRAL STATION
Onboard DACT Screen #1
PHONE LINE
1=TOUCHTONE
2=ROTARY 67/33 (EURO)
3=ROTARY 60/40 (U.S.)
Secondary Phone Type Screen
ON BOARD DACT
1=PRIM PHONE
2=SCND PHONE
3=CENTRAL STATION
Onboard DACT Screen #1
CENTRAL STATION
1=REPORTING NO
2=REPORT STYLE
FIRST AVAILABLE
Central Station Screen #1
CENTRAL STATION
1=PRIMARY
2=SECONDARY
3=CALL LIMIT 0
Central Station Screen #2
REPORT STYLE
1=BACKUP ONLY
2=BOTH
3=FIRST AVAILABLE
Backup Reporting Screen
CENTRAL STATION
1=PRIMARY
2=SECONDARY
3=CALL LIMIT
Central Station Screen #2
CENTRAL STATION #
1=TEST TIME INT 24
2=ACCOUNT CODE 0000
3=24HR T TIME 0000
Primary/Secondary Screen #1
CENTRAL STATION
1=PHONE NUMBER
Primary/Secondary Screen #2
CENTRAL STATION
1=COMM FORMAT
ADEMCO CONTACT ID
2=EVENT CODES
Primary/Secondary Screen #3

MS-5UD & MS-10UD Series Manual — P/N 52626:C4 3/7/2014 81
Master Programming Level Programming
Test Time Interval
Pressing 1 while viewing Primary/Secondary Screen #1 will cause the following screens to be dis-
played:
The test report sent to the Central Station phone number may be sent once every 6, 8, 12 or 24
hours. Select the desired Test Time Interval by pressing the corresponding digit in the screens
shown above.
Account Code
Pressing 2 while viewing Primary/Secondary Screen #1 will cause the following screen to be dis-
played:
The Account Code, which is assigned by a Central Station, depends on the communication format
being used. The Account Code screen will have a flashing cursor in the lower left corner. Program
the supplied 4-digit account code using 0 - 9 and A - F keys. Enter the first digit, then press the
right arrow key to move the cursor to the right, one position. Repeat the process until all digits are
entered.
24 Hour Test Time
Pressing 3 while viewing Primary/Secondary Screen #1 will cause the following screen to be dis-
played:
Use the 24 Hour Test Time screen to program the time that the DACT will transmit the 24 Hour
Test to the Central Station. A flashing cursor will appear in the lower left corner of the screen.
Enter a four digit number representing the test time using military time (0000 = midnight and 2359
= 11:59PM).
Phone Number
Pressing 1 while viewing Primary/Secondary Screen #2 will cause the following screen to be dis-
played:
The Phone Number screen is used to enter the Central Station phone number that the DACT will be
contacting. A maximum of 20 characters can be entered with valid entries being 0 - 9 and A - C
where A = *, B = # and C = look for secondary dial tone for up to 2 seconds (then dial anyway).
A flashing cursor will appear in the lower left corner of the screen. Enter the first digit then press
the right arrow key to move the cursor to the right one position. Enter the second digit and repeat
the process until all digits are entered. Press the Enter key to store the phone number in memory.
CENTRAL STATION
1=TEST TIME INT
2=ACCOUNT CODE
3=24HR TST TIME
Primary/Secondary Screen #1
TEST TIME INTERVAL
1=24 HOURS
2=12 HOURS
3=8 HOURS
Test Time Interval Screen #1
TEST TIME INTERVAL
1=6 HOURS
Test Time Interval Screen #2
ACCOUNT CODE
RANGE 0000-FFFF
Account Codes Screen
CENTRAL STATION
1=TEST TIME INT
2=ACCOUNT CODE
3=24HR T TIME
Primary/Secondary Screen #1
24 HOUR TEST TIME
ENTR USING 24HR TIME
RANGE 0000-2359
24 Hour Test Time Screen
CENTRAL STATION
1=PHONE NUMBER
Primary/Secondary Screen #2
PHONE NUMBER
20 NUMBERS MAXIMUM
Phone Number Screen

82 MS-5UD & MS-10UD Series Manual — P/N 52626:C4 3/7/2014
Programming Master Programming Level
Enter the digits as you would like the number to be dialed. For example, if it’s necessary to dial 9
before dialing a number outside the building, you may wish to pause after dialing 9. Enter 9 fol-
lowed by D for a three second pause, or E for a five second pause then the phone number followed
by an F to indicate the end of the number.
Communication Format
Pressing 1 while viewing Primary/Secondary Screen #3 will cause the following screen to be dis-
played:
The Communication Format is determined by the type of receiver that the DACT is transmitting to.
Consult your Central Station for proper selection or consult our factory representatives. For any
format chosen, the control panel automatically programs all of the event codes.
Select the Communication Format by pressing the corresponding number key while viewing the
Comm Format screen. The following table describes each format:
Event Codes
Pressing 2 while viewing Primary/Secondary Screen #3 will cause the following screen to be dis-
played:
Pressing the down arrow key allows viewing of all Events associated with the selected Communi-
cation Format. Pressing the number corresponding to the event displayed in each screen will dis-
play its default active and restoral event codes which can be customized by the programmer.
For example, if Ademco Contact ID is the selected format, pressing 3 for Zone 3 Alarm will display
the following screen which allows the Event Code to be changed from the default value.
The following table lists the Zone Alarm Types that can be programmed for zones 1 through 10 and
the corresponding Event Codes for Ademco Contact ID and SIA DCS Formats. Note that Table 3.4
on page 84, Table 3.5 on page 85, Table 3.6 on page 86 and Table 3.7 on page 87 list the default set-
tings for Zone 1 through Zone 10. These can be changed to any of the Types listed in Table 3.3.
Screen Selection Communication Format Description
ADEMCO CONTACT ID Contact ID, DTMF, 1400/2300 ACK
SIA-DCS-8 Security Industry Association, 8 messages per call
SIA-DCS-20 Security Industry Association, 20 messages per call
Table 3.2 Communication Formats
CENTRAL STATION
1=COMM FORMAT
2=EVENT CODES
Primary/Secondary Screen #3
COMM FORMAT
1=ADEMCO CONTACT ID
2=SIA-DCS-8
3=SIA-DCS-20
EVENT CODES
1=ZONE 1 ALARM
2=ZONE 2 ALARM
3=ZONE 3 ALARM
Event Code Screen
ZONE 3 ACTIVE
115
NOTE: The third character in the SIA-DCS Format (x in the table below) represents the zone
number.

MS-5UD & MS-10UD Series Manual — P/N 52626:C4 3/7/2014 83
Master Programming Level Programming
The following tables list all of the Events and their default Event Codes for the Ademco Contact ID
and SIA-DCS Communication Formats.
Zone Alarm Type Ademco Contact ID SIA-DCS Format
Active Active Restoral
Pull-Station 115 FAx FHx
Waterflow 113 SAx SHx
Waterflow Nonsilenceable 113 SAx SHx
Combo 113 SAx SHx
Combo AutoResettable Supervisory 113 SAx SHx
2-Wire Detector 111 FAx FHx
Normally Open Contact 110 UAx UHx
Fire 110 FAx FHx
Tamper 144 TAx THx
Supervisory 200 FSx FVx
Supervisory AutoResettable 200 FSx FVx
Medic-Alert 100 MAx MHx
Hazard-Alert 150 PAx PHx
Tornado-Alert 150 PAx PHx
Proc-Mon 200 IAx IRx
Procmon-AR 200 IAx IRx
AC-Loss-Mon 301 ATx ARx
Drill-Switch 604 FIx FKx
Drill-Switch AutoResettable 604 FIx FKx
Table 3.3 Zone Alarm Type Event Codes
NOTE: A detector freeze condition will be reported as a Supervisory Event Code.

84 MS-5UD & MS-10UD Series Manual — P/N 52626:C4 3/7/2014
Programming Master Programming Level
Ademco Contact ID Format - Primary Central Station Phone Number
The information shown in Table 3.4 is automatically programmed for the Primary Central Station
phone number Event Codes when Ademco Contact ID Format is selected. To disable event report-
ing, select the desired Event Code to be disabled and press 0 or Clear and then Enter to disable it.
(Enter must be pressed to save the selection. Pressing Escape will not save the selection).
Event Description Event Code Settings Zone Code
Active
Primary # Zone 1 - 10 Alarm 115 001 - 010
Primary # Zone 1 - 10 Disabled 570 001 - 010
Primary # Drill 604 000
Primary # AC Fault 301 000
Primary # Zone 1 - 10 Fault 380 001 - 010
Primary # Zone 1 - 10 Dirty 380 001 - 010
Primary # Earth Fault 310 000
Primary # Low Battery Fault 302 000
Primary # No Battery Fault 311 000
Primary # Telco Primary Line Fault 351 001
Primary # Telco Secondary Line Fault 352 002
Primary # NAC #1 Fault 321 001
Primary # NAC #2 Fault 322 002
Primary # NAC #3 Fault 326 003
Primary # NAC #4 Fault 327 004
Primary # NAC #1 Disable 521 001
Primary # NAC #2 Disable 522 002
Primary # NAC #3 Disable 526 003
Primary # NAC #4 Disable 527 004
Primary # Charger Fault 300 000
Primary # Comm Trouble Primary # 354 001
Primary # Comm Trouble Secondary # 354 002
Primary # Printer Fault 336 000
Primary # ANN-Bus Fault 330 000
Primary # Option Card Fault 333 000
Primary # CS CALC Fault 304 000
Primary # System Off Normal 308 000
Primary # System Test Message 602 000
Primary # System Abnormal Test Message 608 000
Primary # Upload/Download Request 411 000
Primary # Upload Successful 416 000
Primary # Download Successful 412 000
Primary # Upload/Download Failed 413 000
Primary # Voice EVAC Fault 330 000
Primary # Power Supply Sync Fault 300 000
Table 3.4 Ademco Contact ID Primary # Event Codes

MS-5UD & MS-10UD Series Manual — P/N 52626:C4 3/7/2014 85
Master Programming Level Programming
Ademco Contact ID Format - Secondary Central Station Phone Number
The information shown in Table 3.5 is automatically programmed for the Secondary Central Sta-
tion phone number Event Codes when Ademco Contact ID Format is selected. To disable event
reporting, select the desired Event Code to be disabled and press 0 or Clear and then Enter to dis-
able it. (Enter must be pressed to save the selection. Pressing Escape will not save the selection).
Event Description Event Code Settings
Active
Secondary # Zone 1 - 10 Alarm 115
Secondary # Zone 1 - 10 Disabled 570
Secondary # Drill 604
Secondary # AC Fault 301
Secondary # Zone 1 - 10 Fault 380
Secondary # Zone 1 - 10 Dirty 380
Secondary # Earth Fault 310
Secondary # Low Battery Fault 302
Secondary # No Battery Fault 311
Secondary # Telco Primary Line Fault 351
Secondary # Telco Secondary Line Fault 352
Secondary # NAC #1 Fault 321
Secondary # NAC #2 Fault 322
Secondary # NAC #3 Fault 326
Secondary # NAC #4 Fault 327
Secondary # NAC #1 Disable 521
Secondary # NAC #2 Disable 522
Secondary # NAC #3 Disable 526
Secondary # NAC #4 Disable 527
Secondary # Charger Fault 300
Secondary # Comm Trouble Primary # 354
Secondary # Comm Trouble Secondary # 354
Secondary # Printer Fault 336
Secondary # ANN-BUS Fault 330
Secondary # Option Card Fault 333
Secondary # CS CALC Fault 304
Secondary # System Off Normal 308
Secondary # System Test Message 602
Secondary # System Abnormal Test Message 608
Secondary # Upload/Download Request 411
Secondary # Upload Successful 416
Secondary # Download Successful 412
Secondary # Upload/Download Failed 413
Secondary # Voice EVAC Fault 330
Secondary # Power Supply Sync fault 300
Table 3.5 Ademco Contact ID Secondary # Event Codes

86 MS-5UD & MS-10UD Series Manual — P/N 52626:C4 3/7/2014
Programming Master Programming Level
SIA-DCS Format - Primary Central Station Phone Number
The information shown in Table 3.6 is automatically programmed for the Primary Central Station
phone number Event Codes when SIA-DCS Format is selected. To disable event reporting, select
the desired Event Code to be disabled and press 0 or Clear and then Enter to disable it. (Enter
must be pressed to save the selection. Pressing Escape will not save the selection).
Event Description Event Code Settings
Active Restoral
Primary # Zone 1 Alarm FA1 FH1
Primary # Zone 2 Alarm FA2 FH2
Primary # Zone 3 Alarm FA3 FH3
Primary # Zone 4 Alarm FA4 FH4
Primary # Zone 5 Alarm FA5 FH5
Primary # Zone 6 Alarm FA6 FH6
Primary # Zone 7 Alarm FA7 FH7
Primary # Zone 8 Alarm FA8 FH8
Primary # Zone 9 Alarm FA9 FH9
Primary # Zone 10 Alarm FA10 FH10
Primary # Zone 1 Disabled FB1 FU1
Primary # Zone 2 Disabled FB2 FU2
Primary # Zone 3 Disabled FB3 FU3
Primary # Zone 4 Disabled FB4 FU4
Primary # Zone 5 Disabled FB5 FU5
Primary # Zone 6 Disabled FB6 FU6
Primary # Zone 7 Disabled FB7 FU7
Primary # Zone 8 Disabled FB8 FU8
Primary # Zone 9 Disabled FB9 FU9
Primary # Zone 10 Disabled FB10 FU10
Primary # Drill FI FK
Primary # AC Fault AT AR
Primary # Zone 1 Fault FT1 FJ1
Primary # Zone 2 Fault FT2 FJ2
Primary # Zone 3 Fault FT3 FJ3
Primary # Zone 4 Fault FT4 FJ4
Primary # Zone 5 Fault FT5 FJ5
Primary # Zone 6 Fault FT6 FJ6
Primary # Zone 7 Fault FT7 FJ7
Primary # Zone 8 Fault FT8 FJ8
Primary # Zone 9 Fault FT9 FJ9
Primary # Zone 10 Fault FT10 FJ10
Primary # Zone 1 Dirty FT1 FJ1
Primary # Zone 2 Dirty FT2 FJ2
Primary # Zone 3 Dirty FT3 FJ3
Primary # Zone 4 Dirty FT4 FJ4
Primary # Zone 5 Dirty FT5 FJ5
Primary # Zone 6 Dirty FT6 FJ6
Primary # Zone 7 Dirty FT7 FJ7
Primary # Zone 8 Dirty FT8 FJ8
Primary # Zone 9 Dirty FT9 FJ9
Primary # Zone 10 Dirty FT10 FJ10
Primary # Earth Fault ET38 ER38
Table 3.6 SIA-DCS Primary # Event Codes

MS-5UD & MS-10UD Series Manual — P/N 52626:C4 3/7/2014 87
Master Programming Level Programming
SIA-DCS Format - Secondary Central Station Phone Number
The information shown in Table 3.7 is automatically programmed for the Secondary Central Sta-
tion phone number Event Codes when SIA-DCS Format is selected. To disable event reporting,
select the desired Event Code to be disabled and press 0 or Clear and then Enter to disable it.
(Enter must be pressed to save the selection. Pressing Escape will not save the selection).
Primary # Low Battery Fault YT0 YR0
Primary # No Battery Fault YT0 YR0
Primary # Telco Primary Line Fault LT1 LR1
Primary # Telco Secondary Line Fault LT2 LR2
Primary # NAC #1 Fault ET32 ER32
Primary # NAC #2 Fault ET33 ER33
Primary # NAC #3 Fault ET34 ER34
Primary # NAC #4 Fault ET35 ER35
Primary # NAC #1 Disable ET101 ER101
Primary # NAC #2 Disable ET102 ER102
Primary # NAC #3 Disable ET103 ER103
Primary # NAC #4 Disable ET104 ER104
Primary # Charger Fault YP YQ
Primary # Comm Trouble Primary # YC1 YK1
Primary # Comm Trouble Secondary # YC2 YK2
Primary # Printer Fault VT VR
Primary # ANN-Bus Fault ET61 ER61
Primary # Option Card Fault ET ER
Primary # CS CALC Fault YF 000
Future 000 000
Primary # System Off Normal LB LX
Primary # System Test Message RP 000
Primary # System Abnormal Test Message RP99 000
Primary # Power Supply Sync Fault OU OV
Primary # Upload/Download Request RB 000
Primary # Upload Successful RS 000
Primary # Download Successful RS 000
Primary # Upload/Download Failed RU 000
Primary # Voice EVAC Fault ET ER
Primary # Power Supply Sync Fault OU OV
Event Description Event Code Settings
Active Restoral
Secondary # Zone 1 Alarm FA1 FH1
Secondary # Zone 2 Alarm FA2 FH2
Secondary # Zone 3 Alarm FA3 FH3
Secondary # Zone 4 Alarm FA4 FH4
Secondary # Zone 5 Alarm FA5 FH5
Secondary # Zone 6 Alarm FA6 FH6
Secondary # Zone 7 Alarm FA7 FH7
Secondary # Zone 8 Alarm FA8 FH8
Secondary # Zone 9 Alarm FA9 FH9
Secondary # Zone 10 Alarm FA10 FH10
Secondary # Zone 1 Disabled FB1 FU1
Table 3.7 SIA-DCS Secondary # Event Codes
Table 3.6 SIA-DCS Primary # Event Codes (Continued)

88 MS-5UD & MS-10UD Series Manual — P/N 52626:C4 3/7/2014
Programming Master Programming Level
Secondary # Zone 2 Disabled FB2 FU2
Secondary # Zone 3 Disabled FB3 FU3
Secondary # Zone 4 Disabled FB4 FU4
Secondary # Zone 5 Disabled FB5 FU5
Secondary # Zone 6 Disabled FB6 FU6
Secondary # Zone 7 Disabled FB7 FU7
Secondary # Zone 8 Disabled FB8 FU8
Secondary # Zone 9 Disabled FB9 FU9
Secondary # Zone 10 Disabled FB10 FU10
Secondary # Drill FI FK
Secondary # AC Fault AT AR
Secondary # Zone 1 Fault FT1 FJ1
Secondary # Zone 2 Fault FT2 FJ2
Secondary # Zone 3 Fault FT3 FJ3
Secondary # Zone 4 Fault FT4 FJ4
Secondary # Zone 5 Fault FT5 FJ5
Secondary # Zone 6 Fault FT6 FJ6
Secondary # Zone 7 Fault FT7 FJ7
Secondary # Zone 8 Fault FT8 FJ8
Secondary # Zone 9 Fault FT9 FJ9
Secondary # Zone 10 Fault FT10 FJ10
Secondary # Zone 1 Dirty FT1 FJ1
Secondary # Zone 2 Dirty FT2 FJ2
Secondary # Zone 3 Dirty FT3 FJ3
Secondary # Zone 4 Dirty FT4 FJ4
Secondary # Zone 5 Dirty FT5 FJ5
Secondary # Zone 6 Dirty FT6 FJ6
Secondary # Zone 7 Dirty FT7 FJ7
Secondary # Zone 8 Dirty FT8 FJ8
Secondary # Zone 9 Dirty FT9 FJ9
Secondary # Zone 10 Dirty FT10 FJ10
Secondary # Earth Fault ET38 ER38
Secondary # Low Battery Fault YT0 YR0
Secondary # No Battery Fault YT0 YR0
Secondary # Telco Primary Line Fault LT1 LR1
Secondary # Telco Secondary Line Fault LT2 LR2
Secondary # NAC #1 Fault ET32 ER32
Secondary # NAC #2 Fault ET33 ER33
Secondary # NAC #3 Fault ET34 ER34
Secondary # NAC #4 Fault ET35 ER35
Secondary # NAC #1 Disable ET101 ER101
Secondary # NAC #2 Disable ET102 ER102
Secondary # NAC #3 Disable ET103 ER103
Secondary # NAC #4 Disable ET104 ER104
Secondary # Charger Fault YP YQ
Secondary # Comm Trouble Primary # YC1 YK1
Secondary # Comm Trouble Secondary # YC2 YK2
Secondary # Printer Fault VT VR
Secondary # ANN-Bus Fault ET61 ER61
Secondary # Option Card Fault ET ER
Secondary # CS CALC Fault YF 000
Table 3.7 SIA-DCS Secondary # Event Codes (Continued)

MS-5UD & MS-10UD Series Manual — P/N 52626:C4 3/7/2014 89
Master Programming Level Programming
Trouble Call Limit (Dialer Runaway Prevention)
The Call Limit option limits the number of DACT trouble calls to the Central Station, to a pro-
grammed amount between 0 and 99, for each unique trouble within a 24 hour period. All call limit
counters reset (clear) at each midnight. Separate limit counters keep track of each unique type of
trouble. Note that the number of phone line (communication) faults called to the Central Station
are not limited by this feature. No subsequent restoral message is sent to the Central Station(s) for
a particular trouble whose call limit has been reached. Local DACT annunciation will still track the
particular trouble and restoral.
To set the Trouble Call Limit, press 3 while viewing Central Station Screen #2. The following
screen will be displayed.
Enter a value between 00 and 99, then press Enter to set the Call Limit to this value.
Service Terminal
The FACP can be programmed remotely from a PC using a modem and telephone line. Informa-
tion can also be retrieved from the FACP using the same method. The Upload/Download option
allows an operator to set the necessary parameters to allow the uploading and downloading of data
between the FACP and PC. The Service Terminal selection provides the means for entering these
parameters.
Pressing 1 while viewing Onboard DACT Screen #2 will cause the following screens to appear:
Ring Count
The ring count designates the number of rings allowed on the phone line prior to answering an
incoming call from a service terminal. The factory default is 0 which means the control panel will
not answer an incoming call. This entry may be programmed for 1 to 25 rings.
Secondary # System Off Normal LB LX
Secondary # System Test Message RP 000
Secondary # System Abnormal Test Message RP99 000
Secondary # Power Supply Sync Fault OU OV
Secondary # Upload/Download Request RB 000
Secondary # Upload Successful RS 000
Secondary # Download Successful RS 000
Secondary # Upload/Download Failed RU 000
Secondary # Voice EVAC Fault ET ER
Secondary # Power Supply Sync Fault OU OV
Table 3.7 SIA-DCS Secondary # Event Codes (Continued)
CENTRAL STATION
1=PRIMARY
2=SECONDARY
3=CALL LIMIT
Central Station Screen #2
TROUBLE CALL LIMIT
RANGE 00-99 TROUBLES
Backup Reporting Screen
NOTE: Entering a value of 00 will disable the Trouble Call Limit allowing the DACT to call the
Central Station an unlimited amount of times. This is the factory default setting.
DACT
1=SERVICE TERMINAL
2=SUPERV PHONE LINE
Onboard DACT Screen #2
SERVICE TERMINAL
1=RING COUNT 0
Service Terminal Screen
SERVICE TERMINAL
1=RING COUNT
Service Terminal Screen #2

90 MS-5UD & MS-10UD Series Manual — P/N 52626:C4 3/7/2014
Programming Master Programming Level
To change the Ring Count, press 1 while viewing the Service Terminal Screen #2. The following
screen will be displayed:
A flashing cursor will appear in the lower left corner of the display. Enter the two-digit ring
count which can be a value between 00 and 25. After the second digit is entered, the display
will return to the Service Terminal screen.
Supervised Phone Line
The Supervised Phone Line feature allows the user to disable the supervision of Phone Line 2 by
the DACT when using an alternate means of secondary transmission path. The factory default set-
ting is Phone Line 2 supervised.
Pressing 2 for Superv Phone Line while viewing Onboard DACT Screen 2 will cause the following
screen to be displayed:
Each press of the 1 key while viewing this screen will toggle the option between Supervise Phone
Line 2 Yes and No.
3.5.6 History
The History option allows an authorized user to view or erase events which have occurred in the
control panel. Pressing 3 while viewing Programming Screen #2 will display the History options
as shown in the following display:
View Events
Pressing 1 while viewing the History Screen will allow the user to select the events to be viewed as
illustrated in the following:
While displaying the View Events screen, press 1 to view all events, 2 to view only alarms, or 3 to
view other events. Use the up and down arrow keys to scroll through all of the displayed events.
RING COUNT
RANGE 00-25 RINGS
Ring Count Screen
DACT
1=SERVICE TERMINAL
2=SUPERV PHONE LINE
Onboard DACT Screen #2
SUPERVISE PHONE LINE
1=PHONE LINE 2 YES
PROGRAMMING
1=SYSTEM SETUP
2=OPTION MODULES
3=HISTORY
Programming Screen #2
HISTORY
1=VIEW EVENTS
2=ERASE HISTORY
History Screen
HISTORY
1=VIEW EVENTS
2=ERASE HISTORY
History Screen
HISTORY
1=VIEW ALL
2=VIEW ALARMS
3=VIEW OTHER EVENTS
View Events Screen

MS-5UD & MS-10UD Series Manual — P/N 52626:C4 3/7/2014 91
Master Programming Level Programming
Erase History
The Erase History option allows a user to erase all events from the history file. This will provide a
clean slate in order to use the history file to track future events. Pressing 2 while viewing the His-
tory Screen will display the following screen:
Pressing 1 while viewing the Erase History Screen will erase all events from the History file. After
the History file has been erased, the display will return to the History Screen.
3.5.7 Walktest
Walktest allows an individual to test the fire alarm system without the necessity to reset the control
panel after each device activation. Refer to the sections titled “Walktest” on page 94 and“Walktest”
on page 104 for additional information regarding the Walktest feature. Pressing 1 while viewing
the Programming Screen #3 will cause the following Walktest options to be displayed:
To perform a silent walktest which will not sound the NACs, press 1 while viewing the Walktest
Screen. To perform an audible walktest, which will sound the NACs, press 2 while viewing the
Walktest Screen. When either option is chosen, the panel will enter Walktest Mode and the follow-
ing screen will be displayed:
The user can now perform a one-person walktest by activating devices throughout the system. As
each device is activated, the screen will display the information about the activated device as shown
below. Note that the colon (:) in the time is replaced with an asterisk (*) to distinguish the walk-
test screen from an actual alarm screen.
After completion of the Walktest, press the Esc (Escape) key to exit Walktest Mode and return to
the Walktest Screen. The results of the Walktest can now be viewed by pressing 3 while viewing
the Walktest Screen. The following screen will be displayed:
Use the up and down arrow keys to view all of the walktest results which will be displayed as illus-
trated in the preceding screen. Note that the Walktest log is stored in RAM. If all power (AC and
DC) is removed from the FACP, the Walktest log information will be lost. This information is also
overwritten when subsequent walktests are performed.
ERASE HISTORY
PROCEED?
1=YES 2=NO
Erase History Screen
PROGRAMMING
1=WALKTEST
2=CLEAR PROGRAM
3=PASSWORD CHANGE
Programming Screen #3
WALKTEST
1=SILENT
2=AUDIBLE
3=VIEW RESULT
Walktest Screen
UNIT IN WALKTEST
Walktest Active Screen
ALARM ZONE 1
<ADJ> <NOUN>
Z01
1000A 010805
WALKTEST RESULTS

92 MS-5UD & MS-10UD Series Manual — P/N 52626:C4 3/7/2014
Programming Master Programming Level
3.5.8 Clear Program
Pressing 2 while viewing Programming Screen #3, will select the Clear Program option. The con-
trol panel will provide a warning to the user by prompting with the following display:
Pressing 1 will cause the control panel to carry out the selected clear option. Pressing 2 will pre-
vent programming from being cleared.
Printer/PC
A Printer or a PC can be connected to the control panel. Pressing 3 while viewing the Option Mod-
ule Screen will cause the following screen to appear:
Pressing 1 while viewing the Printer-PC Screen will program the control panel for an unsupervised
(NO SU) printer. The display will change to the Printer Baud Rate Screen as shown below.
Pressing 2 while viewing the Printer-PC Screen will program the control panel for a supervised
(SU) printer. Printer supervision, when enabled, will typically detect the removal of the printer
cable and will detect when the printer power has been turned off. Depending upon the brand of
printer, other errors such as paper empty or printer off-line may be detected.
The following screen will appear, which allows the programmer to select the baud rate for the
printer communication:
Pressing the number key corresponding to the desired baud rate (2 for 4800 Baud for example) will
program the control panel for the selected baud rate and return the display to the Option Module
Screen which will indicate Printer/PC PR4800 for a supervised printer installed at 4800 baud rate.
Pressing 3 while viewing the Printer-PC Screen will program the control panel for a PC connection.
The display will return to the Option Module Screen which will indicate Printer/PC PC for per-
sonal computer installed.
3.5.9 Password Change
The factory set passwords, which have been programmed into the control panel, can be changed by
selecting the Password Change option. Pressing 3 while viewing Programming Screen #3 will
cause the following screen to be displayed:
Press 1 to change the Master Programming Level password, 2 to change the Maintenance Level
password, or 3 to change the Remote Download password. Note that the passwords will not be dis-
played on annunciators.
PROGRAMMING
1=WALKTEST
2=CLEAR PROGRAM
3=PASSWORD CHANGE
Programming Screen #3
WARNING!
SYSTEM CHANGE
PROCEED?
1=YES 2=NO
OPTION MODULES
1=ANNUNCIATORS/UDACT
2=ON BOARD DACT
3=PRINTER/PC NO
Option Module Screen
PRINTER-PC
1=PRINTER NO SU NO
2=PRINTER SU YES
3=PC NO
Printer-PC Screen
PRINTER BAUD RATE
1=2400 BAUD
2=4800 BAUD
3=9600 BAUD
Printer Baud Rate Screen
PROGRAMMING
1=WALKTEST
2=CLEAR PROGRAM
3=PASSWORD CHANGE
Programming Screen #3
PASSWORD CHANGE
1=MASTER
2=MAINTENANCE
3=REMOTE DOWNLOAD
Password Change Screen

MS-5UD & MS-10UD Series Manual — P/N 52626:C4 3/7/2014 93
Maintenance Programming Level Programming
The following screen will appear when one of the change options is selected:
A flashing cursor will appear in the center of the display. Enter a new five digit password (such as
10101 for the Master Level). After the fifth digit is entered, the following screen will be displayed:
The new five digit password must be re-entered to accept the change. The display will then return
to the initial Password Change Screen.
3.6 Maintenance Programming Level
To access Maintenance Programming mode, press the Enter key. The LCD will display the follow-
ing:
To enter the Maintenance Programming mode, press 2. The display will read as follows:
When the Maintenance level password (default 11111) is entered, the following screen will appear:
Note that in the preceding screens, an arrow appears to inform the programmer that additional
options can be viewed by pressing the keypad down arrow key, as shown in the following screen.
3.6.1 Input Zones - Enable/Disable
The Zone Setup option allows the user to enable or disable desired zones. Pressing 1 for Zone
Setup, while viewing Maintenance Screen #1 will cause the following screens to be displayed:
ENTER NEW FIVE DIGIT
PASSWORD
Enter Password Screen
VERIFY NEW
PASSWORD
Password Change Screen
1=READ STATUS
2=PROGRAMMING
3=REMOTE DOWNLOAD
PROGRAMMING
ENTER PASSWORD
PROGRAMMING
1=INPUT ZONES
2=HISTORY
3=WALKTEST
PROGRAMMING
1=TIME-DATE
PROGRAMMING
1=INPUT ZONES
2=HISTORY
3=WALKTEST
Maintenance Screen #1
POINT PROGRAM
1=ZONE 1
2=ZONE 2
3=ZONE 3
Zone Select Screen

94 MS-5UD & MS-10UD Series Manual — P/N 52626:C4 3/7/2014
Programming Maintenance Programming Level
Pressing the down arrow key will display additional Zones (Zones 4 - 5 for MS-5UD and Zones 4 -
10 for MS-10UD). Select the number corresponding to the desired zone. A screen will appear
which will allow enabling or disabling of the selected zone, as illustrated in the following example:
Pressing 1 repeatedly will cause the display to toggle between Enabled Yes and Enabled No.
3.6.2 History
Pressing 2 while viewing Maintenance Screen #1 will cause the following screen to be displayed:
The History feature allows the operator to view control panel events which have been stored in a
history file in memory and erase the contents of the history file
Pressing 1 while viewing the History screen will cause the following screen to be displayed:
To view all the events which have occurred in the control panel since the history file was last
erased, press 1 while viewing the Events screen. To view only alarms/active events which have
occurred, press 2 while viewing the Events screen. To view events other than alarms, press 3. The
most recent event will be displayed on the screen. To view all of the selected events, press the up or
down arrow keys to scroll through the list of events. If no events have occurred, the display will
read NO EVENTS IN HISTORY.
Pressing 2 while viewing the History Screen will cause the following screen to be displayed:
Pressing 1 while viewing the Erase History Screen will erase all events from the History file. The
display will then return to the History Screen. Pressing 2 will cause the display to return to the His-
tory Screen without erasing the History file.
3.6.3 Walktest
To perform a walktest, press 3 while viewing Maintenance Screen #1. The following screen will be
displayed:
The operator can press 1 to perform a silent walktest or 2 to perform an audible walktest. The dis-
play will read UNIT IN WALKTEST. To end the Walktest, press the Esc (Escape) key.
ZONE 1
1=ENABLED YES
Enable/Disable Select Screen
HISTORY
1=VIEW EVENTS
2=ERASE HISTORY
History Screen
HISTORY
1=VIEW ALL
2=VIEW ALARMS
3=VIEW OTHER EVENTS
ERASE HISTORY
PROCEED?
1=YES 2=NO
Erase History Screen
PROGRAMMING
1=INPUT ZONES
2=HISTORY
3=WALKTEST
Maintenance Screen #1
WALKTEST
1=SILENT
2=AUDIBLE
3=VIEW RESULT
Walktest Screen

MS-5UD & MS-10UD Series Manual — P/N 52626:C4 3/7/2014 95
Maintenance Programming Level Programming
Pressing 3 after the walktest has been completed, will allow the operator to view the results of the
walktest.
3.6.4 Time-Date
To program the time and date into the control panel, press 1 while viewing Maintenance Screen #2.
The following display will appear:
To change the time, press 1 to display the following screen:
A flashing cursor will appear on the left side of the display. Enter the four digit number corre-
sponding to the time (0000 - 1259). When the fourth digit is entered, the cursor will move one
position to the right. Press 1 for AM or 2 for PM to complete entering the time. The display will
return to the Time and Date Screen displaying the new time.
To change the date, press 2 while viewing the Time and Date Screen. The following screen will be
displayed:
A flashing cursor will appear on the left side of the display. Enter the two digit month, two digit
day and four digit year. The cursor will move one position to the right after each entry. When the
fourth digit of the year has been entered, the display will return to the Time and Date Screen which
will show the new date.
To change between 12 hour and 24 hour format, press 3 while viewing the Time and Date screen.
Each press of the 3 key will toggle the display between 12 HR and 24 HR format.
PROGRAMMING
1=TIME-DATE
Maintenance Screen #2
TIME AND DATE
1=TIME 01:00 AM
2=DATE 10-09-2013
3=CLOCK FORMAT 12HRS
Time and Date Screen
ENTER TIME AS 12HRS
:
01:00 AM
1=AM 2=PM
Time Screen
ENTER DATE
--
MONTH DAY YEAR
10-15-2013
Date Screen
96 MS-5UD & MS-10UD Series Manual — P/N 52626:C4 3/7/2014
Section 4: Operating Instructions
4.1 Panel Control Buttons
4.1.1 Acknowledge/Step
The first press of the Acknowledge/Step key silences the piezo sounder, changes flashing LEDs to
steady and also changes the status field on the LCD display from capital letters to small letters
(TROUBL to Troubl). When the piezo is silenced, an acknowledge message is sent to the printer
and the history file. Acknowledge also sends a silence piezo command to the optional annunciators
connected to the FACP. The Acknowledge key will have no effect on the Notification Appliance
Circuits.
When more than one event exists, the first press of the Acknowledge/Step key functions as
described in the preceding paragraph. Subsequent pressing of the key steps through each active
event.
4.1.2 Alarm Silenced
The Alarm Silenced key performs the same functions as Acknowledge/Step except it will not step
through each event when multiple events are present at the panel. If an alarm exists, the Alarm
Silenced key turns off all silenceable NACs (Notification Appliance Circuits) and causes the Alarm
Silenced LED to turn on. It also sends an ‘alarm silenced’ message to the printer, history file and
optional annunciators. A subsequent new alarm will resound the system NACs. The Alarm
Silenced LED is turned off by pressing the Reset key, the Drill key or subsequent activation of the
NACs.
Note that if Silence Inhibit has been enabled, NACs cannot be silenced for one minute following
initiation of an alarm.
4.1.3 Drill/Hold 2 Sec
When the Drill key is held for a minimum of two seconds (time required to prevent accidental acti-
vations), the FACP turns on all NAC outputs and turns off the Alarm Silenced LED if it was previ-
ously on. The EVAC IN SYSTEM message is shown on the LCD display. The same message is sent
to the printer and history file. The Alarm Silence key can be used to turn off all silenceable NAC
outputs following activation by the Drill key.
4.1.4 Reset
Pressing and releasing the Reset key turns off all NACs, temporarily turns off resettable power to 4-
wire detectors, causes a RESET IN SYSTEM message to be displayed on the LCD and sends the
same message to the printer and history file. It also performs a lamp test by turning on all LEDs,
piezo sounder and LCD display segments after the Reset key is released. Any alarm or trouble that
exists after a reset will resound the system.
Note that if Silence Inhibit has been enabled, the FACP cannot be reset for one minute following
initiation of an alarm.
4.2 LED Indicators
The five LED indicators, which are located on the front panel, operate as follows:
AC Power
This is a green LED which illuminates if AC power is applied to the FACP. A loss of AC power
will turn off this LED

MS-5UD & MS-10UD Series Manual — P/N 52626:C4 3/7/2014 97
Normal Operation Operating Instructions
Fire Alarm
This red LED flashes when one or more alarms occur. It illuminates steady when the Acknowl-
edge/Step or Alarm Silence key is pressed. The Fire Alarm LED turns off when the Reset key is
pressed. The LED will remain off if all alarms have been cleared.
Supervisory
This is a yellow LED that flashes when one or more supervisory conditions occur, such as a sprin-
kler valve tamper condition. It illuminates steady when the Acknowledge/Step or Alarm Silence
key is pressed. It turns off when the Reset key is pressed and remains off if all supervisory alarms
have been cleared.
Trouble
This is a yellow LED that flashes when one or more trouble conditions occur. It stays on steady
when the Acknowledge/Step or Alarm Silence key is pressed. The LED turns off when all trouble
conditions are cleared. This LED will also illuminate if the microprocessor watchdog circuit is
activated.
Alarm Silenced
This is a yellow LED that turns on after the Alarm Silence key is pressed while an alarm condition
exists. It turns off when the Drill or Reset key is pressed.
4.3 Normal Operation
With no alarms or troubles in the system, the display message is System All Normal along with the
current time and date as shown below. To set the time and date, refer to the appropriate section in
this manual.
The FACP performs the following functions at regular intervals in Normal mode:
Monitors AC input voltage and battery voltage
Monitors and reports status option cards and control panel
Refreshes LCD display and updates time
Scans control panel keypad for key presses
Tests memory
Updates and reads all communications busses (EIA-485, etc.)
i3 smoke detectors will be polled for maintenance and freeze conditions on initial entry into
Normal mode. Thereafter, each device will be polled every hour for freeze and every four
hours for maintenance conditions
4.4 Trouble Operation
With no alarms in the system, the detection of a trouble will cause the following:
• The piezo to pulse 1 second On and 1 second Off
• The system Trouble LED to flash one second On and one second Off
SYSTEM ALL NORMAL
10:00A 070707
NOTE: To ensure that the system is functioning properly, the FACP will perform a freeze check
five minutes after the panel is reset, followed by a maintenance check. If there is no freeze or
maintenance condition, the panel will continue to monitor for freeze conditions every hour and
maintenance conditions every four hours.

98 MS-5UD & MS-10UD Series Manual — P/N 52626:C4 3/7/2014
Operating Instructions Trouble Operation
• The trouble relay to activate
•TROUBL with device type, adjective/noun, address and trouble description will appear on the
LCD display
• The same message, along with the time and date, is sent to the optional printer and the history
buffer.
• Communicate the trouble conditions to the Central Station
• Terminate upload or download communications
Note that specific troubles will initiate additional actions; for example, loss of AC power will turn
off the AC Power LED, etc.
Input Zone
For Input Zones, the following is a typical message that could appear on the LCD display for a
device trouble:
The information displayed in the above example provides the following information:
• First line in display:
– The type of event; in this example OPEN indicating a circuit trouble
– Device type identifier; in this example, PULL STATION indicates a manual device. Other
device type identifiers which can be displayed include SMOKE for Smoke Detector, HEAT
for Heat Detector, etc.
• Second line in display:
– <ADJ>; refers to the user programmed adjective descriptor from library list resident in the
control panel or custom entry via PC.
– <NOUN>; refers to the user programmed noun descriptor from library list resident in the
control panel or custom entry via PC.
• Third line in display indicates Zone and the fault condition. Other possible troubles include:
OPEN - indicating an open circuit
DIRTY - maintenance alert indicating that an i3 detector is near but below the allowed alarm
limit and is in need of maintenance before the performance is compromised
• Fourth line in display:
– Time; the current time in this example is 10:00A which represents 10:00 AM
– Date; the current month, day and year in this example is 10 for October, 09 for the 9th day of
the month and 13 for the year 2013
Pressing the Acknowledge/Step or Alarm Silence key will cause the pulsing piezo to silence and the
system Trouble LED to change from flashing to on steady. This block acknowledgment occurs
regardless of the number of troubles, alarms and supervisory events active in the system. When the
Acknowledge/Step key is pressed and at least one new alarm or trouble exists in the system, the
‘acknowledge’ message is sent to the printer and history file. If the trouble clears, either before or
after the Acknowledge/Step key is pressed, the ‘clear trouble’ message is sent to the printer and his-
tory file.
If all troubles clear and there are no supervisory or fire conditions active in the system, the system
returns to normal mode operation and the System All Normal message is shown on the LCD display
and sent to the history and printer files. The auto-restore feature will restore cleared troubles even
if the troubles were never acknowledged. Note that pressing the Alarm Silence key when only trou-
bles exist in the system will have the same effect as pressing the Acknowledge/Step key except the
Alarm Silenced LED will light.
TROUBL PULL STATION
<ADJ> <NOUN>
ZONE 10 OPEN FAULT
10:00A 100913

MS-5UD & MS-10UD Series Manual — P/N 52626:C4 3/7/2014 99
Alarm Operation Operating Instructions
4.5 Alarm Operation
Alarm operation is similar to trouble operation with the following differences:
• The piezo sounder produces a steady output as opposed to a pulsed output
• The Fire Alarm LED flashes 1 second On and 1 second Off
• The LCD displays Alarm along with the device name, type, adjective/noun, associated zones
and time/date
• Communicate the alarm to the Central Station
• Alarms latch and are not allowed to clear automatically
• Timers for Silence Inhibit, Autosilence and Trouble Reminder are started
• Alarms activate the alarm relay
• Silenced alarms are resounded
• The trouble relay is not activated
• Store event in history buffer
• Terminate upload or download communications
A typical alarm display would be as illustrated below:
Note that the device type, which in this example is PULL STATION, can be any other programma-
ble alarm type.
The information displayed in the above example provides the following information:
• First line in display:
– The type of event; in this example ALARM indicating an alarm condition
– Device type identifier; in this example, PULL STATION indicates a manual pull box. Other
device type identifiers which can be displayed include SMOKE for Smoke Detector, HEAT
for Heat Detector, etc.
• Second line in display:
– <ADJ>; refers to the user programmed adjective descriptor from library list resident in the
control panel or custom entry via PC.
– <NOUN>; refers to the user programmed noun descriptor from library list resident in the
control panel or custom entry via PC.
• Third line in display: Zone 10 indicates the zone programmed to this device which, in this
example, is Input Zone 10.
• Fourth line in display:
– Time; the current time in this example is 10:00A which represents 10:00 AM
– Date; the current month, day and year in this example is 10 for October, 09 for the 9th day of
the month and 13 for the year 2013
4.6 Supervisory Operation
Supervisory operation is similar to alarm operation but with the following differences:
• The piezo sounder pulses ½ second On and ½ second Off
• The Supervisory LED flashes ½ second On and ½ second Off
• The LCD displays the status label Active Supervisory along with the device name, type,
adjective/noun, associated zones and time/date
ALARM PULL STATION
<ADJ> <NOUN>
ZONE 10
10:00A 100913

100 MS-5UD & MS-10UD Series Manual — P/N 52626:C4 3/7/2014
Operating Instructions Process Monitor Operation
• Communicate the supervisory condition to the Central Station
• The supervisory relay is activated
• The alarm relay is not activated
• Silenced alarms are not resounded
• Timers are not started
• Store event in history buffer
• Terminate upload or download communications
A typical Supervisory event would be displayed as illustrated in the following:
In the preceding example:
• FROZEN SUPRV - indicates zone detector is below approximately 45oF
Note that, like alarms, supervisory signals latch, except when programmed for supervisory autore-
settable. Supervisory activations do not cause silenced alarms to resound, as do other alarm condi-
tions. Open circuits in supervisory wiring are processed by the control panel the same way as other
trouble conditions. Refer to “Alarm Operation” on page 99, for a description of the information
displayed on the control panel LCD.
4.7 Process Monitor Operation
Process Monitor operation will initiate the following events:
• The piezo sounder pulses ¼ second On and ¼ second Off
• The LCD displays a process monitor message along with the device name, type,
adjective/noun, associated zones and time/date
• Communicate the process monitor condition to the Central Station (if the default event code
has been changed from 000 to a reportable event code)
• Relays programmed for process monitoring will be activated
• The alarm relay is not activated
• Silenced alarms are not resounded
• Timers are not started
• Store event in history buffer
• Activate appropriate LED on the ANN-LED annunciator (required for this application)
Note that, like supervisories, process monitor signals latch, except when programmed for process
monitor autoresettable.
4.8 Hazard/Tornado Condition Operation
Hazard/Tornado operation is intended for Manual activation.
Hazard/Tornado Condition operation will initiate the following events:
• The piezo sounder pulses ¼ second On, ¼ second Off
• The LCD displays a hazard message along with the device name, type, adjective/noun,
associated zones and time/date
• Communicate the hazard condition to the Central Station (if the default event code has been
changed from 000 to a reportable event code)
• Relays programmed for hazard will be activated
FREEZE SUPERVISORY
<ADJ> <NOUN>
ZONE 05 FROZEN SUPRV
10:00A 100913

MS-5UD & MS-10UD Series Manual — P/N 52626:C4 3/7/2014 101
Medical Alert Condition Operation Operating Instructions
• The alarm relay is not activated
• Silenced alarms are not resounded
• Timers are not started
• Store event in history buffer
• Activate appropriate LED on the ANN-LED annunciator (required for this application)
Hazard conditions latch.
4.9 Medical Alert Condition Operation
Medical alert operation is:
• not intended for nurse call stations (applications) per UL1069.
• not intended for signaling professional medical staff.
• to be used for summoning security guards or other trained personnel within the facility
• intended for Manual activation.
Medical Alert Condition operation will initiate the following events:
• The piezo sounder ¼ second On, ¼ second Off
• The LCD displays a medical alert message along with the device name, type, adjective/noun,
associated zones and time/date
• Communicate the medical alert condition to the Central Station (if the default event code has
been changed from 000 to a reportable event code)
• Relays programmed for medical alert will be activated
• The alarm relay is not activated
• Silenced alarms are not resounded
• Timers are not started
• Store event in history buffer
• Activate appropriate LED on the ANN-LED annunciator (required for this application)
Medical alert conditions latch.
4.10 Disable/Enable Operation
Input zones which are disabled do not cause an alarm or any zone activation. Disabled NACs are
held in the off state. All disabled zones/NACs are treated as if they were in trouble, with the excep-
tion being the status label that will be displayed is DISABL.
4.11 Waterflow Circuits Operation
If an alarm exists from a zone that is a waterflow non-silenceable type, the Alarm Silence key will
not function.

102 MS-5UD & MS-10UD Series Manual — P/N 52626:C4 3/7/2014
Operating Instructions Detector Functions
4.12 Detector Functions
Maintenance Alert
i3 smoke detectors will be polled for maintenance and freeze conditions on initial entry into Normal
mode. Thereafter, each device will be polled every hour for freeze and every four hours for mainte-
nance conditions All alarm and system trouble conditions are annunciated on the control panel’s
LCD.
System Alarm Verification
The control panel may be programmed to perform alarm verification to help eliminate the nuisance
of false alarms. Alarm verification applies to smoke detectors only.
4.13 Time Functions: Real-Time Clock
The FACP includes a crystal-based clock that provides time of day, date and day of week. Time is
displayed as 12 or 24 hour time with month/day/year and is stored in RAM. Daylight savings time
change-over is programmable and automatic. If both AC and battery are lost, the time must be
reprogrammed.
4.14 Coded Operation
The NAC circuits resident on the control panel main circuit board can be programmed for coded
operation. The available pulse rates which can be programmed for coded operation are as follows:
• Continuous: Steady output with no pulsing
• March Time: Pulses at 120 ppm (pulses per minute)
• Temporal Code: Pulses at ½ second On, ½ second Off, ½ second On, ½
second Off, ½ second On, 1½ second Off
• California Code: 10 seconds On, 5 seconds Off
• Two-Stage: Pulses at 20 ppm (pulses per minute) for 3 or 5 minutes
and then changes to Temporal
4.15 Presignal
Presignal option programs an initiating device to delay the activation of NACs while allowing
visual verification by a person. Once a detector triggers an alarm, the onboard piezo sounds imme-
diately, but the NACs are not activated for a user programmed time duration of up to three minutes.
Note that the alarm relay and communicator will respond to the initial alarm immediately.
After the programmed delay, the NACs will activate if the source of the alarm is not cleared. Note
that if a second alarm occurs during the programmed time delay, the alarm will be processed imme-
diately, causing activation of the NACs. The events which occur upon Presignal activation are as
follows:
onboard piezo sounds immediately
control panel LCD display will indicate a presignal event and the active zone
annunciators (if enabled) will sound the local piezo, and pulse the alarm LED and zone LED
NOTE: To ensure that the system is functioning properly, the FACP will perform a freeze check
five minutes after the panel is reset, followed by a maintenance check. If there is no freeze or
maintenance condition, the panel will continue to monitor for freeze conditions every hour and
maintenance conditions every four hours.

MS-5UD & MS-10UD Series Manual — P/N 52626:C4 3/7/2014 103
Positive Alarm Sequence Operating Instructions
outputs (NACs) of associated zones will be inhibited from activating for a user programmed
time delay of up to three minutes
second alarm occurring anytime during the time delay will cause immediate activation of all
associated outputs
Presignal operation requires the approval of the local Authority Having Jurisdiction.
4.16 Positive Alarm Sequence
PAS (Positive Alarm Sequence) option will program a smoke detector to delay panel activation
(including alarm relay and communicator) for a period of 15 seconds.
When a detector triggers an alarm, the onboard piezo sounds immediately, but the NACs are pre-
vented from activating for 15 seconds. This inhibit time is factory set and cannot be changed.
Pressing the Alarm Silence or Acknowledge/Step key during the 15 second inhibit time will silence
the piezo sounder and start a timer which prevents activation of NACs for an additional time dura-
tion which can be user programmed for up to three minutes. After the programmed delay, the
NACs will activate if the source of the alarm is not cleared. Note that if a second alarm occurs
during either time delay, the alarm will be processed immediately, causing activation of the NACs.
The events which occur upon PAS activation are as follows:
onboard piezo sounds immediately
control panel LCD display will indicate a PAS event and the active zone
annunciators (if enabled) will sound the local piezo, and pulse the alarm LED and zone LED
outputs (NACs) of associated zones will be inhibited from activating for a factory set
duration of 15 seconds
pressing the Alarm Silence or Acknowledge/Step key will start a timer which inhibits output
activation for additional time delay of up to three minutes which is user programmable
second alarm occurring anytime during either time delay will cause immediate activation of
all associated outputs
PAS operation requires the approval of the local Authority Having Jurisdiction.
4.17 Special System Timers
4.17.1 Silence Inhibit Timer
This option, if selected, prevents the Alarm Silenced and Reset keys from functioning for 60 sec-
onds following an alarm. A new alarm during the initial 60 second period will not cause the timer
to restart with a new 60 seconds. Silence Inhibit operation requires the approval of the local
Authority Having Jurisdiction.
4.17.2 Autosilence Timer
If Autosilence is selected, the notification appliances, programmed as silenceable, will automati-
cally be silenced after a programmable duration of from 5 to 30 minutes. Pressing the Drill key
will restart the timer. Autosilence operation requires the approval of the local Authority Having
Jurisdiction.
4.17.3 Trouble Reminder
If selected, this feature causes a reminding ‘beep’ every 15 seconds during an alarm (after the
Alarm Silence key is pressed) and every two minutes during a trouble condition (after the Acknowl-
edge/Step or Alarm Silence key is pressed). The ‘beeps’ from the onboard piezo sounder will occur
until the alarm or fault is cleared.

104 MS-5UD & MS-10UD Series Manual — P/N 52626:C4 3/7/2014
Operating Instructions Walktest
Note that if Trouble Reminder feature is not selected and the trouble is not cleared within 24 hours,
the piezo will resound, indicating that the trouble condition still exists.
4.17.4 Waterflow Retard Timer
If selected, this option will delay the activation of a waterflow type alarm for a programmable time
duration from 1 to 90 seconds. This delay is in addition to any time delay inherent in the waterflow
device. This feature requires the approval of the local Authority Having Jurisdiction.
4.17.5 Alarm Verification (None or One Minute)
If alarm verification is selected, a smoke detector activation will cause the FACP to reset the detec-
tor by removing power for 6 seconds. Power is reapplied and a 17 second retard period begins
which allows all detectors to stabilize. If no other detectors alarm, there will be no alarm indication
at the FACP during the 23 second Reset/Retard period. A Confirmation period of 60 seconds fol-
lows, during which a subsequent alarm from the same detector will cause the panel to immediately
activate the appropriate outputs and indicate the alarm condition at the FACP. If a different detector
zone alarms any time during the first detector's Retard & Confirmation period, the panel will imme-
diately activate all appropriate outputs and indicate the alarm condition at the FACP. If no addi-
tional detector alarms occur within 83 seconds of the first alarm (23 second Reset/Retard plus 60
second Confirmation), the timer resets and the panel is ready to verify any new detector alarms
which may occur.
4.18 Walktest
Walktest is a feature which allows one person to test the fire alarm system. An audible walktest
will momentarily sound the Notification Appliance Circuits in the building and store the walktest
information in a file at the panel. A silent walktest will not sound the NACs but will store the walk-
test information in a file which can be viewed at the panel. Disabled NAC devices will not activate
during walktest. In addition, i3 smoke detectors will enter their own test mode causing their LEDs
to flash twice every five seconds (refer to i3 specification document).
Alarm/Shorted Condition
When in audible Walktest, the panel responds to each new alarm and activates the NACs for four
seconds. It also stores each alarm in the walktest history file which can be sent to an optional
printer. The stored display will be the same as if the device actually activated except the colon (:)
in the time stamp is replaced with an asterisk (*).
NOTE: Alarm Verification is available only for smoke detectors.
83 sec.
6 sec.
0 sec.
CONFIRMATION (60 seconds)
RESET
Alarm Ignored Control Panel Processes Alarm if Same Detector is Still in Alarm
Control Panel Immediately Processes Alarm
Detector Alarm
Verification
(Reset/Retard +
Confirmation)
Detector Goes Into Alarm
Different Detector Alarms
During First Detector's
Verification Period
23 sec.
RETARD

MS-5UD & MS-10UD Series Manual — P/N 52626:C4 3/7/2014 105
Read Status Operating Instructions
Open Condition
IDCs and all main circuit board NACs are monitored for fault conditions during Walktest mode.
When an open condition occurs on an IDC, the FACP will activate all enabled NACs during an
audible Walktest and remain activated until the open condition is cleared.
While in Walktest, the trouble relay is activated and the system Trouble LED flashes (as in all of
the Program and status change operations). The alarm relay is not activated.
4.19 Read Status
Read Status functions do not require a password. The control panel will continue to provide fire
protection while in Read Status mode. This mode can be entered while the control panel is in alarm
or trouble. If a new alarm or trouble occurs during these functions, the Read Status is exited to pre-
vent confusion.
Read Status Entry
When the operator presses the control panel Enter key, the LCD will display the following:
Pressing 1, while this screen is being displayed, will cause the control panel to enter the Read Sta-
tus mode which allows the user to view and print the programmed features and status of the control
panel.
The following screens will be displayed:
4.19.1 Input Zones
Pressing 1 while viewing Read Status Screen #1 will cause the following screens to be displayed:
Pressing the down arrow key will allow the selection of Zones 4-5 for the MS-5UD and Zones 4-10
for the MS-10UD.
NOTE: In Walktest, a NAC open or short fault will not cause the NACs to activate.
1=READ STATUS MODE
2=PROGRAMMING MODE
3=FUTURE USE
4=REMOTE DOWNLOAD
READ STATUS
1=INPUT ZONES
2=NACS
3=RELAYS
READ STATUS
1=SYSTEM SETTINGS
2=TIMERS
3=DAYLIGHT SAVINGS
Read Status Screen #1
Read Status Screen #3
READ STATUS
1=HISTORY
2=PRINTER
3=ANN-BUS
Read Status Screen #2
READ STATUS
1=CENTRAL STATION
2=PHONE LINES
3=SERVICE TERMINAL
Read Status Screen #4
READ STATUS
1=INPUT ZONES
2=NACS
3=RELAYS
Read Status Screen #1
INPUT ZONES
1=ZONE 1
2=ZONE 2
3=ZONE 3

106 MS-5UD & MS-10UD Series Manual — P/N 52626:C4 3/7/2014
Operating Instructions Read Status
The operator selects the zone which is to be viewed by pressing the number corresponding to the
desired zone in each screen. For example, if 1 is pressed, the display will change to a screen similar
to the following:
Pressing the down arrow key, while viewing the screen shown above, will allow the operator to
view additional programming information about the selected device, such as:
• Enable/Disable Status
• Device Type
• Alarm Verification On/Off (for detectors)
• PAS (Positive Alarm Sequence) Yes/No (for detectors only)
• Pre-Signal Yes/No (for detectors only)
• Input Zone Freeze Supervision
• Adjective/Noun descriptor
• ACC Message
• Description
4.19.2 NAC
Pressing 2 while viewing Read Status Screen #1 will display the following screen:
The operator can press 1 to view the programmed options for NAC 1, 2 to view the programmed
options for NAC 2, 3 to view the programmed options for NAC 3, or 4 to view the programmed
options for NAC 4.
The resulting screens will display the following information:
• Enable/Disable Status
• Coding Selection (Temporal, Steady, etc.)
• Silenceable/Nonsilenceable
• Auto Silence Enable/Disable and time delay (in minutes)
• Silence Inhibit Enabled/Disabled
4.19.3 Relays
Pressing 3 while viewing Read Status Screen #1 will display the following screen:
This screen allows the operator to view the programmed option for each relay.
PULL STATION
ZONE 1
PRESS TO VIEW
NAC STATUS
1=NAC 1 3=NAC 3
2=NAC 2 4=NAC 4
READ STATUS
1=INPUT ZONES
2=NACS
3=RELAYS
Read Status Screen #1
RELAY
1=RELAY 1 ALARM
2=RELAY 2 TROUBLE
3=RELAY 3 SUPERV

MS-5UD & MS-10UD Series Manual — P/N 52626:C4 3/7/2014 107
Read Status Operating Instructions
4.19.4 System Settings
Pressing 1 while viewing Read Status Screen #2 will display the following screens:
The operator can view the system settings options that have been programmed into the FACP.
4.19.5 Timers
Pressing 2 while Read Status Screen #2 will display the following screen:
These screens allow the operator to view the various timer settings.
4.19.6 Daylight Savings
Pressing 3 while Read Status Screen #2 will cause the following screens to be displayed:
These screens allow the operator to view settings that have been programmed for Daylight Savings
Time.
4.19.7 History
Pressing 1 while viewing Read Status Screen #3 will display the following screens:
The operator can view all events which have been stored in the history file, only alarms or other
events, such as troubles or supervisories, by pressing the corresponding number key.
4.19.8 Print
To print program data or control panel status, press 2 while viewing Read Status Screen #3. The
following screen will be displayed:
Pressing 1 while viewing the Print Screen allows the user to print the History file which will detail
all of the system activities since the file was last cleared from memory.
Pressing 2 while viewing the Print Screen allows the user to print the Walktest log which will detail
all of the system activations during walktest since the log was last cleared. Refer to “Walktest” on
page 91 for additional information on the display.
Pressing 3 while viewing the Print Screen will exit the Print operation.
READ STATUS
1=SYSTEM SETTINGS
2=TIMERS
3=DAYLIGHT SAVINGS
Read Status Screen #2
SYSTEM SETTINGS
TROUBLE REMIND NO
CANADIAN OPTION OFF
CHRGR DISABLE NO
SYSTEM SETTINGS
USER BANNER:
XXX XXXXX XXXX XXXX
READ STATUS
1=SYSTEM SETTINGS
2=TIMERS
3=DAYLIGHT SAVINGS
Read Status Screen #2
TIMERS
PAS DELAY 120
PRE SIGNAL 120
WATERFLOW DELA 0
TIMERS
AC LOSS DELAY 2
DAYLIGHT SAVINGS
ENABLED NO
START MONTH MAR
START WEEK WK 3
DAYLIGHT SAVINGS
END MONTH NOV
END WEEK WK 3
READ STATUS
1=HISTORY
2=PRINTER
3=ANN-BUS
Read Status Screen #3
HISTORY
1=VIEW ALL
2=VIEW ALARMS
3=VIEW OTHER EVENTS
PRINT
1=HISTORY
2=WALKTEST LOG
3=EXIT PRINTING

108 MS-5UD & MS-10UD Series Manual — P/N 52626:C4 3/7/2014
Operating Instructions Read Status
4.19.9 ANN-BUS
Pressing 3 while viewing Read Status Screen #3 will display the settings for the ANN-BUS options
as shown in the following screens:
ANN-BUS Screen #1 indicates whether the ANN-BUS is enabled (Yes/No).
Pressing 1 while viewing ANN-BUS Screen #1 will display BUS Module addresses 1-8 and the
devices, if any, located at those addresses.
Pressing 2 while viewing ANN-BUS Screen #1 will display the printer settings for the printer con-
nected to the FACP. This information includes:
• Serial or Parallel printer
• Printer Supervision (Yes or No)
• Off-line Timer setting
•Baud Rate
• Data Bits
•Parity
• Stop Bits
Pressing 1 while viewing ANN-BUS Screen #2 will display the programmed options for the ANN-
80 devices connected to the ANN-BUS. These include Piezo enable/disable, Lock enable/disable
and which buttons/keys on the annunciator are enabled/disabled.
Pressing 2 while viewing ANN-BUS Screen #2 will display the zone programming for each ANN-
RLY relay.
Pressing 3 while viewing ANN-BUS Screen #2 will display the zone, if any, that has been assigned
as the All-Call Zone.
4.19.10 Central Station
Pressing 1 while viewing Read Status Screen #4 will display the following screens:
Central Station Screen #1 indicates whether the Central Station Reporting is enabled or disabled
and if the Reports will be sent to one or both the Primary and Secondary Central Station phone
numbers. Central Station Screen #2 provides information on the Primary and Secondary Central
Station programming which includes:
• Test Time Interval
• Account Code
• 24 Hour Test Time
• Phone Number
• Communication Format
• Event Codes
This screen also displays the Call Limit for each unique DACT trouble call within a 24 hour period
READ STATUS
1=HISTORY
2=PRINTER
3=ANN-BUS
Read Status Screen #3
ANN-BUS
BUS ENABLED NO
1=BUS MODULES
2=ANN-S/PG OPTIONS
ANN-BUS
1=ANN-80 OPTIONS
2=ANN-RLY OPTION
3=ANN-AUDIO OPTIONS
ANN-BUS Screen #1 ANN-BUS Screen #2
READ STATUS
1=CENTRAL STATION
2=PHONE LINES
3=SERVICE TERMINAL
Read Status Screen #4
CENTRAL STATION
REPORTING YES
REPORT STYLE BOTH
Central Station Screen #1
CENTRAL STATION
1=PRIMARY
2=SECONDARY
3=CALL LIMIT 0
Central Station Screen #2

MS-5UD & MS-10UD Series Manual — P/N 52626:C4 3/7/2014 109
Read Status Operating Instructions
4.19.11 Phone Line
Pressing 1 while viewing Read Status Screen #4 will display the following screen:
The second and third lines of this screen indicate that both the Primary and Secondary phone lines
have been configured for touchtone dialing operation.
Pressing 1 for Superv Phone Line will cause the following screen to be displayed:
This screen indicates whether or not Phone Line 2 is being supervised by the DACT. The factory
default setting is Phone Line 2 supervised (Yes).
4.19.12 Service Terminal
Pressing 3 while viewing Read Status Screen #4 will display the following screens:
The Ring Count is displayed as the first item in the Service Terminal Screen.
PHONE LINES
PRIMARY TCH TNE
SECONDARY TCH TNE
3=SUPERV PHONE LINE
SUPERVISE PHONE LINE
PHONE LINE 2 YES
READ STATUS
1=CENTRAL STATION
2=PHONE LINES
3=SERVICE TERMINAL
Read Status Screen #4
SERVICE TERMINAL
RING COUNT 03
Service Terminal Screen
110 MS-5UD & MS-10UD Series Manual — P/N 52626:C4 3/7/2014
Section 5: Central Station Communications
The control panel transmits zone and system status reports to Central Stations via the public
switched telephone network. Two supervised telephone line connections are made to interface the
control panel to the telephone lines. Two optional 7 foot telephone cords are available for this pur-
pose and can be purchased separately.
The control panel supervises both telephone lines for proper voltage. A delay of two minutes will
occur before a fault in either phone line connection is reported as a trouble. When a fault is
detected, an audible trouble signal will sound, the LCD display will indicate the phone line trouble
and the trouble condition will be reported to the Central Station over the remaining operational
phone line.
The control panel comes with line seizure capability provided for both the primary and secondary
telephone line interfaces. Any time that the control panel needs to make a call to a Central Station,
line seizure will disconnect any local premises phones sharing the same telephone line.
All transmissions to the Central Stations will be sent over the primary phone line. In the event of
noisy phone lines, transmissions will be sent over the backup secondary phone line.
Two phone numbers must be programmed, the primary Central Station phone number and the sec-
ondary Central Station phone number. All system reports will be transmitted to the primary Central
Station phone number. Reports will automatically be sent to the secondary Central Station phone
number if attempts to transmits to the primary Central Station phone number are unsuccessful. If
10 total attempts to communicate are unsuccessful, a Communicator Failure report will be dis-
played. Note that as an option, all reports may also be sent to the secondary Central Station phone
number.
The FACP meets NFPA 72 National Fire Code reporting requirements for: (a) the type of signal, (b)
condition and (c) location of the reporting premises. The general priority reporting structure is:
1. Zone Alarms and Restores
2. Zone Troubles and Restores
3. System Troubles and Restores
4. 24-hour Test

MS-5UD & MS-10UD Series Manual — P/N 52626:C4 3/7/2014 111
Transmittal Priorities Central Station Communications
5.1 Transmittal Priorities
The integral communicator transmits highest priority events first. Events, in terms of priority, are
listed below in descending order:
1. Alarms (highest priority level)
Pull stations
Waterflow
Smoke detector
Other alarm types
2. Supervisory Zone
3. System Troubles
Zone disabled
Fire drill
AC fail (after delay)
Zonal faults
Earth fault
Low battery
Telephone line fault
Notification Appliance Circuits fault
Communication trouble
Annunciator trouble
System off normal
4. Restoral Reports
Zone alarm
Supervisory
Zone(s) enabled
Fire drill
AC
Zone fault
Earth
Battery
Telephone line
Notification Appliance Circuits
Communication
Annunciator trouble
System off normal
5. 24 Hour Test (lowest priority)

112 MS-5UD & MS-10UD Series Manual — P/N 52626:C4 3/7/2014
Central Station Communications Transmittal Priorities
The table below shows UL listed receivers which are compatible with the MS-5UD and MS-10UD.
1. With 685-8 Line Card with Rev. 4.4d software
2. With 124060V206B and 124063 Line Card Rev. B
3. With version V2.4 Receiver and 126047 Line Card Rev. G
4. With 124077V2.00 Receiver and 126047 Line Card Rev. M
5. With V.7301 Receiver S/W
6. With 01.01.03 Receiver S/W and Line Card 01.01.03
7. With software V1.86
8. With software V1.72
9. With DSP4016 and V1.6 Line Card
10. With software V3.9
IMPORTANT! It is the installer’s responsibility to ensure that the Digital Alarm Communica-
tor/Transmitter is compatible with the Central Station Receiver, utilized by the monitoring service,
prior to installation. The Compatibility Table provides a list of compatible receivers and associated
software versions for the receivers. Changes in the hardware and/or software by the receiver man-
ufacturers may affect the receiver compatibility with the FACP DACT. After completing the instal-
lation, communication between the DACT and Central Station Receiver must be tested and
verified.
Format
Ademco
685 (1)
Ademco
MX8000 (2)
Silent Knight
9500 (3)
Silent Knight
9800 (4)
Osborne Hoffman
2000E (5)
Radionics
6600 (6)
SurGard
MLR2 (7)
SurGard
System III (8)
SurGard
MLR-2000 (9)
FBI
CP220FB (10)
0 SIA-DCS-8
1 SIA-DCS-20
2 Ademco Contact ID
Table 5.1 Compatible UL Listed Receivers

MS-5UD & MS-10UD Series Manual — P/N 52626:C4 3/7/2014 113
Section 6: Local/Remote Site Upload/Download
The control panel may be programmed or interrogated off-site via the public switched telephone
network or locally using a USB cable. Any personal computer with Windows® XP or later, with a
2400 baud compatible modem or USB port and Upload/Download software PS-Tools on the CD
ROM P/N PK-CD, may serve as a Service Terminal. This allows download of the entire program
or upload of the entire program, history file, walktest data, current status, system voltages, time and
date.
Upload/Download Preparation
The PK-CD must be placed into the personal computer CD drive and the instructions that come
with it must be followed to install the PS-Tools utility onto the computer. Once that is done, the
PS-Tools utility must be set up to communicate using either a USB serial port or a dial-up modem.
For local USB programming, a standard male-A to male-B USB cable must be connected from the
PC’s USB port to the fire panel’s USB port (J11).
For remote modem programming, you must have the fire panel’s primary line telephone number
entered in the PS-Tools site information screens for that site. You must also change the fire panel’s
ring count from zero (the default) to answer after at least one ring.
Important: Modification of FACP programming requires that the panel be enabled for download
(refer to “Remote Download” on page 113). Remote interrogation of panel programming, history
logs, detector status, etc., is possible without enabling the remote download option.
CAUTION: After successfully downloading a program, make certain to perform the following
steps:
1. Print out all programmed data via Print Mode or manually view programmed entries and
compare to intended program data
2. Test all affected panel operations
3. Immediately correct any problems found
6.1 Remote Download
NFPA 72 requirements state that a technician must be on-site and at the control panel whenever the
Programming Utility is used to download any information to the FACP. This applies to local and
remote programming. For this reason, a new option has been added to the FACP which allows an
individual at the FACP to enter a password and either enable the proprietary mode where down-
loading will be allowed at any time or access a specific password protected screen where down-
loading will be allowed regardless of the current proprietary setting. The Remote Download option
can be selected from the main menu screen as shown below:
Pressing 4 for Remote Download while viewing the main menu will cause the following screen to
be displayed:
The Remote Download password (default 00000) must be entered to access the Remote Download
feature. Note that the default password can be changed using the Password Change option (refer to
“Password Change” on page 92).
1=READ STATUS MODE
2=PROGRAMMING MODE
3=FUTURE USE
4=REMOTE DOWNLOAD
REMOTE DOWNLOAD
ENTER PASSWORD

114 MS-5UD & MS-10UD Series Manual — P/N 52626:C4 3/7/2014
Local/Remote Site Upload/Download Transferring a Program
Entering the correct password will cause the following screen to be displayed:
Pressing 1 for Proprietary No (factory default setting), while viewing the Remote Download
screen, will cause the display to toggle from Proprietary No to Proprietary Yes. Each press of the 1
key will cause the display to toggle between Proprietary No and Proprietary Yes. Selecting Propri-
etary Yes will program the FACP to allow remote programming downloads from the programming
utility at all times without the need to access the Remote Download screen.
Pressing 2 for Accept Download will cause the following screen to be displayed:
While this screen is displayed, remote programming downloads are allowed regardless of the Pro-
prietary setting. Exiting this screen will disable any further downloads to the FACP. Also, follow-
ing 30 minutes of inactivity (including up/downloading), the Accept Download screen will time-
out, causing the display to return to the System All Normal screen.
6.2 Transferring a Program
The first time that the control panel is contacted, a secret code is loaded in by a Service Terminal.
Future upload or download requests cause verification of the secret code by the control panel
before processing of data is allowed. If the secret code is not verified, the control panel will termi-
nate the request.
While the control panel is communicating with the remote Service Terminal, one of the DACT’s
red phone line active LEDs and the green Kissoff LED will remain on steady.
In order to download the panel (whether initiated at the jobsite or remotely), the following must be
true:
The control panel must be in the Normal Mode of operation. Downloading is not possible if
the panel is in any other mode
There cannot be any active communications ongoing with a Central Station receiver
All active events must be successfully 'kissed-off' by the Central Station(s). The
communicator must be in a standby state with no new information waiting to be transmitted
to a Central Station
6.2.1 Security Features
Upload and download with the control panel have been carefully designed to include key security
features to ensure proper functionality. Any time a transfer is initiated, the control panel and the
Service Terminal will communicate and transfer data before contacting a Central Station. When
the data transfers are completed and the control panel disconnects from the Service Terminal, the
control panel will call the Central Station and report one of the following conditions:
• Upload/download request received
• Upload and/or download request successful
• Upload/download failed
The key features are listed and explained in the following sections.
REMOTE DOWNLOAD
1=PROPRIETARY NO
2=ACCEPT DOWNLOAD
ALLOWING DOWNLOADS
IF YOU EXIT THIS
SCREEN DOWNLOADS
WILL BE DISABLED!

MS-5UD & MS-10UD Series Manual — P/N 52626:C4 3/7/2014 115
Transferring a Program Local/Remote Site Upload/Download
Secret Code Verification
A secret code is stored in the control panel by a Service Terminal to prevent unauthorized access.
The secret code is created at the Service Terminal by the master user and cannot be viewed or
changed by anyone other than a master user. Viewing of the secret code is prohibited at the control
panel. Prior to allowing an upload or download of data, the control panel will verify the secret code
transmitted by the Service Terminal.
Time-out at Control Panel
Upon answering an incoming (modem) call on the primary Central Station phone line, the control
panel will listen for a modem connection signal. If this signal is not received within 50 seconds, the
control panel will disconnect the call. Upon successful connection (secret code verified), if no
communication occurs within 30 minutes, the panel will disconnect the call. Upon time-out, trans-
fer activity will be reported to the Central Station (if enabled) and the connection will be termi-
nated.
Error Checking
As each block of data is received by the control panel, it is checked for accuracy. If an error is
detected, the block is retransmitted until correct, up to a maximum of four times. If the Secret Code
is not verified and four errors occur, the call is disconnected and the report that the upload/down-
load was not successful is called to the Central Station(s).
Central Station Data Protection
The primary and secondary Central Station phone numbers, communications format, account code,
test time and programmable event codes are vital Central Station information. These blocks of data
are protected from partial programming due to faulty phone connections, line noise and other
errors. This prevents the panel from being confused due to a wrong phone number, account code,
test time and most critical formatting errors.

116 MS-5UD & MS-10UD Series Manual — P/N 52626:C4 3/7/2014
Section 7: Power Supply Calculations
7.1 Overview
This section contains instructions and tables for calculating power supply currents in alarm and
standby conditions. This is a four-step process, consisting of the following:
1. Calculating the total amount of AC branch circuit current required to operate the system
2. Calculating the power supply load current for non-fire and fire alarm conditions and
calculating the secondary (battery) load
3. Calculating the size of batteries required to support the system if an AC power loss occurs
4. Selecting the proper batteries for your system
7.2 Calculating the AC Branch Circuit
The control panel requires connection to a separate, dedicated AC branch circuit, which must be
labeled FIRE ALARM. This branch circuit must connect to the line side of the main power feed
of the protected premises. No other non-fire alarm equipment may be powered from the fire alarm
branch circuit. The branch circuit wire must run continuously, without any disconnect devices,
from the power source to the control panel. Overcurrent protection for this circuit must comply
with Article 760 of the National Electrical Codes as well as local codes. Use 14 AWG (2.00 mm2)
wire with 600 volt insulation for this branch circuit.
Use Table 7.1, to determine the total amount of current, in AC amperes (A), that must be supplied
to the system.
Device Type Number of
Devices Current Draw
(AC amps) Total Current per
Device
MS-5UD-3/MS-10UD-3
or
MS-5UD-7(C)/MS-10UD-7(C)
or
MS-5UD-3E/MS-10UD-3E
or
MS-5UD-7E/MS-10UD-7E
1X
1.00
3.90
0.54
2.20
=
[ ] X [ ] =
[ ] X [ ] =
Sum Column for AC Branch Current Required =
Table 7.1 AC Branch Circuit Requirements

MS-5UD & MS-10UD Series Manual — P/N 52626:C4 3/7/2014 117
Calculating the System Current Draw Power Supply Calculations
7.3 Calculating the System Current Draw
7.3.1 Overview
The control panel must be able to power all internal and external devices continuously during the
non-fire alarm condition. To calculate the non-fire alarm load on the system power supply when
primary power is applied, use Calculation Column 1 in Table 7.3 on page 118. The control panel
must support a larger load current during a fire alarm condition. To calculate the fire alarm load on
the power supply, use Calculation Column 2 in Table 7.3 on page 118. The secondary power source
(batteries) must be able to power the system during a primary power loss. To calculate the non-fire
alarm load on the secondary power source, use Calculation Column 3 in Table 7.3 on page 118.
When calculating current draw and the battery size, note the following:
• ‘Primary’ refers to the main power source for the control panel
• ‘Secondary’ refers to the control panel’s backup batteries
• All currents are given in amperes (A). Section 7.2 shows how to convert milliamperes and
microamperes to full amperes.
7.3.2 How to Use Table 7.3 on page 118 to Calculate System
Current Draw
Use Table 7.3 on page 118 to calculate current draws as follows:
1. Enter the quantity of devices in all three columns
2. Enter the current draw where required. Refer to the Device Compatibility Document for
compatible devices and their current draw
3. Calculate the current draws for each in all columns
4. Sum the total current for each column
5. Copy the totals from Column 2 and Column 3 to Table 7.4 on page 119
Following are the types of current that can be entered into Table 7.3 on page 118:
Calculation Column 1 - The primary supply current load that the control panel must
support during a non-fire alarm condition, with AC power applied.
Calculation Column 2 - The primary supply current load that the control panel must
support during a fire alarm condition, with AC power applied.
Calculation Column 3 - The standby current drawn from the batteries in a non-fire alarm
condition during a loss of AC power.
To convert... Multiply Example
Milliamperes (mA) to
amperes (A)
mA x 0.001 3 mA x 0.001 = 0.003A
Microamperes (µA) to
amperes (A) µA x 0.000001 300 µA x 0.000001 = 0.0003 A
Table 7.2 Converting to Full Amperes

118 MS-5UD & MS-10UD Series Manual — P/N 52626:C4 3/7/2014
Power Supply Calculations Calculating the System Current Draw
Table 7.3 contains three columns for calculating current draws. For maximum output current avail-
ability per circuit and per panel, refer to Section 1.2, “Specifications”, on page 15. For each col-
umn, calculate the current and enter the total (in amperes) in the bottom row. When finished, copy
the totals from Calculation Column 2 and Calculation Column 3 to Table 7.4 on page 119.
Device Type Calculation Column 1
Primary, Non-Fire Alarm Current
(amps)
Calculation Column 2
Secondary, Fire Alarm Current
(amps)
Calculation Column 3
Secondary, Non-Fire Alarm
Current
(amps)
Qty X[current
draw]= Total Qty X [current draw]
=Total Qty X[current
draw]= Total
Main Circuit
Board
MS-5UD
or
MS-10UD
1
X[0.110]=
X[0.133]=
1
X[0.214]1, 2=
X[0.282]1, 2=
1
X[0.110]=
X[0.133]=
CAC-5X [ ] X[0.001]= [ ] X[0.001]= [ ] X[0.001]=
4XTMF [ ]
1 max.
X[0.005]= [ ]
1 max.
X[0.011]1= [ ]
1 max.
X[0.005]=
ANN-SEC card [ ]
1 max.
X[0.003]= [ ]
1 max.
X[0.003]= [ ]
1 max.
X[0.003]=
ANN-80(C) [ ] X[0.037]= [ ] X[0.040]= [ ] X[0.015]=
ANN-I/O [ ] X[0.035]= [ ] X[0.200]= [ ] X[0.035]=
ANN-RLY [ ] X[0.015]= [ ] X[0.075]= [ ] X[0.015]=
ANN-(R)LED3[ ] X[0.028]= [ ] X[0.068]= [ ] X[0.028]=
ANN-S/PG [ ] X[0.045]= [ ] X[0.045]= [ ] X[0.045]=
2-wire Detector
Heads
[ ] X[ ] 4= [ ] 5X[0.040]= [ ] X[ ] 4=
4-wire Detector
Heads
[ ] X[ ] 4= [ ] 5X[0.040]= [ ] X[ ] 4=
Power
Supervision
Relays6
[ ] X[0.025]= [ ] X[0.025]= [ ] X[0.025]=
NAC #1 [ ] X[ ]=
NAC #2 [ ] X[ ]=
NAC #3
NAC #4
Current Draw
from TB9
(nonalarm)
[ ]= [ ]= [ ]=
Sum each
column7 for
totals
Primary Non-Alarm = Secondary Alarm = Secondary Non-Alarm =
Table 7.3 System Current Draw Calculations
1 If using the Reverse Polarity Alarm output, add 0.005 amps; if using the Reverse Polarity Trouble output, add
another 0.005 amps.
2 The current draw shown represents one zone (IDC) on the main circuit board in alarm. One zone consumes
0.040 amps.
3 An ANN-LED is supplied standard with the MS-5UDC and MS-10UDC.
4 Refer to the Device Compatibility Document for standby current.
5 Enter the number of IDCs used minus one.
6 Must use compatible listed Power Supervision Relay.
7 Total current draw listed above cannot exceed 3.25 amps for the MS-5UD-3(E), 3.28 for the MS-10UD-3(E),
7.25 for the MS-5UD-7(C/E), and 7.28 for the MS-10UD-7(C/E).

MS-5UD & MS-10UD Series Manual — P/N 52626:C4 3/7/2014 119
Calculating the Battery Size Power Supply Calculations
7.4 Calculating the Battery Size
Use Table 7.4 to calculate the total Standby and Alarm load in ampere hours (AH). This total load
determines the battery size (in AH), required to support the control panel under the loss of AC
power. Complete Table 7.4 as follows:
1. Enter the totals from Table 7.3 on page 118, Calculation Columns 2 and 3 where shown
2. Enter the NFPA Standby and Alarm times (refer to ‘NFPA Requirements’ below)
3. Calculate the ampere hours for Standby and Alarm, then sum the Standby and Alarm ampere
hours
4. Multiply the sum by the derating factor of 1.2 to calculate the proper battery size (in AH)
5. Write the ampere hour requirements on the Protected Premises label located inside the cabinet
door
7.4.1 NFPA Battery Requirements
NFPA 72 Local, Central and Proprietary Fire Alarm Systems require 24 hours of standby power
followed by 5 minutes in alarm
7.4.2 Selecting and Locating Batteries
Select batteries that meet or exceed the total ampere hours calculated in Table 7.4. The control
panel can charge batteries in the 7 AH to 26 AH range. The control panel cabinet is capable of
housing batteries up to 18 AH. Batteries larger than 18 AH require the BB-26, BB-55, or other UL
listed external battery cabinet.
For Canadian applications, the minimum battery size is 12 AH and the maximum battery size is
18AH.
Secondary Standby Load
(total from Table 7.3 Calculation
Column 3)
[ ]
Required Standby Time
(24 hours)
X[ ] = AH
Secondary Alarm Load
(total from Table 7.3 Calculation
Column 2)
[ ]
Required Alarm Time
(for 5 min., enter 0.084,
for 10 min., enter 0.168)
X[ ] = AH
Sum of Standby and Alarm Ampere Hours = AH
Multiply by the Derating Factor X 1.2
Battery Size, Total Ampere Hours Required = AH
Table 7.4 Total Secondary Power Requirements at 24 VDC

120 MS-5UD & MS-10UD Series Manual — P/N 52626:C4 3/7/2014
Appendix A: Ademco Contact ID Format Event Code
Descriptions
This appendix describes the various Event Codes and their messages which are available for the
Ademco Contact ID Format.
A.1 Transmission Format Between DACT and Receiver
The transmission string for the Ademco Contact ID Format is as follows:
SSSS 18 QXYZ GG CCC where
SSSS = Four digit Subscriber ID Account Code
18 = Identifies transmission as Contact ID to the receiver at the Central Station
Q = Event Qualifier where 1 = New Event and 3 = New Restore
XYZ = Event code
GG = Group number
CCC = Zone number
Notes:
1. 18, which is used in the reporting structure to identify the transmission as Contact ID, is not
printed out in the alarm and trouble report.
2. GG Group Number is fixed at '00' and cannot be changed.
3. CCC for Zone Number is transmitted as ‘001’ for zone 1 up to ‘010’ for zone 10
A.2 Ademco Contact ID Typical Printout
A typical printout from a Central Station receiver (such as the Ademco 685) of alarm and trouble
reports in the Ademco Contact ID Reporting Structure follows:
Notes:
1. 11 is an example of a Receiver/Line Card, showing which receiver and line card the message
was transmitted to.
2. Q, which is the Event Qualifier for the reporting structure, is printed out in the report as an E
for New Event or R for New Restore.
Time Date Rcvr/Line ID SSSS QXYZ GG CCCC
11:28 03/25 11 7777 E110 00 C001 - general fire alarm on zone one
11:28 03/25 11 7777 E111 00 C002 - smoke detector alarm on zone two
11:28 03/25 11 7777 E380 00 C003 - fault on zone three
11:28 03/25 11 7777 E570 00 C009 - Zone nine disabled
11:28 03/25 11 7777 R110 00 C001 - Zone one alarm restored
11:28 03/25 11 7777 R111 00 C002 - smoke detector zone two restored
11:28 03/25 11 7777 R380 00 C003 - zone three fault restored
11:28 03/25 11 7777 R570 00 C009 - zone nine reenabled
11:28 03/25 11 7777 E158 00 C006 - high temperature, zone six
11:28 03/25 11 7777 E151 00 C007 - gas detected, zone seven

MS-5UD & MS-10UD Series Manual — P/N 52626:C4 3/7/2014 121
Ademco Contact ID Typical Printout Ademco Contact ID Format Event Code Descriptions
EVENT CODE CLASSIFICATIONS
100
ALARMS 200
SUPERVISORY 300
TROUBLES 400
OPEN/CLOSE
REMOTE ACCESS
500
DISABLES/
BYPASSES
600
TEST/
MISC.
Medical
Fire
Panic
Burglary
General
24 Hour
Fire System
Sounder/Relay
System Peripheral
Communication
Protective Loop
Sensor
Open/Close
Remote Access
Access Control
System
Sounder/Relay
System Peripheral
Communication
Test
EVENT MESSAGE
Medical Alarms - 100
100 Medical EMERG - Personal Emergency - #
101 Pendant Transmitter EMERG - Personal Embergency - #
102 Fail to report in EMERG - Fail to Check-in - #
Fire Alarm - 110
110 Fire Alarm FIRE - Fire Alarm - #
111 Smoke FIRE - Smoke Detector - #
112 Combustion FIRE - Combustion - #
113 Waterflow FIRE - Waterflow - #
114 Heat FIRE - Heat Sensor- #
115 Pull station FIRE - Pull Station - #
116 Duct FIRE - Duct Sensor - #
117 Flame FIRE - Flame Sensor - #
118 Near Alarm FIRE - Near Alarm - #
Panic Alarms - 120
120 Panic Alarm PANIC - Panic - #
121 Duress PANIC - Duress
122 Silent PANIC - Silent Panic - #
123 Audible PANIC - Audible Panic - #
Burglar Alams - 130
130 Burlgary BURG - Burglary - #
131 Perimeter BURG - Perimeter - #
132 Interior BURG - Interior - #
133 24-Hour BURG - 24-Hour - #
134 Entry/Exit BURG - Entry/Exit - #
135 Day/Night BURG - Day/Night - #
136 Outdoor BURG - Outdoor - #
137 Tamper BURG - Tamper - #
138 Near Alarm BURG - Near Alarm - #
General Alarms - 140
140 General Alarm ALARM - General Alarm - #
141 Polling loop open ALARM - Polling Loop Open - #

122 MS-5UD & MS-10UD Series Manual — P/N 52626:C4 3/7/2014
Ademco Contact ID Format Event Code Descriptions Ademco Contact ID Typical Printout
142 Polling loop short ALARM - Polling Loop Short - #
143 Expansion module failure ALARM - Exp. Module Fail - #
144 Sensor tamper ALARM - Sensor Tamper - #
145 Expansion module tamper ALARM - Exp. Module Tamper - #
24 Hour Non-Burlary - 150 and 160
150 24-Hour Non-Burg ALARM - 24-Hr. Non-Burg - #
151 Gas detected ALARM - Gas Detected - #
152 Refrigeration ALARM - Refrigeration - #
153 Loss of heat ALARM - Heating System - #
154 Water leakage ALARM - Water Leakage - #
155 Foil break ALARM - Foil Break - #
156 Day trouble ALARM - Day Trouble - #
157 Low bottled gas level ALARM - Low Gas Level - #
158 High temp ALARM - High Temperature - #
159 Low temp ALARM - Low Temperature - #
161 Loss of air flow ALARM - Air Flow - #
Fire Supervisory - 200 and 210
200 Fire supervisory SUPER. - Fire Supervisory - #
201 Low water pressure SUPER. - Low Water Pressure - #
202 Low CO2 SUPER. - Low CO2
203 Gate valve sensor SUPER. - Gate Valve - #
204 Low water level SUPER. - Low Water Level - #
205 Pump activated SUPER. - Pump Activation - #
206 Pump failure SUPER. - Pump Failure - #
System Troubles - 300 and 310
300 System trouble TROUBLE - System Trouble
301 AC loss TROUBLE - AC Power
302 Low system battery TROUBLE - System Low Battery
303 RAM checksum bad TROUBLE - BAD RAM Checksum (restore not applicable)
304 ROM checksum bad TROUBLE - BAD ROM Checksum (restore not applicable)
305 System reset TROUBLE - System Reset (restore not applicable)
306 Panel program changed TROUBLE - Programming Changed (restore not applicable)
307 Self-test failure TROUBLE - Self Test Failure
308 System shutdown TROUBLE - System Shutdown
309 Battery test failure TROUBLE - Battery Test Failure
310 Ground fault TROUBLE - Ground Fault - #
311 No battery TROUBLE - No Battery
Sounder/Relay Troubles - 320
320 Sounder/Relay TROUBLE - Sounder/Relay - #
321 Bell 1 TROUBLE - Bell/Siren - #1
322 Bell 2 TROUBLE - Bell/Siren - #2
323 Alarm relay TROUBLE - Alarm Relay
324 Trouble relay TROUBLE - Trouble Relay
325 Reversing TROUBLE - Reversing Relay
326 Bell 3 TROUBLE - Bell/Siren - #3
327 Bell 4 TROUBLE - Bell/Siren - #4
EVENT MESSAGE

MS-5UD & MS-10UD Series Manual — P/N 52626:C4 3/7/2014 123
Ademco Contact ID Typical Printout Ademco Contact ID Format Event Code Descriptions
System Peripheral Troubles - 330 and 340
330 System peripheral TROUBLE - Sys. Peripheral - #
331 Polling loop open TROUBLE - Polling Loop Open
332 Polling loop short TROUBLE - Polling Loop Short
333 Expansion module failure TROUBLE - Exp. Module Fail - #
334 Repeater failure TROUBLE - Repeater Failure - #
335 Local printer paper out TROUBLE - Printer Paper Out
336 Local printer failure TROUBLE - Local Printer
Communication Troubles - 350 and 360
350 Communication TROUBLE - Communication Trouble
351 Telco 1 fault TROUBLE - Phone Line #1
352 Telco 2 fault TROUBLE - Phone Line #2
353 Long range radio xmitter fault TROUBLE - Radio Transmitter
354 Fail to communicate TROUBLE - Fail to Communicate
355 Loss of radio supervision TROUBLE - Radio Supervision
356 Loss of central polling TROUBLE - Central Radio Polling
Protection Loop Troubles - 370
370 Protection loop TROUBLE - Protection Loop - #
371 Protection loop open TROUBLE - Protection Loop Open - #
372 Protection loop short TROUBLE - Protection Loop Short - #
373 Fire trouble TROUBLE - Fire Loop - #
Sensor Troubles - 380
380 Sensor trouble TROUBLE - Sensor Trouble - #
381 Loss of supervision - RF TROUBLE - RF Sensor Supervision - #
382 Loss of supervision - RPM TROUBLE - RPM Sensor Supervision - #
383 Sensor tamper TROUBLE- Sensor Tamper - #
384 RF transmitter low battery TROUBLE - RF Sensor Batt. - #
Open/Close - 400
400 Open/Close OPENING CLOSING
401 Open/Close by user OPENING - User # CLOSING - User #
402 Group Open/Close OPENING - Group User # CLOSING - Group User #
403 Automatic Open/Close OPENING - Automatic CLOSING - Automatic
404 Late Open/Close OPENING - Late CLOSING - Late
405 Deferred Open/Close Opening not used Closing not used
406 Cancel OPENING - Cancel Closing not used
407 Remote arm/disarm OPENING - Remote CLOSING - Remote
408 Quick arm Opening not applicable CLOSING - Quick Arm
409 Keyswitch Open/Close OPENING - Keyswitch CLOSING - Keyswitch
Remote Access - 410
411 Callback request made REMOTE - Callback Requested (restore not applicable)
412 Success - download/access REMOTE - Successful Access (restore not applicable)
413 Unsuccessful access REMOTE - Unsuccessful Access (restore not applicable)
414 System shutdown REMOTE - System Shutdown
415 Dialer shutdown REMOTE - Dialer Shutdown
416 Success - upload/access REMOTE - Successful Access (restore not applicable)
EVENT MESSAGE

124 MS-5UD & MS-10UD Series Manual — P/N 52626:C4 3/7/2014
Ademco Contact ID Format Event Code Descriptions Ademco Contact ID Typical Printout
Access Control - 420
421 Access denied ACCESS - Access Denied - User # (restore not used)
422 Access report by user ACCESS - Access Gained - User # (restore not used)
System Disables - 500 and 510
Sounder/Relay Disables - 520
520 Sounder/Relay disable DISABLE - Sounder/Relay - #
521 Bell 1 disable DISABLE - Bell/Siren - #1
522 Bell 2 disable DISABLE - Bell/Siren - #2
523 Alarm relay disable DISABLE - Alarm Relay
524 Trouble relay disable DISABLE - Trouble Relay
525 Reversing relay disable DISABLE - Reversing Relay
526 Bell 3 disable DISABLE - Bell/Siren - #3
527 Bell 4 disable DISABLE - Bell/Siren - #4
System Peripheral Disables - 530 and 540
Communication Disables - 550 and 560
551 Dialer disabled DISABLE - Dialer Disable
552 Radio transmitter disabled DISABLE - Radio Disable
Bypasses - 570
570 Zone bypass BYPASS - Zone Bypass - #
571 Fire bypass BYPASS - Fire Bypass - #
572 24-Hour zone bypass BYPASS - 24-Hour Bypass - #
573 Burglar bypass BYPASS - Burg. Bypass - #
574 Group bypass BYPASS - Group Bypass - #
Test Misc. - 600
601 Manual trigger test TEST - Manually Triggered (restore not applicable)
602 Periodic test report TEST - Periodic (restore not applicable)
603 Periodic RF transmission TEST - Periodic Radio (restore not applicable)
604 Fire test TEST - Fire Test (restore not used)
605 Status report to follow STATUS - Status Follows (restore not applicable)
606 Listen-in to follow LISTEN - Listen-in Active (restore not applicable)
607 Walk test mode TEST - Walk Test Mode
608 System abnormal test TEST - System Abnormal Test
EVENT MESSAGE
MS-5UD & MS-10UD Series Manual — P/N 52626:C4 3/7/2014 125
Appendix B: NFPA Standard-Specific Requirements
The MS-5UD/MS-10UD has been designed for use in commercial, industrial and institutional
applications and meets the requirements for service under the National Fire Protection Association
(NFPA) Standards outlined in this Appendix. The minimum system components required for
compliance with the appropriate NFPA standard are listed below:
MS-5UD/MS-10UD Control Panel
Contains the main control board, cabinet (backbox and door), main power supply and transformer.
Batteries
Refer to “Power Supply Calculations” on page 116, for Standby Power Requirements.
Initiating Devices
Connected to one of the control panel's Initiating Device Circuits.
Notification Appliances
Connected to the control panel's Notification Appliance Circuits via a control module.
The following additional equipment is needed for compliance with the NFPA 72 standards listed
below:
NFPA 72 NATIONAL FIRE ALARM STANDARDS FOR:
NFPA 72 Central Station Service (Protected Premises Unit) or Remote Station Service
Onboard Digital Alarm Communicator Transmitter for connection to a compatible listed
Central Station DACR or Protected Premises Receiving Unit. This unit must be installed
as outlined in “Digital Alarm Communicator/Transmitter” on page 21.
OR
411UD may be installed as illustrated in Figure B.1, “MS-5UD/MS-10UD FACP
Connection to 411UD,” on page 126.
OR
4XTMF Transmitter Module for connection to the RS82 Remote Station Receiver. See
Figure B.3, “Remote Station Connection Using 4XTMF Module,” on page 128, for
installation instructions for this unit.
NFPA 72 Auxiliary Fire Alarm System
4XTMF Transmitter Module for connection to a compatible listed Local Energy Municipal Box.
This unit must be installed as illustrated in the section titled “4XTMF Transmitter Module Installa-
tion” on page 39 and as outlined in Figure B.2, “Municipal Box Connected to 4XTMF Transmitter
Module,” on page 127.
NFPA 72 Proprietary Fire Alarm System
MS-5UD/MS-10UD Alarm, Trouble and Supervisory contacts connected to Transmitter(s). See
Figure B.4, “Proprietary Protective Signaling System,” on page 129, for installation instructions for
this unit.

126 MS-5UD & MS-10UD Series Manual — P/N 52626:C4 3/7/2014
NFPA Standard-Specific Requirements
The following figure illustrates an example of Central Station/Remote Station Reporting using a
411UD. The relay contacts from the MS-5UD/MS-10UD may be used to trip any dialer UL listed
for Central Station/Remote Station Reporting Services.
Figure B.1 MS-5UD/MS-10UD FACP Connection to 411UD
Channel1
Channel 2
Channel 3
Channel 4 (2.2K ELR)
Relay Output (DACT Trouble) from 411UD
FACP Supervisory Relay
FACP Alarm Relay
FACP Trouble Relay
J4 Not Installed
411UD
1
2
3
4
5
6
7
8
+ 24 VDC nonresettable power
- 24 VDC nonresettable power
2.2K ELRs P/N 27070
1
2
3
4
5
6
7
8
9
1 2 3 4 5 6 7
FACP
Jumper -VDC to Trouble Relay contact
Trouble Input
(non-supervised,
power-limited)
411UD FACP
Alarm TB2-1 TB8-1
TB2-2 TB8-3
Trouble TB2-3 TB8-4
TB2-4 TB8-6
Supervisory TB2-5 TB8-7
TB2-6 TB8-9
Table B.1 411UD Connections to FACP

MS-5UD & MS-10UD Series Manual — P/N 52626:C4 3/7/2014 127
NFPA Standard-Specific Requirements
Notes:
1. Reference the 411UD Manual for additional information
2. Program the 411UD for slave operation
3. The MS-5UD/MS-10UD must be programmed for AC Loss Reporting Delay This prevents
the immediate transmission of a trouble on the loss of AC power
4. All connections between the control panel and the 411UD must be in conduit, less than 20 feet
(610 cm) in length, in the same room
5. Any zone of the 411UD can be wired to function as alarm, trouble or supervisory. In Figure
B.1 on page 126, Channel 1/Zone 1 is wired to the control panel’s alarm relay, Channel 2/Zone
2 is wired to the control panel’s trouble relay and Channel 3/Zone 3 is wired to the control
panel’s supervisory relay
6. Nonresettable 24 VDC power is supplied to the 411UD via TB9 terminals configured for
nonresettable power on the FACP. Jumper J4 on the 411UD must be removed for 24 VDC
power
7. End-of-Line resistors must terminate all 411UD circuits, including unused circuits
8. A -VDC from the 411UD Trouble Contacts will activate the Trouble Input J6 on the FACP
NFPA 72 Auxiliary Fire Alarm System
All connections are power-limited and supervised. This application is not suitable for separate
transmission of sprinkler supervisory or trouble conditions.
FIRE
Gamewell Model M34-56
Local Energy Municipal
Box
Polarities shown in alarm condition
+
Nonpower-limited
Municipal Box Circuit
+
-
-
4XTMF
Figure B.2 Municipal Box Connected to 4XTMF Transmitter Module
Notes:
1. 3 ohms maximum loop resistance allowed for wiring from
control panel to Municipal Box.
2. Cut JP30 on the MS-5UD/MS-10UD main circuit board to
supervise placement of 4XTMF module and circuit.
3. Cut JP24 on the MS-5UD/MS-10UD main circuit board to
enable FACP Supervisory relay.
4. Refer to “4XTMF Transmitter Module Installation” on
page 39 for detailed information.

128 MS-5UD & MS-10UD Series Manual — P/N 52626:C4 3/7/2014
NFPA Standard-Specific Requirements
NFPA 72 Remote Station Protective Signaling System
Notes:
1. Cut Jumper JP30 on the MS-5UD/MS-10UD main circuit board to supervise placement of the
4XTMF module.
2. Refer to“4XTMF Transmitter Module Installation” on page 39 for detailed information.
RS82 Remote Station Receiver UL listed.
Refer to Instruction Manual for Remote Station Receiver Model RS82.
+ - Polarity Shown is
Normal Standby
4XTMF Transmitter Module
Cutting TBL Jumper allows the
reverse polarity circuit to open with
a system trouble condition if no
alarm condition exists.
Power-limited
Figure B.3 Remote Station Connection Using 4XTMF Module
+
-
(Dummy load with a 4.7K, ¼ watt resistor
when no connection is made)

MS-5UD & MS-10UD Series Manual — P/N 52626:C4 3/7/2014 129
NFPA Standard-Specific Requirements
NFPA 72 Proprietary Protective Signaling Systems
Figure B.4 Proprietary Protective Signaling System
Form-C relay contact programmed to
activate on Supervisory condition.
Form-C Trouble contact which will
automatically activate on any Trouble
condition.
Form-C Alarm contact programmed to
activate on General Alarm.
FACP Main Board
Fire Alarm Control Panel
Notes:
1. Connection between the MS-5UD/MS-10UD
and the transmitter are supervised by the
transmitter.
2. This MS-5UD/MS-10UD Transmitter
arrangement can be employed for NFPA 72
Proprietary Protective Signaling System.
3. Potter Electric Model EFT-C has not been
tested for UL 864 9th Edition and is for use in
retrofit applications only.

130 MS-5UD & MS-10UD Series Manual — P/N 52626:C4 3/7/2014
NFPA Standard-Specific Requirements Central Station/Remote Station Transmitter: Connection to FACP Dry Contacts
B.1 Central Station/Remote Station Transmitter: Connection
to FACP Dry Contacts
The dry contacts of the FACP programmable relays can be used to trip a UL-864 Listed Central
Station/Remote Station Transmitter. The FACP contacts must be supervised by the Central Sta-
tion/Remote Station Transmitter module using End-of-Line Resistors (ELRs) with a value deter-
mined by the Transmitter manufacturer. Power is also provided by the Central Station/Remote
Station Transmitter manufacturer. Refer to the Central Station/Remote Station Transmitter manu-
facturer’s manual for details.
Figure B.5 FACP Dry Contacts Connection to Central Station/Remote Station Transmitter
Typical Central Station/Remote Station Transmitter Module
Typical Input Zone Triggers
Fire Alarm Control Panel
Alarm
Superv.
Trouble*
*Note: The Trouble Relay is a
fail-safe relay. With power
applied to the FACP and no
troubles in the panel, the wiring
should be connected to the NO
and C contacts as indicated in the
illustration.

MS-5UD & MS-10UD Series Manual — P/N 52626:C4 3/7/2014 131
Appendix C: FACP with Keltron
The following figure illustrates the connections between the FACP and Keltron Receiver/Transmit-
ter.
IMPORTANT! All connections between the FACP and Keltron modules must be made within 20
feet and enclosed within conduit or equivalently protected against mechanical injury.
!
P
CAUTION: POSSIBLE EQUIPMENT DAMAGE
FOR REASONS OF WIRING DIAGRAM CLARITY, TERMINAL DESIGNATIONS OF KELTRON
MODULES ARE NOT SHOWN IN ACTUAL ORDER. FOLLOW KELTRON MANUAL AND
MODULE MARKINGS FOR EXACT TERMINAL LOCATIONS TO PREVENT SEVERE MODULE
DAMAGE!
Fire Alarm Control Panel
(terminal blocks are not shown in their
actual positions in order to clarify wiring
connections)
Keltron 95M3158 TTM-RPS
1. Terminals 7 and 8: Remote station alarm/trouble inputs.
2. Terminals 9 and 10: Sprinkler supervisory input.
Note: Cut TBL jumper on 4XTMF module to send
alarm/trouble signal from the same pair or terminals.
Alarm/Trouble SignalSprinkler Supervisory Signal
*Note: For more
information, refer to the
Keltron manual.
4XTMF Module
Figure C.1 Keltron Wiring
UL-Listed
UL-Listed

132 MS-5UD & MS-10UD Series Manual — P/N 52626:C4 3/7/2014
Appendix D: Wire Requirements
Connecting external system accessories to the main circuits must be carefully considered to ensure
proper operation. It is important to use the correct type of wire, gauge and run length for each cir-
cuit. Reference the chart below to specify wire requirements and limitations for each circuit.
D.1 MS-5UD-3(E) & MS-10UD-3(E) NAC Wiring
The following table lists NAC wiring requirements for the MS-5UD-3(E) & MS-10UD-3(E) FACP
which utilizes the FLPS-3 power supply.
CIRCUIT CONNECTIONS WIRE REQUIREMENTS
Circuit Type Circuit Function Wire Type and
Limitations
Recommended
Max. Distance
Feet (meters) Wire Gauge
Initiating Device
Circuit
(power-limited)
Connects to Initiating
Devices
Untwisted, unshielded wire
(maximum loop resistance
not to exceed 100 ohms)
Distance limitation
set by 100 ohm
resistance limitation
12-18 AWG (3.25 - 0.75 mm2)
ANN-BUS (EIA-485)
power-limited
Communication for
ANN-BUS annunciator
and relay modules
Twisted pair a maximum
loop resistance of 120
ohms
6,000 (1,800 m) 12-18 AWG (3.25 - 0.75 mm2)
ANN-BUS Power Power for ANN-BUS
annunciators Refer to Table 2.1, “Wiring Distances,” on page 42 for information on device wiring
24 VDC Regulated,
resettable,
nonresettable
Power for accessories
and
4-wire devices
Untwisted, unshielded wire Distance limitation
set by 4 volt
maximum line drop
12-18 AWG (3.25 - 0.75 mm2)
Auxiliary Trouble
Input
Open Collector trouble
input for CHG-75,
CHG-120F, etc.
Single conductor Distance limitation
20 feet in same
room
18 AWG (0.75 mm2)
Remote Sync Output Provides strobe and
normal sync for
remote NAC power
supplies
Untwisted, unshielded pair
wire
Distance set by 295
ohm resistance
limitation
12-18 AWG (3.25 - 0.75 mm2)
NAC Outputs Connects to NAC
devices or Release
devices
Untwisted, unshielded pair
wire
Refer to Section D.1 and Section D.2 on page 133.
Table D.1 FACP Wire Specifications
NAC Load
(Amps)
Max.
allowable total
loop
resistance
(ohms)
CLASS-B
Max. allowable wire pair length
(feet)
CLASS-A
Max. allowable wire pair length
(feet)
AWG 12
solid AWG 14
solid AWG 16
solid AWG 18
solid AWG 12
solid AWG 14
solid AWG 16
solid AWG 18
solid
0.25 6.00 1554 977 613 386 777 489 307 193
0.5 3.00 777 489 307 193 389 244 153 97
0.75 2.00 518 326 204 129 259 163 102 64
1 1.50 389 244 153 97 194 122 77 48
1.25 1.20 311 195 123 77 155 98 61 39
1.5 1.00 259 163 102 64 130 81 51 32
1.75 0.86 222 140 88 55 111 70 44 28
2 0.75 194 122 77 48 97 61 38 24
2.25 0.67 173 109 68 43 86 54 34 21
2.5 0.60 155 98 61 39 78 49 31 19
Table D.2 NAC Wiring Requirements for FACP with FLPS-3 Power Supply
NOTE: Calculations are based on Direct-Current Resistance data for uncoated copper wire, per
National Electrical Code (2005 Edition) Table 8, Conductor Properties.

MS-5UD & MS-10UD Series Manual — P/N 52626:C4 3/7/2014 133
MS-5UD-7(C/E) & MS-10UD-7(C/E) NAC Wiring Wire Requirements
D.2 MS-5UD-7(C/E) & MS-10UD-7(C/E) NAC Wiring
The following table lists NAC wiring requirements for the MS-5UD-7(C/E) & MS-10UD-7(C/E)
FACP which utilizes the FLPS-7 power supply.
NOTE: These distances reflect the worst case scenario and are based on the correct draw of the
highest candela strobes at the low end of the supported NAC voltage with the entire load at the
end of the circuit. Further distances can be achieved by performing a point to point voltage
calculation that more accurately reflects the specific devices used and how they are dispersed on
the circuit.
NAC Load
(Amps)
Max.
allowable total
loop
resistance
(ohms)
CLASS-B
Max. allowable wire pair length
(feet)
CLASS-A
Max. allowable wire pair length
(feet)
AWG 12
solid AWG 14
solid AWG 16
solid AWG 18
solid AWG 12
solid AWG 14
solid AWG 16
solid AWG 18
solid
0.25 6.00 1554 977 613 386 777 489 307 193
0.5 3.00 777 489 307 193 389 244 153 97
0.75 2.00 518 326 204 129 259 163 102 64
1 1.50 389 244 153 97 194 122 77 48
1.25 1.20 311 195 123 77 155 98 61 39
1.5 1.00 259 163 102 64 130 81 51 32
1.75 0.86 222 140 88 55 111 70 44 28
2 0.75 194 122 77 48 97 61 38 24
2.25 0.67 173 109 68 43 86 54 34 21
2.5 0.60 155 98 61 39 78 49 31 19
2.75 0.55 141 89 56 35 71 44 28 18
3 0.50 130 81 51 32 65 41 26 16
Table D.3 NAC Wiring Requirements for FACP with FLPS-7 Power Supply
NOTE: Calculations are based on Direct-Current Resistance data for uncoated copper wire, per
National Electrical Code (2005 Edition) Table 8, Conductor Properties.
NOTE: These distances reflect the worst case scenario and are based on the correct draw of the
highest candela strobes at the low end of the supported NAC voltage with the entire load at the
end of the circuit. Further distances can be achieved by performing a point to point voltage
calculation that more accurately reflects the specific devices used and how they are dispersed on
the circuit.

134 MS-5UD & MS-10UD Series Manual — P/N 52626:C4 3/7/2014
Appendix E: Default Programming
The following table provides a list of the programming options and their factory default settings.
Program Option Factory Default Program Option Factory Default
Zone #1-10 Enabled Yes ANN-80 Lock Enabled Yes
Zone #1-10 Type Pull Station ANN-80 Acknowledge Button Enabled Yes
Zone #1-10 PAS Pre-Signal Enabled No Delay ANN-80 Silence Button Enabled Yes
Zone #1-10 Verify Enabled No ANN-80 Reset Button Enabled Yes
Zone #1-10 ACC Message No Message Active ANN-80 Drill Button Enabled Yes
Zone #1-10 Freeze Enabled Yes ACC All-Call Zone None
Adjective None ANN-BUS Device 1 None
Noun None ANN-BUS Device 2 None
NAC #1-4 Enabled Yes ANN-BUS Device 3 None
NAC #1-4 Coding Steady ANN-BUS Device 4 None
NAC #1-4 Auto Silence No ANN-BUS Device 5 None
NAC #1-4 Silence Inhibit No ANN-BUS Device 6 None
NAC #1-4 Silenceable Silenceable ANN-BUS Device 7 None
Banner ANN-BUS Device 8 None
Relay 1 Alarm ANN-BUS Relay 1 type Zone 1
Relay 2 Trouble ANN-BUS Relay 2 type Zone 2
Relay 3 Supervisory ANN-BUS Relay 3 type Zone 3
Trouble Reminder No ANN-BUS Relay 4 type Zone 4
Canadian Option No ANN-BUS Relay 5 type Zone 5
Charger Disable No ANN-BUS Relay 6 type Zone 6
Factory Banner Factory Banner ANN-BUS Relay 7 type Zone 7
PAS Timer 120 ANN-BUS Relay 8 type Zone 8
Pre-Signal Timer 120 ANN-BUS Relay 9 type Zone 9
AC Loss Timer 2 ANN-BUS Relay 10 type Zone 10
Waterflow Delay Timer 0 Phone Line 2 Supervision Yes
Time Format 12 Hour Primary Phone Type Touchtone
Daylight Savings Enabled Yes Secondary Phone Type Touchtone
Daylight Savings Start Week Week 2 Central Station Reporting Enabled No
Daylight Savings Start Month March Central Station Report Type First Available
Daylight Savings End Week Week 1 Central Station Call Limit 0
Daylight Savings End Month November Central Station Primary Test Time Interval 24 Hr
Printer Port Type Parallel Port Central Station Primary Communication Format Ademco Contact ID
Printer Supervision No Central Station Primary Phone Number
Printer Baud Rate N/A Central Station Primary Test Time 1:00
Printer Parity N/A Central Station Primary Account Code 0000
Printer Data Bits N/A Central Station Secondary Test Time Interval 24 Hr
Printer Stop Bits N/A Central Station Secondary Communication Format Ademco Contact ID
Printer Offline Timer 60 Central Station Secondary Phone Number
ANN-BUS Enabled No Central Station Secondary Test Time 2:00
ANN-LED Piezo Enabled Yes Central Station Seocndary Account Code 0000
ANN-80 Piezo Enabled Yes Service Terminal Ring Count 0

MS-5UD & MS-10UD Series Manual — P/N 52626:C4 3/7/2014 135
Default Programming

136 MS-5UD & MS-10UD Series Manual — P/N 52626:C4 3/7/2014
Appendix F: Canadian Application
F.1 ANN-LED Annunciator Installation for Canadian
Applications
• The FACP is supplied with a modified dress panel and one ANN-LED annunciator.
• When installing and programming the FACP, the Canadian Option must be set to ON prior to
any other panel programming (refer to “Canadian Option” on page 74 of the Programming
Section of this manual).
• If remote indicators are desired, they must be connected to the secondary ANN-BUS circuit.
This requires the use of the ANN-SEC option card.
• The installer must write in the Date of Final Assembly on the Master Marking and Warranty
Label located on the FACP backbox door.
• To comply with CAN/ULC-S559-04, the ANN-RLY option must be utilized along with the
configuration shown in Figure F.2.
Figure F.1 Canadian FACP Configuration
FACP
ANN-LED Annunciator
on Primary ANN-BUS
510-annled.wmf
ANN-LED
ANN-80C
ANN-I/O
ANN-S/PG
ANN-RLY
Optional Secondary
ANN-BUS using
ANN-SEC Option Card.

MS-5UD & MS-10UD Series Manual — P/N 52626:C4 3/7/2014 137
ANN-LED Annunciator Installation for Canadian Applications Canadian Application
Notes:
1. Relays 1 and 2 on the ANN-RLY must be programmed for latching alarm activation.
2. Relays 3 and 4 on the ANN-RLY must be programmed for non-latching trouble activation.
3. Relays 5 and 6 on the ANN-RLY must be programmed for supervisory activation with
latching/non-latching set in accordance with the local AHJ.
4. The ANN-RLY must be mounted inside the FACP cabinet.
5. Refer to the ANN-RLY Document #53033 for installation instructions.
Figure F.2 Alternate Transmission for Alarm, Trouble, and Supervisory Signals
FACP
ANN-RLY
+
ALARM
-
+
TROUBLE
-
+
SUPERVISORY
-
C
NC
NO
C
NC
NO
C
NC
NO
C
NC
NO
C
NC
NO
C
NC
NO
Relay 1
TB2
Relay 2
TB2
Relay 4
TB4
Relay 6
TB5
Relay 3
TB4
Relay 5
TB5
To Remote Station Receiver
TB9
Non-resettable
Aux Power
2
1
-
+
138 MS-5UD & MS-10UD Series Manual — P/N 52626:C4 3/7/2014
Index
Numerics
10 Zone Main Circuit Board 11
24 Hour Test Time 81
4XTMF 128
installation 39
see also Transmitter module 21, 39
5 Zone Main Circuit Board 10
A
AC Loss Delay 71
AC power 28
AC power rating 15
AC power requirements 116
ACC audio message 63, 64
accessories 21
Account Code 81
ACK
see also Acknowledge 15
Acknowledge 15
Acknowledge/Step 20, 96
Ademco
contact ID format 120
Adjective
list 64
multiple entries 65
Adjective/Noun 64, 65
alarm 99
piezo pulse rate 20
alarm relay 13, 33
contact rating 16
Alarm Silence 15, 20, 96
alarm verification 63, 102, 104
ANN-80(C) 46
ANN-BUS
guidelines 41
ANN-I/O
LED zone assignments 76
ANN-LED 53, 54, 56
ANN-RLY 54
ANN-SEC option card 40
applications 13
Autosilence 103
NAC 69
auxiliary power 33
Auxiliary Trouble Input 17
B
backbox
dimensions 21
mounting 26
Backup Reporting 80
Banner 70
setting 72
battery 21, 29
precautions 29
rating 16
battery box 22
mounting 27, 28
battery calculations 119
baud rate 92
BB-55F
see also battery box 22
buttons
see also control buttons 15
C
cabinet
mounting 26
CAC-5X 30
installation 37
call limit 58, 89
Canadian Applications 24
Canadian Option 70, 74
Central Station 80, 115
account code 81
communications 110
phone number 81
Phone Numbers 80
Central Station/Remote Station Reporting 126
charger capacity 16
Charger Disable 70
circuits 13
Class A 21, 30, 38
Class A Converter Module 21
installation 37
Class B 14, 16, 30
Clock Format 73
Coded Operation 102
coding
NAC 67
two stage operation 67
combination circuit 31
combination waterflow/supervisory 31
requirements 31
wiring 31
communications format 82
compatibility
see also device compatibility 13
contact ID 120
control buttons 15, 96
controls 20
current
nonresettable power 33

MS-5UD & MS-10UD Series Manual — P/N 52626:C4 3/7/2014 139
Index D–L
resettable power 33
total output 32
current requirements for system 117, 118
D
DACT
onboard 79
Date setting 73
Daylight Savings Time 73
Default Programming 134
description 13
detector label 65
Detector
adding description 64
enable/disable 62
device compatibility 13
dialer runaway 58, 89
Digital Communicator 23
dimensions
backbox 21
Downloading 114, 115
dress panel 14, 22
Drill 15, 20, 96
E
earth ground 28
edit detector screens 61
Enable/Disable
zone 62
End-of-Line resistor
IDC 16, 30, 31
NAC 16, 32
Enter key 60
Erase History 91
Error Checking 115
event code classification 121
event codes 82
exiting
programming 59, 60
Read Status 59, 60
F
fail-safe
trouble relay 33
features 14
Form-C
see also relay 13
freeze 30
freeze signal
see also smoke detector monitoring 13
G
guidelines 41
H
Hazard Condition 100
History 90
erase 91
Maintenance Level 94
view events 90
I
I3 detectors 30
IDC 14, 16, 30
alarm current 16
compatibility 30
End-of_Line resistor 31
End-of-Line resistor 16, 30
maximum loop resistance 16, 30
short circuit current 16
standby current 16
wiring 30
indicators 20
see also LED 15
Initiating Device Circuit 14, 16, 30
Class A 38
In-Line resistor
IDC combination circuit 31
Input Zones 61, 105
installation 26
CAC-5X 37
Class A Converter Module 37
option modules 37
Transmitter Module 39
J
J4 and J5
option module connectors 39
JP30 jumper
placement supervision 39
K
Key Panel 20
function keys 20
service/program keys 20
L
lamp test 20
LCD display 15, 20
LED 15, 20
AC Power 15, 20, 96
Alarm Silence 15, 20
Alarm Silenced 97
Fire Alarm 15, 20, 97
Supervisory 15, 20, 97
System Trouble 20
Trouble 15, 97
Local Programming 58

140 MS-5UD & MS-10UD Series Manual — P/N 52626:C4 3/7/2014
M–P Index
M
main circuit board
see also 10 zone main circuit board 11
see also 5 Zone main circuit board 10
see also MS-10UD 11
maintenance 30
piezo pulse rate 20
Maintenance Alert 102
Maintenance Program Level 2 59, 93
maintenance signal
see also smoke detector monitoring 13
Manual programming 58
Master Program Level 1 59, 61
Medical Alert 101
Mode key 60
mounting
cabinet 26
main circuit board 26
municipal box 39
municipal box transmitter
see also Transmitter module 21
N
NAC 13, 16, 66
Auto Silence 69
coded 102
coding 67
current 32
enable/disable 66
End-of-Line resistor 16, 32
maximum current 16
silence inhibit 69
silenceable 68
synchronized 68
wiring 32
NFPA 72 Auxiliary Fire Alarm System 125, 127
NFPA 72 Central Station Service (Protected
Premises Unit) or Remote Station Service 125
NFPA 72 Proprietary Fire Alarm System 125
NFPA 72 Proprietary Protective Signaling Sys-
tems 129
NFPA 72 Remote Station Protective Signaling
System 128
NFPA Standard 125
nonpower-limited wiring 35
nonresettable power 13, 17, 33
current 33
maximum current 17
Normal 97
normal display 58
Notification Appliance Circuit 13, 16, 32, 66
Class A 38
Noun
list 65
multiple entries 65
O
Operating Instructions 96
Operation
alarm 99
disable/enable 101
hazard condition 100
medical alert 101
normal 97
process monitor 100
supervisory 99
trouble 97
waterflow 101
Option Modules
Printer/PC 92
option modules 21, 75
installation 37, 39
P
PAS 103
see also Positive Alarm Sequence 63
PAS timer 70
Password 60
change 92
Maintenance Level 2 60, 93
Master Level 1 60
Phone Number 81
piezo 20
alarm 20
maintenance 20
see also sounder 15
supervisory 20
trouble 20
polarity reversal circuit
see also Transmitter module 40
Positive Alarm Sequence 63, 103
power 16, 28, 33
primary 28
secondary
see also battery 29
power supply calculations 116
power-limited wiring 35
Power-up
first time 59
Pre-signal 63
function 102
Pre-signal Delay timer 71
Pre-signal timer 70
Primary Phone 79
printer
baud rate 92
Process Monitor 100
Program
clear 92
program keys
see also Key Panel 20
Programming 59

MS-5UD & MS-10UD Series Manual — P/N 52626:C4 3/7/2014 141
Index R–T
autoprogramming 58
exiting 59
factory default 134
Level 1 59
Level 2 59
manual 58
Master Level 1 61
Programming Levels 59
Programming Screens 59
Proprietary Yes
see also Remote Upload 114
PS-Tools 23, 113
R
Read Status 59, 105
annunciators 108, 109
exiting 59
history 107
input zones 105
NAC 106
Print 107
relay 106
Real-Time Clock 102
Recall/Increment Function 65
Receivers 112
relay 13, 21, 33, 69
contact rating 16, 33
Form-C 69
programming 69
Remote Download 113
Remote Programming 58
remote station service 40
RENsee also Ringer Equivalence Number 23
Reporting Enable 80
Reset 15, 20, 96
resettable power 13, 16, 33
current 33
maximum current 16
reverse polarity circuit
see also Transmitter module 21
Ring Count 89
Ringer Equivalence Number 23
ROME Series 55
rules for ANN-BUS wiring 41
S
secondary ANN-BUS 40
Secondary Phone 80
Secret Code 115
Security Features 114
Service Terminal 89
Silence Inhibit 69, 103
Silenceable
NAC 68
silenceable circuits
synchronized signals 68
sounder 15, 20
strobes 15, 68
Style B 16, 30
see also Class B 14
Style D 21, 30, 38
Style Y 16
see also Class B 14
Style Z 21, 38
subscreen 60
supervision
Transmitter option module placement 39
supervisory 13, 99
piezo pulse rate 20
supervisory relay 33
contact rating 16
synchronization 68
synchronized 68
synchronized signals 68
and silenceable circuits 68
system current calculations 117
System Setup 69
T
Telephone Circuitry 23
Telephone Company
Rights and Warnings 24
telephone line 36
Terminal 89
Test Time Interval 81
Time setting 73
Time-Date
Maintenance Level 95
Time-Date setting 70, 72
Time-out 115
Timers 69
Transmittal Priorities 111
transmitter module 21, 39
operation 39
specifications 40
Transmitter option module
placement supervision 39
Trouble 97
trouble
piezo pulse rate 20
trouble call limit 58, 89
Trouble Input
Auxiliary 17
trouble relay 13, 33
contact rating 16
fail-safe 33
Trouble Reminder 70, 103
two stage operation 67
Type
zone 62

142 MS-5UD & MS-10UD Series Manual — P/N 52626:C4 3/7/2014
U–Z Index
U
UL wiring requirements 35
Upload/Download 113
V
Verification
zone 63
View Events 90
W
Walktest 91
audible 91
Maintenance Level 94
operation 104
silent 91
Waterflow Delay timer 70, 71
Waterflow Retard Timer 104
Wire Requirements 132
wiring
CAC-5X 38
Class A Converter Module 38
Class A IDC 38
Class A NAC 38
combination waterflow/supervisory 31
IDC 30
NAC 32
nonpower-limited 35
power-limited 35
UL requirements 35
Z
Zone
type 62
verification 63
Zone Setup
Maintenance Level 93
Manufacturer Warranties and Limitation of Liability
Manufacturer Warranties. Subject to the limitations set forth herein,
Manufacturer warrants that the Products manufactured by it in its
Northford, Connecticut facility and sold by it to its authorized
Distributors shall be free, under normal use and service, from defects
in material and workmanship for a period of thirty six months (36)
months from the date of manufacture (effective Jan. 1, 2009). The
Products manufactured and sold by Manufacturer are date stamped at
the time of production. Manufacturer does not warrant Products that
are not manufactured by it in its Northford, Connecticut facility but
assigns to its Distributor, to the extent possible, any warranty offered
by the manufacturer of such product. This warranty shall be void if a
Product is altered, serviced or repaired by anyone other than
Manufacturer or its authorized Distributors. This warranty shall also
be void if there is a failure to maintain the Products and the systems in
which they operate in proper working conditions.
MANUFACTURER MAKES NO FURTHER WARRANTIES, AND
DISCLAIMS ANY AND ALL OTHER WARRANTIES, EITHER
EXPRESSED OR IMPLIED, WITH RESPECT TO THE PRODUCTS,
TRADEMARKS, PROGRAMS AND SERVICES RENDERED BY
MANUFACTURER INCLUDING WITHOUT LIMITATION,
INFRINGEMENT, TITLE, MERCHANTABILITY, OR FITNESS FOR
ANY PARTICULAR PURPOSE. MANUFACTURER SHALL NOT BE
LIABLE FOR ANY PERSONAL INJURY OR DEATH WHICH MAY
ARISE IN THE COURSE OF, OR AS A RESULT OF, PERSONAL,
COMMERCIAL OR INDUSTRIAL USES OF ITS PRODUCTS.
This document constitutes the only warranty made by Manufacturer
with respect to its products and replaces all previous warranties and is
the only warranty made by Manufacturer. No increase or alteration,
written or verbal, of the obligation of this warranty is authorized.
Manufacturer does not represent that its products will prevent any loss
by fire or otherwise.
Warranty Claims. Manufacturer shall replace or repair, at
Manufacturer's discretion, each part returned by its authorized
Distributor and acknowledged by Manufacturer to be defective,
provided that such part shall have been returned to Manufacturer with
all charges prepaid and the authorized Distributor has completed
Manufacturer's Return Material Authorization form. The replacement
part shall come from Manufacturer's stock and may be new or
refurbished. THE FOREGOING IS DISTRIBUTOR'S SOLE AND
EXCLUSIVE REMEDY IN THE EVENT OF A WARRANTY CLAIM.
Warn-HL-08-2009.fm
MS-5UD & MS-10UD Series Manual — P/N 52626:C4 3/7/2014 143

World Headquarters
1 Firelite Place
Northford, CT 06472-1653 USA
203-484-7161
fax 203-484-7118
www.firelite.com