Locks 80 9369 0172 020 (01 09) Accessory Signage Instructions Inst
User Manual: Locks Accessory Signage instructions Mayflower Sales - Norton Door Controls
Open the PDF directly: View PDF .
Page Count: 4

80-9369-0172-020 (01-09)
6900 PowerMatic Series Low Energy Power Operator
Signage Instructions
®
80-9369-0172-020 (01-09)
Signage Placement Instructions
For PowerMatic Low Energy Power Operators
Data here-in is from American National Standard for Low Energy Power Operated and
Power Assisted doors, Standard A156.19.
If further clarification is required, please refer to above noted Standard.
Standard can be obtained though The Builders Hardware Manufactures Association
(BHMA) at (212) 661-4261. Excerpts included with permission of BHMA.
Signage Supplied with Operator Units
Signage Supplied with Switch Kits
Installation Location
2
3
4
ANSI/BHMA A156.19-2002 Section 6.1
Doors shall be equipped with (a) sign(s) visible from either
side, instructing the user as to the operation and function of
the door. The signs shall be mounted 50” +/- 12” (1270mm
+/- 305mm) from the floor to the centerline of the sign. The
letters shall be 5/8” (16mm) high minimum.
PULL
TO
OPERATE
ACTIVATE
SWITCH
TO OPERATE
POWER
ASSISTED
EASY OPEN
DOOR
ACTIVATE
SWITCH THEN
OPEN DOOR
EASY OPEN
DOOR
PULL TO
OPERATE
EASY OPEN
DOOR
PUSH
TO
OPERATE
PUSH TO
OPERATE
EASY OPEN
DOOR
AUTOMATIC
DOOR
CAUTION

PUSH TO
OPERATE
EASY OPEN
DOOR
No: 425
PULL TO
OPERATE
EASY OPEN
DOOR
No: 426
POWER
ASSISTED
EASY OPEN
DOOR
No: 427
AUTOMATIC
DOOR
CAUTION No: 428
PUSH
TO
OPERATE
No: 430
Sign 425
Function: Power Assist Function
Usage:
Placed on Push Side of a door when door motion is used to
initiate the operation of the door operator.
Reference: 6.2.2
Sign 426
Function: Power Assist Function
Usage:
Placed on Pull Side of a door when door motion is used to
initiate the operation of the door operator.
Reference: 6.2.2
Sign 427
Function: Power Assist Function
Usage:
Placed on Both Sides of a door when remote sensor devices
are used to initiate the operation of the door operator.
Reference: 6.2.3
Sign 428
Function: Power Assist / Power Operator Function
Usage:
All Low Energy doors shall be marked with a sign, visible from Both
Sides of the door with the words “AUTOMATIC CAUTION DOOR”.
Reference: 6.3
Sign 430
Function: Power Operator Function
Usage:
Placed on Push Side of a door when door motion is used to initiate
the operation of the door operator.
Reference: 6.3.2
PULL
TO
OPERATE
No: 431
Sign 431
Function: Power Operator Function
Usage:
Placed on Pull Side of a door when door motion is used to initiate
the operation of the door operator.
Reference: 6.3.2
80-9369-0172-020 (12-02 )
2
Power Door Operator Units are packaged with the
following signs shown on this page.
PUSH
TO
OPERATE
(Qty 1)
(Qty 1)
(Qty 2)
(Qty 2)
(Qty 1)
(Qty 1)
Sign Usage references American National Standard, A156.19 Section 6.

ACTIVATE
SWITCH THEN
OPEN DOOR
EASY OPEN
DOOR
No: 424
Sign 429
Function: Power Operator Function
Usage:
Placed on Both Sides of a door when a separate wall switch is
used to initiate the operation of the door operator.
Reference: 6.3.1
Sign 424
Function: Power Assist Function
Usage:
Placed on Both Sides of a door where a separate wall switch is
used to initiate the operation of the door operator.
Reference: 6.2.1
80-9369-0172-020 (12-02 )
ACTIVATE
SWITCH
TO OPERATE
No: 429
Sign 433
Function: Power Operator Function
Usage:
Placed on Both Sides of a door when a separate wall switch is
used to initiate the operation of the door operator.
Reference: 6.3.1
Sign 432
Function: Power Assist Function
Usage:
Placed on Both Sides of a door where a separate wall switch is
used to initiate the operation of the door operator.
Reference: 6.2.1
Switch kits 574, 661, 662, 675, 685, 691, 692, 693,
and 694 are packaged with the following sign.
Switch kits 575, 576, 660, 672, and 676 are
packaged with the following signs.
3
(Qty 1 Per Switch Kit)
ACTIVATE
SWITCH THEN
OPEN DOOR
EASY OPEN
DOOR
No: 432
Sign 432 has the same usage as sign
424. This version is provided without
the International Symbol of
Accessibility to match wall switches
which do not incorporate this symbol.
(Qty 1 Per Switch Kit)
ACTIVATE
SWITCH
TO OPERATE
No: 433
Sign 433 has the same usage as sign 429.
This version is provided without the
International Symbol of Accessibility to
match wall switches which do not
incorporate this symbol.
(Qty 1 Per Switch Kit)
Sign Usage references American National Standard, A156.19 Section 6.
Sign Usage references American National Standard, A156.19 Section 6.
(Qty 1 Per Switch Kit)

80-9369-0172-020 (01-09)
4
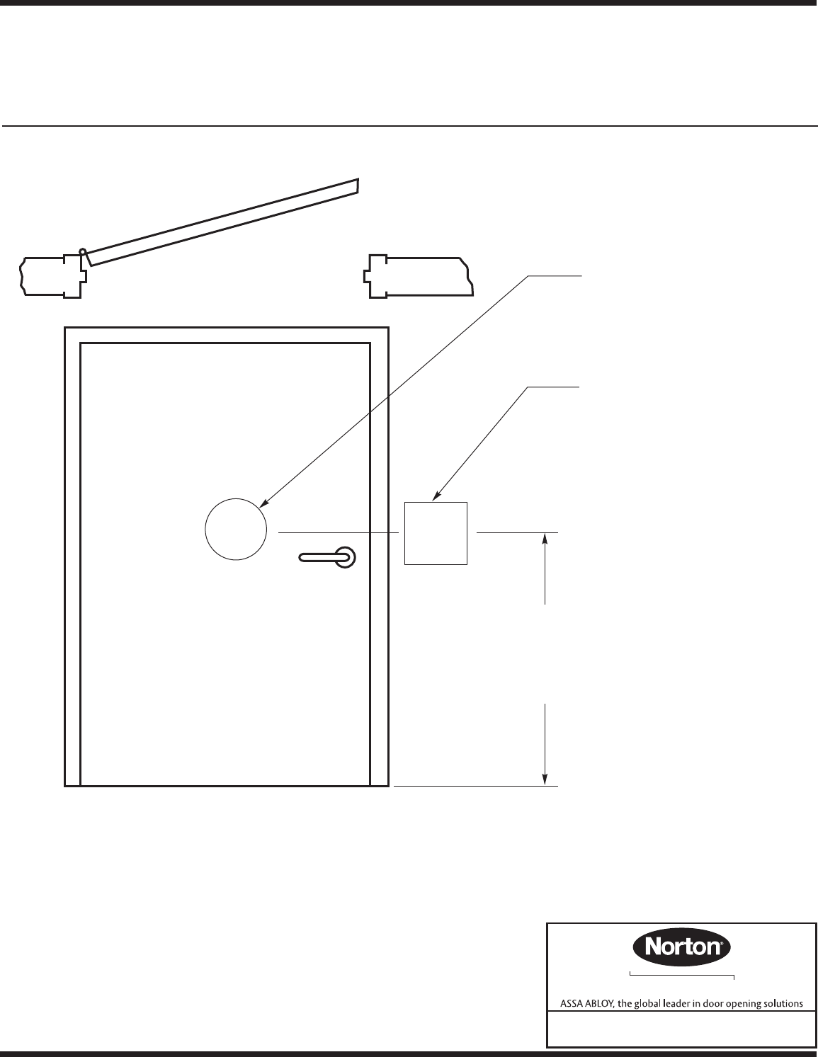
SIGN
428 Function
Signage
SIGNAGE CENTER LINE
BETWEEN 38” MIN. AND 62” MAX.
(10CM - 15CM)
ABOVE FINISHED FLOOR.
PLACED ON
BOTH SIDES
OF DOOR
ADJACENT TO
LATCH EDGE OF DOOR
WHERE THERE IS NO WALL SPACE TO THE
LATCH EDGE OF DOOR, INCLUDING AT
DOUBLE LEAF DOORS, SIGNS SHALL BE
PLACED ON NEAREST ADJACENT WALL.
PLACED ON
BOTH SIDES
OF DOOR
The following information is based on American National Standard
A156.19 and also ADA Standard for Accessible Design.
Some Specific Applications will not require all or any of this signage.
Consult all Federal, State and Local Codes.
3000 Highway 74 East • Monroe, NC 28112
Tel: • Fax: (800)-338-0965
www.nortondoorcontrols.com
(877)-974-2255
ASSA ABLOY
Norton® is a registered trademark of Yale Security Inc., an ASSA ABLOY Group company.
Copyright © 2002, 2009 Yale Security Inc., an ASSA ABLOY Group company. All rights reserved.
Reproduction in whole or in part without the express written permission of Yale Security Inc. is prohibited.