MAYTAG Commercial Dryer Manual L0901608
User Manual: MAYTAG MAYTAG Commercial Dryer Manual MAYTAG Commercial Dryer Owner's Manual, MAYTAG Commercial Dryer installation guides
Open the PDF directly: View PDF
.
Page Count: 36

INSTALLATIONINSTRUCTIONS
COMMERCIALDRYER- Gas or Electric
INSTRUCTIONSPOUR NSTALLATION D'UNE
SECHEUSECOMMERCIALE- A gaz ou (_lectrique
Table of Contents/Table des mati_res ........................................ 2
l
MDE17MN
MDG17MN
MDE17CS
MDG17CS
W10184576A
SP-W10184577A
www.maytagcommerciallaundry.com

TABLEOF CONTENTS
DRYER SAFETY ............................................................................ 2
INSTALLATION REQUIREMENTS .............................................. 5
Tools and Parts .......................................................................... 5
Location Requirements .............................................................. 5
Electrical Requirements - Gas Dryer ........................................ 7
Electrical Requirements - Electric Dryer (U.S.A. Only) ............ 8
Electrical Requirements - Electric Dryer (Canada Only) .......... 9
Gas Supply Requirements .................................................... 10
Venting Requirements ............................................................ 11
INSTALLATION INSTRUCTIONS - COIN SLIDE
AND COIN BOX ...................................................................... 12
INSTALLATION INSTRUCTIONS -GAS DRYER .................. 13
Make Gas Connection .............................................................. 13
Connect Vent ............................................................................ 13
Complete Installation .............................................................. 13
INSTALLATION INSTRUCTIONS- ELECTRIC DRYER ........ 14
Make Electrical Connection ...................................................... 14
Connect Vent ............................................................................ 18
Complete Installation .............................................................. 18
CHANGING TO A30- OR 60-MINUTE TIMING CAM .......... 19
REVERSING THE DOOR SWING .......................................... 19
MAINTENANCE INSTRUCT{ONS .......................................... 20
WARRANTY .............................................................................. 21
TABLEDESMATIERES
SECURITI_ DE LA SECHEUSE .............................................. 22
EXIGENCES D'INSTALLATION ................................................ 25
Outillage et pi_ces .................................................................... 25
Exigences d'emplacement ...................................................... 26
Specifications electriques - s6cheuse _ gaz ........................... 27
Specifications electriques - Pour le Canada seutement .........28
Specifications de I'alimentation en gaz .................................. 29
Exigences concernant I'evacuation .......................................... 30
INSTALLATION D'UNE GLISS_I_RE
ET D'UNE CAISSE ._ MONNAIE .............................................. 32
INSTRUCTIONS D'INSTALLATION - SI_CHEUSE A GAZ .... 32
Raccordement h la canalisation de gaz .................................. 32
Raccordement du conduit d'evacuation ................................ 32
Achever I'instaltation ................................................................ 33
INSTRUCTIONS D'INSTALLATION - SECHEUSE
I_LECTRIQUE ............................................................................ 33
Raccordement du conduit d'evacuation ................................ 33
Achever l'instatlation ................................................................ 34
INSTALLATION D'UNE CAME DE MINUTAGE DE 30 OU 60
MINUTES ...................................................................................... 34
INVERSION DU SENS D'OUVERTURE DE LA PORTE ............ 35
INSTRUCTIONS D'ENTRETIEN .................................................. 35
GARANTIE .................................................................................... 36
DRYERSAFETY
Your safety and the safety of others are very important.
We have provided many important safety messages in this manual and on your appliance. Always read and obey all safety
messages.
This is the safety alert symbol.
This symbol alerts you to potential hazards that can kill or hurt you and others.
All safety messages will follow the safety alert symbol and either the word "DANGER" or "WARNING."
These words mean:
You can be killed or seriously injured if you don't immediately
follow instructions.
You can be killed or seriously injured if you don't follow
instructions.
All safety messages will tell you what the potential hazard is, tell you how to reduce the chance of injury, and tell you what can
happen if the instructions are not followed.

WARNING - ".isk ofFire"
- Clothes dryer installation must be performed by a qualified installer.
- Install the clothes dryer according to the manufacturer's instructions and local codes.
- Do not install aclothes dryer with flexible plastic venting materials, if flexible metal
(foil type) duct is installed, it must be of aspecific type identified by the appliance
manufacturer as suitable for use with clothes dryers. Flexible venting materials are
known to collapse, be easily crushed, and trap lint. These conditions will obstruct
clothes dryer airflow and increase the risk of fire.
- To reduce the risk of severe injury or death, follow all installation instructions.
- Save these instructions.
WARNING: For your safety, the information in this manual must be followed to minimize
the risk of fire or explosion, or to prevent property damage, personal injury, or death.
- Do not store or use gasoline or other flammable vapors and liquids in the vicinity of this
or any other appliance.
- WHAT TO DO iF YOU SMELL GAS:
®Do not try to light any appliance.
•Do not touch any electrical switch; do not use any phone in your building.
=Clear the room, building, or area of all occupants.
=Immediately call your gas supplier from a neighbor's phone. Follow the gas supplier's
instructions.
=if you cannot reach your gas supplier, call the fire department.
- Installation and service must be performed by aqualified installer, service agency, or
the gas supplier.
WARNING: Gas leaks cannot always be detected by smell.
Gas suppliers recommend that you use a gas detector approved by UL or CSA.
For more information, contact your gas supplier.
If a gas leak is detected, follow the "What to do if you smell gas" instructions.
IMPORTANT: The gas installation must conform with local codes, or in the absence of local codes, with the National Fuel Gas
Code, ANSI Z223.1/NFPA 54 or the Canadian Natural Gas and Propane Installation Code, CSA B149.1.
The dryer must be electrically grounded in accordance with local codes, or in the absence of local codes, with the National
Electrical Code, ANSI/NFPA 70 or Canadian Electrical Code, CSA C22.1.
3

In the State of Massachusetts, the following installation instructions apply:
[] Installations and repairs must be performed by a qualified or licensed contractor, plumber, or gasfitter qualified or licensed by
the State of Massachusetts.
[] If using a ball valve, it shall be a T-handle type.
[] A flexible gas connector, when used, must not exceed 3 feet.
IMPORTANT SAFETY INSTRUCTIONS
WARNING: To reduce the risk of fire, electric shock, or injury to persons when using the dryer, follow basic precautions,
including the following:
[] Read all instructions before using the dryer.
[] Do not place items exposed to cooking oils in your dryer.
Items contaminated with cooking oils may contribute to
a chemical reaction that could cause a load to catch fire.
[] Do not dry articles that have been previously cleaned in,
washed in, soaked in, or spotted with gasoline, dry-
cleaning solvents, or other flammable or explosive
substances as they give off vapors that could ignite or
explode.
[] Do not allow children to play on or in the dryer. Close
supervision of children is necessary when the dryer is
used near children.
[] Before the dryer is removed from service or discarded,
remove the door to the drying compartment.
[] Do not reach into the dryer if the drum is moving.
[] Do not install or store the dryer where it will be exposed
to the weather.
[] Do not tamper with controls.
[] Do not repair or replace any part of the dryer or attempt
any servicing unless specifically recommended in this
Use and Care Guide or in published user-repair
instructions that you understand and have the skills to
carry out.
[] Do not use fabric softeners or products to eliminate static
unless recommended by the manufacturer of the fabric
softener or product.
[] Do not use heat to dry articles containing foam rubber or
similarly textured rubber-like materials.
[] Clean lint screen before or after each load.
[] Keep area around the exhaust opening and adjacent
surrounding areas free from the accumulation of lint, dust,
and dirt.
[] The interior of the dryer and exhaust vent should be
cleaned periodically by qualified service personnel.
[] See installation instructions for grounding requirements.
SAVE THESE INSTRUCTIONS
[] It is recommended that the owner post, in a prominent location, instructions for the customer's use in the event the customer smells
gas. This information should be obtained from your gas supplier.
[] Post the following warning in a prominent location.
I FOR YOUR SAFETY
Do not store or use gasoline or other flammable vapors and liquids in the vicinity of this or any other appliance. I

INSTALLATIONREQUIREMENTS
Gather the required tools and parts before starting installation.
Read and follow the instructions provided with any tools
listed here.
Tools needed
m 8" (20 cm) or 10" (25 cm) Pipe wrench
m 8" (20 cm) or 10" (25 cm) adjustable wrench
m Flat-blade screwdriver
m Phillips screwdriver
m Adjustable wrench that opens to 1" (25 mm) or 1" (25 mm)
hex-head socket wrench
m Level
m 5_6"socket wrench
m Utility knife
m Vent clamps
m Pipe-joint compound resistant to LP gas
m Caulk gun and caulk (for installing new exhaust vent)
m Pliers
m Putty knife
Parts supplied
Remove parts bag from dryer drum. Check that all parts were
included.
m Wedge Cone
m Foot boot (4)
m Dryer foot (4)
m 5_6-18x 21Z2'' bolt
m 3 pin timing cam
m 6 pin timing cam
Explosion Hazard
Keep flammable materials and vapors, such as
gasoline, away from dryer.
Do not install in agarage.
Failure to do so can result in death, explosion, or fire.
if installing a gas dryer:
iMPORTANT: Observe all governing codes and ordinances.
[] Check code requirements: Some codes limit or do not permit
installation of clothes dryers in garages, closets, or sleeping
quarters. Contact your local building inspector.
[] Make sure that lower edges of the cabinet, plus the back and
bottom sides of the dryer, are free of obstructions to permit
adequate clearance of air openings for combustion air. See
"Recessed Area and Closet Installation Instructions" below
for minimum spacing requirements.
NOTE: The dryer must not be installed in an area where it will
be exposed to water and/or weather.
Recessed Area and Closet Installation instructions
This dryer may be installed in a recessed area or closet.
For recessed area and closet installations, minimum clearances
can be found on the warning label on the rear of the dryer.
The installation spacing is in inches and is the minimum
allowable. Additional spacing should be considered for ease
of installation, servicing, and compliance with local codes
and ordinances.
If closet door is installed, the minimum unobstructed air opening
in the top and bottom is required. Louvered doors with equivalent
air openings are acceptable.
The dryer must be exhausted outdoors.
No other fuel-burning appliance may be installed in the same
closet as the dryer.
5

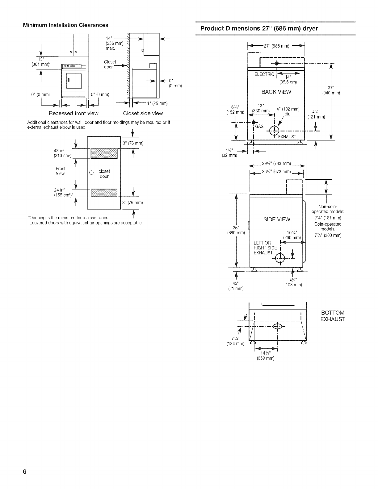
Minimum Installation Clearances
15"
(381 mm)*
oto
Inl I
0" (0 mm) r_
_ mm__--_
max._ _
Closet {'4
door _ ___
O"(0mm) _
"_ '==='="_l [_L_'''_ 1'' (25 mm)
Recessed front view Closet side view
Additional clearances for wall, door and floor moldings may be required or if
external exhaust elbow is used.
48 in_
(310 cm2)*
Front
View O closet
door
3" (76 mm)
3" (76 mm)
*Opening is the minimum for a closet door.
Louvered doors with equivalent air openings are acceptable.
0"
(0 mm)
Product Dimensions 27" (686 ram) dryer
63/4 ''
(152 mm)
£
11/4" ____
(32mm)
35"
(889 mm)
3/4"
(21 mm)
"_L_-----27 '' (686 mm)
.........r
_L_CT_,C_ /
(35.6 cm) [
37"
BACK VIEW (940mm)
/
13" 4" (102 mm) 43/4" /
_/dia. (121 mm)
i ZZ;;......L
i-4_--
291/4'' (743 mm)
261/2'' (673 mm)
[ ....
I
I
I
SIDE VIEW
101/4''
(260 mm)
LEFT OR
RIGHT SIDE i
T
41/4''
(108 mm)
I
Non-coin-
operated models:
71/8'' (181 mm)
Coin-operated
models:
77/8'' (200 mm)
I
71/4" I/I !
(184 mm) _ [ ¢_'
(359 mm)
BOTTOM
EXHAUST

Electrical Shock Hazard
Plug into a grounded 3 prong outlet.
Do not remove ground prong.
Do not use an adapter.
Do not use an extension cord.
Failure to follow these instructions can result in death,
fire, or electrical shock.
iMPORTANT: The dryer must be electrically grounded in
accordance with local codes and ordinances or, in the absence of
local codes, with the National Electrical Code, ANSl/NFPA 70,
latest edition, or Canadian Electrical Code, CSA C22.1.
If codes permit and a separate ground wire is used, it is
recommended that a qualified electrical installer determine that
the ground path is adequate.
A copy of the above code standards can be obtained from:
National Fire Protection Association
One Batterymarch Park, Quincy, MA 02269
CSA International
8501 East Pleasant Valley Road
Cleveland, Ohio 44131-5575
[] A 120 volt, 60 Hz, AC only, 15- or 20-amp, fused electrical
circuit is required. A time-delay fuse or circuit breaker is also
recommended. It is recommended that a separate circuit
serving only this dryer be provided.
Recommended Ground Method
The dryer, when installed, must be electrically grounded in
accordance with local codes or, in the absence of local codes,
with the National Electrical Code, ANSl/NFPA 70, latest edition,
or Canadian Electrical Code, CSA C22.1, and all local codes
and ordinances.
GROUNDING INSTRUCTIONS
[] For a grounded, cord-connected dryer:
This dryer must be grounded. In the event of malfunction or
breakdown, grounding will reduce the risk of electric shock
by providing a path of least resistance for electric current.
This dryer is equipped with a cord having an equipment-
grounding conductor and a grounding plug. The plug must
be plugged into an appropriate outlet that is properly
installed and grounded in accordance with all local codes
and ordinances.
WARNING: improper connection of the equipment-
grounding conductor can result in a risk of electric shock.
Check with a qualified electrician or service representative
or personnel if you are in doubt as to whether the dryer is
properly grounded. Do not modify the plug provided with the
dryer: if it will not fit the outlet, have a proper outlet installed
by a qualified electrician.
SAVE THESE INSTRUCTIONS
7

it is your responsibility
[] To contact a qualified electrical installer.
[] To be sure that the electrical connection is adequate and in
conformance with the National Electrical Code, ANSl/NFPA
70-latest edition and all local codes and ordinances.
The National Electrical Code requires a 4-wire power supply
connection for homes built after 1996, dryer circuits involved
in remodeling after 1996, and all mobile home installations.
A copy of the above code standards can be obtained from:
National Fire Protection Association, One Batterymarch Park,
Quincy, MA 02269.
[] To supply the required 3 or 4 wire, single phase, 120/240 volt,
60 Hz., AC only electrical supply (or 3 or 4 wire, 120/208 volt
electrical supply, if specified on the serial/rating plate) on a
separate 30-amp circuit, fused on both sides of the line. A
time-delay fuse or circuit breaker is recommended. Connect
to an individual branch circuit. Do not have a fuse in the
neutral or grounding circuit.
[] Do not use an extension cord.
[] If codes permit and a separate ground wire is used, it is
recommended that a qualified electrician determine that the
ground path is adequate.
Electrical Connection
To properly install your dryer, you must determine the type of
electrical connection you will be using and follow the instructions
provided for it here.
[] This dryer is manufactured ready to install with a 3-wire
electrical supply connection. The neutral ground conductor is
permanently connected to the neutral conductor (white wire)
within the dryer. If the dryer is installed with a 4-wire electrical
supply connection, the neutral ground conductor must be
removed from the external ground connector (green screw),
and secured under the neutral terminal (center or white wire)
of the terminal block. When the neutral ground conductor is
secured under the neutral terminal (center or white wire) of the
terminal block, the dryer cabinet is isolated from the neutral
conductor.
[] If local codes do not permit the connection of a neutral
ground wire to the neutral wire, see "Optional 3-wire
connection" section.
[] A 4-wire power supply connection must be used when the
appliance is installed in a location where grounding through
the neutral conductor is prohibited. Grounding through the
neutral is prohibited for (1) new branch-circuit installations, (2)
mobile homes, (3) recreational vehicles, and (4) areas where
local codes prohibit grounding through the neutral conductor.
if using a power supply cord:
Use a UL listed power supply cord kit marked for use with
clothes dryers. The kit should contain:
[] A UL listed 30-amp power supply cord, rated 120/240 volt
minimum. The cord should be type SRD or SRDT and be at
least 4 ft (1.22 m) long. The wires that connect to the dryer
must end in ring terminals or spade terminals with upturned
ends.
[] A UL listed strain relief.
If your ouUet looks like this:
4-wirereceptacle(14-30R)
Then choose a 4-wire power supply cord with ring or spade
terminals and UL listed strain relief. The 4-wire power supply
cord, at least 4 ft (1.22 m) long, must have four 10-gauge copper
wires and match a 4-wire receptacle of NEMA Type 14-30R. The
ground wire (ground conductor) may be either green or bare. The
neutral conductor must be identified by a white cover.
If your ouUet looks like this:
3-wire receptacle (10-30R)
Then choose a 3-wire power supply cord with ring or spade
terminals and UL listed strain relief. The 3-wire power supply
cord, at least 4 ft (1.22 m) long, must have three 10-gauge copper
wires and match a 3-wire receptacle of NEMA Type 10-30R.

Ifconnectingbydirectwire:
Powersupplycablemustmatchpowersupply(4-wireor3-wire)
andbe:
[] Flexiblearmoredcableornonmetallicsheathedcoppercable
(withgroundwire),protectedwithflexiblemetallicconduit.All
current-carryingwiresmustbeinsulated.
[] 10-gaugesolidcopperwire(donotusealuminum).
[] Atleast5ft(1.52m)long.
[] Tosupplytherequired4wire,singlephase,120/240volt,60
Hz.,AConlyelectricalsupplyonaseparate30-ampcircuit,
fusedonbothsidesoftheline.Atime-delayfuseorcircuit
breakerisrecommended.Connecttoanindividualbranch
circuit.
[] ThisdryerisequippedwithaCSAInternationalCertified
PowerCordintendedtobepluggedintoastandard14-30R
waltreceptacle.Thecordis5ft(1.52m)inlength.Besure
wattreceptacleiswithinreachofdryer'sfinallocation.
GROUNDING INSTRUCTIONS
[] For a grounded, cord-connected dryer:
This dryer must be grounded. In the event of malfunction or
breakdown, grounding will reduce the risk of electric shock
by providing a path of least resistance for electric current.
This dryer uses a cord having an equipment-grounding
conductor and a grounding plug. The plug must be plugged
into an appropriate outlet that is properly installed and
grounded in accordance with all local codes and ordinances.
[] For a permanently connected dryer:
This dryer must be connected to a grounded metal,
permanent wiring system, or an equipment-grounding
conductor must be run with the circuit conductors and
connected to the equipment-grounding terminal or lead on
the dryer.
WARNING: Improper connection of the equipment-
grounding conductor can result in a risk of electric shock.
Check with a qualified electrician or service representative
or personnel if you are in doubt as to whether the dryer is
properly grounded. Do not modify the plug on the power
supply cord: if it will not fit the outlet, have a proper outlet
installed by a qualified electrician.
SAVE THESE INSTRUCTIONS
Electrical Shock Hazard
Plug into agrounded 4prong outlet.
Failure to do so can result in death or electrical shock.
[]
4-wirereceptacle(14-30R)
Do not use an extension cord.
If you are using a replacement power supply cord, it is
recommended that you use Power Supply Cord Replacement
Part Number 9831317. For further information, please
reference the service numbers located in the "Assistance
or Service" section.
GROUNDING INSTRUCTIONS
[] For a grounded, cord-connected dryer:
This dryer must be grounded. In the event of malfunction or
breakdown, grounding will reduce the risk of electric shock
by providing a path of least resistance for electric current.
This dryer is equipped with a cord having an equipment-
grounding conductor and a grounding plug. The plug must
be plugged into an appropriate outlet that is properly
installed and grounded in accordance with all local codes
and ordinances.
WARNING: improper connection of the equipment-
grounding conductor can result in a risk of electric shock.
Check with a qualified electrician or service representative
or personnel if you are in doubt as to whether the dryer is
properly grounded. Do not modify the plug provided with the
dryer: if it will not fit the outlet, have a proper outlet installed
by a qualified electrician.
SAVE THESE INSTRUCTIONS
It is your responsibility
[]
[]
To contact a qualified electrical installer.
To be sure that the electrical connection is adequate and in
conformance with the Canadian Electrical Code, C22.1-1atest
edition and all local codes. A copy of the above codes
standard may be obtained from: Canadian Standards
Association, 178 Rexdate Blvd., Toronto, ON M9W 1R3
CANADA.
9

_iiiiiiii_i!:_!!iil;iiii_i:!ii?ili:i::iiiii?¸ !i:!_%i?_!:ii:ii::'_!i!:_:_iiii_:_i_i_!!%:i:!!ii_
Explosion Hazard
Use a new CSA International approved gas supply line.
Install ashut=off valve.
Securely tighten all gas connections.
if connected to LP, have a qualified person make sure
gas pressure does not exceed 13" (330 rnnrn)water
column.
Examples of a qualified person include:
licensed heating personnel,
authorized gas company personnel, and
authorized service personnel.
Failure to do so can result in death, explosion, or fire.
IMPORTANT: Observe all governing codes and ordinances.
This installation must conform with all local codes and
ordinances. In the absence of local codes, installation must
conform with American National Standard, National Fuel Gas
Code ANSI Z223.1/NFPA 54 or CAN/CSA B149.
A copy of the above code standards can be obtained from:
National Fire Protection Association
One Batterymarch Park, Quincy, MA 02269
CSA International
8501 East Pleasant Valley Road
Cleveland, Ohio 44131-5575
The design of this dryer has been certified by CSA International
for use at altitudes up to 10,000 feet (3048 m) above sea level at
the B.T.U. rating indicated on the model/serial plate. Burner input
adjustments are not required when the dryer is operated up to
this elevation.
When installed above 10,000 feet (3048 m), a four percent (4%)
reduction of the burner B.T.U. rating shown on the model/serial
plate is required for each 1,000 foot (305 m) increase in elevation.
For assistance when converting to other gas types and/or
installing above 10,000 feet (3048 m) elevation, contact your
local service company.
Type of Gas
This dryer is equipped for use with natural gas. It is design-
certified by CSA International for LP (propane and butane) gases
with appropriate conversion. No attempt shall be made to convert
the dryer from the gas specified on the serial/rating plate for use
with a different gas without consulting the serving gas supplier.
Conversion must be done by a qualified service technician.
Gas conversion kit part numbers are listed on the gas valve
burner base.
Gas Supply Line
Recommended method
[] Provide a gas supply line of 1/2"rigid (IPS) pipe to the dryer
location. Pipe joint compounds that resist the action of LP gas
must be used. Do not use TEFLON _'ttape. With LP gas,
piping or tubing size can be 1/2"minimum. Usually, LP gas
suppliers determine the size and materials used in the system.
Alternate method
[] The gas supply may also be connected using %" approved
copper or aluminum tubing. If the total length of the supply
line is more than 20 ft. (6.1 m), larger tubing will be required.
If using natural gas, do not use copper tubing. Pipe joint
compounds that resist the action of LP gas must be used.
Flexible metal appliance connector:
[] It is recommended that a new flexible stainless steel gas line,
design-certified by CSA International, be used for connecting
the dryer to the gas supply line. (The gas pipe which extends
through the lower rear of the dryer is provided with %" mate
pipe thread.)
[] Do not kink or damage the flexible stainless steel gas line
when moving the dryer.
Rigid pipe connection:
The rigid pipe connection requires a combination of pipe fittings
to obtain an in-line connection to the dryer.
[] Must include a shutoff valve:
The supply line must be equipped with a manual shutoff
valve installed within 6 ft. (1.8 m) of dryer in accordance
with National Fuel Gas Code, ANSI Z223.1. In Canada,
an individual manual shutoff valve must be installed in
accordance with the B149 installation codes CAN/CGA
B149.1 and CAN/CGA B149.2. This valve should be located
in the same room as the dryer. It should be in a location that
allows ease of opening and closing. Do not block access to
shutoff valve. The valve is for turning on or shutting off gas
to the dryer.
B D
_'_'_",_,_,_, ii
A. Gas supply line
B. Shutoff valve in "open" position
C. To dryer
D. NPT 1/8" min. plugged tapping
1-®TEFLON is a registered trademark of E.I. Du Pont De Nemours and Company.
10

[] Installed in a confined area:
If the dryer is installed in a confined area such as a bathroom
or closet, provision must be made for enough air for
combustion and ventilation. Check governing codes and
ordinances or refer to the "Recessed Area and Closet
Installation Instructions" in the "Location Requirements"
section.
Gas Supply Pressure Testing
A 1A" NPT minimum plugged tapping, accessible for gauge
testing, must be installed immediately upstream of the installed
shut-off valve to the dryer.
The dryer must be disconnected from the gas supply piping
system during any pressure testing of the system at test
pressures in excess of 1Z2"psig.
Fire Hazard
Use a heavy metal vent,
Do not use a plastic vent.
Do not use a metal foil vent,
Failure to follow these instructions can result in death
or fire.
WARNING; To reduce the risk of fire, this dryer MUST BE
EXHAUSTED OUTDOORS.
[] The dryer vent must not be exhausted into any gas vent,
chimney, walt, ceiling, attic, crawtspace, or a concealed space
of a building.
[] Only rigid or flexible metal duct shall be used for exhausting.
[] Do not use an exhaust hood with a magnetic latch.
[] Do not install flexible metal vent in enclosed walls, ceilings,
or floors.
[] 4" (102 mm) heavy metal vent and clamps must be used. Do
not use plastic or metal foil vent.
[] Use clamps to seat all joints. The duct shall not be assembled
with screws or other fastening means that extend into the
duct and catch lint. Do not use duct tape.
[] The total length of flexible metal vent shall not exceed 73/4ft
(2.4 m).
iMPORTANT: Observe all governing codes and ordinances.
Rigid metal vent is recommended to prevent crushing and
kinking.
Flexible metal vent must be fully extended and supported when
the dryer is in its final position. Remove excess flexible metal vent
to avoid sagging and kinking that may result in reduced airflow
and poor performance.
An exhaust hood should cap the vent to prevent rodents and
insects from entering the home or business.
Exhaust hood must be at least 12" (305 mm) from the ground
or any object that may be in the path of the exhaust (such as
flowers, rocks, or bushes).
If using an existing vent system, clean lint from the entire length
of the system and make sure exhaust hood is not plugged with
lint. Replace any plastic or metal foil vent with rigid metal or
flexible metal vent.
Plan installation to use the fewest number of elbows and turns.
ExhaustAir Flow
A. Good
B. Better
Allow as much room as possible when using elbows or making
turns. Bend vent gradually to avoid kinking.
Vent outlet is located at the back of the dryer, at bottom center.
The vent can be routed up, down, left, right, or straight out the
back of the dryer.
Vent System Length
Maximum length of vent system depends upon the type of
vent used, number of elbows, and type of exhaust hood.
The maximum length for rigid vent is shown in the chart.
Maximum Vent Length
4" (102 mm) Diameter Exhaust Hoods
Rigid Metal Vent
No. of 90 ° turns Box Hood and Louvered Style Angled Hood Style
0 130 ft. (39.6 m) 129 ft. (39.3 m)
1 125 ft. (38.1 m) 119 ft. (36.3 m)
2 115 ft. (35.1 m) 109 ft. (33.2 m)
3 106 ft. (32.3 m) 100 ft. (30.5 m)
4 98 ft. (29.9 m) 92 ft. (28.0 m)
For vent systems not covered by the vent specification chart,
see your parts distributor.
If dryer is installed in a confined area, such as a bedroom,
bathroom, or closet, provision must be made for enough air
for combustion and ventilation. (Check governing codes and
ordinances.) See "Recessed Area and Closet Installation
Instructions" in the "Location Requirements" section.
A 4" (102 mm) outlet hood is preferred. However, a 21/,`' (64 mm)
outlet exhaust hood may be used. A 21/2`' (64 mm) outlet creates
greater back pressure than other hood types. For permanent
installation, a stationary vent system is required.
11

[] A main vent can be used for venting a group of dryers. The
main vent should be sized to remove 200 CFM of air per
dryer. Large-capacity lint screens of proper design may be
used in the main vent if checked and cleaned frequently. The
room where the dryers are located should have make-up air
equal to or greater than the CFM of all the dryers in the room.
[] Back-draft Damper Kit, Part No. 3391910, is available from
your dealer and should be installed in the vent of each dryer
to prevent exhausted air from returning into the dryers and
to keep the exhaust in balance within the main vent.
Unobstructed air openings are required.
Each vent should enter the main vent at an angle pointing in the
direction of the airflow. Vents entering from the opposite side
should be staggered to reduce the exhausted air from interfering
with the other vents.
The maximum angle of each vent entering the main vent should
be no more than 30 °.
air flow _ B-_---
A. Individualdryervent
B. Mainvent
Keep air openings free of dry cleaning fluid fumes. Fumes create
acids which, when drawn through the dryer heating units, can
damage dryers and loads being dried.
A clean-out cover should be located on the main vent for periodic
cleaning of the vent system.
If an exhaust hood cannot be used:
The outside end of the main vent should have a sweep elbow
directed downward. If the main vent travels vertically through the
roof, rather than through the walt, install a 180° sweep elbow on
the end of the vent at least 2 ft. (610 mm) above the highest part
of the building. The opening in the walt or roof shall have a
diameter 1Z2"(13 mm) larger than the vent diameter. The vent
should be centered in the opening.
B
UC
0w ...............E
__ /- J_::::::::_ of building
E"180f°sn:e;edbow F _Ghighestpoint
_. _o_al vent
Do not install screening or cap over the end of the vent.
INSTALLATIONINSTRUCTIONS- COINSLIDEANDCOINBOX
The console houses the factory-installed accumulator timer with
actuating arm and button.
The factory-installed timer is set to provide 45 minutes (4 pins)
of drying time when activated by the coin slide. Timer cams for
30-minute (6 pins) and 60-minute (3 pins) drying times are
included in the parts bag.
The coin slide mechanism, control panel lock and key, and coin
box lock and key are not included and are available from usual
industry sources.
Excessive Weight Hazard
Use two or more people to move and install dryer.
Failure to do so can result in back or other injury.
NOTE: Slide dryer onto cardboard or hardboard before moving to
avoid damaging floor covering.
1. Using two or more people, move dryer to desired installation
location.
2. Take tape off front corners of dryer. Open dryer and remove
the literature and parts packages. Wipe the interior of the
drum thoroughly with a damp cloth.
3=
4=
5=
6=
7=
8.
Take two of the cardboard corners from the carton and place
them on the floor in back of the dryer. Firmly grasp the body
of the dryer and gently lay it on its back on the cardboard
corners.
With one of the legs in hand, check the ridges for a diamond
marking. That's how far the leg is supposed to go into the
hole.
Start to screw the leveling legs into the holes by hand. (Use a
small amount of liquid detergent to lubricate the screw
threads so it is easier to turn the legs.) Use a 1" (25 mm)
wrench or socket wrench to finish turning the legs until you
reach the diamond mark.
Now stand the dryer up.
Remove the service
door of the meter case
by lifting it up at the
back. Install the money-
accepting device. (Refer
to manufacturer's
instructions for proper
installation.)
For dryers using coin
slides, use the adapter kit supplied with the dryer.
Replace the meter case service door. Put the coin vault with
lock and key in the meter case opening.
Remove cardboard or hardboard from under dryer. Adjust the
legs of the dryer up or down until the dryer is level.
12

INSTALLATIONINSTRUCTIONS- GASDRYER
Excessive Weight Hazard
Use two or more people to move and install dryer.
Failure to do so can result in back or other injury.
1. Remove red cap from gas pipe.
2. Connect gas supply to dryer. Use pipe-joint compound
resistant to the action of LR gas for gas connections. If
flexible metal tubing is used, be certain there are no kinks.
If necessary for service, open the toe panel by removing the
21A'' hex-head screws from the bottom of the panel. Then lift
up on the panel while pulling the bottom of the panel away
from the dryer.
3. Open the shutoff valve in the gas supply line.
4. Test all connections by brushing on an approved noncorrosive
leak-detection solution. Bubbles will show a leak. Correct any
leak found.
1= With dryer in final position, place level on top of the dryer, first
side to side; then front to back. If the dryer is not level, adjust
the legs of the dryer up or down until the dryer is level.
Electrical Shock Hazard
Plug into agrounded 3 prong outlet.
Do not remove ground prong.
Do not use an adapter.
Do not use an extension cord.
Failure to follow these instructions can result in death,
fire, or electrical shock.
1. Using a 4" (102 mm) clamp, connect vent to exhaust outlet
in dryer. If connecting to existing vent, make sure the vent is
clean. The dryer vent must fit over the dryer exhaust outlet
and inside the exhaust hood. Make sure the vent is secured
to exhaust hood with a 4" (102 mm) clamp.
2. Using two or more people, move dryer to desired installation
location. Do not crush or kink vent. Make sure dryer is level.
3. Check to be sure there are no kinks in the flexible gas line.
2. Plug into a grounded 3 prong outlet.
3. Check dryer operation:
Insert coins. Operating time will accumulate per number of
coins. Push START/RESTART button. Using a full heat cycle
(not the air cycle), let the dryer run for at least five minutes.
Dryer will stop when time is used up.
NOTE: Dryer door must be closed for dryer to operate. When
door is open, dryer stops, but timer continues to run. To
restart dryer, close door and push START/RESTART button.
4. If the burner does not ignite and you can feel no heat inside
the dryer, shut off dryer for five minutes. Check that all supply
valve controls are in "ON" position and that the electrical cord
is plugged in. Repeat five-minute test.
5. If drying time is too long, make sure lint screen is clean.
13

INSTALLATIONINSTRUCTIONS-ELECTRICDRYER
Power Supply Cord Method =U.S. Only
1. Disconnect power.
2. Remove hold-down screw and the terminal block cover.
Fire Hazard
Use a new UL listed 30 amp power supply cord.
Use a UL listed strain relief.
Disconnect power before making electrical connections.
Connect neutral wire (white or center wire) to center
terminal (silver).
Ground wire (green or bare wire) must be connected to
green ground connector.
Connect remaining 2 supply wires to remaining
2terminals (gold),
Securely tighten all electrical connections.
Failure to do so can result in death, fire, or
electrical shock.
3=
A. External ground conductor screw
B. Tab
C. Terminalblock cover
D. Hold-down screw
Assemble ,_A"(19 mm) UL-listed strain relief (UL marking on
strain relief) into the hole below the terminal block opening.
Tighten strain relief screws just enough to hold the two clamp
sections together. Install power supply cord through the
strain relief.
A. Strain relief clamp sections
B. Dryer cabinet
C. Strain relief screws
This dryer is manufactured with the neutral ground wire
connected to the neutral (center) of the wiring harness at the
terminal block. If local codes do not permit this type of
connection, use "Four-wire connection" instructions.
Use a UL-listed power supply cord rated 240 volt min.,
30-amp and marked for use with a clothes dryer.
4= Complete installation following instructions for your type of
electrical connection:
* Four-wire (recommended method)
Three-wire (if four-wire is not available)
14

Power Supply Cord,
Four-wire electrical connection:
G
B C D
i'
/
A. Spadeterminalswithupturnedends E
B. Neutral
C.s/4"(19mm) UL-Iistedstrainrelief
D.Neutral(white)
E. Ringterminals
F. Groundwire
G. Groundprong
Four-wire power supply cord must have four,
No. 10 copper wires and match a four-wire
receptacle of NEMA Type 14-30R. The
fourth wire (ground conductor) must be
identified by a green cover and the neutral
conductor by a white cover.
5. Remove the center terminal block screw.
6. Remove the appliance neutral ground wire
from the external ground conductor screw.
Fasten under center, silver-colored
terminal block screw.
7. Connect the ground wire of the power
supply cord to the external ground
conductor screw. Tighten screw.
8. Connect the neutral wire (white or center)
of the power supply cord under the center
screw of the terminal block. Tighten
screw.
9. Connect the other wires to outer terminal
block screws. Tighten screws.
10. Tighten strain relief screws.
11. Insert tab of the terminal block cover into
slot of the dryer rear panel. Secure cover
with hold-down screw.
A g
A. External ground conductor screw
B. Appliance neutral ground wire
C. Center terminal block screw
D. Outer terminal block screws
E. Strain relief screw
F. Neutral (center wire)
G. Ground wire
15

Power Supply Cord,
Three=wire electrical connection:
_m A....................
Thisbladeconnectedto B
.....this conductor. ...................................
E D C
A. Spade terminals with upturned ends
B. Ring terminals
C.Neutral (white or center)
D.s/4" (19 mm) UL-Iisted strain relief
E. Neutral
Three-wire power supply cord must
have three, No. 10 copper wires and
match a three-wire receptacle of NEMA
Type 10-30R.
Use this method where local codes permit connecting
neutral ground wire to neutral wire: A................................ _Z_
5. Loosen or remove the center terminal 1_1_.__ O__1
block screw. F.....................
E..........
Connect the neutral wire (white or center)
of the power supply cord to the center,
silver-colored terminal screw of the
terminal block. Tighten screw.
7. Connect the other wires to outer terminal _ .........
block screws. Tighten screws. _ C
8. Tighten strain relief screws.
9. Insert tab of the terminal block cover into D............
slot of the dryer rear panel. Secure cover
with hold-down screw.
A. External ground conductor screw
B. Center terminal block screw
C. Outer terminal block screws
D. Strain relief screw
E. Neutral (center wire)
F.Appliance neutral ground wire
Use this method where local codes do not permit
connecting neutral ground wire to neutral wire:
5. Remove the center terminal block screw.
6. Remove the appliance neutral ground wire
from the external ground conductor
screw. Connect the appliance neutral
ground wire and the neutral wire (white or
center) of the power supply cord under
the center, silver-colored terminal block
screw. Tighten screw.
7. Connect the other wires to outer terminal
block screws. Tighten screws.
8. Tighten strain relief screws.
9. Insert tab of the terminal block cover into
slot of the dryer rear panel. Secure cover
with hold-down screw.
10. After reattaching the terminal cover,
connect a separate copper ground wire
from the external ground conductor screw
to an adequate ground.
If codes permit and a separate ground wire is
used, it is recommended that a qualified
electrician determine that the ground path is
adequate.
A..........!1 C
uw h
G
E
F...................
A. Separate copper ground wire
B. External ground conductor screw
C. Appliance neutral ground wire
D. Center terminal block screw
E. Outer terminal block screws
F. Strain relief screw
G. Neutral (center wire)
B
16

Direct Wire Method =U.S. Only
Fire Hazard
Use 10 gauge copper wire.
Use a UL listed strain relief.
Disconnect power before making electrical connections.
Connect neutral wire (white or center wire) to center
terminal (silver).
Ground wire (green or bare wire) must be connected to
green ground connector.
Connect remaining 2 supply wires to remaining
2terminals (gold).
Securely tighten all electrical connections.
Failure to do so can result in death, fire, or
electrical shock.
1. Disconnect power.
2. Remove hold-down screw and terminal block cover.
3=
A. External ground conductor screw
B. Tab
C. Terminalblock cover
D. Hold-down screw
Install 3A" conduit connector into the hole below the terminal
block opening. Connect flexible metallic conduit and tighten
connector screw. Install direct wire cable through the flexible
metallic conduit.
LJ
......._ g
A. Conduit connector
B. Dryer cabinet
C. Connector screw
Direct wire cable must match power supply (4-wire or 3-wire)
and be:
[] Flexible armored cable or nonmetallic sheathed copper cable
(with ground wire), protected with flexible metallic conduit. All
current-carrying wires must be insulated.
[] 10-gauge solid copper wire (do not use aluminum).
[] At least 5 ft. (1.52 m) long.
4= Complete installation following instructions for your type of
electrical connection:
• Four-wire (recommended method)
Three-wire (if four-wire is not available)
Direct Wire,
Four-wire electrical connection:
to I °_r_ e_jof / -_ _
_ 5" (127mm) _
Strip 5" (127 mm) of outercovering
fromendof cable.Leavegreenor bare
Shape ends ground wireat 5" (127 mm). Cut11/2"
ofwiresinto (38 mm) from3 remaining wires. Strip
a hook. insulationback1"(25 cm).
A. s/4"(19 mm) conduitconnector
B. Neutral(whiteor center)
C.Groundwire (greenor bare)
D. lO-gauge,3 wirewith groundwire in
flexiblemetallicconduit
5. Remove the center terminal block screw.
6. Remove the appliance neutral ground
wire from the external ground conductor
screw. Fasten under center, silver-
colored terminal block screw.
7. Connect the ground wire (green or bare)
of the direct wire cable to the external
ground conductor screw. Tighten screw.
8. Place the hooked end of the neutral wire
(white or center) of the direct wire cable
under the center screw of the terminal
block (hook facing right). Squeeze hook
end together. Tighten screw.
9. Place the hooked ends of the other
direct wire cable wires under the outer
terminal block screws (hook facing right).
Squeeze hooked ends together. Tighten
screws.
10. Insert tab of the terminal block cover into
slot of the dryer rear panel. Secure cover
with hold-down screw.
F
E¸
D
A. External ground conductor screw
B. Appliance neutral ground wire
C.Center terminal block screw
D.Outer terminal block screws
E. Neutral (center wire)
F.Green or bare ground wire
17

DirectWire,
Three-wire electrical connection:
Three wire with ground wire: green or bare
wire cut short. Wire is not used. Dryer is
grounded through neutral conductor.
A1" (25 mm)
of wires
to strippedof
disconnect insulation
box _
C
Shapeends
of wiresinto
a hook.
(89 mm)
Strip 31/2'' (89 mm) of outer
covering from end of cable.
Strip insulation back 1" (25 mm).
If using 3 wire cable with ground
wire, cut green or bare wire even
with outer covering.
A. s/4"(19 mm) conduit connector
B. Neutral (white or center)
C. lO-gauge, 3 wire with ground wire in
flexible metallic conduit
Use this method where local codes permit
connecting neutral ground wire to
neutral wire:
5. Loosen or remove the center terminal
block screw.
6. Place the hooked end of the neutral wire
(white or center) of the direct wire cable
under the center screw of the terminal
block (hook facing right). Squeeze
hooked end together. Tighten screw.
7. Place the hooked ends of the other
direct wire cable wires under the outer
terminal block screws (hook facing right).
Squeeze hooked ends together. Tighten
screws.
8. Insert tab of the terminal block cover into
slot of the dryer rear panel. Secure cover
with hold-down screw.
C
A. External ground conductor screw
B. Center terminal block screw
C. Outer terminal block screws
D. Neutral (center wire)
E. Appliance neutral ground wire
Use this method where local codes do
not permit connecting neutral ground
wire to neutral wire:
5. Remove the center terminal block screw.
6. Remove the appliance neutral ground wire
from the external ground conductor screw.
Connect the appliance neutral ground wire
and the neutral wire (white or center) of the
direct wire cable under the center, silver-
colored terminal block screw. Tighten
screw.
7. Connect the other wires to outer terminal
block screws. Tighten screws.
8. Insert tab of the terminal block cover into
slot of the dryer rear panel. Secure cover
with hold-down screw.
9. After reattaching the terminal cover,
connect a separate copper ground wire
from the external ground connector screw
to an adequate ground.
If codes permit and a separate ground wire is
used, it is recommended that a qualified
electrician determine that the ground path is
adequate.
A......... C
A. Separate copper ground wire
B. External ground conductor screw
C. Appliance neutral ground wire
D. Center terminal block screw
E. Outer terminal block screws
F. Neutral (center wire)
1. Using a 4" (102 mm) clamp, connect vent to exhaust outlet in
dryer. If connecting to existing vent, make sure the vent is
clean. The dryer vent must fit over the dryer exhaust outlet
and inside the exhaust hood. Make sure the vent is secured to
exhaust hood with a 4" (102 mm) clamp.
2. Move dryer into final position. Do not crush or kink vent.
Make sure dryer is bevel.
1= With dryer in final position place level on top of the dryer, first
side to side; then front to back. If the dryer is not level, adjust
the legs of the dryer up or down until the dryer is bevel.
2. Plug in dryer or reconnect power.
3. Check dryer operation (some accumulated time may be on
the timer due to factory testing).
Insert coins in slide and press slide in slowly. (Operating time
will accumulate per number of coins and type of timing cam
used.) Push START/RESTART button. Using a full heat cycle
(not the air cycle), let the dryer run for at least five minutes.
Dryer will stop when time is used up.
NOTE: Dryer door must be closed for dryer to operate. When
door is open, dryer stops, but timer continues to run. To
restart dryer, close door and push START/RESTART button.
4. If drying time is too long, make sure lint screen is clean.
5. Now start the dryer and allow it to complete a full heat cycle
(not air cycle) to make sure it is working properly.
18

CHANGINGTOA30-OR60-MINUTETIMINGCAM
Electrical Shock Hazard
Disconnect power before making cam changes.
Failure to follow these instructions can result in death
or electrical shock.
You can install the 30-minute or 60-minute timing cam (shipped
with dryer) as follows:
1. Unplug dryer or disconnect power.
2. Unlock meter case.
3. Turn the timing cam by hand until the V-shaped notch lines up
below the ratchet tooth.
.............. _ D
A. Ratchettooth _.\
B. Timir_gcam
cD ivelug k%\\\
D. V-shapednotch _X_
,<j
4. Insert a narrow, flat-blade screwdriver under the timing cam
near the clock shaft. Gently lift cam straight up and off shaft
making sure that the V-shaped notch clears the ratchet tooth.
5. Place new cam (hub side down) over clock shaft. Line up flat
side of shaft with flat side of cam hole. Check that drive lug is
in place.
6. Turn cam until V-shaped notch lines up with ratchet tooth.
7. Press cam down in place on motor shaft. Make sure that
V-shaped notch clears the ratchet tooth.
8. Close and lock the meter case.
REVERSINGTHE DOORSWING(OPTIONAL)
You can change your door swing from a right-side opening to a
left-side opening, if desired.
D
c
6= Be certain to keep cardboard
spacer centered between doors.
Reattach outer door panel to
inner door panel so handle
is on the side where hinges
were just removed.
7= Attach door hinges to dryer door so that the larger hole is
at the bottom of the hinge and the hinge pin is toward the
door front.
1. Place towel (A) on top of dryer to protect surface.
2. Open dryer door. Remove bottom screws from cabinet side of
hinges (B). Loosen (do not remove) top screws from cabinet
side of hinges.
3. Lift door until top screws in cabinet are in large part of hinge
slot. Putt door forward off screws. Set door (handle side up)
on top of dryer. Remove top hinge screws from cabinet.
4. Remove screws attaching hinges to door.
5. Remove screws from all sides of door (5 screws). Holding
door over towel on dryer, grasp sides of outer door and gently
lift to separate it from inner door (do not pry apart). Do not pull
on door seal or plastic door catch.
8. Remove the 4 screws that attach 2 plugs (C) on the handle
side. Attach plugs to opposite side using the same 4 screws.
9. Insert screws into bottom holes on left
side of cabinet. Tighten screws halfway.
Position door so large end of door hinge
slot is over screws. Slide door up so
screws are in bottom of slots. Tighten
screws. Insert and tighten top screws in
hinges.
10. Close door and check that door strike aligns with door
catch (D).
19

MAINTENANCEINSTRUCTIONS
Maintenance instructions:
[] Clean lint screen after each cycle.
[] Removing accumulated lint:
•From inside the dryer cabinet:
Lint should be removed every 2 years or more often,
depending on dryer usage. Cleaning should be done
by a qualified person.
•From the exhaust vent:
Lint should be removed every 2 years, or more often,
depending on dryer usage.
[] Keep area around dryer clear and free from combustible
materials, gasoline, and other flammable vapors and liquids.
[] Keep dryer area clear and free from items that would obstruct
the flow of combustion and ventilation air.
If dryer does not operate, check the following:
[] Electric supply is connected.
[] Circuit breaker is not tripped or house fuse is not blown.
[] Door is closed.
[] Controls are set in a running or "ON" position.
[] START/RESTART button has been pushed firmly.
[] For gas dryers, check that gas supply shutoff valves are set
in open position.
If you need assistance:
The Commercial Laundry Support Center will answer any
questions about operating or maintaining your dryer not covered
in the Installation Instructions. The Commercial Laundry Support
Center is open 24 hours a day, 7 days a week. Just dial
1-800 NO BELTS (1-800-662-3587) -- the call is toll free.
When you call, you will need the dryer model number and serial
number. Both numbers can be found on the serial-rating plate
located in the dryer door well.
20

MAYTAG COMMERCIAL WASHER, DRYER, STACKED DRYER/
DRYER, COMMERCIAL STACK LAUNDRY, AND MULTi=LOAD
COiN OPERATED COMMERCIAL WASHERS AND DRYERS
WAR NTY
LIMITED WARRANTY ON PARTS
For the first five years from the date of purchase, when this commercial appliance is installed, maintained and operated according to the
instructions attached to or furnished with the product, Maytag brand of Whirlpool Corporation (thereafter "Maytag") will pay for factory
specified parts or original equipment manufacturer parts to correct defects in materials or workmanship. Proof of original purchase date
is required to obtain service under this warranty.
ITEMS MAYTAG WILL NOT PAY FOR
1. All other costs including labor, transportation, or custom duties.
2. Service calls to correct the installation of your commercial appliance, to instruct you how to use your commercial appliance, to
replace or repair fuses, or to correct external wiring or plumbing.
3. Repairs when your commercial appliance is used for other than normal, commercial use.
4. Damage resulting from improper handling of product during delivery, theft, accident, alteration, misuse, abuse, fire, flood, acts of
God, improper installation, installation not in accordance with local electrical or plumbing codes, or use of products not approved
by Maytag.
5. Pickup and Delivery. This commercial appliance is designed to be repaired on location.
6. Repairs to parts or systems resulting from unauthorized modifications made to the commercial appliance.
7. The removal and reinstallation of your commercial appliance if it is installed in an inaccessible location or is not installed in
accordance with published installation instructions.
8. Chemical damage is excluded from all warranty coverage.
9. Changes to the building, room, or location needed in order to make the commercial appliance operate correctly.
DISCLAIMER OF IMPLIED WARRANTIES; LIMITATIONS OF REMEDIES
CUSTOMER'S SOLE AND EXCLUSIVE REMEDY UNDER THIS LIMITED WARRANTY SHALL BE PRODUCT REPAIR AS PROVIDED
HEREIN. iMPLiED WARRANTIES, INCLUDING WARRANTIES OF MERCHANTABiLiTY OR FITNESS FOR A PARTICULAR PURPOSE,
ARE LIMITED TO ONE YEAR OR THE SHORTEST PERIOD ALLOWED BY LAW. WHIRLPOOL SHALL NOT BE LIABLE FOR
INCIDENTAL OR CONSEQUENTIAL DAMAGES. SOME STATES AND PROVINCES DO NOT ALLOW THE EXCLUSION OR LIMITATION
OF INCIDENTAL OR CONSEQUENTIAL DAMAGES, OR LIMITATIONS ON THE DURATION OF iMPLIED WARRANTIES OF
MERCHANTABILITY OR FITNESS, SO THESE EXCLUSIONS OR LIMITATIONS MAY NOT APPLY TO YOU. THIS WARRANTY GIVES
YOU SPECIFIC LEGAL RIGHTS AND YOU MAY ALSO HAVE OTHER RIGHTS, WHICH VARY FROM STATE TO STATE OR PROVINCE
TO PROVINCE.
If you need service, please contact your authorized Maytag Commercial Laundry distributor. To locate your authorized Maytag
Commercial Laundry distributor, or for web inquiries, visit www.MaytagCommercialLaundry.com.
9/07
For written correspondence:
Maytag Commercial Laundry Service Department
2000 M-63 North
Benton Harbor, Michigan 49085 USA
21

P P P
SECURITEDELASECHEUSE
Votre securite et celle des autres est tres importante.
Nous donnons de nombreux messages de s_curite importants dans ce manuel et sur votre appareil m_nager. Assurez-vous de
toujours lire tousles messages de s_curite et de vous y conformer.
Voici le symbole d'alerte de s_curit&
Ce symbole d'alerte de s_curit_ vous signale les dangers potentiels de d_c_s et de blessures graves h vous
et h d'autres.
Tous les messages de securite suivront le symbole d'alerte de s_curite et le mot "DANGER" ou
"AVERTISSEMENT". Ces mots signifient •
Risque possible de d_cbs ou de blessure grave si vous ne
suivez pas imm_diatement les instructions.
Risque possible de d_cbs ou de blessure grave si vous
ne suivez pas les instructions.
Tousles messages de s_curite vous diront quel est le danger potentiel et vous disent comment r_duire le risque de blessure et
ce qui peut se produire en cas de non-respect des instructions.
AVERTISSEMENT -"Risque d'incendie"
m
m
m
L'installation de la s_cheuse h linge doit 6tre effectu6e par un installateur qualifi&
installer la s_cheuse conforrn_rnent aux instructions du fabricant et aux codes Iocaux.
Ne pas installer de s_cheuse hlinge avec des mat_riaux d'_vacuation en plastique
souple, Si un conduit m_tallique souple (de type papier d'aluminium) est installS,
celui-ci doit _tre d'un type sp_cifique identifi_ par le fabricant de I'appareil et
convenir bune utilisation avec les s_cheuses blinge, Les rnat_riaux d'_vacuation
souples sont connus pour s'affaisser, 6tre facilement _cras_s et bloquer la charpie,
Ces situations obstrueront le d_bit d'air de la s_cheuse ,_ linge et augmenteront le
risque d'incendie,
Pour r_duire le risque de blessure grave ou de d_c_s, suivre routes
les instructions d'installation,
Conserver ces instructions,
22

AVERTISSEIViENT • Pour votre securite, les renseignements dans ce manuel doivent
_tre observes pour reduire au minimum les risques d'incendie ou d'explosion ou pour
eviter des dommages au produit, des blessures ou un deces.
-Ne pas entreposer ou utiiiser de I'essence ou d'autres vapeurs ou liquides
inflammables aproximite de cet appareil ou de tout autre appareil electromenager.
-QUE FAIRE DANS LE CAS D'UNE ODEUR DE GAZ :
®Ne pas tenter d'allumer un appareil.
• Ne pas toucher a un commutateur electrique; ne pas utiliser le telephone se trouvant
sur les lieux.
• _:vacuer tous les gens de la piece, de I'edifice ou du quartier.
•Appeler immediatement le fournisseur de gaz d'un telephone voisin. Suivre ses
instructions.
•h. defaut de joindre votre fournisseur de gaz, appeler les pompiers.
- L'installation et I'entretien doivent _tre effectues par un installateur qualifie, une
agence de service ou le fournisseur de gaz.
AVERTISSEMENT •L'odorat ne permet pas toujours la detection d'une fuite de gaz.
Les distributeurs de gaz recommandent remploi d'un d6tecteur de gaz (homologation UL ou CSA).
Pour d'autre information, contacter le fournisseur de gaz local.
En cas de d6tection d'une fuite de gaz, ex6cuter les instructions "Que faire dans le cas d'une odeur de gaz".
iMPORTANT :L'installation du gaz dolt se conformer aux codes Iocaux, ou en I'absence de codes Iocaux, au code canadien
d'installation B149.1 du gaz naturel ou du propane.
La secheuse dolt 6tre 61ectriquement reliee & la terre conformement aux codes Iocaux, ou en I'absence de codes Iocaux, au Code
canadien de I'electricit6, CSA C22.1.
Darts I'#tat du Massachusetts, les instructions d'installation suivantes sont applicables :
m=Les travaux d'installation et r6paration doivent _tre ex6cut6s par un plombier ou tuyauteur qualifie ou licencie, ou par le
personnel qualifi6 d'une entreprise licenci6e par I'#tat du Massachusetts.
m=Si une vanne & boisseau spherique est utilisee, elle doit comporter une manette "T".
m=Si un conduit de raccordement flexible est utilis6, sa Iongueur ne doit pas d6passer 3 pi.
23

IMPORTANTES INSTRUCTIONS DE SI_CURITI_
AMERTISSEMENT • Pour r6duire le risque d'incendie, de choc 61ectrique ou de blessure Iors de I'utilisation de
la s6cheuse, il convient d'observer certaines pr6cautions el6mentaires dont les suivantes :
• Lire toutes les instructions avant d'utiliser la s6cheuse.
• Ne pas placer des articles expos6s aux huiles de cuisson
dans votre secheuse. Les articles contamin6s par des
huiles de cuisson peuvent contribuer & une r6action
chimique qui pourrait causer a la charge de s'enflammer.
• Ne pas faire s6cher dans la machine des articles qui ont
d6j& et6 nettoy6s, lav6s, imbib6s, ou tach6s d'essence,
de solvants pour nettoyage a sec, d'autres substances
inflammables, ou de substances explosives puisqu'elles
d6gagent des vapeurs qui peuvent provoquer un
incendie ou une explosion.
• Ne pas permettre & des enfants de jouer sur ou
I'int6rieur de la s6cheuse. Une surveillance 6troite est
n6cessaire Iorsque la s6cheuse est utilis6e pros d'eux.
• Avant d'enlever la s6cheuse du service ou la jeter, enlever
la porte du compartiment de s6chage.
• Ne pas mettre la main dans la s6cheuse si le tambour est
en mouvement.
• Ne pas installer ni entreposer la s6cheuse oQ elle sera
expos6e aux intemp6ries.
• Ne pas jouer avec les commandes.
• Ne pas reparer ni remplacer une piece de la secheuse ou
essayer d'en faire I'entretien & moins d'une recommandation
specifique dans le guide d'utlilisation et d'entretien, ou
publi6e dans les instructions de r6paration par I'utilisateur
que vous comprenez et pouvez ex6cuter avec competence.
• Ne pas utiliser un produit assouplissant de tissu ou des
produits pour eliminer la statique & moins qu'ils ne soient
recommandes par le fabricant du produit assouplissant de
tissu ou du produit.
• Ne pas utiliser la chaleur pour faire secher des articles
fabriqu6s avec du caoutchouc mousse ou des mat6riaux
semblables.
• Nettoyer le filtre & charpie avant et apr_s chaque charge.
• Ne pas laisser la charpie, la poussi_re, ou la salet6
s'accumuler autour du syst_me d'6vacuation ou autour de
I'appareil.
• Un nettoyage periodique de I'int6rieur de la s6cheuse et du
conduit d'6vacuation dolt _tre effectu6 par une personne
qualifi6e.
• Voir les instructions d'installation pour les exigences de
liaison de I'appareil & la terre.
CONSERVEZ CES INSTRUCTIONS
m On recommande que le proprietaire place les instructions & I'usage du client & un endroit bien visible, pour le cas oQ le client
percevrait une odeur de gaz. Ces renseignements doivent 6tre obtenus aupr_s de votre foumisseur de gaz.
m Placer I'avertissement qui suit & un endroit bien visible.
POUR VOTRE S#:CURITE
Ne pas entreposer ni utiliser de I'essence ou d'autres produits liquides ou gazeux inflammables & proximite de cet appareil ou de
tout autre appareil 61ectrom6nager.
24

EXIGENCESD'INSTALLATION
0 i:iiiiiiIi iiiii ilill iiiiii'i !!i;
Rassembter les outils et pi_ces necessaires avant de commencer
I'instatlation. Life et respecter les instructions d'instattation
fournies avec chacun des outits de cette liste.
Outillage n_cessaire
m Cte & tube de 8" (20 cm) [] Couteau utititaire
ou 10" (25 cm) [] Bride de fixation
[] Cle & molette de 8" [] Compose d'etancheite des
(20 mm) ou 10" (25 mm) raccords filetes - r6sistant
[] Toumevis h lame plate au propane
[] Toumevis Phillips [] Pistolet & calfeutrage et
[] Cle & molette avec compose de catfeutrage
ouverture jusqu'& (pour l'instatlation d'un
1" (25 mm) ou cte nouveau circuit
h douille hexagonate d'evacuation)
[] Niveau [] Pince
[] Cle hdouitle de 5/16" [] Couteau hmastic
Pi_ces fournies
Retirer le sac de pi_ces du tambour de la secheuse. V_rifier
la presence de toutes les pi_ces.
[] Coin [] Came de minutage h
[] Patin (4) 3 broches
[] Pied de la secheuse (4) [] Came de minutage h
[] Boulon de ,%6-18x 21/2`' 6 broches
[] Veilter hce que les bords inferieurs de la caisse ainsi que
I'arri_re et les c6tes inf6rieurs de la secheuse soient exempts
d'obstructions, afin de permettre le passage adequat de I'air
de combustion. Voir ta section "Instructions d'instattation darts
un encastrement ou un placard" pour I'espace de
degagement minimal.
NOTE :La secheuse ne dolt pas _tre instaltee en un endroit
oO etle serait exposee h de I'eau ou aux intemperies.
instructions pour I'instailation dans un
encastrement ou un placard
Cette secheuse peut _tre installee dans un placard ou un
encastrement. Pour I'instatlation dans un placard ou un
encastrement, on dolt respecter les distances de separation
minimales mentionnees sur la plaque signatetique de la secheuse.
Les distances de separation sont exprimees en pouces; il s'agit
des distances minimales. It est utile de prevoir des distances de
separation superieures pour faciliter I'installation et les travaux
d'entretien, ou si ceci est exige par les codes et r_glements
Iocaux.
Si la porte du placard est installee, on dolt respecter la taitle
minimale des ouvertures d'entr_e d'air au sommet et en bas. On
peut utiliser une porte h jalousies offrant une surface de passage
d'air equivalente.
Le circuit d'evacuation de la secheuse dolt _tre retie & I'exterieur.
Aucun autre appareil utitisant un combustible ne dolt _tre instatte
dans le m_me placard.
Risque d'explosion
Garder [es mati_res et les vapeurs inflammables, teile
que I'essence, loin de la s_cheuse.
Ne pas installer darts un garage.
Le non-respect de ces instructions peut causer
un d_ces, une explosion ou un incendie.
Pour i'instailation d'une s_cheuse & gaz :
IMPORTANT :Respecter les dispositions de tousles codes
et r_glements en vigueur.
[] Determiner les exigences des codes : Certains codes limitent
ou prohibent I'instatlation d'une secheuse dans un garage, un
placard, ou une chambre h coucher. Consulter I'inspecteur
local des b&timents.
25

Distances de s_paration minimales
15"
(381 mm)*
o" (o ram) .__.
max. _
Porte du _ F--
placard 1
0" (0 mm)
._ ==='==_1[_L_--'-1 '' (25 mm)
Encastrement, vue avant Placard, vue laterate
On doit pr@oir un espacement additionnel pour tenir compte @entuellement
des moulures du mur,de la porte et du plancher,ou si le circuit d'@acuation
comporte un coude. _-
!
48 in_
(310 cm2)*
Vue
avant
3" (76 mm)
O Porte du
placard
_{
3" (76 mm)
* Taille minimale de I'ouverture pour la porte du placard. On peut utiliser une
porte _ jalousies offrant une surface de passage d'air 6quivalente.
0 II
(0 mm)
Dimensions du produit =S_cheuse de 27" (686 ram)
63/4 ''
(152 mm)
CANALISATIONDEGAZ _
11/4" _
(32 mm)
_I[------'27" (886 mm)
1
i I!
CABLE
ELECTRIQUE I (35!4cm)
VUE ARRIERE
13"
(330 mm) 4" (102 mm)
dia. 43/4"
(121 mm)
i/ •
I_="- DECHANGE
37"
(940 mm)
35"
(889 mm)
3/4"
(21 ram)
,___j 291/411(743 mm).j_._
261/2'' (673 mm) J}_-I
I
I
I
I
VUE LATC:RALE --
BOUCHE DE
DECHARGE, COTE
GAUCHE OU COTE
DROIT
101/4"
(260 mm)
?
41/4''
(108 mm)
ModUles sans
m6canisme de
commande _ pi_ces
71/8"(181 mm)
ModUles avec
m6canisme de
commande _ pi_ces
77/?' (200 mm)
I
_= \\
71/4" /L!"
(184 mm) _=_ 141/?' I d=_
[(359 ram) i
FtVACUATION
PAR LE BAS
26

Risque de choc electrique
Brancher sur une prise &3 aIv_oles reli_e &la terre.
Ne pas enlever la broche de liaison ala terre.
Ne pas utiliser un adaptateur.
Ne pas utiliser un c_ble de rallonge.
Le non=respect de ces instructions peut causer
un d_c_s, un incendie ou un choc _lectrique.
IMPORTANT :La secheuse dolt _tre electriquement reliee & la
terre conformement aux prescriptions des codes et r_glements
Iocaux; en I'absence de code local, respecter les prescriptions du
code national en vigueur : National Electrical Code, ANSl/NFPA
70 (6dition la plus r6cente), ou Code canadien de I'etectricit6,
CSA C22.1.
Si un conducteur distinct de liaison & la terre est utitise (Iorsque le
code en vigueur le permet), on recommande qu'un etectricien
quatifie verifie la qualite de la liaison _ la terre.
On peut obtenir un exemptaire du code national en vigueur
I'adresse suivante :
National Fire Protection Association
One Batterymarch Park, Quincy, MA 02269
CSA International
8501 East Pleasant Valley Road
Cleveland, Ohio 44131-5575
[] Uappareil dolt _tre atimente par un circuit electrique de 120 V
(CA seulement), 60 Hz, protege par un fusible de 15 ou 20 A.
On recommande I'emploi d'un fusible temporise ou d'un
disjoncteur. It est egalement recommande d'utiliser un circuit
separ_ pour la secheuse.
Methode recommand_e de liaison _ la terre
Apr_s I'installation, la secheuse dolt _tre etectriquement reliee & la
terre conformement aux prescriptions des codes et r_glements
Iocaux; en I'absence de code local, respecter les prescriptions du
code national en vigueur : National Electrical Code, ANSl/NFPA
70 (edition la plus recente), ou Code canadien de I'electricite,
CSA C22.1, ainsi que cetles des codes et r_glements Iocaux.
INSTRUCTIONS DE LIAISON ,_ LA TERRE
I Pour une s_cheuse reli_e & la terre et connect_e par un
cordon :
Cette s_cheuse doit @re reli_e & la terre. En cas de mauvais
fonctionnement ou de panne, la liaison & la terre r_duira le
risque de choc _lectrique en offrant au courant _lectrique un
acheminement d'_vacuation de moindre r_sistance. Cette
s_cheuse est aliment_e par un cordon _lectrique
comportant un conducteur reli_ & la terre et une fiche de
branchement munie d'une broche de liaison & la terre. La
fiche dolt @re branchee sur une prise appropri_e qui est
bien install_e et reli_e & la terre conform_ment & tousles
codes et r_glements Iocaux.
AVERTISSEMENT " Le raccordement incorrect de
cet apparel au conducteur de liaison & la terre peut susciter
un risque de choc _lectrique. En cas de doute quant & la
qualit_ de liaison & la terre de la s_cheuse, consulter un
_lectricien ou un technicien ou un personnel qualifi& Ne pas
modifier la fiche de branchement fournie avec la s_cheuse;
si la fiche ne correspond pas & la configuration de la prise
de courant, demander & un _lectricien qualifi_ d'installer une
prise de courant appropri_e.
CONSERVEZ CES INSTRUCTIONS
27

_iii!iii_iii::i_=_!ii!;_;J¸_:;iii!!!i_i::!::ii!!i_i::ii0!!:i_!;;di_ii,iii!_,_::i_i:_:'i_i:ii!ii;ii_:!!_!i;......
iii!ii;_0,_;;!ii!i_']i)_;_!i)_iiiiil;ii_i:iir:iiiiii:i(!_ii;ii:,:i_;!)ii,_(Y,ii;;!iii!_!:i!!_i_iiiz_i!_!!%iil;_
Risque de choc _lectrique
Brancher sur une prise & 4 aIv_oles reli_e _ la terre.
Le non=respect de cette instruction peut causer
un d_c_s ou un choc _lectrique,
C'est a I'utiisateur qu'incombe la responsabilite de
[] Communiquer avec un etectricien qualifi&
[] S'assurer que les connexions electriques sont adequates et
conformes au Code canadien de I'etectricit6, C22.1 - derni@e
edition et A tousles codes Iocaux. Pour obtenir un exemptaire
de la norme des codes ci-dessus, contacter : Association
canadienne de normatisation, 178 Rexdale Blvd., Toronto,
ON M9W 1R3 CANADA.
[] Alimenter I'appareil uniquement par un circuit monophase
de 120/240 volts CA seulement, 60 Hz A 4 ills, sur un circuit
separ6 de 30 amperes, fusionne aux deux extremit6s de la
ligne. On recommande I'emploi d'un fusible temporise ou
disjoncteur. On recommande egalement que cet apparel soit
alimente par un circuit independant.
[] Cette secheuse est equip6e d'un cordon electrique
homologue par la CSA International A introduire dans une
prise murale standard 14-30R. Le cordon mesure 5 pi (1,52
m). Veilter A ce que la prise murate se trouve _ proximite de
I'emptacement definitif de la secheuse.
@
Prisemuralea 4 ills 14-30R
INSTRUCTIONS DE LIAISON ,_ LA TERRE
I Pour une s_cheuse reli_e & la terre et connect_e par un
cordon :
Cette s_cheuse doit @re reli_e & la terre. En cas de mauvais
fonctionnement ou de panne, la liaison & la terre r_duira le
risque de choc _lectrique en offrant au courant _lectrique un
acheminement d'_vacuation de moindre r_sistance. Cette
s_cheuse est aliment_e par un cordon _lectrique
comportant un conducteur reli_ & la terre et une fiche de
branchement munie d'une broche de liaison & la terre. La
fiche dolt @re branchee sur une prise appropri_e qui est
bien install_e et reli_e & la terre conform_ment & tousles
codes et r_glements Iocaux.
AVERTISSEMENT " Le raccordement incorrect de
cet appareil au conducteur de liaison & la terre peut susciter
un risque de choc _lectrique. En cas de doute quant& la
qualit_ de liaison & la terre de la s_cheuse, consulter un
_lectricien ou un technicien ou un personnel qualifi& Ne pas
modifier la fiche de branchement fournie avec la s_cheuse;
si la fiche ne correspond pas & la configuration de la prise
de courant, demander & un _lectricien qualifi_ d'installer une
prise de courant appropri_e.
CONSERVEZ CES INSTRUCTIONS
[] Ne pas utiliser un cable de rattonge.
Si on utilise un cordon d'atimentation de rechange, il est
recommande d'utitiser le cordon d'alimentation de rechange
num@o de piece 9831317. Pour plus d'information, veuillez
consulter les num@os de service qui se trouvent _ la section
"Assistance ou service".
28

Risque d'explosion
Utiliser une canalisation neuve d'arriv6e de gaz
approuv6e par CSA International.
Installer un robinet d'arr6t.
Bien setter chaque organe de connexion de la
canalisation de gaz.
En cas de connexion au gaz propane, demander &une
personne qualifi6e de s'assurer que la pression de gaz
ne d6passe pas 330 mm (13 po) de la colonne d'eau.
Par personne qualifi6e, on comprend :
le personnel autoris6 de chauffage,
le personnel autoris6 d'une compagnie de gaz, et
le personnel d'entretien autoris6.
Le non=respect de ces instructions peut causer
un d6c6s, un explosion ou un incendie.
IMPORTANT : Respecter les dispositions de tousles codes et
r6glements en vigueur.
Uinstaltation dolt satisfaire aux crit6res de tousles codes et
r6glements Iocaux. En I'absence de code local, I'instatlation dolt
satisfaire aux prescriptions du National Fuel Gas Code ANSI
Z223.1/NFPA 54 (American National Standard)ou CAN/CSA
B149.
On peut obtenir un exemptaire du code national en vigueur
I'adresse suivante :
National Fire Protection Association
One Batterymarch Park, Quincy, MA 02269
CSA International
8501 East Pleasant Valley Road
Cleveland, Ohio 44131-5575
La conception de cette secheuse a 6te homologuee par CSA
International pour I'utilisation jusqu'_ une altitude de 10 000 pi
(3048 m) au-dessus du niveau de la met, pour le debit thermique
indique sur la plaque signaletique. Aucun r6glage du brOleur n'est
necessaire Iorsque la secheuse est utilisee _ une altitude
inferieure _ cette valeur maximate.
Si la secheuse dolt 6tre utilisee _ une altitude superieure
10 000 pi (3048 m), on dolt r6duire de 4 % le debit thermique du
brOleur indique sur la plaque signaletique pour chaque tranche de
1000 pi (305 m) d'augmentation de I'altitude. Consulter votre
compagnie de service locale pour obtenir de t'aide lots de la
conversion _ d'autres types de gaz ou de l'instatlation de la
secheuse _ une altitude superieure _ 10 000 pi (3048 m).
Type de gaz
La secheuse est 6quipee pour I'alimentation au gaz naturel. Elle
est homologuee par CSA International pour t'atimentation avec
des gaz de petrole liquefies (propane et butane), apr6s
conversion appropriee. Ne pas entreprendre de convertir
I'appareil pour l'utilisation d'un gaz different de celui indique sur la
plaque signaletique sans d'abord consulter le fournisseur de gaz.
Un technicien qualifie dolt effectuer la conversion. Les numeros
des pi6ces necessaires pour la conversion sont mentionnes sur la
base de ta valve du br01eur.
Canalisation de gaz
M6thode recommand6e
[] Installer une canalisation de gaz rigide de 1Z2"(IPS) jusqu'&
I'emplacement d'installation de la secheuse. On dolt utitiser
un compose d'6tancheit6 des tuyauteries resistant & Faction
du gaz de petrole liquefi6. Ne pas utitiser de ruban TEFLON _'t.
Pour I'alimentation au propane, le diam6tre des canatisations
dolt 6tre de 1Z2"(IPS) ou plus. Usueltement le fournisseur de
gaz propane d6termine les materiaux & utitiser et le diam6tre
approprie.
Autre m6thode
[] La canalisation de gaz peut 6gatement 6tre connectee au
moyen d'un tube homologue en atuminium ou en cuivre de
%". Si la Iongueur totale de la canatisation de gaz exc6de
20 pi (6,1 m), un tuyau de plus gros diam6tre sera necessaire.
Dans le cas de I'atimentation au gaz naturel, ne pas utiliser de
tuyau en cuivre. Assurer 1'6tanch6ite des connexions avec un
compose d'6tanch6it6 r6sistant au propane.
Connecteur en m6tal souple pour appareil m6nager :
[] It est recommande d'utiliser une canatisation en acier
inoxydabte souple et neuve, conception homologuee par
CSA International, pour raccorder la secheuse & la conduite
d'alimentation en gaz. (La canalisation d'arrivee de gaz
sortant & l'arri6re/le bas de la secheuse est dotee d'un filetage
m&te de %").
[] Ne pas deformer ni endommager la canatisation de gaz en
acier inoxydable soupte Iorsque vous deptacez la secheuse.
Connexion du tuyau rigide :
La connexion du tuyau rigide necessite une combinaison de
raccords pour obtenir une connexion de la secheuse en ligne.
1-®TEFLON est une marque d6pos6e de E.I. Du Pont De Nemours et Compagnie.
29

[] Robinetd'arr_tnecessaire:
ConformementauxprescriptionsduNationalFuelGasCode,
ANSIZ223.1,ondoltinstallerunrobinetd'arr_tmanuelsurla
canalisationd'atimentation,&moinsde6pi(1,8m)dela
secheuse.AuCanada,lerobinetd'arr_tmanueldolt_tre
installeconformementauxprescriptionsdescodes
d'instaltationB149- CAN/CGAB149.1etCAN/CGAB149.2.
Lerobinetd'arr_tdolt_tresituedanslam_mepiecequela
secheuse.IIdoltsetrouver&unemplacementquipermetune
ouvertureetunefermeturefaciles.NepasbloquerI'acc_sau
robinetd'arr_t.Lerobinetestdestine&atimenter/couper
I'atimentationengazdelasecheuse.
A. Canalisation d'arfiv#e de gaz
B. Robinet d'arr#t -position
d'ouverture
C. Versla s#cheuse
D. Raccord de Vs"NPTminimal
B D
[] Installation dans un espace confine :
Si la secheuse est instatlee dans un espace reduit comme une
satte de bain ou un placard, on dolt pr6voir une arrivee d'air
appropriee pour la combustion et la ventilation. Consulter les
codes et r_glements en vigueur, ou voir "Instructions pour
I'instatlation dans un encastrement ou un placard" de la
section "Exigences d'emplacement'.
Tests de pressurisation de la canalisation de gaz
Un raccord de 1A"NPT minimal, accessible pour le raccordement
d'un manom_tre de test, dolt _tre instatte immediatement en
amont du point de raccordement de la canatisation d'arrivee
de gaz de la secheuse.
Lots de tout test de pressurisation du syst_me & une pression de
test superieure & 1/2tb/po 2 tel., la secheuse dolt _tre deconnect6e
de la canatisation d'arrivee de gaz.
Risque d'incendie
Utiliser un conduit d'_vacuation en m_tal Iourd,
Ne pas utiliser un conduit d'_vacuation en plastique.
Ne pas utiliser un conduit d'6vacuation en feuille
de rn_tal.
Le non=respect de ces instructions peut causer
un d_c_s ou un incendie.
[] Uevent du s_che-linge ne dolt pas _tre connecte & un conduit
d'evacuation de gaz, une cheminee, un mur, un plafond, un
grenier, un vide combte, ou un vide de construction.
[] Utiliser un conduit d'evacuation en metal Iourd.
[] Ne pas utitiser un ctapet d'evacuation & fermeture
magnetique.
[] Ne pas installer le conduit metattique flexible dans les cavites
fermees des murs, plafonds ou ptanchers.
[] Utiliser un conduit d'evacuation en metat Iourd de 4"
(102 mm) et des brides de fixation.
[] Utiliser des brides de fixation pour scelter tousles joints.
Uevent ne dolt pas _tre connecte ou fixe & la secheuse avec
des vis ou autres methodes de fixation qui depassent dans le
conduit et peuvent attraper de la charpie. Ne pas utitiser de
ruban adhesif pour conduits.
[] Le Iongueur totale du conduit metaltique souptene dolt pas
depasser 73Api. (2,4 m).
IMPORTANT : Respecter les dispositions de tous les codes et
r_glements en vigueur.
On recommande d'utiliser un conduit metaltique rigide pour
r6duire les risques d'ecrasement et de deformation.
Un conduit metattique flexible dolt _tre totalement deploye et
soutenu Iorsque la secheuse est & sa position finale. Enlever
tout exces de conduit flexible pour eviter tout affaissement/
deformation susceptible de r_duire le debit d'air et le rendement
de la secheuse.
Terminer le conduit d'evacuation par un clapet de decharge pour
emp_cher les rongeurs et insectes d'entrer dans rhabitation ou
rentreprise.
Le clapet de decharge dolt _tre situe & au moins 12" (305 mm)
au-dessus du sol ou de tout autre objet susceptible de se trouver
sur le trajet de I'air humide rejete (par exempte, ileum, roches, ou
arbustes).
Lots de I'utilisation d'un circuit d'evacuation existant, nettoyer ta
charpie sur toute la longueur du systeme et veiller & ce que ta
bouche de decharge ne soit pas obstruee par une accumulation
de charpie. Remplacer tout conduit de ptastique ou de feuille
metattique mince par un conduit metallique flexible ou rigide.
Planifier l'instaltation pour introduire le nombre minimal de coudes
et de changements de direction.
D_bitd'_vacuation
A. Bon d#bitd'#vacuation
B. Meilleurd#bitd'#vacuation
Si des coudes sont utilises ou des changements de direction
effectues, prevoir autant d'espace que possible. Plier le conduit
graduellement pour eviter de le deformer.
La bouche de sortie est situee & I'arri_re de la secheuse, en
bas/au centre.
On peut acheminer le conduit d'evacuation par le haut, par le
bas, par la gauche, par la droite, derriere la secheuse, ou en ligne
droite depuis I'arri_re de la secheuse.
AVERTlSSEMENT : Pour reduire te risque d'incendie,
cette secheuse DOlT FtVACUER UAIR A UEXTC:RIEUR.
3O

La longueur maximate du circuit d'evacuation depend du type de
conduit utitise, du nombre de coudes et du type de bouche de
decharge. La Iongueur maximate pour le circuit de conduit rigide
ou flexible est indiquee dans le tableau ci-apr_s.
Longueur maximale du conduit
Clapet de d6charge de 4" (102 mm) de diam_tre
Conduit _ (_
metallique rigide
Nombre d'angles Clapets de type bo_te et Clapet inclin_
90° a persiennes
0 130 pi (39,6 m) 129 pi (39,3 m)
1 125 pi (38,1 m) 119 pi (36,3 m)
2 115 pi (35,1 m) 109 pi (33,2 m)
3 106 pi (32,3 m) 100 pi (30,5 m)
4 98 pi (29,9 m) 92 pi (28,0 m)
Pour un circuit d'evacuation qui n'est pas couvert par le tableau,
consulter chez votre marchand.
Si la secheuse est instatlee dans un espace reduit tel qu'une
chambre & coucher, une salte de bain, ou un placard, on dolt
pr_voir une arrivee d'air en quantite suffisante pour la combustion
et la ventilation. (Consulter les codes et r_glements en vigueur.)
Voir "Instructions pour I'instatlation dans un encastrement ou
darts un placard" de ta section "Exigences d'emptacement".
Uemploi d'une bouche de decharge de 4" (102 mm) est
preferable. On peut cependant utiliser une bouche de 2V_"
(64 mm). Une bouche de decharge de 2_Z_'' (64 mm) peut causer
une plus forte r_tropression que les autres genres de bouches.
Pour une installation permanente, un syst_me d'evacuation fixe
est requis.
i_vacuation multiple de la secheuse
[] Un conduit d'evacuation principal peut _tre utilise pour un
groupe de secheuses. Le conduit d'evacuation principal
devrait _tre d'un diametre suffisant pour evacuer 200 pP/min
d'air par secheuse. Des filtres & charpie de forte capacite et
de conception adequate peuvent _tre utitises dans le
conduit principal d'evacuation s'ils sont inspectes et
nettoyes fr_quemment. La piece o_Jse trouvent les
secheuses devrait recevoir un apport d'air de debit egat ou
superieur au debit total (pP/min) de toutes les secheuses
instaltees dans la piece.
[] Des ensembles antirefoulement, n° de piece 3391910, sont
disponibtes chez votre marchand et devraient _tre instaltes
dans le conduit d'evacuation de chaque secheuse pour
emp_cher I'air evacue de retourner dans les secheuses et
pour maintenir une pression equitibr_e darts le conduit
principal d'evacuation. Des orifices de passage d'air non
obstrues sont requis.
Chaque conduit d'evacuation devrait penetrer dans le conduit
principal _ un angle pointant dans la direction du debit d'air. Les
conduits raccordes au conduit principal de part et d'autre
devraient _tre disposes en quinconce pour que I'air evacue par
une secheuse ne puisse perturber I'evacuation d'une autre
secheuse.
Uangle maximal entre le conduit connecte & une secheuse et le
conduit principal ne devrait pas depasser 30 °.
d_bit d'air _ B_,_--
A. Conduitd'_vacuationde la s_cheuse
B. Conduitprincipald'_vacuation
Faire en sorte que les vapeurs gener_es par les tiquides de
nettoyage A sec ne puissent pas atteindre les orifices d'entr_e
d'air; ces vapeurs cr_ent des composes acides qui, Iorsqu'ils
sont attires vers les unites de chauffage des secheuses, peuvent
endommager les secheuses et le linge en cours de sechage.
Une bouche de nettoyage devrait _tre instaltee dans le conduit
principal d'evacuation pour les nettoyages periodiques du
syst_me d'evacuation.
Si une bouche de d_charge ne peut 6tre utilis_e :
Uextremite exterieure du conduit principal devrait _tre munie d'un
coude de deviation dirige vers le bas. Si le conduit principal suit
une trajectoire verticate _ travers le toit, ptutTt qu'_ travers le mur,
installer un coude de deviation de 180 ° _ I'extremite du conduit et
depassant d'au moins 2 pi (610 mm) au-dessus de la partie la
plus elevee du bAtiment. Uouverture murale ou dans le toit dolt
avoir un diam_tre superieur de V_" (13 mm) A cetui du conduit
d'evacuation. Le conduit d'evacuation devrait _tre centr_
dans I'ouverture.
B
S
12 1
D.Conduithorizontal | \ I II
E.Coudede d_viation
180°
F.Conduitvertical
G. Toit
2 pi (610 mm) min.
au-dessus du point
le plus _lev_ du
b_timent
Ne pas installer une grille ou un couvercle sur I'extr_mite du
conduit d'evacuation.
31

INSTALLATIOND'UNEGLISSIEREET D'UNECAISSEA MONNAIE
La console inclut la minuterie (accumulation pr6instatt6e) avec 3.
bouton et bras de manoeuvre.
La minuterie, instatte & I'usine, commande une periode de
sechage de 45 minutes (came h 4 broches) apr_s activation par le
mecanisme d'insertion des pi_ces de monnaie. Le sachet de 4.
pi_ces inctut des cames pour des periodes de sechage de 30
minutes (6 broches) et 60 minutes (3 broches)
Le mecanisme de paiement, la serrure et la cte du tableau de 5.
commande et la serrure et la cte de r_ceptacle des pi_ces ne
sont pas inclus; on peut les obtenir aupr_s des sources usuetles
de I'industrie.
Risque du poids excessif
Utiliser deux ou plus de personnes pour d_placer et
installer la secheuse.
Le non-respect de cette instruction peut causer
une blessure au dos ou d'autre blessure,
NOTE : Placer la secheuse sur une feuitte de carton ou un
panneau de bois dur avant de la deplacer sur le ptancher, afin
d'eviter d'endommager le rev_tement du sol.
1. /_,I'aide de deux personnes ou plus, deptacer la secheuse
I'emplacement d'installation desir6.
2. Entever le ruban adhesif dans les angles avant de la
secheuse. Ouvrir la secheuse; entever les brochures et
sachets de pi_ces. Essuyer parfaitement la surface interne du
tambour avec un chiffon humide.
6=
7=
8=
Prendre deux corni_res de carton de I'emballage et les placer
sur le plancher & I'arri_re de la secheuse. Saisir fermement la
secheuse et la placer doucement en appui sur la face artiste,
sur les corni_res de carton.
Prendre I'un des pieds et identifier la marque en losange dans
le filetage. Ce repere indique jusqu'oQ le pied dolt _tre visse
dans le trou.
Commencer h visser & la main les pieds avant dans tes trous.
(Utitiser une petite quantite de detergent tiquide pour lubrifier
la section fitetee, pour qu'il soit plus facile de tourner tes
pieds). Utitiser une cle de 1" ou une cte h douille pour visser
les pieds jusqu'au repute.
Placer maintenant la secheuse verticalement.
Oter la plaque de
I'ouverture d'acc_s du
bottler de commande.
Soulever la plaque
I'arri_re pour I'enlever.
Installer le dispositif
d'introduction de pi_ces
(pour I'installation,
consulter tes
instructions d'instaltation du fabircant.) Pour une secheuse
dotee d'un mecanisme d'insertion & glissi_re, utiliser
I'ensemble d'adaptation fourni avec la secheuse.
Reinstaller la plaque de t'ouverture d'acc_s du bottler de
commande. Placer la bofte & pi_ces avec la serrure et la cle
dans I'ouverture d'acc_s du bottler de commande.
Retirer la feuilte de carton ou le panneau de bois dur place
sous la secheuse. Relever ou abaisser les pieds de la
secheuse jusqu'& ce que la secheuse soit d'aptomb.
P
INSTRUCTIONSffINSTALLATION-SECHEUSEA GAZ
1.
2.
Risque du poids excessif
Utiliser deux ou plus de personnes pour d_placer et
installer la s_cheuse,
Le non-respect de cette instruction peut causer
une blessure au dos ou d'autre blessure,
Retirer le capuchon rouge de la canatisation de gaz.
Raccorder la canatisation de gaz & la secheuse. Utiliser un
compose d'etancheite compatible avec le gaz propane. Si un
conduit metaltique flexible est utitise, verifier qu'il n'est pas
deforme.
Si cela est n_cessaire & I'entretien, ouvrir le panneau de
ptinthe. Utiliser un couteau h mastic pour appuyer sur le
verrou du panneau de plinthe situe sur la partie superieure
centrale du panneau de plinthe. Tirer le panneau de ptinthe
vers le bas pour I'ouvrir. Le panneau de ptinthe est fixe h la
pattie inferieure.
3=
4.
Ouvrir le robinet d'arr_t de la canatisation d'arrivee de gaz.
V_rifier tous les raccordements en les badigeonnant d'une
solution de detection des fuites non corrosive approuvee.
Uapparition de bulles indique une fuite. Reparer toute fuite
eventuetle.
1. A I'aide d'une bride de fixation de 4" (102 mm), relier le
conduit d'evacuation h la bouche d'evacuation de la
s_cheuse. Si on utilise le conduit d'evacuation existant,
s'assurer qu'il est propre. Le conduit d'evacuation de la
secheuse dolt _tre fixe sur la bouche d'evacuation de la
secheuse et dans le clapet d'evacuation. S'assurer que le
conduit d'evacuation est fixe au clapet d'evacuation h l'aide
d'une bride de fixation de 4" (102 mm).
2. Avec I'aide d'au moins deux autres personnes, deptacer la
secheuse & I'emplacement final desire. Ne pas ecraser ni
deformer le conduit d'evacuation. Wrifier que la secheuse
est de niveau.
3. V_rifier que la canatisation soupte de gaz n'est pas deformee.
32

1=
Jii__z:;i!iit:_iii!z_'_i;'¸_,_iti!_:¸t" i!:_:'_!iitliii__!t;i;_i_ii_::!_,iilil:ili:_iii;_ii,i::i_t_i_
Une fois la secheuse h son emplacement final, placer un
niveau sur le sommet de la secheuse, transversatement, puis
darts le sens avant arri@e. Si la secheuse n'est pas d'aplomb,
ajuster les pieds pour modifier la hauteur et etabtir un bon
aplomb de la secheuse.
Risque de choc 61ectrique
Brancher sur une prise h3alveoles reli6e hla terre.
Ne pas enlever la broche de liaison _la torte.
Ne pas utiliser un adaptateur.
Ne pas utiliser un c_ble de rallonge.
Le non=respect de cos instructions peut causer
un d6c_s, un incendie ou un choc 61ectrique.
3. Contr6ter le bon fonctionnement de la secheuse:
Inserer les pi_ces dans le mecanisme h glissi@e et
enfoncer doucement le m6canisme h glissiere (te temps de
fonctionnement sera accumute, selon le nombre de pi_ces).
Appuyer sur le bouton START/RESTART (mise en
marche/remise en marche). Faire fonctionner la s6cheuse
pendant au moins cinq minutes - programme de sechage
avec chaleur (pas le programme de sechage & t'air). La
secheuse s'arr6tera h I'expiration de la periode ainsi
determin6e.
NOTE : It faut que la porte soit fermee pour que la secheuse
puisse fonctionner. La secheuse s'arr_te d_s I'ouverture de
la porte, mais la minuterie continue de fonctionner. Pour
remettre la secheuse en marche, fermer la porte et appuyer
sur le bouton START/RESTART.
4. Si on ne pergoit aucune chaleur _ l'interieur de la secheuse et
si le brOteur ne s'attume pas, arr_ter la secheuse pendant cinq
minutes. Verifier que tousles robinets de la canatisation
d'alimentation sont ouverts et que le cordon d'alimentation
electrique est branche. Repeter le test de cinq minutes de
fonctionnement.
5. Sile temps de sechage est trop long, s'assurer que le filtre
charpie est propre.
2. Brancher sur une prise h 3 atveoles retiee h la terre.
P #
INSTRUCTIONSfflNSTALLATION-SECHEUSEELECTRIQUE
1=
Risque du poids excessif
Utiliser deux ou plus de personnes pour d_placer et
installer la s_cheuse.
Le non-respect de cette instruction pout causer
une blessure au dos ou d'autre blessure.
A I'aide d'une bride de fixation de 4" (102 mm), relier
le conduit d'evacuation & la bouche d'evacuation de la
secheuse. Si on utilise le conduit d'evacuation existant,
s'assurer qu'il est propre. Le conduit d'evacuation de la
secheuse dolt _tre fixe sur la bouche d'evacuation de la
secheuse et dans le clapet d'evacuation. S'assurer que le
conduit d'evacuation est fixe au clapet d'evacuation h I'aide
d'une bride de fixation de 4" (102 mm).
2= Avec I'aide d'au moins deux autres personnes, deplacer la
secheuse h I'emplacement final desire. Ne pas ecraser ni
deformer le conduit d'evacuation. Wrifier que la secheuse
est de niveau.
33

1=
2=
Jii__z:;i!iit:_iii!z_'_i;'¸_,_iti!_:¸t" i!:_:'_!iitliii__!t;i;_i_ii_::!_,iilil:ili:_iii;_ii,i::i_t_i_
Une fois la secheuse h son emplacement final, placer un
niveau sur le sommet de la secheuse, transversatement, puis
darts le sens avant arri@e. Si la secheuse n'est pas d'aplomb,
ajuster les pieds pour modifier la hauteur et etabtir un bon
aplomb de la secheuse.
Risque de choc _lectrique
Braneher sur une prise _4alv_oles reli_e hla terre.
Le non-respect de cette instruction peut causer
un d_c_s ou un choc _lectrique.
Brancher la secheuse ou reconnecter la source de courant
etectrique.
3=
4=
5.
Contr6ter le bon fonctionnement de la secheuse:
Inserer les pi_ces dans le mecanisme h glissi@e et
enfoncer doucement le m6canisme h glissiere (te temps de
fonctionnement sera accumute, selon le nombre de pi_ces).
Appuyer sur le bouton START/RESTART (mise en
marche/remise en marche). Faire fonctionner la s6cheuse
pendant au moins cinq minutes - programme de sechage
avec chaleur (pas le programme de sechage & t'air). La
secheuse s'arr_tera h l'expiration de la periode ainsi
determin6e.
NOTE : It faut que la porte soit fermee pour que la secheuse
puisse fonctionner. La secheuse s'arr_te d_s I'ouverture de
la porte, mais la minuterie continue de fonctionner. Pour
remettre la secheuse en marche fermer la porte et appuyer
sur le bouton START/RESTART.
Si le temps de sechage est trop long, s'assurer que le filtre
charpie est propre.
Mettre la secheuse en marche; la taisser executer un
programme comptet avec chateur (paste programme de
sechage h I'air) pour verifier qu'etle fonctionne correctement.
INSTALLATIOND'UNECAMEDEMINUTAGEDE 30OU60MINUTES
Risque de choc _lectrique
D_connecter la source de courant _lectrique avant
d'effectuer des modifications sur la came.
Le non=respect de ces instructions peut entrainer un
d_c_s ou un choc _lectrique.
Pour installer une came de minutage de 30 ou 60 minutes
(foumie avec la secheuse), proceder comme suit:
1. Debrancher la s6cheuse ou deconnecter la source de courant
etectrique.
2. Deverrouiller le bottler de commande.
3= Faire tourner la came manuellement pour aligner I'encoche en
V sous la dent de la roue dent_e.
A. Roue dentde
B. Came de minutage
C. Onglet d'entrafnement
D. L'encoche en V
4. Inserer un tournevis & tame plate etroite sous la came de
minutage, pros de I'axe. Soutever doucement la came
verticalement pour la separer de I'axe; veiller h ce que
I'encoche en V laisse passer la dent de la roue dentee.
5. Placer la nouvelte came (moyeu vers le bas) sur l'axe. Aligner
le meplat de I'axe avec le meplat du trou de la came. Veiller
mettre en place l'onglet d'entrafnement.
6. Faire tourner la came pour aligner I'encoche en V sous la dent
de la roue dentee.
7. Appuyer sur la came pour la mettre en place sur I'axe du
moteur; veiller & ce que I'encoche en V laisse passer la dent
de la roue dentee.
8. Fermer et verrouilter le bottler de commande.
34

INVERSIONDUSENSffOUVERTUREDE LAPORTE (FACULTATIF)
Le sens d'ouverture de la porte peut _tre change du c6te droit au
c6te gauche, si desire.
C
1. Placer une serviette (A) sur le dessus de la secheuse pour
proteger sa surface.
2. Ouvrir la porte de la secheuse. Oter les vis inferieures du c6te
charni_re de la caisse (B). Desserrer (he pas retirer) les vis
superieures du c6te charni_re de la caisse..
3. Soutever la porte jusqu'h ce que les vis superieures de la
caisse se trouvent dans la partie large de l'encoche de la
charni_re. Tirer la porte vers I'avant pour la degager des vis.
Placer la porte (c6te poignee vers le haut) sur la secheuse.
Retirer les vis de la charni_re superieure de la caisse.
4. Retirer les vis fixant les charni_res h la porte.
5. Retirer les vis de chaque c6te de la porte (5 vis). Tout en
maintenant la porte sur une serviette et sur la secheuse, saisir
les c6tes de la porte externe et soutever doucement pour la
separer de la porte interne (ne pas les separer en forgant).
Ne pas tirer sur le joint ou te Ioquet en plastique de ta porte.
6. Veilter & maintenir la cate
d'espacement en carton centree
entre les portes. Fixer & nouveau
le panneau de porte & la porte
interne de fagon & ce que la
poignee se trouve du c6te oQ les
vis viennent d'etre retirees.
7. Fixer les charni_res de porte h la porte de la secheuse de
fagon & ce que le trou le plus gros se trouve au fond de la
charni_re et que I'axe de la charni_re soit oriente vers I'avant
de la porte.
8. Oter les 4 vis fixant les 2bouchons d'obturation (C) du c6te
de la poignee. Fixer les bouchons d'obturation au c6te
oppose h I'aide des m_mes 4 vis.
9. Inserer les vis dans les trous inferieurs du
c6t_ gauche de la caisse. Setter les vis _
moitie. Positionner la porte de fagon h ce
que te c6te large de I'encoche de la
charni_re de porte se trouve au-dessus des
vis. Faire glisser la porte vers le haut de
fagon h ce que les vis se trouvent au fond
des encoches. Resserrer les vis. Inserer les vis superieures
darts les charni_res et serrer.
10. Fermer la porte et verifier que la g&che de la porte est atignee
avec le Ioquet (D).
INSTRUCTIONSD'ENTRETIEN
Instructions d'entretien :
[] Nettoyer le filtre h charpie apr_s chaque utitisation.
[] Comment enlever la charpie accumutee :
•De I'interieur de la secheuse :
II faut retirer la charpie tous les 2 ans ou plus souvent, selon
I'utitisation de la secheuse. Le nettoyage dolt _tre effectue
par une personne quatifiee.
•Du conduit d'evacuation :
It faut retirer la charpie tous tes 2 arts ou plus souvent,
selon I'utilisation de la secheuse.
[] Tenir les materiaux combustibles, essence ou autres
vapeurs ou liquides inflammables, h I'ecart de la zone
entourant la secheuse.
[] Tenir les objets qui pourraient obstruer le flux de combustion
et de ventilation hI'ecart de la zone entourant la secheuse.
Si la s_cheuse ne fonctionne pas, v_rifier ce qui suit :
[] Le circuit d'alimentation electrique est bien connecte.
[] Les disjoncteurs ne sont pas ouverts et les fusibtes sont
intacts.
[] La porte est fermee.
[] Les boutons de commande setectionnent une configuration
de fonctionnement.
[] Le bouton START?RESTART (mise en marche) a ete enfonce
fermement.
[] Pour une secheuse h gaz, verifier que les robinets de la
canatisation de gaz sont ouverts.
Si vous avez besoin d'aide :
Le Centre d'assistance d'appareils de buanderie commerciaux
r_pondra _ toute question concernant le fonctionnement et
I'entretien de la secheuse non abordee dans les instructions
d'instaltation. II suffit de composer le 1-800 NO BELTS
(1-800-662-3587). La communication est gratuite.
Lots de I'appel, vous devrez communiquer les numeros de
module et de serie de la secheuse; les deux numeros sont
inscrits sur la plaque signaletique situee dans le Iogement
de la porte de la secheuse.
35

P
GARANTIE DE LA LAVEUSE COMMERCIALE, DE LA SECHEUSE,
DE LA SECHEUSE/SECHEUSE SUPERPOSEE, DE L'ENSEMBLE DE
BUANDERIE COMMERCIAL SUPERPOSE, ET DES LAVEUSES ET
SECHEUSES COMMERCIALES MULTI-CHARGE PAYANTES
MAYTAG
GARANTIE LIMITI_E SUR LES PIECES
Pendant cinq ans &compter de la date d'achat, Iorsque cet appareil menager commercial est installe, utilis6 et entretenu conformement
aux instructions jointes & ou fournies avec le produit, Maytag marque de Whirlpool Corporation (ci-apres designee "Maytag") paiera
pour les pieces de rechange specifiees par I'usine ou les pieces de rechange d'equipement originales du fabricant pour corriger les
vices de materiaux ou de fabrication. Une preuve d'achat originale est requise pour beneficier du service de garantie.
MAYTAG NE PAIERA PAS POUR
1. Tousles autres frais, notamment la main-d'ceuvre, le transport ou les taxes douanieres.
2. Les visites de service pour rectifier I'installation de I'appareil menager commercial, montrer & I'utilisateur comment utiliser I'appareil,
remplacer ou reparer des fusibles, ou rectifier le c&blage ou la plomberie exterieure.
3. Les reparations Iorsque I'appareil est utilise autrement que pour une utilisation commerciale ordinaire.
4. Les dommages imputables & une mauvaise manipulation du produit pendant une livraison, un vol, un accident, une modification, un
usage impropre, un abus, un incendie, une inondation, des actes de Dieu, une mauvaise installation, une installation non conforme
aux codes Iocaux d'electricite et de plomberie, ou I'utilisation de produits non approuves par Maytag.
5. Le ramassage et la livraison. Cet appareil commercial est con£;u pour _tre repar6 sur place.
6. Les reparations aux pieces ou systemes resultant d'une modification non autorisee faite & I'appareil commercial.
7. La depose et la reinstallation de votre appareil commercial si celui-ci est install6 dans un endroit inaccessible ou n'est pas install6
conformement aux instructions d'installation fournies.
8. Les dommages chimiques ne sont pas couverts par la garantie.
9. Les modifications du b&timent, de la piece ou de I'emplacement necessaires pour faire fonctionner I'appareil commercial
correctement.
CLAUSE D'EXONI_RATION DE RESPONSABILITI_ AU TITRE DES GARANTIES IMPLICITES; LIMITATION DES RECOURS
LE SEUL ET EXCLUSIF RECOURS DU CLIENT DANS LE CADRE DE LA PRI2SENTE GARANTIE LIMITEE CONSISTE EN LA
RI2PARATION OU LE REMPLACEMENT DU PRODUIT PRI2VUS CI-DESSUS. LES GARANTIES IMPLICITES, Y COMPRIS LES
GARANTIES APPLICABLES DE QUALITI 2 MARCHANDE ET D'APTITUDE A UN USAGE PARTICULIER, SONT LIMITI2ES A UN AN OU A
LA PLUS COURTE PI2RIODE AUTORISI2E PAR LA LOI. WHIRLPOOL N'ASSUME AUCUNE RESPONSABILITI 2 POUR LES DOMMAGES
FORTUITS OU INDIRECTS. CERTAINES JURIDICTIONS NE PERMETTENT PAS L'EXCLUSION OU LA LIMITATION DES DOMMAGES
FORTUITS OU INDIRECTS, OU LES LIMITATIONS DE LA DURI2E DES GARANTIES IMPLICITES DE QUALITI2 MARCHANDE OU
D'APTITUDE A UN USAGE PARTICULIER, DE SORTE QUE CES EXCLUSIONS OU LIMITATIONS PEUVENT NE PAS S'APPLIQUER
DANS VOTRE CAS. CETTE GARANTIE VOUS CONF#RE DES DROITS JURIDIQUES SPI2CIFIQUES ET VOUS POUVEZ 12GALEMENT
JOUIR D'AUTRES DROITS QUI PEUVENT VARIER D'UNE JURIDICTION A UNE AUTRE.
Si vous avez besoin de service, veuillez communiquer avec votre distributeur d'ensemble de buanderie Maytag autoris& Pour Iocaliser
votre distributeur d'ensemble de buanderie Maytag autorise, ou pour des demandes de renseignements sur Internet, visitez le site Web
www.M aytagCommercialLaundry.com.
9/07
Vous pouvez 6crire & I'adresse suivante :
Maytag Commercial Laundry Service Department
2000 M-63 North
Benton Harbor, Michigan 49085 USA
W10184576A
W10184577A- SP
© 2008
All rights reserved.
Tous droits r&serv&s.
10/2008
Printed in U.S.A.
Imprim& aux E.-U.