MOBASE ELECTRONICS SYECLWPC1801 Wireless Charging System User Manual
SEOYON ELECTRONICS CO., LTD. Wireless Charging System
User manual

U S E R M A N U A L
Page
1/11
Established By
W.P.C SYSTEM
Spec No.
Seoyon Electronics
I N D E X
1. PURPOSE
2. SCOPE
3. ABBREVIATIONS AND DEFINITIONS
4. SYSTEM OVERVIEW
-
RELEASED
ALL
2017.05.26
W.C NO
Rev.NO
DESCRIPTION OF CHANGED
CHANGE PAGE
REV. DATE
REV. BY
REV. DATE
2017.05.26
SORT
PREPARED
CHECKED
APPROVED
A
P
P
R
O
V
A
L
WON CHUL
NO
HO NAM
KIM
GYEONG HEUM
CHOI
(PLM MANAGEMENT
SYSTEM)
DSF-4-02-01A-1 SEOYON ELECTRONICS A4(210x297)

U S E R M A N U A L
Model name :
SYECLWPC1801
Brand name :
HYUNDAI/KIA
Document Change History
Date
Ver.
Editor
Chap.
Description
CR#

U S E R M A N U A L
Contents list page
1. PURPOSE ............................................................................................................................................... 4
2. SCOPE ................................................................................................................................................ 4
3. ABBREVIATIONS AND DEFINITIONS .......................................................................................... 4
4. SYSTEM OVERVIEW ........................................................................................................................ 6
4.1. SYSTEM DESCRIPTION ........................................................................................................................................6
4.2. OPERATION PRINCIPLE .......................................................................................................................................6
4.3. ROLE AND CHARATERISTICS OF W.P.C PING ................................................................................................8
4.4. W.P.C COMMUNICATION AND CHARGING CHARACTERISTICS ............................................................. 10
4.5. PACKET LIST OF W.P.C CONTROLLER ........................................................................................................... 11
4.6. W.P.C FLOW CHART ......................................................................................................................................... 11
4.7. HARDWARE CONFIGURATION ....................................................................................................................... 11
4.8. SYSTEM CONFIGURATION .............................................................................................................................. 13
4.9. W.P.C OPERATION CONDITION ..................................................................................................................... 13
4.9.1. W.P.C OPERATING VOLTAGE .......................................................................................................................... 13
4.9.2. W.P.C INPUT/OUTPUT SPECIFICATIONS ...................................................................................................... 14
4.9.2.1.UNIT Input/Output Interface ........................................................................................................................................................... 14
5. RED Article 10.2 Statement .............................................................................................................................. 15
6. Product specification ......................................................................................................................................... 15
Brand name :
HYUNDAI/KIA
Model name :
SYECLWPC1801

U S E R M A N U A L
Model name :
SYECLWPC1801
1. PURPOSE
This specification specifies general functional requirements, quality requirements and
constraints applicable to the wireless charging system. If there is a difference between this
specification and the drawings, the drawings take precedence.
2. SCOPE
This specification specifies general functional requirements, quality requirements and
constraints applicable to the wireless charging system. If there is a difference between this
specification and the drawings, the drawings take precedence.
3. ABBREVIATIONS AND DEFINITIONS
Item, abbreviation,
acronym
Description
WPC
Wireless Power Charger
Active Area
An interface surface portion through which magnetic flux penetrates
sufficiently when the base station provides power to the mobile device
Power Transmitter
Wireless power transmission system Subsystem of base station that
generates inductive power in Active Area and controls power transmission
to RX
Base Station
Devices that transmit power wirelessly
Digital Ping
Application of Power Signal for RX Detection and Device Identification
Free Positioning
Place the mobile device on the interface surface of the base station.
The user does not need to align the active area of the mobile device
with the active area of the base station.
Guided Positioning
One way to locate a mobile device on the interface surface of the base
station is to provide feedback for the user to align the active area of
the mobile device to the active area of the base station
Interface Surface
Base station and mobile device Connected surface
Mobile Device
Devices that can consume inductive power in active area in wireless power
transmission system
Packet
Data structure that RX uses to communicate messages to TX
Brand name :
HYUNDAI/KIA

U S E R M A N U A L
Model name :
SYECLWPC1801
Power Receiver
Wireless Power Transmission System Subsystem of Mobile Device that
acquires inductive power in Active Area and controls the validity of its
output power
Power Signal
Vibrating flux surrounded by primary cell and secondary coil
Power Transfer
Contract
A set of boundary conditions with parameters having characteristics for
power transmission from TX to RX
Primary Cell
A single Primary Cell or Primary Cell used to provide high magnetic flux
through the Active Area
Secondary Coil
Parts of RX that switch from magnetic flux to electromotive force
Table 1 : ABBREVIATIONS
Brand name :
HYUNDAI/KIA

U S E R M A N U A L
Model name :
SYECLWPC1801
4. SYSTEM OVERVIEW
4.1. SYSTEM DESCRIPTION
A wireless charger (WPC) installed in a vehicle is a system that transmits power to a mobile
phone or a power receiver by power transmission by magnetic induction of a WPC coil and a cell
phone coil without a USB connection.
Picture 1 :OPERATION PRINCIPLE
4.2. OPERATION PRINCIPLE
WPC transmits power by magnetic induction to the overlapping area of the coil inner diameter of WPC and
the coil inner diameter of WPC with LC resonance (110KHZ).
Brand name :
HYUNDAI/KIA

U S E R M A N U A L
Model name :
SYECLWPC1801
Picture 2 : POWER FLOW
Brand name :
HYUNDAI/KIA

U S E R M A N U A L
Model name :
SYECLWPC1801
4.3. ROLE AND CHARATERISTICS OF W.P.C PING
- Analog Ping : Meter reading on wireless charge controller
- Digital Ping : Verify that the meter reading is a wireless charger WPC receiver
Packet
Input
Sequence
Packet
Purpose
Division
1
Signal Strength
Receiver Type
Digital Ping
2
Identification
Information such as the
receiver manufacturer
3
Configuration
Receiver internal
information
4
End Power Transfer
Stop power transmission
Digital Ping
Table 2 : Digital Ping Packe
Brand name :
HYUNDAI/KIA

U S E R M A N U A L
Model name :
SYECLWPC1801
Picture 3 : Receiver Recognition (Ping) Phase and Power Transfer Phase
Ping
Division
Voltage
Timing
Frequency
Analog
SIDE : 3.5V±0.5V
500ms
110-115KHz
Center : 3.0V±0.5V
500ms
Digital
-
64ms
Table 3 : Ping Specification
500msec
Within
Analog Ping
(Pad No object)
above)
Analog Ping-Pad After detection of
upper object Digital Ping and receiver
information recognition
Brand name :
HYUNDAI/KIA
110-115KHz
110-115KHz

U S E R M A N U A L
Model name :
SYECLWPC1801
4.4. W.P.C COMMUNICATION AND CHARGING CHARACTERISTICS
Wireless Charging Transmits messages with uni-directional in-band (ASK) communication using a
specific frequency between the transmit coil and the receive coil.
The wireless charger transmit coil transmits the power of the MAX15W and the operating
frequency is 110KHZ.
Picture 4 : Wireless charging controller communication method
Brand name :
HYUNDAI/KIA

U S E R M A N U A L
Model name :
SYECLWPC1801
4.5. PACKET LIST OF W.P.C CONTROLLER
Table 4 : W.P.C Packet List
4.6. W.P.C FLOW CHART
Picture 5 : W.P.C Flow Chart
4.7. HARDWARE CONFIGURATION
The hardware configuration consists of Conrtoll, wireless charging, and wireless charging
antenna coils.
- CONRTOLL CIRCUIT
1. Control of wireless charger operation
Brand name :
HYUNDAI/KIA

U S E R M A N U A L
Model name :
SYECLWPC1801
2. INDICATOR operation controll
3. CAN communication controll
- W.P.C CIRCUIT
1. Wireless Charging Antenna Coil transfers the power received from BATTERY
2. Check the unidirectional Inventory (ASK) data received from the mobile phone to
control the transmission power
3. Control the amount of transmission power through voltage variation
4. Control of rechargeable coil selection function among 3 coils
- Wireless Charging Antenna Coil
1. Delivered power from wireless charging circuit to mobile phone
Brand name :
HYUNDAI/KIA

U S E R M A N U A L
Model name :
SYECLWPC1801
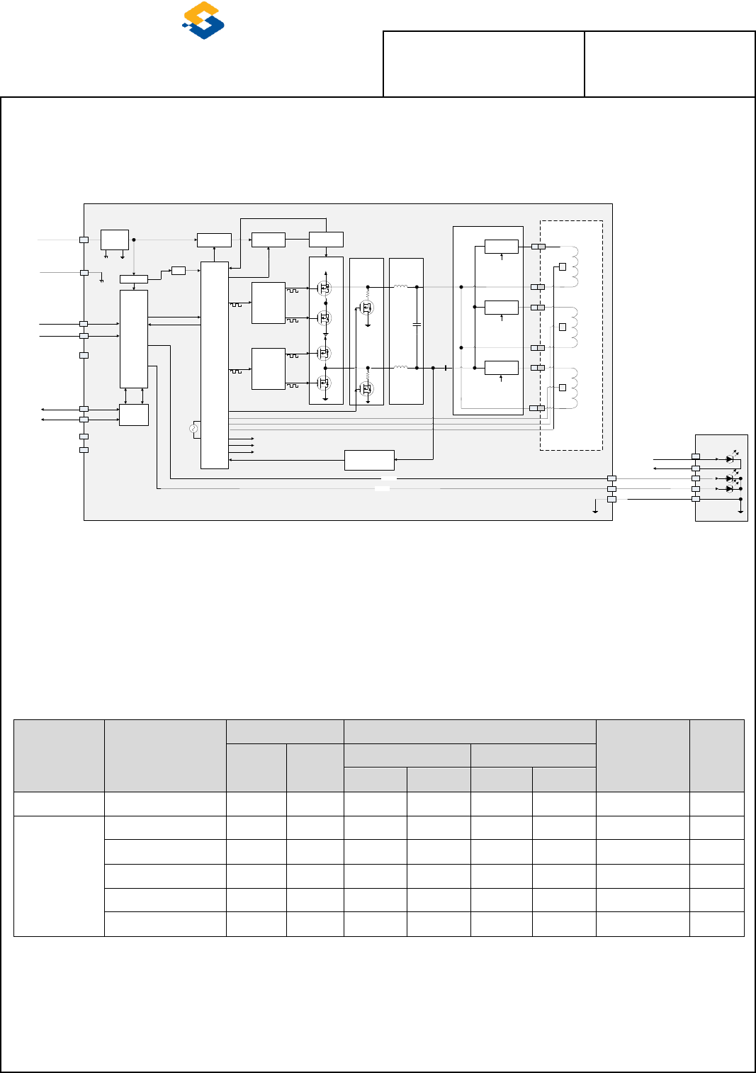
4.8. SYSTEM CONFIGURATION
Coil
Disable
LC
FILTER
FULL
BRIDGE Coil1
Enable
Coil1
Selection
Coil2
Selection
Coil2
Enable
Coil3
Selection
Coil3
Enable
PWM
Driver
IC
1~12V
1~12V
Coil1_Enable
Coil2_Enable
Coil3_Enable
High
Speed
B_CAN
Charged
Regulator
B+(7~18V)
Demodulator
L_LF SearchingOn_IN
B_CAN_LOW
B_CAN_HIGH
GREEN LED
AMBER LED
Wireless Charger Transmitter
GND_ECU
Coil Disable
PWM
DC/DC Buck
Converter
I_SENSE
(FOD Sensor)
L1
L2
L3
Coil1
Temp
Coil2
Temp
Coil3
Temp
Coil1 Temp
Coil2 Temp
Coil3 Temp
Coil CPT
Coil Selection
Gain
A_ACC
16M
12 6
11 5
10 4
9 3
8 2
7 1
1
4
5
6
9
8
10
EMI Filter
Enable
V_Control
V_Control
ILLUMINATION+
AMBER LED
6
5
4
GND_ECU
2
Indicator
1
GREEN LED
MCU
ASIC Chip
Power
Switch
PWM
Driver
IC
LDO
Gain
3
Charging
GND_POWER 12
SPI
B+(9~16V)
B+(7~18V)
ILLUMINATION- 2
7
11
Picture 6 : WPC BLOCK DIAGRAM
4.9. W.P.C OPERATION CONDITION
4.9.1. W.P.C OPERATING VOLTAGE
OPERATION
Signal
Value
Protection
Chattering
Time
Re
marks
LOW
HIGH
Under
Over
Detect
Release
Detect
Release
CAN
B+
6.8V
7V
7.0V
7.5V
18V
17.5V
30ms
WPC
B+
8.5V
9V
9.0V
9.5V
16.5V
16.0V
30ms
A_ACC
7.1V
7.8V
-
-
-
-
30ms
LF_Searching
3.0V
5.6V
-
-
-
-
10ms
LED_AMBER
8.5V
9V
-
-
-
-
-
500ms
LED_GREEN
8.5V
9V
-
-
-
-
-
500ms
Table 5 : W.P.C OPERATING VOLTAGE
Brand name :
HYUNDAI/KIA

U S E R M A N U A L
Model name :
SYECLWPC1801
4.9.2. W.P.C INPUT/OUTPUT SPECIFICATIONS
- UNIT CONNECTOR : KET MG645877
- UNIT WIRING CONNECTOR : KET MG655823
Picture 7 : UNIT CONNECTOR (12PIN)
4.9.2.1.UNIT Input/Output Interface
Pin
Designation
PIN Description
Diagnosis
Short circuit proof
1
B+
BATTERY Voltage Input
N/A
2
A_ACC
ACC Voltage Input
N/A
3
N.C.
NO.CONNECT
N/A
4
L_LFSearchingOn_IN
SMK Searching State Input
Pull-up resistor/diode
5
B-CAN_HI
LS-CAN High Level Signal
IC self protection
6
B-CAN_LO
LS-CAN Low Level Signal
IC self protection
7
N.C.
NO.CONNECT
N/A
8
P_LED_GREEN
Charging State Output
Current limit circuit applied
(PWM operation)
9
P_LED_AMBER
Charging State Output
Current limit circuit applied
(PWM operation)
10
GND_ECU
Ground CONNECT INDICATOR
N/A
11
N.C.
NO.CONNECT
N/A
12
GND_POWER
Ground
N/A
Table 6 : UNIT Input / Output Inerface
<UNIT >CONNECTER
<WIRING CONNECTOR>
<PIN MAP>
Brand name :
HYUNDAI/KIA

U S E R M A N U A L
Model name :
SYECLWPC1801
5. RED Article 10.2 Statement
“This device is compliant with the RED article 10.2 requirement because this device
is operated at least one Member State without infringing applicable requirements on
the use of radio spectrum.”
6. Product specification
SW / HW Version
1.00 / 1.00
Charge Frequency
110.90 kHz (5W)
Max Power
6.08 dBuA/m @ 10m
Voltage
DC 12V
Hereby, SEOYON ELECTRONICS Co.,Ltd declares that the radio equipment type Wireless
Charging System is in compliance with Directive 2014/53/EU.
Brand name :
HYUNDAI/KIA
ANNEX (EN/BG/ES/CS/DA/DE/ET/EL/FR/GA/IT/LV/LT/HU/MT/NL/PL/PT/RO/SK/SL/FI/SV/TR/NO/HR/IS)
1
(EN)EUDeclarationofConformity/(BG)ДЕКЛАРАЦИЯЗАСЪОТВЕТСТВИЕСИЗИСКВАНИЯТАНАЕС/(ES)DeclaraciónUEdeConformidad/(CS)EUProhlášeníoshodě/(DA)EU-
Overensstemmelseserklæ ring/(DE)EU-Konformitätserklärung/(ET)ELiVastavusdeklaratsioon/(EL)ΔΗΛΩΣΗΣΥΜΜΟΡΦΩΣΗΣΕΕ/(FR)DéclarationUEdeConformité/
(GA)DearbhúComhréireachtaanAE/(IT)DichiarazioneUEdiConformità/(LV)ESAtbilstībasDeklarācija/(LT)ESAtitiktiesDeklaracija/(HU)EU-MegfelelőségiNyilatkozat/
(MT)DikjarazzjoniTal-KonformitàTal-UE/(NL)EUConformiteitsverklaring/(PL)DeklaracjaZgodnościUE/(PT)DeclaraçãodeConformidadeUE/(RO)DeclarațiadeConformitateUE/
(SK)VyhlásenieoZhodeEÚ /(SL)IzjavaEUoSkladnosti/(FI)EU-Vaatimustenmukaisuusvakuutus/(SV)EU-FörsäkranomÖ verensstämmelse/(TR)UygunlukBeyanı/
(NO)EUSamsvarserklæ ring/(HR)EZizjavaosukladnosti/(IS)ESBSamræ misyfirlýsing
2
(EN)Number/(BG)№/(ES)No/(CS)Č./(DA)Nr./(DE)Nr./(ET)Nr/(EL)Αριθ./(FR)No/(GA)Uimhir/(IT)N./(LV)Nr./(LT)Nr./(HU)Szám/(MT)Numru/(NL)Nr./(PL)Nr/(PT)N.o/(RO)Nr/(SK)Číslo/(SL)
Št./(FI)N:o/(SV)Nr/(TR)Sayısı/(NO)Nr./(HR)Broj/(IS)Númer
3
(EN)NameandaddressoftheManufacturer/(BG)Наименованиеиадреснапроизводителя/(ES)Nombreydireccióndelfabricante/(CS)Obchodníjménoaadresavýrobce/(DA)Fabrikanten
snavnogadresse/(DE)NameundAnschriftdesHerstellers/(ET)Valmistajanimijaaadress/(EL)Όνομακαιδιεύθυνσηκατασκευαστή/(FR)Nometadressedufabricant/(GA)Ainmagusseoladhan
Mónaróra/(IT)Nomeeindirizzodelfabbricante/(LV)Ražotājanosaukumsunadrese/(LT)Gamintojopavadinimasiradresas/(HU)Gyártóneveéscíme/(MT)Isemuindirizztal-
manifattur/(NL)Naamenadresvandefabrikant/(PL)Nazwaiadresproducenta/(PT)Nomeeendereçodofabricante/(RO)NumeleșiadresaProducătorului/(SK)Obchodnémenoaadresavýrobcu
/(SL)Imeinnaslovproizvajalca/(FI)Valmistajannimijaosoite/(SV)Tillverkarensnamnochadress/(TR)İmalatçınınadıveadresi/(NO)Navnpåogadressetilprodusenten/(HR)Naziviadresaproizv
ođača/(IS)Nafnogheimilisfangframleiðanda
4
(EN)Thisdeclarationofconformityisissuedunderthesoleresponsibilityofthemanufacturer/(BG)Занастоящатадекларациязасъответствиеотговорностносиединственопроизвод
ителят/(ES)Lapresentedeclaracióndeconformidadseexpidebajolaexclusivaresponsabilidaddelfabricante/(CS)Totoprohlášeníoshoděvydalnavlastníodpovědnostvýrobce/(DA)Denneove
rensstemmelseserklæ ringudstedespåfabrikantensansvar/(DE)DieseKonformitätserklärungwirdunterderalleinigenVerantwortungdesHerstellersabgegeben/(ET)Käesolevvastavusdeklar
atsioononväljaantudvalmistajaainuvastutusel/(EL)Ηπαρούσαδήλωσησυμμόρφωσηςεκδίδεταιμεαποκλειστικήευθύνητουκατασκευαστή/(FR)Laprésentedéclarationdeconformitéestétabli
esouslaseuleresponsabilitédufabricant/(GA)Eisítearandearbhúcomhréireachtafaoifhreagrachtaonairanmhonaróra/(IT)Lapresentedichiarazionediconformitàèrilasciatasottolaresponsabi
litàesclusivadelfabbricante/(LV)Šīatbilstībasdeklarācijairizdotavienīgiuzšādaražotājaatbildību/(LT)Šiatitiktiesdeklaracijaišduotatikgamintojoatsakomybe/(HU)Emegfelelőséginyilatkozata
gyártókizárólagosfelelősségérekerülkibocsátásra/(MT)Dinid-dikjarazzjonital-konformitàtinħaregtaħtir-responsabbiltàunikatal-manifattur/
(NL)Dezeconformiteitsverklaringwordtverstrektondervolledigeverantwoordelijkheidvandefabrikant/(PL)Niniejszadeklaracjazgodnościwydanazostajenawyłącznąodpowiedzialnośćprodu
centa/(PT)Apresentedeclaraçãodeconformidadeéemitidasobaexclusivaresponsabilidadedofabricante/(RO)Prezentadeclarațiedeconformitateesteemisăperăspundereaexclusivăaprodu
cătorului/(SK)Totovyhlásenieozhodesavydávanavýhradnúzodpovednosťvýrobcu/(SL)Taizjavaoskladnostiseizdanalastnoodgovornostproizvajalca/(FI)Tämävaatimustenmukaisuusvaku
utusonannettuvalmistajanyksinomaisellavastuulla/(SV)Dennaförsäkranomöverensstämmelseutfärdaspåtillverkarensegetansvar/(TR)Buuygunlukbeyanı,imalatçınınsorumluluğualtındav
erilir/(NO)Dennesamsvarserklæ ringenerutstedtpåprodusentenseneansvar/(HR)Zaizdavanjeoveizjaveosukladnostiisključivojeodgovoranproizvođač/(IS)Þ essisamræ misyfirlýsingergefin
úteingönguáábyrgðframleiðanda
5
(EN)Objectofthedeclaration/(BG)Обектнадекларацията/(ES)Objetodeladeclaración/(CS)Předmětprohlášení/(DA)Erklæ ringensgenstand/(DE)GegenstandderErklärung/(ET)Deklare
eritavese/(EL)Σκοπόςτηςδήλωσης/(FR)Objetdeladéclaration/(GA)Cuspóirandearbhaithe/(IT)Oggettodelladichiarazione/(LV)Deklarācijaspriekšmets/(LT)Deklaracijosobjektas/(HU)Anyil
atkozattárgya/(MT)L-għantad-dikjarazzjoni/(NL)Voorwerpvandeverklaring/(PL)Przedmiotdeklaracji/(PT)Objectodadeclaração/(RO)Obiectuldeclarației/(SK)Predmetvyhlásenia/
(SL)Predmetizjave/(FI)Vakuutuksenkohde/(SV)Föremålförförsäkran/(TR)Beyanınnesne/(NO)Erklæ ringensgjenstand/(HR)Predmetizjave/(IS)Hluturtilyfirlýsingar
6
(EN)Productinformation;ProductName;ModelName/(BG)Информациязапродукта,иметонапродукта,иметонамодела/(ES)Informacióndelproducto;nombredelproducto;nombredel
modelo/(CS)Informaceovýrobku;Názevvýrobku;Názevmodelu/(DA)Produktinformation;Produktnavn;Modelnavn/(DE)Produktinformation;Produktname;Modellname/(ET)Tootekirjeldus;
Tootenimetus;Mudelinimi/(EL)Πληροφορίεςγιατοπροϊόν,όνομαπροϊόντος,όνομαμοντέλου/(FR)Informationsurleproduit;Nomduproduit;Nomdumodèle/(GA)FaisnéisTáirge;AinmTáirge;Ai
nmMúnla/(IT)Informazionisulprodotto;denominazionedelprodotto;Nomedelmodello/(LV)Informācijaparizstrādājumu;Izstrādājumanosaukums;modeļanosaukums/(LT)Informacijaapiepro
duktą;produktopavadinimas;modeliopavadinimas/(HU)Termékinformáció;atermékneve;típusnév/(MT)Informazzjonital-prodott;isemtal-prodott;isemtal-mudell/
(NL)Productinformatie,Productnaam;Modelnaam/(PL)Informacjeoprodukcie;nazwaproduktu;nazwamodelu/(PT)Informaçãosobreoproduto;NomedoProduto;DesignaçãodoModelo/(RO)
InformaţiidespreProdus;DenumireProdus;NumeModel/(SK)Informácieovýrobku;Názovvýrobku;Názovmodelu/(SL)Podatkioizdelku;imeizdelka;imemodela/(FI)Tuotetiedot;tuotteennimi;
mallinimi/(SV)Produktinformation;produktnamn;modellnamn/(TR)Ürünbilgileri;ÜrünAdı;ModelAdı/(NO)Produktinformasjon,Produktnavn,Modellnavn/(HR)Podatcioproizvodu;Nazivproiz
voda;Nazivmodela/(IS)Vöruupplýsingar;Nafnvöru;Nafngerðar
7
(EN)Additionalinformation/(BG)Допълнителнаинформация/(ES)Informaciónadicional/(CS)Dalšíinformace/(DA)Supplerendeoplysninger/(DE)ZusätzlicheAngaben/(ET)Lisateave/(E
L)Συμπληρωματικέςπληροφορίες/(FR)Informationssupplémentaires/(GA)Faisnéisbhreise/(IT)Ulterioriinformazioni/(LV)Papilduinformācija/(LT)Papildomainformacija/(HU)Kiegészítőinf
ormációk/(MT)Informazzjoniaddizzjonali/(NL)Aanvullendeinformatie/(PL)Informacjedodatkowe/(PT)Informaçõescomplementares/(RO)Informațiisuplimentare/(SK)Dodatočnéinformáci
e/(SL)Dodatnipodatki/(FI)Lisätietoja/(SV)Ytterligareinformation/(TR)Ekbilgi/(NO)Tilleggsopplysninger/(HR)Dodatneinformacije/(IS)Viðbótarupplýsingar
8
(EN)TheobjectofthedeclarationdescribedaboveisinconformitywiththerelevantUnionharmonisationlegislation/(BG)Предметътнадекларацията,описанпо-
горе,отговарянасъответнотозаконодателствонаСъюзазахармонизация/(ES)Elobjetodeladeclaracióndescritaanteriormenteesconformeconlalegislacióndearmonizaciónpertinentedel
aUnión/(CS)VýšepopsanýpředmětprohlášeníjeveshoděspříslušnýmiharmonizačnímiprávnímipředpisyUnie/(DA)Genstandenforerklæ ringen,sombeskrevetovenfor,erioverensstemmelse
meddenrelevanteEU-harmoniseringslovgivning/(DE)DerobenbeschriebeneGegenstandderErklärungerfülltdieeinschlägigenHarmonisierungsrechtsvorschriftenderUnion/
(EL)Οστόχοςτηςδήλωσηςπουπεριγράφεταιπαραπάνωείναισύμφωνοςμετησχετικήενωσιακήνομοθεσίαεναρμόνισης/(FR)L’objetdeladéclarationdécritci-
dessusestconformeàlalégislationd’harmonisationdel’Unionapplicable/(GA)TácuspóirandearbhaitheathuairiscítearthuasigcomhréirlereachtaíochtábharthaumchomhchuibhiúdechuidanA
ontais/(IT)L’oggettodelladichiarazionedicuisopraèconformeallapertinentenormativadiarmonizzazionedell’Unione/(LV)IepriekšaprakstītaisdeklarācijaspriekšmetsatbilstattiecīgajamSavie
nībassaskaņošanastiesībuaktam/(LT)PirmiauaprašytasdeklaracijosobjektasatitinkasusijusiusderinamuosiusSąjungosteisėsaktus/(HU)Afentismertetettnyilatkozattárgyamegfelelavonat
kozóuniósharmonizációsjogszabályoknak/(MT)L-għantad-dikjarazzjonideskritthawnfuqhuwakonformimal-leġislazzjonita’armonizzazzjonirilevantital-Unjoni/
(NL)HethierbovenbeschrevenvoorwerpisinovereenstemmingmetdedesbetreffendeharmonisatiewetgevingvandeUnie/(PL)Wymienionypowyżejprzedmiotniniejszejdeklaracjijestzgodnyz
odnośnymiwymaganiamiunijnegoprawodawstwaharmonizacyjnego/(PT)OobjetodadeclaraçãoacimadescritoestáemconformidadecomalegislaçãodeharmonizaçãodaUniãoaplicável/(R
O)ObiectuldeclarațieidescrismaisusesteînconformitateculegislațiarelevantădearmonizareaUniunii/(SK)Uvedenýpredmetvyhláseniajevzhodespríslušnýmiharmonizačnýmiprávnymipred
pismiÚ nie/(SL)PredmetnavedeneizjaveuskladujesmjerodavnimzakonodavstvomUnijeousklađivanju/(FI)Edelläkuvattuvakuutuksenkohdeonasiaakoskevanunioninyhdenmukaistamislai
nsäädännönvaatimustenmukainen/(SV)Föremåletförförsäkranovanöverensstämmermeddenrelevantaharmoniseradeunionslagstiftningen/(TR)YukarıdaaçıklananbildirininnesnesiilgiliTo
plulukuyummevzuatınauygundur/(NO)Formåletmederklæ ringenbeskrevetovenforerisamsvarmeddenaktuelleharmoniseringslovgivningeniunionen/(HR)Afentismertetettnyilatkozattárgy
amegfelelavonatkozóuniósharmonizációsjogszabályoknak/(IS)Efniofangreindraryfirlýsingarerísamræ miviðhlutaðeigandistaðlaðalöggjöfEvrópusambandsins
9
(EN)Referencestotherelevantharmonisedstandardsusedorreferencestothetechnicalspecificationsinrelationtowhichconformityisdeclared/(BG)наименованиятанаизползван
итехармонизиранистандартиилитехническитеспецификации,спрямокоитоседекларирасъответствието/(ES)Referenciasalasnormasarmonizadaspertinentesutilizadas,oreferencia
salasespecificacionestécnicasrespectoalascualessedeclaralaconformidad/(CS)Případnéodkazynapříslušnéharmonizovanénormy,kterébylypoužity,nebonatechnickéspecifikace,najejic
hžzákladěseshodaprohlašuje/(DA)Referencertilderelevanteanvendteharmoniseredestandarderellerreferencertildetekniskespecifikationer,somdererklæ resoverensstemmelsemed/(DE)
AngabedereinschlägigenharmonisiertenNormen,diezugrundegelegtwurden,oderAngabedertechnischenSpezifikationen,fürdiedieKonformitäterklärtwird/(ET)Viitedkasutatudasjakohaste
leühtlustatudstandarditelevõiviitedtehnilistelespetsifikatsioonidele,millegaseosesvastavustkinnitatakse/(EL)μνείατωνσχετικώνεναρμονισμένωνπροτύπωνπουχρησιμοποιήθηκανήτωντε
χνικώνπροδιαγραφώνμεβάσητιςοποίεςδηλώνεταιησυμμόρφωση/(FR)Référencesdesnormesharmoniséespertinentesappliquéesoudesspécificationstechniquesparrapportauxquelleslac
onformitéestdéclarée/(GA)Tagairtídonacaighdeáinchomhchuibhitheábharthaaúsáidtearnótagairtídonasonraíochtaíteicniúlaindáilleisangcomhréireachtadhearbhaítear/(IT)Riferimentiall
epertinentinormearmonizzateutilizzateoriferimentiallespecifichetecnicheinrelazioneallequalièdichiaratalaconformità/(LV)Norādesuzattiecīgajiemsaskaņotajiemstandartiemvainorādesuz
tehniskāmspecifikācijām,attiecībāuzkotiekdeklarētaatbilstība/(LT)Taikytųdarniųjųstandartųnuorodosarbatechniniųspecifikacijų,pagalkuriasbuvodeklaruotaatitiktis,nuorodos/(HU)Adotte
setbenhivatkozásazalkalmazásrakerültvonatkozóharmonizáltszabványokra,illetőlegazokraaműszakileírásokra,amelyekrenézveamegfelelésrolnyilatkoznak/(MT)Referenzigħall-
istandardsarmonizzatirilevantilintużaw,jewreferenzigħall-ispeċifikazzjonijietlib'relazzjonigħalihomqedtiġiddikjaratal-konformità/
(NL)Vermeldingvandetoegepastegeharmoniseerdenormenofvandetechnischespecificatieswaaropdeconformiteitsverklaringbetrekkingheeft/(PL)Odwołaniadoodnośnychnormzharmoni
zowanych,którezastosowano,lubdospecyfikacjitechnicznych,wodniesieniudoktórychdeklarowanajestzgodność/(PT)Referênciasàsnormasharmonizadasaplicáveisutilizadasouàsespecif
icaçõestécnicasemrelaçãoàsquaisédeclaradaaconformidade/(RO)Trimiterilastandardelearmonizaterelevantefolositesautrimiterilaspecificațiiletehniceînlegăturăcucaresedeclarăconfor
mitatea/(SK)Prípadnéodkazynapríslušnépoužitéharmonizovanénormyaleboodkazynatechnickéšpecifikácie,nazákladektorýchsavyhlasujezhoda/(SL)Napotilanauporabljeneusklajenest
andardealinapotilanatehničnespecifikacijezaskladnost,kisonavedenenaizjavi/(FI)Viittausniihinasiaankuuluviinyhdenmukaistettuihinstandardeihin,joitaonkäytetty,taiviittausteknisiineritel
miin,joidenperusteellavaatimustenmukaisuusvakuutusonannettu/(SV)Hänvisningartillderelevantaharmoniseradestandardersomanväntsellerhänvisningartilldetekniskaspecifikationerenl
igtvilkaöverensstämmelsenförsäkras/(TR)Ilgiliuyumlaştırılmışkullanılanstandartlarveyauygunlukbeyanileilgiliolarakteknikreferanslarreferanslar/(NO)Henvisningertilderelevanteharmoni
sertestandardenesomerbruktellerhenvisningertildespesifikasjonenedeterklæ ressamsvarmed/(HR)Upućivanjenamjerodavneusklađenenormeiliupućivanjenatehničkespecifikacijenatem
eljukojihseizjavljujesukladnost/(IS)Tilvísaniríviðeigandisamhæ fingarstaðlasemerunotaðireðatilvísaniríþæ rtæ kniforskriftirsemtengjastsamræ misyfirlýsingunni
10
(EN)Thenotifiedbody;performed;andissuedthecertificate/(BG)нотифициранияторган;извърши;ииздадесертификата/(ES)Elorganismonotificado;haefectuado;yexpideelcertificad
o/(CS)Oznámenýsubjekt;provedl;avydalosvědčení/(DA)Detbemyndigedeorgan;derharforetaget;ogudstedtattesten/(DE)DienotifizierteStelle;hat;undfolgendeBescheinigungausgestellt/(
ET)Teavitatudasutus;teostas;jaandisväljatõendi/(EL)οκοινοποιημένοςοργανισμός;πραγματοποίησε;καιεξέδωσετηβεβαίωση/(FR)L'organismenotifié;aeffectué;etaétablil'attestation/(GA)
Rinneancomhlachtdádtugtarfógra...agusd'eisighséandeimhniú/(IT)l’organismonotificato;haeffettuato;erilasciatoilcertificato/(LV)Pilnvarotāiestāde;irveikusi;unizsniegusisertifikātu/(LT)No
tifikuotojiįstaiga;atliko;irišdavėsertifikatą/(HU)Abejelentettszervezet;elvégeztea;ésakövetkezőtanúsítványtadtaki/(MT)Il-korpnotifikat;wettaq;uħareġiċ-ċertifikat/
(NL)Deaangemeldeinstantie;heefteen;uitgevoerdenhetcertificaatverstrekt/(PL)jednostkanotyfikowana;przeprowadziła;iwydałacertyfikat/(PT)oorganismonotificado;efectuou;eemitiuocer
tificado/(RO)Organismulnotificat;aefectuat;șiaemiscertificatul/(SK)notifikovanýorgán;vykonal;avydalosvedčenie/(SL)jepriglašeniorgan;izvedel;inizdalcertifikat/(FI)ilmoitettulaitos;suoritti
;jaantoitodistuksen/(SV)Detanmäldaorganet;harutfört;ochutfärdatintyget/(TR)Kuruluşabildirmiş;yapılanvesertifikaverilir/(NO)Detmeldteorgan;utført;somogsåinkluderertestresultatogutst
edelseavsertifikat/(HR)Obaviještenotijelo;proveloje;uključujućiizvješćeoispitivanjuiizdalojecertifikat/(IS)Hinntilkynntiaðili...framkvæ mdi...þarmeðtaliðprófunarskýrslurnaroggafútvottorðið
11
(EN)Signedforandonbehalfof/(BG)Подписзаилиотиметона/(ES)Firmadoporyennombrede/(CS)Podepsánozaajménem/(DA)Underskrevetforogpåvegneaf/(DE)Unterzeichnetfürundi
mNamenvon/(ET)(Kellenimeljapoolt)allakirjutatud/(EL)Υπογραφήγιαλογαριασμόκαιεξονόματος/(FR)Signéparetaunomde/(GA)Sínithelehaghaidhagustharceannan/(IT)Firmatoinveceep
ercontodi/(LV)Parakstīts/(LT)Užkąirkienovardupasirašyta/(HU)Cégszerűaláírás/(MT)Iffirmatagħaluf'isem/(NL)Ondertekendvoorennamens/(PL)Podpisanowimieniu/(PT)Assinadoporee
mnomede/(RO)Semnatpentrușiînnumele/(SK)Podpísanézaavmene/(SL)Podpisanozainvimenu/(FI)puolestaallekirjoittanut/(SV)Undertecknatför/(TR)Veadınaimzalanmıştır/(NO)Undert
egnetforogpåvegneav/(HR)Potpisanozaiuime/(IS)Undirritaðfyrirogfyrirhönd
FCC warning statement:
15.19
λ. This device complies with Part 15 of the FCC Rules. Operation is subject to the following two conditions:
(1) this device may not cause harmful interference, and (2) this device must accept any interference received,
including interference that may cause undesired operation.
15.105
This equipment has been tested and found to comply with the limits for a Class B digital device, pursuant to part
15 of the FCC Rules. These limits are designed to provide reasonable protection against harmful interference in
a residential installation. This equipment generates, uses and can radiate radio frequency energy and, if not
installed and used in accordance with the instructions, may cause harmful interference to radio communications.
However, there is no guarantee that interference will not occur in a particular installation. If this equipment does
cause harmful interference to radio or television reception, which can be determined by turning the equipment
off and on, the user is encouraged to try to correct the interference by one or more of the following measures:
—Reorient or relocate the receiving antenna.
—Increase the separation between the equipment and receiver.
—Connect the equipment into an outlet on a circuit different from that to which the receiver is connected.
—Consult the dealer or an experienced radio/TV technician for help.
15.21
- Any changes or modifications not expressly approved by the party responsible for compliance could void the
authority to operate equipment.
- This device and its antenna must not be co-located or operating in conjunction with any other antenna or
transmitter.
- End-users and installers must be provided with antenna installation instructions and transmitter operating
conditions for satisfying RF exposure compliance.
FCC/ IC RF Radiation Exposure Statement:
This equipment complies with FCC/ ISED RF radiation exposure limits set forth for an uncontrolled environment
for body-worn configuration in direct contact to the phantom.
This device complies with FCC/ ISED radiation exposure limits set forth for an uncontrolled environment.
IC warning statement:
RSS-Gen Issue 4 8.4
This device complies with Industry Canada’s licence-exempt RSSs. Operation is subject to the following two
conditions: (1) This device may not cause interference; and (2) This device must accept any interference,
including interference that may cause undesired operation of the device.
Le présent appareil est conforme aux CNR d'Industrie Canada applicables aux appareils radio exempts de licence.
L'exploitation est autorisée aux deux conditions suivantes: (1) l'appareil ne doit pas produire de brouillage, et (2)
l'utilisateur de l'appareil doit accepter tout brouillage radioélectrique subi, même si le brouillage est susceptible
d'en compromettre le fonctionnement.
Industry Canada ICES-003 Compliance Label:
CAN ICES-3
Co-located
This device and its antenna(s) must not be co-located or operating in conjunction with any other antenna or
transmitter.