Majestic Bc36 Operation Manual ManualsLib Makes It Easy To Find Manuals Online!
2014-12-11
: Majestic Majestic-Bc36-Operation-Manual-120569 majestic-bc36-operation-manual-120569 majestic pdf
Open the PDF directly: View PDF
.
Page Count: 24

WF553
BR/BC36
11/10/97
BR/BC Series
Woodburning Fireplace
For Models:
BR36
BR42
BC36
BC42
DO NOT DISCARD THIS MANUAL: Retain for future use.
7412944 4/07 Rev. 21
For use in U.S./Canada
Underwriter's Laboratories
Report No. MH6018
Homeowner's Installation
and Operating Manual

2
Majestic Fireplaces® BR/BC Series
7412944
BR36 / BR42
BC36 / BC42
Listed
UL 127 / ULC-S610
Standard for Factory Built Fireplaces
Safety Information
PLEASE READ THIS MANUAL BEFORE INSTALLING AND USING FIREPLACE.
IMPORTANT: Read all instructions and warnings carefully before starting installation. Failure to
follow these instructions may result in a possible fire hazard and will void the warranty.
Description
The BR/BC Series fireplaces are solid fuel, woodburning
fireplaces. The BR36/42 (Builder Radiant) is a clean-face
fireplace and the BC36/42 (Builder Circulating) unit has
fixed grilles.
Precautions
CFM Corporation fireplaces and component parts have
been highly tested and will operate safely when installed
in accordance with instructions provided in this manual.
Carefully read and understand all instructions before
beginning installation.
If you notice any damage to fireplace or component parts,
immediately report damage to your Majestic Fireplaces
dealer.
Only use CFM Corporation components or the warranty
will be voided and a fire hazard may be created.
CFM Corporation warranty will be voided by and CFM
Corporation disclaims any responsibility for the following
actions:
• Installation by any other than a qualified install-
er, preferably NFI or WETT (Canada) certified.
• Installation of any damaged fireplace or chim-
ney component;
• Modification of fireplace, chimney assembly or
any component parts thereof; (except for chase
flashings as detailed in Chimney Top installation
instructions).
• Installation other than as instructed by CFM
Corporation; or
• Installation and/or use of any component part
not manufactured or approved by CFM Corpo-
ration in combination or assembly with a Majes-
tic Fireplaces fireplace system, notwithstanding
any independent testing laboratory or other
third party approval of such component parts
or accessory.
Any such action may possibly cause a fire hazard.
Consult local building codes to ensure that you are in
compliance before installing the fireplace.
Fireplaces must be vented to the out-of-doors.
Do not obstruct or modify air inlets/outlets in any
manner.
Do not install combustible materials on any of the
black fireplace surround.
Burn only solid wood fuel or gas logs.
Do not install a solid fuel burning insert or other
products not specified for use with this fireplace.
Proposition 65 Warning: Fuels used in gas, wood-
burning or oil fired appliances, and the products of
combustion of such fuels, contain chemicals known to
the State of California to cause cancer, birth defects
and other reproductive harm.
California Health & Safety Code Sec. 25249.6
Drafts
The fireplace should not be located in areas that create
drafts (ie: frequently opened doors and central heating air
inlets/outlets) that hamper the normal flow of air into the
fire.
Gas Logs
If you plan to install a gas log, the gas line should be
installed before framing the fireplace. The gas line must
be installed by a certified gas line installer.
Safety Information . . . . . . . . . . . . . . . . . . 2
Specifications and Framing . . . . . . . . . . 3
Parts Identification . . . . . . . . . . . . . . . . . 5
Chimney Requirements . . . . . . . . . . . . . 6
Planning Information . . . . . . . . . . . . . . . . 7
Installation . . . . . . . . . . . . . . . . . . . . . . . 8
Replacement Parts . . . . . . . . . . . . . . . . 19
Accessories . . . . . . . . . . . . . . . . . . . . . 20
Table of Contents

3
Majestic Fireplaces® BR/BC Series
7412944
BR36 Series Woodburning Fireplace
Fig. 1 BR36 Series specifications and framing.
36"
(914mm)
"
(372mm)
"
(337mm)
40" (1016mm)
36"
(930mm)
"
" (16mm)
45" (1162mm)
45"(1162mm)
" (13mm)
"
" (1645mm)
"
(187mm)
20"
(508mm)
"
(521mm)
" (559mm)
"
(502mm)
"
(533mm)
40"
(1035mm)
"
(241mm)
"
(167mm)
"
(191mm)
"
(191mm)
Outside
Air
Gas Line
Access
Gas Line
Access
Electrical Access
Recessed
Nailing
Flange
FP526
BR36 SPECS
10/28/98
11" Dia.
(279mm)
Rough Opening Width 41"
Rough
Opening
Height
Rough
Opening
Depth
3" (76mm)
*
(1041mm)
8" Dia.
(203mm)
" (822mm)
*If elbows are offset to the back of the unit, chase depth will be 22⁵⁄₈" (575mm).
Fig. 2 BC36 Series specifications and framing.
BC36 Series Woodburning Fireplace — Circulating Model
" (16mm)
" (13mm)
"
36"
(914mm)
34"
(880mm)
40" (1016mm)
"
"
(502mm)
"
(64mm)
" (902mm)
"
(533mm)
"
(197mm)
"
(191mm)
Recessed
Nailing
Flange
FP527
BC36 SPECS
10/28/98
11" Dia.
(279mm)
Rough Opening Width 41"
Rough
Opening
Height
Rough
Opening
Depth
Gas Line
Access
45" (1162mm)
45" (1162mm)
" (1645mm)
"
(187mm)
20"
(508mm)
"
(521mm)
" (559mm)
40"
(1035mm)
"
(372mm)
"
(337mm)
36"
(930mm)
3"
(76mm)
"
(241mm)
"
(191mm)
Outside
Air
Gas Line
Access
Electrical Access
*
(1041mm)
8" Dia.
(203mm)
" (822mm)
*If elbows are offset to the back of the unit, chase depth will be 22⁵⁄₈" (575mm).

4
Majestic Fireplaces® BR/BC Series
7412944
Fig. 4 BC42 Series specifications and framing.
BC42 Series Woodburning Fireplace — Circulating Model
42"
(1067mm)
34"
(880mm)
46" (1168mm)
"
" (16mm)
" (13mm)
"
"
(502mm)
" (64mm)
" (965mm)
"
(533mm)
"
(197mm)
"
(191mm)
Recessed
Nailing
Flange
FP545
BC42 SPECS
10/28/98
11" Dia.
(279mm)
Rough Opening Width 47"
Rough
Opening
Height
Rough
Opening
Depth
Gas Line
Access
49" (1245mm)
49" (1245mm)
" (1765mm)
"
(187mm)
20"
(508mm)
"
(521mm)
" (711mm)
40"
(1035mm)
"
(372mm)
"
(337mm)
36"
(930mm)
3"
(76mm)
"
(241mm)
"
(191mm)
Outside
Air
Gas Line
Access
Electrical Access
*
(1194mm)
8" Dia.
(203mm)
" (895mm)
*If elbows are offset to the back of the unit, chase depth will be 22⁵⁄₈" (575mm).
BR42 Series Woodburning Fireplace
Fig. 3 BR42 Series specifications and framing.
42"
(1067mm)
46" (1168mm)
36"
(930mm)
"
" (16mm)
" (13mm)
"
"
(502mm)
"
(533mm)
"
(197mm)
"
(191mm)
Gas Line
Access
Recessed
Nailing
Flange
FP546
BR42 SPECS
10/28/98
11" Dia.
(279mm)
Rough Opening Width 47"
Rough
Opening
Height
Rough
Opening
Depth
49" (1245mm)
49" (1245mm)
" (1765mm)
"
(187mm)
20"
(508mm)
"
(521mm)
" (711mm)
40"
(1035mm)
"
(372mm)
"
(337mm)
3"
(76mm)
"
(241mm)
"
(191mm)
Outside
Air
Gas Line
Access
*
(1194mm)
Electrical Access
8" Dia.
(203mm)
" (895mm)
*If elbows are offset to the back of the unit, chase depth will be 22⁵⁄₈" (575mm).

5
Majestic Fireplaces® BR/BC Series
7412944
WF554
BR/BC
Combo of IWF261 AND IWF265
11/10/97
Chase Installation
Insulation methods shown are optional
for cold climate, not a requirement for
unit operation.
FP554
Fig. 5 Fireplace and chase parts identification.
Termination Cap
Storm Collar
Pan Flashing
Draftstop
Standoff
Surround
Damper Control
Gas Line Knockout
(both sides)
Screen
Grate
Firebox
Metal Safety Strips
(1,2 or 3 pieces)
Outside Air Cover Plate
Electrical Access
Gas Line Access
(both sides)
Nailing Flange
Ceiling Level
Firestop
Batt Insulation
(cut our around firestop)
A
B
C
FP1531
hearth dimensions
9/04 djt
Front Width Back Width Depth
A B C
BR/BC36 33¹⁄₄" 19⁵⁄₈" 15¹⁄₄"
(845 mm) (499 mm) (387 mm)
BR/BC42 39¹⁄₄" 25⁵⁄₈" 15¹⁄₄"
(997 mm) (651 mm) (387 mm)
FP1531
Fig. 4a Hearth dimensions.

6
Majestic Fireplaces® BR/BC Series
7412944
Chimney
Support
Chimney Requirements - Offset Installations
0 0 0 0 0 3" 11"
1 0 0 0 0 8¹⁄₄" 20"
0 1 0 0 0 11¹⁄₄" 25¹⁄₄"
2 0 0 0 0 13¹⁄₂" 29¹⁄₄"
1 1 0 0 0 16¹⁄₂" 34¹⁄₄"
0 0 1 0 0 20¹⁄₄" 40³⁄₄"
2 1 0 0 0 21³⁄₄" 43¹⁄₂"
0 0 0 1 0 26¹⁄₄" 51¹⁄₄"
0 1 1 0 0 28¹⁄₂" 55¹⁄₄"
1 0 0 1 0 31¹⁄₂" 60¹⁄₄”
0 1 0 1 0 34¹⁄₂" 65¹⁄₂"
0 0 2 0 0 37¹⁄₂" 70³⁄₄"
1 1 0 1 1 41¹⁄₂" 77³⁄₄"
0 0 1 1 1 45" 83³⁄₄"
0 1 2 0 1 47¹⁄₄" 87¹⁄₂"
0 0 0 2 1 51" 94"
0 1 1 1 1 53¹⁄₄" 98"
0 0 3 0 1 56¹⁄₄" 103¹⁄₄"
0 1 0 2 1 59¹⁄₄" 108¹⁄₂"
0 0 2 1 1 62¹⁄₄" 113¹⁄₂"
0 1 3 0 1 64¹⁄₂" 117¹⁄₂"
0 0 1 2 1 68¹⁄₄" 124"
0 1 2 1 1 70¹⁄₂" 128"
0 0 0 3 1 74¹⁄₄" 134¹⁄₂"
0 1 1 2 2 78" 140³⁄₄"
0 0 3 1 2 81" 146"
0 1 0 3 2 84" 151¹⁄₄"
0 0 2 2 2 87" 156¹⁄₂"
0 1 3 1 2 89¹⁄₄" 160¹⁄₄"
0 0 1 3 2 93" 166³⁄₄"
0 1 2 2 2 95¹⁄₄" 170³⁄₄"
0 0 0 4 2 99¹⁄₄" 177³⁄₄"
0 1 1 3 2 101¹⁄₄" 181³⁄₄"
0 0 3 2 2 104¹⁄₄" 186¹⁄₄"
0 1 0 4 2 107¹⁄₄" 191¹⁄₂"
0 0 2 3 2 110¹⁄₄" 196³⁄₄"
0 1 3 2 3 114" 203¹⁄₄"
0 0 1 4 3 117³⁄₄" 209³⁄₄"
0 1 2 3 3 120" 213¹⁄₂"
0 0 0 5 3 123³⁄₄" 220"
30˚ Elbow Offsets
1' 1¹⁄₂'3' 4' Offset Rise
Notes: G + H cannot exceed 20 feet.
Air Space Clearances: SK8 (2-wall) = 1¹⁄₂" and "S" Series (3-wall) = 2"
Illustration Key
The following safety rules apply to
offset installations (letters correspond
with illustration above):
A. Height of the chimney is measured
from the hearth to the chimney exit.
BR/BC36 BR/BC42
Maximum: 90'0" 90'0"
Minimum:
Without Elbows 12' 6" 12' 6"
With 2 Elbows* 14' 6" 14' 6"
With 4 Elbows* 21' 0" 21' 0"
B. Do not use more than 4 elbows per
chimney.
Attach the straps of the return (top)
elbow to a structural framing member.
The offset (first) elbow of any pair does
not have straps.
FP269
C. The chimney cannot be more than 30˚
(45˚ in Canada) from the vertical plane in
any installation*.
D. The maximum length of the angled run
of the total chimney system is 20 feet. (G
plus H cannot exceed 20 feet.)
E. A chimney support (Model SKCS8)
is required every 6 feet of angled run of
chimney. Chimney supports are required
for every 30 feet and 60 feet (SK8 pipe)
or 20 feet and 40 feet (3-wall pipe) of ver-
tical chimney height above the hearth.
Determine the offset distance of your
chimney arrangement from the centerline
of the fireplace to the centerline of the
chimney where it is to pass through the
first ceiling.
NOTE: This offset distance may not be
your full offset distance. See Examples 2
and 3.
FP282
MBUF
5/26/96
OFFSET
RISE
FP282
* In Canada, two (2) SK845 are allowed.
Fig. 6. Chimney system requirements.
D
RISE
BG
H
B
OFFSET
C
E
6 FT.
G
H
A
HEARTH
FLOOR
CHIMNEY
SECTION
CHIMNEY FLUE EXIT
ELBOW
FP269
MBUF
5/16/96
rev. 5/25
30˚
OFFSET
ELBOW
30˚
OFFSET
ELBOW
30˚
RETURN
ELBOW
30˚
RETURN
ELBOW
SKCS8
SUPPORT
Example 1 Example 2 Example 3

7
Majestic Fireplaces® BR/BC Series
7412944
Planning Information
The Ten Foot Rule
Major U.S. building codes specify a minimum chimney
height above the roof top. The “Ten Foot Rule” is a fire
safety rule and not a draft rule. To ensure proper draft,
it is recommended that you always meet or exceed the
“Ten Foot Rule,” especially when installing a termination
on a high pitch roof. (Fig. 8)
The key points of the "Ten Foot Rule" are:
1. If the horizontal distance from the chimney to the
peak of the roof is 10' (3m) or less, the top of the
chimney must be at least 2' (610mm) above the peak
of the roof, but never less than 3' (914mm) in height
above the highest point where it passes through the
roof.
2. If a horizontal distance from the chimney to the peak
of the roof is more than 10' (3m), a chimney height
reference point is established on the surface of the
roof a distance of 10' (3m) from the chimney in a
horizontal plane. The top of the chimney must be
at least 2' (610mm) above the reference point, but
never less than 3' (914mm) in height above the high-
est point where it passes through the roof.
Determine how the chimney will be run, length of run
and chimney components required to complete the
job. (Fig. 6) Never install a chimney below minimum
heights.
In planning a chimney system, it is important to know:
1. The height of a chimney is measured from the
hearth to the exit point on the termination.
2. A chimney cannot be offset more than 30° from a
vertical plane.
3. A chimney may run straight up or it may be neces-
sary to offset it to avoid obstructions.
4. The maximum length of an angled run (total chimney
system) is 20' (6 m).
5. No more than 2 offsets (4 total 30° elbows in U.S./or
2 total 45° elbows in Canada) per fireplace may be
used.
6. A guy wire stabilizer is required for chimneys extend-
ing more than 6' (1.8 m) above a roof line.
L1
L1
LTMODEL SK
2 WALL CHIMNEY
TOTAL
LENGTH
(LT)
INSTALLED
LENGTH
(L1)
SK81
SK818
SK83
SK84
"
"
"
"
"
"
"
"
FP288
MBUF-INSTALLED LENGTH
6/17/96
Fig. 7 Installed lengths of chimney sections.
FP288
AC246
Fig. 8 Ten Foot Rule illustration.
2' Min.
2' Min.
3'
Min.
0 To 10'
3'
Min.
0 To 10'
AC246
4/1/96
Reference
Point
Preplanning an installation is very important to ensure
safety and to save time and money. An installer must
predetermine where a fireplace will be set and how the
chimney system will be run.
Mounting the Fireplace
A fireplace may only be mounted on the following sur-
faces:
1. A flat combustible surface.
2. A raised wooden platform.
3. A concrete block or other solid object placed beneath
each of the four (4) corners of the fireplace.
The fireplace must be spaced 1/2" (13mm) from a com-
bustible back wall and 1/2" (13mm) from a combustible
side wall or support. (Page 14, Fig. 20)
Planning the Chimney Run

8
Majestic Fireplaces® BR/BC Series
7412944
Insulating Fireplace Enclosure
for Cold Climates
Installation
Chimney Supports
The chimney system is supported by the fireplace for
vertical chimney heights less than 30' (9m) above the
hearth. Chimney supports are required if the vertical
height exceeds 30' (9m) with SK8 chimneys or 20' (6m)
with 3-wall chimneys. Locate chimney supports at ceil-
ing holes or other structural framing at 30' (9m) (SK8)
or 20' (6m) (3-wall) heights. Spacing between chimney
supports must not exceed 30' (9m) (SK8) or 20' (6m)
(3-wall). Use Chimney Support Model SKCS8. (NOTE:
The SKCS8 can not be mounted directly to the
fireplace.) Support provided by elbow straps fulfills the
support requirement only if they are spaced as previ-
ously described. (A chimney support is 2¹⁄₂" (64mm)
long when installed.)
Angled chimney runs require a support every 6' (1.8m)
in addition to the elbow straps. Chimney supports are
used for this function. (Fig. 9)
Chase Installation
A chase is a vertical box-like structure which encloses
the fireplace and/or chimney. Chases are typically built
on the outside of the house with fireplace opening cut
into the outer wall of a room. (Page 5, Fig. 5)
If you need help in determining fireplace location or how
the chimney system should be run, contact your Majes-
tic Fireplaces dealer for assistance.
If you live in a cold climate, it is not required but
highly recommended that you insulate fireplace
enclosure to eliminate cold air penetration as much as
possible.
Insulate base of fireplace with a noncombustible
insulation rated for a minimum of 300°F. Insulating
is very important for outside wall installations over
a concrete slab. If fireplace is installed on a platform,
insulation should be placed on top of the platform
before fireplace is set. (Fig. 10)
When a fireplace is installed in a chase or on a
outside wall, enclosure should be treated like any
outside wall in a home. Insulation should be installed
on the inside wall as well as the outside wall(s). In a
chase, it is also a good idea to install a firestop at the
first ceiling level above the fireplace and enclose the
chase with sheeting material. Insulation may then be
installed above sheeting material to assure the space
around the fireplace is totally protected. (Fig. 5)
When installing the chimney, DO NOT caulk between
outer pipe and firestop. It is vital that some air be al-
lowed to flow through this very thin gap.
CAUTION: WHEN INSTALLING A FIREPLACE
IN AN INSULATED ENCLOSURE, BE SURE ALL
REQUIRED AIR SPACES ARE MAINTAINED. (Page
14, Figure 20)
FP284
Fig. 9 Chimney support installation
IWF284
MBUF
5/25/96
Chimney Sup-
port Strap
SKCS8

9
Majestic Fireplaces® BR/BC Series
7412944
Framing
Framing can be constructed before or after the fireplace
is set in place, however, most installers build the frame
before setting the fireplace.
Frame fireplace with 2 x 4 lumber or heavier materials.
Refer to framing dimensions in Figures 1, 2, 3 or 4 for
basic fireplace specifications.
NOTE: When using 2 x 6 framing construction,
the allowable air space between the front of the
SK8 outer pipe and 2 x 6 framing is reduced to 1"
(25mm) as tested and approved by U.L. for use in
both the United States and Canada.
NOTE: Framing should be positioned to accommodate
wall covering and fireplace facing material.
Installing Electrical Wire
(for Circulator Models)
If a circulating fireplace is to be installed, run the 120
VAC, 60 Hz wiring to the left side of installation. Wiring
must be completed before the fireplace is secured and
finish material applied.
Remove the cover plate and electrical knock-out on the
lower left side of the fireplace and set aside. Follow the
instructions on Page 10 for proper wiring and installa-
tion of the EB1.
If the fan kit is not being installed with the fireplace, it
is highly recommended that 120 VAC supply be made
available since someone may elect to install a blower at
a later date.
Option For Circulating Models Only —
EB1 (Receptacle) Hook-Up:
• Wiring should be installed by a certified
electrician.
• Turn off circuit breaker before wiring models.
Once fireplace is secured, complete wiring the fan
kit. Remove knockout in the center of the back of the
EB1 and install listed cable clamps. Feed electrical
wire through listed cable clamp leaving approximately
6" (152 mm) of wire exposed through the EB1. Se-
cure listed cable clamp to the wire.
Attach white wire from power source to one (1) wire
of receptacle and secure with nut. Attach black wire
from power source to the other wire of receptacle and
secure with nut. Be sure nuts are secured tightly.
Secure EB1 assembly to inside of electrical box
coverplate using two screws. Attach cover to face of
the EB1 while being careful to position excess wire
completely within the EB1, then attach coverplate to
fireplace.
Install Fan Kit Assembly
Refer to optional Model FK12 fan kit assembly instal-
lation instructions for field installation.
Chimney Set-up
Since you have already preplanned the chimney run,
you should know exactly how the installation is to be
accomplished — how much pipe is required, the num-
ber of elbows, if any, and type of termination to be used.
CAUTION: REPORT TO YOUR DEALERS ANY
PARTS DAMAGED IN SHIPMENT, SPECIFICALLY
CHECK THE END CONNECTION OF CHIMNEY SEC-
TIONS AND ELBOWS.
NOTE: Fireplaces may use CFM Corporation Model
SK8, or Model S (three wall) chimney systems. The
BR/BC Series Fireplace will accept the SK8 chimney
system as is; but a TWABR adapter collar is required
when using the Model S (triple wall) chimney system.
The installation procedure described in this manual
applies only to the SK8 system. Either chimney system
may be used, but may not be mixed.
FP555
Fig. 10 Insulating between platform and fireplace.
FP555
Platform, insulation
1/10/97
5/11/99 djt
Hard Flat
Surface
Insulation
Platform

10
Majestic Fireplaces® BR/BC Series
7412944
Determine offset distance of your chimney arrangement
from centerline of fireplace to centerline of chimney
where it is to pass through ceiling.
Locate center point of the chimney on ceiling as though
a straight up chimney arrangement is to be used. Mea-
sure your offset dimension from straight up chimney
center point on ceiling.
Ceiling Chimney Hole/
Possible Obstructions
The size of the hole in ceiling will vary with the angle at
which the chimney passes through ceiling.
Drive a nail up through ceiling at marked chimney
center point. Go to floor above and see where hole
will be cut. Check to see where existing ceiling joists
and other possible obstructions are located...i.e. wiring,
plumbing etc... If necessary, re-position chimney and/or
fireplace to avoid obstructions.
Cutting the Hole
Cover fireplace collar opening and cut proper sized
chimney hole in chimney. The SK8 pipe allows you to
run pipe through a typical 16” on center joist without
cutting joists.
Framing the Ceiling Hole
Frame the ceiling chimney hole as shown in Figure
12. It is good practice to use framing lumber that is the
same size as the ceiling joists; this is a requirement at
attic level.
Offset Installation
In order to clear an obstruction, it may be necessary
to offset chimney from vertical. This is accomplished
by using CFM Corporation elbows. Use the 30° Offset
Elbow table on Page 6 to determine proper offset and
parts required.
Each offset requires two (2) elbows. The second elbow
is equipped with support straps. It is very important to
install the second elbow in each offset as close to the
ceiling or support as possible so that the elbow straps
can be secured to framing members to help support the
weight of the chimney.
Straight-Up Chimney Installation
To mark the centerline of the flue, put the fireplace
in final position and measure out from the wall: 8¹⁄₄"
(210 mm)
Mark a spot on the ceiling directly above the fireplace.
Draw a line parallel to the back wall through this mark.
(Fig. 11)
Using a plumb bob positioned directly over center point
of fireplace flue collar, mark the ceiling to establish the
chimney center point. (Fig. 11)
FP556
BR/BC
LOCATE CENTER LINE
11/10/97
"
(210mm)
FP556
Fig. 11 Locate centerline of chimney with plumb line.
Chimney Centerline
Actual Centerpoint
Plumb Line
Plumb Bob
Imaginary
Centerpoint
Fig. 12 Typical frame for ceiling chimney hole.
FP551
FP551
BR/BC
9/29/97
AB AB
A "SK" Series framing = 14¹⁄₂" X 14¹⁄₂" (368 x 368mm)
B "S" Series framing = 17¹⁄₂" X 17¹⁄₂" (445 x 445mm)
Existing Ceiling
Joists
Ceiling
New Framing
Members
Chimney
Hole

11
Majestic Fireplaces® BR/BC Series
7412944
The following table gives firestop spacer model num-
bers:
The inside dimension of the frame must be the same
as the hole size selected from Figure 13 in order to
provide the required 1¹⁄₂" (38 mm) of air space between
the outside diameter of the chimney and the edges of
the framed ceiling hole.
Positioning, Safety Strips,
Securing the Fireplace
Slide fireplace into position.
Lift the fireplace front slightly and slide the metal safety
strips under front bottom edge about 1¹⁄₂" (38 mm), al-
lowing the remainder to extend in front of firebox. Over-
lap strips at least 1/2" (13 mm) to provide a positive
joint. (Flat safety strips are packed with fireplace.) (Fig. 14)
Safety strips are used to ensure that any combustible
materials in front of the fireplace are protected even
though a noncombustible hearth extension is required.
If fireplace is to be elevated above the floor, a “Z”
shaped metal safety strip must be fabricated and used
to protect combustible surfaces in front of the fireplace.
This “Z” shaped safety strip is not provided but must be
fabricated of metal with each horizontal leg at least 1¹⁄₂"
(38mm) wide and equal in length to the metals strips
provided with the fireplace.
Note: Safety strips are not required over noncombusti-
ble floors where all supports at the base of the fireplace
are noncombustible.
Four (4) nailing flanges are supplied with the fireplace
(found on the fireplace hearth). To level the box and
secure it firmly in place, remove the nailing flanges from
the hearth and install at the sides of the fireplace as
shown in Figure 15.
Installing Outside Air Kit
An outside air kit is installed in all BR/BC Series Fire-
places. If desired, or if local codes mandate the use of
an air kit, then an AK-MST is required to complete the
installation (from air kit to the outdoors). If the outside
air kit is to be used, the AK-MST MUST be installed BE-
FORE the fireplace is enclosed. Refer to the AK-MST
instructions for field installation.
FP549
Fig. 15 Fasten fireplace in position.
FP549
9/29/97
BR/BC
Nail Top
Standoffs
Nail Side-
Nailing
Flanges
Fig. 13 Ceiling chimney hole sizes necessary for installing
firestop spacer.
Size of Chimney Vertical 30°
8" Flue SKFS2A SKFS6A
"SK" Series 14¹⁄₂" x 14¹⁄₂" 14¹⁄₂" x 25¹⁄₂"
(368 mm x 368 mm) (368 mm x 648 mm)
8" Flue FS2A FS6A
"S" Series 3-Wall 17¹⁄₂" x 17¹⁄₂" 17⁷⁄₈" x 29⁵⁄₈"
(445 mm x 445 mm) (454 mm x 753 mm)
Angle of Chimney at Ceiling
WF557
BR
11/10/97
" (13mm)
Min. Overlap
"
(38mm)
"Z"
Safety
Strip
Fire-
Place
Plat-
Form Hearth Ext.
(not supplied)
FP557
Fig. 14 Safety strip installation.
Metal Safety Strip
(1,2 or 3 pieces)

12
Majestic Fireplaces® BR/BC Series
7412944
Installing the Chimney System
Start by attaching the first chimney section to the collar
on top of the fireplace.
Install the pipe as pictured in Figure 16. When you
get a good lock, you will hear the pipe clearly snap
together. Once sections are snap-locked in place, it is
extremely difficult to get them apart. Make sure the
pipe is firmly snapped and locked together as each
pipe section is mounted.
When installing elbows, only outer pipe will snap- lock.
Middle pipes simply slide into position. Be sure to
always attach straps on upper elbow to a structural
framing member. (Fig. 17)
Continue installing the pipe as required until pipe is
installed up through the ceiling. At this point, you must
install a firestop spacer.
Installing the Firestop Spacer
in the Ceiling Hole
A firestop spacer is used to keep pipe spaced properly
and required for safety.
Nail the firestop spacer (at each corner) to the framing
members of the ceiling hole. NOTE: A firestop spacer
is not required at the roof.
Hole sizes listed in Figure 13 for angled firestop spac-
ers provide minimum required air space to chimney
pipe for ceiling thickness up to 8" (203mm). When
combined thickness of ceiling material, ceiling joists
and flooring material exceeds 8" (203mm), adjustments
must be made in framing to assure that minimum air
spaces to chimney are maintained.
Proper Firestop Spacer Installation
Figure 18 shows different installation procedures for
both an area that is an attic and an area that is not an
attic.
If the area above the ceiling
is not an attic, position the
firestop spacer with the
flange on the ceiling side
and the angled portion ex-
tending up into the hole.
If the area above the ceil-
ing is an attic, position the
firestop spacer with the
flange on the top of the
framed hole and the angled
portion extending down into
the hole.
Elbow Strap
Angled Strap
Fig. 17 Attach straps to a structural framing member.
FP270/271
FP270/271
CR Series
2/19/99 djt
Support Structure
Elbow Strap
(must be tight)
Ceiling Hole
Framing
Angled Firestop
Chimney Support Strap
(must be tight)
UP
FP558
BR
11/10/97
FP558
Fig. 16 Install pipe, listening for the snap-lock to fasten.
Pipe Section
Pipe
Rim
Pipe
Rim
Hem
Lance
Fig. 18 Installing firestop spacer.
FP593
FP593
SR/C
11/20/97
Attic Installation Ceiling Installation
Nails (4)
Firestop
Spacer
Joist
Joist
Firestop
Spacer
Nails (4)
NOTE: If the attic insulation shield is used, the
firestop is not required in the attic installation.

13
Majestic Fireplaces® BR/BC Series
7412944
Firestop spacers are not available for nor are they re-
quired on vertical walls.
DO NOT put any sealant around the area where the
outer pipe slides through the firestop spacer. If you
seal this area, it may cause a fire hazard.
Canadian Requirements for
Insulation Shield
In Canada, an attic insulation shield is required to
prevent attic insulation from contacting the chimney
section. NOTE: If the attic insulation shield is used, the
firestop is not required in the attic installation. Fram-
ing dimensions for the chimney hole should measure
14¹⁄₂" x 14¹⁄₂" (368 x 368mm). An attic shield MUST
be installed on top of attic joists (above the floor level).
(Fig. 19)
NOTE: In the U.S., it is a good idea, although not al-
ways required, to install an attic insulation shield where
blown-in insulation is planned to be used in the attic.
Install the attic insulation shield with the flanges on its
base extending down into the framing hole. Nail each
corner of attic insulation shield to the framing members
of the ceiling hole using 8d nails. Attic shields are not
required at the roof.
A chimney support is 2¹⁄₂" (64mm) long when installed.
Consider this dimension when determining how many
straight chimney sections are needed.
NOTE: Chimney supports are generally used in long
runs in a chase installation.
Additional Ceilings
If you encounter additional ceilings, repeat same steps
required for first ceiling installation. See firestop illus-
tration on Page 12, Figure 18.
Penetrating the Roof
Run pipe to roofline. Since chimney system must be
vented to the out-of-doors, you must use an approved
termination.
If a chase is used, refer to the installation manual pro-
vided with the termination cap.
Locate Chimney Centerpoint On Roof
Use same procedure detailed in locating center point of
the flue system.
Drive a nail up through roof at the center point. This will
determine center point on outside of the roof.
Cut and Frame Roof Hole
Size of roof hole varies with the type of chimney
termination installed. Refer to installation instructions
provided with the chimney termination to find correct
size of roof hole.
There must be a 1¹⁄₂" (38mm) air space between out-
ermost portion of chimney sections and any adjacent
combustible surfaces. (Combustible surfaces include
burnable materials such as: ceiling members, joists,
flooring, combustible insulation and roof structures.)
WARNING: DO NOT PACK REQUIRED AIR SPACES
WITH INSULATION OR OTHER MATERIALS.
Mark an outline of the roof hole around the center of the
point nail. NOTE: Hole dimensions given in the chimney
top installation instructions are horizontal dimensions;
therefore, the hole size must be marked on the roof ac-
cordingly.
Cover the opening of the installed chimney so debris
cannot get into the system.
Cut and frame the hole. It is good practice to use fram-
ing lumber that is the same size as the rafters. Install
the frame securely because the chimney top and flash-
ing anchored to the frame must be able to withstand
heavy winds.
FP263
MBUF
5/9/96
Attic
Insulation
Shield
Base
Flanges
Ceiling
Attic Joist
Nails
(4 required)
FP263
Fig. 19 Attic shield installlation (Canadian requirement).
Continue Installing Pipe to Complete Run
Continue attaching pipe sections to complete system
to next level always being careful that the pipe is firmly
snapped locked in place before proceeding to next pipe
section.
Chimney Supports
If chimney supports are required, they are installed the
same as elbows. Nail chimney support straps to ad-
jacent structural framing, as shown on Figure 9, Page
8. Bend straps as necessary and make sure they are
secure so they will support the weight of the chimney.

14
Majestic Fireplaces® BR/BC Series
7412944
Install Remainder of Chimney Sections
Since you have already preplanned the height of your
termination according to the Ten Foot Rule, continue to
install pipe to the predetermined height.
Check the chimney top installation instructions for
details on how high above the roof top the chimney sec-
tions (all pipes) should extend.
Installing Top Housing
or Termination
Follow the installation instructions provided with the
chimney termination you have selected.
Installing Chimney In a Chase
Refer to Page 5, Figure 5 for an illustration of a typical
chase installation.
CAUTION: Treatment of firestop spacers and construc-
tion of chase may vary with type of building. These
instructions are not a substitute for local building codes.
You must check your local building codes to determine
specific requirements for your city or state. NOTE:
Other building materials may be required in addition to
Firestop Spacers.
Finishing
CAUTION: All joints between the finished wall and
the fireplace surround (top/sides) must be sealed with
noncombustible material to prevent cold air leakage into
the room. Only noncombustible material may be applied
to the facing of the fireplace surround. (Black painted
area) (Fig. 20)
Finish Wall
Finish the wall with material of your choice. Do not
install a combustible mantel shelf less than 12"
(305mm) from the top of the fireplace opening for
radiant models and 12" (305mm) from top of grille
opening for circulating models. Do not install a
mantel face plate less than 6" (159mm) from top
of fireplace opening for radiant models and 6"
(159mm) from top of grille opening for circulating
models. (Fig. 22) If a combustible material is used be-
low a flat mantel shelf, consult your local building codes
for minimum clearance from top of fireplace opening to
bottom of mantel shelf.
All joints (top, bottom and sides) where wall or deco-
rative facing material meets fireplace surround must
be completely sealed with a noncombustible material.
(Figures 21 and 22)
NOTE: No side wall protection is required for fireplaces
installed at 45° to two (2) side walls (corner installation).
FP559
Fig. 20 Minimum clearances to combustibles.
Front View Side View
Standoff
Combustible framing material MUST NOT
penetrate AIR SPACE (shaded areas).
Air Space Clearances
Only noncombustible
material may be applied
as facing to the black
fireplace surround.
Wall
Shield
Hearth
Extension
0" Clearance
to Floor
Firestop
1/2" (13 mm)
Air Space
to Back
1/2" (13 mm)
Air Space
to Sides
FP559
BR/BC
AIR SPACES
11/10/97
1
" (SK8)
2" (3-WALL)
" air space
to sides
Often a decorative surround or vertical portion of the
mantel is desired. If this is constructed of any combus-
tible material it must be within the safe zone indicated in
Figure 23.

15
Majestic Fireplaces® BR/BC Series
7412944
MA81
rev. 8/5/97
1¹⁄₂"
Ref.
Combustible materials are
permitted within a shaded area
shown in Figure 23 titled
Minimum Wall Clearances.
*
**
MA81
Fig. 22 Combustible mantel clearances.
*12" from top of fireplace opening for radiant models
12" from top of grille opening for circulating models
**6" from top of fireplace opening for radiant models
(Noncombustible material must seperate the black
face surround of the fireplace from any combustible
mantel material)
6" from top of grille opening for circulating models
Face Plate
12"
(305mm)
Max.
FP531a
BR/BC
mantel clearances
9/03 djt
"
12"
(305mm)
Max.
12"
(305mm)
Min.
1"
(38mm)
*
12"
(305mm)
Min.
1"
(38mm)
6"
(159mm)
Min.
12"
(305mm)
Max.
12"
(305mm)
Min.
1"
(38mm)
6"
(159mm)
Min.
Mantel Clearance - Radiant Model - No
Noncombustible Facing Material
Combustible
Mantel and
Trim
Finished
Wall
Header
Standoff
Noncombustible
Material
Radiant
Surround
Face
Fireplace Opening
* Minimum width from top of sur-
round to bottom of screen rail
Combustible
Mantel and
Trim
Finished Wall
Header
Standoff
Noncombustible
Material
Radiant
Surround
Face
Fireplace Opening
Mantel Clearance - Radiant
Model - with Noncombustible
Facing Material
Combustible
Mantel and
Trim
Finished Wall
Header
Standoff
Noncombustible
Material
Circulating
Surround
Face
Fireplace Opening
Noncombustible
Facing Material
Mantel Clearance -
Circulating Model
2 x 4 Stud
Finished Wall
Must be sealed with non-
combustible material
Fireplace Front
Top View
FP531a
Fig. 21 Mantel clearances.

16
Majestic Fireplaces® BR/BC Series
7412944
Side Wall Protection
Adjacent combustible side walls that are within mini-
mum dimensions shown in Figure 23 of the fireplace
opening must be protected with CFM Corporation Wall
Shield Model SP40 or a specifically built wall shield
described in Figure 20.
The special wall shield design described in Figure 20 is
an alternate method of adding protection to side walls
and can be used in place of the SP40 with the same
wall clearances specified for the SP40. Rt must =1.85
minimum.
Examples of wall shield insulation:
1. Manville - CERAFORM 126, K=.27,
1/2 inches thick
2. CFM Corporation - EH2416, K = .458,
1 inch thick required.
Hearth Installation
A hearth extension is required to protect a combustible
floor in front of the fireplace. Refer to Figure 23 for mini-
mum dimensions and mounting detail.
NOTE: Hearth Extension must not cover the air
inlet opening of a fireplace.
The hearth extension described in Figure 23 must be a
durable noncombustible material with a minimum (total)
Rt value of 1.09; see Figure 24 for examples. The over-
all height (above a combustible floor), depth and width
must be as indicated, with the extension centered to the
fireplace opening.
The top of insulation must be covered with a noncom-
bustible decorative covering or a piece of .018” mini-
mum sheet metal, to protect hearth extension material.
(Fig. 23)
Secure the hearth extension to the floor to prevent
shifting, using trim molding or other similar means at
three (3) outer edges. Seal crack between the fireplace
hearth and hearth extension with a noncombustible
material. (Figs. 23 and 25)
Minimum Wall Clearances
WITH
Noncombustible
Surround Facing
WITHOUT
Noncombustible
Surround Facing
Minimum Hearth Extension Dimensions
(for On-Site Construction)
G
HG
J
Seal cracks
between the
fireplace
and hearth
extension with
noncombustible
material
Safety strips
must overlap
" minimum
May install
noncombustible
decorative
covering
OR .018" min.
sheet metal Fireplace
Hearth
Combustible
Floor
Minimum
Insulation
Value "R"
4" MIN.
FP594
SR/SC
11/20/97
Firebox
Opening
A - Min. clearance
to combustible
perpendicular wall
B - Min. clearance
to combustible
perpendicular wall when
using noncombustible wall shield*
Side
Wall Side
Wall
F**
C**
E
ED
4" Brick
(Example material)
Combustible material permitted within shaded area.
* Noncombustible wall shield requires 1" CFM Corporation
EH2416 insulation (minimum R Value = 1.85) between
decorative noncombustible rigid covering and combustible wall.
Minimum height and width is 40" x 40".
** Dimension/degree of angle will vary depending on thickness
of noncombustible surround facing.
4"
Shaded area starts
1/2" away from
edge of unit
FP594
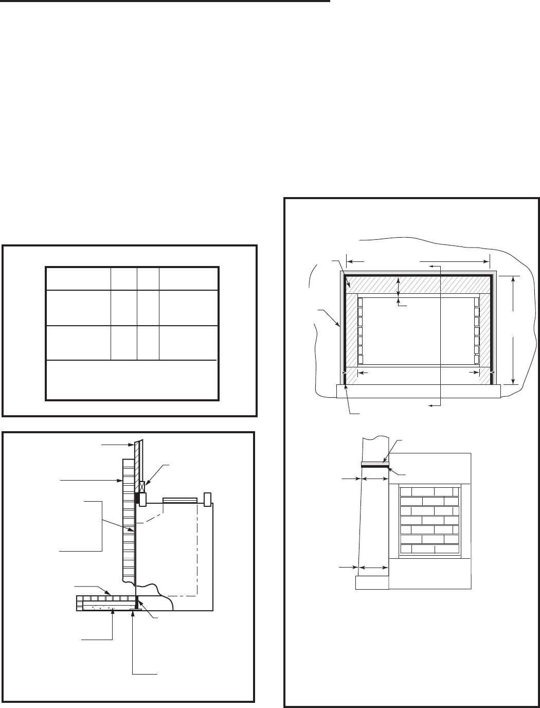
Fig. 23 Combustible side wall protection and hearth extension dimensions.
A B C D E F G H J
BR/BC36 16" 12" 48° 41° 18" 14" 9" 16" 48"
406 mm 305 mm 457 mm 356 mm 229 mm 406 mm 1219 mm
BR/BC42 20" 12" 42° 35° 18" 14" 12" 20" 61¹⁄₂"
508 mm 305 mm 457 mm 356 mm 305 mm 508 mm 1562 mm

17
Majestic Fireplaces® BR/BC Series
7412944
Example of Determining Hearth Extension Equiva-
lents
To determine the thickness required for any new mate-
rial:
NEW K of new material (per inch) thickness
required = --------------------------------------- X of
listed
thickness K of listed material (per inch) mate-
rial
Example for Common Brick
T (new) = 5.0/0.458 x 0.50 in. = 5.46 in. (new required
thickness).
WARNING: HEARTH EXTENSION MUST BE IN-
STALLED IN ACCORDANCE WITH FIGURE 23 AND
MUST NOT COVER THE BOTTOM FRONT OPENING
OF THE CIRCULATING MODEL.
Alternate noncombustible materials may be used pro-
viding the (total) thermal resistance (Rt value) of the al-
ternate material employed is greater than or equal to R
= 1.09 Thermal resistance (R) or thermal conductivity
(K), may be obtained from manufacturer of the material.
Factors are related by the formula K = 1/R. (Fig. 24)
T = given thickness
R = thermal resistance for a given thickness (T)
K = thermal conductivity
Noncombustible material with a lower R value may
be used, provided thickness of material is sufficiently
greater to maintain an equivalent (total) thermal resis-
tance (Rt).
COMMON MATERIALS AND FACTORS
MATERIAL K* RMINIMUM
THICKNESS
EH2416
Common Brick
0.458
5.0
1.09 0.50 in.**
0.10 5.46 in.**
(CFM Corporation)
R Value is for 1/2 inch.
* Units of K = BTU/SQ FT/HR/˚F/IN
** Thickness of Listed Material
FP533ADD
Addendum
6/1/99 djt
8/4/99 changed .2 to .1
one inch to 1/2 inch djt
FP533ADD
Fig. 24 Hearth extension material factors.
FP550
Fig. 25 Sealing gaps.
FP550
BR/BC - SEALING
DETAILS
29/97
Wall Covering
Noncombustible
Decorative
Facing
Noncombustible
Decorative
Covering
Seal all cracks
between fireplace
surround and wall
materials with
noncombustible
material.
Seal crack
between fireplace
and hearth extension
with noncombustible
material.
2x4" HEADER -
Do not notch at
standoffs.
Safety Strips -
Must be overlapped
" minimum.
Hearth
Extension
Insulation
Side View
2”
(51 mm)
2”
(51 mm)
Maximum
14”
(356 mm)
Maximum
10”
(254 mm)
A
A
Minimum
33”
(838 mm)
Minimum
36” (914 mm)
6”
(152 mm)
Minimum
Minimum .030 Thick Stain-
less Steel Plate
Insulation with Minimum R
Value of 2.75
Minimum .030
Thick Stainless
Steel Plate
View A
NOTE: If noncombustible material is not used between the
stainless steel plate and fireplace opening, the steel must
be attached to the front of the unit a minimum of four (4)
places on each piece with sheet metal screws no longer
than 1/2".
NOTE: The size of the insulation and stainless steel
plate must be within limits stated above and covers all
combustible framing material.
Fig. 26 Recessed installation.
FP1608
Hearth
Extension
Hearth Extension
Noncombustible
Material
(if desired)
Insulation
with Minimum
R Value
of 2.75
Recessed Installation - BR/BC36 Only

18
Majestic Fireplaces® BR/BC Series
7412944
CAUTION: WHEN USING DECORATIVE
GAS APPLIANCE, FLUE DAMPER MUST
BE SET IN FULLY OPEN POSITION. IF
YOU HAVE GLASS DOORS ON THE FIRE-
PLACE, THEY MUST ALSO BE FULLY
OPENED.
WARNING: DO NOT OPERATE AN
UNVENTED GAS LOG SET IN THIS FIRE-
PLACE WITH THE CHIMNEY REMOVED.
WARNING: WHEN INSTALLING AN
UNVENTED GAS LOG SET, THE CFM
CORPORATION MODEL AH3244BK OR
AH3244PB 4" ADJUSTABLE HOOD MUST
BE USED.
Only unvented gas log sets which have been found to comply with
the Standard for Unvented Room Heaters, ANSI Z21.11.2, are to be
installed in this fireplace.
Installing Line For Gas Log
CFM Corporation fireplaces are designed to accept a
1/2 inch gas line for installation of an approved gas ap-
pliance. (CFM Corporation manufactures a wide variety
of gas logs for use in CFM Corporation fireplaces.)
Be sure to have the appliance installed in accordance
with building codes.
Gas connection may enter from either left or right side
of the fireplace.
Locate appropriate gas line in the outer casing of fire-
place and remove insulation from gas line tube. (Fig. 27)
From inside the fireplace, locate the knockout on the
firebrick -- be sure you are on the appropriate or "gas
line" side of the fireplace. Using a flat bladed screw-
driver or small chisel and hammer, carefully tap around
the knockout until it loosens and falls out.
Install 1/2 inch certified gas pipe through opening.
After gas pipe installation is complete, use insulation
that was removed from gas line tube to repack space
around the pipe. Material should be inserted from
outside of the fireplace and packed tightly to totally seal
between the pipe and tube.
Note: Gas pipe should not come in contact with
any wood structures until it has reached a point at
least one (1) inch away from fireplace side.
NOTE: When installing an ANSI Z21.11.2 ventless ap-
pliance, the finishing material used for the mantel must
be rated at 250°F or greater.
BTU input of a gas appliance installed in fireplace
should be rated less than 100,000 BTU/Hr.
Gas pipe installation is intended for connection to a
decorative gas appliance only when (1.) incorporating
an automatic shutoff device and (2.) complying with the
Standard for Decorative Gas Appliances for Installa-
tion in Vented Fireplaces (ANSI Z21.60) or CSA draft
requirements for Gas-Fired Log Lighters for Woodburn-
ing Fireplaces (Draft No. 4, August 1993).
Decorative gas appliance should be installed in accor-
dance with the National Fuel Gas Code, ANSI Z223.1/
NFPA 54 (latest edition).
FP560
Fig. 27 Gas line access.
1"
Min.
WF560
BR/BC
11/10/97
1/2"
Hole in Outer Casing Fireplace Top View
Supply Line
Repack Insulation
Ceramic Knock-
out
(both sides)
Hole in Outer
Casing
Ceramic
Knockout
Gas Line
Tube

19
Majestic Fireplaces® BR/BC Series
7412944
1
2
3
4
5
6
a
b
c
7
8
9
10
11
12
944
BR/BC parts
5/16/00 djt
d
13
CFM Corporation reserves the right to make changes in design, materials, specifications, prices and discontinue colors and products at any time,
with out notice.
BR/BC SERIES
For units: FA40R0, FA40R1, GA40R0, GA40R1
Item/Model Number BR/BC36 BR/BC42
1. Damper Blade Weld Assembly RP199 RP199
2. Damper Bracket 3030176 3030176
3. Screen Rod Assembly 3030126 3032112
4. Screen Assembly (two per fireplace) 7554338 7554340
5. Screen Pulls 7554239 7554239
6a. Firebrick - Hearth* 3030103 or 20007494 3032103 or 20007496
6b. Firebrick - Rear* 3030102 or 20007495 3032102 or 20007497
6c. Firebrick - Rt. Side* 3030160 or 20007492 3030160 or 20007492
6d. Firebrick - Lt. Side* 3030104 or 20007493 3030104 or 20007493
7. Top Brick Retainers (three per fireplace) 3030172 3030172
8. Cable Clips (four per fireplace) 7512135 7512135
9. Hearth Pan Cover (BC Only) 3031104 3031104
10. Outer Collar Assembly (SK8 Chimney) 3030143 3030143
11. Nailing Flange - Bag of 4 w/screws 2253160 2253160
12. Basket Grate 3030129 3030129
13. O.S.A. Assy. 20003076 20003076
* When ordering replacement firebrick, check the serial number and plant code of the fireplace, located on the UL
label inside the firebox. Serial numbers/plant code with an 'H' require the firebrick listed first under the respective
fireplace (white brick). Serial numbers/plant code with an 'X' require the firebrick listed second under the respective
fireplace (grey brick).

20
Majestic Fireplaces® BR/BC Series
7412944
The following accessories for this appliance are available from your local Majestic Fireplaces distributor. Should you
need additional information beyond what your distributor can furnish, contact: CFM Corporation, 410 Admiral Blvd.,
Mississauga, Ontario, Canada L5T 2N6, Attn: Technical Services.
CAUTION: This fireplace and chimney assembly is a highly engineered system, and, as such, must be oper-
ated only with CFM Corporation approved components. If you use an unapproved component to make any
modifications, you may create a possible fire hazard and will void the CFM Corporation warranty. In addi-
tion, such action may void the coverage provided by the owner’s insurance.
Accessories
Contact your Majestic Fireplaces distributor or dealer for
finishing Marble and Mantels, available in a wide selection
of styles.
Glass Door — Standard Bi-Fold door set Brushed Brass finish 36GDKBB (BR/BC36)
42GDKBB (BR/BC42)
Black finish 36GDKBK (BR/BC36)
42GDKBK (BR/BC42)
Polished Brass finish 36GDKDP (BR/BC36)
42GDKDP (BR/BC42)
Pewter finish 36GDKS (BR/BC36)
42GDKS (BR/BC42)
Fan Kit Provides forced air flow FK12
Variable Speed Control Provides speed adjustment of fans SCVS
Outside Air Termination Completes connection from air kit to out-of-doors AK-MST
Hearth Extension Insulation Provides hearth extension floor protection EH2416
Grate for BR/BC36/42 Holds firewood in firebox RBBG36
Hearth Patch Compound Patch cracks in hearth HPC-1
Chimney System Adapter Converts fireplace to a 3-wall chimney system TWABR
Collar
Model NumberDescription
Accessory

21
Majestic Fireplaces® BR/BC Series
7412944
Chimney Components
Round Top Termination Top used to terminate chimney at roof.
(Flashing not included.) RLTSK8
Round Top Termination - Top used to terminate chimney at chase.
Extended (Flashing not included.) RLTSK8L
Flashing Metal finishing required around Contemporary 8-6-12 with 8" flue:
Termination to prevent rain leakage. 0-6/12 pitch
8-12-12 with 8" flue:
6/12-12/12 pitch
Square Termination - Top housing of simulated brick pattern S20B (R,T,W)
Housing available in red, tan or white. Appropriate Msut include
adapter required. Flashing included. PLTSK8 or SLTSK8
Adapter Kit Unites Square Termination with chimney CF8CA
pipe (required).
Housing Extensions Extends Square Termination on steep 202036
pitched roofs.
Square Chase Termination Housing used to terminate chimney through CT100
a chase top. Appropriate adapter required.
(Flashing not included.)
Adapter Kit Unites Square Chase Termination with chimney CTSK
pipe (required).
Chase Top Housing Low profile pyramid-style chimney cap used to PTLSK8
terminate chimney through a chase. Includes
adapter. (Flashing not included.)
Chase Top Housing Square chimney cap used to terminate chimney SLTSK8
through a chase. Terra Cotta Masonry. Includes
adapter. (Flashing not included.)
SK8 Chimney Sections Pipe used to build 8" (SK8) flue systems. SK81 (1' Long)
SK818 (1¹⁄₂' Long)
SK83 (3' Long)
SK84 (4' Long)
SK8 Chimney Elbows Elbow used to create an offset in an 8" SK830-2
chimney system. Only 30˚ elbows available.
Packaged 2 per carton (offset and return).
Firestop Required at each floor level of chimney SKFS2A —
installation. (Plus attic on multi-story installation.) (8" straight flue)
SKFS6A —
(8" 30˚ inclined flue)
Chimney Support Used to support chimney for each of: 30' vertical SKCS8
height and 6' of angled chimney run.
U.S.
Model NumberDescriptionComponent

22
Majestic Fireplaces® BR/BC Series
7412944
Chimney Collar Enclosure Installs on the "over the chimney collar" of the CCE-SK
fireplace; provides outside air to assist in cooling
the chimney system.
Attic Insulation Shield Used to prevent insulation from coming in AIS-SK
contact with the chimney system.
SK8 Chimney Sections Used to build chimney systems exposed above SK818CAN (1¹⁄₂' Long)
roof. SK84CAN (4' Long)
45˚ Chimney Elbows Provides 45˚ offset and return. For Canadian SK845/2
installations only. For use with SK8 chimney only.
(Maximum use of 2, or 1 pair.)
Canada
Model NumberDescriptionComponent
(Chimney Components con't.)

23
Majestic Fireplaces® BR/BC Series
7412944
LIMITED WARRANTY & 30 YEAR PROTECTION PLAN
For MAJESTIC FIREPLACES® PRE-ENGINEERED Fireplace Systems
CFM Corporation warrants its MAJESTIC FIREPLACES® Pre-
Engineered Fireplace (“Fireplace”) and the CFM Corporation
supplied firegrate, glass doors, outside air system, fan motor,
and liners to be free from defects in material or workmanship,
as follows:
A. Fireplace and Chimney Components: (exclusive of CFM
Corporation-supplied firegrate, glass doors, outside air system,
fan motor, and liners all of which are covered by separate war-
ranties under paragraphs B through D below): At its option for a
period of thirty (30) years from the date the Fireplace is installed,
CFM Corporation will;
1. For a period of five (5) years from the date the Fireplace is
installed, CFM Corporation, at its option, will repair or replace
any defective part without charge.
2. Thereafter, through the 10th year after the date the Fire-
place is installed, if replacement parts are available, CFM
Corporation will provide a replacement for any defective part
without charge for the part itself. The consumer must pay
for everything else other than the part.
3. Thereafter, through the 30th year after the date the Fireplace
is installed, if replacement parts are available,CFM Corpora-
tion will provide a replacement for any defective part at a cost
to the consumer of CFM Corporation then current list price,
FOB CFM Corporation factory.
B. Firegrate, Glass Doors, Outside Air System:
For a period of 90 days from the date the Fireplace is installed
CFM Corporation, at its option, will provide a replacement for
any defective part, without charge for the part itself, FOB CFM
Corporation factory, (The consumer must pay for everything else
other than the part,).
C. Fan Motor:
1. For a period of one (1) year from the date the Fireplace is
installed, CFM Corporation, at its option, will repair or replace
any defective part without charge.
2. Thereafter, through the 30th year after the date the Fireplace
is installed CFM Corporation, at its option, if replacement
parts are available, will provide a replacement for any defec-
tive part at a cost to the consumer of CFM Corporation then
current list price, FOB CFM Corporation factory.
D. Liners (Refractory or Metal):
1. For a period of two (2) years from the date the Fireplace is
installed, CFM Corporation, at its option, will repair or replace
any defective part without charge.
2. Thereafter, through the 30th year after the date the Fireplace
is installed CFM Corporation, if replacement parts are avail-
able, will provide a replacement for any defective part at a
cost to the consumer of CFM Corporation then current list
price, FOB CFM Corporation factory.
This warranty is subject to the following conditions and limita-
tions:
1. This warranty is extended only to a Fireplace installed in the
continental United States, the state of Alaska and Canada;
only if and so long as the Fireplace is installed or serviced by a
qualified installer, preferably NFI or WETT (Canada) certified,
and according to the installation instructions furnished with
the Fireplace, and operated at all times under normal condi-
tions, use and service according to the operative instructions
furnished with the Fireplace, and only if and so long as the
Fireplace is not removed from its original installation.
2. This warranty is non-transferrable, and is made to the original
owner, provided that the purchase was made through an
authorized supplier of the Company.
3. The sole and exclusive remedies for breach of any warranties
hereunder shall be for the repair, replacement or provision
of a replacement part at CFM Corporation then current list
price, FOB CFM Corporation factory, for any defective part
as specified in paragraphs A through D.
4. CFM Corporation shall not be liable for damage from any
smoking of a MAJESTIC FIREPLACES Pre-Engineered
Fireplace System related to environmental geographic
conditions (such as, for example, nearby structures or roof
peaks, trees, hills, or mountains), inadequate ventilation, or
negative air pressure in the place where the Fireplace system
is installed, related to any mechanical system (such as, for
example, furnaces, fans, air conditioners, clothes dryers,
etc.)
5. Except as otherwise expressly specified in paragraphs A
through D, NONE OF THESE WARRANTIES COVER, AND
CFM CORPORATION SHALL NOT BE RESPONSIBLE FOR,
ANY CONSTRUCTION, INSTALLATION, LABOR, TRANS-
PORTATION OR OTHER COSTS OR EXPENSES ARISING
FROM A DEFECTIVE PART, ITS REPAIR OR REPLACE-
MENT OR OTHERWISE, NOR SHALL CFM CORPORATION
IN ANY EVENT BE RESPONSIBLE FOR ANY INDIRECT,
INCIDENTAL OR CONSEQUENTIAL DAMAGES EXCEPT
TO THE EXTENT REQUIRED BY LAW. Some states do not
allow the exclusion or limitation of incidental or consequential
damages, so this exclusion or limitation may not apply to
you.
NO IMPLIED WARRANTIES, INCLUDING THE IMPLIED
WARRANTIES OF MERCHANTABILITY AND FITNESS FOR
A PARTICULAR PURPOSE, SHALL REMAIN IN EFFECT AF-
TER THE EXPIRATION OF THE WARRANTIES SET FORTH
IN PARAGRAPHS A THROUGH D. Some states do not allow
limitations on how long an implied warranty lasts, so this limita-
tion may not apply to you.
In order to obtain performance of any of the above warranty
obligations write to CFM Corporation at this address:
CFM Corporation
410 Admiral Blvd.
Mississauga, Ontario, Canada L5T 2N6
Attention: Director of Warranty Services
Since local building requirements may vary greatly throughout
the country, users of CFM Corporation products should deter-
mine in advance whether there are any building code restrictions
on the use of a specific product. CFM CORPORATION MAKES
NO REPRESENTATION OR WARRANTY REGARDING, AND
SHALL NOT BE RESPONSIBLE FOR, ANY BUILDING CODE
COMPLIANCE.
The foregoing warranties give you specific legal rights and you
may also have other rights which vary from state to state.

410 Admiral Blvd. • Mississauga, Ontario, Canada L5T 2N6
800-668-5323 • www.cfmcorp.com
CFM Corporation