Mitsubishi Electronics Msz Fa35Va Users Manual
MSZ-FA35VA to the manual 163b9e8f-ff35-4186-97e2-72bb48d65f3e
2015-02-09
: Mitsubishi-Electronics Mitsubishi-Electronics-Msz-Fa35Va-Users-Manual-556450 mitsubishi-electronics-msz-fa35va-users-manual-556450 mitsubishi-electronics pdf
Open the PDF directly: View PDF .
Page Count: 40

SERVICE MANUAL
CONTENTS
1. TECHNICAL CHANGES ····································2
2. PART NAMES AND FUNCTIONS······················3
3. SPECIFICATION·················································5
4. NOISE CRITERIA CURVES·······························6
5. OUTLINES AND DIMENSIONS ·························7
6. WIRING DIAGRAM ············································8
7. REFRIGERANT SYSTEM DIAGRAM················8
8. SERVICE FUNCTIONS ······································9
9. TROUBLESHOOTING······································11
10. DISASSEMBLY INSTRUCTIONS·····················31
11. PARTS LIST······················································35
12. OPTIONAL PARTS···········································38
Wireless type
Models
MSZ-FA25VA - (WH)
MSZ-FA35VA - (WH)
E1
E1
No. OB371
SPLIT-TYPE, HEAT PUMP AIR CONDITIONERS
Indication of model name
MSZ-FA25VA -
MSZ-FA35VA - E1
E1
NOTE:
This service manual describes technical data of the indoor units.
•As for outdoor units MUZ-FA25VA- , MUZ-FA35VA- , MUZ-FA25VAH- and
MUZ-FA35VAH- , refer to service manual OB372.
•As for outdoor units MXZ-3A54VA- , MXZ-4A71VA- and MXZ-4A80VA- ,
refer to service manual OB377.
E1E1E1
E1
E1E1E1
OB371_--1qxp 05.1.17 12:50 Page 1

2
1TECHNICAL CHANGES
MSZ-A09YV - ➔MSZ-FA25VA -
MSZ-A12YV - ➔MSZ-FA35VA - E1E1
E1E1
12. PLASMA DEODORIZING/AIR PURIFYING filter units have been added.
13. i-see Sensor has been added.
(i-see control operation and AREA setting have been added.)
14. Air cleaning filer has been removed.
15. Signal of remote controller has been changed. (It is not available for the conventional models.)
16. Symbol on terminal block has been changed (to S1/S2/S3).
NOTE:Do not remove the vane motor from the motor unit.
Do not disassemble the horizontal vane motor unit.
11. Front panel driving motor unit which opens and closes the front panel has been added.
Front panel opening/closing
output gear
NOTE: Do not disassemble the front panel driving motor unit.
Generalized stepping motor
10. The vertical vane motor unit has been added.
An external gear is added to the generalized stepping motor.
The unit is structured so that the driving torque and stopping torque would increase.
Generalized stepping motor
NOTE: Do not remove the vane motor from the motor unit.
Do not disassemble the vertical vane motor unit.
1. Indication of capacity has been changed.(BTU base ➔kW base)
2. Controller method between indoor and outdoor has been changed.
3. Power supply method has been changed (change to supply from outdoor unit).
4. Power supply cord has been removed.
5. Indoor electronic control P.C. board has been changed.
6. Position of terminal block has been changed.
7. Indoor fan motor has been changed. ( AC ➔DC)
8. Indoor heat exchanger has been changed.
9. The horizontal vane motor unit has been changed.
An external gear is added to the generalized stepping motor.
The unit is structured so that the driving torque and stopping torque would increase.
OB371_--1qxp 05.1.17 12:50 Page 2

3
PART NAMES AND FUNCTIONS
2
INDOOR UNIT
MSZ-FA25VA -
MSZ-FA35VA - E1
E1
Line flow fan
Air outlet
Vertical vane
Air inlet
Display section
Front panel
PLASMA DEODORIZING filter
Panel
Heat exchanger
Horizontal vane
Operation section
(When the front panel is opened)
Remote controller
POWER lamp
Remote control
receiving section
PLASMA AIR PURIFYING filter
Anti-mold air filter Fan guard
i-see Sensor
PLASMA/WASH lamp
AREA lamp
Emergency operation
switch
WASH reset switch
Auto front panel
When the unit starts operating, the
front panel opens automatically to
draw in air. When the unit stops
operating, the front panel closes
automatically.
AREA lamp indicate AREA setting
In AREA setting, the horizontal air flow
direction changes automatically according
to the detection of i-see Sensor which detects
the floor/ wall temperature to air-condition
the room evenly.
i-see control operation
i-see sensor constantly measure
floor/wall temperature to automatically
adjust to the set temperature by
estimating the temperature
actually perceived by a
person inside the room
("sensible temperature").
<Open> <Closed>
Auto front panel
OB371_--1qxp 05.1.17 12:50 Page 3

4
ACCESSORIES
1
2
3
4
5
6
7
Installation plate
Installation plate fixing screw 4 o 25 mm
Remote controller holder
Fixing screw for 3 3.5 o 1.6 mm (Black)
Battery (AAA) for remote controller
Wireless remote controller
Felt tape (Used for left or left-rear piping)
MSZ-FA25VA - E1
MSZ-FA35VA - E1
1
5
1
2
2
1
1
ON-TIMER button
CLOCK SET button
TIME SET buttons
FORWARD button
BACKWARD button
VANE CONTROL button
(Horizontal vane button)
OFF-TIMER button
i-see button
(This diagram shows an overall view.)
Open the front lid.
PLASMA button
AREA button
RESET button
WIDE VANE button
(Vertical vane button)
Signal transmitting section
Operation display section
Temperature buttons
OPERATE/STOP
(ON/OFF) button
FAN SPEED CONTROL button
OPERATION SELECT button
ECONO COOL button
Indication of
remote controller
model is on back
MSZ-FA25VA -
MSZ-FA35VA - E1
E1
REMOTE CONTROLLER
OB371_--1qxp 05.1.17 12:50 Page 4

5
SPECIFICATION
3
T3.15AL250V
NSEJ001DA1 12V DC 100" (at 25˚C)
MP20Z 12V DC 300" (at 25˚C)
MSBPC20M16 12V DC 250" (at 25˚C)
MSBPC20M11 12V DC 300" (at 25˚C)
ERZV14D471
A2TPMI334F0V50HSOBA060P5L1J4S 5V DC
3P
INDOOR UNIT
Item Model
Fuse
Front panel driving motor
i-see Sensor motor
Horizontal vane motor
Vertical vane motor
Varistor
i-see Sensor
Terminal block
MSZ-FA25VA - E1 MSZ-FA35VA - E1
(F11)
(MP)
(MT)
(MV1)
(MV2)
(NR11)
(RR)
(TB)
Specifications and rating conditions of main electric parts
MSZ-FA25VA - E1 MSZ-FA35VA - E1
Indoor model
Function
Power supply Single phase
230V,50Hz
10
0.25
33
—
57
0.25
RC0J40-EB
780O298O198
10
4
42
36W/29W/21W
4
10
10
10
KM05A
Cooling
594
474W/354W/252W
1,220
1,010W/800W/610W
Heating
612
498W/384W/264W
1,250
1,050W/850W/640W
Single phase
230V,50Hz
10
0.25
33
—
57
0.25
RC0J40-EB
780O298O198
10
4
42
36W/29W/22W
4
10
10
10
KM05A
Cooling
594
474W/354W/258W
1,220
1,010W/800W/630W
Heating
612
498W/384W/276W
1,250
1,050W/850W/660W
Air flow(Super High)
Air flow(HighW/Med.W/LowW)
Power outlet
Running current ✽1
Power input ✽1
Auxiliary heater
Power factor ✽1
Fan motor current ✽1
Model
Dimensions WOHOD
Weight
Air direction
Sound level(Super High)
Sound level(HighW/Med.W/LowW)
Fan speed(Super High)
Fan speed(HighW/Med.W/LowW)
Fan speed regulator
Thermistor RT11(at25:)
Thermistor RT12(at25:)
Thermistor RT13(at25:)
Remote controller model
K /h
K /h
A
A
W
A(kW)
%
A
mm
kg
dB(A)
dB(A)
rpm
rpm
k"
k"
k"
Electrical
data
Fan motor
Special
remarks
Capacity
MSZ-FA25VA - E1 MSZ-FA35VA - E1
Indoor model
Function Cooling
546
450W/348W/252W
1,130
960W/790W/610W
Heating
540
420W/372W/264W
1,120
910W/830W/640W
Cooling
516W/390W/258W
1,080W/860W/630W
Heating
522W/402W/276W
1,090W/880W/660W
Air flow(Super High)
Air flow(HighW/Med.W/LowW)
Sound level(Super High)
Sound level(HighW/Med.W/LowW)
Fan speed(Super High)
Fan speed(HighW/Med.W/LowW)
K /h
K /h
dB(A)
dB(A)
rpm
rpm
Special
remarks
Capacity
42
36W/29W/21W
642
42
36W/29W/22W
1,300
NOTE : Test conditions are based on ISO 5151
Cooling : Indoor Dry-bulb temperature 27:Wet-bulb temperature 19:
Outdoor Dry-bulb temperature 35:Wet-bulb temperature 24:
Heating : Indoor Dry-bulb temperature 20:Wet-bulb temperature 15:
Outdoor Dry-bulb temperature 7:Wet-bulb temperature 6:
Refrigerant piping length (one way): 5m
wReference value
✽1 Measured under rated operating frequency.
When outdoor unit is MXZ type.
OB371_--1qxp 05.1.17 12:50 Page 5

6
4NOISE CRITERIA CURVES
90
80
70
60
50
40
30
20
10 63 125 250 500 1000 2000 4000 8000
NC-60
NC-50
NC-40
NC-30
NC-20
NC-70
OCTAVE BAND SOUND PRESSURE LEVEL, dB re 0.0002 MICRO BAR
BAND CENTER FREQUENCIES, Hz
APPROXIMATE
THRESHOLD OF
HEARING FOR
CONTINUOUS
NOISE
COOLING
FUNCTION
42
42
SPL(dB(A)) LINE
Super High
FAN SPEED
HEATING
Test conditions,
Cooling : Dry-bulb temperature 27: Wet-bulb temperature 19:
Heating : Dry-bulb temperature 20: Wet-bulb temperature 15:
INDOORUNIT
WALL
MICROPHONE
0.8m
1m
90
80
70
60
50
40
30
20
10 63 125 250 500 1000 2000 4000 8000
NC-60
NC-50
NC-40
NC-30
NC-20
NC-70
OCTAVE BAND SOUND PRESSURE LEVEL, dB re 0.0002 MICRO BAR
BAND CENTER FREQUENCIES, Hz
Test conditions,
Cooling : Dry-bulb temperature 27: Wet-bulb temperature 19:
APPROXIMATE
THRESHOLD OF
HEARING FOR
CONTINUOUS
NOISE
COOLING
FUNCTION
42
42
SPL(dB(A)) LINE
Super High
FAN SPEED
HEATING
Heating : Dry-bulb temperature 20: Wet-bulb temperature 15:
MSZ-FA25VA - E1 MSZ-FA35VA - E1
OB371_--1qxp 05.1.17 12:50 Page 6

7
OUTLINES AND DIMENSIONS
5
MSZ-FA25VA - E1 Unit : mm
INDOOR UNIT
780
155 155
335 320
41.5 215
42.5
214
3 287.5
7055
5555 225 225
298
90
106
or more7
100
198 5
53.5 102624.5
19
159
58
234
14273.5
Air in
Air out
Wall hole [65
Indoor unit
Installation plate
Installation plate
11o20 Oblong hole
11o26 Oblong hole
10 or more
75 or more
55 or morew
75 or more
wIn case of left, left back, or
left under piping (using spacer),
113 or more
Insulation [28
Drain hose [16
(Connected part O.D)
Liquid line [6.35 - 0.5m
Gas line [9.52 - 0.43m
Insulation [35 O.D
[19 I.D
{
Required space (Indoor unit)
Wireless remote controller
MSZ-FA35VA - E1
OB371_--1qxp 05.1.17 12:50 Page 7

8
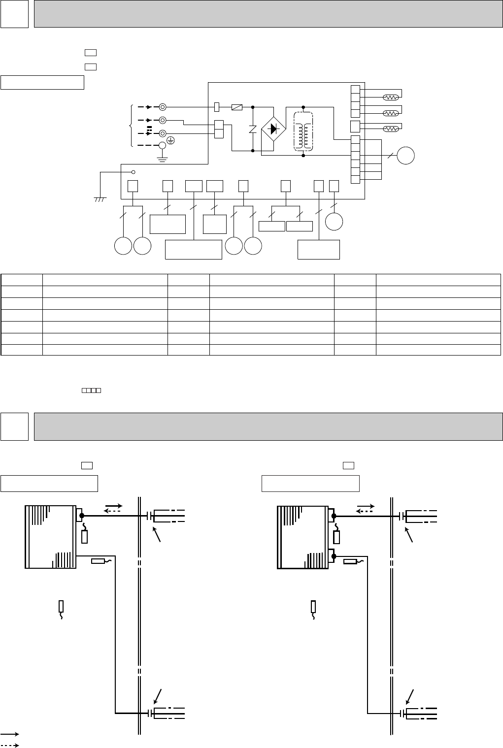
6WIRING DIAGRAM
REFRIGERANT SYSTEM DIAGRAM
7
MSZ-FA25VA - E1
Indoor
heat
exchanger
Flared connection
Room temperature
thermistor
RT11
Indoor coil
thermistor
RT13(sub)
Flared connection
Refrigerant flow in cooling
Refrigerant flow in heating
Refrigerant pipe [9.52
(with heat insulator)
Refrigerant pipe [6.35
(with heat insulator)
Indoor coil
thermistor
RT12(main)
Indoor
heat
exchanger
Flared connection
Room temperature
thermistor
RT11
Indoor coil
thermistor
RT13(sub)
Flared connection
Refrigerant pipe [9.52
(with heat insulator)
Refrigerant pipe [6.35
(with heat insulator)
Indoor coil
thermistor
RT12(main)
INDOOR UNIT
Unit : mm
INDOOR UNIT
MODELS WIRING DIAGRAM
SYMBOL
DB111
F11
MF
MP
MT
MV1
SYMBOL
MV2
NR11
PLASMA_A
PLASMA_D
RR
RT11
SYMBOL
RT12
RT13
T111
TB
NAME
DIODE STACK
FUSE (T3.15AL250V)
INDOOR FAN MOTOR
FRONT PANEL DRIVING MOTOR
i-see Sensor MOTOR
VANE MOTOR (HORIZONTAL)
NAME
VANE MOTOR (VERTICAL)
VARISTOR
PLASMA AIR PURIFYING FILTER UNIT
PLASMA DEODORIZING FILTER UNIT
i-see Sensor
ROOM TEMPERATURE THERMISTOR
NAME
INDOOR COIL THERMISTOR (MAIN)
INDOOR COIL THERMISTOR (SUB)
TRANSFORMER
TERMINAL BLOCK
NOTE:1. About the outdoor side electric wiring refer to the outdoor unit electric wiring diagram for servicing.
2. Use copper conductors only. (For field wiring)
3. Symbols below indicate.
/: Terminal block, : Connector
MSZ-FA25VA -
MSZ-FA35VA - E1
E1
MSZ-FA35VA - E1
INDOOR UNIT
1
2
3
4
S2
8
230V~
BLU
INDOOR ELECTRONIC
CONTROL P.C. BOARD
33
PLASMA_DPLASMA_A
SAFETY DEVICE
(PLASMA UNIT)
MP
RR
54
MT
SW P.C.
BOARD
POWER MONITOR
RECEIVER P.C. BOARD
INTERLOCK
SWITCH(FAN)
55
MV2
MV1
TO OUTDOOR
UNIT
CONNECTING
BLK
RED
S3
TB TAB3
DB111
NR11
F11
5
6
4
2
5
CN
1U1
2
CN
1T2
CN
1T1
CN
110
3
LD
105(T)
LD
101(A)
12-24V
RT13
2
1R1
CN
GRN
LD104
CN201
2
1
151
CN
T111
RED
WHT
111
CN
CN
112
CN211
BLU
YLW
BLK
MF
RT11
RT12
1
3
5
S1
OB371_--1qxp 05.1.17 12:50 Page 8

9
SERVICE FUNCTIONS
8
8-2. P.C. BOARD MODIFICATION FOR INDIVIDUAL OPERATION
A maximum of 4 indoor units with wireless remote controllers can be used in a room.
In this case, to operate each indoor unit individually by each remote controller, P.C. boards of remote controller must be
modified according to the number of the indoor unit.
8-1. TIMER SHORT MODE
For service, set time can be shortened by short circuit of JPG and JPS the electronic control P.C. board.
The time will be shortened as follows. (Refer to 9-7.)
Set time : 1-minute ➔ 1-second
Set time : 3-minute ➔ 3-second (It takes 3 minutes for the compressor to start operation. However, the starting time is
shortened by short circuit of JPG and JPS.)
MSZ-FA25VA -
MSZ-FA35VA - E1
E1
No. 1 unit
No. 2 unit
No. 3 unit
No. 4 unit
1 unit operation
No modification
–
–
–
2 units operation
Same as at left
Solder J1
–
–
3 units operation
Same as at left
Same as at left
Solder J2
–
4 units operation
Same as at left
Same as at left
Same as at left
Solder both J1 and J2
Table 1
How to set the remote controller exclusively for particular indoor unit.
After you turn the breaker ON, the first remote controller that sends the signal to the indoor unit will be regarded as the remote
controller for the indoor unit.
The indoor unit will only accepts the signal from the remote controller that has been assigned to the indoor unit once they are
set.
The setting will be cancelled if the breaker has turned off, or the power supply has shut down.
Please conduct the above setting once again after the power has restored.
How to modify the remote controller P.C. board
Remove batteries before modification.
The board has a print as shown below :
The P.C. board has the print “J1” and “J2”. Solder “J1” and “J2” according to the number of indoor unit as shown in Table 1.
After modification, press the RESET button.
NOTE : For remodelling, take out
the batteries and press the
OPERATE/STOP(ON/OFF)
button twice or 3 times at
first.
After finish remodelling,
put back the batteries then
press the RESET button.
Remote controller model : KM05A
J2
J1
Operation
1If the main power has been cut, the operation settings remain.
2After the power is restored, the unit restarts automatically according to the memory.
(However, it takes at least 3 minutes for the compressor to start running.)
8-3. AUTO RESTART FUNCTION
When the indoor unit is controlled with the remote controller, the operation mode, the set temperature, and the fan speed
are memorized by the indoor electronic control P.C. board. The “AUTO RESTART FUNCTION” sets to work the moment
power has restored after power failure. Then, the unit will restart automatically.
OB371_--1qxp 05.1.17 12:50 Page 9

10
NOTE:
• The operation settings are memorized when 10 seconds have passed after the indoor unit was operated with the remote
controller.
• If main power is turned OFF or a power failure occurs while AUTO START/STOP timer is active, the timer setting is
cancelled.
• If the unit has been off with the remote controller before power failure, the auto restart function does not works as the
power button of the remote controller is off.
• To prevent breaker off due to the rush of starting current, systematize other home appliance not to turn on at the same
time.
• When some air conditioners are connected to the same supply system, if they are operated before power failure, the
starting current of all the compressors may flow simultaneously at restart.
Therefore, the special counter-measures are required to prevent the main voltage-drop or the rush of the starting current
by adding to the system that allows the units to start one by one.
How to release “AUTO RESTART FUNCTION”
1Turn off the main power for the unit.
2Solder the Jumper wire to JR07 on the indoor electronic control P.C. board. (Refer to 9-7.)
JR07
CN151 CN211CN112 CN1R1
CN212
CN1T1CN1T2
CN130
IC156
8-4. Remote controller
Be sure to set the slide switch inside the remote controller to an appropriate position in accordance with the
installed position of the indoor unit. If the switch is not set correctly, the air conditioner may not function properly.
Area Left Center Right
Position of
the slide
switch
Display on
the remote
controller
Where is the indoor unit installed in your room?
Installed at left , if the
distance is not more
than 50 cm.
NOTE:If the indoor unit is installed more than 50 cm away from the side walls, cabinets or other nearby objects, set the slide
switch to the “center” position.
Installed at right , if the
distance is not more
than 50 cm.
Is the indoor unit in-
stalled at right, left or
center?
(Left) (Center) (Right)
Side swich
OB371_--1qxp 05.1.17 12:50 Page 10

21 Stopper
Lock.
Left
Insert this end first.
11
TROUBLESHOOTING
9
3. Troubleshooting procedure
1) First, check if the OPERATION INDICATOR lamp on the indoor unit is flashing on and off to indicate an abnormality.
To make sure, check how many times the abnormality indication is flashing on and off before starting service work.
2) Before servicing check that the connector and terminal are connected properly.
3) If the electronic control P.C. board is supposed to be defective, check the copper foil pattern for disconnection and the
components for bursting and discoloration.
4) When troubleshooting, refer to 9-2., 9-3. and 9-4.
4. How to replace batteries
Weak batteries may cause the remote controller malfunction.
In this case, replace the batteries to operate the remote controller normally.
RESET button
9-1. Cautions on troubleshooting
1. Before troubleshooting, check the following:
1) Check the power supply voltage.
2) Check the indoor/outdoor connecting wire for mis-wiring.
2. Take care the following during servicing.
1) Before servicing the air conditioner, be sure to turn off the unit first with the remote controller, and then after
confirming the horizontal vane is closed, turn off the breaker and / or disconnect the power plug.
2) Be sure to turn OFF the power supply before removing the front panel, the cabinet, the top panel, and the
electronic control P.C. board.
3) When removing the electronic control P.C. board, hold the edge of the board with care NOT to apply stress on the
components.
4) When connecting or disconnecting the connectors, hold the housing of the connector. DO NOT pull the lead wires.
Housing point
Lead wiring
Insert the negative pole of the
batteries first. Check if the polarity
of the batteries are correct.
NOTE : 1. If RESET button is not pressed, the remote controller may not operate correctly.
2. This remote controller has a circuit to automatically reset the microcomputer when batteries are replaced.
This function is equipped to prevent the microcomputer from malfunctioning due to the voltage drop caused by
the battery replacement.
2Press RESET button with tip end of ball point pen
or the like, and then use the remote controller.
1Remove the front lid and insert batteries.
Then reattach the front lid.
MSZ-FA25VA -
MSZ-FA35VA - E1
E1
If horizontal vane is not installed correctly, All of the operation indicator lamps will blink.
In this case, install the horizontal vane correctly by following the procedures 1to 2.
NOTE: Before installation of the horizontal vane, turn OFF the power supply.
5. How to install the horizontal vane
In procedure 22lock the
stoppers until they click
into place.
OB371_--1qxp 05.1.17 12:50 Page 11

12
If PLASMA/WASH lamp on the indoor unit blinks, clean the filters as soon as possible. The lamp will start blinking when
accumulated operating time exceeds 330 hours.
<Remove>
(1) Switch the indoor unit OFF with the remote controller and
disconnect the power supply plug and/ or turn OFF the
breaker.
NOTE: Otherwise, you may get injured since PLASMA
DEODORIZING/AIR PURIFYING filter units are
charged with high voltage.
(2) Hold the knobs on both sides of the front panel and lift the
panel up until its level.
(3) Remove the anti-mold air filter.(See Figure 1.)
(4) Remove PLASMA DEODORIZING/AIR PURIFYING filter
units. (See Figure 2.)
Figure 1.
Figure 2.
(1) Insert the top of PLASMA DEODORIZING/AIR PURIFYING filter
units into the aperture in the plasma element holder.
(See Figure 3.)
(2) Push in PLASMA DEODORIZING/AIR PURIFYING filter units
until they click into place.
•The front panel does not close if PLASMA DEODORIZING/AIR
PURIFYING filter units are not installed properly.
(3) Install the anti-mold air filter.
(4) Connect the power supply plug and/ or turn ON the breaker.
(5) Press WASH reset switch. A short “beep” is heard and the blinks
of PLASMA/WASH lamp will be cancelled. Make sure PLASMA/
WASH lamp is not blinking at the start of operation next time.
(See Figure 4.)
(6) Hold both sides of the front panel and close the front panel.
(7) Press the 3 positions on the front panel as indicated by the
arrows.(See Figure 5.)
WASH
reset
E.O.
SW
<Install>
Install PLASMA DEODORIZING/AIR PURIFYING filter units by following the removal procedure in reverse.
Figure 3.
Figure 4.
Figure 5.
Plasma
element
holder
6. How to remove and install PLASMA DEODORIZING / AIR PURIFYING filter units
NOTE:
Install PLASMA DEODORIZING/AIR PURIFYING filter units only
when they are completely dry. If the filter unit remains wet,
PLASMA/WASH lamp may blink and the plasma function may be
disabled.(When PLASMA DEODORIZING/AIR PURIFYING filter
units are cleaned.)
OB371_--1qxp 05.1.17 12:50 Page 12

13
INFORMATION FOR MULTI SYSTEM AIR CONDITIONER
OUTDOOR UNIT : MXZ series
Multi system air conditioner can connect two or more indoor units with one outdoor unit.
•Unit won’t operate in case the total capacity of indoor units exceeds the capacity of outdoor units. Do not
connect indoor units beyond the outdoor unit capacity.
Operation indicator lamp flashes as shown in the figure below.
•When you try to operate two or more indoor units with one outdoor unit simultaneously, one for the cooling and
the other for heating, the operation mode of the indoor unit that operates earlier is selected. The other indoor
units which start the operation later cannot operate, indicating as shown in the figure below. In this case,
please set all the indoor units to the same operation mode.
•When indoor units start the operation while the defrosting of outdoor unit is being done, it takes a few minutes
(max. 10 minutes) to blow out the warm air.
•In the heating operation, though indoor unit that does not operate may get warm or the sound of refrigerant
flowing may be heard, they are not malfunction. The reason is that the refrigerant continuously flows into it.
Lighted
Blinking
Not lighted
OB371_--1qxp 05.1.17 12:50 Page 13

14
Outline of the function
This air conditioner can memorize the abnormal condition which has occurred once.
Even though LED indication listed on the troubleshooting check table disappears, the memorized failure details can be
recalled.
This mode is very useful when the unit needs to be repaired for the abnormality which doesn't recur.
9-2. Failure mode recall function
1. Flow chart of the indoor/outdoor unit failure mode recall function
Operational procedure
Yes
(Blinks)
No
(OFF)
Yes
No
Releasing the failure mode recall function
W1. Regardless of normal or abnormal, a short
beep is emitted once as the signal is received.
Note1.Make sure to release the failure mode recall function once it's set up, otherwise the unit cannot operate properly.
2.If the abnormal condition is not deleted from the memory, the last abnormal condition is kept memorized.
W2. Blinking pattern when the indoor unit is abnormal:
W3.Blinking pattern when the outdoor unit is abnormal:
ON
OFF Beeps
Repeated cycle Repeated cycle
ON
OFF No beep Beeps
Repeated cycle
2.5-second OFF Blinking at 0.5-
second interval
2.5-second OFF 3-second ON Blinking at 0.5-
second interval
Beeps
Repeated cycle
2.5-second OFF Blinking at 0.5-
second interval
No beep Beeps
Repeated cycle
2.5-second OFF 3-second ON
Blinking at 0.5-
second interval
Repeated cycle
Beeps
Does POWER lamp on the indoor
unit blink at the interval of 0.5 seconds?
Blinks: Either indoor or outdoor unit is abnormal.
Beep sounds are emitted at the same timing
of the blinking of POWER lamp. W2
The cause of abnormality cannot be found because the abnormality doesn't recur.
Setting up the failure mode recall function
Before blinking, does POWER
lamp stay ON for 3 seconds?
Stays ON for 3 seconds (without beep):
The outdoor unit is abnormal.
The indoor unit is abnormal.
Check the blinking pattern, and refer to confirm the
abnormal point(9-2.4.).
Make sure to check at least two consecutive blinking cycles. W2
Turn ON the power supply.
1 While pressing both OPERATION SELECT
button and TOO COOL button on the remote controller at the same
time, press RESET button.
2 First, release RESET button.
And release the other two buttons since all LCD in operation display
section of the remote controller is displayed after 3 seconds.
Deleting the abnormal condition
1After repairing the unit, recall the failure mode again according to
"Setting up the failure mode recall function" mentioned above.
2Press EMERGENCY OPERATION switch so that the memorized
abnormal condition is deleted.
3Release the failure mode recall function according to "Releasing the
failure mode recall function" mentioned above.
Repair the defective parts.
Release the failure mode recall function by the following procedures.
1With the remote controller headed towards the indoor unit, press any button
that is not used in this failure mode recall function (e.g. TIMER button) .
OR
1Turn OFF the power supply and turn ON it again.
2Press RESET button of the remote controller.
Judgment of indoor/outdoor abnormality
W1
Press OPERATE/STOP(ON/OFF) button of the remote controller (the set temperature
is displayed).
With the remote controller headed towards the indoor unit, press TOO COOL or TOO
WARM button to adjust the set temperature to 24:.
Indoor unit is normal.
There is a possibility that the plasma or outdoor unit is abnormal.
Confirm the presence of abnormality according to the flow chart of the
the prasma unit or detailed outdoor unit failure mode recall function.
The outdoor unit is abnormal.
Check the blinking pattern, and refer to confirm the abnormal point.
Make sure to check at least two consecutive blinking cycles. W3
1 While pressing both OPERATION SELECT
button and TOO COOL button on the
remote controller at the same time,
press RESET button.
2 First, release RESET button.
And release the other two buttons since all LCD
in operation display section of the remote controller
is displayed after 3 seconds.
•As for outdoor unit MUZ type, refer to service manual OB372.
As for outdoor unit MXZ type, refer to service manual OB377.
OB371_--1qxp 05.1.17 12:50 Page 14

15
2. Flow chart of PLASMA DEODORIZING/PLASMA AIR PURIFYING power failure mode recall function
Operational procedure
Note1. Make sure to release the failure mode recall function once it's set up, otherwise the unit cannot operate properly.
2. If the abnormal condition is not deleted from the memory, the last abnormal condition is kept memorized.
W2.Blinking pattern when outdoor unit is abnormal:
Yes
(Blinks)
No
(OFF)
W1. Regardless of normal or abnormal, a short
beep is emitted as the signal is received.
Does POWER lamp on the indoor
unit blink at the interval of 0.5 seconds? W2
Blinks: The plasma unit is abnormal.
Beep sounds are emitted at the same timing
of the blinking of POWER lamp.
Deleting the abnormal condition
1After repairing the unit, recall the failure mode again according to
"Setting up the failure mode recall function" mentioned above.
2Press EMERGENCY OPERATION switch so that the memorized
abnormal condition is deleted.
3Release the failure mode recall function according to "Releasing the
failure mode recall function" mentioned above.
Repair the defective parts.
Confirmation of abnormality presence
W1
With the remote controller headed towards the indoor unit, press TOO COOL or TOO
WARM button to adjust the set temperature to 23:.
The plasma unit is normal.
Releasing the failure mode recall function
Release the failure mode recall function by the following procedures.
1With the remote controller headed towards the indoor unit, press any button
that is not used in this failure mode recall function (e.g. TIMER button) .
OR
1Turn OFF the power supply and turn ON it again.
2Press RESET button of the remote controller.
The plasma unit is abnormal.
Check the blinking pattern, and refer to confirm the
abnormal point(9-2.5.).
Make sure to check at least two consecutive blinking cycles. W2
Release the failure mode recall function according to the left
mentioned procedure.
Confirm that the remote controller is in the failure mode recall
function.
There is a possibility that the plasma unit is abnormal.
Confirm the presence of abnormality according to the following procedures.
ON
OFF Beeps
Repeated cycle Repeated cycle
2.5-second OFF Blinking at 0.5-
second interval
Beeps
Repeated cycle
2.5-second OFF Blinking at 0.5-
second interval
Beeps
3. PLASMA DEODORIZING/PLASMA AIR PURIFYING power operation check
NOTE: Perform the above mentioned check with the front panel closed. Panel open is detected by the SAFETY DEVICE
(PLASMA UNIT).
ActionPLASMA/WASH lamp
Continuously flashes
2-time flash
Follow "Check of
PLASMA DEODORIZING
power" or "Check of
PLASMA AIR PURIFYING
power"
to identify the error.(Refer to 9-6.F or G.)
PLASMA DEODORIZING power or PLASMA AIR PURIFYING power
control circuit on the indoor
electronic control P.C. board is out of order.(Refer to 9-6.F or G.)
PLASMA DEODORIZING/PLASMA AIR PURIFYING power goes ON when PLASMA button on the remote controller is pressed
once while the indoor error indication is being checked or after one short beep sound (signal reception beep) is emitted.
PLASMA button is pressed, the power of plasma is changed in sequence:
PLASMA DEODORIZING power goes ON ➔ PLASMA AIR PURIFYING power goes ON ➔ Cancel
Check the operation display section of the remote controller to confirm that PLASMA DEODORIZING power or PLASMA AIR
PURIFYING power is activated.
While PLASMA/WASH lamp stays OFF, and it means normal.
Flashing PLASMA/WASH lamp means abnormal, and the plasma power is not being conducted.
OB371_--1qxp 05.1.17 12:50 Page 15

16
4. Indoor unit failure mode table
NOTE: Blinking patterns of this mode differs from the ones of Troubleshooting check table(9-4.).
5. PLASMA DEODORIZING/PLASMA AIR PURIFYING power failure mode table
12-time flash
2.5-second OFF
Replace the indoor electronic control
P.C. board.
Indoor control system
When it cannot properly read data in the
nonvolatile memory of the indoor electronic
control P.C. board.
11-time flash
2.5-second OFF
Refer to 9-6.A "Check of indoor fan
motor".
Indoor fan motor
When the rotational frequency feedback
signal is not emit during 12-second the
indoor fan operation.
2-time flash
2.5-second OFF
Refer to the characteristic of the main
indoor coil thermistor, the sub indoor coil
thermistor (9-7.).
Indoor coil thermistor
When the indoor coil thermistor short or open
circuit is detected every 8 seconds during
operation.
3-time flash
2.5-second OFF
Refer to 9-6.D "How to check miswiring
and serial signal error".
Serial signal error When the serial signal from outdoor unit is
not received for a maximum of 6 minutes.
1-time flash
every 0.5-second
Refer to the characteristics of the room
temperature thermistor (9-7.).
Room temperature
thermistor
When the room temperature thermistor short
or open circuit is detected every 8
seconds during operation.
Not lighted –Normal –
POWER lamp Check point
Abnormal point
(Failure mode) Detection method
5-time flash
Refer to 9-6.F"Check of PLASMA
DEODORIZING power" or 9-6.G"Check
of PLASMA AIR PURIFYING power".
When the voltage between CN1 1(+)
and 2(GND) on the PLASMA POWER P.C.
board (PLASMA DEODORIZING or PLASMA
AIR PURIFYING) rises above the normal
voltage value (3V).
4-time flash
Refer to 9-6.F"Check of PLASMA
DEODORIZING power" or 9-6.G"Check
of PLASMA AIR PURIFYING power".
PLASMA DEODORIZING/
PLASMA AIR PURIFYING
power
When the voltage between CN1 1(+)
and 2(GND) on the PLASMA POWER P.C.
board (PLASMA DEODORIZING or PLASMA
AIR PURIFYING) falls significantly.
(0.4V / 0.5ms)
3-time flash
Refer to 9-6.F"Check of PLASMA
DEODORIZING power" or 9-6.G"Check
of PLASMA AIR PURIFYING power".
Abnormal electric
discharge error 1
When the voltage between CN1 1(+)
and 2(GND) on the PLASMA POWER P.C.
board (PLASMA DEODORIZING or PLASMA
AIR PURIFYING) falls 0.9V below the normal
range voltage.
2-time flash
Refer to 9-6.F"Check of PLASMA
DEODORIZING power" or 9-6.G"Check
of PLASMA AIR PURIFYING power".
Replace the indoor electronic control P.C.
board.
Spark discharge
1-time flash PLASMA DEODORIZING/
PLASMA AIR PURIFYING
power control
When the voltage between CN1 1(+)
and 2(GND) on the PLASMA POWER P.C.
board (PLASMA DEODORIZING or PLASMA
AIR PURIFYING) falls below 1.6V(spark
discharge judgment voltage).
When PLASMA DEODORIZING/PLASMA
AIR PURIFYING power cannot be turned
OFF.
POWER lamp Check point
Abnormal point
(Failure mode) Detection method
Abnormal electric
discharge error 2
w As soon as an error is detected, PLASMA DEODORIZING power or PLASMA AIR PURIFYING power goes OFF,
therefore measuring instrument which records the voltage wave is required in order to perform the above men-
tioned voltage measurement.
OB371_--1qxp 05.1.17 12:50 Page 16

17
Start
Indoor unit
operates.
Outdoor unit
doesn't
operate.
Indoor unit
doesn't receive
the signal from
remote controller.
OPERATION
INDICATOR
lamp on the
indoor unit is
flashing on
and off.
OPERATION
INDICATOR
lamp on the
indoor unit
stays off.
Outdoor unit
operates in
only Test Run
operation. w
Outdoor unit
doesn't
operate
even in
Test Run
operation. w
Indoor unit
operates, when
EMERGENCY
OPERATION
switch is pressed.
Indoor unit
doesn't operate,
when
EMERGENCY
OPERATION
switch is pressed.
Check room
temperature
thermistor.
Refer to 9-7.
"Test point
diagram and
voltage".
Refer to
"How to check
inverter/
compressor".
Refer to 9-6.B
"Check of
remote controller
and receiver
P.C. board".
1. Check indoor / outdoor
connecting wire.
(Check if the power
is supplied to the
indoor unit.)
2. Refer to 9-6.C
"Check of indoor
electronic control
P.C. board and indoor
fan motor".
PLASMA/WASH lamp
2-time flash
cause:
Indoor unit
• Trouble of PLASMA
DEODORIZNG power
control or PLASMA AIR
PURIFYING power
control
Replace the indoor
electronic control P.C.
board.
Unit doesn't
operate
normal
operation in
COOL or
HEAT mode.
Refer to
"Check of
R.V. coil".
POWER lamp
Flash on and off
at 0.5-second
intervals
Cause:
Indoor/
Outdoor unit
• Mis-wiring
or trouble
of serial signal
POWER lamp
2-time flash
Cause:
Indoor unit
• Trouble of
room temp-
erature/
indoor coil
thermistor
POWER lamp
3-time flash
Cause:
Indoor unit
• Trouble of
indoor fan
motor
POWER lamp
5-time flash
Cause:
Outdoor unit
• Outdoor
power
system
abnormality
POWER lamp
6-time flash
Cause:
Outdoor unit
• Trouble of
thermistor
in outdoor
unit
POWER lamp
7-time flash
Cause:
Outdoor unit
• Trouble of
outdoor
control
system
Refer to 9-6.
D "How to
check of
mis-wiring
and serial
signal error
(when
outdoor unit
doesn't work)".
All lamps
Flash on and off
at 0.5-second
intervals
Cause:
Indoor unit
• The horizontal
vane is not
installed
correctly.
Refer to 9-6.
E "Check of
installation of
the horizontal
vane".
Check room
temperature
thermistor
and indoor
coil thermis-
tor.
Refer to 9-7.
"Test point
diagram and
voltage".
Refer to 9-6.
A "Check of
indoor fan
motor".
Refer to
"How to check
inverter/
compressor".
Refer to
"Check of
outdoor
thermistors".
Replace the
inverter P.C.
board or
the outdoor
electronic
control P.C.
board.
POWER lamp
14-time flash
Cause:
Outdoor unit
• Other
abnormality
Check
"Flow chart of
the detailed
outdoor unit
failure mode
recall function."
Left lamp
of AREA lamp
4-time flash
Cause:
Indoor unit
• Trouble of
indoor unit
control
system
Replace the
indoor
electronic
control
P.C. board.
As for outdoor unit MUZ type,
refer to service manual OB372.
As for outdoor unit MXZ type,
refer to service manual OB377.
Indoor unit operates.
Outdoor unit doesn't
operate normally.
If blinking of OPERATION
INDICATOR lamp cannot
be checked, it can be checked
with failure mode recall function.
w"Test Run operation"
means the operation
within 30 minutes after
EMERGNCY OPERATION
switch is pressed.
9-3. Instruction of troubleshooting
OB371_--1qxp 05.1.17 12:50 Page 17

18
NOTE : When the indoor unit has started operation and the above detection method has detected an abnormality (the first
detection after the power ON), the indoor electronic control P.C. board turns OFF the indoor fan motor with
OPERATION INDICATOR lamp flashing.
No.
1
3
5
6
SymptomOperation indicator lamp Detection method
Check point
POWER lamp flashes.
0.5-second ON
0.5-second OFF
Mis-Wiring
or serial
signal
Outdoor
power
system
Outdoor
thermistors
Outdoor
control
system
Indoor coil
thermistor
When the serial signal form the outdoor unit is
not received for a maximum of 6 minutes.
When it consecutively occurs 3 times that the
compressor stops for overcurrent protection or
start-up failure protection witth in 1 minute
after start-up.
When the outdoor thermistors short or open
circuit during the compressor operation.
When it cannot properly read data in the
nonvolatile memory of the inverter P.C. board
or the outdoor electronic control P.C. board.
• Refer to "Check of outdoor
thermistor".
Refer to service manual
OB372 or OB377.
• Refer to "Check of inverter/
compressor".
Refer to service manual
OB372 or OB377.
Check the stop valve.
• Replace the inverter P.C.
board or the outdoor
electronic control P.C. board.
Refer to service manual
OB372 or OB377.
• Refer to 9-6.D "How to check
mis-wiring and serial signal
error".
4Indoor fan
motor
7
Abnormal
point
Outdoor unit
does not
operate.
Room
tempera-
ture
thermistor
POWER lamp flashes.
2-time flash
2.5-second OFF
When the indoor coil or the room temperature
thermistor is short or open circuit.
• Refer to 9-7.the
characteristics of indoor coil
thermistor, and the room
temperature thermistor.
POWER lamp flashes.
3-time flash
2.5-second OFF
When the rotational frequency feedback
signal is not emit during the indoor fan
operation.
• Refer to 9-7.A "Check of
indoor fan motor".
Indoor unit
and outdoor
unit do not
operate.
POWER lamp flashes.
5-time flash
2.5-second OFF
POWER lamp flashes.
6-time flash
2.5-second OFF
Indoor unit
and outdoor
unit do not
operate.
Indoor unit
and outdoor
unit do not
operate.
Indoor unit
and outdoor
unit do not
operate.
Other
abnonmality
An abnormality other than above mentioned is
deteced.
• Confirm the abnormarity in
detail using the failure mode
recall function.
Indoor unit
and outdoor
unit do not
operate.
Indoor unit
and outdoor
unit do not
operate.
8
Outdoor
control
system
When it cannot properly read data in the
nonvolatile memory of the inverter P.C. board
or the outdoor electronic control P.C. board.
• Check the blinking pattern of
the LED on the inverter P.C.
board or the outdoor lectronic
control P.C. board.
2Outdoor unit
does not
operate.
POWER lamp flashes.
7-time flash
2.5-second OFF
POWER lamp flashes.
14-time flash
2.5-second OFF
POWER lamp lights up
9-4. Troubleshooting check table
NOTE : Before taking measures, make sure that the symptom reappears for accurate troubleshooting.
Self check table
Lighted
Blinking
Not lighted
· Flashing of POWER lamp indicates abnormalities.
OB371_--1qxp 05.1.17 12:50 Page 18

19
Lighted
Blinking
Not lighted
Lighted
Blinking
Not lighted
Lighted
Blinking
Not lighted
· Flashing of AREA lamp(left-hand side lamp) indicates abnormality.
NOTE : When the indoor unit has started operation and the above detection method has detected an abnormality (the first
detection after the power ON), the indoor electronic control P.C. board turns OFF the indoor fan motor with
OPERATION INDICATOR lamp flashing.
No.
1
SymptomOperation indicator lamp Detection method
Check point
Abnormal
point
Left lamp of AREA lamp flashes.
4-time flash
2.5-second OFF
Indoor
control
system
When it cannot properly read data in the
nonvolatile memory of the indoor electronic
control P.C. board.
Indoor unit
and outdoor
unit do not
operate.
• Replace the indoor electronic
control P.C. board.
No.
1
SymptomOperation indicator lamp Detection method
Check point
Abnormal
point
0.5-second ON
0.5-second OFF
When the electricity is not conducted to the
interlock switch (Fan) of the horizontal vane.
• Refer to 9-6.E "Check of
installation of the horizontal
vane".
Indoor unit
and outdoor
unit do not
operate.
Attachment
of the
horizontal
vane
All lamps flash at the same time.
No. SymptomOperation indicator lamp Detection method
Check point
Abnormal
point
1
MXZ type
Operation
mode
setting
Outdoor unit
operates but
indoor unit
does not
operate.
When the operation mode of the each indoor
unit is differently set to COOL(includes DRY)
and HEAT at the same time, the operation
mode of the indoor unit that has operated at
first has the priority.
• Unify the operation mode.
Refer to service manual
OB377.
2.5-second OFF
Both lamps flash
· Flashing of All lamps indicate abnormality.
· Flashing of AREA lamp(both lamps) indicates abnormality.
· POWER lamp is lighted.
NOTE : Before taking measures, make sure that the symptom reappears for accurate troubleshooting.
Self check table
Lighted
Blinking
Not lighted
· Flashing of PLASMA/WASH lamp indicates abnormality.
No.
1
SymptomOperation indicator lamp Detection method
Check point
Abnormal
point
PLASMA/WASH lamp flashes.
2-time flash
2.5-second OFF
When PLASMA DEODORIZING power or
PLASMA AIR PURIFYING power can not be
turned OFF.
Indoor unit
and outdoor
unit do not
operate.
PLASMA
DEODORIZING/
PLASMA
AIR
PURIFYING
power control
• Replace the indoor electronic
control P.C. board.
OB371_--1qxp 05.1.17 12:50 Page 19

20
9-5. Trouble criterion of main parts
MSZ-FA25VA - MSZ-FA35VA - E1E1
Part name FigureCheck method and criterion
Measure the resistance with a tester. (Part temperature 10˚C ~ 30˚C)
Normal
8 k" ~ 20 k"
Abnormal
Open or short-circuit
Room temperature
thermistor(RT11)
Indoor coil thermistor
(RT12(MAIN), RT13(SUB))
Horizontal vane
motor(MV1) Normal
BRN-other one
Abnormal
Open or short-circuit
Measure the resistance between the terminals with a tester.
(Part temperature 10°C ~ 30°C)
235 " ~ 255 "
Color of the lead wire
Vertical vane
motor(MV2)
i-see Sensor
motor(MT) Normal Abnormal
Open or short-circuit
Measure the resistance between the terminals with a tester.
(Part temperature 10°C ~ 30°C)
Front panel
driving motor
(MP) Normal Abnormal
Open or short-circuit
Measure the resistance between the terminals with a tester.
(Part temperature 10°C ~ 30°C)
94 " ~ 102 "
i-see Sensor(RR)
Turn the power ON(i-see Sensor is energized) with the aluminum block part
on the i-see Sensor P.C. board (upper part of i-see Sensor) covered with black
vinyl tape, then measure the voltage between connector terminals of i-see
Sensor using tester.
(Part temperature 10 ~ 40°C)
282 " ~ 306 "
Normal range
2(-)
-
4(+)
1(+)
-
2(-)
Below 1.874 or above 3.387V DC
Below 1.010 or above 1.420V DC
1.874 ~ 3.387V DC
1.010 ~ 1.420V DC
i-see Sensor
connector terminals
Abnormal
NOTE: Pay attention to static electricity.
Indoor fan motor(MF) Check 9-6. A.
PLASMA DEODORIZING/
PLASMA AIR PURIFYING
power
Check 9-6. F or G.
Color of the lead wire
BRN-other one
Color of the lead wire
BRN-other one
RED
YLW
BRN
ORN GRN
ROTOR
RED
YLW
BRN
ORN GRN
ROTOR
RED
YLW
BRN
ORN GRN
ROTOR
i-see Sensor
Connector Black
vinyl tape
Aluminum block
i-see Sensor P.C. board
wThe aluminum block
part is covered with
black vinyl tape.
OB371_--1qxp 05.1.17 12:50 Page 20

21
Check of indoor fan motor
A
When POWER lamp flashes 3-time.
Indoor fan does not operate.
wIf 12 seconds or more passes after EMERGENCY OPERATION switch
is pressed, the voltage mentioned above 2 goes 0V DC although the
indoor electric control P.C. board is normal.
Indoor electronic
control P.C. board
Pay careful attention to the high voltage on
the fan motor connector CN211.
Yes
No
No
Changed
Unchanged
Is there any foreign matter that
interferes the rotation of the
line flow fan?
Turn OFF the power supply.
Insert a stick such as a screw driver
into the air outlet, and check if there is
any catch in the rotation of the line
flow fan.
Adjust the line flow fan and
remove the foreign matter.
w
Turn ON the power supply, wait 5 seconds or more, and then press
EMERGENCY OPERATION switch.
Measure the supply voltage as follows within 12 seconds
after EMERGENCY OPERATION switch is pressed.
If more than 12 seconds passes by, turn OFF the power supply and
turn ON it again, then measure the voltage.
1.Measure the voltage between CN211 1(+) and 3(-).
2.Measure the voltage between CN211 5(+) and 3(-).
Is there 311V DC between
CN211 1 (+) and 3 (-), and does
the voltage between CN211 5(+)
and 3(-) rise to the range of 3 to 6V
DC within 12 seconds after
EMERGENCY OPERATION switch
is pressed?
Yes Replace the indoor fan motor.
CN211
Replace the indoor electronic control P.C. board.
The indoor fan motor error has occurred, and the indoor fan repeats "12-second ON and 30-second OFF" 3 times, and then stops.
Measure the voltage between CN211
6(+) and 3(-) while the fan
motor is rotating.
Is it unchanged holding
0V DC or 15V DC?
Replace the indoor fan motor.
Replace the indoor electronic control P.C. board.
The indoor fan motor error has occurred, and the indoor fan doesn't operate.
9-6. Troubleshooting flow
OB371_--1qxp 05.1.17 12:50 Page 21

22
Check of remote controller and receiver P.C. board
B
Indoor unit operates by pressing EMERGENCY OPERATION switch, but does not operate with the remote controller.
wCheck if the remote controller is exclusive for this air conditioner.
Yes
Replace the batteries. (Refer to 9-1.4.)
Turn on a radio to AM and press switch on
the remote controller.
Is noise heard from radio?
Are there any fluorescent lights of
inverter or rapid-start type within
the range of 1m?
Replace the remote controller.
● Reinstall the unit away from lights.
● Attach a filter on receiving part.
Switch on the remote controller.
Is LCD display on the the remote
controller visible?
Remove the batteries, then set them back
and press RESET button. (Refer to 9-1.4.)
Check if the unit operates with the remote
controller.
Yes
Does the unit operate with the
remote controller?
Yes
OK
No
(not clear)
Yes
No
No
Replace the indoor electronic
control P.C. board.
OB371_--1qxp 05.1.17 12:50 Page 22

23
The unit does not operate with the remote controller.
Also, POWER lamp does not light up by pressing EMERGENCY OPERATION switch.
Check of indoor electronic control P.C. board and indoor fan motor
C
Yes
No
w1. The fan motor connector's 1 lead wire is red, whereas 3 is black.
w2. Connect "+" of the tester to fan motor connector's 1 lead
wire, and "-" to 3 lead wire, otherwise the resistance cannot be
measured properly.
w3
w3. Short circuit:
The indoor fan motor is
abnormal.
Yes
No
w1,2
Does the unit operate with the remote controller?
Does POWER lamp light up by pressing EMERGENCY
OPERATION switch?
Turn OFF the power supply.
Remove indoor fan motor connector CN211, vane motor
connector CN151 front panel driving motor connector
connector CN1U1 and i-see Sensor motor connector
CN110 from the indoor electronic
control P.C. board and turn ON the power supply.
Measure the resistance of the horizontal vane
motor coil and the vertical vane motor coil.
Normal value is approx. 300' or 250'.
Measure the resistance between CN211 3
and 4 of the indoor fan motor connector.
Normal value is approx. 30k' to 50k'.
Short circuit:
Replace the indoor fan motor.
Short circuit:
Replace the horizontal vane motor, the
vertical vane motor and the indoor
electronic control P.C. board.
Turn OFF the power supply.
Check both “parts side” and “pattern
side” of the indoor electronic control P.C.
board visually.
Replace the varistor(NR11) and fuse(F11).
Are the varistor(NR11) burnt
and the fuse(F11) blown?
Be sure to check both the fuse
and the varistor in any case.
No
Yes
No
Is the fuse(F11) blown only?
Yes
No
Is the resistance 1M'
or more?
Measure the resistance between
1(+) and 3(-) of the indoor fan
motor connector (to CN211 on the
indoor electronic control P.C. board) .
Replace the fuse (F11).
Replace the fuse (F11) and the indoor fan motor.
Is the resistance
approx. 4'?
Measure the cement resistance R111 on
the indoor electronic control P.C. board.
Replace the indoor electronic control P.C. board.
Replace the indoor electronic control P.C. board
and the indoor fan motor.
Yes
Measure the resistance of i-see Sensor
motor coil.
Normal value is approx. 300'
Measure the resistance of the front panel
driving motor coil.
Normal value is approx. 100'
Short circuit:
Replace the front panel driving motor
and the indoor electronic control P.C.
board.
Short circuit:
Replace i-see Sensor motor and the
indoor electronic control P.C. board.
CN211
Fuse(F11)
Varistor(NR11)
CN201
Indoor electronic
control P.C.Board
OB371_--1qxp 05.1.17 12:50 Page 23

24
How to check mis-wiring and serial signal error
D
When POWER lamp flashes ON and OFF in every 0.5-second.
Outdoor unit does not operate.
Is there rated voltage of
230V AC in the power
supply?
In 3 minutes after turning ON the
power supply of the outdoor unit, does
the LED on the inverter P.C. board
repeat quick blinking "3.6-second-OFF
and 0.8-second-ON"?
Be sure to check above in 3 minutes
after turning ON. After 3 minutes, LED
blinks 6 times. When the inverter P.C.
board is normal, LED also blinks 6
times after 3 minutes.
Is there any mis-wiring,
poor contact, or wire
disconnection of the
indoor/outdoor
connecting wire?
W1. Mis-wiring may damage indoor electronic control
P.C. board during the operation.
Be sure to confirm the wiring is correct before the
operation starts.
(Lighting)
No
Yes
No
Yes
Yes
No
Yes
No
Yes
No
W2 Be careful to the residual
voltage of smoothing capacitor.
Be sure to release the failure-mode
recall function after checking.
No
No
Yes
No
Yes
Serial signal error display
Yes
Yes
No
Yes
As for outdoor unit MUZ type,refer to service manual OB372.
As for outdoor unit MXZ type,refer to service manual OB377.
Inverter P.C.board
(Parts side)
LED
Blinking
Turn OFF the power supply.
Turn ON the power supply.
Is there 230V AC between
outdoor terminal block S1 and
S2?
Does POWER lamp light up?
<Confirmation of the power to the indoor unit>
Press EMERGENCY OPERATION switch.
Check the power
supply.
Is the self-check of the indoor unit displayed 6
minutes after?
POWER lamp
blinks quickly.
A
Turn OFF the power supply.
Check once more if the indoor/outdoor
connecting wire is not mis-wiring.
Short-circuit outdoor terminal block S2 and
S3.
W1
B
Turn ON the power supply of the outdoor unit.
Check the wiring.
Make them sure.
Remove the short-circuit between
outdoor terminal block S2 and S3.
Is there amplitude of 10 to 20V DC
between outdoor terminal block S2
and S3? <Confirmation of serial
signal>
Is there 230V AC between outdoor
terminal block S1 and S2?
<Confirmation of power voltage>
Replace the indoor electronic control P.C. board.
Replace the inverter
P.C. board.
W2
Is there any error of the
indoor/outdoor connecting wire,
such as the damage of the wire,
intermediate connection, poor
contact to the terminal block?
Is there any error of the
indoor/outdoor connecting wire,
such as the damage of the wire,
intermediate connection, poor
contact to the terminal block?
Replace the
indoor/outdoor
connecting.
Replace the
indoor/outdoor
connecting.
Is serial signal
error indicated
6 minutes later?
Yes
No
· Turn OFF inverter-controlled lighting
equipment.
· Turn OFF the power supply and then
turn ON again.
· Press EMERGENCY OPERATION
switch.
B
· Reinstall
either the
unit or the
light each
other away.
· Attach a filter
on receiving
section of
the indoor
unit.
A
OB371_--1qxp 05.1.17 12:50 Page 24

25
Check of installation of the horizontal vane
E
Start
Replace the
indoor electronic
control P.C. board.
Replace the
interlock switch(Fan).
Is the stopper of the horizontal vane
locked to the indoor unit correctly?
Yes
No
Is there resistance 0 "?
Relock the stopper of the
horizontal vane to the indoor unit.
Refer to 9-1.5.
Yes
Are all lamp flashing?
Yes
No(∞)
No
OK
Turn ON the
power supply.
To check the continuity of the interlock switch
(Fan), measure the resistance of connector 1 - 2
connected to CN1R1 on the indoor
electronic control P.C. board.
Turn OFF the
power supply.
Turn OFF the
power supply.
When All lamps flash ON and OFF every 0.5-second.
Indoor unit and outdoor unit do not operate.
OB371_--1qxp 05.1.17 12:50 Page 25

26
Check of PLASMA DEODORIZING power
F
When PLASMA/WASH lamp flashes 2-time.
wwThe power failure mode for PLASMA DEODORIZING power is memorized when the failure mode is called.
After performing the check, make sure to release the failure mode recall function.
Make sure that the front panel is firmly closed.
1 During pressing both OPERATION SELECT button and
TOO COOL button on the remote controller at the same time,
press RESET button.
2 First, release RESET button.
And release the other two buttons since
all LCD in operation display section of the
remote controller is displayed after 3 seconds.
(Failure mode recall function is set.)
3 Press OPERATE/STOP (ON/OFF) button.
4 After a short beep sound is emitted, press
once PLASMA button.
PLASMA DEODORIZING operation is
selected.
wThe plasma power operation check mode is set.(Refer to 9-2.5.)
PLASMA DEODORIZING power supply is normal.
The front panel is not firmly closed, therefore the
protection by the interlock switch is active.
If the plasma unit is dirty, clean the unit.
After cleaning, make sure to attach the unit when it is
completely dry.
If the air conditioner goes ON with the plasma unit
being wet, protection gets active and PLASMA/WASH
lamp continuously flashes.
w1 Turn PLASMA DEODORIZING power OFF and ON again.
(For turning off PLASMA DEODORIZING power, refer to 9-2.3.)
(If it goes normal without turning OFF and ON, PLASMA/WASH lamp
doesn't go OFF.
Yes
No
No
Yes
Yes
No
9.5V DC is generated.
Yes
No Replace the indoor electronic control P.C. board.
Check the wiring of CN1T1 on the indoor electronic control
P.C. board.
High voltage (approx. -3.9kV) is generated during PLASMA
DEODORIZING power operation.
Pay careful attention and never touch PLASMA/WASH unit
and the high-voltage lead part (red wire).
Yes
No
Stays OFF
PLASMA
DEODORIZING
operation
Continuously flashes.
Stays OFF
Continuously flashes.
While the operation is being
stopped, does
PLASMA/WASH lamp flash
twice?
Turn ON the power supply.
Replace the indoor electronic control P.C. board is out of order.
Remove the plasma unit, firmly close the
front panel, and then perform PLASMA
DEODORIZING power operation check (w1).
Does PLASMA/WASH lamp stay OFF, or
continuously flash?
Does PLASMA/WASH lamp stay OFF, or
continuously flash?
Turn OFF the power supply, and check the
SAFETY DEVICE(PLASMA UNIT).
Is it firmly fixed?
Turn ON and OFF the SAFETY DEVICE
(PLASMA UNIT) using something like a screw
driver, and measure the resistance value between
CN1T2 1 and 3 on the indoor electronic control
P.C. board. Does the switch work?
Keep the SAFETY DEVICE(PLASMA UNIT)
ON using something like a screw driver.
Turn ON the power supply.
While the operation is being stopped, is the
voltage between CN1 1(+) and 2(GND)
on the PLASMA POWER P.C. board
(PLASMA DEODORIZING) 0V?
Set the plasma power failure mode recall function.
Replace the PLASMA POWER P.C. board
(PLASMA DEODORIZING).
Replace the indoor electronic control P.C. board.
When PLASMA button is pressed, is
there voltage of 12.5V DC between CN1
1(+) and 2(GND)?
Replace the SAFETY DEVICE(PLASMA UNIT).
Firmly fix the SAFETY DEVICE.
1 During pressing both OPERATION SELECT
button and TOO COOL button on the remote
controller at the same time, press RESET button.
2 First, release RESET button.
And release the other two buttons since
all LCD in operation display section of the
remote controller is displayed after 3 seconds.
(Failure mode recall function is set.)
3 Press OPERATE/STOP (ON/OFF) button.
4 After a short beep sound is emitted, press
once PLASMA button.
PLASMA DEODORIZING operation is
selected.
OB371_--1qxp 05.1.17 12:50 Page 26

27
Check of PLASMA AIR PURIFYING power
G
When PLASMA/WASH lamp flashes 2-time.
wwThe power failure mode for PLASMA AIR PURIFYING power is memorized when the failure mode is called.
PLASMA AIR
PURIFYING
operation
Make sure that the front panel is firmly closed.
1 During pressing both OPERATION SELECT button and
TOO COOL button on the remote controller at the same time,
press RESET button.
2 First, release RESET button.
And release the other two buttons since
all LCD in operation display section of the
remote controller is displayed after 3 seconds.
(Failure mode recall function is set.)
3 Press OPERATE/STOP (ON/OFF) button.
4 After a short beep sound is emitted, press
twice PLASMA button.
PLASMA AIR PURIFYING operation is
selected.
wThe plasma power operation check mode is set.(Refer to 9-2.5.)
1 During pressing both OPERATION SELECT
button and TOO COOL button on the remote
controller at the same time, press RESET button.
2 First, release RESET button.
And release the other two buttons since
all LCD in operation display section of the
remote controller is displayed after 3 seconds.
(Failure mode recall function is set.)
3 Press OPERATE/STOP (ON/OFF) button.
4 After a short beep sound is emitted, press
twice PLASMA button.
PLASMA AIR PURIFYING operation is
selected.
After performing the check, make sure to release the failure mode recall function.
PLASMA AIR PURIFYING power supply is normal.
The front panel is not firmly closed, therefore the
protection by the interlock switch is active.
If the plasma unit is dirty, clean the unit.
After cleaning, make sure to attach the unit when it is
completely dry.
If the air conditioner goes ON with the plasma unit
being wet, protection gets active and PLASMA/WASH
lamp continuously flashes.
w1 Turn PLASMA AIR PURIFYING power OFF and ON again.
(For turning off PLASMA AIR PURIFYING power, refer to 9-2.3.)
(If it goes normal without turning OFF and ON, PLASMA/WASH lamp
doesn't go OFF.
Yes
No
No
Yes
Yes
No
9.5V DC is generated.
Yes
No Replace the indoor electronic control P.C. board.
Check the wiring of CN1T1 on the indoor electronic control
P.C. board.
High voltage (approx. -3.9kV) is generated during
PLASMA AIR PURIFYING power operation.
Pay careful attention and never touch PLASMA/WASH unit
and the high-voltage lead part (red wire).
Yes
No
Stays OFF
Continuously flashes.
Stays OFF
Continuously flashes.
While the operation is being
stopped, does
PLASMA/WASH lamp flash
twice?
Turn ON the power supply.
Replace the indoor electronic control P.C. board is out of order.
Remove the plasma unit, firmly close the
front panel, and then perform PLASMA AIR
PURIFYING power operation check (w1).
Does PLASMA/WASH lamp stay OFF, or
continuously flash?
Does PLASMA/WASH lamp stay OFF, or
continuously flash?
Turn OFF the power supply, and check the
SAFETY DEVICE(PLASMA UNIT).
Is it firmly fixed?
Turn ON and OFF the SAFETY DEVICE
(PLASMA UNIT) using something like a screw
driver, and measure the resistance value between
CN1T2 1 and 3 on the indoor electronic control
P.C. board. Does the switch work?
Keep the SAFETY DEVICE(PLASMA UNIT)
ON using something like a screw driver.
Turn ON the power supply.
While the operation is being stopped, is the
voltage between CN1 1(+) and 2(GND) on
the PLASMA POWER P.C. board (PLASMA
AIR PURIFYING) 0V?
Set the plasma power failure mode recall function.
Replace the PLASMA POWER P.C. board
(PLASMA AIR PURIFYING).
Replace the indoor electronic control P.C. board.
When PLASMA button is pressed, is
there voltage of 12.5V DC between CN1
1(+) and 2(GND)?
Replace the SAFETY DEVICE(PLASMA UNIT).
Firmly fix the SAFETY DEVICE.
OB371_--1qxp 05.1.17 12:50 Page 27

28
Check of auto front panel
H
Is the connector of the front panel
driving motor unit or the indoor
electric control P.C. board unplugged?
Front panel is normal.
Replace the front panel
driving motor unit.
Does the front panel automatically
open? (Does it start to move?)
Yes
Is the front panel held 10mm or
more upper than the level line of
the nozzle top?
Yes
No
Turn the remote controller ON.
Plug in the connector and
check from the start again.
Is the resistance value between
terminals of the front panel driving
motor unit normal?
Replace the indoor electric
control P.C. board.
Replace the front panel
driving motor unit.
No
No
Yes
Yes
No
Indoor unit and outdoor unit do not operate.
10 mm or
more
Z-Z side view
OB371_--1qxp 05.1.17 12:50 Page 28

29
Electromagnetic noise enters into TV sets or radios
I
Replace the antennas.
Replace the coaxial cable.
No
No
No
Yes
Yes
No
No
Yes
Yes
Yes
Is the distance between the
antennas and the indoor
unit within 3m, or is the
distance between the
antennas and the outdoor
unit within 3m?
Is the distance between the
TV sets or radios and the
indoor unit within 1m, or is
the distance between the TV
sets or radios and the
outdoor unit within 3m?
Is there any antennas damage
by rust or something , coaxial
cable damage, or poor
contact such as loosing of
the connectors or wire
disconnection of wiring of the
antennas?
Is the indoor/outdoor
connecting wire of the air
conditioner and the wiring of
the antennas in close?
Even if all of the above conditions is fulfilled, the electromagnetic noise may enter, depending on
the electric field strength or the installation condition (combination of specific conditions such as
antennas or wiring).
Check the followings before asking for service.
1.Devices affected by the electromagnetic noise
TV sets, radios (FM/AM broadcast, shortwave)
2.Channel, frequency, broadcast station affected by the electromagnetic noise
3.Channel, frequency, broadcast station unaffected by the electromagnetic noise
4.Layout of ;
indoor/outdoor unit of the air conditioner, indoor/outdoor wiring, grounding wire, antennas, wiring
from antennas, receiver
5.Electric field intensity of the broadcast station affected by the electromagnetic noise
6.Presence or absence of amplifier such as booster
7.Operation condition of air conditioner when the electromagnetic noise enters in.
1)Turn OFF the power supply once, and then turn ON the power supply. In this situation check for
the electromagnetic noise.
2)Within 3 minutes after turning ON the power supply, press OPERATE/STOP (ON/OFF) button
on the remote controller for power-on, and check for the electromagnetic noise.
3)After a short time (3 minutes later after turning ON), the outdoor unit starts running. During
operation, check for the electromagnetic noise.
4)Press OPERATE/STOP (ON/OFF) button on the remote controller for power off, when the
outdoor unit stops but the indoor/outdoor communication still runs on. In this situation check for
the electromagnetic noise.
After checking the above, consult the service representative.
Is the unit earthed? Earth the unit.
Extend the distance between
the antennas and the indoor
unit, or the antennas and the
outdoor unit.
Extend the distance between
the TV sets or radios and the
indoor unit, or the TV sets or
radios and the outdoor unit.
Extend the distance between
the indoor/outdoor connecting
wire of the air conditioner and
the wiring of the antennas.
OB371_--1qxp 05.1.17 12:50 Page 29

30
Indoor coil thermistor [RT12 (MAIN), RT13 (SUB)]
Room temperature thermistor (RT11)
Temperature (:)
Resistance (k")
MSZ-FA25VA - MSZ-FA35VA -
Indoor electronic control P.C. board
E1E1
Release of Auto restart
function
Solder the Jumper wire
to JR07.
(Refer to 8-3.)
12V DC
Varistor
(NR11)
5V DC
Room temperature
thermistor (CN111)
Indoor coil thermistor
RT12(MAIN)
12
RT13(SUB)
34
(CN112)
Timer short mode
point JPG, JPS
(Refer to 8-1.)
Horizontal and
Vertical vane
motor(CN151)
}
9-7. Test point diagram and voltage
SW P.C. Board
Power monitor
receiver P.C.
board.
i-see Sensor
(CN110) Fuse
(F11)
Front panel
driving motor
(CN1U1)
Safety device(Plasma unit)
(CN1T2)
Plasma deodorizing/air
purifying filter units
(CN1T1)
CN2011
(Used for check of con-
ducting of thermal fuse)
Interlock switch(Fan)
(CN1R1)
6(+)0V DC or 15V DC
5(+)3-6V DC
415
V DC
3(-) Fiducial terminal of
cathode side on measur-
ing high-voltage DC
1311V DC
Cement resistance
(R111)
Indoor fan motor
(CN211)
1DC 2.5V during PLASMA
AIR PURIFYING/PLASMA
DEODORIZING operation
3DC 12.5V during PLASMA
AIR PURIFYING/PLASMA
DEODORIZING operation
2GND
CN1
High-voltage lead wire
(Red)
Standard lead wire
(Green)
Plasma power P.C. board
WASH reset
switch(SW2)
Emergency
operation
switch(SW1)
230V AC
Power supply input
{
OB371_--1qxp 05.1.17 12:50 Page 30

31
DISASSEMBLY INSTRUCTIONS
10
(1) Slide the sleeve and check if there is a locking lever or not. (2) The terminal with this connector has the
locking mechanism.
1Slide the sleeve.
2Pull the terminal while
pushing the locking
lever.
1Hold the sleeve, and
pull out the terminal
slowly.
The terminal which has the locking mechanism can be detached as shown below.
There are two types ( Refer to (1) and (2)) of the terminal with locking mechanism.
The terminal without locking mechanism can be detached by pulling it out.
Check the shape of the terminal before detaching.
<"Terminal with locking mechanism" Detaching points>
Connector
Sleeve
Locking lever
MSZ-FA25VA - MSZ-FA35VA -
INDOOR UNIT
E1E1
OPERATING PROCEDURE PHOTOS
Photo 1
1. Removing the panel
(1) Press and unlock the knobs on both sides of the front
panel and lift the front panel until it is level, and then pull
the hinges forward to remove the front panel.
(2) Remove the horizontal vane.
(3) Remove the screw caps of the panel.
Remove the screws. (See Photo 1.)
(4) Remove the screw of the front panel driving motor.
(See Photo 2.)
(5) Hold the lower part of both ends on the panel and pull it
slightly toward you, and then remove the panel by pushing
it upward.
Photo 2
Screws of the panel
Horizontal vane
Front panel
Screw of the front panel
driving motor
OB371_--2qxp 05.1.17 12:49 Page 31

32
2. Removing the electronic control P.C. board, the
power monitor receiver P.C. board, i-see Sensor,
SW P.C. board and the terminal block
(1) Remove the horizontal vane, the panel (Refer to 1.) and
the corner box.
(2) Remove the screw of the V.A. clamp, and then the
indoor/outdoor connecting wire.(See Photo 3.)
(3) Remove the switch holder from the electrical cover.
(See Photo 4.)
(4) Remove the screw of the electrical cover, and then the
electrical cover. (See Photo 4.)
(5) Remove the ground wire connected to the indoor electronic
control P.C. board from the electrical box. (See Photo 5.)
(6) Unhook the power monitor receiver P.C. board holder from
the catch. (See Photo 5.)
(7) Open the rear cover of the power monitor receiver P.C.
board holder and pull out the power monitor receiver P.C.
board.
(8) Remove the screws of the i-see Sensor cover and the i-see
Sensor motor, and then the i-see Sensor motor.
(9) Open the i-see Sensor holder and pull out the i-see Sensor.
(10)
Open the switch holder and pull out SW P.C. board.
(11)
Pull the electronic control P.C. board slightly toward you
from the electrical box, and disconnect TAB3 and all the
connectors on the electronic control P.C. board.
(LD101 and LD105 are direct-mounted to the electronic
control P.C. board.)
(12)
Pull out the electronic control P.C. board from the electrical
box.
(13)
Remove the ground wire connected to the heat exchanger
from the electrical box. (See Photo 5.)
(14)
Unhook the catches of the electrical box, and pull out the
electrical box.
(15)
Remove the screws of the terminal block cover, and then
the terminal block cover and the terminal block holder.
(See Photo 3.)
(16)
Remove the terminal block by sliding it.
OPERATING PROCEDURE PHOTOS
Screw of the
electrical cover.
Switch holder
Photo 4
3. Removing the electrical box
(1) Remove the horizontal vane, the panel (Refer to 1.) and the
corner box.
(2) Remove the screw of the V.A. clamp, and then the indoor/
outdoor connecting wire.(See Photo 3.)
(3) Remove the switch holder and the electrical cover.
(See Photo 4.)
(4) Remove the ground wire connected to the heat exchanger
from the electrical box.(See Photo 5.)
(5) Disconnect the following connectors on the electronic
control P.C. board; the fan motor connector <CN211>, the
indoor coil thermistor connector <CN112>, the vane motor
connector <CN151>, the connector of the interlock switch
(Fan) of the horizontal vane <CN1R1>, the connector of
the safety device (plasma unit) <CN1T2>, the connector of
the plasma power P.C. board <CN1T1>, the connector of
the front panel driving motor <CN1U1>.
(6) Unhook the catches of the electrical box, and pull out the
electrical box. (See Photo3.)
Photo 5
Indoor coil thermistor
connector (CN112)
Fan motor
connector (CN211)
Vane motor
connector (CN151)
Connector of the
front panel driving
motor (CN1U1)
Ground wires
Photo 3
Screws of
the terminal
block cover
Screw of the V.A. clamp
Power monitor
receiver P.C.
board holder
i-see Sensor
Connector of the
interlock switch(Fan)
(CN1R1)
Connector of the
plasma power
P.C.board(CN1T1)
Connector of the
safety device(Plasma
unit) (CN1T2)
Drain hose
i-see Sensor
cover
OB371_--2qxp 05.1.17 12:49 Page 32

33
OPERATING PROCEDURE PHOTOS
Photo 8
Photo 10
Screws of the
left side of the
heat exchanger
5. Removing the vertical vane motor unit
(1) Remove the horizontal vane, the panel (Refer to 1.) and
the corner box.
(2) Pull out the drain hose from the nozzle assembly, and
remove the nozzle assembly. (See Photo 5.)
(3) Remove the crank of the vertical vane motor unit from the
arm of the vertical vane.(See Photo 7.)
(4) Remove the screws of the vertical vane motor unit, and pull
the vertical vane motor unit. (See Photo 7.)
Screws of
the motor
bed
4. Removing the horizontal vane motor unit
(1) Remove the horizontal vane and the panel. (Refer to 1.)
(2) Remove the screws of the horizontal vane motor unit,
and pull out the horizontal vane motor unit. (See Photo 6.)
(3) Disconnect the connector from the horizontal vane motor
unit.
Photo 6
Screw of the horizontal
vane motor unit
6. Removing the indoor fan motor and the line flow
fan
(1) Remove the horizontal vane, the panel (Refer to 1.) and
the corner box.
(2)
Remove the switch holder and the electrical box. (Refer to 3.)
(3) Pull out the drain hose from the nozzle assembly, and
remove the nozzle assembly.
(4) Remove the screws fixing the motor bed.
(See Photo 8.)
(5) Loosen the screw fixing the line flow fan.
(See Photo 9.)
(6) Remove the motor bed together with fan motor and motor
band.
(7) Release the hooks of the motor band, and remove the
motor band then pull out the indoor fan motor.
(8) Remove the screws fixing the left side of the heat
exchanger.
(See Photo 10.)
(9) Lift the heat exchanger, and pull out the line flow fan to the
lower-left.
Photo 9
Screw of
the line
flow fan
Photo 7
Crank of the vertical
vane motor unit Screws of the vertical
vane motor unit
Arm
Motor band
OB371_--2qxp 05.1.17 12:49 Page 33

34
OPERATING PROCEDURE PHOTOS
Photo 13
Photo 11
Photo 12
Front panel
driving motor
Screw of the plasma
element holder
7. Removing the plasma power P.C. board
(1) Remove the horizontal vane, the panel (Refer to 1.) and
the corner box.
(2) Remove the switch holder and the electrical cover.
(Refer to 3.)
(3) Disconnect the connector of the front panel driving motor
<CN1U1> from the electronic control P.C. board.
(4) Remove the front panel driving motor.
(5) Remove the screw of the plasma element holder, and remove
the plasma element holder from the heat exchanger.
(See Photo 11.)
(6) Unhook all the catches of plasma unit cover and remove
the plasma unit cover. (See Photo 12.)
(7) Remove the terminals with locking mechanism connected
to the plasma power P.C. board and the safety device
(Plasma unit). (See Photo 13.)
(8) Remove the plasma electrical box from the plasma element
holder.
(9) Remove the screw fixing the plasma electrical box, and
open the plasma electrical box then pull out the plasma
power P.C. board from the plasma electrical box.
(See Photo 13.) Plasma unit cover
Terminal
Screw of
the plasma
electrical box
Terminal
Safety device
(Plasma unit)
Terminal
Terminal Plasma
power
P.C. board
OB371_--2qxp 05.1.17 12:49 Page 34

35
PARTS LIST11
MSZ-FA25VA - (WH)
MSZ-FA35VA - (WH)
11-1. INDOOR UNIT STRUCTURAL PARTS
E1
E1
No. Part No. Part name Remarks
Symbol
in Wiring
Diagram
Q'ty/unit
1
2
3
4
5
6
7
8
MSZ-FA25VA - E1 MSZ-FA35VA - E1
9
10 REMOTE CONTROLLER
REMOTE CONTROLLER HOLDER
KM05A
BOX
PANEL ASSEMBLY (WH)
SCREW CAP
FRONT PANEL (WH)
AIR FILTER (LEFT)
AIR FILTER (RIGHT)
CORNER BOX (RIGHT)
INSTALLATION PLATE
Including No.3,4
2PCS/SET
(WH) (WH)
1
1
2
1
1
1
1
1
1
1
2
1
1
1
1
1
E02 897 234
E02 913 000
E02 913 067
E02 913 010
E02 914 100
E02 913 100
E02 913 975
E02 913 970
1
11
1
E02 913 426
E02 527 083
11-1. INDOOR UNIT STRUCTURAL PARTS
11-2. ACCESSORY AND REMOTE
CONTROLLER
1
7
2
4
3
8
5 6
10
9
11-2. ACCESSORY AND REMOTE CONTROLLER
OB371_--2qxp 05.1.17 12:49 Page 35

36
11-3. INDOOR UNIT ELECTRICAL PARTS
AND FUNCTIONAL PARTS
MSZ-FA25VA - (WH)
MSZ-FA35VA - (WH)
E1
E1
4
2
5
3
9
SLEEVE
BEARING
ROOM
TEMPERATURE
THERMISTOR
FUSE VARISTOR
NR11
1
6
33
11-4. INDOOR UNIT HEAT EXCHANGER
10
8
7
18
11
12
13
POWER MONITOR
RECEIVER P.C. BOARD
POWER MONITOR
RECEIVER P.C.
BOARD HOLDER
i-see Sensor
i-see Sensor
MOTOR
14
15
16
17
18 19
SW P.C. BOARD
18
21
24 20
23
22
25
26
27
28
29
31
SAFETY
DEVICE
(PLASMA UNIT)
30
INTERLOCK
SWITCH
(FAN)
35
34
PLASMA
POWER
P.C.BOARD
32
OB371_--2qxp 05.1.17 12:49 Page 36

37
BEARING MOUNT
SLEEVE BEARING
DRAIN HOSE
NOZZLE ASSEMBLY
VANE MOTOR UNIT (HORIZONTAL)
INTERLOCK SWITCH(FAN)
VANE MOTOR UNIT (VERTICAL)
HORIZONTAL VANE
FUSE
VARISTOR
POWER MONITOR RECEIVER P.C. BOARD HOLDER
i-see Sensor
i-see Sensor MOTOR
VA CLAMP
TERMINAL BLOCK COVER
TERMINAL BLOCK HOLDER
TERMINAL BLOCK
ELECTRONIC CONTROL P.C. BOARD W1
ELECTRONIC CONTROL P.C. BOARD W1
ROOM TEMPERATURE THERMISTOR
INDOOR COIL THERMISTOR
INDOOR COIL THERMISTOR
SWITCH HOLDER
INDOOR FAN MOTOR W2
MOTOR BAND
FRONT PANEL DRIVING MOTOR
LINE FLOW FAN
PLASMA ELEMENT HOLDER
PLASMA UNIT COVER
PLASMA ELECTRICAL BOX
PLASMA POWER P.C. BOARD
SAFETY DEVICE (PLASMA UNIT)
PLASMA AIR PURIFYING FILTER UNIT
PLASMA DEODORIZING FILTER UNIT
UP & DOWN
RIGHT & LEFT
3.15A
AUTO RESTART
AUTO RESTART
RC0J40-
MV1
MV2
F11
NR11
RR
MT
TB
RT11
RT12, RT13
RT12, RT13
MF
MP
PLASMA_A
PLASMA_D
(WH) (WH)
No. Part No. Part name Remarks
Symbol
in Wiring
Diagram
Q'ty/unit
1
2
3
4
5
6
7
8
9
10
11
12
13
14
15
16
17
18
19
20
21
22
23
24
25
26
27
28
29
30
31
32
MSZ-FA25VA- E1 MSZ-FA35VA- E1
33
34
35
INDOOR HEAT EXCHANGER
INDOOR HEAT EXCHANGER
UNION (GAS)
UNION (LIQUID)
{9.52
{6.35
E02 751 509
E02 001 504
E02 897 702
E02 913 235
E02 897 303
E02 897 316
E02 913 303
E02 913 040
E02 127 382
E02 661 385
E02 913 095
E02 913 391
E02 914 303
E02 897 784
E02 897 780
E02 897 779
E02 913 375
E02 913 452
E02 914 452
E02 897 308
E02 913 307
E02 914 307
E02 913 782
E02 897 300
E02 897 333
E02 898 303
E02 897 302
E02 913 775
E02 913 776
E02 913 777
E02 897 440
E02 898 316
E02 913 774
E02 914 774
1
1
1
1
1
1
1
1
1
1
1
1
1
1
1
1
1
1
1
1
1
1
1
1
1
1
1
1
2
1
1
1
1
1
1
1
1
1
1
1
1
1
1
1
1
1
1
1
1
1
1
1
1
1
1
1
1
1
1
1
2
1
1
1
E02 913 620
E02 914 620
E02 815 666
E02 151 667
1
1
1
1
1
1
W1 Including SW P.C. BOARD and POWER MONITOR RECEIVER P.C. BOARD
W2 Including FAN MOTOR RUBBER MOUNT (2 PCS/SET)
11-3. INDOOR UNIT ELECTRICAL PARTS AND FUNCTIONAL PARTS
11-4. INDOOR UNIT HEAT EXCHANGER
OB371_--2qxp 05.1.17 12:49 Page 37

38
12 OPTIONAL PARTS
DEODORIZING CERAMIC FILTER
Replacement of the deodorizing ceramic filter(about once every 6 years)
Deodorizing ceramic filter is installed inside PLASMA DEODORIZING filter unit. The filter is fragile. Handle it with care.
NOTE: PLASMA DEODORIZING filter unit may not operate properly if the deodorizing ceramic filter is not installed.
Be sure to install the deodorizing ceramic filter.
(1) Release the two knobs to open the filter unit.
(2) Pull the side knobs to outward and then
forward to remove, as illustrated below.
(3) Pull out the deodorizing ceramic filter from the side of
the filter unit.
(4) Install the deodorizing ceramic filter by following the
removal procedure in reverse.
(1)
(2)
Deodorizing ceramic filter
MAC-305FT-E
Model Part No.
MSZ-FA25VA -
MSZ-FA35VA -
E1
E1
OB371_--2qxp 05.1.17 12:49 Page 38
39
OB371_--2qxp 05.1.17 12:49 Page 39

HEAD OFFICE: MITSUBISHI DENKI BLDG., 2-2-3, MARUNOUCHI, CHIYODA-KU, TOKYO100-8310, JAPAN
CCCopyright 2005 MITSUBISHI ELECTRIC ENGINEERING CO.,LTD
Distributed in Jan. 2005. No. OB371 6
Made in Japan New publication, effective Jan. 2005
Specifications subject to change without notice.
OB371_--2qxp 05.1.17 12:49 Page 40