Product Detail Manual
2014-09-05
: Pdf 102168-Attachment 102168-Attachment 786849 Batch7 unilog
Open the PDF directly: View PDF
.
Page Count: 147 [warning: Documents this large are best viewed by clicking the View PDF Link!]

Volume 1—Residential and Light Commercial CA08100002E—February 2014 www.eaton.com V1-T5-1
5
5
5
5
5
5
5
5
5
5
5
5
5
5
5
5
5
5
5
5
5
5
5
5
5
5
5
5
5
5
Metering Products
Group Metering and
Meter Breaker Family
5.1 Single Meter Sockets
Product Description. . . . . . . . . . . . . . . . . . . . . . . . . . . . . . . . . . . . . . . V1-T5-2
5.2 Commercial Lever Bypass Sockets
Product Description. . . . . . . . . . . . . . . . . . . . . . . . . . . . . . . . . . . . . . . V1-T5-10
5.3 Multiple Position Horizontal Ganged Sockets
Product Description. . . . . . . . . . . . . . . . . . . . . . . . . . . . . . . . . . . . . . . V1-T5-18
5.4 Instrument Rated Sockets
Product Description. . . . . . . . . . . . . . . . . . . . . . . . . . . . . . . . . . . . . . . V1-T5-25
5.5 Residential Pedestals
Product Description. . . . . . . . . . . . . . . . . . . . . . . . . . . . . . . . . . . . . . . V1-T5-27
5.6 Accessories and Cross-Reference
Product Description. . . . . . . . . . . . . . . . . . . . . . . . . . . . . . . . . . . . . . . V1-T5-29
5.7 Mechanical Lugs
Product Description. . . . . . . . . . . . . . . . . . . . . . . . . . . . . . . . . . . . . . . V1-T5-34
5.8 Communications Grounding Device (NEC 250.94)
Product Description. . . . . . . . . . . . . . . . . . . . . . . . . . . . . . . . . . . . . . . V1-T5-35
5.9 Meter Breakers
Residential Meter Breakers . . . . . . . . . . . . . . . . . . . . . . . . . . . . . . . . . V1-T5-37
Non-EUSERC Combination Service Entrance Devices 100–200A Styles V1-T5-39
Meets EUSERC Requirements Service Entrance Devices 100–225A. V1-T5-48
West Coast All-In-One Design. . . . . . . . . . . . . . . . . . . . . . . . . . . . . . . V1-T5-59
Mechanical Interlock Cover . . . . . . . . . . . . . . . . . . . . . . . . . . . . . . . . . V1-T5-65
House Panels . . . . . . . . . . . . . . . . . . . . . . . . . . . . . . . . . . . . . . . . . . . V1-T5-75
Commercial Safety Sockets. . . . . . . . . . . . . . . . . . . . . . . . . . . . . . . . . V1-T5-83
CH Style Renovation Solutions . . . . . . . . . . . . . . . . . . . . . . . . . . . . . . V1-T5-86
Aluminum Meter Breakers . . . . . . . . . . . . . . . . . . . . . . . . . . . . . . . . . V1-T5-87
5.10 Group Metering
Systems for Residential and Commercial Applications . . . . . . . . . . . . V1-T5-88
Meter Packs . . . . . . . . . . . . . . . . . . . . . . . . . . . . . . . . . . . . . . . . . . . . V1-T5-90
Type CCV 120/240V Tenant Main Circuit Breaker . . . . . . . . . . . . . . . . V1-T5-95
Type CV 120/240V Tenant Main Circuit Breaker . . . . . . . . . . . . . . . . . V1-T5-96
Meter Packs—1MP, 1MM and 3MM Main Tenant Circuit Breakers . . V1-T5-98
Main Service Modules . . . . . . . . . . . . . . . . . . . . . . . . . . . . . . . . . . . . V1-T5-101
Surge Metering . . . . . . . . . . . . . . . . . . . . . . . . . . . . . . . . . . . . . . . . . . V1-T5-115
Residential Meter Stacks. . . . . . . . . . . . . . . . . . . . . . . . . . . . . . . . . . . V1-T5-116
1MP, 1MM and 3MM Main Tenant Circuit Breakers . . . . . . . . . . . . . . V1-T5-125
Phase Balanced Stack . . . . . . . . . . . . . . . . . . . . . . . . . . . . . . . . . . . . . V1-T5-126
Commercial Meter Stack Modules . . . . . . . . . . . . . . . . . . . . . . . . . . . V1-T5-127
35MM, 37MM, 35SS and 37SS Main Tenant Circuit Breakers . . . . . . V1-T5-134
Learn
Online

V1-T5-2 Volume 1—Residential and Light Commercial CA08100002E—February 2014 www.eaton.com
5
5
5
5
5
5
5
5
5
5
5
5
5
5
5
5
5
5
5
5
5
5
5
5
5
5
5
5
5
5
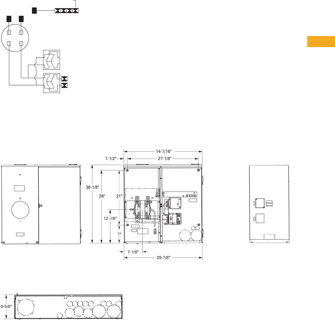
5.1
Metering Products
Single Meter Sockets
Single Meter Sockets
Contents
Description Page
Features and Benefits . . . . . . . . . . . . . . . . . . . . . . V1-T5-3
Catalog Number Selection . . . . . . . . . . . . . . . . . . V1-T5-3
Product Selection . . . . . . . . . . . . . . . . . . . . . . . . . V1-T5-4
Dimensions. . . . . . . . . . . . . . . . . . . . . . . . . . . . . . V1-T5-8
Product Description
Single-Phase Three-Wire and Three-Phase Four-Wire 600 Vac
Single Meter Sockets
All Eaton sockets are rated
600 Vac maximum and either
100, 200 or 320A continuous.
All have a minimum short-
circuit rating of 10,000 rms
symmetrical amperes
(watthour meter is not
included in rating).
All single meter sockets are
UL labeled and are supplied in
surface mounted outdoor
enclosures. Confirm local
utility acceptance prior to
order entry.

Volume 1—Residential and Light Commercial CA08100002E—February 2014 www.eaton.com V1-T5-3
5
5
5
5
5
5
5
5
5
5
5
5
5
5
5
5
5
5
5
5
5
5
5
5
5
5
5
5
5
5
5.1
Metering Products
Single Meter Sockets
Features and Benefits
Single Meter Sockets
Catalog Number Selection
Single Meter Sockets RS Group
Features Benefits
Block assembly base exceeds 400 in-lbs of torque Provides durability under the most extreme installation circumstances
One-piece, die-run enclosure Eliminates tampering and extends product life
High visibility Eaton name embossed on cover Company identity and brand preference
Knockouts are installer friendly Labor savings, less time needed for removing knockouts
Oversized 7/8-inch diameter, heavy-duty, steel lug screws Stronger connection component facilitates a reliable wire termination
Slide-nuts are captive Allow for ease in installation of conductors and eliminates lost components
Horn bypass kit is field installable by changing out slide nut Less inventory required and field modifications are simple
Integral triplex or quadplex ground extruded in neutral lug One piece for terminating incoming/outgoing neutral conductors, which increases integrity of connections
100% plated bridge with 4-point mounting Zinc chromate plated to provide superior corrosion resistance
kAIC rating Tested and UL listed up to 200 kAIC rating with specified overcurrent protection devices
Provides a complete Eaton residential solution Adding meter sockets to the already existing (loadcenter, surge, breakers, generators and AC disconnect) product lines that we already
provide, makes Eaton a one-stop shop for our customers residential and light commercial needs
Copper-plated alloy jaws with reinforcing spring Steel reinforcing springs used in all socket jaws to maintain electrical connections
Standard Prefixes
A= Aluminum enclosure
B= Barrel lock provision, for an exposed INNER-TITE® or Brooks barrel lock;
unit includes an internal lock receiver bracket
F= Barrel Lock with guard provision, for a lock guard INNER-TITE or Brooks
barrel lock; unit includes an internal lock receiver bracket
G= Grounded fifth terminal (9 o’clock position)
H= Horn bypass
I= Inhibitor installed in wire connectors
M= Temporary meter cover (waxed cardboard)
N= No sealing ring (applies only to ring style sockets)
R= Ring style socket
S= Aluminum screw type sealing ring (applies only to ring style sockets)
T= Grounding connector (#14–#2 Cu) for triplex ground
TT = Two grounding connectors (#14–#2 Cu) for quadplex ground
U= UL Underwriters Laboratories label
Z= 5/16-inch hex head connector screw in place of slotted (100A only)
Standard Suffixes
A= Solid top
B= Small hub opening
C= Small hub closing plate mounted
L= 1.25-inch (31.8 mm) hub mounted
M= 1.50-inch (38.1 mm) hub mounted
N= 2.00-inch (50.8 mm) hub mounted
P= 2.50-inch (63.5 mm) hub mounted
T= Large hub opening hub
U= Large hub cover plate hub mounted
V= 2.50-inch (63.5 mm) large hub mounted
Q= 3.00-inch (76.2 mm) large hub mounted
R= 3.50-inch (88.9 mm) large hub mounted
S= 4.00-inch (101.6 mm) large hub mounted
Z= Large to small hub adapter mounted
Maximum Conductor (Line and Load)
0 = 0.38-inch stud connectors
1 = #2/0 connectors
2 = #250 kcmil connectors
3 = #350 kcmil connectors
Service Design
0 = Overhead
1 = Combination overhead/underground
2 = Underground, side wired
3 = Combination overhead/underground, side wired
Ampere Rating
1 = 100A
2 = 200A
5 = 150A
Product Group
RS = Residential service, single position
2R-6R = Residential service, multiple position
2H-6H = Commercial or residential service, multiple position
H= Commercial or residential service, single position
UT RS 2 0 2 B CH
Note: The “U” prefix is always used first followed by
other prefixes required in alphabetical order.

V1-T5-4 Volume 1—Residential and Light Commercial CA08100002E—February 2014 www.eaton.com
5
5
5
5
5
5
5
5
5
5
5
5
5
5
5
5
5
5
5
5
5
5
5
5
5
5
5
5
5
5
5.1
Metering Products
Single Meter Sockets
Product Selection
Residential Ringless Type Cover
Notes
1 Aluminum enclosure.
2 Barrel lock.
3 PEC approved.
For dimensions, see Pages V1-T5-8 and V1-T5-9.
Ampere
Rating Jaws Service Bypass
Connections Opening, Hub or
Closure Plate Catalog NumberLine Load
200 4 UG — 3/8-inch studs 3/8-inch studs Solid top UTRS240ACH
200 4 OH/UG — 3/8-inch studs 3/8-inch studs 3-5/16 hub cover plate UTRS2303CCH
200 4 UG — #8–350 kcmil #8–350 kcmil Solid top UTRS223ACH
200 4 UG — 3/8-inch studs 3/8-inch studs Solid top UTRS220ACH
200 4 OH/UG — #8–350 kcmil #8–350 kcmil 3-5/16 cover plate UTRS213CFLCH
200 4 OH/UG — #8–350 kcmil #8–350 kcmil 3-5/16 hub cover plate UTRS213CEPCH
200 4 OH/UG — #6–350 kcmil #6–350 kcmil 3-5/16 hub cover plate UGTRS213CE
200 4 OH/UG — #6–350 kcmil #6–350 kcmil 3-5/16 hub cover plate UTRS213CE
200 4 OH/UG — #6–350 kcmil #6–350 kcmil 3-5/16 hub opening UATRS213BCH
200 4 OH/UG — #6–350 kcmil #6–350 kcmil 3-5/16 hub opening URS213BCH
200 4 OH/UG — #6–350 kcmil #6–350 kcmil 3-5/16 hub opening UTRS213BE
200 4 UG — #8–350 kcmil #8–350 kcmil Solid top UTRS213AFLCH
200 4 UG — #8–350 kcmil #8–350 kcmil Solid top UTRS213ACH
200 4 OH/UG Horn #8–350 kcmil #8–350 kcmil 3-5/16 hub opening UTRS2138BCH
200 4 OH/UG — #8–250 kcmil #8–250 kcmil Solid top UTRS212ACH
200 4 OH/UG — #8–250 kcmil #8–250 kcmil 3-5/16 cover plate UTRS212CCH
200 4 OH/UG — #8–250 kcmil #8–250 kcmil 3-5/16 cover plate UTRS212CFLCH
200 4 OH/UG — #8–250 kcmil #8–250 kcmil 3-5/16 hub opening UTRS212BCH
200 4 OH — #8–250 kcmil #8–250 kcmil 2-inch bolt-on hub UTRS202NCH
200 4 OH — #8–250 kcmil #8–250 kcmil Small hub opening UATRS202BFLCH 1
200 4 OH/UG — #8–250 kcmil #8–250 kcmil 3-5/16 cover plate UTRS232CCH
200 4 OH — #8–2/0 cu/al #8–2/0 cu/al 3-5/16 hub opening UTRS202BCH
200 4 OH/UG — #8–250 kcmil #8–250 kcmil Solid top URS212ACH
200 4 OH — #8–250 kcmil #8–250 kcmil 2-inch bolt-on hub URS202NCH
200 5 OH Horn #8–250 kcmil #8–250 kcmil 3-5/16 hub opening URS202BDQCH
200 4 OH/UG Horn #8–350 kcmil #8–350 kcmil 3-5/16 hub cover plate UFHTRS213CCH 2
200 4 OH/UG Horn #8–350 kcmil #8–350 kcmil 3-5/16 hub opening UHTTRS213BCH
200 4 OH/UG Horn #8–350 kcmil #8–350 kcmil 3-5/16 hub cover plate UHTTRS213CCH
200 4 OH Horn #8–250 kcmil #8–250 kcmil 3-5/16 hub opening UHTTRS202BCH
200 5 OH/UG Horn #8–350 kcmil #8–350 kcmil 3-5/16 hub cover plate UHTRS233CCH
200 4 UG Horn #8–350 kcmil #8–350 kcmil Solid top UHTRS223ARHCH
200 4 UG Horn #8–350 kcmil #8–350 kcmil Solid top UFHTRS223ACH
200 5 UG Horn #8–350 kcmil #8–350 kcmil Solid top UGHTRS223ACH
200 4 UG Horn #8–350 kcmil #8–350 kcmil Solid top UHTTRS223ACH
200 4 UG Horn #8–350 kcmil #8–350 kcmil Solid top UHTRS223ACH
200 4 OH/UG Horn #6–350 kcmil #6–350 kcmil 3-5/16 hub opening UHTRS213CE
200 4 OH/UG Horn #6–350 kcmil #6–350 kcmil 3-5/16 hub opening UHTRS213BE
200 4 OH/UG Horn #8–350 kcmil #8–350 kcmil Solid top UHTRS213AE
200 4 OH Horn #8–350 kcmil #8–350 kcmil 3-5/16 hub opening UHTRS203BCH
200 4 OH Horn #8–250 kcmil #8–250 kcmil 3-5/16 hub opening UHTRS202BCH
200 4 OH/UG None #8–250 kcmil #8–250 kcmil 2-inch bolt-on hub URS202NPECCH 3
URS212ACH

Volume 1—Residential and Light Commercial CA08100002E—February 2014 www.eaton.com V1-T5-5
5
5
5
5
5
5
5
5
5
5
5
5
5
5
5
5
5
5
5
5
5
5
5
5
5
5
5
5
5
5
5.1
Metering Products
Single Meter Sockets
Residential Ringless Type Cover, continued
Notes
1Right hand incoming.
2Austin Energy approved.
For dimensions, see Pages V1-T5-8 and V1-T5-9.
Ampere
Rating Jaws Service Bypass
Connections Opening, Hub or
Closure Plate Catalog NumberLine Load
200 4 OH/UG Horn #8–350 kcmil #8–350 kcmil Solid top UHIRS223ACVCH
200 4 OH/UG Horn #8–350 kcmil #8–350 kcmil 3-5/16 hub opening UHIRS213BCVCH
200 5 OH/UG — #6–350 kcmil #6–350 kcmil Closure plate UGTRS213CE
200 5 OH/UG — #6–350 kcmil #6–350 kcmil Hub opening UGTRS213BE
200 5 OH/UG Horn #6–350 kcmil #6–350 kcmil Closure plate 786685217918
200 5 OH/UG Horn #6–350 kcmil #6–350 kcmil 3-5/16 hub opening UGHTRS213BE
200 5 OH/UG Horn #8–250 kcmil #8–250 kcmil 3-5/16 hub cover plate UGHRS212CKCCH
200 4 OH — #8–250 kcmil #8–250 kcmil 3-5/16 hub opening UFTRS202BCH
200 4 OH Horn #8–250 kcmil #8–250 kcmil 3-5/16 hub opening UFHTRS202BCH
200 4 UG Horn #8–350 kcmil #8–350 kcmil Solid top UBHTRS223ARHCH
200 4 UG Horn #8–350 kcmil #8–350 kcmil Solid top UBHRS223ACH
200 4 OH Horn #8–250 kcmil #8–250 kcmil 3-5/16 hub cover plate UBHRS202BCH
200 4 OH/UG — #8–350 kcmil #8–350 kcmil 3-5/16 hub opening UATRS213CFLCH
200 4 OH/UG Horn #8–350 kcmil #8–350 kcmil 3-5/16 hub cover plate UAHTRS233CSHCH
200 4 UG Horn #8–350 kcmil #8–350 kcmil Solid top UAHTRS223AFLCH
200 4 OH Horn #8–250 kcmil #8–250 kcmil 3-5/16 hub opening UAHTRS202BFLCH
200 4 OH/UG — #8–350 kcmil #8–350 kcmil 3-5/16 hub closure plate U92197CCCPLCH
200 4 OH/UG — #8–350 kcmil #8–350 kcmil 3-5/16 hub closure plate 1009928CH
200 4 OH/UG Horn #8–250 kcmil #8–250 kcmil Solid top 1009874ACH
200 4 UG — 3/8-inch studs 3/8-inch studs Solid top 1009046CH
200 4 UG Horn #8–350 kcmil #8–350 kcmil Solid top 1008941CH
200 4 UG Horn #8–350 kcmil #8–350 kcmil Solid top 1008940CH
200 4 UG Horn #8–350 kcmil #8–350 kcmil Solid top 1008827CH
200 4 UG Horn #8–350 kcmil #8–350 kcmil Solid top 1008819CH
200 4 UG Horn #8–350 kcmil #8–350 kcmil Solid top 1008717CH
200 4 UG — #8–350 kcmil #8–350 kcmil Solid top 1008617CH
200 4 OH/UG Horn #8–350 kcmil #8–350 kcmil 3-5/16 hub opening 1007817CH
200 4 OH Horn #8–250 kcmil #8–250 kcmil 3-5/16 hub opening 1007699CH
200 4 OH Horn #8–250 kcmil #8–250 kcmil 3-5/16 hub opening 1007665CH
200 4 UG Horn #8–350 kcmil #8–350 kcmil Solid top 1007588CH
200 4 OH/UG — 3/8-inch studs 3/8-inch studs 3-5/16 hub opening 1007448ACH
200 4 UG Horn #8–350 kcmil #8–350 kcmil Solid top 1004884ARHCH 1
200 4 UG Horn #8–350 kcmil #8–350 kcmil Solid top 1004884ACH
200 4 OH/UG — #8–#250 kcmil #8–#250 kcmil 3-5/16 hub cover plate 1004710ECH
200 4 OH — N/A N/A N/A 1004709DCH
200 4 OH Horn #8–#250 kcmil #8–#250 kcmil 2-inch bolt-on hubs 1004455BCH
200 4 OH Horn #8–250 kcmil #8–250 kcmil 3-5/16 hub opening 1004161ACH
200 4 OH/UG Horn #8–350 kcmil #8–350 kcmil 3-5/16 hub opening 1004159ACH
200 4 OH/UG — #8–350 kcmil #8–350 kcmil Hub closure plate 1008826ACH 2
200 4 OH/UG Lever #6–350 kcmil #6–350 kcmil Hub closure plate 1006352CCH 2
200 5 OH Horn #8–250 kcmil #8–250 kcmil 3-5/16 hub opening 1003879ACH
200 5 OH/UG Horn #8–350 kcmil #8–350 kcmil 3-5/16 hub opening 1003878ACH

V1-T5-6 Volume 1—Residential and Light Commercial CA08100002E—February 2014 www.eaton.com
5
5
5
5
5
5
5
5
5
5
5
5
5
5
5
5
5
5
5
5
5
5
5
5
5
5
5
5
5
5
5.1
Metering Products
Single Meter Sockets
Residential Ringless Type Cover, continued
Notes
1 Austin Energy approved.
2 PSE&G approved.
For dimensions, see Pages V1-T5-8 and V1-T5-9.
Ampere
Rating Jaws Service Bypass
Connections Opening, Hub or
Closure Plate Catalog NumberLine Load
150 4 OH/UG — #8–2/0 AWG #8–2/0 AWG Hub closure plate 1004326DCH 1
150 4 OH/UG — #8–250 kcmil #8–250 kcmil Hub opening UTRS502BCH
150 4 OH — #8–250 kcmil #8–250 kcmil 3-5/16 hub opening UTRS502BCH
150 4 OH — #8–250 kcmil #8–250 kcmil 3-5/16 hub cover plate UTRS502CCH
125 4 UG — N/A N/A N/A 1006385BCH
125 4 OH/UG — #8–2/0 cu/al #8–2/0 cu/al 3-5/16 hub opening UTRS111BCH
125 4 OH — #8–2/0 cu/al #8–2/0 cu/al 3-5/16 hub opening UBTRS101BCH
125 4 OH — #8–2/0 cu/al #8–2/0 cu/al 1-1/4-inch bolt-on hub UTRS101LCH
125 4 OH — #8–2/0 cu/al #8–2/0 cu/al 3-5/16 hub cover plate UTRS101CE
125 4 OH — #8–2/0 cu/al #8–2/0 cu/al 3-5/16 hub opening UTRS101BE
125 4 OH — #8–2/0 #8–2/0 3-5/16 hub cover plate URS101CCPLCH
125 4 OH Horn cu/al with
1/2-inch hex
head wire
clamping screw
cu/al with
1/2-inch hex
head wire
clamping screw
3-5/16 hub cover plate URS101BDQCH
125 4 OH — #8–2/0 #8–2/0 3-5/16 hub opening URS101BCPLCH
125 4 OH — #8–2/0 #8–2/0 3-5/16 hub opening URS101BCH
125 4 OH Horn #8–2/0 #8–2/0 3-5/16 hub opening UHTTRS101BCH
125 4 OH/UG Horn #8–250 kcmil #8–250 kcmil 3-5/16 hub opening UHTRS111BCH
125 4 OH Horn #8–2/0 #8–2/0 1.25-inch hub mounted UHTRS101LCH
125 4 OH Horn #8–2/0 #8–2/0 Closure plate UHTRS101CE
125 4 OH Horn #8–2/0 #8–2/0 3-5/16 hub opening UHTRS101BE
125 5 OH/UG — #8–2/0 #8–2/0 3-5/16 hub cover plate UGRS10101CKCCH
125 5 OH/UG — #8–2/0 #8–2/0 3-5/16 hub cover plate UGHTRS111CCH
125 5 OH — #8–2/0 #8–2/0 3-5/16 hub opening UGHTRS101BCH
125 4 OH — #8–2/0 #8–2/0 3-5/16 hub cover plate UBHRS101BCH
125 4 OH/UG — #8–2/0 #8–2/0 3-5/16 hub cover plate UATZRS101CFLCH
125 4 OH — #8–2/0 #8–2/0 3-5/16 hub cover plate UATRS101CCH
125 4 OH — #8–2/0 #8–2/0 3-5/16 hub opening 1008947CH
125 4 UG N/A N/A N/A N/A 1005826ACH
125 4 OH — #8–2/0 #8–2/0 1-1/4-inch bolt-on hub 1004931BCH
125 4 OH — #8–2/0 #8–2/0 3-5/16 hub opening 1004162ACH
125 5 OH — #8–2/0 #8–2/0 3-5/16 hub opening 1003880ACH
125 4 OH — #8–2/0 #8–2/0 3-5/16 hub opening UTZRS101BFLCH
125 4 OH — #8–2/0 #8–2/0 3-5/16 hub closure plate UTZRS101CFLCH
125 5 OH Horn #8–2/0 #8–2/0 Hub opening UTRS101CEPSEG 2
100 4 OH — #8–2/0 #8–2/0 3-5/16 hub opening 1009079CH
200 5 OH/UG Horn #8–350 kcmil #8–350 kcmil Hub closure plate UTRS213CEPSEG 2
URS101BCH

Volume 1—Residential and Light Commercial CA08100002E—February 2014 www.eaton.com V1-T5-7
5
5
5
5
5
5
5
5
5
5
5
5
5
5
5
5
5
5
5
5
5
5
5
5
5
5
5
5
5
5
5.1
Metering Products
Single Meter Sockets
Residential Ring Type Cover
Note
For dimensions, see Pages V1-T5-8 and V1-T5-9.
Ampere
Rating Jaws Service
Connections
Load
Opening, Hub or
Closure Plate Catalog NumberLine
200 4 UG #8–350 kcmil #8–350 kcmil Solid top URTRS223ACH
200 4 OH/UG #8–350 kcmil #8–350 kcmil 3-5/16 hub cover plate URRS213CCH
200 4 OH/UG #8–350 kcmil #8–350 kcmil 2 inch hub mounted URTRS213NEUSCH
200 4 OH/UG #8–350 kcmil #8–350 kcmil 3-5/16 hub cover plate URTRS213CEUSCH
200 4 OH/UG #8–350 kcmil #8–350 kcmil 3-5/16 hub cover plate 1009424CH
200 4 OH/UG #8–350 kcmil #8–350 kcmil Knockouts 1009449CH
200 4 OH #8–350 kcmil #8–350 kcmil 3-5/16 hub opening URSTRS203BCH
200 4 OH #8–250 kcmil #8–250 kcmil 3-5/16 hub cover plate URS212BCRCH
200 4 OH/UG #8–250 kcmil #8–250 kcmil 3-5/16 hub cover plate URTRS202BCH
200 4 OH #8–250 kcmil #8–250 kcmil 3-5/16 hub opening URTRS213BE
200 4 OH/UG #6–350 kcmil #6–350 kcmil Hub opening URTRS202BCH
200 4 OH/UG #6–350 kcmil #6–350 kcmil Closure plate URTRS213CE
200 4 UG #6–350 kcmil #6–350 kcmil 3-5/16 hub opening URTRS213BEUSCH
200 4 OH #8–250 kcmil #8–250 kcmil 2-inch hub mounted URTRS202NEUSCH
200 4 OH #8–250 kcmil #8–250 kcmil 3-5/16 hub opening UNRRS202BEUSCH
200 4 OH/UG #6–350 kcmil #6–350 kcmil Closure plate UNRRS213CEUSE
200 4 OH #8–250 kcmil #8–250 kcmil Hub opening UNRRS213BEUSE
200 4 UG #6–350 kcmil #6–350 kcmil Solid top UNRRS213AEUSE
200 4 OH/UG #6–250 kcmil #6–250 kcmil 5x5 hub opening 3-5/16 adapter plate 1009097CH
125 4 OH #8–2/0 cu/al #8–2/0 cu/al 3-5/16 hub opening URS101BCRCH
125 4 OH #8–2/0 cu/al #8–2/0 cu/al 1-1/4-inch bolt-on hub URRS101LCH
125 4 OH #8–2/0 cu/al #8–2/0 cu/al Hub cover plate URTRS101BE
125 4 OH #8–2/0 cu/al #8–2/0 cu/al Hub cover plate URTRS101CE
125 4 OH #8–2/0 cu/al #8–2/0 cu/al 3-5/16 hub cover plate UNRRS101BEUSE
125 4 OH #8–2/0 cu/al #8–2/0 cu/al Closure plate UNRRS101CEUSE
125 4 OH/UG #8–2/0 cu/al #8–2/0 cu/al 3-5/16 hub cover plate UNRRS111BEUSE
125 4 UG #8–2/0 cu/al #8–2/0 cu/al Solid top UNRRS111AEUSE
125 4 OH #8–2/0 cu/al #8–2/0 cu/al 3-5/16 hub opening URSTRS101BCH

V1-T5-8 Volume 1—Residential and Light Commercial CA08100002E—February 2014 www.eaton.com
5
5
5
5
5
5
5
5
5
5
5
5
5
5
5
5
5
5
5
5
5
5
5
5
5
5
5
5
5
5
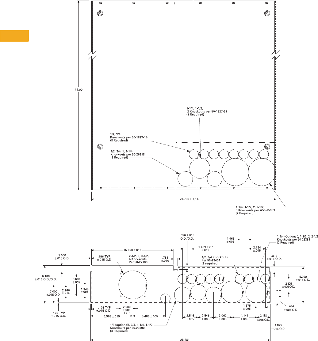
5.1
Metering Products
Single Meter Sockets
Dimensions
Approximate Dimensions in Inches (mm)
Residential Ringless Type Cover
Catalog Number Height Width Depth
UTRS240ACH 18.63 (473.2) 13.00 (330.2) 4.94 (125.5)
UTRS2303CCH 20.00 (508.0) 13.00 (330.2) 4.94 (125.5)
UTRS223ACH 13.00 (330.2) 13.00 (330.2) 4.94 (125.5)
UTRS220ACH 15.13 (384.3) 13.00 (330.2) 4.94 (125.5)
UTRS213CFLCH 15.00 (381.0) 11.00 (279.4) 4.37 (111.0)
UTRS213CEPCH 15.00 (381.0) 11.00 (279.4) 4.37 (111.0)
UGTRS213CE 15.13 (384.3) 11.25 (285.8) 4.50 (114.3)
UTRS213CE 15.13 (384.3) 11.25 (285.8) 4.50 (114.3)
UATRS213BCH 15.13 (384.3) 11.25 (285.8) 4.50 (114.3)
URS213BCH 15.00 (381.0) 11.00 (279.4) 4.36 (110.7)
UTRS213BE 15.13 (384.3) 11.25 (285.8) 4.50 (114.3)
UTRS213AFLCH 15.00 (381.0) 11.00 (279.4) 4.37 (111.0)
UTRS213ACH 15.00 (381.0) 11.00 (279.4) 4.36 (110.7)
UTRS2138BCH 20.00 (508.0) 13.00 (330.2) 4.94 (125.5)
UTRS212ACH 14.00 (355.6) 11.00 (279.4) 4.37 (111.0)
UTRS212CCH 14.00 (355.6) 11.00 (279.4) 4.36 (110.7)
UTRS212CFLCH 14.00 (355.6) 11.00 (279.4) 4.36 (110.7)
UTRS212BCH 14.00 (355.6) 11.00 (279.4) 4.36 (110.7)
UTRS202NCH 14.00 (355.6) 8.00 (203.2) 4.36 (110.7)
UATRS202BFLCH 114.00 (355.6) 8.00 (203.2) 4.36 (110.7)
UTRS232CCH 17.12 (434.8) 13.00 (330.2) 4.93 (125.2)
UTRS202BCH 14.00 (355.6) 8.00 (203.2) 4.36 (110.7)
URS212ACH 14.00 (355.6) 11.00 (279.4) 4.38 (111.3)
URS202NCH 14.00 (355.6) 8.00 (203.2) 4.38 (111.3)
URS202BDQCH 14.00 (355.6) 8.00 (203.2) 4.38 (111.3)
UFHTRS213CCH 215.00 (381.0) 11.00 (279.4) 4.38 (111.3)
UHTTRS213BCH 15.00 (381.0) 11.00 (279.4) 4.38 (111.3)
UHTTRS213CCH 15.00 (381.0) 11.00 (279.4) 4.38 (111.3)
UHTTRS202BCH 14.00 (355.6) 8.00 (203.2) 4.38 (111.3)
UHTRS233CCH 17.13 (435.1) 13.00 (330.2) 4.94 (125.5)
UHTRS223ARHCH 13.00 (330.2) 13.00 (330.2) 4.94 (125.5)
UFHTRS223ACH 13.00 (330.2) 13.00 (330.2) 4.94 (125.5)
UGHTRS223ACH 13.00 (330.2) 13.00 (330.2) 4.94 (125.5)
UHTTRS223ACH 13.00 (330.2) 13.00 (330.2) 4.94 (125.5)
UHTRS223ACH 13.00 (330.2) 13.00 (330.2) 4.94 (125.5)
UHTRS213CE 15.00 (381.0) 11.00 (279.4) 4.38 (111.3)
UHTRS213BE 15.00 (381.0) 11.00 (279.4) 4.38 (111.3)
UHTRS213AE 15.00 (381.0) 11.00 (279.4) 4.38 (111.3)
UHTRS203BCH 15.00 (381.0) 8.00 (203.2) 4.38 (111.3)
UHTRS202BCH 14.00 (355.6) 8.00 (203.2) 4.38 (111.3)
UHIRS223ACVCH 13.00 (330.2) 13.00 (330.2) 4.94 (125.5)
Residential Ringless Type Cover, continued
Notes
1Aluminum enclosure.
2Barrel lock.
3Right hand incoming.
Catalog Number Height Width Depth
UHIRS213BCVCH 15.00 (381.0) 11.00 (279.4) 4.38 (111.3)
UGTRS213CE 15.13 (384.3) 11.25 (285.8) 4.50 (114.3)
UGTRS213BE 15.13 (384.3) 11.25 (285.8) 4.50 (114.3)
786685217918 15.13 (384.3) 11.25 (285.8) 4.50 (114.3)
UGHTRS213BE 15.13 (384.3) 11.25 (285.8) 4.50 (114.3)
UGHRS212CKCCH 14.00 (355.6) 11.00 (279.4) 4.38 (111.3)
UFTRS202BCH 14.00 (355.6) 8.00 (203.2) 4.38 (111.3)
UFHTRS202BCH 14.00 (355.6) 8.00 (203.2) 4.38 (111.3)
UBHTRS223ARHCH 13.00 (330.2) 13.00 (330.2) 4.94 (125.5)
UBHRS223ACH 13.00 (330.2) 13.00 (330.2) 4.94 (125.5)
UBHRS202BCH 14.00 (355.6) 8.00 (203.2) 4.38 (111.3)
UATRS213CFLCH 15.00 (381.0) 11.00 (279.4) 4.38 (111.3)
UAHTRS233CSHCH 17.13 (435.1) 13.00 (330.2) 4.94 (125.5)
UAHTRS223AFLCH 13.00 (330.2) 13.00 (330.2) 4.94 (125.5)
UAHTRS202BFLCH 14.00 (355.6) 8.00 (203.2) 4.38 (111.3)
U92197CCCPLCH 14.13 (358.9) 13.00 (330.2) 4.94 (125.5)
1009928CH 15.00 (381.0) 11.00 (279.4) 4.38 (111.3)
1009874ACH 15.00 (381.0) 13.00 (330.2) 4.94 (125.5)
1009046CH 20.75 (527.1) 9.00 (228.6) 4.94 (125.5)
1008941CH 17.13 (435.1) 13.00 (330.2) 4.94 (125.5)
1008940CH 17.13 (435.1) 13.00 (330.2) 4.94 (125.5)
1008827CH 13.00 (330.2) 13.00 (330.2) 4.94 (125.5)
1008819CH 13.00 (330.2) 13.00 (330.2) 4.94 (125.5)
1008717CH 15.00 (381.0) 13.00 (330.2) 4.94 (125.5)
1008617CH 15.00 (381.0) 13.00 (330.2) 4.94 (125.5)
1007817CH 15.00 (381.0) 11.00 (279.4) 4.38 (111.3)
1007699CH 14.00 (355.6) 8.00 (203.2) 4.38 (111.3)
1007665CH 14.00 (355.6) 8.00 (203.2) 4.38 (111.3)
1007588CH 13.00 (330.2) 13.00 (330.2) 4.94 (125.5)
1007448ACH 19.00 (482.6) 11.00 (279.4) 4.38 (111.3)
1004884ARHCH 313.00 (330.2) 13.00 (330.2) 4.93 (125.2)
1004884ACH 13.00 (330.2) 13.00 (330.2) 4.93 (125.2)
1004710ECH 14.00 (355.6) 11.00 (279.4) 4.38 (111.3)
1004709DCH N/A N/A N/A
1004455BCH 15.00 (381.0) 8.00 (203.2) 4.38 (111.3)
1004161ACH 14.00 (355.6) 8.00 (203.2) 4.38 (111.3)
1004159ACH 15.00 (381.0) 11.00 (279.4) 4.38 (111.3)
1003879ACH 15.00 (381.0) 8.00 (203.2) 4.38 (111.3)
1003878ACH 15.00 (381.0) 11.00 (279.4) 4.38 (111.3)
UTRS502BCH 14.00 (355.6) 8.00 (203.2) 4.38 (111.3)

Volume 1—Residential and Light Commercial CA08100002E—February 2014 www.eaton.com V1-T5-9
5
5
5
5
5
5
5
5
5
5
5
5
5
5
5
5
5
5
5
5
5
5
5
5
5
5
5
5
5
5
5.1
Metering Products
Single Meter Sockets
Approximate Dimensions in Inches (mm)
Residential Ringless Type Cover, continued
Catalog Number Height Width Depth
UTRS502BCH 14.00 (355.6) 8.00 (203.2) 4.36 (110.7)
UTRS502CCH 14.00 (355.6) 8.00 (203.2) 4.36 (110.7)
1006385BCH N/A N/A N/A
UTRS111BCH 14.00 (355.6) 11.00 (279.4) 4.36 (110.7)
UBTRS101BCH 10.88 (276.4) 8.00 (203.2) 3.50 (88.9)
UTRS101LCH 10.88 (276.4) 8.00 (203.2) 3.50 (88.9)
UTRS101CE 11.05 (280.7) 8.22 (208.8) 3.61 (91.7)
UTRS101BE 11.05 (280.7) 8.22 (208.8) 3.61 (91.7)
URS101CCPLCH 10.88 (276.4) 8.00 (203.2) 3.50 (88.9)
URS101BDQCH 10.88 (276.4) 8.00 (203.2) 3.50 (88.9)
URS101BCPLCH 10.88 (276.4) 8.00 (203.2) 3.50 (88.9)
URS101BCH 10.88 (276.4) 8.00 (203.2) 3.50 (88.9)
UHTTRS101BCH 10.88 (276.4) 8.00 (203.2) 3.50 (88.9)
UHTRS111BCH 14.00 (355.6) 11.00 (279.4) 4.38 (111.3)
UHTRS101LCH 10.88 (276.4) 8.00 (203.2) 3.50 (88.9)
UHTRS101CE 11.05 (280.7) 8.22 (208.8) 3.61 (91.7)
UHTRS101BE 11.05 (280.7) 8.22 (208.8) 3.61 (91.7)
UGRS10101CKCCH 12.00 (304.8) 8.00 (203.2) 3.50 (88.9)
UGHTRS111CCH 14.00 (355.6) 11.00 (279.4) 4.36 (110.7)
UGHTRS101BCH 10.88 (276.4) 8.00 (203.2) 3.50 (88.9)
UBHRS101BCH 10.88 (276.4) 8.00 (203.2) 3.50 (88.9)
UATZRS101CFLCH 10.88 (276.4) 8.00 (203.2) 3.50 (88.9)
UATRS101CCH 10.87 (276.1) 8.00 (203.2) 3.50 (88.9)
1008947CH 10.89 (276.6) 8.00 (203.2) 3.50 (88.9)
1005826ACH N/A N/A N/A
1004931BCH 10.88 (276.4) 8.00 (203.2) 3.50 (88.9)
1004162ACH 10.89 (276.6) 8.00 (203.2) 3.50 (88.9)
1003880ACH 10.89 (276.6) 8.00 (203.2) 3.50 (88.9)
UTZRS101BFLCH N/A N/A N/A
UTZRS101CFLCH N/A N/A N/A
1009079CH 23.75 (603.3) 8.00 (203.2) 3.48 (88.4)
Residential Ring Type Cover
Catalog Number Height Width Depth
URTRS223ACH 13.00 (330.2) 13.00 (330.2) 4.93 (125.2)
URRS213CCH 15.00 (381.0) 11.00 (279.4) 4.38 (111.3)
URTRS213NEUSCH 15.00 (381.0) 11.00 (279.4) 4.38 (111.3)
URTRS213CEUSCH 15.00 (381.0) 11.00 (279.4) 4.38 (111.3)
1009424CH 15.00 (381.0) 11.00 (279.4) 4.38 (111.3)
1009449CH 18.31 (465.1) 14.19 (360.4) 5.13 (130.3)
URSTRS203BCH N/A N/A N/A
URS212BCRCH 14.00 (355.6) 8.00 (203.2) 4.38 (111.3)
URTRS202BCH 14.00 (355.6) 11.00 (279.4) 4.38 (111.3)
URTRS213BE 14.00 (355.6) 8.00 (203.2) 4.50 (114.3)
URTRS202BCH 15.13 (384.3) 11.25 (285.8) 4.50 (114.3)
URTRS213CE 15.13 (384.3) 11.25 (285.8) 4.50 (114.3)
URTRS213BEUSCH 15.13 (384.3) 11.25 (285.8) 4.50 (114.3)
URTRS202NEUSCH 14.00 (355.6) 8.00 (203.2) 4.38 (111.3)
UNRRS202BEUSCH 14.00 (355.6) 8.00 (203.2) 4.38 (111.3)
UNRRS213CEUSE 15.13 (384.3) 11.25 (285.8) 4.50 (114.3)
UNRRS213BEUSE 15.13 (384.3) 11.25 (285.8) 4.50 (114.3)
UNRRS213AEUSE 15.13 (384.3) 11.25 (285.8) 4.50 (114.3)
1009097CH 19.00 (482.6) 13.00 (330.2) 5.25 (133.4)
URS101BCRCH 10.88 (276.4) 8.00 (203.2) 3.50 (88.9)
URRS101LCH 10.88 (276.4) 8.00 (203.2) 3.50 (88.9)
URTRS101BE 11.00 (279.4) 8.25 (209.6) 3.63 (92.2)
URTRS101CE 11.00 (279.4) 8.25 (209.6) 3.63 (92.2)
UNRRS101BEUSE 10.88 (276.4) 8.00 (203.2) 3.50 (88.9)
UNRRS101CEUSE 10.88 (276.4) 8.00 (203.2) 3.50 (88.9)
UNRRS111BEUSE 14.00 (355.6) 11.00 (279.4) 4.38 (111.3)
URSTRS101BCH 10.88 (276.4) 8.00 (203.2) 3.50 (88.9)

V1-T5-10 Volume 1—Residential and Light Commercial CA08100002E—February 2014 www.eaton.com
5
5
5
5
5
5
5
5
5
5
5
5
5
5
5
5
5
5
5
5
5
5
5
5
5
5
5
5
5
5
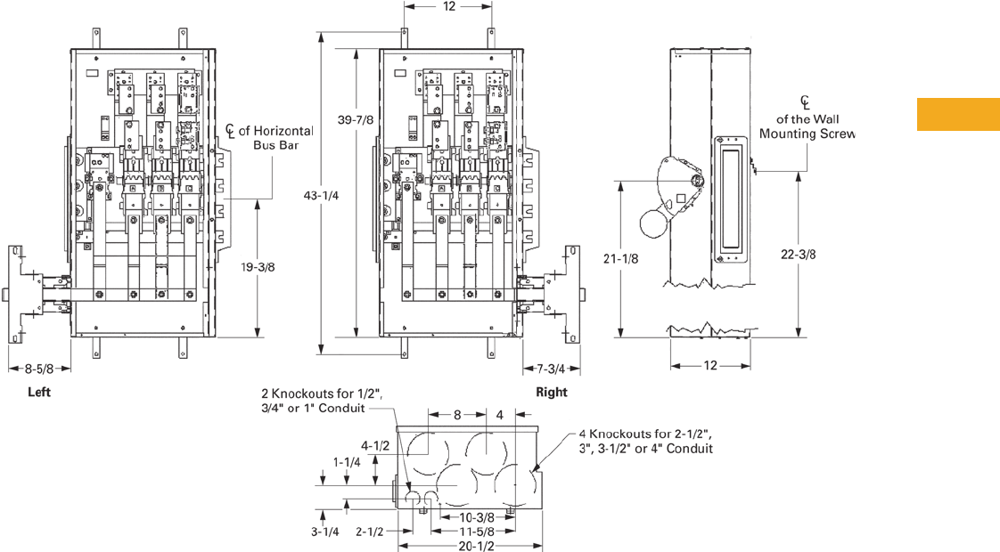
5.2
Metering Products
Commercial Lever Bypass Sockets
Commercial Lever Bypass Sockets
Contents
Description Page
Catalog Number Selection . . . . . . . . . . . . . . . . . . V1-T5-11
Product Selection . . . . . . . . . . . . . . . . . . . . . . . . . V1-T5-12
Dimensions. . . . . . . . . . . . . . . . . . . . . . . . . . . . . . V1-T5-16
Product Description
●Heavy-duty, lever bypass,
jaw clamping ringless
meter socket design
●200A and 320A
styles available
●Single-phase or
three-phase
●4, 5 or 7 terminal available
●600 Vac maximum rating
●Multiple service
design offerings
Standards and
Certifications
●UL 414 listed and
recognized

Volume 1—Residential and Light Commercial CA08100002E—February 2014 www.eaton.com V1-T5-11
5
5
5
5
5
5
5
5
5
5
5
5
5
5
5
5
5
5
5
5
5
5
5
5
5
5
5
5
5
5
5.2
Metering Products
Commercial Lever Bypass Sockets
Catalog Number Selection
Single Meter Sockets H Group
Standard Prefixes
A = Aluminum enclosure
B = Barrel lock provision, for an exposed INNER-TITE or Brooks barrel lock;
unit includes an internal lock receiver bracket
F = Barrel Lock with guard provision, for a lock guard INNER-TITE or
Brooks barrel lock; unit includes an internal lock receiver bracket
G = Grounded fifth terminal (9 o’clock position)
H = Horn bypass
I= Inhibitor installed in wire connectors
M = Temporary meter cover (waxed cardboard)
N = No sealing ring (applies only to ring style sockets)
R = Ring style socket
S = Aluminum screw type sealing ring (applies only to ring style sockets)
T = Grounding connector (#14–#2 Cu) for triplex ground
TT = Two grounding connectors (#14–#2 Cu) for quadplex ground
U = UL label
Z = 5/16-inch hex head connector screw in place of slotted (100A only)
Standard Suffixes
A= Solid top
B= Small hub opening
C= Small hub closing plate mounted
L= 1.25-inch (31.8 mm) hub mounted
M= 1.50-inch (38.1 mm) hub mounted
N= 2.00-inch (50.8 mm) hub mounted
P= 2.50-inch (63.5 mm) hub mounted
T= Large hub opening hub
U= Large hub cover plate hub mounted
V= 2.50-inch (63.5 mm) large hub mounted
Q= 3.00-inch (76.2 mm) large hub mounted
R= 3.50-inch (88.9 mm) large hub mounted
S= 4.00-inch (101.6 mm) large hub mounted
Z= Large to small hub adapter mounted
Product Group
RS = Residential service, single position
2R-6R = Residential service, multiple position
2H-6H = Commercial or residential service, multiple position
H = Commercial or residential service, single position
Jaw Quantity
4 = 4 terminals
5 = 5 terminals
7 = 7 terminals
Maximum Conductor (Line & Load)
0 = 0.38-inch stud connectors
3 = #350 kcmil connectors
5 = #500 kcmil connectors
6 = #600 kcmil connectors
7 = #750 kcmil connectors
8 = Dual #250 kcmil connectors
9 = Dual #350 kcmil connectors
Service Design
0 = Overhead
1 = Combination overhead/underground
2 = Underground, side wired
3 = Combination overhead/underground, side wired
Ampere Rating
2 = 200A
3 = 320A
UT H 4 2 0 3 B CH
Note: The “U” prefix is always used first followed by
other prefixes required in alphabetical order.

V1-T5-12 Volume 1—Residential and Light Commercial CA08100002E—February 2014 www.eaton.com
5
5
5
5
5
5
5
5
5
5
5
5
5
5
5
5
5
5
5
5
5
5
5
5
5
5
5
5
5
5
5.2
Metering Products
Commercial Lever Bypass Sockets
Product Selection
Commercial Lever Bypass
Notes
1Aluminum enclosure.
2Austin Energy approved.
For dimensions, see Pages V1-T5-16 and V1-T5-17.
Ampere
Rating Jaws Service Bypass
Connections Opening, Hub or
Closure Plate Catalog NumberLine Load
320 7 OH/UG Lever #4-600 kcmil #4–600 kcmil 5x5 hub opening UTTH7336TCH
320 7 OH Lever #600 kcmil Dual #6–350 5x5 hub opening UTH73069THLCH
320 7 OH/UG Lever #14–1/0 cu/al #6–350 kcmil 5x5 hub cover plate UTH73369UHLCH
320 7 OH/UG Lever #14–1/0 cu/al #6–350 kcmil 5x5 hub opening UTH73369THLCH
320 7 OH/UG Lever 3/8-inch studs 3/8-inch studs 5x5 hub cover plate UFTH7330UCH
320 7 OH/UG Lever #600 kcmil #600 kcmil 5x5 hub opening UTH7336TCH
320 7 OH/UG Lever 3/8-inch studs 3/8-inch studs 5x5 hub cover plate UTH7330UCH
320 7 OH/UG Lever 3/8-inch studs 3/8-inch studs 5x5 hub cover plate UTH7330UFLCH
320 7 OH/UG Lever 3/8-inch studs 3/8-inch studs 5x5 hub cover plate UATH7330UFLCH 1
320 7 OH/UG Lever 3/8-inch studs 3/8-inch studs 5x5 hub opening UH7330TCPLCH
320 7 OH/UG Lever 3/8-inch studs 3/8-inch studs 5x5 hub opening UTH7330TCH
320 7 OH/UG Lever 3/8-inch studs 3/8-inch studs 5x5 hub-inch opening UTTH7330TCH
320 7 OH/UG Lever 3/8-inch studs 3/8-inch studs 5x5 hub cover plate UH7300UCPLCH
320 7 OH/UG Lever 3/8-inch studs 3/8-inch studs 5x5 hub cover plate UTH7300UCH
320 7 OH/UG Lever 3/8-inch studs 3/8-inch studs 5x5 hub opening UTH7300TCH
320 7 OH/UG Lever #6–350 kcmil #6–350 kcmil Hub closure plate 1006353CCH 2
320 5 OH/UG Lever 3/8-inch studs 3/8-inch studs 5x5 hub cover plate UTH5330UFLCH
320 5 OH/UG Lever 3/8-inch studs 3/8-inch studs 5x5 hub cover plate UTH5330UCH
320 5 OH Lever 3/8-inch studs 3/8-inch studs 5x5 hub opening UTH5300TCH
320 5 OH/UG Lever 3/8-inch studs 3/8-inch studs 5x5 hub cover plate UATH5330UFLCH
320 4 OH/UG lever #4–600 kcmil #4–600 kcmil Hub closure plate 1010468CH 2
320 4 UG Lever 3/8-inch studs 3/8-inch studs Solid top UTH4320ACH
320 4 UG Lever 3/8-inch studs Dual #6–350 Solid top UTH43209ACH
320 4 OH/UG Lever #6–350 kcmil #6–350 kcmil 5x5 hub cover plate UTH4339UCH
320 4 OH/UG Lever #6–250 kcmil #6–250 kcmil 5x5 hub cover plate UTH4338UCH
320 4 OH/UG Lever #4–600 kcmil #4–600 kcmil 5x5 hub cover plate UTH4336UCH
320 4 OH/UG Lever #4–600 kcmil #4–600 kcmil 5x5 hub opening UTH4336TCH
320 4 OH/UG Lever #4–600 kcmil #6–350 kcmil 5x5 hub cover plate UTH43369UCH
320 4 OH/UG Lever #4–600 kcmil #6–350 kcmil 5x5 hub opening UTH43369TCH
320 4 OH/UG Lever 3/8-inch studs 3/8-inch studs 3-5/16 hub cover plate UTTH4330UCH
320 4 OH/UG Lever 3/8-inch studs 3/8-inch studs 3-5/16 hub cover plate UTH4330UCH
320 4 OH/UG Lever 3/8-inch studs 3/8-inch studs 5x5 hub opening UBTH4330TCH
320 4 OH/UG Lever 3/8-inch studs 3/8-inch studs 5x5 hub opening UTH4330TCH
320 4 OH/UG Lever 3/8-inch studs 3/8-inch studs 5x5 cover plate UTH4300UCH
320 4 OH/UG Lever 3/8-inch studs 3/8-inch studs 5x5 hub opening UTH4300TCH
320 5 OH/UG Lever 3/8-inch studs 3/8-inch studs 5x5 hub cover plate UH5300UKCCH
320 4 OH/UG Lever #6–250 kcmil #4–600 kcmil 5x5 hub cover plate UH43168UCPLCH
320 4 OH/UG Lever #4–600 kcmil #6–250 kcmil 5x5 hub cover plate UH43068TCPLCH
320 5 OH/UG Lever 3/8-inch studs 3/8-inch studs 5x5 hub cover plate UGTH4330UCH
320 5 OH/UG Lever 3/8-inch studs 3/8-inch studs 5x5 hub opening UGTH4330TCH
320 7 OH/UG Lever 3/8-inch studs 3/8-inch studs 5x5 hub opening UFTH7330TCH
320 4 OH/UG Lever 3/8-inch studs 3/8-inch studs 5x5 hub opening UFTH4330TCH

Volume 1—Residential and Light Commercial CA08100002E—February 2014 www.eaton.com V1-T5-13
5
5
5
5
5
5
5
5
5
5
5
5
5
5
5
5
5
5
5
5
5
5
5
5
5
5
5
5
5
5
5.2
Metering Products
Commercial Lever Bypass Sockets
Commercial Lever Bypass, continued
Notes
1Bolted in shield.
For dimensions, see Pages V1-T5-16 and V1-T5-17.
Ampere
Rating Jaws Service Bypass
Connections Opening, Hub or
Closure Plate Catalog NumberLine Load
320 7 OH/UG Lever #4–600 kcmil #4–600 kcmil 5x5 hub opening UATH7336TCH
320 5 OH/UG Lever 3/8-inch studs 3/8-inch studs 5x5 hub cover plate UATH5330UFLCH
320 4 OH/UG Lever #4–600 kcmil #4–600 kcmil 5x5 hub opening UATH4336TCH
320 4 OH/UG Lever 3/8-inch studs 3/8-inch studs 5x5 hub opening UATH4330TCH
320 4 OH/UG Lever 3/8-inch studs 3/8-inch studs 5x5 hub cover plate 1009788CH
320 4 OH/UG Lever 3/8-inch studs 3/8-inch studs 5x5 hub cover plate 1009788ACH 1
320 4 OH/UG Lever Dual #6–350 Dual #6–350 (2) 5x5 hub cover plates 1009760ACH
320 4 OH/UG Lever Dual #6–350 Dual #6–350 5x5 hub cover plate 1009722CH
320 4 OH/UG Lever 3/8-inch studs 3/8-inch studs 5x5 hub cover plate 782116975945
320 4 OH/UG Lever 3/8-inch studs 3/8-inch studs 5x5 hub cover plate 1009260CH
320 7 OH/UG Lever #4–600 kcmil/Dual 1/0–250
kcmil cu/al
#4–600 kcmil/Dual 1/0–250
kcmil cu/al
5x5 hub opening 1009181CH
320 4 UG Lever #6–350 kcmil #6–350 kcmil Solid top 1009018CH
320 4 OH/UG Lever 3/8-inch studs 3/8-inch studs 5x5 hub opening 1008950CH
320 4 OH/UG Lever 3/8-inch studs 3/8-inch studs 5x5 hub opening 1008948CH
320 4 UG Lever 3/8-inch studs 3/8-inch studs Solid top 1008848CH
320 4 OH/UG Lever 3/8-inch studs 3/8-inch studs 5x5 hub opening 1008837CH
320 4 OH/UG Lever 3/8-inch studs 3/8-inch studs 5x5 hub opening 1008836CH
320 7 OH/UG Lever 3/8-inch studs 3/8-inch studs 5x5 hub opening 1008798CH
320 4 OH/UG Lever 3/8-inch studs 3/8-inch studs 5x5 hub opening 1008793CH
320 5 OH/UG Lever 3/8-inch studs 3/8-inch studs 5x5 hub opening 1008792CH
320 7 OH/UG Lever #4–600 kcmil/Dual 1/0–250
kcmil cu/al
#4–600 kcmil/Dual 1/0–250
kcmil cu/al
5x5 hub opening 1008543CH
320 4 OH/UG Lever #4–600 kcmil cu/al #4–600 kcmil cu/al 5x5 hub opening 1008541CH
320 4 UG Lever N/A N/A Solid top 1008540CH
320 4 OH/UG Lever #4–600 kcmil cu/al #4–600 kcmil cu/al Solid top 1008435CH
320 4 OH/UG Lever 3/8-inch studs 3/8-inch studs 5x5 hub opening 1008191CH
320 4 OH/UG Lever #6–350 kcmil #6–350 kcmil 5x5 hub opening 1008068CH
320 4 OH/UG Lever N/A N/A N/A 1007818CH
320 4 OH/UG Lever 3/8-inch studs 3/8-inch studs 5x5 hub opening 1007801CH
320 4 OH/UG Lever 3/8-inch studs 3/8-inch studs 5x5 hub opening 1007672CH
320 4 OH/UG Lever #6–350 kcmil #6–350 kcmil 5x5 hub opening 1006344ACH
320 4 OH/UG Lever TBD TBD 5x5 hub opening 1004984ACH
320 4 OH/UG N/A #4–600 kcmil #4–600 kcmil 3-inch bolt-on hub 1004771BCH
200 7 OH/UG Lever 3/8-inch studs 3/8-inch studs N/A UBTH7230ACH
200 7 OH/UG Lever #6–350 kcmil #6–350 kcmil 5x5 hub cover plate UTH7233UCH

V1-T5-14 Volume 1—Residential and Light Commercial CA08100002E—February 2014 www.eaton.com
5
5
5
5
5
5
5
5
5
5
5
5
5
5
5
5
5
5
5
5
5
5
5
5
5
5
5
5
5
5
5.2
Metering Products
Commercial Lever Bypass Sockets
Commercial Lever Bypass, continued
Notes
1Barrel lock.
2TT = quadplex ground.
For dimensions, see Pages V1-T5-16 and V1-T5-17.
Ampere
Rating Jaws Service Bypass
Connections Opening, Hub or
Closure Plate Catalog NumberLine Load
200 7 OH/UG Lever #6–350 kcmil #6–350 kcmil 5x5 hub cover plate UTE7213UFLCH
200 7 OH/UG Lever #6–350 kcmil #6–350 kcmil 3-5/16 hub cover plate UETH72137UCH
200 7 OH/UG Lever #6–350 kcmil #6–350 kcmil 3-5/16 hub cover plate UTE7213UCH
200 7 OH/UG Lever #6–350 kcmil #6–350 kcmil 5x5 hub opening UTE7213THLCH
200 7 OH/UG Lever #6–350 kcmil #6–350 kcmil 5x5 hub opening UBHRS212BCH
200 7 OH/UG Lever #6–350 kcmil #6–350 kcmil 5x5 hub opening UBEH7213TCH
200 7 OH/UG Lever #6–350 kcmil #6–350 kcmil 5x5 hub opening UFTE7213TCH 1
200 7 OH/UG Lever #6–350 kcmil #6–350 kcmil Large to small hub adapter UTE7213ZCH
200 7 OH/UG Lever #6–350 kcmil #6–350 kcmil 5x5 hub opening UTE7213TCH
200 7 OH/UG Lever #6–350 kcmil #6–350 kcmil 3-5/16 hub cover plate UTE7213CFLCH
200 7 OH/UG Lever #6–350 kcmil #6–350 kcmil 3-5/16 hub cover plate UTE7213CCH
200 7 OH/UG Lever #6–350 kcmil #6–350 kcmil 3-5/16 hub opening UBTE7213BCH
200 7 OH/UG Lever #6–350 kcmil #6–350 kcmil 3-5/16 hub opening UTE7213BCH
200 7 OH/UG Lever 3/8-inch studs 3/8-inch studs 5x5 hub cover plate UTE7210UCH
200 7 OH Lever #6–350 kcmil #6–350 kcmil 5x5 hub opening UTE7203TCH
200 7 OH Lever #6–350 kcmil #6–350 kcmil 3-5/16 hub opening UTE7203BCH
200 5 OH/UG Lever #6–350 kcmil #6–350 kcmil 5x5 hub cover plate UETH5213UCH
200 5 OH/UG Lever #6–350 kcmil #6–350 kcmil 5x5 hub opening UTE5213TCH
200 5 OH/UG Lever #6–350 kcmil #6–350 kcmil 5x5 hub opening UTTE5213TCH
200 5 OH/UG Lever #6–350 kcmil #6–350 kcmil 3-5/16 hub cover plate UTE5213CCH
200 5 OH/UG Lever #6–350 kcmil #6–350 kcmil 3-5/16 hub opening UTE5213BNDCH
200 5 OH/UG Lever #6–350 kcmil #6–350 kcmil Large to small hub adapter UTE5213ZCH
200 5 OH/UG Lever #6–350 kcmil #6–350 kcmil 5x5 hub cover plate UTE5213UFLCH
200 5 OH/UG Lever #6–350 kcmil #6–350 kcmil 3-5/16 hub cover plate UTE5213CFLCH
200 5 OH/UG Lever #6–350 kcmil #6–350 kcmil 3-5/16 hub opening UTE5213BCH
200 5 OH/UG Lever 3/8-inch studs 3/8-inch studs 3-5/16 hub cover plate UTE5210CCH
200 5 OH Lever #6–350 kcmil #6–350 kcmil 3-5/16 hub opening UTE5203BCH
200 4 OH/UG Lever #6–350 kcmil #6–350 kcmil 5x5 hub opening with adapter plate UTE4213ZCH
200 5 OH/UG Lever #6–350 kcmil #6–350 kcmil 5x5 hub cover plate UGTE4213CCH
200 4 OH/UG Lever #6–350 kcmil #6–350 kcmil 5x5 hub opening UTE4213TCH
200 4 OH/UG Lever #6–350 kcmil #6–350 kcmil 5x5 hub cover plate UTTE4213UCH 2
200 4 OH/UG Lever #6–350 kcmil #6–350 kcmil 5x5 hub cover plate UTE4213CCH
200 4 OH/UG Lever #6–350 kcmil #6–350 kcmil 3-5/16 hub opening UTE4213BCH
200 4 OH Lever #6–350 kcmil #6–350 kcmil 3-5/16 hub opening UTE4203BCH
200 7 OH/UG Lever #6–350 kcmil #6–350 kcmil 5x5 hub cover plate UIH7213UCVCH
200 7 OH/UG Lever #6–350 kcmil #6–350 kcmil 3-5/16 hub cover plate UE7213CCCCH
200 7 OH/UG Lever #6–350 kcmil #6–350 kcmil 3-5/16 hub cover plate UE7213CCPLCH
200 7 OH/UG Lever #6–350 kcmil #6–350 kcmil 3-5/16 hub opening UE7213BCPLCH

Volume 1—Residential and Light Commercial CA08100002E—February 2014 www.eaton.com V1-T5-15
5
5
5
5
5
5
5
5
5
5
5
5
5
5
5
5
5
5
5
5
5
5
5
5
5
5
5
5
5
5
5.2
Metering Products
Commercial Lever Bypass Sockets
Commercial Lever Bypass, continued
Note
For dimensions, see Pages V1-T5-16 and V1-T5-17.
Ampere
Rating Jaws Service Bypass
Connections Opening, Hub or
Closure Plate Catalog NumberLine Load
200 5 OH/UG Lever #6–350 kcmil #6–350 kcmil 3-5/16 hub opening UGTE4213BCH
200 4 OH/UG Lever #6–350 kcmil #6–350 kcmil 3-5/16 hub cover plate UGE4213CCCCH
200 7 OH/UG Lever #6–350 kcmil #6–350 kcmil 3-5/16 hub opening UFTE7213BCH
200 7 OH/UG Lever #6–350 kcmil #6–350 kcmil 5x5 hub opening UATE7213TCH
200 5 OH/UG Lever #6–350 kcmil #6–350 kcmil 3-5/16 hub cover plate UATE5213CCH
200 4 OH/UG Lever #6–350 kcmil #6–350 kcmil 5x5 hub cover plate UATE4213UFLCH
200 5 OH Lever #6–350 kcmil #6–350 kcmil 3-5/16 hub opening UBGTE4203BCH
200 7 UG Lever 4/0 compression line #6–350 kcmil cu/al load Solid top 1009845ECH
200 5 OH/UG Lever #6–350 kcmil #6–350 kcmil 3-5/16 hub cover plate 1008801ECH
200 5 OH/UG Lever 3/8-inch studs 3/8-inch studs 3-5/16 hub cover plate 1008832ECH
200 4 UG Lever #6–350 kcmil #6–350 kcmil Solid top 1007944ECH
200 7 OH/UG Lever #6–350 kcmil cu/al #6–350 kcmil cu/al 5x5 hub opening 1007670ECH
200 7 OH/UG Lever #6–350 kcmil #6–350 kcmil 5x5 hub opening UTTE7213TCH

V1-T5-16 Volume 1—Residential and Light Commercial CA08100002E—February 2014 www.eaton.com
5
5
5
5
5
5
5
5
5
5
5
5
5
5
5
5
5
5
5
5
5
5
5
5
5
5
5
5
5
5
5.2
Metering Products
Commercial Lever Bypass Sockets
Dimensions
Approximate Dimensions in Inches (mm)
Commercial Lever Bypass
Catalog Number Height Width Depth
UTTH7336TCH 39.89 (1013.2) 20.00 (508.0) 6.50 (165.1)
UTH73069THLCH N/A N/A N/A
UTH73369UHLCH 39.89 (1013.2) 20.00 (508.0) 6.50 (165.1)
UTH73369THLCH 39.89 (1013.2) 20.00 (508.0) 6.50 (165.1)
UFTH7330UCH 39.89 (1013.2) 20.00 (508.0) 6.50 (165.1)
UTH7336TCH 39.89 (1013.2) 20.00 (508.0) 6.50 (165.1)
UTH7330UCH 39.89 (1013.2) 20.00 (508.0) 6.50 (165.1)
UTH7330UFLCH 39.89 (1013.2) 20.00 (508.0) 6.50 (165.1)
UATH7330UFLCH 139.89 (1013.2) 20.00 (508.0) 6.50 (165.1)
UH7330TCPLCH 39.89 (1013.2) 20.00 (508.0) 6.50 (165.1)
UTH7330TCH 39.89 (1013.2) 20.00 (508.0) 6.50 (165.1)
UTTH7330TCH 39.89 (1013.2) 20.00 (508.0) 6.50 (165.1)
UH7300UCPLCH 39.89 (1013.2) 20.00 (508.0) 6.50 (165.1)
UTH7300UCH 39.89 (1013.2) 20.00 (508.0) 6.50 (165.1)
UTH7300TCH 34.50 (876.3) 15.00 (381.0) 5.63 (143.0)
UTH5330UFLCH 39.88 (1013.0) 20.00 (508.0) 6.50 (165.1)
UTH5330UCH 39.88 (1013.0) 20.00 (508.0) 6.50 (165.1)
UTH5300TCH 39.88 (1013.0) 20.00 (508.0) 6.50 (165.1)
UATH5330UFLCH 39.88 (1013.0) 20.00 (508.0) 6.50 (165.1)
UTH4320ACH 26.00 (660.4) 15.00 (381.0) 5.68 (144.3)
UTH43209ACH N/A N/A N/A
UTH4339UCH 36.63 (930.4) 15.00 (381.0) 5.69 (144.5)
UTH4338UCH 29.00 (736.6) 15.00 (381.0) 5.69 (144.5)
UTH4336UCH 36.63 (930.4) 15.00 (381.0) 5.69 (144.5)
UTH4336TCH 36.63 (930.4) 15.00 (381.0) 5.69 (144.5)
UTH43369UCH 36.63 (930.4) 15.00 (381.0) 5.69 (144.5)
UTH43369TCH 36.63 (930.4) 15.00 (381.0) 5.69 (144.5)
UTTH4330UCH 36.63 (930.4) 15.00 (381.0) 5.69 (144.5)
UTH4330UCH 36.63 (930.4) 15.00 (381.0) 5.69 (144.5)
UBTH4330TCH 36.63 (930.4) 15.00 (381.0) 5.69 (144.5)
UTH4330TCH 36.63 (930.4) 15.00 (381.0) 5.69 (144.5)
UTH4300UCH 34.50 (876.3) 13.00 (330.2) 4.94 (125.5)
UTH4300TCH 34.50 (876.3) 13.00 (330.2) 4.94 (125.5)
UH5300UKCCH 34.50 (876.3) 13.00 (330.2) 4.94 (125.5)
UH43168UCPLCH 34.50 (876.3) 15.00 (381.0) 5.69 (144.5)
UH43068TCPLCH 34.50 (876.3) 13.00 (330.2) 4.94 (125.5)
UGTH4330UCH 36.63 (930.4) 15.00 (381.0) 5.69 (144.5)
UGTH4330TCH 36.63 (930.4) 15.00 (381.0) 5.69 (144.5)
UFTH7330TCH 39.88 (1013.0) 20.00 (508.0) 6.50 (165.1)
UFTH4330TCH 36.63 (930.4) 15.00 (381.0) 5.69 (144.5)
Commercial Lever Bypass, continued
Notes
1Aluminum enclosure.
2Bolted in shield.
Catalog Number Height Width Depth
UATH7336TCH 39.88 (1013.0) 20.00 (508.0) 6.50 (165.1)
UATH5330UFLCH 39.88 (1013.0) 20.00 (508.0) 6.50 (165.1)
UATH4336TCH 36.63 (930.4) 15.00 (381.0) 5.69 (144.5)
UATH4330TCH 36.63 (930.4) 15.00 (381.0) 5.69 (144.5)
1009788CH 34.50 (876.3) 13.00 (330.2) 4.94 (125.5)
1009788ACH 234.50 (876.3) 13.00 (330.2) 4.94 (125.5)
1009760ACH 36.63 (930.4) 15.00 (381.0) 5.68 (144.3)
1009722CH 36.63 (930.4) 15.00 (381.0) 5.68 (144.3)
782116975945 36.63 (930.4) 15.00 (381.0) 5.69 (144.5)
1009260CH 36.63 (930.4) 15.00 (381.0) 5.69 (144.5)
1009181CH 34.50 (876.3) 15.00 (381.0) 5.69 (144.5)
1009018CH 63.00 (1600.2) 12.97 (329.4) 4.94 (125.5)
1008950CH 39.88 (1013.0) 20.00 (508.0) 6.50 (165.1)
1008948CH 36.63 (930.4) 15.00 (381.0) 5.69 (144.5)
1008848CH 58.00 (1473.2) 12.97 (329.4) 4.94 (125.5)
1008837CH 36.63 (930.4) 15.00 (381.0) 6.50 (165.1)
1008836CH 36.63 (930.4) 15.00 (381.0) 6.50 (165.1)
1008798CH 34.50 (876.3) 15.00 (381.0) 5.69 (144.5)
1008793CH 34.50 (876.3) 13.00 (330.2) 4.94 (125.5)
1008792CH 34.50 (876.3) 13.00 (330.2) 4.94 (125.5)
1008543CH 39.89 (1013.2) 20.00 (508.0) 6.60 (167.6)
1008541CH 36.63 (930.4) 15.00 (381.0) 5.69 (144.5)
1008540CH N/A N/A N/A
1008435CH 26.00 (660.4) 15.00 (381.0) 5.69 (144.5)
1008191CH 36.63 (930.4) 15.00 (381.0) 5.69 (144.5)
1008068CH 34.50 (876.3) 16.44 (417.6) 6.50 (165.1)
1007818CH N/A N/A N/A
1007801CH 28.50 (723.9) 18.00 (457.2) 5.69 (144.5)
1007672CH 36.63 (930.4) 15.00 (381.0) 5.69 (144.5)
1006344ACH 28.50 (723.9) 18.00 (457.2) 5.69 (144.5)
1004984ACH 36.63 (930.4) 15.00 (381.0) 5.69 (144.5)
1004771BCH 36.62 (930.1) 15.00 (381.0) 5.68 (144.3)
UBTH7230ACH N/A N/A N/A
UTH7233UCH 27.00 (685.8) 16.00 (406.4) 5.63 (143.0)

Volume 1—Residential and Light Commercial CA08100002E—February 2014 www.eaton.com V1-T5-17
5
5
5
5
5
5
5
5
5
5
5
5
5
5
5
5
5
5
5
5
5
5
5
5
5
5
5
5
5
5
5.2
Metering Products
Commercial Lever Bypass Sockets
Approximate Dimensions in Inches (mm)
Commercial Lever Bypass, continued
Catalog Number Height Width Depth
UTE7213UFLCH 19.00 (482.6) 13.00 (330.2) 4.94 (125.5)
UETH72137UCH 19.00 (482.6) 13.00 (330.2) 4.94 (125.5)
UTE7213UCH 19.00 (482.6) 13.00 (330.2) 4.94 (125.5)
UTE7213THLCH 19.00 (482.6) 13.00 (330.2) 4.94 (125.5)
UBHRS212BCH 19.00 (482.6) 13.00 (330.2) 4.94 (125.5)
UBEH7213TCH 19.00 (482.6) 13.00 (330.2) 4.94 (125.5)
UFTE7213TCH 119.00 (482.6) 13.00 (330.2) 4.94 (125.5)
UTE7213ZCH 19.00 (482.6) 13.00 (330.2) 4.94 (125.5)
UTE7213TCH 19.00 (482.6) 13.00 (330.2) 4.94 (125.5)
UTE7213CFLCH 19.00 (482.6) 13.00 (330.2) 4.94 (125.5)
UTE7213CCH 19.00 (482.6) 13.00 (330.2) 4.94 (125.5)
UBTE7213BCH 19.00 (482.6) 13.00 (330.2) 4.94 (125.5)
UTE7213BCH 19.00 (482.6) 13.00 (330.2) 4.94 (125.5)
UTE7210UCH 24.69 (627.1) 13.00 (330.2) 4.94 (125.5)
UTE7203TCH 19.00 (482.6) 10.50 (266.7) 4.94 (125.5)
UTE7203BCH 19.00 (482.6) 10.50 (266.7) 4.94 (125.5)
UETH5213UCH 19.00 (482.6) 13.00 (330.2) 4.94 (125.5)
UTE5213TCH 19.00 (482.6) 13.00 (330.2) 4.94 (125.5)
UTTE5213TCH 19.00 (482.6) 13.00 (330.2) 4.94 (125.5)
UTE5213CCH 19.00 (482.6) 13.00 (330.2) 4.94 (125.5)
UTE5213BNDCH 19.00 (482.6) 13.00 (330.2) 4.94 (125.5)
UTE5213ZCH 19.00 (482.6) 13.00 (330.2) 4.94 (125.5)
UTE5213UFLCH 19.00 (482.6) 13.00 (330.2) 4.94 (125.5)
UTE5213CFLCH 19.00 (482.6) 13.00 (330.2) 4.94 (125.5)
UTE5213BCH 19.00 (482.6) 13.00 (330.2) 4.94 (125.5)
UTE5210CCH 20.13 (511.3) 13.00 (330.2) 4.94 (125.5)
UTE5203BCH 19.00 (482.6) 10.50 (266.7) 4.94 (125.5)
UTE4213ZCH 19.00 (482.6) 13.00 (330.2) 4.94 (125.5)
UGTE4213CCH 19.00 (482.6) 13.00 (330.2) 4.94 (125.5)
UTE4213TCH 19.00 (482.6) 13.00 (330.2) 4.94 (125.5)
UTTE4213UCH 219.00 (482.6) 13.00 (330.2) 4.94 (125.5)
UTE4213CCH 19.00 (482.6) 13.00 (330.2) 4.94 (125.5)
UTE4213BCH 19.00 (482.6) 13.00 (330.2) 4.94 (125.5)
UTE4203BCH 19.00 (482.6) 10.50 (266.7) 4.94 (125.5)
UIH7213UCVCH 19.00 (482.6) 13.00 (330.2) 4.94 (125.5)
UE7213CCCCH 19.00 (482.6) 13.00 (330.2) 4.94 (125.5)
UE7213CCPLCH 19.00 (482.6) 13.00 (330.2) 4.94 (125.5)
UE7213BCPLCH 19.00 (482.6) 13.00 (330.2) 4.94 (125.5)
Commercial Lever Bypass, continued
Notes
1Barrel lock.
2TT = quadplex ground.
Catalog Number Height Width Depth
UGTE4213BCH 19.00 (482.6) 13.00 (330.2) 4.94 (125.5)
UGE4213CCCCH 19.00 (482.6) 13.00 (330.2) 4.94 (125.5)
UFTE7213BCH 19.00 (482.6) 13.00 (330.2) 4.94 (125.5)
UATE7213TCH 19.00 (482.6) 13.00 (330.2) 4.94 (125.5)
UATE5213CCH 19.00 (482.6) 13.00 (330.2) 4.94 (125.5)
UATE4213UFLCH 19.00 (482.6) 13.00 (330.2) 4.94 (125.5)
UBGTE4203BCH 19.00 (482.6) 10.50 (266.7) 4.94 (125.5)
1009845ECH 64.00 (1625.6) 11.00 (279.4) 6.00 (152.4)
1008801ECH 19.00 (482.6) 13.00 (330.2) 4.94 (125.5)
1008832ECH 24.69 (627.1) 13.00 (330.2) 4.94 (125.5)
1007944ECH 22.00 (558.8) 16.00 (406.4) 5.69 (144.5)
1007670ECH 19.00 (482.6) 13.00 (330.2) 4.94 (125.5)
UTTE7213TCH 19.00 (482.6) 13.00 (330.2) 4.94 (125.5)

V1-T5-18 Volume 1—Residential and Light Commercial CA08100002E—February 2014 www.eaton.com
5
5
5
5
5
5
5
5
5
5
5
5
5
5
5
5
5
5
5
5
5
5
5
5
5
5
5
5
5
5
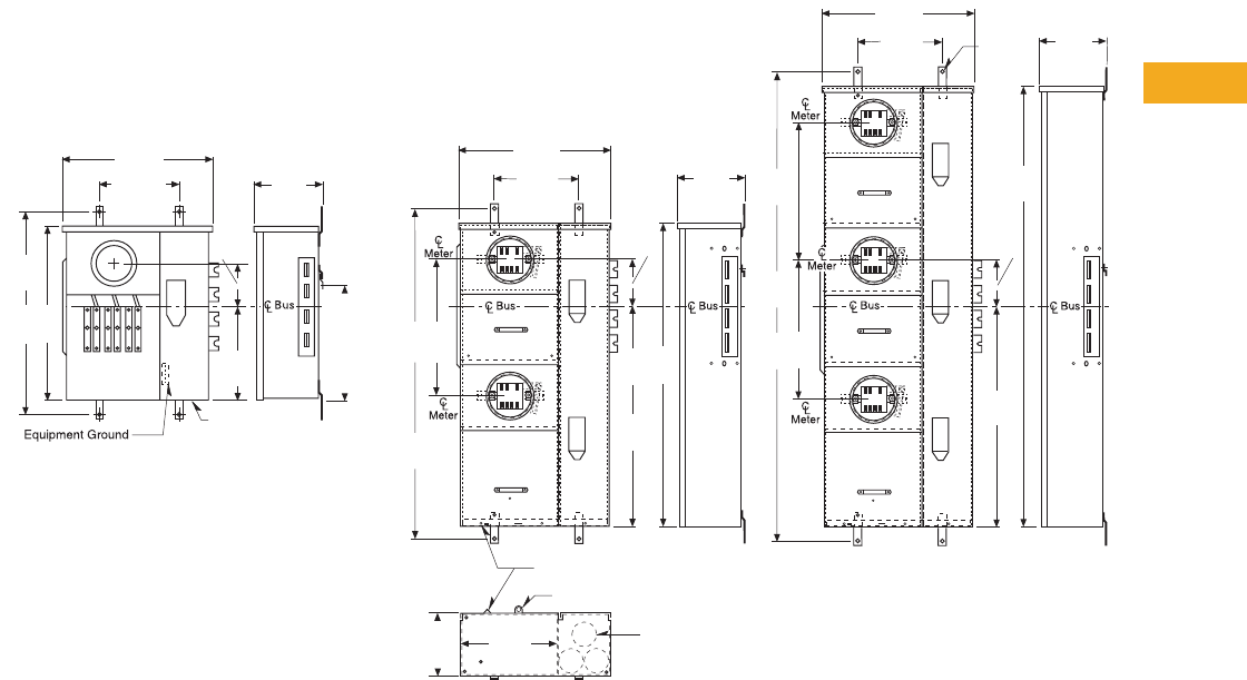
5.3
Metering Products
Multiple Position Horizontal Ganged Sockets
Multiple Position Horizontal Ganged Sockets
Contents
Description Page
Catalog Number Selection . . . . . . . . . . . . . . . . . . V1-T5-19
Product Selection . . . . . . . . . . . . . . . . . . . . . . . . . V1-T5-20
Dimensions. . . . . . . . . . . . . . . . . . . . . . . . . . . . . . V1-T5-23
Product Description
●Available in 100A and
200A designs
●Available in 2-position
through 6-position designs
●Multiple service
design offerings
●Multiple line/load
lug configurations
●Residential or lever
bypass socket designs
●Multiple hub opening
and closure plate
sizes available

Volume 1—Residential and Light Commercial CA08100002E—February 2014 www.eaton.com V1-T5-19
5
5
5
5
5
5
5
5
5
5
5
5
5
5
5
5
5
5
5
5
5
5
5
5
5
5
5
5
5
5
5.3
Metering Products
Multiple Position Horizontal Ganged Sockets
Catalog Number Selection
Single Meter Sockets 2R-6R and 2H-6H Group
Standard Prefixes
A = Aluminum enclosure
B = Barrel lock provision, for an exposed INNER-TITE or Brooks barrel lock;
unit includes an internal lock receiver bracket
F = Barrel lock with guard provision, for a lock guard INNER-TITE or
Brooks barrel lock; unit includes an internal lock receiver bracket
G = Grounded fifth terminal (9 o’clock position)
H = Horn bypass
I = Inhibitor installed in wire connectors
M = Temporary meter cover (waxed cardboard)
N = No sealing ring (applies only to ring style sockets)
R = Ring style socket
S = Aluminum screw type sealing ring (applies only to ring style sockets)
T = Grounding connector (#14–#2 Cu) for triplex ground
TT = Two grounding connectors (#14–#2 Cu) for quadplex ground
U = UL label
Z = 5/16-inch hex head connector screw in place of slotted (100A only)
Standard Suffixes
A = Solid top
B = Small hub opening
C = Small hub closing plate mounted
L = 1.25-inch (31.8 mm) hub mounted
M = 1.50-inch (38.1 mm) hub mounted
N = 2.00-inch (50.8 mm) hub mounted
P = 2.50-inch (63.5 mm) hub mounted
T = Large hub opening hub
U = Large hub cover plate hub mounted
V = 2.50-inch (63.5 mm) large hub mounted
Q = 3.00-inch (76.2 mm) large hub mounted
R = 3.50-inch (88.9 mm) large hub mounted
S = 4.00-inch (101.6 mm) large hub mounted
Z = Large to small hub adapter mounted
Maximum Line Conductor
0 = 0.38-inch stud connectors
1 = #2/0 connectors
2 = #250 kcmil connectors
3 = #350 kcmil connectors
5 = #500 kcmil connectors
6 = #600 kcmil connectors
7 = #750 kcmil connectors
8 = Dual #500 kcmil connectors
Service Design
0 = Overhead
1 = Combination overhead/underground
2 = Underground, side wired
3 = Combination overhead/underground, side wired
4 = End feed
Ampere Rating
1 = 100A
2 = 200A
Maximum Load Conductor
0 = 0.38-inch stud connectors
1 = #2/0 connectors
2 = #250 kcmil connectors
3 = #350 kcmil connectors
5 = #500 kcmil connectors
6 = #600 kcmil connectors
7 = #750 kcmil connectors
8 = Dual #500 kcmil connectors
Product Group
RS = Residential service, single position
2R-6R = Residential service, multiple position
2H-6H = Commercial or residential service, multiple position
H = Commercial or residential service, single position
UT 2R 1 1 2 1 B CH
Note: The “U” prefix is always used first followed by
other prefixes required in alphabetical order.

V1-T5-20 Volume 1—Residential and Light Commercial CA08100002E—February 2014 www.eaton.com
5
5
5
5
5
5
5
5
5
5
5
5
5
5
5
5
5
5
5
5
5
5
5
5
5
5
5
5
5
5
5.3
Metering Products
Multiple Position Horizontal Ganged Sockets
Product Selection
Horizontal Design—Multi Position Ringless
Notes
1 Aluminum enclosure.
For dimensions, see Pages V1-T5-23 and V1-T5-24.
Ampere
Rating Jaws Position Service Bypass
Connections Opening, Hub or
Closure Plate Catalog NumberLine Load
200 4 2 OH/UG Horn #6–350 kcmil #8–250 kcmil 5x5 hub opening 1004401BCH
200 4 3 OH/UG Horn #6–350 kcmil #8–250 kcmil 5x5 hub opening 1004404BCH
200 5 2 OH/UG Horn #6–350 kcmil #8–250 kcmil 5x5 hub opening 1004418ACH
200 4 2 OH/UG — 3/8-inch stud #8–250 kcmil 5x5 hub cover plate 1006737BCH
200 4 2 OH/UG Horn 3/8-inch stud #8–250 kcmil 5x5 hub opening 1007700CH
200 4 3 OH/UG Horn 3/8-inch stud #8–250 kcmil Hub opening 1007701CH
200 4 2 OH/UG Horn #6–350 kcmil #8–250 kcmil 5x5 hub cover plate 1008842CH
200 4 3 OH/UG Horn 1/0–500 kcmil cu/al #8–250 kcmil 5x5 hub cover plate 1008843CH
200 4 4 OH/UG Horn 1/0–500 kcmil cu/al #8–250 kcmil 5x5 hub cover plate 1008844CH
200 4 2 OH/UG Horn #6–350 kcmil #8–250 kcmil 5x5 hub cover plate 1008958CH
200 4 3 OH/UG Horn 1/0–500 kcmil cu/al #8–250 kcmil 5x5 hub cover plate 1008959CH
200 4 4 OH/UG Horn 1/0–500 kcmil cu/al #8–250 kcmil 5x5 hub cover plate 1008960CH
200 4 5 OH/UG Horn (2) 1/0–500 kcmil cu/al #8–250 kcmil (2) 5x5 hub cover plate 1009579ACH
200 4 4 OH/UG Horn 1/0–500 kcmil cu/al #8–250 kcmil 5x5 hub opening U4R2352TDQCH
200 4 5 OH/UG Horn (2) 1/0–500 kcmil cu/al #8–250 kcmil (2) 5x5 hub opening U5R2392TTDQCH
200 4 6 OH/UG Horn (2) 1/0–500 kcmil cu/al #8–250 kcmil 5x5 hub opening (2) places U6R2392TTDQCH
200 4 4 OH/UG Horn 1/0–500 kcmil cu/al #8–250 kcmil 5x5 hub opening UBH4R2352TCH
200 4 2 OH/UG Horn #6–350 kcmil #8–250 kcmil 5x5 hub opening UBH2R2332TCH
200 4 3 OH/UG Horn #6–350 kcmil #8–250 kcmil 5x5 hub opening UBH3R2332TCH
200 4 4 OH/UG Horn 3/8-inch stud #8–250 kcmil 5x5 hub cover plate UEHT4R2302UCH
200 4 3 OH/UG Horn 3/8-inch stud #8–250 kcmil 5x5 hub cover plate UEHT3R2302UCH
200 4 2 OH/UG Horn 3/8-inch stud #8–250 kcmil 5x5 hub cover plate UEHT2R2302UCH
200 4 2 UG Horn #6–350 kcmil #8–250 kcmil Solid top UHI2R2332ACVCH
200 4 2 OH/UG Horn #6–350 kcmil #8–250 kcmil Hub opening UHI2R2332TCVCH
200 4 4 UG Horn 1/0–500 kcmil cu/al #8–250 kcmil Solid top UHI4R2352ACVCH
200 4 2 OH/UG Horn #6–350 kcmil #8–250 kcmil 5x5 hub cover plate UHTT2R2332UCH
200 4 2 OH/UG Horn #6–350 kcmil #8–250 kcmil 5x5 hub opening UHT2R2332TCH
200 4 3 OH/UG Horn #6–350 kcmil #8–250 kcmil 5x5 hub opening UHT3R2332TCH
200 4 3 OH/UG Horn 1/0–500 kcmil cu/al #8–250 kcmil 5x5 hub cover plate UHT3R2352UCH
200 4 4 OH/UG Horn 1/0–500 kcmil cu/al #8–250 kcmil 5x5 hub opening UHT4R2352TCH
200 4 4 OH/UG — 1/0–500 kcmil cu/al #8–250 kcmil 5x5 hub cover plate UT4R2352UFLCH
200 4 4 OH/UG Horn 1/0–500 kcmil cu/al #8–250 kcmil 5x5 hub cover plate UHT4R2352UCH
200 5 2 OH/UG Lever 1/0–500 kcmil cu/al #6–350 kcmil 5x5 hub opening UT2H52353TCH
200 4 2 OH/UG Horn #6–350 kcmil #8–250 kcmil 5x5 hub cover plate UHT2R2332UCH
200 4 2 OH/UG — #6–350 kcmil #8–250 kcmil 3-5/16 hub opening UT2R2332BCH
200 4 2 OH/UG — #6–350 kcmil #8–250 kcmil 5x5 hub opening UAT2R2332TCH 1
200 4 2 OH/UG — #6–350 kcmil #8–250 kcmil 5x5 hub opening UT2R2332TCH
200 4 2 OH/UG — #6–350 kcmil #8–250 kcmil 5x5 hub opening U2R2332TCPLCH
200 4 2 OH/UG — #6–350 kcmil #8–250 kcmil 5x5 hub cover plate U2R2332UCPLCH
200 4 2 OH/UG Horn #6–350 kcmil #8–250 kcmil 5x5 hub opening U2R2332TDQCH
200 4 2 OH/UG — #6–350 kcmil #8–250 kcmil 5x5 hub cover plate UT2R2332UCH
200 4 3 OH/UG Horn #6–350 kcmil #8–250 kcmil Large 5X5 hub opening U3R2332TDQCH
UT2R2332BCH

Volume 1—Residential and Light Commercial CA08100002E—February 2014 www.eaton.com V1-T5-21
5
5
5
5
5
5
5
5
5
5
5
5
5
5
5
5
5
5
5
5
5
5
5
5
5
5
5
5
5
5
5.3
Metering Products
Multiple Position Horizontal Ganged Sockets
Horizontal Design—Multi Position Ringless, continued
Notes
1 Aluminum enclosure.
For dimensions, see Pages V1-T5-23 and V1-T5-24.
Ampere
Rating Jaws Position Service Bypass
Connections Opening, Hub or
Closure Plate Catalog NumberLine Load
200 4 3 OH/UG Lever 1/0–500 kcmil cu/al #6–350 kcmil 5x5 hub opening UT3H42353TCH
200 5 3 OH/UG Lever 1/0–500 kcmil cu/al #6–350 kcmil 5x5 hub opening UT3H52353TCH
200 7 3 OH/UG Lever 1/0–500 kcmil cu/al #6–350 kcmil 5x5 hub cover plate UT3H72353UHLCH
200 4 3 OH/UG — #6–350 kcmil #8–250 kcmil 5x5 hub opening UT3R2332TCH
200 4 3 OH/UG — #6–350 kcmil #8–250 kcmil 5x5 hub cover plate UT3R2332UCH
200 4 3 OH/UG — 1/0–500 kcmil cu/al #8–250 kcmil 5x5 hub opening UT3R2352TCH
200 4 4 OH/UG — 1/0–500 kcmil cu/al #8–250 kcmil 5x5 hub opening UT4R2352TCH
200 4 5 OH/UG Horn (2) 1/0–500 kcmil cu/al #8–250 kcmil 5x5 hub opening (in two places) UHT5R2392TTCH
200 4 5 OH/UG — (2) 1/0–500 kcmil cu/al #8–250 kcmil 5x5 hub opening (in two places) UT5R2392TTCH
200 7 5 OH/UG Lever Dual 1/0–500 kcmil #6–350 kcmil (2) 5X5 hub closure plates UT5H72393UUHLCH
200 4 6 OH/UG Horn (2) 1/0–500 kcmil cu/al #8–250 kcmil 5x5 hub opening (in two places) UHT6R2392TTCH
200 4 6 OH/UG — (2) 1/0–500 kcmil cu/al #8–250 kcmil 5x5 hub opening (in two places) UT6R2392TTCH
200 4 6 OH/UG — (2) 1/0–500 kcmil cu/al #8–250 kcmil 5x5 closure plate (in two places) UT6R2392UUFLCH
200 7 6 OH/UG Lever Dual 1/0–500 kcmil #6–350 kcmil 5x5 closure plate (in two places) UT6H72393UUHLCH
200 4 6 OH/UG Horn (2) 1/0–500 kcmil cu/al #8–250 kcmil 5x5 hub opening (in two places) UHT6R2392TTCH
150 4 2 OH/UG Horn #6–350 kcmil #8–250 kcmil 3-5/16 hub opening U2R5432BDQCH
150 4 5 OH/UG — #6–350 kcmil #8–250 kcmil 3-5/16 hub opening (in two places) UT5R5632BCH
100 4 6 OH/UG — #6–350 kcmil #8–2/0 cu/al 3-5/16 hub opening UT6R1131BCH
100 4 2 OH/UG Horn #6–250 kcmil #8–2/0 cu/al 5x5 hub opening 1004426ACH
100 4 2 OH/UG Horn #6–250 kcmil #8–2/0 cu/al 3-5/16 hub opening 1008951CH
100 4 3 OH/UG Horn #6–250 kcmil #8–2/0 cu/al 3-5/16 hub opening 1008952CH
100 4 2 OH/UG Horn #6–250 kcmil #8–2/0 cu/al 3-5/16 hub cover plate 1009693CH
100 4 3 OH/UG Horn #6–250 kcmil #8–2/0 cu/al 3-5/16 hub cover plate 1009694CH
100 4 4 OH/UG Horn #6–250 kcmil #8–2/0 cu/al 3-5/16 hub cover plate 1009695CH
100 4 5 OH/UG Horn #6–250 kcmil #8–2/0 cu/al 3-5/16 hub cover plate 1009696CH
100 4 6 OH/UG — #6–350 kcmil #8–2/0 cu/al 3-5/16 hub cover plate UATZ6R1131CFLCH 1
100 4 2 OH/UG Horn #6–250 kcmil #8–2/0 cu/al 3-5/16 hub opening UBH2R1121BCH
100 4 3 OH/UG Horn #6–250 kcmil #8–2/0 cu/al 3-5/16 hub opening UBH3R1121BCH
100 4 4 OH/UG Horn #6–250 kcmil #8–2/0 cu/al 3-5/16 hub opening UBH4R1121BCH
100 4 2 OH/UG Horn #6–250 kcmil #8–2/0 cu/al 3-5/16 hub opening UHT2R1121BCH
100 4 4 OH/UG — #6–250 kcmil #8–2/0 cu/al 3-5/16 hub opening UT4R1121BCH
100 4 4 OH/UG — #6–250 kcmil #8–2/0 cu/al 3-5/16 closure plate UT4R1121CCH
100 4 4 OH/UG Horn #6–250 kcmil #8–2/0 cu/al 3-5/16 hub opening UHT4R1121BCH
100 4 5 OH/UG Horn #6–250 kcmil #8–2/0 cu/al 3-5/16 hub opening UHT5R1121BCH
100 4 5 OH/UG — #6–250 kcmil #8–2/0 cu/al 3-5/16 hub opening UT5R1121BCH
100 4 5 OH/UG — #6–250 kcmil #8–2/0 cu/al 3-5/16 closure plate UT5R1121CCH
100 4 2 OH/UG — #6–250 kcmil #8–2/0 cu/al 3-5/16 hub opening UT2R1121BCH
100 4 2 OH/UG — #6–250 kcmil #8–2/0 cu/al 3-5/16 closure plate UT2R1121CCH
100 4 2 OH/UG Horn #6–250 kcmil #8–2/0 cu/al 3-5/16 closure plate UHT2R1421CCH
100 4 2 OH/UG — #6–250 kcmil #8–2/0 cu/al 3-5/16 hub opening
3-5/16 hub cover plate
UT2R1421BCH
100 4 3 OH/UG Horn #6–250 kcmil #8–2/0 cu/al 3-5/16 hub opening UHT3R1121BCH
100 4 3 OH/UG — #6–250 kcmil #8–2/0 cu/al 3-5/16 hub opening UT3R1121BCH
UT2R1121BCH

V1-T5-22 Volume 1—Residential and Light Commercial CA08100002E—February 2014 www.eaton.com
5
5
5
5
5
5
5
5
5
5
5
5
5
5
5
5
5
5
5
5
5
5
5
5
5
5
5
5
5
5
5.3
Metering Products
Multiple Position Horizontal Ganged Sockets
Horizontal Design—Multi Position Ring Type
Notes
1 Vertical gang.
For dimensions, see Pages V1-T5-23 and V1-T5-24.
Ampere
Rating Jaws Position Service Bypass
Connections Opening, Hub or
Closure Plate Catalog NumberLine Load
200 4 2 OH/UG — 1/0–500 kcmil cu/al #8–250 kcmil 5x5 hub opening U2R2352TCRCH
200 4 2 OH/UG — #6–350 kcmil #8–250 kcmil 5x5 hub cover plate URT2R2332UCH
200 5 4 OH/UG — 1/0–500 kcmil cu/al #8–250 kcmil Large 5x5 hub opening U4R2352TCRCH
125 5 2 OH — #8–350 kcmil #8–2/0 cu/al Hub opening U2V1031BCRCH 1
125 5 3 OH — #8–350 kcmil #8–2/0 cu/al Hub opening U3V1031BCRCH 1
100 5 2 OH/UG — #6–250 kcmil #8–2/0 cu/al 3-5/16 opening U2R1121BCRCH
100 5 3 OH/UG — #6–250 kcmil #8–2/0 cu/al 3-5/16 opening U3R1121BCRCH
100 5 4 OH/UG — #6–250 kcmil #8–2/0 cu/al 3-5/16 opening U4R1121BCRCH
100 5 5 OH/UG — #6–250 kcmil #8–2/0 cu/al 3-5/16 opening U5R1121BCRCH

Volume 1—Residential and Light Commercial CA08100002E—February 2014 www.eaton.com V1-T5-23
5
5
5
5
5
5
5
5
5
5
5
5
5
5
5
5
5
5
5
5
5
5
5
5
5
5
5
5
5
5
5.3
Metering Products
Multiple Position Horizontal Ganged Sockets
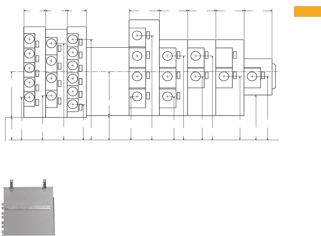
Dimensions
Approximate Dimensions in Inches (mm)
Horizontal Design—Multi Position Ringless
Catalog Number Height Width Depth
1004401BCH 14.13 (358.9) 24.31 (617.5) 5.38 (136.7)
1004404BCH 14.13 (358.9) 32.47 (824.7) 5.38 (136.7)
1004418ACH 14.13 (358.9) 24.31 (617.5) 5.38 (136.7)
1006737BCH 14.13 (358.9) 24.31 (617.5) 5.38 (136.7)
1007700CH 14.13 (358.9) 24.31 (617.5) 5.38 (136.7)
1007701CH 14.13 (358.9) 32.47 (824.7) 5.38 (136.7)
1008842CH 14.13 (358.9) 24.31 (617.5) 5.38 (136.7)
1008843CH 14.13 (358.9) 32.47 (824.7) 5.38 (136.7)
1008844CH 14.13 (358.9) 40.63 (1032.0) 5.38 (136.7)
1008958CH 14.13 (358.9) 24.31 (617.5) 5.38 (136.7)
1008959CH 14.13 (358.9) 32.47 (824.7) 5.38 (136.7)
1008960CH 14.13 (358.9) 40.63 (1032.0) 5.38 (136.7)
1009579ACH 14.13 (358.9) 54.78 (1391.4) 5.38 (136.7)
U4R2352TDQCH 14.13 (358.9) 40.63 (1032.0) 5.38 (136.7)
U5R2392TTDQCH 14.13 (358.9) 62.94 (1598.7) 5.38 (136.7)
U6R2392TTDQCH 14.13 (358.9) 62.94 (1598.7) 5.38 (136.7)
UBH4R2352TCH 14.13 (358.9) 40.63 (1032.0) 5.38 (136.7)
UBH2R2332TCH 14.13 (358.9) 24.31 (617.5) 5.38 (136.7)
UBH3R2332TCH 14.13 (358.9) 32.47 (824.7) 5.38 (136.7)
UEHT4R2302UCH 14.13 (358.9) 40.63 (1032.0) 5.38 (136.7)
UEHT3R2302UCH 14.13 (358.9) 32.47 (824.7) 5.38 (136.7)
UEHT2R2302UCH 14.13 (358.9) 24.31 (617.5) 5.38 (136.7)
UHI2R2332ACVCH 14.13 (358.9) 24.31 (617.5) 5.38 (136.7)
UHI2R2332TCVCH 14.13 (358.9) 24.31 (617.5) 5.38 (136.7)
UHI4R2352ACVCH 14.13 (358.9) 40.63 (1032.0) 5.38 (136.7)
UHTT2R2332UCH 14.13 (358.9) 24.31 (617.5) 5.38 (136.7)
UHT2R2332TCH 14.13 (358.9) 24.31 (617.5) 5.38 (136.7)
UHT3R2332TCH 14.13 (358.9) 32.94 (836.7) 5.38 (136.7)
UHT3R2352UCH 14.13 (358.9) 32.47 (824.7) 5.38 (136.7)
UHT4R2352TCH 14.13 (358.9) 40.63 (1032.0) 5.38 (136.7)
UT4R2352UFLCH 14.13 (358.9) 40.63 (1032.0) 5.38 (136.7)
UHT4R2352UCH 14.13 (358.9) 40.63 (1032.0) 5.38 (136.7)
UT2H52353TCH 23.56 (598.4) 32.78 (832.6) 6.00 (152.4)
UHT2R2332UCH 14.13 (358.9) 24.31 (617.5) 5.38 (136.7)
UT2R2332BCH 14.13 (358.9) 24.31 (617.5) 5.38 (136.7)
UAT2R2332TCH 114.13 (358.9) 24.31 (617.5) 5.38 (136.7)
UT2R2332TCH 14.13 (358.9) 24.31 (617.5) 5.38 (136.7)
U2R2332TCPLCH 14.13 (358.9) 24.31 (617.5) 5.38 (136.7)
U2R2332UCPLCH 14.13 (358.9) 24.31 (617.5) 5.38 (136.7)
U2R2332TDQCH 14.13 (358.9) 24.31 (617.5) 5.38 (136.7)
UT2R2332UCH 14.13 (358.9) 24.31 (617.5) 5.38 (136.7)
U3R2332TDQCH 14.13 (358.9) 32.47 (824.7) 5.38 (136.7)
UT3H42353TCH 23.56 (598.4) 43.91 (1115.3) 6.00 (152.4)
UT3H52353TCH 23.56 (598.4) 43.91 (1115.3) 6.00 (152.4)
UT3H72353UHLCH 23.56 (598.4) 43.91 (1115.3) 5.38 (136.7)
Horizontal Design—Multi Position Ringless, continued
Note
1Aluminum enclosure.
Catalog Number Height Width Depth
UT3R2332TCH 14.13 (358.9) 32.47 (824.7) 5.38 (136.7)
UT3R2332UCH 14.13 (358.9) 32.47 (824.7) 5.38 (136.7)
UT3R2352TCH 14.13 (358.9) 40.63 (1032.0) 5.38 (136.7)
UT4R2352TCH 14.13 (358.9) 40.63 (1032.0) 5.38 (136.7)
UHT5R2392TTCH 14.13 (358.9) 54.78 (1391.4) 5.38 (136.7)
UT5R2392TTCH 14.13 (358.9) 54.78 (1391.4) 5.38 (136.7)
UT5H72393UUHLCH 29.56 (750.8) 72.15 (1832.6) 6.00 (152.4)
UHT6R2392TTCH 14.13 (358.9) 62.94 (1598.7) 5.38 (136.7)
UT6R2392TTCH 14.13 (358.9) 62.94 (1598.7) 5.38 (136.7)
UT6R2392UUFLCH 14.13 (358.9) 62.94 (1598.7) 5.38 (136.7)
UT6H72393UUHLCH 23.56 (598.4) 83.28 (2115.3) 6.00 (152.4)
UHT6R2392TTCH 14.13 (358.9) 62.94 (1598.7) 5.38 (136.7)
U2R5432BDQCH 14.13 (358.9) 20.16 (512.1) 5.38 (136.7)
UT5R5632BCH 14.13 (358.9) 48.63 (1235.2) 5.38 (136.7)
UT6R1131BCH 14.13 (358.9) 56.93 (1446.0) 4.50 (114.3)
1004426ACH 14.13 (358.9) 24.31 (617.5) 4.50 (114.3)
1008951CH 14.13 (358.9) 24.31 (617.5) 4.50 (114.3)
1008952CH 14.13 (358.9) 32.47 (824.7) 4.50 (114.3)
1009693CH 14.13 (358.9) 24.16 (613.7) 5.38 (136.7)
1009694CH 14.13 (358.9) 32.31 (820.7) 5.38 (136.7)
1009695CH 14.13 (358.9) 49.94 (1268.5) 5.38 (136.7)
1009696CH 14.13 (358.9) 48.63 (1235.2) 5.38 (136.7)
UATZ6R1131CFLCH 14.13 (358.9) 56.94 (1446.3) 4.50 (114.3)
UBH2R1121BCH 14.13 (358.9) 24.94 (633.5) 4.50 (114.3)
UBH3R1121BCH 14.13 (358.9) 32.47 (824.7) 4.50 (114.3)
UBH4R1121BCH 14.13 (358.9) 40.63 (1032.0) 4.50 (114.3)
UHT2R1121BCH 14.13 (358.9) 24.31 (617.5) 4.50 (114.3)
UT4R1121BCH 14.13 (358.9) 40.63 (1032.0) 4.50 (114.3)
UT4R1121CCH 14.13 (358.9) 40.63 (1032.0) 4.50 (114.3)
UHT4R1121BCH 14.13 (358.9) 40.63 (1032.0) 4.50 (114.3)
UHT5R1121BCH 14.13 (358.9) 48.78 (1239.0) 4.50 (114.3)
UT5R1121BCH 14.13 (358.9) 48.78 (1239.0) 4.50 (114.3)
UT5R1121CCH 14.13 (358.9) 48.78 (1239.0) 4.50 (114.3)
UT2R1121BCH 14.13 (358.9) 24.31 (617.5) 4.50 (114.3)
UT2R1121CCH 14.13 (358.9) 24.31 (617.5) 4.50 (114.3)
UHT2R1421CCH 14.13 (358.9) 20.16 (512.1) 5.38 (136.7)
UT2R1421BCH 14.13 (358.9) 20.16 (512.1) 5.38 (136.7)
UHT3R1121BCH 14.13 (358.9) 32.47 (824.7) 4.50 (114.3)
UT3R1121BCH 14.13 (358.9) 32.47 (824.7) 4.50 (114.3)

V1-T5-24 Volume 1—Residential and Light Commercial CA08100002E—February 2014 www.eaton.com
5
5
5
5
5
5
5
5
5
5
5
5
5
5
5
5
5
5
5
5
5
5
5
5
5
5
5
5
5
5
5.3
Metering Products
Multiple Position Horizontal Ganged Sockets
Approximate Dimensions in Inches (mm)
Horizontal Design—Multi Position Ring Type
Note
1Vertical gang.
Catalog Number Height Width Depth
U2R2352TCRCH 14.13 (358.9) 24.31 (617.5) 5.38 (136.7)
URT2R2332UCH 14.13 (358.9) 24.31 (617.5) 5.38 (136.7)
U4R2352TCRCH 14.13 (358.9) 48.00 (1219.2) 5.38 (136.7)
U2V1031BCRCH 18.00 (203.2) 25.63 (650.9) 4.38 (111.1)
U3V1031BCRCH 18.00 (203.2) 35.88 (911.2) 4.38 (111.1)
U2R1121BCRCH 14.13 (358.9) 28.00 (711.2) 4.50 (114.3)
U3R1121BCRCH 14.13 (358.9) 38.00 (965.2) 4.50 (114.3)
U4R1121BCRCH 14.13 (358.9) 48.00 (1219.2) 4.50 (114.3)
U5R1121BCRCH 14.13 (358.9) 58.00 (1473.2) 4.50 (114.3)

Volume 1—Residential and Light Commercial CA08100002E—February 2014 www.eaton.com V1-T5-25
5
5
5
5
5
5
5
5
5
5
5
5
5
5
5
5
5
5
5
5
5
5
5
5
5
5
5
5
5
5
5.4
Metering Products
Instrument Rated Sockets
Instrument Rated Sockets
Contents
Description Page
Product Selection . . . . . . . . . . . . . . . . . . . . . . . . . V1-T5-26
Dimensions . . . . . . . . . . . . . . . . . . . . . . . . . . . . . . V1-T5-26
Product Description
●Available in 6, 7, 8 and
13 terminal designs
●20A ratings standard
●Multiple service designs
available (overhead,
underground, overhead/
underground)
●Multiple hub opening
and closure plate
sizes available
●600 Vac rated
●Single cover/dual
cover availability
●Provisional test switches
and factory-installed test
switch designs available

V1-T5-26 Volume 1—Residential and Light Commercial CA08100002E—February 2014 www.eaton.com
5
5
5
5
5
5
5
5
5
5
5
5
5
5
5
5
5
5
5
5
5
5
5
5
5
5
5
5
5
5
5.4
Metering Products
Instrument Rated Sockets
Product Selection
Instrument Rated Sockets
Dimensions
Approximate Dimensions in Inches (mm)
Instrument Rated Sockets
Ampere
Rating Jaws Service
Opening, Hub
or Closure Plate
Catalog
Number
20 13 terminal UG Solid top USTH131A123CH
20 13 terminal OH/UG 3-5/16 hub cover plate USTS131B102CH
20 13 terminal OH/UG 3-5/16 hub cover plate USTS132B101CH
20 13 terminal OH/UG 3-5/16 hub cover plate USTS132CCH
20 13 terminal OH/UG 1-inch bolt-on hub 1008694ACH
20 8 terminal OH/UG 1-inch bolt-on hub 1008695ACH
20 13 terminal N/A N/A 1007003BCH
20 13 terminal Solid top and bottom Solid top 1007003CCH
20 13 terminal OH/UG 3-5/16 hub cover plate USTL131C207CH
20 13 terminal OH/UG Hub opening USTS131BCH
20 13 terminal OH/UG 1-1/4-inch bolt-on hub USTS131L143CH
20 13 terminal N/A N/A USTS132BCH
20 6 terminal OH/UG Hub opening USTS61B138CH
20 6 terminal OH/UG Hub opening UST61BCH
20 8 terminal OH/UG Hub opening USTS82B166CH
20 8 terminal N/A Solid top and bottom 1007361BCH
N/A N/A N/A N/A 1008539CH
20 13 terminal OH/UG 3-5/16 hub cover plate UASTS131C226CH
20 13 terminal OH 3-5/16 hub cover plate 1004671CH
20 7 terminal OH 3-5/16 hub cover plate ULTS131CCH
20 6 terminal UG Solid top STL61A433CH
20 13 terminal UG Solid top STL131A120CH
USTS132CCH
Catalog Number Height Width Depth
USTH131A123CH 20.00 (304.8) 12.00 (304.8) 4.36 (110.7)
USTS131B102CH 20.00 (304.8) 12.00 (304.8) 4.36 (110.7)
USTS132B101CH 20.00 (304.8) 12.00 (304.8) 4.36 (110.7)
USTS132CCH 20.00 (304.8) 12.00 (304.8) 4.36 (110.7)
1008694ACH 20.00 (304.8) 12.00 (304.8) 4.36 (110.7)
1008695ACH 20.00 (304.8) 12.00 (304.8) 4.36 (110.7)
1007003BCH N/A N/A N/A
1007003CCH 16.50 (419.1) 14.00 (355.6) 3.50 (88.9)
USTL131207CH 20.00 (304.8) 12.00 (304.8) 4.35 (110.5)
USTS131BCH 20.00 (304.8) 12.00 (304.8) 4.35 (110.5)
USTS131L143CH 20.00 (304.8) 12.00 (304.8) 4.35 (110.5)
USTS132BCH N/A N/A N/A
USTS61B138CH 20.00 (304.8) 12.00 (304.8) 4.35 (110.5)
UST61BCH 20.00 (304.8) 12.00 (304.8) 4.35 (110.5)
USTS82B166CH 20.00 (304.8) 12.00 (304.8) 4.35 (110.5)
1007361BCH 16.50 (419.1) 14.00 (355.6) 3.50 (88.9)
1008539CH N/A N/A N/A
UASTS131C226CH 20.00 (304.8) 12.00 (304.8) 4.35 (110.5)
1004671CH 17.00 (431.8) 10.00 (254.0) 5.00 (127.0)
ULTS131CCH 22.00 (558.8) 12.00 (304.8) 4.94 (125.5)

Volume 1—Residential and Light Commercial CA08100002E—February 2014 www.eaton.com V1-T5-27
5
5
5
5
5
5
5
5
5
5
5
5
5
5
5
5
5
5
5
5
5
5
5
5
5
5
5
5
5
5
5.5
Metering Products
Residential Pedestals
Residential Pedestals
Contents
Description Page
Product Selection . . . . . . . . . . . . . . . . . . . . . . . . . V1-T5-28
Dimensions . . . . . . . . . . . . . . . . . . . . . . . . . . . . . . V1-T5-28
Product Description
●Available in 100A, 200A,
300A and 320A designs
●Available in 4- or 5-jaw
configurations
●Underground service
design is standard
●Bypass options (lever,
horn) are available
●Solid top designs

V1-T5-28 Volume 1—Residential and Light Commercial CA08100002E—February 2014 www.eaton.com
5
5
5
5
5
5
5
5
5
5
5
5
5
5
5
5
5
5
5
5
5
5
5
5
5
5
5
5
5
5
5.5
Metering Products
Residential Pedestals
Product Selection
Residential Pedestals
Pedestal Extension Kits
Dimensions
Approximate Dimensions in Inches (mm)
Residential Pedestals
Pedestal Extension Kits
Note
1200A breakers.
Ampere
Rating Jaws Service Bypass
Connections Opening, Hub or
Closure Plate Catalog NumberLine Load
320 4 UG — 3/8-inch studs 3/8-inch studs Solid top 1008847CH
320 4 UG Lever #6–350 kcmil line and line neutral 2/0–250 kcmil load and load neutral Solid top 1009017CH 1
300 4 UG Lever #6–350 kcmil line and line neutral 2/0–250 kcmil load and load neutral Solid top
200 4 UG Horn 4/0 compression (line) 2/0
compression (neutral)
#6–250 kcmil load and load neutral Solid top 1006388CH
200 4 UG Horn #8–350 kcmil #8–350 kcmil Solid top UHTRP242363CH
200 4 UG Horn #6–350 kcmil line and line neutral #6–250 kcmil load neutral Solid top 1008846CH
200 4 UG Horn #6–350 kcmil line and line neutral #6–250 kcmil load neutral N/A 1008961CH
200 5 N/A N/A N/A N/A N/A 1008966CH
200 4 UG — #6–350 kcmil line and line neutral #6–350 kcmil load and load neutral Solid top 1009264CH
200 4 UG — 4/0 compression (line) 2/0
compression (neutral)
#6–350 kcmil load and load neutral Solid top 1009265CH
100 4 UG — #6–350 kcmil line and line neutral #6–250 kcmil load neutral Solid top 1009078CH
Connections
Catalog NumberLine Load
Pedestal extension kit for 1008846CH Pedestal extension kit for 1008846CH 1009021CH
1009022CH
1009026CH
UHTRP242363CH
Catalog Number Height Width Depth
1008847CH 58.00 (1473.2) 12.97 (329.4) 4.93 (125.2)
1009017CH 163.00 (1600.2) 12.96 (329.2) 4.93 (125.2)
1006388CH 61.00 (1549.4) 8.96 (227.6) 4.93 (125.2)
UHTRP242363CH 62.63 (1590.8) 8.97 (227.8) 4.94 (125.5)
1008846CH 70.00 (1778.0) 11.00 (279.4) 6.00 (152.4)
1008961CH 69.93 (1776.2) N/A 6.00 (152.4)
1008966CH N/A N/A N/A
1009264CH 74.00 (1879.6) 8.96 (227.6) 4.93 (125.2)
1009265CH 74.00 (1879.6) 8.97 (227.8) 4.94 (125.5)
1009078CH 69.93 (1776.2) 11.00 (279.4) 6.00 (152.4)
Catalog Number Height Width Depth
1009021CH 18.00 (457.2) 11.00 (279.4) 6.00 (152.4)
1009022CH 18.00 (457.2) 12.96 (329.2) 4.93 (125.2)
1009026CH 30.00 (762.0) 12.96 (329.2) 4.93 (125.2)

Volume 1—Residential and Light Commercial CA08100002E—February 2014 www.eaton.com V1-T5-29
5
5
5
5
5
5
5
5
5
5
5
5
5
5
5
5
5
5
5
5
5
5
5
5
5
5
5
5
5
5
5.6
Metering Products
Accessories and Cross-Reference
Product Description
This section will help you
better understand the
features and benefits of the
125A and 200A Eaton
designed meter socket.
Features and Benefits
Construction Features
1. High strength, glass-filled
meter block assembly,
lay-in connectors with
captive slide nut and
screw.
2. 100% plated copper
alloy meter jaw with
reinforcing spring clip
and meter guide.
3. Extruded neutral lug
with integral triplex
ground and quadplex
ground provision.
4. Bridge and meter
supports are 100%
zinc chromate plated.
200A Ringless Block Assembly With Horn Bypass
5. Fifth terminal locating
hole in 9 o’clock position.
6. Triplex ground is a
standard feature.
7. Quadplex ground
provision.
8. Durable “four-point”
bridge mounting
(2 top, 2 bottom).
9. Extra rigid meter support
for ringless sockets.
10. Optional, integral horn
bypass extruded on slide
nut. Horn is ribbed for
secure attachment to
utility bypass jumpers.
Field-installable horn
bypass kit available.

V1-T5-30 Volume 1—Residential and Light Commercial CA08100002E—February 2014 www.eaton.com
5
5
5
5
5
5
5
5
5
5
5
5
5
5
5
5
5
5
5
5
5
5
5
5
5
5
5
5
5
5
5.6
Metering Products
Accessories and Cross-Reference
Product Selection
Meter Socket Accessories
Description Part Number
Hub closure plate meter socket accessories ARP00002CHB
Clam shell hub closure plate meter socket accessories ARP00002CHBCS
1-inch hub closure plate meter socket accessories ARP00003CH1
Clam shell 1-inch hub closure plate—small opening ARP00003CH1CS
1-1/4-inch hub closure plate meter socket accessories ARP00004CH12
Clam shell 1-1/4-inch hub closure plate—small opening ARP00004CH12CS
1-1/2-inch hub closure plate meter socket accessories ARP00005CH15
Clam shell 1-1/2-inch hub closure plate—small opening ARP00005CH15CS
2-inch hub closure plate meter socket accessories ARP00006CH2
2-1/2-inch hub for meter socket accessories ARP00007CH25
Clam shell 2-1/2-inch hub for meter socket accessories ARP00007CH25CS
Aluminum hub closure plate for single sockets ARP00008CH
Hub adapter from large opening to small opening ARP00015CHAP
Large hub cover plate ARP00016CHB
2-inch hub with large diameter opening ARP00017CH2
2.5-inch hub with large diameter opening ARP00018CH25
3-inch hub ARP00019CH3
3-1/2-inch hub for meter sockets ARP00020CH35
4-inch hub ARP00021CH4
Screw sealing ring for single meter sockets ARP00027CH
Fifth jaw kit ARP00035CHJ
#6–350 kcmil lug kit for single sockets—3/8-inch stud ARP00119CH
#4–600 kcmil connector for single position meter sockets ARP00129CH
Fifth jaw for bolt on meter ARP00326CH
#6–350 kcmil double barrel lug kit ARP00427CH
Neutral Insulating Kit ARP00759CH
100A meter socket horn cap assembly kit ARP00777CH
Fifth jaw kit for 320A offset socket ARP00862CH
HQ anti-inversion clip for single meter sockets ARP00984CH
Fifth jaw for Chicago and Wisconsin pedestal ARP01085CH
350 kcmil BNS cap assembly kit for meter sockets ARP01226CH
Right hand block assembly with Z Bar ARP01258CH
Left hand block assembly with Z Bar ARP01414CH
Meter pack trough closure plate kit ARP01565CH
2/0 connector kit for MBB and MBP socket breaker ARP01612CH

Volume 1—Residential and Light Commercial CA08100002E—February 2014 www.eaton.com V1-T5-31
5
5
5
5
5
5
5
5
5
5
5
5
5
5
5
5
5
5
5
5
5
5
5
5
5
5
5
5
5
5
5.6
Metering Products
Accessories and Cross-Reference
Cross-Reference
Meter Sockets
Description
Manufacturer
Eaton Milbank
Part Number Part Number
125A, OH/UG, ringless, triplex ground, hub opening UTRS101BE U7487-RL-TG
125A, OH/UG, ringless, triplex ground, hub cover plate UTRS101CE U7487-XL-TG
125A, OH/UG, ringless, triplex ground, hub opening, horn bypass UHTRS101BE U7487-RL-TG-KK
125A, OH/UG, ringless, triplex ground, hub cover plate, horn bypass UHTRS101CE U7487-XL-TG-KK
125A, OH/UG, ringless, triplex ground, hub opening, fifth terminal UTRS101BCH + MSR5TK U7487-RL-TG-5T
125A, OH/UG, ringless, triplex ground, hub cover plate, fifth terminal UTRS101CE + MSR5TK U7487-XL-TG-5T
125A, OH/UG, ringless, triplex ground, hub opening, horn bypass, fifth terminal UHTRS101BCH + MSR5TK U7487-RL-TG-KK-5T
125A, OH/UG, ringless, triplex ground, hub cover plate, horn bypass, fifth terminal UGHTRS101CE + MSR5TK U7487-XL-TG-KK-5T
200A, OH, ringless, triplex ground, hub opening UTRS202BCH U7021-RL-TG
200A, OH, ringless, triplex ground, hub cover plate UTRS202CCH U7021-XL-TG
200A, OH, ringless, triplex ground, hub opening, horn bypass UHTRS202BCH U7021-RL-TG-KK
200A, OH, ringless, triplex ground, hub cover plate, horn bypass UHTRS202CCH U7021-RL-TG-KK
200A, OH, ringless, triplex ground, hub opening, fifth terminal UGTRS202BCH U7021-RL-TG-5T
200A, OH, ringless, triplex ground, hub cover plate, fifth terminal UGTRS202CCH U7021-XL-TG-5T
200A, OH, ringless, triplex ground, hub opening, horn bypass, fifth terminal UGHTRS202BCH U7021-RL-TG-KK-5T
200A, OH, ringless, triplex ground, hub cover plate, horn bypass, fifth terminal UGHTRS202CCH U7021-RL-TG-KK-5T
200A, OH/UG, ringless, triplex ground, hub opening, 250 kcmil lugs UTRS212BCH No cross (no 250 kcmil lugs)
200A, OH/UG, ringless, triplex ground, hub cover plate, 250 kcmil lugs UTRS212CCH No cross (no 250 kcmil lugs)
200A, OH/UG, ringless, triplex ground, hub opening, horn bypass, 250 kcmil lugs UHTRS212BCH No cross (no 250 kcmil lugs)
200A, OH/UG, ringless, triplex ground, hub cover plate, horn bypass, 250 kcmil lugs UHTRS212CCH No cross (no 250 kcmil lugs)
200A, OH/UG, ringless, triplex ground, hub opening, fifth terminal, 250 kcmil lugs UGTRS212BCH No cross (no 250 kcmil lugs)
200A, OH/UG, ringless, triplex ground, hub cover plate, fifth terminal, 250 kcmil lugs UGTRS212CCH No cross (no 250 kcmil lugs)
200A, OH/ UG, ringless, triplex ground, hub opening, horn bypass, fifth terminal, 250 kcmil lugs UGHTRS212BCH No cross (no 250 kcmil lugs)
200A, OH/UG, ringless, triplex ground, hub cover plate, horn bypass, fifth terminal, 250 kcmil lugs UGHTRS212CCH No cross (no 250 kcmil lugs)
200A, OH/UG, ringless, triplex ground, hub opening, 350 kcmil lugs UTRS213BE U7040-RL-TG
200A, OH/UG, ringless, triplex ground, hub cover plate, 350 kcmil lugs UTRS213CE U7040-XL-TG
200A, OH/UG, ringless, triplex ground, hub opening, horn bypass, 350 kcmil lugs UHTRS213BE U7040-RL-TG-KK
200A, OH/UG, ringless, triplex ground, hub cover plate, horn bypass, 350 kcmil lugs UHTRS213CE U7040-XL-TG-KK
200A, OH/UG, ringless, triplex ground, hub opening, fifth terminal, 350 kcmil lugs UGTRS213BE U7040-RL-TG-5T
200A, OH/UG, ringless, triplex ground, hub cover plate, fifth terminal, 350 kcmil lugs UGTRS213CE U7040-XL-TG-5T
200A, OH/ UG, ringless, triplex ground, hub opening, horn bypass, fifth terminal, 350 kcmil lugs UGHTRS213BE U7040-RL-TG-KK-5T
200A, OH/UG, ringless, triplex ground, hub cover plate, horn bypass, fifth terminal, 350 kcmil lugs UGHTRS213CE U7040-XL-TG-KK-5T
200A, UG, ringless, triplex ground, solid top UTRS223ACH U1980-0-TG
200A, UG, ringless, triplex ground, solid top, horn bypass UHTRS223ACH U1980-0-TG-KK
200A, UG, ringless, triplex ground, solid top, fifth terminal UGTRS223ACH U1980-O-TG-5T
200A, UG, ringless, triplex ground, solid top, horn bypass, fifth terminal UGHTRS223ACH U1980-O-TG-KK-5T

V1-T5-32 Volume 1—Residential and Light Commercial CA08100002E—February 2014 www.eaton.com
5
5
5
5
5
5
5
5
5
5
5
5
5
5
5
5
5
5
5
5
5
5
5
5
5
5
5
5
5
5
5.6
Metering Products
Accessories and Cross-Reference
Lever Bypass
Description
Manufacturer
Eaton Milbank
Part Number Part Number
200A, OH, lever bypass, 4 terminal, small hub opening UTE4203BCH U9800-RL
200A, OH, lever bypass, 4 terminal, hub cover plate UTH4203CCH U9800-XL
200A, OH, lever bypass, 4 terminal, large hub opening UTH4203TCH U9800-R
200A, OH, lever bypass, 4 terminal, large hub cover plate UTH4203UCH U9800-X
200A, OH, lever bypass, 5 terminal, small hub opening UTE5203BCH U4550-RL
200A, OH, lever bypass, 5 terminal, hub cover plate UTH5203CCH U4550-XL
200A, OH, lever bypass, 5 terminal, large hub opening UTH5203TCH U9559-R
200A, OH, lever bypass, 5 terminal, large hub cover plate UTH5203UCH U9550-X
200A, OH, lever bypass, 7 terminal, small hub opening UTE7203BCH U4701-RL
200A, OH, lever bypass, 7 terminal, hub cover plate UTH7203CCH U4701-XL
200A, OH, lever bypass, 7 terminal, large hub opening UTE7203TCH U4701-R
200A, OH, lever bypass, 7 terminal, large hub cover plate UTH7203UCH U4701-X
200A, OH/UG, lever bypass, 4 terminal, small hub opening UTE4213BCH U9801-RL
200A, OH/UG, lever bypass, 4 terminal, hub cover plate UTE4213CCH U9801-XL
200A, OH/UG, lever bypass, 4 terminal, large hub opening UTE4213TCH U9801-R
200A, OH/UG, lever bypass, 4 terminal, large hub cover plate UTH4213UCH U9801-XL
200A, OH/UG, lever bypass, 4 terminal, large hub opening with adapter plate UTE4213ZCH U9801-RRL
200A, OH/UG, lever bypass, 4 terminal, large hub opening with adapter and cover plate UTH4213YCH U9801-RXL
200A, OH/UG, lever bypass, 5 terminal, small hub opening UTE5213BCH U4551-RL
200A, OH/UG, lever bypass, 5 terminal, hub cover plate UTE5213CCH U4551-XL
200A, OH/UG, lever bypass, 5 terminal, large hub opening UTE5213TCH U9551-R
200A, OH/UG, lever bypass, 5 terminal, large hub cover plate UTH5213UCH U9551-X
200A, OH/UG, lever bypass, 5 terminal, large hub opening with adapter plate UTE5213ZCH U9551-RRL or U4551-RRL
200A, OH/UG, lever bypass, 5 terminal, large hub opening with adapter and cover plate UTH5213YCH U9551-RXL or U4551-RXL
200A, OH/UG, lever bypass, 7 terminal, small hub opening UTE7213BCH U9701-RL or U4701-RL
200A, OH/UG, lever bypass, 7 terminal, hub cover plate UTE7213CCH U9701-XL or U4701-XL
200A, OH/UG, lever bypass, 7 terminal, large hub opening UTE7213TCH U9701-R or U4701-R
200A, OH/UG, lever bypass, 7 terminal, large hub cover plate UTE7213UCH U9701-RX or U4701-RX
200A, OH/UG, lever bypass, 7 terminal, large hub opening with adapter plate UTE7213ZCH U9701-RRL or U4701-RRL
200A, OH/UG, lever bypass, 7 terminal, large hub opening with adapter and cover plate UTH7213YCH U9701-RXL or U4701-RXL
320A, OH, lever bypass, 4 terminal, large hub opening UTH4300TCH U1079-R or U1797-R
320A, OH, lever bypass, 4 terminal, large hub cover plate UTH4300UCH U1079-X or U1797X
320A, OH/UG, lever bypass, 4 terminal, large hub opening UTH4330TCH U2448-R or U2124-R
320A, OH/UG, lever bypass, 4 terminal, large hub cover plate UTH4330UCH U2448-RX or U2124-RX
320A, OH, lever bypass, 7 terminal, large hub opening UTH7300TCH —
320A, OH, lever bypass, 7 terminal, large hub cover plate UTH7300UCH —
320A, OH/UG, lever bypass, 7 terminal, large hub opening UTH7330TCH U2120-R
320A, OH/UG, lever bypass, 7 terminal, large hub cover plate UTH7330UCH U2120-X

Volume 1—Residential and Light Commercial CA08100002E—February 2014 www.eaton.com V1-T5-33
5
5
5
5
5
5
5
5
5
5
5
5
5
5
5
5
5
5
5
5
5
5
5
5
5
5
5
5
5
5
5.6
Metering Products
Accessories and Cross-Reference
Accessories
Description
Manufacturer
Eaton Milbank
Part Number Part Number
Small hub cover plate ARP00002CHB A7551
1-inch hub ARP00003CH1 A7514
1-1/4-inch hub ARP00004CH12 A7515
1-1/2-inch hub ARP00005CH15 A7516
2-inch hub ARP00006CH2 A7517
2-1/2-inch hub ARP00007CH25 A7518
3-inch hub ARP00019CH3 A8110
3-1/2-inch hub ARP00020CH35 A8111
4-inch hub ARP00021CH4 A8112
Large to small hub opening adapter plate ARP00015CHAP S8324
Large hub cover plate ARP00016CHB S9064

V1-T5-34 Volume 1—Residential and Light Commercial CA08100002E—February 2014 www.eaton.com
5
5
5
5
5
5
5
5
5
5
5
5
5
5
5
5
5
5
5
5
5
5
5
5
5
5
5
5
5
5
5.7
Metering Products
Mechanical Lugs
Mechanical Lugs
Contents
Description
Mechanical Lugs
Product Description
●Single lug
●Extended tang single lug
●Extended tang triple lug
●Double lug
●Extended tang double lug
●Extended tang quadruple
lug
Product Selection
Mechanical Lugs
Description Style Number
Single #14–#6 mechanical lug ESL146
Single #14–2/0 mechanical lug ESL1420
Single #6–250 kcmil mechanical lug ESL6250
Single #4–500 kcmil mechanical lug ESL4500
Double #14–2/0 mechanical lug EDL1420
Double #6–250 kcmil mechanical lug EDL6250
Extended tang single lug #6–350 kcmil EPBSL6350
Extended tang single lug 300–800 kcmil EPBSL300800
Extended tang double lug #6–350 kcmil EPBDL6350
Extended tang double lug 300–800 kcmil EPBDL300800
Extended tang triple lug #6–350 kcmil EPBTL6350
Extended tang triple lug 300–800 kcmil EPBTL300800
Extended tang quadruple lug #6–350 kcmil EPBQL6350
Extended tang quadruple lug 300–750 kcmil EPBQL300800
Extended tang single lug #2–600 kcmil EPBSL2600
Extended tang single lug 500–1000 kcmil EPBSL5001000
Extended tang triple lug #2–600 kcmil EPBTL2600
Dimensions
Approximate Dimensions in Inches (mm)
Mechanical Lugs
Style Number Height Width Length
ESL146 2.50 (63.5) 8.25 (82.6) 3.50 (88.9)
ESL1420 2.50 (63.5) 10.50 (266.7) 3.50 (88.9)
ESL6250 2.50 (63.5) 10.50 (266.7) 3.50 (88.9)
ESL4500 2.50 (63.5) 10.50 (266.7) 3.50 (88.9)
EDL1420 3.50 (88.9) 4.00 (101.6) 3.50 (88.9)
EDL6250 3.50 (88.9) 3.75 (95.3) 4.50 (114.3)
EPBSL6350 2.50 (63.5) 8.25 (82.6) 3.50 (88.9)
EPBSL300800 2.50 (63.5) 10.50 (266.7) 3.50 (88.9)
EPBDL6350 3.50 (88.9) 4.50 (114.3) 5.50 (139.7)
EPBDL300800 3.00 (76.2) 10.50 (266.7) 5.50 (139.7)
EPBTL6350 3.50 (88.9) 4.50 (114.3) 5.50 (139.7)
EPBTL300800 2.50 (63.5) 10.00 (254.0) 5.75 (146.0)
EPBQL6350 2.25 (57.2) 6.50 (165.1) 6.00 (152.4)
EPBQL300800 4.25 (108.0) 8.50 (215.9) 8.50 (215.9)
EPBSL2600 2.50 (63.5) 8.25 (82.6) 3.50 (88.9)
EPBSL5001000 2.50 (63.5) 10.50 (266.7) 3.50 (88.9)
EPBTL2600 2.25 (57.2) 6.50 (165.1) 6.00 (152.4)

Volume 1—Residential and Light Commercial CA08100002E—February 2014 www.eaton.com V1-T5-35
5
5
5
5
5
5
5
5
5
5
5
5
5
5
5
5
5
5
5
5
5
5
5
5
5
5
5
5
5
5
5.8
Metering Products
Communications Grounding Device (NEC 250.94)
Communication Grounding Device
Contents
Description Page
Wiring Diagram . . . . . . . . . . . . . . . . . . . . . . . . . . . V1-T5-36
Dimensions . . . . . . . . . . . . . . . . . . . . . . . . . . . . . . V1-T5-36
Product Description
This product is required per
the 2008 NEC Article 250.94
“Bonding for Other Systems.”
This product is applied
externally to residential
homes, so that
communications systems
devices such as satellite,
TV, cable and CATV can be
properly bonded at a single
point. This device has two
mounting holes that can be
used for easy installation.
Features, Benefits
and Functions
Communication Grounding
Device Features
●Lay-in lug for ease
of installation
●Four bonding terminals
●Heavy-duty zinc-plated
steel screws included
●Two mounting holes to
securely hold device
into place
●For use with copper and
aluminum conductors
Cover Features
●Outdoor rated reinforced
glass polyester compound
●Suitable for UV exposure
●Paintable exterior, allowing
for matching of exterior of
home
Standards and
Certifications
●ETL listed
Product Selection
Communication Grounding Device
Wire Range
Bonding
Conductor
Ground
Electrode Quantity
Catalog
Number
#14–#2–STR–SOL–CU
#12–#2–SRT–SOL–AL
#8–1/0–STR–SOL–CU/AL (1) Clamshell MSEGR2CS
#14–#2–STR–SOL–CU
#12–#2–SRT–SOL–AL
#8–1/0–STR–SOL–CU/AL (10) Bulk pack MSEGR2

V1-T5-36 Volume 1—Residential and Light Commercial CA08100002E—February 2014 www.eaton.com
5
5
5
5
5
5
5
5
5
5
5
5
5
5
5
5
5
5
5
5
5
5
5
5
5
5
5
5
5
5
5.8
Metering Products
Communications Grounding Device (NEC 250.94)
Wiring Diagram
Installation and Configuration
Dimensions
Approximate Dimensions in Inches (mm)
Communication Grounding Device
Service Entrance Panel
Single Meter Socket
Communication
Grounding Device
(Top View)
Grounding Electrode
Conductor
Phone System Ground
Grounding
Electrode
Conductor
Communication Grounding Device
(Top view)
Satellite TV Ground
Coax Cable Ground
Mounting Holes
(Typical)
Catalog Number Length Width Height
MSEGR2CS 0.75 (19.1) 3.90 (99.1) 1.20 (30.5)
MSEGR2 0.75 (19.1) 3.90 (99.1) 1.20 (30.5)

Volume 1—Residential and Light Commercial CA08100002E—February 2014 www.eaton.com V1-T5-37
5
5
5
5
5
5
5
5
5
5
5
5
5
5
5
5
5
5
5
5
5
5
5
5
5
5
5
5
5
5
5.9
Metering Products
Meter Breakers
Residential Meter Breakers
Contents
Description Page
Residential Meter Breakers
Non-EUSERC Combination Service Entrance
Devices 100–200A Styles . . . . . . . . . . . . . . . . . . V1-T5-39
Meets EUSERC Requirements Service Entrance
Devices 100–225A . . . . . . . . . . . . . . . . . . . . . . . V1-T5-48
West Coast All-In-One Design. . . . . . . . . . . . . . . . V1-T5-59
Mechanical Interlock Cover . . . . . . . . . . . . . . . . . . V1-T5-65
House Panels . . . . . . . . . . . . . . . . . . . . . . . . . . . . V1-T5-75
Commercial Safety Sockets. . . . . . . . . . . . . . . . . . V1-T5-83
CH Style Renovation Solutions . . . . . . . . . . . . . . . V1-T5-86
Aluminum Meter Breakers . . . . . . . . . . . . . . . . . . V1-T5-87
Residential Meter Breakers
Product Description
A meter breaker is service
entrance equipment that
consists of a single meter
socket and loadcenter (circuit
breaker distribution section)
or meter socket and main
breaker combined in one
enclosure. Sometimes called
Combos, All-in-Ones, Meter
Centers or Meter Mains,
these units are increasing in
popularity as the socket and
loadcenter or main breaker
are located in one location,
thus providing the contractor
with a labor and material
savings when installing.
Application Description
In addition to residential
installations, meter breakers
are equally applicable for rural
service entrance, mobile
homes and construction site
temporary power. Meter
breakers are most often sold
in the western, southwestern
and southeastern United
States. The popularity of
meter breakers is continuing
to increase as more utilities
deregulate and pass the
responsibility of supplying
watthour meter sockets on
to the electrical contractor.
Application Considerations
Eaton has the meter breaker
to meet your application,
offering:
●Non-EUSERC
●EUSERC/West Coast
●House panels
●Commercial safety socket
Non-EUSERC
(Page V1-T5-39)
Eaton’s line of non-EUSERC
meter breakers are designed
for customers served by
utilities that are not members
of EUSERC.
EUSERC/West Coast
(Page V1-T5-59)
Eaton’s line of EUSERC
required devices adhere to
the agreed upon standards.
EUSERC utilities are
predominately located in
the western United States,
but some eastern and
midwestern utilities are
also members. These units
can also be used in many
Non-EUSERC areas.
House Panels
(Page V1-T5-75)
CH and BR Styles
(Page V1-T5-76).
Meter breaker device rated
at 300–400A. Applied in
EUSERC and non-EUSERC
areas.
Commercial Safety Sockets
(Page V1-T5-83)
Applied in EUSERC and
non-EUSERC service areas
and used in commercial
applications.
Features, Benefits
and Functions
●Both Type BR and CH
branch circuit breaker
styles available
●Meets latest NEC
wire bending space
requirements
●Slotted sealing screws
at hub with sealing
provision provided
●Surface units are supplied
with mounting tabs
●Semi-flush units are
supplied with stucco flange
●Meter socket ring
landing will accept
locking security rings
●Overhead or underground
service
●Fifth jaw can be installed in
the 3 o’clock or 9 o’clock
position
●Semi-flush with nail flange
or surface mounting
●Meter mounting and
underground pull sections
are utility sealable
●Units are rated a minimum
of 10 kAIC; some units
are 22 kAIC
●Numerous units supplied
with center keyhole for
ease of mounting
●NEMA 3R rainproof
construction

V1-T5-38 Volume 1—Residential and Light Commercial CA08100002E—February 2014 www.eaton.com
5
5
5
5
5
5
5
5
5
5
5
5
5
5
5
5
5
5
5
5
5
5
5
5
5
5
5
5
5
5
5.9
Metering Products
Meter Breakers
Standards and Certifications
●UL Specification 414
(socket)
●UL File Number E52977
●AEIC-EEI-NEMA Standards
(MSJ-7)
●Meet EUSERC utility
requirements where noted
●Documented seismic
qualified—UBC® and
CBC Title 24
●UL Specification 67 (panel)
Technical Data
and Specifications
●Ratings single-phase,
three-wire, 120/240 Vac
●100–225A main breaker
and main lug types
●10,000A rms symmetrical
short-circuit rating
●Available kAIC ratings:
10k with BW breaker,
22k with CSR breaker
and 35k with CSH breaker
Consult TD.31F.01.T.E for
dimensions, wiring diagrams
and knockouts.

Volume 1—Residential and Light Commercial CA08100002E—February 2014 www.eaton.com V1-T5-39
5
5
5
5
5
5
5
5
5
5
5
5
5
5
5
5
5
5
5
5
5
5
5
5
5
5
5
5
5
5
5.9
Metering Products
Meter Breakers
Standard Design Non-EUSERC Panel Compact Design
Residential Meter Breakers
Contents
Description Page
Residential Meter Breakers. . . . . . . . . . . . . . . . . . V1-T5-37
Non-EUSERC Combination Service Entrance
Devices 100–200A Styles
Meets EUSERC Requirements Service Entrance
Devices 100–225A . . . . . . . . . . . . . . . . . . . . . . . V1-T5-48
West Coast All-In-One Design. . . . . . . . . . . . . . . . V1-T5-59
Mechanical Interlock Cover . . . . . . . . . . . . . . . . . . V1-T5-65
House Panels . . . . . . . . . . . . . . . . . . . . . . . . . . . . V1-T5-75
Commercial Safety Sockets . . . . . . . . . . . . . . . . . V1-T5-83
CH Style Renovation Solutions . . . . . . . . . . . . . . . V1-T5-86
Aluminum Meter Breakers . . . . . . . . . . . . . . . . . . V1-T5-87
Non-EUSERC Combination Service Entrance Devices
100–200A Styles
Product Description
A device that may include a
meter socket, main breaker
and loadcenter section within
the same enclosure.
●Meter main = meter socket
and main breaker
●Meter breaker = meter
socket, main breaker and
loadcenter section
Application Description
Eaton’s line of non-EUSERC
meter breakers are designed
for customers served by
utilities that are not members
of EUSERC.
Features, Benefits and Functions
Meter Mains and All-in-Ones
●Single-phase, three-wire,
120/240 Vac,10 kAIC
●Larger lay-in lugs and 3-inch
(76.2 mm) knockouts for
ease of installation
●Box-type main lugs
included
●Factory-installed neutral
●Hub provisions on top
endwall. If hubs are
required, order “DS” style
●Ring, ringless and ringless
with horn bypass styles
available
●Ringless style, provided
with embossed covers and
security latch for utility
company lock
●Padlockable device covers
provide additional measure
of safety and help prevent
tampering
●NEMA 3R rainproof
construction
Meter Mains
●Meter socket and
main breaker
●Stainless steel latches on
meter compartments in
MBP types
●No distribution section
included
All-in-Ones
●Meter socket and
loadcenter distribution
section
●Stainless steel latches on
meter compartments
●Several designs with horn
bypass and fifth jaw
●Center-fed main breaker,
lugs or provision
●Uses Type BR 1-inch
(25.4 mm) wide branch
breakers
●Special channel for top exit

V1-T5-40 Volume 1—Residential and Light Commercial CA08100002E—February 2014 www.eaton.com
5
5
5
5
5
5
5
5
5
5
5
5
5
5
5
5
5
5
5
5
5
5
5
5
5
5
5
5
5
5
5.9
Metering Products
Meter Breakers
Catalog Number Selection
Spacing
Number of spaces
Accessories/Modifications
D = 5th jaw and horn bypass
CU = Copper
C = Single cover compact design
CR = Two cover compact design
Amperes
Amperage of unit
Main
B= Main breaker included
P= Provision for main
L= Main lug
Poles
Maximum number of poles
Breaker Feed
BT = Bottom and top
B = Bottom only
T = Top only
Mounting
S= Surface
F= Flush/stucco
MB 20 40 B 200 BT S
Meter Breaker Type
MB = 1-inch BR Type
MBE = 1-inch BR Type—EUSERC
CMB = 3/4-Inch (19.1 mm) CH Type
CMBE = 3/4-inch (19.1 mm) CH Type—
EUSERC

Volume 1—Residential and Light Commercial CA08100002E—February 2014 www.eaton.com V1-T5-41
5
5
5
5
5
5
5
5
5
5
5
5
5
5
5
5
5
5
5
5
5
5
5
5
5
5
5
5
5
5
5.9
Metering Products
Meter Breakers
Product Selection
Note: See knockout drawings on Pages V1-T5-68 through V1-T5-74 for hub information.
Combination Service Entrance Devices—Non-EUSERC
Notes
1 See Page V1-T5-68 for box details.
2 Per installed main breaker rating.
3 When a provision for main is provided, order one of the main breakers listed in Page V1-T5-43. Panels are dual labeled to accept
Types BW, CSR or CSH Main Breakers.
4 MCBK225 lug kit is needed for load side cable connection for Meter Mains. Please order separately.
5 When a provision for main is provided, order one of the main breakers listed in this table. Panels are labeled to accept Type CSR Main Breakers.
6 Copper bus.
7 One-piece cover on utility side, Florida approved.
8 Single cover design.
9 Xcel approved.
Ampere
Rating Bypass Service kAIC Jaws Distribution Main
Branch
Breaker
Type
Dimensions
and Enclosure
Shape 1
Page Numbers
Catalog
NumberWiring Knockout 1
Ring Style Meter Mains (no distribution section included)
150 None OH/UG 10 4 None CSH2150 None 13 V1-T5-46 V1-T5-74 MBB150BTSCR
150 None OH/UG 22 4 None CSH2150 None 3 V1-T5-43 V1-T5-70 CMBB150BTS 67
200 None OH/UG 10 4 None CSH2200 None 13 V1-T5-46 V1-T5-74 MBB200BTSCR
200 None OH/UG 24 None Provision 45 None 3 V1-T5-43 V1-T5-70 CMBP200BTS 67
200 None OH/UG 22 4 None CSH2200 None 3 — V1-T5-70 CMBB200BTS 67
Ringless Meter Mains (no distribution section included)
150 None OH/UG 10 4 None CSH2150 None 13 V1-T5-46 V1-T5-74 MBB150BTSC 7
200 None OH/UG 10 4 None CSH2200 None 9 V1-T5-47 V1-T5-74 MBB200BTS 8
200 None OH/UG 10 4 None CSH2200 None 13 V1-T5-46 V1-T5-74 MBB200BTSC 7
150 None OH/UG 10 4 None CSH2125 None 9 V1-T5-47 V1-T5-74 MBB150BTS
200 None OH/UG 24 None Provision 3None 9 V1-T5-47 V1-T5-74 MBP200BTS 7
200 Horn OH/UG 25 None Provision 34 None 11 V1-T5-45 V1-T5-74 MBP200SD
200 Horn OH/UG 25 None Provision 34 None 9 V1-T5-47 V1-T5-74 MBP200BTSD
100 Horn OH/UG 10 5 None Provision None 15 — V1-T5-74 CHMMB100BTS
150 Horn OH/UG 10 5 None CSR2150 None 16 — V1-T5-74 CHMMB150BTS
200 Horn OH/UG 10 5 None CSR2200 None 16 — V1-T5-74 CHMMB200BTS
150 None OH/UG 10 4 4/8 CSR BR — — — MB48B150TSG
200 None OH/UG 10 4 4/8 CSR BR — — — MB48B200BTSG
200 Lever OH/UG 22 4 8/16 CSR BR — — — MBX816B200BTS
200 Lever OH/UG 22 4 20/40 CSR BR — — — MBX2040B200BTS
Standard Design
Non-EUSERC Panel
Compact Design

V1-T5-42 Volume 1—Residential and Light Commercial CA08100002E—February 2014 www.eaton.com
5
5
5
5
5
5
5
5
5
5
5
5
5
5
5
5
5
5
5
5
5
5
5
5
5
5
5
5
5
5
5.9
Metering Products
Meter Breakers
Note: See knockout drawings on Pages V1-T5-68 through V1-T5-74 for hub information.
Combination Service Entrance Devices—Non-EUSERC, continued
Notes
1See Page V1-T5-68 for box details.
2Per installed main breaker rating.
3Will accept maximum four single-pole, two-pole, or two quad breakers.
4
When a provision for main is provided, order one of the main breakers listed on
Page V1-T5-43
. All panels are dual labeled to accept Types BW, CSR, CSH Main Breakers.
5Copper bus.
6One-piece cover on utility side, Florida approved.
7Units come with feed-through lugs.
8Xcel approved.
Ampere
Rating Bypass Service kAIC Jaws Distribution Main
Branch
Breaker
Type
Dimensions
and Enclosure
Shape 1
Page Numbers
Catalog
NumberWiring Knockout 1
Ring Style All-in-Ones (includes distribution section)
125 None OH/UG 24 2/4 None—refer
to Distribution
CSH2150
CH 2 V1-T5-43 V1-T5-70 CMB24L125BTS 56
150 None OH/UG 22 4 8 CH 3 V1-T5-44 V1-T5-70 CMB88B150BTS 56
200 None OH/UG 10 4 4/8 CSR2200 BR 3 V1-T5-44 V1-T5-70 MB48B200BTS 67
200 None OH/UG 22 4 8 CSH2200 CH 3 V1-T5-44 V1-T5-70 CMB88B200BTS 567
200 None UG 22 4 32/42 CSH2200 CH 7 V1-T5-43 V1-T5-69 CMB3242B200BS 56
200 None OH/UG 22 — 42/42 — CH — — — CMB4242B200BTS 5
Ringless All-in-Ones (includes distribution section)
125 None OH/UG 22 4 4/8 CSR2125 BR 21 — V1-T5-73 MBT48B125BTS
150 None OH/UG 22 4 4/8 CSR2150 BR 21 V1-T5-46 V1-T5-73 MBT48B150BTS
150 Horn OH/UG 10 5 8/16 BW2150 BR 11 — — MB816B150STD 8
150 Horn OH/UG 10 5 20/40 BW2150 BR 11 V1-T5-47 V1-T5-74 MB2040B150SD 8
200 None OH/UG 10 4 8/16 CSR2200 BR 10 V1-T5-46 V1-T5-74 MB816B200BTS 67
200 None OH/UG 10 4 8/16 CSR2200 BR 10 V1-T5-46 V1-T5-74 MB816B200BTSCU 567
200 Horn OH/UG 10 5 8/16 BW2200 BR 11 — — MB816B200STD 8
200 None OH/UG 248/16 Provision
4BR 10 V1-T5-46 V1-T5-74 MB816P200BTS 67
200 None OH/UG 248/16 Provision
4BR 10 V1-T5-46 V1-T5-74 MB816P200BTSCU 567
200 Horn OH/UG 258/16 Provision
4BR 11 V1-T5-46 V1-T5-74 MB816P200STD 78
200 Horn OH/UG 258/16 Provision
4BR 10 V1-T5-46 V1-T5-74 MB816P200BTSD 7
200 None OH/UG 10 4 12/12 CSH2200 CH 10 V1-T5-44 V1-T5-70 CMB1212B200BTS 567
200 None OH/UG 24 6–2 Pole Main lugs CH 9 V1-T5-45 V1-T5-71 CMB1212L200BTS 57
200 None OH/UG 24 12/12 Provision 4CH 10 V1-T5-45 V1-T5-71 CMB1212P200BTS 567
200 None OH/UG 24 6–2 Pole Main lugs BR 9 V1-T5-44 V1-T5-71 MB1212L200BTS 7
200 None OH/UG 22 4 24/24 CSH2200 CH 10 V1-T5-44 V1-T5-74 CMB2424B200BTS 56
200 None OH/UG 22 4 24/36 CSH2200 CH 10 V1-T5-45 V1-T5-74 CMB2436B200BTS 5
200 None OH/UG 10 4 20/40 CSR2200 BR 10 V1-T5-47 V1-T5-74 MB2040B200BTS 6
200 None OH/UG 24 20/40 Provision 4BR 10 V1-T5-47 V1-T5-74 MB2040P200BTS 6
200 Horn OH/UG 25 20/40 Provision 4BR 11 V1-T5-47 V1-T5-74 MB2040P200SD 8
200 Horn OH/UG 10 5 20/40 CSR2200 BR 10 V1-T5-47 V1-T5-74 MB2040B200SD 8
200 Lever OH/UG 10 5 None CSH2200 None 14 V1-T5-45 V1-T5-73 CMBXB200BTS 5
200 Lever OH/UG 10 5 12/12 CSH2200 CH 14 V1-T5-45 V1-T5-73 CMBX1212B200BTS 57
200 Lever OH/UG 10 5 32/42 CSH2200 CH 14 V1-T5-46 V1-T5-73 CMBX3242B200BTS 5
200 Lever OH/UG 10 5 None Provision None 14 V1-T5-45 V1-T5-73 CMBXP200BTS 5
200 Lever OH/UG 10 5 12/12 Provision CH 14 V1-T5-45 V1-T5-73 CMBX1212P200BTS 57
200 Lever OH/UG 10 5 32/42 Provision CH 14 V1-T5-46 V1-T5-73 CMBX3242P200BTS 5
200 None OH/UG 24 4/8 Provision BR 21 V1-T5-46 V1-T5-73 MBT48P200BTS 7
200 None OH/UG 22 4 4/8 CSR2200 BR 21 V1-T5-46 V1-T5-73 MBT48B200BTS 7

Volume 1—Residential and Light Commercial CA08100002E—February 2014 www.eaton.com V1-T5-43
5
5
5
5
5
5
5
5
5
5
5
5
5
5
5
5
5
5
5
5
5
5
5
5
5
5
5
5
5
5
5.9
Metering Products
Meter Breakers
Main Breaker Selection Chart
Wiring Diagrams
Catalog Number—CMB3242B200BS 47a. Catalog Numbers—CMBP200BTS, CMBB150BTS 47c.
Catalog Number—CMB24L125BTS 47d.
Notes
1When a provision for main is provided, order one of the main breakers listed in this table.
All panels are dual labeled to accept Types BW, CSR and CSR Main Breakers.
2Factory-installed MCBK225 Kit for C/B load lugs.
Maximum
Ampere
Rating
Two-Pole Breaker Catalog Numbers
10 kAIC 25 kAIC 25 kAIC 35 kAIC
100 BW2100 CSR2100 CSR2100N CSH2100N
125 BW2125 CSR2125 CSR2125N CSH2125N
150 BW2150 CSR2150 CSR2150N CSH2150N
200 BW2200 CSR2200 CSR2200N CSH2200N
Load Side Lug Kit for BW and CSR Breakers 1MCBK225
#14-2 AWG
#14-4 AWG
#6-2/0 AWG
#6-250 AWG
Wiring Diagram Key
Service Disconnect
Type CSR
N
Bonded
Neutral
Bonded
Neutral
1
2
3
4
5
6
7
8
9
10
11
12
13
14
15
16
17
18
19
20
21
22
23
24
25
26
27
28
29
30
31
32
33
34
35
36
37
38
39
40
41
42
Line
AB
AB
Bonded
Neutral
Line
N
AB
Install 200 Ampere Maximum
Service Disconnect Type CSR 2
Wiring Diagram Key
#14-2/0 AWG
#14-2 AWG
#6-250 AWG
AB
Bonded
Neutral
Line
N
AB
#14-1/0 AWG
#14-6 AWG
#14-1/0 AWG
#6-250 AWG
1234
Wiring Diagram Key

V1-T5-44 Volume 1—Residential and Light Commercial CA08100002E—February 2014 www.eaton.com
5
5
5
5
5
5
5
5
5
5
5
5
5
5
5
5
5
5
5
5
5
5
5
5
5
5
5
5
5
5
5.9
Group Metering and Meter Breakers
Meter Breakers
Catalog Numbers—CMB88B200BTS, CMB88B150BTS 48a.
Catalog Number—MB48B200BTS 48c.
Catalog Number—CMB1212B200BTS 48d.
Catalog Number—MB1212L200BTS 48e.
Catalog Number—CMB2424B200BTS 48f.
AB
1
2
3
4
AB
5
6
7
8
Wiring Diagram Key
#14-1/0 AWG
#14-6 AWG
#6-2/0 AWG
#6-250 AWG
#4-300 AWG
Service Disconnect
Type CSR 200 Ampere Maximum
Bonded Neutral
Line
N
AB
200A Maximum
Service Disconnect
Type BW or CSR
4
6
8
AB
3
5
7
1
2
L2
L1 Bonded
Neutral
Line
N
#14-1/0 AWG
#14-6 AWG
#6-2/0 AWG
#6-250 AWG
Wiring Diagram Key
5th Jaw Factory Installed
on CMB1212B200BTSD and
CMB1212P200BTSD Only
1
3
5
7
9
11
200 Ampere
Maximum
Service Disconnect
Type CSR or CSH
Bonded
Neutral
Line
N
AB
2
4
6
8
10
12
#14-4 AWG
#6-350 kcmil
#6-2/0 AWG
#4-300 kcmil
#6-300 kcmil
Wiring
Diagram Key
1
3
5
7
9
11
Bonded
Neutral N
AB
Ground Bar
#14-2/0 AWG
#6-350 kcmil
#6-300 kcmil
2
4
6
8
10
12
Wiring
Diagram Key
1
3
5
7
9
11
13
15
17
19
21
23
#14-4 AWG
#6-350 kcmil
#6-2/0 AWG
#4-300 kcmil
200 Ampere
Maximum
Service Disconnect
Type CSR
Bonded
Neutral
Line
N
AB
2
4
6
8
10
12
14
16
18
20
22
24
Wiring
Diagram Key

Volume 1—Residential and Light Commercial CA08100002E—February 2014 www.eaton.com V1-T5-45
5
5
5
5
5
5
5
5
5
5
5
5
5
5
5
5
5
5
5
5
5
5
5
5
5
5
5
5
5
5
5.9
Group Metering and Meter Breakers
Meter Breakers
Catalog Number—CMB1212L200BTS 49a.
Catalog Number—CMB2436B200BTS 49b.
Catalog Numbers—MBP200SD, CMBXB200BTS,
CMBXP200BTS 49c.
Catalog Numbers—CMB1212B150BTS, CMBX1212B200BTS,
CMB1212B200BTS, CMB1212P200BTS, CMBX1212P200BTS 49d.
1
3
5
7
9
11
N
Bonded
Neutral
AB
#14-4 AWG
#6-350 kcmil
#6-2/0 AWG
#6-300 kcmil
5th Jaw Factory Installed
on CMB1212L200BTSD Only
2
4
6
8
10
12
Wiring
Diagram Key
200A Max.
Service Disconnect
Type CSR or CSH
Bonded
Neutral
ABLine
N
20
19
21
22
23
1
2
3
4
6
5
2425
27
26
29
28
31
30
33
32
35
34
36
7
98
11
10
1312
1514
17
16
18
Maximum of 12 twin
Breakers as Shown
#14-4 AWG
#6-350 kcmil
#6-2/0 AWG
#4-300 kcmil
Wiring
Diagram Key
#6-2/0 AWG
#6-350 kcmil
#1-300 kcmil
#6-300 kcmil
Wiring
CMBXB200BTS
factory installed
200A Max Service
Disconnect type CSR
MBP200SD
install 200A Max
Service Disconnect
Type BW or CSR
CMBXB200BTS &
CMBXP200BTS
included lever by
pass meter socket
Line N
AB
Diagram Key
5th Jaw Factory Installed
CMBX1212B200BTS &
CMBX1212P200BTS include
lever bypass meter socket
on CMB1212B200BTSD and
CMB1212P200BTSD Only
1
3
5
7
9
11
200 Ampere
Maximum
Service Disconnect
Type CSR or CSH
Bonded
Neutral
Line
N
AB
2
4
6
8
10
12
#14-4 AWG
#6-350 kcmil
#6-2/0 AWG
#4-300 kcmil
#6-300 kcmil
Wiring
Diagram Key

V1-T5-46 Volume 1—Residential and Light Commercial CA08100002E—February 2014 www.eaton.com
5
5
5
5
5
5
5
5
5
5
5
5
5
5
5
5
5
5
5
5
5
5
5
5
5
5
5
5
5
5
5.9
Group Metering and Meter Breakers
Meter Breakers
Catalog Numbers—MBT48B200BTS, MBT48P200BTS,
MBT48B150BTS, MBT48P150BTS 50a.
Catalog Numbers—CMBX3242P200BTS,
CMBX3242B200BTS 50b.
Catalog Numbers—MBB150BTSC, MBB150BTSCR,
MBB200BTSCR and MBB200BTSC 50c.
Catalog Numbers—MB816P200STD, MB816B200BTS,
MB816B200BTSCU, MB816P200BTS, MB816P200BTSCU
and MB816P200BTSD 50d.
12345678#6-2/0 AWG
#6-350 kcmil
#1-300 kcmil
#6-300 kcmil
Wiring
Factory or Field
installed. 15A or
200A Max. Service
Disconnect
Line N
AB
Diagram Key
1
3
5
7
9
11
13
15
17
19
21
23
25
27
2931
3335
39
37
2
4
6
8
10
12
14
16
18
20
24
28
22
32
26
3638
34
30
40
42
41
#14-4 AWG
#6-350 kcmil
#6-2/0 AWG
#6-300 kcmil
Wiring
Line N
Bonded/
Neutral
CMBX3242P200BTS
200 A Max.
Service Disconnect
Type CSR or CSH
(not included)
CMBX3242B200BTS
200 A Max.
Service Disconnect
Factory Installed
Type CSR or CSH
Maximum of
10 Twin Breakers
as shown
AB
Diagram Key
Includes Lever
Bypass Meter
Socket
AB
200A
Maximum
Service Disconnect
Type CSR
Bonded
Neutral
Line N
#6-2/0 AWG
#6-350 kcmil
#6-250 kcmil
#1-300 kcmil
Included in
MBB150BTSCR
Wiring Diagram Key
AB
1
3
2
4
5
7
6
8
9
11
10
12
13
15
14
16
#14-4 AWG
#6-350 kcmil
#6-2/0 AWG
#6-300 kcmil
#6-300 kcmil
Line
N
Bonded
Neutral
200A
Maximum
Service
Disconnect
Type BW or CSR
Wiring Diagram Key

Volume 1—Residential and Light Commercial CA08100002E—February 2014 www.eaton.com V1-T5-47
5
5
5
5
5
5
5
5
5
5
5
5
5
5
5
5
5
5
5
5
5
5
5
5
5
5
5
5
5
5
5.9
Group Metering and Meter Breakers
Meter Breakers
Catalog Numbers—MBB150BTS, MBP200SD, MBB200BTS,
MBP200BTS, MBP200BTSD, CMBXB200BTS and
CMBXP200BTS 51a.
Catalog Numbers—MB2040P200SD, MB2040B200BTS,
MB2040P200BTS, MB2040B150SD and MB2040B200SD 51b.
AB
#6-2/0 AWG
#6-350 kcmil
#1-300 kcmil
#6-300 kcmil
Line
N
Bonded
Neutral
200A Maximum
Service Disconnect
Type BW or CSR 1
Wiring Diagram Key
AB
1
3
2
4
5
7
6
8
9
11
10
12
13
15
14
16
17
19
18
20
21
23
22
24
25
27
26
28
29 30
33
35
34
36
37
39
38
40
31 32
Line
N
Bonded
Neutral
200A
Maximum
Service
Disconnect
Type BW or CSR
#14-4 AWG
#6-350 kcmil
#6-2/0 AWG
Wiring
Diagram Key

V1-T5-48 Volume 1—Residential and Light Commercial CA08100002E—February 2014 www.eaton.com
5
5
5
5
5
5
5
5
5
5
5
5
5
5
5
5
5
5
5
5
5
5
5
5
5
5
5
5
5
5
5.9
Metering Products
Meter Breakers
Meets EUSERC Requirements Service Entrance Devices 100–225A
Residential Meter Breakers
Contents
Description Page
Residential Meter Breakers . . . . . . . . . . . . . . . . . V1-T5-37
Non-EUSERC Combination Service Entrance
Devices 100–200A Styles. . . . . . . . . . . . . . . . . . V1-T5-39
Meets EUSERC Requirements Service Entrance
Devices 100–225A
West Coast All-In-One Design . . . . . . . . . . . . . . . V1-T5-59
Mechanical Interlock Cover . . . . . . . . . . . . . . . . . . V1-T5-65
House Panels . . . . . . . . . . . . . . . . . . . . . . . . . . . . V1-T5-75
Commercial Safety Sockets . . . . . . . . . . . . . . . . . V1-T5-83
CH Style Renovation Solutions . . . . . . . . . . . . . . . V1-T5-86
Aluminum Meter Breakers . . . . . . . . . . . . . . . . . . V1-T5-87
Meets EUSERC Requirements Service Entrance Devices
100–225A
Product Description
Eaton is proud to introduce
a new line of West Coast/
EUSERC Meter Breaker units.
The new EUSERC devices
complement the existing
standard meter breaker
devices. Customers who are
interested in the complete
meter breaker line of products
can refer to Technical Data
TD.31F.01.T.E.
Application Description
Eaton’s line of EUSERC
required devices adhere
to the agreed upon standards.
EUSERC utilities are
predominately located in the
western United States, but
some eastern and
midwestern utilities are
also members. These units
can also be used in many
Non-EUSERC areas.
Features, Benefits
and Functions
●Single-phase, three-wire,
120/240V, 10 kAIC
●Larger 250 kcmil lugs and
additional knockouts for
ease of installation
●Box type main lugs
are included
●Factory-installed neutrals
●Hub provisions on top
endwall. If hubs are
required, order “DS”
type hubs
●Ring type sockets are
provided with a sealing ring
●Padlockable device covers
provide an additional
measure of security and
help prevent tampering
●Most units have center
keyhole for easy one-
person installation
●NEMA 3R rainproof
construction

Volume 1—Residential and Light Commercial CA08100002E—February 2014 www.eaton.com V1-T5-49
5
5
5
5
5
5
5
5
5
5
5
5
5
5
5
5
5
5
5
5
5
5
5
5
5
5
5
5
5
5
5.9
Metering Products
Meter Breakers
Catalog Number Selection
Note
1Not available in CR.
Meter Breaker Type
MB = 1-inch (25.4 mm) BR Type
MBE = 1-inch (25.4 mm) BR Type—EUSERC
CMB = 0.75-inch (19.1 mm) CH Type
CMBE = 0.75-inch (19.1 mm) CH Type—EUSERC
MBED = 7-inch (177.8 mm) deep
MBER = 1-inch (25.4 mm) BR Type—EUSERC ranch
CMBER = 0.75-inch (19.1 mm) CH Type—EUSERC ranch
MBEB = 1-inch (25.4 mm) BR Type back-to-back
MBX = Xcel approved lever bypass meter breaker
MBE 20 40 B 200 B S
Amperes
Amperage of unit
Main
B = Main breaker included
P = Provision for main
L = Main lug
Poles
Maximum number of poles
Breaker Feed
BT = Bottom and top
B= Bottom only
T= Top only
Mounting
S = Surface
F = Flush/stucco
Last Digits
G= Suffix = GA PWE spec
R 1= Suffix = ECCN renovation
PV = Suffix = PV rated units
6= 2 x 6 construction
A= Aluminum enclosure
Spacing
Number of spaces
Accessories/Modifications
D = 5th jaw and horn bypass
CU = Copper
C = Single cover compact design
CR = Two cover compact design

V1-T5-50 Volume 1—Residential and Light Commercial CA08100002E—February 2014 www.eaton.com
5
5
5
5
5
5
5
5
5
5
5
5
5
5
5
5
5
5
5
5
5
5
5
5
5
5
5
5
5
5
5.9
Metering Products
Meter Breakers
Product Selection
Note: See knockout drawings on Pages V1-T5-68 through V1-T5-74 for hub information.
Combination Service Entrance Devices—EUSERC
Notes
1See Page V1-T5-68 for box details.
2Interrupting rating is dependent on the main breaker that is installed.
3Unit has copper bus.
4Units come with feed-through lugs.
5Please use RH-Type hubs on top end wall for overhead feed.
6Includes factory-mounted 2.50-inch hub on bottom endwall. UG feed only.
7Semi flush flange, not full stucco flange.
8Units include a two-pole provision for secondary main 70A max. Type BR, BRH, BRHH.
Ampere
Rating By-pass Service kAIC Jaws Distribution Main
Branch
Breaker
Type
Dimensions
and Enclosure
Shape
1
Page Numbers
Catalog
Number—Surface
Catalog
Number—Flush
Wiring Knockout
1
Ring Style Meter Mains (no distribution section included)
125 None OH/UG
2
42/4 MLO BR 2
V1-T5-55 V1-T5-70
MBE24L125BTS
MBE24L125BTF
125 None OH/UG
2
42/4 MLO CH 2
V1-T5-53 V1-T5-70
CMBE24L125BTS
3—
150 None OH/UG 22 4 None CSH2150N None 3
V1-T5-52 V1-T5-70
CMBEB150BTS
3—
200 None OH/UG 10 4 None CSR2200 None 3
V1-T5-56 V1-T5-70
MBEB200BTS
MBEB200BTF
200 None OH/UG 22 4 None CSH2200N None 3
V1-T5-52 V1-T5-70
CMBEB200BTS
3—
200 None OH/UG
2
42/4 MLO BR 3
V1-T5-56 V1-T5-70
MBE24L200BTS
MBE24L200BTF
200 None OH/UG
2
42/4 MLO CH 3
V1-T5-53 V1-T5-70
CMBE24L200BTS
3—
Ring Style All-in-Ones (includes distribution section)
100
None
OH/UG 10 4 12/24 BR2100 BR 2
V1-T5-53 V1-T5-70
MBE1224B100BTS
MBE1224B100BTF
100
None
UG 10 4 14/28 BR2100 BR 4
V1-T5-55 V1-T5-69
MBE1428B100BS
MBE1428B100BF
100
None
OH 10 4 12/24 BR2100 BR 9
V1-T5-58 V1-T5-71
MBE1224B100TS
—
125
None
OH/UG 10 4 12/24 BR2125 BR 2
V1-T5-53 V1-T5-70
MBE1224B125BTS
MBE1224B125BTF
125
None
OH 10 4 12/24 BR2125 BR 9
V1-T5-58 V1-T5-71
MBE1224B125TS
—
125
None
UG 10 4 18/36 BR2125 BR 5
V1-T5-54 V1-T5-69
— MBE1836B125BF
150
None
OH/UG
10 4 4/8 CSR2150 BR 19 ——
MBER48B150BTS
48 —
150
None
OH/UG
22 4 8/8 CSH2150N CH 19 ——
CMBER88B150BTS
348 —
150
None
OH/UG 22 4 8 CSH2150N CH 3
V1-T5-53 V1-T5-70
CMBE88B150BTS
34 CMBE88B150BTF 34
150
None
UG 22 4 32/42 CSH2150N CH 7
V1-T5-52 V1-T5-69
CMBE3242B150BS
3—
150
None
UG 10 4 20/40 CSR2150 BR 6
V1-T5-54 V1-T5-69
— MBE2040B150BF 5

Volume 1—Residential and Light Commercial CA08100002E—February 2014 www.eaton.com V1-T5-51
5
5
5
5
5
5
5
5
5
5
5
5
5
5
5
5
5
5
5
5
5
5
5
5
5
5
5
5
5
5
5.9
Metering Products
Meter Breakers
Note: See knockout drawings on Pages V1-T5-68 through V1-T5-74 for hub information.
Combination Service Entrance Devices—EUSERC, continued
Notes
1See Page V1-T5-68 for box details.
2Interrupting rating is dependent on the main breaker that is installed.
3Unit has copper bus.
4Units come with feed-through lugs.
5When a provision for main is provided, order one of the main breakers listed on Page V1-T5-68. All panels are dual labeled to accept Types BW or CSR Main Breakers.
6Please use RH-Type hubs on top end wall for overhead feed.
7Includes factory-mounted 2.50-inch hub on bottom endwall. UG feed only.
8Semi-flush flange, not full stucco flange.
9Units include a two-pole provision for secondary main 70A max. Type BR, BRH, BRHH.
Ampere
Rating
By-
pass Service kAIC Jaws Distribution Main
Branch
Breaker
Typ e
Dimensions
and
Enclosure
Shape
1
Page Numbers
Catalog
Number—Surface
Catalog
Number—Flush
Wiring Knockout
1
Ring Style All-in-Ones (includes distribution section), continued
150
None
OH/UG 22 4 20/40 CSR2150 BR —
V1-T5-55
—
MBE2040B150BTS
6—
150
None
OH/UG 10 4 4/8 CSR2150 BR 3
V1-T5-56 V1-T5-70
MBE48B150BTS
—
200
None
OH/UG 10 4 4/8 CSR2200 BR 3
V1-T5-56 V1-T5-70
MBE48B200BTS
4MBE48B200BTF 4
200
None
OH/UG 22 4 8 CSH2200N CH 3
V1-T5-53 V1-T5-70
CMBE88B200BTS
34 CMBE88B200BTF 34
200
None
OH/UG 10 4 8 CSR2200 BR 3
V1-T5-56 V1-T5-70
MBE88B200BTS
—
200
None
OH/UG
10 4 4/8 CSR2200 BR 19 V1-T5-58 V1-T5-73
MBER48B200BTS
48 —
200
None
OH/UG
10 4 4/8 CSR2200 BR 19 V1-T5-58 V1-T5-73
MBER48B200BTS
48 —
200
None
OH/UG
2
4 8/16 Provision BR 10
V1-T5-57 V1-T5-71
MBE816P200TSCU
36 —
200
None
OH
2
4 8/16 Provision BR 10
V1-T5-57 V1-T5-71
MBE816P200TS
46 —
200
None
UG
2
4
6–2 Pole
Main Lug CH 5
V1-T5-52 V1-T5-69
CMBE1212L200BS
3MBE1212L200BTF
200
None
OH/UG
2
4
6–2 Pole
Main Lug BR 9
V1-T5-57 V1-T5-69
MBE1212L200BTS
—
200
None
OH 10 4 20/40 CSR2200 BR 10
V1-T5-57 V1-T5-71
MBE2040B200TS
6MBE2040B200TF 5
200
None
UG 10 4 20/40 CSR2200 BR 6
V1-T5-54 V1-T5-69
MBE2040B200BS
6MBE2040B200BF 5
200
None
OH/UG 22 4 20/40 CSR2200 BR —
V1-T5-55
—
MBE2040BH200BTS
6—
200
None
OH/UG 22 4 20/40 CSR2200 BR —
V1-T5-55
—
MBE2040BH200BTF
6—
200
None
UG 22 4 30/42 CSR2200 BR 7
V1-T5-54
—— MBE3042B200BF
200
None
UG 22 4 32/42 CSH2200N CH 7
V1-T5-52 V1-T5-69
CMBE3242B200BS
3CMBE3242B200BF 3
200
None
UG 22 4 40 CSR2200 BR 12
V1-T5-58
—
MBE4040B200BSH
6—
200
None
OH/UG 22 4 40 CSR2200 BR 12
V1-T5-58
—
MBE4040B200BTS
MBE4040B200BTF 7
200
None
OH/UG 22 4 42 CSH2200N CH 12
V1-T5-57
—
CMBE4242B200BTS
3—
200
None
OH/UG 10 4 20/40 CSR2200 BR 18
V1-T5-55 V1-T5-73
MBE2040B200BTS
6MBE2040B200BTF 6
225
None
OH/UG 10 4 20/40 CSR2225 BR 18
V1-T5-58 V1-T5-73
MBE2040B225BTS
6MBE2040B225BTF 6
225
None
UG 22 4 30/42 CSR2225 BR 7
V1-T5-55
—— MBE3042B225BF
225
None
UG 22 4 32/42 CSH2225N CH 7
V1-T5-52 V1-T5-69
CMBE3242B225BS
3CMBE3242B225BF 3

V1-T5-52 Volume 1—Residential and Light Commercial CA08100002E—February 2014 www.eaton.com
5
5
5
5
5
5
5
5
5
5
5
5
5
5
5
5
5
5
5
5
5
5
5
5
5
5
5
5
5
5
5.9
Group Metering and Meter Breakers
Meter Breakers
Wiring Diagrams
Catalog Numbers—CMBE3242B150BS, CMBE3242B200BS,
CMBE3242B200BF, CMBE3242B225BS and
CMBE3242B225BF 56a.
Catalog Numbers—CMBE2222P125BF and CMBE2222P125BS
Catalog Number—CMBE1212L200BS 56c.
Catalog Numbers—CMBEB150BTS and CMBEB200BTS 56d.
Note
1
Factory-installed
MCBK225
kit for C/B load lugs.
#14-2 AWG
#14-4 AWG
#6-2/0 AWG
#6-250 AWG
Wiring Diagram Key
Service Disconnect
Type CSR
N
Bonded
Neutral
Bonded
Neutral
1
2
3
4
5
6
7
8
9
10
11
12
13
14
15
16
17
18
19
20
21
22
23
24
25
26
27
28
29
30
31
32
33
34
35
36
37
38
39
40
41
42
Line
AB
12
14
16
21
22
9
11
13
15
10
4
6
8
1
3
5
7
2
18
20
17
19
N
AB
Service Disconnect
Line
Bonded Neutral
Bonded Neutral
#14-4 AWG
#6-2/0 AWG
#14-2/0 AWG
#6-250 AWG
Wiring
Diagram Key
4
6
8
10
12
1
3
5
7
9
11
2
AB
N Line
Bonded Neutral
Bonded Neutral
#14-4 AWG
#6-1/0 AWG
#6-250 AWG
Wiring
Diagram Key
AB
Bonded
Neutral
Line
N
AB
Install 200 Ampere Maximum
Service Disconnect Type CSR 2
Wiring Diagram Key
#14-2/0 AWG
#14-2 AWG
#6-250 AWG

Volume 1—Residential and Light Commercial CA08100002E—February 2014 www.eaton.com V1-T5-53
5
5
5
5
5
5
5
5
5
5
5
5
5
5
5
5
5
5
5
5
5
5
5
5
5
5
5
5
5
5
5.9
Group Metering and Meter Breakers
Meter Breakers
Catalog Number—CMBE24L125BTS 57a.
Catalog Number—CMBE24L200BTS 57b.
Catalog Numbers—CMBE88B200BTS, CMBE88B200BTF,
CMBE88B150BTS and CMBE88B150BTF 57c.
Catalog Numbers—MBE1224B100BTS, MBE1224B100BTF,
MBE1224B125BTS and MBE1224B125BTF 57d.
AB
Bonded
Neutral
Line
N
AB
#14-1/0 AWG
#14-6 AWG
#14-1/0 AWG
#6-250 AWG
1234
Wiring Diagram Key
AB
Bonded
Neutral
Line
N
AB
#14-6 AWG
#14-1/0 AWG
#6-250 AWG
1234
Wiring Diagram Key
AB
1
2
3
4
AB
5
6
7
8
Wiring Diagram Key
#14-1/0 AWG
#14-6 AWG
#6-2/0 AWG
#6-250 AWG
#4-300 AWG
Service Disconnect
Type CSR 200 Ampere Maximum
Bonded Neutral
Line
N
1
2
3
4
#14-6 AWG
#14-1/0 AWG
#14-2/0 AWG
#6-250 AWG
Wiring
Diagram Key
A
Bonded
Neutral
B
Main
5
6
7
8
9
10
11
12
13
14
15
16
17
18
19
20
21
22
23
24

V1-T5-54 Volume 1—Residential and Light Commercial CA08100002E—February 2014 www.eaton.com
5
5
5
5
5
5
5
5
5
5
5
5
5
5
5
5
5
5
5
5
5
5
5
5
5
5
5
5
5
5
5.9
Group Metering and Meter Breakers
Meter Breakers
Catalog Numbers—MBE2040B150BF, MBE2040B200BS
and MBE2040B200BF 58a.
Catalog Number—MBE1836B125BF 58b.
Catalog Numbers—MBE1212L200BF and
MBE1212L200BS
Catalog Number—MBE3042B200BF 58d.
N
AB
1
4
2
3
5
8
6
7
9
12
10
11
13
16
14
15
17
20
18
19
21
24
22
23
25
28
26
27
29
32
30
31
33
36
34
35
37
40
38
39
Service
Disconnect
Type BW
or CSR
Line
Bonded Neutral
Bonded Neutral
#14-4 AWG
#6-2/0 AWG
#6-250 AWG
Wiring
Diagram Key
1
4
2
3
5
8
6
7
9
12
10
11
13
16
14
15
17
20
18
19
21
24
22
23
34
33
36
35
25
28
26
27
29
32
30
31
NLine
AB
Service Disconnect
Bonded Neutral
Bonded Neutral
Wiring
Diagram Key
#14-4 AWG
#6-2/0 AWG
#14-2/0 AWG
#6-250 AWG
4
6
8
10
12
1
3
5
7
9
11
2
Line
AB
N
Bonded Neutral
#14-6 AWG
#6-1/0 AWG
#6-250 AWG
Bonded Neutral
Wiring
Diagram Key
Bonded Neutral
LINE
NAB
41 40
42
39
37 36
38
35
33 32
34
31
29 28
30
27
25 24
26
23
18
17
15
14
16
13
11
10
12
9
7
6
8
5
3
2
4
1
Service
Disconnect
Type BW
or CSR
Bonded Neutral
21 20
22
19
Wiring
Diagram Key
#14-4 AWG
#6-2/0 AWG
#6-250 AWG

Volume 1—Residential and Light Commercial CA08100002E—February 2014 www.eaton.com V1-T5-55
5
5
5
5
5
5
5
5
5
5
5
5
5
5
5
5
5
5
5
5
5
5
5
5
5
5
5
5
5
5
5.9
Group Metering and Meter Breakers
Meter Breakers
Catalog Numbers—MBE1428B100BS and MBE1428B100BF 59a.
Catalog Numbers—MBE2040B200BTS, MBE2040B150BTS,
MBE2040BH200BTS and MBE2040BH200BTF 59b.
Catalog Number—MBE3042B225BF 59c.
Catalog Numbers—MBE24L125BTS and MBE24L125BTF 59d.
1
4
2
3
5
8
6
7
9
12
10
11
13
16
14
15
17
20
18
19
21
24
22
23
26
25
28
27
N
Line
AB
Service Disconnect
Bonded Neutral
Bonded Neutral
Wiring
Diagram Key
#14-4 AWG
#6-2/0 AWG
#14-2/0 AWG
#6-250 AWG
Bonded
Neutral
15
16
17
18
19
20
21
22
13
14
23
24
11
12
9
10
3
4
1
2
7
8
5
6
N
27
28
29
30
31
32
33
34
25
26
35
36
37
38
39
40
AB
AB
200A Max.
Service
Disconnect
Wiring
Diagram Key
#14-6 AWG
#14-1/0 AWG
#6-250 AWG
Bonded Neutral
Service
Disconnect
Type BW
or CSR
Bonded Neutral
LINE
NAB
41 40
42
39
37 36
38
35
33 32
34
31
29 28
30
27
25 24
26
23
18
17
15
14
16
13
11
10
12
9
7
6
8
5
3
2
4
1
21 20
22
19
Wiring
Diagram Key
#14-4 AWG
#6-2/0 AWG
#6-250 AWG
AB
1
Bonded
Neutral
Line
N
AB
23456
#14-1/0 AWG
#14-6 AWG
#14-2/0 AWG
#6-250 AWG
Wiring Diagram Key

V1-T5-56 Volume 1—Residential and Light Commercial CA08100002E—February 2014 www.eaton.com
5
5
5
5
5
5
5
5
5
5
5
5
5
5
5
5
5
5
5
5
5
5
5
5
5
5
5
5
5
5
5.9
Group Metering and Meter Breakers
Meter Breakers
Catalog Numbers—MBE48B150BTS, MBE48B200BTS,
MBE48B200BTF 60a.
Catalog Numbers—MBEB200BTS and MBEB200BTF 60b.
Catalog Numbers—MBE24L200BTS and MBE24L200BTF 60c.
Catalog Number—MBE88B200BTS 60d.
AB
200A Maximum
Service Disconnect
Type BW or CSR
4
6
8
AB
3
5
7
1
2
L2
L1 Bonded
Neutral
Line
N
#14-1/0 AWG
#14-6 AWG
#6-2/0 AWG
#6-250 AWG
Wiring Diagram Key
AB
AB
MCBK225 Kit for
C/B Load Lugs
Wiring Diagram Key
#14-2/0 AWG
#6-2/0 AWG
#6-250 AWG
200A Maximum
Service Disconnect
Type BW or CSR
Bonded
Neutral
Line
N
AB
1
Bonded
Neutral
Line
N
AB
23456
#14-1/0 AWG
#14-6 AWG
#14-2/0 AWG
#6-250 AWG
Wiring Diagram Key
1
2
3
4
5
6
7
8
AB
200A Maximum
Service Disconnect
Type BW or CSR
AB
Bonded Neutral
Line
N
Wiring Diagram Key
#14-1/0 AWG
#14-6 AWG
#6-2/0 AWG
#6-250 AWG

Volume 1—Residential and Light Commercial CA08100002E—February 2014 www.eaton.com V1-T5-57
5
5
5
5
5
5
5
5
5
5
5
5
5
5
5
5
5
5
5
5
5
5
5
5
5
5
5
5
5
5
5.9
Group Metering and Meter Breakers
Meter Breakers
Catalog Numbers—MBE816P200TS and MBE816P200TSCU 61a.
Catalog Numbers— MBE2040B200TS and MBE2040B200TF 61b.
Catalog Number—MBE1212L200BTS 61c.
Catalog Number—MBE1212L200BTS 61d.
Catalog Number—CMBE1212L200TS 61e.
Catalog Number—CMBE4242B200BTS 61f.
AB
1
3
2
4
5
7
6
8
9
11
10
12
13
15
14
16
#14-4 AWG
#6-350 kcmil
#6-2/0 AWG
#6-300 kcmil
#6-300 kcmil
Line
N
Bonded
Neutral
200A
Maximum
Service
Disconnect
Type BW
or CSR
Wiring Diagram Key
AB
Line N
Bonded
Neutral
200A
Maximum
Service
Disconnect
Type BW
or CSR
1
3
2
4
5
7
6
8
9
11
10
12
13
15
14
16
17
19
18
20
21
23
22
24
25
27
26
28
29 30
33
35
34
36
37
39
38
40
31 32
#14-4 AWG
#6-350 kcmil
#6-2/0 AWG
Wiring
Diagram Key
AB
1
2
3
LINE
N
AB4
5
6
Bonded
Neutral
#14-4 AWG
#6-350 kcmil
#6-2/0 AWG
Wiring
Diagram Key
1
3
5
7
9
11
Bonded
Neutral
N
AB
#14-4 AWG
#6-350 kcmil
#6-2/0 AWG
#6-300 kcmil
2
4
6
8
10
12
Wiring Diagram Key
1
3
5
7
9
11
#14-4 AWG
#6-350 kcmil
#6-2/0 AWG
#6-300 kcmil
Bonded
Neutral
ABN
2
4
6
8
10
12
Wiring Diagram Key
1
3
5
7
9
11
13
15
17
19
21
23
25
27
29
31
33
35
37
39
41
AB
AB
Bonded
Neutral
2
4
6
8
10
12
14
16
18
20
22
24
26
28
30
32
34
36
38
40
42
#14-6 AWG
Wiring
Diagram Key
Factory Installed
Service Disconnect
Type CSR
#14-1/0 AWG
#6 AWG-250 kcmil
N

V1-T5-58 Volume 1—Residential and Light Commercial CA08100002E—February 2014 www.eaton.com
5
5
5
5
5
5
5
5
5
5
5
5
5
5
5
5
5
5
5
5
5
5
5
5
5
5
5
5
5
5
5.9
Group Metering and Meter Breakers
Meter Breakers
Catalog Numbers—CMBER88B200BTS and
CMBER88B200BTF 62a.
Catalog Numbers—MBE4040B200BTS and
MBE4040B200BSH 62b.
Catalog Numbers—MBER48B200BTS and MER48B200BTF 62c.
Catalog Numbers—MBE2040B225BTS, MBE2040B225BTF 62d.
Catalog Numbers—MBE1224B125TS and MBE1224B100TS 62e.
Line
N
BA
B
Service
Disconnect Type CSR
or CSH Max 200A
1
2
3
4
5
6
7
8
Secondary
Service
Disconnect
70A Max
Bonded
Neutral
Wire Range
#14-1/0
#14-6 AWG
#5-2/0 AWG
#5-250 AWG
#4-300 AWG
A
1
3
5
7
9
11
13
15
17
19
21
23
25
27
29
31
33
35
37
39
N
AB
AB
Bonded
Neutral
2
4
6
8
10
12
14
16
18
20
22
24
26
28
30
32
34
36
38
40
#14-6 AWG
Wiring
Diagram Key
#14-1/0 AWG
#6 AWG-250 kcmil
Factory Installed
Service Disconnect
Type BW
Line
N
BA
B
Service
Disconnect Type CSR
or CSH Max 200A
1
2
3
4
5
6
7
8
Secondary
Service
Disconnect
70A Max
Bonded
Neutral
Wire Range
#14-1/0
#14-6 AWG
#5-2/0 AWG
#5-250 AWG
#4-300 AWG
A
#14-6 AWG
#14-1/0 AWG
#6-250 AWG
Wiring
Diagram Key
225A Max.
Service
Disconnect
AB
A
N
Bonded
Neutral
B
#14-4 AWG
#14-1/0 AWG
#6-350 kcmil
Wiring
Diagram Key
1
3
5
7
9
11
13
15
17
19
21
23
125A
Maximum
Service Disconnect
Type BR, or BRH
Bonded
Neutral
Line
N
AB
Equipment
Ground
2
4
6
8
10
12
14
16
18
20
22
24

Volume 1—Residential and Light Commercial CA08100002E—February 2014 www.eaton.com V1-T5-59
5
5
5
5
5
5
5
5
5
5
5
5
5
5
5
5
5
5
5
5
5
5
5
5
5
5
5
5
5
5
5.9
Metering Products
Meter Breakers
West Coast All-In-One Design
Contents
Description Page
Residential Meter Breakers. . . . . . . . . . . . . . . . . . V1-T5-37
Non-EUSERC Combination Service Entrance
Devices 100–200A Styles . . . . . . . . . . . . . . . . . . V1-T5-39
Meets EUSERC Requirements Service Entrance
Devices 100–225A . . . . . . . . . . . . . . . . . . . . . . . V1-T5-48
West Coast All-In-One Design
Mechanical Interlock Cover . . . . . . . . . . . . . . . . . . V1-T5-65
House Panels . . . . . . . . . . . . . . . . . . . . . . . . . . . . V1-T5-75
Commercial Safety Sockets. . . . . . . . . . . . . . . . . . V1-T5-83
CH Style Renovation Solutions . . . . . . . . . . . . . . . V1-T5-86
Aluminum Meter Breakers . . . . . . . . . . . . . . . . . . V1-T5-87
West Coast All-In-One Design
Product Description
A metering device that
may contain a meter
socket, main breaker and
distribution section within
the same enclosure.
Features, Benefits
and Functions
●Semi-flush mounting.
7-inch design ideal for
stucco homes
●Endwall knockouts are
easily accessible for
future wiring without
damaging stucco
●Knockout in back of case
for mounting car-charging
receptacle in garage
(meets future electric
car requirements)
●Outboard split neutral
for easy wiring
●Commercial grade
main breaker
●Value-added kits available:
Hub adapter plate

V1-T5-60 Volume 1—Residential and Light Commercial CA08100002E—February 2014 www.eaton.com
5
5
5
5
5
5
5
5
5
5
5
5
5
5
5
5
5
5
5
5
5
5
5
5
5
5
5
5
5
5
5.9
Metering Products
Meter Breakers
Product Selection
7-Inch Deep Meter Breaker—Standard Design OH/NG
Accessories
Hub Adapter Plate
Note
1 Main Breaker Bus connected to 20/40 distribution. Main and Disconnect in same compartment.
Ampere
Rating Bypass Service kAIC Jaws Distribution Main
Branch
Breaker
Typ e
Catalog Number—
Flush
Factory-
Installed
Kits
100 None UG 10 4 18/36 BW2100 BR
MBED1836B100BF
—
125 None UG 10 4 18/36 BW2125 BR
MBED1836B125BF
—
200 None UG 10 4 20/40 BW2200 BR
MBED2040B200BF
—
200
1
None UG 10 4 20/40 BW2200 BR
MBED2040B200BFN
—
200 None UG 10 4 30/42 BW2200 BR
MBED3042B200BF
—
225 None UG 10 4 20/40 BW2225 BR
MBED2040B225BF
—
225
1
None UG 10 4 20/40 BW2225 BR
MBED2040B225BFN
—
225 None UG 10 4 30/42 BW2225 BR
MBED3042B225BF
—
Description
Catalog
Number
Hub adapter plate MBEDADPT
MBED3042B200BF

Volume 1—Residential and Light Commercial CA08100002E—February 2014 www.eaton.com V1-T5-61
5
5
5
5
5
5
5
5
5
5
5
5
5
5
5
5
5
5
5
5
5
5
5
5
5
5
5
5
5
5
5.9
Metering Products
Meter Breakers
Wiring Diagrams
Typical Wiring Diagram for Catalog Numbers
MBED3042B200BF, MBED3042B225BF, MBED3042BH200BF
Typical Wiring Diagram for Catalog Numbers
MBED1836B100BF, MBED1836B125BF
Typical Wiring Diagram for Catalog Numbers
MBED2040B200BFN, MBED2040B225BFN
Typical Wiring Diagram for Catalog Numbers
MBED2040B200BF, MBED2040B225BF, MBED2040BH200BF,
MBED2040BH225BF

V1-T5-62 Volume 1—Residential and Light Commercial CA08100002E—February 2014 www.eaton.com
5
5
5
5
5
5
5
5
5
5
5
5
5
5
5
5
5
5
5
5
5
5
5
5
5
5
5
5
5
5
5.9
Metering Products
Meter Breakers
Typical Wiring Diagram for Catalog Numbers
MBEB2003040BB and MBEB2253040BB
Dimensions and Knockouts
Approximate Dimensions in Inches (mm)
7-Inch Deep Meter Breaker
#14-2/0 AWG
#6-250 AWG
Wiring
Diagram Key
200A or
225A Max.
Service
Disconnect
Type BW
or CSR
Loadcenter
Main Lugs
Loadcenter
Neutral
AB
AB
N
A
Line N
Factory
Bonded
Neutral
B
Catalog Number—
Flush
Height Width Depth
MBED1836B100BF
38.00 (965.2) 14.19 (360.4) 7.00 (177.8)
MBED1836B125BF
38.00 (965.2) 14.19 (360.4) 7.00 (177.8)
MBED2040B200BF
38.00 (965.2) 14.19 (360.4) 7.00 (177.8)
MBED2040B200BFN
42.50 (1079.5) 14.19 (360.4) 7.00 (177.8)
MBED3042B200BF
42.50 (1079.5) 14.19 (360.4) 7.00 (177.8)
MBED2040B225BF
38.00 (965.2) 14.19 (360.4) 7.00 (177.8)
MBED2040B225BFN
42.50 (1079.5) 14.19 (360.4) 7.00 (177.8)
MBED3042B225BF
42.50 (1079.5) 14.19 (360.4) 7.00 (177.8)

Volume 1—Residential and Light Commercial CA08100002E—February 2014 www.eaton.com V1-T5-63
5
5
5
5
5
5
5
5
5
5
5
5
5
5
5
5
5
5
5
5
5
5
5
5
5
5
5
5
5
5
5.9
Metering Products
Meter Breakers
Approximate Dimensions in Inches (mm)
Catalog Numbers MBED2040B200BFN, MBED20408225BFN, MBED3042B200BF, MBED3042B225BF, MBED2040B200BF,
MBED2040B225BF, MBED1836B100BF, MBED1836B125BF
Knockout Configurations and Dimensions for
MBED2040B200BFN, MBED20408225BFN,
MBED3042B200BF, MBED3042B225BF, MBED2040B200BF,
MBED2040B225BF,MBED1836B100BF, MBED1836B125BF

V1-T5-64 Volume 1—Residential and Light Commercial CA08100002E—February 2014 www.eaton.com
5
5
5
5
5
5
5
5
5
5
5
5
5
5
5
5
5
5
5
5
5
5
5
5
5
5
5
5
5
5
5.9
Metering Products
Meter Breakers
Approximate Dimensions in Inches (mm)
Catalog Numbers MBEB2003040BB, MBEB2253040BB
Knockout Configurations for MBEB2003040BB,
MBEB2253040BB

Volume 1—Residential and Light Commercial CA08100002E—February 2014 www.eaton.com V1-T5-65
5
5
5
5
5
5
5
5
5
5
5
5
5
5
5
5
5
5
5
5
5
5
5
5
5
5
5
5
5
5
5.9
Metering Products
Meter Breakers
Meter Breaker with Interlock Cover
Mechanical Interlock Cover
Contents
Description Page
Residential Meter Breakers. . . . . . . . . . . . . . . . . . V1-T5-37
Non-EUSERC Combination Service Entrance
Devices 100–200A Styles . . . . . . . . . . . . . . . . . . V1-T5-39
Meets EUSERC Requirements Service Entrance
Devices 100–225A . . . . . . . . . . . . . . . . . . . . . . . V1-T5-48
West Coast All-In-One Design. . . . . . . . . . . . . . . . V1-T5-59
Mechanical Interlock Cover
House Panels . . . . . . . . . . . . . . . . . . . . . . . . . . . . V1-T5-75
Commercial Safety Sockets. . . . . . . . . . . . . . . . . . V1-T5-83
CH Style Renovation Solutions . . . . . . . . . . . . . . . V1-T5-86
Aluminum Meter Breakers . . . . . . . . . . . . . . . . . . V1-T5-87
Mechanical Interlock Cover
Product Description
Covers mechanically interlock
two breakers. Covers
interlock main breaker with
two-pole breaker mounted in
the distribution section of the
meter breakers.

V1-T5-66 Volume 1—Residential and Light Commercial CA08100002E—February 2014 www.eaton.com
5
5
5
5
5
5
5
5
5
5
5
5
5
5
5
5
5
5
5
5
5
5
5
5
5
5
5
5
5
5
5.9
Metering Products
Meter Breakers
Product Selection
Mechanical Interlock Cover
Mechanical Interlock
Deadfront
Meter Breaker
Catalog Number
MBDF1M CMB1212B200BTS
CMB1212B200BTSD
CMB1212P200BTS
CMB1212P200BTSD
MBDF2M MB816B200BTS
MB816B200BTSCU
MB816P200BTS
MB816P200BTSCU
MB816P200STD
MBDF3M MB2040B200BTS
MB2040P200BTS
MB2040P200SD
MBDF4M MBE816P200TS
MBE816P200TSCU
MBDF5M MBE2040B150BF
MBE2040B150BS
MBE2040B200BF
MBE2040B200BS
MBDF6M MBE2040B200TF
MBE2040B200TS
MBE2040P200TF
MBE2040P200TS
MBDF7M CMBE3242B150BF
CMBE3242B150BS
CMBE3242B200BF
CMBE3242B200BS
CMB3242B150BS
CMB3242B200BS
MBDF8M CMBE4242B200BSH
CMBE4242B200BTF
CMBE4242B200BTS
MBDF9M MBE4040B200BSH
MBE4040B200BSHH
MBE4040B200BTF
MBE4040B200BTS
Meter Breaker with
Interlock Cover
Mechanical Interlock
Deadfront
Meter Breaker
Catalog Number
MBDF1AM CMB2424M200BTS
MBDF10M CMB24B200TFR
CMB24B200TSR
MBDF11M CMBXB200BTS
CMBXP200BTS
MBDF12M CMBX3242B200BTS
CMBX3242P200BTS
MBDF13M MBE3042B200BF
MBE3042B225BF
MBDF14M CMBE88B150BTF
CMBE88B150BTS
CMBE88B200BTF
CMBE88B200BTS
CMB88B150BTS
CMB88B200BTS
MBDF15M MBE48B150BTF
MBE48B150BTS
MBE48B200BTF
MBE48B200BTS
MBDF16M MBE88B150BTF
MBE88B150BTS
MBE88B200BTF
MBE88B200BTS
MBDF17M MBE2040BC200BTS
MBE2040BH200BTF
MBE2040BH200BTS
MBE2040B150BTF
MBE2040B150BTS
MBE2040B200BTF
MBE2040B200BTS
MBE2040B200BTSV
MBE2040B225BTF
MBE2040B225BTS

Volume 1—Residential and Light Commercial CA08100002E—February 2014 www.eaton.com V1-T5-67
5
5
5
5
5
5
5
5
5
5
5
5
5
5
5
5
5
5
5
5
5
5
5
5
5
5
5
5
5
5
5.9
Metering Products
Meter Breakers
Meter Breaker Parts 1
Hub Selection Chart
Top Endwall (Surface)
Description
Catalog
Number
5th Jaw Kits
Compact and standard styles (MB and CMB) MB5JAWKIT
EUSERC style IMM5JKOP
Horn Bypass Kits
Ringless Style units only (MB and CMB) MBHBPKIT
Hub Size
Dimensions in Inches (mm)
Catalog
Number
1.00 (25.4) DS100H2
1.25 (31.8) DS125H2
1.50 (38.1) DS150H2
2.00 (50.8) DS200H2
2.50 (63.5) DS250H2
3.00 (76.2) DS300H2
Hub Provision
Catalog Number
DS100H2
DS125H2
DS150H2
DS200H2
DS250H2
DS300H2
DS900AP (Adapter Plate if using DS___H1 hubs only) 2
Technical Data and Specifications
Wire Size Chart
Wire Size is Determined by the Circuit Breaker Installed
in the Enclosure
Notes
1For breakers under 70A used in backfed applications, add “B” to the end of the catalog string
to get the appropriate “hold-down” version.
2Use when DS H1 Type 1, 1.25 and 1.50-inch hubs are needed.
Use DS...H2 hubs for bottom endwalls (for all units). Use RH hubs for top endwalls on semi-flush
units. Use DS...H2 hubs for top endwalls on surface devices.
Main
Wire Size Range Cu/Al 60ºC
or 75ºC for Line Terminals
BR250 #14–4 kcmil
BR260 #4–1/0 kcmil
BR270 #4–1/0 kcmil
BR280 #4–1/0 kcmil
BR290 #4–1/0 kcmil
BR2100 #4–1/0 kcmil
BW2125 #2–300 kcmil
BW2150 #2–300 kcmil
BW2200 #2–300 kcmil
CSR2125 #2–300 kcmil
CSR2150 #2–300 kcmil
CSR2200 #2–300 kcmil
CSR2125N #1/0–250 kcmil
CSR2150N #1/0–250 kcmil
CSR2200N #1/0–250 kcmil
125A main lugs —
200A main lugs —
MCBK225 #2–300 kcmil
Wire/Application
Maximum
Wire Size
Ampere
Rating
Aluminum—Standard 250 kcmil 200
Aluminum—Service Entrance 250 kcmil 225
Copper—Standard and Service Entrance 250 kcmil 225

V1-T5-68 Volume 1—Residential and Light Commercial CA08100002E—February 2014 www.eaton.com
5
5
5
5
5
5
5
5
5
5
5
5
5
5
5
5
5
5
5
5
5
5
5
5
5
5
5
5
5
5
5.9
Metering Products
Meter Breakers
Dimensions and Knockouts
Approximate Dimensions in Inches (mm)
Box Styles—Five Different Styles (Shapes) of Product
Box Dimensions
Box
Number Height Width Depth
Box
Style
1 12.50 (317.5) 14.44 (366.7) 4.00 (101.6) A
2 23.88 (606.4) 14.44 (366.7) 5.38 (136.5) A
3 28.38 (720.7) 14.44 (366.7) 5.38 (136.5) A
4 34.13 (866.8) 14.44 (366.7) 5.38 (136.5) B
5 36.13 (917.6) 14.44 (366.7) 5.38 (136.5) B
6 43.38 (1101.7) 14.44 (366.7) 5.38 (136.5) B
7 46.88 (1190.6) 14.44 (366.7) 5.38 (136.5) B
8 19.75 (501.7) 7.50 (190.5) 4.00 (101.6) C
9 25.00 (635.0) 14.44 (366.7) 5.38 (136.5) C
10 32.38 (822.3) 14.44 (366.7) 5.38 (136.5) C
11 36.63 (930.3) 14.44 (366.7) 5.38 (136.5) C
12 34.38 (873.1) 22.00 (558.8) 5.38 (136.5) D
13 19.75 (501.7) 14.44 (366.7) 5.38 (136.5) E
14 39.91 (1013.7) 14.44 (366.7) 5.38 (136.5) C
15 23.88 (606.6) 13.00 (330.2) 4.94 (125.5) F
16 28.38 (720.9) 13.00 (330.2) 4.94 (125.5) F
17 34.19 (868.4) 22.13 (562.1) 5.00 (127.0) D
18 36.06 (915.9) 16.63 (422.4) 5.50 (139.7) A
19 28.38 (720.9) 14.44 (366.8) 4.94 (125.5) A
20 32.06 (814.3) 14.44 (366.8) 4.94 (125.5) C
21 25.50 (647.7) 14.44 (366.8) 4.94 (125.5) C
ABCDE F

Volume 1—Residential and Light Commercial CA08100002E—February 2014 www.eaton.com V1-T5-69
5
5
5
5
5
5
5
5
5
5
5
5
5
5
5
5
5
5
5
5
5
5
5
5
5
5
5
5
5
5
5.9
Metering Products
Meter Breakers
Approximate Dimensions in Inches (mm)
Knockouts for Stucco and Surface Units Catalog Numbers—
CMBE3242B200BF, CMBE3242B225BF, MBE2040B200BF,
MBE2040B150BF, MBE1428B100BF, MBE1212L200BTF,
MBE1836B125BF and MBE1212L200BTS 62a.
Knockouts for Stucco and Surface Units Catalog Numbers—
CMBE3242B150BS, CMBE3242B200BS, CMBE3242B225BS,
CMBE1212L200BS, MBE2040B200BS, MBE1428B100BS,
MBE1212L200BTS, CMB3242B150BS and
CMB3242B200BS 62b.
Top Endwall (Surface)
Top Endwall (Stucco) 3
Bottom Endwall
Notes
1For details regarding quantities, please contact the Technical Resource Center (TRC)
at 1-877-ETN-CARE.
2Use when DS H1 Type 1, 1.25 and 1.50-inch hubs are needed.
3RH hubs are to be used for Top Endwall (Stucco) endwalls.
3-1/2
3
-1/
2
(88.9)
8
8.9
3-1/2
(88.9)
K
eyhole Knockouts on Sides for Stucco Units Only.
Keyhole Knockouts on Sides for Stucco Units Only.
T
op Stucco
TT
Top Stucco
4-15/16
(125.4)
Bottom
5-5/16
(134.9)
Top Surface
Bottom
4-15/16
(125.4)
Hub Provision
Catalog Number Quantity
DS100H2 1
DS125H2 1
DS150H2 1
DS200H2 1
DS250H2 1
DS300H2 1
DS900AP (Adapter Plate if using DS___H1 hubs only) 21
Knockout Size
Dimensions in Inches (mm) Quantity
1.25, 1.50, 2.00, 2.50 (31.8, 38.1, 50.8, 63.5) 1
1.00, 1.25, 1.50 (25.4, 31.8, 38.1) 1
0.50, 0.75, 1.00 (12.7, 19.1, 25.4) 1
0.50, 0.75 (12.7, 19.1) 3
0.50 (12.7) 3
Knockout Size
Dimensions in Inches (mm) Quantity
0.50 (12.7) 7
0.50, 0.75 (12.7, 19.1) 4
0.50, 0.75, 1.00 (12.7, 19.1, 25.4) 1
1.00, 1.25, 1.50, 2.00 (25.4, 31.8, 38.1, 50.8) 1
1.25, 1.50, 2.00, 2.50, 3.00 (31.8, 38.1, 50.8, 63.5, 76.2) 1

V1-T5-70 Volume 1—Residential and Light Commercial CA08100002E—February 2014 www.eaton.com
5
5
5
5
5
5
5
5
5
5
5
5
5
5
5
5
5
5
5
5
5
5
5
5
5
5
5
5
5
5
5.9
Metering Products
Meter Breakers
Approximate Dimensions in Inches (mm)
Knockouts for Stucco and Surface Units Catalog Numbers—
CMBE88B150BTF, CMBE88B200BTF, MBE24L125BTF,
MBE24L200BTF, MBE48B200BTF, MBEB200BTF,
MBE1224B100BTF and MBE1224B125BTF 63a.
Knockouts for Stucco and Surface Units Catalog Numbers—
CMBB150BTS, CMBB200BTS, CMBP200BTS,
CMBE24L125BTS, CMB24L125BTS, CMBE24L200BTS,
CMBEB200BTS, CMBEB150BTS, CMBE88B150BTS,
CMBP200BTS, CMBE88B200BTS, MBE24L125BTS,
MBE24L200BTS, MBE48B150BTS, MBE48B200BTS,
MBE88B200BTS, MBEB200BTS, MBE1224B100BTS,
MBE1224B125BTS, CMB88B150BTS, CMB88B200BTS
and MB48B200BTS 63b.
Top Endwall (Surface)
Top Endwall (Stucco) 3
Bottom Endwall
Notes
1For details regarding quantities, please contact the Technical Resource Center (TRC)
at 1-877-ETN-CARE.
2Use when DS H1 Type 1, 1.25 and 1.50-inch hubs are needed.
3RH hubs are to be used for Top Endwall (Stucco) endwalls.
Keyhole Knockouts on Sides for Stucco Units Only.
Top Stucco
Bottom
3-1/2
(88.9)
4-15/16
(125.4)
Top Surface
Bottom
5-5/16
(134.9)
4-15/16
(125.4)
Hub Provision
Catalog Number Quantity
DS100H2 1
DS125H2 1
DS150H2 1
DS200H2 1
DS250H2 1
DS300H2 1
DS900AP (Adapter Plate if using DS___H1 hubs only) 21
Knockout Size
Dimensions in Inches (mm) Quantity
1.25, 1.50, 2.00, 2.50 (31.8, 38.1, 50.8, 63.5) 1
1.00, 1.25, 1.50 (25.4, 31.8, 38.1) 1
0.50, 0.75, 1.00 (12.7, 19.1, 25.4) 1
0.50, 0.75 (12.7, 19.1) 3
0.50 (12.7) 3
Knockout Size
Dimensions in Inches (mm) Quantity
0.50 (12.7) 7
0.50, 0.75 (12.7, 19.1) 4
0.50, 0.75, 1.00 (12.7, 19.1, 25.4) 1
1.00, 1.25, 1.50, 2.00 (25.4, 31.8, 38.1, 50.8) 1
1.25, 1.50, 2.00, 2.50, 3.00 (31.8, 38.1, 50.8, 63.5, 76.2) 1

Volume 1—Residential and Light Commercial CA08100002E—February 2014 www.eaton.com V1-T5-71
5
5
5
5
5
5
5
5
5
5
5
5
5
5
5
5
5
5
5
5
5
5
5
5
5
5
5
5
5
5
5.9
Metering Products
Meter Breakers
Approximate Dimensions in Inches (mm)
Knockouts for Stucco and Surface Units Catalog Number—
MMBE2040B200TF 64a.
Top Endwall (Surface)
Top Endwall (Stucco) 3
Knockouts for Stucco and Surface Units Catalog Numbers—
MBE1224B100TS, MBE1224B125TS, MBE816P200TS,
MBE816P200TSCU, MBE2040B200TS, CMB1212P200BTS,
CMB1212P200BTSD, CMB1212B200BTS, MB1212L200BTS
and CMB1212L200BTS 64b.
Bottom Endwall
Notes
1For details regarding quantities, please contact the Technical Resource Center (TRC)
at 1-877-ETN-CARE.
2Use when DS H1 Type 1, 1.25 and 1.50-inch hubs are needed.
3RH hubs are to be used for Top Endwall (Stucco) endwalls.
Hub Provision
Catalog Number Quantity
DS100H2 1
DS125H2 1
DS150H2 1
DS200H2 1
DS250H2 1
DS300H2 1
DS900AP (Adapter Plate) 21
Knockout Size
Dimensions in Inches (mm) Quantity
1.25, 1.50, 2.00, 2.50 (31.8, 38.1, 50.8, 63.5) 1
1.00, 1.25, 1.50 (25.4, 31.8, 38.1) 1
0.50, 0.75, 1.00 (12.7, 19.1, 25.4) 1
0.50, 0.75 (12.7, 19.1) 3
0.50 (12.7) 3
Keyhole Knockouts on Sides for Stucco Units Only.
Top Stucco
Bottom
3.50
(88.9)
4.94
(125.4)
Knockout Size
Dimensions in Inches (mm) Quantity
0.50 (12.7) 7
0.50, 0.75 (12.7, 19.1) 4
0.50, 0.75, 1.00 (12.7, 19.1, 25.4) 1
1.00, 1.25, 1.50, 2.00 (25.4, 31.8, 38.1, 50.8) 1
1.25, 1.50, 2.00, 2.50, 3.00 (31.8, 38.1, 50.8, 63.5, 76.2) 1
Top Surface
Bottom
5.31
(134.9)
4.94
(125.4)

V1-T5-72 Volume 1—Residential and Light Commercial CA08100002E—February 2014 www.eaton.com
5
5
5
5
5
5
5
5
5
5
5
5
5
5
5
5
5
5
5
5
5
5
5
5
5
5
5
5
5
5
5.9
Metering Products
Meter Breakers
Approximate Dimensions in Inches (mm)
Knockouts for Stucco and Surface Units
Top Endwall (Surface)
Top Endwall (Stucco) 3
Bottom Endwall
Notes
1For details regarding quantities, please contact the Technical Resource Center (TRC)
at 1-877-ETN-CARE.
2Use when DS H1 Type 1, 1.25 and 1.50-inch hubs are needed.
3RH hubs are to be used for Top Endwall (Stucco) endwalls.
3.44
(87.3)
Top Surface
Top Flush
MBE4040B200BTF
Top Surface
Bottom Bottom
2-1/2-inch Hub
CMBE4242B200BTS
MBE4040B200BTS
MBE4040B200BSH
5.31
(134.9)
4.94
(125.4)
5.31
(134.9)
4.94
(125.4)
Hub Provision
Catalog Number Quantity
DS100H2 1
DS125H2 1
DS150H2 1
DS200H2 1
DS250H2 1
DS300H2 1
DS900AP (Adapter Plate) 21
Knockout Size
Dimensions in Inches (mm) Quantity
1.25, 1.50, 2.00, 2.50 (31.8, 38.1, 50.8, 63.5) 2
0.50, 0.75 (12.7, 19.1) 3
Knockout Size
Dimensions in Inches (mm) Quantity
0.50, 0.75 (12.7, 19.1) 6
0.50, 0.75, 1, 1.25 (12.7, 19.1, 25.4, 31.8) 2
1.00, 1.25, 1.50, 2.00, 2.50 (25.4, 31.8, 38.1, 50.8, 63.5) 1
1.00, 1.25, 1.50, 2.00, 2.50, 3.00 (25.4, 31.8, 38.1, 50.8, 63.5, 76.2) 1

Volume 1—Residential and Light Commercial CA08100002E—February 2014 www.eaton.com V1-T5-73
5
5
5
5
5
5
5
5
5
5
5
5
5
5
5
5
5
5
5
5
5
5
5
5
5
5
5
5
5
5
5.9
Metering Products
Meter Breakers
Approximate Dimensions in Inches (mm)
Knockout Configurations and Dimensions for Catalog
Numbers MBER48B200BTS and CMBER88B200BTS 66a.
Knockout Configurations and Dimensions for
Catalog Numbers CMBXP200BTS, CMBXB200BTS,
CMBX1212P200BTS and CMBX3242P200BTS,
CMBX3242B200BTS, CMBX1212B200BTS 66b.
Surface Unit Knockout Configurations and Dimensions for
MBE2040B200BTS, MBE2040B225BTS, MBE2040B200BTF
and MBE2040B225BTF 66c.
Semi-Flush Stucco Unit Knockout Configurations and
Dimensions for MBE2040B200BTS, MBE2040B225BTS,
MBE2040B200BTF and MBE2040B225BTF 66d.
Knockout Configurations and Dimensions for Catalog
Numbers MBT48B125BTS, MBT48B150BTS, MBT48B200BTS
and MBT48P200BTS 66e.
4-15/16"
Top Surface
Bottom End
Mounting Surface
5-5/16"
Bottom
Top Surface
4-15/16"
5-5/16"

V1-T5-74 Volume 1—Residential and Light Commercial CA08100002E—February 2014 www.eaton.com
5
5
5
5
5
5
5
5
5
5
5
5
5
5
5
5
5
5
5
5
5
5
5
5
5
5
5
5
5
5
5.9
Metering Products
Meter Breakers
Approximate Dimensions in Inches (mm)
Knockouts for Non-EUSERC Units Catalog Numbers—
MBB150BTS, MBB200BTS, MBP200BTS, MB816P200BTS,
MB816P200BTSCU, MB816P200BTSD, MB816B200BTS,
MB816B200BTSCU, MB2040P200BTS, MB2040B200BTS,
MBP200BTSD, MBP200SD, MB816P200STD,
MB2040B150SD, MB2040B200SD and MB2040P200SD 67a.
Top Endwall (Surface)
Knockouts for Non-EUSERC Units Catalog Number—
CHMMB100BTS 67b.
Bottom Endwall
Knockouts for Non-EUSERC Units Catalog Numbers—
CMB2424B200BTS, MBB150BTSCR, MBB200BTSCR,
MBB150BTSC, MBB200BTSC and CMB2436B200BTS 67c.
Bottom Endwall
Knockouts for Non-EUSERC Units Catalog Numbers—
CHMMB150BTS and CHMMB200BTS 67d.
Bottom Endwall
Notes
1For details regarding quantities, please contact the Technical Resource Center (TRC)
at 1-877-ETN-CARE.
2Use when DS H1 Type 1, 1.25 and 1.50-inch hubs are needed.
Hub Provision
Catalog Number Quantity
DS100H2 1
DS125H2 1
DS150H2 1
DS200H2 1
DS250H2 1
DS300H2 1
DS900AP (Adapter Plate) 21
Knockout Size
Dimensions in Inches (mm) Quantity
0.31 (7.9) 1
0.50 (12.7) 1
0.50, 0.75, 1.00, 1.25, 1.50, 2.00, 2.50 (12.7, 19.1, 25.4, 31.8, 38.1, 50.8, 63.5) 2
1,00, 1.25, 1.50, 2.00, 2.50 (25.4, 31.8, 38.1, 50.8, 63.5) 1
Top Surface
Bottom
5.31
(134.9)
4.94
(125.4)
Bottom
4.94
(125.4)
Knockout Size
Dimensions in Inches (mm) Quantity
0.31 (7.9) 3
0.50 (12.7) 3
0.50, 0.75 (12.7, 19.1) 2
0.75, 1.00 (12.7, 25.4) 1
1.25, 1.50, 2.00, 2.50 (19.1, 38.1, 50.8, 63.5) 2
1.50, 2.00, 2.50, 3.00 (38.1, 50.8, 63.5, 76.2) 1
Knockout Size
Dimensions in Inches (mm) Quantity
0.31 (7.9) 1
0.50 (12.7) 1
0.50, 0.75, 1.00, 1.25, 1.50, 2.00, 2.50 (12.7, 19.1, 25.4, 31.8, 38.1, 50.8, 63.5) 2
1.00, 1.25, 1.50, 2.00, 2.50, 3.00 (25.4, 31.8, 38.1, 50.8, 63.5, 76.2) 1
Bottom
4.94
(125.4)
5.31
(134.9)
Top Surface (Catalog Numbers with SC and SCR Sufx Only)
Bottom
4.94
(125.4)

Volume 1—Residential and Light Commercial CA08100002E—February 2014 www.eaton.com V1-T5-75
5
5
5
5
5
5
5
5
5
5
5
5
5
5
5
5
5
5
5
5
5
5
5
5
5
5
5
5
5
5
5.9
Metering Products
Meter Breakers
House Panels
Contents
Description Page
Residential Meter Breakers. . . . . . . . . . . . . . . . . . V1-T5-37
Non-EUSERC Combination Service Entrance
Devices 100–200A Styles . . . . . . . . . . . . . . . . . . V1-T5-39
Meets EUSERC Requirements Service Entrance
Devices 100–225A . . . . . . . . . . . . . . . . . . . . . . . V1-T5-48
West Coast All-In-One Design. . . . . . . . . . . . . . . . V1-T5-59
Mechanical Interlock Cover . . . . . . . . . . . . . . . . . . V1-T5-65
House Panels
Commercial Safety Sockets. . . . . . . . . . . . . . . . . . V1-T5-83
CH Style Renovation Solutions . . . . . . . . . . . . . . . V1-T5-86
Aluminum Meter Breakers . . . . . . . . . . . . . . . . . . V1-T5-87
House Panels
Product Description
Eaton’s House Panels offer
a faster, easier and safer
installation.These 400A units
are ideal for larger homes in
North America that require
meter breakers. Available in
both CH and BR styles, these
service entrance devices
consist of a meter socket
and a distribution section.
In response to contractor
feedback, these panels
have been redesigned with a
focus on flexibility, simplified
wiring, and an overall ease of
installation. All units come
standard with a 22 kAIC main
breaker.The load conductors
can exit the top, bottom, side
or back for greater application
and installation flexibility.
Application Description
Additionally, Eaton’s House
Panels can be used for
apartments, condominiums,
clubhouses or common
areas.
Features, Benefits
and Functions
●NEMA 3R rainproof
●Rated for service entrance
equipment
●Lever bypass socket
available on certain
catalog numbers
●Pin type door hinges
●Socket to distribution
section is connected via
insulated cable for safety
●Second main space can
accept 100–200A BW, CSR
or CSR breakers
Standards and Certifications
●Ring style units meet
EUSERC requirements
●UL listed

V1-T5-76 Volume 1—Residential and Light Commercial CA08100002E—February 2014 www.eaton.com
5
5
5
5
5
5
5
5
5
5
5
5
5
5
5
5
5
5
5
5
5
5
5
5
5
5
5
5
5
5
5.9
Metering Products
Meter Breakers
Product Selection
400A “House Panels”
Notes
1 Confirm security type for individual EUSERC utility requirements.
2 Included in all of the following devices.
3 If unit needs to be semi-flush, order accessory item catalog number HPPR to convert all surface mounting devices to semi-flush mounting.
4 Secondary sub-main installed in panel.
5 Feed-through lugs included.
6 Includes manual bypass and additional ground lug to meet Nevada Power requirements.
7 Bolt-on meter socket.
8 For 10 kAIC, use BR or BW breakers as secondary main.
9 Georgia Power approved.
j Xcel approved.
Ampere
Rating Security 1Bypass 2
Main
Breaker
Optional
Secondary
Main
Breaker
(Not
Included)
Service
Type kAIC Dist.
Line Side
Main Lugs
and Neutral
(Lugs Not
Included)
Semi-
Flush
Catalog
Number 3
Surface
Catalog
Number
300 Ringless Lever CSR2150 BW/CSR OH/UG 22 8/16 Lug
landings for
compression
— HP816P400BSL
300 Ringless Lever CSR2150 BW/CSR UG 22 None — HPC30SHL
400 Ring None CSH2200N CSR UG 22 32/42 — CG403242SH
400 Ring None CSH2200N CSR UG 22 12/12 — CG1212P400BS 5
400 Ring Manual CSR2200 BRH/CSR UG 22 None — HP40SHA 8
400 Ring Manual CSR2200 BRH/CSR UG 22 40/40 — HP404040SHA 68
400 Ringless None DK2400 None UG 22 24/40 — HP402440B 7
400 Ringless None CSR2200 BRH/CSR UG 22 24/40 — HP402440SBH 78
400 Ring None DK2400 None UG 22 None — HP40
400 Ring None CSR2200 BRH/CSR UG 22 None — HP40SH 8
400 Ring None DK2400 None UG 22 24/42 — HP402442
400 Ring None CSR220 BRH/CSR UG 22 40/40 HP404040SHF HP404040SH 8
400 Ring Manual CSR2200 BRH/CSR UG 22 40/40 HP404040SHFA 6—
400 Ring None CSR2200 BRH/CSR UG 22 8/16 — HP816P400BS 58
400 Ringless Lever CSH2200N CSR UG 22 12/12 — CG1212P400BSL 5
400 Ringless Lever CSH2200N CSR UG 22 42/42 — CG404242SHL
400 Ringless Lever CSR2200 BRH/CSR UG 22 None — HP40SHL 8
400 Ringless Lever CSR2200 BRH/CSR OH/UG 22 None — HPC40SHL 8
400 Ringless Lever CSR2200 BRH/CSR UG 22 40/40 — HP404040SHL 8
400 Ringless Lever CSR2200 BRH/CSR UG 22 8/16 — HP816P400BSL 58
400 Ringless Lever CSR2200 BRH/CSR OH/UG 22 4/6 — HPC4046SHLG 9
400 Ringless Lever CSR2200 BRH/CSR OH/UG 22 4/6 — HPC4046SHLX j
House Panels

Volume 1—Residential and Light Commercial CA08100002E—February 2014 www.eaton.com V1-T5-77
5
5
5
5
5
5
5
5
5
5
5
5
5
5
5
5
5
5
5
5
5
5
5
5
5
5
5
5
5
5
5.9
Metering Products
Meter Breakers
Accessories
●Top-feed gutter kit to ease
top-fed installation
●Re-engineered, adjustable
flush mount kit for a
cleaner installation
●100A second main
breaker kit
●New 750 kcmil box type
lug kit
Accessories
Description
Catalog
Number
Top feed kit to convert surface mount house panel for overhead service HP40TFKIT
750 kcmil lug kit HPBLK750
Manual bypass kit HPBPK
Flushmount kit HPPR
100A 2nd main kit (Type BR branch) HP2NDMNKIT
100A 2nd main kit (Type CH branch) CH2NDMNKIT
5th jaw for lever bypass house panels ARP00326CH
Locates 3-inch (only) incoming conduit to back of can by utilizing the 4-inch knockout useful in semi-flush applications HP40HUBPLATE
HP40TFKIT
HPBLK750
HPBPK
HP2NDMNKIT

V1-T5-78 Volume 1—Residential and Light Commercial CA08100002E—February 2014 www.eaton.com
5
5
5
5
5
5
5
5
5
5
5
5
5
5
5
5
5
5
5
5
5
5
5
5
5
5
5
5
5
5
5.9
Metering Products
Meter Breakers
Wiring Diagrams
Type CH Style House Panels
Type CH Wiring—Catalog Number CG403242SH
Type CH Wiring—Catalog Number CG404242SHL
12
34
56
11
9
7
12
10
8
13 14
15 16
17 18
19 20
23
21
25
22
27
24
29
26
31
28
33
30
35
32
37
34
39
36
41
38
40
42
A
BONDED
NEUTRAL
EQUIPMENT
GROUNDING
TERMINALS
400 AMPERES
(320 AMPERES
CONTINUOUS)
FACTORY
INSTALLED
200 A
SERVICE
DISCONNECT
NB
LINE
FACTORY/FIELD
INSTALLED
200 A MAXIMUM
SERVICE
DISCONNECT
TYPE CSR
(OPTIONAL)
FACTORY/FIELD
INSTALLED
100 A MAXIMUM
SERVICE
DISCONNECT
TYPE CH
12
34
56
11
9
7
12
10
8
13 14
15 16
17 18
19 20
21 22
23 24
25 26
27 28
29 30
31 32
33 34
35 36
37 38
39 40
41 42
A
BONDED
NEUTRAL
EQUIPMENT
GROUNDING
TERMINALS
400 AMPERES
(320 AMPERES
CONTINUOUS)
FACTORY
INSTALLED
200 A
SERVICE
DISCONNECT
TYPE CSR
NB
LINE
(OPTIONAL)
FACTORY/FIELD
INSTALLED
200 A MAXIMUM
SERVICE
DISCONNECT
FACTORY/FIELD
INSTALLED
100 A MAXIMUM
SERVICE
DISCONNECT
TYPE CH
Type CH Wiring—Catalog Number CG1212P400BS
Type CH Wiring—Catalog Number CG1212P400BSL
Ty p e C H W i ri n g D i a g r a m K e y
A
BONDED
NEUTRAL
AMPERES
200 A MAXIMUM
SERVICE
DISCONNECT
TYPE BW
OR CSR
NB
LINE
200 A MAX.
SERVICE
DISCONNECT
TYPE CSR
12
34
56
11
9
7
12
10
8
OPTIONAL
OPTIONAL
100 A MAX.
SERVICE
DISCONNECT
TYPE CH
(CONTINUOUS)
A
BONDED
NEUTRAL
NB
LINE
12
34
56
11
9
7
12
10
8
200 A MAXIMUM
SERVICE
DISCONNECT
TYPE BW
OR CSR
OPTIONAL
200 A MAX.
SERVICE
DISCONNECT
TYPE CSR
OPTIONAL
100 A MAX.
SERVICE
DISCONNECT
TYPE CH
400 AMPERES
(320 AMPERES
CONTINUOUS)
#14-6 AWG
#14-1/0 AWG
1/0
–
300 kcmil
#4 AWG
–
300 kcmil

Volume 1—Residential and Light Commercial CA08100002E—February 2014 www.eaton.com V1-T5-79
5
5
5
5
5
5
5
5
5
5
5
5
5
5
5
5
5
5
5
5
5
5
5
5
5
5
5
5
5
5
5.9
Metering Products
Meter Breakers
Type BR Style House Panels
Type BR Wiring—Catalog Number HP40
Type BR Wiring—Catalog Number HP402440B
Type BR Wiring—Catalog Number HP404040SH
A
BONDED
NEUTRAL
400 AMPERES
(320 AMPERES
CONTINUOUS)
F ACT ORY
INSTALLED
400 A
SER VICE
DISCONNECT
TYPE DK
NB
LINE
A
BONDED
NEUTRAL
400 AMPS
(320 AMPS
CONTINUOUS)
FACTORY
INSTALLED
400 A
SERVICE
DISCONNECT
TYPE DK
NB
LINE
12
34
56
11
9
7
12
10
8
13 14
15 16
17 18
19 20
21 22
23 24
25 26
27 28
29 30
31 32
33 34
35 36
37 38
39 40
A
BONDED
NEUTRAL
EQUIPMENT
GROUNDING
TERMINALS
400 AMPERES
(320 AMPERES
CONTINUOUS)
FACTORY
INSTALLED
200 A
SERVICE
DISCONNECT
TYPE CSR
NB
LINE
FACTORY/FIELD
INSTALLED
200 A MAXIMUM
SERVICE
DISCONNECT
TYPE CSR
OR BW
100 A MAXIMUM
SERVICE
DISCONNECT
TYPE BRH OR BR
12
34
56
78
9
11
13
15
10
12
14
16
17
19
21
23
18
20
22
24
25
27
29
31
33
35
37
26
28
30
32
34
36
38
40
39
(OPTIONAL)
Type BR Wiring—Catalog Number HP816P400BS
Type BR Wiring—Catalog Number HP402440SBH
Type BR Wiring Diagram Key
BONDED
NEUTRAL
A
EQUIPMENT
GROUNDING
TERMINALS
400 AMPS
(320 AMPS
CONTINUOUS)
FACTORY
INSTALLED
200 A MAX.
SERVICE
DISCONNECT
TYPE CSR
NB
LINE
1
(OPTIONAL)
3
2
4
5
7
6
8
9
11
10
12
13
15
14
16
200 A MAX.
SERVICE
DISCONNECT
TYPE BW OR
CSR
100 A MAX.
SERVICE
DISCONNECT
BONDED
NEUTRAL
400 AMPS
(320 AMPS
CONTINUOUS)
FACTORY/FIELD
INSTALLED
200 A MAX.
SERVICE
DISCONNECT
TYPE CSR OR
BW
FACTORY
INSTALLED
200 A
SERVICE
DISCONNECT
TYPE CSR
(OPTIONAL)
ANB
LINE
1
3
5
11
9
7
13
15
17
19
21
23
25
27
29
31
33
35
37
39
2
4
6
12
10
8
14
16
18
20
22
24
26
28
30
32
34
36
38
40
100 A MAX.
SERVICE
DISCONNECT
TYPE BRH OR
BR
#14-6 AWG
#14-1/0 AWG
#6 AWG
–
250 kcmil
#1 AWG
–
300 kcmil
1/0
–
300 kcmil
#4 AWG
–
300 kcmil
#6 AWG
–
300 kcmil

V1-T5-80 Volume 1—Residential and Light Commercial CA08100002E—February 2014 www.eaton.com
5
5
5
5
5
5
5
5
5
5
5
5
5
5
5
5
5
5
5
5
5
5
5
5
5
5
5
5
5
5
5.9
Metering Products
Meter Breakers
Type BR Wiring—Catalog Number HP402442
Type BR Wiring—Catalog Number HP404040SHL
Type BR Wiring—Catalog Number HP40SH
Type BR Wiring—Catalog Number HP40SHL
A
BONDED
NEUTRAL
400 AMPERES
(320 AMPERES
CONTINUOUS)
FACTORY
INSTALLED
400 A
SERVICE
DISCONNECT
TYPE DK
NB
LINE
12
34
56
11
9
7
12
10
8
13 14
15 16
17 18
19 20
21 22
23 24
25 26
27 28
29 30
31 32
33 34
35 36
37 38
39 40
41 42
1
12
34
56
11
9
7
12
10
8
13 14
15 16
17 18
19 20
21 22
23 24
25 26
27 28
29 30
31 32
33 34
35 36
37 38
39 40
ABONDED
NEUTRAL
FACTORY
INSTALLED
200 A
SERVICE
DISCONNECT
TYPE CSR
400 AMPS
(320 AMPS
CONTINUOUS)
N
B
LINE
(OPTIONAL)
FACTORY/FIELD
INSTALLED
200 A MAX.
SERVICE
DISCONNECT
TYPE BW OR
CSR
100 A MAX.
SERVICE
DISCONNECT
TYPE BR OR
BHR
(OPTIONAL)
A
BONDED
NEUTRAL
400 AMPS
(320 AMPS
CONTINUOUS)
FACTORY
INSTALLED
200 A
SERVICE
DISCONNECT
TYPE CSR
NB
LINE
FACTORY/FIELD
INSTALLED
200A MAX.
SERVICE
DISCONNECT
TYPE CSR OR
BW
100A MAX.
SERVICE
DISCONNECT
TYPE BRH OR
BR
A
BONDED
NEUTRAL
400 AMPS
(320 AMPS
CONTINUOUS)
FACTORY
INSTALLED
200 A
SERVICE
DISCONNECT
TYPE CSR
N
B
LINE
FACTORY/FIELD
INSTALLED
200 A MAX.
SERVICE
DISCONNECT
TYPE BW OR
CSR
(OPTIONAL)
100 A MAX.
SERVICE
DISCONNECT
TYPE BR OR
BRH
Type BR Wiring—Catalog Number HP404040SHA
Type BR Wiring—Catalog Number HP816P400BSL
Ty p e B R W i r i n g D i a g r a m K e y
A
EQUIPMENT
GROUNDING
TERMINALS
400 AMPS
(320 AMPS
CONTINUOUS)
FACTORY
INSTALLED
200 A
SERVICE
DISCONNECT
TYPE CSR
NB
LINE
12
34
56
9
7
10
8
FACTORY
INSTALLED
BY-PASS.
FACTORY/FIELD
INSTALLED
200 A MAX.
SERVICE
DISCONNECT
TYPE CSR
OR BW
20
28
36
40
34
38
24
32
26
30
22
16
18
12
14
27
35
39
33
37
23
31
25
29
21
15
11
13
19
17
GROUNDING
LUG
100 A MAX.
SERVICE
DISCONNECT
TYPE BRH
OR BR
(OPTIONAL)
BONDED
NEUTRAL
A
EQUIPMENT
GROUNDING
TERMINALS
400 AMPS
(320 AMPS
CONTINUOUS)
FACTORY
INSTALLED
200 A MAX.
SERVICE
DISCONNECT
NB
LINE
200 A MAX.
SERVICE
DISCONNECT
TYPE CSR
1
OPTIONAL
3
2
4
5
7
6
8
9
11
10
12
13
15
14
16
100 A MAX.
SERVICE
DISCONNECT
#14-6 AWG
#14-1/0 AWG
#6 AWG
–
250 kcmil
#1 AWG
–
300 kcmil
1/0
–
300 kcmil
1/3
–
300 kcmil
#4 AWG
–
300 kcmil
#6 AWG
–
300 kcmil
1

Volume 1—Residential and Light Commercial CA08100002E—February 2014 www.eaton.com V1-T5-81
5
5
5
5
5
5
5
5
5
5
5
5
5
5
5
5
5
5
5
5
5
5
5
5
5
5
5
5
5
5
5.9
Metering Products
Meter Breakers
Catalog Numbers HPC40SHL and HPC30SHL
Dimensions and Knockouts
Approximate Dimensions in Inches (mm)
Catalog Numbers HPC40SHL and HPC30SHL
Knockout Configurations and Dimensions for
HPC40SHL and HPC30SHL
N
Bonded
Neutral
(Optional)
Factory/Field Installed
150 A Max. - HPC30SHL
200 A Max. - HPC40SHL
Service Disconnect
Type BW or CSR
Factory Installed
150 A or 200 A
Service Disconnect
Type CSR
(Optional)
100 A Max.
Service
Disconnect
Type BR or
BRH
400 Amps
(320 Amps
Continuous)

V1-T5-82 Volume 1—Residential and Light Commercial CA08100002E—February 2014 www.eaton.com
5
5
5
5
5
5
5
5
5
5
5
5
5
5
5
5
5
5
5
5
5
5
5
5
5
5
5
5
5
5
5.9
Metering Products
Meter Breakers
Approximate Dimensions in Inches (mm)
House Panel Dimensions and Knockouts—For All House Panels Except Those With HPCPREFIX

Volume 1—Residential and Light Commercial CA08100002E—February 2014 www.eaton.com V1-T5-83
5
5
5
5
5
5
5
5
5
5
5
5
5
5
5
5
5
5
5
5
5
5
5
5
5
5
5
5
5
5
5.9
Metering Products
Meter Breakers
Residential Meter Breakers
Contents
Description Page
Residential Meter Breakers. . . . . . . . . . . . . . . . . . V1-T5-37
Non-EUSERC Combination Service Entrance
Devices 100–200A Styles . . . . . . . . . . . . . . . . . . V1-T5-39
Meets EUSERC Requirements Service Entrance
Devices 100–225A . . . . . . . . . . . . . . . . . . . . . . . V1-T5-48
West Coast All-In-One Design. . . . . . . . . . . . . . . . V1-T5-59
Mechanical Interlock Cover . . . . . . . . . . . . . . . . . . V1-T5-65
House Panels . . . . . . . . . . . . . . . . . . . . . . . . . . . . V1-T5-75
Commercial Safety Sockets
CH Style Renovation Solutions . . . . . . . . . . . . . . . V1-T5-86
Aluminum Meter Breakers . . . . . . . . . . . . . . . . . . V1-T5-87
Commercial Safety
Sockets
Product Description
A Commercial Safety
Socket is service entrance
equipment that consists of
a commercial meter socket
with a test block, and may
come with or without a
loadcenter type distribution
section.
Application Description
Eaton’s Commercial Safety
Sockets are typically used
where a single meter socket
or single meter socket with
a distribution section are
needed. These areas could
include a commercial
business, commercial office
building, individual retail
facilities and signs and street
lighting. Commercial Safety
Sockets are typically used in
EUSERC utility regions.
Features, Benefits and Functions
Commercial Safety Sockets with
No Secondary Feeder
●Ring type continuous duty
meter socket. 600 Vac
maximum, single- or
three-phase
●100 and 200A units
●Bussed connection from
meter socket to test block
●For use with self-contained
watthour meter
●Conform with EUSERC
standards
●NEMA 3R construction for
indoor/outdoor applications
●Units can be individually
mounted with provisions
for hub kits and pole
mounting
Overhead Combination Units
●NEMA 3R construction for
indoor/outdoor applications
●T-fuse protection, 480 Vac
maximum
●Line at top, load at bottom
●100 and 200A units
available up to 480 Vac
maximum
●Circuit breaker protection
to 480 Vac maximum in
10, 22, 42 and 100 kAIC
ratings
●Factory-cabled connection
from test block to line side
of tenant main
Underground Combination Units
●100 and 200A units
●480 Vac maximum
●NEMA 3R construction for
indoor/outdoor applications
●Underground or overhead
feed
●Provisions for self-
contained watthour meter
●Bussed connection from
meter socket to test block
●Tenant main disconnects
are available with circuit
breakers up to 480 Vac
maximum and T-fuse
mains, 240 Vac maximum
●Load wires can exit top
or bottom

V1-T5-84 Volume 1—Residential and Light Commercial CA08100002E—February 2014 www.eaton.com
5
5
5
5
5
5
5
5
5
5
5
5
5
5
5
5
5
5
5
5
5
5
5
5
5
5
5
5
5
5
5.9
Metering Products
Meter Breakers
Product Selection
Overhead and Underground Combination Units and Individual Units
Individual Safety Sockets—600V Maximum—No Secondary Feeder Devices
Commercial Safety Sockets with Provision for Main Circuit Breaker
Commercial Safety Sockets with Main Circuit Breaker Included
Notes
1 If being protected by a fuse, the interrupting rating of the unit is limited to the fuse AIC rating. If being protected by a single- or three-phase,
600V breaker, the AIC is 14 kA; by a maximum 400A, single-phase, 240V breaker, the AIC is 18 kA; by a maximum 200A, single- or three-phase,
240V breaker, the AIC is 18 kA; by a maximum 125A, single-phase, 240V breaker, the AIC is 22 kA.
2 Order plug-on Type BR, BRH or BRHH circuit breaker separately.
3 Order Type CC breaker or CCH breaker separately.
4 Type BR = 10 kA; Type BRH = 22 kA; Type BRHH = 42 kA.
5 Type CCV = 10 kA; Type CCVH = 25 kA.
Ampere
Rating
No. of
Jaws
AC
Voltage Service Phase, Wire
Maximum
Interrupting
Rating
Wire
Size
Catalog
Number
125 4 600 OH/UG Single-phase, three-wire 1#14–2/0
CH114TB
125 5 600 OH/UG Three-phase, three-wire 1#14–2/0
CH115TB
125 7 600 OH/UG Three-phase, four-wire 1#14–2/0
CH117TB
200 4 600 OH/UG Single-phase, three-wire 1#6–250 kcmil
CH124TB
200 5 600 OH/UG Three-phase, three-wire 1#6–250 kcmil
CH125TB
200 7 600 OH/UG Three-phase, four-wire 1#6–250 kcmil
CH127TB
Ampere
Rating
No. of
Jaws
AC
Voltage Service Phase, Wire
Feeder
Circuit
Breaker
Maximum
Interrupting
Rating
Wire
Size
Catalog
Number
125 4 240 OH Single-phase, three-wire Provision 24 #14–2/0
CH214MTBLB
125 7 208/120 OH Three-phase, four-wire Provision 24 #14–2/0
CH217MTBLB
125 4 240 UG Single-phase, three-wire Provision 24 #14–2/0
CHU214MTBLB
125 7 208/120 UG Three-phase, four-wire Provision 24 #14–2/0
CHU217MTBLB
200 4 120/240 OH Single-phase, three-wire Provision 35 #6–250 kcmil
CH224MTBLB
200 7 208/120 OH Three-phase, four-wire Provision 35 #6–250 kcmil
CH227MTBLB
200 4 120/240 UG Single-phase, three-wire Provision 35 #6–250 kcmil
CHU224MTBLB
200 7 208/120 UG Three-phase, four-wire Provision 35 #6–250 kcmil
CHU227MTBLB
Ampere
Rating
No. of
Jaws
AC
Voltage Service Phase, Wire
Feeder
Circuit
Breaker
Maximum
Interrupting
Rating
Wire
Size
Catalog
Number
100 7 480/277 OH Three-phase, four-wire EHD3100 14 kA #14–2/0
CH217MTBM515
100 7 480/277 UG Three-phase, four-wire EHD3100 14 kA #14–2/0
CHU217MTBMS15
200 7 480/277 OH Three-phase, four-wire JD3200 25 kA #6–250 kcmil
CH227MTBHMS15
200 7 480/277 UG Three-phase, four-wire JD3200 25 kA #6–250 kcmil
CHU227MTBHMS15
CH127TB

Volume 1—Residential and Light Commercial CA08100002E—February 2014 www.eaton.com V1-T5-85
5
5
5
5
5
5
5
5
5
5
5
5
5
5
5
5
5
5
5
5
5
5
5
5
5
5
5
5
5
5
5.9
Metering Products
Meter Breakers
Underground Combination Units and Safety Socket Accessories
Commercial Safety Sockets with T-Fuse Switch
Hubs
Jaws
Note
Order Type CC or CHH breaker separately.
Ampere
Rating
No. of
Jaws
AC
Voltage Service Phase, Wire
Feeder
Circuit
Breaker
Maximum
Interrupting
Rating
Wire
Size
100 4 120/240 OH Single-phase, three-wire 200 kA #14–2/0 CH214MTBP
100 7 208/120 OH Three-phase, four-wire 200 kA #14–2/0 CH217MTBP
100 4 120/240 UG Single-phase, three-wire 200 kA #14–2/0 CHU214MTBP
100 7 208/120 UG Three-phase, four-wire 200 kA #14–2/0 CHU217MTBP
200 4 120/240 OH Single-phase, three-wire 200 kA #6–250 kcmil CH224MTBP
200 7 208/120 OH Three-phase, four-wire 200 kA #6–250 kcmil CH227MTBP
200 4 120/240 UG Single-phase, three-wire 200 kA #6–250 kcmil CHU224MTBP
200 7 208/120 UG Three-phase, four-wire 200 kA #6–250 kcmil CHU227MTBP
Description
Carton
Weight Lbs (kg)
Catalog
Number
Hub closure plate 3 (1.4) ARP00002CHB
1.00-inch (25.4 mm) hub 3 (1.4) ARP00003CH1
1.25-inch (31.8 mm) hub 3 (1.4) ARP00004CH12
1.50-inch (38.1 mm) hub 3 (1.4) ARP00005CH15
2.00-inch (50.8 mm) hub 3 (1.4) ARP00006CH2
2.50-inch (63.5 mm) hub 3 (1.4) ARP00007CH25
Description Part Number
5th jaw kit CH50371
CHU227MTBP

V1-T5-86 Volume 1—Residential and Light Commercial CA08100002E—February 2014 www.eaton.com
5
5
5
5
5
5
5
5
5
5
5
5
5
5
5
5
5
5
5
5
5
5
5
5
5
5
5
5
5
5
5.9
Metering Products
Meter Breakers
CH Style Renovation Solutions
Contents
Description Page
Residential Meter Breakers . . . . . . . . . . . . . . . . . V1-T5-37
Non-EUSERC Combination Service Entrance
Devices 100–200A Styles. . . . . . . . . . . . . . . . . . V1-T5-39
Meets EUSERC Requirements Service Entrance
Devices 100–225A . . . . . . . . . . . . . . . . . . . . . . . V1-T5-48
West Coast All-In-One Design . . . . . . . . . . . . . . . V1-T5-59
Mechanical Interlock Cover . . . . . . . . . . . . . . . . . . V1-T5-65
House Panels . . . . . . . . . . . . . . . . . . . . . . . . . . . . V1-T5-75
Commercial Safety Sockets . . . . . . . . . . . . . . . . . V1-T5-83
CH Style Renovation Solutions
Aluminum Meter Breakers . . . . . . . . . . . . . . . . . . V1-T5-87
CH Style Renovation Solutions
Product Description
●Ring style meter
socket design
●Provisional main breaker
or factory main breaker
available
●Center top feed design
●Exit bottom or top design
●100A, 125A or 200A
ratings available
Product Selection
CH Style Retrofit Solutions
Ampere
Rating Description
Catalog
Number
100 CH, 22 circuit, provision, center top feed, exit top or bottom, flush, OH/UG CMBE22P100BTFR
125 CH, 22 circuit, provision, center top feed, exit top or bottom, surface, OH/UG CMBE22P125BTSR
125 CH, 22 circuit, provision, center top feed, exit top or bottom, flush, OH/UG CMBE22P125BTFR
200 CH, 32/42 circuit, 200A main breaker, center top feed, exit top or bottom, semi-flush, OH/UG CMBE3242B200BTS
200 CH, 32/42 circuit, 200A main breaker, center top feed, exit top or bottom, flush, OH/UG CMBE3242B200BTFR

Volume 1—Residential and Light Commercial CA08100002E—February 2014 www.eaton.com V1-T5-87
5
5
5
5
5
5
5
5
5
5
5
5
5
5
5
5
5
5
5
5
5
5
5
5
5
5
5
5
5
5
5.9
Metering Products
Meter Breakers
Contents
Description Page
Residential Meter Breakers. . . . . . . . . . . . . . . . . . V1-T5-37
Non-EUSERC Combination Service Entrance
Devices 100–200A Styles . . . . . . . . . . . . . . . . . . V1-T5-39
Meets EUSERC Requirements Service Entrance
Devices 100–225A . . . . . . . . . . . . . . . . . . . . . . . V1-T5-48
West Coast All-In-One Design. . . . . . . . . . . . . . . . V1-T5-59
Mechanical Interlock Cover . . . . . . . . . . . . . . . . . . V1-T5-65
House Panels . . . . . . . . . . . . . . . . . . . . . . . . . . . . V1-T5-75
Commercial Safety Sockets. . . . . . . . . . . . . . . . . . V1-T5-83
CH Style Renovation Solutions . . . . . . . . . . . . . . . V1-T5-86
Aluminum Meter Breakers
Aluminum Meter Breakers
Product Description
Eaton’s Aluminum Meter
Breaker enclosure and
external cover offers
excellent corrosion resistance
in the harshest coastal
environments. The meter
breaker’s light weight and
overhead/underground
design offers flexibility and
ease of installation.
Features and Benefits
●Overhead/underground
design provides flexibility
with wiring options
●Steel meter guides are
standard, which provides a
means of easy installation
of the utility glass bulb
meter into the meter’s
jaws
●Main Lug Only design
includes six two-pole
breaker locations, which
complies with National
Electrical Code 225.33
(maximum number of
disconnects)
●Distribution section
accepts BR branch
breakers
●Single-phase, three-wire
120/240 Vac applications
●Hub closure plate is
provided, attached to the
top of the device
●Optional fifth jaw can be
applied to 3 o’clock or
9 o’clock meter socket
position
●10-year warranty
●For customer support,
contact Eaton’s Technical
Resource Center at
1-877-ETN-CARE
●For additional information
or to place an order,
contact your local Eaton
representative or visit us
at www.eaton.com
Catalog Number Selection
Meter Breakers
MB 12 12 L 200 BT S A
Meter Breaker Type
MB = 1-inch (25.4 mm) BR Type
Spacing
Number of spaces
Poles
Maximum number of poles
Main
L = Lug
Amperes
Amperage of unit
Breaker Feed
BT = Bottom and top
Mounting
S = Surface
Material
A = Aluminum

V1-T5-88 Volume 1—Residential and Light Commercial CA08100002E—February 2014 www.eaton.com
5
5
5
5
5
5
5
5
5
5
5
5
5
5
5
5
5
5
5
5
5
5
5
5
5
5
5
5
5
5
5.10
Metering Products
Group Metering
Systems for Residential and Commercial Application
Contents
Description Page
Systems for Residential and Commercial
Applications
Meter Packs . . . . . . . . . . . . . . . . . . . . . . . . . . . . . V1-T5-90
Type CCV 120/240V Tenant Main Circuit Breaker . V1-T5-95
Type CV 120/240V Tenant Main Circuit Breaker . . V1-T5-96
Meter Packs—1MP, 1MM and 3MM Main
Tenant Circuit Breakers . . . . . . . . . . . . . . . . . . . V1-T5-98
Main Service Modules . . . . . . . . . . . . . . . . . . . . . V1-T5-101
Surge Metering. . . . . . . . . . . . . . . . . . . . . . . . . . . V1-T5-115
Residential Meter Stacks . . . . . . . . . . . . . . . . . . . V1-T5-116
1MP, 1MM and 3MM Main Tenant
Circuit Breakers . . . . . . . . . . . . . . . . . . . . . . . . . V1-T5-125
Phase Balanced Stack. . . . . . . . . . . . . . . . . . . . . . V1-T5-126
Commercial Meter Stack Modules . . . . . . . . . . . . V1-T5-127
35MM, 37MM, 35SS and 37SS
Main Tenant Circuit Breakers . . . . . . . . . . . . . . . V1-T5-134
Systems for Residential and Commercial Applications
Product Description
Group metering is a service
entrance product line that
consists of a main device
and multiple meter sockets
in one enclosure or several
connected enclosures.
Group metering allows the
customer to install a multiple
tenant-metering device in
one location while providing
a space and installation
cost savings.
Application Description
Eaton’s Electrical Sector
offers two group metering
designs—Meter Packs and
Gangable Metering. Meter
Packs, also called All-in-Ones,
consist of main lugs and up
to six meter sockets in one
enclosure. Meter Packs are
supplied as one complete
unit and the user cannot
“add” additional meter
sockets to the unit in the
future. The most common
application for Meter Packs
is garden apartments,
small condominiums and
townhouses where six or
less units are metered
through one centrally
located Meter Pack.
Gangable Metering
(Main Service Modules
and Meter Stacks)
The second type of group
metering is Gangable
Metering, which consists of
a Main Service Module used
in conjunction with a Meter
Stack to make a custom
metering lineup. The Main
Service Module can be main
lug, main circuit breaker, main
fusible switch or bolted
pressure switch. The Meter
Stack is offered with various
meter sockets and bus
ratings. This type of custom
lineup allows the owner to
add/remove meter sockets
and main devices to meet
future need. Gangable
Metering is often used in
large condominiums, strip
malls and light commercial
applications where more
than six units are metered,
or there will be a future
need to add more units.

Volume 1—Residential and Light Commercial CA08100002E—February 2014 www.eaton.com V1-T5-89
5
5
5
5
5
5
5
5
5
5
5
5
5
5
5
5
5
5
5
5
5
5
5
5
5
5
5
5
5
5
5.10
Metering Products
Group Metering
Features, Benefits and Functions
Clip-Tight™ Socket
Clip-Tight Socket
Eaton’s series of 1MP, 1MM,
3MM metering devices
incorporate the only socket
base in the industry without
fasteners. This component
uses jaws on both sides of a
thermoplastic polyester glass
fiber reinforced (PBT) base,
eliminating the need
for self-tapping screw
connections to vertical
busbars.
One-Piece Vertical Busbar
One-Piece Vertical Busbar
Eaton’s series of 1MP, 1MM,
3MM meter stacks embody
a one-piece busbar
construction to each socket,
as well as a one-piece cross
bus to each tenant main.
Because the Eaton design
uses the Clip-Tight meter
socket and does not have
busbar joints, the chance of
hot spots occurring is virtually
eliminated.
Field Phase Balancing
Field Phase Balancing
Due to popular incoming
three-phase voltage systems
and single-phase outgoing
loads, installers have the
option to field phase balance
on the individual stack (A-B,
B-C, A-C). This feature
eliminates the chance of
installing an incorrectly
phased device due to its
versatility.
Horn and Manual Bypass
Horn and Manual Bypass
With an increasing demand for
uninterrupted power, Eaton’s
series of 1MP, 1MM and
3MM meter sockets offer
horn (ringless style) and
manual (ring style) field-
installable bypass accessories.
These accessories provide
uninterrupted tenant service
if a meter is pulled for
inspection or replacement.
Lever Bypass
Lever Bypass
Due to commercial
requirements, Eaton offers
a lever bypass (as standard)
on all 35MM and 37MM
devices. Each socket base
consists of a lever bypass,
which also releases the jaws
(when lever is engaged in
bypass position), enabling
utility company mechanics to
easily remove and/or insert
utility meter.
Test Bypass Disconnects
Test Bypass Disconnects
Eaton also provides
commercial meter stacks
with EUSERC required test-
bypass disconnects (35SS
and 37SS). This bypass is
used in the same applications
as the lever bypass and it is
required by EUSERC utilities.
Main Tenant Breaker Cover
Main Tenant Breaker Cover
Each tenant circuit breaker
is protected by a lockable
raintight cover that secures
the breaker against
unauthorized operation. The
tenant breaker cover is a high
impact plastic to resist wear,
rusting and corrosion.
Mounting Features
Mounting Features
A standard mounting rail and
factory-installed swing away
feet speed up and simplify
installation.
Standards and Certifications
●UL listed

V1-T5-90 Volume 1—Residential and Light Commercial CA08100002E—February 2014 www.eaton.com
5
5
5
5
5
5
5
5
5
5
5
5
5
5
5
5
5
5
5
5
5
5
5
5
5
5
5
5
5
5
5.10
Metering Products
Group Metering
Meter Pack
Contents
Description Page
Systems for Residential and Commercial
Applications . . . . . . . . . . . . . . . . . . . . . . . . . . . . V1-T5-88
Meter Packs
Type CCV 120/240V Tenant Main Circuit Breaker . V1-T5-95
Type CV 120/240V Tenant Main Circuit Breaker . . V1-T5-96
Meter Packs—1MP, 1MM and 3MM Main
Tenant Circuit Breakers . . . . . . . . . . . . . . . . . . . V1-T5-98
Main Service Modules . . . . . . . . . . . . . . . . . . . . . V1-T5-101
Surge Metering. . . . . . . . . . . . . . . . . . . . . . . . . . . V1-T5-115
Residential Meter Stacks . . . . . . . . . . . . . . . . . . . V1-T5-116
1MP, 1MM and 3MM Main Tenant
Circuit Breakers . . . . . . . . . . . . . . . . . . . . . . . . . V1-T5-125
Phase Balanced Stack. . . . . . . . . . . . . . . . . . . . . . V1-T5-126
Commercial Meter Stack Modules . . . . . . . . . . . . V1-T5-127
35MM, 37MM, 35SS and 37SS
Main Tenant Circuit Breakers . . . . . . . . . . . . . . . V1-T5-134
Meter Packs
Product Overview
●Eaton’s 1MP units are
self-contained (main
terminal box included) for
installations requiring up to
six meter socket positions
in a single enclosure
●Units are not gangable
with any other metering
device
●Approved by major power
companies, UL listed,
suitable as service
equipment and meet the
service and electrical
requirements of EUSERC
and CECHA
●Series rating up to
100 kAIC
●All ringless cover
devices include fifth
jaw as standard
●Ring type devices do
not include fifth jaw as
standard. Order 1MM5JK
if needed
●Bondable neutral
●120/240 Vac, single-phase
three-wire metering device
●Up to 600A maximum
horizontal bus rating
●Incoming lugs not included
(phase A, phase B and
neutral)
●Indoor/outdoor
construction
●Provision for two-pole
breaker (plug-on type for
125A sockets and bolt-on
type for 200A sockets)—
circuit breakers not
included
●Underground incoming
feed
●Aluminum or copper bus

Volume 1—Residential and Light Commercial CA08100002E—February 2014 www.eaton.com V1-T5-91
5
5
5
5
5
5
5
5
5
5
5
5
5
5
5
5
5
5
5
5
5
5
5
5
5
5
5
5
5
5
5.10
Metering Products
Group Metering
Catalog Number Selection
When Ordering:
1. Determine catalog number of the basic device.
2. Include Lug Kit for incoming section. See Page V1-T5-94.
3. Find quantity and catalog numbers for tenant circuit breakers. (Order one breaker per socket.) See Page V1-T5-94.
4. Select required accessories. See Page V1-T5-136.
Bus Material
C = Copper bus
Blank = Aluminum bus
Single-Phase Type of Metering
MP = Meter pack
Ampere Rating
12 = 125A
20 = 200A
Blank = Accessory
Number of Meters
2, 3, 4, 5 or 6
Blank = Accessory
Security or Accessory Code
R= Ring
RRL = Ringless
RRLB = Ringless with horn bypass
LK = Lug kit (accessory)
SC = Crimp lug landing pad kit
(accessory)
Bus Ampere Rating
2 = 200A
4 = 400A
6 = 600A
Blank = Accessory
1 M P 4 12 4 R C

V1-T5-92 Volume 1—Residential and Light Commercial CA08100002E—February 2014 www.eaton.com
5
5
5
5
5
5
5
5
5
5
5
5
5
5
5
5
5
5
5
5
5
5
5
5
5
5
5
5
5
5
5.10
Metering Products
Group Metering
Product Selection
Meter Packs
Aluminum Bus—Main Lugs Not Included—See Page V1-T5-94
Notes
1Ring Style Meter Packs do not come with fifth jaw. Order 1MM5JK if needed.
2To change in field from ring to ringless—order 1MMRC125.
3To change in field from ring to ringless—order 1MMRC200.
4To change from ring to ringless covers, the top socket only in 2, 5 and 6 socket designs—order 1MMRC125T. Top socket only.
5Main lugs included. #6–300 kcmil. (Optional lugs are not available.)
6For overhead use, order DS_H2 type hub.
7Fifth jaw factory installed at 9 o’clock position.
8For overhead use, order DS type hub.
9To order with raceway provision in bottom endwall, add “T” suffix to the catalog number. Trough accessory catalog number is 1008934CH.
See Page V1-T5-94 for Main Lug Kit selection and Wire Sizes.
Socket
Ampere
Rating
Number of
Meter
Sockets
Bus
Ampere Rating
Main Tenant
Breaker Type
(See Page V1-T5-94)
Catalog
Number
Semi-Flush
Flange Kit
Catalog Number
Ring Style Meter Socket Covers 1
125 22 4200 Plug-on type
BR2_
BRH2_
BRHH2_
1MP2122R 58 1MPSFK1
125 23 400 1MP3124R 61MPSFK2
125 24 400 1MP4124R 61MPSFK2
125 25 4600 1MP5126R 61MPSFK3
125 26 4600 1MP6126R 61MPSFK3
200 32 400 Bolt-on type
CCV2_X
CCVH2_X
CVS2_XMM
CV2_XMM
CVH2_XMM
1MP2204R 61MPSFK4
200 33 600 1MP3206R 61MPSFK5
200 34 600 1MP4206R 61MPSFK5
200 35 600 1MP5206R 61MPSFK6
200 36 600 1MP6206R 61MPSFK6
Ringless Style Meter Socket Covers 7
125 2 200 Plug-on type
BR2_
BRH2_
BRHH2_
1MP2122RRL 58 1MPSFK1
125 3 400 1MP3124RRL 61MPSFK2
125 4 400 1MP4124RRL 61MPSFK2
125 5 600 1MP5126RRL 61MPSFK3
125 6 600 1MP6126RRL 61MPSFK3
200 2 400 Bolt-on type
CCV2_X
CCVH2_X
CVS2_XMM
CV2_XMM
CVH2_XMM
1MP2204RRL 61MPSFK4
200 3 600 1MP3206RRL 61MPSFK5
200 4 600 1MP4206RRL 61MPSFK5
200 5 600 1MP5206RRL 61MPSFK6
200 6 600 1MP6206RRL 61MPSFK6
Ringless Style Covers with Horn Bypass 7
125 2 200 Plug-on type
BR2_
BRH2_
BRHH2_
1MP2122RRLB 58 1MPSFK1
125 3 400 1MP3124RRLB 69 1MPSFK2
125 4 400 1MP4124RRLB 69 1MPSFK2
125 5 600 1MP5126RRLB 69 1MPSFK3
125 6 600 1MP6126RRLB 69 1MPSFK3
200 2 400 Bolt-on type
CCV2_X
CCVH2_X
CVS2_XMM
CV2_XMM
CVH2_XMM
1MP2204RRLB 69 1MPSFK4
200 3 600 1MP3206RRLB 69 1MPSFK5
200 4 600 1MP4206RRLB 69 1MPSFK5
200 5 600 1MP5206RRLB 69 1MPSFK6
200 6 600 1MP6206RRLB 69 1MPSFK6

Volume 1—Residential and Light Commercial CA08100002E—February 2014 www.eaton.com V1-T5-93
5
5
5
5
5
5
5
5
5
5
5
5
5
5
5
5
5
5
5
5
5
5
5
5
5
5
5
5
5
5
5.10
Metering Products
Group Metering
Copper Bus—Main Lugs Not Included—See Page V1-T5-94
Notes
1Ring Style Meter Packs do not come with fifth jaw. Order 1MM5JK if needed.
2To change in field from ring to ringless—order 1MMRC125.
3To change in field from ring to ringless—order 1MMRC200.
4To change in field from ring to ringless covers, the top socket only in 5 to 6 socket design—order 1MMRC125T.
Top socket only—other sockets see 2.
5Fifth jaw factory installed at 9 o’clock position.
6For overhead use, order DS_H2 type hub.
7For overhead use, order DS_MH type hub.
Socket
Ampere
Rating
Number of
Meter
Sockets
Bus
Ampere Rating
Main Tenant
Breaker Type
(See Page V1-T5-94)
Catalog
Number
Semi-Flush
Flange Kit
Catalog Number
Ring Style Meter Socket Covers 1
125 22 4200 Plug-on type
BR2_
BRH2_
BRHH2_
1MP2122RC 61MPSFK1
125 23400 1MP3124RC 71MPSFK2
125 24400 1MP4124RC 71MPSFK2
125 25 4600 1MP5126RC 71MPSFK3
125 26 4600 1MP6126RC 71MPSFK3
200 32 400 Bolt-on type
CCV2_X
CCVH2_X
CVS2_XMM
CV2_XMM
CVH2_XMM
1MP2204RC 71MPSFK4
200 33600 1MP3206RC 71MPSFK5
200 34600 1MP4206RC 71MPSFK5
200 35600 1MP5206RC 71MPSFK6
200 36600 1MP6206RC 71MPSFK6
Ringless Style Meter Socket Covers 5
125 2 200 Plug-on type
BR2_
BRH2_
BRHH2_
1MP2122RRLC 71MPSFK1
125 3 400 1MP3124RRLC 71MPSFK2
125 4 400 1MP4124RRLC 71MPSFK2
125 5 600 1MP5126RRLC 71MPSFK3
125 6 600 1MP6126RRLC 71MPSFK3
200 2 400 Bolt-on type
CCV2_X
CCVH2_X
CVS2_XMM
CV2_XMM
CVH2_XMM
1MP2204RRLC 71MPSFK4
200 3 600 1MP3206RRLC 71MPSFK5
200 4 600 1MP4206RRLC 71MPSFK5
200 5 600 1MP5206RRLC 71MPSFK6
200 6 600 1MP6206RRLC 71MPSFK6
Ringless Style Covers with Horn Bypass 5
125 2 200 Plug-on type
BR2_
BRH2_
BRHH2_
1MP2122RRLBC 71MPSFK1
125 3 400 1MP3124RRLBC 71MPSFK2
125 4 400 1MP4124RRLBC 71MPSFK2
125 5 600 1MP5126RRLBC 71MPSFK3
125 6 600 1MP6126RRLBC 71MPSFK3
200 2 400 Bolt-on type
CCV2_X
CCVH2_X
CVS2_XMM
CV2_XMM
CVH2_XMM
1MP2204RRLBC 71MPSFK4
200 3 600 1MP3206RRLBC 71MPSFK5
200 4 600 1MP4206RRLBC 71MPSFK5
200 5 600 1MP5206RRLBC 71MPSFK6
200 6 600 1MP6206RRLBC 71MPSFK6

V1-T5-94 Volume 1—Residential and Light Commercial CA08100002E—February 2014 www.eaton.com
5
5
5
5
5
5
5
5
5
5
5
5
5
5
5
5
5
5
5
5
5
5
5
5
5
5
5
5
5
5
5.10
Metering Products
Group Metering
Main Lug Selection—Field-Installed Lugs for 400 or 600A Main Bus
Wire Sizes—Neutral and Ground Lugs
Notes
1 This kit comes with three pads for two lines and neutral. Each pad will accept one or two crimp
lugs. Cannot be used on 1MP2122R, RL, RC and RLB EUSERC underground termination.
2 This lug is not UL listed.
Each stack includes a neutral and ground bar. If an extra ground bar is needed, order 1MMGBK.
Line Lug and Wire Sizes
Order Separately and Field Install
Line Lug Kit Catalog Number
Order Three Kits
(For Two Lines and Neutral)
(1) #6–600 kcmil or (2) 2/0–250 kcmil 1MPLK1
(2) 250–500 kcmil 1MPLK3
(3) #4–300 kcmil 1MPLK4 1
(1) 750 kcmil 1MPLK2 2
Crimp lug landing pad 250–750 kcmil 1MPSC1 1
Description
Wire Size,
Al/Cu
Catalog
Number
Neutral—125A meter pack #6–2/0 —
Neutral—200A meter pack #1/0–300 kcmil —
Equipment ground bar—125A meter pack #14–#2 —
Equipment ground bar—200A meter pack #14–2/0 —
Optional ground bar #6–2/0 1MMGBK
1MPLK3

Volume 1—Residential and Light Commercial CA08100002E—February 2014 www.eaton.com V1-T5-95
5
5
5
5
5
5
5
5
5
5
5
5
5
5
5
5
5
5
5
5
5
5
5
5
5
5
5
5
5
5
5.10
Metering Products
Group Metering
Type CCV Tenant Main Circuit Breaker
Contents
Description Page
Systems for Residential and Commercial
Applications . . . . . . . . . . . . . . . . . . . . . . . . . . . . V1-T5-88
Meter Packs . . . . . . . . . . . . . . . . . . . . . . . . . . . . . V1-T5-90
Type CCV 120/240V Tenant Main Circuit Breaker
Type CV 120/240V Tenant Main Circuit Breaker . . V1-T5-96
Meter Packs—1MP, 1MM and 3MM Main
Tenant Circuit Breakers . . . . . . . . . . . . . . . . . . . . V1-T5-98
Main Service Modules . . . . . . . . . . . . . . . . . . . . . V1-T5-101
Surge Metering . . . . . . . . . . . . . . . . . . . . . . . . . . . V1-T5-115
Residential Meter Stacks. . . . . . . . . . . . . . . . . . . . V1-T5-116
1MP, 1MM and 3MM Main Tenant
Circuit Breakers. . . . . . . . . . . . . . . . . . . . . . . . . . V1-T5-125
Phase Balanced Stack . . . . . . . . . . . . . . . . . . . . . . V1-T5-126
Commercial Meter Stack Modules . . . . . . . . . . . . V1-T5-127
35MM, 37MM, 35SS and 37SS
Main Tenant Circuit Breakers . . . . . . . . . . . . . . . V1-T5-134
Type CCV 120/240V Tenant Main Circuit Breaker
Product Overview
Eaton offers Type CCV
(10 and 22 kAIC) and Type CV
(42, 65 and 100 kAIC) family
of circuit breakers as the
primary tenant main breakers
used in most group metering
applications.
Product Description
Eaton’s residential products
Type CCV circuit breaker is
available in two-pole
configurations from 100A to
225A in 10 and 22 kAIC
ratings.
Features
●Ratings—120/240 Vac,
two-pole, through 225
continuous amperes,
calibrated at 40°C
●Tripping characteristics—
thermal-magnetic trip,
calibrated and sealed after
assembly. Indirectly heated
thermal tripping bimetal
elements
●Interrupting capacity at
120/240 Vac. Type CCV—
10 kAIC rms symmetrical.
Type CCVH—25 kAIC rms
symmetrical
●Handles—trip-free with
ON-TRIPPED-OFF
positions. Reset past OFF
is required to latch breaker
contacts after tripping
●Te rm i n a l s —standard
lugs (wire connectors)
suitable for copper or
aluminum wire
●
Backward compatibility
—
Type CCV and CCVH
retains same profile and
footprint as the CC and
CCH breaker, allowing use
in the same applications
Standards and Certifications
●Complies with UL Standard
489. Breakers are listed
under UL File #E7819
Product Selection
Type CCV 120/240V Tenant Main Circuit Breaker
Modification Codes
●X—load side terminals only
Two-Pole Breaker
Ampere
Rating
Wire Size Range,
Al/Cu 10 kAIC 25 kAIC
100 #2–300 kcmil CCV2100X CCVH2100X
125 CCV2125X CCVH2125X
150 CCV2150X CCVH2150X
175 CCV2175X CCVH2175X
200 CCV2200X CCVH2200X
225 CCV2225X CCVH2225X

V1-T5-96 Volume 1—Residential and Light Commercial CA08100002E—February 2014 www.eaton.com
5
5
5
5
5
5
5
5
5
5
5
5
5
5
5
5
5
5
5
5
5
5
5
5
5
5
5
5
5
5
5.10
Metering Products
Group Metering
Type CV Tenant Main Circuit Breaker
Contents
Description Page
Systems for Residential and Commercial
Applications . . . . . . . . . . . . . . . . . . . . . . . . . . . . V1-T5-88
Meter Packs . . . . . . . . . . . . . . . . . . . . . . . . . . . . . V1-T5-90
Type CCV 120/240V Tenant Main Circuit Breaker . V1-T5-95
Type CV 120/240V Tenant Main Circuit Breaker . . V1-T5-96
Meter Packs—1MP, 1MM and 3MM Main
Tenant Circuit Breakers . . . . . . . . . . . . . . . . . . . V1-T5-98
Main Service Modules . . . . . . . . . . . . . . . . . . . . . V1-T5-101
Surge Metering. . . . . . . . . . . . . . . . . . . . . . . . . . . V1-T5-115
Residential Meter Stacks . . . . . . . . . . . . . . . . . . . V1-T5-116
1MP, 1MM and 3MM Main Tenant
Circuit Breakers . . . . . . . . . . . . . . . . . . . . . . . . . V1-T5-125
Phase Balanced Stack. . . . . . . . . . . . . . . . . . . . . . V1-T5-126
Commercial Meter Stack Modules . . . . . . . . . . . . V1-T5-127
35MM, 37MM, 35SS and 37SS
Main Tenant Circuit Breakers . . . . . . . . . . . . . . . V1-T5-134
Type CV 120/240V Tenant Main Circuit Breaker
Product Overview
Eaton offers Type CCV
(10 and 22 kAIC) and Type CV
(42, 65 and 100 kAIC) family
of circuit breakers as the
primary tenant main breakers
used in most group metering
applications.
Product Description
Eaton’s residential products
Type CV molded-case circuit
breaker is available in two-
and three-pole configurations
from 60A to 225A in 42, 65
and 100 kAIC ratings.
Features
●Ratings—120/240 Vac,
two- and three-pole,
through 225 continuous
amperes, calibrated
at 40°C
●Tripping characteristics—
thermal-magnetic trip,
calibrated and sealed after
assembly. Indirectly heated
thermal tripping bimetal
elements; includes push-
to-test button for routine
preventive maintenance
●Interrupting capacity at
120/240 Vac
●Type CVS—42,000A rms
symmetrical
●Type CV—65,000A rms
symmetrical
●Type CVH—100,000A
rms symmetrical
●Handles—trip-free with
ON-TRIPPED-OFF
positions. Reset past OFF
is required to latch breaker
contacts after tripping
●Te rm i n a l s —standard
lugs (wire connectors)
suitable for copper or
aluminum wire
Standards and Certifications
●Complies with UL Standard
489. Breakers are listed
under UL File #E7819

Volume 1—Residential and Light Commercial CA08100002E—February 2014 www.eaton.com V1-T5-97
5
5
5
5
5
5
5
5
5
5
5
5
5
5
5
5
5
5
5
5
5
5
5
5
5
5
5
5
5
5
5.10
Metering Products
Group Metering
Product Selection
Type CV Two-Pole Tenant Main Circuit Breakers Type CV Three-Pole Tenant Main Circuit Breakers
Accessories
Field Installable
Number
of Poles
Main Tenant
Circuit Breaker
Ampere Rating
Wire Size
Range,
Al/Cu
42 kAIC 65 kAIC 100 kAIC
Catalog
Number
Catalog
Number
Catalog
Number
2 60 #6–4/0 CVS2060XMM CV2060XMM CVH2060XMM
70 CVS2070XMM CV2070XMM CVH2070XMM
80 CVS2080XMM CV2080XMM CVH2080XMM
90 CVS2090XMM CV2090XMM CVH2090XMM
100 CVS2100XMM CV2100XMM CVH2100XMM
125 CVS2125XMM CV2125XMM CVH2125XMM
150 CVS2150XMM CV2150XMM CVH2150XMM
175 CVS2175XMM CV2175XMM CVH2175XMM
200 CVS2200XMM CV2200XMM CVH2200XMM
225 CVS2225XMM CV2225XMM CVH2225XMM
Number
of Poles
Main Tenant
Circuit Breaker
Ampere Rating
Wire Size
Range,
Al/Cu
42 kAIC 65 kAIC 100 kAIC
Catalog
Number
Catalog
Number
Catalog
Number
3 60 #6–4/0 CVS3060X CV3060X CVH3060X
70 CVS3070X CV3070X CVH3070X
80 CVS3080X CV3080X CVH3080X
90 CVS3090X CV3090X CVH3090X
100 CVS3100X CV3100X CVH3100X
125 CVS3125X CV3125X CVH3125X
150 CVS3150X CV3150X CVH3150X
175 CVS3175X CV3175X CVH3175X
200 CVS3200X CV3200X CVH3200X
225 CVS3225X CV3225X CVH3225X
Description
Catalog
Number
Two-pole 300 kcmil with terminal shield 2TA225CVK
Three-pole 300 kcmil with terminal shield 3TA225CVK
Replacement mounting hardware kit for 200A 1MP, 1MM and 3MM units 1MMCBK

V1-T5-98 Volume 1—Residential and Light Commercial CA08100002E—February 2014 www.eaton.com
5
5
5
5
5
5
5
5
5
5
5
5
5
5
5
5
5
5
5
5
5
5
5
5
5
5
5
5
5
5
5.10
Metering Products
Group Metering
Main Tenant Circuit Breakers
Contents
Description Page
Systems for Residential and Commercial
Applications . . . . . . . . . . . . . . . . . . . . . . . . . . . . V1-T5-88
Meter Packs . . . . . . . . . . . . . . . . . . . . . . . . . . . . . V1-T5-90
Type CCV 120/240V Tenant Main Circuit Breaker . V1-T5-95
Type CV 120/240V Tenant Main Circuit Breaker . . V1-T5-96
Meter Packs—1MP, 1MM and 3MM Main
Tenant Circuit Breakers
Main Service Modules . . . . . . . . . . . . . . . . . . . . . V1-T5-101
Surge Metering. . . . . . . . . . . . . . . . . . . . . . . . . . . V1-T5-115
Residential Meter Stacks . . . . . . . . . . . . . . . . . . . V1-T5-116
1MP, 1MM and 3MM Main Tenant
Circuit Breakers . . . . . . . . . . . . . . . . . . . . . . . . . V1-T5-125
Phase Balanced Stack. . . . . . . . . . . . . . . . . . . . . . V1-T5-126
Commercial Meter Stack Modules . . . . . . . . . . . . V1-T5-127
35MM, 37MM, 35SS and 37SS
Main Tenant Circuit Breakers . . . . . . . . . . . . . . . V1-T5-134
Meter Packs—1MP, 1MM and 3MM Main Tenant Circuit Breakers
Product Description
Specific main tenant circuit
breakers that are to be
used in meter packs (1MP),
residential meter stacks
(1MM) and three-phase in
single-phase out meter
stacks (3MM).
Product Selection
Notes
1#2–300 kcmil wire size range for CCV and CCVH tenant main circuit breakers.
2“MM” suffix indicates mounting hardware kit is included as standard with tenant main breaker.
31MMCBK replacement mounting hardware kit. One kit is needed per breaker. Mounting hardware kit ships standard with breaker “MM” suffix offering.
4#6–4/0 kcmil wire size range for CVS, CV and CVH tenant main circuit breakers. If #2–300 kcmil is needed, order 2TA225CVK. One kit needed per breaker.
Description
Number
of Poles
Main Tenant
Circuit Breaker
Ampere Rating
10 kAIC 22 kAIC 25 kAIC 42 kAIC 65 kAIC 100 kAIC
Catalog
Number 1
Catalog
Number
Catalog
Number 1234
Catalog
Number 234
Catalog
Number 234
Catalog
Number 234
Plug-On Type
Plug-on type circuit breakers used
with 1MP, 1MM, and 3MM 125A
modular metering stacks
260BR260 BRH260 — BRHH260 — —
270BR270 BRH270 — BRHH270 — —
280BR280 BRH280 — BRHH280 — —
290BR290 BRH290 — BRHH290 — —
2 100 BR2100 BRH2100 — BRHH2100 — —
2 110 BR2110 BRH2110 — BRHH2110 — —
2 125 BR2125 BRH2125 — BRHH2125 — —
Bolt-On Type
Bolt-on type circuit breakers used
with 1MP, 1MM, and 3MM 200A
modular metering stacks
260— — CVS2060XMM CVS2060XMM CV2060XMM CVH2060XMM
270— — CVS2070XMM CVS2070XMM CV2070XMM CVH2070XMM
280— — CVS2080XMM CVS2080XMM CV2080XMM CVH2080XMM
290— — CVS2090XMM CVS2090XMM CV2090XMM CVH2090XMM
2 100 CCV2100X — CCVH2100X CVS2100XMM CV2100XMM CVH2100XMM
2 125 CCV2125X — CCVH2125X CVS2125XMM CV2125XMM CVH2125XMM
2 150 CCV2150X — CCVH2150X CVS2150XMM CV2150XMM CVH2150XMM
2 175 CCV2175X — CCVH2175X CVS2175XMM CV2175XMM CVH2175XMM
2 200 CCV2200X — CCVH2200X CVS2200XMM CV2200XMM CVH2200XMM

Volume 1—Residential and Light Commercial CA08100002E—February 2014 www.eaton.com V1-T5-99
5
5
5
5
5
5
5
5
5
5
5
5
5
5
5
5
5
5
5
5
5
5
5
5
5
5
5
5
5
5
5.10
Metering Products
Group Metering
Dimensions and Knockouts
Approximate Dimensions in Inches (mm)
1MP, 125 Ampere Meter Packs—Aluminum and Copper Bus
3, 4 Meter Device
12.552 9.000 9.000 9.000
48.290
24.260
To of Wall Mtg. Screw
C
L
Meter To Rail Mtg. Screw
C
L
C
L
21.699
7. 0 1 5 (3) Knockout
for 1, 1-1/4, 1-1/2
Conduit
(1) Knockout
for 1-1/2, 2,
2-1/2 Conduit
34.250
2.025
3.140 5, 6 Meter Device
12.550 9.000 9.000
41.600
36.280
3.00 (76.2)
.450
"Z" "Y"
"X""W"
Concentric Knockouts
2-1/2", 3", 3-1/2", 4 " Knockout
Concentric Knockouts
1", 1-1/4", 1-1/2", Knockout
Concentric
Knockouts
1/2" Knockout
4.555
14.460
7. 0 0 5
4.690
3.615
24.08 (611.6)
5.125
5.610
of 1/2" Ring
of 1-1/2" Ring
of 1-1/2" Ring
of 4" Ring
C
L
C
L
C
L
C
L
"Z" =
"Y" =
"X" =
"W" =
3.625
7. 0 1 5
Concentric
Knockouts
2-1/2", 3", 3-1/2", 4 "
Knockout
Concentric Knockouts
1", 1-1/4", 1-1/2", Knockout
Concentric
Knockouts
1/2" Knockout
.450
4.565
8.000
3.000 3.000
36.130
6.560
"Z"
"Y"
"X"
"W"
.695
27.000
4.690
5.610 5.125
2.560
5.000
9.380
11.880
Mtn. for 2, 2-1/2, 3"
C-H Conduit Hubs
1, 1-1/4, 1-1/2" KO
6 Places
2.750
2.880
57 Mtg Holes
4 Places
34.180
23.750
1.806
6.380
5.900 .060
2.250
2.750
1.440
1.880
3.250
2.563
6.500
3.250
2.563
6.500
3.063 Dia.
Hub Opening
2.277
4.000
1.063
.438
3.688
3.063
.875 1", 1-1/4", 1-1/2"
Knockouts
(6 Required)
2.625
1.500
1-1/2", 2",
2-1/2", 3"
Knockouts
1/2" Knockout
4.389
2.313
2.313
1.438
4.375
Bottom Endwall Knockouts for Units with "T" Sufx
3, 4 Meter Device
Bottom Endwall Knockouts for Units with "T" Sufx
5, 6 Meter Device
Top View

V1-T5-100 Volume 1—Residential and Light Commercial CA08100002E—February 2014 www.eaton.com
5
5
5
5
5
5
5
5
5
5
5
5
5
5
5
5
5
5
5
5
5
5
5
5
5
5
5
5
5
5
5.10
Metering Products
Group Metering
Approximate Dimensions in Inches (mm)
1MP, 200 Ampere Meter Packs—Aluminum and Copper Bus
4.690
7. 0 0 5
Concentric Knockouts
2-1/2", 3", 3-1/2", 4 " Knockout
Concentric Knockouts
1", 1-1/4", 1-1/2", 2" Knockout
Concentric Knockouts
1/2" Knockout
5.610
.450
4.555
3.000
5.125
"Z"
"Y"
"X"
"W"
3.615
Typ.
15.000
24.080
of 1/2" Ring
of 1-1/2" Ring
of 1-1/2" Ring
of 4" Ring
C
L
C
L
C
L
C
L
"Z" =
"Y" =
"X" =
"W" =
7. 0 1 5
(4) Knock Out
For 1", 1-1/4", 1-1/2", 2"
Conduit 3, 4 Meter Device
15.826
2.015
25.480
3.125
18.425
12.125 12.125 12.125
64.535
To of Wall Mtg. Screw
C
L
Meter To Rail Mtg. Screw
C
L
C
L
34.250
2 Meter Device
25.480
2.015
42.685
12.155
18.400
38.755
2.015
12.125
12.125
18.425
52.415
5, 6 Meter Device
2, 3 & 4 Meter Endwall
3.0003.000
.450
"Z"
"Y"
"X""W"
Concentric
Knockouts
2-1/2", 3", 3-1/2",
4 " Knockout
Concentric
Knockouts
1", 1-1/4", 1-1/2",
2" Knockout
Concentric Knockouts
1/2" Knockout
4.565
4.690
6.555
.695
3.625
38.635
27.000
7. 0 1 5
8.000
5.610
3.250
2.563
6.500
3.250
2.563
6.500
Bottom Endwall Knockouts
for Units with "T" Sufx
2, 3, 4 Meter Device
Bottom Endwall Knockouts for Units with "T" Sufx
5, 6 Meter Device

Volume 1—Residential and Light Commercial CA08100002E—February 2014 www.eaton.com V1-T5-101
5
5
5
5
5
5
5
5
5
5
5
5
5
5
5
5
5
5
5
5
5
5
5
5
5
5
5
5
5
5
5.10
Metering Products
Group Metering
Contents
Description Page
Systems for Residential and Commercial
Applications . . . . . . . . . . . . . . . . . . . . . . . . . . . . V1-T5-88
Meter Packs . . . . . . . . . . . . . . . . . . . . . . . . . . . . . V1-T5-90
Type CCV 120/240V Tenant Main Circuit Breaker . V1-T5-95
Type CV 120/240V Tenant Main Circuit Breaker . . V1-T5-96
Meter Packs—1MP, 1MM and 3MM Main
Tenant Circuit Breakers. . . . . . . . . . . . . . . . . . . . V1-T5-98
Main Service Modules
Surge Metering . . . . . . . . . . . . . . . . . . . . . . . . . . . V1-T5-115
Residential Meter Stacks . . . . . . . . . . . . . . . . . . . V1-T5-116
1MP, 1MM and 3MM Main Tenant
Circuit Breakers . . . . . . . . . . . . . . . . . . . . . . . . . V1-T5-125
Phase Balanced Stack . . . . . . . . . . . . . . . . . . . . . . V1-T5-126
Commercial Meter Stack Modules . . . . . . . . . . . . V1-T5-127
35MM, 37MM, 35SS and 37SS
Main Tenant Circuit Breakers . . . . . . . . . . . . . . . V1-T5-134
Main Service Modules
Product Description
●Main terminal box
●Main circuit breaker
●Main bolted pressure
switch
●Main fusible switch
●Main fusible switch with
pull box
●Underground pull box
Application Description
Main Circuit Breakers with
Busway Connections
The Service Entrance Product
Team announces the
availability of both main
fusible switch and main
circuit breaker group
metering mains with busway
connections. This offering
provides us with the ability
to offer multiple tenant
metering in high rise
apartment buildings where
riser busway is used.
Features, Benefits and Functions
Eaton’s Main Service Module
●Offering: main terminal/lug
compartment, main circuit
breaker, main fusible
switch, main bolted
pressure switch, main
fusible switch with pull
box (meets EUSERC
electrical requirements),
underground pull box
termination compartment
without cross bus (meets
EUSERC electrical
requirements)
●Mechanically and
electrically built for use
with 1MM, 3MM, 35MM,
37MM, 35SS and 37SS
modular metering stacks
●For integrated system
short-circuit ratings with
main devices, see series
ratings on Page V1-T5-142
●All main service modules
include both left and right
horizontal bus closure
plates
●Two-pole devices are
applied to single-phase,
three-wire, 120/240V or
208Y/120V systems, three-
pole devices to 208Y/240V
or 120/240V delta systems
●Single-phase mains couple
to any modular metering
stack (1MM, 3MM, 35MM,
37MM, 35SS and 37SS)
●Three-phase mains require
three-phase bussed stacks.
These modular metering
stacks are 3MM, 35MM,
37MM, 35SS and 37SS
●If the ampere rating of the
main service module is
greater than the horizontal
bus rating of the meter
stack (residential or
commercial), the main
service module must be
center fed. Examples:
1200A Main Circuit Breaker
(1MCB1200R) with an
800A residential stack
(1MM512R). 1600A Main
Terminal Box
(3MTB1600R) with a
1200A residential stack
(3MM212R12)
●Most main service
modules are available with
aluminum or copper bus
Main Circuit Breakers with
Busway Connections
●Three-phase, 400–200A
main circuit breakers
●Three-phase, 400–800A
main fusible switches
●Simple bridge joint
connection
●Variety of options:
●Right or left mounting
●Internal ground or
housing ground
●The MFS/MCB and busway
connector are supplied
completely assembled

V1-T5-102 Volume 1—Residential and Light Commercial CA08100002E—February 2014 www.eaton.com
5
5
5
5
5
5
5
5
5
5
5
5
5
5
5
5
5
5
5
5
5
5
5
5
5
5
5
5
5
5
5.10
Metering Products
Group Metering
Catalog Number Selection
When Ordering:
1. Determine catalog number of Main Service Module.
2. Determine catalog number of Meter Stack (Residential or Commercial).
3. Find quantity and catalog numbers for tenant circuit breakers (found on Page V1-T5-125 or V1-T5-135).
Order one breaker per socket.
4. If any accessories are needed, order from Pages V1-T5-136 and V1-T5-137.
Phase
1 = Single-phase
3 = Three-phase
Ampere Rating
400A
600A
800A
1000A
1200A
1400A
1600A
2000A
Bus Material
C= Copper bus
Blank= Aluminum bus
Type of Metering
BTB = Main terminal box
MCB = Main circuit breaker
BPS = Bolted pressure switch
MFS = Main fusible switch
UGPB = Underground pull box
MTBE = Main terminal box with utility
pull box
MCBE = Main circuit breaker with utility
pull box
Accessories and Additional Options
BLK= Box lug kit (accessory)
CLK= Compression lug (accessory)
B= Bottom feed
T= Top feed
UG= Pull box
Blank= No options
Enclosure
R = NEMA 3R
3 MTB 400 R C

Volume 1—Residential and Light Commercial CA08100002E—February 2014 www.eaton.com V1-T5-103
5
5
5
5
5
5
5
5
5
5
5
5
5
5
5
5
5
5
5
5
5
5
5
5
5
5
5
5
5
5
5.10
Metering Products
Group Metering
Product Selection
Main Terminal Box
●Phase and neutral lugs
are included
●Top or bottom feed:
●For top feed, use
Myer type hub
●Indoor or outdoor
●Terminal box UL listed
short-circuit rating is the
least AIC rating of any
installed main tenant
breaker—to a maximum
of 100,000 rms
symmetrical amperes
Main Terminal Box
Main Terminal Box Riser Panel
Eaton’s Main Terminal Box
Riser Panel is a main terminal
box with offset lugs on each
phase to allow riser cables to
pass through the main
service module.
These panels are used in the
construction of assisted living
homes, dormitories, public
housing complexes and
apartments.
Main Terminal Box Riser Panel
Notes
1 1200A main devices must be center fed when installing 800A residential meter stacks.
1600A main devices must be center fed when installing 800–1200A residential and commercial meter stacks.
2 For 400A units, to obtain (4) 750 kcmil cables per phase—order quantity 4 1MPLK2. Kit contains one lug.
3 For compression lug landing kits for 600A units, order 3MTB600CLK. Kit includes lug landings for three phases and neutral.
4 For 800A units, to obtain (4) 1/0–300 kcmil or (2) 1/0–750 kcmil cables per phase—order catalog number 3MTB800BLK,
one lug kit per main terminal box ordered (neutral and ground included in kit).
5 For 800A and 1200A units, for compression lug landing kits, order 3MTB1200CLK. Kit includes lug landings for three-phase and neutral.
6 For 1200A units, to obtain (6) 1/0–300 kcmil or (3) 750 kcmil cables per phase—order catalog number 3MTB1200BLK,
one lug kit per main terminal box ordered (neutral and ground included in kit).
7 Meets EUSERC electrical requirements and eliminates the need to add additional pull box section.
8 For 1600A units, to obtain (4) 750 kcmil cables per phase—order catalog number 3MTB1600BLK, one lug kit per main terminal box ordered.
For a 1600A compression lug landing kit, order catalog number 3MTB1600CLK.
9 Quantity (10) lugs per phase—quantity (5) lugs incoming and quantity (5) lugs outgoing per phase.
Ampere
Rating Line Side Lug and Wire Sizes—Included
System Voltage
120/240 Vac Single-Phase, Three-Wire 120/208 Vac Three-Phase, Four-Wire
Catalog Number Catalog Number
Aluminum Bus (Standard Offering)
400 (1) #6–600 or (2) 1/0–250 kcmil 2Use three-phase 3MTB400R
600 (2) 250–500 kcmil 3Use three-phase 3MTB600R
800 (4) 250–500 kcmil 45 1MTB800R 3MTB800R
1200 1(4) 250–500 kcmil 56 1MTB1200R 3MTB1200R
Aluminum Bus (EUSERC)
400 Crimp lug landing pads (no lugs included) 1MTBE400R 73MTBE400R 7
800 Crimp lug landing pads (no lugs included) 1MTBE800R 73MTBE800R 7
Copper Bus (Premium Offering)
400 (1) #6–600 or (2) 1/0–250 kcmil 2Use three-phase 3MTB400RC
600 (2) 250–500 kcmil 3Use three-phase 3MTB600RC
800 (4) 250–500 kcmil 45 1MTB800RC 3MTB800RC
1200 1(4) 250–500 kcmil 56 1MTB1200RC 3MTB1200RC
1600 1(6) 500 kcmil 81MTB1600RC 3MTB1600RC
Main Terminal Box
System Voltage
Ampere
Rating
Line and Load Side Lug and
Wire Sizes Included
120/240 Vac Single-Phase,
Three-Wire Catalog Number
120/208 Vac Three-Phase,
Four-Wire Catalog Number
Copper Bus (Standard Offering)
1200 #2 AWG–750 kcmil 19 Use three-phase 3MTB1200RCRIS
1600 #2 AWG–750 kcmil 19 Use three-phase 3MTB1600RCRIS

V1-T5-104 Volume 1—Residential and Light Commercial CA08100002E—February 2014 www.eaton.com
5
5
5
5
5
5
5
5
5
5
5
5
5
5
5
5
5
5
5
5
5
5
5
5
5
5
5
5
5
5
5.10
Metering Products
Group Metering
Main Circuit Breaker
●Phase and neutral lugs
included. If additional
neutral lugs are needed,
order 1MCB1200NLK
for (3) 1/0–750 or
(6) 1/0–300 kcmil
●For shunt trip mains, order
the field-installable shunt
trip kit in this volume,
Tab 1, se c tion 1.1
●For overhead feed, use
Myer type hub. Verify local
utility approval
●For compression lugs on
400, 600, 800, 1000 and
1200A units, add CL to the
end of the part number
(includes copper lug pads
for lines and neutral)
●1200A or greater main
devices must be center
fed when installing 800A
residential meter stacks
●1400, 1600 and 2000A
main devices must be
center fed when installing
800 and 1200A residential
and commercial meter
stacks
Main Circuit Breaker
Notes
1 If additional neutral lugs are needed, order 1MCB1200NLK [(3) 1/0–750 kcmil or (6) 1/0–300 kcmil].
2 Add CL to end of catalog number for compression lug pads (includes lug pads for lines and neutral).
3 If (3) 500–750 kcmil are needed, order TA1201NB1. Order one kit per pole.
4 Main devices with a rating greater than 800A can be used with 800A residential modular stacks, but only as a center fed main.
Main
Ampere
Rating
Main
Circuit
Breaker
Type Feed kAIC
Line Side Lug and Wire Sizes
(Lugs Included with Main Breaker) 1
System Voltage
120/240 Vac
Single-Phase, Three-Wire
120/208 Vac
Three-Phase, Four-Wire
Catalog Number Catalog Number
Aluminum Bus (Standard Offering)
250 KD Bottom/top 65 (2) 3/0–250 kcmil or (1) 2/0–500 kcmil 1MCB250R 3MCB250R
250 HKD Bottom/top 100 (2) 3/0–250 kcmil or (1) 2/0–500 kcmil 1MHCB250R 3MHCB250R
300 KD Bottom/top 65 (2) 3/0–250 kcmil or (1) 2/0–500 kcmil 1MCB300R 3MCB300R
300 HKD Bottom/top 100 (2) 3/0–250 kcmil or (1) 2/0–500 kcmil 1MHCB300R 3MHCB300R
350 KD Bottom/top 65 (2) 3/0–250 kcmil or (1) 2/0–500 kcmil 1MCB350R 3MCB350R
350 HKD Bottom/top 100 (2) 3/0–250 kcmil or (1) 2/0–500 kcmil 1MHCB350R 3MHCB350R
400 KD Bottom/top 65 (2) 3/0–250 kcmil or (1) 2/0–500 kcmil 1MCB400R 23MCB400R 2
400 HKD Bottom/top 100 (2) 3/0–250 kcmil or (1) 2/0–500 kcmil 1MHCB400R 23MHCB400R 2
500 LD Bottom/top 65 (2) 400–500 kcmil 1MCB500R 3MCB500R
500 HLD Bottom/top 100 (2) 400–500 kcmil 1MHCB500R 3MHCB500R
600 LD Bottom/top 65 (2) 400–500 kcmil 1MCB600R 23MCB600R 2
600 HLD Bottom/top 100 (2) 400–500 kcmil 1MHCB600R 23MHCB600R 2
700 HMDL Bottom/top 100 (3) 3/0–400 kcmil 1MHCB700R 3MHCB700R
700 MDL Bottom/top 65 (3) 3/0–400 kcmil 1MCB700R 3MCB700R
800 MDL Bottom/top 65 (3) 3/0–400 kcmil 1MCB800R 23MCB800R 2
800 MDL Bottom/top 65 (2) 500–750 kcmil 1MCB800R750 3MCB800R750
800 HMDL Bottom/top 100 (3) 3/0–400 kcmil 1MHCB800R 23MHCB800R 2
900 NGS Bottom/top 65 (4) 4/0–500 kcmil 31MCB900R 43MCB900R 4
900 NGH Bottom/top 100 (4) 4/0–500 kcmil 31MHCB900R 43MHCB900R 4
1000 NGS Bottom/top 65 (4) 4/0–500 kcmil 31MCB1000R 24 3MCB1000R 24
1000 NGS Bottom/top 65 (2) 500–750 kcmil 1MCB1000R750 3MCB1000R750
1000 NGH Bottom/top 100 (4) 4/0–500 kcmil 31MHCB1000R 24 3MHCB1000R 24
1200 NGS Bottom 65 (4) 4/0–500 kcmil 31MCB1200R 24 3MCB1200R 24
1200 NGH Bottom 100 (4) 4/0–500 kcmil 31MHCB1200R 24 3MHCB1200R 24
1200 NGS Bottom 65 (2) 500–750 kcmil Use three-phase 3MCB1200R750
Main Circuit Breaker

Volume 1—Residential and Light Commercial CA08100002E—February 2014 www.eaton.com V1-T5-105
5
5
5
5
5
5
5
5
5
5
5
5
5
5
5
5
5
5
5
5
5
5
5
5
5
5
5
5
5
5
5.10
Metering Products
Group Metering
Main Circuit Breaker
Main Circuit Breaker, continued
Notes
1 If additional neutral lugs are needed, order 1MCB1200NLK [(3) 1/0–750 kcmil or (6) 1/0–300 kcmil].
2 Add CL to end of catalog number for compression lug pads (includes lug pads for lines and neutral).
3 If (3) 500–750 kcmil are needed, order TA1201NB1. Order one kit per pole.
4 Main devices with a rating greater than 800A can be used with 800A residential modular stacks but only as a center fed main.
5 If (6) #2–600 kcmil lugs are needed, order TA2000RD. Catalog number includes terminals and hardware for three poles. If neutral is needed, order TA2000N.
6 Copper bus.
7 Main devices with a rating greater than 1200A can be used with residential and commercial modular metering stacks but only as a center fed main.
8 Only to be used in center feed applications with 1200A meter stacks. Not to be used with 800A stacks.
Main
Ampere
Rating
Main
Circuit
Breaker
Type Feed kAIC
Line Side Lug and Wire Sizes
(Lugs Included with Main Breaker) 1
System Voltage
120/240 Vac
Single-Phase, Three-Wire
120/208 Vac
Three-Phase, Four-Wire
Catalog Number Catalog Number
Aluminum Bus (EUSERC)
300 KD Bottom/top 65 Crimp lug landing pads (no lugs included) 1MCBE300R 3MCBE300R
350 KD Bottom/top 65 Crimp lug landing pads (no lugs included) 1MCBE350R 3MCBE350R
400 KD Bottom/top 65 Crimp lug landing pads (no lugs included) 1MCBE400R 3MCBE400R
400 HKD Bottom/top 100 Crimp lug landing pads (no lugs included) 1MHCBE400R 3MHCBE400R
500 LD Bottom/top 65 Crimp lug landing pads (no lugs included) 1MCBE500R 3MCBE500R
600 LD Bottom/top 65 Crimp lug landing pads (no lugs included) 1MCBE600R 3MCBE600R
600 HLD Bottom/top 100 Crimp lug landing pads (no lugs included) 1MHCBE600R 3MHCBE600R
800 MDL Bottom/top 65 Crimp lug landing pads (no lugs included) 1MCBE800R 3MCBE800R
800 HMDL Bottom/top 100 Crimp lug landing pads (no lugs included) 1MHCBE800R 3MHCBE800R
1000 NGS Bottom/top 65 Crimp lug landing pads (no lugs included) 1MCBE1000R 3MCBE1000R
1200 NGS Bottom 65 Crimp lug landing pads (no lugs included) 1MCBE1200R 3MCBE1200R
1200 NGH Bottom 100 Crimp lug landing pads (no lugs included) 1MHCBE1200R 3MHCBE1200R
Copper Bus (Premium Offering)
400 KD Bottom/top 65 (2) 3/0–250 kcmil or (1) 2/0-500 kcmil 1MCB400RC 23MCB400RC 2
400 HKD Bottom/top 100 2/0–500 kcmil 1MHCB400RC 23MHCB400RC 2
600 LD Bottom/top 65 (2) 300–500 kcmil 1MCB600RC 23MCB600RC 2
600 HLD Bottom/top 100 (2) 300–500 kcmil 1MHCB600RC 23MHCB600RC 2
800 MDL Bottom/top 65 (3) 3/0–400 kcmil 1MCB800RC 23MCB800RC 2
800 HMDL Bottom/top 100 (3) 3/0–400 kcmil 1MHCB800RC 23MHCB800RC 2
900 NGS Bottom/top 65 (4) 4/0–500 kcmil 31MCB900RC 43MCB900RC 4
900 NGH Bottom/top 100 (4) 4/0–500 kcmil 31MHCB900RC 43MHCB900RC 4
1000 NGS Bottom/top 65 (2) 500–750 kcmil 1MCB1000R750C 3MCB1000R750C
1000 NGS Bottom/top 65 (4) 4/0–500 kcmil 31MCB1000RC 24 3MCB1000RC 24
1000 NGH Bottom/top 100 (4) 4/0–500 kcmil 31MHCB1000RC 24 3MHCB1000RC 24
1200 NGS Bottom 65 (2) 500–750 kcmil Use three-phase 3MCB1200R750C
1200 NGS Bottom 65 (4) 4/0–500 kcmil 31MCB1200RC 24 3MCB1200RC 24
1200 NGH Bottom 100 (4) 4/0–500 kcmil 31MHCB1200RC 24 3MHCB1200RC 24
1400 RGH Bottom 100 (4) 500–1000 kcmil 51MCB1400RBC 46 3MCB1400RBC 46
1400 RGH Top 100 (4) 500–1000 kcmil 51MCB1400RT 73MCB1400RT 7
1600 RGH Bottom 100 (4) 500–1000 kcmil 51MCB1600RBC 67 3MCB1600RBC 67
1600 RGH Top 100 (4) 500–1000 kcmil 51MCB1600RT 73MCB1600RT 7
2000 RGH Bottom 100 (6) #2–600 kcmil 1MCB2000RBC 68 3MCB2000RBC 68
2000 RGH Top 100 (6) #2–600 kcmil 1MCB2000RT 83MCB2000RT 8
Copper Bus (EUSERC)
1000 NGH Bottom 100 Crimp lug landing pads (no lugs included) 1MCBE1000RC 3MCBE1000RC
1200 NGS Bottom 65 Crimp lug landing pads (no lugs included) 1MCBE1200RC 3MCBE1200RC
1200 NGH Bottom 100 Crimp lug landing pads (no lugs included) 1MHCBE1200RC 3MHCBE1200RC
Main Circuit Breaker

V1-T5-106 Volume 1—Residential and Light Commercial CA08100002E—February 2014 www.eaton.com
5
5
5
5
5
5
5
5
5
5
5
5
5
5
5
5
5
5
5
5
5
5
5
5
5
5
5
5
5
5
5.10
Metering Products
Group Metering
Main Fusible Switches
●Fuses not included
●Main lugs and neutral
included with device
●100 kAIC rating on
switches with Class T
fuses installed. If
converting to Class H, the
kAIC rating is 10 and if
converted to Class R, the
kAIC rating is 200
Note: This is the fuse rating,
switch still rated at 100 kAIC.
●800A top and bottom fed
units are supplied with
Class T fuse clips as
standard. The Class T fuse
clips are field convertible to
Class L by repositioning.
No kit is needed
●Barrier kits available
for 400A–800A
fusible switches:
Bottom feed—3MFSBBK,
Top feed—3MFSTBK
Main Fusible Switches
Notes
1 If Class H fuse clips are needed, use catalog number WCG3HK400 (order (1) per phase).
If Class R fuse clips are needed, order catalog number DS56FK in addition to WCG3HK400.
In order to go from T to R, the device must first be converted to H.
All kits are field installable and each DS56FK kit will convert three poles.
2 If Class H fuse clips are needed, use catalog number WCG3HK600 (order (1) per phase).
If Class R fuse clips are needed, order catalog number DS66FK in addition to WCG3HK600.
In order to go from T to R, the device must first be converted to H.
All kits are field installable and each DS66FK kit will convert three poles.
3 Class T fuse clips provided are field convertible to Class L by repositioning. No kit is needed.
4 If compression lugs are being used, order 3MFS800CLK. This compression lug kit includes four pads (three poles and neutral).
5 1MFS600BLK (4) 3/0–750 kcmil/phase (one kit/phase and one kit/neutral).
6 If compression lugs are being used, order 3MFS800CLKT. This compression lug kit includes four pads (three poles and neutral).
7 IMFS1200LK (3) 750 kcmil/phase (one kit/phase). IMFS1200LKN (3) 750 kcmil (neutral).
Ampere
Rating Feed
Class Fuse
Clips (Fuses
Not Included)
Line Side Box Lugs and Wire Sizes
(Included with Switch)
System Voltage
120/240 Vac
Single-Phase,
Three-Wire
120/208 Vac
Three-Phase,
Four-Wire
Catalog Number Catalog Number
Aluminum Bus (Standard Offering)
400 Bottom T 1(2) 1/0–300 kcmil or (1) 750 kcmil 45 1MFS400RB 3MFS400RB
400 Top T 1(2) 1/0–300 kcmil or (1) 750 kcmil 56 1MFS400RT 3MFS400RT
600 Bottom T 2(2) #2–600 kcmil 45 1MFS600RB 3MFS600RB
600 Top T 2(2) #2–600 kcmil 56 1MFS600RT 3MFS600RT
800 Bottom T, L 3(4) 3/0–750 kcmil 41MFS800RB 3MFS800RB
800 Top T, L 3(4) 3/0–750 kcmil 61MFS800RT 3MFS800RT
1200 Bottom T, L 3(4) #2–600 kcmil 71MFS1200RB 3MFS1200RB
Copper Bus (Premium Offering)
400 Bottom T 1(2) 1/0–300 kcmil or (1) 750 kcmil 45 1MFS400RBC 3MFS400RBC
400 Top T 1(2) 1/0–300 kcmil or (1) 750 kcmil 56 1MFS400RTC 3MFS400RTC
600 Bottom T 2(2) #2–600 kcmil 45 1MFS600RBC 3MFS600RBC
600 Top T 2(2) #2–600 kcmil 56 1MFS600RTC 3MFS600RTC
800 Bottom T, L 3(4) 3/0–750 kcmil 41MFS800RBC 3MFS800RBC
800 Top T, L 3(4) 3/0–750 kcmil 61MFS800RTC 3MFS800RTC
1200 Bottom T, L 3(4) #2–600 kcmil 71MFS1200RBC 3MFS1200RBC
Main Fusible Switches

Volume 1—Residential and Light Commercial CA08100002E—February 2014 www.eaton.com V1-T5-107
5
5
5
5
5
5
5
5
5
5
5
5
5
5
5
5
5
5
5
5
5
5
5
5
5
5
5
5
5
5
5.10
Metering Products
Group Metering
Main Fusible Switch with
Utility Pull Box
●Fuses not included
●Includes lug landing pads
on line side and neutral
●Spacer kit 3MMBSK
required when stacks are
mounted on right-hand
side in EUSERC areas
●100 kAIC rating on
switches with Class T
fuse clips installed
Main Fusible Switch with Utility Pull Box
Utility Pull Box
●Includes lug landing pads
on line side and neutral
●Requires cable connection
in field to main device;
does not include horizontal
cross bus
Pull Box
Note
1 Pull box section includes landing studs for line side compression lugs. Wire sizes refer to load side connection.
Ampere
Rating Feed
Class Fuse Clips
(Fuses Not Included)
Line Side Box Lugs
and Wire Sizes
(Included with Switch)
System Voltage
120/240 Vac
Single-Phase, Three-Wire
120/208 Vac
Three-Phase, Four-Wire
Catalog Number Catalog Number
Aluminum Bus (Standard Offering)
400 Bottom T
11MFS400RUG 3MFS400RUG
600 Bottom T
11MFS600RUG 3MFS600RUG
800 Bottom T, L 11MFS800RUG 3MFS800RUG
1200 Bottom T 11MFS1200RUG 3MFS1200RUG
Copper Bus (Premium Offering)
400 Bottom T
11MFS400RUGC 3MFS400RUGC
600 Bottom T
11MFS600RUGC 3MFS600RUGC
800 Bottom T, L 11MFS800RUGC 3MFS800RUGC
1200 Bottom T 11MFS1200RUGC 3MFS1200RUGC
Main Fusible Switch
with Utility Pull Box
Ampere
Rating Feed
Line Side
Lug Information
Load Side Lug Information
for Cable Connection
to Main Disconnect
System Voltage
120/240 Vac
Single-Phase, Three-Wire
120/208 Vac
Three-Phase, Four-Wire
Catalog Number Catalog Number
Aluminum Bus (Standard Offering)
400 Bottom 11/0–750 kcmil or (2) 1/0–300 kcmil 1UGPB400R 3UGPB400R
800 Bottom 1(2) 1/0–750 kcmil or (4) 1/0–300 kcmil 1UGPB800R 3UGPB800R
1200 Bottom 1(4) #2–600 kcmil 1UGPB1200R 3UGPB1200R
Copper Bus (Premium Offering)
400 Bottom 11/0–750 kcmil or (2) 1/0–300 kcmil 1UGPB400RC 3UGPB400RC
800 Bottom 1(2) 1/0–750 kcmil or (4) 1/0–300 kcmil 1UGPB800RC 3UGPB800RC
1200 Bottom 1(4) #2–600 kcmil 1UGPB1200RC 3UGPB1200RC

V1-T5-108 Volume 1—Residential and Light Commercial CA08100002E—February 2014 www.eaton.com
5
5
5
5
5
5
5
5
5
5
5
5
5
5
5
5
5
5
5
5
5
5
5
5
5
5
5
5
5
5
5.10
Metering Products
Group Metering
Main Bolted Pressure
Contact Switches
●Add suffix ST to catalog
number for shunt trip
●Fuses not included
●100 kAIC rating on
switches with Class L
fuses installed
Main Bolted Pressure Contact Switches
Ampere
Rating Feed
Class Fuse Clips
(Fuses Not Included)
System Voltage
Line Side Box Lugs
and Wire Sizes
(Included)
120/240 Vac
Single-Phase, Three-Wire
120/208 Vac
Three-Phase, Four-Wire
Catalog Number Catalog Number
Copper Bus
1200 Bottom L 1BPS1200RB 3BPS1200RB (4) #4–600 kcmil
1200 Top L 1BPS1200RT 3BPS1200RT (4) #4–600 kcmil
1600 Bottom L Use three-phase 3BPS1600RB (6) #4–600 kcmil
1600 Top L Use three-phase 3BPS1600RT (6) #4–600 kcmil
2000 Bottom L Use three-phase 3BPS2000RB (8) #4–600 kcmil
2000 Top L Use three-phase 3BPS2000RT (8) #4–600 kcmil

Volume 1—Residential and Light Commercial CA08100002E—February 2014 www.eaton.com V1-T5-109
5
5
5
5
5
5
5
5
5
5
5
5
5
5
5
5
5
5
5
5
5
5
5
5
5
5
5
5
5
5
5.10
Metering Products
Group Metering
Main Circuit Breaker with Busway Connection
Verify proper left/right–bus/main phasing.
Note: “Right” means that the bus duct is to the right of the main and
“left” means that the bus duct is to the left of the main. (See Dimension/
Layout section for clarification.)
Main Circuit Breaker with Busway Connection
Ampere
Rating Feed
System Voltage
120/208 Vac
Three-Phase, Four-Wire
Catalog Number
Internal
Ground or
Housing
Ground
Standard T
or TO
Opposite
Phasing
Right
or Left
Side
400 Bottom 3MFS400BCRGTO Internal TO Right
600 Bottom 3MFS600BCRGTO Internal TO Right
800 Bottom 3MFS800BCRGTO Internal TO Right
400 Bottom 3MFS400BCLGTO Internal TO Left
600 Bottom 3MFS600BCLGTO Internal TO Left
800 Bottom 3MFS800BCLGTO Internal TO Left
400 Bottom 3MFS400BCRGT Internal T Right
600 Bottom 3MFS600BCRGT Internal T Right
800 Bottom 3MFS800BCRGT Internal T Right
400 Bottom 3MFS400BCLGT Internal T Left
600 Bottom 3MFS600BCLGT Internal T Left
800 Bottom 3MFS800BCLGT Internal T Left
400 Bottom 3MFS400BCRNTO Housing TO Right
600 Bottom 3MFS600BCRNTO Housing TO Right
800 Bottom 3MFS800BCRNTO Housing TO Right
400 Bottom 3MFS400BCLNTO Housing TO Left
600 Bottom 3MFS600BCLNTO Housing TO Left
800 Bottom 3MFS800BCLNTO Housing TO Left
400 Bottom 3MFS400BCRNT Housing T Right
600 Bottom 3MFS600BCRNT Housing T Right
800 Bottom 3MFS800BCRNT Housing T Right
400 Bottom 3MFS400BCLNT Housing T Left
600 Bottom 3MFS600BCLNT Housing T Left
800 Bottom 3MFS800BCLNT Housing T Left
400 Bottom 3MCB400BCRGT Internal T Right
400 Bottom 3HMCB400BCRGT Internal T Right
600 Bottom 3MCB600BCRGT Internal T Right
600 Bottom 3HMCB600BCRGT Internal T Right
800 Bottom 3MCB800BCRGT Internal T Right
800 Bottom 3HMCB800BCRGT Internal T Right
1000 Bottom 3MCB1000BCRGT Internal T Right
1000 Bottom 3HMCB1000BCRGT Internal T Right
1200 Bottom 3MCB1200BCRGT Internal T Right
1200 Bottom 3HMCB1200BCRGT Internal T Right
400 Bottom 3MCB400BCLGT Internal T Left
400 Bottom 3HMCB400BCLGT Internal T Left
600 Bottom 3MCB600BCLGT Internal T Left
600 Bottom 3HMCB600BCLGT Internal T Left
800 Bottom 3MCB800BCLGT Internal T Left
800 Bottom 3HMCB800BCLGT Internal T Left
1000 Bottom 3MCB1000BCLGT Internal T Left
1000 Bottom 3HMCB1000BCLGT Internal T Left
1200 Bottom 3MCB1200BCLGT Internal T Left
1200 Bottom 3HMCB1200BCLGT Internal T Left
400 Bottom 3MCB400BCRNT Housing T Right
400 Bottom 3HMCB400BCRNT Housing T Right
600 Bottom 3MCB600BCRNT Housing T Right
600 Bottom 3HMCB600BCRNT Housing T Right
800 Bottom 3MCB800BCRNT Housing T Right
800 Bottom 3HMCB800BCRNT Housing T Right
1000 Bottom 3MBC1000BCRNT Housing T Right
1000 Bottom 3HMBC1000BCRNT Housing T Right
Using this information, select the correct main device catalog
number per the selection chart.
Main Circuit Breaker with Busway Connection, continued
Ampere
Rating Feed
System Voltage
120/208 Vac
Three-Phase, Four-Wire
Catalog Number
Internal
Ground or
Housing
Ground
Standard T
or TO
Opposite
Phasing
Right
or Left
Side
1200 Bottom 3MCB1200BCRNT Housing T Right
1200 Bottom 3HMCB1200BCRNT Housing T Right
400 Bottom 3MCB400BCLNT Housing T Left
400 Bottom 3HMCB400BCLNT Housing T Left
600 Bottom 3MCB600BCLNT Housing T Left
600 Bottom 3HMCB600BCLNT Housing T Left
800 Bottom 3MCB800BCLNT Housing T Left
800 Bottom 3HMCB800BCLNT Housing T Left
1000 Bottom 3MCB1000BCLNT Housing T Left
1000 Bottom 3HMCB1000BCLNT Housing T Left
1200 Bottom 3MCB1200BCLNT Housing T Left
1200 Bottom 3HMCB1200BCLNT Housing T Left
400 Bottom 3MCB400BCRGTO Internal TO Right
400 Bottom 3HMCB400BCRGTO Internal TO Right
600 Bottom 3MCB600BCRGTO Internal TO Right
600 Bottom 3HMCB600BCRGTO Internal TO Right
800 Bottom 3MCB800BCRGTO Internal TO Right
800 Bottom 3HMCB800BCRGTO Internal TO Right
1000 Bottom 3MCB1000BCRGTO Internal TO Right
1000 Bottom 3HMCB1000BCRGTO Internal TO Right
1200 Bottom 3MCB1200BCRGTO Internal TO Right
1200 Bottom 3HMCB1200BCRGTO Internal TO Right
400 Bottom 3MCB400BCLGTO Internal TO Left
400 Bottom 3HMCB400BCLGTO Internal TO Left
600 Bottom 3MCB600BCLGTO Internal TO Left
600 Bottom 3HMCB600BCLGTO Internal TO Left
800 Bottom 3MCB800BCLGTO Internal TO Left
800 Bottom 3HMCB800BCLGTO Internal TO Left
1000 Bottom 3MCB1000BCLGTO Internal TO Left
1000 Bottom 3HMCB1000BCLGTO Internal TO Left
1200 Bottom 3MCB1200BCLGTO Internal TO Left
1200 Bottom 3HMCB1200BCLGTO Internal TO Left
400 Bottom 3MCB400BCRNTO Housing TO Right
400 Bottom 3HMCB400BCRNTO Housing TO Right
600 Bottom 3MCB600BCRNTO Housing TO Right
600 Bottom 3HMCB600BCRNTO Housing TO Right
800 Bottom 3MCB800BCRNTO Housing TO Right
800 Bottom 3HMCB800BCRNTO Housing TO Right
1000 Bottom 3MCB1000BCRNTO Housing TO Right
1000 Bottom 3HMCB1000BCRNTO Housing TO Right
1200 Bottom 3MCB1200BCRNTO Housing TO Right
1200 Bottom 3HMCB1200BCRNTO Housing TO Right
400 Bottom 3MCB400BCLNTO Housing TO Left
400 Bottom 3HMCB400BCLNTO Housing TO Left
600 Bottom 3MCB600BCLNTO Housing TO Left
600 Bottom 3HMCB600BCLNTO Housing TO Left
800 Bottom 3HMCB800BCLNTO Housing TO Left
800 Bottom 3HMCB800BCLNTO Housing TO Left
1000 Bottom 3MCB1000BCLNTO Housing TO Left
1000 Bottom 3HMCB1000BCLNTO Housing TO Left
1200 Bottom 3MCB1200BCLNTO Housing TO Left
1200 Bottom 3HMCB1200BCLNTO Housing TO Left

V1-T5-110 Volume 1—Residential and Light Commercial CA08100002E—February 2014 www.eaton.com
5
5
5
5
5
5
5
5
5
5
5
5
5
5
5
5
5
5
5
5
5
5
5
5
5
5
5
5
5
5
5.10
Metering Products
Group Metering
Dimensions
Approximate Dimensions in Inches (mm)
Dimensions (Not to be Used for Construction Purposes)
Main Device
Width Height Depth Mounting
Center Line of
Wall Mounting
Bracket
Knockouts in Bottom Endwalls Except No
KOs for Top Feed Switch or Bolted Pressure
Switch Conduit Diameter KO
Dwg.ABCDEF Inches mm
Terminal Box
400 and 600A 13.50 (342.9) 48.75 (1238.3) 7.00 (177.8) — 54.00 (1371.6) 30.63 (777.9)
(1) 2.50, 3.00, 3.50, 4.00
(1) 0.50
(1) 63.5, 76.2, 88.9, 101.6
(1) 12.7
1
800 and 1200A 20.00 (508.0) 47.63 (1209.8) 11.75 (298.5) 12.00 (304.8) 51.50 (1308.1) 30.63 (777.9)
(2) 0.50, 0.75, 1.00
(4) 2.00, 2.50, 3.00, 3.50, 4.00
(2) 12.1, 19.1, 25.4
(4) 50.8, 63.5, 76.2, 88.9, 101.6
2
1600A 32.88 (835.2) 60.13 (1527.3) 11.44 (290.6) 16.00 (406.4) 64.13 (1628.9) 38.59 (980.2)
(1) 0.75, 1.00, 1.25, 1.50
(5) 3.00, 3.50, 4.00, 5.00
(1) 19.1, 25.4, 31.8, 38.1
(5)
76.2, 88.9, 101.6, 127.0
3
Main Circuit Breaker with Box Lugs
400–1200A 20.00 (508.0) 47.63 (1209.8) 11.75 (298.5) 12.00 (304.8) 51.50 (1308.1) 30.63 (777.9)
(2) 0.50, 0.75, 1.00
(4) 2.00, 2.50, 3.00,3.50, 4.00
(2) 12.7, 19.1, 25.4
(4) 50.8, 63.5, 76.2, 88.9, 101.6
2
1400–2000A 24.88 (632.0) 57.13 (1451.0) 14.88 (378.0) 16.00 (406.4) 57.13 (1451.0) 44.00 (1117.6)
——
—
Main Circuit Breaker with Compression Lugs
400–1200A 20.00 (508.0) 61.00 (1549.4) 11.75 (298.5) 12.00 (304.8) 65.00 (1651.0) 44.00 (1117.6)
(2) 0.50, 0.75, 1.00
(4) 2.00, 2.50, 3.00, 3.50, 4.00
(2) 12.7, 19.1, 25.4
(4) 50.8, 63.5, 76.2, 88.9, 101.60
2
Main Fusible Switch
Bottom feed
400–800A
20.00 (508.0) 47.63 (1209.8) 11.75 (298.5) 12.00 (304.8) 51.50 (1308.1) 30.63 (777.9)
(2) 0.50, 0.75, 1.00
(4) 2.00, 2.50, 3.00, 3.50, 4.00
(2) 12.7, 19.1, 25.4
(4) 50.8, 63.5, 76.2, 88.9, 101.6
2
Top feed
400–800A
20.00 (508.0) 47.63 (1209.8) 11.75 (298.5) 12.00 (304.8) 51.50 (1308.1) 18.13 (460.4)
(2) 0.50, 0.75, 1.00
(4) 2.00, 2.50, 3.00, 3.50, 4.00
(2) 12.7, 19.1, 25.4
(4) 50.8, 63.5, 76.2, 88.9, 101.6
2
1200A 33.50 (850.9) 52.75 (1339.9) 11.88 (301.8) 16.00 (406.4) 56.25 (1428.8) 30.75 (781.1)
(5) 3.50, 4.00, 5.00
(1) 0.75, 1.00, 1.25, 1.50
(5) 88.9, 101.6, 127.0
(1) 19.1, 25.4, 31.8, 38.1
4
Bolted Pressure Switch
36.50 (927.1) 66.50 (1689.1) 19.50 (495.3) 28.00 (711.2) 60.00 (1524.0) 30.63 (777.9)
——
—
Main Fusible Switch with Pull Box
400A 20.00 (508.0) 61.00 (1549.4) 11.75 (298.5) 12.00 (304.8) 65.00 (1651.0) 44.00 (1117.6)
(2) 0.50, 0.75, 1.00
(4) 2.00, 2.50, 3.00, 3.50, 4.00
(2) 12.7, 19.1, 25.4
(4) 50.8, 63.5, 76.2, 88.9, 101.6
2
600 and 800A
(single-phase)
20.00 (508.0) 61.00 (1549.4) 11.75 (298.5) 12.00 (304.8) 65.00 (1651.0) 44.00 (1117.6)
(2) 0.50, 0.75, 1.00
(4) 2.00, 2.50, 3.00, 3.50, 4.00
(2) 12.7, 19.1, 25.4
(4) 50.8, 63.5, 76.2, 88.9, 101.6
2
600 and 800A
(three-phase)
25.06 (636.5) 61.00 (1549.4) 11.75 (298.5) 17.00 (431.8) 65.00 (1651.0) 44.00 (1117.6)
(2) 0.50, 0.75, 1.00
(4) 2.00, 2.50, 3.00, 3.50, 4.00
(2) 12.7, 19.1, 25.4
(4) 50.8, 63.5, 76.2, 88.9, 101.6
4
1200A 33.50 (850.9) 61.50 (1562.1) 11.88 (301.8) 16.00 (406.4) 65.25 (1657.4) 48.00 (1219.2)
(5) 3.50, 4.00, 5.00
(1) 0.75, 1.00, 1.25, 1.50
(5) 88.9, 101.6, 127.0
(1) 19.1, 25.4, 31.8, 38.1
4
Main Circuit Breaker with Pull Box (EUSERC)
400A 20.01 (508.2) 60.44 (1535.2) 11.14 (283.0) 12.00 (304.8) 65.11 (1653.8) 39.75 (1009.6)
(4) 2.50, 3.00, 3.50, 4.00 (4) 63.5, 76.2, 88.9, 101.6
2
800A 24.88 (632.0) 60.94 (1547.9) 11.14 (283.0) 17.00 (431.8) 64.88 (1648.0) 39.81 (1011.2)
(4) 2.50, 3.00, 3.50, 4.00 (4) 63.5, 76.2, 88.9, 101.6
2
1200A 33.00 (838.2) 61.14 (1553.0) 11.32 (287.5) 16.00 (406.4) 65.25 (1657.4) 43.56 (1106.4)
(4) 2.50, 3.00, 3.50, 4.00 (4) 63.5, 76.2, 88.9, 101.6
4
Pull Box
400A 16.38 (416.1) 44.88 (1140.0) 7.88 (200.2) 8.00 (203.2) 45.75 (1162.1) 28.63 (727.2)
(2) 4.00 101.6
5
800A 24.38 (619.3) 46.88 (1190.8) 11.88 (301.8) 12.00 (304.8) 47.75 (1212.9) 32.25 (819.2)
(3) 4.00 101.6
6
1200A 32.50 (825.5) 56.88 (1444.8) 12.00 (304.8) 17.75 (450.9) 57.75 (1466.9) 42.25 (1073.2)
(4) 5.00 127.0
7
EUSERC Bussed Pull Section
Single-phase
400 and 800A
20.13 (511.3) 61.00 (1549.4) 11.25 (285.8) 12.00 (304.8) 64.88 (1648.0) 44.00 (1117.6)
(4) 2.50, 3.00, 3.50, 4.00 (4) 63.5, 76.2, 88.9, 101.6
5
Three-phase
400 and 800A
25.13 (638.3) 61.00 (1549.4) 11.88 (301.8) 17.00 (431.8) 64.88 (1648.0) 44.00 (1117.6)
(4) 2.50, 3.00, 3.50, 4.00 (4) 63.5, 76.2, 88.9, 101.6
6
EUSERC Main Terminal Box
Single-phase
400 and 800A
20.13 (511.3) 61.00 (1549.4) 11.88 (301.8) 12.00 (304.8) 64.88 (1648.0) 44.00 (1117.6)
(2) 0.50, 0.75, 1.00 (2) 12.7, 19.1, 25.4
2
Three-phase
400A
20.13 (511.3) 61.00 (1549.4) 11.88 (301.8) 12.00 (304.8) 64.88 (1648.0) 44.00 (1117.6)
(4) 2.00, 2.50, 3.00, 3.50, 4.00 (4) 50.8, 63.5, 76.2, 88.9, 101.6
2
Three-phase
800A
25.13 (638.3) 61.00 (1549.4) 11.88 (301.8) 17.00 (431.8) 64.88 (1648.0) 44.00 (1117.6)
(4) 2.00, 2.50, 3.00, 3.50, 4.00 (4) 50.8, 63.5, 76.2, 88.9, 101.6
2

Volume 1—Residential and Light Commercial CA08100002E—February 2014 www.eaton.com V1-T5-111
5
5
5
5
5
5
5
5
5
5
5
5
5
5
5
5
5
5
5
5
5
5
5
5
5
5
5
5
5
5
5.10
Metering Products
Group Metering
Approximate Dimensions in Inches (mm)
Main Circuit Breakers, Terminal Boxes and Pull Boxes
Top Feed Fusible Switch
Bottom Feed Fusible Switch and Combination Fusible
Switch with Pull Box
Bolted Pressure Switch
EUSERC Main Terminal Box
C
B
A
E
D
Main CB, Non-Euserc Terminal Box and Pullboxes
F
C
17.00
(431.8)
A
EB
D
Top Feed Switch (No Knockouts)
F
Bottom Feed Switch and Combination Switch/Pullbox
A
EB
D
C
17.00
(431.8)
F
D
B
E
A
25.00
(635.0)
F
C
A
B
C

V1-T5-112 Volume 1—Residential and Light Commercial CA08100002E—February 2014 www.eaton.com
5
5
5
5
5
5
5
5
5
5
5
5
5
5
5
5
5
5
5
5
5
5
5
5
5
5
5
5
5
5
5.10
Metering Products
Group Metering
Approximate Dimensions in Inches (mm)
Knockout 1
Knockout 2
Knockout 3
Knockout 4
.875
.020
.169+.003
–.000 Diameter 5 Hole
.175
.010
Stamped
ID Mark
5.375
.010 3.500
.010
2.880
.010
KO (44)
KO (1)
12.375 .010
3.010
.010
2.880
.030
2-1/2”, 3”, 3-1/2”, 4” KO
1 Knockout Required
1/2”Knockout
1 Required
Per 50-1827-1 .080
.020
2.500
.020
.310 .030 Diameter
Paint Hole
.080
.020
.438
.010
.800
.030
.625
.010
6.500 Outside .010
C
L
8.00
2 Knockouts for 1/2”,
3/4” or 1” Conduit
4 Knockouts for 2-1/2”,
3”, 3-1/2” or 4” Conduit
.281 Diameter Knockout
1 Required
A
.45
3.25 2.50 1.75
4.25
.16
22.54
11.62
10.38
2.50
3.75
1.93
.61
19.40
8.00 4.00
11.19
2.125
.020
6.000
.010
6.000
.010
6.000
.010
6.000
.010
6.000
.010
6.000
.010
6.000
.010
6.000
.010
6.000
.010
3/4”, 1”, 1-1/4”, 1-1/2” Knockout
Per A50-26319 1 Knockout Required
32.120 .020
3”, 3-1/2”, 4”, 5”
Knockout Per A50-26327
5 Knockouts Required
.380
.020
2.750
.010
2.750
.010
2.750
.010
4.000
.020
7.500
.020
2.125
.020
1.440
.020
.169 .002 Diameter
5 Holes Required at ”X”
1.500
.020
.130
.030
.125
.030
4.440
.020
8.00
22.54
11.62
10.38
2.50
19.40
8.00 4.00
3.75
1.93
.61
11.19
.45
3.25 2.50 1.75
4.25
2 Knockouts for 1/2”,
3/4” or 1” Conduit
4 Knockouts for 2-1/2”,
3”, 3-1/2” or 4” Conduit
.281 Diameter Knockout
1 Required
.16
B
Knockout 5
Knockout 6
Knockout 7
Knockout 8
6.000
.020
KO (10)
KO (10)
5.000
.020
.150 .020
Typ.
3.250
.020
3.000
.020
.150 .020 Typ.
6.120
.020
6.850
.020
7.000
+.000
–.030
.780 .020 Typ.
.200
.020
Typ.
KO (10)
.150 .020
Typ.
KO (10)
KO (10)
6.000
.020
6.000
.020
6.000
.020
.250
Ref.
.150
.020
Typ.
4.000
.020
4.250
.020
.250
Ref.
.220
Dia.
Paint
Hole
10.120
.020
10.850
.020
11.000
+.000 -.030
.200 .020
Typ.
.780 .020
Typ.
7.250
.020
7.250
.020
7.250
.020
5.125
.020
.350
Ref.
.150
.020
Typ.
4.000
.020
4.250
.020
.350
Ref.
.220
Dia.
Paint
Hole
.150 .020
Typ.
KO (11)
KO (11)
KO (11)
KO (11)
10.140
.020
10.850
.020
11.000
+.000
–.030
.120
.020
Typ.
.685 .020
Typ.
4 Knockouts for 2-1/2",
3", 3-1/2" or 4" Conduit
8.00 4.00
8.00
24.38
11.25
1.75
2.13
15.38 3.75
16.63
27.13
2.50
3.63
0.50
4.75 3.13 2.50
1.50
4.25 1.75
.281 Dia. Knockout 1 Required
2 Knockouts for
1/2", 3/4", or 1" Conduit
2 Knockouts for
1/2", 3/4", or 1" Conduit

Volume 1—Residential and Light Commercial CA08100002E—February 2014 www.eaton.com V1-T5-113
5
5
5
5
5
5
5
5
5
5
5
5
5
5
5
5
5
5
5
5
5
5
5
5
5
5
5
5
5
5
5.10
Metering Products
Group Metering
Approximate Dimensions in Inches (mm)
Layout—Main Fusible Switch

V1-T5-114 Volume 1—Residential and Light Commercial CA08100002E—February 2014 www.eaton.com
5
5
5
5
5
5
5
5
5
5
5
5
5
5
5
5
5
5
5
5
5
5
5
5
5
5
5
5
5
5
5.10
Metering Products
Group Metering
Approximate Dimensions in Inches (mm)
Main Circuit Breaker—“T-Opposite” Phasing Right
Main Circuit Breaker—“T-Opposite” Phasing Left
Main Circuit Breaker—“Standard T” Phasing Right
Main Circuit Breaker—“Standard T” Phasing Left
Meter
Center
Front
C
LHorizontal
C
L
Floor
Wall
Vertical
8.48
(215.4)
38.76
(984.5)
18.17
(461.5)
20.00
(508.0)
30.08
(764.0)
T-Opposite
T-Opposite
T-Opposite
T-Opposite
6.00
(152.4)
Meter
Center
Front
C
LHorizontal
20.00
(508.0)
Floor
Wall
C
LVertical
38.76
(984.5)
18.17
(461.5)
30.08
(764.0)
8.48
(215.4)
T-Opposite
T-Opposite
T-Opposite
T-Opposite
6.00
(152.4)
Meter
Center
Front
C
LHorizontal
C
L
20.00
(508.0)
Floor
Wall
Vertical
8.48
(215.4)
38.76
(984.5)
18.17
(461.5)
30.08
(764.0)
6.00
(152.4)
Meter
Center
Front
C
LHorizontal
C
L
38.76
(984.5)
18.17
(461.5)
20.00
(508.0)
30.08
(764.0)
Floor
8.48
(215.4)Wall
Vertical
6.00
(152.4)

Volume 1—Residential and Light Commercial CA08100002E—February 2014 www.eaton.com V1-T5-115
5
5
5
5
5
5
5
5
5
5
5
5
5
5
5
5
5
5
5
5
5
5
5
5
5
5
5
5
5
5
5.10
Metering Products
Group Metering
Surge suppression devices shown are factory mounted in
Group Metering Enclosure.
Surge Metering
Contents
Description Page
Systems for Residential and Commercial
Applications . . . . . . . . . . . . . . . . . . . . . . . . . . . . V1-T5-88
Meter Packs . . . . . . . . . . . . . . . . . . . . . . . . . . . . . V1-T5-90
Type CCV 120/240V Tenant Main Circuit Breaker . V1-T5-95
Type CV 120/240V Tenant Main Circuit Breaker . . V1-T5-96
Meter Packs—1MP, 1MM and 3MM Main
Tenant Circuit Breakers . . . . . . . . . . . . . . . . . . . . V1-T5-98
Main Service Modules . . . . . . . . . . . . . . . . . . . . . V1-T5-101
Surge Metering
Residential Meter Stacks. . . . . . . . . . . . . . . . . . . . V1-T5-116
1MP, 1MM and 3MM Main Tenant
Circuit Breakers. . . . . . . . . . . . . . . . . . . . . . . . . . V1-T5-125
Phase Balanced Stack . . . . . . . . . . . . . . . . . . . . . . V1-T5-126
Commercial Meter Stack Modules . . . . . . . . . . . . V1-T5-127
35MM, 37MM, 35SS and 37SS
Main Tenant Circuit Breakers . . . . . . . . . . . . . . . V1-T5-134
Surge Metering
Product Description
Eaton’s multiple metering
product family is proud to
announce the availability of
main surge devices. The new
main surge is mounted
between the main service
module and the meter stacks
and serves the purpose of
providing surge protection
for downstream multiple
metering products. The main
surge is compatible with
all meter stacks currently
manufactured (1MM, 3MM,
35MM and 37MM).
Features, Benefits
and Functions
●Uses thermally protected
metal oxide varistor (MOV)
technology
●Compatible with 37MM
enclosure accessories
●Protection status indicator
lights EMI/RFI filtering and
audible alarms
●Offers surge protection for
all units fed from a main
service module
●Benefit for building/complex
owners who want to offer
surge protection to their
tenants. Owner can market
their apartment complex as
being surge friendly to
appliances and electronics
●Attain local utility
company approval. Not
for use in EUSERC area
Standards and Certifications
●UL 1449 3rd Edition
recognized component
Product Selection
Surge Metering
Voltage
Surge Current
per Phase (kA) Diagnostics
Catalog
Number
120/240V single-phase 100 Standard 1MMSURGE
208Y/120V three-phase 100 Standard 3MMSURGE

V1-T5-116 Volume 1—Residential and Light Commercial CA08100002E—February 2014 www.eaton.com
5
5
5
5
5
5
5
5
5
5
5
5
5
5
5
5
5
5
5
5
5
5
5
5
5
5
5
5
5
5
5.10
Metering Products
Group Metering
1MM and 3MM Metering Stack Modules
Contents
Description Page
Systems for Residential and Commercial
Applications . . . . . . . . . . . . . . . . . . . . . . . . . . . . V1-T5-88
Meter Packs . . . . . . . . . . . . . . . . . . . . . . . . . . . . . V1-T5-90
Type CCV 120/240V Tenant Main Circuit Breaker . V1-T5-95
Type CV 120/240V Tenant Main Circuit Breaker . . V1-T5-96
Meter Packs—1MP, 1MM and 3MM Main
Tenant Circuit Breakers . . . . . . . . . . . . . . . . . . . V1-T5-98
Main Service Modules . . . . . . . . . . . . . . . . . . . . . V1-T5-101
Surge Metering. . . . . . . . . . . . . . . . . . . . . . . . . . . V1-T5-115
Residential Meter Stacks
1MP, 1MM and 3MM Main Tenant
Circuit Breakers . . . . . . . . . . . . . . . . . . . . . . . . . V1-T5-125
Phase Balanced Stack. . . . . . . . . . . . . . . . . . . . . . V1-T5-126
Commercial Meter Stack Modules . . . . . . . . . . . . V1-T5-127
35MM, 37MM, 35SS and 37SS
Main Tenant Circuit Breakers . . . . . . . . . . . . . . . V1-T5-134
Residential Meter Stacks
Features, Benefits and Functions
A. Barrier
Meter socket and tenant
main breaker/wireway
sections are separated by a
solid metal barrier to guard
unmetered bus against
power theft.
B. Tenant Breaker
Reliable busbar–to–busbar
connection. 200A modules
accept bolt-on breakers 60–
200A. 125A modules accept
15–125A plug-on breakers.
C. Moveable Phase Connector
Four-wire horizontal bus lets
you use any 3MM module
for single- or three-phase
incoming service. Shipped
with A and B phase
connection, phase balancing
is easily accomplished in the
field by moving one, front-
accessible phase connector
post per module.
D. Neutral Assembly
A convenient termination for
neutral conductors is in the
wireway of each module.
E. Enclosed Horizontal Bus
Added security because a
non-removable barrier
encloses the 800 or 1200A
horizontal bus passing
through tenant breaker
section.
F. Equipment Ground Bar
Factory installed in side
gutter, a standard feature
that’s moveable to the top or
bottom gutter.
G. Raintight Cap
Shipped on each outdoor
meter module and main
device.
H. Knockouts
Tangential in bottom endwall.
I. Superior Finish
Rust inhibiting phosphate
primer and gray baked
enamel is standard. All
outdoor enclosures are of
galvanized steel construction.
J. Meter Socket
Our unique meter socket
base is installed without any
fasteners—reducing chances
for hot spots, easily
replaceable, and improves
connection to vertical bus.
K. Bus Connection
Mains and modules slip
together quickly and
smoothly with front-
accessible captive bolts
securing the juncture without
removing socket interiors or
bus access plate. Main bus
joint bolts torque to 25 foot
pounds.
L. Separate Wireway Cover
Separate covers allow easy
access to tenant breaker and
wireway section, permit work
on breakers or in wireway
without disturbing meters or
meter covers. (Not shown.)
M. Vertical Busbar
One-piece vertical busbar
from phase balancing joints to
meter socket eliminating any
chance for hot spots.
1MM Meter Stack Module
K
F
E
A
B
G
M
J
C
H
D
I

Volume 1—Residential and Light Commercial CA08100002E—February 2014 www.eaton.com V1-T5-117
5
5
5
5
5
5
5
5
5
5
5
5
5
5
5
5
5
5
5
5
5
5
5
5
5
5
5
5
5
5
5.10
Metering Products
Group Metering
●Eaton’s
1MM stacks are
single-
phase in, single-
phase out design
●Eaton’s 3MM stacks are
three-phase in, single-
phase out design
●Stacks with single-phase
horizontal bus are rated
240/120V, single-phase,
three-wire. Stacks with
three-phase horizontal bus
are rated 208Y/120V, three-
phase, four-wire, but can
be used on 240/120V,
three-phase, four-wire
delta systems
●All three-phase horizontal
bus modules have four-
wire cross bus, connected
A-B phase to vertical bus,
readily reconnectable for
phase balance on
installation
Note: Individual sockets cannot be
phase balanced, only each stack.
●Short-circuit ratings up to
100,00 0A
rms symmetrical
depending
upon AIC rating
of installed main tenant
circuit breakers and
main device
●Main tenant feeders can
exit bottom or back.
Knockouts are available
at all exit locations
●If being used in outdoor
application and exiting the
top, mount Myer type hubs
on rainproof cap
●Provision for two-pole
breaker (plug-on type for
125A sockets and bolt-on
type for 200A sockets)—
circuit breakers not
included
●Mechanically and
electrically built to bolt-up
with main service modules
and commercial modular
metering stacks
●Aluminum or copper bus
●800 or 1200A horizontal
bus
●All 3MM stacks include
fifth jaw at 9 o’clock
position
●All 1MM stacks do not
include fifth jaw. Order
1MM5JK if needed
Catalog Number Selection
When Ordering:
1. Determine catalog number of Main Service Module.
2. Determine catalog number of Meter Stack (Residential or Commercial).
3. Find quantity and catalog numbers for tenant circuit breakers (found on Page V1-T5-125 or V1-T5-135).
Order one breaker per socket.
4. If any accessories are needed, order from Pages V1-T5-136 and V1-T5-137.
Phases
1 = Single-phase
3 = Three-phase
Options
Blank = Ring
RL = Ringless
RLB = Ringless with horn bypass
WB = Wall bracket (accessory)
BSK = Bussed spacer (accessory)
EB12 = 12-inch (304.8 mm) elbow (accessory)
EB16 = 16-inch (406.4 mm) elbow (accessory)
Number of Meters
2, 3, 4, 5 or 6
Blank = Accessory
Bus Type
Blank = Aluminum
C= Copper
Type of Metering
MM = Multiple metering
Ampere Rating
12 = 125A
20 = 200A
Blank = Accessory
Enclosure
R= Outdoor
Blank = Indoor
Bus Amperes
12 = 200A horizontal bus (3MM units only)
Blank = Standard 800A bus
1 MM 4 12 R 12 C

V1-T5-118 Volume 1—Residential and Light Commercial CA08100002E—February 2014 www.eaton.com
5
5
5
5
5
5
5
5
5
5
5
5
5
5
5
5
5
5
5
5
5
5
5
5
5
5
5
5
5
5
5.10
Metering Products
Group Metering
Product Selection
800A Horizontal Aluminum Bus—Standard Offering
Notes
1 For indoor applications where a top endwall with knockouts is needed, order one of part number MM12N1WLK for each 125A stack
or MM20N1WLK for each 200A stack.
2 1MM units do not come with 5th jaw.
3 To change in field from ring to ringless—order 1MMRC125.
4 To change in field from ring to ringless, the top socket in 125A, two- and three-high stacks use 1MMRC125T. Top socket only—other sockets see 3.
5 To change in field from ring to ringless—order 1MMRC200.
6 Check with local utility for height requirements or restrictions.
Amperes
Per
Meter
Socket
Number of
Meter
Sockets
Bus
Ampacity
Enclosure
Type 1
Main Tenant Breaker Type
(For Specific Catalog Numbers,
Refer to Page V1-T5-125)
Single-Phase In,
Single-Phase Out
Three-Phase In,
Single-Phase Out
Single-Phase Horizontal Bus
(Three Horizontal Busbars—
A, B and Neutral) 2
Three-Phase Horizontal Bus
(Four Horizontal Busbars—
A, B, C and Neutral)
Catalog Number Catalog Number
Ring Style Meter Socket Covers
125 32 4800 Indoor/outdoor Plug-on type
BR2_
BRH2_
BRHH2_
Use three-phase 3MM212R
3 4800 Indoor/outdoor 1MM312R 3MM312R
4 800 Indoor/outdoor 1MM412R 3MM412R
5 800 Indoor/outdoor 1MM512R 3MM512R
6 800 Indoor/outdoor 1MM612R 3MM612R
200 52 800 Outdoor Bolt-on type
CCV2_X
CCVH2_X
CVS2_XMM
CV2_XMM
CVH2_XMM
Use three-phase 3MM220R
3 800 Outdoor 1MM320R 3MM320R
4 800 Outdoor 1MM420R 3MM420R
5 800 Outdoor 1MM520R 63MM520R 5
Ringless Style Meter Socket Covers
125 2 800 Outdoor Plug-on type
BR2_
BRH2_
BRHH2_
Use three-phase 3MM212RRL
3 800 Outdoor 1MM312RRL 3MM312RRL
4 800 Outdoor 1MM412RRL 3MM412RRL
5 800 Outdoor 1MM512RRL 3MM512RRL
6 800 Outdoor 1MM612RRL 3MM612RRL
200 2 800 Outdoor Bolt-on type
CCV2_X
CCVH2_X
CVS2_XMM
CV2_XMM
CVH2_XMM
Use three-phase 3MM220RRL
3 800 Outdoor 1MM320RRL 3MM320RRL
4 800 Outdoor 1MM420RRL 3MM420RRL
5 800 Outdoor 1MM520RRL 63MM520RRL 5
Ringless Style Covers with Horn Bypass
125 2 800 Outdoor Plug-on type
BR2_
BRH2_
BRHH2_
Use three-phase 3MM212RRLB
3 800 Outdoor 1MM312RRLB 3MM312RRLB
4 800 Outdoor 1MM412RRLB 3MM412RRLB
5 800 Outdoor 1MM512RRLB 3MM512RRLB
6 800 Outdoor 1MM612RRLB 3MM612RRLB
200 2 800 Outdoor Bolt-on type
CCV2_X
CCVH2_X
CVS2_XMM
CV2_XMM
CVH2_XMM
Use three-phase 3MM220RRLB
3 800 Outdoor 1MM320RRLB 3MM320RRLB
4 800 Outdoor 1MM420RRLB 3MM420RRLB
5 800 Outdoor 1MM520RRLB 63MM520RRLB 5
1MM and 3MM
Metering Stack
Modules

Volume 1—Residential and Light Commercial CA08100002E—February 2014 www.eaton.com V1-T5-119
5
5
5
5
5
5
5
5
5
5
5
5
5
5
5
5
5
5
5
5
5
5
5
5
5
5
5
5
5
5
5.10
Metering Products
Group Metering
800A Horizontal Copper Bus—Premium Offering
Notes
1 For indoor applications where a top endwall with knockouts is needed, order (1) of part number MM12N1WLK for each 125A stack
or MM20N1WLK for each 200A stack.
2 1MM units do not come with 5th jaw.
3 To change in field from ring to ringless—order 1MMRC125.
4 To change in field from ring to ringless, the top socket in 125A, two- and three-high stacks use 1MMRC125T. Top socket only—other sockets see 3.
5 To change in field from ring to ringless—order 1MMRC200.
6 Check with local utility for height requirements or restrictions.
Single-Phase In,
Single-Phase Out
Three-Phase In,
Single-Phase Out
Amperes
Per
Meter
Socket
Number of
Meter
Sockets
Bus
Ampacity
Enclosure
Type 1
Main Tenant Breaker Type
(For Specific Catalog Numbers,
Refer to Page V1-T5-125)
Single-Phase Horizontal Bus
(Three Horizontal Busbars—
A, B, C and Neutral) 2
Three-Phase Horizontal Bus
(Four Horizontal Busbars—
A, B, C and Neutral)
Catalog Number Catalog Number
Ring Style Meter Socket Covers
125 32 4800 Outdoor Plug-on type
BR2_
BRH2_
BRHH2_
Use three-phase 3MM212RC
3 4800 Outdoor 1MM312RC 3MM312RC
4 800 Outdoor 1MM412RC 3MM412RC
5 800 Outdoor 1MM512RC 3MM512RC
6 800 Outdoor 1MM612RC 3MM612RC
200 52 800 Outdoor Bolt-on type
CCV2_X
CCVH2_X
CVS2_XMM
CV2_XMM
CVH2_XMM
Use three-phase 3MM220RC
3 800 Outdoor 1MM320RC 3MM320RC
4 800 Outdoor 1MM420RC 3MM420RC
5 800 Outdoor 1MM520RC 63MM520RC 5
Ringless Style Meter Socket Covers
125 2 800 Outdoor Plug-on type
BR2_
BRH2_
BRHH2_
Use three-phase 3MM212RRLC
3 800 Outdoor 1MM312RRLC 3MM312RRLC
4 800 Outdoor 1MM412RRLC 3MM412RRLC
5 800 Outdoor 1MM512RRLC 3MM512RRLC
6 800 Outdoor 1MM612RRLC 3MM612RRLC
200 2 800 Outdoor Bolt-on type
CCV2_X
CCVH2_X
CVS2_XMM
CV2_XMM
CVH2_XMM
Use three-phase 3MM220RRLC
3 800 Outdoor 1MM320RRLC 3MM320RRLC
4 800 Outdoor 1MM420RRLC 3MM420RRLC
5 800 Outdoor 1MM520RRLC 63MM520RRLC 5
Ringless Style Covers with Horn Bypass
125 2 800 Outdoor Plug-on type
BR2_
BRH2_
BRHH2_
Use three-phase 3MM212RRLBC
3 800 Outdoor 1MM312RRLBC 3MM312RRLBC
4 800 Outdoor 1MM412RRLBC 3MM412RRLBC
5 800 Outdoor 1MM512RRLBC 3MM512RRLBC
6 800 Outdoor 1MM612RRLBC 3MM612RRLBC
200 2 800 Outdoor Bolt-on type
CCV2_X
CCVH2_X
CVS2_XMM
CV2_XMM
CVH2_XMM
Use three-phase 3MM220RRLBC
3 800 Outdoor 1MM320RRLBC 3MM320RRLBC
4 800 Outdoor 1MM420RRLBC 3MM420RRLBC
5 800 Outdoor 1MM520RRLBC 63MM520RRLBC 5
1MM and 3MM
Metering Stack
Modules

V1-T5-120 Volume 1—Residential and Light Commercial CA08100002E—February 2014 www.eaton.com
5
5
5
5
5
5
5
5
5
5
5
5
5
5
5
5
5
5
5
5
5
5
5
5
5
5
5
5
5
5
5.10
Metering Products
Group Metering
1200A Horizontal Aluminum Bus—Standard Offering
Notes
1 For indoor applications where a top endwall with knockouts is needed, order (one) of part number MM12N1WLK for each 125A stack or
MM20N1WLK for each 200A stack.
2 To change in field from ring to ringless—order 1MMRC125.
3 To change in field from ring to ringless, the top socket in 125A, two- and three-high stacks use 1MMRC125T. Top socket only—other sockets see 2.
4 To change in field from ring to ringless—order 1MMRC200.
Three-Phase In, Single-Phase Out
Amperes
Per
Meter
Socket
Number of
Meter
Sockets
Bus
Ampacity
Enclosure
Typ e 1
Main Tenant Breaker Type
(For Specific Catalog Numbers,
Refer to Page V1-T5-116)
Three-Phase Horizontal Bus
(Four Horizontal Busbars—
A, B, C and Neutral)
Catalog Number
Ring Style Meter Socket Covers
125 22 31200 Indoor/outdoor Plug-on type
BR2_
BRH2_
BRHH2_
3MM212R12
3 31200 Indoor/outdoor 3MM312R12
4 1200 Indoor/outdoor 3MM412R12
5 1200 Indoor/outdoor 3MM512R12
6 1200 Indoor/outdoor 3MM612R12
200 42 1200 Outdoor Bolt-on type
CCV2_X
CCVH2_X
CVS2_XMM
CV2_XMM
CVH2_XMM
3MM220R12
3 1200 Outdoor 3MM320R12
4 1200 Outdoor 3MM420R12
5 1200 Indoor/outdoor 3MM520R12
Ringless Style Meter Socket Covers (5th Jaw at 9 o’Clock Standard—Field Adjustable to 3 or 6 o’Clock)
125 2 1200 Outdoor Plug-on type
BR2_
BRH2_
BRHH2_
3MM212R12RL
3 1200 Outdoor 3MM312R12RL
4 1200 Outdoor 3MM412R12RL
5 1200 Outdoor 3MM512R12RL
6 1200 Outdoor 3MM612R12RL
200 2 1200 Outdoor Bolt-on type
CCV2_X
CCVH2_X
CVS2_XMM
CV2_XMM
CVH2_XMM
3MM220R12RL
3 1200 Outdoor 3MM320R12RL
4 1200 Outdoor 3MM420R12RL
5 1200 Outdoor 3MM520R12RL
Ringless Style Covers with Horn Bypass (5th Jaw at 9 o’Clock Standard—Field Adjustable to 3 or 6 o’Clock)
125 2 1200 Outdoor Plug-on type
BR2_
BRH2_
BRHH2_
3MM212R12RLB
3 1200 Outdoor 3MM312R12RLB
4 1200 Outdoor 3MM412R12RLB
5 1200 Outdoor 3MM512R12RLB
6 1200 Outdoor 3MM612R12RLB
200 2 1200 Outdoor Bolt-on type
CCV2_X
CCVH2_X
CVS2_XMM
CV2_XMM
CVH2_XMM
3MM220R12RLB
3 1200 Outdoor 3MM320R12RLB
4 1200 Outdoor 3MM420R12RLB
5 1200 Outdoor 3MM520R12RLB
1MM and 3MM
Metering Stack
Modules

Volume 1—Residential and Light Commercial CA08100002E—February 2014 www.eaton.com V1-T5-121
5
5
5
5
5
5
5
5
5
5
5
5
5
5
5
5
5
5
5
5
5
5
5
5
5
5
5
5
5
5
5.10
Metering Products
Group Metering
1200A Horizontal Copper Bus—Premium Offering
Technical Data and Specifications
Wire Sizes—Neutral and Ground Lugs
●Each stack includes a neutral and ground bar
●If an extra ground bar is needed, order 1MMGBK
Wire Sizes—Neutral and Ground Lugs
Notes
1For indoor applications where a top endwall with knockouts is needed, order (one) of
part number MM12N1WLK for each 125A stack
or MM20N1WLK for each 200A stack.
2To change in field from ring to ringless—order 1MMRC125.
3To change in field from ring to ringless, the top socket in 125A, two- and three-high
stacks use 1MMRC125T. Top socket only—other sockets see 2.
4To change in field from ring to ringless—order 1MMRC200.
Three-Phase In, Single-Phase Out
Amperes
Per
Meter
Socket
Number of
Meter
Sockets
Bus
Ampacity
Enclosure
Typ e 1
Main Tenant Breaker Type
(For Specific Catalog Numbers,
Refer to Page V1-T5-116)
Three-Phase Horizontal Bus
(Four Horizontal Busbars—
A, B, C and Neutral)
Catalog Number
Ring Style Meter Socket Covers
125 22 31200 Indoor/outdoor Plug-on type
BR2_
BRH2_
BRHH2_
3MM212R12C
3 31200 Indoor/outdoor 3MM312R12C
4 1200 Indoor/outdoor 3MM412R12C
5 1200 Indoor/outdoor 3MM512R12C
6 1200 Indoor/outdoor 3MM612R12C
200 42 1200 Outdoor Bolt-on type
CCV2_X
CCVH2_X
CVS2_XMM
CV2_XMM
CVH2_XMM
3MM220R12C
3 1200 Outdoor 3MM320R12C
4 1200 Outdoor 3MM420R12C
5 1200 Outdoor 3MM520R12C
Ringless Style Meter Socket Covers (5th Jaw at 9 o’Clock Standard—Field Adjustable to 3 or 6 o’Clock)
125 2 1200 Outdoor Plug-on type
BR2_
BRH2_
BRHH2_
3MM212R12RLC
3 1200 Outdoor 3MM312R12RLC
4 1200 Outdoor 3MM412R12RLC
5 1200 Outdoor 3MM512R12RLC
6 1200 Outdoor 3MM612R12RLC
200 2 1200 Outdoor Bolt-on type
CCV2_X
CCVH2_X
CVS2_XMM
CV2_XMM
CVH2_XMM
3MM220R12RLC
3 1200 Outdoor 3MM320R12RLC
4 1200 Outdoor 3MM420R12RLC
5 1200 Outdoor 3MM520R12RLC
Ringless Style Covers with Horn Bypass (5th Jaw at 9 o’Clock Standard—Field Adjustable to 3 or 6 o’Clock)
125 2 1200 Outdoor Plug-on type
BR2_
BRH2_
BRHH2_
3MM212R12RLBC
3 1200 Outdoor 3MM312R12RLBC
4 1200 Outdoor 3MM412R12RLBC
5 1200 Outdoor 3MM512R12RLBC
6 1200 Outdoor 3MM612R12RLBC
200 2 1200 Outdoor Bolt-on type
CCV2_X
CCVH2_X
CVS2_XMM
CV2_XMM
CVH2_XMM
3MM220R12RLBC
3 1200 Outdoor 3MM320R12RLBC
4 1200 Outdoor 3MM420R12RLBC
5 1200 Outdoor 3MM520R12RLBC
Lugs in Meter
Socket Modules
Wire Size,
Al/Cu
Branch neutral—125A socket module #6–2/0 kcmil
Branch neutral—200A socket module #1/0–300 kcmil
Equipment ground bar—125A socket module #14–#2 kcmil
Equipment ground bar—200A socket module #14–2/0 kcmil
Optional ground bar (1MMGBK) #6–2/0 kcmil
1MM and 3MM
Metering Stack
Modules

V1-T5-122 Volume 1—Residential and Light Commercial CA08100002E—February 2014 www.eaton.com
5
5
5
5
5
5
5
5
5
5
5
5
5
5
5
5
5
5
5
5
5
5
5
5
5
5
5
5
5
5
5.10
Metering Products
Group Metering
Dimensions
Approximate Dimensions in Inches (mm)
Modular Metering Stacks—Aluminum and Copper
1MM, 3MM, 125 Amperes
Note: Dimensions Apply to 800 and 1200 Ampere Horizontal Bus.
This Bus
Omitted
On 1 —
PH Units
41.80
(1061.7)
9.00
(228.6)
9.00
(228.6)
12.61
(320.2)
3.07
(78.0)
(6) KO for
1, 1-2/4 1-1/2
Conduit
A
7. 0 1
(178.0)
34.25
(870.0)
To of Wall Mtg. Screw
C
L
21.65
(550.0)
C Meter to C Rail Mounting Screw
LL
2.00
(50.8) TYP.
2, 3 Meter Device 4 Meter Device
30.0
(777.2) To C of Main Busbar
L48.50
(1231.9)
12.60
(320.3)
9.00
(228.6)
9.00
(228.6)
9.00
(228.6)
30.60
(777.2)
To C of Main Busbar
L
57.50
(1460.5)
9.00
(228.6)
9.00
(228.6)
9.00
(228.6)
12.60
(320.0)
To C of Main Busbar
L
30.60
(777.2)
5 Meter Device 6 Meter Device
12.60
(320.0)
9.00
(228.6)
9.00
(228.6)
9.00
(228.6)
9.00
(228.6)
9.00
(228.6)
66.50
(1689.1)
A
30.60
(777.2)
To C of Main Busbar
L
Top End & Bottom End View for NEMA 1;
Bottom End View for NEMA 3R
Tangential K.O.'s
3/4, 1, 1-1/4, 1-1/2
"Z" = C OF 1-1/2" Ring
"Y" = C OF 1-1/4" Ring
"X" = C OF 3/4" & 1" Ring
L
L
L
0.125
(3.2)
12.13
(308.1)
2.83
(71.9)
2.83
(71.9)
2.83
(71.9)
2.33
(59.1)
6.62
(168.1)
2.83
(71.9)
6.06
(153.9)
2.83
(71.9)
2.83
(71.9)
12.26
(311.4)
12.26
(311.4)
12.26
(311.4)
12.26
(311.4)
"X""Y"
"Z"

Volume 1—Residential and Light Commercial CA08100002E—February 2014 www.eaton.com V1-T5-123
5
5
5
5
5
5
5
5
5
5
5
5
5
5
5
5
5
5
5
5
5
5
5
5
5
5
5
5
5
5
5.10
Metering Products
Group Metering
Approximate Dimensions in Inches (mm)
Modular Metering Stacks—Aluminum and Copper
1MM, 3MM, 200 Amperes
Note: Dimensions Apply to 800 and 1200 Ampere Horizontal Bus.
4 Meter Device
2, 3 Meter Device
34.25
(870.0)
To C of Wall Rail Mtg. Screw
L
15.82
(401.8)
C Meter to C Rail Mtg. Screw
LL
7. 0 1
(178.1)
(4) KO For
1, 1-1/4, 1-1/2, 2
Conduit
This Bus Omitted on
1-PH Devices
52.35
(1329.7)
12.12
(307.8)
12.12
(307.8)
18.42
(467.9)
30.55
(776.0)
To C of Main Busbar
L
18.42
(467.9)
12.12
(307.8)
12.12
(307.8)
12.12
(307.8)
64.50
(1638.3)
Circuit
Breaker
Covers
Omitted
On NEMA
1 Devices
13.50
(342.9)
1.70
(43.2) TYP.
30.55
(776.0)
To C of Main Busbar
L
1.75
(44.5)
TYP.
Bottom View
3.29
(83.6)
0.12
(3.0)
6.59
(167.4)
13.36
(339.3)
3.29
(83.6)
3.29
(83.6)
3.38
(85.9)
1.75
(44.5)
6.62
(168.1)
(6) Cocentric K.O.'s
1", 1-1/4", 1-1/2", 2"
1.76
(44.7)
3.00
(76.2)

V1-T5-124 Volume 1—Residential and Light Commercial CA08100002E—February 2014 www.eaton.com
5
5
5
5
5
5
5
5
5
5
5
5
5
5
5
5
5
5
5
5
5
5
5
5
5
5
5
5
5
5
5.10
Metering Products
Group Metering
Approximate Dimensions in Inches (mm)
5-High, 200 Amperes, 1MM and 3MM Metering
Note: The Bussed meter stack device shown on the far right of the figure, must be used on Mains with Busway connections, found on Pages V1-T5-109 and V1-T5-113. Please contact factory for
catalog numbers associated with Bussed meter stack devices.
L
33.27
(845.1)
Typ.
to
C
of Wall
Mtg.
Screw
13.50
(342.9)
1.70
(43.2)
0.45
(11.4)
Typ. Residential
Device
6.87
(174.5)
Typ.
16.76
(425.7)
28.88 to
C of Main
Busbar
12.13
(308.1)
12.13
(308.1)
74.96
(1904.0)
12.13
(308.1)
12.13
(308.1)
1.75 (44.5)
3.21
(81.5)
3.21
(81.5)
1.61
(40.9)
(5) Concentric
K.O.'s
1", 1-1/4",
1-1/2", 2"
1.87
(47.5)
2.74
(69.6)
3.85
(97.8)
3.21
(81.5)
L
Bottom View
3.29
(83.6)
0.12
(3.0)
6.59
(167.4)
13.36
(339.3)
3.29
(83.6)
3.29
(83.6)
3.38
(85.9)
1.75
(44.5)
6.62
(168.1)
(6) Cocentric K.O.'s
1", 1-1/4", 1-1/2", 2"
1.76
(44.7)
3.00
(76.2)

Volume 1—Residential and Light Commercial CA08100002E—February 2014 www.eaton.com V1-T5-125
5
5
5
5
5
5
5
5
5
5
5
5
5
5
5
5
5
5
5
5
5
5
5
5
5
5
5
5
5
5
5.10
Metering Products
Group Metering
CV2200
1MM and 3MM Metering Circuit Breakers
Contents
Description Page
Systems for Residential and Commercial
Applications . . . . . . . . . . . . . . . . . . . . . . . . . . . . V1-T5-88
Meter Packs . . . . . . . . . . . . . . . . . . . . . . . . . . . . . V1-T5-90
Type CCV 120/240V Tenant Main Circuit Breaker . V1-T5-95
Type CV 120/240V Tenant Main Circuit Breaker . . V1-T5-96
Meter Packs—1MP, 1MM and 3MM Main
Tenant Circuit Breakers . . . . . . . . . . . . . . . . . . . . V1-T5-98
Main Service Modules . . . . . . . . . . . . . . . . . . . . . V1-T5-101
Surge Metering . . . . . . . . . . . . . . . . . . . . . . . . . . . V1-T5-115
Residential Meter Stacks. . . . . . . . . . . . . . . . . . . . V1-T5-116
1MP, 1MM and 3MM Main Tenant
Circuit Breakers
Phase Balanced Stack . . . . . . . . . . . . . . . . . . . . . . V1-T5-126
Commercial Meter Stack Modules . . . . . . . . . . . . V1-T5-127
35MM, 37MM, 35SS and 37SS
Main Tenant Circuit Breakers . . . . . . . . . . . . . . . V1-T5-134
1MP, 1MM and 3MM Main Tenant Circuit Breakers
Product Description
Specific main tenant circuit
breakers that are to be
used in meter packs (1MP),
residential meter stacks
(1MM) and three-phase in
single-phase out meter
stacks (3MM).
Product Selection
Notes
1#2–300 kcmil wire size range for CCV and CCVH tenant main circuit breakers.
2“MM” suffix indicates mounting hardware kit is included as standard with tenant main breaker.
31MMCBK replacement mounting hardware kit. One kit is needed per breaker. Mounting hardware kit ships standard with breaker “MM” suffix offering.
4#6–4/0 kcmil wire size range for CVS, CV and CVH tenant main circuit breakers. If #2–300 kcmil is needed, order 2TA225CVK. One kit needed per breaker.
Description
Number
of Poles
Main Tenant
Circuit Breaker
Ampere Rating
10 kAIC 22 kAIC 25 kAIC 42 kAIC 65 kAIC 100 kAIC
Catalog
Number 1
Catalog
Number
Catalog
Number 1234
Catalog
Number 234
Catalog
Number 234
Catalog
Number 234
Plug-On Type
Plug-on type circuit breakers used
with 1MP, 1MM, and 3MM 125A
modular metering stacks
260BR260 BRH260 — BRHH260 — —
270BR270 BRH270 — BRHH270 — —
280BR280 BRH280 — BRHH280 — —
290BR290 BRH290 — BRHH290 — —
2 100 BR2100 BRH2100 — BRHH2100 — —
2 110 BR2110 BRH2110 — BRHH2110 — —
2 125 BR2125 BRH2125 — BRHH2125 — —
Bolt-On Type
Bolt-on type circuit breakers used with
1MP, 1MM, and 3MM 200A modular
metering stacks
260— — CVS2060XMM CVS2060XMM CV2060XMM CVH2060XMM
270— — CVS2070XMM CVS2070XMM CV2070XMM CVH2070XMM
280— — CVS2080XMM CVS2080XMM CV2080XMM CVH2080XMM
290— — CVS2090XMM CVS2090XMM CV2090XMM CVH2090XMM
2 100 CCV2100X — CCVH2100X CVS2100XMM CV2100XMM CVH2100XMM
2 125 CCV2125X — CCVH2125X CVS2125XMM CV2125XMM CVH2125XMM
2 150 CCV2150X — CCVH2150X CVS2150XMM CV2150XMM CVH2150XMM
2 175 CCV2175X — CCVH2175X CVS2175XMM CV2175XMM CVH2175XMM
2 200 CCV2200X — CCVH2200X CVS2200XMM CV2200XMM CVH2200XMM

V1-T5-126 Volume 1—Residential and Light Commercial CA08100002E—February 2014 www.eaton.com
5
5
5
5
5
5
5
5
5
5
5
5
5
5
5
5
5
5
5
5
5
5
5
5
5
5
5
5
5
5
5.10
Metering Products
Group Metering
Contents
Description Page
Systems for Residential and Commercial
Applications . . . . . . . . . . . . . . . . . . . . . . . . . . . . V1-T5-88
Meter Packs . . . . . . . . . . . . . . . . . . . . . . . . . . . . . V1-T5-90
Type CCV 120/240V Tenant Main Circuit Breaker . V1-T5-95
Type CV 120/240V Tenant Main Circuit Breaker . . V1-T5-96
Meter Packs—1MP, 1MM and 3MM Main
Tenant Circuit Breakers . . . . . . . . . . . . . . . . . . . V1-T5-98
Main Service Modules . . . . . . . . . . . . . . . . . . . . . V1-T5-101
Surge Metering. . . . . . . . . . . . . . . . . . . . . . . . . . . V1-T5-115
Residential Meter Stacks . . . . . . . . . . . . . . . . . . . V1-T5-116
1MP, 1MM and 3MM Main Tenant
Circuit Breakers . . . . . . . . . . . . . . . . . . . . . . . . . V1-T5-125
Phase Balanced Stack
Commercial Meter Stack Modules . . . . . . . . . . . . V1-T5-127
35MM, 37MM, 35SS and 37SS
Main Tenant Circuit Breakers . . . . . . . . . . . . . . . V1-T5-134
Phase Balanced Stack
Product Description
Eaton’s Phase Balanced
Stack allows for a complete
phase balanced metering line-
up using fewer stacks. With
today’s electrical rooms
becoming smaller, the need
is greater than ever to offer
space-saving metering
products while providing a
fully phase balanced system.
The new phase balanced
stack is the answer.
Today, achieving a phase
balanced system when
connected to a 208Y/120 Vac
three-phase, four-wire
system may require one or
two additional 3MM meter
modules. Standard 3MM
meter stacks come factory
connected to phases A and B.
The new phase balanced
stacks connect the two
bottom meters to phases
B and C and the top two or
three meters to phases
A and C. Using these new
stacks with the AB phased
3MM metering, phase
balancing is accomplished,
and more compact than
before.
Features
●Available in four- and
five-high configurations
at 125A
●200A stacks available
●Available with 800A
aluminum bus and
1200A copper bus
●Ring, ringless, ringless
with horn bypass available
●Outdoor enclosure
●Dimensions same as
existing 125A, three-phase
meter stacks
Product Selection
Ordering Information
●Check with local utility
for height restrictions
●Items loaded in VISTA
●If you have questions,
please contact the
Technical Resource Center
1-800-356-1243, option 3
Phase Balanced Stack
Note: Local codes and utility requirements still apply. The phase balance stacks are not
suitable for changing in the field.
Amperes Per
Meter Socket Bus Ampacity Meter Socket Cover Catalog Number
125 800 Ring 3MM412RACBC
125 800 Ring 3MM512RACBC
125 800 Ringless 3MM412RRLACBC
125 800 Ringless 3MM512RRLACBC
125 800 Ringless horn bypass 3MM412RRLBACBC
125 800 Ringless horn bypass 3MM512RRLBACBC
125 1200 Ring 3MM412R2ACBC
125 1200 Ring 3MM512R2ACBC
125 1200 Ringless 3MM412R2RLACBC
125 1200 Ringless 3MM512R2RLACBC
125 1200 Ringless horn bypass 3MM412R2RLBACBC
125 1200 Ringless horn bypass 3MM512R2RLBACBC

Volume 1—Residential and Light Commercial CA08100002E—February 2014 www.eaton.com V1-T5-127
5
5
5
5
5
5
5
5
5
5
5
5
5
5
5
5
5
5
5
5
5
5
5
5
5
5
5
5
5
5
5.10
Metering Products
Group Metering
35MM, 37MM, 35SS and 37SS
Commercial Meter Stack Modules (35MM, 37MM, 35SS and 37SS)
Contents
Description Page
Systems for Residential and Commercial
Applications . . . . . . . . . . . . . . . . . . . . . . . . . . . . V1-T5-88
Meter Packs . . . . . . . . . . . . . . . . . . . . . . . . . . . . . V1-T5-90
Type CCV 120/240V Tenant Main Circuit Breaker . V1-T5-95
Type CV 120/240V Tenant Main Circuit Breaker . . V1-T5-96
Meter Packs—1MP, 1MM and 3MM Main
Tenant Circuit Breakers . . . . . . . . . . . . . . . . . . . . V1-T5-98
Main Service Modules . . . . . . . . . . . . . . . . . . . . . V1-T5-101
Surge Metering . . . . . . . . . . . . . . . . . . . . . . . . . . . V1-T5-115
Residential Meter Stacks. . . . . . . . . . . . . . . . . . . . V1-T5-116
1MP, 1MM and 3MM Main Tenant
Circuit Breakers. . . . . . . . . . . . . . . . . . . . . . . . . . V1-T5-125
Phase Balanced Stack . . . . . . . . . . . . . . . . . . . . . . V1-T5-126
Commercial Meter Stack Modules
35MM, 37MM, 35SS and 37SS
Main Tenant Circuit Breakers . . . . . . . . . . . . . . . V1-T5-134
Commercial Meter Stack Modules
Product Description
●Heavy-duty lever bypass
socket design
●Single-phase or three-
phase designs (35 = single-
phase, 37 = three-phase)
●Provision for two-pole or
three-pole main tenant
breakers
●Phase balance kits are
included with three-high
and four-high modules
Features, Benefits
and Functions
A. End Walls
The top cap is removable and
does not contain knockouts,
so contractors can position
and punch holes where they
need them. There are
numerous KOs in the back
and bottom for flexibility.
B. Ground Bars
The factory-installed
equipment ground bars are
provided in both the top and
bottom gutters.
C. Meter Socket
The 5-jaw meter socket and
7-jaw meter socket includes a
built-in manual bypass and jaw
release. The ground wire is
factory connected in both
35MM and 37MM modules.
D. Separate Wireway Cover
If work on the breakers or
cables is necessary, it can
be accomplished without
disturbing the meters or
meter covers, thanks to a
separate cover that allows
easy access to the module’s
main tenant breaker and
wireway section.
(Not shown.)
E. Barrier
A solid metal barrier
separates the meter socket
section from the tenant
breaker in the wireway
section. The unmetered
vertical bus is enclosed to
guard against power theft.
F. Neutral Assembly
Located in the wireway of
each module, the assembly
permits convenient
termination of the neutral
conductors.
G. Enclosed Horizontal Bus
Non-removable metal barrier
encloses 1200A horizontal
bus when passing through
the tenant breaker section
for added security.
H. Tenant Breaker Range
All modules accept 15–225A
bolt-on breakers in various
AIC ratings. The CHH_X
breaker carries a UL listed
series rating of 100,000A,
which allows you to use
standard 10 kAIC breakers in
downstream loadcenters and
panelboards by Eaton.
I. Indoor/Outdoor Construction
Raintight caps, meter covers
and lockable raintight tenant
breaker covers make it
convenient for you to use
any of our modules on either
NEMA 1 or NEMA 3R
applications.
J. Mounting Rail
Rear mounting rail and wall
hanger speed and simplify
installation. (Mounting rail
not shown.)
K. Nameplate and Ratings
The nameplate gives you full
rating data: 208Y/120, three-
phase, four-wire; 240/120,
three-phase, four-wire delta
(high leg on B-phase); and
240/120 single-phase.
(Not shown.)
L. Mains and Modules
Slip together quickly,
smoothly with front-
accessible captive bolts
securing the juncture without
removing socket interiors or
bus access plate. Main bus
joint bolts torque to 25 foot
pounds.

V1-T5-128 Volume 1—Residential and Light Commercial CA08100002E—February 2014 www.eaton.com
5
5
5
5
5
5
5
5
5
5
5
5
5
5
5
5
5
5
5
5
5
5
5
5
5
5
5
5
5
5
5.10
Metering Products
Group Metering
37MM Meter Stack Module ●Eaton’s 35MM and 37MM
modular metering stacks
contain meter sockets with
built-in manual
bypass and
jaw release (Non-EUSERC
areas)
●Eaton’s 35SS and 37SS
stacks use meter sockets
with test bypass feature
(meets EUSERC electrical
requirements)
●All commercial modular
metering stacks contain
four horizontal cross buses
●Mechanically and
electrically built to bolt-up
with main service modules
and residential modular
metering stacks
Catalog Number Selection
Commercial Meter Stack Modules
When Ordering:
1. Determine catalog number of Main Service Module.
2. Determine catalog number of Meter Stack (Residential or Commercial).
3. Find quantity and catalog numbers for tenant circuit breakers (found on Page V1-T5-134). Order one breaker per socket.
4. If any accessories are needed, order from Pages V1-T5-136 and V1-T5-137.
L
B
G
F
E
H
C
I
A
Phases
Three-phase only
Number of Jaws
5 or 7
Socket Amperage
20 = 200A
40 = 400A
Number of Meters
1, 2, 3 or 4
Socket Type
K = K Base bolt-on socket
Blank = Plug-in type socket
Type of Metering
MM = Commercial metering module
SS = Safety socket—EUSERC
Bus
12 = 1200A main bus ampacity
AB = Phases A&B—EUSERC
AC = Phases A&C—EUSERC
BC = Phases B&C—EUSERC
Enclosure
R = NEMA 3R
Tenant Breakers
40 = 400A included
Blank = Ordered separately
Bus
C = Copper
Blank = Aluminum
3 7 MM 1 40 R 12 40 K C

Volume 1—Residential and Light Commercial CA08100002E—February 2014 www.eaton.com V1-T5-129
5
5
5
5
5
5
5
5
5
5
5
5
5
5
5
5
5
5
5
5
5
5
5
5
5
5
5
5
5
5
5.10
Metering Products
Group Metering
Product Selection
35MM
●Each socket is a 5 terminal
block with lever bypass and
jaw release
●Ringless covers
●Provision for two-pole main
tenant breakers (circuit
breakers not included).
For circuit breaker
catalog numbers, refer
to Page V1-T5-134
●Phase balancing kits are
included with three-high
and four-high modules.
Each individual socket can
be phase balanced in the
field to the desired lines
(A-B, B-C or A-C). Comes
from factory as A-B
●Indoor/outdoor
construction
●Main tenant feeders can
exit top, bottom or back
●If being used in outdoor
application and exiting the
top, mount Myer type hubs
on rainproof cap
●Short-circuit ratings up
to 100A rms symmetrical
depending upon the kAIC
rating of installed main
tenant circuit breakers
and main device
●Non-EUSERC areas
35MM—Single-Phase Commercial Meter Stack Modules (Three-Phase In, Single-Phase Out)
Notes
1Retrofit tenant circuit breaker mounting kit (37MMRCBK) for installation of Type EHD and CV breakers. Needed only for stacks manufactured prior to February 2013. Order one kit per breaker.
2Unit is bottom exit only.
3Rated at 100 kAIC.
4Rated at 35 kAIC.
System
Voltage
Ampere Rating
Per Meter Socket
Number
of Meter
Sockets
Horizontal
Bus
Ampacity/
Material
Number of
Jaws Per
Meter Socket
Main Tenant
Breaker Type
(Page V1-T5-134) 1
Catalog
Number
120/240V, single-phase, three-wire systems and
208Y/120V network metering (Not suitable for use
on three-phase, four-wire delta systems)
225 1 1200 Al 5 Bolt-on type
EHD2_
CCV2_X
CCVH2_X
CVS2_XMM
CV2_XMM
CVH2_XMM
35MM120R12
1 1200 Cu 5 35MM120R12C
2 1200 Al 5 35MM220R12
2 1200 Cu 5 35MM220R12C
3 1200 Al 5 35MM320R12
3 1200 Cu 5 35MM320R12C
4 1200 Al 5 35MM420R12
4 1200 Cu 5 35MM420R12C
400 1 1200 Al 5 400A
K-Frame included
35MM140R1240 2
1 1200 Cu 5 35MM140R1240C 2
400 1 1200 Al 5 400A
K-Frame included
35MM140HR1240 3
1 1200 Cu 5 35MM140HR1240C 3
400 2 1200 Al 5 400A
K-Frame included
35MM240R1240
2 1200 Cu 5 35MM240R1240C
400 continuous 1 1200 Cu 5 400A
L-Frame included
35MM140R1240K
400 continuous 1 1200 Cu 5 400A
L-Frame included
35MM140HR1240KC 4

V1-T5-130 Volume 1—Residential and Light Commercial CA08100002E—February 2014 www.eaton.com
5
5
5
5
5
5
5
5
5
5
5
5
5
5
5
5
5
5
5
5
5
5
5
5
5
5
5
5
5
5
5.10
Metering Products
Group Metering
37MM
●Each socket is a 7 terminal
block with lever bypass and
jaw release
●Ringless covers
●Provision for three-pole
main tenant breakers
(circuit breakers not
included). For circuit
breaker catalog numbers,
refer to Page V1-T5-134
●Indoor/outdoor
construction
●Main tenant breakers can
exit top, bottom or back
●If being used in outdoor
application and exiting the
top, mount Myer type hubs
on rainproof cap
●Short-circuit ratings up to
100A rms symmetrical
depending upon the kAIC
rating of installed main
tenant circuit breakers
and main device
●Non-EUSERC areas
37MM—Three-Phase Commercial Meter Stack Modules (Three-Phase In, Three-Phase Out)
Notes
1If a socket in a 37MM meter stack module needs to be single-phase, order 37MM1CK. This will convert the three-phase socket to single-phase.
2Retrofit tenant circuit breaker mounting kit (37MMRCBK) for installation of Type EHD and CV breakers. Needed only for stacks manufactured prior to February 2013. Order one kit per breaker.
3320A continuous rated socket with provisions for two main tenant breakers.
4Unit is bottom exit only.
5Rated at 100 kAIC.
6Rated at 25 kAIC.
7Rated at 35 kAIC.
System
Voltage
Ampere Rating
Per Meter Socket
Number
of Meter
Sockets
Horizontal
Bus
Ampacity/
Material
Number of
Jaws Per
Meter Socket 1
Main Tenant
Breaker Type 2
(Page V1-T5-134)
Catalog
Number
208Y/120V, three-phase, four-wire
240/120V, three-phase, four-wire delta
(B-phase is high leg)
225 1 1200 Al 7 Bolt-on type
EHD3_
CC3_X
CVS3_X
CV3_X
CVH3_X
37MM120R12
1 1200 Cu 7 37MM120R12C
2 1200 Al 7 37MM220R12
2 1200 Cu 7 37MM220R12C
3 1200 Al 7 37MM320R12
3 1200 Cu 7 37MM320R12C
4 1200 Al 7 37MM420R12
4 1200 Cu 7 37MM420R12C
400 1 1200 Al 7 400A
K-Frame included
37MM140R12 3
1 1200 Cu 7 37MM140R12C 3
400 1 1200 Al 7 400A
K-Frame included
37MM140R1240 4
1 1200 Cu 7 37MM140R1240C 4
400 1 1200 Al 7 400A
K-Frame included
37MM140HR1240 5
1 1200 Cu 7 37MM140HR1240C 5
400 2 1200 Al 7 400A
K-Frame included
37MM240R1240
2 1200 Cu 7 37MM240R1240C
400 continuous 1 1200 Cu 7 400A
L-Frame included
37MM140R1240KC 6
400 continuous 1 1200 Cu 7 400A
L-Frame included
37MM140HR1240KC 7

Volume 1—Residential and Light Commercial CA08100002E—February 2014 www.eaton.com V1-T5-131
5
5
5
5
5
5
5
5
5
5
5
5
5
5
5
5
5
5
5
5
5
5
5
5
5
5
5
5
5
5
5.10
Metering Products
Group Metering
35SS
●Sockets include EUSERC
required test-bypass-
disconnect feature
●Ring type covers
●Single-phase units have
provisions for two-pole
main tenant breakers
●When applying 35SS
(single-phase) stacks on
208Y/120V, three-phase,
four-wire and 240/120V,
three-phase, four-wire
delta systems, refer to
suffixes for proper phase
balancing. Each meter
stack module is phase
balanced at the plant
(A-B, B-C or A-C) and
cannot be field modified
●Indoor/outdoor
construction
●Main tenant breakers can
exit top, bottom or back.
If being used in outdoor
application and exiting the
top, mount Myer type hubs
on rainproof cap
●Short-circuit ratings up to
100A rms symmetrical
depending upon the kAIC
rating of installed main
tenant circuit breakers
and main device
35SS—Three-Phase Commercial Meter Stack Modules
37SS
●Sockets include EUSERC
required test-bypass-
disconnect feature
●Ring type covers
●Three-phase units have
provisions for three-pole
main tenant breaker
●Aluminum horizontal bus
supplied as standard
37SS—Three-Phase Commercial Meter Stack Modules
Notes
1Retrofit tenant circuit breaker mounting kit (37MMRCBK) for installation of Type EHD and CV breakers. Needed only for stacks manufactured prior to February 2013. Order one kit per breaker.
2Last two digits of catalog number indicate phase balancing (AB indicates all sockets in this stack are connected to phases A and B only).
System
Voltage
Ampere Rating
Per Meter Socket
Number
of Meter
Sockets
Horizontal
Bus
Ampacity/
Material
Number of
Jaws Per
Meter Socket
Main Tenant
Breaker Type 1
(Page V1-T5-134)
Catalog
Number
120/240V, single-phase,
three-wire systems and
208Y/120V network metering
(Not suitable for use on three-phase,
four-wire delta systems)
225 1 1200 Al 5 Bolt-on type
EHD2_
CCV2_X
CCVH2_X
CVS2_X
CV2_X
CVH2_X
35SS120RAB 2
1200 Cu 5 35SS120RABC 2
1200 Al 5 35SS120RAC 2
1200 Cu 5 35SS120RACC 2
1200 Al 5 35SS120RBC 2
1200 Cu 5 35SS120RBCC 2
2 1200 Al 5 35SS220RAB 2
1200 Cu 5 35SS220RABC 2
1200 Al 5 35SS220RAC 2
1200 Cu 5 35SS220RACC 2
1200 Al 5 35SS220RBC 2
1200 Cu 5 35SS220RBCC 2
3 1200 Al 5 35SS320RAB 2
1200 Cu 5 35SS320RABC 2
1200 Al 5 35SS320RAC 2
1200 Cu 5 35SS320RACC 2
1200 Al 5 35SS320RBC 2
1200 Cu 5 35SS320RBCC 2
35SS_
System
Voltage
Ampere Rating
Per Meter Socket
Number
of Meter
Sockets
Horizontal
Bus
Ampacity/
Material
Number of
Jaws Per
Meter Socket
Main Tenant
Breaker Type 1
(Page V1-T5-134)
Catalog
Number
208Y/120V, three-phase, four-wire
240/120V, three-phase, four-wire delta
(B-phase is high leg)
225 1 1200 Al 7 Bolt-on type
EHD3_
CC3_X
CVS3_X
CV3_X
CVH3_X
37SS120R
1200 Cu 7 37SS120RC
2 1200 Al 7 37SS220R
1200 Cu 7 37SS220RC
3 1200 Al 7 37SS320R
1200 Cu 7 37SS320RC

V1-T5-132 Volume 1—Residential and Light Commercial CA08100002E—February 2014 www.eaton.com
5
5
5
5
5
5
5
5
5
5
5
5
5
5
5
5
5
5
5
5
5
5
5
5
5
5
5
5
5
5
5.10
Metering Products
Group Metering
Approximate Dimensions in Inches (mm)
Commercial Stacks (35MM and 37MM)
35MM and 37MM
19.25
(489.0)
66.63
(1692.3)
25.38
(644.5)
14.00
(355.6)
Typ.
52.63
(1336.7)
52.63
(1336.7)
8.75
(222.3)
35MM140R1240
37MM140R1240
same as below
except eliminate
top socket.
18.25
(463.6)
8.75
(222.3)
18.25
(463.6)
8.75
(222.3)
18.25
(463.6)
8.75
(222.3)

Volume 1—Residential and Light Commercial CA08100002E—February 2014 www.eaton.com V1-T5-133
5
5
5
5
5
5
5
5
5
5
5
5
5
5
5
5
5
5
5
5
5
5
5
5
5
5
5
5
5
5
5.10
Metering Products
Group Metering
Approximate Dimensions in Inches (mm)
Commercial Stacks (35SS and 37SS)
35SS and 37SS
3 KOs 1.50 (38.1),
2.00 (50.8), 2.50 (63.5)
Bottom (Typ.)
13.56
(344.5)
8.75
(222.3)
Inside
Wire Seal Slot and Sealing Screw
Ribbon Seal or Barrel Lock Hasp
21.38
(542.9)
12.00
(304.8)
29.38
(746.1)
25.00
(635.0)
13.50
(342.9)
6.50
(165.1)
KO 1.50 (38.1)
2.00 (50.8),
2.50 (63.5)
9.50
(241.3)
17.75
(450.9)
Centerline
of Wall
Mounting
Screws
47.38
(1203.3)
19.50
(495.3)
21.38
(542.9)
12.00
(304.8)
6.50
(165.1)
31.50
(800.1)
43.00
(1092.2)
9.56
(242.9)
19.50
(495.3)
19.50
(495.3)
68.88
(1749.4)
6.50
(165.1)
62.44
(1585.9)
31.50
(800.1)
0.41 Dia.
(10.3)
4-Holes
9.56
(242.9)
12.00
(304.8)
21.38
(542.9)

V1-T5-134 Volume 1—Residential and Light Commercial CA08100002E—February 2014 www.eaton.com
5
5
5
5
5
5
5
5
5
5
5
5
5
5
5
5
5
5
5
5
5
5
5
5
5
5
5
5
5
5
5.10
Metering Products
Group Metering
CV2200/CV3200
35MM, 37MM, 35SS and 37SS Main Tenant Circuit Breakers
Contents
Description Page
Systems for Residential and Commercial
Applications . . . . . . . . . . . . . . . . . . . . . . . . . . . . V1-T5-88
Meter Packs . . . . . . . . . . . . . . . . . . . . . . . . . . . . . V1-T5-90
Type CCV 120/240V Tenant Main Circuit Breaker . V1-T5-95
Type CV 120/240V Tenant Main Circuit Breaker . . V1-T5-96
Meter Packs—1MP, 1MM and 3MM Main
Tenant Circuit Breakers . . . . . . . . . . . . . . . . . . . V1-T5-98
Main Service Modules . . . . . . . . . . . . . . . . . . . . . V1-T5-101
Surge Metering. . . . . . . . . . . . . . . . . . . . . . . . . . . V1-T5-115
Residential Meter Stacks . . . . . . . . . . . . . . . . . . . V1-T5-116
1MP, 1MM and 3MM Main Tenant
Circuit Breakers . . . . . . . . . . . . . . . . . . . . . . . . . V1-T5-125
Phase Balanced Stack. . . . . . . . . . . . . . . . . . . . . . V1-T5-126
Commercial Meter Stack Modules . . . . . . . . . . . . V1-T5-127
35MM, 37MM, 35SS and 37SS
Main Tenant Circuit Breakers
35MM, 37MM, 35SS
and 37SS Main Tenant
Circuit Breakers
Product Description
●The following breakers
are to be used on 35MM,
37MM, 35SS and 37SS
modular metering stacks
●Series rating information
available on Pages V1-T5-
142 through V1-T5-145
●Two-pole breakers are
120/240 Vac, field installed
●Three-pole breakers are
208Y/120 Vac, field
installed

Volume 1—Residential and Light Commercial CA08100002E—February 2014 www.eaton.com V1-T5-135
5
5
5
5
5
5
5
5
5
5
5
5
5
5
5
5
5
5
5
5
5
5
5
5
5
5
5
5
5
5
5.10
Metering Products
Group Metering
Product Selection
35MM, 37MM, 35SS and 37SS Main Tenant Circuit Breakers
Notes
1#6–4/0 kcmil wire size range for CVS, CV and CVH tenant main circuit breakers. If #2–300 kcmil is needed, order 2TA225CVK (two-pole) 3TA225CVK (three-pole). One kit is needed per breaker.
2“MM” suffix provides mounting hardware needed for 1MP, 1MM and 3MM modular metering stacks only. Mounting hardware is not needed for use in 35MM and 35SS modular metering stacks, but
is included as standard with breakers.
3Retrofit tenant circuit breaker mounting kit (37MMRCBK) for installation of Type EHD and CV breakers. Needed only for stacks manufactured prior to February 2013.
Order one kit per breaker.
4Type EHD main tenant circuit breakers are also available from 15 to 50A.
10 kAIC 25 kAIC 42 kAIC 65 kAIC 100 kAIC
Description
Number
of Poles
Main Tenant
Circuit Breaker
Ampere Rating
Catalog
Number
Catalog
Number 12
Catalog
Number 12
Catalog
Number 12
Catalog
Number 12
Bolt-On Type
Bolt-on type circuit breakers used
with 35MM and 35SS (single-phase
modular metering stacks) 34
260 EHD2060 CVS2060XMM CVS2060XMM CV2060XMM CVH2060XMM
270 EHD2070 CVS2070XMM CVS2070XMM CV2070XMM CVH2070XMM
280 EHD2080 CVS2080XMM CVS2080XMM CV2080XMM CVH2080XMM
290 EHD2090 CVS2090XMM CVS2090XMM CV2090XMM CVH2090XMM
2100 CCV2100X CCVH2100X CVS2100XMM CV2100XMM CVH2100XMM
2125 CCV2125X CCVH2125X CVS2125XMM CV2125XMM CVH2125XMM
2150 CCV2150X CCVH2150X CVS2150XMM CV2150XMM CVH2150XMM
2175 CCV2175X CCVH2175X CVS2175XMM CV2175XMM CVH2175XMM
2200 CCV2200X CCVH2200X CVS2200XMM CV2200XMM CVH2200XMM
2225 CCV2225X CCVH2225X CVS2225XMM CV2225XMM CVH2225XMM
Bolt-On Type
Bolt-on type circuit breakers used
with 37MM and 37SS (three-phase
modular metering stacks) 34
360 EHD3060 CVS3060X CVS3060X CV3060X CVH3060X
370 EHD3070 CVS3070X CVS3070X CV3070X CVH3070X
380 EHD3080 CVS3080X CVS3080X CV3080X CVH3080X
390 EHD3090 CVS3090X CVS3090X CV3090X CVH3090X
3100 CC3100X CVS3100X CVS3100X CV3100X CVH3100X
3125 CC3125X CVS3125X CVS3125X CV3125X CVH3125X
3150 CC3150X CVS3150X CVS3150X CV3150X CVH3150X
3175 CC3175X CVS3175X CVS3175X CV3175X CVH3175X
3200 CC3200X CVS3200X CVS3200X CV3200X CVH3200X
3225 CC3225X CVS3225X CVS3225X CV3225X CVH3225X

V1-T5-136 Volume 1—Residential and Light Commercial CA08100002E—February 2014 www.eaton.com
5
5
5
5
5
5
5
5
5
5
5
5
5
5
5
5
5
5
5
5
5
5
5
5
5
5
5
5
5
5
5.10
Metering Products
Group Metering
Accessories
1MP, 1MM and 3MM Modular Metering Stacks
Notes
1 WCG8HB only applies to meter packs built prior to 1998. Current meter packs use 1MMBPH.
2 Must be used when mounting MCB main next to an MTB main or another MCB main device.
Description Application
Catalog
Number
Fifth jaw kit Bolted onto neutral in the 3, 6 or
9 o’clock position. Typically used on
network metering systems (three-phase
in/single-phase out) or when specified
by utility company.
1MM5JK
Isolated
fifth jaw kit
Connects to the neutral
with an insolated wire.
1MM5JKOP
Manual
bypass kit
(ring style
socket only)
For use with 125A sockets only.
(Not top socket.)
1MMBPM125
For use with 200A sockets only.
(Not top socket.)
1MMBPM200
This kit only to be used for top
position of two- and three-high 125A 1MM
and 3MM stacks and of 2, 5 and
six-position 125A 1MP packs.
1MMBPM125T
This kit only to be used for top position of 200A
two-position 1MP packs.
1MMBPM200T
Horn bypass Used only on ringless cover stacks,
kits can be installed on 125A or
200A sockets.
1MMBPH
Note: For 1MP2122RRL use: WCG8HB 1
Meter bypass
jumper
Installed on 125A or 200A
sockets. Jumpers are plugged into jaws.
Order Lexan® cover plate with
bypass jumpers to prevent access
to meter socket once energized. (Not UL listed.)
1MMBPJ
Lexan blank
cover
Circular cover mounted on ring or
ringless devices preventing access
to meter socket while meter is not in
place. Includes four plastic tabs
that plug into each jaw.
1MMPCP
Same as 1MMPCP minus the tabs
located in the back to plug into jaws.
This device to be used while meter
bypass jumpers are in place (1MMBPJ).
1MMACP
Blank meter
socket cover
Used for 125A stacks. Fits bottom
socket only. Kit replaces existing meter
cover preventing access to meter socket.
Includes hasp for seal.
1MMBC125B
Used on 200A stacks. Fits bottom
socket only. Kit replaces existing meter
cover preventing access to meter socket.
Includes hasp for seal.
1MMBC200B
Wall mounting rail Rails are 4 feet (1.2m) in length.
Bolted on wall for stacks, packs
and mains to be hung.
1MMWB
Bussed spacer Bussed spacer 1200A 4-inch
(101.6 mm). Required when stacks
are mounted on right-hand side in
EUSERC areas. (copper)
3MMBSK 2
Bus duct riser/
meter center
connection
Available in 400, 600, 800A
main fusible units only.
Contact product line for details.
—
Fifth Jaw Kit
Manual Bypass Kit
Horn Bypass Kit
Lexan Blank Cover
Wall Mounting Rail
Bussed Spacer

Volume 1—Residential and Light Commercial CA08100002E—February 2014 www.eaton.com V1-T5-137
5
5
5
5
5
5
5
5
5
5
5
5
5
5
5
5
5
5
5
5
5
5
5
5
5
5
5
5
5
5
5.10
Metering Products
Group Metering
Accessories for 1MP, 1MM and 3MM Modular Metering Stacks, continued
Note
1 Aluminum Snap Type.
Description Application
Catalog
Number
Indoor corner elbow
(copper)
12-inch (304.8 mm) indoor corner
elbow, 1200A, three-phase, four-wire
for use with 1MM and 3MM only.
Do not use with 35MM, 37MM,
35SS or 37SS stacks.
12-inch corner elbow not EUSERC approved.
3MMEB12
Indoor corner elbow
(copper)
16-inch (406.4 mm) indoor corner
elbow, 1200A, three-phase, four-wire
for use with 1MM, 3MM, 35MM,
37MM, 35SS and 37SS.
3MMEB16
Barrier Barrier for individual sockets 1MMBK
Meter jumper
and cover
Combination meter jumper and
cover (200A maximum).
Used to jumper line and load
jaws as well as cover meter
socket preventing exposure to
current carrying parts.
1MMJCK
Lug block 125A two-pole lug block assembly. BRSF125
Sealing ring Stainless steel screw type with brass screw 1MMSR1
Standard (included with packs and stacks) 11MMSR2
Stainless steel screw type with cast zinc screw 1MMSR4
Aluminum screw type with locking provisions 1MMSR5
Top endwall 125A, NEMA 1 top end wall with
knockouts for 1MM, 3MM meter stacks
MM12N1WLK
200A, NEMA 1 top end wall
for 1MM, 3MM meter stacks
MM20N1WLK
Indoor Corner Elbow
Standard Sealing Ring

V1-T5-138 Volume 1—Residential and Light Commercial CA08100002E—February 2014 www.eaton.com
5
5
5
5
5
5
5
5
5
5
5
5
5
5
5
5
5
5
5
5
5
5
5
5
5
5
5
5
5
5
5.10
Metering Products
Group Metering
Renewal Parts
1MP, 1MM and 3MM Replacement Parts
Notes
1 Meter Packs 1MP2122RRL and 1MP2122RRLB use different meter sockets.
See Renewal Parts listing RP.32A.01A.T.E for details.
See RP00501001E for a complete Renewal Parts listing.
Description Application
Catalog
Number
Ringless cover
(can install this to go
from ring to ringless)
Installed on 125A socket
for ringless security
1MMRC125
Installed on 200A socket
for ringless security
1MMRC200
For use with top position of 125A,
two- and three-position,1MM and 3MM stacks
and two-, five- and six-position 1MP packs
1MMRC125T
Top-position two position IMP 1MMRC200T
Ring cover Installed on 125A socket
for ring security
1MMCP1
Installed on 200A socket
for ring security
1MMCP2
Top socket ring cover 125A 1MMCP1T
Top socket ring cover 200A 1MMCP2T
Tenant breaker
hinged cover
125A cover 1MMBC1
200A cover 1MMBC2
Meter socket 1125 and 200A 1MMMS
Busbar end cap Flat—left side 47-24139A
Bump—right side 47-28172-2A
Main circuit breaker
cover kit (black)
49-7060
Ringless Cover
Ring Cover
Tenent Breaker Cover
Meter Socket

Volume 1—Residential and Light Commercial CA08100002E—February 2014 www.eaton.com V1-T5-139
5
5
5
5
5
5
5
5
5
5
5
5
5
5
5
5
5
5
5
5
5
5
5
5
5
5
5
5
5
5
5.10
Metering Products
Group Metering
Accessories for 35MM and 37MM Modular Metering Stacks
Notes
1 For all units made 10/2002 and earlier.
2 For all units made after 11/2002.
Description Application
Catalog
Number
Wall mounting rail Rails are 4 feet (1.2m) in length. Bolted on wall for stacks,
packs and mains to be hung.
1MMWB
Indoor corner elbow (copper) 16-inch (406.4 mm) indoor corner elbow, 1200A, three-phase,
four-wire for use with 1MM, 3MM, 35MM, 37MM, 35SS and 37SS.
3MMEB16
Handle
insulator
Each meter block includes a lever bypass. This kit includes the sleeve
which slides onto the lever handle.
37MMHC
Barrel lock bracket kit Needed when using barrel lock security. 37MMBLK
Totalizing jumper kit Used if one socket is to meter two tenant feeds. When ordering jumper
kit, should also order a plastic cover plate (1MMPCP + IMMJCK) preventing
access to live parts on unused socket.
37MMTJK
Type EHD and CV breaker retrofit mounting kit Retrofit mounting hardware for installation of Type EHD and CV breakers in
35MM, 37SS, 37MM and 37SS meter stacks manufactured prior to February 2013.
Order one kit per breaker.
37MMRCBK
Type CV breaker mounting kit Replacement Type CV breaker mounting hardware kit. Used in 200A
1MP/1MM/3MM modular metering stacks at 42, 65 and 100 kAIC.
1MMCBK
Blank cover kit Kit replaces meter cover preventing access to socket. 37MMCK 1
37MMCKA 2
Barrier Barrier for individual sockets 37MMBK
Three-Phase to single-phase conversion kit This kit will convert one three-phase meter socket (37MM devices) to a
single-phase socket. Only needed if phasing A-C or C-B. If single-phase socket
is to be phased A-B, kit is not required for field conversion.
(Must use three-phase breaker.)
37MM1CK
Bus duct riser/meter center connection Available in 400, 600, 800A
Main fusible units and 400, 600, 800, 1000,
1200 main circuit breaker. Contact product line for details.
—
Anti-inversion clip This clip should be inserted into upper right hand jaw of a 320A meter socket. The
purpose is prevent a 200A meter from being inserted into a 320A meter socket.
37MMINVCLIP
Barrel Lock Bracket Kit
Totalizing Jumper Kit
Type EHD and CV
Breaker Retrofit
Mounting Kit
Three-Phase to
Single-Phase
Conversion Kit
Blank Cover Kit
Type CV Breaker
Mounting Kit

V1-T5-140 Volume 1—Residential and Light Commercial CA08100002E—February 2014 www.eaton.com
5
5
5
5
5
5
5
5
5
5
5
5
5
5
5
5
5
5
5
5
5
5
5
5
5
5
5
5
5
5
5.10
Metering Products
Group Metering
Renewal Parts
35MM and 37MM Modular Metering Stacks
Note
See RP.32A.01.T.E for a complete Renewal Parts listing.
Description Application
Catalog
Number
35MM replacement
meter socket
To replace meter socket
with lever bypass and jaw release.
MSLMSA1
37MM replacement
meter socket
To replace meter socket
with lever bypass and jaw release.
MSLMSA2
35SS replacement
meter socket
To replace meter socket with
test bypass disconnect feature
MSTMSA1
37SS replacement
meter socket
To replace meter socket with
test bypass disconnect feature
MSTMSA2
Safety socket
meter cover assembly
To replace ring type cover over the
meter prior to 7/1/02.
MSTMCVR1
Safety socket
meter cover assembly
To replace ring type cover over the
meter after 7/1/02
MSTMCVR1E
35MM and 37MM
meter cover assembly
Prior to 12/1/02 37MMSK
After 12/1/02 37MMSK1
Meter cover assembly
with NJ latch
To replace ringless cover over the meter.
Includes New Jersey latch requirement.
37MMSKNJ
Tenant breaker hinged cover To replace cover over tenant breakers. 1MMBC2
Busbar end cap Flat—left side 47-24139A
Bump—right side 47-28172-2A
Main circuit breaker cover/CIT (black) 49-7060
35MM Replacement
Meter Socket
37SS Replacement
Meter Socket
Meter Cover Assembly

Volume 1—Residential and Light Commercial CA08100002E—February 2014 www.eaton.com V1-T5-141
5
5
5
5
5
5
5
5
5
5
5
5
5
5
5
5
5
5
5
5
5
5
5
5
5
5
5
5
5
5
5.10
Metering Products
Group Metering
Technical Data and
Specifications
Phase Balancing
All 3MM meter modules
come factory connected
to phase A and B, per
Figure A. When connected to
a 208Y/120 Vac three-phase,
four-wire system, field phase
balancing of two out of every
three stacks is required. One
of every three stacks should
be phased AC, per Figure B,
and one of every three stacks
should be phased CB, per
Figure C.
Examples:
Nine Total Positions—use
(three) three-position stacks
and phase one per Figure B
(A-C phasing) and one per
Figure C (C-B phasing).
16 Total Positions—use
(two) five-position and (two)
three-position stacks. Phase
balance (one) five-position
per Figure B (A-C phasing)
and (one) five-position per
Figure C (C-B phasing).
19 Total Positions—where
four-position maximum
height is allowed by utility.
Use (one) four-position and
(five) three-position stacks.
Phase balance (two) three-
position stacks per Figure B
(A-C phasing) and (two)
three-position stacks per
Figure C (C-B phasing).
“Z” Shaped and “Barrel”
Shaped Phase Connector
"Barrel" Shaped
Phase
Connector
"Z" Shaped
Phase
Connector
Phase Balancing
A
C
B
N
A
C
B
N
A
B
A
C
B
C
N
A
A
C
B
N
A
C
B
B
N
C
A
C
B
N
FACTORY 125 A A-B PHASING
125 A STACKS
FIGURE AFIGURE BFIGURE C
200 A STACKS
FIELD 125 A A-C PHASING
FIELD 125 A C-B PHASING
FACTORY 200 A A-B PHASING
FACTORY 200 A A-C PHASING
A
C
B
N
A
C
B
N
A
B
A
C
B
N
A
C
B
N
FACTORY 200 A C-B PHASING
A
C
B
N
A
C
B
N
CB
A
C
Remove "Z" Phase Jumper from "B" Phase
Horizontal Bus
Reattached at "C" Phase Horizontal Bus as Shown.
Torque to 60 lb-in (6.78 N-M)
Remove "Barrel" Phase Jumper from "A" Phase
Horizontal Bus
Reattached at "C" Phase Horizontal Bus as shown.
Torque to 60 lb-in (6.78 N-M)
Remove "Z" Phase Jumper from "B" Phase
Horizontal Bus
Replace with "Barrel" Phase Jumper from
kit 99-4184
Supplied with Meter Stack and attach to "C" Phase
Bus as shown.
Torque to 60 lb-in (6.78 N-M)
Retain "Z" Phase Jumper for future use.
Remove "Barrel" Phase Jumper from "A" Phase
Horizontal Bus
Reattached at "C" Phase Horizontal Bus as shown.
Torque to 60 lb-in (6.78 N-M)
"Barrel" Shaped
Phase Connector
"Barrel" Shaped
Phase Connector
"Z" Shaped
Phase Connector
"Z" Shaped
Phase Connector
"Z" Shaped
Phase Connector
"Barrel" Shaped
Phase Connector
"Barrel" Shaped
Phase Connector
"Barrel" Shaped
Phase Connector
"Barrel" Shaped
Phase Connector
"Z" Shaped
Phase Connector
"Barrel" Shaped
Phase Connector
"Z" Shaped
Phase Connector

V1-T5-142 Volume 1—Residential and Light Commercial CA08100002E—February 2014 www.eaton.com
5
5
5
5
5
5
5
5
5
5
5
5
5
5
5
5
5
5
5
5
5
5
5
5
5
5
5
5
5
5
5.10
Metering Products
Group Metering
Series Combination
Short-Circuit Ratings
When main tenant breakers
are installed in Eaton’s
modular metering stack
per the table on Page
V1-T5-143, the branch
breakers installed in
downstream panel rated 10
kAIC or greater are protected
to the listed series AIC rating.
Refer to the downstream
panel marking for the proper
series combination short-
circuit ratings.
Replacement or additional
breakers shall be of the same
manufacture and type, and
shall have an interrupting
rating equal to or greater than
the interrupting rating of any
main tenant breaker installed.
Series Combination
Short-Circuit Ratings
Modular
Metering
Stack
Main
Service
Module
Load Side
Breakers
Main
Tenant
Breaker
Downstream Panel
(Type CH or BR)
The Watt-Hour Meter is not
Included in the Short-Circuit
Current Rating (Per UL 67).

Volume 1—Residential and Light Commercial CA08100002E—February 2014 www.eaton.com V1-T5-143
5
5
5
5
5
5
5
5
5
5
5
5
5
5
5
5
5
5
5
5
5
5
5
5
5
5
5
5
5
5
5.10
Metering Products
Group Metering
Series Combination Short-Circuit Ratings—240 Vac
Note
1100,000A rating with 100,000A rated main.
Main Module Overcurrent Device
Breaker Type or Class Fuse
System
AIC Rating
120/240 Vac
Maximum
Meter Module
Tenant Feeder Breaker
Type 1MM, 3MM, 35MM,
37MM, 35SS, 37SS
or Loadcenter Main Breaker
Tenant Feeder
Breaker Short-
Circuit Rating
Loadcenter Branch Breaker
(Single-, Two- or Three-Pole)
None 10,000 None — BD, BR, BRD, BQ, BQC, GFCB, CH, CHT, CH3, CH-GFCI
Without main disconnect.
Cable tap box
Type 1MTB_, 3MTB_
10,000 BR_, CC_, BW_, CCV_ 10,000
22,000 BRH_ 22,000
25,000 CSR_, CHH_H2, CCVH_ 25,000
42,000 BRHH_, CHH_H4, CVS_ 42,000
65,000 CV_, KD_, HKD_ 65,000
100,000 CHH_, CVH_, KDC_ 100,000
Main switch module
Type 1MFS_, 3MFS_
with Class T fuse,
400A maximum
42,000 BRH_ 22,000 CH, CHT, CH3, CH-GFCI
Main switch module
Type 1MFS_, 3MFS_
with Class T fuse,
600A maximum
100,000 BRH_ 22,000 BD, BR, BRD, BQ, BQC, GFCB
Main switch module
Type 1MFS_, 3MFS_
with Class T fuse,
1200A maximum
10,000 BR_, CC_, BW_, CCV_ 10,000 BD, BR, BRD, BQ, BQC, GFCB, CH, CHT, CH3, CH-GFCI
22,000 BRH_ 22,000
25,000 CSR_, CHH_H2, CCVH_ 25,000
42,000 BRHH_, CHH_H4, CVS_ 42,000
65,000 CV_, KD_, HKD_ 65,000
100,000 CHH_, CVH_, KDC_ 100,000
Main switch module
Type 1MFS_, 3MFS_
with Class T fuse,
1200A maximum
100,000 BRHH_ 42,000 BD, BR, BRD, BQ, BQC, GFCB, CH, CHT, CH3, CH-GFCI
Main switch module
Type 1BPS_, 3BPS_
with Class L fuse,
1200–2000A
10,000 BR_, CC_, BW_, CCV_ 10,000 BD, BR, BRD, BQ, BQC, GFCB, CH, CHT, CH3, CH-GFCI
22,000 BRH_ 22,000
25,000 CSR_, CHH_H2, CCVH_ 25,000
42,000 BRHH_, CHH_H4, CVS_ 42,000
65,000 CV_, KD_, HKD_ 65,000
100,000 CHH, CVH_, KDC_ 100,000
Main breaker module
Type 1MCB_, 3MCB_ with
KD, HKD (400A maximum)
LD, HLD (600A maximum)
MDL, HMDL (800A maximum)
ND, NGS, HND, NGH (1200A maximum)
RD, RGH (2000A maximum)
10,000 BR_, CC_, BW_, CCV_ 10,000 BD, BR, BRD, BQ, BQC, GFCB, CH, CHT, CH3, CH-GFCI
22,000 BRH_ 22,000
25,000 CSR_, CHH_H2, CCVH_ 25,000
42,000 BRHH_, CHH_H4, CVS_ 42,000
65,000 CV_, KD_, HKD_ 65,000
100,000 1CHH_, CVH_, KDC_ 100,000

V1-T5-144 Volume 1—Residential and Light Commercial CA08100002E—February 2014 www.eaton.com
5
5
5
5
5
5
5
5
5
5
5
5
5
5
5
5
5
5
5
5
5
5
5
5
5
5
5
5
5
5
5.10
Metering Products
Group Metering
1MP 125A Meter Module
This All-in-One Meter Module is UL listed for the short-circuit
rating at 240 Vac maximum in rms symmetrical amperes per
table below.
1MP 125A Meter Module
When Type BRHH or BRH tenant breakers are installed in this
meter module, then Eaton’s breakers rated 10 kAIC or greater
installed on the load side of this meter module may be protected
for short circuits up to 22 kAIC with Type BRH breakers or
42 kAIC with Type BRHH breakers.
See load side breaker panel marking for proper short-circuit
current rating.
1MP 125A Meter Module
1MP 200A Meter Module
This All-in-One Meter Module is UL listed for the short-circuit
rating at 240 Vac maximum in rms symmetrical amperes per
table below.
1MP 200A Meter Module
When Type CV tenant breakers are installed in this meter
module, then breakers rated 10 kAIC or greater installed on
the load side of this meter module may be protected for short
circuits up to 100 kAIC.
See load side breaker panel marking for proper short-circuit
current rating.
1MP 200A Meter Module
Note: The ratings for both 125 and 200A tenant positions apply to
both Type BR and CH loadcenters and 10 kAIC branch breakers.
Tenant Breaker
Catalog Number
Two-Pole
Maximum
Ampere Rating
UL Listed Series
Short-Circuit
Rating
BRHH_____ 125 42 kAIC
BRH_____ 125 22 kAIC
BR_____ 125 10 kAIC
Load Side
Breakers
Tenant
Breaker
Downstream Panel
(Type CH or BR)
The Watt-Hour Meter is not
Included in the Short-Circuit
Current Rating (Per UL 67).
All-in-One
Meter
Module
Tenant Breaker
Catalog Number
Two- or Three-Pole
Maximum
Ampere Rating
UL Listed Series
Short-Circuit
Rating
CVH_XMM 200 100 kAIC
CV_XMM 200 65 kAIC
CVS_XMM 200 42 kAIC
CCVH_XMM 200 25 kAIC
CCV_X 200 10 kAIC
Load Side
Breakers
Tenant
Breaker
Downstream Panel
(Type CH or BR)
The Watt-Hour Meter is not
Included in the Short-Circuit
Current Rating (Per UL 67).
All-in-One
Meter
Module

Volume 1—Residential and Light Commercial CA08100002E—February 2014 www.eaton.com V1-T5-145
5
5
5
5
5
5
5
5
5
5
5
5
5
5
5
5
5
5
5
5
5
5
5
5
5
5
5
5
5
5
5.10
Metering Products
Group Metering
General
When tenant breakers are installed in Eaton’s metering
modules per the short-circuit current ratings below, the
branch breakers installed in downstream panel rated 10 kAIC or
greater are protected to the listed series AIC rating. Refer to the
downstream panel marking for the proper series combination
short-circuit ratings. These ratings apply to both loadcenter
Types BR and CH.
The short-circuit rating is limited to the lowest interrupting
rating of any tenant breaker installed or to the lowest marked
interrupting rating of the main switch, main breaker or main
lug modules.
Replacement or additional breakers shall be of the same type
and manufacturer, and shall have an interrupting rating equal
to or greater than the interrupting rating of any tenant breaker
presently installed in the meter module.
1MM, 3MM 125A Meter Module
When used with main switch, main breaker or main lug
modules, this meter module is UL listed for the short-circuit
rating at 240 Vac maximum in rms symmetrical amperes per
table below.
1MM, 3MM 125A Meter Module
When Type BRHH or BRH tenant breakers are installed in this
meter module, then breakers rated 10 kAIC or greater installed
on the load side of this meter module may be protected for short
circuits up to 22 kAIC with Type BRH breakers or 42 kAIC with
Type BRHH breakers.
See load side breaker panel marking for proper short-circuit
current rating.
1MM, 3MM 125A Meter Module
1MM, 3MM, 200A Meter Modules; 35MM, 37MM, 35SS and 37SS 225A
Meter Modules
When used with main switch, main breaker or main lug
modules, these meter modules are UL listed for the short-circuit
rating at 240 Vac maximum in rms symmetrical amperes per
table below.
1MM, 3MM, 200A Meter Modules; 35MM, 37MM, 35SS and
37SS 225A Meter Modules
When Type CV tenant breakers are installed in these meter
modules, then Eaton’s breakers rated 10 kAIC or greater
installed on the load side of these meter modules may be
protected for short circuits up to 100 kAIC.
See load side breaker panel marking for proper short-circuit
current rating.
1MM, 3MM, 200A Meter Modules; 35MM, 37MM, 35SS and
37SS 225A Meter Modules
Tenant Breaker
Catalog Number
Two-Pole
Amperes
Maximum
UL Listed Series
Short-Circuit Rating
BRHH_____ 125 42 kAIC
BRH_____ 125 22 kAIC
BR_____ 125 10 kAIC
Modular
Metering
Stack
Main
Service
Module
Load Side
Breakers
Main
Tenant
Breaker
Downstream Panel
(Type CH or BR)
The Watt-Hour Meter is not
Included in the Short-Circuit
Current Rating (Per UL 67).
Amperes Maximum
Tenant Breaker
Catalog Number
Two- or Three-Pole
1MM
3MM
200A
35MM, 37MM,
35SS, 37SS
225A
UL Listed Series
Short-Circuit Rating
CVH_XMM 200 225 100 kAIC
CV_XMM 200 225 65 kAIC
CVS_XMM 200 225 42 kAIC
CCVH_X 200 225 25 kAIC
CCV_X 200 225 10 kAIC
CC_X 200 225 10 kAIC
Modular
Metering
Stack
Main
Service
Module
Load Side
Breakers
Main
Tenant
Breaker
Downstream Panel
(Type CH or BR)
The Watt-Hour Meter is not
Included in the Short-Circuit
Current Rating (Per UL 67).

V1-T5-146 Volume 1—Residential and Light Commercial CA08100002E—February 2014 www.eaton.com
5
5
5
5
5
5
5
5
5
5
5
5
5
5
5
5
5
5
5
5
5
5
5
5
5
5
5
5
5
5
5.10
Metering Products
Group Metering
Ratings
A. The assembly shall be
rated to withstand
mechanical forces
exerted during short-
circuit conditions when
connected directly to
a power source having
available fault current
[22,000] [42,000]
[65,000] [100,000]
amperes symmetrical
at rated voltage.
Construction
A. The entire assembly shall
be front accessible and
shall include [main lugs]
[a main disconnect
device].
B. Tenant disconnects
shall be wired for cold
sequence and shall be
molded case circuit
breakers.
C. The meter sockets shall
be (ring-) (ringless-) type
rated (125A) (200A) (as
shown on the plans)
and a bypass (shall be)
(shall not be) required.
If required, the bypass
shall be a (slider-) (horn-)
(lever-) (disconnect block-)
type. The meter sockets
and associated branch
protective device
positions shall be
completely prewired
and shipped ready for
installation of the meters
and tenant main breakers.
Meter sockets shall
include covers with
sealing positions.
Bus
A. All busbars shall be [tin-
plated aluminum or
copper]. Main horizontal
busbars shall be
mounted with all three
phases arranged in the
same vertical plane. Bus
sizing shall be based on
UL standard temperature
rise criteria for multiple
metering equipment.
B. Provide a full capacity
neutral bus where a
neutral bus is indicated
on the drawings.
C. All hardware used for
busbar connections shall
be high-tensile strength,
zinc-plated. Provide
Belleville-type spring
washers for all bus joints.
Wiring/Terminations
A. [Mechanical-type
terminals] [Crimp-type
termination provisions]
shall be provided for all
line terminations suitable
for copper or aluminum
cable and rated at 75ºC.
B. Lugs shall be provided in
the incoming line section
for connection of the main
grounding conductor.
Main Circuit Protective Devices
A. Main protective devices
shall be [molded case
circuit breakers] [bolted
pressure switches] [quick-
make/quick-break fusible
switches].
Molded Case Circuit Breakers
A. [Main] [Feeder] [All]
protective devices shall
be molded case circuit
breakers with inverse
time and instantaneous
tripping characteristics.
B. Circuit breakers shall be
operated by a toggle-type
handle and shall have a
quick-make/quick-break
over-center switching
mechanism that is
mechanically trip-free.
Automatic tripping of the
breaker shall be clearly
indicated by the handle
position. Contacts shall
be nonwelding silver
alloy and arc extension
shall be accomplished by
means of DE-ION® arc
chutes.
C. Circuit breakers shall
have a minimum
symmetrical interrupting
capacity as indicated on
the drawings.
D. Circuit breakers [250-]
[400-] [600-] [1200-]
ampere frame and below
shall be manufactured
by Eaton with thermal-
magnetic or electronic
trip units having
inverse time-current
characteristics.
E. Circuit breakers shall be
UL listed for series
application.
Bolted Pressure Switches
A. Main protective devices
shall be bolted pressure
contact type and shall be
UL listed.
B. Fusible switches shall be
furnished with Class L
fuse clips. Switch
contact interrupting
capacity shall be 12 times
the continuous rating
of the switch.
C. Fuse access door s
hall be mechanically
interlocked with the
operating handle and
shall have provisions for
padlocking the switch in
the OPEN position.
D. The switch shall use a
stored energy deadfront
operating mechanism
compressed and
released by the operating
handle, to provide quick
positive switching action,
independent of the
operating handle.
E. Switches shall be
manually operated.
Quick-Make/Quick-Break
Fusible Switches
A. Fusible switches 30A
through 1200A frames
shall be furnished with
300V Class T-type fuse
clips unless otherwise
scheduled.
B. Switches shall
incorporate safety cover
interlocks to prevent
opening the cover with
the switch in the ON
position.
C. Provide defeater for
authorized personnel.
D. Handles shall have
provisions for padlocking
and shall clearly indicate
the ON or OFF position.
E. Front cover doors shall
be padlockable in the
CLOSED position.
F. Main protective devices
shall be quick-make/
quick-break fusible
switches as manufactured
by Eaton.
Tenant Utility Metering
A. For EUSERC serviced
areas, meter centers
shall incorporate
metering sections with
tenant feeder circuits
using ring-type meter
sockets rated [125] [200]
amperes to meet local
utility and/or customer
requirements.
B. The self-contained meter
sockets shall include a
test bypass/disconnect
block per EUSERC
requirements,
– OR–
A. For non-EUSERC
serviced areas, meter
centers shall incorporate
metering sections with
tenant feeder
circuits
using [ring-] [ringless-]
type meter sockets
rated [125] [200] [320]
amperes to meet local
utility or customer
requirements. Provide
meter sockets with
individual covers having
sealing provisions.
B. Meter sockets shall
have manual
bypass and
optional internal barriers.
Enclosures
A. NEMA 1 Enclosure
– OR–
A. Outdoor NEMA 3R
Surface-Mounted
Enclosure
Finish
A. Boxes and trims shall be
bonderized and finished
with ANSI 61 light gray
enamel.

Volume 1—Residential and Light Commercial CA08100002E—February 2014 www.eaton.com V1-T5-147
5
5
5
5
5
5
5
5
5
5
5
5
5
5
5
5
5
5
5
5
5
5
5
5
5
5
5
5
5
5
5.10
Metering Products
Group Metering
Dimensions
Approximate Dimensions in Inches (mm)
General Layout
Mounting Features
Mounting Features
A standard mounting rail and
factory-installed swing away
feet, speed up and simplify
installation.
Notes
1Not a constant value. Dimension changes depending on main device chosen. See Page V1-T5-110 for specific dimensions.
2Residential device.
1MM/3MM
200 A
1MM/3MM
200 A
34.25
(870.0)
13.38
(339.7)
Typical Height
Above Ground
or Floor Level
31.88
(809.6) 68.25
(1733.6)
26.00
(660.4)
30.14
(765.6)
71.00
(1803.4)
30.00
(762.0)
72.00
(1828.8)
58.00
(1473.2)
30.00
(762.0)
44.00
(1117.6)
58.00
(1473.2)
44.00
(1117.6)
31.00
(787.4)
44.00
(1117.6)
13.50
(342.9)
13.50
(342.9)
12.25
(311.2)
19.25
(488.8)
18.25
(463.6)
18.25
(463.6)
18.25
(463.6)
18.25
(463.6)
Wall Hanger Screws
L
C
1MM/3MM
125 A
35MM/37MM
225 A Maximum
35MM/37MM
225 A Maximum
35MM/37MM
225 A Maximum
37MM
400 A
35MM/37MM
Main Device a
b
Minimum and maximum height of single-phase and three-phase
meter sockets above typical ground level.