Vigirex Ground Fault Relays
2014-11-11
: Pdf 59155-Attachment 59155-Attachment 785901 Batch12 unilog
Open the PDF directly: View PDF
.
Page Count: 52
- Please Note
- Section 1—Introduction
- Section 2—Vigirex Ground-fault Relays System Overview
- Introduction
- Operation
- Vigirex ground-fault relays are not designed to protect people as defined by UL 943 Class A. Vigi...
- Testing Locally or Remotely, With or Without Tripping
- Benefits to the Equipment User
- Table 1: Benefits for the End-Use Customer
- How can manufacturers be sure equipment has this benefit?
- Benefits to the manufacturer of equipment (OEM)
- Table 2: Benefits for the OEM
- Selection Criteria for Relays
- Mounting / Packaging—RH10M, RH21M, RH99M, and RH10P, RH21P, RH99P
- Control Voltage
- Time Delays
- Sensitivity (Tripping Threshold)
- Manual or Automatic Reset
- Selection Criteria for Sensors
- Closed Toroid Sensors
- Split Toroid Sensors
- Rectangular Sensors
- Table 3: Vigirex Ground-Fault Relays (UL 1053)
- Table 4: Sensors for Vigirex Ground-Fault Relays
- Section 3—Relay Characteristics
- Optimum Continuity of Service
- The Vigirex range of ground-fault relays offers multiple setting possibilities that may be used t...
- Provisions to minimize downtime of the Vigirex relay include:
- The Vigirex relays trip between 80% and 100% of their tripping threshold (IDn) thus increasing im...
- A range of power supplies is available, including a low voltage unit for operation from AC or DC ...
- Additional standard functions are available to make the protection as dependable as possible:
- Vigirex relays are not affected by micro-outages lasting less than 60 ms. The maximum break time ...
- Vigirex relays continuously monitor the power supply, relay / sensor link and internal electronic...
- The Vigirex relay can be manually tested as part of a maintenance routine. This procedure can be ...
- Either method can be used locally (with front-panel push buttons) or remotely via the Test and Re...
- If a Vigirex relay with a 30 mA setting is used to shunt trip a Schneider Electric / Square D Com...
- The electronic design of the Vigirex relay provides several functions to minimize outages and eli...
- The inverse-time tripping curve of the Vigirex relays (see Figure 3) affects performance in two b...
- Also, when circuits are energized, the inverse-time tripping curve avoids nuisance tripping due t...
- Vigirex devices use rms measurements for the zero-sequence currents. This is the means to:
- Frequency filtering by Vigirex residual current relays ensures maximum protection against insulat...
- Frequency converters (e.g. variable-speed drives) generate significant levels of high-frequency l...
- Vigirex relays are designed to optimize immunity to:
- To ensure optimal immunity, Vigirex relays are tested in compliance with the following standards:
- The high immunity levels of Vigirex relays ensure optimum safety without nuisance tripping.
- According to the National Electrical Code (NEC), a test is required after installation to check c...
- The purpose of the test is to check:
- Whatever the test mode, a reset clears the fault stored in memory and resets the LEDs and the rel...
- During acceptance of a switchboard or other electrical equipment and prior to dielectric testing,...
- Vigirex relays are supplied with a plug-in connector for easy and secure connection and disconnec...
- The Vigirex relays can be mounted in a variety of ways:
- Plug in connectors allow easy and secure disconnection of control panel for switchboard acceptanc...
- DIN-format Vigirex relays can be equipped with toroids from 1–2 in. (30–50 mm) in diameter.
- —
- Section 4—Sensors
- Section 5—Coordination
- Section 6—Application of Vigirex ground-fault Relays
- Introduction to Equipment Ground-fault Protection
- Installation in Equipment by the End-User
- Installation in Equipment by the OEM
- Distribution Applications in Addition to NEC Requirements at Main Service
- Alarming / Monitoring Applications
- Identifying the Right Applications
- Consequences of an Insulation Fault
- Introduction to Electrical Systems
- Applications
- TN-S Grounding System
- Electrical Shock Hazard
- Vigirex relays are NOT UL Listed to comply with UL standards for people protection.
- Wiring Diagrams—RH10, RH21, and RH99
- Wiring for Optimum Continuity of Service (with Shunt Trip)
- Wiring for Optimum Safety (with Undervoltage Release)
- Connection of Test and Remote Reset Functions
- Connection of RH10, RH21, and RH99 Power Supply
- Section 7—Vigirex Relays and Sensors Installation and Dimensions
- Possible Installation Positions
- Relay Mounting Possibilities
- Dimensions–RH10M, RH21M, and RH99M
- Dimensions—RH10P, RH21P, and RH99P
- Connection (Relays and Sensors)
- Sensor Mounting
- Figure 33: TA30, PA50, IA80, or MA120 on DIN Rail Using Supplied Accessories
- Figure 34: TA30, PA50, IA80, MA120, SA 200 GOA, or POA on a Plate or Bracket
- Figure 35: TA30 and PA50 Clipped on the Back of the Relay
- Figure 36: IA80, MA120, SA200, and GA300 Tied to Cables
- Figure 37: Rectangular Sensors Tied to Cables
- Figure 38: Rectangular Sensors on Bars with Chocks
- Conductor Installation Guidelines
- Connection of Rectangular Sensors and Conductor Layout
- Connection Between Vigirex Relays and Sensors
- Section 8—Definitions
- Coordination
- Direct Contact
- Double Insulation
- Earth Leakage
- EMC / EM
- Earth (Ground)
- Equipotential Bonding
- Exposed Conductive Part
- Fault (Electrical)
- Fault Voltage
- Ground Electrode
- Ground-Fault Current
- Ground-Fault Protection (GFP)
- Ground-Leakage Current
- Grounding Resistance
- Indirect Contact
- Insulation Voltage
- Intentional Leakage Current
- Isolated System
- IT
- Leakage Current
- Live Conductor
- National Electrical Code (NEC)
- Natural Leakage Current
- People Protection Devices
- Pickup Current (Residual Operating Current) (IDn)
- Protective Ground Conductor (PE)
- RFI
- RFI Filter
- RMS
- Residual Current
- Residual Current Device (RCD)
- Residual Operating Current IDn
- Sensor
- Service Voltage
- TN
- TN-S
- TT
- Time Delay
- Touch Voltage
- UL 943
- UL 1053
- Zero-Sequence Current

Vigirex RH99M Ground-Fault Relay
Sensors
Vigirex RH99P Ground-Fault Relay
Vigirex™ Ground-Fault
Relays
Class 0972
CONTENTS
Description Page
Introduction . . . . . . . . . . . . . . . . . . . . . . . . . . . . . . . . . . . . . . . . . . . . . . . . . . . . . . . . . 3
Vigirex Ground-Fault Relays System Overview . . . . . . . . . . . . . . . . . . . . . . . . . . . . . 7
Relay Characteristics . . . . . . . . . . . . . . . . . . . . . . . . . . . . . . . . . . . . . . . . . . . . . . . . 13
Sensors. . . . . . . . . . . . . . . . . . . . . . . . . . . . . . . . . . . . . . . . . . . . . . . . . . . . . . . . . . . 23
Coordination . . . . . . . . . . . . . . . . . . . . . . . . . . . . . . . . . . . . . . . . . . . . . . . . . . . . . . . 29
Application . . . . . . . . . . . . . . . . . . . . . . . . . . . . . . . . . . . . . . . . . . . . . . . . . . . . . . . . 31
Installation and Dimensions . . . . . . . . . . . . . . . . . . . . . . . . . . . . . . . . . . . . . . . . . . . 39
Definitions . . . . . . . . . . . . . . . . . . . . . . . . . . . . . . . . . . . . . . . . . . . . . . . . . . . . . . . . . 49
April
04
PLEASE NOTE
Electrical equipment should be installed, operated, serviced, and maintained only by qualified
personnel. No responsibility is assumed by Schneider Electric for any consequences arising out of the
use of this material.

Vigirex System Catalog
Section 1—Introduction
3
04/04 © 2004 Schneider Electric All Rights Reserved
SECTION 1—INTRODUCTION
VIGIREX™ GROUND-FAULT RELAYS WITH SEPARATE TOROIDS
Overview
The purpose of ground-fault protection is to measure the ground
leakage current of an electrical installation, or part of an installation, and
interrupt the power supply if the ground-fault current becomes
dangerous to property.
Vigirex™ ground-fault relays, with associated sensors (current
transformers), measure the leakage current in an electrical installation
to detect levels that may be damaging. When used for protection, they
cause an associated circuit breaker or switch to interrupt the supply of
power to the protected system. They may also be used for monitoring
only, with output to an alarm.
The Vigirex product line can be used with loads up to 3200 A. It includes
fixed sensitivities from 30 mA to 1 A and adjustable sensitivities up to
30 A, providing a solution that offers both flexibility and performance.
The choice of the right Vigirex relay model for a given application depends on the type of protection
required:
• Protection against equipment damage
• Protection against fire hazards
• Motor protection
These types of protection are covered by standards and correspond to different current thresholds and
time delays on the products.
Characteristics
• UL 1053 Listed
• For currents up to 3200 A (depending on sensor)
• Sensitivities from 30 mA to 30 A
• Control power from 12 Vdc to 220 AC
• Ideal for protection or alarming
• Immunity to nuisance tripping
• Continuous self-monitoring of the detection circuit
• Operation under all unbalanced phase conditions (in solidly-grounded systems)
• Status indicators:
— red LED: fault
— green LED: relay is operational
• Allows coordination over several levels so that only the faulty circuit is shut down
• Test with or without trip of relay
• Modular case, 54 mm wide (DIN rail mount) or 72 mm (panel mount)
• Horizontal or vertical flush or surface mounting on a symmetrical DIN rail
• Automatic or remote reset (depending on model)
Vigirex RH99M Ground-Fault Relay

Vigirex System Catalog
Section 1—Introduction
© 2004 Schneider Electric All Rights Reserved
404/04
Operation
Vigirex relays are designed for use on low-voltage AC installations. When the leakage current detected
by the sensor exceeds a certain threshold, referred to as the “threshold leakage current I∆n”, the
Vigirex relay trips the associated circuit breaker via a shunt trip or under-voltage release on the circuit
breaker. The control signal issued by the relay may be instantaneous or delayed. Depending on the
model, the operating thresholds and time delays may or may not be adjustable.
Vigirex relays can be used at all levels of an installation: power distribution, industrial control and final
distribution, as well as with a variety of OEM equipment. They are designed for AC installations
implementing a variety of solidly-grounded arrangements and are suitable to monitor voltages up to
600 Vac and frequencies ranging from 50/60 Hz and 400 Hz.
Function
Vigirex relays measure the earth-leakage current in an electrical installation via their associated
sensors. The relays can be used in the following ways:
• Ground-fault protection (RH10, RH21, RH99 with manual reset)
• Earth-leakage alarming (same models, plus RH99 with automatic reset)
Ground-Fault Protection
In protection applications, the relays control the interruption of the supply of power to protect:
• equipment and property against fire; and
• equipment against damage from high ground-fault currents.
A relay trips the associated circuit breaker when the threshold operating current I∆n is exceeded.
Depending on the model of the relay, the threshold I∆n can be fixed or user-selectable. Circuit breaker
tripping can be either instantaneous or delayed. On some Vigirex relays, it is possible to adjust the time
delay.
The protection relays “latch” the output contacts until the output contact has been manually reset.
Once the fault has been cleared the relay can be used again. The exception is the group of RH99
relays with automatic reset.
Earth-Leakage Monitoring (Alarming)
Vigirex relays may also be used to monitor earth-leakage in electrical insulation due to aging of cables
or extensions in the installation. Continuous measurement of leakage currents makes it possible to
plan maintenance on faulty circuits before an increase in the leakage currents leads to a complete
shutdown of the installation.
In alarming applications, the output contacts are connected to a warning light, SCADA system, or other
annunciator device. A control signal is issued by the relay when the threshold is overrun. The control
signal can be either instantaneous or delayed. On some relays, it is possible to adjust the time delay.
Some models of the RH99 Vigirex relays do not latch their output contact and they are automatically
reset when the fault is cleared.
It is possible to configure a system to provide both alarming and protection. In that case, one Vigirex
ground-fault relay is set to a low sensitivity to alarm when insulation is faulty but still operable, and a
second Vigirex ground-fault relay is set to interrupt the circuit when the ground-fault level becomes
hazardous.

Vigirex System Catalog
Section 1—Introduction
5
04/04 © 2004 Schneider Electric All Rights Reserved
APPLICATION EXAMPLES
Figure 1: Types of Protection
OPTIMIZED PROTECTION AND CONTINUITY OF SERVICE
The design of the Vigirex relay includes several functions that minimize the risk of nuisance tripping.
Rms measurement of ground-fault currents, frequency filtering, reduced tolerances on the protection
threshold and the inverse-time tripping curve built into the Vigirex relay optimize protection of property
and enhance continuity of service.
Continuous Self-Monitoring of Vigirex Relays
Vigirex relays carry out continuous self-monitoring of key relay functions, including:
• Internal electronics
• Power supply
• Relay / sensor link (and the sensor itself)
When the relay detects a problem, the fault or the ON output contact on the relay is actuated. The
cause of the internal problem must be cleared before the relay can continue its functions.
Sensors
Vigirex relays are used with closed (type A, diameter 30–300 mm) or split (type OA, diameter
46–110 mm) toroids. Additionally, large rectangular sensors are available. All sensors are easy to
mount, with a wide range of installation possibilities.
Environmental Characteristics
Vigirex relays are designed for use in ambient temperatures from -31° F to 158° F (-35° C to 70° C).
The temperature range for device storage, in the original packing, is -67° F to 185° F (-55° C to 85° C).
Vigirex relays comply with the environmental requirements contained in the following standards:
• IEC 60068-2-30 and IEC 60068-2-56: damp heat
• IEC 60068-2-52: salt mist
Vigirex relays are certified for operation in pollution degree III environments, as defined by
IEC 60664-1 and IEC 60947-1 for low-voltage switchgear.
09723025
Protection of electronics*
e.g.: I∆n = 30 mA instantaneous
Protection against fire hazards
e.g.:I∆n = 300 mA
90 ms time delay
Protection of property (motors, etc)
e.g.: I∆n = 3 A
250 ms time delay
*Depending on the opening time of the circuit breaker or associated contactor

Vigirex System Catalog
Section 1—Introduction
© 2004 Schneider Electric All Rights Reserved
604/04
Compliance with Standards
Vigirex relays are designed to comply with the following Standards:
• UL 1053
• CSA C22.2 No. 144
• IEC 60 947-2 Appendix B
• IEC 364 Chapter 4 and Chapter 5
• IEC 755
• UTE C 60–130
• VDE 664
• NFC 61–141 ad. 1
• NFC 15–100
• CISPR 11

Vigirex System Catalog
Section 2–Vigirex Ground-Fault Relays System Overview
7
04/04 © 2004 Schneider Electric All Rights Reserved
SECTION 2—VIGIREX GROUND-FAULT RELAYS SYSTEM OVERVIEW
INTRODUCTION
Manufacturers can increase production efficiency and decrease downtime by protecting expensive
electrical equipment from ground faults. Schneider Electric / Square D has determined that more than
80% of short circuits are initially manifested as ground faults (also called ground leakage or residual
current leakage). Detecting ground faults before they reach hazardous levels helps to avoid damage to
equipment. Planned maintenance can be scheduled before expensive damage occurs, thus minimizing
downtime.
To help protect equipment and electrical distribution systems from ground faults, Square D offers a line
of UL Listed Vigirex Ground-Fault Relays. These are compact electronic devices that are easy to
install. The ground-fault relays can be used with most industrial voltages and currents. The specific
application will dictate which model needs to be used. This is determined primarily by the level of
ground fault current it needs to detect (from a range of 30 mA to 30 A) and the speed with which it
should react (from instantaneous to 4.5 seconds of time delay).
Other choices include:
• Panel-mount or DIN-mount installation
• A variety of sensors for a wide range of line voltages and amperages
• A model to operate on the most common power supply voltages
• Outputs for alarming or for protection via shunt trip of a circuit breaker or switch
• Manual reset (for protection) or auto-reset (for alarming)
OPERATION
The Vigirex relays compare outgoing currents with returning currents to determine if there is leakage of
current to ground. If there is sufficient ground leakage current, the Vigirex relay will operate its
contacts. This can be used for protection by opening the associated disconnect, such as a circuit
breaker with shunt trip or under-voltage release (UVR) contacts. Or the contacts can be used to only
activate an alarm, such as a warning lamp or input to a SCADA system.
Vigirex ground-fault relays are not designed to protect people as defined by UL 943 Class A.
Vigirex relays are designed to meet the UL1053 standard for equipment protection.
Ground-fault relays do not provide overcurrent or short circuit protection. A Vigirex ground-fault system
includes these components:
• Vigirex Ground-Fault Relay—This has control power inputs, inputs from the sensor, outputs to the
disconnect device, and electronic circuitry that determines if the ground-fault exceeds the trip level.
• Sensor—Current transformer through which the monitored line passes (all phases plus neutral; but
not ground wire); its secondary goes to the relay input.
• Disconnect Device or Alarm Annunciator—Output of the Vigirex goes to the protective device such
as a switch or circuit breaker with a shunt trip device or to an alarming device like a warning lamp or
SCADA system.
• Control Power—The electrical energy needed by the relay must be supplied by a source
independent of network voltage.

Vigirex System Catalog
Section 2–Vigirex Ground-Fault Relays System Overview
© 2004 Schneider Electric All Rights Reserved
804/04
Figure 2: Vigirex Ground-Fault Protection System
Testing Locally or Remotely, With or Without Tripping
A front-panel test button can be used to test the Vigirex relay, either with or without tripping the
disconnect device. This testing can also be done remotely through input terminals on the relay.
BENEFITS TO THE EQUIPMENT USER
The Vigirex relay provides several benefits to the user of electrical equipment:
Ideally, the Vigirex can be installed in the control panel of a machine when it is manufactured.
Alternately, it can be installed by the end-user, either in a machine's control panel or in the feeder or
branch circuit supplying the machine.
Table 1: Benefits for the End-Use Customer
Feature Benefit
Used with circuit breaker or switch to protect equipment
from ground-fault Prevents damage to equipment, reducing down-time and repair costs
Outputs to alarm function Provides warning that preventive maintenance should be performed on
the equipment
Fixed (RH10) or user-settable (RH21 and RH99)
sensitivity and time delays Allows adjustment to balance between nuisance tripping and optimal
protection
Frequency filtering and narrow tripping tolerance
(between 0.8 and 1 x I∆n) Increases immunity to nuisance tripping, resulting in high continuity of
service
Local and remote test and reset Simplifies periodic diagnostics
Test with or without tripping Allows testing without interruption of service
Electronic technology High reliability to ensure high availability
Selection of power supplies 12 Vdc–220 Vac Can use existing line power or control power supplies
09723026
Sensor (CT)
Vigirex
Relay
Control
Power
Circuit
Breaker
or Switch
Alarm
Light
or SCADA
Main power line to equipment
NA
B
C

Vigirex System Catalog
Section 2–Vigirex Ground-Fault Relays System Overview
9
04/04 © 2004 Schneider Electric All Rights Reserved
How can manufacturers be sure equipment has this benefit?
• Purchase only equipment that has adequate ground-fault protection
• Specify it for key custom equipment
• As a last resort, add it to equipment or to the electrical service supplying the equipment
BENEFITS TO THE MANUFACTURER OF EQUIPMENT (OEM)
In addition to the benefits to the end-user, including built-in ground-fault protection also has several
benefits for machine manufacturers:
• Provides a better machine for their customers, creating a competitive advantage
• Limits warranty expense by preventing damage to equipment during warranty period
• Ensures that appropriate sensitivity is selected
• The CE mark qualifies equipment for international sales (where ground-fault protection is frequently
mandatory).
SELECTION CRITERIA FOR RELAYS
Ideal for any machine or branch circuit application, there are a wide variety of Vigirex ground-fault
relays. Evaluate the application and select the options that you need, including packaging, supply
voltage, sensitivity, and time delays and the ability to reset after a fault. These models are described in
more detail below and summarized in Table 3 on page 12.
Mounting / Packaging—RH10M, RH21M, RH99M, and RH10P, RH21P, RH99P
All of the options for Vigirex are available in either of two packages and are identified by the model
type:
RH_ _M DIN-rail Mounting—The RH_ _M models are compact, non-metallic enclosures with the same
universal DIN format and light gray color as Multi 9® miniature circuit breakers. They mount on
standard 35 mm DIN rails. Because they measure only 54 mm wide x 88 mm high x 75 mm deep,
space can be found in most control panels. All controls and indications are located behind a clear
protective door that can be locked for security.
RH_ _P Panel Mounting—The RH_ _P models are 72 x 72 mm and can be front-mounted in cut-outs
on panels, doors, or front plates using integral mounting clips. The overall depth is 67 mm. These are
dark charcoal in color and have a clear protective door that can be locked for security. Integral plug-on
connectors are provided for easy connection of all inputs and outputs.
Table 2: Benefits for the OEM
Feature Benefit
Protects equipment from ground-faults Prevents damage to equipment, thus reducing warranty costs
Increases market value to end-use customer
Small DIN-mount (RHP) or panel-mount (RHM) units Easy mounting in equipment control panels
Fixed (RH10) or user-settable (RH21 and RH99) sensitivity and
time delays with a wide range of pick-up levels Suitable for most applications
Nine pickup settings and nine time delay settings (RH99) Can be adapted to specific installation by OEM or end-use
customer
Frequency filtering increases immunity to nuisance tripping and
gives high continuity of service Reduces call-backs due to nuisance tripping
Local and remote test and reset Simplifies diagnostics
Output contacts for up to 6 A Drives most trip contacts, switch solenoids, or alarm contacts
Selection of power supplies 12 Vdc—220 Vac Can use line power or control power supplies
Variety of current sensors Suitable for most loads (amperages) and conductor sizes
UL, IEC with CE mark Equipment can be sold in many markets

Vigirex System Catalog
Section 2–Vigirex Ground-Fault Relays System Overview
© 2004 Schneider Electric All Rights Reserved
10 04/04
Control Voltage
The Vigirex relays operate with an auxiliary source of power rather than depending on fault power. This
means that the relays can be used to monitor low levels of current and can give status even after the
monitored circuit is interrupted. Because they only consume four watts of power, the relays cause little
drain on a auxiliary power supply.
Three different power supplies are available for the Vigirex relays, depending on the catalog number:
• 12–24 Vac (50/60 Hz) / 12-48 Vdc
• 110–130 Vac (50/60 Hz)
• 220–240 Vac (50/60/400 Hz)
Time Delays
The responsiveness of the Vigirex relay is determined from a combination of their sensitivity
(measured in milliamperes or amps) and their time delays (duration that the threshold of ground-fault is
exceeded). These can range from instantaneous (no intentional delay) to 4.5 seconds. The shortest
delay will provide the greatest protection, while the longest will minimize nuisance tripping. The range
of time delays is also helpful when providing a coordinated ground-fault protection scheme.
There are three different groups of Vigirex, based on time delay:
• RH10—Instantaneous (fixed)
• RH21—Instantaneous or 60 milliseconds (two settings)
• RH99—Adjustable from instantaneous to 4.5 seconds (nine settings, including 0.0, 0.06, 0.15,
0.25, 0.31, 0.5, 0.8, 1.0, and 4.5 seconds)
Sensitivity (Tripping Threshold)
The sensitivity of the Vigirex relays determines the level of current leakage to ground at which the relay
will operate. Some models can be purchased with a fixed sensitivity, while others are field-selectable.
The most sensitive (lowest milliamperage) will provide the greatest protection but have the greatest
potential for nuisance tripping. The sensitivity levels include the following:
• RH10—Fixed at 30 mA, 100 mA, 300 mA, 500 mA, or 1 A
• RH21—Selectable between 30 mA or 300 mA (two settings)
• RH99—Adjustable from 30 mA to 30 A (nine settings, including 0.03, 0.1, 0.3, 0.5, 1.0, 3.0, 5.0, 10,
and 30 A)
Manual or Automatic Reset
Most Vigirex relays require a manual reset after operating. This is the preferred mode for protection
schemes, since it retains the indication that the relay caused tripping of the circuit breaker. For
monitoring or alarming applications, it may be desirable to have automatic reset after the current
leakage (ground fault) has been cleared. The RH99M and RH99P are available in either a manual
reset version or an automatic reset version.
• Manual reset—The only version of RH10 and RH21; available in certain models of RH99
• Automatic reset—Available only in certain models of RH99

Vigirex System Catalog
Section 2–Vigirex Ground-Fault Relays System Overview
11
04/04 © 2004 Schneider Electric All Rights Reserved
SELECTION CRITERIA FOR SENSORS
All current-carrying conductors of the monitored circuit must pass through a Vigirex sensor, which
detects the level of residual current in the line. These must include all phases plus neutral.
NOTE: Only Vigirex sensors should be used with Vigirex relays.
Ten different models of sensors (current transformers) are included in the product line. These sensors
should be selected primarily based on the maximum current of the monitored line, size of conductors,
and mounting considerations. See Table 4 on page 12 for the models available.
Closed Toroid Sensors
The widest range of Vigirex sensors is the closed toroid type. The smaller ones can be clipped directly
on to the Vigirex relay or mounted on DIN rail for easy mounting. The sizes and ratings include the
following:
• Window diameters from 30 mm (1.18 in.)–300 mm (11.8 in.)
• Current ratings from 65 A–630 A
Split Toroid Sensors
Split toroids are designed to be used in existing installations, as they can be installed without having to
disconnect the existing cabling. Two models are available:
• Window diameters of 46 mm (1.81 in.) and 110 mm (4.33 mm)
• Current ratings of 85 A and 250 A
Rectangular Sensors
Rectangular sensors are designed for use with large bus bars and high currents. See Section 4 for
details on these sensors. Two models are available:
• 1200 A – 280 x 115 mm (11 x 4.5 in.)
• 1200 and 3200 A – 470 x 160 mm (18.5 x 6.3 in.)

Vigirex System Catalog
Section 2–Vigirex Ground-Fault Relays System Overview
© 2004 Schneider Electric All Rights Reserved
12 04/04
Table 3: Vigirex Ground-Fault Relays (UL 1053)
Model Delay Reset Control / Voltage Sensitivity Catalog
Number
DIN-Rail Mounted
RH10M Instantaneous Manual
12–24 Vac / 12–48 Vdc
30 mA
100 mA
300 mA
500 mA
1A
56300
56302
56305
56306
56307
110–130 Vac
30 mA
100 mA
300 mA
500 mA
1A
56320
56322
56325
56326
56327
220–240 Vac
30 mA
100 mA
300 mA
500 mA
1A
56330
56332
56335
56336
56337
RH21M Instantaneous or
60 ms (2 settings) Manual 12–24 Vac / 12–48 Vdc
110–130 Vac
220–240 Vac 30 mA or 300 mA (2 settings) 56360
56362
56363
RH99M
9 user-selectable time
delays:
0 sec (instantaneous),
60 ms, 150 ms, 250 ms,
310 ms, 500 ms,
800 ms, 1 s, 4.5 s
Manual 12–24 Vac / 12–48 Vdc
110–130 Vac
220–240 Vac
9 user-selectable thresholds
(30 mA to 30 A):
30 mA, 100 mA, 300 mA,
500 mA, 1 A, 3 A, 5 A, 10 A,
30 A
56370
56372
56373
Automatic 12–24 Vac / 12–48 Vdc
110–130 Vac
220–240 Vac
56390
56392
56393
Panel Mounted
RH10P Instantaneous Manual
12–24 Vac / 12–48 Vdc
30 mA
100 mA
300 mA
500 mA
1A
56400
56402
56405
56406
56407
110–130 Vac
30 mA
100 mA
300 mA
500 mA
1A
56420
56422
56425
56426
56427
220–240 Vac
30 mA
100 mA
300 mA
500 mA
1A
56430
56432
56435
56436
56437
RH21P Instantaneous or
60 mSec (2 settings) Manual 12–24 Vac / 12–48 Vdc
110–130 Vac
220–240 Vac 30 mA or 300 mA (2 settings) 56460
56462
56463
RH99P
9 user-selectable time
delays:
0 sec (instantaneous),
60 ms, 150 ms, 250 ms,
310 ms, 500 ms,
800 ms, 1 s, 4.5 s
Manual 12–24 Vac / 12–48 Vdc
110–130 Vac
220–240 Vac
9 user-selectable thresholds
(30 mA to 30 A):
30 mA, 100 mA, 300 mA,
500 mA, 1 A, 3 A, 5 A, 10 A,
30 A
56470
56472
56473
Automatic 12–24 Vac / 12–48 Vdc
110–130 Vac
220–240 Vac
56490
56492
56493
Table 4: Sensors for Vigirex Ground-Fault Relays
Sensors Type Current Rating Inside Diameter Catalog Number
In. mm
Closed toroids, type A
TA30
PA50
IA80
MA120
SA200
GA300
65 A
85 A
160 A
250 A
400 A
630 A
1.18
1.97
3.15
4.72
7.87
11.81
30
50
80
120
200
300
50437
50438
50439
50440
50441
50442
Split toroids, type OA POA*
GOA* 85 A
250 A 1.81
4.33 46
110 50485
50486
Rectangular sensors 280 x 115
470 x 160 1600 A
3200 A 11.02 x 4.53
18.50 x 6.30 280 x 115
470 x 160 56053
56054
* Not UL Recognized
RH99M
RH99P
PA50
SA200

Vigirex System Catalog
Section 3—Relay Characteristics
13
04/04 © 2004 Schneider Electric All Rights Reserved
SECTION 3—RELAY CHARACTERISTICS
OPTIMUM CONTINUITY OF SERVICE
The Vigirex range of ground-fault relays offers multiple setting possibilities that may be used to create
many coordination levels, from the feeder circuits to the final circuits in equipment. Correctly setting the
Vigirex ensures total discrimination for ground faults in the installation, i.e., only the faulty section is
shut down. Elimination of most cases of nuisance tripping by the ground-fault relay ensures both safety
and continuity of service, two indispensable features for users.
Provisions to minimize downtime of the Vigirex relay include:
• Reduced tripping tolerances
• Dependable power supply
• Continuous self-monitoring
• Tests with or without tripping of load
• Test and reset of relay
Reduced Tripping Tolerances
The Vigirex relays trip between 80% and 100% of their tripping threshold (I∆n) thus increasing
immunity to nuisance tripping.
Dependable Power Supply
A range of power supplies is available, including a low voltage unit for operation from AC or DC control
power sources. These include:
• 12–24 Vac / 12–48 Vdc
• 110–130 Vac
• 220–240 Vac
Voltage-dip withstand capacity: The Vigirex relay will operate correctly at 55% of the rated control
power voltage.
Additional standard functions are available to make the protection as dependable as possible:
• Disconnect of the circuit if the relay fails, by using the Normally Closed (NC) output contacts and an
undervoltage release (UVR) instead of shunt trip
• A Green Operating (ON) LED provides a local indication that voltage is not present; this status can
be provided remotely via the ON contacts
Vigirex relays are not affected by micro-outages lasting less than 60 ms. The maximum break time
during micro-outages complies with standard IEC/EN 60947-2.

Vigirex System Catalog
Section 3—Relay Characteristics
© 2004 Schneider Electric All Rights Reserved
14 04/04
Continuous Self-Monitoring
Vigirex relays continuously monitor the power supply, relay / sensor link and internal electronics.
Internally detected faults are signalled and may be used to trip the circuit breaker. The LEDs on the
front of the face can also be used to check operation at any time.
Tests With or Without Tripping
The Vigirex relay can be manually tested as part of a maintenance routine. This procedure can be
performed locally by employing the TEST button, or remotely by using the TEST contacts. The test can
be performed without tripping the protection device, to minimize down-time of equipment. Also, the test
can include testing of the tripping function of the disconnect device.
Either method can be used locally (with front-panel push buttons) or remotely via the Test and Reset
contacts.
Operation in Less Than 50 Milliseconds
If a Vigirex relay with a 30 mA setting is used to shunt trip a Schneider Electric / Square D Compact NS
circuit breaker rated up to 630 A, it will clear faults of greater than 5 x I∆n in less than 50 milliseconds.
Table 5: Test and Reset Functions
LED Status Meaning
ON (Green) Fault (Red)
Normal operation
Fault current detected
Faulty sensor
No power or device not working
Non-standard operation detected
Legend
OFF (O)
ON (I)
Flashing
NOTE: For RH99M models 56390, 56392, and 56393 resetting
is automatic.

Vigirex System Catalog
Section 3—Relay Characteristics
15
04/04 © 2004 Schneider Electric All Rights Reserved
REDUCED NUISANCE TRIPPING
The electronic design of the Vigirex relay provides several functions to minimize outages and eliminate
unnecessary downtime. These features include:
• Inverse-time tripping curve
• RMS measurements of ground-fault currents
• Frequency and harmonic filtering
• Immunity to electromagnetic disturbances
Inverse-Time Tripping curve
The inverse-time tripping curve of the Vigirex relays (see Figure 3) affects performance in two
beneficial ways:
• Protection is optimized because the higher the ground-fault current it detects, the faster the relay
will operate;
• Inverse-time tripping also minimizes the potential for nuisance tripping. This is because, if the
duration of the ground-fault is very short the current can be relatively high, but the relay will not trip.
This inherently helps to avoid nuisance tripping due to electrical noise since it usually exists for a
short duration.
Also, when circuits are energized, the inverse-time tripping curve avoids nuisance tripping due to short,
transient phase-sequence currents, which are caused by:
• the high transient currents caused by certain loads (motors, LV/LV transformers, etc.) and
• the charging of capacitances between live conductors and earth.
Figure 3: Vigirex Inverse-Time Tripping Curve
RMS Measurements of Ground-Fault Current
Vigirex devices use rms measurements for the zero-sequence currents. This is the means to:
• accurately measure the harmonic currents and avoid nuisance tripping due to non-dangerous
currents with high crest factors; and
• correctly calibrate the energies of the fault currents.
(I/l∆n)
∆t(s)
Tripping Zone
Curve 1
1
2
3
0.30
0.15
0.04
12 5
Curve 1: Inverse-time Tripping Curve per IEC 60947-2
1
2
3
Curve 2: Tripping Curve with Fixed Threshold I = I∆n
Curve 3: Transient Zero Phase-sequence current upon
load energization
Zone of optimized continuity of service due to the
inverse-time tripping curve
Non-tripping zone (Curve 2)
09723034

Vigirex System Catalog
Section 3—Relay Characteristics
© 2004 Schneider Electric All Rights Reserved
16 04/04
Frequency Filtering
Frequency filtering by Vigirex residual current relays ensures maximum protection against insulation
faults and a particularly high level of continuity of service.
Frequency converters (e.g. variable-speed drives) generate significant levels of high-frequency
leakage currents. During normal operation (no fault), these capacitive high-frequency leakage currents
flowing in the installation conductors do not represent a danger to equipment.
Figure 4: Frequency Filtering
5
4
3
2
1
010 50 100 1000
09723035
Example
At 50 / 60 Hz, the tripping threshold is I∆n.
At 900 Hz, the tripping threshold is k x I∆n (where k = 5).
f(Hz)
k x l n

Vigirex System Catalog
Section 3—Relay Characteristics
17
04/04 © 2004 Schneider Electric All Rights Reserved
Electromagnetic Disturbances
Vigirex relays are designed to optimize immunity to:
• overvoltages produced by switching (e.g. lighting circuits)
• overvoltages produced by atmospheric disturbances
• radio-frequency waves emitted by devices such as mobile telephones, radio transmitters, two-way
radios, radar, etc., and
• electrostatic discharges produced directly by users
To ensure optimal immunity, Vigirex relays are tested in compliance with the following standards:
• IEC/EN 60947-2: low-voltage switchgear and controlgear, Part 2: circuit breakers)
• IEC/EN 61000-4-1: overview of the IEC/EN 61000-4 series
• IEC/EN 61000-4-2: electrostatic-discharge immunity test
• IEC/EN 61000-4-3: radiated, radio-frequency, electromagnetic-field immunity test
• IEC/EN 61000-4-4: electrical fast transient/burst immunity test
• IEC/EN 61000-4-5: surge immunity test
• IEC/EN 61000-4-6: immunity to conducted disturbances, induced by radio frequency fields
• CISPR 22: limits and methods of measurement of electromagnetic disturbance characteristics of
industrial, scientific and medical (ISM) radio frequency equipment
The high immunity levels of Vigirex relays ensure optimum safety without nuisance tripping.

Vigirex System Catalog
Section 3—Relay Characteristics
© 2004 Schneider Electric All Rights Reserved
18 04/04
TEST AND RESET OF RELAY
Test
According to the National Electrical Code (NEC), a test is required after installation to check correct
operation of the ground-fault relay system.
The purpose of the test is to check:
• the output contacts
— the complete protection system with actuation of the output contacts (this shuts down the
installation)
— the protection system without actuation of the output contacts ("no trip" test) to maintain the
installation up and running.
• correct operation of the LEDs and the internal electronics.
Reset
Whatever the test mode, a reset clears the fault stored in memory and resets the LEDs and the relay
status condition.
Switchboard Acceptance Tests
During acceptance of a switchboard or other electrical equipment and prior to dielectric testing,
isolation of the residual-current relays by disconnecting the power supply is mandatory, as shown in
Figure 5 below.
Vigirex relays are supplied with a plug-in connector for easy and secure connection and disconnection
of control power.
Figure 5: Supply Connections for the DIN and Front-Panel Mount Formats
Table 6: Test and Reset Modes
Pushbutton and Remote Controls Function
Test Test with trip (tests relay and protection
device or alarm)
Reset Reset
Both Test with no trip
t (S)
I n (A)
0.513
5
10
30
0.3
0.1
0.03
Test
0.25 0.31 0.5
0.8
1
4.5
0
0.15
0.06
Reseton
fault
Test no trip
MERLIN
GERIN
Vigirex
RH99M
t (S)
I n (A)
0.3
Test no trip
t (S)
I n (A)
0.3
Test no trip
09723036

Vigirex System Catalog
Section 3—Relay Characteristics
19
04/04 © 2004 Schneider Electric All Rights Reserved
MOUNTING OF VIGIREX RELAYS
The Vigirex relays can be mounted in a variety of ways:
Figure 6: RH Device with Mounting Clips
Secured to a Mounting Plate Figure 7: RH-P Front-Panel Mounted Device
Figure 8: RH-M Device Mounted on a DIN Rail Figure 9: RH-M with Clip-on Toroid
Plug in connectors allow easy and secure
disconnection of control panel for switchboard
acceptance dielectric tests.
DIN-format Vigirex relays can be equipped with
toroids from 1–2 in.
(30–50 mm) in diameter.

Vigirex System Catalog
Section 3—Relay Characteristics
© 2004 Schneider Electric All Rights Reserved
20 04/04
Table 7: Characteristics
Vigirex Relays RH10 RH21 RH99
General Characteristics
Monitored Distribution System: LV AC / System Voltage 50/60/400 Hz and up to 600 V
System Earthing Arrangement TNS (solidly grounded)
A, AC type class as per IEC 60947-2 —
Operating Temperature Range -31°– +158° F
(-35°– +70° C)
Storage Temperature Range -67°– +185° F
(-55°– +85° C)
Electrical Characteristics per IEC 60755, IEC 60947-2 and EN 60947-2, and UL 1053
Power Supply: rated
operational voltage Ue
12–24 Vac (55%–120% Ue1)
12–48 Vdc 50/60 Hz / DC —
110–130 Vac
(55%–110% Ue)50/60 Hz —
220–240 Vac
(55%–110% Ue)50/60/400 Hz —
Rated Impulse Withstand Voltage up to Ue = 525 Vac Uimp (kV) 8
Maximum Consumption AC 4 Va
DC 4 W
Insensitive to
Micro-outages <60 ms —
Maximum Break Time on Toroid Failure (as per Standard IEC 60947-2) —
Fault Current Detection Threshold I∆n1 fixed threshold
0.03 A, 0.1 A,
0.3 A, 0.5 A, 1 A
2 user-selectable
thresholds 0.03 A or
0.3 A
9 user-selectable thresholds
0.03 A, 0.1 A, 0.3 A, 0.5 A, 1 A,
3 A, 5 A, 10 A, 30 A
Fault-current Detection Range 74% I∆n to 100% I∆n
Time Delay ∆t Instantaneous
Instantaneous for
I∆n = 0.03 A
Instantaneous or
0.06 s for I∆n = 0.3 A
9 user-selectable time delays
Instantaneous to 4.5 s
∆t Settings 0 s 0 s, 0.06 s 0 s, 0.06 s, 0.15 s, 0.25 s, 0.31
s, 0.5 s, 0.8 s, 1 s, 4.5 s
Maximum Non-operating Time at 2 I∆n — —, 0.06 s —, 0.06 s, 0.15 s, 0.25 s, 0.31
s, 0.5 s, 0.8 s, 1 s, 4.5 s
Maximum Non-operating Time at 5 I∆n (residual-current relay
alone) 0.015 s 0.015 s, 0.13 s 0.015 s, 0.13 s, 0.23 s, 0.32 s,
0.39 s, 0.58 s, 0.88 s, 1.08 s,
4.58 s
Maximum Total Time at 5 I∆n 20.05 s 0.05 s, 0.15 s 0.05 s, 0.15 s, 0.25 s, 0.34 s,
0.41 s, 0.6 s, 0.9 s, 1.1 s, 4.6 s
Setting Switch none one Two selectors: for sensitivity
and for time delay
Output Contact for protection changeover w/ latching
for monitoring — — some models auto-reset
Test with or without actuation of the output contacts
and output-contact reset following a fault
Local
Remote (hard-wired) (10 m max.)
Remote (hard-wired for several
relays) (10 m max.)
—
—
—
1 80% to 120% Ue if Ue < 20 V
2 Maximum time to clear the fault current when a Vigirex relay with a 30 mA setting is used to shunt trip a
Schneider Electric / Square D Compact NS circuit breaker rated up to 630 A. —Continued next page

Vigirex System Catalog
Section 3—Relay Characteristics
21
04/04 © 2004 Schneider Electric All Rights Reserved
Electrical Characteristics per IEC 60755, IEC 60947-2 and EN 60947-2, and UL 1053
Self-monitoring
Relay / Sensor Link
ContinuousPower Supply
Electronics
Rated Operational Current (A) of Output Contacts Voltage: AC DC-Resistive DC-Inductive
24 V 5 6 2
48 V 5 2 —
110 V 4 0.6 —
220–240 V 4 — —
250 V — 0.4 —
Display and Indications Voltage Presence (LED and / or
Relay)3 : Green —
Threshold Overrun: (fault): Red —
Setting Protection: Sealable Cover Enabling Local Reset and Test —
Mechanical Characteristics Front-Panel Mount DIN
Dimensions 2.8 x 2.8 x 3.0 in.
(72 x 72 x 78 mm) 3.2 x 2.8 x 2.6 in.
(81 x 63 x 65.5 mm)
Weight 0.7 lb. (0.32 kg) 0.5 lb. (0.23 kg)
Insulation Class (IEC 60664-1) Front face II
Degree of Protection
Front face IP40
Other faces IP30
Connections IP20
Sinusoidal Vibrations (Lloyd’s and Veritas) 2 to 13.2 Hz ± 1 mm
and 13.2 to 100 Hz–0.7 g
Fire (IEC 60695-2-1) —
Environment RH10 RH21 RH99
Damp Heat, Equipment not in Service (IEC 60068-2-30) 28 cycles +77°F (+25° C) / 170° F (+55° C) / RH 95%
Damp Heat, Equipment in Service (IEC 60068-2-56) 48 hours, Environment Category C2
Salt Mist (IEC 60068-2-52) KB Test, Severity 2
Degree of Pollution (IEC 60664-1) 3
Electromagnetic Compatibility4 Electrostatic Discharges
(IEC 61000-4-2) Level 4
Radiated Susceptibility
(IEC 61000-4-3) Level 3
Low-energy Conducted
Susceptibility (IEC 61000-4-4) Level 4
High-energy Conducted
Susceptibility (IEC 61000-4-5) Level 4
Radio / Frequency Interference
(IEC 61000-4-6) Level 3
Conducted and Radiated
Emissions (CISPR11) Class B
Sensors and Accessories
Sensors5 A, OA Type Toroids —
Merlin Gerin Rectangular Sensors for I∆n ≥ 500 mA —
Cables Relay / Sensor Link via Standard twisted Pair (not supplied) —
3 Depending on the type of wiring (optimum continuity of service or optimum safety)
4 Compatibility for both relay and sensor
5 Compatibility with E-type toroids in existing installations (see restrictions in Section 7, Installation and Dimensions)
Table 7: Characteristics
Vigirex Relays RH10 RH21 RH99

Vigirex System Catalog
Section 3—Relay Characteristics
© 2004 Schneider Electric All Rights Reserved
22 04/04
Figure 10: Tripping Curves—RH10, RH21, and RH99
∆t(s)
10
1
0.1
0.01 102354679810
(I/I∆n)
∆t = 4.5 s
∆t = 2 s
∆t = 1 s
∆t = 0.8 s
∆t = 0.5 s
∆t = 0.31 s
∆t = 0.25 s
∆t = 0.15 s
∆t = 0.06 s
1 2 3
1
3
Instantaneous Relay
1
2
3
09723041
∆t(s)
1
0.1
0.01
0.001 1023 54679810
(I/I∆n)
Delayed Relay
Non-operating time Operating time Total break time

Vigirex System Catalog
Section 4—Sensors
23
04/04 © 2004 Schneider Electric All Rights Reserved
SECTION 4—SENSORS
INTRODUCTION
The sensors used for Vigirex relays enable the electronic relay to measure the zero-sequence currents
flowing in the monitored circuit. They are designed to measure ground-fault currents and present a
proportional signal to the relay. They also protect the relay from overvoltage and short-circuit currents
in the line being monitored.
The Vigirex relay system includes a variety of sensors, which can be called current transformers (CTs)
or zero-sequence transformers. They are available in three different configurations, and each
configuration comes in different sizes.
• Closed toroids are suitable for new installations up to 630 A. (Certain toroids may be mounted on
DIN rails, plates, or brackets; clipped onto the Vigirex relay; or tied to cables.)
• Split toroids facilitate installation in existing systems up to 400 A and may be installed on plates and
brackets.
• Rectangular sensors are for busbars in installations with currents up to 3200 A.
• Suitable for line voltages up to 600 volts.
Figure 11: A Type Closed
Toroid SA200 Figure 12: POA Split Toroid Figure 13: Rectangular
Sensor
Figure 14: Plug-on TA30 Type Toroid

Vigirex System Catalog
Section 4—Sensors
© 2004 Schneider Electric All Rights Reserved
24 04/04
Measurement Dynamics
The measurement dynamics of ground-fault protection require a special magnetic circuit to measure
very low currents and correct adaptation of the impedance (to avoid saturation) when measuring higher
currents.
To that end, a compromise is required between each of these:
• a material with high magnetic permeability and its saturation phenomena;
• sensor size (cross-sectional area) and acceptable dimensions;
• a high number (n) of turns; but yet:
— sufficiently low resistance
— sufficient signal amplitude (gain 1/n).
Measurement Limits
When a three-phase current flows through the measurement sensor and there is no insulation fault
(the sum of the currents is equal to zero), a secondary current equivalent to a false zero-sequence fault
current is created. This is due to leakage flows caused by manufacturing tolerances. It is necessary to
qualify this phenomenon by indicating the rated operational current for a given zero-sequence leakage
current. See Table 9 on page 28.
NOTE: Strict compliance with the installation rules for the cables passing through the sensor is
mandatory. The addition of a “magnetic sleeve” for the magnetic field considerably increases the rated
operational current.
Rated Operational Current of the Sensors
Certain precautions may be required for sensor installation. This is because high currents (but not an
insulation fault) can locally saturate the magnetic circuit of the sensor, creating abnormal flows that are
interpreted on the secondary winding as zero-sequence currents.
The rated operational current for the sensors used with Vigirex devices:
• is indicated for the minimum setting value at 30 mA
• takes into account switching-in currents (up to 6 I∆n).

Vigirex System Catalog
Section 4—Sensors
25
04/04 © 2004 Schneider Electric All Rights Reserved
SELECTION OF TOROID AND RECTANGULAR SENSORS, DEPENDING ON THE
POWER CIRCUIT
Example 1: A motor feeder (280 A at 400 V) must be monitored by a Vigirex relay with a toroid having
a minimum diameter of 200 mm (SA200). This means that the device may be set to 30 mA
instantaneous without risk of nuisance tripping. The rated operational current must be taken into
account to avoid nuisance tripping; however, higher currents will not damage the toroid.
Example 2: On the motor feeder in example 1, the switching-in current is in fact significantly higher than
6 I∆n. To avoid possible tripping, it may be necessary to:
• use the same sensor but with a magnetic sleeve to channel the flux;
• use a sensor having a higher current rating and larger diameter; or
• increasing the time delay, yet coordination requirements for upstream RCDs.
These three measures may be implemented simultaneously.

Vigirex System Catalog
Section 4—Sensors
© 2004 Schneider Electric All Rights Reserved
26 04/04
SPECIAL PRECAUTIONS IN SEVERE ELECTRICAL NOISE ENVIRONMENT
Measurements in disturbed environments may require special wiring precautions:
• greater distance between the toroid wires and power circuits;
• use of shielded, twisted cables with the shielding grounded at one end;
• reduction to the shortest length possible for the cable between the toroid and the relay;
• use of a dedicated supply with galvanic isolation to eliminate conducted disturbances.
For severe operating conditions, the use of a mild steel magnetic sleeve placed around the cable inside
the sensor considerably increases immunity.
NOTE: Always consult applicable codes before installing magnetic sleeve. When applying, do not
compromise insulator system.
Recommended characteristics:
• mild steel foil 0.1 mm thick to be wrapped several times around the cable inside the toroid
(minimum thickness 1 mm);
• inner diameter of the sensor > 1.4 x outer diameter of the cable bundle;
• length of sleeve L ≥ sensor diameter.
The current can be increased by adding a magnetic sleeve to channel the leakage flux.
Magnetic Sleeve (soft steel ≥ 1 mm)
L ≥ sensor diameter
L = 80 mm L = 200 mm L = 300 mm
TA30 MA120 GA300
PA50 SA200 —
IA80 — —
09723047
L
Ground Conductor
Phase (and neutral)
Conductors
Magnetic Sleeve
Sensor

Vigirex System Catalog
Section 4—Sensors
27
04/04 © 2004 Schneider Electric All Rights Reserved
CONNECTION BETWEEN VIGIREX RELAYS AND SENSORS
Vigirex relays must be connected to the sensors as indicated:
Table 8: Wiring Characteristics
Cross-Section (Cu)–mm2 (in2)AWG Maximum Length–m (ft)
Toroids
0.22 (1) 20 18 (60)
0.75 (1) 18 60 (200)
1 (1) 16 80 (260)
1.5 (1) 14 100 (330)
Rectangular Sensors
0.5 (0.0007) min. / 2.5 (0.0038) max. 20 / 12 10 (33)
(1) Wire size for resistance R maximum = 3 Ω
Cable Type
Standard twisted, shielded pair (not to be run alongside [parallel to] power cables)
09723048
L max.: See table
Ground fault one end if shielded

Vigirex System Catalog
Section 4—Sensors
© 2004 Schneider Electric All Rights Reserved
28 04/04
Table 9: Sensor Specifications
Sensors A Type Closed Sensor OA Type Split Sensor Rectangular Sensor
Relays
Relay Names RH10, RH21, RH99 RH10, RH99 (1)
General Characteristics
Monitored Distribution System 50/60/400 Hz
Voltage Rating 600 V
Operating-temperature range -31° F–158° F (-35°C–70°C) -31° F–176° F (-35°C–80°C)
Storage-temperature range -67° F–185° F (-55°C–85°C) -67° F–212° F (-55°C–100°C)
Degree of Protection IP30 (connections IP20) — IP30 (connections IP20)
Electrical Characteristics
Transformation Ratio 1/1000
Rated short-time withstand current 100 kA/0.5 s
Residual short-circuit withstand current
(IEC 60947-2) (kA rms) 85 kA/0.5 s
Rated Impulse Withstand Voltage Uimp 12 kV
Sensor Characteristics
Type of Sensor Rated
Operational
Current (A)
Conductor
Max. Size
per phase
mm2 Cu
AWG / kcmil Dia. mm (in.) Weight
kg (lb.) Inside dim.
mm (in.) Weight kg (lb.)
TA30 65 25 4 30 (1.18) 0.120 (0.26) — —
PA50 85 50 1/0 50 (1.97) 0.200 (0.44) — —
IA80 110 95 4/0 80 (3.15) 0.420 (0.925) — —
MA120 250 240 500 120 (4.72) 0.590 (1.3) — —
SA200 400 2 x 185 2 x 400 200 (7.97) 1.320 (2.9) — —
GA300 630 2 x 240 2 x 500 300 (11.81) 2.230 (4.9) — —
POA 85 50 1/0 46 (1.81) — — —
GOA 250 240 500 110 (4.33) — — —
Rectangular Sensor 1600 2 x 100 x 5 2 x 4/0 x 5 — — 280 x 115
(11 x 4.5) 13.26 (29.2)
Rectangular Sensor 4000 2 x 125 x 5 2 x 250 x 5 — — 470 x 160
(18/5 x 6.3) 21.16 (46.6)
Environment
Damp Heat, equipment not in service
(IEC 60068-2-30) 28 cycles 77° F (25° C) / 131° F (55° C) / RH 95%
Damp heat, equipment in service (IEC
60069-2-56) 48 hours, Environment category C2
Salt mist (IEC 60068-2-52) KB test, severity 2
Degree of pollution (IEC 60664-1) 3 4
1 For l∆n ≥ 500 mA with RH10, and RH99

Vigirex System Catalog
Section 5—Coordination
29
04/04 © 2004 Schneider Electric All Rights Reserved
SECTION 5—COORDINATION
The term “coordination” refers to the behavior of two
or more series-connected devices in electrical
power distribution in the event of an overcurrent or
ground fault downstream.
When designing a ground-fault protection system,
consideration must be given to two conflicting
requirements: maximizing the continuity of service in
as much of the system as possible, yet minimizing
potential damage to equipment from thermal stress.
A coordinated relay system allows this optimization.
The first requirement can be provided by
coordination of the ground-fault protection scheme.
Coordination involves using multiple levels of
ground-fault relay protection and setting longer time
delays and higher fault current pickups on upstream
devices so as to allow downstream devices to trip
first. This localizes the interruption of service at the
lowest level possible.
Some of the Vigirex relays allow field-tuning of the
pickup and delay settings to allow greater flexibility
in coordination with both upstream and downstream
devices. See Figure 15.
The second requirement is minimizing damage to
equipment. The relay at the lowest level detecting a fault will operate with the least delay or without
intentional delay (instantaneous). This clears the fault at the lowest level possible (minimizing the
scope of the outage) and in the shortest time possible (minimizing the stress on the power system).
In equipment manufactured by an OEM, consideration should be given to the possibility that ground-
fault protection could be included in the permanent facility wiring. In that case, the sensitivity and time
delay of the equipment should be lower than that of the facility.
Figure 15: Coordination of Multiple Levels of
Ground-Fault Protection
09723049
Source
Vigirex
Relay
30 A
1.0 sec.
Delay
Vigirex Relay
1.0 A
0.31 sec. Delay
Vigirex Relay
1.0 A
0.31 sec. Delay
Vigirex Relay
100 mA
0.05 sec. Delay
Vigirex Relay
100 mA
0.05 sec. Delay
Load

Vigirex System Catalog
Section 5—Coordination
© 2004 Schneider Electric All Rights Reserved
30 04/04
IMPLEMENTING COORDINATION
Coordination between upstream and downstream ground-fault devices is ensured by considering:
• the operating-current settings, and
• the non-operating (time delay) and overall breaking times.
The following general coordination guidelines ensure correct operation:
• In terms of the current, the setting for the upstream device must be at least double that of the
downstream device:
—Upstream I∆n ≥ 2 x downstream I∆n
• In terms of time, the non-operating time (time delay) for the upstream device must be greater than
the total time (the intentional ground-fault device delay and the breaking time of the breaking
device) for the downstream device.
— upstream time delay T ≥ downstream total time T
The time / current curves indicate the operating-current values of the Vigirex devices depending on
their standardized characteristics. When superimposed, the curves indicate the protection settings
required to ensure total coordination (See Figure 10 on page 22, “Tripping Curves”).
The Vigirex devices, combined with Square D and Merlin Gerin breaking devices (switches, circuit
breakers), have successive operating-current and time-delay settings that enhance the coordination
rules mentioned above.

Vigirex System Catalog
Section 6—Application of Vigirex Ground-Fault Relays
31
04/04 © 2004 Schneider Electric All Rights Reserved
SECTION 6—APPLICATION OF VIGIREX GROUND-FAULT RELAYS
INTRODUCTION TO EQUIPMENT GROUND-FAULT PROTECTION
Ground-fault protection is a subject that is often overlooked when designing a protection scheme for an
electrical system. Often, the only question asked is “Does the NEC require it?” Unfortunately, the NEC
has minimal requirements and only specifies: “Ground-fault protection of equipment shall be provided
for solidly-grounded wye electrical services of more than 150 volts to ground, but not exceeding 600
volts phase-to-phase for each service disconnect rated 1,000 amperes or more” (NEC 230-95, 215-10,
240-13).
The correct question to ask when specifying a circuit breaker for overcurrent protection is: “Why
wouldn't I also need ground-fault protection to protect equipment against the most common of all
faults?”
The following points should be considered when evaluating the need for ground-fault protection:
Installation in Equipment by the End-User
Ground-fault protection is needed for the following reasons:
• To protect costly equipment,
• To minimize costly downtime and expense for maintenance, and
• To minimize loss of production.
Installation in Equipment by the OEM
Ground-fault protection is needed for the following reasons:
• To give competitive advantage to finished product, and
• To minimize warranty risk to OEM (repair and liability).
Distribution Applications in Addition to NEC Requirements at Main Service
Ground-fault protection is needed at more levels than the minimum required by NEC for the following
reasons:
• To avoid shutting down an entire facility when only one machine or circuit has a ground-fault–
A properly coordinated system will provide protection at multiple levels by setting longer time delays
and higher fault current pickups on upstream devices to allow the downstream devices to trip first.
(See Section 5 on page 29.)
• To better protect equipment located far downstream of the main breaker with more sensitive
ground-fault devices.
• To provide additional protection beyond over-current protection (nearly 85% of faults start as
ground faults).
Alarming / Monitoring Applications
A need to set up the relay for an alarm only (but not protection) may be encountered in situations
where an automatic shutdown would introduce additional hazards and therefore an operator must
make the shutdown decision (e.g., continuous industrial processes, life-support equipment, or a fire
pump circuit).
Critical processes of industrial machines can also benefit by application of Vigirex relays in alarm
mode. In these cases, providing indication of higher than normal earth-leakage current can allow
planned maintenance, rather than a costly disruption of production.

Vigirex System Catalog
Section 6—Application of Vigirex Ground-Fault Relays
© 2004 Schneider Electric All Rights Reserved
32 04/04
Identifying the Right Applications
The Vigirex ground-fault relay may be used if the application requires one or more of the following:
• equipment protection (30 mA up to 30 A), including controls, motors, transformers, and cable;
• self-protection of the equipment or distribution system from damage due to arcing ground-faults;
• an earth-leakage alarm for emergency systems, per the NEC, or other critical processes;
• coordinated ground-fault protection to avoid nuisance tripping at a level upstream of the ground
fault.
CONSEQUENCES OF AN INSULATION FAULT
An insulation fault occurs when a live conductor—phase or neutral—comes in contact with an exposed
conductive part (e.g. motor casing).
The consequences depend upon the type of electrical system used in the installation or part of
installation concerned. Such faults create hazards to life and property.
Ground-fault relays should be used in the following situations:
• a feeder with excessive cable length;
• a circuit supplying portable equipment (such as socket outlet circuits); or
a circuit where there is a risk of the protective conductor breaking.
Do not use the Vigirex ground-fault relay if:
• protection level of more than 30 A is required;
• circuit breaker already includes a ground-fault function, at an appropriate level;
• circuit breaker can have ground-fault option added economically;
• people protection (4–6 mA per UL 943) is required.

Vigirex System Catalog
Section 6—Application of Vigirex Ground-Fault Relays
33
04/04 © 2004 Schneider Electric All Rights Reserved
INTRODUCTION TO ELECTRICAL SYSTEMS
The Vigirex ground-fault relay is designed to be used in solidly-grounded electrical systems, the most
common system in the United States, which is equivalent to the TN-S grounding system in Europe.
APPLICATIONS
TN-S Grounding System
This “multiple-grounded neutral” system has the following main features:
• the neutral point of the distribution transformer is grounded;
• all installation frames are grounded by a ground conductor; and
• the ground conductors and the N neutral conductor are separate.
This system’s characteristics and constraints upon installation:
• allows tripping on the first fault to ground;
• use of a ground-fault relay is recommended, although not compulsory;
• requires calculation, sometimes complex, of loop impedance; and
• tripping of the protection devices must be checked when these devices are installed.
Figure 16: TN-S Grounding System
An insulation fault results in a short-circuit between phase and neutral. The resulting current flow is
high. The exposed conductive parts are at a hazardous voltage. Tripping is essential.
09723050
HV LV A
B
C
N
Ground
Ground-fault relay

Vigirex System Catalog
Section 6—Application of Vigirex Ground-Fault Relays
© 2004 Schneider Electric All Rights Reserved
34 04/04
ELECTRICAL SHOCK HAZARD
NOTE: The Vigirex ground-fault relays are intended for protection of equipment and electrical
distribution systems. They are NOT intended for protection of persons. The protection of persons
requires the use of UL Listed 943 Class A ground-fault circuit interrupters (GFCIs).
Vigirex relays are NOT UL Listed to comply with UL standards for people protection.
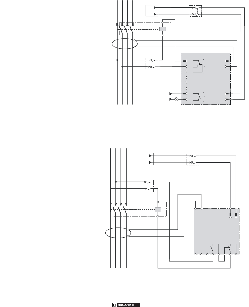
WIRING DIAGRAMS—RH10, RH21, AND RH99
Wiring for Optimum Continuity of Service (with Shunt Trip)
All diagrams are shown with circuits de-energized, all devices open, and relays in released position.
Figure 17: RH10M, RH21M, and RH99M Wiring with MX Shunt Trip
MX: Shunt Release
Q1: Main Circuit Protection
Q2: Circuit Breaker
Q3: 1 A Circuit Breaker, curve
C or D
RH10M, RH21M, and RH99M
• A1-A2: Auxiliary Power
Supply Inputs
• T1-T2: A or OA Type Sensor
or Rectangular Sensor
(if I∆n ≥ 500 mA)
Inputs
• 11-14: Operational (ON)
Output
• 26-25: Device Test Input
• 27-25: Device Reset Input
• 31-32-34: Fault Relay Output
25 26 27 11 14 32 31 34
09723052
A1 A2
N12 3
Q1
T2 / S2 / M2
T1 / S1 / M3
MX
Q3
Q2
T1 T2
RH10M, RH21M or RH99M
ON Fault
LN
See page 38, “Connection of RH10,
RH21, and RH99 Power Supply”.
Lamp

Vigirex System Catalog
Section 6—Application of Vigirex Ground-Fault Relays
35
04/04 © 2004 Schneider Electric All Rights Reserved
Wiring for Optimum Safety (with Undervoltage Release)
All diagrams are shown with circuits de-energized, all devices open, and relays in released position.
Figure 18: RH10P, RH21P, and RH99P Wiring with MX Shunt Trip
MX: Shunt Release
Q1: Main Circuit Protection
Q2: Circuit Breaker
Q3: 1 A Circuit Breaker, curve
C or D
RH10P, RH21P, and RH99P
• A1-A2: Auxiliary Power
Supply Inputs
• T1-T2: A or OA Type Sensor
or Rectangular Sensor
(if I∆n ≥ 500 mA)
Inputs
• 11-14: Operational (ON)
Output
• 26-25: Device Test Input
• 27-25: Device Reset Input
• 31-32-34: Fault Relay Output
Figure 19: RH10M, RH21M, and RH99M Wiring with MN Undervoltage Release
MN: Undervoltage Release
Q1: Main Circuit Protection
Q2: Circuit Breaker
Q3: 1 A Circuit Breaker, curve
C or D
RH10M, RH21M, and RH99M
• A1-A2: Auxiliary Power
Supply Inputs
• T1-T2: A or OA Type Sensor
or Rectangular Sensor
(if I∆n ≥ 500 mA) Input
• 11-14: Operational (ON)
Output
• 26-25: Device Test Input
• 27-25: Device Reset Input
• 31-32-34: Fault Relay Output
NOTE: For the RH99
with automatic reset,
use the “fault” contact
31, 32, 34.
09723053
31
34
32
27
26
25
11
14
A1
A2
N12 3
Q1
T2 / S2 / M2
T1 / S1 / M3
MX
Q3
Q2
T1
T2
RH10P, RH21P or RH99P
ON
Fault
L
N
See page 38, “Connection of RH10,
RH21, and RH99 Power Supply”.
Lamp
09723054
25 26 27 11 14 32 31 34
A1 A2
N1 2 3
Q1
T2 / S2 / M2
T1 / S1 / M3
MN
Q3
Q2
T1 T2
RH10M, RH21M or RH99M
ON Fault
See page 38, “Connection of RH10,
RH21, and RH99 Power Supply”.

Vigirex System Catalog
Section 6—Application of Vigirex Ground-Fault Relays
© 2004 Schneider Electric All Rights Reserved
36 04/04
Figure 20: RH10P, RH21P, and RH99P Wiring with MN Undervoltage Release
MN: Undervoltage Release
Q1: Main Circuit Protection
Q2: Circuit Breaker
Q3: 1 A Circuit Breaker, curve
C or D
RH10M, RH21M, and RH99M
• A1-A2: Auxiliary Power
Supply Inputs
• T1-T2: A or OA Type Sensor
or Rectangular Sensor
(ifI∆n ≥ 500 mA) Inputs
• 11-14: Operational (ON)
Output
• 26-25: Device Test Input
• 27-25: Device Reset Input
• 31-32-34: Fault Relay Output
NOTE: For the RH99
with automatic reset,
use the “fault” contact
31, 32, 34.
Figure 21: Cabling for Alarm
MN: Undervoltage Release
Q1: Main Circuit Protection
Q2: Circuit Breaker
Q3: 1 A Circuit Breaker, curve
C or D
RH10M, RH21M, and RH99M
• A1-A2: Auxiliary Power
Supply Input
• T1-T2: A or OA Type Sensor
or Rectangular
Sensor (if I∆n≥ 500
mA) Input
• 11-14: Operational (ON)
Output
• 26-25: Device Test Input
• 27-25: Device Reset Input
• 31-32-34: Fault Relay
Output
09723055
31
34
32
27
26
25
11
14
A1
A2
N12 3
Q1
T2 / S2 / M2
T1 / S1 / M3
MN
Q3
Q2
T1
T2
RH10P, RH21P or RH99P
ON
Fault
See page 38, “Connection of RH10,
RH21, and RH99 Power Supply”.
09723056
25 26 27 11 14 32 31 34
A1 A2
N123
Q1
T2 / S2 / M2
T1 / S1 / M3
MX
Q3
Q2
T1 T2
RH10M, RH21M or RH99M
ON Fault
See page 38, “Connection of RH10,
RH21, and RH99 Power Supply”.
Alarm
Device

Vigirex System Catalog
Section 6—Application of Vigirex Ground-Fault Relays
37
04/04 © 2004 Schneider Electric All Rights Reserved
CONNECTION OF TEST AND REMOTE RESET FUNCTIONS
Cable
The cable must not exceed 33 ft. (10 m) in length. Use a cable with three twisted wires.
Contacts
Use pushbuttons with low-level contacts suitable for the minimum load of 1 mA at 4 V.
Figure 22: Wiring for Test and Reset
CONNECTION OF RH10, RH21, AND RH99 POWER SUPPLY
Figure 23: Alternative Power Sources
References T and Z: there is no galvanic isolation between A1, A2 and the control circuitry.
User must provide, if needed.
T
est
R
eset
2
5
2
6
2
5
2
5
2
5
2
6
2
6
2
6
27
27
27
27
09
72
30
21
T
est
R
eset
RH10, RH21, RH99 RH10, RH21, RH99
RH10, RH21, RH99
RH10, RH21, RH99
1
2
10
max.
Q3
A1
A2
T
A1
A2
Q3
+
A1
A2
Q3
Z
09723020
11
0
Vac or 22
0
–
24
0
Va
c
12
/
24 Va
c
12
/
4
8
Vd
c
AC Supply Low Voltage AC Supply DC Supply

Vigirex System Catalog
Section 6—Application of Vigirex Ground-Fault Relays
© 2004 Schneider Electric All Rights Reserved
38 04/04

Vigirex System Catalog
Section 7—Vigirex Relays and Sensors Installation and Dimensions
39
04/04 © 2004 Schneider Electric All Rights Reserved
SECTION 7—VIGIREX RELAYS AND SENSORS INSTALLATION AND
DIMENSIONS
POSSIBLE INSTALLATION POSITIONS
RELAY MOUNTING POSSIBILITIES
Mounting of Relays RH10M, RH21M, RH99M
The RHM relays can be mounted in three ways:
• on a DIN rail;
• on a mounting plate using three removable mounting accessories (supplied) and three M4 screws
(not supplied); or
• on a slotted mounting plate with M4 clip-on nuts.
Figure 24: RH_ _M Format (RH10M, RH21M, and RH99M)
Figure 25: RH_ _P Mount Format (RH10P, RH21P, and RH99P)
Figure 26: Mounting Configurations
09723059
Yes Yes Yes
09723060
Yes Yes Yes
09723061
DIN Rail Mounting Plate Front-Panel Mount RH10P, RH21P, and
RH99P Detail
Mounting

Vigirex System Catalog
Section 7—Vigirex Relays and Sensors Installation and Dimensions
© 2004 Schneider Electric All Rights Reserved
40 04/04
DIMENSIONS–RH10M, RH21M, AND RH99M
Figure 27: Mounting on a DIN Rail
Figure 28: Mounting on a Mounting Plate
Figure 29: Door Cutout
09723062
Test no trip
09723063
3.19
[81]
1.77
[45]
2.13
[54]
0.51
[13]
0.12
[3]
0.71
[18]
1.77
[45]
2.91
[74]
2.72
[69]
1.18
[30]
1.97
[50]
2.60
[66]
3.12
[81]
0.89
[22.5]
Dimensions: in.
mm
Test no trip
09723064
09723065
Plate Drilling Layout
3.90
[99]
1.50
[38]
3 5 mm [0.20 in.]
4.53
[115]
3.90
[99]
0.35
[9]
0.31
[8]
1.50
[38]
2.91
[74] Dimensions: in.
mm
09723066
09723067
Mounting on a DIN Rail Mounting on a Mounting Plate
2.20
[56]
1.97
[50]
1.81
[46] Max.
2.17
[55]
Max. Dimensions: in.
mm

Vigirex System Catalog
Section 7—Vigirex Relays and Sensors Installation and Dimensions
41
04/04 © 2004 Schneider Electric All Rights Reserved
DIMENSIONS—RH10P, RH21P, AND RH99P
Figure 30: Front-Panel Mount Relays (Cutout Complying with Standard DIN 43700)
Test no trip
Reset Test
P
on
fault
09723068
Door Cutout 2.85
[72.5]
2.83
[72]
2.83
[72]
3.07
[78]
2.68
[68]
2.48
[63]
2.36
[60]
2.36
[60]
2.60
[66]
.04
[1] Min. 0.10
[2.5] Max.
2.68
[68]
2.68
[68]
2.68
[68
Dimensions: in.
mm

Vigirex System Catalog
Section 7—Vigirex Relays and Sensors Installation and Dimensions
© 2004 Schneider Electric All Rights Reserved
42 04/04
_
CONNECTION (RELAYS AND SENSORS)
Figure 31: RH_ _M Connections
Figure 32: RH_ _P Mount Connections
t (S)
I n (A)
0.513
5
10
30
0.3
0.1
0.03
Test
0.25 0.310.5
0.8
1
4.5
0
0.15
0.06
Reseton
fault
Test no trip
MERLIN
GERIN
Vigirex
RH99M
t (S)
I n (A)
0.3
Test no trip
t (S)
I n (A)
0.3
Test no trip
09723070
on
f
au
l
t
T
est
A1
A2
22
0
/
24
0
VA
C
2
5
2
6
11
14
32
34
(1) See Table 11 on page 43.
(1)
(1)
09723071
31
34
32
27
26
25
11
14
T1
T2
ON
T
R
Fault

Vigirex System Catalog
Section 7—Vigirex Relays and Sensors Installation and Dimensions
43
04/04 © 2004 Schneider Electric All Rights Reserved
Table 11: Terminal Capacity
Product, Terminal, or
Screw Cable Type Terminal Capacity (mm2)Conductor
Size Stripping Tightening Torque
Solid Stranded Flexible w/
Ferrule AWG Solid / Stranded
min. max. min. max. min. max. (mm) (in.) (N•m) (in-lbs)
RH10M, RH21M, and RH99M
11, 14 0.2 4.0 0.2 2.5 0.25 2.5 24-12 8.0 0.31 0.6 0.0678
31, 32, 34 0.2 4.0 0.2 2.5 0.25 2.5 24-12 8.0 0.31 0.6 0.0678
A1, A2 Connector 0.2 2.5 0.2 2.5 0.25 2.5 24-12 7.0 0.27 0.6 0.0678
T1, T2 Twisted Pair 0.14 1.5 0.14 1.0 0.25 0.5 26.16 5.0 0.19 0.25 0.02825
25, 26, 27 3 twisted wires L<10 m 0.14 1.5 0.14 1.0 0.25 0.5 26.16 5.0 0.19 0.25 0.02825
RH10P, RH21P, and RH99P—All Wire Connectors
11, 14 0.20 2.50 0.2 2.50 0.25 2.5 24-12 7.0 0.27 0.60 0.0678
31, 32, 34 0.20 2.50 0.2 2.50 0.25 2.5 24-12 7.0 0.27 0.60 0.0678
A1, A2 0.20 2.50 0.2 2.50 0.25 2.5 24-12 7.0 0.27 0.60 0.0678
T1, T2 Twisted Pair 0.20 2.50 0.2 2.50 0.25 2.5 24-12 7.0 0.27 0.60 0.0678
25, 26, 27 3 Twisted wires L<10 m 0.20 2.50 0.2 2.50 0.25 2.5 24-12 7.0 0.27 0.60 0.0678
Toroids and Rectangular Sensors
30 mm to 200 mm diameter
connectors supplied with
TA30 and PA50 Twisted Cu / Al 0.2 2.5 0.2 1.5 0.2 1.5 24-16 6.0 0.23 0.5 0.565
GA300 2 Fasten
connectors 6.35 x 0.8 mm
(supplied with product) Twisted Cu / Al — 1.5 — 1.0 — — 16 7.0 0.27 — —
POA-GOA 5 mm diameter
ring terminals not supplied:
S1, S2 Twisted Cu / Al —————— — — — 3 0.339
Shunt —————— — — — 3 0.339
Tightening of 2 half-toroids —————— — — — 7 0.791
Mounting on a mounting
plate —————— — — — 3 0.339
Rectangular Sensors M2,
M3 twisted pair L<10 m 0.5 2.5 0.5 2.5 0.5 2.5 20-14 8 to 9 0.33 — —

Vigirex System Catalog
Section 7—Vigirex Relays and Sensors Installation and Dimensions
© 2004 Schneider Electric All Rights Reserved
44 04/04
SENSOR MOUNTING
Figure 33: TA30, PA50, IA80, or MA120 on DIN Rail Using Supplied Accessories
Figure 34: TA30, PA50, IA80, MA120, SA 200 GOA, or POA on a Plate or Bracket
Figure 35: TA30 and PA50 Clipped on the Back of the Relay
Figure 36: IA80, MA120, SA200, and GA300 Tied to Cables
Figure 37: Rectangular Sensors Tied to Cables
Figure 38: Rectangular Sensors on Bars with Chocks
09723072
Accessory
17.5
14
42
09723073
Screws not supplied No. 8 Screw (4 mm) No. 12 Screw (5 mm)
TA 30 IA80
PA 50 MA120
SA200
POA-GOA
09723074
09723075
Cable-ties Not Supplied
Cable-ties with 9 mm (.35 in.)
maximum width and 1.5 mm (.06 in.)
maximum thickness
09723076
09723077

Vigirex System Catalog
Section 7—Vigirex Relays and Sensors Installation and Dimensions
45
04/04 © 2004 Schneider Electric All Rights Reserved
CONDUCTOR INSTALLATION GUIDELINES
IMMUNITY TO LINE OVERCURRENT
Line overcurrents due to motor starting or transformer switching may cause unnecessary tripping of
ground-fault relays.
This can be avoided by a few simple precautions with cumulative effects:
• place the toroid on a straight section of cable;
• center the cable in the toroid;
• use a toroid with a much larger diameter than the cable going through it; 2 x diameter.
CABLE LAYOUT
Figure 39: Cable with Toroid
09723078
09723079
09723080
09723081
09723082
09723083
09723084
09723085
Ground Ground
N
1
N
23123123
Center cables within toroid Toroid diameter = 2 x total cable diameter
N
123N
123N
123
Cable dia. Toroid dia
.
Do not bend cables near the toroids
Do not bend cables near the sensors Do not bend bars near the sensors
X ≥
toroid dia.
X ≥
toroid dia.
Y
YY ≥ 250 mm [9.8 in.] for 280 x 115 mm sensor
Y ≥ 300 mm [11.8 in.] for 470 x 160 mm sensor
Y
Y

Vigirex System Catalog
Section 7—Vigirex Relays and Sensors Installation and Dimensions
© 2004 Schneider Electric All Rights Reserved
46 04/04
CONNECTION OF TOROID SENSORS
Figure 40: Connecting Toroid Sensors
09723086
09723088
09723089
09723087
(1)
(1)
(1) See Table 12 on page 48.
GA300 Closed Toroid
(2 Faston connectors 6.35 x 0.8 mm supplied) POA and GOA Split Toroids
5 mm diameter round lugs not supplied)
(2)
(2)
M5
(2) Depending on the lug.
(1)
(1)
(1)
(1)
(1) See Table 12 on page 48. (1) See Table 12 on page 48.
TA30 and PA50 Closed Toroids
(Connectors supplied) IA80, MA120 and SA200 Closed Toroids

Vigirex System Catalog
Section 7—Vigirex Relays and Sensors Installation and Dimensions
47
04/04 © 2004 Schneider Electric All Rights Reserved
CONNECTION OF RECTANGULAR SENSORS AND CONDUCTOR LAYOUT
Figure 41: Connecting Rectangular Sensors
09723090
M1M2M3
09723091
09723092
M1M2M3
09723093
09723094
(1)
(1)
(1)
(1)
(1)
(1)
Frame 280 x 115 mm
Busbars with 70 mm spacing Frame 470 x 160 mm
Busbars with 115 mm spacing
(1) See Table 12 on page 48.
2 bars 50 x 10 mm (1600 A)
4 bars 100 x 5mm (3200 A)
2 bars 100 x 5 mm (1600 A)
4 bars 125 x 5 mm (3200 A)
4 cables 240 mm2 (1600 A)
(1) See Table 12 on page 48.
(1) See Table 12 on page 48.
N
12
3N
12
3N
12
3N
12
3

Vigirex System Catalog
Section 7—Vigirex Relays and Sensors Installation and Dimensions
© 2004 Schneider Electric All Rights Reserved
48 04/04
CONNECTION BETWEEN VIGIREX RELAYS AND SENSORS
Vigirex relays must be connected to the sensors as indicated:
Figure 42: Connecting Vigirex Relays and Sensors
In Highly Disturbed Environments:
Measurements in disturbed environments may require special precautions:
• greater distance between the toroid wires and power circuits;
• use of twisted, shielded cables with the shielding grounded at one end;
• reduction to the shortest length possible for the cable between the toroid and the relay.
Figure 43: Connecting Vigirex Relays and Sensors in Highly Disturbed Environments
Table 12: Sensor Wiring
Wire Cross-Section (Cu)–mm2 (in2)Maximum Cable Length
mm2AWG Feet m
0.22 (1) 20 (1) 60 18
0.75 (1) 18 (1) 200 60
1.0 (1) 16 (1) 260 80
1.5 (1) 14 (1) 330 100
Rectangular Sensors
0.5 (0.0007) min. / 2.5 (0.0038) max. 20 –14 30 10
(1) Wire cross-section for a resistance of Rmaximum = 3 ohms.
Cable Type
Standard twisted, shielded pair (not to be run alongside (parallel to) power cables)
09723095
L max.: See Table 12
or
09723096
L ≤ 10 m
or

Vigirex System Catalog
Section 8—Definitions
49
04/04 © 2004 Schneider Electric All Rights Reserved
SECTION 8—DEFINITIONS
Coordination
Coordination of the automatic switching devices such that only the faulty part of the installation is cut
off by opening of the device located immediately upstream of the fault.
Direct Contact
Human contact with the normally live parts of electrical equipment.
Double Insulation
Insulation that includes both:
• basic insulation required for protection against direct contact, and
• supplementary insulation required for protection against indirect contact in case of a fault of the
basic insulation.
Earth Leakage
See “Ground-Leakage Current”.
EMC / EM
Electromagnetic compatibility (EMC): the ability of a device or system to operate in its electromagnetic
(EM) environment satisfactorily and without itself producing unacceptable electromagnetic
disturbances for its environment.
Earth (Ground)
The conducting mass of the earth, whose electric potential at any point is conventionally taken as zero.
Equipotential Bonding
Electrical connection putting various exposed conductive parts and extraneous conductive parts at a
substantially equal potential.
Exposed Conductive Part
Any accessible metal part of an electrical equipment item other than the live parts and which can
accidentally become live.
Fault (Electrical)
Accidental connection between two points at different potentials, such as an insulation fault. A fault
may be solid or may exhibit a certain impedance. A solid fault between live conductors is a short circuit.
A distinction is made between phase exposed conductive parts, phase-ground, phase-phase,
phase-neutral, neutral exposed conductive parts and neutral-ground faults.
Fault Voltage
Voltage, in case of an insulation fault, across an exposed conductive part and an grounding reference;
(i.e., a point on which the voltage is not modified when the exposed conductive part becomes live).
Ground Electrode
Conductive part that can be incorporated in a particular conductive environment, for example: concrete
in electrical contact with earth.
Ground-Fault Current
Current flowing to ground due to an insulation fault.
Ground-Fault Protection (GFP)
The system used to measure zero-sequence currents that flow if a fault occurs in the TN-S system
used in the United States (see TN-S).
Ground-Leakage Current
Current flowing from the live parts to ground or extraneous conductive parts in the absence of an
insulation fault.

Vigirex System Catalog
Section 8—Definitions
© 2004 Schneider Electric All Rights Reserved
50 04/04
Grounding Resistance
(Also “Overall Grounding Resistance”).
Resistance between the main grounding terminal (terminal or bar to which the grounding conductors
are connected) and earth.
Indirect Contact
Contact of persons with exposed conductive parts accidentally live due to an insulation fault.
Insulation Voltage
(Preferred term: “Rated Insulation Voltage”).
The rated insulation voltage of an assembly is the voltage characterizing it and used as reference for
the dielectric tests, the isolating distances and the creepage distance.
Intentional Leakage Current
Current flowing to ground or extraneous conductive parts via intentionally installed components
(resistors or capacitors), in the absence of an insulation fault.
Isolated System
System with an autonomous supply of power; not connected to utility power.
IT
In an IT system, all the live parts are either isolated from earth or grounded at one point via an
impedance. The exposed conductive parts of the electrical installation are grounded.
Leakage Current
See “Ground-Leakage Current” and “Natural Leakage Current”.
Live Conductor
Conductor used for transmission of electrical power during normal operation (including the neutral
conductor).
National Electrical Code (NEC)
The National Electrical Code is the installation standard published in the United States.
Natural Leakage Current
Current flowing to ground or extraneous conductive parts via the insulation, in the absence of an
insulation fault.
People Protection Devices
See “UL 943”.
Pickup Current (Residual Operating Current) (I∆n)
The value of the residual current that causes a residual current device to operate.
Protective Ground Conductor (PE)
A conductor required for protection against electric shock for electrically connecting any of the following
parts: exposed conductive parts, extraneous conductive parts, main grounding terminal, ground
electrode, grounded point of the source or artificial neutral, metallic parts of the building structure that
are not part of an electrical device, protected by equipotential bonding, if they are simultaneously
accessible. The presence of switchgear on such conductors is prohibited.
RFI
Radio-Frequency Interference
RFI Filter
An RFI Filter limits radio-frequency disturbances.

Vigirex System Catalog
Section 8—Definitions
51
04/04 © 2004 Schneider Electric All Rights Reserved
RMS
Root Mean Square Value
Residual Current
Vector sum of the currents flowing through all the live conductors (phases plus neutral). It is equal to
zero in the absence of an insulation fault. In case of an insulation fault, the residual current is the
leakage current returned to the source through the ground and the protective conductor.
Residual Current Device (RCD)
A device that opens the associated switchgear when it detects a residual current above its residual
operating current I∆n (see “Pickup Current”).
Residual Operating Current I∆n
The value of the residual current that causes a residual current device to operate (I∆n).
Sensor
The element of a ground-fault current sensing and relaying equipment that detects ground-fault current
and transmits a resulting signal to ground-fault relaying equipment. In the Vigirex system, these are
toroid, split-core, or rectangular current transformers (CTs).
Service Voltage
(Preferred term: “Rated Operating Voltage”).
The rated operating voltage (Ue) of a system is the voltage which, together with the rated current of the
system, determines the load. For three-phase systems, it is the voltage between phases.
TN
In the TN system, a point in the supply system is connected directly to earth. The exposed conductive
parts of the electrical installation are connected to this point via protective conductors.
TN-S
The TN-S system is a TN system in which a protective conductor separate from the neutral is used
throughout the installation. This is common in the United States.
TT
In the TT system, a point in the supply system is connected directly to earth. The exposed conductive
parts of the electrical installation are connected to earth electrodes that are electrically separate from
that for the supply system.
Time Delay
Intentional delay before operation of a device. The time delay on operation of an upstream circuit
breaker allows time discrimination with the downstream circuit breaker. The time delay, which is
voluntary, should not be confused with the break time of a device, which is intrinsic to the device.
Touch Voltage
Voltage in case of an insulation fault across simultaneously accessible parts.
UL 943
UL 943 Class A defines the requirements for protection of personnel from ground-fault current. The
Vigirex system does not fulfill these requirements.
UL 1053
UL 1053 is the standard for ground-fault sensing and relaying equipment under which the Vigirex Relay
System is Listed. It is intended for protection of equipment and wiring, and not as people protective
(see “People Protection Devices”).
Zero-Sequence Current
A method of electrically summing all currents in an electrical line. Any non-zero sum indicates the
presence of leakage of current to ground.

Catalog No. 0972CT0401 April 2004 © 2004 Schneider Electric All Rights Reserved
Schneider Electric USA
3700 Sixth St SW
Cedar Rapids, IA 52404
1-888-SquareD
(1-888-778-2733)
www.SquareD.com
Schneider Canada Inc.
19 Waterman Avenue,
M4B 1 Y2
Toronto, Ontario
1-800-565-6699
www.schneider-electric.ca