Ljt22
2017-09-20
: Pdf Ljt22 ljt22 spec products columbia
Open the PDF directly: View PDF
.
Page Count: 4

EXAMPLE LJT2235HLGFSA12EUORDERING INFORMATION
FEATURES
• Full distribution LED troer
• Direct replacement for uorescent 2x2
• Long-life, 60,000 hour LEDs at L80 reduce life cycle
maintenance costs
• Four LED color choices and 80 CRI
• Many shielding choices
• Two door frame choices
• Metal to metal light leak protection on all four sides of
shielding frame
• Fixed output, step dimming (high/low/o), 0-10V dimming,
0-10V dimming-dim to dark drivers available
• Hinged optical system allows easy access to LED modules and
electrical from below the ceiling
• All models standard with IC rating
• DesignLights Consortium® (DLC) qualied with many
congurations qualifying for DLC Premium;
see www.designlights.org
• Five year warranty
CONSTRUCTION
Luminaire housing, end caps, and reectors are
die-formed code-gauge cold-rolled steel. Optical
system hinges from either side for easy access to
LED module and electrical components. Mechanical
light trap prevents light leaks.
FINISH
All metal parts processed with a multi-stage
phosphate bonding treatment and nished
with a high reectance baked white enamel.
SHIELDING
Lens is high transmission pattern #12 acrylic (A12)
for light diusion without compromise to light
output. Other shielding may be specied. If desired
shielding media is not shown in ordering guide,
contact your local Hubbell Lighting representative.
INSTALLATION
An access plate is furnished with each recessed
xture for fast wiring connections without the
necessity to open the xture or wireway.
CEILING COMPATIBILITY
Designed for recessed installation in standard
inverted tee grid ceilings (G), recessed installation
in hard ceilings (G with FK accessory), surface mount
at ceiling plane (SM), or cable mount suspension
below ceiling plane (CM). For compatibility with
specic ceilings contact your Hubbell Lighting
representative.
CERTIFICATION
All luminaires are built to UL 1598 and 2108
standards, and bear appropriate CSA labels. Damp
location labeling is standard. Emergency equipped
xtures labeled UL924. Adheres to LM79, LM80 and
TM21 industry standards. IC rating is standard on
all models. DesignLights Consortium® (DLC) and
DLC Premium qualied. Please refer to the DLC
website for specic product qualications at
www.designlights.org.
WARRANTY
Five year warranty. (Terms and Conditions Apply)
LUMEN OUTPUT
VW Very Low Watt
MW Medium Low Watt
LW Low Watt
ML Medium Lumen
HL High Lumen
VL Very High Lumen
See Product Availability Table below
– – – –
LJT 22
SIZE
22 2' × 2'
VOLTAGE
U120V-277V
COLOR TEMP
30 3000K
35 3500K
40 4000K
50 5000K
MODEL
LJT LED Lensed
Troffer
ACCESSORIES
ORDER SEPARATELY
FK22 2' × 2' Single
Flange Kit
CM48Y2SC3F-KIT 48" Cable Mount
Kit for 2' wide CM
ceiling type, 3
Wire Feed Cord
CEILING TYPE
GGrid1
SM Surface
Mount
CM Cable Mount2
U
SHIELDING
A12 Pattern
12 Acrylic
Lens
A12125
Pattern 12 Acrylic
Lens, 0.125"
Nominal
A12F
Pattern 12 Frosted
Acrylic Lens
A12125F
Pattern 12 Frosted
Acrylic Lens, 0.125"
Nominal
A19
Pattern 19 Acrylic
Lens, 0.156"
Nominal
A19F
Pattern 19 Frosted
Acrylic Lens 0.156"
DOOR
FS White Flush
Steel
FA White Flush
Aluminum
OPTIONS
C388 3-Wire Flex
C488 4-Wire Flex
C588 5-Wire Flex
TB4 (4) Bulk T-Bar Clips
ELL14 Emergency Battery
Pack Installed,
1400 Lumens4,5
GLR Fast Blow Fuse
GTD Generator Transfer
Device
G1 Single Gasketing
(Door to Housing)
G2 Double Gasketing
(G1 and Lens to Door)
G3 Triple Gasketing
(G2 and Housing to
Ceiling)
CP Chicago Plenum
1 For hard ceilings use flange kit accessory.
2 Order hanger accessories separately.
3 50 Watt and Below
4 For compatibility with Dual-LiteGear(R)
inverters in lieu of installed battery pack,
contact Hubbell Lighting Representative.
5 Not available with 2x2 Surface or Cable
Mount.
Damp label—standard.
IC rating—standard.
DRIVER
EFixed Output
ESD Step Dimming
ED 0-10V Dimming
ED1 0-10V 1%
Dimming
EDD 0-10V Dimming,
Dim to Dark3
LUTH Hi-lume 1%
EcoSystem LED
driver with Soft-
on, Fade-to-
Black dimming
technology 4
LUT5 5-Series
EcoSystem LED
driver 4
LJT22
2' × 2' LED Troer
LED / LJT22Page 1/3 Rev. 09/18/17
© 2017 Columbia Lighting, a division of Hubbell Lighting, Inc. Specications subject to change without notice.
701 Millennium Blvd. Greenville, SC 29607 / Tel 864.678.1000 / Website www.columbialighting.com
Catalog No.
Project Name Type
Date
PROJECT INFORMATION
DRIVER AVAILABILITY TABLE
VW MW LW ML HL VL
E X X X X X X
ESD X X X X X
ED X X X X X X
ED1 X X X X X X
EDD X X X X X X
LUTH X X X X X X
LUT5 X X X X X X

Product Availability
Lumen Package Lumens Input Watts LPW
LJT22-50VWG-FSA12-EU 1572 13 120
LJT22-40VWG-FSA12-EU 14 43 13 110
LJT22-35VWG-FSA12-EU 1421 13 108
LJT22-30VWG-FSA12-EU 1380 13 105
LJT22-50MWG-FSA12-EU 2130 18 117
LJT22-40MWG-FSA12-EU 1956 18 107
LJT22-35MWG-FSA12-EU 1926 18 106
LJT22-30MWG-FSA12-EU 1870 18 103
LJT22-50LWG-FSA12-EU 2741 24 116
LJT22-40LWG-FSA12-EU 2517 24 106
LJT22-35LWG-FSA12-EU 2479 24 105
LJT22-30LWG-FSA12-EU 2407 24 102
LJT22-50MLG-FSA12-EU 3722 31 119
LJT22-40MLG-FSA12-EU 3419 31 109
LJT22-35MLG-FSA12-EU 3365 31 108
LJT22-30MLG-FSA12-EU 3267 31 104
LJT22-50HLG-FSA12-EU 4074 33 125
LJT22-40HLG-FSA12-EU 3743 33 114
LJT22-35HLG-FSA12-EU 3684 33 113
LJT22-30HLG-FSA12-EU 3577 33 109
LJT22-50VLG-FSA12-EU 4718 42 113
LJT22-40VLG-FSA12-EU 4334 42 104
LJT22-35VLG-FSA12-EU 4265 42 103
LJT22-30VLG-FSA12-EU 4142 42 100
LJT22
2' × 2' LED Troer
LED / LJT22Page 2/3 Rev. 09/18/17
© 2017 Columbia Lighting, a division of Hubbell Lighting, Inc. Specications subject to change without notice.
701 Millennium Blvd. Greenville, SC 29607 / Tel 864.678.1000 / Website www.columbialighting.com

PHOTOMETRIC DATA
Luminaire LJT22-40LWG-FSA12-EU
LJT LED, Lensed Troer
2' X 2' LED with A12 pattern acrylic
prismed lens
Ballast XI040C110V054BST1
Ballast Factor 1.00
Lamp LED
Fixture Lumens 2518
Watts 23.70
Mounting Recessed
Shielding Angle 0º = 90 90º = 90
Spacing Criterion 0º = 1.14 90º = 1.20
Luminous Opening
in feet
Length:1.92
Width: 1.92
Height: 0.00
Luminaire LJT22-40MLG-FSA12-EU
LJT LED, Lensed Troer
2' X 2' LED with A12 pattern acrylic
prismed lens
Ballast XI040C110V054BST1
Ballast Factor 1.00
Lamp LED
Fixture Lumens 3419
Watts 31.30
Mounting Recessed
Shielding Angle 0º = 90 90º = 90
Spacing Criterion 0º = 1.14 90º = 1.20
Luminous Opening
in feet
Length:1.92
Width: 1.92
Height: 0.00
Luminaire LJT22-40HLG-FSA12-EU
LJT LED, Lensed Troer
2' X 2' LED with A12 pattern acrylic
prismed lens
Ballast XI040C110V054BST1
Ballast Factor 1.00
Lamp LED
Fixture Lumens 3743
Watts 32.70
Mounting Recessed
Shielding Angle 0º = 90 90º = 90
Spacing Criterion 0º = 1.14 90º = 1.20
Luminous Opening
in feet
Length:1.92
Width: 1.92
Height: 0.00
INDOOR CANDELA PLOT
INDOOR CANDELA PLOT
INDOOR CANDELA PLOT
ENERGY DATA
Total Luminaire Eciency 100.0%
Total Lumens per Watt 106
ANSI/IESNA RP-1-2004
Compliance
Noncompliant
Comparative Yearly Lighting
Energy Cost per 1000 Lumens
$2.29 based on
3000 hrs. and
$0.08 per KWH
ENERGY DATA
Total Luminaire Eciency 100.0%
Total Lumens per Watt 109
ANSI/IESNA RP-1-2004
Compliance
Noncompliant
Comparative Yearly Lighting
Energy Cost per 1000 Lumens
$2.18 based on
3000 hrs. and
$0.08 per KWH
ENERGY DATA
Total Luminaire Eciency 100.0%
Total Lumens per Watt 114
ANSI/IESNA RP-1-2004
Compliance
Noncompliant
Comparative Yearly Lighting
Energy Cost per 1000 Lumens
$2.12 based on
3000 hrs. and
$0.08 per KWH
LUMINAIRE DATA
LUMINAIRE DATA
LUMINAIRE DATA
Test 16378 Test Date 06/30/2016
Test 16381 Test Date 07/13/2016
Test 16384 Test Date 07/13/2016
ZONAL LUMEN SUMMARY
Zone Lumens %Lamp %Fixt.
0-30 889 35.3 35.3
0-40 1401 55.6 55.6
0-60 2157 85.7 85.7
0-90 2518 100.0 100.0
0-180 2518 100.0 100.0
ZONAL LUMEN SUMMARY
Zone Lumens %Lamp %Fixt.
0-30 1209 35.3 35.3
0-40 1903 55.7 55.7
0-60 2930 85.7 85.7
0-90 3419 100.0 100.0
0-180 3419 100.0 100.0
ZONAL LUMEN SUMMARY
Zone Lumens %Lamp %Fixt.
0-30 1321 35.3 35.3
0-40 2081 55.6 55.6
0-60 3206 85.7 85.7
0-90 3743 100.0 100.0
0-180 3743 100.0 100.0
Tel 864 678 1000 701 Millennium Blvd. Greenville, SC 29607
LUMINAIRE: LJT22-40LWG-FSA12-EU
LJT LED, Lensed Troffer
2' X 2' LED with A12 pattern acrylic prismed lens
Data scaled from test 16.01561
BALLAST: XI040C110V054BST1
BALLAST FACTOR: 1.00
LAMP: Led
FIXTURE LUMENS: 2518
WATTS: 23.70
MOUNTING: Recessed
SHIELDING ANGLE: 0º = 90 90º = 90
SPACING CRITERION: 0º = 1.14 90º = 1.20
LUMINOUS OPENING IN FEET
LENGTH: 1.92
WIDTH: 1.92
HEIGHT: 0.00
TEST #16378
DATE: 6/30/2016
TOTAL LUMINAIRE EFFICIENCY = 100.0
TOTAL LUMENS PER WATT = 106
ANSI/IESNA RP-1-2004 COMPLIANCE: NONCOMPLIANT
COMPARATIVE YEARLY LIGHTING ENERGY COST PER 1000 LUMENS = $2.29
BASED ON 3000 HRS. AND $.08 PER KWH
ZONAL LUMENS
ZONE LUMENS % LAMP % FIXTURE
0-30
0-40
0-60
0-90
0-180
889 35.3 35.3
1401 55.6 55.6
2157 85.7 85.7
2518 100.0 100.0
2518 100.0 100.0
INDOOR CANDELA PLOT
Horiz 0-180
600
1200
0 15 30 45
90
75
60
0.0 45.0 90.0
CANDELA/SQ MAVERAGE LUMINANCE
ANGLE 0.0 22.5 45.0 67.5 90.0
0
30
40
45
50
55
60
65
70
75
80
85
3445 3445 3445 3445 3445
3004 3021 3109 3190 3230
2600 2615 2710 2733 2748
2350 2366 2440 2387 2370
2071 2094 2112 2026 2008
1802 1797 1746 1675 1710
1577 1513 1407 1407 1489
1437 1340 1147 1223 1354
1434 1306 1033 1161 1323
1602 1388 1106 1207 1354
1850 1597 1345 1278 1480
2044 1943 1508 1474 1675
ZONAL CAVITY METHODCOEFFICIENTS OF UTILIZATION (%)
EFFECTIVE FLOOR CAVITY REFLECTANCE = 20%
RC 0%80% 70% 50% 30% 10%
RW 70% 50% 30% 10% 70% 50% 30% 10% 50% 30% 10% 50% 30% 10% 50% 30% 10% 0%
R
C
R
0
1
2
3
4
5
6
7
8
9
10
119 119 119 119 116 116 116 116 111 111 111 106 106 106 102 102 102 100
110 105 102 98 107 103 100 96 99 96 93 95 93 91 92 90 88 86
101 93 87 82 98 92 86 81 88 83 79 85 81 77 82 79 76 74
93 83 76 70 91 82 75 69 79 73 68 76 71 67 74 70 66 64
86 75 67 61 84 74 66 60 71 65 60 69 63 59 67 62 58 56
80 68 59 53 78 67 59 53 65 58 52 63 57 52 61 56 51 49
74 62 53 47 72 61 53 47 59 52 47 57 51 46 56 50 46 44
69 56 48 42 67 56 48 42 54 47 42 53 46 42 51 46 41 39
64 52 44 38 63 51 43 38 50 43 38 49 42 38 47 42 37 36
60 48 40 35 59 47 40 35 46 39 34 45 39 34 44 38 34 32
57 44 37 32 56 44 37 32 43 36 32 42 36 31 41 35 31 30
RCR = ROOM CAVITY RATIO RC = EFFECTIVE CEILING CAVITY REFLECTANCE RW = WALL REFLECTANCE
THE DATA IN THIS REPORT ARE BASED ON ABSOLUTE MEASUREMENTS.
ANSI/IESNA RP-1 COMPLIANCE IS BASED ON ABSOLUTE MEASUREMENTS.
THIS TEST RUN IN ACCORDANCE WITH CURRENT I.E.S.N.A. PUBLISHED PROCEDURES.
APPROVED BY:______________
Tel 864 678 1000 701 Millennium Blvd. Greenville, SC 29607
LUMINAIRE: LJT22-40LWG-FSA12-EU
LJT LED, Lensed Troffer
2' X 2' LED with A12 pattern acrylic prismed lens
Data scaled from test 16.01561
BALLAST: XI040C110V054BST1
BALLAST FACTOR: 1.00
LAMP: Led
FIXTURE LUMENS: 2518
WATTS: 23.70
MOUNTING: Recessed
SHIELDING ANGLE: 0º = 90 90º = 90
SPACING CRITERION: 0º = 1.14 90º = 1.20
LUMINOUS OPENING IN FEET
LENGTH: 1.92
WIDTH: 1.92
HEIGHT: 0.00
TEST #16378
DATE: 6/30/2016
TOTAL LUMINAIRE EFFICIENCY = 100.0
TOTAL LUMENS PER WATT = 106
ANSI/IESNA RP-1-2004 COMPLIANCE: NONCOMPLIANT
COMPARATIVE YEARLY LIGHTING ENERGY COST PER 1000 LUMENS = $2.29
BASED ON 3000 HRS. AND $.08 PER KWH
ZONAL LUMENS
ZONE LUMENS % LAMP % FIXTURE
0-30
0-40
0-60
0-90
0-180
889 35.3 35.3
1401 55.6 55.6
2157 85.7 85.7
2518 100.0 100.0
2518 100.0 100.0
INDOOR CANDELA PLOT
Horiz 0-180
600
1200
0 15 30 45
90
75
60
0.0 45.0 90.0
CANDELA/SQ MAVERAGE LUMINANCE
ANGLE 0.0 22.5 45.0 67.5 90.0
0
30
40
45
50
55
60
65
70
75
80
85
3445 3445 3445 3445 3445
3004 3021 3109 3190 3230
2600 2615 2710 2733 2748
2350 2366 2440 2387 2370
2071 2094 2112 2026 2008
1802 1797 1746 1675 1710
1577 1513 1407 1407 1489
1437 1340 1147 1223 1354
1434 1306 1033 1161 1323
1602 1388 1106 1207 1354
1850 1597 1345 1278 1480
2044 1943 1508 1474 1675
ZONAL CAVITY METHODCOEFFICIENTS OF UTILIZATION (%)
EFFECTIVE FLOOR CAVITY REFLECTANCE = 20%
RC 0%80% 70% 50% 30% 10%
RW 70% 50% 30% 10% 70% 50% 30% 10% 50% 30% 10% 50% 30% 10% 50% 30% 10% 0%
R
C
R
0
1
2
3
4
5
6
7
8
9
10
119 119 119 119 116 116 116 116 111 111 111 106 106 106 102 102 102 100
110 105 102 98 107 103 100 96 99 96 93 95 93 91 92 90 88 86
101 93 87 82 98 92 86 81 88 83 79 85 81 77 82 79 76 74
93 83 76 70 91 82 75 69 79 73 68 76 71 67 74 70 66 64
86 75 67 61 84 74 66 60 71 65 60 69 63 59 67 62 58 56
80 68 59 53 78 67 59 53 65 58 52 63 57 52 61 56 51 49
74 62 53 47 72 61 53 47 59 52 47 57 51 46 56 50 46 44
69 56 48 42 67 56 48 42 54 47 42 53 46 42 51 46 41 39
64 52 44 38 63 51 43 38 50 43 38 49 42 38 47 42 37 36
60 48 40 35 59 47 40 35 46 39 34 45 39 34 44 38 34 32
57 44 37 32 56 44 37 32 43 36 32 42 36 31 41 35 31 30
RCR = ROOM CAVITY RATIO RC = EFFECTIVE CEILING CAVITY REFLECTANCE RW = WALL REFLECTANCE
THE DATA IN THIS REPORT ARE BASED ON ABSOLUTE MEASUREMENTS.
ANSI/IESNA RP-1 COMPLIANCE IS BASED ON ABSOLUTE MEASUREMENTS.
THIS TEST RUN IN ACCORDANCE WITH CURRENT I.E.S.N.A. PUBLISHED PROCEDURES.
APPROVED BY:______________
Tel 864 678 1000 701 Millennium Blvd. Greenville, SC 29607
LUMINAIRE: LJT22-40MLG-FSA12-EU
LJT LED, Lensed Troffer
2' X 2' LED with A12 pattern acrylic prismed lens
Data scaled from test 16.01920
BALLAST: XI040C110V054BST1
BALLAST FACTOR: 1.00
LAMP: Led
FIXTURE LUMENS: 3419
WATTS: 31.30
MOUNTING: Recessed
SHIELDING ANGLE: 0º = 90 90º = 90
SPACING CRITERION: 0º = 1.14 90º = 1.20
LUMINOUS OPENING IN FEET
LENGTH: 1.92
WIDTH: 1.92
HEIGHT: 0.00
TEST #16381
DATE: 7/13/2016
TOTAL LUMINAIRE EFFICIENCY = 100.0
TOTAL LUMENS PER WATT = 109
ANSI/IESNA RP-1-2004 COMPLIANCE: NONCOMPLIANT
COMPARATIVE YEARLY LIGHTING ENERGY COST PER 1000 LUMENS = $2.18
BASED ON 3000 HRS. AND $.08 PER KWH
ZONAL LUMENS
ZONE LUMENS % LAMP % FIXTURE
0-30
0-40
0-60
0-90
0-180
1209 35.3 35.3
1903 55.7 55.7
2930 85.7 85.7
3419 100.0 100.0
3419 100.0 100.0
INDOOR CANDELA PLOT
Horiz 0-180
800
1600
0 15 30 45
90
75
60
0.0 45.0 90.0
CANDELA/SQ MAVERAGE LUMINANCE
ANGLE 0.0 22.5 45.0 67.5 90.0
0
30
40
45
50
55
60
65
70
75
80
85
4681 4681 4681 4681 4681
4090 4113 4231 4333 4383
3541 3560 3678 3720 3739
3200 3229 3324 3250 3213
2807 2835 2862 2744 2726
2454 2444 2362 2281 2316
2137 2073 1898 1910 2003
1935 1803 1561 1651 1831
1946 1767 1409 1579 1784
2177 1884 1500 1636 1828
2505 2152 1799 1749 2018
2814 2647 2044 2010 2278
ZONAL CAVITY METHODCOEFFICIENTS OF UTILIZATION (%)
EFFECTIVE FLOOR CAVITY REFLECTANCE = 20%
RC 0%80% 70% 50% 30% 10%
RW 70% 50% 30% 10% 70% 50% 30% 10% 50% 30% 10% 50% 30% 10% 50% 30% 10% 0%
R
C
R
0
1
2
3
4
5
6
7
8
9
10
119 119 119 119 116 116 116 116 111 111 111 106 106 106 102 102 102 100
110 105 102 98 107 103 100 96 99 96 93 95 93 91 92 90 88 86
101 94 87 82 98 92 86 81 88 83 79 85 81 78 82 79 76 74
93 83 76 70 91 82 75 69 79 73 68 76 71 67 74 70 66 64
86 75 67 61 84 74 66 60 71 65 60 69 63 59 67 62 58 56
80 68 59 53 78 67 59 53 65 58 53 63 57 52 61 56 51 49
74 62 53 47 72 61 53 47 59 52 47 57 51 46 56 50 46 44
69 56 48 42 67 56 48 42 54 47 42 53 46 42 51 46 41 40
64 52 44 38 63 51 43 38 50 43 38 49 42 38 47 42 37 36
60 48 40 35 59 47 40 35 46 39 34 45 39 34 44 38 34 32
57 44 37 32 56 44 37 32 43 36 32 42 36 31 41 35 31 30
RCR = ROOM CAVITY RATIO RC = EFFECTIVE CEILING CAVITY REFLECTANCE RW = WALL REFLECTANCE
THE DATA IN THIS REPORT ARE BASED ON ABSOLUTE MEASUREMENTS.
ANSI/IESNA RP-1 COMPLIANCE IS BASED ON ABSOLUTE MEASUREMENTS.
THIS TEST RUN IN ACCORDANCE WITH CURRENT I.E.S.N.A. PUBLISHED PROCEDURES.
APPROVED BY:______________
Tel 864 678 1000 701 Millennium Blvd. Greenville, SC 29607
LUMINAIRE: LJT22-40MLG-FSA12-EU
LJT LED, Lensed Troffer
2' X 2' LED with A12 pattern acrylic prismed lens
Data scaled from test 16.01920
BALLAST: XI040C110V054BST1
BALLAST FACTOR: 1.00
LAMP: Led
FIXTURE LUMENS: 3419
WATTS: 31.30
MOUNTING: Recessed
SHIELDING ANGLE: 0º = 90 90º = 90
SPACING CRITERION: 0º = 1.14 90º = 1.20
LUMINOUS OPENING IN FEET
LENGTH: 1.92
WIDTH: 1.92
HEIGHT: 0.00
TEST #16381
DATE: 7/13/2016
TOTAL LUMINAIRE EFFICIENCY = 100.0
TOTAL LUMENS PER WATT = 109
ANSI/IESNA RP-1-2004 COMPLIANCE: NONCOMPLIANT
COMPARATIVE YEARLY LIGHTING ENERGY COST PER 1000 LUMENS = $2.18
BASED ON 3000 HRS. AND $.08 PER KWH
ZONAL LUMENS
ZONE LUMENS % LAMP % FIXTURE
0-30
0-40
0-60
0-90
0-180
1209 35.3 35.3
1903 55.7 55.7
2930 85.7 85.7
3419 100.0 100.0
3419 100.0 100.0
INDOOR CANDELA PLOT
Horiz 0-180
800
1600
0 15 30 45
90
75
60
0.0 45.0 90.0
CANDELA/SQ MAVERAGE LUMINANCE
ANGLE 0.0 22.5 45.0 67.5 90.0
0
30
40
45
50
55
60
65
70
75
80
85
4681 4681 4681 4681 4681
4090 4113 4231 4333 4383
3541 3560 3678 3720 3739
3200 3229 3324 3250 3213
2807 2835 2862 2744 2726
2454 2444 2362 2281 2316
2137 2073 1898 1910 2003
1935 1803 1561 1651 1831
1946 1767 1409 1579 1784
2177 1884 1500 1636 1828
2505 2152 1799 1749 2018
2814 2647 2044 2010 2278
ZONAL CAVITY METHODCOEFFICIENTS OF UTILIZATION (%)
EFFECTIVE FLOOR CAVITY REFLECTANCE = 20%
RC 0%80% 70% 50% 30% 10%
RW 70% 50% 30% 10% 70% 50% 30% 10% 50% 30% 10% 50% 30% 10% 50% 30% 10% 0%
R
C
R
0
1
2
3
4
5
6
7
8
9
10
119 119 119 119 116 116 116 116 111 111 111 106 106 106 102 102 102 100
110 105 102 98 107 103 100 96 99 96 93 95 93 91 92 90 88 86
101 94 87 82 98 92 86 81 88 83 79 85 81 78 82 79 76 74
93 83 76 70 91 82 75 69 79 73 68 76 71 67 74 70 66 64
86 75 67 61 84 74 66 60 71 65 60 69 63 59 67 62 58 56
80 68 59 53 78 67 59 53 65 58 53 63 57 52 61 56 51 49
74 62 53 47 72 61 53 47 59 52 47 57 51 46 56 50 46 44
69 56 48 42 67 56 48 42 54 47 42 53 46 42 51 46 41 40
64 52 44 38 63 51 43 38 50 43 38 49 42 38 47 42 37 36
60 48 40 35 59 47 40 35 46 39 34 45 39 34 44 38 34 32
57 44 37 32 56 44 37 32 43 36 32 42 36 31 41 35 31 30
RCR = ROOM CAVITY RATIO RC = EFFECTIVE CEILING CAVITY REFLECTANCE RW = WALL REFLECTANCE
THE DATA IN THIS REPORT ARE BASED ON ABSOLUTE MEASUREMENTS.
ANSI/IESNA RP-1 COMPLIANCE IS BASED ON ABSOLUTE MEASUREMENTS.
THIS TEST RUN IN ACCORDANCE WITH CURRENT I.E.S.N.A. PUBLISHED PROCEDURES.
APPROVED BY:______________
Tel 864 678 1000 701 Millennium Blvd. Greenville, SC 29607
LUMINAIRE: LJT22-40HLG-FSA12-EU
LJT LED, Lensed Troffer
2' X 2' LED with A12 pattern acrylic prismed lens
Data scaled from test 16.01921
BALLAST: XI040C110V054BST1
BALLAST FACTOR: 1.00
LAMP: Led
FIXTURE LUMENS: 3743
WATTS: 32.70
MOUNTING: Recessed
SHIELDING ANGLE: 0º = 90 90º = 90
SPACING CRITERION: 0º = 1.14 90º = 1.20
LUMINOUS OPENING IN FEET
LENGTH: 1.92
WIDTH: 1.92
HEIGHT: 0.00
TEST #16384
DATE: 7/13/2016
TOTAL LUMINAIRE EFFICIENCY = 100.0
TOTAL LUMENS PER WATT = 114
ANSI/IESNA RP-1-2004 COMPLIANCE: NONCOMPLIANT
COMPARATIVE YEARLY LIGHTING ENERGY COST PER 1000 LUMENS = $2.12
BASED ON 3000 HRS. AND $.08 PER KWH
ZONAL LUMENS
ZONE LUMENS % LAMP % FIXTURE
0-30
0-40
0-60
0-90
0-180
1321 35.3 35.3
2081 55.6 55.6
3206 85.7 85.7
3743 100.0 100.0
3743 100.0 100.0
INDOOR CANDELA PLOT
Horiz 0-180
900
1800
0 15 30 45
90
75
60
0.0 45.0 90.0
CANDELA/SQ MAVERAGE LUMINANCE
ANGLE 0.0 22.5 45.0 67.5 90.0
0
30
40
45
50
55
60
65
70
75
80
85
5116 5116 5116 5116 5116
4464 4498 4622 4744 4791
3865 3899 4021 4075 4086
3477 3531 3630 3572 3506
3066 3130 3143 3016 2994
2673 2678 2596 2505 2535
2324 2260 2091 2096 2196
2128 1990 1707 1817 2004
2126 1946 1545 1742 1955
2369 2065 1647 1805 2008
2758 2371 1967 1917 2203
3049 2915 2245 2178 2479
ZONAL CAVITY METHODCOEFFICIENTS OF UTILIZATION (%)
EFFECTIVE FLOOR CAVITY REFLECTANCE = 20%
RC 0%80% 70% 50% 30% 10%
RW 70% 50% 30% 10% 70% 50% 30% 10% 50% 30% 10% 50% 30% 10% 50% 30% 10% 0%
R
C
R
0
1
2
3
4
5
6
7
8
9
10
119 119 119 119 116 116 116 116 111 111 111 106 106 106 102 102 102 100
110 105 102 98 107 103 100 96 99 96 93 95 93 91 92 90 88 86
101 93 87 82 98 92 86 81 88 83 79 85 81 77 82 79 76 74
93 83 76 70 91 82 75 69 79 73 68 76 71 67 74 70 66 64
86 75 67 61 84 74 66 60 71 65 60 69 63 59 67 62 58 56
80 68 59 53 78 67 59 53 65 58 52 63 57 52 61 56 51 49
74 62 53 47 72 61 53 47 59 52 47 57 51 46 56 50 46 44
69 56 48 42 67 55 48 42 54 47 42 53 46 42 51 46 41 39
64 52 44 38 63 51 43 38 50 43 38 49 42 38 47 42 37 36
60 48 40 35 59 47 40 35 46 39 34 45 39 34 44 38 34 32
57 44 37 32 56 44 37 32 43 36 32 42 36 31 41 35 31 30
RCR = ROOM CAVITY RATIO RC = EFFECTIVE CEILING CAVITY REFLECTANCE RW = WALL REFLECTANCE
THE DATA IN THIS REPORT ARE BASED ON ABSOLUTE MEASUREMENTS.
ANSI/IESNA RP-1 COMPLIANCE IS BASED ON ABSOLUTE MEASUREMENTS.
THIS TEST RUN IN ACCORDANCE WITH CURRENT I.E.S.N.A. PUBLISHED PROCEDURES.
APPROVED BY:______________
Tel 864 678 1000 701 Millennium Blvd. Greenville, SC 29607
LUMINAIRE: LJT22-40HLG-FSA12-EU
LJT LED, Lensed Troffer
2' X 2' LED with A12 pattern acrylic prismed lens
Data scaled from test 16.01921
BALLAST: XI040C110V054BST1
BALLAST FACTOR: 1.00
LAMP: Led
FIXTURE LUMENS: 3743
WATTS: 32.70
MOUNTING: Recessed
SHIELDING ANGLE: 0º = 90 90º = 90
SPACING CRITERION: 0º = 1.14 90º = 1.20
LUMINOUS OPENING IN FEET
LENGTH: 1.92
WIDTH: 1.92
HEIGHT: 0.00
TEST #16384
DATE: 7/13/2016
TOTAL LUMINAIRE EFFICIENCY = 100.0
TOTAL LUMENS PER WATT = 114
ANSI/IESNA RP-1-2004 COMPLIANCE: NONCOMPLIANT
COMPARATIVE YEARLY LIGHTING ENERGY COST PER 1000 LUMENS = $2.12
BASED ON 3000 HRS. AND $.08 PER KWH
ZONAL LUMENS
ZONE LUMENS % LAMP % FIXTURE
0-30
0-40
0-60
0-90
0-180
1321 35.3 35.3
2081 55.6 55.6
3206 85.7 85.7
3743 100.0 100.0
3743 100.0 100.0
INDOOR CANDELA PLOT
Horiz 0-180
900
1800
0 15 30 45
90
75
60
0.0 45.0 90.0
CANDELA/SQ MAVERAGE LUMINANCE
ANGLE 0.0 22.5 45.0 67.5 90.0
0
30
40
45
50
55
60
65
70
75
80
85
5116 5116 5116 5116 5116
4464 4498 4622 4744 4791
3865 3899 4021 4075 4086
3477 3531 3630 3572 3506
3066 3130 3143 3016 2994
2673 2678 2596 2505 2535
2324 2260 2091 2096 2196
2128 1990 1707 1817 2004
2126 1946 1545 1742 1955
2369 2065 1647 1805 2008
2758 2371 1967 1917 2203
3049 2915 2245 2178 2479
ZONAL CAVITY METHODCOEFFICIENTS OF UTILIZATION (%)
EFFECTIVE FLOOR CAVITY REFLECTANCE = 20%
RC 0%80% 70% 50% 30% 10%
RW 70% 50% 30% 10% 70% 50% 30% 10% 50% 30% 10% 50% 30% 10% 50% 30% 10% 0%
R
C
R
0
1
2
3
4
5
6
7
8
9
10
119 119 119 119 116 116 116 116 111 111 111 106 106 106 102 102 102 100
110 105 102 98 107 103 100 96 99 96 93 95 93 91 92 90 88 86
101 93 87 82 98 92 86 81 88 83 79 85 81 77 82 79 76 74
93 83 76 70 91 82 75 69 79 73 68 76 71 67 74 70 66 64
86 75 67 61 84 74 66 60 71 65 60 69 63 59 67 62 58 56
80 68 59 53 78 67 59 53 65 58 52 63 57 52 61 56 51 49
74 62 53 47 72 61 53 47 59 52 47 57 51 46 56 50 46 44
69 56 48 42 67 55 48 42 54 47 42 53 46 42 51 46 41 39
64 52 44 38 63 51 43 38 50 43 38 49 42 38 47 42 37 36
60 48 40 35 59 47 40 35 46 39 34 45 39 34 44 38 34 32
57 44 37 32 56 44 37 32 43 36 32 42 36 31 41 35 31 30
RCR = ROOM CAVITY RATIO RC = EFFECTIVE CEILING CAVITY REFLECTANCE RW = WALL REFLECTANCE
THE DATA IN THIS REPORT ARE BASED ON ABSOLUTE MEASUREMENTS.
ANSI/IESNA RP-1 COMPLIANCE IS BASED ON ABSOLUTE MEASUREMENTS.
THIS TEST RUN IN ACCORDANCE WITH CURRENT I.E.S.N.A. PUBLISHED PROCEDURES.
APPROVED BY:______________
LJT22
2' × 2' LED Troer
LED / LJT22Page 3/3 Rev. 09/18/17
© 2017 Columbia Lighting, a division of Hubbell Lighting, Inc. Specications subject to change without notice.
701 Millennium Blvd. Greenville, SC 29607 / Tel 864.678.1000 / Website www.columbialighting.com

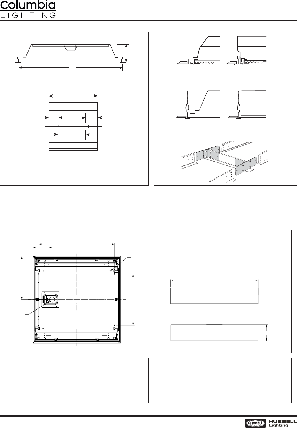
DIMENSIONAL DATA - SURFACE MOUNT (SM) OR CABLE MOUNT (CM)
NOTE: All dimensions are in inches;
dimensions and specications are
subject to change without notice.
Please consult factory or check
sample for verication.
21⁄"
4⁄"
25"
5⁄"
1½"
Thru
Hole
12⁄"
15"
End View
Side View
4½" x 5" Mounting Collar (SM only).
For Cable Mount (CM) a 2" x 3" access
plate with (2) ⁄" K.O.s provided in
place of Mounting Collar shown.
SURFACE MOUNT
Order SM ceiling type. Mounting collar required for surface mounting.
(4) Mounting knock-outs, ¼" to ½" provided as shown, marked "A".
CABLE MOUNT
Order CM ceiling type. Access plate supplied for cable mounting
or suspension. Use CM48Y2C3F-KIT 48" cable mount kit. Includes
3 wire feed cord. For other wiring needs, contact Hubbell Lighting
representative. Mounting knock-outs, ¼" to ½" provided as shown,
marked "A".
Mounting
Holes: (4) ¼–½"
DIA KOs (A)
24"
Side End
NOTE: All dimensions are in inches; dimensions and specications are subject to
change without notice. Please consult factory or check sample for verication.
CEILING COMPATIBILITY
Type G
For lay-in installation in exposed grid ceilings. Maximum tee widths of 1" and
maximum tee heights of 2" allowed.
Flange kit rough in dimensions for single unit only: 24⁄" × 24⁄"
Side End
FK22 Flange Kit
For hard ceiling applications order FK22 ange kit. Flange kit wires directly into
concealed ceiling opening for a clean, nished appearance.
FKCR
For anged xtures in row congurations, the FKCR adapter bracket kit is required
in addition to the FK22 kit. Order one less FKCR than the total number of xtures in
row. (Example: Row of two, order (2) FK22 & (1) FKCR)
Row cut out dimensions using FK22 & FKCR adapters:
Width 24⁄", Length [24" × (# in row)] + ¾". Example: (24" × 2) + ⁄"= 48⁄"
A - ⁄" Diameter Knockout
K - 2" × 3" through hole for access plate
3"
16½"
4½"
AK
DIMENSIONAL DATA
LJT22
24"
4¼"
LJT22
2' × 2' LED Troer
LED / LJT22Page 4/3 Rev. 09/18/17
© 2017 Columbia Lighting, a division of Hubbell Lighting, Inc. Specications subject to change without notice.
701 Millennium Blvd. Greenville, SC 29607 / Tel 864.678.1000 / Website www.columbialighting.com