538773 2 Goulds Aquavar ABII Product Overview
538774 2 Goulds Aquavar Abii Product Overview 538774_2_Goulds Aquavar ABII Product Overview
538775 2 Goulds Aquavar Abii Product Overview 538775_2_Goulds Aquavar ABII Product Overview
538776 2 Goulds Aquavar Abii Product Overview 538776_2_Goulds Aquavar ABII Product Overview
538777 2 Goulds Aquavar Abii Product Overview 538777_2_Goulds Aquavar ABII Product Overview
538780 2 Goulds Aquavar Abii Product Overview 538780_2_Goulds Aquavar ABII Product Overview
: Pump 538773 2 Goulds Aquavar Abii Product Overview 538773_2_Goulds Aquavar ABII Product Overview pdf
Open the PDF directly: View PDF
.
Page Count: 16

* Available up to 100 GPM systems
Aquavar ABII
VARIABLE SPEED CONSTANT PRESSURE SYSTEMS
TECHNICAL BROCHURE
BAQUABII R2

PAGE 2
Residential and Commercial Water Systems
CentriPro
Flow
Pressure
Typical home water pressure
drops when demand is high.
Pressure
Flow
The AquaBoost makes up the
pressure difference at peak demand
for constant home water pressure.
The AquaBoost Advantage
0+
+
0+
+
FEATURES
The AB2 variable speed pump controller and complete booster package kits, provide an
economical answer for municipal water district customers with low water pressure. Both do-
mestic and light commercial applications can benefit. As water use increases, the controller
changes pump speed to maintain pressure. Large supply tanks are eliminated and less wear
and tear on your pump and motor.
Think of it as “Cruise Control” for your pump! The AB2 is available with a range of flow rates
to handle homes with up to four baths, irrigation, filtration and fire suppression systems.
Light commercial applications up to 100 GPM at 45 PSI boost. The AB2 is available as either
a separate controller or as part of a complete pump package with everything you need to
plumb it to a domestic water line.
Diaphragm Tank Sizing and Pre-Set Pressure
Recommendations:
Diaphragm type (captive air) tanks are required on
these systems.
Table 1: Tank Sizing Selection
Use Total Tank Volume, to select the proper tank size.
The total tank volume should be approximately 20%
of the pump’s maximum flow. For example, when
using a 10 gpm pump the system requires a minimum
2 gallon (total volume) tank.
The tank sizing recommendations are field proven to
prevent objectionable pressure drops on start-up and
provide smooth operation for the majority of variable
speed pump systems.
Set the tank pressure, while tank is empty of water, to
20 psi below the desired system pressure setting. Ex.
for a 50 psi system pressure, charge the tank to 30 psi.
TANK SIZING
Maximum
Pump GPM
Recommended Tanks
Total Volume Order Number
10 1.9 V6P
24 4.9 V15P
36 7.3 V25P
70 13.9 V45
100 19.9 V60

PAGE 3
Residential and Commercial Water Systems
CentriPro
*1AB2 – Controller (1151AB2 for 115V)
• 4.2 Amp, 208-230 V, single phase input
• 1 HP variable speed controller
• Wall mount set • Transducer • Pre-wired
• Pump and tank not included
2AB2 – Controller
• 6.9 Amp, 208-230 V, single phase input
• 2 HP variable speed controller
• Wall mount set • Transducer • Pre-wired
• Pump and tank not included
*1AB2LB1035
• 1 HP controller • Wall mount set
• LB stainless steel jet pump • Transducer
• Discharge tee • V6P tank, pressure gauge
• Controller is pre-wired to the pump.
Flows to 15 GPM.
2AB21MC1F2B2
• 2 HP controller • Wall mount set • 208-230 V input
• MCC cast iron / stainless steel pump
• Transducer • V6P (2 gallon) tank and pressure gauge
• Controller is pre-wired. Flows to 27 GPM.
2AB21MC1G2A2
• 2 HP controller • Wall mount kit • 208-230 V input
• MCC cast iron / stainless steel pump
• Transducer • V6P (2 gallon) tank and pressure gauge
• Controller is pre-wired. Flows to 32 GPM.
*1AB21HM1E2D0
• 1 HP controller • Wall mount kit • 208-230 V input
• HMS stainless steel pump • Transducer
• V6P (2 gallon) tank and discharge pipe tee
• Controller is pre-wired. Flows to 20 GPM.
*1AB22HM1E2D0
• 1 HP controller • Wall mount kit • 208-230 V input
• HMS stainless steel pump • Transducer
• V6P (2 gallon) tank, pressure gauge and discharge
pipe tee
• Controller is pre-wired. Flows to 30 GPM.
2AB22HM1F2E0
• 2 HP controller • Wall mount kit • 208-230 V input
• HMS stainless steel pump • Transducer
• V6P (2 gallon) tank, pressure gauge and discharge
pipe tee
• Controller is pre-wired. Flows to 30 GPM.
**3AB2LCB1H2D0
• 3 HP controller • Wall mount kit • 208-230 V input
• LCB stainless steel pump • Transducer
• Pressure gauge and discharge pipe tee
• Controller is pre-wired. Flows to 50 GPM.
**2AB22MC1G2D2
• 2 HP controller • Wall mount kit • 208-230 V input
• MCC cast iron/stainless steel impeller pump
• Pressure transducer
• Pressure gauge, 1¼" bronze discharge tank tee
• Controller and motor are pre-wired. Flows to 80
GPM.
**5AB22MC1J2K2
• 5 HP controller • Wall mount • 208-230 V input
• MCC cast iron/stainless impeller pump
• Pressure transducer
• Pressure gauge, 1¼" bronze tank tee
• Controller and motor are pre-wired. Flows to 100
GPM.
**5AB2LCC1J2D0
• 5 HP controller • Wall mount • 208-230 V input
• LCC stainless steel pump • Pressure transducer
• Pressure gauge, 1¼" bronze tank tee
• Controller and motor are pre-wired. Flows to 70
GPM.
* 1 HP available in 115 input volt models, add a 115 prefix
to order number; ex. 1151AB2LB1035.
** Tank not included, order separately.
See Tank Sizing guide on previous page.
INPUT AND OUTPUT POWER (VOLTAGE AND PHASE)
• All 1AB2 and 2AB2 require single-phase input power • All controllers output three-phase, 230 Volt power
o All will work on 1Ø, 208-230V input power • All pumps are equipped with three-phase motors
o 1151AB2’s will work on 1Ø, 115V input power

PAGE 4
Residential and Commercial Water Systems
CentriPro
SYSTEM SELECTION
PSI 2-10 20 30 40 50 60 70 80 90 100
BOOST GPM GPM GPM GPM GPM GPM GPM GPM GPM GPM
20 1 3 3 5 5 9 9 9 10 10
25 1 3 3 9 9 9 9 10 10 10
30 1 3 3 9 9 10 10 10 10 10
35 1 3 3 9 9 10 10 10 10 10
40 1 3 3 7 7 10 10 10 10 10
45 1 3 3 7 8 10 10 10 10 10
50 1 3 4 7 8 10 10 10 10
55 1 3 4 7 8 10 10
60 1 4 7 8 8
65 2 4 7 8 8
70 2 4 8 8
75 4 4 8
80 4
*1 1AB2LB1035 (1 HP, stainless steel pump, 1" discharge, 1¼" suction)
*2 1AB21HM1E2D0 (1 HP, stainless steel pump, 1" discharge, 1¼" suction)
*3 1AB22HM1E2D0 (1 HP, stainless steel pump, 1" discharge, 1¼" suction)
4 2AB22HM1F2E0 (1½ HP, stainless steel pump, 1" discharge, 1¼" suction)
5 2AB21MC1F2B2 (1½ HP, cast iron pump, 1" discharge, 1¼" suction)
6 2AB21MC1G2A2 (2 HP, cast iron pump, 1" discharge, 1¼" suction)
7 3AB2LCB1H2D0 (3 HP, stainless steel pump, 1" discharge, 1¼" suction)
8 5AB2LCC1J2D0 (5 HP, stainless steel pump, 1" discharge, 1½" suction)
9 2AB22MC1G2D2 (2 HP, cast iron pump, 1¼" discharge, 1½" suction)
10 5AB22MC1J2K2 (5 HP, cast iron pump, 1¼" discharge, 1½" suction)
* 1 HP available in 115 volt input models. See Price Pages.
Items 7 thru 10 do not include tank. Recommend bladder tank, sized to 20% of pump flow (gpm).
See "Tank Sizing" on page 2.
NOTE: PSI is boosting pressure, NOT total system pressure.

PAGE 5
Residential and Commercial Water Systems
CentriPro
(135.36)
5.33
(259.08)
10.20
(237.06)
9.33
(12.07)
.48
(157.90)
6.22
(99.06)
3.90
(114.30)
4.50
(57.15)
2.25
(8.38)
.33
(242.04)
9.53 (232.56)
9.16
(81.28)
3.20
(16.51)
.65
(135.36)
5.33
(259.08)
10.20
(237.06)
9.33
(12.07)
.48
(157.90)
6.22
(99.06)
3.90
(114.30)
4.50
(57.15)
2.25
(8.38)
.33
(242.04)
9.53 (232.56)
9.16
(81.28)
3.20
(16.51)
.65
(135.36)
5.33
(259.08)
10.20
(237.06)
9.33
(12.07)
.48
(157.90)
6.22
(99.06)
3.90
(114.30)
4.50
(57.15)
2.25
(8.38)
.33
(242.04)
9.53 (232.56)
9.16
(81.28)
3.20
(16.51)
.65
AQUAVAR ABII CONTROLLER FEATURES
Input Power* — 208-230V ±15%, single phase
(controller only)
Output Power — Up to 230V three phase (based on
input voltage). Motor rated for 208-230V, ±10%.
Maximum Output Current — 4.2 amps – 1AB2 (1 HP)
— 6.9 amps – 2AB2 (2 HP)
Input Controls — Up and down buttons to set pressure.
Signal Lights — Power on, pump running, inverter
stopped, pump stopped, standby, faults/errors.
Electrical Efficiency — Over 95% at full load
Protection Against — Short circuit, under voltage, over-
load, motor temperature, dead heading, run out, suc-
tion loss, sensor fault, bound pump, over voltage, static
discharge. Note: Suction loss/run out is set for minimum
10 psi at discharge!
Ambient Temperature — 34º F to 104º F
Maximum Humidity — 95% at 104º F, non-condensing
Air Pollution — Avoid mounting in areas with excessive
dust, acids, corrosives and salts.
Approvals — (Listing on Controller Only)
Controller Enclosure — Outdoor, NEMA 3R, IP 43
(Rain-tight)
Mounting — Wall mount with mounting hardware.
Cooling — Convection with cast aluminum heat sink.
— 3 HP, 5 HP with temperature fan
Transducer — 0.5 - 4.5 VDC with 5 VDC power supply,
100 psi range, 10-foot 3-wire shielded cable.
Input Wire — 5 feet of 14, 10 or 8 gauge cable. Depend-
ing on size, cable is pre-wired to controller and motor
conduit box.
Output Wire — 10 feet of 14 gauge cable. Cable is pre-
wired to controller and pump motor (when provided).
*Low input voltage may affect motor operation.
PRESSURE RANGE
Nominal Range — Field adjustable from 20 - 85 psi, total system pressure.
DO NOT SET REQUIRED SYSTEM PRESSURE ABOVE 85 PSI. SEVERE DAMAGE TO PLUMB-
ING COULD RESULT. PLUMB RELIEF VALVE OUTSIDE OR TO A DRAIN.
WARNING
1AB2
2AB2
(135.36)
5.33
(259.08)
10.20
(237.06)
9.33
(12.07)
.48
(157.90)
6.22
(99.06)
3.90
(114.30)
4.50
(57.15)
2.25
(8.38)
.33
(242.04)
9.53 (232.56)
9.16
(81.28)
3.20
(16.51)
.65
CUS
Tested to UL 778 and
CSA 22.2 108 Standards
By Canadian Standards
Association
File #LR38549
UL
®
½"
Liquid
Tight

PAGE 6
Residential and Commercial Water Systems
CentriPro
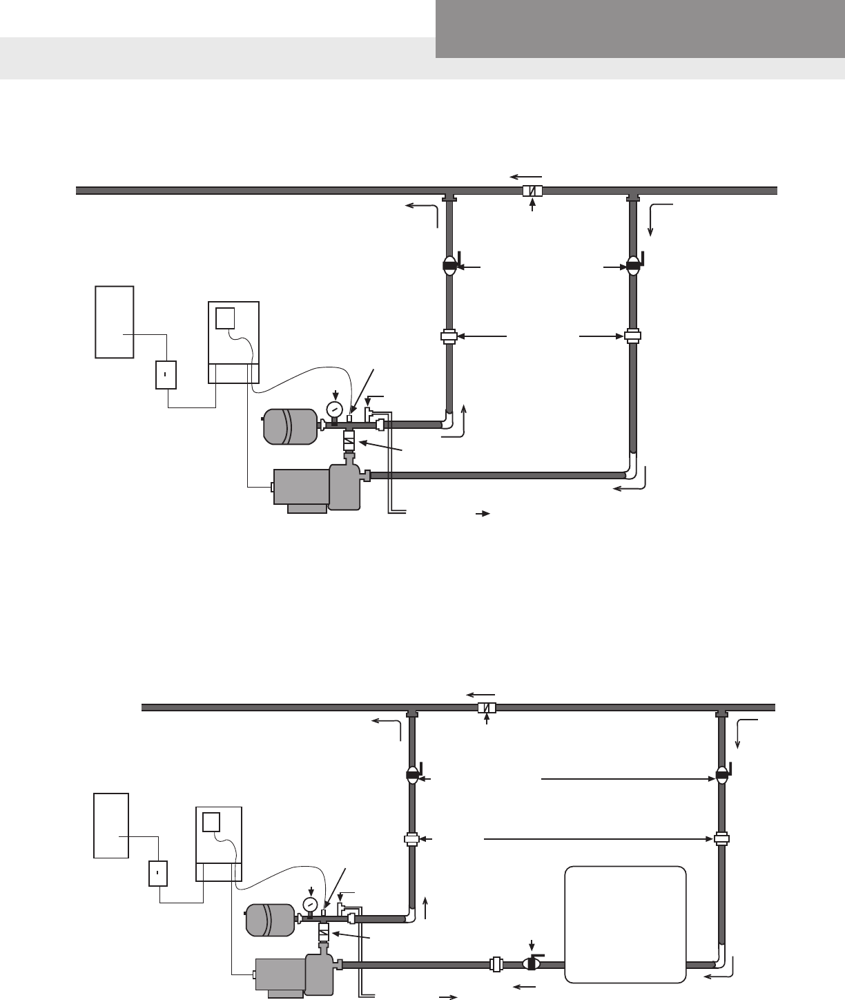
SUGGESTED AB2 INSTALLATION FOR MUNICIPAL WATER SYSTEM
Home Supply Water Main
Check Valve
Isolation Valves
Unions
Check Valve
To Drain
Relief
Valve
Gauge
Tank
AquaBoost
Controller
Circuit
Breaker
Disconnect Transducer
Motor/Pump
Figure 1
SUGGESTED AQUABOOST INSTALLATION FOR WELL PUMP SYSTEM
Home Supply Well Supply
Check Valve
Isolation Valves
Unions
Check Valve
To Drain
Relief
Valve
Gauge
Tank
AquaBoost
Controller
Circuit
Breaker
Disconnect
Atmospheric
Storage Tank
Transducer
Motor/Pump
Isolation
Valve
Figure 2

PAGE 7
Residential and Commercial Water Systems
CentriPro
FEETPSI
CAPACITY (Q)
U.S. GPM
80
60
70
0
TOTAL DYNAMIC HEAD (H)
100
140
80
024816
1234 5
40
60
160
120
180
610 12 14 18 20 22
0
20
0
METERS
50
30
40
0
50
40
30
20
10
20
10
MAX
MIN
NOTE:
Operation
beyond
pictured range,
may overload
controller and
cause
shutdown.
m3/hr
CAPACITY
0
20
40
60
80
100
120
130
0
10
20
30
40
30252015
10
5
0
2
0
140
METERS FEET
TOTAL DYNAMIC HEAD H
U.S. GPM
150
110
90
70
50
30
10
5
1 3 4 6 7
MIN
1MC1G2A0
1MC1F2B0
m3/hr
Model MCC / 1MC Size 1 x 1¼-6
1MC1F2B0, 1MC1G1A0 VARIABLE SPEED
Performance Range at 0 Suction, Max. Imp. Dia. 61/8"
Model LB / Size 1 x 1¼
LB1035 VARIABLE SPEED
Performance Range at 0 Suction
Impeller Diameter 5¼"
MAX.
(61/8")
Indicates
1MC1F2B0
pump with
5¾” diameter
impeller.

PAGE 8
Residential and Commercial Water Systems
CentriPro
FEET
METERS
TOTAL DYNAMIC HEAD
US GPM
CAPACITY
50
100
150
200
0
70
60
50
40
30
20
10
3010
04020
0
98760 m3/hr
250
515 25 35
54321 10
80
300
20
40
60
EFF. %
2HMS
1HMS
90
MAXIMUM SPEED
1HM1E2D0, 2HM1E2D0
and 2HM1F2E0
Performance Range
at 0 Suction
0
70
60
50
40
30
20
10
80
90
PSI
100
1
2
3
➀ Curve represents pump model 1HM1E2D0.
➁ Curve represents pump model 2HM1E2DO.
➂ Curve represents pump model 2HM1F2E0.

PAGE 9
Residential and Commercial Water Systems
CentriPro
0
30
40
50
60
70
80
90
100
110
120
130
140
150
160
170
180
190
200
210
FEET
3550 RPM
3150
2625
TOTAL DYNAMIC HEAD (TDH)
0 6056624844403632282420161284
CAPACITY
US GPM
52.2%
EFF.
LC Stainless Steel Variable Speed
Constant Pressure System
MODEL: 3AB2LCB1H2D0
2 STAGE PUMP
5.19" DIAM. IMP.
20
10
1775
4
12
16
20
24
28
32
36
40
44
48
52
56
60
64
68
72
92
FEET
TOTAL DYNAMIC HEAD (TDH)
0 115908580757065403530252015105
CAPACITY
US GPM
1101051009545 605550
3550 RPM
3150
2625
1775
60.4%
EFF.
8
88
76
80
84
MCC Cast Iron / SS Variable Speed
Constant Pressure System
MODEL: 2AB22MC1G2D2
SINGLE STAGE PUMP
4.62" DIAM. IMP.
NOTE: Curves indicate boost pressure.

PAGE 10
Residential and Commercial Water Systems
CentriPro
20
30
40
50
60
70
80
90
100
110
120
130
140
FEET 3550 RPM
3150
2625
TOTAL DYNAMIC HEAD (TDH)
0 120110100908070605040302010
CAPACITY
US GPM
10
130
1775
59.3%
EFF.
MCC Cast Iron / SS Variable Speed
Constant Pressure System
MODEL: 5AB22MC1J2K2
SINGLE STAGE PUMP
6.12" DIAM. IMP.
0
30
40
50
60
70
80
90
100
110
120
130
140
150
160
170
180
190
200
210
FEET
HEAD
0 95 1009085807570656055504540105
CAPACITY
US GPM
20
10
15 20 25 30 35
52.7%
EFF.
3550 RPM
3150
2625
1775
LC Stainless Steel Variable Speed
Constant Pressure System
MODEL: 5AB2LCC1J2D0
2 STAGE PUMP
5.19" DIAM. IMP.
NOTE: Curves indicate boost pressure.

PAGE 11
Residential and Commercial Water Systems
CentriPro
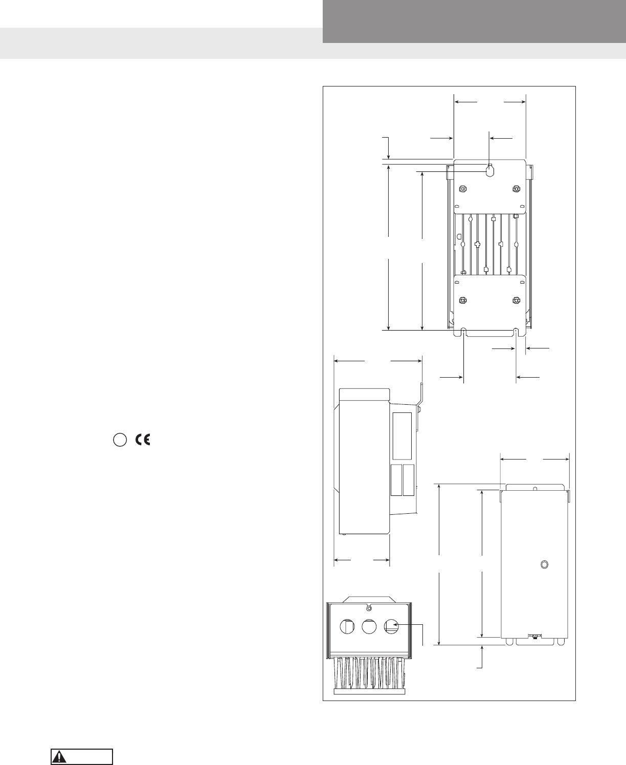
DIMENSIONS (For Reference Only - Do not use for construction purposes)
LB PUMP (LB1035) WITH TANK AND TEE
Capacities — to 15 GPM Pipe Connections — 1 x 11⁄4 NPT
Rotation — Right hand clockwise, Maximum Temperature of Water — 120º F
viewed from motor end NOTE: Tank Liquid Temperature Limit is 120º F
Pump Liquid Temperature Limit is 140º F
Materials — 304 stainless steel casing Maximum System Working Pressure — 85 psi
Noryl impeller
Motor — 1 HP, ODP, Three Phase, Seal — Carbon / Silicon Carbide / EPR
208-230/460V
Overload protection, starters, heaters not required.
Dimensions are in inches.
2.78
18.43
14.31
7.00
6.31Ø
14.93
6.75
4.25
REF
8.09
1.00 .10 (12 GA)
6.50
8.75
Approximate Packaged Shipping Weight — 55 lbs.
➀ Add the Check Valve dimension to this Reference Dimension
➀
½" NPT PLUG
TRANSDUCER
PORT ¼" NPT
DISCHARGE
1” NPT MALE
¾” NPT FEMALE
SUCTION
1¼” NPT
FEMALE
PRESSURE GAUGE
PORT ¼" NPT
½ - 14 NPSM CONDUIT
CONNECTION ODP MOTORS
V6P TANK
¾" NPT

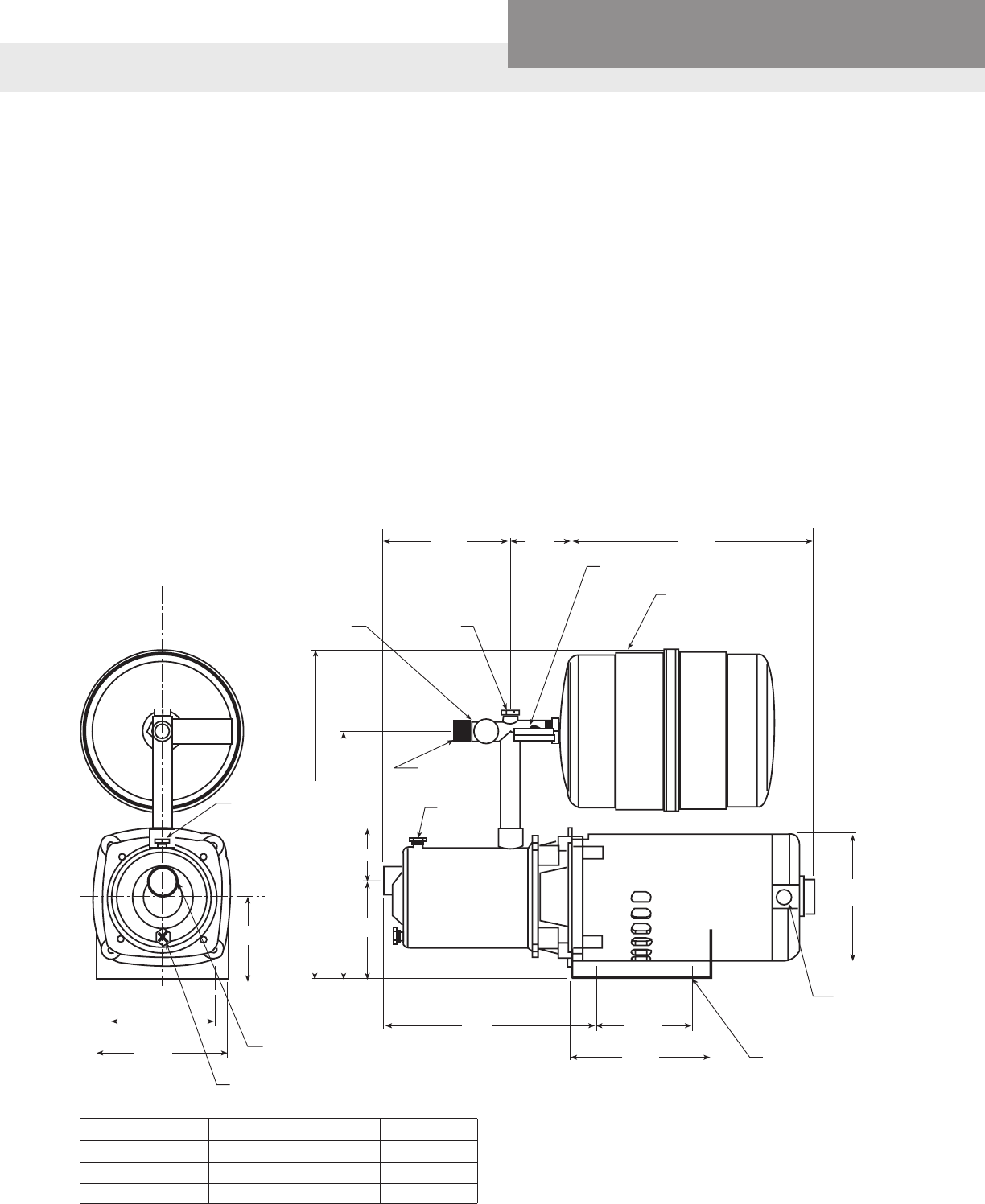
PAGE 12
Residential and Commercial Water Systems
CentriPro
2.00
19.87
15.75
6.75
4.58
6.75
6.31Ø
6.25
4.50
.75 .10 (12 GA)
12.22
DIMENSIONS (For Reference Only - Do not use for construction purposes)
MCC PUMP (1MC1G2A2 AND 1MC1F2B2) WITH TANK AND TEE
Capacity — to 32 GPM (1MC1G2A2) Pipe Connections — 1 x 11⁄4 NPT
— to 27 GPM (1MC1F2B2)
Rotation — Right hand clockwise, Maximum Temperature of Water — 120º F
viewed from motor end NOTE: Tank Liquid Temperature Limit is 120º F
Pump Liquid Temperature Limit is 212º F
Materials — Cast iron casing Maximum System Working Pressure — 85 psi
316 stainless steel impeller
Motor — 11⁄2 HP, ODP, Three Phase, 208-230/460V Seal — Carbon / Silicon Carbide / EPR
— 2 HP, ODP, Three Phase, 208-230/460V
Overload protection, starters, heaters not required.
Dimensions are in inches.
Approximate Packaged Shipping Weight — 75 lbs.
➀ Add the Check Valve dimension to this Reference Dimension
➀
TRANSDUCER
PORT ¼" NPT
DISCHARGE
1” NPT MALE
¾” NPT FEMALE
¼" NPT
DRAIN PLUG
½" NPT PLUG PRESSURE GAUGE
PORT ¼" NPT V6P TANK
¾" NPT
SUCTION
1¼” NPT
FEMALE
½ - 14 NPSM CONDUIT
CONNECTION ODP MOTORS
4 SLOTS LENGTHWISE
.34 X .50 LONG

PAGE 13
Residential and Commercial Water Systems
CentriPro
A 3.19
16.75
MAX
12.12
± .50
4.94
L 4.94
7.25
6.53
MAX
C
2.19
5.50
6.75
4.12
AQUABOOST A L C MOUNTING
1AB22HM1E2D0 5.75 10.75 11.62 View B
1AB21HM1E2D0 5.75 10.75 11.12 View A
2AB22HM1F2E0 6.73 11.75 11.62 View B
DIMENSIONS (For Reference Only - Do not use for construction purposes)
HMS PUMPS (1HM1E2D0, 2HM1E2D0)
Capacities — to 20 GPM (1HM) Pipe Connections — 1 x 11⁄4 NPT
to 38 GPM (2HM4/2HM5) Maximum Temperature of Water — 120º F
Rotation — Right hand clockwise, NOTE: Tank Liquid Temperature Limit is 120º F
viewed from motor end Pump Liquid Temperature Limit is 212º F
Materials — 316L stainless steel for all liquid Maximum System Working Pressure — 85 psi
handling components
Seal — Carbon / Silicon Carbide / EPR
Motor — 1 HP, ODP, Three Phase,208-230/460V (1HM/2HM4)
— 1.5 HP, ODP, Three Phase,208-230/460V (2HMS5)
Overload protection, starters, heaters not required. Dimensions are in inches.
Approximate Packaged Shipping Weight — 55 lbs.
➀ Add the Check Valve dimension to this Reference Dimension
➀
TRANSDUCER
PORT ¼" NPT
DISCHARGE
1” NPT MALE
¾” NPT FEMALE
1¼" NPT
SUCTION
1" NPT
DRAIN PLUG
FILL PLUG
½" NPT
PLUG
PRESSURE GAUGE
PORT ¼" NPT
V6P TANK
¾" NPT
½ - 14 NPSM
CONDUIT
CONNECTION
ODP MOTORS
4 SLOTS LENGTHWISE
.34 X .72 ON CENTER

PAGE 14
Residential and Commercial Water Systems
CentriPro
ALTERNATE PUMP MODELS FOR USE WITH 2AB2 CONTROLLER
3642 — 11⁄2, 2 HP, 3 ph, ODP or TEFC motor versions
GT — 11⁄2, 2 HP, 3 ph, ODP or TEFC motor versions
HSC — 11⁄2, 2 HP, 3 ph, ODP or TEFC motor versions
HMS — 11⁄2 HP, 3 ph, ODP or TEFC motor versions
10GB — 11⁄2, 2 HP, 3 ph, ODP or TEFC motor versions
NPE — 11⁄2, 2 HP, 3 ph, ODP or TEFC motor versions
NPO — 11⁄2, 2 HP, 3 ph, ODP or TEFC motor versions
MCS — 11⁄2, 2 HP, 3 ph, ODP or TEFC motor versions
ICS — 11⁄2, 2 HP, 3 ph, ODP or TEFC motor versions
ALTERNATE PUMP MODELS FOR USE WITH 1AB2 CONTROLLER
MCC — 1⁄2, 3⁄4, 1 HP, 3 ph, ODP or TEFC motor versions
3642 — 1⁄3, 1⁄2, 1 HP, 3 ph, ODP or TEFC motor versions
GT073, GT103 — 3 ph, ODP or TEFC motor versions
HSC07, HSC10 — 3 ph, ODP or TEFC motor versions
HMS — 1⁄2, 3⁄4, 1 HP, 3 ph, ODP or TEFC motor versions
5GB, 7GB — 1⁄2, 3⁄4, 1 HP, 3 ph, ODP or TEFC motor versions
NPE — 1⁄2, 3⁄4, 1 HP, 3 ph, ODP or TEFC motor versions
NPO — 1⁄2, 3⁄4, 1 HP, 3 ph, ODP or TEFC motor versions
MCS — 1⁄2, 3⁄4, 1 HP, 3 ph, ODP or TEFC motor versions
ICS — 1⁄2, 3⁄4, 1 HP, 3 ph, ODP or TEFC motor versions
LB — 1⁄2 and 3⁄4 HP, 3 ph, ODP or TEFC motor versions
SUBMERSIBLE PUMPS
Use Aquavar SOLO or S-Drive controllers for submersible applications,
they have filters built-in and are programmed for submersibles.
Note: These pumps are not currently
offered as a packaged kit, from CentriPro.
All units require three phase motors.
Size pumps and controllers according to
service factor amps of the motor.
Note: These pumps are not currently
offered as a packaged kit, from CentriPro.
All units require three phase motors.
Size pumps and controllers according to
service factor amps of the motor.

PAGE 15
Residential and Commercial Water Systems
CentriPro
PACKAGED HARDWARE WITHOUT PUMP AND MOTOR (SEE PRICING PAGE)
Part Number 15K40
KIT INCLUDES:
1) Tank – V6P (2 gallons)
2) 1" Bronze Discharge Tee – AV20-6
3) Pipe Plug – 1⁄2", 6K68
4) Pressure Gauge – AG5 (1 – 100 PSI)

CentriPro and AquaBoost are trademarks of Xylem Inc. or one of its subsidiaries.
© 2012 Xylem Inc. BAQUABII R2 January 2013
Xylem, Inc.
2881 East Bayard Street Ext., Suite A
Seneca Falls, NY 13148
Phone: (866) 325-4210
Fax: (888) 322-5877
www.xyleminc.com/brands/centripro
1) The tissue in plants that brings water upward from the roots;
2) a leading global water technology company.
We’re 12,500 people unified in a common purpose: creating innovative solutions
to meet our world’s water needs. Developing new technologies that will improve
the way water is used, conserved, and re-used in the future is central to our work.
We move, treat, analyze, and return water to the environment, and we help people
use water efficiently, in their homes, buildings, factories and farms. In more than
150 countries, we have strong, long-standing relationships with customers who
know us for our powerful combination of leading product brands and applications
expertise, backed by a legacy of innovation.
For more information on how Xylem can help you, go to www.xyleminc.com
Xylem