544607 2 Aquavar CPC Specifications
: Pump 544607 2 Aquavar Cpc Specifications 544607_2_Aquavar CPC Specifications pdf
Open the PDF directly: View PDF
.
Page Count: 8

Aquavar® CPC
VARIABLE SPEED CENTRIFUGAL PUMP CONTROLLER
TECHNICAL BROCHURE
BAQUACPC R2

PAGE 2
Commercial Water
CentriPro
Introduction
The Aquavar® CPC (Centrifugal Pump Controller) from CentriPro incorporates the latest state-of-the-art
Aquavar technology, with over 10 years of experience providing variable speed pump controllers. The Aquavar
CPC is a variable frequency drive and pump specific PLC in one compact unit, that will vary the speed of the
motor to maintain a consistent pressure, flow, temperature or level. Here are just a few of the features and
benefits of this innovative product:
• Compatible with previous versions of Aquavar, using version 120 software.
• Start-up “wizards” expedite the programming process, for specic applications.
• Removable control panel/display.
• Fully backlit display with large text makes the control pad easy to read.
• Dedicated help key activates parameter descriptions to enable an easy reference to the programming guide.
• Transducer assembly (0-300 psi) and 16-foot shielded cable included for constant pressure.
• Helps protect the pump from cavitation, dead head and blocked suction.
• Helps protect the motor from short circuit, phase loss, overload, undervoltage, overvoltage.
• Help key activates parameter descriptions to aid in the programming process.
• Integrated line choke reduces harmonics and provides 3-5% impedence line reactor.
• EMC/RFI lters reduce drive noise emissions and interference.
• Preventative maintenance reminders.
• Fault logger records the last 3 faults and drive characteristics at the time of fault.
• Detachable conduit box allows more space for incoming power and motor wiring.
• Fieldbus compatible, standard Modbus® Protocol (SCADA).
• Capable of controlling up to 3 xed speed pumps, with one drive.
• Manage fully variable multipump systems using a CPC for each pump. Up to 4 pumps and drives can be
linked.
• Auto lead/lag and switching control built in.
• Priming delay feature.
• Energy savings versus standard xed speed system. Onboard energy calculator.

PAGE 3
Commercial Water
CentriPro
Layout
• Port for quickly inserting / removing control panel
(keypad).
• Easy to access terminal block for control wiring of
transducer and other peripheral devices.
• Analog and digital inputs and outputs for start/stop,
speed control, monitoring, etc.
• Relay outputs to provide control wiring for up to three
fixed speed pumps (Note: fixed speed pumps require
their own starters).
• Multipump RS 485 connection. Connect up to 4 pumps
without additional PLCs!
• Conduit box is quickly removed with two screws
providing easy access to main power and wiring
terminals.
• Backlit display with large, easy-to-read characters.
• Cell phone style keypad allows the user to quickly
change parameters and save modifications.
• Help key enables onboard parameter explanation to
expedite the programming process.
• Local/Remote allows operator to run motor at full speed
manual control or via transducer.

PAGE 4
Commercial Water
CentriPro
Product Chart
INPUT INPUT NEMA 1 Cont. Output Amps NORMAL DUTY Frame
VOLTAGE PHASE BASE MODEL Normal Duty ➀ HORSEPOWER ➁ Size
CPC20071 3.5 1 R1
CPC20171 8.5 2 R1
CPC20241 12 3 R2
CPC20311 15.5 5 R2
CPC20461 23 7.5 R3
230 1 CPC20591 29.5 10 R3
CPC20881 44.0 15 R4
CPC21141 57.0 20 R4
CPC21431 71.5 25 R6
CPC21781 89.0 30 R6
CPC22211 110.5 40 R6
CPC22481 124.0 50 R6
CPC20041 4.6 1 R1
CPC20071 7.5 2 R1
CPC20121 11.8 3 R1
CPC20171 16.7 5 R1
CPC20241 24.2 7.5 R2
CPC20311 30.8 10 R2
CPC20461 46.2 15 R3
230 3 CPC20591 59.4 20 R3
CPC20751 74.8 25 R4
CPC20881 88.0 30 R4
CPC21141 114.0 40 R4
CPC21431 143.0 50 R6
CPC21781 178.0 60 R6
CPC22211 221.0 75 R6
CPC22481 248.0 100 R6
CPC40061 6.9 3 R1
CPC40081 8.8 5 R1
CPC40121 11.9 7.5 R1
CPC40151 15.4 10 R2
CPC40231 23 15 R2
CPC40311 31 20 R3
CPC40381 38 25 R3
CPC40451 45 30 R3
CPC40591 59 40 R4
CPC40721 72 50 R4
CPC40781 78 60 R4
460 3 CPC40971 97 75 R4
CPC41251 125 100 R5
CPC41571 157 125 R6
CPC41801 180 150 R6
CPC42451 246 200 R6
CPC43161 316 250 R7
CPC43681 368 300 R8
CPC44141 414 350 R8
CPC44861 486 400 R8
CPC45261 526 450 R8
CPC46021 602 500 R8
CPC46451 645 550 R8
CPC50031 2.7 2 R2
CPC50041 3.9 3 R2
CPC50061 6.1 5 R2
CPC50091 9 7.5 R2
CPC50111 11 10 R2
CPC50171 17 15 R2
CPC50221 22 20 R2
575 3 CPC50271 27 25 R3
CPC50321 32 30 R4
CPC50411 41 40 R4
CPC50521 52 50 R4
CPC50621 62 60 R4
CPC50771 77 75 R6
CPC50991 99 100 R6
CPC51251 125 125 R6
CPC51441 144 150 R6
➀ NOTE: Drive output is 3 phase voltage. ➁ ALWAYS consult motor maximum amp rating before selecting drive.

PAGE 5
Commercial Water
CentriPro
Specifications
Ratings and Enclosures
• NEMA 1 (indoor use) standard; other enclosures are available upon request.
• 1 – 200 HP (frame R1 – R6) wall mounted; 250 – 550 HP (frame R7 and R8) oor mounted.
• Ambient temperature 5º F – 104º F. Higher temperatures can be achieved using optional enclosure upgrades
and derating factor for up to 122º F.
• At altitudes from 0 to 3300 feet rated current is available, for every 328 feet above 3300 feet the current must
be derated 1%. Maximum 6600 feet (consult factory above 6600 feet).
• Relative humidity lower than 95% without condensation.
• UL 508C compliant. UL approved.
Electrical Characteristics
Input Power – 3 phase 380 V to 480 V +10%/-15% – Frequency 48 to 63 Hz
– 1 phase 208 V to 240 V +10%/-15% – .98 power factor
– 3 phase 208 V to 240 V +10%/-15%
– 3 phase 575 V +10%/-15%
Output Power – 3 phase from 0 to Vsupply (All motors must be 3 phase.)
– 0 to 60 Hz frequency
Nomenclature
TYPE CODE
CPC 4 370 1
AQUAVAR® CPC (Series)
Voltage
• 2 – 230 Volt • 4 – 460 Volt • 5 – 575 Volt
Amps
370 Amps *See Technical Section
NEMA Enclosure Rating
1 – NEMA 1 (indoor)
2 – NEMA 12 (indoor - dustproof)
Options
– Load Reactor
– Fused Disconnect
* Consult factory for other options, if available. Not all combinations may be available.

PAGE 6
Commercial Water
CentriPro
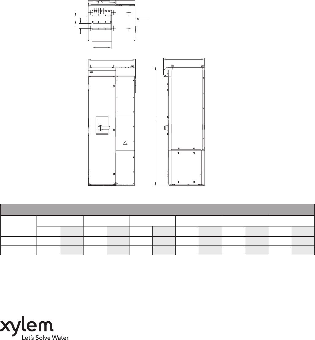
Weights and Dimensions
Frame Sizes R1 through R6 (see product chart for horsepower)
The dimensions and weight for the AQUAVAR depend on the frame size and enclosure type.
If unsure of frame size, rst, nd the “Type” code on the drive labels. Then look up that type
code in the “Technical Data”, to determine the frame size. A complete set of dimensional
drawings for AQUAVAR drives is located in the Technical Reference section of the IOM (Instal-
lation, Operation Manual).
Units with UL Type 1 Enclosures
Outside Dimensions
UL Type 1 – Dimensions for each Frame Size
Ref. R1 R2 R3 R4 R5 R6
mm in mm in mm in mm in mm in mm in
W 125 4.9 125 4.9 203 8.0 203 8.0 265 10.4 300 11.8
H 330 13.0 430 16.9 490 19.3 596 23.4 602 23.7 700 27.6
H2 315 12.4 415 16.3 478 18.8 583 23.0 578 22.8 698 27.5
H3 369 14.5 469 18.5 583 23.0 689 27.1 739 29.1 880 34.6
D 212 8.3 222 8.7 231 9.1 262 10.3 286 11.3 400 15.8
NOTE: Enclosures are standard NEMA 1, indoor use only.
For outdoor, NEMA 3R enclosures, consult factory.

PAGE 7
Commercial Water
CentriPro
Weights and Dimensions
Frame Sizes R1 through R6 (see product chart for horsepower)
Mounting Dimensions
UL Type 1 – Dimensions for each Frame Size
Ref. R1 R2 R3 R4 R5 R6
mm in mm in mm in mm in mm in mm in
W1* 98.0 3.9 98.0 3.9 160 6.3 160 6.3 238 9.4 263 10.4
W2* — — — — 98.0 3.9 98.0 3.9 — — — —
H1* 318 12.5 418 16.4 473 18.6 578 22.8 588 23.2 675 26.6
a 5.5 0.2 5.5 0.2 6.5 0.25 6.5 0.25 6.5 0.25 9.0 0.35
b 10.0 0.4 10.0 0.4 13.0 0.5 13.0 0.5 14.0 0.55 14.0 0.55
c 5.5 0.2 5.5 0.2 8.0 0.3 8.0 0.3 8.5 0.3 8.5 0.3
d 5.5 0.2 5.5 0.2 6.5 0.25 6.5 0.25 6.5 0.25 9.0 0.35
* Center to center dimension.
Weight
UL Type 1 – Weight for each Frame Size
R1 R2 R3 R4 R5 R6
kg lb. kg lb. kg lb. kg lb. kg lb. kg lb.
6.1 13.4 8.9 19.5 14.7 32.4 22.8 50.2 37 82 78 176

Weights and Dimensions
Frame Sizes R7 and R8 (see product chart for horsepower)
NEMA 1 Enclosure
Frame H1 W2 Depth Weight E1 E2
mm in mm in mm in kg lb. mm in mm in
R7 1503 59.17 609 23.98 495 19.49 195 430 92 3.62 250 9.84
R8 2130 83.86 800 31.5 585 23.03 375 827 92 3.62 250 9.84
Drawing is not for engineering purposes.
NOTE: Fusible disconnect included for 200 through 550 HP.
E1
E1
E2
X2
W2
H1
D
Top View
CentriPro and Aquavar are trademarks of Xylem Inc. or one of its subsidiaries.
© 2012 Xylem Inc. BAQUACPC R2 February 2013
Xylem, Inc.
2881 East Bayard Street Ext., Suite A
Seneca Falls, NY 13148
Phone: (800) 453-6777
Fax: (888) 322-5877
www.centripro.com