548293 1 Grundfos CR Replacement Parts List

: Pump 548293 1 Grundfos Cr Replacement Parts List 548293_1_Grundfos CR Replacement Parts List pdf

Open the PDF directly: View PDF PDF.
Page Count: 12

CRN1s-H
Parts List & Kits
Contents
Parts List
Spare Part Kits
Accessories
Special Tools
Standard Tools
Tools for Torques
GRUNDFOS CR SERVICE MANUAL
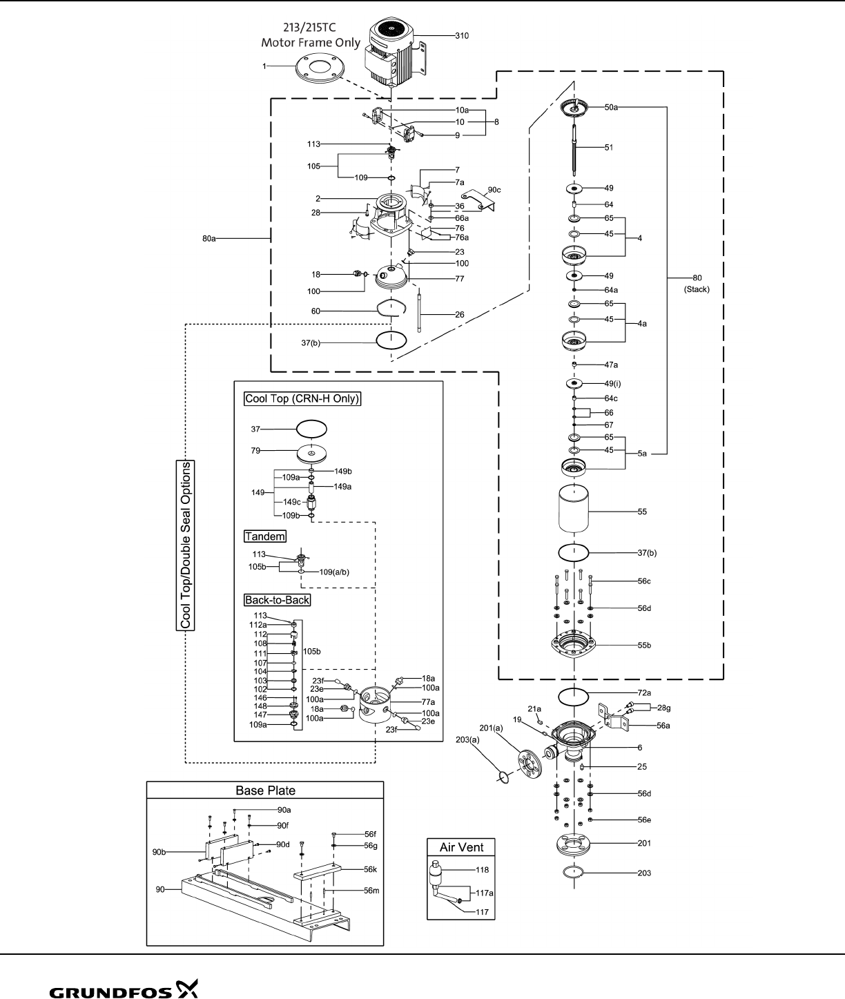
Exploded View CRN1s-H
2
Parts List & Kits CRN1s-H
Comments/Dimensions
Stages
Part Description
Pos.
No.
Material
No. Included
in kits ?
No.
Used
Model
B.O.M.
Ref. No.
parts list
This column indicates which model uses
the spare part. If blank, the part is used in all models.
Due to part changes over time, all position numbers
(1-203) may not be used.
2 Motor Stool-Cat. Cast Iron, w/o insert Pos. 77 3/2-27 1 NEMA, 56C, 1/3 - 2HP 96436510 No
1 NEMA, 182/184TC, 3 - 5HP 96436511 No
Motor Stool-Stainless Option for GI - w/o Pos. 77 3/2-27 1 NEMA, 56C, 1/3 - 2HP 96497267 No
1 NEMA, 182/184TC, 3 - 5HP 96497271 No
4 Chamber, Complete with Pos. 45 & 65 3/2-36 ^^^ PTFE Pos. 45 96439481 No
3/2-36 ^^^ PTFE Pos. 45, (97690021 is a qty. of 5) 96439482 97690021 No
4a Chamber Cpl. w/Pos. 45 & 65 & Bearing 3/2-36 ^^^^ Silicon Carbide Bearing, PTFE Pos. 45 96439476 YES
ChamberCpl.w/Pos.45&65&Brg.(option) 3/2-36 ^^^^ GraonBearing,PTFEPos.45 96440615 YES
5a Chamber, Bottom Complete with Pos. 45 & 65 3/2-36 1* PTFE Pos. 45 96439485 96588149 No
6 Volute 3/2-36 1 GA, Stainless Steel 95922064 No
7 Coupling Guard 3/2-27 2 NEMA-56C 96438137 No
2 NEMA, 182-215TC 96438138 No
7a Screw for Coupling Guard 3/2-36 4 Screw comb. slot torx/straight slot 4 x 8mm 96488481 No
9 Allen Screw 3/2-27 4 M6 x 20mm, Delta Tone/Seal 00ID7899 YES
4 M8 x 25mm, Delta Tone/Seal 00ID7900 YES
10 Shaft Pin 3/2-36 1 ø5 x 26mm 310192 YES
10a Coupling Half 3/2-27 2 NEMA, 56C, 1/3 - 2HP. ø15.8 / ø12 410108 YES
3/2-27 1 NEMA, 143/5TC, 1/3-3HP.ø22.225 /ø12 (Mach) 97851501 YES
2 NEMA, 182/184TC, 3-5HP. ø28.5/ø12 410109 YES
18(a) Priming/Vent Plug 3/2-36 * G 1/2A, NV24 with NV9 x M8 stem 405150 95061351 No
19(a) Pipe Plug 3/2-36 ** 1/4” NPT,SS SQHD, with Loctite 91136507 No
21a Pipe Plug 3/2-36 ** 1/4” NPT,SS SQHD, with Loctite 91136507 No
23(c ) Plug 3/2-36 ** G 1/2A, Solid no port, NV24 370025 95061733 No
23a, e Plug (option) 3/2-36 ** G 1/2A, w/1/4”port, NV24 91120659 No
23b, f Pipe Plug for Pos. 23a , 23e 3/2-36 ** 1/4” NPT,SS SQHD, with Loctite 91136507 No
23d Plug, Vented for Pos. 77a Cool Top® option only 3/2-36 2 G 1/2A, NV24, Vented 96510323 No
25 Drain Plug 3/2-36 1 1/4” NPT,SS SQHD, with Loctite 91136507 No
26 Staybolt 3/2-3 4 M12, ø10,7 x 69mm 97683238 No
4 4 M12, ø10,7 x 87mm 97683239 No
5 4 M12, ø10,7 x 106mm 97683241 No
6 4 M12, ø10,7 x 123mm 97683242 No
7 4 M12, ø10,7 x 141mm 97683243 No
8 4 M12, ø10,7 x 160mm 97683245 No
9 4 M12, ø10,7 x 177mm 97683246 No
10 4 M12, ø10,7 x 195mm 97683247 No
11 4 M12, ø10,7 x 214mm 97683250 No
12 4 M12, ø10,7 x 231mm 97683251 No
13 4 M12, ø10,7 x 249mm 97683252 No
15 4 M12, ø10,7 x 285mm 97683255 No
17 4 M12, ø10,7 x 322mm 97683258 No
19 4 M12, ø10,7 x 357mm 97683260 No
21 4 M12, ø10,7 x 393mm 97683262 No
23 4 M12, ø10,7 x 430mm 97683264 No
25 4 M12, ø10,7 x 465mm 97683266 No
27 4 M12, ø10,7 x 501mm 97683268 No
30 4 M12, ø10,7 x 555mm, 4 pole & 50 Hz. 97683271 No
33 4 M12, ø10,7 x 609mm, 4 pole & 50 Hz. 97683273 No
36 4 M12, ø10,7 x 663mm, 4 pole & 50 Hz. 97683274 No
Staybolt 3/2-3 4 M12, ø10,7 x 177mm 97683246 No
(Cool Top®, Back-to-Back & Tandem Seal Option) 4 4 M12, ø10,7 x 195mm 97683247 No
5 4 M12, ø10,7 x 214mm 97683250 No
6 4 M12, ø10,7 x 231mm 97683251 No
7 4 M12, ø10,7 x 249mm 97683252 No
8 4 M12, ø10,7 x 267mm 97683254 No
9 4 M12, ø10,7 x 285mm 97683255 No
10 4 M12, ø10,7 x 303mm 97683256 No
11 4 M12, ø10,7 x 322mm 97683258 No
12 4 M12, ø10,7 x 339mm 97683259 No
13 4 M12, ø10,7 x 357mm 97683260 No
15 4 M12, ø10,7 x 393mm 97683262 No
17 4 M12, ø10,7 x 430mm 97683264 No
19 4 M12, ø10,7 x 465mm 97683266 No
21 4 M12, ø10,7 x 501mm 97683268 No
23 4 M12, ø10,7 x 537mm 97683270 No
25 4 M12, ø10,7 x 573mm 97683272 No
27 4 M12, ø10,7 x 609mm 97683273 No
30 4 M12, ø10,7 x 663mm, 4 pole & 50 Hz. 97683274 No
33 4 M12, ø10,7 x 717mm, 4 pole & 50 Hz. 97683275 No
36 4 M12, ø10,7 x 771mm, 4 pole & 50 Hz. 97683276 No
B.O.M. Ref. Number is only available if it is not included in a kit or does
not have a material number listed. If it is included in a kit (YES), or has a
material number, request one of these numbers. If not included in a kit
(No), but has a Material Number, use Material Number.
3
Parts List & Kits CRN1s-H
Comments/Dimensions
Stages
Part Description
Pos.
No.
Material
No. Included
in kits ?
No.
Used
Model
B.O.M.
Ref. No.
parts list
28 Motor Bolt 3/2-27 4 NEMA, 56C, 1/3 - 2HP. UNC 3/8” x 25mm 00ID1839 No
4 NEMA, 182/184TC, 3 - 5HP.UNC1/2” x 25mm 00ID1840 No
28g Bolt for foot Pos. 56a 3/2-36 2 M12 x 1.75 x 20mm, 316SS, Delta Tone/Seal 97672732 No
36 Staybolt Nut 3/2-36 4 19mm x M12, 316SS 00ID0876 No
37 Sleeve O-ring 3/2-36 uu EPDM, ø137.5 x 3.3mm 96438743 YES
Sleeve O-ring 3/2-36 uu FKM, ø137.5 x 3.3mm 96438744 YES
37b Sleeve O-ring (option) 3/2-36 uu FXM, ø137.5 x 3.3mm 96458109 YES
3/2-36 uu FFKM, ø136.12 x 3.53mm 96466718 YES
45 Neck Ring 3/2-36 # stgs ø41.3 x ø30.6 x .75mm, PTFE 400003 YES
47a Bearing Ring/Spacer 3/2-36 ^^^^ SiC 150, ø17.37 x ø13.10 x ø10.9 x 13mm 96437488 YES
Brg.Ring/Spacer(optionforGraonPos.4a) 3/2-36 ^^^^ TC,ø15.92xø13.10xø10.9x9.7mm 400041 YES
49 Impeller 3/2-36 # stgs ø73.0 x ø30.6 x 9.0mm (back-plate .5mm) 96433166 No
50a Top Guide Vane 3-36 1 96457638 No
Top Guide Vane Plate (option for destaging) 3/2 1 96478562 No
51 Shaft, Complete 3/2-3 1 ø12 x 160.5mm 96439607 96588198 No
4 1 ø12 x 180.5mm 96440386 96588199 No
5 1 ø12 x 196.5mm 96440387 96588230 No
6 1 ø12 x 214.5mm 96440388 No
7 1 ø12 x 234.5mm 96440389 96588231 No
8 1 ø12 x 250.5mm 96440390 No
9 1 ø12 x 268.5mm 96440391 No
10 1 ø12 x 288.5mm 96440392 No
11 1 ø12 x 304.5mm 96440393 No
12 1 ø12 x 322.5mm 96440394 96588233 No
13 1 ø12 x 342.5mm 96440395 96588234 No
15 1 ø12 x 376.5mm 96440396 96588235 No
17 1 ø12 x 412.5mm 96440398 No
19 1 ø12 x 450.5mm 96440400 No
21 1 ø12 x 484.5mm 96440401 96588236 No
23 1 ø12 x 520.5mm 96440403 No
25 1 ø12 x 556.5mm 96440405 96588237 No
27 1 ø12 x 592.5mm 96440406 No
30 1 ø12 x 646.5mm, 4 pole & 50 Hz. 96440408 No
33 1 ø12 x 700.5mm, 4 pole & 50 Hz. 96440410 No
36 1 ø12 x 754.5mm, 4 pole & 50 Hz. 96440411 96588238 No
Shaft, Cpl. 3/2-3 1 ø12 x 265.5mm 96457560 No
(Cool Top®, Back-to-Back & Tandem Seal option) 4 1 ø12 x 285.5mm 96457561 No
5 1 ø12 x 301.5mm 96457562 No
6 1 ø12 x 319.5mm 96457563 No
7 1 ø12 x 339.5mm 96457564 No
8 1 ø12 x 355.5mm 96457565 No
9 1 ø12 x 373.5mm 96457566 No
10 1 ø12 x 393.5mm 96457567 No
11 1 ø12 x 409.5mm 96457568 No
12 1 ø12 x 427.5mm 96457569 No
13 1 ø12 x 447.5mm 96457570 No
15 1 ø12 x 481.5mm 96457571 No
17 1 ø12 x 517.5mm 96457573 No
19 1 ø12 x 555.5mm 96457575 No
21 1 ø12 x 589.5mm 96457576 No
23 1 ø12 x 625.5mm 96457578 No
25 1 ø12 x 661.5mm 96457580 No
27 1 ø12 x 697.5mm 96457581 No
30 1 ø12 x 751.5mm, 4 pole & 50 Hz. 96457583 No
33 1 ø12 x 805.5mm, 4 pole & 50 Hz. 96457585 No
36 1 ø12 x 859.5mm, 4 pole & 50 Hz. 96457586 No
55 Outer Sleeve 3/2-3 1 ø138 x 44.6mm 96439996 No
4 1 ø138 x 62.6mm 96440025 No
5 1 ø138 x 80.6mm 96441528 No
6 1 ø138 x 98.6mm 96440014 No
7 1 ø138 x 116.6mm 96441529 No
8 1 ø138 x 134.6mm 96441531 No
9 1 ø138 x 152.6mm 96440015 No
10 1 ø138 x 170.6mm 96441532 No
11 1 ø138 x 188.6mm 96441534 No
12 1 ø138 x 206.6mm 96440016 No
13 1 ø138 x 224.6mm 96441535 No
15 1 ø138 x 260.6mm 96440017 No
This column indicates which model uses
the spare part. If blank, the part is used in all models.
Due to part changes over time, all position numbers
(1-203) may not be used.
B.O.M. Ref. Number is only available if it is not included in a kit or does
not have a material number listed. If it is included in a kit (YES), or has a
material number, request one of these numbers. If not included in a kit
(No), but has a Material Number, use Material Number.
4
Comments/Dimensions
Stages
Part Description
Pos.
No.
Material
No. Included
in kits ?
No.
Used
Model
B.O.M.
Ref. No.
parts list
Parts List & Kits CRN1s-H
55 Outer Sleeve (continued) 17 1 ø138 x 296.6mm 96441538 No
19 1 ø138 x 332.6mm 96441539 No
21 1 ø138 x 368.6mm 96440019 No
23 1 ø138 x 404.6mm 96441542 No
25 1 ø138 x 440.6mm 96441543 No
27 1 ø138 x 476.6mm 96440021 No
30 1 ø138 x 530.6mm, 4 pole & 50 Hz. 96440022 No
33 1 ø138 x 584.6mm, 4 pole & 50 Hz. 96440023 No
36 1 ø138 x 638.6mm, 4 pole & 50 Hz. 96439997 No
 55b Sleeveange 3/2-36 1 CaststainlessDin1.4408(316C16) 96834154 No
56a Foot for Pos. 6 Cast Iron 3/2-36 1 H=43mm, W=196mm, ø16mm hole, 95922025 No
CL 152mm, CI.
Foot for Pos. 6 Stainless Steel option for GI 3/2-36 1 H=43mm, W=196mm, ø16mm hole 95922078 No
CL 152mm, SS.
56b(d) Washer for bolt Pos. 56c 3/2-36 16 M8, ø16 x ø8.4x 1.6mm, 316 SS 97672740 No
 56c BoltforsleeveangePos.55b 3/2-36 8 M8x1.25-6gx45mm,316SS,DeltaTone/Seal 97672731 No
56e Nut for bolt Pos. 56c 3/2-36 8 M8, NV13 x1.25-6H 316 SS, DeltaTone/Seal 97672737 No
56f Bolt for base Pos. 90 56C/182TC 3/2-36 2 Hex Hd.1/2 -13 UNC x 1” SAE 5, Zinc plated YES
56g Washer for bolt Pos. 56f 3/2-36 2 1/2” SAE, Zinc plated YES
60 Stack Compression Spring 3/2-36 1 ø136 x 3.5mm 96439662 No
64 Spacing Pipe 2-36 ^^^ ø15.85 x ø12.85 x 17.52mm 400035 95061339 No
64a Spacing Pipe 3/2-36 ^^^^ ø15.85 x ø12.85 x 4.5mm 96440292 YES
SpacingPipe(optionforGraonPos.4a) 3/2-36 ^^^^ UsewithTCPos.47a,ø15xø12.7x7.8mm 400016 YES
64c Clamp, Splined 3/2-36 1 ø15 x ø13.10 x ø10.9 x 13mm 96439668 YES
65 Neck Ring Retainer 3/2-36 # stgs ø43.5 x ø34.0 x 3.6mm 96438746 YES
66 Lock Washer Set for Shaft 3/2-36 1 ø13.5 x ø8.2 x 2.6mm 96417297 YES
66a Washer for Staybolt 3/2-36 4 DIN 125A, 304SS, ø24 x ø13 x 2.5mm 00ID3103 No
67 Lock Nut for Shaft 3/2-36 1 13mm x M8 00ID2061 YES
69 Spacing Pipe 3/2 1 ø15.85 x 12.85 x 18.0mm 400125 95061443 No
72a Sleeve Flange O-ring 3/2-36 1 EPDM, ø137.5 x 3.3mm 96438743 97683277 YES
3/2-36 1 FKM, ø137.5 x 3.3mm 96438744 97683278 YES
Sleeve Flange O-ring (option) 3/2-36 1 FXM, ø137.5 x 3.3mm 96458109 97683279 YES
3/2-36 1 FFKM, ø136.12 x 3.53mm 96466718 97683280 YES
76 Nameplate 3/2-36 1 304SS, 60 x 45mm 96439820 No
76a Rivet for Nameplate 3/2-36 2 304SS, ø3 x 5mm 96022882 No
77 Pump Head Cover for Motor Stool Pos. 2 3/2-36 1 Cast Stainless 96436340 No
77a Pump Head Cover for Back-to-Back & Tand. Seal 3/2-36 1 Cast Stainless 96456293 No
77a Pump Head Cover for Cool Top® (option) 3/2-36 1 Cast Stainless 96456294 No
79 Disc / Plate for Cool Top® 3/2-36 1 Stainless 96456296 No
90 Main Support Baseplate GA 3/2-21 1 BP. Cpl. 139, L=991mm x W=305mm x 96956336 YES
H=106.5mm
Main Support Baseplate - Longer versions GA 23-36 1 XLBP1 (139), L=1500mm x W=381mm x 96956376 YES
H=106.5mm
90a Bolt for motor to slider Pos. 90b 56C 3/2-36 4 Hex Head 5/16-18 UNC x .75” SAE 5, Zinc plated YES
90b Motor support /slide rail 56C 3/2-36 2 BP139, L=204mm x H=45.5mm x W=25.4mm 96956339 YES
90c Support Bracket for Pump Cartridge 3/2-36 1 304 SS, H=74mm CL of hole, GA 95131235 No
90d Bolt for motor slide rail Pos. 90b to base Pos. 90 3/2-36 4 Hex Head 1/4 -20 UNC x 1” SAE 5, Zinc plated YES
90f Washer for mtr. bolt Pos. 90a to slide rail Pos. 90b 3/2-36 4 5/16”” SAE, Zinc plated YES
100 Priming/Vent Plug O-ring 3/2-36 n EPDM, ø16.3 x 2.4mm 00ID1288 YES
3/2-36 n FKM, ø16.3 x 2.4mm 00ID2231 YES
100(a) Priming/Vent Plug O-ring (option) 3/2-36 n FFKM, ø16.3 x 2.4mm 96428162 YES
3/2-36 n FXM, ø16.3 x 2.4mm 96442869 YES
102 O-ring for Pos. 105b Back-to-Back 3/2-36 1 EPDM, ø18 x 2.5mm 00ID2041 YES
3/2-36 1 FKM, ø17.86 x 2.62mm 00ID2187 YES
O-ring for Pos. 105b Back-to-Back (option) 3/2-36 1 FFKM, ø17.86 x 2.62mm 96440281 No
3/2-36 1 FXM, ø17.86 x 2.62mm 96472584 No
103 Stnry Seal Ring for Pos. 105b Back-to-Back 3/2-36 1 TC, 12mm 980190 No
Stnry Seal Ring for Pos. 105b Back-to-Back (opt.) 3/2-36 1 SiC,12mm 980746 YES
104 Rotating Seal Ring for Pos. 105b Back-to-Back 3/2-36 1 TC, 12mm 980163 No
Rotating Seal Ring for Pos. 105b Back-to-Back (opt.) 3/2-36 1 SiC, 12mm 980733 YES
105(b) Shaft Seal HQBE 3/2-36 *** SiC, Carbon with resin-impregnated, EPDM 96441879 YES
Shaft Seal HQBV 3/2-36 *** SiC, Carbon with resin-impregnated, FKM 96441880 YES
Shaft Seal HQBK (option) 3/2-36 *** SiC, Carbon with resin-impregnated, FFKM 96489537 YES
Shaft Seal HQQE 3/2-36 *** SiC, SiC, EPDM 96441877 YES
Shaft Seal HQQV 3/2-36 *** SiC, SiC, FKM 96441878 YES
Shaft Seal HQQF (option) 3/2-36 *** SiC, SiC, FXM 96472620 YES
Shaft Seal HQQK (option) 3/2-36 *** SiC, SiC, FFKM 96464381 YES
Shaft Seal HUBE 3/2-36 *** TC, Carbon with resin-impregnated, EPDM 96441873 YES
Shaft Seal HUBV 3/2-36 *** TC, Carbon with resin-impregnated, FKM 96441874 YES
Shaft Seal HUBF (option) 3/2-36 *** TC, Carbon with resin-impregnated, FXM 96481464 YES
This column indicates which model uses
the spare part. If blank, the part is used in all models.
Due to part changes over time, all position numbers
(1-203) may not be used.
B.O.M. Ref. Number is only available if it is not included in a kit or does
not have a material number listed. If it is included in a kit (YES), or has a
material number, request one of these numbers. If not included in a kit
(No), but has a Material Number, use Material Number.
5
Comments/Dimensions
Stages
Part Description
Pos.
No.
Material
No. Included
in kits ?
No.
Used
Model
B.O.M.
Ref. No.
parts list
Parts List & Kits CRN1s-H
105(b) Shaft Seal HUBK (option) 3/2-36 *** TC, Carbon with resin-impregnated, FFKM 96481463 YES
Shaft Seal HUUE 3/2-36 *** TC, TC, EPDM 96441875 YES
Shaft Seal HUUV 3/2-36 *** TC, TC, FKM 96441876 YES
Shaft Seal HUUF (option) 3/2-36 *** TC, TC, FXM 96475542 YES
Shaft Seal HUUK (option) 3/2-36 *** TC, TC, FFKM 96467885 YES
105b Shaft Seal/inboard for Back-to-Back OQQE 3/2-36 1 SiC, SiC, EPDM 985200 YES
Shaft Seal/inboard for Back-to-Back OQQV 3/2-36 1 SiC, SiC, FKM 985760 YES
Shaft Seal/inboard for Back-to-Back OUUE 3/2-36 1 TC, TC, EPDM 985189 405145 YES
Shaft Seal/inboard for Back-to-Back OUUV 3/2-36 1 TC, TC, FKM 985190 405145 YES
107 O-ring for Pos. 105b Back-to-Back 3/2-36 1 EPDM, ø11.5 x 4.3mm 00ID2040 YES
3/2-36 1 FKM, ø11.5 x 4.3mm 00ID2186 YES
O-ring for Pos. 105b Back-to-Back (option) 3/2-36 1 FFKM, ø11.5 x 4.3mm 96440282 No
3/2-36 1 FXM, ø11.5 x 3.18mm 96472618 No
108 Spring for Pos. 105b Back-to-Back 3/2-36 1 12mm 980195 YES
109(a) O-ring for Shaft Seal Pos. 105 3/2-36 1 EPDM, ø21.3 x 3.0mm 00ID1798 YES
3/2-36 1 FKM, ø21.2 x 3.0mm 00ID2339 YES
109b O-ring for Shaft Seal Pos. 105 (option) 3/2-36 1 FXM, ø22 x 2.75mm 96458111 YES
3/2-36 1 FFKM, ø23.47 x 2.62mm 96464384 YES
111 Seal Driver (small) for Pos. 105b Back-to-Back 3/2-36 1 980192 YES
112 Seal Driver (large) for Pos. 105b Back-to-Back 3/2-36 1 980191 YES
112a Seal Drv threaded for 112, Pos. 105b Back-to-Back 3/2-36 1 400203 YES
113 Set Screw for 112a, for Pos. 105b Back-to-Back 3/2-36 1 3mm x M5 x 6mm 00ID7392 YES
117 Air Vent Pipe for 118 3/2-36 1 G1/2, 316SS, 60 x 43mm 96525189 YES
117a Counter Nut for Pipe 117 3/2-36 1 NV24, internal G1/2, 316SS 96506709 YES
118 Air Vent 3/2-36 1 Air vent type 1511-AV - 5/6430 96427483 YES
146 Allen Bolt for 147/148, for Pos. 105b Back-to-Back 3/2-36 1 2.5mm x M3 x 5mm 96462639 YES
147 Stationary Seal Retainer - Pos. 105b Back-to-Back 3/2-36 1 NV36, 316SS 96457354 No
148 Seal Retainer Washer - Pos. 105b Back-to-Back 3/2-36 1 316SS, ø36.0 x ø21.6 x 5.0mm 96457355 No
149 Connecting Pipe for Cool Top® 3/2-36 1 NV36, 316SS, FXM & EPDM 96460414 No
3/2-36 1 NV36, 316SS, FXM & FKM 96460415 No
149a Retainer for bushing 3/2-36 1 316SS, ø22.0 x ø17.0 x 9mm 96457639 YES
 149b Bushing 3/2-36 1 Graon®,ø21..2xø12.4x53mm 96456297 YES
149c Connecting Pipe less 109a&b and 149a&b 3/2-36 1 NV36, 316SS 96456295 YES
 201 Flange,Suction,CastIron 3/2-17 1 1.5”150#,4x1/2”-13UNCthreadedg.,e-coat 96922828 No
  3/2-36 1 1.5”300#,4x3/4”-10UNCthreadedg.,e-coat 96956145 No
  Flange,Suction,StainlessSteeloptionforGI 3/2-17 1 1.5”150#,4x1/2”-13UNCthreadedange 97644306 No
  3/2-36 1 1.5”300#,4x3/4”-10UNCthreadedange 97644307 No
 201a Flange,Discharge,CastIron 3/2-17 1 1”150#,4x1/2”-13UNCthreadedg.,e-coat 96922827 No
  3/2-36 1 1”300#,4x5/8”-11UNCthreadedg.,e-coat 96956144 No
  Flange,Discharge,StainlessSteeloptionforGI 3/2-17 1 1”150#,4x1/2”-13UNCthreadedange 97644302 No
  3/2-36 1 1”300#,4x3/4”-10UNCthreadedange 97644304 No
 203 RetainingringforPos.201,1.5”ange 3/2-36 1 Stainless,ø72.6x5 96475395 No
 203a RetainingringforPos.201a,1.0”ange 3/2-36 1 Stainless,ø53.6x3.2 96439718 No
This column indicates which model uses
the spare part. If blank, the part is used in all models.
Due to part changes over time, all position numbers
(1-203) may not be used.
B.O.M. Ref. Number is only available if it is not included in a kit or does
not have a material number listed. If it is included in a kit (YES), or has a
material number, request one of these numbers. If not included in a kit
(No), but has a Material Number, use Material Number.
Notes on next page…
6
Parts List & Kits CRN1s-H
Notes:
KITS ....... Recommended spare part
Ø....... Diameter
ANSI ....... American National Standards Institute
CPL ....... Complete Assembly – these parts consist of more than one
component
EPDM ....... Ethylene Propylene (also kNown as EPR and EPT) – an elastic
substance similar to rubber
FFKM ....... Kalrez Elastomer made by DuPont
FKM ....... Fluoro Elastomer (generic for Viton)
FXM ....... Fluoraz Elastomer made by Greene Tweed
M....... International standard thread size designation (thread
diameter in mm)
mm ....... Millimeter
MG ....... Identifies Grundfos motor type/size
N....... Stainless
NBR ....... Buna - N (also kNown as Nitrile) – an elastic substance similar
to rubber
NEMA ....... National Electrical Manufacturers Association
PTFE ....... Teflon
SiC ....... Silicon Carbide
TC ....... Tungsten Carbide
UNC ....... Unified National Coarse – a standard for threads on bolts
^^^ 3/2 to 9 stage = # of Stages less 2
10 to 19 stage = # of stages less 3
21 to 27 stage = # of stages less 4
29 to 36 stage = # of stages less 5
Exception: When de-staging pump by 2 impellers, replace top chamber
Pos. 4 with Pos. 5a
^^^^ 3/2 to 9 stage = use 1
10 to 19 stage = use2
21 to 27 stage = use 3
29 to 36 stage = use 4
*Standard use 1. Back-to-Back or Tandem pump version use 3
** Standard use 1. Back-to-Back or Tandem pump version use 3
*** 1 used in Hxxx (Standard), 2 used in Pxxx (Tandem) pump version
 Standard use 2. Back-to-Back or Tandem pump version use 3
Standard use 2. Back-to-Back or Tandem pump version use 6
1* Standard use 1. When de-staging pump by 2 impellers, replace top chamber
Pos. 4 with an additional Pos. 5a
Cool Top® is a registered trademark of Grundfos Pumps
Therstnumberistotalnumberifimpellers.AnexceptiontothisformatistheCRN1s-
2H.
Example: a CRN1s-2H is actually a CRN1s-3/2H, it has 3 chambers and
2 impellers (de-staged by 1) - it uses a 3 stage shaft.
Key to Symbols:
7
Spare Part Kits
Since certain pump parts can be expected to exhibit wear at the same time as related pump parts, they have been grouped into the
following kits for your convenience. The numbers indicate the quantity of the part within each kit. Please order these kits using the
kit material number at the top of the columns.
Spare Part Kits CRN1s-H
CR(I, N)1S, 1, & 3 SiC Bearing
WEAR PARTS KIT 2-9 Kit No. 96455095
WEAR PARTS KIT 10-19 Kit No. 96455092
WEAR PARTS KIT 20-27 Kit No. 96455093
WEAR PARTS KIT 28-36 Kit No. 96455094
Pos. No. Description Material No. Qty. Included in each Kit
4a Chamber N Cpl. w/Pos.45 & 65 & SiC Bearing 96439476 1 2 3 4
39 Gasket for Oval Flange, 95 x 55 x ø35 x 2mm 400189 2 2 2 2
45 Neck Ring, ø41.3 x ø30.6 x .75mm, PTFE 400003 8 17 24 32
47a Bearing Ring/Spacer, SiC 150, 13mm 96437488 1 2 3 4
64a Spacing Pipe, ø15.85 x ø12.85 x 4.5mm 96440292 1 2 3 4
64c Clamp, Splined, ø15 x ø13.10 x ø10.9 x 13mm 96439668 1 1 1 1
65 Neck Ring Retainer, N, ø43.5 x ø34.0 x 3.6mm 96438746 8 17 24 32
66 Lock Washer Set of 2, ø13.5 x ø8.2 x 2.6mm 96417297 1 1 1 1
67 Lock Nut, 13mm x M8 00ID2061 1 1 1 1
CR(I, N )1S, 1, & 3 Graflon Bearing
WEAR PARTS KIT 2-9 Kit No. 96460140
WEAR PARTS KIT 10-19 Kit No. 96455110
WEAR PARTS KIT 20-27 Kit No. 96455111
WEAR PARTS KIT 28-36 Kit No. 96455112
Pos. No. Description Material No. Qty. Included in each Kit
4a Chamber N Cpl. w/Pos.45 & 65 & Graflon Brg. 96440615 1 2 3 4
39 Gasket for Oval Flange, 95 x 55 x ø35 x 2mm 400189 2 2 2 2
45 Neck Ring, ø41.3 x ø30.6 x .75mm, PTFE 400003 8 17 24 32
47a Bearing Ring/Spacer, TC, 9.7mm 400041 1 2 3 4
64a Spacing Pipe, ø15.85 x ø12.85 x 7.8mm 400016 1 2 3 4
64c Clamp, Splined, ø15 x ø13.10 x ø10.9 x 13mm 96439668 1 1 1 1
65 Neck Ring Retainer, N, ø43.5 x ø34.0 x 3.6mm 96438746 8 17 24 32
66 Lock Washer Set of 2, ø13.5 x ø8.2 x 2.6mm 96417297 1 1 1 1
67 Lock Nut, 13mm x M8 00ID2061 1 1 1 1
STANDARD SHAFT SEAL KIT, BALANCED CARTRIDGE Kit No. 96455088
(Maximum allowed working PSI is 435) Kit No. 96491375
(Tandem Seal option Pumps require 2 of each Seal Kit) Kit No. 96455089
Kit No. 96455086
Kit No. 96533327
Kit No. 96533326
Kit No. 96455087
Pos. No. Descri
p
tion Material No. Qt
y
. Included in each Kit
105 HQBE 96441879 1
HQBK 96489537 1
HQBV 96441880 1
HQQE 96441877 1
HQQF 96472620 1
HQQK 96498109 1
HQQV 96441878 1
N/A Grinding Device Tool for Emery Cloth 370711 1 111111
N/A Emery Cloth 370712 1 111111
OPTIONAL SHAFT SEAL KIT, BALANCED CARTRIDGE Kit No. 96455082
(
Maximum allowed working PSI is 435
)
Kit No. 96533323
(Tandem Seal option Pumps require 2 of each Seal Kit) Kit No. 96533322
Kit No. 96455083
Kit No. 96455084
Kit No. 96533325
Kit No. 96533324
Kit No. 96455085
Pos. No. Description Material No.
105 HUBE 96441873 1
HUBF 96481464 1
HUBK 96481463 1
HUBV 96441874 1
HUUE 96441875 1
HUUF 96475542 1
HUUK 96498108 1
HUUV 96441876 1
N/A Grindin
g
Device Tool for Emer
y
Cloth 370711 1
1111111
N/A Emer
y
Cloth 370712 1
1111111
Qty. Included in each Kit
STACK KITS
Model Material No.
CRN1S-3/2 96479078
CRN1S-3 96479079
CRN1S-4 96479080
CRN1S-5 96479081
CRN1S-6 96479082
CRN1S-7 96479083
CRN1S-8 96479084
CRN1S-9 96479085
CRN1S-10 96479086
CRN1S-11 96479087
CRN1S-12 96479088
CRN1S-13 96479089
CRN1S-15 96479090
CRN1S-17 96479091
CRN1S-19 96479092
CRN1S-21 96479093
CRN1S-23 96479094
CRN1S-25 96479095
CRN1S-27 96479096
*** CRN1S-30 96479097
*** CRN1S-33 96479098
*** CRN1S-36 96479099
***For 4 pole & 50 Hz operation only.
8
Spare Part Kits (continued)
Spare Part Kits CRN1s-H
INBOARD SHAFT SEAL & Gasket KIT, Back to Back OQQE Kit No. 96533360
INBOARD SHAFT SEAL & Gasket KIT, Back to Back OQQV Kit No. 96533361
INBOARD SHAFT SEAL & Gasket KIT, Back to Back OQQV Kit No. 96989183
INBOARD SHAFT SEAL & Gasket KIT, Back to Back OQQK Kit No. 96536168
INBOARD SHAFT SEAL & Gasket KIT, Back to Back OUUE/V Kit No. 405145
(An HQQx or HUUx seal kit must also be used for respectively to complete seal repairs)
Pos. No. Description Material No. Qty. Included in each Kit
37 Sleeve O-ring, EPDM, ø137.5 x 3.3mm 96438743 3
Sleeve O-ring, FKM, ø137.5 x 3.3mm 96438744 3
38, 100(a) Drain Plug O-ring, EPDM, Ø16.3 x 2.4mm 00ID1288 7
Drain Plu
g
O-rin
g
, FKM, Ø16.3 x 2.4mm
00ID2231 7
102 O-rin
g
, EPDM, ø18 x 2.5mm 00ID2041 1 1
O-ring, FKM, ø17.86 x 2.62mm 00ID2187 1 1 1
O-rin
g
, FFKM, ø17.86 x 2.62mm 96440281 1
103 Stationary Seal Ring, SiC,12mm 980746 1
Stationary Seal Ring, TC,12mm 980190 1
104 Rotating Seal Ring, SiC, 12mm 980733 1 1 1 1
Rotating Seal Ring, TC, 12mm 989163 1
107 O-rin
, EPDM, ø11.5 x 4.3mm 00ID2040 1 1
O-rin
g
, FKM, ø11.5 x 4.3mm 00ID2186 1 1 1
O-ring, FFKM, ø11.5 x 4.3mm 96440282 1
108 S
p
rin
g
, 12mm 980195 1 1111
109a O-ring, EPDM, ø21.3 x 3.0mm 00ID1798 1
O-ring, FKM, ø21.2 x 3.0mm 00ID2339 1 1
O-ring, FFKM, ø23.47 x 2.62mm 96464384 1
111 Driver for pos.104 980192 1 1111
112 Driver for
p
os.111 980191 1 1111
112a Driver for
p
os.112 400203 1 1 1 1
113 Set Screw for pos.112a 00ID7392 2 2 2 2
146 Allen Bolt for
p
os.147 & 148, 2.5mm x M3 x 5mm 96462639 3 3 3 3
147 Stationary Seal Retainer - NV36, 316SS 96457354 1 1
148 Seal Retainer Washer -316SS, ø36.0 x ø21.6 x 5.0mm 96457355 1 1
N/A Grinding Device Tool for Emery Cloth 370711 1
N/A Emery Cloth 370712 1
GASKET KIT (EPDM) Kit No. 96455090
GASKET KIT (FKM) Kit No. 96455091
GASKET KIT (FXM) Kit No. 96463944
GASKET KIT (FFKM) Kit No. 96533328
GASKET KIT (EPDM)-Double Seal option. Kit No. 96533362
GASKET KIT (FKM)-Double Seal option. Kit No. 96533363
GASKET KIT (FFKM)-Double Seal option. Kit No. 96533364
GASKET KIT (FXM, & EPDM)- Cool-Top option Kit No. 96533329
Pos. No. Description Material No.
37 Sleeve O-ring, EPDM, ø137.5 x 3.3mm 96438743 2 3 1
Sleeve O-ring, FKM, ø137.5 x 3.3mm 96438744 2 3
37b Sleeve O-ring, FXM, ø137.5 x 3.3mm 96458109 2 2
Sleeve O-ring, FFKM, ø136.12 x 3.53mm 96466718 2 3
38, 100(a) Drain Plug O-ring, EPDM, Ø16.3 x 2.4mm 00ID1288 3 7 4
Drain Plug O-ring, FKM, Ø16.3 x 2.4mm 00ID2231 3 7
38, 100a Drain Plug O-ring, FXM, ø16.3 x 2.4mm 96442869 3 3
Drain Plug O-ring, FFKM, ø16.3 x 2.4mm 96428162 3 7
109(a) O-ring for Pos.105(b) &149, EPDM, Ø21.3 x 3.0mm 00ID1798 1 1
O-ring for Pos.105(b) &149, FKM, Ø21.2 x 3.0mm 00ID2339 1 1
109b O-ring for Pos.105(b) &149, FXM, Ø22.0 x 2.75mm 96458111 1 2
O-ring for Pos.105(b) &149, FFKM, Ø23.47 x 2.62mm 96464384 1 2
Add to above standard gaskets to complete desired CRH, CRNH model
Kit, O-ring EPDM CRN-H1s to 5 Kit No. 97683277
Kit, O-ring FKM CRN-H1s to 5 Kit No. 97683278
Kit, O-ring FXM CRN-H1s to 5 Kit No. 97683279
Kit, O-ring FFKM CRN-H1s to 5 Kit No. 97683280
Pos. No. Material No. Qty. Included in each Kit
72a 97644314 1
97672715 1
97672716 1
97672717 1
NEMA COUPLING KIT
ø15.8/ø12 Kit No. 415314
ø28.5/ø12 Kit No. 415315
ø34.9/ø12 Kit No. 96478700
Pos. No. Description Material No. Qty. Included in each Kit
9 Allen Screw, M6 x 20mm, Delta Seal 00ID7899 4
Allen Screw, M8 x 25mm, Delta Seal 00ID7900 4 4
Allen Screw, M10 x 25mm, Delta Seal 00ID7901
10 Shaft Pin, ø5 x 26mm, Stainless 310192 1 1 1
10a Coupling Half, 56C, 1/3 - 2HP. ø15.8 / ø12 410108 2
Coupling Half, 182/184TC, 3-5HP. ø28.5/ø12 410109 2
Coupling Half, 213TC, 7.5-10HP. ø34.9/ø12 96472175 2
Description
Qty. Included in each Kit
O-ring FFKM ø145.6x3.5mm 2-256
O-ring EPDM ø145.6x3.5mm 2-256
O-ring FKM ø145.6x3.5mm 2-256
O-ring FXM ø145.6x3.5 2-256
Page 1 of 1
9
COUPLING GUARD KIT
NEMA 56C, 1/3-2HP Kit No. 96505131
NEMA 182-215TC, 3 -10HP Kit No. 96505132
Pos. No. Descri
p
tion Material No.
7 Cou
p
lin
g
Guard, W=127mm x H=90.5mm 96438137 2
Cou
p
lin
g
Guard, W=157mm x H=171mm 96438138 2
7a Screw comb.slot torx/strai
g
ht slot 4 x 8mm 96488481 4 4
A
ir Vent Kit - Horizontal Units
CR-H, CRN-H1S to 20 Kit No.
Pos. No. Description Material No.
117 Air Vent Pipe, short for 118, G1/2 , 60x43 96525189
117a Counter Nut for Pipe 117, G1/2 96506709
118 Air vent type 1511-AV - 5/6430 96427483
Connecting Pipe for Cool Top
(EPDM, FKM & FXM) Kit No. 96578704
Pos. No. Description Material No. Qty. Included in each Kit
109a O-ring for Pos.105(b) &149, EPDM, Ø21.3 x 3.0mm 00ID1798 1
O-ring for Pos.105(b) &149, FKM, Ø21.2 x 3.0mm 00ID2339 1
109b O-ring for Pos.105(b) &149, FXM, Ø22.0 x 2.75mm 96458111 1
149a Retainer for bushing, 316SS, ø22.0 x ø17.0 x 9mm 96457639 1
149b Bushing, Graflon®, ø21..2 x ø12.4 x 53mm 96456297 1
149c Connecting pipe, NV36, 316SS 96456295 1
ANSI COMPANION FLANGES FOR CR-H, CRN-H1S to 20
1-1/2" and 1" Threaded Stainless, 150 Lb. Class Kit No. 97698645
Pos. No. Description Material No. Qty. Included in each Kit
N/A Hex Head Cap Screw/Bolt 1/2"-13X 2" 316SS 97743748
N/A Flange ANSI #150 1.5" NPT 316SS 96983498
N/A Flange ANSI #150 1" NPT 316SS 96983497
N/A Gasket 1 1/2" Full Face 150 Lb. ANSI 97694409
N/A Gasket 1" Full Face 150 Lb. ANSI 97692916
A
NSI COMPANION FLANGES FOR SMALL C
R
1-1/2" and 1" Threaded Stainless, 300 Lb. Class Kit No. 97698646
Pos. No. Descri
p
tion Material No. Qt
y
. Included in each Kit
N/A Hex Head Cap Screw/Bolt 3/4"-10 X 2.5" 316SS 91143035 4
N/A Hex Head Cap Screw/Bolt 5/8"-11 X 2.25" 316SS 91143029 4
N/A Flange ANSI #300 1.5" NPT 316SS 96983496 1
N/A Flan
g
e ANSI #300 1"NPT 316SS 96983495 1
N/A Gasket 1 1/2" Full Face 300 Lb. ANSI 97694408 1
N/A Gasket 1" Full Face 300 Lb. ANSI 97694407 1
Baseplate Kit
139 56C for GA Kit No. 97534517
182TC for GA Kit No. 97534518
XLBP1 56C for GA Kit No. 97534573
182TC for GA Kit No. 97534574
Pos. No. Descri
p
tion Material No. Qt
y
. Included in each Kit
90 Base
p
late C
p
l. 139, L=991* x W=305* x H=106.5* 96956336 1 1
Base
p
late C
p
l. XLBP1, L=1500* x W=305* x H=106.5* 96956376 1 1
N/A Slider & fastners for 56C(consists of slider & hardware) 96983855 1 1
N/A Slider & fastner for 182TC (consists of slider & hardware) 96983858 1 1
N/A Hardware Kit -96983855/68/78(cont. pos.56f, g, 90a,d& f)** 97501470 1 1
N/A Hardware Kit -96983858 (cont. pos.56f & g, 90a, d & f)** 97501481 1 1
56f Bolt, Hex Head 1/2 -13 UNC x 1" SAE 5, Zinc
p
lated N/A 2 2 2 2
56
g
Washer, 1/2" SAE, Zinc
p
lated N/A 2 2 2 2
90a Bolt, Hex Head 5/16 -18 UNC x .75" SAE 5, Zinc
p
lated N/A 4 4
Bolt, Hex Head 3/8 -16 UNC x .5" SAE 5, Zinc
p
lated N/A 4 4
90b Slider, GA/B/C 56C/139BP, L=204* x H=45.5* x W=25.4* 96956339 2 2
Slider, GA/B/C 182TC/139 BP, L=230* x H=23* x W=25.4* 96956338 2 2
90d Bolt, Hex Head 1/4 -20 UNC x 1" SAE 5, Zinc
p
lated N/A 4 4
Bolt, Hex Head 1/4 -20 UNC x 1.75" SAE 5, Zinc
p
lated N/A 4 4
90f Washer, 5/16" SAE, Zinc
p
lated N/A 4 4
Washer, 3/8" SAE, Zinc
p
lated N/A 4 4
* Values in mm, Length (L) is +/- 2mm, Height (H) is +/- 1mm, Width (W). ** Hardware kits 97501470 and 81 are also available for sale.
1
Qty. Included in each Kit
91136720
Qty. Included in each Kit
1
2
1
8
1
1
1
Page 1 of 1
Spare Part Kits (continued)
SparePartKits•AccessoriesCRN1s-H
Accessories
10
SparePartKits•SpecialToolsCRN1s-H
Mat. No. Description and Use
00SV0040 Shaft Holder for Dismantling/Assembly
Used to hold and protect the shaft during dismantling and assembly.
00SV2007 Tubular Box Spanner for Shaft Seal 36.1 mm
Used to install and remove the shaft seal.
Fits a 1/2” drive ratchet.
00SV0239 Puller for Neck Ring
Used to remove the Neck Ring from Chamber.
00SV2014 Circlip Pliers for Flange Lock Ring
Used to remove the Lock Ring for the Flange.
00SV2066 Tool for Outer Sleeve
Used to press sleeve into base.
00SV2011 Bit Holder
Used with Bits Kit, 1/4”
00SV2010 Bits Kit
NV 5 mm for M6, 1/4”
NV 6 mm for M8, 1/4”
NV 8 mm for M10, 1/4”
00SV2012 Hexagon Socket Bit
Used for Shaft Seal
NV 2.5 mm for M5, 1/4”
Mat. No. Description and Use
Wrenches
Used to tighten various nuts.
00SV0083 NV 10 mm for M6
00SV0055 NV 13 mm for M8
00SV0056 NV 17 mm for M10
00SV0054 NV 19 mm for M12
00SV0122 NV 24 mm for M16
Torque Wrench
Used to torque various screws.
00SV0292 4-20 Nm, 9 x 12
00SV0269 20-100 Nm, 9 x 12
00SV0400 40-200 Nm, 14x18
Torque Screwdriver
Used to tighten various nuts.
00SV0438 1-6 Nm, 1/4”
Ratchet Spanner for all Adapters
00SV0295 9 mm x 12 mm, 1/2”
Socket Spanner with Inside Hex
00SV0296 NV 5 mm for M6, 1/2” x 1/2”
00SV0297 NV 6 mm for M8, 1/2” x 1/2”
00SV0298 NV 8 mm for M10, 1/2” x 1/2”
Ring Spanner
00SV0310 NV 10 mm for M6
00SV0294 NV 13 mm for M8
00SV0270 NV 17 mm for M10
00SV0271 NV 19 mm for M12
00SV0524 NV 24 mm for M16
Socket Spanner
00SV2013 NV 13 mm for M8, 9 x 12
Special Tools
Tools not generally available from normal sources.
Standard Tools
In addition to being available from Grundfos, comparable tools can be purchased through normal sources.
(optional)
11
GRUNDFOS Pumps Corporation
17100 W. 118th Terrace
Olathe, Kansas 66062
Phone: 913.227.3400
Fax: 913.227.3500
www.grundfos.us
GRUNDFOS Canada, Inc.
2941 Brighton Road
Oakville, Ontario L6H 6C9 Canada
Phone: 905.829.9533
Fax: 905.829.9512
Bombas GRUNDFOS de Mexico S.A. de C.V.
Boulevard TLC No. 15
Parque Industrial Stiva Aeropuerto
Apodaca, N.L. Mexico 66600
Phone: 52.81.8144.4000
Fax: 52.81.8144.4010
L-CR-SM-060 0613
The name Grundfos, the Grundfos logo, and be think innovate are registered trademarks owned by Grundfos Holding A/S, Denmark. All rights reserved worldwide. © Copyright Grundfos Holding A/S

Navigation menu