Rheem Prestige Series Up To 80 Afue Variable Speed Upflow Horizontal Specification Sheet
2015-04-02
: Rheem Rheem-Prestige-Series-Up-To-80-Afue-Variable-Speed-Upflow-Horizontal-Specification-Sheet-683763 rheem-prestige-series-up-to-80-afue-variable-speed-upflow-horizontal-specification-sheet-683763 rheem pdf
Open the PDF directly: View PDF
.
Page Count: 12

Rheem Prestige™Series Communicating
Two-Stage Variable Speed
Upflow/Horizontal Gas Furnace
FORM NO. G11-546 REV. 1
R802V- Upflow/Horizontal Series
80% A.F.U.E.†
Input Rates 50-125 kBTU
Air Gas Furnaces
R802V (UF/HZ) Series
✝A.F.U.E. (Annual Fuel Utilization Efficiency) calculated in accordance with
Department of Energy test procedures.
•80% residential Gas Furnace CSA certified
•Two stages of operation to save energy and maintain optimal
comfort level.
•Variable speed blower motor technology provides ultimate
humidity control quieter sound levels and year round energy
savings
•EcoNet enabled HVAC product
•3 way multi poise design UF / HZ
•PlusOne™Diagnostics — 7 Segment LED all units
•PlusOne™Ignition System – DSI for reliability and longevity
•Heat exchanger is removable for improved serviceability.
Aluminized steel construction provides maximum corrosion
resistance and thermal fatigue reliability.
•Solid doors provide quiet operation
•Solid bottom
•Insulated blower compartment
•Low profile 34" cabinet ideal for space constrained
installations
•Blower shelf design – serviceable in all furnace orientations
•Hemmed edges on cabinets and doors
•1/4 turn door knobs for tool less access
•Integrated Control board features dip switches for easy
system set up
•QR code for quick access to product information from your
smart phone or tablet
•Compatible with single or two stage thermostats. For optimal
performance a two stage thermostat is recommended.

Air Table of Contents
R802V (UF/HZ) Series
2
TABLE OF CONTENTS
Standard & Optional Equipment ......................................................................3
Model Features/Physical Data & Specifications..................................................4
Model Number Identification ............................................................................5
Dimensional Data ........................................................................................6-7
Blower Performance Data ................................................................................8
Accessories....................................................................................................9
Limited Warranty ..........................................................................................10

Air Standard & Optional Equipment
R802V (UF/HZ) Series
3
WARNING
THIS FURNACE IS NOT APPROVED
OR RECOMMENDED
FOR USE IN MOBILE HOMES
DIRECT SPARK IGNITOR
IN-SHOT BURNERS
DRAFT INDUCER MOTOR
PATENTED HEAT EXCHANGER
INTEGRATED FURNACE
CONTROL
STANDARD EQUIPMENT
Completely assembled and wired; 2 speed induced draft blower; high
and low pressure switches; 2 stage redundant main gas control;
blower compartment door safety switch; solid state time on/time off
blower control; limit control; transformer; ECM blower motor. Furnaces
are equipped with cooling/heating relay and transformer (50VA) ready
for air conditioning applications. (Please note: a thermostat is not
included as standard equipment.) Flame sensor diagnostics; fused-
protection (secondary), 3rd speed option for continuous fan.
OPTIONAL EQUIPMENT
Side and bottom filter frame assembly. 4" Flue Adapter
NOTE: Furnace is not listed for use with fuels other than natural or L.P.
(propane) gas.
The complete terms of limited and other warranties are available at our
sales office, or through local installer.
All models can be converted by a qualified Rheem distributor or local
service dealer to use L.P. (propane) gas without changing burners.
Factory approved kits must be used to convert from natural to L.P.
(propane) gas and may be ordered as optional accessories from a
Rheem parts distributor.
For L.P. (propane) operation, refer to Conversion Kit Index Form.
NOTE: For natural and L.P. (propane) gas models, direct spark ignition
is 100% safety lockout type.
ECM MOTOR

Air Model Features/Physical Data & Specifications
R802V (UF/HZ) Series
4
MODEL NUMBERS R802V SERIES R802VA050317M*A R802VA075317M*A R802VA075421M*A R802VA100521M*A R802VA125524M*A
High Input-BTU/Hr [kW] ➁50,000 [15] 75,000 [22] 75,000 [22] 100,000 [29] 125,000 [37]
Heating Capacity BTU/Hr [kW] ➀40,000 [12] 60,000 [18] 60,000 [18] 80,000 [23] 100,000 [29]
Low Input BTU/Hr [kW] ➁35,000 [10] 52,500 [15] 52,500 [15] 70,000 [20] 87,500 [25]
Heating Capacity BTU/Hr [kW] ➀28,000 [8] 42,000 [12] 42,000 [12] 56,000 [16] 70,000 [20]
Heat Ext. Static Pressure [kPa] .10 [.025] .12 [.029] .12 [.029] .15 [.037] .20 [.05]
Blower (D x W) [mm] 11 x 7
[279 x 178]
11 x 7
[279 x 178]
11 x 7
[279 x 178]
11 x 10
[279 x 254]
11 x 10
[279 x 254]
Motor H.P.
Type [W]
1/2ECM
[373]
1/2ECM
[373]
3/4ECM
[560]
3/4ECM
[560]
3/4ECM
[560]
Motor Full Load Amps 7.7 7.7 9.6 9.6 9.6
Cooling CFM @ Rating Point
[L/s]
1250
[590]
1650
[780]
1800
[850]
1750
[825]
1900
[900]
Max. E.S.P. (In. W.C.) [kPa] 1.0 [.249] 1.0 [.249] 1.0 [.249] 1.0 [.249] 1.0 [.249]
Temperature Rise Range °F
[°C]–High Input
25-55
[13.9-30.6]
25-55
[13.9-30.6]
25-55
[13.9-30.6]
35-65
[19.4-36.1]
35-65
[19.4-36.1]
Temperature Rise Range °F
[°C]–Low Input
20-50
[12.8-29.4]
20-50
[12.8-29.4]
20-50
[12.8-29.4]
30-60
[18.3-35]
30-60
[18.3-35]
Max. Outlet Air Temp. °F
[°C]
155
[68.3]
155
[68.3]
165
[73.8]
180
[82.2]
180
[82.2]
Approx. Shipping Weight (Lbs.)
[kg]
125
[57]
125
[57]
140
[64]
140
[64]
150
[68]
AFUE ➀80.0% 80.0% 80.0% 80.0% 80.0%
NOTES: All models are 115V, 60HZ, 1 Ph. Gas connection size for all models is 1/2" [12 mm] N.P.T.
➀In accordance with D.O.E. test procedures.
➁See Conversion Kit Index Form for high altitude derate.
* S = Standard, X = Low Nox
[ ] Designates Metric Conversions
•80% residential Gas Furnace CSA certified
•Two stages of operation to save energy and maintain optimal
comfort level.
•Variable speed blower motor technology provides ultimate
humidity control quieter sound levels and year round energy
savings
•EcoNet enabled HVAC product
•3 way multi poise design UF / HZ
•PlusOne
™
Diagnostics — 7 Segment LED all units
•PlusOne
™
Ignition System – DSI for reliability and longevity
•Heat exchanger is removable for improved serviceability.
Aluminized steel construction provides maximum corrosion
resistance and thermal fatigue reliability.
•Solid doors provide quiet operation
•Solid bottom
•Insulated blower compartment
•Low profile 34" cabinet ideal for space constrained
installations
•Blower shelf design serviceable in all furnace orientations
•Hemmed edges on cabinets and doors
•1/4 turn door knobs for tool less access
•Integrated Controls board features dip switches for easy
system set up
•QR code for quick access to product information from your
smart phone or tablet
•Compatible with single or two stage thermostats. For optimal
performance a two stage thermostat is recommended.
Model Features
Physical Data and Specifications

R80 2 V A 075 4 17 M S A
Rheem 80 =
80% AFUE
2 = Two Stage V = Variable
Speed
ECM
Design Series
A = 1st Design
Input
BTU/HR [kW]
050 = 50,000 [15]
075 = 75,000 [22]
100 = 100,000 [29]
125 = 125,000 [37]
3 = Up to
3 Ton
4 = 21/2to
4 Ton
5 = 31/2to
5 Ton
Cabinet
Width
17 = 17.5"
21 = 21".0
24 = 24.5"
M = Multi X = Low NOx
S = Standard
Revision-
Marketing
(A – First Time
Release)
Air Model Number Identification
R802V (UF/HZ) Series
5
Model Number Identification
[ ] Designates Metric Conversions

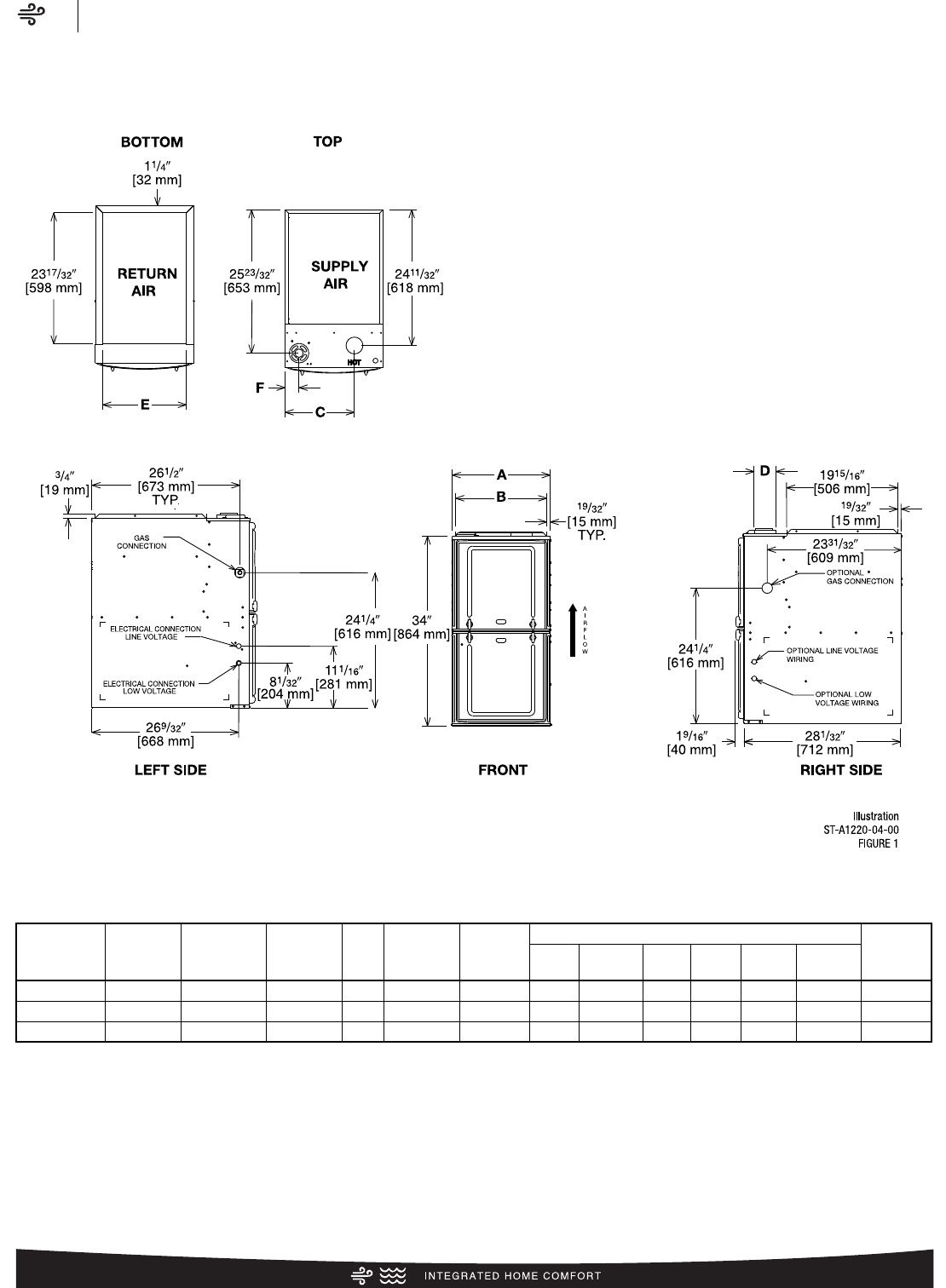
Air Dimensional Data
R802V (UF/HZ) Series
6
Upflow Application
MODEL
R802V- A B C D E F
REDUCED CLEARANCE (IN.) [mm] SHIP
WGTS.
(LBS.) [kg]
LEFT
SIDE
RIGHT
SIDE BACK TOP FRONT VENT
050, 075317 171/2[445] 1611/32 [415] 123/8[314] ➀151/2[381] 21/2[64] 03 [76] ➁01 [25] 3 [76] 6 [152] ➂125 [57]
075421, 100 211/2[533] 1927/32 [504] 141/8[359] ➀181/2[470] 21/2[64] 0 0 0 1 [25] 3 [76] 6 [152] ➂140 [64]
125 241/2[622] 2311/32 [593] 157/8[403] ➀221/2[559] 21/2[64] 0 0 0 1 [25] 3 [76] 6 [152] ➂150 [68]
NOTES: ➀May require a 3" [76 mm] to 4" [102 mm] or 3" [76 mm] to 5" [127 mm] adapter.
➁May be 0" [0 mm] with type B vent.
➂May be 1" [25 mm] with type B vent.
Furnaces must be vented in accordance with the National Fuel Gas Code, ANSI Z223.1 in accordance with local codes.
[ ] Designates Metric Conversions
Dimensional Data: Upflow Model

Air Dimensional Data
R802V (UF/HZ) Series
7
Horizontal Application
MODEL
R802V- A B C D E F
REDUCED CLEARANCE (IN.) [mm] SHIP
WGTS.
(LBS.) [kg]
LEFT
SIDE
RIGHT
SIDE BACK TOP FRONT VENT
050, 075317 171/2[445] 1611/32 [415] 123/8[314] ➀151/2[381] 21/2[64] 03 [76] ➁01 [25] 3 [76] 6 [152] ➂125 [57]
075421, 100 211/2[533] 1927/32 [504] 141/8[359] ➀181/2[470] 21/2[64] 0 0 0 1 [25] 3 [76] 6 [152] ➂140 [64]
125 241/2[622] 2311/32 [593] 157/8[403] ➀221/2[559] 21/2[64] 0 0 0 1 [25] 3 [76] 6 [152] ➂150 [68]
NOTES: ➀May require a 3" [76 mm] to 4" [102 mm] or 3" [76 mm] to 5" [127 mm] adapter.
➁May be 0" [0 mm] with type B vent.
➂May be 1" [25 mm] with type B vent.
Furnaces must be vented in accordance with the National Fuel Gas Code, ANSI Z223.1 in accordance with local codes.
[ ] Designates Metric Conversions
Dimensional Data: Horizontal Model
WARNING
THIS FURNACE IS NOT APPROVED
OR RECOMMENDED FOR INSTALLATION
ON ITS BACK, WITH ACCESS DOORS
FACING UPWARDS.

Air Blower Performance Data
R802V (UF/HZ) Series
8
MODEL NUMBER R802VA050317MSA R802VA075317MSA R802VA075421MSA R802VA100521MSA R802VA125524MSA
TARGET GAS
HEATING
AIRFLOW
HIGH
HEATING CFM
SW15 = OFF SW16 = OFF 890 1425 1345 1400 1985
SW15 = ON SW16 = OFF 790 1200 1100 1250 1700
SW15 = OFF SW16 = ON DO NOT USE
SW15 = ON SW16 = ON 735 1075 960 1150 1530
LOW
HEATING CFM
SW13 = OFF SW14 = OFF 835 1125 1045 1200 1500
SW13 = ON SW14 = OFF 590 950 865 1050 1275
SW13 = OFF SW14 = ON DO NOT USE
SW13 = ON SW14 = ON 510 825 665 950 1150
TARGET
COOLING/
HEAT-PUMP
AIRFLOW
HIGH
COOLING CFM
SW4 = OFF SW5 = OFF 1200 1200 1600 2000 2000
SW4 = ON SW5 = OFF 1000 1000 1400 1600 1600
SW4 = OFF SW5 = ON 800 800 1200 1400 1400
SW4 = ON SW5 = ON 600 600 1000 1200 1200
LOW
COOLING CFM
SW4 = OFF SW5 = OFF 900 900 1200 1500 1500
SW4 = ON SW5 = OFF 750 750 1050 1200 1200
SW4 = OFF SW5 = ON 600 600 900 1050 1050
SW4 = ON SW5 = ON 450 450 750 900 900
[ ] Designates Metric Conversions
Blower Performance Data

Air Accessories
R802V (UF/HZ) Series
9
FILTER RACK FILTER SIZES* INCHES [mm]
MODEL
R802V
RXGF-CB
(UPFLOW/
HORIZONTAL)
RXGF-CD
(UPFLOW)
SIDE RETURN
050 & 075317 153/4x 25
[400 x 635]
153/4x 25
[400 x 635]
075421 & 100 191/4x 25
[489 x 635]
153/4x 25
[400 x 635]
125 223/4x 25
[578 x 635]
153/4x 25
[400 x 635]
WARNING: IMPORTANT NOTICE
A SOLID METAL BASE PLATE (SEE TABLE) MUST BE IN PLACE WHEN THE
FURNACE IS INSTALLED WITH SIDE AIR RETURN DUCTS. FAILURE TO
INSTALL A BASE PLATE COULD CAUSE PRODUCTS OF COMBUSTION TO
BE CIRCULATED INTO THE LIVING SPACE AND CREATE POTENTIALLY
HAZARDOUS CONDITIONS.
FURNACE SOLID BASE BASE
WIDTH BOTTOM PLATE NO. PLATE SIZE
IN. [mm] KIT NO. IN. [mm]
171/2[445] RXGB-D17 AE-61874-02 151/8x 239/16 [384 x 598]
211/2[533] RXGB-D21 AE-61874-03 185/8x 239/16 [473 x 598]
241/2[622] RXGB-D24 AE-61874-04 255/8x 239/16 [651 x 598]
FOR HIGH ALTITUDES:
OPTION CODE FOR HIGH ALTITUDE: U.S.
None required for high altitudes.
HIGH ALTITUDE CONVERSION KITS: U.S.
None required for high altitudes.
80+ HIGH ALTITUDE INSTRUCTIONS
CAUTION: Always follow National Fuel Gas Code (NFGC) guidelines
when converting for high altitudes.
High altitude option codes are not required for these models.
However, the burner orifice size needs to be recalculated and verified
at elevations above 2000 ft. See Installation Instructions for more
information.
[ ] Designates Metric Conversions
SIDE RETURN FILTER RACK: RXGF-CD
BOTTOM RETURN FILTER RACK FOR
UPFLOW APPLICATION: RXGF-CB
INDOOR COIL CASINGS
MODEL
NUMBER
RXBC-D17AI
RXBC-D21AI
RXBC-D21BI
RXBC-D24AI
4" FLUE ADAPTER: RXGW-C01
CONTRACTOR BENEFITS:
• Auto/Self Configuration
• Day-at-a-glance scheduling, with programmable fan
• Intuitive wiring connections
• Dual fuel ready
• Automatically optimizes airflow
• System status & mode information
• Complete diagnostic information on display
HOMEOWNER BENEFITS:
• Large, easy to read icons and characters
• Auto-mode control
• Smart recovery
• Continuous Fan Mode (5 speeds)
• Humidity Control
• Water heater, pool heater integration* (check model compatibility)
*ECONET CONTROL ACCESSORIES:
Wall Plate = RCPN-AMC08
Face Plate = RETSTFPL
IMPORTANT: Existing Comfort Control
2
System Condensing Units &
Heat Pumps are compatible with EcoNet when matched with a
R802V Gas Furnace and with an EcoNet Translator (RETRN620CC2)
installed on the Comfort Control
2
System control board.
*Available through PROSTOCK®.
ECONET CONTROL
RECOMMENDED COMMUNICATING FURNACE CONTROL
RETST600SYS

Air Limited Warranty
R802V (UF/HZ) Series
10
GENERAL TERMS OF LIMITED WARRANTY*
Rheem will furnish a replacement for any part of this product
which fails in normal use and service within the applicable
period stated, in accordance with the terms of the limited
warranty.
*For complete details of the Limited and Conditional Warranties,
including applicable terms and conditions, contact your local contractor
or the Manufacturer for a copy of the product warranty certificate.
Parts*..........................................................Ten (10) Years
Heat Exchanger ........................................Limited Lifetime

Air Notes
R802V (UF/HZ) Series
11

The new degree of comfort.
™
Rheem Heating, Cooling & Water Heating • P.O. Box 17010
Fort Smith, Arkansas 72917 • www.rheem.com
In keeping with its policy of continuous progress and product improvement, Rheem reserves the right to make changes without notice.
PRINTED IN U.S.A. 3/15 QG FORM NO. G11-546 REV. 1
Rheem Canada Ltd./Ltée • 125 Edgeware Road, Unit 1
Brampton, Ontario • L6Y 0P5