Salto Systems S L L90 XS4 Locker Lock- RFID Electronic Lock User Manual
Salto Systems S.L XS4 Locker Lock- RFID Electronic Lock Users Manual
Users Manual

All contents current at time of publication.
SALTO Systems S.L. reserves the right to change availability of any
item in this catalog, its design, construction, and/or materials. 220639 -ED0 -27/09/2012
European view
©2011 SALTO Systems S.L.
Installation guide XS4-Locker
I
Eng
F
D
EInstallation guide
Guía de instalación
Guide d'installation
Montageanleitung
Guida all'installazione
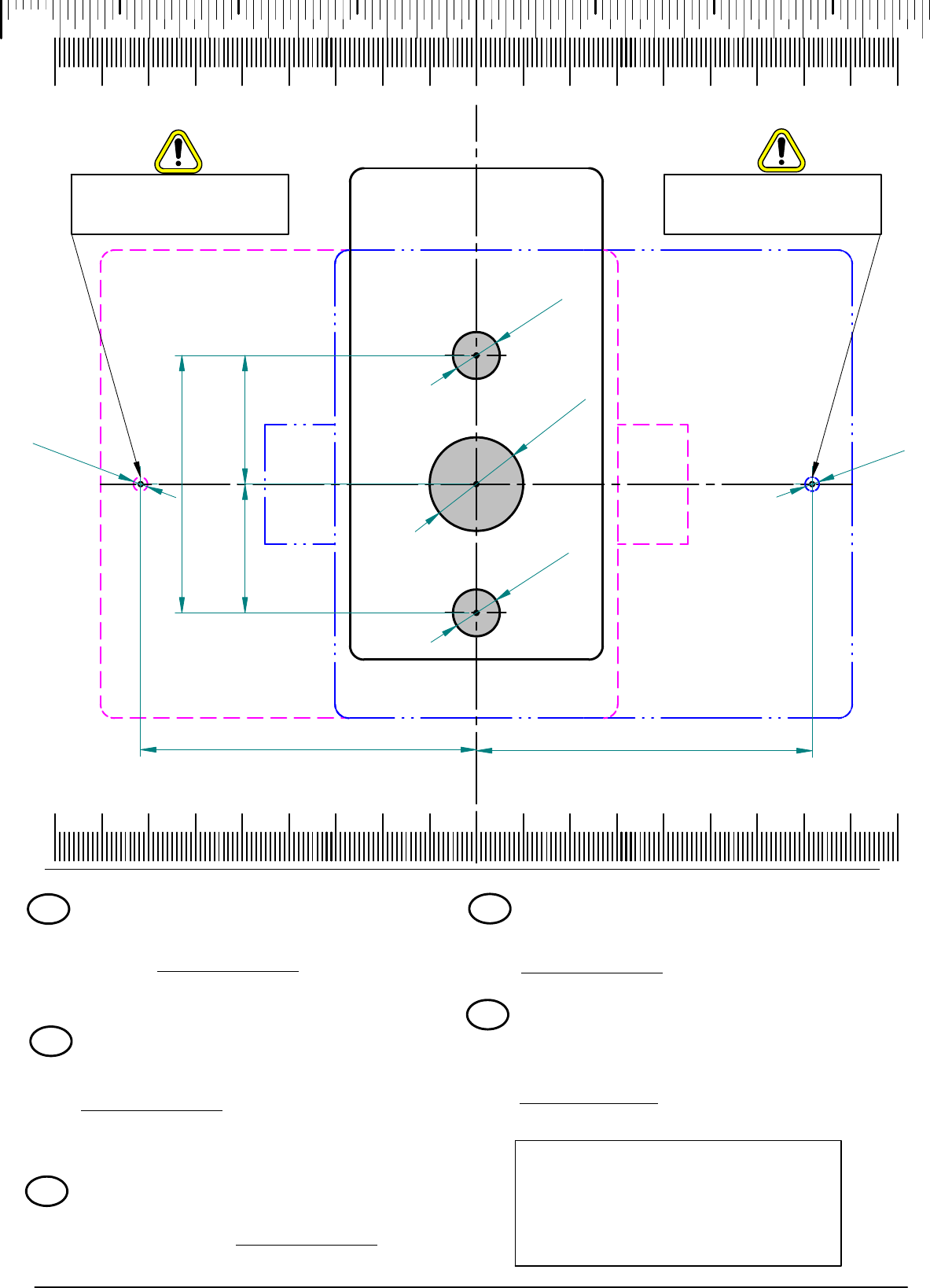
105
[4-1/8"]
54
[2-1/8"] 28
[1-1/8"]
100
[3-15/16"]
110,5
[4-11/32"]
15
[19/32"]
25,5
[1"]
4,5
[11/64"]
9
[23/64"]
67,5
[2-21/32"]
INSIDE
OUTSIDE
30
[1-3/16"]
*
* Only for doors >40 mm [1-37/64"] thickness
*Solo para puertas > 40mm de espesor
*Uniquement pour portes > 40 mm d' épaisseur
*Nur für Türblattstärken > 40 mm
*Solo per porte>40 mm di spessore
EXTERIOR
EXTERIEUR
AUSSEN
ESTERNO
INTERIOR
INTERIEUR
INNEN
INTERNO
th
For doors th <10 mm [3/8"]
Para puertas th <10mm
Pour portes th< 10 mm
Für Türblattstärken th <10 mm
Per porte th <10 mm
REF. SP220640
10 mm
3/8"
L i 050A th series
1/4
25.5
[1"]

All contents current at time of publication.
SALTO Systems S.L. reserves the right to change availability of any
item in this catalog, its design, construction, and/or materials. 220639 -ED0 -27/09/2012
European view
©2011 SALTO Systems S.L.
Installation guide XS4-Locker
2/4
BB
B
The dimension B will depend on the door or strike tipe the locker lock is going to be installed on.
La cota B dependera en cada caso del tipo de puerta o cerradero donde se instale la cerradura de taquilla .
La mesure B dépendra dans chaque cas du type de porte ou gâche où va s'intaller la serrure vestiaire.
Moß B ist abhängig von Tür-oder Schließblechart, an der das Schrank-/Kabinenschloss installiert wird.
OUTSIDE
B
=
=
¡clik!
B
"R" MOUNTING
MONTAJE "R"
MONTAGE "R"
"L" MOUNTING
MONTAJE "L"
MONTAGE "L"
Eng
F
D
E
R
L
INSIDE
7 mm [1/4"] deep, Hole only inside.
Agujero solo por el interior. 7 mm de prof.
Trou de 7 mm profondeur par l'interieur.
7mm tiefe Lochung nur innen.
O
3
[1/8"]
EXTERIOR
EXTERIEUR
AUSSEN
ESTERNO
INTERIOR
INTERIEUR
INNEN
INTERNO

All contents current at time of publication.
SALTO Systems S.L. reserves the right to change availability of any
item in this catalog, its design, construction, and/or materials. 220639 -ED0 -27/09/2012
European view
©2011 SALTO Systems S.L.
Installation guide XS4-Locker
=
==
=
AT THIS POINT DO NOT
CLOSE THE DOOR
PROGRAM THE LOCK FIRST
follow user manual
Eng
NO CIERRE LA PUERTA.
PROGRAME LA CERRADURA
TÜRE NICHT SCHLIESSEN.
ZUERST SCHLOSS
PROGRAMMIEREN
NE FERMEZ PAS LA PORTE.
PROGRAMMEZ LA SERRURE
AVANT
E
D
F
IPRIMA DI CHIUDERE LA
PORTA, PROGRAMMARE LA
SERRATURA
Fasten with screw to keep it aligned.
Fijar el tornillo para mantener el alineamiento.
Fixer la vis pour assurer l'alignement .
Schraube fixieren, um Ausrichtung beizubehalten.
Fissare la vite per tenela allineata.
Screw driver
Torx T15 TAMPER
closed open closed open
-Caution !
-Atención
-Achtung
-Attention
-Attenzione
"R" MOUNTING
MONTAJE "R"
MONTAGE "R"
"L" MOUNTING
MONTAJE "L"
MONTAGE "L"
RL
3/4
INSIDE
-Caution !
-Atención
-Achtung
-Attention
-Attenzione
INTERIOR
INTERIEUR
INNEN
INTERNO

2030405060708090 10 10 20 30 40 50 60 70 80 90
20 30 40 50 60 70 80 9010102030405060708090
2030405060708090 10 10 20 30 40 50 60 70 80 90
132 1 32
mm
in.
mm
mm
O
10
[3/8"]
O10
[3/8"]
O20
[25/32"]
==
55
[2 -1/8"]
71,75
[2 -13/16"]
71,75
[2 -13/16"]
Declaración de conformidad
Por medio de la presente Salto Systems S.L. (Pol. Lanbarren C/Arkotz, 9 - 20180
Oiartzun – Spain - CIF B20708517), declara que este equipo cumple con los
requisitos esenciales y cualesquiera otras disposiciones aplicables o exigibles
de la Directiva 1999/5/CE o la Directiva 89/336/EEC. Podrá encontrar una copia
de la declaración de conformidad original en la siguiente dirección de Internet:
http://www.saltosystems.com
Todos los modelos de proximidad son “Receiver class 3”.
Declaration of conformity
By means of the present Salto Systems S.L. (Pol. Lanbarren C/Arkotz, 9 -
20180 Oiartzun - Spain - CIF B20708517), declares that this equipment fulfills
the essential requirements and any other applicable or indispensable
dispositions of the Directive 1999/5/CE or the Directive 89/336/EEC. You will be
able to find a copy of the original declaration of conformity at the following
Internet address: http://www.saltosystems.com
A
ll proximity models are "Receiver class 3".
Déclaration de conformité
Par le biais de celle-ci, Salto Systems S.L. (Pol. Lanbarren C/Arkotz, 9 - 20180
Oiartzun – Spain - CIF B20708517), déclare être conforme aux normes essentielles e
t
n’importe quelles autres dispositions applicable et exigibles des Directives 1999/5/CE
ou 89/336/EEC. Vous pourrez trouver une copie de la déclaration de conformité
originale sur le site internet suivant: http://www.saltosystems.com
Tous les modèles de proximité sont “Receiver class 3”.
Konformitätserklärung
Hiermit erklärt Salto Systems S.L. (Pol. Lanbarren C/Arkotz, 9 – 20180 Oiartzun
– Spanien – UID-Nr. B20708517), dass sich dieses Produkt in
Übereinstimmung mit den grundlegenden Anforderungen und den relevanten
Vorschriften der Richtline 1999/5/EG bzw. 89/336/EWG befindet. Die Kopie de
r
Konformitätserklärung im Originalwortlaut ist auf folgender Website zu finden:
http://www.saltosystems.com
A
lle Proximity-Modelle sind “Receiver class 3”.
E
Eng
F
D
Dichiarazione di conformità
Con la presente Salto Systems S.L (Pol.Lanbarren C/Arkotz, 9 – 20180
Oiartzun – Spain – CIF B20708517), dichiara che questa apparecchiatura è
conforme ai
requisiti essenziali ed a qualsiasi disposizione applicabile o esigibile in riferimento
alla direttiva 1999/5/CE e della direttiva 89/336/EEC. È possibile trovare una copia
originale della dichiarazione di conformità al seguente indirizzo internet
http:/www.saltosystems.com
Tutti i modelli di prossimità sono “Receiver Class 3”
I
All contents current at time of publication.
SALTO Systems S.L. reserves the right to change availability of any
item in this catalog, its design, construction, and/or materials. 220639 -ED0 -27/09/2012
©2010 SALTO Systems S.L.
Reader/ Lector /Lecteur /Leser
Control / Steuereinheit
Control / Steuereinheit
"R" MOUNTING
MONTAJE "R"
MONTAGE "R"
"L" MOUNTING
MONTAJE "L"
MONTAGE "L"
7 mm [1/4"] deep, Hole only inside.
Agujero solo por el interior. 7 mm de prof.
Trou de 7 mm profondeur par l'interieur.
7mm tiefe Lochung nur innen.
O
3
[1/8"]
O
3
[1/8"]
7 mm [1/4"] deep, Hole only inside.
Agujero solo por el interior. 7 mm de prof.
Trou de 7 mm profondeur par l'interieur.
7mm tiefe Lochung nur innen.
RL
4/4
ONLY FOR PROXIMITY MODELS
This device complies with Part 15 of the FCC Rules and with Industry
Canada licence-exempt RSS standard(s).
Operation is subject to the following two conditions: (1) this device
may not cause harmful interference, and (2) this device must
accept any interference received, includin
g
interference that may
cause undesired operation. Chan
g
es or modifications not expressly
approved by the party responsible for compliance could void the
user's authority to operate the equipment.

ED0‐221405
FCC Compliance Statements
(FCCID: UKCAE9, UKCAE9W, UKCL90, UKCG90, UKCRPOE, UKCNRF, UKCA9XX, UKCA9XW)
This device complies with Part 15 of the FCC Rules.Operation is subject to the following two conditions: (1) this device may not cause harmful interference, and (2) this device must accept any
interference received, including interference that may cause undesired operation. Changes or modifications not expressly approved by the party responsible for compliance could void the user's
authority to operate the equipment.
Note: This equipment has been tested and found to comply with the limits for a Class B digital device, pursuant to part 15 of the FCC Rules. These limits are designed to provide reasonable
protection against harmful interference in a residential installation. This equipment generates, uses, and can radiate radio frequency energy and, if not installed and used in accordance with the
instructions may cause harmful interference to radio communications. However, there is no guarantee that interference will not occur in a particular installation. If this equipment does cause harmful
interference to radio or television reception, which can be determined by turning the equipment off and on, the user is encouraged to try to correct the interference by one or more of the following
measures:
Reorient or relocate the receiving antenna.
Increase the separation between the equipment and receiver.
Connect the equipment into an outlet on a circuit different from that to which the receiver is connected.
Consult the dealer or an experienced radio/TV technician for help.
Canadian Compliance Statement
(IC: 10088A-AE9, 10088A-AE9W, 10088A-L90, 10088A-G90, 10088A-RPOE, 10088A-NRF, 10088A-A9XX, 10088A-A9XW)
This device complies with Industry Canada licence-exempt RSS standard(s). Operation is subject to the following two conditions: (1) this device may not cause harmful interference, and (2) this
device must accept any interference received, including interference that may cause undesired operation. Changes or modifications not expressly approved by the party responsible for compliance
could void the user's authority to operate the equipment.
Le présent appareil est conforme aux CNR d'Industrie Canada applicables aux appareils radio exempts de licence. L'exploitation est autorisée aux deux conditions suivantes : (1) l'appareil ne doit
pas produire de brouillage, et (2) l'utilisateur de l'appareil doit accepter tout brouillage radioélectrique subi, même si le brouillage est susceptible d'en compromettre le fonctionnement.
Canadian Compliance Lable
(IC: 10088A-AE9, 10088A-AE9W, 10088A-L90, 10088A-G90, 10088A-A9XX, 10088A-A9XW)
Industry Canada ICES-003 Compliance Label:
CAN ICES-3 (B)/NMB-3(B)
EU Compliance Statement
EN Hereby, Salto Systems S.L. (Arkotz Kalea (Pol. Lanbarren), 9 – 20180 Oiartzun– Spain), declares that this access control equipment is in compliance with the essential requirements
and other relevant provisions of Directive 1999/5/EC (R&TEE). You will be able to find a copy of the original declaration of conformity at the following Internet address:
http://www.saltosystems.com/declarations
ES Por medio de la presente Salto Systems S.L. (Arkotz Kalea (Pol. Lanbarren), 9 – 20180 Oiartzun– Spain) declara que este equipo de control de accesos cumple con los requisitos
esenciales y cualesquiera otras disposiciones aplicables o exigibles de la Directiva 1999/5/CE (R&TEE). Podrá encontrar una copia de la declaración de conformidad original en la
siguiente dirección de internet: http://www.saltosystems.com/declarations
FR Par la présente Salto Systems S.L. (Arkotz Kalea (Pol. Lanbarren), 9 – 20180 Oiartzun– Spain) déclare que l'appareil access control equipment est conforme aux exigences
essentielles et aux autres dispositions pertinentes de la Directive 1999/5/CE (R&TEE). You will be able to find a copy of the original declaration of conformity at the following Internet
address: http://www.saltosystems.com/declarations
DE Hiermit erklärt Salto Systems S.L. (Arkotz Kalea (Pol. Lanbarren), 9 – 20180 Oiartzun– Spain), dass sich das Gerät access control equipment in Übereinstimmung mit den
grundlegenden Anforderungen und den übrigen einschlägigen Bestimmungen der Richtlinie 1999/5/EG (R&TEE). You will be able to find a copy of the original declaration of conformity
at the following Internet address: http://www.saltosystems.com/declarations
DU Hierbij verklaart Salto Systems S.L. (Arkotz Kalea (Pol. Lanbarren), 9 – 20180 Oiartzun– Spain)dat het toestel access control equipment in overeenstemming is met de essentiële eisen
en de andere relevante bepalingen van richtlijn 1999/5/EG (R&TEE). You will be able to find a copy of the original declaration of conformity at the following Internet address:
http://www.saltosystems.com/declarations
Mechanical Warnings
In order to assure a good performance for the device, Salto recommends to use a certified mortise lock and make sure that it is in good condition. Do not knock the device while mounting, if
necessary, loose the trims fixation. Do not bring the device into contact with oil, paints or acids. Do not paint the door with the mortise lock fixed to the door.
CLEANING THE ELECTRONIC FURNITURE: You can use a damp cloth from soapy water. Never use abrassive soaps or sprays.It is important to clean stainless steel regularly.
Legal Warnings
SALTO shall not be liable for any losses, personal damages or claims arising out of, or in connection with t he wrong fitting of the cylinders o r bad programming that can cause blocking of entries
and exits i.e. blocking entrance, exit of Injured or people in danger.
Do you have the programming keys or management software (not included in this box)? If not, then take note that when the door is closed without having been programmed it will automatically lock,
and can only be opened with a Portable Programing Device. If in any doubt, please contact your supplier or visit our Web site: www.saltosystems.com
According to the fourth point on the SALTO SYSTEMS LIMITED WARRANTY document, the warranty does not cover product failures due to repair installations, modifications or improper service
performed by non-Salto authorised persons. The user is not allowed to disassemble the inner electromechanic structure in the SALTO furniture. (for instance, loosening the torx screws) In the case
of a user intended intervention at the inner parts, the user will lose any warranty right from SALTO.
Copyright © 2013 SALTO Systems
N20371