Sanyo Spw C253G5 Users Manual S0043E01.PM5
Sanyo Air Conditioner SPW-T363GS56 SPW-T253G56 SPW-C253G5 (8) (M)
SPW-T483GS56 to the manual ba674032-160e-47d5-ae0b-dcb9904652f0
2015-01-26
: Sanyo Sanyo-Spw-C253G5-Users-Manual-336356 sanyo-spw-c253g5-users-manual-336356 sanyo pdf
Open the PDF directly: View PDF
.
Page Count: 71

FILE NO.
SERVICE MANUAL
1
2
3
4
5
Section
85464849143001 REFERENCE NO. SM830043
SPW-T253G56, SPW-T253GS56 ⁄ SPW-C253G5 (/M), SPW-C253G8 (/M)
SPW-T303G56, SPW-T303GS56 ⁄ SPW-C303G5 (/M)
SPW-T363G56, SPW-T363GS56 ⁄ SPW-C363G5 (/M), SPW-C363G8 (/M)
SPW-T483G56, SPW-T483GS56 ⁄ SPW-C483G8 (/M)
SPLIT SYSTEM AIR CONDITIONER
0409_C_S
SPW-C363G5 SPW-C363G5/M
SPW-C363G8 SPW-C363G8/M
SPW-C483G8 SPW-C483G8/M
0408_C_S
SPW-C253G5 SPW-C253G5/M
SPW-C253G8 SPW-C253G8/M
SPW-C303G5 SPW-C303G5/M
SPW-T253G56
SPW-T253GS56
SPW-T303G56
SPW-T303GS56
SPW-T363G56
SPW-T363GS56
SPW-T483G56
SPW-T483GS56
INDOOR MODEL No. PRODUCT CODE No. OUTDOOR MODEL No. PRODUCT CODE No.
SPW-T253G56 854 012 50 SPW-C253G5 854 012 22
SPW-C253G5/M 854 012 65
SPW-T253GS56 854 012 54 SPW-C253G8 854 012 23
SPW-C253G8/M 854 012 68
SPW-T303G56 854 012 51 SPW-C303G5 854 012 24
SPW-T303GS56 854 012 55 SPW-C303G5/M 854 012 69
SPW-T363G56 854 012 52 SPW-C363G5 854 012 25
SPW-C363G5/M 854 012 66
SPW-T363GS56 854 012 56 SPW-C363G8 854 012 26
SPW-C363G8/M 854 012 70
SPW-T483G56 854 012 53 SPW-C483G8 854 012 27
SPW-T483GS56 854 012 57 SPW-C483G8/M 854 012 67
NOTE) Models which does not have the alphabet “ /M” behind outdoor Model No. comply
with the European regulations.
Indoor Unit Outdoor Unit

SM830043
When Transporting
……………………………………………………………………
Be careful when picking up and moving the indoor and
outdoor units. Get a partner to help, and bend your knees
when lifting to reduce strain on your back. Sharp edges or
thin aluminum fins on the air conditioner can cut your
fingers.
When Installing
……………………………………………………………………
…In a Room
Properly insulate any tubing run inside a room to prevent
“sweating” that can cause dripping and water damage to
walls and floors.
…In Moist or Uneven Locations
Use a raised concrete pad or concrete blocks to provide a
solid, level foundation for the outdoor unit. This prevents
water damage and abnormal vibration.
…In an area with High Winds
Securely anchor the outdoor unit down with bolts and a
metal frame. Provide a suitable air baffle.
…In a Snowy Area
(for Heat Pump-type Systems)
Install the outdoor unit on a raised platform that is higher
than drifting snow. Provide snow vents.
When Connecting Refrigerant Tubing
……………………………………………………………………
•
Execute enough ventilation in case refrigerant gas leaks
during operations. Be careful not to contact the refrigerant
gas with the flame. It will cause the generation of
poisonous gas.
• Keep all tubing runs as short as possible.
• Use the flare method for connecting tubing.
• Apply refrigerant lubricant to the matching surfaces of
the flare and union tubes before connecting them, then
tighten the nut with a torque wrench for a leak-free
connection.
• Check carefully for leaks before starting the test run.
NOTE
Depending on the system type, liquid and gas lines may
be either narrow or wide. Therefore, to avoid confusion,
the refrigerant tubing for your particular model is specified
as either “narrow” or “wide” rather than as “liquid” or “gas”.
When Servicing
……………………………………………………………………
• Turn the power OFF at the main power box before
opening the unit to check or repair electrical parts and
wiring.
• Keep your fingers and clothing away from any moving
parts.
• Clean up the site when finished servicing. Don’t forget
to check that no metal scraps or bits of wiring have
been left inside the unit.
IMPORTANT!
Please Read Before Starting
This air conditioning system meets strict safety and
operating standards. As the installer or service person, it
is an important part of your job to install or service the
system so it operates safely and efficiently.
For safe installation and trouble-free operation,you
must:
ⓦCarefully read this instruction booklet before beginning.
ⓦFollow each installation or repair step exactly as shown.
ⓦObserve all local, state, and national electrical codes.
ⓦPay close attention to all warning and caution notices
given in this manual.
This symbol refers to a hazard
or unsafe practice which can
result in severe personal injury
or death.
This symbol refers to a hazard
or unsafe practice which can
result in personal injury or
product or property damage.
If Necessary, Get Help
These instructions are all you need for most installation
sites and maintenance conditions. If you require help for a
special problem, contact our sales/service outlet or your
certified dealer for additional instructions.
In Case of Improper Installation
The manufacturer shall in no way be responsible for
improper installation or maintenance service, including
failure to follow the instructions in this document.
SPECIAL PRECAUTIONS
When Wiring
……………………………………………………………………
ELECTRICAL SHOCK CAN CAUSE
SEVERE PERSONAL INJURY OR DEATH.
ONLY A QUALIFIED, EXPERIENCED
ELECTRICIAN SHOULD ATTEMPT TO
WIRE THIS SYSTEM.
• Do not supply power to the unit until all wiring and
tubing are completed or reconnected and checked.
• Highly dangerous electrical voltages are used in this
system. Carefully refer to the wiring diagram and these
instructions when wiring. Improper connections and
inadequate grounding can cause accidental injury or
death.
•Ground the unit following local electrical codes.
• Connect all wiring tightly. Loose wiring may cause
overheating at connection points and a possible fire
hazard.
CAUTION
Important

– 3 – SM830043
WHO SHOULD USE THIS MANUAL
This service manual is made to assist the service technician apply his knowledge and
training to this model air conditioner. This manual is written both for experienced service
persons and those who are new to air conditioning service. To help those with less
experience or who are new to this kind of unit we have included more explanations of
basic procedures in simple language than is usual in some service manuals. The experi-
enced technician will of course find he knows many of these things already and can go
directly to the procedures and information he needs; the less experienced technician will
better understand what to do even before he arrives on the job, and therefore be better
able to work by himself as well as assist the more experienced technician.
TABLE OF CONTENTS
1. SPECIFICATIONS....................................................................................................... 7
1-1 Unit Specifications .............................................................................................. 8
1-2 Major Component Specifications ...................................................................... 14
(A) Indoor Unit .................................................................................................... 14
(B) Outdoor Unit ................................................................................................ 18
1-3 Other Component Specifications ...................................................................... 21
(A) Indoor Unit .....................................................................................................21
(B) Outdoor Unit ..................................................................................................22
1-4 Dimensional Data................................................................................................23
(A) Indoor Unit .....................................................................................................23
(B) Outdoor Unit ..................................................................................................24
1-5 Refrigerant Flow Diagram ...................................................................................26
1-6 Operating Range.................................................................................................27
2. PROCESSES AND FUNCTIONS ................................................................................29
2-1 Room Temperature Control ................................................................................30
2-2 Freeze Prevention...............................................................................................31
2-3 Outdoor Fan Control ...........................................................................................31
3. ELECTRICAL DATA ..................................................................................................33
3-1 Indoor Unit ..........................................................................................................34
3-2 Outdoor Unit........................................................................................................42
– 4 – SM830043
4. SERVICE PROCEDURES ...........................................................................................55
4-1 Troubleshooting ..................................................................................................56
4-2 A Sensor is Defective..........................................................................................67
4-3 Operation of Major Electrical Parts .....................................................................67
4-4 Checking the Electrical Components ..................................................................68
5. INSTRUCTION MANUAL ...........................................................................................73
5-1 Wired Remote Controller / RCS - T251G ........................................................... 74
5-2 Wireless Remote Controller / RCS - 5PS3E ...................................................... 87

– 5 – SM830043
WHAT IS IN THIS MANUAL
Introduction:
Read Me First!
This manual will help you understand and service the air conditioner. To help you find the information you
need, we have divided it into 5 main sections. Each section is divided into chapters with charts, tables and
explanations to help you find and repair problems.
❑Section 1: Specifications, tells you about the physical and electrical make up of the unit, as
well as its heating and cooling capacities. Look in this section to find the correct values for
components and functions.
❑Section 2: Processes and Functions, explains each different part of the cooling and
heating cycle, and how each control function reacts to changing conditions to keep the room
at the set temperature range.
❑Section 3: Electrical Data, which has fold-out schematic and wiring diagrams so you can
find the parts you need to check when something is wrong, and see how they should be
connected.
❑Section 4: Service Procedures, has two main parts, a
diagnostic
chapter to help you find
the specific component to replace or adjust, and a chapter with specific procedures and
values to guide you in checking the electrical components in the unit.
❑Section 5: Instruction Manual, is the same manual the user will have, and it contains
general information about how to set and use the features of this particular air conditioner.
Knowing this information will help you tell the owner how to use and care for this air
conditioner, and also help you install and set the unit correctly.
HOW TO USE THIS MANUAL
You can use this manual both as a
reference
to find specific information about the
capacity, functions and
construction of this unit, and as a source of information to help you set up and maintain the unit.
When this unit is not working properly, and the cause is not known, you can use the procedures in
Section 3: Servicing Procedures to find the problem, fix it, and restore the unit to its proper functioning.
This air conditioner has many helpful self diagnostic features to help you identify problem areas quickly.
So you will be ready when a problem happens, we suggest you look this manual over and become familiar
with it by following these steps:
1. Look at the TABLE OF CONTENTS to get an idea of what is in this manual and where to
find it.
2. Look at the chapter about TROUBLE SHOOTING, so you are familiar with the way the flow
charts work. They are designed to guide you quickly through the possible causes for each
kind of problem that is likely to happen to the Unit. Particularly read the introduction to this
section, and the parts about the self-diagnosis and error codes which show on the display.
3. Look at the chapter about CHECKING ELECTRICAL COMPONENTS. You already know
about most of these procedures. This chapter gives you the specific values and methods for
these components. If you don’t know some of these procedures, you can easily learn them
here.
4. Read the Instruction Manual! The Instruction Manual is included here because it helps you
help the user to set the temperature controls properly and know how to take care of any
simple problems that may happen, as well as know when to call for service. The Instruction
Manual also has illustrations, care, and installation information not found in the rest of the
service manual. It is short, and if you read it carefully, you will be able to answer the
customers questions easily, and also know the most efficient ways for setting times and
temperatures.
Please use this manual to make your work easier, keep the air conditioner functioning well, and keep your
customers satisfied.
– 6 – SM830043

– 7 – SM830043
1. SPECIFICATIONS
1-1 Unit Specifications ......................................................................................... 8
1-2 Major Component Specifications .................................................................. 14
(A) Indoor Unit ................................................................................................14
(B) Outdoor Unit ........................................................................................... 18
1-3 Other Component Specifications ................................................................. 21
(A) Indoor Unit ................................................................................................21
(B) Outdoor Unit ........................................................................................... 22
1-4 Dimensional Data...........................................................................................23
(A) Indoor Unit ................................................................................................23
(B) Outdoor Unit .............................................................................................24
1-5 Refrigerant Flow Diagram ............................................................................. 26
1-6 Operating Range............................................................................................27 1

– 8 – SM830043
1. Specifications
1
MODEL No. Indoor Unit SPW-T253G56 SPW-T253GS56
Outdoor Unit SPW-C253G5, C253G5/M
POWER SOURCE 220 - 230 - 240 V / 1 Phase / 50 Hz
PERFORMANCE Cooling
Capacity kW 7.3
BTU / h 25,000
Air circulation (Hi/Me/Lo) m3 / h 1,140/1,020/840
Moisture removal(High) Liters/h 3.4
ELECTRICAL RATINGS
Voltage rating V 220 230 240
Available voltage range V 198 - 264
Running amperes* A 14.5 14.6 15
Max. running amperes** A 20.1 19 19.2
Power input kW 2.97 3.02 3.11
Power factor % 93.1 89.9 86.4
C.O.P W / W 2.46 2.42 2.35
Max. starting amperes A 69 72 75
FEATURES
Controls Microprocessor
Timer ON / OFF 12-hours ON/OFF 24-hours & Program
Fan speed (Indoor) 3 and Automatic control
Airflow direction (Indoor) Automatic (Remote control)
Air filter Washable, easy access
Remote controller (Accessory) RCS-T251G RCS-5PS3E
Refrigerant control Capillary tube
Drain pump (drain connection) No (20A, OD26mm)
Compressor Rotary
Operation sound Indoor - Hi/Me/L
o
dB - A 45 / 41 / 37
Outdoor - Hi dB - A 53
REFRIGERANT TUBING
Limit of tubing length m (ft.) 40 (131)
Limit of tubing length at shipment m (ft.) 15 (49)
Limit of elevation difference m (ft.) Outdoor unit is higher than indoor unit: 40 (131)
between the two units Outdoor unit is lower than indoor unit: 25 (82)
Refrigerant tube Narrow tube mm (in) 6.35 (1 / 4)
outer diameter Wide tube mm (in) 15.88 (5 / 8)
Refrigerant amount at shipment kg R22 - 2.4
DIMENSIONS & WEIGHT Indoor unit Outdoor unit
Unit dimensions Height mm (in) 185 (7-9/32) 735 (28-30/32)
Width mm (in) 1,270 (50) 940 (37)
Depth mm (in) 670 (26-12/32) 340 (13-12/32)
Package dimensions Height mm (in) 271 (10-21/32) 826 (32-17/32)
Width mm (in) 1,370 (53-30/32) 1,016 (40)
Depth mm (in) 782 (30-25/32) 416 (16-12/32)
Net weight kg (lb) 28 (62) 68 (150)
Shipping weight kg (lb) 36 (79) 74 (163)
Shipping volume m
3
(Cu. ft.) 0.29 (10.2) 0.349 (12.3)
DATA SUBJECT TO CHANGE WITHOUT NOTICE
Cooling :
Rating conditions(*) : Indoor air temperature 27 °C DB / 19 °C WB, Outdoor air temperature 35 °C DB
Full load conditions(**) Indoor air temperature 35 °C DB / 25 °C WB, Outdoor air temperature 50 °C DB
1-1 Unit Specifications

– 9 – SM830043
1
1. Specifications
MODEL No. Indoor Unit SPW-T303G56 SPW-T303GS56
Outdoor Unit SPW-C303G5, C303G5/M
POWER SOURCE 220 - 230 - 240 V / 1 Phase / 50 Hz
PERFORMANCE Cooling
Capacity kW 8.8
BTU / h 30,000
Air circulation (Hi/Me/Lo) m3 / h 1,380/1,200/1,020
Moisture removal(High) Liters/h 3.9
ELECTRICAL RATINGS
Voltage rating V 220 230 240
Available voltage range V 198 - 264
Running amperes* A 16.5 17.3 18.2
Max. running amperes** A 22.3 22.4 22
Power input kW 3.27 3.36 3.5
Power factor % 90.1 84.4 80.1
C.O.P W / W 2.69 2.62 2.51
Max. starting amperes A 101 105 109
FEATURES
Controls Microprocessor
Timer ON / OFF 12-hours ON/OFF 24-hours & Program
Fan speed (Indoor) 3 and Automatic control
Airflow direction (Indoor) Automatic (Remote control)
Air filter Washable, easy access
Remote controller (Accessory) RCS-T251G RCS-5PS3E
Refrigerant control Capillary tube
Drain pump (drain connection) No (20A, OD26mm)
Compressor Rotary
Operation sound Indoor - Hi/Me/L
o
dB - A 46 / 42 / 37
Outdoor - Hi dB - A 53
REFRIGERANT TUBING
Limit of tubing length m (ft.) 40 (131)
Limit of tubing length at shipment m (ft.) 15 (49)
Limit of elevation difference m (ft.) Outdoor unit is higher than indoor unit: 40 (131)
between the two units Outdoor unit is lower than indoor unit: 25 (82)
Refrigerant tube Narrow tube mm (in) 6.35 (1 / 4)
outer diameter Wide tube mm (in) 15.88 (5 / 8)
Refrigerant amount at shipment kg R22 - 2.6
DIMENSIONS & WEIGHT Indoor unit Outdoor unit
Unit dimensions Height mm (in) 250 (9-27/32) 735 (28-30/32)
Width mm (in) 1,570 (61-26/32) 940 (37)
Depth mm (in) 670 (26-12/32) 340 (13-12/32)
Package dimensions Height mm (in) 336 (13-7/32) 826 (32-17/32)
Width mm (in) 1,670 (65-24/32) 1,016 (40)
Depth mm (in) 782 (30-25/32) 416 (16-12/32)
Net weight kg (lb) 41 (90) 70 (154)
Shipping weight kg (lb) 51 (112) 76 (168)
Shipping volume m
3
(Cu. ft.) 0.439 (15.5) 0.349 (12.3)
DATA SUBJECT TO CHANGE WITHOUT NOTICE
Cooling :
Rating conditions(*) : Indoor air temperature 27 °C DB / 19 °C WB, Outdoor air temperature 35 °C DB
Full load conditions(**) Indoor air temperature 35 °C DB / 25 °C WB, Outdoor air temperature 50 °C DB
1-1 Unit Specifications

– 10 – SM830043
1. Specifications
1
MODEL No. Indoor Unit SPW-T363G56 SPW-T363GS56
Outdoor Unit SPW-C363G5, C363G5/M
POWER SOURCE 220 - 230 - 240 V / 1 Phase / 50 Hz
PERFORMANCE Cooling
Capacity kW 10.6
BTU / h 36,000
Air circulation (Hi/Me/Lo) m3 / h 1,680/1,410/1,200
Moisture removal(High) Liters/h 4.8
ELECTRICAL RATINGS
Voltage rating V 220 230 240
Available voltage range V 198 - 264
Running amperes* A 16 17.1 18.6
Max. running amperes** A 20.5 20.8 21.5
Power input kW 3.17 3.28 3.45
Power factor % 90.1 83.4 77.3
C.O.P W / W 3.34 3.23 3.07
Max. starting amperes A 102 107 111
FEATURES
Controls Microprocessor
Timer ON / OFF 12-hours ON/OFF 24-hours & Program
Fan speed (Indoor) 3 and Automatic control
Airflow direction (Indoor) Automatic (Remote control)
Air filter Washable, easy access
Remote controller (Accessory) RCS-T251G RCS-5PS3E
Refrigerant control Capillary tube
Drain pump (drain connection) No (20A, OD26mm)
Compressor Rotary
Operation sound Indoor - Hi/Me/L
o
dB - A 47 / 43 / 39
Outdoor - Hi dB - A 54
REFRIGERANT TUBING
Limit of tubing length m (ft.) 50 (164)
Limit of tubing length at shipment m (ft.) 15 (49)
Limit of elevation difference m (ft.) Outdoor unit is higher than indoor unit: 50 (164)
between the two units Outdoor unit is lower than indoor unit: 30 (98)
Refrigerant tube Narrow tube mm (in) 6.35 (1 / 4)
outer diameter Wide tube mm (in) 15.88 (5 / 8)
Refrigerant amount at shipment kg R22 - 4.2
DIMENSIONS & WEIGHT Indoor unit Outdoor unit
Unit dimensions Height mm (in) 250 (9-27/32) 1,235 (48-20/32)
Width mm (in) 1,570 (61-26/32) 940 (37)
Depth mm (in) 670 (26-12/32) 340 (13-12/32)
Package dimensions Height mm (in) 336 (13-7/32) 1,326 (52-7/32)
Width mm (in) 1,670 (65-24/32) 1,016 (40)
Depth mm (in) 782 (30-25/32) 416 (16-12/32)
Net weight kg (lb) 41 (90) 94 (207)
Shipping weight kg (lb) 51 (112) 101 (223)
Shipping volume m
3
(Cu. ft.) 0.439 (15.5) 0.56 (19.8)
DATA SUBJECT TO CHANGE WITHOUT NOTICE
Cooling :
Rating conditions(*) : Indoor air temperature 27 °C DB / 19 °C WB, Outdoor air temperature 35 °C DB
Full load conditions(**) Indoor air temperature 35 °C DB / 25 °C WB, Outdoor air temperature 50 °C DB
1-1 Unit Specifications

– 11 – SM830043
1
1. Specifications
MODEL No. Indoor Unit SPW-T253G56 SPW-T253GS56
Outdoor Unit SPW-C253G8, C253G8/M
POWER SOURCE 380 - 400 - 415 V / 3N / 50 Hz
PERFORMANCE Cooling
Capacity kW 7.3
BTU / h 25,000
Air circulation (Hi/Me/Lo) m3 / h 1,140/1,020/840
Moisture removal(High) Liters/h 3.4
ELECTRICAL RATINGS
Voltage rating V 380 400 415
Available voltage range V 342 - 456
Running amperes* A 4.7 4.6 4.6
Max. running amperes** A 5.8 5.7 5.6
Power input kW 2.72 2.76 2.76
Power factor % 86.7 86.7 86.3
C.O.P W / W 2.66 2.64 2.62
Max. starting amperes A 26 28 30
FEATURES
Controls Microprocessor
Timer ON / OFF 12-hours ON/OFF 24-hours & Program
Fan speed (Indoor) 3 and Automatic control
Airflow direction (Indoor) Automatic (Remote control)
Air filter Washable, easy access
Remote controller (Accessory) RCS-T251G RCS-5PS3E
Refrigerant control Capillary tube
Drain pump (drain connection) No (20A, OD26mm)
Compressor Rotary
Operation sound Indoor - Hi/Me/L
o
dB - A 45 / 41 / 37
Outdoor - Hi dB - A 53
REFRIGERANT TUBING
Limit of tubing length m (ft.) 40 (131)
Limit of tubing length at shipment m (ft.) 15 (49)
Limit of elevation difference m (ft.) Outdoor unit is higher than indoor unit: 40 (131)
between the two units Outdoor unit is lower than indoor unit: 25 (82)
Refrigerant tube Narrow tube mm (in) 6.35 (1 / 4)
outer diameter Wide tube mm (in) 15.88 (5 / 8)
Refrigerant amount at shipment kg R22 - 2.4
DIMENSIONS & WEIGHT Indoor unit Outdoor unit
Unit dimensions Height mm (in) 185 (7-9/32) 735 (28-30/32)
Width mm (in) 1,270 (50) 940 (37)
Depth mm (in) 670 (26-12/32) 340 (13-12/32)
Package dimensions Height mm (in) 271 (10-21/32) 826 (32-17/32)
Width mm (in) 1,370 (53-30/32) 1,016 (40)
Depth mm (in) 782 (30-25/32) 416 (16-12/32)
Net weight kg (lb) 28 (62) 68 (150)
Shipping weight kg (lb) 36 (79) 74 (163)
Shipping volume m
3
(Cu. ft.) 0.29 (10.2) 0.349 (12.3)
DATA SUBJECT TO CHANGE WITHOUT NOTICE
Cooling :
Rating conditions(*) : Indoor air temperature 27 °C DB / 19 °C WB, Outdoor air temperature 35 °C DB
Full load conditions(**) Indoor air temperature 35 °C DB / 25 °C WB, Outdoor air temperature 50 °C DB
1-1 Unit Specifications

– 12 – SM830043
1. Specifications
1
MODEL No. Indoor Unit SPW-T363G56 SPW-T363GS56
Outdoor Unit SPW-C363G8, C363G8/M
POWER SOURCE 380 - 400 - 415 V / 3N / 50 Hz
PERFORMANCE Cooling
Capacity kW 10.6
BTU / h 36,000
Air circulation (Hi/Me/Lo) m3 / h 1,680/1,410/1,200
Moisture removal(High) Liters/h 4.8
ELECTRICAL RATINGS
Voltage rating V 380 400 415
Available voltage range V 342 - 456
Running amperes* A 5.2 5.2 5.2
Max. running amperes** A 6.7 6.5 6.4
Power input kW 3.07 3.11 3.15
Power factor % 89.7 86.3 84.3
C.O.P W / W 3.45 3.35 3.37
Max. starting amperes A 31 33 34
FEATURES
Controls Microprocessor
Timer ON / OFF 12-hours ON/OFF 24-hours & Program
Fan speed (Indoor) 3 and Automatic control
Airflow direction (Indoor) Automatic (Remote control)
Air filter Washable, easy access
Remote controller (Accessory) RCS-T251G RCS-5PS3E
Refrigerant control Capillary tube
Drain pump (drain connection) No (20A, OD26mm)
Compressor Rotary
Operation sound Indoor - Hi/Me/L
o
dB - A 47 / 43 / 39
Outdoor - Hi dB - A 54
REFRIGERANT TUBING
Limit of tubing length m (ft.) 50 (164)
Limit of tubing length at shipment m (ft.) 15 (49)
Limit of elevation difference m (ft.) Outdoor unit is higher than indoor unit: 50 (164)
between the two units Outdoor unit is lower than indoor unit: 30 (98)
Refrigerant tube Narrow tube mm (in) 9.52 ( 3 / 8 )
outer diameter Wide tube mm (in) 19.05 ( 3 / 4 )
Refrigerant amount at shipment kg R22 - 4.0
DIMENSIONS & WEIGHT Indoor unit Outdoor unit
Unit dimensions Height mm (in) 250 (9-27/32) 1,235 (48-20/32)
Width mm (in) 1,570 (61-26/32) 940 (37)
Depth mm (in) 670 (26-12/32) 340 (13-12/32)
Package dimensions Height mm (in) 336 (13-7/32) 1,326 (52-7/32)
Width mm (in) 1,670 (65-24/32) 1,016 (40)
Depth mm (in) 782 (30-25/32) 416 (16-12/32)
Net weight kg (lb) 41 (90) 94 (207)
Shipping weight kg (lb) 51 (112) 101 (223)
Shipping volume m
3
(Cu. ft.) 0.439 (15.5) 0.56 (19.8)
DATA SUBJECT TO CHANGE WITHOUT NOTICE
Cooling :
Rating conditions(*) : Indoor air temperature 27 °C DB / 19 °C WB, Outdoor air temperature 35 °C DB
Full load conditions(**) Indoor air temperature 35 °C DB / 25 °C WB, Outdoor air temperature 50 °C DB
1-1 Unit Specifications

– 13 – SM830043
1
1. Specifications
MODEL No. Indoor Unit SPW-T483G56 SPW-T483GS56
Outdoor Unit SPW-C483G8, C483G8/M
POWER SOURCE 380 - 400 - 415 V / 3N / 50 Hz
PERFORMANCE Cooling
Capacity kW 14
BTU / h 47,800
Air circulation (Hi/Me/Lo) m3 / h 1,920/1,680/1,320
Moisture removal(High) Liters/h 7.1
ELECTRICAL RATINGS
Voltage rating V 380 400 415
Available voltage range V 342 - 456
Running amperes* A 8.4 8.6 8.9
Max. running amperes** A 11 10.9 10.8
Power input kW 4.7 4.76 4.86
Power factor % 85 80 76
C.O.P W / W 2.98 2.94 2.88
Max. starting amperes A 71 73 75
FEATURES
Controls Microprocessor
Timer ON / OFF 12-hours ON/OFF 24-hours & Program
Fan speed (Indoor) 3 and Automatic control
Airflow direction (Indoor) Automatic (Remote control)
Air filter Washable, easy access
Remote controller (Accessory) RCS-T251G RCS-5PS3E
Refrigerant control Capillary tube
Drain pump (drain connection) No (20A, OD26mm)
Compressor Scroll
Operation sound Indoor - Hi/Me/L
o
dB - A 48 / 44 / 40
Outdoor - Hi dB - A 56
REFRIGERANT TUBING
Limit of tubing length m (ft.) 50 (164)
Limit of tubing length at shipment m (ft.) 15 (49)
Limit of elevation difference m (ft.) Outdoor unit is higher than indoor unit: 50 (164)
between the two units Outdoor unit is lower than indoor unit: 30 (98)
Refrigerant tube Narrow tube mm (in) 9.52 ( 3 / 8 )
outer diameter Wide tube mm (in) 19.05 ( 3 / 4 )
Refrigerant amount at shipment kg R22 - 4.3
DIMENSIONS & WEIGHT Indoor unit Outdoor unit
Unit dimensions Height mm (in) 250 (9-27/32) 1,235 (48-20/32)
Width mm (in) 1,570 (61-26/32) 940 (37)
Depth mm (in) 670 (26-12/32) 340 (13-12/32)
Package dimensions Height mm (in) 336 (13-7/32) 1326 (52-7/32)
Width mm (in) 1,670 (65-24/32) 1,016 (40)
Depth mm (in) 782 (30-25/32) 416 (16-12/32)
Net weight kg (lb) 41 (90) 106 (234)
Shipping weight kg (lb) 51 (112) 113 (249)
Shipping volume m
3
(Cu. ft.) 0.439 (15.5) 0.56 (19.8)
DATA SUBJECT TO CHANGE WITHOUT NOTICE
Cooling :
Rating conditions(*) : Indoor air temperature 27 °C DB / 19 °C WB, Outdoor air temperature 35 °C DB
Full load conditions(**) Indoor air temperature 35 °C DB / 25 °C WB, Outdoor air temperature 50 °C DB
1-1 Unit Specifications

– 14 – SM830043
1. Specifications
1
MODEL No. SPW-T253G56 SPW-T253GS56
Source 220 - 230 - 240 V / 1 phase / 50 Hz
Remote Controller (Accessory) RCS - T251G RCS - 5PS3E
Controller P.C.B. Ass’y CR - X363GS
Switch Ass’y – SW - X363GS
Fan (Number…diameter) mm Centrifugal (4...ø130)
Fan Motor
Model…Nominal output W KFG4Q - 41A5P...40 W
Source 220 - 230 - 240 V / 1 phase / 50 Hz
No. of pole…r.p.m. (230 V, High) rpm. 4...1,198
Coil resistance ΩBRN – WHT : 175.1 , ORG – YEL : 70.9
(Ambient temperature 20 °C) WHT – VLT : 43.6 , YEL – PNK : 15.6
VLT – ORG : 27.0
Safety device
Operating temperature Open °C 130 ± 5 °C
Close °C Differential 15 deg. (min.)
Run capacitor VAC, µF 440 V, 2.5 µF
Heat exchanger
Coil Aluminum plate fin / Copper tube
Rows…fin pitch mm 3…1.7
Face area m20.170
Auto louver motor MC8 D
Auto louver motor...Raterd V, Hz, W, rpm. 220 - 240 VAC, 50 Hz, 3 W, 3.3 rpm. 8P
Coil resistance (at 25 ˚C) Ω14,900 Ω ± 8 %
Dew proof heater V, W 240 V, 15 W
1-2 Major Component Specifications
(A) Indoor Unit

– 15 – SM830043
1
1. Specifications
1-2 Major Component Specifications
(A) Indoor Unit
MODEL No. SPW-T303G56 SPW-T303GS56
Source 220 - 230 - 240 V / 1 phase / 50 Hz
Remote Controller (Accessory) RCS - T251G RCS - 5PS3E
Controller P.C.B. Ass’y CR - X363GS
Switch Ass’y – SW - X363GS
Fan (Number…diameter) mm Centrifugal (4...ø150)
Fan Motor
Model…Nominal output W KFG4T - 41A5P...40 W
Source 220 - 230 - 240 V / 1 phase / 50 Hz
No. of pole…r.p.m. (230 V, High) rpm. 4...906
Coil resistance ΩBRN – WHT : 119.4 , YEL – PNK : 55.3
(Ambient temperature 20 °C) WHT – VLT : 29.2
VLT – YEL : 14.5
Safety device
Operating temperature Open °C 130 ± 5 °C
Close °C Differential 15 deg. (min.)
Run capacitor VAC, µF 440 V, 3 µF
Heat exchanger
Coil Aluminum plate fin / Copper tube
Rows…fin pitch mm 3…2.0
Face area m20.34
Auto louver motor MC8 D
Auto louver motor...Raterd V, Hz, W, rpm. 220 - 240 VAC, 50 Hz, 3 W, 3.3 rpm. 8P
Coil resistance (at 25 ˚C) Ω14,900 Ω ± 8 %
Dew proof heater V, W 240 V, 17 W

– 16 – SM830043
1. Specifications
1
1-2 Major Component Specifications
(A) Indoor Unit
MODEL No. SPW-T363G56 SPW-T363GS56
Source 220 - 230 - 240 V / 1 phase / 50 Hz
Remote Controller (Accessory) RCS - T251G RCS - 5PS3E
Controller P.C.B. Ass’y CR - X363GS
Switch Ass’y – SW - X363GS
Fan (Number…diameter) mm Centrifugal (4...ø150)
Fan Motor
Model…Nominal output W KFG4Q - 101D5P...100 W
Source 220 - 230 - 240 V / 1 phase / 50 Hz
No. of pole…r.p.m. (230 V, High) rpm. 4...1,194
Coil resistance ΩBRN – WHT : 43.3 , ORG – YEL : 349.3
(Ambient temperature 20 °C) WHT – VLT : 16.6 , VLT – PNK : 40.8
VLT – ORG : 24.5
Safety device
Operating temperature Open °C 130 ± 5 °C
Close °C Differential 15 deg. (min.)
Run capacitor VAC, µF 440 V, 4.0 µF
Heat exchanger
Coil Aluminum plate fin / Copper tube
Rows…fin pitch mm 3…1.7
Face area m20.34
Auto louver motor MC8 D
Auto louver motor...Raterd V, Hz, W, rpm. 220 - 240 VAC, 50 Hz, 3 W, 3.3 rpm. 8P
Coil resistance (at 25 ˚C) Ω14,900 Ω ± 8 %
Dew proof heater V, W 240 V, 17 W

– 17 – SM830043
1
1. Specifications
1-2 Major Component Specifications
(A) Indoor Unit
MODEL No. SPW-T483G56 SPW-T483GS56
Source 220 - 230 - 240 V / 1 phase / 50 Hz
Remote Controller (Accessory) RCS - T251G RCS - 5PS3E
Controller P.C.B. Ass’y CR - X363GS
Switch Ass’y – SW - X363GS
Fan (Number…diameter) mm Centrifugal (4...ø150)
Fan Motor
Model…Nominal output W KFG4Q - 101D5P...100 W
Source 220 - 230 - 240 V / 1 phase / 50 Hz
No. of pole…r.p.m. (230 V, High) rpm. 4...1,212
Coil resistance ΩBRN – WHT : 43.3 , ORG – YEL : 349.3
(Ambient temperature 20 °C) WHT – VLT : 16.6 , VLT – PNK : 40.8
VLT – ORG : 24.5
Safety device
Operating temperature Open °C 130 ± 5 °C
Close °C Differential 15 deg. (min.)
Run capacitor VAC, µF 440 V, 4.5 µF
Heat exchanger
Coil Aluminum plate fin / Copper tube
Rows…fin pitch mm 3…1.7
Face area m20.34
Auto louver motor MC8 D
Auto louver motor...Raterd V, Hz, W, rpm. 220 - 240 VAC, 50 Hz, 3 W, 3.3 rpm. 8P
Coil resistance (at 25 ˚C) Ω14,900 Ω ± 8 %
Dew proof heater V, W 240 V, 17 W

– 18 – SM830043
1. Specifications
1
1-2 Major Component Specifications
(B) Outdoor Unit
Model No. SPW-C253G5 SPW-C303G5 SPW-C363G5
SPW-C253G5/M SPW-C303G5/M SPW-C363G5/M
Source 220 - 230 - 240 V / 1 phase / 50 Hz
Compressor Rotary (Hermetic)
Model ... Code No. C - R221H5V C - R240H5W
Nominal output W 2,200 2,400
Compressor oil cc 1,350
Coil resistance (at 25°C) Ω
C - R : 0.76, C - S : 2.76
C - R : 0.69, R - S : 3.34, S - C : 2.66
Refrigerant amount at shipment kg R22 - 2.4 R22 - 2.6 R22 - 4.2
Safety device Internal / OL - D24 Internal type
Operating temperature Open °C160±5/150±10 175 ± 5
Close °C87±9/ 63±10 105 ± 9
Run capacitor V, µF 400V, 40
High pressure switch ACB - 1TB07
Set pressure OFF kg/cm230
ON kg/cm224 ± 2.0
Fan (Number…diameter (mm)) Propeller (1…ø 460) Propeller (2…ø 460)
Fan motor
Model…Nominal output W KFC6S - 91C5P…100 W KFC6S - 91C5PX2
100WX2
No. of pole ... rpm (230V, High) rpm 6...868 6…871
Coil resistance ΩBRW – WHT : 61.0
(Ambient temperature 20°C) YEL – PNK : 17.7
WHT – YEL : 64.3
Safety device Internal type Internal type
Operating temperature Open °C130±8 130 ±8
Close °C79±15 79 ±15
Run capacitor VAC, µF 440 V, 5 µF 440 V, 5 µF / 5 µF
Heat exchanger
Coil Aluminium plate fin / Copper tube
Rows ... fin pitch mm 2...2.0 2...2.0
Face area m20.616 1.08
+2.0
+0.5

– 19 – SM830043
1
1. Specifications
MODEL No.SPW-C253G8, SPW-C253G8/M
Source 380 - 400 - 415 V / 3 phase / 50 Hz
Compressor Rotary (Hermetic)
Model … Code No. C - R224H8S
Nominal output W 2,200
Compressor oil CC 1,350
Coil resistance (at 25°C) ΩR - S : 5.54 , S - T : 5.54 , T - R : 5.54
Refrigerant amount at shipment kg R22 – 2.4
Safety device Internal type External type
Overload relay models — FMSA - 1SZ607A
Operating temperature Open °C120±5—
Close °C98±11 —
Operating ampere (at 25°C) A — 6A, 110%
Run capacitor V, µF—
High pressure switch ACB - 1TB07
Set pressure OFF kg/cm230
ON kg/cm224 ± 2.0
Fan Number … diameter mm Propeller (1 … ø 460)
Fan motor
Model … Nominal output W KFC6S - 91C5P … 100 W
No. of pole … rpm (230 V, High) rpm 6 … 868
Coil resistance ΩBRW – WHT : 61.0 , YEL – PNK : 17.7
(Ambient temperature 20°C) WHT – YEL : 64.3
Safety device
Operating temperature Open °C130±8
Close °C79±15
Run capacitor VAC, µF 440V, 5 µF
Heat exchanger
Coil Aluminum plate fin / Copper tube
Rows … fin pitch mm 2 … 2.0
Face area m20.616
1-2 Major Component Specifications
(B) Outdoor Unit
+2.0
+ 0.5

– 20 – SM830043
1. Specifications
1
1-2 Major Component Specifications
(B) Outdoor Unit
MODEL No. SPW-C363G8 SPW-C483G8
SPW-C363G8/M SPW-C483G8/M
Source 380 - 400 - 415 V / 3 phase / 50 Hz
Compressor Rotary (Hermetic) Scroll (Hermetic)
Model...Code No. C - R243H8T ZR61KC - TFD - 522
Nominal output W 2,400 3,750
Compressor oil cc 1,350 2,130
Coil resistance ΩT – R : 5.54 , R – S : 5.54 T1 – T2 : 2.72 , T2 – T3 : 2.72
(Ambient temperature 25°C ) S – T : 5.54 T3 – T1 : 2.72
Refrigerant amount at shipment kg R 22 - 4.0 R 22 - 4.3
Safety devices Internal type External type Internal type External type
Overload relay models —
FMSA -1SZ607A
—
FMSA -1SZ607A
Operating temperature Open °C 120 ±5— 130 —
Close °C 98 ± 11 — 61 —
Operating ampere (at 25°C) A — 6A, 110 % — 10A, 110%
Run capacitor V, µF—
High pressure switch ACB - 1TB07
Set pressure OFF kg/cm230
ON kg/cm224 ± 2.0
Fan (Number...diameter) mm Propeller (2...ø460)
Fan motor
Model...Nominal output W KFC6S - 91C5PX2...100WX2
No. of pole...rpm (230 V, High) rpm 6...871
Coil resistance ΩBRN – WHT : 61.0
(Ambient temperature 20°C) WHT – YEL : 64.3
YEL – PNK : 17.7
Safety device
Operating temperature Open °C130±8
Close °C79±15
Run capacitor VAC, µF 440V, 5 µF / 440 V, 5 µF
Heat exchanger
Coil Aluminum plate fin / Copper tube
Rows...fin pitch mm22...2.0
Face area m21.08
+2.0
+0.5

– 21 – SM830043
1
1. Specifications
MODEL No. SPW-T253G56 SPW-T303G56 SPW-T363G56 SPW-T483G56
Power Transformer ATR - I75A
Rated Primary AC 230 V, 50 Hz
Secondary 10.6 V, 0.93 A
Capacity 9.86 VAC
Coil resistance ΩWHT – WHT : 101 , BRN – BRN : 0.6 (at 20 °C)
Thermistor cut off temperature °C 150
Thermistor (Coil sensor) PBC - 41E - S36 PBC - 41E - S35
Coil resistance kΩ–10°C : 23.7 , 5°C : 12.1
–5°C : 18.8 , 10°C : 9.7
0°C : 15.0 , 15°C : 8.0
Synchronized Motor MC8 D
1-3 Other Component Specifications
(A) Indoor Unit
MODEL No. SPW-T253GS56 SPW-T303GS56 SPW-T363GS56 SPW-T483GS56
Power Transformer ATR - I75B
Rated Primary AC 230 V, 50 Hz
Secondary 10.6 V, 0.93 A
Capacity 9.86 VAC
Coil resistance ΩWHT – WHT : 101 , BRN – BRN : 0.6 (at 20 °C)
Thermistor cut off temperature °C 150
Thermistor (Coil sensor) PBC - 41E - S36 PBC - 41E - S35
Coil resistance kΩ–10°C : 23.7 , 5°C : 12.1
–5°C : 18.8 , 10°C : 9.7
0°C : 15.0 , 15°C : 8.0
Thermistor (Room or coil sensor) KTEC - 35 - S6
Coil resistance kΩ0°C : 16.5 , 40°C : 2.7
5°C : 12.8 , 45°C : 2.2
10°C : 10.0 , 50°C : 1.8
20°C : 6.3 , 55°C : 1.5
30°C : 4.0 ,
Switch Ass'y SW - X363GS
Indicator Lamp Ass'y IND - T251GS
Synchronized Motor MC8 D

– 22 – SM830043
1. Specifications
1
1-3 Other Component Specifications
(B) Outdoor Unit
MODEL No. SPW-C253G8 SPW-C363G8 SPW-C483G8
SPW-C253G8/M SPW-C363G8/M SPW-C483G8/M
Compressor Motor Magnetic Contactor FMSA - 1SZ607A
Coil rated AC 220 - 240 V, 50 Hz
Coil resistance (at 20°C) Ω828 (at 20 °C)
Contact rated V, A AC 440 V, 13 A
Thermal Relay
Contact rated V, A AC 220 V, 2.25 A
Rated ampere (90 / 120%) A 6 A, 110% 6 A, 110% 10 A, 110%
Auxiliary relay HH62S / 085
Coil rated A AC 240 V, 50 Hz
Coil resistance kW 15.5 ± 20 %
Contact rated A AC 250 V, 10A
Relay RDR - S400
Rated voltage V AC 380 - 415 V, 3 phase, 50Hz
Resistance (at 20°C) kΩR - T : 76.3
Thermostat (Coil sensor) YTB - S377
Operating Temperature °C 27.5 ± 1.5 OFF (High)
25.5 ON (Low)
Contact rated AC 250 V, 1 A
+1.5
–0.5
+1.5
–0.5
MODEL No. SPW-C253G5 SPW-C303G5 SPW-C363G5
SPW-C253G5/M SPW-C303G5/M SPW-C363G5/M
Compressor Motor Mgnetic Contactor FMCA - 1SZ607
Coil rated AC 220 - 240 V, 50 Hz
Coil resistance (at 20°C) Ω828 ± 15 %
Contact rated V, A AC 440 V, 13A
Auxiliary relay HH62S / 085
Coil rated AC 240 V, 50 Hz
Coil resistance (at 20°C) kΩ17.2
Contact rated V, A AC 220 V, 5A
Thermostat (Coil sensor) YTB - S377
Operating Temperature °C 27.5 ± 1.5 OFF (High)
25.5 ON (Low)
Contact rated A AC 250 V, 1 A

– 23 – SM830043
1
1. Specifications
107 60
60 73
103
33
12
92
62
42
35
89
8540
40
6590
221
35
40
138
330 256
626
670
1190
4 - ø 28
HOLES FOR ANCHOR BOLT
TUBING FOR TOP
(SLIT HOLE)
TUBING FOR BACK
(SLIT HOLE)
1190
1190
40
221
4040
3535
36
125C
B
330
60 8
9110
TUBING FOR SIDE
18158
291
588
626
670
29
38
Dimension : mm
Refrigerant gas line
Refrigerant liquid line
Drain connection
D
E
A
(Wide tube)
(Narrow tube)
(20A, O.D. 26mm)
0296_T_I
DRAIN HOLE
(SLIT HOLE)
25, 30 type 36, 48 type
A 1270 1570
B 185 250
C 60 125
D 748 1048
E 1190 1490
Ref.gas line ø 15.88 ø 19.05
Ref. liquid line ø 6.35 ø 9.52
1-4 Dimensional Data
(A) Indoor Unit : 25, 30, 36, 48 Type

– 24 – SM830043
1. Specifications
1
400
380
20
340
20
110660170
735
280
307
940
Dimension : mm
Hole for anchor bolt (4-ø13)
Refrigerant tube joint (narrow tube)
Flare connection 1/4 in (6.35 mm)
Refrigerant tube joint (wide tube)
Flare connection 5/8 in (15.88 mm)
Refrigerant tubing inlet
Power supply inlet
0411_C_S
Fig. 3
1-4 Dimensional Data
(B) Outdoor Unit : SPW-C253G5, SPW-C253G5/M
SPW-C253G8, SPW-C253G8/M
SPW-C303G5, SPW-C303G5/M

– 25 – SM830043
1
1. Specifications
400
380
20
340
20
110660170
1235
580
607
940
Dimension : mm
Hole for anchor bolt (4-ø13)
Refrigerant tube joint (narrow tube)
Flare connection 3/8 in (9.52 mm)
Refrigerant tube joint (wide tube)
Flare connection 3/4 in (19.05 mm)
Refrigerant tubing inlet
Power supply inlet 0412_C_S
Fig. 4
1-4 Dimensional Data
(B) Outdoor Unit : SPW-C363G5, SPW-C363G5/M
SPW-C363G8, SPW-C363G8/M
SPW-C483G8, SPW-C483G8/M

– 26 – SM830043
1. Specifications
1
Indoor Unit : SPW-T363GS56 Outdoor Unit : SPW-C363G5, SPW-C363G5/M
SPW-T363G56 SPW-C363G8, SPW-C363G8/M
Fig. 5-1
O. D.
19.05 mm
(3/4")
Evaporator
Capillary
O. D.
9.52 mm
(3/8")
Condenser
HP
High
pressure
switch
Compressor
Accumulator
Capillary
Sub-condenser
Wide tube
service valve
0605_X_S
Narrow tube
service valve
Strainer
Strainer
1-5 Refrigerant Flow Diagram
Indoor Unit : SPW-T253GS56 Outdoor Unit : SPW-C253G5, SPW-C253G5/M
SPW-T303GS56 SPW-C303G5, SPW-C303G5/M
SPW-T253G56 SPW-C253G8, SPW-C253G8/M
SPW-T303G56
O. D.
15.88 mm
(5/8")
Evaporator
Capillary
O. D.
6.35 mm
(1/4")
Condenser Compressor
Accumulator
Capillary
Sub-condenser
Wide tube
service valve
Narrow tube
service valve
0664_T_S
Strainer
Strainer
HP
High
pressure
switch

– 27 – SM830043
1
1. Specifications
Fig. 5-2
1-6 Operating Range
Temperature Indoor air intake temp. Outdoor air intake temp.
Cooling Maximum 35°C DB / 22.5°C WB 52°C DB
Minimum 19°C DB / 14°C WB 19°C DB
1-5 Refrigerant Flow Diagram
Indoor Unit : SPW-T483GS56 Outdoor Unit : SPW-C483G8, SPW-C483G8/M
SPW-T483G56
O. D.
19.05 mm
(3/4")
Evaporator
Capillary
O. D.
9.52 mm
(3/8")
Condenser
HP
High
pressure
switch
Compressor
Accumulator
Sub-condenser
Wide tube
service valve
0606_X_S
Narrow tube
service valve
Strainer

– 28 – SM830043
1. Specifications
1

– 29 –
2
2. Processes and functions
SM830043
2. PROCESSES AND FUNCTIONS
2-1 Room Temperature Control .......................................................................... 30
2-2 Freeze Prevention..........................................................................................31
2-3 Outdoor Fan Control ......................................................................................31

– 30 – SM830043
2
2. Processes and functions
2-1 Room Temperature Control
The Unit adjusts room temperature by turning the outdoor unit’s compressor ON and OFF.
This process is controlled by the thermostat located in the remote control unit.
The figures on this and the next pages show how each part of the system performs when
the room temperature changes and the thermostat activates the compressor to start
(thermo ON) or stop (thermo OFF). Fig. 6 shows about the cooling cycle.
Fig. 6
THERMO ON
ROOM TEMPERATURE
THERMO ON
S. T.+0.5°C
SET TEMP. T°C
(S.T.)
COMPRESSOR OFF OFF
WITHIN 3 MINUTE
MORE THAN
5 MINUTES
ON ON ON
0607_X_S
OFF OFF
INDOOR FAN
OUTDOOR FAN
SET SPEED (MANUAL)
THERMO OFF
3 MINUTES
THERMO OFF
MORE THAN 3 MINUTES
ON ON ON
Chart Summary and Explanations
❑Once the compressor starts, it keeps running for 5 minutes.
❑Once the compressor stops, it will not start running again for 3 minutes.
❑If you change the operation mode during the cooling cycle, the control circuit stops the
compressor for 3 minutes.
❑For 5 minutes after the compressor is first turned on, and for 3 minutes after it is turned off,
the compressor is not controlled by the room sensor.
❑Thermo ON: When room temperature rises 0.5°C above the set temperature T˚,
(T˚+0.5 °C):
Compressor ➞ ON
❑Thermo OFF: When the room temperature is equal to or below the set temperature T˚:
Compressor ➞ OFF
❑In case of wireless remote control model (GS type).
• The remote control unit sends the temperature signal to the air conditioner regularly at 3
minute intervals. If the signal from the remote control unit stops for more than 10 minutes
due to the damage of the remote control unit or other trouble, the air conditioner will
switch to the temperature sensor which is built in the indoor unit and control the room
temperature. In these cases, the temperature around the remote contorl unit may differ
from the temperature detected at the air conditioner’s position.
• If the remote control is located near a heat source, such as a space heater or in direct
sunlight, press the A/C SENSOR button to switch to the sensor in the indoor unit.

– 31 –
2
2. Processes and functions
SM830043
2-2 Freeze Prevention
Freeze Prevention keeps the indoor heat exchange coil from freezing. Freezing reduces
the efficiency of the unit, and frost buildup on the coil blocks cool air circulation from the
indoor unit’s fan.
Fig. 7
COMPRESSOR
OUTDOOR FAN
INDOOR FAN
OFF
OFF OFF
OFF
INDOOR COIL
TEMPERATURE
MORE THAN 10 MINUTES
FREEZE
PREVENTION
6 MINUTES 10 MINUTES
FREEZE
PREVENTION
6 MINUTES
(THERMO OFF)
(THERMO ON)
–1°C
ON
ON
ON
ON
ON
ON
0608_X_S
SET SPEED
Fig. 8
2-3 Outdoor Fan Control
• In low outdoor temperature, the outdoor fan is set automatically from HIGH to LOW to
prevent the indoor heat exchanger from freezing.
• When the outdoor temperature falls below 25.5°C, the outdoor fan is set from HIGH to
LOW automatically. When the outdoor temperature rises to 27.5°C, the outdoor fan is
set from LOW to HIGH automatically.

– 32 – SM830043
2
2. Processes and functions

– 33 – SM830043
3
3. Electrical data
3. ELECTRICAL DATA
3-1 Indoor Unit (Electric Wiring Diagram, Schematic Diagram) ............................... 34
3-2 Outdoor Unit (Electric Wiring Diagram, Schematic Diagram)............................. 42

SM830043
– 34 –
3
3. Electrical data
3-1 Indoor Unit
11
11
1SPW-T253G56, SPW-T363G56, SPW-T483G56
Connector
8P(WHT)
31
3175
315
12345678
1
S
P2345678
1
To Outdoor Unit
Power Supply
Terminal
Plate(4P)
• Electric Wiring Diagram
W 854-2-5268-498-00-1 (T253G56, T363G56, T483G56)
2 3 4
GRN/YEL
GRN/YEL GRN/YEL
RC1
YEL
GRY
GRY
ORG
VLT
BRN
WHT
RED
BRN
BRN
WHT
WHT
ORG
YEL
VLT
WHT
GRY
GRY
PNK
BRN
PNK
BRN
BRN
FMI
Controller (CR-X363GS)
E
49FMI
3P(WHT)
COM
FM
SUP
5P(WHT) MHL
7P(WHT)
51
5
Remote
Control
Switch
1
12P(WHT)
121
121
5P(WHT)
21
TR
PS
21
PRY
2P(WHT) SEC
2P(WHT)
TH1 (Coil)
21
TH1
2P(RED)
31
LM
BLK
WHT
31
31
21
Connector
2P(WHT)
P
Connector
2P(BLK) Connector
2P(BLU) Connector
2P(RED)
BLK BLK
BLK
21
21
S
P21
2
S
P
31
3P (RED)
FS 3P (BLU)
DP 3P (RED)
DPH 3P (GRN)
LM
DPH
1
21
2
S
P1
BLU
WHT
YEL
WHT
BLK
WHT
BLK
BLK
YEL
WHT

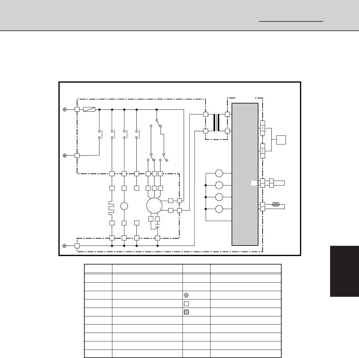
– 35 – SM830043
3
3. Electrical data
3-1 Indoor Unit
11
11
1SPW-T253G56, SPW-T363G56, SPW-T483G56
• Schematic Diagram
S 854-2-5268-498-00-1 (T253G56, T363G56, T483G56)
2
1
3
FS 1
2
1
5
1
12
1
TR
Coil
TH1
CR-X363GS
Controller
1
1
3
5
F2
1
2
1
3
2
DPH
RY2
RY1
RY4
RY5
3
2
LM
1
1
RY3
4P-1
4P-4
1
4P-2
RY5
FMI
C
12
1
735
456
RY1
RY2 RY2
HLM
3
2
1
1
17
3
49FMI
8
RY4
RY4
Symbols Description
FMI
49FMI
C
F
DPH
LM
TR
RY1-RY5
TH1
TH2
Indoor Fan Motor
Indoor Motor Thermal Protector
Capacitor
Fuse
Dew Proof Heater
Auto Louver Motor
Power Transformer
Auxiliary Relay
Thermistor (Indoor Coil)
Room Thermistor
Symbols Description
CR-X363GS
RCS
Indoor Controller
Remote Control Switch
Terminal Plate
Connector
Terminal
RCS
TH2

SM830043
– 36 –
3
3. Electrical data
3-1 Indoor Unit
22
22
2SPW-T303G56
Connector
8P(WHT)
31
3175
315
12345678
1
S
P
2345678
1
To Outdoor Unit
Power Supply
Terminal
Plate(4P)
• Electric Wiring Diagram
W 854-2-5268-499-00-1 (T303G56)
2 3 4
GRN/YEL
GRN/YEL GRN/YEL
RC1
YEL
GRY
GRY
ORG
VLT YEL
VLT
WHT
GRY
GRY
PNK
BRN
PNK
BRN
BRN
FMI
Controller (CR-X363GS)
E
49FMI
3P(WHT)
COM
FM
SUP
5P(WHT) MHL
7P(WHT)
51
5
Remote
Control
Switch
1
12P(WHT)
121
121
5P(WHT)
21
TR
PS
21
PRY
2P(WHT) SEC
2P(WHT)
TH1 (Coil)
21
TH1
2P(RED)
31
LM
BLK
WHT
31
31
21
Connector
2P(WHT)
P
Connector
2P(BLK) Connector
2P(BLU) Connector
2P(RED)
BLK BLK
BLK
21
21
S
P
21
2
S
P
31
3P (RED)
FS 3P (BLU)
DP 3P (RED)
DPH 3P (GRN)
LM
DPH
1
21
2
S
P
1
BLU
WHT
YEL
WHT
BLK
WHT
BLK
BLK
YEL
WHT
BRN
WHT
RED
BRN
BRN
WHT
WHT

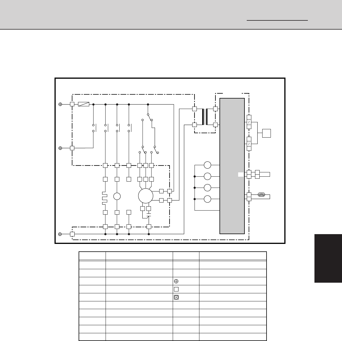
– 37 – SM830043
3
3. Electrical data
3-1 Indoor Unit
22
22
2SPW-T303G56
• Schematic Diagram
S 854-2-5268-499-00-1 (T303G56)
2
1
3
FS 1
2
1
5
1
12
1
TR
Coil
TH1
CR-X363GS
Controller
1
1
3
5
F2
1
2
1
3
2
DPH
RY2
RY1
RY4
RY5
3
2
LM
1
1
RY3
4P-1
4P-4
1
4P-2
RY5
FMI
C
12
1
735
356
RY1
RY2 RY2
HLM
3
2
1
1
17
3
49FMI
8
RY4
RY4
Symbols Description
FMI
49FMI
C
F
DPH
LM
TR
RY1-RY5
TH1
TH2
Indoor Fan Motor
Indoor Motor Thermal Protector
Capacitor
Fuse
Dew Proof Heater
Auto Louver Motor
Power Transformer
Auxiliary Relay
Thermistor (Indoor Coil)
Room Thermistor
Symbols Description
CR-X363GS
RCS
Indoor Controller
Remote Control Switch
Terminal Plate
Connector
Terminal
RCS
TH2

SM830043
– 38 –
3
3. Electrical data
3-1 Indoor Unit
33
33
3SPW-T253GS56, SPW-T363GS56, SPW-T483GS56
Connector
8P(WHT)
31
3175
315
12345678
1
S
P
2345678
1
To Outdoor Unit
Power Supply
Terminal
Plate(4P)
• Electric Wiring Diagram
W 854-2-5268-500-00-1 (T253GS56, T363GS56, T483GS56)
2 3 4
GRN/YEL
GRN/YEL GRN/YEL
RC1
YEL
GRY
GRY
ORG
VLT ORG
YEL
VLT
WHT
GRY
GRY
PNK
BRN
PNK
BRN
BRN
FMI
Controller (CR-X363GS)
E
49FMI
3P(WHT)
COM
FM
SUP
5P(WHT) MHL
7P(WHT) 7P(WHT)
71
91
91
21
TR
PS
21
PRY
2P(WHT) SEC
2P(WHT)
TH1 (Coil)
21
TH1
2P(RED)
31
LM
BLK
WHT
31
31
21
Connector
2P(WHT)
P
Connector
2P(BLK) Connector
2P(BLU) Connector
2P(RED)
Connector
9P(WHT)
BLK BLK
BLK
21
21
S
P
21
2
S
P
31
3P (RED)
FS 3P (BLU)
DP 3P (RED)
DPH 3P (GRN)
LM
DPH
1
21
2
S
P
1
BLU
WHT
YEL
WHT
BLK
WHT
BLK
BLK
TH2 (Rooom)
21
TH2
2P(YEL)
BLK
BLK
YEL
WHT
213
213
3P(WHT)
71
IND Lamp
Assy
Switch
Assy
S
P
RED
ORG
BRN
BRN
WHT
RED
BRN
BRN
WHT
WHT

– 39 – SM830043
3
3. Electrical data
3-1 Indoor Unit
33
33
3SPW-T253GS56, SPW-T363GS56, SPW-T483GS56
• Schematic Diagram
S 854-2-5268-500-00-1 (T253GS56, T363GS56, T483GS56)
2
1
3
FS 1
2
1
TR
Coil
TH1
CR-X363GS
Controller
1
1
3
5
F2
1
2
1
3
2
DPH
RY2
RY1
RY4
RY5
3
2
LM
1
1
RY3
4P-1
4P-4
1
4P-2
RY5
FMI
C
12
1
735
456
RY1
RY2 RY2
HLM
3
2
1
1
17
3
49FMI
8
RY4
RY4
Symbols Description
FMI
49FMI
C
F
DPH
LM
TR
RY1-RY5
TH1
TH2
Indoor Fan Motor
Indoor Motor Thermal Protector
Capacitor
Fuse
Dew Proof Heater
Auto Louver Motor
Power Transformer
Auxiliary Relay
Thermistor (Indoor Coil)
Room Thermistor
Symbols Description
CR-X363GS
IND
SW
Indoor Controller
Indicator Lamp Assy
Switch Assy
Terminal Plate
Connector
Terminal
3
1
2
IND
3
1
2
7
1
9
1
7
1
SW
2
1
Room
TH2

SM830043
– 40 –
3
3. Electrical data
3-1 Indoor Unit
44
44
4SPW-T303GS56
Connector
8P(WHT)
31
3175
315
12345678
1
S
P
2345678
1
To Outdoor Unit
Power Supply
Terminal
Plate(4P)
• Electric Wiring Diagram
W 854-2-5268-501-00-1 (T303GS56)
2 3 4
GRN/YEL
GRN/YEL GRN/YEL
RC1
YEL
GRY
GRY
ORG
VLT YEL
VLT
WHT
GRY
GRY
PNK
BRN
PNK
BRN
BRN
FMI
Controller (CR-X363GS)
E
49FMI
3P(WHT)
COM
FM
SUP
5P(WHT) MHL
7P(WHT) 7P(WHT)
71
91
91
21
TR
PS
21
PRY
2P(WHT) SEC
2P(WHT)
TH1 (Coil)
21
TH1
2P(RED)
31
LM
BLK
WHT
31
31
21
Connector
2P(WHT)
P
Connector
2P(BLK) Connector
2P(BLU) Connector
2P(RED)
Connector
9P(WHT)
BLK BLK
BLK
21
21
S
P
21
2
S
P
31
3P (RED)
FS 3P (BLU)
DP 3P (RED)
DPH 3P (GRN)
LM
DPH
1
21
2
S
P
1
BLU
WHT
YEL
WHT
BLK
WHT
BLK
BLK
TH2 (Rooom)
21
TH2
2P(YEL)
BLK
BLK
YEL
WHT
213
213
3P(WHT)
71
IND Lamp
Assy
Switch
Assy
S
P
RED
ORG
BRN
BRN
WHT
RED
BRN
BRN
WHT
WHT

– 41 – SM830043
3
3. Electrical data
3-1 Indoor Unit
44
44
4SPW-T303GS56
• Schematic Diagram
S 854-2-5268-501-00-1 (T303GS56)
2
1
3
FS 1
2
1
TR
Coil
TH1
CR-X363GS
Controller
1
1
3
5
F2
1
2
1
3
2
DPH
RY2
RY1
RY4
RY5
3
2
LM
1
1
RY3
4P-1
4P-4
1
4P-2
RY5
FMI
C
12
1
735
356
RY1
RY2 RY2
HLM
3
2
1
1
17
3
49FMI
8
RY4
RY4
Symbols Description
FMI
49FMI
C
F
DPH
LM
TR
RY1-RY5
TH1
TH2
Indoor Fan Motor
Indoor Motor Thermal Protector
Capacitor
Fuse
Dew Proof Heater
Auto Louver Motor
Power Transformer
Auxiliary Relay
Thermistor (Indoor Coil)
Room Thermistor
Symbols Description
CR-X363GS
IND
SW
Indoor Controller
Indicator Lamp Assy
Switch Assy
Terminal Plate
Connector
Terminal
3
1
2
IND
3
1
2
7
1
9
1
7
1
SW
2
1
Room
TH2

SM830043
– 42 –
3
3. Electrical data
3-2 Outdoor Unit
11
11
1SPW-C253G5
SPW-C253G5/M
CM FM
C1
C2
YEL
WHT
GRY
BRN
PNK
45
45
23
23
1
1
Connector
6P (WHT)
Connector 2P (WHT) 63PH
31
32
13
14
T
W
S
V
R
U
A
B
OLR
PS
Earth
Terminal
CRS
GRN/YEL GRN/YEL
GRN/YEL
52C
5
7
813
Relay
1
2
1
2
6
24
1Y
Power Supply
50Hz 1ø 220 V To Indoor Unit
Terminal
Plate
1
2
4
L
N
WHT
PNK
WHT
PNK
WHT
WHT
RED
BRN
RED
WHT
BLK
WHT
BLU
RED RED
WHT
• Electric Wiring Diagram
W 854-2-5268-461-00-1 (C253G5)
P
S
C
HL
23S
YEL
WHT
GRY
BRN
PNK
RED
RED

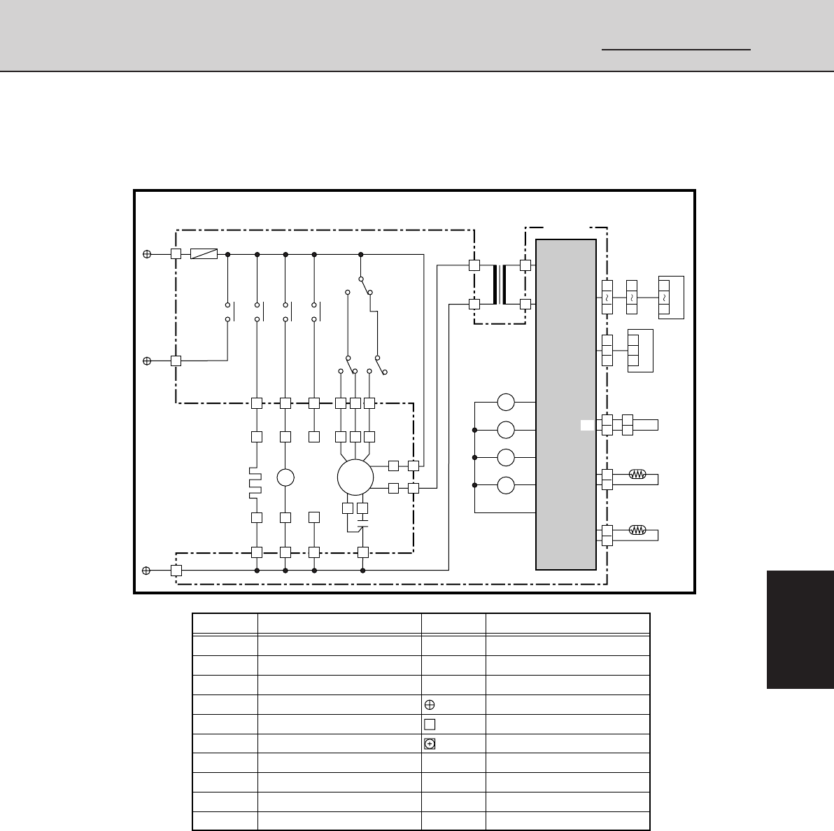
– 43 – SM830043
3
3. Electrical data
1
2
1Y 52C
4
1
2
N
L
S
V
R
U
1Y
C1 63PH
C2
52C
OLR
23S
FM
CM
LH
C
45
123
W
T
52C
• Schematic Diagram
S 854-2-5268-461-00-1 (C253G5)
Symbols Description
CM
FM
52C
63PH
23S
C1, 2
OLR
1Y
Compressor motor
Fan Motor
Compressor Motor Magnetic Contactor
High Pressure Switch
Fan Speedcontrol Thermostat
Capacitor
Overload relay
Auxiliary Relay
Connector
Terminal Plate
3-2 Outdoor Unit
11
11
1SPW-C253G5
SPW-C253G5/M

SM830043
– 44 –
3
3. Electrical data
3-2 Outdoor Unit
22
22
2SPW-C303G5
SPW-C303G5/M
CM FM
C1
C2
YEL
WHT
GRY
BRN
PNK
45
45
23
23
1
1
Connector
6P (WHT)
Connector 2P (WHT) 63PH
31
32
13
14
T
W
S
V
R
U
A
B
PS
Earth
Terminal
CRS
GRN/YEL GRN/YEL
GRN/YEL
52C
5
7
813
Relay
1
2
1
2
6
24
1Y
Power Supply
50Hz 1ø 220 V To Indoor Unit
Terminal
Plate
1
2
4
L
N
WHT
PNK
WHT
PNK
WHT
WHT
RED
BRN
WHT
BLK
WHT
BLU
RED RED
WHT
• Electric Wiring Diagram
W 854-2-5268-462-00-1 (C303G5)
P
S
C
HL
23S
YEL
WHT
GRY
BRN
PNK
RED
RED
TH
BLKWHT

– 45 – SM830043
3
3. Electrical data
3-2 Outdoor Unit
22
22
2SPW-C303G5
SPW-C303G5/M
1
2
1Y 52C
4
1
2
N
L
S
V
R
U
1Y
C1 63PH
C2
TH
52C
23S
FM
CM
LH
C
45
123
W
T
52C
• Schematic Diagram
S 854-2-5268-462-00-1 (C303G5)
Symbols Description
CM
FM
52C
63PH
23S
C1, 2
TH
1Y
Compressor motor
Fan Motor
Compressor Motor Magnetic Contactor
High Pressure Switch
Fan Speedcontrol Thermostat
Capacitor
Thermistor
Auxiliary Relay
Connector
Terminal Plate

SM830043
– 46 –
3
3. Electrical data
3-2 Outdoor Unit
33
33
3SPW-C363G5
SPW-C363G5/M
CM FM1
C1
C3
YEL
WHT
GRY
BRN
PNK
45
45
23
23
1
1
Connector
6P (WHT)
Connector 2P (WHT) 63PH
31
32
13
14
T
W
S
V
R
U
A
B
PS
Earth
Terminal
CRS
GRN/YEL GRN/YEL
GRN/YEL
52C
5
7
813
Relay
1
2
1
2
6
24
2Y
Power Supply
50Hz 1ø 220 V To Indoor Unit
Terminal
Plate
1
2
4
L
N
WHT
PNK
WHT
PNK
WHT
WHT
RED
BRN
WHT
BLK
WHT
BLU
RED RED
RED
WHT
• Electric Wiring Diagram
W 854-2-5268-463-00-2 (C363G5)
P
S
YEL
WHT
GRY
BRN
PNK
FM2
C2
YEL
WHT
GRY
BRN
PNK
45
45
23
23
1
1
Connector
6P (WHT)
P
S
YEL
WHT
GRY
BRN
PNK
RED
TH
BLKWHT
Relay
3
8
7
14
5
1Y
2
6
CH
L
23S
VLT
WHT
WHT
WHT
RED
GRY
GRY
GRN/YEL

– 47 – SM830043
3
3. Electrical data
3-2 Outdoor Unit
33
33
3SPW-C363G5
SPW-C363G5/M
1
2
2Y
FM2
52C
4
1
2
N
L
S
V
R
U
13
2Y
14
52C
42
C1 C2 63PH
6
C
L
C3
TH
52C
H
23S
54
123
1Y
FM1
CM
31
5
54
123
W
T
52C
• Schematic Diagram
S 854-2-5268-463-00-2 (C363G5)
Symbols Description
CM
FM1, 2
52C
63PH
23S
C1, 2, 3
TH
1Y, 2Y
Compressor motor
Fan Motor
Compressor Motor Magnetic Contactor
High Pressure Switch
Fan Speedcontrol Thermostat
Capacitor
Thermistor
Auxiliary Relay
Connector
Terminal Plate

SM830043
– 48 –
3
3. Electrical data
3-2 Outdoor Unit
44
44
4SPW-C253G8
SPW-C253G8/M
CM
FM
C
YEL
WHT
GRY
BRN
PNK
YEL
WHT
GRY
BRN
PNK
45
45
23
23
1
1
Connector
6P (WHT) P
S
Connector 2P (WHT) 63PH
31
32
13
14
T
W
S
V
R
U
642
A
B
95
9651C
C
PS
HL
23S
49C
Earth
Terminal
RST
GRN/YEL GRN/YEL
GRN/YEL
52C
46
35
8
Relay
S
BATR
C7
1
2
1
2
1Y
47C
Power Supply
50Hz 3ø 380 V / 415 V To Indoor Unit
Terminal
Plate
1
2
4
5
6
7
8
L1
L2
L3
N
PNK
BRN
ORG
WHT
WHT
PNK
PNK
BLU
RED
PNK
YEL
RED
WHT
BLU
ORG
RED
WHT
WHT
BLU
RED RED
GRY
WHT
ORG
• Electric Wiring Diagram
W 854-2-5268-458-00-0 (C253G8)

– 49 – SM830043
3
3. Electrical data
3-2 Outdoor Unit
44
44
4SPW-C253G8
SPW-C253G8/M
1
2
1
AB
S
T
R
C47C
49C
2
4
52C
1Y
47C
5
6
7
8
L1
L2
L3
NC
FM
LH
63PH
C23S
45
123
52C
51C
• Schematic Diagram
S 854-2-5268-458-00-0 (C253G8)
Symbols Description
CM
FM
52C
51C
49C
47C
63PH
23S
C
1Y
Compressor motor
Fan Motor
Compressor Motor Magnetic Contactor
Compressor Motor Overcurrent Relay
Compressor Motor Thermal Protector
Negative Phase Relay
High Pressure Switch
Fan Speedcontrol Thermostat
Capacitor
Auxiliary Relay
Connector
Terminal Plate
13
14
5
95
96
51C
52C
1Y
3
CM

SM830043
– 50 –
3
3. Electrical data
3-2 Outdoor Unit
55
55
5SPW-C363G8
SPW-C363G8/M
CM
FM1
C1
YEL
WHT
GRY
BRN
PNK
YEL
WHT
GRY
BRN
PNK
45
45
23
23
1
1
Connector
6P (WHT)
Connector 2P (WHT) 63PH
31
32
13
14
T
W
S
V
R
U
642
A
B
95
9651C
PS
49C
Earth
Terminal
RST
GRN/YEL GRN/YEL
GRN/YEL
GRN/YEL
52C
46
35
8
Relay
Relay
S
BATR
C7
1
2
1
2
2Y
47C
Power Supply
50Hz 3ø 380 V / 415 V To Indoor Unit
Terminal
Plate
1
2
4
5
6
7
8
L1
L2
L3
N
PNK
BRN
ORG
WHT
WHT
PNK
PNK
BLU
RED
PNK
YEL
RED
WHT
BLU
ORG
GRY
RED
WHT
BLU
RED RED
GRY
WHT
ORG
ORG
• Electric Wiring Diagram
W 854-2-5268-459-00-1 (C363G8)
P
S
FM2
C2
YEL
WHT
GRY
BRN
PNK
YEL
WHT
GRY
BRN
PNK
45
45
23
23
1
1
Connector
6P (WHT)
P
S
3
8
7
14
5
1Y
2
6
CH
L
23S
WHT
ORG
WHT
VLT
WHT
WHT

– 51 – SM830043
3
3. Electrical data
3-2 Outdoor Unit
55
55
5SPW-C363G8
SPW-C363G8/M
1
2
1
C1
FM1
31
5
54
123
AB
S
T
R
C47C
49C
H
2
4
52C
1Y
2Y
47C
5
6
7
8
L1
L2
L3
NC2
FM2
42
L
23S
63PH
C
6
54
123
52C
51C
• Schematic Diagram
S 854-2-5268-459-00-1 (C363G8)
Symbols Description
CM
FM1, 2
52C
51C
49C
47C
63PH
23S
C1, 2
1Y, 2Y
Compressor motor
Fan Motor
Compressor Motor Magnetic Contactor
Compressor Motor Overcurrent Relay
Compressor Motor Thermal Protector
Negative Phase Relay
High Pressure Switch
Fan Speedcontrol Thermostat
Capacitor
Auxiliary Relay
Connector
Terminal Plate
13
14
5
95
96
51C
52C
2Y
3
CM

SM830043
– 52 –
3
3. Electrical data
3-2 Outdoor Unit
66
66
6SPW-C483G8
SPW-C483G8/M
CM
FM1
C1
YEL
WHT
GRY
BRN
PNK
YEL
WHT
GRY
BRN
PNK
45
45
23
23
1
1
Connector
6P (WHT)
Connector 2P (WHT) 63PH
31
32
13
14
T
W
S
V
R
U
642
A
B
95
9651C
PS
Earth
Terminal
T1 T2 T3
GRN/YEL GRN/YEL
GRN/YEL
GRN/YEL
52C
46
35
8
Relay
Relay
S
BATR
C7
1
2
1
2
2Y
47C
Power Supply
50Hz 3ø 380 V / 415 V To Indoor Unit
Terminal
Plate
1
2
4
5
6
7
8
L1
L2
L3
N
PNK
PNK
BRN
ORG
WHT
WHT
PNK
PNK
BLU
RED
PNK
RED
WHT
BLU
GRY
RED
WHT
BLU
RED RED
GRY
WHT
ORG
ORG
YEL
• Electric Wiring Diagram
W 854-2-5268-460-00-1 (C483G8)
P
S
FM2
C2
YEL
WHT
GRY
BRN
PNK
YEL
WHT
GRY
BRN
PNK
45
45
23
23
1
1
Connector
6P (WHT)
P
S
3
8
7
14
5
1Y
2
6
CH
L
23S
WHT
ORG
WHT
VLT
WHT
WHT

– 53 – SM830043
3
3. Electrical data
3-2 Outdoor Unit
66
66
6SPW-C483G8
SPW-C483G8/M
1
2
1
C1
FM1
31
5
54
123
AB
S
T
R
C47C
H
2
4
52C
1Y
2Y
47C
5
6
7
8
L1
L2
L3
NC2
FM2
42
L
23S
63PH
C
6
54
123
52C
51C
• Schematic Diagram
S 854-2-5268-460-00-1 (C483G8)
Symbols Description
CM
FM1, 2
52C
51C
47C
63PH
23S
C1, 2
1Y, 2Y
Compressor motor
Fan Motor
Compressor Motor Magnetic Contactor
Compressor Motor Overcurrent Relay
Negative Phase Relay
High Pressure Switch
Fan Speedcontrol Thermostat
Capacitor
Auxiliary Relay
Connector
Terminal Plate
13
14
5
95
96
51C
52C
2Y
3
CM

SM830043
– 54 –
3
3. Electrical data

SM830043
– 55 –
4
4. Service procedures
4. SERVICE PROCEDURES
4-1 Troubleshooting .............................................................................................56
(1) Check before and after Troubleshooting ................................................ 56
(2) Air conditioner does not operate ............................................................ 57
(3) Outdoor unit does not run ...................................................................... 61
(4) Indoor unit does not run ......................................................................... 63
(5) Some part does not operate................................................................... 63
(6) Outdoor fan does not run ....................................................................... 64
(7) Outdoor fan speed is not switched from High to Low even when
the outdoor temperature falls below 25.5°C. .......................................... 64
(8) Compressor does not run....................................................................... 64
(9) Poor cooling ............................................................................................65
(10) Excessive cooling....................................................................................66
4-2 A Sensor is Defective.....................................................................................67
4-3 Operation of Major Electrical Parts ............................................................... 67
4-4 Checking the Electrical Components ............................................................ 68
(1) Measurement of Insulation Resistance .................................................. 68
(2) Checking the Protective Devices............................................................ 69
(3) Checking the Electrical Parts ................................................................. 70
(4) Thermistor Characteristic Curve............................................................. 71

SM830043
– 56 –
4
4. Service procedures
4-1 Trobleshooting
(1) Check before and after Troubleshooting
Many problems may happen because of wiring or power supply problems, so you should
check these areas first. Problems here can cause false results in some of the other tests,
and so should be corrected first.
11
11
1. Check power supply wiring
(a) Single-phase
❑Check that power supply wires are correctly connected to terminal No.
1 through No. 4 on the 4P terminal plate in the indoor unit and L and N
on the 6P terminal in the outdoor unit.
(b) 3-phase
❑Check that power supply wires are correctly connected to terminal No.
1 through No. 4 on the 4P terminal plate in the indoor unit and L1
through L3 and N on the 8P terminal in the outdoor unit.
22
22
2. Check inter-unit wiring
❑Check that inter-unit control wiring (AC 220 - 240 V Line voltage) is
correctly connected between the indoor unit and outdoor unit.
33
33
3. Check power supply
❑Check that voltage is within the specified range (±10% of the rating).
❑Check that power is being supplied.
If the following troubleshooting must be done with power being supplied,
be careful not to thouch any uninsulated live part that can cause
ELECTRIC SHOCK.
44
44
4. Check the lead wires and connectors in indoor and outdoor units.
❑Check that the sheath of lead wires is not damaged.
❑Check that the lead wires are firmly connected at the terminal plate.
❑Check that the wiring is correct.
55
55
5Reference
• Condition of general cooling operation (Thermo. ON)
SWEEP..................ON
Indoor fan speed....HIGH
Single-phase outdoor unit 3-phase outdoor unit
1
2
4
1
2
4
L
N
Indoor Unit Outdoor Unit
Ground
Ground
B
A
0611_X_S
L
N
Power supply
Inter-Unit
Wiring
(Line voltage)
Fig. 16
1
2
4
1
2
4
L1
N
Indoor Unit Outdoor Unit
Power supply
Inter-Unit
Wiring
(Line voltage)
Ground
Ground
B
A
0612_X_S
L1
L2 L2
L3 L3
N

SM830043
– 57 –
4
4. Service procedures
(2) Air conditioner does not operate
11
11
1Circuit breaker trips (or fuse blows).
(a) When the circuit breaker is set to ON, it is tripped soon.
• There is a possibility of ground fault.
• Check insulation resistance.
If resistance value is 1MΩ or less, it is a defect of insulation.
1
2
3
(Example)
*Set the circuit breaker to OFF.
Remove power supply cords
from the terminal plate in
the outdoor unit.
• Check insulation resistance
of power supply cords.
OK
NO
NO Insulation of
outdoor unit
is defective.
Execute
rewiring.
Remove interunit power line
from the terminal plate in
the outdoor unit.
• Check insulation resistance
of outdoor unit.
OK
Remove interunit power line
from the terminal plate in
the indoor unit.
• Check insulation resistance
of indoor unit.
OK
Interunit power lines are
defective.
NO Insulation of
outdoor unit
is defective.
• Check insulation
resistance of
electrical parts
in the outdoor unit.
• Check insulation
resistance of
electrical parts
in the outdoor unit.
Execute
rewiring.
0613_X_S
+
+
+
++
+
13
2
Circuit
breaker
Outdoor
unit
5 1
6 2
3
4
Indoor
unit
1
2
3
4
Power
supply
cords Interunit
power line
L
N
Earth
+
+
+
+
++
+
+
13
2
Circuit
breaker
Indoor
unit
1
2
Power
supply
cords
Interunit
power line
L1
L2
L3
N
Earth
4
+
+
+
+
4
Outdoor
unit
5 1
6
7 2
4
3
84
3

SM830043
– 58 –
4
4. Service procedures
(b)
Circuit breaker trips in several minutes after turning the air conditioner on.
• There is a possibility of short circuit.
22
22
2Neither indoor unit nor outdoor unit runs.
A. Power is not supplied
0615_X_S
• Check power supply.
Is power being supplied
to outdoor unit ?
Circuit breaker
is tripped.
Power failure.
Reset the breaker.
Wait for recovery
or consult power
supply company.
NO
B. Check remote control unit.
0616_X_S
• Try to run both indoor and
outdoor units with another
remote control unit.
Refer to item C.
NO
The other remote control
unit is defective.
OK
• Check capacity of circuit
breaker. NO
• Check resistance of
outdoor fan motor winding.
0614_X_S
Is capacity of circuit
breaker sufficient ?
• Check resistance of
compressor motor winding.
Replace it with a
suitable one.
(= larger capacity)

SM830043
– 59 –
4
4. Service procedures
C. Check “Operation selector” switch in the indoor unit.
: In case of wireless remote control unit (GS type)
D. Check compressor motor protectors.
a) High pressure switch (63PH)
b) Compressor motor overcurrent relay (51C)
0618_X_S
• Check high pressure switch.
Does high pressure switch
actuate ? (63PH)
YES
YES
Clean heat exchanger coil
or remove obstacles.
• Is outdoor heat exchanger
coil dirty or are there
obstacles near air suction
inlet of outdoor unit ?
• Check if outdoor fan rotates.
Refer to “Only outdoor fan
does not run.”
NO
Disconnect the socket from 2P (WHT) connector.
Check the continuity between No.1 and No.2 poles
of the socket.
0617_X_S
• Has “Operation selector”
switch been set to ON
position ?
YES
Set “Operation selector”
switch to ON.
NO
But neither unit runs.
Switch Ass’y or P.C.B.
Ass’y in the indoor unit
is defective.
IND. LAMP Ass’y or P.C.B.
Ass’y in the indoor unit
is defective.
0619_X_S
• Check compressor motor
overcurrent relay. (51C)
Does it actuate ?
YES
NO
YES
Consult power supply company
and restore voltage to
normal value.
• Check power supply voltage.
Is voltage 90% or less of
rated voltage ?
• Following causes may be considered.
Locked rotor of compressor.
Overcharged refrigerant.
Air shortage of outdoor unit ventilation.
Obstacles in front of outdoor unit.
NO
Refer to “CHECKING ELECTRICAL COMPONENTS
(Electro magnetic contactor)”.
90% or more of
rated voltage.

SM830043
– 60 –
4
4. Service procedures
E. Check. auxiliary relay. (1Y or 2Y)
0620_X_S
• Check coil resistance of
auxiliary relay.
(1Y or 2Y)
F. Check indoor fan motor thermal protector (49FMI)
• Disconnect the socket from 9P (WHT) connector.
• Check the continuity
between No. 8 and No.9
poles of the 9P socket.
The thermal protector (49FMI)
is operated.
No continuity.
0621_X_S
• Check fan rotation.
Rotate the fan gently once
or twice by hand.
Check fan casing
for foreign matter
on the inside.
Remove foreign
matter or repair.
Repair or replace.
Fan cannot
be rotated.
OK
• Check fan motor capacitor.
Fan motor burnout
or foreign matter
in bearing.
G. Check fuse on the P.C.B. Ass’y in the indoor unit.
0665_T_S
• Check fuse on the P.C.B.
Ass'y in the indoor unit
for continuity.
• Check transformer. (TR)
• Check resistance of indoor
fan motor winding.
(FMI)
• Check resistance of louver
motor winding. (LM)
When the fuse blows.
OK
OK
OK
• Check coil of compressor
motor magnetic contactor.
(52C)
• P.C.B. Ass'y is defective.
OK
OK
• Check resistance of dew
proof heater. (DPH)

SM830043
– 61 –
4
4. Service procedures
(3) Outdoor unit does not run.
A. Check COOL/FAN selector switch in the remote control unit.
0623_X_S
• Is COOL/FAN selector switch
set to COOL ? NO Set to COOL.
B. Check set temperature.
0624_X_S
Try to lower set
temperature by Temperature
setting button “COOLER”.
• Set “Operation selector”
switch to TEST in the
indoor unit.
YES
Outdoor unit runs.
Is room temperature too
low ?
NO
• Try to run both indoor and
outdoor units with another
remote control unit.
OK
The other remote control
unit is defective.
(Room sensor in the remote
control unit is defective.)
C. Outdoor unit is abnormal.
a) Check power supply wiring
0625_X_S
• Check negative phase relay.
(47C)
Dose it operate ?
Rewire power supply cords.
NO

SM830043
– 62 –
4
4. Service procedures
b) Check compressor motor thermal protector (49C)
0628_X_S
• Check voltage between
terminals No.2 and No.4 at
terminal plate.
• Check P.C.B. Ass’y.
No voltage appears.
P.C.B. Ass’y is defective.
D. Check indoor unit P.C.B.
0626_X_S
Is temperature of compressor
abnormally high ?
Refrigerant gas shortage.
YES
NO
Compressor is defective.
Charge refrigerant gas.
• Check compressor motor
thermal protector. (49C)
0627_X_S
• Check compressor motor
magnetic contactor.
(52C)
(Only outdoor fan does not run.)

SM830043
– 63 –
4
4. Service procedures
(4) Indoor unit does not run.
(Indoor fan and louver motor do not run.
0630_X_S
P.C.B. Ass’y is defective.
(5) Some part does not operate.
(1) Indoor fan does not run.
• Check resistance of fan
motor winding.
• Check fan motor capacitor.
OK
Relay RY1 or RY2 on the
P.C.B. Ass’y is defective.
• Check fan rotation.
Rotate the fan gently once
or twice by hand.
0631_X_S
Check fan casing
for foreign matter
on the inside.
Remove foreign
matter or repair.
Repair or replace.
Fan cannot
be rotated.
Fan motor burnout
or foreign matter
in bearing.
OK
(2) Louver motor does not run.
• Check resistance of
louver motor winding.
P.C.B. Ass’y or remote
control unit is defective.
OK
0632_X_S

SM830043
– 64 –
4
4. Service procedures
(6) Outdoor fan does not run.
• Check resistance of fan
motor winding.
• Check fan motor capacitor
OK
• Check continuity between
terminals on the compressor
motor magnetic contactor.
• Check fan rotation.
Rotate the fan gently once
or twice by hand.
0633_X_S
• Check fan casing
for foreign matter
on the inside.
Remove foreign
matter or repair.
Repair or replace.
Fan cannot
be rotated.
• Fan motor burnout
or foreign matter
in bearing.
SPW-C363G8, SPW-C363G8/M and SPW-C483G8, SPW-C483G8/M
(8) Compressor does not run.
• Check compressor motor capacitor. Refer to
4-4
0635_X_S
• Check resistance of compressor motor winding.
• Check compressor motor overload relay.
(Only SPW-C253G5, SPW-C253G5/M)
OK
OK
OK
NG
NG
NG
Refer to
4-4
Refer to
4-4
Refer to 4-4
NG Replace magnetic
contactor.
• Check continuity between terminals R-U, and
then S-V on the magnetic contactor.
OK
(7) Outdoor fan speed is not switched from High to Low even when the outdoor
temperature falls below 25.5°C.
• Check the thermostat (23S).
• Check coil resistance of
the auxiliary relay.
(1Y)
0634_X_S

SM830043
– 65 –
4
4. Service procedures
(9) Poor cooling
Check installation position
of remote control unit.
• Does cool air from air condi-
tioner reach remote control
unit directly ?
• Is wide tube between indoor unit
and outdoor unit insulated ?
0636_X_S
• Measure temperatures of suction
and discharge air of indoor unit.
Change installation
position of remote
control unit.
Insulate wide tube and
then execute taping with
narrow tube.
YES
NO
Possibility of
refrigerant
shortage.
Charge
refrigerant
(R22).
Temperature
difference
is small.
YES
• Check clogging of air
filter.
Temperature difference between
suction and discharge air is
large enough (Approx. 10 deg. or more).
Clean filter.
Air filter is clogged.
Set fan speed to either
HIGH or MEDIUM.
• Is fan speed set to LOW ?
Reduce cooling load or
replace the unit with
higher cooling capacity.
• Review cooling load estimate,
if performance of air conditioner
is normal.
YES

SM830043
– 66 –
4
4. Service procedures
(10) Excessive cooling.
• The set temperature is too low.
• Is the remote control unit installed
at a place where it can
detect the room temperature
properly ?
0637_X_S
Set the temperature to
higher value using
temperature setting
button of the remote
control unit.
Change installation
position of the remote
control unit.
YES
NO

SM830043
– 67 –
4
4. Service procedures
4-2 A Sensor is Defective.
11
11
1Indoor (heat exchanger) coil temp. Sensor is defective.
(a) Open (=No continuity in sensor)
Compressor and outdoor fan repeat ON for 10 minutes and OFF for 6 minutes
when sensor opens.
(b) Short
“Freeze Prevention” does not operate when dehumidified water is frozen on the
indoor coil.
22
22
2Room temp. Sensor (in the remote control unit) is defective.
(a) Open (=No continuity in sensor)
Neither outdoor fan nor compressor runs.
(b) Short
Outdoor fan and compressor do not stop. — Excessive cooling.
4-3 Operation of Major Electrical Parts
(Function)
Operation Indoor unit and Remote Control unit Oudoor unit
Freeze prevention
Manual
Energy
saver
Night
setback
Timer
(set)
Fan
Operation Mode
Sweep
Stop
Indicator lamps
Thermo. ON VV VV V
Thermo. OFF VV V
Thermo. ON VV V VV V
Thermo. OFF VV V
Thermo. ON VV V VV V
Thermo. OFF VV V
ON Timer V
OFF Timer VVV VV V
VV V
VV
Cool VV*V*VV*V*
Fan VV
Cool VV*V*VV*V*
Fan VV
NOTE V* Refer to Cooling Mode.
Cool Timer Sweep
Cool
-ing
Fan
Flap
Night setback
Energy saver
Room
Temp.
Fan Compressor

SM830043
– 68 –
4
4. Service procedures
4-4 Checking the Electrical Components
(1) Measurement of Insulation
Resistance
• The electrical insulation is acceptable when the
resistance exceeds 1 MΩ.
1Power Supply Wires
Clamp the earthed wire of the Power Supply wires
with a lead clip of the insulation resistance tester and
measure the resistance by placing a probe on either
of the power wires. (Fig. 42)
Then measure the resistance between the earthed
wire and the other power wires. (Fig. 42)
2Indoor Unit
Clamp an aluminum plate fin or copper tube with the
lead clip of the insulation resistance tester and
measure the resistance by placing a probe on the
terminal plate (Fig. 43)
3Outdoor Unit
Measure the resistance by placing a probe on the
terminal plate in the same manner as explained
above 2. (Fig. 43)
4Measurement of Insulation Resistance for
Electrical parts
• Disconnect the connector of the desired electric
part from terminal plate, P.C.B. Ass’y, etc. (Fig. 44)
• Similarly, disconnect the lead wires from
compressor, capacitor, etc. (Fig. 45)
• Measure the resistance in the same manner as
illustrated on the right.
Refer to Electrical Wiring Diagram.
NOTE
If the probe does not enter the hole because the
hole is too narrow, use a probe with a thinner pin.
Fig. 42
Fig. 43
Fig. 44
Fig. 45
Copper
tube or
metallic part
Clip
Insulation
tester
Probe
Terminal plate
0639_X_S
Copper
tube or
metallic part
Clip
Insulation
tester
Probe
0640_X_S
From fan motor,
compressor and other
parts.
Clip
Probe
Insulation
tester
Metallic
part
0641_X_S
Earthed wire
Clip
Probe
Insulation
tester
0638_X_S

SM830043
– 69 –
4
4. Service procedures
(2) Checking the Protective Devices
• Disconnect the connector, which consists of P (plug) and S (socket) when you want to
check the protective device.
• Then check continuity among plug’s (and/or socket’s) terminal as in Fig. 46.
• Normality of the protective device can be judged by the following table.
The Protective Device is proved normal if there is a continuity between terminals.
1Indoor fan motor thermal protector (49FI) . . . . . . Indoor unit
• Disconnect the connector which leads to the indoor fan motor (FMI).
• Check the socket’s terminals.
2Compressor motor thermal protector (49C) . . . . . . Outdoor unit
• Disconnect both the connectors in the outdoor unit.
• Check terminal between the plug and socket.
3Outdoor fan motor thermal protector (49FO) . . . . . . Outdoor unit
• Disconnect both the connector which leads to the outdoor fan motor (FMO).
• Check socket’s terminal.
Fig. 46
Ω
socket
Multimeter
0642_X_S

SM830043
– 70 –
4
4. Service procedures
Fig. 47
Multimeter
Fan motor
Capacitor 0643_X_S
(3) Checking the Electrical Parts
1Power transformer (TR1) ................. Indoor unit *Measure the coil resistance.
• Primary 220-240 V ; Measure the resistance between two WHT lead wire
terminals of socket connected to power transformer.
• Secondary 10.6V ; Measure the resistance between two BRN lead wires.
Refer to “1–3–(A) Other component specifications”.
2Indoor fan motor (FMI) ............... Indoor unit *Measure the coil resistance.
• Measure the resistance between each terminal of the socket connected to
the indoor fan motor.
Refer to “1–2–(A) Major component specifications”.
3 Outdoor fan motor (FMO) ........... Outdoor unit *Measure the coil resistance.
• Measure the resistance in the same manner as explained above 2.
Refer to “1–2–(B) Major component specifications”.
4Fan motor capacitor ............ Both in indoor and outdoor unit
• Remove the lead wires from the capacitor terminals,
and then place a probe on the capacitor terminals as
shown in Fig. 47. Observe the deflection of the pointer,
setting the resistance measuring range of the multimeter
to the maximum value.
• The capacitor is “acceptable” if the pointer bounces to a
great extent and then gradually returns to its original
position.
NOTE
The range of deflection and the deflection time differ according to
the capacity of the capacitor.

SM830043
– 71 –
4
4. Service procedures
5Fuse on indoor P.C.B. Ass’y
• Remove the P.C.B. Ass’y from the electrical component box. Then pull out the
fuse from the P.C.B. Ass’y. (Fig. 48)
• The check for continuity of the fuse by using the multimeter. (Fig. 49)
Having continuity is acceptable.
(4) Thermistor Characteristic Curve
1Room temp. sensor 1Coil sensor
Fuses
Indoor P.C.B. Ass’y
0644_X_S
Fuse
0645_X_S
(PBC-41E)(KTEC-35)
Resistance (kn )
10 15 20 25 30 35 40
10
9
8
7
6
5
4
3
2
1
Temperature (°C)
0374_M_I
–20 –15 –10 –5 0 5 10 15 20
0
5
10
15
20
25
30
35
40
Temperature (°C)
Resistance (kn )
0375_M_I
Fig. 48
Fig. 49