Seas of Solutions McMurdo M-2 McMurdo Automatic Identification System User Manual Installation Manual

Orolia Ltd McMurdo Automatic Identification System Installation Manual

Contents

Installation Manual

                       Installation Manual  M-2 AIS Transponder System    35-060-001
    This page contains no other data
      Contents 1 PREFACE.................................................................................................................................. 1 2 INSTALLING THE AIS TRANSPONDER SYSTEM SAFELY........................................................ 2 3 INTRODUCTION ........................................................................................................................ 5 3.1 ABOUT THIS MANUAL.............................................................................................................. 5 4 AIS TRANSPONDER SYSTEM................................................................................................... 7 4.1 SYSTEM CONFIGURATION ....................................................................................................... 7 4.2 INSTALLATION ACCESSORIES ................................................................................................... 7 4.3 AIS BUILDING BLOCKS ............................................................................................................ 7 5 MECHANICAL MOUNTING OPTIONS AND GUIDELINES..........................................................10 5.1 LOCATION ...........................................................................................................................10 5.2 AIS TRANSPONDER UNIT .......................................................................................................10 5.2.1 Transponder main dimensions .....................................................................................10 5.3 AIS DISPLAY .......................................................................................................................13 5.3.1 AIS Display trunnion assembly.....................................................................................13 5.3.2 AIS Display flush mount assembly ...............................................................................14 5.4 ANTENNA UNITS ...................................................................................................................15 5.4.1 Antenna mounting position ..........................................................................................15 5.4.2 VHF antenna..............................................................................................................15 5.4.3 GNSS antenna ...........................................................................................................15 5.4.4 Weld on plate mounting of the GNSS antenna..............................................................16 5.4.5 Cable Preparation.......................................................................................................17 6 ELECTRICAL CONNECTIONS ..................................................................................................19 6.1 GROUND CONNECTION..........................................................................................................19 6.2 SIGNAL CABLE CONNECTIONS FOR AIS TRANSPONDER...............................................................19 6.3 VHF AND  GNSS (GPS) ANTENNA CABLE CONNECTIONS ............................................................20 6.3.1 VHF antenna..............................................................................................................21 6.3.2 GNSS (GPS) antenna .................................................................................................21 6.4 CONNECTION TERMINALS.......................................................................................................22 6.4.1 Fuse values ................................................................................................................22 6.4.2 Signal line termination .................................................................................................22 6.4.3 Method of connecting screens at the transponder .........................................................23 6.4.4 Test and program connections.....................................................................................24 6.4.5 Power supply..............................................................................................................24 6.4.6 DISP port – Display.....................................................................................................25 6.4.7 SEN 1, 2, 3, 4 ports - Sensors......................................................................................25 6.4.8 SEN Ports necessary sentences:.................................................................................26 6.4.9 Main and AUX high speed input/output ports ................................................................26 6.4.10 MAIN port ...................................................................................................................27 6.4.11 AUX/Pilot port .............................................................................................................27 6.4.12 Pilot Plug connection...................................................................................................27 6.4.13 Long Range Port.........................................................................................................27 6.4.14 RTCM port, Differential GNSS correction input/output port.............................................27 6.4.15 Alarm relay .................................................................................................................27 6.5 COMPLETION OF  INSTALLATION...............................................................................................28 7 SPECIFICATION.......................................................................................................................29 7.1 TECHNICAL INFORMATION......................................................................................................30 7.1.1 RS-422 interfaces .......................................................................................................30 7.1.2 Termination ................................................................................................................30 7.1.3 Output drive capability.................................................................................................30 7.1.4 Input loading...............................................................................................................30 7.1.5 Isolation .....................................................................................................................30 7.2 RTCM BINARY MESSAGES .....................................................................................................30 7.3 NMEA SENTENCES USED ......................................................................................................30 7.4 MESSAGE STRUCTURES ........................................................................................................32
    7.4.1 ABK - AIS addressed and binary broadcast acknowledgement ......................................32 7.4.2 ABM – AIS addressed binary and safety related message.............................................32 7.4.3 ACA – AIS channel assignment message.....................................................................32 7.4.4 ACK – Acknowledge alarm..........................................................................................32 7.4.5 ACS - AIS channel management information source.....................................................33 7.4.6 AIR – AIS interrogation request ...................................................................................33 7.4.7 ALR – Alarm condition and status ................................................................................33 7.4.8 BBM - AIS broadcast binary message ..........................................................................33 7.4.9 DTM – Datum reference..............................................................................................34 7.4.10 GBS – GNS satellite fault detection..............................................................................34 7.4.11 GGA – Global positioning system (GPS) fix data...........................................................34 7.4.12 GLL – geographic position...........................................................................................35 7.4.13 GNS – GNSS fix data..................................................................................................35 7.4.14 HDT – heading true.....................................................................................................35 7.4.15 LR1 - AIS long-range reply 1 .......................................................................................35 7.4.16 LR2 - AIS long-range reply 2 .......................................................................................36 7.4.17 LR3 - AIS long-range reply 3 .......................................................................................36 7.4.18 LRF - AIS long-range function......................................................................................36 7.4.19 LRI - AIS long-range interrogation................................................................................37 7.4.20 RMC – recommended minimum specific GNSS data.....................................................37 7.4.21 ROT – rate of turn.......................................................................................................37 7.4.22 TXT – text transmission...............................................................................................37 7.4.23 VBW – Dual ground/water speed .................................................................................38 7.4.24 VDM – VHF data link message....................................................................................38 7.4.25 VDO - AIS VHF Data-link own-vessel report .................................................................38 7.4.26 VSD – AIS voyage static data......................................................................................39 7.4.27 VTG – course over ground and ground speed...............................................................39 7.4.28 VSD – AIS voyage static data......................................................................................39 7.5 GENERAL FAULTS & ERROR MESSAGES ....................................................................................39 8 SERIAL INTERFACE COMMUNICATIONS PROTOCOLS..........................................................41 8.1 SENSOR DATA INTERFACE .....................................................................................................41 8.2 MAIN AND AUX PORT RECEPTION AND  TRANSMISSION OF AIS DATA .............................................41 9 WARRANTY REGISTRATION & ACCEPTANCE RECORD........................................................43 10 PRE-INSTALLATION INSPECTION RECORD........................................................................45 11 GLOSSARY..........................................................................................................................49 12 COMMISSIONING GUIDE .....................................................................................................51
AIS Installation Manual Issue 1 1     1 Preface   Applicability of this manual This manual describes the installation of equipment to hardware build standard 02.02.   In accordance with McMurdo's policy of continual development and product improvement, hardware may be upgraded from time to time and future versions may therefore not correspond exactly with this manual. When necessary, upgrades will be accompanied by updates or addenda to this manual.       IMPORTANT: Please take time to read this manual carefully and to understand its contents fully, so that you can install your AIS system correctly.  Once installed please read the Operation Manual fully to make sure you understand how to use your new AIS.                                     Disclaimer Information contained in this manual is supplied in good faith, but is liable to change without notice. McMurdo Limited disclaims any liability for consequences arising from omissions or inaccuracies in the manuals and documentation provided with this product.  2004 McMurdo Ltd.
   2 Issue 1 AIS Installation Manual 2 Installing the AIS Transponder System Safely    Installation    WARNING: Do not connect the AIS transponder system to a mains (line) AC electrical supply, as an electric shock or fire hazard could result.   CAUTION: Do not connect the Transponder to a DC supply exceeding 32 V or reverse the supply polarity. Damage to the transceiver may result.   CAUTION: Do not bypass the built in fuse   CAUTION: The Transponder system is designed for operation in the temperature range  -15 °C to +55 °C. Do not install (or use) the transponder system in environments which exceed this range.   CAUTION: The AIS Transponder is not water-resistant. Consequently, the Transponder must be installed in a dry place and must be protected from direct contact with water.   WARNING: Do not install the Transponder system in a position where; a) the controls of your vessel may be obstructed. b) it may obstruct your normal movement around your vessel. c) it may cause bodily injury. d) it cannot be easily accessed in an emergency.    Use   WARNING: Certain parts of the Transponder chassis, notably the rear panel, can become hot, particularly if the ambient temperature is high. Avoid touching these areas when the Transponder is operating.   WARNING: Do not remove the cover of the Transponder before the power is switched off. Do not touch the antenna connections when the Transponder is operating and do not touch the antenna whip (mast) or connecting cable when the Transponder is in operation, for RF exposure and electrical safety reasons. Refer to Radio Frequency Exposure Warning.   WARNING: Unauthorised opening of the Transponder system will invalidate the warranty.   Maintenance   CAUTION: Avoid using chemical solvents to clean the Transponder system as some solvents can damage the case material.  NOTE: Apart from the fuse located beside the connectors, the Transponder system contains no user serviceable parts. Contact your Service Agent for repair if replacing the fuse fails to make the equipment servicable.
AIS Installation Manual Issue 1 3     Radio Frequency Exposure Warning To meet the current requirements for Radio Frequency Exposure it is necessary to install the antenna mast correctly and operate the equipment according to the instructions. The assumptions used in this assessment are: full transmit power is used, a good antenna is used (assumed to be a unity gain (0 dB) wideband omni-directional type).  Where no suitable structure exists to achieve a 3 metre vertical separation then the antenna base must be mounted at least 1 metre above the head of any person within range and all persons must stay outside the 3-metre safety radius.  Failure to adhere to these limits could expose persons within the 3 metre radius to RF radiation in excess of the MPE / SAR limits.   WARNING: The antenna mast must be mounted at a minimum distance (vertical separation) of 3 metres from the head of any person standing on deck to meet international safety directives on Maximum Permissible Exposure (MPE) / Specific Absorption Rate (SAR).    WARNING: Do not transmit when persons are closer than 3 metres to the antenna. If any person (e.g. the operator) must be closer, then a grounded RF shield should be interposed between that person and the antenna.     Rules of Operation  Licensing  IMPORTANT: In most countries the operation of the AIS Transponder is a part of the radio regulations and therefore the ship must possess a current VHF radio telephone licence which lists the AIS system, and the equipment must be registered (Call Sign and MMSI number). Please contact the relevant authority in your country for more information.   Refer to the AIS Transponder Operation Manual for the full operating procedure.    Good Practice The installer is expected to be familiar with IMO SN/Circ.227 Guidelines for the Installation of a Shipborne Automatic Identification System, and to comply with these recommendations. The document contains detailed information which supplements the instructions in this manual.     Compass Safe Distances Display         0.7 m for 1° deviation; 1.2 m for 0.3° deviation Transponder:    1.3 m for 1° deviation; 2.1 m for 0.3° deviation
   4 Issue 1 AIS Installation Manual This page contains no other data
AIS Installation Manual Issue 1 5     3 Introduction It is recommended that the vessel should be surveyed prior to commencing any installation work to determine the suitability of the existing on-board sensors. Section 8 of this Manual contains a ‘Pre-Installation Inspection’ form to assist this process.  Installation of the AIS Transponder has been designed to be as easy as possible and requires few tools. However as the AIS equipment forms a vital part of the ship’s navigational equipment the installation must be performed with great care and with attention to detail.  The AIS is considered part of the ship’s radio station and is surveyed together with the radio installation. Surveys on Convention ships should be carried out in accordance with the rules laid down in IMO Res. A 746(18) Survey Guidelines under the harmonised system of survey and certification and Protocol of 1988 relating to the International Convention for the Safety of Life at Sea 1974  For the AIS installation, it is likely that the following drawings will be required for the survey: • Antenna layout for the VHF and the GNSS antenna installation  • AIS Arrangement drawing  • Block diagram showing the interconnection to other units   To assist in the preparation of this information, a Pre-installation Inspection Record is included in this manual at section 10. Completion of this Record will provide much of the required information.   It is also necessary to complete an installation report, which shall be kept on board.   3.1 About this manual This manual provides step-by-step guidance through the installation of the AIS Transponder system. Please read the manual carefully and make sure to follow the instructions.   In this manual only the installation of the AIS stand-alone configuration will be described. If the AIS unit is to be connected to other display devices, refer to the manual for that display. However the setup must always be performed with the supplied Display unit.. Other display units will be additional to the IMO required installation.  The procedures required for installation can be summarised: 1. Obtain a copy of the AIS Pre-installation Inspection form; check that it is filled in with all the data necessary for the installation. If the form has not been filled in, it is advisable to do it at this stage, as this is a good way to make sure that all information is available for the installation.  2. The available AIS Transponder system building blocks are listed in section 4.3. Before starting the installation ensure that everything needed for the installation is to hand. 3. Locate the places to install the different units. The templates and the drilling instructions are provided in this manual. 4. Connect the units and the sensors as shown in this manual. 5. DO NOT POWER UP THE SYSTEM AT THIS STAGE. It is most important to read the Operation Manual, which contains the detailed commissioning information, before power is applied. 6. Once the operating procedures are understood, the system may be powered up and the permanent parameters may be set. A guide listing the steps in this procedure is provided as Section 12 of this manual.   The Warranty Registration & Acceptance Record, Section 9 at the rear of this manual, must be completed and signed when the system has been commissioned and accepted.
   6 Issue 1 AIS Installation Manual This page contains no other data
AIS Installation Manual Issue 1 7     4 AIS Transponder System  4.1 System Configuration The M-2 may be installed as stand-alone AIS equipment or integrated with Electronic Charting Systems (ECS) or Integrated Bridge Systems (IBS).   Stand-Alone System The AIS transponder with Display unit is interfaced to the vessel's primary navigation sensors. The Display is used as both the AIS display unit and AIS control unit.   Electronic Chart System (ECS) with AIS In this arrangement the stand-alone AIS installation and ECS display have been integrated. The Display is used mainly to input own ship's information with the ECS having the ability to display AIS target information. This arrangement greatly enhances the presentation of information by displaying AIS targets in an environment normally used for navigation of the vessel.   Integrated Bridge System has the ability to display AIS target information directly on an Automatic Radar Plotting Aid (ARPA ) or Electronic Chart Display and Information System (ECDIS). By combining these technologies the navigator is provided with the optimum navigational information, directly on the vessel’s primary navigation display. Where approved for this purpose the ARPA or ECDIS equipment maybe used to directly control the function of the AIS transponder.    4.2 Installation accessories An optional AIS installation cable kit contains all the basic installation materials and cables that are typically needed to ready a vessel for installation of the AIS equipment.  Other accessories include a VHF antenna and a range of antenna bracket options, an AC/DC power supply unit, a Gyro Interface Unit (Stepper/Synchro gyro input - RS422 output) and a remote IMO Pilot Plug kit. (The Pilot Plug may be supplied with the system, depending on the configuration ordered.)   4.3 AIS building blocks    M-2 Class A AIS system, comprising:            Part  35-001-001A  - AIS transponder unit  - Display unit   - GNSS antenna   - Connector kit  - Operator and installation manuals  M-2 Class A AIS system, comprising:            Part  35-001-002A  - AIS transponder unit  - Display unit   - GNSS antenna   - Connector kit  - Operator and installation manuals  - Pilot plug kit (-002 version)
   8 Issue 1 AIS Installation Manual       Packaging  M-2 Master Carton        Contains:- 1 x M-2 Transponder        2 x PL259 Plug for VHF Antenna 2 x TNC Plug for GNSS Antenna 4 x M6 x 40 mm Machine Screws for Bulkhead Mounting 1 x Display interconnect cable 5 m 1 x Set of screw terminal connectors (bagged) 1 x Installation Manual    1 x M-2 Display unit 1 x Trunion Mounting Bracket 1 x Flush Mounting Frame 4 x No.10 x 25 mm Self-Tapping Screws for mounting Trunnion Bracket 1 x Seal for Flush Mounting Frame 1 x Operation Manual   1 x GPS Antenna 1 x Stub mounting pole 2 x ‘U’ Bolts 1 x Back Plate 1 x Pilot Plug kit (-002 version) if part of system
AIS Installation Manual Issue 1 9     Optional Extras:  Part  Description 89-020-001 AIS VHF antenna, 1.2 mtr 0 db Gain 903-01 Antenna bracket -stand off mast 903-02 Antenna bracket -stand off mast / Bulkhead 903-04 Antenna deck mount fitting 89-081-001 Pilot Plug kit to AIS Transponder, 25 m cable 89-081-002 Pilot Plug kit to  Display, 5 m cable with D plug  89-028 Gyro Interface Unit - Stepper / Synchro input - RS422 output 89-029 AIS Power supply unit AC+DC input - 24 V DC output  89-038 AIS Installation cable Kit (standard);  20 mtrs x 2 mm 2-Core Flex Power Cable  30 mtrs x RG214 VHF Coax Antenna Cable  30 mtrs x RG58 GPS Coax Antenna Cable  60 mtrs x 0.5 mm 4-Twisted Pair + Drain Signal Cable  200 x Cable Ties  20 x Cable Markers  2 x Self Amalgamating Tape  2 x  PL259 connector  2   x TNC connector
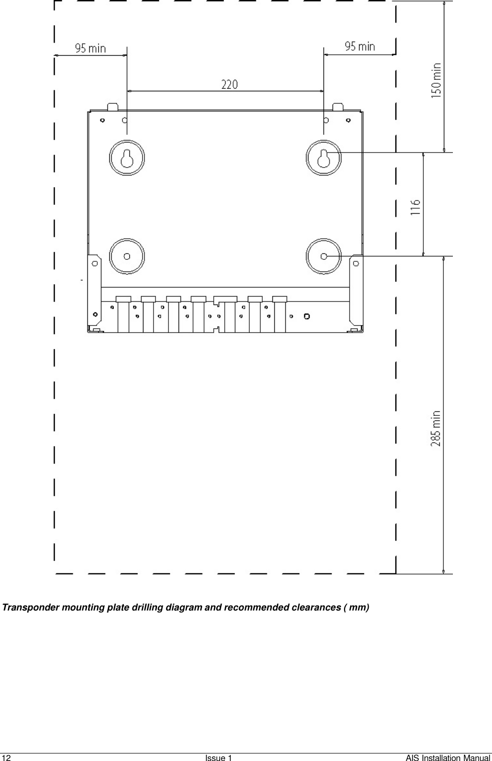
   10 Issue 1 AIS Installation Manual 5 Mechanical mounting options and guidelines 5.1 Location The transponder unit is classed as protected equipment and thus should be located inside in a dry environment. Normally the transponder is located in the Radio Room. The transponder compass safe distance is 2.1 m.  The recommended location should provide: A dry environment  Access to connections (eg antennas, power, sensors) Minimal shock and vibration An ambient temperature between -15 °C and +55 °C A site clear of exhausts and vents Sufficient space to allow maintenance  The transponder does not require external illumination during operation. Naturally, some form of illumination should be provided while installing or maintaining the transponder.  The Display should be available to the mariner at the position from which the ship is normally operated. The Display compass safe distance is 0.7 m. The Display does not require external illumination during operation, as it has an internal backlight; the use of illuminated keys ensures that all controls are visible.  The Pilot Plug should be installed on the bridge near the pilot’s operating position. It is recommended that a suitable mains outlet (3-pin 120 V AC) should be available at this location.   Special siting considerations apply to antennas. These principles are outlined in section 5.4; for detailed advice, see the IMO Guidelines.    5.2 AIS Transponder unit The transponder mounting plate is attached by four M6 screws. Keyhole slots in the plate allow two screws to be inserted in the mounting surface, then the plate to be mounted on the screws and to be self-supporting while the remaining screws are inserted and all screws are tightened. The transponder chassis is then attached to the plate using four screws, as shown overleaf. The transponder may be mounted at any angle.  It is recommended to leave at least 300 mm free space around the terminals to allow for connection cables.    5.2.1 Transponder main dimensions
AIS Installation Manual Issue 1 11        Exploded view of M-2 transceiver showing cover, detachable terminal blocks and mounting plate
   12 Issue 1 AIS Installation Manual  Transponder mounting plate drilling diagram and recommended clearances ( mm)
AIS Installation Manual Issue 1 13     5.3 AIS Display  5.3.1 AIS Display trunnion assembly  The Display can be either trunnion mounted or flush mounted.           Hole size to fit #10 screw:  3.5mm Drilling drawing (mm) Select hole size to suit method of fixing mountings – clear or tapped holes. Mounted dimensions:  Height:    150 mm Width:   270 mm Depth:   120 mm (over connectors) Connectors:  Display port   Pilot Plug   Test port
   14 Issue 1 AIS Installation Manual  5.3.2 AIS Display flush mount assembly NOTE: The Pilot Plug is intended to be connected to the Display, although an alternative connection is available on the transponder. The cabling arrangements should take this into consideration when flush mounting the Display.  A cutting template is supplied with the flush mounting kit. This template carries full fitting instructions.      FRONT
AIS Installation Manual Issue 1 15     5.4 Antenna units The AIS Transponder has to be connected to two antennas: a VHF antenna and a GNSS antenna. The GNSS (GPS) antenna is supplied as standard.  5.4.1 Antenna mounting position In accordance with IMO guidelines, antennas should be mounted in positions which, as far as possible, minimise interaction between them.  The sketch summarises the recommendations:                            5.4.2 VHF antenna The VHF antenna is an important part of the receiver and transmitter system; the reception range is heavily dependent on the antenna installation. The VHF antenna must be installed as high as possible and free of shadow effects from the ship superstructure; effective installation will maximise the range of the system. The antenna must also be mounted so as to achieve the safety standards detailed in Section 2.  WARNING: The antenna must have sufficient bandwidth to suit the AIS system, as otherwise the high VSWR produced may cause the transponder to shut down. It is recommended to use an omni-directional vertical polarised VHF antenna with unity gain (0 dB), and a bandwidth sufficient to maintain VSWR <1.5 over the frequency range 156 – 163 MHz.  A suitable antenna is available from McMurdo as an option, part number 89-020-001.  5.4.3 GNSS antenna The Transponder package contains a GNSS antenna and a mounting bracket. The mounting bracket is designed for welding to the ship’s superstructure.  Installation of the GNSS antenna is critical for the performance of the GNSS, which is used for timing of the transmitted time slots and for the supply of navigational information should the main navigational GNSS fail. We strongly recommend that the supplied antenna is used.  1. The GNSS antenna must be mounted in an elevated position and free of shadow effect from the ship’s superstructure Vertical separation2m GNSS antenna alternative position 180° Horizontal separation 10 m Vertical Separation 2 m 360° GNSS antenna preferred position
   16 Issue 1 AIS Installation Manual 2. The GNSS antenna must have a free view through 360 degrees with a vertical angle of 5 to 90 degrees above the horizon.  3. As the received GNSS signal is very sensitive to noise and interference generated by other onboard transmitters, ensure that the GNSS antenna is placed as far away as possible from Radar, Inmarsat and Iridium transmitters. Ensure the GNSS antenna is free from direct view of the Radar and the Inmarsat beam. It is also important that the MF/HF and other VHF transmitter antennas are kept as far away as possible from the GNSS antenna. It is good practice never to install a GNSS antenna within a radius of 5 meters from these antennas.    WARNING: Screw the rod into the GNSS antenna by turning the rod. Do not turn the GNSS antenna as this will twist the cable and damage the connection.   5.4.4 Weld on plate mounting of the GNSS antenna
AIS Installation Manual Issue 1 17     5.4.5 Cable Preparation    Ensure grommet is fitted before connector
   18 Issue 1 AIS Installation Manual This page contains no other data
AIS Installation Manual Issue 1 19     6 Electrical connections  This installation guide takes into account the IMO “Guidelines for installation of Shipborne Automatic Identification System”. However both the IMO publication and these instructions must be taken as guidance only; individual circumstances must take precedence.  This guide is concerned only with the installation of the AIS transponder unit and does not cover the installation of any peripheral equipment connected to the transponder. For proper installation and connection of peripheral equipment to the transponder refer to the installation manuals for these products.  Connection Must connect Optional  24.0 VDC power supply* Yes    GNSS antenna Yes    VHF antenna Yes    Display system  Yes    Position (external GNSS) Yes    Heading (vessel gyro) Yes    Pilot plug See Note 1 See Note 1  Alarm Relay    Yes  ECDIS (Main port)    Yes  ARPA (Main port)    Yes  Long range function    Yes  RTCM, differential GNSS info.    Yes  Rate of turn    Yes  Speed and Course    Yes  *WARNING: Ensure supply is compatible with voltage and current requirements.  Note 1:  depends on IMO recommendations and local legislation.   6.1 Ground Connection The earth stud on the transponder backplate must be connected to ship’s ground. The recommended connector wire is 4 mm2, green/yellow colour.  6.2 Signal cable connections for AIS Transponder As shown in the table above, the AIS Transponder must be or may be connected to different types of peripheral units; these can be divided in three groups:  • Coax connection to the antennas • signal cable connection to the sensors (GNSS, Gyro, Log)  • signal cable connections to the five-input/output ports (Main, AUX/Pilot, long-range, RTCM, Display)  Connecting the three types of interfaces is described in detail in the following sections. The signal connections are all connected via a serial RS422 type interface; data rates are normally 4800 or 38400 baud.  In some cases, particularly in retrofit installations, it may not be possible to connect the AIS directly to the required sensor, because some sensors do not provide the IEC 61162-2 (NMEA) sentences required by the AIS unit. In such cases a protocol converter is required between the sensor and the AIS unit. Converters are available from different manufacturers, either as direct protocol converters or frequently as repeater instruments for the sensor. A Gyro Interface Unit, P/N 89-028, is available from McMurdo as an optional extra.
   20 Issue 1 AIS Installation Manual  6.3 VHF and GNSS (GPS) antenna cable connections The VHF and the GNSS antenna cables are connected directly to the transponder through a UHF and a TNC plug respectively.  The coax cable plugs must be attached directly to the cables; the outer insulation must not be connected in the cable cleat but in the coax plug as illustrated below.
AIS Installation Manual Issue 1 21     6.3.1 VHF antenna To make sure that the transmitted and received VHF signal is not interfering with Radar signals, other VHF transmission or power lines it is important that the connection between the VHF antenna and the transponder is of a high quality double shielded coax cable. It is recommended to use a RG214 cable and PL259 connector.   If the cable has to be longer than 40 metres, it is recommended to use a cable with lower loss; a 40 metre RG214 coax cable has a signal attenuation of 3 dB at 150 MHz, thus the signal strength is reduced to half its value due to cable attenuation.  Detailed instructions for fitting the connector are provided with the installation kit. The illustration shows the preparation of the cable and the components of the connector.    6.3.2 GNSS (GPS) antenna The GNSS operates in the ultra high frequency band (1.575 GHz). The signal attenuation in cables is therefore substantial and has to be taken into account when the coax cable between the antenna and the AIS unit is chosen. To compensate for signal attenuation the supplied  GPS antenna includes a pre-amplifier with a gain of 30 dB.  The cable attenuation should not be greater than 30 dB for optimum results, because the aim is to have a total signal loss of less than 0 dB. The table shows the attenuation and the recommended maximum length of two types of coax cable.   Cable description Attenuation / 100 metres @ 1.5 GHz Recommended maximum cable length RG 58 70 dB  40 metres RG 214 37 dB 80 metres  Connectors used must be TNC throughout.   Detailed instructions for fitting the connector are provided with the installation kit. The illustration shows the preparation of the cable.   Connector body  “Top hat”  Plastic sleeve  Gland nut
   22 Issue 1 AIS Installation Manual 6.4 Connection terminals  The AIS Transponder has detachable terminal blocks for connection of cables. Dedicated connections are provided for power sources, sensors, the Display and other interfaces.  Refer to the wiring diagram, attached as an appendix, for details of connections to the terminal blocks.   6.4.1 Fuse values The main system fuse (3.15 Amp) is located beside the connectors on the transponder chassis.   Fuse description Fuse value Part No. Main system fuse  3.15 Amp 99-084   6.4.2 Signal line termination RS422 signal lines may need termination by resistors, depending on the length of connecting cable and the rate of data transmission. Suitable resistors are incorporated in the transponder listeners and can be switched in by wire links in the corresponding screw terminal blocks – see subsequent tables and section 6.4.4 for details. The talkers in the transponder have inbuilt termination resistors.  Whether termination at the transponder is required depends on many factors, including how the other units are connected and whether any of these other units provides termination for the signal line. The following sketch shows the principle:  Note: For clarity, the sketch shows the devices connected to the twisted pair by spurs; in practice, the twisted pair is looped through each device in turn.  There is only one talker per twisted pair; there can be several listeners. The intention is that terminations must be provided by the devices at the ends of the line, regardless of whether they are listeners or the talker, and that no other device should provide a termination.   A terminal is provided for the common connection at each port on the transponder; note that this is NOT a ground connection.   It is good practice to use screened cables in all ship cable installations. Take care to connect the cable screen to ship’s ground at one end only of the cable, as connecting at both ends may cause ground loops and interference to the signals. The correct method of connecting the cable screen to ground is at the talker only, as shown in the diagram above.  ListenerListenerTalkerTermination resistorat end of lineScreen connected to groundat talker ONLYTwisted pair, with common and screenCommon ListenerTermination resistorat end of lineListener
AIS Installation Manual Issue 1 23     In the transponder unit the screen from some cable entries should be connected to ground at the transponder, as shown in the table. The technique of connecting the screen is illustrated below.  Function Lines terminated by resistor Connect screen at transponder  Display     Display (VDU) port    YES  LONG RANGE   Long Range port    PREFERRED  AUX / PILOT    Auxiliary or Pilot port    PREFERRED  MAIN     Main port    PREFERRED  RTCM    RTCM port for differential correction    PREFERRED  SEN 1    Sensor 1 port    NO  SEN 2    Sensor 2 port    NO  SEN 3    Sensor 3 port    NO  SEN 4    Sensor 4 port    NO  PREFERRED means that the screen may be connected either at the remote device or at the transponder; if no other considerations apply, connection at the transponder is recommended.   6.4.3 Method of connecting screens at the transponder    If the screen is not to be connected at the transponder, secure the cleat over the outer cable insulation.
   24 Issue 1 AIS Installation Manual 6.4.4 Test and program connections                        The connectors are 5mm pitch female screw terminal conectors. Manufacturer’s numbers are given for the Hitaltech models, but any equivalent may be used.  Connectors used: 8 way   1 off     CIF08001 7 way   4 off     CIF07001 4 way   4 off     CIF04001 3 way   1 off     CIF03001 2 way RED   1 off     CIF02001OR   6.4.5 Power supply Connect to the ship’s 24 V DC emergency power source, which ideally should be an uninterrupted power supply (UPS), through a 2-pole switched fused supply to allow isolation for servicing. The power requirements are 24 V DC +30% -10%, 2.5 A minimum.  Standby power requirement 15 W; 0.6 Amp at 24 V DC Peak power requirement 50 W; 2.0 Amp at 24 V DC   Required conductor area as a function of cable length Power cable length Required conductor area 0 – 10 metres 0.75 mm2 10 – 20 metres 1.5 mm2 20 – 30 metres 2.5 mm2 30 – 40 metres 3.0 mm2    Isolation between the power supply connections and any other connection to the transponder is 1 kV minimum.  The DC power source should comply with IMO guidelines for the class of vessel concerned. National authorities and classification societies may have their own power supply requirements; these should also be considered.
AIS Installation Manual Issue 1 25     Power Supply Unit (optional) An AC/DC + DC emergency backup power supply, P/N 89-029, is available as an option. Follow the installation instructions supplied with the equipment.   6.4.6 DISP port – Display The DISP port connects the Display unit with the Transponder. The display connection cable is supplied ready for use, and needs only to be plugged into the appropriate ports on the transponder and the Display.   For installations where the Display cable needs to be extended, the connections are given below.   Display cable: Four twisted pairs, screened, PVC sheathed. For lengths to 200 meters, use 0.22 mm2 (7/32); Belden 8104 or equivalent.  The connection between the transponder connector block and the Display unit is given below,  Connection is to the 15-pin socket on the Display.  Function Terminal Display pin Common 1 2 Rx A 2 6 Rx B 3 1 Tx A 5 12 Tx B 6 13 Termination  4 (link to 3) 8 + Power out 7 3 - Power out 8 4  The twisted pairs are assigned as (Rx A/B), (Tx A/B), (common pair) and (power pair)   6.4.7 SEN 1, 2, 3, 4 ports - Sensors Sensor input ports can be configured to receive serial data from the Gyro (or Gyro Converter), the external GNSS used for navigation and from the LOG. Each of the four sensor (SEN1, SEN2, SEN3 and SEN4) ports can be used to receive information from one of these sensors. Alternatively, all sensor information can be received at any one of the sensor ports provided that the information is first multiplexed.  The sensor ports require configuration before use; this is outlined in the Commissioning Guide, section 12, and described in detail in the Operation Manual.  The AIS must be connected to: • The GNSS unit used for navigation • The gyrocompass providing heading information  If available the following information can be connected to the AIS: • Rate-Of-Turn (ROT)  • Speed over ground from bottom-referenced log  Sensor wire connection The twisted pair shall be assigned as RxA and RxB
   26 Issue 1 AIS Installation Manual Recommended cable for connection of Sensors: Single twisted pair, shielded, PVC sheathed. (Note: The recommended sensor cable, as supplied in the optional Installation Kit 89-038, has four twisted pairs. Only one pair should be used.) For lengths to 200 meters, use 0.22 mm2 (7/32); Belden 8102 or equivalent (2 pairs)   6.4.8 SEN Ports necessary sentences: The basic requirements are: IEC 61162-2 transmission standard ITU-T V.11 electrical properties Data bits 8, Stop bits 1, Parity none Speed 4800 or 38400 baud (transponder speed is configurable)  All required as well as optional sentences are listed in the table; ensure that the connected sensor transmits at least the required sentences (as given by IEC 61162-1):  IEC 61162-1 sentence format Data Preferred Optional Reference datum  DTM   Positioning system:  Time of position Latitude/longitude  Position accuracy GNS, GLL GGA, RMC Speed over ground (SOG) VBW VTG, RMC Course over ground (COG) RMC VTG, OSD RAIM indicator GBS   Heading HDT   Rate of turn (ROT) ROT     6.4.9 Main and AUX high speed input/output ports The Transponder has two high-speed communication ports. The ports are identical, the same information is input and output on these ports. All information received and transmitted on the VHF link will be reflected as correct IEC 61162 sentences. All error messages will also be transmitted.  The Main port will primarily be used to connect external equipment such as ECDIS and ARPA or another navigation information display system.  The AUX port is normally connected to the display unit, where it is looped through to drive the Pilot Plug connector on the display unit. If a Pilot Plug is not required, the AUX port may be disconnected from the display (at the transponder end) and may then be used as an additional Presentation Interface (PI) port.
AIS Installation Manual Issue 1 27     6.4.10 MAIN port Three twisted pairs, shielded, PVC sheathed. For lengths to 200 meters, use 0.22 mm2 (7/32); Belden 8104 or equivalent  Main port wire connection The twisted pairs shall be assigned as (RxA/RxB), (TxA/TxB) and (RxCom/TxCom).   6.4.11 AUX/Pilot port Three twisted pairs, shielded, PVC sheathed. For lengths to 200 meters, use 0.22 mm2 (7/32); Belden 8104 or equivalent   6.4.12 Pilot Plug connection The Pilot Plug is designed to be connected to the Display. The Plug supplied with the AIS system has the connector fitted, and needs only to be fixed and plugged in.    6.4.13 Long Range Port The AIS Long-Range Function requires a compatible long-range communication system e.g. Inmarsat-C. If this is available, a connection to the Inmarsat-C system can be made. It is required that the Inmarsat-C input/output port can be interfaced using IEC 61162-2 and understand the long-range sentences as required by IEC 61993.  Recommended cable for connection of Long Range port:  Three twisted pairs, shielded, PVC sheathed. For lengths to 200 meters, use 0.22 mm2 (7/32); Belden 8104 or equivalent  The twisted pairs shall be assigned as (RxA/RxB), (TxA/TxB) and (RxCom/TxCom)   6.4.14 RTCM port, Differential GNSS correction input/output port The RTCM-port is the input port for differential correction. The AIS Transponder can receive differential correction in two ways: • The RTCM port can be connected to a DGNSS unit. The DGNSS unit will then provide differential correction to the AIS Transponder through the RTCM port. • Through message 17 transmitted from a base station. The RTCM port will then work as an output port, which can supply differential correction in RTCM format to other units.  Recommended cable for connection of RTCM-port: Three twisted pairs, shielded, PVC sheathed. For lengths to 200 meters, use 0.22 mm2 (7/32); Belden 8104 or equivalent  RTCM port wire connection The twisted pairs shall be assigned as (RxA/RxB), (TxA/TxB) and (RxCom/TxCom)   6.4.15 Alarm relay  The AIS requires that an alarm output (relay) be connected to an audible alarm device or to the ship’s alarm system, if available.  If any failure or malfunction is detected that will significantly reduce integrity or stop operation of the AIS, an alarm is initiated. In this case: • An alarm message is displayed on the display unit • The alarm relay is activated • The transponder health status LED turns off
   28 Issue 1 AIS Installation Manual • An appropriate alarm message is output via the presentation interface (Main and AUX-ports) and repeated every 30 seconds.  The AIS transponder provides a relay connection which can be selected as normally closed or normally open contacts.  Recommended cable for connection of alarm relay:  One twisted pair, shielded, PVC sheathed. The required cable dimension is dependent on the current necessary to activate the alarm indicator.   Built in alarm relay ratings:  Absolute maximum ratings Maximum switching current in contacts 0.25 Amp Maximum carry current 1.20 Amp Maximum switching voltage 175 V (dc or ac peak)             Test Port The test port is intended to allow easy field reprogramming of the transponder and should not be used in normal operation.   6.5 Completion of Installation The foregoing provides the information necessary to perform the installation. Other useful information is contained in the sections following.  The Pre-Installation Inspection Record (Section 8) should have been completed before installation commenced.   It is most important that the installed system is not switched on at this stage. The inspection procedures given in the Operation Manual must be completed before power is applied.   The Warranty and Acceptance Record can only be completed after the system is configured, as detailed in the Operation Manual. Transponder Screw terminal board N/C Com N/O
AIS Installation Manual Issue 1 29     7 Specification  General Data: Power consumption: 50 W peak 15 W average Power supply: 24 V DC –10% +30% AIS1 (CH87B) 161.975 MHz AIS2 (CH88B) 162.025 MHz Default frequencies: DSC (CH70) 156.525 MHz Operating temperature: -15 °C to +55 °C Storage temperature: -20 °C to +70 °C Environmental: IEC 60945 Protected Environment (Antennas: Exposed Environment) Transponder size/weight 331 x 274 x 100 mm, 4 kg VDU size/weight 220 x 150 x 72 mm, 1 kg GPS size/weight ∅ 115 mm x 76 mm, 0.25 kg Compass safe distance Display:      0.7 m for 1° deviation       1.2 m for 0.3° deviation Transponder:  1.3 m for 1° deviation       2.1 m for 0.3° deviation GNSS receiver: Used for TDMA timing. Optionally used for navigational information. GNSS antenna: Patch antenna with built-in 30 dB pre-amplifier DSC Transmitter: Power output: 12.5 W or 2.0 W Frequency range: 156.025 – 162.025 MHz Antenna impedance: 50 ohms TDMA Receivers: Sensitivity: (PER) < 20% at –107 dBm (25 kHz) Frequency range: 156.025 – 162.025 MHz Channel spacing: 12.5 or 25 kHz Modulation: GMSK Data rate: 9600 bits/s Frequency stability: < ± 1 ppm DSC Receiver: Sensitivity: BER <10-4 at 107 dBm Frequency range: 155.3 – 162.5 MHz Channel spacing 25 kHz Modulation 1300 Hz/2100 Hz - FSK Frequency stability < ± 1 ppm Serial inputs/outputs: SENS1/2/3/4 IEC61162-1/2 (input only) LONG RANGE, MAIN, AUX/PILOT, RTCM IEC61162-1/2 (input & output) Display RS422 non-isolated
   30 Issue 1 AIS Installation Manual 7.1 Technical Information  7.1.1 RS-422 interfaces The Transponder has eight RS-422 interfaces:  • 4 sensor data input ports SEN1, SEN2, SEN3 and SEN4 • 2 Bi-directional input/output ports MAIN and AUX/Pilot • 1 Bi-directional input/output port RTCM • 1 Bi-directional input/output port Long Range  All communication interfaces are compatible with IEC61162-1 (2000) and IEC61162-2 (1998) standards.   7.1.2 Termination Termination resistors are required at each end of the RS-422 connection, to match the impedance of the line to minimise reflections. The figures quoted assume that the line is correctly terminated, and allow for that extra loading.   7.1.3 Output drive capability Each talker output has a capability of driving a minimum of 12 listeners on a terminated cable.   7.1.4 Input loading Each receiver presents a load of approximately 12 kohm to the line. Line termination resistors are 100 ohms.   7.1.5 Isolation The interface isolation is 1 kV minimum throughout.    7.2 RTCM binary messages The RTCM port on the transponder accepts incoming messages from a differential beacon receiver in RTCM binary format and outputs messages in RTCM binary format. Differential correction data received on the VHF data link (in message 17) is also output to the RTCM port in RTCM binary format.    7.3 NMEA sentences used  The ports on the M-2 transponder accept and output different combinations of NMEA sentences as follows: Port Input sentences Output sentences Main, Display and Aux (“Presentation ports”) ACA, ABM, BBM, ACK, AIR, AIQ, LRI, LRF ABK, ACA, ACS, ALR, LRI, lRF, LR1, LR2, LR3, SSD, TXT, VDO, VDM, VSD Long Range LRI, LRF LRI, LRF, LR1, LR2, LR3 S1, S2, S3 and S4 (“Sensor ports”) DTM, GBS, GGA, GLL, GNS, HDT, RMC, ROT, VBW, VTG None
AIS Installation Manual Issue 1 31     Decoded Sentences The sentence types listed in the table below are decoded by the Transponder.  Formatter Source Primary function Optional function Comment          ABK AIS      VDL Ack ABM AIS      Addressed binary message BBM        Broadcast binary message AIR AIS      Interrogation          ACA AIS      Channel assignment          ROT Sensor Rate of turn     HDT Sensor Heading    Heading VBW Sensor SOG     GNS GNSS Pos + time of pos     GLL GNSS Pos + time of pos     RMC GNSS COG Pos + time of pos, SOG   GBS GNSS RAIM indication    RAIM VTG GNSS    COG, SOG   GGA GPS    Pos + time of pos            VSD Display      Voyage data SSD Display      Static data          LRF LR      Long range interrogation LRI LR      Long range interrogation TXT         ALR         ACK Display      Alarm ack   Position Sensor Priority List  Priority (Highest first) Sources External Differential GNSS GNS, GLL, RMC, GGA Internal Differential GNSS (msg17) GNS, GLL, RMC, GGA Internal Differential GNSS (RTCM ) GNS, GLL, RMC, GGA External GNSS GNS, GLL, RMC, GGA Internal GNSS GNS, GLL, RMC, GGA Manual input    None available    Notes: RAIM indication requires a valid GBS message from the sensor currently in use.
   32 Issue 1 AIS Installation Manual 7.4 Message structures Message structures are shown in the format used in IEC 61162-1  7.4.1 ABK - AIS addressed and binary broadcast acknowledgement The ABK sentence is output by the transponder on the presentation ports in response to the receipt of an ABM, AIR or BBM sentence. Its purpose is to inform the requesting device about the success or failure of its request. $--ABK,xxxxxxxxx,x,x.x,x,x*hh<CR><LF> Type of acknowledgement Message sequence number M.1371 Message ID AIS channel of reception MMSI of the addressed AIS unit   7.4.2 ABM – AIS addressed binary and safety related message This sentence is used to transmit M.1371 messages 6 (binary addressed) or 12 (addressed safety related) via the AIS system by encapsulating the M.1371 message within one or more AIS sentences. $--ABM,x,x,x,xxxxxxxxx,x,xx,s—s,x*hh<CR><LF> number of fill-bits encapsulated data M.1371 Message ID (6 or 12) AIS channel MMSI of the destination AIS unit  sequential message identifier sentence number total number of sentences  When the transponder receives an ABM sentence from an external device, it will return an ABK sentence to indicate the success or failure of the transmission attempt.   7.4.3 ACA – AIS channel assignment message $--ACA,x,llll.ll,a,yyyyy.yy,a,llll.ll,a,yyyyy.yy,a,x,xxxx,x,xxxx,x,x,x,a,x,hhmmss.ss*hh<CR><LF> time of “in use” change in-use Flag information source power level control Tx/Rx mode control channel B bandwidth channel B channel A bandwidth channel A  transition zone size region southwest corner longitude, E/W region southwest corner latitude, N/S region northeast corner longitude, E/W region northeast corner latitude, N/S sequence number  The ACA sentence is used both to send channel management information to the transponder and to obtain channel management information from it.    7.4.4 ACK – Acknowledge alarm This sentence is used to acknowledge an alarm condition. $--ACK,xxx*hh<CR><LF> alarm ID
AIS Installation Manual Issue 1 33     7.4.5 ACS - AIS channel management information source This sentence is used in conjunction with the ACA sentence. It identifies the originator of the information contained in the ACA sentence and the date and time when the transponder received that information. $--ACS,x,xxxxxxxxx,hhmmss.ss,xx,xx,xxxx*hh<CR><LF> day, month, year UTC of receipt of information MMSI of originator sequence number   7.4.6 AIR – AIS interrogation request The interrogation request sentence allows an external to request certain M.1371 messages from other remote devices via the AIS system.  $--AIR,xxxxxxxxx,x.x,x,x.x,x,xxxxxxxxx,x.x,x*hh<CR><LF> message sub-section number of messages requested from station-2 MMSI of interrogated station-2 message sub-section number of second message requested from station-1 message sub-section M.1371 message requested from station-1 MMSI of interrogated station  When the transponder receives an AIR sentence it sends M.1371 interrogation messages (type 15) to the addressed station(s) and returns an ABK sentence to the requesting device indicating that the transmission is complete.   7.4.7 ALR – Alarm condition and status This sentence is sent by the transponder to all presentation ports order to report an alarm condition on a device. It identifies the source of the alarm, whether it has been acknowledged or not and the time at which the condition changed.  $--ALR,hhmmss.ss,xxx,A,A,c--c*hh<CR><LF> descriptive text acknowledge state alarm condition alarm source time of condition change  This sentence is sent by the transponder whenever a new alarm is raised or its condition changes state. It is also sent periodically even when there are no active alarms In order to provide a positive indication of the current status of each alarm.   7.4.8 BBM - AIS broadcast binary message The BBM sentence allows an external device to instruct the transponder to broadcast a block of binary data in an M.1371 binary broadcast message (type 8) or a safety related broadcast message (type 14).  !--BBM,x,x,x,x,x.x,s—s,x*hh<CR><LF> number of fill-bits encapsulated data M.1371 message ID AIS channel for broadcast of the radio message sequential message identifier sentence number total number of sentences needed to transfer message  When the transponder receives one or more BBM sentences from an external device, is de-encapsulates the encoded data and re-assembles an M.1371 message of type 8 or 14 and then
   34 Issue 1 AIS Installation Manual transmits it over the VDL (if possible). It then sends an ABK sentence back to the requesting device to indicate whether the transmission of the message succeeded or failed.   7.4.9 DTM – Datum reference Local geodetic datum and datum offsets from a reference datum. $--DTM,ccc,a,x.x,a,x.x,a,x.x,ccc*hh<CR><LF> Reference datum Altitude offset, m Lon offset, min, E/W Lat offset, min, N/S Local datum subdivision code Local datum  Note that the only datum supported by AIS is WGS84. The DTM sentence must be sent to the transponder at a frequency of more than once every 30 seconds otherwise any positional information sentences (eg GLL, GNS. RMC and GGA) will be ignored.   7.4.10 GBS – GNS satellite fault detection This message is used to support receiver autonomous integrity monitoring (RAIM). $--GBS,hhmmss.ss,x.x,x.x,x.x,xx,x.x,x.x,x.x,*hh<CR><LF> Standard deviation of bias estimate Estimate of bias on most likely failed satellite Probability of missed detection for most likely failed satellite ID number of most likely failed satellite Expected error in altitude Expected error in longitude Expected error in attitude UTC time of GGA or GNS fix associated with this sentence   7.4.11 GGA  – Global positioning system (GPS) fix data Time, position and fix-related data for a GPS receiver.    $--GGA,hhmmss.ss,IIII.II,a,yyyyy.yy,a,x,xx,x.x,x.x,M,x.x,M,x.x,xxxx*hh<CR><LF>  Differential reference station ID Age of differential GPS data Units of geoidal separation, m Geoidal separation Units of antenna altitude, m Antenna altitude above/below mean sea level (geoid) Horizontal dilution of precision Number of satellites in use GPS quality indicator Longitude E/W Latitude N/S UTC of position
AIS Installation Manual Issue 1 35     7.4.12  GLL – geographic position This sentence is a primary source of position information for the transponder when connected to a functional GNSS system. In the absence of GNS sentences, longitude and latitude information may also be obtained from GNS, GGA or RMC sentences.  $--GLL,llll.ll,a,yyyyy.yy,a,hhmmss.ss,A,a*hh<CR><LF> mode indicator (‘A’, ‘D’, ‘E’, ‘M’ -> used; ‘N’ -> invalid) status  (‘A’ -> use mode flag; ‘V’ -> use position as default) UTC of position longitude, E/W latitude, N/S  Note that DTM sentences must be received by the transponder at least once every 30 seconds in order for the GLL sentence to be accepted.   7.4.13 GNS – GNSS fix data The transponder may receive this sentence from other sensors and uses the information in its own calculations of the ship’s current position.  $--GNS,hhmmss.ss,llll.ll,a,yyyyy.yy,a,c—c,xx,x.x,x.x,x.x,x.x,x.x*hh<CR><LF>  Diff ref erence station ID (ignored) age of diff data (ignored) geoidal separation (ignored) antenna altitude (ignored) HDOP (ignored) number of satellites in use (ignored) mode indicator (‘A’, D’, ‘E’, ‘M’ - used; ‘N’ - default value) longitude, E/W latitude, N/S UTC of position    7.4.14 HDT – heading true This sentence provides the actual vessel heading and may be sent by any system or device that calculates true headings. $--HDT,x.x,T*hh<CR><LF> heading, degrees true    7.4.15 LR1 - AIS long-range reply 1 The LR1 sentence identifies the destination for the reply and contains the information items requested by the function identification character in the LRF sentence that requested the information. $--LR1,x,xxxxxxxxx,xxxxxxxxx,c—c,c—c,xxxxxxxxx*hh<CR><LF> IMO number call sign ship’s name MMSI of requestor (reply destination) MMSI of responder sequence number
   36 Issue 1 AIS Installation Manual 7.4.16 LR2 - AIS long-range reply 2 The LR2 sentence contains further information items that can be requested in an LRF sentence. $--LR2,x,xxxxxxxxx,xxxxxxxx,hhmmss.ss,llll.ll,a,yyyyy.yy,a,x.x,T,x.x,N*hh<CR><LF> speed over ground, Knots  course over ground, deg True  longitude, E/W latitude, N/S UTC time of position date MMSI of responder sequence number   7.4.17 LR3 - AIS long-range reply 3 The LR3 sentence contains further information items that can be requested in an LRF sentence. $--LR3,x,xxxxxxxxx,c—c,xxxxxx,hhmmss.ss,x.x,x.x,x.x,x.x,x.x,x.x*hh<CR><LF> persons  ship type ship breadth ship length ship/cargo draught ETA time ETA date voyage destination MMSI of responder sequence number    7.4.18 LRF - AIS long-range function This sentence is used in both long-range interrogation requests and long-range interrogation replies. The LRF-sentence is the second sentence of the long-range interrogation request pair LRI and LRF. The LRF sentence is also the first sentence of the long-range interrogation reply. The minimum reply consists of an LRF sentence followed by a LR1 sentence. The LR2 sentence and/or the LR3 sentences follow the LR1 sentence if information provided in these sentences was requested by the interrogation.  $--LRF,x,xxxxxxxxx,c—c,c—c,c—c*hh<CR><LF> function reply status  function request name of requestor MMSI of requestor sequence number
AIS Installation Manual Issue 1 37     7.4.19 LRI - AIS long-range interrogation Long-range interrogation is a mechanism that allows one AIS unit to request certain data from another AIS unit through the use of a number of interrogation and reply sentences.  When the transponder receives an LRI and LRF sentence pair on its Long Range port, it forwards them on to all the presentation ports. If the transponder has been configured to provide and automatic response to the interrogation then it does so; otherwise it waits for the sentences to be returned to it (on any presentation port) before responding. $--LRI,x,a,xxxxxxxxx,xxxxxxxxx,llll.ll,a,yyyyy.yy,a,llll.ll,a,yyyyy.yy,a*hh<CR><LF> longitude, E/W (SW coordinate) latitude, N/S (SW coordinate) longitude, E/W (NE co-ordinate) latitude, N/S (NE co-ordinate) MMSI of destination MMSI of requestor control flag sequence number   7.4.20 RMC – recommended minimum specific GNSS data This sentence is used to transmit the time, data, position, course and speed data from a GNSS navigation receiver. The sentence is transmitted at least once every two seconds from GNSS device(s) and is always accompanied by an RMB sentence when a destination waypoint is active. $--RMC,hhmmss.ss,A,llll.ll,a,yyyyy.yy,a,x.x,x.x,xxxxxx,x.x,a,a*hh<CR><LF> mode indicator (‘A’, ‘D’, ‘E’, ‘M’ -> used; ‘N’ -> invalid) magnetic variation date course over ground speed over ground londitude, E/W latitude, N/S status (‘A’ -> use mode field; ‘V’ -> use fields as default values) UTC of position fix  Note that RMC has priority over VTG.   7.4.21 ROT – rate of turn This sentence provides the rate and direction of turn. $--ROT,x.x,A*hh<CR><LF> status (‘A’ -> rate of turn is valid) rate of turn    7.4.22 TXT – text transmission This sentence is used for transmitting text messages such as alarm messages from a sensor or the transponder to any presentation display device such as the M-2 display unit. $--TXT,xx,xx,xx,c--c*hh<CR><LF> text message text identifier message number total number of messages
   38 Issue 1 AIS Installation Manual 7.4.23 VBW – Dual ground/water speed S—VBW,x.x,x.x,A,x.x,x.x,A,x.x,A,x.x,A*hh<CR><LF> Status: stern ground speed Stern traverse ground speed Status: stern water speed Stern traverse water speed Status: ground speed Traverse ground speed Longitudinal ground speed Status: water speed Traverse water speed Longitudinal water speed  Longitudinal ground speed – used Transverse ground speed – used Status of ground speed - used Other fields ignored  7.4.24 VDM – VHF data link message This sentence is output by the transponder each time it receives an incoming message over the VHF data link. The VDM sentence encapsulates a part of an M.1371 message, and several VDM sentences may need to be decoded and re-assembled in order to re-construct the original M.1371 message. !--VDM,x,x,x,a,s—s,x*hh<CR><LF> number of fill-bits encapsulated ITU-R M.1371 radio message AIS Channel sequential message identifier sentence number total number of sentences needed to transfer message   7.4.25 VDO - AIS VHF Data-link own-vessel report This sentence is output to all the presentation ports at regular intervals and contains the contents of the transponders own-vessel report. Each time the transponder transmits an own-vessel report, it encapsulates the M.1371 message in one or more VDO sentences and outputs them on its presentation ports. !--VDO,x,x,x,a,s—s,x*hh<CR><LF> number of fill-bits encapsulated ITU-R M.1371 radio message AIS Channel (‘A’ or ‘B’) sequential message identifier sentence number total number of sentences needed to transfer message  The transponder outputs one VDO sentence every second in addition to echoing all transmitted VDO sentences as they are transmitted in order to provide frequent updates to all connected presentation devices. VDO sentences which have also been transmitted contain the appropriate AIS channel indicator whereas VDO sentences that have not been transmitted contain a NULL field for the channel indicator.
AIS Installation Manual Issue 1 39     7.4.26 VSD – AIS voyage static data This sentence may be output by the transponder in response to a query. $--VSD,x.x,x.x,x.x,c—c,hhmmss.ss,xx,xx,x.x,x.x*hh<CR><LF> regional application flags  navigational status  estimated month of arrival at destination estimated day of arrival at destination estimated UTC of arrival at destination destination persons on-board maximum present static draught type of ship and cargo category   7.4.27 VTG – course over ground and ground speed This sentence contains the actual course and speed relative to the ground.  $--VTG,x.x,T,x.x,M,x.x,N,x.x,K,a*hh<CR><LF> mode indicator speed over ground, km/h (ignored) speed over ground, knots  course over ground, degrees magnetic (ignored) course over ground, degrees true  Note that RMC has priority over VTG. . 7.4.28 VSD – AIS voyage static data This sentence is output by the transponder in response to a query and contains the Ship’s voyage data. $--VSD,x.x,x.x,x.x,c—c,hhmmss.ss,xx,xx,x.x,x.x*hh<CR><LF> regional application flags  navigational status  estimated month of arrival at destination estimated day of arrival at destination estimated UTC of arrival at destination destination persons on-board maximum present static draught type of ship and cargo category    7.5 General faults & error messages  An ALR-sentence is used to indicate a failure or malfunction that will significantly reduce integrity or stop operation of M2. The Alarm messages generated are IEC61162-1 compliant “$AIALR”-sentences on the Presentation Interface output ports.  The parameters of this sentence are: Time of alarm condition change (UTC) Unique alarm number (identifier) at alarm source Alarm condition Alarm acknowledge state Alarm description text and are set according to the table following.  The "alarm condition" field is set to "A" when the alarm condition threshold is exceeded, and "V" when the alarm condition returns to a level that does not exceed the threshold. A continuing healthy status “V” is sent out at 1 minute intervals.  NOTE: When all alarm conditions are healthy, a special single message is sent at 1 minute intervals.
   40 Issue 1 AIS Installation Manual ALARM DESCRIPTION TEXT ALARM ID OR TEXT DENTIFIER REACTION OF THE SYSTEM TO THE ALARM CONDITION WHEN THRESHOLD EXCEEDED AIS: Tx malfunction  001 Stop transmission AIS: Antenna VSWR exceeds limit  002 Continue operation AIS: Rx channel 1 malfunction  003 Stop transmission on affected channel AIS: Rx channel 2 malfunction 004 Stop transmission on affected channel AIS: Rx channel 70 malfunction  005 Stop transmission on affected channel AIS: general failure 006 Stop transmission AIS: Display connection lost 008 Continue operation with "DTE" set to "1"  AIS: external EPFS lost 025 Continue operation  AIS: no sensor position in use 026 Continue operation  AIS: no valid SOG information 029 Continue operation using default data AIS: no valid COG information 030 Continue operation using default data AIS: Heading lost/invalid 032 Continue operation using default data  AIS: no valid ROT information 035 Continue operation using default data
AIS Installation Manual Issue 1 41     8 Serial interface communications protocols The Transponder has eight RS-422 interfaces:  • 4 sensor data input ports SEN1, SEN2, SEN3 and SEN4 • 2 Bi-directional input/output ports MAIN and AUX/Pilot • 1 Bi-directional input/output port RTCM • 1 Bi-directional input/output port Long Range    8.1 Sensor data interface The Sensor data input ports receive navigational data in NMEA–0183 format from the connected sensors. The connected sensors can be a GNSS unit used for navigation, a gyrocompass and a bottom track log. These data are processed in the AIS unit and transmitted as dynamic data. The data received by other stations over the VHF link form an image of the sensor data. It is therefore vital that the sensor data are correct and that the port is correctly configured.   Navigational data must be received via the sensor ports within certain intervals; the maximum intervals are listed in the table below. If NMEA sentences containing identical information arrive at the sensor input ports, the AIS Transponder will choose the information with the highest priority level.   The built-in GNSS unit will under normal conditions only be used for TDMA slot timing. However if no data are received from the external sensors, the built-in GNSS unit can be set to take over automatically and supply navigational information for the VHF data link transmission. The changeover between internal GNSS information and external sensor information happens automatically. Information received from the external sensors has priority and will always be used when available.  Messages received and interpreted from sensors:   Data type  Max update interval [s] NMEA application Default parameter value Date 3 RMC Year 2000, month. 0, day 0 UTC 3 GNS, RMC, GGA, GLL 24:60:60 Lat, Lon 3 GNS, RMC, GGA, GLL 91°00′00″ nl, 181°00′00″ wl Datum 30 DTM Not defined SOG, COG 3 RMC, VBW 102.3, 360° Altitude 3 GNS 4095 Heading 10 HDT 511 Turn rate 10 ROT -128 RAIM 10 GBS Ok  Route plans with positions are transmitted in RTE (Routes) and WPL (Waypoint location) sentences. There is no update interval for these data, therefore the last updated Route plan will be kept in memory until data are updated or the power is switched off, as the data are not kept in the permanent memory.    8.2 Main and AUX port reception and transmission of AIS data Specific AIS Transponder functions are available via the Main and AUX ports. The ports are identical and will transmit all received VDL (VHF Data Link) messages as well as Transponder
   42 Issue 1 AIS Installation Manual error messages. A request for information may be sent from equipment connected to the Main and AUX ports, ether a request for information or a request for the Transponder to carry out a specific task. The communication protocol is text, but in non-readable sentences which contain compressed binary data.  The Transponder Main/AUX input port can accept requests: • To send a short text message or a small binary data array to a specified address (MMSI) or as a broadcast message • To send a static or voyage information request to a specified address (MMSI) • To change AIS radio frequencies and/or parameters of access to AIS channels (radiating power, frequency band etc.)  The Transponder Main/AUX input port can accept: • Static and voyage related data • Navigation or dynamic data, similar to sensors data interface • Error situation message acknowledgement  The Transponder Main/AUS output port can transmit: • Notifications about every VHF message received and transmitted via AIS channels with the VHF message included • Acknowledgement of requests from other stations
AIS Installation Manual Issue 1 43     9 Warranty Registration & Acceptance Record  IMPORTANT! To validate product warranty, please fax a completed copy of this form to: - McMurdo Customer Services on +44 23 9262 3824   Vessel Data Vessel Name    Flag State   Owner / Company    Radio Call Sign  Office: On-Board Contact  1 Name  Telephone Number(s) GSM: Office: On-Board Contact 2 Name   Telephone Number(s) GSM:     Scope Of Supply Part No. Description Serial No. Qty Location 35-081-001A  Transponder       35-080-001A   Display unit       89-028 Gyro Interface Unit       89-029 AC/DC Converter             General Setup MMSI (Maritime Mobile Service Identity)           IMO (International Maritime Organisation)           RAIM Present (Automatically Selected) Yes No User password           (20 characters max)  Operator Password   (20 characters max)   Service Password      (20 characters max)
   44 Issue 1 AIS Installation Manual   Vessel Name     Vessel and GNSS dimensions Vessel length    Metres Vessel beam    Metres  Internal GNSS External GNSS A External GNSS B  GNSS antenna distance to Stern    Metres GNSS antenna distance to Port side    Metres   RS-422 Setup Port General Baud rate Port General Baud rate Main On Off 4800 38400 Sen 1 On Off 4800 38400 Aux On Off 4800 38400 Sen 2 On Off 4800 38400 LR On Off 4800 38400 Sen 3 On Off 4800 38400 RTCM On Off 4800 38400 Sen 4 On Off 4800 38400    Installers Data Company Name  Stamp: Technician’s Name    Address Line 1  Address Line 2  City / Town  Province / State  Post / Zip Code  Country     This is an acceptance record of the installation and commissioning of the AIS on-board the above-mentioned vessel. 24-months Warranty is valid on signing this form.   Installer’s Signature Owners Representative’s Signature Commissioning Date Installer’s Name Owners Representative’s Name
AIS Installation Manual Issue 1 45     10 Pre-Installation Inspection Record 1. Vessel Data (  Tick appropriately ) Vessel Name    IMO Number  Flag State    MMSI Number  Owner / Company    Radio Call Sign   Office: On-Board Contact  Name & Position  Telephone Number(s) GSM:  Office: Shore-based Contact  Name & Position  Telephone Number(s) GSM: Type of Vessel  Gross Tonnage gt L.O.A m Beam m Comments:   2. Installation (  Tick appropriately ) Ship’s Emergency Power Source & Location Cable length to Transponder =                                                             m  Optional AC to DC Converter (89-029) Required  12 V DC    24 V DC    110 V AC    220 V AC  50 Hz      60 Hz  AIS Transponder Proposed Location   AIS Display Proposed Location 4 Twisted Pair + Drain Cable length to Transponder                           m   AIS GNSS Antenna Proposed Location RG58 Cable length to Transponder =                                                  m   Optional Antenna Adapter (89-362) Required  AIS VHF Antenna Proposed Location RG214 Cable length to Transponder =                                                m   Optional VHF Antenna (89-020-001) Required  Optional Antenna Mast Mount (903-01) Required  Optional Antenna Mast/Bulkhead Mount (903-02) Required  AIS Pilot Plug* Proposed Location  Cable length to Transponder =                                                             m  Ship’s Ground Connection Location Cable length to Transponder =                                                             m  Ship’s Alarm Panel Location Cable length to Transponder =                                                             m  * If a Pilot Plug is fitted, a mains  power supply for a PC should be made available nearby  Optional Installation Kit (89-038) Required Comments:
   46 Issue 1 AIS Installation Manual Bridge Layout Drawing: Position of all parts & interface pick-off points  3. Heading Sensor(s)* (  Tick appropriately ) Source Option A Option B Manufacturer    Model     Type  GyroCompass      GNSS Compass  Fluxgate  Compass     Transmitting Magnetic Compass  GyroCompass      GNSS Compass  Fluxgate  Compass     Transmitting Magnetic Compass Output NMEA Message  IEC 61162-2 RS422 Required:-     HDT     ROT** Optional:-     OSD Required:-     HDT     ROT** Optional:-     OSD If no NMEA  Optional Gyro Interface Unit (89-028) Required    Synchro Reference Voltage = Phase Voltage =          Frequency = Ratio  -     90:1      180:1      360:1  Synchro Reference Voltage = Phase Voltage =          Frequency = Ratio  -     90:1      180:1      360:1   Stepper  Positive Step    Negative Step Step Voltage = Ratio  -     90:1      180:1      360:1  Stepper  Positive Step    Negative Step Step Voltage = Ratio  -     90:1      180:1      360:1 Location    Cable length to Transponder  m  m  * Heading information is a mandatory sensor input to the AIS. A converter will be needed if the ship’s compass has no IEC61162 output. ** If a rate-of-turn indicator is available and it includes an IEC61162 output it should be connected to the AIS Comments:
AIS Installation Manual Issue 1 47     4. Position Sensor(s)* (  Tick appropriately ) Source Option A Option B Manufacturer    Model    Type  GPS     GLONASS     Differential  GPS     GLONASS     Differential Output NMEA Message  IEC 61162-2 RS422 Required:-      DTM     GNS      GLL      RMC      GBS     RTE      WPL Optional:-     GGA     Required:-      DTM     GNS       GLL    RMC      GBS     RTE      WPL Optional:-     GGA     Location    Cable length to Transponder m  m  Antenna Location External Position Source GNSS Antenna AIS Internal Position Source GNSS Antenna Dimension Limits A = Distance to Bow m  m  0- 511 m  B = Distance to Stern m  m  0 – 511 m C = Dist. to Port-Side m  m  0 – 63 m  D = Dist. to Starboard m m 0 – 63 m  * Position information is a mandatory sensor input to the AIS. Comments:     5. Speed Sensor(s)* (  Tick appropriately ) Source Option A Option B Manufacturer    Model     Type  Bottom Track Log  Bottom Track Log Output NMEA Message IEC 611622-2 RS422 Required:-     VBW Required:-     VBW Location    Cable length to Transponder m m  * If a Bottom Track Log is available and it includes an IEC61162 output it should be connected to the AIS. Comments:
   48 Issue 1 AIS Installation Manual 6. ARPA / ATA RADAR(s) (  Tick appropriately ) Source Option A Option B Manufacturer    Model     Type     In/Output NMEA Message IEC 61162-2 RS422    Location    Cable length to Transponder m  m  Comments:     7. ECDIS / ECS(s) (  Tick appropriately ) Source Option A Option B Manufacturer    Model     Type     In/Output NMEA Message IEC 61162-2 RS422    Location    Cable length to Transponder m  m  Comments:    8. Notes Include comments relative to installation: Cable routing, Deck glands to be opened, Hot work required, Interfacing, Mounting, Earthing, etc…
AIS Installation Manual Issue 1 49     11 Glossary  4S Ship-to-Ship & Ship-to-Shore AIS Automatic Identification System ALM Alarm ANT Antenna ARPA  Automatic Radar Plotting Aid ATA Automatic Tracking Aid AtoN Aid to Navigation AUTO Automatic AUX Auxiliary BAT Battery BIIT Built-In Integrity Test BRG Bearing BRILL Display Brilliance CG Coast Guard CH Channel CHG Change CLR Clear CNCL Cancel CNS Communication, Navigation & Surveillance COG Course Over Ground CONTR Contrast CPA  Closest Point of Approach CPU Central Processing Unit CSE Course DEL Delete DEST Destination DG Dangerous Goods DGLONASS Differential GLONASS DGNSS Differential GNSS DGPS Differential GPS DISP Display DIST Distance DSC Digital Selective Calling DTE Data Terminal Equipment ECDIS Electronic Chart Display and Information System ECS Electronic Chart System EGNOS European Geo-stationary Navigational Overlay System ENC Electronic Navigation Chart ENT  Enter EPA  Electronic Plotting Aid EPFS Electronic Position Fixing System EPIRB Electronic Position Indicating Radio Beacon ERR Error ETA Estimated Time of Arrival EXT External FCC Federal Communications Commission FREQ Frequency GLO or GLONASS Global Orbiting Navigation Satellite System GMDSS Global Maritime Distress and Safety System GND Ground GNSS Global Navigation Satellite System GPS Global Positioning System GYRO Gyro Compass HDG Heading HS Hazardous Substances  HSC High Speed Craft I/O Input / Output IBS Integrated Bridge System ID Identification IEC International Electotechnical Commission IMO International Maritime Organisation IN Input INFO Information INS Integrated Navigation System ITU-R International Telecommunications Union – Radiocommunications Bureaux    KN Knots L/L Latitude / Longitude LAT Latitude LON Longitude LOST TGT Lost Target M Metres MAG Magnetic MAN Manual MED Marine Equipment Directive MF/HF Medium Frequency/High Frequency MID Maritime Identification Digit MIN Minimum MKD Minimum Keyboard and Display MMSI Maritime Mobile Service Identity  MOB Man Overboard MP Marine Pollutant NAV Navigation NM Nautical Mile NUC Not Under Command OOW Officer Of the Watch OS Own Ship OUT Output PI Presentation Interface POSN Position PPU Portable Pilot Unit PWR Power RAIM Receiver Autonomous Integrity Monitoring RNG Range RORO Roll On, Roll Off ROT Rate Of Turn RR Range Rings RTCM Radio Technical Commission for Maritime services  RTE Route Rx Receive / Receiver SAR Search And Rescue SEL Select SOG Speed Over Ground SPD Speed SPEC Specification STBD Starboard STBY Standby STW Speed Through Water TCPA  Time to Closest Point of Approach TDMA  Time Division Multiple Access TGT Target TPR Transponder TRK Track TSS Traffic Separation Scheme TTG Time To Go Tx Transmit / Transmitter Tx/Rx Transceiver AIS Universal Automatic Identification System UHF Ultra High Frequency UTC Universal Time Co-ordinate VDU Visual Display Unit VHF Very High Frequency VOY Voyage VSWR Virtual Standing Wave Ratio VTS Vessel Traffic Systems  WAAS Wide Area Augmentation System WCV  Waypoint Closure Velocity WGS World Geodetic System WIG Wing In Ground WPT Waypoint
   50 Issue 1 AIS Installation Manua This page contains no other data
AIS Installation Manual Issue 1 51     12 Commissioning guide The sequence of operations given here MUST be performed in order to set essential parameters of the AIS system, and to make it operational.   The Operation manual contains detailed information on the method of setting these parameters. Refer to that manual if difficulty is found with any of the outline steps given below.    1. select “Setup mode: Ship's static data” by pressing and holding 'ENTER' 2. select “edit SHIP'S DATA” 3. enter service mode by using the service password (default 'SERVICE') 4. go to page "Setup mode: Configuration" 5. change the baud rate of each serial port in turn to match the baud rate of the external equipment connected to that port 6. go to page “Setup mode: Ship’s static data” 7. enter valid data for 'MMSI', 'IMO', 'vessel' & 'call sign' 8. select 'vessel type' 9. enter 'beam' & 'length' 10. enter internal & external GNSS antenna positions 11. press 'Save SHIP'S DATA' to save settings CAUTION: as soon as a valid MMSI number is saved, the AIS will begin operation. Allow at least 2 minutes for the system to initialise and obtain a valid GNSS fix.   The next stage is to check that the sensors are operational.  12. select “Voyage mode: Current status” 13. check that all available sensors are recognised 14. temporarily disconnect the external GNSS signal (This will cause an alarm.) 15. check that the internal GNSS is providing data, and that the display indicates the GNSS source as internal 16. reconnect the external GNSS signal. Check that the GNSS source is now external   Now change the service password:  17. select “Setup mode: Ship's static data”  18. select “edit SHIP'S DATA” 19. enter current service password (default 'SERVICE') 20. enter new password in 'change password' field 21. enter new password in ‘confirm password' field   22. press 'verify password' to store the new service password  This completes the entry of required parameters. The M-2 system is now fully operational.  If it becomes necessary to disable an alarm, refer to the Operation manual.

Navigation menu