Skidata AS450SA00 Parking column using RFID User Manual Parking Columns unlimited
Skidata AG Parking column using RFID Parking Columns unlimited
Skidata >
User Manual

Manual and operational description
Parking Column AS 450 PA00
Parking Column AS 450 PA00-E
Parking Column AS 450 PA00-GC
Parking Column AS 450 PE00
Parking Column AS 450 PE00-E
Parking Column AS 450 PE00-GC
Parking Column AS 450 SA00 BLL
Parking Column AS 450 PA00-US
Parking Column AS 450 PA00-E-US
Parking Column AS 450 PA00-GC-US
Parking Column AS 450 PE00-US
Parking Column PE00-E-US
Parking Column PE00-GC-US
Parking Column SA00 BLL-US
Parking Columns unlimited

Manual and operational description Parking Columns unlimited
Page 2 © SKIDATA AG, April 2004
SKIDATA AG
Technical Documentation
Untersbergstrasse 40
A-5083 Gartenau
Telephone +43 6246 888-0,
Telefax +43 6246 888-7
Internet http://www.skidata.com
e-mail docu@skidata.com
Copyright
© 2004 by SKIDATA AG. All rights reserved. All information in the
following document is protected by copyright law. No part of this
document may be reproduced without the written consent of SKI-
DATA AG. SKIDATA AG reserves the right to make any changes
of specification and other information in this document without
further notice.
Please note
During the compilation of this Technical Documentation, great
care has been taken to ensure the accuracy of the information
contained in it. However, despite our constant effort to ensure the
highest degree of accuracy and comprehensiveness possible,
the information provided cannot be guaranteed to be absolutely
error-free.
Trademarks
This documentation may contain representations of registered
product or service trademarks owned by SKIDATA AG or third
parties, as well as references to proprietary know-how protected
by copyright laws or other legal provisions. In any case the intel-
lectual property rights remain exclusively with their respective
owners.
Declaration of Conformity
The Parking Columns unlimited except the model versions where
the name ends with the characters “-US” have been developed,
designed and manufactured in accordance with the following EU
directive:
R&TTE (99/5/EC)
0408
Version April 2004

Parking Columns unlimited Manual and operational description
© SKIDATA AG, April 2004 Page 3
Important : The FCC-specific notes apply only to the model ver-
sion “AS 450 SA00 BLL-US”
FCC 15.19:
This device complies with Part 15 of the FCC Rules. Operation is
subject to the following two conditions: (1) this device may not
cause harmful interference, and (2) this device must accept any
interference received, including interference that may cause un-
desired operation.
FCC 15.21:
IMPORTANT : Any changes to or modifications of the
AS 450 SA00 BLL-US unless expressly approved by SKIDATA
AG, may void the user's authority to operate this device.
Note: The model versions
- AS 450 PA00-US
- AS 450 PA00-E-US
- AS 450 PA00-GC-US
- AS 450 PE00-US
- AS 450 PA00-E-US
- AS 450 PE00-GC-US
contain the modular transmitter with the FCC-ID
“QSS-MECH450”.

Manual and operational description Parking Columns unlimited
Page 4 © SKIDATA AG, April 2004
Parking Columns unlimited 1
Document Management – Version Table
Tab. 1: Document Version Table for Installation & Maintenance Instructions
Section Document Pages Version Date
1 Parking Columns unlimited 29 2.12004-04-24

Parking Column unlimited 1
1
Parking Column
unlimited
Version 2.1
29 pages
Copyright 2004 by SKIDATA AG

1 Parking Column unlimited
1.1 Contents
Page 2 © SKIDATA AG, Version 2.1
1.1 Contents
1.1 Contents 2
1.2 System APT 450 – Columns unlimited 3
1.2.1 Versions of Parking Column Unlimited 3
1.2.1.1 Parking column unlimited – “Standard” (AS 450
PA00,
AS 450 PE00, AS 450 PA00-US, AS 450 PE00-US) 3
1.2.1.2 Parking column unlimited – “Extended” (AS 450
PA00-
E, AS 450 PE00-E, AS 450 PA00-US, AS 450 PE00-
US) 4
1.2.1.3 Parking column unlimited – “Graphic” (AS 450 PA00-
GC, AS 450 PE00-GC, AS 450 PA00-GC-US, AS 450
PE00-GC-US) 5
1.2.1.4 Parking column unlimited – “handsfree” (AS 450
SA00- BLL, AS 450 SA00 BLL-US) 6
1.2.2 Installation of Parking column unlimited 7
1.2.2.1 Warning 7
1.2.2.2 Preparation for Installation 7
1.2.2.3 Installation 7
1.2.2.4 Installation on non-level surfaces (applies only in
exceptional circumstances) 9
1.2.3 Power supply 10
1.2.3.1 Note 10
1.2.3.2 Stripping connection wires 12
1.2.3.3 Cross-sectional area of cable leads 13
1.2.3.4 Power supply 13
1.2.3.5 Connection terminals for control lead and intercom 15
1.2.3.6 Loop Connections, Standard-Version, Graphics-
Version, Handsfree-Version 18
1.2.3.7 Loop connections, Extended-Version 19
1.2.3.8 Earthing connection 20
1.2.3.9 Changing the fuse 21
1.2.3.10 Surge protection for external devices 21
1.2.4 Weather protection 22
1.2.5 MANUAL OPEN/CLOSE switch 23
1.2.6 Installing devices in the front panel 24
1.2.7 Opening the front panel 25
1.2.8 Closing the Parking Column 25
1.2.9 Installing and Deinstalling the Coding Unit
(except Handsfree-Version and OEM-
Version) 27

Parking Column unlimited 1
System APT 450 – Columns unlimited 1.2
© SKIDATA AG, Version 2.1 Page 3
1.2 System APT 450 – Columns
unlimited
1.2.1 Versions of Parking Column Unlimited
1.2.1.1 Parking column unlimited – “Standard”
(AS 450 PA00, AS 450 PE00, AS 450 PA00-
US, AS 450 PE00-US)
Fig. 1:
Parking Column unlimited –
“Standard”

1 Parking Column unlimited
1.2 System APT 450 – Columns unlimited
Page 4 © SKIDATA AG, Version 2.1
1.2.1.2 Parking column unlimited – “Extended”
(AS 450 PA00-E, AS 450 PE00-E, AS 450
PA00-US, AS 450 PE00-US)
Fig. 2:
Parking Column unlimited - ”Ex-
tended”

Parking Column unlimited 1
System APT 450 – Columns unlimited 1.2
© SKIDATA AG, Version 2.1 Page 5
1.2.1.3 Parking column unlimited – “Graphic”
(AS 450 PA00-GC, AS 450 PE00-GC, AS 450
PA00-GC-US, AS 450 PE00-GC-US)
Fig. 3:
Parking Column unlimited -
”Graphic”

1 Parking Column unlimited
1.2 System APT 450 – Columns unlimited
Page 6 © SKIDATA AG, Version 2.1
1.2.1.4 Parking column unlimited – “handsfree”
(AS 450 SA00- BLL, AS 450 SA00 BLL-US)
Fig. 4:
Parking Column unlimited -
”handsfree”

Parking Column unlimited 1
System APT 450 – Columns unlimited 1.2
© SKIDATA AG, Version 2.1 Page 7
1.2.2 Installation of Parking column unlimited
1.2.2.1 Warning
General Warning:
PCBs are sensitive to electrostatic discharge and should be
handled with great care to avoid damage to the circuitry.
Avoid touching the boards unnecessarily. Before mounting the
column, check the entire device for possible transport damage.
Before accessing electronical or mechanical parts, the entire
deviced must be disconnected from the mains.
1.2.2.2 Preparation for Installation
Ensure the following before proceeding with the installation:
The concrete foundation must be exactly horizontal. Installing
the device on an uneven surface may cause the chassis to
become warped or damaged. If levelling of the surface is not
possible, the parking column must be level-adjusted, e.g. by
using additional hexagon nuts; in that case the threaded rods
must be allowed to protrude further.
The surface of the concrete foundation must be even and ex-
actly horizontal
Cable protection tubes should be cut approx. 2 cm above the
concrete surface
1.2.2.3 Installation
The threaded rods should protrude approx. 50 mm from the
concrete surface
The fastening tension of the hexagon nuts must not exceed
20 Nm
Use washers with large outer diameter (∅ = 30 mm, as per
UN 737 standard)
The parking column must be aligned exactly horizontally

1 Parking Column unlimited
1.2 System APT 450 – Columns unlimited
Page 8 © SKIDATA AG, Version 2.1
Fig. 5: Column installation

Parking Column unlimited 1
System APT 450 – Columns unlimited 1.2
© SKIDATA AG, Version 2.1 Page 9
1.2.2.4 Installation on non-level surfaces (applies
only in exceptional circumstances)
All three No. 2 washers must be absolutely level (use a spirit
level if necessary).
Important:
Avoid drilling dust from getting into the device during installa-
tion, as electrostatically charged dust may cause damage to
the electronic assemblies inside the column.
Fig. 6:
Hexagon nuts as spacers

1 Parking Column unlimited
1.2 System APT 450 – Columns unlimited
Page 10 © SKIDATA AG, Version 2.1
1.2.3 Power supply
1.2.3.1 Note
Important notes:
Electric installation and maintenance work may be carried
out only by appropriately qualified, licensed electrical
technicians.
Mains connections must be hardwired.
Please ensure full compliance with all applicable national and
international rules and regulations concerning electric connec-
tions, and all applicable safety regulations.
When all electric lines are properly connected, replace and
fasten the cover

Parking Column unlimited 1
System APT 450 – Columns unlimited 1.2
© SKIDATA AG, Version 2.1 Page 11
Ensure the following before proceeding with electrical con-
nections:
Check for proper mains supply voltage (120 or 230 VAC); see
type label
Mains connections must comply with national standards and
directives
When using flexible stranded wires, all filaments must be
placed inside the terminal clamps (use wire-end sleeves, if
necessary)
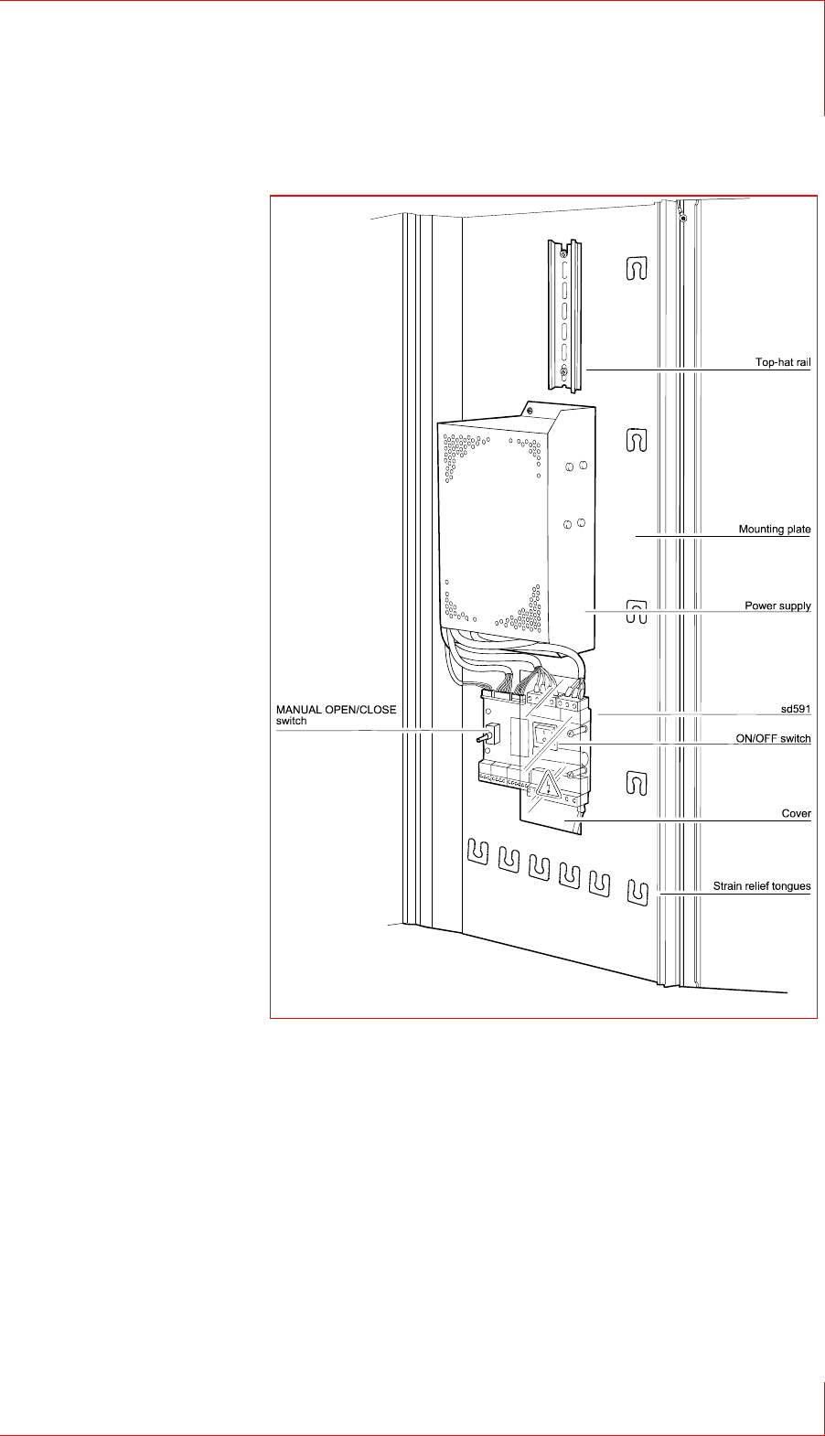
Fig. 7:
Column interior:
Mounting plate configuration

1 Parking Column unlimited
1.2 System APT 450 – Columns unlimited
Page 12 © SKIDATA AG, Version 2.1
The mains supply line must be fused in accordance with ap-
plicable regulations (6 A fuse recommended)
Check the isolation resistance of the cables to make sure it
exceeds 0,5 MΩ
Fix cables to mounting plate by way of tension relieve tongues
and cable ties
Check the network cables to ensure the proper loop imped-
ance
Important: Always make sure that the device is completely
disconnected from the mains while fitting electric wiring.
1.2.3.2 Stripping connection wires
To avoid danger of short circuit with wires or chassis parts, wires
should not be stripped by more than 6 mm (recommended
value). Uninsulated wire sections must be inserted completely
into the connection terminals.
When attaching connecting wires, the insulation should cover the
wire up to the point where it connects to the terminal.
Fig. 8:
Correct connector wiring

Parking Column unlimited 1
System APT 450 – Columns unlimited 1.2
© SKIDATA AG, Version 2.1 Page 13
1.2.3.3 Cross-sectional area of cable leads
1.2.3.4 Power supply
** see Section 1.2.3.3
Tab. 1: Cable leads – Technical characteristics
wires Max. torque at terminals Rigid
Solid
Flexible
Twisted
* 0,22 – 0,25 Nm 0,14 – 1,5 mm² 0,14 – 1,5 mm²
** 0,5 – 0,6 Nm 0,20 – 2,5 mm² 0,20 – 2,5 mm²
*** 0,22 – 0,25 mm² 0,14 – 1,5 mm² 0,14 – 1,0 mm²
Fig. 9:
Power supply on sd591

1 Parking Column unlimited
1.2 System APT 450 – Columns unlimited
Page 14 © SKIDATA AG, Version 2.1
Caution:
The OUT terminal on connection control board sd591 is not
fused and cannot be deactivated by way of the on-board mains
switch.
Note:
Electrical leads and wires must comply wirth applicable na-
tional guidelines concerning
– mechanical stress
– tension resistance
– cross-sectional area with respect to voltage drop
– current carrying capacity and short-circuit rating
To install electrical fittings, you must first remove the cover of
control board sd591

Parking Column unlimited 1
System APT 450 – Columns unlimited 1.2
© SKIDATA AG, Version 2.1 Page 15
1.2.3.5 Connection terminals for control lead and
intercom
* see Section 1.2.3.3
Fig. 10:
Connection terminals for control
lead and intercom

1 Parking Column unlimited
1.2 System APT 450 – Columns unlimited
Page 16 © SKIDATA AG, Version 2.1
*** siehe 1.2.3.3
Fig. 11:Connections on control board sd582

Parking Column unlimited 1
System APT 450 – Columns unlimited 1.2
© SKIDATA AG, Version 2.1 Page 17
Note on wire twisting:
When connecting Arcnet and loop cables, make sure that the
wires are twisted up to the connection terminal (approx. 5
twists per 10 cm).
Shield connections must be as short as possible and insulated
against contact with the chassis wall by means of a protective
tube.
Fig. 12:
sd582 – I/O circuit connections

1 Parking Column unlimited
1.2 System APT 450 – Columns unlimited
Page 18 © SKIDATA AG, Version 2.1
1.2.3.6 Loop Connections, Standard-Version,
Graphics-Version, Handsfree-Version
Fig. 13:
Loop connections, Standard-
Version, Graphics-Version,
Handsfree-Version)

Parking Column unlimited 1
System APT 450 – Columns unlimited 1.2
© SKIDATA AG, Version 2.1 Page 19
1.2.3.7 Loop connections, Extended-Version
Fig. 14: Loop connections, Ex-
tended-Version)

1 Parking Column unlimited
1.2 System APT 450 – Columns unlimited
Page 20 © SKIDATA AG, Version 2.1
1.2.3.8 Earthing connection
The protective earth conductor of the lead must be attached to
the central earthing point by way of a ring lug (see connection
layout in Fig. 9).
After installation, ensure proper metal contact of all aluminium
parts, i.e. the cable lug and/or metal part (check by measur-
ing)
If necessary, mill off any aluminium parts at the contact point
to ensure proper conductivity (the resistance of the earth con-
ductor must not exceed 0,1 ȍ)
After connecting the earth conductor, proceed as follows:
Check the strain relief clamps for proper fit
Check to make sure the cables leading to the connection ter-
minals are properly placed in accordance with applicable
norms
Fig. 15:
Earthing point
Fig. 16:
Protective earth
conductor

Parking Column unlimited 1
System APT 450 – Columns unlimited 1.2
© SKIDATA AG, Version 2.1 Page 21
Perform a visual check of the insulation to ensure it is in
proper condition
Slightly tug at the wires to check whether the terminal screws
are fastened properly
Chek to ensure the connectors are plugged in properly
Reattach the cover of sd591
Perform a visual check and manual inspection of the earthing
connection
Check to make sure that none of the wires are strained
Note:
If the Parking Column is powered up at temperatures below 2
°C, the control assembly will not start up to prevent possible
damage. In that case, the built-in temperature control system
will activate the heater (make sure that all doors are closed to
allow for the device to warm up as quickly as possible).
1.2.3.9 Changing the fuse
Important Note:
A blown fuse indicates a device defect that requires the atten-
tion of a trained service technician. The fuse must be re-
placed by a new one of the same type and technical
characteristics (see below). Before replacing the fuse, the lead
in the power distributor must be deactivated (i.e., disconnected
from the mains).
Fuse characteristics:
120 VAC = 5 A–T
230 VAC = 2,5 A–T
Model: Schurter
Type: SPT 5x20
Time lag: T
High breaking capacity: H
Ceramic tube
1.2.3.10 Surge protection for external devices
In case additional devices (e.g., relays, controls, etc) are installed
inside the chassis (on the top-hat rail) any relay contacts and coil
connections must be protected against transient voltage by
means of appropriate components (e.g., diodes, RC elements,
varistors, etc).

1 Parking Column unlimited
1.2 System APT 450 – Columns unlimited
Page 22 © SKIDATA AG, Version 2.1
1.2.4 Weather protection
Important:
Opening the device while it is exposed to rain or snowfall may
cause damage to the components inside.
To avoid moisture damage when performing installation work,
you can protect the open device against moisture by means of
an umbrella (see illustration below).
Before opening the device during or shortly after a rain or
snow shower, use a cloth to wipe down the top cover and up-
per edge of the front panel to avoid moisture getting inside the
device.
Fig. 17:
Using an umbrella for moisture
protection when performing main-
tenance work

Parking Column unlimited 1
System APT 450 – Columns unlimited 1.2
© SKIDATA AG, Version 2.1 Page 23
1.2.5 MANUAL OPEN/CLOSE switch
Switch positions
Position 0: Normal operation
Position 1: Keep CLOSED
Position 2: Keep OPEN
Single gate passage
Briefly set the switch to position 2; after the barrier opens, set
it back to the 0 position
Fig. 18:
Column top – Detail: umbrella
holding frame
Fig. 19:
OPEN/CLOSE switch on sd591

1 Parking Column unlimited
1.2 System APT 450 – Columns unlimited
Page 24 © SKIDATA AG, Version 2.1
If no vehicle passes through the gate, the barrier will close
automatically after approximately ten seconds
1.2.6 Installing devices in the front panel
Important: Devices and cables intended for subsequent in-
stallation must bear a CE label (EU countries) or UL/CSA la-
bel (USA; Canada) and must comply with all national and
international standards and guidelines. Installation of such
components may only be performed by qualified electricians.
Fig. 20:
Installing devices in the front
panel

Parking Column unlimited 1
System APT 450 – Columns unlimited 1.2
© SKIDATA AG, Version 2.1 Page 25
CAUTION:
When installing devices in the front panel, ensure a minimum
clearance of 5 cm above the fan-heater (see illustration).
The fan-heater must never be covered to avoid the danger
of fire.
To avoid damage to the device, make sure that the fastening
screws of the mounting plate are not screwed in too tightly
(max. torque 0,5 Nm).
When cutting out the metal plate, make sure it is not warped,
as this may cause water to leak into the device.
After installing the desired device(s), check the chassis for
tightness against water and snow.
1.2.7 Opening the front panel
To open the front panel, open the column door and pull the lock-
ing lever on the inside of the chassis wall forward (see illustra-
tion).
1.2.8 Closing the Parking Column
Close the top cover and the front panel
After locking the column door, slide the dust cover back over
the lock (see Fig. 1)
Fig. 21:
Opening the front panel

1 Parking Column unlimited
1.2 System APT 450 – Columns unlimited
Page 26 © SKIDATA AG, Version 2.1
Important:
If the front panel is not closed tightly, water or snow may get
inside the device, causing damage to the electronic assem-
blies.
After closing the front panel, pull at it slightly to make sure it is
properly closed and locked shut.
Fig. 22:
Closing the column top section

Parking Column unlimited 1
System APT 450 – Columns unlimited 1.2
© SKIDATA AG, Version 2.1 Page 27
1.2.9 Installing and Deinstalling the Coding Unit
(except Handsfree-Version and OEM-
Version)
To be able to access the Coding Unit for maintenance purposes,
you must first open the front panel (see illustration).
The device is secured to the draw-out support plate by means of
four mounting pegs (indicated by arrows in the illustration below).
Fig. 23:
Parking Column unlimited – Cod-
ing Unit
Fig. 24:
Coding Unit mounting pegs
(Bottom view)

1 Parking Column unlimited
1.2 System APT 450 – Columns unlimited
Page 28 © SKIDATA AG, Version 2.1
Deinstallation
Before you dismount the coding unit, it is essential that you
unplug all cables and disconnect the Column from the power
supply
Using your thumb to give you leverage, detach the front panel
of the Coding Unit from the support plate (see illustration be-
low) and lift it out of its anchoring (note that you will need to
overcome a resistance to do so)
Next, hold the Coding Unit by the ticket slot, raise it out of its
rear anchoring (again overcoming a slight resistance) and lift
it off the support plate
Fig. 25:
Lifting the front section of the
Coding Unit

Parking Column unlimited 1
System APT 450 – Columns unlimited 1.2
© SKIDATA AG, Version 2.1 Page 29
Installation
To reinstall the Coding Unit, hold it by the ticket slot, place it
on the rear pegs and press it down until it locks into place
Next, place the front panel of the Coding Unit on the two front
pegs and press it down until it also locks into place (in doing
so, place your hand against the support plate to avoid it get-
ting warped)
When re-installing the coding unit, use one hand to apply
counter-pressure to the mounting plate from below as you
press down the coder into place with your other hand. This is
to prevent the mounting plate from warping as a result of the
downward pressure being applied during the installation.
Finally, push the support plate back in as far as it will go
Wear protection
After locking the column door, remember to slide the dust
cover over the lock to prevent dust and dirt from getting inside
Fig. 26:
Deinstalling and installing the
Coding Unit