Stanley Security QDC100 Series Door Closer Installation Instructions 5043520 04 QDC100Installation
User Manual: Stanley Security QDC100 Series Door Closer Installation Instructions Installation
Open the PDF directly: View PDF
.
Page Count: 12

NOTICE
IT IS IMPORTANT TO CAREFULLY
FOLLOW ALL INSTALLATION AND
MOUNTING INSTRUCTIONS WHEN
INSTALLING ANY DOOR CLOSER.
MAXIMUM
DOOR WIDTH
FULL TURNS OF POWER
ADJUSTING SCREW*
CW = clockwise CCW = counterclockwise
EXTERIOR
(SWING OUT)
DOOR
CLOSER
SIZE
INTERIOR
BF
1
2
3
4
5
6
28” (0.71m)
14 CCW
12 CCW
6 CCW
QDC111 QDC111BF
3 CCW
3 CW
7 CW
12 CW
4 CW
0 (PRESET) 0 (PRESET)
8 CCW
36” (0.91m)
42” (1.07m)
48” (1.22m)
54” (1.37m)
5 lb-f
32” (0.81m)
32” (0.81m) 36” (0.91m)
42” (1.07m)
48” (1.22m)
54” (1.37m)
58” (1.47m)
*NOTICE
TURNS REQUIRED ARE APPROXIMATE DUE TO VARIOUS DOOR CONDITIONS AND
LOCATIONS. FURTHER ADJUSTMENTS FOR SPRING POWER MIGHT BE NECESSARY
TO SUIT YOUR REQUIREMENTS.
LATCH SPEED
CONTROL SCREW
BACK CHECK
SCREW
SWEEP SPEED
CONTROL SCREW
DELAYED ACTION
CONTROL SCREW
SPRING POWER
ADJUSTING SCREW
THREE INSTALLATION OPTIONS: A, B, AND C.
OPTION A: REGULAR ARM MOUNT
(PULL SIDE)
OPTION B: TOP JAMB MOUNT
(PUSH SIDE)
OPTION C: PARALLEL MOUNT
(PUSH SIDE)
RIGHT HAND DOOR = RH
LEFT HAND REVERSE = LHR
LEFT HAND DOOR = LH
RIGHT HAND REVERSE = RHR
RIGHT HAND DOOR = RH
LEFT HAND REVERSE = LHR
CCW
CW
+
1
2
4
CONTROL RANGE
BACK CHECK DELAYED ACTION
SWEEP
LATCH
Increase
Decrease
Increase
Decrease
Slow
Fast
Slow
Fast
3
DOOR HANDING
DOOR HANDS DETERMINED FROM OUTSIDE
LEFT HAND RIGHT HAND
INSIDE
OUTSIDE
INSIDE
OUTSIDE
LEFT HAND
REVERSE BEVEL
RIGHT HAND
REVERSE BEVEL
COVER
SCREW
HOLES
SPRING POWER / SIZING
HEX
WRENCH
The closing force for series QDC111BF door closers is an adjustable form of a size 1 to a size 6, as
outllined in ANSI Standard A156.4. When these series of door closers are installed and adjusted to
conform to ADA reduced opening force requirements (5 lbs max) for interiror doors, they may not have
adequate closing force to reliably close and latch door. Power adjustments charted on this page are
recommended where possible to ensure proper door control.
By law, the Americans with Disabilities Act (ADA)
may require that door closer installation comply
with accessibility guidelines.
QDC100 SERIES
DOOR CLOSER
INSTALLATION INSTRUCTIONS
ENGLISH
1/4

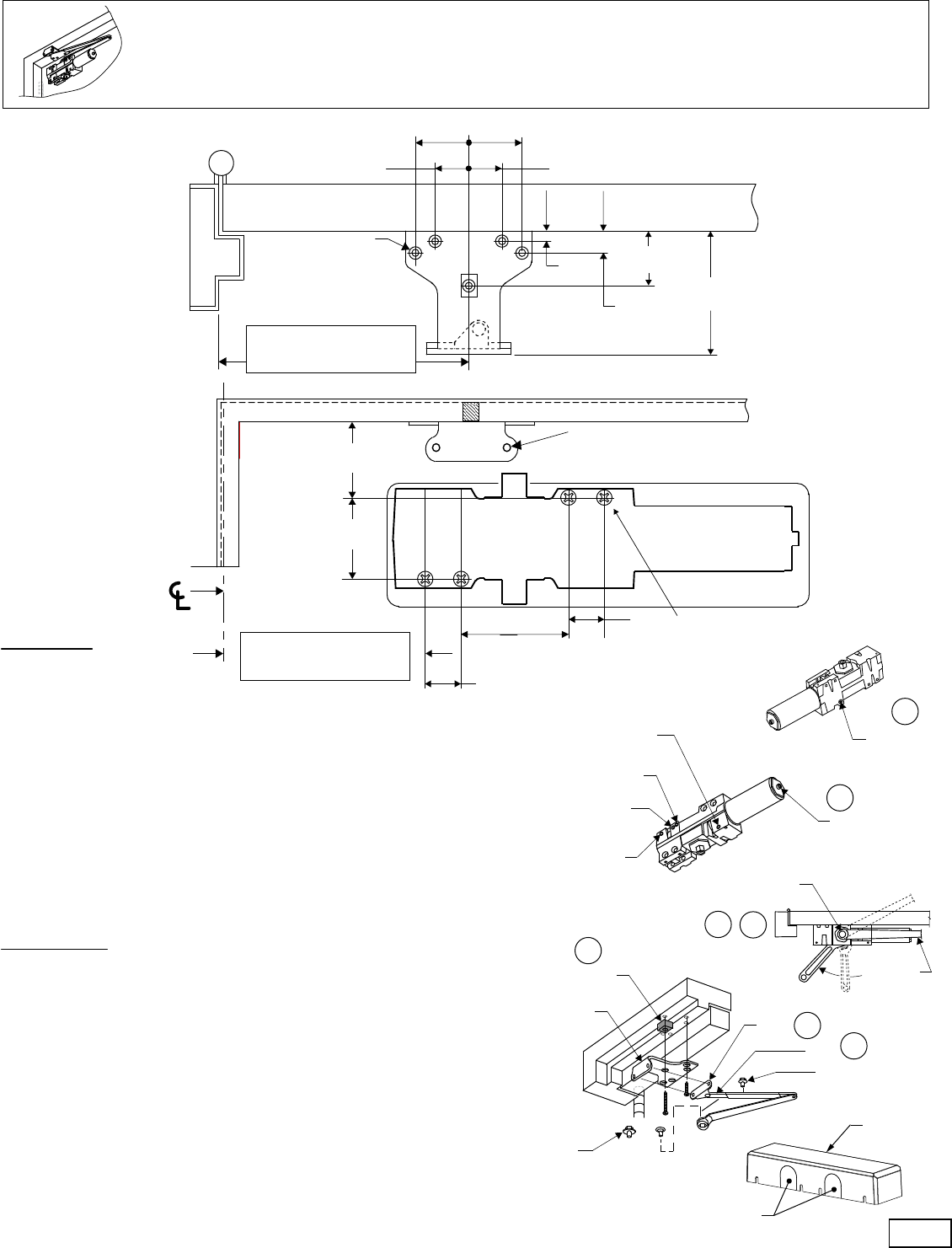
PROCEDURE:
1. Adjust spring power to match door width as indicated in chart on sheet 1.
2. Mount closer on door using dimensions shown in diagram. Tube end faces towards
hinge. If pivots are used, locate closer and shoe from centerline of pivot. For offset
pivots, increase dimensions in diagram marked with an asterisk ( * ) by 1/8 inch
(3.18mm).
3. Place main arm on top of shaft 100˚ to closer body, then preload to 90°. Insert arm
screw into top of shaft and tighten.
4. Attach shoe to frame, as shown. If more latching power is required, rotate shoe 180˚.
5. Open door and insert rod in forearm.
6. With forearm at right angle to door (90˚), insert forearm set screw and tighten. If hold-open
arm is used, nut is on top for RH door and on bottom for LH door.
ADJUSTMENTS:
SWEEP / LATCH
“Normal” closing time from 90˚ open position to door stop position is 4-6 seconds evenly
divided between main swing speed and latch swing speed. Use hex wrench (furnished) to
adjust speed. To slow main speed of door, turn sweep speed control screw clockwise;
to slow latch speed, turn latch speed control screw clockwise.
BACK CHECK
To increase back check force, turn back check screw clockwise. DO NOT USE ABRUPT
BACK CHECK MOVEMENT OR EXPECT DOOR CLOSER TO ACT AS A DOOR STOP.
DELAYED ACTION
To increase delayed action closing time, turn delayed action control screw clockwise.
HOLD-OPEN ADJUSTMENT (when hold-open arm is used)
Loosen adjusting nut, open door to desired hold-open position and tighten nut. DO NOT
PERMIT DOOR TO SWING BEYOND HOLD-OPEN SETTING.
COVER
Remove appropriate perforated cover tab then push cover against door. Tighten both cover
screws securely.
OPTION A: REGULAR ARM MOUNT
DOOR CLOSER MOUNTED ON PULL SIDE OF DOOR
DOOR OPENING: 120°
2 HOLES FOR #14
ALL-PURPOSE OR 1/4-20
(M6x1.0) MACHINE SCREW
4 HOLES FOR #14
ALL-PURPOSE OR 1/4-20
(M6x1.0) MACHINE SCREW
1 15/16”
(49,2mm)
*10 13/16”
(274,6mm)
*6 1/4”
(158,8mm)
11/16”
(17,5mm)
11/16”
(17,5mm)
2 1/4”
(57mm)
1”
(25,4mm)
1”
(25,4mm)
3”
76,2mm
This diagram shows RIGHT-HAND DOOR. For LEFT-HAND DOOR, rotate door closer 180° (spring power adjusting screw
facing towards door hinges).
SPRING POWER
ADJUSTING SCREW
SHOE
ARM SCREW
MAIN ARM
ROD
FOREARM
SET SCREW
4
56
23
1
PRELOAD TO
90º
LATCH SPEED
CONTROL SCREW
BACK CHECK
SCREW
SWEEP SPEED
CONTROL SCREW
DELAYED ACTION
CONTROL SCREW
COVER SCREWS
Hinge or Pivot
PERFORATED
COVER TABS
OR
COVER
2/4

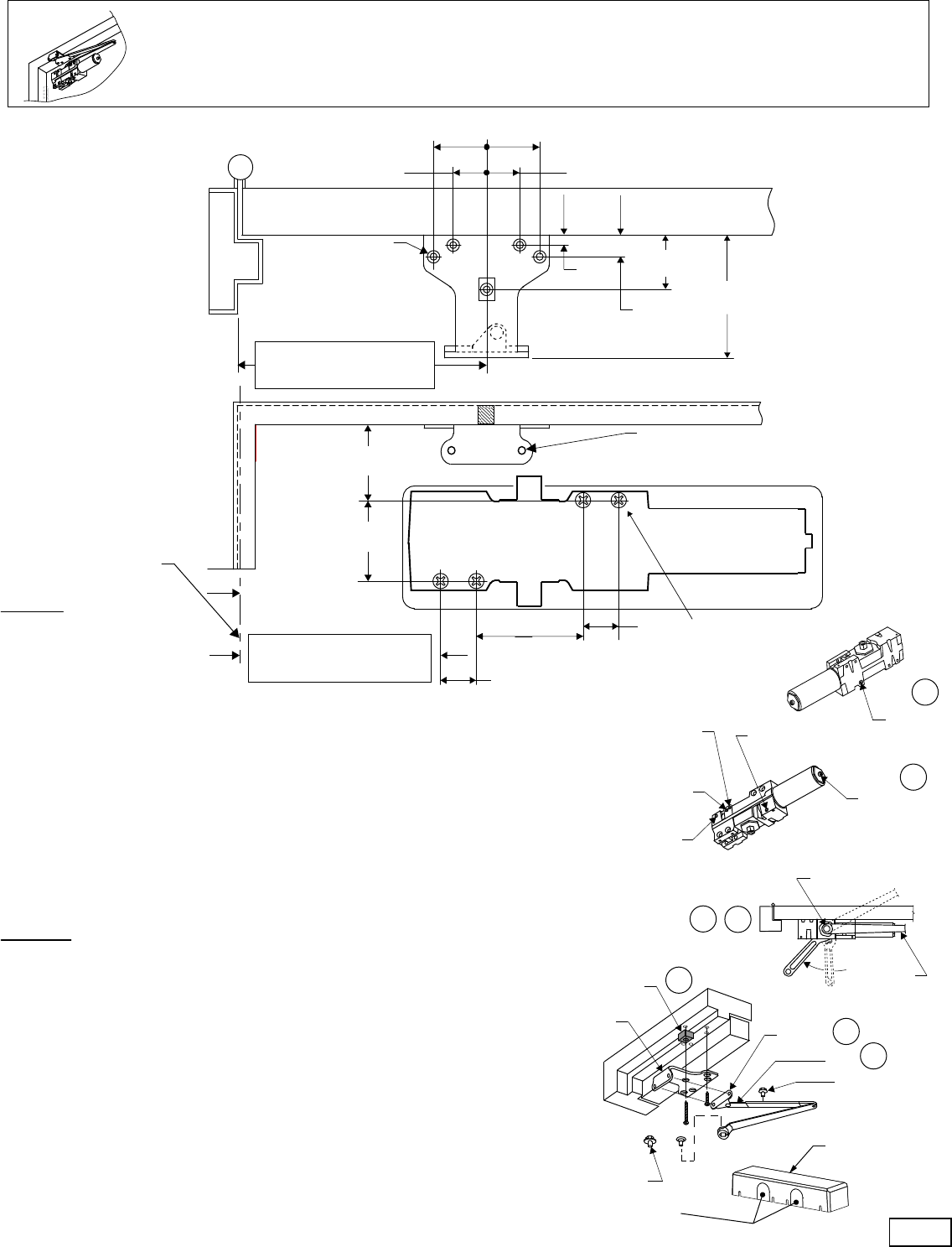
4 HOLES FOR #14
ALL-PURPOSE OR 1/4-20
(M6x1.0) MACHINE SCREWS
2 HOLES FOR #14
ALL-PURPOSE OR 1/4-20
(M6x1.0) MACHINE SCREWS
*6 5/16”
(160mm)
1”
(25.4mm) 1”
(25.4mm)
1 15/16”
(49.2mm) *10 3/4”
(273mm)
This diagram shows RIGHT-HAND DOOR. For LEFT-HAND DOOR, rotate door closer 180º (spring power adjusting screw
facing towards door hinges).
OPTION B: TOP JAMB MOUNT
DOOR CLOSER MOUNTED ON TOP JAMB ON PUSH SIDE OF DOOR
DOOR OPENING: 120°
3”
(76.2mm)
2 1/4”
(57mm)
11/16”
(17.5mm)
11/16”
(17.5mm)
PROCEDURE:
1. Adjust spring power to match door width as indicated in chart on sheet 1.
2. Mount closer on doorframe using dimensions shown in diagram. Tube end faces towards
hinge. If pivots are used, locate closer and shoe from centerline of pivot. For offset pivots,
increase dimensions marked with an asterisk by 1/8 inch (3.18mm).
3. Place main arm on top of shaft 100˚ to closer body, then preload to 90°. Insert arm
screw into top of shaft and tighten.
4. Attach shoe to frame, as shown. If more latching power is required, rotate shoe 180˚.
5. Open door and insert rod in forearm.
6. With forearm at right angle to door (90˚), insert forearm set screw and tighten.
If hold-open arm is used, nut is on top for RH door and on bottom for
LH door.
ADJUSTMENTS:
SWEEP / LATCH
“Normal” closing time from 90˚ open position to door stop position is 4-6 seconds evenly
divided between main swing speed and latch swing speed. Use hex wrench (furnished) to
adjust speed. To slow main speed of door, turn sweep speed control screw clockwise; to
slow latch speed, turn latch speed control screw clockwise.
BACK CHECK
To increase back check force, turn back check screw clockwise. DO NOT USE ABRUPT
BACK CHECK MOVEMENT OR EXPECT DOOR CLOSER TO ACT AS A DOOR STOP.
DELAYED ACTION
To increase delayed action closing time, turn delayed action control screw clockwise.
HOLD-OPEN ADJUSTMENT (when hold-open arm is used)
Loosen adjusting nut, open door to desired hold open position and tighten nut. DO NOT
PERMIT DOOR TO SWING BEYOND HOLD-OPEN SETTING.
COVER
Remove appropriate perforated cover tab then push cover against door. Tighten both cover
screws securely.
SPRING POWER
ADJUSTING SCREW
23
56
PRELOAD TO
90°
1
4
FOREARM
SET SCREW
ROD
SHOE
CLOSING SWEEP
CONTROL SCREW
LATCH SPEED
CONTROL SCREW
DELAYED ACTION
CONTROL SCREW
BACK CHECK
SCREW
COVER
SCREWS
Hinge or Pivot
PERFORATED
COVER TABS
COVER
3/4

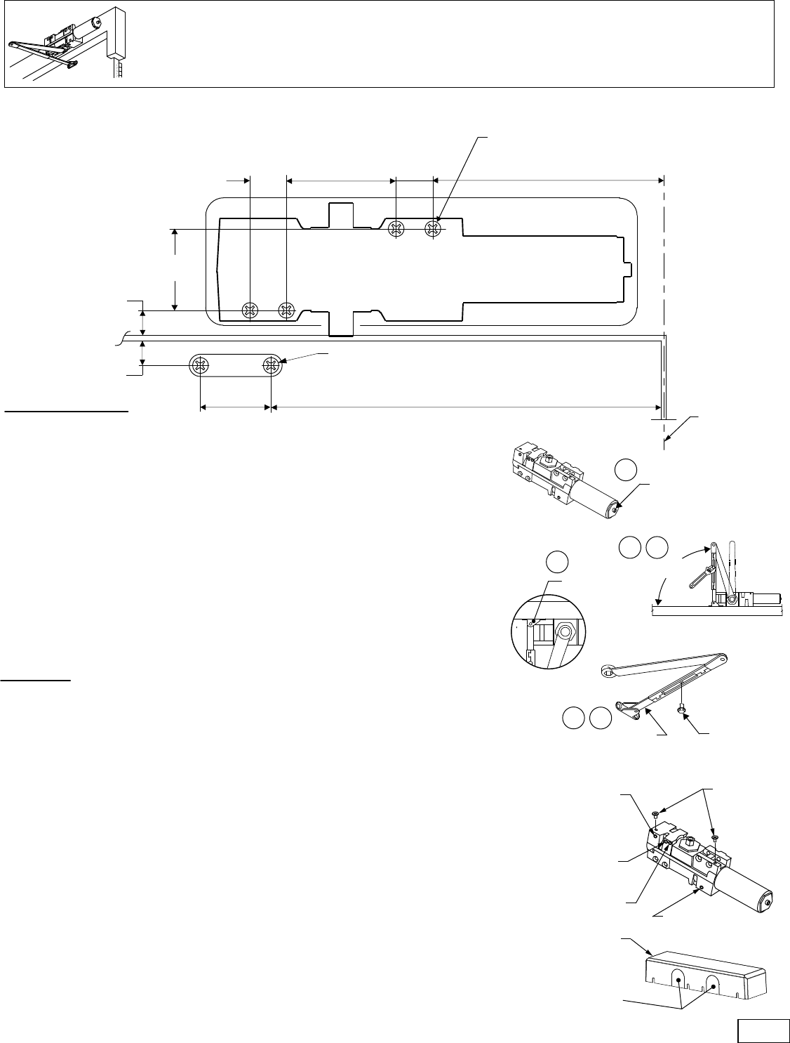
OPTION C: PARALLEL MOUNT
DOOR CLOSER MOUNTED ON DOOR ON PUSH SIDE OF DOOR
DOOR OPENING: 180°
This diagram shows LEFT-HAND DOOR. For RIGHT-HAND DOOR, rotate door closer 180º.
PROCEDURE:
1. Before installing, turn back
check selector valve clockwise
all the way in (valve can be
found on opposite side of closer
from back check screw side).
2. Adjust spring power to match door width as indicated in chart on page 1.
3. Mount closer on door using dimensions shown. Tube end faces towards latch.
If pivots are used, locate closer and parallel bracket from centerline of pivot.
4. Place open-end wrench on bottom shaft and turn toward hinge jamb about 30˚. Place main
arm on top shaft. Insert arm screw into top of shaft and tighten.
5. Attach parallel bracket on frame using dimensions shown. Use spacer block, as shown, for
extra bracket support.
6. Attach rod and shoe to parallel bracket, as shown.
7. Insert rod in forearm. Insert main arm to closer parallel to door. Insert forearm set screw and
tighten. If hold-open arm is used, nut is on top for RH door and bottom for LH door.
ADJUSTMENTS:
SWEEP / LATCH
“Normal” closing time from 90˚ open position to door stop position is 4-6 seconds evenly divided
between main swing speed and latch swing speed. Use hex wrench (furnished) to adjust speed.
To slow main speed of door, turn sweep speed control screw clockwise; to slow latch speed, turn
latch speed control screw clockwise.
BACK CHECK
To increase back check force, turn back check screw clockwise. DO NOT USE ABRUPT BACK
CHECK MOVEMENT OR EXPECT DOOR CLOSER TO ACT AS A DOOR STOP.
DELAYED ACTION
To increase delayed action closing time, turn delayed action control screw clockwise.
HOLD-OPEN ADJUSTMENT (when hold-open arm is used)
Loosen adjusting nut, open door to desired hold open position and tighten nut. DO NOT PERMIT
DOOR TO SWING BEYOND HOLD-OPEN SETTING.
COVER
Remove appropriate perforated cover tab then push cover against door. Tighten both cover screws securely.
1
BACK CHECK
SELECTOR
SCREW
2
BACK CHECK
SCREW
DELAYED ACTION
SCREW
SWEEP SPEED
SCREW
LATCH SPEED
SCREW
SPRING POWER
ADJUSTING
SCREW
34
30°
ARM SCREW
MAIN
ARM
5
6
7
FOREARM
SET SCREW
ROD
SHOE
PARALLEL
BRACKET
ARM
SCREW
SPACER
BLOCK
PERFORATED
COVER TABS
COVER
OR
(43mm)
1 11/16”1 11/16”
(43mm)
1 1/16”
(27mm)
1 1/16”
(27mm)
1 3/4”
(44.5mm)
4”
(101.6mm)
11/16”
(17.5mm)
5/16”
(8mm)
5 HOLES FOR #14
ALL-PURPOSE OR
1/4-20 (M6x1.0)
MACHINE SCREWS
11 1/2” (292mm) = 90° OPENING
10” (254mm) = 120° OPENING
7 7/8” (200mm) = 180° OPENING
2 HOLES FOR #14
ALL-PURPOSE OR 1/4-20
(M6x1.0) MACHINE SCREWS
4 HOLES FOR #14
ALL-PURPOSE OR
1/4-20 (M6x1.0)
MACHINE SCREWS
2 5/16”
(58.7mm)
2 1/4”
(57mm)
3”
(76.2mm)
1”
(25.4mm)
1”
(25.4mm)
9 1/2” (241mm) = 90° OPENING
8” (203mm) = 120° OPENING
6 1/2” (165mm) = 180° OPENING
Hinge or Pivot
4/4

1-855-365-2407 www.stanleysecuritysolutions.com

PROCÉDÉ:
1. Régler la puissance du ressort pour qu'elle corresponde à la largeur de la porte tel qu'indiqué sur la feuille 1.
2. Installer le ferme-porte sur la porte en utilisant les dimensions montrées sur le schéma. L'extrémité du tube
fait face aux charnières. Si on utilise des pivots, situer le ferme-porte et la semelle à partir de la ligne
centrale du pivot. Pour les pivots désaxés, augmenter de 1/8 po (3.18mm) les dimensions marquées par un
astérisque ( * ) dans le schéma.
3. Placer le bras principal sur le dessus de la tige à 100° sur le corps du ferme-porte; ensuite, précharger
à 90°. Insérer la vis du bras sur l'extrémité supérieure de la tige et la serrer.
4. Fixer la semelle au cadre, selon l´illustration. S'il faut plus de puissance d'enclenchement, faire tourner la
semelle à 180°.
5. Ouvrir la porte et insérer la tige dans l'avant-bras.
6. Avec l'avant-bras placé à un angle droite (90°), insérer la vis de réglage de l'avant-bras.
Si le bras pour tenir la porte ouverte est utilisé, l'écrou est sur le dessus pour les portes MD et dessous
pour les portes MG.
RÉGLAGES:
BALAYAGE / ENCLENCHEMENT
Le temps de fermeture « Normal » à partir d'une porte ouverte à 90° jusqu'à ce que la porte se ferme est
d'environ 4 à 6 secondes divisées également entre la vitesse de balayage principale et la vitesse de balayage
d'enclenchement. Utiliser la clé hexagonale (incluse) pour régler la vitesse. Pour ralentir la vitesse principale
de la porte, il faut tourner la vis de commande de la vitesse de balayage dans le sens horaire; pour ralentir la vitesse
d'enclenchement, il faut tourner la vis de commande de la vitesse du verrou dans le sens horaire.
BUTÉE
Pour augmenter la force de la butée, il faut tourner la vis de butée dans le sens horaire.
NE PAS UTILISER UN MOUVEMENT DE BUTÉE ABRUPT OU S'ATTENDRE À CE QUE
LE FERME-PORTE FASSE FONCTION DE BUTOIR DE PORTE.
ACTION À RETARDEMENT
Pour augmenter le temps de fermeture à retardement, il faut tourner la vis de commande
de retardement dans le sens horaire.
RÉGLAGE POUR TENIR LA PORTE OUVERTE (lorsque l'on utilise le bras pour maintenir la
porte ouverte)
Il faut desserrer l'écrou de réglage, ouvrir la porte à l'ouverture désirée et serrer l'écrou.
IL NE FAUT PAS LAISSER LA PORTE OUVRIR AU-DELÀ DU RÉGLAGE DE MAINTIEN DE LA PORTE OUVERTE.
COUVERCLE
Retirer la languette perforée appropriée du couvercle, puis pousser le couvercle contre la porte. Bien
resserrer les deux vis du couvercle.
OPTION A: MONTAGE ORDINAIRE DU BRAS
FERME-PORTE INSTALLÉ DU CÔTÉ DE LA PORTE SUR LEQUEL ON TIRE
OUVERTURE DE LA PORTE: 120°
2 TROUS POUR VIS DE
MÉCANIQUE #14
POLYVALENTE OU 1/4-20
(M6x1.0)
4 TROUS POUR VIS DE
MÉCANIQUE #14
POLYVALENTE OU 1/4-20
(M6x1.0)
1 15/16”
(49,2mm)
*10 13/16”
(274,6mm)
*6 1/4”
(158,8mm)
11/16”
(17,5mm)
11/16”
(17,5mm)
2 1/4”
(57mm)
1”
(25,4mm)
1”
(25,4mm)
3”
76,2mm
Ce schéma montre une PORTE MAIN DROITE. Pour une PORTE MAIN GAUCHE, faire tourner le ferme-porte de 180° (la
vis de réglage de la puissance du ressort doit faire face aux charnières de la porte).
SEMELLE
VIS DU BRAS
BRAS
PRINCIPAL
TIGE
VIS DE RÉGLAGE
DE L'AVANT-BRAS
4
56
23
1
PRÉCHARGÉ
À 90º
VIS DU
COUVERCLE
LANGUETTES
PERFORÉES DU
COUVERCLE
OU
COUVERCLE
LIGNE CENTRALE
POUR LA CHARNIÈRE
OU LE PIVOT
VIS DE RÉGLAGE
DE LA PUISSANCE
DU RESSORT
VIS DE COMMANDE
DE LA VITESSE
D'ENCLENCHEMENT
VIS DE COMMANDE DE LA
VITESSE DE BALAYAGE
VIS DE COMMANDE DE LA
L´ACTION À RETARDEMENT VIS DE LA
BUTÉE
2/4

*6 5/16”
(160mm)
1”
(25.4mm) 1”
(25.4mm)
1 15/16”
(49.2mm) *10 3/4”
(273mm)
OPTION B:
MONTAGE SUR LE MONTANT SUPÉRIEUR
FERME-PORTE INSTALLÉ SUR LE MONTANT DE PORTE SUPÉRIEUR DU CÔTÉ DE LA
PORTE SUR LEQUEL ON POUSSE
OUVERTURE DE LA PORTE: 120°
3”
(76.2mm)
2 1/4”
(57mm)
11/16”
(17.5mm)
11/16”
(17.5mm)
PROCÉDÉ:
1. Régler la puissance du ressort
pour qu'elle corresponde à la largeur de la porte tel qu'indiqué sur la feuille 1.
2. Installer le ferme-porte sur le cadre de porte en utilisant les dimensions montrées sur le schéma. Si on
utilise des pivots, situer le ferme-porte et la semelle à partir de la ligne centrale du pivot. Pour les pivots
désaxés, augmenter de 1/8 po (3.18mm) les dimensions marquées par un astérisque ( * ) dans le schéma.
3. Placer le bras principal sur le dessus de la tige à 100° sur le corps du ferme-porte; ensuite, précharger à 90°.
Insérer la vis du bras sur l'extrémité supérieure de la tige et la serrer.
4. Fixer la semelle au cadre, selon l´illustration. S'il faut plus de puissance d'enclenchement, faire tourner la
semelle à 180°.
5. Ouvrir la porte et insérer la tige dans l'avant-bras.
6. Avec l'avant-bras placé à un angle droite (90°), insérer la vis de réglage de l'avant-bras.
Si le bras pour tenir la porte ouverte est utilisé, l'écrou est sur le dessus pour les portes MD et
dessous pour les portes MG.
RÉGLAGES:
BALAYAGE / ENCLENCHEMENT
Le temps de fermeture « Normal » à partir d'une porte ouverte à 90° jusqu'à ce que la porte se ferme est
d'environ 4 à 6 secondes divisées également entre la vitesse de balayage principale et la vitesse de balayage
d'enclenchement. Utiliser la clé hexagonale (incluse) pour régler la vitesse. Pour ralentir la vitesse principale
de la porte, il faut tourner la vis de commande de la vitesse de balayage dans le sens horaire; pour ralentir la
vitesse d'enclenchement, il faut tourner la vis de commande de la vitesse du verrou dans le sens horaire.
BUTÉE
Pour augmenter la force de la butée, il faut tourner la vis de butée dans le sens horaire.
NE PAS UTILISER UN MOUVEMENT DE BUTÉE ABRUPT OU S'ATTENDRE À CE QUE
LE FERME-PORTE FASSE FONCTION DE BUTOIR DE PORTE.
ACTION À RETARDEMENT
Pour augmenter le temps de fermeture à retardement, il faut tourner la vis de commande
de retardement dans le sens horaire.
RÉGLAGE POUR TENIR LA PORTE OUVERTE (lorsque l'on utilise le bras
pour maintenir la porte ouverte)
Il faut desserrer l'écrou de réglage, ouvrir la porte à l'ouverture désirée et serrer l'écrou.
IL NE FAUT PAS LAISSER LA PORTE OUVRIR AU-DELÀ DU RÉGLAGE DE MAINTIEN
DE LA PORTE OUVERTE.
COUVERCLE
Retirer la languette perforée appropriée du couvervle, puis pousser le couvercle contre la porte.
Bien resserrer les deux vis du couvercle.
Ce schéma montre une PORTE MAIN DROITE. Pour une PORTE MAIN GAUCHE, faire tourner le ferme-porte de 180° (la
vis de réglage de la puissance du ressort doit faire face aux charnières de la porte).
1
VIS DE RÉGLAGE
DE LA PUISSANCE
DU RESSORT
4
PRÉCHARGÉ
À 90º
23
SEMELLE
TIGE
VIS DE RÉGLAGE
DE L'AVANT-BRAS
56
VIS DU
COUVERCLE
VIS DE COMMANDE
DE LA VITESSE
D'ENCLENCHEMENT
VIS DE COMMANDE DE
LA VITESSE DE BALAYAGE
VIS DE COMMANDE DE
L´ACTION À RETARDEMENT VIS DE LA
BUTÉE
COUVERCLE
LANGUETTES PERFORÉES
DU COUVERCLE
LIGNE
CENTRALE
POUR LA
CHARNIÈRE
OU LE PIVOT
4 TROUS POUR VIS DE
MÉCANIQUE #14
POLYVALENTE OU 1/4-20
(M6x1.0)
2 TROUS POUR VIS DE
MÉCANIQUE #14
POLYVALENTE OU 1/4-20
(M6x1.0)
3/4

OPTION C: MONTAGE PARALLÈLE
FERME-PORTE INSTALLÉ DU CÔTÉ DE LA PORTE SUR LEQUEL ON POUSSE
OUVERTURE DE LA PORTE: 180°
Ce schéma montre une PORTE MAIN GAUCHE. Pour une PORTE MAIN DROITE, faire tourner le ferme-porte de 180°.
2. Régler la puissance du ressort pour qu'elle corresponde à la largeur de la porte tel
qu'indiqué sur la feuille 1.
3. Installer le ferme-porte sur la porte en utilisant les dimensions montrées sur le schéma. L'extrémité du tube fait face
aux charnières. Si on utilise des pivots, situer le ferme-porte et la semelle à partir de la ligne centrale du pivot.
4. Il faut placer l'extrémité ouverte de la clé sur la tige inférieure et tourner en direction de la charnière sur le montant à
environ 30°. Placer le bras principal sur la tige supérieure. Insérer la vis du bras sur l'extrémité supérieure de la tige
et serrer.
5. Fixer l'équerre parallèle sur le cadre en utilisant les dimensions montrées. Utiliser une cale, selon l´illustration, pour
mieux soutenir l'équerre.
6. Fixer la tige et la semelle à l'équerre parallèle selon l´illustration.
7. Insérer la tige dans l'avant-bras. Insérer le bras principal dans le ferme-porte parallèle à la porte. Insérer la vis
de réglage de l'avant-bras et serrer. Si le bras pour tenir la porte ouverte est utilisé, l'écrou est sur le dessus
pour les portes MD et dessous pour les portes MG.
RÉGLAGES:
BALAYAGE / ENCLENCHEMENT
Le temps de fermeture « Normal » à partir d'une porte ouverte à 90° jusqu'à ce que la porte se ferme est
d'environ 4 à 6 secondes divisées également entre la vitesse de balayage principale et la vitesse de balayage
d'enclenchement. Utiliser la clé hexagonale (incluse) pour régler la vitesse. Pour ralentir la vitesse principale
de la porte, il faut tourner la vis de commande de la vitesse de balayage dans le sens horaire; pour ralentir la
vitesse d'enclenchement, il faut tourner la vis de commande de la vitesse du verrou dans le sens horaire.
BUTÉE
Pour augmenter la force de la butée, il faut tourner la vis de butée dans le sens horaire. NE PAS UTILISER
UN MOUVEMENT DE BUTÉE ABRUPT OU S'ATTENDRE À CE QUE LE FERME-PORTE FASSE FONCTION
DE BUTOIR DE PORTE.
ACTION À RETARDEMENT
Pour augmenter le temps de fermeture à retardement, il faut tourner la vis de commande de retardement dans le sens
horaire.
RÉGLAGE POUR TENIR LA PORTE OUVERTE (lorsque l'on utilise le bras pour maintenir la porte ouverte)
Il faut desserrer l'écrou de réglage, ouvrir la porte à l'ouverture désirée et serrer l'écrou. IL NE FAUT PAS LAISSER LA
PORTE OUVRIR AU-DELÀ DU RÉGLAGE DE MAINTIEN DE LA PORTE OUVERTE.
COUVERCLE
Retirer la languette perforée appropriée du couvercle, puis pousser le couvercle contre la porte.
Bien resserrer les deux vis du couvercle.
PROCÉDÉ:
1. Avant de commencer l'installation,
il faut tourner la valve du sélecteur
de la butée dans le sens horaire au
complet (la valve se trouve sur le côté
opposé du ferme-porte à partir du côté
de la vis de réglage de la butée).
VALVE DU
SÉLECTEUR
DE LA BUTÉE
1
VIS DE LA
BUTÉE
VIS DE COMMANDE
DE L´ACTION À
RETARDEMENT
VIS DE COMMANDE
DE LA VITESSE DE
BALAYAGE
VIS DE COMMANDE
DE LA VITESSE
D'ENCLENCHEMENT
2
VIS DE RÉGLAGE
DE LA PUISSANCE
DU RESSORT
34
VIS DU BRAS
30° BRAS
PRINCIPAL
5
6
7
CALE
D'ESPACEMENT
SEMELLE
ÉQUERRE
PARALLÈLE
VIS DU
BRAS
OU
TIGE
VIS DE RÉGLAGE
DE L'AVANT-BRAS
COUVERCLE
LANGUETTES PERFORÉES
DU COUVERCLE
1 11/16”
(43mm)
1 11/16”
(43mm)
1 1/16”
(27mm)
1 1/16”
(27mm)
5/16”
(8mm)
1 3/4”
(44.5mm)
11/16”
(17.5mm)
4”
(101.6mm)
5 TROUS POUR VIS DE
MÉCANIQUE #14
POLYVALENTE OU 1/4-20
(M6x1.0)
11 1/2” (292mm) = OUVERTURE À 90°
10” (254mm) = OUVERTURE À 120°
7 7/8” (200mm) =OUVERTURE À 180°
4 TROUS POUR VIS DE
MÉCANIQUE #14
POLYVALENTE OU 1/4-20
(M6x1.0)
2 TROUS POUR VIS DE
MÉCANIQUE #14
POLYVALENTE OU 1/4-20
(M6x1.0)
2 5/16”
(58.7mm)
2 1/4”
(57mm)
3”
(76.2mm)
1”
(24.5mm)
9 1/2” (241mm) = OUVERTURE À 90°
8” (203mm) = OUVERTURE À 120°
6 1/2” (165mm) = OUVERTURE À 180°
1”
(24.5mm)
LIGNE CENTRALE
POUR LA CHARNIÈRE
OU LE PIVOT
4/4

1-855-365-2407 www.stanleysecuritysolutions.com

2 AGUJEROS PARA #14
MULTIUSO O 1/4-20
(M6x1.0) TORNILLOS DE
MAQUINA
4 AGUJEROS PARA #14
MULTIUSO O 1/4-20
(M6x1.0) TORNILLOS DE
MAQUINA
1 15/16”
(49,2mm)
*10 13/16”
(274,6mm)
*6 1/4”
(158,8mm)
11/16”
(17,5mm)
11/16”
(17,5mm)
2 1/4”
(57mm)
1”
(25,4mm)
1”
(25,4mm)
3”
76,2mm
TORNILLO PARA LA
FUERZA DEL
RESORTE
ZAPATA
TORNILLO
DEL BRAZO
BRAZO PRINCIPAL
BARRA
TORNILLO DE
PRESIÓN DEL
ANTEBRAZO
4
56
23
1
PRECARGUE
A 90°
TORNILLOS DE LA
CUBIERTA
LENGÜETAS PERFORADAS
DE LA CUBIERTA
O
CUBIERTA
PROCEDIMIENTO:
1. Ajuste la fuerza del resorte a la anchura de la puerta según lo indicado en la tabla en
la pagina 1.
2. Monte sobre la puerta con las dimensiones mostradas en el diagrama. El extremo del tubo va orientado
hacia la bisagra. Si utiliza pivotes, encuentre el cierre y la zapata desde la línea central del pivote. Para
pivotes desplazados, incremente las dimensiones en el diagrama marcadas con un asterisco ( * ) por
1/8 de pulgada (3.18 mm).
3. Coloque el brazo principal encima del eje 100˚ más cerca al cuerpo, luego precargue a 90°.
Inserte el tornillo del brazo en la tapa del eje y apriete.
4. Fije la zapata al marco como se muestra. Si necesita más fuerza en el seguro, gire la zapata 180˚.
5. Abra la puerta e introduzca la varilla al antebrazo.
6. Con el antebrazo al ángulo recto de la puerta (90˚), inserte el tornillo de presión del
antebrazo y apriete. Si utiliza el brazo para mantenerla abierta, ponga la tuerca en la parte
superior para la puerta MD y en la parte inferior para la puerta MI.
AJUSTES:
BARRIDO / SEGURO
El tiempo “normal” de cierre desde la posición abierta de 90˚ hasta la posición del tope de la puerta
es de 4 a 6 segundos, dividido equitativamente entre la velocidad del giro principal y la velocidad
del giro del seguro. Utilice la llave hexagonal (incluida) para ajustar la velocidad. Para reducir la
velocidad principal de la puerta, gire el tornillo de control de la velocidad de barrido en el sentido de
las manecillas del reloj.
CHEQUE TRASERO
Para incrementar la fuerza del atrapador, gire el tornillo del atrapador en el sentido de las
manecillas del reloj. NO UTILICE EL MOVIMIENTO ABRUPTO DEL ATRAPADOR O ESPERE
QUE EL CIERRE DE LA PUERTA ACTÚE COMO TOPE.
ACCIÓN RETRASADA
Para incrementar el tiempo de cerrado de la acción retardada, gire el tornillo de control de la acción
retardada en el sentido de las manecillas del reloj.
AJUSTE PARA MANTENERLA ABIERTA (cuando el brazo para mantenerla
abierta es utilizado)
Afloje la tuerca de ajuste, abra la puerta a la posición deseada para mantenerla abierta y apriete la tuerca.
NO PERMITA QUE LA PUERTA GIRE MÁS ALLÁ DEL AJUSTE PARA MANTENERLA ABIERTA.
CUBIERTA
Retire la lengüeta perforada de la cubierta y luego empújela contra la puerta. Apriete la cubierta y los tornillos con firmeza.
LÍNEA CENTRAL DE LA
BISAGRA O DEL PIVOTE
OPCIÓN A: MONTAJE REGULAR DEL BRAZO
CIERRA PUERTAS MONTADO SOBRE EL LADO PARA JALAR LA PUERTA
ABERTURA DE LA PUERTA: 120°
Este diagrama demuestra PUERTA DERECHA. Para PUERTA DE LA MANO IZQUIERDA, gire el cierra puertas 180º
(revestimiento del tornillo de reglaje de la energía del resorte hacia las bisagras de puerta).
TORNILLO PARA LA
VELOCIDAD DE SEGURO
TORNILLO PARA LA
VELOCIDAD DEL
BARRIDO
TORNILLO PARA LA
ACCIÓN RETARDADA TORNILLO DEL
ATRAPADOR
2/4

*6 5/16”
(160mm)
1”
(25.4mm) 1”
(25.4mm)
1 15/16”
(49.2mm) *10 3/4”
(273mm)
3”
(76.2mm)
2 1/4”
(57mm)
11/16”
(17.5mm)
11/16”
(17.5mm)
PROCEDIMIENTO:
1. Ajuste la fuerza del resorte a la
anchura de la puerta según lo indicado en la tabla en la pagina 1.
2. Monte sobre el marco de la puerta con las dimensiones mostradas en el diagrama. El extremo
del tubo va orientado hacia la bisagra. Si utiliza pivotes, encuentre el cierre y la zapata desde
la línea central del pivote. Para pivotes desplazados, incremente las dimensiones en el diagrama
marcadas con un asterisco (*) por 1/8 de pulgada (3.18 mm).
3. Coloque el brazo principal encima del eje 100˚ más cerca al cuerpo, luego precargue a 90°.
Inserte el tornillo del brazo en la tapa del eje y apriete.
4. Fije la zapata al marco como se muestra. Si necesita más fuerza en el seguro, gire la zapata 180˚.
5. Abra la puerta e introduzca la varilla al antebrazo.
6. Con el antebrazo al ángulo recto de la puerta (90˚), inserte el tornillo de presión del
antebrazo y apriete. Si utiliza el brazo para mantenerla abierta, ponga la tuerca en la parte
superior para la puerta MD y en la parte inferior para la puerta MI.
AJUSTES:
BARRIDO / SEGURO
El tiempo “normal” de cierre desde la posición abierta de 90˚ hasta la posición del tope de la puerta es de
4 a 6 segundos, dividido equitativamente entre la velocidad del giro principal y la velocidad del giro del
seguro. Utilice la llave hexagonal (incluida) para ajustar la velocidad. Para reducir la velocidad principal de la
puerta, gire el tornillo de control de la velocidad de barrido en el sentido de las manecillas del reloj.
CHEQUE TRASERO
Para incrementar la fuerza del atrapador, gire el tornillo del atrapador en el sentido de las manecillas
del reloj. NO UTILICE EL MOVIMIENTO ABRUPTO DEL ATRAPADOR O ESPERE QUE EL
CIERRE DE LA PUERTA ACTÚE COMO TOPE.
ACCIÓN RETRASADA
Para incrementar el tiempo de cerrado de la acción retardada, gire el tornillo de control de la acción
retardada en el sentido de las manecillas del reloj.
AJUSTE PARA MANTENERLA ABIERTA (cuando el brazo para mantenerla
abierta es utilizado)
Afloje la tuerca de ajuste, abra la puerta a la posición deseada para mantenerla abierta y apriete la tuerca.
NO PERMITA QUE LA PUERTA GIRE MÁS ALLÁ DEL AJUSTE PARA MANTENERLA ABIERTA.
CUBIERTA
Retire la lengüeta perforada de la cubierta y luego empújela contra la puerta. Apriete la cubierta y
los tornillos con firmeza.
23
56
1
4
TORNILLO DE
PRESIÓN DEL
ANTEBRAZO
BARRA
ZAPATA
Este diagrama demuestra PUERTA DERECHA. Para PUERTA DE LA MANO IZQUIERDA, gire el cierra puertas 180º
(revestimiento del tornillo de reglaje de la energía del resorte hacia las bisagras de puerta).
OPCIÓN B: MONTAJE SUPERIOR DE LA CANILLERA
CIERRA PUERTAS MONTADO SOBRE LA JAMBA SUPERIOR EN EL LADO DE EMPUJE DE LA
PUERTA
ABERTURA DE LA PUERTA: 120°
LÍNEA CENTRAL
DE LA BISAGRA
O DEL PIVOTE
4 AGUJEROS PARA #14
MULTIUSO O 1/4-20
(M6x1.0) TORNILLOS DE MAQUINA
2 AGUJEROS PARA #14
MULTIUSO O 1/4-20
(M6x1.0) TORNILLOS DE
MAQUINA
TORNILLO PARA LA
FUERZA DEL
RESORTE
PRECARGUE
A 90°
TORNILLOS
DE LA
CUBIERTA
TORNILLO PARA
LA VELOCIDAD
DE SEGURO
LENGÜETAS PERFORADAS
DE LA CUBIERTA
CUBIERTA
TORNILLO PARA LA
VELOCIDAD DEL
BARRIDO
TORNILLO PARA LA
ACCIÓN RETARDADA TORNILLO DEL
ATRAPADOR
3/4

:PROCEDIMIENTO
1. Antes de instalar, gire la válvula
selectora del atrapador hacia todo el
sentido de las manecillas del reloj
(la válvula está en el lado opuesto del cierre desde el lado del tornillo del atrapador).
2. Ajuste la fuerza del resorte a la anchura de la puerta según lo indicado en la tabla en la pagina 1.
3. Monte sobre la puerta con las dimensiones mostradas en el diagrama. El extremo del tubo va orientado
hacia la bisagra. Si utiliza pivotes, encuentre el cierre y la zapata desde la línea central del pivote.
4. Coloque la llave de boca en el eje inferior y gire unos 30˚ hacia la bisagra de la jamba. Coloque el brazo
principal sobre el eje superior.
5. Una el soporte paralelo al marco con las dimensiones mostradas. Utilice el bloque espaciador como
se muestra para que el soporte pueda aguantar más.
6. Una la varilla y la zapata al soporte paralelo como se muestra.
7. Introduzca la varilla al antebrazo y el brazo principal al cierre paralelo a la puerta. Introduzca el tornillo
de ajuste del antebrazo y apriete. Si utiliza el brazo para mantenerla abierta, ponga la tuerca en la
parte superior para la puerta MD y en la parte inferior para la puerta MI.
AJUSTES:
BARRIDO / SEGURO
El tiempo “normal” de cierre desde la posición abierta de 90˚ hasta la posición del tope de la puerta es de 4 a 6
segundos, dividido equitativamente entre la velocidad del giro principal y la velocidad del giro del seguro. Utilice
Utilice la llave hexagonal (incluida) para ajustar la velocidad. Para reducir la velocidad principal de la puerta, gire
el tornillo de control de la velocidad de barrido en el sentido de las manecillas del reloj.
CHEQUE TRASERO
Para incrementar la fuerza del atrapador, gire el tornillo del atrapador en el sentido de las manecillas
del reloj. NO UTILICE EL MOVIMIENTO ABRUPTO DEL ATRAPADOR O ESPERE QUE EL
CIERRE DE LA PUERTA ACTÚE COMO TOPE.
ACCIÓN RETRASADA
Para incrementar el tiempo de cerrado de la acción retardada, gire el tornillo de control de la acción
retardada en el sentido de las manecillas del reloj.
AJUSTE PARA MANTENERLA ABIERTA (cuando el brazo para mantenerla abierta es utilizado)
Afloje la tuerca de ajuste, abra la puerta a la posición deseada para mantenerla abierta y apriete la tuerca.
NO PERMITA QUE LA PUERTA GIRE MÁS ALLÁ DEL AJUSTE PARA MANTENERLA ABIERTA.
CUBIERTA
Retire la lengüeta perforada de la cubierta y luego empújela contra la puerta. Apriete la cubierta y
los tornillos con firmeza.
OPCIÓN C: MONTAJE PARALELO
CIERRA PUERTAS MONTADO SOBRE LA PUERTA EN EL LADO DE EMPUJE
ABERTURA DE LA PUERTA: 180°
Este diagrama demuestra PUERTA IZQUIERDA . Para PUERTA DE LA MANO DERECHA, gire el cierra puertas 180º.
1
TORNILLO
SELECTOR DEL
ATRAPADOR
2
TORNILLO PARA
LA VELOCIDAD DE
SEGURO
TORNILLO PARA LA
VELOCIDAD DEL
BARRIDO
TORNILLO PARA LA
ACCIÓN RETARDADA
TORNILLO DEL
ATRAPADOR
TORNILLO PARA LA
FUERZA DEL
RESORTE
34
5
6
7
TORNILLO DE PRESIÓN
DEL ANTEBRAZO
BARRA
ZAPATA
SOPORTE
PARALELO
30°
TORNILLO
DEL BRAZO
TORNILLO DEL
BRAZO
BRAZO
PRINCIPAL
BLOQUE
SEPARADOR
O
LENGÜETAS PERFORADAS
DE LA CUBIERTA
CUBIERTA
1 1/16”
(27mm)
1 11/16”
(43mm)
1 11/16”
(43mm)
1 1/16”
(27mm)
1 3/4”
(44.5mm)
5/16”
(8mm)
11/16”
(17.5mm)
4”
(101.6mm)
5 AGUJEROS PARA #14
MULTIUSO O 1/4-20
(M6x1.0) TORNILLOS DE
MAQUINA
11 1/2” (292mm) = 90° ABERTURA
10” (254mm) = 120° ABERTURA
7 7/8” (200mm) = 180° ABERTURA
2 5/16”
(58.7mm)
2 1/4”
(57mm)
2 AGUJEROS PARA #14
MULTIUSO O 1/4-20
(M6x1.0) TORNILLOS DE
MAQUINA
4 AGUJEROS PARA #14
MULTIUSO O 1/4-20
(M6x1.0) TORNILLOS DE
MAQUINA
1”
(24.5mm)
3”
(76.2mm)
1”
(24.5mm)
9 1/2” (241mm) = 90° ABERTURA
8” (203mm) = 120° ABERTURA
6 1/2” (165mm) = 180° ABERTURA
LÍNEA CENTRAL
DE LA BISAGRA
O DEL PIVOTE
4/4
Copyright © 2013 Stanley Black&Decker 5043520-03