Synapse Wireless RFE RF ENGINE User Manual USERS MANUAL
Synapse Wireless Inc. RF ENGINE USERS MANUAL
USERS MANUAL

5015 B.U. Bowman Drive Buford, GA 30518 USA Voice: 770-831-8048 Fax: 770-831-8598
FCC Part 15.249
Transmitter Certification
Test Report
FCC ID: U9O-RFE
FCC Rule Part: 15.249
ACS Report Number: 07-0157-15C-RFE
Manufacturer: Wireless Control Network Solutions, LLC.; dba Synapse
Brand Name: RF Engine
Model: RFE
Manual
RF Engine Product Manual
Rev 0.1 – 5/1/2007

1.0 RF Engine OEM Modules
RF Engine modules meet IEEE 802.15.4 specifications. These modules provide a
low power, highly reliable sensor wireless network at very low cost. The modules provide
up to 16 channels of operation in the ISM 2.4GHz frequency band. The are two versions
of modules. One version has an external power amplifier. This module will be referred to
as RF Engine with amplifier. The other module has no external power amplifier and is
referred to as RF Engine without amplifier.
1.1 Specifications
RF Engine
Specifications No Ext Amp With Ext Amp
Indoor Range 200 ft. 1000 ft.
Outdoor LOS Range up to 1000 ft. up to 3 miles
Performance Transmit Power Output 4 dBm 18 dBm
RF Data Rate 250,000 bps 250,000 bps
Receiver Sensitivity ~102 dBm (1% PER) ~102 dBm (1% PER)
Supply Voltage 2.7 - 3.4 V 2.7 - 3.4 V
Transmit Current (Typ) 40mA 110mA
Power
Requirements Idle/Receive Current (Typ) 50mA 50mA
Power-down Current (Typ) 75uA @ 3 sec. wakeup cycle 75uA @ 3 sec. wakeup cycle
Frequency ISM 2.4GHz ISM 2.4GHz
Spreading Method Direct Sequence Direct Sequence
General Modulation O-QPSK O-QPSK
Dimensions 1.333" x 1.333" 1.333" x 1.333"
Operating Temperature ~40 to 85 deg C. ~40 to 85 deg C.
Antenna Options Integrated F, External
RPSMA Integrated F, External
RPSMA
Topology SNAP (star) SNAP (star)
Networking Error Handling Retries and
acknowledgement Retries and
acknowledgement
Number of Channels 16 16
UARTS with HW Flow Control 2 Ports - 4 total I/O 2 ports - 4 total I/O
Available I/O GPIO 11 total; 8 can be analog in 11 total, 8 can be analog in
with 10bit ADC with 10bit ADC
FCC Part 15.247 Yes Yes
Agency
Approvals Industry Canada (IC) Yes Yes

1.2 Module Pin Definitions
Pin No. Name Direction Description
1 GND - Power Supply
2 GPIO0_TPM1CH2 Bidirectional GPI/O, or Timer1 Channel 2
3 GPIO1_KBI0 Bidirectional GPI/O, Keyboard In
4 GPIO2_KBI1 Bidirectional GPI/O, Keyboard In
5 GPIO3_RX_UART0 Input UART0 Data In
6 GPIO4_TX_UART0 Output UART0 Data Out
7 GPIO5_KBI4_CTS0 Bidirectional GPI/O, Keyboard In, or UART0 CTS
8 GPIO6_KBI5_RTS0 Bidirectional GPI/O, Keyboard In, or UART0 RTS
9 GPIO7_RX_UART1 Input RS232*/UART1 Data In
10 GPIO8_TX_UART1 Output RS232*/UART1 Data Out
11 GPIO9_KBI6_CTS1 Bidirectional GPI/O, Keyboard In, or RS232*/UART1_CTS
12 GPIO10_KBI7_RTS1 Bidirectional GPI/O, Keyboard In, or RS232*/UART1_RTS
13 GPIO11_AD7 Bidirectional GPI/O, or Analog In
14 GPIO12_AD6 Bidirectional GPI/O, or Analog In
15 GPIO13_AD5 Bidirectional GPI/O, or Analog In
16 GPIO14_AD4 Bidirectional GPI/O, or Analog In
17 GPIO15_AD3 Bidirectional GPI/O, or Analog In
18 GPIO16_AD2 Bidirectional GPI/O, or Analog In
19 GPIO17_AD1 Bidirectional GPI/O, or Analog In
20 GPIO18_AD0 Bidirectional GPI/O, or Analog In
21 VCC - Power Supply
22 PTG0/BKDG Bidirectional Background Debug Communications
23 RESET* Input Module Reset, Active Low
24 GND - Power Supply
* RS232 levels only if MAX3232 chip installed.

1.3 Electrical Characteristics
Symbol Parameter Condition Min Typ Max Units Note
___________________________________________________________________________________
Vcc Supply Voltage With RS232 3.0 3.3 3.4 V
Option
Without RS232 2.7 3.0 3.4 V
Option
Top Operating Temp -40 85 Deg C
Vih Input Hi Voltage Vcc = 3.3V 2.31 V
Vil Input Low Voltage Vcc = 3.3V 1.15 V
Vol Output Low Voltage Vcc = 3.3V 0.5 V
(Iol = 2mA)
Voh Output High Voltage Vcc = 3.3V Vcc – 0.5 V
(Ioh = -2mA)
ILin In Leakage Current Vcc or Vss, all Pins 1 uA
TX-Icc Transmit Current Vcc = 3.3V 110 mA 1.
MCU Wait Mode
RX-Icc Receive Current Vcc = 3.3V 50 mA 2.
MCU Wait Mode
SHDN-Icc Shutdown Current Doze Mode 75 uA 3
Notes:
1. This is for the maximum transmit power configuration.
2. This is the maximum receiver sensitivity configuration.
3. Based upon a 3 second wakeup cycle.
ADD Analog electrical specs *****************************

1.4 User Options
There are several options for the SNAP Module offerings to allow different
capabilities for the user. Here is a partial list of these options.
Option Description
Embedded F-Antenna With the version of the module with embedded F-antenna,
antenna is fully integrated into the module.
External Antenna With the version of the module with RPSMA
connector populated, an external antenna can be attached.
Increased RF Range With the population of an external power amplifier on the
transmitter, outdoor line of sight range can be increased from 300
meters to 3000 meters.

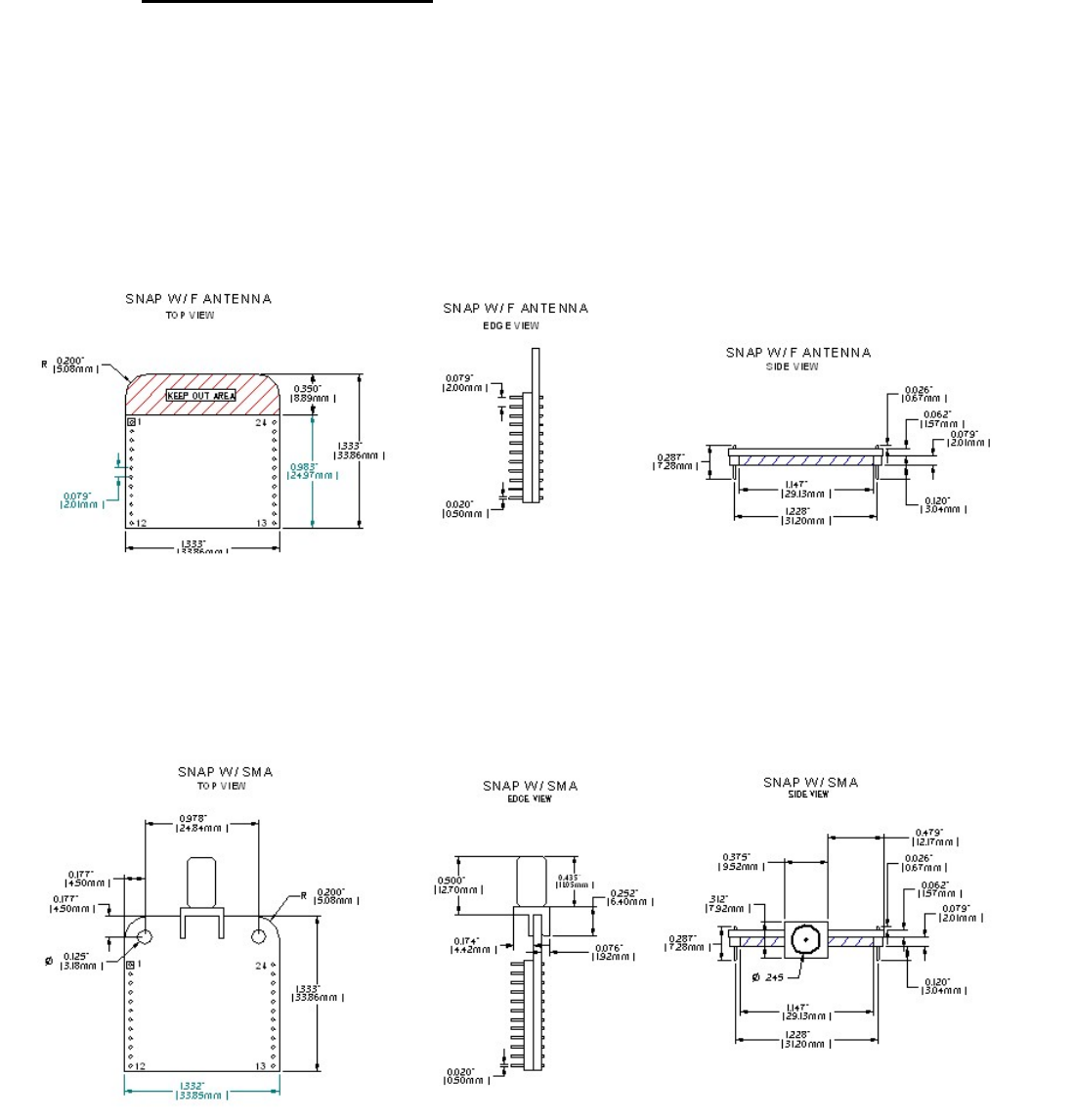
1.5 Mechanical Drawings
These drawings in Figure 1-1 show both the version of the module with
integrated F antenna and the version of the module with the SMA
connector for use with an external antenna.
Figure 1-1. Mechanical drawings of the RF Engine Modules.

1.6 Board Mounting Considerations
The RF Engine modules are designed to mount into a receptacle (socket) on the host
board. Picture 1-1 shows the receptacle area of a host board and Picture 1-2 shows a
RF Engine module plugged in. Suggested receptacles to be used on the host are:
(1) Suggested thru-hole receptacle is: Samtec MMS-112-01-T-SV
(2) Suggested surface mount receptacle is: Samtec MMS-112-02-T-SV
When the module with SMA connector is used, it is recommended that the mounting
holes provided in the module on either side of the SMA connector be used with
supporting mounting hardware to hard mount the module to either the host board or
to the enclosure to handle the mechanical stresses that can occur when an external
antenna is screwed into the SMA.
For the module with integrated F-antenna, in order to maximize RF range in the
direction behind the module, it is recommended that no components and no metal
(either traces or VCC and GND planes) be on any layers of the host board that lies
underneath the module in the area designated by the “Keep Out Area” shown in the
mechanical drawings of Figure 1-1.
Picture 1-1.
ADD Picture ****************
Picture 1-2.
ADD Picture ****************

2.0 Agency Certifications
2.1 United States (FCC)
The RF Engine nodules comply with Part 15 of the FCC rules and regulations.
Compliance with the labeling requirements, FCC notices and antenna usage guidelines is
required. In order to comply with FCC Certification requirements, the Original Equipment
Manufacturer (OEM) must fulfill the following requirements.
1. The system integrator must place an exterior label on the outside of the final product
housing the RF Engine Modules. Figure 1 below shows the contents that must be
included in this label.
2. RF Engine Modules may only be used with antennas that have been tested and
approved for use with the module. Please refer to the antenna tables provided in this
section.
2.1.1 OEM Labeling Requirements
WARNING: The OEM must make sure that FCC labeling requirements are met.
This includes a clearly visible exterior label on the outside of the final product
housing that displays the contents shown in Figure 2-1 below.
Figure 2-1. FCC Label
* The FCC ID for the RF Engine without external amplifier is “U9O-RFE”. The
FCC ID for the RF Engine with external amplifier is “U9O-RFET”
MANUFACTURERS NAME
BRAND NAME or TRADE NAME
Contains RF Engine FCC ID: U9O-RFE*
This device complies with Part 15 of the FCC Rules. Operation is subject to the following
two conditions: (1) This device may not cause harmful interferences, and (2) this device
must accept any interference received, including interference that may cause undesired
operation.

2.1.2 FCC Notices
WARNING: The RF Engine modules have been tested by the FCC for use with
other products without further certification (as per FCC Section 2.1091).
Changes or modifications to this device not expressly approved by Synapse
could void the user’s authority to operate the equipment.
NOTICE: OEM’s must certify final end product to comply with unintentional
radiators (FCC Section 15.107 and 15.109) before declaring compliance of their
final product to Part 15 of the FCC Rules.
NOTICE: The RF Engine modules have been certified for remote and base
radio applications. If the module will be used for portable applications, the
device must undergo SAR testing.
This equipment has been tested and found to comply with the limits for a Class
B digital device, pursuant to Part 15 of the FCC Rules. These limits are designed
to provide reasonable protection against harmful interference in a residential
installation. This equipment generates, uses, and can radiate radio frequency
energy and, if not installed and used in accordance with the instructions, may
cause harmful interference to radio communications. However, there is no
guarantee that interference will not occur in a particular installation.
If this equipment does cause harmful interference to radio or television reception,
which can be determined by turning the equipment off and on, the user is
encouraged to try to correct the interference by one or more of the following
measures:
• Reorient or relocate the receiving antenna.
• Increase the separation between the equipment and receiver.
• Connect the equipment into an outlet on a circuit different from that to which
the receiver is connected.
• Consult the dealer or an experienced radio/TV technician for help.

2.1.3 FCC Approved Antennas
The RF Engine modules are FCC-approved for fixed base station and mobile
applications on channels 11 thru 26 of the ISM 2.4GHz frequency band as
defined in I.E.E.E 802.15.4 specifications. The FCC requirement for mobile
applications states that the antenna must be mounted at least 20 cm (8 in) from
nearby persons.
Notice: To reduce potential radio interference to other users, the antenna type
and its gain should be chosen so that the equivalent isotropically radiated power
(e.i.r.p) is not more than that permitted for successful communication. This
module has been designed to operate with the antennas listed below in Table 2.1,
and having a maximum gain of 5 dB. Antennas not included in this list or having
a gain greater than 5 dB are strictly prohibited for use with this device. The
required antenna impedance is 50 ohms.
Table 2.1. Approved Antennas
Part Number Type Gain Application Min. Separation
AC12000 Dipole (quarter-wave RPSMA) 3.2dBi Fixed/Mobile 20 cm.
AC12001 Dipole (half-wave RPSMA) 5.0dBi Fixed/Mobile 20 cm.
AC12002 Dipole (quarter-wave RPSMA) 4.9cBi Fixed/Mobile 20 cm.
AC12003 Dipole (quarter-wave RPSMA) 2.0dBi Fixed/Mobile 20 cm.
RF Exposure
Warning: This equipment complies with FCC radiation exposure limits
set forth for an uncontrolled environment. This equipment should be
installed and operated with minimum distance 20cm between the radiator
and your body. This transmitter must not be co-located or operating in
conjunction with any other antenna or transmitter.
Notice: The preceding statement must be included as a CAUTION statement in
OEM product manuals in order to alert users of FCC RF Exposure compliance.

2.2 Canada (IC)
This Class B digital apparatus meets all requirements of the Canadian Interference
Causing Equipment Regulations. Operation is subject to the following conditions:
(1) this device may not cause harmful interference, and (2) this device must accept
any interference received, including interference that may cause undesired operation.
2.2.1 OEM Labeling Requirements
Labeling requirements for Industry Canada are similar to those of the FCC. A
clearly visible label on the outside of the final product housing must display the
contents shown in Figure 2-2 below.
Figure 2-2. IC Label
* The IC ID for the RF Engine without amp is “7084A-RFE”. The IC ID for the
RF Engine with amp is “7084A-RFET”
NOTE: The OEM can choose to implement a single label combined for both
FCC and IC labeling requirements. If a combined single label is chosen, there
must be a clearly visible label on the outside of the final product housing
displaying the contents shown in Figure 2-3 below.
MANUFACTURERS NAME
BRAND NAME or TRADE NAME
MODEL:
Contains RF Engine IC: 7084A-RFE*

Figure 2-3. Combined FCC and IC Label
* The FCC ID for the RF Engine without amp is “U9O-RFE”. The FCC ID for
the RF Engine with amp is “U9O-RFET”. The IC ID for the RF Engine without
amp is “7084A-RFE”. The IC ID for the RF Engine with amp is “7084A-
RFET”
MANUFACTURERS NAME
BRAND NAME or TRADE NAME
Contains RF Engine FCC ID: U9O-RFE*
Contains RFEngine IC: 7084A-RFE*
This device complies with Part 15 of the FCC Rules. Operation is subject to the
following two conditions: (1) This device may not cause harmful interferences, and (2)
this device must accept any interference received, including interference that may cause
undesired o
p
eration.