TAPPAN Free Standing, Gas Manual L0205193
User Manual: TAPPAN TAPPAN Free Standing, Gas Manual TAPPAN Free Standing, Gas Owner's Manual, TAPPAN Free Standing, Gas installation guides
Open the PDF directly: View PDF
.
Page Count: 24

INSTALLATION AND SERVICE MUST BE PERFORMED BY
A QUALIFIED INSTALLER.
IMPORTANT: SAVE FOR LOCAL ELECTRICAL INSPECTOR'S USE.
READ AND SAVE THESE INSTRUCTIONS FOR FUTURE REFERENCE.
If the information in this manual is not followed exactly, a fire or explosion may result
causing property damage, personal injury or death.
FOR YOUR SAFETY:
mDo not store or use gasoline or other flammable vapors and liquids in the vicinity of this or any other
appliance,
WHAT TO DO IF YOU SMELL GAS:
•Do not try to light any appliance,
•Do not touch any electrical switch; do not use any phone in your building,
•Immediately call your gas supplier from a neighbor's phone. Follow the gas suppliers instructions,
•If you cannot reach your gas supplier, call the fire department,
Installation and service must be performed by a qualIfied installer, service agency or the gas supplier.
Dimensions and Clearance
Provide adequate clearance between range
and adjacent combustible surfaces.
HI Profile Control Panel 45 5/8" min.
LO Profile Control Panel 40 7/8" Min.
35 1 25 1/8" _ 36" _
--1
30" Minimum
Minimum to
wall on either
side of range _,_ _
above 36" height
I Minimum to
18" cabinets on either
side of range
36"
_36 1/4"
1_3etweenCabinets
0" Clearance at rear of
range below cooktop.
Figure I
NOTE: Wiring diagrams for these appliances are enclosed in this booklet.
_ Recycledpaper
P/N 318201750 (0101) Rev. B
English - pages 1-9
Espafio] - p_ginas 10-19
Wiring Diagrams - pages 20-24

Important Notes to the Installer
1. Read all instructions contained in these installation
instructions before installing the range.
2. Remove all packing material before connecting the
electrical supply to the appliance.
3. Observe all governing codes and ordinances.
4. Besure to leave these instructions with the consumer.
Important Note to the Consumer
Keep these instructions with your Use and Care Guide for
future reference.
IMPORTANT SAFETY
INSTRUCTIONS
Installation of this range must conform with local codes,
or in the absence of local codes, with the National Fuel
Gas Code ANSI Z223.1ilatest edition.
This range has been design certified by American Gas
Association (A.G.A.). As with any appliance using gas
and generating heat, there are certain safety precautions
you should follow. You will find them in the Use and
Care Guide, read it carefully.
• Be sure your range is installed and grounded
properly by a qualified installer or service
technician.
•This range must be electrically grounded in
accordance with local codes, or in their absence,
with the National Electrical Code ANSI/NFPA No.
70--latest edition.
•The installation of appliances designed for
manufactures (mobile) home installation must conform
with Manufactured Home Construction and Safety
Standard, title 24CFR, part 3280 [Formerly the Federal
Standard for Mobile Home Construction and Safety,
title 24, HUD (part 280)] or when such standard is not
applicable, the Standard for Manufactured Home
Installation 1982 (Manufactured Home Sites,
Communities and Set ups), ANSI Z225.1 latest edition,
or local codes.
@•All ranges
can tip.
• Injuryto
persons
could result.
• Install anti-
tip device
packedwith
range.
To reduce the risk of tipping
of the range, the range
must be secured by properly
installed anti-tip bracket (s)
_rovided with the range. To
check if the bracket(s) is
installed properly, grasp the
top rear edge of the range
and carefully tilt it forward
to make sure the range is
anchored.
• Before installing the range in area covered with
linoleum or any other synthetic floor covering,
make sure the floor covering can withstand heat
at least 90°F above room temperature without
shrinking, warping or discoloring. Do not install
the range over carpeting unless you place an
insulating pad or sheet of 1A" thick plywood
between the range and carpeting.
•Make sure the wall coverings around the range
can withstand the heat generated by the range.
•Do not obstruct the flow of combustion air at the oven
vent nor around the base or beneath the lower front
panel of the range. Avoid touching the vent openings
or nearby surfaces as they may become hot. This
range requires fresh air for proper burner combustion.
• Do not store items of interest to children in the
cabinets above the range. Children could be
seriously burned climbing on the range to reach items.
•To eliminate the need to reach over the surface
burners, cabinet storage space above the burners
should be avoided.
•Adjust surface burner flame size so it does not
extend beyond the edge of the cooking utensil.
Excessive flame is hazardous.
• Do not use the oven as a storage space. This
creates a potentially hazardous situation.
•Never use your range for warming or heating the
room. Prolonged use of the range without adequate
ventilation can be hazardous.
• Do not store or use gasoline or other flammable
vapors and liquids near this or any other
appliance. Explosions or fires could result.
•Remove broiler pan and other utensils and wipe up
excess spillage before self-cleaning the oven (if
equipped).
Do not make any attempt to operate
the electric ignition oven during an electrical power
failure. Resumption of electric power when OVEN TEMP
and OVEN SETcontrols are in any position other than OFF
will result in automatic ignition of the oven or broiler
burner.
In case of a power outage, you can light the surface
burners on your range with a match. Hold a lighted
match to the burner, then slowly turn the knob to the
LITEposition. Use extreme caution when lighting
burners this way.
Surface burner in use when electrical power failure occurs
will continue to operate normally.
The oven burner and broil burner on your range are
lighted by electrical ignition. The oven and broiler
cannot be operated in the event of a power failure.
2

1. Before Installing the Range
Remove shipping material
Remove all tape, shipping and packaging materials and
the oven rack packaging• Lift up cooktop and remove
the two shipping screws from the cooktop burners (see
figure 2). Screws
B. Install Y2" flare union adaptor supplied with the
connector, to the Y2" NPT internal thread on pressure
regulator•
Gas Connection for Electric Ignition Models
Flare Union Adaptor
t
Flexible Appliance
Connector
Pressure
Regulator
Figure 3
Figure 2
2. Provide an Adequate Gas Supply
This range is designed to operate on natural gas at 4" of
manifold pressure or on LPgas at 10" of manifold
pressure• It is shipped from the factory set for natural
gas. If it is to be used with LP gas, adjustments must be
made.
A convertible pressure regulator is connected in series
with the manifold of the range and must remain in series
with the supply line regardless of whether natural or LP
gas is being used.
E•
•Because solid pipe restricts moving the range we
recommended use of A.G.A. design certified flexible
metal appliance connector• Connect flexible
appliance to flare union•
•Move range into approximate position and connect
flexible appliance connector to gas supply line with
proper flare union adaptor• The adaptor supplied with
the flexible connector must be used.
Check for leaks. Turn the gas supply on the range
and use a liquid leak detector at all joints and
connections to check for leaks in the system•
For proper operation, the maximum inlet pressure to
the regulator must be no more than 14" of water column
(W.C.) pressure•
For checking the regulator, the inlet pressure must be at
least 1" water column pressure greater than the
regulator manifold outlet setting• If the regulator is set
for 4" of manifold pressure, the inlet pressure must be at
least 5". If the regulator isset for 10", the inlet pressure
must be at least 11 ".
The gas supply line into the range should be Y2" or 3,_,,
I.D. flexible metal appliance connector five feet in
length•
3. Seal the Openings
Seal any openings in the wall behind the range and in
the floor under the range when hookups are completed•
4. Connect the Range to Gas
Refer to figure 4 to 7 for recommended connections•
A. Install a manual shut-off valve in the gas line in an
easily accessible location outside of the range• Be
sure you know how and where to shut-off the gas
supply to the range•
3-Wire Polarized
120V. Outlet
20"
or Lower
'.-'" 36 ¼"
Recommended locations for installing the electrical
outlet and pipe opening may be adjusted to meet
specific requirements.
Figure 4
3

Do not use a flame to check for leaks
from gas connections. Checking for leaks with a flame
may result in a fire or explosion.
Disconnect this range and its individual shutoff
valve from the gas supply piping system during any
pressure testing of that system at test pressures greater
than 14" of water column pressure (approx. Y2" psig).
Isolate the range from the gas supply piping system
by closing its individual manual shutoff valve during any
pressure testing of the gas supply piping system at test
pressures equal to or lessthan 14" of water column
(approx. Y2" psig).
Back of
Range
Flexible
Connector
1/2"
Close Nipple
Recommended Shut-Off
tion
Flexible Connector Hookup
Figure 5
Union
Back of
Range
17/16" 3/_,, _Wall
End of
Pressure
Regulator
iil
Counte_ :
Top
2 5//8"
TOP VIEW FRONTVIEW
Solid Pipe Hookup Detail
Figure 7
5. LP/Propane Gas Conversion
A. Pressure Regulator Conversion
NAT.
Figure 8
Cap Screw
Do Not Remove the Pressure Regulator
Remove cap-screw and snap out the nylon gas
indicator by pushing it sideways. Turn the nylon gas
indicator for type gas (Natural or LP)and snap it back
in the cap-screw. Put cap-screw back on gas
regulator.
Y2" Nipple
IIII IIII
I,-- 6 3/8"-_
Solid Pipe Hookup
Figure 6
4

B. Surface Burner Valves Conversion
Air Shutter
Nat.
Top
Figure 9
1. Lift cooktop to gain access to the surface burner
spuds.
2. With Y2" wrench, turn spud down or clockwise until
snug (approximately 2 Y2turns). This restricts the
flow of gas through spud to that allowed only by the
hollow LPmetering pin. Do not overtighten.
Pi_ Spud
Natural Gas _z-
Increase Gas
Increase Flame Size
(Pre-Set at Factory _LI_I/--L.R Gas
for Natural Gas) "_ Decrease Gas
Decrease Flame
Size
Figure 10
3. Lower main top and apply gas to check for proper
flame size. Flame should be steady with
approximately Y2" blue inner cones and no yellow or
orange tips.
Inner Cone Flame Length
C. Readjust the "LOW" Setting Surface
Burner Valve
1. Turn control to LITEuntil burner ignites.
2. Quickly turn knob down to LOWEST SETTING.
3. If burner goes out, readjust valve as described in
"Adjust the LOW Setting Surface Burner Valve" from
Page 7.
D. Air Adjustment Shutter
Apply gas to the burner and adjust air shutter on
burner venturi tube to proper flame. ForLPgas, the
air shutter is generally left completely open.
Air adjustment shutter _
Figure 12
The air adjustment for each burner is located at the
open end of the venturi tube and sits on the hood of
the valve. The shutter is held in place by friction fit.
If air shutter needs adjusting, rotate the shutter to
allow more or less air into the burner tubes as needed.
Figure 11
Proper Air Adjustment
If air shutter is adjusted so that too much air flows into
the burner, the flame will appear unsteady, possibly
not burning all the way around and will be noisy (like
a blow torch).
Oven Burner Spud
Figure 13

E. Convert Oven Burner Orifice
1. Remove storage drawer if equipped or lower panel
to gain access to oven burner spuds.
2. Remove oven bottom and oven burner baffle
located on top of burner. To remove oven bottom,
pull up at rear, disengaged front of bottom from
oven front frame, and pull the oven bottom straight
out of the oven. Remove burner baffle so that the
burner flame can be observed.
3. Using Y2" wrench, turn down the adjustable spud
which injects gas into the oven burner, until snug
against the LP metering pin. This will be
approximately 2 Y2turns. Do Not Overtighten.
4. Push the BAKE TEMP button, then SETthe
temperature to 300°F. Wait until burner starts to
cycle. To determine if the oven burner flame is
proper, observe the flame. It should be steady with
approximately 1" blue cones and no yellow or
orange flame tips.
41- Air Shutter
Figure 14
5. If adjustment to the air shutter is necessary, locate
oven burner air shutter, loosen shutter set screw and
adjust to obtain optimum flame (figure 14). This
will normally be completely open for LP gas.
Tighten shutter set screw.
F. Convert Waist High Broiler Burner Orifice
Flame (Self-Clean Models Only)
1. Open oven door.
2. Locate broiler burner spud and turn down
approximately 2 Y2turns so that spud is snug against
LPmetering pin. Do Not Overtighten.
3. To determine if burner flame is proper, push the
BROILbutton, then turn the SET knob to the LO
setting, and observe broiler flame. It should be
steady and sharp with approximately 1" blue cones
and no yellow or orange flame tips.
4. If adjustment to the air shutter is necessary, locate
oven burner air shutter, loosen shutter set screw and
adjust to obtain optimum flame (figure 14). This
will normally be completely open for LP gas.
Tighten shutter set screw.
6. Connect Electricity to Gas Range
Electrical Requirements
120 volt, 60 Hertz, individual, properly grounded and
polarized branch circuit protected by a 15 amp. circuit
breaker or time delay fuse.
Extension Cord Cautions:
Because of potential safety hazards under certain
conditions we strongly recommend against the use of
any extension cord. However, if you still select to use an
extension cord, it is absolutely necessary that it be a UL
listed 3-Wire grounding type appliance extension cord
and that the current carrying rating of the cord in
amperes be equivalent to or greater than the branch
circuit rating. Such extension cords are obtainable
through your local service organization.
Grounding Instructions
IMPORTANT Please read carefully.
For personal safety, this appliance must be properly
grounded.
The power cord of this appliance is equipped with a 3-
prong (grounding) plug which mates with a standard 3-
prong grounding wall receptacle (see Figure 8) to
minimize the possibility of electric shock hazard from the
appliance.
The wall receptacle and circuit should be checked by a
qualified electrician to make sure the receptacle is
properly grounded.
Figure 15
6

Preferred Method SD o not, under any"X_
I circumstances, cut, I
_ remove, or bypass I
I_t_he grounding J
Grounding _k" prong, j,
type wall
receptacle Power supply cord with
3-prong grounding plug
Figure 16
Where a standard 2-prong wall receptacle is installed, it
is the personal responsibility and obligation of the
consumer to have it replaced by a properly grounded 3-
prong wall receptacle.
Do not, under any circumstances, cut or remove the
third (ground) prong from the power cord.
Disconnect electrical supply cord from
wall receptacle before servicing range.
7. Check Operation
Refer to the Use and Care Guide packaged with the
range for operating instructions and for care and
cleaning of your range.
Do not touch the burners. They may be hot enough to
cause burns.
1. Check the igniters
Operation of electric igniters should be checked after
range and supply line connectors have been carefully
checked for leaks and range has been connected to
electric power.
Note: If range is to be operated on L.P. gas, conversion
of regulator and adjustment of burner spuds is necessary
before ignition check; refer to ???.
A} Surface Burner Igniters
To check for proper lighting, push in and turn a
surface burner knob to the LITEposition. The surface
burner should light when gas is available to top
burner. Each burner should light within 4 seconds in
normal operation after air has been purged from
supply lines. Once the burner lights, knob should be
rotated out of the LITEposition. Try each valve
separately until all burners have been checked out.
B) Oven Igniter System
Self-Clean Models:
Remove all materials and literature from oven and:
1. Push the BAKE TEMP button and set the oven
temperature to 300°F. Within 60 seconds the
bake (lower) burner will ignite. Check for proper
flame; push the CANCEL button.
2. Push the broil button and set the oven temperature
to 300°F. Within 60 seconds the broil (upper)
burner will ignite. Check for proper flame. Allow
burners to cycle at least one time; push the
CANCEL button.
Non Self-Clean Models:
Remove all materials and literature from oven and:
1. Turn oven temperature knob to BAKE (300°F).
Within 60 seconds the lower burner should ignite.
Check for proper flame. Turn knob to off.
2. Turn oven temperature knob to BROIL. Within 60
seconds the lower burner should ignite. Check for
proper flame. Turn knob to off.
2. Adjust the "LO" or "SIMMER" Setting of Surface
Burner Valves (see Figure 17)
Screw in Stem
Figure 17
A.
B.
C.
Turn control to LITEuntil burner ignites.
Quickly turn knob down to LOWESTPOSITION.
If burner goes out, readjust valve as follows:
Remove the surface burner control knob, insert a
thin-bladed screw driver into the hollow valve
stem and engage the slotted screw inside.
Flame size can be increased or decreased with
the turn of the screw. Adjust flame until you
can quickly turn knob from LITEto LOWEST
POSITIONwithout extinguishing the flame.
Flame should be as small as possible without
going out.
8. Make Sure Range Is Level
Level the range by placing a level horizontally on an oven
rack. Check diagonally from front to back, then level the
range by either adjusting the leveling legs or by placing
shims under the corners of the range as needed.
7

9. When installation is complete, connect the
power cord and set the time of day on the
electronic oven control as explained in the
Owner's Guide.
10. Verify the operation of the electronic
control functions as per instructions given in
the Owner's Guide.
11. Make sure the air flow from the oven
vent and the air flow to the bottom front of
range is unobstructed.
When All Hookups are Complete
Make sure all controls are left in the OFFposition.
NOTE: Refer to Owner's Guide for complete instructions for
ordering parts or making inquiries about this range.
NOTE: Refer to Owner's Guide for operating instructions
and cleaning instructions.
Important: See next page for Anti-Tip
Bracket Installation Instructions.
Model and Serial Number Location
The model and serial plate is located in the left hand
side, underneath the surface cooktop.
When ordering parts for or making inquires about your
range, always be sure to include the model and serial
numbers and a lot number or letter from the serial plate
of your range.
Your serial plate also tells you the rating of the burners
and type of fuel and the pressure the range was adjusted
for when it left the factory.
Before You Call for Service
Read the Avoid Service Checklist and operating
instructions in your Use and Care Guide.
Check to make sure the house fuse or circuit breaker for
your cooktop are not blown or open.
8

12. Important Safety Warning
This range must be properly secured to the floor by using
the included anti-tip brackets and screws. Failure to
install the brackets could allow the range to accidentally
tip over if excessive weight is placed on an open door or
if a child climbs upon it. Serious injury might result from
spilled hot liquids or from the range itself. Refer to the
instructions below for proper installation. Figure A.
NOTE: If the range is ever moved to a different
location, the anti-tip brackets must also be
moved and installed with the range.
Anti-Tip Bracket Installation Instructions
The anti-tip kit is located in a plastic bag in the
oven.
Tools Required:
5/16" Nutdriver or Flat Head Screwdriver
Adjustable Wrench
3/16" Dia. Masonry Drill Bit (if installing in concrete)
Attach brackets to the floor at the back of the range to
hold both rear leg levelers. When fastening to the floor,
be sure that screws do not penetrate electrical wiring or
plumbing. The screws provided will work in either wood
or concrete.
Range may be anchored to floor in a dwelling house with
hold down brackets as illustrated in Figure "A". These
hold down brackets allow range to be freely pulled out
from the wall for cleaning or servicing without the use of
tools.
1. Attach brackets to the floor or rear wall with screws
provided. Important: Attachment must be secured
to solid floor or wall. Do not attach to plaster, sheet
rock, or other soft material. If attachment is to rear
wall, any moldings must be removed in area behind
range.
2. If brackets are to be attached to masonry or ceramic
floors, position brackets on floor and mark hole
location. Drill 3/16" holes.
3. Lower both rear leg levelers about three turns so the
brackets will slide over leveler head.
4. Level the range front to back and side to side with
the two front leg levelers and the rear levelers.
.Slide range into place making sure rear legs are
trapped by ends of brackets. Range may need to be
shifted slightly to one side as it is being pushed back
to allow rear legs to align with brackets. Remove
lower panel or storage drawer to inspect brackets or
grasp the top rear edge of the range and carefully
attempt to tilt it forward to make sure range is
properly anchored.
For mobile homes, the range must be anchored to the
floor as illustrated in Figure "B".
1. Remove false panel or storage drawer to gain access
to the anchoring holes.
2. A 1/4" diameter hole is provided in the center of
each base rail for anchoring to floor.
I
_'1 ,---Install Hold
3/8" /Down Bracket
3/8" z< Back Edge of Range ".........
_ JJ _ or Rear Wall //__
i _ _" "2Screws
i __ Per Bracket
' ,_S _ Range Side
y-i Panel Location
Install Hold ""--..
Down Bracket ""-.. _
Figure A
'
Midway of Base Rail
Figure B
Body
Side
_Front
Frame
Stepping, leaning or sitting on the door or
drawer of this range can result in serious injuries and also
cause damage to the range.
9

LA INSTALACION Y EL SERVICIO DEBEN SER EFECTUADOS POR
UN INSTALADOR CALIFICADO.
IMPORTANTE: GUARDE ESTAS INSTRUCCIONES PARA USO DEL
INSPECTOR LOCAL DE ELECTRICIDAD.
LEA Y GUARDE ESTAS INSTRUCCIONES PARA REFERENCIA FUTURA.
Si todas las instrucciones de _ste manual no son observadas a la letra, se puede
ocurrir incendios o explosiones que pueden causar da_os materiales, lesiones o la muerte.
mNo almacene o utilice gasolina u otros vapores y liquidos inflamables cerca de este o
cualquier otro artefacto.
- QUE HACER SI HAY FUGAS DE GAS
•No intente de encender ning_n artefacto
•No toque ning_n interruptor el_ctrico; no utilice ning_n aparato telefonico en su edificio.
•Llame inmediatamente el abastecedor de gas desde el telefonico de un vecino. Siga las
instrucciones del abastecedor de gas.
•En caso que no puede contactar el abastecedor de gas, Ilame al departamento de bomberos.
- La instalacion y el servicio t_cnico deben ser realizados por un instalador calificado, por un
servicio t_cnico certificado o por el abastecedor de gas.
Dimensiones y espacios libres
Provee adecuados espacios libres entre la estufa y las
superficies combustibles adyacentes
25 1/8"
15/16" _36"_
30" Minimo
_ Min[mo hasta los
Min. hasta la pared
a cualquier lado de /gabinetes a
la estufa superior a_._ 18" cualquier lado de la
36" de altura, estufa.
36"
36 1/4"
-entre los gabinetesrl
Figura 1
0" De espacio libre debajo de la
plancha para cocinar y el
posterior de la cocina.
NOTA: Se adjunta los diagramas de cables de estas estufas con el libreta.
_ Papel recyclado
P/N 318201750 (0101) Rev. B
English - pages 1-9
Espa_ol - paginas 10-19
Diagrama de la instalaci6n alambrica -pages 20-24

Notas importantes para el instalador
1. Leatodas las instrucciones contenidas en este manual
antes de instalar la estufa.
2. Saque todo el material usado en el embalaje del
compartimiento del horno antes de conectar el
suministro el_ctrico a la estufa.
3. Observe todos los c6digos y reglamentos pertinentes.
4. Deje estas instrucciones con el comprador.
Nota Importante para el Consumidor
Conserve estas instrucciones y el Manual del Usuario para
referencia futura.
IMPORTANTES
INSTRUCCIONES DE
SEGURIDAD
La instalaci6n de esta estufa debe realizarse en
conformidad con los c6digos locales o, si _stos no
existen, con el National Fuel Gas Code ANSI Z223.1 -
01tima edici6n.
El diseho de esta estufa cuenta con la aprobaci6n de la
American Gas Association. AI igual que todos los
artefactos a gas que generan calor, deben seguirse
ciertas medidas de seguridad. Vienen con el Manual de
utilizaci6n y mantenimiento. Lea el manual
atentamente.
• Aseg_rese que la estufa sea instalada
correctamente por un instalador o tdcnico
calificado.
•La estufa debe conectarse eldctricamente a tierra
de acuerdo con los cbdigos locales o, de no
existir, con el cbdigo eldctrico ANSI/NFPA No. 70 -
_ltima edicibn.
•La instalaci6n de unidades disehadas para casas
(movibles) deben cumplir con los estandares de
"Manufactured Home Construction and Safety
Standard, title 24 CFR part 3280". (Anteriormente
Todas las estufas
pueden volcarse.
Esto podria
resultar en
lesiones
personales.
Instale el
dispositivos
antivuelcos que
se ha empacado
junto con esta
estufa.
I[Irl_ Reducir el
riesgo de que se vuelque la
estufa, hay que asegurarla
adecuadamente colocandole
los soportes antivuelco que se
proporcionan. Para
comprobar si estos estan
instalados y apretados en su
lugar como se debe, ase el
borde trasero superior de la
estufa y cuidadosamente
inclinela hacia adelante para
asegurar que la estufa se
ancle.
11
"The Federal Standard for Mobile Home Construction
and Safety title 24, HUD (Part 280)". O cuando estos
estandares no sean aplicables: "The Standard for
Manufactured Home Installation 1982, (Manufactured
Home Sites, Communities and set-ups), ANSI Z225.1,
01tima edici6n o c6digos y regulaciones locales.
•Antes de instalar la estufa en una _rea recubierta
con linbleo o cualquiera otra cubierta de suelo
sint_tico, aseg_rese que la cubierta puede resistir
a una temperatura de al menos 90 ° F de calor
superior a la temperatura de la pieza, sin
contraerse, deformarse o descolorirse. No
coloque la estufa sobre una carpinteria a menos
que instale un soporte aislante o una plancha
contrachapada de %" de espesor entre la estufa y
la carpinteria.
•Asegt_rese que el tapiz de la pared alrededor de la
estufa puede resistir al calor generado por la
estufa.
•No obstruya la circulaci6n de aire de combusti6n en las
ventilaciones del homo, ni alrededor de la base, ni
debajo del tablero frontal de la estufa. Evite tocar las
aberturas de ventilaci6n y las superficies cercanas pues
_stas pueden calentarse. Esta estufa requiere aire
fresco para que el quemador haga la combusti6n
adecuadamente.
•No almacene articulos que interesan los nifios en
los armarios que est&n por encima de la estufa.
Les podria causar quemaduras gravas si intentan
subirse para alcanzarlos.
•Para eliminar toda posibilidad de alargar el brazo
por encima de los superficies de los quemadores,
es necesario eliminar todos los armarios por
encima de los quemadores.
•Grade el tamafio de la llama de modo que no
sobrepase el borde del ustensilio sobre la plancha
de cocinar. Una llama excesiva puede ser peligrosa.
•No use el horno como espacio de
almacenamiento. Esa situaci6n puede ser peligrosa.
•No utilice jam&s su estufa como calefactor. El uso
prolongado de la estufa sin la ventilaci6n adecuada
puede ser peligroso.
•No guarde o haga uso de gasolina o otros vaporos
y liquidos inflamables acerca de est_ o cualquier
aparato. Se puede resultar en incendios o
explosi6nes.
• Remueva la bandeja de la parrilla y otros utensilios, y
todo derramamiento antes de usar el ciclo de limpieza
a si misma.
llr__ No trate de usar el horno de
encendido el_ctrico durante un corte de energia. El
reestablecimiento del servicio el_ctrico cuando los
controles de TEMP DEL HORNO y de REGULACION DEL
HORNO est_n en cualquier posici6n diferente a
APAGADO causaria el encendido autom_tico del
quemador del horno o del quemador de la parrilla.

Durante un corte de energia el_ctrica se pueden
encender los quemadores de la cubierta con una
cerilla. Acerque una cerilla encendida al quemador y
luego gire lentamente el bot6n a la posici6n
ENCENDIDO (LITE). Tenga extremo cuidado al
encender los quemadores en esta forma.
Los quemadores de superficie que est_n encendidos
cuando ocurra el corte de energ[a el_ctrica seguir_in
funcionando normalmente.
El quemador del horno y el quemador de la parrilla
de su estufa estan encendidos con encendido
el_ctrico. El horno y la parrilla no pueden
funcionar durante un corte de energia.
1. Antes de instalar la estufa a gas
Remueva todos los articulos de embalaje
Retire toda la cinta, todos los art[culos de embalaje y de
expedici6n, y el embalaje de la rejilla del horno. Levante
la plancha para cocinar y remueva los dos tornillos de
expedici6n de los quemadores de la plancha para
cocinar.
_Tornillos
/
Figura 2
2. Provea un adecuado suministro
de gas
Esta estufa ha sido diseAada para utilizar gas natural de
4" de presi6n m01tiple, o para utilizar gas PLde 10" de
presi6n m01tiple. De f_ibrica viene para usarse con gas
natural. Para que se pueda usar con gas PL.
Un regulador de conversi6n de presi6n esta conectado
con el m01tiple de la estufa, y debe permanecer en serie
con la I[nea de suministro de gas, no importa siesta
usando gas natural o gas PL.
Para que manejo correcto, la presion de entrada
maxima hacia el. Regulador no debe exceder 14" de
presion de la columna de agua.
Para controlar el regulador, la presi6n de entrada debe
ser de al menos 1" mayor que el ajuste de la presi6n del
m01tiple del regulador. Si el regulador se ajusta a 4" de
la presi6n del m01tiple, la presi6n de entrada debe de ser
de al menos 5". Si el regulador se ajusta a 10" de la
presi6n del m01tiple, la presi6n de entrada debe de ser
de al menos 11 ".
La I[nea de suministro de gas por el horno deber_i tener
un tubo de Y2" o I.D. de 3A" conector de metal flexible
de una Iongitud de cinco pies.
3. Selle las aberturas
Selle todas las aberturas en la pared detr_is de la estufa
yen el suelo debajo de la estufa cuando los montajes
estan terminados.
4. Conexion de la estufa al
suministro de gas
Refi_rase alas figuras 4 a 7 para las conexi6nes
recomendadas.
A. Instale una v_lvula de cierre manual en la I[nea de
suministro de gas en un sitio de f_cil acceso en la
parte exterior de la estufa. AsegOrese de saber de
d6nde y como cerrar el suministro de gas de la estufa.
B. Instale el ensanchamiento de union o adaptor provisto
con el conector, al filete interno NPT de Y2" al
regulador de presi6n.
Conexion del gas en los modelos
con encendido el_ctrico
Adaptor o ensanchamiento
de union
t
Conector de
artefacto flexible de presion
Figura 3
C.No es fac[I de mover la estufa a causa de su tuber[a
solida, por eso recomendamos de utilizar un conector
de metal flexible de diseAo AGA certificado. Conecte
el conector de metal flexible al ensanchamiento de
union.
D. Mueva la estufa en su prosici6n aproximada y conecte
el conector flexible a la I[nea de suministro de gas con
el ensanchamiento de union adecuado. Debe usarse
el adaptor provisto con el conector flexible.
12

E. Verifique si hay fugas. D_ la vuelta al suministro de
gas de la estufa y utilice un detector de fugas I[quidas
en todas las articulaciones y conexiones para verificar
si existen fugas.
Toma de corrient
polarizado de 3 alambres
de 120V
20"
o menos i
I
Tubieria de
suministro de
gas
3/_,,
36 ¼"
Trasera
de la estufa
Niple
cerrado de
1,/2"
Conector flexible_ Sit_° de cierre recomendado
Acoplamiento de conector flexible
Figura 5
Regulaci6n de cierre
Los sitios recomendados para instalar la toma de
corriente el#ctrica y la abertura de la tuberia se
pueden ajustar seg0n los requ[sitos especfficos.
Figura 4
No use ning_n tipo de llama para
verificar si hay fugas de gas.
Desconecte la cocina y su v_lvula de cierre
individual del sistema de tuberia del suministro de
gas durante cualquier ensayo de presi6n del sistema en
ensayos de presi6n superiores a 14" (aprox. Y2psig.)
Aparte la cocina del sistema de tuberia del suministro
de gas, cierrando su v_lvula de cierre individual manual,
durante cualquier ensayo de presi6n del systema de
suministro de gas en ensayos iguales o inferiores a 14"
(aprox. Y2psig.)
11
13
Union
Trasera de
la estufa
I Niple Y2" I
IIII IIIJ
_-- 63/8" _
Acoplamiento de tuber[a solida
Figura 6
2 s/8"
Fin de " parte supeiior
regulador de del mostrador
presi6n
VISTA DESDELA ALTURA
/Suelo
VISTA DESDE EL FRENTE
Detalles de acoplamiento de tuber[a solida
Figura 7

5. Conversibn de gas propano/
licuado
A. Conversibn el regulador de presibn
No remueva el regulador de presibn
Figura 8
NAT
de
Pasador-_ _- Junta en forma de
Gas natural _ bellota
Aumentar el gas
Aumentar el tamaho --_1_//_ __\\/1_1_
de la llama ___-- PLGas
(De fabrica viene _ Disminuir el gas
para usarse con gas _ Disminuir el
natural) tamaho de la
llama
Figura 10
3. Rabaje la superficie superior y abre el gas para
determinar si el tamaho de la llama es la apropiada.
Esta debe estar estable formando conos internos
azules de Y2" aproximadamente sin extremos
amarillos o anaranjados.
Tamaho de llamas de
conos internos
Remueva el tornillo de cabeza y suelte el indicator de
gas de nil6n empujandole de lado. Gire el indicator de
gas de nil6n para usar con la especie de gas deseado
(Natural o PL)y sit0ele de nuevo en el tornillo de
cabeza. Vuelva a poner el tornillo de cabeza sobre el
regulador de gas.
B. Conversibn las valvulas para quemadores
de superficie
de aire
Figura 11
Ajuste de entrada de aire
Si el obturador de aire est_ dejando pasar demasiado
aire al quemador, la llama ser_ inestable,
posiblemente no habr_ llama a todo el rededor del
quemador, y esta ser_ ruidosa (como un soplete).
Capuc
Ajuste del quemador superior
Figura 9
1. Levante la cubierta de la plancha de cocinar para
acceder alas juntas en forma de bellota de las
quemaduras de superficie.
2. Usando una Ilave de Y2", volt_e la junta en forma
de bellota hacia abajo o en el sentido de las
manecillas de un reloj hasta que est_n
completamente ajustadas (aproximadamente 2 Y2
vueltas). Esto restringe el flujo de gas a trav_s de la
junta, permitiendo solamente el flujo de gas por el
pasador de medici6n de gas PL. No apriete
demasiado.
C. Ajuste la regulacion de "LOW" de la
superficie de las valvulas para quemadores
1. Gire los controles a ENCENDIDO (LITE) hasta que el
quemador se encende.
2. Gire r_pidamente el boton de control hasta la
posicion mSs baja.
3. Si el quemador se apague, reajuste la valvula como
se muestra a continuaci6n: (como se muestra en la
pSgina 18).
14

D. Obturador de ajuste para el aire
Proporcione gas al quemador y ajuste el obturador de
gas en el v_nturi para obtener una llama adecuada.
Para gas LP, el obturador de aire se deja generalmente
abierto, sinembargo.
Obturador de ajuste _
para el aire
Figura 12
El obturador de ajuste de aire, para cada uno de los
cuatro quemadores, esta Iocalizado en el extremo
abierto del v_nturi posicionado sobre la capucha de la
valvula. El obturador es mantenido en su punto por
fricci6n.
Si el obturador de aire necesita ajuste, gire el
obturador para permitir mas o menos entrada de aire
en los quemadores (seg0n se necesite).
E. Convierta el orificio del quemador del
horno
1. Remueva el caj6n de almacenamiento si el horno le
tiene o el panel inferior para acceder a las juntas en
forma de bellota de las quemaduras del horno.
2. Remueva la parte inferior del horno y el resonador
del quemador situado sobre la extremidad del
quemador. Para retirar el fondo del horno. Tire la
parte de atras, suelte la parte frontal del fondo del
horno del armaz6n del homo, y tire el fondo del
horno en I[nea recta del horno. Remueva el
resonador del quamador para poder observar la
llama del quemador.
3. Usando una Ilave de Y2", giro hacia abajo la junta
en forma de bellota ajustable que inyecta gas al
quemador del homo, hasta que ajuste contra el
pasador medidor de P.L. Esto sera
aproximadamente 2 Y2vueltas. No apriete
damasiado.
4. Aprete el boton de ASAR y ajuste la temperatura
del horno a 300°F. Espere hasta que el horno
alterne entre "on" y "off" (prendido y apagado).
Para determinar si el tamaho de la llama es la
apropiada, observe la llama. Esta debe estar
estable formando conos internos azules de 1"
aproximadamente sin extremos amarillos o
anaranjados.
Junta en
forma de
bellota -41- Obturador de
aire
Figura 14
5. Si sea necesario de ajustar el obturador de aire,
Iocalice el obturador de aire del quemador del
horno, afloje el tornillo del obturador y ajuste
para obtener la llama optima. Sera
completamente abierta para gas PL. Apriete el
tornillo del obturator.
Junta en forma de bellota del
quemador del horno
Figura 13
15

F. Conversibn de la llama del orificio del
quemador de la alta cintura de parrilla
(Modelos autolimpiables solamente)
Junta en
forma de
bellota
Figura 15
1. Abre la puerta.
2. Localice el quemador en forma de bellota de la
parrilla, y gire aproximadamente 2 Y2vueltas, de tal
modo que la junta en forma de bellota se asea junta
al pasador de medici6n PL. No apriete
demasiado.
3. Para determinar si el tamaho de la llama es la
apropiada, aprete el boton para HORNEAR y gire el
boton de SET al marco LO, y observe la llama de la
parrilla. Esta debe estar estable y bien aguda
formando conos internos azules de 1"
aproximadamente sin extremos amarillos o
anaranjados.
4. Si sea necesario de ajustar el obturador de aire,
Iocalice el obturador de aire del quemador del
homo, afloje el tornillo del obturador para obtener
la llama optima (vea figura 14). Debera ser
completamente abierta para gas PL. Apriete el
tornillo del obturator.
6. Conexibn de la electricidad a la
estufa
Requisitos el_ctricos
Un circuito de caher[as particular conectado
correctamente a tierra de 120 voltios, 60 Herz protegidos
por un interruptor autom_tico de 15 amp. o un fusible de
retardo.
Tenga extremo cuidado a la utilizaci6n de un cable
flexible de extensibn:
La utilizaci6n de un cable flexible de extensi6n puede ser
muy peligrosa; recomendamos de no utilizar un cable
flexible de extensi6n. Sin embargo, si desee utilizar a
cualquier precio un cable de extension, debera ser un
cable UL de tres patas de conexi6n a tierra y la
derivaci6n corriente en amperios del cable de extensi6n
debera ser de capacidad normal equivalente o mas
grande que la capacidad del circuito derivado. Puede
obtener estos cables flexibles de extensi6n a su
organizaci6n de servicio local.
Conexion a tier
IMPORTANTE Por favor, lea atentamente.
Como medida de seguridad personal, este artefacto
debe conectarse a tierra correctamente.
El cable de encendido de este artefacto incluye un
enchufe de tres patas (de conexi6n a tierra) que calza
con un enchufe de pared estandar de tres patas de
conexi6n a tierra (Figura. 16) para disminuir la
posibilidad de peligro de choques el_ctricos desde el
artefacto.
Se aconseja al consumidor que un electricista calificado
verifique el enchufe de pared y el circuito para asegurar
que el enchufe est_ conectado a tierra correctamente y
polarizado.
16

Metodo preferido /f NO debe, bajo h
I . ninguna /
_ circunstancia cortar I
_ or_etirar la tercera I
"t pata del cable de]
Enchure \ encendido J
de pared a
tierra Cablo de encendido con
enchufe de tres patas a
tierra
Figura 16
D6nde se encuentre un toma standard de dos patas, sera
responsabilidad personal y obligaci6n del comprador
reemplazarlo por un enchufe de pared de tres patas
correctamente conectado a tierra.
No debe, bajo ninguna circunstancia cortar o retirar
la tercera pata (tierra) del cable de encendido.
Desconecte el cable el_ctrico del toma de
la pared antes de hacer mantenimiento.
7. Verifique la operacibn
Refiera el Manual del usuario que viene con la eatufa
para las instrucciones de funcionamiento y el
mantenimiento y la limpieza de su estufa.
No toque a los quemadores. Pueden estar
suficientemente calientes par causar quemaduras.
1. Verifique los dispositivos de encendido
La manipulaci6n de los dispositivos de encendido
el_ctrico deber_n verificarse tras haber revisado
detenidamente la estufa y los conectores del tubo del
suministro de fugas y tras haber conectado la estufa al
suministro el_ctrico.
Nota: Para que se pueda usar la cocina con gas PL, la
conversi6n del regulador de presi6n y el ajuste de las
juntas en forma de bellota de los quemadores deben
realizarse antes de verificar los dispositivos de
encendido; refiere a "Como convertir la estufa para que
se pueda usar con gas PL."
A)
B)
Dispositivos de encendido de los quemadores de
superficie
Para verificar el correcto encendido, presione hacia
adentro y gire una valvula de quemador superior
hasta la posici6n "ENCENDIDO" (LITE). El quemador
de superficie debe encender cuando el quemador
superior tiene gas disponible. Cada uno de los
quemadores debe encenderse dentro de cuatro (4)
segundos en el modo de funcionamento normal
despu_s de haber purgado el aire de la I[nea de
suministro de gas. Una vez el quemador encienda
debe cambiarse a una posici6n diferente a
"ENCENDIDO" (LITE). Cada valvula debe chequearse
independientemente hasta que todos los quemadores
hallan sido revisados.
Sistema de encendido del horno
Modelos autolimpiables:
Remueva todos los art[culos y el paquete de literatura
del homo, y:
1. Aprete el boton para ASAR y ajuste la temperatura
delhornoa300F. En60segundos
aproximadamente, el quemador de asar
(quemador de la parte inferior) debe encender.
Verifique para obtener la llama adecuada y aprete
el boton de CANCELAR.
2. Aprete el boton para HORNEAR y ajuste la
temperatura delhornoa300F. En60segundos
aproximadamente, el quemador de hornear
(quemador de la parte superior) debe encender.
Verifique para obtener la llama adecuada. El
quemador debe alternar entre encendido y
apagado por Io menos una vez antes de apretar el
boton de CANCELAR.
Modelos no autolimpiables:
Remueva todos los art[culos y el paquete de literatura
del homo, y:
1. Gire el boton de temperatura para ASAR (BAKE)
(300°F). En 60 segundos aproximadamente, el
quemador de la parte inferior debe encender.
Verifique para obtener la llama adecuada. Gire el
boton de temperatura a OFF.
2. Gire el boton de temperatura para HORNEAR
(BROIL). En 60 segundos aproximadamente, el
quemador de la parte inferior debe encender.
Verifique para obtener la llama adecuada. Gire el
boton de temperatura a OFF.
17

.Ajuste el marco de "LOW" de la supercificie de
las valvulas para quemadores (vea figura 17)
Tornillo en el vastago J
Figura 17
.
2.
3.
Gire los controles a ENCENDIDO (LITE) hasta que
el quemador se encende.
Gire r_pidamente el boton de control hasta la
POSIClON M4,S BAJA.
Si el quemador se apague, reajuste la valvula
como se muestra a continuaci6n:
Retire el bot6n de control del quemador, inserte
un destornillador de cuchillo delgado en el
vastago del agujero de la valvula y encaje el
tornilloranuradoadentro. EItamahodelallama
se puede aumentar o disminuir girando el
tornillo. GradOe la llama hasta que se pueda
girar rapidamente hacia abajo desde LITEhasta
LOWEST POSITION sin apagar la llama. La
llama debera ser Io mas baja posible y estable
sin apagarse.
8. Asegurese que la estufa esta a
nivel
Nivele la estufa, instalado un nivel horizontalmente sobre
una rejilla del horno. Verifique en diagonal de adelante
hacia atras, y nivele la estufa ajustando las patas de
nivelaci6n o poniendo cuhas por debajo de los ric6nes de
la estufa como sea necesario.
9. Despues de la instalacibn, conecte el cable
de energia y ponga el control de la
regulacion del reloj del homo electrbnico a la
buena hora como se muestra en la guia del
usuario.
11. Asegurese que el flujo de combustibn de
la ventilacion del horno y la ventilacibn de
aire de la parte mbs baja del armazbn de la
estufa no est_n obstruidos.
Cuando se han realizado todos los sistemas
de conexibn
Asegurese que todos los controles est_n en la posici6n de
apagado.
NOTA: Consulte el Manual de usuario para completas
instrucciones o soliciud de informaci6n acerca de su estufa.
NOTA: Consulte el Manual de usuario para las
instrucciones de funcionamiento y limpieza.
Importante: Ver la pagina 10 para las
instrucciones de instalacibn del soporte
antivuelco.
Modelo y ubicacibn del n_mero de serie
El modelo y la placa de numero de serie est_n ubicados
al lado izquierdo, por debajo del armaz6n de la plancha
para cocinar.
AsegOrese de incluir el modelo y nOmero de serie que se
encuentran en la placa de su estufa, en todo pedido de
partes o solicitud de informaci6n acerca de su estufa.
La placa de nOmero de serie tambi_n indica las
especificaciones de los quemadores, el tipo de
combustible y la presi6n para la cual fu_ ajustada la
estufa en la fabrica.
Antes de Ilamar al servicio t_cnico
Consulte el Manual del usuario para las instrucciones de
functionamiento u limpieza.
Verifique que los fusibles de la casa no se hayan fundido
o el cortacircuitos de la estufa no hayan saltado o
abierto.
10. Verifique si todos los controles del horno
electr6nico funcionan correctamente, in
acuerdo con las instrucciones de la guia del
usuario.
18

12. Advertencia de seguridad
importante
Esta estufa debe ser asegurada al piso usando las
platinas de anclaje y los tornillos suministrados. El no
instalar apropiadamente los soportes antivuelco puede
Ilegar a permitir que la estufa se incline hacia adelante,
accidentalmente, si se coloca un peso excesivo sobre la
puerta abierta o si un niho se sube en ella. La estufa
caliente a los liquidos calientes derramados podrfan
causar serias lesiones personales. Refi_rase a las
instrucciones que se dan a continuaci6n para la correcta
instalaci6n de los soportes antivuelco. Figura A.
NOTA: Si mueva la estufa a otro sitio, deba tambien
mover los soportes antivuelco para instalarlas
con la estufa.
Instrucciones para de instalacibn del
soporte antivuelco
Las piezas se encuentran en un saco de plastico en
el horno.
Herramientas requeridas:
Llave de tuerca de 5/16" o destornillador de cabeza
plana
Llave ajustable
Broca para mamposterfa de 3/16" de di_metro (para
taladrar concreto)
Asegure las platinas al piso en la parte posterior de la
estufa de forma que soporten las dos platas niveladoras
traseras. AI colocarlas aseg0rese de no perforar
alambres el_ctricos o tuberfa. Los tornillos suministrados
pueden usarse en concreto o madera.
La estufa puede anclarse al piso en una residencia con
las platinas de anclaje, tal como se ilustra en la figura
"A". Estas platinas permiten que la estufa se hale hacia
adelante para su limpieza o reparaci6n, sin necesidad de
usar herramientas.
1. Asegure las platinas de anclaje al piso o a la pared
posterior con los tornillos suministrados. Importante:
las platinas deben anclarse sobre madera o piso
s61ido. No deben anclarse sobre estuco, chapa de
roca o alg0n otro material de baja resistencia. Si el
anclaje va a hacerse sobre la pared posterior, deben
removerse todas la molduras que queden detr_s de la
estufa.
2. Si las platinas van a anclarse en pisos de manposter[a
o cer_mica, coloque las platinas en el piso y marque
la ubicaci6n de los orificios. Taladre orificios de
3/16".
3. Gire las patas niveladoras 3 vueltas hacia abajo de
forma que las platinas deslicen sobre las cabezas
niveladoras.
4. Nivele la parte delantera y trasera de la estufa y las
partes laterales con los dos niveladores de pata
delanteros y los niveladores traseros.
.Deslice la estufa hasta que quede en su lugar
asegur_ndose de que las patas traseras est_n
atrapadas bajo las platinas de anclaje. Puede ser
necesario balancear la estufa hacia los lados a
medida que se desliza hacia atr_s para Iograr que las
platas traseras se alin_en con las platinas de anclaje.
Para asegurarse de que la estufa est_ correctamente
anclada remueva el caj6n de almacenamiento o el
panel inferior, tambi_en puede verificarse la
instalaci6n tratando, cuidadosamente, de inclinar la
estufa hacia adelante.
En casas m6viles la estufa debe anclarse al piso come se
muestra en la figura B.
1. Remueva el panel falso o el caj6n de
almacenamiento para poder alcanzar los orificios de
anclaje.
2. En el centro de cada riel de la base de la estufa se
suministra un orificio de ¼" para el anclaje al piso.
_1/3/8"
/l_ i/--Instalar
| i /platinas
de anclaje
3/8" z-fjj" f" ".........................
f_Borde poster or de a .....
,x i _ __ j.J_" --estufao pared posterior J
12b °rn'"°s
1_ por plasma Ubicacion de los paneles
_.i laterales de la estufa
Instalar "--..
platinas ""--.
de anclaje ""-.. _/
Figura A
Rie--
L:::::aa
piso orificio ubicado
aproximadamente en la mitad <
del riel
Figura B
Parte
lateral del
cuerpo
Armazon
frontal
Pararse, a6yarse o sentarse en la puerta o
cajon de estaestufa causarseriaslesionespersonalesy tambi_n
puede dahar la estufa.
19

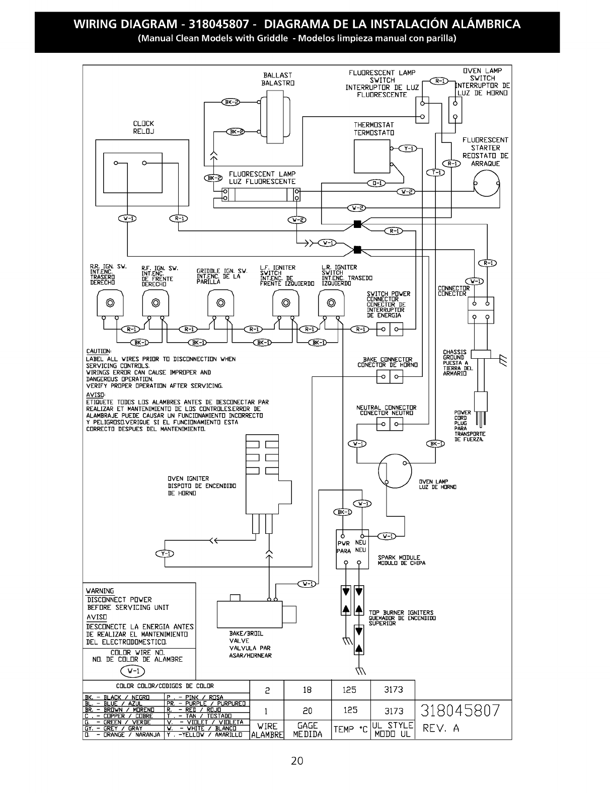
CLOCK
RELBJ
BALLAST
BALASTRO
FLUORESCENT LAMP
SWITCH
INTERRUPTOR DE LUZ I
FLUORESCENTE ___
THERMOSTAT
TERMOSTATO
OVEN LAMP
SWITCH
NTERRUPTOR DE
UZ DE HORND
FLUORESCENT
REnSTATO I)E
ARRAOUE
FLUORESCENT LAMP
-_) LUZ FLUFIRESCENTE
IRI(._I.GN.SW. R.F. IGN. S:W.............. L.F. IGNITER L.R. IGNITER
'_'_' INT ENC u?__u__£__Lu,,:pw. SWITCH SWITCH
TRASERD ' ' .NtLNU UL LA NT
.. DE FRENTE n*;-;.,. 'i INT.ENC. DE I ,ENC, TRASEDO ,,_
DERECNu DERECHO rMI_LLLH FRENTE IZQUIERDO IZQUIERDO _ P
_ _ _ _ ]NNECTOI
t_I\i\/\/\ SWITCH POWER ]NECTOR
Ir_, II,_, I I r_, IIr_, I I r_, ICONNECTOR --
I _ I I u_ I I _ I I LV) I I _ I CONECTORBE (
IIII IIIIIIINTERRUPTOR -
CAUTION: CHASSIS -- q
LABELALLWIRE_PRIORTODISCONNECTIONWHEN BAKECONNEOTOR GROUND
SERVICINGOONTROL_ CONEOTORBEHORNO _# _. !
WIRINGS ERROR CAN CAUSE IMPROPER AND _ ARMARIO /
DANGEROUS OPERATION. I_/
VERIFY PROPER OPERATION AFTER SERVICING. I
AVISO,
ET---?TQUETETODOS LOS ALAMBRES ANTES BE BESCONECTAR PAR
REALIZAR ET MANTENIMIENTO DE LOS CONTROLESERROR DE NEUTRAL CONNECTOR
ALAMBRAJE PUEDE CAUSAR UN FUNCIONAMIENTO INCORRECTO _CONECTOR NEUTRO _"_R IIII
Y PELIGROSO.VERIQUE SI EL FUNCIONAMIENTO ESTA _ Io-I-- PLUG IIII
CORRECTB BESPUES BEL MANTENIMIENTB. I I I I PARA u
TRANSPDRTE
OVEN IGNITER I I I \ t/BVEN LAMP
£ISPOTO BE ENCENBIDn I _ I_IOUVENDEHORN{]
BE HORNO I I ,LI
(,/R EU
/ix I I SPARK MODULE
WARNING __ I_ _I
_ECT POWER I I 66 q /
I-I
BEFORE SERVICING UNIT ILlT P RN R N T R
AVISO -, o Du E IGIESI I I T_ OUE_A_nRD__NC_N_IDn
_TgigNECTE
LA ENERGIA ANTES L-- J_ / -_
/SUPERIOR
DE REALIZAR EL MANTEN[MIENTB BAKEIBROIL J_ TI
I)EL ELECTRODBMESTICO, VALVE \\\ I
-- -- -- VALVULA PAR _IL
COLOR WIRE NO. ASAR/HORNEAR :J
NO, DE COLOR DE ALAMBRE
@
COLOR COLOR/CODIGOS DE COLOR ;3 18
OK. -BLACK /NEGRO IP, - PINK /ROSA
BL. -BLUE /AZUL IPR PURPLE /PURPUREO
OR. - BROWN /MORENO IR - RED /ROJO 1_0
C . - COPPER ICOBRE T .- TAN ITOSTADO
O. -GREEN IVERDE V, - VIOLET /VIOLETA
GY. - GREY /GRAY i - WHITE /BLANCO _l RE GAGE
O. - ORANGE /NARANJA _ -YELLOW /AMARILLO ALAFIBRE MEDIDA
125 3173
I£5 3173
TEMP °C SLODSoTYuLE
318045807
REV, A
20

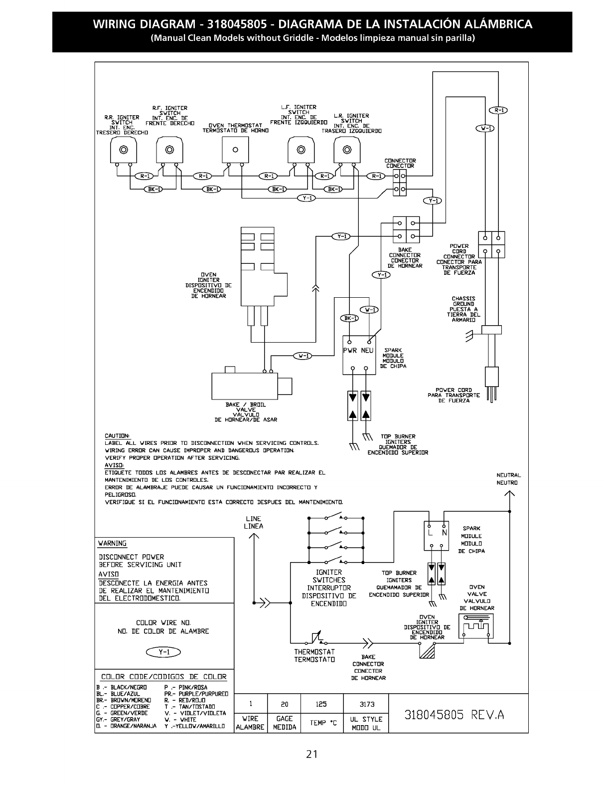
R.F. IGNITER
SWITCH
R.R. IGNITER INT. END. DE
SWITCH FRENTE DERECHO
INT. ENC. nVEN THERMOSTAT
TRESERO DERECHO TERMrlSTATO DE HORNn
L.F, IGNITER
SWITCH
INT. END. DE L.R. IGNITER
FRENTE IZQQUIERDO SWITCH
INT. END. DE
TRASERO IZQQUIERDO
OVEN
IGNITER
DISPOSIT[VO DE
ENCENDIDO
DE HORNEAR
Z
F7
BAKE /BROIL
VALVE
VALVULO
DE HORNEAR/DE ASAR
CONNECTOR
CONECTOR
C
BAKE
CONNECTOR
CONECTOR
DE HORNEAR
SPARK
MODULE
MODULO
DE CHIPA
POWER
CORD
CONNECTOR
CONECTOR PARA
TRANSPORTE
DE FUERZA
CHASSIS
GROUND
PUESTA A
TIERRA DZL
ARMARIO
CAUTION:
LABEL ALL WIRES PRIOR TO DISCONNECTION WHEN SERVICING CONTROLS.
WIRING ERROR CAN CAUSE IMPROPER AND DANGEROUS OPERATION.
VERIFY PROPER OPERATION AFTER SERVICING.
AVISO,
ETIQUETE TODOS LOS ALAMBRES ANTES BE BESCONECTAR PAR REALIZAR EL
MANTENIMIENTO DE LOS CONTROLES.
ERROR DE ALAMBRAJE PUEBE CAUSAR UN FUNCIONAMIENTO INCORRECTO Y
PELIGROSO.
VERIFIQUE SI EL FUNCIONAMIENTO ESTA CORRECTO DESPUES DEL MANTENIMIENTO.
TOP BURNER
IGNITERS
QUEMADOR DE
ENCENDIDO SUPERIOR
WARNING
DISCONNECT POWER
BEFORE SERVICING UNIT
AVISO
DESCDNECTE LA ENERGIA ANTES
DE REALIZAR EL MANTENIMIENTO
DEL ELECTRBDDMESTICD.
COLOR WIRE NO,
NO. BE COLOR BE ALAMBRE
COLOR CODE/CODIGOS BE COLOR
I - BLACK/NEGRO P .- PINK/Rn_;A
L,- BLUE/AZUL PR.- PURPLE/PURPUREB
BR,- BRnVN/MORENn R. - RED/RrIjn
C ,- cnPPER/CnBRE T .- TAN/TrlSTAD[]
• GREEN/VERDE V, - VInLET/VInLETA
GY,- GREY/GRAY V, - VHITE
n. - []RANGE/NARANJA Y .-YELLnV/AMARILL[]
LINE
LINEA
i- IGNITER
SWITCHES
INTERRUPTOR
DISPOSITIVO DE
ENCENDIDO
TOP BURNER
IGNITERS
QUEMAMADOR DE
ENCENDIDO SUPERIOI
>>
THERMOSTAT
TERMOSTATO BAKE
CONNECTOR
CONECTOR
DE HORNEAR
ALAMBRE I MEDIDA I
OVEN
IGNITER
BISPOSITIVO DE
ENCENDIDO
DE HORNEAR
125 3173
TEMP °O UL STYLE
NODO UL
318045805
POWER CORD
PARA TRANSPORTE
DE FUERZA
NEUTRAL
NEUTRO
/
SPARK
MODULE
MODULO
BE CHIPA
OVEN
VALVE
VALVULO
DE HORNEAR
REV,A
21

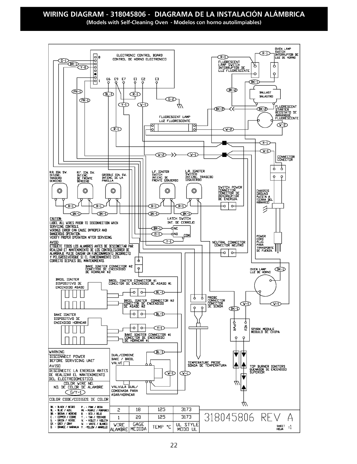
OVEN LAMP
_8 ELECTRONICCONTROLBOAR_ _ _r--C-_-'--'-_I_P_ORDE
_.,-'_, I_I CONTROL BE HORNO ELECTRONICD _ \ I ILUZ DE HDRND
--..._u.>._,j...___ I_I FLUORESCENT _
--_ -I_31 LAMP SWITCH I_ I IA I
IoI INTERRUPTORDE I _ I I_ I
I_I LU'ELUORESEENTEIoI'I_I
I_ 'i"_'_l, E6 E9 E7 El E2 E3 I _ T
ilii
R.R. IGN. Sw. R.F. IGN. SV II L.F. IGNITER L.R. IGNITER
[NT.ENC. INT.ENC. " GRIDDLE IGN. SV. II I III I SWITCH SWITCH I
TRASERD DEFRENTE INT.ENC_ELA I I I II I I INT.ENC.DE INT.ENC.TRASEDG I I I I 9 9 I
DERECHD DERECHD PARILLA I I I II I I FRENTE_QUIERDDIZQUIERDO_I I
CONNECTOR 0HASSIS
INTERRUPTOR PUESTA A
IIIIIII IIITI_ELII
c_o,,ON, _-_ LATE,S_ I II
LABEL WIRES PRIOR TD DISCONNECTION WHEN IIIIIII INT. DE CERROJO I I I I I
SERVICINGCONTROLS. III ...... I I I I I
WIRINGSERRORCANCAUSEIMPROPERAND III III _ _'_ I I I I
DANGEROUS DPERATIDN. I I t_i-H_o-1_)_dNO _.1 II I I I
VERIFYPRDPERDPERATmNAFTERSERVICING,I_111 _.--._._ I I IgNW__ I I
TPLUG
AVISD, I_l' I I _ _ NEUTRAL CGNNEC OR .UG
ET--T_TEmD_sL_ALAMBRESANTESDEDESCmECTARPARIll_ _ I C_NEOTORNEUTROI I_SPO.TEIITIIF
REAL_ARETNANTENINIENTDDELOSCONTRDLES.ERRDRDE I1"'I I I _ I ID_-fOL_A7UllU
ALAMBRAJEPUEDECAUSARUNFUNCION_IENTOINCDRRECTDI' I I I _ I I
YPELIGRDSD.VERIQUESIELFUNCIDNAMIENTDESTA_ I I I I I
CORRECTOBESPUESGELMANTENIMIENTO. I _ I I I I I /
BAKE IGNITER CONNECTOR #_ _ I I I ._L_ I
CDNECTDR DE ENEENBIDD I Y I I I I OVEN LAMP CBK-1) I
OEHORNEAR._ III LU'_--TI
BROIL IGNITER BROIL IGNITER CONNECTOR #I I I I /o-_ I
_ISPDSITIVD BE I_ CDNECTDR DE ENCENDIDO DE ASABO #i I I I I 1 I
ENCEN_IBO ASABO I I I I I _ II
PROBE
_ _ _ BROIL IGNITER CONNECTOR #B _CDNNECTDR I I
II II II _CDNEETDR DE ENCENDIBD _CDNECTDR )L_W-I_"_
,,,,,,, --IOE °ES°NBA-
BAKEIGNITER _ I _ k )
BISPDSITIVD BE _ -- _ _ F
ENCENDIBD HDRNEARI I ,i-L,
i i i i i i I._ _ I I _ MODULO DE CHIPA
IBAKE IGNITER CDNNECTDR #1 II I
I _ _ _ i'_I_CDNECTDR DE ENCENDIDD II I
WARNING _II
-- p _UAL,COMBINE
DISCONNECTOVER I -- V
F BAKE /BROIL
BE ORE SERVICING UNIT I_
VALVE _ TEMPERATURE PROBE
AV[SO I hh I_ I ISONBA DE TEMPERATURA TOP BURNER IGNITERS
QUEMADDR _E ENCENDIDD
_NECTE LA ENERGIAANTES I _ ...-L_ _ _,p.....
DEREALIZARELMANTENIMIENTOI I I_ _ .......
GEL ELECTRDDDMESTICD. I I_ I
--__ L_ YYx I
NO. DE COLOR DE ALAMBRE VALVULA _UAL/ I I
(_ CDMBINADA PARA / u
ASAR/HDRNEAR --
COLOR CDDEICDI]IGDS I)E COLOR
BI(, - BLA[K /NEGRO P.- PB_(/RI]SA
BL. - BLUE l_UL PR.- _F_LE /PLII_LIRErl
_R. - _R[]VN I_RENO R. -RE_ IRI]Jn
C.- CLIPPERIC{]_I_ T . - TAN /_TA_(]
G. - _RI_54 /VEI_E V. - Vlri_T /VIlli.ETA
bY. - _EY /GRAY V. -_lIl_ /BLANCD
I'[ - ORN4GEINARCd4JA Y . -?ELLI]VI_q_[L[.[] WIRE I..b___u._I
_LAMBREIMF..JJIUAI
125 3173
125 3173
TEMP °C UL STYLE
MOOD UL
318045806 REV A
SHEET 11
HOJA .L
22

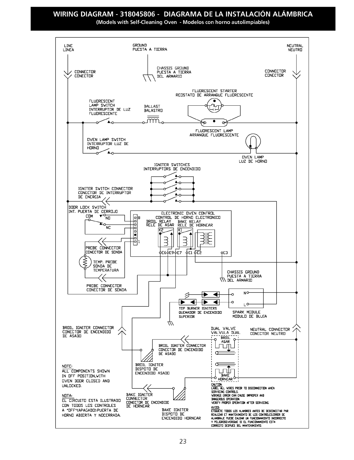
LINE
LINEA
CONNECTORCDNECTDR
FLUORESCENT
LAMP SWITCH
INTERRUPTDR DE LUZ
FLUORESCENTE
__._
T OVEN LAMP SWITCH
I INTERRUPTOR LUZ DE
IGNITER SWITCH CONNECTOR
CONECTOR DE INTERRUPTOR
DE ENERGIA
,<(
DOOR LOCK SWITCH
INT. PUERTA DE CERRDJO
PRD_BE C<ONNECTOR
/_NECTOR DE SONDA
I _ }TEMP. PROBE
SONDA DE
T TEMPERATURA
,<<
PROBE CONNECTOR
CONECTDR DE SDNDA
BROIL IGNITER CONNECTOR
CDNECTDR DE ENCENDIDD
DE ASADB
NOTE:
ALL COMPONENTS SHOWN
IN OFF POSITION,WITH
OVEN DOOR CLOSED AND
UNLOCKED.
NOTA:
EL CIRCUITO ESTA ILUSTRADO
CON TODOS LOS CONTROLES
A "OFF'(APAGADO).PUERTA DE
HDRNO ABIERTA Y NDCERRADA.
GROUND
PUESTA A TIERRA
CHASSIS GROUND
PUESTA A TIERRA
DEL ARMARID
CONNECTOR
CONECTOR
BALLAST
BALASTRO
o_rn'T
FLUORESCENT STARTER
REOSTATO DE ARRANQUE FLUORESCENTE
FLUORESCENT LAMP
ARRANQUE FLUDRESCENTE
IGNITER SWITCHES
INTERRUPTDRS DE ENCENDIDD
OVEN LAMP
LUZ DE HORNO
ELECTRONIC OVEN CONTROL
CONTROL DE HORNO ELECTRONICO
BROIL RELAY BAKE RELAY
RELE DE ASAR RELE DE HORNEAR
IQUEMADOR DE ENCENDIDO SPARKL_DDULE
SUPERIOR MODULO DE BUJIA
DUAL VALVE
VALVULA DUAL
<( ,, ,,
BROIL IGNITER CONNECTOR ', ',
CDNECTDR DE ENCENI)IDD
DE ASADD , ,
i i
i i
i i
i i
i i
i i
i i
i i
i
CAUTION,
LABEL ALL V[RES PRIOR TO DISCONNEET_N WHEN
S@VICINO CONTROLS.
W_INGS ERROR CAN CAUSE [MPRnp[ AND
D_GERDUS OP[ATmN.
VERIFY PROP[ OPERATION AFT[] SERVIC_G.
AVIS{)
BAKE IGNITER ETIQUETE TODDS LOS AL_BRES ANTES DE DESCONECTAR PAR
DISPOTO DE REALIZ.AR ET MANTENIM[[TO DE LOS CDNTROLES.[ROR DE
ENCENDIDO HORNEAR ALAMBRAJE PUlE CAUSAR UN FUNCIONANI[TO INCORRECTO
YPELIOROSO.VERIQUE S[ EL FUNCIONAM[ENTOESTA
CORRELTD DESPUES DEL NANTENINIENTO.
BROIL IGNITER
DISPOTO DE
ENCENDIDD ASADO
--<<
BAKE IGNITER
CONNECTOR
CONECTDR DE ENCENI)IDO
DE HORNEAR
NEUTRAL CONNECTOR
CONECTDR NEUTRD
NEUTRAL
NEUTRO
/
x,
23

24