THERMADOR Side By Refrigerator Manual L0909644
User Manual: THERMADOR THERMADOR Side by Side Refrigerator Manual THERMADOR Side by Side Refrigerator Owner's Manual, THERMADOR Side by Side Refrigerator installation guides
Open the PDF directly: View PDF  .
.
Page Count: 42

INSTALLATION
INSTRUCTIONS
For Built-in Refrigerators,
Freezers and Wine units
INSTRUCTIONS
D'INSTALLATION
Pour r_frig6rateurs,
congelateurs et
caves 6 vin encastres
INSTRUCCIONES
s
DE INSTALACION
Para los refrigeradores,
congeladores y unidades
de vino empotrados
Single Door Models
Modeles A une porte
Modelos de una puerta
Thermedor _
9000222885

2

Contents
Before you Begin ...........................................................................
Definitions ...............................................................................
Important information ......................................................................
Installation options ..........................................................................
Individual unit .............................................................................
Side-by-Side .............................................................................
Individual appliances with partition ...........................................................
At the end of the kitchen units ...............................................................
Installation location
Installation room
Installation cavity
Furniture/fixtures
Base ....................................................................................
Connecting the power .......................................................................
Additional grounding procedure .............................................................
Grounding instruction ......................................................................
Connecting the water .......................................................................
Installation dimensions ......................................................................
Single installation ..........................................................................
Side-by-Side installation ....................................................................
Water connection .........................................................................
Appliance dimensions .......................................................................
1. 18" Appliance (Freezer/Freezer with Ice and Water dispenser) .................................
2. 18" Appliance (Wine unit) ...............................................................
3. 24" Appliance (Refrigerator/Freezer/Freezer with Ice and Water dispenser) ......................
4. 24" Appliance (\Nine unit) ...............................................................
5. 30" Appliance (Refrigerator/Freezer/Freezer with Ice and Water dispenser) ......................
Required accessories and tools ..............................................................
1. Supplied accessories ...................................................................
2. Optional accessories ...................................................................
3. Other required accessories from specialist outlets ...........................................
4. Tools ................................................................................
5. Other ................................................................................
5
5
5
6
6
6
6
6
7
7
7
7
7
8
8
8
8
9
9
10
11
12
12
13
14
15
16
17
17
17
17
17
17
3

Installation instructions ......................................................................
1. Checking the installation cavity ..........................................................
2.. Transoort of the appliance ..............................................................
3. Removing the packaging ...............................................................
4. Prepanng the appliance .................................................................
5. Changrng over the door hinges ..........................................................
6. Prepanng the installation cavity ..........................................................
7. Attaching an alternative anti-tip device ....................................................
8. Prepanng to connect the water ..........................................................
9. Attaching the edge protection ...........................................................
10.Side-by-Side installation .................................................................
11. Pushing the appliance into the installation cavity ............................................
12. Installing and aligning the appliance ......................................................
13. Attaching the appliance to the top of the cavity .............................................
14. Attaching the individual appliance to the side of the cavity ....................................
15. Connecting the water to the appliance ....................................................
16. Attaching the toe kick panel .............................................................
17. Commissioning the Appliance ...........................................................
18. Preparing the furniture doors ............................................................
19. Loading the appliance door .............................................................
20. Attaching the adjusting rail to the furniture door .............................................
21. Attaching and aligning the furniture door ..................................................
22. Attaching the furniture door .............................................................
23. Shorten the finger guard ................................................................
24. Attaching the finger guard ...............................................................
25. Attaching the covers ...................................................................
26. Aligning the ice-water dispenser .........................................................
27. Attaching the cover frame and the shelf ...................................................
28. Attaching the cover strips ...............................................................
29. Mounting of air separator ...............................................................
30. Adjusting the door opening angle ........................................................
31. Changing the door spring ...............................................................
18
18
18
19
19
20
22
24
24
25
25
25
26
27
28
28
29
30
31
32
32
33
34
36
36
37
38
39
39
40
41
41
4

Before you Begin
Read these instructions completely and carefully.
IMPORTANT
Save these instructions for local inspector's use.
Observe all governing codes and ordinances.
Note to Installer - Be sure to leave these instructions
with the Consumer.
Note to Consumer- Keep these instructions with your
Owner's Manual for future reference.
WARNING
This appliance must be properly grounded. See the
section on "Connecting the power" on page 8.
WARNING
__ hese appliances are top-heavy and must be
secured to prevent the possibility of tipping
forward. Anti-tip protection is required.
Keep doors closed until the appliance is completely
installed and secured per installation instructions.
Due to the weight and size of this appliance, and to
reduce the risk of personal injury or damage to the
product - TWO PEOPLE ARE REQUIRED FOR
PROPER INSTALLATION.
CAUTION
Skill - Level- Installation of this appliance requires basic
mechanical, carpentry and plumbing skills. Proper
installation is the responsibility of the installer. Product
failure due to improper installation is not covered under
the Appliance Warranty. See the Owner's Manual for
warranty information.
WARNING
Use this appliance only for its intended purpose.
Immediately repair or replace electric service cords that
become frayed or damaged.
Unplug the appliance or switch off the fuse before
cleaning or making repairs.
Repairs should be made by a qualified service
technician.
These installation instructions are intended for use by
qualified installers. All connections for water, electrical
power and grounding must comply with local codes and
ordinances and be made by licensed personnel when
required. In the absence of a local code:
- In the U.S.A., in accordance with the National
Electric Code, ANSI/NFPA70 - latest edition/State
and Municipal codes and/or local codes.
- In Canada, in accordance with the Canadian
Electric Code C22.1 - latest edition/Provincial and
Municipal codes and/or local codes.
Definitions
WARNING - This indicates that death or serious
injuries may occur as a result of not observing this
warning.
CAUTION - This indicates that minor or moderate
injuries or damage may occur as a result of not
observing this warning.
IT] This symbol is used to draw the user's attention to
something in particular.
Important information
The importance of complying with all regulations
and instructions in this installation manual cannot be
emphasised enough. The installation should be carried
out by a qualified fitter.
Before starting the installation, always read this
installation manual in full. It contains important details
which the fitter must observe. Provided this manual is
read thoroughly, the installation will be simple,
trouble-free and, most importantly, safe.
5

Installation options
There are many different installation options.
These are limited only by the design of the kitchen and
the function of the finger guard.
Individual unit
Side-by-Side
Individual appliances with partition
* Partition required!
IT] When 2 appliances are installed Side-by-Side,
the Basic Combination Side-by-Side Sealing kit
must be used to ensure a stable connection.
See the section on "Optional accessories" on
page 17.
%Note
When dimensioning the partition for model 4, note
the thickness of the furniture fronts to prevent
damage if the doors are opened at the same time.
Use the Extreme Combination Side-by-Side
Heating kit if the gap between the appliances is
less than 6" (160 mm).
See the section on "Optional accessories" on
page 17.
Minimum thickness of the partition 5/s" (16 mm).
At the end of the kitchen units
If one side of the appliance is visible, a side panel must
be used.
The side panel must be connected firmly to the wall,
the floor and overhead furniture/fixtures before the
appliance is placed in the cavity.
The dimensions of the side panel are taken from the
opposite cavity wall. During installation ensure that the
cavity is square and the exact size.

Installation location
Do not install the appliance:
- outdoors,
- in an environment with dripping water,
- in rooms which are at risk of frost.
Appliance is very heavy - for empty weight see the
following table:
Refrigerator 24"
Refrigerator 30"
Freezer 18"
Freezer 24"
Freezer 30"
Wine unit 18"
Wine unit 24"
approx. 310 Ibs /140 kg
approx. 350 Ibs /158 kg
approx. 255 Ibs /115 kg*
approx. 300 Ibs /135 kg*
approx. 335 Ibs /150 kg*
approx. 300 Ibs /135 kg
approx. 360 Ibs /160 kg
(* without Water Dispenser)
Installation room
The appliance should be installed in a dry, ventilated
room,
The ambient temperature should not drop below 55 °F
(13 °C) or rise above 110 °F (43 °C), otherwise
malfunctions may occur.
The installation location should not be exposed to direct
sunlight and not placed near a heat source, such as an
oven, radiator, etc. If installation next to a heat source is
unavoidable, use a suitable insulating plate or observe
the following minimum distances from the heat source:
- 11/4" (30 mm) from an electric cooker,
- 12" (300 mm) from an oil or solid-fuel cooker.
Installation cavity
It is important to observe the specified dimensions of
the installation cavity for a trouble-free installation of the
appliance and for the subsequent general view of the
furniture front.
[-i-] In particular ensure that the cavity is square.
Squareness can be checked by suitable means,
e.g. spirit level, diagonal measurements, etc.
r_The side walls of the cavity must be flush.
The minimum thickness of side walls and the top wall
must be 5/8" (16 mm).
The minimum thickness of toe kick panel must be
1/2" (13 mm).
A thickness of-Y4" (19 mm)is recommended.
Furniture/fixtures
The new appliance is screwed securely to adjacent
and overhead furniture/fixtures.
For this reason it is essential that all attachable
furniture/fixtures are connected securely to the
base or the wall by suitable means.
Base
A fully-load appliance is very heavy - for the
load-bearing capacity at least see the following table:
Refrigerator 24"
Refrigerator 30"
Freezer 18"
Freezer 24"
Freezer 30"
Wine unit 18"
Wine unit 24"
(* without Water Dispenser)
approx. 890 Ibs /400 kg
approx. 1110 Ibs /500 kg
approx. 560
approx. 780
approx. 950
Ibs 250 kg*
Ibs 350 kg*
Ibs 425 kg*
approx. 550 Ibs 245 kg
approx. 694 Ibs 310 kg
To ensure that the appliance is installed securely and
functions properly, the base must be flat and level.
The base must be made of a hard, rigid material.
The installation area must be the same height as the rest
of the room.
On account of the heavy weight of a fully loaded
appliance, a load-bearing base is required. If in doubt,
contact an architect or a building expert.
7

Connecting the power
Electrical Shock Hazard
- Plug into a grounded 3 prong outlet.
- Do not remove ground prong.
- Do not use an adapter.
- Do not use an extension cord.
Failure to follow these instructions can result in
death, fire, or electrical shock.
The appliance comes with a 3-wire power supply cord,
UL listed in the USA.
The appliance requires a 3-wire receptacle.
The receptacle must be installed by a licensed
electrician only.
The receptacle must be fitted with a 10A fuse or higher.
Please observe in this coherence the following table:
Appliance
Refrigerat0r24"
Refrigerator30"
Freezer18" (incl,IceMaker)
Freezer24" (incl,IceMaker)
Freezer30" (incl,IceMaker)
Maximumloadat onetime
2 Ampere
2 Ampere
3,5 Ampere
4 Ampere
4,5 Ampere
Orient ground prong to the bottom as shown in the
pictures.
For the installation position of the receptacle see
"Installation dimensions", page 8.
Additional grounding procedure
Some local regulations may require a seperate ground.
In such cases, the required accesseory ground wire,
clamp and screw must be purchased seperately.
Never ground the appliance to plastic plumbing lines,
gas lines or water pipes.
Grounding instruction
This appliance must be grounded. In the event of
a malfunction or breakdown, grounding will reduce
the risk of electric shock by providing a path of least
resistance for the electric current.
Improper connection of the equipment grounding
conductor may result in electric shock. Have the
appliance checked by a qualified electrician or
service technician if you are in doubt as to whether
the appliance has been properly grounded.
Connecting the water
A cold water connection is required for operation of
the automatic ice maker. The water pressure must
be between 25 and 120 p.s.i. (1.72-8.25 bar).
The installation must comply with local plumbing
regulations.
A separate shut-off valve must be installed for the
appliance water connection.
The shut-off valve for the water connection must not be
behind the appliance. It is recommended to place the
shut-off valve directly next to the appliance (base unit)
or in another easily accessible location.
When installing the water connection, observe the
permitted installation areas for the pipe. For the
permitted installation areas and dimensions see
"Installation dimensions", page 8.
The supply pipe can be located at the side on the right
(a), at the side on the left (b) or underneath (c).
Maximum outer diameter of the water pipe
(without fittings): 13/32" (10 mm).
Attach a separate shut-off valve for the water
connection in a suitable, easily accessible location.
Do not use a self-piercing valve!

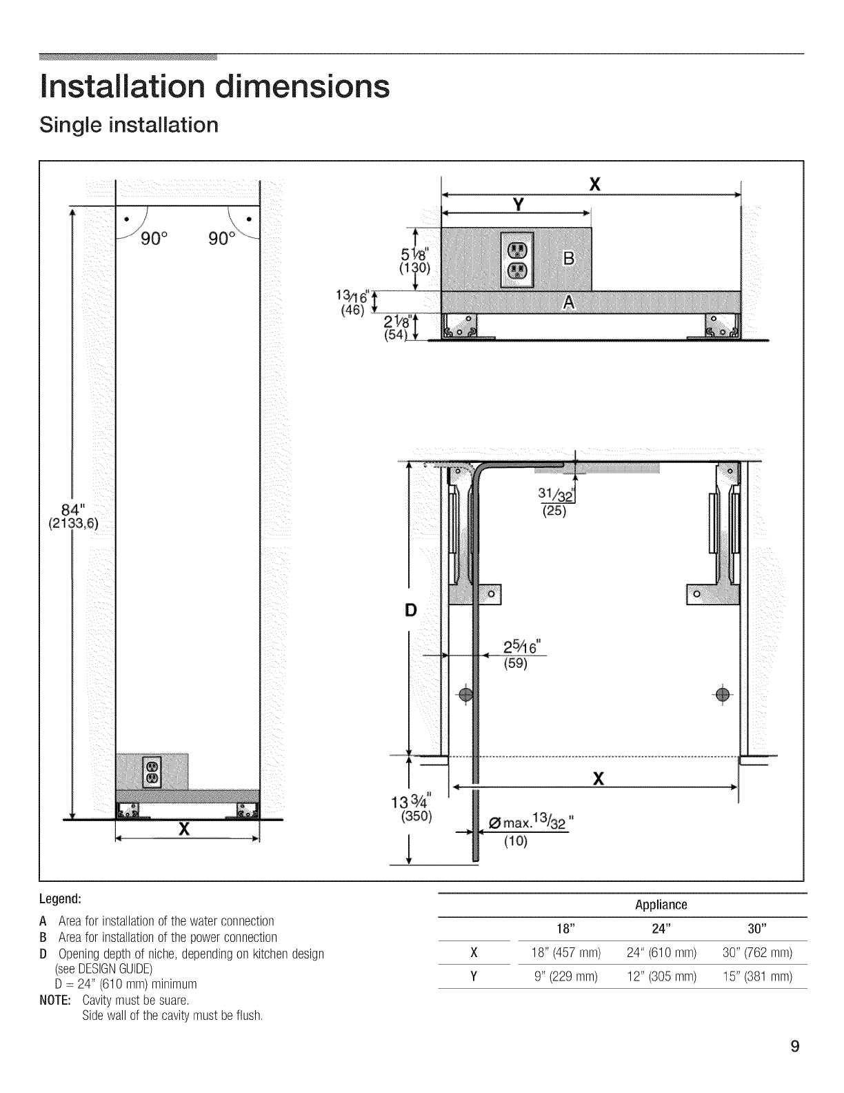
Installation dimensions
Single installation
90° 90_
X
iiil
(46)
Y
X
iii
133/4"
(350)
31
(25)
25/16"
(59)
X
Legend:
A Areafor installationof the waterconnection
B Areafor installationof the powerconnection
D Openingdepthof niche,dependingon kitchendesign
(seeDESIGNGUIDE)
D = 24" (610mm)minimum
NOTE: Cavitymustbesuare,
Sidewall of the cavitymustbeflush,
X
Y
Appliance
18" 24" 30"
18" (457 mm) 24" (610mm) 30" (762mm)
9" (229mm) 12" (305mm) 15" (381mm)
9

Side-by-Side installation
The cavity dimensions indicated above for the
respective appliance apply to a Side-by-Side installation
of two appliances.
The total width of the cavity results from the addition of
the cavity widths indicated for the two appliances.
Example:
Freezer 18" /Refrigerator 30"
! 8 (1219)
_. 30"
(457)
(46)
1i8 `¸'
(457)
0 _f
48" (762)
(12i9)
iiii L
@ @ @
(457} ._,
(1219}
1
@
0 ¸_i
(762)
Legend:
A Areafor installationof the waterconnection
B Areafor installationof the powerconnection
D Openingdepthof niche,dependingon kitchendesign
(seeDESIGNGUIDE)
D= 24" (610mm)minimum
NOTE: Cavitymust besuare,
Sidewall of the cavitymustbeflush,
10

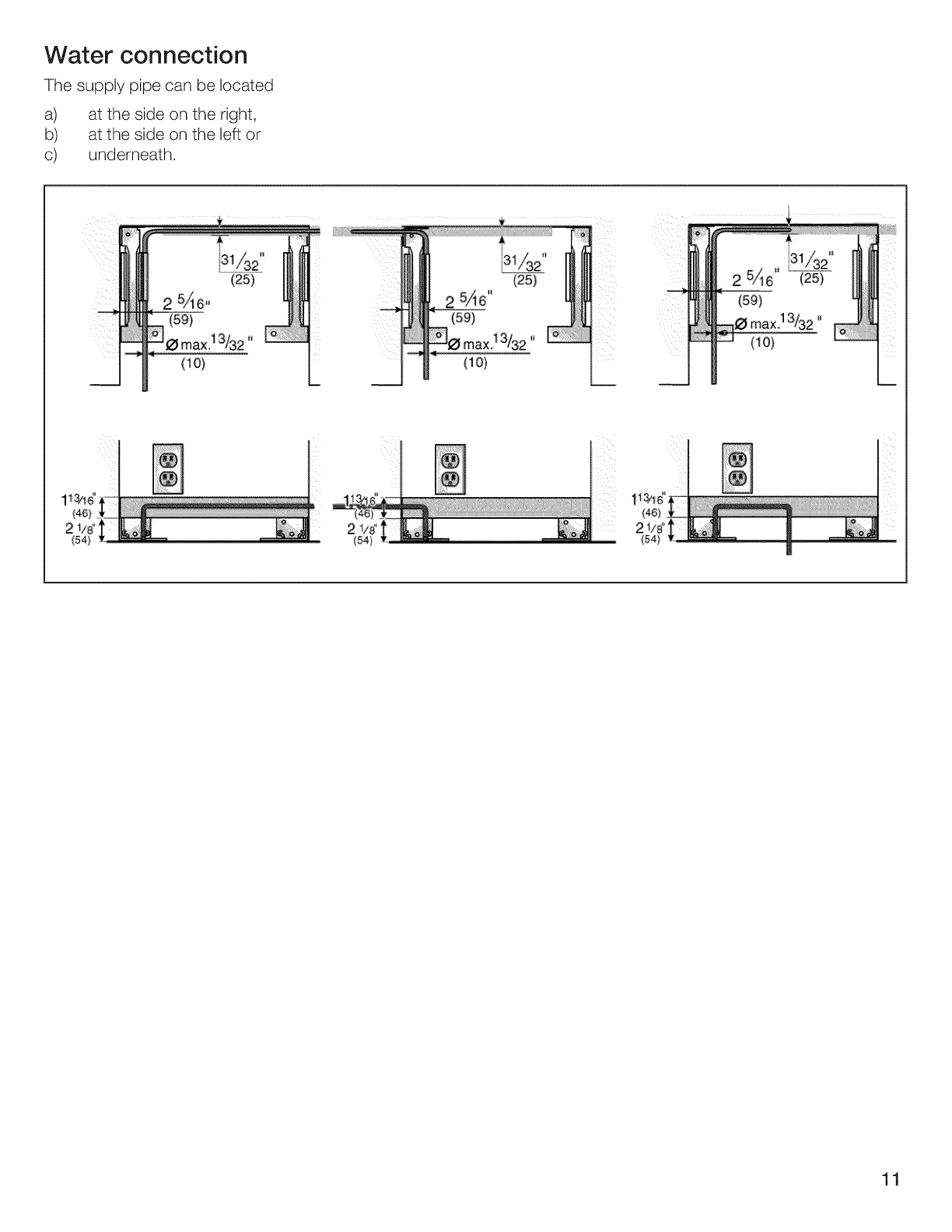
Water connection
The supply pipe can be located
a)
b)
c)
at the side on the right,
at the side on the left or
underneath.
H
3%2"
.2 5/16"
_ max, 13/32 ,,
(1o)
(lO)
113/1" I
6"?
(54} L
i¸¸
1....
(46} 2
2 it8°'
(54)
11

Appliance dimensions
1. 18" Appliance (Freezer/Freezer with Ice and
Frontview
(withoutdoorpanel)
1_" e) b)
24"
(457) (610)
i15/16"
(287,4)
T
14_ 6"
(360)
14_5"
14_6"
(36O)
115't6"
(287,4)
T
131/8"
_ii_!__iiii_iiii_ : ___
Water dispenser)
b) f) a)
797/8" 84"
(2029} (2i33,6)
c)
e)
8
(451,2)
f)
24"e_
(6io)
...... l
c)
24"
(510)e)
.... (71 _7 - 106,7)
Legend:
a) Adjustmentin levellinglegs+13/8" (35mm)/ 1/2"(13 mm).
b) Dimensionsmayvary.
c) Thicknessof doorpanelmayvary.
d) Thisdimensionmayvarydependingon installation,panelthickness
and kitchenhardware.
e) Unitdimensions
Note:
Onedesignof the woodenpaneldisplayed.Forfurther informationabout
the differentstylescheckthe DESIGNGUIDE.
12

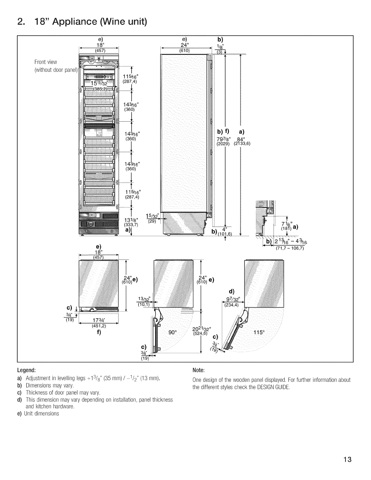
2. 18" Appliance (Wine unit)
Frontview
(withoutdoorpanel)
e)
1i8¸'`
(457)
131/8"
e)
24"
(81_o)
c)
e)
(451,2)
i)
c)
b)
b) f) a)
797/8" 84"
(2029) (2i33,6)
24"
(510)e)
2o22132"
,6) c)
i!iii_!_!_:i!_ii_i!!i:!;_i:il;;_¸!_i_iii!!iii
71/8a\
(18_) /
(71,7 -106,7)
Legend:
a) Adjustmentin levellinglegs+13/8" (35mm)/ 1/2"(13 mm).
b) Dimensionsmayvary.
c) Thicknessof doorpanelmayvary.
d) Thisdimensionmayvarydependingon installation,panelthickness
and kitchenhardware.
e) Unitdimensions
Note:
Onedesignof the woodenpaneldisplayed,Forfurther informationabout
the differentstylescheckthe DESIGNGUIDE,
13

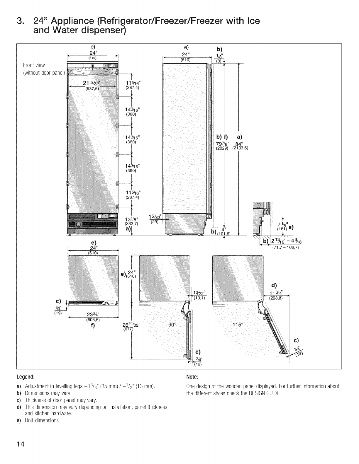
3. 24" Appliance (Refrigerator/Freezer/Freezer with Ice
and Water dispenser)
Frontview
(withoutdoorpanel)
115/16"
(287,41
138 (291
b) f) a)
84"
(2133,61
e)
c)
(_91 233/4°
(603,6)
f) 2621/32"
(677)
c)
d)
c)
Legend:
a) Adjustmentin levellinglegs+13/8" (35mm)/ 1/2"(13 mm).
b) Dimensionsmayvary.
c) Thicknessof doorpanelmayvary.
d) Thisdimensionmayvarydependingon installation,panelthickness
and kitchenhardware.
e) Unitdimensions
Note:
Onedesignof the woodenpaneldisplayed,Forfurther informationabout
the differentstylescheckthe DESIGNGUIDE,
14

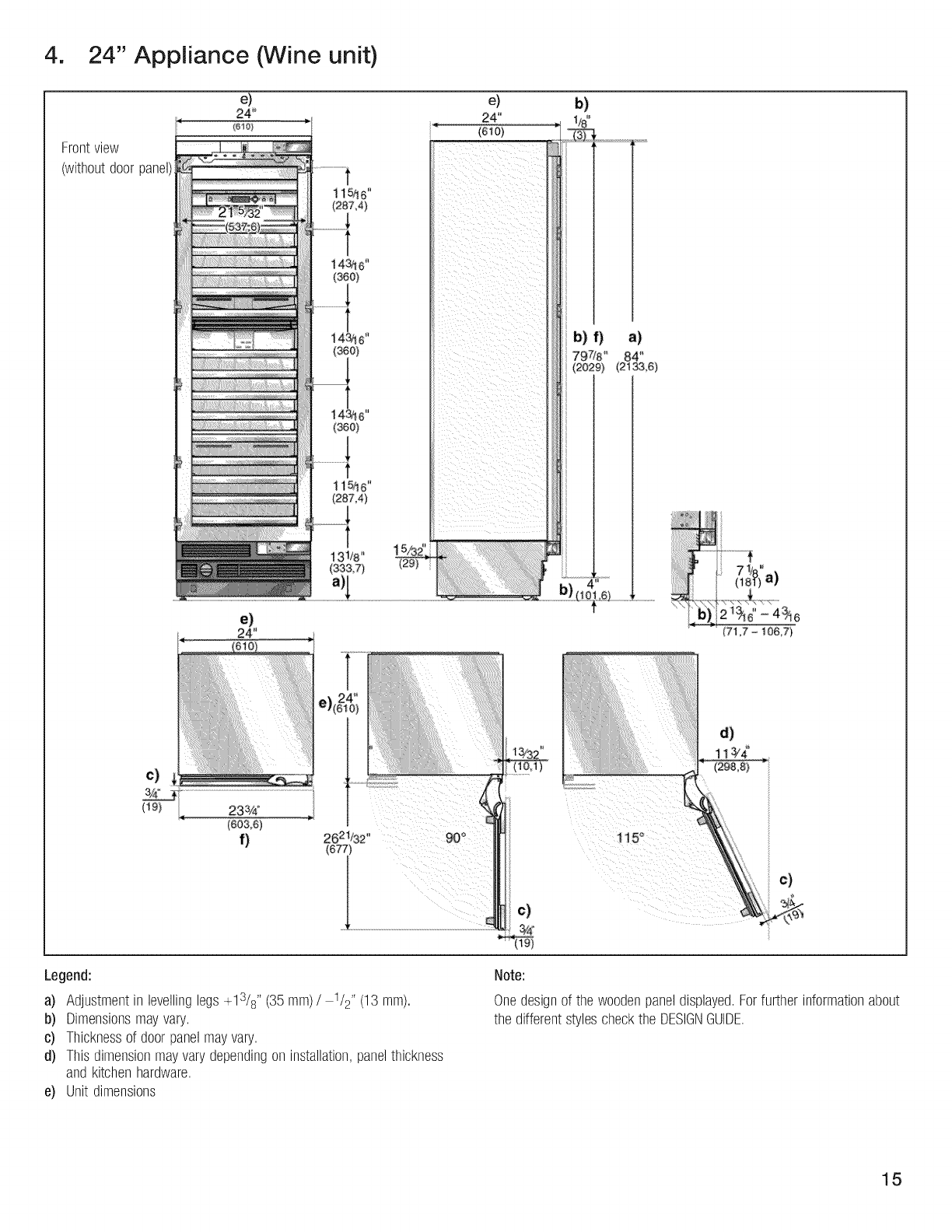
4. 24" Appliance (Wine unit)
Frontview
(withoutdoorpanel)
i15/16"
(2874)
(360)
115/16"
(287,4)
e)
24"
(29)
b)
1/8"¸
b) f) a)
797;8" 84"
(2029) (213&6}
e)
24
c)
3/4°
(_9) 23%°
(60&6)
f) 2621/32" 90°
c)
115 °
c)
Legend:
a) Adjustmentin levellinglegs+13/8" (35mm)/ 1/2"(13 mm).
b) Dimensionsmayvary.
c) Thicknessof doorpanelmayvary.
d) Thisdimensionmayvarydependingon installation,panelthickness
and kitchenhardware.
e) Unitdimensions
Note:
Onedesignof the woodenpaneldisplayed,Forfurther informationabout
the differentstylescheckthe DESIGNGUIDE,
15

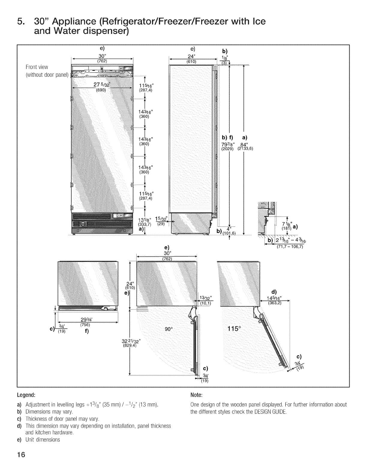
5. 30" Appliance (Refrigerator/Freezer/Freezer with Ice
and Water dispenser)
Frontview
(withoutdoorpanel)
e) e) b)
30 '_ 24'
(762) " (610) _" 1/8"
11N6"
(287,4)
14_6"
(360}
115h 6"
(287,4)
i3i/8
i¸ i_
b) f) a)
797/8,, 84,_
(2029) (2133,6)
c)
c)
Legend:
a) Adjustmentin levellinglegs+13/8" (35mm)/ 1/2"(13 mm).
b) Dimensionsmayvary.
c) Thicknessof doorpanelmayvary.
d) Thisdimensionmayvarydependingon installation,panelthickness
and kitchenhardware.
e) Unitdimensions
Note:
Onedesignof the woodenpaneldisplayed,Forfurther informationabout
the differentstylescheckthe DESIGNGUIDE,
16

Required accessories and
1. Supplied accessories
- Installation instructions
- Operating instructions
- Installation kit
2. Optional accessories
Basic Combination Side-by-Side Sealing kit
For permanent connection of two individual appliances,
e. g. Freezer next to Refrigerator.
Extreme Combination Side-by-Side Heating kit
If the gap between the appliances is less than
6" (160 mm).
Extra long finger protection part
Panel unification part (Metal strip)
For connection of two furniture doors. Can be used
for standard height furniture doors without further
preliminary work.
3. Other required accessories
from specialist outlets
Ice maker installation kit 1/_,,OD copper line
For connecting appliances which require water, e.g. for
an ice maker.
IT] Maximum outer diameter of the water pipe
(without fittings): 13/32" (10 mm).
tools
Cutter with adjustable blade
Metal tape measure
Square
Spirit level length 2' (60 cm) and 4' (1,2 m)
Marking-out level, length at least 4' (1.2 m) for
individual appliances or 7' (2.0 m) for Side-by-Side
installation
5. Other
- Stepladder
- Dolly, hand truck
- Hammer drill for drilling holes in wall or floor
- Bits according suitable for material and in different
sizes
- Wooden beam (cross section min. 3" x 4") as an
alternative tilt protection, length according to the
width of the installation cavity
- Wooden screws in different sizes
- Thin (max. 1/16" (1.5 mm)), suitable material to
protect the floor from damage (e.g. lino)
- Suitable material for covering and protecting
furniture (e.g. protective sheets)
- Adhesive tape
4. Tools
- Cordless screwdriverT20
- Torx screwdriver T20
- Torx bit T20 + magnetic holder
- 5/16" (8 mm) hex nut driver
- Wood drills in different sizes
- Open end wrench 1/2"(SW 13 mm)
- Multigrip pliers
- Adjustable wrench
17

Installation instructions
The following installation instructions describe
the installation steps for various appliance types:
- Refrigerator units
- Freezer units
- Freezer units with ice maker
- Freezer units with ice-water dispenser
- Wine storage units
Therefore the diagrams may not be a true
representation of your appliance.
Particular reference is made to special installation
steps for individual appliance types.
1. Checking the installation cavity
To ensure a safe, trouble-free installation and an
optimum overall view of the subsequent furniture
front, thoroughly check that the installation cavity
complies with the installation requirements.
Before starting the installation, check that the installation
cavity complies with all requirements for a safe and
trouble-free installation.
Q Checkthe base.
Follow the instructions in the section on "Installation
location" on page 7.
Q Check the dimensions of the cavity.
Q Check that the cavity is square.
Q Check location of the socket.
Also follow the instructions in the section on
"Connecting the power" on page 8 and in the
section on "Installation dimensions" on page 9.
Q Check location of the water connection.
(only for appliances with ice maker)
Also follow the instructions in the section on
"Connecting the water" on page 8.
Q Check attachment of the adjacent furniture/fixtures.
All furniture parts in the vicinity of the appliance
must be connected securely to the wall.
Q Check that adjacent furniture/fixtures do not collide
(door opening angle).
2.. Transport of the appliance
The appliance is very heavy. Be careful, otherwise
people who are helping may be injured or the
appliance may be damaged.
Q Transport the appliance to a suitable installation
location with suitable means of transportation
(trolley, lifting truck or hand-driven truck).
Q Secure the appliance during transportation to
prevent it from overturning.
The appliance is 2134 mm tall. If the appliance cannot
be transported in an upright position due to the
structural conditions, the appliance can be transported
horizontally.
When erecting the appliance, observe the required
minimum height at the installation location according to
the following table:
Appliancewidth Erectionvia Erectionvia
appliancerear appliance side panel
86" / 2185 mm
86" / 2185 mm
86" / 2185 mm
86" / 2185 mm
18"/457 mm 853/4" /2180 mm
24" /610 mm 871/4"/2215 mm
30" /762 mm 89" /2260 mm
36"/914 mm 911/4"/2315 mm
18

3. Removing the packaging
- The appliance may tip over while it is being
unpacked.
-The appliance is very heavy.
-When opening the appliance door, the appliance
may tip forwards.
Be careful, otherwise people who are helping may be
injured or the appliance may be damaged.
To protect the base from damage during installation:
I_ Attach a residual piece of carpet, lino, etc. to the
floor with adhesive tape in front of the intended
installation location.
B
(3
Preparing the appliance
Remove the side brackets and fixing plates which
attach the furniture fronts.
To do this, loosen the fastening screws and remove
the stop parts.
-i-] Store the stop parts in suitable receptacles,
otherwise they may get lost.
I_ Move the appliance with a hand truck securely.
I_ Remove transportation packaging:
- Remove the cartoon. Use the cutter securely to
protect the surface of appliance.
- Take supplied accessories out of protection
parts of packaging.
Do not remove transportation safety devices which
protect the shelves and storage compartments inside
the appliance until the installation is complete,
otherwise the parts may be damaged.
(3 Check appliance for damage in transit.
Do not install the appliance if it is visibly damaged.
If in doubt, contact your dealer.
19

5. Changing over the door hinges
Before working on the hinge, release the spring -
risk of injury[
The door hinges may have to be changed over
depending on the installation situation.
IT]If it is not necessary to change over the door hinges,
continue with the next installation step.
Q Unscrewthe door.
Release the spring on the hinge. Loosen the screw
from I to 0.
I_ Remove the hinges.
Q Remove the hinge box covers.
2O
I_ Remove the parts of grill.
IT]It will used new parts.

i
I_ Change over the hinge angle.
I_ Fix the hinges on the appliance. Change the hinges
crosswise!
I_ Fixthe door.
I_ Fit the plastic part of the grill.
I_ Mount the grill completely.
I_ Span the spring on the hinge. Tighten the screw
from 0 to I.
I_ Change over the fixation parts on the door.
21

Q
Preparing the installation cavity
2 anti-tip-brackets are required for each appliance
or appliance combination (Side-by-Side).
Specify the attachment points of the
anti-tip-brackets.
Specify the detailed dimensions according to the
section on "Installation dimensions" starting on
page 9.
Q Fix the hinge box cover.
Assure that there are no electrical wires or plumbing
in the area which the screws could penetrate - risk of
injury and damage!
D=24-25 !/2"
(609,6-647,7)
Q Change the attachment plates crosswise.
QIf the installation cavity is deeper than the appliance,
place a solid wooden beam behind the
anti-tip-brackets and attach securely to the base or
the wall.
The length of the wooden beam is equal to the
width of the installation cavity!
If possible, always screw the wooden beam to
existing studs on the rear panel of the cavity.
In some installations the sub-flooring or finished floor
may necessitate angling the wood screws used to
fasten the anti-tip-brackets to the back wall.
%Important information for secure attachment of the
anti-tip brackets:
The supplied set contains fastening screws for
various applications. Select the fastening screws
according to the local conditions.
If the supplied fastening screws do not permit
secure attachment of the anti-tip brackets and
therefore the appliance, another method must
be used to attach the anti-tip brackets securely.
22

Wood floor application
Use the wooden screws provided, see overview diagram
"Use the screws in the screws set".
Q Drill pilot holes:
1/s" (3 ram) for the (5 x 60 ram) wooden screws
5/G4" (2 ram) for the (4 x 15 ram) wooden screws
Being certain the screws penetrate through
the flooring and into the wall plate a minimum
of 3/4" (19 mm).
Q Attach the anti-tip-bracket completely. Be sure
screws hold tight.
a_
Q
Q
b_ C_
Manually insert the screw into the wall plug until the
screw begins to resist.
Knock the wall plug and screw into the hole until the
screw head is approx. 1/2"(13 mm) from the anti-tip
bracket.
Q Tighten the screw.
Concrete floor applications
Always wear safety glasses and other necessary
protective devices or apparel when installing or
working with anchors - risk of injury!
Not recommended for use in light-weight masonry
material such as block or brick.
Not recommended for use in new concrete which has
not had time to cure.
Do not use core drills to drill holes for this anchor.
Use concrete anchor M8 and M8 srew. Additional use
the wooden screws provided, see overview diagram
"Use the screws in the screws set".
QDrill a 10 mm diameter hole any depth exceeding
the minimum embedment. Use the provided drill.
Q Clean hole or continue drilling additional depth.
23

7. Attaching an alternative anti-tip
device
If possible, always screw the wooden beam to
existing studs on the rear panel of the cavity.
If the anti-tip brackets cannot be attached securely,
an alternative anti-tip device can be attached.
However, ensure that there is no play between the
appliance and the anti-tip device.
13 Saw the wooden beam (cross section min. 3" x 4")
to the required length.
Length is equal to the width of the installation cavity!
IT] Note
- If the installation cavity is deeper than the appliance,
select a beam which has a larger cross section or
attach 2 beams.
- The beam must cover the appliance by at least 2"
(50.8 mm).
13 Locate wall studs near the rear panel of the cavity
and mark drill holes in the beam.
13 Predrill the wooden beam.
13 Attach the wooden beam to the rear panel of the
cavity.
8. Preparing to connect the water
(only for appliances which require a water connection)
Turn off the main water tap to prevent damage
caused by leaking water.
13
13
Attach the connecting pipe to the shut-off valve
according to the instructions supplied by the
manufacturer of the ice maker installation kit.
Install the connecting pipe. Always observe the
indicated gap dimensions to prevent damage to the
connecting pipe when pushing in the appliance.
13 Attach the connecting pipe to the floor with
adhesive tape.
13
13
Mark the installation height (lower edge of the beam)
on the rear panel of the cavity.
Select screws according to the thickness of the
wooden beam: length -- min. 2.5 x beam thickness,
diameter #12 or #14.
IT] Specify the number of screws according to the
cavity width, thereby ensuring that the beam can
be attached securely.
24

9. Attaching the edge protection 10.Side-by-Side installation
IT]If a side-by-side installation is intended,
now connect the two appliances together.
See the Installation Manual for the Side-by-Side kits.
Q To protect the corners of the installation cavity,
attach the supplied protective brackets with
adhesive tape.
11. Pushing the appliance into the installation cavity
Caution when pushing the appliance into the
installation cavity. Do not damage the water pipe
or power cord attached to the floor.
IT] When the floor or the appliance is tilted in
comparison to the installation cavity adjust height
adjustable wheels before you move the appliance
into the installation cavity.
25

I_ Put the mains plug into the socket.
IT]In the case of Side-by-Side appliances a separate
socket must be used for each appliance.
I_ Prevent the power cord from becoming caught.
Tie a piece of string to the middle of the power cord
and feed forwards under the appliance. When
pushing in the appliance, pull the cable forwards.
Or
Using adhesive tape, stick the power cord to the
floor centrally behind the appliance approx. 15"
(380 mm) away from the rear panel of the cavity.
Carefully push the appliance into the cavity until
the height-adjustable wheel interlock with the
anti-tip brackets.
12. Installing and
appliance aligning the
I_ Remove edge protection.
%
Align the appliance with the furniture fronts.
Place marking-out level over the installation aid
parts on the door.
The installation aid parts on the door have been
designed for the following total thickness of furniture
doors:
_ 3A,,(19 mm)
- 11/2"(38 mm)
Always take account of the possible differing
thickness of the furniture fronts which are to be
fitted subsequently.
26

The height-adjustable feet at the front and rear can all
be adjusted from the front.
Front: with open-ended wrench 1/2" (SW13)
Rear: with 5/16" (8 mm) hex nut driver
via flexible shaft.
Never use a cordless screwdriver!
A mark is attached to the appliance base and is used as
a standard gage for height adjustment. When adjusting
the height, align this mark at a height of 1V4"(32 mm)
above the floor.
(32 mm)
Q Unscrew the height-adjustable feet until the mark
on the base has reached the indicated guide
dimension (11/4"/32 mm).
IT]It is very important to comply with this dimension for
the subsequent alignment of the furniture fronts.
Q Align the furniture fronts with the spirit level.
%
13,
Note:
Do not twist or jam the appliance inside the cavity!
When unscrewing the height-adjustable feet,
proceed gradually: Always alternate between left
and right, left and right, etc..
The adjustment of the rear feet is facilitated if the
appliance is unloaded at the rear.
If using a wooden beam as an alternative anti-tip
device according to point 6 of this installation
manual, rotate the appliance all the way towards
the wooden beam.
Attaching the appliance to the
top of the cavity
83 Screw the attachment plate lugs (top) to the
overhead furniture/fixtures.
27

(3
(3
Fix the attachment plate side lugs (top) depending
on the installation situation. If there is no gap or only
a slight gap, it is not necessary to fix the side lugs.
If there is a fairly large gap above the appliance, fit a
wooden beam above the appliance, ensuring that
the wooden beam fits the gap exactly.
14.
(3
Attaching the individual
appliance to the side of
the cavity
Screw the attachment plate lugs (side) to the
adjacent furniture/fixtures (individual appliances
only).
15. Connecting the water to the
appliance
IT] When connecting the water pipe to the solenoid
valve of the appliance, follow the instructions
supplied by the manufacturer of the ice maker
installation kit enclosed with the installation manual.
When bending the water pipe, do not kink it,
otherwise there is a risk of leaks and water damage.
Use bending aids.
I_ Attach the cover strip to the attachment plate (top).
Shorten the fitting strip to the required height!
28

16. Attaching the toe kick pane[
The maximum height of the toe kick panel is 4" from
the top of the floor. Do not cover ventilation slots in
the base panel. Risk of damage to the appliance.
Q If required, cut the toe kick panel to the required
length.
Q Remove the cap from the appliance connection (_!}.
Q Bend the water pipe according to the location of the
connection on the appliance _2}.
Q Push the union nut and seal onto the water pipe.
Q Push the end of the water pipe into the appliance
connection and screw on the union nut _3}.
Tighten hand-tight.
Q Using the open-ended wrench, tighten the union
nut. Do not overturn[
QOpen the shut-off valve and main water tap.
Check the connection on the shut-off valve and
on the appliance for leaks.
Q Attach the base panel to the appliance.
[
Q
Q
Remove the protective film from the adhesive pads
on the Velcro.
Fit the toe kick panel to the base panel and press
firmly into place.
29

(3
(3
(3
Put on the base panel (do not screw on) and
measure the difference in depth Y between the base
panel and toe kick panel of the adjacent furniture.
Remove the base panel.
Loosen the brackets for attaching the base panel
and push in all the way.
13 Attach the base panel.
[-i-] If required, the toe kick panel can be screwed to the
base panel. There are screw holes in the base panel
near the Velcro.
13 Pull out the brackets by the measured amount Y.
13 Screw the brackets tightly.
17. Commissioning the Appliance
To guarantee the accuracy of the following working
steps and thus the appearance of the overall kitchen
front later on, the appliance should now be operated.
13 Open the appliance door.
13 Press the POWER button.
Only for appliances with a water connection:
In order to avoid the risk of damage caused by
leaking water from damage possibly caused to the
water pipe feeding the appliance, keep the shut-off
valve closed.
3O

18. Preparing the furniture doors
When performing any work on the furniture doors,
always observe the following:
- Always screw into the best load-bearing material
of the furniture door.
- Never screw into fillers, decorative strips or similar.
- Select a screw length which is always shorter than
the thickness of the furniture front.
- To prevent damage, protect surfaces of the
furniture doors during installation.
The total weight of the furniture front must not
exceed the following values:
18" 37 Ibs /17 kg
24" 50 Ibs /23 kg
30" 64 Ibs /29 kg
The furniture fronts are attached to the appliance door
by means of fitting parts on the appliance. These fitting
parts allow the furniture door to be adjusted precisely
and attached securely to the appliance.
Function of different parts:
1. Double threaded bolt on the adjusting rail:
for vertical adjustment of the furniture door.
2. Side brackets:
for adjusting the depth of the furniture front.
3. Nuts on the double threaded bolt:
for securing the furniture front to prevent lateral
movement.
4. Lower brackets:
for securing the furniture front to prevent lateral
movement.
31

In the case of 30" and 36" wide appliances 2 adjacent
furniture doors can be attached instead of one large
door. These furniture doors must be connected to
a metal strip on the rear.
This metal strip can be purchased from customer
service as an optional accessory, see the section on
"Optional accessories" on page 17.
20. Attaching the adjusting rail
to the furniture door
[-i-] The adjusting rail is the most important means of
adjusting the furniture front.
When attaching the metal strip to the furniture doors,
observe the maximum possible length of the screws and
the position of the drill holes. Always screw into the best
load-bearing material of the furniture door.
Never screw into fillers, decorative strips or similar.
IT]If only one furniture door is to be attached to the
door of a 30" or 36" wide appliance, attach the
supplied sandwich plate to the adjusting rail and
lock into position.
19. Loading the appliance door
When attaching the furniture doors, it is recommended
to load the door storage compartments in the appliance
with weights in order to ensure that the gap width is as
precise as possible.
Recommendations:
18" Appliance 22 Ibs /10 kg
24" Appliance 33 Ibs /15 kg
30" Appliance 44 Ibs /20 kg
Q Unscrew the installation support part from the
appliance door.
[-i-] Store the positioning aids, there will be used in
an installation step later.
Q Measure the distance X between the adjusting rail
and the overhead furniture/fixtures.
32

4x15
21. Attaching and aligning
the furniture door
IT] The double threaded bolts are responsible for
adjusting the height of the furniture front.
Q Hang the furniture door on the double threaded
bolt.
Q Mark this amount X on the rear of the furniture door.
Q Determine and mark the centerline of the furniture
door.
Q Loosen the 2 nuts and remove the adjusting rail.
Q Put on the adjusting rail and align along the marks.
Mark the drill holes.
Q Drill the holes.
Q Screw on the adjusting rail tightly.
IT] Note
- Attach the adjusting rail to the furniture door with at
least 6 screws. One screw should be inserted under
each double threaded bolt.
6x
4 4_
6x -k
24 _
6x _r
10x
Q
Q
Align the furniture door with the double threaded
bolts (Torx screwdriver).
Transfer the middle drill holes along the outer edge
of the appliance door to the furniture front and mark.
Wine unit
The adjusting rail features a variety of holes for the
many different design options of furniture doors.
Always screw into the best load-bearing material
of the furniture door.
33

13 Remove the furniture door. 22. Attaching the furniture door
IT] Now fit the furniture handles which are screwed
from behind!
13
13
Using the positioning aid, set both longitudinal sides
of the furniture door parallel.
Using a square, extend the drill hole marks which
you have just made to the vertical marks.
13 Mark and drill the holes.
4x15
13
13
13
13
Hang the furniture door with adjusting rail over the
double threaded bolts.
Screw the nuts a little onto the double threaded
bolts. Do not tighten!
Precisely adjust the furniture door.
To do this, insert the bracket directly behind the
furniture handle into the associated fixing plate.
Slide the bracket onto the screw on the appliance
door and tighten.
Align the furniture door with the double threaded
bolts (Torx screwdriver). Then loosen the bracket
screw again.
After erecting the appliance, remove the fixing
plates again!
Align the furniture door, checking the clearance all
the way round. If required, move the adjusting rail to
the left or right.
13 Screw on the fixing plates (10x).
34

I_ Attach the bracket:
Lift the furniture door slightly away from the
appliance door.
Push the side bracket ((_!}.)on the left and right
over the screws.
- Insert the side bracket ({2}.) on the left and right
into the fixing plate and slide over the screw.
Slowly lower the door.
Continue the process until the last side brackets
(_6}.) have been inserted into the fixing plates and
are positioned on the screws.
r-7-1 The two upper brackets ((_!}.- on the left and right)
have no side piece for insertion into the fixing plate.
(3
(3
(3
Close the door and check that the depth of the
furniture front is aligned with the adjacent fronts.
If required, correct.
Tighten the bracket screws to fix the depth
alignment.
Close the door and check the side alignment.
Correct by gently tapping the edge of the open
furniture door with your hand.
(3
(3
Tighten the nuts on the adjusting rail. This will fix the
side alignment of the door.
Screw on the lower brackets (Installation kit).
Predrill holes in the furniture door!
The lower bracket fixes the side position of the door.
1. Loosen the screw.
2. Check the side position of the door.
3. Screw in the wooden screw.
4. Tighten the screw.
5. Put the cover on the brackets.
35

1× 2x
]]]The number of lower brackets depends on the width
and the design of the furniture door.
23. Shorten the finger guard
The finger guard mLISt cover the entire height of the
door. If doors exceed the standard height, use the
extra long finger guard (see "Optional accessories").
Q Hold the finger guard at the side of the open door.
[_The recesses on the finger guard must be situated
exactly at the height of the brackets!
H×-I1×2 .....
X
24. Attaching the finger guard
Insert the finger guard into the gap between the
appliance and adjacent furniture (1.).
IZI Clamp the finger guard under the brackets (2.).
i 5×
i
F_I Push the cap onto the bracket and screw tightly.
F_I Transfer the door dimensions to the finger guard.
Q Using a knife and steel ruler, shorten the finger
guard to the required length.
36

Q Attach the finger guard under the lower hinge with
the angle. Slide the cover on the angle.
25. Attaching the covers
Q Put the vertical cover strip on the finger guard.
[-i-] The side piece of the cover strip is shorter on the
side on which the finger guard has been attached.
Q Place the cover strips on the door.
Q Attach the light switch cover.
[-i-] The cover for 24", 30" and 36" appliances can be
screwed to the door.
37

Side-by-Side installation only:
!i ¸
Q Insert the cover strip into the space between the
appliances.
Individual appliances only:
Q Insert the cover strip into the space between the
appliance and the wooden panel.
26. Aligning the ice-water
dispenser
(for freezer unit with ice-water dispenser only)
The depth of the ice-water dispenser can be aligned
inside the cutout of the furniture door. This allows the
dispenser to be aligned parallel to the furniture door in
order to obtain an optimum overall appearance.
Q Remove covers.
Q Loosen screws on the 4 clamps.
A Appliance
B Furniture
QScrew on the brackets (side) for holding the cover
strip.
QInsert flat screwdriver into one of the 4 slots and
push the blocks sideways until the ice-water
dispenser are the same distance from the furniture
door.
Q Retighten the screws on the clamps.
38

Q Re-attach covers. Q Insert shelf.
27. the shelf
Attaching the cover frame and
(for freezer unit with ice-water dispenser only)
(19 ram)
For 3/4" /19 mm thick furniture doors:
Q Slide cover frame onto the ice-water dispenser and
press in until the frame is flush with the door
surface.
For 11/2" /38 mm thick furniture doors:
Q Press extension frame onto the cover frame.
Q Slide cover frame onto the ice-water dispenser and
press in until the frame is flush with the door
surface.
28. Attaching the cover strips
(for wine storage cupboard only)
Note:
If the frame width is narrow, the cover strip side piece
may have to be shortened. To determine the required
length of the side piece, test pieces are enclosed with
the cover strip.
39

Q
Q
\
Push cover strips on the longitudinal side into the
gap between the furniture door and glass pane.
Cut the cover strips on the short sides to the
required length.
29. Mounting of air separator
Screw the air separator to the furniture door in order to
separate the supply and waste air.
Q Shorten the air separator to the required length.
Q Attach the air separator with the 2 clamps.
Align the air separator with the center line of the
door as illustrated in the diagram.
QSlowly close the door. Check whether the air
separator collides with parts of the ventilation grille.
If required, shorten the longitudinal side of the air
separator by approx. 6mm.
For appliances with ice-water dispenser:
Q The air separator must be cut out in the area of the
hose.
Q Slide cover strips in the gap between the furniture
door and glass pane.
4O

30. Adjusting the door opening
angle
Depending on the installation situation, it may be
necessary to adjust the door opening angle. A door
opening angle of 115 ° has been set at the factory.
To adjust the door opening angle to 90°:
Q Open door to 90 ° .
31. Changing the door spring
To adjust the door spring:
Rotate the adjusting screw with a cross-head
screwdriver.
I -- maximum spring tension
0 -- no spring tension
I_i Insert the banking pin through the boreholes which
are now vertically aligned and drive in with
a hammer.
41

9000222885(8611)
AIJ rights reserved.
Todos los derechos reservados.
Tous droits reserves.
®Thermador is a Registered Trademark of BSH Home Appliances Corporation
@Thermador es una marca registrada de BSH Home Appliances Corporation
@Thermador est une marque de commerce deposee de BSH Home Appliances Corporation.
ThermadoW reserves the right to make changes in modeJs, features, and specifications without prior notice.
Thermador _ se reserva el derecho de hacer cambios en los modelos, caracteristicas y especificaciones sin previo aviso.
Thermador _se reserve le droit d'apporter des changements aux modeles, aux caracteristiques et aux specifications sans pr_avis.