TRANE Air Handler (indoor Blower&evap) Manual L0905036
User Manual: TRANE TRANE Air Handler (indoor blower&evap) Manual TRANE Air Handler (indoor blower&evap) Owner's Manual, TRANE Air Handler (indoor blower&evap) installation guides
Open the PDF directly: View PDF
.
Page Count: 12

18-GE02D2=4
Convertible Air Handlers
1=1/2- 5 Ton for R-410A
4TEP3F18A1000A 4TEP3F36A1000A
4TEP3F24A1000A 4TEP3F42A1000A
4TEP3F30A1000A 4TEP3F48A1000A
4TEP3F48B1000B
4TEP3F63A1000A
4TEP3F63B1000B
ALL phases of this installation must comply with NATIONAL, STATE AND LOCAL CODES
IMPORTANT -- This Document is customer property and is to remain with this unit. Please return to service
information pack upon completion of work.
A. GENERAL iNFORMATiON
THIS iNFORMATiON iS FOR USE BY iNDiViDUALS
HAVING ADEQUATE BACKGROUNDS OF ELECTRICAL
AND MECHANICAL EXPERIENCE. ANY ATTEMPT TO
REPAIR A CENTRAL AiR CONDiTiONiNG PRODUCT
MAY RESULT iN PERSONAL iNJURY AND/OR PROP=
ERTY DAMAGE. THE MANUFACTURER OR SELLER
CANNOT BE RESPONSIBLE FOR THE INTERPRETA-
TION OF THiS iNFORMATiON, NOR CAN iT ASSUME
ANY LiABiLiTY iN CONNECTION WiTH iTS USE.
Contents
General information ...........
installationLimitations& ...........
Unit Installation
Upflow
Downflow
Horizontal Left
Horizontal Right
To prevent shortening its service life, the air handler
should not be used during the finishing phases of
construction. The low return air temperaturescan lead
to the formation of condensate. Condensat_ ;i_;;;the
presence of chloridesand fluorides from pai;!i _ish,
stains, adhesives, cleaning ......
createsacorrosive .........
deterioration of the cabinet _;_ int_ _al _p ;_ents.
These instructions cover 811v_ i ;_ns in sys-
tems or provide for Should
further _formation e _ _ed o} particular problems
ar_ _ :are_ _ sufficiently by this manual,
co ;t No lo ::_ distributor or the manufacturer as
handler nameplate.
Thes_:_r Ha_lers are shipped from the factory in the
upflow horizontal right configuration and are fully
convertible to downflow or horizontal left. Refer to
Section B beginning on page 3 for additional information.
iNSPECTiON
Check carefully for any shipping damage. This must be
reported to and claims made against the transportation
company immediately. Check to be sure all major
components are in the unit. Any missing parts should
be reported to your supplier at once, and replaced with
authorized parts only.
Drain Piping
Eh -- Power Wiring
Control Wiring
Checkout Procedure
Hook-up Diagrams
Outline Drawings
Cardboard packing material must be removed from
inside the blower assembly before starting the unit.
Failure to do so may cause indoor blower motor failure.
INSTALLATION LIMITATIONS & RECOMMENDATIONS
The general location of the air handler is normally
selected by the architect, contractor and/or home owner
for the most effective application and satisfaction.
These air handlers are suitable for installation in a closet,
alcove or utility room with free, non-ducted, air return,
using the area space as a return air plenum. With ducted
supply air, if the minimum clearances to combustible
materials and service access are observed, the above
installations are suitable.

Eo o) l
|nsta||er's Guide
This area may also be used for other purposes, including
an electric hot water heater - but in no case shall a
fossil fuel device be installed and/or operated in the
same closet, alcove or utility room.
In addition, these air handlers are suitable for installation
in an attic, garage or crawl space with ducted supply and
return air.
This equipment has been evaluated in accordance with the
Code of Federal Regulations, Chapter XX, Part 3280 or the
equivalent. "SUITABLE FOR MOBILE HOME USE."
For proper installation the following items must be
considered:
!.
2.
3.
If adequate power is available and correct according
to nameplate specifications.
Insulate all ducts, particularly if unit is located
outside of the conditioned space.
To ensure maximum efficiency and system perfor-
mance, the existing supply and return duct system
static pressures must not exceed the total available
static pressure of the air handler. ReferenceACCA
Manual D, Manual S and Manual RS along with the
air handler Product Data and Service Facts for
additional information.
4. It is recommended that the outline drawing be
studied and dimensions properly noted and checked
against selected installation site. By noting in ad-
vance which knockouts are to be used, proper clear-
ance allowances can be made for installation and
possible future service.
5. When air handler with supplementary heater is to be
installed in the downflow position on combustible
flooring an accessory subbase (TAYBASE101 for
4TEP3F18-36A, TAYBASE 100 for 4TEP3F42A,
4TEP3F48-63B and TAYBASE102 on 4TEP3F48-63A)
must be used. See Figure 1.
6. If supplementary heat is to be added, power supply
must be sufficient to carry the load. In addition,
minimum air flow settings, unit and duct clearances
to combustible material must be maintained as stated
on the air handler rating nameplate.
For air handlers not equipped with afactory installed
electric heater, a field installed heater is available from
American Standard inc. Only heaters built by American
Standard inc. are approved for use in the air handler.
These heaters have been designed and tested in accor-
dance with UL standards to provide safe and reliable
operation. A list of approved heaters is provided on the
air handler rating nameplate. Heaters that are not
factory approved could cause damage and are not
covered under equipment warranty.
NOTE:
ff air handier is used WITHOUT a supplementary electric
heater, a sheetmeta] plate is required to cover the open
hole in the airflow system. See Figure 2. Also seal the
cabinet air tight where the wire enters.
7. If field installed electric heaters are applied, mini-
mum air flow settings, unit and duct clearances to
combustibles must be maintained as stated on the
air handler rating nameplate.
8. If the unit is installed without a return air duct,
applicable local codes may limit this air handler to
installation only in a single story residence and
within conditioned space.
9. If the outdoor unit is to be installed later, or by
others, then installation of the air handler must be
made to allow access for refrigerant lines, or attach
refrigerant lines to air handler when installing.
©AiR HANDLER SUBBASE
JOISTS _ JOIST
HEADER_._
A m =..,,,,,.,_
JL
HEADER _ JOIST F_"
JOISTS
m
m
m
I
APPROX, 3/4" FLANGES ON FIELD SUBBASE
FLOOR OPENING - SIZE
MODEL NO. A B
TAYBASE 100 23-3/4 14-13/16
TAYBASE 101 21-3/4 14-13/16
TAYBASE 102 26-3/4 14-13/16
MATERIAL.
© 2004 American Standard Inc. All Rights Reserved 2 18-GE02D2-4

|nstaller's Guide
@
IF AIRHANDLER IS USED WITHOUT A FACTORY FURNISHED
SUPPLEMENTARY HEATER, A PLATE IS REQUIRED TO COVER
THE OPEN HOLE IN THE AIR FLOW SYSTEM
_L I"
I'T .±
_-- 3/8"
17" b]
1/4" HOLES (4) _o
ACCESSORY BAY99X123
From Dwg. 21 B140413
!0. Make sure there are provisions for installing conden-
sate drain lines.
!1. If side, front or rear return is required, air handler
must be elevated or placed on a plenum (TAYPLNM100
or 101). Connecting return duct directly to the side,
front or rear of the cabinet is not approved.
12. Route refrigerant and condensate drain lines away
from air handler so they do not interfere with access
panels and filters.
13. When external accessories are used, the additional
height and width requirements must be considered in
the overall space needed.
14. These units are not approved for outdoor installation.
15. These units are approved for draw-through applica-
tion only.
B. UNIT INSTALLATION
UPFLOW
a. For maximum efficiency, the horizontal drip
tray should be removed. Tray removal requires
that the coil be removed by sliding the coil out on
the coil channel supports. The tray is detached
by removing the two screws at the drain pan and
the two screws holding the two brackets at the
top of the coil.
b. Remove the factory installed baffle assembly
from the apex of the coil by removing the 5/16"
hex head screws.
®FOR MAXIMUM EFFICIENCY ON
HORIZONTAL LEFT,
UPFLOW AND DOWNFLOW
Remove
and
Discard
Replace
with
Narrow
Baffle
C.
Replace this baffle with the factory supplied
narrow coil baffle using the screws removed
previously (See Figure 3).
Position unit on Pedestal or other suitable founda-
tion. If Pedestal is not used, a frame strong enough
to support the total weight must be provided.
Provide a minimum height of 14 inches for proper
unrestricted airflow.
d. If a return air duct is connected to the air handler,
it must be the same dimensions as shown in the
outline drawing.
e. Pedestal and unit should be isolated from the
foundation using a suitable isolating material.
DOWNFLOW
a. For maximum efficiency, the horizontal drip
tray should be removed. Tray removal requires
that the coil be removed by sliding the coil out on
the coil channel supports. The tray is detached
by removing the two screws at the drain pan and
the two screws holding the two brackets at the
top of the coil.
b. Remove the factory installed baffle assembly
from the apex of the coil by removing the 5/16"
hex head screws.
Replace this baffle with the factory supplied
narrow coil baffle using the screws removed
previously (See Figure 3).
NOTE:
INSTALLATION OF THE DOWNFLOW BAFFLE KIT
INCLUDED WITH UNIT IS REQUIRED ON
DOWNFLOW APPLICATIONS. SEE FIGURE 4.
©
SCREWSTO
REMOVE
DOWNFLOW BAFFLE KiT
DISCARD HORIZONTAL
7/8"GASKET-
SECT. X-X
(TYP. BOTH SIDES)
1/2" GASKET _CREWS TO
INSIDE SURFACE REMOVE COIL
OF BAFFLE
WATER \ _,/"-B
ATER oo
BLOW-OFF ....... oh% ooo
oO DIVERTER ooo
BAFFLES "_ o%0 ooo
.,.- AFF
ATTACH WITH 7-.J,_%o/f 15TON ONLY/ _\%o_'_,
o°° _ J o
2SCREWS ......
EACH SIDE I ""_ /'-_-"-'
_LL WITH SEALANT
18-GE02D2-4 3

iiiiiiiiiiii
|nsta||er's Guide
c. Detach the coil from the drain pan by removing f.
4 screws as shown in Figure 4.
d. Remove the front triangular baffle from the coil
and install the 1/2" wide gasket provided per
Figure 4. Trim the gasket length to fit the baffle.
Reinstall the bane to coil, with gasket material
compressed against the coil.
e. Install the water blow-offbaffles provided on each
side of the coil with the flange at the top as shown
in Figure 4. The bottom of the baffle is to be as g.
close to the bottom of the coil as possible.
f. Install the 7/8" wide gasket in each side of the
drain pan as shown in Figure 4 (sect. X-X).
g. Place the 2 water diverter baffles (5 ton model h.
only) underneath the coil on the inside edge of
the drain pan, Figure 4. Fill the bend in the i.
baffle which fits the inner edge of the drain pan
with RTV type adhesive/sealant before installing
the baffle.
h. The unit is then placed with the blower side down
and the coil is replaced on the coil channel supports
with the drain connections at the bottom. The unit
is now in downflow position with front access.
i. When air handler with supplementary heater is to
be installed in the downflow position on combus-
tible flooring an accessory subbase (TAYBASE101
for 4TEP3F18-36A, TAYBASE100 for 4TEP3F42A,
4TEP3F48-63B and TAYBASE102 on 4TEP3F48-
63A) must be used. See Figure 1.
HORIZONTAL LEFT
a. For maximum efficiency and Customer ease of
filter maintenance, it is recommended that a
properly sized remote filter and grille be installed
for horizontal applications. Airflow should not
exceed the face velocity of the filter being used.
The factory installed filter should then be
removed from the unit.
b. To convert the unit to horizontal left, front access,
slide the coil out on the coil channel supports and
rotate the complete coil 180 degrees.
c. Remove the factory installed bane assembly from
the apex of the coil by removing the 5/16" hex head
screws. Replace this baffle with the factory sup-
plied narrow coil bane using the screws removed
previously (See Figure 3).
d. The coil is then inserted back into the cabinet on
the opposite side coil channel supports. The unit is
now horizontal left with front access.
e. Openings where field wiring enters the
cabinet must be completely sealed. Location of
power entry is shown on the Outline Drawing.
Cage nuts are not provided for horizontal left
suspension. However, if the unit is suspended, it
must be supported from the bottom near both ends
as well as the middle to prevent sagging. The
service access must remain unobstructed.
If the unit is not suspended it must be supported as
mentioned above and isolated carefully to prevent
sound transmission. Vibration isolators (purchased
locally) must be placed under the unit.
It is always recommended that an auxiliary drain
pan be installed under a horizontal air handler
(See Condensate Piping) to prevent possible
damage to ceilings.
Isolate the auxiliary drain pan from the unit or
from the structure.
Connect the auxiliary drain pan to a separate drain
line (no trap is needed in this line) or route outside
the structure to a conspicuous location in accor-
dance with national and local codes.
HORIZONTAL RIGHT
a. For maximum e_iciency and Customer ease of
filter maintenance, it is recommended that a
properly sized remote filter grille be installed for
horizontal applications. Airflow should not exceed
the face velocity of the filter being used. The
factory installed filter should then be re-
moved from the unit.
b. Unit is shipped from the factory in the upflow or
horizontal right configuration. Unit conversion is
not required.
c. The unit is designed for suspension using 1/4" -
20 threaded rods. Other means of suspension are
allowed as long as the unit is supported from both
ends as well as the middle to prevent sagging and
service access is not obstructed.
d. If the unit is not suspended it must be isolated
carefully to prevent sound transmission. Vibration
isolators (purchased locally) must be placed under
the unit.
e. It is always recommended that an auxiliary drain
pan be installed under a horizontal air handler
(See Condensate Drain Piping) to prevent possible
damage to ceilings.
f. Isolate the auxiliary drain pan from the unit or
from the structure.
g. Connect the auxiliary drain line to a separate drain
line (no trap is needed in this line) and terminate
according to local codes.
h. If a return duct is connected to the Air Handler, it
must be the same dimensions as the return open-
ing shown in the outline drawings.
4 18-G E02D2-4

|nsta||er's Guide
C. DUCT CONNECTIONS
The supply and return air ducts should be connected to
the unit with flame retardant duct connectors.
Convertible duct flanges are provided on the discharge
opening to provide a "flush fit" for 3/4" or 1-1/2" duct board
applications. See the Outline drawing on page 9 for sizes
of the duct connections. After the duct is secured, seal
around the supply duct to prevent air leakage.
NOTE:
If the convertible duct flanges are not used, they must be
removed and discarded for proper airflow.
D. REFRIGERANT PiPiNG
IMPORTANT:
Refrigerant piping must be routed to maintain service access
to blower compartment and provide easy removal of filter
access panel and filter.
i. Refrigerant connections are made outside the cabinet.
Note:
TXV bulb MUST be protected (wrapped with wet rag) or
removed, while brazing the tubing. Overheating of the
sensing bulb will affect the functional characteristics
and performance of the air handler.
2. Installation of refrigerant lines is covered in the
installation instructions packaged with the outdoor
unit. Evacuation, leak testing and brazing procedures
are included in those instructions. Read those instruc-
tions before starting installation of refrigerant lines.
BRAZING TO EVAPORATOR SECTION
NOTE:
A brazing shield is provided in the information pack
accompanying this unit. This shield fits over the refriger-
ant fittings while brazing. Wet the shield before brazing.
See Figure 5.
IMPORTANT:
Do not unseal refrigerant tubing until ready to cut and fit
refrigerant lines.
!. Remove the sealing caps from indoor coil field
connections.
2. Field supplied tubing should be cut square, round and
free of burrs at the connecting end. Clean the tubing
to prevent contaminants from entering the system.
3. Run refrigerant tubing into the stub sockets of indoor
unit coil.
4. Braze and evacuate according to indoor and outdoor
installation instructions.
PAINTED AREAS OF UNIT MUST BE SHIELDED
DURING BRAZING.
@BRAZE SHIELD
///-
ii
E. CONDENSATE DRAIN PiPiNG
NOTE:
Make certain that the unit has been installed in a level
position to ensure proper draining.
The indoor blower is downstream of the evaporator coil
which creates a negative pressure at the condensate drain
connections during operation. The condensate drain
connections in front of the indoor coil are 3/4" NPT. The
lower connection is the primary drain. See Figure 6.
Two secondary drain connections are provided for the
different orientations (See Figure 6). The lower of the two
should be connected as a backup to prevent condensate
overflow by a blocked primary drain.
For proper drainage of condensate, the following steps
should be followed:
!. The primary drain line must be trapped with a mini-
mum of 2" water seal as shown in Figures 7 & 8. Do
not use preformed 3/4" PVC running traps.
The use of Field fabricated or manufactured traps as
shown in Figures 7 & 8 is acceptable. The manufac-
tured trap shown in Figure 7 allows for a float switch
option to be added.
Refer to the manufacturer's data and instructions
for details.
2. The trap must be located within 4 feet of the air
handler drain outlet connection.
3. It is recommended that a clean-out tee or cross be
installed in the primary drain line for future
maintenance (See Figures 7 & 8).
4. Do not use reducing fittings in the condensate drain
lines.
18-GE02D2-4 5

|nsta||er's Guide
®
i3/4 NPT Secondary
drain connection
3/4" NPT
Primary drain
connection
©MANUFACTURED TRAPS
2" MINIMUM
r
=
2" MINIMUM
EZT-105
(_ FIELD FABRICATED TRAP
2" lVllN. I
I
m =,
I
2" Mid ,I
I
I
I I
I
Close as possible
Trap must be within 4' [
of air handler condensate J
drain connection.
5. Slope the drain lines downward a minimum of 1/4"
per foot.
6. Insulate the primary drain to prevent sweating.
7. Provide means for drainage to prevent winter
freeze-up of condensate line.
8. Do not connect the drain line to a closed drain system.
9. Use Teflon ®tape on the air handler drain line
connections! Do Not Use pipe joint compound or
PVC/CPVC cement!
It is always recommended that an auxiliary drain pan be
installed under a horizontally installed air handler.
Connect the auxiliary drain line to a separate drain line
(no trap is needed in this line) and terminate according to
local codes.
NOTE:
DO NOT use a torch or flame near the plastic drain pan
coupling.
NOTE:
DO NOT tighten the drain pipe excessively. Support the
condensate piping and traps outside the unit to prevent
strain on the drain coupling.
TO PREVENT INJURY OR DEATH DUE TO ELECTRICAL
SHOCK OR CONTACT WITH MOVING PARTS, LOCK
UNIT DISCONNECT SWITCH IN OPEN POSITION
[BEFORE SERV C NG UN T.
F=
1.
ELECTRICAL m POWER WIRING
These Air Handlers are shipped from the factory
wired for 230 volts. The units may be wired for 208
volts. Follow instructions on unit wiring diagram
located on blower housing and in the Service Facts
document included with the unit.
2. The selection of wire and fuse sizes should be made
according to the Minimum Branch Circuit Ampacity
and the Maximum Overcurrent Device listed on the
unit nameplate.
3. Field wiring diagrams for electric heaters and unit
accessories are shipped with the accessory.
4. Wiring must conform to National and Local codes.
Ground unit per Local codes with good safety
procedures.
If an electric heater is not installed, connections are made
through the 7/8" knockout into the air handler junction
box to the two power leads and ground wire connections
which are located near the discharge of the blower.
NOTE:
ff air handler is used with or without a heater, the 7/8"
electrical entry hole as weft as any other cabinet penetra-
tions must be sealed air ti hghL.
6 18-G E02D2-4

Installer's Guide
G. CONTROL WIRING
!. Connect wiring between indoor unit, outdoor unit and
thermostat. The use of color-coded low-voltage wires
is recommended.
2. A low voltage terminal board is provided for control
wiring, and is located on the left side of the cross
brace in the center of the unit.
3. Field wiring diagrams are provided which show the
low voltage wiring hook-up for a single speed
cooling only system (with supplementary heaters) and
a heat pump system (with supplementary heaters).
Plug in type electrical connectors are provided for use
with supplementary heaters.
IMPORTANT:
When supplementary heaters are installed, inspect to insure
that all packaging material has been removed.
NOTE:
Direct drive motors have bearings which are perma-
nently lubricated and under normal use lubrication is not
recommended.
H. CHECKOUT PROCEDURE
!. Check the Air Handler operation and installation in
accordance with this instruction on page 12,
2, "Operational Procedure" for the system installation
can be found in the outdoor unit installer guide and
will be compatible with this Air Handler.
Cardboard packing material must be removed from
inside the blower assembly before starting the unit.
Failure to do so may cause indoor blower motor failure.
T'STAT
J
[Z]
[Z]
[Z]
%
%
[]
4TEP3F AIR HANDLER WITH HEAT PUMP
AIR
_NOTE 5
HANDLER
[Z]
[]
i
i
i
%
SEE NOTE 2
IPF_:],,,,/PM-A
SUPPL HTR. ]
CONTROL BOX RED
FOR
/3 PH
JODT" I
ODT-2
NOTE3
NOTE 4
TO POWER SUPPLY
PER LOCAL CODES &
AS DEFINED IN
FIELD WIRING TABLE
HEAT PUMP
O.D. SECTION
(SINGLE SPEED)
_--R
_--.y
_--0
BR/X2
OR BK
___
BR(T
I IlIP
f|H | H
TO POWER SUPPLY __
PER LOCAL CODES
NOTES:
I. LOW VOLTAGE WIRING TO BE NO.
18 A.W.G. MINIMUM CONDUCTORS.
WHEN FIELD-INSTALLED HEATERS ARE
USED, DISCARD POWER LEADS WITH
POLARIZED PLUG I-PM AND CONNECT
I-PF TO MATING PLUG iN THE HEATER
CONTROL BOX AS SHOWN.
3. IF OUTDOORTHERMOSTAT(ODT) IS
NOT USED, CONNECTWl TO W2 TO W3
ON LVTB.
4. CONNECT IN THIS MANNER IF
O.D. UNIT HAS "F" CONNECTION.
5. SEE HEATER WIRING DIAGRAM FOR
HEATING ANTICIPATOR SETTINGS.
INTER-COMPONENT WIRING
-24 V. FACTORY
= LINE v.jWIRING
24 V )FIELD
LINE V. WIRING
From Dwg. 21 B801082 Rev. 1
18-GE02D2-4 7

|nsta||er's Guide
4TEP3F AiR HANDLERS WiTH SINGLE SPEED COOLING UNIT, 1 STAGE HEAT
COO I NG
T 'STAT
I...................................................._NOTE4
AIR HANDLER O,D, SECTION
(SINGLE SPEED)
[]
[]
[]
SEE NOT_ 2
IW P_ A
RED
FOR
..y
_E3
NO1ES:
I LOW VOI1AGE WiRiNG 10 BE NO.
18 AWG MiNiMUM CONDUCTOR
WHEN FIELD-INSTALLED HEATERS ARE
USED, DISCARD POWERLEADS W}TH
POLARIZED PLUG PN-A AND CONNECT
I-PF TO MATING PLUG }N THE HEATER
CONTROL BOX AS SHOWN
3 IF OUTDOOR THERMOSTAT (ODT) }S
NOT USED, CONNECT Wl TO W2 TO WB
ON IVTB
4 SEE HEAIER WIRING DIAGRAM FOR
HEATING ANTiCiPATOR SETTING
INTER-COMPONENT WIRING
From Dwg. 21B801083 Rev. 1
4TEP3F AIR HANDLER WITH SINGLE SPEED COOLING UNIT, 2 STAGE HEAT
COOLING
O,D. SECTION
IR HANDLER
[]
[]
[]
[]
[]
[]
[]
SEE NOTE 2
'"RF_pN.A
_Bo_SUPPL__ NTR FoRREO3PN
TO POWERSUPPLY
PER LOCALCODES &
ASDEFINEDIN
FIELDWIRINGTABLE
T'STAT
2-STAGE HEAT/
I-STAGE COOL
_--NOTE 3
_, "_-FIELD
IPNV ADDED
JUMPER
[]
[]
[]
[]
(SINGL SPEED)
--y
TO POWERSUPPLY
PER LOCALCODES
NOTES:
I. LOW VOLTAGEWIRING TO BE NO.
18 A.W,G. MINIMUM CONDUCTOR.
WHEN FIELD-INSTALLED HEATERS
ARE USED, DISCARD POWERLEADS
WITH POLARIZED PLUG PM-A AND
CONNECT I_PF TO MATING
PLUG IN THE HEATER
CONTROL BOX AS SHOWN,
3. SEE HEATERWIRING DIAGRAM
FOR HEATING ANTICIPATOR
SETTING,
INTER-COMPONENT WIRING
124 v_FACTORY
...... LINEIv_WlRING
24 V FIELD
LiNE V WIRING
From Dwg. 21B801081 Rev. 1
8 18-G EO2D2-4

Installer's Guide
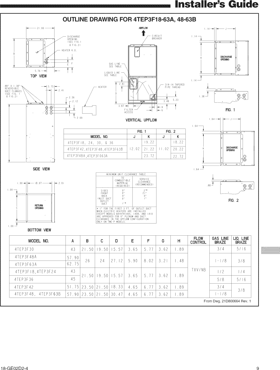
OUTLINE DRAWING FOR 4TEP3F18-63A, 48-63B
AIRFLOW
CIRCUIT
BREAKER 114 7 T
K
TOP VIEW
o
s s7,,,d
FILTER
ACCESS
VERTICAL UPFLOW
MODELNO.
4TEP3FI8, 24, S0, & 36
41EPSF42,41EP3F48,418P3F63B
4TFP3F48A 4TEP3FO63A
FIG.I FIG.2
dK , K
_9,22 18.22
12.02 2122 }102 2022
2372 2272
SIDE VIEW
i O0
I 00_ ...................
COPENING
oo } BOTTOM VIEW
I" FOR THE FIRST 3 FT OF OUTLET DUC(
WHEN ELECTRIC HEALERS ARE HqS[AL/ED
EXCEPT MODELS BAYHTRI405, 1408, AND 1410
ARF APPROVED FO_ 0" PLENUM AND DUCT
CLFARAHCE IN [HE UPFLOW CONFIGUI_ATIO_
ONLY ON TWEP MODELS¸
114 _
K
I 64_
FIG.I
_j_
:OPENINGDISCHARQE_/I'i /
88 _
FIG.2
MODELNO. A
4]EP3FSO 43
4fEP3F48A 57.90
4TEP3F63A 62.75
4TEP3FIS,4TEP3F24 43
4]EPSF36 45
4TEP3F42 51.75
4TEP3F48, 4TEP3F63B 57.90
B C D E F G H
21.50 19.50 15.51 3.65 5.1! 3.62 1.89
26 24 27.12 5.90 8.02 3.21 1.48
21.50 19.50 15.57 3,65 5,77 3.62 1.89
23.50 21.50 18.33 4.65 6.77 3.62 1.89
23.50 21.50 30.47 4.65 6.77 3,62 1,89
FLOW
CONTROL
TXV/NB
GAS LINE
BRAZE
3/4
11/8
I/2
5/8
5/4
I-I/8
LIO. LINE
BRAZE
5/}6
5/8
I/4
5/16
5/8
From Dwg. 21D8OO664 Rev.
18-GEO2D2-4 9

|nsta||er's Guide
CAGE NUT MOUNTING iNSTRUCTiON FOR 4TEP3F AiR HANDLERS
1.50
H
B
* FOR 4TEP3F63B WITH
TWO PIECE CABINET ONLY.
A
Model No. H W A B
4TEP3F18A
4TE P3F24A 43.00 21.50 17.00 39.00
4TEP3F30A
4TEP3F36A 45.00 21.50 19.00 41.00
4TEP3F42A 51.75 23.50 23.80 47.75
4TEP3F48A 57.90 26.00 29.00 53.90
4TEP3F63A 62.75 26.00 31.20 58.75
4TEP3F48B 57.90 23.50 31.20 58.75
4TEP3F63B 57.90 23.50 31.20 58.75
19.50
_".50
1.00
21.00 f
W
From Dwg. 21 B800400 Rev. 1
10 18-GE02D2-4

|nsta||er's Guide
NOTES
18-GEO2D2-4 11

|nsta||er's Guide
CHECKOUTPROCEDURES
After installation has been completed, it is recommended that the Air Handler be checked against the following
checklist.
!. Make sure power is "OFF" at power
disconnect switch ................................................... [
2. Check all field wiring for tight connections. See
that grounding of unit is in accord with code ........ [
3. Make sure unit suspension (if used) is secure
and that there are no tools or loose debris in,
around or on top of the unit ................................... [
4. Check all duct outlets; they must be open
and unrestricted ..................................................... [
5. Check drain lines and be sure
all joints are tight .................................................. [
]
]
6.
7.
8.
] 9.
] !0.
]
Make sure secondary drain pan is installed .......... [ ]
Check power supply for correct requirements
per unit nameplate ................................................ [ ]
Check filters for proper size. Inform owner
of proper procedure for removal and
reinstallation ......................................................... [ ]
Energize the system and carefully observe its
operation; make any necessary adjustment .......... [ ]
Instruct owner, engineer (if possible) on proper
operating procedure and leave Use and Care
Manual with owner ................................................ [ ]
SUPPLEMENTARY HEATERS CHECKOUT PROCEDURES,
iF USED DOES HEATER REQUIRE A SPECIAL CiRCUiT?
SEE "LiMiTATiONS AND RECOMMENDATIONS"
!. Be sure the disconnect switch is "OFF", and safety label (if any) is attached ............................................... [ ]
2. Check on field wiring for tight connections and grounding according to codes ............................................. [ ]
3. Check circuit protection for proper size per nameplate specifications ........................................................... [ ]
4. Check control box panel -- in place and secured ........................................................................................... [ ]
NOTE:
OPERATION OF HEATERS MUST BE CHECKED DURING THE OPERATION CHECK OF THE TOTAL SYSTEM.
American Standard Inc.
6200 Troup Highway
Tyler, TX 75711
8/04
For more information contact Since the manufacturer has a policy of continuous product and product data improvement, it reserves the right
your loca! dealer(distributor) to change design and specifications without notice.