Teltronic U PTBSR75450B RF Transceiver / Base Station Repeater User Manual BSR BSR75 Installation Guide
Teltronic S.A.U. RF Transceiver / Base Station Repeater BSR BSR75 Installation Guide
User manual

BSR & BSR75. INSTALLATION GUIDE.
F067207PT_2800b05
Page 1 of 28
en
Document
F067207PT
_2
8
00
b0
5
Product
PowerTrunk
-
T
Date
March
201
8
T
TE
EC
CH
HN
NI
IC
CA
AL
LD
DE
ES
SC
CR
RI
IP
PT
TI
IO
ON
N
P
Po
ow
we
er
rT
Tr
ru
un
nk
k-
-T
T
B
BS
SR
R&
&B
BS
SR
R7
75
5.
.I
IN
NS
ST
TA
AL
LL
LA
AT
TI
IO
ON
NG
GU
UI
ID
DE
E.
.

BSR & BSR75. INSTALLATION GUIDE.
F067207PT_2800b05
Page 2 of 28
en
WASTE MANAGEMENT
PowerTrunk Inc. is the subsidiary of Teltronic S.A.U. responsible for business development, distribution and customer support for
Teltronic’s Land Mobile Radio products in North America. The company is headquartered in New Jersey. Teltronic S.A.U. distributes the
same products for Land Mobile Radio under different trademarks and brand names in other regions of the world.
Disclaimer
Although every reasonable effort has been made to ensure the accuracy of the information contained herein and in any other referred
document, this should not be construed as a commitment on the part of Teltronic S.A.U. and/or PowerTrunk Inc., and the liability of
Teltronic S.A.U. and/or PowerTrunk Inc. for any errors and omissions shall be limited to the correction of such errors and omissions.
Teltronic S.A.U. and/or PowerTrunk Inc. welcomes any comment as a way to improve any delivered documentation.
The information contained herein has been prepared for the use of appropriately trained personnel, and it is intended for the purpose of
the agreement under which the information is submitted. Any party using or relying upon this information assumes full responsibility for
such use and in no event shall Teltronic S.A.U. and/or PowerTrunk Inc. be liable to anyone for special, collateral, incidental, or
consequential damages in connection with or arising out of the use of this information.
The information or statements given in these documents regarding the suitability, capacity or performance of the mentioned hardware or
software products cannot be considered binding but shall be defined in the agreement made between Teltronic S.A.U. and/or
PowerTrunk Inc. and the customer.
Teltronic S.A.U. and/or PowerTrunk Inc. reserves the right to revise these documents and to make changes to their content at any time,
without prior notification.
Copyright
No part of the information contained herein and the other referred documents may be copied, distributed or transmitted by any means to
any other party without prior written permission of Teltronic S.A.U. and/or PowerTrunk Inc. The distribution of this document may be also
covered by NDA (non-disclosure agreement) between Teltronic S.A.U. and/or PowerTrunk Inc. and the receiver.
Please also note that part of these contents even may be covered by patent rights.
This document, the referred documents and the described product are considered protected by copyright according to the applicable
laws.
PowerTrunk and the PowerTrunk logo are registered trademarks of Teltronic S.A.U.
Copyright © PowerTrunk Inc. All rights reserved
The symbol means that the product must be taken to separate collection at the product end-of
life. Do not dispose of these products as unsorted municipal waste.

BSR & BSR75. INSTALLATION GUIDE.
F067207PT_2800b05
Page 3 of 28
en
TABLE OF CONTENTS
1. INTRODUCTION 4
2. UNPACKING AND CHECKING 4
3. PREVIOUS CONSIDERATIONS 4
4. INFORMATION ON SAFETY AND ELECTROMAGNETIC COMPATIBILITY / INFORMATIONS SUR
LA SÉCURITÉ ET LA COMPATIBILITÉ ÉLECTROMAGNÉTIQUE 5
4.1 ENGLISH 5
4.1.1 GENERAL CONSIDERATIONS ABOUT SAFETY 5
4.1.2 OPERATION AND EXPOSURE TO RF ENERGY 6
4.1.3 IMPORTANT SAFETY NOTES ABOUT THE ANTENNA 7
4.1.4 ELECTROMAGNETIC COMPATIBILITY REGULATORY INFORMATION (FCC AND ISED) 8
4.1.5 EMC, SAFETY AND RF EXPOSURE STANDARDS 9
4.2 FRANÇAIS 10
4.2.1 CONSIDÉRATIONS GÉNÉRALES SUR LA SÉCURITÉ 10
4.2.2 FONCTIONNEMENT ET EXPOSITION À L'ÉNERGIE RF 11
4.2.3 NOTES DE SÉCURITÉ SUR L'ANTENNE 12
4.2.4 INFORMATIONS RÉGLEMENTAIRES SUR LA COMPATIBILITÉ ÉLECTROMAGNÉTIQUE (FCC ET ISED) 13
4.2.5 RÉGLEMENT SUR LA CEM, LA SÉCURITÉ ET L’ÉXPOSITION AUX RF 14
5. EQUIPMENT DESCRIPTION 15
5.1 FRONT VIEW 15
5.2 REAR VIEW 17
5.3 MODULES 18
5.4 CABLING AND CONNECTORS 21
6. INSTALLATION GUIDE 23
6.1 LOCATION 23
6.2 POWER SUPPLY CONNECTION 23
6.3 ANTENNA CONNECTION 24
6.4 SWITCHING ON THE BSR OR BSR75 24
7. CONFIGURATION 25
8. INCIDENTS 25
8.1 ALARMS 25
8.2 ALARMS WITHOUT STATUS LEDS 28
8.2.1 INTERFERENCE AT BSR. 28

BSR & BSR75. INSTALLATION GUIDE.
F067207PT_2800b05
Page 4 of 28
en
1. INTRODUCTION
The BSR module (Base Station Repeater 40 W) and BSR75 module (Base Station Repeater 75 W)
are a modular design, high performance products used as TETRA repeaters.
This manual is common to all the equipment models, including all their options and accessories.
The proper functioning of any electronic device depends on its correct use. It is therefore
recommended that the instructions in this manual be followed.
2. UNPACKING AND CHECKING
The BSR or BSR75 module is usually supplied already assembled in the infrastructure cabinet;
nevertheless, in special circumstances, it may be individually packaged.
The equipment is supplied with all the modules already assembled in the rack and with RF cables
connected. The modules in the basic configuration are: Control (RCPU), Transmitter (RTX or RTX75), power
module (RPA or RPA75), Receiver (RRX) and the power supply module (RPS or RPS75).
IMPORTANT: if any of these elements is missing or damaged, contact your dealer and / or installer.
3. PREVIOUS CONSIDERATIONS
This manual contains information on instructions for installation, maintenance and use. Read the
following pages before using this equipment.
It is inadvisable to switch on the equipment without having previously connected the antenna or, in specific
versions of BSR75, the 50W load to the TNC connector. Doing so may seriously damage the equipment and
even cause irreparable damage to the transmitter circuits. It is important to use an antenna adjusted to the
work frequency.

BSR & BSR75. INSTALLATION GUIDE.
F067207PT_2800b05
Page 5 of 28
en
4. INFORMATION ON SAFETY AND ELECTROMAGNETIC
COMPATIBILITY / INFORMATIONS SUR LA SÉCURITÉ ET LA
COMPATIBILITÉ ÉLECTROMAGNÉTIQUE
4.1 ENGLISH
4.1.1 GENERAL CONSIDERATIONS ABOUT SAFETY
Most electronic equipment is susceptible to electromagnetic interference if it is not duly protected. If
the BSR or BSR75 is placed near unprotected electronic devices, they may malfunction.
Only cables that fulfil the characteristics specified in this document must be used. Communication
cables must be shielded and earthed at both ends.
Do not attempt to dismantle this product. Servicing and repairs to this product must be performed by
trained service technicians at PowerTrunk approved service centres.
PowerTrunk has not approved any changes or modifications to this device by the user. Any changes
or modifications could void the user’s authority to operate the equipment.
Only fit an approved accessory. If a non-approved accessory is fitted, it may compromise the product
safety ratings and may void any product warranty.
Take care when handling the BSR or BSR75. It has sharp edges, which may cut if handled
incorrectly.
Maintenance and repair of these repeaters must be carried out by qualified personnel only.
Connect the BSR or BSR75 chassis to earth.
Switch off the BSR or BSR75 before inserting/removing any of its modules

BSR & BSR75. INSTALLATION GUIDE.
F067207PT_2800b05
Page 6 of 28
en
4.1.2 OPERATION AND EXPOSURE TO RF ENERGY
It is the responsibility of the person operating the product to ensure that it is operated safely at all
times, and that local laws and regulations governing the usage of Radio Frequency (RF) wireless devices are
observed. Obey all signs and instructions relating to the usage to RF wireless devices.
PowerTrunk designs and manufactures products to meet strict guidelines and international standards
relating to Radio Frequency (RF) energy and the potential health risks associated with using RF wireless
devices. If you have any concerns relating to long term health risks associated with using RF wireless
devices, you should obtain advice from your employer.
FCC and ISED radiation exposure statement
This radio is intended for use in occupational/controlled applications where users have been made
aware of the potential risks for exposure and can exercise control over their exposure. This product is not
authorised for general population, consumer or similar use. This transmitter must not be co-located or
operated in conjunction with any other antenna or transmitter.
This equipment complies with FCC and ISED radiation exposure limits set forth for an uncontrolled
environment. The antenna should be installed and operated with minimum distance of 5.5 m between the
radiator and your body. This transmitter must not be co-located or operating in conjunction with any other
antenna or transmitter.
FCC compliance labelling on RF Exposure
The following compliance product labelling can be found in a conspicuous location of the BSR75 for
North America market:
FCC notice on operating the device
The device may contain functions that are not operational in U.S Territories except as noted in the
certification filing. Devices may be restricted in frequency by the FCC TCB Grant. Please refer to it for
allowed frequency ranges. The TCB Grant may have extended frequencies as noted in the certification filing
and Section 2.927(b) may apply to the authorisation. The device complies with 47 CFR Part 90.203 (e), in
that the operator cannot directly program the transmit frequencies using the normal accessible external
controls. All instructions detailed in this manual must be followed in order to ensure compliance with RF
exposure limits.
Failure to observe these restrictions may result in exceeding the FCC RF exposure limits.
ISED Canada information on RF Exposure
The Government of Canada provides further information about RF Exposure by means of official
publications that are available on the following website:
http://www.ic.gc.ca/eic/site/smt-gst.nsf/eng/sf01904.html

BSR & BSR75. INSTALLATION GUIDE.
F067207PT_2800b05
Page 7 of 28
en
4.1.3 IMPORTANT SAFETY NOTES ABOUT THE ANTENNA
The BSR75 has been approved by FCC and ISED to operate with the antenna types listed below
with the maximum permissible gain indicated. Antenna types not included in this list, having a gain greater
than the maximum gain indicated for that type, are strictly prohibited for use with this device.
MODEL CERTIFICATION NUMBER TYPE OF ANTENNA MAX.GAIN
BSR75 –7
(409-430 MHz) FCC ID: WT7PTBSR75410B
IC: 8624A-PTBSR75410B
Vertically polarised panel antenna 11.0 dBi
Cross-polarised panel antenna 15.0 dBi
Vertically polarised collinear antenna 11.15 dBi
MODEL CERTIFICATION NUMBER TYPE OF ANTENNA MAX.GAIN
BSR75 –8
(450-470 MHz) FCC ID: WT7PTBSR75450B
IC: 8624A-PTBSR75450B
Vertically polarised panel antenna 11.0 dBi
Cross-polarised panel antenna 15.0 dBi
Vertically polarised collinear antenna 11.15 dBi
MODEL CERTIFICATION NUMBER TYPE OF ANTENNA MAX.GAIN
BSR75 –K
(763-806 MHz) FCC ID: WT7PTBSR75760B
IC: 8624A-PTBSR75760B
Vertically polarised panel antenna 16.5 dBi
Cross-polarised panel antenna 18.0 dBi
Vertically polarised collinear antenna 11.15 dBi
MODEL CERTIFICATION NUMBER TYPE OF ANTENNA MAX.GAIN
BSR75 –N
(806-870 MHz) FCC ID: WT7PTBSR75800B
IC: 8624A-PTBSR75800B
Vertically polarised panel antenna 16.5 dBi
Cross-polarised panel antenna 18.0 dBi
Vertically polarised collinear antenna 11.15 dBi
Only use PowerTrunk approved antennas with this product. The use of non-approved antennas may
damage the product, will result in the non-compliance with regulatory requirements, will compromise the
product safety ratings, will reduce the length of operating time and will invalidate the product warranty.
When installing the antenna, follow the guidelines for exposure of the human body to high and low
frequency electromagnetic fields. Follow the supplier’s / manufacturer’s instructions.
The BSR must not transmit without its antenna connected or, in specific versions of BSR75, without
the 50W load in the TNC connector.
Burns may be suffered if the antenna connector output of the power module (RPA or RPA75) is
touched by bare skin when the BSR or BSR75 are transmitting with the antenna disconnected.
NEVER use your device if the antenna shows signs of damage.

BSR & BSR75. INSTALLATION GUIDE.
F067207PT_2800b05
Page 8 of 28
en
4.1.4 ELECTROMAGNETIC COMPATIBILITY REGULATORY INFORMATION (FCC AND ISED)
These devices generate, use and radiate RF energy and, if not installed and used in accordance with
the instruction manual, may cause harmful interference to radio communications.
FCC interference statement and compliance labelling
This device complies with Part 15 of the FCC Rules and Industry Canada’s licence-exempt RSS
standards. Operation is subject to the following two conditions: (1) this device may not cause
interference, and (2) this device must accept any interference, including interference that may cause
undesired operation of the device.
A label with the text above can be found in a conspicuous location of the BSR75 for North America
market.
FCC Class B digital device notice
This equipment has been tested and found to comply with the limits for a Class B digital device, pursuant
to part 15 of the FCC Rules. These limits are designed to provide reasonable protection against harmful
interference in a residential installation. This equipment generates, uses and can radiate radio frequency
energy and, if not installed and used in accordance with the instructions, may cause harmful interference to
radio communications. However, there is no guarantee that interference will not occur in a particular
installation. If this equipment does cause harmful interference to radio or television reception, which can be
determined by turning the equipment off and on, the user is encouraged to try to correct the interference by
one or more of the following measures:
- Reorient or relocate the receiving antenna.
- Increase the separation between the equipment and receiver.
- Connect the equipment into an outlet on a circuit different from that to which the receiver is
connected.
- Consult the dealer or an experienced radio/TV technician for help.
ISED Canada ICES-003 compliance labelling
This Class B digital apparatus has been fully tested and found to comply with the Canadian ISED
(Innovation, Science and Economic Development) standard ICES-003. A label with the text below can be
found in a prominent location of the radio for North America market:
CAN ICES-3 (B) / NMB-3 (B)

BSR & BSR75. INSTALLATION GUIDE.
F067207PT_2800b05
Page 9 of 28
en
4.1.5 EMC, SAFETY AND RF EXPOSURE STANDARDS
BSR and BSR75 are in conformity with the applicable requirements of the following standards and
normative documents, in full accordance with the aforesaid directive:
ETSI EN 300 394-1 Terrestrial Trunked Radio (TETRA);Conformance testing
specification; Part 1: Radio
ETSI EN 301 489-1 Electromagnetic Compatibility and Radio spectrum Matters
(ERM); ElectroMagnetic Compatibility (EMC) standard for radio
equipment and services; Part 1: Common technical requirements
ETSI EN 301 489-5
ElectroMagnetic Compatibility (EMC) standard for radio
equipment and services; Part 5: Specific conditions for Private
land Mobile Radio (PMR) and ancillary equipment (speech and
non-speech) and Terrestrial Trunked Radio (TETRA) Harmonised
Standard covering the essential requirements of article 3.1(b) of
the Directive 2014/53/EU
EN 60950-1 / IEC 60950-1 / UL 60950-1 Information technology equipment - Safety -- Part 1: General
requirements
EN 50385
Product standard to demonstrate the compliance of radio base
stations and fixed terminal stations for wireless
telecommunication systems with the basic restrictions or the
reference levels related to human exposure to radio frequency
electromagnetic fields (110 MHz - 40 GHz) - General public
BSR and BSR75 have been designed according to the Radio Equipment Directive 2014/53/EU
(RED).
Note: The exact editions can be found in the declaration of conformity.

BSR & BSR75. INSTALLATION GUIDE.
F067207PT_2800b05
Page 10 of 28
en
4.2 FRANÇAIS
4.2.1 CONSIDÉRATIONS GÉNÉRALES SUR LA SÉCURITÉ
La plupart des équipements électroniques sont susceptibles d'être soumis à des interférences
électromagnétiques s'ils ne sont pas correctement protégés. Le montage de le BSR ou le BSR75 est placé à
proximité d'équipements électroniques non protégés peut provoquer un dysfonctionnement de ces derniers.
Seuls les câbles répondant aux caractéristiques indiquées dans ce document doivent être utilisés.
Les câbles de communication doivent être blindés et ils doivent être mis à la terre aux deux extrémit
N'essayez pas de démonter ce produit. L'entretien et les réparations de ce produit doivent être
effectués par des techniciens de maintenance qualifiés dans les centres de service agréés par PowerTrunk.
PowerTrunk n’approuve aucune modification apportée à l’appareil par l’utilisateur, quelle qu’en soit
la nature. Tout changement ou modification peuvent annuler le droit d’utilisation de l’appareil par l’utilisateur.
N'installez qu'un accessoire approuvé. Si un accessoire non approuvé est installé, cela pourrait
compromettre les cotes de sécurité du produit et annuler la garantie du produit
Manipuler le BST/BSR75 avec soin. Cet équipement est pourvu d'arêtes qui peuvent être à l'origine
de coupures en cas de mauvaise manipulation.
La maintenance et la réparation de cet équipement doivent être prises en charge par du personnel
qualifié.
Connectez le châssis BSR ou BSR75 à la terre.
Eteindre le BSR ou le BSR75 avant d'insérer / retirer l'un de ses modules

BSR & BSR75. INSTALLATION GUIDE.
F067207PT_2800b05
Page 11 of 28
en
4.2.2 FONCTIONNEMENT ET EXPOSITION À L'ÉNERGIE RF
Il est de la responsabilité de la personne qui exploite le produit de s'assurer qu'il est exploité en toute
sécurité en tout temps et que les lois et règlements régissant l'utilisation des appareils sans fil à
radiofréquence (RF) sont respectés. Respectez tous les signes et instructions relatifs à l'utilisation des
appareils RF sans fil
Powertrunk conçoit et fabrique des produits répondant aux normes et directives internationales
strictes relatives à l'énergie des radiofréquences (RF) et aux risques potentiels pour la santé associés à
l'utilisation de dispositifs RF sans fil. Si vous avez des préoccupations concernant les risques à long terme
pour la santé associés à l'utilisation de dispositifs RF sans fil, vous devriez obtenir des conseils de votre
employeur
Déclaration de l'exposition aux radiations FCC et ISED
Cette radio est conçue pour être utilisée dans des applications professionnelles / contrôlées où les
utilisateurs ont été informés des risques potentiels d'une exposition et peuvent exercer un contrôle sur leur
exposition. Ce produit n'est pas autorisé pour l'usage de la population générale, consommateur ou similaire.
Cet émetteur ne doit pas être localisé ou utilisé avec d'autres antennes ou émetteurs.
Cet équipement est conforme aux limites d'exposition aux radiations FCC et ISED définies pour un
environnement non contrôlé. L'antenne doit être installée de façon à garder une distance minimale de 5.5 m
entre la source de rayonnements et votre corps. L'émetteur ne doit pas être colocalisé ni fonctionner
conjointement avec à autre antenne ou autre émetteur.
Étiquetage de conformité FCC RF
L'étiquette de conformité de produit suivante peut être trouvée dans un emplacement visible sur
l'unité BSR75 pour le marché nord-américain:
Avis sur le fonctionnement du dispositif FCC
L'appareil peut contenir des fonctions qui ne sont pas opérationnelles dans les territoires des États-
Unis. UU sauf tel qu'indiqué dans la demande de certification. La subvention FCC TCB peut limiter la
fréquence des appareils. Voir les plages de fréquences autorisées. La subvention de TCB peut avoir des
fréquences étendues comme indiqué dans la soumission de certification et la section 2.927 (b) peut
s'appliquer à l'autorisation. L'appareil est conforme à la norme 47 CFR Part 90.203 (e), car l'opérateur ne
peut pas programmer directement les fréquences de transmission à l'aide des commandes externes
normalement accessibles. Toutes les instructions détaillées dans ce manuel doivent être suivies pour
assurer la conformité aux limites d'exposition RF.
Information d'ISED Canada sur l'exposition aux RF
Le gouvernement du Canada fournit plus de renseignements sur l'exposition aux radiofréquences au
moyen de publications officielles disponibles sur le site Web suivant:
http://www.ic.gc.ca/eic/site/smt-gst.nsf/eng/sf01904.html

BSR & BSR75. INSTALLATION GUIDE.
F067207PT_2800b05
Page 12 of 28
en
4.2.3 NOTES DE SÉCURITÉ SUR L'ANTENNE
BSR75 a été approuvée par FCC et ISED pour fonctionner avec les types d'antennes énumérés ci-
dessous avec le gain maximum admissible indiqué. Les types d'antennes non inclus dans cette liste, qui ont
un gain supérieur au gain maximal indiqué pour ce type, sont strictement interdits pour une utilisation avec
cet appareil
MODÉLE NUMÉRO DE CERTIFICATION TYPE D'ANTENNE MAX.GAIN
BSR75 –7
(409-430 MHz) FCC ID: WT7PTBSR75410B
IC: 8624A-PTBSR75410B
Antenne de panneau polarisée
verticalement 11.0 dBi
Cross-polarised panel antenna 15.0 dBi
Antenne de panneau polarisée
verticalement 11.15 dBi
MODÉLE NUMÉRO DE CERTIFICATION TYPE D'ANTENNE MAX.GAIN
BSR75 –8
(450-470 MHz) FCC ID: WT7PTBSR75450B
IC: 8624A-PTBSR75450B
Antenne de panneau polarisée
verticalement 11.0 dBi
Antenne de panneau à polarisation
croisée 15.0 dBi
Antenne de panneau polarisée
verticalement 11.15 dBi
MODÉLE NUMÉRO DE CERTIFICATION TYPE D'ANTENNE MAX.GAIN
BSR75 –K
(763-806 MHz) FCC ID: WT7PTBSR75760B
IC: 8624A-PTBSR75760B
Antenne de panneau polarisée
verticalement 16.5 dBi
Antenne de panneau à polarisation
croisée 18.0 dBi
Antenne de panneau polarisée
verticalement 11.15 dBi
MODÉLE NUMÉRO DE CERTIFICATION TYPE D'ANTENNE MAX.GAIN
BSR75 –N
(806-870 MHz) FCC ID: WT7PTBSR75800B
IC: 8624A-PTBSR75800B
Antenne de panneau polarisée
verticalement 16.5 dBi
Antenne de panneau à polarisation
croisée 18.0 dBi
Antenne de panneau polarisée
verticalement 11.15 dBi
Utilisez uniquement des antennes approuvées par Powertrunk avec ce produit. L'utilisation
d'antennes non approuvées peut endommager le produit, entraîner le non-respect des exigences
réglementaires, compromettre les cotes de sécurité du produit, réduire le temps de fonctionnement et
invalider la garantie du produit.
Une fois l'antenne installée, suivez les directives pour exposer le corps humain aux champs
électromagnétiques de haute et basse fréquence. Suivez les instructions du fournisseur / fabricant.
N'utilisez JAMAIS votre appareil sans antenne connectée ou, dans des versions spécifiques de
BSR75, sans la charge de 50W dans le connecteur TNC.
Des brûlures peuvent être subies si la sortie du connecteur d'antenne du module d'alimentation
(RPA ou RPA75) est touchée par la peau nue lorsque le BSR ou le BSR75 émet avec l'antenne
déconnectée.
N'utilisez JAMAIS votre appareil si l'antenne présente des signes de dommages

BSR & BSR75. INSTALLATION GUIDE.
F067207PT_2800b05
Page 13 of 28
en
4.2.4 INFORMATIONS RÉGLEMENTAIRES SUR LA COMPATIBILITÉ ÉLECTROMAGNÉTIQUE (FCC
ET ISED)
Ces appareils génèrent, utilisent et rayonnent de l'énergie RF et, s'ils ne sont pas installés et utilisés
conformément au manuel d'instructions, peuvent causer des interférences nuisibles aux communications
radio.
Déclaration d'interférence et étiquetage de conformité FCC
Cet appareil est conforme à la partie 15 des règlements de la FCC et aux règles RSS exemptées de
la licence d'Industrie Canada. Le fonctionnement est soumis aux deux conditions suivantes: (1) cet appareil
ne doit pas causer d'interférences, et (2) cet appareil doit accepter toute interférence, y compris les
interférences pouvant provoquer un fonctionnement indésirable de l'appareil.
Une étiquette avec le texte ci-dessus peut être trouvée dans un endroit visible de le BSR75 pour le
marché nord-américain.
Avis sur les appareils numériques de classe B de la FCC
Cet équipement a été testé et répond aux limites d'un appareil numérique de classe B,
conformément à la partie 15 des règles de la FCC. Ces limites sont conçues pour fournir une protection
raisonnable contre les interférences nuisibles dans une installation résidentielle. Cet équipement génère,
utilise et peut émettre de l'énergie radiofréquence et, s'il n'est pas installé et utilisé conformément aux
instructions, peut causer des interférences nuisibles aux communications radio. Cependant, il n'y a aucune
garantie que des interférences ne se produiront pas dans une installation particulière. Si cet équipement
cause des interférences nuisibles à la réception radio ou télévision, ce qui peut être déterminé en éteignant
et en rallumant l'équipement, l'utilisateur est encouragé à essayer de corriger l'interférence par une ou
plusieurs des mesures suivantes:
- Réorienter ou déplacer l'antenne de réception.
- Augmentez la distance entre l'équipement et le récepteur.
- Connectez l'équipement à une prise d'un circuit différent de celui auquel le récepteur est connecté.
- Consulter le revendeur ou un technicien radio / TV expérimenté pour obtenir de l'aide.
Étiquetage de conformité ISED Canada ICES-003
Cet appareil numérique de classe B a été entièrement testé et est conforme à la norme canadienne
ISED (Innovation, Sciences et Développement Économique) ICES-003. Une étiquette avec le texte suivant
peut être trouvée dans un endroit visible sur la radio pour le marché nord-américain:
CAN ICES-3 (B) / NMB-3 (B)

BSR & BSR75. INSTALLATION GUIDE.
F067207PT_2800b05
Page 14 of 28
en
4.2.5 RÉGLEMENT SUR LA CEM, LA SÉCURITÉ ET L’ÉXPOSITION AUX RF
L'équipement a été conçu conformément aux réglementations suivantes:
ETSI EN 300 394-1 Réseaux radioélectriques à ressources partagées (TETRA);
spécification du test de conformité ; Partie 1: Radio
ETSI EN 301 489-1
Compatibilité électromagnétique et spectre radioélectrique
(ERM); norme de compatibilité électromagnétique (CEM) pour
l'équipement et les services radio ; Partie 1: Conditions requises
techniques courantes
ETSI EN 301 489-5
Compatibilité électromagnétique (EMC) pour les équipements et
services radio; Part. 5: Conditions spécifiques pour la norme
harmonisée de radio mobile terrestre privée (PMR) et de matériel
auxiliaire (parole et non-parole) et radio terrestre à ressources
partagées (TETRA) couvrant les exigences essentielles de
l'article 3.1 (b) de la directive 2014/53 / UE
EN 60950-1 / IEC 60950-1 / UL 60950-1 Équipement de technologie d'informations - Sécurité -- Partie 1:
Exigences générales
EN 50385
Norme produit pour la démonstration de la conformité des
stations de base radio et des stations terminales fixes pour les
radio télécommunications, aux restrictions de base et aux
niveaux de référence relatifs à l'exposition de l'homme aux
champs électromagnétiques (110 MHz - 40 GHz) - Application au
public en général
BSR et BSR75 ont été conçus conformément à la directive sur les équipements radio 2014/53 / UE
(RED).
Note: Les éditions exactes peuvent être trouvées dans la déclaration de conformité.

BSR & BSR75. INSTALLATION GUIDE.
F067207PT_2800b05
Page 15 of 28
en
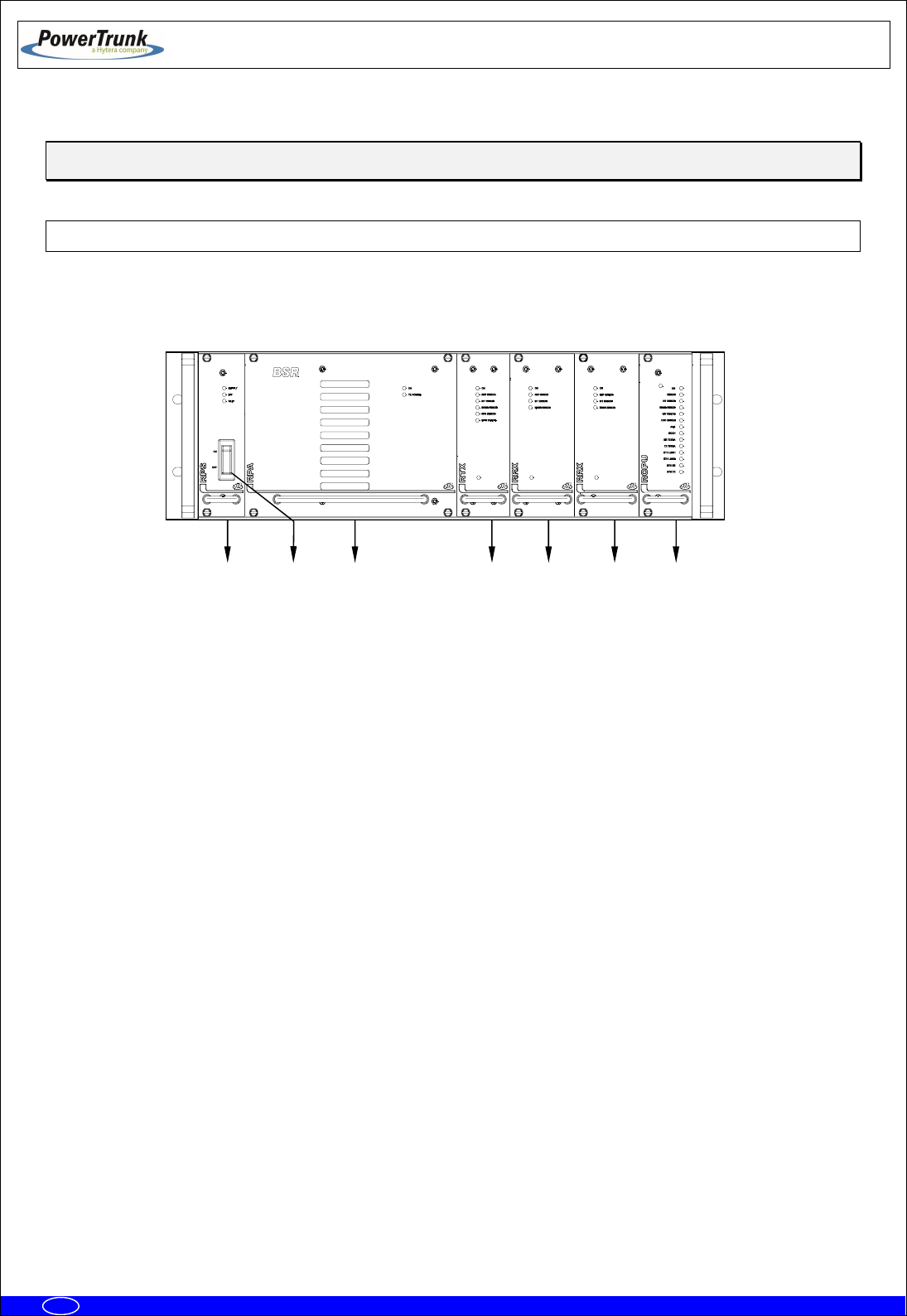
5. EQUIPMENT DESCRIPTION
5.1 FRONT VIEW
¨BSR
1.- RPS (Repeater Power Supply)
2.- RPA (Repeater Power Amplifier)
3.- RTX (Repeater Transmitter)
4.- RRX (Repeater Receiver)
5.- Option RRX2/BSYNC (Repeater Receiver 2 / BSR Synchronism)
6.- RCPU (Repeater Control Processing Unit)
7.- Switch ON/OFF
7
1 2 34 5 6

BSR & BSR75. INSTALLATION GUIDE.
F067207PT_2800b05
Page 16 of 28
en
¨BSR75
1.- RPS75 (Repeater Power Supply 75 W)
2.- RPA75 (Repeater Power Amplifier 75 W)
3.- RTX75 (Repeater Transmitter 75 W)
4.- RRX (Repeater Receiver)
5.- Option RRX2/BSYNC ( Repeater Receiver 2 / BSR Synchronism)
6.- RCPU (Repeater Control Processing Unit)
7.- Switch ON/OFF
7
1 2 34 5 6

BSR & BSR75. INSTALLATION GUIDE.
F067207PT_2800b05
Page 17 of 28
en
5.2 REAR VIEW
¨BSR
¨BSR75
8
24
23
22
21
20
19
18
17
16
15
14
9
10
11
12
13
24
23
22
21
20
19
18
1
7
16
15
14
9
10
11
12
13
8
25

BSR & BSR75. INSTALLATION GUIDE.
F067207PT_2800b05
Page 18 of 28
en
5.3 MODULES
1.- RPS or RPS75 (REPEATER POWER SUPPLY)
LEDs to indicate module status.
LED TYPE NORMAL STATUS FUNCTIÓN
SUPPLY Green On There are 27.4 V at the RPS or
RPS75 input
24 V or 26.4 V Green On There are 27.4 V at the RPS or
RPS75 output
13.2 V Green On There are 13.2 V at the RPS or
RPS 75 output
Power on switch (Ref. 7): ON/OFF switch to connect to and disconnect from the BSR or BSR75.
2.- RPA or RPA75 (REPEATER POWER AMPLIFIER)
LEDs to indicate module status:
LED TYPE NORMAL STATUS FUNCTIÓN
ON Green On Power supply correct
TX POWER Green On Module transmitting
3.- RTX or RTX75 (REPEATER TRANSMITTER)
LEDs to indicate module status:
LED TYPE NORMAL STATUS FUNCTIÓN
ON Green On Power supply correct
REF. ERROR Red Off Failure in the 10 MHz reference
INT. ERROR Red Off Internal failure
BBSR ERROR Red Off Communication failure with RCPU
module
RPA ERROR Red Off RPA or RPA75 failure
RPW ERROR Red Off Reflected power failure

BSR & BSR75. INSTALLATION GUIDE.
F067207PT_2800b05
Page 19 of 28
en
4.- RRX (REPEATER RECEIVER)
LEDs to indicate module status:
LED
TYPE
NORMAL STATUS
FUNCTIÓN
ON Green On Power supply correct
REF. ERROR Red Off Failure in the 10 MHz reference
INT. ERROR Red Off Internal failure
BBSR ERROR Red Off Communication failure with the RCPU
module
5.- SLOT OPTION: RRX2 / BSYNC (REPEATER RECEIVER 2/ BSR SYNCHRONISM)
LEDs to indicate the status of option RRX2:
LED
TYPE
NORMAL STATUS
FUNCTIÓN
ON Green On Power supply correct
REF. ERROR Red Off Failure in the 10 MHz reference
INT. ERROR Red Off Internal failure
BBSR ERROR Red Off Communication failure with RCPU
module
LEDs to indicate the status of option BSYNC:
LED
TYPE
NORMAL STATUS
FUNCTIÓN
ON Green On Power supply correct
REF. ERROR Red Off Failure in the 10 MHz reference
WARM UP Red Off Oscillator in warming up phase
TIME GPS Green Flashing There is NMEA signal from GPS
PPS GPS Green Flashing There is PPS signal from GPS
TIME LOCAL Green Flashing There is NMEA local signal (without GPS)
PPS LOCAL Green Flashing There is PPS local signal (without GPS)
NOTE: this slot is not used in the BSR basic configuration.

BSR & BSR75. INSTALLATION GUIDE.
F067207PT_2800b05
Page 20 of 28
en
6.- RCPU (REPEATER CONTROL)
LEDs to indicate the module status:
LED
TYPE
NORMAL STATUS
FUNCTIÓN
ON Green On Power supply correct
REF. ERROR Red Off Failure in the 10 MHz reference
INT. ERROR Red Off Internal failure
BBSR ERROR Red Off BSR bus failure
DIV ERROR Red Off Diversity failure
CNC ERROR Red Off Communication failure with the CNC
AUX Green Off Not used
MCCH Green Off / On Main carrier indicator
RX Green Flickering TETRA information received
TX Green On TETRA information transmission
ETH LINK1 Yellow On Link between the local network switch and
the RCPU module in Ethernet port 1
ETH LINK2 Yellow Off Link between the local network switch and
the RCPU module in Ethernet port 1
ETH RX Green Flashing Reception of an Ethernet packet
ETH TX Green Flashing Transmission of an Ethernet packet

BSR & BSR75. INSTALLATION GUIDE.
F067207PT_2800b05
Page 21 of 28
en
5.4 CABLING AND CONNECTORS
¨BSR
8.- Power supply connector.
9.- Transmitter antenna connector.
10.- SMB RF cables.
11.- Reception antenna connector (receiver chain 1).
12.- Reception antenna connector (receiver chain 2).
13.- Reception antenna connectors for the RRX2 option / antenna connectors for the GPS,
depending on the inserted module.
14.- Ethernet_A connector.
15.- Ethernet_B connector.
16.- SYNC_OUT_2 connector.
17.- SYNC_OUT_1 connector.
18.- SYNC_IN_1 connector.
19.- SYNC_IN_2 connector.
20.- Maintenance connector for BSR Bus.
21.- VT100 Connector for RCPU module maintenance.
22.- VT100 Connector for RRX2 module maintenance.
23.- VT100 Connector for RRX1 module maintenance.
24.- VT100 Connector for RTX module maintenance.

BSR & BSR75. INSTALLATION GUIDE.
F067207PT_2800b05
Page 22 of 28
en
¨BSR75
8.- Power supply connector.
9.- Transmission power antenna connector.
10.- SMB RF cables.
11.- Reception antenna connector (receiver chain 1).
12.- Reception antenna connector (receiver chain 2).
13.- Reception antenna connectors for the RRX2 option / antenna connectors for the GPS,
depending on the inserted module.
14.- Ethernet_A connector.
15.- Ethernet_B connector.
16.- SYNC_OUT_2 connector.
17.- SYNC_OUT_1 connector.
18.- SYNC_IN_1 connector.
19.- SYNC_IN_2 connector.
20.- Maintenance connector for BSR bus.
21.- Connector VT100 for RCPU module maintenance.
22.- Connector VT100 for RRX2 module maintenance.
23.- Connector VT100 for RRX1 module maintenance.
24.- Connector VT100 for RTX75 module maintenance.
25.- TNC connector for 50W load (only in specific BSR75 hardware versions).

BSR & BSR75. INSTALLATION GUIDE.
F067207PT_2800b05
Page 23 of 28
en
6. INSTALLATION GUIDE
The following recommendations must be followed closely before starting up the BSR module or the
BSR75 module.
6.1 LOCATION
The BSR and BSR75 have been designed in the standard format of 19” / 3 units high, and so they
must be installed in cabinets with this format.
The BSR or BSR75 site must be permanent, well-ventilated and without vibrations.
6.2 POWER SUPPLY CONNECTION
DC power supply: check that the power supply source and/or the battery to be used meet the voltage
and current requirements necessary to supply the equipment:
Nominal voltage: 27.4 VDC (range: from 21.6 to 28 VDC)
Minimum source current: 10 A (BSR) or 20 A (BSR75)
qIf lead batteries are used, they are to be placed as far from the BSR or BSR75 as possible to
prevent corrosion in the repeater due to battery vapours. They should be situated in a well-
ventilated place.
qUse the power supply connector provided (D013000) to connect the BSR or BSR75 to the
power supply source. Use cable with a minimum section of 3.5 mm2 (or AWG-12). Ensure
that the connection is made with the correct polarity.
qEnsure that the earth connection is made. Make this connection with a cable of maximum
diameter and minimum length.
NEVER use a gas or electricity conduit as an earth.

BSR & BSR75. INSTALLATION GUIDE.
F067207PT_2800b05
Page 24 of 28
en
6.3 ANTENNA CONNECTION
qChoose the most adaptable antenna for the installation. The antenna must have an
impedance of 50 ohms to the equipment transmission frequency. Install the antenna in
accordance with the manufacturer’s instructions.
qUse cable coaxial, avoiding as much as possible large cable lengths. Cable impedance is 50
ohms.
qMeasure the ROE of the installation. Never accept a ROE greater than 2.
qIf a duplexer module or a band pass filter is required, adjust them to the work frequency
before starting up.
6.4 SWITCHING ON THE BSR OR BSR75
qCheck the connections between the modules.
qCheck that the power supply source is connected correctly.
qCheck that the RF SMB cables are connected correctly (see Rear View diagram Ref. 10).
qCheck the connections of the antennas in the RPA or RPA75 and RRX modules.
qOnly in case of the BSR75 check the 50W load is connected to the rear TNC connector in
the RPA75.
qCheck that the Ethernet connections to the CNC/Gateway are in accordance with the
configuration.
qCheck that the RPS or RPS75 module LED SUPPLY is on.
qActivate the power on switch on the RPS module or RPS75 module.
qCheck that the 24V LED and the 13.2 V LED on the RPS module or the 26.4 V LED and
13.2 V LED on the RPS75 module are on and check that the LEDS ON are switched on for
the other modules.
qWait for the BSR or BSR75 to start up.
qCheck that the mobile equipment is registered in the BSR or BSR75.
Note: see section 5 for more information on references for the different modules and LEDs.

BSR & BSR75. INSTALLATION GUIDE.
F067207PT_2800b05
Page 25 of 28
en
7. CONFIGURATION
A BSR (BSR or BSR75) is configured via a NMS (Network Management System). To configure the
BSR or BSR75, consult NMS User manual.
8. INCIDENTS
The repeater must be repaired by authorized technical personnel only. If a BSR failure
occurs, the entire BSR must be replaced. If transmitter module is damaged and there is
not an entire BSR available to replace, set RTX and RPA modules previously calibrated
jointly.
If an error or alarm occurs in the BSR or BSR75, this is indicated in the corresponding LED for each
one of the modules. The following list shows the possible failures and their solutions.
8.1 ALARMS
Led indication Status Failure / Solution
RPS /
RPS75
SUPPLY OFF Power supply failure. Check that the source and the power
supply cable are correctly connected. Check the internal fuse
of the RPS. Contact Technical Services if unsolved.
24V or 26.4 V OFF Power supply failure. Contact Technical services.
13.2 V OFF Power supply failure. Contact Technical services.
RPA / RPA75
ON OFF Power supply failure. Contact Technical Services.
TX POWER OFF No power transmission in the antenna. Wait for BSR or
BSR75 to be started up by the CNC. Check other LED
indications. Contact Technical Services if unsolved.

BSR & BSR75. INSTALLATION GUIDE.
F067207PT_2800b05
Page 26 of 28
en
RTX / RTX75
ON OFF Internal power supply failure. Contact Technical services.
REF. ERROR ON Failure in the 10 MHz reference. Contact Technical services.
INT. ERROR ON Internal failure. Contact Technical services.
BBSR ERROR ON Communication failure with the RCPU module. Check that all
the modules are correctly installed. Contact Technical
services if still unsolved.
RPA ERROR ON Failure in the RPA or RPA75 modules. Check that the RF
SMB cables (Ref. 10) are correctly connected. Contact
Technical services i still unsolved.
RPW ERROR ON Reflected power alarm. Check that the antenna is correctly
installed. Contact Technical services.
RRX
ON OFF Internal power supply failure. Contact Technical services.
REF. ERROR ON Failure in the 10 MHz reference. Contact Technical services.
INT. ERROR ON Internal failure. Contact Technical services.
BBSR ERROR ON Communication failure with the RCPU module. Check that all
the modules are correctly installed. Contact Technical
Services if still unsolved.
BSYNC
ON OFF Internal power supply failure. Contact Technical services.
REF. ERROR OFF Failure in the 10 MHz reference. Contact Technical services.
TIME GPS OFF If GPS is activated, there is failure in the data frame. Contact
Technical Services.
PPS GPS OFF If GPS is activated, there is failure in the PPS signal of the
GPS:
- Check that the starting up period has been exceeded (about
10 minutes after switching on)
- Check the GPS antenna connection.
- Check the correct positioning of the GPS antenna, in
accordance with the manufacturer’s instructions.
Contact Technical Services if still unsolved.
TIME LOCAL OFF If GPS is not activated, there is failure in the local reference
data frame. Contact Technical Services.
PPS LOCAL OFF If GPS is not activated, there is failure in the local PPS signal.
Contact Technical Services.

BSR & BSR75. INSTALLATION GUIDE.
F067207PT_2800b05
Page 27 of 28
en
RCPU
ON OFF Internal power supply failure. Contact Technical Services.
REF ERROR ON Failure in the 10
MHz reference. Check that the BSYNC
module is installed or that the SYNC IN cable is correctly
connected. Contact Technical services if still unsolved.
INT ERROR ON Internal failure. Contact Technical Services.
BBSR ERROR ON
Communication failure by the BSR bus. Check that all the
modules are correctly installed. Contact Technical services if
still unsolved.
DIV ERROR ON
Error in diversity: occurs when the difference in received
power betwee
n received paths exceeds a level (20 dBs by
default) for a consecutive number of receptions.
These receptions on the received paths which do not have
sufficient power are not counted.
This alarm does not disappear until there are no receptions
with the suf
ficient power, and until the difference of received
power between received paths does not exceed the level
previously mentioned.
Check diversity configuration in the CNC.
Check that the reception antennas are correctly installed.
Contact Technical services if still unsolved.
CNC ERROR ON
Communication failure with the CNC. Check the Ethernet
connections.
Check that the CNC is working correctly. Contact Technical
Services if still unsolved.
RX Continuous
ON Interference detection.
Check the installation. Check that the work frequencies are
correct.
ETH LINK1 OFF Failure in Ethernet link 1.
Check Ethernet connection 1 and the Switch A.
ETH LINK2 OFF Failure in Ethernet link 2.
Check Ethernet connection 2 and the Switch B.
ETH RX OFF Packets are not received by Ethernet.
Check the Ethernet connections.
ETH TX OFF Packets are not sent by Ethernet.
Check the Ethernet connections.

BSR & BSR75. INSTALLATION GUIDE.
F067207PT_2800b05
Page 28 of 28
en
8.2 ALARMS WITHOUT STATUS LEDS
8.2.1 INTERFERENCE AT BSR.
This alarm is monitored in the management and configuration module NMS. See the infrastructure
Event List in the NMS Client Help contents.
Interference in the BSR or BSR75 is activated when there are a large number of consecutive
reception faults in the BSR or BSR75. A reception fault is considered when a level higher than the threshold
for reception of the carrier, but is not recognized as valid TETRA signal. Depending on the signal level,
interference is considered low or high. So, if the level of signal is above the threshold for reception and below
the threshold set to high interference and is not recognized as valid sign, it will be a low interference alarm. If
the signal level is above the threshold set to high interference and is not recognized as a valid signal, the low
level alarm would disappear (if it happened) and high interference would produce.
These alarms are turned off when the interference source disappears or with any right TETRA
reception for low interference case, and with more than one consecutive right reception for high-level
interference.