Thermador Cooktop Ucvm36Fs Users Manual
UCVM36FS to the manual c8271db7-cee2-46d8-b1e6-6d4265355b3e
2015-02-04
: Thermador Thermador-Thermador-Cooktop-Ucvm36Fs-Users-Manual-390721 thermador-thermador-cooktop-ucvm36fs-users-manual-390721 thermador pdf
Open the PDF directly: View PDF  .
.
Page Count: 6

MODELS SHOWN: UCVM36FS 36-INCH DOWNDRAFT WITH CIT365KM INDUCTION COOKTOP184

1.800.735.4328   |   THERMADOR.COM
VENTILATION — DOWNDRAFT
185
If you prefer a concealed look, choose a Thermador Downdraft Ventilation Unit, which offers 
space efciency when a hood is not preferred. The full-face lter combines a lter with a splatter 
shield in one easy-to-remove, dishwasher-safe element. Thermador invented the rst retractable 
downdraft, and was also the rst to introduce a recirculation option for downdrafts — making 
ventilation possible in any kitchen.
VENTILATION
DOWNDRAFT

186
DOWNDRAFT   
FEATURES & BENEFITS
FULL 13-INCH RISE 
With an over 13-inch intake, the UCVM rises well above even the  
tallest pans. This protects against splatters when cooking and provides 
better performance in capturing steam and smoke — even from the 
front burners.
DOWNDRAFT RECIRCULATION OPTION 
Downdraft recirculation is now available for island or wall applications. 
Combine the performance of the UCVM Downdraft with the odor- and 
grease-capturing lters in the Recirculation Module for the perfect 
ventilation combination for anywhere in your kitchen.
FULL-FACE FILTERS 
Full-face lters combine a lter with a splatter shield in one easy-
to-remove, dishwasher-safe element. These lters maximize grease 
capture without affecting airow.
PLANNING INFORMATION
MODEL OPTIONS
Thermador Downdraft Hoods are available in 30 and 36-inch 
widths to t your kitchen plans and are meticulously crafted for 
both function and design. Be sure to reference the correct model 
information in this design guide.
ELECTRICAL SPECIFICATIONS
Be sure your Thermador Downdraft Hood is properly installed 
and grounded by a qualied technician. Installation, electrical 
connections and grounding must comply with all applicable  
local codes.
MODEL
REQUIRED CIRCUIT 
BREAKER
120V AC, 60 Hz
UCVM30FS, UCVM36FS 15 Amp
INSTALLATION CONSIDERATIONS
The information in this design guide provides key features, 
product dimensions, cutouts and installation specications. 
Before installing a Thermador Downdraft Hood, be sure to verify 
the cutout dimensions and electrical connections. Also, always 
consult with the installation manual packed with the product for 
complete details before installing.
Thermador Downdraft Hoods may be installed in a wall or island 
behind a Thermador non-professional gas, electric or induction 
cooktop to create a convenient cooking center. Refer to the 
appropriate section for additional specications. 
HOOD WIDTH
Downdraft ventilation units should be the same width as the 
cooking surfaces they are ventilating.
CHOOSING THE CORRECT BLOWER
A variety of interior and exterior blower options (Remote, Inline 
or Integrated) are available for Thermador’s Downdraft Hoods. 
If the unit you have selected does not have a blower, one can 
be purchased separately. Blower selection will vary based on 
the volume of air that needs to be moved and the length and 
location of the duct run. For long duct runs with multiple turns 
and bends, consider using a more powerful blower. For the most 
efcient air ow exhaust, use a straight run or as few elbows  
as possible.
Remote Blowers (VTR Series) 
Depending on your preference and ducting situation, these 
blowers can be mounted on the roof or exterior wall of your 
home. An exterior installation may be more appealing to reduce 
noise in the kitchen.
 Inline Blowers (VTI series) 
 To minimize noise in the kitchen, these blowers are mounted 
along the duct line anywhere between the kitchen and the 
exterior wall. If you have easy access to your duct line (in an attic, 
for example), this may be an appealing option. 
 Integrated Blowers (VTN series) 
These blowers are purchased separately and integrated into the 
hood or onto the downdraft unit at the time of installation. This 
option allows you to select your ideal hood with the exact power 
you require.

1.800.735.4328   |   THERMADOR.COM
VENTILATION — DOWNDRAFT
187
DOWNDRAFT   
FEATURES & BENEFITS
CHOOSING THE RIGHT CFM
The power of the cooktop, measured in BTU, is perhaps 
the most important factor in determining CFM needs for  
a hood. Professional Gas Rangetops generally should 
have 1 CFM for every 100 BTU.
You should also consider the cooking space and cooking 
style of your client. 
•  More demanding cooks usually require more exhaust 
capacity to handle moisture generated by boiling large 
pots of water or the grease and smoke resulting from 
grilling or frying. This cooking style could require a hood 
or downdraft system with airow of 600 to 1,300 CFM.
•  For those who are used to preparing quick meals in a 
relatively small kitchen, a hood with 600 CFM may be 
adequate ventilation for the cooking space.
•  If the cooking surface is in a peninsula or island, a larger 
capacity hood can provide better capture when there 
are cross currents and when the hood needs to be 
mounted higher. Downdraft ventilation systems are also 
a good alternative.
•  High heat cooking or aromatic foods may require 
additional CFM. Increasing capture area by 3" on each 
side is also a recommended way to address this issue.
LENGTH AND SIzE OF DUCTWORK
Do not use exible duct; it creates back pressure/air 
turbulence and reduces performance.
Straight runs and gradual turns are best. Use the shortest 
route with the fewest turns possible.
Proper performance is dependent upon proper ducting. 
Use a qualied and trained installer. Local building codes 
may require the use of make-up air systems when using 
ducted ventilation systems greater than specied CFM 
of air movement. The specied CFM varies from locale 
to locale. Consult your HVAC professional for specic 
requirements in your area.
If using a 10" duct, Thermador recommends not 
exceeding 150 feet of duct. Transitions, elbows and 
wall or roof caps are all factors that will add more static 
pressure, therefore increasing your equivalent duct run.
WARRANTY
Limited warranty parts and labor (2 year)
See page 308 for additional warranty details.
BLOWER OPTIONS
REMOTE  Requires CV2T6 or CV2T10 Transition
VTR630D – 600 CFM Use RFPLT600 in roof-mount applications
VTR1030D – 1000 CFM Use RFPLT1000 in roof-mount applications
INLINE  Requires CV2T6 or CV2T10 Transition
VTI610D – 600 CFM
VTI1010D – 1000 CFM
INTEGRATED
VTN600CV2C – 600 CFM
REMOTE (Mounted to roof or external wall)
VTR630D – 600 CFM VTR1030D – 1000 CFM
INLINE (Mounted between kitchen and external wall)
VTI610D – 600 CFM VTI1010D – 1000 CFM
INTEGRATED (Mounted on hood)
VTN600CV2C – 600 CFM
 REMOTE BLOWER ACCESSORIES
RFPLT600 
For use with Remote 
Blower VTR630D
RFPLT1000 
For use with Remote 
Blower VTR1030D

188
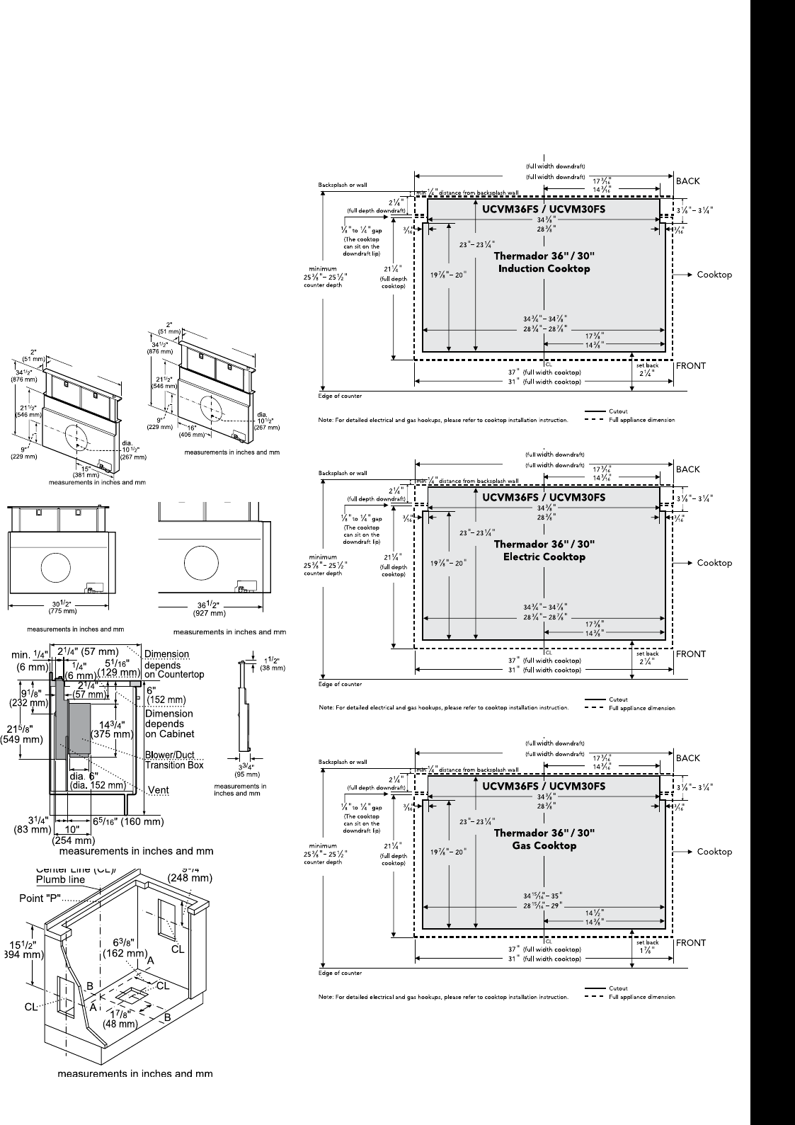
UCVM30FS / UCVM36FS 
PERFORMANCE
- Suitable for wall or island applications
- Downdraft rises over 13" to capture steam from the tallest pots
- Downdraft recirculation possible with module RECIRC36DF
- Three fan speeds
- Dishwasher-safe full-face lters also act as a splatter shield
- Filter systems are highly efcient at capturing grease
- Powerfully Quiet® ventilation systems
- Blowers sold separately
- Choose from Inline, Remote or Integrated Blowers
- Replacement charcoal lters available (CHFILT3036)
DESIGN
- Brushed stainless steel nish
- Easy-to-operate control buttons
VENTILATION    
DOWNDRAFT (30"/36") 
UCVM30FS / UCVM36FS
SPECIFICATIONS
Available Hood Widths 30" / 36"
Blower Sold Separately — 
See Blower Options Table
Duct Size at Discharge 6" Round
Ducting Direction Down, Left or Right
Dishwasher-safe Filters Full-Face Mesh
Electrical 120V AC, 60Hz
MASTERPIECE 
UCVM30FS – 30-Inch
UCVM36FS – 36-Inch
ACCESSORIES
Recirculation Kit
RECIRC36DF
-  Comes complete with 2 charcoal lters, 2 venting 
grids, and ducting to transition to integrated 
blower (blower sold separately)
- For toekick heights of 4" or taller
- Wall or island applications
-  Easily mounts to integrated blower (VTN600CV2C) 
under cooktop
- Toekick/socket can be vented in any direction
- Mounts to base of cabinet; recesses into toekick
-  To be used only with Thermador Downdraft and 
Integrated Blower
- Replacement lters are ordered as a service item
- Filters should be replaced twice a year
Replacement Charcoal Filters
Sold separately as a service item  
(For use with recirculation module)
 TRANSITIONS
Transition piece required for installation of inline and remote 
blowers — downdraft applications only
CV2T6
Transition piece required 
for installation of 600 CFM 
Inline and Remote Blowers 
with 6" duct connections — 
downdraft applications only
CV2T10 
Improves overall 
performance when installing 
with Thermador’s 1,000 CFM 
Inline or Remote Blowers 
with 10" duct connections — 
downdraft applications only
14 3/8"
14 7
/16"Ø 10"
11"
14 3/8"
Ø 6"
6 3/4"
15 1/8"

1.800.735.4328   |   THERMADOR.COM 189
VENTILATION    
DOWNDRAFT (30"/36") 
UCVM30FS / UCVM36FS
INSTALLATION OPTIONS
The Thermador Downdraft Hood System is 
available in 30-inch or 36-inch widths. It is intended 
for installation with Thermador non-professional 
gas, electric or induction cooktops only. 
A Recirculation Kit (RECIRC36DF) can be 
purchased separately and used in conjunction with 
the Integral Blower if ducting to the outside is not 
a viable option. Refer to the appropriate section 
for additional specications. 
These hoods are designed to be used for side or 
downward discharge.
36 7/8"
30 7/8"
36 7/8"
30 7/8"
36 7/8"
30 7/8"
VENTILATION — DOWNDRAFT
30 7/8"
(784 mm)
36 7/8"
(936 mm)
CUTOUT DIMENSIONS (TOP VIEW)