Trane Huvc Horizontal Classroom Unit Ventilator Installation And Maintenance Manual UV SVN02C EN (24 Jan 2013)
2015-04-02
: Trane Trane-Huvc-Horizontal-Classroom-Unit-Ventilator-Installation-And-Maintenance-Manual-684294 trane-huvc-horizontal-classroom-unit-ventilator-installation-and-maintenance-manual-684294 trane pdf
Open the PDF directly: View PDF
.
Page Count: 112 [warning: Documents this large are best viewed by clicking the View PDF Link!]
- Warnings, Cautions, and Notices
- Model Number Descriptions
- General Information
- ECM Application Notes
- Dimensions and Weights
- Receiving and Handling
- Pre-Installation
- Installation—Mechanical
- Installation—Piping
- Installation—Sensors
- Installation—Electrical
- ECM Overview and Setup
- Time Clock
- Wired Controllers—Communication Wiring
- Pre-Start
- Startup
- Tracer ZN520 Unit Startup
- Tracer UC400 Unit Startup
- General Information
- Fan Mode Switch Operation
- Tracer ZN520 Operation
- UC400 Controller Operation
- Tracer ZN520 Sequence of Operation
- UC400 Sequence of Operation
- Power-up Sequence (UC400)
- Random Start (UC400)
- Occupancy Modes (UC400)
- Timed Override Control (UC400)
- Zone Temperature Control (UC400)
- Discharge Air Tempering (UC400)
- Heating or Cooling Mode (UC400)
- Entering Water Temperature Sampling Function (UC400)
- Fan Operation (UC400)
- Exhaust Control (UC400)
- Valve Operation (UC400)
- Modulating Outdoor/Return Air Damper (UC400)
- Two-position Control Of A Modulating Outdoor Air Damper (UC400)
- Electric Heat Operation (UC400)
- Dehumidification Operation (UC400)
- Peer-to-peer Communication (UC400)
- Unit Protection Strategies (UC400)
- Maintenance
- Diagnostics
- Replacing ECM Components
- Accessories

SAFETY WARNING
Only qualified personnel should install and service the equipment. The installation, starting up, and
servicing of heating, ventilating, and air-conditioning equipment can be hazardous and requires specific
knowledge and training. Improperly installed, adjusted or altered equipment by an unqualified person could
result in death or serious injury. When working on the equipment, observe all precautions in the literature
and on the tags, stickers, and labels that are attached to the equipment.
Horizontal Unit Ventilator
Classroom Unit Ventilator—Model HUV
January 2013 UV-SVN02C-EN
Installation, Operation,
and Maintenance
Models “C” and later Design Sequence
HUVC 750 cfm—2000 cfm
UV-SVN02_-EN.book Page 1 Thursday, January 24, 2013 4:48 PM

© 2013 Trane All rights reserved UV-SVN02C-EN
Warnings, Cautions, and Notices
Warnings, Cautions, and Notices. Note that
warnings, cautions, and notices appear at appropriate
intervals throughout this manual. Warnings are provide to
alert installing contractors to potential hazards that could
result in personal injury or death. Cautions are designed to
alert personnel to hazardous situations that could result in
personal injury, while notices indicate a situation that
could result in equipment or property-damage-only
accidents.
Your personal safety and the proper operation of this
machine depend upon the strict observance of these
precautions.
Important
Environmental Concerns!
Scientific research has shown that certain man-made
chemicals can affect the earth’s naturally occurring
stratospheric ozone layer when released to the
atmosphere. In particular, several of the identified
chemicals that may affect the ozone layer are refrigerants
that contain Chlorine, Fluorine and Carbon (CFCs) and
those containing Hydrogen, Chlorine, Fluorine and
Carbon (HCFCs). Not all refrigerants containing these
compounds have the same potential impact to the
environment. Trane advocates the responsible handling of
all refrigerants-including industry replacements for CFCs
such as HCFCs and HFCs.
Responsible Refrigerant Practices!
Trane believes that responsible refrigerant practices are
important to the environment, our customers, and the air
conditioning industry. All technicians who handle
refrigerants must be certified. The Federal Clean Air Act
(Section 608) sets forth the requirements for handling,
reclaiming, recovering and recycling of certain
refrigerants and the equipment that is used in these
service procedures. In addition, some states or
municipalities may have additional requirements that
must also be adhered to for responsible management of
refrigerants. Know the applicable laws and follow them.
ATTE NT ION : Warnings, Cautions, and Notices appear at
appropriate sections throughout this literature. Read
these carefully:
WARNING Indicates a potentially hazardous
situation which, if not avoided, could
result in death or serious injury.
CAUTIONsIndicates a potentially hazardous
situation which, if not avoided, could
result in minor or moderate injury. It
could also be used to alert against
unsafe practices.
NOTICE: Indicates a situation that could result in
equipment or property-damage only
WARNING
Proper Field Wiring and Grounding
Required!
All field wiring MUST be performed by qualified
personnel. Improperly installed and grounded field
wiring poses FIRE and ELECTROCUTION hazards. To
avoid these hazards, you MUST follow requirements for
field wiring installation and grounding as described in
NEC and your local/state electrical codes. Failure to
follow code could result in death or serious injury.
WARNING
Personal Protective Equipment (PPE)
Required!
Installing/servicing this unit could result in exposure to
electrical, mechanical and chemical hazards.
• Before installing/servicing this unit, technicians
MUST put on all PPE required for the work being
undertaken. ALWAYS refer to appropriate MSDS
sheets and OSHA guidelines for proper PPE.
• When working with or around hazardous chemicals,
ALWAYS refer to the appropriate MSDS sheets and
OSHA guidelines for information on allowable
personal exposure levels, proper respiratory
protection and handling instructions.
• If there is a risk of arc or flash, technicians MUST put
on all PPE in accordance with NFPA 70E or other
country-specific requirements for arc flash
protection, PRIOR to servicing the unit.
Failure to follow instructions could result in death or
serious injury.
WARNING
Contains Refrigerant!
System contains oil and refrigerant under high
pressure. Recover refrigerant to relieve pressure before
opening the system. See unit nameplate for refrigerant
type. Do not use non-approved refrigerants, refrigerant
substitutes, or refrigerant additives.
Failure to follow proper procedures or the use of non-
approved refrigerants, refrigerant substitutes, or
refrigerant additives could result in death or serious
injury or equipment damage.
UV-SVN02_-EN.book Page 2 Thursday, January 24, 2013 4:48 PM

Warnings, Cautions, and Notices
UV-SVN02C-EN 3
Trademarks
ComfortLink, Rover, Tracer, Tracer Summit, Trane, and the
Trane logo are trademarks or registered trademarks of
Trane in the United States and other countries. All
trademarks referenced in this document are the
trademarks of their respective owners.
BACnet is a registered trademark of American Society of
Heating, Refrigerating and Air-Conditioning Engineers
(ASHRAE); Echelon, LonTalk, and LONWORKS are registered
trademarks of Echelon Corporation; Energizer is a
registered trademark of Eveready Battery Company, Inc.;
National Electrical Code, National Fire Protection
Association, and NEC are registered trademarks of the
National Fire Protection Association.
WARNING
R-410A Refrigerant under Higher Pressure
than R-22!
Some of the units described in this manual uses R-410A
refrigerant which operates at higher pressures than
R-22 refrigerant. Use ONLY R-410A rated service
equipment or components with this unit. For specific
handling concerns with R-410A, please contact your
local Trane representative.
Failure to use R-410A rated service equipment or
components could result in equipment or components
exploding under R-410A high pressures which could
result in death, serious injury, or equipment damage.
WARNING
Hazard of Explosion!
Use only dry nitrogen with a pressure regulator for
pressurizing unit. Do not use acetylene, oxygen or
compressed air or mixtures containing them for
pressure testing. Do not use mixtures of a hydrogen
containing refrigerant and air above atmospheric
pressure for pressure testing as they may become
flammable and could result in an explosion. Refrigerant,
when used as a trace gas should only be mixed with
dry nitrogen for pressurizing units. Failure to follow
these recommendations could result in death or serious
injury or equipment or property-only damage.
UV-SVN02_-EN.book Page 3 Thursday, January 24, 2013 4:48 PM

4 UV-SVN02C-EN
Table of Contents
Model Number Descriptions . . . . . . . . . . . . . . 6
General Information . . . . . . . . . . . . . . . . . . . . . 8
Unit Description . . . . . . . . . . . . . . . . . . . . . 8
Options . . . . . . . . . . . . . . . . . . . . . . . . . . . . 8
Unit Ventilator Controls . . . . . . . . . . . . . . 10
ECM Application Notes . . . . . . . . . . . . . . . . . . 12
Dimensions and Weights . . . . . . . . . . . . . . . . 13
Unit Location and Clearances . . . . . . . . . 13
Receiving and Handling . . . . . . . . . . . . . . . . . 19
Pre-Installation . . . . . . . . . . . . . . . . . . . . . . . . . 20
Jobsite Inspection . . . . . . . . . . . . . . . . . . 20
Jobsite Storage . . . . . . . . . . . . . . . . . . . . 20
Installation—Mechanical . . . . . . . . . . . . . . . . 21
Location Considerations . . . . . . . . . . . . . . . 21
Unit Mounting . . . . . . . . . . . . . . . . . . . . . . . 21
Horizontal Recessed Mounting . . . . . . . . 21
Installation—Piping . . . . . . . . . . . . . . . . . . . . . 23
Trane Piping Packages (Option) . . . . . . . 23
Split System Units . . . . . . . . . . . . . . . . . . 23
Refrigerant Piping . . . . . . . . . . . . . . . . . . 23
Steam Piping . . . . . . . . . . . . . . . . . . . . . . 24
Modulating Water Valves (Option) . . . . . 24
Plumbing . . . . . . . . . . . . . . . . . . . . . . . . . . 25
Manual Opener . . . . . . . . . . . . . . . . . . . . . 26
Isolation Valves . . . . . . . . . . . . . . . . . . . . . . 26
Installation . . . . . . . . . . . . . . . . . . . . . . . . 26
Servicing/Removal of Valves . . . . . . . . . . 26
Heating Coils with Direct Expansion Cooling
. . . . . . . . . . . . . . . . . . . . . . . . . . . . . . . . . . . . . 27
Installation—Sensors . . . . . . . . . . . . . . . . . . . 28
Control Options . . . . . . . . . . . . . . . . . . . . . . 28
Installing Wall-Mounted Wired Sensors . 29
Location Considerations . . . . . . . . . . . . . 30
Location Considerations for Wireless Zone
Sensors . . . . . . . . . . . . . . . . . . . . . . . . . . . 30
Fan Mode Switch Installation . . . . . . . . . 30
Zone Sensor Installation . . . . . . . . . . . . . 30
Wireless Sensors . . . . . . . . . . . . . . . . . . . . . 31
Address Setting . . . . . . . . . . . . . . . . . . . . 31
Observing the Receiver for Readiness to As-
sociate . . . . . . . . . . . . . . . . . . . . . . . . . . . . .32
Associating the Sensor to the Receiver . .32
Testing Signal Strength and Battery Status
. . . . . . . . . . . . . . . . . . . . . . . . . . . . . . . . . . .33
Configuring the Wireless Display Sensor
(Model WDS only) . . . . . . . . . . . . . . . . . . .34
Sensor Operations . . . . . . . . . . . . . . . . . . .36
Wireless Sensor Specifications . . . . . . . . .39
Installation—Electrical . . . . . . . . . . . . . . . . . . .41
Wiring . . . . . . . . . . . . . . . . . . . . . . . . . . . . .41
Electrical Wiring . . . . . . . . . . . . . . . . . . . . .41
Electric Heat Units . . . . . . . . . . . . . . . . . . .41
Heating Coils with Direct Expansion Cooling
. . . . . . . . . . . . . . . . . . . . . . . . . . . . . . . . . . .42
ECM Overview and Setup . . . . . . . . . . . . . . . .43
Overview . . . . . . . . . . . . . . . . . . . . . . . . . . . . .43
General Information . . . . . . . . . . . . . . . . . . .43
Trane BLDC Motor . . . . . . . . . . . . . . . . . . .43
ECM Engine Controller . . . . . . . . . . . . . . .43
Standard Adapter Board . . . . . . . . . . . . . .44
CSTI Adapter Board . . . . . . . . . . . . . . . . . .44
Installation and Initial Setup . . . . . . . . . . . .45
Installation and Initial Setup . . . . . . . . . . .45
Adjustment and Configuration of the Engine
Board . . . . . . . . . . . . . . . . . . . . . . . . . . . . . .47
Status Display . . . . . . . . . . . . . . . . . . . . . . .48
Initial Setup and Configuration . . . . . . . . .53
Configuration . . . . . . . . . . . . . . . . . . . . . . . . .53
Configuring the ECM Engine Controller . .53
Configuring the ECM Engine Board . . . . .58
Time Clock . . . . . . . . . . . . . . . . . . . . . . . . . . . . . .63
Setting the Time Clock . . . . . . . . . . . . . . . .63
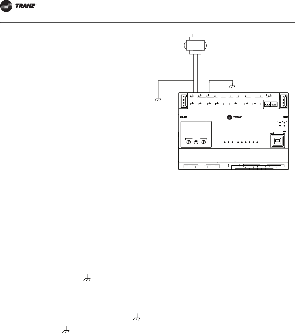
Wired Controllers—Communication Wiring 65
Wiring Installation (Tracer ZN520) . . . . . . .65
Device Addressing . . . . . . . . . . . . . . . . . . .65
Recommended Communication Wiring Prac-
tices . . . . . . . . . . . . . . . . . . . . . . . . . . . . . . .65
Wiring Installation (Tracer UC400) . . . . . . .65
Wiring Overview Outline . . . . . . . . . . . . . .66
UV-SVN02_-EN.book Page 4 Thursday, January 24, 2013 4:48 PM

UV-SVN02C-EN 5
General Instructions . . . . . . . . . . . . . . . . . 66
BACnet MS/TP Link . . . . . . . . . . . . . . . . . 66
Power Supply . . . . . . . . . . . . . . . . . . . . . . 67
Pre-Start . . . . . . . . . . . . . . . . . . . . . . . . . . . . . . . 69
Pre-Start-up Checklist . . . . . . . . . . . . . . . 69
Startup . . . . . . . . . . . . . . . . . . . . . . . . . . . . . . . . 70
Tracer ZN520 Unit Startup . . . . . . . . . . . . 70
Tracer UC400 Unit Startup . . . . . . . . . . . 70
General Information . . . . . . . . . . . . . . . . . 70
Fan Mode Switch Operation . . . . . . . . . . 70
Tracer ZN520 Operation . . . . . . . . . . . . . 70
UC400 Controller Operation . . . . . . . . . . 71
Tracer ZN520 Sequence of Operation . . . 71
Cooling Operation (Tracer ZN520) . . . . . 72
Fan Mode Operation (Tracer ZN520) . . . 73
UC400 Sequence of Operation . . . . . . . . . 78
Power-up Sequence (UC400) . . . . . . . . . 78
Random Start (UC400) . . . . . . . . . . . . . . . 78
Occupancy Modes (UC400) . . . . . . . . . . . 78
Timed Override Control (UC400) . . . . . . 79
Zone Temperature Control (UC400) . . . . 79
Discharge Air Tempering (UC400) . . . . . 80
Heating or Cooling Mode (UC400) . . . . . 80
Entering Water Temperature Sampling Func-
tion (UC400) . . . . . . . . . . . . . . . . . . . . . . . 80
Fan Operation (UC400) . . . . . . . . . . . . . . 80
Exhaust Control (UC400) . . . . . . . . . . . . . 81
Valve Operation (UC400) . . . . . . . . . . . . . 81
Modulating Outdoor/Return Air Damper
(UC400) . . . . . . . . . . . . . . . . . . . . . . . . . . . 82
Two-position Control Of A Modulating Out-
door Air Damper (UC400) . . . . . . . . . . . . 83
Electric Heat Operation (UC400) . . . . . . . 83
Dehumidification Operation (UC400) . . . 83
Peer-to-peer Communication (UC400) . . 83
Unit Protection Strategies (UC400) . . . . . 83
Maintenance . . . . . . . . . . . . . . . . . . . . . . . . . . . 85
Service Access . . . . . . . . . . . . . . . . . . . . . 85
Periodic Maintenance . . . . . . . . . . . . . . . 85
Filters . . . . . . . . . . . . . . . . . . . . . . . . . . . . . 85
Removal of the Drain Pan . . . . . . . . . . . . .85
Removal of the Fanboard and Coil Cleaning
. . . . . . . . . . . . . . . . . . . . . . . . . . . . . . . . . . .86
Lubrication: Fan Shaft . . . . . . . . . . . . . . . .86
Motor . . . . . . . . . . . . . . . . . . . . . . . . . . . . . .87
Modulating Valves (3-Wire Floating) . . . .87
Preventive Maintenance . . . . . . . . . . . . . . . .87
Diagnostics . . . . . . . . . . . . . . . . . . . . . . . . . . . . .88
Troubleshooting Checklist . . . . . . . . . . . . .88
Output Testing and Diagnostics (Tracer
ZN520) . . . . . . . . . . . . . . . . . . . . . . . . . . . . . . .89
Output Testing and Diagnostics (UC400) . .93
Output Testing (UC400) . . . . . . . . . . . . . . .93
Diagnostics (UC400) . . . . . . . . . . . . . . . . .93
Troubleshooting (Wireless Controls) . . . . .94
Troubleshooting (Tracer ZN520) . . . . . . .100
Troubleshooting (UC400) . . . . . . . . . . . .101
Troubleshooting (ECM) . . . . . . . . . . . . . .103
General Information (ECM) . . . . . . . . . . .104
Troubleshooting Information (ECM) . . .104
Replacing ECM Components . . . . . . . . . . . .106
Circuit Modules Replacement Notes/Work In-
structions . . . . . . . . . . . . . . . . . . . . . . . . .107
Softsetting the IMC Address of an ECM En-
gine Module . . . . . . . . . . . . . . . . . . . . . . .107
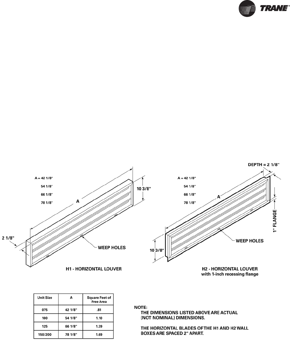
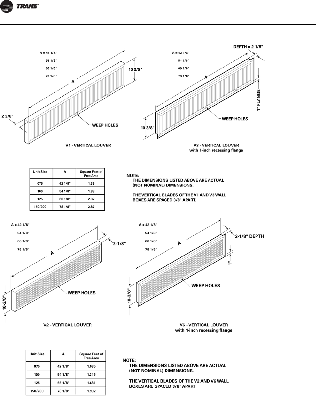
Accessories . . . . . . . . . . . . . . . . . . . . . . . . . . . .109
Wallboxes . . . . . . . . . . . . . . . . . . . . . . . . . . .109
General Instructions . . . . . . . . . . . . . . . . .109
Installation in Masonry Walls . . . . . . . . .111
Installation in Curtain Walls . . . . . . . . . .111
UV-SVN02_-EN.book Page 5 Thursday, January 24, 2013 4:48 PM

6 UV-SVN02C-EN
Model Number Descriptions
Digit 1, 2, 3 — Unit
Configuration
HUV = Horizontal Unit Ventilator
Digit 4 — Development
Sequence
C = Third Generation
Digit 5, 6, 7 — Development
Sequence
075 = 750 CFM
100 = 1000 CFM
125 = 1250 CFM
150 = 1500 CFM
200 = 2000 CFM
Digit 8 — Unit Incoming Power
Supply
1 = 120V/60/1
2 = 208V/60/1
3 = 208V/60/3
4 = 240V/60/1
5 = 240V/60/3
6 = 277V/60/1
8 = 480V/60/3-Phase 4-Wire Power
Supply
Digit 9 — Motor
0 = Free Discharge ECM
4 = Free Discharge ECM, Low
Acoustics
7 = Free Discharge ECM, Low FLA
Option
N = Free Discharge, Low Acoustics,
Low FLA
A = High Static ECM
E = High Static ECM, Low Acoustics
H = High Static ECM, Low FLA
Option
K = High Static ECM, Low Acoustics,
Low FLA
Digit 10, 11 — Design Sequence
** = Design Sequence
Digit 12, 13 — Coil Letter
Designation
(Single Coil Options)
AA = 2 R, 12 FPI CW/HW Changeover
AB = 2 R, 16 FPI CW/HW Changeover
AC = 3 R, 12 FPI CW/HW Changeover
AD = 4 R, 12 FPI CW/HW Changeover
AE = 4 R, 16 FPI CW/HW Changeover
H1 = 1 R, 12 FPI Heating Coil
H2 = 1 R, 14 FPI Heating Coil
H3 = 1 R, 16 FPI Heating Coil
H4 = 2 R, 12 FPI Heating Coil
H5 = 2 R, 14 FPI Heating Coil
H6 = 2 R, 16 FPI Heating Coil
K1 = 1 R Low Capacity Steam Coil
K2 = 1 R High Capacity Steam Coil
E4 = 4 Element Heating Only Coil
E6 = 6 Element Heating Only Coil
E8 = 8 Element Heating Only Coil
G0 = 2 R, 12 FPI DX Coil
(Coupled Coil Options)
DA = 1 R, 12 FPI HW Coil with 2 R,
12 FPI CW Coil
DC = 1 R, 12 FPI HW Coil with 2 R,
14 FPI CW Coil
DD = 1 R, 12 FPI HW Coil with 3 R,
12 FPI CW Coil
DE = 1 R, 14 FPI HW Coil with 3 R,
14 FPI CW Coil
DK = 1 R Steam with 3 R CW Coil
X3 = 3 Element Elec Coil with
3 R CW Coil (2 R on Sz 125)
X4 = 4 Element Elec Coil with
3 R CW Coil (2 R on Sz 125)
X6 = 6 Element Elec Coil with
3 R CW Coil (2 R on Sz 125)
GK = 1 R Steam Coil with 2 R DX Coil
GA = 1 R Heating coil with 2 R DX Coil
G3 = 3 Element Elec Heat Coil with
2 R DX Coil
G4 = 4 Element Elec Heat Coil with
2 R DX Coil
G6 = 6 Element Elec Heat Coil with
2 R DX Coil
R1 = 3 R, 12 FPI CW Coil with 1 R,
12 FPI HW Coil
R2 = 3 R, 14 FPI CW Coil with 1 R,
12 FPI HW Coil
Digit 14 — Coil Connections
A = Right Hand Supply
B = Left Hand Supply
C = Left Hand Cool/Right Hand Heat
D = Right Hand Cool/Left Hand Heat
Digit 15 — Control Types
0 = Unit-Mounted Speed Switch
Q = Tracer™ ZN520
R = Tracer ZN520 w/Low Temp
T = Tracer ZN520 w/Time Clock
U = Tracer ZN520 w/Low Temp &
Time Clock
X = Tracer ZN520 ICS w/Fan Status
Y = Tracer ZN520 ICS w/Low Temp &
Fan Status
8=CSTI
9 = CSTI w/Low Temp
L = Tracer UC400
M = Tracer UC400 w/Time Clock
Digit 16 — Heating/Change Over
Coil Control
0=None
1 = Face & Bypass Damper Actuator
2 = 2-Pipe Face & Bypass Damper
Control
3 = 4-Pipe Face & Bypass Damper
Control & Isolation Valve
4 = Single Stage Electric Heat
Control
5 = Dual Stage Electric Heat
7 = Face & Bypass Damper w/2-Pipe
Control & Isolation Valve
9 = 2-Way 1/2-in. 3.3 CV; 3-Wire Mod
W = 2-Way 1/2-in. 1.9 CV; 3-Wire Mod
G = 2-Way 3/4-in. 4.7 CV; 3-Wire Mod
H = 2-Way 1-in. 6.6 CV; 3-Wire Mod
Z = 3-Way 1/2-in. 1.9 CV; 3-Wire Mod
Q = 3-Way 1/2-in. 3.8 CV; 3-Wire Mod
R = 3-Way 3/4-in. 6.6 CV; 3-Wire Mod
T = Steam: 3-Wire Mod 1/2-in. 1.9 CV
U = Steam: 3-Wire Mod 1/2-in. 4.7 CV
V = Steam: 3-Wire Mod 3/4-in. 8.6 CV
Digit 17 — Cooling Coil Control
0=None
1 = Single Stage DX Controls
A = Field-Supplied Analog Valves
W = 2-Way 1/2-in. 1.9 CV; 3-Wire Mod
G = 2-Way 3/4-in. 4.7 CV; 3-Wire Mod
H = 2-Way 1-in. 6.6 CV; 3-Wire Mod
Z = 3-Way 1/2-in. 1.5 CV; 3-Wire Mod
Q = 3-Way 1/2-in. 3.8 CV; 3-Wire Mod
R = 3-Way 3/4-in. 6.6 CV; 3-Wire Mod
Digit 18 — Damper
Configuration
0 = Field Installed Damper Actuator
1 = 100% Return Air/No Damper or
Actuator
(Modulating ASHRAE Cycle II)
F = RA/OA Damper and Actuator
(2–10 Vdc)
A = RA/OA Damper and Actuator
(3-Point Modulating)
E = RA/OA Damper and Actuator
with Exhaust (3-Point Mod)
(Two Position Control)
D = Damper w/Manual Quad Adjust
UV-SVN02_-EN.book Page 6 Thursday, January 24, 2013 4:48 PM

Model Number Descriptions
UV-SVN02C-EN 7
Digit 19 — Zone Sensor/Fan
Speed Switch
0 = No Sensor - Unit Mounted Fan
Speed Switch
J = Wall Mt Zone Sensor (OALMH;
Setpoint Dial; On/Cancel)
K = Wall Mt Zone Sensor (OALMH;
Setpoint Dial)
L = UNIT Mt Zone Sensor (OALMH;
Setpoint Dial)
M = Wall Mount Display Sensor
w/Setpoint Adjust
P = Wall Mt Sensor (Setpoint dial;
On/Cancel) w/Unit-Mt Speed
Switch
Q = Wall Mt Sensor (Setpoint Dial)
w/Unit Speed Switch
3 = Wireless Display Sensor
(H-L-A-O)
4 = Wireless Sensor - Ext Adjust
Digit 20 — Inlet Arrangement
A = FA Duct Top/RA Duct Lower Back
B = FA Duct Top/RA Duct Bottom
C = FA Duct Top/RA Bar Grille
Bottom
D = FA Duct Top/RA Open Bottom
E = 100% FA Duct Top
F = FA Duct Upper Back/RA Duct
Lower Back
G = FA Duct Upper Back/RA Duct
Bottom
H = FA Duct Upper Back/RA Bar
Grille Bottom
J = FA Duct Upper Back/RA Open
Bottom (no grille)
K = 100% FA Duct Upper Back
L = 100% RA Duct Lower Back
M = 100% RA Duct Bottom
N = 100% RA Bar Grille Bottom
P = 100% RA Open Bottom (no grille)
Digit 21 — Discharge
Arrangement
1 = Bar Grille Discharge
2 = Duct Collar Discharge 7-1/8 in.
from Top
3 = Duct Collar Discharge 3/4 in.
from Top
4 = Duct Collar Discharge 3-5/8 in.
from Top
5 = Front Double Deflection Grille
Discharge
6 = Front Double Deflection Opening
Only (no grille)
7 = Bottom w/Double Deflection
Grille
Digit 22 — Unit Access Panel
0 = Std. Horizontal Access Panel
1 = Safety Chain/Std. Access Panel
2 = Removable Access Panel
3 = Safety Chain/Removable
Access Panel
Digit 23 — Recessing Flange
0 = No Recessing Flange
1 = Standard Recessing Flange
Digit 24 — Piping Package
0 = No Factory Installed Piping
Package
A = Package 1; Standard Package
C = Package 2; Standard Package
w/Circuit Setter
D = Package 3; Standard Package
w/Strainer and Circuit Setter
Digit 25 — Filter
1 = Throwaway Filter
2 = MERV 8 Filter
3 = MERV 13 Filter
Digit 26 — Color Selection
1 = Deluxe Beige Cabinet
2 = Cameo White Cabinet
3 = Soft Dove Cabinet
4 = Stone Gray Cabinet
5 = Driftwood Gray Cabinet
Digit 27 — Motor Disconnect
0 = No Disconnect
A = Non-Fused Toggle
B = Circuit Breaker
Digit 28 — Control Accessories
0=None
A= C0
2 Sensor
B = Wall Mounted Relative Humidity
Sensor
UV-SVN02_-EN.book Page 7 Thursday, January 24, 2013 4:48 PM

8 UV-SVN02C-EN
General Information
Unit Description
Configuration. This classroom unit ventilator is
configured in a horizontal (ceiling mount) configuration.
The units range from 750 cfm to 2000 cfm for the
horizontal configuration.
Cabinet. The units are constructed of 14- and 16-gauge
zinc coated steel. All steel surfaces are cleaned,
phosphatized, rinsed and dried before application of final
finish paint. The paint is applied by an electrostatic powder
spray system, minimum thickness of 1.5 mil which results
in an appliance grade finish.
Front Panels. The front panels are retained by Allen
wrench operated locks which open with a 180-degree
rotation.
The bottom panel is constructed of heavy gauge material.
End Pockets. Unit Ventilators are equipped with end
pockets to provide field installation of valves, piping, and
controls. The units have a large pipe access opening in
both end pockets and large knockouts for piping and
electrical connections. All electrical connections are made
in the left-hand end pocket, with exception of units
equipped with the electric heating coil option.
Drain Pan. The drain pan is positively sloped in all planes
to assure proper drainage and help eliminate the risk of
microbial growth. To help ensure indoor air quality, the
drain pan is insulated on the bottom to help prevent
condensate formation. The drain pan can be easily
removed for cleaning purposes. The drain pan is drilled-
out and pitched toward the cooling coil connection during
assembly per model number selection.
Fanboard. The fanboard assembly is acoustically
designed in a single, rigid assembly that includes the fans,
fan housing, bearings, fan shaft and motor. The fan motor
is mounted on the fanboard. The fanboard is made from
14-gauge galvanized steel to resist corrosion and increase
strength.
Electrically Commutated Motor (ECM). All motors
are brushless DC (BLDC)/electronically commutated
motors (ECM) factory-programmed and run-tested in
assembled units. The motor controller is mounted in a
control box with a built-in integrated user interface and
LED tachometer. If adjustments are needed, motor
parameters can be adjusted through momentary contact
switches accessible without factory service personnel on
the motor control board.
Motors will soft-ramp between speeds to lessen the
acoustics due to sudden speed changes. Motors can be
operated at three speeds or with a field-supplied variable
speed controller. The motor will choose the highest speed
if there are simultaneous/conflicting speed requests.
All motors have integral thermal overload protection with
a maximum ambient operating temperature of 104°F and
are permanently lubricated. Motors are capable of starting
at 50 percent of rated voltage and operating at 90 percent
of rated voltage on all speed settings. Motors can operate
up to 10 percent over voltage.
Filter. Standard units are equipped with a single 1-inch
thick filter (MERV 8) that is accessible without removal of
the unit front panel. Filter options include throwaway,
MERV 8 and MERV 13 options.
OA/RA Damper. Trane unit ventilators are equipped
with dual blade type mixing damper to ensure proper
modulation and mixing of return and outdoor air designed
in accordance to ARI 840. A splitter is placed between the
damper blades to separate the fresh-air and return-air
compartments to prevent draft blow-through.
Options
OA/RA Actuator (Option). The OA/RA actuator
provides true spring return operation for positive close-off
of the OA/RA damper. The spring return system of the
actuator closes the outside damper if power is lost to the
building. When ordered with factory mounted controls,
the actuator is 3-point floating. A 2 to 10 Vdc actuator is
also available when other than Trane controls is required.
See Ta b l e 1 , p . 8 for technical data of the OA/RA actuator.
Table 1. Technical data for OA/RA actuator
Power Supply 24 Vac ±20% 50/60Hz
24 Vac ±10%
Power Running: 2.5W
Consumption Holding: 1W
Transformer Sizing 5VA (class 2 power source)
Overload Electronic throughout
Protection 0- to 95-degree rotation
Control Signal 2–10 Vdc 3 point floating w/ Trane controls
Rotation Angle 95-degree max. Adjustable w/mechanical stop
Torque 35-inch/lb
Rotation Direction Spring return reversible w/CW/CCW mounting
Position Indication Visual indicator, 0- to 95-degrees
Noise Level Running: 30dB
UV-SVN02_-EN.book Page 8 Thursday, January 24, 2013 4:48 PM

General Information
UV-SVN02C-EN 9
Face and Bypass (Option). The face and bypass option
consist of an actuator, damper blade and 2-position water
valve (option).
During bypass mode, the damper moves to prevent air
from traveling through the coil. The damper blade is
tightly sealed to eliminate heat pickup while in the full
bypass mode.
A two-position isolation valve control (option) further
enhances this system by closing off all water flow to the
coil during full bypass operation. Two-pipe main steam
systems utilize the face and bypass as part of the standard
operation and may incorporate the optional isolation
valve.
Face and Bypass Actuator (Option). The face and
bypass damper actuator incorporates a direct couple
design for the horizontal configurations. The actuator is
provided with electronic protection against overload. It
does not contain, nor require a limit switch. When reaching
the damper end position, the actuator automatically stops.
The gears can be manually disengaged with a button on
the actuator housing. See Table 2 for technical data.
Modulating Water Valves (Option). The modulating
control valve option provides optimum control of hot and
chilled water flow in various heating and cooling
applications. They are designed to provide sinusoidal
valve actuator travel and operate silently, resisting water
hammer.
The actuator on the valve is a 24V, 3-point floating type.
See Ta b l e 3 , p . 9 for more technical data.
Isolation Valves (Option). The isolation valves are two
position 24V, spring return type. They provide added
control in heating and cooling applications when used in
conjunction with the face and bypass damper.
On heating coils and two-pipe change-over applications,
the valve is a normally open type to prevent the coil from
freezing in case of power loss.
For cooling, the valve is normally closed and opens when
there is a call for cooling. See Table 4, p. 10 for more
technical data.
Table 2. Technical data for face and bypass actuator
Power Supply 24 Vac ±20% 50/60Hz
24 Vac ±10%
Power Consumption 2W
Transformer Sizing 3VA (class 2 power source)
Manual Override External push button
Control Signal 3-point floating w/Trane controls
Rotation Angle 95-degree max. Adjustable w/mechanical stop
Torque 35-inch/lb
Rotation Direction Reversible with switch L/R
Position Indication Clip-on indicator
Noise Level Less than 35dB
Table 3. Technical data for modulating water valves
Power Supply 24V - 50/60 Hz
Power Consumption 4W
Maximum Duty Cycle 15%
Operating Ambient Temperature 0°C to 65°C
32°F to 150°F
Min./Max. Fluid Temperatures 1°C to 95°C
34°F to 203°F
Operating Pressure Differential Max. - 4 bar (60 psi)
Pressure Rating Static - 20 bar (300 psi)
Burst - 100 bar (1500 psi)
Flow Characteristics Linear
UV-SVN02_-EN.book Page 9 Thursday, January 24, 2013 4:48 PM

General Information
10 UV-SVN02C-EN
Unit Ventilator Controls
Options
Field-Installed Controls (Option). The unit comes
equipped with a fan speed switch, damper blade (only),
and an optional low temperature detection.
Customer Supplied Terminal Interface (CSTI)
(Option). Units containing the end device control design
will incorporate a pre-wired, selected control components
to a terminal strip for wiring a field-provided controller and
temperature sensor.
Note: For controller operation malfunction of any non-
Trane, field installed controls, consult the literature
or technical support of the controls manufacturer.
Tracer ZN520 Control Package (Option). The Tracer
ZN520 electronic digital controller is a factory installed,
tested and commissioned LonTalk® certified design. It
may be used in a stand-alone control scheme, or as part of
a building automation system. The controller is pre-wired
to Trane selected control components best suited for room
comfort. For more information on the Tracer ZN520 unit
controller operation and service issues, refer to
CNT-SVX04A-EN (Installation, Operation, and
Programming Guide: Tracer ZN520 Unit Controller), or the
most recent version.
Tracer UC400 Control Package (Option). The Tracer
UC400 electronic digital controller is a factory installed,
tested and commissioned BACnet® certified design. The
Tracer UC400 operates as a single zone VAV controller and
ramps fan speed based on space load. It may be used in a
stand-alone control scheme, or as part of a building
automation system. The controller is mounted, pre-wired,
and pre-programmed to selected control components
best suited for room comfort. For more information on the
Tracer UC400 unit controller operation and service issues,
refer to BAS-SVX48B-EN (Installation, Operation, and
Table 4. Technical data for isolation water valves
Power Supply 24V - 50/60 Hz
Power Consumption 5W
Max. Fluid Temp. 200°F / 94°C
Min. Fluid Temp. 34°F / 1°C
Max. Operating Pressure 300 psi
Max. Close-off Pressure 1/2 in.= 30 psi
3/4 = 20 psi
1 = 15 psi
Figure 1. Tracer ZN520 unit controller
UV-SVN02_-EN.book Page 10 Thursday, January 24, 2013 4:48 PM

General Information
UV-SVN02C-EN 11
Programming: Tracer UC400 Programmable Controller),
or the most recent version.
When Trane controls are ordered for an installation, the
controls are shipped already installed and factory-tested
to ensure proper operation at start-up.
Notes:
•For more details on the ZN520 unit controller option or
operation and service/replacement issues, please refer
to CNT-SVX04A-EN (Installation, Operation, and
Programming Guide: Tracer ZN520 Unit Controller), or
the most recent version.
•For more details on the UC400 unit controller option or
operation and service/replacement issues, refer to
BAS-SVX48B-EN (Installation, Operation, and
Programming: Tracer UC400 Programmable
Controller), or the most recent revision.
Automatic Controls
Regardless of type of controls, all systems provide a
sequence of operation designed to provide rapid warm-up
of the room and increase ventilation while offsetting
overheating.
In addition, air conditioning installations will usually
provide a means of system changeover from heating to
cooling as well as provisions for drawing a pre-determined
amount of outside air into the room.
Unit Switch
The unit “On-Off” switch, provided by Trane, is typically
housed in the control box mounted in the left hand end
pocket immediately below the discharge grille.
When Tracer ZN520 or Tracer UC400 unit controllers are
used, the unit switch is located on the switch module in the
end pocket behind the front panel rather than below the
grille.
Figure 2. Tracer UC400 unit controller
UV-SVN02_-EN.book Page 11 Thursday, January 24, 2013 4:48 PM

12 UV-SVN02C-EN
ECM Application Notes
The new Trane BLDC system has some notable differences
to traditional designs.
RPM Mode
The motors are programmed from the factory to run in
rpm mode and will not change rpm based on external
static pressure, except at the performance limits of the
motor/controller. For ducted units, the units are shipped
with the rpm set for 0.2 in. ESP for High, Medium, and Low
speeds. The speeds can for high, medium, and low
operation, but should not be changed for the electric heat
actuation speeds.
Generally, the fans deliver less cfm for the same rpm, if the
static is increased and the power will decrease. The fan will
deliver more cfm for the same rpm, if the static is
decreased and the fan power will increase. A unit with high
static configuration should not be used to free-deliver air
(i.e., with no ducting attached).
Field Power Wiring
Note: This product uses an electronic variable speed
motor control, which includes a line reactor to
minimize power line harmonic currents. It is
recommended that good wiring practices be
followed to manage building electrical power
system harmonic voltages and currents to avoid
electrical system problems or other equipment
interaction.
Performance Boundaries
While the speeds of the fan motors can be adjusted, never
program a fan speed higher than 1700 rpm, or lower than
450 rpm. In many cases, units configured for high-static
operation will not achieve the desired rpm if the ESP of the
unit is too low, or the unit is allowed to “free-discharge.”
The ECM engine contains settings that will limit the output
power of the motor under these overload conditions. If the
motors cannot achieve rpm close to the target for a specific
period of time, the unit will disable electric heat and fan-
status indicators.
MCA/MFS and Power Draw
The Trane BLDC motors have variable output but are
shipped at specific settings to deliver proper performance
and reliability. The power draw indicated in the catalogue
indicates the power consumed when applied properly (as
shipped and with the nominal ESP applied). However, the
nameplate of the unit indicates the maximum input draw
of the motor, as the motor settings can be changed to draw
more power.
Electric Heat Relays
For quiet operation, the new BLDC units employ power
relays instead of definite purpose contactors for electric
heat actuation. The coils of multiple relays are hooked in
parallel to simulate a multi-pole contactor, as shown in
Figure 3. In Figure 3, two sets of three relays are used to
perform the function of a two 3-pole contactors.
Troubleshooting Other Unit Functions
In some cases, the normal or abnormal operation of the
BLDC system may interact with other components in the
system. Generally, verification of the engine and adapter
boards’ wiring and configuration should be checked if
there are unexplained abnormalities in other areas of the
unit:
1. Valve operation
2. Electric Heat operation
3. Changeover sensor operation
4. Damper operation
5. Condensate overflow switch
A high degree of protection is provided on electric heat
units. If electric heat fails to actuate, it may be because of
one of the following events:
1. Fans are failing to meet target speed. If a second motor
is not present, all settings for speeds for Motor 2
should be set to 0000.
2. Hot water may be available in the changeover coil.
3. The connection to analogue input 1 on the Tracer ZN
controller may be reversed in polarity.
4. Target speeds for motors may be set too high:
a. The parameter may be set incorrectly.
b. The parameter may be set incorrectly.
Figure 3. Sample arrangement: electric heat relay
UV-SVN02_-EN.book Page 12 Thursday, January 24, 2013 4:48 PM

UV-SVN02C-EN 13
Dimensions and Weights
Unit Location and Clearances
Locate the unit in an indoor area. The ambient
temperature surrounding the unit must not be less than
45°F. Do not locate the unit in areas subject to freezing.
Attention should be given to service clearance and
technician safety. The unit should contain enough space
for service personnel to perform maintenance or repair.
Provide sufficient room to make water, and electrical
connection(s).
A 36-inch clearance at the unit front is sufficient for
maintenance and service of the equipment.
NOTICE:
Equipment Damage!
Do not locate the unit in areas subject to freezing. Pipes
could burst at lower temperature resulting in
equipment damage.
WARNING
Electrocution and Fire Hazards with
Improperly Installed and Grounded Field
Wiring!
Improperly installed and grounded field wiring poses
FIRE & ELECTROCUTION hazards. To avoid these
hazards, you MUST follow requirements for field wiring
installation and grounding as described in NEC and
your local/state electrical codes. All field wiring MUST
be performed by qualified personnel.
Failure to follow these requirements could result in
death or serious injury.
Table 5. Weights and measurements: horizontal unit ventilators
Unit Size 075 100 125 150 200
Unit Length (in.) 70-1/4 82-1/4 94-1/4 106-1/4 106-1/4
Unit Height (in.) 16-5/8 16-5/8 16-5/8 16-5/8 17-5/8
Unit Width (Front Discharge) (in.) 35-5/8 35-5/8 35-5/8 35-5/8 43-1/8
Unit Width (Bottom Discharge) (in.) 48-3/4 48-3/4 48-3/4 48-3/4 57-1/4
Shipping Weight (lb)(a) 340* 375* 435* 500* 600*
Filter Size (inches-actual) 41-1/2 x 15-1/4 x 1 53-1/2 x 15-1/4 x 1 65-1/2 x 15-1/4 x 1 77-1/2 x 15-1/4 x 1 77-1/2 x 15-1/4 x 1
(a) Working weight is approximately 10% less than shipping weight. Trane recommends 1/4-inch rods for hanging suspension
Table 6. Control methodology
Fan Speed
FSS 3 or infinite(a)
(a)With a field-supplied 2–10 Vdc controller.
CSTI 3 or infinite(a)
Tracer ZN520 3
Tracer UC400 Infinite
Table 7. Control sequences
Fan Speeds
DX operation(a)
(a) Fan speed during sequence operation.
1
Electric heat operation(a) 1
Sidewall Exhaust(b)
(b)Unit Ventilator when operating with option.
2
ERSA(b) 2
UV-SVN02_-EN.book Page 13 Thursday, January 24, 2013 4:48 PM

Dimensions and Weights
14 UV-SVN02C-EN
Figure 4. Horizontal unit ventilator with ducted front discharge dimensional data; sizes 075–150 (dimensions in
inches)
3"
4"
4"
1 3/4"
10 1/8"
6 1/2"
10 1/2"
32 1/2"
35 5/8"
11"
14 1/2"
16 5/8"
7 1/8"
7 7/8"
B17 1/8"
12 1/8"
13 1/2" 13 1/2"
4 7/8"
2 3/8"
2"-DIA K.O.
FOR PIPING
7/8"-DIA K.O.
FOR ELECTRICAL
17 1/8"
A
C
D
F.A. UPPER BACK
R.A. LOWER BACK
BACK VIEW SIDE VIEW
TOP VIEW
NOTE:
WHEN ELECTRIC HEAT IS PRESENT, ALL POWER
CONNECTIONS ARE MADE IN THE RIGHT HAND
END POCKET. ON ALL OTHER CONFIGURATIONS,
POWER CONNECTIONS ARE MADE IN THE LEFT
HAND END POCKET.
ISO VIEW
7/8" x 2" SLOTS
FOR HANGING BRACKETS
RIGHT HAND
END POCKET
LEFT HAND
END POCKET
DISCHARGE
Size A B C D
75 70-1/4 36 46 43-1/4
100 82-1/4 48 58 55-1/4
125 94-1/4 60 70 67-1/4
150 106-1/4 72 82 79-1/4
UV-SVN02_-EN.book Page 14 Thursday, January 24, 2013 4:48 PM

Dimensions and Weights
UV-SVN02C-EN 15
Figure 5. Horizontal unit ventilator with ducted front discharge dimensional data; size 200 (dimensions in inches)
4"
5"
5"
2 3/4"
10 1/8"
7 1/2"
11 1/2"
39 1/2"
26 1/2"
43 1/8"
13 1/2"
15 1/2"
17 5/8"
6 1/8"
9 7/8"
72"17 1/8"
12 1/8"
13 1/2" 13 1/2"
4 7/8"
2 3/8"
2"-DIA K.O.
FOR PIPING
7/8"-DIA K.O.
FOR ELECTRICAL
17 1/8"
106 1/4"
82"
79 1/4"
F.A. UPPER BACK
R.A. LOWER BACK
BACK VIEW SIDE VIEW
TOP VIEW
ISO VIEW
7/8" x 2" SLOTS
FOR HANGING BRACKETS
RIGHT HAND
END POCKET
LEFT HAND
END POCKET
DISCHARGE
NOTE:
WHEN ELECTRIC HEAT IS PRESENT, ALL POWER
CONNECTIONS ARE MADE IN THE RIGHT HAND
END POCKET. ON ALL OTHER CONFIGURATIONS,
POWER CONNECTIONS ARE MADE IN THE LEFT
HAND END POCKET.
72"
UV-SVN02_-EN.book Page 15 Thursday, January 24, 2013 4:48 PM

Dimensions and Weights
16 UV-SVN02C-EN
Figure 6. Horizontal unit ventilator with double deflection discharge dimensional data; sizes 075–150 (dimensions in
inches)
3"
6 1/2"
10 1/2"
14 1/2"
B
R.A. LOWER BACK
17 1/8"
4 7/8"
2 3/8"
2"-DIA K.O.
FOR PIPING
7/8"-DIA K.O.
FOR ELECTRICAL
17 1/8"
3/4"
7 1/4"
5 1/8"
4"
A
4"
16 5/8"
10 1/8"
32 3/4"
46"
48 3/4"
11"
12 1/8"
13 1/2" 13 1/2"
C
D
BACK VIEW SIDE VIEW
TOP VIEW
NOTE:
WHEN ELECTRIC HEAT IS PRESENT, ALL POWER
CONNECTIONS ARE MADE IN THE RIGHT HAND
END POCKET. ON ALL OTHER CONFIGURATIONS,
POWER CONNECTIONS ARE MADE IN THE LEFT
HAND END POCKET.
ISO VIEW
7/8" x 2" SLOTS
FOR HANGING BRACKETS
RIGHT HAND
END POCKET
LEFT HAND
END POCKET
BOTTOM DISCHARGE
B
Size A B C D
75 70-1/4 36 46 43-1/4
100 82-1/4 48 58 55-1/4
125 94-1/4 60 70 67-1/4
150 106-1/4 72 82 79-1/4
UV-SVN02_-EN.book Page 16 Thursday, January 24, 2013 4:48 PM

Dimensions and Weights
UV-SVN02C-EN 17
Figure 7. Horizontal unit ventilator with double deflection discharge dimensional data; size 200 (dimensions in
inches)
4"
7 1/2"
11 1/2"
15 1/2"
72"
R.A. LOWER BACK
17 1/8"
4 7/8"
2 3/8"
2"-DIA K.O.
FOR PIPING
7/8"-DIA K.O.
FOR ELECTRICAL
17 1/8"
3/4"
9 1/4"
5 1/8"
5"
106 1/4"
5"
17 5/8"
10 1/8"
26 1/2"
53 3/4"
57 1/4"
13 1/2"
12 1/8"
13 1/2" 13 1/2"
82"
79 1/4"
BACK VIEW SIDE VIEW
TOP VIEW
ISO VIEW
7/8" x 2" SLOTS
FOR HANGING BRACKETS
RIGHT HAND
END POCKET
LEFT HAND
END POCKET
NOTE:
WHEN ELECTRIC HEAT IS PRESENT, ALL POWER
CONNECTIONS ARE MADE IN THE RIGHT HAND
END POCKET. ON ALL OTHER CONFIGURATIONS,
POWER CONNECTIONS ARE MADE IN THE LEFT
HAND END POCKET.
BOTTOM DISCHARGE
UV-SVN02_-EN.book Page 17 Thursday, January 24, 2013 4:48 PM

Dimensions and Weights
18 UV-SVN02C-EN
Figure 8. Supply/return air arrangements for the horizontal unit ventilator
DIGIT 20 = A
FA DUCT TOP
w/RA DUCT LOWER BACK
DIGIT 20 = B
FA DUCT TOP
w/RA DUCT BOTTOM
DIGIT 20 = G
FA DUCT UPPER BACK
w/RA DUCT BOTTOM
DIGIT 20 = F
FA DUCT UPPER BACK
w/RA DUCT LOWER BACK
DIGIT 20 = E
100% FA DUCT TOP
DIGIT 20 = K
100% FA DUCT UPPER BACK
DIGIT 20 = C & D
(C) FA DUCT TOP
w/RA BAR GRILLE BOTTOM
(D) FA DUCT TOP
w/RA OPEN BOTTOM
DIGIT 20 = H & J
(H) FA DUCT UPPER BACK
w/RA BAR GRILLE BOTTOM
(J) FA DUCT UPPER BACK
w/RA OPEN BOTTOM (no grille)
DIGIT 20 = M
100% RA DUCT BOTTOM
DIGIT 20 = L
100% RA DUCT LOWER BACK
DIGIT 20 = N & P
(N) 100% RA BAR GRILL BOTTOM
(P) 100% RA OPEN BOTTOM
(no grille)
UV-SVN02_-EN.book Page 18 Thursday, January 24, 2013 4:48 PM

UV-SVN02C-EN 19
Receiving and Handling
The unit ventilator is packaged in clear stretch wrap and
protective cardboard.
Note: Before unwrapping, make a visual inspection of the
unit for any damage that may have occurred during
shipping. All orders are shipped FOB (Freight on
Board) from the factory, therefore any claims must
be made with the delivering carrier.
Following visual inspection, carefully begin the following
procedures:
1. Carefully remove the stretch wrap and the top
cardboard cover.
2. Remove remaining cardboard blocking.
3. Remove the bottom access panel with a 7/32-in. Allen
wrench.
4. Verify nameplate sales order number is correct.
5. Remove shipping bracket from the lower rear corners
of the unit and shipping skid. Access to the screws
holding unit to the skid is obtained inside the unit.
6. Rotate fan wheels manually. Wheels should move
freely and be in proper alignment. Visually inspect the
fan area for obstructions or shipping damage.
7. Remove all applicable knock-outs for coil piping and
electrical connections (see Figure 5, p. 13 through
Figure 7, p . 17).
Figure 9. Horizontal unit ventilator as shipped
Figure 10. Shipping skid removal
UV-SVN02_-EN.book Page 19 Thursday, January 24, 2013 4:48 PM

20 UV-SVN02C-EN
Pre-Installation
Jobsite Inspection
Always perform the following checks before accepting a
unit:
1. Verify that the nameplate data matches the data on the
sales order and bill of lading (including electrical data).
2. Verify that the power supply complies with the unit
nameplate specifications.
3. Visually inspect the exterior of the unit, for signs of
shipping damage. Do not sign the bill of lading
accepting the unit(s) until inspection has been
completed. Check for damage promptly after the
unit(s) are unloaded. Once the bill of lading is signed at
the jobsite, the unit(s) are now the property of the
SOLD TO party and future freight claims MAY NOT be
accepted by the freight company.
Jobsite Storage
This unit is intended for indoor use only. To protect the unit
from damage due to the elements, and to prevent possible
IAQ contaminant sources from growing.
1. Place the unit(s) on a dry surface or raise above the
ground to assure adequate air circulation beneath the
unit.
2. Cover the unit(s) with a water proof tarp to protect
them from the elements.
3. Make provisions for continuous venting of the covered
units to prevent moisture from standing on the unit(s)
surfaces.
4. Do not stack units.
NOTICE:
Microbial Growth!
Wet interior unit insulation can become an
amplification site for microbial growth (mold), which
may cause odors and damage to the equipment and
building materials. If there is evidence of microbial
growth on the interior insulation, the insulation should
be removed and replaced prior to operating the system.
UV-SVN02_-EN.book Page 20 Thursday, January 24, 2013 4:48 PM

UV-SVN02C-EN 21
Installation—Mechanical
Location Considerations
Selecting the appropriate location for installing a unit is
very important. The following factors should be
considered:
1. Ceiling hung design must be of sufficient structure to
support the weight of the unit (see Tab l e 8 for weight
data). Figure 5, p. 13 through Figure 9, p. 17 show
hanging rod location and placement.
Note: Isolator and suspension rods are to be provided
by the installer. For hanging suspension, Trane
recommends 3/8-in. rods.
2. Service access is gained through the access panels on
the bottom of the unit. Sufficient space should be
allowed for panel removal. If the hinged panel option
is ordered, allow for a swing radius of 14-in.
3. Sufficient free area around both the discharge and wall
box should be maintained to ensure proper
ventilation. If any part of the discharge is blocked off,
unit performance may be affected. If the wall box is too
small on the inlet, water or debris could be pulled into
the unit (see Tab l e 9) for minimum wall box free area
requirements).
4. Use the shortest and most efficient ductwork possible
when ducting the discharge and/or return air grille.
Units ordered with a duct collar discharge
arrangement are equipped with a 1-in. duct flange.
Note: Ductwork for ducted units will be provided by
the installer.
5. If installing a split system, refer to the condenser
installation instructions provided with that unit for
special location considerations.
Note: Measurements in Figure 5, p. 13 through
Figure 9, p. 17 do not include adjusted leveling
legs. Adjustment of Leveling legs should be
done first. New measurements from the floor
should be retaken before installation.
Unit Mounting
The horizontal unit ventilator may be attached directly to
the ceiling or suspended from the ceiling by hangers.
Hanger rods should be at least 3/8 in. diameter steel to
support unit weight, as given in Table 8, p. 21.
Install the hanging devices before hoisting the unit. A fork
lift or other special lifting device is required to hoist the
unit into mounting position.
Protect the unit finish by covering the lifting platform.
To hoist the unit into place, follow the instructions below:
1. Secure 2 x 4s to the lift forks. These two supports must
be long enough and spaced properly on the forks to
support the unit while it is being lifted and clear the
duct flanges on the unit.
2. Tip the unit onto the supports and slide it toward the lift
until the unit weight balances.
3. Lift the unit. Once in position, temporarily secure the
unit to the hanger rods or mounting studs with nuts
and washers.
4. Align the unit with the duct work. When in proper
alignment, tighten the mounting nuts securely.
5. Recheck the unit alignment and make sure the unit is
level.
6. Replace all covers, panels and filters before starting
the unit.
Note: Unit must be mounted level. Coils and drain pans
inside unit are pitched properly for drainage before
shipment.
Horizontal Recessed Mounting
The recessing flange assembly ships in a box separate
from the unit. The assembly includes pre-cut flanges,
corner transition pieces, mounting screws, filler pieces,
and pressure sensitive gaskets. Refer to Figure 11 and
Figure 12, p. 22 for typical horizontal installation.
Ta b l e 8. Typical unit weights(a)
(a) Weight at time of shipping. Subtract approximately 10% for actual
hanging weight.
Unit Size lb kg
075 340 154
100 375 170
120 435 197
150 500 227
200 600 272
Table 9. Wall box free area requirements
Unit Size Discharge (in2)Inlet (in
2)
075 232 169
100 296 217
120 364 265
150 430 313
200 576 391
WARNING
Heavy Objects!
Always lift unit with fork trucks or other special lifting
device following the recommended procedures. Failure
to properly lift the unit as instructed, could result in
death or serious injury.
UV-SVN02_-EN.book Page 21 Thursday, January 24, 2013 4:48 PM

Installation—Mechanical
22 UV-SVN02C-EN
1. Measure and cut the pressure sensitive gaskets to the
correct lengths and attach to the flanges.
2. Starting at a corner, attach the top flange with the
mounting screws provided.
3. Press the corner transition pieces onto the end of the
flange and attach the adjoining flanges and filler
pieces at the bottom of the unit. Work around the unit
in this manner until all flanges and corners are
installed.
4. Mounting holes are pre-drilled in the flanges. Use the
assembled flanges as a template to drill all 7/32-in.
mounting holes in the cabinet.
5. Attach the flange section to the unit cabinet with the
mounting screws provided.
6. Open and remove the front access panel.
7. Tighten the mounting fastener, making sure that the
unit is level.
8. Open the unit access panel and remove the bottom
front panel (see Figure 13, p. 22).
9. Hoist the unit onto a forklift and mount in place as
described in “Unit Mounting,” p. 21, ensuring the unit
is secured and aligned in place, and that the mounting
nuts are tightly fastened.
Note: Unit must be mounted level. Coils and drain
pans inside the unit are pitched internally for
proper drainage.
10. Replace all covers, panels and filters before starting the
unit.
Figure 11. Recess flange installation around horizontal
unit ventilator access panel and inlet
Figure 12. Recess flange installation around bottom
and front of horizontal unit
Supply Air
Supply
Air
G
rille
Access Panel
Recessing Flange
Return Air
Inlet Grille
Supply Air
Grille
Access Panel
Recessing Flange
Return Air
Inlet Grille
Figure 13. Horizontal unit ventilator with front panel
removed
Intake Panel
Bottom Front Panel
Discharge Panel End Cover
UV-SVN02_-EN.book Page 22 Thursday, January 24, 2013 4:48 PM

UV-SVN02C-EN 23
Installation—Piping
Note: Before installation of piping package, the shipping
bracket holding the piping in place, must be
removed.
Proper installation of piping is necessary to provide
efficient coil operation and to prevent damage during
operation. Follow standard piping practices and include all
accessories as necessary.
Piping connection knockouts are shown in Figure 5, p. 13
through Figure 9, p. 17. Field connection types and sizes
for units without piping packages are listed in Ta b l e 10,
p. 23.
A 3/4-in. OD condensate drain connection is provided on
the chilled water supply end of the unit. Attach a flexible
condensate drain hose over the drain pan connection and
secure with a hose clamp.
The drain pan on the horizontal unit is internally pitched.
To field reverse, remove the screws and drain pan, rotate
the pan and reinstall.
After the condensate drain piping has been completed,
check water flow to be sure the system properly carries and
away all condensate accumulation.
A P-trap is recommended for installations that drain
directly into a sewer system. A P-trap is not necessary for
operation but will eliminate sewer gas odor.
Trane Piping Packages (Option)
Trane Standard Piping Package includes a two- or three-
way valve with bypass balance valve, ball valves, Pete’s
plugs, and unions. A strainer and circuit balancing valve
are optional.
All union connections should be tightened in the field.
Units are shipped with union connections hand-tightened
only in the factory.
Notes:
•All connections made in the field should be sweat
connections.
•Piping packages are not shipped insulated. Any
insulation should be provided in the field by the
installing contractor.
Split System Units
The following refrigerant piping and interconnecting
wiring instructions apply to unit ventilators with direct
expansion type cooling coils used in conjunction with air-
cooled condensing units. Reference must also be made to
the condensing unit installation and wiring manuals which
are shipped with the condensing unit.
Note: A UL listing mark applied to a unit ventilator does
not apply to any associated refrigerant condensing
unit.
Refrigerant Piping
Unit ventilators with direct expansion cooling are
dehydrated and shipped with a dry air holding charge.
Connections are “pinched off” at the factory.
To connect the condensing unit lines, cut off the stubouts
and swage. The condensing unit lines can then be brought
into the swage and brazed. Trane recommends the use of
nitrogen purge when brazing refrigerant lines to prevent
formation of oxides in the lines.
Table 10. Coil data for field piping
Coil Type Connection Location Field Connection Size
4-pipe chilled water /
hot water Left or right (opposite
ends) 7/8 in. OD / 5/8 in. OD
2-pipe changeover coil Left or right 7/8 in. OD
Hot water only Left or right 7/8 in. OD
Steam Left or right 1 in. MPT
Chilled water / electric
heat Left cooling 7/8 in. OD
Chilled water / steam Left or right 7/8 in. OD / 1 in. MPT
DX Left 7/8 in. suction, 3/8 in.
DX / hot water Left cooling / right
heating 7/8 in. suction,
3/8 in. / 5/8 in. OD
DX / steam Left cooling / right
heating 7/8 in. suction,
3/8 in. / 1 in. MPT
DX / electric heat Left cooling / right
heating 7/8 in. suction,
3/8 in. / NA
Figure 14. Condensate drain pan location
13-5/8"
3"
Horizontal Unit
WARNING
Hazard of Explosion and Deadly Gases!
Never solder, braze or weld on refrigerant lines or any
unit components that are above atmospheric pressure
or where refrigerant may be present. Always remove
refrigerant by following the guidelines established by
the EPA Federal Clean Air Act or other state or local
codes as appropriate. After refrigerant removal, use dry
nitrogen to bring system back to atmospheric pressure
before opening system for repairs. Mixtures of
refrigerants and air under pressure may become
combustible in the presence of an ignition source
leading to an explosion. Excessive heat from soldering,
brazing or welding with refrigerant vapors present can
form highly toxic gases and extremely corrosive acids.
Failure to follow all proper safe refrigerant handling
practices could result in death or serious injury.
UV-SVN02_-EN.book Page 23 Thursday, January 24, 2013 4:48 PM

Installation—Piping
24 UV-SVN02C-EN
Install the refrigerant suction and liquid lines as described
in the condensing unit installation instructions. The
thermal expansion valve (TXV) is factory-installed on the
Unit Ventilator.
Note: The R-410A direct expansion (DX) refrigerant coil
includes a factory-mounted adjustable thermal
expansion valve (TXV) set to 90 psig superheat and
an equalizing tube.
Piping should be run straight out through the back of the
unit. Access piping knockouts are located in the rear
panels of the unit, as shown in Figure 5, p. 13 through
Figure 9, p. 17.
Recommended refrigerant line connections for various
unit combinations are given in Table 9, p. 21. Typical
Superheat Charging Charts are shown in the Trane Service
Facts found in the condensing unit section manual.
Refrigerant charge weights can also be determined with
your local Trane account manager using a valid Trane
Selection Program.
Steam Piping
When air, water or another product is heated, the
temperature or heat transfer rate can be regulated by a
modulating steam pressure control valve. Since pressure
and temperature do not vary at the same rate as load, the
steam trap capacity, which is determined by the pressure
differential between the trap inlet and outlet, may be
adequate at full load, but not some lesser load.
There are detailed methods for determining condensate
load under various operating conditions. However, in
most cases this is not necessary if the coils are piped as
shown in Figure 15. Follow the procedure documented in
the ASHRAE Systems Handbook, Steam Systems.
Modulating Water Valves (Option)
The actuator on the valve is a 24 V, three-point floating
valve. The actuator can be easily removed from the valve
body by pressing in on the locking tab and rotating the
actuator 45° counter-clockwise (see Figure 16). The two-
way valves are bi-directional flow. The three-way valves
can be mixing or diverting (see Figure 17).
Note: The actuator must be removed if soldering is being
conducted near the valve. High heat may cause
damage to the actuator’s plastic body/
mechanisms.
On applications without factory-installed piping packages
(option), it is important to remove the cartridge assembly
from the valve body with the provided tool (see Figure 18,
p. 25).
Figure 15. Steam piping
Vacuum Equalizer
H= 12"
minimum
F&T Trap
See text for sizing
Gravity flow to
vented receiver
Coil
To Condensate
return
Temp. Regulating Valve
Figure 16. Remove modulating valve actuator by
pressing in tab (inset) and turning actuator
45° clockwise
UV-SVN02_-EN.book Page 24 Thursday, January 24, 2013 4:48 PM

Installation—Piping
UV-SVN02C-EN 25
Use the following steps to complete cartridge assembly
removal:
1. Remove valve actuator.
2. Remove the cartridge assembly from the valve body
with the enclosed tool.
3. Solder the valve in accordance with normal soldering
practices.
4. Re-install the cartridge after soldering by tightening
until it bottoms out. The top surface of the cartridge
will be flush with the top edge of the body casting.
Note: Do not over-tighten. Maximum torque is 40
in·lb.
5. Replace valve actuator and wire in accordance with
instructions.
Plumbing
The valve may be plumbed in any angle but preferably not
with the actuator below horizontal level of the body. Make
sure there is enough room around the actuator for
servicing or replacement.
For use in diverting applications, the valve is installed with
the flow water entering through the bottom AB port and
diverting through end ports A or B. In mixing applications
the valve is installed with inlet to A or B and outlet through
AB.
Mount directly to the tube or pipe. Do not grip the actuator
while making or tightening plumbing connections. Either
hold valve body by hand or attach an adjustable spanner
(38 mm/1-1/2”) across the hexagonal or flat faces on the
valve body (see Figure 19, p. 26).
Figure 17. Steam piping: two-way valve (top) and three-
way valve (bottom)
Closed
Open
AB
AB
Two-way valve
AB<->B
AB
B
AB<->A
A
AB
Three-way valve
Figure 18. Cartridge removal tool
UV-SVN02_-EN.book Page 25 Thursday, January 24, 2013 4:48 PM

Installation—Piping
26 UV-SVN02C-EN
Manual Opener
The manual opener can be manipulated only when in the
up position. The A port can be manually opened by firmly
pushing the white manual lever down to the midway
position and pushing the lever in. In this position, both A
and B ports are open. This “manual open” position may be
used for filling, venting and draining the system or
opening the valve during power failure.
The valve can be closed by depressing the white lever
lightly and then pulling the lever outward. The valve and
actuator will return to the automatic position when power
is restored.
Note: If the valve is powered open, it cannot be manually
closed, unless the actuator is removed.
Typical floating controller is an SPDT controller with a
center-off position. On a change in temperature from the
set point, the controller will close the NO or NC contacts,
driving the valve to an intermediate position until a further
change at the controller.
The valve is set between the limits of the controller to
satisfy various load requirements. In the event of power
failure, the valve will stay in the position it was in before
loss of power. When power is restored, the valve will again
respond to controller demand.
Isolation Valves
Installation
The valve can be mounted in any position on a vertical line.
If the valve is mounted horizontally, the actuator must be
even with or above the center line. Make sure there is
enough room to remove actuator cover for servicing.
Mount the valve on the tube or pipe.
Note: Make sure the flow through the valve is in the
direction indicated by the arrow stamped on the
valve body.
Servicing/Removal of Valves
The actuator can be removed from the valve body.
Removing the actuator is recommended of soldering is
being conducted near the valve.
To remove the actuator:
1. Place the manual operating lever in the Open position
(see Figure 21, p. 26).
2. Depress the locking button and lift actuator until it
separates from the valve body.
To install the actuator to the valve body:
1. Align the slot on the shaft of the valve with the valve
body notch on side of body (see Figure 22, p. 27).
Figure 19. Proper plumbing technique for modulating
valves
Figure 20. Proper mounting for isolation valves
Figure 21. Removing isolation valve actuator
UV-SVN02_-EN.book Page 26 Thursday, January 24, 2013 4:48 PM

Installation—Piping
UV-SVN02C-EN 27
2. Install body valve into pipe.
3. Wiring connections may be made either before or after
actuator installed on body.
4. Place the manual operating lever on the actuator in the
OPEN position.
5. Align actuator coupling to slot on the shaft of the valve
body and fit the head onto the valve body to ensure the
shaft seats correctly (see Figure 22).
6. Press the actuator and valve body until it secures
together.
Soldering procedures are as follows:
1. Remove actuator as stated earlier.
2. Place valves on the pipe. Rotate valve stem so the shaft
slot points at the notch in the side of the body (90O to
flow direction). This protects the plug inside the valve
by removing it from the seat (see Figure 23).
3. Sweat the joints, keeping outer surface free from
solder.
Note: Do not use silver solder due to high
temperature requirements.
Heating Coils with Direct
Expansion Cooling
Heating options for direct expansion cooling in the unit
ventilator are hot water, steam or electric heat.
These coils facilitate direct expansion cooling with
standard capacities. The supply and return connections
are located in the right hand end pocket. Hot water field
connections are made with a 5/8 in.\[15.9\] OD male
sweated joint, while steam coils have a 1 in.\[25.4\] male
pipe thread (MPT) connection (see Tabl e 10, p . 2 3 ).
Electric heat coils provide a third way to supply heating to
the direct expansion cooling. The coil utilizes three to six
preheat elements which are factory-wired.
Figure 22. Installing isolation valve actuator
Figure 23. Preparation for soldering
UV-SVN02_-EN.book Page 27 Thursday, January 24, 2013 4:48 PM

28 UV-SVN02C-EN
Installation—Sensors
Control Options
Figure 24. Wireless temp sensor with display
(SP, OALH, COMM)
Digit 19 = 3
Figure 25. Wireless temp sensor
(SP, OALMH, COMM)
Digit 19 = 4
Figure 26. Wall mtd temp sensor
(SP, OCC/UNOCC, OA, LMH, COMM)
Digit 19 = J
X13790822-04 (wall)
X13790855-01 (unit)
X13790492-01 (wall)
X13790855-01 (unit)
X13790842-01 (wall)
X13651467-02 (comm)
Figure 27. Unit mtd temp sensor
(SP, OALH, COMM)
Digit 19 = L
Figure 28. Split mtd zone sensor, unit mtd fan speed
switch, and wall mtd setpoint dial
with On/Cancel
Digit 19 = P
Figure 29. Split mtd zone sensor,
unit mtd fan speed switch, and
wall mtd setpoint dial
Digit 19 = Q
X13790843-01 (unit)
X13511527-01 (wall)
X13790849-01 (unit)
X13651467-02 (comm)
X13511529-01 (wall)
X13790849-01 (unit)
X13651467-02 (comm)
UV-SVN02_-EN.book Page 28 Thursday, January 24, 2013 4:48 PM

Installation—Sensors
UV-SVN02C-EN 29
Installing Wall-Mounted Wired
Sensors
Reference the wall-mounted zone sensor dimensions in
Figure 32, p. 29. Position the sensor on an inside wall three
to five feet above the floor and at least 18 inches from the
nearest outside wall. Installing the sensor at a lower height
may give the advantage of monitoring the temperature
closer to the zone, but it also exposes the sensor to airflow
obstructions. Ensure that air flows freely over the sensor.
Sensor
When selecting a sensor location, avoid the following:
• Areas of direct sunlight
• Areas in the direct airstream of air diffusers
• Exterior walls and other walls that have a temperature
differential between the two sides
• Areas that are close to heat sources such as sunlight,
appliances, concealed pipes, chimneys, or other heat-
generating equipment
• Drafty areas
• Dead spots behind doors, projection screens, or
corners
• Walls that are subject to high vibration
• Areas with high humidity
• High traffic areas (to reduce accidental damage or
tampering)
Figure 30. Wall mtd temp sensor
(SP, OALMH, COMM)
Digit 19 = K
Figure 31. Wall mtd display temp sensor
(SP, OCC/UNOCC, OALMH, COMM)
Digit 19 = M
X13790841-01 (wall)
X13651467-02 (comm)
X13790886-04 (wall)
X13651467-02 (comm)
Figure 32. Wall-mounted wired and wireless zone
sensor dimensions
1. 0.31 in
2. TYP R.07 in (R1.9)
3. TYP 0.24 in)
4. 2.9 in
5. 1.08 in
6. 0.12 in
7. 3.39 in
8. 4.68 in
9. 2.48 in
10. 0.63 in
11. 1.45 in
12. 2.62 in
12
3
45
6
7
89
0
-
=
UV-SVN02_-EN.book Page 29 Thursday, January 24, 2013 4:48 PM

Installation—Sensors
30 UV-SVN02C-EN
• Metal barriers between the receiver and the sensor (for
example, plastered walls with metal lathe or metal roof
decks)
• Thick, solid concrete walls between the receiver and
the sensor
• Placing the sensor inside metal enclosures
Height Requirements
It is recommended that you mount the back plate a
maximum distance of 54 inches above the floor. If a
parallel approach by a person in a wheelchair is required,
reduce the maximum height to 48 inches.
Note: Consult section 4.27.3 of the 2002 ADA (Americans
with Disability Act) guideline, and local building
codes, for further details regarding wheelchair
requirements.
Mounting Surfaces
Using the hardware provided, mount the back plate of the
sensor to a flat surface such as sheetrock or plaster, or an
electrical junction box. The sensor must be mounted
plumb for accurate temperature control and to ensure
proper air movement through the sensor.
• If mounting onto sheetrock or plaster, use the plastic
threaded anchors (pre-drilling holes is not usually
necessary) and the two M3.5 x 20 mm mounting
screws.
• For mounting onto an electrical junction box, use the
two 6-32 x 3/4 in. screws.
Before beginning installation, consider the location
considerations below. Also, refer to the unit wiring
schematic for specific wiring details and point
connections.
Location Considerations
Avoid mounting the sensor in an area subject to the
following conditions:
• Dead spots, such as behind doors or in corners that do
not allow free air circulation.
• Air drafts from stairwells, outside doors, or
unsectioned hollow walls.
• Radiant heat from the sun, fireplaces, appliances, etc.
• Airflow from adjacent zones or other units.
• Unheated or uncooled spaces behind the controller,
such as outside walls or unoccupied spaces.
• Concealed pipes, air ducts, or chimneys in partition
spaces behind the controller.
Location Considerations for Wireless Zone
Sensors
Placement of the sensor is critical to proper operation (the
receiver is factory mounted on fan-coil units). For most
installations, barriers limit proper radio signal strength
more than distance. For best radio transmission range and
reliability, mount the receiver and sensor in line of sight.
Where this is not possible, try to minimize the number of
barriers between the pair of devices. In general, sheetrock
walls and ceiling tiles offer little restriction to the
transmission range for the sensor is as follows:
• Open range: 2,500 ft (packet error rate = 2%)
• Usable range: 200 ft
• Typical range: 75 ft
Fan Mode Switch Installation
The fan mode switch ships loose inside the unit accessory
bag. Follow the steps below to install the fan mode switch.
Items needed:
2 x 4 electrical junction box
1. Remove the brown wire if not using a field-supplied
damper.
2. Remove the terminals, cut and strip wires as required
for installation.
3. Level and position a 2 x 4 electrical junction box.
4. Follow the instructions given in “Wall-Mounted
Control Interconnection Wiring,” p. 41 and route the
wires as shown in the wiring diagram. Refer to the
typical wiring diagram or to the unit specific diagram
on the unit.
5. Position the fan mode switch over the junction box
with the two screws supplied.
Zone Sensor Installation
Follow the procedure below to install the wired zone
sensor module.
1. Note the position of the setpoint adjustment knob and
gently pry the adjustment knob from the cover using
the blade of a small screwdriver.
2. Insert the screwdriver blade behind the cover at the top
of the module and carefully pry the cover away from
the base.
3. To mount the sensor back plate:
a. Hold the back plate against the mounting surface
and mark the screw locations.
b. Secure the back plate against the mounting surface
using included hardware.
4. To install the zone sensor module to a standard
junction box:
a. Level and install a 2 x 4-in. junction box (installer
supplied) vertically on the wall.
b. Pull the control wires through the cutout. Attach the
module to the wall using the screws provided.
5. Strip the insulation on the interconnection wires back
0.25-inch and connect to TB1 (for wired sensors).
6. Screw down the terminal blocks (for wired sensors).
7. To replace the cover:
UV-SVN02_-EN.book Page 30 Thursday, January 24, 2013 4:48 PM

Installation—Sensors
UV-SVN02C-EN 31
a. Hook the cover over the top of the back plate. Apply
light pressure to the bottom of the cover until it
snaps in place.
b. Install the security screw into the bottom of the
cover (if desired).
If installing a Tracer ZN520 zone sensor, see “Control
Options,” p. 28 for more information.
Wireless Sensors
Notes:
•Receivers ship installed on the unit. To remove the
receiver, press in the retention tabs on the underside of
the receiver enclosure (see Figure 35) and push
upward.
•For more detailed information for wireless sensors,
please refer to BAS-SVX04E-EN (Installation,
Operation, and Maintenance: Wireless Sensors,
Models WTS, WZS, and WDS), or the most recent
revision
Address Setting
The process of establishing communication between a
receiver and sensor is referred to as association. The
following limitations apply:
• Each associated receiver/sensor set that
communicates within the reception range of the
wireless system must have a unique address.
It is not possible to associate more than one sensor to a
receiver, nor is it possible to associate more than one
receiver to a sensor.
To associate a receiver and sensor, the two devices must
have their rotary address switches set to the same
address.
Important: Set the addresses before applying power to
the receiver and before removing the
insulation strip (Figure 36) from the sensor.
To set the receiver and sensor addresses:
1. Using a small screwdriver, set the three rotary address
switches (locations S1, S2, S3) on the receiver to an
address between 001 and 999 (see Figure 36). You do
not have to remove the covers to access the rotary
address switches.
Figure 33.
Figure 34.
Security
screw
Figure 35. Retention tabs on underside of receiver
enclosure
UV-SVN02_-EN.book Page 31 Thursday, January 24, 2013 4:48 PM

Installation—Sensors
32 UV-SVN02C-EN
Note: Do not use 000 as an address. An address of
000 returns the receiver outputs to their factory
defaults (zone temperature and setpoint
outputs: 72.5°F, removes all association
knowledge, and prevents association with a
sensor.
2. Set the three rotary address switches (locations S1, S2,
S3) on the sensor to the same address as the receiver
(see Figure 36).
Note: Do not use 000 as an address. An address of
000 removes all association knowledge, reverts
the sensor to a low-power hibernation mode,
and sends a disassociation request to the
receiver.
3. Record the address and location of the receiver and
sensor pair.
Observing the Receiver for Readiness to
Associate
After initial power up, the receiver conducts a channel scan
for 20 seconds. During this time, the receiver selects from
16 available channels the clearest channel on which to
operate. LED1, LED2, and LED3 flash rapidly in succession
(round-robin style) while the channel scan is in progress,
as shown in part 1 of the illustration.
Important: Do not attempt association (leave the
insulation strip in place) until the channel
scan is finished.
After the channel scan is finished, LED3 begins blinking
(one-blink pattern) to show that the receiver is ready to be
associated with a sensor (see part 2 of the following
figure).
Associating the Sensor to the Receiver
To associate the sensor to the receiver:
1. Remove the sensor cover by firmly pressing the thumb
tab at the bottom of the cover and pulling the cover
away from the back plate.
2. Verify that the sensor is set to the same address as the
receiver it is to be associated with.
Figure 36. Setting the rotary address switches on the
receiver and the sensor
S5
GND
R77
C35
S1 S2
C33
LED4
S4
S5
S3
LED1
LED2
LED3
LED5
C34
J1
COMM -
24VAC/DC
SETPOINT
HEATING SET
SIGNAL
POWER
ADDDRESS
FAN/SYSTEM
ZONE
COMM +
INSTALL
WIRELESS
GND
LED3
LED2
L
T
A
L
L
L
E
S
S
L
T
A
A
L
E
Receiver
DRESS
IN
B1 +
INSTALL
WIRELESS
S4
S3
S2
S1
ADDRESS
STATUS
BATTERY
LED5
SIGNAL
LED3
LED2
LED1
Pb
Pb-FREE
STATUS
LED4
Do not remove the
insulation strip yet.
Sensor
10
20
Sec.
2
LED3
UV-SVN02_-EN.book Page 32 Thursday, January 24, 2013 4:48 PM

Installation—Sensors
UV-SVN02C-EN 33
3. Power the sensor by removing the insulation strip from
between the two batteries.
Association is automatically initiated between the sensor
and the receiver. When LED3 on the receiver stops
blinking, association has been established.
If the first association attempt is unsuccessful, the sensor
automatically re-attempts association with the receiver
every 10 minutes.
Note: An associated sensor that has lost communication
with the receiver will transmit an association
request every 50 minutes. You can manually
initiate association (see “Manual Association
(Wireless Controls),” p. 97”).
Testing Signal Strength and Battery Status
To verify that the association process was successful and
that the batteries have adequate charge:
1. Firmly press and release the Test button on the bottom
of the sensor (as illustrated below).
2. For model WZS, view LED1, LED2, and LED3 to
determine the signal strength. View LED5 to determine
the battery status (see the following figure for model
WZS sensors).
Note: The LEDs will turn Off after 5 seconds to
conserve battery strength.
For model WDS, determine the signal strength and
battery status by viewing the symbols on the sensor
display (see the following figure for model WDS
sensors).
3. Record the results in your commissioning statement.
Note: For more information, see “Testing Signal Strength
(Wireless Controls),” p. 95 and “Testing Battery
Status (Wireless Controls),” p. 96.
LED1
LED2
LED3
LED5
Model WZS sensor
Push firmly,
then release
Test button
Model WDS sensor
Test button
Push firmly,
then release
UV-SVN02_-EN.book Page 33 Thursday, January 24, 2013 4:48 PM

Installation—Sensors
34 UV-SVN02C-EN
Configuring the Wireless Display Sensor
(Model WDS only)
Note: Sensors shipped with the fan-coil are pre-
configured for three speeds.
The configuration of the sensor determines which system
features can be accessed and changes can be made by the
tenant (for example, changes to cooling/heating mode,
setpoint, or fan speed. Verify system and associated unit
features before configuring the sensor.
The building owner or operator may choose to limit tenant
access to certain features. This can be done through
configuration. Or, if a sensor is configured to match all
control capabilities of the building automation system, the
locking feature can be used to restrict the tenant from
making changes.
Configuration Procedure
To configure settings on the model WDS sensor, follow
this procedure in the order presented.
1. Press the configuration button for 3 seconds.
The display will change to configuration mode. When the
sensor is in configuration mode, a wrench symbol appears
on the display and the menus are separated by lines, as
illustrated below.
2. Press the center button on the keypad to begin the
configuration process.
3. Configure the sensor options in the order shown in the
table.
•Press or to scroll to the next selection (as
illustrated).
•Press or to move to the next menu (as
illustrated).
Configuration
button
Center button
UV-SVN02_-EN.book Page 34 Thursday, January 24, 2013 4:48 PM

Installation—Sensors
UV-SVN02C-EN 35
4. Review the display to ensure that you have selected the
correct configuration.
5. To return the display to operating mode, press the
configuration button (see Step 1, p. 34).
Note: The sensor will revert to operating mode if no
buttons are pressed for 10 minutes.
Setting Configuration Options
Temperature
• Choose Fahrenheit or Celsius
• Choose the degree resolution
(whole degrees, half degrees, or
tenths of degrees).
Setpoint
System
Fan
Note: Not all fan options are available
for all systems.
Occupancy (timed override)
. . .
.
.
.
dual setpoint
no
setpoint
single
setpoint
no system
options enabled
auto/off/low
med/high
auto/off/
low/high
auto/off
off/high (on) off/low/high off/low/
med/high
no fan options
enabled
(Default)
UV-SVN02_-EN.book Page 35 Thursday, January 24, 2013 4:48 PM

Installation—Sensors
36 UV-SVN02C-EN
Optional Features
Displaying Setpoint or Temperature. You can
configure the sensor to display either the temperature
(default) or setpoint. To select either option:
1. Verify that the sensor is in operating mode and at the
home screen.
2. Press the up and down arrows for 3 seconds. The arrow
indicates setpoint display, as shown in the figure.
Locking or Unlocking Settings. You can lock or unlock
the setpoint, system, or fan setting to prevent changes.
To lock or unlock a setting:
1. Verify that the sensor is in operating mode and at the
home screen.
2. Choose a setting to lock or unlock:
•Select the setpoint by pressing the up or down
arrow.
•From the system menu press the down arrow to
select the fan menu. Use the left or right arrow to
choose the setting.
3. Press the left and right arrows for 4 seconds.
Note: If you try to access a feature that is locked, the
locked symbol will appear on the display.
If you press a keypad button to try change a locked
setting, the locked symbol will flash.
Sensor Operations
Temporary Occupancy (Timed Override)
Temporary occupancy (timed override) is available on
model WDS. Temporary occupancy is selected for after-
business-hours adjustment of temperature setting, fan
settings, or heat/cool settings, when the system has
changed to unoccupied mode. System control will revert
to unoccupied after a pre-determined time period.
Note: Not all systems support the occupancy function.
Model WDS Sensor
To request and cancel temporary occupancy on a model
WDS sensor, see “Requesting Temporary Occupancy,”
p. 38.
End-of-Range Temperature Values
Receiver: The end-of-range temperature limits of the
receiver for all models are 32°F to 122°F. The receiver
cannot replicate temperature values outside this range. If
the sensor transmits a temperature value to the receiver
that is out of the receiver replication range, the receiver
will “freeze” the output at the end-of-range values. This
value will remain frozen until the transmitted temperature
moves to between the end-of-range temperature limits.
Sensor: The end-of-range temperature setpoint limits for
the model WDS sensor is 50°Fto 89.6°F.
Receiver Power-up Sequence
When power is applied to the receiver, one of the following
sequences occurs. The sequence is dependent on the
address setting and the association status of the receiver.
Address set to 000 and receiver is not associated
with a sensor
• LED5 is constantly On, indicating power is applied and
the receiver is functional.
• All models: Zone temperature and cooling setpoint
default to 72.5°F.
WDS only: The heating setpoint defaults to 70.5°F and
the fan/system output will be 2230 Ω. (see “Output
Values—Failure and Default Modes of Operation
(Wireless Controls),” p. 99).
• Status LED3 will display a 2-blink pattern diagnostic.
Address set from 001 to 999 and receiver is not
associated with a sensor
• LED5 is constantly On, indicating power is applied and
the receiver is functional.
• All models: Zone temperature and cooling setpoint
default to 72.5°F.
WDS only: The heating setpoint defaults to 70.5°F and
the fan/system output will be 2230 Ω. (see “Output
Arrow
indicates
setpoint is
shown on
display
Setpoint
Fan menu
UV-SVN02_-EN.book Page 36 Thursday, January 24, 2013 4:48 PM

Installation—Sensors
UV-SVN02C-EN 37
Values—Failure and Default Modes of Operation
(Wireless Controls),” p. 99).
• The receiver conducts an energy scan for 20 seconds to
determine the clearest channel on which to operate.
• LED3 flashes On every 2 seconds when it is ready to
accept a sensor association request. When an
association request is made by a sensor, the receiver
instructs the sensor on which power level to operate.
Then the receiver and sensor begin operation at the
appropriate channel and power level (see “Observing
the Receiver for Readiness to Associate,
” p. 32).
Address set from 001 to 999 (and not changed since
most recent power-up) and receiver is associated
with a sensor
• LED5 is constantly On, indicating power is applied and
the receiver is functional.
• Zone temperature and setpoint default to 72.5°F. WDS
only: Heating setpoint defaults to 70.5°F, Fan = Auto,
System = Off.
• The receiver waits for a broadcast transmission from
its associated sensor. When a transmission is received,
the receiver positions its zone temperature and
setpoint outputs appropriately.
• If the receiver does not receive a communicated signal
from its associated sensor within 35 minutes, zone
temperature and setpoint outputs fail, generating a
unit controller alarm (see “Output Values—Failure and
Default Modes of Operation (Wireless Controls),”
p. 99).
Note: Once a receiver communicates to a WZS sensor,
the receiver disables (opens) its zone setpoint
output indefinitely.
Sensor Transmission Time and Temperature
Variables
Sensor transition time variables are as follows:
• The maximum time between sensor temperature
transmissions is 15 minutes.
• The minimum time between sensor temperature
transmissions is 30 seconds.
• The minimum time for transmitting temperature
setpoint changes is 10 seconds.
Note: If a sensor transmits a message to the receiver and
the receiver does not reply, the sensor will
retransmit the message to the receiver every 30
seconds until communication to the receiver is re-
established.
Sensor temperature time variables are as follows:
• The minimum change in zone temperature required to
force a sensor transmission is:
– 0.2°F when the temperature range is between 60°F
and 80°F
– 0.5°F when the temperature range is between 32°F
and 60°F or between 80°F and 122°F
• The minimum change in temperature setpoint
required to force a sensor transmission is:
– 0.1°C for a model WDS sensor
Operating Mode (Model WDS)
This section describes how to operate the Trane wireless
sensor, model WDS. Figure 37 shows an example of a
model WDS that has been configured and is in operating
mode.
Changing Room Temperature
Figure 37. Wireless sensor (model WDS) in operating
mode
This symbol
shows the
current room
temperature, or
your setpoint
selection while
you are making
an adjustment.
1. To increase the room
temperature, press
.
To decrease the room
temperature, press
.
2. To confirm, press
or wait 5 seconds.
The display will return
to the home screen.
When you select
a setpoint, this
symbol
appears.
.
Keypad
Test button
Test symbols (appear only
when Test button is pushed
Occupancy
indicator/Error code
Temperature
System settings (not available for
fan-coil or Force-Flo units)
Fan settings
.
UV-SVN02_-EN.book Page 37 Thursday, January 24, 2013 4:48 PM

Installation—Sensors
38 UV-SVN02C-EN
Changing Heating and Cooling Room Temperature
Settings (applies to some systems)
Changing the Fan Setting
Requesting Temporary Occupancy
Error Codes
Lock Symbol
Testing Signal Strength
Testing Battery Status
Some systems allow
you to select both
heating and cooling
room temperature
settings. If your
system has this
option, this symbol
appears when you
adjust the
temperature setting.
1. Press or to
select the heating/
cooling setting.
2. If in cooling mode,
press to change to
heating mode. If in
heating mode, press
to change to cooling
mode.
3. Press or to
select the heating/
cooling setting.
4. To confirm, press or
wait 5 seconds. The
home screen will
appear.
When you adjust the
cooling setting, the
top arrow and
snowflake flash.
When you adjust the
heating setting, the
bottom arrow and
flame flash.
Indicates that the
fan will operate as
needed to reach
the selected
temperature.
1. From the home screen,
activate the fan setting
menu by pressing
and then .
2. Press or to choose
the desired fan setting.
3. When the symbol for the
desired setting appears,
confirm your choice by
•Pressing (the
home screen will
appear), or
•Pressing or
(the next menu
will appear), or
•Waiting five seconds.
Indicates that the
fan setting is On.
The number of
arrows indicates
fan speed
(3: high, 2:
medium, 1: low).
The example
shown indicates a
fan on high speed.
Not all systems
offer all three
speeds.
Indicates that the
fan setting is Off.
Select to
request
occupancy
• If you need heating or cooling after
normal business hours, you can
“request” temporary occupancy by
pressing and holding it for
2 seconds. The occupied symbol
remains on the screen and the
unoccupied symbol disappears.
After 30 seconds, the unoccupied
symbol will re-appear.
• To cancel temporary occupancy,
press and hold for 2 seconds. The
unoccupied symbol will remain on
the screen and the occupied symbol
will disappear. After 30 seconds, the
occupied symbol will re-appear.
Select to
cancel
occupancy
Indicates an
error code If an error code (E0–E7) is displayed,
technical assistance may be required.
Indicates
that a
setting is
locked
The lock symbol appears if you try to
adjust a setting that cannot be
changed.
Indicates
excellent
signal
strength
Indicates
satisfacto
ry signal
strength
Indicate
s poor
signal
strength
Press the Test button to display the signal strength
symbols.
Indicates full
battery power Indicates
50% of
battery life
left.
Indicates 25%
of battery life
left. Replace
batteries.
Flashing symbol
indicates that
approximately 14 days
of operation remain.
Press the Test button to display the battery status symbols.
Use only UL-listed non-rechargeable 1.5 V lithium AA batteries
(Trane p/n X13770035010 or equivalent).
UV-SVN02_-EN.book Page 38 Thursday, January 24, 2013 4:48 PM

Installation—Sensors
UV-SVN02C-EN 39
Wireless Sensor Specifications
The following table presents specifications for all models
of the wireless sensor sets.
Sensor operating temperature 32°F to 122°F
Receiver operating temperature -40°F to 158°F
Storage temperature -40°F to 185°F
Storage and operating humidity
range 5% to 95%, non-condensing
Accuracy 0.5°F over a range of 55ºF to 85°F
Resolution 0.125°F over a range of 60°F to 80°F
0.25°F when outside this range
Setpoint functional range (WDS
only) 50°F to 89.6°F
Receiver voltage 24 V nominal ac/dc ±10%
Receiver power consumption <1 VA
Housing Polycarbonate/ABS blend, UV
protected, UL 94-5VA flammability
rating, suitable for application in a
plenum
Mounting 3.24 in (8.26 cm) for 2 mounting
screws (supplied)
Sensor battery (2) AA, 1.5 V, 2800 mAh, lithium,
5-year life, UL listed
Range(a)
(a) Range values are estimated transmission distances for satisfactory op-
eration. Actual distance is job specific and must be determined during
site evaluation.
Open range: 2,500 ft (762 m)
(packet error rate = 2%)
Usable: 200 ft (61 m)
Typical: 75 ft (23 m)
Output power 100 mW
Radio frequency 2.4 GHz (IEEE Std 802.15.4-2003
compliant)
(2405 to 2480 MHz, 5 MHz spacing)
Radio channels 16
Address range 000 to 999
Minimum time between
transmissions 30 seconds
Maximum time between
transmissions 15 minutes
UV-SVN02_-EN.book Page 39 Thursday, January 24, 2013 4:48 PM

Installation—Sensors
40 UV-SVN02C-EN
The following table presents agency compliance
information for wireless sensor set models as shown.
United States compliance
(all models)
UL listed: UL 94-5VA Flammability rating
UL 916: Energy management equipment
FCC CFR47, Section 15.247 & Subpart E Digital Modulation Transmission with no SAR (FCC Identification TFP-
13651127)
This device complies with Part 15 of the FCC Rules.
Operation is subject to the following two conditions:
1. This device may not cause harmful interference, and
2. This device must accept any interference received,
including interference that may cause undesired operation.
Warning:
Changes or modifications not expressly approved by the party responsible for compliance could void the
user’s authority to operate the equipment.
20 cm separation distance:
To comply with FCC’s RF exposure limits for general population/uncontrolled exposure, the antenna(s) used
for this transmitter must be installed to provide a separation distance of at least 20 cm from all persons and
must not be co-located or operating in conjunction with any other antenna or transmitter.
Canada compliance
(all models)
CSA22.2 No. 205-M1983 Signal Equipment
Industry Canada (Certification no: IC: 6178A-13651127)
Industry Canada statement:
the term “IC” before the certification/registration number signifies only that the Industry Canada technical
specifications were met.
Section 14 of RSS-210:
The installer of this radio equipment must ensure that the antenna is located or pointed such that it does
not emit RF field in excess of Health Canada limits for the general population.
IEEE compliance for radio
frequency range
(all models)
IEEE 802.15.4-2003, IEEE Standard for Information Technology—Telecommunications and information
exchange between systems—Local and metropolitan area networks—Specific requirements, Part 15.4:
Wireless Medium Access Control (MAC) and Physical Layer (PHY) Specifications for Low Rate Wireless
Personal Area Networks (LR-WPANs)
UV-SVN02_-EN.book Page 40 Thursday, January 24, 2013 4:48 PM

UV-SVN02C-EN 41
Installation—Electrical
Wiring
All classroom unit ventilators have 115 V motor power.
Motor data can be found in Ta b l e 11 and Tab l e 1 2 :
Electrical Wiring
Unit Wiring Diagrams. Specific unit wiring diagrams,
based on unit options ordered, are provided inside each
unit and can be easily removed for reference. Use these
diagrams for connections or trouble analysis. Wiring
diagrams are attached on the inside of the front panel of
the unit.
Supply Power Wiring. Refer to the unit nameplate to
obtain the minimum circuit ampacity (MCA) and
maximum fuse size (MFS) or maximum circuit breaker
(MCB) to properly size field supply wiring and fuses or
circuit breakers. Refer to the unit operating voltage listed
on the unit wiring schematic, submittal, or nameplate.
Reference the wiring schematic for specific wiring
connections.
Note: All field wiring should conform to NEC and all
applicable state and local code requirements. The
control panel box is always on the end opposite the
piping connections. Access the control box by
removing the two screws that secure the front
cover. This will allow the panel to be removed, to
provide access to the electrical components.
If the unit does not have a disconnect switch, the power
leads and capped ground wire are inside the control panel.
If the unit has a disconnect switch, the power leads are
wired to the junction box switch on the control panel. Pull
the capped ground wire into the junction box.
Electrical Grounding Restrictions. All sensor and
input circuits are normally at or near ground (common)
potential. When wiring sensors and other input devices to
the Tracer controller, avoid creating ground loops with
grounded conductors external to the unit control circuit.
Ground loops can affect the measurement accuracy of the
controller.
All input/output circuits (except isolated relay contacts and
optically isolated inputs) assume a grounded source,
either a ground wire at the supply transformer to control
panel chassis, or an installer supplied ground.
Wall-Mounted Control Interconnection Wiring. The
installer must provide interconnection wiring to connect
wall-mounted devices such as a fan mode switch or zone
sensor module. Refer to the unit wiring schematic for
specific wiring details and point-to-point wiring
connections. Dashed lines indicate field wiring on the unit
wiring schematics. All interconnection wiring must
conform to NEC Class 2 wiring requirements and any state
and local requirements. Refer to the following table for the
wire size range and maximum wiring distance for each
device.
Important: Do not bundle or run interconnection wiring
in parallel with or in the same conduit with
any high-voltage wires (110 V or greater).
Exposure of interconnection wiring to high
voltage wiring, inductive loads, or RF
transmitters may cause radio frequency
interference (RFI). In addition, improper
separation may cause electrical noise
problems. Therefore, use shielded wire
(Belden 83559/83562 or equivalent) in
applications that require a high degree of
noise immunity. Connect the shield to the
chassis ground and tape at the other end.
Note: Do not connect any sensor or input circuit to an
external ground connection.
Supply Power. Power supply wiring is to be connected
to terminals 1 and 2 at the junction box in the left end
pocket, below the discharge air grille.
Electric Heat Units
Supply Power. Supply power wiring is to be connected
to the following line terminals in the right-hand end
pocket:
• 208V or 240V, 3-phase, 3-wire system: L1, L2, and L3
Table 11. UV Standard motor data(a)
(a)Data typical for AA coil.
Unit
Size Volts RPM CFM Amps
Watts
(FLA) HP
75 115/60/1 1050 750 1.3 135 1
100 115/60/1 1050 1000 1.3 180 1
125 115/60/1 1050 1250 1.3 191 1
150 115/60/1 1050 1500 1.3 221 1
200 115/60/1 875 2000 1.3 311 1
Table 12. Hi-ESP Motor data(a)
(a)Data typical for AA coil.
Unit
Size Volts RPM CFM Amps
Watts
(FLA) HP
75 115/60/1 1330 750 13 198 1
100 115/60/1 1330 1000 13 287 1
125 115/60/1 1330 1250 13 305 1
150 115/60/1 1330 1500 13 357 1
200 115/60/1 1330 2000 13 770 1
NOTICE:
Use Copper Conductors Only!
Unit terminals are not designed to accept other types of
conductors. Failure to use copper conductors could
result in equipment damage.
UV-SVN02_-EN.book Page 41 Thursday, January 24, 2013 4:48 PM

Installation—Electrical
42 UV-SVN02C-EN
• 480V, 3-phase, 4-wire system: L1, L2, L3, and N
(neutral)
Note: The supply neutral wire must be connected to the
neutral terminal block.
Operational controls and an electric heating safety device
are factory mounted. The safety device is a high temp cut-
out which de-energizes electric heating elements through
the K1 safety contactor.
Heating Coils with Direct Expansion
Cooling
Wiring. A typical unit ventilator with DX coil includes an
outside air thermostat, a frost prevention thermostat and
a 24 V transformer for condensing unit control.
Wire sizing is the same as given for the thermostat wiring
in the condensing unit installation instructions, or may be
obtained from the nameplate. The condensing unit must
be controlled by the same room thermostat that also
controls the Unit Ventilator.
Split System Start-Up. After all piping and wiring has
been completed, follow the instructions provided with the
condensing unit for control testing and system start-up. If
sweat-type field-piped systems are being used, then
pressure testing, evacuation and refrigerant charging will
be required.
Two bulbs will also be shipped with a split system unit:
1. Frost stat bulb
2. TXV valve bulb
Both components are to be field installed. For complete
installation instructions and locations, refer to the tag
attached to the unit. See Figure 38, p. 42 for an example of
the installation tag.
Note: Depending on the controls package ordered with
the unit, not all installations will require mounting
the frost stat bulb.
WARNING
Hazardous Voltage!
Disconnect all electric power, including remote
disconnects before servicing. Follow proper lockout/
tagout procedures to ensure the power can not be
inadvertently energized. Failure to disconnect power
before servicing could result in death or serious injury.
Figure 38. Frost stat/TXV valve bulb installation tag
IMPORTANT:
INSTALLER MUST MOUNT THERMAL
EXPANSION VALVE BULB AND FROST
PROTECTION BULB (if suppled) TO
SUCTION LINE AFTER CONNECTION
OF FIELD REFRIGERANT PIPING
X39001939010A
12
3
6
93:00
4:00
8:00
9:00
X
X
MOUNT BULB IN
HORIZONTAL PLANE
RECOMMENDED
BULB PLACEMENT
UV-SVN02_-EN.book Page 42 Thursday, January 24, 2013 4:48 PM

UV-SVN02C-EN 43
ECM Overview and Setup
Overview
This section addresses changes to unit ventilators,
integrating new Trane Brushless DC motors and
controllers. This exciting new series delivers outstanding
comfort, safety, and performance with greatly reduced
energy consumption compared to traditional units with
permanent split capacitance AC motors.
The new series of units will provide a long service life with
proper installation and operation. The new system
provides a high degree of flexibility and configurability,
but the simplicity of customized factory configuration
appropriate to most installations.
Very little intervention is needed by service and
installation personnel in most applications; however,
installers must read through the entire document before
beginning installation of the new equipment.
This literature focuses on unit motors and controls,
including three new circuit modules developed
specifically for this series.
General Information
There are four primary components that enable the
technology on your product:
1. Trane B LDC Mo tor
2. ECM Engine Board
3. Adapter Board
4. CSTI Adapter Board
The motors and modules are combined as systems, and
cannot work without each other.
Trane BLDC Motor
• The BLDC motor has integrated electronics, overload
protection and short circuit protection. The motor
contains no user-serviceable components inside.
• The motor mates to the unit electrically via a single
plug that contains both the operating voltage and the
control signals that are needed for correct operation.
• The BLDC motor comes a single shaft configuration for
all horizontal unit ventilator sizes (075, 100, 125, 150,
200).
• The BLDC motor has two voltage variations,
115/208-230V and 277V. Units with three-phase and
neutral have motors wired to the L-N (as opposed to
L-L). The 115/208-230V is configured for voltage by use
of an external jumper. If the jumper is present the
motor will be configured for use with 115V. The jumper
must NOT be present for use with 208-230V.
ECM Engine Controller
• The ECM engine controls and reports the performance
of up to two Trane BLDC motors.
• The engine also co-ordinates the operation of the fan
in response to electric heat behavior, and electric heat
behavior in response to hydronic heat behavior and
fan behavior.
• The engine incorporates a user interface that allows
adjustment of certain unit parameters and provides
constant feedback on motor operation.
• The engine integrates service and troubleshooting
tools, including high-precision tachometers, fan
status, and electric heat-enable indicators.
Figure 39. Trane BLDC motor
1. High Efficiency Brushless DC (BLDC) Motor Core
2. Motor Base Housing Potted Electronics Package
1
2
NOTICE:
Equipment Damage!
The motor harness attached to the single plug to which
the motor mates contains the very important motor
voltage jumper and should not be modified or
substituted. Failure to follow this instruction could
result in equipment damage.
Figure 40. ECM engine controller
Note: Display and Menu/
Enter, Increase, and
Decrease Buttons
UV-SVN02_-EN.book Page 43 Thursday, January 24, 2013 4:48 PM

ECM Overview and Setup
44 UV-SVN02C-EN
• The engine integrates a versatile configurable
auxiliary temperature sensor.
• The engine incorporates various safety and lockout
features, such as maintaining proper fan speeds, if
electric heat is called for.
Standard Adapter Board
• The adapter allows direct customer interfacing
through the use of terminal strips. Standard
interfacing includes:
– Fan Speeds (H, M, L) (for wall mounted fan speed
switches)
– Variable speed (0–10V) inputs
• The standard adapter board eliminates many separate
wiring harnesses in the panel and allows simple,
mistake-proofed single-plug interfacing of:
– The ECM engine controller
–Transformers
–Motors
– Valves
–Dampers
– Electric heat control
– Fan speed switches
– Main Power (except electric heat).
• Electric heat lockout circuits and fan proving circuits
for electric heat are standard, and are pre-configured at
the factory.
CSTI Adapter Board
• Performs all the functions of the standard adapter
module, but in addition, provides convenient field
connections to factory mounted end devices,
including:
– Valves
–D
ampers
– Electric Heat
• Performs courtesy “inversion” of thermostatic inputs
to match selected valves:
– Standard thermostats put out only “on” signals,
however customer may select a normally open
valve. A selectable switch allows the customer to
invert the thermostat outputs for correct operation.
These switches are set at the factory, but can be
adjusted in the field.
– Sophisticated changeover function when used with
a thermistor, that replaces traditional bi-metallic
disc temperature switches:
•Board will automatically honor only the
appropriate customer request (Heat/Cool)
depending on sensed water temperature.
•Feature can be enabled or disabled with a
selector switch—however, it is set correctly at
the factory, based on customer choice of coil.
•The bi-metallic disc temperature switch
emulation is programmable, and dead-band
range can be adjusted.
•Electric heat lockout circuits and fan proving
circuits for electric heat are standard, and are
pre-configured at the factory.
Figure 41. Adapter board
Note: Customer Low-
Voltage
Interface for
Fan Speeds,
Variable Fan
Speed, and
24 Vac Supply
Figure 42. CSTI adapter board
1. Customer Low-Voltage Interface for Valves, Electric Heat, Dampers, Fan
Speeds, Variable Fan Speed, and 24 Vac Supply
2. Valve(s), Electric Heat, and Changeover Configuration Switches (Factory-
Set)
1
2
UV-SVN02_-EN.book Page 44 Thursday, January 24, 2013 4:48 PM

ECM Overview and Setup
UV-SVN02C-EN 45
Installation and Initial Setup
Installation and Initial Setup
Note: Normally, the Trane BLDC motors are configured
for soft ramps and transitions between speeds.
However, to aid in commissioning of the unit, for
approximately 10–15 minutes, the ramps will be
shortened to quickly observe proper unit behavior
and response to speeds.
For new installations, all boards and motors are pre-
installed and pre-configured according to the unit
configuration, indicated by its model number.
Under normal and intended operation, the only required
intervention specific to the new BLDC units is the wiring of:
WARNING
Hazardous Voltage w/Capacitors!
Disconnect all electric power, including remote
disconnects and discharge all motor start/run
capacitors before servicing. Follow proper lockout/
tagout procedures to ensure the power cannot be
inadvertently energized. For variable frequency drives
or other energy storing components provided by Trane
or others, refer to the appropriate manufacturer’s
literature for allowable waiting periods for discharge of
capacitors. Verify with an appropriate voltmeter that all
capacitors have discharged. Failure to disconnect
power and discharge capacitors before servicing could
result in death or serious injury.
WARNING
Safety Alert!
You MUST follow all recommendations below. Failure
to do so could result in death or serious injury.
• The BLDC motors contain capacitors which store
residual energy. Please keep clear of the fan wheels
for 5 minutes after the power has been removed from
the system, as a power request with the motor
powered off, could result in a very short period of
actuation.
• All settings take effect immediately, including fan
startup and enabling of electric heat. Caution should
be taken to stay clear of hazardous voltages, moving
parts and electric heat elements while making
adjustments to the ECM engine board. If it is not
practical to stay clear of these areas during
adjustment of the ECM engine board, please contact
Trane Global Parts for configuration kit that allows
easy powering of the engine board outside of the unit
with a 9V battery.
• The adapter boards contain high voltage.
Configuration adjustments to the ECM engine board
should be made through the SMALLER of the two
low-voltage lids on the front of the control panel,
through the low-voltage insulation/shielding.
• Changes to switch settings on the CSTI adapter
board take effect immediately. Changes should be
made to the CSTI configuration switches with the
power off.
• Initial hookups to the CSTI and Standard Adapter
board, including low voltage interconnections, must
be made with the power off.
• Do not make connections to the motors or the
adapter boards while power is ON. Do not remove
connections to the motor or the adapter boards while
the power is ON.
• Do not free spin the fan wheels with your hands while
the unit is powered on. The system is constantly
scanning and responding to the operational status of
the motors.
UV-SVN02_-EN.book Page 45 Thursday, January 24, 2013 4:48 PM

ECM Overview and Setup
46 UV-SVN02C-EN
• Wall-mounted low-voltage fan speed switch inputs to
the adapter boards’ terminal strips and 24 Vac tap to
field-installed fan speed switch.
• Field-supplied controllers/thermostats to the adapter
boards’ terminal strips and 24 Vac power tap to
field-supplied controller/thermostat.
• Adjustment and calibration of the variable speed
inputs (VSP/0–10V) on the system.
• Adjustment, calibration or disabling of the optional
auto-changeover function on CSTI units.
Otherwise, proceed with the mechanical, electrical and
controls installations as defined in other sections of this
manual, while obeying the warnings communicated in this
section.
Proceed with the power on after installation, as defined in
the other sections of UNT-SVX07B-EN.
Wall Mounted Low Voltage Fan Speed Switch/
Customer-Supplied Controller/Thermostat
Instructions
Note: Specifications subject to change without notice.
Consult the unit submittals and unit schematics
before determining hookup requirements to the
fan-coil unit. Terminal block positions, polarities
and assignments are determined for specific unit
configurations only. Signal assignments are
indicated, for reference only.
Both adapter boards come equipped with integrated
terminal blocks to hook up to the field supplied/mounted
Fan Speed Switches and external controls. Connections
should be made to the screw terminals with wires between
16 AWG and 24 AWG, with a ~4–5-mm wire strip length.
The terminal blocks have 5-mm spacing, and are equipped
with 3-mm screws. The field-supplied wires should have
an insulation rating of 600V.
Standard Adapter Board Field Connections
All customer connections to the two adapter boards are
made to the terminal strips on both adapter boards.
Screw terminal blocks provide convenient access to fan
controls for High, Medium, Low, and Variable speed. In
addition, a courtesy 10 Vdc supply is provided for use with
an external potentiometer or rheostat. The 10 Vdc supply
supports up to 10 mA draw.
TB3 (right five positions) is normally used to provide 24V
hookup to a wall mounted fan speed switch, and to accept
the returns from the switch for High, Medium, and Low
requests.
TB4 (left three positions) is normally used to control the
system with a 0–10 Vdc output from a thermostat/
controller, or a fan control rheostat/potentiometer.
The terminal block functional assignments and polarity
are shown for reference only, and the schematics that ship
with each unit should be consulted before wiring. Wiring
assignments are configured for each unit.
WARNING
Hazardous Voltage w/Capacitors!
Disconnect all electric power, including remote
disconnects and discharge all motor start/run
capacitors before servicing. Follow proper lockout/
tagout procedures to ensure the power cannot be
inadvertently energized. For variable frequency drives
or other energy storing components provided by Trane
or others, refer to the appropriate manufacturer’s
literature for allowable waiting periods for discharge of
capacitors. Verify with an appropriate voltmeter that all
capacitors have discharged. Failure to disconnect
power and discharge capacitors before servicing could
result in death or serious injury.
WARNING
Safety Alert!
You MUST follow all recommendations below. Failure
to do so could result in death or serious injury.
• Hook ups to the adapter boards should be made only
with the power off to the unit.
• Only connect Class 2 voltages to the terminal blocks
on the adapter boards that share a common with the
unit mounted low-voltage transformer.
• Secure low voltage connections firmly to terminal
strips, and strain-relieve all low voltage connection to
prevent accidental detachment and possible short-
circuiting of high voltage components. Care should
be taken to avoid contact of low voltage wiring to the
back side of the adapter boards, which contain high
voltage.
Figure 43. Standard adapter board field connections
1. VSP 10V
2. VSP 0–10V
3. VSP DC COM
1. 24 Vac Y (gnd)
2. 24 Vac B (com)
3. High
4. Medium
5. Low
321 543 21
UV-SVN02_-EN.book Page 46 Thursday, January 24, 2013 4:48 PM

ECM Overview and Setup
UV-SVN02C-EN 47
CSTI Adapter Board Field Connections
The CSTI adapter board provides all the hookups of the
standard adapter board, but in addition provides hookups
for valve control (main and auxiliary coils), electric heat
control and damper control.
Screw terminal blocks provide convenient access to fan
controls and to end device control. In addition, a courtesy
10 Vdc supply is provided for use with an external
potentiometer or rheostat. The 10 Vdc supply supports up
to 10 mA draw.
TB3 (right 13 positions) is normally used to provide:
1. 24 Vac supply to a wall fan speed switch or
2. 24 Vac supply to a field-installed unit-mounted
controller, or a wall-mounted controller or thermostat
3. Inputs (returns) for thermostatic fan control: High,
Medium, and Low
4. Inputs (returns) for cooling/heating requests
5. Inputs (returns) for electric heat requests
6. Inputs (returns) for damper operation requests
TB4 (left three positions) is normally used to control the
system with a 0–10 Vdc input from a thermostat/controller
with a variable speed output, or a fan control rheostat.
The terminal block functional assignments and polarity
are shown for reference only, and the schematics that ship
with each unit should be consulted before wiring. Wiring
assignments are configured for each unit.
Adjustment and Configuration of the
Engine Board
Note: The engine board functions and unit specific
settings are summarized on the ECM engine
configuration label affixed to the back side of the
control panel low voltage lid on every unit.
Figure 44. CSTI adapter board field connections
1. V S P 10 V
2. VSP 0–10V
3. VSP DC COM
1. 24 Vac Y (hot)
2. Damper Open
3. 24 Vac Y (gnd)
4. High
5. Medium
6. Low
7. V1Op/Cooling
8. Not used
9. Not used
10. V1C1 (not std)
11. V2Op/EH1St/Heating
12. V2C1/EH2St (not std)
13. Dmp Cl (not std)
321 1098 7654 321
11
12
13
WARNING
Safety Alert!
You MUST follow all recommendations below. Failure
to do so could result in death or serious injury.
• All settings take effect immediately, including fan
startup and enabling of electric heat. Caution should
be taken to stay clear of hazardous voltages, moving
parts and electric heat elements while making
adjustments to the ECM engine board. If it is not
practical to stay clear of these areas during
adjustment of the ECM engine board, please contact
Trane Global Parts for configuration kit that allows
easy powering of the engine board outside of the unit
with a 9V battery.
• Configuration adjustments to the ECM engine board
should be made through the SMALLER of the two
low-voltage lids on the front of the control panel,
through the low-voltage insulation/shielding.
CAUTION
Burn Hazard!
On electric heat units, certain parameter values are
locked out to prevent overheating of the unit. These
functions will appear to be saved; however, they will
not be accepted if the Electric Heat Protection setting is
“On”. Do not change the Electric Heat Protection setting
to “Off” and make changes to the protected settings
unless you are programming an unconfigured service
replacement board to match the unit settings on a ECM
configuration label. Failure to follow this instruction
could result in the unit overheating and becoming hot
to the touch, which could result in minor or moderate
injury, and/or equipment damage.
UV-SVN02_-EN.book Page 47 Thursday, January 24, 2013 4:48 PM

ECM Overview and Setup
48 UV-SVN02C-EN
The ECM engine board features a nested menu integrated
user interface (UI) that supports:
1. Status display for instant touch-free confirmation of
unit operation.
2. Configuration parameter and value display and
modification changes (using integrated menu/set
buttons).
3. Error code prioritized reporting.
Status Display
The ECM engine board contains a four-digit, seven-
segment display that is used to present information in a
format close to real-world language, while having a small-
form factor. Most characters are immediately
recognizable; however, please consult Ta b l e 1 3 and
Tabl e 14 for the graphical representation of each
alphanumeric character.
Note: Characters on the ECM engine board display
appear in red, on a black background.
The display contains decimal positions as well that change
position with each parameter, as appropriate. Under
normal conditions (i.e., with no error code displayed), the
status will loop the following message:
Figure 45. ECM engine label
1. To check status, configuration, or to change settings on
the engine board with the power on the unit, detach the
low voltage access lid and look or reach through the
low voltage access panel.
2. The ECM engine label is affixed to the back or front of
the low voltage access lid.
1
2
Figure 46. Status display
Table 13. Screen representation of alphabetical
characters
ABCDEFGHI JKLM
NOPQR S TUVWXY Z
Table 14. Screen representation of numeric characters
1234567890
UV-SVN02_-EN.book Page 48 Thursday, January 24, 2013 4:48 PM

ECM Overview and Setup
UV-SVN02C-EN 49
RPM Mode
RUNNING/ FAN STATUS
CONTINUOUS LOOP
Displayed when:
1) No error codes are present
2) Motor has completed ramping
Indicates the current rpm of Motor 1 in the system. “0” rpm
here indicate that no fan speed has been requested.
→
Indicates the current rpm of Motor 2 in the system. “0” rpm
here indicate a fan off condition OR a fan “missing”
condition(a).
→
Indicates the status being calculated or Fan Motor 1. If “off,”
this indicates that either:
1) No fan speed is being requested or
2) The fan performance is failing to meet the request; refer
to “Troubleshooting (ECM),” p. 103 for additional
information.
If “on,” this indicates that the fan is performing correctly and
will be used to report fan status correctly, depending on
mode.
/
Indicates the status being calculated or Fan Motor 2. If “off,”
this indicates that either:
1) No fan speed is being requested or
2) The fan performance is failing to meet the request; refer
to “Troubleshooting (ECM),” p. 103 for additional
information.
3) If the target speed for Motor 2 is “0”, this is used to
indicate a missing motor(a).
If “on,” this indicates that the fan is performing correctly and
will be used to report fan status correctly, depending on
mode.
/
Indicates that the temperature sensing circuit has
calculated a logical “on” based on the settings of the
following parameters:
///
(a)Motor 1 is the only motor for all horizontal unit ventilator sizes (075, 100, 125, 150, 200).
UV-SVN02_-EN.book Page 49 Thursday, January 24, 2013 4:48 PM

ECM Overview and Setup
50 UV-SVN02C-EN
Configuration parameter and value display
and modification changes
The ECM engine board’s on-board user interface is easy to
use and supports:
1. Verification/auditing of on-board parameter settings
(read-only)
2. Adjustment of the on-board settings (write)
The user interface has three input buttons, from left to
right:
1. “M enu /Set”
2. “Decrement”
3. “Increment”
Each button has several different actuation levels
depending on length of press, and what the UI is currently
displaying.
Figure 47. User interface input buttons
Table 15. Button actuation levels
Button
Menu/Set
Duration Action
Short Press in
Status Display <1 sec None
Short Press in
Configuration
Display
Toggles between parameter
name and value without saving
(abandons value if changed).
Long Press/Hold
in Status Display >3 sec Enters the configuration menu
Long Press/Hold
in Configuration
Display
>3 sec If on a parameter name, toggles
to the value. If on a parameter
value, saves the value settings
and returns to the parameter
name as confirmation.
Button
Decrement
Duration Action
Short Press in
Status Display <1 sec None
Short Press in
Configuration
Display
<1 sec Scrolls through parameter
names, or decreases value of
parameter.
Long Press/Hold
in Status Display >3 sec N/A
Long Press/Hold
in Configuration
Display
>3 sec Faster scroll through parameter
name, or faster decrease of
values of parameters.
Button
Increment
Duration Action
Short Press in
Status Display <1 sec None
Short Press in
Configuration
Display
<1 sec Scrolls through parameter
names, or increases value of
parameter.
Long Press/Hold
in Status Display >3 sec N/A
Long Press/Hold
in Configuration
Display
Faster scroll through parameter
name, or faster increase of
values of parameters.
UV-SVN02_-EN.book Page 50 Thursday, January 24, 2013 4:48 PM

ECM Overview and Setup
UV-SVN02C-EN 51
Configuration Use Examples
Example 1. To view the value of parameters without
saving. In this case we wish to verify that the “Low Speed
Value” for Motor 1 is set correctly to 800 rpm.
We start with the ECM engine scrolling status display and
proceed as follows:
Example 2. We wish to change the change the value of
Low Speed to 820 rpm:
We will continue from the previous example as shown
below, using a long press to “save” the new desired value.
Note: If the display has timed out and returned to the
status loop, repeat Example 1 to arrive back at this
example’s starting point.
Example 3. We wish to double check to see if the value of
“820 rpm” has been saved.
Note: If the display has timed out and returned to the
status loop, repeat Example 1 and Example 2 to
arrive back at this example’s starting point.
Example 4. We wish to change the value of a protected
value on an electric heat unit.
It would appear that the value has been changed, but if we
check the value, we notice that the original value has been
retained.
Priority / Error Display
Under special conditions, the status display will interrupt
briefly to prioritize display of events:
Notes:
•During error displays, the user interface will be
disabled, until the error is removed or resolved.
•If changes are made to parameters and saved, most
settings take effect immediately. Any change to fan
speeds will take effect and cause the configuration
menu to exit immediately to begin tracking speeds via
the on-board tachometer.
•Where practical, the unit will offer “limp-in”
performance, but to ensure safe operation, certain unit
functions will be disabled. For example, if one motor
fails, the unit will display an error code, but the second
motor (if present) will continue to operate. However, to
ensure safe operation, the electric heat (if present) will
be disabled.
•If a error occurs while the configuration menu is in
effect, all unsaved values will be discarded and the
error codes will be displayed.
UV-SVN02_-EN.book Page 51 Thursday, January 24, 2013 4:48 PM

ECM Overview and Setup
52 UV-SVN02C-EN
Error Codes
Displayed during
abnormal operation.
Indicates a locked rotor condition of Motor 1. The motor will be locked
out until the cause has been resolved, and the power cycled; refer to
refer to “Troubleshooting (ECM),” p. 103 for resolution details.
Motor 2 will continue to operate, but will not be monitored. Fan Status
function, if being used, will report an inoperative motor. Electric heat
and changeover heat will be shut down.
Indicates a locked rotor condition of Motor 2. The motor will be locked
out until the cause has been resolved, and the power cycled; refer to
refer to “Troubleshooting (ECM),” p. 103 for resolution details.
Motor 1 will continue to operate, but will not be monitored. Fan Status
function, if being used, will report an inoperative motor. Electric heat
and changeover heat will be shut down.
Indicates that Motor 1 has experienced a run-away or over speed
condition, and has been shutdown. The unit will offer limited “limp-in”
performance, and Motor 2 will continue to operate, but will not be
monitored. Fan Status function, if being used, will report an
inoperative motor.
Refer to “Troubleshooting (ECM),” p. 103: to reset, the cause must be
resolved and the power to the unit cycled. Electric heat and changeover
heat will be shut down.
Indicates that Motor 2 has experienced a run-away or over speed
condition, and has been shutdown. The unit will offer limited “limp-in”
performance, and Motor 1 will continue to operate, but will not be
monitored. Fan Status function, if being used, will report an
inoperative motor.
Refer to “Troubleshooting (ECM),” p. 103: to reset, the cause must be
resolved and the power to the unit cycled. Electric heat and changeover
heat will be shut down.
Indicates the motor is transitioning between speeds, ramping up or
down. The message “RAMP” is briefly displayed, followed by the
target speed for “Motor 1” only. Once the target speed has been
reached, the status display will resume operation.
→
→
On power on, the version of software is briefly displayed, followed by
the results of a POST (power on self test).
UV-SVN02_-EN.book Page 52 Thursday, January 24, 2013 4:48 PM

ECM Overview and Setup
UV-SVN02C-EN 53
Initial Setup and Configuration
After connections of power and hookup of customer
installed controls/fan speed switches and under normal/
operative conditions the only adjustments needed to be
made to the ECM engine board during commissioning of
the unit are:
• Adjustment and calibration of the variable speed
inputs (VSP/0–10V) on the system, where applicable.
• Adjustment, calibration or disabling of the optional
auto-changeover function on CSTI units, where
applicable.
In addition, the CSTI adapter board offers configurability
that can be used in special cases to adjust the following
operation of the unit:
• Courtesy cooling/main valve logic inversion relays for
use with normally open valves
• Courtesy heating/auxiliary valve logic inversion relays
for use with normally open valves
• Changeover function for use with changeover coils (in
conjunction with the ECM engine board)
The switches are factory-set based on the model number
configuration as ordered; however, the information is
provided below to aid in the understanding of the
operation of the system.
Configuration
Configuring the ECM Engine Controller
Adjustment and Calibration of the Variable
Speed Inputs (VSP/0–10V)
Notes:
•The 0–10V (variable speed) inputs are available for use,
but are not mandatory. The Trane Brushless DC system
comes standard with three to five field-accessible
WARNING
Hazardous Voltage w/Capacitors!
Disconnect all electric power, including remote
disconnects and discharge all motor start/run
capacitors before servicing. Follow proper lockout/
tagout procedures to ensure the power cannot be
inadvertently energized. For variable frequency drives
or other energy storing components provided by Trane
or others, refer to the appropriate manufacturer’s
literature for allowable waiting periods for discharge of
capacitors. Verify with an appropriate voltmeter that all
capacitors have discharged. Failure to disconnect
power and discharge capacitors before servicing could
result in death or serious injury.
WARNING
Safety Alert!
You MUST follow all recommendations below. Failure
to do so could result in death or serious injury.
• The adapter boards contain high voltage.
Connections to the adapter boards/changes to the
CSTI configuration switches should be made only
with the power to the unit disconnected.
• The adapter boards contain high voltage.
Configuration adjustments to the ECM engine board
should be made through the SMALLER of the two
low-voltage lids on the front of the control panel,
through the low-voltage insulation/shielding.
• All settings take effect immediately, including fan
startup and enabling of electric heat. Caution should
be taken to stay clear of hazardous voltages, moving
parts and electric heat elements while making
adjustments to the ECM engine board. If it is not
practical to stay clear of these areas during
adjustment of the ECM engine board, please contact
Trane Global Parts for configuration kit that allows
easy powering of the engine board outside of the unit
with a 9V battery.
CAUTION
Burn Hazard!
On electric heat units, certain parameter values are
locked out to prevent overheating of the unit. These
functions will appear to be saved; however, they will
not be accepted if the Electric Heat Protection setting is
“On”. Do not change the Electric Heat Protection setting
to “Off” and make changes to the protected settings
unless you are programming an unconfigured service
replacement board to match the unit settings on a ECM
configuration label. Failure to follow this instruction
could result in the unit overheating and becoming hot
to the touch, which could result in minor or moderate
injury, and/or equipment damage.
NOTICE:
Equipment Damage!
You MUST follow all recommendations below. Failure
to do so could result in equipment damage.
• Care should be taken in the system to use a single
24 Vac supply system to avoid damage to equipment.
• Care should be taken to observe proper polarity and
grounding in the hookup of the 0–10V system to
avoid damage to equipment.
UV-SVN02_-EN.book Page 53 Thursday, January 24, 2013 4:48 PM

ECM Overview and Setup
54 UV-SVN02C-EN
thermostatic inputs (with adjustable speed), so the use
of the 0–10V inputs is optional.
•All inputs are independently configurable and
simultaneously accessible, and the ECM engine will
choose the highest user (configured and requested)
speed. However, care should be taken with customer
controls to avoid contention of signals.
The ECM engine and adapter boards offer standard,
normalizing 0–10V Variable speed fan inputs for use with
field supplied controllers or thermostats. These inputs can
be used as the only input to the system, used in addition
to the thermostatic (H, M, L) inputs, or not used at all. The
inputs are accessible via 1TB4 on the adapter boards.
The ECM engine is factory configured to drive the unit to
a minimum speed (catalogue “low speed” value), defined
as - and - once the analog (0–10V) input is
honored. As a default, the noise floor/threshold is set to
3 percent (0.3V). At 0.3V, the system will drive the motors
to the speeds defined in defined as - and -. If the
analogue input goes to 10V, the ECM engine will drive the
motor to maximum speed (normally catalogue “high
speed” value), defined as and , and will
change speed in response.
Although the ECM engine board ships with settings that
will work with most 0–10 Vdc outputs, calibration should
be performed to maximize response range and controller
authority. Typically, the only settings needed for the VSP
inputs are calibration of the signal to ensure that the
system obeys the following rules:
1. The minimum output from the field supplied controller
is met with a positive fan response. That is, we do not
want the - setting on the ECM engine board to be
higher than the minimum output of the field supplied
controller, as the ECM engine will “ignore” a portion of
the usable range of the customer fan variable speed
output.
2. The minimum output from the field supplied controller
is not significantly greater than the floor setting -
floor. If the minimum output of the controller is
significantly greater than the floor setting, the first
point that the motor will turn on will be above the
- and - value. The full range of motor control
will not be fully utilized in this case, as the motor will
never reach the low speed motor analogue input
scaling value for Motor 1 and Motor 2 (- and
-)
3. The maximum output of the controller needs to be 10V,
or if lower, needs to be compensated using the analog
input scaling value, to normalize the operational
range. As a default, the scaling value is set to 1.00 (so
a voltage of 5V will be graded as 5V); however, to
compensate for long runs or lower max voltages (i.e.,
lower than 10.00), the scaling value can be increased
accordingly to maximize operational range.
For example, if the voltage is only reaching a value of
9.0V at the adapter boards, then the parameter
should be set to (10/9=) .. If left un-calibrated, the
unit will never attain maximum speeds, defined as
and .
4. The ECM engine can accept slightly over-biased inputs
up to 12 Vdc, and the parameter can be set to a
value less than 1.0 to compensate.
VSP Setup Examples
Example 1: - set too high and set too high
Example 2: - set too high but set correctly
Example 3: - set correctly and set correctly
UV-SVN02_-EN.book Page 54 Thursday, January 24, 2013 4:48 PM

ECM Overview and Setup
UV-SVN02C-EN 55
Use of Potentiometer/Rheostat For VSP
A courtesy 10-Vdc supply is provided that can support a
10-mA draw. The use of a 1K or a 10K potentiometer is
recommended, and only a stand-alone potentiometer (not
shared with any other electrical system) should be
employed. When a simple potentiometer is used as
depicted in Figure 48, the - setting will define a null-
zone (off).
The typical connection is depicted in Figure 48; however,
please consult the unit schematic for the most updated
instruction, as Figure 48 is provided as reference only.
Adjustment or Disabling of Optional Auto-
Changeover Function on CSTI Units
WARNING
Hazardous Voltage w/Capacitors!
Disconnect all electric power, including remote
disconnects and discharge all motor start/run
capacitors before servicing. Follow proper lockout/
tagout procedures to ensure the power cannot be
inadvertently energized. For variable frequency drives
or other energy storing components provided by Trane
or others, refer to the appropriate manufacturer’s
literature for allowable waiting periods for discharge of
capacitors. Verify with an appropriate voltmeter that all
capacitors have discharged. Failure to disconnect
power and discharge capacitors before servicing could
result in death or serious injury.
WARNING
Safety Alert!
You MUST follow all recommendations below. Failure
to do so could result in death or serious injury.
• The adapter boards contain high voltage.
Connections to the adapter boards/changes to the
CSTI configuration switches should be made only
with the power to the unit disconnected.
• Configuration adjustments to the ECM engine board
should be made through the SMALLER of the two
low-voltage lids on the front of the control panel,
through the low-voltage insulation/shielding.
• All settings take effect immediately, including fan
startup, enabling of electric heat. Caution should be
taken to stay clear of hazardous voltages, moving
parts and electric heat elements while making
adjustments to the ECM engine board. If it is not
practical to stay clear of these areas during
adjustment of the ECM engine board, please contact
Trane Global Parts for configuration kit that allows
easy powering of the engine board outside of the unit
with a 9V battery.
Figure 48. Typical connection
WARNING
Hazardous Voltage w/Capacitors!
Disconnect all electric power, including remote
disconnects and discharge all motor start/run
capacitors before servicing. Follow proper lockout/
tagout procedures to ensure the power cannot be
inadvertently energized. For variable frequency drives
or other energy storing components provided by Trane
or others, refer to the appropriate manufacturer’s
literature for allowable waiting periods for discharge of
capacitors. Verify with an appropriate voltmeter that all
capacitors have discharged. Failure to disconnect
power and discharge capacitors before servicing could
result in death or serious injury.
WARNING
Safety Alert!
You MUST follow all recommendations below. Failure
to do so could result in death or serious injury.
• The adapter boards contain high voltage.
Connections to the adapter boards should be made
only with the power to the unit disconnected.
• All settings take effect immediately, including fan
startup, enabling of electric heat. Caution should be
taken to stay clear of hazardous voltages, moving
parts and electric heat elements while making
adjustments to the ECM engine board. If it is not
practical to stay clear of these areas during
adjustment of the ECM engine board, please contact
Trane Global Parts for configuration kit that allows
easy powering of the engine board outside of the unit
with a 9V battery.
UV-SVN02_-EN.book Page 55 Thursday, January 24, 2013 4:48 PM

ECM Overview and Setup
56 UV-SVN02C-EN
The ECM engine board provides additional temperature
controlled logic to help coordinate certain electric-heat
and valve logic functions:
• On units with electric heat and a changeover coil, the
engine board and adapter boards are pre-configured
to cause hydronic heat and electric heat to be mutually
exclusive:
– On units with ComfortLink™ controls (Tracer ZN
controllers), the Tracer ZN board will serve as the
primary logic to select the electric heat only if hot
water is not available, but the engine board will
service as a backup lockout.
– On units with Customer Supplied Controllers (CSTI
units), the engine board and CSTI board will serve
as the primary lockout.
• On CSTI units selected with a changeover coil
configuration, the engine board is factory configured
to work in conjunction with the CSTI adapter board to
provide a useful auto-changeover function.
Traditionally, a fixed setpoint bi-metallic disc
temperature switch is used to provide changeover with
customer controls; however, the engine board has
defeatable and configurable bi-metallic disc
temperature switch emulation when combined with
the CSTI adapter board. The ECM engine is
preconfigured for typical values, so changeover
settings do not necessarily need to be changed.
– An NTC thermistor is supplied and affixed to the
supply pipes where applicable. The ECM engine
has several settings that affect the operation of the
changeover function:
• parameter should normally be set to -
or to use the changeover functions.
•- parameter should be chosen if the unit has
a changeover coil without electric heat.
• parameter should be chosen if the unit
has a changeover coil with electric heat.
Generally, this will perform the same as the -
parameter but in addition, will disable heating
function on electric heat and on the changeover
coil if there are fan failures. The auxillary heating
coil function will continue to operate and
respond to the customer heating request.
• parameter should be set to for CSTI units and
to for ComfortLink controller units.
• parameter defines the temperature at which the
engine board will close the triac onboard the ECM
engine (if parameter is set correctly).
• parameter defines the temperature at which the
engine board will open the triac onboard the ECM
Engine (if parameter is set correctly). By leaving
a “gap” between the make and break value, we will
simulate hysteresis of a real bi-metallic disc
temperature switch.
• When combined with the CSTI adapter board, the bi-
metallic disc temperature switch emulation and the
electric heat lockout function will work when the
switches are set correctly.
Adjustment and Configuration of the CSTI
Adapter Board
For CSTI units, the board mounted switches have to be set
appropriately to enable the desired functionality.
Notes:
•All switches are factory-set based on customer
configuration of the unit model number. The unit will
function correctly as shipped; however, the switch
functions and positions are depicted for customer
convenience and for service and troubleshooting aids.
•SW3 and SW4 work in conjunction with settings on the
ECM engine controller. Simple activation of
changeover and electric heat lockout function may not
CAUTION
Burn Hazard!
If SW4 is turned off, the factory/customer controller/
thermostat will be able to actuate the electric heat
while hot water is available or if the fans have failed.
This switch should NOT be turned off if the unit
schematic indicates that it should be on, to prevent
overheating of the unit (due to simultaneous electric
heat and hydronic heat actuation, or failure of the fan)
and to use the preferred hydronic heating over electric
heat. Failure to follow this instruction could result in
the unit overheating and becoming hot to the touch,
which could result in minor or moderate injury, and/or
equipment damage.
Figure 49. CSTI adapter board: board-mounted
switches
Table 16. CSTI adapter board: switch functions
Switch
(L-R) SW1 SW2 SW3 SW4
Function Valve one
operation
logic
Valve two
operation
logic
Changeover
Function Electric Heat /
Fan Proving
Function
UP position
(towards
terminal
strip)
Normally
Open Valve Normally
Open Valve Changeover
Function ON Electric Heat /
Fan Proving
Function
DOWN
position
(towards
black relays)
Normally
Closed Valve Normally
Closed Valve Changeover
Function OFF Electric Heat /
Fan Proving
Function
UV-SVN02_-EN.book Page 56 Thursday, January 24, 2013 4:48 PM

ECM Overview and Setup
UV-SVN02C-EN 57
work correctly unless the ECM engine board is
configured to perform these functions.
•Customers are advised to locate the changeover coil
temperature sensor on the bypass line if possible, to
avoid measuring standing water temperature.
•If a 4-pipe unit with changeover function is selected,
the heating input will drive the main coil if hot water is
detected, but will always drive the auxiliary coil or
electric heat (where available).
•Where electric heat is available with a changeover coil,
the electric heat is factory-configured to be deactivated
if there is hot water available and if there is a fan failure.
The CSTI board comes with courtesy valve inversion
relays that allow both normally open and normally closed
two-position valves to be used with simple thermostats
that do not have the configurability to adapt to the
customer choice of valves. Independent switches, SW1
and SW2, are provided for 2-pipe or 4-pipe units, or 2-pipe
units with an optional reheat coil. The functions of SW1
and SW2 is downstream of the changeover function (SW3
and ECM engine board). Decisions made by the
changeover circuits will be flowed to the inversion circuits,
if they are selected.
SW3 enables or disables the changeover function for
2-pipe changeover coil units, or 4-pipe units where the coil
has both a heating/cooling circuit and a heating circuit
piped internally. If SW3 is turned off, the changeover
function will be disabled, and the unit will then be
configured as a cooling only coil, a heating only coil, or a
combination of cooling only/heating only coil. Thus,
customer cooling requests will drive the main valve, and
heating requests will drive the auxiliary valve.
The changeover function is designed to work with
customer controllers that request heating or cooling
(based on customer request), but have coil water
temperatures that are “changed over” from heating to
cooling (or cooling to heating) depending on the season
and the building equipment available. Customer
thermostats MUST be hooked to the correct terminal strip
locations (V1 and V2) for the changeover function to work.
Cooling
In general, the (CSTI) changeover function will provide
cooling if:
1. A unit is factory configured with a changeover coil
(cooling/heating) as the only coil or as the main coil
portion.
2. SW3 on the CSTI adapter board is turned on, and the
parameter set to - or to use the
changeover functions.
a. - parameter should be chosen if the unit has a
changeover coil without electric heat.
b. parameter should be chosen if the unit has a
changeover coil with electric heat. Generally, this
will perform the same as the - parameter but
will in addition, disable the heating function on
electric heat and on the changeover coil heat if there
are fan failures. The auxiliary heating coil valve will
continue to respond to customer heating requests.
3. The ECM engine has sensed that there is cold water
available on the supply/bypass line for the changeover
coil. In this case, “cold” water is inferred by the ECM
engine if:
a. A 10K NTC thermistor (similar to Trane part number
X13790374010) is wired properly to the engine
board, through the crossover cables and CSTI
adapter boards.
b. The input impedance of the thermistor circuit must
be set correctly (the parameter should be set
to for CSTI units).
c. The temperature sensed is lower than the
parameter.
d. The parameter is higher than the
parameter.
e. The temperature is not in the dead-band between
the parameter and the parameter (in
this case, previous state will be retained).
4. The customer thermostat is properly hooked up the
input strip 1TB3, and is requesting cooling input (V1)
based on the customer cooling setpoint being lower
than the space temperature.
Heating
In general, the (CSTI) changeover function will provide
heating if:
1. A unit is factory-configured with a changeover coil
(cooling/heating) as the only coil or as the main coil
portion.
2. SW3 on the CSTI adapter board is turned on, and the
parameter set to - or to use the
changeover functions.
a. - parameter should be chosen if the unit has a
changeover coil without electric heat.
b. parameter should be chosen if the unit has a
changeover coil with electric heat. Generally, this
will perform the same as the - parameter but
will in addition, disable the heating function on
electric heat and on the changeover coil heat if there
are fan failures. The auxiliary heating coil valve will
continue to respond to customer heating requests.
3. The ECM engine has sensed that there is hot water
available on the supply/bypass line for the changeover
coil. In this case, “hot” water is determined if:
a. A 10K NTC thermistor (similar to Trane part number
X13790374010) is wired properly to the engine
board, through the crossover cables and CSTI
adapter boards.
b. The input impedance of the thermistor circuit must
be set correctly (the parameter should be set
to for CSTI units).
UV-SVN02_-EN.book Page 57 Thursday, January 24, 2013 4:48 PM

ECM Overview and Setup
58 UV-SVN02C-EN
c. The temperature sensed is higher than the
parameter.
d. The parameter is higher than the
parameter.
e. The temperature is not in the dead-band between
the parameter and the parameter (in
this case, previous state will be retained).
4. The customer thermostat is properly hooked up the
input strip 1TB3, and is requesting heating input (V2)
based on the customer heating set point being higher
than the space temperature.
5. The heating input on 1TB3 will drive the main
changeover coil IF conditions 1–4 are satisfied, but will
always drive the auxiliary coil valve (if present).
Electric heat will be locked out (where present) if hot
water is available since SW4 will be factory set to “ON”
in these units.
SW4 selects the electric heat lockout function, where we
will lock out the electric heat circuit based on either:
1. The presence of hot water in the changeover coil
section (if the parameter is set to -).
2. Abnormal behavior of the fan/s (if the parameter
is set to ).
3. Or a combination of both the presence of hot water or
abnormal behavior of the fan/s (if the parameter
is set to ).
4. The preceding three examples depend on the
inference of the engine board that hot water is present.
In this case, “hot” water is determined if:
a. The temperature sensed is higher than the
parameter.
b. The parameter is higher than the
parameter.
c. The temperature is not in the dead-band between
the parameter and the parameter (in
this case, previous state will be retained).
d. The input impedance of the thermistor circuit must
be set correctly (the parameter should be set
to for CSTI units).
Configuring the ECM Engine Board
Every Trane Fan-Coil or Cabinet Heater unit with BLDC
motors will have modules specifically configured at the
factory for the operation of that unit. The ECM engine
configuration label is affixed to the low-voltage access lid
on the outside of the control panel (see Figure 45, p. 48
and Figure 50, p. 58). The ECM engine label may be on the
back-side of the low voltage access lid, depending on the
unit configuration.
The serial number of each unit and the custom
configuration settings specific to that unit will be printed
on the label for convenient matching of labels/settings to
specific units. Programming a unit with the settings from
another unit will result in abnormal operation. The label
contains four important sections:
1. How to enter the configuration menu
2. The description and meaning of the Error Codes
3. The description and meaning of the status display
4. The parameter names and values specific to that unit
Note: This label is provided for reference only, as an
example, and should not be used to configure the
unit.
Figure 50. ECM engine label
UV-SVN02_-EN.book Page 58 Thursday, January 24, 2013 4:48 PM

ECM Overview and Setup
UV-SVN02C-EN 59
Configuration Settings of the ECM Engine
Board
Note: The engine board functions and unit specific
settings are summarized on the ECM engine
configuration label affixed to the back side of the
control panel low voltage lid, on every unit.
The following table lists the parameter names and typical
settings of the ECM engine board, for reference only.
Additional Notes:
1. This list is applicable only to Fan-coil and Force-Flo
products.
2. Do not change the electric heat protection settings if
your unit has electric heat.
3. If the format setting for rpm values are not correct (i.e.,
not four-digit: XXXX), please check the operation mode
of the ECM engine board and and motor
signal output format and .
WARNING
Safety Alert!
You MUST follow all recommendations below. Failure
to do so could result in death or serious injury.
All settings take effect immediately, including fan
startup and enabling of electric heat. Caution should be
taken to stay clear of hazardous voltages, moving parts
and electric heat elements while making adjustments
to the ECM engine board. If it is not practical to stay
clear of these areas during adjustment of the ECM
engine board, please contact Trane Global Parts for
configuration kit that allows easy powering of the
engine board outside of the unit with a 9V battery.
The adapter boards contain high voltage. Configuration
adjustments to the ECM engine board should be made
through the SMALLER of the two low-voltage lids on
the front of the control panel, through the low-voltage
insulation/shielding.
CAUTION
Burn Hazard!
On electric heat units, certain parameter values are
locked out to prevent overheating of the unit. These
functions will appear to be saved; however, they will
not be accepted if the Electric Heat Protection setting is
“On”. Do not change the Electric Heat Protection setting
to “Off” and make changes to the protected settings
unless you are programming an unconfigured service
replacement board to match the unit settings on a ECM
configuration label. Failure to follow this instruction
could result in the unit overheating and becoming hot
to the touch, which could result in minor or moderate
injury, and/or equipment damage.
NOTICE:
Equipment Damage!
Do not change the PWM output voltage settings as
motor damage could occur.
UV-SVN02_-EN.book Page 59 Thursday, January 24, 2013 4:48 PM

ECM Overview and Setup
60 UV-SVN02C-EN
Table 17. Configuration settings of the ECM engine board
Description on
Unit Label
User
Interface
Name
Typical
User
Interface
Value Description
Notes:
These notes are provided for reference
only, and the ECM engine label must be
used as the ultimate guide for setting up an
engine board on specific units.
Mtr 1 High Spd Sets the high-speed rpm for Motor 1. Do not exceed 1700 rpm.
Do not set under 450 rpm.
On units with two motors, the single shafted
motor is designated as Motor 1.
If the unit has only one motor, all seven speed
settings for the second motor (, ,
, , , , )
should be set to zero.
Analog inputs below the - setting will be
rejected.
Note: , , , settings
are locked out on units with electric heat.
Mtr 1 Med Spd Sets the medium-speed rpm for Motor 1.
Mtr 1 Low Spd - Sets the low-speed rpm for Motor 1.
EHStg1 Mtr1 Spd Assigns an rpm to be associated with a call
for 1st stage electric heat, for Motor 1 (only
on units equipped with electric heat).
EH Stg 2 Mtr 1 Spd Assigns an rpm to be associated with a call
for 2nd stage electric heat, for Motor 1
(only on electric heat equipped units).
AI High Spd Mtr 1 Sets the maximum rpm for Motor 1 for the
maximum input value of the analog input.
AI Low Spd Mtr 1 - Sets the minimum turn-on rpm for
Motor 1, when the analog input becomes
active.
Mtr 2 Hgh Spd Sets the high-speed rpm for Motor 2.
Mtr 2 Med Spd Sets the medium-speed rpm for Motor 2.
Mtr 2 Low Spd Sets the low-speed rpm for Motor 2.
EHStg1 Mtr2 Spd Assigns an rpm to be associated with a call
for 1st stage electric heat, for Motor 2 (only
on electric heat equipped units).
EH Stg 2 Mtr 2 Spd Assigns an rpm to be associated with a call
for 2nd stage electric heat, for Motor 2
(only on electric heat equipped units).
AI High Spd Mtr 2 Sets the maximum rpm for Motor 2 for the
maximum input value of the analog input.
AI Low Spd Mtr 2 - Sets the minimum turn-on rpm for
Motor 2, when the analog input becomes
active.
Op Mode Mtr 1 Sets the operational mode for Motor 1. Must be set to for fan-coil products.
Op Mode Mtr 2 Sets the operational mode for Motor 2. Must be set to for fan-coil products.
Mtr 1 Out Format Sets the interface type for Motor 1. Must be set to for fan-coil products.
Mtr 2 Out Format Sets the interface type for Motor 2 Must be set to for fan coil products.
Mtr 1/2 PWM Freq. Sets the PWM frequency, for cases when
the PWM outputs are used. On fan-coil units, the must not be
changed.
Mtr 1 PWM Volt - Sets the PWM voltage, for cases when the
PWM outputs are used. This setting must NOT be changed, as damage to
the motor may occur!
Mtr 2 PWM Volt - Sets the PWM voltage, for cases when the
PWM outputs are used. This setting must NOT be changed, as damage to
the motor may occur!
Mt1 Hgh PWM Lt Sets the maximum output % that the
controller will request from Motor 1. This envelope protection value should not be
altered.
Mt1 Low PWM Lt .Sets the minimum maximum output %
that the controller will request from
Motor 1.
This envelope protection value should not be
altered.
Mt2 Hgh PWM Lt Sets the maximum output % that the
controller will request from Motor 2. This envelope protection value should not be
altered.
Mt2 Low PWM Lt .Sets the minimum maximum output %
that the controller will request from
Motor 2.
This envelope protection value should not be
altered.
Mt1 Ovspd RPM Selects the rpm above which the Motor 1
will be assumed to be in an overspeed
condition and will need to be shut down.
This envelope protection value should not be
altered.
UV-SVN02_-EN.book Page 60 Thursday, January 24, 2013 4:48 PM

ECM Overview and Setup
UV-SVN02C-EN 61
Mt2 Ovspd RPM Selects the rpm above which the Motor 2
will be assumed to be in an overspeed
condition and will need to be shut down.
This envelope protection value should not be
altered.
Fan Proving Fct Selects which mode should be assigned to
the Binary output circuit, depending on
unit type.
This setting has to be correct for proper unit
operation of electric heat and changeover units.
AI Boost Amp Boosts or attenuates the analog input
signal to compensate for long wire runs. A value of should be used if no voltage level
compensation is needed (i.e., voltage peak is at
10 Vdc).
AI Floor - .Rejects noise on the analog input lines and
sets up the engine board to turn on if the
thermostat or controller is commanding its
analog outputs on.
PulsePerRev Sets up the tachometer function to be
compatible with the on-board motor and
for correct speed calculation and
calibration.
Do not change this setting as this is critical to
proper unit operation.
P Value Mtr 1 - . Sets up the on board closed loop control to
control Motor 1 with proper stability. Do not change this setting.
I Value Mtr 1 - . Sets up the on board closed loop control to
control Motor 1 with proper stability. Do not change this setting.
P Value Mtr 2 - . Sets up the on board closed loop control to
control Motor 2 with proper stability. Do not change this setting.
I Value Mtr 2 - . Sets up the on board closed loop control to
control Motor 2 with proper stability. Do not change this setting.
Ht Sens Mk Val F Sets the make value for the engine board
triac output based on the thermistor input. Operation also depends on , , and
settings.
Ht Sens Bk Val F Sets the break value for the engine board
triac output based on the thermistor input. Operation also depends on , , and
settings.
Ht Sens Resistor Sets the input impedance of the thermistor
input. Should be pre-set to “OUT” for Tracer ZN
controllers.
Mt 1 Ramp %/sec Sets the ramp rate for Motor 1, in % per
second.
Mt 2 Ramp %/sec Sets the ramp rate for Motor 2, in % per
second
EH Rmp Accel Sets the acceleration factor for the electric
heat inputs. Is used to force faster ramps when electric heat
is requested.
Ramp MAX Time Sets the maximum ramp time for both
Motor 1 and Motor 2 (in seconds). Overrides the ramp rates and if
the calculated ramp time exceeds .
EH Fan off delay - Selects how long the fan needs to stay on
after an electric heat request has been
turned off.
Not used on fan-coil unit.
Lck Rtr Protect Selects whether to use the on-board
locked rotor protection function. This will shut down the affected motor, if
rotational response is not detected.
Table 17. Configuration settings of the ECM engine board (continued)
Description on
Unit Label
User
Interface
Name
Typical
User
Interface
Value Description
Notes:
These notes are provided for reference
only, and the ECM engine label must be
used as the ultimate guide for setting up an
engine board on specific units.
UV-SVN02_-EN.book Page 61 Thursday, January 24, 2013 4:48 PM

ECM Overview and Setup
62 UV-SVN02C-EN
Fan Speed Response Verification
1. After performing controller specific commissioning,
observe the display on the ECM engine board with the
power on, to the unit. The ECM engine display should
display a looping status indicator as follows:
→→→→→
→→
→→
Notes:
•The indicator is unit-specific and may indicate
“Off” at this point; refer to thermistor function for more
information.
•A representative fan speed of “1050” rpm are shown in
the following example. Each unit is factory-configured
differently and will have different settings for different
fan speeds.
2. While the unit remains on, exercise the fan controls on
the unit, either directly or indirectly through request for
unit heat/cool. Observe the fan spinning, and then
observe the fan display on the ECM engine board. It
should display a looping status indicator as follows:
For any size unit (using typical unit operating fan
speeds):
→→→→
→→→
→→
Note: The indicator is unit-specific and may
indicate “Off” at this point; refer to thermistor
function for more information.
3. OPTIONAL:
While the fan is running, if practical, change the fan
speeds and observe the display temporarily indicate:
Exercise all fan speeds to ensure positive unit
response and to validate any field wiring.
Congratulations! Your new Trane BLDC Engine/Motor
system is performing properly.
Protect Funct This function protects settings on the
board that affect the safety of the electric
heat system.
Do NOT change this setting. This setting locks
out the following parameters from being
changed, for safe operation of the unit.
Rmp dft (auto rst) This function shortens the ramps for faster
unit commissioning and auto-resets to off
after approximately 15 minutes of power-
on operation.
To aid in commissioning of the unit, for
approximately 10–15 minutes, the ramps will be
shortened to quickly observe proper unit
behavior and response to speeds.
Soft Rev . Displays the software version.
Table 17. Configuration settings of the ECM engine board (continued)
Description on
Unit Label
User
Interface
Name
Typical
User
Interface
Value Description
Notes:
These notes are provided for reference
only, and the ECM engine label must be
used as the ultimate guide for setting up an
engine board on specific units.
UV-SVN02_-EN.book Page 62 Thursday, January 24, 2013 4:48 PM

UV-SVN02C-EN 63
Time Clock
Setting the Time Clock
The Time Clock must be programmed for the unit to
operate. If not programmed, the unit may not run in the
correct occupied/unoccupied state until timing
instructions are received from the Time Clock.
Note: Power must be supplied to the unit for the time
clock to be set.
The following procedure covers:
• setting the time format
• setting the current time and day
• setting the program ON / OFF settings (events)
• pre set program selections
• deleting programs
• daylight savings setting
• overriding programs (manually)
The time clock (see Figure 51) is located behind the access
door of a Unit Ventilator.
Reset the Time Clock
To clear any programs that may exist from the factory,
press the reset button (Res.).
Note: The time clock uses Standard Time. If you are
programming during Daylight Savings Time, one
hour should be subtracted from times needed (see
“Daylight Savings Time,” p. 64).
For example, if the Daylight Savings Time is 2:30, the time
setting for the clock should be 1:30.
Set the Time Format, Time, and Day
(Program to 24 hr or am/pm format.)
1. Press the Menu button until the display screen is blank
(time not showing) and 24h or am/pm is blinking in
the upper left corner of the screen.
2. Use the + and/or - buttons to select the desired setting
and then press OK.
3. The hour display begins to blink—use the + and/or -
buttons to select the desired setting and then press
OK.
4. The minute display begins to blink—use + / - to select
the desired setting and press OK.
5. The day display (on the left side of the display screen)
begins to blink—use + / - to select the desired setting
and press OK.
Set the Program
Note: The Time Clock should be used to program the unit
for the UNOCCUPIED mode—the periods of time
when the unit will not be in operation. The mode
you are programming is shown on the LED display:
: The Timer is in operation (ON). The unit is in
UNOCCUPIED mode.
: The Timer is not in operation (OFF). The unit
is in OCCUPIED mode.
Note: Odd number programs activate the timer ON
function (the unit is in UNOCCUPIED mode) and
even number programs activate the timer OFF
function (the unit is in OCCUPIED mode).
Set the Switching ON Time
1. Press OK until prog 01 is visible on the LED display
(see Figure 52).
Note: When prog 01 is visible, 01 should be blinking
and the ON symbol, , should be displayed in
the LED window. Press OK again.
Figure 51. Time clock
1. Time format display
2. Day display
3. LED display
3
2
1
Figure 52. Setting the switching ON time
UV-SVN02_-EN.book Page 63 Thursday, January 24, 2013 4:48 PM

Time Clock
64 UV-SVN02C-EN
2. The hour display begins to blink—use the + and/or -
buttons to select the desired setting and then press
OK.
3. The minute display begins to blink—use + / - to select
the desired setting and press OK.
4. The day display (on the left side of the display screen)
begins to blink—use + / - to select the desired setting
and press OK.
Note: After you set the switching ON time, the prog
number should increase by one (for example, from
prog 01 to prog 02). The number should be
blinking and the OFF symbol, , should be
displayed in the LED window. Set the switching
OFF time.
Set the Switching OFF Time
1. The hour display begins to blink—use the + and/or -
buttons to select the desired setting and then press
OK.
2. The minute display begins to blink—use + / - to select
the desired setting and press OK.
3. The day display (on the left side of the display screen)
begins to blink—use + / - to select the desired setting
and press OK.
Note: Repeat the steps for setting the switching ON/OFF
times for each additional programming needed.
You can set a maximum of 20 times: 10 switching
ON times, and 10 switching OFF times.
Preset Program Selections
When selecting daily programming, preset selections can
be used (see Figure 53).
Deleting Programs
1. Press the Menu button and then press OK until the ON
hour time display of the program you want to delete is
blinking.
2. Use the + / - to select -- and then press OK.
Important: Switching programs must be deleted in
ON-OFF pairs. When you delete a single ON
instruction, you must also delete the
corresponding OFF instruction.
Daylight Savings Time
Note: Use +1h button to make the change to and from
Daylight Savings Time.
• Press the +1h button (see Figure 54) to add 1 hour to
the current time. Press the +1h button again to subtract
1 hour from the current time.
Override Program (Manual)
To override the program, press the OVR (+) button (see
Figure 55).
Toggle between the unoccupied and occupied
states by pressing the OVR (+) button.
Note: When you override the program, the override
remains in effect until the next programming event
or until you press OVR again.
Figure 53. Preset program selection options
Figure 54. Daylight Savings Time
Figure 55. Manual program override
UV-SVN02_-EN.book Page 64 Thursday, January 24, 2013 4:48 PM

UV-SVN02C-EN 65
Wired Controllers—Communication Wiring
Wiring Installation (Tracer ZN520)
Tracer ZN520 controllers are LonTalk® devices that
interface with the Trane Tracer Summit building
management system. Reference the unit wiring diagram
or submittals.
Ground shields at each Tracer ZN520, taping the opposite
end of each shield to prevent any connection between the
shield and anther ground. Refer to the most recent version
of Trane publication CNT-SVX04A-EN (Tracer ZN520 Unit
Controller: Installation, Operation and Programming
Guide) for the communication wiring diagram.
Communication wire must conform to the following
specification:
1. Shielded twisted pair 18 AWG
2. Capacitance 23 (21–25) picofarads (pF) per foot
3. Listing/Rating—300 V 150C NEC 725-2 (b) Class 2 Type
CL2P
4. Trane Part No. 400-20-28 or equivalent, available
through Trane BAS Buying Group Accessories catalog.
Note: Communication link wiring is a shielded, twisted
pair of wire and must comply with applicable
electrical codes.
Follow these general guidelines when installing
communication wiring on units with a Tracer ZN520
controller:
• Maintain a maximum 5000 ft. aggregate run.
• Install all communication wiring in accordance with
the NEC and all local codes.
• Solder the conductors and insulate (tape) the joint
sufficiently when splicing communication wire. Do not
use wire nuts to make the splice.
• Do not pass communication wiring between buildings
because the unit will assume different ground
potentials.
• Do not run power in the same conduit or wire bundle
with communication link wiring.
Note: You do not need to observe polarity for LonTalk
communication links.
Device Addressing
LonTalk devices are given a unique address by the
manufacturer. This address is called a Neuron ID. Each
Tracer ZN520 controller can be identified by its unique
Neuron ID, which is printed on a label on the controller’s
logic board. The Neuron ID is also displayed when
communication is established using Tracer Summit or
Rover service tool. The Neuron ID format is
00-01-64-1C-2B-00.
Wire Characteristics
Controller communication-link wiring must be low
capacitance, 18-gage, shielded, twisted pair with stranded,
tinned-copper conductors. For daisy chain configurations,
limit the wire run length to 5,000 ft. Truck and branch
configurations are significantly shorter. LonTalk wire
length limitations can be extended through the use of a
link repeater.
Recommended Communication Wiring
Practices
The following guidelines should be followed while
installing communication wire.
• LonTalk is not polarity sensitive. Trane recommends
that the installer keep polarity consistent throughout
the site.
• Only strip away two inches maximum of the outer
conductor of shielded cable.
• Make sure that the 24 Vac power supplies are
consistent in how they are grounded. Avoid sharing
24 Vac between LonTalk UCMs.
• Avoid over-tightening cable ties and other forms of
cable wraps. A tight tie or wrap could damage the
wires inside the cable.
• Do not run LonTalk cable alongside or in the same
conduit as 24 Vac power.
• In an open plenum, avoid lighting ballasts, especially
those using 277 Vac.
• Do not use a trunk and branch configuration, if
possible. Trunk and branch configurations shorten the
distance cable can be run.
Wiring Installation (Tracer UC400)
This section provides information about wiring the UC400
controller. For more detailed information, refer to BAS-
SVX02D-EN (Installation, Operation, and Maintenance:
Tracer UC400 Programmable Controller), or the most
recent revision.
UV-SVN02_-EN.book Page 65 Thursday, January 24, 2013 4:48 PM

Wired Controllers—Communication Wiring
66 UV-SVN02C-EN
Wiring Overview Outline
General Instructions
Conformance to Regulatory Standards
All wiring must comply with the National Electrical Code™
(NEC™) and local electrical codes.
Connecting Wires to Terminals
To connect wires to the UC400 controller or the expansion
modules:
1. Strip the wires to expose 0.28 inch (7 mm) of bare wire.
2. Insert the wire into a terminal connector.
3. Tighten the terminal screw to 0.5 to 0.6 N-m (71 to
85 ozf-in or 4.4 to 5.3 lbf-in.).
4. Tug on the wires after tightening the screws to ensure
all wires are secure as shown on the right.
BACnet MS/TP Link
Setting the Address
The rotary address dials on the UC400 controller serve one
or two purposes depending upon the network: they are
always used for the MAC Address, which is sometimes all
or part of the BACnet Device ID (refer to the illustration
below).
MAC Address. The MAC Address is required by the RS-
485 communication protocol on which BACnet operates. A
UC400 controller can use a MAC Address from 001 to 120.
Important: Each device on the link must have a unique
MAC Address/Device ID. The controller
rotary addresses should be sequentially set,
with no gaps in the numbering, starting with
001 on each link (for example 001, 002, 003,
004 and so on). A duplicate address or a 000
address setting will interrupt
communications and cause the Tracer SC
device installation process to fail.
BACnet Device ID. The BACnet Device ID is required by
the BACnet network. Each device must have a unique
number from 001 to 4094302.
BACnet networks without a Tracer SC system
controller
On BACnet networks without a Tracer SC system
controller, the Device ID can be assigned one of two ways:
• It can be the same number as the MAC Address,
determined by the rotary address dials on the UC400
controller. For example, if the rotary address dials are
set to 042, both the MAC Address and the BACnet
Device ID are 042.
• It can be soft set using the Tracer TU service tool. If the
BACnet Device ID is set using the Tracer TU service
tool, the rotary address dials only affect the MAC
Address, they do not affect the BACnet Device ID.
BACnet networks with a Tracer SC system
controller
On BACnet networks with a Tracer SC system controller,
the Device ID for the UC400 controller is always soft set by
the system controller using the following scheme
illustrated below.
BACnet MS/TP
Link
Power ON Check
(p. 68)
Wiring
Requirements
(p. 68)
Connection
Wiring (p. 67)
Setting the
Address (p. 66)
General
Instructions
(p. 66)
Power Supply
VAC
24
XFRM
BI4
AO1 BI
5
AO2 UI
1
UI
2
P
1
P
2
CNCNO BO3
CNCNO BO2
CNCNO BO1 RELAYS
ADDRESS
TRIAC SUPPLY TRIACS
A
BO9BO8BO7BO6BO5BO4
AB
B
TX
RX
LINK IMC
SERVI
C
E
SERVICE TOOL
CONNECT AC POWER TO THE TRAIC SUPPLY TO POWER THE TRIACS
BO1 BO2 BO3 BO4 BO5 BO6 BO7 BO8 BO9
1
2
3
4
5
6
7
8
9
0
x10
IM
C
1
1
3
4
5
6
7
1
2
3
4
5
6
7
8
9
0
x100
8
9
0
x1
Use a 1/8 inch (3.2 mm) flathead screwdriver to set rotary address
dials. Dials rotate in either direction.
UV-SVN02_-EN.book Page 66 Thursday, January 24, 2013 4:48 PM

Wired Controllers—Communication Wiring
UV-SVN02C-EN 67
Note: The BACnet Device ID is displayed as the Software
Device ID on the Tracer TU Controller Settings
page in the Protocol group.
Connection Wiring
Field-supplied BACnet MS/TP link wiring must be installed
in compliance with NEC and local codes. The wire must be
low-capacitance, 18-gauge, stranded, tinned-copper,
shielded, twisted-pair. The illustration below shows an
example of BACnet link wiring with multiple UC400
controllers.
Note: For more details, refer to Wiring Guide: Unit
Controller Wiring for the Tracer SC™ System
Controller (BAS-SVN03D-EN, or the most recent
revision).
Power Supply
Please read all of the warnings, cautions, and notices
below before proceeding with this section.
A separate transformer is recommended for each UC400
controller. The line input to the transformer must be
equipped with a circuit breaker sized to handle the
maximum transformer line current.
If a single transformer is shared by multiple UC400
controllers:
• The transformer must have sufficient capacity.
• Polarity must be maintained for every UC400
controller powered by the transformer.
Important: If the polarity is inadvertently reversed
between two controllers powered by the
same transformer, a difference of 24Vac will
occur between the grounds of each
controller, which can result in:
• Partial or full loss of communication on
the entire BACnet MS/TP link
• Improper function of the UC400
controller outputs
• Damage to the transformer or a blown
transformer fuse
ADDRESS
0
1
2
3
4
5
6
7
8
9
x1
0
1
2
3
4
5
6
7
8
9
x10
0
1
2
3
4
5
6
7
8
9
x100
001 0201
ADDRESS
0
1
2
3
4
5
6
7
8
9
x1
0
1
2
3
4
5
6
7
8
9
x10
0
1
2
3
4
5
6
7
8
9
x100
ADDRESS
0
1
2
3
4
5
6
7
8
9
x1
0
1
2
3
4
5
6
7
8
9
x10
0
1
2
3
4
5
6
7
8
9
x100
001 0201
ADDRESS
0
1
2
3
4
5
6
7
8
9
x1
0
1
2
3
4
5
6
7
8
9
x10
0
1
2
3
4
5
6
7
8
9
x100
BACnet
Device ID for
this UC400
The first three digits
are determined by the
address rotary dials on
the Tracer SC system
controller.
The fourth digit is
determined by the link
number to which the
UC400 controller is
attached.
The last three digits
are determined by the
rotary address dials
on the UC400
controller.
= 0012001
UC400
Link 2
Link 1
BI LINK IMC
+
VDC
AIAIAI AI AI
PP
TX
RX
LINK IM
SERVI
SERVICE TOOL
IM
BI LINK IMC
+
VDC
AIAIAI AI AI
PP
TX
RX
LINK IM
SERVI
SERVICE TOOL
IM
BI LINK IMC
+
VDC
AIAIAI AI AI
PP
TX
RX
LINK IM
SERVI
SERVICE TOOL
IM
+
+
BI LINK IMC
+
VDC
AIAIAI AI AI
PP
TX
RX
LINK IM
SERVI
SERVICE TOOL
IM
+
BI LINK IMC
+
VDC
AIAIAI AI AI
PP
TX
RX
LINK IM
SERVI
SERVICE TOOL
IM
+
Tracer SC UC400 UC400 UC400
Zone sensor
communications
jack wiring
Trane BACnet
Terminator
Zone
Sensor Zone
Sensor Zone
Sensor
WARNING
Hazardous Voltage!
Disconnect all electric power, including remote
disconnects before servicing. Follow proper lockout/
tagout procedures to ensure the power can not be
inadvertently energized. Failure to disconnect power
before servicing could result in death or serious injury.
CAUTION
Personal Injury and Equipment Damage!
After installation, make sure to check that the 24 Vac
transformer is grounded through the controller. Failure
to check could result in personal injury and/or damage
to equipment. Measure the voltage between chassis
ground and any ground terminal on the UC400
controller. Expected result: Vac £ 4.0 V
NOTICE:
Avoid Equipment Damage!
Sharing 24 Vac power between controllers could cause
equipment damage.
UV-SVN02_-EN.book Page 67 Thursday, January 24, 2013 4:48 PM

Wired Controllers—Communication Wiring
68 UV-SVN02C-EN
Transformer Recommendations
A 24Vac power supply must be used for proper operation
of the binary inputs, which requires 24Vac detection. In
addition, the spare 24Vac outputs may be used to power
relays and TRIACS.
• AC transformer requirements: UL listed, Class 2 power
transformer, 24Vac ±15%, device max load 24VA. The
transformer must be sized to provide adequate power
to the controller (12VA) and outputs (maximum 12VA
per binary output).
• CE-compliant installations: The transformer must be
CE marked and SELV compliant per IEC standards.
Wiring Requirements
To ensure proper operation of the UC400 controller, install
the power supply circuit in accordance with the following
guidelines:
• A dedicated power circuit disconnect switch must be
near the controller, easily accessible by the operator,
and marked as the disconnecting device for the
controller.
• 18 AWG (0.823 mm2) copper wire is recommended for
the circuit between the transformer and the controller.
Important: The controller must receive AC power from
a dedicated power circuit; failure to comply
may cause the controller to malfunction. DO
NOT run AC power wires in the same wire
bundle with input/output wires; failure to
comply may cause the controller to
malfunction due to electrical noise.
Connecting Wires
To connect the wires:
1. Disconnect power to the transformer.
2. Connect the 24Vac secondary wires from the
transformer to the 24Vac and terminals on the
UC400 controller (refer to the illustration below).
3. Do one of the following to ensure the controller is
adequately grounded:
•Connect a grounding pigtail at some point along the
secondary wire that runs between the controller
terminal and the transformer.
•Ground one of the terminals on the controller to
the enclosure (if the enclosure is adequately
grounded) or to an alternate earth ground.
.
Power ON Check
To perform a Power ON check:
1. Verify that the 24Vac connector and the chassis ground
are properly wired.
2. Remove the lockout/tagout from the line voltage power
to the electrical cabinet.
3. Energize the transformer to apply power to the UC400
controller.
4. Observe the UC400 controller when power is applied
to verify the power check sequence as follows:
a. The power LED lights red for 1 second
b. The power LED lights green
•If the sequence above is completed as described,
the controller is properly booted and ready for the
application code.
If the power LED flashes red, a fault condition exists.
VAC
24
XFRM VAC
24
VAC
24
BI
1
BI
2
BI
3
LINK IMC
+
24
VDC
BI4
AO1 BI
5
AO2 UI
1
UI
2
AI
3
AI
2
AI
1
AI
4
AI
5
P
1
P
2
CNCNO BO3
CNCNO BO2
CNCNO BO1 RELAYS
ADDRESS
TRIAC SUPPLY TRIACS
A
BO9BO8BO7BO6BO5
BO4
ABB
TX
RX
LINK IMC
SERVI
C
E
SERVICE TOOL
CONNECT AC POWER TO THE TRAIC SUPPLY TO POWER THE TRIACS
BO1 BO2 BO3 BO4 BO5 BO6 BO7 BO8 BO9
1
2
3
4
5
6
7
8
9
IM
C
1
IM
C
1
3
4
5
6
7
1
2
3
4
5
6
7
8
9
8
9
x1
A pigtail connection may be
necessary between earth ground
and/or enclosure ground if the
device is not grounded through
one leg of the transformer wiring.
Alternate ground method.
24Vac
transformer
UV-SVN02_-EN.book Page 68 Thursday, January 24, 2013 4:48 PM

UV-SVN02C-EN 69
Pre-Start
Pre-Start-up Checklist
Before energizing the unit, the following system devices
must be checked:
Is the high voltage power supply correct and in
accordance with the nameplate ratings?
Is the field wiring and circuit protection the correct
size?
Is the low voltage control circuit wiring correct per the
unit wiring diagram?
Is the piping system clean/complete and correct?
Is unit serviceable? (See “Dimensions and Weights,”
p. 13.)
Are all the unit access panels secure and in place?
Is the water flow established and circulating through
all the units?
Is the condensate line properly sized, run, trapped and
pitched?
Does the indoor blower turn freely without rubbing?
Has all work been done in accordance with applicable
local and national codes?
Has heat transfer fluid been added in the proper mix to
prevent freezing if required?
UV-SVN02_-EN.book Page 69 Thursday, January 24, 2013 4:48 PM

70 UV-SVN02C-EN
Startup
Tracer ZN520 Unit Startup
Refer to the most recent version of Trane publication CNT-
SVX04A-EN (Tracer ZN520 Unit Controller: Installation,
Operation and Programming Guide). The factory pre-
programs the ZN520 with default values to control the
temperature and unit airflow. Use Tracer Summit building
automation system or Rover™ software to change the
default values.
Follow the procedure below to operate the ZN520 in a
stand-alone operation:
1. Turn power on at the disconnect switch option.
2. Position the fan mode switch to either high, medium,
low, or the auto position.
3. Rotate the setpoint dial on the zone sensor module to
55°F for cooling or 85°F for heating.
The appropriate control valve will actuate assuming the
following conditions:
1. Room temperature should be greater than 55°F and
less than 85°F.
2. For a 2-pipe fan-coil unit with an automatic changeover
sensor, the water temperature input is appropriate for
the demand placed on the unit. For example, cooling
operation is requested and cold water (5° lower than
room temperature) flows into the unit.
3. Select the correct temperature setpoint.
Note: Select and enable zone sensor temperature
settings to prevent freeze damage to unit.
Tracer UC400 Unit Startup
Refer to the most recent version of Trane publication BAS-
SVX48B-EN (Installation, Operation, and Programming:
Tracer UC400 Programmable Controller) for Tracer UC400
unit ventilator. The factory pre-programs the Tracer UC400
unit ventilator with default values to control the
temperature and unit airflow. Use Tracer SC building
automation system or Tracer TU software to change the
default values.
Follow the procedure below to operate the Tracer UC400 in
a stand-alone operation:
1. Turn power on at the disconnect switch option.
2. Position the fan mode switch to either high, medium,
low, or the auto position.
3. Rotate the setpoint dial on the zone sensor module to
55°F for cooling or 85°F for heating.
The appropriate control valve will actuate assuming the
following conditions:
1. Room temperature should be greater than 55°F and
less than 85°F.
2. For a 2-pipe fan-coil unit with an automatic changeover
sensor, the water temperature input is appropriate for
the demand placed on the unit. For example, cooling
operation is requested and cold water (5° lower than
room temperature) flows into the unit.
3. Select the correct temperature setpoint.
Note: Select and enable zone sensor temperature
settings to prevent freeze damage to unit.
General Information
Manual Fan Speed Switch
The manual fan mode switch is available with a four-
position switch (off-hi-med-lo) allows manual fan mode
selection and is available unit- or wall-mounted. See
Figure 56.
The fan speed switch can be used to provide simultaneous
fan speed customer requests in addition to external
controller fan speed request. The wall-mounted option is
low-voltage and has three 24-volt relays using a factory-
wired transformer and relays to control the fan motor.
Fan Mode Switch Operation
Off
Fan is turned off, two-position damper option spring-
returns closed.
Hi, Med, Lo
Fan runs continuously at the selected speed. The two-
position damper option opens to an adjustable
mechanical stop position.
Tracer ZN520 Operation
Off
Fan is off; control valve options and fresh air damper
options close. The low air temperature detection option is
still active.
Auto
Fan speed control in the auto setting allows the
modulating (3-wire floating point) or 2–position control
valve option and three-speed fan to work cooperatively to
meet precise capacity requirement, while minimizing fan
Figure 56. Fan speed switch
UV-SVN02_-EN.book Page 70 Thursday, January 24, 2013 4:48 PM

Startup
UV-SVN02C-EN 71
speed (motor/energy/acoustics ) and valve position (pump
energy, chilled water reset ). As the capacity requirement
increases at low fan speed, the water valve opens. When
the low fan speed capacity switch point is reached, the fan
switches to medium speed and the water valve repositions
to maintain an equivalent capacity. The reverse sequence
takes place with a decrease in required capacity.
Low/Med/High
The fan runs continuously at the selected speed and the
valve option will cycle to meet setpoint.
UC400 Controller Operation
Off
Fan is off; control valve options and fresh air damper
options close. The low air temperature detection option is
still active.
Auto
Fan speed control in the auto setting allows the
modulating (3-wire floating point) or 2-position control
valve option and 1-, 2-, 3- or variable-speed fan to work
cooperatively to meet precise capacity requirement, while
minimizing fan speed (motor/energy/acoustics) and valve
position (pump energy, chilled water reset). As the
capacity requirement increases, the water valve opens.
When the fan speed capacity switch points are reached,
the fan speed ramps up and the water valve repositions to
maintain an equivalent capacity. The reverse sequence
takes place with a decrease in required capacity.
Low/Med/High
The fan runs continuously at the selected speed and the
valve option will cycle to meet setpoint.
Tracer ZN520 Sequence of
Operation
The Tracer ZN520 operates the fan in the following modes:
1. occupied
2. unoccupied
3. occupied standby
4. occupied bypass
5. Tracer Summit with supply fan control
Occupied (Tracer ZN520)
When the controller is in the occupied mode, the unit
attempts to maintain the space temperature at the active
occupied heating or cooling setpoint, based on the
measured space temperature, the discharge air
temperature, the active setpoint, and the proportional/
integral control algorithm. The modulating control
algorithm used when occupied or in occupied standby is
described in the following sections. Additional
information related to the handling of the controller
setpoints can be found in the previous Setpoint operation
section.
Unoccupied Mode (Tracer ZN520)
When the controller is in the unoccupied mode, the
controller attempts to maintain the space temperature at
the stored unoccupied heating or cooling setpoint, based
on the measured space temperature, the active setpoint
and the control algorithm, regardless of the presence of a
hard-wired or communicated setpoint. Similar to other
configuration properties of the controller, the locally
stored unoccupied setpoints can be modified using Rover
service tool.
In unoccupied mode, a simplified zone control algorithm is
run. During the cooling mode, when the space
temperature is above the cool setpoint, the primary
cooling capacity operates at 100 percent. If more capacity
is needed, the supplementary cooling capacity turns on (or
opens to 100 percent). During the heating mode, when the
space temperature is below the heat setpoint, the primary
heating capacity turns on. All capacity is turned off when
the space temperature is between the unoccupied cooling
and heating setpoints. Note that primary heating or
cooling capacity is defined by unit type and whether
heating or cooling is enabled or disabled. For example, if
the economizer is enabled and possible, it will be the
primary cooling capacity. If hydronic heating is possible, it
will be the primary heating capacity.
Occupied Standby Mode (Tracer ZN520)
The controller can be placed into the occupied standby
mode when a communicated occupancy request is
combined with the local (hard-wired) occupancy binary
input signal. When the communicated occupancy request
is unoccupied, the occupancy binary input (if present)
does not affect the controller’s occupancy. When the
UV-SVN02_-EN.book Page 71 Thursday, January 24, 2013 4:48 PM

Startup
72 UV-SVN02C-EN
communicated occupancy request is occupied, the
controller uses the local occupancy binary input to switch
between the occupied and occupied standby modes.
During occupied standby mode, the controller’s
economizer damper position goes to the economizer
standby minimum position. The economizer standby
minimum position can be changed using Rover service
tool.
In the occupied standby mode, the controller uses the
occupied standby cooling and heating setpoints. Because
the occupied standby setpoints typically cover a wider
range than the occupied setpoints, the Tracer ZN520
controller reduces the demand for heating and cooling the
space. Also, the outdoor air economizer damper uses the
economizer standby minimum position to reduce the
heating and cooling demands.
When no occupancy request is communicated, the
occupancy binary input switches the controller’s operating
mode between occupied and unoccupied. When no
communicated occupancy request exists, the unit cannot
switch to occupied standby mode.
Occupied Bypass Mode (Tracer ZN520)
The controller can be placed in occupied bypass mode by
either communicating an occupancy request of Bypass to
the controller or by using the timed override On button on
the Trane zone sensor.
When the controller is in unoccupied mode, you can press
the On button on the zone sensor to place the controller
into occupied bypass mode for the duration of the bypass
time (typically 120 minutes).
Occupancy Sources (Tracer ZN520)
There are four ways to control the controller’s occupancy:
• Communicated request (usually provided by the
building automation system or peer device)
• By pressing the zone sensor’s timed override On
button
• Occupancy binary input
• Default operation of the controller (occupied mode)
A communicated request from a building automation
system or another peer controller can change the
controller’s occupancy. However, if communication is lost,
the controller reverts to the default operating mode
(occupied) after 15 minutes (configurable, specified by the
“receive heartbeat time”), if no local hard-wired
occupancy signal exists.
A communicated request can be provided to control the
occupancy of the controller. Typically, the occupancy of
the controller is determined by using time-of-day
scheduling of the building automation system. The result
of the time-of-day schedule can then be communicated to
the unit controller.
Tracer Summit with Supply Fan Control
(Tracer ZN520)
If the unit is communicating with Tracer Summit and the
supply fan control programming point is configured for
Tracer (the factory configures as local), Tracer Summit will
control the fan regardless of the fan mode switch position.
When the fan mode switch is set to Off or when power is
restored to the unit, all Tracer ZN520 lockouts (latching
diagnostics) are manually reset. The last diagnostic to
occur is retained until the unit power is disconnected.
Refer to Trane publication, CNT-SVX04A-EN (Tracer ZN520
Unit Controller: Installation, Operation and Programming
Guide) for specific instructions regarding the procedure
for running the Tracer ZN520.
Cooling Operation (Tracer ZN520)
The heating and cooling setpoint high and low limits are
always applied to the occupied and occupied standby
setpoints. During the cooling mode, the Tracer ZN520
controller attempts to maintain the space temperature at
the active cooling setpoint. Based on the controller’s
occupancy mode, the active cooling setpoint is one of the
following:
• Occupied cooling setpoint
• Occupied standby cooling setpoint
• Unoccupied cooling setpoint
The controller uses the measured space temperature, the
active cooling setpoint, and discharge air temperature
along with the control algorithm to determine the
requested cooling capacity of the unit (0 percent–
100 percent). The outputs are controlled based on the unit
configuration and the required cooling capacity. To
maintain space temperature control, the Tracer ZN520
cooling outputs (modulating hydronic valve, two-position
hydronic valve, or outdoor air economizer damper) are
controlled based on the cooling capacity output.
The cooling output is controlled based on the cooling
capacity. At 0 percent capacity, all cooling capacities are
off and the damper is at minimum position. Between
0 percent and 100 percent capacity, the cooling outputs
are controlled according to modulating valve logic
(modulating valves) or cycled on (2-position valves). As
the load increases, modulating outputs open further and
binary outputs are energized longer. At 100 percent
capacity, the cooling valve or damper is fully open
(modulating valves) or on continuously (and 2-position
valves).
Unit diagnostics can affect fan operation, causing
occupied and occupied standby fan operation to be
defined as abnormal. Refer to “Troubleshooting (Wireless
Controls),” p. 94 for more information about abnormal fan
operation.
The Tracer ZN520 controller operates the supply fan
continuously when the controller is in the occupied and
occupied standby modes, for either heating or cooling.
UV-SVN02_-EN.book Page 72 Thursday, January 24, 2013 4:48 PM

Startup
UV-SVN02C-EN 73
The controller only cycles the fan off with heating and
cooling capacity in the unoccupied mode.
The economizer is used for cooling purposes whenever
the outdoor temperature is below the economizer enable
setpoint and there is a need for cooling. The economizer is
used first to meet the space demand, and other forms of
cooling are used if the economizer cannot meet the
demand alone. See modulating outdoor air damper
operation for additional information.
Cascade cooling control initiates a discharge air tempering
function if the discharge air temperature falls below the
discharge air temperature control low limit, all cooling
capacity is at minimum, and the discharge control loop
determines a need to raise the discharge air temperature.
The controller then provides heating capacity to raise the
discharge air temperature to its low limit.
Discharge Air Tempering (Tracer ZN520)
The discharge air tempering function enables when cold
outdoor air is brought in through the outdoor air damper,
causing the discharge air to fall below the discharge air
temperature control low limit. The controller exits the
discharge air tempering function when heat capacity has
been at 0 percent for five minutes.
Heating Operation (Tracer ZN520)
During heating mode, the Tracer ZN520 controller
attempts to maintain the space temperature at the active
heating setpoint. Based on the occupancy mode of the
controller, the active heating setpoint is one of the
following:
• Occupied heating
• Occupied standby heating
• Unoccupied heating
During dehumidification in the heating mode, the
controller adjusts the heating setpoint up to the cooling
setpoint. This reduces the relative humidity in the space
with a minimum of energy usage.
The controller uses the measured space temperature, the
active heating setpoint, and discharge air temperature,
along with the control algorithm, to determine the
requested heating capacity of the unit (0 percent–
100 percent). The outputs are controlled based on the unit
configuration and the required heating capacity.
Unit diagnostics can affect the Tracer ZN520 controller
operation, causing unit operation to be defined as
abnormal. Refer to “Diagnostics,” p. 88 for more
information about abnormal unit operation.
The heating output is controlled based on the heating
capacity. At 0 percent capacity, the heating output is off
continuously. Between 0 percent and 100 percent
capacity, the heating output is controlled according to
modulating valve logic (modulating valves) or cycled on
(two-position valves). As the load increases, modulating
outputs open further and binary outputs are energized
longer. At 100 percent capacity, the heating valve is fully
open (modulating valves) or on continuously (two-
position valves).
The Tracer ZN520 fan output(s) normally run continuously
during the occupied and occupied standby modes, but
cycle between high and off speeds with heating/cooling
during the unoccupied mode. When in the occupied mode
or occupied standby mode and the fan speed is set at the
high, medium, or low position, the fan runs continuously
at the selected speed. Refer to “Diagnostics,” p. 88 for
more information on abnormal fan operation.
When the unit’s supply fan is set to auto, the controller’s
configuration determines the fan speed when in the
occupied mode or occupied standby mode. The fan runs
continuously at the configured heating fan speed or
cooling fan speed. For all fan speed selections except off,
the fan cycles off during unoccupied mode.
The economizer outdoor air damper is never used as a
source of heating. Instead, the economizer damper (when
present) is only used for ventilation; therefore, the damper
is at the occupied minimum position in the occupied
mode. The damper control is primarily associated with
occupied fan operation.
Fan Mode Operation (Tracer ZN520)
For multiple fan speed applications, the Tracer ZN520
controller offers additional fan configuration flexibility.
Separate default fan speeds for heating and cooling
modes can be configured. The fan runs continuously for
requested speeds (off, high, medium, or low). When the
fan mode switch is in the Auto position or a hard-wired fan
mode input does not exist, the fan operates at the default
configured speed. See Tab le 18 , p . 7 3 for default fan
configuration for heat and cool mode. During unoccupied
mode, the fan cycles between high speed and off with
heating and cooling fan modes. If the requested speed is
off, the fan always remains off.
During dehumidification, when the fan is on Auto, the fan
speed can switch depending on the error. Fan speed
increases as the space temperature rises above the active
cooling setpoint.
Additional flexibility built into the controller allows you to
enable or disable the local fan switch input. The fan mode
request can be either hard-wired or communicated to the
controller. When both are present, the communicated
request has priority over the hard-wired input. See
Ta b l e 1 8. Fan configuration (Tracer ZN520)
Auto Fan Operation Fan Speed Default
Heating Continuous Off
Low
Medium
High
Cooling Continuous Off
Low
Medium
High
UV-SVN02_-EN.book Page 73 Thursday, January 24, 2013 4:48 PM

Startup
74 UV-SVN02C-EN
Tab l e 19, Table 20, and Table 21.
Continuous Fan Operation (Tracer ZN520)
During occupied and occupied standby modes, the fan
normally is on. For multiple speed fan applications, the fan
normally operates at the selected or default speed (off,
high, medium, or low). When fan mode is auto, the fan
operates at the default fan speed.
During unoccupied mode, the controller controls the fan
off. While unoccupied, the controller heats and cools to
maintain the unoccupied heating and cooling setpoints. In
unoccupied mode, the fan is controlled on high speed only
with heating or cooling.
The unit fan is always off during occupied, occupied
standby, and unoccupied modes when the unit is off due
to a diagnostic or when the unit is in the off mode due to
the local zone sensor module, a communicated request, or
the default fan speed (off).
If both a zone sensor module and communicated request
exist, the communicated request has priority.
Fan Cycling Operation (Tracer ZN520)
Tracer ZN520 does not support fan cycling in
occupied mode. The fan cycles between high speed and
off in the unoccupied mode only. The controller’s cascade
control algorithm requires continuous fan operation in the
occupied mode.
Fan Off Delay (Tracer ZN520)
When a heating output is controlled off, the Tracer ZN520
controller automatically holds the fan on for an additional
30 seconds. This 30-second delay gives the fan time to
blow off any residual heat from the heating source, such as
a steam coil. When the unit is heating, the fan off delay is
normally applied to control the fan; otherwise, the fan off
delay does not apply.
Fan Start on High Speed (Tracer ZN520)
On a transition from off to any other fan speed, the Tracer
ZN520 controller automatically starts the fan on high
speed and runs the fan at high speed for 0.5 seconds. This
provides the ample torque required to start all fan motors
from the off position.
Entering Water Temperature Sampling
Function (Tracer ZN520)
Only units using the main hydronic coil for both heating
and cooling (2-pipe changeover and 4-pipe changeover
units) use the entering water temperature sampling
function. Two-pipe changeover and 4-pipe changeover
applications allow the main coil to be used for heating and
for cooling; therefore, these applications require an
entering water temperature sensor.
When three-way valves are ordered with a Tracer ZN520
control, the controller is factory-configured to disable the
entering water temperature sampling function, and the
entering water sensor is mounted in the proper location.
Disabling entering water temperature sampling
eliminates unnecessary water flow through the main coil
when three-way valves are used.
The controller invokes entering water temperature
sampling only when the measured entering water
temperature is too cool to heat or too warm to cool.
Entering water is cold enough to cool when it is five
degrees below the measured space temperature. Entering
water is warm enough to heat when it is five degrees
above the measured space temperature.
When the controller invokes the entering water
temperature sampling function, the unit opens the main
hydronic valve for no more than three minutes before
considering the measured entering water temperature. An
initial stabilization period is allowed to flush the coil. This
period is equal to 30 seconds plus half of the valve stroke
time. Once this temperature stabilization period has
expired, the controller compares the entering water
temperature against the effective space temperature
Table 19. Local fan switch enabled (Tracer ZN520)
Communicated Fan Speed
Input
Fan Switch
(Local)
Fan
Operation
Off Ignored Off
Low Ignored Low
Medium Ignored Medium
High Ignored High
Auto Off
Low
Medium
High
Auto Off
Low
Medium
High
Auto (configured default, determined by heat/cool mode)
Table 20. Fan operation in heating and cooling modes
(Tracer ZN520)
Fan Mode
Heating Cooling
Occ. Unocc. Occ. Unocc.
Off Off Off Off Off
Low Low Off/high Low Off/high
Medium Med Off/high Med Off/high
High High Off/high High Off/high
Auto Default fan sp. Off/high Default fan sp. Off/high
Table 21. Local fan switch disabled or not present (Tracer
ZN520)
Communicated Fan Speed Input Fan Operation
Off Off
Low Low
Medium Medium
High High
Auto (or not present) Auto (fan runs at the default speed)
UV-SVN02_-EN.book Page 74 Thursday, January 24, 2013 4:48 PM

Startup
UV-SVN02C-EN 75
(either hard-wired or communicated) to determine
whether the entering water can be used for the desired
heating or cooling. If the water temperature is not usable
for the desired mode, the controller continues to compare
the entering water temperature against the effective space
temperature for a maximum of three minutes.
The controller automatically disables the entering water
temperature sampling and closes the main hydronic valve
when the measured entering water exceeds the high
entering water temperature limit (110°F). When the
entering water temperature is warmer than 110°F, the
controller assumes the entering water temperature is hot
because it is unlikely the coil would drift to a high
temperature unless the actual loop temperature was very
high.
If the entering water temperature is unusable—too cool to
heat or too warm to cool—the controller closes the
hydronic valve and waits 60 minutes before initializing
another sampling. If the controller determines the
entering water temperature is valid for heating or cooling,
it resumes normal heating/cooling control and effectively
disables entering water temperature sampling until it is
required.
Electric Heat Operation (Tracer ZN520)
The Tracer ZN520 controller supports one or two-stage
electric heat operation for heating. To control the space
temperature, electric heat is cycled to control the
discharge air temperature. The rate of cycling is
dependent upon the load in the space and the temperature
of the incoming fresh air from the economizer (if any).
Two-pipe changeover units with electric heat use the
electric heat only when hot water is not available.
Manual Fresh Air Damper (Tracer ZN520)
Units with the manual fresh air damper option ship with
the damper in the closed position, which is adjustable
from zero to 100 percent in 25 percent increments. To
adjust the position, first remove the air filter to expose the
damper stop screw on the control panel end. Relocate the
stop screw to the appropriate position. Then loosen the
stop screw wingnut and adjust the linkage.
Economizer Damper Option (Tracer ZN520)
With a valid outdoor air temperature (either hard-wired or
communicated), Tracer ZN520 uses the modulating
economizer damper as the highest priority source of
cooling. Economizer operation is only possible through
the use of a modulating damper.
Economizing is possible during the occupied, occupied
standby, unoccupied, and occupied bypass modes.
The controller initiates the economizer function if the
outdoor air temperature is cold enough to be used as free
cooling capacity. If the outdoor air temperature is less than
the economizer enable setpoint (absolute dry bulb), the
controller modulates the outdoor air damper (between the
active minimum damper position and 100 percent) to
control the amount of outdoor air cooling capacity. When
the outdoor air temperature rises 5°F above the
economizer enable point, the controller disables
economizing and moves the outdoor air damper back to its
predetermined minimum position based on the current
occupancy mode or communicated minimum damper
position.
Dehumidification (Tracer ZN520)
Dehumidification is possible when mechanical cooling is
available, the heating capacity is located in the reheat
position, and the space relative humidity setpoint is
valid.The controller starts dehumidifying the space when
the space humidity exceeds the humidity setpoint.
The controller continues to dehumidify until the sensed
humidity falls below the setpoint minus the relative
humidity offset.The controller uses the cooling and reheat
capacities simultaneously to dehumidify the space. While
dehumidifying, the discharge air temperature is controlled
to maintain the space temperature at the current setpoint.
A typical scenario involves high humidity and high
temperature load of the space.The controller sets the
cooling capacity to 100 percent and uses the reheat
capacity to warm the discharge air to maintain space
temperature control. Dehumidification may be disabled
via Tracer or configuration.
Note: If the unit is in the unoccupied mode, the
dehumidification routine will not operate.
Data Sharing (Tracer ZN520)
Because this controller utilizes LONWORKS® technology, the
controller can send or receive data (setpoint, heat/cool
mode, fan request, space temperature, etc.) to and from
other controllers on the communication link, with or
without the existence of a building automation system.
This applies to applications where multiple unit
controllers share a single space temperature sensor (for
rooms with multiple units but only one zone sensor) for
both standalone (with communication wiring between
Table 22. Relationship between outdoor temperature
sensors and damper position (Tracer ZN520)
Outdoor Air
Temp. Modulating Outdoor Air Damper
Occupied or
Occupied
Bypass Occupied Standby Unoccupied
None or invalid Open to
occupied
minimum
position
Open to occupied
standby minimum
position
Closed
Failed Open to
occupied
minimum
position
Open to occupied
standby minimum
position
Closed
Present and
economizing
feasible
Economizing
minimum
postion to
100%
Economizing between
occupied standby
minimum position to
100%
Open &
economizing
when unit is
operating, closed
Present &
economizing
not feasible
Open to
occupied
minimum
position
Open to occupied
standby minimum
position
Closed
UV-SVN02_-EN.book Page 75 Thursday, January 24, 2013 4:48 PM

Startup
76 UV-SVN02C-EN
units) and building automation system applications. For
this application you will need to use the Rover service tool.
For more information on setup, refer to the Trane
publication EMTX-SVX01G-EN (Rover Service Tool:
Installation, Operation, and Programming Guide), or the
most recent version.
Binary Inputs (Tracer ZN520)
The Tracer ZN520 controller has four available binary
inputs (see Table 23). Normally, these inputs are factory-
configured for the following functions:
• Binary input 1: Low temperature detection (freezestat)
• Binary input 2: Condensate overflow
• Binary input 3: Occupancy/ Generic
• Binary input 4: Fan status
Note: The generic binary input can be used with a Tracer
Summit™ building automation system only.
Each binary input default configuration (including
normally open/closed) is set at the factory. However, you
can configure each of the four binary inputs as normally
open or normally closed. The controller will be set
properly for each factory-supplied binary input end-
device. When no device is connected to the input,
configure the controller’s input as not used.
Binary Outputs (Tracer ZN520)
Binary outputs are configured to support the following:
• Three fan stages (when one or two fan stages are
present, medium fan speed can be configured as
exhaust fan)
• One hydronic cooling stage
• One hydronic heating stage (dehumidification requires
this to be in the reheat position)
• One DX cooling stage
• One or two-stage electric heat (dehumidification
requires this to be in the reheat position)
• Face and bypass damper
• Modulating outdoor air damper
• One baseboard heat stage
For more information, see T
able 24.
Table 23. Binary input configurations (Tracer ZN520)
Binary
Input Description Configuration
Controller Operation
Contact
Closed
Contact
Open
BI 1 Low temperature
detection(a)
(a) During low temperature, condensate overflow, and fan status diagnos-
tics, the Tracer ZN520 control disables all normal unit operation of the
fan, valves, and damper.
Normally closed Normal Diagnostic(b)
(b)Table 24 shows the controller’s response to low temperature detection,
condensate overflow, and fan status diagnostics.
BI 2 Condensate
overflow(a) Normally closed Normal Diagnostic(b)
BI 3 Occupancy Normally open Unoccupied Occupied
BI 3 Generic binary
input Normally open Normal(c)
(c) The generic binary input does not affect unit operation. A building au-
tomation system reads this input as a generic binary input.
Normal(c)
BI 4 Fan status(a) N o r m a l l y o p e n N o r m a l D i a g n o s t i c (d)
(d)If the fan mode input is in the off position or the controller is in the un-
occupied mode with the fan off, the fan status input will be open. A di-
agnostic will not be generated when the controller commands the fan
off. A diagnostic will only be generated if the fan status input does not
close after one minute from energizing a fan output or any time the input
is open for one minute. The controller waits up to one minute after en-
ergizing a fan output to allow the differential pressure to build up across
the fan.
Note: The occupancy binary input is for standalone unit controllers as an
occupied/unoccupied input. However, when the controller receives
a communicated occupied/unoccupied request, the communicated
request has priority over the hard-wired input.
Table 24. Binary output configuration (Tracer ZN520)
Binary
Output Configuration
J1-1 Fan high
J1-2 Fan medium
J1-3 Fan low
J1-4 (Key)
J1-5 Cool valve—open, or 2-position valve(a)
(a) For Tracer ZN520 units configured and applied as 2-pipe hydronic heat/
cool changeover, terminals J1-5 and J1-6 are used to control the pri-
mary valve for both heating and cooling. For Tracer ZN520 units con-
figured and applied as 2-pipe hydronic heat/cool changeover with
electric heat, terminals J1-5 and J1-6 are used to control the primary
valve (for both cooling and heating), and terminals J1-9 and J1-10 are
used only for the electric heat stage. For those 2-pipe changeover units,
electric heat will not be energized while the hydronic supply is hot (5°
or more above the space temperature).
J1-6 Cool valve—close Note 1
J1-9 Heat valve—open, or 2 position valve, or 1st electric heat
stage(a)
J1-10 Heat valve—close or 2nd Electric heat stage(a)
J1-11 Fresh air damper—open
J1-12 Fresh air damper—close
TB4-1 Generic/baseboard heat output
TB4-2 24 Vac
UV-SVN02_-EN.book Page 76 Thursday, January 24, 2013 4:48 PM

Startup
UV-SVN02C-EN 77
Zone Sensor (Tracer ZN520)
The Tracer ZN520 controller accepts the following zone
sensor module inputs:
• Space temperature measurement (10kΩ thermistor)
• Local setpoint (either internal or external on the zone
sensor module)
• Fan switch
• Timed override (On) and Cancel timed override
• Communication jack
Space Temperature Measurement (Tracer
ZN520)
Trane zone sensors use a 10kΩ thermistor to measure the
space temperature. Typically, zone sensors are wall-
mounted in the room and include a space temperature
thermistor. As an option, the zone sensor can be unit-
mounted with a separate space temperature thermistor
located in the unit’s return air stream. If both a hard-wired
and communicated space temperature value exist, the
controller ignores the hard-wired space temperature input
and uses the communicated value.
External Setpoint Adjustment (Tracer ZN520)
Zone sensors with an external setpoint adjustment (1kΩ)
provide the Tracer ZN520 controller with a local setpoint
(50°F to 85°F or 10°C to 29.4°C). The external setpoint is
exposed on the zone sensor’s front cover.
When the hard-wired setpoint adjustment is used to
determine the setpoints, all unit setpoints are calculated
based on the hard-wired setpoint value, the configured
setpoints, and the active mode of the controller. The hard-
wired setpoint is used with the controller’s occupancy
mode (occupied, occupied standby, or unoccupied), the
heating or cooling mode, the temperature deadband
values, and the heating and cooling setpoints (high and
low limits) to determine the controller’s active setpoint.
When a building automation system or other controller
communicates a setpoint to the controller, the controller
ignores the hard-wired setpoint input and uses the
communicated value. The exception is the unoccupied
mode, when the controller always uses the stored default
unoccupied setpoints. After the controller completes all
setpoint calculations, based on the requested setpoint, the
occupancy mode, the heating and cooling mode, and
other factors, the calculated setpoint is validated against
the following setpoint limits:
• Heating setpoint high limit
• Heating setpoint low limit
• Cooling setpoint high limit
• Cooling setpoint low limit
These setpoint limits only apply to the occupied and
occupied standby heating and cooling setpoints. These
setpoint limits do not apply to the unoccupied heating and
cooling setpoints stored in the controller’s configuration.
When the controller is in unoccupied mode, it always uses
the stored unoccupied heating and cooling setpoints.The
unit can also be configured to enable or disable the local
(hard-wired) setpoint. This parameter provides additional
flexibility to allow you to apply communicated, hard-
wired, or default setpoints without making physical
changes to the unit.
Similar to hard-wired setpoints, the effective setpoint
value for a communicated setpoint is determined based
on the stored default setpoints (which determines the
occupied and occupied standby temperature deadbands)
and the controller’s occupancy mode.
Fan Switch (Tracer ZN520)
The zone sensor fan switch provides the controller with an
occupied (and occupied standby) fan request signal (Off,
Low, Medium, High, Auto). If the fan control request is
communicated to the controller, the controller ignores the
hard-wired fan switch input and uses the communicated
value. The zone sensor fan switch input can be enabled or
disabled through configuration using the Rover service
Table 25. Analog inputs (Tracer ZN520)
Descripti
on
Termina
ls Function Range
Zone TB3-1 Space temperature
input 5°F to 122°F
Ground TB3-2 Analog ground NA
Set TB3-3 Setpoint input 40°F to 115°F
Fan B3-4 Fan switch input 4821 to 4919 W (off)
2297 to 2342 W (auto)
10593 to 10807 W (low)
13177 to 13443 W
(medium)
15137 to 16463 W (high)
Ground TB3-6 Analog ground NA
Analog
input 1 J3-1 Entering water
temperature -40°F to 212°F
J3-2 Analog ground NA
Analog
input 2 J3-3 Discharge air
temperature -40°F to 212°F
J3-4 Analog ground NA
Analog
input 3 J3-5 Fresh air temp/generic
temp -40°F to 212°F
J3-6 Analog ground NA
Analog
input 4 J3-7 Universal input 0% to 100%
Generic 4–20mA 0% to 100%
Humidity 0 to 2000 ppm
CO2
J3-8 Analog ground NA
G r o u n d J 3 - 9 A n a l o g g r o u n d N A
Notes:
1. The zone sensor, entering water temperature sensor, discharge air
sensor, and the outside air temperature sensor are 10KΩ thermistors.
2. Zone sensor: Wall-mounted sensors include a thermistor soldered to
the sensor’s circuit board. Unit mounted sensors include a return air
sensor in the units return air stream.
3. Changeover units include an entering water temperature sensor.
UV-SVN02_-EN.book Page 77 Thursday, January 24, 2013 4:48 PM

Startup
78 UV-SVN02C-EN
tool. If the zone sensor switch is disabled, the controller
resorts to its stored configuration default fan speeds for
heating and cooling, unless the controller receives a
communicated fan input.
When the fan switch is in the off position, the controller
does not control any unit capacity. The unit remains
powered and all outputs drive to the closed position. Upon
a loss of signal on the fan speed input, the controller
reports a diagnostic and reverts to using the default fan
speed.
On/Cancel Buttons (Tracer ZN520)
Momentarily pressing the on button during unoccupied
mode places the controller in occupied bypass mode for
120 minutes. You can adjust the number of minutes in the
unit controller configuration using Rover service tool. The
controller remains in occupied bypass mode until the
override time expires or until you press the Cancel button.
Communication Jack (Tracer ZN520)
Use the RJ-11 communication as the connection point
from Rover service tool to the communication link—when
the communication jack is wired to the communication
link at the controller. By accessing the communication jack
via Rover, you can access any controller on the link.
Communications (Tracer ZN520)
Tracer ZN520 controller communicates via Trane’s LonTalk
protocol. Typically, a communication link is applied
between unit controllers and a building automation
system. Communication also is possible via Rover, Trane’s
service tool. Peer-to-peer communication across
controllers is possible even when a building automation
system is not present. You do not need to observe polarity
for LonTalk communication links.
The controller provides six 0.25-inch quick-connect
terminals for the LonTalk communication link connections,
as follows:
• Two terminals for communication to the board
• Two terminals for communication from the board to
the next unit (daisy chain)
• Two terminals for a connection from the zone sensor
back to the controller
UC400 Sequence of Operation
The UC400 controller will operate to maintain the space
temperature setpoint. This section provides information
about sequence of operations.
Power-up Sequence (UC400)
When 24Vac power is initially applied to the UC400
controller, the following sequence occurs:
1. The Power Marquee LED turns on as red, then flashes
green, and then turns a solid green.
2. All outputs are controlled OFF and all modulating
valves and dampers close.
3. The controller reads all input local values to determine
initial values.
4. The random start timer begins (refer to the following
section, “Random Start (UC400)”).
5. The random start timer expires.
6. Normal operation begins, assuming there are no
generated diagnostics. If any points are in fault or
alarm mode, the Power Marquee LED flashes red.
Important: Flashing red does not indicate that the
UC400 controller will fail to operate.
Instead, the point(s) that are in fault or alarm
mode should be checked to determine if the
status of the point(s) is acceptable to allow
equipment operation.
Random Start (UC400)
Random start is intended to prevent all units in a building
from energizing at the same time. The random start timer
delays the fan and any heating or cooling start-up from 5
to 30 seconds.
Occupancy Modes (UC400)
Occupancy modes can be controlled in the following ways:
• The state of the local (hard wired) occupancy binary
input BI1.
• A timed override request from a Trane zone sensor (see
“Timed Override Control (UC400),” p. 79).
• A communicated signal from either a Tracer SC or BAS.
A communicated request, from either a Tracer SC or BAS,
takes precedence over local requests. If a communicated
occupancy request has been established, and is no longer
present, the controller reverts to the default (occupied)
occupancy mode after 15 minutes (if no hard wired
occupancy request exists). The UC400 controller has the
following occupancy modes:
• Occupied
• Unoccupied
• Occupied standby
• Occupied bypass
Table 26. Zone sensor wiring connections (Tracer ZN520)
TB1 Description
1 Space temperature / timed override detection
2 Common
3Setpoint
4Fan mode
5 Communications
6 Communications
UV-SVN02_-EN.book Page 78 Thursday, January 24, 2013 4:48 PM

Startup
UV-SVN02C-EN 79
Occupied Mode (UC400)
In Occupied Mode, the UC400 controller maintains the
space temperature based on the occupied space
temperature setpoint ± occupied offset. The controller
uses the occupied mode as a default mode when other
forms of occupancy request are not present and the fan
runs continuously. The outdoor air damper, if present, will
close when the fan is OFF. The temperature setpoints can
be local (hard wired), communicated, or stored default
values (configurable using the Tracer TU service tool).
Unoccupied Mode (UC400)
In unoccupied mode, the UC400 controller attempts to
maintain the space temperature based on the unoccupied
heating or cooling setpoint. The fan will cycle between
high speed and OFF. In addition, the outdoor air damper
remains closed, unless economizing. The controller
always uses the stored default setpoint values
(configurable using the Tracer TU service tool), regardless
of the presence of a hard wired or communicated setpoint
value.
Occupied Standby Mode (UC400)
The UC400 controller is placed in occupied standby mode
only when a communicated occupied request is combined
with an unoccupied request from occupancy binary input
BI1. In occupied standby mode, the controller maintains
the space temperature based on the occupied standby
heating or cooling setpoints. Because the occupied
standby setpoints have a typical temperature spread of 2°F
(1.1°C) in either direction, and the outdoor air damper is
closed, occupied standby mode reduces the demand for
heating and cooling the space. The fan will run as
configured (continuously) for occupied mode. The
controller always uses the stored default setpoint values
(configurable using the Tracer TU service tool), regardless
of hard wired or communicated setpoint values. In
addition, the outdoor air damper uses the economizer
occupied standby minimum position setpoint to reduce
the ventilation rate.
Occupied Bypass Mode (UC400)
The UC400 controller is placed in occupied bypass mode
when the controller is operating in the unoccupied mode
and when either the timed override ON button on the
Trane zone sensor is pressed or the controller receives a
communicated occupied bypass signal from a BAS. In
occupied bypass mode, the controller maintains the space
temperature based on the occupied heating or cooling
setpoints. The fan will run as configured (continuous or
cycling). The outdoor air damper closes when the fan is
OFF. The controller remains in occupied bypass mode
until either the CANCEL button is pressed on the Trane
zone sensor or the occupied bypass time (configurable
using the Tracer TU service tool) expires. The temperature
setpoints can configured as local (hard wired),
communicated, or stored default values using the Tracer
TU service tool.
Timed Override Control (UC400)
If the UC400 controller has a timed override option
(ON/CANCEL buttons), pushing the ON button initiates a
timed override on request. A timed override on request
changes the occupancy mode from unoccupied mode to
occupied bypass mode. In occupied bypass mode, the
controller controls the space temperature based on the
occupied heating or cooling setpoints. The occupied
bypass time, which resides in the UC400 controller and
defines the duration of the override, is configurable from
0 to 240 minutes (default value of 120 minutes). When the
occupied bypass time expires, the unit transitions from
occupied bypass mode to unoccupied mode. Pushing the
CANCEL button cancels the timed override request. In
addition, it will end the timed override before the occupied
bypass time has expired and transition the unit from
occupied bypass mode to unoccupied mode.
If the controller is in any mode other than unoccupied
mode when the ON button is pressed, the controller still
starts the occupied bypass timer without changing to
occupied bypass mode. If the controller is placed in
unoccupied mode before the occupied bypass timer
expires, the controller is placed into occupied bypass
mode and remains in this mode until either the CANCEL
button is pressed on the Trane zone sensor or the occupied
bypass time expires.
Zone Temperature Control (UC400)
The UC400 controller has three methods of zone
temperature control:
•Cascade zone control—used in the occupied,
occupied bypass, and occupied standby modes. It
maintains zone temperature by controlling the
discharge air temperature to control the zone
temperature. The controller uses the difference
between the measured zone temperature and the
active zone temperature setpoint to produce a
discharge air temperature setpoint. The controller
compares the discharge air temperature setpoint with
the discharge air temperature and calculates a unit
heating/cooling capacity accordingly (refer to the
illustration below). The end devices (outdoor air
damper, valves, and so on) operate in sequence based
on the unit heating/cooling capacity (0–100 percent).
If the discharge air temperature falls below the
discharge air temperature low limit setpoint,
Difference
Active zone
temperature
setpoint
Calculated
discharge air
temperature
setpoint
Calculated unit
heating/cooling
capacity
Measured
zone
temperature
Measured
discharge air
temperature
Difference
UV-SVN02_-EN.book Page 79 Thursday, January 24, 2013 4:48 PM

Startup
80 UV-SVN02C-EN
(configurable using the Tracer TU service tool), and the
cooling capacity is at a minimum, the available heating
capacity is used to raise the discharge air temperature
to the low limit (refer to the following section,
“Discharge Air Tempering (UC400).”).
•Simplified zone control— if discharge air
temperature failure occurs, then simplified zone
controls runs. In the unoccupied mode, the controller
maintains the zone temperature by calculating the
required heating or cooling capacity (0–100%)
according to the measured zone temperature and the
active zone temperature setpoint. The active zone
temperature setpoint is determined by the current
operating modes, which include occupancy and heat/
cool modes.
•Discharge air temperature control— is the backup
mode that runs only if there is not valid zone
temperature. In this mode, the active space
temperature setpoint is used as the discharge air
temperature setpoint.
Important: This is not a normal operating mode. The
source of the invalid zone temperature
needs to be corrected to restore normal
operation.
Discharge Air Tempering (UC400)
If the UC400 controller is in cooling mode, cascade zone
control initiates a discharge air tempering function when:
• The discharge air temperature falls below the
discharge air temperature low limit setpoint
(configurable using the Tracer TU service tool)
• All cooling capacity is at a minimum. The discharge air
tempering function allows the controller to provide
heating capacity (if available) to raise the discharge air
temperature to the discharge air temperature low limit
setpoint.
• The cold outdoor air is brought in through the outdoor
air damper and when the damper is at (high) minimum
position. This causes the discharge air temperature to
fall below the discharge air temperature low limit
setpoint.
Heating or Cooling Mode (UC400)
The heating or cooling mode can be determined in one of
two ways:
• By a communicated signal from a BAS or a peer
controller
• Automatically, as determined by the UC400 controller
A communicated heating signal permits the controller to
only heat and a communicated cooling signal permits the
controller to only cool. A communicated auto signal
allows the controller to automatically change from heating
to cooling and vice versa.
In heating or cooling mode, the controller maintains the
zone temperature based on the active heating setpoint and
the active cooling setpoint, respectively. The active
heating and cooling setpoints are determined by the
occupancy mode of the controller.
For 2-pipe and 4-pipe changeover units, normal heat/cool
operation will not begin until the ability to conduct the
desired heating or cooling operation is verified. This is
done using the entering water temperature sampling
function, for which a valid entering water temperature is
required. When neither a hard wired nor a communicated
entering water temperature value is present on
changeover units, the controller operates in only heating
mode and assumes the coil water is hot. The sampling
function is not used.
The entering water temperature sampling function is used
only for changeover applications and for information and
troubleshooting. It does not affect the operation of the
controller. (For more information, refer to the following
section, “Entering Water Temperature Sampling Function
(UC400)”.)
Entering Water Temperature Sampling
Function (UC400)
The entering water temperature sampling function is used
with 2-pipe and 4-pipe changeover units and requires a
valid entering water temperature value. If the entering
water temperature value is less than 5°F (2.8°C) above a
valid zone temperature value for hydronic heating, and
greater than 5°F (2.8°C) below a valid zone temperature
value for hydronic cooling, the sampling function is
enabled. When the sampling function is enabled, the
UC400 controller opens the main hydronic valve to allow
the water temperature to stabilize. After 3 minutes, the
controller again compares the entering water temperature
value to the zone temperature value to determine if the
desired heating or cooling function can be accomplished.
If the entering water temperature value remains out of
range to accomplish the desired heating/cooling function,
the controller closes the main hydronic valve and waits 60
minutes to attempt another sampling. If the entering water
temperature value falls within the required range, it
resumes normal heating/cooling operation and disables
the sampling function.
Fan Operation (UC400)
The UC400 controller supports 1-, 2-, 3-speed fans and
variable-speed fans. The fan always operates
continuously while either heating or cooling during
occupied, occupied standby, and occupied bypass
operation. During unoccupied operation, the fan cycles
between OFF and HIGH, regardless of the fan
configuration. When running in AUTO mode, the fan
operates differently based on the mode and the type of fan.
For 1-, 2-, and 3-speed fans, each time the fan is enabled,
the fan begins operation and runs on high speed for a
period of time (0.5 seconds for fan coils and 3 seconds for
unit ventilators and blower coils) before changing to
another speed. Initially running on high speed provides
UV-SVN02_-EN.book Page 80 Thursday, January 24, 2013 4:48 PM

Startup
UV-SVN02C-EN 81
adequate torque to start the fan motor from the OFF
position.
Note: In occupied mode, the UC400 controller requires
continuous fan operation because of cascade zone
control. In unoccupied mode, the fan cycles.
Manual Fan Speed Control (UC400)
Regardless of the fan type, the fan runs continuously at the
desired fan speed during occupied, occupied standby, and
occupied bypass operation as follows:
• When the controller receives a communicated fan
speed signal (HIGH, MEDIUM, LOW)
• The associated fan speed switch is set to a specific fan
speed
• The Supply Fan Speed Request point is overridden
During unoccupied operation, the fan cycles between OFF
and HIGH, regardless of the communicated fan speed
signal or fan speed switch setting (unless either of these is
OFF, which in turn, will control the fan OFF).
The fan turns OFF when:
• The controller receives a communicated OFF signal
• The fan speed switch is set to OFF
• Specific diagnostics are generated
• The default fan speed is set to OFF and the fan is
operating in the AUTO mode
Note: The supply fan speed source can be configured for
BAS, local, or default value control using the Tracer
TU service tool.
AUTO Fan Operation; 1-, 2-, 3-speed Fans
(UC400)
When the controller receives a communicated auto signal
(or the associated fan speed switch is set to AUTO with no
communicated value present), the fan operates in the
AUTO mode. In AUTO mode, the fan operates according
to the fan default (configurable using the Tracer TU service
tool). The fan speed has multiple speed configurations
(default is AUTO) or set to OFF for both heating and
cooling operation. When configured as AUTO (and with
multiple speeds available), the fan changes based on the
required capacity calculated by the control algorithm.
AUTO Fan Operation; ECM Energy Efficient
Mode (UC400)
When the controller is configured for Energy Efficient
Mode, by means of the Fan Operating Mode Request MV
point, the controller and daughter board will minimize
energy use by running the fan at the lowest possible speed
while maintaining space temperature. The controller will
fully utilize valves, economizer, or electric heat which
increases fan speed to meet space temperature (unless the
fan has been manually controlled. Refer to the preceding
section, “Manual Fan Speed Control (UC400)”).
AUTO Fan Operation; ECM Acoustical Mode
(UC400)
When the controller is configured for Acoustical Mode, by
means of the Fan Operating Mode Request MV point, the
controller and daughter board will minimize acoustical
nuisance by balancing changes in fan speed and total fan
noise. The controller will fully OPEN cooling and heating
valves before increasing fan speed to meet space
temperature (unless the fan has been manually controlled.
Refer to the preceding section, “Manual Fan Speed
Control (UC400)”). If multiple stages of electric heat exist
the controller will use a single minimum air flow for each
stage.
Exhaust Control (UC400)
Exhaust control is achieved by a single-speed exhaust fan
and controlled by binary output 2 (BO2). Exhaust control,
if not present, can be enabled by selecting Ye s under the
Exhaust Fan Selection on the Tracer TU Configuration
page under the Equipment Options group.
Note: Exhaust fan configuration cannot be selected with
3-speed fan operation.
Important: If exhaust control is added to an existing
configuration, all other configuration
options should be verified to match the
correct equipment options.Temperature
and flow setpoints will revert to default
values.
The exhaust function is coordinated with the supply fan
and outdoor/return air dampers as follows:
• The exhaust fan energizes when the fan is running and
when the outdoor air damper position is greater than
or equal to the exhaust fan enable position (or the
outside air damper position at which the exhaust fan
turns ON).
• The exhaust fan turns OFF when the fan either turns
OFF or the outdoor air damper closes to 10 percent
below the exhaust fan enable position.
• If the exhaust fan/damper enable setpoint is less than
10 percent, the exhaust output is energized if the
outdoor air damper position is at the setpoint and de-
energized at 0.
Valve Operation (UC400)
The UC400 controller supports one or two modulating or
two-position valves, depending on the application (refer
Table 27, p. 82). The controller opens and closes the
appropriate valve(s) to maintain the active zone
temperature setpoint at the heating setpoint in heating
mode or the cooling setpoint in cooling mode (refer to
“Cascade Zone Control,” p. 79).
Modulating Valve Operation (UC400)
The UC400 controller supports tri-state modulating valve
control. Two binary outputs control each valve: one to
drive the valve open and one to drive the valve closed. The
UV-SVN02_-EN.book Page 81 Thursday, January 24, 2013 4:48 PM

Startup
82 UV-SVN02C-EN
stroke time for each valve is configurable using the Tracer
TU service tool. The controller supports the following:
•Heating
•Cooling
• Heat/cool changeover with a single valve and coil for 2-
pipe applications
• Cooling or heat, cool changeover with the main valve,
and coil
• Only heating with the auxiliary valve and coil for 4-pipe
applications
The controller moves the modulating valve to the desired
positions based on heating or cooling requirements.
Modulating Valve Calibration (UC400)
Modulating valve calibration is automatic. During normal
controller operation, the UC400 overdrives the actuator
(135 percent of the stroke time) whenever there is a
request for a position of 0 percent or 100 percent. At either
power-up, after a power outage, or when the occupancy
status changes to unoccupied, the controller first drives all
modulating valves (and dampers) to the closed position.
The controller calibrates to the fully CLOSED position by
over driving the actuator (135 percent of the stroke time).
Thereafter, the controller resumes normal operation.
Two-position Valve Operation (UC400)
The UC400 controller supports two-position valves with a
single binary output for each valve. Controllers used for
2-pipe applications support heating, cooling, or heat/cool
changeover with a single valve/coil. A controller used for
4-pipe applications supports cooling or heat/cool
changeover with a main valve/coil and heating only with
an auxiliary valve/coil.
Modulating Outdoor/Return Air Damper
(UC400)
The UC400 controller operates the modulating outdoor/
return air dampers based on the following:
• Occupancy mode
• Outdoor air temperature (communicated or hard wired
sensor)
• Zone temperature
•Setpoint
• Discharge air temperature
• Discharge air temperature setpoint
The minimum position for an outdoor air damper is
configurable using the Tracer TU service tool for both
occupied mode and occupied standby mode and for low-
speed fan operation. A controller can receive a BAS-
communicated outdoor air damper minimum position.
A BAS-communicated minimum position setpoint has
priority over all locally configured setpoints. When a
communicated minimum position setpoint is not present,
the controller uses the configured minimum position for
low fan speed whenever the fan is running at low speed,
regardless of the occupancy state. Refer to Table 27 and
Table 28 for more information about how the controller
determines the position of the modulating outdoor air
damper.
Economizing (Free Cooling) (UC400)
Cooling with outdoor air (during the times when the
temperature is low enough to allow) is referred to as
economizing (free cooling). The UC400 controller and
applications with modulating outside air damper, support
economizing. The modulating outdoor air damper
provides the first source of cooling for the controller.
The controller initiates economizing if the outdoor air
temperature is below the economizer enable point
(configurable using the Tracer TU service tool). If
economizing is initiated, the controller modulates the
outdoor air damper (between the active minimum damper
Table 27. Modulating outdoor air damper position
setpoint determination (UC400)
Occupancy
BAS-
communicated
Setpoint
Fan
speed
Active
Minimum
Setpoint
Unoccupied Any value Any value 0% (closed).
•Occupied
• Occupied bypass
• Occupied standby
Valid Any value BAS-
communicated.
•Occupied
• Occupied bypass
• Occupied standby
Invalid Low Occupied low fan
minimum.
•Occupied
• Occupied bypass Invalid Medium/
high Occupied
minimum.
Occupied standby Invalid Medium/
high Occupied
standby
minimum.
Ta b l e 2 8. Relationship between outdoor temperature
sensors and damper position (UC400)
Outdoor Air
Temperature
Modulating outdoor air damper position
Occupied or
Occupied
Bypass
Occupied
Standby Unoccupied
No or invalid
outdoor air
temperature.
Open to occupied
minimum
position.
Open to occupied
standby minimum
position.
Closed.
Failed outdoor air
sensor. Open to occupied
minimum
position.
Open to occupied
standby minimum
position.
Closed.
Outdoor air
temperature
present and
economizing
possible (Refer to
section,
“Economizing
(Free Cooling)
(UC400),” p. 82).
Economizing;
damper
controlled
between occupied
minimum
position and
100%.
Economizing;
damper
controlled
between occupied
standby
minimum position
and 100%.
Open and
economizing
during unit
operation;
otherwise closed.
Outdoor air
temperature
present and
economizing not
possible (Refer to
section,
“Economizing
(Free Cooling)
(UC400),” p. 82).
Open to occupied
minimum
position.
Open to occupied
standby minimum
position.
Closed.
UV-SVN02_-EN.book Page 82 Thursday, January 24, 2013 4:48 PM

Startup
UV-SVN02C-EN 83
position and 100 percent) to control the amount of outdoor
air cooling capacity. When the outdoor air temperature
rises 5°F (2.8°C) above the economizer enable point, the
controller disables economizing and moves the outdoor
air damper back to its predetermined minimum position,
based on the current occupancy mode or communicated
minimum outdoor air damper position. If an outdoor air
temperature value is not present, economizing is disabled.
Two-position Control Of A Modulating
Outdoor Air Damper (UC400)
The UC400 controller supports two-position outdoor air
damper actuators. However, a modulating outdoor/return
air damper actuator can be used for two-position control.
Two-position control can be achieved by not providing an
outdoor air temperature (neither hard wired nor
communicated) to the controller, and by setting the
damper minimum position (using the Tracer TU service
tool) to the desired value, typically 100 percent.
Electric Heat Operation (UC400)
The UC400 controller supports both SCR (modulating) and
staged electric heat (1- or 2-stages). SCR heat is only a
field-installed option. In a unit configured with staged
electric heat, the electric heating circuit(s) are cycled ON
and OFF appropriately to maintain the desired space
temperature at the active heating setpoint. In a unit
configured with SCR (modulating) electric heat, the UC400
will send a 0 to 10 Volt DC signal to adjust SCR capacity in
order to maintain the desired space temperature.
In both staged and modulating electric heat applications,
the simultaneous use of electric and hydronic heat is not
supported and the UC400 will operate electric heat only
when hot water is not available (for example, in a
changeover unit). In addition, the UC400 will run the
supply fan for 30 seconds after electric heat is turned OFF
in order to dissipate heat from the unit
Note: This delay does not apply to steam or hydronic
heating.
Factory-configured electric heat units have built-in
mechanical protections to prevent dangerously high
discharge air temperatures.
Dehumidification Operation (UC400)
The UC400 controller supports space dehumidification
when:
• Mechanical (DX or hydronic) cooling is available
• The heating capacity is located in the reheat position
• The space relative humidity is valid
The space relative humidity can be a BAS-communicated
value or come directly from a wired relative humidity
sensor. The controller begins to dehumidify the space
when the space humidity exceeds the humidity setpoint.
The controller continues to dehumidify until the sensed
humidity falls below the setpoint minus the relative
humidity offset.
Peer-to-peer Communication (UC400)
Peer-to-peer communication is accomplished by means of
custom TGP2 programming in the Tracer SC system
controller or via hard wiring only between controllers.
Unit Protection Strategies (UC400)
The following unit protection strategies are initiated when
specific conditions exist in order to protect the unit or
building from damage:
•Smart reset
• Low coil temperature protection
• Condensate overflow
• Fan status
• Fan off delay
• Filter maintenance timer
• Freeze avoidance
• Freeze protection (discharge air temperature low limit)
Smart Reset (UC400)
The UC400 controller will automatically restart a unit that
is locked out as a result of a Low Coil Temp Detection
(BI3) diagnostic. Referred to as smart reset, this automatic
restart will occur 30 minutes after the diagnostic occurs. If
the unit is successfully restarted, the diagnostic is cleared.
If the unit undergoes another Low Coil Temp Detection
diagnostic within a 24-hour period, the unit will be locked
out until it is manually reset.
Note: Freeze protection will also perform a smart reset.
Low Coil Temperature Protection (UC400)
For more information refer to BAS-SVX48B-EN
(Installation, Operation, and Programming: Tracer UC400
Programmable Controller), or the most recent revision,
and the preceding section, “Smart Reset (UC400)”.
Condensate Overflow (UC400)
For more information refer to BAS-SVX48B-EN
(Installation, Operation, and Programming: Tracer UC400
Programmable Controller), or the most recent revision.
Fan Status (UC400)
In 1-, 2- and 3-speed fans, the status is based on the
statuses of the supply fan output multistate and analog
points dedicated to fan control. The fan status is reported
as HIGH, MEDIUM, LOW, and as a percentage, whenever
the fan is running. The fan status is reported as OFF
whenever the fan is not running. In addition, a fan status
switch can be connected to binary input 5 (BI5) to monitor
the status of the fan for belt-driven or direct-driven units
(except Trane Macon factory ECM fan motor units). The fan
status switch provides feedback to the controller as
follows:
UV-SVN02_-EN.book Page 83 Thursday, January 24, 2013 4:48 PM

Startup
84 UV-SVN02C-EN
• If the fan is not operating when the controller has the
fan controlled to ON, the controller generates a Low
Airflow-Supply Fan Failure diagnostic.
• If the UC400 controller energizes the fan output for
1 minute, and the fan status switch indicates no fan
operation, the controller performs a unit shutdown
and generates a Low Airflow-Supply Fan Failure
diagnostic.
• If the fan has been operating normally for one minute,
but the fan status switch indicates no fan operation, the
same diagnostic is generated.
This manual diagnostic discontinues unit operation until
the diagnostic has been cleared from the controller. If a
diagnostic reset is sent to the controller, and the fan
condition still exists, the controller attempts to run the fan
for 1 minute before generating another diagnostic and
performing a unit shutdown. A diagnostic reset can be
sent to the controller from the Tracer TU Alarms page or by
temporarily overriding the Reset Diagnostic Request on
the Tracer TU Binary Status page.
Note: In the ECM fan application, the ECM engine board
will monitor the status of the fan. In case of a
failure, the engine board will disable the motor
immediately, and the low airflow diagnostic is sent.
Fan Off Delay (UC400)
After heating has been controlled OFF, the UC400
controller keeps the fan energized for an additional 30
seconds in order to remove residual heat from the heating
source.
Filter Maintenance Timer (UC400)
The filter maintenance timer tracks the amount of time (in
hours) that the fan is enabled. The Filter Runtime Hours
Setpoint (configurable using the Tracer TU service tool) is
used to set the amount of time until maintenance
(typically, a filter change) is required. The timer can be
enabled/disabled from the Supply Fan group on the
Setup Parameters page in Tracer TU.
The UC400 controller compares the fan run time to filter
runtime hours setpoint. Once the setpoint is reached, the
controller generates a Filter Change Required
diagnostic. When the diagnostic is cleared, the controller
resets the filter maintenance timer to zero, and the timer
begins accumulating fan run time again. The diagnostics
can be cleared and the filter timer reset by temporarily
overriding the Filter Timer Reset Request on the Binary
Status page or by using the reset button on the Alarms
page in Tracer TU.
Freeze Avoidance (UC400)
Freeze avoidance is used for low ambient temperature
protection. It is initiated only when the fan is OFF. The
UC400 controller enters the freeze avoidance mode when
the outdoor air temperature is below the freeze avoidance
setpoint (configurable using the Tracer TU service tool).
The controller disables freeze avoidance when the outdoor
air temperature rises 3°F (1.7°C) above the freeze
avoidance setpoint.
The following occurs when the controller is in freeze
avoidance mode:
• Valves are driven open to allow water to flow through
the coil
• Fan is OFF
• Economizing is disabled
• The outdoor/return air damper is closed
• DX cooling is OFF
• Electric heat stages are OFF
Freeze Protection (Discharge Air Temperature
Low Limit) (UC400)
The UC400 controller monitors the discharge air
temperature with a 10 kΩ thermistor wired to AI4. The
freeze protection operation is initiated whenever the
discharge air temperature falls below the discharge air
temperature low limit. The discharge air temperature low
limit is configurable using the Tracer TU service tool.
During freeze protection, the controller increases the
heating capacity or decreases the cooling capacity in order
to raise the discharge air temperature above the low limit.
If the discharge air temperature remains below the low
limit for 3 minutes, the controller generates a Discharge
Air Temp Limit diagnostic.
Freeze protection will also perform a smart reset. Refer to
“Smart Reset (UC400),” p. 83.
UV-SVN02_-EN.book Page 84 Thursday, January 24, 2013 4:48 PM

UV-SVN02C-EN 85
Maintenance
Service Access
To access the unit for water balancing, motor access or
other start-up and maintenance functions, use one of the
following methods:
1. Remove the entire front panel and put a blockoff over
the air chamber in the front.
2. Remove the return air grille by releasing the mounting
screws.
3. If there is no shelving or other obstructions, removing
the end panel may allow more access.
Periodic Maintenance
The following maintenance suggestions apply to all types
of unit ventilators, chilled water, hot water, split systems
and electric. Additional information for controls not
supplied by The Trane Company should be obtained from
the controls manufacturer.
Split system unit ventilators include a condensing unit and
the instructions provided with the condensing unit will
apply to the entire refrigerant system.
Filters
The air filters supplied with Trane unit ventilators are
specially designed for high lint content. Depending upon
room conditions, these filters will normally need to be
replaced every four to eight weeks. To assure proper unit
operation, inspect the filters monthly and clean or replace
as required.
Overloaded filters will reduce unit air handling capacity,
which may result in insufficient heating during the
morning warm-up period and loss of natural cooling
capacity during mild weather.
To replace the filter, lower the back access panel and lift the
filter out of its channel and out of the unit.
Removal of the Drain Pan
The unit ventilator’s drain pan is removable for periodic
cleaning or for easy access for maintenance/drainage
issues. Refer to Figure 58 and the following steps for
removing the drain pan:
1. Turn off power to the unit and remove the front panel
by turning camlocks.
2. Disconnect the drain line from the drain spout.
3. Remove two screws from each side of the drain pan
(four total) as shown.
Note: The drain pan will drop straight down upon
screw removal.
WARNING
Hazardous Service Procedures!
The maintenance and troubleshooting procedures
recommended in this section of the manual could result
in exposure to electrical, mechanical or other potential
safety hazards. Always refer to the safety warnings
provided throughout this manual concerning these
procedures. When possible, disconnect all electrical
power including remote disconnects before servicing.
Follow proper lockout/tagout procedures to ensure the
power can not be inadvertently energized. When
necessary to work with live electrical components, have
a qualified licensed electrician or other individual who
has been trained in handling live electrical components
perform these tasks. Failure to follow all of the
recommended safety warnings provided, could result in
death or serious injury.
NOTICE:
Equipment Damage!
Do not operate unit without filters or grille in place.
Operating the unit without filters or grille in place could
cause equipment failure.
Figure 57.
1. Filter
2. Hinged back access panel
1
2
UV-SVN02_-EN.book Page 85 Thursday, January 24, 2013 4:48 PM

Maintenance
86 UV-SVN02C-EN
Note: The drain pan is installed at an angle to allow
drainage. For each end of the drain pan,
remember the position (top or bottom slot)
from which the fastener was removed.
4. When reinstalling, use the same steps in reverse order,
remembering the pitch of the drain pan.
Removal of the Fanboard and Coil
Cleaning
The unit ventilator fan board can be removed for service to
the blower motor and fan wheels. The fan board must also
be removed for easier access to the unit coils for cleaning
and maintenance. Utilize the following steps for proper
removal of the fanboard.
1. Turn off power to the unit and remove the front panel.
2. Remove the front air grille and filter from the unit.
3. Pick wires out of the cable chase and tie them out of the
way (see Figure 59).
Note: The cable chase is part of the fanboard
assembly.
4. Disconnect motor wires.
5. Loosen the four bolts (two on each side of the
fanboard; see Figure 60).
6. For units with face and bypass options only: Before
removing the fanboard, the drain pan must be
removed (Figure 58, p. 86). After the drain pan has
been removed, proceed to Step 7.
7. Remove the bolts and fanboard.
8. When reinstalling, use the same steps in reverse order.
Lubrication: Fan Shaft
One fan shaft bearing is mounted on the right end of the
fan board. This sleeve-type bearing has an inner surface of
sintered bronze which allows oil to flow from the built-in
Figure 58. Removal of screws holding drain pan in
place.
Figure 59. Tie wires from the cable chase out of the
way
NOTICE:
Equipment Damage!
Support the fanboard before removing the bolts that
support it to prevent it from falling out of the unit,
which could cause equipment damage.
Figure 60. Loosen the two bolts (four total) at either
end of the fanboard
UV-SVN02_-EN.book Page 86 Thursday, January 24, 2013 4:48 PM

Maintenance
UV-SVN02C-EN 87
reservoir to the bearing surface without the use of grooves
or holes in the inner bearing surface. Do not alter the inner
bearing in any way.
Fill the bearing reservoir every six months with a
No. 10 SAE, non- detergent, automotive type oil.
Motor
The fan motor is an electronically commutated motor.
To replace the fan motor, complete the following steps:
1. Turn off power to the unit and remove the front cover.
2. Complete steps for return air grille and filter removal.
3. Complete steps for removal of drain pan if face and
bypass option is installed.
4. Complete steps for removal of fan board.
5. Disconnect the motor ground wire.
6. Using a 7/16-in. Allen wrench, loosen the coupling on
the fan shaft.
7. Loosen the screw on the motor clamp until it allow the
motor to be lifted off the base.
8. Lift the motor and pull forward until fan shaft separates
from the motor.
9. Attach new motor to fan shaft and reverse steps to
complete installation.
Modulating Valves (3-Wire Floating)
The valve should be services by a trained, experienced
technician. For detailed installation and removal steps,
refer to “Modulating Water Valves (Option),” p. 24 in this
manual.
For general servicing or malfunction, follow one of the
appropriate steps:
1. If the valve is leaking, drain system OR isolate valve
from the system. DO NOT remove valve body from
plumbing.
2. Check to see if the cartridge needs to be replaced. If so,
follow appropriate steps explained for cartridge
assembly removal.
3. If the motor or other internal parts of the actuator is
damaged, replace the entire actuator assembly.
Notes:
•These hydronic valves are designed and tested for
silent operation. However, water noise may occur as a
result of high water velocity. Piping noises may also
occur in high temperature (over 212°F) systems with
insufficient water pressure.
•Do not use petroleum-based or mineral oil type boiler
additives. Compounds with a 50-percent water dilution
that can be used are diethylene glycol, etheylene glycol
and propylene glycol.
Preventive Maintenance
A comprehensive preventive maintenance program
should be established for a unit ventilator system. The
following are several key elements:
• Inspect the filters monthly.
• Inspect and clean the drain pans every three months.
• Check the coils for “dirt” accumulation every three to
six months.
• Clean the coils at least once each year.
• Inspect the unit ventilator insulation every three
months; thoroughly clean as needed.
UV-SVN02_-EN.book Page 87 Thursday, January 24, 2013 4:48 PM

88 UV-SVN02C-EN
Diagnostics
Troubleshooting Checklist If operating difficulties are encountered, refer to the
following table for probable causes and corrective
measures. If suggested corrective measures have been
taken, and the trouble still persists, contact the control
supplier or the local Trane Sales Office.
WARNING
Hazardous Service Procedures!
The maintenance and trouble shooting procedures
recommended in this section of the manual could
result in exposure to electrical, mechanical or other
potential safety hazards. Always refer to the safety
warnings provided throughout this manual concerning
these procedures. When possible, disconnect all
electrical power including remote disconnects before
servicing. Follow proper lockout/tagout procedures to
ensure the power can not be inadvertently energized.
When necessary to work with live electrical
components, have a qualified licensed electrician or
other individual who has been trained in handling live
electrical components per these tasks. Failure to follow
all of the recommended safety warnings provided,
could result in death or serious injury.
Problem Heating Cooling Cause Correction
Room too warm
(outside air temperature is
below 35°F)
XMain power off. Check fuses.
X Room sensor is not properly set. Reset room sensor temperature.
X Room sensor is providing a false reading due
to walls being cold from the night
temperature setting.
Start the warm-up cycle earlier in the morning
to provide appropriate time-frame to increase
room temperature prior to space occupation.
X Sensor is mounted on a block wall that is
leaking cold air into the room through the
mounting holes.
Relocate sensor.
X Face and bypass damper, or coil valve is
malfunctioning. Replace malfunctioning component, or
contact the control’s contractor, or if Trane
controls, see CNT-SVX04A-EN for more
information concerning Tracer controls.
Room too warm
(outside air temperature is
above 35°F)
X Room sensor is not properly set. Reset room sensor temperature.
X Face and bypass damper or coil control valve
is malfunctioning. Replace malfunctioning component, or
contact the control’s contractor, or if Trane
controls, see CNT-SVX04A-EN for more
information concerning Tracer controls.
X OA damper is in the closed position. Ensure OA damper is in the open position.
X Clogged filter. Replace filter.
Room too warm
(outside air temperature is
above 35°F)
Unit utilizes Wall Fin auxiliary
radiation:
X Control valve is malfunctioning. Check flow of hot water through the control
valve.
X Boiler. Check the boiler reset schedule to determine
if the loop temperature can be decreased.
X Steam. Check the operation of the control valves.
X Outside air temperature is above 60°F to
65°F. The economics of the unit ventilator selection
dictate that, in most cases, the unit will be
sized to provide adequate natural
(ventilation) cooling without outside
temperatures up to 60°F to 65°F. Above this
point, a changeover should be made to the
mechanical cooling cycle.
UV-SVN02_-EN.book Page 88 Thursday, January 24, 2013 4:48 PM

Diagnostics
UV-SVN02C-EN 89
Output Testing and Diagnostics
(Tracer ZN520)
Room too cool X Room sensor is not properly set. Reset room sensor temperature.
X Clogged filter. Replace filter.
X Face and bypass damper, or coil valve is
malfunctioning. Replace malfunctioning component, or
contact the control’s contractor, or if Trane
controls, see CNT-SVX04A-EN for more
information concerning Tracer controls.
X OA damper is in the open position. Ensure OA damper is in the closed or
minimum outside air position.
X Boiler pressure or temperature design
requirements not being met. On hot water and steam type units, check the
boiler pressure or temperature to ensure that
the requirements are being met.
Room too cool
Unit utilizes Wall Fin auxiliary
radiation:
X Radiation controls malfunctioning. Check the operation of the wall fin controls.
Room too hot X Room sensor is not properly set. Reset room sensor temperature.
X Clogged filter. Replace filter.
X Face and bypass damper, or coil valve is
malfunctioning. Replace malfunctioning component, or
contact the control’s contractor, or if Trane
controls, see CNT-SVX04A-EN for more
information concerning Tracer controls.
X OA damper is in the open position. Ensure OA damper is in the minimum outside
air position.
X Chiller temperature design requirements not
being met. Check the temperature of the water leaving
the chiller to ensure that it meets design
requirements.
Motor X If the motor fails to start, and other motors
on the same circuit are functioning. Check the unit switch to ensure it is in the ON
position.
X If the motor fails to start, and other motors
on the same circuit are functioning. Check for loose switch or motor connection.
Unit
265 and 460 volt unit X X If the unit fails to start. Check fuse in right-hand end pocket inside the
transformer mounting box. Replace with
Trane fuse X1311057435 (ABC type 6A
250V).
Problem Heating Cooling Cause Correction
Table 29. Tracer ZN520 diagnostics
Diagnostic Fan Other Outputs(a)
Condensate
overflow Off Valves Closed, Fresh air damper Closed, Electric
heat Off, Baseboard heat Off
Low temperature
detection Off Valves Open, Fresh air damper Closed, Electric heat
Off, Baseboard heat Off
Low air flow - fan
failure Off Valves Closed, Fresh air damper Closed, Electric
heat Off, Baseboard heat Off
Space
temperature
failure
Off Valves Closed, Fresh air damper Closed, Electric
heat Off, Baseboard heat Off
Entering water
temp failure On Valves Enabled(b), Fresh air damper Enabled(b),
Electric heat Enabled(b), Baseboard heat Off
Discharge air
temp low limit Off Valves Open, Fresh air damper Closed, Electric heat
Off, Baseboard heat Off
Discharge air
temp failure Off Valves Closed, Fresh air damper Closed, Electric
heat Off, Baseboard heat Off
Fresh air temp
failure On Valves Enabled, Fresh air damper Minimum
position(c), Electric heat Enabled, Baseboard heat
Enabled
Relative humidity
failure On Valves Enabled, Fresh air damper Enabled, Electric
heat Enabled, Baseboard heat Enabled
Generic 4–20mA
failure On Valves Enabled, Fresh air damper Enabled, Electric
heat Enabled, Baseboard heat Enabled
CO2 Input failure On Valves Enabled, Fresh air damper Enabled, Electric
heat Enabled, Baseboard heat Enabled
Maintenance
required On Valves Enabled, Fresh air damper Enabled, Electric
heat Enabled, Baseboard heat Enabled
Local fan mode
failure On Valves Enabled, Fresh air damper Enabled, Electric
heat Enabled, Baseboard heat Enabled
Local setpoint
failure On Valves Enabled, Fresh air damper Enabled, Electric
heat Enabled, Baseboard heat Enabled
Invalid unit
configuration Off Valves Disabled, Fresh air damper Disabled,
Electric heat Disabled, Baseboard heat Disabled
Normal—power
up On Valves Enabled, Fresh air damper Enabled, Electric
heat Enabled
(a) The generic binary output (TB4-1, TB4-2) state is unaffected by all unit
diagnostics.
(b)When the entering water temperature is required but not present, the
Tracer ZN520 controller generates a diagnostic to indicate the sensor
loss condition. The controller automatically clears the diagnostic once
a valid entering water temperature value is present (non-latching di-
agnostic). When the entering water temperature sensor fails, the con-
troller prohibits all hydronic cooling operation, but allows the delivery
of heat when heating is required. In the Cool mode, all cooling is locked-
out, but normal fan and outdoor air damper operation is permitted.
(c) When the outdoor air temperature sensor has failed or is not present,
the Tracer ZN520 controller generates a diagnostic to indicate the sen-
sor loss condition. The controller automatically clears the diagnostic
once a valid outdoor air temperature value is present (non-latching di-
agnostic). When the outdoor air temperature sensor fails or is not pres-
ent, the controller prohibits economizer operation.
Table 29. Tracer ZN520 diagnostics
Diagnostic Fan Other Outputs(a)
UV-SVN02_-EN.book Page 89 Thursday, January 24, 2013 4:48 PM

Diagnostics
90 UV-SVN02C-EN
Translating Multiple Diagnostics (Tracer
ZN520)
The controller senses and records each diagnostic
independently of other diagnostics. It is possible to have
multiple diagnostics present simultaneously. The
diagnostics are reported in the order they occur.
Possible diagnostics include:
• Low temperature detection
• Condensate overflow
• Low air flow—fan status
• Discharge air temp limit
• Space temperature failure1
• Entering water temp failure1
• Discharge air temp failure1
• Outdoor air temp failure1
• Local setpoint failure1
• Local fan mode failure1
•CO
2 sensor failure1
• Generic AIP failure1
• Humidity input failure1
• Defrosting compressor lockout1
• Maintenance required
• Invalid unit configuration
• Generic temperature failure
• Discharge air low limit
Resetting Diagnostics (Tracer ZN520)
There are a number of ways in which diagnostics are reset:
1. Automatic reset by the controller
2. By initiating a manual output test at the controller
3. By cycling power to the controller
4. Through Rover, Trane’s service tool
5. Tracer ZN520: by using any other communicating
device ab le to access the controller’s diagnostic reset
input.
6. Tracer ZN520: by cycling the fan switch from Off to any
speed setting.
Automatic Reset by the Controller (Tracer
ZN520)
The controller includes an automatic diagnostic reset
function that attempts to automatically restore the unit
when a low temperature diagnostic occurs.
Note: The controller implements the automatic
diagnostic reset function only once every 24 hours.
For the controller to increment the 24 hour timer,
you must maintain power to the controller. Cycling
power resets all timers and counters.
After the controller detects the first special diagnostic, the
unit waits 30 minutes before invoking the automatic
diagnostic reset function. The automatic diagnostic reset
function clears the special diagnostic and attempts to
restore the controller to normal operation. The controller
resumes normal operation until another diagnostic
occurs.
Note: The automatic diagnostic reset function does not
operate during the manual output test sequence.
If a special diagnostic occurs within 24 hours after an
automatic diagnostic reset, the controller must be
manually reset. Other possible methods of resetting
diagnostics are described in the sections that follow.
Manual Output Test (Tracer ZN520)
To verify proper end device operation, press the
controller’s Test button. This exercise will verify all outputs
in a predefined sequence, the first of which will attempt to
reset the controller diagnostics if any are present.
Cycling Power to the Controller (Tracer ZN520)
After removing and reapplying the 24 Vac power from the
board, the unit cycles through a power-up sequence. By
default, the controller attempts to reset all diagnostics
present at power-up. Diagnostics present at power-up and
those that occur after power-up are handled according to
Table 30.
1Non-latching diagnostics automatically reset when the input is present and valid.
Table 30. Tracer ZN520 controller diagnostics
Diagnostic Latching Fan Valves
Elec
Heat Damper
Auxiliary temp.
failure No Enabled No
action No action No action
Condensate overflow
detection Yes Off Closed Off Closed
Entering water temp.
failure No Enabled Enabled Enabled Enabled
Fan mode failure No Enabled Enabled Enabled Enabled
Invalid unit
configuration failure Yes Disabled Disabled Disabled Disabled
Low temp. detection Yes Off Open Off Closed
Maintenance
required Yes Enabled No
action No action No action
Setpoint No Enabled No
action No action No action
Zone temp. failure No Off Closed Off Closed
Notes:
1. Priority Level: Diagnostics are listed in order from highest to lowest
priority. The controller senses and records each diagnostic
independently of other diagnostics. It is possible to have multiple
diagnostics present simultaneously. The diagnostics affect unit
operation according to priority level.
2. Latching: A latching diagnostic requires a manual reset of the
controller; while a non-latching diagnostic automatically resets when
the input is present and valid.
3. Enabled: End device is allowed to run if there is a call for it to run.
4. Disabled: End device is not allowed to run even if there is a call for it
to run.
5. No Action: The diagnostic has no affect on the end device.
UV-SVN02_-EN.book Page 90 Thursday, January 24, 2013 4:48 PM

Diagnostics
UV-SVN02C-EN 91
Using Trane’s Service Tool, Rover (Tracer
ZN520)
Rover, Trane’s service tool, can reset diagnostics present in
the controller and troubleshoot the unit. For more
information, refer to the Trane publication
EMTX-SVX01G-EN (Rover Service Tool: Installation,
Operation, and Programming Guide), or the most recent
revision.
Diagnostic Reset (Tracer ZN520)
Any device that can communicate the network variable
nviRequest (enumeration “clear_alarm”) can reset
diagnostics in the Tracer ZN520 controller.The controller
also attempts to reset diagnostics whenever power is
cycled.
Cycling the Fan Switch (Tracer ZN520)
Cycle the fan speed switch from Off to any speed and the
controller resets all diagnostics. Diagnostics may recur
immediately if the problem still exists.
Table 31. Fan outputs do not energize (Tracer ZN520)
Probable
Cause Explanation
Random start After power-up, the controller always observes a random
start that varies observed between 0 and 25 seconds. The
controller remains off until the random start time expires.
Power-up
control wait When power-up control wait is enabled (non-zero time), the
controller remains off until one of two conditions occurs:
1. The controller exits power-up control wait once it receives
communicated information.
2. The controller exits power-up control wait once the
power-up control wait time expires.
Cycling fan
operation When the fan mode switch is in the auto position, the unit
fan cycles off when there is no call for heating or cooling. The
heating/cooling sources cycle on or off periodically with the
unit fan to match the capacity according to pulse-width-
modulation (PWM) logic.
Unoccupied
operation The fan cycles with capacity when the unit is in unoccupied
mode. This occurs even if the unit is in continuous fan
operation. While unoccupied, the fan cycles on or off with
heating/cooling to provide varying amounts of heating or
cooling to the space to match the to pulse-width-modulation
(PWM) logic.
Fan mode off When using the local fan mode switch to determine the fan
operation, the off position controls the unit fan to off.
Requested
mode: off It is possible to communicate the operating mode (such as
off, heat, and cool) to the controller. When “off” is
communicated to the controller, the unit controls the fan to
off. The unit is not capable of heating or cooling when the
controller is in this mode.
Diagnostic
present A specific list of diagnostics effects fan operation. For more
information, see “Diagnostics,” p. 88.
No power to
the controller If the controller does not have power, the unit fan will not
operate. For the controller to operate normally, it must have
an input voltage of 24 Vac. When the green LED is off
continuously, the controller does not have sufficient power
or the controller has failed.
Manual output
test The controller includes a manual output test sequence to
verify binary output operation and the associated wiring.
However, based on the current step in the test sequence, the
unit fan may not be powered on. Refer to “Manual Output
Test (Tracer ZN520),” p. 90.
Unit wiring The wiring between the controller outputs and the fan relays
and contacts must be present and correct for normal fan
operation. Refer to the typical unit wiring diagrams.
Table 32. Valves stay closed (Tracer ZN520)
Probable
Cause Explanation
Normal
operation The controller opens and closes the valves to meet the unit
capacity requirements.
Requested
mode: off It is possible to communicate the operating mode (such as
off, heat, and cool) to the controller. When off is
communicated to the controller, the unit controls the fan to
off. The unit is not capable of heating or cooling when the
controller is in this mode.
Valve override The controller can communicate a valve override request.
This request affects the valve operation.
Manual output
test The controller includes a manual output test sequence to
verify analog and binary output operation and the associated
wiring. However, based on the current step in the test
sequence, the valves may not be open. Refer to “Manual
Output Test (Tracer ZN520),” p. 90.
Diagnostic
present A specific list of diagnostics affects valve operation. For more
information, see “Diagnostics,” p. 88.
Sampling
logic The controller includes entering water temperature
sampling logic that automatically invokes during 2-pipe or
4-pipe changeover. It determines when the entering water
temperature is either too cool or too hot for the desired
heating or cooling mode.
Unit
configuration The controller must be properly configured based on the
actual installed end devices and application. When the unit
configuration does not match the actual end device, the
valves may not work correctly.
No power to
the controller If the controller does not have power, the valves do not
operate. For the controller to operate normally, it must have
an input voltage of 24 Vac. When the green LED is off
continuously, the controller does not have sufficient power,
or the controller has failed.
Unit wiring The wiring between the controller outputs and the valve(s)
must be present and correct for normal valve operation.
Refer to the typical unit wiring diagrams.
Table 33. Valves stay open (Tracer ZN520)
Probable
Cause Explanation
Normal
operation The controller opens and closes the valves to meet the unit
capacity requirements.
Valve override The controller can communicate a valve override request to
affect the valve operation.
Manual output
test
The controller includes a manual output test sequence that
verifies analog and binary output operation and the
associated wiring. However, based on the current step in the
test sequence, the valves may be open. Refer to “Manual
Output Test (Tracer ZN520),” p. 90.
Diagnostic
present A specific list of diagnostics affects valve operation. For more
information, see “Diagnostics,” p. 88.
Sampling
logic
The controller includes entering water temperature
sampling logic that automatically invokes during 2-pipe or
4-pipe changeover to determine if the entering water
temperature is correct for the unit operating mode.
Unit
configuration
The controller must be properly configured based on the
actual installed end devices and application. When the unit
configuration does not match the actual end device, the
valves may not work correctly.
Unit wiring The wiring between the controller outputs and the valve(s)
must be present and correct for normal valve operation.
Refer to the typical unit wiring diagrams.
UV-SVN02_-EN.book Page 91 Thursday, January 24, 2013 4:48 PM

Diagnostics
92 UV-SVN02C-EN
Table 34. Electric heat not operating (Tracer ZN520)
Probable
Cause Explanation
Normal
operation The controller cycles electric heat on and off to meet the
unit capacity requirements.
Requested
mode: off It is possible to communicate the operating mode (such as
off, heat, cool) to the controller. When off is communicated
to the controller, the units shuts off the electric heat.
Communicated
disable Numerous communicated requests may disable electric
heat, including an auxiliary heat enable input and the heat/
cool mode input. Depending on the state of the
communicated request, the unit may disable electric heat.
Manual output
test The controller includes a manual output test sequence that
verifies analog and binary output operation and associated
output wiring. However, based on the current step in the
test sequence, the electric heat may not be on. Refer to
“Manual Output Test (Tracer ZN520),” p. 90.
Diagnostic
present A specific list of diagnostics affects electric heat operation.
For more information, see “Diagnostics,” p. 88.
Unit
configuration The controller must be properly configured based on the
actual installed end devices and application. When the unit
configuration does not match the actual end device, the
electric heat may not work properly.
No power to
the controller If the controller does not have power, electric heat does not
operate. For the controller to operate normally, a 24 Vac
input voltage must be applied. When the green LED is off
continuously, the controller does not have sufficient power
or has failed.
Unit wiring The wiring between the controller outputs and the electric
heat contacts must be present and correct for normal
electric heat operation. Refer to the typical unit wiring
diagrams.
ECM Motor /
Control Board
Failure
ECM controls include sophisticated fan proving / interlock
circuitry that will disable electric heat if one or more motors
are not performing normally
Hot water is
present on a
changeover
unit
On units with changeover coil and electric heat,
simultaneous operation of hydronic heat and electric heat
is not allowed.
Table 35. Fresh air damper stays open (Tracer ZN520)
Probable
Cause Explanation
Normal
operation The controller opens and closes the fresh air damper based
on the controller’s occupancy mode and fan status.
Normally, the fresh air damper is open during occupied mode
when the fan is running and closed during unoccupied mode.
Manual output
test The controller includes a manual output test sequence that
verifies analog and binary output operation and associated
output wiring. However, based on the current step in the test
sequence, the fresh air damper may not be open. Refer to
“Manual Output Test (Tracer ZN520),” p. 90.
Unit
configuration The controller must be properly configured based on the
actual installed end devices and application. When the unit
configuration does not match the actual end device, the
damper may not work correctly.
Unit wiring The wiring between the controller outputs and the fresh air
damper must be present and correct for normal damper
operation. Refer to the typical unit wiring diagrams.
Table 36. Fresh air damper stays closed (Tracer ZN520)
Probable
Cause Explanation
Normal
operation The controller opens and closes the fresh air damper based
on the controller’s occupancy mode and fan status.
Normally, the fresh air damper is open during occupied mode
when the fan is running and closed during unoccupied mode.
Warmup and
cooldown The controller includes both a warmup and cooldown
sequence to keep the fresh air damper closed during the
transition from unoccupied to occupied. This is an attempt to
bring the space under control as quickly as possible.
Requested
mode: off It is possible to communicate the operating mode (such as
off, heat, cool) to the controller. When off is communicated
to the controller, the unit closes the fresh air damper.
Manual output
test The controller includes a manual output test sequence that
verifies analog and binary output operation and associated
output wiring. However, based on the current step in the test
sequence, the fresh air damper may not be open. Refer to
“Manual Output Test (Tracer ZN520),” p. 90.
Diagnostic
present A specific list of diagnostics effects fresh air damper
operation. For more information, see “Diagnostics,” p. 88.
Unit
configuration The controller must be properly configured based on the
actual installed end devices and application. When the unit
configuration does not match the actual end device, the
damper may not work correctly.
No power to
the controller If the controller does not have power, the fresh air damper
does not operate. For the controller to operate normally, a
24 Vac input voltage must be applied. When the green LED
is off continuously, the controller does not have sufficient
power or has failed.
Unit wiring The wiring between the controller outputs and the fresh air
damper must be present and correct for normal damper
operation. Refer to the typical unit wiring diagrams.
UV-SVN02_-EN.book Page 92 Thursday, January 24, 2013 4:48 PM

Diagnostics
UV-SVN02C-EN 93
Output Testing and Diagnostics
(UC400)
This section provides information about the following:
• Output testing
• Diagnostics
Note: For detailed description of LED activities and
troubleshooting tips, refer to the section.
Output Testing (UC400)
Important: Do not directly overwrite the outputs.
Output testing can be accomplished by
overriding the following analog and
multistate value points in the desired state
or position:
• Cool valve request
• DX cool request
• Economizer request
• Electric heat request
• Heat valve request
• Supply fan speed request
The points can be overridden on the Tracer TU analog or
multistate pages by clicking on the Override icon in
the control column. A higher priority (lower number) must
be chosen over the current control setting.
Diagnostics (UC400)
Diagnostics are informational messages that indicate the
operational status of the UC400 controller. In response to
most diagnostics, the controller attempts to protect the
equipment by enabling/disabling, or by opening/closing
specific outputs. Other diagnostics provide information
about the status of the controller, but have no effect on
outputs. Diagnostics are reported in the order in which
they occur. Multiple diagnostics can be present
simultaneously. Diagnostic messages are viewed using
the Tracer TU service tool or through a BAS.
Note: Tracer TU will report only active diagnostics.
Diagnostics Types (UC400)
Diagnostics are categorized according to the type of
clearing method each uses and the type of information
each provides.
The diagnostic types are:
• Manual (latching) diagnostics
• Automatic (non-latching) diagnostics
• Smart reset diagnostics
• Informational diagnostics
Note: Clearing diagnostics refers to deleting diagnostics
from the software; it does not affect the problem
that generated the message.
Manual (Latching) Diagnostics (UC400). Manual
diagnostics (also referred to as latching) cause the unit to
shut down. Manual diagnostics can be cleared from the
UC400 controller in one of the following ways:
• By using the Tracer TU service tool to reset latching
diagnostics on the Alarms Status tab or by
temporarily overriding the Reset Diagnostic
Request (bv/2) on the Binary Status tab.
• Through a building automation system.
• By cycling power to the controller. When the 24Vac
power to the controller is cycled OFF and then ON
again, a power-up sequence occurs.
Automatic (Non-latching) Diagnostics (UC400).
Automatic diagnostics clear automatically when the
problem that generated the diagnostic is solved.
Smart Reset Diagnostics (UC400). Smart Reset
Diagnostics are latching diagnostics that will auto-recover
if the condition is corrected. After the controller detects the
first smart reset diagnostic, the unit waits 30 minutes
before initiating the smart reset function. If another
diagnostic of this type occurs again within 24 hours after
an automatic clearing, clear the diagnostic manually by
using any of the ways listed under the preceding section,
“Manual (Latching) Diagnostics (UC400).”
Informational Diagnostics (UC400). Informational
diagnostics provide information about the status of the
controller. They do not affect machine operation, but can
be cleared from the controller using the BAS or Tracer SC.
Table of Diagnostics (UC400)
Table 37 lists each diagnostic that can be generated by the
UC400 controller, the diagnostic effect on outputs
(consequences), and diagnostic type.
Note: The generic binary output is unaffected by
diagnostics.
Table 37. UC4000 diagnostics
Diagnostic Probable Cause Consequences
Diagnostic
Type
Filter change
required Fan run hours
exceed the time set
to indicate filter
change.
•Fan Unaffected
•Valves Unaffected
•Electric heat
Unaffected
Informational
Condensate
overflow The drain pan is full
of water. •Fan OFF
•Valves Closed
• Outdoor air damper
Closed
•DX/electric heat OFF
Manual
Low coil
temp
detection
The leaving fluid
temperature may be
close to freezing.
•Fan OFF
•Valves Open
• Outdoor air damper
Closed
•DX/electric heat OFF
Smart reset/
Manual
Low airflow
supply fan
failure
The fan drive belt,
contactor, or motor
has failed.
•Fan OFF
•Valves Closed
• Outdoor air damper
Closed
•DX/electric heat OFF
Manual
UV-SVN02_-EN.book Page 93 Thursday, January 24, 2013 4:48 PM

Diagnostics
94 UV-SVN02C-EN
Troubleshooting (Wireless
Controls)
Locations of LEDs, Test button, Test Symbols,
and Error Codes
The receiver for all models has four LEDs: LED1, LED2,
LED3, and LED5. Figure 61 shows their locations.
Note: To view LEDs on a flush mount receiver on a fan-
coil unit, the front panel of the unit must be
removed.
The sensor for model WZS have four LEDs: LED1, LED2,
LED3, and LED5. The sensor for model WDS has test
symbols and error codes that appear on the display. All
three sensor models have a Test button. Figure 62, p. 95
shows their locations.
Space
temperature
failure(a)
Invalid or missing
value for zone
temperature.
• Discharge air
temperature control
runs
•Unit shuts OFF if both
space temperature
and discharge air
temperature fail
Automatic
Entering
water temp
failure
Invalid or missing
value for zone
temperature.
•Fan Unaffected
(enabled)
•Valves Unaffected
• Outdoor air damper
Unaffected
• DX/electric heat
Unaffected
Automatic
Discharge air
temp low
limit
Discharge air
temperature has
fallen below the
Discharge Air
Temperature Low
Limit.
•Fan OFF
•Valves Open
• Outdoor air damper
Closed
• DX/electric heat OFF
Smart reset/
manual
Discharge air
temp
failure(a)
Invalid or missing
value for discharge
air temperature.
• Simplified zone
control algorithm runs
• Unit shuts OFF if zone
temperature fails
Automatic
Outdoor air
temp failure Invalid or missing
value for outdoor air
temperature.
•Fan Unaffected
•Valved Unaffected
• Outdoor air damper
Minimum
Position
• DX cooling/electric
heat unaffected
Automatic
Humidity
input failure Invalid or missing
value for relative
humidity.
•Fan Unaffected
•Valves Unaffected
• Outdoor air damper
Unaffected
• DX cooling/electric
heat Unaffected
Automatic
CO2 sensor
failure Invalid or missing
value for CO2.•Fan Unaffected
•Valves Unaffected
• Outdoor air damper
Unaffected
• DX cooling/electric
heat Unaffected
Informational
Generic AIP
failure Invalid or missing
value for generic
analog input.
•Fan Unaffected
•Valves Unaffected
• Outdoor air damper
Unaffected
• DX cooling/electric
heat Unaffected
Informational
Local fan
mode failure Invalid or missing
fan-speed switch
(reverts to default
fan speed).
•Fan Unaffected
•Valves Unaffected
• Outdoor air damper
Unaffected
• DX cooling/electric
heat Unaffected
Automatic
Local
setpoint
failure
Invalid or missing
value for zone
temperature
setpoint (reverts to
default setpoint).
•Fan Unaffected
•Valves Unaffected
• Outdoor air damper
Unaffected
• DX cooling/electric
heat Unaffected
Automatic
(a) For detailed information about zone temperature control methods, refer
to “Zone Temperature Control (UC400),” p. 79.
Table 37. UC4000 diagnostics (continued)
Diagnostic Probable Cause Consequences
Diagnostic
Type
Figure 61. LED locations on the receiver
LED1
LED2
LED3
LED5
UV-SVN02_-EN.book Page 94 Thursday, January 24, 2013 4:48 PM

Diagnostics
UV-SVN02C-EN 95
Diagnostics (Wireless Controls)
LED1, LED2, and LED3, located on the sensor of model
WZS respond to diagnostics by exhibiting specific blinking
patterns. View their response by pressing the Test button
(see Table 38, p. 95).
Error codes appear on the display of the model WDS
sensor when diagnostics occur (see Tab l e 3 8 ).
LED1, LED2, and LED3, located on the receiver of all
models, respond to diagnostics by exhibiting specific
blinking patterns. They respond independently of any user
action (see Table 39).
Testing Signal Strength (Wireless Controls)
To initiate a signal strength test, push the Test button on
the sensor (see location of Test button in Figure 62).
•Models WZS: LED1, LED2, and LED3 respond by
indicating signal strength. You can view them on the
sensor (Ta b l e 40) and the receiver (Ta b l e 41).
•Model WDS: Test symbols on the sensor display
indicate signal strength (Ta b l e 40). LED1, LED2, and
LED3, on the receiver, respond by indicating signal
strength (Ta b l e 41).
Figure 62. LED, Test button, and symbol locations on
the sensor
LED1
LED2
LED3
LED5
Test button
WZS sensor
.
Test symbols
Error code
Test button
WDS sensor
Ta b l e 3 8. Diagnostics on the sensor (wireless controls)
LED state when Test
button is pressed (WZS
sensor)
Error code
(WDS
sensor
display) Indicates...
N/A E0, E5, E7 Sensor failure
• Replace sensor
LED1: Off
LED2: Off
LED3(a): 1-blink pattern
repeated 3 times
(a) Blink pattern is On for 1/4 s, Off for 1/4 s, with 2 s Off between repe-
titions.
E1 Disassociated
• Sensor is not associated with
a receiver.
LED1: Off
LED2: Off
LED3(a): 2-blink pattern
repeated 3 times
E2 Address set to 000
• Address not set to between
001–999.
LED1: Off
LED2: Off
LED3(a): 3-blink pattern
repeated 3 times
E3 Software error
• Replace sensor
LED1: Off
LED2: Off
LED3(a): 4-blink pattern
repeated 3 times
E4 Input voltage too high
• No RF transmission is
permitted with an input
battery voltage greater than
3.9 V.
Table 39. Diagnostics on the receiver (wireless controls)
LED state Indicates...
LED1: Off
LED2: Off
LED3: 1-blink pattern
repeated continuously(a)
(a) Blink pattern is On for 1/4 s, Off for 1/4 s, with 2 s Off between repe-
titions.
Disassociated
• Receiver is not associated, waiting for a
sensor.
• Receiver lost communication with sensor.
• Receiver has no devices on its wireless
personal area network.
• Association with a device has been
manually removed.
LED1: Off
LED2: Off
LED3: 2-blink pattern
repeated continuously(a)
Address set to 000
• Address not set to between 001–999.
LED1: Off
LED2: Off
LED3: 3-blink pattern
repeated continuously(a)
Not configured
• Receiver configuration properties not
properly set (defective receiver).
UV-SVN02_-EN.book Page 95 Thursday, January 24, 2013 4:48 PM

Diagnostics
96 UV-SVN02C-EN
Testing Battery Status (Wireless Controls)
Initiate a battery status test as follows:
• On model WZS, push the Test button on the sensor (see
location on Figure 62, p. 95). LED5 on the sensor
responds by indicating the level of battery strength, as
shown in Ta b l e 42, p. 96.
• On model WDS, push the Test button on the sensor
(see location on Figure 62, p. 95). In response, a battery
test symbol appears on the display. The symbol shown
indicates battery life expectancy (see Ta b l e 43).
24 V Power Status Indicator (Wireless Controls
LED5 on the receiver of all models (Figure 61, p. 94) lights
and stays constantly On when 24 V power is normal.
Using the Wireless Sensor System to Check
Signal Strength on a Site (Wireless Controls)
Follow these steps to check the signal strength on a site:
1. Power up a receiver with a 24 V transformer (user
supplied)
2. Associate the sensor to a receiver of the same model
intended for the job
3. Place the receiver at the desired location
4. Place or hold the sensor at the desired location
5. Press the Test button (S5) on the sensor and observe
the signal strength as indicated by LED1, LED2, and
LED3 on model WZS, and on the display on model
WDS (Figure 62, p. 95).
Table 40. Observing signal strength on the sensor
(wireless controls)
User action
LED state
(WZS sensors)
Symbol (WDS
sensor
display) Indicates...
None LED1: Off
LED2: Off
LED3: Off
No Test symbols
appear Normal state
• No Test button press.
Press Test
button on the
sensor
LED1: Off
LED2: Off
LED3: Off
Associated; no
communication with
receiver
• Associated, but no
signal from the
receiver after
pressing Test button.
LED1: On
LED2: On
LED3: On
Displays for 5
seconds, then
constantly Off
Excellent signal
strength
•Good signal margin
for reliable
communication.
LED1: Off
LED2: On
LED3: On
Displays for 5
seconds, then
constantly Off
Satisfactory signal
strength
• Adequate signal
strength for reliable
communication.
• Moving sensor or
receiver may improve
signal strength.
• Increased channel
switching may reduce
battery life.
LED1: Off
LED2: Off
LED3: On
Displays for 5
seconds, then
constantly Off
Poor signal strength
•Unreliable
communication.
• Strongly recommend
moving the sensor or
receiver to a better
location.
Table 41. Observing signal strength on the receiver
(wireless controls)
User
action
LED state (receiver, all
models) Indicates...
None LED1: Off
LED2: Off
LED3: Off
Normal state
• No Test button press.
Press
Test
button
on the
sensor
LED1: On
LED2: On
LED3: On
Displays for 5 seconds, then
constantly Off
Excellent signal strength
• Good signal margin for reliable
communication.
LED1: Off
LED2: On
LED3: On
Displays for 5 seconds, then
constantly Off
Satisfactory signal strength
• Adequate signal strength for
reliable communication.
• Moving sensor or receiver may
improve signal strength.
• Increased channel switching may
reduce battery life.
LED1: Off
LED2: Off
LED3: On
Displays for 5 seconds, then
constantly Off
Poor signal strength
• Unreliable communication
• Strongly recommend moving the
sensor or receiver to a better
location
Table 42. Battery status: LED5 on model WZS sensors
(wireless controls)
User
action LED state (WZS) Indicates...
Press
Test
button
Solid green for 5 seconds Battery is adequate for proper
operation.
Solid red for 5 seconds 25% battery life left. Batteries should
be replaced.
No light Batteries life expired or not installed
properly, or sensor is defective.
None Blinking red: 1-blink
pattern(a) repeated 5
times. Cycle repeats
every 15 minutes.
(a) Blink pattern is On for 1/4 s, Off for 3/4 s, with 2 s Off between repe-
titions.
Approximately 14 days of operation
remain before the battery is too weak
to power the sensor.
Table 43. Battery status: Battery symbol on model WDS
sensor display (wireless controls)
User
action
Battery
test
symbol Indicates...
Press Test
button Full battery power.
50% battery life left.
25% battery life left. Replace batteries.
Flashing symbol indicates that approximately 14
days of operation remain before the battery is too
weak to power the sensor.
UV-SVN02_-EN.book Page 96 Thursday, January 24, 2013 4:48 PM

Diagnostics
UV-SVN02C-EN 97
For more information on interpreting the LEDs and the
display symbols that indicate signal strength, see “Testing
Signal Strength (Wireless Controls),” p. 95.
Replacing Sensor Batteries (Wireless Controls)
Sensor battery type, length of life, and installation are
addressed in this section.
Battery Type (Wireless Controls)
Use two non-rechargeable 1.5 V lithium AA batteries in the
sensor. To maintain UL rating, use only UL-listed lithium
batteries. The sensor ships with Energizer® L91 batteries
already installed. Replacement batteries are available at
Trane Service Parts Centers (p/n X13770035010) or other
local suppliers.
Battery Life (Wireless Controls)
Battery life is five years under normal conditions. If the
sensor is not used for an extended period of time, do one
of the following:
• Set the sensor address to 000 to place the sensor into
a low-power hibernation mode.
• Remove the batteries
Notes:
•If lithium batteries are temporarily unavailable,
alkaline batteries can be used. However, alkaline
battery life is very short by comparison.
•The battery life for a model WDS may decrease with
extended LCD display activity.
Battery Installation (Wireless Controls)
6. Observe the polarity indicators that are molded into
the cover.
7. Install two batteries (of the type specified in “Battery
Type (Wireless Controls),” p. 97) in the battery-holding
slot that is molded into the sensor cover.
The sensor has been designed to prevent damage if the
batteries are installed backwards, to reduce the potential
for injury.
Manual Association (Wireless Controls)
Before attempting manual or automatic association, the
receiver must indicate readiness to associate (one blink
pattern of LED3 on receiver). Refer to “Observing the
Receiver for Readiness to Associate,” p. 36.
At any time, the manual association method can be used
to associate the receiver with the sensor. If an association
was previously established between a receiver and a
sensor and needs to be re-established, the manual
association process may be used. If an association has not
yet been established, the automatic association process is
recommended (see “Associating the Sensor to the
Receiver,” p. 36).
8. Using a small screwdriver, set the three rotary address
switches (Figure 36, p. 35, locations S1, S2, S3) on the
receiver to an address between 001 and 999.
Notes:
•An address can be changed without powering
down the receiver or sensor.
•An address can be changed at any time after initial
association has been established.
9. Set the three rotary address switches (Figure 36, p. 35,
locations S1, S2, S3) on the sensor to the same address
as the receiver.
10. Record the address and location of the receiver and
sensor pair.
•After verifying that the receiver and sensor are
powered up, press the Test button on the sensor to
establish that the signal strength (“Testing Signal
Strength (Wireless Controls),” p. 95) and the battery
life “Testing Battery Status (Wireless Controls),”
p. 96) are adequate for proper functioning.
Disassociation (Wireless Controls)
The receiver disassociates from the sensor (by removing
all stored association information), conducts a channel
scan, and restarts itself, if any of the following are true:
• The receiver address is changed from its current
setting (001–999)
NOTICE:
Equipment Damage!
The batteries are manufactured in a ready-to-use state.
They are not designed for recharging. Recharging can
cause battery leakage or, in some cases, can cause the
safety release vent to open.
NOTICE:
Equipment Damage!
Do not attempt to hook up the sensor to a power
supply. Equipment damage may result.
WARNING
Prevent Injury!
Batteries can explode or leak and cause burns if
installed backwards, disassembled, charged, or
exposed to water, fire, or high temperature.
WARNING
Prevent Injury!
Keep away from small children. If swallowed, contact
your local poison control center immediately.
UV-SVN02_-EN.book Page 97 Thursday, January 24, 2013 4:48 PM

Diagnostics
98 UV-SVN02C-EN
• The receiver receives a disassociation notification
from its associated sensor
• The receiver does not receive a communication from
its associated sensor within 50 minutes.
• The sensor and receiver are associated and
communicating at the time the sensor is set to 000 and
the Test button is pressed.
Note: A disassociated sensor will transit an association
request every 10 minutes.
Sensor/Receiver Compatibility (Wireless
Controls)
Version 1.5 (p/n X13790854 and X13790855) and higher
receivers are compatible with all sensors models and
support all functions. Receivers released prior to version
1.5 are compatible with only model WZS.
Replacing a Failed Sensor or Receiver
(Wireless Controls)
Note: Receivers ship installed on the unit. To remove the
receiver, press in the retention tabs on the
underside of the receiver enclosure and push
upward.
To replace a failed sensor or receiver:
11. Confirm that the device is disassociated (see Ta bl e 38
and Ta b l e 39, p. 95).
12. Set the rotary address switch of the new device to
match the address of the remaining sensor or receiver.
Note: There is no need to remove power from the
remaining device.
13. Apply power to the new device. Association between
the new and the remaining devices will automatically
occur.
Note: When replacing a WDS sensor, the receiver
(version 1.5 or higher) will automatically configure
the sensor to match the last stored configuration, if
the sensor has not been placed into configuration
mode and the factory default configuration is still
valid. If the sensor configuration does not match
the desired system features, it can be manually
configured (see “Manual Association (Wireless
Controls),” p. 97).
Servicing and Testing (Wireless Controls)
If the wireless sensor system is not working as expected,
use the tools and procedure described in this section.
Servicing and Testing Tools (Wireless Controls)
No special tools or software are necessary to service and
test the wireless sensor system. Test the system by using:
• The LEDs on the receiver, LEDs on the model WZS
sensor, and the display on the model WDS sensor
• The Test button on the sensor
• The address test mode on the receiver
• A common volt-ohm meter
Procedure for Testing the Wireless Sensor System
(Wireless Controls)
If the wireless sensor system is not working as expected:
1. Observe LED5 on the receiver. LED5 is On solid green
whenever the receiver is powered.
2. Verify that the receiver is properly grounded. Both the
GND-SIGNAL (black) wire and the GND-POWER
(yellow) wire must be grounded.
3. Press the Test button on the sensor.
•Model WZS: LED5 should turn On solid green,
indicating proper battery strength. LED1, LED2, and
LED3 will indicate signal strength.
Note: When checking signal strength, both LED1
and LED3 on the receiver and sensor
illuminate in unison if the sensor and
receiver are associated. Use this feature to
confirm association.
•Model WDS: Battery life (“Testing Battery Status
(Wireless Controls),” p. 96) and signal strength
(“Testing Signal Strength (Wireless Controls),”
p. 95) are indicated on the display.
Procedure for Testing the Receiver (Wireless
Controls)
If the receiver is not working as expected:
1. Verify that the receiver is powered.
2. Set the receiver address to 000 to force the zone
temperature output and zone temperature setpoint
output to their default mode values (see “Output
Values—Failure and Default Modes of Operation
(Wireless Controls),” p. 99).
3. Measure the receiver output resistance (see
“Measuring Output Resistance (Wireless Controls),”
p. 99).
4. When the test is complete, reset the receiver address to
its previous setting.
5. Press the Test button on the sensor to force re-
association.
6. Confirm association and communication by noting
LED1, LED2, and LED3 as described in “Testing Signal
Strength (Wireless Controls),” p. 95.
Forcing a Sensor to Transmit (Wireless Controls)
To force a wireless sensor to transmit during servicing,
press the Test button on the sensor.
Output Power Level (Wireless Controls)
The maximum output power level of a wireless sensor set
is controlled by software and restricted by channel of
operation and agency requirements per country or region.
The sensor has a default maximum power level of 10 mW,
UV-SVN02_-EN.book Page 98 Thursday, January 24, 2013 4:48 PM

Diagnostics
UV-SVN02C-EN 99
but the receiver determines the ultimate output power
level of the sensor.
Output Values—Failure and Default Modes of
Operation (Wireless Controls)
The following table provides output values for failure and
default modes of operation, which can be used for
troubleshooting.
Measuring Output Resistance (Wireless
Controls)
To measure the resistance of receiver outputs for zone
temperature and setpoints for all models, and heating
setpoint and fan/system for the WDS:
1. Ensure that the GND-SIGNAL (black) wire and the
GND-POWER (yellow) wire are grounded to the
transformer.
2. Disconnect the ZONE (white) and SETPOINT (RED)
wires from the controller. Disconnect the HEAT
SETPOINT (brown) and FAN/SYSTEM (green) wires
from the controller, if applicable.
3. Measure resistance as follows:
a. All models: Measure between the grounded GND-
SIGNAL (black) wire and either the SETPOINT (red)
or ZONE (white) wire. Compare resistance
measurements to those in Table 45, p. 99.
b. WDS only: Measure between the grounded GND-
SIGNAL (black) wire and the FAN/SYSTEM (green)
wire. Compare resistance measurements to those
given in Table 46, p. 99.
Note: The output circuits are not electrically
powered; consequently, resistance can be
measured without risk of damage to the
volt-ohm meter.
Cleaning the Sensor (Wireless Controls)
You can clean the sensor by applying glass cleaner to a
soft, non-abrasive cloth, and gently wiping the face,
including the buttons and LCD display. Use of a pre-
moistened towelette designed for lens or screen cleaning
is also acceptable.
Avoid inadvertent pressing of the Occupied/Unoccupied
buttons on the keypad on the WDS sensor as this may
result in an unwanted timed override or settings change.
Table 44. Output values
Situation
Zone
temperature
output
Zone
setpoint
output
Heating
setpoint
output
Fan/
System
output
Receiver address = 000 11.17 kΩ,
72.5°F
(22.5°C),
indefinitely
451 Ω,
72.5°F
(22.5°C),
indefinitely
501 Ω,
70.5°F
(21.4°C),
indefinitely
2320 Ω
Fan =
Auto
System
= Off
Receiver address = 001
to 999 and:
Receiver is powered up,
but not is associated, or
Receiver has received a
disassociation request
from the associated
sensor.
11.17 kΩ,
72.5°F
(22.5°C) Hold
for 15 minutes,
then open
451 Ω,
72.5°F
(22.5°C),
Hold for 15
minutes,
then open
501 Ω,
70.5°F
(21.4°C),
indefinitely
2320 Ω
Fan =
Auto
System
= Off
Receiver address = 001
to 999 and receiver has
not received a
communication within
35 minutes from the
associated sensor.
Open Open Open Open
Receiver has no power. Open Open Open Open
Thermistor in sensor
has failed to either open
or close.
Open Normal
value Normal
value N/A
Setpoint potentiometer
has failed to either open
or close.
Normal value Open Open N/A
Table 45. Receiver resistance table for all models
(wireless controls)
Zone or setpoint
temperature
Nominal zone
temperature output
resistance
Nominal setpoint
and heating
setpoint output
resistance
55°F (12.8°C) 17.47 kΩ792 Ω
60°F (15.6°C) 15.3 kΩ695 Ω
65°F (18.3°C) 13.49 kΩ597 Ω
70°F (21.1°C) 11.9 kΩ500 Ω
75°F (23.9°C) 10.5 kΩ403 Ω
80°F (26.7°C 9.3 kΩ305 Ω
85°F (29.4°C) 8.25 kΩ208 Ω
Table 46. Receiver resistance table for model WDS
(wireless controls)
Fan command Nominal output resistance
High 16,130 Ω
Med 13,320 Ω
Low 10,770 Ω
Auto 2320 Ω
Off 4870 Ω
NOTICE:
Equipment Damage!
Spraying glass cleaner or any other solution directly on
the sensor may damage it.
UV-SVN02_-EN.book Page 99 Thursday, January 24, 2013 4:48 PM

Diagnostics
100 UV-SVN02C-EN
Troubleshooting (Tracer ZN520)
Red SERVICE LED (Tracer ZN520)
During normal operation, the LED is off continuously when
power is applied to the controller.
If the LED is on continuously, even when power is applied
to the controller means that someone is pressing the
SERVICE button or that the controller has failed.
If the LED flashes once every second, use Rover, Trane’s
service tool, to restore the unit to normal operation. Refer
to the Rover product literature for more information.
Note: If the Service button is held down for more than
15 seconds on the Tracer ZN520 controller, it will
uninstall itself from the ICS communication
network and shut down all unit operation.
Green STATUS LED (Tracer ZN520)
During normal operation, the LED is on continuously.
If the LED blinks once, the controller is in Manual output
test mode.
If the LED blinks twice the controller is in Manual output
test mode, with one or more diagnostics present.
If the LED blinks (1/4 second on, 1/4 second off for 10
seconds) the controller is in the “Wink” mode.
Note: The “wink” feature allows the identification of a
particular controller. When sending a request from
a device, such as Rover, the controller will “wink” to
indicate it received the signal.
If the LED is off, either the power is off, an abnormal
condition is present or the TEST button is pressed.
Yellow COMM LED (Tracer ZN520)
If the LED is off continuously, the controller is not detecting
any communication. This is normal for units in standalone
applications.
If the LED blinks, the controller detects communication.
If the LED is on continuously, this indicates an abnormal
condition.
Manual Output Test (Tracer ZN520)
The purpose of the manual output test sequence is to
verify output and end device operation. Use the manual
output test to:
• Verify output wiring and operation without using
Rover, service tool
• Force the water valve to open and balance the hydronic
system
Note: The manual output test is not an automatic cycle.
You must press the TEST button to proceed
through each step.
The controller observes all diagnostics that occur during
the test sequence. Although an automatic diagnostic reset
sequence exists as part of the controller’s normal
operation, the automatic diagnostic reset feature is not
active during the test sequence.
If left in an individual test step, the controller remains in
test mode for 60 minutes and then exits to normal
operation.
Many service calls are due to unit diagnostics. The test
sequence resets unit diagnostics and attempts to restore
normal unit operation prior to testing the outputs. If the
diagnostics remain after a reset, the STATUS LED indicates
the diagnostic condition is still present (two blinks).
Manual Output Test Procedure (Tracer
ZN520)
Follow the procedure below to test Tracer ZN520
controllers.
1. Press and hold the TEST button for at least two
seconds (not exceeding 5 seconds), and then release,
to start the test mode.
2. The test sequence will turn off all outputs and then
attempt to clear all diagnostics.
3. Press the TEST button several more times (no more
than once per second) to advance through the test
sequence.
The outputs are not subject to minimum times during the
test sequence. However, the test sequence only permits
one step per second which limits minimum output time.
The green LED is turned off when the TEST button is
pressed. To begin the manual output test mode, press and
hold the TEST button (turning off the green LED) for at least
1. Green STATUS LED
Indicates Whether the Controller is Powered On (24 Vac Supplied)
2. Yellow COMM LED
Indicates if Communication is Functioning
3. Red SERVICE LED
Indicates if Service is Needed
1
2
3
UV-SVN02_-EN.book Page 100 Thursday, January 24, 2013 4:48 PM

Diagnostics
UV-SVN02C-EN 101
two seconds.The green LED will begin to blink, indicating
the controller is in test mode.
Troubleshooting (UC400)
Table 48 through Table 53, p. 103 provide troubleshooting
information if encountering operational problems with the
UC400 controller.
Table 47. Test sequence for 1-heat/1-cool configurations
(Tracer ZN520)
Steps
Fan
BOP1-3
Cool
Output
BOP4(a)
(a) At the beginning of the Fan High step, the controller attempts to clear
all diagnostics.
Heat
Output
BOP5
Damper
BOP6
1. Off Off Off Off Closed
2. Fan High High Off Off Closed
3. F a n Med i u m M e d i u m O ff O f f C l o s e d
4. Fan Low Low Off Off Closed
5. Cool High On Off Closed
6. Heat High Off On Closed
7. Fresh Air Damper(b)
(b)The fresh air damper (BOP6) only energizes during this step if binary
output 6 has been configured as a fresh air damper.
High Off Off Open
8. Exit (c)
(c) After the Fresh Air Damper step, the test sequence performs the Exit
step.This initiates a reset and attempts to return the controller to normal
operation.
Note: For all 1-heat/1-cool applications including 2-pipe changeover, BOP4
energizes in the cooling test stage and BOP5 energizes in the heat
test stage.This occurs even though during normal 2-pipe changeover
operation BOP4 controls the unit valve for both cooling and heating.
Ta b l e 4 8. Fan does not energize (UC400)
Probable
Cause Explanation
Unit wiring The wiring between the controller outputs and the fan
relays and contacts must be present and correct for normal
fan operation. Refer to applicable wiring diagram.
Failed end
device The fan motor and relay must be checked to ensure proper
operation.
Normal
operation The fan will turn OFF when:
• The controller receives a communicated off signal
• The fan-speed switch is set to OFF if no communicated
value is present
• Specific diagnostics are generated
• The default fan speed is set to OFF and the fan is
operating in the Auto mode.
If the controller is in unoccupied mode, the fan cycles
between OFF and the highest fan speed.
No power to
the controller If the controller does not have power, the unit fan does not
operate. For the controller to operate normally, it must
have an input voltage of 24 Vac. If the Marquee/Power LED
is OFF continuously, the controller does not have sufficient
power or has failed.
Diagnostic
present Several diagnostics affect fan operation. For detailed
information about these diagnostics, refer to Table 37,
p. 93.
Unit
configuration The controller must be properly configured based on the
actual installed end devices and application. If the unit
configuration does not match the actual end device, the
fans may not work correctly.
Random start
observed After power-up, the controller always observes a random
start from 5 to 30 seconds. The controller remains OFF
until the random start time expires.
Cycling fan
operation/
continuous
The controller continuously operates the fan when in the
occupied, occupied standby, or occupied bypass mode.
When the controller is in the unoccupied mode, the fan is
cycled between high speed and OFF with capacity.
Unoccupied
operation Even if the controller is configured for continuous fan
operation, the fan normally cycles with capacity during
unoccupied mode. While unoccupied, the fan cycles ON or
OFF with heating/cooling to provide varying amounts of
heating or cooling to the space.
Fan mode off If a local fan mode switch determines the fan operation, the
OFF position controls the fan to off.
Requested
mode off The user can communicate a desired operating mode (such
as OFF, heat, and cool) to the controller. If OFF is
communicated to the controller, the unit controls the fan to
off. There is no heating or cooling.
Table 49. Valves remain closed (UC400)
Probable
Cause Explanation
Unit wiring The wiring between the controller outputs and the valve(s)
must be present and correct for normal valve operation.
Refer to applicable wiring diagram.
Failed end
device The valves must be checked to ensure proper operation.
No power to
the controller If the controller does not have power, the unit valve(s) will
not operate. For the controller to operate normally, apply
an input voltage of 24 Vac. If the Marquee/Power LED is
OFF continuously, the controller does not have sufficient
power or has failed.
Diagnostic
present Several diagnostics affect valve operation. For detailed
information about these diagnostics, refer to Table 37,
p. 93.
Normal
operation The controller opens and closes the valves to meet the unit
capacity requirements.
UV-SVN02_-EN.book Page 101 Thursday, January 24, 2013 4:48 PM

Diagnostics
102 UV-SVN02C-EN
Unit
configuration The controller must be properly configured based on the
actual installed end devices and application. If the unit
configuration does not match the actual end device, the
valves may not work correctly.
Random start
observed After power-up, the controller always observes a random
start from 5 to 30 seconds. The controller remains OFF
until the random start time expires.
Requested
mode off The user can communicate a desired operating mode (such
as OFF, heat, and cool) to the controller. If OFF is
communicated to the controller, the unit controls the fan to
off. There is no heating or cooling.
Entering water
temperature
sampling logic
The controller includes entering water temperature
sampling logic, which is automatically initiated during
2-pipe and 4-pipe changeover, if the entering water
temperature is either too cool or too hot for the desired
heating or cooling.
Valve
configuration Ensure the valves are correctly configured, using the Tracer
TU service tool, as normally open or normally closed as
dictated by the application.
Table 50. Valves remain open (UC400)
Probable
Cause Explanation
Unit wiring The wiring between the controller outputs and the valve(s)
must be present and correct for normal valve operation.
Refer to applicable wiring diagram.
Failed end
device The valves must be checked to ensure proper operations.
Normal
operation The controller opens and closes the valves to meet the unit
capacity requirements.
Diagnostic
present Several diagnostics affect valve operation. For detailed
information about these diagnostics, refer to Table 37,
p. 93.
Unit
configuration The controller must be properly configured based on the
actual installed end devices and application. If the unit
configuration does not match the actual end device, the
valves may not work correctly.
Entering water
temperature
sampling logic
The controller includes entering water temperature
sampling logic, which is automatically initiated during 2-
pipe and 4-pipe changeover, if the entering water
temperature is either too cool or too hot for the desired
heating or cooling.
Valve
configuration Ensure the valves are correctly configured, using the Tracer
TU service tool, as normally open (NO) or normally closed
(NC) as dictated by the application.
Freeze
avoidance When the fan is OFF with no demand for capacity (0%),
and the outdoor air temperature is below the freeze
avoidance setpoint, the controller opens the water valves
(100%) to prevent coil freezing. This includes unoccupied
mode when there is no call for capacity or any other time
the fan is OFF.
Table 49. Valves remain closed (UC400) (continued)
Probable
Cause Explanation
Table 51. DX or electric heat does not energize (UC400)
Probable
Cause Explanation
Unit wiring The wiring between the controller outputs and the end
devices must be present and correct for normal operation.
Refer to applicable wiring diagram.
Failed end
device Check the control contactors or the electric heat element,
including any auxiliary safety interlocks, to ensure proper
operation.
No power to
the controller If the controller does not have power, heat outputs do not
operate. For the controller to operate normally, apply an
input voltage of 24 Vac. If the Marquee/Power LED is OFF
continuously, the controller does not have sufficient power
or has failed.
Diagnostic
present Several diagnostics affect DX and electric heat operation.
For detailed information about these diagnostics, refer to
Table 37, p. 93.
Normal
operation The controller controls compressor or electric heat outputs
as needed to meet the unit capacity requirements.
Unit
configuration The controller must be properly configured based on the
actual installed end devices and application. If the unit
configuration does not match the actual end device, DX or
electric heat may not operate correctly.
Requested
mode off The user can communicate a desired operating mode (such
as OFF, heat, and cool) to the controller. If OFF is
communicated to the controller, the unit shuts off the
compressor or electric heat.
Freeze
avoidance When the fan is OFF with no demand for capacity (0%),
and the outdoor air temperature is below the freeze
avoidance setpoint, the controller disables compressors
and electric heat outputs (100%) to prevent coil freezing.
This includes unoccupied mode when there is no call for
capacity or any other time the fan is OFF.
Table 52. Outdoor air damper remains closed (UC400)
Probable
Cause Explanation
Unit wiring The wiring between the controller outputs and the outdoor
air damper must be present and correct for normal outdoor
air damper operation. Refer to applicable wiring diagram.
Failed end
device Check damper actuator to ensure proper operation.
No power to
the controller If the controller does not have power, the outdoor air
damper does not operate. For the controller to operate
normally, apply an input voltage of 24 Vac. If the Marquee/
Power LED is OFF continuously, the controller does not
have sufficient power or has failed.
Diagnostic
present Several diagnostics affect outdoor air damper operation.
For detailed information about these diagnostics, refer to
Table 37, p. 93.
Normal
operation The controller opens and closes the outdoor air damper
based on the controller’s occupancy mode and fan status.
Normally, the outdoor air damper is open during occupied
mode when the fan is running and closed during
unoccupied mode.
Unit
configuration The controller must be properly configured based on the
actual installed end devices and application. If the unit
configuration does not match the actual end device, the
outdoor air damper may not work correctly.
Warm-up and
cool-down
sequence
The controller includes both a morning warm-up and cool-
down sequence to keep the outdoor air damper closed
during the transition from unoccupied to occupied. This is
an attempt to bring the space under control as quickly as
possible.
Requested
mode off The user can communicate a desired operating mode (such
as OFF, heat, or cool) to the controller. If OFF is
communicated to the controller, the unit closes the outdoor
air damper.
UV-SVN02_-EN.book Page 102 Thursday, January 24, 2013 4:48 PM

Diagnostics
UV-SVN02C-EN 103
Troubleshooting (ECM)
Notes:
•The new Trane BLDC system is a closed loop system
that has equipment protections and envelope
enforcements. Do not assume that the motor has failed
without first consulting the ECM engine status/
diagnostics screen. In many cases, the engine shuts
down the motor operation and locks it out to prevent
equipment damage.
•Electric Heat operation and Changeover Coil control on
CSTI units are co-coordinated by the ECM engine
board. Changeover function on Tracer ZN units can
also be affected by incorrect configuration of the ECM
engine or improper wiring of terminals to analog
Table 53. Outdoor air damper remains open
Probable
Cause Explanation
Unit wiring The wiring between the controller outputs and the outdoor
air damper must be present and correct for normal outdoor
air damper operation. Refer to applicable wiring diagram.
Failed end
device Check damper actuator to ensure proper operation.
Normal
operation The controller opens and closes the outdoor air damper
based on the controller occupancy mode and fan status.
Normally, the outdoor air damper is open during occupied
mode when the fan is running and closed during
unoccupied mode. (Refer to “Modulating Outdoor/Return
Air Damper (UC400),” p. 82.)
Unit
configuration The controller must be properly configured based on the
actual installed end devices and application. If the unit
configuration does not match the actual end device, the
outdoor air damper may not work correctly.
WARNING
Hazardous Voltage w/Capacitors!
Disconnect all electric power, including remote
disconnects and discharge all motor start/run
capacitors before servicing. Follow proper lockout/
tagout procedures to ensure the power cannot be
inadvertently energized. For variable frequency drives
or other energy storing components provided by Trane
or others, refer to the appropriate manufacturer’s
literature for allowable waiting periods for discharge of
capacitors. Verify with an appropriate voltmeter that all
capacitors have discharged. Failure to disconnect
power and discharge capacitors before servicing could
result in death or serious injury.
WARNING
Safety Alert!
You MUST follow all recommendations below. Failure
to do so could result in death or serious injury.
• The BLDC motors contain capacitors which store
residual energy. Please keep clear of the fan wheels
for 5 minutes after the power has been removed from
the system, as a power request with the motor
powered off, could result in a very short period of
actuation. Unplugging the motor is adequate to
ensure that there will be no power request.
• The adapter boards contain high voltage.
Configuration adjustments to the ECM engine board
should be made through the SMALLER of the two
low-voltage lids on the front of the control panel,
through the low-voltage insulation/shielding.
• Initial hookups to the CSTI and standard adapter
boards, including low voltage interconnections,
must be made with the power off.
• Do not make connections to the motors or the
adapter boards while power is ON. Do not remove
connections to the motor or the adapter boards while
the power is ON.
UV-SVN02_-EN.book Page 103 Thursday, January 24, 2013 4:48 PM

Diagnostics
104 UV-SVN02C-EN
input 1 on the Tracer ZN controller (polarity
sensitivity).
•The mini-access lid on the front of the main control
panel lid has the ECM engine troubleshooting/setup
guide affixed to the back of the lid. This guide is unit-
specific and should be consulted before determining
the disposition of a unit.
General Information (ECM)
The ECM engine oversees and monitors all motor
operations and changes to speed resulting from:
• Direct Fan Speed Requests
– Customer Fan Speed Switches
–Thermostat Fan Speed, On or 0–10V requests
– Automatic Fan Request from Tracer ZN / UC
controllers
• Indirect Fan Speed Requests
– Electric Heat requests will bring the fan to the
proper speed.
• Conflicting Fan Speed Requests
– If two or more commands are received (direct or
indirect), the fan will honor the higher speed
requested.
Note: In some cases, indirect requests will result in fan
behavior change regardless of whether the end-
device fails to actuate (due to device failure, or
safety/down-stream lockouts).
The ECM engine board also coordinates the operation of
Electric Heat, Electric/Hydronic Heat lockouts, and CSTI
Changeover coil operation.
Troubleshooting Information (ECM)
General system troubleshooting tips (ECM)
• ECM engine configuration must perfectly match the
factory-supplied ECM.
–Refer to “ECM Overview and Setup,” p. 43 for
troubleshooting configuration of the engine board.
• The ECM engine will display troubleshooting
information, and contains dual tachometers to aid in
performance verification.
• Under normal circumstances, the ECM engine display
will display the operational status of the motors and
electric heat circuit/sensors, however, a malfunction
will drive a priority display mode that will present the
error code instantly to the screen. The error must be
cleared by solving by powering down, removing the
cause of the problem and restarting the engine board.
• Engine Label setup document (affixed to the back of the
low voltage access lid) should be used to verify engine
configuration settings.
• For proper operation of the system, all plugs must be
firmly seated in all boards and motors. Insecure
connections will cause malfunction and the system
will shutdown.
• Do not unplug or plug-in motors or connectors while
the system is receiving a speed request of any kind.
The system must be powered down before plugging or
un-plugging connections to the adapter boards,
engine boards or motors. Failure do so will register
diagnostics or cause unsafe operation and reduction in
the contact life of the connectors.
• The motor will not spin if plugged in while the ECM
engine is requesting power.
Troubleshooting a motor that does not spin,
or spins too slowly (ECM)
The motor connections and motor plug connections to the
adapter boards should be secure. Unit should be powered
off to check the fit of the connectors.
When configured correctly, the system will always
respond positively to direct, indirect, and conflicting speed
requests with very few exceptions:
These exceptions are:
1. If a motor has been locked out due to engine locked
rotor protection:
– Assuming Motor 1 has an obstruction. In this case,
the “Status Display” will be interrupted to display:
→→
Solution:
i. Remove obstruction from the fan wheel.
ii. Ensure that motor plugs and all plugs to adapter
boards and the ECM engine board are secure
iii. Verify that the configuration does not specify a
motor that is physically missing. Most units
require only one motor. The controller is made
aware of the missing motor by specifying all
speeds related to Motor 2 to 0 rpm.
iv. Verify that and , the low motor
signal output limits, are set correctly.
2. If a motor has been locked out due to overspeed or
runaway condition:
– Assuming Motor 1 has an overspeed condition. In
this case, the “Status Display” will be interrupted to
display:
→→
Solution:
i. Ensure that set-screw is attached firmly to the
motor shaft.
ii. Ensure that motor plugs and all plugs to adapter
boards and the ECM engine board are secure.
iii. Verify that the configuration does not specify a
speed lower than 450 rpm for the affected motor.
Speeds below 450 rpm are not supported on fan-
coil units.
UV-SVN02_-EN.book Page 104 Thursday, January 24, 2013 4:48 PM

Diagnostics
UV-SVN02C-EN 105
3. VSP Inputs (0–10V inputs) are of the wrong polarity
– Verify that variable speed (VSP) inputs are properly
wired to 1TB4.
Notes:
•Do not short the courtesy 10 Vdc supply to chassis
or loads that require greater than 10 mA of DC
current.
•Please observe proper polarity of 0–10 Vdc inputs.
Failure to observe proper polarity can cause failure
of the ECM engine board, the customer-supplied
controller or the Tracer ZN controller.
4. Customer Controller output signal to VSP Inputs are
too low.
Note: If the customer supplied controller outputs
signals that are below the noise threshold, they
will be ignored by the ECM Engine.
– The ECM Engine board contains an adjustable
noise floor parameter, - that can be configured
to reject signals below the noise floor.
– If the noise floor parameter is set too high, it can be
lowered as long as there are acceptable noise levels
on the inputs lines.
Troubleshooting a motor that spins too fast, or
spins without any apparent speed request
(ECM)
Typical equipment and controls design practice will
ensure that the fans will come on if there is a call for heat,
cool, or ventilation. In most cases, we will depend on the
controller/thermostat to call for the fan to come on when
appropriate, but during calls for electric heat, or calls for
heat on CSTI units equipped with electric heat, as a call for
the appropriate fan speed. This behavior, as described
previously, is an indirect request.
When a call for electric heat is made, the system will
positively drive the fan on to the correct speed, regardless
of whether the controller has asked for fan operation or
not. The unit design incorporates an interlock instead of a
lock-out. (It does not lock out electric heat if the fan is set
to off; it brings the fan on.)
Notes:
•In many cases, indirect requests will result in fan
behavior change regardless of whether the end-device
fails to actuate (due to device failure, or safety/down-
stream lockouts). If there is hot water available on CSTI
units with changeover coils and electric heat, we will
still drive the fan to the appropriate electric heat speed.
•The new fan coil designs incorporate sophisticated fan
interlocks that will lockout heat if there is a fan failure.
If the preceding conditions do not describe the behavior of
the unit, the following checks should be performed:
• Verify that the voltage jumper on the motor plug
harness is absent for 208-230V units and 277V units. If
the jumper is present for these units, the motor
electronics will be damaged, and the motor will not be
controllable.
• Verify that the fan speed request is not below 450 rpm.
Speeds below 450 rpm are not supported on the fan-
coil product.
• Verify that the all binary inputs to the customer
terminal blocks are of proper and consistent polarity.
– For CSTI units, the fan inputs and end device inputs
on TB3 must receive signals that are 24 Vac with
respect to the unit chassis.
Note: Do not short 24 Vac (pos 1 or pos 2) to
chassis; refer to the unit schematic.
– For Fan Speed Switch units, that incorporate the
Tracer ZN/CSTI adapter board, all inputs to TB3
must be 24 Vac with respect to unit chassis.
Note: Do not short 24 Vac (pos 1 or pos 2) to
chassis; refer to the unit schematic.
– For Tracer ZN units, where there is a desire to use
parallel fan inputs on the adapter board TB3 strip,
the inputs must be COM (i.e., the inputs will honor
only 0 V with respect to unit chassis).
Note: Do not short 24 Vac (pos 1 or pos 2) to
chassis; refer to the unit schematic.
• Verify that variable speed (VSP) inputs are properly
wired to 1TB4.
Notes:
•Do not short the courtesy 10 Vdc supply to chassis
or loads that require greater than 10 mA of DC
current.
•Please observe proper polarity of 0–10 Vdc inputs.
Failure to observe proper polarity can cause failure
of the ECM Engine board, the customer-supplied
controller or the Tracer ZN controller.
• Verify that the signal on the VSP inputs is noise free.
The ECM engine board contains an adjustable noise
floor parameter, -, that can be configured to reject
signals below the noise floor.
Note: If the customer supplied controller outputs
signals that are below the noise threshold, they
will be ignored by the ECM engine.
• Verify that VSP input settings are correct. The ECM
engine board contains an adjustable digital amplifier,
, to compensate for long 10 Vdc cable runs. For
normalized (0–10 Vdc) signals, this setting should be
set to 1.000. If it is set too high, the motors will faster
than the requested ratio, and will hit the limit
before the input voltage has reached its upper limit.
• Verify that and , the low motor signal
output limits, are set correctly.
UV-SVN02_-EN.book Page 105 Thursday, January 24, 2013 4:48 PM

106 UV-SVN02C-EN
Replacing ECM Components
Notes:
•Ensure that drip-loops are maintained on wiring on
pipe end of unit to avoid wicking of water into the unit.
•Before assuming that any of the boards or components
in the new system have failed, please ensure that the
ECM engine board has been configured correctly and
that the switches on the CSTI board (where applicable)
are set correctly.
•It is necessary to configure the service replacement
ECM engine board before commissioning the unit. The
ECM engine board is pre-configured with safe values,
but will NOT work correctly unless properly
configured.
•Only genuine Trane® replacement components with
identical Trane part numbers should be used.
•Unit fan assemblies contain concealed wires that
should be removed before the fan-board is removed,
to avoid nicking the wire.
•Care should be maintained to retain the order of the
motors with respect to the motor plugs. On a unit with
two motors, the double-shafted motor will always be
to the left side, and will be designated as Motor 2 by the
controller.
Tips:
•Ensure that motor nameplate voltage is the same as
unit voltage (for 3-phase/ 4-wire units with Neutral,
motor voltage will be L-N, not L1-L2).
•Ensure that motor harness is correct (harness will have
jumper installed for 115V units only).
•Ensure that configuration on ECM Engine matches the
affixed label.
•Maintain correct plug/motor association. The plugs
will have the motor number and shaft configuration
printed on an affixed label.
•Ensure that configuration of switches on CSTI adapter
board matches depiction of switches on the unit
schematic.
•Ensure that all wires are plugged in securely.
•Ensure that edge protection on sharp edges,
grommets, and wire management devices are
maintained when replacing components.
•Ensure that blunt-tip screws are used when in the
proximity of wire harnesses.
WARNING
Hazardous Voltage w/Capacitors!
Disconnect all electric power, including remote
disconnects and discharge all motor start/run
capacitors before servicing. Follow proper lockout/
tagout procedures to ensure the power cannot be
inadvertently energized. For variable frequency drives
or other energy storing components provided by Trane
or others, refer to the appropriate manufacturer’s
literature for allowable waiting periods for discharge of
capacitors. Verify with an appropriate voltmeter that all
capacitors have discharged. Failure to disconnect
power and discharge capacitors before servicing could
result in death or serious injury.
WARNING
Safety Alert!
You MUST follow all recommendations below. Failure
to do so could result in death or serious injury.
• The BLDC motors contain capacitors which store
residual energy. Please keep clear of the fan wheels
for 5 minutes after the power has been removed from
the system, as a power request with the motor
powered off, could result in a very short period of
actuation. Unplugging the motor is adequate to
ensure that there will be no power request.
• The adapter boards contain high voltage.
Configuration adjustments to the ECM engine board
should be made through the SMALLER of the two
low-voltage lids on the front of the control panel,
through the low-voltage insulation/shielding.
• Initial hookups to the CSTI and standard adapter
board, including low voltage interconnections, must
be made with the power off.
• Do not make connections to the motors or the
adapter boards while power is ON. Do not remove
connections to the motor or the adapter boards while
the power is ON.
• Caution should be taken to stay clear of hazardous
voltages, moving parts and electric heat elements
while making adjustments to the ECM engine board.
If it is not practical to stay clear of these areas during
adjustment of the ECM engine board, please contact
Trane Global Parts for configuration kit that allows
easy powering of the engine board outside of the unit
with a 9V battery.
• For safe operation, it is necessary to configure
replacement boards to match the setup/switch
configuration of the previously installed boards.
• Ensure that new circuit modules are firmly seated on
the nylon standoffs, and that the nylon standoffs are
firmly seated on the metal panel.
NOTICE:
Equipment Damage!
The motor harness attached to the single plug to which
the motor mates contains the very important 115V
motor voltage jumper; the motor harness should
always be present for 115V units and should not be
modified or substituted. Failure to follow this
instruction could result in equipment damage.
UV-SVN02_-EN.book Page 106 Thursday, January 24, 2013 4:48 PM

Replacing ECM Components
UV-SVN02C-EN 107
Circuit Modules Replacement Notes/Work
Instructions
1. Circuit modules are equipped with nylon standoffs
which can either be removed by squeezing the barbs at
the rear of the control panel, or squeezing the latch
above the circuit module. If the latter method is chosen,
the standoffs will be retained on the metal panel. The
new standoffs (affixed to the replacement modules)
can be removed if necessary, so the new module circuit
board can be attached to the retained standoffs.
2. If replacing the ECM engine module, special care
should be taken to avoid electro-static discharge
damage. Please use an ESD protection wrist-strap and
frequently touch a grounded surface (with unit power
off) to discharge any static buildup.
3. Replace connectors carefully onto the appropriate
board. For units with a green wire attached to the CSTI
or standard adapter boards, please ensure that the
green wire is attached to the engine board white
connector as shown in Figure 64.
4. Ensure that the new ECM engine controller is
configured to match the ECM engine configuration
label that is present on the unit. It is necessary to
configure the ECM engine board to avoid improper
operation of the unit, discomfort to the end user, and
loud fan operation.
5. Ensure that the CSTI adapter board switches are set
correctly, as indicated on the attached unit schematic
(where applicable).
6. After replacing modules, commission the unit by
performing at a minimum, “Fan Speed Response
Verification,” p. 62.
Softsetting the IMC Address of an ECM
Engine Module
When a blower coil, fan-coil, or unit ventilator application
requires an ECM engine module, the Tracer UC400
requires that the ECM engine module be configured at IMC
address 99. If an engine module is found at an address
other than 99 (as it will be in a field application / hardware
replacement scenario), Tracer TU populates the Expansion
Module box on the Controller Status screen as shown
here.
Figure 63.
Figure 64.
Depress latch to
remove PCB, leaving
standoff attached to
the metal panel.
Green wire attached to
white plug on blue ECM
engine board, and to
quick-connect terminal
on the adapter board.
Figure 65.
UV-SVN02_-EN.book Page 107 Thursday, January 24, 2013 4:48 PM

Replacing ECM Components
108 UV-SVN02C-EN
Notice one ECM type is configured at address 99, but no
ECM is found at that address. Also, notice that another
ECM has been found with an address of 0. When this
situation occurs, Tracer TU displays a Softset… button you
can use to configure the engine module address.
Complete the following steps to softset the engine module
address:
1. Cli ck the Softset… button to initiate the softest
procedure.
Tracer TU displays the Softset Rotary Address -
Expansion Module dialog box.
2. Prior to clicking OK, activate the engine module using
the (+) button on the ECM engine board in the control
box.
Once the engine module is activated, the LED to the
right of the (+) button lights up.
3. Once the light has been activated, click OK on the
Softset Rotary Address - Expansion Module dialog box
shown in Step 2.
When you click OK, Tracer TU softsets the engine
module IMC address to 99 and the light on the module
will turn off.
4. Return to the Expansion Module Status box, click
Discover and wait five to ten seconds for Tracer TU to
refresh the screen.
Once complete, the value in the Error column updates
to None and the Status column updates to Comm Up.
Figure 66.
Figure 67.
Figure 68.
Figure 69.
UV-SVN02_-EN.book Page 108 Thursday, January 24, 2013 4:48 PM

UV-SVN02C-EN 109
Accessories
Wallboxes
The following instructions are general recommendations
for installing wall intake boxes. Consult the architectural
plans for specific requirements.
Additional materials required to complete any specific
installations (such as duct connections, metal mounting
plates, or flanges) are not furnished by Trane.
For best results, all air intake boxes should be removable
from outside of the building. Weep holes must be at the
bottom to permit free drainage. A positive air and
moisture seal should be provided around all edges.
General Instructions
Trane wallboxes are illustrated in Figure 70 and Figure 71,
p. 110; each lists the wall openings required for wallboxes.
Vertical louvers in the wall intake box provide extra
strength for a high load bearing capacity. The lintel may be
omitted on masonry wall installations.
Weep holes are provided in the outside face of the bottom
channel in the wallbox frame. Install all wall boxes to
permit free drainage through the weep holes to the
outside of the building.
All wallboxes are furnished with diamond pattern
expanded aluminum bird screen.
Note: H1 (horizontal) wall models are all unflanged. H2,
V3, and V6 are flanged.
Figure 70. Horizontal louver wallbox (H1 and H2) dimensions
UV-SVN02_-EN.book Page 109 Thursday, January 24, 2013 4:48 PM

Accessories
110 UV-SVN02C-EN
Figure 71. Vertical louver wallbox (V1, V3, V2, and V6) dimensions
UV-SVN02_-EN.book Page 110 Thursday, January 24, 2013 4:48 PM

Accessories
UV-SVN02C-EN 111
Installation in Masonry Walls
A typical method of installing the wallbox in a masonry
wall opening is illustrated in Figure 72.
Grout the top and bottom of the wall box frame as noted.
A sloped water dam located in the space between the unit
and wall facilitates moisture drainage. Grouting at the
ends of the intake box will complete the seal between the
wall box frame and the masonry opening.
Installation in Curtain Walls
In all cases, the wall intake box should be caulked to
provide a tight, weatherproof seal (see Figure 73, p. 111).
Note: A minimum of 2-1/8 in. of clearance must be
maintained between the exterior wall and back of
the unit. Failure to provide this gap will not allow
the wall box to fit properly.
Figure 72. Wallbox installation in masonry wall
Figure 73. Flanged wallbox installation in 2-in. wall
Grout
Weep
Holes
Rubber
Seals
Unit
Outside
Wall
Floor
Interior Wall
w/ sheetrock
Water dam sloped
toward exterior
Weep
Holes
Caulking
Outside
Wall
Rubber
Seals
Unit
Interior Wall
w/ sheetrock
Water dam sloped
toward exterior
Flanged
wallbox
UV-SVN02_-EN.book Page 111 Thursday, January 24, 2013 4:48 PM

Trane optimizes the performance of homes and buildings around the world. A business of Ingersoll Rand, the
leader in creating and sustaining safe, comfortable and energy efficient environments, Trane offers a broad
portfolio of advanced controls and HVAC systems, comprehensive building services, and parts.
For more information, visit www.Trane.com.
Trane has a policy of continuous product and product data improvement and reserves the right to change design and specifications without notice.
We are committed to using environmentally
conscious print practices that reduce waste.
© 2013 Trane All rights reserved
UV-SVN02C-EN 24 Jan 2013
Supersedes UV-SVN02B-EN (01 Feb 2005)
UV-SVN02_-EN.book Page 112 Thursday, January 24, 2013 4:48 PM