Trane Vav Users Manual
VAV-IN-24 to the manual d4caf1d7-0cc1-45f7-9cd7-ab973dff8ed8
2015-01-29
: Trane Trane--Vav-Users-Manual-236145 trane--vav-users-manual-236145 trane pdf
Open the PDF directly: View PDF
.
Page Count: 8

VAV-IN-24
July 2005
Models
“A” and later Design Sequence
Installation
Unit Control Module (UCM) 4.2 Retrofit
Model VAV
VAV

© 2005 American Standard All rights reserved VAV-IN-24
Notice
NOTICE:
Warnings and Cautions appear at appropriate sections throughout this manual.
Read these carefully.
WARNING – Indicates a potentially hazardous situation
which, if not avoided, could result in death or
serious injury.
CAUTION – Indicates a potentially hazardous situation
which, if not avoided, may result in minor or
moderate injury. It may also be used to alert
against unsafe practices.
CAUTION – Indicates a situation that may result in
equipment or property-damage-only accidents.
General
The purpose of this installation manual is to provide application, functional and
calibration information for the Trane Retrofit package. Examples and charts are
provided to enhance the understanding of this information.
Introduction
The DDC/VAV retrofit kit consists of the UCM control assembly, a Honeywell™ or
Belimo™ actuator (both optional), and various accessories such as zone sensors,
transformers, flow sensors, etc. This manual is intended to show how to apply,
install and configure the DDC/VAV Retrofit kit. It is intended to provide
information specific to the VAV retrofit. Refer to VAV-SVX01C-EN for complete
DDC/VAV system wiring, installation and programming instructions.
Applications
The retrofit kit may be applied to pneumatic terminals by replacing the pneumatic
actuator with an electric actuator or electrically controlled terminals by either
using the existing electric actuator or by replacing it with one provided by Trane.
The kit may be used on existing shutoff, shutoff hot water reheat, shutoff with up
to three stages of electric heat, and fan powered (both parallel and series) cooling
only, hot water, and electric reheat units.
Note: Fan powered units have only two stages of reheat available.
Dual duct units may also be retrofitted using two sets of controllers. The kit has
also been applied to constant volume reheat systems where the retrofit kit is used
to control duct coils.
The kit has been tested on VAV terminals of several major manufacturers. It is
mandatory for unit to have an external shaft to function properly with the direct
coupled actuators offered.

VAV-IN-24 3
Contents
Installation/Startup/Commissioning
2
Notice/Introduction 2
Application 2
Hardware 4
Installation 5
Commissioning 6

4VAV-IN-24
UCM 4.2 Retrofit Kit
The UCM 4.2 retrofit kit is available in
three basic kits.
• Retrofit Kit with a Honeywell
actuator
• Retrofit Kit with a Belimo actuator
• Retrofit Kit with no actuator
The kit may also be ordered in a pres-
sure dependent version on a special
basis. Both the Belimo and Honeywell
actuators are direct coupled actuators.
Honeywell Actuator
Key benefits and features of the Hon-
eywell actuator are:
• Selectable 45°, 60°, and 90° angles
of rotation
• 35-inch-pound torque capacity
• 3/8-inch to 1/2-inch shaft size capa-
bility
• 90-second drive time over 90° rota-
tion
• Magnetic coupled motor provides
45-inch-pounds stall
• 2 VA at 24-volts power consumption
• Manual clutch to disengage the ac-
tuator from the motor
Belimo Actuator
The Belimo actuator’s principle benefit
is flexibility. Belimo is designed with
the following features:
• Direct coupled with universal clamp
fitting shaft sizes, 3/8-inch to 1/2-
inch shaft size.
• Manual clutch to disengage the ac-
tuator from the motor
• Motor reversing switch to change
rotation
• Adjustable mechanical stops
• 35-inch-pounds torque capacity
• 3 VA at 24-volts power consumption
• 95-second run time
Control Assembly
The actual control assembly consists
of UCM and Delta P transducer mount-
ed in a sheet metal enclosure. The ac-
cessories offered with the kit are zone
sensors with the same options as
Trane DDC/VAV: flow bars for use with
units without a flow sensor and con-
trol power transformers.
Hardware

VAV-IN-24 5
WARNING
Hazardous Service
Procedures!
The maintenance and Trouble
Shooting procedures recommend-
ed in this section of the manual
could result in exposure to electri-
cal, mechanical or other potential
safety hazards. Always refer to
the safety warnings provided
throughout this manual concern-
ing these procedures. When possi-
ble, disconnect all electrical
power including remote discon-
nects and discharge all motor
start/run capacitors before servic-
ing. Follow proper lockout/tagout
procedures to ensure the power
can not be inadvertently ener-
gized. When necessary to work
with live electrical components,
have a qualified licensed electri-
cian or other individual who has
been trained in handling live elec-
trical components perform these
tasks. Failure to follow all of the
recommended safety warnings
provided, could result in death or
serious injury.
WARNING
Hazardous Voltage!
Disconnect all electric power, in-
cluding remote disconnects and
discharge all motor start/run ca-
pacitors before servicing. Follow
proper lockout/tagout procedures
to ensure the power can not be in-
advertently energized. Failure to
disconnect power before servic-
ing could result in death or seri-
ous injury.
Pre-Installation
The existing unit controls will require
removal prior to installing the UCM 4.2
retrofit kit. This includes pneumatic ac-
tuators, volume regulators and any
miscellaneous auxiliary controls.
The communications power and zone
sensor wiring should be pulled to the
unit. The wiring procedures and
guidelines used are outlined in the
VAV-SVX01C-EN manual.
CAUTION
Local and N.A.C. electrical codes
should be observed when install-
ing the UCM 4.2 retrofit kit.
Control Box Mounting
The next phase is to begin the installa-
tion of the kit. The controller should be
mounted at any convenient location
on the existing unit. Keep in mind the
controller must be mounted in a verti-
cal plane to the flow transducer will
function properly. In a typical installa-
tion, the controller is mounted on one
side of the unit, and the actuator on
the other side due to space limitations.
However, Trane’s controller may be
mounted on the ductwork adjacent to
the terminal unit. The only require-
ment is the flow sensor tubing cannot
exceed 10-feet.
Actuator Installation
When installing the actuator, the con-
vention of the damper rotation is as-
sumed as:
• Clockwise rotation of the damper
shaft will close the damper.
• Counterclockwise rotation of the
damper shaft will open the damper
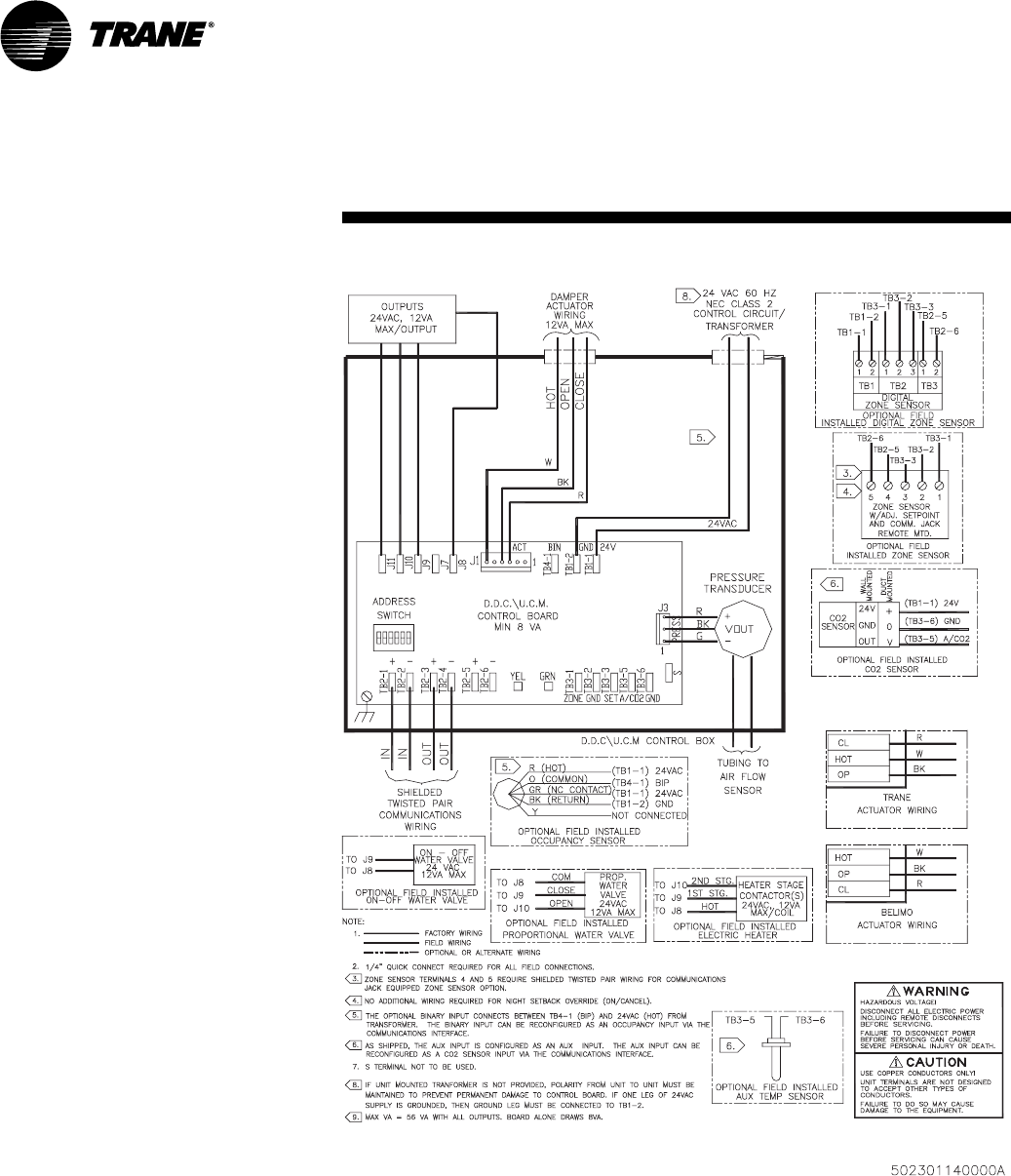
All of the wiring diagrams assume this
convention, Figure 1.
WARNING
Hazardous Voltage!
Disconnect all electric power, in-
cluding remote disconnects and
discharge all motor start/run ca-
pacitors before servicing. Follow
proper lockout/tagout procedures
to ensure the power can not be in-
advertently energized. Failure to
disconnect power before servic-
ing could result in death or seri-
ous injury.
Actuator Installation
To install the actuator, slip the actuator
over the shaft of the damper and use a
sheet metal screw to secure the actua-
tor to the base of the terminal unit. Ro-
tate both the actuator and damper
shaft fully clockwise and ensure that
the damper is fully closed. When the
damper is fully closed, tighten the set
screws of the actuator onto the damp-
er shaft.
When following the clockwise-closed
convention, wiring terminations for
the actuator are shown in Table 1.
Table 1:
The actuator is now configured for
clockwise operation (with the actuator
closing the damper). If the damper is a
90° rotating damper, the actuator will
close the damper.
Note: If the damper angle of rotation is
counterclockwise to close, follow the
above procedure except reverse the
open and closed wires at the actuator
terminal block.
UCM 4.2 Actuator Color Code Function
TB4-1 COM White Hot
TB4-2 CCW Black Open
TB4-3 CW Red Closed
Installation

6VAV-IN-24
Commissioning
For commissioning and configuration,
contact the local Trane service techni-
cian, or refer to VAV-SVX01C-EN.
Commissioning
Figure 1: UCM 4.2 Wiring Diagram

VAV-IN-24 7
Commissioning
0.01
0.1
1
5
10 100 1,000 10,000
Cfm
Flow Sensor DP (In. wg)
4" 12"10"8"6"
5" 14" 16"
Figure 2: Sensor signal vs. airflow delivery
Note:
Refer to manufacturer of competitive terminal for Delta P vs. airflow delivery.

Trane has a policy of continuous product and data improvement and reserves the right to change
design and specifications without notice.
Literature Order Number VAV-IN-24
File Number SV-TD-000-VAV-IN-24-0705
Supersedes SV-TD-000-VAV-IN-24-0693
Stocking Location Inland
Trane
A Business of American Standard Companies
www.trane.com
For more information, contact your local district
office or e-mail us at comfort@trane.com